Крупнейшая бесплатная информационно-справочная система онлайн доступа к полному собранию технических нормативно-правовых актов РФ. Огромная база технических нормативов (более 150 тысяч документов) и полное собрание национальных стандартов, аутентичное официальной базе Госстандарта. GOSTRF.com - это более 1 Терабайта бесплатной технической информации для всех пользователей интернета. Все электронные копии представленных здесь документов могут распространяться без каких-либо ограничений. Поощряется распространение информации с этого сайта на любых других ресурсах. Каждый человек имеет право на неограниченный доступ к этим документам! Каждый человек имеет право на знание требований, изложенных в данных нормативно-правовых актах!

  


 

ПРАВИТЕЛЬСТВО МОСКВЫ

ДЕПАРТАМЕНТ ГРАДОСТРОИТЕЛЬНОЙ ПОЛИТИКИ,
РАЗВИТИЯ И РЕКОНСТРУКЦИИ ГОРОДА МОСКВЫ

УПРАВЛЕНИЕ НАУЧНО-ТЕХНИЧЕСКОЙ ПОЛИТИКИ
В СТРОИТЕЛЬНОЙ ОТРАСЛИ

ГУП «НИИМОССТРОЙ»

НАУКА - МОСКОВСКОМУ
СТРОИТЕЛЬСТВУ

Сборник технической информации № 3

Москва, 2007

СОДЕРЖАНИЕ

ВВЕДЕНИЕ

ПРИМЕНЕНИЕ ПРОГРАММНОГО КОМПЛЕКСА PLAXIS V8 ДЛЯ РАСЧЕТОВ ОГРАЖДАЮЩИХ КОНСТРУКЦИЙ ГЛУБОКИХ КОТЛОВАНОВ В УСЛОВИЯХ ПЛОТНОЙ ГОРОДСКОЙ ЗАСТРОЙКИ

УСКОРЕННЫЕ ИСПЫТАНИЯ ДОЛГОВЕЧНОСТИ КРОВЕЛЬНЫХ И ГИДРОИЗОЛЯЦИОННЫХ МАТЕРИАЛОВ

ОБЕСПЕЧЕНИЕ КАЧЕСТВА БЕТОНА МОНОЛИТНЫХ КОНСТРУКЦИЙ ПО ПРОЧНОСТИ, МОРОЗОСТОЙКОСТИ И ВОДОНЕПРОНИЦАЕМОСТИ

СОВРЕМЕННЫЕ СТРОИТЕЛЬНЫЕ МАТЕРИАЛЫ НА 15-ой МЕЖДУНАРОДНОЙ СТРОИТЕЛЬНОЙ НЕДЕЛЕ В «СОКОЛЬНИКАХ»

УСТРОЙСТВО ДЛЯ КРЕПЛЕНИЯ БАШЕННОГО КРАНА К СТРОЯЩЕМУСЯ ЗДАНИЮ

ОПЫТ СТРОИТЕЛЬСТВА БЕТОННЫХ ДОРОГ В АВСТРИИ «Strasse+Autobahn», 2006, № 6, с. 357-359 (нем.)

СТРОИТЕЛЬСТВО ДОРОГ В БРЕМЕНЕ «Strasse+Autobahn», 2006, № 3, стр. 153-158 (нем.)

РЕЗУЛЬТАТЫ ИССЛЕДОВАНИЙ В ОБЛАСТИ ДОРОЖНОГО СТРОИТЕЛЬСТВА «Strasse+Autobahn», 2006, № 162, стр. 428-432 (нем.)

ВВЕДЕНИЕ

Сборник информационных материалов подготовлен отделом научно-технической информации ГУП «НИИМосстрой» по результатам НИОКР, выполненных различными организациями по заданиям Департамента градостроительной политики, развития и реконструкции города Москвы и ОАО «МКНТ».

Статьи содержат сведения о современных методах расчета строительных конструкций, методах обеспечения долговечности и качества строительных материалов, в т.ч. бетона. Приведены характеристики некоторых строительных материалов, экспонировавшихся на 15-ой Международной строительной неделе в «Сокольниках».

Впервые в сборник включена подборка зарубежной информации, состоящая из материалов о состоянии дорожного строительства в Австрии и Германии. Статьи переведены на русский язык в Научно-технической библиотеке Мэрии Москвы, а рефераты выполнены в отделе НТИ ГУП «НИИМосстрой».

Сборник предназначен для информирования строительных организаций о новшествах, применение которых обеспечивает качество строительства, энергосбережение, комфортность и экологическую безопасность жилья.

Более подробную информацию о приведенных разработках можно найти на сайтах «Строительный мир» - www.stroi.ru и ГУП «НИИМосстрой» - www.niimosstroy.ru.

ПРИМЕНЕНИЕ ПРОГРАММНОГО КОМПЛЕКСА PLAXIS V8 ДЛЯ РАСЧЕТОВ ОГРАЖДАЮЩИХ КОНСТРУКЦИЙ ГЛУБОКИХ КОТЛОВАНОВ В УСЛОВИЯХ ПЛОТНОЙ ГОРОДСКОЙ ЗАСТРОЙКИ

Д-р.техн.наук. В.Л. Кубецкий,

В.В. Иванов, Д.И. Калеев

По данным НИИПИ Генплана г. Москва может вместить до 250 высотных зданий [1]. В соответствии с инвестиционной программой «Новое кольцо Москвы» до 2015 г. в столице намечено построить 60 комплексов, каждый высотой более 30 этажей [2].

Лаборатория оснований, фундаментов, надземных конструкций зданий и сооружений ГУП «НИИМосстрой» проводит комплекс работ по научно-техническому сопровождению строительства зданий повышенной этажности.

В 2006 г. ГУП «НИИМосстрой» выпущен нормативный документ по устройству фундаментов зданий повышенной этажности с использованием разрядно-импульсной технологии [3]. С участием лаборатории выпущены временные рекомендации МДС 12-23.2006 [4] по технологии и организации строительства высотных зданий.

В комплексах зданий повышенной этажности в большинстве случаев устраиваются подземные многоуровневые паркинги. Здания возводятся в непосредственной близости от существующей застройки, что, в соответствии с московскими нормами [5], должно быть учтено при обосновании проектных решений.

Одной из важных задач, решение которой требуется для выполнения программы «Новое кольцо Москвы», является разработка и внедрение в практику строительства надежных конструкций фундаментов, позволяющих передать на грунтовое основание значительные нагрузки от высотных зданий [1], а также надежных и экономичных конструктивных и технологических решений по обеспечению устойчивости бортов глубоких котлованов.

В ГУП «НИИМосстрой» для объектов, сооружаемых в условиях плотной городской застройки, оценка напряженно-деформированного состояния грунтовых массивов при устройстве глубоких котлованов производится с применением программного комплекса PLAXIS V8, широко используемого в мировой практике.

В качестве примера представлены результаты расчетной оценки конструкции крепления котлована и влияния на окружающую застройку строительства подземной автостоянки в районе Кунцево.

На объекте в зоне влияния строительства располагаются жилые дома различной этажности - 12, 14, 17 этажей, образующие внутреннюю площадку. В контурах площадки предусмотрено строительство подземной 2-х ярусной гараж-стоянки. Расстояние от зданий до бровки котлована гаража составляют 12,50 - 15,50 м. Глубина котлована - 10-12 м. Конструкция фундамента встраиваемого гаража - монолитная железобетонная плита на естественном основании. Несущие конструкции гаража выполняются из монолитного железобетона. Площадь котлована - 3,5 тыс. м2.

Рисунок 1 - Расчетная схема

Основанием фундаментной плиты служат суглинки тугопластичные и полутвердые. В геологическом строении площадки принимают участие четвертичные и меловые отложения. Четвертичные отложения сверху перекрыты грунтами техногенного происхождения. Четвертичные отложения представлены мелкими песками средней плотности, суглинками, тугопластичными с прослойками песка и суглинками. Глубина погружения в грунт шпунтового ограждения (ниже дна котлована) 8,5-12,5м.

В соответствии с проектом ограждающая конструкция - стальные трубы размером d = 325×8, длиной 19,20-24,50 м и шагом 600, 1000 и 1200 мм. Крепление шпунтовой стенки выполняется путем установки временных грунтовых анкеров по технологии РИТ в три ряда под углом 15 и 20° к горизонтальной поверхности. Расчетная схема по одному из сечений представлена на рисунке 1.

В программе PLAXIS V8 шпунтовое ограждение моделируется «плитным элементом» с распределенными жесткостными характеристиками, эквивалентными жесткостным характеристикам стенки ограждения котлована. Анкерная тяга моделируется «анкером», корень анкера - «геосеткой». Для моделирования работы грунтового массива была использована модифицированная упруго-пластическая модель Кулона-Мора - модель упрочняющегося грунта.

Моделирование напряженно-деформированного состояния грунтового массива по выбранному расчетному сечению проводилось в соответствии с процессом его формирования. При проведении расчетов учитывались только статические воздействия. Динамические и температурные воздействия не учитывались.

Математическое моделирование выполнялось следующими этапами:

1 - загружение расчетной области собственным весом грунта и определение начального напряженно-деформированного состояния грунтового массива;

2 - моделирование существующей застройки созданием соответствующего напряженно-деформированного состояния;

3 - исключение из последующего рассмотрения деформаций, произошедших до начала раскрытия котлована;

4 - установка труб шпунтового ограждения;

5 - экскавация 1-й очереди котлована до отметки - 2,1 м;

6 - экскавация 2-й очереди котлована до отметки котлована - 5,1 ми включение первого ряда анкеров;

7 - экскавация 3-й очереди котлована до проектной отметки котлована - 8,1м от уровня дневной поверхности и включение второго ряда анкеров;

8 - экскавация последней очереди котлована до отметки дна котлована - 11,0 м и включение третьего ряда анкеров.

На рисунках 2 - 6 представлены результаты расчетов напряженно-деформированного состояния грунтового массива на различных этапах строительства.

Результаты расчетов в PLAXIS V8 показали, что принятая конструкция ограждения котлована обеспечивает его устойчивость, и позволяют сделать вывод, что дополнительные осадки зданий, расположенных в непосредственной близости от котлована, находятся в пределах от 0,84 до 2,96 см. Относительная разность осадок находится в пределах от 0,0005 до 0,0016. Полученные величины деформаций зданий отвечают требованиям «Рекомендаций по проектированию и устройству оснований фундаментов при возведении зданий вблизи существующих в условиях плотной застройки в г. Москве». Правительство Москвы, М. - 1999 г. [6].

Рисунок 2 - Этап 4. Деформированная сетка.

Перемещения увеличены в 10×103 раз. Макс, перемещения 61,76×10-3 мм

Рисунок 3 - Этап 6. Деформированная сетка.

Перемещения увеличены в 200 раз. Макс, перемещения 7,74 мм

Рисунок 4 - Этап 8. Деформированная сетка.

Перемещения увеличены в 100 раз. Макс, перемещения 29,74 мм

Рисунок 5 - Этап 8. Общие перемещения.

Макс, перемещения 29,74 мм

Рисунок 6 - Этап 8. Дополнительная осадка здания 2,96 см.

Относительная разность осадок 0,001584

Использование программного комплекса PLAXIS V8 позволяет с достаточной степенью достоверности оценивать изменение напряженно-деформированного состояния грунтовых массивов при строительстве зданий с развитой подземной частью в плотной городской застройке.

Нормативные ссылки

1. Н.В. Дубинин. Высотное строительство - дело техники. «Жилищное строительство», М. 2006 № 2, с. 16-18.

2. Постановление Правительства Москвы от 02.02.99 г. № 80 «О реализации городской комплексной инвестиционной программы «Новое кольцо Москвы».

3. ТР 50-180-06. Технические рекомендации по проектированию и устройству свайных фундаментов, выполняемых с использованием разрядно-импульсной технологии для зданий повышенной этажности (сваи-РИТ) (ГУП «НИИМосстрой).

4. МДС 12-23.2006 «Временные рекомендации по технологии и организации строительства многофункциональных высотных зданий и зданий-комплексов в Москве».

5. МГСН 4.19-2005 «Временные нормы и правила проектирования многофункциональных высотных зданий и зданий-комплексов в г. Москве» М., 2005 г.

6. Рекомендации по проектированию и устройству оснований фундаментов при возведении зданий вблизи существующих в условиях плотной застройки в г. Москве. Правительство Москвы, М. - 1999 г.

ГУП «НИИМосстрой»

119192, Москва, Винницкая ул., д. 8

Тел. (495) 147-79-91; факс (495) 147-41-12

www.niimosstroy.ru

УСКОРЕННЫЕ ИСПЫТАНИЯ ДОЛГОВЕЧНОСТИ КРОВЕЛЬНЫХ И ГИДРОИЗОЛЯЦИОННЫХ МАТЕРИАЛОВ

Канд. техн. наук Н.Д. Серебренникова,

д-р. техн. наук В.Ф. Коровяков

Одной из важных характеристик, влияющих на безопасность эксплуатации кровли в целом или ее элементов, является характеристика их надежности (долговечности). Однако до сих пор не решена задача принятия единой методики определения долговечности кровельных и гидроизоляционных материалов.

В журнале «Строительные материалы» № 5, 2006 г. компания «ПОЛИКРОВ» предложила комбинированный метод определения долговечности кровельных и гидроизоляционных материалов, который, однако, является очень длительным и трудоемким. Продолжительность испытаний составит около 1,5 лет. Уменьшение времени за счет отбора образцов с эксплуатируемых в течение ряда лет кровель имеет ряд недостатков:

- отсутствие исходных показателей по материалу эксплуатируемой кровли;

- трудность отбора образцов, особенно наплавленных или приклеенных, без нарушения их макроструктуры и целостности;

- несоблюдение требований по применению и эксплуатации может привести к изменению свойств материала, несопоставимых с результатами ускоренных испытаний;

- нарушение фактора совместной работы отдельных слоев кровельного ковра;

- невозможность получения достоверных результатов из-за колебания погодных условий эксплуатации, «год на год не приходится».

Предложенный метод предполагает получение данных для конкретного материала. Для новых видов материалов, не имеющих опыта эксплуатации, каждый раз необходим полный комплекс испытаний в натурных условиях и при ускоренном старении.

Считаем также неправомерным предложение авторов с целью сокращения сроков ускоренных испытаний старение кровельных материалов проводить только при повышенных температурах. Учитывая свойства битуминозных материалов, которые имеют температуру стеклования при - 10-25 °С, влияние знакопеременных температур, количество которых в холодный период года значительно, может существенно сказываться на снижении эксплуатационных показателей этих материалов.

Не корректно дана оценка существующим методикам по прогнозированию сроков службы кровельных материалов. «Методические рекомендации по определению условной долговечности рулонных и мастичных кровельных материалов при воздействии искусственных климатических факторов» (далее MP), приведенные в статье, и, разработанные рядом ведущих институтов (МНИИТЭП, ЦНИИпромзданий, ВНИИстройполимер) в настоящее время приняты в ГУП «НИИМосстрой» за основу для определения сроков службы кровельных материалов. Рекомендации являются универсальными и применимы ко многим видам кровельных материалов, а не только к материалам на основе битумов.

Они разработаны на основании результатов лабораторных и натурных испытаний не только битуминозных, но и полимерных материалов, в т.ч. мастичных и рулонных. Были испытаны материалы с разной полимерной основой: рулонные - Кармизол (наирит), Бутерол (сшитый бутилкаучук), Гидробутил (термопластичный бутилкаучук); мастичные - Эгик (битумная), БНК, Вента и БЛЭМ (битумно-полимерные), Кровлелит (полимерная) и другие.

Универсальность документа заключается, прежде всего в том, что в основу разработки режимов ускоренных испытаний положен принцип наиболее полного учета условий эксплуатации кровельных материалов, а именно: конкретный климатический район эксплуатации, способ и место установки материала в конструкции. При изменении тех или иных условий эксплуатации режим испытаний может быть скорректирован.

Ускорение процесса старения материала производится не за счет интенсификации воздействия отдельных климатических факторов (температуры, дозы облучения, количества переходов температуры через 0 °С и т.д.), что может привести к изменению физического состояния материала и требует дополнительных исследований, а за счет непрерывности воздействия эксплуатационных факторов. При этом климатические условия эксплуатации рассчитывались на основании многолетних наблюдений МГУ (более чем за 100 лет). Климатические факторы вводились в режим на максимальном или среднем из максимальных уровней.

Достоверность результатов ускоренных испытаний по MP подтверждены результатами натурных испытаний и наблюдений за поведением опытных материалов в условиях эксплуатации.

Так, материал Кармизол, срок службы которого по результатам ускоренных испытаний оценен в 2-3 года, после двух лет эксплуатации на кровле спортивного зала МГИМО начал разрушаться (трещины, усадка, отслоения).

Материал Бутерол является более долговечным, прогнозируемый срок службы составляет не менее 12 лет, и в условиях эксплуатации на кровле бассейна «Олимпийский» после 10 лет эксплуатации отмечено удовлетворительное состояние кровельного покрытия.

Срок службы мастичного покрытия Кровлелит, нанесенного методом безвоздушного напыления и имеющего множество воздушных включений, по результатам ускоренных испытаний составляет 1-2 года. Покрытие применили на совмещенной кровле пристроенного магазина (Керченская ул., д. 8). Кровля стала протекать через год эксплуатации. Долговечность покрытия Кровлелит, нанесенного разливом в несколько слоев, по результатам ускоренных испытаний составляет более 15 лет. Такое покрытие в течение 20 лет эксплуатируется на Курском вокзале.

Таким образом, методика ускоренных испытаний долговечности кровельных материалов, применяющаяся в настоящее время, вполне себя оправдывает. Поскольку показатель долговечности должен входить в номенклатуру показателей, оцениваемых при сертификационных испытаниях, неприемлем переход к более длительным срокам испытаний.

Считаем также, что при оценке эксплуатационной стойкости кровельных материалов целесообразно прогнозировать их долговечность применительно к конкретным условиям эксплуатации, как это делается во всем мире. Нецелесообразно определять фактический срок службы, т. к. при ускоренных лабораторных испытаниях и при эксплуатации в течение одного года не представляется возможным достаточно полно воспроизвести эксплуатационные воздействия.

ГУП «НИИМосстрой»

119192, Москва, Винницкая ул., д. 8

Тел. (495) 147-44-84; факс (495)147-41-12

www.niimosstroy.ru

ОБЕСПЕЧЕНИЕ КАЧЕСТВА БЕТОНА МОНОЛИТНЫХ КОНСТРУКЦИЙ ПО ПРОЧНОСТИ, МОРОЗОСТОЙКОСТИ И ВОДОНЕПРОНИЦАЕМОСТИ

Канд. техн. наук С.Л. Подмазова

В последние годы в г. Москве и других регионах бурно развивается монолитное строительство, особенно при возведении жилых и общественных зданий и объектов транспортной инфраструктуры.

При монолитном способе ведения работ особое значение приобретает обеспечение необходимых строительных характеристик бетона, как на стадии приготовления бетонной смеси, так и в готовой конструкции.

Следует отметить, что при одинаковых требованиях к бетону по прочности, морозостойкости и водонепроницаемости, а также удобоукладываемости в зависимости от вида конструкции следует разрабатывать разные составы бетона:

- для фундаментной плиты - бетон с низкой экзотермией (цемент с добавками, крупный заполнитель, предпочтительно известняковый плотных пород и замедлители схватывания и твердения);

- для колонн - в составе бетона следует изменить соотношение заполнителей в сторону увеличения доли песка и уменьшения доли щебня, сильные водоредуцирующие/пластифицирующие добавки, т.е. приблизиться по составу к самоуплотняющемуся бетону;

- для конструкций стен - при разработке состава следует обратить внимание на соотношение в щебне фракций 5-10 и 10-20 мм и количество щебня выше 20 мм. Так как, если щебень по фракционному составу и количеству щебня выше 20 мм не соответствует требованиям ГОСТ 26633 «ТУ Бетоны тяжелые и мелкозернистые», то бетонная смесь, уложенная в конструкцию в качестве защитного слоя поверхности вдоль горизонтальной арматуры, может иметь несплошности.

Перед изготовителем бетонной смеси и подрядчиком стоит задача обеспечения требуемых физико-механических характеристик бетона монолитных конструкций, указанных проектировщиком в технической документации на возведение объекта.

Обычно в проекте указываются требования к бетону по прочности - класс бетона, марки по морозостойкости и по водонепроницаемости. Морозостойкость и водонепроницаемость бетона необходимо обеспечить, если конструкция эксплуатируется в условиях переменного замораживания и оттаивания (водонасыщения) или в агрессивной среде.

Кроме того, в проекте производства работ, требования к бетону должны быть представлены более подробно, в т.ч. следует указывать:

- подвижность бетонной смеси, которая назначается в зависимости от технологии возведения (способа подачи и укладки бетона);

- сохраняемость подвижности во времени, которая зависит от местонахождения бетоносмесительного узла (БСУ) относительно стройплощадки и, следовательно, времени, необходимого для доставки бетонной смеси, которое должно быть указано в договоре между изготовителем бетонной смеси и подрядчиком;

- время снятия опалубки и величина распалубочной прочности для всех видов конструкций, которая может быть выражена как в процентах от средней прочности, так и абсолютной величиной в МПа.

При заключении договора на поставку смеси бетоносмесительный узел должен гарантировать выполнение следующих условий:

- обеспечить заданную подвижность бетонной смеси на месте укладки;

- определить лимит времени на доставку бетонной смеси;

- гарантировать набор заданной прочности в возрасте 1, 2 или 3 суток и проектной прочности в возрасте 28 сут.;

- обеспечить проектную морозостойкость и водонепроницаемость бетона.

Лаборатория БСУ, проектируя состав бетона с заданными характеристиками, может использовать два пути.

Первый предназначен для БСУ, имеющих опыт производства бетонной смеси с подобными характеристиками. В этом случае, путем изучения технической документации и производственных норм выбирается состав бетона, который на основе экспертной оценки может обеспечить все вышеперечисленные показатели. Эти показатели уточняются по данным производственного контроля за предыдущие 6 мес., включая характеристики по морозостойкости и водонепроницаемости.

При подтверждении необходимых характеристик возможны поставки бетонной смеси выбранного состава на объект.

Второй путь - для предприятий, никогда ранее не выпускавших бетон с характеристиками, определяемыми требованиями проекта производства работ. Он предусматривает проектирование состава бетона заново и прямой подбор составов.

Перед тем как начинать проектировать составы бетона, следует определить качество имеющихся цементов и оценить возможность их использования для производства бетона с заданными характеристиками. Это может быть выполнено по прочности производственных составов бетонов аналогичных классов за предыдущий период, если испытания цемента в бетоне проводятся систематически.

При оценке свойств цементов следует иметь в виду, что нередко поставщики предлагают цемент, который имеет высокий темп набора прочности в начальный период, что достигается на стадии производства варьированием его минералогического состава, повышением содержания трехкальциевого силиката (более 65 %), или введением водоредуцирующих добавок разного рода, или интенсификаторов помола, или иными способами. Такие цементы действительно могут показывать высокие начальные и промежуточные прочности, но не обеспечивать получение марочной прочности в возрасте 28 сут. Кроме того, бетоны на таких цементах обладают пониженной морозостойкостью.

Подобрав цемент, далее следует испытать песок, определив содержание пылевидных и глинистых частиц и модуль крупности Мк, а также щебень по показателям содержания пылевидных и глинистых частиц и соотношению фракций 5-10 мм и 10- 20 мм. Эти два параметра главным образом влияют на водопотребность бетонной смеси. Следует использовать песок и щебень, отвечающие требованиям соответствующих стандартов.

После оценки качества составляющих бетонной смеси следует выполнить начальные подборы составов бетона в диапазоне водо-цементного отношения на 0,3 (выше и ниже этого значения), которое ориентировочно должно обеспечить среднюю прочность для заданного класса бетона. На основании заданной промежуточной и проектной прочности, а также результатов, полученных при прямом подборе, следует окончательно выбрать производственный состав, который обеспечивает заданные строительные свойства бетона.

Если кроме прочности заданы требования по морозостойкости и водонепроницаемости бетона, следует испытать выбранный состав бетона на эти воздействия по методикам ГОСТ 10060 «Бетоны. Методы определения морозостойкости» и ГОСТ 12730 «Бетоны. Методы определения плотности, влажности, водопоглощения, пористости и водонепроницаемости». В случае необходимости дополнительно откорректировать состав бетона для обеспечения всего комплекса нормируемых требований. Подборы производственных составов бетона следует производить после оценки необходимой подвижности и сохраняемости подвижности бетонной смеси во времени.

Бывают случаи, когда проектировщик указывает не сочетаемые друг с другом требования к бетону. Например, задается прочность класса В15, марка по морозостойкости F200 (1 базовый метод) и марка по водонепроницаемости W6. Для выполнения требований по прочности ее среднее значение должно быть 19,2 МПа. Если будущая конструкция будет эксплуатироваться в среде с определенной степенью агрессивности и в зимний период времени с частым переходом через 0 °С, то разработанный состав бетона по прочности 19,2 МПа не обеспечит указанную в проекте водонепроницаемость и морозостойкость. В этом случае состав бетона должен проектироваться по-другому. Например, при марке по водонепроницаемости W6 класс бетона по прочности должен быть не ниже В25 (среднее значение прочности 32,0 МПа при Vп = 13,5 %). Для получения марки по морозостойкости F200 (1 базовый метод) следует иметь класс бетона по прочности В25, при этом бетон должен быть изготовлен с водоредуцирующей, а еще лучше с водоредуцирующей и воздухововлекающей добавкой.

Таким образом, разработанный и испытанный состав бетона, на который при тщательном выполнении всех процедур может потребоваться несколько месяцев, может уверенно поставляться заказчику.

Таблица 1

Факторы, обеспечивающие водонепроницаемость бетона

Марка по водонепроницаемости, W

2

4

6

8

10

12

14

Прочность, МПа

25,0

30,0

35,0

40,0

45,0

55,0

60,0

Водоцементное отношение, В/Ц

0,65

0,55

0,50

0,43

0,40

0,38

0,35

Вид цемента*

Общестроительного назначения или нормируемый по С3А

Общестроительного назначения или нормируемый по С3А или сульфатостойкий

Нормируемый по С3А или сульфатостойкий

Добавки химические или минерально-химические

Водоредуцирующие

Водоредуцирующие или повышающие плотность бетона (снижающие проницаемость)

* Вид цемента назначается в зависимости от вида и уровня химической агрессии.

В таблице 1 приведены ориентировочные значения характеристик состава бетона для выполнения проектных требований по водонепроницаемости, а в таблице 2 - по морозостойкости.

Таблица 2

Факторы, обеспечивающие морозостойкость бетона

Морозостойкость, циклы*

75-100

200-300

400-600

700-1000

-

100

200

300

Прочность, МПа

≥25,0

≥30,0

≥35,0

≥40,0

Вид цемента ГОСТ 10178

общестроительного назначения

общестроительного назначения

общестроительного назначения или нормируемый по С3А

общестроительного назначения или нормируемый по С3А

Расход цемента, кг/м3

>300

>300

>320

>340

Количество воды, л/м3

≤180

≤180

≤180

<180

Водо-цементное отношение

<0,6

<0,55

<0,5

<0,45

Добавки по ГОСТ 24211

пластифицир./водо­редуцирующая

Воздухововлекающая и пластифицир./водо­редуцирующая

Воздухововлекающая и пластифицир./водо­редуцирующая

воздухововлекающая и пластифицир./водо­редуцирующая

Воздухововлечение, %

2-3

3-4

4-6

5-7

* Верхняя строчка - марка по морозостойкости по 1 базовому методу, нижняя - по II методу.

Для обеспечения качества бетона в конструкции при поступлении бетона на стройплощадку необходимо определять подвижность смеси практически из каждого автобетоносмесителя. После укладки, уплотнения и затвердевания бетона при надлежащем уходе перед снятием опалубки следует определять прочность бетона в конструкции по образцам-кубам, изготовленным из отобранной пробы бетонной смеси или непосредственно в конструкции путем применения неразрушающих методов - склерометром или ультразвуковым методом или отрывом со скалыванием.

Если распалубочная прочность оказывается ниже указанной в проекте производства работ для заданного возраста, следует выяснить причину этого отклонения (например, недостаточное уплотнение, отсутствие ухода за уложенным бетоном). Если никаких технологических нарушений нет, необходимо пересмотреть состав бетона.

Укрытие теплоизолирующим покрытием, а в холодное время года обогрев любыми указанными в проекте производства работ способами должны производиться в обязательном порядке. Невыполнение этих работ ведет к разбросу прочности бетона по зонам конструкции, к возможному замораживанию бетона конструкции, не обеспечиваются проектные характеристики бетона.

Существуют следующие варианты назначения в проекте качественных показателей бетона мостовых конструкций:

В25 F300 (II метод) W12;

В30 F300 (II метод) W12;

В35 F300 (II метод) W12;

В40 F300 (II метод) W12.

Известно, что с увеличением требований по водонепроницаемости необходимо увеличивать цементно-водное отношение (Ц/В). С увеличением Ц/В, увеличивается прочность бетона. Существует закономерность и прямая зависимость прочность-водонепроницаемость. И, если разрабатывать представленные составы с обеспечением заданной средней прочности класса, то в этом случае классы бетона В25, В30, В35 не обеспечат водонепроницаемость марки W12.

В настоящих стандартах на бетонные смеси и бетон, технологические параметры, влияющие на обеспечение долговечности, указаны не в полном объеме. В ГОСТ 26633-91* указано только воздухововлечение в зависимости от вида конструкции, что недостаточно при разработке составов бетона.

Вероятно, следует приступить к пересмотру ГОСТов и объединить следующие стандарты: ГОСТ 26633-91* «Бетоны тяжелые и мелкозернистые. Технические условия», ГОСТ 7473-94 «Смеси бетонные. Технические условия» и ГОСТ 18105-86* «Бетоны. Правила контроля прочности» с приложением технологических параметров, указанных в таблицах 1 и 2, и гармонизацией с европейским стандартом EN 206-1:200 «Бетон. Общие технические требования, производство и контроль качества».

Морозостойкость бетона мостовых конструкций обеспечивается определенной структурой бетона, содержащего не менее 3,5 % количества пор, с фактором расстояния не более 0,15 мм.

Строгое соблюдение технологии на стадии подбора состава бетона, его изготовления и производства работ при возведении монолитных конструкций, инспекция и осуществление процедур контроля являются гарантией обеспечения проектной долговечности здания или сооружения. И как предписывает европейский стандарт EN 206-1, при выполнении соответствующих правил эксплуатации здания или сооружения долговечность монолитных конструкций должна быть не менее 50 лет.

«НИИЖБ»

109428, г. Москва, 2-я Институтская ул., д. 6

Тел./факс. (495) 174-74-00

СОВРЕМЕННЫЕ СТРОИТЕЛЬНЫЕ МАТЕРИАЛЫ НА 15-ой МЕЖДУНАРОДНОЙ СТРОИТЕЛЬНОЙ НЕДЕЛЕ В «СОКОЛЬНИКАХ»

В.А. Беренфельд

Проспекты фирм «Sika-Trocal», Германия; «Tectothen® GmbH», Германия; «СЛАВ Груп», Россия; ООО «ПСМ-АЛЬФА», Россия; ООО «СУПЕРПЛАСТ», Россия; ООО «ПОЛИПЛАСТ Новомосковск», Россия; ПО «ТВЭЛ», Россия; группы компаний «ЕВРОТРУБПЛАСТ», Россия; группы «ПОЛИПЛАСТИК», Россия; группы компаний «ПОЛИМЕРТЕПЛО», Россия (рус).

В Международной Строительной Неделе в «Сокольниках» с 27 февраля по 3 марта 2007 г. в г. Москве принимали участие многочисленные отечественные и зарубежные фирмы, представлявшие различные области строительства, и в т.ч. строительные материалы и изделия. В частности, экспонировались гидроизоляционные, кровельные, герметизирующие и теплоизоляционные материалы, добавки для растворов и бетонов, трубы из полимерных материалов и др. Среди представленных на выставке строительных материалов и изделий можно отметить следующие.

Гидроизоляционные материалы были представлены фирмой «Sika-Trocal» (Германия), специализирующейся на разработке и производстве полимерных и битумно-полимерных материалов, предназначенных для кровельных систем с механическим креплением мембран, для кровель с балластом, озеленяемых и эксплуатируемых кровель, кровель с приклеиваемыми мембранами.

Продукция фирмы включает, в частности, кровельные мембраны Sikaplan® G, изготовляемые из пластифицированного поливинилхлорида и армированные синтетическими сетками. Лицевой слой материала имеет светло-серый цвет, тыльный - темно-серый цвет. Свойства мембран соответствуют требованиям стандартов Германии, Австрии и Швейцарии, а также ГОСТ 30547-97*.

Мембраны Sikaplan® G предназначены для устройства гидроизоляции плоских кровель со свободной укладкой и механическим креплением. Пригодны для гидроизоляции кровель, которые могут подвергаться интенсивной вибрации, но не используются при устройстве гидроизоляции кровель с применением балласта, а также озеленяемых кровель. Мембраны не отличаются стойкостью к воздействию битума, масел, растворителей и ряда других веществ.

Производятся также мембраны Sikaplan® VG, отличающиеся повышенной огнестойкостью, и мембраны Sikaplan® VGWT, характеризующиеся повышенной огнестойкостью и морозостойкостью.

Мембраны укладываются, как правило, перпендикулярно волнам профнастила или брусьям деревянной обрешетки. При укладке на любые теплоизоляционные материалы, кроме минераловатных плит, требуется применять противопожарные защитные слои стеклоткани. При укладке на деревянную обрешетку или слой пенополистирола в качестве защитного слоя используется материал из полиэфирного волокна (геотекстиль). Если мембраны укладываются непосредственно на несущее основание, то под ними располагается защитный подкладочный слой - геотекстиль из полиэфирного волокна или теплоизоляционный слой (плиты из минеральной ваты или пенополистирола) с дополнительным разделительным слоем стеклоткани.

Производятся также мембраны Trocal для устройства гидроизоляции плавательных бассейнов: мембраны Trocal WB, используемые при строительстве крытых и открытых бассейнов; мембраны Trocal WBP - для зон крытых и открытых бассейнов с повышенной опасностью скольжения (например, в детских бассейнах, на ступенях), изготовляемые с рельефной поверхностью; мембраны Trocal WBV для любых бассейнов. Мембраны изготовляются из пластифицированного поливинилхлорида, отличаются долговечностью, атмосферостойкостью, стойкостью к воздействию ультрафиолетовых лучей, не содержат микроорганизмов, на них не скапливаются водоросли.

Толщина мембран составляет 1,5 мм. Они поставляются в рулонах с длиной полотна 16500 мм при ширине 1800; 1650 или 1600 мм. При укладке их соединяют между собой методом диффузионной сварки с применением растворителя, сваркой горячим воздухом и некоторыми другими методами.

Фирма «Sika-Trocal» производит также кровельные мембраны Carisma CIK, представляющие собой битумно-полимерный материал с основой из стеклохолста. Мембраны используются в основном для обновления поврежденных кровель. Они отличаются стойкостью к отрицательным воздействиям окружающей среды, стойкостью к различным погодным воздействиям, могут использоваться в контакте с битумом. Материал имеет черный цвет.

Фирмой «Sika-Trocal» предложена высокоэффективная система Sikadur®-Combiflex® для герметизации швов и трещин. Система предусматривает применение уплотнительной ленты Sikadur®-Combiflex®, изготовляемой из эластомера, и тиксотропного эпоксидного клея Sikadur®.

Лента отличается высокой эластичностью, долговечностью, химической стойкостью, стойкостью к прорастанию корней. При соединении отрезки ленты можно сваривать между собой.

Система применяется для герметизации деформационных швов, технологических швов, заделки трещин в конструкциях различных сооружений, в т.ч. резервуаров питьевой воды, водоочистных сооружений, плавательных бассейнов, тоннелях и др.

Фирма «Tectothen® GmbH» (Германия) также представила различные гидроизоляционные материалы.

В их числе, в частности, трехслойные диффузионные мембраны ТЕКТОТЕН, предназначенные для подкровельной гидроизоляции черепичных, металлических, битумочерепичных и других крыш, а также для ветрогидроизоляции кровель и наружных стен зданий. Поверхностная плотность мембран составляет 105, 125, 140 и 160 г/м2; прочность на разрыв соответственно 180, 210, 250 и 290 Н/5 см; паропроницаемость - 1000-1200 г/(м2 сут); воздухопроницаемость - до 2 мл/мин; относительное удлинение - 26 %. Мембраны изготовляются трехслойными с наружными высокопрочными слоями из полипропиленового волокна, между которыми расположен слой полипропиленовой пленки с неорганическим микронаполнителем, отличающейся высокой паропроницаемостью. Мембраны могут выдерживать значительные механические нагрузки, стойки к воздействию ультрафиолетового излучения и окислительной деструкции, к воздействию низких и повышенных температур, не изменяют свойств в течение всего срока эксплуатации при температуре от -80 до +100 °С, биостойки (не поражаются микроорганизмами и грибами).

Выпускается также пароизоляционный теплоотражающий материал ТЕКТОТЕН-РЕФЛЕКТА, изготовляемый с наружным слоем из лавсановой алюминированной пленки. Затем располагается армирующая полипропиленовая сетка и нижний слой полиэтиленовой пленки. Материал используется в качестве эффективного паронепроницаемого барьера, который в конструкциях кровель, стен, перекрытий помещается с внутренней стороны утеплителя, препятствует прониканию пара и образованию конденсата в конструкциях, а также сокращает утечку тепла из помещений.

Фирма «СЛАВ Груп» (Россия) производит ветро-, паро-, гидроизоляционные пленочные материалы, включающие многослойную полиолефиновую пленку СЛАФОЛ-ПП из экологически чистого сырья, предназначенную для устройства пароизоляции в домах с постоянным обогревом, пароизоляции. помещений с высокой влажностью (бассейнов, бань, кухонь), гидроизоляции фундаментов (от стеновых конструкций). Высокие изоляционные свойства материала обусловлены его многослойной структурой, а высокая прочность - послойной комбинацией различных полимеров.

Пароизоляционный материал СЛАФОЛ-С производства фирмы «СЛАВ Груп» представляет собой крафт-полукартон с покрытием из полиэтилена и снабжен антиконденсатным слоем целлюлозных волокон, который отличается высокой поглощающей способностью. Материал предназначен для использования в жилых помещениях для внутренней изоляции утепленных стен, потолков, полов от проникания бытового пара, устранения конденсата и защиты помещений от проникания в них вредных летучих веществ, выделяющихся из теплоизоляционных материалов, например, фенола из минераловатных плит, стирола из пенополистирола.

Ветро- и влагоизоляционный паропроницаемый материал СЛАВЕТ представляет собой крафт-полукартон с односторонней пропиткой из гидрофобного компаунда, которая придает материалу водоотталкивающие свойства при сохранении микропористости и высокой паропроницаемости. Предназначен для защиты стеновых конструкций и утеплителей от воздействия ветра и влаги.

Ветро- и влагоизоляционный нетканый материал из полипропиленового волокна СЛАФОЛ-ДИФ отличается высокими прочностными свойствами и гидрофобностью. Предназначен для внешней защиты утеплителя от воздействия влаги и ветра в конструкциях кровель и наружных стен зданий.

Нетканый материал СЛАФОЛ-КОН из полипропиленового волокна, снабженный пленочным покрытием, отличается высокими гидроизоляционными свойствами и применяется для устройства дополнительной гидроизоляции под кровли из металлической, керамической, цементно-песчаной черепицы. Нижняя волокнистая поверхность материала собирает конденсат, который выводится в результате циркуляции воздуха.

ООО «ПСМ-АЛЬФА» предлагаются эффективные гидроизоляционные материалы, изготовляемые с применением натриевого бентонита.

В частности, геотекстильные маты VOLTEX изготовляются с двумя каркасными слоями (тканого и нетканого) геотекстиля из полипропиленового волокна, между которыми расположен слой гранул натриевого бентонита. Слои соединены между собой иглопробивным способом, благодаря чему достигается равномерное распределение и фиксация гранул бентонита в каркасе материала. При укладке нетканый слой материала располагается со стороны поступления влаги, в маты поступает вода и происходит образование бентонитового геля, что сопровождается многократным увеличением его объема, в результате чего водопроницаемость материала существенно снижается. Основные характеристики материала: коэффициент фильтрации - 1×10-9 см/с; стойкость к гидростатическом давлению - 0,7 МПа; содержание бентонитовых гранул - 4,9 кг/м2; толщина матов - 6,4 мм; размеры - 1,15×5 м; (при устройстве гидроизоляции на больших площадях - 5×40 м); температура укладки - не ниже - 30 °С. Маты VOLTEX используются для устройства гидроизоляции вертикальных и горизонтальных поверхностей в различных подземных сооружениях (автостоянках, торговых центрах, подземных переходах, бассейнах, резервуарах для воды и др.).

Выпускаются также маты BENTOMAT, структура которых аналогична структуре матов VOLTEX. Производятся маты следующих марок: BENTOMAT SS 100 (толщиной 6,4 мм) - с содержанием гранул бентонита 4,8 кг/м2; предназначены для экранирования полигонов бытовых и промышленных отходов, нефтехранилищ и хранилищ горюче-смазочных материалов, промышленных водоемов; BENTOMAT AS 100 (толщиной 6,4 мм), AS 50 (толщиной 5,6 мм), ST (толщиной 4,8 мм) - содержат соответственно 4,8; 3,5; 3 кг/м2 гранул бентонита и применяются в качестве экранов при сооружении полигонов бытовых отходов, промышленных и декоративных водоемов, в дорожном строительстве; Bentomat ASL 100, ASL 50, STL - с каркасом, конструкция которого дополнена геомембраной из полиэтилена; предназначены для использования в условиях повышенных требованиий к защите окружающей среды, а также под воздействием сред с высокой концентрацией и токсичностью загрязняющих веществ. Маты BENTOMAT отличаются низкой водопроницаемостью, долговечностью, стойкостью к воздействию попеременного замораживания-оттаивания, химической стойкостью, экологичностью, выдерживают гидростатическое давление до 0,7 МПа, пригодны в сложных гидрогеологических условиях, легко укладываются в любых погодных условиях.

Гидроизоляционная мембрана SWELLTITE состоит из двух слоев: полиэтиленовой геомембраны, образующей верхний слой, и нижнего слоя композита на основе натриевого бентонита в сочетании с бутилкаучуком, который снабжен антиадгезионной пленкой. Материал сочетает эластичность и прочность геомембраны с низкой водопроницаемостью натриевого бентонита. Он отличается долговечностью, экологической безопасностью, стойкостью к воздействию сред с рН = 5-10, масло- и бензостойкостью, стойкостью к попеременному замораживанию-оттаиванию, его укладка проста и возможна в любых погодных условиях. Основные показатели материала: толщина геомембраны - 0,31 мм; толщина слоя бентонитвого композита - 2,08 мм; стойкость материала к гидростатическому давлению 0,7 МПа; прочность на разрыв - 68,9 кПа; коэффициент фильтрации бентонитового композита - 2,2×10-9 см/с; температура укладки - не ниже -15 °С; температура эксплуатации - от -57 до +82 °С; размеры полотен - 1,02×11,5 м. Мембраны SWELLTITE эффективно используются для устройства наружной гидроизоляции вертикальных и горизонтальных поверхностей подземных частей различных зданий и сооружений.

В выставке принимали также участие фирмы-производители химических добавок к растворам и бетонам.

В числе указанных фирм ООО «СУПЕРПЛАСТ» (Россия), продукция которого включает химические добавки различного назначения. Производятся, комплексные добавки полифункционального действия серии СУПЕРПЛАСТ (ТУ 5730-004-43184789-2006), представляющие собой сбалансированные смеси водорастворимых солей щелочных и щелочноземельных металлов, сульфированных олигомерных соединений в смеси с неорганическими или органическими модификаторами. Потребительские свойства добавок серии СУПЕРПЛАСТ соответствуют требованиям ГОСТ 24211-2003 «Добавки для бетонов. Общие технические требования», предъявляемым к пластифицирующим добавкам со значительным пластифицирующим эффектом. Производятся добавки следующих марок: СУПЕРПЛАСТ ПФМ-1 - суперразжижающая, без изменения сроков схватывания; СУПЕРПЛАСТ ПФМ-2 - с эффектом ускорения сроков схватывания; СУПЕРПЛАСТ ПФМ-3 - с эффектом замедления сроков схватывания; СУПЕРПЛАСТ ПФМ-4 - противоморозная (для зимнего бетонирования); СУПЕРПЛАСТ ПФМ-5 - воздухововлека-ющая; СУПЕРПЛАСТ ПФМ-6 - гидрофобизирующая; СУПЕРПЛАСТ ПФМ-7 - пенообразующая. В зависимости от состава приготовляемых бетонных смесей количество используемых добавок СУПЕРПЛАСТ составляет от 0,35 до 0,8 % от массы цемента (в расчете на сухое вещество). Их применение позволяет регулировать подвижность бетонных смесей во времени (повысить время сохранения удобоукладываемости), обеспечивать необходимую удобоукладываемость, повысить прочность приготовляемого бетона, снизить расход цемента (до 20 %), улучшить технологические и реологические свойства бетонных смесей, уменьшить расход воды (на 20-25 %). Добавки изготовляются в виде водного раствора или сухого порошка (микрогранул).

Комплексные добавки серии МЕГАЛИТ (ТУ 5730-003-43184789-2005) включают следующие разновидности химических добавок: пластификатор МЕГАЛИТ С-3 МЛ, применяемый в количестве 0,3-0,5 % массы цемента (в пересчете на сухое вещество), и предназначенный для применения в условиях производства бетона и железобетона при повышенной температуре окружающей среды; замедлитель схватывания МЕГАЛИТ С-3 PC, используемый в количестве 0,4-0,7 % массы цемента в условиях повышенных температур, и рекомендуемый при длительных транспортировках бетонных смесей; ускоритель набора прочности МЕГАЛИТ С-3 РТ, обладающий водоредуцирующим действием, регулирующий кинетику твердения бетона, в условиях нормального твердения позволяющий в возрасте 1 сут. повысить его прочность на 50 % и более, применяемый в количестве 0,4-0,8 % в бетоне, предназначенном для густоармированных и тонкостенных конструкций, конструкций сложной конфигурации; пластификатор с воздухоподавляющим эффектом МЕГАЛИТ С-3 ВО, применяемый в количествах 0,35-0,7 % массы цемента, эффективно снижающий содержание воздуха (до 1 %) при низких В/Ц бетона и заметно повышающий его прочность, обеспечивающий монолитность бетона и необходимую кинетику его твердения, предназначенный для производства изделий с уплотненной структурой цементного камня, снижения усадки и деформаций при производстве изделий с качественной поверхностью и хорошим внешним видом.

ООО «ПОЛИПЛАСТ Новомосковск» (Россия) также были представлены химические добавки для растворов и бетонов.

В их числе комплексная добавка на органоминеральной основе Полипласт-МБ (ТУ 5745-013-58042865-06), содержащая поверхностно-активные натриевые соли метиленбиссульфокислоты в сочетании с кремнеземистым компонентом и пригодная при производстве товарного бетона и сборных конструкций, конструкций из высокопрочного бетона, напорных железобетонных труб, густоармированных конструкций, а также при производстве сухих строительных смесей и легкого бетона. При постоянном В/Ц применение добавки дает возможность повысить проектную прочность бетона на 10-30 % при одновременной экономии цемента в количестве 10-25 %, получать подвижные литые смеси при одновременном увеличении прочности бетона на 15-30 %, значительно повысить прочность сцепления бетона с арматурой, повысить морозостойкость и уменьшить водопроницаемость бетона. При приготовлении бетонов и растворов добавка применяется в количестве 1-3 % от массы вяжущего (в пересчете на сухое вещество), при производстве легкого ячеистого бетона и пенобетона - 0,08-0,3 %. Добавка не изменяет токсиколого-гигиенических характеристик бетона. При работе с ней требуется применение средств индивидуальной защиты.

Суперпластификатор ПОЛИПЛАСТ СП-1 (ТУ 5870-005-58042865-05) представляет собой смесь натриевых солей полиметиленнафталинсульфо-кислот различной молекулярной массы. Добавка рекомендуется для применения в производстве сборного железобетона, конструкций из монолитного тяжелого бетона, конструкций из мелкозернистого бетона, густоармированных и тонкостенных конструкций, конструкций сложной конфигурации, а также при приготовлении бетонных смесей с нестандартными заполнителями и мелкими песками, при применении шлакопортландцемента, пуццоланового и гиноземистого цементов. Применение добавки позволяет увеличивать подвижность бетонных смесей без снижения прочности и долговечности бетона, повысить его прочностные показатели на 20 % и более, получать бетоны с низкой водопроницаемостью, высокой морозостойкостью и коррозионной стойкостью, снизить расход цемента, сократить время и энергетические затраты при тепло-влажностной обработке и вибрировании бетона. Суперпластификатор добавляется в бетоны и растворы в количестве 0,3-0,8 % от массы цемента (в пересчете на сухое вещество).

Суперпластификатор ПОЛИПЛАСТ СП-3 (ТУ 5870-006-58042865-05) представляет собой смесь натриевых солей полиметиленнафталинсульфо-кислот, лигносульфонатов и комплекса неорганических солей. В основном используется в таких же целях, как суперпластификатор СП-1. При этом максимальный эффект достигается при приготовлении высокоподвижных бетонных смесей и получении высокопрочных бетонов. Добавку не следует применять в бетонах с заполнителями, содержащими реакционноспособный кремнезем, а также в бетонах, используемых при сооружений промышленных предприятий, потребляющих постоянный ток. Расход добавки - 0,3-0,8 % от массы цемента.

Суперпластификатор ПОЛИПЛАСТ СП-1 ВП (ТУ 5870-005-58042865-05) изготовляется на основе натриевых солей полиметиленнафталинсульфокислот различной молекулярной массы с добавлением воздухоподавляющего компонента. Количество применяемой добавки составляет 0,4-0,8 % массы цемента (в пересчете на сухое вещество). Она используется в таких же целях, как добавка ПОЛИПЛАСТ СП-1.

Добавка ПФМ-НЛК (ТУ 2493-010-047865546-2001) - полифункциональный модификатор бетона, относящийся к классу добавок со значительным пластифицирующим эффектом и представляющий собой смесь натриевых солей полиметиленнафталинсульфокислот различной молекулярной массы с добавлением воздухововлекающего и гидрофобизирующего компонентов. Добавку ПФМ-НЛК рекомендуется применять при изготовлении сборных и монолитных железобетонных конструкций, эксплуатируемых в условиях агрессивного воздействия окружающей среды и сурового климата. Помимо повышения морозостойкости, снижения водопроницаемости бетона, повышения его коррозионной стойкости и прочностных показателей применение добавки позволяет производить сульфатостойкий бетон на обычном портландцементе (при необходимых согласованиях).

Выпускаются также пластифицирующие добавки противоморозного действия.

Комплексная пластифицирующая добавка КРИОПЛАСТ П25 (ТУ 5870-013-58042865-05) относится к классу суперпластификаторов и представляет собой смесь поверхностно-активных натриевых солей лигниновой и метиленбиснафталинсульфокислот и противоморозного компонента (смеси органических и неорганических солей натрия и калия). Добавка не обладает коррозионным действием, не содержит вредных веществ, содержание в ней хлорид-ионов не превышает 0,1 %. Добавка предотвращает замерзание бетонных и растворных смесей в условиях полигона при температуре твердения до - 25 °С при возведении монолитных бетонных и железобетонных конструкций, изготовлении сборно-монолитных конструкций, а также при замоноличивании стыков сборных изделий и конструкций. В зависимости от температуры окружающего воздуха количество применяемой добавки составляет 1-6 % от массы цемента.

Добавка КРИОПЛАСТ СП 15-1 (ТУ 5870-008-58042865-05) - суперпластификатор на основе смеси натриевых солей полиметиленнафталинсульфокислоты различной молекулярной массы с добавлением противоморозного комплекса на основе формиата натрия. Не содержит хлора. Применение добавки дает возможность работать с бетонами и растворами при температуре воздуха до -15 °С, ускорить набор прочности бетона при термосном выдерживании в зимний период, увеличивать подвижность бетонной смеси без снижения прочности и долговечности бетона. Добавка обеспечивает приготовление, транспортирование, укладку, уплотнение и выдерживание бетонной смеси в зимних условиях до начала активной тепловой обработки или до устройства теплоизоляции при термосном выдерживании. Количество применяемой добавки, % от массы цемента (в пересчете на сухое вещество): при температуре до -5 °С - 1,5; до -10 °С - 2,5; до -15 °С - 3,5.

Продукция ООО «ПОЛИПЛАСТ Новомосковск» включает также суперпластификатор РЕЛАМИКСТ Т-2 (ТУ 5870-002-14153664-04), изготовляемый на основе натриевых солей полиметиленнафталинсульфо-кислот различной молекулярной массы и содержащий комплекс веществ - ускорителей твердения бетона, но не содержащий хлора. Применение добавки позволяет повысить прочность бетона в возрасте 1-2 сут. на 50 % и более, сократить время, необходимое для достижения распалубочной прочности бетона, понизить водопроницаемость, повысить морозостойкость бетона, уменьшить расход цемента, улучшить ряд других показателей бетона. Расход добавки - 0,6-1,5 % массы цемента.

Суперпластификатор ЛИНАМИКС П-120 (ТУ 5870-007-58042865-05) содержит комплекс веществ на основе лигносульфонатов, замедляющих процесс схватывания бетонных смесей. Добавку рекомендуется применять при производстве конструкций из монолитного тяжелого и мелкозернистого бетона при необходимости продолжительных транспортирования и укладки бетонной смеси. Ее рекомендуется использовать при возведении массивных монолитных конструкций при необходимости снижения тепловыделения или замедления его интенсивности, а также при необходимости уменьшения числа швов в конструкциях. Расход добавки - 0,3-0,5 % от массы цемента (в пересчете на сухое вещество).

В числе других строительных материалов и изделий на выставке экспонировались изделия из полимерных материалов, в т.ч. трубы различного назначения,

В частности, ПО «ТВЭЛ» (Россия) были представлены трубы Рех-а диаметром 16-110 мм, изготовляемые из полиэтилена пространственной структуры (сшитого). Материал экологически чист. Наличие в материале поперечных связей между цепями полимера обусловливает его повышенную прочность и теплостойкость. Материал не подвержен коррозии и стоек к воздействию агрессивных сред. Трубы снабжены наружным антикислородным барьером из гидроксида этилвинила, наносимым на поверхность труб в заводских условиях и не пропускающим кислород, что обеспечивает долговечность отопительных систем. Трубы Рех-а отличаются эластичностью, износостойкостью, легко режутся, изгибаются и соединяются при монтаже трубопроводов. Рабочее давление в трубах составляет 0,6 или 1 МПа при температуре 90 °С. Они не изменяют свойств в рабочем диапазоне температур от - 100 до +90 °С, кратковременно выдерживают воздействие температуры до +100 °С. Воздействие 100 циклов попеременного замораживания-оттаивания не приводит к разрушению труб. Трубы пригодны для систем отопления, горячего и холодного водоснабжения, транспортирования пищевых или химически агрессивных жидкостей, обогреваемых полов и др. Трубы диаметром 16 и 20 мм поставляются в бухтах по 500 или 200 м, диаметром 25-32 мм - по 100 или 50 м; трубы диаметром 40-110 мм поставляются в бухтах или прямых отрезках в соответствии с требованием заказчика.

ПО «ТВЭЛ» производит трубы ИЗОПЭКС, конструкция которых включает основную (несущую) трубу из полиэтилена пространственной структуры, заключенную в теплоизоляционную оболочку из пенополиуретана. Поверх теплоизоляционного слоя расположена наружная гидроизоляционная гофрированная оболочка из полиэтилена. При этом возможно изготовление труб с одной или двумя основными трубами. Трубы предназначены для систем теплоснабжения, систем горячего и холодного водоснабжения, водопроводов питьевой воды, а также для использования в сельском хозяйстве и др. Диаметр труб (по основной трубе) - 16-110 мм. Использование сдвоенных труб (прямой и обратный трубопровод) дает возможность уменьшить размеры траншей и, следовательно, сократить стоимость работ по прокладке трубопровода. Стоимость такого трубопровода примерно в 1,5 раза ниже стального трубопровода.

Предназначенные для систем холодного водоснабжения трубы ИЗОПЭКС снабжены специальным термокабелем (изменяющим сопротивление в зависимости от температуры окружающей среды) для автоматического регулирования подогрева несущей полиэтиленовой трубы, причем регулирование температуры возможно на каждом конкретном участке трубопровода в зависимости от изменения на нем наружной температуры. В такой системе исключено замерзание воды. Однако если это произошло, несущая полиэтиленовая труба не разрушается.

Выпускаются также дренажные гофрированные трубы ТВЭЛ с перфорацией, изготовляемые из полиэтилена высокой плотности и предназначенные для устройства дренажных систем на осушаемых и орошаемых землях, дренажных систем дорог, фундаментного дренажа. Трубы не подвержены коррозии, имеют малую массу, легко укладываются, отличаются высокой долговечностью. Возможны поставки труб в геотекстильной оболочке из нетканого полимерного материала Terram, предотвращающей заиливание отверстий водоприемных отверстий в трубах. Диаметр труб - 63, 110, 160, 200 мм; толщина стенки - 0,9; 0,8; 1,3; 1,4 мм. Трубы поставляются в бухтах по 40, 50, 100, 150 м.

Группа компаний «ЕВРОТРУБПЛАСТ» (Россия) производит трубы КОРСИС с двойной стенкой, изготовляемые по технологии фирмы «Polieco» (Италия), и предназначенные для систем безнапорной и ливневой канализации. Трубы изготовляются методом коэкструзии, при этом наружный слой стенок труб получается гофрированным, а внутренний слой - гладким. Для изготовления труб используется полиэтилен повышенной плотности, отличающийся высокой ударопрочностью (в т.ч. при пониженных температурах), высокой химической стойкостью, износостойкостью, долговечностью. Трубы легко монтируются. Наружный диаметр труб - 125-1200 мм; внутренний диаметр - 107- 1030 мм; шаг гофра - 12,5-110 мм. Трубы выпускаются в стандартных отрезках длиной 6 и 12 м. По заказу возможно изготовление отрезков труб другой длины.

Группа «ПОЛИПЛАСТИК» (Россия) производит полиэтиленовые трубы различного назначения, номенклатура которых включает напорные трубы для холодного водоснабжения из полиэтилена высокой плотности ПЭ 80, ПЭ 100 диаметром до 1200 мм, рассчитанные на давление до 1,6 МПа, канализационные трубы диаметром 32-1200 мм, сварные сегментные отводы и тройники диаметром 90-1200 мм и др. Трубы выпускаются длиной до 13 м, а также в бухтах до 400 м.

Группой компаний «ПОЛИМЕРТЕПЛО» (Россия) производятся гибкие теплоизолированные трубы ИЗОПРОФЛЕКСв из полимерных материалов, предназначенные для внутриквартальных сетей горячего водоснабжения и отопления. Трубы изготовляются по технологии CALPEX фирмы «Brugg Rohrsysteme» (Швейцария). В качестве основной (подающей) трубы для них применяются трубы из полиэтилена пространственной структуры, производимые по технологии фирмы «Golan Plastic Products LTD» (Израиль), и отличающиеся значительной гибкостью, химической стойкостью и прочностью при повышенных температурах. Основная труба заключена в теплоизоляционную оболочку из пенополиуретана, поверх которой расположена гофрированная гидроизоляционная оболочка из полиэтилена. Число основных труб может составлять 1, 2 или 4, что позволяет оптимизировать схему прокладки труб в зависимости от назначения и характера трассы. Трубы рассчитаны на рабочее давление 0,6 и 1 МПа и отличаются высокой долговечностью. Конкретные эксплуатационные параметры труб (давление и срок службы) определяются с учетом времени воздействия переменной температуры в соответствии с ТУ 2248-021-40270293-2005.

Выпускаются также гибкие трубы КАСАФЛЕКС для тепловых сетей (отопления и горячего водоснабжения) с рабочей температурой до 150 °С и давлением до 2,5 МПа. В этом случае в качестве внутренней (напорной) трубы используются стальные гофрированные трубы из нержавеющей стали 1.4301 или 1.4404 (по европейскому стандарту EN 10088-2). Затем располагаются теплоизоляционный слой из пенополиуретана (вспениваемого по бесфреоновой технологии) и гидроизоляционная оболочка из полиэтилена высокого давления. Трубы снабжены сигнальным кабелем. Трубы изготовляются по технологии фирмы «Brugg Rohrsysteme». Обеспечивают эффективную подачу горячей воды по тепловым сетям при минимальных теплопотерях, не подвержены коррозии, долговечны. Гибкость труб значительно облегчает прокладку трубпроводов. Они рассчитаны на бесканальную прокладку. Трубы с усиленной теплоизоляцией предназначены для районов с отрицательной среднегодовой температурой воздуха.

вниинтпи

119331, Москва, просп. Вернадского, 29

Тел. (495) 133-51-50

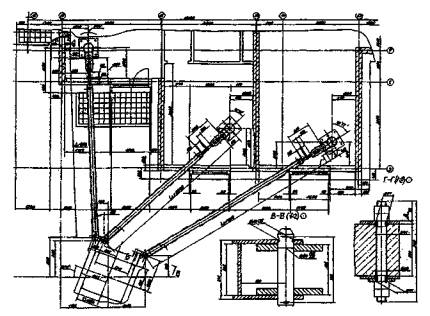
УСТРОЙСТВО ДЛЯ КРЕПЛЕНИЯ БАШЕННОГО КРАНА К СТРОЯЩЕМУСЯ ЗДАНИЮ

Канд. техн. наук В.Л. Грищенко, Л.Н. Поляков

По мере роста высотности домов выявилась необходимость крепления приставных башенных кранов к строящимся зданиям. Еще до вхождения в состав ГУП «НИИМосстрой» конструкторское бюро, решая задачи по механизации монтажно-строительных работ, занималось разработкой проектов крепления приставных башенных кранов.

С помощью таких приставных башенных кранов построены дома на Тверской улице, на Новом Арбате, в микрорайоне Химки-Ховрино, в г. Зеленограде, Дом Правительства РФ, корпуса Измайловского гостиничного комплекса, Храм Христа Спасителя и многие другие здания г. Москвы. Нами выполнены проекты креплений приставных башенных кранов в гг. Ташкенте, Кишиневе, Самаре, Волгограде и во многих других городах бывших союзных республик.

Рисунок 1 - Фрагмент тяги крепления крана при строительстве Храма Христа Спасителя

В прежние годы краны не отличались разнообразием, и их было немного (ПВК, КБ-180, КБ-573). Впоследствии появились краны КБ-473, КБ-474, КБ-675, КБ-676. В настоящее время парк башенных кранов помимо отечественных пополнился зарубежными кранами разных модификаций, (LIEBHERR, Potain, Xaco, CTT).

При разработке конструкторской документации на крепление башенных кранов учитываются условия установки их на строительном объекте, диктуемые проектом производства работ, технические данные и инструкции по монтажу кранов, а также конструкции возводимых зданий и сооружений.

Крепление приставных башенных кранов к строящемуся зданию выполняется поэтапно по мере увеличения высоты здания (рисунок 2). Количество креплений зависит от конструкции башенного крана и высотности сооружения.

Рисунок 2 - Крепления башенного крана к строящемуся жилому зданию

Конструкция крепления (рисунок 3) выполнена в виде тяг, соединяющих рамку башни крана с кронштейном или балкой, прикрепленных к элементам конструкции здания (например, к колоннам, стенам или перекрытиям). Тяги для облегчения монтажа регулируются по длине при помощи резьбовой стяжки. Элементы конструкции крепления рассчитываются на основании нагрузок, возникающих при работе башенного крана, и высоты строящегося здания. Конструкция крепления также зависит от условий монтажа и демонтажа крана.

Рисунок 3 - Конструкция крепления башенного крана к строящемуся зданию

Помимо конструкторской рабочей документации, расчетов и паспорта на конструкцию крепления приставных башенных кранов разрабатывается рабочая программа и методика испытания устройства. Комплект технической документации согласовывается с организацией, которая осуществляла проектирование строительного объекта.

За прошедшие годы специалисты СКБ приобрели значительный опыт проектирования устройств для креплений башенных кранов к строительному сооружению. СКБ осуществляет авторский надзор за изготовлением и монтажом, приемкой каждого крепления перед выдвижением башни до необходимой высоты.

СКБ «НИИМосстрой»

117556, Москва, Болотниковская ул., д. 11, корп. 1

Тел: (499) 613-04-11; (499) 619-48-27

www.niimosstroy.ru

ОПЫТ СТРОИТЕЛЬСТВА БЕТОННЫХ ДОРОГ В АВСТРИИ

«Strasse+Autobahn», 2006, № 6, с. 357-359 (нем.)

В Австрии сохраняется традиция строительства бетонных дорог. Бетон применяется преимущественно для сооружения высококлассных автобанов и скоростной дорожной сети с возрастающей интенсивностью движения тяжелого транспорта, а также для дорог, к которым предъявляются повышенные требования в отношении безопасности движения, например, в тоннелях протяженностью более 1000 м.

Бетон может служить целесообразной альтернативой при строительстве второстепенной дорожной сети, для брусчатых дорог, покрытых бетоном, дорог с небольшим движением транспорта, узких дорог в сельской местности и др. В городах бетон применяется главным образом для участков дорог около автобусных остановок и на перекрестках.

Современные дороги, обладающие такими свойствами как прочность, износостойкость, распределение нагрузки, сопротивление деформациям, достаточная шероховатость, подходят для всех транспортных магистралей. Поэтому такие дороги являются технической и экономически оправданной альтернативой для организации движения с большим количеством поворотов (серпантина).

Участки с круговым движением сооружаются в соответствии с австрийскими инструкциями и предписаниями для дорожного строительства (RVS). Такие участки чаще всего сооружаются:

- для повышения безопасности движения;

- для реконструкции участков, где чаще всего происходят несчастные случаи;

- для примыкания к скоростным автобанам.

При повышенной нагрузке (класс I) требуется, чтобы толщина бетонного покрытия составляла не менее 22 см. При более интенсивном движении тяжелых транспортных средств (класс нагрузки S, включающий более 18 млн. знакопеременных нагрузок) создается следующая конструкция дорожного полотна:

- бетонное покрытие с соединением штырями - 25 см;

- слой асфальта - 5 см;

- несущий слой, стабилизированный цементом - 20 см или несвязанный несущий слой - 45 см.

Исследования показали, что высокая транспортная нагрузка требует тщательного расчета и планирования особенно при разделении швов, т.к. именно кромки плит при круговом движении подвергаются наибольшим нагрузкам. Несмотря на то, что укладка тонкого промежуточного слоя асфальта не является обязательной, этот слой удобен для фиксации опалубки при ручной укладке, а также в качестве предохранительного слоя при поставке и укладке бетона.

Как правило, в Австрии бетонные покрытия не армируются. Бетонные покрытия дороги с поворотами армируются не полностью. Поскольку при круговом движении почти все швы во время движения транспорта подвергаются значительным нагрузкам, они снабжаются шпонками, а продольные швы на въезде и выезде оснащаются анкерами, как и в традиционных бетонных покрытиях проезжей части.

В соответствии с инструкцией по строительству дорог с использованием бетонных покрытий геометрия дорожных плит следующая

- кратная ширина - ≤ 1,5;

- кратная толщина - ≤ 2,5;

- максимальная длина пролета - 5,5 м;

- соотношение «длина : ширина» - 1:1 при концевых пролетах со свободной кромкой.

Особая тщательность соблюдается при формировании швов на въезде на участок с круговым движением и на участках, где покрытие меняется с асфальта на бетон. В любом случае перед началом строительства составляется план распределения швов, который учитывает направление движения на разных этапах строительства и сроки укладки бетона.

При движении транспорта на дороге с поворотами значительные нагрузки наблюдаются при въезде и выезде из участка с круговым движением, что связано с тормозными усилиями и с ускорением. Причем часто это происходит при въезде на такой участок. Поэтому рекомендуется использовать бетон на въездных и выездных участках приблизительно в пределах 50 м вокруг них. Приблизительно это расстояние соответствует длине двух грузовиков.

Требования к бетону изложены в Стандарте Австрии (издание 2004-04-01) ЦNORM D 4710-1» «Бетон, ч. 1: Определение, изготовление, применение» (Австрийский институт стандартов, г. Вена):

- устойчивость при замерзании - оттаивании при использовании соли;

- атмосферостойкость;

- прочность на растяжение при изгибе в возрасте 28 сут. ≤ 5,5 МПа, бетон с обнаженным заполнителем - ≤ 7,0 МПа;

- прочность на сжатие в возрасте 28 сут. верхнего слоя бетона - ≤ 40 МПа; нижнего слоя бетона - ≤ 35 МПа;

- применение износостойкого заполнителя;

- консистенция бетона в соответствии с методом укладки (вручную или механизированный способ).

Состав бетона и требования к нему зависят также от условий поставки и эксплуатации дорожного полотна. В отдельных случаях уже на раннем этапе строительства может потребоваться открытие движения на этом участке. На крупных стройках эти требования не вызывают никаких проблем. Однако часто сооружение дороги с поворотами организуется на небольшом участке или на очень отдаленных площадях, а бетон заказывается на ближайшем бетонном заводе. Поэтому рекомендуются следующие марки бетона:

- С 30/37/XF 4 ХМ 2 (А) = (D) - верхний слой бетона;

- С 30/37/XF 4 (А) = (D) - нижний слой бетона.

Важным моментом является подбор консистенции бетона в зависимости от применяемого способа укладки (вручную или механизированный), что позволяет выполнить достаточное уплотнение бетона и гарантирует качественную обработку поверхности дороги с приданием ей соответствующей структуры.

Применительно к строительству участков дороги с поворотами даются следующие рекомендации:

- минимальная толщина бетонного покрытия - 22 см (класс нагрузки I) , предпочтительно 25 см (класс нагрузки S);

- перед началом строительства подготовка плана распределения швов;

- тщательный выбор геометрии плит в переходной зоне въезд/выезд из района с круговым движением (без острых углов);

- размещение шпонок даже для проезжей зоны с продольными швами:

- марка бетона С 30/37/XF 4 ХМ 2 (для верхнего слоя бетона);

- консистенция бетона в соответствии с методом укладки, способ уплотнения, структура поверхности дороги;

- привязки (въезд/выезд) в бетоне протяженностью около 50 м.

Разрабатывается памятка «Бетонные покрытия участков дороги с круговым движением».

Научно-техническая библиотека Мэрии Москвы

Перевод: Н.Ю. Панкратов

СТРОИТЕЛЬСТВО ДОРОГ В БРЕМЕНЕ

«Strasse+Autobahn», 2006, № 3, стр. 153-158 (нем.)

С 2004 г. в г. Бремен работает центр транспортного менеджмента, в котором создан банк данных, позволяющий оптимизировать и гарантировать информацию, необходимую для строительства и для решения транспортных проблем.

В настоящее время г. Бремен обслуживает в общей сложности 70,2 км автотрасс, причем важнейшие трассы BAB A1 и ВАВ А27, как и прежде, строятся из бетона.

С учетом специфических условий, характерных для г. Бремена, класс строительства IV больше не используется, а класс III используется при особых нагрузках. Поэтому в г. Бремене его называют класс III S.

Из-за высокого уровня грунтовых вод толщина, гарантирующая морозостойкость для всех типов транспортных площадей, составляет не менее 80 см. В качестве морозостойкого защитного слоя, в первую очередь, используют песок, который сверху уплотняется цементом. В особых случаях вместо упрочнения укладывается щебеночный несущий слой толщиной 20 см. В этом случае модуль деформации должен составлять не менее 100 МН/м2 на морозозащитном слое и не менее 150 МН/м2 на щебеночном несущем слое.

В г. Бремене строительство дорожных покрытий из бетона имеет давнюю традицию. Стандартный способ сооружения дорожного полотна - бетонное покрытие толщиной 27 см, укладываемое на геотекстиль, с упрочняющим цементным слоем толщиной 25 см. Поверхностный грунт, как правило, покрывается морозоустойчивым материалом в соответствии с DIN 18196. Под асфальтовыми покрытиями и брусчаткой, как правило, используется слой грунта, укрепленного цементом толщиной 15 см, который может быть изготовлен методом централизованного смешивания и состоит, в первую очередь, из песков, близко расположенных к поверхности. Средняя прочность на сжатие покрытия под асфальтовыми слоями и брусчаткой в возрасте 28 сут. должна составлять 6,0 Н/мм2.

Испытание готового слоя выполняется на кернах диаметром 150 мм.

В пешеходных зонах в центре города, а также в исторических местах доминирует строительство с использованием брусчатки. На транспортных артериях с интенсивным движением верхнее дорожное полотно состоит, как правило, из гранитной крупногабаритной брусчатки толщиной 16 см, уложенной на балластный слой из брусчатки толщиной 6 см и на упрочняющий слой цемента толщиной 15 см.

Чаще всего в г. Бремене для покрытия транспортных площадей применяется асфальт класса строительства от I до V. При проведении работ всегда выдерживаются единые стандарты, обеспечивающие наивысшее качество и экономичность работ. Укатываемый асфальт (класс SV) применяется для устройства пешеходных и велосипедных дорожек. Для всех асфальтовых слоев применяется 10 различных составов асфальта. Начиная с класса строительства III S и выше, в асфальтовом покрытии в качестве вяжущего используется только битумы, модифицированные полимерными волокнами - РmВ 45 и/или РmВ 25А.

Из соображений долговечности для верхних асфальтовых покрытий применяется залитый мастикой асфальт с мелким щебнем (размер частиц до 8 мм). Толщина покрытия составляет 3 см вместо обычных 4 см. За счет этого в будущем можно рассчитывать на большую продолжительность эксплуатации асфальтовых покрытий, а также на экономию средств для мероприятий по уходу за дорогами.

Оптимальный состав смеси определяют расширенным испытанием на образование колеи, которое проводят в соответствии с «Техническими инструкциями по испытанию асфальта, используемого в дорожном строительстве». На образцах выбранного состава смеси глубина колеи может составлять не более 4,5 мм. Нижние слои асфальтового покрытия имеют толщину 9 или б см. Начиная с 2003 г., наряду с вяжущим РmВ 45, учитывая особые нагрузки, в классе строительства II используется также PmD 25A. В нижних слоях асфальтового покрытия в соответствии с требованиями ZTB-STB 01, содержание пустот должно составлять от 3,0 до 7,0 % по объему и не менее 0,2 % по массе стабилизирующих присадок. Нижний асфальтовый слой 0/22S должен содержать не менее 10,5 % по объему вяжущих и от 25 до 30% по массе зерен размером более 16 мм. В асфальтовом слое 0/16 S объем вяжущих должен составлять не менее 11% по объему, а содержание частиц размером более 11 мм - от 25 до 30 % по массе. На отобранных образцах глубина колеи может составлять не более 3,5 мм. Повторное использование асфальтового гранулята в асфальтовых несущих слоях не ограничено, также как в нижних слоях асфальтового покрытия, начиная с класса строительства II.

Связь между асфальтовыми слоями считается достаточной, если в кернах диаметром 150 мм при температуре воздуха +25 °С на границе слоев возникают следующие срезающие усилия:

- верхний асфальтовый слой - нижний асфальтовый слой - не менее 25 кН;

- верхний асфальтовый слой - асфальтовый несущий слой или подкладка - не менее 25 кН;

- нижний асфальтовый слой - несущий асфальтовый слой - не менее 20 кН;

- нижний асфальтовый слой - нижний асфальтовый слой - не менее 20 кН;

- асфальтовый несущий слой - асфальтовый несущий слой - не менее 16 кН.

Следует отметить, что с момента введения этого требования в 2003 г. не было зафиксировано нарушений. Контрольные испытания проводятся на каждом объекте для каждых 2 тыс. кв. м. Допускаемые отклонения на содержание вяжущего в несущих асфальтовых слоях при испытании составляют ±0,5 % по массе, в нижних слоях - ±0,4 %.

При испытании битумов, модифицированных полимерными волокнами, РmВ 45 и/или РmВ 25А, восстановление упругости (эластичности) обновленных битумов должно составлять не менее 50 %, а экстрагированного из смеси - не менее 40 %.

При этом целесообразно использовать метод испытаний в соответствии с положениями TL РmВ «Технические условия поставки готовых к применению модифицированных полимерных битумов». Относительно растворителя следует руководствоваться указаниями DIN 1996-6. Это требование действительно также при преждевременном разрыве полимерного волокна. В вяжущих с низким значением температуры размягчения (кольцо-шар) менее 63 °С устанавливается величина 15 см, а при температуре размягчения более 63 °С - 8 см.

В 1997 г. в г. Бремене была создана система дорожного менеджмента (PMS). На основании отчета о строительстве дорог, состоянии покрытия проезжей части, а также с учетом ограниченных средств, выделяемых на содержание и ремонт дорог, было принято оптимальное решение. Определяли размер капиталовложений в производство материалов, применяемых для укрепления покрытия проезжей части дорог, и разработали прогноз инвестиций на 10 лет. Таким образом, система дорожного менеджмента PMS позволяет ориентироваться в дорожном строительстве с административных позиций, и оказывает необходимую помощь при принятии решений.

Научно-техническая библиотека Мэрии Москвы

Перевод: Н.Ю. Панкратов

РЕЗУЛЬТАТЫ ИССЛЕДОВАНИЙ В ОБЛАСТИ ДОРОЖНОГО СТРОИТЕЛЬСТВА

«Strasse+Autobahn», 2006, № 162, стр. 428-432 (нем.)

В связи с постоянно увеличивающимся объемом перевозок нагрузки, которым подвергаются дорожные покрытия, также возрастают. При многослойной конструкции асфальтовых дорог связь между асфальтовыми слоями является важнейшим фактором, гарантирующим длительное без повреждений восприятие напряжений, возникающих в результате климатических воздействий и движения транспорта. Прочная связь слоев обеспечивает долговечность дорог и существенно снижает расходы по уходу за дорогами и на их реконструкцию.

Однако до настоящего времени минимальная толщина связанных слоев, необходимая для высокой долговечности, остается неизвестной.

Исследовали взаимосвязь между долговечностью дорожных покрытий и связью слоев. Исследования проводились на дорожных участках с различным периодом эксплуатации и состоянием поверхности. По методу Лойтера испытывали фактически существующую связь слоев и определяли взаимосвязь между состоянием участка и результатами испытаний.

В сотрудничестве с дорожно-строительными организациями федеральных земель Бавария, Баден-Вюртенберг, Гессен и Рейнланд-Пфальц были исследованы 15 дорожных участков различного возраста (4-12 лет). Для исследований выбирались участки асфальтовых дорог, которые визуально оценивались как «хорошие», построенные в соответствии с RSTO 86/90 (классы строительства I-III). Совместно с представителями дорожно-строительных служб дополнительно были выбраны три участка для исследований, где отмечались значительные деформации и другие структурные дефекты. На этих участках целенаправленно изучали влияние связности слоев на имеющиеся дефекты и снижение долговечности (между 10-12 годами).

Перед отбором кернов на каждом исследуемом участке проводилась оценка его состояния для того, чтобы систематизировать вопросы ухода за дорогами.

На каждом участке отбирались 12 буровых кернов с правой колеи и из середины проезжей части. Наряду с испытанием связи слоев, на имеющихся асфальтовых слоях определяли такие характеристики асфальта как содержание пустот, вяжущих, а также степень уплотнения, оценивали состояние граничной поверхности слоев. На основании статического анализа полученных результатов по изучению связи между слоями дорожного полотна с учетом результатов ранее выполненных исследовательских работ были предложены минимальные требования, которые можно использовать при приемке строительного объекта.

Оценка состояния всех исследуемых участков проводилась в соответствии с нормами, содержащимися в документе АР 9, раздел А1 «Специальные предписания по дорожному строительству» (FGSV, 2001). При этом все полученные характерные показатели были перенесены в соответствующие параметры состояния участков. Затем, исходя из различных параметров состояния, была дана оценка эксплуатационных характеристик и применяемых материалов для определения потребительской стоимости участка. При оценке потребительской стоимости учитывается степень комфорта и безопасности движения. При оценке применяемых материалов уделяется внимание устойчивости и несущей способности дорожного полотна. Посредством перевода величин, характеризующих состояние участка, в параметры состояния можно сравнить полученные показатели с результатами определения состояния каждого исследуемого участка. При исследовании участков с ярко выраженными дефектами в форме желобов в дорожной колее и в материале получен суммарный показатель состояния между 3,4 и 5,0. На двух или трех исследуемых участках приведенная в рабочем документе АР 9 пороговая величина около 4,5 была достигнута через 12 лет после укладки. При исследовании участка XIII пороговая величина была чуть меньше 3,5.

При исследовании участков, состояние которых визуально оценивались как «хорошее», установлена долговечность участков I-XII от 4 до 6 лет, а участков XIV-XVI - 12 лет.

Параметры состояния, установленные в результате исследований, составили от 1,4 до 3,0.

Контрольная величина 3,5, приведенная в рабочем документе АР 9, на большинстве участков не была достигнута. Исключением являются три участка, отличавшиеся худшим состоянием поверхности.

После раздельной оценки результатов исследований при отборе буровых кернов из правой колеи и из середины проезжей полосы не было установлено никакого влияния транспортной нагрузки на связь слоев в течение всего предусмотренного периода эксплуатации дороги. Для шести исследуемых участков средняя величина кернов из правой колеи (участок, подвергающийся транспортным нагрузкам) немного не доходит до средней величины кернов, отобранных из середины проезжей полосы (ненагруженная зона) на границе участков. Для семи участков эта величина немного превышена. Статистическое отклонение обеих средних величин по направлению друг к другу не обнаружено. Это противоречит результатам, полученным Штокертом, согласно которым отмечена тенденция увеличения срезающей нагрузки в колее по сравнению с серединой дорожной полосы через год эксплуатации. Но можно допустить, что сначала низкие величины в середине проезжей полосы в течение продолжительной эксплуатации приближаются к более высокому уровню в колее. Средние показатели срезающих усилий на исследуемых участках находятся в области длительно «хорошего» состояния между 17,3 кН и 48,3 кН. На участках с «плохим» состоянием установленные срезающие усилия (средний показатель) находятся между 24,6 кН и 33,4 кН. Систематическую взаимосвязь между состоянием дорожной одежды и установленным срезающим усилием выявить не представляется возможным.

Оценка характерных величин асфальтовых слоев показывает, что содержание пустот в асфальтовом покровном слое оказывает существенное влияние на связь между покровным и нижним слоями асфальта в течение всего периода эксплуатации. Согласно ZTB-STB в готовом слое содержание пустот в асфальте, залитом мастикой, должно составлять ≤ 6,0 объемных %, а в асфальтобетоне 0,11 S ≤ 7,0 объемных %. На старых участках с асфальтобетоном это требование соблюдалось, так что даже определяемые срезающие усилия оказывались на сравнительно высоком уровне (более 27 кН). В отличие от этого, содержание пустот порядка 34 % на участках с асфальтом, залитым мастикой, не отвечает требованиям ZTB-STB. Это заметно даже при установленном срезающем усилии. На всех исследуемых участках с покровным слоем асфальта, залитого мастикой, и содержанием пустот ≥ 6 объемных % были установлены сравнительно низкие срезающие усилия на границе слоев. В результате высокого содержания пустот в готовом слое в процессе эксплуатации на границе слоев возможны отслаивания и ослабления между слоями, вызванные проникновением поверхностной воды в покровный слой. Вода может скапливаться на границе с нижним слоем, вымыть вяжущее, что приведет к нарушению связи между слоями и вероятному преждевременному повреждению дорожной одежды. Это подтверждается при сопоставлении асфальтов с содержанием пустот, не соответствующих требованиям, на исследуемых участках с заметным ухудшением связи между слоями с состоянием новых дорог. Уменьшение срезающего усилия на границе слоев на новых дорогах составляет в отдельных случаях до 16 кН. Оценка результатов применительно к нижнему слою асфальта и к верхнему несущему была аналогичной в отношении границы между слоями. В плотном нижнем асфальтовом слое, расположенном под верхним, содержащим большое количество пустот, накапливается поверхностная вода, проникающая через верхний слой, что приводит к ослаблению связи на границе между слоями. Если под верхним слоем с большим количеством пустот находится слой асфальта, тоже содержащий большое количество пустот, то это дополнительно негативно сказывается на связи между нижним и несущим асфальтовым слоем.

Исследовали керны, отобранные на участках с дефектами. Отсутствие связи между нижним и верхним асфальтовым слоями было установлено в 19 из 180 кернов.

Средний показатель срезающей нагрузки на границе между слоями в кернах из участков в «хорошем» состоянии составил 28,61 кН. Сравнение с величинами, установленными Штокертом, показывает, что приблизительно 33 % результатов оценки срезающей нагрузки оказываются ниже минимальной величины 20 кН. Это означает, что 67 % всех учитываемых нагрузок при оценке буровых кернов соответствует минимальной величине 20 кН.

Шероховатости и неоднородности, обнаруженные визуально в местах среза отдельных кернов, могут являться одними из причин плохого состояния поверхностей на границе между слоями. Для правильной оценки качества мест среза особенно дорожной одежды после определенного периода эксплуатации, использовали характеристики асфальта на граничных слоях: содержание вяжущего, пустот, а также степени уплотнения. Эти характеристики асфальта готового слоя решающим образом влияют на связь между слоями. Кроме этого на качество поверхностей на границе между слоями и на связь между слоями к началу эксплуатации влияют следующие граничные условия:

- загрязнение надстраиваемой асфальтовой поверхности;

- не соблюдение требований дозировки наносимого состава;

- неравномерное опрыскивание основания;

- неблагоприятные погодные условия.

Эти положения известны строителям дорог, и они входят в нормативы. Однако очень часто в процессе строительства эти правила не соблюдаются и этим объясняются низкие или отсутствующие срезающие нагрузки. Данные исследования показывают, что при соблюдении требований к свойствам асфальта в готовом слое и правил укладки можно добиться высоких срезающих усилий после 12 лет эксплуатации дороги.

На основании результатов проведенных исследований можно сделать вывод, что на связь между асфальтовыми слоями влияют многие факторы. Эти факторы могут действовать по-разному, и в пределах одного участка могут наблюдаться различные срезающие нагрузки и пути среза. Однако для того, чтобы сформулировать минимальные требования для внесения их в нормативы, нужно знать, как с экономической точки зрения влияют на состояние дорожной одежды не достигшие нормируемых показателей величины.

Результаты исследования подтверждают прежде полученные данные и показывают, что на практике связь между отдельными асфальтовыми слоями может характеризоваться определенным разбросом. В данной работе исследовали керны, отобранные с 15 участков, которые визуально находились в хорошем состоянии, и возраст которых составлял от 4 до 12 лет. При этом систематическое плохое состояние участков не удалось объяснить недостаточной связью между слоями. Приблизительно на 10 исследованных и положительно оцениваемых участках были отобраны керны, у которых уже при отборе не было связи между слоями асфальта. На трех участках с выраженными дефектами, напротив, связь между слоями была прочной.

Поэтому на основании выполненных исследований не представляется возможным определить возможную взаимосвязь между состоянием поверхности дороги, связью между слоями асфальта и установленным срезающем усилии. Участки с незначительной или отсутствующей связью между асфальтовыми слоями не обязательно имели плохое состояние поверхности.

Чтобы устранить неясности в формулировке «достаточная» связь между слоями в Технических правилах и обеспечить дополнительные возможности для оценки качества строительных работ, целесообразно установить минимальные требования, предъявляемые к связи слоев.

Исследования показали, что не представляется возможным разработать методы, которые позволили бы точно определить величину, характеризующую недостаточную связь слоев. Однако, без сомнения, необходима определенная минимальная связь между двумя асфальтовыми слоями.

В качестве основы формулирования минимальных требований при оценке учитывались только керны с приемлемым состоянием поверхности на границе слоев и выполненными требованиями к состоянию асфальтового слоя.

Были предложены следующие минимальные требования к срезающему усилию на момент приемки строительства (с учетом работ Штокерта и Лойтнера):

- граница асфальтовый верхний слой/ асфальтовый нижний слой - 16 кН;

- граница асфальтовый нижний слой/ асфальтовый верхний слой - 13 кН.

Научно-техническая библиотека Мэрии Москвы

Перевод: Н.Ю. Панкратов

 

 




ГОСТЫ, СТРОИТЕЛЬНЫЕ и ТЕХНИЧЕСКИЕ НОРМАТИВЫ.
Некоммерческая онлайн система, содержащая все Российские Госты, национальные Стандарты и нормативы.
В Системе содержится более 150000 файлов нормативно-технической документации, действующей на территории РФ.
Система предназначена для широкого круга инженерно-технических специалистов.

Рейтинг@Mail.ru Яндекс цитирования

Copyright © www.gostrf.com, 2008 - 2026