|
|
АЛЬБОМ Генеральный директор ОАО ПКТИпромстрой _____________________ С.Ю. Едличка 2002 АННОТАЦИЯНастоящая работа выполнена во исполнение распоряжения руководителя Комплекса архитектуры, строительства, развития и реконструкции города от 12.08.2001 г. № 62 «О повышении культуры производства, обустройства и содержании строительных площадок» и предусматривает своевременное и качественное выполнение работ подготовительного периода на строительстве зданий и сооружений в г. Москве. В работе унифицированы требования различных источников нормативно-правовой базы, постановлений правительства Москвы и Комплекса в части обустройства строительных площадок. Работа состоит из двух разделов: Раздел I Организация строительной площадки и административно-бытовых комплексов; Раздел II Каталог мобильных зданий и сооружений.
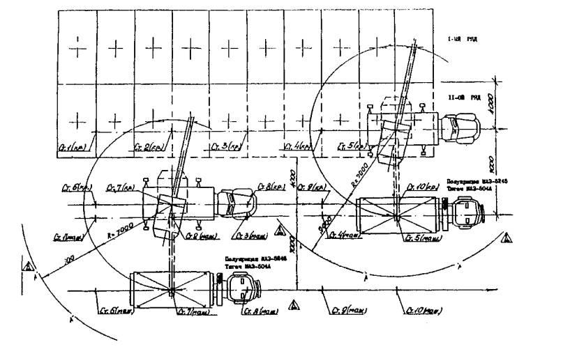
Правительство Москвы Управление экономической, научно-технической и промышленной политики в строительной отрасли АЛЬБОМ УНИФИЦИРОВАННЫХ РЕШЕНИЙ ВРЕМЕННЫХ ЗДАНИЙ И СООРУЖЕНИЙ ДЛЯ ОБУСТРОЙСТВА СТРОИТЕЛЬНЫХ ПЛОЩАДОК СодержаниеОРГАНИЗАЦИЯ СТРОИТЕЛЬНЫХ ПЛОЩАДОК И АДМИНИСТРАТИВНО-БЫТОВЫХ КОМПЛЕКСОВ РАЗДЕЛ IОБЩИЕ ПОЛОЖЕНИЯНастоящая работа выполнена с целью повышения состояния культуры производства, обустройства и содержания строительных площадок, качества выполняемых строительно-монтажных работ, и преследует своевременное и качественное выполнение работ подготовительного периода на строительных площадках Комплекса архитектуры, строительства, развития и реконструкции города. Для информации проектных и строительных организаций о наличии инвентарных зданий и сооружений, разрабатываемых в Москве, и использовании их при организации административно-бытовых комплексов в работе отдельным разделом даны каталожные листы этих зданий и сооружений. В каталожных листах наряду с общими видами и возможными планировочными, технико-экономическими и эксплуатационными показателями указаны организации-разработчики и предприятия-изготовители мобильных зданий, что позволит быстро и эффективно принимать решения, выбирать и заказывать эти здания. Подготовительный период строительства каждого объекта кроме необходимых общеплощадочных работ решает вопросы обустройства строительных площадок, куда входит: устройство ограждения строительной площадки; установка информационных щитов; оборудование выездов со стройплощадок пунктами мойки колес автотранспорта; сбор и удаление строительного мусора; размещение санитарно-бытовых и административных зданий и сооружений. Завершение работ подготовительного периода должно оформляться актом приемки комиссией, организованной заказчиком строительства, представленный в Приложении А. В работе обобщены требования различных источников нормативного характера, постановлений правительства Москвы и распоряжений Комплекса архитектуры, строительства, развития и реконструкции города в части своевременного и качественного выполнения работ подготовительного периода и обустройства строительных площадок. Данная работа может служить методическим пособием при разработке требований по обустройству строительных площадок и бытовых городков проектными и строительными подразделениями Комплекса. 1 УСТРОЙСТВО ОГРАЖДЕНИЙ СТРОИТЕЛЬНЫХ ПЛОЩАДОКВ соответствии с распоряжением премьера правительства Москвы от 8 апреля 1997 года № 370-РП «Об утверждении положения о порядке устройства ограждений фасадов зданий и сооружений и ограждений строительных площадок на период строительства, реконструкции, реставрации и капитального ремонта в г. Москве» строительные площадки на период строительства, реконструкции или ремонта объекта ограждаются специально для этого предусмотренными ограждениями. Правительство Москвы своим Постановлением от 19 июня 2001 г. № 548-ПП предусматривает применение типовых решений унифицированных инвентарных ограждений строительных площадок в г. Москве. На рисунках 1 и 2 даны принципиальные варианты ограждений мест производства различного вида строительно-монтажных работ. Основным элементом ограждений является несплошная «полупрозрачная» панель (секция), выполняемая по металлическому каркасу из сетки «Рабитца», из прямоугольных труб, штакетником из профлиста, арматуры. При производстве работ на проезжей части улиц и магистралей в качестве ограждения используются дорожные блоки из полимерных материалов (рисунок 3).
1 - металлическая сетка «Рабитца» на металлическом каркасе; 2 - фундаментный блок ФБС-2,4×0,6×0,4; 3 - стойки. Рисунок 1 - Временное сетчатое ограждение стройплощадки по сборным ж.б. блокам
Рисунок 2 -Унифицированные инвентарные ограждения строительных площадок
Основные размеры блоков
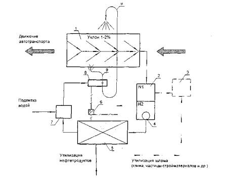
2 УСТАНОВКА ИНФОРМАЦИОННЫХ ЩИТОВВ соответствии с «Правилами производства земляных и строительных работ, прокладки и переустройства инженерных сетей и коммуникаций в г. Москве», утвержденных постановлением правительства Москвы № 603 от 8 августа 2000 года, при въезде на строительную площадку и выезде с нее устанавливаются информационные щиты. На щите должны быть указаны следующие реквизиты: - адрес и наименование строящегося объекта; - наименование заказчика, номер телефона; - наименование генерального подрядчика, номер телефона; - фамилия, имя, отчество руководителя работ/номер телефона; - наименование проектной организации, номер телефона; - сроки начала и окончания строительства: - лицензия на право производства работ. Помимо информационного щита на ограждениях строительных площадок в обязательном порядке должны быть размещены графическое изображение строящегося объекта с краткой его характеристикой и указанием автора проекта, а также графическое изображение или фотографии исторического прошлого места, на котором ведется строительство. 3 ОБОРУДОВАНИЕ СТРОЙПЛОЩАДОК УСТАНОВКАМИ ДЛЯ ЧИСТКИ И МОЙКИ КОЛЕС АВТОТРАНСПОРТАОборудование выездов со стройплощадок пунктами мойки колес автотранспорта выполняется в соответствии с распоряжением первого заместителя премьера правительства Москвы от 11.05.96 г. № 441-РЗП. Принципиальная схема установки для мойки колес автотранспорта приведена на рисунках 4 и 5.
1. Эстакада (моечная площадка). 2. Баки-отстойники (песколовка) 3. Шламоприемный кювет. 4. Насос. 5. Очистная установка. 6. Щит питания. 7. Бак водозаборный. 8. Установка моечная. 9. Моечный пистолет с форсункой и шлангом. Рисунок 4 - Технологическая схема мойки колес автотранспорта с системой оборотного водоснабжения (вариант)
Эстакада представляет собой сборно-разборную конструкцию, уложенную на дорожную плиту и оснащенную продольными и поперечными сливными желобами. ТЕХНИЧЕСКАЯ ХАРАКТЕРИСТИКА 1. Колея(по осям площадки), м - 1,9 2. Уклон плит, % - 2 Рисунок 5 - Принципиальная схема устройства эстакады к установке для мойки колес автотранспорта4 СБОР И УДАЛЕНИЕ СТРОИТЕЛЬНОГО МУСОРАДля сбора строительного мусора с этажей строящегося здания устанавливается секционный мусоросброс и бункер-накопитель, представленные на рисунках 6, 7 и 8.
1 - конус приемный; 2 - конус прямой; 3 - цепь; 4 - карабин; 5 - узел крепления. Рисунок 6 - Конусы приемный и прямой мусоросброса МСП
1 - конус приемный; 2 - конус прямой; 3 -цепь; 4 - карабин; 5 - узел крепления. Рисунок 7 - Mycopocбpoc секционный полимерный МСП
Мусороприемник V=3 м3 Арх. № 2972.
Мусоросборник V=6 м3 Арх. № 2976.
Мусоросборник секторный V=3 м3 Арх. № 4719. Рисунок 8 - Мусоросборник 5 АДМИНИСТРАТИВНО-БЫТОВЫЕ КОМПЛЕКСЫ5.1 Основные требования к обустройству административно-бытовых комплексов.Административно-бытовые комплексы должны возводиться в подготовительный период строительства, и их подготовка к эксплуатации должна быть закончена до начала производства основных строительно-монтажных работ на объектах. Административно-бытовые комплексы выполняются в соответствии с проектом организации строительства, являющегося составной частью проекта, в соответствии с действующими нормативами и номенклатурой согласно таблицы 1. Таблица 1 - Состав административно-бытовых комплексов
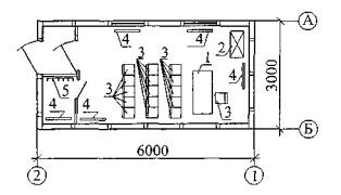
Принципиальные решения административно-бытового комплекса приведены на рисунке 9.
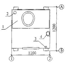
Рисунок 9 - Административно-бытовой комплекс на 100 человек При организации административно-бытовых комплексов и строительной площадки следует иметь в виду: - расстояние от рабочих мест до туалетов, помещений для обогрева, устройств питьевого водоснабжения должно приниматься не более 150 м; - при численности работающих в смену более 15 человек туалеты для мужчин и женщин предусматриваются раздельные; - при списочном составе от 50 до 300 работающих должен быть предусмотрен медицинский пункт: площадью 12 м при списочной численности от 50 до 150 работающих и 18 м2 - от 151 до 300 работающих. - при численности работающих в смену более 200 человек следует предусматривать столовую, до 200 человек - столовую-раздаточную. При численности работающих в смену менее 30 человек вместо столовой-раздаточной допускается предусматривать комнату приема пищи.
Административно-бытовые комплексы должны располагаться вне опасной зоны от действия грузоподъемных кранов. Если в стесненных условиях строительной площадки административно-бытовые комплексы попадают в опасную зону от действия грузоподъемных кранов, то для ликвидации опасной зоны должны устраиваться защитные экраны согласно рисункам 10, 11, 12. Пешеходные дорожки на территории комплекса и от комплекса до остановок общественного транспорта должны выполняться с твердым покрытием. Внутриплощадочные автомобильные дороги должны отвечать требованиям соответствующих строительных норм и правил и оборудованы дорожными знаками в соответствии с правилами дорожного движения Российской Федерации. Территория административно-бытового комплекса должна быть освещена в соответствии с нормами ГОСТ 12.1.046-85 «ССБТ. Строительство. Нормы освещенности строительных площадок» и СНиП 23-05-95 «Естественное и искусственное освещение». Для складирования бытового мусора и отходов на территории комплекса должен находиться бункер-накопитель, для которого должно быть предусмотрено место. Административно-бытовые комплексы должны быть подключены к сетям водо-, электро-, теплоснабжения, канализации, как правило, от существующих городских сетей. Все комплексы должны быть обеспечены доброкачественной питьевой водой в соответствии с требованиями Госсанэпиднадзора России. Состав зданий и сооружений бытового городка определяется на основании следующих исходных данных: - общего числа работающих и графика движения рабочих; - принятой для конкретного строительства системы организации производственного быта; - действующей нормативной базы; - структуры работающих и их числа в наиболее многочисленную смену; - имеющегося у строительно-монтажной организации набора мобильных зданий.
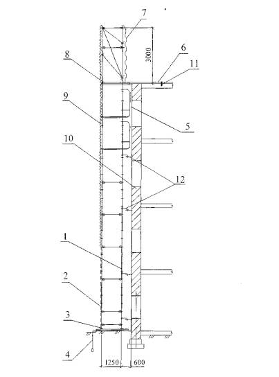
1 – консоль в окно; 2 – леса строительные; 3 – сетка декоративная; 4 – связь; 5 – профнастил ограждения; 6 – струбцина. Рисунок 10 – Установка лесов на консоль в окна
1 – консоль настенная; 2 – леса строительные; 3 – сетка декоративная; 4 - профнастил ограждения; 5 – связи; 6 - возводимое здание. Рисунок 11 - Установка лесов на консоль настенную
1 - леса строительные; 2 - щит декоративный; 3 - опора винтовая; 4 - заземление; 5 - площадка навесная; 6 - стяжка; 7 - профнастил ограждения; 8 - щит с люком; 9 - сетка декоративная; 10 - возводимое здание; 11 - место крепления стяжки к перекрытию; 12 - места крепления лесов к зданию. Рисунок 12 - Установка лесов на землю Точность и качество расчетов состава вспомогательных зданий и сооружений зависят, прежде всего, от уровня детализации исходных данных по видам работ, профессии, структуре и численности работающих по видам работ. На рисунке 13 приведена принципиальная схема расчета потребности мобильных зданий и сооружений бытового городка строителей. В бытовых городках, ориентированных на обслуживание бригад до 50-60 человек, как минимум, должна быть следующая номенклатура зданий и сооружений: - гардеробные с умывальными и сушилками; - помещение для обогрева, отдыха и приема пищи; - туалет и помещения личной гигиены женщин; - контора мастера; - навес для отдыха и место для курения; - устройство для мытья обуви; - щит со средствами пожаротушения. Бытовые городки размещаются на строительной площадке или в непосредственной близости от нее, в зоне наибольшей концентрации работающих с максимальным приближением к основным маршрутам их передвижения на строительстве. На каждый бытовой городок должен быть составлен паспорт бытового городка согласно приложению Б. Каждый контейнер должен быть снабжен табелем оборудования согласно приложению В. 5.2 Общие требования пожарной безопасности к инвентарным зданиям и административно-бытовым комплексам.5.2.1 Требования пожарной безопасности при возведении инвентарных зданий и административно-бытовых комплексов должны соответствовать «Правилам пожарной безопасности в Российской Федерации» (ППБ 01-93**) и соблюдаться всеми организациями и их работниками независимо от форм собственности, вида деятельности и ведомственной принадлежности. 5.2.2 Руководитель строительной организации, в ведении которого находятся инвентарные здания и сооружения, своим распоряжением назначает ответственного за пожарную безопасность территории и зданий бытового комплекса. 5.2.3 Персональная ответственность за обеспечение пожарной безопасности административно-бытового комплекса возлагается на руководителя организации. 5.2.4 На видных местах административно-бытового комплекса должны быть вывешены таблички с указанием номера телефона вызова пожарной охраны.
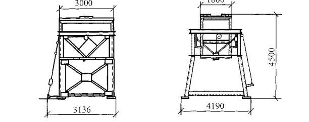
Рисунок 13- Принципиальная схема расчета потребности мобильных здании и сооружений бытового городка строителей 5.2.5 На территории комплекса приказом должен быть установлен противопожарный режим, в том числе: - определены к оборудованы места для курения; - установлен порядок уборки горючих отходов, хранения промасляной спецодежды; - определен порядок обесточивания электрооборудования в случае пожара и по окончании рабочего дня; - порядок осмотра и закрытия помещений после окончания работы; - действия сотрудников при обнаружении пожара. 5.2.6 Инвентарные здания должны располагаться от других зданий и сооружений на расстоянии не менее 15 м или у противопожарных стен. 5.2.7 Отдельные блок-контейнерные здания допускается располагать группами не более 10 в группе. Расстояние между группами и от них до других строений принимать не менее 15 м. При уменьшении расстояния между группами предусматривается устройство противопожарной преграды для предотвращения распространения пожара от одной группы к другой. Противопожарная преграда представляет собой стену, выложенную из фундаментностеновых блоков типа ФБС, выступающую за габариты здания не менее чем на 1 м и опирающуюся на самостоятельный фундамент. 5.2.8 Расположение зданий и сооружений административно-бытового комплекса должно соответствовать утвержденному строительному генеральному плану, разработанному в составе проекта организации строительства. 5.2.9 Ко всем зданиям должен быть обеспечен свободный подъезд. Дороги должны иметь покрытие, пригодное для проезда пожарных автомобилей в любое время года. 5.2.10 Во всех помещениях (независимо от назначения), которые по окончании работ закрываются и не контролируются дежурным персоналом, все электроустановки и электроприборы должны быть обесточены (за исключением дежурного и аварийного освещения, автоматических установок пожаротушения и охранной сигнализации). 5.2.11 При эксплуатации электроустановок запрещается: - использовать электроаппараты и приборы в условиях, не соответствующих инструкциям предприятий-изготовителей, или имеющие неисправности, могущие привести к пожару, а также эксплуатировать провода и кабели с поврежденной или потерявшей защитные свойства изоляцией; - пользоваться поврежденными розетками, рубильниками, другими электроустановочными изделиями; - обертывать электролампы и светильники 'бумагой, тканью и другими горючими материалами, а также эксплуатировать их со снятыми колпаками (рассеивателями); - пользоваться электроутюгами, электроплитками и другими электронагревательными приборами без подставок из негорючих материалов; - оставлять без присмотра включенные в сеть электронагревательные приборы; - применять самодельные электронагревательные приборы, использовать некалиброванные плавкие вставки или другие самодельные аппараты защиты от перегрузки и короткого замыкания. 5.2.12 Административно-бытовые комплексы должны быть обеспечены первичными средствами пожаротушения в соответствии с требованиями «Правил пожарной безопасности в Российской Федерации»» (ППБ 01-93**). Бытовые городки не должны размещаться с наветренной стороны от объектов, выделяющих вредные пары, газы, пыль и т п., у открытых траншей и котлованов, железнодорожных путей или зон работы грузоподъемных механизмов, не оборудованных соответствующими средствами, обеспечивающими безопасность людей, находящихся на территории городка. 5.3 Погрузочно-разгрузочные работыРаботы, связанные с погрузкой и разгрузкой инвентарных зданий, должны выполняться под руководством лица, ответственного за безопасное производство работ кранами. Освещенность площадок, где производится погрузка, разгрузка и монтаж инвентарных зданий, должна соответствовать нормам, определенным ГОСТ 12.1.046-85 «Строительство. Нормы освещения строительных площадок». Места производства погрузочно-разгрузочных работ должны соответствовать требованиям ГОСТ 12.3.009-76 ССБТ «Работы погрузочно-разгрузочные. Общие требования безопасности». Строповку зданий необходимо производить за специальные строповочные узлы или обозначенные места в зависимости от положения центра тяжести и массы контейнера. Места строповки, положения центра тяжести и масса контейнера должны быть обозначены предприятием-изготовителем. Графическое изображение способов строповки и зацепки должны быть выданы на руки стропальщикам и машинистам кранов и вывешены в местах производства работ. На рисунках 14 и 15 приведены схемы погрузки мобильных зданий, выполненных в блочном исполнении.
Рисунок 14 - Принципиальная схема погрузки мобильных зданий
Рисунок 15 - Погрузка и разгрузка зданий контейнерного типа стреловым краном 5.4 Транспортирование мобильных зданийПравила и порядок транспортирования зданий, их особенности, последовательность подготовки к транспортированию, узлы и способы крепления к транспортному средству определяются в прилагаемых заводом инструкциях по эксплуатации. При перевозке здания все пакеты, ящики или кассеты с элементами должны быть надежно закреплены на транспортном средстве с помощью упоров и растяжек. Каждая растяжка должна закрепляться за элементы блок-контейнера и за крепежные детали транспортного средства. Транспортирование мобильных зданий, сооружений автомобильным транспортом осуществляется в зависимости от их габаритных и весовых параметров автотранспортными средствами общего назначения или отнесенных к специализированным. Рекомендуемые автотранспортные средства для перевозки зданий приведены на рисунке 16. Транспортирование зданий, приравненных по параметрам к грузам общего назначения, осуществляется в соответствии с «Правилами дорожного движения Российской Федерации». Перевозка крупногабаритных или тяжеловесных зданий осуществляется в соответствии с «Инструкцией по перевозке крупногабаритных и тяжеловесных грузов автомобильным транспортом по дорогам Российской Федерации» и по специальному разрешению ГИБДД. При перевозке зданий, имеющих высоту над поверхностью проезжей части (включая транспортные средства) более 4,5 метров, маршрут движения автотранспортных средств обязательно согласовывается со службами городского электротранспорта, электросетей и т.д. Все мобильные здания, сооружения и комплекты их элементов подготавливаются к транспортированию. Этот этап в зависимости от особенности конструктивных решений зданий и принятых схем их размещения, крепления и перевозки включают в себя: проверку комплектности, упаковку, укладку и закрепление оборудования, мебели; пакетирования сборно-разборных конструкций и элементов; маркирование, защиту от повреждений и разукомплектования. 5.5 Монтаж и демонтаж мобильных зданийМонтаж (демонтаж) отдельных мобильных зданий и сооружений различного типа и номенклатуры производится согласно требованиям и положениям соответствующего раздела инструкции по эксплуатации, при этом на крупные мобильные объекты вместо принципиальных схем монтажа разрабатываются технологические схемы, с учетом требований СНиП 12-03-2001. Монтаж мобильных зданий и сооружений осуществляется «с колес».
а - подкатные тележки (шасси): 1 - рама тележки; 2 - то же, задняя неповоротная; 3 - выдвижные опоры для установки блок-контейнера; 4 - передняя поворотная тележка; 5 -дышло; 6 - рессоры; 7 - пневмошины; б - низкорамные полуприцеп-тяжеловоз для блок-контейнеров с большой общей массой: 1 - рама; 2 - грузовая платформа; 3 - подвеска; 4 -пневмошины; 5 - опорное устройство; в - саморазгружающийся универсальный полуприцеп: 1 - гидравлический поворотный консольный кран; 2 - грузовая платформа; 3 - пневмошины; 4 - запасное колесо; 5 - рама; 6 - опорное устройство; г - полуприцеп: 1 - рама; 2 - грузовая платформа; 3 - опорное устройство; 4 - тягач; 5 - блок-контейнер; 6 - погрузочно-разгрузочное устройство кранового типа с двумя телескопическими стрелами и траверсной грузоподъемностью 10 т; 7 - пневмошины. Рисунок 16 - Автотранспортные средства для перевозки зданий, сооружении и комплектов их элементов До начала монтажа зданий и сооружений необходимо выполнить: - вертикальную планировку площадки с отводом поверхностных вод; - подвести инженерные сети, постоянные или временные автодороги и проезды; - проверить комплектность и качество поступивших на монтаж зданий и сооружений. Вид и характер вертикальной планировки территории зависят от инженерно-геологических условий площадки в зоне монтажа и могут включать в себя срезку растительного слоя, собственно планировку, подсыпку дренирующего слоя грунта, зачистку грунта и т.д. Здания и сооружения, имеющие повреждения, перед монтажом подлежат ремонту. Принципиальные схемы монтажа, зданий и сооружений контейнерного типа приведены на рисунках 17, 18, 19, 20, 21, 22, 23. Схемы строповки зданий приведены на рисунках 24, 25. Рекомендуемые способы установки зданий на объектах приводятся на рисунке 26. Принципиальная схема заземления здания приведена на рисунке 27 . Основные работы и мероприятия по подготовке мобильных контейнерных зданий к эксплуатации приводятся в таблице 2.
Рисунок 17 - Порядок монтажа административного блока (8-секционного) контейнерного типа
Рисунок 18 - Порядок монтажа зданий контейнерного типа
Рисунок 19 - Порядок монтажа санитарно-бытового блока на 36 человек 8-секционного контейнерного типа
Рисунок 20- - Порядок монтажа здания 20-секционног о контейнерного типа
Рисунок 21 - Порядок монтажа здания буфета-раздаточной на 36 посадочных мест (6-секционный) контейнерного типа
Рисунок 22 - Порядок установки здания столовой-доготовочной на 100 посадочных мест
Рисунок 23 - Порядок монтажа бытового комплекса в два яруса
Рисунок 24 – Схемы строповки мобильных зданий
Рисунок 25 – Схемы строповки мобильных зданий
1. Установка непосредственно на спланированную площадку. Удельное давление на грунт с учетом оборудования и нахождения людей: При монтаже в один ярус - 0,05 кг/см2 При монтаже в два яруса -0,10 кг/см2 Примечание. Площадка под контейнер должна быть спланирована без уклонов и укатана небольшим слоем щебня.
2. Установка с подкладкой 2 дорожных плит (марка Ш30.18 3000×1750×170) Удельное давление на грунт с учетом оборудования и нахождения людей: При монтаже в один ярус - 0,04 кг/см2 При монтаже в два яруса - 0,08 кг/см2
3 Установка с подкладкой 3 обрезков железобетонных свай (300´300 мм) Удельное давление на грунт с учетом оборудования и нахождения людей: При монтаже в один ярус -0,19 кг/см2 При монтаже в два яруса - 0,38 кг/см2
4 Инвентарное бытовое помещение контейнерного типа на полозьях Удельное давление на грунт с учетом оборудования и нахождения людей - 0,42 кг/см2 Рисунок 26 - Рекомендуемые способы установки зданий контейнерного тина на основания
1 - блок-контейнер; 2 - вводная коробка; 3 - стальной канат или другой токоотвод; 4 - соединительная стальная полоса; 5 - стальной стержень; 6 - заземлитель; 7 - каркас блок-контейнера; 8 - болт; 9 - гайка; 10 - шайба. Рисунок 27 - Принципиальная схема заземления здания Таблица 2 - Основные работы и мероприятия по подготовке мобильных контейнерных зданий к эксплуатации
Приложение А
|
|||||||||||||||||||||||||||||||||||||||||||||||||||||||||||||||||||||||||||||||||||||||||||||||||||||||||||||||||||||||||||||||||||||||||||||||||||||||||||||||||||||||||||||||||||||||||||||||||||||||||||||||||||||||||||||||||||||||||||||||||||||||||||||||||||||||||||||||||||||||||||||||||||||||||||||||||||||||||||||||||||||||||||||||||||||||||||||||||||||||||||||||||||||||||||||||||||||||||||||||||||||||||||||||||||||||||||||||||||||||||||||||||||||||||||||||||||||||||||||||||||||||||||||||||||||||||||||||||||||||||||||||||||||||||||||||||||||||||||||||||||||||||||||||||||||||||||||||||||||||||||||||||||||||||||||||||||||||||||||||||||||||||||||||||||||||||||||||||||||||||||||||||||||||||||||||||||||||||||||||||||||||||||||||||||||||||||||||||||||||||||||||||||||||||||||||||||||||||||||||||||||||||||||||||||||||||||||||||||||||||||||||||||||||||||||||||||||||||||||||||||||||||||||||||||||||||||||||||||||||||||||||||||||||||||||||||||||||||||||||||||||||||||||||||||||||||||||||||||||||
|
Наличие наружных сетей: |
Элементы благоустройства: |
|
Теплосеть __________________________ |
Навесы для отдыха _________________ шт. |
|
Горячее водоснабжение ______________ |
Питьевые фонтанчики ______________ шт. |
|
Водопровод ________________________ |
Урны металлические ________________ шт. |
|
Канализация _______________________ |
Скамьи ____________________________ шт. |
|
Электросеть _______________________ |
Забор ______________________________ м |
|
Радиосеть _________________________ |
|
Наличие санитарно-бытовых помещений
Гардеробные__________________________________________________________ шт./мест
Помещения для обогрева и отдыха________________________________________ шт./кв. м
Столовая__________________________________________________ шт./посадочных мест
Душевые__________________________________________________шт./сетка
Туалеты____________________________________________________кабина
Помещения для сушки спецодежды_____________________________ шт./кв. м
Комнаты личной гигиены женщин ______________________________________.кв. м
Административное здание __________________________________________ шт./кв. м
1. Нагревательные приборы заводского изготовления для салонов и сушилок для спецодежды.
2. Раковины эмалированные.
3. Краны водопроводные.
4. Бачки для воды на хозяйственные нужды (над раковинами).
5. Стол обыкновенный или подъемный.
6. Скамьи или табуреты.
7. Бачки с фонтанчиками для питьевой воды.
8. Зеркало.
9. Аптечка с медикаментами.
10. Полочка для радиоприемника или репродуктора.
11. Огнетушитель.
12. Занавески на окна.
13. Шторы на шкафчики для одежды (при открытом хранении).
14. Щетки для чистки для одежды.
15. Щетки для чистки обуви.
16. Урна для мусора.
17. Ведро.
18. Швабра.
19. Предупредительные и указательные надписи и таблички, плакаты, инструкция, касающаяся лица, ответственного за пожарную безопасность в бытовом помещении.
В соответствии с требованиями СНиП 3.01.01-85 «Организация строительного производства» и «Правил производства земляных и строительных работ, прокладки и переустройства инженерных сетей и коммуникаций в г. Москве» (Постановление правительства Москвы от 08.08.2000 г. № 603) при строительстве новых объектов (реконструкции, капитальном ремонте существующих зданий и сооружений) необходимо организовывать административно-бытовые комплексы.
Решение этой задачи связано, главным образом, с использованием мобильных (инвентарных) зданий, рассчитанных на многократное их использование и позволяющих создавать жилищно-бытовые, медицинские, административные и жизнеобеспечивающие производственные комплексы и установки.
Использование настоящего каталога, в котором наряду с общими видами и возможными планировками, технико-экономическими и эксплуатационными показателями, указаны организации-разработчики и предприятия-изготовители мобильных зданий, позволит быстро и эффективно принимать решения, выбирать и заказывать такие здания.
Выпущенные ранее каталоги не соответствуют современным требованиям многочисленных строительных организаций г. Москвы ни по фактическому наличию, ни по географическому размещению организаций и предприятий-изготовителей мобильных зданий.
По согласованию с заказчиками мобильные здания могут быть укомплектованы различным оборудованием, в том числе средствами освещения и отопления, санитарно-техническими обустройствами, мебелью и т.п.
Стоимость мобильных зданий колеблется в широких пределах, в зависимости от применяемых конструктивных, отделочных материалов, теплоизоляции, оснащения зданий электротехническим, санитарно-бытовым оборудованием, мебелью и т.п., а также объектом трудозатрат и размеров заработной платы.
В настоящем каталоге представлены основные вида мобильных зданий различного назначения, разработанные и выполненными организациями г. Москвы.
Эксплуатация инвентарных зданий и сооружений должна осуществляться в соответствии с инструкциями заводом-изготовителем.
|
|
МОБИЛЬНЫЕ (ИНВЕНТАРНЫЕ) ЗДАНИЯ И СООРУЖЕНИЯ |
1129-034 |
|
|
МОСКВА |
|||
|
ОАО ПКТИпромстрой |
ЗДАНИЕ КОНТЕЙНЕРНОГО ТИПА СИСТЕМЫ «УНИВЕРСАЛ» |
Управление экономической, научно-технической и промышленной политики в строительной отрасли |
|
|
2002 г |
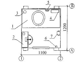
САНИТАРНО-БЫТОВОЙ КОМПЛЕКС на 36 мест (женский) |
На 3 страницах стр.1 |
|
|
|
|||
|
|
НАЗНАЧЕНИЕ |
|
|
|
|
Здание предназначено для обогрева и отдыха, приема пищи, хранения уличной и домашней одежды, умывания, сушки и хранения рабочей одежды. |
|
|
|
|
ТЕХНИЧЕСКАЯ ХАРАКТЕРИСТИКА |
|
|
|
|
Масса, т |
17,0 |
|
|
|
Расчетный срок службы, лет |
20 |
|
|
|
Оборачиваемость, раз |
20-30 |
|
|
|
Строительный объем, м3 |
252,0 |
|
|
|
Площадь застройки, м2 |
90,0 |
|
|
|
Полезная площадь, м2 |
83,2 |
|
|
|
Габаритные размеры, м: |
|
|
|
|
длина |
15,0 |
|
|
|
ширина |
6,0 |
|
|
|
высота |
2,835 |
|
|
|
САНИТАРНО-БЫТОВОЙ КОМПЛЕКС на 36 мест (женский) |
1129-034 |
Стр.2 |
|
|
|
ПЛАН РАЗМЕЩЕНИЯ ОБОРУДОВАНИЯ |
|
|
|
|
|
||||
|
|
|
|
|
|
|
|
1 поддон душевой, |
|
|
|
|
|
2 Умывальник; |
|
|
|
|
|
3 Электросушитель для рук; |
|
|
|
|
|
4 Крючки для одежды; |
|
|
|
|
|
5 Унитаз; |
|
|
|
|
|
6 Биде; |
|
|
|
|
|
7 Электроплита; |
|
|
|
|
|
8 Холодильник; |
|
|
|
|
|
9 Тумба; |
|
|
|
|
|
10 Стол; |
|
|
|
|
|
11 Скамья; |
|
|
|
|
|
12 Шкаф отопительный; |
|
|
|
|
|
13 Котел электроводогрейный; |
|
|
|
|
|
14 Насос центробежный; |
|
|
|
|
|
15 Емкость аккумулирующая; |
|
|
|
|
|
16 Стеллаж; |
|
|
|
|
|
17 Шкаф; |
|
|
|
|
|
18 Вешалка для одежды. |
|
|
|
|
|
ИНЖЕНЕРНОЕ ОБЕСПЕЧЕНИЕ |
|
|
|
|
|
Электроснабжение |
от внешних сетей; |
|
|
|
|
Водоснабжение |
от внешних сетей и автономное; |
|
|
|
|
Отопление |
электрическое; |
|
|
|
|
Вентиляция |
естественная и принудительная; |
|
|
|
|
Канализация |
в городскую сеть. |
|
|
|
|
САНИТАРНО-БЫТОВОЙ КОМПЛЕКС на 36 мест (женский) |
1129-034 |
Стр.2 |
||
|
|
ПЛАН РАЗМЕЩЕНИЯ ОБОРУДОВАНИЯ |
|
|
||
|
|
РАСЧЕТНЫЕ ХАРАКТЕРИСТИКИ |
|
|
||
|
|
Скоростной напор ветра |
0,48 кПа (48 кгс/м2) |
|
|
|
|
|
Масса снегового покрова |
1,5 кПа (150 кгс/м2) |
|
|
|
|
|
Расчетная температура наружного воздуха |
минус 45 С |
|
|
|
|
|
Степень огнестойкости |
V |
|
|
|
|
|
Климатические районы |
подрайон I В, II А, III А. |
|
|
|
|
|
СТРОИТЕЛЬНЫЕ КОНСТРУКЦИИ И ИЗДЕЛИЯ |
|
|
||
|
|
Фундаменты - гравийная подсыпка, бетонная подготовка, балки или деревянные брусья. Каркас - стальной тонкостенный профиль. Стены - трехслойные стеновые панели. Полы - линолеум по настилу из шпунтованных досок. Кровля - кровельная сталь. Отделка наружная - окраска масляной краской или эмалями. внутренняя - древесностружечные плиты, древесноволокнистые плиты. |
||||
|
|
РАЗРАБОТЧИК документации |
МГП "Мосспецпромпроект" 103045, г. Москва, Просвирин пер., д.5/6, стр. 1 тел. 924-82-02 |
|||
|
|
ЗАВОД-ИЗГОТОВИТЕЛЬ |
АОЗТ "КССК" 119361, г. Москва, ул. Б. Очаковская, д. 2. тел. 430-78-27 |
|||
|
|
УТВЕРЖДЕНИЕ |
ТУ 5282-006-05108104-98 |
|||
|
|
СОСТАВИТЕЛЬ каталожного листа |
ОАО ПКТИпромстрой |
|||
|
|
РАСПРОСТРАНИТЕЛЬ каталожного листа |
ОАО ПКТИпромстрой 125040, Москва, Ленинградский пр-т, д. 26 тел.(095) 214-36-49, факс (095) 214-95-53 E-mail: pkti@tsr.ru; http://www.tsr.ra/~pkti |
|||
|
|
МОБИЛЬНЫЕ (ИНВЕНТАРНЫЕ) ЗДАНИЯ И СООРУЖЕНИЯ |
1129-033 |
|
|
МОСКВА |
|||
|
ОАО ПКТИ промстрой |
ЗДАНИЕ КОНТЕЙНЕРНОГО ТИПА СИСТЕМЫ «УНИВЕРСАЛ» |
Управление экономической, научно-технической и промышленной политики в строительной отрасли |
|
|
2002 г |
САНИТАРНО-БЫТОВОЙ КОМПЛЕКС на 36 мест (мужской) |
На 3 страницах стр.1 |
|
|
|
|||
|
|
НАЗНАЧЕНИЕ |
|
|
|
|
Здание предназначено для обогрева и отдыха, приема пищи, хранения уличной и домашней одежды, умывания, сушки и хранения рабочей одежды. |
|
|
|
|
ТЕХНИЧЕСКАЯ ХАРАКТЕРИСТИКА |
|
|
|
|
Масса, т |
17,0 |
|
|
|
Расчетный срок службы, лет |
20 |
|
|
|
Оборачиваемость, раз |
20-30 |
|
|
|
Строительный объем, м3 |
252,0 |
|
|
|
Площадь застройки, м2 |
90,0 |
|
|
|
Полезная площадь, м2 |
83,2 |
|
|
|
Габаритные размеры, м: |
|
|
|
|
длина |
15,0 |
|
|
|
ширина |
6,0 |
|
|
|
высота |
2,835 |
|
|
|
САНИТАРНО-БЫТОВОЙ КОМПЛЕКС на 36 мест (мужской) |
1129-033 |
Стр.2 |
|
|
|
ПЛАН РАЗМЕЩЕНИЯ ОБОРУДОВАНИЯ |
|
|
|
|
|
||||
|
|
|
|
|
|
|
|
1 поддон душевой, |
|
|
|
|
|
2 Умывальник; |
|
|
|
|
|
3 Электросушитель для рук; |
|
|
|
|
|
4 Крючки для одежды; |
|
|
|
|
|
5 Унитаз; |
|
|
|
|
|
6 Писсуар; |
|
|
|
|
|
7 Электроплита; |
|
|
|
|
|
8 Холодильник; |
|
|
|
|
|
9 Тумба; |
|
|
|
|
|
10 Стол; |
|
|
|
|
|
11 Скамья; |
|
|
|
|
|
12 Шкаф отопительный; |
|
|
|
|
|
13 Котел электроводогрейный; |
|
|
|
|
|
14 Насос центробежный; |
|
|
|
|
|
15 Емкость аккумулирующая; |
|
|
|
|
|
16 Стеллаж; |
|
|
|
|
|
17 Шкаф; |
|
|
|
|
|
18 Вешалка для одежды. |
|
|
|
|
|
ИНЖЕНЕРНОЕ ОБЕСПЕЧЕНИЕ |
|
|
|
|
|
Электроснабжение |
от внешних сетей; |
|
|
|
|
Водоснабжение |
от внешних сетей и автономное; |
|
|
|
|
Отопление |
электрическое; |
|
|
|
|
Вентиляция |
естественная и принудительная; |
|
|
|
|
Канализация |
в городскую сеть. |
|
|
|
|
САНИТАРНО-БЫТОВОЙ КОМПЛЕКС на 36 мест (мужской) |
1129-033 |
Стр.3 |
||
|
|
ПЛАН РАЗМЕЩЕНИЯ ОБОРУДОВАНИЯ |
|
|
||
|
|
РАСЧЕТНЫЕ ХАРАКТЕРИСТИКИ |
|
|
||
|
|
Скоростной напор ветра |
0,48 кПа (48 кгс/м2) |
|
|
|
|
|
Масса снегового покрова |
1,5 кПа (150 кгс/м2) |
|
|
|
|
|
Расчетная температура наружного воздуха |
минус 45 С |
|
|
|
|
|
Степень огнестойкости |
V |
|
|
|
|
|
Климатические районы |
подрайон I В, II А, III А. |
|
|
|
|
|
СТРОИТЕЛЬНЫЕ КОНСТРУКЦИИ И ИЗДЕЛИЯ |
|
|
||
|
|
Фундаменты - гравийная подсыпка, бетонная подготовка, балки или деревянные брусья. Каркас - стальной тонкостенный профиль. Стены - трехслойные стеновые панели. Полы - линолеум по настилу из шпунтованных досок. Кровля - кровельная сталь. Отделка наружная - окраска масляной краской или эмалями. внутренняя - древесностружечные плиты, древесноволокнистые плиты. |
||||
|
|
РАЗРАБОТЧИК документации |
МГП "Мосспецпромпроект" 103045, г. Москва, Просвирин пер., д.5/6, стр. 1 тел. 924-82-02 |
|||
|
|
ЗАВОД-ИЗГОТОВИТЕЛЬ |
АОЗТ "КССК" 119361, г. Москва, ул. Б. Очаковская, д. 2. тел. 430-78-27 |
|||
|
|
УТВЕРЖДЕНИЕ |
ТУ 5282-006-05108104-98 |
|||
|
|
СОСТАВИТЕЛЬ каталожного листа |
ОАО ПКТИпромстрой |
|||
|
|
РАСПРОСТРАНИТЕЛЬ каталожного листа |
ОАО ПКТИпромстрой 125040, Москва, Ленинградский пр-т, д. 26 тел.(095) 214-36-49, факс (095) 214-95-53 E-mail: pkti@tsr.ru; http://www.tsr.ra/~pkti |
|||
|
|
МОБИЛЬНЫЕ (ИНВЕНТАРНЫЕ) ЗДАНИЯ И СООРУЖЕНИЯ |
1129-063 |
|
|
МОСКВА |
|||
|
ОАО ПКТИ промстрой |
ЗДАНИЕ КОНТЕЙНЕРНОГО ТИПА СИСТЕМЫ «УНИВЕРСАЛ» |
Управление экономической, научно-технической и промышленной политики в строительной отрасли |
|
|
2002 г |
САНИТАРНО-БЫТОВОЙ КОМПЛЕКС на 68 человек |
На 3 страницах стр.1 |
|
|
|
|||
|
|
НАЗНАЧЕНИЕ |
|
|
|
|
Здание предназначено для обогрева и отдыха, приема пищи, хранения уличной и домашней одежды, умывания, сушки и хранения рабочей одежды. |
|
|
|
|
РАСЧЕТНЫЕ ХАРАКТЕРИСТИКИ |
|
|
|
|
Скоростной напор ветра |
0,48 кПа (48 кгс/м2) |
|
|
|
Масса снегового покрова |
1,5 кПа (150 кгс/м2) |
|
|
|
Расчетная температура наружного воздуха |
минус 45 С |
|
|
|
Степень огнестойкости |
V |
|
|
|
Климатические районы |
подрайон I В, II А, III А. |
|
|
|
ТЕХНИЧЕСКАЯ ХАРАКТЕРИСТИКА |
|
|
|
|
Масса, т |
17,0 |
|
|
|
Расчетный срок службы, лет |
20 |
|
|
|
Оборачиваемость, раз |
20-30 |
|
|
|
Строительный объем, м3 |
252,0 |
|
|
|
Площадь застройки, м2 |
90,0 |
|
|
|
Полезная площадь, м2 |
83,2 |
|
|
|
Габаритные размеры, м: |
|
|
|
|
длина |
15,0 |
|
|
|
ширина |
6,0 |
|
|
|
высота |
2,835 |
|
|
|
САНИТАРНО-БЫТОВОЙ КОМПЛЕКС на 68 человек |
1129-063 |
Стр.2 |
|
|
|
ПЛАН РАЗМЕЩЕНИЯ ОБОРУДОВАНИЯ |
|
|
|
|
|
||||
|
|
|
|
|
|
|
|
1 поддон душевой, |
|
|
|
|
|
2 Умывальник; |
|
|
|
|
|
3 Электросушитель для рук; |
|
|
|
|
|
4 Крючки для одежды; |
|
|
|
|
|
5 Зеркало; |
|
|
|
|
|
6 Унитаз; |
|
|
|
|
|
7 Электрорадиатор; |
|
|
|
|
|
8 Вентилятор; |
|
|
|
|
|
9 Вешалка для одежды; |
|
|
|
|
|
10 Биде со смесителем; |
|
|
|
|
|
11 Аптечка; |
|
|
|
|
|
12 Огнетушитель; |
|
|
|
|
|
13 Электроплита; |
|
|
|
|
|
14 Холодильник; |
|
|
|
|
|
15 Тумба; |
|
|
|
|
|
16 Стол; |
|
|
|
|
|
17 Скамья; |
|
|
|
|
|
18 Шкаф отопительный; |
|
|
|
|
|
19 Сатуратор; |
|
|
|
|
|
20 Котел; |
|
|
|
|
|
21 Панель управления; |
|
|
|
|
|
22 Насос; |
|
|
|
|
|
23 Емкость; |
|
|
|
|
|
24 Стеллаж; |
|
|
|
|
|
25 Шкаф двойной; |
|
|
|
|
|
26 Шкаф одинарный; |
|
|
|
|
|
25 Писсуар; |
|
|
|
|
|
ИНЖЕНЕРНОЕ ОБЕСПЕЧЕНИЕ |
|
|
|
|
|
Электроснабжение |
от внешних сетей; |
|
|
|
|
Водоснабжение |
от внешних сетей и автономное; |
|
|
|
|
Отопление |
электрическое; |
|
|
|
|
Вентиляция |
естественная и принудительная; |
|
|
|
|
Канализация |
в городскую сеть. |
|
|
|
|
САНИТАРНО-БЫТОВОЙ КОМПЛЕКС на 68 человек |
1129-063 |
Стр.3 |
||
|
|
ТЕХНИЧЕСКАЯ ХАРАКТЕРИСТИКА |
|
|
||
|
|
Масса, т |
30,0 |
|
|
|
|
|
Расчетный срок службы, лет |
20 |
|
|
|
|
|
Оборачиваемость, раз |
20-30 |
|
|
|
|
|
Строительный объем, м3 |
517,5 |
|
|
|
|
|
Площадь застройки, м2 |
90,0 |
|
|
|
|
|
Полезная площадь, м2 |
177,3 |
|
|
|
|
|
Габаритные размеры, м: |
|
|
|
|
|
|
длина |
15,0 |
|
|
|
|
|
ширина |
6,0 |
|
|
|
|
|
высота |
5,87 |
|
|
|
|
|
СТРОИТЕЛЬНЫЕ КОНСТРУКЦИИ И ИЗДЕЛИЯ |
|
|
||
|
|
Фундаменты - гравийная подсыпка, бетонная подготовка, балки или деревянные брусья. Каркас - стальной тонкостенный профиль. Стены - трехслойные стеновые панели. Полы - линолеум по настилу из шпунтованных досок. Кровля - кровельная сталь. Отделка наружная - окраска масляной краской или эмалями. внутренняя - древесностружечные плиты, древесноволокнистые плиты. |
||||
|
|
РАЗРАБОТЧИК документации |
МГП "Мосспецпромпроект" 103045, г. Москва, Просвирин пер., д.5/6, стр. 1 тел. 924-82-02 |
|||
|
|
ЗАВОД-ИЗГОТОВИТЕЛЬ |
АОЗТ "КССК" 119361, г. Москва, ул. Б. Очаковская, д. 2. тел. 430-78-27 |
|||
|
|
УТВЕРЖДЕНИЕ |
ТУ 5282-006-05108104-98 |
|||
|
|
СОСТАВИТЕЛЬ каталожного листа |
ОАО ПКТИпромстрой |
|||
|
|
РАСПРОСТРАНИТЕЛЬ каталожного листа |
ОАО ПКТИпромстрой 125040, Москва, Ленинградский пр-т, д. 26 тел.(095) 214-36-49, факс (095) 214-95-53 E-mail: pkti@tsr.ru; http://www.tsr.ra/~pkti |
|||
|
|
МОБИЛЬНЫЕ (ИНВЕНТАРНЫЕ) ЗДАНИЯ И СООРУЖЕНИЯ |
1840(215)-020 |
|
|
МОСКВА |
|||
|
ОАО ПКТИ промстрой |
ЗДАНИЕ КОНТЕЙНЕРНОГО ТИПА СИСТЕМЫ «УНИВЕРСАЛ» |
Управление экономической, научно-технической и промышленной политики в строительной отрасли |
|
|
2002 г |
АДМИНИСТРАТИВНО-БЫТОВОЙ КОМПЛЕКС на 50 человек |
На 3 страницах стр.1 |
|
|
|
|||
|
|
НАЗНАЧЕНИЕ |
|
|
|
|
Здание предназначено для санитарно-бытового обслуживания и питания строителей, хранения и сушки одежды, кратковременного отдыха, медицинского обслуживания, а так же для создания рабочих мест начальника участка, прорабов и диспетчеров. |
|
|
|
|
РАСЧЕТНЫЕ ХАРАКТЕРИСТИКИ |
|
|
|
|
Скоростной напор ветра |
0,48 кПа (48 кгс/м2) |
|
|
|
Масса снегового покрова |
1,5 кПа (150 кгс/м2) |
|
|
|
Расчетная температура наружного воздуха |
минус 45 С |
|
|
|
Степень огнестойкости |
V |
|
|
|
Климатические районы |
подрайон I В, II А, III А. |
|
|
|
АДМИНИСТРАТИВНО-БЫТОВОЙ КОМПЛЕКС на 50 человек |
1840(215)-020 |
Стр.2 |
|
|
|
ПЛАН РАЗМЕЩЕНИЯ ОБОРУДОВАНИЯ |
|
|
|
|
|
||||
|
|
1. Мужской гардероб; |
|
|
|
|
|
2. Душевая; |
|
|
|
|
|
3 Умывальная; |
|
|
|
|
|
4 Сушка одежды; |
|
|
|
|
|
5 Кладовая; |
|
|
|
|
|
6 Комната личной гигиены женщин; |
|
|
|
|
|
7 Женский санузел; |
|
|
|
|
|
8 Мужской санузел; |
|
|
|
|
|
9 Буфет; |
|
|
|
|
|
10 Подсобная; |
|
|
|
|
|
11 Кабинет начальника участка; |
|
|
|
|
|
12 Учебный кабинет; |
|
|
|
|
|
13 Медпункт; |
|
|
|
|
|
14 Тамбур4 |
|
|
|
|
|
15 Женский гардероб; |
|
|
|
|
|
16 Холл; |
|
|
|
|
|
17 Вестибюль; |
|
|
|
|
|
18 Коридор; |
|
|
|
|
|
19 Помещение отдыха и обогрева мужчин; |
|
|
|
|
|
20 Помещение отдыха и обогрева женщин; |
|
|
|
|
|
21 Прорабская; |
|
|
|
|
|
22 Диспетчерская, радиоузел 4 |
|
|
|
|
|
ИНЖЕНЕРНОЕ ОБЕСПЕЧЕНИЕ |
|
|
|
|
|
Электроснабжение |
от внешних сетей; |
|
|
|
|
Водоснабжение |
от внешних сетей и автономное; |
|
|
|
|
Отопление |
электрическое; |
|
|
|
|
Вентиляция |
естественная и принудительная; |
|
|
|
|
Канализация |
в городскую сеть. |
|
|
|
|
АДМИНИСТРАТИВНО-БЫТОВОЙ КОМПЛЕКС на 50 человек |
1840(215)-020 |
Стр.3 |
||
|
|
ТЕХНИЧЕСКАЯ ХАРАКТЕРИСТИКА |
|
|
||
|
|
Масса, т |
70,0 |
|
|
|
|
|
Расчетный срок службы, лет |
20 |
|
|
|
|
|
Оборачиваемость, раз |
20-30 |
|
|
|
|
|
Строительный объем, м3 |
862,1 |
|
|
|
|
|
Площадь застройки, м2 |
360,0 |
|
|
|
|
|
Полезная площадь, м2 |
339,3 |
|
|
|
|
|
Габаритные размеры, м: |
|
|
|
|
|
|
длина |
30,0 |
|
|
|
|
|
ширина |
12,0 |
|
|
|
|
|
высота |
2,835 |
|
|
|
|
|
СТРОИТЕЛЬНЫЕ КОНСТРУКЦИИ И ИЗДЕЛИЯ |
|
|
||
|
|
Фундаменты - гравийная подсыпка, бетонная подготовка, балки или деревянные брусья. Каркас - стальной тонкостенный профиль. Стены - трехслойные стеновые панели. Полы - линолеум по настилу из шпунтованных досок. Кровля - кровельная сталь. Отделка наружная - окраска масляной краской или эмалями. внутренняя - древесностружечные плиты, древесноволокнистые плиты. |
||||
|
|
РАЗРАБОТЧИК документации |
МГП "Мосспецпромпроект" 103045, г. Москва, Просвирин пер., д.5/6, стр. 1 тел. 924-82-02 |
|||
|
|
ЗАВОД-ИЗГОТОВИТЕЛЬ |
АОЗТ "КССК" 119361, г. Москва, ул. Б. Очаковская, д. 2. тел. 430-78-27 |
|||
|
|
УТВЕРЖДЕНИЕ |
ТУ 5282-006-05108104-98 |
|||
|
|
СОСТАВИТЕЛЬ каталожного листа |
ОАО ПКТИпромстрой |
|||
|
|
РАСПРОСТРАНИТЕЛЬ каталожного листа |
ОАО ПКТИпромстрой 125040, Москва, Ленинградский пр-т, д. 26 тел.(095) 214-36-49, факс (095) 214-95-53 E-mail: pkti@tsr.ru; http://www.tsr.ra/~pkti |
|||
|
|
МОБИЛЬНЫЕ (ИНВЕНТАРНЫЕ) ЗДАНИЯ И СООРУЖЕНИЯ |
1840(215)-021 |
|
|
МОСКВА |
|||
|
ОАО ПКТИ промстрой |
ЗДАНИЕ КОНТЕЙНЕРНОГО ТИПА СИСТЕМЫ «УНИВЕРСАЛ» |
Управление экономической, научно-технической и промышленной политики в строительной отрасли |
|
|
2002 г |
АДМИНИСТРАТИВНО-БЫТОВОЙ КОМПЛЕКС на 125 человек |
На 3 страницах стр.1 |
|
|
|
|||
|
|
НАЗНАЧЕНИЕ |
|
|
|
|
Здание предназначено для санитарно-бытового обслуживания и питания строителей, хранения и сушки одежды, кратковременного отдыха, медицинского обслуживания, а так же для создания рабочих мест начальника участка, прорабов и диспетчеров. |
|
|
|
|
РАСЧЕТНЫЕ ХАРАКТЕРИСТИКИ |
|
|
|
|
Скоростной напор ветра |
0,48 кПа (48 кгс/м2) |
|
|
|
Масса снегового покрова |
1,5 кПа (150 кгс/м2) |
|
|
|
Расчетная температура наружного воздуха |
минус 45 С |
|
|
|
Степень огнестойкости |
V |
|
|
|
Климатические районы |
подрайон I В, II А, III А. |
|
|
|
АДМИНИСТРАТИВНО-БЫТОВОЙ КОМПЛЕКС на 125 человек |
1840(215)-021 |
Стр.2 |
|
|
|
ПЛАН РАЗМЕЩЕНИЯ ОБОРУДОВАНИЯ |
|
|
|
|
|
||||
|
|
1 Тамбур |
|
|
|
|
|
2 Вестибюль |
|
|
|
|
|
3 Коридор |
|
|
|
|
|
4 Холл |
|
|
|
|
|
5 Умывальная |
|
|
|
|
|
6 Женский гардероб |
|
|
|
|
|
7 Душевая |
|
|
|
|
|
8 Чистка и сушка одежды |
|
|
|
|
|
9 Кладовая чистой и грязной одежды |
|
|
|
|
|
10 Фельшерский пункт |
|
|
|
|
|
11 Помещение отдыха и обогрева женщин |
|
|
|
|
|
12 Комната личной гигиены женщин |
|
|
|
|
|
13 Санузлы |
|
|
|
|
|
14 Подсобное помещение |
|
|
|
|
|
15 Гардероб верхней одежды |
|
|
|
|
|
16 Зал для совещаний |
|
|
|
|
|
17 Подсобное помещение |
|
|
|
|
|
18 Раздаточная |
|
|
|
|
|
19 Торговый зал буфета на 50 мест |
|
|
|
|
|
20 Моечная посуды |
|
|
|
|
|
21 Мужской гардероб |
|
|
|
|
|
22 Кабинет физиотерапии |
|
|
|
|
|
23 Помещение отдыха и обогрева мужчин |
|
|
|
|
|
24 Кабинет стоматологический |
|
|
|
|
|
25 Помещение мастеров и прорабов |
|
|
|
|
|
26 Диспетчерская, радиоузел |
|
|
|
|
|
27 Кабинет начальника участка |
|
|
|
|
|
28 Кабинет главного инженера |
|
|
|
|
|
29 Конторское помещение |
|
|
|
|
|
30 Конторское помещение |
|
|
|
|
|
31 Кабинет технической учебы |
|
|
|
|
|
ИНЖЕНЕРНОЕ ОБЕСПЕЧЕНИЕ |
|
|
|
|
|
Электроснабжение |
от внешних сетей; |
|
|
|
|
Водоснабжение |
от внешних сетей и автономное; |
|
|
|
|
Отопление |
электрическое; |
|
|
|
|
Вентиляция |
естественная и принудительная; |
|
|
|
|
Канализация |
в городскую сеть. |
|
|
|
|
АДМИНИСТРАТИВНО-БЫТОВОЙ КОМПЛЕКС на 125 человек |
1840(215)-021 |
Стр.3 |
||
|
|
ТЕХНИЧЕСКАЯ ХАРАКТЕРИСТИКА |
|
|
||
|
|
Масса, т |
136,0 |
|
|
|
|
|
Расчетный срок службы, лет |
20 |
|
|
|
|
|
Оборачиваемость, раз |
20-30 |
|
|
|
|
|
Строительный объем, м3 |
2376,0 |
|
|
|
|
|
Площадь застройки, м2 |
396,0 |
|
|
|
|
|
Полезная площадь, м2 |
789,0 |
|
|
|
|
|
Габаритные размеры, м: |
|
|
|
|
|
|
длина |
33,0 |
|
|
|
|
|
ширина |
12,0 |
|
|
|
|
|
высота |
5,67 |
|
|
|
|
|
СТРОИТЕЛЬНЫЕ КОНСТРУКЦИИ И ИЗДЕЛИЯ |
|
|
||
|
|
Фундаменты - гравийная подсыпка, бетонная подготовка, балки или деревянные брусья. Каркас - стальной тонкостенный профиль. Стены - трехслойные стеновые панели. Полы - линолеум по настилу из шпунтованных досок. Кровля - кровельная сталь. Отделка наружная - окраска масляной краской или эмалями. внутренняя - древесностружечные плиты, древесноволокнистые плиты. |
||||
|
|
РАЗРАБОТЧИК документации |
МГП "Мосспецпромпроект" 103045, г. Москва, Просвирин пер., д.5/6, стр. 1 тел. 924-82-02 |
|||
|
|
ЗАВОД-ИЗГОТОВИТЕЛЬ |
АОЗТ "КССК" 119361, г. Москва, ул. Б. Очаковская, д. 2. тел. 430-78-27 |
|||
|
|
УТВЕРЖДЕНИЕ |
ТУ 5282-006-05108104-98 |
|||
|
|
СОСТАВИТЕЛЬ каталожного листа |
ОАО ПКТИпромстрой |
|||
|
|
РАСПРОСТРАНИТЕЛЬ каталожного листа |
ОАО ПКТИпромстрой 125040, Москва, Ленинградский пр-т, д. 26 тел.(095) 214-36-49, факс (095) 214-95-53 E-mail: pkti@tsr.ru; http://www.tsr.ra/~pkti |
|||
|
|
МОБИЛЬНЫЕ (ИНВЕНТАРНЫЕ) ЗДАНИЯ И СООРУЖЕНИЯ |
1129-037 |
|
|
МОСКВА |
|||
|
ОАО ПКТИ промстрой |
ЗДАНИЕ КОНТЕЙНЕРНОГО ТИПА СИСТЕМЫ «УНИВЕРСАЛ» |
Управление экономической, научно-технической и промышленной политики в строительной отрасли |
|
|
2002 г |
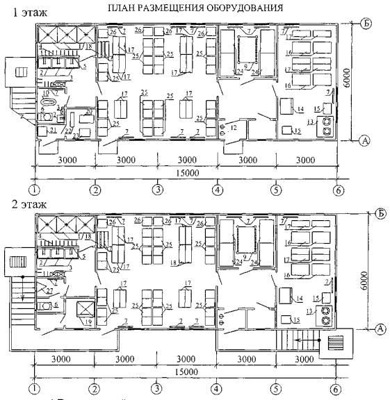
АДМИНИСТРАТИВНО-БЫТОВОЙ КОМПЛЕКС двухэтажный 10-секционный на 50 человек |
На 3 страницах стр.1 |
|
|
|
|||
|
|
НАЗНАЧЕНИЕ |
|
|
|
|
Здание предназначено для хранения уличной и домашней одежды, сушки рабочей одежды работающих на стройплощадке, их санитарного обслуживания, обогрева, отдыха и приема пищи (1 этаж); для создания рабочих мест начальника участка, прорабов, мастеров, диспетчера и конторских служащих (2 этаж). |
|
|
|
|
РАСЧЕТНЫЕ ХАРАКТЕРИСТИКИ |
|
|
|
|
Скоростной напор ветра |
0,48 кПа (48 кгс/м2) |
|
|
|
Масса снегового покрова |
1,5 кПа (150 кгс/м2) |
|
|
|
Расчетная температура наружного воздуха |
минус 45 С |
|
|
|
Степень огнестойкости |
V |
|
|
|
Климатические районы |
подрайон I В, II А, III А. |
|
|
|
АДМИНИСТРАТИВНО-БЫТОВОЙ КОМПЛЕКС двухэтажный 10-секционный на 50 человек |
1129-037 |
Стр.2 |
|
|
|
ПЛАН РАЗМЕЩЕНИЯ ОБОРУДОВАНИЯ |
|
|
|
|
|
||||
|
|
1 Поддон душевой |
|
|
|
|
|
2 Умывальник |
|
|
|
|
|
3 Электросушитель для рук |
|
|
|
|
|
4 Крючки для одежды |
|
|
|
|
|
5 Унитаз |
|
|
|
|
|
6 Писсуар |
|
|
|
|
|
7 Электроплита |
|
|
|
|
|
8 Холодильник |
|
|
|
|
|
9 Тумба |
|
|
|
|
|
10 Стол |
|
|
|
|
|
11 Скамья гардеробная |
|
|
|
|
|
12 Шкаф отопительный |
|
|
|
|
|
13 Котел электроводогрейный |
|
|
|
|
|
14 Насос |
|
|
|
|
|
15 Емкость аккумулирующая |
|
|
|
|
|
16 Стеллаж |
|
|
|
|
|
17 Шкаф |
|
|
|
|
|
18 Стул |
|
|
|
|
|
19 Шкаф для документов |
|
|
|
|
|
20 Вешалка |
|
|
|
|
|
ИНЖЕНЕРНОЕ ОБЕСПЕЧЕНИЕ |
|
|
|
|
|
Электроснабжение |
от внешних сетей; |
|
|
|
|
Водоснабжение |
от внешних сетей и автономное; |
|
|
|
|
Отопление |
электрическое; |
|
|
|
|
Вентиляция |
естественная и принудительная; |
|
|
|
|
Канализация |
в городскую сеть. |
|
|
|
|
АДМИНИСТРАТИВНО-БЫТОВОЙ КОМПЛЕКС двухэтажный 10-секционный на 50 человек |
1129-037 |
Стр.3 |
||
|
|
ТЕХНИЧЕСКАЯ ХАРАКТЕРИСТИКА |
|
|
||
|
|
Масса, т |
30,0 |
|
|
|
|
|
Расчетный срок службы, лет |
20 |
|
|
|
|
|
Оборачиваемость, раз |
20-30 |
|
|
|
|
|
Строительный объем, м3 |
517,5 |
|
|
|
|
|
Площадь застройки, м2 |
90,0 |
|
|
|
|
|
Полезная площадь, м2 |
177,3 |
|
|
|
|
|
Габаритные размеры, м: |
|
|
|
|
|
|
длина |
15,0 |
|
|
|
|
|
ширина |
6,0 |
|
|
|
|
|
высота |
5,67 |
|
|
|
|
|
СТРОИТЕЛЬНЫЕ КОНСТРУКЦИИ И ИЗДЕЛИЯ |
|
|
||
|
|
Фундаменты - гравийная подсыпка, бетонная подготовка, балки или деревянные брусья. Каркас - стальной тонкостенный профиль. Стены - трехслойные стеновые панели. Полы - линолеум по настилу из шпунтованных досок. Кровля - кровельная сталь. Отделка наружная - окраска масляной краской или эмалями. внутренняя - древесностружечные плиты, древесноволокнистые плиты. |
||||
|
|
РАЗРАБОТЧИК документации |
МГП "Мосспецпромпроект" 103045, г. Москва, Просвирин пер., д.5/6, стр. 1 тел. 924-82-02 |
|||
|
|
ЗАВОД-ИЗГОТОВИТЕЛЬ |
АОЗТ "КССК" 119361, г. Москва, ул. Б. Очаковская, д. 2. тел. 430-78-27 |
|||
|
|
УТВЕРЖДЕНИЕ |
ТУ 5282-006-05108104-98 |
|||
|
|
СОСТАВИТЕЛЬ каталожного листа |
ОАО ПКТИпромстрой |
|||
|
|
РАСПРОСТРАНИТЕЛЬ каталожного листа |
ОАО ПКТИпромстрой 125040, Москва, Ленинградский пр-т, д. 26 тел.(095) 214-36-49, факс (095) 214-95-53 E-mail: pkti@tsr.ru; http://www.tsr.ra/~pkti |
|||
|
|
МОБИЛЬНЫЕ (ИНВЕНТАРНЫЕ) ЗДАНИЯ И СООРУЖЕНИЯ |
1129-032 |
|
|
МОСКВА |
|||
|
ОАО ПКТИ промстрой |
ЗДАНИЕ КОНТЕЙНЕРНОГО ТИПА СИСТЕМЫ «УНИВЕРСАЛ» |
Управление экономической, научно-технической и промышленной политики в строительной отрасли |
|
|
2002 г |
АДМИНИСТРАТИВНО-БЫТОВОЙ КОМПЛЕКС двухэтажный 8-секционный |
На 3 страницах стр.1 |
|
|
|
|||
|
|
НАЗНАЧЕНИЕ |
|
|
|
|
Здание предназначено для обеспечения рабочих мест начальника, прорабов, мастеров, проведения технической учебы, собраний и других мероприятий. |
|
|
|
|
РАСЧЕТНЫЕ ХАРАКТЕРИСТИКИ |
|
|
|
|
Скоростной напор ветра |
0,48 кПа (48 кгс/м2) |
|
|
|
Масса снегового покрова |
1,5 кПа (150 кгс/м2) |
|
|
|
Расчетная температура наружного воздуха |
минус 45 С |
|
|
|
Степень огнестойкости |
V |
|
|
|
Климатические районы |
подрайон I В, II А, III А. |
|
|
|
АДМИНИСТРАТИВНО-БЫТОВОЙ КОМПЛЕКС двухэтажный 8-секционный |
1129-032 |
Стр.2 |
|
|
|
ПЛАН РАЗМЕЩЕНИЯ ОБОРУДОВАНИЯ |
|
|
|
|
|
||||
|
|
1 Стол |
|
|
|
|
|
2 Шкаф для документации |
|
|
|
|
|
3 Стул |
|
|
|
|
|
4 Умывальник |
|
|
|
|
|
5 Электросушитель для рук |
|
|
|
|
|
6 Унитаз |
|
|
|
|
|
7 Вешалка |
|
|
|
|
|
8 Доска меловая школьная |
|
|
|
|
|
ИНЖЕНЕРНОЕ ОБЕСПЕЧЕНИЕ |
|
|
|
|
|
Электроснабжение |
от внешних сетей; |
|
|
|
|
Водоснабжение |
от внешних сетей и автономное; |
|
|
|
|
Отопление |
электрическое; |
|
|
|
|
Вентиляция |
естественная и принудительная; |
|
|
|
|
Канализация |
в городскую сеть. |
|
|
|
|
АДМИНИСТРАТИВНО-БЫТОВОЙ КОМПЛЕКС двухэтажный 10-секционный на 50 человек |
1129-037 |
Стр.3 |
||
|
|
ТЕХНИЧЕСКАЯ ХАРАКТЕРИСТИКА |
|
|
||
|
|
Масса, т |
26,0 |
|
|
|
|
|
Расчетный срок службы, лет |
20 |
|
|
|
|
|
Оборачиваемость, раз |
20-30 |
|
|
|
|
|
Строительный объем, м3 |
408,2 |
|
|
|
|
|
Площадь застройки, м2 |
144,0 |
|
|
|
|
|
Полезная площадь, м2 |
134,0 |
|
|
|
|
|
Габаритные размеры, м: |
|
|
|
|
|
|
длина |
12,0 |
|
|
|
|
|
ширина |
12,0 |
|
|
|
|
|
высота |
2,835 |
|
|
|
|
|
СТРОИТЕЛЬНЫЕ КОНСТРУКЦИИ И ИЗДЕЛИЯ |
|
|
||
|
|
Фундаменты - гравийная подсыпка, бетонная подготовка, балки или деревянные брусья. Каркас - стальной тонкостенный профиль. Стены - трехслойные стеновые панели. Полы - линолеум по настилу из шпунтованных досок. Кровля - кровельная сталь. Отделка наружная - окраска масляной краской или эмалями. внутренняя - древесностружечные плиты, древесноволокнистые плиты. |
||||
|
|
РАЗРАБОТЧИК документации |
МГП "Мосспецпромпроект" 103045, г. Москва, Просвирин пер., д.5/6, стр. 1 тел. 924-82-02 |
|||
|
|
ЗАВОД-ИЗГОТОВИТЕЛЬ |
АОЗТ "КССК" 119361, г. Москва, ул. Б. Очаковская, д. 2. тел. 430-78-27 |
|||
|
|
УТВЕРЖДЕНИЕ |
ТУ 5282-006-05108104-98 |
|||
|
|
СОСТАВИТЕЛЬ каталожного листа |
ОАО ПКТИпромстрой |
|||
|
|
РАСПРОСТРАНИТЕЛЬ каталожного листа |
ОАО ПКТИпромстрой 125040, Москва, Ленинградский пр-т, д. 26 тел.(095) 214-36-49, факс (095) 214-95-53 E-mail: pkti@tsr.ru; http://www.tsr.ra/~pkti |
|||
|
|
МОБИЛЬНЫЕ (ИНВЕНТАРНЫЕ) ЗДАНИЯ И СООРУЖЕНИЯ |
|
|
МОСКВА |
||
|
ОАО ПКТИ промстрой |
ТУАЛЕТНАЯ КАБИНА |
Управление экономической, научно-технической и промышленной политики в строительной отрасли |
|
2002 г |
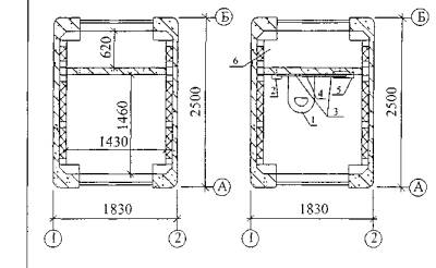
ОБЩЕСТВЕННЫЙ АВТОМАТИЗИРОВАННЫЙ ТУАЛЕТ |
На 2 страницах стр.1 |
|
|
||
|
|
НАЗНАЧЕНИЕ |
|
|
|
Кабина предназначена для создания санитарно-гигиенических условий работающим на стройплощадке. |
|
|
|
ПЛАН РАЗМЕЩЕНИЯ ОБОРУДОВАНИЯ |
|
|
|
|
|
|
|
|
|
|
|
|
|
|
|
|
|
|
|
|
|
|
|
|
|
|
|
1 Унитаз |
|
|
|
2 Бумагодержатель |
|
|
|
3 Освещение |
|
|
|
4 Принудительная вентиляция |
|
|
|
5 Умывальник с автоматической подачей мыла, воды и сушилка для рук |
|
|
|
7 Оборудование снабжено системой сенсорных датчиков |
|
|
|
ОБЩЕСТВЕННЫЙ АВТОМАТИЗИРОВАННЫЙ ТУАЛЕТ |
Стр. 2 |
||
|
ТЕХНИЧЕСКАЯ ХАРАКТЕРИСТИКА |
|
|||
|
1 Габариты внешние, мм: |
|
|||
|
высота |
|
2780 |
||
|
ширина |
|
1830 |
||
|
глубина |
|
2500 |
||
|
2 Габариты внутренние, мм: |
|
|||
|
высота |
|
2190 |
||
|
ширина |
|
1400 |
||
|
глубина |
|
1360 |
||
|
3 Диаметр подключения к канализационной трубе , мм |
150 |
|||
|
4 Диаметр подключения к магистральному водопроводу, мм |
20 |
|||
|
5 Температура воды в умывальнике, °С |
|
10-27 |
||
|
6 Температура воздуха в помещении, С |
|
10-20 |
||
|
7 Степень защиты I РЗУ ГОСТ 14254-80 от вредного доступа воды и твердых частиц. |
|
|||
|
8 Время готовности к работе при первоначальном включении |
|
|||
|
(нагрев воды и помещения), час |
|
1,5 |
||
|
9 Способ защиты человека от поражения электрическим током |
- I класс защиты по ГОСТ РМЭК 335-1-94 и ГОСТ Р 50585-93 |
|||
|
10 Суммарная потребляемая мощность при максимальной нагрузке в зимний период, кВт |
6 |
|||
|
11 Расход воды, л/час |
|
400 |
||
|
12 Масса изделия, т |
|
7 |
||
|
13 Расчетный срок службы, лет |
|
20 |
||
|
14 Оборачиваемость, раз |
|
много кратная |
||
|
СТРОИТЕЛЬНЫЕ КОНСТРУКЦИИ И ИЗДЕЛИЯ |
||||
|
Строительные конструкции - сборный железобетон (сталефибробетон). Покрытие - на основе сухих шламов фирмы "Реммерс". Отделка - декоративное кварцевое покрытие. |
||||
|
РАЗРАБОТЧИК документации |
АО ЭЗОИС "Энергопромстрой" 107112, Москва, 2-ой Иртышский проезд, д. 6 Факс (095) 966-12-17, тел. (095) 164-07-85 |
|||
|
ЗАВОД-ИЗГОТОВИТЕЛЬ |
АО ЭЗОИС "Энергопромстрой" 107112, Москва, 2-ой Иртышский проезд, д. 6 Факс (095) 966-12-17, тел (095) 164-07-85 |
|||
|
СОСТАВИТЕЛЬ каталожного листа |
ОАО ПКТИпромстрой |
|||
|
РАСПРОСТРАНИТЕЛЬ каталожного листа |
ОАО ПКТИпромстрой 125040, Москва, Ленинградский пр-т, д. 26 тел.(095) 214-36-49, факс :(095)214-95-53 E-mail: pkti@tsr.ru; http://www.tsr.ru/~pkti |
|||
|
|
МОБИЛЬНЫЕ (ИНВЕНТАРНЫЕ) ЗДАНИЯ И СООРУЖЕНИЯ |
|
|
|
МОСКВА |
|
||
|
ОАО ПКТИ промстрой |
ТУАЛЕТНАЯ КАБИНА |
Управление экономической, научно-технической и промышленной политики в строительной отрасли |
|
|
2002 г |
ТУАЛЕТНАЯ КАБИНА «Люкс» |
На 2 страницах стр.1 |
|
|
|
|
||
|
|
НАЗНАЧЕНИЕ |
|
|
|
|
Кабина предназначена для создания санитарно-гигиенических условий работающим на стройплощадке. |
|
|
|
ПЛАН РАЗМЕЩЕНИЯ ОБОРУДОВАНИЯ |
|
||
|
|
|||
|
|
|
||
|
|
1 Бак для фекалий |
|
|
|
|
2 Рукомойник |
|
|
|
|
3 Вентиляционная труба |
|
|
|
|
4 Отопление кабины |
|
|
|
|
5 Освещение кабины |
|
|
|
|
6 Крючок для одежды |
|
|
|
|
7 Бумагодержатель |
|
|
|
|
ТУАЛЕТНАЯ КАБИНА «Люкс» |
Стр. 2 |
|||
|
ТЕХНИЧЕСКАЯ ХАРАКТЕРИСТИКА |
|||||
|
Масса, кг |
80,0 |
|
|||
|
Расчетный срок службы, лет |
30 |
|
|||
|
Площадь застройки, м |
1,3 |
|
|||
|
Габаритные размеры, м: |
|
|
|||
|
длина |
1,2 |
|
|||
|
ширина |
1,1 |
|
|||
|
высота |
2,2 |
|
|||
|
ИНЖЕНЕРНОЕ ОБЕСПЕЧЕНИЕ |
|||||
|
Автономность - не требует подключения к коммуникациям; Универсальность - чистка производится обычной ассенизационной машиной; Экологичность - отсутствие контакта с почвой и ее последующего заражения. |
|||||
|
РАСЧЕТНЫЕ ХАРАКТЕРИСТИКИ |
|||||
|
Ударопрочность |
до 300 кг на 1 кв. м; |
||||
|
Жаростойкость |
плюс 60 С; |
||||
|
Морозостойкость |
минус 60° С; |
||||
|
Вместительность бака |
250 литров-500 чел./посещений; |
||||
|
Климатические районы |
подрайон I В, II А, III А |
||||
|
СТРОИТЕЛЬНЫЕ КОНСТРУКЦИИ И ИЗДЕЛИЯ |
|||||
|
Легкотранспортируемые конструкции из пожаробезопасного и ударопрочного полиэтилена. Цвета: голубой, зеленый, черный, красный. |
|||||
|
РАЗРАБОТЧИК документации |
ОАО "Экосервис" 19435, Москва, Лужнецкая наб-я, 10 А, а/я 633, тел/факс (095) 201-14-01, 201-14-06, 242-50-76. |
||||
|
ЗАВОД-ИЗГОТОВИТЕЛЬ |
ОАО "Экосервис" 19435, Москва, Лужнецкая наб-я, 10 А, а/я 633, тел/факс (095) 201-14-01, 201-14-06, 242-50-76. |
||||
|
СОСТАВИТЕЛЬ каталожного листа |
ОАО ПКТИпромстрой |
||||
|
РАСПРОСТРАНИТЕЛЬ каталожного листа |
ОАО ПКТИпромстрой 125040, Москва, Ленинградский пр-т, д. 26 тел.(095) 214-36-49, факс :(095)214-95-53 E-mail: pkti@tsr.ru; http://www.tsr.ru/~pkti |
||||
|
|
МОБИЛЬНЫЕ (ИНВЕНТАРНЫЕ) ЗДАНИЯ И СООРУЖЕНИЯ |
|
|
|
МОСКВА |
|
||
|
ОАО ПКТИ промстрой |
ТУАЛЕТНАЯ КАБИНА |
Управление экономической, научно-технической и промышленной политики в строительной отрасли |
|
|
2002 г |
ТУАЛЕТНАЯ КАБИНА |
На 2 страницах стр.1 |
|
|
|
|
||
|
|
НАЗНАЧЕНИЕ |
|
|
|
|
Кабина предназначена для создания санитарно-гигиенических условий работающим на стройплощадке. |
|
|
|
ПЛАН РАЗМЕЩЕНИЯ ОБОРУДОВАНИЯ |
|
||
|
|
|||
|
|
|
||
|
|
1 Бак для фекалий |
|
|
|
|
2 Руковина-писсуар |
|
|
|
|
3 Вентиляционная труба |
|
|
|
|
4 Крючок для одежды |
|
|
|
|
5 Бумагодержатель |
|
|
|
|
ТУАЛЕТНАЯ КАБИНА |
Стр. 2 |
|||
|
ТЕХНИЧЕСКАЯ ХАРАКТЕРИСТИКА |
|||||
|
Масса, кг |
80,0 |
|
|||
|
Расчетный срок службы, лет |
30 |
|
|||
|
Площадь застройки, м |
1,3 |
|
|||
|
Габаритные размеры, м: |
|
|
|||
|
длина |
1,17 |
|
|||
|
ширина |
1,10 |
|
|||
|
высота |
2,30 |
|
|||
|
ИНЖЕНЕРНОЕ ОБЕСПЕЧЕНИЕ |
|||||
|
Автономность - не требует подключения к коммуникациям; Универсальность - чистка производится обычной ассенизационной машиной; Экологичность - отсутствие контакта с почвой и ее последующего заражения. |
|||||
|
РАСЧЕТНЫЕ ХАРАКТЕРИСТИКИ |
|||||
|
Жаростойкость |
плюс 60 С; |
||||
|
Морозостойкость |
минус 60° С; |
||||
|
Вместительность бака |
300 кг; |
||||
|
Климатические районы |
подрайон I В, II А, III А |
||||
|
СТРОИТЕЛЬНЫЕ КОНСТРУКЦИИ И ИЗДЕЛИЯ |
|||||
|
Легкотранспортируемые конструкции из светостабилизированного и морозоустойчивого полиэтилена. Кабины выполнены из полиэтилена в любом цветовом решении, не выгорающие под действием ультрафиолета. |
|||||
|
РАЗРАБОТЧИК документации |
ЗАО "Ротопласт" 107066, Москва, Токмаков пер., д. 5 Факс (095) 937-48-69, тел. (095) 937-48-66, 937-48-67. |
||||
|
ЗАВОД-ИЗГОТОВИТЕЛЬ |
ЗАО "Ротопласт" 107066, Москва, Токмаков пер., д. 5 Факс (095) 937-48-69, тел. (095) 937-48-66, 937-48-67. |
||||
|
УТВЕРЖДЕНИЕ |
ТУ 22-93-001-18538792-99 |
||||
|
СОСТАВИТЕЛЬ каталожного листа |
ОАО ПКТИпромстрой |
||||
|
РАСПРОСТРАНИТЕЛЬ каталожного листа |
ОАО ПКТИпромстрой 125040, Москва, Ленинградский пр-т, д. 26 тел.(095) 214-36-49, факс :(095)214-95-53 E-mail: pkti@tsr.ru; http://www.tsr.ru/~pkti |
||||
|
|
МОБИЛЬНЫЕ (ИНВЕНТАРНЫЕ) ЗДАНИЯ И СООРУЖЕНИЯ |
|
|
|
МОСКВА |
|
||
|
ОАО ПКТИ промстрой |
ТУАЛЕТНАЯ КАБИНА |
Управление экономической, научно-технической и промышленной политики в строительной отрасли |
|
|
2002 г |
ТУАЛЕТНАЯ КАБИНА «Стандарт» |
На 2 страницах стр.1 |
|
|
|
|
||
|
|
НАЗНАЧЕНИЕ |
|
|
|
|
Кабина предназначена для создания санитарно-гигиенических условий работающим на стройплощадке. |
|
|
|
ПЛАН РАЗМЕЩЕНИЯ ОБОРУДОВАНИЯ |
|
||
|
|
|||
|
|
|
||
|
|
1 Бак для фекалий |
|
|
|
|
2 Вентиляционная труба |
|
|
|
|
3 Крючок для одежды |
|
|
|
|
4 Бумагодержатель |
|
|
|
|
ТУАЛЕТНАЯ КАБИНА «Стандарт» |
Стр. 2 |
|||
|
ТЕХНИЧЕСКАЯ ХАРАКТЕРИСТИКА |
|||||
|
Масса, кг |
80,0 |
|
|||
|
Расчетный срок службы, лет |
30 |
|
|||
|
Площадь застройки, м |
1,3 |
|
|||
|
Габаритные размеры, м: |
|
|
|||
|
длина |
1,2 |
|
|||
|
ширина |
1,1 |
|
|||
|
высота |
2,2 |
|
|||
|
ИНЖЕНЕРНОЕ ОБЕСПЕЧЕНИЕ |
|||||
|
Автономность - не требует подключения к коммуникациям; Универсальность - чистка производится обычной ассенизационной машиной; Экологичность - отсутствие контакта с почвой и ее последующего заражения. |
|||||
|
РАСЧЕТНЫЕ ХАРАКТЕРИСТИКИ |
|||||
|
Ударопрочность |
до 300 кг на 1 кв. м; |
||||
|
Жаростойкость |
плюс 60 С; |
||||
|
Морозостойкость |
минус 60° С; |
||||
|
Вместительность бака |
250 литров-500 чел./посещений; |
||||
|
Климатические районы |
подрайон I В, II А, III А |
||||
|
СТРОИТЕЛЬНЫЕ КОНСТРУКЦИИ И ИЗДЕЛИЯ |
|||||
|
Легкотранспортируемые конструкции из пожаробезопасного и ударопрочного полиэтилена. Цвета: голубой, зеленый, черный, красный. |
|||||
|
РАЗРАБОТЧИК документации |
ОАО "Экосервис" 19435, Москва, Лужнецкая наб-я, 10 А, а/я 633, тел/факс (095) 201-14-01, 201-14-06, 242-50-76. |
||||
|
ЗАВОД-ИЗГОТОВИТЕЛЬ |
ОАО "Экосервис" 19435, Москва, Лужнецкая наб-я, 10 А, а/я 633, тел/факс (095) 201-14-01, 201-14-06, 242-50-76. |
||||
|
СОСТАВИТЕЛЬ каталожного листа |
ОАО ПКТИпромстрой |
||||
|
РАСПРОСТРАНИТЕЛЬ каталожного листа |
ОАО ПКТИпромстрой 125040, Москва, Ленинградский пр-т, д. 26 тел.(095) 214-36-49, факс :(095)214-95-53 E-mail: pkti@tsr.ru; http://www.tsr.ru/~pkti |
||||
|
|
МОБИЛЬНЫЕ (ИНВЕНТАРНЫЕ) ЗДАНИЯ И СООРУЖЕНИЯ |
1129-046 |
||||||||
|
МОСКВА |
||||||||||
|
ОАО ПКТИ промстрой |
ЗДАНИЕ КОНТЕЙНЕРНОГО ТИПА СИСТЕМЫ «УНИВЕРСАЛ» |
Управление экономической, научно-технической и промышленной политики в строительной отрасли |
||||||||
|
2002 г |
ТУАЛЕТ на 4 очка |
На 2 страницах стр.1 |
||||||||
|
|
||||||||||
|
|
НАЗНАЧЕНИЕ |
|
||||||||
|
Здание предназначено для обеспечения необходимого санитарно-гигиенического обслуживания работающих на стройплощадке |
||||||||||
|
|
ТЕХНИЧЕСКАЯ ХАРАКТЕРИСТИКА |
|
||||||||
|
|
Масса, т |
3,0 |
|
|||||||
|
|
Расчетный срок службы, лет |
20 |
|
|||||||
|
|
Оборачиваемость, раз |
20-30 |
|
|||||||
|
|
Строительный объем, м3 |
50,5 |
|
|||||||
|
|
Площадь застройки, м2 |
18,0 |
|
|||||||
|
|
Полезная площадь, м2 |
15,5 |
|
|||||||
|
|
Габаритные размеры, м: |
|
|
|||||||
|
|
длина |
6,0 |
|
|||||||
|
|
ширина |
3,,0 |
|
|||||||
|
|
высота |
3,86 |
|
|||||||
|
|
Туалет на 4 очка |
1129-046 |
Стр. 2 |
|
|||||
|
ПЛАН РАЗМЕЩЕНИЯ ОБОРУДОВАНИЯ |
|
||||||||
|
|
1 Унитаз |
|
|
||||||
|
2 Писсуар |
|
|
|||||||
|
3 Умывальник |
|
|
|||||||
|
4 Электросушитель для рук |
|
|
|||||||
|
5 Электрорадиатор |
|
|
|||||||
|
6 Вешелка |
|
|
|||||||
|
|
|
|
|||||||
|
РАСХОД МАТЕРИАЛОВ НА 1 м2 ПОЛЕЗНОЙ ПЛОЩАДИ |
|
||||||||
|
Сталь, кг |
85 |
|
|||||||
|
Пиломатериалы, м3 |
0,04 |
|
|||||||
|
Утеплитель, м3 |
0,15 |
|
|||||||
|
ИНЖЕНЕРНОЕ ОБЕСПЕЧЕНИЕ |
|
||||||||
|
Электроснабжение - |
от внешних сетей; |
|
|||||||
|
Водоснабжение - |
от внешних сетей; |
|
|||||||
|
Отопление - |
электрическое; |
|
|||||||
|
Вентиляция - |
естественная и принудительная; |
|
|||||||
|
Канализация - |
в городскую сеть. |
|
|||||||
|
РАСЧЕТНЫЕ ХАРАКТЕРИСТИКИ |
|
||||||||
|
Скоростной напор ветра |
0,48 кПа (48 кгс/м2) |
|
|||||||
|
Масса снегового покрова |
1,5 кПа (150 кгс/м2) |
|
|||||||
|
Расчетная температура наружного воздуха |
минус 45 С |
|
|||||||
|
Степень огнестойкости |
V |
|
|||||||
|
Климатические районы |
подрайон I В, II А, III А |
|
|||||||
|
СТРОИТЕЛЬНЫЕ КОНСТРУКЦИИ И ИЗДЕЛИЯ |
|
||||||||
|
Каркас - стальной тонкостенный профиль. Стены - трехслойные стеновые панели. Полы - линолеум по настилу из шпунтованных досок. Кровля - кровельная сталь. Отделка наружная - окраска масляной краской или эмалями. внутренняя - древесностружечные плиты, древесноволокнистые плиты. |
|
||||||||
|
РАЗРАБОТЧИК документации |
МГП «Мосспецпромпроект» 103045, г. Москва, Просвирин пер., д.5/6, стр.1 тел. 924-82-02 |
|
|||||||
|
ЗАВОД-ИЗГОТОВИТЕЛЬ |
АОЗТ "КССК" 119361, г. Москва, ул. Б. Очаковская, д. 2. тел. 430-78-27 |
|
|||||||
|
УТВЕРЖДЕНИЕ |
ТУ 5282-006-05108104-98 |
|
|||||||
|
СОСТАВИТЕЛЬ каталожного листа |
ОАО ПКТИпромстрой |
|
|||||||
|
РАСПРОСТРАНИТЕЛЬ каталожного листа |
ОАО ПКТИпромстрой 125040, Москва, Ленинградский пр-т, д. 26 тел.(095) 214-36-49, факс :(095)214-95-53 E-mail: pkti@tsr.ru; http://www.tsr.ru/~pkti |
|
|||||||
|
|
МОБИЛЬНЫЕ (ИНВЕНТАРНЫЕ) ЗДАНИЯ И СООРУЖЕНИЯ |
Тип ТСП-2 |
||||||||
|
МОСКВА |
||||||||||
|
ОАО ПКТИ промстрой |
ЗДАНИЕ КОНТЕЙНЕРНОГО ТИПА |
Управление экономической, научно-технической и промышленной политики в строительной отрасли |
||||||||
|
2002 г |
ТУАЛЕТ СОВМЕЩЕННЫЙ ПЕРЕДВИЖНОЙ |
На 2 страницах стр.1 |
||||||||
|
|
||||||||||
|
|
Табурет - 1 |
|
||||||||
|
|
Аптечка - 1 |
|
||||||||
|
|
Огнетушитель ОП-5 - 1 |
|
||||||||
|
|
Зеркало - 4 |
|
||||||||
|
|
Умывальник - 3 |
|
||||||||
|
|
Писсуар - 5 |
|
||||||||
|
|
Унитаз - 8 |
|
||||||||
|
|
НАЗНАЧЕНИЕ |
|
||||||||
|
Здание предназначено для обслуживания работающих на строительной площадке, населения в местах демонстраций, народных гуляний, спортивных соревнований, митингов и прочих временных сборов большого количества людей. |
||||||||||
|
|
ТЕХНИЧЕСКАЯ ХАРАКТЕРИСТИКА |
|
||||||||
|
|
Масса, т |
5,8 |
|
|||||||
|
|
Строительный объем, м3 |
46,6 |
|
|||||||
|
|
Площадь застройки, м2 |
34,8 |
|
|||||||
|
|
Полезная площадь, м2 |
23,7 |
|
|||||||
|
|
В том числе: |
|
|
|||||||
|
|
Площадь женского отделения |
13,2 |
|
|||||||
|
|
Площадь мужского отделения |
9,3 |
|
|||||||
|
|
Площадь служебного отделения |
1,2 |
|
|||||||
|
|
Габаритные размеры, м: |
|
|
|||||||
|
|
Длина в рабочем положении |
10,94 |
|
|||||||
|
|
Ширина в рабочем положении |
3,18 |
|
|||||||
|
|
высота |
3,55 |
|
|||||||
|
|
Высота внутри кузова |
2,55 |
|
|||||||
|
|
Мужских кабин, шт |
2 |
|
|||||||
|
|
Женских кабин, шт |
6 |
|
|||||||
|
|
Писсуаров, шт |
5 |
|
|||||||
|
|
Туалет совмещенный передвижной |
Тип ТСП-2 |
Стр. 2 |
|
|||||
|
ИНЖЕНЕРНОЕ ОБЕСПЕЧЕНИЕ |
|
||||||||
|
Электроснабжение - |
от электросети трехфазного переменного тока |
|
|||||||
|
Вентиляция - |
естественная с помощью потолочных дефлекторов |
|
|||||||
|
СТРОИТЕЛЬНЫЕ КОНСТРУКЦИИ И ИЗДЕЛИЯ |
|
||||||||
|
Фургон закрытого типа, установленный на специальные шасси - сварную металлическую конструкцию из стандартных профилей. Каркас кузова деревометаллический. Наружная обшивка - листовая сталь толщиной 1,2 мм. Внутренняя обшивка - пластик. Снаружи кузов окрашен пентафталевыми эмалями. |
|
||||||||
|
РАЗРАБОТЧИК документации |
ГК "Мосгортранс", завод "АРЕМКУЗ", 113114, Москва, ул. Кожевническая, 18 тел. 235-75-13 |
|
|||||||
|
ЗАВОД-ИЗГОТОВИТЕЛЬ |
ГК "Мосгортранс", завод "АРЕМКУЗ", 113114, Москва, ул. Кожевническая, 18 тел. 235-75-13 |
|
|||||||
|
УТВЕРЖДЕНИЕ |
ТУ 400-12-64-91 |
|
|||||||
|
СОСТАВИТЕЛЬ каталожного листа |
ОАО ПКТИпромстрой |
|
|||||||
|
РАСПРОСТРАНИТЕЛЬ каталожного листа |
ОАО ПКТИпромстрой 125040, Москва, Ленинградский пр-т, д. 26 тел.(095) 214-36-49, факс :(095)214-95-53 E-mail: pkti@tsr.ru; http://www.tsr.ru/~pkti |
|
|||||||
|
|
МОБИЛЬНЫЕ (ИНВЕНТАРНЫЕ) ЗДАНИЯ И СООРУЖЕНИЯ |
1129-071 |
||||||||
|
МОСКВА |
||||||||||
|
ОАО ПКТИ промстрой |
ЗДАНИЕ КОНТЕЙНЕРНОГО ТИПА СИСТЕМЫ «УНИВЕРСАЛ» |
Управление экономической, научно-технической и промышленной политики в строительной отрасли |
||||||||
|
2002 г |
ТУАЛЕТ с комнатой личной гигиены женщин |
На 2 страницах стр.1 |
||||||||
|
|
||||||||||
|
|
НАЗНАЧЕНИЕ |
|
||||||||
|
Здание предназначено для обеспечения необходимого санитарно-гигиенического обслуживания работающих на стройплощадке |
||||||||||
|
|
ТЕХНИЧЕСКАЯ ХАРАКТЕРИСТИКА |
|
||||||||
|
|
Масса, т |
3,0 |
|
|||||||
|
|
Расчетный срок службы, лет |
20 |
|
|||||||
|
|
Оборачиваемость, раз |
20-30 |
|
|||||||
|
|
Строительный объем, м3 |
50,5 |
|
|||||||
|
|
Площадь застройки, м2 |
18,0 |
|
|||||||
|
|
Полезная площадь, м2 |
15,5 |
|
|||||||
|
|
Габаритные размеры, м: |
|
|
|||||||
|
|
длина |
6,0 |
|
|||||||
|
|
ширина |
3,,0 |
|
|||||||
|
|
высота |
3,86 |
|
|||||||
|
|
Туалет с комнатой личной гигиены женжин |
1129-046 |
Стр. 2 |
|
|||||
|
ПЛАН РАЗМЕЩЕНИЯ ОБОРУДОВАНИЯ |
|
||||||||
|
|
1 Унитаз |
|
|
||||||
|
2 Писсуар |
|
|
|||||||
|
3 Умывальник |
|
|
|||||||
|
4 Электросушитель для рук |
|
|
|||||||
|
5 Электрорадиатор |
|
|
|||||||
|
6 Биде со смесителем |
|
|
|||||||
|
|
|
|
|||||||
|
РАСХОД МАТЕРИАЛОВ НА 1 м2 ПОЛЕЗНОЙ ПЛОЩАДИ |
|
||||||||
|
Сталь, кг |
85 |
|
|||||||
|
Пиломатериалы, м3 |
0,04 |
|
|||||||
|
Утеплитель, м3 |
0,15 |
|
|||||||
|
ИНЖЕНЕРНОЕ ОБЕСПЕЧЕНИЕ |
|
||||||||
|
Электроснабжение - |
от внешних сетей; |
|
|||||||
|
Водоснабжение - |
от внешних сетей; |
|
|||||||
|
Отопление - |
электрическое; |
|
|||||||
|
Вентиляция - |
естественная и принудительная; |
|
|||||||
|
Канализация - |
в городскую сеть. |
|
|||||||
|
РАСЧЕТНЫЕ ХАРАКТЕРИСТИКИ |
|
||||||||
|
Скоростной напор ветра |
0,48 кПа (48 кгс/м2) |
|
|||||||
|
Масса снегового покрова |
1,5 кПа (150 кгс/м2) |
|
|||||||
|
Расчетная температура наружного воздуха |
минус 45 С |
|
|||||||
|
Степень огнестойкости |
V |
|
|||||||
|
Климатические районы |
подрайон I В, II А, III А |
|
|||||||
|
СТРОИТЕЛЬНЫЕ КОНСТРУКЦИИ И ИЗДЕЛИЯ |
|
||||||||
|
Каркас - стальной тонкостенный профиль. Стены - трехслойные стеновые панели. Полы - линолеум по настилу из шпунтованных досок. Кровля - кровельная сталь. Отделка наружная - окраска масляной краской или эмалями. внутренняя - древесностружечные плиты, древесноволокнистые плиты. |
|
||||||||
|
РАЗРАБОТЧИК документации |
МГП «Мосспецпромпроект» 103045, г. Москва, Просвирин пер., д.5/6, стр.1 тел. 924-82-02 |
|
|||||||
|
ЗАВОД-ИЗГОТОВИТЕЛЬ |
АОЗТ "КССК" 119361, г. Москва, ул. Б. Очаковская, д. 2. тел. 430-78-27 |
|
|||||||
|
УТВЕРЖДЕНИЕ |
ТУ 5282-006-05108104-98 |
|
|||||||
|
СОСТАВИТЕЛЬ каталожного листа |
ОАО ПКТИпромстрой |
|
|||||||
|
РАСПРОСТРАНИТЕЛЬ каталожного листа |
ОАО ПКТИпромстрой 125040, Москва, Ленинградский пр-т, д. 26 тел.(095) 214-36-49, факс :(095)214-95-53 E-mail: pkti@tsr.ru; http://www.tsr.ru/~pkti |
|
|||||||
|
|
МОБИЛЬНЫЕ (ИНВЕНТАРНЫЕ) ЗДАНИЯ И СООРУЖЕНИЯ |
1129-048 |
|
|
МОСКВА |
|
||
|
ОАО ПКТИ промстрой |
ЗДАНИЕ КОНТЕЙНЕРНОГО ТИПА СИСТЕМЫ «УНИВЕРСАЛ» |
Управление экономической, научно-технической и промышленной политики в строительной отрасли |
|
|
2002 г |
СТОЛОВАЯ-РАЗДАТОЧНАЯ на 16 посадочных мест |
На 2 страницах стр.1 |
|
|
|
|
||
|
|
НАЗНАЧЕНИЕ |
|
|
|
|
Здание предназначено для отпуска горячих и холодных блюд и приема пищи. |
|
|
|
ПЛАН РАЗМЕЩЕНИЯ ОБОРУДОВАНИЯ |
|
||
|
|
|||
|
|
|
||
|
|
1 плита электрическая |
|
|
|
|
2 кипятильник с подставкой |
|
|
|
|
3 сосисковарка |
|
|
|
|
4 термостат электрический |
|
|
|
|
5 электросушитель |
|
|
|
|
6 шкаф холодильный |
|
|
|
|
7 прилавок-витрина для буфетов |
|
|
|
|
8 ванная моечная одногнездная |
|
|
|
|
9 раковина |
|
|
|
|
10 умывальник |
|
|
|
|
11 буфетная стойка |
|
|
|
|
12 шкаф для одежды |
|
|
|
|
13 стол производственный |
|
|
|
|
14 Вставка |
|
|
|
|
15 Стол обеденный |
|
|
|
|
16 Табурет |
|
|
|
|
17 Крючки для одежды |
|
|
|
|
18 Полка |
|
|
|
|
19 Тумбочка для пищевых отходов |
|
|
|
|
20 Бачок |
|
|
|
|
21 Декоративная решетка |
|
|
|
|
22 Кассета настенная для тарелок |
|
|
|
|
23 Вентилятор |
|
|
|
|
24 Шкаф силовой распределительный для пищеблока |
|
|
|
|
25 Электрорадиатор |
|
|
|
|
СТОЛОВАЯ-РАЗДАТОЧНАЯ на 16 посадочных мест |
1129-048 |
Стр. 2 |
|||
|
ТЕХНИЧЕСКАЯ ХАРАКТЕРИСТИКА |
||||||
|
Масса, кг |
5,5 |
|
||||
|
Расчетный срок службы, лет |
20 |
|
||||
|
Оборачиваемость, раз |
20-30 |
|
||||
|
Строительный объем, м3 |
102,0 |
|
||||
|
Площадь застройки, м2 |
36,0 |
|
||||
|
Габаритные размеры, м: |
|
|
||||
|
длина |
6,0 |
|
||||
|
ширина |
6,0 |
|
||||
|
высота |
2,955 |
|
||||
|
ИНЖЕНЕРНОЕ ОБЕСПЕЧЕНИЕ |
||||||
|
Электроснабжение - |
от внешних сетей; |
|||||
|
Водоснабжение - |
от внешних сетей; |
|||||
|
Отопление - |
электрическое; |
|||||
|
Вентиляция - |
естественная и принудительная; |
|||||
|
Канализация - |
в городскую сеть. |
|||||
|
Расход материалов на 1 м2 полезной площади |
||||||
|
Сталь, кг |
85 |
|||||
|
Пиломатериалы, м3 |
0,04 |
|||||
|
Утеплитель, м3 |
0,15 |
|||||
|
РАСЧЕТНЫЕ ХАРАКТЕРИСТИКИ |
||||||
|
Скоростной напор ветра |
0,48 кПа (48 кгс/м2) |
|||||
|
Масса снегового покрова |
1,5 кПа (150 кгс/м2) |
|||||
|
Расчетная температура наружного воздуха |
минус 45 С |
|||||
|
Степень огнестойкости |
V |
|||||
|
Климатические районы |
подрайон I В, II А, III А |
|||||
|
СТРОИТЕЛЬНЫЕ КОНСТРУКЦИИ И ИЗДЕЛИЯ |
||||||
|
Фундаменты - гравийная подсыпка, бетонная подготовка, балки или деревянные брусья. Каркас - стальной тонкостенный профиль. Стены - трехслойные стеновые панели. Полы - линолеум по настилу из шпунтованных досок. Кровля - кровельная сталь. Отделка наружная - окраска масляной краской или эмалями. внутренняя - древесностружечные плиты, древесноволокнистые плиты. |
||||||
|
РАЗРАБОТЧИК документации |
МГП «Мосспецпромпроект» 103045, г. Москва, Просвирин пер., д.5/6, стр.1 тел. 924-82-02 |
|||||
|
ЗАВОД-ИЗГОТОВИТЕЛЬ |
АОЗТ "КССК" 119361, г. Москва, ул. Б. Очаковская, д. 2. тел. 430-78-27 |
|||||
|
УТВЕРЖДЕНИЕ |
ТУ 5282-006-05108104-98 |
|||||
|
СОСТАВИТЕЛЬ каталожного листа |
ОАО ПКТИпромстрой |
|||||
|
РАСПРОСТРАНИТЕЛЬ каталожного листа |
ОАО ПКТИпромстрой 125040, Москва, Ленинградский пр-т, д. 26 тел.(095) 214-36-49, факс :(095)214-95-53 E-mail: pkti@tsr.ru; http://www.tsr.ru/~pkti |
|||||
|
|
МОБИЛЬНЫЕ (ИНВЕНТАРНЫЕ) ЗДАНИЯ И СООРУЖЕНИЯ |
1129-031 |
|
|
МОСКВА |
|
||
|
ОАО ПКТИ промстрой |
ЗДАНИЕ КОНТЕЙНЕРНОГО ТИПА СИСТЕМЫ «УНИВЕРСАЛ» |
Управление экономической, научно-технической и промышленной политики в строительной отрасли |
|
|
2002 г |
СТОЛОВАЯ-РАЗДАТОЧНАЯ на 36 посадочных мест |
На 2 страницах стр.1 |
|
|
|
|
||
|
|
НАЗНАЧЕНИЕ |
|
|
|
|
Здание предназначено для отпуска горячих и холодных блюд и приема пищи. |
|
|
|
ПЛАН РАЗМЕЩЕНИЯ ОБОРУДОВАНИЯ |
|
||
|
|
|||
|
|
|
||
|
|
1 электрокипятильник |
|
|
|
|
2 линия прилавков самообслуживания |
|
|
|
|
3 холодильный шкаф |
|
|
|
|
4 сосисковарка |
|
|
|
|
5 плита электрическая |
|
|
|
|
6 ванна моечная |
|
|
|
|
7 стол производственный |
|
|
|
|
8 тумбочка для пищевых отходов |
|
|
|
|
9 шкаф для одежды |
|
|
|
|
10 умывальник |
|
|
|
|
11 комплект мебели: столы обеденные со стульями |
|
|
|
|
СТОЛОВАЯ-РАЗДАТОЧНАЯ на 36 посадочных мест |
1129-031 |
Стр. 2 |
|||
|
ТЕХНИЧЕСКАЯ ХАРАКТЕРИСТИКА |
||||||
|
Масса, кг |
22,0 |
|
||||
|
Расчетный срок службы, лет |
20 |
|
||||
|
Оборачиваемость, раз |
20-30 |
|
||||
|
Строительный объем, м3 |
317,6 |
|
||||
|
Площадь застройки, м2 |
108,0 |
|
||||
|
Габаритные размеры, м: |
|
|
||||
|
длина |
12,0 |
|
||||
|
ширина |
9,0 |
|
||||
|
высота |
2,835 |
|
||||
|
ИНЖЕНЕРНОЕ ОБЕСПЕЧЕНИЕ |
||||||
|
Электроснабжение - |
от внешних сетей; |
|||||
|
Водоснабжение - |
от внешних сетей; |
|||||
|
Отопление - |
электрическое; |
|||||
|
Вентиляция - |
естественная и принудительная; |
|||||
|
Канализация - |
в городскую сеть. |
|||||
|
Расход материалов на 1 м2 полезной площади |
||||||
|
Сталь, кг |
85 |
|||||
|
Пиломатериалы, м3 |
0,04 |
|||||
|
Утеплитель, м3 |
0,15 |
|||||
|
РАСЧЕТНЫЕ ХАРАКТЕРИСТИКИ |
||||||
|
Скоростной напор ветра |
0,48 кПа (48 кгс/м2) |
|||||
|
Масса снегового покрова |
1,5 кПа (150 кгс/м2) |
|||||
|
Расчетная температура наружного воздуха |
минус 45 С |
|||||
|
Степень огнестойкости |
V |
|||||
|
Климатические районы |
подрайон I В, II А, III А |
|||||
|
СТРОИТЕЛЬНЫЕ КОНСТРУКЦИИ И ИЗДЕЛИЯ |
||||||
|
Фундаменты - гравийная подсыпка, бетонная подготовка, балки или деревянные брусья. Каркас - стальной тонкостенный профиль. Стены - трехслойные стеновые панели. Полы - линолеум по настилу из шпунтованных досок. Кровля - кровельная сталь. Отделка наружная - окраска масляной краской или эмалями. внутренняя - древесностружечные плиты, древесноволокнистые плиты. |
||||||
|
РАЗРАБОТЧИК документации |
МГП «Мосспецпромпроект» 103045, г. Москва, Просвирин пер., д.5/6, стр.1 тел. 924-82-02 |
|||||
|
ЗАВОД-ИЗГОТОВИТЕЛЬ |
АОЗТ "КССК" 119361, г. Москва, ул. Б. Очаковская, д. 2. тел. 430-78-27 |
|||||
|
УТВЕРЖДЕНИЕ |
ТУ 5282-006-05108104-98 |
|||||
|
СОСТАВИТЕЛЬ каталожного листа |
ОАО ПКТИпромстрой |
|||||
|
РАСПРОСТРАНИТЕЛЬ каталожного листа |
ОАО ПКТИпромстрой 125040, Москва, Ленинградский пр-т, д. 26 тел.(095) 214-36-49, факс :(095)214-95-53 E-mail: pkti@tsr.ru; http://www.tsr.ru/~pkti |
|||||
|
|
СТОЛОВАЯ-РАЗДАТОЧНАЯ на 36 посадочных мест |
1129-031 |
Стр. 2 |
|
||||||
|
ТЕХНИЧЕСКАЯ ХАРАКТЕРИСТИКА |
|
|||||||||
|
Масса, кг |
7,0 |
|
|
|||||||
|
Расчетный срок службы, лет |
20 |
|
|
|||||||
|
Оборачиваемость, раз |
20-30 |
|
|
|||||||
|
Площадь застройки, м2 |
34,8 |
|
|
|||||||
|
Полезная площадь, м2 |
23,7 |
|
|
|||||||
|
В том числе: салон |
15,3 |
|
|
|||||||
|
кухня |
8,4 |
|
|
|||||||
|
Габаритные размеры, м: |
|
|
|
|||||||
|
длина |
10,94 |
|
|
|||||||
|
ширина |
3,18 |
|
|
|||||||
|
высота |
3,55 |
|
|
|||||||
|
Высота внутри кузова |
2,25 |
|
|
|||||||
|
ИНЖЕНЕРНОЕ ОБЕСПЕЧЕНИЕ |
|
|||||||||
|
Электроснабжение - |
от внешних сетей; |
|
||||||||
|
Водоснабжение - |
от внешних сетей; |
|
||||||||
|
Отопление - |
электрическое; |
|
||||||||
|
Вентиляция - |
В салоне: естественная и принудительная; |
|
||||||||
|
|
На кухне: принудительная вытяжка |
|
||||||||
|
Канализация - |
В местную канализационную сеть через сливные трубопроводы |
|
||||||||
|
СТРОИТЕЛЬНЫЕ КОНСТРУКЦИИ И ИЗДЕЛИЯ |
|
|||||||||
|
Фургон закрытого типа, установленный на специальные шасси - сварную металлическую конструкцию из стандартных профилей. Каркас кузова деревометаллический. Наружная обшивка - листовая сталь толщиной 1,2 мм. Внутренняя обшивка - древесноволокнистая плита с окрашенной поверхностью. Полы - линолеум. Теплоизоляция выполнена из пенопласта. Фургон имеет два отделения: салон и кухня. Каждое отделение имеет отдельный вход. |
|
|||||||||
|
РАЗРАБОТЧИК документации |
ГК "Мосгортранс", завод "АРЕМКУЗ", 113114, Москва, ул. Кожевническая, 18 тел. 235-75-13 |
|
||||||||
|
ЗАВОД-ИЗГОТОВИТЕЛЬ |
ГК "Мосгортранс", завод "АРЕМКУЗ", 113114, Москва, ул. Кожевническая, 18 тел. 235-75-13 |
|
||||||||
|
УТВЕРЖДЕНИЕ |
ТУ 400-12-64-91 |
|
||||||||
|
СОСТАВИТЕЛЬ каталожного листа |
ОАО ПКТИпромстрой |
|
||||||||
|
РАСПРОСТРАНИТЕЛЬ каталожного листа |
ОАО ПКТИпромстрой 125040, Москва, Ленинградский пр-т, д. 26 тел.(095) 214-36-49, факс :(095)214-95-53 E-mail: pkti@tsr.ru; http://www.tsr.ru/~pkti |
|
||||||||
|
|
МОБИЛЬНЫЕ (ИНВЕНТАРНЫЕ) ЗДАНИЯ И СООРУЖЕНИЯ |
1129-041 |
|
||||||||
|
МОСКВА |
|
||||||||||
|
ОАО ПКТИ промстрой |
ЗДАНИЕ КОНТЕЙНЕРНОГО ТИПА СИСТЕМЫ «УНИВЕРСАЛ» |
Управление экономической, научно-технической и промышленной политики в строительной отрасли |
|
||||||||
|
2002 г |
СТОЛОВАЯ-РАЗДАТОЧНАЯ на 100 посадочных мест |
На 2 страницах стр.1 |
|
||||||||
|
|
|
||||||||||
|
|
НАЗНАЧЕНИЕ |
|
|
||||||||
|
|
Здание предназначено для отпуска горячих и холодных блюд и приема пищи. |
|
|
||||||||
|
ПЛАН РАЗМЕЩЕНИЯ ОБОРУДОВАНИЯ |
|
||||||||||
|
|
|||||||||||
|
|
|
||||||||||
|
|
1 тамбур |
|
|
||||||||
|
|
2 гардероб |
|
|
||||||||
|
|
3 обеденный зал столовой на 100 мест |
|
|
||||||||
|
|
4 раздаточная |
|
|
||||||||
|
|
5 горячий цех |
|
|
||||||||
|
|
6 моечная столовой и кухонной посуды |
|
|
||||||||
|
|
7 доготовочный цех |
|
|
||||||||
|
|
8 зеленной цех |
|
|
||||||||
|
|
9 холодильный цех |
|
|
||||||||
|
|
10 хлеборезка |
|
|
||||||||
|
|
11 кладовая сухих продуктов |
|
|
||||||||
|
|
12 гардероб персонала |
|
|
||||||||
|
|
13 санузел |
|
|
||||||||
|
|
14 тепловой узел |
|
|
||||||||
|
|
15 кабинет администратора |
|
|
||||||||
|
|
16 загрузочная |
|
|
||||||||
|
|
17 кладовая тары |
|
|
||||||||
|
|
18 помещение для отдыха персонала |
|
|
||||||||
|
|||||||||||
|
|
СТОЛОВАЯ-РАЗДАТОЧНАЯ на 36 посадочных мест |
1129-031 |
Стр. 2 |
|||
|
ТЕХНИЧЕСКАЯ ХАРАКТЕРИСТИКА |
||||||
|
Масса, кг |
3,7 |
|
||||
|
Расчетный срок службы, лет |
20 |
|
||||
|
Оборачиваемость, раз |
20-30 |
|
||||
|
Площадь застройки, м2 |
360,6 |
|
||||
|
Габаритные размеры, м: |
|
|
||||
|
длина |
30,0 |
|
||||
|
ширина |
12,0 |
|
||||
|
высота |
2,835 |
|
||||
|
ИНЖЕНЕРНОЕ ОБЕСПЕЧЕНИЕ |
||||||
|
Электроснабжение - |
от внешних сетей; |
|||||
|
Водоснабжение - |
от внешних сетей; |
|||||
|
Отопление - |
электрическое; |
|||||
|
Вентиляция - |
естественная и принудительная; |
|||||
|
Канализация - |
в городскую сеть. |
|||||
|
Расход материалов на 1 м2 полезной площади |
||||||
|
Сталь, кг |
85 |
|||||
|
Пиломатериалы, м3 |
0,04 |
|||||
|
Утеплитель, м3 |
0,15 |
|||||
|
РАСЧЕТНЫЕ ХАРАКТЕРИСТИКИ |
||||||
|
Скоростной напор ветра |
0,48 кПа (48 кгс/м2) |
|||||
|
Масса снегового покрова |
1,5 кПа (150 кгс/м2) |
|||||
|
Расчетная температура наружного воздуха |
минус 45 С |
|||||
|
Степень огнестойкости |
V |
|||||
|
Климатические районы |
подрайон I В, II А, III А |
|||||
|
СТРОИТЕЛЬНЫЕ КОНСТРУКЦИИ И ИЗДЕЛИЯ |
||||||
|
Фундаменты - гравийная подсыпка, бетонная подготовка, балки или деревянные брусья. Каркас - стальной тонкостенный профиль. Стены - трехслойные стеновые панели. Полы - линолеум по настилу из шпунтованных досок. Кровля - кровельная сталь. Отделка наружная - окраска масляной краской или эмалями. внутренняя - древесностружечные плиты, древесноволокнистые плиты. |
||||||
|
РАЗРАБОТЧИК документации |
МГП «Мосспецпромпроект» 103045, г. Москва, Просвирин пер., д.5/6, стр.1 тел. 924-82-02 |
|||||
|
ЗАВОД-ИЗГОТОВИТЕЛЬ |
АОЗТ "КССК" 119361, г. Москва, ул. Б. Очаковская, д. 2. тел. 430-78-27 |
|||||
|
УТВЕРЖДЕНИЕ |
ТУ 5282-006-05108104-98 |
|||||
|
СОСТАВИТЕЛЬ каталожного листа |
ОАО ПКТИпромстрой |
|||||
|
РАСПРОСТРАНИТЕЛЬ каталожного листа |
ОАО ПКТИпромстрой 125040, Москва, Ленинградский пр-т, д. 26 тел.(095) 214-36-49, факс :(095)214-95-53 E-mail: pkti@tsr.ru; http://www.tsr.ru/~pkti |
|||||
|
|
МОБИЛЬНЫЕ (ИНВЕНТАРНЫЕ) ЗДАНИЯ И СООРУЖЕНИЯ |
Тип СРП-22 |
|
МОСКВА |
||
|
ОАО ПКТИ промстрой |
ЗДАНИЕ КОНТЕЙНЕРНОГО ТИПА СИСТЕМЫ «УНИВЕРСАЛ» |
Управление экономической, научно-технической и промышленной политики в строительной отрасли |
|
2002 г |
СТОЛОВАЯ-РАЗДАТОЧНАЯ ПЕРЕДВИЖНАЯ |
На 2 страницах стр.1 |
|
|
||
|
|
НАЗНАЧЕНИЕ |
|
|
|
Здание предназначено для обеспечения привозной горячей пищей рабочих, занятых на участках строительных, ремонтно-строительных и дорожных работ. |
|
|
|
Стол обеденный – 6 |
|
|
|
Табурет – 22 |
|
|
|
Маслянный радиатор – 3-6 |
|
|
|
Электроплита 3-комфорочная – 1 |
|
|
|
Электромармит – 1 |
|
|
|
Электрохолодильник – 1 |
|
|
|
Электрокипятильник КНД-80 - 1 |
|
|
|
Двухкамерная мойка – 1 |
|
|
|
Насос ручной БКФ-2М - 1 |
|
|
|
Баки для воды - 3 |
|
|
|
Вентилятор «ОВ» - 1 |
|
|
|
Шкаф для одежды – 1 |
|
|
|
Витрина и прилавок - 1 |
|
|
|
Стол раздачи - 1 |
|
|
|
Стол для пищевых отходов - 1 |
|
|
|
Огнетушитель ОП-5 - 2 |
|
|
|
Зеркало – 1 |
|
|
|
Вешалка на 22 крючка – 1 |
|
|
|
Трап откидной - 1 |
|
|
|
СТОЛОВАЯ-РАЗДАТОЧНАЯ ПЕРЕДВИЖНАЯ |
ТИП СРП-22 |
Стр. 2 |
|||
|
ТЕХНИЧЕСКАЯ ХАРАКТЕРИСТИКА |
||||||
|
Масса, кг |
7,0 |
|
||||
|
Расчетный срок службы, лет |
20 |
|
||||
|
Оборачиваемость, раз |
20-30 |
|
||||
|
Площадь застройки, м2 |
34,8 |
|
||||
|
Полезная площадь, м2 |
23,7 |
|
||||
|
В том числе: салон |
15,3 |
|
||||
|
кухня |
8,4 |
|
||||
|
Габаритные размеры, м: |
|
|
||||
|
длина |
10,94 |
|
||||
|
ширина |
3,18 |
|
||||
|
высота |
3,55 |
|
||||
|
Высота внутри кузова |
2,25 |
|
||||
|
ИНЖЕНЕРНОЕ ОБЕСПЕЧЕНИЕ |
||||||
|
Электроснабжение - |
от внешних сетей; |
|||||
|
Водоснабжение - |
от внешних сетей; |
|||||
|
Отопление - |
электрическое; |
|||||
|
Вентиляция - |
В салоне: естественная и принудительная; |
|||||
|
|
На кухне: принудительная вытяжка |
|||||
|
Канализация - |
В местную канализационную сеть через сливные трубопроводы |
|||||
|
СТРОИТЕЛЬНЫЕ КОНСТРУКЦИИ И ИЗДЕЛИЯ |
||||||
|
Фургон закрытого типа, установленный на специальные шасси - сварную металлическую конструкцию из стандартных профилей. Каркас кузова деревометаллический. Наружная обшивка - листовая сталь толщиной 1,2 мм. Внутренняя обшивка - древесноволокнистая плита с окрашенной поверхностью. Полы - линолеум. Теплоизоляция выполнена из пенопласта. Фургон имеет два отделения: салон и кухня. Каждое отделение имеет отдельный вход. |
||||||
|
РАЗРАБОТЧИК документации |
ГК "Мосгортранс", завод "АРЕМКУЗ", 113114, Москва, ул. Кожевническая, 18 тел. 235-75-13 |
|||||
|
ЗАВОД-ИЗГОТОВИТЕЛЬ |
ГК "Мосгортранс", завод "АРЕМКУЗ", 113114, Москва, ул. Кожевническая, 18 тел. 235-75-13 |
|||||
|
УТВЕРЖДЕНИЕ |
ТУ 400-12-64-91 |
|||||
|
СОСТАВИТЕЛЬ каталожного листа |
ОАО ПКТИпромстрой |
|||||
|
РАСПРОСТРАНИТЕЛЬ каталожного листа |
ОАО ПКТИпромстрой 125040, Москва, Ленинградский пр-т, д. 26 тел.(095) 214-36-49, факс :(095)214-95-53 E-mail: pkti@tsr.ru; http://www.tsr.ru/~pkti |
|||||
|
|
МОБИЛЬНЫЕ (ИНВЕНТАРНЫЕ) ЗДАНИЯ И СООРУЖЕНИЯ |
|
|
МОСКВА |
||
|
ОАО ПКТИ промстрой |
ЗДАНИЕ КОНТЕЙНЕРНОГО ТИПА |
Управление экономической, научно-технической и промышленной политики в строительной отрасли |
|
2002 г |
ФУРГОН-СТОЛОВАЯ |
На 2 страницах стр.1 |
|
|
||
|
|
НАЗНАЧЕНИЕ |
|
|
|
Здание предназначено для обеспечения привозной горячей пищей рабочих, занятых на участках строительных, ремонтно-строительных и дорожных работ. |
|
|
|
1 холодильник |
|
|
|
2 стол нержавеющий |
|
|
|
3 Бак для воды |
|
|
|
4 Шкаф |
|
|
|
5 Труба водопроводная |
|
|
|
6 титан |
|
|
|
7 стол для мойки |
|
|
|
8 ведро для мусора |
|
|
|
9 мойка |
|
|
|
10 стол нержавеющий |
|
|
|
11 электроплита |
|
|
|
12 полка под телефон |
|
|
|
13 полка для посуды |
|
|
|
14 стол деревянный |
|
|
|
15 перекладина для вешалок одежды |
|
|
|
16 полки для головных уборов |
|
|
|
17 Электросушилка для рук |
|
|
|
18 полотенцедержатель |
|
|
|
19 раковина с зеркалом |
|
|
|
20 трап откидной малый |
|
|
|
ФУРГОН-СТОЛОВАЯ |
|
Стр. 2 |
|||
|
ТЕХНИЧЕСКАЯ ХАРАКТЕРИСТИКА |
||||||
|
Площадь застройки, м2 |
25,23 |
|
||||
|
Полезная площадь, м2 |
24,11 |
|
||||
|
Габаритные размеры, м: |
|
|
||||
|
длина |
8,70 |
|
||||
|
ширина |
2,90 |
|
||||
|
высота |
3,55 |
|
||||
|
ИНЖЕНЕРНОЕ ОБЕСПЕЧЕНИЕ |
||||||
|
Электроснабжение - |
От электросети трехфазного переменного тока |
|||||
|
Отопление - |
электрическое; |
|||||
|
Вентиляция - |
принудительная; |
|||||
|
СТРОИТЕЛЬНЫЕ КОНСТРУКЦИИ И ИЗДЕЛИЯ |
||||||
|
Фургон закрытого типа, установленный на специальные шасси - сварную металлическую конструкцию из стандартных профилей. Каркас кузова деревометаллический. Наружная обшивка - листовая сталь толщиной 1,2 мм. Внутренняя обшивка - древесноволокнистая плита с окрашенной поверхностью. Снаружи кузов окрашен пентафталевыми эмалями. |
||||||
|
РАЗРАБОТЧИК документации |
ГК "Мосгортранс", завод "АРЕМКУЗ", 113114, Москва, ул. Кожевническая, 18 тел. 235-75-13 |
|||||
|
ЗАВОД-ИЗГОТОВИТЕЛЬ |
ГК "Мосгортранс", завод "АРЕМКУЗ", 113114, Москва, ул. Кожевническая, 18 тел. 235-75-13 |
|||||
|
УТВЕРЖДЕНИЕ |
ТУ 400-12-64-91 |
|||||
|
СОСТАВИТЕЛЬ каталожного листа |
ОАО ПКТИпромстрой |
|||||
|
РАСПРОСТРАНИТЕЛЬ каталожного листа |
ОАО ПКТИпромстрой 125040, Москва, Ленинградский пр-т, д. 26 тел.(095) 214-36-49, факс :(095)214-95-53 E-mail: pkti@tsr.ru; http://www.tsr.ru/~pkti |
|||||
|
|
МОБИЛЬНЫЕ (ИНВЕНТАРНЫЕ) ЗДАНИЯ И СООРУЖЕНИЯ |
1129-021 |
|
МОСКВА |
||
|
ОАО ПКТИ промстрой |
ЗДАНИЕ КОНТЕЙНЕРНОГО ТИПА СИСТЕМЫ «УНИВЕРСАЛ» |
Управление экономической, научно-технической и промышленной политики в строительной отрасли |
|
2002 г |
ГАРДЕРОБНАЯ на 6 человек |
На 2 страницах стр.1 |
|
|
||
|
|
НАЗНАЧЕНИЕ |
|
|
Здание предназначено для хранения уличной и домашней одежды, сушки и хранения рабочей одежды, умывания, снабжения питьевой водой. |
||
|
ПЛАН РАЗМЕЩЕНИЯ ОБОРУДОВАНИЯ |
||
|
|
||
|
|
1 шкаф |
|
|
|
2 скамья |
|
|
|
3 стол однотумбовый |
|
|
|
4 умывальник |
|
|
|
5 электросушитель для рук |
|
|
|
6 электрорадиатор |
|
|
|
7 бак для воды |
|
|
|
ГАРДЕРОБНАЯ на 6 человек |
1129-021 |
Стр. 2 |
|||
|
ТЕХНИЧЕСКАЯ ХАРАКТЕРИСТИКА |
||||||
|
Масса, кг |
3,4 |
|
||||
|
Расчетный срок службы, лет |
20 |
|
||||
|
Оборачиваемость, раз |
20-30 |
|
||||
|
Строительный объем, м3 |
50,5 |
|
||||
|
Площадь застройки, м2 |
18,0 |
|
||||
|
Полезная площадь, м2 |
15,5 |
|
||||
|
Габаритные размеры, м: |
|
|
||||
|
длина |
6,0 |
|
||||
|
ширина |
3,0 |
|
||||
|
высота |
2,835 |
|
||||
|
ИНЖЕНЕРНОЕ ОБЕСПЕЧЕНИЕ |
||||||
|
Электроснабжение - |
от внешних сетей; |
|||||
|
Водоснабжение - |
от внешних сетей; |
|||||
|
Отопление - |
электрическое; |
|||||
|
Вентиляция - |
естественная и принудительная; |
|||||
|
Канализация - |
в городскую сеть. |
|||||
|
Расход материалов на 1 м2 полезной площади |
||||||
|
Сталь, кг |
85 |
|||||
|
Пиломатериалы, м3 |
0,04 |
|||||
|
Утеплитель, м3 |
0,15 |
|||||
|
РАСЧЕТНЫЕ ХАРАКТЕРИСТИКИ |
||||||
|
Скоростной напор ветра |
0,48 кПа (48 кгс/м2) |
|||||
|
Масса снегового покрова |
1,5 кПа (150 кгс/м2) |
|||||
|
Расчетная температура наружного воздуха |
минус 45 С |
|||||
|
Степень огнестойкости |
V |
|||||
|
Климатические районы |
подрайон I В, II А, III А |
|||||
|
СТРОИТЕЛЬНЫЕ КОНСТРУКЦИИ И ИЗДЕЛИЯ |
||||||
|
Фундаменты - гравийная подсыпка, бетонная подготовка, балки или деревянные брусья. Каркас - стальной тонкостенный профиль. Стены - трехслойные стеновые панели. Полы - линолеум по настилу из шпунтованных досок. Кровля - кровельная сталь. Отделка наружная - окраска масляной краской или эмалями. внутренняя - древесностружечные плиты, древесноволокнистые плиты. |
||||||
|
РАЗРАБОТЧИК документации |
МГП «Мосспецпромпроект» 103045, г. Москва, Просвирин пер., д.5/6, стр.1 тел. 924-82-02 |
|||||
|
ЗАВОД-ИЗГОТОВИТЕЛЬ |
АОЗТ "КССК" 119361, г. Москва, ул. Б. Очаковская, д. 2. тел. 430-78-27 |
|||||
|
УТВЕРЖДЕНИЕ |
ТУ 5282-006-05108104-98 |
|||||
|
СОСТАВИТЕЛЬ каталожного листа |
ОАО ПКТИпромстрой |
|||||
|
РАСПРОСТРАНИТЕЛЬ каталожного листа |
ОАО ПКТИпромстрой 125040, Москва, Ленинградский пр-т, д. 26 тел.(095) 214-36-49, факс :(095)214-95-53 E-mail: pkti@tsr.ru; http://www.tsr.ru/~pkti |
|||||
|
|
МОБИЛЬНЫЕ (ИНВЕНТАРНЫЕ) ЗДАНИЯ И СООРУЖЕНИЯ |
1129-025 |
|
МОСКВА |
||
|
ОАО ПКТИ промстрой |
ЗДАНИЕ КОНТЕЙНЕРНОГО ТИПА СИСТЕМЫ «УНИВЕРСАЛ» |
Управление экономической, научно-технической и промышленной политики в строительной отрасли |
|
2002 г |
ГАРДЕРОБНАЯ С ДУШЕМ на 5 человек |
На 2 страницах стр.1 |
|
|
||
|
|
НАЗНАЧЕНИЕ |
|
|
Здание предназначено для хранения уличной и домашней одежды, сушки и хранения рабочей одежды, умывания, снабжения питьевой водой. |
||
|
ПЛАН РАЗМЕЩЕНИЯ ОБОРУДОВАНИЯ |
||
|
|
||
|
|
1 поддон душевой |
|
|
|
2 умывальник |
|
|
|
3 скамья |
|
|
|
4 электросушитель |
|
|
|
5 шкаф левый |
|
|
|
6 стол |
|
|
|
7 стол подсобный |
|
|
|
8 электронагреватель |
|
|
|
9 электроплита |
|
|
|
10 ларь для инструмента |
|
|
|
11 электрорадиатор |
|
|
|
12 бак для воды |
|
|
|
ГАРДЕРОБНАЯ С ДУШЕМ на 5 человек |
1129-021 |
Стр. 2 |
|||
|
ТЕХНИЧЕСКАЯ ХАРАКТЕРИСТИКА |
||||||
|
Масса, кг |
3,6 |
|
||||
|
Расчетный срок службы, лет |
20 |
|
||||
|
Оборачиваемость, раз |
20-30 |
|
||||
|
Строительный объем, м3 |
50,5 |
|
||||
|
Площадь застройки, м2 |
18,0 |
|
||||
|
Полезная площадь, м2 |
15,5 |
|
||||
|
Габаритные размеры, м: |
|
|
||||
|
длина |
6,0 |
|
||||
|
ширина |
3,0 |
|
||||
|
высота |
2,835 |
|
||||
|
ИНЖЕНЕРНОЕ ОБЕСПЕЧЕНИЕ |
||||||
|
Электроснабжение - |
от внешних сетей; |
|||||
|
Водоснабжение - |
от внешних сетей; |
|||||
|
Отопление - |
электрическое; |
|||||
|
Вентиляция - |
естественная и принудительная; |
|||||
|
Канализация - |
в городскую сеть. |
|||||
|
Расход материалов на 1 м2 полезной площади |
||||||
|
Сталь, кг |
85 |
|||||
|
Пиломатериалы, м3 |
0,04 |
|||||
|
Утеплитель, м3 |
0,15 |
|||||
|
РАСЧЕТНЫЕ ХАРАКТЕРИСТИКИ |
||||||
|
Скоростной напор ветра |
0,48 кПа (48 кгс/м2) |
|||||
|
Масса снегового покрова |
1,5 кПа (150 кгс/м2) |
|||||
|
Расчетная температура наружного воздуха |
минус 45 С |
|||||
|
Степень огнестойкости |
V |
|||||
|
Климатические районы |
подрайон I В, II А, III А |
|||||
|
СТРОИТЕЛЬНЫЕ КОНСТРУКЦИИ И ИЗДЕЛИЯ |
||||||
|
Фундаменты - гравийная подсыпка, бетонная подготовка, балки или деревянные брусья. Каркас - стальной тонкостенный профиль. Стены - трехслойные стеновые панели. Полы - линолеум по настилу из шпунтованных досок. Кровля - кровельная сталь. Отделка наружная - окраска масляной краской или эмалями. внутренняя - древесностружечные плиты, древесноволокнистые плиты. |
||||||
|
РАЗРАБОТЧИК документации |
МГП «Мосспецпромпроект» 103045, г. Москва, Просвирин пер., д.5/6, стр.1 тел. 924-82-02 |
|||||
|
ЗАВОД-ИЗГОТОВИТЕЛЬ |
АОЗТ "КССК" 119361, г. Москва, ул. Б. Очаковская, д. 2. тел. 430-78-27 |
|||||
|
УТВЕРЖДЕНИЕ |
ТУ 5282-006-05108104-98 |
|||||
|
СОСТАВИТЕЛЬ каталожного листа |
ОАО ПКТИпромстрой |
|||||
|
РАСПРОСТРАНИТЕЛЬ каталожного листа |
ОАО ПКТИпромстрой 125040, Москва, Ленинградский пр-т, д. 26 тел.(095) 214-36-49, факс :(095)214-95-53 E-mail: pkti@tsr.ru; http://www.tsr.ru/~pkti |
|||||
|
|
МОБИЛЬНЫЕ (ИНВЕНТАРНЫЕ) ЗДАНИЯ И СООРУЖЕНИЯ |
4293.00.000.000 |
|
МОСКВА |
||
|
ОАО ПКТИ промстрой |
ЗДАНИЕ КОНТЕЙНЕРНОГО ТИПА СИСТЕМЫ «КУБ-МОНТАЖ» |
Управление экономической, научно-технической и промышленной политики в строительной отрасли |
|
2002 г |
ГАРДЕРОБНАЯ на 8 человек |
На 2 страницах стр.1 |
|
|
||
|
|
НАЗНАЧЕНИЕ |
|
|
Здание предназначено для использования в качестве вспомогательных помещений строительно-монтажных организаций, производственных, жилых и общественных. Здания могут эксплуатироваться как отдельностоящие, так и сблокированные из блок-контейнеров. Блокировка контейнеров может осуществляться по его длине, ширине и высоте. |
||
|
ПЛАН РАЗМЕЩЕНИЯ ОБОРУДОВАНИЯ |
||
|
|
||
|
|
1 шкаф для одежды ДД-25,4 |
|
|
|
2 стол обеденный |
|
|
|
3 стул |
|
|
|
4 огнетушитель |
|
|
|
ГАРДЕРОБНАЯ на 8 человек |
4293.00.000.000 |
Стр. 2 |
|||
|
ТЕХНИЧЕСКАЯ ХАРАКТЕРИСТИКА |
||||||
|
Масса, кг |
4,0 |
|
||||
|
Расчетный срок службы, лет |
15 |
|
||||
|
Оборачиваемость, раз |
многократная |
|
||||
|
Строительный объем, м3 |
46,3 |
|
||||
|
Площадь застройки, м2 |
18,3 |
|
||||
|
Полезная площадь, м2 |
15,8 |
|
||||
|
Габаритные размеры, м: |
|
|
||||
|
длина |
6,1 |
|
||||
|
ширина |
3,0 |
|
||||
|
высота |
2,77 |
|
||||
|
ИНЖЕНЕРНОЕ ОБЕСПЕЧЕНИЕ |
||||||
|
Электроснабжение - |
от внешних сетей; |
|||||
|
Водоснабжение - |
от внешних сетей; |
|||||
|
Отопление - |
электрическое; |
|||||
|
Вентиляция - |
естественная и принудительная; |
|||||
|
Канализация - |
в городскую сеть. |
|||||
|
Расход материалов на 1 м2 полезной площади |
||||||
|
Сталь, кг |
54,6 |
|||||
|
Пиломатериалы, м3 |
0,056 |
|||||
|
Утеплитель, м3 |
0,39 |
|||||
|
Древесностружечная плита, м2 |
0,044 |
|||||
|
Древесноволокнистая плита, м2 |
2,60 |
|||||
|
Цементностружечная плита, м2 |
1,09 |
|||||
|
Гипсокартонные панели, м2 |
0,39 |
|||||
|
РАСЧЕТНЫЕ ХАРАКТЕРИСТИКИ |
||||||
|
Скоростной напор ветра |
0,23 кПа (23 кгс/м2) |
|||||
|
Масса снегового покрова |
1,0 кПа (100 кгс/м2) |
|||||
|
Расчетная температура наружного воздуха |
минус 45 С |
|||||
|
Степень огнестойкости |
V |
|||||
|
Климатические районы |
подрайон I В, II А, III А |
|||||
|
СТРОИТЕЛЬНЫЕ КОНСТРУКЦИИ И ИЗДЕЛИЯ |
||||||
|
Здание каркасно-панельной конструкции. Опоры - бетонные или антисептированные деревянные подкладки. Стены - трехслойные панели каркасной конструкции. Каркас панелей - деревянный, обшивка наружная - металлический профилированный лист, обшивка внутренняя - древесно-стружечная плита, древесноволокнистая плита. Панель покрытия - многослойная конструкция с металлическим сварным каркасом. Наружная обшивка - стальной профилированный лист, внутренняя обшивка - древесностружечная плита. Панель пола - многослойная конструкция с металлическим сварным каркасом. Наружная обшивка - цементностружечная плита, внутренняя обшивка - древесностружечная плита, покрытая линолеумом. Утеплитель - минераловатная плита, пенопласт. Отделка наружная - окраска пентафталевой эмалью, покрытием, внутренняя - окраска пентафталевой эмалью и отделка гипсокартонными панелями с покрытием. |
||||||
|
РАЗРАБОТЧИК документации |
Ассоциация ВНИИМонтажспецстрой, ТОО "ЗИС" документации Конструкторское Бюро. 109391, Москва, Орехово-Зуевский проезд, д. 16/5, кв.9 |
|||||
|
ЗАВОД-ИЗГОТОВИТЕЛЬ |
АО "Моспромстрой", Производственная база фирмы "Монтажстройиндустрии" г. Люберцы. 140000, Московская обл., г. Люберцы, ул. Котельническая, д. 11 |
|||||
|
УТВЕРЖДЕНИЕ |
|
|||||
|
СОСТАВИТЕЛЬ каталожного листа |
ОАО ПКТИпромстрой |
|||||
|
РАСПРОСТРАНИТЕЛЬ каталожного листа |
ОАО ПКТИпромстрой 125040, Москва, Ленинградский пр-т, д. 26 тел.(095) 214-36-49, факс :(095)214-95-53 E-mail: pkti@tsr.ru; http://www.tsr.ru/~pkti |
|||||
|
|
МОБИЛЬНЫЕ (ИНВЕНТАРНЫЕ) ЗДАНИЯ И СООРУЖЕНИЯ |
1129-020 |
|
МОСКВА |
||
|
ОАО ПКТИ промстрой |
ЗДАНИЕ КОНТЕЙНЕРНОГО ТИПА СИСТЕМЫ «УНИВЕРСАЛ» |
Управление экономической, научно-технической и промышленной политики в строительной отрасли |
|
2002 г |
ГАРДЕРОБНАЯ на 12 человек |
На 2 страницах стр.1 |
|
|
||
|
|
НАЗНАЧЕНИЕ |
|
|
Здание предназначено для хранения уличной и домашней одежды, сушки и хранения рабочей одежды, умывания, снабжения питьевой водой, обогрева и отдыха. |
||
|
ПЛАН РАЗМЕЩЕНИЯ ОБОРУДОВАНИЯ |
||
|
|
||
|
|
1 шкаф правый |
|
|
|
2 шкаф левый |
|
|
|
3 скамья |
|
|
|
4 бак для воды |
|
|
|
5 умывальник |
|
|
|
6 электрорадиатор |
|
|
|
7 электросушитель |
|
|
|
ГАРДЕРОБНАЯ С ДУШЕМ на 5 человек |
1129-021 |
Стр. 2 |
|||
|
ТЕХНИЧЕСКАЯ ХАРАКТЕРИСТИКА |
||||||
|
Масса, кг |
3,5 |
|
||||
|
Расчетный срок службы, лет |
20 |
|
||||
|
Оборачиваемость, раз |
20-30 |
|
||||
|
Строительный объем, м3 |
50,5 |
|
||||
|
Площадь застройки, м2 |
18,0 |
|
||||
|
Полезная площадь, м2 |
15,5 |
|
||||
|
Габаритные размеры, м: |
|
|
||||
|
длина |
6,0 |
|
||||
|
ширина |
3,0 |
|
||||
|
высота |
2,835 |
|
||||
|
ИНЖЕНЕРНОЕ ОБЕСПЕЧЕНИЕ |
||||||
|
Электроснабжение - |
от внешних сетей; |
|||||
|
Водоснабжение - |
от внешних сетей; |
|||||
|
Отопление - |
электрическое; |
|||||
|
Вентиляция - |
естественная и принудительная; |
|||||
|
Канализация - |
в городскую сеть. |
|||||
|
Расход материалов на 1 м2 полезной площади |
||||||
|
Сталь, кг |
85 |
|||||
|
Пиломатериалы, м3 |
0,04 |
|||||
|
Утеплитель, м3 |
0,15 |
|||||
|
РАСЧЕТНЫЕ ХАРАКТЕРИСТИКИ |
||||||
|
Скоростной напор ветра |
0,48 кПа (48 кгс/м2) |
|||||
|
Масса снегового покрова |
1,5 кПа (150 кгс/м2) |
|||||
|
Расчетная температура наружного воздуха |
минус 45 С |
|||||
|
Степень огнестойкости |
V |
|||||
|
Климатические районы |
подрайон I В, II А, III А |
|||||
|
СТРОИТЕЛЬНЫЕ КОНСТРУКЦИИ И ИЗДЕЛИЯ |
||||||
|
Фундаменты - гравийная подсыпка, бетонная подготовка, балки или деревянные брусья. Каркас - стальной тонкостенный профиль. Стены - трехслойные стеновые панели. Полы - линолеум по настилу из шпунтованных досок. Кровля - кровельная сталь. Отделка наружная - окраска масляной краской или эмалями. внутренняя - древесностружечные плиты, древесноволокнистые плиты. |
||||||
|
РАЗРАБОТЧИК документации |
МГП «Мосспецпромпроект» 103045, г. Москва, Просвирин пер., д.5/6, стр.1 тел. 924-82-02 |
|||||
|
ЗАВОД-ИЗГОТОВИТЕЛЬ |
АОЗТ "КССК" 119361, г. Москва, ул. Б. Очаковская, д. 2. тел. 430-78-27 |
|||||
|
УТВЕРЖДЕНИЕ |
ТУ 5282-006-05108104-98 |
|||||
|
СОСТАВИТЕЛЬ каталожного листа |
ОАО ПКТИпромстрой |
|||||
|
РАСПРОСТРАНИТЕЛЬ каталожного листа |
ОАО ПКТИпромстрой 125040, Москва, Ленинградский пр-т, д. 26 тел.(095) 214-36-49, факс :(095)214-95-53 E-mail: pkti@tsr.ru; http://www.tsr.ru/~pkti |
|||||
|
|
МОБИЛЬНЫЕ (ИНВЕНТАРНЫЕ) ЗДАНИЯ И СООРУЖЕНИЯ |
1129-042 |
|
МОСКВА |
||
|
ОАО ПКТИ промстрой |
ЗДАНИЕ
КОНТЕЙНЕРНОГО ТИПА СИСТЕМЫ «УНИВЕРСАЛ» |
Управление экономической, научно-технической и промышленной политики в строительной отрасли |
|
2002 г |
ГАРДЕРОБНАЯ на 12 человек |
На 2 страницах стр.1 |
|
|
||
|
|
НАЗНАЧЕНИЕ |
|
|
Здание предназначено для хранения уличной и домашней одежды, сушки и хранения рабочей одежды, умывания, снабжения питьевой водой, обогрева и отдыха. |
||
|
ПЛАН РАЗМЕЩЕНИЯ ОБОРУДОВАНИЯ |
||
|
|
||
|
|
1 шкаф правый |
|
|
|
2 шкаф левый |
|
|
|
3 скамья |
|
|
|
4 бак для воды |
|
|
|
5 умывальник |
|
|
|
6 электрорадиатор |
|
|
|
7 электросушитель |
|
|
|
ГАРДЕРОБНАЯ С ДУШЕМ на 12 человек |
1129-042 |
Стр. 2 |
|||
|
ТЕХНИЧЕСКАЯ ХАРАКТЕРИСТИКА |
||||||
|
Масса, кг |
3,6 |
|
||||
|
Расчетный срок службы, лет |
20 |
|
||||
|
Оборачиваемость, раз |
20-30 |
|
||||
|
Строительный объем, м3 |
50,5 |
|
||||
|
Площадь застройки, м2 |
17,8 |
|
||||
|
Полезная площадь, м2 |
15,5 |
|
||||
|
Габаритные размеры, м: |
|
|
||||
|
длина |
6,0 |
|
||||
|
ширина |
3,0 |
|
||||
|
высота |
3,86 |
|
||||
|
ИНЖЕНЕРНОЕ ОБЕСПЕЧЕНИЕ |
||||||
|
Электроснабжение - |
от внешних сетей; |
|||||
|
Водоснабжение - |
от внешних сетей; |
|||||
|
Отопление - |
электрическое; |
|||||
|
Вентиляция - |
естественная и принудительная; |
|||||
|
Канализация - |
в городскую сеть. |
|||||
|
Расход материалов на 1 м2 полезной площади |
||||||
|
Сталь, кг |
85 |
|||||
|
Пиломатериалы, м3 |
0,04 |
|||||
|
Утеплитель, м3 |
0,15 |
|||||
|
РАСЧЕТНЫЕ ХАРАКТЕРИСТИКИ |
||||||
|
Скоростной напор ветра |
0,48 кПа (48 кгс/м2) |
|||||
|
Масса снегового покрова |
1,5 кПа (150 кгс/м2) |
|||||
|
Расчетная температура наружного воздуха |
минус 45 С |
|||||
|
Степень огнестойкости |
V |
|||||
|
Климатические районы |
подрайон I В, II А, III А |
|||||
|
СТРОИТЕЛЬНЫЕ КОНСТРУКЦИИ И ИЗДЕЛИЯ |
||||||
|
Каркас - стальной тонкостенный профиль. Стены - трехслойные стеновые панели. Полы - линолеум по настилу из шпунтованных досок. Кровля - кровельная сталь. Отделка наружная - окраска масляной краской или эмалями. внутренняя - древесностружечные плиты, древесноволокнистые плиты. |
||||||
|
РАЗРАБОТЧИК документации |
МГП «Мосспецпромпроект» 103045, г. Москва, Просвирин пер., д.5/6, стр.1 тел. 924-82-02 |
|||||
|
ЗАВОД-ИЗГОТОВИТЕЛЬ |
АОЗТ "КССК" 119361, г. Москва, ул. Б. Очаковская, д. 2. тел. 430-78-27 |
|||||
|
УТВЕРЖДЕНИЕ |
ТУ 5282-006-05108104-98 |
|||||
|
СОСТАВИТЕЛЬ каталожного листа |
ОАО ПКТИпромстрой |
|||||
|
РАСПРОСТРАНИТЕЛЬ каталожного листа |
ОАО ПКТИпромстрой 125040, Москва, Ленинградский пр-т, д. 26 тел.(095) 214-36-49, факс :(095)214-95-53 E-mail: pkti@tsr.ru; http://www.tsr.ru/~pkti |
|||||
|
|
МОБИЛЬНЫЕ (ИНВЕНТАРНЫЕ) ЗДАНИЯ И СООРУЖЕНИЯ |
1129-043 |
|
МОСКВА |
||
|
ОАО ПКТИ промстрой |
ЗДАНИЕ КОНТЕЙНЕРНОГО ТИПА СИСТЕМЫ «УНИВЕРСАЛ» |
Управление экономической, научно-технической и промышленной политики в строительной отрасли |
|
2002 г |
ГАРДЕРОБНАЯ на 12 человек |
На 2 страницах стр.1 |
|
|
||
|
|
НАЗНАЧЕНИЕ |
|
|
Здание предназначено для хранения уличной и домашней одежды, сушки и хранения рабочей одежды, умывания, снабжения питьевой водой. |
||
|
ПЛАН РАЗМЕЩЕНИЯ ОБОРУДОВАНИЯ |
||
|
|
||
|
|
1 шкаф |
|
|
|
2 скамья |
|
|
|
3 стол однотумбовый |
|
|
|
4 умывальник |
|
|
|
5 электросушитель |
|
|
|
6 электрорадиатор |
|
|
|
7 бак для воды |
|
|
|
ГАРДЕРОБНАЯ С ДУШЕМ на 6 человек |
1129-043 |
Стр. 2 |
|||
|
ТЕХНИЧЕСКАЯ ХАРАКТЕРИСТИКА |
||||||
|
Масса, кг |
3,5 |
|
||||
|
Расчетный срок службы, лет |
20 |
|
||||
|
Оборачиваемость, раз |
20-30 |
|
||||
|
Строительный объем, м3 |
50,5 |
|
||||
|
Площадь застройки, м2 |
18,0 |
|
||||
|
Полезная площадь, м2 |
15,5 |
|
||||
|
Габаритные размеры, м: |
|
|
||||
|
длина |
6,0 |
|
||||
|
ширина |
3,0 |
|
||||
|
высота |
3,86 |
|
||||
|
ИНЖЕНЕРНОЕ ОБЕСПЕЧЕНИЕ |
||||||
|
Электроснабжение - |
от внешних сетей; |
|||||
|
Водоснабжение - |
от внешних сетей; |
|||||
|
Отопление - |
электрическое; |
|||||
|
Вентиляция - |
естественная и принудительная; |
|||||
|
Канализация - |
в городскую сеть. |
|||||
|
Расход материалов на 1 м2 полезной площади |
||||||
|
Сталь, кг |
85 |
|||||
|
Пиломатериалы, м3 |
0,04 |
|||||
|
Утеплитель, м3 |
0,15 |
|||||
|
РАСЧЕТНЫЕ ХАРАКТЕРИСТИКИ |
||||||
|
Скоростной напор ветра |
0,48 кПа (48 кгс/м2) |
|||||
|
Масса снегового покрова |
1,5 кПа (150 кгс/м2) |
|||||
|
Расчетная температура наружного воздуха |
минус 45 С |
|||||
|
Степень огнестойкости |
V |
|||||
|
Климатические районы |
подрайон I В, II А, III А |
|||||
|
СТРОИТЕЛЬНЫЕ КОНСТРУКЦИИ И ИЗДЕЛИЯ |
||||||
|
Каркас - стальной тонкостенный профиль. Стены - трехслойные стеновые панели. Полы - линолеум по настилу из шпунтованных досок. Кровля - кровельная сталь. Отделка наружная - окраска масляной краской или эмалями. внутренняя - древесностружечные плиты, древесноволокнистые плиты. |
||||||
|
РАЗРАБОТЧИК документации |
МГП «Мосспецпромпроект» 103045, г. Москва, Просвирин пер., д.5/6, стр.1 тел. 924-82-02 |
|||||
|
ЗАВОД-ИЗГОТОВИТЕЛЬ |
АОЗТ "КССК" 119361, г. Москва, ул. Б. Очаковская, д. 2. тел. 430-78-27 |
|||||
|
УТВЕРЖДЕНИЕ |
ТУ 5282-006-05108104-98 |
|||||
|
СОСТАВИТЕЛЬ каталожного листа |
ОАО ПКТИпромстрой |
|||||
|
РАСПРОСТРАНИТЕЛЬ каталожного листа |
ОАО ПКТИпромстрой 125040, Москва, Ленинградский пр-т, д. 26 тел.(095) 214-36-49, факс :(095)214-95-53 E-mail: pkti@tsr.ru; http://www.tsr.ru/~pkti |
|||||
|
|
МОБИЛЬНЫЕ (ИНВЕНТАРНЫЕ) ЗДАНИЯ И СООРУЖЕНИЯ |
Тип ФБ-01.00.00 |
|
МОСКВА |
||
|
ОАО ПКТИ промстрой |
ЗДАНИЕ КОНТЕЙНЕРНОГО ТИПА |
Управление экономической, научно-технической и промышленной политики в строительной отрасли |
|
2002 г |
ФУРГОН-БЫТОВКА |
На 2 страницах стр.1 |
|
|
||
|
|
НАЗНАЧЕНИЕ |
|
|
|
Здание предназначено для хранения уличной и рабочей одежды, санитарного обслуживания работающих на стройплощадке, их обогрева, приема пищи и отдыха. |
|
|
|
1 ящик с жесткой крышкой |
|
|
|
2 стол |
|
|
|
3 шкаф |
|
|
|
4 табурет |
|
|
|
5 металлическая раковина |
|
|
|
6 рукомойник |
|
|
|
7 электрощит |
|
|
|
8 ставень на окно |
|
|
|
ФУРГОН-БЫТОВКА |
ФБ-01.00.00 |
Стр. 2 |
|||
|
ТЕХНИЧЕСКАЯ ХАРАКТЕРИСТИКА |
||||||
|
Площадь застройки, м2 |
25,23 |
|
||||
|
Полезная площадь, м2 |
22,3 |
|
||||
|
Габаритные размеры, м: |
|
|
||||
|
длина |
8,70 |
|
||||
|
ширина |
2,90 |
|
||||
|
высота |
3,55 |
|
||||
|
Высота внутри кузова |
2,25 |
|
||||
|
ИНЖЕНЕРНОЕ ОБЕСПЕЧЕНИЕ |
||||||
|
Электроснабжение - |
От электросети трехфазного переменного тока |
|||||
|
Отопление - |
электрическое; |
|||||
|
Вентиляция - |
принудительная; |
|||||
|
СТРОИТЕЛЬНЫЕ КОНСТРУКЦИИ И ИЗДЕЛИЯ |
||||||
|
Фургон закрытого типа, установленный на специальные шасси - сварную металлическую конструкцию из стандартных профилей. Каркас кузова деревометаллический. Наружная обшивка - листовая сталь толщиной 1,2 мм. Внутренняя обшивка - древесноволокнистая плита с окрашенной поверхностью. Полы - линолеум. Теплоизоляция выполнена из пенопласта. Фургон имеет два отделения: салон и кухня. Каждое отделение имеет отдельный вход. |
||||||
|
РАЗРАБОТЧИК документации |
ГК "Мосгортранс", завод "АРЕМКУЗ", 113114, Москва, ул. Кожевническая, 18 тел. 235-75-13 |
|||||
|
ЗАВОД-ИЗГОТОВИТЕЛЬ |
ГК "Мосгортранс", завод "АРЕМКУЗ", 113114, Москва, ул. Кожевническая, 18 тел. 235-75-13 |
|||||
|
УТВЕРЖДЕНИЕ |
ТУ 400-12-64-91 |
|||||
|
СОСТАВИТЕЛЬ каталожного листа |
ОАО ПКТИпромстрой |
|||||
|
РАСПРОСТРАНИТЕЛЬ каталожного листа |
ОАО ПКТИпромстрой 125040, Москва, Ленинградский пр-т, д. 26 тел.(095) 214-36-49, факс :(095)214-95-53 E-mail: pkti@tsr.ru; http://www.tsr.ru/~pkti |
|||||
|
|
МОБИЛЬНЫЕ (ИНВЕНТАРНЫЕ) ЗДАНИЯ И СООРУЖЕНИЯ |
1129-022 |
|
МОСКВА |
||
|
ОАО ПКТИ промстрой |
ЗДАНИЕ КОНТЕЙНЕРНОГО ТИПА СИСТЕМЫ «УНИВЕРСАЛ» |
Управление экономической, научно-технической и промышленной политики в строительной отрасли |
|
2002 г |
КОНТОРА НА ДВА РАБОЧИХ МЕСТА |
На 2 страницах стр.1 |
|
|
||
|
|
НАЗНАЧЕНИЕ |
|
|
Здание предназначено для обеспечения рабочими местами 2-х прорабов (мастеров) |
||
|
ПЛАН РАЗМЕЩЕНИЯ ОБОРУДОВАНИЯ |
||
|
|
||
|
|
1 стол конторский |
|
|
|
2 шкаф для документов |
|
|
|
3 умывальник |
|
|
|
4 электросушитель |
|
|
|
5 электрорадиатор |
|
|
|
6 бак для воды |
|
|
|
7 тумба |
|
|
|
8 стул |
|
|
|
КОНТОРА НА ДВА РАБОЧИХ МЕСТА |
1129-022 |
Стр. 2 |
|||
|
ТЕХНИЧЕСКАЯ ХАРАКТЕРИСТИКА |
||||||
|
Масса, кг |
3,5 |
|
||||
|
Расчетный срок службы, лет |
20 |
|
||||
|
Оборачиваемость, раз |
20-30 |
|
||||
|
Строительный объем, м3 |
50,5 |
|
||||
|
Площадь застройки, м2 |
18,0 |
|
||||
|
Полезная площадь, м2 |
15,5 |
|
||||
|
Габаритные размеры, м: |
|
|
||||
|
длина |
6,0 |
|
||||
|
ширина |
3,0 |
|
||||
|
высота |
2,835 |
|
||||
|
ИНЖЕНЕРНОЕ ОБЕСПЕЧЕНИЕ |
||||||
|
Электроснабжение - |
от внешних сетей; |
|||||
|
Водоснабжение - |
от внешних сетей; |
|||||
|
Отопление - |
электрическое; |
|||||
|
Вентиляция - |
естественная и принудительная; |
|||||
|
Канализация - |
в городскую сеть. |
|||||
|
Расход материалов на 1 м2 полезной площади |
||||||
|
Сталь, кг |
85 |
|||||
|
Пиломатериалы, м3 |
0,04 |
|||||
|
Утеплитель, м3 |
0,15 |
|||||
|
РАСЧЕТНЫЕ ХАРАКТЕРИСТИКИ |
||||||
|
Скоростной напор ветра |
0,48 кПа (48 кгс/м2) |
|||||
|
Масса снегового покрова |
1,5 кПа (150 кгс/м2) |
|||||
|
Расчетная температура наружного воздуха |
минус 45 С |
|||||
|
Степень огнестойкости |
V |
|||||
|
Климатические районы |
подрайон I В, II А, III А |
|||||
|
СТРОИТЕЛЬНЫЕ КОНСТРУКЦИИ И ИЗДЕЛИЯ |
||||||
|
Каркас - стальной тонкостенный профиль. Стены - трехслойные стеновые панели. Полы - линолеум по настилу из шпунтованных досок. Кровля - кровельная сталь. Отделка наружная - окраска масляной краской или эмалями. внутренняя - древесностружечные плиты, древесноволокнистые плиты. |
||||||
|
РАЗРАБОТЧИК документации |
МГП «Мосспецпромпроект» 103045, г. Москва, Просвирин пер., д.5/6, стр.1 тел. 924-82-02 |
|||||
|
ЗАВОД-ИЗГОТОВИТЕЛЬ |
АОЗТ "КССК" 119361, г. Москва, ул. Б. Очаковская, д. 2. тел. 430-78-27 |
|||||
|
УТВЕРЖДЕНИЕ |
ТУ 5282-006-05108104-98 |
|||||
|
СОСТАВИТЕЛЬ каталожного листа |
ОАО ПКТИпромстрой |
|||||
|
РАСПРОСТРАНИТЕЛЬ каталожного листа |
ОАО ПКТИпромстрой 125040, Москва, Ленинградский пр-т, д. 26 тел.(095) 214-36-49, факс :(095)214-95-53 E-mail: pkti@tsr.ru; http://www.tsr.ru/~pkti |
|||||
|
|
МОБИЛЬНЫЕ (ИНВЕНТАРНЫЕ) ЗДАНИЯ И СООРУЖЕНИЯ |
1129-044 |
|
МОСКВА |
||
|
ОАО ПКТИ промстрой |
ЗДАНИЕ КОНТЕЙНЕРНОГО ТИПА СИСТЕМЫ «УНИВЕРСАЛ» |
Управление экономической, научно-технической и промышленной политики в строительной отрасли |
|
2002 г |
КОНТОРА на 2 рабочих места |
На 2 страницах стр.1 |
|
|
||
|
|
НАЗНАЧЕНИЕ |
|
|
Здание предназначено для обеспечения рабочими местами двух производителей работ. |
||
|
ПЛАН РАЗМЕЩЕНИЯ ОБОРУДОВАНИЯ |
||
|
|
||
|
|
1 стол конторский |
|
|
|
2 шкаф для документов |
|
|
|
3 умывальник |
|
|
|
4 электросушитель |
|
|
|
5 электрорадиатор |
|
|
|
6 бак для воды |
|
|
|
7 тумба |
|
|
|
8 стул |
|
|
|
КОНТОРА на 2 рабочих места |
1129-044 |
Стр. 2 |
|||
|
ТЕХНИЧЕСКАЯ ХАРАКТЕРИСТИКА |
||||||
|
Масса, кг |
3,5 |
|
||||
|
Расчетный срок службы, лет |
20 |
|
||||
|
Оборачиваемость, раз |
20-30 |
|
||||
|
Строительный объем, м3 |
50,5 |
|
||||
|
Площадь застройки, м2 |
18,0 |
|
||||
|
Полезная площадь, м2 |
15,5 |
|
||||
|
Габаритные размеры, м: |
|
|
||||
|
длина |
6,0 |
|
||||
|
ширина |
3,0 |
|
||||
|
высота |
3,86 |
|
||||
|
ИНЖЕНЕРНОЕ ОБЕСПЕЧЕНИЕ |
||||||
|
Электроснабжение - |
от внешних сетей; |
|||||
|
Водоснабжение - |
от внешних сетей; |
|||||
|
Отопление - |
электрическое; |
|||||
|
Вентиляция - |
естественная и принудительная; |
|||||
|
Канализация - |
в городскую сеть. |
|||||
|
Расход материалов на 1 м2 полезной площади |
||||||
|
Сталь, кг |
85 |
|||||
|
Пиломатериалы, м3 |
0,04 |
|||||
|
Утеплитель, м3 |
0,15 |
|||||
|
РАСЧЕТНЫЕ ХАРАКТЕРИСТИКИ |
||||||
|
Скоростной напор ветра |
0,48 кПа (48 кгс/м2) |
|||||
|
Масса снегового покрова |
1,5 кПа (150 кгс/м2) |
|||||
|
Расчетная температура наружного воздуха |
минус 45 С |
|||||
|
Степень огнестойкости |
V |
|||||
|
Климатические районы |
подрайон I В, II А, III А |
|||||
|
СТРОИТЕЛЬНЫЕ КОНСТРУКЦИИ И ИЗДЕЛИЯ |
||||||
|
Каркас - стальной тонкостенный профиль. Стены - трехслойные стеновые панели. Полы - линолеум по настилу из шпунтованных досок. Кровля - кровельная сталь. Отделка наружная - окраска масляной краской или эмалями. внутренняя - древесностружечные плиты, древесноволокнистые плиты. |
||||||
|
РАЗРАБОТЧИК документации |
МГП «Мосспецпромпроект» 103045, г. Москва, Просвирин пер., д.5/6, стр.1 тел. 924-82-02 |
|||||
|
ЗАВОД-ИЗГОТОВИТЕЛЬ |
АОЗТ "КССК" 119361, г. Москва, ул. Б. Очаковская, д. 2. тел. 430-78-27 |
|||||
|
УТВЕРЖДЕНИЕ |
ТУ 5282-006-05108104-98 |
|||||
|
СОСТАВИТЕЛЬ каталожного листа |
ОАО ПКТИпромстрой |
|||||
|
РАСПРОСТРАНИТЕЛЬ каталожного листа |
ОАО ПКТИпромстрой 125040, Москва, Ленинградский пр-т, д. 26 тел.(095) 214-36-49, факс :(095)214-95-53 E-mail: pkti@tsr.ru; http://www.tsr.ru/~pkti |
|||||
|
|
МОБИЛЬНЫЕ (ИНВЕНТАРНЫЕ) ЗДАНИЯ И СООРУЖЕНИЯ |
Тип ППП-2 |
|
МОСКВА |
||
|
ОАО ПКТИ промстрой |
ЗДАНИЕ КОНТЕЙНЕРНОГО ТИПА |
Управление экономической, научно-технической и промышленной политики в строительной отрасли |
|
2002 г |
ПУНКТ ПРОРАБСКИЙ ПЕРЕДВИЖНОЙ |
На 2 страницах стр.1 |
|
|
||
|
|
НАЗНАЧЕНИЕ |
|
|
|
Здание предназначено для эксплуатации на участках строительных, ремонтно-строительных и дорожных работ. |
|
|
|
Вешалка на 8 крючков |
|
|
|
Вешалка на 6 крючков |
|
|
|
Вешалка с «плечиками» |
|
|
|
Решетка для сушки обуви |
|
|
|
Вешалка для руковиц |
|
|
|
Масляный эл. радиатор |
|
|
|
Огнетушитель ОУ-2 |
|
|
|
Огнетушитель ОУ-5 |
|
|
|
Зеркало |
|
|
|
Аптечка |
|
|
|
ПУНКТ ПРОРАБСКИЙ ПЕРЕДВИЖНОЙ |
Тип ППП-2 |
Стр. 2 |
|||
|
ТЕХНИЧЕСКАЯ ХАРАКТЕРИСТИКА |
||||||
|
Масса, т |
5,55 |
|
||||
|
Строительный объем, м3 |
46,6 |
|
||||
|
Площадь застройки, м2 |
34,8 |
|
||||
|
Полезная площадь, м2 |
23,7 |
|
||||
|
Габаритные размеры, м: |
|
|
||||
|
длина |
10,47 |
|
||||
|
ширина |
3,18 |
|
||||
|
высота |
3,45 |
|
||||
|
Высота внутри кузова |
2,25 |
|
||||
|
ИНЖЕНЕРНОЕ ОБЕСПЕЧЕНИЕ |
||||||
|
Электроснабжение - |
От электросети трехфазного переменного тока |
|||||
|
Отопление - |
электрическое; |
|||||
|
Вентиляция - |
принудительная; |
|||||
|
СТРОИТЕЛЬНЫЕ КОНСТРУКЦИИ И ИЗДЕЛИЯ |
||||||
|
Фургон закрытого типа, установленный на специальные шасси - сварную металлическую конструкцию из стандартных профилей. Каркас кузова деревометаллический. Наружная обшивка - листовая сталь толщиной 1,2 мм. Внутренняя обшивка - древесноволокнистая плита с окрашенной поверхностью. Полы - линолеум. Теплоизоляция выполнена из пенопласта. Фургон имеет два отделения: салон и кухня. Каждое отделение имеет отдельный вход. |
||||||
|
РАЗРАБОТЧИК документации |
ГК "Мосгортранс", завод "АРЕМКУЗ", 113114, Москва, ул. Кожевническая, 18 тел. 235-75-13 |
|||||
|
ЗАВОД-ИЗГОТОВИТЕЛЬ |
ГК "Мосгортранс", завод "АРЕМКУЗ", 113114, Москва, ул. Кожевническая, 18 тел. 235-75-13 |
|||||
|
УТВЕРЖДЕНИЕ |
ТУ 400-12-64-91 |
|||||
|
СОСТАВИТЕЛЬ каталожного листа |
ОАО ПКТИпромстрой |
|||||
|
РАСПРОСТРАНИТЕЛЬ каталожного листа |
ОАО ПКТИпромстрой 125040, Москва, Ленинградский пр-т, д. 26 тел.(095) 214-36-49, факс :(095)214-95-53 E-mail: pkti@tsr.ru; http://www.tsr.ru/~pkti |
|||||
|
|
МОБИЛЬНЫЕ (ИНВЕНТАРНЫЕ) ЗДАНИЯ И СООРУЖЕНИЯ |
Тип ФБД-02 |
|
МОСКВА |
||
|
ОАО ПКТИ промстрой |
ЗДАНИЕ КОНТЕЙНЕРНОГО ТИПА |
Управление экономической, научно-технической и промышленной политики в строительной отрасли |
|
2002 г |
ФУРГОН-БЫТОВКА ДИСПЕТЧЕРСКАЯ |
На 2 страницах стр.1 |
|
|
||
|
|
НАЗНАЧЕНИЕ |
|
|
|
Здание предназначено для размещения диспетчерского персонала строительной площадки сушки одежды, и может быть использовано для круглосуточного режима работы. |
|
|
|
1 Кушетка |
|
|
|
2 Стол с тумбой |
|
|
|
3 Обогреватель |
|
|
|
4 Ящик с инструментами |
|
|
|
5 Ящик с огнетушитель |
|
|
|
6 Ящик-сиденье со спинкой |
|
|
|
7 Стол |
|
|
|
8 Электроплита |
|
|
|
9 Воздуховод |
|
|
|
10 Вентилятор с вытяжкой |
|
|
|
11 Сушка обуви |
|
|
|
12 Вешалка с полкой |
|
|
|
ФУРГОН-БЫТОВКА ДИСПЕТЧЕРСКАЯ |
Тип ФБД-02 |
Стр. 2 |
|||
|
ТЕХНИЧЕСКАЯ ХАРАКТЕРИСТИКА |
||||||
|
Площадь застройки, м2 |
25,23 |
|
||||
|
Полезная площадь, м2 |
22,3 |
|
||||
|
Габаритные размеры, м: |
|
|
||||
|
длина |
8,70 |
|
||||
|
ширина |
2,90 |
|
||||
|
высота |
3,55 |
|
||||
|
Высота внутри кузова |
2,25 |
|
||||
|
ИНЖЕНЕРНОЕ ОБЕСПЕЧЕНИЕ |
||||||
|
Электроснабжение - |
От электросети трехфазного переменного тока |
|||||
|
Отопление - |
электрическое; |
|||||
|
Вентиляция - |
принудительная; |
|||||
|
СТРОИТЕЛЬНЫЕ КОНСТРУКЦИИ И ИЗДЕЛИЯ |
||||||
|
Фургон закрытого типа, установленный на специальные шасси - сварную металлическую конструкцию из стандартных профилей. Каркас кузова деревометаллический. Наружная обшивка - листовая сталь толщиной 1,2 мм. Внутренняя обшивка - древесноволокнистая плита с окрашенной поверхностью. Полы - линолеум. Теплоизоляция выполнена из пенопласта. Фургон имеет два отделения: салон и кухня. Каждое отделение имеет отдельный вход. |
||||||
|
РАЗРАБОТЧИК документации |
ГК "Мосгортранс", завод "АРЕМКУЗ", 113114, Москва, ул. Кожевническая, 18 тел. 235-75-13 |
|||||
|
ЗАВОД-ИЗГОТОВИТЕЛЬ |
ГК "Мосгортранс", завод "АРЕМКУЗ", 113114, Москва, ул. Кожевническая, 18 тел. 235-75-13 |
|||||
|
УТВЕРЖДЕНИЕ |
ТУ 400-12-64-91 |
|||||
|
СОСТАВИТЕЛЬ каталожного листа |
ОАО ПКТИпромстрой |
|||||
|
РАСПРОСТРАНИТЕЛЬ каталожного листа |
ОАО ПКТИпромстрой 125040, Москва, Ленинградский пр-т, д. 26 тел.(095) 214-36-49, факс :(095)214-95-53 E-mail: pkti@tsr.ru; http://www.tsr.ru/~pkti |
|||||
|
|
МОБИЛЬНЫЕ (ИНВЕНТАРНЫЕ) ЗДАНИЯ И СООРУЖЕНИЯ |
1129-023 |
|
МОСКВА |
||
|
ОАО ПКТИ промстрой |
ЗДАНИЕ КОНТЕЙНЕРНОГО ТИПА СИСТЕМЫ «УНИВЕРСАЛ» |
Управление экономической, научно-технической и промышленной политики в строительной отрасли |
|
2002 г |
МЕДПУНКТ |
На 2 страницах стр.1 |
|
|
||
|
|
НАЗНАЧЕНИЕ |
|
|
Здание предназначено для обеспечения рабочими местами двух производителей работ. |
||
|
ПЛАН РАЗМЕЩЕНИЯ ОБОРУДОВАНИЯ |
||
|
|
||
|
|
1 Кушетка медицинская смотровая |
|
|
|
2 Стол однотумбовый |
|
|
|
3 Тумба |
|
|
|
4 Шкаф медицинский |
|
|
|
5 Стул |
|
|
|
6 Электрорадиатор |
|
|
|
7 Умывальник |
|
|
|
8 Бак для воды |
|
|
|
9 Ширма |
|
|
|
10 Электросушитель |
|
|
|
МЕДПУНКТ |
1129-023 |
Стр. 2 |
|||
|
ТЕХНИЧЕСКАЯ ХАРАКТЕРИСТИКА |
||||||
|
Масса, кг |
3,3 |
|
||||
|
Расчетный срок службы, лет |
20 |
|
||||
|
Оборачиваемость, раз |
20-30 |
|
||||
|
Строительный объем, м3 |
50,5 |
|
||||
|
Площадь застройки, м2 |
18,0 |
|
||||
|
Полезная площадь, м2 |
15,5 |
|
||||
|
Габаритные размеры, м: |
|
|
||||
|
длина |
6,0 |
|
||||
|
ширина |
3,0 |
|
||||
|
высота |
2,835 |
|
||||
|
ИНЖЕНЕРНОЕ ОБЕСПЕЧЕНИЕ |
||||||
|
Электроснабжение - |
от внешних сетей; |
|||||
|
Водоснабжение - |
от внешних сетей; |
|||||
|
Отопление - |
электрическое; |
|||||
|
Вентиляция - |
естественная и принудительная; |
|||||
|
Канализация - |
в городскую сеть. |
|||||
|
Расход материалов на 1 м2 полезной площади |
||||||
|
Сталь, кг |
85 |
|||||
|
Пиломатериалы, м3 |
0,04 |
|||||
|
Утеплитель, м3 |
0,15 |
|||||
|
РАСЧЕТНЫЕ ХАРАКТЕРИСТИКИ |
||||||
|
Скоростной напор ветра |
0,48 кПа (48 кгс/м2) |
|||||
|
Масса снегового покрова |
1,5 кПа (150 кгс/м2) |
|||||
|
Расчетная температура наружного воздуха |
минус 45 С |
|||||
|
Степень огнестойкости |
V |
|||||
|
Климатические районы |
подрайон I В, II А, III А |
|||||
|
СТРОИТЕЛЬНЫЕ КОНСТРУКЦИИ И ИЗДЕЛИЯ |
||||||
|
Фундаменты – гравийная подсыпка, бетонная подготовка, балки или деревянные брусья. Каркас - стальной тонкостенный профиль. Стены - трехслойные стеновые панели. Полы - линолеум по настилу из шпунтованных досок. Кровля - кровельная сталь. Отделка наружная - окраска масляной краской или эмалями. внутренняя - древесностружечные плиты, древесноволокнистые плиты. |
||||||
|
РАЗРАБОТЧИК документации |
МГП «Мосспецпромпроект» 103045, г. Москва, Просвирин пер., д.5/6, стр.1 тел. 924-82-02 |
|||||
|
ЗАВОД-ИЗГОТОВИТЕЛЬ |
АОЗТ "КССК" 119361, г. Москва, ул. Б. Очаковская, д. 2. тел. 430-78-27 |
|||||
|
УТВЕРЖДЕНИЕ |
ТУ 5282-006-05108104-98 |
|||||
|
СОСТАВИТЕЛЬ каталожного листа |
ОАО ПКТИпромстрой |
|||||
|
РАСПРОСТРАНИТЕЛЬ каталожного листа |
ОАО ПКТИпромстрой 125040, Москва, Ленинградский пр-т, д. 26 тел.(095) 214-36-49, факс :(095)214-95-53 E-mail: pkti@tsr.ru; http://www.tsr.ru/~pkti |
|||||
|
|
МОБИЛЬНЫЕ (ИНВЕНТАРНЫЕ) ЗДАНИЯ И СООРУЖЕНИЯ |
1129-062 |
|
МОСКВА |
||
|
ОАО ПКТИ промстрой |
ЗДАНИЕ КОНТЕЙНЕРНОГО ТИПА СИСТЕМЫ «УНИВЕРСАЛ» |
Управление экономической, научно-технической и промышленной политики в строительной отрасли |
|
2002 г |
МЕДПУНКТ ДЛЯ СТРОЕК на 300-500 человек |
На 2 страницах стр.1 |
|
|
||
|
|
НАЗНАЧЕНИЕ |
|
|
Здание предназначено для медицинского обслуживания строек с числом работающих от 300-500 человек |
||
|
ПЛАН РАЗМЕЩЕНИЯ ОБОРУДОВАНИЯ |
||
|
|
||
|
|
1 умывальник |
|
|
|
2 унитаз |
|
|
|
3 электросушитель |
|
|
|
4 холодильный шкаф |
|
|
|
5 кушетка смотровая |
|
|
|
6 стол письменный для врача |
|
|
|
7 стол перевязочный складной |
|
|
|
8 столик инструментальный |
|
|
|
9 ширма трехстворчатая |
|
|
|
10 стул |
|
|
|
11 мусоросборник |
|
|
|
12 электрокардиограф |
|
|
|
13 кресло мягкое |
|
|
|
14 полка навесная 2-х створчатая |
|
|
|
15 шкаф медицинский 1-створчатый |
|
|
|
16 табурет |
|
|
|
17 огнетушитель |
|
|
|
18 сейф |
|
|
|
19 зеркало |
|
|
|
20 табурет винтовой |
|
|
|
21 стерилизатор медицинского инструмента электрический (малый) |
|
|
|
22 стерилизатор медицинского инструмента электрический (большой) |
|
|
|
23 стол обеденный |
|
|
|
24 вентилятор |
|
|
|
25 электрорадиатор |
|
|
|
26 стоматологическая установка |
|
|
|
27 походное стоматологическое кресло |
|
|
|
28 столик стоматологический |
|
|
|
29 сушильный шкаф |
|
|
|
30 бактериальная лампа |
|
|
|
31 кварцевая лампа |
|
|
|
32 лампа «соллюкс» стационарная |
|
|
|
МЕДПУНКТ ДЛЯ СТРОЕК на 300-500 человек |
1129-062 |
Стр. 2 |
|||
|
ТЕХНИЧЕСКАЯ ХАРАКТЕРИСТИКА |
||||||
|
Масса, кг |
9,4 |
|
||||
|
Расчетный срок службы, лет |
20 |
|
||||
|
Оборачиваемость, раз |
20-30 |
|
||||
|
Строительный объем, м3 |
153,0 |
|
||||
|
Площадь застройки, м2 |
54,0 |
|
||||
|
Полезная площадь, м2 |
19,4 |
|
||||
|
Габаритные размеры, м: |
|
|
||||
|
длина |
9,0 |
|
||||
|
ширина |
6,0 |
|
||||
|
высота |
2,835 |
|
||||
|
ИНЖЕНЕРНОЕ ОБЕСПЕЧЕНИЕ |
||||||
|
Электроснабжение - |
от внешних сетей; |
|||||
|
Водоснабжение - |
от внешних сетей; |
|||||
|
Отопление - |
электрическое; |
|||||
|
Вентиляция - |
естественная и принудительная; |
|||||
|
Канализация - |
в городскую сеть. |
|||||
|
Расход материалов на 1 м2 полезной площади |
||||||
|
Сталь, кг |
85 |
|||||
|
Пиломатериалы, м3 |
0,04 |
|||||
|
Утеплитель, м3 |
0,15 |
|||||
|
РАСЧЕТНЫЕ ХАРАКТЕРИСТИКИ |
||||||
|
Скоростной напор ветра |
0,48 кПа (48 кгс/м2) |
|||||
|
Масса снегового покрова |
1,5 кПа (150 кгс/м2) |
|||||
|
Расчетная температура наружного воздуха |
минус 45 С |
|||||
|
Степень огнестойкости |
V |
|||||
|
Климатические районы |
подрайон I В, II А, III А |
|||||
|
СТРОИТЕЛЬНЫЕ КОНСТРУКЦИИ И ИЗДЕЛИЯ |
||||||
|
Фундаменты – гравийная подсыпка, бетонная подготовка, балки или деревянные брусья. Каркас - стальной тонкостенный профиль. Стены - трехслойные стеновые панели. Полы - линолеум по настилу из шпунтованных досок. Кровля - кровельная сталь. Отделка наружная - окраска масляной краской или эмалями. внутренняя - древесностружечные плиты, древесноволокнистые плиты. |
||||||
|
РАЗРАБОТЧИК документации |
МГП «Мосспецпромпроект» 103045, г. Москва, Просвирин пер., д.5/6, стр.1 тел. 924-82-02 |
|||||
|
ЗАВОД-ИЗГОТОВИТЕЛЬ |
АОЗТ "КССК" 119361, г. Москва, ул. Б. Очаковская, д. 2. тел. 430-78-27 |
|||||
|
УТВЕРЖДЕНИЕ |
ТУ 5282-006-05108104-98 |
|||||
|
СОСТАВИТЕЛЬ каталожного листа |
ОАО ПКТИпромстрой |
|||||
|
РАСПРОСТРАНИТЕЛЬ каталожного листа |
ОАО ПКТИпромстрой 125040, Москва, Ленинградский пр-т, д. 26 тел.(095) 214-36-49, факс :(095)214-95-53 E-mail: pkti@tsr.ru; http://www.tsr.ru/~pkti |
|||||
|
|
МОБИЛЬНЫЕ (ИНВЕНТАРНЫЕ) ЗДАНИЯ И СООРУЖЕНИЯ |
1129-047 |
|
МОСКВА |
||
|
ОАО ПКТИ промстрой |
ЗДАНИЕ КОНТЕЙНЕРНОГО ТИПА СИСТЕМЫ «УНИВЕРСАЛ» |
Управление экономической, научно-технической и промышленной политики в строительной отрасли |
|
2002 г |
ДУШЕВАЯ на 3 сетки |
На 2 страницах стр.1 |
|
|
||
|
|
НАЗНАЧЕНИЕ |
|
|
Здание предназначено для обеспечения необходимыми санитарно-гигиеническими условиями работающих на площадке. |
||
|
ПЛАН РАЗМЕЩЕНИЯ ОБОРУДОВАНИЯ |
||
|
|
||
|
|
1 душевой поддон |
|
|
|
2 сушильный шкаф |
|
|
|
3 скамья |
|
|
|
4 электрорадиаторы |
|
|
|
5 унитаз |
|
|
|
6 умывальник |
|
|
|
7 электросушитель |
|
|
|
8 вентилятор |
|
|
|
ДУШЕВАЯ на 3 сетки |
1129-047 |
Стр. 2 |
|||
|
ТЕХНИЧЕСКАЯ ХАРАКТЕРИСТИКА |
||||||
|
Масса, кг |
3,0 |
|
||||
|
Расчетный срок службы, лет |
20 |
|
||||
|
Оборачиваемость, раз |
20-30 |
|
||||
|
Строительный объем, м3 |
50,5 |
|
||||
|
Площадь застройки, м2 |
18,0 |
|
||||
|
Полезная площадь, м2 |
15,5 |
|
||||
|
Габаритные размеры, м: |
|
|
||||
|
длина |
6,0 |
|
||||
|
ширина |
3,0 |
|
||||
|
высота |
3,86 |
|
||||
|
ИНЖЕНЕРНОЕ ОБЕСПЕЧЕНИЕ |
||||||
|
Электроснабжение - |
от внешних сетей; |
|||||
|
Водоснабжение - |
от внешних сетей; |
|||||
|
Отопление - |
электрическое; |
|||||
|
Вентиляция - |
естественная и принудительная; |
|||||
|
Канализация - |
в городскую сеть. |
|||||
|
Расход материалов на 1 м2 полезной площади |
||||||
|
Сталь, кг |
85 |
|||||
|
Пиломатериалы, м3 |
0,04 |
|||||
|
Утеплитель, м3 |
0,15 |
|||||
|
РАСЧЕТНЫЕ ХАРАКТЕРИСТИКИ |
||||||
|
Скоростной напор ветра |
0,48 кПа (48 кгс/м2) |
|||||
|
Масса снегового покрова |
1,5 кПа (150 кгс/м2) |
|||||
|
Расчетная температура наружного воздуха |
минус 45 С |
|||||
|
Степень огнестойкости |
V |
|||||
|
Климатические районы |
подрайон I В, II А, III А |
|||||
|
СТРОИТЕЛЬНЫЕ КОНСТРУКЦИИ И ИЗДЕЛИЯ |
||||||
|
Фундаменты – гравийная подсыпка, бетонная подготовка, балки или деревянные брусья. Каркас - стальной тонкостенный профиль. Стены - трехслойные стеновые панели. Полы - линолеум по настилу из шпунтованных досок. Кровля - кровельная сталь. Отделка наружная - окраска масляной краской или эмалями. внутренняя - древесностружечные плиты, древесноволокнистые плиты. |
||||||
|
РАЗРАБОТЧИК документации |
МГП «Мосспецпромпроект» 103045, г. Москва, Просвирин пер., д.5/6, стр.1 тел. 924-82-02 |
|||||
|
ЗАВОД-ИЗГОТОВИТЕЛЬ |
АОЗТ "КССК" 119361, г. Москва, ул. Б. Очаковская, д. 2. тел. 430-78-27 |
|||||
|
УТВЕРЖДЕНИЕ |
ТУ 5282-006-05108104-98 |
|||||
|
СОСТАВИТЕЛЬ каталожного листа |
ОАО ПКТИпромстрой |
|||||
|
РАСПРОСТРАНИТЕЛЬ каталожного листа |
ОАО ПКТИпромстрой 125040, Москва, Ленинградский пр-т, д. 26 тел.(095) 214-36-49, факс :(095)214-95-53 E-mail: pkti@tsr.ru; http://www.tsr.ru/~pkti |
|||||
|
|
МОБИЛЬНЫЕ (ИНВЕНТАРНЫЕ) ЗДАНИЯ И СООРУЖЕНИЯ |
|
|
МОСКВА |
||
|
ОАО ПКТИ промстрой |
ЗДАНИЕ КОНТЕЙНЕРНОГО ТИПА |
Управление экономической, научно-технической и промышленной политики в строительной отрасли |
|
2002 г |
ПЕРЕДВИЖНАЯ ДУШЕВАЯ на 10 мест |
На 2 страницах стр.1 |
|
|
||
|
|
НАЗНАЧЕНИЕ |
|
|
Здание предназначено для обеспечения необходимыми санитарно-гигиеническими условиями работающих на площадке. |
||
|
|
1 электрощит |
|
|
|
2 бойлер электрический |
|
|
|
3 скамья с вешалкой |
|
|
|
4 душевой поддон |
|
|
|
5 бак для холодной воды |
|
|
|
6 вешалка |
|
|
|
7 душевая арматура со смесителем |
|
|
|
8 радиатор отопления |
|
|
|
9 оконный вентилятор |
|
|
|
ПЕРЕДВИЖНАЯ ДУШЕВАЯ на 10 мест |
|
Стр. 2 |
|||
|
ТЕХНИЧЕСКАЯ ХАРАКТЕРИСТИКА |
||||||
|
Площадь застройки, м2 |
25,23 |
|
||||
|
Полезная площадь, м2 |
24,11 |
|
||||
|
Габаритные размеры, м: |
|
|
||||
|
длина |
8,70 |
|
||||
|
ширина |
2,90 |
|
||||
|
высота |
3,55 |
|
||||
|
ИНЖЕНЕРНОЕ ОБЕСПЕЧЕНИЕ |
||||||
|
Электроснабжение - |
От электросети трехфазного переменного тока |
|||||
|
Отопление - |
электрическое; |
|||||
|
Вентиляция - |
принудительная; |
|||||
|
СТРОИТЕЛЬНЫЕ КОНСТРУКЦИИ И ИЗДЕЛИЯ |
||||||
|
Фургон закрытого типа, установленный на специальные шасси - сварную металлическую конструкцию из стандартных профилей. Каркас кузова деревометаллический. Наружная обшивка - листовая сталь толщиной 1,2 мм. Внутренняя обшивка - древесноволокнистая плита с окрашенной поверхностью. Полы - линолеум. Теплоизоляция выполнена из пенопласта. Фургон имеет два отделения: салон и кухня. Каждое отделение имеет отдельный вход. |
||||||
|
РАЗРАБОТЧИК документации |
ГК "Мосгортранс", завод "АРЕМКУЗ", 113114, Москва, ул. Кожевническая, 18 тел. 235-75-13 |
|||||
|
ЗАВОД-ИЗГОТОВИТЕЛЬ |
ГК "Мосгортранс", завод "АРЕМКУЗ", 113114, Москва, ул. Кожевническая, 18 тел. 235-75-13 |
|||||
|
УТВЕРЖДЕНИЕ |
ТУ 400-12-64-91 |
|||||
|
СОСТАВИТЕЛЬ каталожного листа |
ОАО ПКТИпромстрой |
|||||
|
РАСПРОСТРАНИТЕЛЬ каталожного листа |
ОАО ПКТИпромстрой 125040, Москва, Ленинградский пр-т, д. 26 тел.(095) 214-36-49, факс :(095)214-95-53 E-mail: pkti@tsr.ru; http://www.tsr.ru/~pkti |
|||||
|
|
МОБИЛЬНЫЕ (ИНВЕНТАРНЫЕ) ЗДАНИЯ И СООРУЖЕНИЯ |
1129-030 |
|
МОСКВА |
||
|
ОАО ПКТИ промстрой |
ЗДАНИЕ КОНТЕЙНЕРНОГО ТИПА СИСТЕМЫ «УНИВЕРСАЛ» |
Управление экономической, научно-технической и промышленной политики в строительной отрасли |
|
2002 г |
ЗДАНИЕ ДЛЯ ПРОВЕДЕНИЯ ЗАНЯТИЙ на 15 человек |
На 2 страницах стр.1 |
|
|
||
|
|
НАЗНАЧЕНИЕ |
|
|
Здание предназначено для проведения занятий по технике безопасности. |
||
|
ПЛАН РАЗМЕЩЕНИЯ ОБОРУДОВАНИЯ |
||
|
|
||
|
|
1 стол однотумбовый |
|
|
|
2 шкаф для документации |
|
|
|
3 стул |
|
|
|
4 электрорадиатор |
|
|
|
5 вешалка |
|
|
|
ЗДАНИЕ ДЛЯ ПРОВЕДЕНИЯ ЗАНЯТИЙ на 15 человек |
1129-030 |
Стр. 2 |
|||
|
ТЕХНИЧЕСКАЯ ХАРАКТЕРИСТИКА |
||||||
|
Масса, кг |
3,3 |
|
||||
|
Расчетный срок службы, лет |
20 |
|
||||
|
Оборачиваемость, раз |
20-30 |
|
||||
|
Строительный объем, м3 |
50,5 |
|
||||
|
Площадь застройки, м2 |
18,0 |
|
||||
|
Полезная площадь, м2 |
15,5 |
|
||||
|
Габаритные размеры, м: |
|
|
||||
|
длина |
6,0 |
|
||||
|
ширина |
3,0 |
|
||||
|
высота |
2,835 |
|
||||
|
ИНЖЕНЕРНОЕ ОБЕСПЕЧЕНИЕ |
||||||
|
Электроснабжение - |
от внешних сетей; |
|||||
|
Водоснабжение - |
от внешних сетей; |
|||||
|
Отопление - |
электрическое; |
|||||
|
Вентиляция - |
естественная и принудительная; |
|||||
|
Канализация - |
в городскую сеть. |
|||||
|
Расход материалов на 1 м2 полезной площади |
||||||
|
Сталь, кг |
85 |
|||||
|
Пиломатериалы, м3 |
0,04 |
|||||
|
Утеплитель, м3 |
0,15 |
|||||
|
РАСЧЕТНЫЕ ХАРАКТЕРИСТИКИ |
||||||
|
Скоростной напор ветра |
0,48 кПа (48 кгс/м2) |
|||||
|
Масса снегового покрова |
1,5 кПа (150 кгс/м2) |
|||||
|
Расчетная температура наружного воздуха |
минус 45 С |
|||||
|
Степень огнестойкости |
V |
|||||
|
Климатические районы |
подрайон I В, II А, III А |
|||||
|
СТРОИТЕЛЬНЫЕ КОНСТРУКЦИИ И ИЗДЕЛИЯ |
||||||
|
Фундаменты – гравийная подсыпка, бетонная подготовка, балки или деревянные брусья. Каркас - стальной тонкостенный профиль. Стены - трехслойные стеновые панели. Полы - линолеум по настилу из шпунтованных досок. Кровля - кровельная сталь. Отделка наружная - окраска масляной краской или эмалями. внутренняя - древесностружечные плиты, древесноволокнистые плиты. |
||||||
|
РАЗРАБОТЧИК документации |
МГП «Мосспецпромпроект» 103045, г. Москва, Просвирин пер., д.5/6, стр.1 тел. 924-82-02 |
|||||
|
ЗАВОД-ИЗГОТОВИТЕЛЬ |
АОЗТ "КССК" 119361, г. Москва, ул. Б. Очаковская, д. 2. тел. 430-78-27 |
|||||
|
УТВЕРЖДЕНИЕ |
ТУ 5282-006-05108104-98 |
|||||
|
СОСТАВИТЕЛЬ каталожного листа |
ОАО ПКТИпромстрой |
|||||
|
РАСПРОСТРАНИТЕЛЬ каталожного листа |
ОАО ПКТИпромстрой 125040, Москва, Ленинградский пр-т, д. 26 тел.(095) 214-36-49, факс :(095)214-95-53 E-mail: pkti@tsr.ru; http://www.tsr.ru/~pkti |
|||||
|
|
МОБИЛЬНЫЕ (ИНВЕНТАРНЫЕ) ЗДАНИЯ И СООРУЖЕНИЯ |
1129-029 |
|
МОСКВА |
||
|
ОАО ПКТИ промстрой |
ЗДАНИЕ КОНТЕЙНЕРНОГО ТИПА СИСТЕМЫ «УНИВЕРСАЛ» |
Управление экономической, научно-технической и промышленной политики в строительной отрасли |
|
2002 г |
ЗДАНИЕ ДЛЯ ПРОВЕДЕНИЯ ЗАНЯТИЙ на 6 человек |
На 2 страницах стр.1 |
|
|
||
|
|
НАЗНАЧЕНИЕ |
|
|
Здание предназначено для проведения занятий по повышению квалификации и технической учебы. |
||
|
ПЛАН РАЗМЕЩЕНИЯ ОБОРУДОВАНИЯ |
||
|
|
||
|
|
1 стол |
|
|
|
2 стул |
|
|
|
3 шкаф |
|
|
|
4 электрорадиатор |
|
|
|
5 вешалка |
|
|
|
ЗДАНИЕ ДЛЯ ПРОВЕДЕНИЯ ЗАНЯТИЙ на 6 человек |
1129-029 |
Стр. 2 |
|||
|
ТЕХНИЧЕСКАЯ ХАРАКТЕРИСТИКА |
||||||
|
Масса, кг |
3,3 |
|
||||
|
Расчетный срок службы, лет |
20 |
|
||||
|
Оборачиваемость, раз |
20-30 |
|
||||
|
Строительный объем, м3 |
50,5 |
|
||||
|
Площадь застройки, м2 |
18,0 |
|
||||
|
Полезная площадь, м2 |
15,5 |
|
||||
|
Габаритные размеры, м: |
|
|
||||
|
длина |
6,0 |
|
||||
|
ширина |
3,0 |
|
||||
|
высота |
2,835 |
|
||||
|
ИНЖЕНЕРНОЕ ОБЕСПЕЧЕНИЕ |
||||||
|
Электроснабжение - |
от внешних сетей; |
|||||
|
Водоснабжение - |
от внешних сетей; |
|||||
|
Отопление - |
электрическое; |
|||||
|
Вентиляция - |
естественная и принудительная; |
|||||
|
Канализация - |
в городскую сеть. |
|||||
|
Расход материалов на 1 м2 полезной площади |
||||||
|
Сталь, кг |
85 |
|||||
|
Пиломатериалы, м3 |
0,04 |
|||||
|
Утеплитель, м3 |
0,15 |
|||||
|
РАСЧЕТНЫЕ ХАРАКТЕРИСТИКИ |
||||||
|
Скоростной напор ветра |
0,48 кПа (48 кгс/м2) |
|||||
|
Масса снегового покрова |
1,5 кПа (150 кгс/м2) |
|||||
|
Расчетная температура наружного воздуха |
минус 45 С |
|||||
|
Степень огнестойкости |
V |
|||||
|
Климатические районы |
подрайон I В, II А, III А |
|||||
|
СТРОИТЕЛЬНЫЕ КОНСТРУКЦИИ И ИЗДЕЛИЯ |
||||||
|
Фундаменты – гравийная подсыпка, бетонная подготовка, балки или деревянные брусья. Каркас - стальной тонкостенный профиль. Стены - трехслойные стеновые панели. Полы - линолеум по настилу из шпунтованных досок. Кровля - кровельная сталь. Отделка наружная - окраска масляной краской или эмалями. внутренняя - древесностружечные плиты, древесноволокнистые плиты. |
||||||
|
РАЗРАБОТЧИК документации |
МГП «Мосспецпромпроект» 103045, г. Москва, Просвирин пер., д.5/6, стр.1 тел. 924-82-02 |
|||||
|
ЗАВОД-ИЗГОТОВИТЕЛЬ |
АОЗТ "КССК" 119361, г. Москва, ул. Б. Очаковская, д. 2. тел. 430-78-27 |
|||||
|
УТВЕРЖДЕНИЕ |
ТУ 5282-006-05108104-98 |
|||||
|
СОСТАВИТЕЛЬ каталожного листа |
ОАО ПКТИпромстрой |
|||||
|
РАСПРОСТРАНИТЕЛЬ каталожного листа |
ОАО ПКТИпромстрой 125040, Москва, Ленинградский пр-т, д. 26 тел.(095) 214-36-49, факс :(095)214-95-53 E-mail: pkti@tsr.ru; http://www.tsr.ru/~pkti |
|||||
|
|
МОБИЛЬНЫЕ (ИНВЕНТАРНЫЕ) ЗДАНИЯ И СООРУЖЕНИЯ |
1129-024 |
|
МОСКВА |
||
|
ОАО ПКТИ промстрой |
ЗДАНИЕ КОНТЕЙНЕРНОГО ТИПА СИСТЕМЫ «УНИВЕРСАЛ» |
Управление экономической, научно-технической и промышленной политики в строительной отрасли |
|
2002 г |
ЗДАНИЕ ДЛЯ КРАТКОВРЕМЕННОГО ОТДЫХА, ОБОГРЕВА И СУШКИ РАБОЧЕЙ ОДЕЖДЫ |
На 2 страницах стр.1 |
|
|
||
|
|
НАЗНАЧЕНИЕ |
|
|
Здание предназначено для обогрева и кратковременного отдыха 10 человек и сушки рабочей одежды |
||
|
ПЛАН РАЗМЕЩЕНИЯ ОБОРУДОВАНИЯ |
||
|
|
||
|
|
1 стол с электронагревателем |
|
|
|
2 скамья |
|
|
|
3 тумба |
|
|
|
4 умывальник |
|
|
|
5 электросушка для рук |
|
|
|
6 электрорадиатор |
|
|
|
7 бак для воды |
|
|
|
ЗДАНИЕ ДЛЯ КРАТКОВРЕМЕННОГО ОТДЫХА, ОБОГРЕВА И СУШКИ РАБОЧЕЙ ОДЕЖДЫ |
1129-024 |
Стр. 2 |
|||
|
ТЕХНИЧЕСКАЯ ХАРАКТЕРИСТИКА |
||||||
|
Масса, кг |
3,5 |
|
||||
|
Расчетный срок службы, лет |
20 |
|
||||
|
Оборачиваемость, раз |
20-30 |
|
||||
|
Строительный объем, м3 |
50,5 |
|
||||
|
Площадь застройки, м2 |
18,0 |
|
||||
|
Полезная площадь, м2 |
15,5 |
|
||||
|
Габаритные размеры, м: |
|
|
||||
|
длина |
6,0 |
|
||||
|
ширина |
3,0 |
|
||||
|
высота |
2,835 |
|
||||
|
ИНЖЕНЕРНОЕ ОБЕСПЕЧЕНИЕ |
||||||
|
Электроснабжение - |
от внешних сетей; |
|||||
|
Водоснабжение - |
от внешних сетей; |
|||||
|
Отопление - |
электрическое; |
|||||
|
Вентиляция - |
естественная и принудительная; |
|||||
|
Канализация - |
в городскую сеть. |
|||||
|
Расход материалов на 1 м2 полезной площади |
||||||
|
Сталь, кг |
85 |
|||||
|
Пиломатериалы, м3 |
0,04 |
|||||
|
Утеплитель, м3 |
0,15 |
|||||
|
РАСЧЕТНЫЕ ХАРАКТЕРИСТИКИ |
||||||
|
Скоростной напор ветра |
0,48 кПа (48 кгс/м2) |
|||||
|
Масса снегового покрова |
1,5 кПа (150 кгс/м2) |
|||||
|
Расчетная температура наружного воздуха |
минус 45 С |
|||||
|
Степень огнестойкости |
V |
|||||
|
Климатические районы |
подрайон I В, II А, III А |
|||||
|
СТРОИТЕЛЬНЫЕ КОНСТРУКЦИИ И ИЗДЕЛИЯ |
||||||
|
Фундаменты – гравийная подсыпка, бетонная подготовка, балки или деревянные брусья. Каркас - стальной тонкостенный профиль. Стены - трехслойные стеновые панели. Полы - линолеум по настилу из шпунтованных досок. Кровля - кровельная сталь. Отделка наружная - окраска масляной краской или эмалями. внутренняя - древесностружечные плиты, древесноволокнистые плиты. |
||||||
|
РАЗРАБОТЧИК документации |
МГП «Мосспецпромпроект» 103045, г. Москва, Просвирин пер., д.5/6, стр.1 тел. 924-82-02 |
|||||
|
ЗАВОД-ИЗГОТОВИТЕЛЬ |
АОЗТ "КССК" 119361, г. Москва, ул. Б. Очаковская, д. 2. тел. 430-78-27 |
|||||
|
УТВЕРЖДЕНИЕ |
ТУ 5282-006-05108104-98 |
|||||
|
СОСТАВИТЕЛЬ каталожного листа |
ОАО ПКТИпромстрой |
|||||
|
РАСПРОСТРАНИТЕЛЬ каталожного листа |
ОАО ПКТИпромстрой 125040, Москва, Ленинградский пр-т, д. 26 тел.(095) 214-36-49, факс :(095)214-95-53 E-mail: pkti@tsr.ru; http://www.tsr.ru/~pkti |
|||||
|
|
МОБИЛЬНЫЕ (ИНВЕНТАРНЫЕ) ЗДАНИЯ И СООРУЖЕНИЯ |
1129-045 |
|
МОСКВА |
||
|
ОАО ПКТИ промстрой |
ЗДАНИЕ КОНТЕЙНЕРНОГО ТИПА СИСТЕМЫ «УНИВЕРСАЛ» |
Управление экономической, научно-технической и промышленной политики в строительной отрасли |
|
2002 г |
ЗДАНИЕ ДЛЯ КРАТКОВРЕМЕННОГО ОТДЫХА, ОБОГРЕВА МОНТАЖНИКОВ |
На 2 страницах стр.1 |
|
|
||
|
|
НАЗНАЧЕНИЕ |
|
|
Здание предназначено для обогрева и кратковременного отдыха и обогрева монтажников на этажах строящегося здания. |
||
|
ПЛАН РАЗМЕЩЕНИЯ ОБОРУДОВАНИЯ |
||
|
|
||
|
|
1 стол |
|
|
|
2 скамья |
|
|
|
3 электроплита |
|
|
|
4 тумба |
|
|
|
5 электрорадиатор |
|
|
|
ЗДАНИЕ ДЛЯ КРАТКОВРЕМЕННОГО ОТДЫХА, ОБОГРЕВА МОНТАЖНИКОВ |
1129-045 |
Стр. 2 |
|||
|
ТЕХНИЧЕСКАЯ ХАРАКТЕРИСТИКА |
||||||
|
Масса, кг |
2,0 |
|
||||
|
Расчетный срок службы, лет |
20 |
|
||||
|
Оборачиваемость, раз |
20-30 |
|
||||
|
Строительный объем, м3 |
23,5 |
|
||||
|
Площадь застройки, м2 |
10,0 |
|
||||
|
Полезная площадь, м2 |
8,3 |
|
||||
|
Габаритные размеры, м: |
|
|
||||
|
длина |
4,41 |
|
||||
|
ширина |
2,27 |
|
||||
|
высота |
2,35 |
|
||||
|
ИНЖЕНЕРНОЕ ОБЕСПЕЧЕНИЕ |
||||||
|
Электроснабжение - |
от внешних сетей; |
|||||
|
Отопление - |
электрическое; |
|||||
|
Вентиляция - |
естественная и принудительная; |
|||||
|
Расход материалов на 1 м2 полезной площади |
||||||
|
Сталь, кг |
85 |
|||||
|
Пиломатериалы, м3 |
0,04 |
|||||
|
Утеплитель, м3 |
0,15 |
|||||
|
РАСЧЕТНЫЕ ХАРАКТЕРИСТИКИ |
||||||
|
Скоростной напор ветра |
0,48 кПа (48 кгс/м2) |
|||||
|
Масса снегового покрова |
1,5 кПа (150 кгс/м2) |
|||||
|
Расчетная температура наружного воздуха |
минус 45 С |
|||||
|
Степень огнестойкости |
V |
|||||
|
Климатические районы |
подрайон I В, II А, III А |
|||||
|
СТРОИТЕЛЬНЫЕ КОНСТРУКЦИИ И ИЗДЕЛИЯ |
||||||
|
Фундаменты – гравийная подсыпка, бетонная подготовка, балки или деревянные брусья. Каркас - стальной тонкостенный профиль. Стены - трехслойные стеновые панели. Полы - линолеум по настилу из шпунтованных досок. Кровля - кровельная сталь. Отделка наружная - окраска масляной краской или эмалями. внутренняя - древесностружечные плиты, древесноволокнистые плиты. |
||||||
|
РАЗРАБОТЧИК документации |
МГП «Мосспецпромпроект» 103045, г. Москва, Просвирин пер., д.5/6, стр.1 тел. 924-82-02 |
|||||
|
ЗАВОД-ИЗГОТОВИТЕЛЬ |
АОЗТ "КССК" 119361, г. Москва, ул. Б. Очаковская, д. 2. тел. 430-78-27 |
|||||
|
УТВЕРЖДЕНИЕ |
ТУ 5282-006-05108104-98 |
|||||
|
СОСТАВИТЕЛЬ каталожного листа |
ОАО ПКТИпромстрой |
|||||
|
РАСПРОСТРАНИТЕЛЬ каталожного листа |
ОАО ПКТИпромстрой 125040, Москва, Ленинградский пр-т, д. 26 тел.(095) 214-36-49, факс :(095)214-95-53 E-mail: pkti@tsr.ru; http://www.tsr.ru/~pkti |
|||||
|
|
МОБИЛЬНЫЕ (ИНВЕНТАРНЫЕ) ЗДАНИЯ И СООРУЖЕНИЯ |
1129-073 |
|
МОСКВА |
||
|
ОАО ПКТИ промстрой |
ЗДАНИЕ КОНТЕЙНЕРНОГО ТИПА СИСТЕМЫ «УНИВЕРСАЛ» |
Управление экономической, научно-технической и промышленной политики в строительной отрасли |
|
2002 г |
ШТАБ СТРОИТЕЛЬСТВА |
На 2 страницах стр.1 |
|
|
||
|
|
НАЗНАЧЕНИЕ |
|
|
Здание предназначено для проведения собраний, совещаний и занятий. |
||
|
ПЛАН РАЗМЕЩЕНИЯ ОБОРУДОВАНИЯ |
||
|
|
||
|
|
1 стол |
|
|
|
2 стул |
|
|
|
3 доска мелованная |
|
|
|
4 шкаф для документации |
|
|
|
5 шкаф для инвентаря |
|
|
|
6 электрорадиатор |
|
|
|
Штаб строительства |
1129-073 |
Стр. 2 |
|||
|
ТЕХНИЧЕСКАЯ ХАРАКТЕРИСТИКА |
||||||
|
Масса, кг |
5,0 |
|
||||
|
Расчетный срок службы, лет |
20 |
|
||||
|
Оборачиваемость, раз |
20-30 |
|
||||
|
Строительный объем, м3 |
106,4 |
|
||||
|
Площадь застройки, м2 |
36,0 |
|
||||
|
Полезная площадь, м2 |
32,0 |
|
||||
|
Габаритные размеры, м: |
|
|
||||
|
длина |
6,0 |
|
||||
|
ширина |
6,0 |
|
||||
|
высота |
2,835 |
|
||||
|
ИНЖЕНЕРНОЕ ОБЕСПЕЧЕНИЕ |
||||||
|
Электроснабжение - |
от внешних сетей; |
|||||
|
Отопление - |
электрическое; |
|||||
|
Водоснабжение |
От внешних сетей и автономное |
|||||
|
Вентиляция - |
естественная и принудительная; |
|||||
|
Канализация |
В городскую сеть |
|||||
|
Расход материалов на 1 м2 полезной площади |
||||||
|
Сталь, кг |
85 |
|||||
|
Пиломатериалы, м3 |
0,04 |
|||||
|
Утеплитель, м3 |
0,15 |
|||||
|
РАСЧЕТНЫЕ ХАРАКТЕРИСТИКИ |
||||||
|
Скоростной напор ветра |
0,48 кПа (48 кгс/м2) |
|||||
|
Масса снегового покрова |
1,5 кПа (150 кгс/м2) |
|||||
|
Расчетная температура наружного воздуха |
минус 45 С |
|||||
|
Степень огнестойкости |
V |
|||||
|
Климатические районы |
подрайон I В, II А, III А |
|||||
|
СТРОИТЕЛЬНЫЕ КОНСТРУКЦИИ И ИЗДЕЛИЯ |
||||||
|
Фундаменты – гравийная подсыпка, бетонная подготовка, балки или деревянные брусья. Каркас - стальной тонкостенный профиль. Стены - трехслойные стеновые панели. Полы - линолеум по настилу из шпунтованных досок. Кровля - кровельная сталь. Отделка наружная - окраска масляной краской или эмалями. внутренняя - древесностружечные плиты, древесноволокнистые плиты. |
||||||
|
РАЗРАБОТЧИК документации |
МГП «Мосспецпромпроект» 103045, г. Москва, Просвирин пер., д.5/6, стр.1 тел. 924-82-02 |
|||||
|
ЗАВОД-ИЗГОТОВИТЕЛЬ |
АОЗТ "КССК" 119361, г. Москва, ул. Б. Очаковская, д. 2. тел. 430-78-27 |
|||||
|
УТВЕРЖДЕНИЕ |
ТУ 5282-006-05108104-98 |
|||||
|
СОСТАВИТЕЛЬ каталожного листа |
ОАО ПКТИпромстрой |
|||||
|
РАСПРОСТРАНИТЕЛЬ каталожного листа |
ОАО ПКТИпромстрой 125040, Москва, Ленинградский пр-т, д. 26 тел.(095) 214-36-49, факс :(095)214-95-53 E-mail: pkti@tsr.ru; http://www.tsr.ru/~pkti |
|||||
|
|
МОБИЛЬНЫЕ (ИНВЕНТАРНЫЕ) ЗДАНИЯ И СООРУЖЕНИЯ |
1129-065 |
|
МОСКВА |
||
|
ОАО ПКТИ промстрой |
ЗДАНИЕ КОНТЕЙНЕРНОГО ТИПА СИСТЕМЫ «УНИВЕРСАЛ» |
Управление экономической, научно-технической и промышленной политики в строительной отрасли |
|
2002 г |
Здание различного назначения |
На 2 страницах стр.1 |
|
|
||
|
|
НАЗНАЧЕНИЕ |
|
|
Здание различного назначения |
||
|
ПЛАН РАЗМЕЩЕНИЯ ОБОРУДОВАНИЯ |
||
|
|
||
|
|
1 стеллаж |
|
|
|
2 прилавок |
|
|
|
3 стол |
|
|
|
4 стол |
|
|
|
5 холодильник |
|
|
|
6 умывальник |
|
|
|
7 электросушитель |
|
|
|
8 электрорадиатор |
|
|
|
ЗДАНИЕ РАЗЛИЧНОГО НАЗНАЧЕНИЯ |
1129-065 |
Стр. 2 |
|||
|
ТЕХНИЧЕСКАЯ ХАРАКТЕРИСТИКА |
||||||
|
Масса, кг |
3,0 |
|
||||
|
Расчетный срок службы, лет |
20 |
|
||||
|
Оборачиваемость, раз |
20-30 |
|
||||
|
Строительный объем, м3 |
50,0 |
|
||||
|
Площадь застройки, м2 |
18,0 |
|
||||
|
Полезная площадь, м2 |
15,5 |
|
||||
|
Габаритные размеры, м: |
|
|
||||
|
длина |
6,0 |
|
||||
|
ширина |
3,0 |
|
||||
|
высота |
2,835 |
|
||||
|
ИНЖЕНЕРНОЕ ОБЕСПЕЧЕНИЕ |
||||||
|
Электроснабжение - |
от внешних сетей; |
|||||
|
Отопление - |
электрическое; |
|||||
|
Вентиляция - |
естественная и принудительная; |
|||||
|
Расход материалов на 1 м2 полезной площади |
||||||
|
Сталь, кг |
85 |
|||||
|
Пиломатериалы, м3 |
0,04 |
|||||
|
Утеплитель, м3 |
0,15 |
|||||
|
РАСЧЕТНЫЕ ХАРАКТЕРИСТИКИ |
||||||
|
Скоростной напор ветра |
0,48 кПа (48 кгс/м2) |
|||||
|
Масса снегового покрова |
1,5 кПа (150 кгс/м2) |
|||||
|
Расчетная температура наружного воздуха |
минус 45 С |
|||||
|
Степень огнестойкости |
V |
|||||
|
Климатические районы |
подрайон I В, II А, III А |
|||||
|
СТРОИТЕЛЬНЫЕ КОНСТРУКЦИИ И ИЗДЕЛИЯ |
||||||
|
Фундаменты – гравийная подсыпка, бетонная подготовка, балки или деревянные брусья. Каркас - стальной тонкостенный профиль. Стены - трехслойные стеновые панели. Полы - линолеум по настилу из шпунтованных досок. Кровля - кровельная сталь. Отделка наружная - окраска масляной краской или эмалями. внутренняя - древесностружечные плиты, древесноволокнистые плиты. |
||||||
|
РАЗРАБОТЧИК документации |
МГП «Мосспецпромпроект» 103045, г. Москва, Просвирин пер., д.5/6, стр.1 тел. 924-82-02 |
|||||
|
ЗАВОД-ИЗГОТОВИТЕЛЬ |
АОЗТ "КССК" 119361, г. Москва, ул. Б. Очаковская, д. 2. тел. 430-78-27 |
|||||
|
УТВЕРЖДЕНИЕ |
ТУ 5282-006-05108104-98 |
|||||
|
СОСТАВИТЕЛЬ каталожного листа |
ОАО ПКТИпромстрой |
|||||
|
РАСПРОСТРАНИТЕЛЬ каталожного листа |
ОАО ПКТИпромстрой 125040, Москва, Ленинградский пр-т, д. 26 тел.(095) 214-36-49, факс :(095)214-95-53 E-mail: pkti@tsr.ru; http://www.tsr.ru/~pkti |
|||||
|
|
МОБИЛЬНЫЕ (ИНВЕНТАРНЫЕ) ЗДАНИЯ И СООРУЖЕНИЯ |
1129-068 |
|
МОСКВА |
||
|
ОАО ПКТИ промстрой |
ЗДАНИЕ КОНТЕЙНЕРНОГО ТИПА СИСТЕМЫ «УНИВЕРСАЛ» |
Управление экономической, научно-технической и промышленной политики в строительной отрасли |
|
2002 г |
МАГАЗИН |
На 2 страницах стр.1 |
|
|
||
|
|
НАЗНАЧЕНИЕ |
|
|
Здание предназначено для размещения товара и организации рабочего места продавца. |
||
|
|
МАГАЗИН |
1129-068 |
Стр. 2 |
|||
|
ТЕХНИЧЕСКАЯ ХАРАКТЕРИСТИКА |
||||||
|
Масса, кг |
3,5 |
|
||||
|
Расчетный срок службы, лет |
20 |
|
||||
|
Оборачиваемость, раз |
20-30 |
|
||||
|
Строительный объем, м3 |
51,0 |
|
||||
|
Площадь застройки, м2 |
18,0 |
|
||||
|
Полезная площадь, м2 |
15,5 |
|
||||
|
Габаритные размеры, м: |
|
|
||||
|
длина |
6,0 |
|
||||
|
ширина |
3,0 |
|
||||
|
высота |
2,835 |
|
||||
|
ИНЖЕНЕРНОЕ ОБЕСПЕЧЕНИЕ |
||||||
|
Электроснабжение - |
от внешних сетей; |
|||||
|
Отопление - |
электрическое; |
|||||
|
Вентиляция - |
естественная и принудительная; |
|||||
|
Расход материалов на 1 м2 полезной площади |
||||||
|
Сталь, кг |
85 |
|||||
|
Пиломатериалы, м3 |
0,04 |
|||||
|
Утеплитель, м3 |
0,15 |
|||||
|
РАСЧЕТНЫЕ ХАРАКТЕРИСТИКИ |
||||||
|
Скоростной напор ветра |
0,48 кПа (48 кгс/м2) |
|||||
|
Масса снегового покрова |
1,5 кПа (150 кгс/м2) |
|||||
|
Расчетная температура наружного воздуха |
минус 45 С |
|||||
|
Степень огнестойкости |
V |
|||||
|
Климатические районы |
подрайон I В, II А, III А |
|||||
|
СТРОИТЕЛЬНЫЕ КОНСТРУКЦИИ И ИЗДЕЛИЯ |
||||||
|
Фундаменты – гравийная подсыпка, бетонная подготовка, балки или деревянные брусья. Каркас - стальной тонкостенный профиль. Стены - трехслойные стеновые панели. Полы - линолеум по настилу из шпунтованных досок. Кровля - кровельная сталь. Отделка наружная - окраска масляной краской или эмалями. внутренняя - древесностружечные плиты, древесноволокнистые плиты. |
||||||
|
РАЗРАБОТЧИК документации |
МГП «Мосспецпромпроект» 103045, г. Москва, Просвирин пер., д.5/6, стр.1 тел. 924-82-02 |
|||||
|
ЗАВОД-ИЗГОТОВИТЕЛЬ |
АОЗТ "КССК" 119361, г. Москва, ул. Б. Очаковская, д. 2. тел. 430-78-27 |
|||||
|
УТВЕРЖДЕНИЕ |
ТУ 5282-006-05108104-98 |
|||||
|
СОСТАВИТЕЛЬ каталожного листа |
ОАО ПКТИпромстрой |
|||||
|
РАСПРОСТРАНИТЕЛЬ каталожного листа |
ОАО ПКТИпромстрой 125040, Москва, Ленинградский пр-т, д. 26 тел.(095) 214-36-49, факс :(095)214-95-53 E-mail: pkti@tsr.ru; http://www.tsr.ru/~pkti |
|||||
|
|
МОБИЛЬНЫЕ (ИНВЕНТАРНЫЕ) ЗДАНИЯ И СООРУЖЕНИЯ |
|
|
МОСКВА |
||
|
ОАО ПКТИ промстрой |
ЗДАНИЕ КОНТЕЙНЕРНОГО ТИПА СИСТЕМЫ «УНИВЕРСАЛ» |
Управление экономической, научно-технической и промышленной политики в строительной отрасли |
|
2002 г |
ПОМЕЩЕНИЕ ДЛЯ КРУГЛОСУТОЧНОГО НЕСЕНИЯ СЛУЖБЫ |
На 2 страницах стр.1 |
|
|
||
|
|
НАЗНАЧЕНИЕ |
|
|
Здание предназначено для круглосуточного несения службы |
||
|
ПЛАН РАЗМЕЩЕНИЯ ОБОРУДОВАНИЯ |
||
|
|
||
|
|
1 турникет |
|
|
|
2 электрический шкаф |
|
|
|
3 стол рабочий |
|
|
|
4 стул |
|
|
|
5 вешалка |
|
|
|
6 шкафчик для ключей |
|
|
|
7 полка для хранения и зарядки радиостанций, аккумуляторного фанаря |
|
|
|
8 кушетка для отдыха |
|
|
|
9 шкаф |
|
|
|
10 кухонный стол |
|
|
|
11 кухонный шкаф |
|
|
|
12 умывальник |
|
|
|
13 электрическая плита |
|
|
|
14 холодильник |
|
|
|
ПОМЕЩЕНИЕ ДЛЯ КРУГЛОСУТОЧНОГО НЕСЕНИЯ СЛУЖБЫ |
|
Стр. 2 |
|||
|
ТЕХНИЧЕСКАЯ ХАРАКТЕРИСТИКА |
||||||
|
Масса, кг |
3,5 |
|
||||
|
Расчетный срок службы, лет |
20 |
|
||||
|
Оборачиваемость, раз |
20-30 |
|
||||
|
Строительный объем, м3 |
50,5 |
|
||||
|
Площадь застройки, м2 |
18,0 |
|
||||
|
Полезная площадь, м2 |
15,5 |
|
||||
|
Габаритные размеры, м: |
|
|
||||
|
длина |
6,0 |
|
||||
|
ширина |
3,0 |
|
||||
|
высота |
2,835 |
|
||||
|
ИНЖЕНЕРНОЕ ОБЕСПЕЧЕНИЕ |
||||||
|
Электроснабжение - |
от внешних сетей; |
|||||
|
Отопление - |
электрическое; |
|||||
|
Вентиляция - |
естественная и принудительная; |
|||||
|
Расход материалов на 1 м2 полезной площади |
||||||
|
Сталь, кг |
85 |
|||||
|
Пиломатериалы, м3 |
0,04 |
|||||
|
Утеплитель, м3 |
0,15 |
|||||
|
РАСЧЕТНЫЕ ХАРАКТЕРИСТИКИ |
||||||
|
Скоростной напор ветра |
0,48 кПа (48 кгс/м2) |
|||||
|
Масса снегового покрова |
1,5 кПа (150 кгс/м2) |
|||||
|
Расчетная температура наружного воздуха |
минус 45 С |
|||||
|
Степень огнестойкости |
V |
|||||
|
Климатические районы |
подрайон I В, II А, III А |
|||||
|
СТРОИТЕЛЬНЫЕ КОНСТРУКЦИИ И ИЗДЕЛИЯ |
||||||
|
Фундаменты – гравийная подсыпка, бетонная подготовка, балки или деревянные брусья. Каркас - стальной тонкостенный профиль. Стены - трехслойные стеновые панели. Полы - линолеум по настилу из шпунтованных досок. Кровля - кровельная сталь. Отделка наружная - окраска масляной краской или эмалями. внутренняя - древесностружечные плиты, древесноволокнистые плиты. |
||||||
|
РАЗРАБОТЧИК документации |
МГП «Мосспецпромпроект» 103045, г. Москва, Просвирин пер., д.5/6, стр.1 тел. 924-82-02 |
|||||
|
ЗАВОД-ИЗГОТОВИТЕЛЬ |
АОЗТ "КССК" 119361, г. Москва, ул. Б. Очаковская, д. 2. тел. 430-78-27 |
|||||
|
УТВЕРЖДЕНИЕ |
ТУ 5282-006-05108104-98 |
|||||
|
СОСТАВИТЕЛЬ каталожного листа |
ОАО ПКТИпромстрой |
|||||
|
РАСПРОСТРАНИТЕЛЬ каталожного листа |
ОАО ПКТИпромстрой 125040, Москва, Ленинградский пр-т, д. 26 тел.(095) 214-36-49, факс :(095)214-95-53 E-mail: pkti@tsr.ru; http://www.tsr.ru/~pkti |
|||||
|
|
МОБИЛЬНЫЕ (ИНВЕНТАРНЫЕ) ЗДАНИЯ И СООРУЖЕНИЯ |
|
|
МОСКВА |
||
|
ОАО ПКТИ промстрой |
ТРАНСФОРМАТОРНЫЕ ПОДСТАНЦИИ |
Управление экономической, научно-технической и промышленной политики в строительной отрасли |
|
2002 г |
ТРАНСФОРМАТОРНАЯ ПОДСТАНЦИЯ мощность до 630 кВт |
На 2 страницах стр.1 |
|
|
||
|
|
НАЗНАЧЕНИЕ |
|
|
БКТП - блочная комплектная трансформаторная подстанция с двумя (2БКТП) или одним (БКТП) трансформатором мощностью до 630 кВА 6 - 10,04 кВ - предназначена для электроснабжения жилищно-коммунальной, общественной и промышленной застройки. |
||
|
ПЛАН РАЗМЕЩЕНИЯ ОБОРУДОВАНИЯ |
||
|
|
||
|
|
1 РУ – 10 кВ |
|
|
|
2 сборка НН |
|
|
|
3 АВР 0,4 ПДУ 83 – 02 |
|
|
|
4 смотровое окно |
|
|
|
5 трансформатор |
|
|
|
ТРАНСФОРМАТОРНАЯ
ПОДСТАНЦИЯ |
|
Стр. 2 |
|||
|
ТЕХНИЧЕСКИЕ ПАРАМЕТРЫ |
||||||
|
2БКТП 630 РУ-6-20 аВ (КРУ типа RM-6 IIDI) |
||||||
|
1 Максимальное количество присоединений, шт. |
6 линейных (I) и 2 для транформаторов (D) с максимальной токовой защитой |
|||||
|
2 Номинальный ток присоединения, А |
для линейных 400 А, |
|||||
|
3 Напряжение, кВ |
6; 6,3; 10; 20 кВ |
|||||
|
4 Ток термической стойкости, кА/1сек |
16 |
|||||
РУ-0,4 кВ (сборки низкого напряжения) |
||||||
|
1 Максимальное количество присоединений, шт. |
24 |
|||||
|
2 Номинальный ток присоединения, А |
400 - 600 |
|||||
|
3 АВР на магнитных контакторах для трансформаторов мощностью до |
630 кВт |
|||||
|
4 Номинальный ток н/в рубильника, А |
1200 |
|||||
|
Габариты, площадь, вес |
||||||
|
Одного блока |
2340´4000 |
9,4 м2 |
12 т |
|||
|
Двух блоков |
4680´4000 |
18,8 м2 |
24 т |
|||
|
Высота внутри - 2175 |
||||||
|
СТРОИТЕЛЬНЫЕ КОНСТРУКЦИИ |
||||||
|
2БКТП 630 состоит из 2-х блоков (БТП1 и БТП2), для БКТП используется один блок. |
||||||
|
БКТП соответствует требованиям ГОСТ 14695-80, ГОСТ 14693-90, ТУ и конструкторской документации. |
||||||
|
Каждый блок БКТП разделен на 2 отсека: отсек РУ высокого и низкого напряжений с внутренним обслуживанием и отсек трансформатора. |
||||||
|
Климатическое исполнение и категория размещения - У1 по ГОСТ 15150-69. |
||||||
|
РАЗРАБОТЧИК документации |
АО ЭЗОИС "Энергопромстрой" 107112,Москва, 2-ой Иртышский проезд, д. 6 Факс (095) 966-12-17, тел. (095) 164-07-85 |
|||||
|
ЗАВОД-ИЗГОТОВИТЕЛЬ |
АО ЭЗОИС "Энергопромстрой" 107112,Москва, 2-ой Иртышский проезд, д. 6 Факс (095) 966-12-17, тел. (095) 164-07-85 |
|||||
|
УТВЕРЖДЕНИЕ |
Сертификаты соответствия "Стандартэлектро-С" Гсстандарта России |
|||||
|
СОСТАВИТЕЛЬ каталожного листа |
ОАО ПКТИпромстрой |
|||||
|
РАСПРОСТРАНИТЕЛЬ каталожного листа |
ОАО ПКТИпромстрой 125040, Москва, Ленинградский пр-т, д. 26 тел.(095) 214-36-49, факс :(095)214-95-53 E-mail: pkti@tsr.ru; http://www.tsr.ru/~pkti |
|||||
|
|
МОБИЛЬНЫЕ (ИНВЕНТАРНЫЕ) ЗДАНИЯ И СООРУЖЕНИЯ |
1129 - 028 |
|
МОСКВА |
||
|
ОАО ПКТИ промстрой |
ЗДАНИЕ КОНТЕЙНЕРНОГО ТИПА СИСТЕМЫ «УНИВЕРСАЛ» |
Управление экономической, научно-технической и промышленной политики в строительной отрасли |
|
2002 г |
КОТЕЛЬНАЯ |
На 2 страницах стр.1 |
|
|
||
|
|
НАЗНАЧЕНИЕ |
|
|
Здание контейнера предназначено для размещения оборудования по централизованному обеспечению горячей водой мобильных инвентарных санитарно-бытовых помещений на строительных площадках. |
||
|
ПЛАН РАЗМЕЩЕНИЯ ОБОРУДОВАНИЯ |
||
|
|
||
|
|
1 емкость аккумулирующфя |
|
|
|
2 насос центробежный |
|
|
|
3 шкаф управления |
|
|
|
4 щит управления |
|
|
|
5 электрорадиатор |
|
|
|
6 котел |
|
|
|
КОТЕЛЬНАЯ |
1129 - 028 |
Стр. 2 |
|||
|
ТЕХНИЧЕСКАЯ ХАРАКТЕРИСТИКА |
||||||
|
Масса, кг |
4,0 |
|
||||
|
Расчетный срок службы, лет |
20 |
|
||||
|
Оборачиваемость, раз |
20-30 |
|
||||
|
Строительный объем, м3 |
50,5 |
|
||||
|
Площадь застройки, м2 |
18,0 |
|
||||
|
Полезная площадь, м2 |
16,5 |
|
||||
|
Габаритные размеры, м: |
|
|
||||
|
длина |
6,0 |
|
||||
|
ширина |
3,0 |
|
||||
|
высота |
2,835 |
|
||||
|
ИНЖЕНЕРНОЕ ОБЕСПЕЧЕНИЕ |
||||||
|
Электроснабжение - |
от внешних сетей; |
|||||
|
Отопление - |
электрическое; |
|||||
|
Водоснабжение |
От внешних сетей и автономное |
|||||
|
Вентиляция - |
естественная и принудительная; |
|||||
|
Канализация |
В городскую сеть |
|||||
|
Расход материалов на 1 м2 полезной площади |
||||||
|
Сталь, кг |
85 |
|||||
|
Пиломатериалы, м3 |
0,04 |
|||||
|
Утеплитель, м3 |
0,15 |
|||||
|
РАСЧЕТНЫЕ ХАРАКТЕРИСТИКИ |
||||||
|
Скоростной напор ветра |
0,48 кПа (48 кгс/м2) |
|||||
|
Масса снегового покрова |
1,5 кПа (150 кгс/м2) |
|||||
|
Расчетная температура наружного воздуха |
минус 45 С |
|||||
|
Степень огнестойкости |
V |
|||||
|
Климатические районы |
подрайон I В, II А, III А |
|||||
|
СТРОИТЕЛЬНЫЕ КОНСТРУКЦИИ И ИЗДЕЛИЯ |
||||||
|
Фундаменты – гравийная подсыпка, бетонная подготовка, балки или деревянные брусья. Каркас - стальной тонкостенный профиль. Стены - трехслойные стеновые панели. Полы - линолеум по настилу из шпунтованных досок. Кровля - кровельная сталь. Отделка наружная - окраска масляной краской или эмалями. внутренняя - древесностружечные плиты, древесноволокнистые плиты. |
||||||
|
РАЗРАБОТЧИК документации |
МГП «Мосспецпромпроект» 103045, г. Москва, Просвирин пер., д.5/6, стр.1 тел. 924-82-02 |
|||||
|
ЗАВОД-ИЗГОТОВИТЕЛЬ |
АОЗТ "КССК" 119361, г. Москва, ул. Б. Очаковская, д. 2. тел. 430-78-27 |
|||||
|
УТВЕРЖДЕНИЕ |
ТУ 5282-006-05108104-98 |
|||||
|
СОСТАВИТЕЛЬ каталожного листа |
ОАО ПКТИпромстрой |
|||||
|
РАСПРОСТРАНИТЕЛЬ каталожного листа |
ОАО ПКТИпромстрой 125040, Москва, Ленинградский пр-т, д. 26 тел.(095) 214-36-49, факс :(095)214-95-53 E-mail: pkti@tsr.ru; http://www.tsr.ru/~pkti |
|||||
|
|
МОБИЛЬНЫЕ (ИНВЕНТАРНЫЕ) ЗДАНИЯ И СООРУЖЕНИЯ |
1129 - 026 |
|
МОСКВА |
||
|
ОАО ПКТИ промстрой |
ЗДАНИЕ КОНТЕЙНЕРНОГО ТИПА СИСТЕМЫ «УНИВЕРСАЛ» |
Управление экономической, научно-технической и промышленной политики в строительной отрасли |
|
2002 г |
РЕМОНТНО-МЕХАНИЧЕСКАЯ МАСТЕРСКАЯ на 2 рабочих места |
На 2 страницах стр.1 |
|
|
||
|
|
НАЗНАЧЕНИЕ |
|
|
Здание предназначено для выполнения слесарно-механических работ. |
||
|
ПЛАН РАЗМЕЩЕНИЯ ОБОРУДОВАНИЯ |
||
|
|
||
|
|
1 станок настольный сверлильный |
|
|
|
2 станок точильно-шлифовальный |
|
|
|
3 ящик для обтирочного материала |
|
|
|
4 верстак |
|
|
|
5 шкаф для хранения инструмента |
|
|
|
6 пила дисковая – маятниковая |
|
|
|
7 стол двухместный для настольных станков |
|
|
|
8 тиски слесарные с ручным приводом |
|
|
|
9 умывальник |
|
|
|
10 электросушитель для рук |
|
|
|
11 электрорадиатор |
|
|
|
12 бак для воды |
|
|
|
РЕМОНТНО-МЕХАНИЧЕСКАЯ МАСТЕРСКАЯ на 2 рабочих места |
1129 - 026 |
Стр. 2 |
|||
|
ТЕХНИЧЕСКАЯ ХАРАКТЕРИСТИКА |
||||||
|
Масса, кг |
4,0 |
|
||||
|
Расчетный срок службы, лет |
20 |
|
||||
|
Оборачиваемость, раз |
20-30 |
|
||||
|
Строительный объем, м3 |
50,5 |
|
||||
|
Площадь застройки, м2 |
18,0 |
|
||||
|
Полезная площадь, м2 |
15,5 |
|
||||
|
Габаритные размеры, м: |
|
|
||||
|
длина |
6,0 |
|
||||
|
ширина |
3,0 |
|
||||
|
высота |
2,835 |
|
||||
|
ИНЖЕНЕРНОЕ ОБЕСПЕЧЕНИЕ |
||||||
|
Электроснабжение - |
от внешних сетей; |
|||||
|
Отопление - |
электрическое; |
|||||
|
Водоснабжение |
От внешних сетей и автономное |
|||||
|
Вентиляция - |
естественная и принудительная; |
|||||
|
Канализация |
В городскую сеть |
|||||
|
Расход материалов на 1 м2 полезной площади |
||||||
|
Сталь, кг |
85 |
|||||
|
Пиломатериалы, м3 |
0,04 |
|||||
|
Утеплитель, м3 |
0,15 |
|||||
|
РАСЧЕТНЫЕ ХАРАКТЕРИСТИКИ |
||||||
|
Скоростной напор ветра |
0,48 кПа (48 кгс/м2) |
|||||
|
Масса снегового покрова |
1,5 кПа (150 кгс/м2) |
|||||
|
Расчетная температура наружного воздуха |
минус 45 С |
|||||
|
Степень огнестойкости |
V |
|||||
|
Климатические районы |
подрайон I В, II А, III А |
|||||
|
СТРОИТЕЛЬНЫЕ КОНСТРУКЦИИ И ИЗДЕЛИЯ |
||||||
|
Фундаменты – гравийная подсыпка, бетонная подготовка, балки или деревянные брусья. Каркас - стальной тонкостенный профиль. Стены - трехслойные стеновые панели. Полы - линолеум по настилу из шпунтованных досок. Кровля - кровельная сталь. Отделка наружная - окраска масляной краской или эмалями. внутренняя - древесностружечные плиты, древесноволокнистые плиты. |
||||||
|
РАЗРАБОТЧИК документации |
МГП «Мосспецпромпроект» 103045, г. Москва, Просвирин пер., д.5/6, стр.1 тел. 924-82-02 |
|||||
|
ЗАВОД-ИЗГОТОВИТЕЛЬ |
АОЗТ "КССК" 119361, г. Москва, ул. Б. Очаковская, д. 2. тел. 430-78-27 |
|||||
|
УТВЕРЖДЕНИЕ |
ТУ 5282-006-05108104-98 |
|||||
|
СОСТАВИТЕЛЬ каталожного листа |
ОАО ПКТИпромстрой |
|||||
|
РАСПРОСТРАНИТЕЛЬ каталожного листа |
ОАО ПКТИпромстрой 125040, Москва, Ленинградский пр-т, д. 26 тел.(095) 214-36-49, факс :(095)214-95-53 E-mail: pkti@tsr.ru; http://www.tsr.ru/~pkti |
|||||
|
|
МОБИЛЬНЫЕ (ИНВЕНТАРНЫЕ) ЗДАНИЯ И СООРУЖЕНИЯ |
1129 - 072 |
|
МОСКВА |
||
|
ОАО ПКТИ промстрой |
ЗДАНИЕ КОНТЕЙНЕРНОГО ТИПА СИСТЕМЫ «УНИВЕРСАЛ» |
Управление экономической, научно-технической и промышленной политики в строительной отрасли |
|
2002 г |
САТУРАТОРНАЯ |
На 2 страницах стр.1 |
|
|
||
|
|
НАЗНАЧЕНИЕ |
|
|
Здание предназначено для обеспечения работающих питьевой водой. |
||
|
ПЛАН РАЗМЕЩЕНИЯ ОБОРУДОВАНИЯ |
||
|
|
||
|
|
1 автомат газированной воды |
|
|
|
2 электрорадиатор |
|
|
|
САТУРАТОРНАЯ |
1129 - 072 |
Стр. 2 |
|||
|
ТЕХНИЧЕСКАЯ ХАРАКТЕРИСТИКА |
||||||
|
Масса, кг |
2,0 |
|
||||
|
Расчетный срок службы, лет |
20 |
|
||||
|
Оборачиваемость, раз |
20-30 |
|
||||
|
Строительный объем, м3 |
23,5 |
|
||||
|
Площадь застройки, м2 |
10,0 |
|
||||
|
Полезная площадь, м2 |
8,32 |
|
||||
|
Габаритные размеры, м: |
|
|
||||
|
длина |
441 |
|
||||
|
ширина |
2,27 |
|
||||
|
высота |
2,35 |
|
||||
|
ИНЖЕНЕРНОЕ ОБЕСПЕЧЕНИЕ |
||||||
|
Электроснабжение - |
от внешних сетей; |
|||||
|
Отопление - |
электрическое; |
|||||
|
Водоснабжение |
От внешних сетей и автономное |
|||||
|
Вентиляция - |
естественная и принудительная; |
|||||
|
Канализация |
В городскую сеть |
|||||
|
Расход материалов на 1 м2 полезной площади |
||||||
|
Сталь, кг |
85 |
|||||
|
Пиломатериалы, м3 |
0,04 |
|||||
|
Утеплитель, м3 |
0,15 |
|||||
|
РАСЧЕТНЫЕ ХАРАКТЕРИСТИКИ |
||||||
|
Скоростной напор ветра |
0,48 кПа (48 кгс/м2) |
|||||
|
Масса снегового покрова |
1,5 кПа (150 кгс/м2) |
|||||
|
Расчетная температура наружного воздуха |
минус 45 С |
|||||
|
Степень огнестойкости |
V |
|||||
|
Климатические районы |
подрайон I В, II А, III А |
|||||
|
СТРОИТЕЛЬНЫЕ КОНСТРУКЦИИ И ИЗДЕЛИЯ |
||||||
|
Фундаменты – гравийная подсыпка, бетонная подготовка, балки или деревянные брусья. Каркас - стальной тонкостенный профиль. Стены - трехслойные стеновые панели. Полы - линолеум по настилу из шпунтованных досок. Кровля - кровельная сталь. Отделка наружная - окраска масляной краской или эмалями. внутренняя - древесностружечные плиты, древесноволокнистые плиты. |
||||||
|
РАЗРАБОТЧИК документации |
МГП «Мосспецпромпроект» 103045, г. Москва, Просвирин пер., д.5/6, стр.1 тел. 924-82-02 |
|||||
|
ЗАВОД-ИЗГОТОВИТЕЛЬ |
АОЗТ "КССК" 119361, г. Москва, ул. Б. Очаковская, д. 2. тел. 430-78-27 |
|||||
|
УТВЕРЖДЕНИЕ |
ТУ 5282-006-05108104-98 |
|||||
|
СОСТАВИТЕЛЬ каталожного листа |
ОАО ПКТИпромстрой |
|||||
|
РАСПРОСТРАНИТЕЛЬ каталожного листа |
ОАО ПКТИпромстрой 125040, Москва, Ленинградский пр-т, д. 26 тел.(095) 214-36-49, факс :(095)214-95-53 E-mail: pkti@tsr.ru; http://www.tsr.ru/~pkti |
|||||
|
|
МОБИЛЬНЫЕ (ИНВЕНТАРНЫЕ) ЗДАНИЯ И СООРУЖЕНИЯ |
1129 - 027 |
|
МОСКВА |
||
|
ОАО ПКТИ промстрой |
ЗДАНИЕ КОНТЕЙНЕРНОГО ТИПА СИСТЕМЫ «УНИВЕРСАЛ» |
Управление экономической, научно-технической и промышленной политики в строительной отрасли |
|
2002 г |
СКЛАД |
На 2 страницах стр.1 |
|
|
||
|
|
НАЗНАЧЕНИЕ |
|
|
Здание предназначено для хранения инструментов и инвентаря. |
||
|
|
СКЛАД |
1129 - 027 |
Стр. 2 |
|||
|
ТЕХНИЧЕСКАЯ ХАРАКТЕРИСТИКА |
||||||
|
Масса, кг |
3,3 |
|
||||
|
Расчетный срок службы, лет |
20 |
|
||||
|
Оборачиваемость, раз |
20-30 |
|
||||
|
Строительный объем, м3 |
50,5 |
|
||||
|
Площадь застройки, м2 |
18,0 |
|
||||
|
Полезная площадь, м2 |
17,0 |
|
||||
|
Габаритные размеры, м: |
|
|
||||
|
длина |
6,0 |
|
||||
|
ширина |
3,0 |
|
||||
|
высота |
2,835 |
|
||||
|
ИНЖЕНЕРНОЕ ОБЕСПЕЧЕНИЕ |
||||||
|
Электроснабжение - |
от внешних сетей; |
|||||
|
Вентиляция - |
естественная и принудительная; |
|||||
|
Расход материалов на 1 м2 полезной площади |
||||||
|
Сталь, кг |
85 |
|||||
|
Пиломатериалы, м3 |
0,04 |
|||||
|
Утеплитель, м3 |
0,15 |
|||||
|
РАСЧЕТНЫЕ ХАРАКТЕРИСТИКИ |
||||||
|
Скоростной напор ветра |
0,48 кПа (48 кгс/м2) |
|||||
|
Масса снегового покрова |
1,5 кПа (150 кгс/м2) |
|||||
|
Расчетная температура наружного воздуха |
минус 45 С |
|||||
|
Степень огнестойкости |
V |
|||||
|
Климатические районы |
подрайон I В, II А, III А |
|||||
|
СТРОИТЕЛЬНЫЕ КОНСТРУКЦИИ И ИЗДЕЛИЯ |
||||||
|
Фундаменты – гравийная подсыпка, бетонная подготовка, балки или деревянные брусья. Каркас - стальной тонкостенный профиль. Стены - трехслойные стеновые панели. Полы - линолеум по настилу из шпунтованных досок. Кровля - кровельная сталь. Отделка наружная - окраска масляной краской или эмалями. внутренняя - древесностружечные плиты, древесноволокнистые плиты. |
||||||
|
РАЗРАБОТЧИК документации |
МГП «Мосспецпромпроект» 103045, г. Москва, Просвирин пер., д.5/6, стр.1 тел. 924-82-02 |
|||||
|
ЗАВОД-ИЗГОТОВИТЕЛЬ |
АОЗТ "КССК" 119361, г. Москва, ул. Б. Очаковская, д. 2. тел. 430-78-27 |
|||||
|
УТВЕРЖДЕНИЕ |
ТУ 5282-006-05108104-98 |
|||||
|
СОСТАВИТЕЛЬ каталожного листа |
ОАО ПКТИпромстрой |
|||||
|
РАСПРОСТРАНИТЕЛЬ каталожного листа |
ОАО ПКТИпромстрой 125040, Москва, Ленинградский пр-т, д. 26 тел.(095) 214-36-49, факс :(095)214-95-53 E-mail: pkti@tsr.ru; http://www.tsr.ru/~pkti |
|||||
|
|
МОБИЛЬНЫЕ (ИНВЕНТАРНЫЕ) ЗДАНИЯ И СООРУЖЕНИЯ |
Тип ППП - 2 |
|
МОСКВА |
||
|
ОАО ПКТИ промстрой |
ЗДАНИЕ КОНТЕЙНЕРНОГО ТИПА |
Управление экономической, научно-технической и промышленной политики в строительной отрасли |
|
2002 г |
ТЕХНИЧЕСКИЙ ФУРГОН |
На 2 страницах стр.1 |
|
|
||
|
|
НАЗНАЧЕНИЕ |
|
|
Здание предназначено для выполнения различных электротехнических работ, связанных с деятельностью строительной организации, а также для хранения одежды (рабочей и домашней) и отдыха персонала. |
||
|
|
1 стеллаж аккумуляторов |
|
|
|
2 стеллаж большой |
|
|
|
3 светильники дневного света |
|
|
|
4 шкаф для одежды (в мастерской) |
|
|
|
5 шкаф для одежды в комнате отдыха |
|
|
|
6 верстак |
|
|
|
7 умывальник |
|
|
|
8 общий электрощиток |
|
|
|
9 выключатели |
|
|
|
10 розетки |
|
|
|
11 ставень на окно |
|
|
|
ТЕХНИЧЕСКИЙ ФУРГОН |
|
Стр. 2 |
|||
|
ТЕХНИЧЕСКАЯ ХАРАКТЕРИСТИКА |
||||||
|
Площадь застройки, м2 |
25,23 |
|
||||
|
Полезная площадь, м2 |
22,3 |
|
||||
|
Габаритные размеры, м: |
|
|
||||
|
длина |
8,70 |
|
||||
|
ширина |
2,90 |
|
||||
|
высота |
3,55 |
|
||||
|
ИНЖЕНЕРНОЕ ОБЕСПЕЧЕНИЕ |
||||||
|
Электроснабжение - |
От электросети трехфазного переменного тока |
|||||
|
Отопление - |
электрическое; |
|||||
|
Вентиляция - |
принудительная; |
|||||
|
Водоснабжение |
автономное |
|||||
|
СТРОИТЕЛЬНЫЕ КОНСТРУКЦИИ И ИЗДЕЛИЯ |
||||||
|
Фургон закрытого типа, установленный на специальные шасси - сварную металлическую конструкцию из стандартных профилей. Каркас кузова деревометаллический. Наружная обшивка - листовая сталь толщиной 1,2 мм. Внутренняя обшивка - древесноволокнистая плита с окрашенной поверхностью. Полы - линолеум. Теплоизоляция выполнена из пенопласта. Фургон имеет два отделения: салон и кухня. Каждое отделение имеет отдельный вход. |
||||||
|
РАЗРАБОТЧИК документации |
ГК "Мосгортранс", завод "АРЕМКУЗ", 113114, Москва, ул. Кожевническая, 18 тел. 235-75-13 |
|||||
|
ЗАВОД-ИЗГОТОВИТЕЛЬ |
ГК "Мосгортранс", завод "АРЕМКУЗ", 113114, Москва, ул. Кожевническая, 18 тел. 235-75-13 |
|||||
|
УТВЕРЖДЕНИЕ |
ТУ 400-12-64-91 |
|||||
|
СОСТАВИТЕЛЬ каталожного листа |
ОАО ПКТИпромстрой |
|||||
|
РАСПРОСТРАНИТЕЛЬ каталожного листа |
ОАО ПКТИпромстрой 125040, Москва, Ленинградский пр-т, д. 26 тел.(095) 214-36-49, факс :(095)214-95-53 E-mail: pkti@tsr.ru; http://www.tsr.ru/~pkti |
|||||
|
|
МОБИЛЬНЫЕ (ИНВЕНТАРНЫЕ) ЗДАНИЯ И СООРУЖЕНИЯ |
4393.00.000.000 |
|
МОСКВА |
||
|
ОАО ПКТИ промстрой |
ЗДАНИЕ КОНТЕЙНЕРНОГО ТИПА СИСТЕМЫ «КУБ-МОНТАЖ» |
Управление экономической, научно-технической и промышленной политики в строительной отрасли |
|
2002 г |
ДВУХЭТАЖНЫЙ КОМПЛЕКС (Гардеробные) |
На 2 страницах стр.1 |
|
|
||
|
|
НАЗНАЧЕНИЕ |
|
|
Мобильное двухэтажное здание из 4-х блок-контейнеров предназначено для эксплуатации в строительно-монтажных организациях в качестве гардеробных. |
||
|
|
ДВУХЭТАЖНЫЙ КОМПЛЕКС (Гардеробные) |
4393.00.000.000 |
Стр. 2 |
|||
|
ТЕХНИЧЕСКАЯ ХАРАКТЕРИСТИКА |
||||||
|
Масса т, |
4,0 |
|
||||
|
Расчетный срок службы, лет |
15 |
|
||||
|
Площадь застройки, м2 |
36,6 |
|
||||
|
Внутренний объем, м3 |
151,6 |
|
||||
|
Строительный объем, м3 |
185,2 |
|
||||
|
Полезная площадь, м2 |
63,2 |
|
||||
|
Габаритные размеры, м: |
|
|
||||
|
длина |
6,1 |
|
||||
|
ширина |
6,0 |
|
||||
|
высота |
5,55 |
|
||||
|
Высота этажа внутри здания |
2,40 |
|
||||
|
ИНЖЕНЕРНОЕ ОБЕСПЕЧЕНИЕ |
||||||
|
Электроснабжение - |
От электросети трехфазного переменного тока |
|||||
|
Отопление - |
электрическое; |
|||||
|
Вентиляция - |
принудительная; |
|||||
|
Водоснабжение |
автономное |
|||||
|
Канализация |
в городскую сеть |
|||||
|
РАСХОД МАТЕРИАЛОВ НА 1 м2 ПЛОЩАДИ |
||||||
|
Сталь, кг |
54,6 |
|||||
|
Пиломатериалы, м3 |
0,056 |
|||||
|
Древесностружечная плита, м2 |
0,044 |
|||||
|
Древесноволокнистая плита, м |
2,60 |
|||||
|
Цементностружечная плита, м2 |
1,09 |
|||||
|
Гипсокартонные панели, м2 |
2,75 |
|||||
|
Утеплитель, м3 |
0,39 |
|||||
|
РАСЧЕТНЫЕ ХАРАКТЕРИСТИКИ |
||||||
|
Скоростной напор ветра |
0,23 кПа (23 кгс/м2); |
|||||
|
Вес снегового покрова |
1,0 кПа (100 кгс/м2); |
|||||
|
Расчетная температура наружного воздуха |
минус 45 °С. |
|||||
|
Степень огнестойкости |
V |
|||||
|
СТРОИТЕЛЬНЫЕ КОНСТРУКЦИИ |
||||||
|
Здание каркасно-панельной конструкции. Опоры - бетонные или антисептированные деревянные подкладки. Стены - трехслойные панели каркасной конструкции. Каркас панелей - деревянный, обшивка наружная - металлический профилированный лист, обшивка внутренняя - древесно-стружечная плита, древесноволокнистая плита. Панель покрытия - многослойная конструкция с металлическим сварным каркасом. Наружная обшивка - стальной профилированный лист, внутренняя обшивка - древесностружечная плита Панель пола - многослойная конструкция с металлическим сварным каркасом. Наружная обшивка - цементностружечная плита, внутренняя обшивка - древесностружечная плита, покрытая линолеумом. Утеплитель - минераловатная плита, пенопласт. Отделка наружная - окраска пентафталевой эмалью, покрытием, внутренняя - окраска пентафталевой эмалью и отделка гипсокартонными панелями с покрытием. |
||||||
|
РАЗРАБОТЧИК документации |
Ассоциация ВНИИМонтажспецстрой, ТОО "ЗИС" Конструкторское Бюро. 109391, Москва, Орехово-Зуевский проелд, д. 16/5, кв.9 |
|||||
|
ЗАВОД-ИЗГОТОВИТЕЛЬ |
АО "Моспромстрой", Производственная база фирмы "Монтажстройиндустрии" г. Люберцы. 140000, Московская обл., г. Люберцы, ул. Котельническая, д. 11 |
|||||
|
УТВЕРЖДЕНИЕ |
|
|||||
|
СОСТАВИТЕЛЬ каталожного листа |
ОАО ПКТИпромстрой |
|||||
|
РАСПРОСТРАНИТЕЛЬ каталожного листа |
ОАО ПКТИпромстрой 125040, Москва, Ленинградский пр-т, д. 26 тел.(095) 214-36-49, факс :(095)214-95-53 E-mail: pkti@tsr.ru; http://www.tsr.ru/~pkti |
|||||
|
|
МОБИЛЬНЫЕ (ИНВЕНТАРНЫЕ) ЗДАНИЯ И СООРУЖЕНИЯ |
1129 - 050 |
|
МОСКВА |
||
|
ОАО ПКТИ промстрой |
ЗДАНИЕ СБОРНО-РАЗБОРНОГО ТИПА |
Управление экономической, научно-технической и промышленной политики в строительной отрасли |
|
2002 г |
ПРОИЗВОДСТВЕННОЕ ЗДАНИЕ |
На 3 страницах стр.1 |
|
|
||
|
|
НАЗНАЧЕНИЕ |
|
|
Здание предназначено для хранения инструментов и инвентаря. |
||
|
|
ПРОИЗВОДСТВЕННОЕ ЗДАНИЕ |
1129 - 050 |
Стр. 2 |
|
|
НАЗНАЧЕНИЕ |
||||
|
|
||||
|
1 туалет с комнатой личной гигиены |
||||
|
2 туалет мужской |
||||
|
3 помещение для примема пищи |
||||
|
4 склад |
||||
|
5 медицинская комната |
||||
|
6 производственное помещение |
||||
|
7 гардероб |
||||
|
8 контора |
||||
|
9 диспетчерская |
||||
|
10 душевая |
||||
|
11 помещение для обогрева и отдыха |
||||
|
РАСЧЕТНЫЕ ХАРАКТЕРИСТИКИ |
||||
|
Скоростной напор ветра |
0,48 кПа (48 кгс/м2) |
|||
|
Масса снегового покрова |
1,5 кПа (150 кгс/м2) |
|||
|
Расчетная температура наружного воздуха |
минус 45 С |
|||
|
Степень огнестойкости |
V |
|||
|
Климатические районы |
подрайон I В, II А, III А |
|||
|
|
ПРОИЗВОДСТВЕННОЕ ЗДАНИЕ |
1129 - 050 |
Стр. 3 |
|||
|
ТЕХНИЧЕСКАЯ ХАРАКТЕРИСТИКА |
||||||
|
Масса, кг |
30,3 |
|
||||
|
Расчетный срок службы, лет |
20 |
|
||||
|
Оборачиваемость, раз |
20-30 |
|
||||
|
Строительный объем, м3 |
2592,0 |
|
||||
|
Площадь застройки, м2 |
432,0 |
|
||||
|
Полезная площадь, м2 |
864,0 |
|
||||
|
В том числе производственная |
576,0 |
|
||||
|
Габаритные размеры, м: |
|
|
||||
|
длина |
24,0 |
|
||||
|
ширина |
18,0 |
|
||||
|
высота |
7,0 |
|
||||
|
ИНЖЕНЕРНОЕ ОБЕСПЕЧЕНИЕ |
||||||
|
Электроснабжение - |
от внешних сетей; |
|||||
|
Отопление - |
электрическое; |
|||||
|
Вентиляция - |
принудительная; |
|||||
|
Водоснабжение |
автономное |
|||||
|
Канализация |
в городскую сеть |
|||||
|
РАСЧЕТНЫЕ ХАРАКТЕРИСТИКИ |
||||||
|
Скоростной напор ветра |
0,48 кПа (48 кгс/м2) |
|||||
|
Масса снегового покрова |
1,5 кПа (150 кгс/м2) |
|||||
|
Расчетная температура наружного воздуха |
минус 45 С |
|||||
|
Степень огнестойкости |
V |
|||||
|
Климатические районы |
подрайон I В, II А, III А |
|||||
|
СТРОИТЕЛЬНЫЕ КОНСТРУКЦИИ И ИЗДЕЛИЯ |
||||||
|
Фундаменты – гравийная подсыпка, бетонная подготовка, балки или деревянные брусья. Каркас - стальной тонкостенный профиль. Стены - трехслойные стеновые панели. Полы - линолеум по настилу из шпунтованных досок. Кровля - кровельная сталь. Отделка наружная - окраска масляной краской или эмалями. внутренняя - древесностружечные плиты, древесноволокнистые плиты. |
||||||
|
РАЗРАБОТЧИК документации |
МГП «Мосспецпромпроект» 103045, г. Москва, Просвирин пер., д.5/6, стр.1 тел. 924-82-02 |
|||||
|
ЗАВОД-ИЗГОТОВИТЕЛЬ |
АОЗТ "КССК" 119361, г. Москва, ул. Б. Очаковская, д. 2. тел. 430-78-27 |
|||||
|
УТВЕРЖДЕНИЕ |
ТУ 5282-006-05108104-98 |
|||||
|
СОСТАВИТЕЛЬ каталожного листа |
ОАО ПКТИпромстрой |
|||||
|
РАСПРОСТРАНИТЕЛЬ каталожного листа |
ОАО ПКТИпромстрой 125040, Москва, Ленинградский пр-т, д. 26 тел.(095) 214-36-49, факс :(095)214-95-53 E-mail: pkti@tsr.ru; http://www.tsr.ru/~pkti |
|||||
|
|
МОБИЛЬНЫЕ (ИНВЕНТАРНЫЕ) ЗДАНИЯ И СООРУЖЕНИЯ |
2731 7075 7212 |
|
МОСКВА |
||
|
ОАО ПКТИ промстрой |
ЗДАНИЕ СБОРНОЕ ЖЕЛЕЗОБЕТОННОЕ БЫСТРОМОНТИРУЕМОЕ |
Управление экономической, научно-технической и промышленной политики в строительной отрасли |
|
2002 г |
ОДНОЭТАЖНОЕ ОДНОПРОЛЕТНОЕ ЗДАНИЕ пролетом 12 м, высотой 6 м. |
На 2 страницах стр.1 |
|
|
||
|
|
НАЗНАЧЕНИЕ |
|
|
Сборное железобетонное быстромонтируемое здание высокой заводской готовности предназначено для размещения в нем различных производственных и складских помещений. |
||
|
|
ОДНОЭТАЖНОЕ ОДНОПРОЛЕТНОЕ ЗДАНИЕ пролетом 12 м, высотой 6 м. |
2731 7075 7212 |
Стр. 2 |
||||
|
ТЕХНИЧЕСКАЯ ХАРАКТЕРИСТИКА |
|||||||
|
Пролет здания, м |
12,0 |
|
|||||
|
Высота от пола до низа несущих конструкций, м |
5,8 |
|
|||||
|
Масса наиболее тяжелого монтажного элемента, т |
8,0 |
|
|||||
|
Размеры проемов, м: |
|
|
|||||
|
оконных |
1,8´2,4 |
|
|||||
|
дверных |
1,5´2,4 |
|
|||||
|
воротных |
4,0´4,0 |
|
|||||
|
Длина здания |
Не ограничена |
|
|||||
|
Оборудование – подвесной однобалочный кран грузоподъемностью, т |
5,0 |
|
|||||
|
ИНЖЕНЕРНОЕ ОБЕСПЕЧЕНИЕ |
|||||||
|
Электроснабжение - |
от внешних сетей; |
||||||
|
Отопление - |
электрическое; |
||||||
|
Вентиляция - |
принудительная; |
||||||
|
Водоснабжение |
автономное |
||||||
|
Канализация |
в городскую сеть |
||||||
|
РАСЧЕТНЫЕ ХАРАКТЕРИСТИКИ |
|||||||
|
Нагрузки: |
|
||||||
|
ветровая |
IV район |
||||||
|
снеговая |
II – V район |
||||||
|
Расчетная температура наружного воздуха |
минус 30 С |
||||||
|
Степень огнестойкости |
II |
||||||
|
КОНСТРУКТИВНЫЕ РЕШЕНИЯ |
|||||||
|
Стеновые панели - ребристая трехслойная с утеплителем из пенополистирола с вертикальной разрезкой на всю высоту здания. Размеры панелей: 5,82´3 м 3,90´3 м 6,20´3 м Плиты покрытий - ребристые предварительно напряженные размером 3´12 м (по аналогии с плитами серии 1.465.1-3/80). Опирание стеновых панелей на фундаменты - шарнирное. Фундаменты - предпочтительно малозаглубленные. |
|||||||
|
РАЗРАБОТЧИК документации |
ООО "КБ Энерготехпром" г. Москва, Высоковольтный проезд, 1 тел./факс 901-90-72 |
||||||
|
ЗАВОД-ИЗГОТОВИТЕЛЬ |
ООО "КБ Энерготехпром" г. Москва, Высоковольтный проезд, 1 тел./факс 901-90-72 |
||||||
|
УТВЕРЖДЕНИЕ |
|
||||||
|
СОСТАВИТЕЛЬ каталожного листа |
ОАО ПКТИпромстрой |
||||||
|
РАСПРОСТРАНИТЕЛЬ каталожного листа |
ОАО ПКТИпромстрой 125040, Москва, Ленинградский пр-т, д. 26 тел.(095) 214-36-49, факс :(095)214-95-53 E-mail: pkti@tsr.ru; http://www.tsr.ru/~pkti |
||||||
|
|
МОБИЛЬНЫЕ (ИНВЕНТАРНЫЕ) ЗДАНИЯ И СООРУЖЕНИЯ |
901401-2 |
|
|
МОСКВА |
|||
|
ОАО ПКТИ промстрой |
ЗДАНИЕ СБОРНО-РАЗБОРНОГО ТИПА |
Управление экономической, научно-технической и промышленной политики в строительной отрасли |
|
|
2002 г |
ЗДАНИЕ ДЛЯ ОТДЫХА |
На 2 страницах стр.1 |
|
|
|
|||
|
|
I Прихожая |
IV Тамбур |
|
|
|
II Комната подогрева пищи |
V Тамбур |
|
|
|
III Комната отдыха |
VI Санузел |
|
|
|
НАЗНАЧЕНИЕ |
|
|
|
Здание предназначено для хранения уличной и домашней одежды, сушки и хранения рабочей одежды, умывания, обогрева и отдыха. |
|||
|
1 шкаф сушильный |
|||
|
2 шкаф с мойкой |
|||
|
3 электрополотенце ЕР-4 |
|||
|
4 зеркало бытовое |
|||
|
5 шкаф-стол рабочий 0,8 м |
|||
|
6 шкаф-стол рабочий 0,4 м |
|||
|
7 электротермостат ЛСБ-6М |
|||
|
8 электроплитка «Мечта» |
|||
|
9 стол обеденный |
|||
|
10 стул полумягкий |
|||
|
11 скамья |
|||
|
12 умывальник |
|||
|
13 унитаз |
|||
|
14 ведро педальное |
|||
|
15 вешалка |
|||
|
16 электрошит ОЩВ-6 АХ |
|||
|
17 огнетушитель ОХВП-10 |
|||
|
18 стол откидной |
|||
|
|
ЗДАНИЕ ДЛЯ ОТДЫХА |
901401-2 |
Стр. 2 |
|||
|
ТЕХНИЧЕСКАЯ ХАРАКТЕРИСТИКА |
||||||
|
Расчетный срок службы, лет |
20 |
|
||||
|
Оборачиваемость, раз |
5 |
|
||||
|
Строительный объем, м3 |
82,70 |
|
||||
|
Площадь застройки, м2 |
28,49 |
|
||||
|
полезная: |
22,96 |
|
||||
|
общая |
24,40 |
|
||||
|
Габаритные размеры, м: |
|
|
||||
|
длина |
9,54 |
|
||||
|
ширина |
2,95 |
|
||||
|
высота |
2,94 |
|
||||
|
ИНЖЕНЕРНОЕ ОБЕСПЕЧЕНИЕ |
||||||
|
Электроснабжение - |
от внешних сетей; |
|||||
|
Отопление - |
электрическое; |
|||||
|
Вентиляция - |
принудительная; |
|||||
|
Водоснабжение |
автономное |
|||||
|
Канализация |
в городскую сеть |
|||||
|
РАСЧЕТНЫЕ ХАРАКТЕРИСТИКИ |
||||||
|
Скоростной напор ветра |
0,48 кПа (48 кгс/м2) |
|||||
|
Масса снегового покрова |
1,5 кПа (150 кгс/м2) |
|||||
|
Расчетная температура наружного воздуха |
минус 45 С |
|||||
|
Степень огнестойкости |
V |
|||||
|
Климатические районы |
подрайон II Б, II В, II Г |
|||||
|
СТРОИТЕЛЬНЫЕ КОНСТРУКЦИИ И ИЗДЕЛИЯ |
||||||
|
Здание сборно-разборного типа из блок-контейнера. Фундаменты разрабатываются при привязке проекта. Блок-контейнер - пространственная прямоугольная конструкция, собранная из отдельных панелей. Размеры блок-контейнера 9,54´2,95´2,94 м. Соединение панелей - болтовое. Стены - панели каркасной конструкции. Каркас панелей угловых - металлический, остальных - деревянный. Обшивка наружная и внутренняя цементно-стружечная плита. Утеплитель - плиты теплоизоляционные из пенопласта полистирольного ПСБ-С марки 35. Перегородки - трехслойные панели каркасной конструкции. Каркас деревянный. Обшивка - цементно-стружечная плита. Кровля - двускатная панель с уклоном 1% от середины к краям каркасной конструкции. Каркас - металлический. Наружная и внутренняя обшивка - цементностружечная плита. Полы - линолеум, в санузле - релин. Отделка наружная - окраска эмалью. Отделка внутренняя - окраска водоэмульсионной краской. |
||||||
|
РАЗРАБОТЧИК документации |
ВНИИПКспецстройконструкция, 105264, г. Москва, ул. Верхняя Первомайская, 32, тел. 169-98-90 |
|||||
|
СОСТАВИТЕЛЬ каталожного листа |
ОАО ПКТИпромстрой |
|||||
|
РАСПРОСТРАНИТЕЛЬ каталожного листа |
ОАО ПКТИпромстрой 125040, Москва, Ленинградский пр-т, д. 26 тел.(095) 214-36-49, факс :(095)214-95-53 E-mail: pkti@tsr.ru; http://www.tsr.ru/~pkti |
|||||
|
|
МОБИЛЬНЫЕ (ИНВЕНТАРНЫЕ) ЗДАНИЯ И СООРУЖЕНИЯ |
901401-3 |
|
|
МОСКВА |
|||
|
ОАО ПКТИ промстрой |
ЗДАНИЕ СБОРНО-РАЗБОРНОГО ТИПА |
Управление экономической, научно-технической и промышленной политики в строительной отрасли |
|
|
2002 г |
ЗДАНИЕ ДЛЯ ОТДЫХА |
На 2 страницах стр.1 |
|
|
|
|||
|
|
I Прихожая |
IV Комната отдыха |
|
|
|
II Комната подогрева пищи |
V Тамбур |
|
|
|
III Комната для сушки одежды и обуви |
VI Санузел |
|
|
|
НАЗНАЧЕНИЕ |
|
|
|
Здание предназначено для хранения уличной и домашней одежды, сушки и хранения рабочей одежды, умывания, обогрева и отдыха. |
|||
|
1 шкаф сушильный |
|||
|
2 шкаф с мойкой |
|||
|
3 электрополотенце ЕР-4 |
|||
|
4 зеркало бытовое |
|||
|
5 шкаф-стол рабочий 0,8 м |
|||
|
6 шкаф-стол рабочий 0,4 м |
|||
|
7 электротермостат ЛСБ-6М |
|||
|
8 электроплитка «Мечта» |
|||
|
9 стол обеденный |
|||
|
10 стул полумягкий |
|||
|
11 скамья |
|||
|
12 умывальник |
|||
|
13 унитаз |
|||
|
14 ведро педальное |
|||
|
15 вешалка |
|||
|
16 электрошит ЩКИ |
|||
|
17 огнетушитель ОХВП-10 |
|||
|
18 стол откидной |
|||
|
19 кондиционер |
|||
|
|
ЗДАНИЕ ДЛЯ ОТДЫХА |
901401-3 |
Стр. 2 |
|||
|
ТЕХНИЧЕСКАЯ ХАРАКТЕРИСТИКА |
||||||
|
Расчетный срок службы, лет |
20 |
|
||||
|
Оборачиваемость, раз |
5 |
|
||||
|
Строительный объем, м3 |
82,70 |
|
||||
|
Площадь застройки, м2 |
28,49 |
|
||||
|
полезная: |
22,96 |
|
||||
|
общая |
24,40 |
|
||||
|
Габаритные размеры, м: |
|
|
||||
|
длина |
9,54 |
|
||||
|
ширина |
2,95 |
|
||||
|
высота |
2,94 |
|
||||
|
ИНЖЕНЕРНОЕ ОБЕСПЕЧЕНИЕ |
||||||
|
Электроснабжение - |
от внешних сетей; |
|||||
|
Отопление - |
электрическое; |
|||||
|
Вентиляция - |
принудительная; |
|||||
|
Водоснабжение |
автономное |
|||||
|
Канализация |
в городскую сеть |
|||||
|
РАСЧЕТНЫЕ ХАРАКТЕРИСТИКИ |
||||||
|
Скоростной напор ветра |
0,48 кПа (48 кгс/м2) |
|||||
|
Масса снегового покрова |
1,5 кПа (150 кгс/м2) |
|||||
|
Расчетная температура наружного воздуха |
минус 45 С |
|||||
|
Степень огнестойкости |
V |
|||||
|
Климатические районы |
VI |
|||||
|
СТРОИТЕЛЬНЫЕ КОНСТРУКЦИИ И ИЗДЕЛИЯ |
||||||
|
Здание сборно-разборного типа из блок-контейнера. Фундаменты разрабатываются при привязке проекта. Блок-контейнер - пространственная прямоугольная конструкция, собранная из отдельных панелей. Размеры блок-контейнера 9,54´2,95´2,94 м. Соединение панелей - болтовое. Стены - панели каркасной конструкции. Каркас панелей угловых - металлический, остальных - деревянный. Обшивка наружная и внутренняя цементно-стружечная плита. Утеплитель - плиты теплоизоляционные из пенопласта полистирольного ПСБ-С марки 35. Перегородки - трехслойные панели каркасной конструкции. Каркас деревянный. Обшивка - цементно-стружечная плита. Кровля - двускатная панель с уклоном 1% от середины к краям каркасной конструкции. Каркас - металлический. Наружная и внутренняя обшивка - цементностружечная плита. Полы - линолеум, в санузле - релин. Отделка наружная - окраска эмалью. Отделка внутренняя - окраска водоэмульсионной краской. |
||||||
|
РАЗРАБОТЧИК документации |
ВНИИПКспецстройконструкция, 105264, г. Москва, ул. Верхняя Первомайская, 32, тел. 169-98-90 |
|||||
|
СОСТАВИТЕЛЬ каталожного листа |
ОАО ПКТИпромстрой |
|||||
|
РАСПРОСТРАНИТЕЛЬ каталожного листа |
ОАО ПКТИпромстрой 125040, Москва, Ленинградский пр-т, д. 26 тел.(095) 214-36-49, факс :(095)214-95-53 E-mail: pkti@tsr.ru; http://www.tsr.ru/~pkti |
|||||
|
|
МОБИЛЬНЫЕ (ИНВЕНТАРНЫЕ) ЗДАНИЯ И СООРУЖЕНИЯ |
902202-6 |
|
|
МОСКВА |
|||
|
ОАО ПКТИ промстрой |
ЗДАНИЕ СБОРНО-РАЗБОРНОГО ТИПА |
Управление экономической, научно-технической и промышленной политики в строительной отрасли |
|
|
2002 г |
КОНТОРА |
На 2 страницах стр.1 |
|
|
|
|||
|
|
I Рабочая комната |
IV Душевая |
|
|
|
II Тамбур |
|
|
|
|
III Санузел |
|
|
|
|
НАЗНАЧЕНИЕ |
|
|
|
Здание предназначено для администрации строителей, занятых на объектах. Здание является изделием заводского изготовления, поставляемым комплектно. |
|||
|
1 шкаф |
|||
|
2 стол письменный (однотумбовый) |
|||
|
3 стол письменный (двухтумбовый) |
|||
|
4 кресло |
|||
|
5 шкаф для прихожей |
|||
|
6 часы настенные электронные |
|||
|
7 телефон |
|||
|
|
КОНТОРА |
902202-6 |
Стр. 2 |
|||
|
ТЕХНИЧЕСКАЯ ХАРАКТЕРИСТИКА |
||||||
|
Наибольшая масса монтажного элемента, т |
4,20 |
|
||||
|
Строительный объем, м3 |
77,63 |
|
||||
|
Площадь застройки, м2 |
27,0 |
|
||||
|
Габаритные размеры, м: |
|
|
||||
|
длина |
9,00 |
|
||||
|
ширина |
3,00 |
|
||||
|
высота |
3,00 |
|
||||
|
ИНЖЕНЕРНОЕ ОБЕСПЕЧЕНИЕ |
||||||
|
Электроснабжение - |
от внешних сетей; |
|||||
|
Отопление - |
электрическое; |
|||||
|
Вентиляция - |
принудительная; |
|||||
|
Водоснабжение |
автономное |
|||||
|
Канализация |
в городскую сеть |
|||||
|
РАСЧЕТНЫЕ ХАРАКТЕРИСТИКИ |
||||||
|
Скоростной напор ветра |
0,55 кПа (55 кгс/м2) |
|||||
|
Масса снегового покрова |
1,96 кПа (196 кгс/м2) |
|||||
|
Расчетная температура наружного воздуха |
минус 30, 40, 50 С |
|||||
|
Степень огнестойкости |
IIIа |
|||||
|
СТРОИТЕЛЬНЫЕ КОНСТРУКЦИИ И ИЗДЕЛИЯ |
||||||
|
Несущие конструкции - стальной каркас унифицированного бокса с утепленным основанием. Ограждающие конструкции - стеновые и кровельные трехслойные панели с утеплителем и металлической обшивкой. |
||||||
|
РАЗРАБОТЧИК документации |
ВНИИПКспецстройконструкция, 105264, г. Москва, ул. Верхняя Первомайская, 32, тел. 169-98-90 |
|||||
|
СОСТАВИТЕЛЬ каталожного листа |
ОАО ПКТИпромстрой |
|||||
|
РАСПРОСТРАНИТЕЛЬ каталожного листа |
ОАО ПКТИпромстрой 125040, Москва, Ленинградский пр-т, д. 26 тел.(095) 214-36-49, факс :(095)214-95-53 E-mail: pkti@tsr.ru; http://www.tsr.ru/~pkti |
|||||
|
|
МОБИЛЬНЫЕ (ИНВЕНТАРНЫЕ) ЗДАНИЯ И СООРУЖЕНИЯ |
901101-1 |
|
|
МОСКВА |
|||
|
ОАО ПКТИ промстрой |
ЗДАНИЕ СБОРНО-РАЗБОРНОГО ТИПА |
Управление экономической, научно-технической и промышленной политики в строительной отрасли |
|
|
2002 г |
ДУШЕВАЯ |
На 2 страницах стр.1 |
|
|
|
|||
|
|
I Душевая |
IV Гардеробная |
|
|
|
II Санузел |
VТамбур |
|
|
|
III Преддушевая |
|
|
|
|
НАЗНАЧЕНИЕ |
|
|
|
Здание предназначено для обеспечения необходимыми санитарно-гигиеническими условиями работающих на площадке. |
|||
|
1 душевой поддон |
|||
|
2 унитаз |
|||
|
3 умывальник |
|||
|
4 скамья деревянная |
|||
|
5 скамья деревянная |
|||
|
6 шкаф для верхней одежды |
|||
|
7 шкаф для уборочного инвентаря |
|||
|
8 электрополотенце |
|||
|
9 зеркало |
|||
|
10 электрощит ОЩВ-6АХЛ |
|||
|
11 крючок лоя одежды |
|||
|
12 воздухонагреватель |
|||
|
13 скамья |
|||
|
14 огнетушитель ОХВП-10 |
|||
|
|
ДУШЕВАЯ |
901101-1 |
Стр. 2 |
|||
|
ТЕХНИЧЕСКАЯ ХАРАКТЕРИСТИКА |
||||||
|
Расчетный срок службы, лет |
20 |
|
||||
|
Оборачиваемость, раз |
5 |
|
||||
|
Строительный объем, м3 |
82,70 |
|
||||
|
Площадь застройки, м2 |
28,49 |
|
||||
|
полезная: |
22,96 |
|
||||
|
общая |
24,40 |
|
||||
|
Габаритные размеры, м: |
|
|
||||
|
длина |
9,54 |
|
||||
|
ширина |
2,95 |
|
||||
|
высота |
2,94 |
|
||||
|
ИНЖЕНЕРНОЕ ОБЕСПЕЧЕНИЕ |
||||||
|
Электроснабжение - |
От внутриплощадных сетей |
|||||
|
Отопление - |
Водяное, с подключением к теплосети |
|||||
|
Вентиляция - |
С механическим побуждением |
|||||
|
Горячее водоснабжение |
Централизованное от наружной сети |
|||||
|
Канализация |
Бытовая к наружным сетям |
|||||
|
РАСХОД МАТЕРИАЛОВ НА 1 М ПЛОЩАДИ |
||||||
|
Металл,т |
0,061 |
|||||
|
Пиломатериалы, м3 |
0,081 |
|||||
|
Утеплитель, м3 |
0,69 |
|||||
|
Плита цементностружечная толщиной 10мм, м2 |
9,80 |
|||||
|
Плита цементностружечная толщиной 20мм, м2 |
1,00 |
|||||
|
РАСЧЕТНЫЕ ХАРАКТЕРИСТИКИ |
||||||
|
Скоростной напор ветра |
0,48 кПа (48 кгс/м2) |
|||||
|
Масса снегового покрова |
1,0 кПа (100 кгс/м2) |
|||||
|
Расчетная температура наружного воздуха |
минус 35 С° |
|||||
|
Степень огнестойкости |
V |
|||||
|
Климатические районы |
I, II, III |
|||||
|
Подрайон |
I В, II А, III А |
|||||
|
СТРОИТЕЛЬНЫЕ КОНСТРУКЦИИ И ИЗДЕЛИЯ |
||||||
|
Здание сборно-разборного типа из блок-контейнера. Фундаменты разрабатываются при привязке проекта. Блок-контейнер - пространственная прямоугольная конструкция, собранная из отдельных панелей. Размеры блок-контейнера 9,54´2,95´2,94 м. Соединение панелей - болтовое. Стены - панели каркасной конструкции. Каркас панелей угловых - металлический, остальных - деревянный. Обшивка наружная и внутренняя цементно-стружечная плита. Утеплитель - плиты теплоизоляционные из пенопласта полистирольного ПСБ-С марки 35. Перегородки - трехслойные панели каркасной конструкции. Каркас деревянный. Обшивка - цементно-стружечная плита. Кровля - двускатная панель с уклоном 1% от середины к краям каркасной конструкции. Каркас - металлический. Наружная и внутренняя обшивка - цементностружечная плита. Полы - линолеум, в санузле - релин. Отделка наружная - окраска эмалью. Отделка внутренняя - окраска водоэмульсионной краской. |
||||||
|
РАЗРАБОТЧИК документации |
ВНИИПКспецстройконструкция, 105264, г. Москва, ул. Верхняя Первомайская, 32, тел. 169-98-90 |
|||||
|
СОСТАВИТЕЛЬ каталожного листа |
ОАО ПКТИпромстрой |
|||||
|
РАСПРОСТРАНИТЕЛЬ каталожного листа |
ОАО ПКТИпромстрой 125040, Москва, Ленинградский пр-т, д. 26 тел.(095) 214-36-49, факс :(095)214-95-53 E-mail: pkti@tsr.ru; http://www.tsr.ru/~pkti |
|||||
|
|
МОБИЛЬНЫЕ (ИНВЕНТАРНЫЕ) ЗДАНИЯ И СООРУЖЕНИЯ |
901101-1 |
|
|
МОСКВА |
|||
|
ОАО ПКТИ промстрой |
ЗДАНИЕ СБОРНО-РАЗБОРНОГО ТИПА |
Управление экономической, научно-технической и промышленной политики в строительной отрасли |
|
|
2002 г |
ОБЩЕЖИТИЕ на 12 человек |
На 3 страницах стр.1 |
|
|
|
|||
|
|
НАЗНАЧЕНИЕ |
|
|
|
Здание предназначено для проживания строителей, обогрева и сушки одежды, приема пищи и отдыха. |
|||
|
ТЕХНИЧЕСКАЯ ХАРАКТЕРИСТИКА |
|||
|
Расчетный срок службы, лет |
20 |
||
|
Оборачиваемость, раз |
5 |
||
|
Строительный объем, м3 |
419,3 |
||
|
Площадь застройки, м2 |
142,6 |
||
|
общая |
133,0 |
||
|
полезная |
121,6 |
||
|
Габаритные размеры, м: |
|
||
|
длина |
14,95 |
||
|
ширина |
9,54 |
||
|
высота |
2,94 |
||
|
РАСХОД МАТЕРИАЛОВ НА 1 М2 ПЛОЩАДИ |
|||
|
Металл,т |
0,063 |
||
|
Пиломатериалы, м3 |
0,082 |
||
|
Утеплитель, м3 |
0,70 |
||
|
Плита цементностружечная толщиной 10мм, м2 |
9,70 |
||
|
Плита цементностружечная толщиной 20мм, м2 |
1,03 |
||
|
|
ОБЩЕЖИТИЕ на 12 человек |
901101-1 |
Стр. 2 |
|
|
|
||||
|
I комната жилая, 11,10мм |
VI корридор |
|||
|
II комната жилая, 11,31 м |
VII комната для сушки одежды и обуви |
|||
|
III комната жилая, 11,53 м |
VIII прихожая |
|||
|
IV кают-компания со столовой |
IX тамбур |
|||
|
V санузел |
|
|||
|
|
|
|||
|
1 подставка для сушки одежды и обуви |
14т табурет |
|||
|
2 вешалка на 4 крючка |
15 стол журнальный |
|||
|
3 зеркало с полклй |
16 тумба для аппаратуры |
|||
|
4 кровать |
17 шкаф с мойкой |
|||
|
5 тумба прикроватная |
18 шкаф-стол рабочий |
|||
|
6 стол |
19 шкаф настенный |
|||
|
7 стул |
20 электроплита ЭБ4Ш-6-4-5,8-220 |
|||
|
8 шкаф для одежды |
21 холодильник «Юрюзань-5» |
|||
|
9 секция антресольная |
22 занавес для ванной комнаты |
|||
|
10 полка книжная |
23 карниз |
|||
|
11 диван |
24 бачок хозяйственный |
|||
|
12 кресло |
25 огнетушитель ОХВП-10 ТУ22-4720-80 |
|||
|
13 стол |
|
|||
|
|
ОБЩЕЖИТИЕ на 12 человек |
901101-1 |
Стр. 3 |
||
|
ИНЖЕНЕРНОЕ ОБЕСПЕЧЕНИЕ |
|||||
|
Электроснабжение - |
От внутриплощадных сетей |
||||
|
Водопровод - |
Хозяйственно-питьевой, от наружной сети |
||||
|
Отопление - |
Водяное |
||||
|
Вентиляция - |
Естественная |
||||
|
Горячее водоснабжение - |
Централизованное от наружной сети |
||||
|
Канализация |
Бытовая к наружным сетям |
||||
|
РАСЧЕТНЫЕ ХАРАКТЕРИСТИКИ |
|||||
|
Скоростной напор ветра |
0,48 кПа (48 кгс/м2) |
||||
|
Масса снегового покрова |
1,50 кПа (150 кгс/м2) |
||||
|
Расчетная температура наружного воздуха |
минус 55 С° |
||||
|
Степень огнестойкости |
V |
||||
|
Климатические районы |
I, II, III |
||||
|
Подрайон |
I В, II А, III А |
||||
|
СТРОИТЕЛЬНЫЕ КОНСТРУКЦИИ И ИЗДЕЛИЯ |
|||||
|
Здание сборно-разборного типа из блок-контейнера. Фундаменты разрабатываются при привязке проекта. Блок-контейнер - пространственная прямоугольная конструкция, собранная из отдельных панелей. Размеры блок-контейнера 9,54´2,95´2,94 м. Соединение панелей - болтовое. Стены - панели каркасной конструкции. Каркас панелей угловых - металлический, остальных - деревянный. Обшивка наружная и внутренняя цементно-стружечная плита. Утеплитель - плиты теплоизоляционные из пенопласта полистирольного ПСБ-С марки 35. Перегородки - трехслойные панели каркасной конструкции. Каркас деревянный. Обшивка - цементно-стружечная плита. Кровля - двускатная панель с уклоном 1% от середины к краям каркасной конструкции. Каркас - металлический. Наружная и внутренняя обшивка - цементностружечная плита. Полы - линолеум, в санузле - релин. Отделка наружная - окраска эмалью. Отделка внутренняя - окраска водоэмульсионной краской. |
|||||
|
РАЗРАБОТЧИК документации |
ВНИИПКспецстройконструкция, 105264, г. Москва, ул. Верхняя Первомайская, 32, тел. 169-98-90 |
||||
|
СОСТАВИТЕЛЬ каталожного листа |
ОАО ПКТИпромстрой |
||||
|
РАСПРОСТРАНИТЕЛЬ каталожного листа |
ОАО ПКТИпромстрой 125040, Москва, Ленинградский пр-т, д. 26 тел.(095) 214-36-49, факс :(095)214-95-53 E-mail: pkti@tsr.ru; http://www.tsr.ru/~pkti |
||||
|
|
МОБИЛЬНЫЕ (ИНВЕНТАРНЫЕ) ЗДАНИЯ И СООРУЖЕНИЯ |
901401-4 |
|
|
МОСКВА |
|||
|
ОАО ПКТИ промстрой |
ЗДАНИЕ СБОРНО-РАЗБОРНОГО ТИПА |
Управление экономической, научно-технической и промышленной политики в строительной отрасли |
|
|
2002 г |
ЗДРАВПУНКТ |
На 3 страницах стр.1 |
|
|
|
|||
|
|
НАЗНАЧЕНИЕ |
|
|
|
Здание предназначено для медицинского обслуживания работающих на стройке. |
|||
|
ТЕХНИЧЕСКАЯ ХАРАКТЕРИСТИКА |
|||
|
Расчетный срок службы, лет |
20 |
||
|
Оборачиваемость, раз |
5 |
||
|
Строительный объем, м3 |
166,5 |
||
|
Площадь застройки, м2 |
56,66 |
||
|
общая |
52,33 |
||
|
полезная |
48,93 |
||
|
Габаритные размеры, м: |
|
||
|
длина |
9,54 |
||
|
ширина |
5,94 |
||
|
высота |
2,94 |
||
|
РАСХОД МАТЕРИАЛОВ НА 1 М2 ПЛОЩАДИ |
|||
|
Металл,т |
0,051 |
||
|
Пиломатериалы, м3 |
0,073 |
||
|
Утеплитель, м3 |
0,63 |
||
|
Плита цементностружечная толщиной 10мм, м2 |
8,28 |
||
|
Плита цементностружечная толщиной 20мм, м2 |
1,00 |
||
|
|
ЗДРАВПУНКТ |
901401-4 |
Стр. 2 |
|
|
|
||||
|
I кабинет доврачебного приема |
VI санузел |
|||
|
II перевязочная |
VII тамбур |
|||
|
III кабинет физиотерапии |
|
|||
|
IV стерилизионная |
|
|||
|
V вестибюль ожидания |
|
|||
|
|
|
|||
|
1 стол медицинский на колесах |
16 унитаз |
|||
|
2 кушетка процедурная |
17 вешелка |
|||
|
3 стол |
18 носилки |
|||
|
4 стул |
19 стол |
|||
|
5 шкаф медицинский двухстворчатый |
20 стул медицинчкий рабочий |
|||
|
6 шкаф встроенный |
21 холодильник |
|||
|
7 стерилизатор |
22 сейф |
|||
|
8 шкаф для одежды встроенный |
23 электрокардиограф |
|||
|
9 ширма |
24 аппарат «Амплипульс» |
|||
|
10 аппарат УВЧ-терапии |
25 аппарат «Тонус» |
|||
|
11 ингалятор |
26 тубусный кварц |
|||
|
12 весы |
27 стерилизатор воздушный ГП-20 |
|||
|
13 ростоиер |
28 огнетушитель ОХП-10 |
|||
|
14 умывальник |
29 печь электрическая тепловая ПЭТ-4 |
|||
|
15 зеркало |
30 печь электрическая тепловая ПЭТ-7 |
|||
|
|
ЗДРАВПУНКТ |
901101-1 |
Стр. 3 |
||
|
ИНЖЕНЕРНОЕ ОБЕСПЕЧЕНИЕ |
|||||
|
Электроснабжение - |
От внутриплощадных сетей |
||||
|
Водопровод - |
Хозяйственно-питьевой, от наружной сети |
||||
|
Отопление - |
Водяное |
||||
|
Вентиляция - |
Естественная |
||||
|
Горячее водоснабжение - |
Централизованное от наружной сети |
||||
|
Канализация |
Бытовая к наружным сетям |
||||
|
РАСЧЕТНЫЕ ХАРАКТЕРИСТИКИ |
|||||
|
Скоростной напор ветра |
0,48 кПа (48 кгс/м2) |
||||
|
Масса снегового покрова |
1,00 кПа (100 кгс/м2) |
||||
|
Расчетная температура наружного воздуха |
минус 35 С° |
||||
|
Степень огнестойкости |
V |
||||
|
Климатические районы |
I, III |
||||
|
Подрайон |
I Б, II В, III Б, II Г, III В |
||||
|
СТРОИТЕЛЬНЫЕ КОНСТРУКЦИИ И ИЗДЕЛИЯ |
|||||
|
Здание сборно-разборного типа из 2 блок-контейнера. Фундаменты разрабатываются при привязке проекта. Блок-контейнер - пространственная прямоугольная конструкция, собранная из отдельных панелей. Размеры блок-контейнера 9,54´2,95´3,64 м. Соединение панелей - болтовое. Стены - панели каркасной конструкции. Каркас панелей угловых - металлический, остальных - деревянный. Обшивка наружная и внутренняя цементно-стружечная плита. Утеплитель - плиты теплоизоляционные из пенопласта полистирольного. Перегородки - трехслойные панели каркасной конструкции. Каркас деревянный. Обшивка - цементно-стружечная плита. Кровля - двускатная панель с уклоном 1% от середины к краям каркасной конструкции. Каркас - металлический. Наружная и внутренняя обшивка - цементностружечная плита. Полы – линолеум. Отделка наружная - окраска эмалью. Отделка внутренняя - окраска водоэмульсионной краской. |
|||||
|
РАЗРАБОТЧИК документации |
ВНИИПКспецстройконструкция, 105264, г. Москва, ул. Верхняя Первомайская, 32, тел. 169-98-90 |
||||
|
СОСТАВИТЕЛЬ каталожного листа |
ОАО ПКТИпромстрой |
||||
|
РАСПРОСТРАНИТЕЛЬ каталожного листа |
ОАО ПКТИпромстрой 125040, Москва, Ленинградский пр-т, д. 26 тел.(095) 214-36-49, факс :(095)214-95-53 E-mail: pkti@tsr.ru; http://www.tsr.ru/~pkti |
||||
|
|
МОБИЛЬНЫЕ (ИНВЕНТАРНЫЕ) ЗДАНИЯ И СООРУЖЕНИЯ |
901101-3 |
|
|
МОСКВА |
|||
|
ОАО ПКТИ промстрой |
ЗДАНИЕ СБОРНО-РАЗБОРНОГО ТИПА |
Управление экономической, научно-технической и промышленной политики в строительной отрасли |
|
|
2002 г |
МАГАЗИН СМЕШАННОЙ ТОРГОВЛИ |
На 2 страницах стр.1 |
|
|
|
|||
|
|
I комната продавца |
IV кладовая промтоваров |
|
|
|
II Тамбур |
V кладовая продтоваров |
|
|
|
III торговый зал |
|
|
|
|
НАЗНАЧЕНИЕ |
|
|
|
Здание предназначено для размещения товара и организации рабочего места продавца. |
|||
|
1 весы напольные цифровые |
|||
|
2 вешалка |
|||
|
3 горка универсальная пристенная |
|||
|
4 прилавок витрина «Таир-106» |
|||
|
5 подтоварник |
|||
|
6 стеллаж |
|||
|
7 шкаф холодильный ШХ-0,71 |
|||
|
8 карниз |
|||
|
9 стул |
|||
|
10 настил деревянный |
|||
|
11 бачок хозяйственный |
|||
|
12 огнетушитель ОХВП-10 |
|||
|
13 раковина |
|||
|
14 электрощит ЯРН 8501-400ЧУЗБ |
|||
|
|
МАГАЗИН СМЕШАННОЙ ТОРГОВЛИ |
901101-3 |
Стр. 2 |
|||
|
ТЕХНИЧЕСКАЯ ХАРАКТЕРИСТИКА |
||||||
|
Расчетный срок службы, лет |
20 |
|
||||
|
Оборачиваемость, раз |
5 |
|
||||
|
Строительный объем, м3 |
82,70 |
|
||||
|
Площадь застройки, м2 |
28,49 |
|
||||
|
полезная: |
22,96 |
|
||||
|
общая |
24,40 |
|
||||
|
Габаритные размеры, м: |
|
|
||||
|
длина |
9,54 |
|
||||
|
ширина |
2,95 |
|
||||
|
высота |
2,94 |
|
||||
|
ИНЖЕНЕРНОЕ ОБЕСПЕЧЕНИЕ |
||||||
|
Электроснабжение - |
От внутриплощадных сетей |
|||||
|
Отопление - |
Водяное |
|||||
|
Вентиляция - |
Естественная |
|||||
|
Водопровод |
Централизованное от наружной сети |
|||||
|
Канализация |
Бытовая к наружным сетям |
|||||
|
РАСХОД МАТЕРИАЛОВ НА 1 М ПЛОЩАДИ |
||||||
|
Металл,т |
0,061 |
|||||
|
Пиломатериалы, м3 |
0,081 |
|||||
|
Утеплитель, м3 |
0,69 |
|||||
|
Плита цементностружечная толщиной 10мм, м2 |
9,80 |
|||||
|
Плита цементностружечная толщиной 20мм, м2 |
1,00 |
|||||
|
РАСЧЕТНЫЕ ХАРАКТЕРИСТИКИ |
||||||
|
Скоростной напор ветра |
0,48 кПа (48 кгс/м2) |
|||||
|
Масса снегового покрова |
1,5 кПа (150 кгс/м2) |
|||||
|
Расчетная температура наружного воздуха |
минус 55 С° |
|||||
|
Степень огнестойкости |
V |
|||||
|
Климатические районы |
I, II |
|||||
|
Подрайон |
I А, I Б, I В, I Г, II А, II В |
|||||
|
СТРОИТЕЛЬНЫЕ КОНСТРУКЦИИ И ИЗДЕЛИЯ |
||||||
|
Здание сборно-разборного типа из блок-контейнера. Фундаменты разрабатываются при привязке проекта. Блок-контейнер - пространственная прямоугольная конструкция, собранная из отдельных панелей. Размеры блок-контейнера 9,54´2,95´2,94 м. Соединение панелей - болтовое. Стены - панели каркасной конструкции. Каркас панелей угловых - металлический, остальных - деревянный. Обшивка наружная и внутренняя цементно-стружечная плита. Утеплитель - плиты теплоизоляционные из пенопласта полистирольного ПСБ-С марки 35. Перегородки - трехслойные панели каркасной конструкции. Каркас деревянный. Обшивка - цементно-стружечная плита. Кровля - двускатная панель с уклоном 1% от середины к краям каркасной конструкции. Каркас - металлический. Наружная и внутренняя обшивка - цементностружечная плита. Полы - линолеум, в санузле - релин. Отделка наружная - окраска эмалью. Отделка внутренняя - окраска водоэмульсионной краской. |
||||||
|
РАЗРАБОТЧИК документации |
ВНИИПКспецстройконструкция, 105264, г. Москва, ул. Верхняя Первомайская, 32, тел. 169-98-90 |
|||||
|
СОСТАВИТЕЛЬ каталожного листа |
ОАО ПКТИпромстрой |
|||||
|
РАСПРОСТРАНИТЕЛЬ каталожного листа |
ОАО ПКТИпромстрой 125040, Москва, Ленинградский пр-т, д. 26 тел.(095) 214-36-49, факс :(095)214-95-53 E-mail: pkti@tsr.ru; http://www.tsr.ru/~pkti |
|||||
|
|
МОБИЛЬНЫЕ (ИНВЕНТАРНЫЕ) ЗДАНИЯ И СООРУЖЕНИЯ |
902202-2 |
|
|
МОСКВА |
|||
|
ОАО ПКТИ промстрой |
ЗДАНИЕ СБОРНО-РАЗБОРНОГО ТИПА |
Управление экономической, научно-технической и промышленной политики в строительной отрасли |
|
|
2002 г |
ОВОЩЕХРАНИЛЕЩЕ емкость 60 т. |
На 3 страницах стр.1 |
|
|
|
|||
|
|
НАЗНАЧЕНИЕ |
|
|
|
Овощехранилище емкостью 60 т предназначено для хранения овощей. |
|||
|
ТЕХНИЧЕСКАЯ ХАРАКТЕРИСТИКА |
|||
|
Площадь застройки, м2 |
272,7 |
||
|
Габаритные размеры, м: |
|
||
|
длина |
18,0 |
||
|
ширина |
12,0 |
||
|
высота |
4,64 |
||
|
Наибольшая масса монтажного элемента,т |
4,2 |
||
|
|
ОВОЩЕХРАНИЛЕЩЕ емкость 60 т. |
902202-2 |
Стр. 2 |
|
|
|
||||
|
I Склад хранения картофеля |
VI Калориферная |
|||
|
II Склад хранения лука и чеснока |
VII Помещение для холодильно-нагревательных машин |
|||
|
III Склад кващений и солений |
|
|||
|
IV Комната переборки овощей |
|
|||
|
V Весовая |
|
|||
|
|
|
|||
|
1 холодильно-нагревательная машина |
6 стол производственный |
|||
|
2 тележка грузовая с подъемными вилами |
7 тележка грузовая |
|||
|
3 поддон плоский |
|
|||
|
4 поддон плоский для солений |
|
|||
|
5 весы платформенные |
|
|||
|
|
ОВОЩЕХРАНИЛЕЩЕ емкость 60 т. |
902202-2 |
Стр. 3 |
||
|
ИНЖЕНЕРНОЕ ОБЕСПЕЧЕНИЕ |
|||||
|
Электроснабжение - |
От электросети 380/220 В |
||||
|
Отопление - |
Водяное |
||||
|
В помещениях холодильных машин отопление электрическое |
|
||||
|
ЭКСПУАТАЦИОННЫЕ ПОКАЗАТЕЛИ |
|||||
|
Расход тепла, кВт (ккал/ч) |
135,5 (117100) |
||||
|
Установленная электрическая мощность, кВт |
44,1 |
||||
|
РАСЧЕТНЫЕ ХАРАКТЕРИСТИКИ |
|||||
|
Скоростной напор ветра |
0,54 кПа (54 кгс/м2) |
||||
|
Масса снегового покрова |
1,96 кПа (196 кгс/м2) |
||||
|
Расчетная температура наружного воздуха |
минус 50 С° |
||||
|
Степень огнестойкости |
III а |
||||
|
СТРОИТЕЛЬНЫЕ КОНСТРУКЦИИ И ИЗДЕЛИЯ |
|||||
|
Здание является изделием заводского изготовления, поставляемым комплектно. Несущие конструкции - стальной каркас унифицированного бокса с утепленным основанием. Ограждающие конструкции - стеновые и кровельные трехслойные панели с утеплителем и металлической обшивкой. Холодная кровля - стальной оцинкованный профилированный лист. |
|||||
|
РАЗРАБОТЧИК документации |
ВНИИПКспецстройконструкция, 105264, г. Москва, ул. Верхняя Первомайская, 32, тел. 169-98-90 |
||||
|
СОСТАВИТЕЛЬ каталожного листа |
ОАО ПКТИпромстрой |
||||
|
РАСПРОСТРАНИТЕЛЬ каталожного листа |
ОАО ПКТИпромстрой 125040, Москва, Ленинградский пр-т, д. 26 тел.(095) 214-36-49, факс :(095)214-95-53 E-mail: pkti@tsr.ru; http://www.tsr.ru/~pkti |
||||
|
|
МОБИЛЬНЫЕ (ИНВЕНТАРНЫЕ) ЗДАНИЯ И СООРУЖЕНИЯ |
902202-3 |
|
|
МОСКВА |
|||
|
ОАО ПКТИ промстрой |
ЗДАНИЕ СБОРНО-РАЗБОРНОГО ТИПА |
Управление экономической, научно-технической и промышленной политики в строительной отрасли |
|
|
2002 г |
ОВОЩЕХРАНИЛЕЩЕ емкость 120 т. |
На 3 страницах стр.1 |
|
|
|
|||
|
|
НАЗНАЧЕНИЕ |
|
|
|
Овощехранилище емкостью 120 т предназначено для хранения овощей. |
|||
|
ТЕХНИЧЕСКАЯ ХАРАКТЕРИСТИКА |
|||
|
Площадь застройки, м2 |
371,0 |
||
|
Габаритные размеры, м: |
|
||
|
длина |
30,0 |
||
|
ширина |
12,0 |
||
|
высота |
4,64 |
||
|
Наибольшая масса монтажного элемента,т |
11,0 |
||
|
|
ОВОЩЕХРАНИЛЕЩЕ емкость 120 т. |
902202-3 |
Стр. 2 |
|
|
|
||||
|
I Склад хранения картофеля |
VI Калориферная |
|||
|
II Склад хранения лука и чеснока |
VII Помещение для холодильно-нагревательных машин |
|||
|
III Склад кващений и солений |
|
|||
|
IV Комната переборки овощей |
|
|||
|
V Весовая |
|
|||
|
|
|
|||
|
1 холодильно-нагревательная машина |
6 стол производственный |
|||
|
2 тележка грузовая с подъемными вилами |
7 тележка грузовая |
|||
|
3 поддон плоский |
|
|||
|
4 поддон плоский для солений |
|
|||
|
5 весы платформенные |
|
|||
|
|
ОВОЩЕХРАНИЛЕЩЕ емкость 120 т. |
902202-3 |
Стр. 3 |
||
|
ИНЖЕНЕРНОЕ ОБЕСПЕЧЕНИЕ |
|||||
|
Электроснабжение - |
От электросети 380/220 В |
||||
|
Отопление - |
Водяное |
||||
|
В помещениях холодильных машин отопление электрическое |
|
||||
|
ЭКСПУАТАЦИОННЫЕ ПОКАЗАТЕЛИ |
|||||
|
Расход тепла, кВт (ккал/ч) |
135,5 (117100) |
||||
|
РАСЧЕТНЫЕ ХАРАКТЕРИСТИКИ |
|||||
|
Скоростной напор ветра |
0,54 кПа (54 кгс/м2) |
||||
|
Масса снегового покрова |
1,96 кПа (196 кгс/м2) |
||||
|
Расчетная температура наружного воздуха |
минус 30,40, 50 С° |
||||
|
Степень огнестойкости |
III а |
||||
|
СТРОИТЕЛЬНЫЕ КОНСТРУКЦИИ И ИЗДЕЛИЯ |
|||||
|
Здание является изделием заводского изготовления, поставляемым комплектно. Несущие конструкции - стальной каркас унифицированного бокса с утепленным основанием. Ограждающие конструкции - стеновые и кровельные трехслойные панели с утеплителем и металлической обшивкой. Холодная кровля - стальной оцинкованный профилированный лист. |
|||||
|
РАЗРАБОТЧИК документации |
ВНИИПКспецстройконструкция, 105264, г. Москва, ул. Верхняя Первомайская, 32, тел. 169-98-90 |
||||
|
СОСТАВИТЕЛЬ каталожного листа |
ОАО ПКТИпромстрой |
||||
|
РАСПРОСТРАНИТЕЛЬ каталожного листа |
ОАО ПКТИпромстрой 125040, Москва, Ленинградский пр-т, д. 26 тел.(095) 214-36-49, факс :(095)214-95-53 E-mail: pkti@tsr.ru; http://www.tsr.ru/~pkti |
||||
|
|
МОБИЛЬНЫЕ (ИНВЕНТАРНЫЕ) ЗДАНИЯ И СООРУЖЕНИЯ |
902202-5 |
|
|
МОСКВА |
|||
|
ОАО ПКТИ промстрой |
ЗДАНИЕ СБОРНО-РАЗБОРНОГО ТИПА |
Управление экономической, научно-технической и промышленной политики в строительной отрасли |
|
|
2002 г |
СКЛАД ОБЩЕТОВАРНЫЙ площадью 432 м2 |
На 2 страницах стр.1 |
|
|
|
|||
|
|
I склад промтоварный |
|
|
|
|
II склад продовольственный |
|
|
|
|
|
|
|
|
|
|
|
|
|
1 передвижной ленточный транспортер |
|||
|
2 кран подвесной |
|||
|
3 стеллаж трехполочный |
|||
|
4 поддон деревянный плоский |
|||
|
5 тележка грузовая |
|||
|
НАЗНАЧЕНИЕ |
|||
|
Общетоварный склад площадью 432 м - предназначен для хранения продуктов и товаров народного потребления. |
|||
|
|
СКЛАД ОБЩЕТОВАРНЫЙ площадью 432 м2 |
902202-5 |
Стр. 2 |
|||
|
ТЕХНИЧЕСКАЯ ХАРАКТЕРИСТИКА |
||||||
|
Строительный объем, м3 |
2880,0 |
|
||||
|
Площадь застройки, м2 |
432,0 |
|
||||
|
Габаритные размеры, м: |
|
|
||||
|
длина |
24,0 |
|
||||
|
ширина |
18,0 |
|
||||
|
высота |
7,9 |
|
||||
|
Наибольшая масса монтажного элемента, т |
9,0 |
|
||||
|
ИНЖЕНЕРНОЕ ОБЕСПЕЧЕНИЕ |
||||||
|
Электроснабжение - |
От электросети 380/220 В |
|||||
|
Отопление - |
Водяное и воздушное |
|||||
|
Вентиляция - |
Приточно-вытяжная естественная |
|||||
|
Водопровод |
противопожарный |
|||||
|
РАСЧЕТНЫЕ ХАРАКТЕРИСТИКИ |
||||||
|
Скоростной напор ветра |
0,54 кПа (54 кгс/м2) |
|||||
|
Масса снегового покрова |
1,96 кПа (196 кгс/м2) |
|||||
|
Расчетная температура наружного воздуха |
минус 30,40,50 С° |
|||||
|
Степень огнестойкости |
IIIа |
|||||
|
СТРОИТЕЛЬНЫЕ КОНСТРУКЦИИ И ИЗДЕЛИЯ |
||||||
|
Общетоварный склад - сооружение, состоящее из шести складывающихся секций БКС-24, является изделием заводского изготовления, поставляемым комплектно. Несущая конструкция - шарнирно соединенные щит и два стеновых щита. Утеплитель - плиты минераловатные П 125. Кровля - двухскатная. |
||||||
|
РАЗРАБОТЧИК документации |
ВНИИПКспецстройконструкция, 105264, г. Москва, ул. Верхняя Первомайская, 32, тел. 169-98-90 |
|||||
|
СОСТАВИТЕЛЬ каталожного листа |
ОАО ПКТИпромстрой |
|||||
|
РАСПРОСТРАНИТЕЛЬ каталожного листа |
ОАО ПКТИпромстрой 125040, Москва, Ленинградский пр-т, д. 26 тел.(095) 214-36-49, факс :(095)214-95-53 E-mail: pkti@tsr.ru; http://www.tsr.ru/~pkti |
|||||
|
|
МОБИЛЬНЫЕ (ИНВЕНТАРНЫЕ) ЗДАНИЯ И СООРУЖЕНИЯ |
902202-4 |
|
|
МОСКВА |
|||
|
ОАО ПКТИ промстрой |
ЗДАНИЕ СБОРНО-РАЗБОРНОГО ТИПА |
Управление экономической, научно-технической и промышленной политики в строительной отрасли |
|
|
2002 г |
СКЛАД ОБЩЕТОВАРНЫЙ площадью 216 м2 |
На 2 страницах стр.1 |
|
|
|
|||
|
|
I склад промтоварный |
|
|
|
|
II склад продовольственный |
|
|
|
|
|
|
|
|
|
|
|
|
|
1 передвижной ленточный транспортер |
|||
|
2 кран подвесной |
|||
|
3 стеллаж трехполочный |
|||
|
4 поддон деревянный плоский |
|||
|
5 тележка грузовая |
|||
|
НАЗНАЧЕНИЕ |
|||
|
Общетоварный склад площадью 216 м - предназначен для хранения продуктов и товаров народного потребления. |
|||
|
|
СКЛАД ОБЩЕТОВАРНЫЙ площадью 216 м2 |
902202-4 |
Стр. 2 |
|||
|
ТЕХНИЧЕСКАЯ ХАРАКТЕРИСТИКА |
||||||
|
Строительный объем, м3 |
1555,2 |
|
||||
|
Площадь застройки, м2 |
216,0 |
|
||||
|
Габаритные размеры, м: |
|
|
||||
|
длина |
18,0 |
|
||||
|
ширина |
112,0 |
|
||||
|
высота |
7,2 |
|
||||
|
Наибольшая масса монтажного элемента, т |
5,0 |
|
||||
|
ИНЖЕНЕРНОЕ ОБЕСПЕЧЕНИЕ |
||||||
|
Электроснабжение - |
От электросети 380/220 В |
|||||
|
Отопление - |
Водяное и воздушное |
|||||
|
Вентиляция - |
Приточно-вытяжная естественная |
|||||
|
Водопровод |
противопожарный |
|||||
|
РАСЧЕТНЫЕ ХАРАКТЕРИСТИКИ |
||||||
|
Скоростной напор ветра |
0,54 кПа (54 кгс/м2) |
|||||
|
Масса снегового покрова |
1,96 кПа (196 кгс/м2) |
|||||
|
Расчетная температура наружного воздуха |
минус 30,40,50 С° |
|||||
|
Степень огнестойкости |
IIIа |
|||||
|
СТРОИТЕЛЬНЫЕ КОНСТРУКЦИИ И ИЗДЕЛИЯ |
||||||
|
Общетоварный склад - сооружение, состоящее из шести складывающихся секций БКС-24, является изделием заводского изготовления, поставляемым комплектно. Несущая конструкция - шарнирно соединенные щит и два стеновых щита. Утеплитель - плиты минераловатные П 125. Кровля - двухскатная. |
||||||
|
РАЗРАБОТЧИК документации |
ВНИИПКспецстройконструкция, 105264, г. Москва, ул. Верхняя Первомайская, 32, тел. 169-98-90 |
|||||
|
СОСТАВИТЕЛЬ каталожного листа |
ОАО ПКТИпромстрой |
|||||
|
РАСПРОСТРАНИТЕЛЬ каталожного листа |
ОАО ПКТИпромстрой 125040, Москва, Ленинградский пр-т, д. 26 тел.(095) 214-36-49, факс :(095)214-95-53 E-mail: pkti@tsr.ru; http://www.tsr.ru/~pkti |
|||||
|
|
МОБИЛЬНЫЕ (ИНВЕНТАРНЫЕ) ЗДАНИЯ И СООРУЖЕНИЯ |
1772-21 |
|
|
МОСКВА |
|||
|
ОАО ПКТИ промстрой |
ЗДАНИЕ СБОРНО-РАЗБОРНОГО ТИПА |
Управление экономической, научно-технической и промышленной политики в строительной отрасли |
|
|
2002 г |
ВСПОМОГАТЕЛЬНОЕ ЗДАНИЕ СТОЛОВОЙ |
На 2 страницах стр.1 |
|
|
|
|||
|
|
I помещение неотапливаемое |
|
|
|
|
II помещение отапливаемое |
|
|
|
|
|
|
|
|
|
|
|
|
|
1 холодильный шкаф |
|||
|
2 стеллаж стационарный |
|||
|
3 ларь для овощей |
|||
|
4 тележка |
|||
|
5 огнетушитель |
|||
|
НАЗНАЧЕНИЕ |
|||
|
Вспомогательное здание столовой предназначено для кратковременного хранения продуктов, напитков, кухонной и столовой посуды. |
|||
|
|
ВСПОМОГАТЕЛЬНОЕ ЗДАНИЕ СТОЛОВОЙ |
1772-21 |
Стр. 2 |
|||
|
ТЕХНИЧЕСКАЯ ХАРАКТЕРИСТИКА |
||||||
|
Расчетный срок службы, лет |
20 |
|
||||
|
Оборациваемость, раз |
5 |
|
||||
|
Строительный объем, м3 |
199,5 |
|
||||
|
Площадь застройки, м2 |
77,5 |
|
||||
|
Габаритные размеры, м: |
|
|
||||
|
длина |
12,0 |
|
||||
|
ширина |
6,3 |
|
||||
|
высота |
2,575 |
|
||||
|
Наибольшая масса монтажного элемента, т |
10,5 |
|
||||
|
ИНЖЕНЕРНОЕ ОБЕСПЕЧЕНИЕ |
||||||
|
Электроснабжение - |
От электросети 380/220 В |
|||||
|
Отопление - |
Водяное |
|||||
|
Вентиляция - |
Приточно-вытяжная, естественная, дефлекторами |
|||||
|
Для скоропортящихся продуктов предусмотренны холодильники, для сухих продуктов, овощей и фруктов – стеллажи и лари. Для обдегчения транспортировки продуктов предусмотренна тележка. У дверей и ворот сделаны пандусы. |
||||||
|
РАСЧЕТНЫЕ ХАРАКТЕРИСТИКИ |
||||||
|
Скоростной напор ветра |
0,54 кПа (54 кгс/м2) |
|||||
|
Масса снегового покрова |
1,96 кПа (196 кгс/м2) |
|||||
|
Расчетная температура наружного воздуха |
минус 30,40,50 С° |
|||||
|
Степень огнестойкости |
IIIа |
|||||
|
СТРОИТЕЛЬНЫЕ КОНСТРУКЦИИ И ИЗДЕЛИЯ |
||||||
|
Здание является изделием заводского изготовления, поставляемым комплектного. |
||||||
|
РАЗРАБОТЧИК документации |
ВНИИПКспецстройконструкция, 105264, г. Москва, ул. Верхняя Первомайская, 32, тел. 169-98-90 |
|||||
|
СОСТАВИТЕЛЬ каталожного листа |
ОАО ПКТИпромстрой |
|||||
|
РАСПРОСТРАНИТЕЛЬ каталожного листа |
ОАО ПКТИпромстрой 125040, Москва, Ленинградский пр-т, д. 26 тел.(095) 214-36-49, факс :(095)214-95-53 E-mail: pkti@tsr.ru; http://www.tsr.ru/~pkti |
|||||
|
|
МОБИЛЬНЫЕ (ИНВЕНТАРНЫЕ) ЗДАНИЯ И СООРУЖЕНИЯ |
7206 |
|
|
МОСКВА |
|||
|
ОАО ПКТИ промстрой |
ЗДАНИЕ СБОРНОЕ ЖЕЛЕЗОБЕТОННОЕ БЫСТРОМОНТИРУЕМОЕ |
Управление экономической, научно-технической и промышленной политики в строительной отрасли |
|
|
2002 г |
ОДНОЭТАЖНОЕ МНОГОПРОЛЕТНОЕ ЗДАНИЕ пролетом 12 м, высотой 4 м. |
На 2 страницах стр.1 |
|
|
|
|||
|
НАЗНАЧЕНИЕ |
|||
|
Сборное железобетонное быстромонтируемое здание высокой заводской готовности предназначено для размещения в нем различных помещений многофункционального назначения. |
|||
|
ТЕХНИЧЕСКАЯ ХАРАКТЕРИСТИКА |
|||
|
Пролет здания, м |
5,0´12,0 |
||
|
Высота от пола до низа несущих конструкций, м |
3,8 |
||
|
Масса наиболее тяжелого монтажного элемента, т |
8,0 |
||
|
Размеры проемов, м: |
|
||
|
оконных |
1,2´1,8 |
||
|
дверных |
1,5´2,4 |
||
|
воротных |
3,0´3,0 |
||
|
Длина здания |
не ограничена |
||
|
|
ОДНОЭТАЖНОЕ МНОГОПРОЛЕТНОЕ ЗДАНИЕ пролетом 12 м, высотой 4 м. |
7206 |
Стр. 2 |
||
|
ИНЖЕНЕРНОЕ ОБЕСПЕЧЕНИЕ |
|||||
|
Электроснабжение - |
от внешних сетей |
||||
|
Отопление - |
от внешних сетей |
||||
|
Вентиляция - |
принудительная |
||||
|
Водоснабжение |
от внешних сетей |
||||
|
Канализация |
в городскую сеть |
||||
|
РАСЧЕТНЫЕ ХАРАКТЕРИСТИКИ |
|||||
|
Скоростной напор ветра |
IV район |
||||
|
Масса снегового покрова |
II-V район |
||||
|
Расчетная температура наружного воздуха |
минус 30 С° |
||||
|
Степень огнестойкости |
II |
||||
|
КОНСТРУКТИВНЫЕ РЕШЕНИЯ |
|||||
|
Стеновые панели - ребристая трехслойная с утеплителем из пенополистирола с вертикальной разрезкой на всю высоту здания. Размеры панелей: 3,90x3 м Плиты покрытий - ребристые предварительно напряженные размером 3´12 м (по аналогии с плитами серии 1.465.1-3/80). Опирание стеновых панелей на фундаменты - шарнирное. Фундаменты - предпочтительно малозаглубленные. |
|||||
|
РАЗРАБОТЧИК документации |
ООО «КБ Энерготехпром» г. Москва, Высоковольтный проезд, 1, тел/факс. 901-90-72 |
||||
|
ЗАВОД_ИЗГОТОВИТЕЛЬ |
ООО «КБ Энерготехпром» г. Москва, Высоковольтный проезд, 1, тел/факс. 901-90-72 |
||||
|
СОСТАВИТЕЛЬ каталожного листа |
ОАО ПКТИпромстрой |
||||
|
РАСПРОСТРАНИТЕЛЬ каталожного листа |
ОАО ПКТИпромстрой 125040, Москва, Ленинградский пр-т, д. 26 тел.(095) 214-36-49, факс :(095)214-95-53 E-mail: pkti@tsr.ru; http://www.tsr.ru/~pkti |
||||
|
|
МОБИЛЬНЫЕ (ИНВЕНТАРНЫЕ) ЗДАНИЯ И СООРУЖЕНИЯ |
7206 |
|
|
МОСКВА |
|||
|
ОАО ПКТИ промстрой |
ЗДАНИЕ СБОРНОЕ ЖЕЛЕЗОБЕТОННОЕ БЫСТРОМОНТИРУЕМОЕ |
Управление экономической, научно-технической и промышленной политики в строительной отрасли |
|
|
2002 г |
ОДНОЭТАЖНОЕ МНОГОПРОЛЕТНОЕ ЗДАНИЕ пролетом 12 м, высотой 6 м. |
На 2 страницах стр.1 |
|
|
|
|||
|
НАЗНАЧЕНИЕ |
|||
|
Сборное железобетонное быстромонтируемое здание высокой заводской готовности предназначено для размещения в нем различных помещений многофункционального назначения. |
|||
|
ТЕХНИЧЕСКАЯ ХАРАКТЕРИСТИКА |
|||
|
Пролет здания, м |
5,0´12,0 |
||
|
Высота от пола до низа несущих конструкций, м |
5,8 |
||
|
Масса наиболее тяжелого монтажного элемента, т |
8,0 |
||
|
Размеры проемов, м: |
|
||
|
оконных |
1,8´2,4 |
||
|
дверных |
1,5´2,4 |
||
|
воротных |
4,0´4,0 |
||
|
Длина здания |
не ограничена |
||
|
Оборудование – подвесной однобалочный кран грузоподъемностью 5 т |
|||
|
|
ОДНОЭТАЖНОЕ МНОГОПРОЛЕТНОЕ ЗДАНИЕ пролетом 12 м, высотой 6 м. |
7206 |
Стр. 2 |
||
|
ИНЖЕНЕРНОЕ ОБЕСПЕЧЕНИЕ |
|||||
|
Электроснабжение - |
от внешних сетей |
||||
|
Отопление - |
от внешних сетей |
||||
|
Вентиляция - |
принудительная |
||||
|
Водоснабжение |
от внешних сетей |
||||
|
Канализация |
в городскую сеть |
||||
|
РАСЧЕТНЫЕ ХАРАКТЕРИСТИКИ |
|||||
|
Скоростной напор ветра |
IV район |
||||
|
Масса снегового покрова |
II-V район |
||||
|
Расчетная температура наружного воздуха |
минус 30 С° |
||||
|
Степень огнестойкости |
II |
||||
|
КОНСТРУКТИВНЫЕ РЕШЕНИЯ |
|||||
|
Стеновые панели - ребристая трехслойная с утеплителем из пенополистирола с вертикальной разрезкой на всю высоту здания. Размеры панелей: 3,90´3 м Плиты покрытий - ребристые предварительно напряженные размером 3´12 м (по аналогии с плитами серии 1.465.1-3/80). Опирание стеновых панелей на фундаменты - шарнирное. Фундаменты - предпочтительно малозаглубленные. |
|||||
|
РАЗРАБОТЧИК документации |
ООО «КБ Энерготехпром» г. Москва, Высоковольтный проезд, 1, тел/факс. 901-90-72 |
||||
|
ЗАВОД_ИЗГОТОВИТЕЛЬ |
ООО «КБ Энерготехпром» г. Москва, Высоковольтный проезд, 1, тел/факс. 901-90-72 |
||||
|
СОСТАВИТЕЛЬ каталожного листа |
ОАО ПКТИпромстрой |
||||
|
РАСПРОСТРАНИТЕЛЬ каталожного листа |
ОАО ПКТИпромстрой 125040, Москва, Ленинградский пр-т, д. 26 тел.(095) 214-36-49, факс :(095)214-95-53 E-mail: pkti@tsr.ru; http://www.tsr.ru/~pkti |
||||
|
|
МОБИЛЬНЫЕ (ИНВЕНТАРНЫЕ) ЗДАНИЯ И СООРУЖЕНИЯ |
7150 |
|
|
МОСКВА |
|||
|
ОАО ПКТИ промстрой |
ЗДАНИЕ СБОРНОЕ ЖЕЛЕЗОБЕТОННОЕ БЫСТРОМОНТИРУЕМОЕ |
Управление экономической, научно-технической и промышленной политики в строительной отрасли |
|
|
2002 г |
ОДНОЭТАЖНОЕ ОДНОПРОЛЕТНОЕ ЗДАНИЕ пролетом 6 м, высотой 4 м. |
На 2 страницах стр.1 |
|
|
|
|||
|
НАЗНАЧЕНИЕ |
|||
|
Сборное железобетонное быстромонтируемое здание высокой заводской готовности предназначено для размещения в нем различных помещений многофункционального назначения. |
|||
|
ТЕХНИЧЕСКАЯ ХАРАКТЕРИСТИКА |
|||
|
Пролет здания, м |
6,0 |
||
|
Высота от пола до низа несущих конструкций, м |
3,8 |
||
|
Масса наиболее тяжелого монтажного элемента, т |
8,0 |
||
|
Размеры проемов, м: |
|
||
|
оконных |
1,2´1,8 |
||
|
дверных |
1,5´2,4 |
||
|
воротных |
3,0´3,0 |
||
|
Длина здания |
не ограничена |
||
|
|
|||
|
|
ОДНОЭТАЖНОЕ ОДНОПРОЛЕТНОЕ ЗДАНИЕ пролетом 6 м, высотой 4 м. |
7150 |
Стр. 2 |
||
|
ИНЖЕНЕРНОЕ ОБЕСПЕЧЕНИЕ |
|||||
|
Электроснабжение - |
от внешних сетей |
||||
|
Отопление - |
от внешних сетей |
||||
|
Вентиляция - |
принудительная |
||||
|
Водоснабжение |
от внешних сетей |
||||
|
Канализация |
в городскую сеть |
||||
|
РАСЧЕТНЫЕ ХАРАКТЕРИСТИКИ |
|||||
|
Скоростной напор ветра |
IV район |
||||
|
Масса снегового покрова |
II-V район |
||||
|
Расчетная температура наружного воздуха |
минус 30 С° |
||||
|
Степень огнестойкости |
II |
||||
|
КОНСТРУКТИВНЫЕ РЕШЕНИЯ |
|||||
|
Стеновые панели - ребристая трехслойная с утеплителем из пенополистирола с вертикальной разрезкой на всю высоту здания. Размеры панелей: 3,90´3 м Плиты покрытий - ребристые предварительно напряженные размером 3´12 м (по аналогии с плитами серии 1.465.1-3/80). Опирание стеновых панелей на фундаменты - шарнирное. Фундаменты - предпочтительно малозаглубленные. |
|||||
|
РАЗРАБОТЧИК документации |
ООО «КБ Энерготехпром» г. Москва, Высоковольтный проезд, 1, тел/факс. 901-90-72 |
||||
|
ЗАВОД-ИЗГОТОВИТЕЛЬ |
ООО «КБ Энерготехпром» г. Москва, Высоковольтный проезд, 1, тел/факс. 901-90-72 |
||||
|
СОСТАВИТЕЛЬ каталожного листа |
ОАО ПКТИпромстрой |
||||
|
РАСПРОСТРАНИТЕЛЬ каталожного листа |
ОАО ПКТИпромстрой 125040, Москва, Ленинградский пр-т, д. 26 тел.(095) 214-36-49, факс :(095)214-95-53 E-mail: pkti@tsr.ru; http://www.tsr.ru/~pkti |
||||
|
|
МОБИЛЬНЫЕ (ИНВЕНТАРНЫЕ) ЗДАНИЯ И СООРУЖЕНИЯ |
7009 7075 7212 |
|
|
МОСКВА |
|||
|
ОАО ПКТИ промстрой |
ЗДАНИЕ СБОРНОЕ ЖЕЛЕЗОБЕТОННОЕ БЫСТРОМОНТИРУЕМОЕ |
Управление экономической, научно-технической и промышленной политики в строительной отрасли |
|
|
2002 г |
ОДНОЭТАЖНОЕ ОДНОПРОЛЕТНОЕ ЗДАНИЕ пролетом 12 м, высотой 4 м. |
На 2 страницах стр.1 |
|
|
|
|||
|
НАЗНАЧЕНИЕ |
|||
|
Сборное железобетонное быстромонтируемое здание высокой заводской готовности предназначено для размещения в нем различных помещений многофункционального назначения. |
|||
|
ТЕХНИЧЕСКАЯ ХАРАКТЕРИСТИКА |
|||
|
Пролет здания, м |
12,0 |
||
|
Высота от пола до низа несущих конструкций, м |
3,8 |
||
|
Масса наиболее тяжелого монтажного элемента, т |
8,0 |
||
|
Размеры проемов, м: |
|
||
|
оконных |
1,2´1,8 |
||
|
дверных |
1,5´2,4 |
||
|
воротных |
3,0´3,0 |
||
|
Длина здания |
не ограничена |
||
|
|
|||
|
|
ОДНОЭТАЖНОЕ ОДНОПРОЛЕТНОЕ ЗДАНИЕ пролетом 6 м, высотой 4 м. |
7009 7075 7212 |
Стр. 2 |
||
|
ИНЖЕНЕРНОЕ ОБЕСПЕЧЕНИЕ |
|||||
|
Электроснабжение - |
от внешних сетей |
||||
|
Отопление - |
от внешних сетей |
||||
|
Вентиляция - |
принудительная |
||||
|
Водоснабжение |
от внешних сетей |
||||
|
Канализация |
в городскую сеть |
||||
|
РАСЧЕТНЫЕ ХАРАКТЕРИСТИКИ |
|||||
|
Скоростной напор ветра |
IV район |
||||
|
Масса снегового покрова |
II-V район |
||||
|
Расчетная температура наружного воздуха |
минус 30 С° |
||||
|
Степень огнестойкости |
II |
||||
|
КОНСТРУКТИВНЫЕ РЕШЕНИЯ |
|||||
|
Стеновые панели - ребристая трехслойная с утеплителем из пенополистирола с вертикальной разрезкой на всю высоту здания. Размеры панелей: 3,90´3 м Плиты покрытий - ребристые предварительно напряженные размером 3´12 м (по аналогии с плитами серии 1.465.1-3/80). Опирание стеновых панелей на фундаменты - шарнирное. Фундаменты - предпочтительно малозаглубленные. |
|||||
|
РАЗРАБОТЧИК документации |
ООО «КБ Энерготехпром» г. Москва, Высоковольтный проезд, 1, тел/факс. 901-90-72 |
||||
|
ЗАВОД-ИЗГОТОВИТЕЛЬ |
ООО «КБ Энерготехпром» г. Москва, Высоковольтный проезд, 1, тел/факс. 901-90-72 |
||||
|
СОСТАВИТЕЛЬ каталожного листа |
ОАО ПКТИпромстрой |
||||
|
РАСПРОСТРАНИТЕЛЬ каталожного листа |
ОАО ПКТИпромстрой 125040, Москва, Ленинградский пр-т, д. 26 тел.(095) 214-36-49, факс :(095)214-95-53 E-mail: pkti@tsr.ru; http://www.tsr.ru/~pkti |
||||
|
|
МОБИЛЬНЫЕ (ИНВЕНТАРНЫЕ) ЗДАНИЯ И СООРУЖЕНИЯ |
7018 |
|
|
МОСКВА |
|||
|
ОАО ПКТИ промстрой |
ЗДАНИЕ СБОРНОЕ ЖЕЛЕЗОБЕТОННОЕ БЫСТРОМОНТИРУЕМОЕ |
Управление экономической, научно-технической и промышленной политики в строительной отрасли |
|
|
2002 г |
АДМИНИСТРАТИВНО-БЫТОВОЕ ЗДАНИЕ с высотой этажа 3 м пролетом 12 м. |
На 3 страницах стр.1 |
|
|
|
|||
|
НАЗНАЧЕНИЕ |
|||
|
Сборное железобетонное быстромонтируемое здание высокой заводской готовности предназначено для размещения в нем различных помещений административно-бытового назначения. |
|||
|
ТЕХНИЧЕСКАЯ ХАРАКТЕРИСТИКА |
|||
|
Пролет здания, м |
|
||
|
На отметке 0,00 |
6,0+6,0 |
||
|
На отметке 6,00 |
12,0 |
||
|
Высота этажей,м |
3,0+3,0 |
||
|
Шаг колонн на отм. 0,00 по средней оси здания, м |
3,0 |
||
|
Размер панелей, м |
6,2´3,0 |
||
|
Размеры проемов, м: |
|
||
|
оконных |
1,2´2,0 |
||
|
дверных |
1,5´2,4 |
||
|
Длина здания |
не ограничена |
||
|
|
|||
|
|
АДМИНИСТРАТИВНО-БЫТОВОЕ ЗДАНИЕ с высотой этажа 3 м пролетом 12 м. |
7018 |
Стр. 2 |
|
|
|
||||
|
а) план здания на отметке 0,00 |
5 колонна |
|||
|
б) план плит перекрытия |
6 лестничная площадка |
|||
|
в) план плит покрытия |
7 лестничный марш |
|||
|
1 стеновые панели продольных стен |
8 подкос |
|||
|
2 торцевые стеновые панели |
9 стальные накладки |
|||
|
3 плита перекрытия |
|
|||
|
4 плита покрытия |
|
|||
|
ИНЖЕНЕРНОЕ ОБЕСПЕЧЕНИЕ |
||||
|
Электроснабжение - |
от внешних сетей |
|||
|
Отопление - |
от внешних сетей |
|||
|
Вентиляция - |
принудительная |
|||
|
Водоснабжение |
от внешних сетей |
|||
|
Канализация |
в городскую сеть |
|||
|
|
АДМИНИСТРАТИВНО-БЫТОВОЕ ЗДАНИЕ с высотой этажа 3 м пролетом 12 м. |
7018 |
Стр. 3 |
|
|
КОНСТРУКТИВНЫЕ РЕШЕНИЯ |
||||
|
Стеновые панели - ребристая трехслойная с утеплителем из пенополистирола с вертикальной разрезкой на всю высоту здания. Плиты покрытий - ребристые предварительно напряженные размером 3´12 м (по аналогии с плитами серии 1.465.1-3/80). Опирание стеновых панелей на фундаменты - шарнирное. Фундаменты - предпочтительно малозаглубленные. |
||||
|
РАЗРАБОТЧИК документации |
ООО «КБ Энерготехпром» г. Москва, Высоковольтный проезд, 1, тел/факс. 901-90-72 |
|||
|
ЗАВОД-ИЗГОТОВИТЕЛЬ |
ООО «КБ Энерготехпром» г. Москва, Высоковольтный проезд, 1, тел/факс. 901-90-72 |
|||
|
СОСТАВИТЕЛЬ каталожного листа |
ОАО ПКТИпромстрой |
|||
|
РАСПРОСТРАНИТЕЛЬ каталожного листа |
ОАО ПКТИпромстрой 125040, Москва, Ленинградский пр-т, д. 26 тел.(095) 214-36-49, факс :(095)214-95-53 E-mail: pkti@tsr.ru; http://www.tsr.ru/~pkti |
|||
|
|
МОБИЛЬНЫЕ (ИНВЕНТАРНЫЕ) ЗДАНИЯ И СООРУЖЕНИЯ |
|
|
|
МОСКВА |
|||
|
ОАО ПКТИ промстрой |
СООРУЖЕНИЯ ИНЖЕНЕРНОГО ОБЕСПЕЧЕНИЯ |
Управление экономической, научно-технической и промышленной политики в строительной отрасли |
|
|
2002 г |
УСТАНОВКА ДЛЯ МОЙКИ КОЛЕС АВТОТРАНСПОРТА (с установкой оборотного водоснабжения «Мойдодыр») |
На 2 страницах стр.1 |
|
|
|
|||
|
НАЗНАЧЕНИЕ |
|||
|
Установка может использоваться на стройплощадках, автопарках, промышленных объектах и пр. для мойки колес автотранспортных средств без применения моющих добавок. |
|||
|
КОМПЛЕКТ ОБОРУДОВАНИЯ |
|||
|
1 Установка "Мойдодыр-К-4,5" |
1 шт |
||
|
2 Песколовка |
1 шт |
||
|
3 Насос погружной (N=1 кВт) |
1 щт |
||
|
НАЗНАЧЕНИЕ КОМПЛЕКТА ОБОРУДОВАНИЯ |
|||
|
Комплект предназначен для использования на строительных площадках, в автопарках, промышленных и других объектах для мойки колес автотранспортных средств и обеспечивает очистку воды для повторного использования при пропускной способности до 30 грузовых автомобилей в час. За счет электрообогрева насосной камеры и емкости очищенной воды возможна работа установки при температуре до -5 С. |
|||
|
|
УСТАНОВКА ДЛЯ МОЙКИ КОЛЕС АВТОТРАНСПОРТА (с установкой оборотного водоснабжения «Мойдодыр») |
|
Стр. 2 |
||
|
Комплект оборудования предназначен для сбора и очистки сточных вод от взвешенных веществ и нефтепродуктов в системе оборотного водоснабжения мойки колес автотранспортных средств и обеспечивает повторное использование очищенной технической воды. Комплект обеспечивает очистку оборотной воды при пропускной способности 10-15 единиц транспорта в час. |
|||||
|
ТЕХНИЧЕСКИЕ ДАННЫЕ |
|||||
|
I Установка. |
|||||
|
1 Производительность по очищенной воде, м /ч |
до 4,5 |
||||
|
2 Концентрация загрязняющих веществ в сточной воде, мг/л, не более |
|
||||
|
по взвешенным веществам |
4500 |
||||
|
по нефтепродуктам |
200 |
||||
|
3 Концентрация загрязняющих веществ в оборотной воде, мг/л, не более |
|
||||
|
по взвешенным веществам |
200 |
||||
|
по нефтепродуктам |
20 |
||||
|
4 Габаритные размеры, мм |
|
||||
|
длина |
3610 |
||||
|
ширина |
1760 |
||||
|
5 Масса без воды, кг |
1290 |
||||
|
6 Объем воды в установке, м |
4,2 |
||||
|
7 Обслуживающий персонал, чел. |
1-2 |
||||
|
II Насос высокого давления. |
|
||||
|
1 Производительность, л/мин. |
70-80 |
||||
|
2 Давление, кгс/см2 |
11-15 |
||||
|
3 Установленная мощность, кВт |
7,5 |
||||
|
III Погружной насос |
|
||||
|
1 Производительность, л/мин. |
до 150 |
||||
|
2 Напор, м вод.ст. |
9 |
||||
|
3 Установленная мощность, кВт |
0,6 |
||||
|
ПИТАНИЕ |
|
||||
|
Силовая трехфазная сеть электропитания 380 В, 50 Гц. |
|
||||
|
Водопровод - от внешней сети или подвозимая в автоцистернах. |
|
||||
|
РАЗРАБОТЧИК документации |
ЗАО Экологический промышленно-финансовый концерн "Мойдодыр", Россия, 107370, Москва, Открытое ш.,48 а тел./факс: (095)168-73-51, тел: 168-73-56, 162-07-69 |
||||
|
СОСТАВИТЕЛЬ каталожного листа |
ОАО ПКТИпромстрой |
||||
|
РАСПРОСТРАНИТЕЛЬ каталожного листа |
ОАО ПКТИпромстрой 125040, Москва, Ленинградский пр-т, д. 26 тел.(095) 214-36-49, факс :(095)214-95-53 E-mail: pkti@tsr.ru; http://www.tsr.ru/~pkti |
||||
|
|
МОБИЛЬНЫЕ (ИНВЕНТАРНЫЕ) ЗДАНИЯ И СООРУЖЕНИЯ |
|
|
МОСКВА |
||
|
ОАО ПКТИ промстрой |
СООРУЖЕНИЯ ИНЖЕНЕРНОГО ОБЕСПЕЧЕНИЯ |
Управление экономической, научно-технической и промышленной политики в строительной отрасли |
|
2002 г |
УСТАНОВКА ДЛЯ МОЙКИ КОЛЕС АВТОТРАНСПОРТА (с установкой оборотного водоснабжения «Автосток М») |
На 2 страницах стр.1 |
|
|
||
|
НАЗНАЧЕНИЕ |
||
|
Установка может использоваться на стройплощадках, автопарках, промышленных объектах и пр. для мойки колес автотранспортных средств без применения моющих добавок. |
||
|
1 площадка (эстакада) для размещения автомобилей и сбора грязной воды |
||
|
2 приемная емкость грязной воды V= 5-10 м3 (при больших объемах) |
||
|
3 штатная приемная емкость гряной воды V= 0,7 м3 , входит в комплект поставки |
||
|
4 шлаконакопительный кювет, устраиваемый при использовании штатной риемной емкости |
||
|
5 съемная бадья |
||
|
6 выносной погружной насос |
||
|
7 установка «Автосток М» |
||
|
|
УСТАНОВКА ДЛЯ МОЙКИ КОЛЕС АВТОТРАНСПОРТА (с установкой оборотного водоснабжения «Автосток М») |
|
Стр. 2 |
||
|
ТЕХНИЧЕСКИЕ ДАННЫЕ |
|||||
|
1 Производительность по очищенной воде, м /ч |
до 4,5 |
||||
|
2 Концентрация загрязняющих веществ в сточной воде, мг/л, не более |
|
||||
|
по взвешенным веществам |
|
||||
|
На входе в песколовку |
30000,0 |
||||
|
На входе в установку |
50000,0 |
||||
|
По нефтепродуктам |
200,0 |
||||
|
3 Концентрация загрязняющих веществ в оборотной воде, мг/л, не более |
|
||||
|
по взвешенным веществам |
200,0-300,0 |
||||
|
по нефтепродуктам |
20,0 |
||||
|
4 Масса без воды, кг |
450,0 |
||||
|
5 Объем воды в установке, м3 |
3,0 |
||||
|
6 Установленная мощность, кВт |
|
||||
|
Переносной насос |
1,0 |
||||
|
Высоконапорный насос |
7,5 |
||||
|
7 Обслуживающий персонал, чел |
1-2 |
||||
|
РАЗРАБОТЧИК документации |
ЗАО Экологический центр "ЭКО" 123371, Москва, Волоколамское ш., д.87, тел.(095) 491-08-29, 494-19-89, 490-87-66 |
||||
|
ИЗГОТОВИТЕЛЬ |
ЗАО Экологический центр "ЭКО" 123371, Москва, Волоколамское ш., д.87, тел.(095) 491-08-29, 494-19-89, 490-87-66 |
||||
|
УТВЕРЖДЕНИЕ |
Гигиенический сертификат на установку № 77.01.22.485.Т.16478.04.9. от 19.04.99 Патент Российской Федерации на установку № 43239 |
||||
|
СОСТАВИТЕЛЬ каталожного листа |
ОАО ПКТИпромстрой |
||||
|
РАСПРОСТРАНИТЕЛЬ каталожного листа |
ОАО ПКТИпромстрой 125040, Москва, Ленинградский пр-т, д. 26 тел.(095) 214-36-49, факс :(095)214-95-53 E-mail: pkti@tsr.ru; http://www.tsr.ru/~pkti |
||||
|
|
МОБИЛЬНЫЕ (ИНВЕНТАРНЫЕ) ЗДАНИЯ И СООРУЖЕНИЯ |
|
|
МОСКВА |
||
|
ОАО ПКТИ промстрой |
СООРУЖЕНИЯ ИНЖЕНЕРНОГО ОБЕСПЕЧЕНИЯ |
Управление экономической, научно-технической и промышленной политики в строительной отрасли |
|
2002 г |
УСТАНОВКА ДЛЯ МОЙКИ КОЛЕС АВТОТРАНСПОРТА (с очистным оборудованием ООО «Чистая компания-АСЦ») |
На 2 страницах стр.1 |
|
|
||
|
НАЗНАЧЕНИЕ |
||
|
Установка может использоваться на стройплощадках, автопарках, промышленных объектах и пр. для мойки колес автотранспортных средств. |
||
|
1 водоотстойник |
||
|
2 система очистки СОРВ-2 |
||
|
3 аппарат высокого давления |
||
|
4 система отвода газов |
||
|
5 бытовка |
||
|
6 водосборный лоток |
||
|
ОСНОВНЫЕ РЕШЕНИЯ |
||
|
Мойка выполнена как мобильный пункт при наличии стационарных водосборных и водопроводных коммуникаций. Данный пункт монтируется на базе строительного вагона-бытовки со следующими минимальными размерами: длина - 3500 мм; ширина - 2000 мм; высота - 2000 мм. В бытовке будут располагаться аппарат высокого давления HD 1090, система очистки и рециркуляции воды СОРВ-2, буферная емкость на 1000 л. Для функционирования системы необходимо оборудовать моечный пункт водосборным лотком, водоотстойником, а также системой коммуникаций для подачи электроэнергии и водопровода. |
||
|
|
УСТАНОВКА ДЛЯ МОЙКИ КОЛЕС АВТОТРАНСПОРТА (с очистным оборудованием ООО «Чистая компания-АСЦ») |
|
Стр. 2 |
||
|
ТЕХНИЧЕСКИЕ ДАННЫЕ |
|||||
|
1 Очистная установка СОРВ-2 |
|
||||
|
Производительность, л/час |
2000 |
||||
|
(с буферной емкостью 1000 и 130 л); |
|
||||
|
Сетевое напряжение,вольт, Гц |
380, 50 |
||||
|
Потребляемая мощность,кВт |
2,5 |
||||
|
Средство стерилизации RM 851, мл/м |
200,0 |
||||
|
Габариты установки, мм: |
|
||||
|
высота |
1900 |
||||
|
длина |
1200 |
||||
|
ширина |
800 |
||||
|
вес (при полной загрузке) |
450 |
||||
|
2 Аппарат высокого давления без нагрева воды HD 1090 |
|
||||
|
Производительность,л/час |
300-900 |
||||
|
Максимальная температура воды, С |
10-230 |
||||
|
Мощность, кВт |
60 |
||||
|
Сетевое напряжение, в, Гц |
380,50 |
||||
|
Габариты, мм |
|
||||
|
высота |
503 |
||||
|
длина |
490 |
||||
|
ширина |
942 |
||||
|
вес, кг |
55 |
||||
|
ТЕХНИЧЕСКИЕ ТРЕБОВАНИЯ |
|
||||
|
1 Площадь площадки для мойки колес: длина - 7000 мм; |
|
||||
|
ширина - 4000 мм; |
|
||||
|
ширина с постом - 9000 мм. |
|
||||
|
2 Размеры помещения для монтажа оборудования (бытовка): длина - 4000 мм; |
|
||||
|
ширина - 2500 мм. |
|
||||
|
3 Электроснабжение 3x380 в, 50 гЦ, 12 кВт (без учета электропотребления отопительных приборов). |
|
||||
|
4 Водоотстойник и водосборную канаву можно выполнять как в бетонном, покрыты слоем гидроизоляции, так и в металлическом исполнении (грунтовка, покраска). |
|
||||
|
РАЗРАБОТЧИК документации |
ООО "Чистая компания - АСЦ" |
||||
|
ПРОИЗВОДИТЕЛЬ МОЕЧНОГО ОБОРУДОВАНИЯ |
Немецкая фирма Alfred karcher GmbH&Co |
||||
|
ПРОИЗВОДИТЕЛЬ МОЕЧНОГО ОБОРУДОВАНИЯ |
ООО "Чистая компания - АСЦ" |
||||
|
УТВЕРЖДЕНИЕ |
|
||||
|
СОСТАВИТЕЛЬ каталожного листа |
ОАО ПКТИпромстрой |
||||
|
РАСПРОСТРАНИТЕЛЬ каталожного листа |
ОАО ПКТИпромстрой 125040, Москва, Ленинградский пр-т, д. 26 тел.(095) 214-36-49, факс :(095)214-95-53 E-mail: pkti@tsr.ru; http://www.tsr.ru/~pkti |
||||
|
|
МОБИЛЬНЫЕ (ИНВЕНТАРНЫЕ) ЗДАНИЯ И СООРУЖЕНИЯ |
|
|
МОСКВА |
||
|
ОАО ПКТИ промстрой |
СООРУЖЕНИЯ ИНЖЕНЕРНОГО ОБЕСПЕЧЕНИЯ |
Управление экономической, научно-технической и промышленной политики в строительной отрасли |
|
2002 г |
ЭСТАКАДА С ПОДДОНОМ ДЛЯ МОЙКИ КОЛЕС АВТОТРАНСПОРТА |
На 2 страницах стр.1 |
|
|
||
|
НАЗНАЧЕНИЕ |
||
|
Установка может использоваться на стройплощадках, автопарках, промышленных объектах и пр. для мойки колес автотранспортных средств. |
||
|
1 горизонтальная площадка |
||
|
2 пандус левый |
||
|
3 пандус правый |
||
|
4 поддон левый |
||
|
5 поддон правый |
||
|
НАЗНАЧЕНИЕ |
||
|
Эстакада с поддоном предназначена для мойки колес автомобильного транспорта с максимальной нагрузкой на ось 10 т в стесненных условиях, строительства в комплексе с системой оборотного водоснабжения "Автосток", "Мойдодыр", "УКО-1 |
||
|
|
ЭСТАКАДА С ПОДДОНОМ ДЛЯ МОЙКИ КОЛЕС АВТОТРАНСПОРТА |
|
Стр. 2 |
||
|
ТЕХНИЧЕСКИЕ ДАННЫЕ |
|||||
|
1 Максимальная нагрузка на эстакаду, т |
20,0 |
||||
|
2 Колея (по осям площадок), м |
1,9 |
||||
|
3 Минимальный радиус поворота,м |
9,0 |
||||
|
4 Высота проезжей части эстакады, мм |
282,0 |
||||
|
5 Углы выезда (съезда), градус |
20,0 |
||||
|
6 Суммарная емкость поддонов, |
1,8 |
||||
|
7 Габаритные размеры, мм: |
|
||||
|
длина |
3900 |
||||
|
ширина |
3900 |
||||
|
высота |
477 |
||||
|
8 Общая масса,кг |
1620 |
||||
|
в т.ч горизонтальная площадка |
|
||||
|
пандус левый |
83 |
||||
|
поддон правый |
130 |
||||
|
поддон левый |
218 |
||||
|
пандус правый |
264 |
||||
|
СОСТАВ ИЗДЕЛИЯ |
|||||
|
Площадка состоит из следующих основных узлов |
|
||||
|
площадка горизонтальная - |
2 шт. |
||||
|
пандус левый - |
2 шт. |
||||
|
пандус правый - |
2 шт. |
||||
|
поддон левый - |
1 шт. |
||||
|
поддон правый - |
1 шт. |
||||
|
РАЗРАБОТЧИК документации |
ОАО ПКТИпромстрой 125040, Москва, Ленинградский пр-т, д. 26 тел.(095) 214-36-49, факс :(095)214-95-53 |
||||
|
СОСТАВИТЕЛЬ каталожного листа |
ОАО ПКТИпромстрой |
||||
|
РАСПРОСТРАНИТЕЛЬ каталожного листа |
ОАО ПКТИпромстрой 125040, Москва, Ленинградский пр-т, д. 26 тел.(095) 214-36-49, факс :(095)214-95-53 E-mail: pkti@tsr.ru; http://www.tsr.ru/~pkti |
||||
|
|
МОБИЛЬНЫЕ (ИНВЕНТАРНЫЕ) ЗДАНИЯ И СООРУЖЕНИЯ |
|
|
МОСКВА |
||
|
ОАО ПКТИ промстрой |
ИНВЕНТАРНЫЕ ОПОРЫ |
Управление экономической, научно-технической и промышленной политики в строительной отрасли |
|
2002 г |
ПЕРЕДВИЖНАЯ ПРОЖЕКТОРНАЯ МАЧТА |
На 2 страницах стр.1 |
|
|
||
|
|
||
|
Наименование |
Количество |
Масса,кг |
|
Рама прожекторная |
1 |
104 |
|
Стойка поворотная |
1 |
623 |
|
Нога |
1 |
423 |
|
Опора-салазки |
1 |
207 |
|
Подкос |
4 |
208 |
|
Пригруз |
4 |
1000 |
|
|
ПЕРЕДВИЖНАЯ ПРОЖЕКТОРНАЯ МАЧТА |
|
Стр. 2 |
|
|
КОНСТРУКЦИЯ ПРОЖЕКТОРНОЙ МАЧТЫ |
||||
|
Прожекторная мачта - сборно-разборная. Все составные элементы мачты габаритны. Мачта состоит из поворотной стойки, на верхнем конце которого установлена прожекторная рама, а на нижнем конце укреплен противовес. На высоте 4,5 м от уровня земли поворотная стойка имеет шарнирное соединение со сварной ногой, которая раскреплена четырьмя подкосами. Нога и подкосы закрепляются на опоре-салазках. |
||||
|
МОНТАЖ ПРОЖЕКТОРНОЙ МАЧТЫ |
||||
|
Сборка мачты производится на болтах нормальной точности Ml6. Болты плотно затянуть на гайку и контргайку. При монтаже мачты до установки поворотной стойки на опору-салазки должен быть уложен пригруз 4x250 кг. Противовес - наборный из листового проката любой толщины и любой марки стали. |
||||
|
ТРАНСПОРТИРОВАНИЕ |
||||
|
В пределах мтроительной площадки мачту можно транспортировать на опоре-салазках волоком только по выровненной поверхности с помощью тягача со скоростью не более 5 км/ч (при этом пригруз не снимается). При транспортировке волоком поворотную стойку необходимо перевести в горизонтальное положение и закрепить оттяжками со стороны противовеса и прожекторов к опоре-салазкам. Мачта может быть установлена с уклоном до 3°. |
||||
|
ПРИМЕНЕНИЕ |
||||
|
Мачту допускается применять только в I и II районах по давлению ветра в соответствии со СНиП 2.01.07-85. |
||||
|
РАЗРАБОТЧИК документации |
ОАО ПКТИпромстрой 125040, Москва, Ленинградский пр-т, д. 26 тел.(095) 214-36-49, факс :(095)214-95-53 |
|||
|
ЗАВОД-ИЗГОТОВИТЕЛЬ |
АОЗТ "КССК" |
|||
|
УТВЕРЖДЕНИЕ |
ТУ 5282-006-05108104-98 |
|||
|
СОСТАВИТЕЛЬ каталожного листа |
ОАО ПКТИпромстрой |
|||
|
РАСПРОСТРАНИТЕЛЬ каталожного листа |
ОАО ПКТИпромстрой 125040, Москва, Ленинградский пр-т, д. 26 тел.(095) 214-36-49, факс :(095)214-95-53 E-mail: pkti@tsr.ru; http://www.tsr.ru/~pkti |
|||
|
ГОСТЫ, СТРОИТЕЛЬНЫЕ и ТЕХНИЧЕСКИЕ НОРМАТИВЫ. Некоммерческая онлайн система, содержащая все Российские Госты, национальные Стандарты и нормативы. В Системе содержится более 150000 файлов нормативно-технической документации, действующей на территории РФ. Система предназначена для широкого круга инженерно-технических специалистов. Copyright © www.gostrf.com, 2008 - 2026 |