Крупнейшая бесплатная информационно-справочная система онлайн доступа к полному собранию технических нормативно-правовых актов РФ. Огромная база технических нормативов (более 150 тысяч документов) и полное собрание национальных стандартов, аутентичное официальной базе Госстандарта. GOSTRF.com - это более 1 Терабайта бесплатной технической информации для всех пользователей интернета. Все электронные копии представленных здесь документов могут распространяться без каких-либо ограничений. Поощряется распространение информации с этого сайта на любых других ресурсах. Каждый человек имеет право на неограниченный доступ к этим документам! Каждый человек имеет право на знание требований, изложенных в данных нормативно-правовых актах!

  


 

ФГУП «НИЦ «Строительство»

НИИЖБ им. А.А. Гвоздева

ЗАО «КТБ НИИЖБ»

АРМИРОВАНИЕ ЭЛЕМЕНТОВ МОНОЛИТНЫХ
ЖЕЛЕЗОБЕТОННЫХ ЗДАНИЙ

Пособие по проектированию

Москва

2007

 

Данное Пособие предназначено для использования при проектировании элементов зданий из монолитного железобетона и восполняет пробел, касающийся их армирования. В нем приведены последние разработки НИИЖБ по эффективным арматурным сталям, таким как стержневая классов А500С и А500СП и поставляемая в мотках, классов А500С и В500С, в том числе промежуточных диаметров, винтовая и канатная арматура.

Предлагаются новая методика расчета зданий на аварийные нагрузки и рекомендации по их проектированию с учетом предотвращения прогрессирующего обрушения.

В приложениях к пособию приводятся конструктивные требования к армированию основных элементов зданий из монолитного железобетона и примеры конструирования армирования этих элементов в реальных проектах.

Одобрено конструкторской секцией НТС НИИЖБ 13 сентября 2007 г.

Утверждено приказом ФГУП «НИЦ «Строительство» от 17 сентября 2007 г. № 181.

Материалы Пособия могут быть использованы как в практическом проектировании монолитных зданий, так и в учебном процессе по строительным специальностям.

Рецензенты: д-р техн. наук, проф. А.С. Залесов и д-р техн. наук, проф. В.А. Клевцов.

Замечания и предложения следует направлять в НИИЖБ - филиал ФГУП «НИЦ «Строительство» (тел. 174-75-09, www.niizhb.ru, Россия, 109428, г. Москва, 2-я Институтская ул., 6).

СОДЕРЖАНИЕ

ВВЕДЕНИЕ

1. ЭФФЕКТИВНАЯ АРМАТУРА ДЛЯ МОНОЛИТНОГО СТРОИТЕЛЬСТВА

1.1 Стержневой арматурный прокат

1.2 Арматурный прокат, поставляемый в мотках (бунтах)

1.3 Винтовой арматурный прокат

1.4 Канатные элементы и их применение в предварительно напряженных перекрытиях зданий

2 ОСНОВНЫЕ РАСЧЕТНЫЕ ТРЕБОВАНИЯ

3 ТРЕБОВАНИЯ ПО ЗАЩИТЕ ЗДАНИЙ ОТ ПРОГРЕССИРУЮЩЕГО ОБРУШЕНИЯ

3.1 Очередность расчета по приведенной методике для вновь проектируемых зданий и при экспертизе проектных решений [10]

4 КОНСТРУКТИВНЫЕ ТРЕБОВАНИЯ

5 АНКЕРОВКА АРМАТУРЫ

6 СОЕДИНЕНИЯ АРМАТУРЫ

6.1 Стыки арматуры без сварки

6.2 Сварные соединения для арматуры всех типов

6.3 Сварные соединения, применяемые для термомеханически упрочненной арматурной стали класса А500СП

6.4 Дополнительные технологические рекомендации по сварке арматурной стали класса А500СП для типовых сварных соединений, а также нетипового стыкового соединения с 3-4 накладками

6.5 Дополнительные технологические рекомендации по сварке арматурной стали класса А500СП для нетиповых сварных соединений

6.6 Механические стыковые соединения

7 ТРЕБОВАНИЯ К ГИБОЧНЫМ ОПЕРАЦИЯМ

8 ПРИЕМКА, ВХОДНОЙ КОНТРОЛЬ КАЧЕСТВА АРМАТУРЫ У ПОТРЕБИТЕЛЯ, МАРКИРОВКА, УПАКОВКА

9 КОНТРОЛЬ КАЧЕСТВА СВАРНЫХ СОЕДИНЕНИЙ АРМАТУРЫ КЛАССОВ А500С И А500СП

ПРИЛОЖЕНИЕ 1 КОНСТРУКТИВНЫЕ ТРЕБОВАНИЯ К АРМИРОВАНИЮ ОСНОВНЫХ ЭЛЕМЕНТОВ ЗДАНИЙ ИЗ МОНОЛИТНОГО ЖЕЛЕЗОБЕТОНА

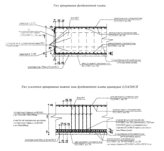
Раздел 1. Армирование монолитных фундаментов

Раздел 2. Армирование монолитных стоек и стен

Раздел 3. Армирование монолитных железобетонных балок и плит перекрытия

ПРИЛОЖЕНИЕ 2 ПРИМЕРЫ АРМИРОВАНИЯ КОНСТРУКЦИЙ ЗДАНИЙ ПОВЫШЕННОЙ ЭТАЖНОСТИ ИЗ МОНОЛИТНОГО ЖЕЛЕЗОБЕТОНА

Раздел 1 Фундаменты

Раздел 2. Вертикальные конструкции цокольного этажа

Раздел 3 Перекрытия цокольного этажа

Раздел 4 Вертикальные конструкции типового этажа

Раздел 5 Перекрытия типового этажа

Раздел 6 Балки

Раздел 7 Лестницы, ограждения балконов

ПРИЛОЖЕНИЕ 3 ИНФОРМАЦИОННОЕ ПИСЬМО ГОССТРОЯ АП-4823/02

10 СПИСОК ИСПОЛЬЗОВАННОЙ ЛИТЕРАТУРЫ

НОРМАТИВНЫЕ ДОКУМЕНТЫ

ВВЕДЕНИЕ

Арматурный прокат для железобетона является одним из самых массовых видов продукции черной металлургии.

С учетом все возрастающих темпов строительства объемы производства арматурного проката в обозримой перспективе будут только увеличиваться (табл. 1).

Таблица 1

Прогноз производства железобетона и потребности в арматурных сталях в РФ до 2010 г.

№ п.п.

Ввод жилья, строительные материалы

год

2000*

2001*

2004

2005

2007

2010

1

Ввод жилья, млн. м2

30,3

31,7

41

41,6

54,7

80

2

Цемент, млн. т

32,4

35,4

45,6

48,7

56

70

3

Железобетон; всего **, млн. м2

35,4

38,7

45,7

48,4

56,3

72

 

В том числе:

 

 

 

 

 

 

 

сборный железобетон, млн. м3

18,3

19,70

22,6

23,5

28

38

 

предварительно напряженный железобетон. млн. м3

6,2

6,8

8,3

9,3

11,3

15

4

Стальная арматура всех видов, тыс. т

2835

3098

3350

3530

4100

5200

5

Высокопрочная напрягаемая арматура, тыс. т

124

136

250

280

340

450

 

в том числе стержневая классов А800, Aт800 и Ат1000

99

109

220

250

310

415

* Данные лаборатории арматуры НИИЖБ

** Оценочные данные ЦПЭ НИИЖБ

Номенклатура и сортамент арматурного проката, производимого на металлургических предприятиях бывшего СССР, складывались под влиянием спроса, ориентированного массовым развитием сборного железобетона и в условиях, практически изолированных от мирового рынка. До настоящего времени это обстоятельство в большей или меньшей степени для разных металлургических предприятии сказывается в недополучении прибыли, связанном с производством устаревших видов арматурного проката, с высокой себестоимостью и низкой конкурентной способностью.

Требования, предъявляемые к арматурному прокату строителями (потребителями) еще на ранней стадии развития железобетона, остались актуальными и в настоящее время.

Учитывая особенности современного производства и эксплуатации арматурных элементов сборного и монолитною железобетона (каркасов, сеток, закладных деталей, монтажных петель и т.п.), к основным требованиям по прочности, деформативности и сцеплению с бетоном добавились дополнительные требования по свариваемости, хладостойкости, коррозионной стойкости арматуры и др. Из-за все возрастающих требований к качеству строительства экономическая эффективность и надежность применения того или иного вида арматурного проката у потребителя становятся основополагающими для внедрения его у производителя.

На ранней стадии производства арматуры главными определяющими ее потребительских свойств были технические возможности сталелитейного и прокатного технологического оборудования. Тогда строители были вынуждены довольствоваться той арматурной продукцией, которую производила металлургическая промышленность.

В связи с бурным развитием металлургического производства в последние годы практически все технологические ограничения с производства арматуры были сняты. В настоящее время металлурги готовы производить ту арматурную продукцию, которая может быть эффективно использована в строительстве.

В соответствии с СП 52-101-2003 для армирования железобетонных конструкций рекомендуется применять арматуру следующих видов:

- горячекатаную гладкую и периодического профиля с постоянной и переменной высотой выступов (соответственно кольцевой и серповидный профили) диаметром 6-40 мм;

- термомеханически упрочненную периодического профиля с постоянной и переменной высотой выступов (кольцевой и серповидный) диаметром 6-40 мм:

- холоднодеформированную периодического профиля диаметром 3-12 мм.

Класс арматуры по прочности на растяжение обозначается:

А - для горячекатаной и термомеханически упрочненной арматуры;

В - для холоднодеформированной арматуры.

Классы арматуры по прочности на растяжение А и В отвечают гарантированному значению предела текучести (с округлением) с обеспеченностью не менее 0,95, определяемому по соответствующим государственным стандартам или техническим условиям.

В необходимых случаях к арматуре предъявляются требования по дополнительным показателям качества: свариваемость, пластичность, сцепление с бетоном, хладостойкость, коррозионная стойкость, усталостная прочность и др.

При проектировании железобетонных конструкций может быть использована арматура:

- гладкая класса А240 (A-I);

- периодического профиля классов А300 (А-II), А400 (А-III, А400С), А500 (А500С, А500СП), В500 (Bp-I, B500C), где С - свариваемая, П - повышенного сцепления.

До 80-х годов прошлого столетия основной объем производства и применения в строительстве составляла арматура с пределом текучести σт=400 МПа. За период 1991 - 1997 основные европейские страны перешли на единый класс свариваемой арматуры периодического профиля для ненапряженных железобетонных конструкций с пределом текучести σт=500 МПа (табл. 2).

Таблица 2

Страна и стандарт

Класс арматуры и диаметр, мм

Механические свойства

σт (физ. или усл.)

σв

δ

Аgt

 

Н/мм2

%

Не менее

США

ASTM A615/A615M-06

А706/А706М-06а

Gr.40(300)

300

420

δ200 12

-

Ø10-19 мм

 

 

 

 

Gr.60(420)

420

620

7-9

-

Ø10-57 мм

 

 

 

 

Gr.75(520)

520

690

6-7

-

Ø19-57 мм

 

 

 

 

Великобритания

BS 4449:2005

BS EN 10080:2005

В500А

500

1,05σт

-

2,5

В500В

500

1,08σт

-

5,0

В500С

500

1,15- 1,35σт

-

7,5

Ø6-50 мм

 

 

 

 

Германия

Bst 420, Ø6-40

420

500

δ10 10

-

DIN 488

Bst 500, Ø6-28

500

550

10

-

 

300R

300

1,15σт

δ200 11-12

-

Канада

400R(400W)

400

1,15σт

7-10

-

CAN/CSA G30.18-М92

500R(500W)

500

1,15σт

6-9

-

 

Ø10-55 мм

 

 

 

 

Япония

JIS G 3112

SD 40

400

570

δ5 16

-

SD 50

500

525

12

-

Ø6-51 мм

 

 

 

 

Франция

NF A35-016

Fe E500-2

500

1,03σт

-

2,5

Fe T500-3

500

1,05σт

-

5,0

Ø5-40 мм

 

 

 

 

ENV 10080; 1995

В500В, 6-40

500

540

-

5,0

В500А 6-16

500

525

-

2,5

ISO/DIS 6935-2

Rb 400W, 6-40

400

440

δ5,65 14

2,5

Rb 500W, 6-40

500

550

14

2,5

ДСТУ 3760-98

А400С, 6-40

400

500

δ5 16

2,5

А500С, 6-40

500

600

14

2,5

Россия

А500С, 6-40

500

600

δ5 14

-

ГОСТ Р 52544-2006

В500С, 4-12

500

550

-

2,5(2)

 

А400 (A-III)

 

 

 

 

ГОСТ 5781-82

25Г2С, 6-40

400

570

14

-

 

35ГС, 6-40

400

600

14

-

ГОСТ 10884-94

Ат400С, 6-40

440

550

δ5 16

-

Ат500С, 6-40

500

600

14

-

СТО АСЧМ 7-93

А400С, 6-40

400

500

δ5 16

-

А500С, 6-40

500

600

14

-

ТУ 14-1-5254-2006

А400С, 6-60

400

500

δ5 16

-

А500С, 6-60

500

600

14

-

ТУ 14-1-5526-2006

А500СП, 10-40

500

600

δ5 14

-

Унифицированная свариваемая арматура имеет химический состав, определяемый содержанием в стали углерода не более 0,22 %.

Применение арматуры класса А500 вместо арматуры класса А400 (А-III) обеспечивает более 10 % экономии стали в строительстве.

Для отечественного строительства возможна замена этим классом стали не только арматуры класса А400 (А-III), но и гладкой арматуры класса А240(А-I), применяемой в виде конструктивной арматуры в монтажных петлях, в закладных деталях и т.п.

Для этого арматура при σт=500 Н/мм2 должна иметь максимальную пластичность при растяжении и изгибе как в целых стержнях, так и после сварки и удельную энергию разрушения на уровне горячекатаной стали класса А240 как при положительных, так и при низких отрицательных температурах [1].

Этим условиям в термомеханически упрочненном состоянии могут соответствовать низкоуглеродистые стали марок: Ст3сп, Ст3пс, Ст3Гпс или низколегированные стали типов 18ГС, 20ГС и т.п.

Учитывая вышеизложенное, в качестве эффективной арматуры для железобетонных конструкций, устанавливаемой по расчету, следует преимущественно применять арматуру периодического профиля класса А500 (А500С, А500СП), а также арматуру класса В500 в сварных сетках и каркасах.

Пособие состоит из двух частей. В первой части приводятся результаты исследований Центра проектирования и экспертизы НИИЖБ в области разработок и внедрения эффективного стержневого и поставляемого в мотках арматурного проката класса прочности 500 МПа. Здесь же приводится оценка потребительских свойств новых видов арматуры в сопоставлении с известными, а также даются рекомендации по их применению в строительстве. Отдельно выделен в издании раздел требований по защите зданий от прогрессирующего обрушения, в котором приводится новая методика расчета с использованием возможностей программного комплекса «Лира 9.2». При рассмотрении вопросов конструктивного характера особое внимание уделялось сопоставлению требований СП 52-101-2003 и СНиП 2.03.01-841). Здесь же приводятся рекомендации по применению арматуры класса А500СП.

_____________________

1) Отменен с 1 марта 2004 г.

Во второй части, оформленной в виде приложений 1 и 2, приводятся конструктивные требования к армированию основных элементов зданий из монолитного железобетона, а также примеры рабочей документации по армированию основных конструктивных элементов монолитных зданий с разными конструктивными схемами, построенных в Москве и разработанных ЗАО «Проектно-архитектурная мастерская "ПИК"», ЗАО «Трианон», КНПСО Центр «Поликварт», а также в НИИЖБ.

В работе использованы материалы исследований, в проведении которых принимали участие сотрудники: И.Н. Суриков, В.З. Мешков, B.C. Гуменюк, Г.Н. Судаков, К.Ф. Штритер, Б.Н. Фридлянов, И.С. Шапиро, АА. Квасников, И.П. Саврасов, О.О. Цыба, М.М. Козелков, А.Р. Демидов, С.Н. Шатилов, В.П. Асатрян. Оформление графической части издания выполнял А.А. Квасников с участием Л.А. Гладышевой, А.В. Лугового, Д.В. Плотникова, В.Я. Никитиной, Т.Н. Николаевой, Н.И. Федоренко и др.

1. ЭФФЕКТИВНАЯ АРМАТУРА ДЛЯ МОНОЛИТНОГО СТРОИТЕЛЬСТВА

1.1 Стержневой арматурный прокат

В строительстве из монолитного железобетона для армирования применяется преимущественно стержневой арматурный прокат диаметром 10-40 мм (табл. 3).

Таблица 3

Расход арматуры в жилищном строительстве Москвы

№ п.п.

Класс и сортамент арматуры, мм

Расход стали на 1 м2, %

КПД

Монолитные здания с шагом более 4,2 м

Средний по многоэтажным жилым домам

монолитные с шагом до здания 4,2 м

1

Вр-1

28,0

-

-

19,6

Ø4 и 5

 

2

А400. А500С

24,0

-

-

16,8

Ø6-10

 

 

моток

 

 

 

3

А400, А500С

17,0

69,0

62,0

29,8

 

Ø10-12

 

4

А400, А500С

Ø14-22

7,0

23,0

12,5

5

А400, А500С

Ø25-40

3,0

12,0

5,7

6

А240 (A-I)

Ø6,5-20,0

21,0

3,0

15,6

7

Средний расход на 1 м2. кг

40,0

72,0

55,0

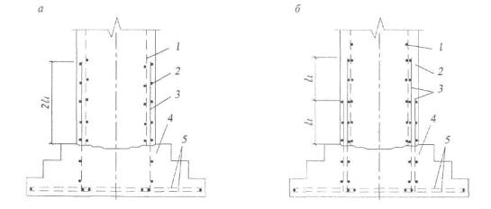
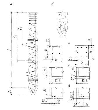
До 90-х годов прошлого столетия в СССР практически единственным типом периодического профиля стрежневой арматуры был профиль так называемой кольцевой конфигурации по ГОСТ 5781-82 (рис. 1,а).

Рисунок 1 - Основные типы периодического профиля

а - кольцевой, ГОСТ 5781-82, fR = 0,10 (не нормируется); б - серповидный двусторонний, СТО АСЧМ 7-93, fR = 0.056; в - серповидный четырехсторонний, ТУ 14-1-5526-2006, fR = 0,075

В настоящее время в РФ стержневой арматурный прокат наиболее распространенных классов А400 и А500 выпускается как с кольцевым, так и с «европрофилем», имеющим двухстороннее расположение серповидных поперечных ребер, форма которых регламентируется СТО АСЧМ 7-93 (рис. 1,б). В западно-европейских странах этот профиль начал широко применяться для стержневой арматуры с начала 70-х годов и к настоящему времени практически полностью вытеснил профили других типов.

По сравнению с «кольцевым» профилем по ГОСТ 5781-82 геометрия серповидного профиля имеет ряд преимуществ, относящихся к технологичности в современном прокатном производстве.

Плавное изменение высоты серповидных поперечных ребер и отсутствие их пересечений с продольными ребрами позволяет несколько повысить выносливость стержней при воздействии многократно повторяющихся нагрузок.

Существенным недостатком серповидного профиля являются сниженная по сравнению с кольцевым профилем прочность и жесткость сцепления арматурных стержней с бетоном вследствие меньшей площади смятия поперечных ребер при их увеличенном шаге.

Это нашло отражение в нормах проектирования разных стран. В международных рекомендациях ЕКБ-ФИП 1970 г. и ряде последующих редакций проекта Еврокода, нормах США расчетные базовые длины анкеровки арматуры в 1,3-2 раза выше, чем требуемые по строительным нормам РФ. Большой объем зарубежных публикаций по исследованиям сцепления за этот период [2] свидетельствует о научной обоснованности таких требований к арматуре с «европрофилем». Это видно на диаграмме рис. 2. где в ретроспективе приведены значения базовых длин анкеровки арматуры периодического профиля класса А400 (420) диаметром до 20 мм в бетоне класса В25 (М350), установленные нормами проектирования разных стран. В отличие от европейских стран, где серповидный профиль занял практически монопольное положение на рынке арматуры, в России, где число производящих apматypy металлургических предприятий велико, продолжают мирно уживаться и серповидный профиль, и традиционный кольцевой профиль по ГОСТ 5781-82. Это положение допускается действующими стандартами и ТУ на арматурный прокат. Стержневая арматура практически любого класса может иметь, один из этих профилей и, следовательно, нереально гарантировать проектировщику, что на объем будет поставляться арматура только одного профиля весь период строительства. Полому в СП 52-101-2003 было сочтено целесообразным принять унифицированное требование к базовой длине анкеровки, дающее некое компромиссное значение lо,ап для всех применяемых профилей. Очевидно, однако, что при этом оказалась необоснованно сниженной степень надежности конструкций, армированных стержнями с двухсторонним серповидным профилем.

Рисунок 2 - Базовые значения длины анкеровки стержневой арматуры по нормам проектирования СССР (РФ), CEN (FIN), США (ACI-318). Бетон В25 (М350), арматура А400 (A-III) диаметром 16 мм

Разработанный специально для арматуры класса прочности 500 МПа (А500СП) профиль с условным названием «серповидный четырехсторонний» объединяет в себе положительные особенности как кольцевого, так и серповидного двухстороннего профилей, имеет показатели прочности сцепления с бетоном даже более высокие, чем у профиля по ГОСТ 5781-82 (рис. 3). Кроме того, он позволяет без прокатной маркировки специальных символов безошибочно идентифицировать класс прочности арматуры на поверхности стержней, что практически исключает возможность случайного попадания в конструкции арматуры низшего класса прочности (рис. 1,в).

Рисунок 3 - Конструкция четырехстороннего серповидного профиля

По сравнению с двухсторонним серповидным новый профиль позволяет при той же высоте поперечных ребер увеличить их относительную площадь смятия fR в 1,3-1,4 раза при том, что шаг ребер в каждом ряду увеличивается на 10-15 %. Увеличенный шаг расположенных вразбежку поперечных выступов облегчает внедрение между выступами зернам крупного заполнителя, что повышает и прочность, и жесткость сцепления. Четырехрядная компоновка ребер делает более равномерным по контуру сечения стержня распределение расклинивающих бетон усилий распора, возникающих в зонах анкеровки или нахлестки арматуры.

Преимущества формы нового профиля подтвердили проведенные в НИИЖБ сравнительные исследования взаимодействия с бетоном стержней с кольцевым профилем по ГОСТ 5781-82, с серповидным двухсторонним по СТО АСЧМ 7-93 и новым (серповидным четырехсторонним). Так как минимальные нормируемые значения относительной площади смятия (критерий Рема) приняты для арматуры с серповидным двухсторонним профилем 0,056 и четырехсторонним 0,075, наиболее объективными будут считаться сопоставительные испытания на сцепление образцов арматуры с этими значениями критерия Рема. Характерные результаты испытаний на сцепление арматуры с бетоном приведены на рис. 4. Выполненными исследованиями обнаружена способность стержней с новым профилем при определенных условиях сохранять максимально достигнутую прочность сцепления даже при значительных пластических деформациях стержней при напряжениях на уровне предела текучести и даже выше.

Рисунок 4 - Деформации втягивания незагруженного конца стержня и энергоемкость разрушения сцепления арматуры с бетоном (профили: серповидные четырехсторонний и двухсторонний).

Rb=41,6 МПа; Ø16; lап=8d (130 мм)

В аналогичных условиях стержни и серповидного двухстороннего, и кольцевого профилей теряют прочность сцепления при значительно меньших пластических деформациях. То есть затрата энергии на разрушение сцепления (энергоемкость сцепления) при испытаниях на вытягивание, которая на рис. 4 выражена как площадь под диаграммой растяжения загруженного конца стержня, для нового профиля заметно выше. Это очень существенный фактор увеличения стойкости конструкции против прогрессирующего разрушения в условиях запредельной (катастрофической) стадии работы.

Отмеченное явление в поведении арматуры с четырехсторонним серповидным профилем в бетоне может быть объяснено его меньшей одноосной распорностью, обусловливаемой равномерным (объемным) характером распределения этих усилий по периметру (поверхности) стержня (рис. 5).

Рисунок 5 - Схема взаимодействия растянутого арматурного стержня с окружающим бетоном

1 - европейский профиль (серповидный двухсторонний); 2 - профиль нового типа (серповидный четырехсторонний); а - усилия в бетоне в зоне передачи напряжений с арматуры на бетон и характер трещинообразования в бетоне; б - распределение усилий распора в поперечном сечении

При одинаковых усилиях N вытягивания или вдавливания стержня из бетона или в бетон расклинивающие усилия на единицу длины арматуры с двухсторонним расположением

Р = nР1,

где  при Fsn = Fsn1,

Fsn, Fsn1, Fsn2 - площади проекции поперечных ребер на плоскость, нормальную продольной оси стержня;

t1 и t2 - шаги поперечных ребер (рис. 5).

Среднестатистические диаграммы растяжения арматуры классов А500С и А500СП производства РУП «БМЗ» и Западно-Сибирского металлургического комбината приведены на рис. 6 и 7.

Рисунок 6 - Среднестатистическая диаграмма растяжения арматуры классов А500С и А500СП Ø10-40 производства РУП «Белорусский металлургический завод»

Рисунок 7 - Среднестатистическая диаграмма растяжения арматуры классов А500С и А500СП Ø10-28 производства ОАО «ЗапСибметкомбинат»

Усталостные испытания образцов проката с новым профилем показали, что по выносливости стержни с новым профилем не уступают стержням с профилем по СТО АСЧМ 7-93, что объясняется более чем вдвое уменьшенным по сравнению с ГОСТ 5781-82 числом пересечений продольных и поперечных ребер, а также исключением замкнутости формы поперечных ребер (высота всех ребер плавно сводится на нет).

Арматурную сталь с серповидным четырехсторонним профилем класса А500СП поставляет Западно-Сибирский металлургический комбинат по ТУ 14-1-5526-2006 «Прокат арматурный класса А500СП с эффективным периодическим профилем». Применение этого арматурного проката в строительстве регламентировано стандартом организации ФГУП «НИЦ «Строительство» СТО 36554501-005-2006.

Эффективность применения арматурного проката класса А500СП приведена в табл. 4.

Таблица 4

Эффективность применения арматурной стали класса прочности 500 МПа

Нормативные документы, механические свойства, области применения, эффективность, потребительские и технические характеристики

Класс арматуры

А400 (A-III)

А500

А400 (A-III)

А400С

А500С

А500СП

Марка стали

35ГС

25Г2С

Ст3СП

Ст3ПС

Ст3ГПС

Ст3СП, Ст3ПС, Ст3ГПС, 18ГС, 20ГСФ

Документы для поставки

ГОСТ 5781-82

СТО АСЧМ 7-93

СТО АСЧМ 7-93, ТУ 14-1-5254-2006, ТУ 14-1-5526-2006

Документы для расчета, проектирования и применения в железобетонных конструкциях

СНиП 52-01-2003

СП 52-101-2003

СНиП 52-01-2003

СП 52-101-2003

ТСН 102-00

СНиП 52-01-2003

СП 52-101-2003

ТСН 102-00

СТО 36554501-005-2006

Временное сопротивление разрыву σв, Н/мм2

590

600

Предел текучести σт0,2), Н/мм2

390

500

Относительное удлинение δ5, %

14

16

14

Угол изгиба при диаметре оправки C=3d

90°

160°-180°

160°-180°

Расчетное сопротивление растяжению Rs, МПа

355

435

450

Расчетное сопротивление сжатию Rsc, МПа

355

435(400)

450(400)

Нормативное сопротивление Rsn, МПа

400

500

Применение при отрицательных температурах

до -55 °С

до -70 °С

до -70 °С

до -70 °С

Применение дуговой сварки прихватками крестообразных соединений

Запрещается

Допускается

Допускается

Допускается

Вид профиля арматуры, минимальное значение критерия Рема fR

Кольцевой

fR - не нормируется

Серповидный двухсторонний

fR = 0,056

Серповидный двухсторонний

fR = 0,056 кольцевой

Серповидный четырехсторонний

fR = 0,075

Эффективность сцепления с бетоном

Высокая при эксплуатационных нагрузках, средняя - при критических (аварийных)

Средняя

Средняя

Высокая

Эффективность сопротивления динамическим нагрузкам

Средняя

Высокая

Высокая

Высокая

Применение в качестве анкеров закладных деталей

Допускается

Допускается

Рекомендуется для повышения надежности

Применение в качестве монтажных петель

Запрещено

Возможно

Возможно

Возможный экономический эффект относительно арматуры класса А400 (А-III)

-

10-20 %

15-25 %

Применение в ответственных зданиях и сооружениях, в том числе проектируемых с учетом сейсмических и аварийных нагрузок

Допускается

Допускается

Рекомендуется для повышения надежности

Способ производства проката

Горячекатаный

Термомеханически упрочненный, холоднодеформи­рованный

Термомеханически упрочненный, холоднодеформированный, горячекатаный

Маркировка класса арматуры

Прокатная на поверхности, не реже чем через 1,5 м

Видом профиля

Примечание. Значение Rsc в скобках используют только при расчетах на кратковременное действие нагрузки.

1.2 Арматурный прокат, поставляемый в мотках (бунтах)

В России для производства железобетонных конструкций широко используется арматурный прокат диаметром до 12 мм, поставляемый в мотках, доля которого в общей потребности в ненапрягаемой арматуре составляет около 30 %, а с учетом проволоки Вр-I диаметром 3-5 мм по ГОСТ 6727-80 может достигать 40-45 % (табл. 5).

Таблица 5

Диаметр арматуры, мм

4-5

6-8

10-12

14-20

22-28

32-40

Объем, %

12-14

16-18

26-28

13-15

18-20

7-8

Способ производства

В мотках

В мотках, в стержнях

В стержнях

Применение арматуры в мотках практически исключает отходы при заготовительных операциях, позволяет механизировать производство сварных арматурных сеток, каркасов и других изделий.

Как видно из таблицы 5, арматурная сталь, поставляемая в мотках, применяется преимущественно в производстве сборного железобетона. В монолитном строительстве применение арматуры в мотках ограничивалось использованием в качестве хомутов колонн и пилонов, конструктивной арматуры стен, поперечной перекрытий и балочных изгибаемых элементов. Ее применение является рациональным при использовании в монолитном строительстве арматурных каркасов и сеток, изготавливаемых на специализированном арматурном производстве, укомплектованном правильно-отрезным оборудованием.

Применение арматуры, поставляемой в мотках, сдерживалось конструктивным ограничением СНиП 2.03.01-84*, п. 5.17, в котором для армирования внецентренно сжатых элементов монолитных конструкций требовался диаметр не менее 12 мм. Исключение этого ограничения в СП 52-101-2003 для железобетонных стен позволит проектировщикам широко использовать для армирования сжатых элементов арматуру диаметрами 8 и 10 мм, поставляемую как в мотках, так и в стержнях.

Одной из современных проблем строительного комплекса в России является неудовлетворенный спрос на арматуру периодического профиля в мотках. Так как многие металлургические предприятия пока не располагают техническими возможностями производить в мотках арматурный прокат требуемых размера и прочности в необходимых объемах, строители вынуждены перерасходовать до 20-30 % стали в изделиях из-за замены необходимой арматуры на имеющийся в наличии прокат большего диаметра.

Одним из направлений уменьшения дефицита арматуры диаметром до 12 мм является организация массового производства арматуры класса В500 по опыту Германии и других стран, где в качестве арматуры диаметром 4 - 12 мм применяют преимущественно холоднодеформированную сталь. Другое направление связано с освоением металлургами производства арматуры класса А500 диаметром 12 мм и менее в мотках. В обоих случаях необходимо предусмотреть расширение по сравнению со СТО АСЧМ 7-93 сортамента проката, что позволит уменьшить расход конструктивной (нерасчетной) арматуры и при определенных условиях решить задачу взаимозаменяемости арматуры одного класса прочности на другой класс без перепроектирования железобетонных конструкций. Соседние позиции существующего сортамента от 6 до 12 мм сильно отличаются по площади поперечного сечения (на 44-78 %), что вынуждает при проектировании специфицировать существенно большее количество арматуры, чем это требуется по расчету [4].

Реализация на практике первого направления наблюдается в последние годы в Центральном регионе России, где на предприятиях среднего бизнеса интенсивно наращивается производство по техническим условиям свариваемой холоднодеформированной арматуры периодического профиля класса В500С диаметром до 12 мм в мотках [5] волочением через роликовые волоки. Реализация второго направления начата на Белорусском металлургическом заводе.

Отраслевой стандарт СТО АСЧМ 7-93 предусматривает три категории свариваемого стержневого и поставляемого в мотках арматурного проката класса прочности 500 МПа, различающиеся по способу производства: горячекатаный, термомеханически упрочненный с прокатного нагрева, механически упрочненный в холодном состоянии (холоднодеформированный). Поставка арматуры диаметром от 6 до 12 мм может быть предусмотрена в мотках. Свод правил СП 52-101-2003, который содержит рекомендации по расчету и проектированию бетонных и железобетонных конструкций без предварительного натяжения арматуры, определяет требования к показателям качества для двух групп арматуры класса прочности 500 МПа: класс А500 для горячекатаного и термомеханически упрочненного проката номинальным диаметром от 10 до 40 мм и класс В500 для холоднодеформированной по разным технологиям арматуры номинальным диаметром от 3 до 12 мм. Требования к расчетным показателям арматуры классов А500 и В500 в СП 52-101-2003 различаются.

Расширение сортамента арматуры классов А500 и В500 позволяет уменьшить расход конструктивной арматуры и в необходимых случаях решить задачу взаимозаменяемости арматуры одного класса на арматуру другого класса с учетом всех требований, предъявляемых к рабочей арматуре железобетонных конструкций без пересчета последних. В качестве примера в таблице 6 приведены рекомендации по замене в железобетонных конструкциях без их перепроектирования растянутой рабочей арматуры классов А400С и А400 (А-III) на арматуру классов А500 и В500. Предполагаемая замена в конструктивном армировании, как видно из таблицы 6, позволяет получить экономию стали от 12 % до 19 % при использовании в качестве заменяющей арматуры обоих классов А500 и В500.

В рабочем (расчетном) армировании аналогичный эффект достигается при использовании только горячекатаной и термомеханически упрочненной арматуры класса А500.

Из-за меньшего расчетного сопротивления холоднодеформированной арматуры класса В500 экономически целесообразна замена на нее (07,5 мм) только арматуры 08 мм класса А400 (А-III). В этом случае снижение рабочего армирования составит 12,1 %.

Вид эффективного арматурного проката, поставляемого в мотках с четырехсторонним периодическим профилем, приведен на рисунках 8 и 9.

Рисунок 8 - Вид арматурного проката классов А400 и А500С, поставляемого в мотках по ТУ 14-1-5501-2004 РУП «Белорусский металлургический завод»

Рисунок 9 - Прокат периодического профиля по ТУ 14-1-5501-2004

а - номинальный диаметр 5,5 мм; б - номинальный диаметр 7 мм


Таблица 6

Рекомендации по замене растянутой рабочей арматуры классов А400С и А400 (А-III) на арматуру класса А500/В500 без перепроектирования железобетонных конструкций*

Заменяемая арматура классом А400 и А400С

Предлагаемая арматура класса А500/В00

, %

Номиналь­ный диаметр dн, мм

Номиналь­ная площадь попереч­ного сечения As1, мм2

Усилие, соответ­ствую­щее Rsn1, кН

Усилие, соответ­ствую­щее Rs1,кН

Норма­тивное сопротив­ление Rsn1, МПа

Расчетное сопротив­ление Rs1,МПа

Номиналь­ный диаметр dн, мм

Номиналь­ная площадь попереч­ного сечения As2, мм2

Усилие, соответст­вующее Rsn2, кН

Усилие, соответст­вующее Rs2, кН для А500/В00

Норма­тивное сопротив­ление Rsn2, МПа

Расчетное сопро­тивление Rs2, МПа, для А500/В500

не менее

не менее

6

28,3

11.32

10,05

400

355

5,5

23,8

11,9

10,35/9,88

500

435/415

15,9/-

-

-

-

-

-

-

6

28,3

14,15

12,31/11,74

500

435/415

-

-

-

-

-

-

-

7

38,5

19,25

16,75/15,98

500

435/415

-

8

50,3

20,12

17,86

400

355

7,5

44,2

22,1

19,23/18,34

500

435/415

12,1

-

-

-

-

 

 

8

50,3

25,15

21,88/20,88

500

435/415

-

10

78,5

31,4

27,87

400

355

9

63,6

31,8

27,67/26,39

500

435/415

19,0/-

-

-

-

-

 

 

10

78,5

39,25

34,15/32,58

500

435/415

1

12

113,1

45,24

40,15

400

355

11

95

47,5

41,32/39,43

500

435/415

16,0/-

-

-

-

-

-

-

12

113,1

56,55

49,2/46,94

500

435/415

-

* Для железобетонных конструкций, армирование которых определено при расчете по первой группе предельных состояний.


В НИИЖБ в последнее время ведутся работы по эффективному применению холоднодеформированной арматуры диаметром 4-12 мм в унифицированных сетках. Этот вид арматурной продукции может быть эффективно использован в сборном и монолитном домостроении. В России нашли массовое применение рулонные и плоские сетки из арматурной холоднодеформированной проволоки класса Вр-I диаметром 4 и 5 мм. В московском регионе унифицированные сетки из холоднодеформированной арматуры диаметром 6-10 мм классов В400С и В500С производятся в ограниченном объеме 4-5-ю предприятиями-изготовителями. Из-за низких пластических свойств эти сетки применяются в основном в неответственных железобетонных конструкциях.

В настоящее время с целью увеличения объемов применения унифицированных арматурных сеток в монолитном домостроении для рабочего (расчетного) армирования в НИИЖБ, совместно с группой «ДиПОС», ведутся работы по совершенствованию технологии производства холоднодеформированной арматуры с улучшенными пластическими свойствами.

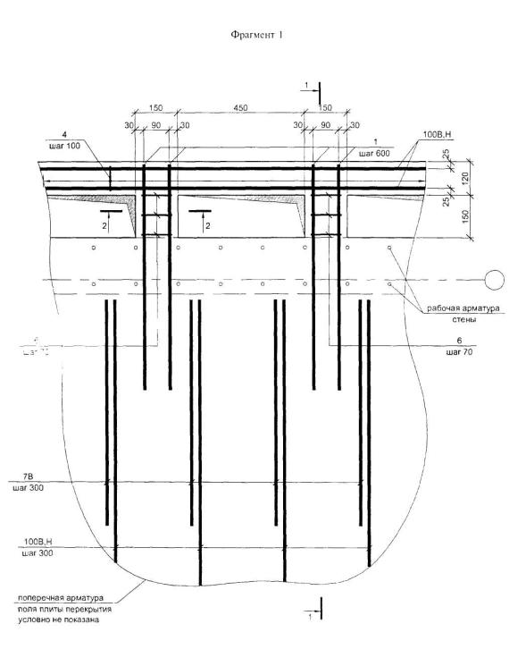
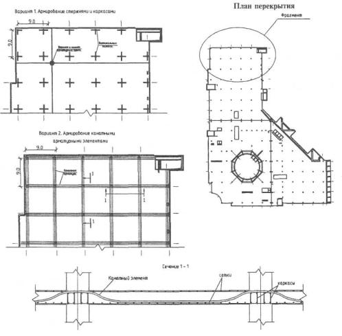
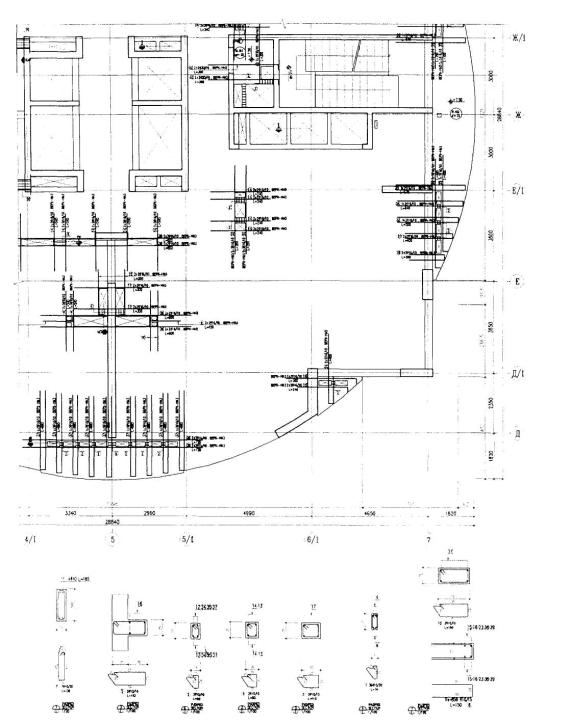
Как показывает практика проектирования, замена армирования одиночными стержнями плосткостных несущих конструктивных элементов монолитных зданий (фундаменты, перекрытия, стены) на армирование унифицированными сетками позволяет значительно снизить трудозатраты по армированию. Замена стержней класса А400 на стержни класса прочности 500 МПа с использованием в сетках промежуточных диаметров позволит обеспечить экономию арматуры до 5-10 % даже с учетом перерасхода на нахлестку сеток. Примеры конструирования рабочего армирования фрагментов перекрытий гражданских зданий одиночными стержнями и унифицированными сетками производства группы «ДиПОС» приведены на рисунках 10а и 10б.

Рисунок 10а - Вариант полевого нижнего армирования перекрытия жилого здания

Рисунок 10б - Вариант полевого нижнего армирования перекрытия гаража

1.3 Винтовой арматурный прокат

Винтовой арматурный прокат отличается от обычного тем, что выступы его периодического профиля служат не только для сцепления с бетоном, но и образуют винтовую нарезку по всей длине стержней с целью навинчивания разного рола винтовых крепежных элементов - гаек, муфт, анкерных гаек и т.д. (рис. 11). Таким образом, арматурный стержень по сути превращается в винтовую шпильку большой длины (до 12 м из условий перевозки), что открывает большие возможности для применения винтовой арматуры в строительстве.

Рисунок 11 - Арматура винтового профиля с правой резьбой разного поперечного сечения

А - с продольными лысками (немецкая ГЕВИ-сталь (GEWI-Stahl); Б - с продольными желобками (фирма Сумитомо (SUMITOMO)

Винтовую арматуру впервые начали делать и применять в Германии в конце 60-х годов по инициативе строительной фирмы ДИВИДАГ (DYWIDAG), производство арматуры было освоено на металлургическом заводе Peine-Salzqitter. Арматура выпускается двух основных видов - для ненапряженного железобетона класса BSt420RU (в настоящее время BSt500S) диаметром 16-50 мм и высокопрочная (классов 835/1030, 900/1100 и 1080/1230) диаметром 15,0-36,0 мм. В Японии фирмой СУМИТОМО (SUMITOMO) производится и применяется винтовая арматура классов SD30, SD35 и SD40 диаметром от 19 до 57 мм. В Венгрии в начале 80-х годов на Оздском метзаводе освоено производство винтовой арматуры классов BSt420/500 и BSt835/1030. В рекламном проспекте этого завода указывается сортамент 12-40 мм арматуры этих классов. Соединительные элементы за рубежом изготавливаются в основном или из шестигранника, или с использованием литья (анкерные и спецгайки) с изготовлением внутренней резьбы с использованием методов обработки металла резанием.

На металлургических предприятиях бывшего СССР с конца 70-х годов предпринималось несколько попыток освоения производства винтовой арматуры (все с участием НИИЖБ). Ниже приводятся список этих предприятий в хронологическом порядке и виды арматуры, которые на них осваивались:

- Донецкий металлопрокатный завод, № 25, A-III;

- Макеевский меткомбинат, № 25 и 32, А-III и Aт-V;

- Криворожский меткомбинат, № 18, 25 и 32, А-III и Aт-V:

- Западно-Сибирский меткомбинат, № 14, 16, 18, 20 и 25, классов A-III, A500C, Aт-V, Aт-VII и № 36 класса А500С;

- Череповецкий меткомбинат, № 36 класса A-V (23X2Г2T).

В ощутимых количествах (порядка сотен тонн) винтовая арматура производилась на Криворожском, Западно-Сибирском, Череповецком меткомбинатах и Белорусском металлургическом заводе, в настоящее время техническую возможность производства винтовой арматуры сохранили только Запсибметкомбинат и Белорусский металлургический завод.

Начиная с 70-х годов предпринималось несколько попыток создания технологии производства крепежных элементов для винтовой арматуры (все с участием НИИЖБ).

Для зарубежного строительства область применения винтовой стали в монолитном железобетоне является наиболее массовой, несмотря на повышенную цену винтовой арматуры по сравнению с обычной, дополнительные расходы на муфты и гайки и усложнение технологии стыковки стержней (затяжка контргаек нормируемым усилием для исключения податливости муфтовых стыков вследствие обмятия резьбы). Это объясняется тем, что за рубежом в монолитном железобетоне арматура в основном стыкуется внахлестку без сварки, при этом, по немецким источникам, для реальных объектов расход арматурной стали на стыковку может доходить до 50 % массы всей рабочей арматуры. Кроме того, для сильно нагруженных конструкций (колонн нижних этажей высотных административных и промышленных зданий, фундаментных стоек и т.п.) насыщение сечений арматурой может быть таким большим, что само размещение в пределах сечения конструкции арматуры, стыкуемой внахлестку, становится проблематичным, так как приводит к ухудшению качества бетона вследствие плохих условий его вибрации. При этих условиях применение винтовой арматуры становится эффективным. В зарубежной практике винтовая арматура с пределом текучести 500 Н/мм2 (например, класса BSt500S по стандарту Германии DIN488) применяется в разнообразных монолитных конструкциях зданий и сооружений - атомных и тепловых электростанций, конструкциях мостов (опор мостов, пилонов и т.п.), тоннелей метро, производственных, административных и спортивных зданий и т.п. В настоящее время для вышеуказанных целей используется винтовая арматура диаметром 16-50 мм с пределом текучести 500 Н/мм2 (по европейской классификации В500) в комплекте с соединительными элементами (рис. 12). Контргайки муфтовых соединений и концевых анкеров затягиваются нормируемым усилием.

Рисунок 12 - Ненапрягаемая винтовая арматура с основными винтовыми соединениями

а - сжато-растянутый стык с контргайками; б - сжатый стык с контргайками; в - сжатый (контактный) стык; г - два вида концевых анкеров винтовой арматуры; 1 - соединительная муфта; 2 - контргайка; 3 - щель для контроля контакта стержней; 4 - анкерная гайка; 5 - анкерная шайба

В отличие от Западной Европы в России и странах СНГ арматуру в монолитном железобетоне в основном стыкуют с использованием нахлеста и сварки, что до 2005 г. было значительно дешевле, чем винтовые стыки. С увеличением длины нахлеста по СП 52-101-2003 на 15-30 % внедрение безнахлесточных стыков, в том числе винтовых, стало актуальным и экономически целесообразным в России. Существуют виды монолитных конструкций, в которых сварка не разрешается в принципе по соображениям пожарной безопасности. Прежде всего это монолитные железобетонные дымовые трубы и градирни тепловых электростанций, арматура которых соединяется по длине с использованием стыков внахлестку без сварки анкерными гайками, соединительными муфтами, трубками для инъецирования и т.п.

Прутки винтовой арматуры в комплекте с гайками могут использоваться для крепления щитов опалубки при бетонировании бетонных и железобетонных конструкций в построечных условиях. При этом арматурные прутки выполняют роль винтовых стяжек; эти стяжки могут быть многократного использования (извлекаются после распалубки) или остающимися в бетоне (рис. 13). В настоящее время, в связи с возрастающим объемом строительства монолитных железобетонных жилых и общественных зданий (особенно в Москве), действует большое число заграничных и отечественных фирм, поставляющих инвентарную опалубку разнообразной конструкции (стальную, деревометаллическую, дюралевую и т.п.), которая комплектуется тяжами из винтовой арматуры. Заграничные фирмы (например, немецкие QUICK, Bauer, Paschal) используют высокопрочную винтовую арматуру номинального диаметра 15 мм. Параметры резьбы этой арматуры приведены в таблице 7.

Рисунок 13 - Схема крепления опалубки с использованием в качестве тяжей винтовой арматуры

а - извлекаемый тяж; б - тяж, остающийся в бетоне; 1 - тяж из винтовой арматуры; 2 - гайка; 3 - подкладка; 4 - конструкция опалубки; 5 - железобетонная стена; 6 - неизвлекаемая пластмассовая трубка; 7 - заглушка

Таблица 7

Параметры винтовой арматуры номинального диаметра 15 мм
(резьба правая)

Площадь поперечного сечения, мм2

Сердечник стержня

Поперечные выступы

d1

D2

Шаг С

Высота а

Ширина b

Радиус сопряжения r

Угол при вершине α, град

177

14,85±0,35

14,6±0,4

10+0,3-0,1

1,00,3

4,0°-0,6

0,8

90

Примечание. Обозначение параметров - на рисунке 11, размеры r и α не контролируются.

В Москве фирма «Выбор-19» одно время использовала винтовую арматуру производства Запсибметкомбината диаметрами 14, 16 и 18 мм классов Ат800 и А500С. Арматура диаметром 16 мм класса Ат800 Запсибметкомбината в комплекте с гайками из шестигранника № 32 с точеной резьбой применялась для крепления нестандартной опалубки при возведении монолитных железобетонных пилонов висячего покрытия стадиона «Локомотив» в Москве.

Кроме винтовой арматуры в Москве используются прутки длиной до 2 м с резьбой, накатанной без нагрева (процесс холодной винтовой прокатки). Практика применения показала невысокую надежность таких тяжей - отмечались случаи хрупких разрушений холоднодеформированных прутков-стяжек в процессе вибрации бетонной смеси в опалубке.

Потребителями винтовой стали для крепления опалубки являются:

- строительные фирмы, постоянно применяющие инвентарную опалубку, так как тяжи, комплектующие опалубку, выходят из строя в процессе ее эксплуатации;

- фирмы - изготовители инвентарной опалубки. В настоящее время потребность в этой стали небольшая, но она будет неизбежно расти с увеличением объемов применения в РФ монолитного железобетона.

В строительстве применяется большое количество типов фундаментных болтов. Болты служат в основном для крепления к железобетонным фундаментам технологического оборудования и разного рода строительных конструкций: стальных опор ЛЭП, стальных стропильных и подстропильных ферм, балок и т.п. Болты изготавливаются в основном из стали Ст.3 исходя из условий их эксплуатации, желательна повышенная стойкость болтов к действию динамических нагрузок. В связи с этим возможно применение в качестве болтов арматуры винтового профиля класса А500С, изготавливаемой из стали Ст.3 с использованием термомеханического упрочнения как обладающей повышенным сопротивлением к действию динамических нагрузок. Кроме того, винтовая арматура в качестве болтов имеет следующие преимущества: имеет крупную трапециевидную резьбу, менее подверженную повреждениям в процессе монтажа по сравнению с метрической, и обладает хорошим сцеплением с бетоном.

В связи с тем что винтовая арматура по существу является винтовой шпилькой большой длины, она может применяться в строительстве для разных целей в качестве тяжей и стяжек, в частности для ремонтных и восстановительных работ, крепления сантехнического оборудования, трубопроводов и временных лесов для проведения монтажных и отделочных строительных работ.

Отдельным объектом эффективного применения винтовой арматуры является ее использование в качестве анкерных элементов крепления стен в грунте, широко применяемых в подземном монолитном строительстве.

1.4 Канатные элементы и их применение в предварительно напряженных перекрытиях зданий

Канатный арматурный элемент (КАЭ) образуется из канатной арматуры (К-7) в смазке и в оболочке (ПНД) и поставляется в мотках и практически неограниченной длины.

Применяются канатные арматурные элементы для преднапряжения монолитных безригельных перекрытий с увеличенным шагом колонн до 12-18 м в домостроении, а также в сооружениях с большими пролетами.

Конструктивная схема зданий представляет собой каркасную безригельную систему из монолитного железобетона с преднапряженными в построечных условиях перекрытиями.

Канатные арматурные элементы располагаются по эпюре изгибающих элементов в надколонных полосах, в продольном и поперечном направлениях.

Принятая конструктивная схема, образующая рамно-связевой монолитный каркас с предварительно напряженными перекрытиями, обеспечивает пространственную устойчивость здания и восприятие внешних силовых воздействий, а также является положительным моментом для предотвращения прогрессирующего обрушения при чрезвычайных ситуациях.

Плоское напряженное состояние обжатия плиты увеличивает жесткость плиты, а также улучшает условия работы плиты на продавливание.

Расчеты преднапряженных элементов плит проводятся по первой категории трешиностойкости, при которой не допускаются возникновение и раскрытие трещин, т.е. в упругой постановке. В расчетах учитываются степень обжатия бетона, усилия отпора, возникающие при натяжении канатных арматурных элементов.

Технология производства работ по устройству преднапряженного перекрытия следующая. В опалубку укладываются нижняя арматурная сетка, каркасы по осям колонн, затем канатные арматурные элементы, после - верхняя арматурная сетка. Располагается КАЭ в сечениях перекрытий по эпюре изгибающих моментов. После бетонирования и набора передаточной прочности производятся натяжение КАЭ и передача усилия натяжения на бетон. Фиксация КАЭ в натянутом состоянии производится по периметру перекрытия с помощью анкерных втулок.

Оставляя временные опоры перекрытия, до натяжения КАЭ можно монтировать последующие этажи по существующим технологиям возведения монолитных каркасных зданий.

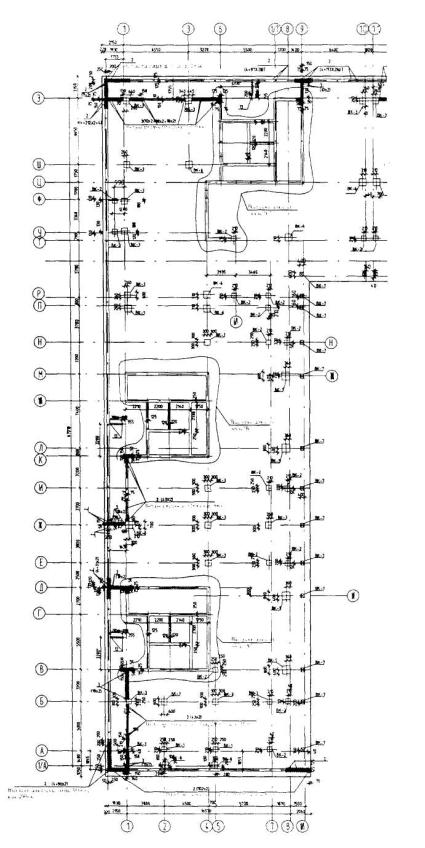
По данной технологии при участии НИИЖБ построены следующие объекты в Москве: гараж-стоянка в Южном Бутове, 25-этажное административно-офисное здание, многофункциональный торгово-развлекательный комплекс «Ереван-Плаза», а также 13-этажный жилой дом в г. Санкт-Петербурге, Торгово-развлекательный комплекс в г. Коломне, производственно-логистический комплекс в г. Домодедово и др. (рис. 14 и табл. 7а).

Рисунок 14 - Армирование монолитного перекрытия многофункционального Торгово-развлекательного комплекса с использованием предварительно напряженной канатной арматуры (конструктивная система НИИЖБ), г. Коломна

Таблица

Сравнительная оценка материалоемкости, трудоемкости и себестоимости 1 м2 перекрытия ячейки каркаса пролетом 9×9 м с системой традиционной и преднапряженной

Наименование работ

Ед. изм.

Количество

Стоимость ед., руб.

Стоимость общ., руб.

Варианты

1

2

1

2

1

2

Бетонирование В25

м3

0,22

0,22

3000

3000

660

660

Армирование ненапряженное

кг

48

17,5

25

25

1200

438

Система преднапряженная, включая стоимость всех материальных затрат (канаты, трубка, смазка, анкер, заклад, дет., транспорт, натяжение)

м2

-

1

-

425

-

425

Трудоемкость и себестоимость

бетон, раб.

чел.-ч

0,461

0,38

78

78

36

29

арматурн. раб.

чел.-ч

1,845

0,95

78

78

144

74

опалубочн. раб.

чел.-ч

2,306

1,45

78

78

180

113

Итого стоимость 1 м2 ячейки составляет

2220

1739

Примечание. Экономическая эффективность применения преднапряженного варианта на 1 м2 составляет 481 руб., или 21,6 %.

2 ОСНОВНЫЕ РАСЧЕТНЫЕ ТРЕБОВАНИЯ

Количество арматуры в элементах конструкций монолитных железобетонных зданий определяется расчетом с выполнением требований первой (по несущей способности) и второй (трещиностойкости и деформативности) групп предельных состояний в соответствии с указаниями СП 52-101-2003, СП 52-103-2007 и СТО 36554501-005-2006 (для А500СП) к СНиП 52-01-2003.

Расчет армирования производится по усилиям, отвечающим предельным состояниям конструкций здания в целом, а также отдельных его элементов на всех стадиях - изготовления, транспортирования, возведения и эксплуатации. Расчетные схемы должны отвечать принятым конструктивным решениям.

Усилия и деформации от различных воздействий в конструкциях при наличии разработанных методик расчета следует определять с учетом возможного образования трещин и неупругих деформаций в бетоне и арматуре (физическая нелинейность), а также с учетом в необходимых случаях деформированного состояния конструкций перед разрушением (геометрическая нелинейность).

Нормативные значения нагрузок и воздействий, коэффициенты сочетаний, коэффициенты надежности по нагрузке, коэффициенты надежности по назначению, а также подразделение нагрузок на постоянные и временные (длительные и кратковременные) принимаются согласно СНиП 2.01.07-85* и конкретизируются для высотных зданий и комплексов высотой более 75 м (МДС 20-1.2006).

3 ТРЕБОВАНИЯ ПО ЗАЩИТЕ ЗДАНИЙ ОТ ПРОГРЕССИРУЮЩЕГО ОБРУШЕНИЯ

Здания из монолитного железобетона должны быть защищены от прогрессирующего обрушения в случае локального разрушения несущих конструкций в результате возникновения аварийных чрезвычайных ситуаций.

Устойчивость здания против прогрессирующего обрушения должна проверятся расчетом и обеспечиваться конструктивными мерами, способствующими развитию в несущих конструкциях пластических деформаций при предельных нагрузках.

Расчет устойчивости здания необходимо производить на особое сочетание нагрузок, включающих постоянные и длительные нагрузки при наиболее опасной схеме локального разрушения. Таковой в каркасных зданиях является разрушение (удаление) колонн (пилонов) либо колонн (пилонов) с примыкающими к ним участками стен, расположенных на одном (любом) этаже на площади локального разрушения [6].

Постоянные и временные нагрузки следует принимать с коэффициентом сочетаний нагрузок и коэффициентами надежности по нагрузкам, равными единице. Величины деформаций и ширина раскрытия трещин в конструкциях не регламентируются. Расчетные прочностные и деформативные характеристики материалов принимаются равными их нормативным значениям согласно действующим нормам проектирования железобетонных конструкций.

Для расчета зданий при прогрессирующем обрушении следует использовать пространственную расчетную модель. В модели могут учитываться элементы, являющиеся ненесущими в обычных условиях (наружные стены, ограждения балконов и т.п.), которые в случае прогрессирующего обрушения могут воспринимать аварийные нагрузки и активно участвовать в перераспределении усилий в элементах конструктивной системы.

Расчет здания предпочтительно выполнять с использованием сертифицированных программных комплексов, допускающих возможность учета физической и геометрической нелинейности жесткостных характеристик элементов, что обеспечивает наибольшую достоверность расчета и снижение дополнительных материалозатрат.

Принимая во внимание перечисленные выше допущения к расчету зданий при прогрессирующем обрушении, следует предположить, что эти допущения могут при определенных обстоятельствах обеспечить положительные результаты расчета при отсутствии или минимальном увеличении расхода материалов (бетона и арматуры).

Для оценки критических величин габаритных размеров сетки колонн разноэтажных каркасных зданий с регулярной структурой из монолитного железобетона могут быть использованы приведенные ниже результаты их статических расчетов на прогрессирующее обрушение по рекомендуемой методике [6]. Расчеты выполнялись с использованием возможностей программного комплекса «Лира 9.2». Принятая очередность расчета:

- статический расчет здания в упругой постановке по расчетным нагрузкам и сопротивлениям материалов для 1 и 2 групп предельного состояния. Жесткостные характеристики материалов - условные, принятые одинаковыми отдельно для перекрытий и колонн;

- определение армирования перекрытий по статическому расчету, корректировка пролетных и опорных зон армирования плиты перекрытия по максимальным пролетным моментам и принципу его непрерывности и симметричности в растянутых и сжатых зонах с сохранением расчетного армирования надопорных зон;

- внесение изменений в жесткостные характеристики материалов, учитывающих принятое армирование;

- изменение типа конечных элементов расчетной схемы на геометрически и физически нелинейные;

- введение трехлинейных диаграмм деформирования для бетона и двухлинейной диаграммы для арматуры согласно СП 52-101-2003;

- введение откорректированных расчетных сопротивлений материалов с их увеличением путем умножения на коэффициенты динамического упрочнения (коэффициенты условий работы);

- снижение нагрузки на перекрытие до величин постоянной и длительной нагрузки с коэффициентами сочетания и надежности, равными единице;

- удаление одной колонны нижнего этажа и перерасчет здания с новыми условиями итерационным методом;

- оценка результатов расчета.

Колонны были приняты сечением 400×400 мм, толщина перекрытия 200 мм, арматура класса прочности А500, класс бетона В25. Суммарная величина принятой при статических расчетах равномерно распределенной нагрузки составила 1100 кгс/м2, дополнительной полосовой нагрузки 1300 кгс/м2.

Характерные схемы нагружения, принятые в выполненных расчетах, и его результаты приведены в таблице 8.

Таблица 8

№ расчетной схемы нагружения

Расчеты критические (максимальные) размеры сеток колонн

При статическом расчете в упругой постановке (по первой и второй группам предельных состояний)

При разрушении колонн первого этажа здания

3-этажного

10-этажного

17-этажного

30-этажного

1

9×9

7,5×7,5

6,6×6,6

5,5×5,5

4×4

2

9×9

6,8×6,8

5,5×5,5

4,5×4,5

3,3×3,3

3

9×9

7,0×7,0

5.8×5.8

5,0×5,0

3,6×3,6

4

9×9

7,5×6,5

5,5×5,5

4,5×4,5

3,3×3,3

5

9×9

7,5×6,5

5,5×5,5

4,5×4,5

3,3×3,3

6

8,7×8,7

6.1×6,1

5,1×5,1

4,2×4,2

3,1×3,1

7

8,7×8,7

6,4×6,4

5,5×5,5

4,5×4,5

3,3×3,3

Графическое отображение схем нагружения представлено на рис. 15.

Рисунок 15 - Расчетные схемы нагружения

Главные напряжения и расчетные схемы раскрытия трещин в перекрытиях приведены на рисунках 16-18.

Рисунок 16 - Главные напряжения и расчетные схемы развития трещин в перекрытии первого этажа 3-этажного здания

Рисунок 17 - Главные напряжения и расчетные схемы развития трещин в перекрытии первого этажа 10-этажного здания

Рисунок 18 - Главные напряжения и расчетные схемы развития трещин в перекрытии первого этажа 30-этажного здания

В результате выполненных расчетов получены данные, которые могут служить ориентиром для оценки эффективности и экономической целесообразности принятых на стадии предпроектных разработок объемно-планировочных решений каркасных зданий, проектируемых с учетом исключения прогрессирующего обрушения.

Превышение размеров сеток колонн, приведенных в таблице 8, может создать условия для потери устойчивости здания от прогрессирующего обрушения. При этом предотвращение обрушения потребует значительного увеличения расхода бетона и арматуры и усложнения проектных решений армирования конструкций и их узловых соединений.

Совершенствование расчетной модели, например, путем использования трехлинейной диаграммы арматуры класса прочности 500 МПа, перераспределения усилий за счет раскрытия шарниров пластичности, учета влияния распора на несущую способность перекрытий, а также увеличение высоты сечения перекрытия и применение бетона более высокой прочности позволят откорректировать приведенные в таблице 8 критические размеры сетки колонн в сторону увеличения.

При превышении критических размеров сетки колонн проверка здания на устойчивость против прогрессирующего обрушения производится на основании сопоставления усилий в отдельных конструктивных элементах, полученных из статического расчета с предельными усилиями, которые могут быть восприняты этими элементами. Устойчивость здания против прогрессирующего обрушения обеспечена, если для любого элемента соблюдается условие FS, где F и S соответственно усилие в конструктивном элементе и его расчетная несущая способность, найденные с учетом указаний, приведенных выше.

Конструкции, для которых требования по прочности не удовлетворяются, должны быть усилены дополнительным армированием или увеличением сечения элементов.

Так как разрушение колонны каркасного здания может быть мгновенным (взрыв), эксплуатационная статическая нагрузка в расчетах на прогрессирующее нагружение должна приниматься как динамическая нагрузка [7]. Динамический характер нагружения в этом случае учитывается коэффициентом динамичности по нагрузке

γ = qud/q0,                                                                                                               (1)

где qud - предельная нагрузка на перекрытие с удаленной колонной (пилоном, участком стены);

q0 - нормативная постоянная и длительная временная нагрузка. Из работы [7]

                                                                                                         (2)

где Kpl - коэффициент пластичности, равный отношению полного прогиба элемента к предельному упругому.

Из формулы (2) следует, что коэффициент динамичности будет равен двум при равенстве полного и упругого прогибов, что возможно в случае равенства относительной высоты сжатой зоны ξ = х/h0 ее граничному значению ξR.

При относительной высоте сжатой зоны ξ = х/h0≤0,25 коэффициент пластичности может быть определен по формуле из [8]

                                                                                  (3)

где εbmd - краевые относительные деформации сжатого бетона

                                                                                                 (4)

εbuld - относительные деформации бетона при центральном сжатии, εbuld = 0,002;

ωd - коэффициент полноты эпюры напряжения сжатой зоны бетона,

ωd = 0,85-0,006·Rbd,                                                                                               (5)

Rbd - напряжения бетона при динамическом нагружении;

Rbd = Rdnγ*bv,

Rbn - нормативное значение сопротивления бетона сжатию;

γ*bv - коэффициент динамического упрочнения бетона при сжатии.

Для железобетонных элементов, имеющих расчетное армирование сжатой зоны γ*bv = l,l, не имеющих расчетного армирования γ*bv = 1,2 [9]

Es - модуль упругости арматуры,

Es = 2·105МПа;

Rsd - расчетное значение сопротивления арматуры растяжению при динамическом нагружении,

Rsd = γ*svRsn,

Rsn - нормативное значение сопротивления арматуры растяжению;

γ*sv - коэффициент динамического упрочнения арматуры при растяжении.

Для арматуры с Rsd = 400 МПа и Rsd = 500 МПа γ*sv = 1,1;

ξd = хd/h0 - относительная высота сжатой зоны бетона при динамическом нагружении, определяемая по СНиПу при динамическом сопротивлении арматуры растяжению Rsd, сжатию Rscd и бетона Rbd, вычисляемых как произведения коэффициентов динамического упрочнения и нормативных сопротивлений материалов

Rscd = γ*scvRsc.

Для арматуры с Rsn = 400 МПа, Rsc = 400 Мпа

γ*scv = 1,05

с Rsn = 500 МПа, Rs = 450 Мпа

γ*scv = 1,0.

На рисунке 19 приведены расчетные графические зависимости коэффициента динамичности по нагрузке у от коэффициента пластичности Кpl и ξd.

Рисунок 19 - Зависимость коэффициента динамичности по нагрузке γ от коэффициента пластичности Кpl и ξd

Графики построены для арматуры класса прочности 500 МПа и бетона разных классов.

Из приведенного рисунка можно заключить, что увеличение армирования для повышения несущей способности железобетонных элементов влечет за собой увеличение относительной высоты сжатой зоны ξd, снижение пластической работы конструкций Кpl и обусловливает необходимость использовать при проектировании зданий на прогрессирующее обрушение методики расчета железобетона при кратковременных динамических нагрузках с учетом коэффициента динамичности по нагрузке γ. Это приведет к дополнительным материальным затратам. В практике проектирования железобетонных изгибаемых элементов зданий с учетом защиты от прогрессирующего обрушения следует при армировании выполнять условие ξd<0,25. Самое наивыгодное армирование изгибаемого элемента, рассчитываемое на прогрессирующее обрушение, когда ξd<0,1, но в этом случае при проверке прочности величины Кpl по формуле (3) не должны превышать предельно допустимые значения , которые можно определить по формуле (6)

                                                                                                  (6)

где  - предельно допустимое равномерное относительное удлинение, обеспеченное с вероятностью выше 0,975 (M-2S), по данным НИИЖБ, можно принять  = 0,05 (рис. 6, 7).

Для арматуры класса прочности 500 МП

Расчет сечений железобетонных элементов при прогрессирующем обрушении с учетом максимально допустимой величины коэффициента пластичности  и, следовательно, минимально возможном коэффициенте динамичности по нагрузке γ можно выполнять по формулам (7) и (8). Здесь не учитывается работа сжатой арматуры, так как при ξmind высота сжатой зоны х меньше 2а', где а' - защитный слой бетона арматуры сжатой зоны.

                                                                                (7)

                                                                                                     (8)

где Mud - момент от эквивалентной статической нагрузки Mud = γМu при Кpl = , γ≤1,1;

ξmind - минимальная относительная высота сжатой зоны бетона, соответствующая максимально допустимым пластическим деформациям растянутой арматуры

                                                               (9)

где η - коэффициент, учитывающий работу арматуры при напряжениях выше физического или условного предела текучести η≤σbт(0,2);

σb и σт(0,2) - нормируемые величины временного сопротивления и физического или условного предела текучести арматурной стали при растяжении по ГОСТ 5781-82, СТО АСЧМ 7-93, ТУ 14-1-5526-2006. Для арматуры класса прочности А500 (А500С, А500СП) η = 1,1, для В500 η = l,0.

3.1 Очередность расчета по приведенной методике для вновь проектируемых зданий и при экспертизе проектных решений [10]

1. Выполняется статический расчет здания по общепринятой методике. При этом устанавливаются размеры сечения перекрытий.

2. По формуле (9) и принятым характеристикам материалов определяется величина ξmind, при этом γ = 1.

3. Предполагается образование пластического шарнира на опоре с возможностью перераспределения части опорного момента в пролет.

4. По принятым ξmind и h0 (см. п. 1), с использованием формулы (8), определяется верхнее армирование в зоне максимальных опорных моментов. Нижняя арматура в опорном и пролетном сечениях принимается равной надопорной.

5. Вносятся изменения в жесткостные характеристики материалов расчетной модели, учитывающие принятое в п. 4 армирование.

6. Типы конечных элементов расчетной модели принимаются геометрически и физически нелинейными.

7. Вводятся трехлинейная диаграмма деформирования для бетона и двухлинейная диаграмма для арматуры согласно СП 52-101-2003 при εs2 =  = 0,05.

8. Производится перерасчет здания итерационным методом со снижением нагрузки на перекрытие до величин постоянной и длительной нагрузки с коэффициентами сочетания и надежности, равными единице, и удалением одной колонны нижнего этажа.

9. В случае положительного результата расчета по п. 8 проверяется принятое армирование перекрытий по СП 52-101-2003 по двум группам предельных состояний с восстановлением удаленной колонны первого этажа и использованием нелинейной модели. При экспертизе проектных решений положительные результаты расчетов по п. 9 используются для оценки эффективности принятого проектного армирования.

10. В случае отрицательного результата расчета по п. 8 принимаем 1< Кpl<. По принятому Кpl в соответствии с графиком на рисунке 19 или по формуле (2) определяют коэффициент динамичности γ, а по формуле (9) - ξd. Корректируют внешнюю статическую нагрузку по формуле

qud = γq0

11. Повторяется очередность выполнения пп. 4-9 расчета с учетом определенных ξd и qud.

12. В случае отрицательного результата при выполнении п. 9 подбирается необходимое армирование для его выполнения.

13. В процессе расчета экономически целесообразна оценка возможности корректировки высоты сечения перекрытия h или же изменения его конструктивного решения (замена безбалочного перекрытия на балочное).

В результате расчета зданий по приведенной методике могут быть получены оптимальные высота, армирование и конструктивные решения перекрытий, обеспечивающие его защиту от прогрессирующего обрушения. Приведенная методика расчета позволяет обеспечить снижение расхода арматуры до 20 % относительно расхода арматуры, полученного по общепринятой в проектировании методике расчета с учетом рекомендаций по защите зданий от прогрессирующего обрушения [6].

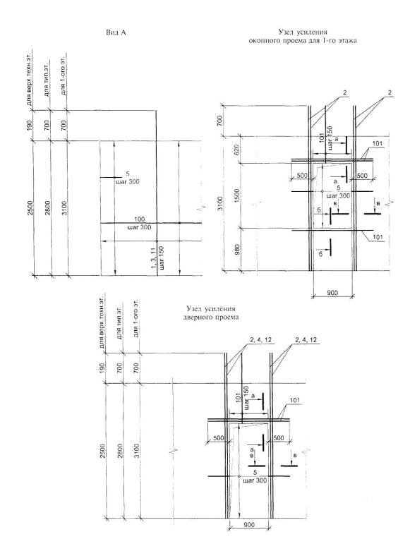
К главным конструктивным требованиям для защиты здания от прогрессирующего обрушения относится эффективная работа арматуры [11]. Эта эффективность в монолитных зданиях обеспечивается пластичностью работы арматуры в предельном состоянии, большими абсолютными деформациями без разрыва при высокой прочности сцепления ее анкерующих участков. В сборных и сборно-монолитных зданиях особое внимание следует уделять анкеровке закладных деталей и сварным соединениям, которые рекомендуется рассчитывать на усилие в 1,5 раза большее, чем несущая способность самой связи, выполняемой из пластичной листовой или арматурной стали и объединяющей отдельные несущие элементы здания в цепочку последовательно соединенных элементов - анкер закладной детали, закладная летать, собственно связь, закладная деталь второго элемента и ее анкер.

Расчетом здания серии ПЗМ МНИИТЭП на устойчивость против прогрессирующего обрушения по кинематическому методу предельного равновесия показано, что хрупкое разрушение (вырыв анкеров закладных деталей из бетона) связей между конструктивными элементами (колоннами, перекрытиями, панелями внутренних и наружных стен), используемыми практически во всех типовых сериях панельных и каркасно-панельных зданий из железобетона для восприятия монтажных нагрузок, активно включающихся в работу при прогрессирующем обрушении, наступает при нагрузке в 1,7 раза меньше нагрузки, при которой разрушаются сварные швы и реализуется пластичность пластин, связующих закладные детали конструктивных элементов [12]. Так как по СП 52-101-2003 расчетная длина анкеров закладных деталей увеличивается примерно на 26 %, для обеспечения надежности анкеровки при проектировании следует учесть в расчетах и этот фактор [13]. Если к сказанному прибавить то, что анкеры закладных деталей изготавливают зачастую из высокоуглеродистой, плохо свариваемой арматурной стати классов А-II (А300) и A-III (A400) марок Ст5 и 35ГС, то можно сделать вывод о высокой опасности этих узловых соединений.

Для выполнения указанных эксплуатационных требований более всего подходит разработанная в НИИЖБ арматура класса А500СП с эффективным, так называемым четырехсторонним серповидным арматурным профилем по ТУ 14-1-5526-2006 (рис. 1,в), применяемая в строительстве по СТО 36554501-005-2006 [13] и в соответствии с информационным письмом Росстроя АП-4823/02 (приложение 3).

4 КОНСТРУКТИВНЫЕ ТРЕБОВАНИЯ

Основные конструктивные требования к армированию железобетонных конструкций сборного и монолитного исполнения изложены в Руководстве по конструированию бетонных и железобетонных конструкций из тяжелого бетона (без предварительного напряжения), разработанном ГПИ Ленинградский Промстройпроект с участием ЦНИИПромзданий и НИИЖБ (М.: Стройиздат, 1978), и Пособии по проектированию бетонных и железобетонных конструкций из тяжелого бетона без предварительного напряжения арматуры, разработанном ЦНИИПромзданий и НИИЖБ к СП 52-101-2003 [14, 15].

В данном издании приводятся материалы, касающиеся сравнительного анализа рекомендаций СНиП 2.03.01-84* и СП 52-101-2003, особенностей конструирования железобетонных конструкций с использованием эффективной стержневой арматуры класса прочности 500 МПа.

Некоторое ужесточение конструктивных требований СП 52-101-2003 относительно СНиП 2.03.01-84* вызвано приближением их к требованиям международных стандартов и зарубежной практике проектирования, а также с целью повышения надежности строительства. НИИЖБ - головной организации по железобетонным конструкциям, автору СНиП и СП дано исключительное право по корректировке требований нормативно-технической документации для подконтрольного использования при проектировании и строительстве.

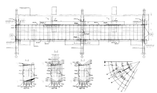
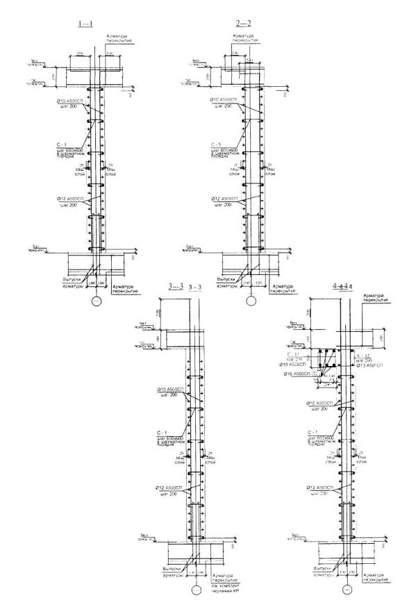
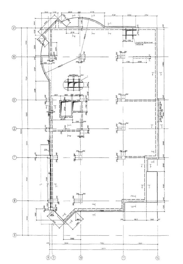
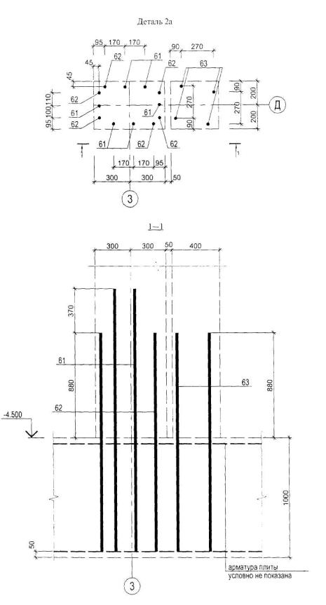
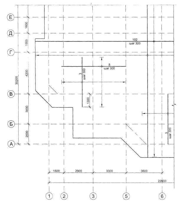
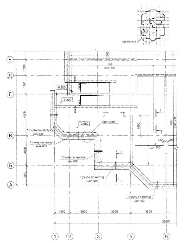
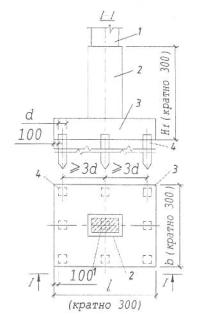
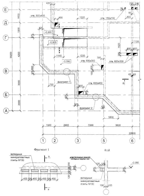
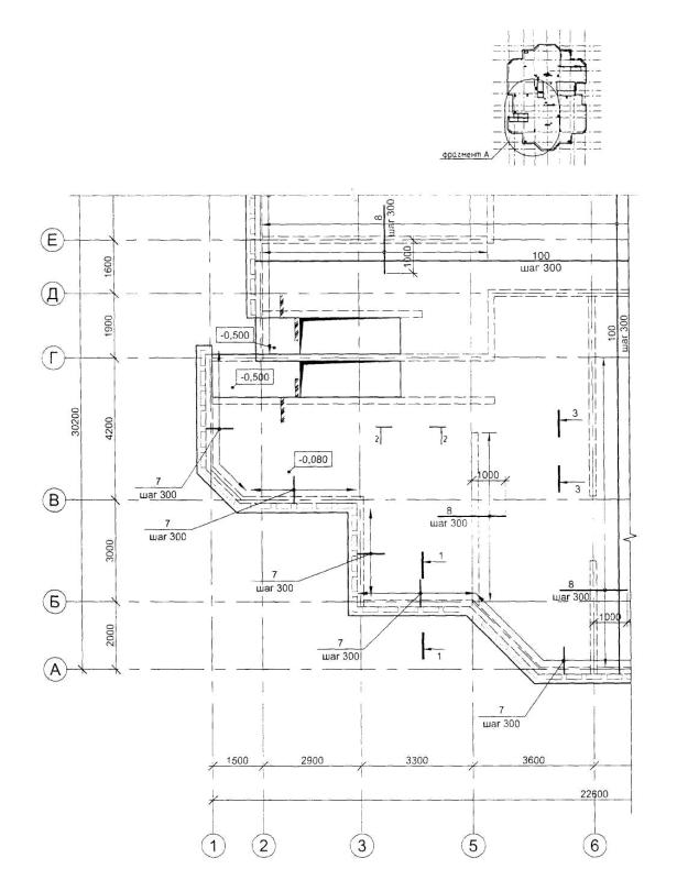
В приложении 1 приводятся конструктивные требования к армированию основных элементов зданий из монолитного железобетона, необходимые для практического использования при выполнении проектной рабочей документации.

Таблица 9

Основные конструктивные требования для армирования монолитного железобетона (обычные условия эксплуатации)

№ п.п.

Требования

По СНиП 2.03.01-84*

По СП 52-101-2003

1

2

3

4

1

Защитный слой бетона для продольной рабочей арматуры (кроме арматуры подошвы фундаментов)

При толщине плит до 100 мм включ. - 10 мм. свыше 100 мм - 15 мм

 

 

не менее диаметра арматуры и не менее

 

20 мм

 

не более

 

50 мм

2

Минимальные расстояния между стержнями арматуры (в свету):

 

 

при горизонтальном или наклонном положении стержней при бетонировании для нижней арматуры, расположенной в один или два ряда

25 мм

25 мм

то же, для верхней арматуры

30 мм

30 мм

то же, при расположении нижней арматуры более чем в два ряда (кроме стержней двух нижних рядов), а также при вертикальном положении стержней при бетонировании

50 мм

50 мм

3

Продольное армирование

Площадь сечения продольной растянутой арматуры, а также сжатой, если она требуется по расчету, в процентах площади сечения бетона, равной произведению ширины прямоугольного сечения либо ширины ребра таврового (двутаврового) сечения на рабочую высоту сечения μs = (As/bh0)100 %, следует принимать не менее указанных в графах 3 и 4 таблицы при условиях работы арматуры:

 

 

а) арматура S в изгибаемых и во внецентренно растянутых элементах при расположении продольной силы за пределами рабочей высоты сечения

0,05%

0,10 %(< 0,10 %)

б) арматура S и S' во внецентренно растянутых элементах при расположении продольной силы между арматурой S и S'

0,05%

0,10 %(< 0,10 %)

в) арматура во внецентренно сжатых элементах при:

 

 

l0/i < 17 (для прямоугольных сечений l0/h ≤ 5)

0,05%

0,10 %(< 0,10 %)

17 < l0/i ≤ 35 (5 < l0/h ≤ 10)

0,10 %

0,15 %(< 0,15 %)

35 < l0/i < 85 (10 < l0/h < 25)

0,20 %

0,20%

l0/i > 83 (l0/h > 25)

0,25%

0,25%

Минимальный процент содержания арматуры S и S' во внецентренно сжатых элементах, несущая способность которых при расчетном эксцентриситете используется менее чем на 50 %. независимо от гибкости элемента

0,05%

0,10 %(< 0.10 %)

В железобетонных линейных конструкциях и плитах наибольшие расстояния между осями стержней продольной арматуры должны быть не более:

 

 

в балках и плитах:

 

 

при высоте поперечного сечения

 

 

h 150 мм

200 мм

200 мм

h > 150 мм

1,5h

1,5h и 400 мм

в направлении, перпендикулярном плоскости изгиба

400 мм

400 мм

в направлении плоскости изгиба

500 мм

500 мм

В железобетонных стенах расстояние между стержнями арматуры принимают не более:

 

 

вертикальной

400 мм при S' 1,5 % и и S + S' 3 %

2t и 400 мм

горизонтальной

2t и 600 мм, где t - толщина стены

400 мм

Диаметр продольных стержней внецентренно сжатых линейных элементов монолитных конструкций должен быть не менее:

12 мм

12 мм (< 12 мм)

в колоннах с размером меньшей стороны сечения 250 мм и более

-»-

16 мм (< 16 мм)

в железобетонных стенах диаметр продольных стержней рекомендуется назначать не менее

-»-

8 мм

Диаметр продольных стержней сжатых элементов не должен превышать для бетона тяжелого и мелкозернистого:

 

 

класса ниже В25

40 мм

40 мм

класса выше В25

-»-

≥40 мм при наличии производства и согласования НИИЖБ

4

Поперечное армирование элементов

 

 

Максимальное расстояние между поперечными стержнями у каждой грани поверхности железобетонного элемента не более

600 мм и 2t, где t - ширина грани элемента

600 мм и 2t

Диаметр поперечной арматуры (хомутов) в вязаных каркасах

 

 

внецентренно сжатых элементов принимают не менее:

0,25d, где d - наибольший диаметр продольных стержней

0,25d или 6 мм (5 и 5,5 мм)

изгибаемых элементов не менее:

 

 

при высоте сечения элемента

 

 

≤ 800 мм

5 мм

6 мм (5 и 5,5 мм)

плит-балок

6 мм

то же

≥ 800 мм

8 мм

-»-

В железобетонных элементах, в которых поперечная сила по расчету не может быть воспринята только бетоном, ставится поперечная арматура с шагом не более:

 

 

при h 450 мм

h/2 или 150 мм

0,5h0 или 300 мм

при h > 450 мм

h/3 или 500 мм

то же

В сплошных плитах, а также в многопустотных и часторебристых перекрытиях высотой менее 300 мм и в балках (ребрах) высотой менее 150 мм на участке элемента, где поперечная сила по расчету воспринимается только бетоном, поперечную арматуру допускается

В балках и ребрах высотой 150 мм и более, а также в часторебристых плитах высотой 300 мм и более, на участках элемента, где поперечная сила по расчету воспринимается только бетоном, следует преcусматривать установку поперечной арматуры с шагом не более:

Не устанавливать

Не устанавливать

при h ≤ 450 мм

h/2 или 150 мм

0,75h0 или 500 мм

при h > 450 мм

h/3 или 500 мм

то же

Во внецентренно сжатых линейных элементах, а также в изгибаемых элементах при наличии необходимой по расчету сжатой продольной арматуры следует устанавливать поперечную арматуру с шагом не более:

 

 

при Rsc 400 МПа и каркасах:

15d

15d или 500 мм,

вязаных

 

где d - диаметр сжатой продольной арматуры

сварных

20d или 500 мм

15d или 500 мм,

при Rsc ≤ 450 МПа и каркасах:

 

где d - диаметр сжатой продольной арматуры

вязаных

12d

12d(15d или 500 мм)

сварных

15d или 500 мм

15d или 500 мм

При насыщении сжатой продольной арматуры, устанавливаемой у одной из граней элемента более 1,5 %, поперечную арматуру следует устанавливать с шагом не более

10d или 300 мм

10d или 300 мм

Расстояние между хомутами внецентренно сжатых элементов в местах стыкования рабочей арматуры внахлестку без сварки должно составлять не более

10d

10d

В изгибаемых элементах при армировании их вязаными каркасами на концах отогнутых стержней должны устанавливаться прямые участки длиной не менее

lan

0,8lan

20d - в растянутой зоне

20d - в растянутой зоне

10d - в сжатой

10d - в сжатой

Расстояние от грани свободной опоры до верхнего конца первого отгиба (считая от опоры) должно быть не более

50 мм

50 мм

Угол наклона отгибов к продольной оси элемента следует принимать

 

 

в пределах

30-60°

30-60°

рекомендуется

45°

45°

Во внецентренно сжатых линейных элементах конструкция хомутов (поперечных стержней) должна быть такой, чтобы продольные стержни (по крайней мере через один) располагались в местах перегибов, а эти перегибы - на расстоянии по ширине грани не более

400 мм

400 мм

При ширине грани ≤ 400 мм и числе продольных стержней у этой грани не более четырех охват всех продольных стержней одним хомутом

Допускается

Допускается

 

 

 

 

В железобетонных стенах поперечные стержни, нормальные к плоскости стены, располагаются на расстоянии не более:

 

 

 

 

по вертикали

600 мм или 2t

20d

по горизонтали

то же

600 мм

При наличии расчетной продольной арматуры с насыщением менее минимального процента (см. п. 3а, б, в) поперечные стержни можно располагать на расстоянии не более:

 

 

 

 

 

 

по вертикали

600 мм или 2t

600 мм

по горизонтали

то же

1000 мм

При насыщении продольной арматурой железобетонных стен более 2 % поперечные стержни должны располагаться на расстоянии не более:

 

 

 

 

 

 

по вертикали

600 мм или 2t

15d или 500 мм, где

 

 

d - диаметр вертикальных стержней

по горизонтали

то же

400 мм и не более двух шагов вертикальных стержней

В плитах в зоне продавливания в направлении, перпендикулярном сторонам расчетного контура, поперечную арматуру устанавливают с шагом не более

h/3 или 200 мм

h0/3 или 300 мм

h - толщина плиты

 

Стержни, ближайшие к контуру грузовой площади, располагают от этого контура:

 

 

не ближе

 

h0/3

и не далее

 

h0/2

Ширина зоны постановки поперечной арматуры (от контура грузовой площади) должна быть не менее

1,5h

1,5h0

 

 

В направлении, параллельном сторонам расчетного контура, расстояние между стержнями поперечной арматуры принимают не более

h/3 или 200 мм

1/4 длины

 

соответствующей стороны расчетного контура

Поперечная арматура в виде сварных сеток косвенного армирования при местном сжатии (смятии) должна удовлетворять следующим требованиям:

 

 

а) площади стержней сетки на единицу длины в одном направлении не должны различаться более чем

 

1,5 раза

б) шаг сеток (расстояние между сетками в осях стержней направления) следует принимать:

 

 

не менее

60 мм

60 мм

не более

150 мм или 1/3 меньшей стороны сечения элемента

150 мм

в) размеры ячеек сеток в свету должны быть:

 

 

не менее

45 мм

45 мм

не более

100 мм или 1/4 меньшей стороны сечения элемента

100 мм

г) первая сетка располагается на расстоянии от нагруженной поверхности элемента

15-20 мм

15-20 мм

Поперечное армирование коротких консолей колонн выполняется горизонтальными или наклонными под углом 45° хомутами

 

 

 

 

Шаг хомутов не более

h/4 или 150 мм, где

h/4 или 150 мм

 

h - высота консоли

 

Примечание. В скобках даны величины, которые могут быть допущены для использования в конкретных проектах при согласовании с НИИЖБ.

5 АНКЕРОВКА АРМАТУРЫ

Анкеровку стержней арматуры с периодическим профилем в монолитных железобетонных конструкциях осуществляют преимущественно:

- в виде прямого окончания стержня (прямая анкеровка);

- с отгибом (лапки) на конце стержня (только для растянутой арматуры);

- с приваркой или установкой поперечных стержней;

- с применением специальных анкерных устройств на конце стержня.

При расчете длины анкеровки арматуры следует учитывать способ анкеровки, класс арматуры и ее профиль, диаметр арматуры, прочность бетона и его напряженное состояние в зоне анкеровки, конструктивное решение элемента в зоне анкеровки (наличие поперечной арматуры, положение стержней в сечении элемента и др.).

В СП 52-101-2003 базовую (основную) длину анкеровки, необходимую для передачи усилия в арматуре с полным расчетным значением сопротивления Rs на бетон, определяют по формуле

lo,an = RsAs/Rbondus                                                                                                  (10)

где As и us - соответственно площадь поперечного сечения анкеруемого стержня арматуры и периметр его сечения, определяемые по номинальному диаметру стержня;

Rbond - расчетное сопротивление сцепления арматуры с бетоном, принимаемое равномерно распределенным по длине анкеровки и определяемое по формуле

Rbond = η1η2Rbt,                                                                                                       (11)

где η1 - коэффициент, учитывающий влияние вида поверхности арматуры, принимаемый равным:

1,5 - для гладкой арматуры (класс А240);

2,0 - для холоднодеформированной арматуры периодического профиля (класс В500);

2,25 - для стержневой арматуры периодического профиля иностранного производства горячекатаной и термо-механически упрочненной (табл. 2), что соответствует требованиям зарубежных нормативных документов;

2,5 - для арматуры периодического профиля производителей России по ГОСТ 5781-82, ГОСТ 10884-94, ГОСТ Р 52544-2006, СТО АСЧМ 7-93, ТУ 14-1-5254-94, кроме А500СП по ТУ 14-1-5526-2006;

2,8 - для арматуры класса А500СП по ТУ 14-1-5526-2006;

η2 - коэффициент, учитывающий влияние размера диаметра арматуры, принимаемый равным:

1,0 - при диаметре арматуры ds≤32;

0,9 - при диаметре арматуры 36 и 40 мм всех видов.

Требуемую расчетную длину анкеровки арматуры с учетом конструктивного решения элемента в зоне анкеровки определяют по формуле

lan = (αlo,an)(As,cal/As,ef),                                                                                                (12)

где lo,an - базовая длина анкеровки, определяемая по формуле (10);

As,cal/As,ef - площади поперечного сечения арматуры, соответственно требуемая по расчету с полным расчетным сопротивлением и фактически установленная;

α - коэффициент, учитывающий влияние на длину анкеровки напряженного состояния бетона и арматуры и конструктивного решения элемента в зоне анкеровки.

При анкеровке стержней периодического профиля с прямыми концами (прямая анкеровка) или гладкой арматуры с крюками или петлями без дополнительных анкерующих устройств для растянутых стержней принимают α = 1,0, а для сжатых α = 0,75.

Допускается уменьшать длину анкеровки в зависимости от количества и диаметра поперечной арматуры и величины поперечного обжатия в зоне анкеровки (например, от опорной реакции) в соответствии с указаниями п. 3.45 Пособия [15], но не более чем на 30 %.

При этом Rbond определяется с учетом значений η1 и η2 приведенных ранее в данном пособии.

В любом случае фактическую длину анкеровки принимают не менее 0,3lo,an, а также не менее 15ds и 200 мм.

Усилие, воспринимаемое анкеруемым стержнем арматуры Ns, определяют по формуле

Ns = RsAs(ls/lan) ≤ RsAs                                                                                           (13)

где lan - определяется по формуле (12);

ls - расстояние от конца анкеруемого стержня до рассматриваемого сечения элемента.

На крайних свободных опорах элементов длина запуска растянутых стержней за внутреннюю грань свободной опоры при выполнении условия Q ≤ 0,5Rbtbh0 должна составлять не менее 5ds. Если указанное условие не соблюдается, длина запуска арматуры за грань опоры должна быть равной lan, которую определяют согласно формуле (12).

6 СОЕДИНЕНИЯ АРМАТУРЫ

Для соединения арматуры принимают один из следующих типов стыков:

а) стыки внахлестку без сварки:

- с прямыми концами стержней периодического профиля диаметра до 40 мм;

- с прямыми концами стержней с приваркой или установкой по длине нахлестки поперечных стержней;

- с загибами на концах (крюки, лапки, петли); при этом для гладких стержней применяют только крюки и петли;

б) сварные и механические стыковые соединения:

- со сваркой арматуры диаметра до 40 мм;

- с применением специальных механических устройств (стыки с опрессованными муфтами, резьбовыми муфтами и др.).

6.1 Стыки арматуры без сварки

Стыки растянутой или сжатой арматуры должны иметь длину перепуска (нахлестки) не менее значения длины /,, определяемого по формуле (14) или графикам на рисунках 20, 21

ll = αlo,an(As,cal/As,ef),                                                                                                    (14)

где lo,an - базовая длина анкеровки, определяемая по формуле (10), в том числе с учетом требований к арматуре класса А500СП;

As,cal/As,ef - cм. выше;

α - коэффициент, учитывающий влияние напряженного состояния арматуры, конструктивного решения элемента в зоне соединения стержней, количества стыкуемой арматуры в одном сечении по отношению к общему количеству арматуры в этом сечении, расстояния между стыкуемыми стержнями.

Рисунок 20 - Графики для определения длины нахлестки арматурных стержней периодического профиля в растянутом бетоне

Рисунок 21 - Графики для определения длины нахлестки арматурных стержней периодического профиля в сжатом бетоне

При соединении арматуры периодического профиля с прямыми концами, а также гладких стержней с крюками или петлями без дополнительных анкерующих устройств коэффициент α для растянутой арматуры принимают равным 1,2, а для сжатой арматуры - 0,9. При этом должны быть соблюдены следующие условия:

- относительное количество стыкуемой в одном расчетном сечении элемента рабочей растянутой арматуры периодического профиля должно быть не более 50 %, гладкой арматуры (с крюками или петлями) - не более 25 %;

- усилие, воспринимаемое всей поперечной арматурой, поставленной в пределах стыка, должно быть не менее половины усилия, воспринимаемого стыкуемой в одном расчетном сечении элемента растянутой рабочей арматурой;

- расстояние между стыкуемыми рабочими стержнями арматуры не должно превышать 4ds (рис. 22):

- расстояние между соседними стыками внахлестку (по ширине железобетонного элемента) должно быть не менее 2ds и не менее 30 мм (рис. 22).

Рисунок 22 - Расположение стержней, стыкуемых внахлестку, и самих стыков

а - расположение стержней в стыке; б - расположение стыков

В качестве одного расчетного сечения элемента, рассматриваемого для определения относительного количества стыкуемой арматуры в одном сечении, принимают участок элемента вдоль стыкуемой арматуры длиной 1,3ll. Считается, что стыки арматуры расположены в одном расчетном сечении, если центры этих стыков находятся в пределах этого участка (рис. 22).

Допускается увеличивать относительное количество стыкуемой в одном расчетном сечении элемента рабочей растянутой арматуры до 100 %, принимая значение коэффициента а равным 2,0. При относительном количестве стыкуемой в одном расчетном сечении арматуры периодического профиля более 50 % и гладкой арматуры более 25 % значения коэффициента а определяют по линейной интерполяции.

При наличии дополнительных анкерующих устройств на концах стыкуемых стержней (приварка поперечной арматуры, загиб концов стыкуемых стержней периодического профиля и др.) длина перепуска стыкуемых стержней может быть уменьшена, но не более чем на 30 %.

В любом случае фактическая длина перепуска должна быть не менее 0,4αlo,an, не менее 20ds и не менее 250 мм.

6.2 Сварные соединения для арматуры всех типов

При соединении арматуры всех видов с использованием сварки выбор типов сварного соединения и способов сварки производят с учетом условий эксплуатации, свариваемости стали и требований по технологии изготовления в соответствии с действующими нормативными документами (ГОСТ 14098-91).

6.3 Сварные соединения, применяемые для термомеханически упрочненной арматурной стали класса А500СП

6.3.1 Сварные соединения типовые по ГОСТ 14098-91:

- крестообразные соединения К1-Кт и К3-Рр, выполняемые контактной точечной и ручной дуговой сваркой;

- стыковые соединения типов С1-Ко и С3 - Км, выполняемые контактной стыковой сваркой с отношением диаметров соединяемых стержней 0,85-1,0;

- стыковые соединения типов С21-Рн, С22-Ру и С23-Рэ, выполняемые ручной дуговой сваркой с парными накладками или с нахлесткой в горизонтальном и вертикальном положениях стержней;

- стыковые соединения стержней на стальной скобе-накладке типов С14-Мп, С15-Рс, С17-Мп, С19-Рм, С25-Мп и С26-Рс, выполняемые ручной дуговой или механизированной сваркой;

- нахлесточные соединения стержней с плоскими элементами проката типа Н1-Рш, выполняемые ручной дуговой сваркой швами;

- нахлесточные соединения типов Н2-Кр и Н3-Кп, выполняемые контактной точечной сваркой по рельефу на плоском элементе проката;

- тавровые соединения стержней с плоским элементом проката типа Т2-Рф, выполняемые дуговой сваркой под флюсом без присадочного металла;

- тавровые соединения типов Т10-Мс и Т11-Мц, выполняемые дуговой механизированной сваркой в СО2 в отверстие;

- тавровые соединения типа Т12-Рз, выполняемые ручной дуговой сваркой в раззенкованное отверстие.

6.3.2 Нетиповые сварные соединения, выполняемые ручной дуговой сваркой:

- стыковые соединения с тремя или четырьмя накладками, равномерно распределенными по периметру сечения стержня; диаметр накладок меньше номинального диаметра соединяемых стержней. Рекомендуется для соединения продольных стержней колонн монолитных каркасов;

- крестообразные соединения с нормируемой прочностью с дополнительными коротышами;

- стыковое соединение для утилизации немерных обрезков стержней;

- соединения для узловых сварных ферм из арматурной стали;

- соединения арматурных стержней с плоскими элементами проката (тавровые и под углом к плоскости пластины), не требующие предварительной механической обработки пластин;

- другие типы соединений.

6.4 Дополнительные технологические рекомендации по сварке арматурной стали класса А500СП для типовых сварных соединений, а также нетипового стыкового соединения с 3-4 накладками

6.4.1 Дуговую сварку прихватками крестообразных соединений следует выполнять электродами типов Э46, Э46А диаметром 4-5 мм или механизированным способом в среде СО2.

6.4.2 Контактную стыковую сварку следует выполнять только методом непрерывного оплавления без предварительного подогрева.

При сварке на каждый стержень следует принимать установочную длину, равную (0,6-1,0)ds, а величину оплавления (0,3-0,5)ds. Диаметр венчика выдавливания грата - не более (1,1-1,2)ds.

6.4.3 Дуговую сварку с парными накладками С21-Рн следует выполнять односторонними протяжными швами, наплавляемыми в шахматном порядке, электродами типов Э46, Э46А диаметром 4-5 мм или механизированным способом в среде СО2.

Парные накладки следует изготавливать из арматуры того же класса и диаметра длиной не менее 1СЦ плюс величина зазора между стыкуемыми стержнями (не более 0,5ds). Концы накладок должны оставаться незаваренными на длину (0,5-1,0)ds с обеих сторон.

6.4.4 Дуговую сварку сварных соединений внахлестку С23-Рэ следует выполнять с длиной нахлестки не менее 10ds Сварку следует начинать у краев нахлестки, отступив от них на (0,5-1,0)ds, направляя шов к центру соединения, с заваркой кратера на расстоянии 5ds от торцов соединяемых стержней. Края нахлестки должны оставаться незаваренными.

6.4.5 Ванно-шовную сварку стыковых соединений С14-Мп, С15-Рс, С17-Мп, С19-Рм, С25-Мп и С26-Рс следует выполнять на удлиненных до 4ds желобчатых остающихся скобах-накладках. Межторцевой зазор заваривается одиночными электродами типов Э50А-Э55 диаметром 4-6 мм в зависимости от диаметра арматуры.

Сварное соединение должно содержать на длине желобчатом накладки четыре фланговых шва с катетом 6-10 мм. которые выполняют после полного остывания основного шва в шахматном порядке начиная от краев скобы-накладки к заваренному ранее центру стыка.

6.4.6 Сварку под флюсом тавровых соединений Т2-Рф анкеров с плоскими элементами стального проката закладных деталей следует выполнять при диаметре анкера ds не более 14 мм с соотношением толщины пластины и диаметра анкера не менее 0,55.

6.5 Дополнительные технологические рекомендации по сварке арматурной стали класса А500СП для нетиповых сварных соединений

6.5.1 Нетиповые сварные соединения следует выполнять электродами типа Э55.

6.5.2 Применение для арматуры класса А500СП нетиповых сварных соединений по п. 6.3.2, а также стандартных соединений, не включенных в перечень п. 6.3.1, допускается только при условии согласования Проекта производства сварочных работ (ППСР) с НИИЖБ.

6.6 Механические стыковые соединения

При использовании для стыков арматуры механических устройств в виде муфт (муфты на резьбе, опрессованные муфты и т.д.) несущая способность муфтового соединения должна быть такой же, что и стыкуемых стержней (соответственно при растяжении или сжатии). Концы стыкуемых стержней следует заводить на требуемую длину в муфту, определяемую расчетом или опытным путем.

При использовании муфт на резьбе должна быть обеспечена требуемая затяжка муфт для ликвидации люфта в резьбе (раздел 1.3).

7 ТРЕБОВАНИЯ К ГИБОЧНЫМ ОПЕРАЦИЯМ

7.1 При применении гнутой арматуры (отгибы, загибы концов стержней) минимальный диаметр загиба отдельного стержня должен быть таким, чтобы избежать разрушения или раскалывания бетона внутри загиба арматурного стержня и его разрушения в месте загиба (рис. 23).

Рисунок 23 - Конструкция отгибов арматуры

Минимальный диаметр оправки don для арматуры принимают в зависимости от диаметра стержня ds не менее:

для гладких стержней:

don = 2,5ds при ds<20 мм;

don = 4ds при ds ≥20 мм;

для стержней периодического профиля:

don = 5ds при ds<20 мм;

don = 8ds при ds≥20 мм:

7.2 Термомеханически упрочненная арматура классов А500С и А500СП может подвергаться гибке только в холодном состоянии.

7.3 Максимальный угол изгиба не должен превышать 180°; минимальные диаметры оправок гибочного оборудования в зависимости от диаметра стержней приведены в таблице 10.

Таблица 10

Диаметр арматурного стержня ds, мм

10

12

14

16

18

20

22

25

28

Минимальный диаметр оправки, мм

30

50

65

80

90

100

120

150

170

7.4 Приварка поперечных стержней к изогнутому стержню допускается на расстоянии не менее 5ds плюс диаметр оправки от начала изгиба, считая по внутренней поверхности изогнутого стержня.

 

8 ПРИЕМКА, ВХОДНОЙ КОНТРОЛЬ КАЧЕСТВА АРМАТУРЫ У ПОТРЕБИТЕЛЯ, МАРКИРОВКА, УПАКОВКА

8.1 Арматурную сталь принимают партиями в соответствии с ГОСТ 10884 массой не более 70 т.

8.2 Каждая партия арматурной стали сопровождается документом о качестве, где указываются номер профиля, класс прочности, химический состав, значения временного сопротивления, предела текучести физического σт или условного σ0,2, относительного удлинения δ5 и δр и результаты испытания на изгиб.

8.3 С целью безошибочной индентификации при входном контроле и в процессе эксплуатации арматурный прокат должен иметь продольную маркировку, включающую в себя товарный знак предприятия-изготовителя и обозначение класса проката. Пример маркировки приведен на рисунке 24.

Рисунок 24 - Пример прокатной маркировки арматурного проката класса А500С производства ОАО «Оскольский электрометаллургический комбинат»

Допускается поставка арматурного проката с маркировкой предприятия-изготовителя, которую наносят с использованием утолщенных поперечных ребер с одной стороны проката. Начало чтения маркировки обозначают двумя утолщенными ребрами, число следующих обычных поперечных ребер до утолщенного ребра обозначает номер предприятия-изготовителя. В случае двухзначного номера предприятия-изготовителя (рис. 25) начальное число обычных ребер указывает число десятков, а затем, после следующего утолщенного ребра, - число единиц.

Рисунок 25 - Пример прокатной маркировки предприятия-изготовителя под номером 14

Допускаются другие виды прокатной маркировки, не снижающие эксплуатационные свойства проката и согласованные с потребителем.

8.4 Прокатная маркировка, обозначающая класс прочности и наименование предприятия- изготовителя, на стержнях арматуры класса А500СП, как правило, не наносится.

8.5 Общие правила упаковки - по ГОСТ 7566 с нижеследующими дополнениями.

8.6 Прутки упаковывают в связки массой от 1,5 до 15 т. По требованию потребителя масса связки не может быть менее 1.5 т.

8.7 При поставке в мотках каждый моток должен состоять из одного отрезка арматурного проката. Допускается поставка мотков, состоящих из двух отрезков, в количестве не более 10 % массы партии. Масса мотка должна быть от 0,3 до 1,5 т. По согласованию изготовителя с потребителем для холоднодеформированного проката класса В500С допускается масса мотка от 0,03 до 0.3 г и от 1,5 до 3,0 т.

Моток должен быть плотно обвязан. Количество и схему обвязок оговаривают в заказе или контракте.

8.8 Каждая связка и каждый моток арматурного проката должны иметь ярлык, на котором указывают:

- товарный знак и наименование предприятия-изготовителя;

- номинальный диаметр арматурного проката, мм;

- класс арматурного проката;

- обозначение стандарта, по которому изготовлена арматура;

- номер партии.

В необходимых случаях арматурную стать подвергают контрольным испытаниям на растяжение и изгиб. Испытания проводят на растяжение по ГОСТ 12004, а на изгиб по ГОСТ 14019 на натурных образцах, отбираемых от каждой партии в количестве не менее двух для каждого вида испытаний.

При получении неудовлетворительных результатов хотя бы по одной из нормируемых механических характеристик испытания повторяют на вдвое большем числе образцов, после чего делается окончательное заключение о качестве продукции. Для партий арматуры, сертифицированной в соответствии с требованиями приложения «В» стандарта СТО АСЧМ 7-93, испытания при входном контроле могут не производиться.

В спорных случаях испытания следует проводить в соответствии с положениями приложения С стандарта СТО АСЧМ 7-93.

9 КОНТРОЛЬ КАЧЕСТВА СВАРНЫХ СОЕДИНЕНИЙ АРМАТУРЫ КЛАССОВ А500С И А500СП

9.1 Размер принимаемой партии для типовых сварных соединений по п. 6.3.1 и нетипового стыкового соединения с 3-4 накладками должен соответствовать требованиям ГОСТ 10922. Для прочих нетиповых соединений по п. 6.3.2 размер принимаемой партии 50 шт.

9.2 При операционном и приемочном контроле технические требования к сварным арматурным конструкциям, порядок отбора образцов и их конструкция, методы испытаний должны соответствовать ГОСТ 10922.

9.3 Визуально-измерительный контроль (ВИК) типовых сварных соединений по п. 6.3.1 следует выполнять в соответствии с требованиями проектной документации и СНиП 3.03.01-87, а нетиповых соединений по п. 6.3.2 - в соответствии с ППСР и СНиП 3.03.01-87.

9.4 В случае невозможности или нецелесообразности проведения механических испытаний сварных соединений на образцах, отобранных непосредственно от изделий или конструкций, допускается проведение испытаний образцов-свидетелей, изготовленных тем же сварщиком в идентичных условиях.

9.5 При разрушающем методе контроля для приемки готовой продукции (сварных соединений арматуры и закладных изделий, выполненных в соответствии с пп. 6.2; 6.3; 6.4) результаты испытаний образцов сварных соединений, проведенных в соответствии с требованиями ГОСТ 10922, должны отвечать следующим условиям:

1) R≤118 МПа;

2) σсреднС, значения которого принимают: при R до 39 МПа включительно С=540 МПа, при R свыше 39 до 79 МПа включительно С=570 МПа;

при R свыше 78 до 118 МПа включительно С=630 МПа,

где R - размах значений предела прочности σi трех контрольных образцов;

σi - предел прочности (временное сопротивление) отдельного контрольного образца;

σсредн - среднее значение предела прочности трех контрольных образцов.

9.6 Если условие 1) не выполняется, то партию готовой продукции принимают без учета размаха значений предела прочности сварных соединений, при этом минимальное значение σi должно быть не менее 550 МПа. Для тавровых соединений закладных деталей минимальное значение о. должно быть не менее 500 МПа.

9.7 При несоблюдении перечисленных требований производят повторную выборку контрольных образцов в количестве 6 шт. Если в результате повторного испытания не соблюдается хотя бы одно из условий пп. 9.2 и 9.3, то партию бракуют.

ПРИЛОЖЕНИЕ 1

КОНСТРУКТИВНЫЕ ТРЕБОВАНИЯ К АРМИРОВАНИЮ ОСНОВНЫХ ЭЛЕМЕНТОВ ЗДАНИЙ ИЗ МОНОЛИТНОГО ЖЕЛЕЗОБЕТОНА

Раздел 1. Армирование монолитных фундаментов

Фундаменты зданий из монолитного железобетона бывают трех типов: отдельные (под каждой колонной, пилоном), ленточные (под рядами колонн в одном или двух направлениях, а также под несущими стенами), сплошные (под всем зданием).

Отдельные фундаменты

Отдельные фундаменты под колонны и пилоны зданий из монолитного железобетона делаются также преимущественно монолитными. Плитная часть этих фундаментов проектируется одно- и многоступенчатой, подколонная часть может отсутствовать. Размеры фундаментов определяются расчетом.

Армирование подошвы монолитных фундаментов выполняют сетками из сварной или вязаной стержневой арматуры. Могут применяться также типовые унифицированные сварные сетки, укладывемые в два слоя, с рабочей арматурой во взаимно перпендикулярных направлениях.

Толщину защитного слоя бетона для рабочей арматуры монолитных фундаментов принимают:

- при наличии бетонной подготовки и для устраиваемых на скальных грунтах - 40 мм;

- при отсутствии бетонной подготовки - 70 мм.

Диаметр рабочих стержней арматуры (сварной или вязаной) подошвы, укладываемых вдоль стороны 3 м и менее, должен быть не менее 10, а стержней, укладываемых вдоль стороны более 3 м, - не менее 12 мм.

При армировании отдельными стержнями их укладывают во взаимно перпендикулярных направлениях, параллельных сторонам подошвы. Шаг стержней принимают не менее 100 и не более 200 мм, длина стержней каждого направления должна быть одинаковой. При применении арматуры периодического профиля два крайних ряда пересечении стержней по периметру сетки соединяют дуговой сваркой. Внутренние пересечения должны быть перевязаны через узел в шахматном порядке.

Минимальный процент армирования подошвы фундаментов не регламентируется.

При возможности изготовления и транспортирования сеток больших размеров рекомендуется армировать фундаменты цельными сетками без устройства стыков. Можно также применять узкие сетки с продольной рабочей арматурой, укладываемые в двух плоскостях таким образом, чтобы рабочая арматура в верхних и нижних сетках проходила в двух взаимно перпендикулярных направлениях. Сетки в каждой плоскости укладываются рядом друг с другом без нахлестки.

При размерах сторон подошвы фундамента 3 м и более рекомендуется половину стержней арматуры обрывать на расстоянии 0,1L от края подошвы фундамента (L - сторона подошвы фундамента). При этом длина всех стержней должна быть одинакова, а их укладка производиться вразбежку со смещением по противоположным сторонам подошвы фундамента через один стержень.

При армировании фундаментов цельными сетками рекомендуется укладывать их в двух слоях, принимая размеры в плане сетки, укладываемой поверху, равными 0,8 соответствующих размеров нижней сетки.

При армировании фундаментов сетками с рабочей арматурой одного направления рекомендуется принимать такой тип сеток, в котором часть стержней не доводится до края, или укладывать сетки одну на другую с взаимной раздвижкой.

Подколонники, если это необходимо по расчету, армируют продольной и поперечной арматурой по принципу армирования колонн (см. табл. 9).

В монолитных фундаментах с монолитными колоннами для удобства установки опалубки размеры поперечного сечения подколенника принимают увеличенными относительно размеров колонны на 50 мм в каждую сторону. Отметку верха фундамента (подколонника) назначают на 50 мм ниже уровня чистого пола.

Для осуществления заделки железобетонных монолитных стоек в фундаменты из последних устраиваются выпуски арматуры. Сечение арматуры выпусков должно быть не менее расчетного сечения арматуры стоек на уровне обреза фундамента.

Выпуски арматуры должны быть соединены хомутами (приваренными или привязанными), причем первый хомут ставится у нижних концов арматуры, а второй - на расстоянии 100 мм ниже обреза фундамента (рис. 1.1).

Рисунок 1.1 - Ступенчатые железобетонные фундаменты

При большой высоте подколонника может выполняться дополнительный нижний стык продольной арматуры подколонника с выпусками арматуры из верхней ступени плитной части фундамента (рис. 1.2).

Рисунок 1.2 - Армирование фундамента монолитной колонны

Заделка выпусков арматуры в фундаменте должна быть не менее lап [см. формулу (12)].

При армировании колонн вязаной арматурой стержни периодического профиля (при их числе у растянутой грани сечения больше двух) стыкуют в двух уровнях (рис. 1.3, 1.4).

Рисунок 1.3 - Расположение выпусков стержней периодического профиля для устройства стыков арматуры фундамента с арматурой колонны внахлестку без сварки

Рисунок 1.4 - Устройство стыков растянутых стержней внахлестку в фундаментах колонн при раздельном бетонировании ступенчатой части фундамента и подколонника

а - при стыковке всех стержней в одном сечении; б - то же, 50 % стержней; 1 - сетка подколониика; 2 - подколенник; 3 - стыковая сетка; 4 - ступенчатая часть фундамента; 5 - сетка подошвы фундамента

Длину перепуска (нахлестки) стержней определяют по формуле (14).

Выпуски из фундамента назначают с таким расчетом, чтобы стержни большей длины и большего диаметра располагались по углам поперечного сечения подколонника (колонны, пилона).

В пределах стыка следует устанавливать хомуты с шагом не более 10 диаметров стержня продольной арматуры (берется меньший диаметр).

Выпуски стержней из фундаментов для устройства сварных стыков с продольной арматурой колонн с помощью ванной полуавтоматической сварки под флюсом выполняются, как правило, на одном уровне. Длина выпусков должна быть не менее 4d стыкуемого стержня и не менее 160 мм; расстояние в свету между выпускаемыми стержнями - не менее 50 мм.

Ленточные фундаменты

Железобетонные монолитные ленточные фундаменты под отдельные стойки проектируют в основном таврового сечения с фундаментной плитой и ребром сверху. При грунтах высокой вязкости иногда применяют тавровый профиль с ребром, обращенным вниз (при этом несколько уменьшается объем земляных работ и упрощается опалубка) (рис. 1.5). Размеры подошвы и ребра монолитного ленточного фундамента назначаются расчетом из условий его достаточной прочности и жесткости.

Рисунок 1.5 - Ленточные фундаменты под колонны

а, б - в виде лент соответственно отдельных и перекрестных; в - варианты поперечного сечения

Нижнюю продольную рабочую арматуру ленточного фундамента рекомендуется укладывать в пределах всей его ширины (рис. 1.6; 1.7).

Рисунок 1.6 - Армирование ленточного фундамента под колонны

1 - нижние сварные сетки; 2 - сварные каркасы; 3, 4 - верхние сетки соответственно корытообразные и плоские

Рисунок 1.7 - Армирование плит ленточных фундаментов сетками

а - узкими стандартными сварными: б - нестандартными сварными; в - вязаными; 1, 3 - рабочие стержни соответственно полки и ленты; 2 - стыки сварных сеток

При этом сечение арматуры, располагаемой в пределах ширины ребра, должно составлять не менее 70 % общего количества арматуры, требуемой по расчету.

Сечение верхней и нижней арматуры необходимо принимать не менее величин, приведенных в таблице 9. Указанные в таблице 9 проценты армирования должны приниматься по отношению к поперечному сечению ребра (без свесов полки).

Для армирования ленточных фундаментов следует преимущественно применять сварные сетки и каркасы.

При возможности получения сварных сеток, ширина которых равна ширине плиты (полки), рекомендуется армировать плиту сварными сетками с рабочей арматурой, расположенной в двух направлениях, используя поперечную арматуру сетки в качестве рабочей арматуры полок при работе их как консолей, а продольную арматуру сетки - в качестве продольной арматуры ленточного фундамента, добавляемой к арматуре каркасов ребер.

При отсутствии широких сеток возможно армировать плиту узкими сетками с рабочей арматурой, расположенной в одном направлении, укладывая сетки друг на друга в двух взаимно перпендикулярных плоскостях. Сетки в каждой плоскости укладываются рядом друг с другом без нахлестки (рис. 1.7).

В направлении рабочей арматуры, расположенной вдоль ребра, должны устраиваться стыки рабочей арматуры сеток с длиной перепуска (нахлестки), определяемой по формуле (14).

Стыки всех сеток могут устраиваться в одном поперечном сечении ленточного фундамента, если общая площадь всех рабочих стержней сеток не превышает 50 % сечения продольной арматуры ленточного фундамента.

Площадь сечения продольной арматуры ребра определяют расчетом, однако в любом случае следует предусматривать непрерывную по всей длине фундамента верхнюю и нижнюю арматуру с процентом армирования 0,2-0,4 % каждая.

Шаг поперечной арматуры в сварных каркасах не должен превышать 20 диаметров продольной арматуры. В вязаных каркасах ребер хомуты предусматривают замкнутыми диаметром не менее 8 мм (7,5 мм) с шагом не более 15 диаметров продольной арматуры; количество ветвей хомутов должно быть не менее трех при b ≤ 400 мм, не менее четырех при 400 мм < b ≤ 800 мм и не менее шести при большей ширине ребра.

Сплошные плитные фундаменты

Современные монолитные здания имеют разнообразные архитектурно-планировочные схемы с преимущественно нерегулярным расположением вертикальных несущих элементов и разноэтажной площадью застройки.

Это обусловливает неравномерное нагружение основания и предпочтительное применение сплошных плитных фундаментов из монолитного железобетона.

Плитные фундаменты выполняют в виде железобетонных плоских, ребристых или коробчатых плит (рис. 1.8)

Рисунок 1.8 - Сплошные плитные фундаменты

а - в - плиты соответственно плоская, ребристая и коробчатая

Наиболее эффективными и, следовательно, широко применяемыми являются плитные плоские фундаменты. Они просты по конструкции и технологичны в изготовлении. Монолитные железобетонные плоские плитные фундаменты рекомендуется применять при расстоянии между колоннами до 9 м и нагрузках на колонну до 10 000 кН. Толщину сплошных фундаментных плит устанавливают на основе технико-экономического анализа. При этом толщину плит рекомендуется принимать не менее 50 см и не более 200 см, класс бетона - не менее В20, армирование - не менее 0,3 %, а марку по водонепроницаемости - не менее W6. Толщину плиты конструктивно назначают примерно 1/6 расстояния между колоннами и уточняют расчетом.

Для повышения сопротивления плиты продавливанию и с целью уменьшения ее толщины и материалоемкости в местах опирания колонн (особенно тяжело нагруженных) предусматривают ушинения (банкетки) по типу капителей колонн безбалочных перекрытий (рис. 1.9; 1.10).

Рисунок 1.9 - Фрагмент плана сплошного фундамента

Рисунок 1.10 - Армирование сплошных плоских фундаментов

а - армирование вязаной арматурой; б - армирование сварными сетками

Сплошные плитные фундаменты рекомендуется армировать унифицированными сварными сетками и каркасами (рис. 1.10,б). Применение вязаных сеток и каркасов из отдельных стержней трудоемко и, следовательно, рекомендуется использовать на объектах строительства, когда отсутствует возможность поставки унифицированных арматурных изделий, а также в случае применения больших диаметров рабочей стержневой арматуры (рис. 1.10,а).

Перспективным является также армирование фундаментов тяжелыми сетками и каркасами из отдельных стержней, стыкуемых без сварки и нахлестки с помощью обжимных или резьбовых соединительных элементов (муфт).

Сварные унифицированные сетки рекомендуется применять с рабочей арматурой одного направления и укладывать их друг над другом не более чем в четырех плоскостях.

Сетки в каждой плоскости должны укладываться без нахлестки в нерабочем направлении таким образом, чтобы в соседних плоскостях рабочая арматура сеток проходила в перпендикулярном направлении.

Стыки рабочих стержней сеток рекомендуется устраивать внахлестку без сварки.

Общая площадь рабочей арматуры стыкуемых сеток в одном сечении должна быть не более 50 % общей площади рабочей арматуры сеток данного направления.

Сетки, расположенные по верху фундамента, должны укладываться на подставки в виде сварных (вязаных) каркасов, устанавливаемых вертикально или под углом друг к другу (рис. 1.10). Используются также соединительные элементы из вертикально устанавливаемых металлических профилей (уголков, швеллеров и т.п.).

Расстояние между подставками определяется из условия обеспечения необходимой жесткости верхней арматуры фундамента на воздействие собственного веса, веса рабочих (арматурщиков и бетонщиков) и массы укладываемого бетона.

В том случае если прочность плит на продавливание недостаточная, следует предусматривать специальную поперечную арматуру, расположенную в пределах граней пирамид продавливания (рис. 1.10).

Под стены, колонны и пилоны здания следует предусматривать наличие выпусков арматуры из фундаментов, количество и площадь сечения которых определяются расчетом.

Анкеровка выпусков в плитных сплошных фундаментах и вертикальных несущих элементах здания назначается аналогично анкеровке выпусков отдельных фундаментов (см. выше).

Ребристые плитные фундаменты рекомендуется применять при нагрузке более 10 000 кН на колонны и расстояниях более 9 м между ними. Такие конструктивные решения фундаментов могут быть целесообразными при необходимости обеспечения большой жесткости фундамента. Толщину плиты в ребристых плитных фундаментах принимают равной 1/8 - 1/10 пролета. Ребра устраивают только по осям рядов колонн. Толщину и высоту ребра назначают расчетом и из тех же условий, как и в ленточных фундаментах под ряды колонн.

Ребра сплошных ребристых фундаментов армируют сварными либо вязаными сетками с соблюдением правил армирования ребер ленточных фундаментов под ряды колонн, плиты - сварными или вязаными сетками, расположенными по верху и низу плиты. Количество рабочей арматуры определяется расчетом.

Полые коробчатые фундаменты обладают наибольшей жесткостью, но требуют большого расхода материалов и сложны в изготовлении. В связи с этим такие фундаменты рекомендуются только в особых случаях и при технико-экономическом обосновании.

При армировании полых коробчатых фундаментов, как и всех других сплошных фундаментов, должны соблюдаться изложенные выше общие конструктивные требования.

Свайные фундаменты

Свайные фундаменты состоят из железобетонных свай и железобетонных ростверков. Их устраивают в виде:

- лент под стены зданий с расположением свай в один, два и более рядов;

- «кустов» под колонны (рис. 1.11):

Рисунок 1.11 - Свайный фундамент под колонну

1 - колонна; 2 - подколенник; 3 - плитная часть; 4 - сваи

- сплошного «свайного» поля, под тяжелые сооружения со сравнительно небольшими габаритами в плане и распределенными по всей площади нагрузками (рис. 1.12);

Рисунок 1.12 - Пример расположения свай в виде свайного поля

- одиночных свай и свай-колонн, у которых выступающая над поверхностью грунта часть заменяет колонну.

В монолитном строительстве применяют забивные (заводского изготовления) (рис. 1.13; 1.14) и набивные (построечного изготовления) сваи (рис. 1.15).

Рисунок 1.13 - Конструкция железобетонной сваи квадратного сечения с поперечным армированием ствола

а - общий вид; б - конструкция острия сваи с напрягаемой арматурой; в - д - примеры армирования сваи арматурой соответственно стержневой, напрягаемой прядевой и напрягаемой проволочной

Рисунок 1.14 - Конструкция железобетонных полых круглых свай и свай-оболочек

а, б - цельные сваи и сваи-оболочки соответственно без наконечника и с наконечником; в - болтовые элементы стыков секций: г - сварные элементы стыков секций

Рисунок 1.15 - Армирование буронабивных свай

а - в - сваи, армированные соответственно на всю глубину, укороченными каркасами и каркасами с частично оборванными стержнями

Забивные сваи изготавливают прямоугольного, круглого и кольцевого сечений с напрягаемой и ненапрягаемой арматурой.

Сваи квадратного сечения имеют длину от 3 до 20 м и размеры поперечного сечения от 200 до 400 мм.

Круглые полые сваи могут быть цельными длиной 4-12 м и составными при длине секций 6-12 м.

Диаметр круглых свай 400, 500, 600 и 800 мм, свай-оболочек 1000, 1200, 1600 мм.

При армировании забивных свай ненапрягаемой арматурой целесообразно использовать в качестве рабочей арматуру классов А500С и А500СП, имеющую предельные деформации при сжатии, близкие по величине предельным деформациям бетона при сжатии

εso = σт/Еs = 500/2×10-5 = 250×10-5.

В этом случае не происходит, как при армировании классом А400, выпучивания арматуры при достижении ею текучести во время забивки раньше достижения предельных деформаций в бетоне, вызывающего внутренние растягивающие усилия и преждевременно разрушающего бетон верхней части сваи.

Набивные сваи чаще всего устраивают в виде железобетонных буронабивных свай с уширенной пятой и без нее. Они представляют собой элементы из монолитного железобетона, бетонируемые в предварительно пробуренных скважинах и имеют длину 10-40 м и диаметр ствола сваи не менее 400 мм.

Сваю армируют в зависимости от действующих на нее нагрузок. При действии только вертикальных сжимающих усилий, когда не требуется рабочего армирования, сваю следует конструктивно армировать только в верхней части постановкой 4-12 стержней Ø14-20 мм и длиной 1400-2000 мм. Выпуски из свай для связи с ростверком должны иметь длину 250-400 мм.

При действии на сваю горизонтальных нагрузок и моментов армируют весь ствол либо его часть, определяемую расчетом, с учетом необходимой длины заанкеривания рабочей арматуры.

Армирование осуществляется в виде жесткого каркаса, усиленного приваркой поперечной арматуры Ø10-16 мм или хомутов из полосовой стали толщиной Ø5-6 мм и шириной 50-60 мм с шагом 3-4 м по длине каркаса.

Ростверки свайных фундаментов чаще всего выполняют в монолитном железобетоне.

Плиты ростверка рекомендуется армировать в каждом направлении отдельными сварными сетками при расстоянии между рабочими стержнями 200 мм. Сварка должна быть во всех точках пересечения стержней. Можно применять также и вязаные сетки при условии обязательной сварки всех точек пересечения в двух крайних рядах по периметру сеток. Для обеспечения анкеровки рабочей арматуры по концам сеток на расстоянии 25 мм от конца продольных стержней предусматривают поперечные стержни половинного (по сравнению с продольными) диаметра.

При заделке верхних концов свай в плиту ростверка на глубину 50 мм арматурные сетки укладывают сверху на голову свай. При большей глубине заделки свай в ростверк попадающие на сваи стержни сетки вырезают, обеспечивая таким образом защитный слой сваи 50 мм.

Компенсацию вырезанных стержней производят укладкой дополнительных стержней, привязываемых к основной сетке.

Сопряжение сваи с ростверком выполняют в виде условно-шарнирного опирания или жесткого защемления (рис. 1.16).

Рисунок 1.16 - Примеры конструктивного решения сопряжения железобетонной сваи с монолитным ростверком

а - шарнирное опирание; б - жесткая заделка; 1 - ростверк; 2 - бетонная подготовка; 3 - свая; 4 - арматурные выпуски

При шарнирном опирании голову сваи заделывают в ростверк на 5-10 см.

Жесткое сопряжение свай с ростверком осуществляют заделкой головы сваи на глубину, соответствующую длине анкеровки арматуры, либо заделкой в ростверк выпусков арматуры на длину их анкеровки.

В последнем случае в голове предварительно напряженных свай должен быть предусмотрен ненапрягаемый каркас, выполняющий роль анкерной арматуры. Длина анкеровки определяется по формуле (12). Глубина заделки головы сваи в ростверке не должна быть меньше диаметра сваи (большей стороны ее сечения).

Раздел 2. Армирование монолитных стоек и стен

При проектировании рекомендуется принимать оптимальные конструктивные параметры монолитных стоек (колонн, пилонов), устанавливаемые на основе технико-экономического анализа. При этом минимальный размер поперечного сечения квадратных и круглых колонн рекомендуется принимать не менее 30 см, для колонн с вытянутым поперечным сечением (пилонов) - не менее 20 см, класс бетона стоек принимается, как правило, - не менее В25 и не более В60. Конструктивные параметры колонн рекомендуется принимать одинаковыми на одном уровне перекрытий.

В сжатых стойках сечение продольной арматуры и ее минимальный диаметр должны соответствовать величинам, указанным в таблице 9.

Максимальный диаметр в стойках обычно не превышает 40 мм. Для особо мощных стоек, при соответствующем обосновании, могут применяться стержни больших диаметров.

В стойках с меньшей стороной b ≥ 25 см диаметр продольной арматуры рекомендуется принимать не менее 16 мм.

По длинным сторонам сечений внецентренно сжатых стоек (пилонов), если не предусмотрено специальной арматуры по расчету, ставится конструктивная арматура диаметром не менее 16 мм с шагом не более 400 мм.

Для рабочего армирования сжатых стоек рекомендуется применять эффективный арматурный прокат класса прочности 500 МПа (А500С и А500СП), что обусловливает эффективную совместную работу бетона и арматуры и ее экономичное применение.

В результате близких значений предельных деформаций бетона и предельных упругих деформаций арматуры не происходит выпучивания ее из-за потери устойчивости при достижении пластического деформирования ранее достижения деформациями бетона предельных значений.

Концы продольных рабочих стержней арматуры для монолитных стоек диаметром до 40 мм включительно, не привариваемые к анкерующим деталям, должны отстоять от торца элемента на расстоянии не менее:

15 мм - для стоек длиной до 6 м включительно;

20 мм - для стоек длиной более 6 м.

Торцы поперечных стержней сварных каркасов стоек должны иметь защитный слой не менее 5 мм.

Площадь сечения рабочей арматуры стоек определяется расчетом и по таблице 9; в то же время ее не рекомендуется, без соответствующего обоснования, назначать более 5 % площади поперечного сечения стойки. Максимально допускаемый процент армирования стоек в любом сечении (включая участки с нахлесточным соединением арматуры) - 10 %.

Все стержни продольной рабочей арматуры рекомендуется назначать одинакового диаметра. В случае если продольная арматура конструируется из стержней разного диаметра, допускается применение не более двух разных диаметров, не считая конструктивных стержней. При этом стержни большего диаметра следует располагать по углам поперечного сечения стоек.

Продольную рабочую арматуру внецентренно сжатых колонн рекомендуется располагать по граням, перпендикулярным плоскости изгиба колонны. Продольную рабочую арматуру при косом внецентренном сжатии колонн рекомендуется концентрировать в углах сечении.

Длины продольных стержней арматуры стоек должны, как правило, назначаться таким образом, чтобы была исключена потребность в стыках. В случае необходимости устройства стыков внахлестку (без сварки) располагать их следует преимущественно в местах изменения сечения стоек или устраивать на уровне верха перекрытий с помощью выпусков по аналогии с выпусками из фундаментов (см. выше). При высоте этажа менее 3,6 м или при продольной арматуре d ≥ 28 мм стыки рекомендуется устраивать через этаж.

В ступенчатых стойках продольная арматура верхнего участка должна быть заведена в бетон нижнего участка не менее чем на длину анкеровки.

Выпуски стержней из стоек с большим поперечным сечением нижнего этажа в колонну с меньшим поперечным сечением верхнего этажа рекомендуется осуществлять в соответствии с рисунком 2.1.

Рисунок 2.1 - Схемы устройства стыков продольных стержней монолитных стоек многоэтажных зданий

а - при одинаковом сечении стоек (колонн) верхнего и нижнего этажей; б, в - при различии незначительном и резком в сечениях стоек верхнего и нижнего этажей

При этом перевод стержней из одного этажа стойки в другой осуществляется путем их отгиба с уклоном не более 1:6. Часть стержней стойки нижнего этажа может быть доведена до верха перекрытия (рис. 2.1,б) и не заводиться в стойку верхнего этажа, если она там не нужна по расчету. В случае резкой разницы в сечении стоек верхнего и нижнего этажей выпуски следует устраивать установкой специальных стержней в количестве, необходимом для стойки верхнего этажа (рис. 2.1,в).

Глубина заделки (длина анкеровки) рабочей продольной арматуры в стойке нижнего этажа должна быть не менее требуемой по формуле (12), а длина нахлестки стержней в стыке - по формуле (14).

Расстояние между осями стержней продольной арматуры стоек должно приниматься не более 400 мм.

При расстоянии между рабочими стержнями более 400 мм между ними необходимо устанавливать конструктивные стержни диаметром не менее 12 мм с тем, чтобы расстояния между продольными стержнями были не более 400 мм.

Расстояние в свету между продольными стержнями монолитных стоек следует назначать не менее 50 мм и не менее диаметра стержней.

Для сдерживания поперечных деформаций бетона и предотвращения выпучивания продольной арматуры в любом направлении в железобетонных монолитных стойках применяется поперечное армирование в виде хомутов, сварных сеток, спиралей. Хомуты, охватывающие продольные стержни стоек, на концах должны иметь крюки. При использовании для рабочего продольного армирования арматуры классов А500С и А500СП из марок стали Ст3 (ПС, СП, ГПС), 25Г2С с содержанием углерода менее 0,24 % допускается приварка (прихватка) хомутов к продольным стержням. В этом случае устройство крюков на концах хомутов не требуется.

Для устройства хомутов стоек, сеток и спиралей рекомендуется использовать гладкую арматуру класса А240 (А-1), а также арматуру периодического профиля классов А400, А500, В400 и В500 расширенного сортамента (см. разд. 1.2).

Поперечная арматура должна устанавливаться у всех поверхностей стоек, вблизи которых ставится продольная арматура.

Конструкция хомутов в стойках должна быть такой, чтобы продольные стержни (по крайней мере через один) располагались в местах перегиба хомутов. При ширине стойки b ≤ 40 см и числе стержней с каждой стороны не более четырех допускается охват стержней одним хомутом. В колоннах с высотой сечения h > 45 см. в зависимости от числа стержней боковой арматуры, ставятся дополнительные хомуты согласно рисункам 2.2 и 2.3.

Рисунок 2.2 - Примеры армирования сечений колонн с рекомендуемым количеством стержней вязаными каркасами

Рисунок 2.3 - Примеры армирования сечений колонн с рекомендуемым количеством стержней сварными сетками

1 - сетка; 2 - сетка или соединительный стержень; 3 - соединительный стержень (шпилька); 4 - хомут; 5 - поперечная арматура в виде сварной сетки; 6 - отдельные стержни продольной арматуры

Образование пространственных каркасов из плоских в построечных условиях может производиться электродуговой сваркой поперечных стержней каркасов в соответствии с рисунком 2.3. Диаметр поперечных стержней в этом случае должен быть не менее 8 мм. Число продольных стержней в плоских каркасах рекомендуется принимать не более четырех. Диаметры стержней вязаной поперечной арматуры в зависимости от диаметров продольных стержней следует принимать не менее указанных в таблице 2.1.

Таблица 2.1

Наименьший допускаемый диаметр, мм, стержней поперечной арматуры при диаметре продольных стержней, мм

12

16

18

20

22

25

28

32

36

40

6/5,5*

6/5,5

6/5,5

6/5,5

6/5,5

8/7,0

8/7,0

8/7,0

10/9

10/9

* В знаменателе приводятся промежуточные диаметры поперечной арматуры классов А400, А500, В400, В500 (по согласованию с НИИЖБ).

Расстояния между поперечной арматурой у каждой грани стойки должны назначаться в соответствии с таблицей 9.

В стыках продольной рабочей арматуры внахлестку без сварки обязательно применяются хомуты. Расстояние между хомутами в зоне стыка должно быть не более 10d, где d - диаметр продольных сжатых стержней рабочей арматуры (меньшей). Рекомендуемые расстояния между стержнями поперечной арматуры стоек приведены в таблице 2.2.

Таблица 2.2

Условия работы поперечной арматуры

Рекомендуемые расстояния, мм, между стержнями поперечной арматуры стоек при диаметре продольных сжатых стержней, мм

12

16

18

20

22

25

28

32

37

40

Сварной и вязаный каркас при Rsc ≤ 400 МПа и Rs ≥ 435 МПа

150

250

300

350

350

400

400

400

400

400

Сварной и вязаный каркас при μ ≥ 3 %

100

150

150

200

200

250

250

300

300

300

Сварной и вязаный каркас на участке стыка продольной арматуры внахлестку без сварки

100

150

150

200

200

250

250

300

350

350

Примечания:

1. При вычислении процента армирования μ учитывается общее насыщение сечения колонны продольной арматурой.

2. Если сечение армировано продольными стержнями разного диаметра, то расстояние между поперечной арматурой назначается по меньшему из них.

3. При назначении расстояний между стержнями поперечной арматуры разрешается не принимать но внимание продольные стержни, не учитываемые расчетом, если диаметр этих стержней не превышает 12 мм и не более половины толщины защитного слоя бетона.

Армирование монолитных железобетонных стен зданий осуществляется в соответствии с расчетом и конструктивными требованиями СП 52-101-2003, а также рекомендациями, приведенными в таблице 9.

При проектировании рекомендуется применять оптимальные конструктивные параметры стен, устанавливаемые на основе технико-экономического анализа. При этом размеры поперечного сечения (толщину) стен рекомендуется принимать не менее 18 см, класс бетона - не менее В20. процент армирования в любом сечении стены (включая участки с нахлесточным соединением арматуры) - не более 10 %.

При применении высоких процентов армирования сечений должны выполняться указания СП 52-101-2003, п. 8.3.3, при этом максимальная крупность заполнителя в бетонной смеси не должна превышать 10 мм.

Стены рекомендуется армировать, как правило, вертикальной и горизонтальной арматурой, расположенной симметрично у боковых сторон стены и поперечными связями, соединяющими вертикальную и горизонтальную арматуру, расположенную у противоположных боковых сторон стен и предотвращающих от выпучивания вертикальные сжатые стержни.

Торцевые участки стен и их сопряжения в местах их пересечения следует армировать по всей высоте пересекающимися П-образными или гнутыми (замкнутыми) хомутами, создающими требуемую анкеровку концевых участков горизонтальных стержней и также предохраняющими от выпучивания вертикальные стержни. Армирование торцов стен и проемов следует увеличивать относительно равномерно распределяемого армирования по всей остальной площади стен.

Косвенное армирование

Косвенное армирование сжатых железобетонных элементов в виде спиралей (рис. 2.4), колец, пакета поперечных сварных сеток (рис. 2.5) препятствует поперечному расширению бетона, в результате чего увеличивается несущая способность стоек.

Рисунок 2.4 - Схема армирования колонн поперечной арматурой в виде спирали

Рисунок 2.5 - Схема косвенного армирования в виде пакета поперечных сварных сеток

При конструировании колонн из монолитного железобетона с поперечной арматурой в виде спирали, учитываемой в расчете как косвенное армирование (расчет по ядру сечения), должны соблюдаться следующие условия (рис. 2.4):

а) спирали в плане должны быть круглыми:

б) расстояния между витками спирали в осях должны быть не менее 40 мм, не более 1/5 диаметра сечения ядра колонны, охваченного спиралью, и не более 100 мм;

в) спирали должны охватывать всю рабочую продольную арматуру;

г) диаметр навивки спирали ds должен быть не менее 200 мм.

Сетки косвенного армирования делают сварными из пересекающихся стержней.

При косвенном армировании сварными сетками:

- площади сечения стержней сетки на единицу длины в одном и в другом направлении не должны различаться более чем в 1,5 раза;

- шаг сеток (расстояние между сетками в осях стержней одного направления) следует принимать не менее 60 мм, не более 1/3 меньшей стороны сечения стойки и не более 150 мм (для стоек из ячеистого бетона - не более 70 мм);

- размеры ячеек сеток назначают не менее 45 мм. не более 1/4 меньшей стороны сечения стойки и не более 100 мм.

Первую сварную сетку следует располагать на расстоянии 15-20 мм от нагруженной поверхности стойки.

В случае усиления концевых участков стоек у торца предусматривают не менее четырех сварных сеток и располагают их на длине (считая от торца стойки) 10d (где d - наибольший диаметр продольной арматуры стойки).

Раздел 3. Армирование монолитных железобетонных балок и плит перекрытия

По количеству пролетов и характеру опирания балки из монолитного железобетона могут быть однопролетные свободно лежащие, однопролетные зещемленные на одной или обеих опорах, многопролетные неразрезные и консольные. Монолитные железобетонные балки применяют в зданиях и сооружениях отдельно или в составе перекрытий, фундаментов и других конструкций.

Форму поперечных сечений монолитных балок обычно принимают прямоугольной или тавровой (с полкой сверху или снизу).

Возможны и другие виды поперечных сечений балок (двутавровая, трапецеидальная, коробчатая и др.), но их выбор ограничивается технологическими трудностями производства монолитного железобетона.

Минимальную высоту сечения балок в долях пролета и размеры поперечных сечений рекомендуется назначать по таблицам 3.1 и 3.2. Ширину поперечного сечения балок принимают равной 1/3-1/2 высоты сечения, а именно 100, 120, 150, 200, 220, 250 мм и далее кратной 50 мм.

Таблица 3.1

Минимальная высота сечений балок
Тип балки и характер опирания

Вид бетона

тяжелый

легкий

Ригели и прогоны

(1/15)l

(1/12)l

Второстепенные балки

(1/20)l

(1/17)l

Балки часторебристых перекрытий:

 

 

при свободном опирании

(1/20)l

(1/17)l

при упруго заделанных концах

(1/25)l

(1/20)l

Таблица 3.2

Рекомендуемые размеры прямоугольных поперечных сечений балок

Ширина сечения.

Высота сечения, мм

мм

300

400

500

600

700

800

1000

1200

Далее кратно 300

150

+

+

 

 

 

 

 

 

 

200

 

+

+

+

 

 

 

 

 

300

 

 

 

+

+

+

 

 

 

400

 

 

 

 

 

+

+

+

 

500

 

 

 

 

 

 

+

+

 

Далее кратно 100

 

 

 

 

 

 

 

+

+

В тонкостенных конструкциях толщина ребра балки может составлять до 1/5 высоты сечения.

Армирование балок из монолитного железобетона выполняют сварной и вязаной продольной и поперечной арматурой (рис. 3.1; 3.2; 3.3)

Рисунок 3.1 - Схема армирования сечений балок

а - вязаной арматурой, двухсрезными хомутами; б - вязаной арматурой, четырехсрезными хомутами; в - сварной арматурой; 1 - открытый хомут; 2 - закрытый хомут; 3 - хомут балок, рассчитанный на кручение

Рисунок 3.2 - Армирование второстепенных монолитных балок отдельными стержнями

а - крайние опоры; б - средняя опора; t1 - по расчету, но не менее 1/3l; t2 - по расчету, но не менее 1/4l

Рисунок 3.3 - Армирование второстепенных монолитных балок сварными сетками

а, а' - крайние опоры; б - средняя опора; в - деталь установки стыкового стержня при рабочей арматуре из стержней соответственно гладких (слева) и периодического профиля (справа); 1, 5 - пролетная арматура балок соответственно главной и второстепенной; 2 - главная балка; 3 - опорная сетка второстепенной балки; 4 - второстепенная балка; 6 - стыковой стержень диаметром dj; t1 - по расчету, но не менее 1/3l; t2 - по расчету, но не менее 1/4l

В вязаных каркасах используют также отогнутую арматуру. Площадь сечения рабочей арматуры определяют расчетом и принимают не менее приведенной в таблице 9. Диаметр рабочей продольной арматуры в балках с доведением до опоры не менее двух стержней должен быть не менее 10 мм. В ребрах часторебристых перекрытий допускается применение рабочей арматуры диаметром 8 мм с доведением одного стержня до опоры. В вязаных каркасах при высоте балок 400 мм и более рекомендуется использовать в качестве ненапрягаемой арматуры стержни диаметром не менее 12 мм. Для конструктивной продольной арматуры можно применять стержни меньшего диаметра.

В балках из легкого бетона с арматурой класса прочности 500 МПа и ниже диаметр продольной арматуры не должен превышать для бетона классов:

В12.5 и ниже                                                    16 мм

В15-В25                                                            25 мм

В30 и выше                                                       32 мм

В балках из ячеистого бетона класса В10 и ниже диаметр продольной арматуры должен быть не более 16 мм.

В балках рекомендуется применять не более двух разных диаметров стержней (не считая конструктивных стержней). Стержни большего диаметра следует располагать в первом ряду, в углах поперечного сечения и при вязаных каркасах - в местах перегиба хомутов.

Стержни ненапрягаемой продольной рабочей арматуры должны размещаться равномерно по ширине сечения балки, как правило, не более чем в три ряда. При этом в третьем ряду должно быть не менее двух стержней. Размещение стержней последующего ряда над просветами предыдущего не разрешается. Расстояние в свету между отдельными стержнями продольной арматуры принимают не менее наибольшего диаметра стержней и не менее 25 мм для нижней арматуры и 30 мм - для верхней.

Максимальное количество продольных стержней одинакового диаметра, рекомендуемых для расположения в одном ряду по ширине балки, приведено в таблице 3.3.

Таблица 3.3

Максимальное количество продольных стержней одного диаметра, размещенных в одном ряду по ширине балки

Ширина сечения балки, мм

Арматура в сечении балки

Диаметр стержней, мм

12

14

16

18

20

22

25

28

32

36

40

150

Верхняя

3

3

3

2

2

2

2

2

-

-

-

150

Нижняя

3

3

3

3

3

2

2

2

-

-

-

200

Верхняя

4

4

4

4

3

3

3

3

2

-

-

200

Нижняя

5

4

4

4

4

3

3

3

2

-

-

300

Верхняя

-

-

6

6

5

5

5

4

4

3

3

300

Нижняя

-

-

7

6

6

5

5

5

4

3

3

400

Верхняя

-

-

-

-

7

7

6

6

6

5

4

400

Нижняя

-

-

-

-

8

8

7

6

6

5

4

500

Верхняя

-

-

-

-

9

9

8

8

7

6

6

500

Нижняя

-

-

-

-

10

10

9

8

7

6

6

При расположении нижней арматуры более чем в два ряда по высоте сечения расстояния между стержнями третьего и последующего рядов принимают не менее 50 мм (рис. 3.4).

Рисунок 3.4 - Расположение продольной арматуры в поперечном сечении балки

а - сварной; б - вязаной

В стесненных условиях стержни можно размещать попарно без зазоров.

Расстояние в свету между стержнями периодического профиля назначают по номинальному диаметру без учета выступов и ребер.

Нижнюю арматуру, которая доводится до крайних свободных опор балок, следует заводить за грань опоры на длину анкеровки, определенной по формуле (12).

Часть стержней пролетной сварной арматуры сверх тех, которые следует довести до опоры, нужно обрывать в пролете; стержни пролетной вязаной арматуры при их числе более двух и двухсрезных хомутах или более четырех и четырехсрезных хомутах можно отгибать на опоры.

Длину приопорного участка балки, на котором размешают отгибы, места обрывов и отгибов стержней определяют расчетом.

При конструировании отгибов следует выполнять требования:

а) расстояние от грани опоры (колонны, прогона) до начала отгиба должно быть не более 5 см;

б) начало отгиба в растянутой зоне должно отстоять от нормального к оси элемента сечения, в котором отгибаемый стержень полностью используется по моменту, не менее чем на h0/2, а конец отгиба должен быть расположен не ближе того сечения, в котором отгиб не требуется по эпюре моментов (рис. 3.5).

Рисунок 3.5 - Положение отгибов, определяемое эпюрой изгибающих моментов в балке

Применение коротких стержней с одним наклонным участком и не связанных с обшей арматурой (так называемых плавающих стержней) не допускается. При необходимости допускается применение дополнительной арматуры на промежуточной опоре в виде коротких стержней с двумя наклонными и двумя горизонтальными участками внизу для обеспечения анкеровки.

в) радиус дуги, по которой отгибается наклонный участок стержня, должен быть не менее 10d. Угол наклона отгиба к продольной оси балки принимают обычно равным 45°. В балках высотой более 800 мм и в балках-стенках угол наклона отгибов может быть увеличен до 60°, а в низких балках и при сосредоточенных нагрузках - уменьшен до 30°;

г) в балках шириной 200 мм и менее в каждой плоскости можно отгибать по одному стержню. В балках шириной 300-400 мм в первой от опоры плоскости следует отгибать не менее двух стержней, а в последующих плоскостях можно отгибать и по одному. В балках шириной более 400 мм в каждой плоскости должно отгибаться не менее двух стержней;

д) отгибы стержней желательно располагать симметрично относительно вертикальной оси сечения балки, если же отгибается один стержень, размешать его следует как можно ближе к указанной оси.

Отгибать стержни, расположенные непосредственно у боковых граней балок, не рекомендуется. Стержни с отгибами располагают на расстоянии не менее 2d от боковых граней балки;

е) расстояние между наклонными участками стержней по длине балки определяют расчетом.

Нижняя точка последнего отгиба (считая от опоры) при сосредоточенных нагрузках может располагаться ближе к опорам, чем точка пересечения эпюры поперечных сил Q с эпюрой Qbsw, на величину не более чем U (рис. 3.6,а); при равномерных нагрузках нижняя точка последнего отгиба должна располагаться не ближе к опоре, чем точка пересечения эпюры поперечных сил с эпюрой Qbsw (рис. 3.6,б).

Рисунок 3.6 - Положение отгибов, определяемое эпюрой поперечных сил в балке

а - при действии на балку сосредоточенных сил; б - при действии на балку равномерно распределенной нагрузки

Здесь Qbsw = Qb + Qsw - расчетная предельная поперечная сила, воспринимаемая бетоном сжатой зоны Qb и только вертикальными хомутами Qsw в невыгоднейшем наклонном сечении [15]; U = (Rbbho2 )/Q; где Q - расчетная поперечная сила в месте теоретического обрыва стержней (последнего от грани опоры отгиба). Значения величины U/ho можно назначать по таблице 3.4.

Таблица 3.4

Q/(bhoRb)

1/3

1/4

1/5

1/6

1/7

1/8

1/9

1/10

U/ho

0,3

0,4

0,5

0,6

0,7

0,8

0,9

1,0

Если же в расчете не содержится каких-либо указаний о расположении плоскостей отгибов, расстояние между ними принимают в соответствии с рисунком 3.2, конструирование отогнутых стержней производится в соответствии с рисунком 3.7;

Рисунок 3.7 - Конструирование отогнутых стержней

ж) стержни, отгибаемые из пролета в первой и второй плоскостях от промежуточной опоры, заводят в смежный пролет.

Стержни, отгибаемые в третьей и последующих плоскостях, разрешается, в случае отсутствия в них надобности на опорных участках, обрывать в пролете (рис. 3.2).

Верхние концы отогнутых стержней, которые не переводят через опору в смежный пролет, должны заканчиваться прямыми участками длиной не менее 0,8lan, но не менее 20d в растянутой зоне и 10d - в сжатой. Следует избегать обрыва отогнутых стержней в растянутой зоне (внизу).

Вертикальные проекции hinc, мм, наклонных участков отгибаемых стержней, в зависимости от высоты сечения балки h и толщины защитного слоя бетона аb, вычисляют по формулам:

hinc,1 = h - аb - а'b;

hinc,2 = h - аb - а'b - d2 - 20;

hinc,3 = h - аb - а'b - d1 - 20;

hinc,4 = h - аb - а'b - d1 - d2 - 40.

При этом: для второстепенных балок аb = а'b; для главных балок, к которым примыкают второстепенные с верхней арматурой диаметром до 20 мм, - а'b = аb + 20 мм, а для главных балок, к которым примыкают второстепенные с верхней арматурой диаметром более 20 мм, - а'b = аb + 30 мм.

Если d2 > 20 мм, или d1 > 20 мм, или (d1 + d2) > 40 мм, то в последние три формулы подставляют соответственно d2 и d1 вместо 20 мм, или d1 + d2 вместо 40. Величины hinc вычисляют с точностью до 10 мм.

На крайних опорах многопролетных балок, при монолитном их соединении с железобетонными прогонами (обвязочными балками), должна быть предусмотрена верхняя арматура сечением не менее 1/4 сечения пролетной арматуры в примыкающем пролете.

Верхняя арматура должна быть заведена на длину не менее 1/6 l от внутренней грани прогона (l - пролет балки в свету) (рис. 3.2,a).

Верхняя арматура должна быть заведена в прогон на длину lan (считая от грани прогона).

На крайних опорах балок, опирающихся на кирпичные стены, для восприятия момента защемления, как правило, достаточно верхней монтажной арматуры, которая заводится за грань на lan.

Длина пролетных сварных каркасов второстепенных балок назначается равной размеру пролета в свету, а за грань крайних и промежуточных опор заводятся специальные стыковые стержни. Так делается в случае опирания второстепенных балок на промежуточные и крайние опоры в виде стоек, главных балок или прогонов. Эти стержни устанавливаются на уровне стержней пролетной рабочей арматуры балок, число их должно соответствовать количеству пролетных сеток, а диаметр быть не менее 10 мм и не менее половины диаметра рабочего стержня сетки. Общая площадь сечения этих стержней, кроме того, должна быть не менее минимального процента армирования сечения балки на опоре.

Стыковые стержни периодического профиля заводятся за грань опоры в пролет не менее чем на 15d (рис. 3.3, в).

Если на опоре нужна сжатая арматура, сечение стыковых стержней назначается по расчету и они заводятся за грань опоры в пролет на длину стыка внахлестку для сжатых стержней.

Стержни нижней вязаной арматуры монолитных балок (рис. 3.2) в случаях, когда в опорных сечениях нижняя арматура по расчету не требуется, рекомендуется заводить за грань промежуточной опоры не менее чем на длину lan для растянутых стержней.

Если нижняя арматура на промежуточной опоре учитывается в расчете как сжатая или растянутая, то стык стержней смежных пролетов осуществляется в соответствии с указаниями по устройству стыков арматуры внахлестку без сварки, при этом в одном сечении могут осуществляться стыки всех доведенных до опоры стержней.

При действии на балку временной равномерно распределенной нагрузки, не превышающей утроенной постоянной, можно половину (по площади) верхних стержней заводить за грань опоры в смежный пролет на 1/3 пролета в свету, а половину - на 1/4 (рис. 3.2, 3.3).

В балках с разными пролетами, отличающимися друг от друга не более чем на 20 %, места обрыва стержней во всех пролетах принимают одинаковыми (по большему пролету), а при различии в пролетах более 20 % стержни в меньший пролет заводят на длину, определяемую по смежному (большому) пролету. Если же малый пролет находится между двумя большими, из смежных пролетов протягивают через весь меньший пролет поверху два стержня, даже если они не требуются по расчету.

Армирование опор главных бачок монолитных перекрытий сварными сетками показано на рисунке 3.8.

Рисунок 3.8 - Армирование опор монолитных главных балок сварными сетками

а - средних; б - крайних: 1, 2 - сетки соответственно опорная и пролетная; t1 - по расчету, но не менее (1/3)l, t2 - по расчету, но не менее (1/4)l

Схема армирования отдельными стержнями аналогична схеме армирования второстепенных балок (см. рис. 3.2).

У боковых граней балок при высоте их поперечного сечения более 700 мм ставят конструктивные продольные стержни с расстоянием между ними по высоте не более 400 мм и площадью поперечного сечения

Asc.1 ≥ 0,001b'h'

где h' - расстояние между стержнями;

b' = 0,5d, но не более 200 мм (рис. 3.9).

Рисунок 3.9 - Размещение конструктивных стержней по высоте боковых граней балок при каркасах

а - вязаных; б - сварных; 1, 2 - продольная арматура соответственно рабочая и монтажная; 3 - шпильки; 4 - продольный конструктивный стержень площадью поперечного сечения Asc.1

Эти стержни должны соединяться шпильками диаметром 6-8 мм из арматуры классов A-I, А400, А500 или В400, В500 с шагом 500 мм по длине балки. Вместе с поперечной арматурой такие стержни сдерживают раскрытие наклонных трещин на боковых гранях балок.

В балках и ребрах высотой более 150 мм следует устанавливать вертикальную поперечную арматуру. В балках и ребрах высотой 150 мм и меньше поперечную арматуру можно не ставить. Ее допускается не ставить у граней тонких ребер и балок шириной 150 мм и меньше, если по ширине их располагаются один продольный стержень или одна сварная сетка. При этом должно соблюдаться условие (3.65) Пособия [15].

Диаметр поперечных стержней в сварных сетках и каркасах определяется расчетом с учетом условий сварки (табл. 3.5).

Таблица 3.5

Диаметр стержня одного направления, d1

3-12

14; 16

18; 20

22

25-32

36; 40

Наименьший допустимый диаметр стержня другого направления, d2

2

4

5

6

8

10

Конструктивные требования к поперечному армированию балок приведены в таблице 9 и на рисунке 3.10.

Рисунок 3.10 - Расположение поперечной арматуры в балках, не имеющих отгибов

а, б - при высоте сечения балки соответственно до 450 и более 450 мм

Длина приопорного участка lsup при равномерной нагрузке принимается равной 1/4 пролета, а при сосредоточенных нагрузках - расстоянию от опоры до ближайшего груза, но не менее 1/4 пролета.

Расстояние между поперечными стержнями (хомутами) в балках со сжатой продольной арматурой, учитываемой в расчете, рекомендуется принимать по табл. 2.2.

В вязаных каркасах средних балок монолитных ребристых перекрытий при временных нагрузках на перекрытие, не превышающих 30 кПа, ставят открытые хомуты; в отдельных балках прямоугольного или таврового сечения, в крайних балках монолитных ребристых перекрытий, в балках с расчетной сжатой арматурой, а также в средних балках монолитных ребристых перекрытий, рассчитанных на временную нагрузку более 30 кПа, - замкнутые.

В вязаных каркасах хомуты следует конструировать таким образом, чтобы в местах их перегиба, а также загиба концевых крюков (при отсутствии перепуска концов) обязательно располагались продольные стержни. Каждый хомут должен охватывать в одном ряду не более пяти растянутых стержней и не более трех сжатых. При большем числе стержней в одном ряду, а также при ширине балки 350 мм и более рекомендуется переходить на четырех- или многосрезные хомуты (рис. 3.1).

При монолитных конструкциях в местах пересечения балки с колонной или с прогоном первый хомут или поперечный стержень располагают в пролете на расстоянии 50 мм от грани опоры.

При опирании монолитных балок на кирпичную кладку на крайней опоре первый хомут или поперечный стержень устанавливают у торца балки (с необходимым защитным слоем), а в пределах средних опор установку поперечной арматуры продолжают с шагом, принятым для пролета балки.

Дополнительные указания по армированию балок

Примеры армирования балок, работающих на изгиб с кручением, приведены на рисунках 3.11 и 3.12.

Рисунок 3.11 - Армирование балок, работающих на изгиб с кручением

а - вязаной арматурой; б - сварным швом

Рисунок 3.12 - Армирование балок сложного поперечного сечения

1, 2 - замкнутые хомуты соответственно ребра и полки

В балках, работающих на изгиб с кручением, вязаные хомуты должны быть замкнутыми с перепуском их концов на 30d, где d - диаметр хомута, а при сварных каркасах все поперечные стержни обоих направлений должны быть приварены точечной сваркой к угловым продольным стержням, образуя замкнутый контур.

При отсутствии сварочных клешей плоские сварные сетки соединяют при помощи скоб посредством дуговой сварки их с поперечными стержнями.

В балках сложного поперечного сечения (тавровых, двутавровых), работающих на изгиб с кручением, все составляющие части сечения (ребра, полки) должны иметь замкнутое поперечное армирование в пределах каждой части (рис. 3.12).

Расстояния между поперечными стержнями, расположенными у граней, нормальных к плоскости изгиба, должны составлять не более ширины сечения элемента d; у граней сжатых от изгиба, при Т ≤ 0,2M, где Т - крутящий момент, M - изгибающий момент, расстояния между поперечными стержнями допускается увеличивать, принимая их такими, как в сжатых элементах.

Приведенные указания относятся, в частности, к крайним балкам, к которым второстепенные балки или плиты примыкают лишь с одной стороны (обвязочные балки, балки у температурных швов и т.п.), а также к средним балкам, для которых нагрузки, передающиеся на балку от примыкающих к ней пролетов, различны (отличаются друг от друга более чем в 2 раза).

Примеры армирования балок в местах приложения сосредоточенных нагрузок приведены на рисунке 3.13.

Рисунок 3.13 - Дополнительное армирование балок в местах приложения сосредоточенных нагрузок

а - сварными сетками; б - учащением хомутов на участке h1 (количество по расчету); в - подвесками

Площадь сечения дополнительной арматуры определяют расчетом. Ее конструируют в виде сварных сеток, отгибов, подвесок и учащенных хомутов. При этом их количество должно быть не менее двух, вертикальных стержней в каждой сварной сетке - не менее четырех Ø6 мм; отгибы или подвески назначают диаметром не менее 10 мм; в верхней зоне предусматривают горизонтальный прямой участок отогнутых стержней длиной не менее 0,8lап и не менее 20d.

Армирование монолитных железобетонных плит

Монолитные железобетонные плиты перекрытий могут быть полностью или частично опертыми по контуру, со свободным опиранием или с защемлением на опорах. В практике монолитного строительства достаточно часто встречаются плиты, защемленные по одной кромке (консольные) и опертые в точках (углах), например плиты безбалочных перекрытий.

По расчетной схеме плиты подразделяют на балочные (однопролетные - разрезные, неразрезные - многопролетные, консольные) и работающие в двух направлениях, которые могут быть однопролетными (с шарнирным или нешарнирным опиранием по кромкам) или многопролетными неразрезными.

Балочными плиты считают в том случае, если усилия, действующие в одном направлении, пренебрежительно малы по сравнению с усилиями, действующими в другом направлении. К балочным плитам относят: прямоугольные равномерно нагруженные плоские плиты, опертые по двум противоположным сторонам, а также плиты, опертые по контуру либо защемленные по трем или четырем сторонам при соотношении сторон (пролетов), большем определенного граничного значения. Граничное отношение пролетов в нормативных документах ограничивают цифрами 2 или 3.

К работающим в двух направлениях считают все не относящиеся к балочным плиты, в том числе непрямоугольные в плане (круглые, кольцевые и др.), а также опертые в точках (например, плиты безбалочных перекрытий). В безбалочных перекрытиях монолитных зданий плита может опираться непосредственно на колонны как без уширений, так и с уширениями, называемыми капителями. При пролетах до 6-8 м монолитные перекрытия рекомендуется выполнять плоскими, при больших значениях - плоскими с капителями или межколонными балками или стенами, ребристыми или пустотными. Для зальных помещений пролетом 12-15 м рекомендуются кесонные, ребристые и пустотные перекрытия при опирании по четырем сторонам на балки и стены.

При пролетах более 7 м рекомендуется применение дополнительной предварительно напряженной арматуры из высокопрочных канатов класса К-7 без сцепления с бетоном (раздел 1.4).

При выборе конструктивного решения опирания плиты на колонны без капителей необходимо предусмотреть усиление дополнительным армированием этих участков плиты с целью исключения ее продавливания при эксплуатационных нагрузках.

Толщину балочных плит монолитных перекрытий с отношением сторон l2: l1 > 2 следует принимать не менее, мм:

Для междуэтажных перекрытий жилых

и общественных зданий                                               70

Для междуэтажных перекрытий

производственных зданий                                           80

Для покрытий                                                               60

Под проездами                                                           100

Для плит из легкого бетона

классов В7.5 и ниже во всех случаях                        70

Толщина железобетонной плиты кесонных часторебристых перекрытий должна быть не менее 25-30 мм.

Толщину монолитных плит h, мм, рекомендуется принимать 40, 50, 60, 70, 80, 100, 120, 140, 160, 180, 200, 250, 300, далее кратно 100.

Минимальная толщина бетонного защитного слоя для рабочей арматуры плит, находящихся в обычных условиях эксплуатации, 20 мм.

Минимальная толщина плит в зависимости от пролета ориентировочно может быть принята по таблице 3.6.

Таблица 3.6

Минимальная толщина плит

Типы плит и характер опирания

Вид бетона

тяжелый

легкий

Балочные:

 

 

при свободном опирании

(1/35)l

(1/30)l

при упругой заделке

(1/45)l

(1/35)l

Работающие в двух направлениях:

 

 

опертые по контуру при свободном опирании

(1/45)l1*

(1/38)l1

то же, при упругой заделке

(1/50)l1

(1/42)l1

кессонные часторебристые перекрытия при свободном опирании

(1/30)l1

(1/25)l1

то же, при упругой заделке по контуру

(1/35)l1

(1/30)l1

плиты безбалочных перекрытий при опирании на колонны с капителями

(1/35)/2

(1/30)l2

то же, без капителей - но не менее 16 см

(1/32)l2

(1/27)l2

* l1 и l2 - меньший и больший пролеты плит.

Толщину неразрезных или однопролетных плит, монолитно связанных с железобетонными балками, принимают как при упругой заделке, а толщину плит, опертых на стены, - как при свободном опирании.

Монолитные железобетонные плиты армируют вязаной арматурой и стандартными сварными сетками.

Диаметр рабочих стержней сварной арматуры рекомендуется принимать не менее 3, а вязаной - не менее 6 (5,5) мм.

При толщине плиты h < 150 мм расстояния между осями стержней рабочей арматуры в средней части пролета плиты (внизу) и над опорой (вверху многопролетных плит) должны быть не более 200 мм, при h > 150 мм - не более 1,5h и 400 мм.

Расстояния между рабочими стержнями, доводимыми до опоры плиты, не должны превышать 400 мм, причем площадь сечения этих стержней на 1 м ширины плиты должна составлять не менее 1/3 площади сечения стержней в пролете, определенной расчетом по наибольшему изгибающему моменту.

Площадь сечения рабочей арматуры плит должна быть не менее указанной в таблице 3.7.

Таблица 3.7

Площадь поперечного сечения арматуры на 1 м ширины плиты, см2

Шаг стержней, мм

Диаметр стержней, мм

3

4

5

6

8

10

12

14

16

18

20

22

25

100

0,71

1,26

1,96

2,83

5,03

7,85

11,31

15,39

20,11

25,45

31,42

38,01

49,09

125

0,57

1,01

1,57

2,26

4,02

6,28

9,05

12,31

16,08

20,36

25,13

30,41

39,27

150

0,47

0,84

1,31

1,84

3,35

5,23

7,54

10,26

13,4

16,96

20,94

25,33

32,72

200

0,35

0,63

0,98

1,41

2,51

3,93

5.65

7,69

10,05

12,72

19,71

19,00

24,54

250

0,28

0,50

0,79

1,13

2,01

3,14

4.52

6,16

8,04

10,18

12,56

15,20

19,64

300

0,23

0,42

0,65

0,94

1,68

2,61

3,77

5,13

6,70

8,48

10,47

12,66

16,36

350

0,20

0,36

0,56

0,81

1,44

2,24

3,23

4,44

5,74

7,27

8,97

10,86

14,00

400

0,18

0,32

0,40

0,71

1,25

1,96

2,82

3,50

5,02

6,36

7,86

9,50

12,49

Диаметр и шаг стержней этой арматуры можно подбирать по этой же таблице.

При армировании плит, работающих в двух направлениях, отношение Аs2/Аs1 между площадями сечения нижних арматур, укладываемых на 1 м ширины плиты (Аs1 - площадь стержней, располагаемых параллельно короткой стороне), рекомендуется принимать по таблице 3.8, в зависимости от отношений пролетов плиты l2/l1

Таблица 3.8

Отношение площадей сечений нижней арматуры для плиты, работающей в двух направлениях

l2/l1

Аs2/Аs1

l2/l1

Аs2/Аs1

1,0

1-0,8

1,6

0,5-0,3

1,1

0,9-0,7

1,7

0,45-0,25

1,2

0,8-0,6

1,8

0,4-0,2

1,3

0,7-0,5

1,9

0,35-0,2

1,4

0,6-0,4

2,0

0,2-0,15

1,5

0,65-0,35

 

 

Площадь сечения распределительной арматуры в балочных плитах должна составить не менее 10 % площади сечения рабочей арматуры в месте наибольшего изгибающего момента. Диаметр и шаг стержней этой арматуры в зависимости от диаметра и шага стержней рабочей арматуры можно применять по таблице 3.9.

Таблица 3.9

Диаметр и шаг стержней распределительной арматуры балочных плит, мм

Диаметр стержней рабочей арматуры, мм

Шаг стержней рабочей арматуры мм

100

125

150

200

250

300

3-4

3

400

3

400

3

400

3

400

3

400

3

400

5

3

350

3

350

3

350

3

350

3

400

3

400

6(5,5)

4

350

4

350

3

350

3

350

3

400

3

400

8(7;7,5)

5

350

5

350

4

350

4

350

3

350

3

400

10(9)

6(5,5)

350

6(5,5)

350

5

350

5

350

5

350

5

350

12(11)

6(5,5)

250

6(5,5)

300

6(5,5)

350

6(5,5)

350

6(5,5)

350

6(5,5)

350

14

8(7,5)

300

8(7,5)

350

8(7,5)

350

6(5,5)

300

6(5,5)

350

6(5,5)

350

16

8(7,5)

250

8(7,5)

300

8(7,5)

350

8(7,5)

350

8(7,5)

350

8(7,5)

350

18

10(9)

300

10(9)

350

10(9)

350

8(7,5)

350

8(7,5)

350

8(7,5)

350

20

10(9)

200

10(9)

250

10(9)

300

10(9)

350

10(9)

350

10(9)

350

22

12(11)

250

12(11)

300

10(9)

300

10(9)

350

10(9)

350

10(9)

350

25

14

300

10(9)

200

8(7,5)

150

8(7,5)

200

8(7,5)

250

8(7,5)

300

Примечание. Над чертой указан диаметр стержней распределительной арматуры, под чертой - их шаг. В скобках указан диаметр стержней, применяемый по согласованию с НИИЖБ.

Рабочую арматуру в направлении меньшего пролета располагают ниже арматуры, идущей в направлении большего пролета. В соответствии с таким расположением арматуры рабочая высота сечения плиты для каждого направления различна и будет отличаться на размер диаметра арматуры.

При армировании сварными сетками сплошных балочных плит толщиной 120 мм и более при содержании растянутой рабочей арматуры до 1,5 % расстояние между стержнями распределительной арматуры допускается увеличивать до 600 мм.

Балочные монолитные плиты, армированные сварными сетками, конструируют в соответствии с рисунками 3.14, 3.15.

Рисунок 3.14 - Схема армирования монолитных балочных плит сварными сетками

а - продольная арматура в виде цельных сварных сеток с поперечными рабочими стержнями; б - то же, в виде узких сварных сеток с продольными рабочими стержнями: в - план надопорной арматуры

Рисунок 3.15 - Армирование опор плит сварными сетками (разрезы в рабочем направлении)

а, в - крайние опоры плиты, соответственно монолитно связанной с железобетонной балкой, стеной и в кирпичной стене; б, г - средние опоры плиты, монолитно связанной с железобетонной балкой, стеной и с надопорной арматурой соответственно из двух раздвинутых сеток и из одной сетки

Пролетную арматуру плит шириной до 3 м и длиной до 6 м конструируют в виде плоской цельной сварной сетки, поперечные стержни которой - рабочая арматура плиты (рис. 3.14,а).

При диаметре рабочей арматуры более 10 мм плиты можно армировать плоскими узкими сварными унифицированными сетками. Их длина должна соответствовать ширине плиты, которая может быть и более 3 м.

Продольные стержни сеток выполняют роль рабочей арматуры, поперечные - распределительной, стыкуемой в плите внахлестку без сварки.

Надопорную арматуру неразрезных плит конструируют в соответствии с рисункам 3.15,б в виде двух с подвижкой сеток или одной сетки (рис. 3.15,г) с поперечными рабочими стержнями, укладываемыми вдоль опор. Надопорные сетки могут быть рулонными.

Многопролетные балочные монолитные плиты толщиной до 100 мм с рабочей арматурой средних пролетов и опор до 7 мм рекомендуется армировать сварными рулонными типовыми сетками с продольной рабочей арматурой в соответствии с рисунком 3.16.

Рисунок 3.16 - Непрерывное армирование монолитных неразрезных плит сварными рулонными сетками

а - план и разрезы плиты, опертой на железобетонные балки; б - деталь опирания плиты на кирпичную стену

Рулоны при этом раскатывают поперек второстепенных балок, а поперечные стержни сеток, являющиеся распределительной арматурой плиты, стыкуют внахлестку без сварки. В крайних пролетах и на первых промежуточных опорах, где обычно требуется дополнительная арматура, на основную сетку укладывают дополнительную (рис. 3.16), которая заводится за грань первой промежуточной опоры во второй пролет на 1/4 пролета плиты. Вместо дополнительной сетки можно укладывать отдельные стержни, привязывая их к основной сетке.

Плиты, работающие в двух направлениях, также рекомендуется армировать сварными сетками. При этом плиты, имеющие размеры не более 6×3 м, можно армировать в пролете одной цельной сварной сеткой с рабочей арматурой в обоих направлениях. С целью экономии арматуры рекомендуется использование сварных сеток с переменным армированием в двух направлениях в соответствии с эпюрой моментов или же использование разноразмерных сеток, накладываемых друг на друга в зоне максимальных изгибаемых моментов (рис. 3.17). Ширину крайней полосы le определяют расчетом.

Рисунок 3.17 - Схема армирования пролета плиты, опертой по контуру, цельными сварными сетками

1 - основной; 2 - дополнительной

В случае армирования плиты узкими сварными унифицированными сетками с продольной арматурой их укладывают в пролете в два слоя во взаимно перпендикулярных направлениях (рис. 3.18,б). При этом сетки, укладываемые вдоль меньшего пролета плиты, должны быть снизу. Монтажные стержни сеток каждого слоя кладут впритык и не стыкуют, причем в сетках нижнего слоя они должны быть под рабочей арматурой в ее защитном слое, а в сетках верхнего слоя - сверху.

Надопорную арматуру, работающую в двух направлениях неразрезных многопролетных плит (рис. 3.18,б) с плоскими сетками в пролетах, конструируют так же, как надопорную арматуру балочных плит (рис. 3.15).

Рисунок 3.18 - Схема армирования плиты, опертой по контуру, сетками

а - узкими сварными пролетными; б - надопорными

Работающие в двух направлениях многопролетные неразрезные плиты с рабочей арматурой диаметром до 7 мм можно армировать типовыми рулонными сетками с продольными рабочими стержнями (рис. 3.19). Для этого плиту разбивают в каждом направлении на три полосы: две крайние по 1/4 меньшего пролета и среднюю. Рулоны в пролетах укладывают в два слоя, раскатываемых во взаимно перпендикулярных направлениях только по средним полосам плит (рис. 3.19,а). Надопорную арматуру углов плиты в этом случае можно конструировать в виде квадратных плоских сеток с рабочими стержнями в обоих направлениях. Эти сетки укладывают на пересечении ребер (балок) плит, причем стержни могут быть параллельными ребрам (балкам) или укладываться под углом 45° к ним (рис. 3.19,б).

Рисунок 3.19 - Схема армирования плиты, опертой по контуру, сварными рулонными сетками

а - пролетная и средняя надопорная арматура; б - надопорная арматура углов плиты

Армирование сварными сетками безбалочных перекрытий с точечным опиранием плит на колонны можно производить по аналогии с описанными выше. В этом случае обычно возникает необходимость в дополнительном армировании по осям колонн и в местах опирания на них плит перекрытий отдельными стержнями или плоскими вертикальными каркасами. Необходимость дополнительного армирования и его количество определяются расчетом (рис. 3.20).

Рисунок 3.20 - Пример усиления армирования безбалочного плитного перекрытия каркасами

К-1 - пролетный каркас; К-2 - надопорный каркас

Вязаную арматуру монолитных плит толщиной 120 мм и меньше проектируют в соответствии с рисунками 3.21, 3.22, 3.23, 3.24, 3.25 с доведением всех пролетных нижних стержней до опор.

Рисунок 3.21 - Раздельное армирование монолитных балочных плит отдельными стержнями (вязаной арматурой)

1, 3 - надопорная арматура в направлениях соответственно рабочем и нерабочем; 2 - пролетная арматура в рабочем направлении

Рисунок 3.22 - Непрерывное армирование монолитных плит отдельными стержнями (вязаной арматурой)

а - средняя опора многопролетной плиты - железобетонная балка: б - то же, стальная балка; в - крайняя опора - железобетонная балка; г - то же, кирпичная кладка; 1 - отгибы; 2 - дополнительная надопорная арматура (ставится, если недостаточно отогнутых стержней); 3 - пролетная арматура

Рисунок 3.23 - Раздельное армирование крайних опор монолитной плиты отдельными стержнями в рабочем направлении

а - монолитно связанной с железобетонной балкой; б - защемленной в кирпичной кладке; в - свободно лежащей на стальной балке; г - то же, на кирпичной стене; д - консольно опирающейся на стальную балку; 1 - пролетная рабочая арматура As,sp диаметром d; 2 - опорная арматура (по расчету, но не менее 0,5As,sp); 3 - распределительная арматура; 4 - арматура железобетонной балки; 5 - опорная арматура не менее (1/3)As,sp и не менее 5Ø6A-I на 1 м; 6 - стержень Ø6 мм, устанавливаемый с шагом 1000 мм и обеспечивающий совместную работу плиты со стальной балкой (по расчету обычно не требуется); 7 - сварка

Рисунок 3.24 - Раздельное армирование крайних опор монолитной плиты отдельными стержнями в нерабочем направлении

а - свободно лежащей на стальной балке; б - консольно опирающейся на стальную балку; в - монолитно связанной с железобетонной балкой; г - защемленной в кирпичной стене; д - примыкающей к стене без опирания; 1 - пролетная рабочая арматура As,sp диаметром d, 2 - распределительная арматура; 3 - опорная арматура по расчету, но не менее (1/3)As,sp; 4 - арматура железобетонных балок: 5 - опорная арматура

Рисунок 3.25 - Армирование средних опор монолитной плиты отдельными стержнями

а - монолитно связанной с железобетонной балкой в рабочем направлении; б - свободно лежащей на стальной балке в рабочем направлении; в - монолитно связанной с железобетонной балкой в нерабочем направлении; 1 - пролетная рабочая арматура As,sp диаметром d; 2 - распределительная арматура; 3 - опорная арматура по расчету, но не менее (1/3)As,sp; 4 - арматура железобетонной балки; 5 - сварка

При так называемом раздельном армировании над опорами устанавливают свою арматуру. Нижние пролетные рабочие стержни неразрезных плит рекомендуется конструировать сквозными, пропуская их через несколько опор; в крайних пролетах, если это требуется по расчету, устанавливают дополнительные стержни.

Надопорную арматуру в нерабочем направлении предусматривают конструктивно в количестве не менее 1/3 сечения рабочей арматуры в пролете.

В плитах толщиной более 120 мм часть пролетных стержней (в целях экономии арматуры) рекомендуется переводить на опоры (так называемое непрерывное армирование) (рис. 3.22). В плитах толщиной до 150 мм стержни отгибают под углом 30°, 160 мм и более - под углом 45°. Отгибы конструируют в соответствии с рисунком 3.22.

Армирование опор монолитных плит отдельными стержнями при разных опорных условиях показано на рисунках 3.23, 3.24, 3.25.

Вязаную арматуру плит, работающих в двух направлениях, конструируют так же, как и в балочных плитах. С целью экономии арматуры плиту рекомендуется разбивать в каждом направлении на три полосы: две крайние шириной 1/4 меньшего пролета и среднюю. В крайних полосах площадь сечения арматуры, против параллельной им третьей полосы, может быть уменьшена вдвое, но при этом на 1 м ширины плиты должно приходиться не менее трех стержней. Стержни в направлении короткой стороны укладываются внизу. Надопорную рабочую арматуру устанавливают по всей длине каждой стороны плиты равномерно.

На крайних свободных опорах плит, монолитно связанных с железобетонными прогонами (обвязочными балками), надопорную расчетную арматуру заделывают в прогон на глубину lап. На крайних свободных опорах плит пролетную арматуру заводят за грань опоры не менее 5ds при выполнении условия Q ≤ 0,5Rbtbh0.

Консольные плиты при вылете консоли до одного метра принимают постоянной толщины. При вылете более 1 м толщина сечения плиты в месте заделки определяется расчетом, а на свободном конце должна быть не менее 50 мм.

Консольные плиты армируют, как правило, только верхней арматурой. Консоли, являющиеся частью одно- и многопролетной плиты, армируют вместе с плитой и той же арматурой - сетками или отдельными стержнями.

При армировании консольных плит с вылетом более 1000 мм допускается половину рабочих стержней обрывать на половине вылета консоли.

Толстые монолитные плиты, например фундаментные, рекомендуется армировать объемными армоблоками, собираемыми из плоских сварных каркасов и сеток. Их следует устанавливать с разрывом, равным ширине армоблока, а в зазор помещать горизонтальные сварные сетки по верхнему и нижнему уровням блоков. При этом необходимо обеспечивать жесткость армирования путем установки дополнительных связей жесткости, например крестовых, из арматуры, уголка и т.п.

Дополнительные указания по армированию стен и плит

Армирование в местах отверстий

Отверстия значительных размеров (более или равные 300 мм) в монолитных железобетонных стенах и плитах должны окаймляться дополнительной арматурой сечением не менее сечения рабочей арматуры (того же направления), которая требуется по расчету плиты как сплошной (рис. 3.26,a).

Отверстия до 300 мм специальными стержнями не окаймляют.

Вязаная рабочая и распределительная арматура вокруг таких отверстий сгущается - два крайних стержня ставятся с промежутком 50 мм (рис. 3.26,б).

Рисунок 3.26 - Армирование плит в местах отверстий

а, б - отверстия соответственно более 300 и до 300 мм (при рабочей и распределительной вязаной арматуре); 1 - стержни арматуры плиты: 2 - специальные стержни арматуры, окаймляющие отверстие

При армировании сварными сетками отверстия до 300 мм в арматуре рекомендуется вырезать по месту, при этом разрезанные стержни целесообразно отгибать в тело плиты.

ПРИЛОЖЕНИЕ 2

ПРИМЕРЫ АРМИРОВАНИЯ КОНСТРУКЦИЙ ЗДАНИЙ ПОВЫШЕННОЙ ЭТАЖНОСТИ ИЗ МОНОЛИТНОГО ЖЕЛЕЗОБЕТОНА

Раздел 1 Фундаменты

Рисунок 2.1 - Фрагмент фундаментной плиты здания конструктивной схемы с несущими стенами. Опалубка, схема расположения выпусков

___________

*Номер позиции из таблицы спецификации арматуры.

Рисунок 2.2 - Фрагмент фундаментной плиты здания конструктивной схемы с несущими стенами. Нижнее армирование

Рисунок 2.3 - Фрагмент фундаментной плиты здания конструктивной схемы с несущими стенами. Верхнее армирование

Рисунок 2.4 - Фрагменты расположения выпусков арматуры под несущие стены (см. рис. 2.1)

Рисунок 2.5 - Армирование фундаментной плиты здания конструктивной схемы с несущими стенами. Разрез 1 - 1, каркас К-1 (см. рис. 2.1)

Рисунок 2.6 - Фрагмент фундаментной плиты здания каркасной конструктивной схемы. Опалубка

Рисунок 2.7 - Фрагмент фундаментной плиты здания каркасной конструктивной схемы. Разрез 1 - 1 (см. рис. 2.6)

Рисунок 2.8 - Фрагмент фундаментной плиты здания каркасной конструктивной схемы. Нижнее армирование

Рисунок 2.9 - Фрагмент фундаментной плиты здания каркасной конструктивной схемы. Верхнее армирование

Рисунок 2.10 - Фрагмент фундаментной плиты здания каркасной конструктивной схемы. Расположение каркасов, выпусков из плиты

Рисунок 2.11 - Каркасы фундаментной плиты под колонны цокольного этажа (см. рис. 2.10)

Рисунок 2.12 - Армирование фундаментной плиты здания каркасной схемы. Разрез 3-3 (см. рис. 2.9). Расположение выпусков под колонны с учетом изменения сечения по высоте

Рисунок 2.13 - Детали арматурных выпусков под колонны цокольного этажа (см. рис. 2.10)

Рисунок 2.14 - Детали арматурных выпусков из фундаментной плиты под колонны цокольного этажа (см. рис. 2.10)

Рисунок 2.15 - Фрагмент фундаментной плиты здания каркасной конструктивной схемы. Нижнее армирование, первый слой

Рисунок 2.16 - Фрагмент фундаментной плиты здания каркасной конструктивной схемы. Нижнее армирование, второй слой

Рисунок 2.17 - Фрагмент фундаментной плиты здания каркасной конструктивной схемы. Нижнее армирование, третий слой

Рисунок 2.18 - Фрагмент фундаментной плиты здания каркасной конструктивной схемы. Верхнее армирование, первый слой

Рисунок 2.19 - Фрагмент фундаментной плиты здания каркасной конструктивной схемы. Верхнее армирование, второй слой

Рисунок 2.20 - Фрагмент фундаментной плиты здания каркасной конструктивной схемы. Поперечное армирование

Рисунок 2.21 - Фрагмент фундаментной плиты здания каркасной конструктивной схемы. Выпуски

Рисунок 2.22 - Примеры расположения выпусков из фундаментной плиты под колонны

Рисунок 2.23 - Узлы армирования фундаментной плиты здания каркасной конструктивной схемы (см. рис. 2.15÷2.20)

Рисунок 2.24 - Фрагмент фундаментной плиты со свайным основанием, столбчатых и ленточных фундаментов. Опалубка

Рисунок 2.25 - Элементы фундаментной плиты со свайным основанием, армирование ленточных фундаментов. Разрезы 1 - 1...3-3 (опалубка). Узел 1 (см. рис. 2.4)

Рисунок 2.26 - Армирование фундаментной плиты со свайным основанием, столбчатых и ленточных фундаментов. Разрезы 1-1...3-3

Рисунок 2.27 - Пример устройства молниезащиты в фундаментной плите

Соединение полосы 40×4 с токоотводом и скобой Г - 1 выполнять ручной дуговой сваркой по ГОСТ 14098-85.

Примечания

1. Токоотводы Т1-Т8. П1-П6 выполняются из полосы 40×4 и устанавливаются в теле колонн и стен. Стыкование элементов полосы - 40×4 токоотводов выполняется с помощью нахлесточного соединения длиной 50 мм и приварки двойными торцевыми швами длиной 40 мм (bш = 6 мм).

Токоотводы Т1-Т8 соединяются в кровле с молниеприемником, а также с полосой - 40×4, проложенной по контуру фундаментной плиты в уровне нижней и верхней арматуры.

2. В качестве заземлителя используется полоса - 40×4 по замкнутому контуру в уровне нижней и верхней арматуры фундаментной плиты (верхний и нижний уровень полосы - 40×4 соединяется скобой (Г-6) в точках Т1-Т8. П1-П6).

Условные обозначения

- полоса - 40×4. проложенная по замкнутому контуру в уровне нижней и верхней арматуры фундаментной плиты.

- места опусков токоотводов (полоса - 40×4), соединяющие контур заземления с молнпеприемпиком.

- места опусков токоотводов (полоса - 40×4), соединяющие контур заземления с контуром электрощитовой (ИТП. Машинного помещения).

Рисунок 2.28 - Пример устройства молниезашиты в фундаментной плите. Разрез 1 - 1

Раздел 2. Вертикальные конструкции цокольного этажа

Рисунок 2.29 - Схема расположения стен цокольного этажа здания конструктивной схемы с несущими стенами

Спецификация к схеме расположения стен нижнего технического этажа

№ п.п.

Обозначение

Наименование

Количество, шт.

Масса единицы, кг

Масса общая, кг

 

 

Бетон В25,                м2

130

 

 

 

ТУ 14-1-5526-2006

Ø12А500СП             Lп.м = 6500

 

 

5772

1

 

Ø16А500СП             L = 3970

2620

6,3

16506

2

 

Ø16А500СП             L = 3350

1270

5,3

6730

3

 

Ø12 А500 СП           L = 1050

750

1,0

750

4

 

Ø12 А500 СП           L = 1000

180

0,9

162

5

 

Ø12 А500 СП           L = 1170

630

1,1

690

6

ГОСТ 5781-82

Ø6 A-I                      L = 280

3000

0,1

300

7

 

Ø16 А500СП           L = 2540

70

4,6

322

8

 

Ø12 А500СП           L = 1000

180

0,9

162

Рисунок 2.30 - Армирование стен цокольного этажа. Разрезы 1 - 1...3-3 (см. рис. 2.29) Б - узел опирания подземных стен гаража выше глубины промерзания грунта

опалубка

Рисунок 2.31 - Пример развертки стены цокольного этажа с дверными проемами по оси «6» в осях «Л» - «Р»

Рисунок 2.32 - Пример развертки стены цокольного этажа с технологическими отверстиями по оси «11» в осях «Е»-«В»

Рисунок 2.33 - Узлы армирования стен цокольного этажа здания конструктивной схемы с несущими стенами (см. рис. 2.29, зеркально)

Рисунок 2.34 - Армирование стен жесткости цокольного лажа (см. рис. 2.15)

Рисунок 2.35 - Армирование колони цокольного этажа здания каркасной конструктивной схемы

Рисунок 2,36 - Армирование пилона цокольного этажа здания каркасной конструктивной схемы (см. рис. 2.6)

Раздел 3 Перекрытия цокольного этажа

Рисунок 2.37 - Фрагмент перекрытия цокольного этажа здания конструктивной схемы с несущими стенами (см. рис. 2.1). Опалубка

Рисунок 2.38 - Фрагмент перекрытия цокольного этажа здания конструктивной схемы с несущими стенами. Нижнее армирование

Рисунок 2.39 - Фрагмент армирования перекрытия цокольного этажа здания конструктивной схемы с несущими стенами (см. рис. 2.38)

Рисунок 2.40 - Фрагмент перекрытия цокольного этажа здания конструктивной схемы с несущими стенами. Верхнее армирование

Рисунок 2.41 - Армирование плиты перекрытия цокольного этажа. Разрезы 1 - 1, 2-2, 3-3 (см. рис. 2.40)

Рисунок 2.42 - Балочная плита перекрытия цокольного этажа здания каркасной схемы. Опалубка

Рисунок 2.43 - Балочная плита перекрытия цокольного этажа здания каркасной схемы. Нижнее армирование

Рисунок 2.44 - Балочная плита перекрытия цокольного этажа здания каркасной схемы. Верхнее армирование

Рисунок 2.45 - Плита перекрытия цокольного этажа здания каркасной схемы. Опалубка

Рисунок 2.46 - Плита перекрытия цокольного этажа здания каркасной схемы. Нижнее армирование

Рисунок 2.47 - Плита перекрытия цокольного этажа здания каркасной схемы. Верхнее армирование

Рисунок 2.48 - Армирование плиты перекрытия цокольного этажа здания каркасной конструктивной схемы. Разрезы 1 - 1, 3-3. 4-4 (см. рис. 2.47)

Рисунок 2.49 - Армирование плиты перекрытия цокольного этажа здания каркасной конструктивной схемы. Схема расположения каркасов под колонны (см. рис. 2.46)

Раздел 4 Вертикальные конструкции типового этажа

Рисунок 2.50 - Схема расположения стен типового этажа здания конструктивной схемы с несущими стенами

Рисунок 2.51 - Узлы армирования стен типового этажа здания конструктивной схемы с несущими стенами

Рисунок 2.52 - Армирование стен типового этажа здания конструктивной схемы с несущими стенами

Рисунок 2.53 - Вариант усиления дверного проема и отверстий в стенах. Сечение а-а

Рисунок 2.54 - Схема расположения стен, колонн, пилонов типового этажа здания каркасно-стеновой конструктивной схемы

Рисунок 2.55 - Армирование стен, колонн, пилонов типового этажа здания каркасно-стеновой конструктивной схемы (см. рис. 2.54)

Рисунок 2.56 - Армирование стен и колонн лифтового узла типового этажа здания каркасно-стеновой конструктивной схемы (см. рис. 2.54)

Рисунок 2.57 - Армирование стен и колонн лестничного узла типового этажа здания каркасно-стеновой конструктивной схемы (см. рис. 2.54)

Рисунок 2.58 - Варианты армирования монолитных несущих стен здания. Сечения 1 - 1...4-4

Рисунок 2.59 - Варианты армирования колонн типового этажа

Рисунок 2.60 - Варианты армирования колонн типового этажа

Рисунок 2.61 - Пример армирования пилона здания. Разрезы 1 - 1...3-3

Рисунок 2.62 - Пример армирования стены, переходящей в пилон

Раздел 5 Перекрытия типового этажа

Рисунок 2.63 - Фрагмент плиты перекрытия типового этажа здания конструктивной схемы с несущими стенами. Опалубка

Рисунок 2.64 - Фрагмент плиты перекрытия типового этажа здания конструктивной схемы с несущими стенами. Нижнее армирование

Рисунок 2.65 - Фрагмент плиты перекрытия типового этажа здания конструктивной схемы с несущими стенами. Верхнее армирование

Рисунок 2.66 - Фрагмент армирования плиты перекрытия типового этажа здания конструктивной схемы с несущими стенами (см. рис. 2.64; 2.65)

Рисунок 2.67 - Фрагмент армирования плиты перекрытия типового этажа здания конструктивной схемы с несущими стенами (см. рис. 2.64; 2.65)

Рисунок 2.68 - Фрагменты армирования плиты перекрытия типового этажа здания конструктивном схемы с несущими стенами (см. рис. 2.64; 2.65; 2.66)

Рисунок 2.69 - Армирования плиты перекрытия типового этажа здания конструктивной схемы с несущими стенами. Разрезы 1 - 1...7-7 (см. рис. 2.64; 2.65; 2.67)

Спецификация к схеме армирования перекрытия типового этажа и плиты покрытия.

Марка поз.

Обозначение

Наименование

кол., шт.

Масса ед., кг

Масса общ., кг

Примечание

100

ТУ 14-1-5526-2006

Ø12 А500СП, п.м

4300

 

3820

 

101

 

Ø16 А500СП, п.м

400

 

630

 

7

 

Ø12А500СП             L = 950

70

0,85

60

 

8

 

Ø12 А500СП            L = 320

320

1,8

570

 

10

 

Ø16А500СП            L = 2100

50

3,3

165

 

Рисунок 2.70 - Армирование плиты перекрытия типового этажа здания конструктивном схемы с несущими стенами. Разрезы 8-8...12-12. Пример спецификации (см. рис. 2.64; 2.65)

Рисунок 2.71 - Схема расположения плиты перекрытия и балок типового этажа здания каркасно-стеновой конструктивной схемы

Рисунок 2.72 - Опалубка и варианты армирования балок типового этажа здания каркасно-стеновой конструктивной схемы (см. рис. 2.71)

Рисунок 2.73 - Опалубка и варианты армирования балок типового этажа здания каркасно-стеновой конструктивной схемы (см. рис. 2.71)

Рисунок 2.74 - Фрагмент плиты перекрытия типового этажа здания каркасно-стеновой конструктивной схемы. Совмещенный план нижнего и верхнего армирования

Рисунок 2.75 - Фрагмент плиты перекрытия типового этажа здания каркасно-стеновой конструктивной схемы. Дополнительное армирование обрамления отверстий

Рисунок 2.76 - Вариант контурного армирования железобетонной плиты здания каркасно-стеновой конструктивной схемы

Рисунок 2.77 - Варианты армирования контурных балок перекрытия здания каркасно-стеновой конструктивной схемы. Разрезы 1 - 1...6-6 (см. рис. 2.76)

Рисунок 2.78 - Варианты армирования контурных балок перекрытия здания каркасно-стеновой конструктивной схемы. Разрезы 1-1..Л 1 - 11 (см. рис. 2.76)

Рисунок 2.79 - Фрагменты опалубки и армирования перекрытия типового этажа

Рисунок 2.80 - Узлы армирования перекрытия типового этажа

Рисунок 2.81 - Узлы армирования перекрытия типового этажа. Пример армирования сварными каркасами (см. рис. 2.80)

Раздел 6 Балки

Рисунок 2.82 - Армирование балки перекрытия жилого здания каркасной конструктивной схемы (см. рис 2.42)

Рисунок 2.83 - Фрагмент расположения системы балок здания каркасной конструктивной схемы. Опалубка, армирование

Рисунок 2.84 - Армирование балки Б1 переходной части между отдельными зданиями. Разрезы 1-1, 2-2

Рисунок 2.85 - Армирование балки Б1 переходной части между отдельными зданиями. Фрагменты 1, 2. Закладная деталь М-4

Рисунок 2.86 - Армирование балки перекрытия гаража. Разрезы 1-1, 2-2

Рисунок 2.87 - Армирование балки пол колонны пал проездами здания. Разрезы 1-1...3-3

Раздел 7 Лестницы, ограждения балконов

Рисунок 2.88 - Опалубка и армирование монолитной железобетонной эвакуационной наружной лестницы

Рисунок 2.89 - Опалубка и армирование типового лестничного узла здания

Рисунок 2.90 - Опалубка и армирование монолитной железобетонной наружной лестницы

Рисунок 2.91 - Варианты конструкций ограждения балконов

Рисунок 2.92 - Варианты конструкций ограждения балконов

ПРИЛОЖЕНИЕ 3

ИНФОРМАЦИОННОЕ ПИСЬМО ГОССТРОЯ АП-4823/02

ФЕДЕРАЛЬНОЕ АГЕНТСТВО
ПО СТРОИТЕЛЬСТВУ И ЖИЛИЩНО-
КОММУНАЛЬНОМУ ХОЗЯЙСТВУ
(РОССТРОЙ)

РУКОВОДИТЕЛЬ

119991. ГСП Москва, ул. Строителей. 8. корп. 2
тел. (095) 930-17-55. факс (095) 938-22-02
06.12.2006 г. №
CK-5145/02

Органы исполнительной власти

субъектов Российской Федерации

(по списку)

О ПРИМЕНЕНИИ В ЖЕЛЕЗОБЕТОННЫХ КОНСТРУКЦИЯХ АРМАТУРЫ КЛАССА А500СП

В порядке информационного обеспечения участников строительства Росстрой сообщает следующее.

Западно-Сибирский металлургический комбинат (г. Новокузнецк) в 2006 г. приступил к выпуску термомеханически упрочненной арматуры класса А500СП по ТУ 14-1-5526-2006 «Прокат арматурный класса А500СП с эффективным периодическим профилем. Технические условия», разработанной НИИЖБ - филиалом ФГУП «НИЦ «Строительство». Сортамент стержней от 10 до 28 мм, в дальнейшем - до 40 мм. Механические свойства арматуры класса А500СП приведены в таблице.

Класс проката

Условный предел текучести (σ0,2). Н/мм2

Временное сопротивление (σв), Н/мм2

Относительное удлинение (δ5), %

менее

А500СП

500

600

14

Указанная арматура для железобетонных конструкций изготавливается из стали марки Ст3 по ГОСТ 380-88 с содержанием углерода не более 0,22 %.

Арматуру класса А500СП следует применять в соответствии с разработанным Центром проектирования и экспертизы НИИЖБ и выпущенным ФГУП «НИЦ «Строительство» стандартом организации СТО 36554501-005-2006 «Применение арматуры класса А500СП в железобетонных конструкциях», в котором предусмотрено использование ряда преимуществ нового материала, дающих возможность снижения расхода металла в конструкциях.

Консультативную помощь по эффективному применению арматуры класса А500СП по ТУ 14-1-5526-2006 можно получить в НИИЖБ - филиале ФГУП «НИЦ «Строительство» по адресу: 2-я Институтская ул, д. 6, г. Москва, 109428.

Контактные телефоны: 171-75-08, 174-74-75, 174-74-49, факс 174-75-09.

С.И. Круглик

10 СПИСОК ИСПОЛЬЗОВАННОЙ ЛИТЕРАТУРЫ

1. Малатян С.А. Арматура железобетонных конструкций. - М.: «Воентехлит», 2000. - С. 256.

2. Bond of reinforcement in concrete. State-of-art report by Task group Bond models. FIB bullenin 10 (August 2000).

3. Тихонов И.Н., Мешков В.З., Судаков Т.Н. О нормировании анкеровки стержневой арматуры//Бетон и железобетон. - 2006. - № 3. - С. 2-7.

4. Тихонов И.Н., Гуменюк B.C. Анализ требований СП 52-101-2003 к арматуре класса прочности 500 МПа//Бетон и железобетон. - 2006. - № 4. - С. 6-11.

5. Бондаренко В.И., Пахомов А.В. Холоднодеформированная арматура класса В500//Научные труды 2-й Всероссийской (Международной) конференции по бетону и железобетону. Т.5. - М.: ООО «Информполиграф», 2005.

6. Рекомендации по защите монолитных жилых зданий от прогрессирующего обрушения. - М.: ГУП НИАЦ, 2005.

7. Расторгуев Б.С, Мутока К.Н. Деформирование конструкций перекрытий каркасных зданий после внезапного разрушения одной колонны//Сейсмостойкое строительство. Безопасность сооружений. 2006. - № 1. - С. 12-15.

8. Тихонов И.Н. Расчет сечений железобетонных элементов при действии кратковременных динамических нагрузок//Бетон и железобетон. - 1991. - № 9.

9. Гвоздев А.А., Дмитриев С.А., Крылов С.М., Белобров И.К., Тихонов И.Н. и др. Новое о прочности железобетона - М.: Стройиздат, 1977.-271 с.

10. Тихонов И.Н., Козелков М.М., Демидов А.Р. К проектированию зданий из железобетона с учетом защиты от прогрессирующего обрушения//Бетон и железобетон. - 2006. - №6.-С. 6-10.

11. Тихонов И.Н. Арматурный прокат для ответственных зданий и сооружений, в том числе проектируемых с учетом аварийных нагрузок и предотвращения прогрессирующего обрушения//Бетон и железобетон - пути развития. Материалы II Всероссийской конференции по бетону и железобетону. Том 5. - М.: ООО «Информполиграф», 2005.

12. Рекомендации по предотвращению прогрессирующих обрушений крупнопанельных зданий. - М.: ГУП НИАЦ. 1999. - 55 с.

13. СТО 36554501-005-2006. Применение арматуры класса А500СП в железобетонных конструкциях.

14. Руководство по конструированию бетонных и железобетонных конструкций из тяжелого бетона (без предварительного напряжения). - М.: Стройиздат, 1978. - 175 с.

15. Пособие по проектированию бетонных и железобетонных конструкций из тяжелого бетона без предварительного напряжения арматуры (к СП 52-101-2003). - М.: ОАО «ЦНИИПромзданий», 2005. - 214 с.

НОРМАТИВНЫЕ ДОКУМЕНТЫ

СНиП 2.01.07-85* Нагрузки и воздействия

СНиП 2.03.01-84* Бетонные и железобетонные конструкции (справочно)

СНиП 3.03.01-87 Несущие и ограждающие конструкции

СНиП 52-01-2003 Бетонные и железобетонные конструкции. Основные положения

СП 52-101-2003 Бетонные и железобетонные конструкции без предварительного напряжения арматуры

МДС 20-1.2006 Временные рекомендации по назначению нагрузок и воздействий, действующих на многофункциональные высотные здания и комплексы в Москве

ГОСТ 5781-82 Сталь горячекатаная для армирования железобетонных конструкций. Технические условия

ГОСТ 6727-80 Проволока из низкоуглеродистой стали холоднотянутая для армирования железобетонных конструкций

ГОСТ 7566-94* Металлопродукция. Приемка, маркировка, упаковка, транспортирование и хранение

ГОСТ 10884-94 Сталь арматурная термомеханически упрочненная для железобетонных конструкций. Технические условия

ГОСТ 10922-90 Арматурные и закладные изделия сварные, соединения сварные арматуры и закладных изделий железобетонных конструкций. Общие технические условия

ГОСТ 12004-81* Сталь арматурная термомеханически упрочненная для железобетонных конструкций. Технические условия

ГОСТ 14019-2003 Материалы металлические. Метод испытания на изгиб

ГОСТ 14098-91 Соединения сварные арматуры и закладных изделий железобетонных конструкций. Типы, конструкции и размеры

ГОСТ Р 52544-2006 Прокат арматурный свариваемый периодического профиля классов А500С и В500 для армирования железобетонных конструкций. Технические условия

СТО АСЧМ 7-93 Прокат периодического профиля из арматурной стали. Ассоциация Черметстандарт

ТУ 14-1-5254-94

ТУ 14-1-5526-2006 Прокат арматурный класса А500СП с эффективным периодическим профилем

 

 




ГОСТЫ, СТРОИТЕЛЬНЫЕ и ТЕХНИЧЕСКИЕ НОРМАТИВЫ.
Некоммерческая онлайн система, содержащая все Российские Госты, национальные Стандарты и нормативы.
В Системе содержится более 150000 файлов нормативно-технической документации, действующей на территории РФ.
Система предназначена для широкого круга инженерно-технических специалистов.

Рейтинг@Mail.ru Яндекс цитирования

Copyright © www.gostrf.com, 2008 - 2026