|
|
ОДМ 218.5.001-2008ОТРАСЛЕВОЙ ДОРОЖНЫЙ МЕТОДИЧЕСКИЙ ДОКУМЕНТ
МЕТОДИЧЕСКИЕ
РЕКОМЕНДАЦИИ ФЕДЕРАЛЬНОЕ ДОРОЖНОЕ АГЕНСТВО Москва 2008 ОДМ 218.5.001-2008ОТРАСЛЕВОЙ ДОРОЖНЫЙ МЕТОДИЧЕСКИЙ ДОКУМЕНТУтверждены распоряжениемРосавтодораот 01.02.2008 г. № 44-р МЕТОДИЧЕСКИЕ
РЕКОМЕНДАЦИИ
|
|||||||||||||||||||||||||||||||||||||||||||||||||||||||||||||||||||||||||||||||||||||||||||||||||||||||||||||||||||||||||||||||||||||||||||||||||||||||||||||||||||||||||||||||||||||||||||||||||||||||||||||||||||||||||||||||||||||||||||||||||||||||||||||||||||||||||||||||||||||||||||||||||||||||||||||||||||||||||||||||||||||||||||||||||||||||||||||||||||||||||||||||||||||||||||||||||||||||||||||||||||||||||||||||||||||||||||||||||||||||||||||||||||||||||||||||||||||||||||||||||||||||||||||||||||||||||||||||||||||||||||||||||||||||||||||||||||||||||||||||||||||||||||||||||||||||||||||||||||||||||||||||||||||||||||||||||||||||||||||||||||||||||||||||||||||||||||||||||||||||||||||||||||||||||||||||||||||||||||||||||||||||||||||||||||||||||||||||||||||||||||||||||||||||||||||||||||||||||||||||||||||||||||||||||||||||||||||||||||||||||||||||||||||||||||||||||||||||||||||||||||||||||||||||||||||||||||||||||||||||||||||||||||||||||||||||||||||||||||||||||||||||||||||||||||||||||||||||||||||||
|
Категория заносимости участков |
Характеристика участка |
|
Сильнозаносимые |
Нераскрытые выемки любой глубины, если на подветренном откосе не может разместиться весь снег, приносимый в течение зимы |
|
Среднезаносимые |
Раскрытые выемки, выемки, разделанные под насыпь, нулевые места и насыпи ниже высоты снежного покрова в данной местности, определенной с расчетной вероятностью превышения |
|
Слабозаносимые |
Насыпи высотой менее руководящей рабочей отметки по условию снегонезаносимости, но больше высоты снежного покрова с вероятностью превышения |
|
Незаносимые |
Насыпи высотой более руководящей рабочей отметки по условию снегонезаносимости; нераскрытые выемки, подветренный откос которых может вместить весь снег, приносимый за зиму; выемки с полками, предусмотренными для размещения приносимого метелью снега на подветренных откосах выемок и над полками |
Если в процессе эксплуатации дороги выявлены снегозаносимые участки, то проводится их обследование, выявляются причины заносимости и принимаются меры по обеспечению снегонезаносимости.
По степени снегозаносимости участки дорог классифицируют на 4 категории (табл. 1).
Основными показателями уровня содержания автомобильных дорог являются:
- ширина чистой от снега поверхности дороги;
- толщина рыхлого снега на проезжей части, накапливающегося с момента начала снегопада до начала снегоочистки или в перерывах между проходами снегоочистительной техники при патрульной снегоочистке;
- толщина уплотненного слоя снега (снежного наката) на проезжей части и обочинах;
- сроки окончания очистки проезжей части и снегоочистки обочин с момента окончания уборки проезжей части;
- толщина уплотненного снега на тротуарах.
По этим показателям все дороги России разделены на группы. Группировка дорог для целей оценки уровня содержания представлена в Приложении В.
Для обеспечения нормальной эксплуатации дороги, снижения трудовых и денежных затрат на зимнее содержание в дорожной отрасли установлены три уровня содержания (допустимый, средний, высокий) (Приложение Г).
Уровень зимнего содержания во многом зависит от степени заносимости дороги. Дорожно-эксплуатационные организации в процессе эксплуатации дороги выявляют заносимые места, устанавливают причины образования снежных заносов, разрабатывают и осуществляют меры, уменьшающие или полностью устраняющие заносимость.
Снегоочистка автомобильных дорог организуется таким образом, чтобы обеспечивать указанные в табл. 2, 3 и 4 директивные сроки снегоочистки, определенные ГОСТ Р 50597-93.
а) Характеристика проезжей части дороги, обочин и тротуаров в зимний период
|
№ п/п |
Наименование показателей |
Группа дорог |
Уровни содержания |
||
|
допустимый |
средний |
высокий |
|||
|
Проезжая часть (включая используемые съезды, мостовые сооружения) |
|||||
|
1. |
Рыхлый (талый) снег на проезжей части толщиной не более, см. |
А1, А2, A3, Б |
1,0 (2,0) |
||
|
Нормативная ширина очистки -100%. |
В |
2,0 (4,0) |
|||
|
|
Г1, Г2 |
- |
|||
|
2. |
Срок ликвидации зимней скользкости с момента образования (и уборка снега с момента окончания снегопада) до полного устранения, не более, ч |
А1, А2, A3 |
4,0 |
3,5 |
3,0 |
|
Б |
5,0 |
4,5 |
4,0 |
||
|
В |
6,0 |
5,0 |
4,5 |
||
|
Г1 |
12,0 |
10,0 |
8,0 |
||
|
Г2 |
16,0 |
12,0 |
10,0 |
||
|
3. |
Снежный накат толщиной не более, см (*) - при интенсивности движения до 500 авт./сут |
А1, А2, A3, Б |
Не допускается |
||
|
В (*), Г1 |
4,0 |
||||
|
Г2 |
6,0 |
||||
|
№ п/п |
Наименование показателей |
Группа дорог |
Уровни содержания |
||
|
допустимый |
средний |
высокий |
|||
|
1 |
2 |
3 |
4 |
5 |
6 |
|
1. |
Рыхлый (талый) снег на обочине после окончания снегоочистки толщиной не более, см. Ширина очистки обочин для групп: A1, A2 - 100%, для остальных - 50% |
А1, А2, A3, Б |
1,0 (2,0) |
||
|
В |
3,0 (6,0) |
||||
|
Г1, Г2 |
Не нормируется |
||||
|
2. |
Срок снегоочистки обочин с момента окончания уборки проезжей части, не более, ч |
А1, А2, A3 |
4,0 |
3,5 |
3,0 |
|
Б |
5,0 |
4,5 |
4,0 |
||
|
В |
6,0 |
5,0 |
4,5 |
||
|
Г1 |
12,0 |
10,0 |
8,0 |
||
|
Г2 |
Не нормируется |
||||
|
3. |
Рыхлый (уплотненный) снег на тротуарах после окончания снегоочистки толщиной слоя не более, см |
А1, А2 |
5 (3) |
||
|
A3, Б, В |
5 (5) |
||||
|
Г1, Г2 |
5 (10) |
||||
|
4. |
Рыхлый (уплотненный) снег на тротуарах мостов в населенных пунктах после окончания снегоочистки толщиной слоя не более, см. Срок очистки тротуаров в населенных пунктах не более 1 сут |
Для всех групп дорог |
5 (3) |
||
|
5. |
Минимальная длина обочины, на которой не должно быть снежных валов; вблизи ж-д. переездов / перед пересечением в одном уровне / вблизи остановочных пунктов общественного транспорта / вблизи пешеходного перехода, м |
А1, А2 |
Не допускается |
||
|
A3 |
500/250/20/5 |
||||
|
Б |
500/250/20/5 |
||||
|
В, Г1, Г2 |
500/150/20/5 |
||||
|
6. |
Снежные валы у ограждений на обочине, а также у осевого двустороннего ограждения. Срок ликвидации снежных валов у ограждений не более 5 сут |
Для всех групп дорог |
Не допускаются. (Допускаются на участках, проходящих по лесному массиву за ограждениями на обочине.) |
||
б) Характеристика элементов обустройства и обстановки
|
№ п/п |
Наименование показателей |
Группа дорог |
Уровни содержания |
||
|
допустимый |
средний |
высокий |
|||
|
Земляное полотно, полоса отвода |
|||||
|
1. |
Рыхлый (уплотненный) снег на заездных карманах и посадочных площадках остановок общественного транспорта после окончания снегоочистки толщиной слоя не более, см |
А1.А2, A3, Б, В |
2 (0) |
||
|
Г1 |
6 (4) |
||||
|
Г2 |
8 (6) |
||||
|
2. |
Рыхлый (уплотненный) снег на площадках отдыха и стоянках транспортных средств после окончания снегоочистки толщиной слоя не более, см |
А1, А2 |
6 (4) |
4 (2) |
2 (0) |
|
A3, Б, В |
8 (6) |
6 (4) |
4 (2) |
||
|
Г1, Г2 |
12 (8) |
10 (6) |
8 (4) |
||
|
3. |
Снежно-ледяные отложения, закрывающие информацию на дорожных знаках. Срок очистки не более 1 сут с момента обнаружения |
Для всех групп дорог |
Не допускаются |
||
|
4. |
Грязные, покрытые снегом, не обеспечивающие световозвращающий эффект, световозвращающие элементы на поверхности ограждений. Срок очистки не более 1 сут с момента обнаружения |
Для всех групп дорог |
Не допускаются |
||
в) Оценка зимнего содержания
Оценка уровня содержания автомобильной дороги проводится с целью выявления соответствия фактических показателей, влияющих на уровень содержания дорог, рекомендациям, предъявляемым к ним установленными нормами и правилами.
Оценка уровня содержания дорог является обязательной, в случаях, предусмотренных в контрактных обязательствах.
Порядок и методика оценки уровня содержания автомобильных дорог определены в «Руководстве по оценке уровня содержания автомобильных дорог» (Росавтодор, 2003 г.).
а) Классификация снежных осадков
Снежные отложения на дороге возникают в результате различных снежных явлений, которые по своим признакам делятся на:
- Спокойный снегопад - происходит выпадение снега из облаков без переноса ветром частиц ранее выпавшего снега по поверхности снежного покрова.
Снегопады характеризуются интенсивностью (количеством осадков, выпадающих в единицу времени) и продолжительностью.
- Метели - перенос ветром снега над поверхностью земли.
По признаку метелевых отложений наиболее часто встречающиеся в практике метели классифицируются:
Верховая метель - метель, при которой происходит перенос снега при слабом ветре (2-3 м/с) без перемещения по поверхности снежного покрова ранее выпавшего снега.
Низовая метель - метель, при которой происходит перенос ветром частиц ранее выпавшего снега с поднятием снежных частиц над поверхностью снежного покрова до нескольких метров.
Такая метель наблюдается при ветре достаточной силы (более 5 м/с) и сухом состоянии поверхности снежного покрова.
Обшая метель - метель, при которой одновременно происходят выпадение снега из облаков и перемещение ветром уже упавших снежинок.
Поземка - перенос ветром частиц ранее выпавшего снега непосредственно по поверхности снежного покрова без выпадения снега из облаков. При поземках высота поднятия снега над уровнем снежного покрова до 0,5 м.
Буран (пурга) - перенос снега при скорости ветра более 20 м/с.
- Обрушение снега с горных склонов в виде лавин.
Снегопады и верховая метель образуют на дорогах сравнительно равномерные отложения, имеющие небольшую толщину и плотность.
Метели (поземка, низовая, буран) вызывают образование заносов - отложения снега большой толщины и повышенной плотности.
Обрушения снега с горных склонов в виде лавин вызывают образование снежных завалов, имеющих очень большие объемы и состоящих из плотного снега, иногда смешанного со льдом, в отдельных случаях и с камнями.
Плотность слоя свежевыпавшего снега в зависимости от формы выпадающих снежинок:
- рыхлый свежевыпавший - 0,06 - 0,08 г/см3
- рыхлый свежий хлопьями - 0,04 - 0,07 г/см3
- рыхлый свежий средними снежинками - 0,08 - 0,12 г/см3
- рыхлый свежий крупинками - 0,13 г/см3
- рыхлый свежий мелкими крупинками - 0,08-0,16 г/см3
Плотность слоя свежевыпавшего снега в зависимости от силы ветра при его выпадении:
- в тихую погоду - 0,04 - 0,07 г/см3
- при легком ветре - 0,04 - 0,18 г/см3
- при среднем ветре - 0,12 -0,18 г/см3
- при сильном ветре - 0,15-0,20 г/см3
Плотность снежного покрова с течением времени под влиянием собственного веса, давления вновь образующихся слоев и уплотняющего действия ветра постепенно увеличивается и к концу зимы достигает в среднем 0,30 г/см3.
б) Виды снегозащитных средств
Снежные отложения на дороге образуются в результате прохождения снегопадов или метелей. Отложения от спокойных снегопадов имеют в основном высоту 5-10 см, редко 15 см и еще реже до 35 см. Снегоотложения от метелевого переноса снега могут достигать большой высоты, измеряемой метрами. Величина снегоотложений зависит от объема снегоприноса. Наибольшую опасность представляют метелевые снегоотложения.
Все мероприятия, обеспечивающие снегонезаносимость дорог во время метелей, основываются на прогнозе возможных объемов снегоприноса к снегозаносимым участкам дороги за зиму, за одну метель и возможных объемов снегоотложений на конец зимнего периода или одной метели.
Для обоснованного решения вопросов о снегозащитных мероприятиях необходимо определить ряд расчетных параметров (Приложения А и Б):
- расчетный объем снегоприноса к снегозаносимым участкам дорог за зиму слева и справа от дороги;
- расчетный объем снегоотложений у снегозащиты к концу зимнего периода;
- расчетную метель и ее основные параметры: объем снегоприноса и продолжительность;
- объем снегоотложений от расчетного снегопада.
Защита дорог от снежных заносов осуществляется с помощью постоянной или временной снегозащиты.
К постоянной снегозащите относят снегозащитные лесополосы и постоянные заборы.
К временной - снегозадерживающие щиты, снежные траншеи, валы и т.д.
Постоянные снегозадерживающие устройства следует проектировать на расчетный объем снегоотложений к концу зимнего периода или на расчетную метель, имеющую объем снегоприноса больший, чем объем снегоотложений в конце зимнего периода. Это возможно за счет разности плотности снегоотложений в конце зимнего периода (до 0,25-0,30 т/м3) и в снегоотложениях от свежепринесенного снега. При этом необходимо учитывать объем снегоотложений от снегопада.
Возможный объем снегоотложений от расчетного объема снегоприноса в конце зимы определяют с учетом коэффициента потерь снега от испарения и таяния во время оттепелей и увеличения плотности в снегоотложениях к концу зимнего периода (Приложение Б).
Временные снегозащитные устройства следует проектировать на расчетную метель, так как после отработки временной снегозащиты предусматривается ее восстановление.
По принципу воздействия на снеговетровой поток снегозащитные устройства подразделяют на:
- снегозащитные средства снегозадерживающего действия, которые работают по принципу задержания метелевого снега на подступах к дороге;
- снегозащитные средства снегопередувающего действия, увеличивающие скорость ветра снеговетрового потока и способствующие переносу снега через дорогу (снегопередувающие заборы);
- снегозащитные средства, полностью изолирующие объекты от попадания снега (галереи и тоннели).
Наибольшее распространение на автомобильных дорогах получили устройства снегозадерживающего действия.
в) Снегозащитные лесные полосы
Наиболее надежным, экологически оправданным видом защиты снегозадерживающего действия являются снегозащитные лесные полосы.
Снегозащитная полоса должна иметь плотную (непродуваемую) конструкцию. Обязательным элементом каждой полосы должна быть густая двухрядная кустарниковая опушка.
Конструкция снегозащитной полосы определяется типовой схемой, на основе которой выбирается рабочая схема полосы для каждого конкретного случая (рис. 2).

Рис. 2. Типовые схемы снегозащитных лесных насаждений вдоль автомобильных дорог при объеме снегопереноса (м3/м):
а - до 25; б - до 50; в - до 75; г - до 100; д - до 125; е - до 150; ж - до 200; з - до 250
условные обозначения:
|
|
|
|
|
|
Рабочую схему составляет проектная организация. Она определяет состав древесных и кустарниковых пород, их размещение по рядам, а также количество рядов, ширину междурядий и размещение растений в рядах.
Расстояние между соседними рядами деревьев и кустарников в лесной полосе принимается: в благоприятных лесорастительных условиях - 2,5 м, а в тяжелых условиях - 3,0-3,5 м.
Расстояние между растениями в ряду допускается в пределах 0,5-1,0м.
Расстояние от бровки земляного полотна до придорожной снегозащитной полосы, ширина лесных полос и величина разрывов между полосами при объемах снегоприноса до 250 м3/м определяются по табл. 5.
|
Расчетный объем снегоприноса, м3/м |
Расстояние от бровки земляного полотна до лесонасаждений, м |
Ширина разрыва между лесонасаждениями, м |
Ширина полос отвода земель для лесонасаждений, м |
|
10-25 |
15-25 |
- |
4 |
|
50 |
30 |
- |
9 |
|
75 |
40 |
- |
12 |
|
100 |
50 |
- |
14 |
|
125 |
60 |
- |
17 |
|
150 |
65 |
- |
19 |
|
200 |
70 |
- |
22 |
|
250 |
50 |
50 |
2×14 |
В связи с возможностью переноса снега под углом по отношению к оси дороги снегозащитные лесные полосы устраивают длиннее защищаемого участка на 50-100 м. В условиях снегоприноса более 100 м3/м эта величина должна быть обоснована расчетом для ветров под углом более 30° с учетом расстояния между лесной полосой и защищаемым участком дороги.
Для обеспечения видимости на пересечениях и примыканиях автомобильных дорог в одном уровне снегозащитные полосы размещают в соответствии с рис. 3.

Рис. 3. Схема расположения лесных полос для обеспечения видимости на пересечениях автомобильных дорог
Расчетные расстояния видимости поверхности дороги (La, Lв) должны соответствовать расчетным скоростям движения на пересекающихся дорогах, и принимаются по табл. 6, а ширина примыкающей к дороге полосы, обеспечивающая боковую видимость (Lб), должна составлять 25 м (от кромки проезжей части) для дорог I-III категорий и 15 м - для дорог IV-V категорий.
При большой длине снегозащитной полосы, создаваемой на сельскохозяйственных угодьях, необходимо предусматривать технологические разрывы по 10-15 м через каждые 800-1000 м для прохода сельскохозяйственных машин.
|
Расчетная скорость движения, км/ч |
Расчетные расстояния видимости, м |
|
150 |
250 |
|
120 |
175 |
|
100 |
140 |
|
80 |
100 |
|
60 |
75 |
|
50 |
60 |
|
40 |
50 |
|
30 |
40 |
В случаях, когда существующая снегозащитная полоса не удовлетворяет нормам по конструкции, составу пород, размещению и другим признакам и в результате не выполняет свои снегозащитные функции, должны быть предусмотрены мероприятия по ее усилению путем увеличения ширины или создания дополнительных полос.
Типовые схемы размещения дополнительных полос в сочетании с усилением существующих придорожных посадок принимают в соответствии с объемом снегоприноса (рис. 4)

Рис. 4. Типовые схемы усиления существующих снегозащитных лесных насаждений вдоль автомобильных дорог при объеме снегоприноса (м3/м):
а - до 25; б - до 50; в - до 100; г - до 150; д - до 250
условные обозначения:
|
|
|
|
|
|
|
|
|
Величина параметров l1, l2 и d зависит от ширины существующей полосы С, ее расстояния до дороги l и ширины дополнительных лесных полос.
Ассортимент древесных и кустарниковых пород и их размещение в дополнительных лесных полосах и при уширении существующих насаждений принимают в соответствии с изложенными выше рекомендациями по созданию новых снегозащитных полос.
Создание новых снегозащитных насаждений и посадка дополнительных лесных полос осуществляются по специальным проектам, а поддержание работоспособности существующих посадок осуществляется рубками ухода.
Если снегозащитные лесные полосы не вступили в работу или их применение невозможно по почвенно-климатическим или другим условиям, необходимо использовать снегозащитные устройства или защиты из снега.
г) Постоянные снегозадерживающие заборы
В местности с интенсивной метелевой деятельностью рекомендуется применять заборы. Заборы могут быть снегозадерживающего действия и снегопередувающего действия.
Надежным средством защиты дорог от снежных заносов являются снегозадерживающие заборы - устройства капитального типа с большой затратой материалов и высокой стоимостью. Поэтому постройку заборов обосновывают экономически.
Заборы могут быть сплошными и решетчатыми, деревянными, железобетонными или комбинированными. Сплошные заборы собирают меньше снега, чем решетчатые, поэтому они применяются только в том случае, когда требуется одностороннее задержание снега. В зависимости от объема приносимого к дороге снега снегозадерживающие заборы устраивают высотой от 3 до 5 м.
Высоту забора определяют в зависимости от объема снегоприноса и высоты снежного покрова в данной местности:
![]()
где Н3 - высота забора, м;
Wсп - объем снегоприноса, м3/м;
Нсп - средняя многолетняя наибольшая высота снежного покрова в данной местности, м.
Не рекомендуется делать заборы выше 5 м. Если по расчету требуется большая высота, то устраивают два и более рядов заборов. Общая снегосборная способность заборов, поставленных в несколько рядов, определяется по формуле
Q = β (n-1) Hз·l + K1·H23,
где Q - объем задерживаемого снега у многорядных защит, м3/м;
β - коэффициент заполнения снегом пространства между рядами (при расчетах можно принимать β = 0,8);
n - количество рядов заборов;
Нз - высота забора, м;
l - расстояние между рядами заборов (следует принимать в пределах 30 Нз), м;
K1 - коэффициент, равный 8,0.
При устройстве решетчатых заборов для уменьшения их заносимости, а также увеличения снегосборности, оставляют просветы между землей и нижней панелью забора, а также и между панелями. Высоту просветов в зависимости от общей высоты забора можно проектировать до 0,5 - 0,8 м.
Расстояние от линии защиты до бровки земляного полотна должно составлять от 15 до 25 высот забора в зависимости от просветности обрешетки конструкции (от 35% до 50% соответственно). Если по местным условиям нельзя удалить забор на указанное расстояние, допускается сокращение расстояния до 10 высот забора при уменьшении просветности его решетки до 30%.
Для лучшего использования снегозадерживающей способности заборов и предотвращения повреждений, особенно при весенней осадке снега, заборы, особенно деревянные, наиболее правильно располагать перпендикулярно к направлению господствующих ветров, если даже при этом заборы будут расположены по отношению к дороге под тем или иным углом.
Деревянные снегозадерживающие заборы рекомендуется применять трех типов:
I - двуХIIанельные высотой 4 м, высота продуваемых проемов равна 0,6 м и каждой панели по 1,4 м (рис. 5, а);
II - двуХIIанельные высотой 5 м, высота продуваемых проемов равна 0,7 м и каждой панели по 1,8 м (рис. 5, б);
III - однопанельные с увеличенной просветностью высотой 5 м, высота нижнего продуваемого проема 0,5 м (рис. 5, в).

Рис. 5. Рекомендуемые типы снегозадерживающих заборов:
1 - противопучинные анкеры (брусок 10×14 см или пластины длиной 50 см) (размеры даны в см)
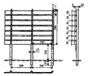
Железобетонные снегозадерживающие заборы долговечнее деревянных. Они выполняются из сборных железобетонных элементов (рис. 6). Для повышения эффективности их работы необходимо предусмотреть устройство разрывов в обрешетке, как в заборах, изготовляемых из дерева. Можно применять смешанные конструкции, состоящие из железобетонных стоек и деревянных панелей.

Рис. 6. Железобетонный снегозадерживающий забор (размеры даны в мм)
Железобетонные панели изготовляют на строительных площадках, а монтируют (путем закладки в пазы) на заранее установленных стойках. Ямы под стойки копают ямокопателем, а устанавливают стойки и монтируют панели при помощи передвижного крана.
д) Постоянные заборы снегопередувающего действия
Заборы снегопередувающего действия увеличивают скорость снеговетрового потока при его прохождении над дорогой, что предовращает образование на ней снежных отложений.
Заборы снегопередувающего действия рекомендуется применять при соблюдении следующих условий: при объеме снегоприноса более 300 м3/м, направлении господствующих ветров под углом от 50° до 90° к оси дороги и сухом, легкоподвижном снеге. Наибольший эффект эти сооружения имеют в открытой безлесной местности.
Защищать заборами снегопередувающего действия можно выемки глубиной до 5 м, низкие насыпи, нулевые участки и полувыемки-полунасыпи на косогорах, если уклон косогора не превышает 45°.
Основными параметрами заборов снегопередувающего действия, влияющими на их аэродинамические характеристики, являются: общая высота забора, Нз, высота продуваемого проема, h (до 40% Нз), высота ветронаправляющей панели, hп (до 60% Нз), угол наклона панели к горизонту, α (90°), общая высота забора 5-8 м (рис. 7, 8).
Заборы снегопередувающего действия необходимо располагать на расстоянии 0,8 м от кромки проезжей части. Их строят из дерева или делают сборными из железобетона. Заполнение деревянных зазоров рекомендуется делать вертикальным.
Наиболее распространены следующие типы снегопередувающих заборов (табл. 7).
|
Тип забора |
Общая высота, м |
Высота ветронаправляющей панели, м |
Высота продуваемого проема, м |
Угол наклона панели к горизонту, град |
Ширина зоны выдувания, м |
|
I |
5,0 |
3,0 |
2,0 |
90° |
до 6,0 |
|
II |
6,5 |
4,0 |
2,5 |
90° |
от 6 до 8 |
|
III |
8,0 |
5,0 |
3,0 |
90° |
от 8 до 10 |

Рис. 7. Снегопередувающие деревянные заборы (размеры даны в мм)

Рис. 8. Снегопередувающий керамзитобетонный забор (размеры даны в см)
е) Временные снегозащитные устройства
В случае невозможности размещения на прилегающих к автомобильной дороге землях постоянных средств снегозащиты или при невозможности усиления существующих, а также во всех случаях, когда это экономически оправдано, следует использовать временные снегозадерживающие устройства; снегозадерживающие щиты, траншеи, снежные стенки и т.д.
Они могут применяться в качестве защиты дорог от снежных заносов и как средство усиления посадок или заборов.
Снегозадерживающие щиты изготавливают из дерева с разреженной решеткой в нижней части. Конструкции переносных щитов показаны на рис. 9.

Рис. 9. Переносные решетчатые щиты (размеры даны в мм)
Конструктивные данные и рекомендуемые условия их применения приведены в табл. 8.
|
Тип щита |
Высота, м |
Просветность, % |
Скорость ветра, при которой можно применять щиты, м/с |
Объем снегоприноса, при котором целесообразно применять щиты, м3/м |
||
|
общая |
нижней части |
верхней части |
||||
|
I |
2,0 |
50 |
60 |
40 |
Более 20 |
Более 100 |
|
II |
1,5 |
50 |
60 |
40 |
Более 20 |
Менее 100 |
|
III |
2,0 |
60 |
70 |
50 |
20 и менее |
Более 100 |
|
IV |
1,5 |
60 |
70 |
50 |
20 и менее |
Менее 100 |
Расстояние от бровки земляного полотна до ряда щитов следует назначать в зависимости от объема снегоприноса равным: при объеме снегоприноса до 25 м3/м - 30 м; до 50 м3/м - 40 м; до 75 м3/м - 50 м; более 75 м3/м - 60 м.
Щиты устанавливают сплошной линией параллельно оси дороги, без зигзагов и изломов. При косых ветрах (дующих под острыми углами к дороге) их рекомендуется ставить через 60 м перпендикулярно к основной щитовой линии короткие звенья щитов с таким расчетом, чтобы концы их подходили к дороге не ближе чем на 10-15 м или устанавливают звенья щитов перпендикулярно к направлению метелевых ветров (рис. 10, 11).

Рис. 10. Косые звенья щитов
Места перехода из выемки в насыпь ограждают по схеме, приведенной на рис. 11.

Рис. 11. Ограждение мест перехода из выемки в насыпь
Щиты по возможности следует ставить по верху возвышений (бугров, валов), избегая понижений.
Щиты устанавливают, привязывая их к кольям мягкой отожженной проволокой, веревкой или другим прочным материалом.
Колья должны иметь диаметр 6-8 см и длину, превышающую на 1 м высоту щита. При установке колья забивают в предварительно просверленные отверстия на глубину 0,5 м. Расстояние между кольями должны быть равны 1,9 м.
Щиты следует привязывать к кольям так, чтобы между грунтом и ножками щитов оставалось 5 см, для исключения примерзания к грунту.
Для повышения снегосборной способности щитов при отработке их переставляют на вершину образующегося около них снежного вала или поднимают по кольям, когда:
- высота снежного вала в местностях с интенсивной метелевой деятельностью достигает уровня, составляющего 2/3 высоты щита, а в местности с неинтенсивной метелевой деятельностью - полной высоты щита;
- толщина слоя снега у щитовой линии достигает 50 см;
- необходимость перестановки щитов устанавливают по тому признаку, который наступает раньше.
В районах с длительными и интенсивными метелями, во время которых перестановка щитов затруднена, щитовые линии ставят в два, три и более рядов. Расстояние между рядами принимают равным 30 высотам щита, причем первый, ближний к дороге ряд, ставят на расстоянии 20 высот щита от бровки земляного полотна.
При устройстве многорядных щитовых линий достаточно переставлять только полевой ряд щитов.
Количество снега, задерживаемого одной щитовой линией, можно определить по формуле
Q = 9·H2
многорядной щитовой линией:
Q = 8·[l + (np - 1)·εc]·H2,
где Q - количество задерживаемого снега, м3/м;
np - число рядов защиты;
εс - коэффициент, учитывающий влияние смежного ряда (1-2);
Н - высота щита, м.
Оптимальное расстояние между рядами щитов 30-40 Нщ. Расстояние ближнего к дороге ряда не должно быть меньше 20 высот щита, считая от бровки земляного полотна.
Многорядные щитовые линии целесообразно формировать из щитов разной просветности. Ближайшие к полю линии формируются из щитов с менее густой решеткой (тип III), а ближайший к дороге ряд - из щитов с более густой решеткой (тип I).
Объем снега, который может задержать однорядная щитовая защита при Нщ = 2 м - 36 м3/м, двухрядная - до 96 м3/м, трехрядная - до 160 м3/м, двухрядная с перестановкой - до 300 м3/м.
Если объем снегоприноса от расчетной метели меньше объема снега, задерживаемого защитой (однорядной, двухрядной и т.д.), то производится перестановка щитов в течение зимнего периода при исчерпании их снегосборной способности.
В районах с интенсивными метелями (при объемах снегоприноса до 120 м3/м) целесообразно применять устройства с изменяющейся просветностью, плотность конструкции которых увеличивается пропорционально силе ветра при метели. Устройства с изменяющейся просветностью высотой 2,0 м размещаются на расстоянии 40 м от бровки земляного полотна и параллельно дороге.
При объемах снегоприноса до 75 м3/м можно применять временные пространственные снегозащитные средства (ВПС), изготавливаемые из полимерных материалов (рис. 12) и сетки на полимерной основе (рис. 13).

Рис. 12. Временные пространственные снегозащитные средства (ВПС):
а - рулонное заполнение; б - листовое заполнение (уголковый профиль); в - листовое заполнение (криволинейный профиль)

Рис. 13. Снегозадерживающие полиэтиленовые сетки:
а - тип I на стойках металлических труб; б - тип II на деревянных кольях; в - размещение кольев; 1 - стопорная шайба Ø150×5 с отверстием Ø 33 мм; 2 - упор; 3- крепление для сетки Ø 5 мм; 4 - стальная труба Ø 33 - 24 мм; 5 - деревянные колья Ø 80-100 мм; 6 - сетка
ВПС устанавливают параллельно оси дороги на расстоянии 30 высот от бровки земляного полотна.
Сетка на полимерной основе крепится к кольям (стойкам) на высоте 25 см над уровнем земли. Снегозащитное устройство из сетки должно находиться на расстоянии 60 м от бровки земляного полотна.
ж) Защитные устройства из снега
Большое распространение при защите автомобильных дорог от снежных заносов получили устройства из снега.
Наиболее распространенными видами устройств, создаваемых из снега, являются снежные траншеи.
Траншеи могут применяться как самостоятельное средство защиты - на дорогах IV-V категорий или в сочетании с другими средствами (насаждениями, заборами, щитами), чтобы усилить снегозадерживающее действие и повысить надежность снегозащитных линий на дорогах I, II, III категории.
Первую со стороны дороги траншею при отсутствии других средств защиты размещают не ближе 30 м и не дальше 100 м от бровки земляного полотна. Если траншеи служат дополнительным средством защиты к имеющимся лесополосам, щитам или заборам, то ближайшую к дороге траншею размещают с полевой стороны имеющихся снегозащитных линий на расстоянии 20-30 м от них. Полная снегосборная способность траншей приведена в табл. 9.
Таблица 9
|
Конструкция защиты |
Высота снежного покрова, м |
Расстояние между траншеями, м |
Ширина траншеи, м |
Снегозадерживающая способность, м3/м, при глубине траншей, м |
|||
|
0,3 |
0,5 |
0,8 |
1,0 |
||||
|
1 |
2 |
3 |
4 |
5 |
6 |
7 |
8 |
|
Одиночная |
0,2 |
- |
4 |
2,56 |
4,00 |
- |
- |
|
0,3 |
- |
4 |
- |
4,50 |
6,00 |
- |
|
|
0,5 |
- |
4 |
- |
- |
7,60 |
8,90 |
|
|
Система из двух траншей |
0,2 |
8,0 |
4 |
6,00 |
8,88 |
- |
- |
|
0,3 |
8,0 |
4 |
- |
10,02 |
14,34 |
17,22 |
|
|
0,5 |
8,0 |
4 |
- |
- |
17,20 |
20,10 |
|
|
Система из трех траншей |
0,2 |
8,0 |
4 |
9,40 |
13,80 |
- |
- |
|
0,3 |
8,0 |
4 |
- |
15,50 |
22,00 |
26,30 |
|
|
0,5 |
8,0 |
4 |
- |
- |
26,18 |
30,50 |
|
|
Система из четырех траншей |
0,2 |
8,0 |
4 |
12,88 |
18,64 |
- |
- |
|
0,3 |
8,0 |
4 |
- |
21,06 |
29,70 |
35,46 |
|
|
0,5 |
8,0 |
4 |
- |
- |
35,19 |
40,90 |
|
|
Система из пяти траншей |
0,2 |
8,0 |
4 |
16,32 |
23,52 |
- |
- |
|
0,3 |
8,0 |
4 |
- |
26,58 |
37,38 |
44,58 |
|
|
0,5 |
8,0 |
4 |
- |
- |
44,10 |
51,30 |
|
|
Система из шести траншей |
0,2 |
8,0 |
4 |
19,76 |
28,40 |
- |
- |
|
0,3 |
8,0 |
4 |
- |
32,10 |
45,06 |
53,70 |
|
|
0,5 |
8,0 |
4 |
- |
- |
53,06 |
61,70 |
|
|
Система из семи траншей |
0,2 |
8,0 |
4 |
23,20 |
33,28 |
- |
- |
|
0,3 |
8,0 |
4 |
- |
37,62 |
52,74 |
62,82 |
|
|
0,5 |
8,0 |
4 |
- |
- |
62,02 |
72,10 |
|
|
Система из восьми траншей |
0,2 |
8,0 |
4 |
26,64 |
38,16 |
- |
- |
|
0,3 |
8,0 |
4 |
- |
43,14 |
60,72 |
71,94 |
|
|
0,5 |
8,0 |
4 |
- |
- |
70,98 |
82,50 |
|
|
Система из девяти траншей |
0,2 |
8,0 |
4 |
30,08 |
43,04 |
- |
- |
|
0,3 |
8,0 |
4 |
- |
48,66 |
68,10 |
81,06 |
|
|
0,5 |
8,0 |
4 |
- |
- |
79,94 |
92,90 |
|
|
Система из десяти траншей |
0,2 |
8,0 |
4 |
33,52 |
47,92 |
- |
- |
|
0,3 |
8,0 |
4 |
- |
54,18 |
75,78 |
90,18 |
|
|
0,5 |
8,0 |
4 |
- |
- |
88,90 |
103,3 |
|
С целью повышения эффективности работы траншей после заполнения их снегом до половины глубины производят их восстановление по старому следу.
Прокладывать и возобновлять траншеи следует по возможности в тихую, безветренную погоду (в промежутках между метелями) или при слабом ветре, когда перенос снега не препятствует видимости.
При устройстве и возобновлении траншей на прилегающих к дороге полях, занятых озимыми, на дне траншей должен быть оставлен снег слоем около 10 см во избежание вымерзания и повреждения озимых проходящими механизмами. В остальных случаях дно траншеи после прохода механизма должно быть свободным от снега.
Траншеи прочищают до тех пор, пока толщина снегоотложений в них не достигнет 1,0-1,5 м. В этом случае прокладывают новые траншеи параллельно имеющимся на расстоянии 12-15 м от них и на таком же расстоянии друг от друга.
Целесообразные условия применения различных снегозадерживающих устройств приведены в табл. 10.
Таблица 10
|
Вид защиты |
Характеристика |
Снегозадерживающая способность, м3/м |
|
Снегозащитные лесные полосы |
Одна |
25-200 |
|
Две |
250-300 |
|
|
Снегозадерживающие заборы |
Однорядные |
100-200 |
|
Двухрядные |
500-800 |
|
|
Переносные щиты |
Высота 2 м |
30-120 |
|
Устройство с изменяющейся просветностью |
Один ряд |
20-90 |
|
Два ряда |
90-120 |
|
|
Три ряда |
140-170 |
|
|
Два ряда с перестановкой |
250-300 |
|
|
Сетка из полимерных материалов |
Высота 2 м |
10-75 |
|
Снежные траншеи (валы) |
Один ряд |
до 10 |
|
Два ряда |
10-20 |
|
|
Четыре ряда |
20-40 |
|
|
Шесть рядов |
40-60 |
|
|
Восемь рядов |
50-80 |
|
|
Десять рядов |
70-100 |
з) Защита дорог в горной местности (лавины)
В горных районах, где выпадает много снега, часто происходят снежные обвалы (лавины) с крутых склонов.
Различают сухие и мокрые лавины. Сухие лавины образуются в периоды морозов. Лавины от мокрого снега образуются весной или во время сильных оттепелей.
По характеру движения снежной массы различают три типа лавин:
- осовы, при которых вся масса снега на склоне равномерно смещается по склону без строго фиксированного русла;
- лотковые лавины, при которых снег со снегосборного бассейна скользит по логу (каналу стока);
- прыгающие лавины, которые вначале смещаются по каналу стока, а затем, когда он образует горизонтальную площадку или уклон его увеличивается, слетают с уступа и обрушиваются на дно долины.
Основными причинами, вызывающими сход лавин, являются:
- спокойные снегопады и снегопады с ветром, приводящие к накоплению снега на лавиноопасных участках;
- постоянно протекающий внутри снежной толщи процесс перекристаллизации, в результате которого в нижней части появляются слабо связанные между собой частицы снега, что приводит к обрушению всего слоя снега;
- наступившая оттепель.
При изысканиях горных дорог необходимо установить участки, опасные в отношении снежных обвалов. Наиболее опасны в отношении лавинообразования склоны с крутизной 20-45°, на которых может накапливаться большое количество снега, постепенно приходящего в неустойчивое состояние. На крутых склонах с уклоном более 60° больших накоплений снега не бывает, так как он осыпается постепенно.
При сходе лавин несколько раз в год лавинные лотки четко выработаны, отсутствуют травяной покров и кустарники. В местах конусов выноса лавин снег сохраняется до июня - конца июля, здесь появляется влаголюбивая растительность.
Если лавины повторяются один раз в несколько лет, на склонах развивается угнетенный стелющийся кустарник и сохраняются поваленные и сильно наклоненные тонкоствольные деревья лиственных пород с вертикальными ветками.
Если лавины образуются редко, 1 раз в несколько лет, в лавинных лотках и на верхней части конусов выноса может развиваться лиственный лес со следами повреждений.
При изысканиях дорог следует избегать пересечения дорогой лавиноопасных мест. Если обойти лавиноопасное место не представляется возможным, дорогу располагают:
- над дном долины на такой высоте, чтобы ее не закрывали завалы от скатывающихся лавин;
- или дорогу следует прокладывать через участки каналов стока, где легче всего построить снегозащитные галереи и они будут иметь наименьшую длину.
Дорожно-эксплуатационные организации должны иметь перечень участков дорог, на которых когда-либо были зарегистрированы лавины. Для чего ведется специальный журнал регистрации схода лавин с указанием года, месяца и числа их схода, места схода, примерной толщи отложений снега над дорогой и на дороге, если лавина ее достигла.
На лавиноопасных участках, в зависимости от местных условий, осуществляют защиту дорог от лавин следующими способами:
- пропуск лавин над или под защищаемым объектом;
- искусственное обрушение снега на лавиноопасных участках;
- уменьшение накопления снега в лавиносборных бассейнах;
- удержание снега на склонах, не допуская его соскальзывания;
- отвод лавин в сторону от объекта.
На участках дорог с интенсивным движением лавины пропускают над защищаемым объектом, для чего сооружают железобетонные или каменные галереи и навесы.
Если условия данного участка не позволяют пропустить лавину под дорогой (узкие, глубокие ущелья), тогда следует на данном участке строить закрытую галерею, типа тоннеля, и лавина до момента таяния остается над этой галереей.
Галереи и навесы являются дорогими сооружениями и должны строиться по специальным проектам.
Если сразу нельзя построить долговременное сооружение на участках, где наблюдаются осовы, допускается постройка деревянных навесов. На участках с лотковыми и прыгающими лавинами деревянные навесы не устраивают.
На участках с небольшой интенсивностью движения, где допустима задержка движения, разрешается искусственный сброс лавин с временным закрытием движения и последующей уборкой снега. Такой сброс целесообразнее всего производить обстрелом из минометов.
Накопление снега в лавиносборных бассейнах предупреждают установкой сплошных щитов, каменных стен, железобетонных заборов, террас, надолбов, канав, рвов, плетней и других преград, которые задерживают снег на подходах к лавиносбору. Все эти снегозадерживающие устройства располагаются таким образом, чтобы задержать снег на подступах к лавиносборам и не допустить его переноса в лавиносборные бассейны.
Под защитой этих сооружений выращивают крупные, способные произрастать в данном месте деревья.
Надолбы делают из бревен диаметром 15-20 см и длиной около 2 м. Их зарывают в землю вертикально на глубину 50-60 см в шахматном порядке на расстоянии 1 м друг от друга и соединяют проволокой в секции по 10 штук. Каждую секцию крепят оттяжками к скалам. Если грунт не позволяет врыть надолбы, ставят пирамиды из бревен, связанные проволокой. Пирамиды размещают также в шахматном порядке на расстоянии 2 м одна от другой и заваливают у основания камнем.
Плетневые изгороди делают высотой 1,5 м в виде секций длиной по 10 м, размещая их на склоне в шахматном порядке. Вместо плетневых изгородей можно использовать проволочные сетки, натянутые на колья.
Щиты для удержания снега на склонах делают высотой до 3,5 м из досок толщиной 70 мм и устанавливают на рельсовых опорах. Расстояние между опорами 2,5-3,0 м. Глубина заложения опор определяется расчетом. На крутых склонах щиты следует дополнительно закреплять оттяжками.
Отвод лавин в сторону от защищаемого объекта осуществляют при помощи лавинорезов - бетонных или каменных треугольных дамб, обращенных своим режущим ребром навстречу лавине. Лавинорезы строят по специальным проектам.
а) Организационное обеспечение
С целью повышения эффективности работ по снегоочистке составляется проект организации работ, который является составной частью «Проекта содержания автомобильных дорог». В проекте указываются технология зимней уборки, типы снегоочистителей, разрабатываются схемы снегоочистки, определяются места стоянки снегоочистительной техники.
Для эксплуатируемых дорог проекты организации работ по снегоочистке составляются подрядной организацией и согласовываются с органами управления дорожным хозяйством.
Для проектируемых дорог проект организации работ по снегоочистке разрабатывается проектной организацией, как раздел инженерного проекта по содержанию дорог.
Организационное обеспечение зимнего содержания автомобильных дорог, взаимодействие структурных подразделений в зимний период, вопросы дорожного обеспечения освещены в Руководстве по борьбе с зимней скользкостью на автомобильных дорогах (ОДН 218.3.023-2003).
На случай возможных экстремальных погодных условий, с целью недопущения перерыва движения распоряжением органа управления дорожным хозяйством в составе одной из дорожных организаций создается мобильный дорожный отряд, за которым закрепляются снегоочистительная техника и бригада из водительского состава. С водительским составом проводится инструктаж.
б) Патрульная снегоочистка автомобильных дорог
На всех дорогах, где дорожные условия позволяют применять быстроходные машины, основой снегоочистительных мероприятий рекомендована патрульная очистка.
Патрульная снегоочистка производится одиночными или отрядом плужно-щеточных автомобилей. Патрулирование ведется периодическими проходами снегоочистителей по закрепленному для обслуживания участку дороги в течение всей метели или снегопада. Число машин для патрульной снегоочистки определяется по формуле
![]()
где L - длина участка дороги, км;
В - ширина очищаемой поверхности дороги, м;
tпp - время между проходами снегоочистителей, ч;
Кв - коэффициент использования рабочего времени (0,7-0,9);
vpaб - рабочая скорость ведущей машины, км/ч;
b - ширина захвата снегоочистителя.
Время между проходами снегоочистителей
![]()
где hдоп - допустимая толщина слоя снега на покрытии, мм;
iсн - интенсивность снегонакопления на покрытии, мм/ч.
На автомобильных дорогах с небольшой интенсивностью движения при малой интенсивности снегопада или метели и в районах слабой метелевой деятельности очистку следует производить одиночными снегоочистителями.
На автомобильных дорогах с интенсивным движением, более 2000 авт./сут, а также в условиях частых и интенсивных метелей патрульная снегоочистка ведется отрядами машин. Для патрульной снегоочистки используют одноотвальные автомобильные снегоочистители.
В районах, где во время метелей образуются косы и переметы, которые нельзя пробить одноотвальными снегоочистителями, в состав отрядов следует вводить двухотвальные автомобильные снегоочистители.
Плужными автомобильными снегоочистителями снег перемещают от оси дороги к обочинам. Машины располагаются в плане уступами одна за другой на расстоянии 30-60 м, причем ближняя к обочине машина работает с боковым крылом. При большой ширине земляного полотна (шире 15-16 м) во избежание многих перевалок снега допускается работа по схеме с разным направлением перемещения (рис. 14).

Рис. 14. Схема очистки с разным направлением перемещения
В этом случае часть снегоочистителей сдвигает снег в направлении оси дороги, а другие (идущие по краю) - в сторону кюветов. При работе по такой схеме во избежание образования снежных заносов на дороге необходимо сразу же удалять роторными снегоочистителями снежный вал, образующийся на оси дорожного полотна.
При отсутствии роторных снегоочистителей и недостаточном количестве плужных можно вести работу по схеме, показанной на рис. 15.

Рис. 15. Схема проходов снегоочистителей при расчистке дороги, занесенной толстым слоем снега (при отсутствии роторных снегоочистителей)
Снегоочистители приступают к очистке с краев проезжей части, а затем, после удаления снега, находящегося на краю дорожного полотна, переходят к очистке середины дороги.
Если дорогу приходится очищать при сильном боковом ветре, нецелесообразно отбрасывать снег против ветра, так как он сдувается обратно. В таких случаях патрульную снегоочистку производят по схеме, позволяющей перемещать снег в направлении, совпадающем с направлением ветра (рис. 16).

Рис. 16. Патрульная очистка дороги при сильном боковом ветре
При работе по этой схеме не рекомендуются снегоочистители с жесткозакрепленным (неповоротным) отвалом, так как приходится делать холостые проходы. Следует пользоваться снегоочистителями с поворотным отвалом. Пройдя в одном направлении, меняют положение отвала снегоочистителя на обратное и, возвращаясь, отбрасывают снег по ветру.
При отсутствии снегоочистителей с поворотным отвалом применяют двухотвальные плужные снегоочистители. Снег сгребают той стороной двухотвального плуга, при пользовании которой направление перемещения снега совпадает с направлением ветра.
На участках дорог, проходящих по косогорам, очистка дорожного полотна начинается со стороны верхового откоса и ведется последовательными проходами снегоочистителей с перемещением снега в сторону низового откоса. Схема проходов аналогична применяемой при очистке во время сильного бокового ветра.
в) Зимняя уборка автомагистралей и скоростных дорог
Основной задачей зимнего содержания автомагистралей и скоростных дорог является своевременная очистка от снега проезжей части с целью предотвращения уплотнения (прикатывания) свежевыпавшего снега движущимися транспортными средствами.
При снегоочистке автомагистралей и скоростных дорог технологические операции следует выполнять со скоростью, близкой к скорости транспортного потока, за возможно короткий срок и минимальное количество проходов. Для этого на многополосных магистралях требуется применение высокопроизводительной техники.
При зимнем содержании дорог с многополосным движением используется, как правило, комплексная снегоочистка с применением химических реагентов.
При получении информации о погодных условиях с возможным образованием на покрытии ледяных отложений (стекловидного льда) необходимо провести предварительную (профилактическую) обработку покрытия химическими ПГМ в количестве 5-15 т/м2.
Предварительная обработкам может производиться за 1-2 ч до прогнозируемого явления погоды.
Для предварительной обработки на дорогах могут быть использованы твердые, жидкие реагенты, а также смоченная соль.
Сухие соли эффективно применять только в том случае, если на поверхности дорожного покрытия имеется достаточное количество влаги для ускорения действия химических ПГМ. Если покрытие сухое или на нем недостаточное количество влаги, то целесообразно использовать смоченные соли.
При температуре воздуха выше -5°С более эффективно использовать растворы солей или природные рассолы, которые могут распределяться и на сухое покрытие перед выпадением осадков для предотвращения образования скользкости.
При снегопаде в зависимости от его интенсивности, температуры воздуха и дальнейшего прогноза погоды определяются временные параметры выхода распределителей противогололедных материалов (ПГМ) и снегоочистительной техники.
Уточняются нормы посыпки.
Для предотвращения возможного образования гололеда или уплотненного слоя снега под колесами движущегося транспорта проводится первичная (профилактическая) обработка покрытия противогололедными материалами (сухие твердые химикаты, растворы или предварительно увлажненные твердые реагенты).
Обработка должна проводиться до или немедленно после ухудшения погодных условий.
При сильном продолжительном снегопаде, при наличии предварительной обработки, проводят дополнительную обработку. При этом норму распределения дополнительной обработки принимают равной норме предварительной обработки (5-15 г/м2).
Если профилактическая обработка не была произведена, то технологический цикл снегоуборки с применением ПГМ осуществляется в следующей последовательности: выдержка, обработка дорожных покрытий реагентами, интервал, сгребание и уборка снега.
При слабом снегопаде интенсивностью до 3 см/ч к распределению ПГМ необходимо приступить через 30-40 мин после его начала или при образовании на покрытии слоя снега толщиной 2-4 см.
При снегопаде интенсивностью 3-5 см/ч или образовании слоя снега толщиной 6 см к распределению ПГМ приступают через 20-30 мин. К очистке покрытия приступают при толщине снега 4-8 см.
При снегопаде с интенсивностью более 8 см/ч к снегоочистке приступают с момента начала снегопада и распределение противогололедных материалов выполняют одновременно с проведением снегоочистки.
Норму распределения противогололедных материалов принимают в соответствии с данными табл. 11.
Таблица 11
|
Наименование ПГМ |
Соответствующий номер ТУ на ПГМ |
Рыхлый снег и накат, t°С |
||||||||||
|
-2 |
-4 |
-8 |
-12 |
-16 |
-20 |
|||||||
|
1 |
2 |
3 |
4 |
5 |
6 |
7 |
8 |
|||||
|
Твердые, г/м2 |
||||||||||||
|
Хлориды |
|
|||||||||||
|
1. Технический хлористый натрий карьерный |
ТУ 2152-067-00209 527-95 |
10 |
20 |
30 |
50 |
60 |
- |
|||||
|
2. ПГМ на основе хлористого натрия |
ТУ 2152-082-002 09527-99 |
10 |
15 |
30 |
45 |
55 |
- |
|||||
|
3. Биодор |
ТУ 2149-001-93688694-06 |
15 |
20 |
30 |
40 |
50 |
60 |
|||||
|
4.ХКФ |
ТУ 2152-05761643-2000 |
10 |
20 |
30 |
40 |
50 |
60 |
|||||
|
Карбамиды |
|
|||||||||||
|
5.КАС |
ТУ 2149-001-4018052-97 |
20 |
25 |
60 |
- |
- |
- |
|||||
|
Нитраты |
|
|||||||||||
|
6. АНС (НКМ) |
ТУ 6-03-349-73 |
20 |
25 |
50 |
75 |
- |
- |
|||||
|
7. НКММ |
ТУ 2149-051-05 761643-98 |
10 |
20 |
40 |
65 |
- |
- |
|||||
|
Жидкие, мл/м2 |
||||||||||||
|
Хлориды |
|
|||||||||||
|
8.ХКМ |
ТУ 2149-026-13164401-98 |
20 |
40 |
65 |
80 |
95 |
110 |
|||||
|
9. Биомаг |
ТУ 2152-001-53561075-02 |
20 |
50 |
70 |
90 |
100 |
115 |
|||||
|
Ацетаты |
|
|||||||||||
|
10. Антиснег-1 |
ТУ 2149-001-45052508-00 |
10 |
20 |
30 |
50 |
60 |
80 |
|||||
|
11. Нордвэй |
ТУ 2149-002-40874358-00 |
5 |
10 |
15 |
25 |
30 |
40 |
|||||
Если после окончания первого цикла работ снегопад продолжается, то работы по снегоочистке и распределению ПГМ повторяются.
Если примененная механохимическая обработка не дает нужных результатов, то следует увеличить расход реагентов.
В случае выпадения значительного количества снега или при образовании наката, жидкие химикаты не применяются.
Распределители ПГМ в зависимости от ширины проезжей части двигаются уступом в одном направлении. Последующий (второй) водитель контролирует распределение по границе первого.
Колонна снегоочистителей после выхода на магистраль выстраивается с дистанцией между снегоочистителями в 15-20 м. С целью предупреждения обгона колонны попутными транспортными средствами движение колонны осуществляется со скоростью не менее 45-55 км/ч.
Убираемая ширина второй в колонне и последующих машин меньше впереди идущих за счет перекрытия следа.
Колонна широкозахватных снегоочистителей, оснащенных фронтальными плугами и боковыми отвалами (плугами), при сгребании снега обеспечивает однопроходную качественную очистку магистрали.
В зависимости от интенсивности снегопада при накоплении на покрытии 2-2,5 см снежной массы или при подтверждении метеослужбой окончания снегопада проводится подметание (промет) проезжей части.
г) Расчистка снежных заносов
Для расчистки снежных заносов применяется весь комплект снегоочистительных машин.
Снежные заносы небольшой толщины (0,2-0,3 м) расчищают плужными снегоочистителями, работающими совместно с автогрейдерами, которые перемещают небольшие валы в сторону кюветов.
При толщине снега 0,6-0,7 м применяют двухотвальные снегоочистители, автогрейдеры или бульдозеры.
При толщине снега 1,0-1,2 м применяют двухотвальные плужные или роторные снегоочистители. Дальнейшую уборку снега с дороги производят роторные снегоочистители.
Сильные заносы, образовавшиеся в результате метелей, расчищают роторными снегоочистителями, двухотвальными тракторными снегоочистителями и бульдозерами. Эти машины могут применяться в комплексе или самостоятельно.
При расчистке снежных заносов бульдозерами с неповоротным отвалом снежные отложения убирают поочередными проходами в одну и другую сторону под углом к оси дороги.
Универсальными бульдозерами с отвалами, поставленными под углом к оси дороги, снежные заносы расчищают последовательными проходами вдоль оси дороги.
Во избежание образования снежных заносов от валов, образовавшихся после расчистки, снег необходимо отодвигать от бровки земляного полотна на расстояние, равное 10-15 высотам снежного вала.
При толщине отложений более 1,5 м роторные снегоочистители на колесном ходу должны работать совместно с бульдозерами. Бульдозеры сдвигают снег к роторному снегоочистителю, который отбрасывает его с дороги.
Роторный снегоочиститель на гусеничном ходу может расчищать снежные отложения любой толщины послойно, последовательными проходами.
В горных условиях, если снег можно сбрасывать под откос, находящийся с одной стороны дороги, при расчистке отложений большой толщины снег сдвигают со всей ширины дорожного полотна в сторону откоса.
Удобнее снег сдвигать универсальным бульдозером. На участках, где имеются парапеты, нижний слой снега, расположенный на уровне парапетов, удаляют роторным снегоочистителем.
Занесенные выемки при большой толщине отложений (более 2 м) расчищаются роторными снегоочистителями на гусеничном ходу. Снег удаляют послойно последовательными проходами вдоль выемки.
При отсутствии роторных снегоочистителей на гусеничном ходу снежные отложения в выемке разрабатывают бульдозерами совместно с роторными снегоочистителями на колесном ходу. Бульдозеры работают короткими проходами (10-15 м) с загружением отвала в зависимости от плотности и прочности снежных отложений. Они сдвигают снег к роторным снегоочистителям, которые отбрасывают его с дороги.
Количество роторных снегоочистителей для ликвидации снежных заносов определяется по формуле
![]()
где Wуб - количество снега, подлежащего уборке, м3;
Пэ - эксплуатационная производительность снегоочистителя, м3/ч;
tэ - директивное время на уборку снежных отложений, ч.
Снежные завалы, образуемые лавинами на горных дорогах, расчищают различными способами в зависимости от рельефа местности, по которой проходит дорога. Наиболее целесообразна расчистка завалов роторными снегоочистителями.
На участках с невысокими насыпями (до 1 м), проходящими по дну долин у подножия склонов, снежные отложения удаляют послойно сверху вниз до дорожного полотна, оставляя уступы высотой 2 м и шириной не менее 1 м.
При большой высоте завалов из соображений охраны труда нельзя прорезать глубокие траншеи сразу до низа завала.
Рекомендуется снимать слои последовательными проходами на всю ширину полосы расчистки.
Завалы в полувыемках-полунасыпях расчищают с перемещением снега в сторону низового откоса.
В продольном направлении завалы расчищают роторными снегоочистителями двумя способами. Если завал имеет сравнительно большую длину по протяжению дороги, работа выполняется с разворотами машин. При небольшой длине завала следует работать без разворотов. Снегоочиститель разрабатывает завал наклонными слоями под возможно большим углом к горизонтальной плоскости.
Очистку дороги от снега на серпантинах можно выполнять универсальными бульдозерами со сваливанием снега под откос. При применении роторных снегоочистителей разработку снежных отложений на серпантинах ввиду их малых радиусов производят короткими отрезками - «секущими».
д) Уборка снежных валов, очистка от снега пересечений в одном уровне, остановок для пассажирского транспорта, площадок отдыха, объектов сервиса, тротуаров, элементов обустройства
Снегоочистительные машины должны работать на возможно большой скорости с целью повышения производительности и отбрасывания снега за пределы дорожного полотна без образования валов.
Нельзя допускать образования снежных отложений большого объема. Их нужно удалять в начальной стадии образования. Работа по уборке снежных валов должна обеспечивать требования к содержанию земляного полотна автомобильных дорог в зимний период (Руководство по оценке уровня содержания автомобильных дорог. 2003). Снежные валы удаляют с помощью роторных снегоочистителей.
Если валы сдвинуты на кюветы, то следует применять роторные снегоочистители на гусеничном ходу, ввиду опасности съезда колесных снегоочистителей в кювет.
При отсутствии снегоочистителя на гусеничном ходу для удаления валов, расположенных над кюветами, применяют автогрейдеры в комплекте с роторными снегоочистителями на колесном ходу.
Автогрейдер сдвигает снег из вала на дорожное полотно, а роторный снегоочиститель отбрасывает его в сторону.
На участках, защищенных лесом, где на дорожное полотно попадает только снег, выпадающий из облаков, а снежные валы не создают опасности для движения транспорта на дороге, можно ограничиться сдвиганием снежных валов в сторону при помощи авто грейдеров, универсальных бульдозеров или двухотвальных роторных снегоочистителей.
Снегоочистку автомобильных дорог в местах локального накопления снега (ограждения, направляющие столбики, возвышающиеся бордюры и т.п.) необходимо производить звеном, состоящим из плужных снегоочистителей, автогрейдера и роторного снегоочистителя. При этом автогрейдер должен сдвигать формируемый плужными снегоочистителями вал от ограждений или бордюров в сторону проезжей части на минимальное расстояние, а замыкающий звено роторный снегоочиститель - отбрасывать его за пределы земляного полотна. Окончательная уборка снега из-под ограждений должна производиться после завершения патрульной снегоочистки средствами малой механизации или вручную. На прямых участках дороги, проходящих по лесному массиву, удаление снега за барьерным ограждением не производится до весеннего периода.
Снегоочистка на участках дороги, проходящих через населенные пункты и города, мостовых переходах производится с использованием шнековых и шнекороторных снегоочистителей, лаповых снегопогрузчиков, осуществляющих погрузку убираемого снега в автомобили-самосвалы.
Убранный снег транспортируется в специально отведенные места складирования (снегосвалки).
Использование шнекороторных снегоочистителей эффективно при погрузке валов больших размеров и слежавшихся или смерзшихся валов, но их использование днем на искусственных сооружениях с большой интенсивностью движения затруднено, так как снегоочиститель и загружаемый транспорт движутся рядом, занимая по ширине много места.
Лаповые снегопогрузчики имеют меньшую производительность, но при их использовании снегопогрузчик и автомобиль-самосвал движутся друг за другом, что уменьшает занимаемую ширину проезжей части и делает возможным их использование на искусственных сооружениях независимо от времени суток.
Снегоочистку пунктов весового контроля, пунктов учета интенсивности движения, тротуаров и пешеходных дорожек осуществляют средствами малой механизации или вручную после завершения работ по снегоочистке проезжей части. При этом удаление снега с отдельных элементов весов и датчиков, вмонтированных в покрытие проезжей части, целесообразно производить сжатым воздухом, используя для этой цели передвижные компрессорные установки.
Очистку автомобильных дорог от снега производят специальными снегоочистительными машинами, которые подразделяются на два основных типа: плужные и роторные.
а) Плужные снегоочистители
Плужные снегоочистители снабжены пассивным рабочим органом в виде одноотвального или двухотвального плуга, монтируемого в передней или средней части самоходной базовой машины.
Плужные снегоочистители бывают сдвигающего и отбрасывающего действия в зависимости от навесного плужного оборудования.
Плужные снегоочистители сдвигающего типа используются для удаления снега плотностью 0,35 - 0,45 г/см3, прокладки снежных траншей.
Скоростные плужные снегоочистители отбрасывающего действия обладают высокой производительностью и дальностью отбрасывания снега до 10 м.
Используются такие снегоочистители преимущественно при удалении свежевыпавшего снега и небольших по высоте рыхлых снежных отложений (до 200 мм).
После их прохода не образуются ярко выраженные валы на обочине дороги, что значительно уменьшает снегозаносимость дорожного полотна.
Скоростной плужный снегоочиститель может оснащаться дополнительным боковым отвалом (крылом). Крылья могут использоваться или для самостоятельной работы, или в сочетании с плугом для увеличения дальности отброса снега.
Плужные снегоочистители могут работать в комплексе со щеточным, пескоразбрасывающим оборудованием, а такие современные машины, как ЭД 405 У (на шасси «КамАЗ»), могут выполнять весь комплекс работ по летнему и зимнему содержанию автомобильных дорог.
б) Роторные снегоочистители
Второй группой снегоочистителей являются роторные снегоочистители, снабженные активным рабочим органом (ротором).
Роторные снегоочистители разделяются на плужно-роторные, шнеко-роторные и фрезерно-роторные.
Применяются, главным образом, на очистке автомобильных дорог от больших снежных заносов и завалов, расчистке горных участков дорог от выпавшего, наметенного и лавинного снега, а также при удалении снежных валов, созданных снегоочистителями сдвигающего действия.
- У плужно-роторного снегоочистителя рабочий орган состоит из плуга со встроенным в него лопастным ротором. Их применение целесообразно для уборки сухого рыхлого снега небольшой плотности (0,12-0,20 г/см3).
- Рабочий орган шнеко-роторного снегоочистителя состоит из шнекового питателя и лопастного ротора, смонтированных в одном корпусе. Работают такие снегоочистители на снеге средней плотности (0,40-0,50 г/см3).
- У фрезерно-роторного снегоочистителя рабочий орган состоит из фрезерного питателя и одного или двух лопастных роторов, смонтированных в общем корпусе. Применение таких снегоочистителей целесообразно при разработке снега большой плотности (0,6 - 0,7 г/см3).
Широкое применение на работах по зимнему содержанию автомобильных дорог имеют трактора, укомплектованные различным оборудованием.
Роторные снегоочистители, монтируемые на тракторе типа К-700, предназначаются для расчистки сильнозанесенных участков дорог и после схода лавин; роторный снегоочиститель на тракторе Т-40А - для уборки снежных валов, образованных плужными снегоочистителями или автогрейдерами.
в) Снегопогрузчики
Снегопогрузчики универсальные относятся к типу машин, предназначенных для погрузки в транспортные средства снега из сформированных валов и куч, а также могут быть использованы для очистки дорог от снега на труднодоступных для очистки участках с возможностью погрузки снега в транспортные средства.
Снегопогрузчики бывают лапового типа и фрезерные.
В настоящее время отечественной промышленностью выпускаются снегопогрузчики лапового типа, например, КО-206А (модернизированный вариант выпускавшихся ранее снегопогрузчиков Д-566, Д-566А) с шириной рабочей зоны снегоочистки 2,6 м; мощность двигателя 62 л.с.
Снегопогрузчик лапового типа СпП-17 предназначен для погрузки снега, уплотненного снега, скола в автомобили-самосвалы через кабину водителя. Ширина снегоочистки 2,6 м. Мощность двигателя 107 л.с.
Фрезерные снегопогрузчики, как например КО-207 и его модификация СНФ-200 на тракторе МТЗ-82, предназначены для погрузки снега (за исключением погрузки скола льда и уплотненного снега) в транспортные средства.
При необходимости снегопогрузчик может обеспечивать перекидку снега или укладку его в валы. Ширина рабочей зоны 2,0 м, 2,4 м. Дальность отброса снега при перекидке 16 м.
Снегопогрузчик фрезерно-роторный КО-721 на базе трактора МТЗ-82. Ширина рабочей зоны 1,8 м. Дальность отбрасывания снега 20 м.
г) Малое снегоочистительное оборудование
Трактора с малой мощностью, укомплектованные специальным навесным оборудованием, могут использоваться на различных работах по зимнему содержанию (на очистке снега у барьерных ограждений, а также очистке небольших по площади территорий и тротуаров). Разновидностью этих машин являются.
Машины тротуароуборочные ТЗО-КО на базе трактора ВТЗ-2027, ВТЗ-2032А с шириной рабочей зоны плуга 1,86 м; тротуароуборочные машины на базе трактора Т-25А (КО-712, КО-718, КО-719) с шириной рабочей зоны 1,6 м, 1,7 м; машина тротуароуборочная ДКТ-501 на базе трактора Т - «Уралец» с шириной рабочей зоны плуга 1,45 м и дальностью отбрасывания снега 7 м используются на уборке тротуаров малых площадей.
Трактор типа МТЗ, оснащенный оборудованием для очистки барьерного ограждения от снега (ОТ-4), в комплексе с автогрейдером, оснащенным оборудованием ОБГ-2, используются для уборки снега за ограждениями, что полностью исключает ручной труд при очистке металлических барьерных ограждений.
д) Организация и обустройство снегосвалок
Снежно-ледяные отложения, убираемые с участков дороги, проходящих по искусственным сооружениям (эстакад, мостов, путепроводов) в черте городов и населенных пунктов, должны вывозиться на снегоприемные пункты.
Количество снегоприемных пунктов и места их расположения определяются исходя из условий:
- обеспечения оперативности работ по вывозке снега с автомобильной дороги;
- минимизации транспортных расходов при вывозке снега;
- объемов снега, подлежащего вывозу с дороги;
- обеспеченности беспрепятственного подъезда к ним транспорта.
Снегоприемные пункты бывают в виде «сухих» снежных свалок и снегоплавильных шахт, подключенных к системе городской канализации.
«Сухие» снегосвалки не должны располагаться в водоохранных зонах водных объектов населенного пункта.
Участок, отведенный под «сухую» снегосвалку, должен иметь твердое покрытие; обваловку по всему периметру, исключающую попадание талых вод на рельеф; водосборные лотки и систему транспортировки талой воды на локальные очистные сооружения; ограждение по всему периметру; контрольно-пропускной пункт, оборудованный телефонной связью.
Снегосвалки должны эксплуатировать организации, имеющие квалифицированный персонал и необходимую технику для осуществления комплекса работ, связанных с приемом, складированием снега и обслуживанием очистных сооружений.
На устройство сооружения для сбора, хранения снега разрабатывается проектная документация.
Схема «сухой» снегосвалки приведена на рис. 17.

|
Площадь "сухой" снегосвалки -1,1 га Максимальная высота складирования - 4 м Полезная площадь "сухой" снегосвалки - 0,93 га Полезный объем "сухой" снегосвалки - 33,7 тыс.м3 Объем талой воды - 27 тыс.м3 Равномерный сброс талой воды в течение 95 дней Скорость сброса талых вод - 280 м3/сут |
I - транспортировка и разгрузка снежной массы автомобилями-самосвалами II - перемещение и уплотнение (до плотности 0,8 т/м3) снежной массы бульдозером
|
Рис. 17. Схема « сухой» снегосвалки
|
Наименование пунктов |
Количество осадков, мм |
Снежный покров |
|||
|
за год |
Жидких осадков за год |
суточный максимум |
средняя дата образования и разрушения устойчивого снежного покрова |
средняя из наибольших высот за зиму, см |
|
|
1 |
2 |
3 |
4 |
5 |
6 |
|
Алтайский край |
|||||
|
Алейск |
503 |
- |
85 |
10/XI-7/IV |
22 |
|
Барнаул |
613 |
380 |
61 |
7/XI-6/IV |
46 |
|
Беля |
584 |
485 |
97 |
15/XI-19/III |
- |
|
Бийск |
625 |
481 |
59 |
7/XI-11/IV |
40 |
|
Горно-Алтайск |
795 |
604 |
69 |
4/XI-17/IV |
60 |
|
Змеиногорск |
706 |
452 |
113 |
8/XI-I4/IV |
56 |
|
Камень-на-Оби |
420 |
344 |
119 |
9/XI-12/IV |
30 |
|
Катанда |
472 |
378 |
35 |
4/XI-10/IV |
39 |
|
Кош-Агач |
127 |
94 |
54 |
18/XI-30/III |
12 |
|
Онгудай |
379 |
174 |
52 |
12/XI-27/III |
24 |
|
Родино |
359 |
291 |
50 |
12/ХI-8/IV |
22 |
|
Рубцовск |
454 |
300 |
- |
12/XI-4/IV |
- |
|
Славгород |
337 |
276 |
70 |
12/XI-9/IV |
30 |
|
Амурская область |
|||||
|
Благовещенск |
575 |
529 |
122 |
10/XI-23/III |
21 |
|
Бысса |
707 |
- |
106 |
25/X-19/IV |
40 |
|
Гош |
604 |
- |
107 |
3/XI-11/IV |
25 |
|
Дамбуки |
539 |
- |
90 |
26/X-16/IV |
29 |
|
Джалинда |
475 |
- |
- |
30/X-7/IV |
20 |
|
Ерофей Павлович |
476 |
- |
81 |
28/X-5/IV |
22 |
|
Магдагачи |
485 |
- |
- |
2/XI-4/IV |
- |
|
Поярково |
499 |
- |
94 |
12/XI-28/III |
17 |
|
Сковородино |
482 |
424 |
97 |
26/X-1/IV |
- |
|
Тыган-Уркан |
576 |
- |
- |
27/X-9/IV |
20 |
|
Тындинский |
580 |
- |
69 |
21/X-25/IV |
35 |
|
Усть-Нюкжа |
456 |
388 |
128 |
22/Х-21/IV |
- |
|
Шимановск |
556 |
- |
78 |
2/XI-2/IV |
20 |
|
Экимчан |
728 |
604 |
96 |
20/Х-26/IV |
- |
|
Архангельская область |
|||||
|
Амдерма |
314 |
170 |
30 |
15/X-1/IV |
- |
|
Архангельск |
675 |
459 |
55 |
8/XI-23/IV |
66 |
|
Вельск |
656 |
- |
66 |
13/XI-20/IV |
51 |
|
Индига |
388 |
- |
48 |
3/XI-16/V |
32 |
|
Канин Нос |
354 |
- |
- |
13/XI-21/V |
- |
|
Каргополь |
690 |
538 |
- |
12/XI-23/IV |
48 |
|
Котлас |
661 |
522 |
- |
15/XI-17/IV |
- |
|
Койнас |
688 |
- |
80 |
1/XI-6/IV |
69 |
|
Малые Кармакулы |
317 |
190 |
28 |
21/X-6/VI |
- |
|
Мезень |
592 |
444 |
51 |
4/XI-3/V |
36 |
|
Нарьян-Мар |
609 |
444 |
- |
27/X-12/V |
42 |
|
Нижняя Пеша |
396 |
- |
- |
31/X-8/V |
- |
|
Онега |
706 |
494 |
72 |
8/XI-24/IV |
58 |
|
Холмогоры |
667 |
- |
72 |
7/XI-26/IV |
42 |
|
Хоседа-Хард |
528 |
- |
- |
18/X-17/V |
- |
|
Шенкурск |
656 |
446 |
54 |
12/XI-21/IV |
60 |
|
Яренск |
705 |
- |
81 |
2/XI-25/IV |
64 |
|
Астраханская область |
|||||
|
Астрахань |
249 |
214 |
73 |
- |
5 |
|
Оранжерейный Промысел |
229 |
- |
- |
- |
- |
|
Харабали |
285 |
- |
54 |
24/ХII-1/III |
- |
|
Белгородская область |
|||||
|
Белгород |
637 |
- |
83 |
15/ХII-21/III |
18 |
|
Новый Оскол |
580 |
- |
- |
20/ХII-25/III |
19 |
|
Владимирская область |
|||||
|
Александров |
724 |
- |
105 |
23/XI-11/IV |
- |
|
Владимир |
691 |
- |
109 |
24/XI-6/IV |
44 |
|
Юрьев-Польский |
709 |
- |
- |
22/XI-11/IV |
- |
|
Волгоградская область |
|||||
|
Волгоград |
478 |
- |
82 |
14/ХII-20/III |
- |
|
Калач-на-Дону |
510 |
- |
- |
26/ХII-13/III |
- |
|
Камышин |
433 |
355 |
84 |
13/ХII-26/III |
- |
|
Котельниково |
510 |
- |
53 |
21/ХII-8/III |
- |
|
Михайловка |
538 |
- |
- |
18/ХII-22/III |
- |
|
Палласовка |
539 |
- |
56 |
16/ХII-28/III |
18 |
|
Серафимович |
514 |
432 |
68 |
23/ХII-18/III |
19 |
|
Урюпинск |
505 |
364 |
94 |
14/ХII-29/III |
- |
|
Эльтон |
389 |
311 |
99 |
20/ХII-16/III |
- |
|
Вологодская область |
|||||
|
Белозерск |
696 |
- |
76 |
19/XI-16/IV |
- |
|
Великий Устюг |
673 |
- |
- |
15/XI-21/IV |
42 |
|
Выгра |
754 |
573 |
72 |
21/ХI-19/IV |
37 |
|
Тотьма |
777 |
676 |
51 |
13/XI-22/IV |
60 |
|
Воронежская область |
|||||
|
Борисоглебск |
603 |
- |
78 |
9/ХII-31/III |
41 |
|
Воронеж |
696 |
612 |
112 |
4/ХII-29/III |
25 |
|
Россошь |
567 |
- |
98 |
18/ХII-17/III |
- |
|
Екатеринбургская область |
|||||
|
Верхотурье |
566 |
408 |
58 |
4/XI-11/IV |
53 |
|
Ивдель |
541 |
384 |
91 |
29/X-17/IV |
- |
|
Карпинск |
492 |
- |
77 |
3/XI-11/IV |
64 |
|
Красноуфимск |
600 |
426 |
64 |
8/XI-18/IV |
56 |
|
Нижний Тагил |
628 |
484 |
80 |
7/XI-6/IV |
33 |
|
Екатеринбург |
582 |
442 |
94 |
6/XI-8/IV |
41 |
|
Ивановская область |
|||||
|
Иваново |
744 |
- |
77 |
20/XI-12/IV |
57 |
|
Юрьевец |
706 |
- |
61 |
20/XI-13/IV |
53 |
|
Иркутская область |
|||||
|
Алыгджер |
628 |
540 |
56 |
2/XI-15/IV |
- |
|
Бодайбо |
500 |
350 |
52 |
19/X-23/IV |
54 |
|
Братск |
406 |
308 |
102 |
27/X-13/IV |
33 |
|
Дубровское |
507 |
- |
56 |
18/Х-1/IV |
60 |
|
Ербогачен |
401 |
268 |
71 |
12/X-4/V |
55 |
|
Зима |
424 |
- |
66 |
4/XI-5/IV |
28 |
|
Илимск |
445 |
- |
52 |
20/Х-23/IV |
46 |
|
Иркутск |
489 |
401 |
82 |
2/XI-31/III |
39 |
|
Качуг |
360 |
- |
79 |
2/XI-11/IV |
- |
|
Киренск |
457 |
329 |
66 |
21/Х-26/IV |
46 |
|
Невон |
429 |
- |
56 |
21/X-25/IV |
44 |
|
Перевоз |
372 |
- |
48 |
21/X-17/IV |
22 |
|
Слюдянка |
526 |
463 |
144 |
10/XI-25/III |
20 |
|
Тайшет |
475 |
361 |
71 |
30/X-7/IV |
44 |
|
Токма |
434 |
- |
- |
16/X-3/V |
- |
|
Тулун |
438 |
- |
101 |
31/Х-12/IV |
36 |
|
Калининградская область |
|||||
|
Калининград |
856 |
- |
110 |
28/ХII-11/III |
- |
|
Калужская область |
|||||
|
Жиздра |
759 |
620 |
74 |
1/XII-2/IV |
44 |
|
Калуга |
738 |
598 |
89 |
29/XI-6/IV |
- |
|
Малоярославец |
749 |
- |
- |
1/XII-2/IV |
- |
|
Спас-Деменск |
779 |
- |
59 |
7/XII-4/IV |
31 |
|
Камчатская область |
|||||
|
Апука |
551 |
- |
57 |
8/XI-21/V |
69 |
|
Верхнее Пенжино |
371 |
163 |
46 |
12/X-29/V |
62 |
|
Долиновка |
459 |
- |
43 |
30/X-1/V |
63 |
|
Ича |
927 |
621 |
- |
4/XI-4/V |
- |
|
Каменское |
342 |
171 |
- |
18/X-10/V |
- |
|
Карагинск |
590 |
236 |
- |
7/XI-24/V |
111 |
|
Ключи |
860 |
413 |
62 |
6/XI-9/V |
113 |
|
Лопатка |
1041 |
604 |
72 |
24/XI-11/V |
82 |
|
Мильково |
620 |
285 |
51 |
28/X-12/V |
101 |
|
Петропавловск-Камчатский |
1617 |
938 |
207 |
9/XI-16/V |
104 |
|
Соболево |
1024 |
- |
92 |
1/XI-12/V |
67 |
|
Тигиль |
523 |
314 |
- |
28/X-l/V |
- |
|
Усть-Большерецк |
1121 |
522 |
67 |
14/XI-9/V |
38 |
|
Усть-Воямполка |
645 |
- |
65 |
27/X-10/V |
31 |
|
Усть-Камчатск |
1050 |
546 |
58 |
13/XI-19/V |
112 |
|
Усть-Хайрюзово |
766 |
498 |
61 |
1/XI-11/V |
56 |
|
Чемурнаут |
556 |
301 |
- |
20/X-21/V |
- |
|
Эссо |
462 |
249 |
46 |
21/X-4/V |
59 |
|
Кемеровская область |
|||||
|
Гурьевск |
440 |
330 |
53 |
7/ХI-31/III |
17 |
|
Кемерово |
476 |
362 |
46 |
3/ХI-13/IV |
51 |
|
Киселевск |
497 |
- |
49 |
4/ХI-31/III |
20 |
|
Кондома |
1043 |
657 |
72 |
27/Х-28/IV |
115 |
|
Мариинск |
495 |
- |
69 |
1/XI-9/IV |
43 |
|
Тайга |
716 |
- |
82 |
28/X-18/IV |
- |
|
Тисуль |
524 |
- |
78 |
10/XI-1/IV |
16 |
|
Кировская область |
|||||
|
Кирс |
689 |
- |
61 |
8/XI-19/IV |
- |
|
Котельнич |
657 |
- |
56 |
12/XI-16/IV |
- |
|
Мураши |
753 |
- |
69 |
9/XI-20/IV |
- |
|
Опарино |
692 |
- |
69 |
10/XI-20/IV |
60 |
|
Советск |
673 |
- |
77 |
15/XI-20/IV |
- |
|
Костромская область |
|||||
|
Вохма |
735 |
- |
69 |
15/XI-20/IV |
- |
|
Галич |
707 |
- |
70 |
17/XI-15/IV |
- |
|
Кострома |
720 |
597 |
62 |
21/XI-14/IV |
55 |
|
Макарьев |
744 |
- |
75 |
18/XI-16/IV |
- |
|
Пыщуг |
743 |
- |
- |
12/XI-20/IV |
- |
|
Солигалич |
682 |
- |
79 |
16/XI-20/IV |
- |
|
Чухлома |
775 |
- |
- |
13/ХI-19/IV |
68 |
|
Шарья |
744 |
- |
- |
18/XI-15/1V |
- |
|
Краснодарский край |
|||||
|
Армавир |
634 |
- |
- |
- |
13 |
|
Ейск |
530 |
- |
135 |
- |
- |
|
Красная Поляна |
1904 |
- |
132 |
31/ХII-16/III |
62 |
|
Краснодар |
711 |
- |
99 |
- |
14 |
|
Майкоп |
775 |
- |
88 |
- |
17 |
|
Новороссийск |
805 |
- |
153 |
- |
- |
|
Сочи |
1664 |
1474 |
177 |
- |
6 |
|
Староминская |
611 |
- |
112 |
29/XII-2/II |
12 |
|
Темрюк |
541 |
- |
201 |
- |
- |
|
Тихорецк |
640 |
- |
92 |
25/ХII-19/II |
11 |
|
Туапсе |
1424 |
- |
227 |
- |
- |
|
Усть-Лабинск |
715 |
- |
108 |
30/ХII-23/II |
- |
|
Красноярский край |
|||||
|
Агата |
567 |
363 |
48 |
8/X-27/V |
65 |
|
Агинское |
491 |
- |
60 |
9/XI-7/IV |
- |
|
Ачинск |
520 |
374 |
99 |
29/X-12/IV |
39 |
|
Байкит |
518 |
300 |
49 |
12/X-6/V |
78 |
|
Богучаны |
458 |
334 |
63 |
24/Х-19/IV |
35 |
|
Ванавара |
478 |
296 |
57 |
15/Х-30/IV |
56 |
|
Верхнеимбатское |
680 |
422 |
40 |
15/X-12/V |
87 |
|
Волочанка |
452 |
- |
- |
1/X-6/VI |
- |
|
Диксон |
274 |
151 |
- |
2/X-11/VI |
- |
|
Дзержинское |
441 |
- |
- |
28/Х-12/IV |
- |
|
Енисейск |
572 |
389 |
50 |
25/X-24/IV |
57 |
|
Ессей |
342 |
222 |
56 |
4/X-22/V |
27 |
|
Игарка |
705 |
430 |
55 |
8/X-3/VI |
- |
|
Канск |
436 |
- |
72 |
10/ХI-5/IV |
22 |
|
Кежма |
364 |
251 |
39 |
22/Х-19/IV |
34 |
|
Ключи |
615 |
- |
63 |
24/Х-18/IV |
47 |
|
Красноярск |
429 |
393 |
67 |
12/ХI-28/III |
42 |
|
Минусинск |
362 |
300 |
51 |
15/XI-24/III |
25 |
|
Норильск |
363 |
- |
- |
30/IX-22/V |
- |
|
Тура |
396 |
277 |
50 |
12/X-6/V |
43 |
|
Туруханск |
666 |
426 |
61 |
8/X-22/V |
90 |
|
Хатанга |
355 |
160 |
- |
29/IХ-4/IV |
- |
|
Челюскин, мыс |
209 |
77 |
- |
16/IХ-1/IV |
- |
|
Чунская Стрелка |
475 |
- |
71 |
11/X-7/V |
- |
|
Шира |
360 |
- |
65 |
12/ХI-23/III |
14 |
|
Ярцево |
667 |
447 |
77 |
18/X-7/V |
81 |
|
Курганская область |
|||||
|
Курган |
472 |
- |
87 |
11/XI-5/IV |
26 |
|
Шадринск |
484 |
- |
71 |
11/XI-10/IV |
- |
|
Курская область |
|||||
|
Курск |
764 |
642 |
144 |
7/ХII-30/III |
42 |
|
г. Санкт-Петербург |
|||||
|
Санкт-Петербург |
673 |
498 |
76 |
6/ХII-31/III |
32 |
|
Ленинградская область |
|||||
|
Выборг |
785 |
- |
84 |
9/XII-7/IV |
- |
|
Кингисепп |
719 |
- |
66 |
12/XII-1/IV |
- |
|
Свирица |
725 |
- |
76 |
28/XI-16/IV |
49 |
|
Липецкая область |
|||||
|
Липецк |
630 |
- |
69 |
3/ХII-5/IV |
57 |
|
Магаданская область |
|||||
|
Анадырь |
254 |
137 |
46 |
19/X-31/V |
37 |
|
Аркагала |
341 |
246 |
42 |
3/X-12/V |
20 |
|
Биллингса, мыс |
228 |
- |
33 |
27/IХ-11/VI |
38 |
|
Еропол |
363 |
- |
- |
10/X-25/V |
62 |
|
Илирней |
277 |
161 |
- |
2/X-1/VI |
35 |
|
Кегали |
327 |
- |
- |
7/X-26/V |
- |
|
Коркодон |
325 |
176 |
28 |
7/X-17/V |
56 |
|
Кулу |
330 |
211 |
- |
7/X-16/V |
43 |
|
Марково |
432 |
- |
40 |
10/X-27/V |
62 |
|
Нагаева, бухта |
470 |
310 |
60 |
22/X-12/V |
31 |
|
Ола |
315 |
- |
- |
27/Х-24/VI |
15 |
|
Омолон |
305 |
174 |
- |
8/X-19/V |
43 |
|
Омсукчан |
332 |
- |
32 |
4/Х-22/V |
47 |
|
Островное |
248 |
- |
38 |
3/X-21/V |
39 |
|
Палатка |
477 |
310 |
46 |
16/X-11/V |
35 |
|
Пестрая Дресва |
604 |
290 |
82 |
20/X-26/V |
39 |
|
Провидения, бухта |
494 |
- |
68 |
30/X-29/V |
92 |
|
Сеймчан |
341 |
167 |
37 |
8/X-11/V |
60 |
|
Снежное |
327 |
- |
40 |
9/X-1/VI |
48 |
|
Срднекан |
509 |
- |
37 |
3/X-24/V |
90 |
|
Стрелка |
347 |
205 |
49 |
4/X-16/V |
53 |
|
Сусуман |
314 |
217 |
52 |
1/X-9/V |
23 |
|
Усть-Олой |
303 |
161 |
47 |
4/X-17/V |
49 |
|
Уэлен |
386 |
201 |
49 |
17/X-8/VI |
60 |
|
Шмидта, мыс |
254 |
127 |
66 |
27/IХ-10/VI |
45 |
|
Эльген |
344 |
- |
31 |
6/X-14/V |
51 |
|
Ямск |
460 |
235 |
59 |
30/X-23/V |
39 |
|
г. Москва |
|||||
|
Москва |
696 |
522 |
61 |
26/XI-6/IV |
48 |
|
Московская область |
|||||
|
Волоколамск |
759 |
- |
- |
2/XII-4/IV |
- |
|
Дмитров |
715 |
- |
- |
27/XI-8/IV |
46 |
|
Кашира |
699 |
- |
80 |
26/XI-4//IV |
- |
|
Можайск |
34 |
631 |
- |
28/XI-5/IV |
- |
|
Серпухов |
722 |
- |
52 |
27/XI-1/IV |
42 |
|
Мурманская область |
|||||
|
Ена |
577 |
- |
47 |
2/XI-8/V |
60 |
|
Ковда |
579 |
- |
44 |
9/XI-6/V |
71 |
|
Краснощелье |
5.62 |
348 |
48 |
4/XI-11/V |
60 |
|
Кузомень |
568 |
- |
- |
17/XI-11/V |
- |
|
Ловозеро |
494 |
- |
- |
30/X-5/V |
- |
|
Мончегорск |
566 |
- |
51 |
2/XI-2/V |
- |
|
Мурманск |
589 |
336 |
39 |
10/XI-6/V |
31 |
|
Пялица |
567 |
340 |
45 |
14/XI-9/V |
15 |
|
Хибины |
640 |
384 |
51 |
3/XI-11/V |
50 |
|
Нижегородская область |
|||||
|
Выкса |
648 |
- |
- |
29/XI-7/IV |
- |
|
Красные Баки |
696 |
- |
86 |
20/XI-14/IV |
- |
|
Нижний Новгород |
675 |
540 |
72 |
19/XI-12/IV |
59 |
|
Новгородская область |
|||||
|
Боровичи |
683 |
492 |
- |
5/ХII-3/IV |
28 |
|
Новгород |
728 |
- |
65 |
6/XII-4/IV |
- |
|
Старая Русса |
657 |
- |
- |
13/XII-27/III |
- |
|
Холм |
783 |
- |
- |
8/XII-1/IV |
30 |
|
Новосибирская область |
|||||
|
Барабинск |
481 |
361 |
73 |
3/XI-11/IV |
24 |
|
Болотное |
669 |
408 |
64 |
3/X-11/IV |
68 |
|
Карасук |
354 |
- |
- |
10/XI-9/IV |
24 |
|
Кочки |
470 |
- |
68 |
7/XI-12/IV |
27 |
|
Купино |
368 |
313 |
93 |
5/XI-11/IV |
29 |
|
Кыштовка |
530 |
- |
- |
1/XI-14/IV |
- |
|
Новосибирск |
514 |
370 |
95 |
1/XI-10/IV |
37 |
|
Пихтовка |
566 |
- |
75 |
30/Х-18/IV |
39 |
|
Татарск |
448 |
354 |
83 |
5/XI-10/IV |
22 |
|
Чулым |
545 |
- |
56 |
4/XI-13/IV |
32 |
|
Омская область |
|||||
|
Большеречье |
447 |
353 |
- |
6/XI-11/IV |
23 |
|
Большие Уки |
514 |
- |
- |
2/XI-15/IV |
- |
|
Васисс |
541 |
- |
- |
28/Х-18/IV |
59 |
|
Исилькуль |
456 |
- |
- |
7/XI-11/IV |
38 |
|
Калачинск |
432 |
- |
- |
8/XI-11/IV |
29 |
|
Омск |
374 |
317 |
75 |
8/XI-8/IV |
24 |
|
Тара |
560 |
448 |
79 |
3/XI-18/IV |
47 |
|
Усть-Ишим |
554 |
- |
- |
1/XI-18/IV |
40 |
|
Черлак |
398 |
- |
- |
10/XI-5/IV |
- |
|
Оренбургская область |
|||||
|
Кувандык |
527 |
- |
- |
15/XI-8/IV |
43 |
|
Оренбург |
432 |
315 |
60 |
21/XI-8/IV |
57 |
|
Сорочинск |
456 |
- |
47 |
21/XI-6/IV |
- |
|
Шарлык |
518 |
- |
- |
18/XI-15/IV |
38 |
|
Орловская область |
|||||
|
Ливны |
624 |
|
82 |
13/ХII-31/III |
25 |
|
Орел |
674 |
532 |
71 |
7/ХII-1/IV |
26 |
|
Пензенская область |
|||||
|
Земетчино |
596 |
495 |
73 |
27/XI-6/IV |
41 |
|
Кузнецк |
627 |
- |
80 |
221XI-11/IV |
42 |
|
Пенза |
666 |
460 |
100 |
23/ХI-6/IV |
55 |
|
Пермская область |
|||||
|
Бисер |
962 |
616 |
82 |
23/X-27/IV |
92 |
|
Кизел |
1009 |
636 |
74 |
28/X-18/IV |
- |
|
Кудымкар |
664 |
- |
68 |
7/ХI-19/IV |
56 |
|
Ножовка |
619 |
- |
60 |
9/XI-19/IV |
61 |
|
Оса |
666 |
- |
- |
11/ХI-17/IV |
- |
|
Пермь |
821 |
- |
72 |
3/XI-18/IV |
76 |
|
Чердынь |
818 |
564 |
73 |
30/Х-27/IV |
94 |
|
Чусовой |
794 |
- |
- |
6/XI-16/IV |
80 |
|
Приморский край |
|||||
|
Владивосток |
813 |
732 |
176 |
6/XII-19/II |
14 |
|
Дальнереченск |
724 |
644 |
- |
24/ХI-30/III |
24 |
|
Вострецово |
868 |
- |
82 |
13/XI-8/IV |
50 |
|
Пограничный |
668 |
608 |
158 |
3/ХII-3/III |
10 |
|
Псковская область |
|||||
|
Великие Луки |
690 |
545 |
60 |
12/ХII-28/III |
- |
|
Гдов |
727 |
- |
52 |
12/XII-1/IV |
25 |
|
Дно |
696 |
- |
- |
11/XII-27/III |
|
|
Опочка |
719 |
- |
66 |
14/XII-25/III |
23 |
|
Псков |
672 |
538 |
- |
16/XII-25/III |
21 |
|
Ростовская область |
|||||
|
Азов |
613 |
- |
97 |
3/ХII-28/II |
- |
|
Каменск-Шахтинский |
496 |
- |
99 |
30/XII-26/II |
- |
|
Миллерово |
587 |
- |
64 |
21/ХII-18/III |
- |
|
Ростов-на-Дону |
593 |
551 |
100 |
27/ХII-28/II |
13 |
|
Таганрог |
599 |
- |
140 |
1/I-28/II |
- |
|
Чертково |
561 |
- |
63 |
21/ХII-20/III |
- |
|
Рязанская область |
|||||
|
Михайлов |
670 |
- |
59 |
29/ХI-31/III |
28 |
|
Ряжск |
600 |
- |
119 |
7/ХII-25/III |
- |
|
Рязань |
614 |
491 |
91 |
28/XI-4/IV |
41 |
|
Сасово |
617 |
- |
- |
2/XII-4/IV |
- |
|
Тума |
679 |
- |
- |
25/XI-8/IV |
46 |
|
Самарская область |
|||||
|
Самара |
574 |
453 |
72 |
23/XI-5/IV |
36 |
|
Сызрань |
505 |
- |
77 |
26/XI-5/IV |
- |
|
Саратовская область |
|||||
|
Балашов |
559 |
- |
63 |
1/XII-4/IV |
26 |
|
Ершов |
441 |
353 |
44 |
5/XII-4/IV |
26 |
|
Малый Узень |
398 |
298 |
80 |
6/ХII-30/III |
18 |
|
Озинки |
394 |
- |
72 |
6/XII-5/IV |
- |
|
Ртищево |
579 |
- |
81 |
29/XI-3/IV |
42 |
|
Саратов |
496 |
382 |
65 |
1/XII-3/IV |
- |
|
Сахалинская область |
|||||
|
Александровск-СахалинскиЙ |
772 |
548 |
77 |
8/XI-26/IV |
68 |
|
Долинск |
1113 |
- |
222 |
16/XI-23/IV |
111 |
|
Кировское |
769 |
- |
70 |
1/XI-5/V |
73 |
|
Корсаков |
916 |
- |
86 |
1/XII-12/IV |
40 |
|
Курильск |
1040 |
718 |
170 |
16/XII-6/IV |
- |
|
Ноглики |
777 |
- |
87 |
9/XI-3/IV |
66 |
|
Оха |
546 |
- |
62 |
2/XI-12/V |
85 |
|
Пильво |
693 |
- |
- |
11/XI-21/IV |
62 |
|
Поронайск |
889 |
738 |
135 |
17/XI-20/IV |
83 |
|
Углегорск |
600 |
- |
94 |
14/XI-9/IV |
- |
|
Холмск |
777 |
- |
137 |
23/XI-6/IV |
63 |
|
Смоленская область |
|||||
|
Велиж |
851 |
740 |
85 |
7/ХII-13/III |
- |
|
Вязьма |
738 |
612 |
69 |
30/XI-7/IV |
55 |
|
Смоленск |
792 |
681 |
67 |
3/XII-5/IV |
47 |
|
Ставропольский край |
|||||
|
Арзгир |
395 |
- |
67 |
24/XII-2/III |
- |
|
Дивное |
477 |
- |
98 |
28/ХII-25/II |
11 |
|
Ессентуки |
584 |
- |
78 |
17/ХII-7/III |
- |
|
Невинномысск |
596 |
- |
84 |
20/ХII-27/II |
- |
|
Пятигорск |
548 |
488 |
92 |
18/ХII-1/III |
- |
|
Теберда |
763 |
- |
75 |
19/ХII-2/III |
- |
|
Черкесск |
588 |
- |
92 |
21/ХII-23/II |
10 |
|
Тамбовская область |
|||||
|
Мичуринск |
618 |
457 |
80 |
4/XII-2/IV |
42 |
|
Моршанск |
630 |
- |
- |
26/XI-4/IV |
33 |
|
Тамбов |
624 |
487 |
60 |
28/XI-1/IV |
38 |
|
Тверская область |
|||||
|
Бежецк |
697 |
544 |
78 |
27/XI-6/IV |
47 |
|
Вышний Волочек |
726 |
566 |
79 |
27/XI-9/IV |
49 |
|
Ржен |
761 |
624 |
70 |
29/XI-5/IV |
42 |
|
Тверь |
783 |
642 |
68 |
1/XII-4/TV |
45 |
|
Томская область |
|||||
|
Александровское |
590 |
448 |
61 |
26/Х-25/IV |
58 |
|
Бакчар |
560 |
- |
74 |
30/Х-17/IV |
44 |
|
Ваюганское |
674 |
438 |
56 |
28/Х-21/IV |
- |
|
Колпашево |
598 |
466 |
64 |
27/Х-24/IV |
- |
|
Пышкино-Троицкое |
499 |
364 |
69 |
31/Х-19/IV |
- |
|
Пудино |
563 |
405 |
87 |
31/Х-18/IV |
47 |
|
Томск |
637 |
420 |
76 |
31/Х-19/IV |
60 |
|
Усть-Озерное |
633 |
- |
96 |
23/Х-28/IV |
- |
|
Тульская область |
|||||
|
Волово |
662 |
536 |
- |
28/XI-6/IV |
- |
|
Тула |
678 |
542 |
68 |
2/ХII-29/III |
27 |
|
Тюменская область, Национальные округа территории Крайнего Севера |
|||||
|
Березово |
514 |
365 |
70 |
19/X-5/V |
65 |
|
Викулово |
506 |
- |
- |
4/XI-12/IV |
31 |
|
Гыда |
311 |
- |
- |
9/X-10/IV |
- |
|
Демьяновское |
559 |
- |
64 |
27/Х-20/IV |
44 |
|
Ишим |
454 |
- |
60 |
11/XI-12/IV |
24 |
|
Казым |
519 |
- |
- |
21/X-30/V |
62 |
|
Ларьяк |
604 |
447 |
- |
22/X-28/IV |
69 |
|
Леуши |
555 |
444 |
- |
5/XI-16/IV |
56 |
|
Марресале |
307 |
147 |
- |
14/X-2/VI |
- |
|
Новый порт |
387 |
255 |
- |
I4/X-4/IV |
43 |
|
Ныда |
433 |
316 |
- |
16/X-18/V |
- |
|
Няксимволь |
541 |
373 |
- |
28/X-28/IV |
54 |
|
Октябрьское |
592 |
- |
104 |
23/X-4/V |
56 |
|
Салехард |
585 |
351 |
52 |
16/X-20/V |
- |
|
Сеяха |
329 |
- |
- |
9/X-9/VI |
28 |
|
Сосьвинская |
512 |
- |
- |
21/Х-26/IV |
55 |
|
Сургут |
676 |
460 |
68 |
23/X-4/V |
80 |
|
Тазовский |
394 |
268 |
- |
10/X-2/VI |
- |
|
Тамбей |
301 |
162 |
- |
10/X-13/VI |
42 |
|
Тарко-Сале |
584 |
392 |
50 |
12/X-18/V |
- |
|
Тобольск |
567 |
391 |
65 |
1/ХI-18/IV |
41 |
|
Толька |
570 |
388 |
- |
14/Х-17/IV |
- |
|
Тюмень |
524 |
403 |
111 |
10/XI-9/IV |
49 |
|
Уват |
548 |
- |
- |
29/X-18/IV |
39 |
|
Ханты-Мансийск |
569 |
- |
52 |
24/X-25/IV |
- |
|
Ярково |
514 |
- |
- |
7/XI-14/IV |
34 |
|
Яр-Сале |
396 |
- |
- |
16/X-23/V |
26 |
|
Хабаровский край |
|||||
|
Аян |
919 |
698 |
138 |
29/X-15/V |
- |
|
Бикин |
693 |
616 |
130 |
17/XI-28/III |
- |
|
Бурукан |
595 |
- |
84 |
25/Х-30/IV |
- |
|
Екатерино-Никольское |
676 |
629 |
163 |
23/ХI-15/III |
11 |
|
Комсомольск-на-Амуре |
577 |
496 |
95 |
14/XI-9/IV |
- |
|
Нелькан |
446 |
285 |
60 |
16/X-6/V |
- |
|
Николаевск-на-Амуре |
657 |
440 |
82 |
1/XI-4/V |
- |
|
Охотск |
467 |
359 |
80 |
25/X-7/V |
- |
|
Советская Гавань |
849 |
- |
140 |
23/XI-12/IV |
- |
|
Софийск, прииск |
722 |
- |
89 |
15/X-4/V |
- |
|
Хабаровск |
672 |
591 |
99 |
15/ХI-28/III |
- |
|
Чекунда |
710 |
639 |
115 |
31/Х-10/VI |
- |
|
Чумикан |
681 |
490 |
128 |
28/X-8/V |
- |
|
Энкан |
521 |
375 |
- |
3/XI-3/V |
- |
|
Челябинская область |
|||||
|
Бреды |
402 |
- |
105 |
- |
- |
|
Златоуст |
795 |
541 |
78 |
3/XI-13/IV |
77 |
|
Челябинск |
521 |
413 |
88 |
12/XI-4/IV |
32 |
|
Читинская область |
|||||
|
Агинское |
361 |
- |
78 |
16/XI-14/III |
- |
|
Акша |
406 |
369 |
66 |
18/ХI-6/III |
6 |
|
Александровский Завод |
404 |
- |
- |
7/XI-3/IV |
- |
|
Борзя |
323 |
284 |
73 |
14/XI-22/III |
9 |
|
Калакан |
406 |
353 |
64 |
23/Х-12/IV |
|
|
Красный Чикой |
358 |
329 |
60 |
13/XI-24/III |
- |
|
Могоча |
470 |
413 |
99 |
29/Х-30/III |
18 |
|
Нерчинск |
326 |
- |
64 |
6/ХI-29/III |
11 |
|
Нерчинский Завод |
413 |
367 |
78 |
8/ХI-5/IV |
20 |
|
Оловянная |
342 |
- |
60 |
13/XI-19/III |
11 |
|
Петровск-Забайкальский |
386 |
- |
75 |
4/ХI-25/III |
20 |
|
Чара |
364 |
309 |
54 |
25/X-9/IV |
|
|
Чита |
375 |
338 |
51 |
13/ХI-21/III |
11 |
|
Ярославская область |
|||||
|
Пошехонье-Володарск |
768 |
- |
68 |
21/IX-17/IV |
- |
|
Ростов |
641 |
- |
98 |
25/IX-9/IV |
- |
|
Углич |
803 |
- |
- |
24/IX-13/IV |
49 |
|
Ярославль |
712 |
- |
- |
23/IX-11/IV |
- |
|
Республика Башкортостан |
|||||
|
Бирск |
678 |
468 |
68 |
11/XI-15/IV |
59 |
|
Уфа |
533 |
346 |
53 |
10/XI-16/IV |
82 |
|
Республика Бурятия |
|||||
|
Бабушкин |
657 |
486 |
127 |
6/XI-11/IV |
36 |
|
Баргузин |
327 |
248 |
78 |
30/Х-12/IV |
32 |
|
Богдарин |
373 |
- |
- |
27/X-3/IV |
- |
|
Кяхта |
345 |
304 |
76 |
12/ХI-23/III |
11 |
|
Монды |
363 |
323 |
80 |
23/XI-15/II |
- |
|
Нижнеангарск |
417 |
296 |
- |
29/Х-22/IV |
- |
|
Новоселенгинск |
255 |
- |
- |
25/ХI-16/III |
6 |
|
Онохой |
275 |
- |
- |
13/ХI-29/III |
- |
|
Романовна |
265 |
- |
53 |
27/Х-5/IV |
- |
|
Сосновка |
519 |
- |
- |
26/X-6/V |
60 |
|
Сосново-Озерское |
360 |
- |
- |
1/XI-1/IV |
- |
|
Улан-Удэ |
287 |
244 |
92 |
7/ХI-27/III |
17 |
|
Хоринск |
268 |
- |
- |
12/ХI-18/III |
- |
|
Республика Дагестан |
|||||
|
Ахты |
394 |
- |
60 |
- |
- |
|
Буйнакск |
497 |
- |
104 |
- |
9 |
|
Дербент |
410 |
- |
113 |
- |
6 |
|
Махачкала |
524 |
472 |
104 |
- |
7 |
|
Хасавюрт |
540 |
- |
- |
- |
11 |
|
Хунзах |
644 |
573 |
78 |
- |
7 |
|
Республики Ичкерия и Ингушетия |
|||||
|
Грозный |
502 |
472 |
146 |
23/ХII-18/II |
8 |
|
Республика Кабардино-Балкария |
|||||
|
Нальчик |
656 |
- |
105 |
23/ХII-3/III |
10 |
|
Прохладная |
480 |
- |
- |
17/XII-21/II |
- |
|
Республика Калмыкия |
|||||
|
Сарпа |
319 |
- |
78 |
- |
- |
|
Элиста |
416 |
307 |
58 |
18/ХII-12/III |
- |
|
Яшкуль |
309 |
- |
73 |
29/ХII-26/II |
8 |
|
Республика Карелия |
|||||
|
Кемь |
576 |
472 |
62 |
11/XI-26/IV |
49 |
|
Кондопога |
653 |
- |
50 |
30/XI-14/IV |
40 |
|
Лоухи |
591 |
- |
60 |
8/XI-3/V |
50 |
|
Олонец |
734 |
- |
97 |
29/XI-19/IV |
41 |
|
Паданы |
591 |
449 |
54 |
22/XI-22/IV |
|
|
Петрозаводск |
708 |
- |
73 |
28/XI-14/IV |
- |
|
Пудож |
758 |
- |
95 |
20/XI-22/1V |
53 |
|
Реболы |
632 |
- |
41 |
14/XI-30/IV |
- |
|
Республика Коми |
|||||
|
Вендинга |
677 |
- |
59 |
31/X-1/V |
65 |
|
Сыктывкар |
670 |
509 |
65 |
2/XI-22/IV |
54 |
|
Троицко-Печорск |
712 |
470 |
58 |
26/Х-28/IV |
74 |
|
Усть-Кулум |
721 |
- |
61 |
3/XI-25/IV |
58 |
|
Усть-Уса |
610 |
- |
47 |
21/X-8/V |
- |
|
Усть-Цильма |
646 |
426 |
66 |
27/X-3/V |
- |
|
Усть-Щугор |
744 |
491 |
52 |
22/X-11/V |
98 |
|
Республика Марий-Эл |
|||||
|
Козьмодемьянск |
660 |
- |
80 |
18/XI-14/IV |
- |
|
Йошкар-Ола |
643 |
508 |
57 |
19/XI-12/IV |
- |
|
Республика Мордовия |
|||||
|
Саранск |
620 |
502 |
128 |
21/XI-7/IV |
- |
|
Темников |
621 |
- |
107 |
25/ХI-9/IV |
- |
|
Республика Саха |
|||||
|
Алдан |
682 |
443 |
75 |
8/X-17/V |
- |
|
Аллах-Юнь |
334 |
257 |
53 |
9/X-7/V |
- |
|
Амбарчик |
209 |
104 |
28 |
30/IX-23/V |
- |
|
Амга |
268 |
182 |
66 |
12/X-2/V |
37 |
|
Верхоянск |
184 |
123 |
33 |
4/X-12/V |
28 |
|
Вилюйск |
310 |
205 |
71 |
10/X-6/V |
47 |
|
Витим |
482 |
333 |
54 |
19/X-6/V |
73 |
|
Джарджан |
441 |
273 |
40 |
30/IX-23/V |
- |
|
Дружина |
326 |
183 |
43 |
3/X-21/V |
56 |
|
Жиганск |
377 |
249 |
55 |
3/X-16/V |
61 |
|
Зырянка |
362 |
206 |
39 |
1/X-13/V |
56 |
|
Исить |
312 |
231 |
63 |
17/Х-30/IV |
- |
|
Иэма |
300 |
210 |
69 |
3/X-21/V |
- |
|
Крест-Халджа |
286 |
206 |
44 |
11/X-5/V |
44 |
|
Кюсюр |
427 |
248 |
42 |
28/IХ-31/V |
46 |
|
Ленек |
458 |
307 |
106 |
14/X-28/IV |
63 |
|
Нагорный |
646 |
536 |
67 |
15/X-9/V |
- |
|
Нюрба |
306 |
214 |
88 |
11/X-4/V |
- |
|
Оймякон |
209 |
146 |
29 |
3/X-9/V |
36 |
|
Олекминск |
327 |
226 |
65 |
17/X-28/IV |
42 |
|
Оленек |
337 |
216 |
60 |
1/X-20/V |
33 |
|
Саскылах |
308 |
194 |
28 |
26/IХ-1/VI |
- |
|
Сангар |
378 |
280 |
58 |
7/X-7/V |
- |
|
Среднеколымск |
250 |
132 |
38 |
3/X-20/V |
55 |
|
Сунтар |
308 |
206 |
- |
13/Х-1/V |
40 |
|
Сухана |
311 |
208 |
56 |
27X-22/V |
- |
|
Сюрен-Кюель |
369 |
273 |
48 |
2/X-15/V |
- |
|
Тикси, бухта |
241 |
140 |
49 |
30/IX-5/VI |
- |
|
Томпо |
312 |
237 |
29 |
5/X-10/V |
- |
|
Туой-Хая |
364 |
240 |
56 |
9/X-5/V |
- |
|
Усто-Мая |
309 |
210 |
48 |
12/X-3/V |
45 |
|
Усть-Мома |
226 |
151 |
30 |
5/X-10/V |
- |
|
Усть-Нера |
274 |
206 |
32 |
7/X-1/V |
- |
|
Чокурдах |
296 |
- |
25 |
25/IX-29/V |
- |
|
Чульман |
571 |
445 |
83 |
11/X-4/V |
49 |
|
Шелагонцы |
327 |
226 |
70 |
3/X-22/V |
- |
|
Якутск |
247 |
175 |
42 |
12/X-29/IV |
37 |
|
Республика Северная Осетия |
|||||
|
Владикавказ |
895 |
814 |
131 |
20/ХII-1/III |
12 |
|
Республика Татарстан |
|||||
|
Бугульма |
653 |
509 |
- |
- |
40 |
|
Елабуга |
590 |
- |
68 |
15/XI-11/IV |
36 |
|
Казань |
562 |
481 |
121 |
18/XI-11/IV |
32 |
|
Республика Тыва |
|||||
|
Кызыл |
253 |
202 |
51 |
11/XI-4/IV |
25 |
|
Тора-Хем |
343 |
274 |
54 |
2/XI-13/IV |
- |
|
Чадан |
243 |
- |
75 |
7/XI-2/IV |
18 |
|
Эрзин |
223 |
169 |
35 |
9/XI-17/IV |
21 |
|
Республика Удмуртия |
|||||
|
Воткинск |
570 |
- |
56 |
14/XI-14/IV |
- |
|
Глазов |
685 |
- |
62 |
12/XI-18/IV |
61 |
|
Можга |
647 |
- |
64 |
13/XI-17/IV |
61 |
|
Сарапул |
599 |
419 |
73 |
12/XI-15/IV |
61 |
|
Республика Чувашия |
|||||
|
Канаш |
625 |
- |
- |
17/XI-9/IV |
- |
|
Порецкое |
652 |
- |
108 |
21/XI-13/IV |
- |
Метелевая деятельность в районе прохождения автомобильной дороги определяется рядом параметров. Основными из них являются:
- количество метелей при различных направлениях ветра,
- продолжительность метелей по румбам,
- интенсивность метелей,
- объемы снегопереноса по румбам и суммарные за год,
- объемы снегоприноса к автомобильным дорогам различного направления.
Для определения объемов снегопереноса и снегоприноса используется метод суммарных переносов.
Исходными для расчета объемов снегоприноса к дороге являются данные наблюдений на Государственной сети метеостанций:
- дата прохождения метели,
- продолжительность метели,
- скорость и направление ветра, вид метели,
- температура воздуха при прохождении метели.
Информация выбирается для метелей, имеющих место при отрицательной температуре воздуха.
Данные о метелевом режиме выбираются из журналов наблюдений на метеостанции за срок не менее 20 лет. Форма выборки данных приведена в табл. Б.1.
Таблица Б.1.
|
Год |
Дата метели |
Время начала - время окончания метели |
Скорость ветра, м/с |
Направление ветра, румб |
Вид метели |
Температура воздуха, °С |
|
1980 |
23.12 |
19,0-21,4 |
6 |
ЮВ |
Низовая |
-13,4 |
|
1980 |
25.12 |
3,8-19,0 |
10 |
ю |
Общая |
-3,9 |
Для получения количественных значений объемов снегопереноса и снегоприноса производят обработку данных метеостанции. Обработка может проводиться вручную или с использованием специальной компьютерной программы.
При ручной обработке таблица исходных данных метеостанций дополняется тремя столбцами, в которые заносятся посчитанные для каждой метели:
- продолжительность метели,
- интенсивность метели,
- объем снегопереноса при метели.
Для каждой метели по времени начала (tн) и окончания (tк) определяется ее продолжительность по формуле
t = tк - tн,
интенсивность
I = C·V3,
объем снегопереноса
Wcп.,i = t·I,
где С - эмпирический коэффициент, равный 0,00046;
V - скорость ветра при метели на уровне флюгера, м/с.
Объемы снегопереноса по румбам и за год определяются суммированием соответствующих объемов снегопереноса, посчитанных для отдельных метелей.
Объем снегоприноса к одной стороне дороги за зиму рассчитывается по формуле
![]()
где Wпp - объем снега, принесенного к одной стороне дороги, м3/м;
Wcп,i - объем снегопереноса по i-му румбу, м3/м;
αi - азимуты румбов;
αд - азимут дороги.
Для каждого направления дороги количество румбов, с которых учитывается снегоперенос, равно 7. По данным натурных наблюдений, снег, принесенный к дороге с направлений, имеющих угол с осью дороги менее 30°, интенсивно продувается и на дороге не откладывается. Поэтому при расчете объемов снегоприноса к дороге не учитываются ветры, дующие под углом менее 30°. Схема учета направлений, с которых приносится снег к одной стороне дороги, направленной на север, приведена на рис. Б.1.

Рис. Б.1. Схема расчета объемов снегоприноса к дороге, направленной на Север
Зона действия каждого направления (по 16 румбам) определяется сектором с дугой в 22,5°.
Учитываемые направления, с которых суммируются объемы снегопереноса при расчете объемов снегоприноса для дорог различного направления, приведены в табл. Б.2.
В соответствии с расчетной схемой и данными табл. Б.2. при определении объемов снегоприноса справа к дороге, направленной на север, расчетная формула будет иметь вид
Wc(пp) = 167·Wссв·sin (αд - αссв) + WCB·sin (αд - αсв) + Wвсв·sin (αд - αвсв) + WB·sin (αд - αв) +
+ WBюB·sin (αд - αвюв) + Wюв·sin (αд - αюв) + 0,167·Wююв·sin (αд - αююв).
Таблица Б.2.
|
Направление дороги, румб |
Учитываемые объемы снегопереноса при расчете снегоприноса |
|
|
справа от дороги |
слева от дороги |
|
|
С |
16,7 % ССВ, СВ, ВСВ, В, ВЮВ, ЮВ, 16,7 % ЮЮВ |
16,7 % ЮЮЗ, ЮЗ, ЗЮЗ, З, ЗСЗ, СЗ,16,7% ССЗ |
|
ссв |
16,7 % СВ, ВСВ, В, ВЮВ, ЮВ, ЮЮВ, 16,7% Ю |
16,7 % ЮЗ, ЗЮЗ, З, ЗСЗ, СЗ, ССЗ, 16,7 % С |
|
СВ |
16,7 % ВСВ, В, ВЮВ, ЮВ, ЮЮВ, Ю, 16,7% ЮЮЗ |
16,7 % ЗЮЗ, З, ЗСЗ, СЗ, ССЗ, С, 16,7% ССВ |
|
ВСВ |
16,7 % В, ВЮВ, ЮВ, ЮЮВ, Ю, ЮЮЗ, 16,7% ЮЗ |
16,7 % 3, ЗСЗ, СЗ, ССЗ, С, ССВ, 16,7 % СВ |
|
В |
16,7 % ВЮВ, ЮВ, ЮЮВ, Ю, ЮЮЗ, ЮЗ, 16,7% ЗЮЗ |
16,7 % ЗСЗ, СЗ, ССЗ, С, ССВ, СВ, 16,7% ВСВ |
|
ВЮВ |
16,7 % ЮВ, ЮЮВ, Ю, ЮЮЗ, ЮЗ, ЗЮЗ, 16,7 % з |
16,7 % СЗ, ССЗ, С, ССВ, СВ, ВСВ, 16,7 % В |
|
ЮВ |
16,7% ЮЮВ, Ю, ЮЮЗ, ЮЗ, ЗЮЗ, З,16,7% ЗСЗ |
16,7 % ССЗ, С, ССВ, СВ, ВСВ, В, 16,7 % ВЮВ |
|
ЮЮВ |
16,7% Ю, ЮЮЗ, ЮЗ, ЗЮЗ, З, ЗСЗ, 16,7 % СЗ |
16,7 % С, ССВ, СВ, ВСВ, В, ВЮВ, 16,7 % ЮВ |
|
Ю |
16,7% ЮЮЗ, ЮЗ, ЗЮЗ, З, ЗСЗ, СЗ, 16,7 % ССЗ |
16,7 % ССВ, СВ, ВСВ, В, ВЮВ, ЮВ, 16,7 % ЮЮВ |
|
ЮЮЗ |
16,7% ЮЗ, ЗЮЗ, З, ЗСЗ, СЗ, ССЗ, 16,7% С |
16,7 % СВ, ВСВ, В, ВЮВ, ЮВ, ЮЮВ, 16,7% Ю |
|
ЮЗ |
16,7% ЗЮЗ, З, ЗСЗ, СЗ, ССЗ, С, 16,7% ССВ |
16,7 % ВСВ, В, ВЮВ, ЮВ, ЮЮВ, Ю, 16,7% ЮЮЗ |
|
ЗЮЗ |
16,7% З, ЗСЗ, СЗ, ССЗ, С, ССВ, 16,7 % СВ |
16,7 % В, ВЮВ, ЮВ, ЮЮВ, Ю, ЮЮЗ, 16,7 % ЮЗ |
|
з |
16,7% ЗСЗ, СЗ, ССЗ, С, ССВ, СВ, 16,7 % ВСВ |
16,7% ВЮВ, ЮВ, ЮЮВ, Ю, ЮЮЗ, ЮЗ, 16,7% ЗЮЗ |
|
зсз |
16,7% СЗ, ССЗ, С, ССВ, СВ, ВСВ, 16,7 % В |
16,7 % ЮВ, ЮЮВ, Ю, ЮЮЗ, ЮЗ, ЗЮЗ, 16,7 % З |
|
сз |
16,7% ССЗ, С, ССВ, СВ, ВСВ, В, 16,7 % ВЮВ |
16,7 % ЮЮВ, Ю, ЮЮЗ, ЮЗ, ЗЮЗ, З,16,7% ЗСЗ |
|
ссз |
16,7% С, ССВ, СВ, ВСВ, В, ВЮВ, 16,7 % ЮВ |
16,7 % Ю, ЮЮЗ, ЮЗ, ЗЮЗ, З, ЗСЗ, 16,7 % СЗ |
Объемы снегоприноса к дороге данного направления справа и слева рассчитываются за каждый год.
При проектировании снегозащиты и организации работ по снегоуборке необходимо учитывать различную плотность снежных отложений. По данным наблюдений на метеостанциях, плотность снежных отложений к концу зимнего периода достигает величины от 0,25 до 0,30 т/м3. Многолетние данные метеостанций и замеры плотности свежих снегоотложений от метелевого снега, проведенные Д.М. Мельником и в Воронежском инженерно-строительном институте, показывают, что в зависимости от скорости ветра и влажности плотность свежепринесенного снега может изменяться от 0,11 до 0,22 т/м3, или в среднем - 0,17 т/м3.
В Центральной части Европейской территории России в зимний период возможны частые оттепели и таяние снега, что приводит к уменьшению занимаемого им объема у снегозадерживающих преград и повышению плотности снежных отложений. Для определения объема снегоотложений на конец зимнего периода предлагается ввести в расчет коэффициент потерь снега от испарения и таяния во время оттепелей и коэффициент, характеризующий изменение плотности снежных отложений. Таким образом, объем снегоприноса к дороге пересчитывается в возможный объем снегоотложений на конец зимнего периода по формуле
Qотл = Wпp·K·(1 - Kп),
где Qотл - возможный объем снегоотложений у защиты, м3/м;
К - коэффициент, показывающий изменение плотности снежных отложений в течение зимы;
Кп - коэффициент потерь снега от испарения и снеготаяния.
![]()
где δ - плотность свежевыпавшего снега, т/м3;
δотл - среднегодовая плотность снежного покрова, т/м3.
В качестве δотл принимается среднегодовое значение плотности снежного покрова, которую можно получить по данным наблюдений метеостанций. При наличии данных о нескольких измерениях плотности снега расчет производится по формуле

где δj - результат измерения плотности снегоотложений, г/м3;
m - количество произведенных за год измерений плотности.
При расчетах можно пользоваться также данными климатологических справочников о плотности снежных отложений.
Определение коэффициента потерь снега от испарения и таяния Kп с достаточной для практического использования точностью может производиться на основе обработки данных наблюдений на метеостанциях за высотой и плотностью снежных отложений в течение зимнего периода.
По высоте и плотности снегоотложений определяют массу снега на единицу площади при максимальной (Мmах) и минимальной (Mmin) высоте снежного покрова, тогда разность вычисленных значений для каждого межметелевого периода составит потери снега (П)
п = Mmax - Mmin.
Общие потери снега за зиму составят
![]()
где m - число межметелевых периодов за зиму.
Возможная за зиму масса снега (Мвозм) без учета потерь определяется по формуле
Мвозм = Mmax1 + (Mmax2 - Mmax1) + … + (Mmax.m - Mmax.m-1).
Общий коэффициент потерь снега за зиму составит
![]()
Для расчетов принимается среднее многолетнее значение коэффициента потерь

Коэффициент потерь отражает то количество снега, на которое уменьшится его объем в снегоотложениях за весь зимний период до начала массового таяния снега весной. Его величина всегда меньше единицы.
Производят статистическую обработку полученных за ряд лет значений объемов снегоприноса к автомобильным дорогам
Параметры метелевой деятельности изменяются по годам и румбам и представляют случайную величину. Для получения расчетных объемов снегоприноса к дороге слева и справа с заданной вероятностью превышения необходимо использовать методы математической статистики.
Вычисленные по вышеприведенной методике расчетные объемы снегоприноса к автомобильным дорогам различного направления слева и справа для каждого года наблюдения ранжируют в нисходящий ряд (располагают в убывающем порядке). Каждому члену ряда ставится в соответствие ежегодная эмпирическая вероятность превышения (Рm), которая вычисляется по формуле
![]()
где m - порядковый номер члена ряда;
n - количество членов ряда (количество лет наблюдений).
По полученным данным строится теоретическая кривая распределения вероятностей для расчетных объемов снегоприноса. Для сглаживания опытных данных рекомендуется применять трехпараметрическое гамма-распределение, параметрами которого являются:
- среднее многолетнее значение расчетной величины,
- коэффициент вариации,
- отношение коэффициента асимметрии к коэффициенту вариации.
Определение параметров производится по ранжированным рядам с использованием метода моментов.
Среднее многолетнее значение объема снегоприноса определяется по формуле

где Wпр,i - i-ый член убывающего ряда,
n - количество лет наблюдения.
Расчетный коэффициент вариации определяется по формуле

где Кi - модульные коэффициенты для каждого члена ряда:
![]()
Коэффициент асимметрии для трехпараметрического гамма-распределения вычисляется по формуле

Ординаты аналитической кривой трехпараметрического гамма-распределения для различной вероятности превышения определяются по специальным статистическим таблицам в зависимости от числовых значений коэффициента вариации и отношения коэффициента асимметрии к коэффициенту вариации.
По результатам расчета можно получить значение случайной величины с любой вероятностью превышения.
На протяжении зимнего периода не всякая метель вызывает заносы на дорогах, так как метели различаются по интенсивности переноса снега, продолжительности и, следовательно, объемам снегоприноса.
При производстве наблюдений на метеостанции два атмосферных явления (к ним относятся все виды осадков и метели) считаются разными, если время между окончанием одного и началом другого составляет более 0,1 ч. Для дорожников на проведение работ по снегоочистке дается определенный директивный срок, регламентируемый ГОСТ Р 50597-93 и «Руководством по оценке уровня содержания автомобильных дорог». Следовательно, все метели, для которых межметелевый разрыв (время между окончанием предыдущей и началом последующей метели) меньше директивного срока на уборку снега являются для дорожных организаций практически одной метелью со своими расчетными параметрами - продолжительностью, объемами снегопереноса и снегоприноса.
В связи со значительным разбросом количественных оценок параметров отдельных метелей необходимо определять расчетную метель, которая позволит планировать мероприятия по снегоочистке и борьбе со снежными заносами на дорогах.
При проведении расчетов все следующие друг за другом метели, отмеченные на метеостанции как отдельные (см. таблицу Б.1), объединяются в одну, если время разрыва между окончанием предыдущей и началом последующей метели не превышает принятого в расчет межметелевого разрыва. Для каждой метели определяют ее продолжительность и объемы снегопереноса как сумму продолжительностей и объемов снегопереноса следующих друг за другом метелей, а также объемы снегоприноса к дорогам различных направлений по формуле.
Для получения расчетных параметров отдельных метелей производят статистическую обработку рядов из максимальных значений объемов снегоприноса и продолжительности метелей для каждого года наблюдения.
Для выравнивания эмпирических значений параметров также используется трехпараметрическое гамма-распределение.
|
Группы дорог для целей оценки уровня содержания |
Фактическая интенсивность движения в транспортных единицах, авт./сут |
Число полос движения |
Примечание |
|
|
от |
до |
|||
|
1 |
2 |
3 |
4 |
5 |
|
А1 |
40000 |
|
8 |
Автомагистрали* |
|
20000 |
40000 |
6 |
||
|
7000 |
20000 |
4 |
||
|
А2 |
40000 |
|
8 |
Автомобильные дороги с покрытиями из цементобетона, асфальтобетона и битумоминеральных смесей |
|
20000 |
40000 |
6 |
||
|
7000 |
20000 |
4 |
||
|
A3 |
3000 |
7000 |
2 |
|
|
Б |
1000 |
3000 |
2 |
|
|
В |
100 |
1000 |
2 |
|
|
|
100 |
1 |
||
|
Г1 |
100 |
1000 |
2 |
Автомобильные дороги с покрытиями из обработанных и необработанных вяжущими щебеночных, гравийных материалов |
|
|
100 |
1 |
||
|
Г2 |
|
100 |
1-2 |
Грунтовые автомобильные дороги |
______________
* Автомагистраль - автомобильная дорога общего пользования, имеющая на всем протяжении многополосную проезжую часть с центральной разделительной полосой, не имеющая пересечений в одном уровне с автомобильными, железными дорогами, трамвайными путями, велосипедными и пешеходными дорожками, доступ на которую возможен только через пересечения в разных уровнях.
|
Уровень содержания дорог |
Характеристика уровня содержания |
|
Допустимый |
Содержание дороги обеспечивает допустимый уровень безопасности движения в соответствии с ГОСТ Р 50597-93 «Автомобильные дороги и улицы. Требования к эксплуатационному состоянию, допустимому по условиям безопасности дорожного движения». Допускаются факты временного ограничения движения транспортных средств на отдельных участках по условиям их содержания. ДТП с сопутствующими неудовлетворительными дорожными условиями, зависящими от дефектов содержания дорог, отсутствуют. Допускается наличие не более 15% (по протяженности) участков с недопустимым уровнем содержания. |
|
Средний |
Содержание дороги обеспечивает поддержание потребительских свойств автомобильной дороги на среднем уровне. Состояние конструктивных элементов, зависящее от содержания, не вызывает необходимость временного ограничения движения транспортных средств. ДТП с сопутствующими неудовлетворительными дорожными условиями, зависящими от дефектов содержания дорог, отсутствуют. Допускается наличие не более 10% (по протяженности) участков с недопустимым уровнем содержания. |
|
Высокий |
Содержание дороги обеспечивает поддержание потребительских свойств автомобильной дороги на максимально возможном уровне, для фактически сложившегося транспортно-эксплуатационного состояния дороги. Автомобильная дорога и каждый ее конструктивный элемент содержится в состоянии, обеспечивающем круглосуточное, бесперебойное и безопасное движение транспортных средств. ДТП с сопутствующими неудовлетворительными дорожными условиями, зависящими от дефектов содержания дорог, отсутствуют. Не допускается наличие участков с недопустимым уровнем содержания. |
Примечание. На одной дороге для различных участков могут быть установлены разные уровни содержания.
|
№ п/п |
Наименование, марка |
Изготовитель |
Базовое шасси |
Ширина рабочей зоны снегоочистки, м |
Угол поворота раздаточного транспортера, град |
Вылет транспортера, м |
Высота убираемого слоя снега, мм |
Дальность отбрасывания снега, не более, м |
Масса полная, кг |
Габаритные размеры, мм |
Производительность техническая, т/ч |
Высота погрузки, мм |
Скорость |
|
|
Рабочая, км/ч |
Транспортная, км/ч |
|||||||||||||
|
1 |
2 |
3 |
4 |
5 |
6 |
7 |
8 |
9 |
10 |
11 |
12 |
13 |
14 |
15 |
|
ОТЕЧЕСТВЕННАЯ ТЕХНИКА |
||||||||||||||
|
1 |
Снегоочиститель ЗМ-14 |
ПО «Лидер» АО «Урал AЗ» |
Урал-5557 (6×6) |
2,8 |
- |
- |
500 |
15 |
11600 |
11800× 3100× 2700 |
- |
- |
10-30 |
70 |
|
2 |
Снегоочиститель ДМК-40 |
АО «КОРМЗ» |
КамАЗ-53229 (6×4) |
2,7 |
- |
- |
500 |
5 |
- |
- |
- |
- |
35 |
60 |
|
3 |
Снегоочиститель фрезерно-роторный МДКЗ-18 |
АО "Туймазинский" завод автобетоновозов |
МТЗ-82 |
2,0 |
- |
- |
500 |
10 |
- |
- |
50,0 |
- |
0-5 |
30 |
|
4 |
Снегоочиститель ДЭ-210Б-3 |
АО "Севдормаш" |
ЗИЛ 433422 (6×6) |
2,6 |
- |
- |
1300 |
25 |
12000 |
8550 × 2570 × 3050 |
1000 |
- |
0-10 |
41,0 |
|
5 |
Снегоочиститель шнекороторный ДЭ-210Б |
АО "Севдормаш" |
ЗИЛ 131Н (6×6) |
2,6 |
- |
- |
1300 |
33 |
10697 |
8470 × 2570 × 2840 |
1216,0 |
- |
0-10 |
40,0 |
|
6 |
Снегоочиститель шнекороторный ДЭ-226 |
АО "Севдормаш" (АО «УралАЗ» |
Урал 4320-10 (6×6) |
2,8 |
- |
- |
1600 |
30,0 |
15150 |
10050 × 2810 × 3000 |
1500 |
- |
0-30 |
50 |
|
7 |
Снегоочиститель шнекороторный ДЭ-210У (КО-605) |
АО "Севдормаш" (АО «УралАЗ» |
Урал 4320-10 (6×6) |
2,7 |
- |
- |
1300 |
35,0 |
21000 |
8900 × 2900 × 2850 |
2000 |
- |
0,55-30 |
50 |
|
8 |
Снегопогрузчик лаповый ТМ-3-01 |
Завод «Ударник» |
- |
2,4 |
60 |
2,5 |
500 |
- |
7500 |
9925 × 2590 × 3685 |
160,0 |
35000 |
0-3,5 |
16,0 |
|
9 |
Снегопогрузчик лаповый КО-206А |
«Уральский автомоторный завод» |
- |
2,6 |
60 |
2,5 |
1100 |
- |
6000 |
9900 × 2800 × 3300 |
- |
3800 |
0-5 |
30,0 |
|
10 |
Снегопогрузчик фрезерный КО-207 |
АО "Севдормаш" |
МТЗ-82 |
2,0 |
- |
- |
1000 |
7-16 |
5100 |
5200 × 2250 × 3700 |
180-230 |
3600 |
0-10 |
25,0 |
|
11 |
Снегопогрузчик фрезерно-роторный УМ-75 |
ГУП "Омсктрансмаш" |
ЗТМ-60Л |
1,9 |
- |
- |
500 |
10 |
4 080 |
4860 × 1884 × 2730 |
150,0 |
2500 |
0-10 |
24,5 |
|
12 |
Снегопогрузчик фрезерно-роторный СНФ-200 |
АО "Амкодор" |
МТЗ-82 |
1,4 |
- |
- |
1100 |
20-25 |
- |
5100 × 2000 × 3080 |
200 |
2500 |
- |
20,0 |
|
13 |
Снегопогрузчик фрезерно-роторный КО-721 |
АО "Севдормаш" |
МТЗ-82 |
1,8 |
- |
- |
1100 |
20 |
4850 |
5200 × 2050 × 3750 |
500 |
3000 |
- |
30,0 |
|
14 |
Универсальная машина для содержания дорог МД-433 |
АО "Кургандормаш" |
ЗИЛ-433362 (4×2) |
2,5 |
- |
- |
1000 |
- |
6180 |
8700 × 2980 × 2850 |
- |
- |
35 |
40 |
|
15 |
Универсальная машина для содержания дорог КО-815 |
АО "Мценский завод КОММАШ" |
ЗИЛ-494560 (4×2) |
3,0 |
- |
- |
500 |
2-3 |
12000 |
9500 × 2800 × 2900 |
- |
- |
35 |
40 |
|
16 |
Комплексная машина КМ-600 |
ЗАО «ТД Мотовилинские заводы» |
КамАЗ-53228 |
2,6-2,9 |
- |
- |
200-1000 |
- |
21200 |
12350 × 3150 × 3000 |
- |
- |
5-60 |
60 |
|
17 |
машина комбинированная КО-823 |
АО "Мценский завод КОММАШ" |
КамАЗ-53229 |
2,5-2,95 |
- |
- |
- |
- |
24000 |
10800 × 3150 × 3000 |
- |
- |
40-60 |
60 |
|
18 |
машина комбинированная КО-806 |
АО "Мценский завод КОММАШ" |
МАЗ-5337 (4×2) |
2,5 |
- |
- |
1000 |
5 |
15200 |
7400 × 2500 × 3000 |
- |
- |
35 |
50 |
|
19 |
машина комбинированная поливомоечная АКПМ-3У |
АО "Севдормаш" |
Урал 4320 (6×6) |
2,5-3,0 |
- |
- |
500 |
- |
20000 |
10200 × 3000 × 2900 |
- |
- |
35 |
55 |
|
20 |
машина дорожная комбинированная ЭД-405 |
АО "Комплексные дорожные машины" |
КамАЗ-53213 (6×4) |
2,47-4,0 |
- |
- |
1000 |
5 |
20500 |
10800 × 3150 × 3000 |
- |
- |
35 |
60 |
|
21 |
машина дорожная ЭД-226 |
АО "Комплексные дорожные машины" |
ЗИЛ-433102 (4×2) |
2,7-3,0 |
- |
- |
500 |
2-3 |
12000 |
9500 × 2800 × 2900 |
- |
- |
35 |
40 |
|
22 |
машина дорожная КДМ-130В |
АО "Комплексные дорожные машины" |
ЗИЛ-433362 (4×2) |
2,5 |
- |
- |
1000 |
- |
11000 |
6300 × 2790 × 2755 |
- |
- |
35 |
40 |
|
23 |
машина дорожная МДК-433362 |
АО "Смоленский автоагрегатный завод АМО "ЗИЛ" |
ЗИЛ-433362 (4×2) |
2,6-3,0 |
- |
- |
500 |
2-3 |
1200 |
8600 × 2850 × 2670 |
- |
- |
35 |
40 |
|
24 |
машина дорожная ЭД-244 |
АО "Комплексные дорожные машины" |
МАЗ-5337 (4×2) |
2,7-3,0 |
- |
- |
1000 |
5 |
16000 |
9500 × 2800 × 3300 |
- |
- |
35 |
50 |
|
25 |
машина дорожная ЭД-403 |
АО "Комплексные дорожные машины" |
ЗИЛ-133Г4 (6×4) |
3,0 |
- |
- |
500 |
2-3 |
17700 |
11340 × 2800 × 2900 |
- |
- |
35 |
40 |
|
26 |
машина дорожная ЭД-410 |
АО "Комплексные дорожные машины" |
ЗИЛ-133Д4 (6×4) |
2,47-3,0 |
- |
- |
500 |
2-3 |
16700 |
10200 × 2800 × 2800 |
- |
- |
35 |
40 |
|
27 |
машина дорожная МДК-5337 |
АО "Смоленский автоагрегатный завод АМО "ЗИЛ" |
МАЗ-533700 (4×2) |
2,6-3,0 |
- |
- |
1000 |
5 |
15500 |
9100 × 2850 × 3200 |
- |
- |
35 |
50 |
|
28 |
машина дорожная МДК-133Г4 (МДК-133Д4) |
АО "Смоленский автоагрегатный завод АМО "ЗИЛ" |
ЗИЛ-133Г4 (ЗИЛ-133Д4) |
4,3 |
- |
- |
500 |
2-3 |
16700 |
10200 × 2800 × 2800 |
- |
- |
35 |
40 |
|
29 |
машина дорожная МДК-53231 |
АО "Смоленский автоагрегатный завод АМО "ЗИЛ" |
КамАЗ-53213 (6×4) |
4,3 |
- |
- |
- |
- |
20500 |
10800 × 3150 × 3000 |
- |
- |
35 |
60 |
|
ЗАРУБЕЖНАЯ ТЕХНИКА |
||||||||||||||
|
30 |
ротор боковой снегоуборочный S 3,1 |
SCHMIDT |
UNIMOG U 1 50 |
2,0 |
- |
- |
1200 |
22,0 |
- |
- |
1300 |
- |
- |
60 |
|
31 |
Снегопогрузчик АМТЕНО 2500 |
FRCTIC MACHINE OY |
Спецпогрузчик |
2,65 |
- |
200 |
1200 |
- |
3100 |
2880 × 2650 × 3970 |
- |
- |
0-5 |
60 |
|
32 |
Снегопогрузчик АМТЕНО 500 |
FRCTIC MACHINE OY |
Навесной погрузчик |
0,9 |
- |
90 |
880 |
- |
880 |
1000 × 1000 × 3100 |
- |
- |
0-5 |
60 |
|
33 |
Машина фрезерно-роторная SFS 250/70 |
|
|
2,5 |
- |
- |
1000 |
10-20 |
6030 |
5970 × 2110 × 2655 |
1500 |
- |
- |
95,0 |
|
34 |
Машина фрезерно-роторная BUCHER-ROLBA R-600S |
|
|
2,2 |
- |
- |
1300 |
5-40 |
8000 |
5705 × 2200 × 2760 |
1800 |
- |
- |
45,0 |
|
35 |
Машина фрезерно-роторная SUPRA 4000 |
|
|
2,6 |
- |
- |
1500 |
5-40 |
9000 |
6400 × 2600 × 2900 |
2000 |
- |
- |
40,0 |
|
36 |
Машина фрезерно-роторная BUCHER-ROLBA R-1500 |
|
|
2,5 |
- |
- |
1500-2100 |
40 |
10400 |
6800 × 2500 × 2890 |
3500 |
- |
- |
50,0 |
Ключевые слова: автомобильная дорога, зимнее содержание, защита дорог от снега, снегозаносимость, метель, снегопад, снежные осадки, снегозащитные средства, снегоуборочная техника, снегосвалки
|
ГОСТЫ, СТРОИТЕЛЬНЫЕ и ТЕХНИЧЕСКИЕ НОРМАТИВЫ. Некоммерческая онлайн система, содержащая все Российские Госты, национальные Стандарты и нормативы. В Системе содержится более 150000 файлов нормативно-технической документации, действующей на территории РФ. Система предназначена для широкого круга инженерно-технических специалистов. Copyright © www.gostrf.com, 2008 - 2026 |