|
|
СИСТЕМЫ КАБЕЛЬНЫХ И СПЕЦИАЛЬНЫХ
КАБЕЛЬНЫХ Часть 1 Общие требования IEC 61084-1:1991
Предисловие Цели и принципы стандартизации в Российской Федерации установлены Федеральным законом
от 27 декабря Сведения о стандарте 1 ПОДГОТОВЛЕН Открытым акционерным обществом «Компания «Электромонтаж» (ОАО «Компания «Электромонтаж») на основе собственного аутентичного перевода стандарта, указанного в пункте 4 2 ВНЕСЕН Техническим комитетом по стандартизации ТК 337 «Электроустановки жилых и общественных зданий» 3
УТВЕРЖДЕН И ВВЕДЕН В ДЕЙСТВИЕ Приказом Федерального агентства по техническому регулированию и метрологии от 19 декабря 4 Настоящий стандарт идентичен международному стандарту МЭК 61084-1-1991 «Системы кабельных и специальных кабельных коробов для электрических установок. Часть 1. Общие требования» (IEC 61084-1:1991 «Cable trunking and ducting systems for electrical installations - Part 1: General requirements») и Поправке 1 к нему (IEC 61084-1:1993 «Cable trunking and ducting systems for electrical installations - Part 1: General requirements» - Amendment 1». При применении настоящего стандарта рекомендуется использовать вместо ссылочных международных стандартов соответствующие им стандарты Российской Федерации, сведения о которых приведены в дополнительном приложении Б 5 ВВЕДЕН ВПЕРВЫЕ Информация об изменениях к настоящему стандарту публикуется в ежегодно издаваемом информационном указателе «Национальные стандарты», а текст изменений и поправок - в ежемесячно издаваемых указателях «Национальные стандарты». В случае пересмотра (замены) или отмены настоящего стандарта соответствующее уведомление будет опубликовано в ежемесячно издаваемом информационном указателе «Национальные стандарты». Соответствующая информация, уведомление и тексты размещаются также в информационной системе общего пользования - на официальном сайте Федерального агентства по техническому регулированию и метрологии в сети Интернет СодержаниеВведение Настоящий стандарт является прямым применением международного стандарта МЭК 61084-1:1991, входящего в комплекс стандартов «Системы кабельных и специальных кабельных коробов для электрических установок». Комплекс стандартов состоит из следующих частей: часть 1 - Общие требования; часть 2 - Частные требования. На момент издания настоящего стандарта часть 2 состояла из следующих разделов: раздел 1 - часть 2-1. Системы кабельных и специальных кабельных коробов, предназначенные для установки на стенах и потолках; раздел 2 - часть 2-2. Системы кабельных и специальных кабельных коробов, предназначенные для установки под полом и заподлицо с полом; раздел 4 - часть 2-4. Сервисные стойки. Вышеуказанный комплекс стандартов является основополагающим нормативным документом, который должен использоваться при разработке, производстве и эксплуатации систем кабельных и специальных кабельных коробов, и устанавливает требования к конструкции систем и их компонентов, к их классификации, размерам, электрическим и механическим параметрам, огнестойкости, исполнению защиты от внешних воздействий и от поражения людей электрическим током, маркировке, требования к испытаниям, а также термины и определения, относящиеся к области применения данных систем. Требования настоящего стандарта должны учитываться при разработке стандартов и технических условий на системы кабельных и специальных кабельных коробов конкретных типов. Настоящий стандарт не заменяет действующий на территории Российской Федерации межгосударственный стандарт ГОСТ 20803-81 «Короба металлические для электропроводок. Общие технические условия». Требования, установленные в ГОСТ 20803-81 в части стойкости кабельных коробов к климатическим и механическим внешним воздействующим факторам, условиям транспортирования и хранения, транспортной маркировке и лакокрасочным покрытиям металлических коробов, могут быть рекомендованы для применения в нормативных документах при заказе, изготовлении и эксплуатации кабельных коробов дополнительно к требованиям, установленным в настоящем стандарте. В настоящем стандарте методы испытаний выделены курсивом. НАЦИОНАЛЬНЫЙ СТАНДАРТ РОССИЙСКОЙ ФЕДЕРАЦИИ
Дата введения - 2008-07-01 1 Область примененияНастоящий стандарт устанавливает требования к системам кабельных и специальных кабельных коробов для электроустановок, предназначенным для прокладки и, при необходимости, разделения проводов, кабелей, шнуров, а также для размещения другого электрооборудования. Требования стандарта не распространяются на трубы, кабельные лотки или кабельные лестницы и на токоведущие части, прокладываемые внутри систем кабельных и специальных кабельных коробов. Примечание - Дополнительные требования к различным конструкциям систем (см. приложение А) приведены в соответствующих разделах МЭК 61084-2. 2 Нормативные ссылкиВ настоящем стандарте использованы нормативные ссылки на следующие стандарты: МЭК 60228: 1978 Проводники изолированных кабелей МЭК 60364-5-51:1979 Электроустановки зданий. Часть 5. Выбор и монтаж электрического оборудования. Глава 51. Общие правила МЭК 60364-5-54:1980 Электроустановки зданий. Часть 5. Выбор и установка электрического оборудования. Глава 54. Заземляющие устройства и защитные проводники МЭК 60423: 1973 Электротехнические трубы. Наружные диаметры труб для электрических установок и резьбы для труб и арматуры МЭК 60529:1989 Степени защиты, обеспечиваемые оболочками (Код IP) МЭК IEC 60695-2-1-1991 Испытания на пожароопасность. Часть 2. Методы испытаний. Раздел 1. Испытания нагретой проволокой и руководство МЭК IEC 60695-2-4/1-1991 Испытания на пожароопасность. Часть 2. Методы испытаний. Раздел 4. Лист 1. Испытание при напряжении 1 кВт заранее подготовленным испытательным пламенем и руководство 3 Термины и определенияВ настоящем стандарте применены следующие термины с соответствующими определениями. 3.1 система кабельных или специальных кабельных коробов (cable trunking or ducting system) 3.1.1 система кабельных коробов (cable trunking system): Система замкнутых оболочек, состоящих из корпуса со съемной или открывающейся крышкой, предназначенная для прокладки внутри нее изолированных проводов, кабелей и шнуров и/или для размещения другого электрооборудования. 3.1.2 система специальных кабельных коробов (cable ducting system): Система коробов прямоугольного сечения, не имеющих съемных или открывающихся крышек, предназначенная для прокладки внутри нее изолированных проводов и кабелей и обеспечивающая возможность затяжки в короба проводов и кабелей и их замены. 3.2 компоненты системы (system components): составные части, входящие в систему: 1) прямые секции (lengths of trunking or ducting); 2) фасонные секции, например переходные, тройниковые, крестообразные, угловые, присоединительные, заглушки (trunking or ducting fittings); 3) устройства крепления (fixing devices); 4) детали для установки аппаратов (apparatus mounting devices); 5) другие вспомогательные детали (other accessories). Примечание - В систему необязательно могут входить все перечисленные компоненты. В каждом отдельном случае могут быть использованы их различные комбинации. 3.3 прямая секция кабельного короба (trunking length): Основной компонент системы кабельных коробов, состоящий из основания (корпуса) со съемной или открывающейся крышкой. 3.4 прямая секция специального короба (ducting length): Основной компонент системы специальных кабельных коробов, имеющий замкнутое прямоугольное поперечное сечение. 3.5 фасонная секция (fitting): Компонент системы, предназначенный для соединения, изменения направления или оконцевания прямых секций. 3.6 устройство крепления (fixing device): Компонент системы, предназначенный для крепления других компонентов к стене, потолку или полу. 3.7 деталь для установки аппаратов (apparatus mounting device): Компонент системы, применяемый для установки электрических аппаратов и электроустановочных изделий (выключателей, автоматических выключателей, электрических и телефонных розеток и др.) на прямых секциях коробов или специальных коробов. 3.8 вспомогательная деталь (system accessory): Компонент системы, применяемый для выполнения дополнительных функций, например разделения, крепления, вывода кабелей и т.п. 3.9 напольное устройство для подключения (floor service unit): Специальное устройство, предназначенное для установки электрических аппаратов и электроустановочных изделий, применяемое в напольных, устанавливаемых под полом и заподлицо с полом системах. 3.10 напольное входное устройство (floor access unit): Специальное устройство, применяемое для монтажа напольных, устанавливаемых под полом и заподлицо с полом систем, обеспечивающее доступ к кабелям. 3.11 металлический компонент (metal component): Компонент, выполненный только из металла. 3.12 изоляционный компонент (insulated component): Компонент, выполненный из изоляционного материала и не имеющий проводящих частей. 3.13 композитный компонент (composite component): Компонент, содержащий как проводящие, так и изоляционные материалы (пластик и металл или проводящий пластик). 3.14 компонент, не распространяющий горение (nonflame propagating component): Компонент, который может загораться или не загораться под воздействием пламени и который не распространяет горение. 3.15 внешнее воздействие (external influence): Наличие воды, масла, строительных материалов, высокой или низкой температуры, коррозионных или загрязняющих веществ, солнечной радиации и механических факторов. 4 Общие требованияКонструкция и технические характеристики системы кабельных и специальных кабельных коробов при необходимости должны обеспечивать надежную механическую защиту находящихся в них проводов и кабелей, а также соответствующую защиту людей от поражения электрическим током. Компоненты системы должны быть устойчивыми к воздействию механических факторов, возможных при транспортировании, хранении и в рекомендуемых условиях монтажа и эксплуатации системы. Соответствие этим требованиям, как правило, проверяют проведением соответствующих испытаний. 5 Испытания. Общие условия5.1 Испытания, предусмотренные настоящим стандартом, являются типовыми. Если не установлены другие условия, испытаниям подвергают системы кабельных и специальных кабельных коробов, установленные в условиях, соответствующих нормальным условиям эксплуатации, все части которых собраны в соответствии с инструкцией изготовителя. Типовые испытания компонентов системы, содержащих изоляционные или композитные материалы, должны начинаться не ранее чем через 240 ч после их изготовления. В течение этого периода образцы могут выдерживаться в условиях, указанных в 10.3.1. 5.2 Если не заданы другие условия, испытания должны проводиться при температуре окружающей среды (20 ± 5)°С. 5.3 Отбор образцов кабельных и специальных кабельных коробов (далее - образцы) для различных испытаний проводят из различных секций. Все испытания должны проводиться на новых образцах. Если не заданы другие условия, испытуемые образцы вместе с крышками (если имеются) должны быть собраны и смонтированы в соответствии с инструкцией изготовителя и установлены в условиях, соответствующих условиям нормальной эксплуатации. 5.4 Если для испытаний используются процессы с наличием токсичности, взрывоопасности или пожароопасности, должны быть предусмотрены соответствующие меры защиты персонала, проводящего испытания. 5.5 Если не установлены другие требования, образцы считают не выдержавшими испытания, если повреждено более одного образца при проведении любого испытания. Если испытание не выдержал один образец, это испытание проводят повторно на другом комплекте образцов, точно соблюдая все условия его подготовки и проведения, которые могут повлиять на результат этого испытания. Повторное испытание должны выдержать все образцы. Примечание - Изготовитель, представляющий на испытание комплект образцов, может одновременно представить дополнительный комплект образцов или прямых секций кабельных или специальных кабельных коробов, которые могут понадобиться в случае повреждения при испытании одного из образцов первого комплекта. В этом случае испытательная лаборатория должна, не обращаясь к изготовителю, провести испытание дополнительного комплекта образцов и забраковать его только в том случае, если повреждение повторится. Если дополнительный комплект образцов не представлен одновременно с основным, браковка проводится при повреждении одного образца. 6 Классификация6.1 По материалу 6.1.1 Металлические системы кабельных и специальных кабельных коробов. 6.1.2 Системы кабельных и специальных кабельных коробов из изоляционных материалов. 6.1.3 Системы кабельных и специальных кабельных коробов из композитных материалов или имеющие в своем составе, как металлические части, так и части из изоляционных материалов. 6.2 По механическим свойствам 6.2.1 Системы кабельных и специальных кабельных коробов для очень легких механических воздействий. 6.2.2 Системы кабельных и специальных кабельных коробов для легких механических воздействий. 6.2.3 Системы кабельных и специальных кабельных коробов для средних механических воздействий. 6.2.4 Системы кабельных и специальных кабельных коробов для тяжелых механических воздействий. 6.2.5 Системы кабельных и специальных кабельных коробов для очень тяжелых механических воздействий. 6.3 По температуре Таблица 1 - Классификация по температуре в градусах Цельсия
Примечание - Приведенные в таблице 1 значения температуры являются рабочими. Значения температуры окружающей среды приведены в таблице 51А МЭК 60364-5-51. 6.4 По сопротивлению распространению горения 6.4.1 Системы кабельных и специальных кабельных коробов, распространяющие горение. 6.4.2 Системы кабельных и специальных кабельных коробов, не распространяющие горение. 6.5 По электрическим характеристикам 6.5.1 Системы кабельных и специальных кабельных коробов, не обеспечивающие непрерывность электрической цепи. 6.5.2 Системы кабельных и специальных кабельных коробов, обеспечивающие непрерывность электрической цепи. 6.5.3 Системы кабельных и специальных кабельных коробов, не имеющие изолирующих свойств. 6.5.4 Системы кабельных и специальных кабельных коробов с наличием изолирующих свойств. 6.6 По исполнению защиты от внешних воздействий Системы кабельных и специальных кабельных коробов классифицируют в собранном и установленном в соответствии с инструкцией изготовителя виде. 6.6.1 Защита от проникновения твердых предметов (см. МЭК 60529) 6.6.1.1 Системы кабельных и специальных кабельных коробов, обеспечивающие защиту от проникновения твердых предметов диаметром Проверку степени защиты IP2X проводят с помощью шара, а не испытательного пальца. 6.6.1.2
Системы кабельных и специальных кабельных коробов, обеспечивающие защиту от проникновения твердых предметов диаметром 6.6.1.3
Системы кабельных и специальных кабельных коробов, обеспечивающие защиту от проникновения твердых предметов диаметром 6.6.1.4 Системы кабельных и специальных кабельных коробов, обеспечивающие защиту от пыли (IP5X). 6.6.1.5 Пыленепроницаемые системы кабельных и специальных кабельных коробов (IP6X). Примечание - Приведенные выше обозначения IP по МЭК 60529 обозначают также степень защиты людей от прикосновения к опасным токоведущим частям. 6.6.2 Защита от проникновения воды (см. МЭК 60529) 6.6.2.1 Системы кабельных и специальных кабельных коробов, не обеспечивающие защиту. 6.6.2.2 Системы кабельных и специальных кабельных коробов, обеспечивающие защиту от вертикально падающих капель воды (IPX1). 6.6.2.3 Системы кабельных и специальных кабельных коробов, обеспечивающие защиту от вертикально падающих капель воды при наклоне до 15° (1РХ2). 6.6.2.4 Системы кабельных и специальных кабельных коробов, обеспечивающие защиту от дождя (IPX3). 6.6.2.5 Системы кабельных и специальных кабельных коробов, обеспечивающие защиту от брызг (всплесков) (IPX4). 6.6.2.6 Системы кабельных и специальных кабельных коробов, обеспечивающие защиту от водяных струй (IPX5). 6.6.3 Защита от коррозионных и загрязняющих веществ 6.6.3.1 Системы кабельных и специальных кабельных коробов с низким уровнем внутренней и внешней защит. 6.6.3.2 Системы кабельных и специальных кабельных коробов со средним уровнем внешней и низким уровнем внутренней защит. 6.6.3.3 Системы кабельных и специальных кабельных коробов со средним уровнем внутренней и внешней защит. 6.6.3.4 Системы кабельных и специальных кабельных коробов с высоким уровнем внешней и низким уровнем внутренней защит. 6.6.3.5 Системы кабельных и специальных кабельных коробов с высоким уровнем внешней и средним уровнем внутренней защит. 6.6.3.6 Системы кабельных и специальных кабельных коробов с высоким уровнем внешней и внутренней защит. 6.6.4 Защита от солнечной радиации 6.6.4.1 Системы кабельных и специальных кабельных коробов, не обеспечивающие защиту. 6.6.4.2 Системы кабельных и специальных кабельных коробов с низким уровнем защиты. 6.6.4.3 Системы кабельных и специальных кабельных коробов со средним уровнем защиты. 6.6.4.4 Системы кабельных и специальных кабельных коробов с высоким уровнем защиты. 6.7 По способу крепления крышки 6.7.1 С крышкой, снимаемой без применения инструмента. 6.7.2 С крышкой, снимаемой с применением инструмента. 7 Маркировка7.1 На каждой прямой и фасонной секции должна быть маркировка, содержащая наименование предприятия-изготовителя или ответственного торгового представителя, торговая марка или другой идентификационный символ, обозначение настоящего стандарта и/или номер ТУ, по которым изготовлена секция. Если фасонные секции поставляют в упакованном виде, достаточно ярлыка, на котором указаны приведенные выше данные, прикрепленного к каждой упаковке. Системы кабельных и специальных кабельных коробов, распространяющие горение, должны иметь четкую маркировку, указывающую на то, что они являются распространяющими горение. 7.2 Маркировка должна быть прочной и четкой. Примечание 1 - Маркировка может быть выполнена, например, методом штамповки, формовки, печати, в виде ярлыков или наклеенных этикеток. Соответствие маркировки проверяют путем ее осмотра и трения вручную. Маркировка, выполненная методом печати или в виде этикеток, должна выдерживать в течение 15 с трение вручную куском ткани, смоченным водой, а затем в течение следующих 15 с - куском ткани, смоченным уайт-спиритом. Примечания 2 Уайт-спирит - растворитель с содержанием ароматизаторов не более 0,1 % объема, Каури-бутаноловым числом, равным 29, начальной точкой кипения приблизительно 65°С, точкой испарения около 69°С и удельным весом около 0,68 г/см2. 3 Для повышения устойчивости к трению на маркировку может быть нанесено соответствующее защитное покрытие. 8 Размеры8.1 Изготовитель должен указать площадь внутреннего поперечного сечения кабельного или специального кабельного короба в миллиметрах в квадрате, которая может быть использована для прокладки кабелей. Примечание - Установка на кабельных и специальных кабельных коробах некоторых вспомогательных деталей может привести к уменьшению площади поперечного сечения, предназначенной для прокладки кабелей. 8.2 Предпочтительные длины прямых секций следует выбирать из ряда, образуемого приращениями по 9 Конструкция9.1 Края и поверхности коробов не должны повреждать провода и кабели. Соответствие проверяют путем осмотра с разборкой образцов при необходимости. 9.2 Все винты, шпильки и другие крепежные изделия должны быть установлены таким образом, чтобы исключить нанесение повреждений проводам и кабелям. Перфорированные короба могут иметь заводские крепежные отверстия. Эти отверстия должны соответствовать требованиям соответствующих разделов МЭК 61084-2. Все монтажные устройства, используемые для крепления аппаратов, должны соответствовать требованиям соответствующих стандартов на эти изделия. Системы кабельных и специальных кабельных коробов могут иметь перегородки, разделяющие цепи внутри короба, которые должны быть соответствующим образом прикреплены к прямой секции короба. Соответствие проверяют испытанием по 9.6.2. Для всех доступных для прикосновения металлических частей системы, которые могут оказаться под напряжением при повреждении изоляции, за исключением винтов и других мелких деталей, должна быть обеспечена возможность их надежного присоединения к защитному проводнику. Соответствие проверяют испытанием по 12.2. 9.3 Крепежные винты и мелкие пружинные зажимы фасонных секций коробов, изготовленных из изоляционного материала, могут быть изготовлены не из изоляционного материала, если они не касаются проводов и кабелей. 9.3.1 Винты, используемые для крепления других компонентов или крышек (при их наличии) к компонентам системы, должны иметь метрические резьбы системы ISO; в ином случае применяют самонарезающие формирующие винты. Самонарезающие режущие винты могут быть применены, если это предусмотрено конструкцией короба. Крепежные винты и мелкие зажимы, используемые для компонентов, изготовленных из изоляционного материала, могут быть изготовлены не из изоляционного материала, если они изолированы от токоведущих частей и не способны замыкать цепь аварийного тока между различными частями оборудования, установленного на компоненте. Винтовые крепежные изделия должны выдерживать механические воздействия, возможные при монтаже и нормальной эксплуатации. Соответствие винтовых креплений с резьбой, выполненной при изготовлении короба, проверяют путем испытания по 9.3.2 с последующим осмотром. 9.3.2 При испытании винты следует ввинтить и вывинтить: - 10 раз - винты, ввинчиваемые в резьбу из изоляционного материала, и винты, изготовленные из изоляционного материала; - 5 раз - для всех других случаев. Испытание проводят с помощью соответствующей отвертки или гаечного ключа с приложением крутящего момента в соответствии с таблицей 2. В процессе испытания не должно происходить повреждений, например поломки винта, головки винта или резьбы, которые могут ухудшить дальнейшее использование винта. Затяжку винтов не следует производить резкими порывистыми движениями. Таблица 2 - Значения крутящих моментов для испытания винтов
9.4 Доступ к токоведущим частям 9.4.1 Конструкция систем кабельных и специальных кабельных коробов должна обеспечивать недоступность токоведущих частей в смонтированном, заполненном изолированными проводами и кабелями и оснащенном аппаратами для нормальной эксплуатации виде. Соответствие проверяют путем осмотра и, при необходимости, испытаниями по 9.4.2-9.4.5 образца, смонтированного в соответствии с нормальными условиями эксплуатации и заполненного изолированными проводами и кабелями. 9.4.2 Испытания проводят по МЭК 60529 с помощью стандартного испытательного пальца, который прижимают ко всем возможным местам образца, и электрического индикатора напряжением не менее 40 В и не более 50 В, предназначенного для сигнализации о наличии контакта с соответствующей частью. 9.4.3 Для частей из изоляционных и композитных материалов проводят дополнительное испытание при температуре окружающей среды (40 ± 2)°С и аналогичной температуре образца. Образец в течение 1 мин подвергают воздействию силы 75 Н, прилагаемой через вершину прямого отдельного испытательного пальца, размеры которого должны соответствовать размерам стандартного испытательного пальца по МЭК 60529. Палец, оснащенный электрическим индикатором по 9.4.2, прижимают ко всем местам образца, в которых прогиб или эластичность изоляционного материала может нарушить электробезопасность системы. К числу таких мест не относятся подштамповки с надрубами (надрубы, предусмотренные для последующей пробивки входных и выходных отверстий), перегородки и т.п. В процессе испытания деформация компонентов системы с устройствами для установки и крепления не должна приводить к прикосновению испытательного пальца к токоведущим частям. 9.4.4 Подштамповки с надрубами испытывают в течение 1 мин путем воздействия силы 10 Н, приложенной через вершину прямого испытательного пальца, размеры которого должны соответствовать размерам стандартного испытательного пальца по МЭК 60529. После испытания на подштамповках не должно быть трещин и других повреждений. 9.4.5 Для доступных для прикосновения металлических частей, не имеющих постоянного надежного присоединения к защитному проводнику, например тонкой декоративной металлической фольги и
аналогичных, должны быть приняты меры, чтобы расстояния путей утечки тока по поверхности и через
воздушные промежутки были не менее Указание о способе выполнения данного требования при применении металлической фольги и аналогичных материалов должно быть приведено в инструкции изготовителя. Соответствие проверяют путем измерений и осмотра. 9.5 Размеры входных отверстий, если они имеются, должны позволять ввод трубы или защитной
оболочки кабеля для обеспечения полной механической защиты кабелей, а конструкция этих отверстий
должна обеспечивать вхождение трубы или защитной оболочки внутрь компонента не менее чем на Входные отверстия для труб должны обеспечивать ввод труб, имеющих размеры, указанные в МЭК 60423. Соответствие этому требованию проверяют путем измерений и осмотра. 9.6 Перегородки 9.6.1 Перегородки и другие подобные детали должны быть съемными, надежно закреплены и не должны смещаться при механических и термических воздействиях, возможных при нормальных условиях эксплуатации. Соответствие этому требованию проверяют испытанием по 9.6.2. 9.6.2 Испытание перегородок проводят на системах кабельных и специальных кабельных коробов в собранном виде. Образец в течение 2 ч выдерживают в камере тепла, в которой поддерживается температура (40 ± 2)°С. По окончании этого времени к различным частям перегородки в течение 5 с прикладывают силу 30 Н через вершину прямого испытательного пальца, размеры которого должны соответствовать размерам стандартного испытательного пальца по МЭК 60529. В процессе испытания степень деформации перегородок не должна приводить к доступности для прикосновения токоведущих частей, а также к вытеснению перегородок из короба. К перегородкам, которые при нормальных условиях эксплуатации могут подвергаться осевому натяжению, прикладывают осевую растягивающую силу 30 Н в течение 5 с. После испытания перегородки не должны вытесняться из короба. 9.6.3 Конструкция и материал перегородок должны допускать прокладку (затяжку) кабелей в систему при низкой температуре окружающей среды. Соответствие этому требованию проверяют испытанием по 9.6.4. 9.6.4 В соответствующую часть системы кабельных и специальных кабельных коробов устанавливают перегородки, не подвергавшиеся какой-либо обработке, которая может вызвать старение, и не имеющие специально выполненных отверстий. Образец выдерживают в течение 2 ч в камере холода при температуре, указанной в таблице 1 для монтажа и эксплуатации. По истечении этого времени образец извлекают из камеры холода, после чего сразу же, пока образец еще холодный, прокладывают (затягивают) кабели, при этом затяжка наиболее тяжелых кабелей должна выполняться без приложения чрезмерной силы. После испытаний по 9.6.2 и 9.6.4 на перегородках не должно быть признаков деформации, например трещин или аналогичных повреждений, видимых при нормальном или скорректированном зрении без применения специальных приборов. 9.7 Сальники 9.7.1 Резьбовые сальники подвергают испытаниям по 9.7.2. 9.7.2 В сальник вводят цилиндрический металлический стержень, диаметр которого (в миллиметрах) равен ближайшему целому числу, меньшему, чем внутренний диаметр уплотнителя сальника. После этого сальник затягивают с помощью соответствующего гаечного ключа крутящим моментом, указанным в таблице 3, который выдерживают в течение 1 мин. После испытания на сальниках, а также на кабельных и специальных кабельных коробах не должно быть повреждений или трещин, видимых при нормальном или скорректированном зрении без применения специальных приборов. Таблица 3 - Значения крутящих моментов при испытании сальников
10 Механические свойства10.1 Системы кабельных и специальных кабельных коробов должны иметь соответствующую механическую прочность. Соответствие проверяют испытаниями по 10.2 - 10.6, а также дополнительными испытаниями, указанными в соответствующем разделе МЭК 61084-2. После испытаний механических свойств крышка, если имеется, не должна отделяться от образца. 10.2 Испытание опорных плоскостей для кабелей при монтаже систем кабельных и специальных кабельных коробов на поверхности стены или потолка 10.2.1 Испытание проводят на трех образцах прямых секций длиной не менее Кабельные зажимы, если их применение предусмотрено изготовителем, устанавливают в точках, указанных изготовителем. 10.2.2
Каждый образец поочередно надежно закрепляют в соответствии с инструкцией изготовителя на жестком основании при помощи винтов и шайб с наружным диаметром не менее 10.2.3
Для испытания при температуре (20 ± 5)°С при установке образцов в соответствии с
положением А (рисунок 1) каждый отсек нагружают равномерно распределенной нагрузкой Нагрузка должна состоять из изолированных гибких медных кабелей, соответствующих классу 5 таблицы 111 МЭК 60228. Если требуемое значение нагрузки не обеспечивается, изоляция может быть удалена. Через 2 ч нагрузку снимают и измеряют деформацию образца. Деформация должна быть не более 10 % размера Н (положение А на рисунке 1) при максимальном значении 10.2.4 Следующий комплект образцов устанавливают при температуре (20 ± 5)°С в положение В (рисунок 1), затем каждый отсек нагружают равномерно распределенной нагрузкой После приложения нагрузки в течение 2 ч измеряют деформацию образца. Деформация должна быть не более 10 % размера W (положение А на рисунке 1) при максимальном значении 10.2.5 Для испытания при температуре (60 ± 2)°С комплект образцов устанавливают в положение А (рисунок 1), затем каждый отсек нагружают равномерно распределенной нагрузкой Через 2 ч нагрузку снимают и измеряют деформацию образца. Деформация должна быть не более 10 % размера Н (положение А на рисунке 1) при максимальном значении 10.2.6 Следующий комплект образцов устанавливают при температуре (60 ± 2)°С в положение В (рисунок 1), затем каждый отсек нагружают равномерно распределенной нагрузкой Через 2 ч нагрузку снимают и измеряют деформацию образца. Деформация должна быть не более 10 % размера W (положение А на рисунке 1) при максимальном значении 10.3 Испытание на воздействие ударов 10.3.1 Испытанию подвергают три образца длиной (250 ± 5) мм каждый. Компоненты из изоляционных и композитных материалов перед испытанием выдерживают в камере тепла при температуре (60 ± 2)°С в течение 240 ч без перерывов. 10.3.2 Испытательное устройство в соответствии с рисунком 2 устанавливают на губчатую подушку из этиленпропиленовой резины толщиной Испытательное устройство вместе с образцами помещают в камеру холода, в которой поддерживают температуру, указанную в таблице 1 для хранения и транспортирования, с допустимым отклонением ±1°С. 10.3.3 Через 2 ч образцы с установленными крышками (если имеются) поочередно помещают в испытательное устройство таким образом, чтобы удар прикладывался сначала к центру образца или крышки (если имеется), а затем - к краям образца (крышки). Прилагаемая энергия удара, масса ударного элемента и высота падения должны соответствовать указанным в таблице 4. Таблица 4 - Значения ударных воздействий при испытании
Примечание - Соотношения между категориями ударных воздействий, приведенных в данной таблице и в таблице 51А МЭК 60364-5-51, являются следующими:
10.3.4 После испытания на образцах не должно быть признаков раздробления и трещин, видимых при нормальном или скорректированном зрении без применения специальных приборов. На внутренних перегородках допускаются трещины, которые не ухудшают условия электробезопасности и дальнейшей эксплуатации коробов. 10.4 Испытание на продольный прогиб 10.4.1 Испытанию подвергают три образца прямых секций. Образцы устанавливают на опоры, симметрично удаленные от центра испытуемого образца на максимальное расстояние, рекомендуемое изготовителем, при этом длина образца должна быть равна удвоенному расстоянию между опорами, и закрепляют их. 10.4.2 Испытание проводят при температуре (20 ± 5)°С, а для секций из изоляционного или композитного материала также при температуре (60 ± 2)°С. 10.4.3
Нагрузка должна быть 10.4.4 Нагрузку прикладывают внутри короба и распределяют равномерно по всей его длине. В качестве нагрузки используют цепи массой 1,16 кг/м, звенья которых имеют отношение внутренней длины к ширине не менее 2. Испытание проводят на образце с установленной крышкой (если имеется) при всех возможных ее положениях, т.е. при установке ее сверху, на днище и на каждой боковой стенке образца. 10.4.5 Нагрузку выдерживают в течение 1 ч, после чего в центре расстояния между опорами измеряют прогиб, который не должен быть более 1 % этого расстояния. Крышка (если имеется) под воздействием нагрузки не должна отделяться от образца. 10.5 Испытание на сжатие находится в стадии разработки. 10.6 Испытание крепления крышки 10.6.1
Для прямой секции системы кабельных и специальных кабельных коробов, крышка которой может быть снята только с применением инструмента, испытание проводят по 10.6.2. Длина
образца - 10.6.2 Прямую секцию образца прочно закрепляют на горизонтальном основании, а крышку - на прямой секции в соответствии с инструкцией изготовителя. К крышке прикладывают наибольшую возможную силу, достаточную для снятия крышки вручную без применения инструмента. При этом крышка не должна отделяться от прямой секции. 11 Сопротивление распространению горения11.1 Кабельные и специальные кабельные короба, не распространяющие горение, не должны воспламеняться либо, если возгорание произошло, не должны поддерживать горение после удаления источника возгорания. Соответствие этому требованию проверяют следующим образом: - для прямых секций кабельных и специальных кабельных коробов - испытанием по 11.1.1; - для других частей из изоляционного материала - испытанием по 11.1.2. 11.1.1 Испытание пламенем Испытанию подвергают три образца длиной Испытание проводят с помощью горелки, указанной в МЭК 60695-2-4. Образец устанавливается вертикально. Ось горелки должна быть расположена под углом 45° ± 2° к вертикали. Пламя должно воздействовать на образец таким образом, чтобы расстояние от вершины сопла горелки до образца, измеренное по оси пламени, было (100 ± 10) мм. Ось пламени должна пересекаться с поверхностью образца в точке, находящейся на (150 ± 5) мм выше нижнего края образца или на (100 ±5) мм выше любого места прижима. В плоскости, расположенной под углом 45° ± 2° к вертикальной оси образца, ось пламени должна быть под углом 90° относительно горизонтальной оси образца и пересекать вертикальную ось образца. Оба конца образца закрепляют для предотвращения деформации или смещения образца под воздействием приложенного пламени. Пламя должно воздействовать на образец в течение 60+1 с. Образец считают выдержавшим испытание, если: - образец не загорелся или - затухание горения произошло в течение 30 с после прекращения воздействия пламени. 11.1.2 Испытание раскаленной проволокой. Испытание проводят по разделам 4-10 МЭК 60695-2-1 с соблюдением следующих условий: - для частей из изоляционного материала токоведущие части должны быть закреплены в положении, предусмотренном для испытания при температуре 850°С; - для частей из изоляционного материала не требуется закреплять токоведущие части даже в том случае, если они находятся в контакте с ними, а также закреплять заземляющие зажимы в положении, предусмотренном для испытания при температуре 650°С. Мелкие части, например шайбы, не подвергают данному испытанию. Испытанию не подвергают части образцов, выполненные из керамических материалов. По возможности образец должен быть укомплектован всеми вспомогательными деталями. Если испытанию не может быть подвергнут образец с полным комплектом деталей, те детали, которые не должны подвергаться испытанию, отделяют от образца. Испытанию подвергают один образец. Если испытание проводят более чем в одном месте одного и того же образца, необходимо принять меры для того, чтобы никакое повреждение, вызванное предыдущими испытаниями, не повлияло на результаты последующего испытания. При сомнительных результатах испытания его повторяют на двух других образцах. Испытание проводят путем однократного приложения к образцу раскаленной проволоки. Для испытания образец устанавливают в положение, наиболее неблагоприятное из предусмотренных для его использования. При этом поверхность, подлежащая испытанию, должна быть расположена вертикально. Вершину раскаленной проволоки прижимают к поверхности образца с учетом предусмотренных условий его эксплуатации, в которых к образцу может прикоснуться нагретый или раскаленный предмет. Образец считают выдержавшим испытание, если: - отсутствует видимое пламя и продолжительное свечение или - пламя и свечение на образце затухают в течение 30 с после удаления раскаленной проволоки. Не должно быть возгорания папиросной бумаги или подгорания и коробления доски. 12 Электрические характеристики12.1 Конструкция систем кабельных и специальных кабельных коробов, обеспечивающих непрерывность электрической цепи, должна обеспечивать возможность их использования в качестве проводников уравнивания потенциалов, заземляющих или защитных проводников. При использовании систем в качестве защитного проводника они должны соответствовать пункту 543.1 МЭК 60364-5-54. Соответствие проверяют следующими испытаниями, которым подвергают три образца длиной не менее Перед испытаниями все образцы должны пройти следующую предварительную обработку. С испытуемых образцов полностью удаляют смазку путем погружения их на 10 мин в трихлорэтан или в другой эквивалентный обезжиривающий реагент. Затем части погружают на 10 мин в 10 %-ный водный раствор хлористого аммония при температуре (20 ±5)°С. Без просушки, но стряхнув с образцов все капли, их затем помещают на 10 мин в камеру с насыщенным влагой воздухом при температуре (20 ± 5)°С. Затем образцы просушивают в течение 10 мин в камере тепла при температуре (100 ± 5)°С, после чего выдерживают при комнатной температуре в течение 24 ч. После этого образцы испытывают по 12.2 и 12.3. 12.2 Испытания непрерывности электрических цепей заземления и уравнивания потенциалов 12.2.1 Сопротивление образца на единицу длины Между двумя концами образца как можно ближе к концам измеряют падение напряжения, создаваемое протекающим по образцу постоянным током 1 А. Входное сопротивление измерительного прибора должно быть не менее 20000 Ом/В. Сопротивление образца при этом должно быть не более 5 10-3 Ом/м. 12.2.2 Сопротивление заземления Между заземляющим зажимом или заземляющим контактом и каждой доступной для прикосновения металлической частью поочередно пропускают ток 25 А, создаваемый источником переменного тока напряжением не более 12 В при отсутствии нагрузки. Затем измеряют падение напряжения между заземляющим зажимом и доступной металлической частью, после чего вычисляют сопротивление по значениям тока и падения напряжения. Также проверяют сопротивление между образцами, расположенными с каждой стороны точки соединения, и между основанием секции и крышкой при ее наличии. Во всех случаях сопротивление должно быть не более 0,05 Ом. 12.3 Испытание электрической прочности изоляции и электрического сопротивления изоляции систем с изолирующими электрическими характеристиками Перед испытанием проверяют степень защиты каждого образца от проникновения воды в соответствии с требованиями изготовителя. Если образцы имеют перегородки или разделители, каждый отсек испытывают как отдельный короб; испытательное напряжение прикладывают также к перегородкам и разделителям. Один конец образца закрывают заглушкой из изоляционного материала с отверстиями для
проникновения двух отдельных кабелей внутрь образца на Затем внутреннее пространство каждого отсека образца заполняют шаровидными металлическими предметами размером не более После этого комплект образцов подвергают воздействию влаги в испытательной камере, в которой установлена относительная влажность воздуха от 91 % до 95 % при любом подходящем значении температуры t от 20°С до 30°С с точностью ±1°С. Перед помещением в камеру влажности температуру образцов доводят до значения от t до t +4°С, что может быть достигнуто путем выдерживания их при этой температуре не менее 4 ч перед воздействием влаги. В камере влажности образцы выдерживают в течение 48 ч. Относительная влажность воздуха от 91 % до 95 % может быть достигнута путем помещения в камеру влажности емкости с насыщенным водным раствором сульфата натрия (Na2S04) или нитрата калия (KNO3) с большой поверхностью контакта с воздухом. Для обеспечения вышеприведенных условий в камере влажности должна быть постоянная циркуляция воздуха, для чего рекомендуется использовать камеру с термоизоляцией. Сразу же после того как образцы вынут из камеры влажности, их следует обернуть сверху фольгой или тонкой проволочной тканью с хорошей проводимостью. Проводимость металлических предметов внутри образца проверяют путем измерения сопротивления между жилами двух кабелей, введенных в образец. Измеренное сопротивление не должно быть более 100 Ом. Сопротивление изоляции измеряют путем приложения напряжения постоянного тока не менее 500 В между жилами кабелей и фольгой или проволочной тканью. Измерение проводят через 1 мин после приложения напряжения. Сопротивление изоляции должно быть не менее 100 МОм. Затем между кабелями и фольгой или проволочной тканью (как показано на рисунке 3) в течение 1 мин прикладывают напряжение 2500 В неискаженной синусоидальной формы частотой от 50 до 60 Гц от испытательного аппарата, характеристики которого обеспечивают ток 200 мА напряжением 1250 В. Сначала прикладывают не более половины напряжения, а затем его увеличивают до 2500 В с максимальной скоростью, возможной без возникновения переходных перенапряжений. В процессе испытания не должно происходить пробоев изоляции. 13 Внешние воздействияТребования к внешним воздействиям находятся в стадии разработки. Приложение А
|
||||||||||||||||||||||||||||||||||||||||||||||||||||||||||||||||||||||||||||||||||||||||||||||||||||||||||||||||||||||||||||||||||||||||||||||||||||||||||||||||||||||||||||||||||||||||||||||
|
Номер позиции на рисунке 4 |
Наименование |
Назначение |
Место и способ установки |
|
1, 7, 11, 12, 13, 15 |
Кабельные короба и вспомогательные детали |
Для прокладки изолированных проводов, кабелей, шнуров |
На поверхности стены и потолка. На стенах устанавливают горизонтально или вертикально, непосредственно или на кронштейнах, или на консолях, на потолке - на подвесах |
|
3, 9 |
Кабельные короба и вспомогательные детали |
Для прокладки изолированных проводов, кабелей, шнуров |
Заподлицо со стеной или потолком. В стенах устанавливают горизонтально и вертикально |
|
5 |
Кабельные короба и вспомогательные детали |
Для прокладки изолированных проводов, кабелей, шнуров, установки деталей для монтажа аппаратов (выключателей, розеток, автоматических выключателей и т.п.) |
На поверхности стены или потолка. На стенах устанавливают горизонтально или вертикально, непосредственно или на кронштейнах или консолях |
|
2, 10, 8 |
Специальные кабельные короба и вспомогательные детали |
Для прокладки изолированных проводов, кабелей, шнуров |
На поверхности стены или потолка. На стенах устанавливают горизонтально или вертикально, непосредственно или на кронштейнах, или на консолях, на потолке - на подвесах |
|
4 |
Специальные кабельные короба и вспомогательные детали |
Для прокладки изолированных проводов, кабелей, шнуров |
Замоноличивают в стенах и потолках; в стенах устанавливают горизонтально или вертикально |
|
- |
Кабельные короба и вспомогательные детали |
Для прокладки изолированных проводов, кабелей, шнуров, установки деталей для монтажа аппаратов (выключателей, розеток, автоматических выключателей и т.п.) |
Заподлицо с потолком. Заподлицо в стенах горизонтально и вертикально |
|
Позиция 14 относится к части 2 МЭК 61084-1 |
|||
А.2 Системы кабельных и специальных кабельных коробов, предназначенные для установки на поверхности, внутри и заподлицо с полом
|
Номер позиции на рисунке 4 |
Наименование |
Назначение |
Место и способ установки |
|
1 |
Кабельные короба и вспомогательные детали |
Для прокладки изолированных проводов, кабелей, шнуров |
Заподлицо с полом |
|
1, 5, 6 |
Кабельные короба и вспомогательные детали |
Для прокладки изолированных проводов, кабелей, шнуров |
На поверхности пола |
|
2 |
Специальные кабельные короба и вспомогательные детали |
Для прокладки изолированных проводов, кабелей, шнуров |
Заподлицо с полом |
|
3 |
Специальные кабельные короба и вспомогательные детали |
Для прокладки изолированных проводов, кабелей, шнуров |
Замоноличивают в полу |
|
7 |
Напольные устройства для установки аппаратов |
Для установки аппаратов |
Заподлицо с полом |
|
8 |
Напольные устройства для установки аппаратов |
Для установки аппаратов |
На поверхности пола |
|
Плинтусные системы |
|||
|
6, 15 |
Плинтусы и вспомогательные детали |
Для прокладки изолированных проводов, кабелей, шнуров |
На поверхности стены или потолка |
|
- |
Плинтусы и вспомогательные детали |
Для прокладки изолированных проводов, кабелей, шнуров, установки деталей для крепления аппаратов |
На поверхности стены или потолка |
|
- |
Розеточный цоколь (подрозетник) |
Для установки штепсельных розеток |
На поверхности стены |
Рисунок 1 - Испытания на деформацию опорных плоскостей систем, предназначенных для открытой установки

Рисунок 2 - Устройство для испытания на воздействие ударов

Рисунок 3 - Испытание электрической прочности изоляции и сопротивления изоляции
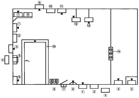
5 - место установки аппаратов в системе кабельных коробов.
Рисунок 4 - Типы и применение систем кабельных и специальных кабельных коробов
Примечание - Пояснения к обозначениям позиций, указанных на данном рисунке, приведены в приложении А.
|
Обозначение ссылочного международного стандарта |
Обозначения и наименования соответствующего национального стандарта и условное обозначение степени его соответствия ссылочному международному стандарту |
|
МЭК 60228: 2004 |
* |
|
МЭК 60364-5-51-97 |
ГОСТ Р 50571.24-2000 (МЭК 364-5-51-94) Электроустановки зданий. Часть 5. Выбор и монтаж электрооборудования. Глава 51. Общие требования (NEQ) |
|
МЭК 60364-5-54-80 |
ГОСТ Р 50571.10-96 (МЭК 364-5-54-80) Электроустановки зданий. Часть 5. Выбор и монтаж электрооборудования. Глава 54. Заземляющие устройства и защитные проводники (MOD) |
|
МЭК 60423-1973 |
* |
|
МЭК 60529-89 |
ГОСТ 14254-96 (МЭК 529-89) Степени защиты, обеспечиваемые оболочками (код IP) |
|
МЭК 60695-2-1: 1991 |
ГОСТ 27483-87 (МЭК 695-2-1-80) Испытания на пожароопасность. Методы испытаний. Испытания нагретой проволокой (NEQ) |
|
МЭК 60695-2-4/1: 1991 |
ГОСТ 27484-87 (МЭК 695-2-2-80) Испытания на пожароопасность. Методы испытаний. Испытания горелкой с игольчатым пламенем (NEQ) |
|
* Соответствующий национальный стандарт отсутствует. До его утверждения рекомендуется использовать русскую версию или аутентичный перевод на русский язык данного международного стандарта. Переводы международных стандартов (при их наличии) находятся в Федеральном информационном фонде технических регламентов и стандартов. |
|
Ключевые слова: короба, короба для электрических установок, кабельные короба, специальные кабельные короба, системы кабельных коробов, испытания, классификация, размеры, конструкция, характеристики
|
ГОСТЫ, СТРОИТЕЛЬНЫЕ и ТЕХНИЧЕСКИЕ НОРМАТИВЫ. Некоммерческая онлайн система, содержащая все Российские Госты, национальные Стандарты и нормативы. В Системе содержится более 150000 файлов нормативно-технической документации, действующей на территории РФ. Система предназначена для широкого круга инженерно-технических специалистов. Copyright © www.gostrf.com, 2008 - 2026 |