|
|
|
ГОСУДАРСТВЕННЫЙ КОМИТЕТ ПО АРХИТЕКТУРЕ И ГРАДОСТРОИТЕЛЬСТВУ ПРИ ГОССТРОЕ СССР Центральный научно-исследовательский и проектно-экспериментальный институт инженерного оборудования (ЦНИИЭП инженерного оборудования) Государственный комитет по делам строительства РСФСР Ассоциация
делового сотрудничества с зарубежными странами РУКОВОДСТВО Москва-1990 Рекомендовано к изданию Госкомархитектуры РУКОВОДСТВО ПО ВОССТАНОВЛЕНИЮ ИНЖЕНЕРНЫХ СИСТЕМ НАСЕЛЕННЫХ ПУНКТОВ, ПОДВЕРГШИХСЯ ЗЕМЛЕТРЯСЕНИЯМ (СТИХИЙНЫМ БЕДСТВИЯМ). М. ЦНИИЭП инженерного оборудования, 1990 г. Авторы: А.Е. Школьник, А.И. Кунахович (ЦНИИЭП инженерного оборудования), Э.В. Сарнацкий (Госкомархитектуры), Е.М. Колесникова (ЦНИИЭП инженерного оборудования) Рецензент: Кафедра гражданской обороны Всесоюзного института повышения квалификации Минэнерго СССР, нач. кафедры, доцент, к. т. н. К.С. Жигаловский Содержатся основные положения по организации и управлению производством, технологии восстановительных работ на системах водоснабжения, канализации, теплоснабжения и отопительных котельных населенных мест. Приведены сведения об инженерной разведке повреждений, подготовке производства и осуществлению работ. Руководство предназначено для инженерно-технического персонала строительных подразделений, действующих при восстановительных работах, а также проектных организаций и исполкомов. Содержание ПРЕДИСЛОВИЕЗемлетрясения - важнейший фактор окружающей среды, экстремально воздействующей на людские поселения. Многие географические регионы в той или иной мере подвержены катастрофическим смещениям земной коры. Наряду с землетрясениями население земного шара нередко испытывает тяжесть и других стихийных бедствий, от которых среднегодовой экономический ущерб, наносимый мировому сообществу, превышает 30 млр. долл. Однако материальные потери не столь важны для человечества и не столь ощутимы, как гибель людей. По данным ХХIII международного географического конгресса (Москва) число людских жертв от землетрясений и других бедствий, вызываемых природными факторами, достигает в среднем 250 тыс. за годовой период. Оценивая советский регион в градостроительном аспекте, необходимо учитывать, что более 10 % густонаселенной территории нашей страны расположено в сейсмоопасных зонах. Это значит, что почти каждый шестой житель СССР может оказаться жертвой тектонических сил. Скорбный список погибших только во время одного землетрясения, может насчитывать сотни тысяч людей. Так, в 1948 г. в Ашхабаде число жертв достигло 110 тыс., а в 1976 г. в Китае - 250 тыс. Накопившийся опыт борьбы со стихийнымиtбедствиями свидетельствует, что гибель жителей населенных пунктов обусловлена не только недостаточной устойчивостью зданий к экстремальным нагрузкам. Большое количество жертв приносят эпидемии, пожары, холод и другие факторы, возникающие при стихийных бедствиях по причинам неудовлетворительного водоснабжения, канализации, теплоснабжения и энергообеспечения. Чем дольше длится период восстановления инженерной инфраструктуры населенных пунктов, тем выше вероятность гибели людей, лишенных чистой воды и тепла. Хотя первопричиной разрушений коммунальных систем является труднопредсказуемое воздействие стихий, величина причиненного ими ущерба, во многом зависит от степени подготовки строительно-восстановительных подразделений к организованным и эффективным действиям на всех этапах экстремальной ситуации. Цель настоящего руководства - оказать помощь всем техническим формированиям, действующим в условиях экстремального периода, обусловленного землетрясением, другим стихийным бедствием. Руководство поможет грамотно реагировать на факторы экстремальных ситуаций, внезапно возникших на системах инженерной инфраструктуры населенных пунктов и быстро восстановить их работоспособность. Технические аспекты Руководства в основном касаются специфических технологий строительных процессов; методов инженерной разведки; состава проектной документации; порядка ввода во временную и постоянную эксплуатацию восстановительных систем. Организационные аспекты руководства отражают вопросы формирования восстановительно-строительных подразделений, действующих в экстремальных условиях. Руководство состоит из 5 разделов. Первый раздел освещает вопросы организации и оперативного управления производством восстановительных работ; инженерной разведки; экономического обоснования принимаемых решений. Во втором разделе содержатся основные положения по технологии восстановления отопительных котельных. Отражен характер разрушений при землетрясениях. Приведены данные по трудозатратам, необходимым для восстановления оборудования и коммуникаций котлов и котельных установок. Третий раздел посвящен вопросам восстановления тепловых сетей. В разделе содержатся сведения об основных рабочих операциях и объемах работ, связанных с монтажом трубопроводов по временным схемам. Четвертый раздел содержит основные положения по подготовке производства и технологии проведения восстановительных работ на коммунальных системах водоснабжения и канализации населенных пунктов. В Руководстве использованы научные и технологические разработки ЦНИИЭП инженерного оборудования, АКХ им. К.Д. Памфилова МЖКХ РСФСР, Минмонтажспецстроя, Минэнерго, Минобороны, а также учтен мировой опыт восстановительных работ, проведенных в зонах стихийных бедствий. Руководство предназначено для инженерно-технических работников проектных и строительных организаций независимо от ведомственной принадлежности. Пятый раздел касается комплекса вопросов, связанных с испытанием восстановленных систем, введением их в эксплуатацию. Материалы, помещенные в руководстве были апробированы при ведении восстановительных работ в районах Армении, подвергшихся землетрясению в 1988 г. ОБЩИЕ ПОЛОЖЕНИЯ1. Руководство по организации технологии и управлению процессами восстановления инженерных систем населенных пунктов, подвергшихся землетрясениям регламентируют мероприятия по формированию восстановительных подразделений, организации и управлению работами на период, устанавливаемый для ликвидации последствий стихийного бедствия. Настоящее Руководство предназначено для всех восстановительных подразделений, проектных и других организаций, независимо от ведомственной подчиненности. При восстановительных работах кроме настоящего Руководства следует соблюдать требования соответствующих глав СНиП, а также нормативных документов, утвержденных или согласованных Госкомархитектуры и Госстроем СССР, и СНиП «Техника безопасности в строительстве». 2. Восстановительные работы должны выполняться в соответствии с необходимой технической документацией, разработанной для конкретного объекта. Восстановительные работы следует осуществлять в технологической последовательности, учитывающей возможность частичного ввода в эксплуатацию отдельных инженерных систем потребителей с тем, чтобы в дальнейшем одновременно с функционирующими участками этих систем вводились новые, а также продолжалась работа по их достройке. 3. С целью организации комплексного выполнения восстановительных работ в кратчайшие сроки все положения Руководства предусматривают в первую очередь механизированные способы, а при отсутствии возможности осуществления таковых - рациональные ручные приемы. Производство восстановительных работ можно разделить на следующие организационно-технологические этапы: заблаговременное комплектование формирований восстановления и проведение работ подготовительного периода; получение расчетных величин и сбор данных инженерной разведки об очагах и тяжести разрушения; принятие решений; передвижение восстановительных формирований и средств механизации к местам разрушений; расчистка завалов и земляные работы; восстановление разрушенных систем трубопроводов и оборудования; испытание восстановленных конструкций и сдача работ. 4. При производстве восстановительных работ следует широко применять упрощенные технические решения, средства механизации и местные строительные материалы. 5. При проведении восстановительных работ в первую очередь необходимо локализовать аварии, принять меры по сохранению уцелевших объектов и предотвратить опасность дальнейшего повреждения и разрушения сетей, сооружений и оборудования от вторичных факторов поражения: пожаров, взрывов, обвалов или обрушений, затоплений, отравлений сильнодействующими отравляющими веществами, например, хлором хлораторных и складов реагентов обеззараживания вод, а также замерзания воды в трубах и т.п., а затем или параллельно с этим ликвидировать аварийное состояние на объекте и обеспечить его функционирование в максимально возможной степени. Восстановительные работы наряду с основными процессами предусматривают расчистку завалов и обрушений, отключение разрушенных участков сетей, отвод подземных и паводковых вод, устройство подходов и подъездов, демонтаж поврежденного оборудования и т. п. технологические операции, связанные с восстановлением работоспособности инженерных систем. 6. При производстве работ, наряду с настоящим Руководством, необходимо учитывать следующие нормативные документы: СНиП «Организация строительного производства»; СНиП «Приемка в эксплуатацию законченных строительством предприятий, зданий и сооружений. Основные положения»; СНиП «Тепловые сети. Нормы проектирования»; СНиП «Котельные установки. Нормы проектирования»; СНиП «Наружные сети и сооружения. Водоснабжение и канализация. Нормы проектирования»; СНиП «Противопожарные нормы»и др. 7. Требования, изложенные в главах СНиП, на соответствующие виды строительных работ - монтажные и общестроительные, не вошедшие в настоящее Руководство, могут выполняться по усмотрению руководителя восстановительными работами исходя из сложившихся условий. 8. Очагом поражения, возникшем в населенных пунктах под действием факторов землетрясения или других стихийных бедствий принято считать территорию, на которой произошло массовые разрушения зданий и сооружений, потери среди населения, сбои в снабжении жителей водой, теплом, электроэнергией, газом и другими компонентами жизнеобеспечения населения. В пределах очага поражения условно выделяют четыре основные зоны разрушений, являющиеся территорией, в пределах которой инженерные системы имеют в основном одинаковое снижение функциональных характеристик. 9. В зоне полных разрушений все головные сооружения инженерных систем, трубопроводные и другие коммуникации выходят из строя в результате механических деформаций. По всей зоне образуются большие завалы. 10. В зоне сильных разрушений подземные коммуникации коммунально-энергетического хозяйства сохраняются полностью или получают небольшие повреждения, а у головных надземных сооружений выходят из строя несущие конструкции. В зоне возникают очаговые завалы, пожары значительных масштабов. 11. В зоне средних разрушений сети и сооружения коммунально-энергетического хозяйства в основном сохраняются. Могут иметь место отдельные разрывы трубопроводов, повреждения опор лэп. 12. В зоне слабых разрушений сети и сооружения коммунально-энергетического хозяйства сохраняются. В наземных зданиях водопроводных станций, котельных, подстанций возникают трещины, оконные и дверные заполнения разрушаются. 13. На этапе спасательных и неотложных аварийно-восстановительных работ (СНАВР) необходимо срочно локализовать и устранить аварии коммунальных систем в целях устранения причин, препятствующих проведению операций по спасению населения. 14. Основными способами локализации аварий являются: отключение разрушенных или поврежденных участков коммуникаций; заделка разрушенных трубопроводов; отвод и откачка стоков. 15. Восстановление работоспособности инженерных систем в основном осуществляют после СНАВР. В период СНАВР необходимо провести подготовку к инженерно-восстановительным работам на коммунальных системах. РАЗДЕЛ 1
|
|||||||||||||||||||||||||||||||||||||||||||||||||||||||||||||||||||||||||||||||||||||||||||||||||||||||||||||||||||||||||||||||||||||||||||||||||||||||||||||||||||||||||||||||||||||||||||||||||||||||||||||||||||||||||||||||||||||||||||||||||||||||||||||||||||||||||||||||||||||||||||||||||||||||||||||||||||||||||||||||||||||||||||||||||||||||||||||||||||||||||||||||||||||||||||||||||||||||||||||||||||||||||||||||||||||||||||||||||||||||||||||||||||||||||||||||||||||||||||||||||||||||||||||||||||||||||||||||||||||||||||||||||||||||||||||||||||||||||||||||||||||||||||||||||||||||||||||||||||||||||||||||||||||||||||||||||||||||||||||||||||||||||||||||||||||||||||||||||||||||||||||||||||||||||||||||||||||||||||||||||||||||||||||||||||||||||||||||||||||||||||||||||||||||||||||||||||||||||||||||||||||||||||||||||||||||||||||||||||||||||||||||||||||||||||||||||||||||||||||||||||||||||||||||||||||||||||||||||||||||||||||||||||||||||||||||||||||||||||||||||||||||||||||||||||||||||||||||||||||||
|
Зоны |
Разрушение |
Сила землетрясения, баллов |
Характер разрушений |
|
1 |
Полное |
9 |
Несущие конструкции наземных сооружений обрушены. Трубопроводы систем водоснабжения, канализации и тепловых сетей в эпицентре полностью разрушены, у границ зоны повреждены. Колодцы полностью завалены и деформированы. Наземные трассы и переходы полностью выведены из строя |
|
2 |
Сильное |
8 |
Наземные сооружения (насосные, центральные тепловые пункты (ЦТП), станции водоподготовки, павильоны станций перекачки, отдельно стоящие котельные и т.п.) сильно разрушены. Заглубленные сооружения сохранены. Инженерные сети имеют существенные повреждения. Большие пожары и завалы |
|
3 |
Среднее |
7,5 |
Несущие конструкции наземных сооружений имеют локальные повреждения; крыши разрушены. Подземные коммуникации в основном сохранены, повреждения единичны |
|
4 |
Слабое |
6,5 |
Наземные здания имеют слабые разрушения. Инженерные сети сохранены. Возможны повреждения раструбных сетей с жесткими стыками, каналов теплосетей, чугунной арматуры |
1.1.3. В целях успешного осуществления восстановительных работ в очаге поражения необходимо заблаговременно решить следующие организационные и инженерно-технические задачи:
разработать организационную структуру инженерно-восстановительных формирований;
выявить наиболее вероятный к моменту восстановительных работ парк строительных и транспортных машин и средств механизации;
определить состав и оснащение инженерных формирований в зависимости от возможных повреждений инженерных коммуникаций и сооружений (см. табл. 1);
наметить центры средоточения сил и средств;
найти оптимальные пути следования формирований к местам производства работ;
изучить особенности, принципиальные схемы и рабочие чертежи инженерных коммуникаций населенного пункта; составить картотеку сетевых сооружений, магистральных и распределительных трубопроводов с указанием материала и габаритов несущих конструкций и труб, глубины заложения коммуникаций, привязочных размеров, трассы отключающих и водовыпускных устройств и др.;
организовать техническую подготовку формирований, изучить возможные очаги поражения, разобрать технологические карты и карты трудовых процессов;
подготовить эффективный инструмент и приспособления;
разработать директивный график восстановления инженерных систем в порядке очередности по степени важности объектов;
оборудовать временные городки для команд восстановительной службы и склады для инструмента, приспособлений и материалов.
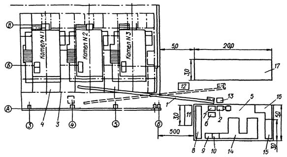
1.1.4. Основными организационными единицами формирований восстановительных работ являются колонна, отряды, группы и звенья рис. 1.2.
1.1.5. Комплектование формирований должно производиться с учетом:
существующих монтажных организаций и заводов (мастерских) централизованных заготовок;
сохранения специализации рабочих и инженерно-технического персонала;
комплексного ведения работ командой (звеном); максимально возможной механизации работ; В необходимых случаях для решения оперативных задач могут создаваться сводные отряды.
1.1.6. При отборе механизмов для восстановительных формирований следует принимать во внимание следующие конструктивные особенности:
способность к автономному передвижению (самоходность);
возможность передвижения со скоростью более 10 км/ч;
универсальность оборудования землеройных машин (прямая и обратная лопата, грейдер, нож для расчистки и засыпки траншей);
автономность водоотливных средств, необходимую высоту всасывания, допустимость перекачки загрязненных вод.
1.1.7. Оперативное руководство действиями восстановительных команд, определение объема работ в зависимости от силы разрушения, выбор строительной техники и средств механизации следует производить с учетом данных инженерной разведки об очагах и тяжести разрушений.

Рис. 1.2. Структурная схема формирований для восстановительных работ
1.1.8. Для оснащения восстановительных формирований рекомендуются механизмы и приспособления, приведенные в табл. 1.2.
Таблица 1.2
|
Основное оборудование |
Выполняемые работы |
|
Экскаваторы с обратной лопатой и грейдером марок Э-302, Э-303, Э-652, Э03322 |
Откопка и расчистка завалов, смотровых колодцев, отрывка траншей и котлованов. Опускание труб в траншею |
|
Кратны автомобильные и пневмоколесные: K-61, К-63, СМК-7, K-104, K-124 |
Перемещение обломков, труб и деталей инженерных коммуникаций |
|
Сварочные агрегаты: САК, автогенные аппараты, керосинорезы. Насосы: «Гном», М-300, М-600, М-800, M-1200, «Андижанец». Легкая иглофильтровальная установка |
Сварка и резка труб и металлоконструкций. Водоотлив и водопонижение мест устранения аварий |
|
Трубоукладчики |
Перемещение отдельных труб и плетей, установка несущих конструкций сооружения, разбор завалов |
|
Приспособление для резки чугунных труб |
Демонтаж повреждений участков системы водоснабжения |
|
Лабораторное оборудование |
Обнаружение и установление степени заражения местности |
Таблица 1.3
|
Показатели |
Передвижные компрессорные станции |
|||
|
ЗИФ-55 |
ПКС-5 |
ПКС-6 |
ПКС-6М |
|
|
Подача, м3/мин |
5 |
5 |
5,5 |
6 |
|
Предельное давление, МП |
0,7 |
0,7 |
0,6 |
0,7 |
|
Число раздаточных вентилей, шт. |
5 |
5 |
6 |
6 |
|
Расход бензина за 1 ч работы, кг |
16 |
13 |
17 |
17 |
|
Вместимость топливного бака, л |
110 |
65 |
65 |
110 |
|
Вес станции (сухой), т |
2,75 |
2,85 |
2,8 |
2,7 |
Таблица 1.4
|
Показатели |
Мотопомпы |
||
|
М-600 |
М-800 |
M-1200 |
|
|
Производительность, л/мин |
600 |
800 |
1200 |
|
Наибольшая высота всасывания, м (м вод. ст.) |
5 |
6 |
7 |
|
Мощность двигателя, Вт |
9,8 |
11,7-12,9 |
30,2 |
|
Вес, кг |
74 |
70 |
845 |
1.1.9. Примерный состав и оснащение формирований по производству восстановительных работ указан в табл. 1.5
Таблица 1.5
|
Формиро- |
Количество личного состава, |
Оснащение |
Объем работы за смену |
|
Колонна (трест) |
500-900 |
Экскаваторов - 15-18, бульдозеров - 4, автокранов - 16, трубоукладчиков - 10, газосварочной аппаратуры - 50, насосов - 60, машин технической помощи - 4 |
Устранение 30-40 разрывов сетей, прокладка 1 км трубопроводов и траншеи, 4 км наземных сетей, восстановление 1 теплоисточника |
|
Отряд (СМУ) |
60-70 |
Экскаваторов - 3, бульдозеров - 1, автокранов - 2, трубоукладчиков - 2, насосов - 10, сварочное оборудование - 8 |
Отключение участков разрушенных сетей, устранение причин затопления убежищ, откачка воды из убежищ, устройство временных сетей водоснабжения - 0,25 км, канализации - 0,1 км, теплоснабжения - 0,15 км, восстановление мест повреждений - 4 |
|
Команда (участок) |
15-20 |
Экскаваторы - 1, трубоукладчики или кран - 1, насосы - 5, сварочное оборудование - 2, приспособление для резки чугунных труб |
Отключение разрушенных участков, водоотлив из подвалов, устранение течей в трубопроводах - 3, прокладка временных труб - 20-50 м |
|
Группа (бригада) |
5-6 |
Сварочные аппараты - 1, труборез - 1, чеканка - 5, лопаты - 6, ключи трубные - 10, зубила - 4, кувалды - 3 |
Перекрытие отключающих устройств - 4; ремонт задвижек - 1; пожарных гидрантов - 1; компрессоров - 1, опорожнение систем - 1; смена арматуры - 2; работы по восстановлению разрушенных стыков - 1 |
|
Звено |
1-3 |
Ключи трубные и рожковые, лопата, зубила, молотки |
Выявление мест повреждений, мелкий ремонт |
1.1.10. Оперативное управление формированиями с целью оптимальной организации и регулирования их деятельности необходимо вести эффективными методами с обязательным использованием почасовых сетевых (линейных) графиков работ, технологических нормалей и карт трудовых процессов (карт организации работ).
1.1.11. Разработка графиков работ должна осуществляться в следующем порядке:
проведение анализа обстановки и характера разрушений по данным инженерной разведки;
установление работ, подлежащих включению в график;
выявление объема работ по элементам восстановительного процесса;
выбор метода производства работ и средств механизации;
подсчет необходимых трудозатрат и машино-часов;
определение продолжительности отдельных видов работ и взаимосвязи их во времени.
Общий вид сетевого графика восстановительных работ должен соответствовать рис. 1.3.
1.1.12. При анализе данных инженерной разведки следует выявить возможность:
применения механизмов и машин;
соответствие наличных средств, необходимых в возникшей ситуации;
привлечения к работам местного населения;
применения местных строительных материалов;
укрупнения узлов на сохранившихся заводах.

Рис. 1.3. Сетевой график принятия решений по восстановительным работам
Таблица 1.6
|
Вид работ |
Высота |
Размеры траншеи |
Продолжительность работ, ч |
без |
|||||
|
глубина, |
длина, |
объем, |
При вместимости ковша, м3 |
||||||
|
0,35 |
0,5 |
0,65 |
1 |
||||||
|
Вскрытие мест повреждения экскаватором: |
|
|
|
|
|
|
|
|
|
|
сетей водоснабжения |
0,5 |
3×5 |
8 |
120 |
5 |
3 |
2 |
1,8 |
- |
|
1 |
4×6 |
8,5 |
204 |
18 |
6 |
5 |
5 |
- |
|
|
2 |
5×7 |
9 |
315 |
12 |
9 |
7 |
6 |
- |
|
|
3 |
6×7 |
9 |
380 |
15 |
12 |
9 |
8 |
- |
|
|
4 |
7×8 |
10 |
560 |
17 |
14 |
12 |
10 |
- |
|
|
теплосетей |
0,5 |
1×3 |
3 |
9 |
1 |
0,9 |
0,8 |
0,7 |
- |
|
1 |
1×3,5 |
3,5 |
10,5 |
1,1 |
I |
0,9 |
0,8 |
- |
|
|
2 |
1×4 |
3,5 |
14 |
1,5 |
1.4 |
1,3 |
1 |
- |
|
|
3 |
1×4,5 |
4 |
18 |
2 |
1,8 |
1,5 |
1,3 |
- |
|
|
4 |
1×5 |
4 |
20 |
2,1 |
2 |
1,7 |
1,5 |
- |
|
|
Расчистка завала над люком экскаватором |
1 |
- |
- |
4,5 |
1 |
0,8 |
0,7 |
0,5 |
- |
|
2 |
- |
- |
20 |
2 |
1,8 |
1,7 |
1,5 |
- |
|
|
3 |
- |
- |
60 |
3,5 |
3,2 |
2,9 |
2,5 |
- |
|
|
4 |
- |
- |
80 |
6,1 |
5,8 |
5,3 |
5 |
- |
|
|
у ЦТП, насосных станций и т.п. сооружений автокраном |
2 |
- |
- |
20 |
- |
- |
- |
- |
2 |
|
3 |
- |
- |
35 |
- |
- |
- |
- |
4 |
|
|
4 |
- |
- |
45 |
- |
- |
- |
- |
6 |
|
|
|
|
|
|
|
|
|
|
|
|
|
Отрывка мест повреждения вручную (6 ч) |
1,5-2 |
3×5 |
4 |
60 |
- |
- |
- |
- |
20 |
Таблица 1.7
|
Работы |
Подразделения, |
Состав подразделения |
Машины и механизмы |
Часы работы |
||||
|
вид |
объем |
1 |
2 |
3 |
4 |
|||
|
Сбор данных разведки |
Очаг поражения |
Звено |
Дозиметрист, сантехник, строитель |
- |
|
|||
|
Определение обстановки, принятие решения |
Все повреждения |
Командир отряда |
Командир, нач. штаба |
- |
|
|||
|
Следование к местам восстановительных работ |
3-8 км |
Личный состав |
Личный состав |
Автомобили |
|
|||
|
Расчистка завалов |
3-300 м3 |
Команда 20-30 чел. |
Бульдозерист, крановщик |
Бульдозер - 2, кран - 2, экскаватор - 3 |
|
|||
|
|
||||||||
|
Рытье траншей |
10-100 м3 |
8 чел. |
Экскаваторщик, крановщик |
Экскаватор - 1, кран - 1 |
|
|||
|
Вскрытие каналов |
10 м |
Звено 5 чел. |
Слесарь - 4, крановщик |
Кран - 1, |
|
|||
|
Ремонт труб |
3 м |
Звено 4 чел. |
Слесарь - 4 |
CAK - 1, кран-1, автоген-1 |
|
|||
|
Чеканка стыков |
2-10 стыков |
Звено 3 чел. |
Трубоукладчик - 2, землекоп - 1 |
Приспособление для резки труб |
|
|||
|
Проверка плотности |
1 участок |
Звено 3 чел. |
То же |
Гидропресс |
|
|||
|
Ремонт насосов |
5-8 шт. |
Группа 6 чел. |
Механик - 2, слесарь - 3, наладчик - 1 |
Тали - 2, домкрат - 2 |
|
|||
|
Смена задвижек и арматуры |
14 шт. |
Группа 7 чел. |
Слесарь - 2, сварщик - 1, подсобный рабочий - 2 |
Тали - 2, кран - 1 |
|
|||
|
Прокладка временных, участков сетей |
20-80 м |
Группа 12 чел |
Сварщик - 5, слесарь - 7 |
САК-4 |
|
|||
|
Откачка вод из убежищ |
15 м |
5 звеньев по 3 чел. |
Механик - 5, слесарь - 5, землекоп-5 |
Мотопомпы - 5, насосы - 3 |
|
|||
|
Восстановление колодцев |
16 шт. |
Команда 16 чел. |
Каменщик-бетонщик - 6, подсобник - 10 |
Растворомешалка, кран |
|
|||
|
Ремонт резервуаров |
2 шт. |
Команда 10 чел. |
Бетонщик - 4. сварщик - 2, подсобник - 4 |
Экскаваторщик - 1, кран, мотопомпа |
|
|||
|
Восстановление систем зданий |
1 здание |
Команда 15 чел. |
Каменщик, монтажник |
Кран - 2, САК - 2 |
|
|||
|
Организация пунктов временного водозабора |
15 пунктов |
Команда 20 чел. |
Слесарь - 15, сварщик - 5 |
Сварочное оборудование |
|
|||
|
Засыпка грунтом котлованов |
12 участков |
Звено 3 чел. |
Землекоп-3 |
Бульдозер-2 |
|
|||
|
Следование в укрытие |
3-8 км |
Личный состав |
- |
Автомобиль |
|
|||

Рис. 1.4. График восстановительных работ на сетях водоснабжения
1.1.13. Типы и мощность машин необходимо выбирать исходя из условий работы и маневрирования, места отвоза грунтов с учетом понижающего коэффициента на производительность.
1.1.14. Трудовые затраты следует определять по данным табл. 1.6.
1.1.15. При определении продолжительности работ следует исходить из расчета ведения работ в 3 смены.
1.1.16. Основой для составления графика должна служить технологическая нормаль (табл. 1.7).
1.1.17. Примерный сетевой график восстановительных работ, которые следует выполнять отряду, приведен на рис. 1.4.
1.1.18. Для производства восстановительных работ не требуется обязательного составления проектно-сметной документации. Они могут выполняться по эскизам, схемам, а также по исполнительным чертежам сооружений и сетей, на которые при обследовании и технической проверке наносятся места разрушений и указываются объемы работ.
На исполнительных чертежах, эскизах и схемах или в описании, прилагаемом к ним, кратко указываются способы производства наиболее сложных работ, сроки их выполнения, потребность в основных материалах, оборудовании, строительных механизмах и рабочей силе.
1.1.19. Основным документом на выполнение восстановительных работ силами привлекаемых специализированных организаций является оформленный приказ-наряд (прил. 1), утверждаемый начальником формирования или его заместителем. На основании таких приказов-нарядов, фактически израсходованных материалов и затрат на транспорт и механизмы при расчетах за выполненные работы составляется акт, который вместе с приказом-нарядом сдается в банк. Работы, выполняемые аварийно-техническими командами (группами или звеньями), производятся по указанию начальника соответствующего формирования.
|
«Утверждаю» Начальник дата (подпись)
1. Адрес места производства работ и наименование объекта ________________________________________________________________________________ ________________________________________________________________________________ ________________________________________________________________________________ 2. Ответственный исполнитель работ: ________________________________________________________________________________ ________________________________________________________________________________ (наименование организации) 3. Состав работ (краткое содержание работ) ________________________________________________________________________________ ________________________________________________________________________________ ________________________________________________________________________________ ________________________________________________________________________________ 4. Основные мероприятия по технике безопасности (при особо опасных работах) ________________________________________________________________________________ ________________________________________________________________________________ ________________________________________________________________________________ ________________________________________________________________________________ ________________________________________________________________________________ Приложение к наряду: 1. Исполнительные чертежи, эскизы, схемы, технические паспорта. 2. Плановые сроки выполнения восстановительных работ. 3. Разные материалы (дефектная ведомость и др.). Наряд с приложениями получил: Ответственный представитель организации исполнителя работ: (подпись), (дата) Особые замечания ответственного производителя работ. К акту на выполненные работы прилагаются следующие документы: фактически затраченное время в человеко-днях; перечень и количество затраченных материалов; фактическая работа транспорта в тонно-километрах; фактические затраты на работу механизмов в машино-сменах. |
Технологическая карта восстановления поврежденных трубопроводов приведена в прил. 2.
1. Организационно-технологические условия.
1.1. Назначение карты организации труда.
Карту используют в процессе восстановления участков поврежденных трубопроводов комплексной бригадой из трубоукладчиков, электросварщиков, изолировщиков.
1.2. Нормативная, проектная и техническая документация.
Сборка, электродуговая сварка, изоляция стыков, укладка плети в траншею ведутся в соответствии с настоящим руководством согласно требованиям СНиП.
1.3. Форма организации труда, состав комплексной бригада приведены ниже.
|
Состав звена, |
Основная профессия |
Разряд |
Количество звеньев |
Смежная профессия |
Разрад |
Работа, выполняемая звеном |
|
5 |
Машинист трубоукладчик |
6 |
1 |
- |
5 |
- |
|
6 |
1 |
Такелажник |
5 |
- |
||
|
5 3 |
1 1 |
Такелажник |
3 |
- |
||
|
Электросварщик |
5 |
1 |
Газосварщик |
|
- |
|
|
6 |
То же |
6 |
6 |
То же |
|
Электросварка |
|
3 |
Изолировщик |
5 |
1 |
Машинист би- |
4 |
Изоляция стыков труб на бровке |
|
То же |
3 |
2 |
||||
|
7 |
Машинист трубоукладчик |
6 |
3 |
Такелажник |
3 |
Укладка плетей |
|
6 |
1 |
|||||
|
То же |
3 |
3 |
Такелажник |
4 |
|
Как видно из таблицы, в работе занято всего 21 человек. Средний разряд рабочего - 5.
1.4. Средства труда, используемые при восстановительных работах, приведены ниже.
|
№ |
Наименование |
Количество, шт. |
|
1. |
Приспособление для правки торцов труб ПВ |
3 |
|
2. |
Машина для абразивной зачистки кромок |
3 |
|
3. |
Центратор наружный звенный ЦЗ-1020 |
6 |
|
4. |
Полотенце для подачи секций ТП-1020 |
4 |
|
5. |
Лом стальной ЛМ-20 |
2 |
|
6. |
Кувалда массой 8 кг |
2 |
|
7. |
То же, 4 кг |
6 |
|
8. |
Напильник плоский драчевой длиной 400 мм, ключ разводной |
3 |
|
9. |
Щуп для замера зазора |
3 |
|
10. |
Зубило слесарное 20×60 |
6 |
|
11. |
Молоток слесарный массой 0,8 кг |
6 |
|
12. |
Электродержатель |
7 |
|
13. |
Маска для защиты электросварщика |
7 |
|
14. |
Светофильтры стеклянные |
14 комп. |
|
15. |
Набор простых стекол (оконных) |
6 |
|
16. |
Лупа измерительная |
6 |
|
17. |
Муфта для соединения сварочных кабелей |
4 |
|
18. |
Струбцина для крепления нулевого провода |
4 |
|
19. |
Лопата строительная совковая |
2 |
|
20. |
Лейка |
1 |
|
21. |
Кисть малярная для праймирования |
1 |
|
22. |
Очки защитные с простыми стеклами |
18 |
|
23. |
Скребок для очистки труб от грязи1 |
6 |
|
24. |
Котел битумоплавильный прицепной ИСТЭБ2 |
1 |
|
25. |
Щетка металлическая3 |
1 |
|
26. |
Лежни инвентарные из стальных труб диаметром 500 мм |
2 на одну секцию |
|
27. |
Упоры под трубы |
4 на одну секцию |
|
28. |
Электродница |
7 |
|
29. |
Коврик резиновый |
7 |
|
30. |
Лестница металлическая |
7 |
|
31. |
Заземлитель переносной |
7 |
|
32. |
Ящик металлический (или ведро) |
4 |
|
33. |
Мешалка деревянная |
3 |
|
34. |
Боек (деревянный щит размером 2×1,5 м |
1 |
|
35. |
Полотенце из брезента |
2 |
|
36. |
Нож |
2 |
|
37. |
Стропы |
5 |
|
38. |
Электросварочный агрегат АСД-300 |
1 |
|
39. |
То же, АСДП-500 |
3 |
|
40. |
Кран-трубоукладчик T15-30B |
4 |
1 Изготовляется в механических мастерских СМУ, ПМК
2 СКВ «Газостроймашина»
3 Изготовляется в механической мастерской СМУ, ПИК
2. Организация трудового процесса
2.1. Подготовительные работы
Расчистить трассу от завалов, подготовить все материалы, инструменты, приспособления. Проинструктировать восстановительные отряды о порядке проведения работ и по технике безопасности.
2.2. Технологическая основа процесса
Трубопровод укладывают в следующей технологической последовательности: сборка, электродуговая сварка и изоляция стыков на бровке траншеи способом наращивания.
Ранее заизолированную плеть опускают с бермы траншеи кранами-трубоукладчиками.
2.3. Трудовой процесс
Звено № 1. Сборка секций в плеть на бровке траншеи. Укладка и зачистка кромок, стыковка секций с равномерным зазором между кромками и установкой центратора, электродуговая ручная прихватка стыка.
Звено № 2. Электродуговая ручная сварка стыка секций на бровке траншеи производится по схеме «снизу вверх». электродами на постоянном токе обратной полярности.
Звено № 3. Приготовление битумной мастики и грунтовки, изоляция стыков на бровке траншеи; очистка поверхности стыка; нанесение грунтовки; подготовка котла и нанесение битумной мастики; обертывание стыка рулонным материалом.
Звено № 4. Укладка трубопровода в траншею плетью: строповка и поднятие плети первыми двумя кранами; подготовка третьего крана, к
опусканию плети захваткой (установка в доходное положение); строповка и поднятие плети третьим краном, расстановка рабочих; поддержка плети первым краном при опускании в траншею; подача плети на весу вторым краном к бровке траншеи; укладка плети в траншею; расстроповка, переход в исходное положение.
2.4. Вспомогательные работы
Звено № 1 разгружает секции с плетеводов, раскладывает их вдоль трассы и устанавливает временные инвентарные пешеходные мостики через траншею. Характеристика электродов для сварки стальных труб и деталей дана ниже.
|
Марка |
Тип |
Толщ, |
Сварочный ток |
Сварочная сталь труб |
|
ОММ-5 |
3-42 |
3-6 |
Переменный и постоянный любой полярности |
Малоуглеродистая |
|
ОЗС-5 |
Э50А |
3-6 |
Постоянный обратной полярности |
Среднеуглеродистая и низколегированная |
|
ОЗС-6 |
Э46 |
3-8 |
Переменный и постоянный любой полярности |
Малоуглеродистая и низколегированная типа 09Г2 |
|
УОНИ13/45 |
342А |
2-6 |
Постоянный обрат- ной полярности |
Малоуглеродистая, среднеуглеродистая и низколегированная |
|
УОНИИ13/55 |
50А |
2-6 |
То же |
То же |
|
СМ-5 |
Э42 |
4-6 |
То же |
То же |
|
AHО-1 |
Э42 |
4-6 |
Переменный и постоянный любой полярности |
Малоуглеродистая и низколегированная типа 09Г2 |
|
АНО-3 |
346 |
36 |
То же |
То же |
|
АНО-4 |
346 |
2-6 |
То же |
То же |
|
АНО-5 |
342 |
4-6 |
То же |
То же |
|
АНО-6 |
342 |
4-6 |
То же |
То же |
|
MP-1 |
346 |
4-6 |
Переменный и постоянный обратной полярности |
То же |
|
МР-3 |
346 |
4-6 |
То же |
То же |
1.2.1. При экономической оценке решений по восстановлению систем инженерного оборудования и повышению их устойчивости необходим методический подход, позволяющий производить соизмерение затрат и результатов с учетом предотвращения ущерба во всех звеньях, использующих инженерные ресурсы, и отрицательного влияния последствий аварий и повреждений на окружающую среду.
При этом дополнительные единовременные и текущие затраты на восстановление инженерных систем сопоставляются с совокупным народнохозяйственным эффектом, который можно подразделить на два вида.
Экономический эффект первого вида представляет собой сумму затрат на предотвращение ущерба в экстремальных условиях, то есть величину, на которую снижается ущерб за счет повышения устойчивости и надежности систем.
1.2.2. Для расчета эффекта от внедрения решений по восстановлению инженерных систем разработана система показателей по видам инженерного оборудования, которые отражают специфику ущерба, возникающего в результате действия факторов экстремальных условий. Экономический эффект следует определять по показателям характеризующим:
сохранность основных фондов систем инженерного оборудования при действии избыточного давления и других факторов;
сохранность зданий и сооружений при действии вторичных факторов разрушения;
сохранность материально-технических средств и запасов в помещениях, затопляемых при разрушении водопровода, канализации или системы отопления;
сохранность инженерных ресурсов;
ликвидацию простоев и потерь за счет бесперебойного снабжения потребителей производственной и непроизводственной сфер водой, теплотой, электроэнергией, газом, а также своевременного отведения сточных вод;
сокращение сроков восстановительных работ разрушенных либо поврежденных участков систем;
защиту людей от воздействия разрушений.
1.2.3. Для определения показателей экономического эффекта выявляют конкретные координаты зон разрушения на площади города, подсчитывая объем разрушенных систем инженерного оборудования, а также объем потерь до и после повышения устойчивости инженерных систем и их восстановления.
1.2.4. Инженерное оборудование городов, по видам рассматривается на основе системного анализа факторов в их единстве и взаимовлиянии, с учетом объемов разрушений и отрицательного воздействия одной поврежденной системы на другие.
1.2.5. В целях упрощения расчетов вводится коэффициент повышения устойчивости i-й системы (∆Hi ), учитывающий величину предотвращенного ущерба по ряду показателей рассматриваемого вида экономического эффекта. Эта величина представляет собой разность между долями основных фондов каждой из систем, оставшихся целыми после (1 - φiп) и до (1 - φiд) осуществления оцениваемого решения.
∆Hi = (1 - φiп) - (1 - φiд) = φiд - φiп
Умножив сумму ущерба, возникающего в результате разрушений зданий и сооружений ∆С, утрат материально-технических средств ∆Мi либо потерь инженерных ресурсов Дi, на коэффициент повышения устойчивости i-й системы получают соответствующие значения искомого показателя.
1.2.6. Основными слагаемыми экономического эффекта являются:
физические объемы разрушенных зданий и сооружений города ∆С, основных фондов городских инженерных систем ∆Фi, оцениваемые по их восстановительным стоимостям, которые равны затратам на их восстановление;
потери материально-технических средств в городских хранилищах ∆Mi вследствие разрушения i-й инженерной системы, определяемые по балансовой стоимости среднегодовых остатков этих средств;
потери i-го инженерного ресурса Дi в результате разрушения и повреждения систем инженерного оборудования, определяемые по формуле
Дi = Qi + Si,
где Qi - объем потерь i-го инженерного ресурса, единиц;
Si - средняя отпускная цена i-го инженерного ресурса, тыс. руб/единиц;
Остальные слагаемые экономического эффекта зависят от времени на восстановление систем инженерного оборудования, в течение которого потребности в инженерных ресурсах (услугах) не будут удовлетворяться. Это вызывает простои на j-х предприятиях города, а следовательно, сокращение объемов выпуска продукции или приводит к дискомфорту в производственной среде и местах проживания. Предотвращенный ущерб Пi от сокращения продолжительности простоев на j-x предприятиях города, обусловленного повышением надежности и устойчивости систем инженерного оборудования города, определяют по формуле
![]()
где bj - среднесуточная выработка продукции j-м предприятием города, тыс. руб/сут;
tij - время сокращения продолжительности простоев j-й системы на j-м предприятии города, сут/год.
Кроме того, введение соответствующих коэффициентов позволит учесть снижение отрицательного влияния дискомфорта в производственной среде и местах проживания.
Разрушения и повреждения систем инженерного оборудования наносят ущерб не только сферам социального и материального производства, но и окружающей среде.
Затопления, загазованность, возгорание помещений в результате разрушения систем могут привести к потере численности населения. За единицу измерения предотвращенного ущерба принимают долю национального дохода, приходящуюся на одного человека. Сумму такого ущерба Лi следует определять по формуле
![]()
где Д - национальный доход, тыс. руб.;
Ч - численность населения СССР, чел.;
∆Чi - снижение численности населения за счет потерь, чел.
1.2.7. Отрицательные экологические последствия в виде загрязнения водоемов и территорий города в результате разрушения системы канализации приводят к потерям природного ресурса и антисанитарным условиям мест проживания.. Оценку сохранности природных ресурсов водоема производят по формуле
Ц = Qп×z×d×Eн,
где Qп - объем природного ресурса в расчете на 1 га площади водоема, ед/га;
d - площадь водоема, га;
z - средняя оценка единицы природного ресурса, имеющегося в данном водоеме (принимается по взвешенным оценочным объемам его запасов), тыс. руб/ед.
Затраты на ликвидацию антисанитарного состояния определяют по формуле
И = c×V+×Eн,
где с - усредненные затраты по рекультивации 1 га земли, залитой сточными водами, тыс. руб/га;
V+ - площадь земли, залитой сточными водами, га.
1.2.8. Экономический эффект Э1i от применения систем инженерного оборудования для экстремальных условий рассчитывается по показателям предотвращенного ущерба.
Годовой экономический эффект (второго вида) в обычных условиях Э2i от принятых решений по восстановлению инженерных систем с учетом фактора времени рекомендуется определять по формуле
![]()
Экономический эффект, обусловленный увеличением срока службы отдельных элементов инженерных систем, определяется согласно Инструкции по определению экономической эффективности использования в строительстве новой техники, изобретений и рационализаторских предложений (СН 509-78).
1.2.9. Совокупный народнохозяйственный эффект Эi от восстановленных инженерных систем в экстремальных условиях с учетом фактора времени определяется суммой эффектов, образующихся в экстремальных Э1i и в обычных условиях Э2i, за вычетом дополнительных затрат на повышение устойчивости систем, а также эффекта ЭЗi, обусловленного увеличением срока службы элементов инженерных систем. Причем единовременные затраты Кi приводятся к годовой размерности с помощью нормативного коэффициента эффективности капитальных вложений Eн, а годовые текущие издержки ∆qi определяются с учетом фактора времени.
Формула для расчета совокупного народнохозяйственного эффекта с учетом фактора времени имеет вид

2.1.1. Рекомендации по восстановлению отопительных котельных регламентируют мероприятия по организации и технологии проведения монтажных восстановительных операций в отопительных котельных.
Настоящие Положения предназначены для восстановительных подразделений, проектных и других организаций независимо от ведомственной подчиненности.
При восстановительных работах кроме настоящего Руководства следует соблюдать требования соответствующих глав СНиП, а также нормативных документов, утвержденных или согласованных с Госкомархитектуры или Госстроем СССР, и СНиП «Техника безопасности в строительстве».
2.1.2. Восстановительные работы должны выполняться в соответствии с технической документацией, разработанной для конкретных объектов.
Восстановительные работы следует осуществлять в технологической последовательности, учитывающей возможность частичного ввода в эксплуатацию отдельных систем отопления с тем, чтобы в дальнейшем одновременно с функционирующими вводились новые участки сетей, а также продолжалась работа по их достройке.
2.1.3. С целью организации комплексного выполнения восстановительных работ в кратчайшие сроки все положения Руководства предусматривают в первую очередь механизированные способы, а при отсутствии возможности осуществления таковых - рациональные ручные приемы.
Производство восстановительных работ можно разделить на следующие организационно-технологические этапы:
заблаговременное комплектование формирований и проведение работ подготовительного периода;
получение расчетных величин и сбор данных инженерной разведки об очагах и тяжести разрушения;
принятие решений;
расчистка завалов и земляные работы;
восстановление разрушенных трубопроводов и оборудования;
испытание восстановленных конструкций и сдача работ.
2.1.4. При производстве восстановительных работ следует широко применять упрощенные технические решения, средства механизации и местные строительные материалы.
2.1.5. При проведении восстановительных работ в первую очередь необходимо локализовать аварии, принять меры по сохранению уцелевших объектов и предотвратить опасность дальнейшего повреждения и разрушения сетей, сооружений и оборудования от вторичных факторов поражения: пожаров, взрывов, обвалов и обрушений, затоплений, замерзания воды в трубах и т.п., параллельно с этим ликвидировать аварийное состояние на объекте и обеспечить его функционирование в максимально возможной степени.
Восстановительные работы кроме основных технологических операций предусматривают также расчистку завалов, отключение разрушенных участков сети, водоотвод, устройство подходов и подъездов, демонтаж поврежденного оборудования и т.д.
2.1.6. При производстве работ, наряду с настоящим Руководством необходимо учитывать следующие нормативные документы:
СНиП «Организация строительного производства».
СНиП «Приемка в эксплуатацию законченных строительством предприятий, зданий и сооружений. Основные положения.
СНиП «Тепловые сети».
СНиП «Противопожарные нормы».
СНиП «Котельные установки. Нормы проектирования».
Требования, изложенные в главах СНиП на соответствующие виды строительных работ - монтажные и общестроительные, не вошедшие в настоящее Руководство, могут выполняться по усмотрению руководителя восстановительными работами исходя из местных условий.
2.1.7. Требования настоящего раздела распространяются на производство восстановительных работ в отопительных котельных с чугунными и стальными котлами на твердом, жидком и газообразном топливе, предназначенных для покрытия расходов теплоты на нужды отопления, вентиляции и горячего водоснабжения жилых и общественных зданий, а также бытовых и технологических потребителей в городах и населенных пунктах.
Рассматриваются котельные установки с предельной расчетной паропроизводительностью паровых котлов не более 20 т/ч и рабочим давлением 12 бар; водогрейных - теплопроизводительностью до 120 МВт, с температурой воды на выходе из котла до 150°С.
2.1.8. Сокращение объемов работ и сроков восстановления котельных достигается при использовании мероприятий, проводимых эксплуатирующей организацией заблаговременно.
К подготовительным мероприятиям относятся:
составление и корректировка проектной документации теплопотребителей и теплоисточников; при этом все изменения, произошедшие при строительстве, реконструкции, переводе котельной с одного вида топлива на другое, монтаже и наладке, должны своевременно вноситься в проекты;
разработка плана восстановления котельных на основании анализа вариантов возможных повреждений. Исходя из конкретных условий рассматриваются варианты упрощенных схем работы котельной;
создание неприкосновенного комплекта запасных частей и материалов в количествах, предусмотренных «Временным положением о системе планово-предупредительного ремонта котельного хозяйства предприятий объединенных котельных и тепловых сетей» МЖКХ РСФСР и «Нормами расхода материалов на капитальный ремонт основных видов оборудования» ЖКХ РСФСР;
распределение обязанностей среди эксплуатационного персонала котельных и работников эксплуатирующей организации по ликвидации аварий;
содержание средств пожаротушения в постоянной готовности к применению;
содержание запорной арматуры на газо-, водо- и паропроводах в исправном состоянии.
2.1.9. В подготовительный период следует учитывать, что разрушение котельных и потеря работоспособности обслуживающего персонала могут произойти не только от воздействия внешних причин, но и от взрыва котлов, пожара, вызванного воспламенением топлива (особенно газообразного и жидкого), ожогов паром и горячей водой. В целях предупреждения или уменьшения степени разрушений необходимы следующие специальные профилактические мероприятия:
произвести быстрый останов котлов путем прекращения подачи топлива и воздуха в топку, при этом в топке котлов должно поддерживаться небольшое разрежение (до охлаждения котлов);
в котельных, работающих на газообразном топливе, отключить наружный газопровод;
в котельных, работающих на жидком топливе, имеющих подземные хранилища, произвести слив топлива из расходных баков.
2.1.10. При разрушении котельной следует:
выявить состояние пострадавших лиц, находящихся в котельной, и при необходимости оказать им медицинскую помощь;
принять немедленные меры по спасению людей, заваленных в результате обвала зданий;
отключить разрушенную котельную от линии электроэнергии и принять меры к обесточиванию оборудования и заземлению оборванных проводов;
в котельных, работающих на газе, проверить загазованность помещений, целостность газопровода, приборы и оборудование, наполненные газом, и устранить утечку газа;
не применять открытого огня до полного выяснения отсутствия загазованности;
произвести осмотр зданий, сооружений инженерного оборудования, обрушить элементы конструкций, грозящие обвалом;
в котельных, работающих на жидком топливе, произвести осмотр емкостей и трубопроводов. Устранить протечки, убрать разлившееся топливо. При осмотре и ликвидации течи не применять открытого огня, а также инструментов, способных дать искру.
2.1.11. Принять мере по предотвращению переохлаждения отапливаемых от котельной зданий. Для этого необходимо:
ответственным за восстановление, а также эксплуатацию отапливаемых зданий лицам, принять меры по уменьшению дополнительных теплопотерь зданий через выбитые окна, оторванные дверные полотна и др.;
утеплить теплопроводы в местах, подверженных охлаждению;
принять меры по утеплению котельной и предотвращению замерзания воды в коммуникациях, оборудовании и приборах, которое приводит к их разрушению;
при возможности обеспечить временное подключение отапливаемых зданий к другим действующим источникам теплоснабжения.
2.1.12. Если сроки восстановления котельной или присоединение отапливаемых зданий к другим источникам теплоты превышают время, в течение которого в системе отопления может замерзнуть вода, должны быть приняты меры к опорожнению трубопроводов.
2.1.13. Аварийный спуск воды из системы и ее наполнение после окончания восстановительных работ производят в соответствии с действующими положениями эксплуатирующей организации.
2.1.14. Необходимо подготовить пути подъезда и подхода к котельной - расчистить завалы, укрепить части зданий и сооружений, угрожающих падением. При этом следует принимать меры по защите оборудования котельной от повреждения обрушаемыми конструкциями.
2.1.15. Потребность в материалах в процессе восстановительных работ определяют в соответствии с эскизным проектом восстановительных работ.
2.1.16. Номенклатура запасных частей на основные виды оборудования и нормы их запаса принимают в соответствии с временными положениями о системе планово-предупредительного ремонта котельного хозяйства.
2.2.1. Цель восстановительных работ - ликвидация последствий разрушений и пуск котельной по упрощенной схеме, допускающей эксплуатации ее без некоторых элементов и узлов, отсутствие которых не отражается отрицательно на безопасности ее работы.
Способы упрощения схем котельных для временной эксплуатация приведены в табл. 1.
Таблица 2.1
|
Характеристика основной тепловой схемы котельной |
Способы эксплуатации установки по упрощенной схеме |
|
Отопительная котельная с чугунными водогрейными котлами на твердом топливе, с ручной колосниковой решеткой, дутьевыми вентиляторами, золоулавливающей установкой, дымососами, циркуляционными насосами, водоподготовкой |
При выходе из строя: дутьевого вентилятора или дымососа - работа производится на естественной тяге: открывается поддувало, отвод газов производится в обход золоулавливающей установки; золоулавливающей установки - отвод газов производится так же, как и в первом случае; установки для водоподготовки - подпитка из водопровода; дымовой трубы - отвод газов по временной дымовой трубе. |
|
Отопительная котельная с чугунными паровыми котлами и дополнительными подпиточными насосами и конденсатным баком |
При выходе из строя подпиточного насоса и конденсатного бака подпитка производится из водопровода или ручным насосом привозной водой. |
|
То же, со стальными паровыми котлами на газообразном топливе, с подогревателями сетевой воды, питательным экономайзером, деаэрационной установкой, водоподготовкой, устройством для непрерывной продувки, питательными подпиточными и сетевыми насосами |
При выходе из строя: экономайзера - питательная вода подается непосредственно в котел, отвод газов по обводному борову; деаэрационной установки или водоподготовки и связанных с ней подогревателей - питание производится из водопровода в питательный бак; устройства непрерывной продувки - производится периодическая продувка; питательного насоса с электроприводом - включается питательный паровой насос. |
Условия работы восстанавливаемых помещений котельной согласно упрощенной технологической схемы должна определяться в соответствии с табл. 2.
Таблица 2.2
|
Котельные |
Расчетная температура наружного воздуха |
Здания и помещения, подлежащие восстановлению |
Условия работы |
|
Закрытого типа |
Ниже минус 30°С |
Котельный зал, насосное отделение, помещение химводоподготовки (частично) |
Ограждающие конструкции, приборы системы отопления должны обеспечивать поддержание внутренней температуры воздуха помещений не ниже +13°С. При работе котельных на твердом топливе с механической подачей топлива на колосниковую решетку температура воздуха в помещениях топливоподачи должна быть не ниже +5°С. При работе котельной на жидком топливе (мазуте) необходимо устанавливать емкости с подогревателями, обеспечивающими поддержание температуры мазута перед теплообменниками не ниже 60°С. Температура мазута за теплообменником перед форсункой должна быть не ниже 110°С. При работе котельной на газообразном топливе необходимо предусматривать газораспределительный пункт (ГРП) |
|
Открытого типа |
До минус 25°С |
Котельный зал, насосное отделение, помещение химводоподготовки (частично) |
Необходимо иметь помещение для электрощитов и насосов. При работе котельной на жидком топливе (мазуте) должны предусматриваться емкости со змеевиками, поддерживающими температуру мазута перед теплообменниками не ниже 60°С. Температура мазута за теплообменником перед форсункой должна быть не ниже 110°С. При работе котельных на газообразном топливе необходимо иметь ГРП |
|
Полуоткрытого типа |
До минус 25°С |
То же |
То же |
2.2.2. Оборудование для работы котельной по упрощенной схеме следует подбирать в следующем порядке.
Общее количество котлов должно обеспечить минимально допустимые тепловые нагрузки.
Суммарная поверхность котлов, необходимая для покрытия указанных нагрузок, определяется по формулам:
для водогрейных котельных установок
м2,
паровых
м2,
где 1,1-1,2 - коэффициент запаса на непроизводительные потери теплоты;
QP - расчетная тепловая нагрузка, ккал/ч;
Q/HК - тепловое напряжение поверхности нагрева, ккал/м2×ч;
Все котлы - чугунные и стальные (водогрейные и паровые) должны быть оборудованы предохранительными устройствами и минимально необходимыми контрольно-измерительными приборами (термометры, манометры), и арматурой (предохранительные клапаны, запорные задвижки и вентили, обводные линии с обратными клапанами гидравлические затворы и т.д.).
2.2.3. Производительность циркуляционных насосов определяют по формуле
кг/ч
где Qmax - максимальная теплопроизводительность котельной в ккал/ч;
tгop.; toбp. - температура горячей и обратной воды при расчетной наружной температуре;
С - теплоемкость воды, ккал/кг×град
Напор питательных насосов
Нн = PК + HС + НН + НП, м вод. ст.,
где: PК - избыточное давление в котле в м;
НС - сопротивление сети (всасывавших и питательных линий), м вод. ст.;
НН, НП - геодезические высоты нагнетания и подпора, измеренные от оси насоса, м.
Обычно принимают
НН = PК + (10 + 20) м вод. ст.
2.2.4. Производительность вентилятора определяет по формуле
м3/ч
где: 1,1 - коэффициент, учитывающий утечку воздуха через неплотности воздуховодов;
α - коэффициент избытка воздуха в топке;
Bmax - максимальный расход топлива, кг/ч;
VO - количество воздуха, необходимое для сжигания 1 кг топлива при 0°С и 760 мм рт. ст., м3/кг;
tB - температура подаваемого воздуха, °С.
2.2.5. Мощность, расходуемую на валу вентилятора, определяют по формуле:
кВт
где НГ - полное расчетное давление вентилятора, мм вод. ст.
ηв - КПД вентилятора при полном давлении.
2.2.6. Производительность дымососа прямого действия определяют по формуле:
м3/ч
где: Вmax - максимальное количество сжигаемого топлива, кг/ч;
- объем дымовых газов перед дымососом, м3/кг.
Объем конденсатных баков Vкб равен
м3
где Дmax - максимальный расход воды ( пара)
![]()
здесь r - доля возвращаемого конденсата;
ДН - максимальный расход нормального пара, кг/ч;
iпара - энтальпия пара, ккал/кг;
tПВ - температура питательной воды (входящей в экономайзер), °С.
2.2.7. Количество питательных устройств паровых котлов должно быть минимальным:
для паровых котельных низкого давления (до 0,7 атм): центробежный насос. - 1 шт.; ручной насос - 1 шт.;
давлением свыше 0,7 атм: многоступенчатый центробежный насос - 1 шт.; центробежный насос - 1 шт. или поршневой насос - 1 шт. и инжектор - 1 шт.;
запасные мазутные форсунки - по одному комплекту на котел при переводе с газообразного топлива на мазут (при наличии устройства для слива, хранения, транспортирования, очистки и нагрева мазута).
2.2.8. После пуска котельной в эксплуатацию по упрощенной схеме следует составить план восстановления всего комплекса и по мере готовности оборудования включать его в работу по основной схеме.
План восстановительных работ котельной по постоянной схеме должен осуществляться по этапам:
определение вида и характера ремонтных работ;
установление очередности работ и сроков их выполнения;
организация или изыскание производственной базы для выполнения ремонтных работ;
обеспечение снабжения необходимыми материалами, запасными деталями, готовыми изделиями и узлами;
осуществление контроля за качеством ремонта и эксплуатации оборудования;
устройство путей подвоза, определение порядка и места складирования материалов для восстановления и конструкций от разборки разрушенной котельной.
2.2.9. При выполнении работ, связанных с монтажом оборудования по временной схеме, необходимо учитывать неотложность восстановления всего оборудования для работы котельной в постоянном режиме.
2.2.10. Повреждения оборудования котельных и внутрикотельных коммуникаций по сложности их восстановления делятся на I, II и III группы (табл. 2.3)
Таблица 2.3
|
Оборудование |
Группа повреждения |
Работы пo ликвидации повреждений |
|
Котлы чугунные секционные |
Первая |
Наружный осмотр кожуха, арматуры, гарнитуры и шиберов, устранение мелких дефектов и неплотностей, ремонт обмуровки котла и тепловой изоляции оборудования; ремонт топливоподающих устройств и вспомогательного оборудования |
|
То же |
Вторая |
Ремонт частично разрушенной обмуровки, кожуха; ремонт или замена арматуры и гарнитуры, очистка дымоходов от обрушений; восстановление (ремонт) дымоходов, выносной топки, газового оборудования (ГРП и КИП), форсунок и вспомогательного оборудования |
|
Котлы чугунные секционные |
Третья |
Полная переборка котла с заменой отдельных секций или котла в целом; замена кожуха, изоляции, комплекта арматуры; ремонт и перекладка фундамента под котлы |
|
Котлы стальные |
Первая |
Наружный осмотр котлоагрегата, поверхности нагрева, мест вальцовки труб и барабанов коллекторов без вскрытия люков и лазов, швов, кромок, штуцеров днища, лазов; мелкий ремонт изоляции барабанов и трубопроводов в пределах котлоагрегата; наружный осмотр кладки температурных швов; устранение дефектов обмуровки; уплотнение лазов, гляделок, рам шиберов; устранение присоса воздуха при работе дымососа |
|
Котлы стальные |
Вторая |
Все операции первой группы, а также полный осмотр и проверка поверхности нагрева котла; заварка трещин и правка воздушников на трубах, подвальцовка и замена отдельных труб, отдельных заклепок и подчеканка швов барабанов; замена, уплотнение и пригонка люков; замена отдельных подвесок, болтов; ремонт изоляции барабанов, трубопроводов, коллекторов; очистка дымоходов от обрушений; ремонт дымоходов и обмуровки котла; замена и уплотнение лазов и гляделок; ремонт шиберов и замена отдельных деталей приводов; устранение неплотностей в газовых направляющих перегородках; гидравлическое испытание котла |
|
Котлы стальные |
Третья |
Все операции первой и второй группы; замена более 25% поврежденных кипятильных экранных труб; вскрытие люков коллекторов для осмотра и вальцовок труб; замена лючков, секционных коробок коллекторов, отдельных газовых перегородок по ходам котла, сепарирующих и питательных устройств в барабанах; перекладка более 25 % обмуровки; замена шиберов и их приводов; ремонт или замена изоляции коллекторов, барабанов и трубопроводов в пределах котла; гидравлическое испытание котла |
|
Топки с ручными колосниковыми решетками |
Первая |
Осмотр топочной гарнитуры в доступных местах, стенок и сводов топки, зольника и шлакового затвора, осмотр и проверка действия механизмов шиберов, приводов шлаковых затворов и их мелкий ремонт |
|
То же |
Вторая |
Все операции первой группы и замена отдельных частей топочной гарнитуры, отдельных механизмов поворачивающихся колосников и приводов шламовых затворов |
|
То же |
Третья |
Полная переборка колосников и замена более 25% колосников, подколосниковых балок 50 % и более; комплектов топочной гарнитуры; полный внутренний осмотр; замена деталей механизмов поворачивающихся колосников; приводов шлаковых затворов и шиберов дутья |
|
Топки для жидкого и газообразного топлива |
Первая |
Разборка, осмотр и чистка 50 % головок форсунок и горелок, осмотр регулировочных устройств для подачи пара или воздуха к форсункам и горелкам, топочной гарнитуры в доступных снаружи местах |
|
То же |
Вторая |
Замена поврежденных деталей форсунок и горелок, отдельных форсунок и горелок, отдельных болтов и креплений, поврежденных деталей регулировочных устройств, для подачи воздуха к форсункам и горелкам; замена или ремонт деталей топочной гарнитуры |
|
То же |
Третья |
Переборка, осмотр и чистка всех форсунок и горелок; замена 50 % форсунок и горелок; переборка, проверка и чистка регулировочных устройств и паро- и воздухопроводов, комплектная замена регулировочных устройств для подачи воздуха; полный внутренний осмотр и ремонт топочной гарнитуры; полный ремонт футеровки |
|
Вентиляторы и дымососы |
Первая |
Осмотр креплений, подшипников, лопаток ротора, кожуха и изоляций, устройств для охлаждения подшипников дымососов; устранение обнаруженных повреждений |
|
То же |
Вторая |
Ремонт или замена вкладышей подшипников; замена отдельных лопаток или их наварка; ремонт кожуха, изоляции; балансировка ротора; ремонт охлаждающих устройств |
|
Вентиляторы и дымососы |
Третья |
Ремонт или изготовление нового кожуха вентилятора или дымососа, ремонт или замена ротора; замена корпусов подшипников вала; балансировка ротора |
|
Центробежные насосы |
Первая |
Проверка плотностей стыков и креплений, осевого разбега и свободного вращения вала, вкладышей и шеек вала, пальцев соединительной муфты, приемного клапана |
|
То же |
Вторая |
Все операции первой группы и выемка ротора; осмотр внутренних поверхностей насоса; замена прокладок, сальников, отдельных дисков; правка вала; замена уплотнительных колец, балансировка ротора |
|
То же |
Третья |
Ремонт корпуса и крышек; замена ротора и дисков; проверка вала, балансировка ротора; замена подшипников |
|
Поршневые навесы |
Первая |
Осмотр и проверка наружного механизма парораспределения; проверка плотности парозапорного вентиля фланцевых соединений; осмотр всасывавших и нагнетательных клапанов |
|
То же |
Вторая |
Замена шпилек и гаек крышки цилиндра; выемка поршня; проверка крепления штока и поршневых колец; замена сальниковой втулки; опрессование парозапорного вентиля; ремонт механизмов передачи; замена пальцев шарнирных соединений, креплений и фланцев паропровода; замена или ремонт конденсационного горшка, опрессовка всасывающего трубопровода |
|
Поршневые навесы |
Третья |
Все операции второй группы и заделка трещин в крышках и втулках |
|
Воздуховоды низкого давления |
Первая |
Выявление неплотностей в воздуховодах; осмотр и проверка креплений воздуховодов |
|
То же |
Вторая |
Все операции первой группы и устранение неплотностей в воздуховодах; ремонт креплений, замена отдельных участков |
|
То же |
Третья |
Замена не менее 30 % воздуховодов с устройством креплений |
|
Трубопроводы |
Первая |
Осмотр трубопроводов; установка термометров, манометров; замена прокладок во фланцевых соединениях; устранение течи в трубопроводах, приборах и арматуре подтягиванием муфт; постановка хомутов на резиновых прокладках; обматывание специальной лентой; укрепление существующих крючков, хомутов, кронштейнов и подвесок, а также постановка дополнительных средств крепления трубопроводов и приборов |
|
Трубопроводы |
Вторая |
Все операции первой группы, замена отдельного участка трубопроводов (не более 20 % данного участка) и прокладок во фланцевых соединениях; снятие, переборка и установка сальникового конденсатора на трубопроводе; подтяжка, исправление «мертвых» и скользящих опор; замена конденсаторного горшка новым; гидравлическое испытание системы трубопровода |
|
То же |
Третья |
Все операции первой и второй группы, замена отдельных участков трубопроводов (более 20 % данного участка) и прокладок у конденсаторов трубопроводов; разборка чугунных водопроводных и канализационных труб и фасонных частей; замена отдельных участков труб и фасонных частей; гидравлическое испытание трубопровода |
2.2.11. Объем восстановительных работ в зависимости от тяжести повреждений включает:
При первой группе повреждений
разборку основных узлов агрегата, детали которых оказались поврежденными и мешают нормальной, бесперебойной работе агрегата;
ремонт или замену поврежденных мелких деталей (в том числе приводных ремней);
регулировку правильности и легкости включения хода агрегатов;
проверку состояния подшипников, предохранительных устройств, устройств по технике безопасности;
устранение мелких повреждений на трущихся и других рабочих поверхностях;
сборку агрегата и проверку правильности режимов его работы, заправку и т. п.
При второй группе повреждений
частичную разборку агрегата, как правило, без снятия с фундамента, ремонт или замену наиболее ответственных поврежденных деталей или отдельных несложных узлов;
проверку и зачистку всех деталей, устранение задиров, царапин на шестернях, валиках, во втулках и т.п.;
замену и ремонт подшипников, устройств по предохранению от перегрузок и технике безопасности;
сборку и проверку правильности режимов работы оборудования.
При третьей группе повреждений
полную разборку агрегата со снятием его с фундамента, заменой или ремонтом всех повреждений деталей и узлов; наладку оборудования после ремонта;
составление подробного перечня работ по устранению повреждений и классификации их по группам.
2.2.12. При определении технического состояния зданий, сооружений и инженерного оборудования котельной необходимо дать предварительную оценку разрушений и определить потребность в подъемно-транспортных средствах с указанием грузоподъемности, вылета стрелы и максимальной высоты подъема.
При осмотре разрушений (повреждений) котельной особое внимание должно быть обращено на состояние основных несущих конструкций (фундаменты, стены, перекрытия, кровля и т.д.)
2.2.13. По результатам осмотра принимают решения:
по восстановлению зданий и сооружений или устройств укрытия для временного размещения в них основного и вспомогательного оборудования котельной с внесением этих решений в соответствующий проект;
по предупреждению замерзания воды в системах отопления во избежание разрыва труб и нагревательных приборов, а также внутрикотельных коммуникаций;
по переоборудованию топочных устройств при прекращении подачи основного вида топлива под резервное;
по включению в работу двигателей внутреннего сгорания или передвижной электростанции при прекращении подачи электроэнергии;
о восстановлении работы котельных по временным схемам теплоснабжения с внесением решений в существующий проект.
2..2.14. Техническое состояние котельных установок, вспомогательного оборудования и внутрикотельных коммуникаций, а также способы устранения повреждений по каждой котельной с учетом ее специфических особенностей должна определять эксплуатирующая организация.
2,2.15. Потребность в подъемно-транспортных средствах для расчистки завалов, удаления инженерного оборудования, ремонта и монтажа определяют с учетом характера разрушения (табл. 4).
Таблица 2.4
|
Характер разрушения |
Способы восстановления элементов зданий |
|
Обрушение кровли |
Восстановить обрешетку. Покрыть рулонной кровлей или брезентом. |
|
Обрушение междуэтажных или чердачных перекрытий и кровли |
Разобрать завалы от обрушения перекрытий. Эксплуатацию котельных временно производить без междуэтажных и чердачных перекрытий. Восстановить обрешетку. Покрыть рулонной кровлей или брезентом. |
|
Выбиты стекла и повреждены оконные переплеты |
Оконные проемы забить досками, готовыми щитами или обшить жестью. Котельную эксплуатировать при искусственном освещении. |
|
Полностью разрушено насосное помещение |
Насосы могут быть установлены в палатках или тепляках на территории рядом с котельной. В качестве оснований под насосы должны быть изготовлены рамы из деревянных брусьев. |
|
Частично обрушены стены и кровля |
Разобрать завал от обрушения стен и кровли. Обрушить элементы конструкции, грозящие обвалом. Расчистить кладку, места разрушенных стен заделать крупноблочными панелями, используя их от разрушенных и не подлежащих восстановлению зданий. Восстановить обрешетку, покрыть рулонной кровлей или брезентом. |
|
Отклонение стен от вертикальной оси менее чем на 1/3 их толщины |
Установить анкерные крепления, связывающие эти стены с другими стенами или перекрытиями. При деформации стены из-за перекоса фундамента устроить контрфорсы. |
|
Отклонение стен от вертикальной оси более чем на 1/3 их толщины |
Усилить стену специальным металлическим каркасом. |
|
Появление трещин и частичное разрушение в простенках |
Усилить простенки, поставив хомуты или обоймы из круглой, полосовой или угловой стали. |
|
Трещины в перемычках |
Усилить перемычки, поставив металлические хомуты или балки. |
|
Деформация элементов несущих конструкций перекрытий (фермы, балки, прогоны и т.д.) |
Усилить или заменить поврежденные элементы. |
2.3.1. Восстановление следует вести с учетом того, что эксплуатация котельных установок по упрощенной схеме может быть допущена на короткий срок при условии, если эти упрощения не повлекут за собой преждевременный выход из строя оборудования или его отдельных узлов и не будут нарушены правила безопасности (см. табл. 1).
2.3.2. При временном восстановлении зданий и сооружений котельных необходимо обеспечивать:
нормальное функционирование технического оборудования, исключающее замерзание воды в коммуникациях и отдельных узлах, приводящих к их разрушению;
доступ к приборам контроля и безопасности.
2.3.3. Для бесперебойного теплоснабжения в качестве временной меры следует подключить отапливаемые помещения к котельным, не подвергшимся разрушению или имеющим небольшие разрушения и восстановленных в короткие сроки. В этих случаях может быть использована воздушная прокладка трубопроводов.
2.3.4. Работоспособность оборудования и способы устранения повреждений следует определять по табл. 5.2.5.
2.3.5. При подготовке бригад к выполнению восстановительных работ следует особое внимание обратить на соблюдение требований техники безопасности, исходя из того, что при стихийных бедствиях восстанавливаемый объект подвергается разрушающему действию, и поэтому могут быть неожиданные обвалы отдельных конструкций.
Таблица 2.5
|
Оборудование |
Характер возможных повреждений и состояние оборудования |
Способ обнаружения повреждений |
Устранение |
|
Котлы чугунные секционные |
Течь в ниппельных соединениях |
Котел наполнить водой и испытать под давлением сетевого водопровода. Если давление недостаточное, то создать его насосом1. В работающем котле произвести осмотр ниппельных соединений. |
Подтянуть стяжные болты или перебрать секции заново с подмоткой на ниппеля асбестового шнура |
|
То же |
Трещины в секциях котлов, течь, потение секций |
Осмотр |
Заменить секции |
|
Котлы стальные (водотрубные) |
Расстройство в вальцовочных соединениях, течь |
То же |
Подвальцевать трубы или заглушить (не более 10 % общего количества) |
|
То же |
Расстройство в заклепочных соединениях, течь |
|
Слабые заклепки заклепать |
|
Котлы стальные (водотрубные) |
Расстройство в фланцевых соединениях, течь |
Осмотр |
Подтянуть болты или разобрать прокладки и соединить болтами. При повышении давления или температуры воды подтянуть болты. |
|
То же |
Разрыв экранных и кипятильных труб; течь пароводяной смеси в топку, выход пара из дымовой трубы; выброс пламени через топочное отверстие; снижение уровня воды в водоуказательном стекле; падение давления в котле; снижение уровня в лопнувшей трубе |
В работающем котле произвести осмотр, в охлажденном котле каждую трубу заполнить водой (с другого конца труба закрывается пробкой) |
Медленно охладить котел до температуры воды до 70°С, спустить воду из котла, провентилировать барабан. Лопнувшую трубу заменить или поставить заглушку. При небольшом повреждении кипятильной или экранной трубы при условии поддержания нормального уровня воды допускается с разрешения ответственного лица кратковременная работа котла при пониженных нагрузках и давлении |
|
Котлы чугунные и стальные |
Повреждение обмуровки; выпадение кирпичей; выход домовых газов в помещение котельной, Увеличение присосов воздуха в топку; трещины на поверхности обмуровки. |
Путем осмотра, с помощью пламени свечи, поднесенной к трещинам на обмуровке. При работе топки с разряжением - отклонения пламени в сторону трещины; при работе топки с наддувом - отклонение пламени от трещины. |
Выпавшие кирпичи поставить на место. Трещины расширить и затереть раствором глины и песка. Температурные швы в топке не закладываются, а уплотняются асбестовым шнуром |
|
Центробежные насосы |
Ослабление фундаментных болтов, прикрепляющих насос к фундаментной плите, осадка фундамента. Насос при работе вибрирует |
Дефект обнаруживается при осмотре и прощупывании. Пробой ключом крепления гаек и болтов, установкой уровня на соединительную муфту и проверкой под угольник |
Укрепить болты, проверить горизонтальность валов мотора и насоса, установить под осевую часть прокладки из кровельного железа, если осадка незначительная. В противном случае необходимо переложить фундамент и установить насос заново |
|
Паровые насосы |
Погнутость штока; при подаче пара поршень не приходит в движение |
Путем включения насоса в работу |
Разобрать насос. Отрихтовать шток |
|
То же |
Нарушилось парораспределение; снизилась производительность насоса |
Определяется по давлению пара перед насосами или на слух путем включения дымососа в работу |
Отрегулировать парораспределение по давлению пара перед насосами |
|
Дымососы |
Завал в дымоходах; повышение сопротивления в дымоходе |
|
Выявить с помощью тягомера места завала дымохода; устранить завал |
|
Тепловые сети |
Разрыв трубопроводов; резкое падение давления теплоносителя в теплотрассе |
Показания по манометру |
Сильно поврежденные трубы заменить. Небольшие трещины заделать металлическими накладками с резиновыми прокладками, закрепляемыми на трубопроводах с помощью хомутов |
|
Газопроводы |
Утечка газа, в местах утечки газа появляется мыльные пузыри |
Внешний осмотр, проверка мыльным раствором и осмотр, всех сварных, фланцевых и резьбовых соединений |
То же |
|
Трубопроводы чугунные и керамические |
Расстройство соединения в стыках, течь в стыках |
Осмотр |
Стыки ремонтируются заполнением в раструбы труб или муфт свинца, а также путем замены раструбов муфт и фланцев. В некоторых случаях целесообразно обмазать (обетонировать) чугунный раструб цементным раствором с одновременной обмоткой стыка сеткой и прочих капроновых или хлопчатобумажных ниток. |
1 Гидравлическое испытание котлов должно производиться под давлением согласно Правилам Госгортехнадзора СССР
2.3.6. До начала проведения работ в котельной необходимо:
отключить внешние инженерные коммуникации;
убедиться в полном отсутствии газа в газопроводах и оборудовании для газа;
проверить плотность вентилей и заглушек, перекрывающих газопроводы;
принять меры против замерзания воды в коммуникациях, системе отопления и оборудования котельной, заполненных водой, и при необходимости спустить воду.
При осмотре подземных тоннелей, коллекторов и колодцев подземных газовых сетей и других сооружений, в которых может накапливаться газ, необходимо соблюдать меры предосторожности и пользоваться средствами защиты от отравления.
Необходимо избегать касания электропроводки и соединенных с ней металлических проводников без соответствующих средств защиты.
2.3.7. Для производства восстановительных работ, вызванных стихийными бедствиями, требуется специальная подготовка и натренированность личного состава, умение пользоваться средствами индивидуальной защиты (в загазованных местах), четкое знание своих обязанностей.
2.3.8. Способы и методы восстановления котельных установок, вспомогательного оборудования и внутрикотельных коммуникаций будут зависать от характера разрушений.
Одновременно с этим может возникнуть необходимость восстановления котельных с применением резервного вида топлива.
2.3.9. В целях увеличения продолжительности работы рабочих при высоких температурах их изолирующую хлопчатобумажную одежду необходимо периодически смачивать водой, а на прорезиненные костюмы необходимо надевать влажный экранирующий комбинезон из хлопчатобумажной ткани.
2.3.10. При восстановлении систем водоснабжения и канализации во избежание затопления помещения котельной следует временно закрыть переливные трубы трапов, сифоны санитарных приборов, выходящие в помещения.
2.3.11. Разрушенные участки сетей теплоснабжения необходимо немедленно отключить, чтобы избежать ожогов горячим теплоносителем людей, находящихся в завалах и бойцов, выполняющих спасательные и восстановительные работы. Для отключения теплотрассы нужно вскрыть смотровые колодцы вблизи котельной и закрыть задвижки или соответствующий вентиль на распределительной гребенке.
2.3.12. Ориентировочные нормативные сроки производства восстановительных работ следует принимать согласно табл. 2,6-2.13
Таблица 2.6
|
Оборудование |
Поверхность нагрева, м2 |
Паропроизво- |
Затраты |
|
Котлы промышленные вертикальные и горизонтальные водогрейные экранированные без пароперегревателей давлением до 13 кгс/см2 (1275 КПа) |
До 70 |
До 1 |
900 |
|
100 |
1.5 |
1200 |
|
|
125 |
2-2,5 |
1500 |
|
|
150 |
3 |
1800 |
|
|
200 |
4 |
2100 |
|
|
300 |
6,5 |
2400 |
|
|
400 |
10 |
2700 |
|
|
500 |
- |
3000 |
|
|
Котлы (ДКВ, ДКВР, БЗЛ, ТВД, КРШ) вертикально-водотрубные двухбарабанные давлением до 13 кгс/см2 (1,3 МПа) |
75 |
5 |
900 |
|
110 |
2,5 |
1350 |
|
|
177 |
14,5 |
1950 |
|
|
230 |
16,5 |
2200 |
|
|
300 |
20 |
2400 |
|
|
Котлы (Шухова, ВГД) вертикально-цилиндрические с кипятильными трубами давлением до 8 кгс/см2 (0,8 МПа) |
7 |
1.5 |
100 |
|
11 |
2 |
150 |
|
|
16 |
5 |
280 |
|
|
22 |
0,7 |
250 |
|
|
29 |
1 |
300 |
|
|
40 |
1,2 |
350 |
|
|
То же, с кипятильными и дымовыми трубами давлением до 8 кгс/см2 (0,8 МПа) |
16 |
0,4-0,5 |
225 |
|
34 |
0,8 |
325 |
|
|
40 |
1-1,2 |
375 |
|
|
Котлы жаротрубные (ланкаширские и карквалийские) давлением до 8 кгс/см2 (0,8 МПа) |
60 |
1 |
300 |
|
80 |
1.5 |
500 |
|
|
100 |
2,2 |
650 |
|
|
150 |
3 |
800 |
|
|
Отопительные котлы чугунные, секционные типа HP Универсал, Стрела, МГ-2, Энергия, Искитим, Братск, стальные пакетные типа HP-18 |
20 |
- |
200 |
|
30 |
- |
250 |
|
|
40 |
- |
300 |
|
|
50 |
- |
550 |
|
|
60 |
- |
400 |
|
|
То же, трехходовые |
280 |
300 |
|
|
560 |
500 |
||
|
800 |
600 |
||
|
1000 |
700 |
||
|
Воздухоподогреватели чугунные ребристые плиточные с обдувочным устройством |
250 |
400 |
60 |
|
500 |
500 |
||
|
750 |
600 |
||
|
1000 |
700 |
||
|
Экономайзеры водяные ребристые чугунные с обдувочным устройством |
1000 |
900 |
860 |
|
100 |
300 |
||
|
200 |
450 |
||
|
500 |
650 |
||
|
750 |
860 |
||
|
1000 |
1000 |
||
|
То же, гладкотрубные стальные |
100 |
200 |
|
|
200 |
400 |
||
|
500 |
600 |
||
|
750 |
800 |
||
|
Котлы КВГМ-30 |
- |
- |
4000 |
|
Котлы КВТМ-100 |
- |
- |
5000 |
|
ПТВМ-50 |
1405 |
- |
8000 |
Таблица 2.7
|
Оборудование |
№ вентилятора |
Производитель- |
Затраты
труда, |
|
Электровентилятор ЭВР |
2 и 3 |
900-3500 |
15 |
|
4 |
6000-9000 |
25 |
|
|
5 |
9000-11000 |
35 |
|
|
6 |
14000-16000 |
50 |
|
|
Вентиляторы среднего и высокого давления и пылевые типов ВР, ВРС и др. |
3 |
1000-5000 |
20 |
|
4 |
2000-10000 |
30 |
|
|
5 |
4000-15000 |
40 |
|
|
6 |
6000-20000 |
50 |
|
|
8 |
8000-50000 |
80 |
|
|
10 |
10000-90000 |
105 |
|
|
12 |
20000-120000 |
130 |
|
|
Вентиляторы осевые |
4 и 5 |
3800-80000 |
10 |
|
6 |
9000-14000 |
15 |
|
|
7 |
12000-21000 |
20 |
|
|
10 |
41000 |
30 |
|
|
12 |
65000 |
35 |
|
|
8 |
21000-30000 |
|
|
|
Циклоны |
|
1590-4500 |
50 |
|
6000-10000 |
100 |
||
|
12500-17500 |
150 |
Таблица 2.8
|
Оборудование для топливоподачи и золоудаления |
Техническая |
Затраты
труда, |
|
Шахтные мельницы производительностью, т/ч |
1,5 |
400 |
|
3 |
500 |
|
|
5 |
550 |
|
|
8 |
850 |
|
|
Питатель сырого угля производительностью, т/ч: |
|
|
|
тарельчатый |
10 |
200 |
|
ленточный |
10 |
200 |
|
Транспортеры ленточные на 1 м длины при ширине ленты, мм |
400 |
8 |
|
500 |
10 |
|
|
650 |
25 |
|
|
800 |
30 |
|
|
1000 |
35 |
|
|
1200 |
40 |
|
|
Передвижная сбрасывающая тележка, шт. |
1 |
50 |
|
Сепаратор магнитный, шт. |
1 |
150 |
|
Элеваторы с длиной цепи до 25 мм при ширине ковша, мм |
300 |
400 |
|
450 |
500 |
|
|
650 |
600 |
|
|
Лебедки скреперные с электропроводом грузоподъемностью, т |
3 |
750 |
|
5 |
900 |
|
|
10 |
1250 |
|
|
Грейферный гусеничный кран ПК-2, шт. |
1 |
1400 |
|
Дробилки вальцовые при диаметре валков 500-800 мм, шт. |
1 |
600 |
|
Вагонетки узкой колеи емкостью, м3 |
0,75-1,5 |
100 |
|
Узкоколейный путь длиной (погонной), м |
100 |
50 |
|
Поворотный круг, шт. |
1 |
25 |
|
Циклоны центробежные, батарейные и жалюзийные для котлов производительностью, т/ч |
5 |
50
|
|
10 |
100 |
|
|
20 |
150 |
Таблица 2.9
|
Насосы |
Производительность, м3/ч |
Затраты
труда, |
|
Центробежные консольные одноступенчатые давлением до 100 м вод. ст. |
10 |
50 |
|
Центробежные одноступенчатые давлением до 120 м вод. ст. |
180 |
100 |
|
360 |
150 |
|
|
500 |
200 |
|
|
720 |
250 |
|
|
1200 |
350 |
|
|
2000 |
450 |
|
|
2800 |
500 |
|
|
3600 |
600 |
|
|
4500 |
900 |
|
|
То же, многоступенчатые давлением до 300 м вод. ст. |
50 |
100 |
|
100 |
150 |
|
|
170 |
200 |
|
|
240 |
250 |
|
|
350 |
300 |
|
|
500 |
360 |
|
|
Вихревые |
60 |
50 |
|
10 |
75 |
|
|
17 |
100 |
|
|
35 |
125 |
|
|
Кислотные |
20 |
75 |
|
30 |
100 |
|
|
70 |
125 |
|
|
120 |
150 |
|
|
Поршневые паровые давлением до 170 м вод. ст. |
6 |
75 |
|
25 |
125 |
|
|
53 |
200 |
|
|
138 |
300 |
|
|
250 |
350 |
Таблица 2.10
|
Диаметр |
Затраты труда на 100 м погонной длины, чел.-ч |
|||
|
воздухо- и водопровода холодной воды |
Водопровода горячей воды, бензо- и газо- провода, отопительной сети |
паро-, |
Канализации (хозяйственно-фекальной и производственной) |
|
|
25 |
35 |
50 |
55 |
- |
|
50 |
45 |
60 |
65 |
50 |
|
75 |
65 |
86 |
90 |
- |
|
100 |
80 |
100 |
110 |
60 |
|
150 |
90 |
125 |
135 |
75 |
|
200 |
118 |
150 |
210 |
115 |
|
250 |
150 |
145 |
210 |
115 |
|
300 |
175 |
225 |
250 |
135 |
|
350 |
200 |
260 |
285 |
155 |
|
400 |
210 |
335 |
365 |
175 |
|
450 |
230 |
360 |
400 |
200 |
|
500 |
300 |
380 |
425 |
260 |
|
600 |
325 |
425 |
450 |
300 |
Таблица 2.11
|
Условный
проход, |
Затраты труда на трубопроводную арматуру, чел.-ч |
|||||||
|
Вентили запорные ланцевые и муфтовые |
краны |
клапаны |
за- |
конден- |
сальнико- |
|||
|
обратные подъемные и приемные |
предохрани- |
редук- |
||||||
|
19 |
5 |
5 |
- |
- |
- |
- |
5 |
- |
|
25 |
5 |
5 |
2 |
- |
15 |
- |
10 |
- |
|
50 |
6 |
8 |
5 |
10 |
20 |
2 |
15 |
- |
|
75 |
7,5 |
12 |
6 |
13 |
30 |
5 |
- |
- |
|
100 |
8 |
16 |
7,5 |
16 |
40 |
6 |
- |
50 |
|
150 |
10 |
20 |
9 |
20 |
50 |
8 |
- |
- |
|
200 |
12 |
- |
10 |
- |
- |
9 |
- |
- |
|
250 |
15 |
- |
12 |
- |
- |
11 |
- |
2 |
|
300 |
175 |
- |
15 |
- |
- |
13 |
- |
- |
|
350 |
200 |
- |
18 |
- |
- |
14 |
- |
- |
|
400 |
215 |
- |
20 |
- |
- |
16 |
- |
150 |
|
450 |
230 |
- |
21 |
- |
- |
20 |
- |
- |
|
500 |
250 |
- |
22 |
- |
- |
25 |
- |
- |
|
600 |
275 |
- |
25 |
- |
- |
30 |
- |
- |
Таблица 2.12
|
Оборудование |
Затраты |
Оборудование |
Затраты |
|
Подогреватели водоводяные с поверхностью нагрева, м2 |
|
Распределители
воды типа |
|
|
5 |
10 |
20 |
100 |
|
15 |
50 |
100 |
200 |
|
40 |
100 |
25 |
100 |
|
125 |
200 |
75 |
150 |
|
|
|
100 |
200 |
|
150 |
250 |
||
|
Фильтр диаметром, мм катионитовый 1030 1525 механический 2000 |
75 100 |
Резервуары для нефтепродуктов емкостью, м3 |
|
|
150 |
100 700 |
210 360 |
|
|
Солерастворители диаметром, мм |
|
2000 5000 |
620 1020 |
|
670 1038 |
50 60 |
||
|
Дозаторы шайбовые емкостью, мм |
|
||
|
0,2 0,5 |
40 50 |
||
|
Смесители напорного типа емкостью, м |
|
||
|
2,3 5,5 12,5 |
50 75 100 |
Таблица 2.13
|
Показатели для электродвигателей с И = 500 В |
Затраты труда, чел.-ч, на электродвигатели с ротором |
|
|
короткозамкнутым |
фазовым крановым и взрывобезопасным |
|
|
Мощность, кВт |
|
|
|
до 0,5 |
50 |
65 |
|
от 0,6 до 3 |
65 |
85 |
|
3,1-5 |
80 |
120 |
|
5,1-10 |
100 |
155 |
|
10,1-15 |
130 |
190 |
|
15,1-20 |
155 |
225 |
|
20,1-30 |
185 |
360 |
|
до 0,6 |
50 |
65 |
|
от 0,6 до 3 |
65 |
85 |
|
3,1-5 |
80 |
120 |
|
5,1-10 |
100 |
155 |
|
10,1-15 |
130 |
190 |
|
15,1-20 |
155 |
225 |
|
20,1-30 |
185 |
260 |
|
30,1-40 |
200 |
300 |
|
40,1-55 |
255 |
350 |
|
55,1-75 |
300 |
400 |
|
75,1-100 |
350 |
450 |
|
100,1-125 |
400 |
550 |
|
125,1-155 |
450 |
550 |
|
155,1-180 |
500 |
600 |
|
180,1-215 |
550 |
650 |
|
215,1-240 |
600 |
700 |
|
240,1-280 |
700 |
800 |
|
280,1-320 |
800 |
900 |
2.4.1. Котлоагрегаты следует восстанавливать в соответствии с техническим паспортом, привязочными чертежами, монтажно-технологической документацией и сетевым графиком.
При восстановлении оборудования должны замеряться:
отметки по высоте (нивелиром или гидравлическим уровнем);
отклонения от вертикали (отвесом и масштабной линейкой);
геометрические размеры (рулеткой, стальным метром, масштабной линейкой, штангенциркулем и нутромером);
горизонтальность валов механизмов (валовым уровнем);
биение (индикатором);
аксиальные и радиальные зазоры (пластинчатым и клиновым щупами);
конусность и овальность (микрометром).
2.4.2. В здании котельной до начала восстановления котлоагрегатов и другого оборудования должны быть проведены основные строительно-восстановительные мероприятия. Помещения следует освободить от строительных лесов и очистить от строительного мусора, фундаменты разопалубить и подготовить к установке оборудования.
2.4.3. До начала восстановительных работ все оборудование следует тщательно подготовить к монтажу, подвергнуть ревизии и укомплектовать. При необходимости возвести временный каркас.
Элементы трубопроводов, крупную гарнитуру, змеевики пароперегревателей, горелки газовые и газомазутные, рамы и кожухи дымососов и вентиляторов, каркасы котлов, рамы дымососов, экранные и кипятильные трубы, бункеры, циклоны, деаэрационные оголовки и баки, натрий-катионовые фильтры и другие элементы химводоочистки, топливоподачи и узлы следует, как правило, сосредотачивать в монтажной зоне на открытых площадках, снабженных шпальными выкладками или деревянными подкладками. Расстояние между подкладками должно быть 3-3,5 м.
Трубы и змеевики следует раскладывать по функциональной принадлежности и размерам гнутыми концами вниз.
2.4.4. До начала монтажа следует оборудовать навес, под которым сосредотачиваются опоры и подвески барабанов и сухопарников, трубы мелких диаметров (до 25 мм), гарнитуры котлов, роторы дымососов, редукторы мельниц, редукторы приводов, автоматические весы, питатели угля, взрывные клапаны, насосы, патрубки с фланцами, грохоты, скреперные лебедки, приводные станции транспортеров и пр.
2.4.5. До начала монтажа котлоагрегатов группа подготовки производства должна расконсервировать и отремонтировать электродвигатели, форсунки, обдувочные приборы, соединительные муфты, пневмозабрасыватели, оборудование автоматики и контрольно-измерительные приборы.
2.4.6. Опорные рамы восстанавливаемых котлов должны монтироваться на фундаменты, набравшие не менее 70 % своей проектной прочности. Для ручной топки котла и топки с пневмозабрызгивателями высотная отметка подошвы опорной рамы должна совпадать с полом котельной, и в этом случае рама укладывается непосредственно на фундамент. Величина отклонения установленных опорных рам котлов и экономайзеров от чертежей не должна превышать, мм:
расстояние между осями ±5,
отклонение отметок по вертикали ±2,
разность размеров диагоналей 3.
2.4.7. При восстановлении каркаса отдельные детали, узлы и блоки следует соединять электросварочной прихваткой в местах, обеспечивающих полную их устойчивость и неизменяемость формы в процессе работ. Особое внимание должно быть обращено на количество и места расположения подкладок, устанавливаемых под «башмаки» колонн, и на величину зазоров в стыкуемых элементах каркаса.
В одном пакете должно быть не более четырех прокладок, которые устанавливают в плоскости балок, примыкающих к колоннам. Зазоры между стыками должны быть не более 2 мм. Все деформированные колонны следует выправлять, пользуясь домкратами и тельферами.
2.4.8. При восстановлении каркаса отклонение его размеров и отметок (мм) от проектных может быть не более величин, приведенных ниже.
Смещение осей башмаков основных колонн каркаса и фундамента ±5
Отклонение
отметок башмаков основных колонн каркаса от паспорта ±25
основных колонн и стоек каркаса от вертикали 1 мм на 1 м, но не более 15 мм
Общая стрела прогиба колонн, стоек и балок 1 мм на 1 м, но не более 15 мм
Разность размеров диагоналей между колоннами каркаса в плане внизу и вверху 1,5 мм на 1 м
Отклонение отметок балок, ригелей и других частей каркаса от паспортных ±5
2.4.9. После восстановления каркаса его следует выверить, затем башмаки колонн приварить по всему контуру и закрепить анкерными болтами или приварить к специально выпущенной арматуре фундамента, а блоки и узлы каркаса сварить или закрепить постоянными болтами.
2.4.10. При восстановлении барабаны и коллекторы должны быть тщательно проверены с внутренней и внешней сторон, с целью выявления повреждений металла (трещины, вмятины, раковины). При обнаружении дефектов допускается вырубка металла на толщину не более 10 %.
Сварные швы должны иметь ровную поверхность без впадин, непроваров, кратеров, подрезов и ноздреватостей.
2.4.11. Восстановлению подлежат котлы с предельной деформацией элементов, мм
барабан
по длине 10,
утончение стенок 0,5
прогиб 10,0
коллектор
по длине 5,0
прогиб 1 мм на 1 м,
овальность 1,5 диаметра.
2.4.12. В трубных отверстиях и штуцерах могут допускаться следующие отклонения от паспортных, мм:
ось патрубного отверстия (штуцера) ±2,
шаг трубного отверстия ±2,
выход из ряда ±3,
высота расположения штуцеров ±3.
2.4.13. На поверхности стенок трубных отверстий не должно быть плен, задиров, раковин и забоин. Трубы следует проверить на проходимость, пропустив через них шар. Сужение внутреннего диаметра трубы в месте сварного шва должно быть проверено с помощью шара размером 0,86 внутреннего диаметра для змеевиков и 0,9 - для экранных и кипятильных труб.
2.4.14. Отклонение размеров змеевиков поверхностей нагрева не должно превышать величин, приведенных в табл. 14.
Таблица 14
|
Характеристика змеевика |
Величина отклонения, мм |
|
Высота |
±5 |
|
Расстояние между концами змеевика |
±3 |
|
Расстояние между осями двух соседних змеевиков: |
|
|
на прямом участке |
±3 |
|
на петлях |
±6 |
|
Расстояние между осями крайних труб змеевиков |
±7 |
2.4.15. При установке барабана для компенсации тепловых расширений должны выдерживаться зазоры, указанные в заводских чертежах.
В случае отсутствия таких указаний тепловое удлинение барабана следует определять по формуле
мм
где l - длина барабана, м;
t - температура среды в барабане, °С.
2.4.16. Концы труб необходимо закреплять в трубных отверстиях в день их зачистки. Попадание снега, влаги или масла в зазор между трубой и стенкой трубного отверстия не допускается.
Труба должна плотно прилегать к стенке трубного отверстия, а при обстукивании молотком не должна издавать дребезжащего звука.
2.4.17. Концы труб после закрепления их в трубных решетках следует развальцевать. При этом не допускаются:
разрывы, плены и расслоение металла на торцах и внутренней поверхности развальцованных труб;
недовальцовка и перевальцовка;
подрезы и накаты.
2.4.18. Блоки змеевиковых поверхностей нагрева пароперегревателя необходимо восстанавливать в следующей последовательности:
установка опор под коллекторы;
выемка поврежденных змеевиков, их ремонт и монтаж.
Поврежденные днища следует отрезать, затем отрихтовать по шаблону, подготовить кромки и приварить.
2.4.19. Чугунная перегородка до установки на место должна быть предварительно собрана, а обнаруженные дефекты в литье и наплывы зачищены. Размер отдельных неплотностей в местах соединения плит перегородки не должен превышать 3 мм.
Чугунную перегородку рекомендуется устанавливать строго вертикально.
2.4.20. Все узлы и детали топки, оборудованной пневмомеханическими забрасывателями и механическими решетками, необходимо подвергать ревизии. У забрасывателей следует вскрывать крышки шариковых подшипников и коробок редукторов.
Подшипники, шестерни и внутренние полости коробок редукторов необходимо промыть керосином, все подшипники и масленки заполнить консистентной смазкой, а валы редукторов проверить на свободное вращение от руки.
2.4.21. Рама решетки должна крепиться к кладке анкерными болтами и за счет продолговатых отверстий свободно расширяться по направлению от фронта топки к задней стене.
Первые от фронта анкерные болты должны затягиваться наглухо, а остальные сдвигаться в продольных отверстиях по направлению к задней стене и оставаться слабозатянутыми.
Поперечные швеллеры должны крепиться также со слабой затяжкой болтов.
2.4.22. При установке забрасывателей продольные оси роторов должны находиться на одной прямой. Несоосность вала привода по отношению к валу ротора первого забрасывателя должна быть не более 2 мм.
Вал группового управления кулисами механизма забрасывателей должен легко поворачиваться в подшипниках. Люфты в соединениях частей вала не допускаются. Рычаги для привода зубчатых реек должны быть поставлены строго в одинаковые положения.
2.4.23. У вентилятора возврата не должно быть вибрации ротора и нагрева электродвигателя.
При монтаже оборудования возврата уноса выходные сопла в задней стене топки должны быть установлены выше 500 мм над уровнем колосниковой решетки, с уклоном вниз на 7-10°.
2.4.24. При восстановлении цепной решетки БРЦ должна производиться ревизия ее деталей и узлов. При этом редуктор решетки может быть проверен только на легкость хода.
2.4.25. Все элементы котлоагрегата и другого энергетического оборудования, получившие повреждения, следует проверить на образование невидимых трещин в стенках трубок и коллекторов.
Для быстрого обнаружения и измерения глубин трещин рекомендуется пользоваться переносным прибором ИГТЦ-3, который дает возможность выявить деформации в диапазоне от 0,5 до 100 мм.
2.4.26. Для обнаружения трещин в элементах следует:
подавать напряжение на токовые электроды щупа;
привести в соприкосновение щуп с контролируемым элементом;
с помощью двух измерительных электродов, находящихся между токовыми электродами, измерить мгновенную разность потенциалов между точками соприкосновения;
по изменению сигнала, поступающего с электродов щупа на усилитель и стрелочный прибор, засечь место образования трещин.
2.5.1. Цель индустриально-интенсивной технологии восстановления котельных установок - максимальное сокращение срока обеспечения теплотой населения, подвергшегося воздействию факторов землетрясений или других стихийных бедствий.
2.5.2. Для реализации принципов индустриально-интенсивной технологии надлежит в короткие сроки организовать хорошо оснащенные производственно-комплектовочно-монтажные подразделения, которые предназначены для изготовления, доставки на объект и сборки металлоконструкций, узлов трубопроводов и других заготовок, агрегатирования блоков тепломеханического оборудования, предназначенного для восстановления котлов и вспомогательных машин.
2.5.3. Весь процесс восстановительных работ должен протекать на основе повышения производительности труда рабочих, благодаря инженерной подготовке производства: всемерной механизации процесса восстановления, передовых методов монтажа по картам организации труда.
Карты организации труда при восстановлении котлов
2.5.4. Карты организации труда (КОТ) предназначены для организации восстановительных работ по конкретным рабочим операциям.
КОТ могут быть разработаны по аналогии с картой на восстановление котлов ДКВР - наиболее часто встречающегося технологического процесса восстановления котельных установок.
Основные положения КОТ ДКВР-10/13 приведены ниже.
1. ОРГАНИЗАЦИОННО-ТЕХНИЧЕСКИЕ УСЛОВИЯ
1.1. Назначение карты организации труда.
Карта предназначена для организации труда бригады восстановителей слесарей-монтажников при монтаже котлоагрегата типа ДКВР, работающего на топливе газ-мазут, в принятом по акту здании.
1.2. Нормативная, проектная и технологическая документация
Монтаж котлов ведется на основании рабочих чертежей проекта производства работ, технологических карт, карт организации труда, ЕНиР в соответствии с требованиями СНиП, паспорта котла.
Бригаде выдают калькуляции затрат труда, заработной платы и материалов, задание по вводу объекта в эксплуатацию, единый аккордный наряд-задание, расчетную стоимость работ, поручаемых бригаде по бригадному подряду.
1.3. Нормы труда и эффективность рекомендуемых решений
Рост производительности труда при восстановительных операциях составляет 85% и достигается в результате подбора оптимального численного и квалификационного состава бригады, четкого разграничения обязанностей, совмещения профессий, оснащения прогрессивным инструментом, приспособлениями, механизмами, обеспечения безопасности работ, снижения утомляемости рабочих за счет внедрения рационального режима труда и отдыха, выполнения подготовительных работ участком подготовки производства и монтажа укрупненными блоками, рационального размещения оборудования и материалов в зоне укрупненной сборки блоков 1.4. Формы организации труда. Состав комплексной бригады
|
№ |
К-во |
Основная профессия |
Раз- |
К-во |
Смежная профессия |
Раз- |
№
тру- |
Работа, выполняемая звеном |
|
1 |
2 |
3 |
4 |
5 |
6 |
7 |
8 |
9 |
|
1 |
2 |
Слесарь-монтажник |
VI |
1 |
Газоэлектро- |
V |
1 |
Проверка, разметка фундамента под котел и установка фундаментных болтов |
|
|
|
То же |
IV |
1 |
Такелажник |
III |
2 |
Сборка в блоки и узлы каркаса котла и лестничных площадок |
|
3 |
Монтаж каркаса котла, блоков и лестничных площадок |
|||||||
|
4 |
Монтаж барабанов |
|||||||
|
5 |
Монтаж трубных поверхностей нагрева: установка спускных и перепускных труб заднего и переднего экранов установка труб конвективного пучка |
|||||||
|
6 |
Монтаж обвязочных трубопроводов и арматуры в пределах котла. Электросварочные работы |
|||||||
|
7 |
Гидравлическое испытание котла |
|||||||
|
2 |
2 |
Слесарь- |
V |
1 |
Газоэлектро- |
III |
2 |
Сборка в блоки и узлы каркаса котла и лестничных площадок |
|
|
|
|
|
|
|
|
3 |
Монтаж каркаса котла, блоков и лестничных площадок |
|
|
|
То же |
III |
1 |
Такелажник |
III |
4 |
Монтаж барабанов |
|
|
|
|
|
|
|
|
5 |
Монтаж трубных поверхностей нагрева: установка опускных н перепускных труб заднего и переднего экранов установка труб конвективного пучка |
|
6 |
Монтаж обвязочных трубопроводов и арматуры в пределах котла. Электросварочные работы |
|||||||
|
7 |
Гидравлическое испытание котла |
|||||||
|
3 |
2 |
Слесарь- |
III |
1 |
Газорезчик |
III |
2 |
Сборка блоков каркаса лестничных площадок |
|
3 |
Монтаж каркаса, котла, блоков и лестничных площадок |
|||||||
|
|
|
То же |
IV |
1 |
Электрослесарь |
III |
4 |
Монтаж барабанов |
|
5 |
Монтаж трубных поверхностей нагрева: подготовка трубных поверхностей к монтажу |
|||||||
|
6 |
Монтаж обвязочных трубопроводов и арматуры в пределах котла |
|||||||
|
7 |
Гидравлическое испытание котла |
Всего 6 человек. Средний разряд работы - 3,64; средний разряд рабочего - 4,0.
1.5. Средства труда
|
№ |
Наименование |
Количество, шт. |
|
1 |
Автокран грузоподъемностью 7,5 т с вылетом стрелы 7,5 м |
1 |
|
2 |
Комплект усилителей каркаса котла с двумя выверочными каретками |
1 |
|
3 |
Накаточный путь |
1 |
|
4 |
Лебедка ручная рычажная грузоподъемностью 1,5 т |
1 |
|
5 |
Блок однороликовый грузоподъемностью 2 т |
1 |
|
6 |
Строп универсальный четырехветьевой грузоподъемностью 5 т |
1 |
|
7 |
Строп универсальный кольцевой грузоподъемностью 3 т |
1 |
|
8 |
Канат стальной |
50 м |
|
9 |
Канат стальной |
40 м |
|
10 |
Электротельфер грузоподъемностью 2 т |
1 |
|
11 |
Канат пеньковый Ø15,9 мм |
50 м |
|
12 |
Станок трубогибочный |
1 |
|
13 |
Станок для зачистки концов труб с комплектом зачистных камней |
1 |
|
14 |
Приспособление для зачистки очков в барабанах с электроприводом |
1 |
|
15 |
Набор унифицированных трехроликовых вальцовок |
4 комплекта |
|
16 |
Набор унифицированных трехроликовых вальцовок |
4 комплекта |
|
17 |
Генератор ацетиленовый |
2 |
|
18 |
Машина электрошлифовальная ручная |
1 |
|
19 |
Сверлилка электрическая ручная |
1 |
|
20 |
Преобразователь тока |
2 |
|
21 |
Передвижной сварочно-трансформаторный пункт |
1 |
|
22 |
Гайковерт ручной электрический ударный |
1 |
|
23 |
Станок труборезный |
1 |
|
24 |
Электровальцовка |
3 |
|
25 |
Лестница приставная высотой 6 м |
1 |
|
26 |
Тиски слесарные с ручным приводом с шириной губок 100 мм |
1 |
|
27 |
Центраторы для стыковки труб Ø32, 38, 57 мм |
3 комплекта |
|
28 |
Ключи гаечные с открытыми зевами двусторонние 17-36 мм |
2 комплекта |
|
29 |
Кувалда кузнечная остроносая массой 4 кг |
2 |
|
30 |
Напильник плоский драчевой |
4 |
|
31 |
Ключи трубные рычажные |
1 комплект |
|
32 |
Молоток слесарный стальной |
2 |
|
33 |
Лом стальной строительный 1100 мм |
2 |
|
34 |
Линейка измерительная металлическая |
2 |
|
35 |
Метр складной металлический |
1 |
|
36 |
Рулетка измерительная металлическая длиной 10 м |
1 |
|
37 |
Угольник с широкой основой 90°, тип П, размером 160×100 |
1 |
|
38 |
Уровень рамный II группы точности 200 мм |
1 |
|
39 |
Уровень гидравлический шланговый длиной 10 м |
1 |
|
40 |
Штангенциркуль |
1 |
|
41 |
Щуп металлический № 5 |
2 |
|
42 |
Проволока стальная Ø1 мм |
30 м |
|
43 |
Нутромер микрометрический |
1 |
|
44 |
Контрольные шары |
1 комплект |
|
45 |
Каска пластмассовая |
6 |
1.6. Интенсификация
До начала работ бригаде выдается наряд на весь объем работ с расчетом времени, определяемого дифференцированно, исходя из ожидаемого сокращения сроков и качества работ.
2. ОРГАНИЗАЦИЯ ТРУДА БРИГАДЫ
2.1. Подготовка трудового процесса
До начала монтажных работ линейный персонал и участок подготовки производства обязаны (с учетом конкретных обстоятельств):
получить техническую документацию с разрешением «К производству работ» (монтажные чертежи оборудования; заводские чертежи, паспорта, сертификаты и отправочные ведомости оборудования; акты заводских испытаний котла и трубопроводов; маркировочные схемы узлов и деталей, оборудования; формуляры с указанием допусков; проект производства работ); при необходимости объем документации сокращают;
принять по акту готовность зданий и фундаментов к производству монтажных работ в соответствии со СНиП и получить разрешение на использование строительных конструкций для установки грузоподъемного оборудования;
подготовить складские и бытовые помещения, укрупнительно-сборочные площадки, обеспечить нормальную подачу оборудования и материалов к месту сборки и в монтажную зону;
разместить поставляемое оборудование и материалы на монтажной и сборочной площадках с учетом последовательности их установки;
произвести ревизию узлов монтируемого оборудования с целью выявления его комплектности, пороков и повреждений;
укрупнительно-сборочные площадки и зону монтажа обеспечить грузоподъемными механизмами и приспособлениями., ацетиленом, кислородом, водой и т.д. в объеме, предусмотренном ППР. Установить подвесную двутавровую балку № 24 к поясам ферм и навесить тельфер;
произвести инструктаж членов бригады по технике безопасности;
выдать бригаде проектную и нормативную документацию, обеспечить средствами труда.
2.2. Организацию монтажной площадки производят по схеме.

1 - котел № 2; 2 - место сборки передней стенки; 3 - подвесная балка; 4 - котел № 1; 5 - место сборки задней стенки; 6 - передвижной сварочно-трансформаторный пункт; 7 - верхний барабан № 2; 8 - верхний барабан № 1; 9 - нижний барабан № 1; 10 - нижний барабан № 2; 11 - площадка для укрупненной сборки узлов; 12 - автокран; 13 - трубы радиационной части котла; 14 - плаз размером 5×2,5 м; 15 - трубогибочный станок; 16 - трубы конвективной части котла, коллекторы; 17 - каркас котла, экраны, стенки, лестницы; 18 - тельфер; 19 - генератор ацетиленовый; 20 - гарнитура котла; 21 - передвижная мастерская.
2.3. Технологическая основа организации труда бригады
Монтаж производится максимально укрупненными блоками (коэффициент блочности 47,2 %) при комплексной механизации технологических процессов в такой последовательности:
проверка, разметка фундамента под котел и установка фундаментных болтов;
сборка в блоки и узлы каркаса котла и лестничных площадок;
монтаж каркаса котла, блоков и лестничных площадок;
монтаж барабанов;
монтаж трубных поверхностей нагрева;
установка радиационных и конвективных труб;
установка спускных и перепускных труб;
монтаж обвязочных трубопроводов и арматуры;
гидравлическое испытание котла.
2.4. Организация трудовых процессов
1. Проверка, разметка фундамента под котел, установка фундаментных болтов. Выполняет звено № 1 в течение 4 ч.

Звено от основных колонн здания в соответствии с чертежами производит разбивку продольной оси котла и линии фронта обмуровки котла, которые должны быть взаимно перпендикулярны. Для выверки осей натягивают стальную проволоку диаметром 1 мм на высоте 2 м. От точки их пересечения О откладывают два равных отрезка ОА и ОБ длиной 3 м, а на продольной оси отмечают произвольную точку С. Если продольная ось перпендикулярна к линии фронта, то СА будет равняться СБ. Звено, опуская отвес от натянутых осей на поверхность фундамента, несмываемой краской размечает оси колонн, очертания башмаков колонн и проверяет правильность расположения колодцев для анкерных болтов; с помощью гидравлического уровня проверяет горизонтальность опорных поверхностей фундамента; устанавливает фундаментные болты.

1 - укрупненный блок бокового каркаса с лестницей (проектное положение); 2 - временные крепления блока.
Звено участвует в составлении акта приемки и формуляра.
2. Сборка в блоки и узлы каркаса котла и лестничных площадок.
Выполняют звенья № 1-3 в течение 14 ч.
Для сборки блоков каркаса на площадке устраивают шпальные выкладки, верхняя поверхность которых должна лежать в одной горизонтальной плоскости. На них строго параллельно друг другу укладывают колонны так, чтобы их подошвы находились на одной прямой. Расстояние между колоннами принимают в соответствии с чертежами. К колоннам приваривают поперечные балки, связи, кронштейны и остальные детали. Затем устанавливают лестницы, площадки, ограждения и бортовые полосы. Для увеличения жесткости к блоку приваривают или прикрепляют болтами специальные раскосы и распорки. Сборку фронтального и заднего блоков каркаса производят звенья № 2 и 3, сборку бокового левого от топки блока каркаса - звено № 1. Детали каркаса к месту сборки подают тельфером.
3. Монтаж каркаса котла, блоков и лестничных площадок.
Выполняют звенья № 1-3 в течение 10 ч.

1 - боковой (левый) блок; 2 - задний блок; 3 - каркас котла (в сборе); 4 - поперечные связи; 5 - боковой (правый) блок; 6 - фронтальный блок.
Укрупненный блок (боковой левый от топки) звенья устанавливают при помощи тельфера в проектное положение на металлические подкладки основания, исключающие осадку колонн. Выверяют вертикальность блока в двух плоскостях и раскрепляют его.
Затем устанавливают фронтальный и задний укрупненный блоки. Прямоугольность каркаса проверяют измерением вверху и внизу диагоналей прямоугольников, образуемых в плане центрами колонн. Разность между диагоналями не должна превышать - 1,5 мм на 1 м длины диагонали. Убедившись, что каркас собран правильно, сваривают углы, балки и другие детали, приваривают к закладным деталям фундамента башмаки колонн и подкладки. Производят подливку башмаков цементным раствором 1:2.
Опорные двутавровые балки, распорки, ограждения и выверочные каретки барабана устанавливают после монтажа каркаса.

Схема перемещения барабанов:
а - нижнего; б - верхнего; I-III - положения барабана в процессе монтажа; 1 - подвесная балка; 2 - тельфер; 3 - каркас котла № 2; 4 - каркас котла № 1; 5 - выверочные каретки; 6 - трос; 7 - балки временные; 8 - стрела автокрана; 9 - опоры временные.
4. Монтаж барабанов.
Выполняет звенья № 1-3 в течение 8 ч.
Звенья устанавливают на опорные балки и тщательно проверяют выверочные каретки. Катки кареток заклинивают, чтобы они не сдвинулись при установке барабана. На барабане мелом намечают место прилегания подушек или хомутов. Выжигают горелкой мазут в трубных отверстиях и зачищают наружную и внутреннюю поверхности отверстий. Первым монтируют нижний (малый) барабан с помощью тельфера. Верхний барабан подают автокраном АК-75. Барабан опускается на каретки, установленные на каркасе, и после расстроповки с помощью блока и тельфера перемещается в проектное положение. Установку барабана тщательно выверяют. Снаружи на днище барабана по двум заводским отметкам, совпадающим с вертикальной диаметральной плоскостью, проверяют вертикальность оси. Горизонтальность продольной оси проверяют с помощью гидростатического уровня. Совпадение в одной вертикальной плоскости всех осей крайних отверстий труб на обоих барабанах проверяют, примеряя маячные трубы.


Схема монтажа трубопроводов
а - конвекционных; б - радиационных; 1 - верхний барабан; 2 - нижний: барабан; 3 - камера.
5. Монтаж трубных поверхностей нагрева.
Выполняют звенья № 1-3 в течение 48 ч.
Перед установкой труб производят зачистку до металлического блеска очков стенок барабанов и камер, а также концов кипятильных труб на 50-60 мм, применяя газовую горелку и электрощетки. В соответствии с ППР подготовляют плаз, где обязательно проверяют конфигурацию труб. При небольших отклонениях трубы подгибают на месте в холодном состоянии.
Монтаж трубных поверхностей нагрева начинают с установки маячных (контрольных) труб, по ним проверяют взаимное соответствие труб барабанов и камер. У котлов ДКВР-10/13 маячными являются две крайние трубы боковых экранов, четыре средние второго поперечного ряда конвективного пучка, считая от фронта, одиннадцатый ряд труб у чугунной перегородки от задней стенки котла. Маячные трубы закрепляют вальцовкой. Нижние концы экранных труб прихватывают к камерам экрана электродами Э-42, а верхние - развальцовывают в барабане.

1 - трубы; 2 -зажим для пакетов; 3 - швеллеры.
На площадке укрупнительной сборки изготовляют трубные пакеты и приступают к установке труб кипятильного пучка и экранов. Установку труб ведут поперечными рядами от маячных труб, начиная со среднего продольного ряда.
Трубные пакеты подают тельфером, концы труб заводят в очки барабана и привальцовывают их. Трубы, не вошедшие в пакет, монтируют россыпью. После установки и развальцовки всех кипятильных и экранных труб монтируют опускные и перепускные трубы.
6. Монтаж обвязочных трубопроводов и арматуры в пределах котла.
Выполняют звенья № 1-3 в течение 8 ч.
Работы по монтажу трубопроводов начинают с разметки мест для опор и подвесок и их установки. Затем собирают блоки с запорно-регулировочной арматурой, подготовленной в заготовительных мастерских, с выполнением всех работ: сварки, установки прокладок, компенсаторов соединения фланцев на болтах.
Смонтированный трубопровод подлежит регистрации и освидетельствованию инспекцией Госкотлотехнадзора.
7. Гидравлическое испытание котла.
Выполняют звенья № 1-3 в течение 8 ч.
Гидравлическое испытание производят в соответствии с правилами Госгортехнадзора в присутствии инспектора. Люки и лазы должны быть закрыты, барабаны, камеры и трубы очищены, все изогнутые трубы проверены прокаткой металлическими шариками на тросе (диаметр шарика составляет 0,85 внутреннего диаметра проверяемой трубы).
К котлу присоединяют гидравлический пресс с манометрами, водопровод, воздухосборник. Температура воды для заполнения котла должна быть выше температуры окружающей среды. Водоуказательные стекла должна быть перекрыты, предохранительные клапаны - заклинены.
Пробное давление в 16 атм выдерживают в течение 5 мин. Повышение и снижение давления производят постепенно. Котел считается выдержавшим испытание, если в течение 5 мин установленное давление не упадет и не будут обнаружены капли или потеки в сварных швах и местах вальцовки.
Внутрибарабанные устройства монтируют после испытания котла.
3. УСЛОВИЯ ТРУДА
3.1. Производственная санитария
На объекте должны быть оборудованы: гардеробная с умывальниками, душевая, туалетная, помещение для сушки спецодежды и обуви, помещения для обогрева и приема пищи. На объекте должны быть аптечка и средства первой помощи.
3.2. Техника безопасности
Рабочие обязаны пройти производственное обучение и инструктаж по технике безопасности, получить удостоверения (под расписку) , изучить инструкцию по технике безопасности на монтаж, прилагаемую к паспорту монтируемого оборудования. Перед началом работы должны убедиться в полной исправности инструмента, пусковых приспособлений, проверить наличие на местах необходимых ограждений, надежность и правильность заземления, изоляцию проводов. Применять электрифицированный инструмент с напряжением не выше 36 В.
Рабочие, выполняющие сварочные работы, должны пройти освидетельствование, сдать техминимум и экзамены по специальной программе по производству сварочных работ и получить удостоверения.
Вся сварочная аппаратура должна иметь паспорта. На все стропы, применяемые при монтажных работах, должны быть паспорта или заключения, полученные на основании лабораторных испытаний. Грузоподъемные блоки должны иметь заводское клеймо, указывающее их грузоподъемность.
Рабочие должны быть обеспечены спецодеждой.
Работы следует выполнять в соответствии со СНиП и правилами Госкотлотехнадзора, а также ведомственными инструкциями по монтажу котлоагрегатов.
1. ОРГАНИЗАЦИОННО-ТЕХНИЧЕСКИЕ УСЛОВИЯ
1.1. Назначение карты организация труда
Карта предназначена для организации труда звена восстановителей слесарей-монтажников при монтаже котлоагрегата ДКВР-2,5/13 на топливе газ-мазут при блочной поставке в принятом по акту здании с помощью автокрана KC-5361 грузоподъемностью 25 т.
1.2. Нормативная, проектная и технологическая документация
Монтаж котлоагрегата ведется на основании рабочих чертежей, проекта производства работ, технологических карт, карты организации труда, в соответствии с требованиями СНиП и паспорта котла.
Звену выдают калькуляции затрат труда, заработной платы и материалов, задание по вводу объекта в эксплуатацию, единый аккордный наряд-задание, расчетную стоимость работ, поручаемых звену.
1.3. Нормы труда и эффективность рекомендуемых решений
Рост производительности труда составляет 83,8% и достигается в результате блочного монтажа, подбора оптимального численного и квалификационного состава звена, четкого разграничения обязанностей, совмещения профессий, оснащения прогрессивным инструментом, приспособлениями, механизмами, обеспечения безопасности работ, снижения утомляемости рабочих за счет внедрения рационального режима труда и отдыха, выполнения подготовительных работ участком подготовки производства, рационального размещения оборудования и материалов в зоне монтажа.
1.4. Формы организации труда. Состав специализированного звена восстановителей
|
№ |
К-во |
Основная профессия |
Разряд |
К-во |
Смежная профессия |
Разряд |
№
трудового |
Работа, выполняемая звеном |
|
1 |
2 |
3 |
4 |
5 |
6 |
7 |
8 |
9 |
|
1 |
2 |
Слесарь-монтажник |
VI |
1 |
Электросварщик |
V |
1 |
Проверка и разметка фундамента под котел |
|
|
|
|
III |
1 |
Такелажник |
II |
2 |
Монтаж блока котла |
|
3 |
Монтаж каркаса, лестниц и площадок |
|||||||
|
4 |
Монтаж трубопроводов и арматуры в пределах котла |
|||||||
|
5 |
Гидравлическое испытание котла |
|||||||
|
2 |
3 |
Слесарь-монтажник |
IV |
1 |
Газорезчик |
III |
2 |
Монтаж блока котла |
|
|
|
Слесарь-монтажник |
III |
1 |
Такелажник |
II |
3 |
Монтаж каркаса, лестниц и площадок |
|
|
|
Слесарь-монтажник |
II |
1 |
|
|
4 |
Монтаж трубопроводов и арматуры в пределах котла |
|
|
|
|
|
|
|
|
5 |
Гидравлическое испытание котла |
Всего 5 человек. Средний разряд работы - 3,87; средний разряд рабочего - 3,7. Машинист автокрана в состав специализированного звена не входит.
1.5. Средства труда
|
№ |
Наименование |
Количество, |
|
1 |
2 |
3 |
|
1 |
Автокран грузоподъемностью 25 т |
1 |
|
2 |
Лебедка с электроприводом |
1 |
|
3 |
Станок для зачистки концов труб с комплектом зачистных камней |
1 |
|
4 |
Электровальцовка |
1 |
|
5 |
Набор унифицированных трехроликовых вальцовок |
1 |
|
6 |
То же |
1 |
|
7 |
Станов труборезный |
1 |
|
8 |
Передвижной сварочно-трансформаторный пункт |
1 |
|
9 |
Генератор ацетиленовый |
1 |
|
10 |
Сверлилка электрическая ручная |
1 |
|
11 |
Машинка электрошлифовальная ручная |
1 |
|
12 |
Преобразователь тока |
1 |
|
13 |
Вальцовка ручная |
1 |
|
14 |
Домкрат грузоподъемностью 10 т |
1 |
|
15 |
То же, 3 т |
1 |
|
16 |
Строп универсальный четырехветьевой грузоподъемностью 10 т |
1 |
|
17 |
Канат пеньковой Æ 25 мм |
30 м |
|
18 |
Лестница инвентарная высотой 4 м |
2 |
|
19 |
Краска пластмассовая |
5 |
|
20 |
Рукавицы тканевые |
5 |
|
21 |
Блок однороликовый грузоподъемностью 2 т |
4 |
|
22 |
Канат стальной Æ 18 мм |
5 м |
|
23 |
Пресс гидравлический |
1 |
|
24 |
Ключи гаечные с открытым звеном двусторонние 17-36 мм |
2 комплекта |
|
25 |
Кувалда кузнечная остроносая массой 4 кг |
1 |
|
26 |
Молоток слесарный стальной |
2 |
|
27 |
Зубило слесарное |
2 |
|
28 |
Ключи трубные рычажные |
1 комплект |
|
29 |
Лом стальной строительный |
2 |
|
30 |
Напильник плоский драчевой |
2 |
|
31 |
Щетка металлическая 50×200 |
1 |
|
32 |
Ящик инструментальный |
1 |
|
33 |
Линейка измерительная металлическая |
1 |
|
34 |
Метр складной металлический |
2 |
|
35 |
Рулетка измерительная металлическая длиной 20 м |
1 |
|
36 |
Уровень слесарный рамный II группы точности, 200 мм |
1 |
|
37 |
Уровень гидравлический шланговый длиной 10 м |
1 |
|
38 |
Отвес стальной строительный |
1 |
1.6. материальное стимулирование труда
Оплата труда осуществляется на основе ЕНиР по сдельно-премиальной системе.
За три дня до начала работ звену выдается аккордный наряд на весь объем работ с расчетом премиальных доплат, определяемых дифференцировано исходя из ожидаемого сокращения сроков и качества работ, а также указывается суммы премий из фонда мастера и за экономию, достигнутую звеном от снижения затрат по сравнению с расчетной стоимостью при работе по методу бригадного подряда.
2. ОРГАНИЗАЦИЯ ТРУДА
2.1. Подготовка трудового процесса
До начала монтажных работ линейных персонал и участок подготовки производства обязаны:
получить техническую документацию с разрешением «К производству работ» (монтажные чертежи оборудования; заводские чертежи, паспорта, сертификаты и отправочные ведомости оборудования; акты заводских испытаний котла, трубопроводов, арматуры; маркировочные схемы узлов и деталей оборудования; формуляры с указанием допусков; проект производства работ);
принять по акту готовность зданий и фундаментов к производству монтажных работ в соответствии со СНиП и получить разрешение на использование строительных конструкций для установки грузоподъемного оборудования;
подготовить складские и бытовые помещения, укрупнительно-сборочные площадки, обеспечить нормальную подачу оборудования и материалов к месту сборки и в монтажную зону;
разместить поставляемое оборудование и материалы на монтажной и сборочной площадках с учетом последовательности их установки;
произвести ревизию узлов монтируемого оборудования с целью выявления его комплектности, пороков и повреждений;
укрупнительно-сборочные площадки и зону монтажа обеспечить грузоподъемными механизмами и приспособлениями, электроэнергией, водой, кислородом в объеме, предусмотренном ППР. Установить электролебедку;
проверить монтажный проем в перекрытии здания котельной;
произвести инструктаж членов бригады по технике безопасности;
выдать бригаде проектную и нормативную документацию, обеспечить средствами труда.
2.2. Организация монтажной площадки.
2.3. Технологическая основа организации труда бригады.
Монтаж котлоагрегата производится блоком (коэффициент блочности 71,25%) при комплексной механизации технологических процессов в такой последовательности:
проверка и разметка фундаментов под котел;
монтаж блока котла;
монтаж каркаса, лестниц и площадок;
монтаж трубопроводов и арматуры в пределах котла;
гидравлическое испытание котла.

1 - автокран KC-5361; 2 - генератор ацетиленовый; 3 - монтажный проем в покрытии; 4 - сварочный трансформатор; 5 - передвижная мастерская; 6 - электролебедка; 7 - трос крепления электролебедки; 8 - котел № 2; 9 - котел № 1; 10 - первоначальное положение котла; 11 - лестницы и площадки; 12 - трубопроводы и арматура; 13 - стропы.
2.4. Организация трудовых процессов.
1. Проверка и разметка фундамента под котел.
Выполняет звено № 1 в течение 2 ч.

Звено от основных колонн здания в соответствии с чертежами производит разбивку продольной оси котла и линии фронта обмуровки котла. Для выверки осей натягивают стальную проволоку диаметром 1 мм на высоте 2 м. От точки их пересечения откладывают два равных отрезка. На продольной оси откладывают произвольную точку. Если продольная ось перпендикулярна к линии фронта, то отрезки будут равны.
Горизонтальность опорных поверхностей фундамента проверяют с помощью гидравлического уровня. Производят очистку арматуры от ржавчины, грязи, масла, краски, наплывов бетона.
При приемке фундаментов котлов допускается разность длин диагоналей между осями колонн каркаса котла не более 25 мм, отклонение поверхности фундамента и отметки опорных деталей по высоте - ±5 мм.
2. Монтаж блока котла.
Выполняют звенья № 1 и 2 в течение 8 ч.
Укрупненный блок котла из первоначального положения поднимают на высоту 150-200 мм от уровня земли, выдерживают в течение 15-20 мин., проверяя надежность такелажной оснастки. Затем начиняют дальнейший подъем блока котла выше отметки покрытия на 100-150 мм.

1 - первоначальное положение блока; 2 - автокран KC-5361; 3 - монтажный проем в покрытии; 4 - проектное положение блока котла.
Разворачивают блок над покрытием, совмещают продольную ось его с осью фундамента и опускают на проектную отметку через монтажный проем в перекрытии здания котельной.
При необходимости для обеспечения правильной установки под раму котла подливают цементный раствор, подваривают к закладным деталям подкладки.
3. Монтаж каркаса, лестниц и площадок.
Выполняют звенья № 1 и 2 в течение 3 ч.
К колоннам каркаса котлоагрегата приваривают поперечные балки, кронштейны, связи и остальные детали. Затем устанавливают лестницы, площадки, ограждения и бортовые полосы.
4. Монтаж трубопроводов и арматуры в пределах котла.
Выполняет звено № 2 в течение 17 ч.
Работы по монтажу трубопроводов начинают с разметки мест для опор и подвесок и установки их. Затем собирают блоки с запорно-регулировочной арматурой, подготовленной в заготовительных мастерских, с выполнением всех работ: сварки, установки прокладок, компенсаторов, соединения фланцев на болтах.
Узлы трубопроводов котельного зала монтируют с помощью электролебедки.
Смонтированный трубопровод подлежит регистрации и освидетельствованию инспекцией Госкотлотехнадзора.
5. Гидравлическое испытание котла.
Выполняют звенья № 1 и 2 в течение 4 ч.
Гидравлическое испытание котла производят в соответствии с правилами Госкотлотехнадзора в присутствии инспектора. К началу испытания барабаны и коллекторы котла очищают от грязи и ржавчины. Закрывают все люки, лазы, запорную арматуру.
Присоединяют к котлу гидравлический пресс с манометрами, водопровод, воздухосборник. Температура воды для заполнения котла должна быть выше температуры окружающей среды. Водоуказательные стекла должны быть перекрыты, предохранительные клапаны заклинены.
Пробное давление выдерживают в течение 5 мин. Повышение и снижение давления производится постепенно. Котел считается выдержавшим испытание, если в течение 5 мин. установленное давление не упадет и не будут обнаружены капли или потеки с сварных швах и местах вальцовки.
1. ОРГАНИЗАЦИОННО-ТЕХНИЧЕСКИЕ УСЛОВИЯ
1.1. Назначение и условия применения
Карта предназначена для организации труда бригады восстановителей-огнеупорщиков при обмуровке котлов ДКВР-10/13 на топливе газ-мазут, поставляемых россыпью.
1.2. Проектные и нормативные документы
Обмуровка ведется на основании рабочих чертежей, ППР, технологических карт, карт организации труда в соответствии с требованиями СНиП.
Бригаде выдают калькуляции затрат труда и заработной платы, материалов, задание по вводу объекта в эксплуатацию, единый аккордный наряд-задание, расчетную стоимость работ, поручаемых бригаде по бригадному подряду.
1.3. Нормы труда и эффективность рекомендуемых решений
Рост производительности труда составляет 50% и достигается в результате механизации транспортных работ, подачи материалов на рабочее место огнеупорщиков транспортером и тельфером, приготовления огнеупорного и глиняного растворов растворомешалкой; подбора оптимального численного и квалификационного состава бригады, четкого разграничения обязанностей, оснащения прогрессивным инструментом, приспособлениями, обеспечения безопасности работ, снижения утомляемости рабочих за счет внедрения рационального режима труда и отдыха, выполнения подготовительных работ участком подготовки производства, рационального размещения материалов в рабочей зоне, опережения выполнения внутренней кладки (футеровки) над наружной (облицовкой).
1.4. Формы организации труда. Состав специализированной бригады
|
№ |
Коли- |
Основная профессия |
Разряд |
Коли- |
Смежная профессия |
Разряд |
№
трудового |
Работа, выполняемая эвеном |
|
1 |
5 |
Огнеупорщик |
V |
1 |
Плотник |
IV |
1 |
Кладка пода и стен котла до отметки +1,15 м |
|
|
|
Огнеупорщик |
III |
2 |
Моторист |
III |
2 |
Кладка экранной перегородки котла, изоляция верхнего барабана в зоне горения |
|
|
|
Огнеупорщик |
II |
2 |
Транспортный рабочий |
II |
3 |
Кладка передней стены топочной части котла до отметки +2,4 м; установка кружал, опалубки для лазов и смотровых окон |
|
|
|
|
|
|
|
|
4 |
Кладка свода и передней стены конвективной части котла до отметки +2,4 м |
|
5 |
Кладка передней и задней стен верхней части котла до отметки +5,2 |
|||||||
|
6 |
Изоляция металлической части котла, защитная обмазка футеровки |
|||||||
|
7 |
Транспортные работы |
|||||||
|
2 |
2 |
Огнеупорщик |
IV |
1 |
Плотник |
III |
1 |
Кладка пода котла и стен до отметки +1,15 м |
|
|
|
Огнеупорщик |
III |
1 |
Плотник |
II |
3 |
Кладка левой стены топочной части котла до отметки +2,4 м |
|
4 |
Кладка левой от топки стены под конвективной частью до отметки +2,4 м |
|||||||
|
5 |
Кладка левой от топки стены до отметки +5,2 м |
|||||||
|
6 |
Изоляция металлической части котла, защитная обмазка футеровки |
|||||||
|
3 |
2 |
Огнеупорщик |
IV |
1 |
Плотник |
III |
1 |
Кладка пода котла и правой от топки стены до отметки +1,15 м |
|
|
|
Огнеупорщик |
III |
1 |
Плотник |
II |
3 |
Кладка правой от топки стены до отметки +2,4 м |
|
4 |
Кладка правой стены конвективной части котла до отметки +2,4 м |
|||||||
|
5 |
Кладка правой от топки стены до отметки +5,2 м |
|||||||
|
6 |
Изоляция металлической части котла, защитная обмазка футеровки |
Всего 9 человек. Средний разряд работы - 3,43; рабочего - 3,44.
Два человека из звена № 1, периодически сменяясь, выполняют транспортные работы во вторую смену.
1.5. Средства труда
|
№ |
Наименование |
Количество, |
|
1 |
Растворомешалка емкостью 80 л |
2 |
|
2 |
Ленточный транспортер |
1 |
|
3 |
Электротельфер грузоподъемностью 1 т |
1 |
|
4 |
Леса трубчатые безболтовые высотой 6 м |
140 м2 |
|
5 |
Подмости из досок толщиной 40 мм |
60 м2 |
|
6 |
Навес сборно-разборный 11,2×5×3 м |
1 |
|
7 |
Ларь для шамотного порошка |
1 |
|
8 |
Ларь для огнеупорной глины 1×1,5×1 м |
1 |
|
9 |
Ларь для цемента глиноземного 1×1,5×1 м |
1 |
|
10 |
Ларь для хромистой массы ПМХ-6 1×l×l м |
1 |
|
11 |
Ящик для сухого смешивания 0,7×0,5×0,25 м |
1 |
|
12 |
Ящик дозировочный емкостью 0,25 м3 |
1 |
|
13 |
Сито с ячейками 1×1 мм |
1 |
|
14 |
То же 2×2 мм |
1 |
|
15 |
То же 3×3 мм |
1 |
|
16 |
Ящик для подачи раствора 0,45×0,25×0,25 м |
15 |
|
17 |
Выдвижные подмости высотой 1 и 1,5 м |
2 |
|
18 |
Ковш для раствора |
5 |
|
19 |
Лестница монтажная облегченная металлическая высотой 2 м |
2 |
|
20 |
То же высотой 4 м |
2 |
|
21 |
Кружало |
4 |
|
22 |
Набор сборочных опалубок для сводов радиусом 1500 мм |
1 |
|
23 |
То же радиусом 2600 мм |
1 |
|
24 |
Ящик для раствора 1,5×1×0,5 м |
2 |
|
25 |
Ящик для шамотного раствора |
1 |
|
26 |
Ящик для гашеной извести 0,7×0,5×0,25 м |
1 |
|
27 |
Опоры подвесные для подмостей |
4 |
|
28 |
Специальные подмости для торкретирования барабана |
5 |
|
29 |
Кирочка |
9 |
|
30 |
Кирочка-молоток (печной) |
9 |
|
31 |
Кельма |
9 |
|
32 |
Рейка деревянная длиной 1 м |
2 |
|
33 |
То же, 1,5 м |
2 |
|
34 |
То же 2 м |
2 |
|
35 |
Уровень строительный |
3 |
|
36 |
Скарпель ручной |
3 |
|
37 |
Отвес стальной строительный 0,15 кг |
6 |
|
38 |
Щуп клиновой рабочий |
3 |
|
39 |
Щуп контрольный |
3 |
|
40 |
Расшивка стальная |
5 |
|
41 |
Угольник деревянный |
3 |
|
42 |
Шнур |
60 м |
|
43 |
Трамбовка деревянная |
2 |
|
44 |
Метр складной деревянный |
2 |
|
45 |
Молоток деревянный |
3 |
|
46 |
Ведро |
5 |
|
47 |
Лопата совковая |
4 |
|
48 |
Кисть малярная |
4 |
|
49 |
Веник |
1 |
|
50 |
Щетка металлическая |
1 |
|
51 |
Ножовка по дереву |
1 |
|
52 |
Топор плотничный |
1 |
|
53 |
Лампа 12(36) В |
5 |
|
54 |
Рулетка измерительная металлическая |
1 |
|
55 |
Комплект средств индивидуальной защиты (фартуки, рукавицы, очки) |
9 |
|
56 |
Перчатки резиновые технические |
9 |
1.6. Материальное стимулирование труда
Оплата труда осуществляется на основе ЕНиР по сдельно-премиальной системе.
За три дня до начала работ бригаде выдается аккордный наряд на весь объем работ с расчетом премиальных доплат, определяемых дифференцированно исходя из ожидаемого сокращения сроков и качества работ, а также указывается сумма премий из фонда мастера и за экономию, достигнутую от снижения затрат по сравнению с расчетной стоимостью при работе по методу бригадного подряда.
2. ОРГАНИЗАЦИЯ ТРУДА БРИГАДЫ
2.1. Подготовка трудового процесса
До начала обмуровочных работ линейный персонал обязан:
получить и изучить техническую документацию с разрешением «К производству работ» (рабочие чертежи, проект производства работ);
принять по акту готовность зданий и фундаментов в соответствии со СНиП и получить разрешение на использование строительных конструкций для установки грузоподъемного оборудования;
подготовить складские и бытовые помещения, обеспечить нормальную подачу материалов в рабочую зону;
разместить механизмы, обеспечить водоэнергоресурсами и материалами согласно проекту производства работ;
получать и применять материалы, изделия в соответствии со спецификациями, указанными в проекте, отвечающие государственным стандартам и техническим условиям, получить технические паспорта или другие документы, удостоверяющие качество материалов и изделий;
обеспечить правильное хранение огнеупорных материалов, которые должны быть защищены от увлажнения и размещены по маркам, классам, сортам и назначению в соответствии с очередностью их укладки;
установить электротельфер, ленточный транспортер, растворомешалки для приготовления глиняного и шамотного растворов;
произвести монтаж подвесной балки с электротельфером, узколенточного транспортера, установить растворомешалку, подключить и опробовать все механизмы;
обеспечить инвентарными подмостями, кружалами и другими приспособлениями;
произвести инструктаж по технике безопасности; обеспечить бригаду огнеупорщиков средствами труда.
2.2. Организация рабочей площадки.

1 - ленточный транспортер; 2 - растворомешалка; 3 - леса трубчатые безболтовые; 4 - щиты настилов ограждений; 5 - навес сборно-разборный; 6 - ящик для сыпучих материалов; 7 - ящик для огнеупорной глины; 8 - ларь для шамотного порошка; 9 - ларь для цемента глиноземного; 10 - ларь для хромистой массы ПМХ-6; 11 - ларь металлический для огнеупорной глины; 12 - ящик для глиняного раствора; 13 - ящик для огнеупорного раствора; 14 - место складирования шамотного кирпича; 15 - место складирования шлаковаты; 16 - место складирования диатомитового кирпича; 17 - место складирования строительного кирпича.
2.3. Технологическая основа организации труда бригада
Для котлов ДКВР-10/13 при поставке их россыпью применяется тяжелая обмуровка, состоящая из внутренней футеровки огнеупорным кирпичом и наружной облицовки из красного кирпича. Кладка обмуровки производится в такой последовательности:
1. Кладка пода и стен котла до отметки +1,15 м.
2. Кладка экранной перегородки котла, изоляция верхнего барабана в зоне горения.
3. Кладка стен топочной части котла до отметки +2,4 м.
4. Кладка свода и стен конвективной части котла до отметки +2,4 м.
5. Кладка стен верхней части котла до отметки +5,2 м.
6. Изоляция металлической части котла, защитная обмазка футеровки.
7. Транспортные работы.
По окончании работ производится сушка обмуровки при сжигании древесного топлива в течение 5 суток летом и 7-8 суток - зимой.

Этапы обмуровки котла
|
№ этапа |
Наименование этапов обмуровки |
Объем работ, м3 |
|
1 |
Под котла, стены вокруг топки |
13,78 |
|
2 |
Перегородки внутри котла, торкретирование верхнего барабана |
1,02 |
|
3 |
Стены вокруг топки до отметки +2,4 м |
14,88 |
|
4 |
Стены и свод под конвективной частью до отметки +2,4 м |
12,65 |
|
5 |
Стены до верха котла, перегородки до отметки +5,2 м |
26,95 |
|
6 |
Изоляция и обшивка верха котла |
5,35 |
2.4. Организация трудовых процессов
1. Кладка пода и стен котла до отметки +1,15 м.
Выполняют звенья № 1-3 в течение 16 ч.
Звено № 1 ведет кладку передней (топочной) и задней стены котла, выкладывает разгрузочный свод, сводики над амбразурами, топочными дверцами и столбики кладки между амбразурами. Эту кладку ведет огнеупорщик V разряда, которому периодически помогают огнеупорщики III или II разряда.
Звено № 2 ведет кладку пода и левой от топки стены. Звено № 3 ведет кладку пода и правой от топки стены. Огнеупорщики звена № I II и III разрядов в первую смену приготовляют растворы и подают материалы звеньям.
2. Кладка экранной перегородки котла, изоляция верхнего барабана в зоне горения.
Выполняет звено № 1 в течение 8 ч.
Газовые перегородки выполняют из шамотного кирпича, который кладут по всей ширине котла. Перегородки должны входить в кладку стен не менее чем на 1/4 кирпича и отделяться от нее температурными швами. Поверхность верхнего барабана котла, выходящую в топку, торкретируют огнеупорщики II и III разрядов. Эти огнеупорщики устанавливают под барабаном подвесные подмости, натягивают вокруг барабана стальную сетку на расстоянии 40-50 мм от его поверхности.

Торкретную массу наносят в два слоя толщиной 80-100 мм с промежутком 1,5 ч. Затем поверхность затирают. От наружного слоя торкретной массы до каркаса должно быть расстояние около 50 мм
Торкретная масса состоит из 75 % шамотного порошка, 15% огнеупорной глины и 10 % глиноземистого цемента.


3. Кладка стен топочной части котла до отметки +2,4 м.
Выполняют звенья № 1-3 в течение 16 ч.
Кладку передней стены топочной части, установку кружал, опалубки для лазов и смотровых окон выполняет звено № 1.
Звено № 2 ведет кладку до отметки +2,4 м левой от топки стены.
Звено № 3 ведет кладку до отметки +2,4 м правой от топки стены.
Перед укладкой красный кирпич на месте смачивают водой.
Кладку стен звенья ведут от углов к середине законченными рядами под шнурок и по уровню. Шнур натягивают по горизонтальному шву, закрепляют в углах стены и туго натягивают вдоль внутренней поверхности стены. Кирпич укладывают в рядки с таким расчетом, чтобы верхняя кромка уложенного на растворе кирпича совпадала со шнуром. Каждый четвертый или пятый рад уложенного кирпича проверяют по рейке уровнем. Кладку углов начинают в 3/4 или 1/2 кирпича.
Внутреннюю часть стены (огнеупорную футеровку) ведут с опережением по высоте на 0,8-1,0 м над наружной облицовкой.
Обмуровку следует выполнять так, чтобы она могла беспрепятственно расширяться во всех направлениях. Сплошная перевязка огнеупорной футеровки с красной наружной кладкой не разрешается из-за более сильного расширения внутренней части обмуровки.
Перевязка огнеупорной кладки с облицовкой производится прерывистыми горизонтальными поясами через каждые 4-6 рядов путем выпуска огнеупорных кирпичей.
Для высокой футеровки перевязку выполняют распорными крючьями с чугунными якорями. При такой перевязке огнеупорная кладка прижимается к облицовке, предотвращает ее выпучивание в сторону топки и допускает взаимное перемещение шамотного и красного кирпича.
4. Кладка свода и стен конвективной части котла до отметки +2,4 м.
Выполняют звенья № 1-3 в течение 16 ч.
Звено № 1 ведет кладку свода, звено № 2 - кладку левой и задней стен. Звено № 3 ведет кладку правой и задней стен.
Огнеупорную кладку сводчатого перекрытия выполняют из шамотного кирпича клиновидной формы. Опорные пяты сводов располагают под углом 60°. Они опираются на облицовочную обмуровку. Кирпичи в сводах укладывают в перевязку. В каждом горизонтальном ряду вертикальные швы кладки располагают вразбежку.

Прочность швов меньше прочности кирпича, поэтому швы следует делать как можно тоньше: для красного кирпича не более 5, для шамотного - не более 2-3 мм.
Огнеупорный раствор, применяемый для кладки, состоит из 20-40 % огнеупорной глины и 60-80% шамотного порошка.
Фасонные кирпичи, используемые в обмуровке, должны быть тщательно подобраны и, если требуется, подтесаны и наверстаны насухо.
5. Кладка стен верхней части котла до отметки +5,2 м.
Выполняют звенья № 1-3 в течение 40 ч.
Звено № 1 ведет кладку передней и задней стен, звено № 2 - левой стены; звено № 3 - правой стены.

Температурные вертикальные швы:
а - угловой для футеровки в один кирпич; б - промежуточной стены; 1 - шамотный кирпич; 2 - обыкновенный красный кирпич; 3 - асбестовый шнур.
Для обеспечения горизонтального расширения футеровки в углах обмуровки и местах сопряжения стен в процессе кладки устраивают вертикальные температурные швы шириной до 25 мм. Швы заполняют асбестовым шнуром, диаметр которого должен быть на 5 мм больше ширины температурного шва. Шнур, расположенный ближе к огневой части топки, промазывают раствором огнеупорной глины или графитом. Для выдержки зазоров в температурных швах применяют планки, перемещаемые по мере кладки.
Обмуровка не должна препятствовать перемещению барабанов, коллекторов и других деталей котла при их расширении от нагревания. Зазоры около барабанов заполняют эластичной асбестовой набивкой. То же делается при проходке труб через обмуровку фронтального и заднего экрана котла. При сжигании в котлах жидкого и газообразного топлива в обмуровке устанавливают взрывные клапаны.

6. Изоляция металлической части котла, защитная обмазка футеровки.
Выполняют звенья № 1-3 в течение 8 ч.
Подтесывая кирпичи по сгибам труб, звенья выкладывают потолочные перекрытия. Изолируют барабаны котла, коллекторы газовых коробов, холодные воронки от действия пламени и горячих газов путем покрытия этих элементов огнеупорной массой. Коллекторы экранов защищают кладкой из шамотного кирпича. Для предохранения футеровки от высоких температур и химического воздействия шлаков на нее наносят слой огнеупорной обмазки толщиной 5-10 мм.

Защитную обмазку подают через лазы внутрь котла и на очищенную обмуровку наносят слоями толщиной 2-4 мм после просушки предыдущего слоя.
Во избежание возможных присосов воздуха потолочное перекрытие бригада монтажников обшивает листовой сталью толщиной 2 мм.
7. Транспортные работы.
Выполняют два человека из звена № 1 в течение 96 ч.
В процессе обмуровки двое рабочих III и II разрядов из звена № 1, периодически сменяясь, выполняют транспортные работы в первую и вторую смены.
В первую смену эти рабочие приготовляют раствор для огнеупорной кладки в растворомешалке. Подают его тельфером в ящиках размером 0,45×0,25×0,25 мм на леса и разносят всем звеньям на рабочие места. Совместно с огнеупорщиком V разряда производят обмуровку котла.
Во вторую смену двое рабочих принимают и складируют поступающие материалы, устанавливают и наращивают леса, подают на них тельфером или транспортером кирпич, разносят его на рабочие места в количестве, соответствующем сменной выработке звеньев. Производят затворение огнеупорной глины, промывку растворомешалок, растворных ящиков и т.д.
Теплоснабжение восстанавливаемых зданий и поселков должно базироваться на цельнопередвижных котельных полной заводской готовности, монтаж которых сводится к 2-3 действиям грузоподъемного механизма. Общие трудозатраты на установку их находятся в пределах 50-60 чел.-ч. Большое влияние на характер развития мобильных котельных оказывает топливный баланс страны, который в настоящее время ориентирован на потребления низкокачественных углей.
В результате научных исследований (головная организация -исполнитель - ЦНИИЭП инженерного оборудования) разработано семейство транспортабельных котельных полной заводской готовности, как с автоматизированными процессами углеподачи и золошлакоудаления, так и (для особых условий) с полумеханизированным сжиганием топлива.
В семейство входят:
механизированная транспортабельная котельная УКМТ-1, работающая на рядовых несортированных углях;
механизированная котельная, работающая на углях и отходах древесины «KBAHT-1»;
агрегатируемая автоматизированная котельная «АКСИОМА-3» мощностью до 3 МВт;
водогрейная инвентарная транспортабельная полумеханизированная отопительная котельная «ВИТОК-300/900»;
панельно-объемная индустриальная сборная котельная «ПОИСК-600».
Механизированная отопительная котельная УКМТ-1 (рис. 1) - одноблочная теплопроизводительностью 1,25 МВт со слоевым сжиганием рядовых каменных и бурых углей, с механизированными системами топливоподачи и золошлакоудаления.
В ней установлены:
водогрейный котел из листовой стали теплопроизводительностью 1,25 МВт;
водоводяной подогреватель для горячего водоснабжения;
электромагнитный аппарат обработки подпиточной воды;
емкость умягченной воды;
три шкафа управления.
Предусмотрено резервирование насосов циркуляционных, подпиточных и горячего водоснабжения.
Механизация систем топливоподачи и золошлакоудаления осуществляется с помощью подъемника и транспортера, крепящихся снаружи к котельному блоку. Дымососная установка ДН-9 с газоходами и металлической дымовой трубой размещается вне здания котельной.
Здание котельной УКМТ-1 представляет собой блок-бокс (длина - 13150, ширина - 3200 и высота - 3900 мм) с утепленным полом, стенами и кровлей, состоящих из основания, каркаса и панелей ограждающих конструкций. Панели - неиндустриального типа с гладкими поверхностями, навесные.

Рис. 1
Основание выполнено в виде сварной коробчатой конструкции с каркасом из балок жесткости, обшитых стальным листом. В верхней части основания проложен теплоизоляционный утеплитель - жесткие минераловатные плиты на синтетическом связующем марки 150 толщиной 100 мм. К основанию блока приварен каркас из прокатного профиля и несущие панели ограждающих конструкций.Последние выполнены трехслойными с обшивкой из тонколистовой стали и теплоизоляционным средним слоем из жестких минераловатных плит на синтетическом связующем марки 150 толщиной 100 мм.
Котельную УКМТ-1 можно транспортировать к месту доставки железнодорожным, автомобильным и водным транспортом, а также волоком в условиях бездорожья без демонтажа размещенного в ней оборудования и коммуникаций, быстро ввести в эксплуатацию; работать она может при низких температурах наружного воздуха (до минус 40°С). Котельная выпускается Братским заводом отопительного оборудования Минстройматериалов СССР с 1983 г.
С 1984 г. по разработкам ЦНИИЭП инженерного оборудования и В/О «Союзлесстрой» изготавливается автоматизированная цельнопередвижная нормализованная котельная «KBAHT-1» (рис. 2) по двум нормалям для сжигания несортированных каменных и бурых углей с отходами деревообрабатывающей промышленности.

Рис. 2
Котельная водогрейная транспортабельная мощностью 1 МВт оснащена трубчатым механизированным котлоагрегатом. Котлоагрегат имеет модернизированную механическую топку с шурующей планкой новой конструкции, устраняющей мертвые пристеночные зоны топочного объема. В топке использовано острое дутье с расходом воздуха, обеспечивающего сжигание древесины. Водоподготовка - безреагентная с использованием электромагнитно-сепарационной установки, работающей в автоматическом режиме.
Блок насосных установок в котельной «KBAHT-1» по сравнению с котельной УКМТ-1 увеличен, что позволяет осуществлять забор исходной воды непосредственно из водоисточника (при отсутствии сети водоснабжения). Блок-бокс котельной «KBAHT-1» собирается из унифицированных несущих конструкций. Панели индустриальные с вертикальным рифлением, сталь оцинкованная, утеплитель - жесткие минераловатные плиты.
С 1985 г. семейство котельных пополнилось агрегатируемой секционной инвентарной отопительной котельной «АКСИОМА-3» (рис. 3).

Рис. 3
Котельная - мобильная автоматизированная общей мощностью 3 МВт. Установленный в ней модернизированный трубчатый котлоагрегат с выдвижной конвективной частью существенно повышает эксплуатационные качества установки. К любой поверхности нагрева котла (в том числе радиационной) имеется свободный доступ для чистки и ремонта (панельный котел УКМТ-1,25 этих качеств не имеет). Котел формируется из труб торгового сортамента, имеющихся в монтажных организациях. При необходимости он может работать на естественной тяге, без дымососа.
Принципиально новым в компоновочных решениях этой котельной является установка вместо трех электрощитов регулирующего объединенного блока отработки технологий «РОБОТ» (рис. 4). Он обеспечивает автоматический режим подачи топлива в топку; разравнивает и рыхлит его; сбрасывает шлак и золу на транспортер; осуществляет отключение и включение дутьевого вентилятора и дымососа. Блок «РОБОТ» также обеспечивает автоматическую обработку подпиточной воды, промывку бельтингового фильтра, переключение электромагнитной установки с рабочего режима в режим «пауза», следит за выходными параметрами функциональных устройств котельной «АКСИОМА-3», в аварийных ситуациях прекращает топочный процесс, сигнализируя об этом. Таким образом, работа оператора котельной сводится к растопке котла, установке в необходимое положение датчика, наблюдению за продолжительностью цикла и работой механизмов.

Рис. 4.
В тепловой схеме котельной разработан принципиально новый метод питания трубной системы котла, при котором не образуется коррозия поверхностей нагрева. Среднегодовой КПД «АКСИОМЫ-3» на 15-18% выше КПД аналогичных установок. Котельная работает по схеме (рис. 5).
Углепогрузчик подает топливо в бункер-накопитель или в скип котельной. Пройдя через сетку и бункер-накопитель (16), уголь поступает в рабочий бункер (15) механической топки котлоагрегата (11) TKBMC-I500. По команде от задатчика, вмонтированного в пульт управления, срабатывает сектор-питатель (13), расположенный под бункером (15). Уголь поступает в колосниковую решетку топки. Разравнивание топлива, очистка от шлака и золы топки происходит в процессе поступательно-возвратного движения водоохлаждаемой шурующей планки, действующей от привода (12).

Рис. 5. Схема работы котельной «АКСИОМА-3»
ЭКСПЛИКАЦИЯ ОБОРУДОВАНИЯ:
1 - шибер газохода; 2 - дымовая труба; 3 - трубопроводы сети горячего водоснабжения; 4 - трубопроводы сети отопления; 5 - грязевик; 6 - насосы циркуляционные отопления и горячего водоснабжения; 7 - сепарационно-бельтинговое устройство; 8 - несущее основание; 9 - пульт управления; 10 - шлаковый комод; 11 - механизированный котлоагрегат ТКВМС-1500; 12-редуктор шурующей планки; 13 - сектор-питатель топки; 14 - дутьевой вентилятор; 15 - рабочий бункер; 16 - бункер-накопитель; 17 - сетка бункера; 18 - стеновые панели; 19 - бойлер горячего водоснабжения; 20 - несущий каркас.
Каменный уголь в топке сжигается по каскадной схеме. Суть ее состоит в том, что одна часть воздуха, поступающего от вентилятора (14), подается под колосниковую решетку, а другая - непосредственно в топочное пространство над слоем топлива. Часть воздуха, поступающего через колосниковую решетку, не превышает теоретический необходимый расход и обеспечивает достаточно полное сжигание топлива, находящегося в слое. Воздух острого дутья, подаваемый в топочный объем, вступает в контакт с продуктами неполного сгорания, обеспечивая их глубокий дожиг.
Благодаря каскадной схеме процесс воспламенения и начального горения топлива происходит при несколько пониженной концентрации кислорода, что приводит к снижению количества образующихся окислов азота.
Преимущества этого процесса особенно значительны при работе котельной на низкосортных углях с высоким содержанием азота. Как показали заводские и натурные эксплуатационные исследования, количество поступающих в атмосферу окислов азота (в пересчете на двуокись) уменьшается на 40%, а экономия от снижения ущерба, наносимого окружающей среде, достигает 10 тыс. руб. Каскадное сжигание в большинстве случаев позволяет отказаться от установки газоочистных устройств, расположенных между дымоходом и дымовой трубой. При форсированных нагрузках из топочного пространства шлак и зола сбрасываются в бункер (10), а затем при помощи транспортера удаляются за пределы котельной.
Котельную «АКСИОМА-3» выпускает Главнечерноземводстрой.
Решая проблему теплоснабжения строительных подразделений, дислоцированных в специфических природно-климатических условиях (гористые районы с извилистыми дорогами, ограниченные ресурсы энергии), ЦНИИЭП инженерного оборудования разработал малогабаритную водогрейную инвентарную транспортабельную отопительную котельную «ВИТОК-300/900» мощностью от 300 до 900 кВт (рис. 6).

Рис. 6
С конца 1985 г. котельная «ВИТОК-300/900» выпускается серийно. Эта котельная высокой эксплуатационной надежности может (по желанию заказчика) комплектоваться блоками систем водоснабжения.
Для особых условий котел снабжается двумя топками. Благодаря небольшому аэродинамическому сопротивлению газового тракта котельная «ВИТОК-300/900» работает без дымососа. Подача твердого топлива к топочному фронту легко механизируется путем дополнительной установки вертикального бункера-накопителя и разработанного в ЦНИИЭП инженерного оборудования погрузчика.
Для теплоснабжения сельских населенных мест ЦНИИЭП инженерного оборудования совместно с институтом Калинингражданпроект и Калининским территориальным управлением капитального строительства разработал панельно-объемную индустриальную секционную котельную «ПОИСК-600» (рис. 7).

Рис. 7
В котельной установлен без обмуровки универсальный блочный цельнометаллический котел БЦМУ теплопроизводительностью 600 кВт.
Впервые в практике конструирования передвижных котельных ограждающие конструкции выполнены из легких трехслойных панелей, состоящих из асбестоцементных или цементно-стружечных плит между которыми проложен утеплитель. Благодаря этому расход металла на изготовление блок-бокса снизился до 650 кг (по сравнению с ранее освоенными типами УКМТ-1, ПАКУ почти в 20 раз).
Правильный выбор оборудования мобильных котельных является залогом экономной эксплуатации. Специфика использования теплоисточников, применяющихся для временного отопления строящихся объектов, состоит в создании повышенного (около 40°С) режима помещений независимо от наружной температуры. Период работы котельной на одном объекте не превышает 3-5 мес. В средней климатической зоне расход теплоты составляет 300-600 кВт. Примерно такое же теплопотребление поселка на 300 чел., размещенных в инвентарных мобильных зданиях.
Выбор мобильной котельной должен быть увязан с числом часов использования установленной мощности в течение года и другими техническими параметрами теплосчетчика (табл. 1).
Инвентарные котельные имеют широкую сферу применения. Это и временные теплоисточники многократного использования по 2-3 мес. на одной строительной площадке для сушки и отопления строящихся зданий, и пускорезервные установки, предназначенные для обеспечения теплотой технологических операций по пуску более крупных энергетических, в том числе атомных, комплексов (подогрев мазута и котельных залов, компрессорных станций, блоков ТЭЦ и т.п.), и временные аварийные теплоснабжающие центры населенных мест, подвергшихся стихийному бедствию, и централизованный источник теплоты и горячей воды инвентарных зданий трассовых поселков строителей и т.д.
Во всех случаях использование инвентарных котельных экономически оправдано. Отделом экономики строительства треста Ленинградстрой и ЦНИИЭП инженерного оборудования определена сравнительная стоимость отопления и сушки строящихся объектов различными способами и агрегатами (табл. 2). Данные табл. 2 относятся к двухэтажной застройке поселка на 300 чел. (жилые дома, детсад, магазин) Ленинградской обл. Суммарная тепловая потребность 30 строящихся зданий до 500 кВт.
Таблица 1
Технические параметры мобильных цельнопередвижных твердотопливных котельных
|
Торговая марка котельной |
Габариты, м |
Теплопроизводи- |
Масса, т |
Расход
металла |
Коэффициент |
КПД котла на бурых углях |
Потреб- |
Цена в тыс. руб. |
|
|
исполь- |
готов- |
||||||||
|
«ВИТОК-300» |
6×3×3,2 |
300 |
9 |
4,9 |
0,55 |
0,95 |
0,8 |
5 |
7,0 |
|
«ВИТОК-600» |
6×3×3,2 |
600 |
10 |
4,9 |
0,125 |
0,95 |
0,81 |
7 |
7,5 |
|
«ВИТОК-900» |
6×3×3,2 |
900 |
10,6 |
4,9 |
0,083 |
0,95 |
0,81 |
9 |
8,0 |
|
«ПОИСК-600» |
6×3×3,5 |
600 |
11 |
0,65 |
0,125 |
0,95 |
0,81 |
7 |
7,0 |
|
«АКСИОМА-3» |
1,0×3×3,2 |
1000-3000* |
18,5 |
9,5 |
0,075 |
0,9 |
0,82 |
23 |
38 |
|
УКМТ-1 |
13×3,1×3,5 |
1250 |
30 |
13 |
0,06 |
0,9 |
0,8 |
30 |
56 |
|
«КВАНТ-1 |
13×3,1×3,5 |
1000 |
28 |
11 |
0,075 |
0,9 |
0,82 |
30 |
35 |
|
УКМТ-3,75 |
28,5×15,6×7,1 |
3750 |
60 |
40 |
0,02 |
0,05 |
0,81 |
120 |
130 |
* Производительность 3000 кВт для трех секций.
Таблица 2
Денежные и трудовые затраты на временное отопление и сушку строящихся объектов
|
Система отопления, агрегат |
Теплопро- |
Стоимость кВт/ч, коп. |
Стоимость отопления и сушки, руб. |
Трудозатраты |
|
|
1000
м3 |
1000
м2 |
||||
|
Центральная водяная, работающая от передвижной котельной на твердом топливе «ВИТОК» |
500 |
0,53 |
42,4 |
288,9 |
180 |
|
«АКСИОМА-3» (одна секция) |
1200 |
0,64 |
50,88 |
346,7 |
240 |
|
УКМТ-1,25 |
1250 |
0,77 |
60,54 |
412,57 |
280 |
|
на жидком топливе ПАКУ |
3000 |
1,69 |
132 |
906,4 |
375 |
|
Огневой калорифер на твердом топливе |
95 |
2,16 |
174 |
1180 |
3650 |
|
Моторный подогреватель МПМ-85К |
100 |
0,95 |
75 |
518 |
1830 |
|
Передвижной электрокалорифер ЭПВОУ |
20 |
4,0 |
348 |
2360 |
680 |
Из табл. 2 видно, что наиболее эффективным и экономичным является временное отопление объектов, подключенных к передвижным твердотопливным котельным мощностью 300-600 кВт.
Цельнопередвижные котельные могут комплектоваться быстромонтируемыми тепловыми сетями, разработанными ЦНИИЭП инженерного оборудования на основе трубопроводов специального назначения.
Применение автоматизированных цельнопередвижных котельных дает возможность в кратчайшие сроки создать комфортные условия в восстанавливаемых зданиях. Мобильные источники также обеспечивают наиболее эффективные способы отопления и сушки строящихся объектов.
3.1.1. Положения по восстановлению тепловых сетей касаются мероприятий по организации и технологии проведения восстановительных и монтажных операций на тепловых сетях.
3.1.2. Настоящие Положения обязательны для всех восстановительных подразделений, проектных и других организаций, независимо от ведомственной подчиненности.
3.1.3. При восстановительных работах кроме настоящих Положений следует соблюдать требования соответствующих глав СНиП, а также нормативных документов, утвержденных или согласованных с Госкомархитектуры и Госстроем СССР, и СНиП «Техника безопасности в строительстве».
3.1.4. Восстановительные работы должны выполняться в соответствии с технической документацией по восстановлению тепловых сетей населенных пунктов.
Восстановительные работы следует осуществлять в технологической последовательности, учитывающей возможность частичного ввода в эксплуатацию отдельных отопительных систем потребителей с тем, чтобы в дальнейшем одновременно с функционирующими участками теплосетей вводились новые, а также продолжалась работа по их достройке.
3.1.5. С целью организации комплексного выполнения восстановительных работ в кратчайшие сроки все пункты Положений предусматривают в первую очередь механизированные способы, при отсутствии возможности осуществления таковых - рациональные ручные приемы.
Производство восстановительных работ можно разделить на следующие организационно-технологические этапы:
заблаговременное комплектование формирований и проведение работ подготовительного периода;
получение расчетных величин и сбор данных инженерной разведки об очагах и тяжести разрушения;
принятие решений;
передвижение восстановительных формирований и средств механизации к местам разрушений;
расчистка завалов и земляные работы;
восстановление разрушенных трубопроводов и оборудования;
испытание восстановленных конструкций, сдача работ;
ликвидация очагов разрушений.
При производстве восстановительных работ следует широко применять упрощенные технические решения, средства механизации и местные строительные материалы.
3.1.6. При проведении восстановительных работ в первую очередь необходимо локализовать аварии, принять меры по сохранению уцелевших объектов и предотвратить опасность дальнейшего повреждения и разрушения сетей, сооружений и оборудования от вторичных факторов поражения: пожаров, взрывов, обвалов и обрушений, затоплений, отравлений, замерзания воды в трубах и т. п., а затем или параллельно с этим ликвидировать аварийное состояние на объекте и обеспечить его функционирование.
Восстановительные работы предусматривают расчистку завалов и обрушений, отключение разрушенных участков сети, отвод воды, устройство подходов и подъездов, демонтаж поврежденного оборудования и т. п.
3.2.1. Требования настоящей главы распространяются на организацию и проведение восстановительных работ на следующих элементах систем теплоснабжения населенных пунктов:
теплопроводах;
арматуре;
тепловых камерах;
станциях подкачки;
тепловых и контрольно-распределительных пунктах.
Рекомендации не распространяются на системы теплоснабжения, находящиеся в ведении промышленных предприятий.
3.2.2. К восстановительным работам на системах теплоснабжения относятся локализация и ликвидация аварий после разрушения с целью частичного или полного восстановления работоспособности системы, а также предотвращения нарушения функционирования смежных подземных сооружений.
3.2.3. Работы должны быть направлены в первую очередь на обеспечение теплотой категорийных технологических потребителей, присоединенных к городской системе теплоснабжения. Одновременно или сразу же вслед за этим необходимо провести мероприятия по восстановлению подачи теплоты в системы отопления и во вторую очередь - на горячее водоснабжение и вентиляцию.
3.2.4. Восстановительные работы на объектах водо- и теплоснабжения осуществляют специальные формирования, персонал подразделений служб теплоснабжения с привлечением местного населения и рабочих предприятий, расположенных в данных населенных пунктах.
3.2.5. Проведение восстановительно-монтажных работ на объектах, подвергшихся разрушению, разрешается только после принятия мер по спасению людей, тушению пожара и дезактивации территории (при необходимости).
3.2.6. На обследование и проведение восстановительных работ необходимо получить разрешение исполкома населенного пункта, порядок выполнения которого следует строго соблюдать.
3.2.7. При восстановлении индивидуальных и центральных тепловых пунктов (ИТП, ЦТП) и зданий насосных особое внимание следует обратить на специальные меры предосторожности:
выбирать безопасные от обрушения конструкций рабочие места и проходы;
не допускать нахождения людей, не имеющих допуск, в местах производства работ по разборке обрушений зданий и сооружений;
при осмотре подземных тоннелей, коллекторов и колодцев применять средства защиты от отравления подземными газами.
3.2.8. При расчистке завалов и демонтажных работах необходимо принимать меры по сохранению оборудования, арматуры, конструкций, труб и других материалов с целью их дальнейшего использования при восстановлении.
3.2.9. Проектирование и реконструкция тепловых сетей и источников теплоснабжения в мирное время должно вестись с учетом требований настоящего Руководства.
3.2.10. Для обеспечения надежности работы тепловых сетей в аварийной ситуации в существующих и вновь разрабатываемых проектах систем теплоснабжения должны предусматриваться:
резервные источники теплоты;
в тепловых сетях резервные перемычки, рассчитанные на аварийный пропуск теплоносителя;
обеспечение наиболее важных объектов двойным питанием;
аварийные схемы и их режимы;
сооружение по трассе коллекторов аварийных насосных станций и т.д.
3.2.11. Аварийные команды по проведению восстановительных работ должны иметь в своем распоряжении следующую техническую документацию:
принципиальную схему тепловых сетей города (в частности, района, где произошла авария);
пьезометрические графики магистралей;
планы и профили трасс тепловых сетей;
комплект исполнительной документации на тепловые сети, насосные и т.д., входящие в зону обслуживания данного операционного направления.
3.2.12. На восстановительные подразделения возлагают работы на тепловых сетях и коллекторах с целью:
отключения поврежденных участков, отвода горячей воды от объекта во избежание подмыва сооружений;
обеспечения возможности подхода к поврежденному участку сетей и циркуляции в неповрежденных участках сети (перекрытие секционирующих задвижек, включение перемычек и др.);
ликвидации повреждения, замены участков сети и обеспечения подачи горячей воды или пара потребителям, т.е. включения участков в нормальный режим эксплуатации;
проведения в случае необходимости дальнейших восстановительных работ без перерыва теплоснабжения.
3.2.13. Задачами восстановительных работ на тепловых сетях населенных пунктов являются:
обеспечение расчетных условий работы систем или, если это невозможно, снижение параметров теплоносителя до значений, соответствующих падению температуры воздуха в помещениях не более чем на 8°С;
локализация и ликвидация аварий и повреждений с целью предотвращения дальнейшего их расширения и выхода из строя всей системы теплоснабжения;
подача теплоты, в первую очередь к наиболее важным промышленным предприятиям и другим объектам для поддержания необходимого уровня работы городского хозяйства;
создание в системах теплоснабжения циркуляции, исключающей возможность замерзания теплоносителя;
временное использование в качестве теплоносителя пара в водяных системах теплоснабжения;
обеспечение работы отопительных систем зданий и сооружений за счет частичного или полного отключения систем горячего водоснабжения;
изменение типа прокладки поврежденных участков тепловых сетей;
отпуск теплоты на горячее водоснабжение по принудительному графику до завершения восстановительных работ в полном объеме;
перевод систем теплоснабжения на повышенный или скорректированный график работы.
3.2.14. Восстановительная команда должна производить работы на тепловых сетях и коллекторах наиболее эффективными из имеющихся в ее распоряжении средствами. При этом она должна:
отключать поврежденные участки, перекрывая задвижки, и отводить горячую воду от объекта путем устройства временных насыпей, отводных каналов и т.д. во избежание подмыва сооружений;
обеспечить подход к поврежденному участку сетей и циркуляцию в неповрежденных участках сети, перекрыв секционирующие задвижки иди включив перемычки и др.;
ликвидировать повреждения, заполнить участок сети и обеспечить подачу горячей воды или пара потребителям, т. е. включить участок в нормальную эксплуатацию;
обеспечить производство капитальных восстановительных работ без перерыва теплоснабжения.
3.2.15. В зависимости от степени и размеров разрушений тепловых сетей и местных условий (наличие строительных материалов, машин и механизмов, рабочей силы, директивный срок восстановления и т. п.) может быть применена одна из временных схем тепловых сетей, а именно:
упрощенная схема, предусматривающая аварийно-восстановительный ремонт, при котором из существующей системы исключается ряд полностью поврежденных элементов (секционирующая, дренирующая арматура, задвижки, ответвления от магистрали и задвижки на них и др.) и ремонтируются доступные для восстановления участки тепловых сетей, насосные, арматура и др.;
прокладка новой трассы или участка трассы тепловых сетей взамен разрушенных с установкой временных передвижных насосных и других элементов, необходимых для обеспечения теплоснабжения объекта;
комбинированная схема, т.е. аварийно-восстановительный ремонт существующих сетей и устройство временных тепловых сетей (с наземной и бесканальной прокладкой), насосных, камер и т.д. на отдельных участках.
3.2.16. Восстановительные работы на объектах теплоснабжения должны выполняться по этапам:
организационно-профилактические мероприятия, осуществляемые в период, предшествующий аварийной обстановке;
инженерная разведка с целью обнаружения и фиксации мест повреждений;
ликвидация аварий и восстановление работоспособности системы в максимально возможной степени;
сдача приемной комиссии восстановленных объектов со смонтированным оборудованием, арматурой и трубопроводом.
3.2.17. В штабе формирований восстановительных работ согласно настоящих Рекомендаций должна быть подготовлена и храниться в полном комплекте техническая документация всех систем теплоснабжения населенного пункта и отдельных объектов; схема и планы сетей и сооружений и отдельных технологических процессов, исполнительные чертежи и инструкции по работе систем теплоснабжения в различных аварийных ситуациях.
3.2.18. На планах и схемах тепловых сетей должны быть указаны все источники теплоты (в том числе и резервные); расположение и краткая характеристика (мощность, число насосов и подогревателей, диаметры труб и т.д.) индивидуальных, центральных и контрольно-распределительных пунктов; основные камеры и колодцы с запорной и регулирующей арматурой.
3.2.19 Разработку восстановительных операций следует осуществлять по планшетам и картам трубопроводов тепловых сетей, составленных в масштабах 1:500 и 1:200.
3.2.20. Необходимо составить пьезометрические графики магистралей и отдельных тепловых сетей для трех режимов:
при работающих сетевых, подпиточных и повысительных насосных установках и отсутствии расхода теплоносителя;
при работающих насосных установках и расчетном расходе теплоносителя;
при выключении отдельных групп насосов и расчетном расходе теплоносителя.
3.2.21, Мероприятия по повышению гидравлической устойчивости тепловых сетей не входят в задачу восстановительных работ.
3.2.22. Целью инженерной разведки на объектах систем теплоснабжения являются:
обнаружение и нанесение на планы мест повреждений;
определение характера повреждений и составление дефектной ведомости; а также:
3.2.23. Определение объема восстановительных работ и оформление исполнительной документации; при этом в заблаговременно подготовленной исполнительной документации должны быть указаны возможные способы и сроки производства работ, потребность в материалах, оборудовании, механизмах и рабочей силе;
3.2.24. Выявление тепловых нагрузок по всем видам потребления и составление теплового баланса системы с учетом норм на отопление, вентиляцию и горячее водоснабжение в условиях особого периода.
3.2.25 При обследовании системы теплоснабжения необходимо пользоваться сохранившейся технической документацией, отмечая на ней участки, подлежащие восстановлению. При отсутствии таковой следует параллельно с оформлением исполнительной документации составить схемы восстанавливаемых участков и указать их основные размеры.
3.2.26. Характерными повреждениями на тепловых сетях и коллекторах являются:
разрывы металлических труб, преимущественно в местах, подверженных наружной и внутренней коррозии;
деформации, изломы, трещины труб и конструкций;
нарушение герметичности фланцевых соединений в местах соединения труб с арматурой;
повреждения арматуры, образование течей в местах установки арматуры и сальниковых компенсаторов;
срыв неподвижных опор;
разрывы труб в результате замерзания теплоносителя.
3.2.27. На насосных станциях, контрольно-распределительных и тепловых пунктах могут быть следующие повреждения:
полное разрушение зданий и оборудования;
прекращение подачи электроэнергии при сохранении зданий и оборудования;
частичное разрушение зданий и выход из строя одного или нескольких агрегатов или арматуры и др.
3.2.28. Характерным признаком аварии на тепловых сетях является падение давления и возрастание расхода подпиточной воды, для поддержания которого требуется увеличить подпитку в 3-4 раза и более. Аварийные размеры подпитки должны быть установлены заранее.
3.2.29. Для обнаружения мест повреждений на тепловых сетях рекомендуется один из следующих методов: акустический и электронно-акустический; введение в трубопроводы веществ-индикаторов с последующей фиксацией их в зоне утечки; гидролокация.
3.2.30. Бесконтактные и контактные акустические методы следует применять только при благоприятном общем спектре шумов, т. е. при возможности выделения шумов утечки электронно-акустическим прибором с заданной чувствительностью селектирующего узла из общего спектра.
3.2.31. С целью уменьшения влияния посторонних шумов-помех, возникающих при движении транспорта и работе промышленного оборудования, бесконтактные методы в условиях города применяют, как правило, в ночное время.
3.2.32. Контактные методы обнаружения мест утечки теплоносителя следует осуществлять прослушиванием трассы тепловых сетей с помощью металлических стержней и щупов с аквафонами.
Контакт стержней и щупов с тепловыми сетями необходимо производить в наиболее доступных точках (ЦТП, ИТП, узел абонентского ввода и т.д.), а при выходе дренажных труб на наружную поверхность - на дренажах.
3.2.33. При неблагоприятном спектре шумов следует использовать активный акустический метод, заключающийся в создании специальных генераторов шумов с определенной характеристикой колебаний.
3.2.34. Локацию следует осуществлять введением в трубопроводы радиоактивных веществ, красителей (например, фуксин) флюоресцирующих добавок, легко обнаруживаемых газов, азотной кислоты и др. индикаторов. При этом необходимо принимать следующие меры:
при применении в качестве индикаторов красителей и радиоактивных веществ временно отключать контролируемый участок;
при использовании радиоактивных веществ соблюдать правила техники безопасности;
после пропуска радиоактивной воды контролируемый участок тщательно промыть.
3.2.35. Метод гидролокации заключается в искусственном создании гидравлического удара при быстром закрытии задвижки в конце контролируемого участка и записью ударной диаграммы давления в этой точке.
В качестве электронно-акустических приборов рекомендуются установки ИЛТ-3 и течеискатель ТЭА для определения мест повреждения трубопроводов, теплотрасс по шуму струи воды, истекающей через место повреждения. Прослушивание производится с поверхности земли непосредственно по трассе трубопровода, индикацию уровня и характера сигнала следует осуществлять по двум раздельным сигналам: на головные телефоны разведчика и стрелочный индикатор.
Применение электронно-акустических приборов исключает необходимость пробных вскрытий, значительно снижает затраты времени на ликвидацию разрушений.
3.2.36. До начала восстановительных работ на тепловых сетях должен быть составлен график очередности отключения и восстановления участков и систем теплопотребления.
3.2.37. В зависимости от местных условий, утепленности и конструкции зданий службой эксплуатации должна быть заранее определена допустимая длительность прекращения циркуляции теплоносителя при установившейся наружной температуре. Например, при минус 15°С разрешается отключить теплосеть на срок до 4 часов, при минус 10°С - не более 8 часов.
3.2.38. В каждом секционируемом участке сети должен быть заранее подготовлен спуск воды и определена скорость опорожнения и наполнения участка.
3.2.39. Основными мероприятиями по локализации аварии являются:
снижение давления в тепловых сетях до минимально-возможного;
полное прекращение подачи теплоты в район поражения;
отключение разрушенных или поврежденных элементов тепловых сетей.
3.2.40. Для обеспечения горячей водой наиболее важных потребителей при аварийной ситуации возможны следующие технические решения, позволяющие увеличить пропускную способность сетей (предварительно испытанных):
переход на скорректированный или повышенный графики;
переход на график 180/70°С вместо 150/70°С или 150/70°С вместо 130/70°С, если это допускается прочностью котлов, бойлеров, насосов, арматуры и трубопроводов тепловых сетей;
работа тепловых сетей по графику 150/70 со срезкой для наиболее холодного периода при 130°С (с целью увеличения числа потребителей, обеспечиваемых теплотой).
3.2.41. Если после восстановительных работ невозможно обеспечить необходимую механическую прочность элементов сети при paботе с расчетными параметрами, допускается применять пониженный температурный график (130/70° или 110/70° вместо 150/70°) с соответствующим снижением давления до значений, при которых не происходит опорожнения системы отопления в верхних точках.
3.2.42. Для увеличения пропускной способности восстановленных тепловых сетей у потребителей, имеющих большие расходы горячей воды, рекомендуется устанавливать местные баки-аккумуляторы.
3.2.43. При недостатке теплоты на отопление следует временно отключить горячее водоснабжение и часть вентиляции на предприятиях и в общественных зданиях по заранее составленному и согласованному списку.
3.2.44. При восстановлении разрушенных участков теплотрассы допускается применять надземную и бесканальную прокладку тепловых сетей на низких опорах, выполняемых из местных материалов.
3.2.45. В процессе восстановительных работ подпитку закрытых систем теплоснабжения допускается осуществлять технической водой.
3.2.46. В исключительных случаях, при повреждении прямой трубы на квартальных ответвлениях, допускается (при достаточной производительности подпиточных устройств) временно подавать горячую воду в системы отопления по обратной трубе со сбросом ее в дренаж. Не исключается возможность использования также перемычек и конденсатопроводов.
3.2.47. При повреждении какой-либо из магистралей районов, снабжающихся теплотой от двух источников, следует использовать поперечные связи между магистралями обоих районов для полного или частичного теплоснабжения потребителей, подключенных к поврежденной магистрали. При этом, независимо от степени покрытия тепловой нагрузки, должна быть обеспечена нормальная подпитка всех сетей в обход места повреждения от обоих источников теплоты или одного из них.
3.2.48. Если невозможна подача горячей воды по существующим линиям, в обход отключенного участка, а также восстановление разрушенной линии, потребители могут использовать временную схему. Такая схема создается в следующем порядке:
открывают трубы в наиболее доступных местах с обеих сторон места аварии;
устанавливают специальные фасонные части с выходом на поверхность земли;
прокладывают временную обводную линию, защищенную от внешних повреждений, и если требуется, то с теплоизоляцией.
3.2.49. При больших размерах земляной воронки трубы временно могут укладываться на козлах, стульях или на опорах из шпал.
При массовых повреждениях теплопроводов восстановление рекомендуется вести в соответствии с картой трудового процесса, приведенной ниже.
1. Назначение и показатели применения карты.
1.1. Карта предназначена для организации восстановительных работ при сварке труб в расчищенной от завала траншее диаметрами 57×3,5 мм; 76×3,5; 89×3,5 мм; 104×4 мм; 133×4 мм; 152×4,5 мм; 159×4,5 мм; 194×5 мм; 219×7 мм; 219×6 мм.
1.2. Показатели производительности труда. Затраты труда на 1 стык - 2,45 чел.-ч.
2. Исполнители и орудия труда при восстановительных работах.
2.1. Состав исполнителей, чел.:
электросварщик 5-6 разряда - 1,
электросварщик - 5 разряда - 1,
разнорабочий - 1;
слесарь - сантехник - 1.
2.2. Инструменты, приспособления, инвентарь.
|
Наименование |
Количество, шт. |
|
Зубило слесарное 20×60 |
2 |
|
Молоток слесарный массой 0,8 |
2 |
|
Напильник плоский драчевой длиной 400 мм |
3 |
|
Электродвигатель |
2 |
|
Маска для защиты электросварщика |
2 |
|
Светофильтры стеклянные |
2 комп. |
|
Набор простых стекол (оконных) |
2 комп. |
|
Струбцина для крепления нулевого провода |
2 |
|
Щетка металлическая 50×200 |
|
|
Коврик резиновый |
2 |
|
Лестница металлическая |
2 |
|
Заземлитель переносной |
2 |
|
Лопата |
1 |
|
Ключи газовые |
2 |
2.3. Расход материалов на 1 стык: электроды 4 шт. - 3,24 кг.
3. Подготовка процесса и условия его выполнения.
3.1. Расчистить приямок, снять антикоррозионный слой от стыка по 10 см на двух участках и вырезать поврежденный участок трубопровода .
3.2. До начала сварки стыков трубопроводов необходимо проверить:
правильность совпадения кромок труб;
качество электродов;
исправность электродвигателей;
а также плотность соединения всех контактов сварочного кабеля; установить рабочий режим сварочного оборудования.
Напряжение на зажимах генераторов или трансформатора в момент зажигания дуги не должно превышать 110 В для машин постоянного тока и 70 В - для переменного.
3.3. Толщина корневого (первого) слоя шва должна составлять 15-20% толщины стенки трубы, а первого и второго слоев - 60-75%, Толщина всех трех слоев должна быть на 1-3 мм больше толщины стенки трубы за счет усиления выпуклого валика наплавленного металла.
3.4. Все электросварочные установки должны быть снабжены пусковыми регулирующими реостатами и измерительными приборами, обеспечивающими непрерывный контроль за их работой.
3.5. При выполнении работ необходимо соблюдать правила техники безопасности.
4. Технологии и организация процесса при восстановительных работах
4.1. До начала сварки трубопроводов в траншее проверяют правильность стыкования и зазоров между кромками труб. Убедившись в правильности сборки и центровки стыка, электросварщики осуществляют прихватку, после чего приступают к сварке корневого (первого) слоя по схеме «снизу-вверх». Корневой слой шва накладывают сразу после установки центратора и центрирования стыков. Сварку производят с поперечными колебаниями электрода к линии его движения под углом 15-20° постоянным током обратной полярности.
Режим ручной электродуговой сварки при потолочном положении стыка приведен ниже.
|
Слой |
Диаметр электрода, мм |
Сила тока, А |
|
Первый Второй Третий |
3-4 4 4-5 |
110-140 120-150 130-180 220-280 |
4.2. График трудового процесса
|
Операция |
Продолжи- |
Затраты
труда, |
|
Расчистка приямка |
40 |
40 |
|
Очистка антикоррозионного слоя |
15 |
30 |
|
Вырезка поврежденного участка |
10 |
10 |
|
Подготовка теплопровода под сварку |
20 |
40 |
|
Подготовка кромок вставки |
15 |
30 |
|
Центровка и прихватка вставки |
10 |
20 |
|
Подбор режима; сварка корневого (первого) слоя, зачистка его от шлака и грата |
10 |
20 |
|
Регулирование режима и сварка второго слоя; зачистка его от шлака и грата |
8 |
16 |
|
То же третьего (облицовочного) |
12 |
24 |
|
Клеймение стыка |
2 |
14 |
|
Итого |
142 |
234 |
* Время указано для теплопровода диаметром 219 мм, для других диаметров продолжительность процесса сварки сокращается.
5. Приемы труда
|
Операция |
Исполнитель |
Орудие труда |
Продолжи- |
|
Расчистка приямка |
Разнорабочий |
Лопата совковая |
40 |
|
Очистка изоляции от антикоррозионного слоя |
Слесарь- сантехник |
Зубило, молоток |
30 |
|
Вырезка поврежденного участка трубы |
Электрогазосварщик, сварщик |
Бензорез, резак |
10 |
|
Подготовка теплопровода к сварке: снятие фаски с конца трубы и зачистка образовавшейся коррозии |
Электрогазосварщик, слесарь |
Бензорез, драчевой напильник |
40 |
|
То же, кромок вставки |
То же |
То же |
30 |
|
Центровка и прихватка вставки |
Слесарь-сантехник, электрогазосварщик |
Тали, бензорез, драчевой напильник |
30 |
|
Подбор режима; сварка корневого (первого) слоя, зачистка его от шлака и грата |
Электрогазосварщик |
Электродержатель, электродница, маска, щуп для замера зазора, светофильтры, набор стекол простых, лупа, коврик резиновый, лестница металлическая, молоток, слесарный напильник ,заземлитель переносной |
20 |
|
Регулирование режима; сварка второго (промежуточного) слоя |
То же |
То же |
10 |
|
То же, третьего (облицовочного) слоя, зачистка его от шлака и грата |
То же |
То же |
10 |
|
Осмотр после сварки и клеймение стыка |
Электрогазосварщик |
Клеймономер |
2 |
3.2.50. Трубы разных диаметров можно соединять с помощью стандартных фасонных частей или патрубков, а при их отсутствии - с помощью упрощенных сварных переходов.
3.2.51. При восстановлении сетей необходимо учитывать необходимость компенсации тепловых удлинений.
3.2.52. Локальные повреждения трубопроводов необходимо восстанавливать с помощью накладок, толщина стенок которых не менее толщины стенок трубы.
3.2.53. Разрушенный коммуникационный узел (задвижки, фасонные части и т. п.) следует заменить; при отсутствии запасных деталей - установить патрубок (катушки) для соединения на прямую. Чугунная арматура из нового чугуна (марка КЧ) должна быть защищена от изгибающих нагрузок. Задвижки из серого чугуна (марка Ч) на паропроводах применять запрещается.
3.2.54. Конец трубы следует заглушить приваркой глухим патрубком с обязательной установкой упоров .Деревянные пробки для заглушек применять запрещается.
3.2.55. При производстве восстановительных работ должны быть рассчитаны изменения давлений для обеспечения напора в сети. При этом следует предусмотреть минимально допустимую циркуляцию воды в системах отопления дальних потребителей.
3.2.56. Для обогрева замерзших участков теплосети и системы отопления с учетом противопожарных требований следует использовать пар, горячую воду или электроэнергию от агрегатов и трансформаторов.
Отогреваемые участки необходимо подключать к агрегату с помощью клемм в виде хомутиков с болтами, медного кабеля сечением не менее 95 мм2 (на первичной цепи от рубильника до регулятора и трансформатора можно применять медный провод сечением 25 мм2).
Для контроля за напряжением на клеммах должен устанавливаться вольтметр, а на отогреваемой трубе во избежание перегрева и выгорания уплотнителя - термометр. Ориентировочное время отогрева участка трубы длиной 3 м приведено ниже.
|
Диаметр трубы, дюймы |
Время на размораживание, мин. |
|
1,5 |
3 |
|
1 |
7 |
|
1.5 |
13 |
|
2 |
20 |
|
3 |
30 |
3.2.57. При низкой наружной температуре воздуха и вынужденном длительном отключении отопительные системы следует своевременно освободить от воды продувкой сжатым воздухом. Особенное внимание необходимо обратить на опорожнение дренажных устройств, наиболее подверженных замерзанию.
3.2.58. Замороженный теплопровод допускается отогревать с помощью паяльной лампы или газосварочной горелки. После отогрева место разрыва должно быть заварено, а поврежденный участок при необходимости заменен.
3.2.59. Основное назначение работ по восстановлению тепловой изоляции тепловых сетей - предотвращение замерзания теплопроводов и снижение их теплопотерь.
3.2.60. Изоляцию, как правило, выполняют из конструкций, не требующих штукатурки, применяя покровный слой из мягких кровельных материалов (толь, рубероид, лакостеклоткань и т.п.).
При их отсутствии допускается временная эксплуатация теплоизоляции без покровного слоя.
3.2.61. С целью сокращения сроков ввода в эксплуатацию сетей тепловая изоляция наносится последовательно на восстановленные и включенные в работу участки теплопроводов, в которых циркулирует теплоноситель.
3.2.62. При восстановлении повреждений тепловой изоляции следует использовать местные материалы, аналогичные или близкие по физическим свойствам к основному. При восстановлении битумо-перлитной изоляции допускается применение пенобетона, газосиликата, керамзитобетона и временно - импригированной глины (85-90 % мятой глины, 10-15 % обработанных нефтяных масел).
Аналогичные мероприятия следует осуществлять и при бесканальных армопенобетонных прокладках, при этом толщина временной изоляции из пенобетона и газосиликата должна быть не больше толщины прежней изоляции.
3.2.63. Нарушенную подвесную изоляцию рекомендуется восстанавливать без вскрышных работ. Для этого необходимо заполнить непроходные каналы пено- или газобетонной массой. При изоляции стыков восстанавливаемых теплопроводов следует руководствоваться картой трудового процесса, приведенной ниже.
1. Назначение и показатели применения карты.
1.1. Карта предназначена для организации труда рабочих при изоляции в траншее теплопроводов диаметрами 57×3,5 мм; 76×3,5 мм; 89×3,5 мм; 104×4 мм; 133×4 мм; 152×4,5 мм; 159×4,5 мм; 194×6 мм; 195×5 мм; 219×7 мм; 219×6 мм.
1.2. Затраты труда на 1 стык, чел -ч.
2. Исполнители и орудия труда.
2.1. Состав исполнителей, чел.:
изолировщик 5-го разряда - 1,
изолировщик 3-го разряда - 2.
2.2. Инструменты, приспособления, инвентарь.
|
Инструменты |
ГОСТ |
Количество, шт. |
Место изготовления |
|
Лейка |
- |
1 |
|
|
Ведро |
- |
1 |
|
|
Лопата строительная песковая |
3620-63 |
1 |
|
|
Кисть малярная для праймирования |
10597-70 |
1 |
|
|
Полотенце из брезента |
|
2 |
мастерская |
|
Щетка металлическая (50×220 мм) |
- |
2 |
То же |
|
Деревянная мешалка |
- |
2 |
|
|
Нож |
- |
2 |
|
|
Очки защитные с простыми стеклами |
9802-61 |
3 |
|
|
Пассатижи |
- |
2 |
|
|
Кусачки |
- |
2 |
|
2.3. Расход материалов на 1 стык
Битумно-резиновая мастика МБР-90, м3 - 0,005
Оберточный материал (бризол, стеклоизол, стеклорубероид, гидроизол, изол), м2 - 1,8
Бензин авиационный М-90, л - 0,15
Битум нефтяной БМ-IV по ГОСТ 6617-56, л - 0,10
Минеральная вата, м3 - 0,04
3. Подготовка процесса и условия его выполнения
3.1. До начала изоляции стыков необходимо приготовить битумную мастику в битумоплавильном котле, установить его у листа изоляции и подготовить инвентарь и инструменты.
3.2. Рабочие-изолировщики обязаны пройти инструктаж по технике безопасности и правилам эксплуатации битумно-плавильного котла.
4. Технология процесса
4.1. Изоляцию стыков стальных трубопроводов рекомендуется выполнять в следующем порядке:
приготовляют грунтовку из обезвоженного битума марки IV и авиационного бензина в соотношении 1:2 по объему;
устанавливают битумоплавильный котел с готовой битумо-резиновой мастикой у места изоляции;
очищают поверхность трубы на 0,5 м по обе стороны стыка от грязи, окалины и ржавчины, наносят грунтовку, мастику и обертывают рулонным материалом;
осматривают и исправляют дефекты на трубопроводе.
Грунтовку наносят на сухую поверхность сразу после очистки стыка. Слой грунтовки должен быть ровным, без пропусков, сгустков, подтеков и пузырей.
Мастику наносят в горячем виде (170-180°С), поливая поверхности трубы (стыка) из шланга от насоса котла ИСТЗБ и растирая снизу полотенцем.
Обертывают стыки труб рулонным материалом по горячему битуму с нахлесткой витков на 2-3 см.
4.2. Организация рабочего процесса
И-1, И-2, И-3 - места нахождения изолировщиков;
И-1 - изолируемый стык;
И-2 - передвижной битумоплавильный котел ИСТЗБ;
И-3 - изолируемая труба.
4.3. График трудового процесса
|
Наименование операций |
Продолжительность, |
Затраты
труда, |
|
Приготовление грунтовки |
3 |
3 |
|
Очистка поверхности стыка |
3 |
6 |
|
Нанесение грунтовки |
3 |
6 |
|
Подготовка котла ИСТЗБ к нанесение мастики |
3 |
3 |
|
Нанесение битумной мастики |
4 |
12 |
|
Обертывание стыка рулонным материалом |
1 |
3 |
|
Минеральной ватой и покровным слоем |
11 |
38 |
5. Приемы труда
|
Операция |
Орудие труда |
Место исполнителя |
Продолжитель- |
|
Вливание разогретого битума в бензин с перемешиванием деревянной мешалкой |
Лейка с горячим битумом, ведро, деревянная мешалка |
И-1 |
3 |
|
Очистка поверхности стыка от грязи, окалины и ржавчины |
Щетка металлическая, ветошь |
И-2 и И-3 |
3 |
|
Нанесение с наветренной стороны кистью на поверхность трубы грунтовки толщиной 0,1-0,2 мм, растирка подтеков |
Кисть, ведро, полотенце |
И-1 и И-3 |
3 |
|
Подготовка котла к работе, проверка исправности шланга и ручного насоса |
|
И-2 |
3 |
|
Нанесение с наветренной стороны мастики на трубы. Привод в действие шестеренчатого насоса для подачи мастики. Растирка подтеков. |
Шланг, полотенце |
И-1, И-2, И-3 |
4-5 |
|
Обертывание стыка рулонным материалом по горячей мастике с напуском кромок 2-3 см. Осмотр плети и исправление дефектов в местах изоляции. |
Нож для резки рулонного материала |
То же |
1 |
|
Обертывание стыка минеральной ватой с установкой бандажных колец. |
То же |
То же |
8 |
|
Изготовление минераловатного мата на бумажной основе. |
То же |
То же |
10 |
|
Обертывание теплоизоляционного слоя рулонным материалом |
- |
И-1, И-2, И-3 |
3 |
|
Нанесение битумной мастики |
- |
То же |
3 |
3.2.64. При ремонте центробежных сетевых насосов допускается:
заваривать трещины в корпусе и отбитые части;
наваривать сносившиеся концы перьев рабочих колес;
вместо литых колес делать сварные из стали.
Особое внимание надо уделять балансировке колеса после сварки или ремонта.
3.2.65. При восстановлении оборудования на станциях (насосы, двигатели , задвижки) можно производить электросварку чугунных частей медным электродом. С этой целью на прутковую медь диаметром 3-4 мм надевают трубку из белой жести (можно от консервной банки) и покрывают жидким стеклом. Дальнейший процесс электросварки аналогичен сварке железным электродом.
3.2.66. При невозможности создать требуемый напор последовательной установкой насосов на одной насосной станции допускается устройство дополнительной временной станции подкачки. Марку насоса следует выбирать по табл. 3.1.
3.2.67. Допускается применение насосов с разным напором, но при условии, чтобы у каждого насоса он был не менее требуемого, или с разным напором, но необходимой подачей (используя резервные).
3.2.68. В аварийных ситуациях воду следует сбрасывать в ближайший водосток. Трубопроводы аварийного водовыпуска прокладывать с уклоном в сторону сброса воды.
Таблица 3.1
|
Марка насоса |
Подача, м3/ч |
Напор, |
Высота всасывания, м |
Мощность
электро-двигателя |
Масса, кг |
|
К 14/14(1,5К-6; |
6-14 |
20-14 |
6 |
1,7 |
120 |
|
КМ 14/44(КМ-6) |
14 |
14 |
6 |
1,7 |
120 |
|
К 24/28(2К-6) |
10-24 |
34-28 |
8,7-6,5 |
4,5 |
162 |
|
КМ 30/24(2КМ-6) |
30 |
24 |
5,7 |
4,5 |
162 |
|
К 20/18(2К-9) |
11-20 |
21-18 |
8-6,8 |
2,8 |
118 |
|
Е2КМ-9 |
22 |
17,5 |
6,4 |
2,8 |
118 |
|
К 60/50(3К-6) |
30-60 |
62-50 |
7,7-5,6 |
20 |
218 |
|
К 54/27(3К-9) |
30-54 |
35-27 |
6 |
7 |
168 |
|
K 115/81(4K-6) |
35-115 |
22-81 |
7,0 |
55 |
272 |
|
К 120/60(4К-8) |
70-120 |
59-43 |
5,1 |
28 |
218 |
|
К 90/37(4К-12) |
65-90 |
37-34 |
6,7 |
14 |
174 |
|
KM 120/28(4KM-12) |
120 |
28 |
3,3 |
14 |
174 |
3.2.69. При перерывах в электроснабжении, приводящих к отключению сетевых насосов, должна быть предусмотрена рассечка зон нормального и повышенного давления с помощью автоматических устройств по импульсу падения давления за насосом.
3.2.70. При восстановлении разрушенных коммуникаций насосных, в случае отсутствия подвалов и каналов, трубопроводы, а также задвижки и пр. арматуру можно размешать на полу или у стен, а на коротких участках - на весу, с минимальными проходами для обслуживания агрегатов (0,6-0,7 м).
3.2.71. Монтаж насосов, трубопроводов и арматуры, временно восстанавливаемых, должен производиться с учетом необходимости капитального восстановления оборудования.
3.2.72. При восстановлении элементов систем теплоснабжения с давлением воды до 16 кгс/см2 рекомендуются способы ликвидации аварии, приведенные в табл. 3.2.
Таблица 3.2.
|
Возможные повреждения |
Способы ремонта |
|
Трещина стыкового шва |
Подварка или наложение стяжного хомута с подкладкой из листовой резины |
|
Разрыв стыкового шва |
Наложение стяжного хомута с подкладкой из листовой резины; наварка разрезной цилиндрической муфты; врезка «катушки» на месте дефектного шва. |
|
Раскрытие продольного шва сварных труб |
Замена трубы или участка теплопровода или подварка шва. |
|
Разрыв стальных труб или образование в них больших трещин |
Замена трубы или участка труб; заварка с накладкой любого типа заплаты; врезка «катушки» на месте повреждения. |
|
Деформация (изгибы, вмятины) труб или участков теплопроводов от сдвигов грунта в любой плоскости |
Как правило, замена деформированных труб и участков теплопровода. Сохранение отдельных незначительных деформированных участков теплопроводов допускается после внешнего осмотра и гидравлического испытания по нормам теплопроводов высокого давления, производимого за один раз, продолжительностью 5 мин. |
|
Пробитие прокладки фланца |
Очистка зеркала фланцев от поврежденной прокладки; замена прокладки, переварка фланцев; временная установка косых прокладок |
|
Течь в сальниковых компенсаторах |
Подтяжка сальников или замена сальниковой набивки (воду можно не спускать, ограничась снятием давления) |
|
Повреждение сальникового компенсатора (поломка корпуса, стакана или втулки) |
Замена компенсатора или поврежденной части (после устранения перекоса труб); вварка вместо компенсатора «катушки» с фланцем. |
|
Выход стакана из корпуса компенсатора вследствие срыва «мертвой» опоры колодца |
Закрепление «мертвой» опоры. |
|
Разрушение кладки |
Расчистка завалов и ремонт стенок колодца и перекрытия с использованием имеющихся материалов, в том числе древесины или устройство временных щитовых креплений от обвалов грунта с временной деревянной крышкой. |
|
Повреждение корпуса стальной задвижки |
Замена задвижки или вставка инвентарной «катушки» с фланцем; вырезка задвижки и вварка «катушки». При отсутствии стальных задвижек можно установить чугунные. |
|
Отрыв ответвления теплопровода в месте вварки |
Если функционирование ввода не обязательно, на отверстие в основном теплопроводе накладывают заплату, а свободный конец ввода забивают кляпом; вырезка «катушки» у места врезки и вварка нового патрубка. |
|
Изгибы и повреждения отводных трубок конденсатосборника и дренажа |
Отрезка трубки и вварка новой, при невозможности эксплуатации теплопровода без отводных трубок их отрезают и отверстия заваривают наглухо |
|
Разрушение опор и срыв надземных теплопроводов с деформацией труб и разрывом стыков |
Восстановление теплопровода или устройство вновь временного земного и подземного теплопровода с использованием пригодных труб и др. материалов |
|
Разрушение строительной части коллекторов камер и ЦТП с завалами и повреждением оборудования и контрольно-измерительных приборов |
Расчистка завалов, восстановление трубопроводов и технологической части, замена при необходимости поврежденного оборудования и контрольно-измерительных приборов с последующим устройством временного укрытия (брезент, толь, шифер , инвентарные щиты и т.д.). |
|
То же насосной станции |
Расчистка завалов, восстановление технологической части насосной станции и замена при необходимости поврежденного оборудования КИП, теплопроводов с последующим устройством временного укрытия (брезент, шифер, инвентарные шиты и т.п.); установка и присоединение к сети типовой передвижной или плавучей насосных станций с последующим устройством защитных стен, кровли из инвентарных щитов или из подсобных материалов (песок и т. п.) |
3.2.73. При восстановлении теплосетей, проложенных совместно с другими инженерными коммуникациями, раскопка коллекторов должна быть согласована с соответствующими службами (газовыми, телефонными и водопроводными) в данном районе.
3.2.74. При восстановительных работах на трассе все отключения и переключения должны производиться с разрешения дежурного диспетчера теплосети, который обязан оповестить об этом управления и ведомства, в ведении которых находятся отключаемые объекты.
Во избежание повышения давления отключение должно производиться с учетом требований специальных оперативно-производственных инструкций о порядке аварийных переключений в тепловых сетях при повреждениях, которые должны быть предварительно разработаны службой эксплуатации для каждого района тепловых сетей.
3.2.75. При невозможности отключения участка тепловой сети в техническом коридоре необходимо закрыть ближайшие задвижки, отсекающие поврежденный участок трубопровода.
3.2.76. Для выхода людей из коллектора при авариях следует использовать аварийные люки с двойными крышками и запорными устройствами, предусмотренные проектом, находящиеся от здания на расстоянии не ближе 20 м, а также на всех тупиковых участках.
Аварийные люки должны быть совмещены с камерами и узлами коллектора и оборудованы стационарными лестницами из несгораемых материалов.
3.2.77. Восстановительные работы в камерах и коллекторах должны выполнять не менее двух человек, проверяя на загазованность и соблюдая технику безопасности, при этом один человек должен быть обязательно вне камеры.
3.2.78. Во время работ место вскрытия коллектора или открытые люки должны ограждаться.
3.2.79. В камерах и коллекторах при температуре более 50°С не разрешается выполнять работы без теплостойкой спецодежды, предварительного вентилирования и охлаждения. Вентилирование следует осуществлять передвижной вентиляционной установкой с электродвигателем и двигателем внутреннего сгорания.
3.2.80. Напряжение аварийного электрического освещения коллекторов и камер, создаваемое переносными светильниками, не должно превышать 42 В.
3.2.81. Спасательная команда должна проверить в действии все временно восстановленные тепловые сети гидроиспытанием давлением 1,25 Рраб.; норма утечки воды - 0,03 л/мин-м.
3.2.82. Восстановительные работы при повреждении или разрушении теплопроводов на переходах через водные преграды, овраги, автострады, переходах под железнодорожными и трамвайными путями, а также при пересечении с различными коммуникациями производятся по эскизным техническим решениям и условиям, указываемым в наряде на производство работ. То же относится и к сооружениям на тепловых сетях (колодцы, ЦТП и др.).
3.2.83. При производстве вскрышных работ на тепловых сетях и коллекторах каждое место раскрытия ограждается забором (щитом) установленного образца и оборудуется предупредительными знаками установленного образца.
3.2.84. Грунт, строительные материалы и конструкции допускается складывать в пределах ограждаемых территорий или в местах, предусмотренных правилами производства работ. Громоздкие и длинномерные конструкции и детали вне пределов трассы должны складироваться в специально отведенных местах.
3.2.85. При транспортировании, разгрузке, складировании и укладке в траншеи и котлованы труб и др. конструкций должны приниматься меры, исключающие повреждение антикоррозионной и тепловой изоляции.
3.2.86. При производстве восстановительных работ запрещается засыпать грунтом крышки люков, колодцев, камер, решетки дождеприемников, лотки дорожных покрытий и складировать материалы на трассах действующих подземных сооружений и в охранных зонах линий электропередач.
3.2.87. Земляные работы в зоне расположения смежных подземных коммуникаций (электрокабели, кабели связи, газопроводы и др.) допускаются только в присутствии представителя соответствующих организаций, который должен выдать команде восстановительных работ план (схему) с указанием расположения и глубины заложения коммуникаций.
3.2.88. Восстановленные теплосети следует вводить в действие в строгом соответствии с Правилами технической эксплуатации и Техники безопасности тепловых сетей.
4.1.1. Раздел 4 Руководства касается положений по восстановлению систем водоснабжения и канализации населенных пунктов и распространяется на мероприятия по организации и технологии монтажных операций, производимых на разрушенных элементах систем водоснабжения и канализации.
Требования настоящего раздела обязательны для всех восстановительных подразделений, проектных и других организаций независимо от ведомственной подчиненности.
При восстановительных работах кроме настоящих Положений следует соблюдать требования соответствующих глав СНиП, а также нормативных документов, утвержденных или согласованных с Госкомархитектуры иди Госстроем СССР, и СНиП «Техника безопасности в строительстве».
4.1.2. Восстановительные работы должны выполняться в соответствии с технической документацией, разработанной согласно разделу 1.
Восстановительные работы следует осуществлять в технологической последовательности, учитывающей возможность частичного ввода в эксплуатацию систем водоснабжения отдельных потребителей с тем, чтобы в дальнейшем одновременно с функционирующими участками водоводов вводились новые, а также продолжалась работа по их достройке.
4.1.3. С целью организации комплексного выполнения восстановительных работ в кратчайшие сроки все положения предусматривают в первую очередь механизированные способы, а при отсутствии возможности осуществления таковых - рациональные ручные приемы.
4.1.4. При производстве восстановительных работ следует широко применять упрощенные технические решения, средства механизации и местные строительные материалы.
4.1.5. При проведении восстановительных работ в первую очередь необходимо локализовать аварии, принять меры по сохранению уцелевших объектов и предотвратить опасность дальнейшего повреждения и разрушения сетей, сооружений и оборудования от вторичных факторов поражения: пожаров, взрывов, обвалов и обрушений, затоплений, отравлений, замерзания воды в трубах и т.п., а затем параллельно с этим ликвидировать аварийное состояние на объекте и обеспечить его функционирование.
Восстановительные работы предусматривают расчистку завалов и обрушений, отключение разрушенных участков сети, отвод воды, устройство подходов и подъездов, демонтаж поврежденного оборудования и т.д.
4.2.1. Восстанавливаемые системы водоснабжения и канализации населенных пунктов, как правило, представляют собой комплексы сооружений, состоящие из водозаборных устройств, насосных станций, резервуаров, очистных сооружений и трубопроводных сетей.
4.2.2. После землетрясения или другого стихийного бедствия восстановлению подлежат два вида водопроводных сооружений: объемные, предназначенные для обработки, аккумулирования и перекачки очищаемой воды (питьевой или сточной), и линейные (трубопроводы) - для транспортирования воды в технологической цепи очистки и последующей подачи (или отвода), распределения (или сбора) в пределах населенного пункта.
К объемным сооружениям системы водоснабжения относят водозаборы, водоподъемные, очистные станции и вспомогательные объекты (административные здания, лаборатории, склады и т.п.); к линейным - транзитные, магистральные и распределительные трубопроводы.
К объемным сооружениям канализации относят устройства для механической (песколовки, первичные отстойники и др.) и биологической очистки сточных вод (аэротенки, метантенки, вторичные отстойники, биологические пруды, и др.);
К линейным - сборные (квартальные и дворовые), районные и квартальные коллекторы.
К линейным сооружениям обеих этих систем относят также подземные галереи глубокого заложения и большого поперечного сечения, используемые в качестве коллекторов или для прокладки в них отдельных трубопроводов и других коммуникаций.
4.2.3. При выборе средств и методов производства работ необходимо учитывать что:
водозаборные сооружения располагают вдали от населенных пунктов и выше по течению реки на сухих грунтах с достаточно четко выраженным уклоном, позволяющим обеспечить безнапорную подачу воды в технологические сооружения, а также оптимальное заглубление сооружений с целью уменьшения объемов земляных работ и соблюдения нулевого баланса земляных масс;
очистные сооружения систем канализации размещают аналогично водозаборным, но ниже по течению реки, за пределами населенных пунктов;
распределительные и магистральные сети и водоводы систем водоснабжения, а также сборные квартальные и уличные сети и коллекторы систем канализации располагают по уличным проездам населенных пунктов;
транзитные сети, связывающие систему городских сетей с очистными и другими сооружениями размещаемыми вдали от населенных пунктов, находятся в полевых условиях.
4.2.4. Методы восстановления сетей зависят от особенностей и протяженности трасс, а также от характера застройки населенных пунктов (плотности населения, уровня благоустройства, топографии, геологических и гидрогеологических условий).
4.2.5. Производство земляных работ следует планировать с учетом глубины заложения и материала труб, имея в виду, что сети водоснабжения, работающие в напорном режиме, размещают на относительно небольшой глубине. При этом используют главным образом металлические (стальные или чугунные) трубы и реже - асбестоцементные и железобетонные.
4.2.6. Канализационные самотечные трубопроводы сооружают из неметаллических труб (железобетонных, керамических, асбестоцементных и т. п.). Сложность грунтовых условий и большая глубина прокладки значительно усложняют восстановление сетей и сооружений.
4.2.7. Следует учитывать три основные разновидности условий восстановления водопроводных и канализационных сооружений и сетей:
в водоемах и поймах;
в сухих грунтах на территориях с рельефом, обеспечивающим минимальный объем земляных работ;
на территориях населенных пунктов и за их пределами.
4.2.8. Восстановительные работы рекомендуется вести по стадиям:
На первой стадии восстанавливают ограждающие и поддерживающие конструкции наземной части сооружения, технологическое оборудование металлоконструкций и трубопроводов, а также разрушенные стены из сборных или монолитных железобетонных конструкций, кирпича или других материалов, колонны и другие конструкции, монтируемые одновременно с ними; фундаменты, каналы под технологическое оборудование и для укладки трубопроводов; монтируют технологическое и энергетическое оборудование, электротехнические и распределительные устройства и т. п.;
На второй стадии завершаются монтажно-восстановительные работы: монтируют конструкции покрытия или крыши, устраивают на них паро- и гидроизоляцию, возводят защитные и теплоизоляционные стены, камеры для узлов переключения на технологических трубопроводах и др.
4.2.9. Учитывая особенности объемно-планировочных решений емкостных сооружений, восстановительные работы на первой и второй стадиях чаще всего совмещают, что позволяет применять для их выполнения более простые схемы и соответственно снижать общие трудозатраты.
4.2.10. Третья стадия объединяет все работы послемонтажного периода - окончательную отделку сооружений (зданий) до полного их завершения.
К ним относят:
навивку кольцевой предварительно напрягаемой арматуры;
гидравлическое испытание (для емкостных сооружений);
торкретирование и железнение внутренних и наружных поверхностей ограждающих конструкций (стен и днищ емкостных сооружений);
устройство гидроизоляционных и антикоррозионных покрытий и окончательную штукатурку стен и др.
4.2.11. Все технологические мероприятия должны быть направлены на сокращение продолжительности восстановительных работ, совмещение их во времени, а также выбор простейших способов и схем их выполнения с учетом объемов работ, вида и характера восстанавливаемых конструкций и условий восстановления.
4.3.1. На объектах городского хозяйственно-питьевого водопровода и хозяйственно-фекальной канализации восстановлению подлежат следующие элементы систем:
водозаборные сооружения;
насосные станции;
очистные сооружения;
установки для обеззараживания воды;
водоводы и коллекторы;
сети и сетевые сооружения;
водонапорные башни и резервуары;
сетевые водоразборные устройства.
4.3.2. На водопроводные и канализационные системы технического назначения, находящиеся в ведении промышленных предприятий, настоящие Рекомендации не распространяются.
4.3.3. Цель восстановительных работ по локализации и ликвидации аварий непосредственно после разрушения:
возобновление функционирования водопровода и канализации по временным или постоянным схемам;
обеспечение водой потребителей для первоочередных нужд;
отведение от них стоков;
поддержание в населенном пункте соответствующих санитарно-гигиенических условий;
аварийное снабжение водой промышленных предприятий и категорийных объектов, а также тушение пожаров и участие в спасательных операциях.
4.3.4. Для создания условий пребывания населения в укрытиях, эффективного пожаротушения, санитарной обработки пострадавших в первую очередь должны быть восстановлены элементы систем водоснабжения. Восстановление канализации может быть приурочено к моменту начала подачи воды потребителям.
4.3.5. Восстановительные работы в первую очередь должны обеспечить функционирование уцелевших и действующих объектов водопровода и канализации и их резервного оборудования, источников энергопитания, использование подземных вод, а также локализацию и ликвидацию тех аварий, которые угрожают целостности водопроводных и канализационных сооружений, вызывают затопление подвалов, убежищ и укрытий, пониженных районов города и территорий промышленных предприятий, складов, а также подходов и подъездов к ним.
4.3.6. Прежде всего следует восстанавливать подземные водоисточники, затем те сооружения и коммуникации, без которых невозможна работа систем водоснабжения и канализации, таких, как, например, водозаборы, очистные сооружения, насосные станции, основные водоводы и коллекторы и т.д.
4.3.7. Для аварийной эксплуатации восстановленных сооружений и сетей на объектах городского водопровода и канализации из числа рабочих и служащих предприятий должны быть созданы:
на сетях - водопроводно-канализационные аварийно-эксплуатационные команды (группы или звенья);
на очистных сооружениях, водозаборных узлах и крупных насосных станциях - отдельные команды объектов.
Водопроводно-канализационная аварийно-техническая команда создается, как правило, на базе ремонтно-эксплуатационного подразделения (участка, района, бригады) управления водопроводно-канализационного хозяйства города.
В задачу команды входят осуществление инженерно-технической разведки состояния сетей и сооружений водоснабжения, канализации и теплофикации, локализация и ликвидация аварий на сетях и сооружениях водоснабжения города.
Примерная численность команды зависит от количества работающих в ремонтно-эксплуатационном подразделении, на базе которого она создается (табл. 1). Состав звена механизации определяется количеством автотракторной техники, имеющейся в Управлении. Оснащение команды имуществом производят в соответствии с примерным табелем, приведенным в табл. 2.
Таблица 1
|
Наименование должности |
Подразделения, чел. |
|
|
команда |
группа |
|
|
Управление |
|
|
|
Командир - инженер (начальник района, участка, бригады) |
1 |
2 |
|
Зам. начальника по политчасти |
1 |
1 |
|
Санинструктор-дозиметрист |
1 |
1 |
|
Мотоциклист-связной |
1 |
1 |
|
Связной |
1 |
- |
|
Шофер |
1 |
1 |
|
Итого: |
6 |
5 |
|
Звено аварийно-технической разведки |
|
|
|
Командир-техник |
1 |
1 |
|
Дозиметрист |
1 |
1 |
|
Разведчик - слесарь-сантехник |
4 |
3 |
|
Подсобный рабочий |
2 |
3 |
|
Газосварщик |
1 |
1 |
|
Итого: |
10 |
10 |
|
Аварийно-техническая группа |
|
|
|
Командир группы-техник |
1 |
- |
|
Дозиметрист |
1 |
- |
|
Газосварщик |
1 |
- |
|
Связной |
1 |
- |
|
Шофер |
3 |
- |
|
Итого: |
7 |
- |
|
Аварийно-техническое звено (всего 3 звена) |
|
|
|
Командир-ст. мастер |
1 |
1 |
|
Рабочий, слесарь-сантехник |
5 |
8 |
|
Подсобный рабочий |
3 |
4 |
|
Газосварщик |
- |
1 |
|
Шофер |
- |
1 |
|
Итого: |
9 |
15 |
|
Итого в 3-х звеньях: |
27 |
- |
|
Итого в группе: |
34 |
- |
|
Звено механизации |
|
|
|
Командир-техник |
1 |
1 |
|
Тракторист |
1 |
1 |
|
Экскаваторщик |
1 |
1 |
|
бульдозерист |
1 |
1 |
|
Компрессорщик |
1 |
1 |
|
Шофер автокрана |
1 |
1 |
|
Подсобный рабочий |
3 |
3 |
|
Итого: |
9 |
9 |
|
Звено материально-технического снабжения |
|
|
|
Командир |
|
|
|
Зав.техническим складом |
1 |
1 |
|
Зав.продовольственным складом |
1 |
1 |
|
Повар |
1 |
1 |
|
Подсобный рабочий |
1 |
1 |
|
Шофер |
1 |
1 |
|
Итого: |
6 |
6 |
|
Всего в подразделении: |
65 |
45 |
Таблица 2
|
Средства оснащения |
Единица измерения |
Количество |
||
|
на команду |
на отдельную группу |
на отдельное звено |
||
|
Инженерно-техническое имущество |
|
|
|
|
|
Предохранительный пояс |
комп. |
8 |
6 |
2 |
|
Труборез |
комп. |
2 |
1 |
1 |
|
Лопата штыковая |
шт. |
10 |
6 |
3 |
|
Лом обыкновенный |
шт. |
10 |
6 |
3 |
|
Кирка-мотыга |
шт. |
4 |
2 |
1 |
|
Топор плотничий |
шт. |
5 |
3 |
2 |
|
Пила поперечная |
шт. |
4 |
2 |
1 |
|
Пила-ножовка по металлу |
шт. |
6 |
4 |
2 |
|
Дрель ручная |
шт. |
6 |
4 |
2 |
|
Дрель электрическая |
шт. |
4 |
2 |
1 |
|
Бурав |
шт. |
4 |
2 |
1 |
|
Зубило кузнечное |
шт. |
8 |
4 |
2 |
|
Кувалда |
шт. |
4 |
2 |
1 |
|
Шлямбур |
шт. |
4 |
3 |
2 |
|
Скарпель |
шт. |
4 |
3 |
2 |
|
Клин стальной |
шт. |
4 |
3 |
2 |
|
Трубы стальные, чугунные разных диаметров на 1 км сетей |
м |
3-5 |
3-5 |
2-3 |
|
Крюк для открывания колодцев |
шт. |
8 |
6 |
3 |
|
Ключ газовый |
шт. |
8 |
4 |
2 |
|
Ключи рожковые |
комп. |
8 |
4 |
2 |
|
Ключ раздвижной |
шт. |
8 |
4 |
2 |
|
Молоток слесарный |
шт. |
8 |
4 |
2 |
|
Ключ цепной для газовых труб |
шт. |
8 |
3 |
2 |
|
Компрессор передвижной |
шт. |
1 |
1 |
- |
|
Электростанция передвижная ПЭС-50 |
шт. |
1 |
1 |
- |
|
Аппарат электросварочный |
шт. |
1 |
1 |
- |
|
Бензокеросинорез в комплекте со шлангами и резаками |
шт. |
1 |
1 |
- |
|
Отбойный пневмомолоток |
шт. |
3 |
2 |
- |
|
Лампа паяльная |
я |
5 |
3 |
2 |
|
Машина аварийная водопроводная |
шт. |
2-3 |
1-2 |
1 |
|
Насос ручной в комплекте с рукавами (диафрагмовый) |
комп. |
1 |
1 |
1 |
|
Вентилятор |
шт. |
2 |
1 |
1 |
|
Ведро железное |
шт. |
8 |
6 |
3 |
|
Блоки (разные) |
комп. |
4 |
2 |
1 |
|
Газосварочный аппарат |
шт. |
2 |
1 |
1 |
|
Лебедка ручная с тросом |
шт. |
1 |
1 |
1 |
|
Домкрат |
шт. |
1 |
1 |
1 |
|
Фонарь аккумуляторный, взрывобезопасный |
шт. |
8 |
6 |
3 |
|
Фонарь «Летучая мышь» |
шт. |
20 |
10 |
5 |
|
Комплект светильников на треногах |
комп. |
4 |
2 |
1 |
|
Канат пеньковый |
м |
60 |
40 |
20 |
|
Сурик |
кг |
16 |
10 |
6 |
|
Пакля-лен |
кг |
16 |
10 |
6 |
|
Цемент |
кг |
80 |
60 |
30 |
|
Насос водоотливной передвижной с электро- или дизелеприводом |
шт. |
2 |
2 |
1 |
|
Имущество связи |
|
|
|
|
|
Электромегафон |
шт. |
4 |
2 |
1 |
|
Химическое имущество |
|
|
|
|
|
Противогаз гражданский |
шт. |
65 |
45 |
20 |
|
Патрон гопкалитовый к гражданским противогазам |
шт. |
7 |
5 |
2 |
|
Изолирующий противогаз ИП, в комплекте с регенеративным патроном |
шт. |
6 |
4 |
1 |
|
Противогаз шланговый |
шт. |
5 |
3 |
2 |
|
Защитный плащ ОП или защитная фильтрующая одежда ЭФО |
комп. |
50 |
30 |
30 |
|
Чулки защитные |
пар |
50 |
30 |
20 |
|
Перчатки защитные |
пар |
50 |
30 |
20 |
|
Прибор химической разведки ПХР |
комп. |
2 |
1 |
- |
|
Ранцевый дегазационный прибор РДП-4в |
шт. |
2 |
1 |
- |
|
Рентгенометр |
шт. |
2 |
1 |
1 |
|
Радиометр |
шт. |
1 |
1 |
- |
|
Медико-санитарное имущество |
|
|
|
|
|
Индивидуальный перевязочный пакет |
шт. |
70 |
50 |
25 |
|
Индивидуальный противохимический пакет |
шт. |
70 |
50 |
25 |
|
Санитарная сумка со спецукладкой |
шт. |
2 |
1 |
1 |
|
Автотракторная техника |
|
|
|
|
|
Автомобиль грузовой |
шт. |
2 |
2 |
1 |
|
То же (аварийный) |
шт. |
4 |
2 |
1 |
|
Мотоцикл |
шт. |
1 |
1 |
- |
|
Трактор |
шт. |
1 |
1 |
- |
|
Экскаватор |
шт. |
1 |
1 |
- |
|
Бульдозер |
шт. |
1 |
1 |
- |
|
Компрессор |
шт. |
1 |
1 |
- |
|
Автокран |
шт. |
1 |
1 |
- |
|
Хозяйственное имущество |
|
|
|
|
|
Котел пищевой |
шт. |
1 |
1 |
- |
|
Термос 36 л |
шт. |
2 |
2 |
1 |
|
Котелок |
шт. |
65 |
45 |
20 |
|
Фляга для воды |
шт. |
65 |
45 |
20 |
|
Бидон или канистра для воды 50 л |
шт. |
2 |
2 |
1 |
|
Бочка 150-200 л для ГСМ |
шт. |
3 |
3 |
2 |
|
Ведро железное |
шт. |
3 |
3 |
2 |
|
Брезент |
шт. |
2 |
3 |
1 |
|
Запас ГСМ |
шт. |
2 |
2 |
1 |
4.3.8. Для технической эксплуатации насосных станций должны создаваться отдельные команды согласно табл. 3.
Таблица 3
|
Состав подразделения |
Количество, чел. |
|
Управление |
|
|
Командир команды-начальник объекта |
1 |
|
Зам. командира-гл. инженер объекта |
1 |
|
Зам. командира по политчасти |
1 |
|
Шофер |
3-4 |
|
Итого: |
6-7 |
|
Звено разведки |
|
|
Командир звена-инженер |
1 |
|
Разведчик |
4-6 |
|
Итого: |
5-6 |
|
Звено радиометрического, химического и бактериологического контроля |
|
|
Командир звена-инженер (ст.лаборант) |
1 |
|
Разведчик-лаборант |
4-6 |
|
Итого: |
5-7 |
|
Звено связи |
|
|
Командир звена |
1 |
|
Радиотелеграфист |
1-2 |
|
Телефонист (связной) |
2-4 |
|
Мотоциклист (связной) |
1 |
|
Итого: |
5-8 |
|
Звено спасательных и аварийно-технических работ |
|
|
Командир звена-инженер (техник) |
1 |
|
Зам. командира звена - бригадир |
1 |
|
Рабочий (газосварщик, слесарь, сантехник, электромонтер, каменщик, бетонщик, плотник) |
16-20 |
|
Итого: |
18-22 |
|
Звено пожаротушения |
|
|
Командир звена-техник |
1 |
|
Рядовой |
3-5 |
|
Итого: |
4-6 |
|
Звено обеззараживания территории сооружений и оборудования |
|
|
Командир звена |
1 |
|
Дозиметрист |
1 |
|
Дегазатор |
2-4 |
|
Итого: |
4-6 |
|
Санитарное звено |
|
|
Командир звена |
1 |
|
Сандружинник |
2-4 |
|
Санинструктор |
1 |
|
Итого: |
4-6 |
|
Звено обслуживания убежищ |
|
|
Командир звена |
1 |
|
Рядовой |
2 |
|
Итого: |
3 |
|
Группа военизированной охраны |
|
|
Командир группы-нач. караула |
1 |
|
Стрелок |
8-10 |
|
Итого: |
9-11 |
|
Звено материально-технического снабжения |
|
|
Командир звена |
1 |
|
Зав.техническим складом и ГСМ |
1 |
|
Зав.продовольственным складом |
1 |
|
Повар |
1 |
|
Подсобный рабочий |
2-3 |
|
Шофер |
1-2 |
|
Итого: |
7-9 |
|
Всего: |
70-91 |
4.3.9. Отдельная водопроводно-канализационная аварийно-техническая группа создается на базе одного ремонтно-эксплуатационного подразделения (участка, бригады) водопроводно-канализационного хозяйства города, численность работающих которого не позволяет создать команду (см. табл. 1).
Для эксплуатации насосных станций команды формируются в соответствии со штатом, приведенным в табл. 4.
4.3.10. Отдельное водопроводно-канализационное аварийно-техническое звено создается на базе одного ремонтно-эксплуатационного подразделения (участка, бригады) водопроводно-канализационного хозяйства города, численность работающих которого не позволяет создать команду или группу. Примерный штат звена приведен в табл. 4.
Таблица 4
|
Наименование должности |
Количество, чел. |
|
Командир звена-техник (начальник участка бригады) |
1 |
|
Разведчик, зам.начальника звена-старший мастер |
1 |
|
Разведчик-мастер |
1 |
|
Газосварщик |
1 |
|
Рабочий - слесарь-сантехник |
8 |
|
Санинструктор-дозиметрист |
1 |
|
Подсобный рабочий |
4 |
|
Зав. имуществом |
1 |
|
Шофер |
2 |
|
Всего: |
20 |
Отдельная команда объекта создается для обеспечения работы водоочистной станции при различных оперативных положениях, а также для проведения спасательных и неотложных восстановительных работ на его территории.
Численность и структура команды в зависимости от специфики объекта, его производительности и числа работающих могут быть изменены решением начальника службы, которой подчинен объект.
В формирование объекта включаются все рабочие и служащие, работающие на нем, за исключением лиц, подлежащих призыву в армию, инвалидов 1-й и 2-й групп и женщин, имеющих детей до 8 лет.
3.11. Отдельное водопроводное аварийно-техническое звено следует оснастить в соответствии с табелем, см. табл. 2.
3.12. Команды по аварийной эксплуатации участков сети должны комплектоваться в соответствии с табл. 5.
Таблица 5
|
Средства оснащения |
Единица измерения |
Количество |
|
Инженерное имущество |
|
|
|
Комплект инструмента для работ на сетях водоснабжения |
компл. |
2 |
|
на сетях канализации |
компл. |
2 |
|
слесарных |
компл. |
2 |
|
электромонтажных |
компл. |
2 |
|
плотницких |
компл. |
2 |
|
Предохранительный пояс |
шт. |
4 |
|
Когти монтерские |
пар |
4 |
|
Труборез |
шт. |
4 |
|
Лопата железная (разные) |
шт. |
20 |
|
Лом обыкновенный |
шт. |
10 |
|
Лом-пешня |
шт. |
2 |
|
Кирка-мотыга |
шт. |
4 |
|
Топор плотницкий |
шт. |
4 |
|
Пила поперечная |
шт. |
4 |
|
Пила-ножовка по металлу |
шт. |
6 |
|
Дрели |
|
|
|
ручная |
шт. |
6 |
|
электрическая |
шт. |
4 |
|
Бурав |
шт. |
4 |
|
Зубило кузнечное |
шт. |
8 |
|
Кувалда |
шт. |
4 |
|
Шлямбур |
шт. |
6 |
|
Скарпель |
шт. |
6 |
|
Клин стальной |
шт. |
6 |
|
Крюк для открывания крышек колодцев |
шт. |
4 |
|
Ключи |
|
|
|
газовый |
шт. |
4 |
|
разводной 1/2-1” |
шт. |
4 |
|
то же, 1-2” |
шт. |
4 |
|
цепной газовый |
шт. |
4 |
|
Молоток слесарный обмедненный |
шт. |
4 |
|
Прижимы |
компл. |
1 |
|
Лампа паяльная |
шт. |
6 |
|
Водоотливные средства (передвижные центробежные насосы) |
шт. |
2 |
|
Насос ручной, в комплекте с рукавами |
шт. |
10 |
|
Ведро железное |
шт. |
10 |
|
Лебедка ручная с тросом 0,5-3 т |
шт. |
1 |
|
Таль грузоподъемностью 0,5-3 т |
шт. |
1 |
|
Домкрат грузоподъемностью 3-5 т |
шт. |
1 |
|
Блоки разные |
шт. |
3 |
|
Передвижной электро- или дизельный сварочный аппарат |
компл. |
1 |
|
Газосварочный аппарат (переносной) |
компл. |
1 |
|
Бензорез (керосинорез) в комплекте со шлангами и резаками |
компл. |
1-2 |
|
Отбойный пневмо- или электромолоток |
компл. |
1-2 |
|
Компрессор передвижной |
компл. |
1 |
|
Передвижные электростанции ПЭС или ЖЭС |
компл. |
1 |
|
Передвижной паровой котел |
компл. |
2-4 |
|
Вентиляторы центробежные |
компл. |
2-4 |
|
Баллон с кислородом |
шт. |
2-4 |
|
Баллон с ацетиленом |
шт. |
2-4 |
|
Редукторы |
|
|
|
кислородный |
шт. |
2-4 |
|
ацетиленовый |
шт. |
2-4 |
|
Фонари |
|
|
|
аккумуляторный, взрывобезопасный |
шт. |
6 |
|
«Летучая мышь» |
шт. |
20 |
|
Комплект светильников на треногах |
компл. |
4 |
|
Точило круглое |
шт. |
4 |
|
Напильники разные |
шт. |
10 |
|
Багор пожарный |
шт. |
4 |
|
Топор пожарный |
шт. |
2 |
|
Лестницы |
|
|
|
штурмовая |
шт. |
2 |
|
пожарная |
шт. |
2 |
|
Спецодежда (комбинезоны, сапоги, очки, рукавицы, костюмы ватные, брезентовые, прорезин. и т. п.) |
компл. |
по местн. услов. |
|
Противопожарные средства для тушения огня (огнетушители, пеногасители, асбестовые одеяла и др.) |
компл. |
несколько |
|
Противопожарная спецодежда |
компл. |
6 |
|
Трос стальной диаметром, мм |
|
|
|
8 |
м |
50 |
|
16 |
м |
50 |
|
Канат пеньковый и веревки |
м |
100 |
|
Электропровод разный |
м |
500 |
|
Электрокабель разный |
м |
500 |
|
Электрическая пусковая и контрольно-измерительная аппаратура |
компл. |
несколько |
|
Кабельная масса |
кг |
50 |
|
Гильзы (муфты) для спайки и разделки кабеля |
шт. |
10 |
|
Третник |
кг |
5 |
|
Сурик |
кг |
10 |
|
Резина термостойкая |
кг |
20 |
|
Пакля (лен) |
кг |
10 |
|
Набивка сальниковая асбестовая |
кг |
20 |
|
Паронит листовой |
кг |
20 |
|
Проволока |
|
|
|
сварочная |
кг |
30 |
|
вязальная |
кг |
20 |
|
Проволока-катанка арматурная |
кг |
500 |
|
Сталь полосовая, листовая и круглая |
кг |
500 |
|
Цемент |
кг |
500 |
|
Масло машинное (автол) |
кг |
30 |
|
Тавот (солидол) |
м3 |
10 |
|
Лес круглый |
м3 |
5 |
|
Гвозди и шурупы |
кг |
50 |
|
Толь (рубероид, пергамин) |
кг |
200 |
|
Железо кровельное |
кг |
300 |
|
Трубы стальные, чугунные и прочие разных диаметров |
3-5 м |
на
1 км |
|
Арматура разная |
1 шт. |
на 10 устан. |
|
Насосы, запасные части к ним и крепеж |
1 шт. |
на 3-4 рабоч. |
|
Электроприводы |
1 шт. |
на 10 рабоч. |
|
Вакуумметры, манометры, расходомеры электротехнические приборы и т.д. |
1 компл. |
на 10 действ. |
|
Реагенты и реактивы для очистки, обеззараживания воды и обезвреживания оборудования, сооружений и территории |
|
В
соответствии |
|
Имущество связи |
|
|
|
Радиостанция УКВ |
шт. |
1 |
|
Телефонный аппарат ТАИ, ТА-57 |
шт. |
3 |
|
Полевой телефонный кабель П-275 |
м |
1000 |
|
Электромегафон |
шт. |
2 |
|
Сумка телефониста |
шт. |
2 |
|
Химическое имущество |
|
|
|
Противогаз гражданский |
шт. |
70-91 |
|
Гопкалитовый патрон к гражданскому противогазу |
шт. |
20 |
|
Изолирующий противогаз ИП в комплекте с регенеративными патронами |
шт. |
2 |
|
Противогаз шланговый |
шт. |
2 |
|
Защитный плащ ОП или защитная фильтрующая одежда ЭФО |
компл. |
40-60 |
|
Чулки защитные |
пар |
40-60 |
|
Перчатки защитные |
пар |
40-60 |
|
Фартуки и нарукавники |
шт. |
25 |
|
Защитный комплект Л 2 |
компл. |
25 |
|
Прибор химической разведки ПХР |
компл. |
1 |
|
Дегазационный комплект АДК или ИДК |
компл. |
1 |
|
Ранцевый дегазационный прибор |
шт. |
1 |
|
Комплект носимых знаков ограждения KЗО-1 |
компл. |
1 |
|
Метеокомплект № 3 |
компл. |
1 |
|
Индикатор радиоактивности |
шт. |
1 |
|
Ренгенометр |
шт. |
2 |
|
Бета-, гаммарадиометр |
шт. |
1 |
|
Комплект лабораторного оборудования и защитной одежды для работников лабораторий |
шт. |
В соответствии с установленными нормами |
|
Медико-санитарное имущество |
|
|
|
Индивидуальный перевязочный пакет |
шт. |
80-100 |
|
Индивидуальный противохимический пакет |
шт. |
80-100 |
|
Санитарная сумка со спецукладкой |
шт. |
2-4 |
|
Кислородная подушка |
шт. |
2-4 |
|
Носилки санитарные |
шт. |
2-3 |
|
Автотракторная техника |
|
|
|
Грузовая автомашина |
шт. |
4-5 |
|
Автонасос |
шт. |
1 |
|
Мотопомпа |
шт. |
1 |
|
Мотоцикл |
шт. |
1 |
|
Катер |
шт. |
1 |
|
Лодка |
шт. |
1 |
|
Хозяйственное имущество |
|
|
|
Котел пищевой |
шт. |
1 |
|
Термос 36 л |
шт. |
3 |
|
Котелок |
шт. |
70-91 |
|
Фляга для воды |
шт. |
70-91 |
|
Бидон или канистра для воды 50 л |
шт. |
3 |
|
Бочка 150-200 л для ГСМ |
шт. |
3 |
|
Ведро железное |
шт. |
3 |
|
Брезент |
шт. |
3 |
|
Запас ГСМ |
аварийн. |
3 |
4.3.13. Общее руководство проведением восстановительных работ и эксплуатацией на всех объектах водопроводно-канализационного хозяйства должно осуществляться с центрального диспетчерского пункта Производственного управления водопроводно-канализационного хозяйства (ПУВКХ) в увязке с общегородскими мероприятиями по ликвидации последствий разрушений и восстановлению городского хозяйства.
4.3.14. При больших масштабах разрушений, значительном объеме восстановительных работ и срочном их выполнении к ликвидации аварий на объектах водопроводно-канализационного хозяйства следует привлекать специализированные строительно-монтажные организации, которые передаются временно или постоянно в подчинение ПУВКХ и выполняют работы совместно с объектными командами под руководством специалистов управления.
4.3.15. На центральном диспетчерском пункте ПУВКХ и на объектах водопровода и канализации должна быть заблаговременно подготовлена и храниться в полном комплекте техническая документация всех систем водоснабжения и канализации города или населенного пункта и отдельных объектов: планы сетей и сооружений, схемы отдельных технологических процессов, исполнительные чертежи и инструкции по работе сетей и сооружений при различных аварийных положениях.
4.3.16. На планах и схемах водопроводно-канализационной сети города указываются все источники водоснабжения (в том числе и резервные), расположение, краткая характеристика (производительность, число насосов, диаметры труб и т.д.) водозаборов (поверхностных и подземных вод), очистных сооружений, насосных станций, резервуаров чистой воды, а также основные камеры переключений и колодцы на сети с запорной и регулирующей арматурой, места аварийных канализационных выпусков в водоемы, ближайшие дюкеры, ливнеспуски, овраги и балки и др.
Кроме того, должны быть составлены планшеты и карты большого масштаба основных водоводов, магистральных линий и коллекторов водопроводной и канализационной сети для команд и звеньев, производящих восстановительные работы.
4.3.17. Места аварийных выпусков сточных вод должны быть согласованы с органами санитарного надзора.
4.3.18. Для повышения устойчивости систем водоснабжения и канализации и создания благоприятных условий проведения восстановительных работ, ПУВКХ городов заблаговременно на всех объектах должны осуществить ряд организационно-технических мероприятий согласно пп. 4.3.19-4.3.26 настоящего руководства.
4.3.19. Следует выявить и максимально использовать подземные источники для снабжения водой населенного пункта путем расширения существующих и строительства новых водозаборов, а также подключения скважин промышленных предприятий к городской водопроводной сети и передвижным насосным станциям соответствующих типов (табл. 6).
4.3.20. Необходимо защитить подземные источники от заражения, загерметизировав устья всех действующих и резервных водяных скважин, а также выявить и закрыть (ликвидировать тампонажем) все не эксплуатируемые и недействующие водяные скважины и подготовить при необходимости к закрытию и герметизации все эрлифтные установки. Предусмотреть защиту оборудования скважин от обломков при разрушении надземных павильонов и близлежащих зданий, устроив камеры над оголовками.
4.3.21. На подземных водозаборах и отдельных водяных скважинах следует организовать пункты раздачи воды населению в привозную тару и одновременно удобные подъезды и подходы к ним.
4.3.22. Подземные водозаборы и отдельные скважины большой производительности (в разных районах города и главным образом в пригородной зоне) при отсутствии двустороннего электропитания необходимо оборудовать резервными автономными источниками электроснабжения - передвижными электростанциями, отбор которых может быть сделан с учетом данных табл. 7.
Таблица 6
|
Марка станции |
Тип станции |
Марка и тип двигателя |
Мощность
двигателя, |
Марка насоса |
Напор, КПа, (м вод. ст.) |
Производи- |
|
Наземные передвижные насосные станции |
||||||
|
ПНСТ-130-63 |
Прицепная, насос и двигатель на одной реле |
Дизель Д-6 |
110 |
8НДв |
687 |
100-140 |
|
С-245 |
То же |
Бензиновый |
9,6 |
С-245 |
196 |
До 32 |
|
С-247 |
То же |
То же Д-3 |
2,2 |
С-427 |
88 |
До 24 |
|
ПНСТ-6НДв |
Насос установлен на раме-салазках |
Трактор мощностью 14,7-36,8 кВт |
14,7-36,8 |
6НДВ |
324 |
До 90 |
|
ПНСТ-2х-6НДв |
То же |
То же |
14,7-36,8 |
2х6НДв |
127-324 |
30-130 |
|
ПНСТ-2х-6НДв |
То же |
Трактор С-80 |
68,4 |
2х6НДв |
147-177 |
50-170 |
|
ПНСТ-8НДВ |
То же |
Трактор ДТ-54 |
39,7 |
8НДВ |
108-343 |
35-130 |
|
ПНСТ-8НДВ |
То же |
Трактор С-80 |
68,4 |
8НДВ |
196-490 |
60-120 |
|
ПНСТ-12НДС |
То же |
Трактор С-80 |
68,4 |
12ГДС |
137-275 |
70-114 |
|
ПНСТ-12НДС |
То же |
Трактор ДТ-54 |
39,7 |
12НДС |
96-196 |
100-250 |
|
Плавучие насосные станции |
||||||
|
СПНС-1 |
На поплавках |
Дизель 2М4 |
14,7 |
8К-18а |
127 |
До 90 |
|
СПНС-2 |
То же |
Дизель 4М4 |
29,4 |
8К-18а |
127-265 |
90-114 |
|
СПНС-3 |
То же |
Дизель 2М4 |
14,7 |
8К-18а |
127-255 |
80-96 |
|
СПНС-4 |
То же |
Дизель 44-10,5 |
29,4 |
2х8К-18а |
167-334 |
55-176 |
Таблица 7
|
Показатели |
Марка электростанции |
||||||||
|
ЭСД-30 |
ЭСД-50 |
ЭСД-100 |
ДЭС-50 |
ДЭС-100 |
ДЭС-200 |
ПЭС-60 |
ПЭС-100 |
ЖЭС-60 |
|
|
Мощность, кВт Напряжение, В Марка двигателя |
30 230/400 Д-40А |
50 230/400 - |
100 230/400 - |
50 230/400 - |
100 230/400 - |
200 230/400 1Д-12 |
60 230/400 КДМ-46 |
103 230/400 1Д6-150 |
60 230/400 КДМ-46 |
|
Марка генератора |
- |
дгс |
- |
ДГС |
|
Сд-123-4 |
СГ-60/6 |
СГ-117-4 |
СГС-65/6 |
|
Вес, т |
- |
- |
- |
- |
- |
- |
5,5 |
7 |
3,9 |
4.3.23. При необходимости для отключения водонапорных башен, резервуаров и станций очистки подземных вод (обезжелезивания, обесфторивания и т.д.) устраивают обводные линии.
4.3.24. На всех скважинах, подлежащих использованию при разрушении основного водозабора должен быть решен вопрос о размещении временных установок для обеззараживания воды при наличии требования санитарного надзора.
4.3.25. На сетях водопровода и канализации следует заблаговременно произвести:
кольцевание сети и устройство перемычек для передачи воды из одного участка сети (или зоны) в другой;
установку дополнительных (дублирующих) водоводов на отдельных ответственных участках сети (дюкеры, эстакады и т.п.);
устройство подкачивающих (повысительных) насосных станций;
проверку, профилактику и дополнительную установку запорной и регулирующей арматуры (задвижек, вантузов, обратных клапанов, шиберов) для быстрого отключения разрушенных участков трубопроводов и перераспределения потоков воды в заданном направлении;
нумерацию и привязку основных камер переключения и колодцев с арматурой к постоянным незаваливаемым ориентирам (постаменты памятников, стены массивных зданий и т. п.);
утепление арматуры и камер зимой, обвалование и герметизация крышек камер в местах возможного затопления;
подготовку отдельных участков трубопроводов большого диаметра для использования в качестве емкостей чистой воды путем двустороннего отключения последних от разводящей сети и мест разрушения и получение воды из этих емкостей с помощью специальных устройств (гидрантов, водоразборных колонок, мотопомп, насосов; гидранты и колонки желательно устанавливать в пониженных точках трубопровода) в тех случаях, когда значительная часть водопроводной сети и сооружений разрушена и временно прекращена подача.
4.3.26. Следует герметизировать резервуары питьевой воды (в том числе резервуары промышленных предприятий), оборудовать их упрощенными фильтрами-поглотителями (УФП) и устройствами для забора и раздачи воды в передвижную тару.
4.3.27. Необходимо подготовить плавучие насосные станции ( в том числе земснаряды-рефулеры) и наземные передвижные насосные агрегаты и предполагаемые места их установки на берегу водоемов для использования в качестве резервных водозаборов (по возможности за пределами предполагаемых зон разрушения).
4.3.28. В помещениях насосных станций требуется установить дополнительное оборудование или заменить устаревшее более производительным (или иметь «холодный» резерв насосных агрегатов на складе) и по возможности обеспечить станцию резервными источниками энергоснабжения.
4.3.29. Следует подготовить водоочистные станции к работе в специальных режимах очистки воды и создать на них запасы необходимых реагентов и реактивов, оборудования и др. материалов.
4.3.30. На трубопроводах и коммуникациях водоочистной станции должны быть предусмотрены обводные и дублирующие линии для отключения отдельных сооружений и участков трубопроводов из общей схемы.
4.3.31. Целесообразна заделка лишних (неиспользуемых) оконных и дверных проемов, устройство дополнительных перемычек и перегородок в помещениях насосных станций, защита входов в здания, замена оконного стекла на стеклоблоки и т.д.
4.3.32. Рекомендуется дополнительное обвалование резервуаров чистой воды, насосных станций и других заглубленных и полузаглубленных зданий и сооружений.
4.3.33. На канализационной сети следует предусмотреть соединительные линии для перепуска сточных вод в коллектора соседних бассейнов канализования и в ближайшие сети водостоков или промышленной канализации.
4.3.34. Обводные линии на очистной канализационной станции должны быть выполнены от сооружений механической очистки до выпуска, минуя сооружения биологической очистки, а также обводные и сбросные линии для отключения и опорожнения отдельных сооружений.
4.3.35. Необходимо составить аварийные планы действия по каждой водоочистной и канализационной станциям, крупным насосным станциям, основным водоводам, коллекторам и магистралям и по двум-трем участкам уличной сети. Провести тренировочные учения аварийно-восстановительных команд ПУВКХ.
4.3.36. В этих планах следует предусмотреть несколько вариантов мест и степени разрушений сетей и сооружений и необходимые меры по локализации аварий и восстановлению нормальной работа системы. При этом необходимо:
решить, какие работы следует выполнить, чтобы локализовать аварии - какие задвижки закрыть и какие открыть для обходного питания нижерасположенных районов, какие перепуски открыть для направления сточных вод из районов выше очага поражения в другие непораженные бассейны, а в исключительных случаях - непосредственно в ближайшие водоемы самотеком или при необходимости перекачкой насосами;
решить, как организовать откачку или отвод воды из зоны разрушения, подвалов, убежищ и т.д.;
выявить, кем выполняются работы (с указанием количества рабочих, их квалификации и возможности совмещения профессий);
определить сроки выполнения работы;
найти требуемые инструменты, приспособления, оборудование и материалы и места их расположения;
определить влияние разрушений на работу системы в целом или отдельных ее зон и участков; степень уменьшения подачи, ослабление давления и т.п.;
найти оптимальное месторасположение восстановительных команд, складов, гаражей и т.д.;
выявить, какие мероприятия следует осуществить при разной степени разрушения насосных станций с учетом их значения в общей системе, при каких условиях требуется срочное подключение дублирующих средств и т.д.
4.3.37. В зависимости от характера и степени разрушения и других местных условий следует обеспечить работу систем водоснабжения и канализации по временным схемам.
Технические решения
4.3.38. Восстановительные работы по локализации и ликвидации аварий на поврежденных сетях и сооружениях водоснабжения следует производить одним из следующих способов:
отключить или заменить отдельные участки сети, элементы и оборудование;
использовать вместо разрушенных сооружений, устройств и оборудования резервные или передвижные установки и устройства (например, передвижные наземные или плавучие насосные агрегаты, передвижные хлораторные и электростанции, запасные дозаторы и т.п.);
устроить обводные линии (байпасирование) на поврежденных участках сети и сооружениях.
4.3.39. При полном выходе из строя водозаборов и водоочистных сооружений, работавших от поверхностных источников водоснабжения (реки, водохранилища, озера) необходимо:
перевести водоснабжение города или населенного пункта на подземные источники, используя сохранившиеся участки сети и специально выбранные магистрали для подачи воды к особо важным объектам: промышленным предприятиям, пунктам санитарной обработки людей, госпиталям и др.;
использовать отдельно стоящие скважины (в том числе промышленных предприятий) для подачи воды в сеть или в резервуары, оборудованные упрощенными фильтрами-поглотителями (УФП);
использовать запасы питьевой воды, находящейся в трубопроводах большого диаметра или хранящейся в резервуарах питьевой воды, в первую очередь оборудованных УФП. При этом вода должна быть проверена на соответствие действующему стандарту «Вода питьевая».
4.3.40. При отсутствии заражений в поверхностном источнике водоснабжения и допустимом качестве, в отдельных случаях по согласованию с санитарными органами, воду возможно подавать в сеть без очистки, используя временно оборудованные водозаборы, плавучие или наземные передвижные насосные станции или отдельные агрегаты, в том числе:
самовсасывающие (см. табл. 8);
погружные (см. табл. 9);
ручные (табл. 10);
пожарные машины (табл. 11);
коммунальные машины (табл. 12).
Однако необходимо хлорирование вода повышенными дозами хлора и осуществление постоянного контроля за ее качеством в источнике. Величина остаточного хлора должна приниматься согласно действующим нормам.
Таблица 8
|
Показатели |
единица измерения |
Марка |
||||
|
С-203 |
С-204 |
С-245 |
C-247A |
С-490 |
||
|
Насосы самовсасывающие |
||||||
|
Подача |
м3/ч |
24 |
120 |
120 |
85 |
120 |
|
Наибольшая высота всасывания |
м |
6 |
6 |
6 |
6 |
6 |
|
Напор |
м |
9 |
20 |
20 |
20 |
20 |
|
Тип двигателя |
- |
- |
- |
Т-52 |
Л/3/2 |
Л-12/4 |
|
Мощность |
кВт |
1,5 |
7,4 |
9,7 |
- |
2,2 |
|
Число оборотов |
об/мин |
1500 |
1500 |
- |
- |
- |
|
Габариты установки: |
|
|
|
|
|
|
|
длина |
мм |
1190 |
1828 |
1800 |
1000 |
1590 |
|
ширина |
мм |
505 |
760 |
1000 |
532 |
890 |
|
высота |
мм |
1024 |
1450 |
1500 |
1024 |
1200 |
|
Вес |
кг |
190 |
560 |
1056 |
145 |
495 |
Таблица 9
|
Марка насоса |
Подача, |
Напор, |
Рекомендуемая мощность двигат., кВт |
Число оборотов, об/мин |
Число ступеней (колес) |
|
Насосы для артезианских скважин Насосы с погружными электродвигателями |
|||||
|
6АП-9х6* |
7,2 |
50 |
2,5 |
2950 |
6 |
|
8АП-9Х6 |
18 |
100 |
12 |
2950 |
6 |
|
10АП-18х6 |
72 |
86 |
35 |
2950 |
6 |
|
10АПВм-9х7 |
40 |
160 |
35 |
2850 |
7 |
|
Насосы с трансмиссионным валом |
|||||
|
ATH-8-1 |
30 |
65 |
14 |
1460 |
16 |
|
|
30 |
90 |
20 |
1460 |
20 |
|
AHT-10-1 |
70 |
30 |
14 |
1460 |
4 |
|
|
70 |
60 |
28 |
1460 |
8 |
|
70 |
100 |
40 |
1460 |
13 |
|
* Насосы марки АП могут быть заменены насосами марки ЭЦВ с примерно аналогичной характеристикой.
Таблица 10
|
Марка
|
Подача,
л/с при числе |
Напор, |
Высота всасывания |
Мощность
двигателя, |
Вес, |
||
|
30-45 |
30 |
55 |
|||||
|
Поршневые насосы |
|||||||
|
ОМЗ |
1,28 |
- |
- |
100 |
Работает |
7 |
2003 |
|
Бурвод III |
1,12 |
- |
- |
70 |
То же |
6 |
1310 |
|
БКФ-2 |
0,25-0,38 |
- |
- |
30 |
4,5 |
Ручной |
21,5 |
|
БКЖ-4 |
0,68-0,98 |
- |
- |
30 |
4,5 |
То же |
27 |
|
ПН-100 |
- |
2,2 |
2,67 |
40 |
7 |
Ручной 8-12 чел. |
- |
|
ПН-120 |
- |
3,5 |
4,67 |
27 |
7 |
То же |
- |
Таблица 11
|
Показатели |
Единица измерения |
ПМ-6 |
ПМ-8 |
МПМ-1 |
МПМ-2 |
МПМ-5 |
|
Насосы от автомашины |
|
ЗИЛ-5 |
ЗИЛ-150 |
ЗИЛ-5 |
ЗИЛ-5 |
ЗИЛ-150 |
|
Емкость цистерны |
м3 |
4 |
5,5 |
3,5 |
5 |
8 |
|
Нормы разлива |
|
|
|
|
|
|
|
при поливе |
л/м2 |
0,2 |
0,2 |
0,2-0,37 |
0,2-0,37 |
0,2-0,37 |
|
при мойке |
л/м2 |
до 1 |
до 1,2 |
0,7-1 |
0,7-1 |
1-1,2 |
|
Средняя производительность: |
|
|
|
|
|
|
|
при поливе |
м2/ч |
58000 |
70000 |
38000 |
43000 |
40000 |
|
при мойке |
м2/ч |
11000 |
13000 |
17000 |
19000 |
18000 |
|
Ширина разлива |
|
|
|
|
|
|
|
при поливе |
м |
22 |
18 |
15 |
15 |
27 |
|
Тип насоса |
Центробежный |
|||||
|
Подача насоса |
л/мин |
600 |
|
|
1000-1200 |
|
|
Рабочее давление у насадки |
кгс/см2 |
3 |
4 |
4 |
4 |
4 |
|
Дальность струи |
м |
23 |
27 |
27 |
27 |
27 |
Таблица 12
|
Показатели |
Единица измерения |
Аварийная водопроводная машина АВМ-2 |
Ремонтно-водопроводная машина РВМ-2 |
Оперативная водопроводная машина ОBM-1 |
|
Базовая автомашина |
||||
|
|
|
ГАЗ-51 |
ЗИЛ-164 |
УАЗ-450А |
|
Грузоподъемность |
т |
2,5 |
4 |
- |
|
Генератор |
||||
|
|
|
3-фазный
синхронного |
Синхронного |
ГАБ-2-Т-230 |
|
Мощность |
кВт |
7,5 |
30 |
2 |
|
Напряжение |
В |
230/380 |
230/400 |
230 |
|
Число оборотов |
об/мин |
1500 |
1500 |
- |
|
Сварочный аппарат |
||||
|
|
|
СМГ-2Г-VI-б типа 1-АП-1,5 |
агрегат на прицепе СТЭ-24 |
|
|
Мощность |
кВт |
9 |
10,5 |
- |
|
Напряжение |
В |
30 |
- |
- |
|
Сила тока |
а |
300 |
360 |
- |
|
Число оборотов |
об/мин |
1430 |
- |
- |
|
Самовсасывающий насос |
||||
|
|
|
Типа С-203 |
С-247 |
С-347 |
|
Подача |
м3/ч |
24 |
35 |
24 |
|
Напор |
м |
- |
9 |
9 |
|
Мощность |
кВт |
3 |
3 |
- |
|
Число оборотов |
об/мин |
- |
2200 |
- |
|
Высота всасывания |
м |
- |
- |
6 |
|
Подъемный кран |
||||
|
Грузоподъемность |
кг |
500 |
100 |
Нет |
|
Вылет стрелы |
м |
1,4 |
1,5 |
Нет |
|
Воздуходувка |
||||
|
Производительность |
м3/ч |
250 |
250 |
Нет |
|
Давление |
кг/м2 |
100 |
100 |
Нет |
|
|
|
Прожектор |
|
|
|
|
|
Тип ПЗ-35 |
ПЗ-35 |
Нет |
|
Мощность |
Вт |
350 |
350 |
Нет |
|
Электромолоток |
||||
|
|
|
|
Тип М-67 |
|
|
Мощность |
Вт |
- |
800 |
- |
|
Сила тока |
а |
- |
3 |
- |
|
Вес |
кг |
- |
8,6 |
- |
|
Далья |
||||
|
Вместимость |
л |
100 |
100 |
- |
|
Обслуживающий персонал |
||||
|
Шофер |
чел. |
1 |
1 |
1 |
|
Рабочие |
чел. |
3 |
3 |
4 |
4.3.41. При заражении открытых водоемов водоснабжение осуществляют из подземных источников, а при их недостатке или отсутствии очистные сооружения переводятся на специальный режим очистки воды в соответствии с действующими требованиями.
4.3.42. Возобновлению работы канализационных систем должно предшествовать восстановление определенной части водопроводной системы. Для удаления нечистот с территории населенных пунктов в первую очередь необходимо провести следующие мероприятия:
обследовать повреждения на сети и сооружениях канализации с обязательным составлением дефектных ведомостей;
расчистить разрушенные сети и сооружения от мусора, грязи, засоров и завалов;
организовать расчистку территории для поддержания санитарно-гигиенических условий;
составить план восстановительных работ по вводу канализации и водопровода в действие с приложением эскизов проектных решений и исполнительной техдокументации.
4.3.43. При восстановительных работах нужно учитывать, что длительное затопление территории сточной жидкостью в жаркое время года может создать условия для возникновения очагов эпидемических заболеваний.
В случае повреждения аварийного выпуска должен быть сделан временный упрощенный выпуск в виде открытой канавы, траншеи с установкой временной хлораторной. Во избежание размывов при больших скоростях сточных вод дно и откосы следует укрепить отмосткой, горбылем, дерном.
4.3.44. Во избежание затопления территории и отдельных объектов сточными водами следует:
устроить временные отводные каналы, лотки или перепускные трубы в обход поврежденным участкам в расположенный ниже колодец;
установить земляные ограждения-валы в местах выхода сточных вод;
обеспечить возможность перекачки сточной жидкости передвижными насосами;
устроить участки трубопроводов, лотков, каналов до ближайших коллекторов промышленной канализации, водостоков или канализационных труб соседнего бассейна канализования.
4.3.45. Чтобы устроить обводные линии и перепуски, поврежденный участок следует отключить, установив заглушки и пробки в канализационных трубах, примыкающих к смотровым колодцам.
4.3.46. После частичного или полного восстановления участка сети, коллектора или всей канализации следует проверить работу сети, подав достаточное количество воды для создания необходимого наполнения и скорости.
При малом количестве сточных вод в канализационную сеть могут быть временно сброшены:
производственные условно чистые воды;
ливневые и дренажные, а также вода местных источников, ключей, родников, открытых водоемов, уровень которых лежит выше лотка коллектора.
4.3.47. В случае выхода из строя системы энергоснабжения станции и поступления сточной жидкости самотеком очистка ее должна производиться по следующим технологическим схемам.
1. На станциях механической очистки и станциях с биофильтрами - по обычной схеме: решетка-песколовка-отстойник (двухъярусный отстойник)-биофильтр-вторичный отстойник-хлорирование-выпуск в водоем. Сырой осадок при неработающих метантенках передается на часть выделенных для этого иловых площадок или на заранее устроенные временные сооружения (земляные котлованы, перегороженные плотинами, балки и овраги по типу шламонакопителей) по согласованию с органами санитарного надзора.
2. На станциях с аэротенками - только на сооружениях механической очистки. Аэротенки выключаются из работы и опорожняются. При наличии резервных источников энергоснабжения часть аэротенков или отдельные секции должны быть постоянно в работе для поддержания жизнедеятельности активного ила.
4.3.48. В напорной режиме при отсутствии резервных источников энергоснабжения все стоки отводятся по аварийному выпуску, минуя очистные сооружения; при наличии резервного энергоснабжения сточные воды (или их часть) поступают на очистку согласно п. 4.3.46 настоящих Рекомендаций.
4.3.49. При резком сокращении притока сточной жидкости часть сооружений станции выключается из работы для поддержания нормальных технологических режимов очистки и гидравлических условий протока (наполнение лотков, самоочищающие скорости).
4.3.50. При выходе из строя ряда сооружений их следует отключить, а сточные воды по обводным каналам и лоткам направить на сохранившиеся устройства, допуская временную работу их с перегрузкой, или по согласованию с санитарными органами сбрасывать в водоем.
4.3.51. При полном выходе из строя первичных отстойников биофильтры должны быть выключены, аэротенки могут продолжать работать при условии, что на подводящих каналах и лотках перед аэротенками будут поставлены съемные мелкие решетки или сетки с периодической ручной очисткой задержанных на них отбросов.
4.3.52. При разрушении песколовок сточные воды можно направлять непосредственно на первичные отстойники.
4.3.53. Во всех случаях необходимо принимать меры по хлорированию сбрасываемой в водоем очищенной сточной жидкости. При разрушении стационарных установок необходимо устраивать временные или использовать передвижные хлораторные.
Определение технического состояния объектов
4.3.54. До начала восстановительных работ в зоне разрушения необходимо произвести инженерную разведку, а затем обследование и технический осмотр всех разрушенных сооружений, оборудования и трубопроводов согласно положениям настоящего Руководства.
В результатах разведки следует классифицировать поврежденные трубы на водопроводных и канализационных сетях, водоводах и коллекторах по следующим видам:
раздробление труб на куски, их перелом, расстройство стыковых соединений, разрушение смотровых колодцев и установленной арматуры;
нарушение прямолинейности трубопроводов, появление продольных и поперечных трещин в трубах и колодцах и т. п.;
образование вмятин, свищей и пробоин в стенках труб и т.д.
4.3.55. При обследовании сетей и водоемов необходимо проверить целостность и прямолинейность труб, их диаметры, состояние и работоспособность задвижек, гидрантов, колонок и другой арматуры, целостность колодцев. В канализационных колодцах дополнительно проверяют состояние лотков и уклоны труб.
4.3.56. При обследовании зданий, сооружений и оборудования, кроме наружного, необходимо производить и внутренний осмотр (например, при обследовании резервуаров, отстойников, галерей, труб диаметром 700 мм и более и др.), а также по возможности опробование задвижек, насосов и прочего оборудования прокручиванием, наполнением водой, подключением электроэнергии, разборкой и т.д.
4.3.57. При обследовании делают эскизы повреждений сетей, водоводов и сооружений и наносят затем на планы, схемы (исполнительная техдокументация). Характер и объем повреждения заносятся в дефектную ведомость.
4.3.58. При обследовании разрушенных труб и производстве восстановительных работ особое внимание следует обращать на инфильтрацию или эксфильтрацию воды и случаи, когда может произойти непосредственный контакт канализационных стоков с водопроводной водой.
4.3.59. До начала восстановительных работ производится расчистка мест повреждения и колодцев от мусора и завалов с обнажением труб, колодцев и арматуры. На время работ все присоединения уличной сети к водоводу должны быть отключены.
4.3.60. В зависимости от степени разрушения и характера повреждения очистных сооружений, их отдельных элементов и конструкций до начала восстановительных работ должны быть приняты следующие решения:
о целесообразности восстановления существующих или рациональности строительства новых, хотя бы временных упрощенных очистных сооружений;
о восстановлении сооружений в прежнем их виде и по прежней схеме или об изменении конструкций и схемы;
об очередности восстановления элементов и схеме их использования;
об уточнении возможной производительности восстанавливаемых очистных сооружений и увязке их с подачей насосных станций и пропускной способностью оставшихся водоемов и сетей.
4.4.1. Технические решения по производству восстановительных работ могут приниматься как на месте, так и в проектно-командных формированиях, исходя из конкретных условий. Они оформляются в виде чертежей, эскизов и схем, составляемых, как правило, с использованием имеющейся исполнительной технической документации и материалов, полученных из опыта ликвидации аварий, возникающих в обычных условиях эксплуатации.
4.4.2. Учитывая разнообразный характер возможных разрушений водопроводных и канализационных сооружений, сетей и отдельных узлов, рекомендуются следующие технические решения по некоторым основным видам восстановительных работ:
байпасирование - присоединение временного обводного трубопровода через тройник к сохранившемуся участку сети, который отключается от разрушенного задвижкой;
присоединение обводной линии в обход разрушенного участка через пожарные гидранты на сохранившемся участке;
устройство упрощенного стендера для присоединения обводных линий;
заделка продольных трещин на чугунных и стальных трубопроводах;
заделка поперечных трещин на стальных и чугунных трубах стальным хомутом и серопесчаным сплавом;
заделка повреждения трубопроводов обмоткой брезентом или толью в 6-8 слоев с покрытием поверху кровельным железом и постановкой хомутов;
применение ремонтных муфт при замене поврежденных труб;
соединение труб разных диаметров с помощью сварного фланцевого перехода;
соединение труб разных диаметров с помощью деревянных клиньев и заделка стыков с помощью серопесчаного сплава;
перепуск сточных вод из одной сети в другую;
перекачка насосами сточных вод с отведением их по временному деревянному желобу.
4.4.3. На отдельных водопроводных сооружениях рекомендуется провести дополнительные мероприятия:
1. Подключить насосное оборудование водяных скважин к передвижным электростанциям. При этом передвижная электростанция размещается вблизи от скважин на бетонном фундаменте под временным деревянным навесом. В расчетах следует учитывать, что передвижная электростанция типа ПЭС-100 может обеспечить работу насосов типа 10 АП или шести насосов типа 8 АП; станция типа ДЭС-50 - четырех насосов типа 8 АП. Сечение кабеля КРПТ для подключения насосов к передвижной электростанции ПЭС-100 в зависимости от расстояния до водяных скважин принимается по табл. 13.
Таблица 13
|
Тип |
длина линии, м |
|||||
|
25 |
50 |
73 |
100 |
150 |
200 |
|
|
при сечении кабеля КРПТ |
||||||
|
10 АП 8хАП |
3×25 3×4 |
3×25 3×4 |
3×25 3×6 |
3×25 3×6 |
3×25 3×16 |
3×25 3×16 |
2. Герметизировать устья водяных скважин, оборудованных насосами типа АП.
3. Подготовиться к забору воды мотопомпами из резервуаров, оборудованных спецвентиляцией (УФП). Раздача воды населению производится в передвижную тару (бидоны, цистерны из-под кваса, молока и т. п.).
4. Оборудовать резервуары, предназначенные для раздачи воды в передвижную тару, упрощенными фильтрами-поглотителями (УФП).
5. Одновременно с установкой УФП на резервуарах следует загерметизировать неиспользованные вентиляционные стояки, установив заглушки на всех люках и лазах, а на переливных трубопроводах - гидравлические затворы.
4.4.4. При частичном разрушении сооружений, входящих в комплекс водозабора, в зависимости от вида и характера разрушения для восстановления полной или частичной подачи вода в город необходимо:
силами специализированной буровой организации произвести ремонт поврежденных обсадных труб, подварить или заменить их верхнюю часть, очистить скважины от упавшего водоподъемного оборудования или других предметов;
оборудовать скважины новым погружным насосом с подводом к нему электроэнергии;
восстановить коммуникации (сборные, сифонные, всасывающие, самотечные и т. п. линии).
4.4.5. В случае сильных повреждений скважины и невозможности восстановления она подлежит обязательному тампонажу под наблюдением санитарных органов (СЭС). При этом водоносные слои засыпаются фильтрующим материалом (гравием, щебнем), а водоупорный слой глиной со щебнем или заливаются цементным раствором в пропорции 1:2-1:4. При этом верхняя часть скважины заделывается глиной или цементным раствором на глубину 10-15 м.
4.4.6. При восстановлении ранее бездействовавших отдельно стоящих скважин, по требованию санитарного надзора для обеззараживания подаваемой из них воды временно можно применять жидкий хлор, гипохлорид кальция или хлорную известь.
4.4.7. В случае разрушения источников электроснабжения можно использовать передвижные электростанции различных типов ЭСД, ДЭС, ЖЭС, ПЭС или двигатели внутреннего сгорания с генераторами.
4.4.8. При отсутствии погружных насосов для подъема воды из скважины (при динамическом уровне воды в ней менее 6 м) можно использовать горизонтальные центробежные насосы с соответствующей допустимой высотой всасывания, которые устанавливаются на поверхности земли на временном фундаменте и приводятся в действие электромоторами или двигателями от тракторов, автомашин и т.д.
При динамическом уровне более 5-6 м насосы устанавливаются с соответствующим заглублением, а при диаметре обсадных труб 250-300 мм возможно кратковременное использование насосов типа «ГНОМ», опускаемых непосредственно в скважины или колодцы.
4.4.9. До начала восстановления поврежденных водозаборных сооружений необходимо провести тщательное обследование элементов водозабора, в том числе подводной части с помощью водолазов. При отсутствии водолазов обследование можно производить силами ПУВКХ, прощупывая повреждения шестами с лодок, а в зимнее время - со льда через проруби. При небольшой глубине и слабом течении воды в летнее время для более точного обследования следует применять ныряние.
4.4.10. Восстановительные работы с целью получения воды из водоемов могут производиться следующими способами:
использование оголовка и самотечных труб в сохранившейся их части;
восстановление разрушенного оголовка и др. узлов;
устройство временных водозаборных сооружений заново, если обследованием будет установлено полное разрушение эксплуатировавшегося.
4.4.11. При полном разрушении оголовка в первую очередь необходимо проверить возможность забора воды через сохранившуюся часть самотечных труб с устройством упрощенного оголовка укреплением труб в случае необходимости сваями, каменной обсыпкой или другим способом.
4.4.12. Рекомендуются следующие способы устройства упрощенного оголовка:
в конец сохранившейся самотечной трубы на длину 0,5-0,8 м вводится отрезок стальной трубы соответствующего диаметра с приваренным к нему коленом того же диаметра и переходным патрубком, направленным вверх и в сторону (вниз по течению реки);
отверстие патрубка защищается вертикальными металлическими прутками для возможности их периодической прочистки с лодки или со льда обычными граблями;
кольцевой зазор между самотечной трубой и вставленным в него патрубком заделывается под водой. Свободный конец патрубка укрепляют засыпкой из щебня или устраивая бетонный упор в подводном исполнении;
вместо указанного металлического оголовка в виде патрубка с коленом можно на конец самотечной трубы опустить ряжевый ящик, рубленый из пластин и бревен, который загружают камнем и снабжают окнами или щелями для приема воды на более высоком уровне от дна. Ящик обсыпается с тыловой стороны камнем.
4.4.13. Подготовку основания под ряжевый ящик производят подводным вычерпыванием грунта. Ряж рубится на берегу, затем на плаву подводится к месту установки, частично загружается камнем и погружается в воду. После установки его при помощи водолаза на место и соединения с самотечной трубой, производится полная догрузка ряжевого оголовка камнем или щебнем.
4.4.14. При достаточной глубине у берега, в случае значительного повреждения самотечных трубопроводов, возможно устройство ряжевого берегового колодца для приема воды (с одного или двух уровней) и забора ее насосами.
4.4.15. Для уточнения места повреждения труб на береговом участке следует трубопроводы опорожнить от воды и протащить проволоку или шланг со стороны приемного колодца. При диаметре труб более 600 мм возможен непосредственный осмотр изнутри.
При невозможности установить места повреждения трубопровода указанными способами производится его вскрытие на всем протяжении или частями до его обнаружения.
4.4.16. При повреждении самотечных труб на речном участке место и характер повреждения должен определить водолаз или местный персонал.
Замену поврежденных труб при небольшой глубине реки можно производить в шпунтовом ограждении с непрерывной откачкой воды, а на значительной глубине - при помощи водолазов. Учитывая сложность и трудоемкость работ, следует рассмотреть вопрос о целесообразности устройства временного упрощенного водозабора в виде выпуска труб в реку на сваях.
4.4.17. Восстановительные работы на береговых колодцах в зависимости от характера повреждения выражаются в заделке трещин и пробоин в стенах и днище, перекрытии и постановке внутри сооружения дополнительных креплений (ригелей, рам).
4.4.18. При значительных повреждениях берегового колодца можно отказаться от его восстановления, соединив всасывающие трубы насосов непосредственно с самотечными в пределах колодца или с помощью обводной линии, минуя колодец.
4.4.20. Передвижные насосные станции могут быть наземные и плавучие. Оборудование передвижных насосных станций состоит, как правило, из центробежных насосов, приводимых в действие электрическими или тепловыми двигателями. Наземные передвижные насосные станции чаще всего монтируют навесными или прицепными к тракторам различных марок.
4.4.21. Устраивать временные береговые насосные станции можно одним из следующих способов:
при крутом береге и достаточной глубине реки - на берегу во временной будке на металлической сварной или деревянной раме (при необходимости на сварном основании) устанавливают насосы с забором воды гибким шлангом, конец которого, снабженный дырчатым колпаком, подвешен к поплавку и спущен в воду. Для того, чтобы не забирать воду непосредственно около берега, следует удлинить шланги, выдвигаемые в реку. Ось насосов необходимо располагать с учетом высоты всасывания при наинизшем уровне воды в водоеме;
при пологом береге - насосы со всасывающей трубой, спущенной вертикально вниз, устанавливают в будке на свайном помосте, выдвинутом в реку. Во всех случаях следует предусмотреть защиту электромоторов и электротехнического оборудования от залива водой и производить систематическую околку льда в месте погружения всасывающих труб в воду.
4.4.22. При наличии в хозяйстве свободных погружных насосов типа АП они могут быть использованы вместо горизонтальных. Собранные в виде батареи насосы АП наклонно опускают в реку и, при наличии одинаковой или близкой технической характеристики, все вместе они могут подавать воду в один напорный трубопровод, идущий на очистные сооружения.
Спуск этих насосов в реку может быть осуществлен по эстакаде, выполненной из металлических балок, уголков, рельс или деревянных брусьев.
4.4.23. Плавучие насосные станции монтируются в зависимости от местных условий на судах, баржах, катерах или на понтонах.
Эти плавучие насосные станции могут отбуксировываться в заранее выбранное место, где их закрепляют якорями и растяжками.
При отсутствии электроэнергии насосы могут приводиться в действие от вала отбора мощности трактора, через карданный вал автомобильного типа или двигателями другого типа. Насос соединяют с напорными и всасывающими трубопроводами с помощью гибких шлангов. Для подъема и опускания трубопроводов можно применять обычную ручную лебедку грузоподъемностью 0,5 т.
На месте установки насосов и двигателей устраивают закрытое помещение легкого типа.
На плавучей насосной станции возможен монтаж временной установки для хлорирования воды и при необходимости емкостей для хранения одно-, двухдневного запаса горючего.
4.4.24. Для устройства напорных линий от передвижных насосных станций в зависимости от подачи и напора насосов следует использовать пожарные, резинотканевые и резинотканевые с металлической спиралью рукава, а также стальные трубы. Для плотного соединения резинотканевых рукавов со стальными трубами на концы труб, на которые надвигают рукав, приваривают три стальных кольца и рукав прижимают к трубе стальной проволокой, наматываемой по 3-4 нитки между кольцами с усилием не менее 20 кг.
4.4.25. При повреждении зданий и оборудования насосных станций рекомендуются следующие работы:
при повреждении перекрытия станции и сохранившихся стенах для предотвращения обрушения необходимо поставить подпорки в виде деревянных или металлических стоек и колонн;
при образовании трещин в надземных стенах, угрожающих сохранности последних, рекомендуется устраивать на уровне трещин одну или несколько металлических стяжек, пропущенных через стены и закрепленных болтами. Если стены сильно ослаблены и имеют большие трещины и проломы, то их крепление может быть осуществлено с помощью каркаса из швеллеров. Снаружи и изнутри стен сверху и снизу прокладывают два пояса из швеллеров и металлические стойки, пояса и стойки связывают между собой болтами и образуют несущий каркас, а стены являются заполнителем;
при расположении агрегатов в подземной поврежденной части станции следует принять меры по водонепроницаемости днища и стенок заделкой трещин, чеканкой их просмоленным канатом и заливкой цементным раствором. Следует также предусматривать откачку просачивающейся воды.
Если эти меры не дадут должного эффекта, то рекомендуется наращивание фундаментов выше уровня грунтовых вод, (при условии допустимости всасывания) с устройством временного легкого пола на уровне верха фундаментов;
фундаменты под агрегаты выполняют в зависимости от типа и марки агрегата, его веса и числа оборотов, причем длину и ширину принимают обычно на 20-30 см больше плиты агрегата, материалом для фундамента может служить бетон, кирпичная или каменная кладка на цементном растворе. Для временных фундаментов допускается устраивать рамы из деревянных брусьев.
4.4.26. При повреждении электронасосного оборудования необходимо его заменить или отремонтировать в мастерской.
При ремонте центробежных насосов допускается:
при стальном корпусе - заваривать автогеном трещины в корпусе насоса и сваривать отбитые куски и части насосов (корпус, лапы, всасывающий и напорный патрубки и т.д.);
наваривать сносившиеся концы перьев рабочих колес: стальные - автогеном, чугунные и бронзовые - припоем красной меди или бронзы;
вместо литых стальных, чугунных и бронзовых колес делать стальные сварные. После сварки или ремонта рабочих колес при сборке насоса особое внимание надо уделить их балансировке;
где это возможно, заделывать трещины в корпусах насосов и задвижек цементом или охватом поврежденных частей железобетонным каркасом или стальными накладками с прокладками из резины на хомутах.
4.4.27. При выходе из строя водомеров, вакуумметров и манометров можно ограничиться установкой только манометра.
4.4.28. Трубопровода и арматуру можно временно размещать на полу или стенах, учитывая, чтобы это не помешало впоследствии проведению капитально-восстановительных работ.
У насоса может быть одна задвижка на напорной линии, если его ось расположена выше уровня воды в резервуаре или колодце .Если насос установлен под залив, то задвижка необходима и на всасывающей линии.
4.4.29. После монтажа насосы и трубопроводы должны быть подвергнуты гидравлическому испытанию на рабочее давление 0,5 МПа (5 атм).
4.4.30. При оценке технического состояния очистных сооружений следует учитывать как пропускную способность труб, каналов, отстойников, фильтров, так и сохранность стен, днищ, колонн, перекрытий и их способность к восприятию нагрузок.
Оценку технического состояния и методы восстановления строительных конструкций следует производить с учетом требований Указаний CH-000-B «Жилые и общественные здания».
4.4.31. При восстановительных работах на существующих или устраиваемых новых временных очистных сооружениях в первую очередь необходимо организовать обеззараживание сырой неочищенной воды.
Подача в водопроводную сеть воды без предварительного обеззараживания допускается только из защищенных подземных источников.
4.4.32. При выходе из строя реагентного хозяйства затворные и растворные баки могут быть заменены любыми деревянными баками, бочками или ящиками, оштукатуренными изнутри цементным раствором с толщиной слоя 1,5-2 см. Временное реагентное хозяйство может быть установлено на уровне земли с подачей реагентов эжектором или насосом в подающую трубу или смеситель.
4.4.33. В отдельных случаях возможна организация временного реагентного хозяйства на станцию первого подъема, где раствор реагента следует подавать во всасывающие трубы насосов. Такое решение особенно целесообразно при разрушении смесителя и реагентного хозяйства. При этом длина участка трубы, используемой в качестве смесителя, должна быть равна или больше 50 диаметров трубопроводов.
4.4.34. Для обеспечения быстрого восстановления коагулирования воды, при разрушении реагентного хозяйства необходимо заблаговременно изготовить и хранить на складе несколько комплектов дозирующих устройств для оборудования ими временных затворных и дозирующих баков.
4.4.35. При частичном разрушении отстойников необходимо:
заменить кольцевые железобетонные переливные желобы в вертикальном отстойнике на деревянные, располагаемые радиально или в виде квадрата, шестиугольника и т.д.;
заменить поврежденную центральную железобетонную трубу отстойника деревянной круглой или квадратной;
удалить из горизонтальных отстойников при повреждении их перекрытия обломки строительных конструкций и грунта, затереть обнаруженные трещины цементным раствором. Поврежденные колонны усиливают металлическими или деревянными стойками, после чего устраивают временное перекрытие отстойника;
заделать большие проломы и трещины в стенах отстойников, резервуаров и других емкостей кирпичной кладкой, бетоном или железобетоном.
Для предотвращения проникновения воды изнутри или вовнутрь резервуаров восстановленную поверхность с внутренней стороны оштукатуривают цементным раствором, а с наружной устраивают глиняный замок.
В глубокие трещины бетонных и кирпичных стен и днища с внутренней стороны ставят тампоны из просмоленного каната с последующей оштукатуркой заделываемой поверхности.
4.4.36. При выходе из строя части отстойников вода с содержанием взвешенных веществ не более 150 мг/л частично направляется на фильтры без отстаивания и частично пропускается через сохранившиеся или восстановленные отстойники.
4.4.37. При полном разрушении отстойников на период паводка могут быть выстроены временные земляные горизонтальные отстойники по типу пожарных водоемов с легким перекрытием и распределительными желобами и колодцами для впуска и выпуска воды.
4.4.38. Разрушенные безнапорные трубы и каналы можно заменить деревянными лотками, устанавливая на них в качестве запорной арматуры деревянные щиты и шибера. На напорных линиях количество арматуры следует сводить до минимума, а при ее отсутствии временно устанавливать фланцевые патрубки.
4.4.40. Для восстановления отдельных секций фильтров и контактных осветлителей следует прежде всего освободить их от завалов, мусора и грязи, после чего удалить верхний загрязненный слой песка.
Оставшаяся загрузка выгружается весьма тщательно послойно. Песок, гравий и гальку складывают отдельно на помост из чистых досок, брезент и пр.
Поврежденные промывные желоба должны быть восстановлены: железобетонные желоба могут быть временно заменены деревянными. При значительном разрушении дренажа для ускорения работ может быть смонтирован дренаж другого типа с применением местных материалов.
4.4.42. До укладки новой загрузки фильтр должен быть прохлорирован в соответствии с Правилами технической эксплуатации водопроводов и канализации МЖКХ РСФСР и Инструкцией Министерства здравоохранения СССР.
После этого песок и поддерживающие слои гравия следует промыть и загрузить в фильтр или контактный осветлитель строго послойно. При недостатке песка можно догрузить новым предварительно промытым песком или песком из фильтров, не подлежащих восстановлению.
4.4.43. При повреждении промывного бака или промывного насоса вода для промывки может подаваться насосами второго подъема по проложенному временно трубопроводу. При этом интенсивность промывки может быть снижена до 8 л/с×м2.
4.4.44. В целях ускорения пуска водоочистных сооружений с разрушенными покрытиями следует ограничиться временными облегченными покрытиями над восстанавливаемыми отстойниками, фильтрами и контактными осветлителями.
4.4.45. Восстановление крупных сильно поврежденных водоочистных станций - процесс длительный и трудоемкий. Поэтому необходимо при наличии в городе подземных источников максимально использовать имеющиеся скважины, а также пробурить новые. При отсутствии таких источников, по согласованию с санитарными органами следует подавать неочищенную поверхностную воду, ограничившись обеззараживанием хлором.
4.4.46. Если водопотребление в прежнем объеме не требуется, целесообразно восстановить только часть поврежденных элементов станции для работы по временным схемам.
При этом следует предусматривать в первую очередь только хлорирование, во вторую очередь дополнительно коагулирование, отстаивание и в третью очередь фильтрацию воды.
4.4.47. Заблаговременно в каждом городском водопроводном хозяйстве необходимо:
приобрести и обеспечить хранение в должном порядке неприкосновенного запаса обеззараживающих реагентов - жидкого хлора в баллонах, гипохлорида кальция, хлорной извести в объемах, приемлемых для местных условий;
помимо резервных действующих хлораторов, иметь некоторое их дополнительное количество на складе для использования во временных хлораторных или на передвижных установках (организованных взамен выведенных из строя), а также на местах, где потребуется дополнительное хлорирование воды (при заражении источников и обеззараживании восстановленных сооружений и сетей);
помимо обеззараживания воды на очистных сооружениях может появиться необходимость в дополнительном хлорировании воды (по требованию санитарной службы) в резервуарах, расположенных на городской территории и вне ее, на временных водозаборах, передвижных насосных станциях и др.
4.4.49. При подаче неочищенной воды в сеть насосами первого подъема хлор следует вводить перед насосами. При этом раствор хлорной извести или гипохлорида кальция можно подавать непосредственно во всасывающие трубы насосов или приемный колодец, газообразный хлор следует предварительно растворить и дозировать в виде хлорной воды.
Во всасывающую трубу хлор можно подавать только временно в течение 3-5 суток во избежание коррозии насоса.
4.4.50. В первую очередь восстанавливаются наиболее сохранившиеся нитки водоводов, которые можно использовать для подачи воды, соединяя их через сохранившиеся перемычки или проложив обводные линии. Водовод следует восстанавливать отдельными участками, начиная с того конца, откуда он может заполняться водой с целью проведения гидравлического испытания.
4.4.52. Для заделки раструбов чугунных труб можно применять асбестоцемент, цемент марки 300-400, серосплав и свинец.
Для асбестоцемента обычно применяют быстросхватывающийся цемент. Несмотря на это, заделанные асбестоцементом раструбы труб требуют выдержки в течение двух суток. Водовод, смонтированный на серосплаве и свинце, может быть пущен в эксплуатацию немедленно.
Серосплав может изготовляться в местных мастерских (табл. 14). Способ его изготовления предложен Минжилкомхозом РСФСР.
4.4.53. Все расстроенные асбестоцементные и цементные стыки расчеканиваются и заделываются вновь. Серосплавные и свинцовые стыки только подчеканиваются.
Осмотр и переделку стыков на водоводе необходимо производить в обе стороны от места повреждений до тех пор, пока не встретятся исправные стыки и трубы.
Таблица 14
|
Состав серосплава* |
Весовые проценты состава |
||
|
№ 1 |
№ 2 |
№ 3 |
|
|
Сера чистая |
64 |
62,5 |
55 |
|
Инертный заполнитель (песок) |
32 |
33 |
41 |
|
Уголь древесный (порошок) с размером частиц меньше 0,1 мм |
3 |
4,5 |
- |
|
Сажа |
- |
- |
2 |
|
Нафталин |
1 |
- |
- |
|
Тиокол (резинит) |
- |
- |
2 |
* Инертным заполнителем служит смесь кварцевого песка крупностью зерен 0.4-0,01 мм (25% по весу) и песка с крупностью зерен 0,01-0,005 мм (75% по весу) или сухого кислотоупорного цемента.
4.4.54. Вместо поврежденных единичных труб укладывают новые. Вновь уложенную трубу с существующим трубопроводом соединяют с одного конца в раструб трубы, а с другого - с помощью проходной надвижной или ремонтной муфты.
4.4.55. Небольшие продольные трещины в трубах, которые не увеличиваются от удара молотка при простукивании, заделывают установкой на резине складной муфты на болтах или накладкой с хомутом в зависимости от длины трещины.
4.4.56. Поврежденные фасонные части, задвижки и другую арматуру заменяют, а при отсутствии арматуры ее заменяют отрезками труб; вантузы для выпуска воздуха в случае повреждения необходимо отремонтировать и установить на место; вместо них до окончания ремонта должны применяться вентили.
4.4.57. В процессе восстановительных работ на стальных водоводах проводятся следующие мероприятия:
все образовавшиеся на стальных трубопроводах продольные трещины, отдельные пробоины в теле трубы заваривают. Все поврежденные стыковые соединения перевариваются;
все трубы, приведенные в негодное состояние, заменяются. При отсутствии труб необходимого диаметра допускается временная разборка части одной нитки водовода для ремонта другой. Во всех случаях, когда производится вставка нового куска труб, следует тщательно центрировать концы новой трубы и, лишь убедившись в точности установки, приступить к сварке;
во избежание смятия стальных трубопроводов, при образовании в них вакуума, поврежденные вантузы для впуска и выпуска воздуха ремонтируют в первую очередь, а в случае задержки с ремонтом, на их место временно устанавливают вентили.
4.4.58. Для производства восстановительных работ могут быть рекомендованы следующие механизмы:
для разборки завала и выемки обломков труб: лебедки (табл. 15) и автокраны грузоподъемностью 3-5 т (табл. 16);
для разбивки усовершенствованного дорожного покрытия, глыб в завалах и рыхления мерзлого грунта - отбойные молотки с передвижными компрессорами, бетоноломы (табл. 17);
для откачки воды - насосы, установленные на специализированных автомашинах типа ABM-1, АВРМ-2, изготовляемых заводом «Водмашоборудование» МЖКХ РСФСР, а также диафрагмовые передвижные насосы типа «Атлантик», изготовляемые заводом «Мосводоприбор» МЖКХ РСФСР и Елецким механическим заводом Минстройматериалов РСФСР, и другие передвижные или временно устанавливаемые насосы (типа «ГНОМ» и др.), перечень которых приведен в табл. 8;
для раскопки грунта на месте повреждения труб могут использоваться одноковшовые экскаваторы и другое оборудование (табл. 18).
4.4.59. До пуска водовода в эксплуатацию он должен быть промыт водой и продезинфицирован хлором в соответствии с Инструкцией по контролю за обеззараживанием хозяйственно-питьевой воды и за дезинфекцией водопроводных сооружений № 723а-67 Министерства здравоохранения СССР, утвержденной 25 ноября 1967 г.
Согласно Инструкции дезинфекция считается законченной при благоприятных результатах двух анализов, взятых последовательно из одной точки. После чего, участок водовода промывают водой до полного удаления запаха хлора. Обычно при дезинфекции участок трубопровода заполняют хлорной водой с концентрацией 25 мг/л и выдерживают 24 ч.
Таблица 15
|
Показатели |
Лебедки ручные |
Домкраты |
|||||||||
|
Т-68А |
T-69 |
ЛР-0,5 |
ЛР-1 |
ЛP-21 |
Реечные |
Винтовые |
|||||
|
ДРМ-5 |
ОДМ-7 |
ДР-7 |
БО-3 |
БО-5 |
БТ-10 |
||||||
|
Грузоподъемность, т |
1 |
3 |
0,5 |
1 |
2 |
5 |
5 |
7 |
3 |
5 |
10 |
|
Канатоемкость, м |
150 |
150 |
100 |
150 |
150 |
- |
- |
- |
- |
- |
|
|
Высота подъема, мм |
|
|
|
|
|
400 |
350 |
350 |
130 |
300 |
330 |
|
Вес механизма, кг |
218 |
369 |
160 |
280 |
450 |
29 |
36 |
47 |
6,2 |
17 |
17 |
Таблица 16
|
Показатели |
Автокраны |
|||
|
К-32 |
K-51 |
K-104 |
K-125 |
|
|
|
Базовая машина |
|||
|
ЗИЛ-150 |
МАЗ-200 |
ПАЗ-200 |
На пневмоколесном ходу |
|
|
Длина стрелы, м |
5,5 |
7-10 |
10-16 |
20 |
|
Грузоподъемность, т |
3-1 |
5-2 |
10-2,2 |
12 |
Таблица 17
|
Показатели |
Пневматические молотки |
Мотоинструмент |
Электромолоток |
||||||||||
|
отбойные |
бурильные |
бетонолом |
перфоратор |
бетонолом |
М-669 |
И-158Б |
бурильный |
||||||
|
РБ-45 |
ОМСП-5 |
МО-8 |
РПМ-17а |
ПР-24Л |
С-359 |
С-628 |
С-406М |
С-829 |
|||||
|
Давление |
539,5 (5,5) |
392,4 (4) |
490,5 (5) |
490,5 (5) |
490,5 (5) |
490,5-539,5 (5-5,5) |
|
|
|
|
|
|
|
|
Расход |
0,66 |
1 |
1,15 |
1,8 |
3,5 |
1,7 |
|
|
|
|
|
|
|
|
Энергия удара |
88,29 (0,9) |
34,34 (3,5) |
29,43 (3) |
24,53 (2,5) |
49,05 (5) |
78,48 (81) |
34,34 (3,5) |
24,53 (2,5) |
29,43 (3) |
24,53 (2,5) |
3,92 (0,4) |
19,62 (2) |
3,92 (0,4) |
|
Внутренний |
16 |
16 |
16 |
- |
25 |
|
|
|
|
|
|
|
|
|
Рукава для |
|
|
|
|
|
|
|
|
|
|
|
|
|
|
для воды, мм |
|
|
|
|
12 |
|
|
|
|
|
|
|
|
|
Глубина |
|
|
|
4 |
4 |
- |
- |
- |
- |
- |
- |
- |
- |
|
Диаметр |
|
|
|
38 |
36-56 |
- |
- |
- |
- |
- |
- |
- |
- |
|
Мощность |
|
|
|
|
|
|
(3,2) |
(3,1) |
(3,1) |
(3,1) |
0,5 |
0,8 |
0,4 |
|
Напряжение |
|
|
|
|
|
|
|
|
|
|
220 |
220 |
220 |
|
Расход |
|
|
|
|
|
|
0,74 (550) |
0,74 (550) |
0,74 (550) |
0,74 (550) |
|
|
|
|
Производ. |
|
|
|
|
|
|
0,08 (60) |
0,011 До 80 |
- |
- |
|
|
|
|
Масса, кг |
|
9,5 |
8 |
17,5 |
24 |
18,9 |
26 |
15 |
30 |
13 |
8 |
17,5 |
9 |
Таблица 18
|
Наименование |
Тип, марка |
Краткая характеристика |
|
Сварочный агрегат |
САГК |
Мощность 15 кВт с приводом бензомотора |
|
Установка для отогрева замерзших труб |
Котел |
Производительность 100 кг пара в 1 ч; давление 39,24×104 Па (4 атм), поверхность нагрева 3,4 м2 |
|
Экскаватор одноковшовый со сменным оборудованием |
Э-1252 |
Емкость ковша 1 м3 |
|
Э-1252 |
Емкость ковша 0,65 м3 |
|
|
|
Э-652 |
Экскаватор на пневмоходу Вес 22,1 т |
|
|
Э-652 |
Емкость ковша 0,3 м3, вес 11,3 т |
|
Э-302 |
||
|
Бульдозер |
Д-535 |
На гусеничном ходу, на тракторе Т-75; вес 6,49 т |
4.4.60. При изливе воды из разрушенных участков сети необходимо их отключить с помощью задвижек в смотровых колодцах, а при разрушении колодцев и порче задвижек, установив герметические заглушки и пробки на концах разрушенного трубопровода. Одновременно следует принять меры против угрозы затопления близлежащих территорий, для чего устраивают временные оградительные земляные валы, отводные каналы, лотки или перепускные трубы для отведения поступающей воды в ближайшие канализационные и водосточные колодцы, естественные впадины (балки, овраги) или на соседние улицы и проезды, где опасности затопления не возникает. Для осушения места аварии следует откачать воду передвижными насосами и произвести ремонт разрушенного участка сети.
4.4.61. Для снабжения потребителей водой при отключении разрушенного участка на сохранившихся участках сети должны быть организованы пункты раздачи воды в ручную тару.
Необходимые переключения на сети производятся аварийно-технической командой (группой, звеном), прибывшей на место аварии и имеющей у себя схему водопроводно-канализационных сетей.
4.4.62. При невозможности подачи воды по существующим линиям и обхода разрушенного участка, а также быстрого восстановления трубы необходимо вскрыть в наиболее доступных местах (при минимальном объеме работ по расчистке завалов и обрушений) с обеих сторон места аварии, врезать или установить фасонные части. Между ними проложить временную обводную линию по поверхности земли. В целях защиты от механического повреждения ее следует выполнить из резинотканевых шлангов, пожарных рукавов или стальных труб. Обводная линия может быть присоединена к стендерам, установленным на пожарных гидрантах по обе стороны от места разрушения. При длительном использовании в зимнее время обводную линию необходимо утеплить.
4.4.64. При укладке стальных трубопроводов концы труб соединяют газо- или электросваркой, или (в крайнем случае) на фланцах.
4.4.66. Соединение труб разных диаметров заливкой стыков серосплавом производят в следующем порядке:
на конец трубы меньшего диаметра наматывают проволоку или смоляную прядь для предохранения от выпирания конопатки внутрь трубы;
трубу вставляют на глубину 2-3-х диаметров меньшей трубы, но не более чем на 60 см;
выполняют конопатку смоляной прядью, причем первый виток крепко скручен и туго входит в зазор жгутом, каждый последующий конопатится сильнее;
по окончании конопатки стык заливают серо-песчаным сплавом;
при зазоре более 20 мм и трубе диаметром 400 мм и более заливку следует закрепить от выпирания путем конопатки зазора снаружи и постановки стяжного хомута из полосового железа.
4.4.67. Стальные трубопровода, укладываемые в землю или по поверхности, необходимо покрыть битумной грунтовкой или другим антикоррозионным составом.
4,4.68. Засыпку трубопроводов производят после гидравлического испытания на рабочее давление плюс 49,05×104 Па (5 кгс/см2). Засыпку под трубой (выше верха трубы на 0,2 м) по возможности производят песком слоями по 20-30 см с подливкой водой и утрамбовкой грунта, а выше трубы - местным грунтом. Под трубы диаметром 500 мм и выше следует дать песчано-щебеночную засыпку с утрамбовкой ее послойно.
В слабых грунтах устраивается свайное основание.
В зимний период под основание трубы необходимо засыпать талый песок, предварительно удалив со дна траншеи мерзлый грунт.
4.4.69. Замерзшие участки труб следует отогревать горячей водой, паром от передвижных паровых котлов или применять электрообогрев. В последнем случае для стальных труб можно использовать сварочные аппараты, заменив у них лишь амперметр, поскольку отогрев рекомендуется при напряжении 10 В и силе тока около 600 А. Отогреваемые участки подключают к агрегату с помощью медного кабеля сечением не менее 95 мм2. На клеммах устанавливают вольтметр, а на отогреваемой трубе - термометр. Электрообогрев можно осуществить также с помощью трансформаторов типа СТЭ-22 или СТЭ-32.
4.4.70. До пуска в эксплуатацию новый участок трубопроводов должен быть промыт водой и продезинфицирован хлором.
4.4.71. Работы по устранению небольших повреждений и заделке мест утечек заключаются в ремонте раструбных и сварных соединений, трещин и сетевой арматуры. Ориентировочное время на их выполнение приведено в табл. 19.
Таблица 19
|
Вид работ |
Количество
работающих, |
Норма
времени*, |
|
Закрывание (открывание) задвижек на водопроводной сети вручную при диаметре, мм: |
|
|
|
125-500 |
3 |
0,3 |
|
600-900 |
4 |
1,5-3 |
|
Ликвидация аварий на водопроводной сети: |
|
|
|
постановка хомута при диаметре труб, мм: |
|
|
|
200-500 |
3 |
1-5 |
|
600-900 |
5 |
6-10 |
|
постановка разъемной или свертной муфты при диаметре труб, мм |
|
|
|
200-500 |
3 |
1,5-2 |
|
установка седелок при диаметре труб, мм |
|
|
|
100-250 |
3 |
2-3 |
|
300-500 |
3 |
4-5 |
|
заделка цементом или асбестоцементом раструба чугунной трубы диаметром, мм: |
|
|
|
150-250 |
3 |
0,5 |
|
300-500 |
3 |
2-5 |
|
подчеканка раструба чугунной трубы при появлении течи под напором диаметром, мм: |
|
|
|
75-125 |
3 |
0,5-1 |
|
800-500 |
3 |
1,5-2 |
|
1000-1200 |
4 |
3-6 |
|
Ликвидация аварии на водопроводной сети из чугунных и асбестоцементных труб заменой нескольких звеньев на одно звено диаметром, мм: |
|
|
|
100-250 |
3 |
3-5 |
|
300-600 |
4 |
4-8 |
|
свыше 500 |
4 |
6-10 |
|
Установка деревянной пробки на трубе в канализационном колодце |
3 |
1-1,5 |
|
Разборка поврежденного бетонного колодца диаметром 700-1000 мм |
3-4 |
3-4 |
|
Устройство временного водоотводного лотка из досок (на 100 м лотка) |
2 |
3-5 |
|
Откопка люка колодца или аварийного выхода при высоте завала, м |
|
|
|
1 |
4 |
2-2,5 |
|
2 |
4 |
7,5-8 |
|
3 |
6 |
14-15 |
|
Пробивка проема 0,8×0,8 м в кирпичной стене толщиной 52 см или стене из бетонных блоков толщиной 40-50 см |
2 |
3-4 |
|
Вырезка отверстия 0,6×0,8 м в полотне металлической двери керосинорезом |
2 |
20-25 мин |
* В нормах не учтены земляные работы и по расчистке завалов, а также время на отыскание мест аварии и прибытие к месту работы.
Течи в раструбных сетях устраняют подчеканкой стыка свинцом или быстротвердеющими составами (цемент, асбестоцемент, серосплав);
сварные стыки, свищи и трещины на стальных трубопроводах заваривают газо- и электросваркой или накладывают на них приварные заплаты;
небольшие продольные трещины на чугунных, асбестоцементных и стальных трубах могут быть заделаны металлическими накладками с резиновыми прокладками. Накладки плотно прижимают к трубе хомутами;
поврежденная сетевая арматура (задвижки, вентили, гидранты и др.) подлежит замене или ремонту. При отсутствии исправной арматуры на ее место вставляются патрубки, соединяемые с трубой на фланцах или сварке.
В зависимости от местных условий восстановление колодца может быть полным или частичным:
для ремонта стенок и днища применяют бетон, кирпич или дерево;
разбитый чугунный люк заменяют временной деревянной крышкой с ограждением колодца;
отключаемые в колодцах и камерах ответвления при поврежденной арматуре закрывают приварными заглушками или пробками;
при повреждении вантузов необходимо установить вентили или задвижки с последующей заменой их вантузами.
4.4.73. При разборке завалов и разрушений сети и колодцев при производстве восстановительных работ, сохранившиеся трубы и отрезки, а также сетевая арматура, должны быть собраны и очищены от пыли и грязи. Трубы, арматура и отдельные ее части должны сортироваться по маркам и ремонтироваться для повторного использования.
4.4.74. При производстве восстановительных работ на поврежденных или разрушенных дюкерах, проложенных через водные преграды, балки и овраги, рекомендуется:
при разрушении одной из двух линий дюкера поврежденную линию отключают на обоих концах и воду временно подают по сохранившейся линии;
при разрушении обеих линий дюкера следует восстановить хотя бы одну из них по временной схеме.
4.4.75. Способы производства восстановительных работ на дюкерах избираются в зависимости от конкретных условий:
при незначительной водной преграде, малой скорости течения и глубине поврежденные трубы можно заменять в шпунтовом ограждении с непрерывной откачкой воды или прокладывая трубопровод по временным опорам (сваи, мостки, понтоны, опоры уцелевших мостков и т.д.) выше максимального уровня воды в реке. При этом опоры дюкера должны строиться с учетом пропуска паводковых расходов воды и защищены от натиска льда; через овраги и балки временную линию дюкера можно проложить по эстакадам и насыпям с учетом пропуска дождевых и талых вод; через большие водные преграды рекомендуется прокладка линий дюкера под проезжей частью ближайшего сохранившегося моста.
Восстановление или прокладка новой линии дюкера ввиду сложности и трудоемкости работ должны быть отнесены к капитальным работам.
4.4.76. В районе, отрезанном от водоснабжения (в связи с аварией дюкера) принимают срочные меры по использованию всех резервных источников водоснабжения (скважины подземных вод, промышленные водозаборы, запасы питьевой воды в резервуарах и трубопроводах большого диаметра, временные водозаборы с хлорированием воды и т.д.).
При невозможности организовать временное водоснабжение, восстановление или прокладка новой линии дюкера должны производиться по решению Исполкома силами и средствами специализированных строительно-монтажных организаций с привлечением проектных организаций.
4.4.77. При повреждениях водонапорных башен и резервуаров очередность проведения восстановительных работ устанавливается с учетом их значения в общей схеме водоснабжения. В первую очередь восстанавливают те емкости, которые расположены вблизи действующих очистных сооружений, насосных станций, важных потребителей воды и регулируют режим водопотребления данного района, а также те емкости, к которым сохранились подающие трубопроводы.
4.4.78. Характер и объем восстановительных работ зависит от степени разрушения емкостей и конструктивных особенностей сооружения.
При сильном разрушении и большой трудоемкости работ сооружения отключают от водопроводной сети, для чего устраивают обводные линии. При разрушении внешних коммуникаций для сохранения запасов воды их отключают от сети.
При частичном разрушении резервуаров и башен восстановительные работы производят одним из способов, приведенным ниже.
4.4.79. Большие пробоины и проломы в кирпичных, бетонных и железобетонных стенах подземных резервуаров заделывают кирпичом, бетоном и железобетоном, оштукатуривают изнутри и снаружи и изолируют снаружи битумной обмазкой и замком из мятой глины толщиной 0,6-0,8 м.
4.4.80. При отсутствии разрывов в арматуре железобетонных подземных резервуаров для закрытия мелких трещин в стенах и днище можно делать цементную штукатурку слоем 3-4 см, в необходимых случаях сначала установить мелкую сетку из тонкой проволоки и по ней нанести слой штукатурки.
4.4.81. Глубокие трещины в бетонных и каменных стенах и днищах заделывают тампонами из просмоленного каната с последующим оштукатуриванием. Мелкие пробоины в бетонных, железобетонных и металлических резервуарах и баках заделывают изнутри деревянными пробками (рваные края пробоины предварительно зачищаются) или установкой с обеих сторон пробоины металлических накладок с прокладками из резины или просмоленного войлока, стянутых между собой болтами, пропущенными через пробоину.
4.4.83. При разрушении перекрытия и верхней части резервуаров и баков, если отсутствуют видимые дефекты и сохранена герметичность в остальной части, можно использовать оставшуюся часть резервуаров и баков меньшего объема, снизив отметку верха переливных труб. При этом над местом повреждения необходимо устроить временное перекрытие (деревянное, металлическое, из сборных железобетонных элементов и т.д.).
для заглубленных резервуаров, расположенных в низких ровных местах у скважин и при очистных сооружениях на обычных грунтах, - 30 л/м2×сут;
для резервуаров, расположенных на возвышенностях, при отсутствии ниже их по склону ответственных сооружений, в обычных грунтах - 15 л/м2×сут;
то же, при наличии ниже резервуара по склону ответственных сооружений в обычных грунтах - 7,5 л/м2×сут;
для резервуаров на лесовидных просадочных грунтах - не более 0,25 л/м2×сут.
4.4.85. Производство работ по восстановлению разрушенных и поврежденных канализационных сетей и коллекторов следует осуществлять с разрушенных участков прокладкой труб по старым трассам или по новым трассам в обход разрушенного участка согласно технологической карте, приведенной ниже.
Технологическая карта восстановления канализационной сети из неметаллических (асбестоцементных) труб при массовых разрушениях
Область применения
Карта применяется при восстановлении трубопроводов из асбестоцементных труб диаметром 400 мм с соединением стыков на цилиндрических муфтах.
Укладка трубопровода предусматривается без креплений в траншею глубиной 3 м, разработанную в сухом суглинке в теплый период года.
Карта охватывает весь комплекс работ по восстановлению одного участка трубопровода. Все работы выполняются в две смены.
Технико-экономические показатели
Продолжительность монтажа 1 м трубопровода - 0,3 ч
Трудоемкость сооружения 100 м трубопровода - 30 ч
Затраты времени с применением механизмов на прокладку 100 м трубопровода в смену, машино-смены:
экскаватор Э-656 - 2
бульдозер Д-493 - 1
кран ЛAЗ-690 - 1
При производстве работ в 1 смену продолжительность монтажа увеличивается в 2 раза, остальные показатели остаются без изменений.
Организация и технология строительного процесса
1. До начала строительства трубопровода должны быть выполнены следующие работы:
трасса расчищена от завалов;
однодневный запас труб и прочих материалов завезен и уложен вдоль трассы трубопровода;
в зону работ поставлены строительные и монтажные машины, инструмент, инвентарь и приспособления.
2. Материалы транспортируются на трассу трубопровода без участия формирований по производству восстановительных работ.
Асбестоцементные трубы рекомендуется завозить на автомобилях типа МАЗ-200 или ЯАЗ-214, укладывая на соломенные маты. Между рядами труб по вертикали прокладывают обрезки пенькового каната.
3. Доставленные на трассу трубы следует раскладывать вдоль трассы в зоне действия монтажного крана.
4. Строительство трубопровода ведется поточно в указанной ниже последовательности:
расчистка завалов;
разработка траншей, подчистка дна траншей, устройство приямков под стыки и щебеночных бетонных блоков колодцев (взамен разрушенных);
укладка труб с заделкой стыков и соединений труб с блоками;
монтаж верхних колец, горловин с установкой люков, колодцев;
присыпка трубопровода грунтом, испытание трубопровода и засыпка траншей.
Общая продолжительность строительства 100 м трубопровода - 30 ч.
5. Отдельные виды работ выполняются с соблюдением требований соответствующих разделов настоящих Рекомендаций в следующем порядке.
Разработка траншей, зачистка дна и рытье приямков
1. До начала земляных работ на трассе должны быть закончены подготовительные работы.
2. Отрывку траншеи выполняют в сроки, строго увязанные с общим потоком работ по прокладке трубопровода.
3. Разработку траншеи производить экскаватором Э-656 с укладкой грунта в односторонний отвал.
4. Режим экскаваторных работ принять в 2 смены по 10 ч, включая междусменную передачу и приемку.
5. Недобор грунта против проектной отметки разрешается не более чем на 10 см. Перебор грунта не допускается.
6. Зачистку недобора и устройство приямков выполнять вручную.
Разработанный грунт укладывать у бортов по дну траншей и использовать для последующей подбивки уложенного трубопровода.
7. Недобранный слой грунта выбирать лишь на середине траншеи шириной, равной наружному диаметру трубы.
Укладка труб в траншею
1. Перед укладкой труб в траншею отметки подготовленного основания проверить нивелировкой.
2. Трубы рекомендуется опускать в траншею автокраном ЛA3-690 или другим грузоподъемностью 0,75 т при вылете стрелы 5 м.
3. Для строповки труб необходимо использовать стальные тросы с органическим сердечником (6×7 = 42) диаметром 6,5 мм.
4. Трос к трубе следует крепить у центра ее тяжести.
5. Укладку труб производить с зазором между торцами 3-6 мм.
6. Центровку труб выполнять с помощью деревянного рычага.
7. Рабочее положение трубы закрепить подбивкой грунта.
8. Трубы (концы), примыкающие к колодцам, уложить заподлицо с внутренней поверхности стенки рабочей камеры.
9. Зазор между трубой и стенкой колодца заливают асфальтовой мастикой или зачеканивают асбестоцементным раствором.
10. Отметка лотка трубы перед колодцем не должна отличаться от проектной более чем на ± 5 мм. Отклонение горизонтальной оси трубопровода от проектной не допускается.
Заделка стыков труб
Соединение асбестоцементных труб на цилиндрических асбестоцементных муфтах производить в следующем порядке:
1. Перед сборкой стыка сделать разметку на трубах рабочего положения муфты.
2. После разметки поставить муфту на ранее уложенную трубу.
3. Вновь укладываемую трубу установить в рабочее положение, правильность которого проверить отвесом и шнуром.
4. Произвести центрирование укладываемой трубы при помощи деревянного рычага.
5. После центрирования трубы и выверки ее положения по шнуру, отвесу и визирке закрепить ее в неизменном положении, подсыпав и утрамбовав грунт между стенками трубы и траншеи.
6. Надвинуть муфту в рабочее положение и обеспечить равномерный кольцевой зазор между трубами и муфтой с помощью клиньев или специального шаблона.
7. Зазор между наружной поверхностью труб и внутренней поверхностью муфты заполнить пеньковой прядью не выше 1/3 стыкового пространства.
8. Конопатку стыков производить плотно скрученными жгутами диаметром, превышающим ширину зазора.
9. Жгут из пряди заводить в зазор и конопатить послойно витками. Каждый виток проконопачивать до полного уплотнения.
10. Заделку стыка производить осторожно во избежание повреждения труб или муфты.
11. Сухую асбестоцементную смесь готовить централизованно в смесительных барабанах и доставлять на стройплощадку в количестве, не превышающим суточную норму.
12. Хранить сухую смесь не более 15 дней, используя герметическую тару.
13. Смесь необходимо увлажнять водой непосредственно перед употреблением в дело.
14. Смесь должна быть употреблена в дело до начала схватывания цемента.
15. Увлажнение и перемешивание смеси производить на металлическом противне.
16. Заполнение зазора увлажненной асбестоцементной смесью начинать с низа.
17. После заделки стыка асбестоцемент должен заполнять зазор заподлицо с концами муфты.
18. Заделанный стык на время твердения раствора укрыть влажной мешковиной.
Заделку и зачеканку одной половины муфты можно выполнить на бровке траншеи. В этом случае трубу с муфтой укладывают и центрируют как раструбную.
Засыпка траншей
1. Засыпку уложенного в траншею трубопровода выполнять в три приема.
Непосредственно после укладки подбить пазухи для обеспечения сохранности стыковых соединений и присыпать трубопровод на 20 см выше шелыги трубы. Стыки труб при этом должны быть оставлены незасыпанными.
2. После испытания герметичности стыковых соединений засыпать приямки, подбить пазухи и присыпать трубопровод в местах стыков.
3. Для выполнения указанных выше работ применять электротрамбовку.
4. В третью очередь произвести засыпку траншеи бульдозером в соответствии с Типовой технологической картой производства земляных работ № П-Д-17 ГПИ Проектгидромеханизации.
5. Количество монтажа асбестоцементных трубопроводов с колодцами из сборного железобетона определяется с учетом допускаемых отклонений от проектного, которые приводятся в строительных нормах и правилах.
Организация и методы труда рабочих
1. В качестве первичной единицы формирования, ведущей укладку систем канализации, принять комплексное звено, объединяющее рабочих различных специальностей. Звено выполняет все виды работ, включая испытание и сдачу трубопровода в эксплуатацию.
2. Комплексная команда должна состоять из двух специализированных звеньев и иметь в своем составе 8-10 человек.
3. Состав команды по профессиям и распределение работы между звеньями приведены ниже.
|
№ |
Состав звена по профессиям |
Количество |
Вид работ |
|
1 |
Машинист экскаватора |
2 |
Разработка траншеи, присыпка трубопровода |
|
|
Трубоукладчики 4 разряда |
2 |
Монтаж труб и колодцев, заделка стыков труб |
|
3 разряда |
4 |
||
|
Бульдозерист-машинист 5 разряда |
1 |
Разборка тяжеловесов, засыпка траншей |
Для эффективного использования механизмов и сохранения единого ритма работы звеньев разработку траншей, монтаж труб, колодцев, а также испытание трубопровода необходимо производить в 2 смены.
Количество человек в бригаде указано с учетом работы звеньев в 1 смену.
4. Размещение в рабочей зоне инвентаря, приспособлений и средств малой механизации на рабочих местах при подготовке к монтажу труб и колодцев должно быть показано на схеме. Последовательность выполнения основных операций приводится ниже.
|
Вид работ |
Последовательность операций |
|
Расчистка трассы |
Разработка тяжеловесов краном Расчистка бульдозером |
|
Выемка траншеи |
Разработка траншеи Зачистка дна траншеи и рытье приямков |
|
Укладка трубопровода |
Перемещение к траншее трубы и муфты Установка муфты в первоначальное положение Строповка трубы Очистка концов трубы Опускание трубы в траншею и укладка на готовое основание Центровка трубы Подбивка трубы грунтом Расстроповка трубы Заготовка пеньковых жгутов Конопатка кольцевых зазоров Приготовление асбестоцементной смеси Заделка зазоров асбестоцементом |
|
Устройство колодца |
Зачистка дна котлована Устройство щебеночной подготовки со сбрасыванием щебня, разравниванием и трамбованием Установка нижнего сборного блока колец с заделкой швов и труб к колодцам Сборка горловины |
|
Засыпка трубопровода и траншеи |
Присыпка трубопровода (кроме стыков) Засыпка приямков и присыпка стыков Засыпка траншеи (после испытания трубопровода) |
Методы и приемы работ
Разработку траншеи выполняет звено № 1 (два человека) на экскаваторе Э-656 в соответствии с настоящей картой.
Подчистку дна траншеи, устройство приямков- под стыки и щебеночных оснований под колодцы выполняют вручную трубоукладчики 2-го и 3-го разряда (три человека) после разработки траншеи экскаватором, соблюдая минимальное расстояние 3 м между экскаватором и ближайшим рабочим.
Места, где грунт выбран ниже проектных заметок, засыпают местным грунтом, уплотняя его до естественной плотности электротрамбовками.
Монтаж труб производится звеном трубоукладчиков
4-го разряда (звеньевой) - 1
3-го разряда - 2
Монтаж труб начинают после того, как на участке траншеи длиной не менее 10 м будут закончены работы по устройству основания трубы, приямков для стыков труб и щебеночной подготовки под основание колодца. Трубоукладчик, находящийся на бровке траншеи, производит подбор и перемещение муфты в траншею. Звено, находящееся на дне траншеи (трубоукладчики), принимает муфту и устанавливает на конец ранее уложенной трубы, подает сигнал машинисту крана на подъем груза. После подъема трубы краном на высоту 0,1-0,2 м над уровнем земли (от низа трубы) трубоукладчик очищает концы трубы от грязи.
После проверки надежности строповки трубоукладчик дает команду опустить трубы в траншею. Трубоукладчики, находящиеся на две траншеи, подводят трубу (подвешенную к стреле крана) к ранее уложенной. С помощью шаблона устанавливают зазор между торцами труб, а шнура, отвеса и визирки - проектное положение оси укладываемой трубы, после чего дается команда опустить трубу на дно траншеи. Трубоукладчики устанавливают на трубу деревянный рычаг и производят точную ее центровку. Одновременно выполняют подбивку трубы грунтом без засыпки приямков.
Закончив центровку, трубоукладчики заготавливают пряди и производят конопатку стыка. Отверстия муфты заделывают цементным раствором после предварительного испытания трубопровода.
Устройство колодцев предусматривает следующие рабочие процессы:
устройство щебеночного основания ведется вручную одним трубоукладчиком во время заделки ближайшего к колодцу стыка труб;
отметку основания проверяют по визирке или нивелиром с рейкой или колом с шурупом, забиваемым предварительно в центре основания колодца с обозначением отметки лотка и основания.
Монтаж сборного днища колодца осуществляется сразу после устройства основания двумя трубоукладчиками, свободными на период заделки стыка труб.
Во время монтажа колодца один рабочий должен находиться наверху на строповке грузов; двое - в траншее и по одному на вспомогательных работах наверху и внизу (очистка колец и деталей люка от загрязнений, подноска материалов, инструмента и приспособлений и т.д.).
Трубоукладчик, застропив четырехветвевым стропом нижний бетонный блок колодца, подает сигналы крановщику поднимать груз. После пробного подъема блока на высоту 0,1-0,2 м над уровнем земли трубоукладчик проверяет надежность строповки и дает команду подать блок, который устанавливается на готовое основание с выверкой отметки и оси лотка колодца по визирке или нивелиром с рейкой. После чего укладывают сопрягаемые с блоком колодца трубы - вначале выходную, затем входную, и только тогда производится монтаж колец колодца и заделка концов труб.
Перед установкой нижнего кольца на опорную поверхность нижнего блока укладывается слой цементного раствора М-50. Три рабочих внизу принимают кольца и устанавливают на опорную окружность лотка, расстропливают его; звеньевой дает сигнал крановщику убрать строп и подготовить к монтажу второе кольцо. Выступивший из-под кольца цементный раствор снимается, а шов тщательно заштукатуривается, снаружи и изнутри колодца и железнится.
После этого на опорную поверхность установленного нижнего кольца наносится слой раствора, и звеньевой дает сигнал о подаче следующего кольца. Монтаж следующих колец колодца ведется аналогично монтажу нижнего кольца. Правильность установки колец проверяется уровнем и отвесом.
Завершается монтаж колодца установкой люка (обоймы и крышки) с заделкой обоймы на горловине также цементным раствором М-60.
Присыпка трубопровода осуществляется механизированным способом после укладки его участка длиной 500 м.
После присыпки трубопровода грунтом производится испытание его на плотность.
В случае обнаружения дефекта в стыках труб при предварительном испытании воду удаляют из труб, дефектный стык демонтируют, просушивают и заделывают вновь. При утечке в пределах нормы испытание прекращается, воду выпускают из трубопровода и участок засыпают грунтом.
Окончательное испытание трубопровода на прочность производится после засыпки траншеи.
Засыпку траншеи осуществляют непосредственно за предварительным испытанием трубопровода.
3. График производства работ составлен из расчета в объеме одного стыка.
Общую продолжительность восстановления конкретного внеплощадочного трубопровода определяется временем выполнения одной захватки.
4.4.86. Восстановление сетей небольших диаметров при разрушении коротких участков следует выполнять по старой трассе трубами прежнего диаметра.
4.4.87. Для восстановления разрушенных участков сети должны применяться (в зависимости от наличия) железобетонные, асбестоцементные, керамические, чугунные, металлические и другие трубы. Поврежденные асбестоцементные и керамические трубы можно повторно использовать после тщательного осмотра и проверки их на плотность.
4.4.88. В пределах образовавшихся воронок по старому направлению трубопроводы целесообразно прокладывать с тщательным соблюдением уклона следующими способами:
на постоянных опорах - кирпичных, бетонных, бутовых, каменных и т.д.;
на подготовленное грунтовое основание - подсыпкой песка слоями по 25-80 см, поливкой водой и утрамбовкой до отметки основания труб. Для труб диаметром 500 мм и более необходимо устраивать песчано-щебеночное основание.
4.4.89. Трубопроводы должны засыпаться после проверки стыков на герметичность. При работе в мерзлых грунтах воронки следует засыпать талым грунтом. Предварительно место повреждения должно быть очищено от крупных и средних обломков разрушенных трубопроводов, колодцев, дорожных покрытий и удален мерзлый грунт.
4.4.90. Перед прокладкой трубопроводов грунт должен быть расчищен до естественного ненарушенного слоя и до обоих торцов сохранившихся труб, не имеющих видимых дефектов. Старые трубы соединяют с новыми с помощью надвижных муфт или обрубков труб с законопаткой зазоров просмоленным канатом и заделкой быстросхватывающим цементным раствором или другими способами.
4.4.91. Замену разрушенных труб в местах просадки грунта, а также ликвидацию засоров с заменой отдельных звеньев труб и восстановлением стыковых соединений следует производить в открытых траншеях, предварительно установив места требуемых разрытий с помощью проволоки, протаскиваемой из колодцев до мест перелома или засора.
4.4.92. Траншеи с вертикальными стенками в зависимости от характера грунта и глубины раскопок необходимо установить крепления и принять меры по сохранности пересекаемых подземных коммуникаций.
4.4.93. Для использования поврежденных бетонных трубопроводов допускается вырубка дефектной части на длину, большую размеров траншеи на 10-20 см, в каждую сторону со вставкой новой трубы соответствующей длины. Стык заделывают постановкой металлической сварной муфты с зачеканкой зазора смоляной прядью и цементом или железобетонного пояска.
4.4.94. В отдельных случаях мелкие трещины в бетонных трубах можно законопатить просмоленной прядью или мешковиной и снаружи покрыть цементным раствором. Пробоины, в особенности мелкие, можно заделывать деревянными пробками или клиньями.
4.4.95. В проходных каналах заделку больших и глубоких трещин следует производить инъектированием цементного раствора под давлением.
4.4.96. Повреждения в напорных металлических трубопроводах следует устранять в соответствии с пп. 4.4.63-4.4.68 настоящего Руководства.
4.4.97. При повреждении или разрушении смотровых колодцев допускается на этом участке восстановление лишь их части (через один-два колодца) заменив лотки для пропуска стоков вставками из труб.
4.4.98. При разрушении колодцев, расположенных вне проездов, допускается восстановление только нижней их части до отметки выше грунтовых вод с перекрытием ее сверху досками, деревянными щитами и крышками, обитыми толью. Такие колодцы должны быть ограждены.
4.4.99. При разрушении только верхней части колодцев лоток и рабочую часть следует очистить от обломков и земли, перекрыть и оградить колодец.
4.4.100. При необходимости наращивания колодцев для верхней их части можно использовать кирпичную кладку или монолитный бетон.
4.4.101. Для ликвидации засоров сети следует использовать обычные способы и приспособления - проволоку, штанги, спиральный вал, подмыв водой под напором из нижнего колодца; при невозможности ликвидировать засор указанными способами следует произвести вскрытие траншеи над местом засора и после прочистки труб уложить их вновь.
4.4.102. Разогрев замороженных участков сети и ледяных пробок в них можно производить подмывом водопроводной водой из нижних колодцев или горячей водой с t = 50-60°С от передвижных водогрейных котлов, а также паром от передвижных котлов давлением 78-98 КПа (0,8-1 атм) и др. способами.
4.4.103. Для устройства обводных линий могут быть применены:
трубы стальные, чугунные, асбестоцементные, железобетонные, фанерные и др.;
деревянные короба и лотки прямоугольного и трапецеидального сечения размером не менее 15×15 см из звеньев длиной 2-4 м. Отдельные звенья коробов и лотков могут иметь сборно-разборные соединения. Места соединений должны герметизироваться глиняным замком слоем не менее 30 см.
4.4.104. Для отведения сточных вод в отдельных случаях могут быть использованы дорожные кюветы и лотки, земляные канавы с укреплением дна откосов досками от размыва грунта.
В зимнее время наземные временные линии следует утеплять подручными материалами, а при перерывах в работе - опорожнять.
4.4.105. Временные обводные линии допускается прокладывать с минимальными уклонами, чтобы они могли работать при полном наполнении и даже с подпором. В отдельных случаях вместо одной могут быть уложены 2 нитки из труб меньшего диаметра.
4.4.106. Временные линии - трубы, лотки, желоба следует прокладывать по кратчайшим трассам по поверхности земли или с небольшим заложением и минимальным числом поворотов в плане и профиле. Для напорных линий допускается также наземная прокладка.
4.4.107. Допускается прокладка временных линий под проезжими частями дорог, под тротуарами, внутри кварталов и в местах, свободных от застройки. Для защиты линий от повреждения транспортными средствами их укладывают между бревнами, перекрытыми досками, в один или два ряда.
4.4.108. Для перекрытия канализационных сетей применяются деревянные пробки и щиты. Круглые и щитовые пробки пригодны для использования в трубах диаметром до 600 мм. Щитовые пробки следует устанавливать в одном или двух верхних колодцах, а круглые как по течению, так и против течения с креплением их распорками.
Для отключения трубопроводов диаметром более 600 мм следует применять деревянные щиты, нижняя часть которых должна иметь форму лотка, а верхняя может быть прямоугольной, возвышающейся над шелыгой на 20-30 см. Щиты должны быть закреплены распорками в противоположную сторону колодца и уплотнены тряпками, мешковиной и т. п. Для опускания больших щитов горловину колодцев следует разобрать.
4.4.109. Для изоляции больших каналов выше и ниже присоединения обводной линии или лотка рекомендуется применять кирпичные щиты-перегородки на цементном растворе на всю ширину каналов с насечкой на стенках в местах примыкания для более плотной связи перегородки с кладкой канала.
4.4.111. Восстановление дюкеров через крупные водоемы возможно только с помощью соответствующей специализированной организации. Эти работы, как правило, производят в порядке капитального восстановления.
4.4.112. При разрушении одной нитки дюкера в подводной части ее следует выключать на обоих берегах и обеспечить самостоятельную работу сохранившейся нитки.
4.4.113. При разрушении одной или обеих ниток дюкера в прибрежной части следует произвести аварийный ремонт, вскрыв траншеи и заменив поврежденные трубы новыми.
4.4.114. При разрушении обеих ниток дюкера в подводной части следует решить вопрос о прокладке линии под проезжей частью сохранившегося ближайшего моста или через водоем на понтонах, сваях или мостках. Применять сваи и мостки необходимо с учетом пропуска паводков и защиты опор от напора льда.
4.4.115. При пересечении дюкером оврагов, ручьев и т. п. возможна их надземная прокладка на эстакадах и насыпях с учетом пропуска поверхностных вод.
4.4.116. При невозможности использования указанных рекомендаций по согласованию с санитарными органами, сточные воды следует выпустить в водоем без очистки, ограничив пользование им.
4.4.118. При значительных повреждениях перекрытия насосной станции для предотвращения обрушения необходимо поставить подпорки в виде металлических или деревянных колонн и произвести ремонт кровли.
4.4.119. При появлении течи в стенах и днище подземной части здания, а также в стене, отделяющей машинный зал от приемного резервуара, необходимо восстановить их водонепроницаемость, заделав трещины просмоленным канатом, цементным раствором и штукатуркой.
4.4.120. При сильном разрушении стены, разделяющей машинный зал от приемного резервуара, и невозможности ликвидации поступления сточной жидкости в помещение машинного зала заделкой крупных течей и проломов рекомендуется откачивать стоки из машинного зала обратно в резервуар. Если откачка будет неэффективной, то насосные агрегаты необходимо вынести из помещения и расположить на временных фундаментах за пределами станции в котловане, глубина которого определяется возможной высотой всасывания насосов.
В летний период над насосами устраивается навес с легкими стенами, в зимний - тепляки.
4. 4.121. Во время ремонта центробежных насосов допускается:
при стальном корпусе - заваривать автогеном трещины в корпусе насоса и сваривать отбитые куски и части (корпус, лапы, всасывающий и нагнетательный патрубки);
наваривать отбитые или сносившиеся концы перьев рабочих колес: стальные - автогеном, чугунные и бронзовые - припоем красной меди или бронзы;
вместо литых стальных, бронзовых и чугунных рабочих колес делать стальные сварные. После сварки и ремонта рабочих колес особое внимание надо уделить их балансировке при сборке насоса.
4.4.122. При разрушении фундаментов насосных агрегатов рекомендуется устройство временных рамных деревянных фундаментов рядом с разрушенным, что позволит продолжить восстановительные работы.
4.4.123. При восстановлении разрушенных коммуникаций, в случае отсутствия каналов и лотков, трубопроводы и задвижки можно размещать по полу или стенам так, чтобы это размещение не помешало бы впоследствии проведению капитальных работ.
4.4.124. Если имеет место повреждение сооружений для подачи электроэнергии, необходимо решить вопрос о возможности получения электроэнергии из другого источника или использовать двигатели внутреннего сгорания и передвижные электростанции.
4.4.126. Принцип действия канализационных очистных сооружений по временным схемам при аварийной обстановке изложен в гл. 3 настоящих Рекомендаций и должен быть учтен при разработке мероприятий по производству восстановительных работ.
4.4.127. Очистные сооружения канализации (песколовки, отстойники, биофильтры, аэротенки, метантенки, илоуплотнители, насосные станции, каналы и лотки и т.д.), как правило, выполняют из монолитного или сборного железобетона. Характер их повреждения (разрушение стен или днища, проломы, трещины, нарушение герметичности и т.д.) аналогичен разрушению водопроводных сооружений и емкостей. Поэтому способы производства восстановительных работ на канализационных сооружениях отдельно не приводятся, а принимаются в соответствии с разработанными выше способами для аналогичных видов работ.
4.4.128. Заделку проломов и трещин в стенах и днище сооружений, устройство временных безнапорных лотков, каналов, трубопроводов и отдельных элементов сооружений выполняют в соответствии с изложенными выше рекомендациями.
4.4.129. Ремонт и замену поврежденных напорных и самотечных трубопроводов, восстановление целостности (герметичности) стенок труб, раструбных и фланцевых соединений, ремонт колодцев и камер переключения и т.д. выполняют в соответствии с п.п. 4.4.51; 4.4.57; 4.4.63-4.4.65; 4.4.72; 4.4.82-4.4.110.
4.4.130. Восстановительные работы на насосных и воздуходувных станциях очистных сооружений производят аналогично работам, изложенным в п.п. 4.4.19-4.4.29 и 4.4.117-4.4.125.
4.4.131. Ремонт и восстановление биофильтров - по типу работ, см. п.п. 4.4.39-4.4.41 с учетом специфики канализационных сооружений (загрузка щебнем или гравием, ремонт оросительных и дозирующих устройств, восстановление дренажа, возможность работы биофильтра при частичном повреждении стен и т.д.).
4.4.132. Хлорирование очищенных сточных вод применяют в зависимости от местных условий и обстановки по согласованию с санитарными органами и в соответствии с п.п. 4.4.47 и 4.4.48.
4.4.133. Испытание восстановленных сооружений на утечку воды производят согласно п. 4.4.84, с учетом местных условий.
4.4.134. При разрушении выпуска сточных вод в подводной его части следует расчистить место аварии для свободного залива.
4.4.135. При разрушении выпуска в прибрежной части следует устроить временную обводную линию или открытый канал для производства восстановительных работ.
5.1.1. После окончания монтажа трубопроводы должны быть подвергнуты наружному осмотру и испытаны на прочность и плотность.
Всасывающие трубопроводы насосов, компрессоров и воздуходувок, маслопроводы, трубопроводы, предназначенные для продуктов, требующих особой чистоты и паропроводы после монтажа промываются или продуваются.
В технически обоснованных случаях трубопроводы в процессе пусконаладочных работ могут подвергаться дополнительной обработке (протравливанию, обезжириванию и др.).
В случаях, предусмотренных проектом (при транспортировании продуктов с токсичными свойствами, взрывоопасных, а также при вакууме), трубопроводы в процессе пусконаладочных работ, при комплексных испытаниях оборудования подвергаются дополнительным пневматическим испытаниям на плотность с определением падения давления за время испытания.
5.1.2. Испытание трубопроводов может быть гидравлическим или пневматическим.
Испытание трубопроводов следует производить, как правило, гидравлическим способом.
Пневматический метод испытания допускается:
а) при сложности проведения гидравлического испытания трубопроводов (температура окружающей среды ниже 0°, отсутствие воды на площадке, возникновение чрезмерных напряжений в трубопроводе и опорных конструкциях от веса воды и т.п.);
б) при требовании проекта о проведении испытаний трубопроводов на плотность воздухом или газом.
Если проектом не предусмотрен определенный вид (или оба вида) испытаний, метод испытания выбирается монтажной организацией.
5.1.3. Испытываемый трубопровод следует отключить от оборудования и других трубопроводов заглушками; использование запорной арматуры для отключения испытываемого трубопровода не разрешается.
5.1.4. Присоединение вновь сооружаемого трубопровода к действующим допускается только после его испытания и приемки.
5.1.5. Манометры, применяемые при испытании трубопроводов, должны быть осмотрены, проверены и иметь пломбу или клеймо государственной контрольной лаборатории по измерительной технике.
5.1.6. Проверка манометров и их пломбирование производятся ежегодно, а также каждый раз после проведенного ремонта.
Дефекты, обнаруженные при испытании трубопроводов, должны быть устранены, а испытание повторено.
Устранение дефектов во время нахождения трубопровода под давлением запрещается.
5.1.7. Трубы и детали с дефектными продольными швами должны быть заменены новыми.
5.1.8. Испытание на сплошность покрытия стальных трубопроводов с внутренним покрытием из пластмасс или резины должно производиться после их испытания на прочность и плотность.
5.1.9. Испытания трубопроводов должны производиться под непосредственным руководством мастера в строгом соответствии с правилами настоящего раздела Госгортехнадзора СССР и техники безопасности, а также специальными инструкциями и проектом.
О проведении испытаний трубопроводов составляется акт.
5.2.1. Beличина испытательного давления на прочность указывается в проекте, а при отсутствии этих данных устанавливается:
а) для стальных трубопроводов при рабочем давлении до 5 кгс/см2 и для трубопроводов, предназначенных для работы с температурой стенки свыше 400°С - 1,5 Рраб, но не менее 2 кгс/см2;
б) для стальных трубопроводов при рабочем давлении от 5 кгс/см2 и выше - 1,25 Рраб, но не менее Рраб + 3 кгс/см2;
в) для остальных трубопроводов - 1,25 Рраб кгс/см2 но не менее:
для чугунных, винипластовых, полиэтиленовых и стеклянных трубопроводов - 2 кгс/см2;
для трубопроводов из цветных металлов и сплавов - 1 кгс/см2;
для фаолитовых трубопроводов - 0,5 кгс/см2.
5.2.2. Присоединение испытываемого трубопровода к гидравлическому прессу, насосу или сети, создающих необходимое испытательное давление, должно осуществляться через два запорных вентиля.
После достижения испытательного давления трубопровод должен отключаться от пресса, насоса или сети.
Примечание: При испытании трубопроводов из пластмасс достижение испытательного давления должно обеспечиваться дополнительной подкачкой воды, имеющей целью компенсировать деформацию трубопроводов при опрессовке. К испытанию следует приступить после стабилизации давления в трубопроводе.
5.2.3. Испытательное давление должно выдерживаться в течение 5 мин, после чего оно снижается до рабочего, при этом давлении должен быть произведен осмотр трубопровода.
Испытательное давление при испытании стеклянных трубопроводов выдерживается в течение 20 мин.
5.2.4. Сварные швы стальных трубопроводов при осмотре могут обстукиваться молотком весом не более 1,5 кг; трубопроводы из цветных металлов и сплавов не более 0,8 кг.
Трубопроводы из прочих материалов обстукивать запрещается.
5.2.5. Воздушники после проведения испытания должны быть открыты и трубопровод полностью освобожден от воды.
5.2.6. Результаты гидравлического испытания признаются удовлетворительными, если во время испытания не произошло падения давления по манометру, а в сварных швах, фланцевых соединениях и сальниках не обнаружено течи и отпотевания.
5.2.7. Одновременное гидравлическое испытание нескольких трубопроводов, смонтированных на одних опорных конструкциях или на эстакаде, допускается, если эти опорные конструкции или эстакада рассчитаны на соответствующие нагрузки.
5.2.8. При проведении гидравлического испытания трубопроводов при температуре окружающего воздуха ниже °С должны быть приняты меры против замерзания воды в трубопроводах, особенно в спускных линиях, и обеспечено надежное опорожнение трубопроводов.
5.3.1. Пневматическое испытание производится воздухом или инертным газом.
5.3.2. Пневматическое испытание трубопроводов на плотность (в том числе с определением падения давления) должно производиться только после предварительного их испытания на прочность.
5.3.3. Пневматическое испытание на прочность надземных чугунных, а также всех фаолитовых и стеклянных трубопроводов запрещается.
5.3.4. Пневматическое испытание трубопроводов на прочность не разрешается в действующих цехах производственных предприятий, а также на эстакадах, в каналах и лотках, где уложены трубопроводы, находящиеся в работе.
5.3.5. Давление при пневматическом испытании на прочность должно быть равно давлению, установленному для гидравлического испытания. Испытательное давление выдерживается, в течение 5 мин, после чего оно снижается до рабочего.
При испытании трубопроводов на плотность испытательное давление должно быть равно рабочему.
Примечание. Газопроводы, работающие на избыточном давлении до 1 кгс/см2 или в вакууме, испытываются давлением, которое устанавливается специальными инструкциями или проектом.
5.3.6. В случае установки чугунной арматуры, кроме арматуры из ковкого чугуна, пневматическое испытание трубопровода на прочность допускается при испытательном давлении не выше 4 кгс/см2 (изб.); при этом вся чугунная арматура должна пройти предварительное гидравлическое испытание на прочность пробным давлением в соответствии с ГОСТ 356-59.
5.3.7. Давление в трубопроводе при пневматическом испытании следует поднимать постепенно с осмотром трубопровода при достижении:
0,6 испытательного давления - для трубопровода с рабочим давлением до 2 кгс/см2;
0,3 и 0,6 испытательного давления - для трубопроводов с рабочим давлением выше 2 кгс/см2.
На время осмотра трубопровода подъем давления прекращается.
5.3.8. Окончательный осмотр трубопроводов производится при рабочем давлении и совмещается с испытанием их на плотность.
При этом герметичность сварных стыков, фланцевых соединений и сальников проверяется галлоидными течеискателями или путем обмазки их мыльным или другим раствором.
5.3.9. Результаты пневматического испытания трубопроводов признаются удовлетворительными, если при испытании на прочность за время испытания не произошло падения давления по манометру и при последующем испытании на плотность в сварных швах, фланцевых соединениях и сальниках не обнаружено утечек.
5.3.10. Трубопроводы, транспортирующие сильнодействующие ядовитые вещества и другие продукты с токсичными свойствами, сжиженные нефтяные газы, горючие и активные газы, а также легковоспламеняющиеся и горючие жидкости.
Требования к этим испытаниям должны указываться в проектах. Результаты испытаний фиксируются в акте.
5.3.11. Испытание на плотность с определением падения давления может производиться только после выравнивания температур внутри трубопровода. Для наблюдения за температурой в трубопроводе в начале и конце испытываемого участка следует устанавливать термометры.
5.3.12. Длительность испытания трубопроводов на плотность с определением падения давления устанавливается организацией, проводящей испытание, если в проекте нет указаний на этот счет.
5.3.13. На время проведения пневматических испытаний трубопроводов должна устанавливаться охраняемая зона.
Минимальное расстояние в любом направлении от испытываемого трубопровода до границы зоны: при надземной прокладке - 25 м; при подземной прокладке - 10 м.
Границы зоны отмечаются флажками.
Примечание. При проведении испытания трубопроводов на плотность с определением падения давления на время испытания охраняемая зона не устанавливается.
Пребывание людей в охраняемой зоне во время подъема давления в трубопроводах и при испытании на прочность запрещается.
5.3.14. Компрессор, используемый при проведении испытаний, должен находиться вне охраняемой зоны.
5.3.15. Осмотр трубопроводов разрешается производить лишь после того, как испытательное давление снижено до рабочего.
Осмотр должен производиться специально выделенными для этой цели и проинструктированными лицами. Нахождение в охраняемой зоне лиц, не участвующих в осмотре запрещается.
5.4.1. Промывка трубопроводов производится водой, а продувка - сжатым воздухом, кроме паропроводов, которые продуваются паром по разработанным схемам.
О промывке и продувке трубопроводов составляются акты.
5.4.2. Промывку трубопроводов следует вести интенсивно, обеспечивая скорость воды в трубопроводе 1-1,5 м/сек, до устойчивого появления чистой воды из выходного патрубка или опускного устройства трубопровода.
После промывки трубопроводы должны быть опорожнены.
5.4.3. Продувку трубопроводов следует производить при давлении ,равном рабочему, но не выше 40 кгс/см2, не допуская значительного снижения давления в конце трубопровода.
Время продувки должно быть не менее 10 мин.
Примечания:
1. Продувка газопроводов, работающих при избыточном давлении до 1 кгс/см2 в вакууме, производится по специальной инструкции.
2. Стеклянные и фаолитовые трубопроводы продувке не подлежат.
5.4.4. Промываемый или продуваемый трубопровод должен быть отключен от действующих трубопроводов заглушками.
5.4.5. При горячей продувке трубопроводов следует вести наблюдение за тепловым удлинением трубопроводов и работой опор и подвесок, проверяя надежность креплений и отсутствие защемлений.
5.4.6. Арматура установленная на спускных линиях и тупики трубопроводов после промывки или продувки должны быть осмотрены и очищены.
5.4.7. Монтажные шайбы, установленные вместо диафрагм контрольно-измерительных приборов, после промывки или продувки трубопроводов должны быть заземлены диафрагмами.
5.5.1. Приемка технологических трубопроводов в эксплуатацию должна производиться совместно с приемкой в эксплуатацию промышленных установок, агрегатов, цехов и других объектов, к которым они относятся.
5.5.2. При приемке технологических трубопроводов в эксплуатацию представляется следующая техническая документация:
а) акты на скрытые работы;
б) сертификаты на сварочные материалы;
в) акты испытаний арматуры и трубопроводов;
г) журналы сварочных работ для трубопроводов I и II категории и схемы трубопроводов I категории;
д) акты промывки и продувки;
е) комплект рабочих чертежей на монтаж трубопроводов с внесенными в них изменениями в период монтажа.
|
ГОСТЫ, СТРОИТЕЛЬНЫЕ и ТЕХНИЧЕСКИЕ НОРМАТИВЫ. Некоммерческая онлайн система, содержащая все Российские Госты, национальные Стандарты и нормативы. В Системе содержится более 150000 файлов нормативно-технической документации, действующей на территории РФ. Система предназначена для широкого круга инженерно-технических специалистов. Copyright © www.gostrf.com, 2008 - 2026 |