|
|
Р О С С Т Р О Й (ОАО ЦНС) ИНФОРМАЦИОННЫЙ ЦЕНТР ПО НОРМИРОВАНИЮ И СТАНДАРТИЗАЦИИ В СТРОИТЕЛЬСТВЕ
НОРМАТИВНО-ТЕХНИЧЕСКАЯ БАЗА СТРОИТЕЛЬСТВА
НОВЫЕ СТРОИТЕЛЬНЫЕ НОРМЫ И СТАНДАРТЫ
НОРМАТИВНЫЕ ДОКУМЕНТЫ СИСТЕМЫ НОРМАТИВНЫХ ДОКУМЕНТОВ В СТРОИТЕЛЬСТВЕ
«Временная
методика
|
|||||||||||||||||||||||||||||||||||||||||||||||||||||||||||||||||||||||||||||||||||||||||||||||||||||||||||||||||||||||||||||||||||||||||||||||||||||||||||||||||||||||||||||||||||||||||||||||||||||||||||||||||||||||||||||||||||||||||||||||||||||||||||||||||||||||||||||||||||||||||||||||||||||||||||||||||||||||||||||||||||||||||||||||||||||||||||||||||||||||||||||||||||||||||||||||||||||||||||||||||||||||||||||||||||||||||||||||||||||||||||||||||||||||||||||||||||||||||||||||||||||||||||||||||||||||||||||||||||||||||||||||||||||||||||||||||||||||||||||||||||||||||||||||||||||||||||||||||||||||||||||||||||||||||||||||||||||||||||||||||||||||||||||||||||||||||||||||||||||||||||||||||||||||||||||||||||||||||||||||||||||||||||||||||||||||||||||||||||||||||||||||||||||||||||||||||||||||||||||||||||||||||||||||||||||||||||||||||||||||||||||||||||||||||||||||||||||||||||||||||||||||||||||||||||||||||||||||||||||||||||||||||||||||||||||||||||||||||||||||||||||||||||||||||||||||||||||||||||||||
|
Утверждаю: Начальник ФГУ ВНИИПО МЧС России ___________ д.т.н., проф. Н.П. Копылов 14 февраля 2008 г. |
Утверждаю: Директор ЦНИИСК им. В.А. Кучеренко - филиала ФГУП НИЦ «Строительство» ___________ д.т.н., проф. Ю.П. Назаров 8 февраля 2008 г. |
Пояснительная записка
Настоящая «Временная методика» разработана для определения огнестойкости и пожарной опасности (далее по тексту пожарно-технических характеристик) наружных ненесущих навесных стен на основе стоечно-ригельных систем, а также других видов наружных ненесущих стен каркасного типа со светопрозрачными элементами.
Необходимость и актуальность разработки предлагаемой методики обусловлена следующим.
В действующих противопожарных нормах к наружным ненесущим (в том числе навесным) стенам предъявляются требования к их пределам огнестойкости по признаку Е (целостности) и классу пожарной опасности. При этом предел огнестойкости этих конструкций устанавливается испытаниями по ГОСТ 30247.1. Однако, в области применения этого стандарта указано, что огневые испытания должны проводиться с применением образцов конструкций без проемов. Для традиционных наружных ненесущих стен зданий, выполненных из традиционных материалов с достаточно массивными поперечными сечениями, применение ГОСТ 30247.1 в известной степени можно считать допустимым, поскольку, в этих конструкциях применяются, как правило, негорючие материалы с достаточно высокими термомеханическими характеристиками, в том числе с внешней стороны стен. Для этих конструкций характерно наличие достаточно высоких простенков между смежными по высоте оконными проемами.
Однако, для широко применяемых в настоящее время в строительстве наружных ненесущих стен, выполненных на основе стоечно-ригельных систем из тонкостенных стальных или алюминиевых профилей, схема испытаний конструкций (без проемов) по ГОСТ 30247.1 становится не корректной.
Это объясняется конструктивной особенностью таких стен и номенклатурой применяемых в них материалов и изделий.
Конструктивной особенностью этих стен является то, что все элементы каркаса (стойки и ригели) с внешней (фасадной) стороны являются открытыми. Элементы заполнения каркаса, образующие собственно сами стены, тоже расположены с внешней стороны и их крепление к каркасу также осуществляется с внешней стороны.
Существуют конструкции стен с отнесенными от плоскости стен дополнительными экранами из стекла (т.н. двойные светопрозрачные фасадные системы), а также их комбинация с классическими навесными фасадными системами с воздушным зазором.
В качестве элементов заполнения каркаса этих конструкций широко применяются стекло и изделия из него, облицовки из стали, алюминия и их сочетание, трехслойные композитные изделия, листовые неметаллические материалы и т.п. Для крепления элементов заполнения в этих стенах применяются как механические, так и клеевые соединения.
Таким образом, эти конструкции характеризуются большим разнообразием как конструктивных решений, так и разнообразием применяемых в них материалов и изделий с различными физико-механическими, термомеханическими и пожарно-техническими свойствами.
В случае пожара эти конструкции после разрушения остекления (светопрозрачного участка) и выхода факела пламени на фасад здания будут испытывать в пределах этажа пожара трехстороннее огневое воздействие (со стороны помещения с очагом пожара, с торца и с наружной стороны) и одностороннее огневое воздействие с наружной стороны в пределах этажа, расположенного над очагом пожара. Учитывая незащищенность металлического каркаса стен с наружной стороны в условиях трехстороннего огневого (теплового) воздействия следует ожидать сначала высокую деформативность каркаса, которая может привести к разрушению и выпадению элементов его заполнения, а в дальнейшем возможное последующее разрушение самого каркаса стены.
Кроме того, также вызывает трудности определение класса пожарной опасности этих конструкций в рамках действующих стандартных методов испытаний. Класс пожарной опасности наружных стен с внешней стороны определяется в соответствие с ГОСТ 31251 «Конструкции строительные. Методы определения пожарной опасности. Стены наружные с внешней стороны». Методикой испытаний по этому ГОСТ предусматривается монтаж образцов конструкций навесных фасадных систем на фрагменте стены из негорючих материалов толщиной не менее 200 мм, имеющей оконные проемы. Таким образом, схема испытаний по этому ГОСТ предполагает наличие капитальных стен, которые защищают испытываемые конструкции со стороны очага пожара.
На основании изложенного следует, что оценить огнестойкость по ГОСТ 30247.1 и класс пожарной опасности по ГОСТ 31251 наружных ненесущих (в т.ч. навесных) стен стоечно-ригельной конструкции не представляется возможным.
В предлагаемой «Временной методике» определение пожарно-технических характеристик наружных ненесущих стен на основе стоечно-ригельных систем и других типов каркасных стен из легких эффективных материалов предлагается определять двумя методами испытаний, которые последовательно реализуют две схемы огневого воздействия на эти конструкции в процессе пожара в здании. Первая схема огневого воздействия на конструкцию реализует одностороннее тепловое воздействие на конструкцию в очаге пожара, вторая схема - тепловое воздействие на конструкцию после разрушения остекления и выхода факела на фасад здания.
Для реализации первой схемы теплового воздействия на конструкцию предлагается использование ГОСТ 30247.1. Целью испытания по этому методу является определение времени разрушения остекления (светопрозрачного заполнения) стены и выхода факела пламени на фасад здания.
Для реализации второй схемы огневого воздействия на конструкцию предлагается метод испытания, основанный на использовании двухэтажной установки, имитирующей два этажа здания - этаж пожара и этаж над этажом пожара. Целью испытаний по второму методу является определение времени, в течение которого конструкция сопротивляется распространению пожара на вышерасположенный этаж, т.е. времени проявления предельных состояний по огнестойкости любого элемента стены в пределах второго этажа.
Таким образом, огнестойкость конструкции по данной «Временной методике» предлагается определять как сумму времени до разрушения светопрозрачного заполнения стены в очаге пожара, определяемому по ГОСТ 30247.1, и времени проявления предельных состояний по огнестойкости любого элемента стены в пределах этажа, расположенного над этажом пожара при испытании по второму методу. В тексте «Временной методики» этим методам испытаний присвоены наименования метод I и метод II соответственно.
Для обеспечения объективности получаемых результатов огневых испытаний и по методу I и по методу II «Временной методики» принципиально важен выбор теплового режима испытаний в этих методах испытаний.
В методе I, который практически идентичен методу испытаний ограждающих конструкций по ГОСТ 30247.1 (отличие заключается в том, что конструкции испытываются с проемом и с заполнением проема), используется температурно-временной режим, применяемый при огневых испытаниях строительных конструкций по ГОСТ 30247.0.
В методе II, по мнению авторов, следует применять температурный режим испытаний практически идентичный температурному режиму, принятому в ГОСТ 31251, а в качестве пожарной нагрузки для создания огневого воздействия следует принять древесину.
Выбор этого вида пожарной нагрузки и теплового воздействия в методе II и, соответственно, температурного режима испытаний обусловлен результатами и накопленным опытом натурных огневых испытаний систем наружного утепления фасадов зданий на трехэтажном фрагменте здания в рамках отработки ГОСТ 31251 в соответствии с «Временной методикой огневых испытаний систем наружного утепления», согласованной Госстроем России и ГУГПС МЧС России в 1996 г. Результаты этих исследований, по мнению авторов, позволяют миновать стадию натурных огневых испытаний наружных ненесущих стен, предусмотренных п. 5.20* СНиП 21-01-97* (и в соответствие с НПБ 233), и непосредственно перейти к испытаниям наружных стен по предлагаемому методу II. Кроме того, в данном методе испытания предлагается использование образцов конструкций в натуральную величину (размеры образцов не менее 3600*4200 мм (высота * ширина)) и тепловое воздействии, соответствующее тепловому воздействию при натурных огневых испытаниях наружных стен. Практически это означает, что метод II можно рассматривать как натурный метод огневых испытаний наружных ненесущих стен в условиях «реального» огневого воздействия.
Продолжительность теплового воздействия при испытаниях наружных стен по методу II во «Временной методике» предлагается определять исходя из принципа соблюдения равной огнестойкости субъектов системы «стена-перекры-тие», т.е. исходя из результатов испытаний конструкции стены по методу I и будущей области применения стены (в конечном итоге пределами огнестойкости перекрытий). Это позволит при нормировании пределов огнестойкости этих конструкций соотнести их огнестойкость, определяемую по настоящей «Временной методике», с нормируемыми пределами огнестойкости междуэтажных перекрытий, устанавливаемыми в зависимости от степени огнестойкости зданий.
По мнению авторов «Временной методики», максимальная огнестойкость наружных ненесущих стен, определяемая по методам I и II, должна ограничиваться значением 60 минут, т.к. продолжительность пожаров в зданиях при величинах пожарной нагрузки до 1000 МДж/м2 и типовых значениях проемности помещений, не превышает этой величины.
Вследствие того, что схема теплового (огневого) воздействия на конструкцию наружной стены и температурный режим по методу II практически полностью аналогичны применяемым в ГОСТ 31251, то в процессе проведения огневых испытаний по этому методу возможно определение и параметров конструкции, которые определяют ее пожарную опасность:
- наличие/отсутствие вторичных источников зажигания;
- наличие/отсутствие падающих элементов фасада и значение их массы;
- наличие/отсутствие повреждения горючих элементов конструкции и его размеры.
Во «Временную методику» в качестве методов идентификационного контроля материалов, применяемых в испытываемых конструкциях, наряду с методом контроля по приложению А ГОСТ 31251 вводится новый метод - определение низшей теплоты сгорания материалов по методу определения теплотворной способности материалов согласно EN ISO 1716: 2002. «Reaction to fire test for building products - Determinations of the heat of combustion». Введение этого метода позволит получить численные значения физических величин материалов, что в конечном итоге даст не только новый объем важной информации, но и повысит качество и надежность идентификации применяемых в конструкциях материалов.
Таким образом, по мнению авторов, разработанная «Временная методика» огневых испытаний позволяет достаточно объективно определить огнестойкость и класс пожарной опасности наружных ненесущих (в том числе навесных) стен. Вместе с тем существует ряд вопросов методологии проведения огневых испытаний этих конструкций, ответы на которые могут быть даны только после проведения огневых испытаний по данной методике. Поэтому на первом этапе освоения этой методики предполагается участие в испытаниях комиссии из представителей Росстроя, ГУГПС МЧС России, УГПС МЧС г. Москвы, ЦНИИСК им. В.А. Кучеренко и ВНИИПО МЧС России с целью обсуждения полученных результатов испытаний и выработки решений по вопросам проведения и оценке результатов испытаний.
1 Область применения
1.1 Настоящий документ устанавливает временную методику определения показателей огнестойкости и пожарной опасности (далее - пожарно-технических характеристик) наружных ненесущих (в т.ч. навесных) стен с проемами (светопрозрачными участками любых размеров) при воздействии пожара, как со стороны внутреннего объема здания, так и с внешней стороны здания.
Испытаниям по данной временной методике подлежат все виды наружных ненесущих (в т.ч. навесных) стен выполненных на каркасе из тонкостенных профилированных элементов из стали или алюминиевых сплавов, дерева, пластмасс и их комбинаций; с любыми видами облицовки или заполнения каркаса стен с внешней стороны, со светопрозрачными участками любых размеров; конструкции стен смешанного типа: стены каркасного типа в комбинации с навесными фасадными системами с воздушным зазором или системами наружного утепления фасадов зданий; все виды стен с отнесенными от основной плоскости фасада экранами из стекла (т.н. двойные светопрозрачные фасадные системы).
Настоящая временная методика при согласовании в установленном порядке может быть использована для определения пожарно-технических характеристик и других видов наружных ограждающих конструкций или иных, в том числе декоративных, конструкций и элементов, технические решения которых или применяемые в них материалы и изделия, а также варианты и способы их применения могут способствовать распространению пожара с наружной стороны здания.
1.2 Настоящая временная методика распространяется на наружные ненесущие вертикальные и наклонные (с углом наклона не более 45 ° от вертикали наружу) стены.
1.3 Установленные по данной временной методике пожарно-технические характеристики наружных ненесущих (в т.ч. навесных) стен могут использоваться проектными, строительными и надзорными органами при применении этих конструкций в строительстве.
1.4 Настоящая временная методика не распространяется:
- на оценку нормируемых пожарно-технических характеристик светопрозрачных противопожарных преград, перегородок и на заполнения светопрозрачных проемов в противопожарных преградах.
2 Нормативные ссылки
В настоящей временной методике использованы ссылки на следующие нормативные документы:
ГОСТ 12.1.033-81 ССБТ. «Пожарная безопасность. Термины и определения»
ГОСТ 30247.1-94 «Конструкции строительные. Методы испытаний на огнестойкость. Несущие и ограждающие конструкции»
ГОСТ 30403-96 «Конструкции строительные. Метод определения пожарной опасности»
ГОСТ 31251-2003 «Конструкции строительные. Методы определения пожарной опасности. Наружные стены с внешней стороны»
СТ СЭВ 383-87 «Пожарная безопасность в строительстве. Термины и определения»
СНиП 21-01-97* «Пожарная безопасность зданий и сооружений».
EN ISO 1716: 2002. «Reaction to fire test for building products - Determinations of the heat of combustion».
3 Определения
В настоящем документе приняты термины и определения, приведенные в СТ СЭВ 383, ГОСТ 12.1.033, а также следующие термины и их определения.
3.1 Наружная ненесущая (в т.ч. навесная) стена - ограждающая конструкция здания воспринимающая нагрузку от собственного веса и ветровую нагрузку и передающая эту нагрузку на несущие конструкции здания.
3.2 Светопрозрачное заполнение стены - участок (часть) стены с коэффициентом светопропускания более 0.
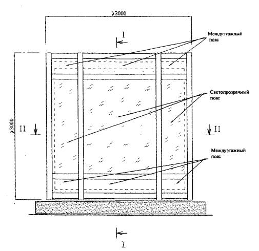
3.3 Междуэтажный пояс наружной ненесущей (в т.ч. навесной) стены - «глухая» часть наружной ненесущей (в т.ч. навесной) стены проектной высоты, непосредственно примыкающая к перекрытию здания и расположенная между смежным по высоте светопрозрачными участками стены.
3.4 Огнестойкость наружных ненесущих стен (в минутах) - сумма предела огнестойкости стены при испытании по методу I и минимального времени наступления любого признака предельного состояния по огнестойкости, регламентируемого данной временной методикой и определяемого по методу II.
3.5 Класс пожарной опасности наружной ненесущей стены - показатель пожарной опасности конструкции, устанавливаемый по критериям ГОСТ 31251, за исключением критерия, регламентируемого им по п. 10.1 а).
4 Основные положения
4.1 Сущность метода заключается в определении показателей пожарно-технических характеристик наружных ненесущих (в т.ч. навесных) стен (огнестойкости и класса пожарной опасности) при испытании в условиях, установленных настоящей методикой в течение времени, определяемого нормативными требованиями к пределу огнестойкости перекрытий зданий, но не более 60 минут.
4.2. Временная методика включает два метода огневых испытаний - метод испытания I и метод испытания II.
4.3. Огнестойкость наружных ненесущих (в т.ч. навесных) стен устанавливается последовательно при испытаниях по методу I и методу II.
4.3.1. Испытания по методу I проводятся в соответствие с требованиями ГОСТ 30247.1. со следующими изменениями и дополнениями:
- наружные стены испытываются со светопрозрачным заполнением стены;
- наружные стены испытываются на железобетонной раме с узлами крепления согласно технической документации;
- испытанию подлежит один образец;
- в качестве предельного состояния конструкции по огнестойкости принимается время разрушения светопрозрачного заполнения испытываемой конструкции и выхода факела пламени на фасад здания. Размер разрушения светопрозрачного заполнения конструкций не регламентируется*.
__________
*Подлежит уточнению
4.3.2. Испытания по методу II проводятся в соответствии с разделами 4-9 настоящей методики в части, относящейся к методу II.
Испытания по методу II имитируют тепловое воздействие на наружные ненесущие стены здания с внешней стороны от факела пламени из проема помещения с очагом пожара после разрушения его светопрозрачного участка и выхода факела пламени на фасад здания.
Испытания конструкций по методу II проводятся в условиях теплового воздействия, соответствующего требованиям калибровки установки по разделу 7.
В качестве предельных состояний конструкции по огнестойкости принимаются:
- потеря теплоизолирующей способности (I) и целостности (Е) по ГОСТ 30247.0 любого элемента или участка стены в пределах междуэтажного пояса, в том числе узла сопряжения стены с перекрытием здания;
- потеря теплоизолирующей способности (I) элементов каркаса светопрозрачного заполнения стены, время разрушения светопрозрачного заполнения или превышение критических значений теплового излучения Wкр., проходящего сквозь светопрозрачного заполнения стены над этажом пожара (на первом этапе исследований критические значения теплового излучения Wкр. определяются загоранием занавесей-пробников из синтетических и натуральных тканей, установленных в одной плоскости с приемной).
4.3.3. Конструкции должны испытываться с узлами сопряжения с внутренними стенами и перекрытиями.
4.3.4. Огнестойкость наружной ненесущей стены определяется суммой времени разрушения светопрозрачного заполнения испытываемой конструкции, установленному при испытании по методу I (по 4.3.1), и минимального времени наступления любого признака предельного состояния конструкции по огнестойкости, устанавливаемого по методу II (по 4.3.2).

Рисунок 1a - Схема установки с образцом стены при испытании по методу I (ГОСТ 30247.1)

Рисунок 1б - Схема установки с образцом стены при испытании по методу I (ГОСТ 30247.1), разрез I-I.

Рисунок 1в - Схема установки с образцом стены при испытании по методу I (ГОСТ 30247.1), разрез II-II.

Рисунок 2а - Схема установки с образцом стены при испытании по методу II
Н - высота этажа; А - высота междуэтажного пояса; В - высота светопрозрачного участка стены; С - свес междуэтажного пояса стены относительно нижней поверхности перекрытия; D - высота междуэтажного пояса над перекрытием; Е - толщина перекрытия (ригеля).

Рисунок 2б - Схема размещения средств измерения и контроля на установке с образцом конструкции стены при испытании по методу II

Рисунок 2в - Примерная схема размещения термопар и тепломеров с необогреваемой стороны образца
- термопары
□ - тепломеры

Рис. 2г - Схема сопряжения образца конструкции с внутренней стеной здания (стойкой рамы) при испытании по методу I (ГОСТ 30247.1)

Рисунок 3а - Схема установки с калибровочным образцом 1
1...8 - факельные термопары
Д1, Д2 - тепломеры

Рисунок 3б - Схема установки с калибровочным образцом и размещением термопар и тепломеров при калибровке установки для испытаний по методу II
4.4. Пожарная опасность конструкций определятся по методу II одновременно с определением характеристик ее огнестойкости по этому методу.
В качестве показателей пожарной опасности стены принимаются показатели пожарной опасности систем наружного утепления наружных стен зданий с внешней стороны, принятые по ГОСТ 31251:
- наличие/отсутствие вторичных источников зажигания;
- наличие/отсутствие обрушения элементов конструкции массой более 1 кг;
- наличие/отсутствие повреждения горючих материалов конструкции не выше уровней, указанных на рисунке 6.
Показатель пожарной опасности конструкции, регламентируемый п. 10.1 а) ГОСТ 31251, не применяется.
4.5. Полученные по настоящей методике пожарно-технические характеристики наружных стен относятся к зданиям, для которых продолжительность пожара не превышает 60 минут.
В случае несоответствия зданий этому требованию, испытательная лаборатория, руководствуясь п. 5.20* СНиП 21-01, согласовывает в установленном порядке вопрос о необходимости проведения натурных огневых испытаний фрагмента здания по НПБ 233 с вышеуказанными конструкциями для определения области их применения.
4.6. Пожарно-технические характеристики вышеуказанных наружных стен определяются на основании результатов огневых испытаний образцов их конструкций, смонтированных на фрагменте каркаса здания, выполненного из материалов, соответствующих физико-механическим характеристикам материалов конструкций зданий, для которых они будут применяться.
4.7. Испытательная лаборатория не несет ответственности за неизменность во времени показателей огнестойкости и пожарной опасности конструкций, испытанных по данной методике.
5.1. Для огневых испытаний по методу I используется стендовое оборудование по ГОСТ 30247.0.
Размеры образца и схема монтажа образца испытываемой конструкции для испытаний по методу I должны соответствовать рисункам 1а и 1б.
Температурный режим испытаний должен соответствовать ГОСТ 30247.0.
5.2. Для испытаний по методу II используется следующее оборудование:
- установка, состоящая из печи с открытым проемом, конструкций для монтажа образца ненесущей стены, имитирующих несущие конструкции здания (перекрытия или ригели) и торцы внутренних стен 1-го и 2-го этажа;
- система измерения и регистрации контролируемых параметров, включая оборудование для регистрации визуальных наблюдений - фото- или видеоаппаратуру.
5.3. Размеры установки для испытаний образцов наружных стен по методу II, схема монтажа образца испытываемой конструкции и примерные схемы размещения средств измерения должны соответствовать рисункам 2а, 2б и 2в.
5.4. Для калибровки установки при испытании по методу II следует использовать образец стены без проемов, толщиной не менее 100 мм (калибровочный образец), выполненный из негорючих материалов (бетона, железобетона, кирпича). Габаритные размеры калибровочного образца, схема его размещения на установке и схема расстановки датчиков для измерения регистрируемых параметров при калибровке показаны на рисунках 3а и 3б.
5.5. Установка должна быть выполнена таким образом, чтобы обеспечить режим теплового воздействия на калибровочный образец по требованиям раздела 7.
5.6. Перед калибровочным образцом и образцом конструкции стены на основании из негорючих материалов, кроме металлов, вплотную к передней стенке печи и на всю ширину образца следует расположить лист рубероида марки РПЭ 300 или РПП 300 (по ГОСТ 10923) шириной не менее 1,2 м.
5.7. Тепловое воздействие на калибровочный/испыты-ваемый образец стены следует обеспечивать сжиганием древесины. Рекомендуется использование древесины хвойных пород в виде брусков длиной по размерам печи, с поперечным сечением 50*50 (±5 мм) и весовой влажностью 12-15 %. Бруски древесины должны быть уложены в штабель послойно, с взаимно перпендикулярным расположением брусков в смежных по высоте слоях. Расстояние между брусками в слое должно составлять примерно 40-60 мм. Более точное расположение брусков в слое устанавливается при калибровках установки.
5.8. Требования к системам измерения.
5.8.1 Для измерения температур факела пламени при калибровке и испытаниях образцов конструкций, а также температур на поверхности и по сечению испытываемого образца конструкции следует применять термоэлектрические преобразователи (далее - термопары), отвечающие требованиям ГОСТ 30247.0.
5.8.2 Для измерения тепловых потоков следует использовать неселективные датчики поглощенного теплового потока (далее - тепломеры) с точностью измерения не менее 20%.
5.8.3 Требования к приборам для регистрации измеряемых характеристик - по ГОСТ 31251. Интервал регистрации показаний тепломеров не должен превышать 10 с.
5.8.4 Способы и приспособления для крепления тепломеров и термопар не должны влиять на их показания.
5.9. Для накопления экспериментальных данных о влиянии лучистого теплового потока на воспламеняемость материалов различной химической природы с необогреваемой стороны испытываемого образца конструкции стены на расстоянии 100 ± 5 мм от его внутренней поверхности устанавливаются занавеси из различных по химической природе материалов (синтетические и хлопчатобумажные ткани).
6 Образцы для испытаний
6.1 Испытанию по методу I подлежит один образец.
Образцы испытывают при воздействии тепла со стороны, обращенной при эксплуатации к помещению.
Габаритные размеры образца должны соответствовать ГОСТ 30247.1.
Конструкция образца должна обеспечивать возможность размещения в огневом проеме печи не менее одного светопрозрачного элемента стены проектных размеров. В случае невозможности обеспечения этого требования, габаритные размеры светопрозрачного элемента стены устанавливаются решением испытательной лаборатории, но не менее 1,0 * 2,0 (ширина * высота) м.
6.2 Испытаниям по методу II подлежат один или два образца конструкций стен с учетом возможных вариантов технических решений (см. 6.5.1).
6.3 Вертикальные размеры образцов конструкций стен определяются высотой светопрозрачного заполнения и двойной высотой междуэтажного пояса, но не менее 3600 мм, горизонтальные - не менее 4200 мм.
6.4 Образцы испытываемых конструкций монтируются на установке в соответствии с рисунками 2 и в соответствии с технической документацией на конструкцию.
6.5.1 Один из образцов должен испытываться при минимально возможном расстоянии (свесе) нижнего горизонтального торца междуэтажного пояса образца относительно нижней поверхности имитации плиты перекрытия, другой - при максимальном. Значения этих расстояний определяет Заказчик испытаний.
6.5.2 У испытываемых образцов каркасных стен нижний горизонтальный торец, обращенный к огневому проему печи, должен быть конструктивно выполнен для варианта его сопряжения со светопрозрачным заполнением. Верхний торец образца должен быть открытым, а вертикальные торцы образца должны быть закрытыми.
6.5.3 При испытании образцов наружных стен стоечно-ригельной конструкции нижний и верхний горизонтальные торцы образца должны выполняться в конструктивном варианте исполнения сопряжения ригеля со светопрозрачным заполнением; вертикальные (боковые) торцы образца должны заканчиваться стойками. В пределах ширины открытого проема печи, над его верхним откосом должно располагаться не менее двух вертикальных стоек (несущих элементов стены стоечно-ригельной конструкции).
Испытательная лаборатория с учетом технических решений конструкции стен может потребовать установку стоек в пределах площади огневого проема.
6.6 Узлы сопряжения образцов ненесущих стен с перекрытиями и имитацией торцов внутренних стен здания должны быть выполнены в соответствии с технической документацией.
6.7 Монтаж образцов испытываемой стены выполняется Заказчиком испытания.
6.8 При использовании в конструкции стены горючих (по ГОСТ 30244) материалов следует производить в процессе изготовления образцов для испытаний отбор проб этих материалов для проведения идентификационного контроля в соответствии с приложением А к ГОСТ 31251 и с приложением 1 к настоящему документу. Испытательная лаборатория в необходимых случаях имеет право проводить указанный контроль и для негорючих материалов. Отбор проб производится совместно представителями испытательной лаборатории и представителя Заказчика с составлением двустороннего акта отбора образцов.
6.9 В процессе монтажа средств измерения, предусмотренных разделом 7, по решению испытательной лаборатории на образцах могут устанавливаются дополнительные средства измерения для контроля температуры на их поверхности и по сечению, тепловых потоков, а также иных характеристик. Дополнительные средства измерения и контроля не должны влиять на пожарно-технические свойства испытываемых конструкций.
6.10 Комплект поставки образцов на испытания должен включать:
- полный комплект технической документации на испытываемую конструкцию, включая чертежи примыкания стен к перекрытиям и внутренним стенам здания, чертежи открывающихся проемов светопрозрачного заполнения конструкции (системы), внутреннего и наружного угла стены, узла примыкания к карнизу кровли и цоколю здания;
- спецификацию используемых материалов и изделий с указанием их пожарно-технических характеристик и соответствующих документов, а также сопроводительные документы, идентифицирующие конструкцию, материалы и изделия на стадии их изготовления и поставки;
- чертеж образца испытываемой конструкции на установке для огневых испытаний (Заказчик испытаний при разработке чертежа образца должен их согласовывать с испытательной лабораторией);
- инструкцию по монтажу испытываемой конструкции;
- протокол огневых испытаний конструкции по методу I (для испытаний по методу II).
6.11 При передаче представителем Заказчика образцов смонтированных для проведения испытаний конструкций испытательной лаборатории обеими сторонами составляются акт о соответствии образца требованиям технической документации на испытываемую конструкцию и согласие представителя Заказчика на проведение испытаний, а также акт об отборе проб материалов для проведения идентификационного контроля материалов.
7 Калибровка установки для испытаний по методу II
7.1 Цель калибровки установки по методу II - по 7.1 ГОСТ 30403.
7.2. В качестве калибровочного образца следует использовать фрагмент стены, отвечающий требованиям 5.4.
Калибровку установки производят со смонтированным на ней в соответствии с рисунками 3 тепломерами Д1, Д2 и термопарами 1-8.
7.3 Тепловой режим, обеспечиваемый сжиганием пожарной нагрузки по 5.7, контролируют тепломером Д1 и термопарами 1 и 2.
7.4 Тепловой режим при калибровке для последующих испытаний конструкций наружных ненесущих стен зданий должен соответствовать следующим требованиям:
7.4.1 Температура, регистрируемая термопарой 1, должна быть в пределах, приведенных в таблице 1, а температура, регистрируемая термопарой 2, должна быть не менее 700°С в период с 10 по 60 минуты калибровки*.
7.4.2 Факел пламени из огневого проема печи установки должен выходить на фасад фрагмента стены не позднее 6 минуты калибровки и уходить внутрь печи не ранее 60 минуты. Высота светящейся части факела пламени при калибровке в период с 10 по 60 минуты должна составлять не менее 1,2* м, считая от уровня нижнего торца калибровочного образца.
7.4.3 Калибровку прекращают после снижения температуры в точке 1 до 450 °С, но не ранее чем через 75 минут после ее начала.
Таблица 1
|
Время t, мин |
Температура Т, °С |
Допускаемые отклонения |
|
0≤t≤7 |
100 (1+t)+20 |
±20 % |
|
7≤t≤60 |
850 |
±6% |
|
60 <t |
не регламентируется |
не регламентируется |
|
Примечание: 1. За начало времени калибровки (t=0) принимается момент достижения температуры, регистрируемой термопарой 1, значения 120° С. |
||
7.5 При калибровке по 7.4 среднее значение показаний плотности поглощенного теплового потока, регистрируемого тепломером Д1 в непрерывном интервале времени от 7 до 40 минуты калибровки должно составлять 12,5±2,5* кВт/м2 и ни в какой момент времени не должно превышать 20 кВт/м*.
____________
* - значение будет уточнено при калибровке установки
7.6 В процессе калибровки регистрируют условия сжигания топлива, а также показания термопар 1... 8 и тепломеров Д1 и Д2. Регистрация показаний термопар и тепломеров при калибровке должна осуществляться не реже, чем через 60 и 10 с (1 и 0,167 минут) соответственно.
7.7 При признании калибровок установки удовлетворительной составляется акт калибровок, рекомендуемая форма которого приведена в приложении В.
7.8 Частота калибровки - по 7.7 ГОСТ 30403.
8 Подготовка испытаний
8.1 Подготовка испытаний по методу I включает монтаж образца испытываемой конструкции на печь, проверку приборов и оборудования, монтаж термопар и тепломеров в соответствии с разработанной схемой их расстановки.
Конструкции стен по методу I испытываются только в вертикальном положении.
Схема проведения испытания по методу I приведена на рисунке 1.
8.2 Подготовка к проведению испытаний по методу II включает монтаж образца испытываемой конструкции на несущие элементы установки, размещение в печи топлива в соответствие с актом калибровки, проверку приборов и оборудования, монтаж термопар и тепломеров в соответствии с разработанной схемой их расстановки.
8.3 Образец конструкции на установке монтируется таким образом, чтобы его вертикальная ось симметрии совпадала с вертикальной осью симметрии открытого проема печи, а расстояние между нижним горизонтальным торцом образца и нижним откосом огневого проема печи соответствовало высоте огневого проема, приведенного на рисунке 2.
8.4 Образцы, изготавливаемые с использованием «мокрых» процессов, к моменту испытаний должны быть выдержаны в течение времени, необходимого для достижения требуемых эксплуатационных свойств согласно технической документации на испытываемую конструкцию.
8.5 В случае применения стены с уклоном от вертикали наружу (см. 1.3), образец конструкции стены должен испытываться с конкретным значением этого уклона. В случае применения стены с уклоном от вертикали в сторону внутреннего объема здания, испытания проводят при вертикальном расположении образца стены.
8.6 Монтаж термопар и тепломеров производится в соответствии с разработанной схемой их расстановки, в том числе:
- факельные термопары по 7.2;
- термопары на обогреваемой поверхности (см. рис. 2а) и внутри образца испытываемой конструкции (места установки термопар определяются решением испытательной лаборатории);
- термопары для измерения температуры необогреваемой горизонтальной поверхности узла сопряжения образца испытываемой конструкции с перекрытием огневой камеры печи (места установки термопар определяются решением испытательной лаборатории);
- термопары для измерения температуры необогреваемой поверхности междуэтажного пояса образца испытываемой конструкции над перекрытием огневой камеры печи (см. рис. 2в; конкретные места установки термопар определяются решением испытательной лаборатории);
- тепломер в нижнем уровне светопрозрачного участка испытываемого образца конструкции. Плоскость приемной поверхности тепломера В1 должна находиться на расстоянии 100 ± 5 мм от плоскости необогреваемой поверхности светопрозрачного элемента испытываемого образца конструкции (рис. 2б). Кроме того, в уровне 2-го этажа установки на расстоянии 100 ± 5 мм от плоскости необогреваемой поверхности светопрозрачного заполнения испытываемого образца конструкции должны навешиваться два полотна занавесей из синтетической и хлопчатобумажной ткани шириной 500 ± 50 мм (рис. 2б). Занавеси не должны закрывать плоскость приемной поверхности тепломера.
- тепломер в уровне верхнего торца испытываемого образца конструкции. Плоскость приемной поверхности тепломера В2 должна находиться в плоскости наружной поверхности испытываемого образца конструкции.
8.7 При проведении испытаний при согласовании с Заказчиком допускается отсутствие представителя Заказчика.
9 Проведение испытаний
9.1 Испытания образцов по методу I проводят в соответствие с ГОСТ 31247.1 и п. 5.1.
В процессе проведения испытаний следует регистрировать параметры, указанные в п 8.2 ГОСТ 30247.0, а также время и размер разрушения светопрозрачного участка стены.
Испытания по методу I прекращаются после разрушения светопрозрачного заполнения испытываемой конструкции и выхода факела пламени на фасад здания. Размер разрушения светопрозрачного заполнения конструкций не регламентируется *.
*- уточняется в процессе испытаний
9.2 Испытания образцов по методу II проводят при температуре окружающего воздуха от +1 до +30 °С, скорости его движения не более 0,5 м/с и относительной влажности (60±15)%, измеренных на расстоянии от 1 до 1,5 м от поверхности образца.
9.3 Испытания проводят при использовании того топлива, его количества, расположения, способа разжигания, и при той же площади вентиляционных отверстий в печи, которые были определены при калибровке установки по разделу 7. Длительность испытания определяется по 7.4.
9.4 В процессе испытания следует регистрировать следующие параметры, события и время их реализации, которые характеризуют пожарно-технические показатели системы:
а) показания факельных термопар и термопар, установленных на образце (в том числе установленных по 6.9), а также показания тепломеров В1и В2; показания термопар и тепломеров следует регистрировать с тем же интервалом времени, что и при калибровке;
б) распространение горения по поверхности и/или по сечению образца;
в) воспламенение газов, выделяющихся при термическом разложении материалов образца по его торцам;
г) образование горящего расплава и/или частиц, приводящее к воспламенению рубероида, расположенного на основании печи;
д) высоту факела пламени;
е) обрушение элементов образца и их размеры;
ж) потерю целостности светопрозрачного заполнения;
з) загорание занавесей, установленных по 5.9.
9.5 События по 9.4а) и время их реализации фиксируются по показаниям регистрирующей аппаратуры; события 9.4б)...9.4з) - визуально и с помощью видео- или фотосъемки.
9.6 Кроме определения параметров, указанных в 9.4, в процессе испытания регистрируют: время появления и характер развития в образце трещин, отверстий, отслоений; появление, изменение цвета газообразных продуктов термического разложения материалов; появление и изменение интенсивности запахов, характерных для термического разложения органических материалов; появление пламени; изменение цвета и состояния поверхностей, а также другие особенности реакции образца на тепловое воздействие.
Эти явления регистрируют визуально, органолептически и с помощью видео- или фотосъемки, а также с помощью системы измерения и регистрации параметров.
9.7 После окончания испытания образец оставляют на печи для остывания (вместе с печью) до температуры окружающей среды для последующего вскрытия конструкции и обследования.
9.8 После остывания образца проводится его обследование с целью определения и регистрации размеров и характера повреждения материалов образца. При измерении размеров повреждения необходимо обследовать все слои и элементы путем последовательного вскрытия слоев образца.
9.9 Размеры повреждения измеряются в миллиметрах в плоскости образца от нижнего горизонтального торца образца конструкции, перпендикулярно к ней, до наиболее удаленной точки повреждения образца.
9.10 Повреждением считается обугливание материалов, из которых выполнена конструкция, на глубину более 2 мм, их оплавление с признаками горения - обугливанием или образованием расплава черного цвета при светлых тонах окраски исходного материала.
9.11 Повреждением не считается изменение цвета и оплавление материалов при отсутствии признаков горения, указанных в 9.10. Не учитывается повреждение материалов толщиной менее 2 мм.
9.12 Испытания прекращаются (регистрация параметров прекращается) после снижения температуры в точке 1 ниже 450°С, но не ранее, чем через 60 минут после начала испытаний и при условии устойчивого снижения температур, измеряемых термопарами, установленными внутри и на поверхности образца.
9.13 Техника безопасности при проведении испытаний - по ГОСТ 31251.
10 Оценка результатов испытания
Конструкция стены по результатам огневых испытаний характеризуется двумя показателями: огнестойкостью (по п. 3.4) и классом пожарной опасности (по 3.5).
10.1 Огнестойкость наружных ненесущих стен (в минутах) определяется суммой предела огнестойкости стены при испытании по методу I (временем разрушения светопрозрачного заполнения испытываемой конструкции по 10.1а) и минимального времени наступления любого признака предельного состояния по огнестойкости стены при испытании по методу II (по 10.1б)…..10.1е), в том числе:
а) пределом огнестойкости по признаку разрушения светопрозрачного заполнения испытываемой конструкции стены (в минутах) на этаже пожара при испытании по методу I - Е1;
б) потерей теплоизолирующей способности I2 или целостности Е2 (по ГОСТ 30247.1) необогреваемой поверхности узла сопряжения образца конструкции с имитацией перекрытия;
в) потерей теплоизолирующей способности I3 или целостности Е3 (по ГОСТ 30247.1) необогреваемой поверхности междуэтажного пояса образца конструкции в пределах 2-го этажа установки;
г) потерей теплоизолирующей способности I4 или целостности Е4 элементов каркаса светопрозрачного заполнения образца конструкции в пределах 2-го этажа установки;
д) потерей целостности Е5 элементов светопрозрачного заполнения образца конструкции в пределах 2-го этажа установки;
е) временем загорания занавесей, установленных по 5.8 (или превышение значений теплового излучения W* светопрозрачного заполнения стены над этажом пожара) - tw.
Условное обозначение предела огнестойкости наружной ненесущей (навесной) стены, установленное по данной временной методике обозначается как
П0 = Е1 + MIN [Е2, I2, Е3, I3, E4, I4, E5, tw], где
П0 - предел огнестойкости наружной ненесущей стены.
10.2 Пожарная опасность конструкции определяется:
а) вторичными источниками зажигания, которые устанавливаются по реализации события 9.4 г) непрерывно в течение не менее 5 сек;
б) временем обрушения хотя бы одного элемента конструкции или его части массой 1,0 кг и более;
в) повреждением материалов образца по 9.9 и 9.10,
10.3 Конструкции подразделяются на классы пожарной опасности в соответствии с таблицей 2 по наименее благоприятному показателю.
10.4 Результаты испытания вертикально расположенных образцов стен распространяются на стены с уклоном от вертикали в сторону внутреннего объема здания и не распространяются на стены с уклоном от вертикали наружу.
Таблица 2
|
Класс пожарной опасности |
Наличие |
||
|
вторичных источников зажигания по 10.2а) |
обрушения элементов системы по 10.2б) |
Повреждение материалов образца по 10.2в) допускается не выше уровня, указанного на рисунке 2а |
|
|
1 |
2 |
3 |
4 |
|
К0 |
Не допускается |
Не допускается |
1 |
|
К1 |
Не допускается |
Не допускается |
2 |
|
К2 |
Не допускается |
Не регламентируется |
3 |
|
К3 |
Не регламентируется |
||
11 Протокол испытаний
11.1 Протокол испытаний оформляется по разделу 11 ГОСТ 30403. При этом допускается не включать в протокол данные о воспламеняемости и дымообразующей способности материалов.
11.2 К протоколу испытаний должны быть приложены протоколы идентификационного контроля материалов, применяемых при изготовлении образцов (по приложениям А ГОСТ 31251 и настоящего документа).
«ПРИЛОЖЕНИЕ А»
(обязательное)
Образец оформления протокола
определения низшей теплоты сгорания материала по методу EN ISO 1716:2002.
«Reaction to fire test for building products -Determinations of the heat
of combustion».
____________________________________________________________________________
(Наименование организации, выполняющей испытания)
ПРОТОКОЛ № _________________________________
определения низшей теплоты сгорания материала
______________________________________________
(наименование материала)
1. Заказчик: Наименование организации, адрес:
2. Полное наименование материала (ГОСТ, ТУ, № экспериментальной партии, паспорт и т.д.): ________________________
Испытаниям подверглись 3 образца.
3. Дата поступления образца на испытания:
4. Дата проведения испытаний:
5. Тип аппаратуры: Калориметр сгорания.
6. Наименование методики испытаний: «Материалы строительные. Метод испытания на определение теплоты сгорания».
7. Условия проведения испытаний:
Таблица 1
|
Масса образцов, г. Число испытанных образцов Относительная влажность в помещении, % Температура в помещении, °С |
0,4756; 0,4765; 0,4721 3 81 20 |
8. Результаты проведения испытаний:
Таблица 2
|
i, опыт |
1 |
2 |
3 |
|
Qнi, МДж/кг |
2,003 |
2,0081 |
2,001 |
Qн = ΣQнi/i = 2,0028 МДж/кг.
Вывод: Низшая теплота сгорания материала __________________________________________ составляет 2,0028 МДж/кг.»
«ПРИЛОЖЕНИЕ Б»
(рекомендуемое)
Содержание акта калибровки установки
В акте калибровки должны быть приведены следующие сведения:
- дата калибровки;
- место калибровки;
- идентификационный номер установки;
- температура и влажность окружающей среды, скорость движения воздуха, измеренная на расстоянии 1-1,5 м от поверхности образца;
- вид древесины;
- масса древесины (масса пожарной нагрузки);
- весовая влажность древесины и способ ее определения (в том числе наименование прибора для измерения влажности древесины, его идентификационный номер, погрешность, время следующей аттестации);
- геометрические характеристики древесины (поперечное сечение и характерная длина);
- способ укладки древесины;
- наличие, вид, масса, расположение и способ воспламенения топлива для розжига пожарной нагрузки в печи установки;
- расположение и размеры вентиляционных отверстий печи;
- моменты времени регулирования вентиляционных отверстий и их геометрические размеры;
- фото - или видеосъемка калибровки установки, в которых должны присутствовать: съемка всех вентиляционных отверстий печи; взвешивания пожарной нагрузки (древесины), измерение ее геометрических характеристик, ее укладка, расположение топлива для разжигания пожарной нагрузки в печи установки и способ ее воспламенения.
- графики изменения температур, регистрируемые термопарами 1-7, и графики изменения плотности теплового потока, регистрируемые тепломерами Д1 и Д2.
Акт калибровки установки вместе с видео-фотоматериалами калибровки должен быть заверен руководителем испытательной лаборатории и предъявляться по первому требованию Заказчика испытаний».
ПРИЛОЖЕНИЕ В
(справочное)
Принципиальные схемы наружных ненесущих стен стоечно-ригельной конструкции

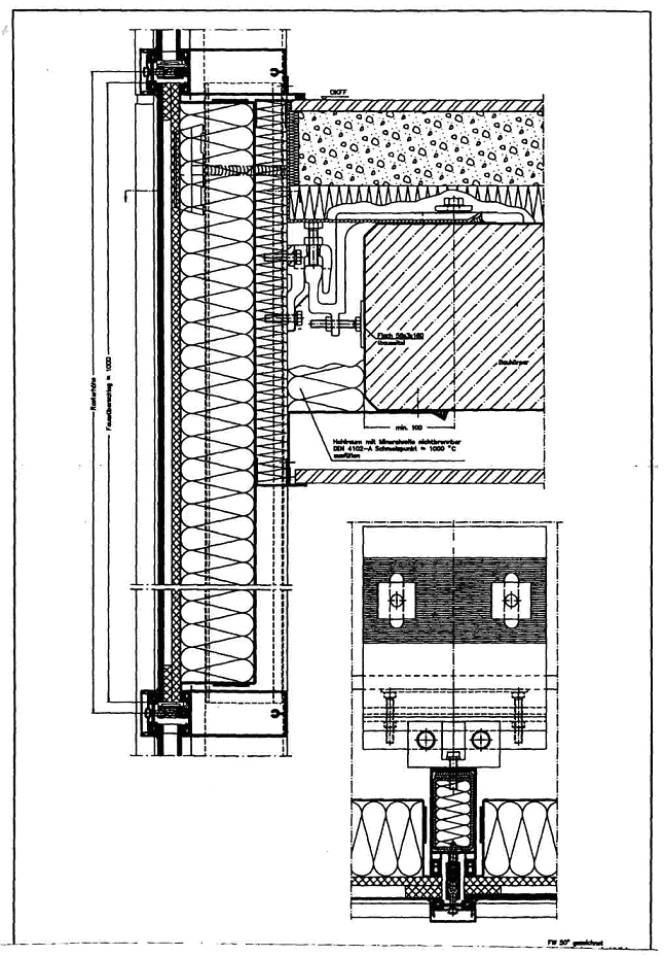
Рис. 4. Пример наружной ненесущей (навесной) стены стоечно-ригельной конструкции с междуэтажным поясом

Рис. 5. Пример типового междуэтажного пояса наружной ненесущей (навесной) стены стоечно-ригельной конструкции

Рис. 6. Принципиальная схема т.н. "двойных фасадов" стоечно-ригельной конструкции
Разработчики:
|
ЦНИИСК им. В.А. Кучеренко: |
Зведующий Лабораторией противопожарных исследований (ЛПИСИЭС) А.В. Пестрицкий Главн. научн. сотр., к.т.н. в.Н. Зигерн-Корн Вед. научн. сотр., к.т.н. А.А. Гусев
|
|
ФГУ ВНИИПО МЧС России: |
Главн. научн. сотр., д.т.н., проф. И.С. Молчадский |
Письмо ОАО «Центр методологии нормирования и стандартизации в строительств» от 29.02.2008 № 175/и
Директору ЦНИИСК им. В.А. Кучеренко Назарову Ю.П.
ОАО «Центр методологии нормирования и стандартизации в строительстве» рассмотрел «Временную методику огневых испытаний наружных ненесущих (в т.ч. навесных) стен со светопрозрачными элементами по определению их огнестойкости и пожарной опасности» (в редакции от февраля 2008 г.), разработанную Лабораторией противопожарных исследований института совместно со специалистами ВНИИПО МЧС России и ООО «ЦПИТЗС» и, учитывая положительные отзывы ВНИИПО МЧС России и УГПС МЧС России по г. Москве, считает целесообразным рекомендовать ее применение для оценки огнестойкости и пожарной опасности наружных ненесущих стен со светопрозрачными элементами
Огневые испытания наружных ненесущих стен по этой методике, основанной на результатах натурных испытаний, проведенных ЦНИИСК при участии ВНИИПО МЧС России в 1997-2003 г.г. в рамках «Программы натурных огневых испытаний фрагментов фасадов зданий с дополнительной наружной теплоизоляцией» (согласованной Управлением стандартизации, технического нормирования и сертификации Госстроя России 28.07.1997 г. и ГУГПС МВД России письмом № 20/2.2/1612 от 28.07.1997 г.), позволят проектным и строительным организациям, разрабатывающим и применяющим в строительстве этот вид строительной продукции, объективно оценить их огнестойкость и пожарную опасность.
Учитывая актуальность проблемы, по мере накопления опыта и результатов огневых испытаний наиболее представительных систем ограждающих конструкций этого типа, Центр считает необходимым в дальнейшем внесение соответствующих изменений или дополнений в указанную методику, а также предложений по нормированию этих конструкций.
Заместитель генерального директора В.И. Иванов
В соответствии с протоколом от 21 ноября 2007 г. № 32 заседания Межгосударственной научно-технической комиссии по стандартизации, техническому нормированию и сертификации в строительстве приказываю:
1. Ввести в действие с 1 января 2009 г. для применения в Российской Федерации в качестве национального стандарта Российской Федерации ГОСТ 21.502-2007 «Система проектной документации для строительства. Правила выполнения проектной и рабочей документации металлических конструкций» с правом досрочного применения.
Введен впервые.
2. Закрепить принятый стандарт за Управлением технического регулирования и стандартизации.
Руководитель Федерального агентства Г.И. Элькин
В соответствии с Федеральным законом от 27 декабря 2002 г. № 184-ФЗ «О техническом регулировании» приказываю:
1. Утвердить национальный стандарт Российской Федерации ГОСТ Р 52910-2008 «Резервуары вертикальные цилиндрические стальные для нефти и нефтепродуктов. Общие технические условия» с датой введения в действие 1 января 2009 г. с правом досрочного применения.
Введен впервые.
2. Закрепить утвержденный стандарт за Управлением технического регулирования и стандартизации.
Руководитель Федерального агентства Г.И. Элькин
В соответствии с протоколом от 21 ноября 2007 г. № 32 заседания Межгосударственной научно-технической комиссии по стандартизации, техническому нормированию и сертификации в строительстве приказываю:
1. Ввести в действие с 1 января 2009 г. для применения в Российской Федерации в качестве национального стандарта Российской Федерации ГОСТ 31356-2007 «Смеси сухие строительные на цементном вяжущем. Методы испытаний» с правом досрочного применения.
Введен впервые.
2. Закрепить принятый стандарт за Управлением технического регулирования и стандартизации.
Руководитель Федерального агентства Г.И. Элькин
В соответствии с Федеральным законом от 27 декабря 2002 г. № 184-ФЗ «О техническом регулировании» приказываю:
1. Утвердить национальный стандарт Российской Федерации ГОСТ Р 52908-2008 (ЕН 13820:2003) «Изделия теплоизоляционные, применяемые в строительстве. Метод определения содержания органических веществ», модифицированный по отношению к европейскому стандарту ЕН 13820:2003 «Теплоизоляционные изделия, применяемые в строительстве - Определение содержания органических веществ», с датой введения в действие 1 января 2009 г. с правом досрочного применения.
Введен впервые.
2. Закрепить утвержденный стандарт за Управлением технического регулирования и стандартизации.
Руководитель Федерального агентства Элькин
В соответствии с Федеральным законом от 27 декабря 2002 г. № 184-ФЗ «О техническом регулировании» приказываю:
1. Утвердить национальный стандарт Российской Федерации ГОСТ Р ЕН 822-2008 «Изделия теплоизоляционные, применяемые в строительстве. Методы измерения длины и ширины», идентичный европейскому стандарту ЕН 822:1994 «Теплоизоляционные изделия, применяемые в строительстве - Определение длины и ширины», с датой введения в действие 1 января 2009 г. с правом досрочного применения.
Введен впервые.
2. Закрепить утвержденный стандарт за Управлением технического регулирования и стандартизации.
Руководитель Федерального агентства Элькин
В соответствии с Федеральным законом от 27 декабря 2002 г. № 184-ФЗ «О техническом регулировании» приказываю:
1. Утвердить национальный стандарт Российской Федерации ГОСТ Р ЕН 823-2008 «Изделия теплоизоляционные, применяемые в строительстве. Методы измерения толщины», идентичный европейскому стандарту ЕН 823:1994 «Теплоизоляционные изделия, применяемые в строительстве – Определение толщины», с датой введения в действие 1 января 2009 г. с правом досрочного применения.
Введен впервые.
2. Закрепить утвержденный стандарт за Управлением технического регулирования и стандартизации.
Руководитель Федерального агентства Элькин
В соответствии с Федеральным законом от 27 декабря 2002 г. № 184-ФЗ «О техническом регулировании» приказываю:
1. Утвердить национальный стандарт Российской Федерации ГОСТ Р ЕН 824-2008 «Изделия теплоизоляционные, применяемые в строительстве. Методы измерения отклонения от прямоугольности», идентичный европейскому стандарту ЕН 824:1994 «Теплоизоляционные изделия, применяемые в строительстве - Определение отклонения от прямоугольности», с датой введения в действие 1 января 2009 г. с правом досрочного применения.
Введен впервые.
2. Закрепить утвержденный стандарт за Управлением технического регулирования и стандартизации.
Руководитель Федерального агентства Элькин
В соответствии с Федеральным законом от 27 декабря 2002 г. № 184-ФЗ «О техническом регулировании» приказываю:
1. Утвердить национальный стандарт Российской Федерации ГОСТ Р ЕН 825-2008 «Изделия теплоизоляционные, применяемые в строительстве. Методы измерения отклонения от плоскостности», идентичный европейскому стандарту ЕН 825:1994 «Теплоизоляционные изделия, применяемые в строительстве - Определение отклонения от плоскостности», с датой введения в действие 1 января 2009 г. с правом досрочного применения.
Введен впервые.
2. Закрепить утвержденный стандарт за Управлением технического регулирования и стандартизации.
Руководитель Федерального агентства Элькин
В соответствии с Федеральным законом от 27 декабря 2002 г. № 184-ФЗ «О техническом регулировании» приказываю:
1. Утвердить национальный стандарт Российской Федерации ГОСТ Р ЕН 826-2008 «Изделия теплоизоляционные, применяемые в строительстве. Методы определения характеристик сжатия», идентичный европейскому стандарту ЕН 826:1996 «Теплоизоляционные изделия, применяемые в строительстве - Определение характеристик сжатия», с датой введения в действие 1 января 2009 г. с правом досрочного применения.
Введен впервые.
2. Закрепить утвержденный стандарт за Управлением технического регулирования и стандартизации.
Руководитель Федерального агентства Г.И. Элькин
В соответствии с Федеральным законом от 27 декабря 2002 г. № 184-ФЗ «О техническом регулировании» приказываю:
1. Утвердить национальный стандарт Российской Федерации ГОСТ Р ЕН 1607-2008 «Изделия теплоизоляционные, применяемые в строительстве. Метод определения прочности при растяжении перпендикулярно к лицевым поверхностям», идентичный европейскому стандарту ЕН 1607:1996 «Теплоизоляционные изделия, применяемые в строительстве - Определение прочности при растяжении перпендикулярно лицевым поверхностям», с датой введения в действие 1 января 2009 г. с правом досрочного применения.
Введен впервые.
2. Закрепить утвержденный стандарт за Управлением технического регулирования и стандартизации.
Руководитель Федерального агентства Г.И. Элькин
В соответствии с Федеральным законом от 27 декабря 2002 г. № 184-ФЗ «О техническом регулировании» приказываю:
1. Утвердить национальный стандарт Российской Федерации ГОСТ Р ЕН 1608-2008 «Изделия теплоизоляционные, применяемые в строительстве. Метод определения прочности при растяжении параллельно лицевым поверхностям», идентичный европейскому стандарту ЕН 1608:1996 «Теплоизоляционные изделия, применяемые в строительстве - Определение прочности при растяжении параллельно лицевым поверхностям», с датой введения в действие 1 января 2009 г. с правом досрочного применения.
Введен впервые.
2. Закрепить утвержденный стандарт за Управлением технического регулирования и стандартизации.
Руководитель Федерального агентства Г.И. Элькин
В соответствии с Федеральным законом от 27 декабря 2002 г. № 184-ФЗ «О техническом регулировании» приказываю:
1. Утвердить национальный стандарт Российской Федерации ГОСТ Р ЕН 1609-2008 «Изделия теплоизоляционные, применяемые в строительстве. Метод определения водопоглощения при кратковременном и частичном погружении», идентичный европейскому стандарту ЕН 1609:1996 «Теплоизоляционные изделия, применяемые в строительстве - Определение водопоглощения при кратковременном и частичном погружении», с датой введения в действие 1 января 2009 г. с правом досрочного применения.
Введен впервые.
2. Закрепить утвержденный стандарт за Управлением технического регулирования и стандартизации.
Руководитель Федерального агентства Г.И. Элькин
В соответствии с Федеральным законом от 27 декабря 2002 г. № 184-ФЗ «О техническом регулировании» приказываю:
1. Утвердить национальный стандарт Российской Федерации ГОСТ Р ЕН 12085-2008 «Изделия теплоизоляционные, применяемые в строительстве. Методы измерения линейных размеров образцов, предназначенных для испытаний», идентичный европейскому стандарту ЕН 12085:1997 «Теплоизоляционные изделия, применяемые в строительстве - Определение линейных размеров образцов для испытаний», с датой введения в действие 1 января 2009 г. с правом досрочного применения.
Введен впервые.
2. Закрепить утвержденный стандарт за Управлением технического регулирования и стандартизации.
Руководитель Федерального агентства Г.И. Элькин
В соответствии с Федеральным законом от 27 декабря 2002 г. № 184-ФЗ «О техническом регулировании» приказываю:
1. Утвердить национальный стандарт Российской Федерации ГОСТ Р ЕН 12430-2008 «Изделия теплоизоляционные, применяемые в строительстве. Метод определения прочности при действии сосредоточенной нагрузки», идентичный европейскому стандарту ЕН 12430:1998 «Теплоизоляционные изделия, применяемые в строительстве – Определение характеристик изделия при действии сосредоточенной нагрузки», с датой введения в действие 1 января 2009 г. с правом досрочного применения.
Введен впервые.
2. Закрепить утвержденный стандарт за Управлением технического регулирования и стандартизации.
Руководитель Федерального агентства Г.И. Элькин
В соответствии с Федеральным законом от 27 декабря 2002 г. № 184-ФЗ «О техническом регулировании» приказываю:
1. Утвердить национальный стандарт Российской Федерации ГОСТ Р ЕН 29053-2008 «Материалы акустические. Методы определения сопротивления продуванию потоком воздуха», идентичный европейскому стандарту ЕН 29053:1993 «Материалы, применяемые в акустике – Определение сопротивления продуванию потоком воздуха», с датой введения в действие 1 января 2009 г. с правом досрочного применения.
Введен впервые.
2. Закрепить утвержденный стандарт за Управлением технического регулирования и стандартизации.
Руководитель Федерального агентства Г.И. Элькин
|
Номер и название стандарта |
Дата введения в действие |
Примечание |
||
|
1. |
ГОСТ Р ИСО 10019-2007 «Менеджмент организации. Руководство по выбору консультантов по системам менеджмента качества и использованию их услуг» (IDT). Код 03.100.30, 03.120.10. |
01.06.2008 |
Введен впервые.
ИУС 2/2008 |
|
|
2. |
ГОСТ Р ИСО 6507-1-2007 «Металлы и сплавы. Измерение твердости по Виккерсу. Часть 1. Метод измерения» (IDT). Код 17.020. |
01.08.2008 |
Введен впервые.
ИУС 2/2008 |
|
|
3. |
ГОСТ Р 52779-2007 (ИСО 8085-2:2001, ИСО 8085-3:2001) «Детали соединительные из полиэтилена для газопроводов. Общие технические условия» (MOD). Код 23.040.45, 83.140.30. |
01.07.2008 |
Введен впервые.
ИУС 2/2008 |
|
|
Общероссийские классификаторы |
|
|||
|
1. |
ОК 029-2007 (КДЕС Ред. 1.1) «Общероссийский классификатор видов экономической деятельности» |
01.01.2008 на период до 01.01.2011 |
|
|
|
Название документа |
Дата утверждения |
Примечание |
||
|
1. |
«О внесении изменений в Приказ министра от 12 апреля 2006 г. № 39 «Об утверждении методики определения норматива стоимости 1 кв. метра общей площади жилья по Российской Федерации и средней рыночной стоимости 1 кв. метра общей площади жилья по субъектам Российской Федерации» |
23.11.2007 Приказ Минрегиона России № 110 |
Текст приказа приводится ниже. |
|
|
|
«О Федеральном законе от 4 декабря 2007 г. № 324-ФЗ» |
14.12.2007 Письмо Минрегиона России № 22548-СК/08 |
Текст письма приводится ниже. |
|
|
|
«О средней рыночной стоимости 1 квадратного метра общей площади жилья по субъектам Российской Федерации на второй квартал 2008 года» |
27.02.2008 Приказ Минрегиона России № 21 |
Текст приказа приводится ниже. |
|
|
|
«О порядке разработки и согласования специальных технических условий для разработки проектной документации на объект капитального строительства» |
01.04.2008 Приказ Минрегиона России № 36 |
Текст приказа приводится ниже. |
|
Во исполнение поручения Правительства Российской Федерации (пункт 4 раздела II протокола совещания у Первого заместителя Председателя Правительства Российской Федерации Д.А. Медведева от 10 июля 2007 г. N ДМ-П9-З1пр), приказываю:
1. В Методику определения норматива стоимости 1 кв. метра общей площади жилья по Российской Федерации и средней рыночной стоимости 1 кв. метра общей площади жилья по субъектам Российской Федерации, утвержденную приказом Министра от 12 апреля 2006 г. N 39 "Об утверждении Методики определения норматива стоимости 1 кв. метра общей площади жилья по Российской Федерации и средней рыночной стоимости 1 кв. метра общей площади жилья по субъектам Российской Федерации" (зарегистрирован в Министерстве юстиции Российской Федерации 19.05.2006 г. N 786, Бюллетень нормативных актов федеральных органов исполнительной власти, 2006, N 108) внести следующие изменения:
пункт 2.4. изложить в следующей редакции:
"На четвертом этапе определяется норматив стоимости 1 кв. метра общей площади жилья по Российской Федерации:
Указанный норматив определяется как среднеарифметическая величина прогнозных показателей размера средней рыночной стоимости 1 кв. метра общей площади жилья по каждому субъекту Российской Федерации на середину планируемого полугодия по формуле:

где:
РПС1 - размер средней рыночной стоимости 1 кв. метра общей площади жилья на планируемый квартал по первому субъекту Российской Федерации;
РПСn - размер средней рыночной стоимости 1 кв. метра общей площади жилья на планируемый квартал по n-му субъекту Российской Федерации;
n - количество субъектов Российской Федерации;
Кдефл. - прогнозируемый коэффициент-дефлятор на период времени от планируемого квартала до середины определяемого полугодия.
2. Контроль за исполнением настоящего Приказа возложить на заместителя Министра регионального развития Российской Федерации С.И. Круглика.
Министр Д.Н. Козак
Зарегистрировано в Минюсте РФ 14 декабря 2007 г.
Регистрационный N 10739
Министерство регионального развития Российской Федерации информирует о принятии Федерального закона от 4 декабря 2007 г. № 324-ФЗ «О внесении изменений в отдельные законодательные акты Российской Федерации», которым урегулирован вопрос разграничения полномочий по проведению государственной экспертизы проектной документации особо опасных и технически сложных объектов.
Согласно указанному Закону государственная экспертиза проектной документации тепловых электростанций мощностью до 150 мегаватт, проектной документации объектов газораспределительных систем, на которых используется, хранится, транспортируется природный газ под давлением до 1,2 мегапаскаля включительно или сжиженный углеводородный газ под давлением до 1,6 мегапаскаля включительно проводится уполномоченным органом исполнительной власти субъекта Российской Федерации или подведомственным ему государственным (бюджетным или автономным) учреждением.
СИ. Круглик
В соответствии с пунктом 3 постановления Правительства Российской Федерации от 21 марта 2006 г. № 153 "О некоторых вопросах реализации подпрограммы "Выполнение государственных обязательств по обеспечению жильем категорий граждан, установленных федеральным законодательством" федеральной целевой программы "Жилище" на 2002-2010 годы (Собрание законодательства Российской Федерации, 2006, № 13, ст. 1405), приказываю:
Утвердить среднюю рыночную стоимость 1 кв. метра общей площади жилья (в рублях) по субъектам Российской Федерации, подлежащую применению федеральными органами исполнительной власти, органами исполнительной власти субъектов Российской Федерации для расчета размеров субсидий, выделяемых в соответствии с планами на II квартал 2008 г., для всех категорий граждан, которым указанные субсидии предоставляются за счет средств федерального бюджета на приобретение жилых помещений в размерах согласно приложению.
Министр Д. Козак
Приложение
Средняя рыночная стоимость стоимости 1 квадратного метра общей площади жилья по субъектам Российской Федерации на второй квартал 2008 года
|
Центральный район |
|
|
Белгородская область |
21 450 |
|
Брянская область |
20 050 |
|
Владимирская область |
24 200 |
|
Воронежская область |
20 300 |
|
Ивановская область |
21 550 |
|
Калужская область |
28 900 |
|
Костромская область |
27 550 |
|
Курская область |
18 950 |
|
Липецкая область |
23 400 |
|
г. Москва |
59 350 |
|
Московская область |
36 550 |
|
Орловская область |
19 100 |
|
Рязанская область |
24 950 |
|
Смоленская область |
21 100 |
|
Тамбовская область |
21 000 |
|
Тверская область |
27 000 |
|
Тульская область |
21 150 |
|
Ярославская область |
26 550 |
|
Северо-Западный федеральный округ |
|
|
Республика Карелия |
27 350 |
|
Республика Коми |
28 850 |
|
Архангельская область |
31 800 |
|
Вологодская область |
28 400 |
|
Калининградская область |
24 450 |
|
Ленинградская область |
23 700 |
|
Мурманская область |
22 050 |
|
Новгородская область |
22 500 |
|
Псковская область |
23 000 |
|
г. Санкт-Петербург |
35 500 |
|
Ненецкий автономный округ |
37 850 |
|
Южный федеральный округ |
|
|
Республика Адыгея (Адыгея) |
15 400 |
|
Республика Дагестан |
15 850 |
|
Республика Ингушетия |
13 100 |
|
Кабардино-Балкарская Республика |
13 850 |
|
Республика Калмыкия |
11 800 |
|
Карачаево-Черкесская Республика |
12 900 |
|
Республика Северная Осетия Алания |
13 850 |
|
Чеченская Республика |
14 150 |
|
Краснодарский край |
26 700 |
|
Ставропольский край |
16 100 |
|
Астраханская область |
19 600 |
|
Волгоградская область |
24 300 |
|
Ростовская область |
23 000 |
|
Приволжский федеральный округ |
|
|
Республика Башкортостан |
27 150 |
|
Республика Марий Эл |
22 800 |
|
Республика Мордовия |
20 500 |
|
Республика Татарстан |
23 150 |
|
Удмуртская Республика |
27 450 |
|
Чувашская Республика |
23 850 |
|
Кировская область |
25 550 |
|
Нижегородская область |
31 500 |
|
Оренбургская область |
22 550 |
|
Пензенская область |
24 050 |
|
Пермский край |
32 500 |
|
Самарская область |
27 800 |
|
Саратовская область |
18 350 |
|
Ульяновская область |
20 950 |
|
Уральский федеральный округ |
|
|
Курганская область |
20 550 |
|
Свердловская область |
33 100 |
|
Тюменская область |
32 250 |
|
Челябинская область |
23 300 |
|
Ханты-Мансийский автономный округ - Югра |
35 250 |
|
Ямало-Ненецкий автономный округ |
36 700 |
|
Сибирский федеральный округ |
|
|
Республика Алтай |
25 350 |
|
Республика Бурятия |
22 950 |
|
Республика Тыва |
23 050 |
|
Республика Хакасия |
20 850 |
|
Алтайский край |
26 650 |
|
Красноярский край |
28 600 |
|
Иркутская область |
30 250 |
|
Кемеровская область |
23 250 |
|
Новосибирская область |
29 650 |
|
Омская область |
25 750 |
|
Томская область |
26 500 |
|
Забайкальский край |
22 050 |
|
Дальневосточный федеральный округ |
|
|
Республика Саха (Якутия) |
28 100 |
|
Камчатская область |
28 450 |
|
Приморский край |
26 850 |
|
Хабаровский край |
29 800 |
|
Амурская область |
23 250 |
|
Магаданская область |
23 900 |
|
Сахалинская область |
40 700 |
|
Еврейская автономная область |
15 950 |
|
Чукотский автономный округ |
27 500 |
В соответствии с пунктом 5 Положения о составе разделов проектной документации и требованиях к их содержанию, утвержденного постановлением Правительства Российской Федерации от 16 февраля 2008 года № 87 «О составе разделов проектной документации и требованиях к их содержанию» (Собрание законодательства Российской Федерации, 2008, № 8, ст. 744), приказываю:
1. Утвердить прилагаемый Порядок разработки и согласования специальных технических условий для разработки проектной документации на объекты капитального строительства.
2. Контроль за исполнением настоящего Приказа возложить на заместителя Министра регионального развития Российской Федерации С.И. Круглика.
Министр Д.Н. Козак
Приложение
Порядок разработки и согласования специальных технических условий для разработки проектной документации на объект капитального строительства
I. Общие положения
1. Настоящий «Порядок разработки и согласования специальных технических условий для разработки проектной документации на объект капитального строительства» устанавливает общие требования к разработке и согласованию специальных технических условий (далее - СТУ), в случае если для разработки проектной документации на объект капитального строительства (далее - объект) недостаточно требований по надежности и безопасности, установленных нормативными техническими документами, или такие требования не установлены.
2. СТУ являются техническими нормами, содержащими (применительно к конкретному объекту капитального строительства) дополнительные к установленным или отсутствующие технические требования в области безопасности, отражающими особенности инженерных изысканий, проектирования, строительства, эксплуатации, а также демонтажа (сноса) объекта.
3. В зависимости от степени обеспеченности планируемого к строительству объекта действующими нормативными положениями, по решению заказчика (инвестора) СТУ могут разрабатываться трех видов:
нормы, содержащие технические требования на проектирование, строительство и эксплуатацию объектов, указанных в статье 48' Градостроительного кодекса Российской Федерации (Собрание законодательства Российской Федерации, 03.01.2005, № 1 (часть 1), ст. 16), объектов культурного наследия (памятников истории и культуры), а также иных объектов, для проектирования которых недостаточно требований по надежности и безопасности, установленных нормативными техническими документами;
нормы, содержащие технические требования по обеспечению сейсмической безопасности при проектировании, строительстве и эксплуатации объектов на площадках сейсмичностью более 9 баллов для всех видов объектов;
нормы, содержащие технические требования на проектирование и строительство объектов в части обеспечения пожарной безопасности.
II. Порядок разработки специальных технических условий и требования к их содержанию
4. Разработка СТУ проводится в соответствии с техническим заданием заказчика (инвестора) проектной организацией, научно-исследовательской или другой организацией, обладающей научно-техническим потенциалом и опытом практической работы в соответствующей области.
5. В техническом задании должны быть приведены краткое обоснование необходимости разработки СТУ, данные об уровне ответственности объектов в соответствии с действующими строительными нормами, а также другие требования, необходимые для разработки СТУ, в том числе требования, связанные с пожарной и сейсмической безопасностью.
6. Разработке СТУ должно предшествовать определение принципиальных технических решений объекта (в том числе объемно- планировочные и конструктивные решения, применяемые материалы и изделия), а также анализ имеющейся нормативной базы в отношении конкретного объекта, который служит основой для выработки недостающих нормативных положений или разработки отсутствующих норм по определенным направлениям. Принципиальные технические решения могут быть определены применительно к объекту в целом, его частям или отдельным видам конструкций или инженерных систем.
7. В СТУ должны содержаться следующие данные:
детальное обоснование необходимости разработки СТУ и недостающие нормативные требования для данного конкретного объекта, излагаемые в соответствии со структурой действующих технических норм в данной области;
перечень вынужденных отступлений от требований действующих технических нормативных документов, содержащий обоснование их необходимости и мероприятия, компенсирующие эти отступления.
Кроме того, в СТУ должны быть приведены:
основание для строительства;
данные, включающие наименование и место расположения объекта и условия строительства;
сведения об инвесторе (заказчике), генеральной проектной организации и разработчике СТУ;
описание объекта в целом и его важнейших элементов с изложением объемно-планировочных и конструктивных решений с приложением схемы организации земельного участка и чертежей архитектурно-планировочных решений.
8. Допускается включение в состав СТУ положений, содержащих отступления от действующих норм, при условии обоснования необходимости
таких отступлений и разработки в составе СТУ нормативных положений, компенсирующих эти отступления.
Аналогично должны быть обоснованы дополнительные требования по сравнению с требованиями, установленными в действующих технических нормативных документах.
9. Структура СТУ определяется на стадии составления технического задания на их разработку и, как правило, должна соответствовать структуре действующих технических норм в данной области.
Дополнительные требования каждого раздела (подраздела) СТУ должны быть отнесены к конкретному нормативному документу или его разделу. Конкретный состав разделов и их содержание определяет разработчик СТУ в соответствии с требованиями технического задания.
10. Отдельные положения, содержащиеся в нормативных документах зарубежных стран, могут быть включены в состав СТУ при условии их соответствия законодательству Российской Федерации.
11. В СТУ не включаются положения, содержащиеся в действующих технических нормативных документах, в том числе формулы расчета в другом построении. Обозначения и единицы величин, использованные в СТУ, должны соответствовать обозначениям и единицам, принятым в строительных нормах и правилах, государственных стандартах Российской Федерации и национальных стандартах.
Технические требования в составе СТУ должны быть конкретными и допускать возможность контроля в установленном порядке.
III. Порядок согласования специальных технических условий
13. Согласование СТУ проводится Министерством регионального развития Российской Федерации (далее - Минрегион России).
Работу по согласованию СТУ, а также подготовку документов, предусмотренных настоящим Порядком, осуществляет Департамент, определенный приказом Министра регионального развития Российской Федерации (далее - Департамент).
14. Для рассмотрения вопроса о согласовании СТУ, заказчик строительства представляет в Минрегион России следующие документы (далее именуется - Документация):
составленное в произвольное форме заявление заказчика строительства на имя Министра регионального развития Российской Федерации о рассмотрении СТУ, подписанное руководителем или лицом, исполняющим его обязанности и заверенное печатью организации1;
1 В случае, если заявление подается юридическим лицом.
пояснительную записку, содержащую информацию о необходимости разработки СТУ, принятых проектных технических решениях, компенсирующих мероприятиях (в случае принятия решений об отступлении от действующих технических норм), описание нормативных положений, содержащих новые технические требования (в случае разработки новых требований), информацию об обеспечении безопасности объекта, а также при необходимости - информацию о согласовании СТУ с заинтересованными федеральными органами исполнительной власти. СТУ, содержащие технические требования на проектирование и строительство объектов в части обеспечения пожарной безопасности, представляются при наличии положительного заключения МЧС России;
проект СТУ в двух экземплярах, подписанный должностными лицами разработчика;
копию технического задания на разработку СТУ, заверенного руководителем заказчика строительства или лицом, исполняющим его обязанности.
Представленная заказчиком строительства Документация возврату не подлежит, за исключением случаев, установленных настоящим Порядком.
15. Решение о согласовании СТУ либо об отказе в согласовании СТУ принимается Министром либо уполномоченным им приказом лицом в течение месяца со дня поступления Документации в Минрегион России.
В отдельных случаях по решению Министра срок рассмотрения Документации и принятия соответствующих решений может быть продлен до 3-х месяцев.
В случае отказа в согласовании СТУ в решении указываются обоснованные причины, которые послужили основанием для отказа.
16. В случае, если Документация представлена в Минрегион России с нарушением перечня, установленного пунктом 14 настоящего Порядка, она возвращается заказчику строительства без рассмотрения по существу в течение десяти календарных дней со дня представления Документации в Минрегион России.
17. Рассмотрение представленной Документации включает в себя: изучение состава представленных документов и материалов; проведение научно-технической экспертизы СТУ;
подготовку заключения Минрегиона России по результатам рассмотрения Документации (далее именуется Заключение);
принятие решения о согласовании или об отказе в согласовании СТУ.
18. Для рассмотрения Документации и подготовки Заключения Департаментом могут привлекаться соответствующие эксперты.
19. К проведению научно-технической экспертизы не может быть привлечена организация или специалисты, участвовавшие в разработке проектной документации, их аффилированные лица, а также организации по проведению государственной экспертизы и государственные эксперты, работающие в таких организациях
20. По результатам рассмотрения Документации Департаментом готовится Заключение о согласовании (либо об отказе в согласовании) СТУ.
Указанное Заключение, согласованное с курирующим заместителем Министра регионального развития Российской Федерации, представляется
Министру либо лицу, уполномоченному приказом Министра на принятие решений, указанных в пункте 15 настоящего Порядка.
21. По результатам рассмотрения представленного Заключения Министр либо лицо, уполномоченное приказом Министра, принимает решение о согласовании СТУ либо об отказе в согласовании СТУ.
Указанное решение оформляется путем утверждения представленного Заключения, которому в хронологическом порядке присваивается соответствующий порядковый номер.
22. В случае принятия положительного решения, согласование СТУ оформляется путем проставления на титульном листе СТУ согласующей подписи Министра либо уполномоченного приказом лица, а также проставления на каждом листе СТУ (на двух экземплярах) согласующей подписи директора Департамента.
После согласования СТУ они подлежат утверждению заказчиком.
23. О принятом решении заказчик строительства уведомляется Минрегионом России в течение трех рабочих дней со дня принятия решения путем направления соответствующего письменного уведомления. Уведомление может быть подписано Министром, курирующим заместителем Министра, директором Департамента или лицами, исполняющими их обязанности на основании приказа.
В случае согласования СТУ к уведомлению прилагается экземпляр СТУ, оформленный в соответствии с требованиями пункта 22 настоящего Порядка.
В случае отказа в согласовании СТУ к уведомлению прилагается:
копия Заключения;
один экземпляр СТУ.
24. После устранения причин, послуживших основанием для отказа в согласовании СТУ, Документация может быть повторно представлена на согласование в общем порядке.
25. В случае возникновения необходимости внесения изменений в ранее согласованные СТУ, заказчик строительства представляет в Минрегион России соответствующую Документацию в общем порядке.
При этом, в случае согласования вновь измененных СТУ, ранее согласованные СТУ утрачивают силу со дня принятия решения о согласовании новых СТУ, что отражается в соответствующем Заключении.
26. Согласованные СТУ подлежат архивному хранению и учету в соответствующем реестре. В реестр в обязательном порядке включается информация о:
заказчике строительства (наименование, организационно-правовая форма, место нахождение, банковские реквизиты, сведения о руководителе (фамилия, имя, отчество, телефон);
наименовании СТУ;
дате и номере Заключения о согласовании СТУ;
изменении СТУ;
иная информация, необходимая для обеспечения надлежащего учета СТУ.
Ведение указанного реестра осуществляется Департаментом.
27. Заказчик строительства вправе в любой момент рассмотрения Документации отозвать свое заявление путем направления соответствующего письменного уведомления в Минрегион России. В этом случае рассмотрение Документации по существу прекращается, о чем составляется соответствующее заключение, подлежащее утверждению Министром или уполномоченным им лицом.
|
Название документа |
Дата утверждения |
Примечание |
|
|
|
1. |
«О применении Части 2.1 статьи 11 Федерального закона от 21 июля 2005 г. № 94-ФЗ «О размещении заказов на поставки товаров, выполнение работ, оказание услуг для государственных и муниципальных нужд» |
25.12.2007 Письмо Росстроя № ВБ-4731/01 |
Текст письма приводится ниже. |
|
|
2. |
«Об аттестации государственных экспертов» |
28.12.2007 Приказ Росстроя № 393 |
Приложение – Положение о порядке аттестации государственных экспертов в области государственной экспертизы проектной документации и инженерных изысканий. |
|
|
3. |
«Об утверждении состава Экспертного совета Федерального агентства по строительству и жилищно-коммунальному хозяйству по профессиональной переподготовке и повышению квалификации специалистов в области градостроительной деятельности» |
16.01.2008 Приказ Росстроя № 5 |
Приложение – Состав Экспертного совета Федерального агентства по строительству и жилищно-коммунальному хозяйству по профессиональной переподготовке и повышению квалификации специалистов в области градостроительной деятельности. |
|
|
4. |
«Об организации конкурсного отбора субъектов Российской Федерации для участия в 2008 году в реализации подпрограммы «Обеспечение жильем молодых семей» федеральной целевой программы «Жилище» на 2002-2010 годы» |
30.01.2008 Приказ Росстроя № 15 |
Признается утратившим силу приказ Росстроя от 28.06.2007 № 176. Конкурсный отбор организуется повторно. Приложение – Порядок проведения конкурсного отбора. |
|
|
5. |
«О внесении изменений в приказ Росстроя от 29 марта 2006 г. № 80 «Об утверждении порядка учета, хранения и уничтожения бланков государственных жилищных сертификатов, выдаваемых гражданам-участникам подпрограммы «Выполнение государственных обязательств по обеспечению жильем категорий граждан, установленных федеральным законодательством» федеральной целевой программы «Жилище» на 2002-2010 годы» |
05.02.2008 Приказ Росстроя № 18 |
В пункте 1.2 слова «субсидии (жилищной субсидии) за счет средств федерального бюджета для приобретения жилого помещения» заменить словами «социальной выплаты для приобретения жилого помещения за счет средств федерального бюджета». Приказ вступил в действие с 1 января 2008 г. |
|
|
6. |
«О внесении изменений в приказ Росстроя от 29 марта 2006 г. № 82 «Об утверждении порядка заполнения бланков государственных жилищных сертификатов, выдаваемых гражданам-участникам подпрограммы «Выполнение государственных обязательств по обеспечению жильем категорий граждан, установленных федеральным законодательством» |
05.02.2008 Приказ Росстроя № 19 |
Приложение – Изменения, вносимые в Порядок заполнения бланков государственных жилищных сертификатов, выдаваемых гражданам-участникам подпрограммы «Выполнение государственных обязательств по обеспечению жильем категорий граждан, установленных федеральным законодательством» федеральной целевой программы «Жилище» на 2002-2010 годы. |
|
|
7. |
«О внесении изменений в приказ Федерального агентства по строительству и жилищно-коммунальному хозяйству от 08.02.2007 № 19»
|
06.02.2008 Приказ Росстроя № 20 |
Ответственным представителем государственного заказчика для участия в работе комиссии по приемке работ по завершенным контрактам назначен начальник Управления строительных программ Савин Д.В. |
|
|
8. |
«Об организации работы по подготовке технических свидетельств, подтверждающих пригодность новых материалов, изделий, конструкций и технологий для применения в строительстве» |
06.02.2008 Приказ Росстроя № 22 |
Текст приказа приводится ниже. |
|
|
9. |
«О внесении изменений в состав Комиссии по проведению отборов в рамках реализации подпрограммы «Обеспечение жильем молодых семей», «Модернизация объектов коммунальной инфраструктуры» и «Обеспечение земельных участков коммунальной инфраструктурой в целях жилищного строительства» федеральной целевой программы «Жилище» на 2002-2010 годы, утвержденной приказом Федерального агентства по строительству и жилищно-коммунальному хозяйству от 14 марта 2007 г. № 59» |
07.02.2008 Приказ Росстроя № 26 |
Приложение – Состав Комиссии по проведению отборов в рамках реализации подпрограммы «Обеспечение жильем молодых семей», «Модернизация объектов коммунальной инфраструктуры» и «Обеспечение земельных участков коммунальной инфраструктурой в целях жилищного строительства» федеральной целевой программы «Жилище» на 2002-2010 годы. |
|
|
10. |
«О нормативной и методической документации по вопросам ценообразования и сметного нормирования» |
08.02.2008 Письмо Росстроя № ВБ-339/02 |
Текст письма приводится ниже. |
|
|
11. |
«О ценах на проектные и изыскательские работы для строительства на II квартал 2008 года» |
04.04.2008 Письмо Росстроя № ВБ-1302/02 |
Текст письма приводится ниже. |
|
|
12. |
«Об индексах изменения сметной стоимости на II квартал 2008 года» |
04.04.2008 Письмо Росстроя № ВБ-1305/02 |
Текст письма приводится ниже. |
|
|
13. |
«Федеральное отраслевое соглашение по строительству и промышленности строительных материалов Российской Федерации на 2008-2010 годы» |
30.11.2007 Росстрой 03.12.2007 Российский Союз строителей 03.12.2007 Профсоюз Строителей России |
Соглашение зарегистрировано Федеральной службой по труду и занятости (Роструд) 28.12.2007 г. |
|
В связи с возникающими в правоприменительной практике вопросами о применении части 2.1 статьи 11 Федерального закона от 21 июля 2005 г. N 94-ФЗ "О размещении заказов на поставки товаров, выполнение работ, оказание услуг для государственных и муниципальных нужд" (далее - Закон) Минэкономразвития России, Росстрой, ФАС России и Росавтодор сообщают.
В соответствии с частью 2.1 статьи 11 Закона при размещении заказа на выполнение работ по строительству, реконструкции, капитальному ремонту объекта капитального строительства путем проведения аукциона, если начальная (максимальная) цена контракта (цена лота) составляет пятьдесят миллионов рублей и более, заказчик, уполномоченный орган вправе установить участникам размещения заказа требование выполнения ими за последние пять лет, предшествующие дате окончания срока подачи заявок на участие в аукционе, работ по строительству, реконструкции, капитальному ремонту объекта капитального строительства, относящихся к той же группе, подгруппе или одной из нескольких групп, подгрупп работ, на выполнение которых размещается заказ, в соответствии с номенклатурой товаров, работ, услуг для государственных и муниципальных нужд, утверждаемой Минэкономразвития России, стоимость которых составляет не менее чем двадцать процентов начальной (максимальной) цены контракта (цены лота), на право заключить который проводится аукцион. При этом учитывается стоимость всех выполненных участником размещения заказа (с учетом правопреемственности) работ по строительству, реконструкции, капитальному ремонту одного из объектов капитального строительства (по выбору участника размещения заказа).
В настоящее время номенклатура товаров, работ, услуг для государственных и муниципальных нужд Минэкономразвития России не утверждена.
До утверждения указанной номенклатуры заказчики, уполномоченные органы самостоятельно принимают решения при определении требований к участникам размещения заказа, устанавливаемых в соответствии с частью 2.1 статьи 11 Закона. Вместе с тем, в целях недопущения необоснованного ограничения количества участников размещения заказа Минэкономразвития России, Росстрой, ФАС России и Росавтодор считают целесообразным для определения указанных требований руководствоваться следующими критериями отнесения работ к соответствующим группам и подгруппам:
|
Группа |
Работы по строительству, реконструкции, капитальному ремонту любых объектов капитального строительства |
|
Подгруппа |
Работы по строительству, реконструкции и капитальному ремонту особо опасных и технически сложных объектов капитального строительства |
|
Подгруппа |
Работы по строительству, реконструкции и капитальному ремонту иных объектов капитального строительства (включая уникальные объекты капитального строительства), не отнесенных к особо опасным и технически сложным |
|
Подгруппа |
Работы по строительству, реконструкции и капитальному ремонту объектов, не являющихся объектами капитального строительства (временные постройки, киоски, навесы и другие подобные постройки) |
Отнесение объектов к особо опасным, технически сложным, уникальным объектам капитального строительства, а также отнесение к объектам капитального строительства осуществляется в соответствии с законодательством о градостроительной деятельности.
|
Статс-секретарь - заместитель Министра экономического развития и торговли Российской Федерации |
А.В. Попова |
|
Статс-секретарь - заместитель Руководителя Федеральной антимонопольной службы |
А.Ю. Цариковский |
|
Руководитель Федерального дорожного агентства |
О.В. Белозеров |
|
И.О. Руководителя Федерального агентства по строительству и жилищно-коммунальному хозяйству |
В.В. Бланк |
В целях организации работы по подготовке технических свидетельств, подтверждающих пригодность новых материалов, изделий, конструкций и технологий для применения в строительстве, приказываю:
1. Возложить на начальника Управления строительных программ Федерального агентства по строительству и жилищно-коммунальному хозяйству Савина Дмитрия Владимировича обязанности по подписанию технических свидетельств, подтверждающих пригодность новых материалов, изделий, конструкций и технологий для применения в строительстве, подготовленных Федеральным государственным учреждением «Федеральный центр технической оценки продукции в строительстве».
2. Подтверждение пригодности новых материалов, изделий, конструкций и технологий для применения в строительстве осуществлять в соответствии с Порядком подтверждения пригодности новых материалов, изделий, конструкций и технологий для применения в строительстве, утвержденным постановлением Государственного комитета Российской Федерации по строительству и жилищно-коммунальному комплексу от 01.07.2002 № 76 «О порядке подтверждения пригодности новых материалов, изделий, конструкций и технологий для применения в строительстве» (зарегистрированного Минюстом России 2 августа 2002 г., регистрационный № 3659).
3. Управлению строительных программ (Д.В. Савин) в месячный срок представить на утверждение положение о ведении реестра выданных технических свидетельств.
Контроль за исполнением настоящего приказа оставляю за собой.
И.О. руководителя В.В. Бланк
В связи с искажениями редакции нормативных и методических документов, установленными в копиях официальных изданий, распространяемых коммерческими организациями, а также в целях упорядочения информирования предприятий строительного комплекса Российской Федерации и организаций, использующих в своей работе нормативную и методическую документацию по вопросам ценообразования и сметного нормирования в строительстве, Федеральное агентство по строительству и жилищно-коммунальному хозяйству сообщает.
Официальной нормативной и методической документацией, утвержденной, согласованной, одобренной и введенной в действие в установленном порядке, распространяемой через розничную сеть, являются издания Федерального государственного учреждения "Федеральный центр ценообразования в строительстве и промышленности строительных материалов" (ФГУ ФЦЦС) на бумажном носителе и имеющие на обложке соответствующий знак. Издания ФГУ ФЦЦС являются официальными в работе с органами государственной власти, экспертизы и арбитража.
Копии официальных нормативных и методических документов (ГЭСН-2001, ФЕР-2001, МДС и др.), издаваемые коммерческими организациями, а также публикации в средствах массовой информации и в сети "Интернет" не гарантируют точности изложения и могут использоваться только в информационных целях.
И.о. руководителя В.В. Бланк
Федеральное агентство по строительству и жилищно-коммунальному хозяйству на основании данных, представленных ОАО "ЦЕНТРИНВЕСТпроект" и ОАО "ПНИИИС", сообщает для применения на II квартал 2008 года рекомендуемые индексы изменения стоимости:
а) проектных работ для строительства в размере:
2,58 к уровню базовых цен по состоянию на 1 января 2001 года;
19,85 к уровню базовых цен по состоянию на 1 января 1995 года, определяемых с учетом положений, изложенных в письме Госстроя России от 13 января 1998 года № 9-1-1/6;
б) изыскательских работ для строительства в размере:
2,64 к базовым ценам, рассчитываемым по справочникам базовых цен на инженерные изыскания, по состоянию на 1 января 2001 года;
30,09 к базовым ценам, рассчитываемым по справочникам базовых цен на инженерные изыскания и сборнику цен на изыскательские работы для капитального строительства с учетом Временных рекомендаций по уточнению базовых цен, определяемых по сборнику цен на изыскательские работы для капитального строительства, рекомендованных к применению письмом Минстроя России от 17 декабря 1992 года № БФ-1060/9, по состоянию на 1 января 1991 года.
И.о. руководителя В.В. Бланк
Федеральное агентство по строительству и жилищно-коммунальному хозяйству сообщает рекомендуемые индексы изменения сметной стоимости строительно-монтажных работ (СМР) в целом и по статьям затрат на II квартал 2008 года в разрезе субъектов Российской Федерации.
Указанные индексы разработаны ФГУ "ФЦЦС" с использованием отчетных данных региональных органов по ценообразованию в строительстве за I квартал 2008 года с учетом прогнозного уровня инфляции.
Индексы предназначены для укрупненных расчетов стоимости строительства базисно-индексным методом, формирования начальной цены при подготовке конкурсной документации (документации об аукционе) и общеэкономических расчетов в инвестиционной сфере для объектов, финансирование строительства которых осуществляется с привлечением средств федерального бюджета.
Взаиморасчеты за выполненные работы базисно-индексным методом рекомендуется осуществлять с использованием индексов, дифференцированных по видам работ или единичным расценкам, разрабатываемых региональными органами по ценообразованию в строительстве и утверждаемых органами исполнительной власти субъектов Российской Федерации.
Индексы в целом на СМР определены с учетом накладных расходов и сметной прибыли. Накладные расходы приняты с понижающим коэффициентом 0,94, учитывающим снижение с 1 января 2005 года ставки единого социального налога. К накладным расходам в базисном уровне цен указанный коэффициент не применяется.
При применении индексов по статьям затрат накладные расходы и сметная прибыль определяются от фонда оплаты труда рабочих-строителей и механизаторов в текущем уровне цен.
Рекомендуемые индексы изменения сметной стоимости технологического оборудования, прочих работ и затрат сообщаются в межрегиональных сборниках индексов пересчета сметной стоимости строительно-монтажных работ по субъектам Российской Федерации и в сборниках индексов пересчета сметной стоимости строительно-монтажных работ по федеральным округам в разрезе субъектов Российской Федерации, разрабатываемых ФГУ "ФЦЦС".
И.о. руководителя В.В. Бланк
Приложение
Индексы изменения сметной стоимости (без НДС) на II квартал 2008 года к уровню баз 1991 и 2001 годов по субъектам Российской Федерации
|
№ |
Наименование региона |
Индекс на СМР к 1991 г. без НДС |
Индекс на СМР к ТЕР-2001 без НДС |
В том числе |
Индекс на СМР к ФЕР-2001 без НДС |
В том числе |
||||
|
Материалы |
Оплата труда |
Экспл. маш. и мех. |
Мате-риалы |
Оплата труда |
Экспл. маш. и мех. |
|||||
|
I |
Центральный федеральный округ: |
|||||||||
|
1 |
Белгородская область |
54,97 |
5,16 |
4,73 |
7,22 |
3,76 |
4,90 |
4,43 |
6,78 |
4,43 |
|
2 |
Брянская область |
52,40 |
5,53 |
5,06 |
8,10 |
4,07 |
4,61 |
4,38 |
5,88 |
3,47 |
|
3 |
Владимирская область |
56,90 |
4,91 |
4,38 |
7,04 |
4,38 |
4,91 |
4,35 |
7,04 |
4,76 |
|
4 |
Воронежская область |
56,37 |
6,26 |
5,59 |
8,57 |
5,62 |
5,49 |
4,68 |
8,56 |
5,27 |
|
5 |
Ивановская область |
50,68 |
4,86 |
4,39 |
7,46 |
3,40 |
4,64 |
4,37 |
6,01 |
3,59 |
|
6 |
Калужская область |
47,48 |
4,68 |
4,07 |
7,14 |
4,21 |
4,52 |
3,97 |
6,70 |
4,05 |
|
7 |
Костромская область |
46,40 |
4,56 |
3,85 |
7,68 |
4,28 |
4,50 |
3,91 |
6,72 |
4,31 |
|
8 |
Курская область |
55,36 |
5,07 |
4,31 |
8,25 |
3,92 |
4,73 |
3,98 |
7,58 |
4,52 |
|
9 |
Липецкая область |
54,62 |
5,74* |
4,21 |
14,01* |
4,53 |
4,90* |
3,88 |
8,80* |
4,25 |
|
10 |
Московская область |
66,77 |
5,84 |
4,38 |
11,41 |
4,89 |
5,87 |
4,39 |
11,42 |
4,94 |
|
11 |
Орловская область |
49,18 |
4,71 |
4,18 |
6,91 |
3,94 |
4,74 |
4,20 |
6,98 |
3,97 |
|
12 |
Рязанская область (2 зона) |
55,05 |
4,76 |
4,28 |
6,70 |
4,47 |
4,88 |
4,43 |
6,70 |
4,42 |
|
13 |
Смоленская область |
48,33 |
5,23 |
4,66 |
7,92 |
4,30 |
4,73 |
4,31 |
6,44 |
4,28 |
|
14 |
Тамбовская область (1 зона) |
55,06 |
4,78 |
4,30 |
7,07 |
4,52 |
4,64 |
4,37 |
5,78 |
4,35 |
|
15 |
Тверская область |
63,33 |
5,49 |
4,75 |
8,99 |
4,25 |
5,90 |
5,30 |
8,70 |
4,11 |
|
16 |
Тульская область (1 зона) |
48,98 |
5,21 |
4,60 |
7,58 |
5,66 |
5,20 |
4,70 |
7,10 |
5,07 |
|
17 |
Ярославская область |
52,12 |
4,36* |
3,53 |
7,72* |
3,87 |
4,53* |
3,70 |
7,72* |
3,87 |
|
18 |
г. Москва* |
65,91 |
- |
- |
- |
- |
5,65 |
4,29 |
10,75 |
4,96 |
|
II |
Северо-Западный федеральный округ: |
|||||||||
|
19 |
Республика Карелия (1 зона) |
67,94 |
5,16 |
4,69 |
7,34 |
4,04 |
6,45 |
5,95 |
8,72 |
5,23 |
|
20 |
Республика Коми (1 зона) |
50,49 |
4,85 |
4,41 |
7,03 |
4,20 |
6,00 |
5,69 |
7,53 |
4,91 |
|
21 |
Архангельская область (1 зона) |
62,41 |
4,38 |
3,47 |
8,42 |
4,85 |
6,82 |
5,73 |
11,11 |
5,76 |
|
22 |
Вологодская область (3 зона) |
52,12 |
5,52 |
4,95 |
8,09 |
4,39 |
5,97 |
5,38 |
8,44 |
5,12 |
|
23 |
Калининградская область |
59,75 |
4,24* |
3,59 |
7,70* |
3,40 |
5,73* |
5,23 |
8,18* |
4,03 |
|
24 |
Ленинградская область (1 зона) |
58,47 |
4,10 |
4,16 |
4,02 |
4,48 |
5,19 |
4,60 |
7,62 |
4,28 |
|
25 |
Мурманская область |
62,84 |
4,86 |
4,25 |
6,65 |
5,93 |
8,15 |
6,95 |
13,02 |
6,74 |
|
26 |
Новгородская область |
60,20 |
4,86 |
4,86 |
4,95 |
4,96 |
5,68 |
5,23 |
7,50 |
5,35 |
|
27 |
Псковская область (1 зона) |
58,35 |
5,73 |
5,18 |
8,21 |
5,10 |
5,29 |
4,82 |
7,01 |
5,47 |
|
28 |
г. Санкт-Петербург |
63,90* |
5,25 |
4,70 |
7,21 |
4,73 |
5,81 |
5,06 |
8,83 |
5,13 |
|
III |
Южный федеральный округ |
|||||||||
|
29 |
Республика Адыгея (Адыгея) |
49,25 |
4,72 |
4,11 |
7,32 |
4,15 |
4,46 |
3,90 |
6,66 |
4,00 |
|
30 |
Республика Дагестан (1 зона) |
55,75 |
4,25 |
3,54 |
7,74 |
3,48 |
5,12 |
4,52 |
7,74 |
3,92 |
|
31 |
Республика Ингушетия |
56,86 |
4,76 |
4,23 |
7,09 |
4,09 |
4,67 |
4,18 |
6,67 |
4,24 |
|
32 |
Кабардино-Балкарская Республика (1 зона) |
50,06 |
4,38 |
4,12 |
5,56 |
3,85 |
4,78 |
4,52 |
6,30 |
3,32 |
|
33 |
Республика Калмыкия |
62,15 |
4,98 |
4,00 |
10,05 |
4,52 |
5,06 |
4,38 |
7,80 |
4,30 |
|
34 |
Карачаево-Черкесская Республика |
51,34 |
5,41 |
5,13 |
6,61 |
5,01 |
4,76 |
4,46 |
6,01 |
4,69 |
|
35 |
Республика Северная Осетия - Алания |
48,12 |
4,20 |
3,89 |
5,39 |
3,93 |
4,59 |
4,18 |
6,20 |
4,34 |
|
36 |
Чеченская Республика |
58,75 |
5,07 |
4,22 |
7,70 |
3,87 |
5,53 |
4,19 |
10,62 |
4,73 |
|
37 |
Краснодарский край * |
49,73 |
5,23 |
4,17 |
9,43 |
4,50 |
4,92 |
3,96 |
8,58 |
4,33 |
|
38 |
Ставропольский край |
48,11 |
5,45 |
4,43 |
9,67 |
5,75 |
4,85 |
4,09 |
7,56 |
5,09 |
|
39 |
Астраханская область |
46,40 |
4,28 |
3,70 |
7,32 |
3,34 |
4,84 |
4,42 |
6,72 |
3,84 |
|
40 |
Волгоградская область |
61,71 |
5,48* |
4,54 |
8,93* |
5,48 |
5,36* |
4,45 |
8,80* |
5,07 |
|
41 |
Ростовская область |
43,74 |
4,96 |
4,62 |
6,36 |
4,61 |
4,88 |
4,53 |
6,36 |
4,52 |
|
IV |
Приволжский федеральный округ: |
|||||||||
|
42 |
Республика Башкортостан |
43,51 |
4,36 |
4,15 |
5,42 |
3,42 |
4,95 |
4,49 |
6,86 |
4,26 |
|
43 |
Республика Марий Эл |
47,89 |
4,66 |
3,92 |
8,49 |
3,59 |
4,90 |
4,38 |
7,16 |
3,80 |
|
44 |
Республика Мордовия |
47,31 |
4,89 |
4,50 |
7,71 |
2,20 |
4,95 |
4,43 |
7,21 |
3,69 |
|
45 |
Республика Татарстан (Татарстан) |
46,74 |
4,56 |
3,96 |
7,47 |
3,07 |
4,64 |
4,07 |
7,01 |
3,75 |
|
46 |
Удмуртская Республика |
52,00 |
5,28 |
4,87 |
7,17 |
4,14 |
5,60 |
5,18 |
7,70 |
4,06 |
|
47 |
Чувашская Республика - Чаваш республики (1 зона) |
48,73 |
5,26 |
4,41 |
8,56 |
5,10 |
5,17 |
4,37 |
8,01 |
5,41 |
|
48 |
Кировская область (1 зона) |
59,90 |
5,21 |
4,92 |
6,45 |
4,39 |
5,49 |
5,07 |
7,37 |
4,59 |
|
49 |
Нижегородская область |
52,20 |
5,25 |
4,70 |
7,38 |
4,57 |
5,31 |
4,67 |
7,74 |
5,27 |
|
50 |
г. Саров (Нижегородская область) |
57,32 |
5,19 |
4,78 |
6,86 |
4,02 |
5,51 |
4,92 |
8,12 |
4,11 |
|
51 |
Оренбургская область |
48,22 |
3,83 |
3,52 |
5,18 |
3,51 |
4,27 |
3,99 |
5,38 |
4,11 |
|
52 |
Пензенская область (1 зона) |
46,14 |
4,30 |
3,62 |
7,47 |
3,77 |
4,90 |
4,33 |
7,29 |
4,05 |
|
53 |
Пермский край |
41,22 |
4,09 |
3,68 |
5,49 |
3,32 |
4,83 |
4,10 |
7,81 |
3,84 |
|
54 |
Самарская область |
52,21 |
5,08 |
4,76 |
6,31 |
3,91 |
5,10 |
4,27 |
8,20 |
4,96 |
|
55 |
Саратовская область (1 зона) |
51,81 |
4,93 |
4,58 |
6,48 |
4,14 |
4,90 |
4,48 |
6,49 |
5,00 |
|
56 |
Ульяновская область |
53,01 |
4,88 |
4,64 |
6,29 |
3,42 |
4,77 |
4,42 |
6,28 |
4,16 |
|
V |
Уральский федеральный округ: |
|||||||||
|
57 |
Курганская область |
53,46* |
4,80 |
4,51 |
6,39 |
3,92 |
5,43 |
5,20 |
6,39 |
5,41 |
|
58 |
Свердловская область (г. Екатеринбург) |
40,06 |
4,65 |
4,33 |
6,00 |
3,13 |
5,30 |
4,55 |
8,46 |
3,88 |
|
59 |
Тюменская область (1 зона) |
64,86 |
4,99 |
4,15 |
8,29 |
3,84 |
5,29 |
4,36 |
9,07 |
4,04 |
|
60 |
Челябинская область |
49,92 |
4,59 |
4,42 |
5,53 |
3,24 |
4,91 |
4,46 |
6,99 |
3,65 |
|
61 |
Ханты-Мансийский автономный округ (Югра) |
45,32 |
3,48 |
3,12 |
4,34 |
3,29 |
7,30 |
5,61 |
13,67 |
6,40 |
|
62 |
Ямало-Ненецкий автономный округ (2 зона) |
56,27 |
4,67 |
4,15 |
6,59 |
3,45 |
6,65 |
5,72 |
10,95 |
3,68 |
|
VI |
Сибирский федеральный округ: |
|||||||||
|
63 |
Республика Алтай (1 зона) |
50,86 |
4,85 |
4,21 |
7,66 |
3,47 |
5,77 |
5,11 |
8,92 |
3,29 |
|
64 |
Республика Бурятия |
52,41 |
4,36 |
3,93 |
5,63 |
4,75 |
5,21 |
4,47 |
7,86 |
5,47 |
|
65 |
Республика Тыва |
46,95 |
4,04* |
3,94 |
4,64* |
3,26 |
5,36* |
4,91 |
7,41* |
4,26 |
|
66 |
Республика Хакасия |
51,86 |
4,20 |
3,60 |
6,58 |
4,10 |
5,65 |
4,94 |
8,56 |
4,74 |
|
67 |
Алтайский край (1 зона) |
50,73 |
4,83 |
4,10 |
8,53 |
3,25 |
5,30 |
4,70 |
8,17 |
3,15 |
|
68 |
Красноярский край (1 зона) |
56,51 |
3,61 |
3,34 |
4,40 |
3,58 |
5,37 |
4,65 |
8,12 |
5,09 |
|
69 |
Иркутская область |
60,04 |
4,85 |
4,14 |
7,49 |
5,43 |
6,35 |
5,56 |
9,33 |
6,19 |
|
70 |
Кемеровская область (2 зона) |
55,04 |
3,96 |
3,43 |
6,28 |
3,32 |
5,08 |
4,45 |
7,54 |
4,67 |
|
71 |
Новосибирская область (4 зона) |
45,70 |
4,92 |
4,59 |
6,39 |
4,17 |
5,82 |
5,49 |
7,54 |
4,48 |
|
72 |
Омская область |
63,02 |
4,80 |
3,42 |
13,46 |
4,39 |
5,98 |
4,82 |
10,63 |
4,61 |
|
73 |
Томская область |
61,03 |
4,73 |
4,17 |
6,54 |
4,55 |
5,69 |
4,77 |
9,22 |
5,19 |
|
74 |
Читинская область (1 зона) |
56,08 |
4,63 |
3,86 |
8,61 |
3,87 |
5,23 |
4,63 |
7,73 |
4,31 |
|
VII |
Дальневосточный федеральный округ: |
|||||||||
|
75 |
Республика Саха (Якутия) Якутск |
44,63 |
4,13* |
4,00 |
4,71* |
2,80 |
8,35* |
6,99 |
14,30* |
5,02 |
|
|
Республика Саха (Якутия) Мирный |
- |
3,72* |
4,06 |
3,30* |
2,52 |
10,52* |
9,83 |
14,78* |
5,10 |
|
|
Республика Саха (Якутия) Нерюнгри |
- |
4,09* |
3,94 |
4,71* |
2,68 |
8,05* |
6,60 |
14,30* |
4,72 |
|
76 |
Приморский край |
52,85 |
5,39 |
4,22 |
10,04 |
3,17 |
6,25 |
4,85 |
12,19 |
3,27 |
|
77 |
Хабаровский край (1 зона) |
47,75 |
4,28 |
3,36 |
8,27 |
2,73 |
5,98 |
4,83 |
10,96 |
3,38 |
|
78 |
Амурская область |
50,15 |
4,37 |
3,53 |
8,02 |
3,40 |
5,22 |
4,28 |
9,01 |
3,86 |
|
79 |
Камчатская область (1 зона) |
59,62 |
3,68 |
2,97 |
6,38 |
3,09 |
9,77 |
7,90 |
17,50 |
6,52 |
|
80 |
Магаданская область |
48,77 |
3,95 |
3,47 |
6,15 |
3,46 |
9,45 |
8,71 |
13,37 |
5,70 |
|
81 |
Сахалинская область (2 зона) |
56,31 |
3,83 |
4,13 |
3,45 |
3,63 |
10,39 |
9,13 |
16,38 |
5,97 |
|
82 |
Еврейская автономная область |
- |
3,96 |
3,33 |
6,95 |
3,04 |
5,87 |
5,17 |
9,07 |
3,75 |
|
83 |
Корякский автономный округ |
- |
3,22 |
2,70 |
6,38 |
3,12 |
12,82 |
12,09 |
17,50 |
6,58 |
|
84 |
Чукотский автономный округ * |
48,39 |
3,10 |
- |
- |
- |
12,66 |
10,74 |
20,37 |
8,06 |
* данные не представлены, рассчитано ФГУ "ФЦЦС".
** данные могут быть уточнены.
Примечания:
1. Для учета повышенной нормы накладных расходов к индексам изменения стоимости СМР следует применять следующие коэффициенты:
- для районов Крайнего Севера - 1,02 (к индексам к ФЕР), 1,005 (к индексам к ТЕР);
- для местностей, приравненных к районам Крайнего Севера - 1,01 (к индексам к ФЕР), 1,003 (к индексам к ТЕР).
При использовании индексов по статьям затрат и к базе 1991 года данные коэффициенты не применяются.
2. При расчете текущей стоимости строительства приведенные индексы следует применять к сметной стоимости СМР (с учетом накладных расходов и сметной прибыли) в базисном уровне, определенной без учета НДС.
Начисление НДС производится на итог сводного сметного расчета.
3. Для определения стоимости ремонтно-строительных работ следует использовать индексы по статьям затрат.
|
Название документа |
Дата утверждения |
Примечание |
||
|
1. |
Федеральный закон «Об автомобильных дорогах и о дорожной деятельности в Российской Федерации и о внесении изменений в отдельные законодательные акты Российской Федерации» |
08.11.2007 Федеральный Закон № 257-ФЗ |
Настоящий Федеральный закон регулирует отношения, возникающие в связи с использованием автомобильных дорог, в том числе на платной основе, и осуществлением дорожной деятельности в Российской Федерации. Действие настоящего Федерального закона распространяется на все автомобильные дороги в Российской Федерации независимо от их форм собственности и значения. |
|
|
2. |
«О внесении изменений в Постановление Правительства Российской Федерации от 5 марта 2007 г. № 145» |
29.12.2007 Постановление Правительства РФ № 970 |
Тексты постановления и изменений приводятся ниже. |
|
|
3. |
«Об осуществлении в 2008 году бюджетных инвестиций в объекты капитального строительства государственной собственности Российской Федерации и объекты капитального строительства, находящиеся в собственности юридических лиц, не являющихся государственными или муниципальными учреждениями и государственными или муниципальными унитарными предприятиями» |
29.12.2007 Постановление Правительства РФ № 989 |
Приложение – Правила осуществления в 2008 году бюджетных инвестиций в объекты капитального строительства государственной собственности Российской Федерации и объекты капитального строительства, находящиеся в собственности юридических лиц, не являющихся государственными или муниципальными учреждениями и государственными или муниципальными унитарными предприятиями. |
|
В целях совершенствования порядка организации и проведения государственной экспертизы проектной документации и результатов инженерных изысканий Правительство Российской Федерации постановляет:
Утвердить прилагаемые изменения, которые вносятся в постановление Правительства Российской Федерации от 5 марта 2007 г. N 145 "О порядке организации и проведения государственной экспертизы проектной документации и результатов инженерных изысканий" (Собрание законодательства Российской Федерации, 2007, N 11, ст. 1336).
Председатель Правительства
Российской Федерации В. Зубков
Изменения, которые вносятся в постановление Правительства Российской Федерации от 5 марта 2007 г. N 145
1. В подпункте "а" пункта 2 слова "с 1 января 2008 г." заменить словами "с 1 января 2009 г.".
2. В Положении об организации и проведении государственной экспертизы проектной документации и результатов инженерных изысканий, утвержденном указанным постановлением:
а) в пункте 13:
подпункты "б" и "в" исключить;
в подпункте "з" слова "заключение государственной экологической экспертизы" заменить словами "положительное заключение государственной экологической экспертизы";
б) в подпункте "б" пункта 15 цифру "3" заменить цифрой "7";
в) в пункте 21 цифры "15" заменить цифрами "16";
г) в подпункте "г" пункта 24 цифры "15" заменить цифрами "16";
д) абзац первый пункта 44 дополнить словами ", или при внесении изменений в проектную документацию, получившую положительное заключение государственной экспертизы, в части изменения технических решений, которые влияют на конструктивную надежность и безопасность объекта капитального строительства.".
|
Название документа |
Дата утверждения |
Примечание |
||
|
Инструктивно-распорядительные, методические и нормативные документы Федеральной службы по экологическому, технологическому и атомному надзору |
|
|||
|
1. |
НП-082-07 «Правила ядерной безопасности реакторных установок атомных станций» |
10.12.2007 Постановление Ростехнадзора № 4 |
Федеральные нормы и правила в области использования атомной энергии, вводятся в действие с 1 июня 2008 г. |
|
|
2. |
РД 02-08-2008 «Положение о Межрегиональном территориальном управлении по информационным технологиям и защите информации Федеральной службы по экологическому, технологическому и атомному надзору» |
22.01.2008 Приказ Ростехнадзора № 18 |
Вводится в действие с 18 апреля 2008 г. Признается утратившим силу РД 02-08-2007 и приказ от 04.10.2007 № 669 об утверждении Изменения № 1 к нему. |
|
|
Инструктивно-распорядительные, методические и нормативные документы Федеральной службы по надзору в сфере защиты прав потребителей и благополучия человека |
|
|||
|
1. |
СанПиН 2.2.1/2.1.1.1200-03 «Санитарно-защитные зоны и санитарная классификация предприятий, сооружений и иных объектов» |
25.09.2007 Постановление Главного государственного санитарного врача РФ № 74 |
Новая редакция СанПиН 2.2.1/2.1.1.1200-03 введена в действие с 1 марта 2008 г. Старая редакция СанПиН 2.2.1/2.1.1.1200-03 от 10.04.2003 г. утратила силу. |
|
|
2. |
ГН 1.2.2221-07 «Гигиенические нормативы содержания пестицидов в объектах окружающей среды (перечень), дополнение №6 к ГН 1.2.1323-03 (приложение)» |
19.12.2007 Постановление Главного государственного санитарного врача РФ № 88 |
Введены в действие с 20 февраля 2008 г. |
|
|
3. |
ГН 2.2.5.2308-07 «Ориентировочные безопасные уровни воздействия (ОБУВ) вредных веществ в воздухе рабочей зоны» |
19.12.2007 Постановление Главного государственного санитарного врача РФ № 89 |
Введены в действие с 1 марта 2008 г. Утратили силу: ГН 2.2.5.1314-03, ГН 2.2.5.1828-03, ГН 2.2.5.2101-06, ГН 2.2.5.2240-07. |
|
|
4. |
ГН 2.1.5.2307-07 «Ориентировочные допустимые уровни (ОДУ) химических веществ в воде водных объектов хозяйственно-питьевого и культурно-бытового водопользования» |
19.12.2007 Постановление Главного государственного санитарного врача РФ № 90 |
Введены в действие с 1 марта 2008 г. Утратили силу: ГН 2.1.5.1316-03, ГН 2.1.5.1831-04.
|
|
|
5. |
СанПиН 2.1.8/2.2.4.2302-07 «Изменения № 1 к санитарно-эпидемиологическим правилам и нормативам «Гигиенические требования к размещению и эксплуатации передающих радиотехнических объектов. СанПиН 2.1.8/2.2.4.1383-03*» |
19.12.2007 Постановление Главного государственного санитарного врача РФ № 91 |
Введены в действие с 20 февраля 2008 г. |
|
|
6. |
ГН 2.1.6.2309-07 «Ориентировочные безопасные уровни воздействия (ОБУВ) загрязняющих веществ в атмосферном воздухе населенных мест» |
19.12.2007 Постановление Главного государственного санитарного врача РФ № 92 |
Введены в действие с 1 марта 2008 г. Утратили силу: ГН 2.1.6.1339-03, ГН 2.1.6.1764-03, ГН 2.1.6.1984-05, ГН 2.1.6.1986-06. |
|
|
Федеральное агентство кадастра объектов недвижимости |
|
|||
|
1. |
«О рассмотрении вопросов по представлению документов для государственной регистрации прав собственности на объекты капитального строительства» |
02.07.2007 Письмо Федерального агентства кадастра объектов недвижимости № АМ-0834 |
Приложение – Схема организации информационного взаимодействия территориальных органов Роснедвижимости и Росрегистрации, Требования к планам объекта недвижимости.
|
|
|
Федеральная служба государственной статистики |
|
|||
|
1. |
Об отмене Постановления Госкомстата России от 03.10.1996 № 123 «Об утверждении Инструкции по заполнению форм федерального государственного статистического наблюдения по капитальному строительству» |
28.12.2007 Постановление Федеральной службы государственной статистики № 108 |
С 01 января 2008 г. утратило силу постановление Госкомстата России от 03.10.1996 г. № 123. |
|
|
Росавтодор |
|
|||
|
1. |
ОДМ «Методические рекомендации по защите и очистке автомобильных дорог от снега» |
01.02.2008 Распоряжение Росавтодор № 44-р |
Рекомендовано к использованию в работе с 1 марта 2008 г. |
|
|
2. |
ОДМ 218.2.002-2008 «Рекомендации по проектированию и установке полимерных опорных частей мостов» |
20.02.2008 Распоряжение Росавтодор № 73-р |
Рекомендовано к применению с 1 марта 2008 г. |
|
|
ОАО «Российские железные дороги» |
|
|||
|
1. |
«Об утверждении отраслевых Сборников элементных сметных норм и единичных расценок на строительные работы, используемых при разработке сметной документации на объекты, строящиеся по заказам ОАО «РЖД» |
21.09.2007 Распоряжение ОАО «Российские железные дороги» № 1847р |
Настоящим распоряжением утверждены: ОЭСН-2001 № 28 «Железные дороги»; ОЕР-2001 № 28 «Железные дороги». |
|
|
Название документа |
Дата утверждения |
Примечание |
||
|
Нормативные правовые и методические документы г. Москвы |
|
|||
|
1. |
«О создании Межведомственного совета по ценовой политике в строительстве при Правительстве Москвы» |
22.01.2008 Постановление Правительства Москвы № 61-ПП |
Приложение – Положение о Межведомственном совете по ценовой политике в строительстве при Правительстве Москвы. |
|
|
Нормативные правовые и методические документы Московской области |
|
|||
|
1. |
«О предлагаемых к строительству объектах, по которым отсутствуют нормы проектирования» |
03.12.2007 Письмо ГУ МО «Мособлгосэкспертиза» № 4259 Р/1 |
Текст письма приводится ниже. |
|
|
2. |
«О распределении между муниципальными образованиями Московской области субсидий, предоставленных бюджету Московской области из федерального бюджета для предоставления субсидий бюджетам муниципальных образований Московской области на проведение капитального ремонта многоквартирных домов и на переселение граждан из аварийного жилищного фонда» |
24.12.2007 Постановление Правительства Московской области № 1004/44 |
Приложения 1 – 7. |
|
|
3. |
«Об утверждении предельной стоимости 1 квадратного метра общей площади жилья в Московской области на 1 квартал 2008 года» |
28.12.2007 Распоряжение Министерства экономики Московской области № 26-РМ |
Текст распоряжения приводится ниже. |
|
|
Территориальные правовые и методические документы г. Санкт-Петербурга |
|
|||
|
1. |
«Об утверждении укрупненных расценок на капитальный ремонт жилых зданий, осуществляемый за счет средств бюджета Санкт-Петербурга» |
25.12.2007 Распоряжение Комитета экономического развития, промышленной политики и торговли Санкт-Петербурга № 592-р |
Приложение - Перечень укрупненных расценок на капитальный ремонт жилых зданий, осуществляемый за счет средств бюджета Санкт-Петербурга. |
|
|
2. |
«О возмещении суммы затрат на организацию и проведение торгов на право заключения договоров аренды земельных участков» |
28.12.2007 Постановление Правительства Санкт-Петербурга №1725 |
Постановление вступило в силу с 1 января 2008 г. |
|
|
3. |
«О внесении изменений в постановление правительства Санкт-Петербурга от 15.05.2007 № 499» |
28.12.2007 Постановление Правительства Санкт-Петербурга №1750 |
Внесены изменения в Положение о согласовании производства капитального ремонта, иных неотделимых улучшений объектов нежилого фонда, арендодателем которых является Санкт-Петербург, и принятии решения о сумме и периоде возмещения затрат на их производство. |
|
|
4. |
«О нормативах затрат на содержание службы заказчика-застройщика» |
18.01.2008 Распоряжение Комитета экономического развития, промышленной политики и торговли Санкт-Петербурга № 37-р |
Приложение – Нормативы затрат на содержание службы заказчика-застройщика, осуществляющего строительство, реконструкцию, капитальный ремонт, текущий ремонт и реставрацию объектов городского хозяйства за счет средств бюджета Санкт-Петербурга.
|
|
|
5. |
«О создании рабочей группы» |
05.02.2008 Распоряжение Правительства Санкт-Петербурга № 8-рп |
Приложение – Положение о рабочей группе по координации деятельности исполнительных органов государственной власти Санкт-Петербурга при реализации проектов по комплексному освоению территорий в целях жилищного строительства в Санкт-Петербурге. |
|
В настоящее время увеличилось количестве предлагаемых к строительству объектов, по которым отсутствуют нормы проектирования и требующие разработки специальных технических условий, право на разработку которых имеют организации разных форм собственности. К таким объектам относятся уникальные и технически сложные объекты, а также объекты многофункционального назначения.
Для повышения уровня обеспеченности пожарной, экологической безопасности и безопасности при чрезвычайных ситуациях, ГУ МО «Мособлэкспертиза» рекомендует обоснование применения технических решений, принятых в соответствии с ТУ, проводить в ЦНИИСК им. В.А.Кучеренко (Филиал ФГУП «НИЦ «Строительство») и ФГУП ЦНС, так как данные организации являются одними из разработчиков действующих ГОСТов, СНиПов и других нормативных и регулирующих документов в области строительства.
Директор И.Е. Горячев
В соответствии с постановлением Правительства Московской области от 08.11.2006 № 1046/44 «Об утверждении Порядка определения и применения предельной стоимости 1 квадратного метра общей площади жилья в Московской области при исполнении бюджета Московской области и о признании утратившим силу постановления Правительства Московской области от 28.11.2005 № 843/48 «Об утверждении Методики определения средней рыночной стоимости 1 квадратного метра общей площади жилья в Московской области» и с учетом решения Московской областной межведомственной комиссии по ценовой и тарифной политике (протокол № 5 от 27.12.2007):
1. Утвердить предельную стоимость 1 квадратного метра общей площади жилья в разрезе муниципальных образований Московской области для использования в качестве предельной цены приобретения жилья за счет средств бюджета Московской области на I квартал 2008 года (прилагается).
2. Организационно-контрольному отделу (Петухова Л.М.):
2.1. Довести настоящее распоряжение до сведения:
государственных заказчиков Московской области, ответственных за приобретение жилья для государственных нужд Московской области;
Министерства финансов Московской области;
органов местного самоуправления муниципальных районов и городских округов Московской области.
2.2. Направить в Министерство по делам печати и информации Московской области копию настоящего распоряжения для его официального опубликования в газете «Ежедневные новости. Подмосковье».
2.3. В 7-дневный срок направить копию настоящего распоряжения в Главное управление Министерства юстиции Российской Федерации по Центральному федеральному округу.
3. Контроль за выполнением настоящего распоряжения возложить на заместителя министра экономики Правительства Московской области Ушакову Н.С.
Министр экономики
Правительства Московской области В.Б. Крымов
Предельная стоимость 1 кв. м, руб.
|
Муниципальные районы |
||
|
1. |
Волоколамский |
36350 |
|
2. |
Воскресенский |
42970 |
|
3. |
Дмитровский |
59190 |
|
4. |
Егорьевский |
40310 |
|
5. |
Зарайский |
29820 |
|
6. |
Истринский |
62740 |
|
7. |
Каширский |
44000 |
|
8. |
Клинский |
46180 |
|
9. |
Коломенский |
47100 |
|
10. |
Красногорский |
87020 |
|
11. |
Ленинский |
86520 |
|
12. |
Лотошинский |
35430 |
|
13. |
Луховицкий |
37730 |
|
14. |
Люберецкий |
85400 |
|
15. |
Можайский |
44750 |
|
16. |
Мытищинский |
85270 |
|
17. |
Наро-Фоминский |
58000 |
|
18. |
Ногинский |
50150 |
|
19. |
Одинцовский |
99040 |
|
20. |
Озерский |
35870 |
|
21. |
Орехово-Зуевский |
44570 |
|
22. |
Павлово-Посадский |
49700 |
|
23. |
Подольский |
69730 |
|
24. |
Пушкинский |
79470 |
|
25. |
Раменский |
65100 |
|
26. |
Рузский |
47030 |
|
27. |
Сергиево-Посадский |
54790 |
|
28. |
Серебряно-Прудский |
31160 |
|
29. |
Серпуховский |
47580 |
|
30. |
Солнечногорский |
56710 |
|
31. |
Ступинский |
51670 |
|
32. |
Чеховский |
60410 |
|
33. |
Талдомский |
32870 |
|
34. |
Шатурский |
35470 |
|
35. |
Шаховской |
32650 |
|
36. |
Щелковский |
73120 |
|
Городские округа |
||
|
37. |
Балашиха |
74540 |
|
38. |
Бронницы |
46770 |
|
39. |
44330 |
|
|
40. |
Дзержинский |
74090 |
|
41. |
Долгопрудный |
75600 |
|
42, |
Домодедово |
76720 |
|
43. |
Дубна |
50690 |
|
44. |
Железнодорожный |
73530 |
|
45. |
Жуковский |
62430 |
|
46. |
Звенигород |
51720 |
|
47. |
Ивантеевка |
62220 |
|
48. |
Климовск |
60730 |
|
49. |
Коломна |
47100 |
|
50. |
Королев |
79230 |
|
51. |
Котельники |
62660 |
|
52. |
Красноармейск |
53240 |
|
53. |
Краснознаменск |
58770 |
|
54. |
Лобня |
68040 |
|
55. |
Лосино-Петровский |
51630 |
|
56. |
Лыткарино |
66570 |
|
57. |
Молодежный |
52050 |
|
58. |
Орехово-Зуево |
44570 |
|
59. |
Подольск |
69730 |
|
60. |
Протвино |
53760 |
|
61. |
Пущино |
50880 |
|
62. |
Реутов |
91730 |
|
63. |
Рошаль |
27670 |
|
64. |
Серпухов |
47580 |
|
65. |
Троицк |
72820 |
|
66. |
Фрязино |
60680 |
|
67. |
Химки |
90580 |
|
68. |
Черноголовка |
55170 |
|
69. |
Щербинка |
73280 |
|
70. |
Электрогорск |
41680 |
|
71. |
Электросталь |
49250 |
|
72. |
Юбилейный |
73270 |
|
В каком месте |
Напечатано |
Должно быть |
|
|
Стр. 5, п. 5.12 |
В реальных монолитных зданиях конструктивные схемы обычно перекрестные (рис. 5.1, б, в). Чисто поперечные и продольные схемы (рис. 5.6, а, б) рассматриваются при разделении пространственной КС на две независимые (рис. 5.6 и 5.7) с целью упрощения расчетов |
В реальных монолитных зданиях конструктивные схемы обычно перекрестные (рис. 5.5, в, г; 6.2, а). Чисто поперечные и продольные схемы (рис. 6.1, б, в) рассматриваются при разделении пространственной КС на две независимые (рис. 6.1, б, в и 6.2, б, в) с целью упрощения расчетов |
|
|
Стр. 13, 20-я строка сверху |
элемента стен согласно п. 5.7 |
элемента стен |
|
|
№№ п/п |
Наименование проекта национального стандарта |
Разработчик |
Проект стандарта можно получить |
|
|
1. |
«ССБТ. Средства индивидуальной защиты от падения с высоты. Страховочные привязи. Общие технические требования. Методы испытаний» |
Научно-исследовательский Институт охраны труда в г. Екатеринбурге |
620075 Екатеринбург, ул. Толмачева, 11, тел. (343) 371-02-85, факс: (393) 371-98053. E-mail: iot-siz@epn.ru. |
|
|
2. |
«ССБТ. Средства индивидуальной защиты от падения с высоты. Соединительные элементы. Общие технические требования. Методы испытаний» |
Научно-исследовательский Институт охраны труда в г. Екатеринбурге |
620075 Екатеринбург, ул. Толмачева, 11, тел. (343) 371-02-85, факс: (393) 371-98053. E-mail: iot-siz@epn.ru. |
|
|
№ п/п |
Наименование организации |
Номер и дата документа Москомархитектуры об аккредитации организации |
Регистрационный номер аттестата аккредитации |
Учетный номер бланка аттестата аккредитации |
Виды деятельности, по которым проводится научно-техническая оценка |
|
|
полное, тел/факс, E-mail |
сокращенное |
|||||
|
1. |
Государственное унитарное предприятие города Москвы «Московский научно-исследовательский и проектный институт типологии, экспериментального проектирования», (495) 925-7756, 923-6138, E-mail: niitep.sekretar@infostroi.ru |
ГУП мниитэп |
Указание от 28 февраля 2007 г. № 17 |
МКА-003-2007 |
2 |
Расчетно-теоретические исследования по строительным конструкциям и разработка нормативов на строительные материалы и конструкции |
|
2. |
Государственное учреждение города Москвы «Городской координационный экспертно-научный центр «Энлаком», (495) 147-4043,932-7661, E-mail: enlakom@sumail.ru |
ГУ Центр «ЭНЛАКОМ» |
Указание от 28 февраля 2007 г. № 12 |
МКА-004-2007 |
3 |
Проектная документация на фасадные системы и разработка нормативов по видам деятельности на строительные конструкции |
|
3. |
Общество с ограниченной ответственностью «Научно-исследовательский институт бетона и железобетона», (495) 709-3444, 709-3432, (495) 147-4043,932-7661, E-mail: zvezdov@niizhb.ru |
Ооо «НИИЖБ» |
Указание от 08 ноября 2007 г № 63 |
МКА-005-2007 |
4 |
Проектная документация, расчетно-теоретические исследования по железобетонным конструкциям и в области обеспечения пожарной безопасности в строительстве, разработка нормативов на строительные материалы и конструкции |
|
4. |
Государственное унитарное предприятие города Москвы «Московский городской трест геолого-геодезических и картографических работ», (495)257-0911,257-1083, E-mail: geotrest@infostroi.ru |
ГУП «Мосгоргеотрест» |
Указание от 28 февраля 2007 г № 16 |
МКА-006-2007 |
5 |
Инженерно-геологические изыскания и расчетно-теоретические исследования, разработка нормативов по видам деятельности |
|
5. |
Общество с ограниченной ответственностью «СтройКонсультант Менеджмент», (495) 755-1501, E-mail: snip01@mail.ru |
ООО «СтройКонсультант Менеджмент» |
Указание от 28 февраля 2007 г № 13 |
МКА-007-2007 |
6 |
Проектная документация и расчетно-теоретические исследования, разработка нормативов на строительные материалы и конструкции |
|
6. |
Общество с ограниченной ответственностью «Проектно-технологическая мастерская», (495) 147-4134, 147-4089, E-mail: enlakom@sumail.ru |
ООО «ПТМ» |
Указание от 28 февраля 2007 г № 15 |
MKA-008-2007 |
7 |
Проектная документация и расчетно-теоретические исследования и разработка нормативов на строительные материалы и конструкции |
|
7. |
Общество с ограниченной ответственностью «ТЕХСОФТ», (495) 960-2283,120-1123, E-mail:nb@tech-soft.ru |
ООО «ТЕХСОФТ» |
Указание от 20 апреля 2007 г. № 23
|
MKA-009-2007 |
8 |
Расчетно-теоретические исследования по металлическим и железобетонным конструкциям |
|
8. |
Московское областное Общественное Учреждение «Региональный сертификационный центр «ОПЫТНОЕ», (495) 585-5818,743-1741, E-mail: opit №e@RAMBLER.RU |
МООУ «РСЦ «ОПЫТНОЕ» |
Указание от 20 апреля 2007 г № 22 |
MKA-010-2007 |
9 |
Проектная документация, расчетно-теоретические исследования по строительным конструкциям и разработка нормативов на строительные материалы и конструкции |
|
9. |
«Ассоциация предприятий, выполняющих работы в области пожарной безопасности «Защита», (495) 174-0729, 8-985-364- 1123, 8-903-728-9300, E-mail: aifakon-stroy@yandex.ru |
«Ассоциация предприятий «Защита» |
Указание от 20 апреля 2007 г N° 24 |
MKA-011-2007 |
10 |
Расчетно-теоретические исследования по обеспечению пожарной безопасности в строительстве и разработка нормативов по пожарной безопасности |
|
10. |
Общество с ограниченной ответственностью «ИНФОРМ-АЛЬЯНС», (495) 207-4558, 207-5539, E-mail: infora@binfora.ru |
ООО «ИНФОРМ- АЛЬЯНС» |
Указание от 25 мая 2007 г № 31 |
MKA-012-2007 |
11 |
Расчетно-теоретические исследования в области комплексного обеспечения безопасности и антитеррористической защищенности высотных зданий и разработка нормативов на конкретные виды деятельности |
|
11. |
Общество с ограниченной ответственностью «М-Автоматика», (495) 645-9201,645-9203, E-mail: m-avtomatika@bk.ru |
ООО «М- Автоматика» |
Указание от 25 мая 2007 г № 36 |
MKA-013-2007 |
12 |
Проектная документация и расчетно-теоретические исследования в области комплексного обеспечения безопасности и антитеррористической защищенности высотных зданий |
|
12. |
Общество с ограниченной ответственностью «Курсор-Холдинг», (495) 250-2441,250-2048, E-mail: ch@cursor-holding.ru |
ООО «Курсор- Холдинг» |
Указание от 25 мая 2007 г № 32 |
MKA-015-2007 |
14 |
Расчетно-теоретические исследования по строительным конструкциям и разработка нормативов по данному виду деятельности |
|
13. |
Некоммерческое образовательное учреждение «Университет комплексных систем безопасности и инженерного обеспечения», (495) 203-9870, 203-8954, E-mail: KSB@mail.cnt.ru |
НОУ «Университет КСБ» |
Указание от 25 мая 2007 г. № 33 |
MKA-016-2007 |
15 |
Расчетно-теоретические исследования в области комплексного обеспечения безопасности и антитеррористической защищенности высотных зданий и разработка нормативов на указанные виды деятельности |
|
14. |
Автономная некоммерческая организация «Всемирная Академия Наук Комплексной Безопасности», (495) 735-6314, 203-8954, E-mail: info@systemservice.ru |
АНО «ВАН КБ» |
Указание от 25 мая 2007 г. № 34 |
MKA-017-2007 |
16 |
Расчетно-теоретические исследования в области комплексного обеспечения безопасности уникальных и высотных зданий, разработка нормативов на указанные виды деятельности |
|
15. |
Общество с ограниченной ответственностью «Империя-Групп », (495) 444-6203, 505-7207, E-mail: imperia06@rambler.ru |
ООО «Империя- Групп» |
Указание от 25 мая 2007 г № 35 |
MKA-018-2007 |
17 |
Расчетно-теоретические исследования в области противопожарной защиты зданий |
|
16. |
Научно-исследовательский институт строительной физики Российской академии архитектуры и строительных наук, (495) 482-4076, 482-4060, E-mail: niisf@ipc.ru |
НИИСФ РААСН |
Указание от 13 июля 2007 г № 49 |
МКА-019-2007 |
18 |
Расчетно-теоретические исследования по строительным конструкциям, долговечности, прочности, разработка нормативов на строительные материалы и конструкции |
|
17. |
Автономная некоммерческая организация «Академический научно-технический центр Академии архитектуры и строительных наук», (499) 747-4176, E-mail: m-antc@antcraasn.ru |
АНОАНТЦ РААСН |
Указание от 25 сентября 2007 г. № 54 |
МКА-020-2007 |
19 |
Расчетно-теоретические исследования по строительным конструкциям и разработка нормативных документов в области строительства |
|
18. |
Научно-исследовательский институт теории архитектуры и градостроительства Российской академии архитектуры и строительных наук - государственное учреждение, (495) 965-1357, 965-1637, E-mail: drakulina@mail.ru |
НИИТАГ РААСН |
Указание от 08 ноября 2007 г. № 64 |
МКА-021-2007 |
20 |
Фундаментальные и прикладные научные исследования в области теории и истории архитектуры и градостроительства и разработка нормативных документов в области строительства |
|
19. |
Государственное образовательное учреждение высшего профессионального образования «Московский государственный строительный университет» (495) 183-3429, 188-3610, E-mail: science@mgsu.ru |
ГОУ ВПО МГСУ |
Указание от 04 декабря 2007 г. № 69 |
МКА-022-2007 |
21 |
Расчетно-теоретические исследования и разработка нормативных документов на строительные конструкции и технологии, материалы, системы жизнеобеспечения в области строительства, пожарную безопасность и оценку рисков |
|
20. |
Автономная некоммерческая организация «Академический научно-технический центр Академии архитектуры и строительных наук», (499) 747-4176, E-mail: m-antc@antcraasn.ru |
АНО АНТЦ РААСН |
Указание от 25 декабря 2007 г. № 76 |
МКА-020-2007 |
22 |
Проектная документация и расчетно-теоретические исследования по строительным конструкциям и разработка нормативных документов в области строительства |
|
21. |
Центральный научно-исследовательский институт строительных конструкций имени В.А. Кучеренко - филиал ФГУП НИЦ «Строительство», (495) 174-1333, 174-7431, E-mail: end-build@yandex.ru |
ЦНИИСК им. В.А. Кучеренко – филиал ФГУП НИЦ «Строительство» |
Указание от 16 января 2008 г. № 2 |
МКА-001-2008 |
23 |
Пожарная и экологическая безопасность зданий и сооружений |
|
22. |
Закрытое акционерное общество «Архитектурно-проектно-конструкторско-технологическое бюро АЛЬКОС-ПРОЕКТ», (495) 973-3362, E-mail: ntzentr@yandex.ru |
ЗАО «АПКТБ «АЛЬКОС-ПРОЕКТ» |
Указание от 28 января 2008 г. № 5 |
МКА-002-2008 |
24 |
Расчетно-теоретические исследования по деревянным конструкциям |
|
23. |
Общество с ограниченной ответственностью «Производственно-строительная проектно-научновнедренческая фирма «Ассоциация КрилаК», (495) 744-0052, 170-70-22, E-mail: krilak@krilak.ru |
ООО «Ассоциация КрилаК» |
Указание от 12 февраля 2008 г. № 7 |
МКА-003-2008 |
25 |
Пожарная и экологическая безопасность зданий промышленного и гражданского строительства |
Ученый секретарь НТС Москомархитектуры С.Ю. Сопоцько
С О Д Е Р Ж А Н И Е
© ОАО «ЦНС», 2008
|
ИНФОРМАЦИОННЫЙ БЮЛЛЕТЕНЬ "Н О Р М И Р О В А Н И Е, С Т А Н Д А Р Т И З А Ц И Я И С Е Р Т И Ф И К А Ц И Я
РЕДАКЦИОННЫЙ КОЛЛЕКТИВ: Иванов В.И., Фомичева Т.С., оформление обложки – Пескова Н.Г. Периодичность - шесть номеров в год Издатель – ОАО «ЦНС» Адрес редакции: 125057, Москва, Ленинградский проспект, д.63, а/я 63 Тел./факс: 8-499-157-22-33 E-mail: snip01@mail.ru Web-сайт: www.gpcns.ru Свидетельство о регистрации СМ № 018402 от 06.01.1999 г. выдано Госкомитетом РФ по печати ПОДПИСНОЙ ИНДЕКС в каталоге «Роспечать» (каталог «Газеты и журналы». Раздел «Строительство») 79262 Стоимость подписки – 1800 рублей |
|
ГОСТЫ, СТРОИТЕЛЬНЫЕ и ТЕХНИЧЕСКИЕ НОРМАТИВЫ. Некоммерческая онлайн система, содержащая все Российские Госты, национальные Стандарты и нормативы. В Системе содержится более 150000 файлов нормативно-технической документации, действующей на территории РФ. Система предназначена для широкого круга инженерно-технических специалистов. Copyright © www.gostrf.com, 2008 - 2026 |