Крупнейшая бесплатная информационно-справочная система онлайн доступа к полному собранию технических нормативно-правовых актов РФ. Огромная база технических нормативов (более 150 тысяч документов) и полное собрание национальных стандартов, аутентичное официальной базе Госстандарта. GOSTRF.com - это более 1 Терабайта бесплатной технической информации для всех пользователей интернета. Все электронные копии представленных здесь документов могут распространяться без каких-либо ограничений. Поощряется распространение информации с этого сайта на любых других ресурсах. Каждый человек имеет право на неограниченный доступ к этим документам! Каждый человек имеет право на знание требований, изложенных в данных нормативно-правовых актах!

  


 

Государственный комитет Республики Башкортостан по строительству, архитектуре и транспорту

РЕКОМЕНДАЦИИ
ПО ТЕХНОЛОГИИ ВОЗВЕДЕНИЯ НАРУЖНЫХ ТЕПЛОЭФФЕКТИВНЫХ ТРЕХСЛОЙНЫХ СТЕН ЗДАНИЙ НА ОСНОВЕ ВИБРОПРЕССОВАННЫХ БЕТОННЫХ ИЗДЕЛИЙ, КЕРАМИЧЕСКОГО И СИЛИКАТНОГО КИРПИЧА

Уфа
2004

ПРЕДИСЛОВИЕ

1. РАЗРАБОТАНЫ: Уфимским государственным нефтяным техническим университетом - УГНТУ (доктор техн. наук Бабков В.В. - руководитель темы; кандидат техн. наук, профессор Федорцев И.В. - ответственный исполнитель; доктора техн. наук Габитов А.И., Недосеко И.В.; кандидаты техн. наук Гайсин А.М., Чикота А.Н., Шаймухаметов А.А., Чуйкин А.Е., инженеры Султанова Е.А., Архипов В.Г.); Башкирским научно-исследовательским, проектно-конструкторским и производственным институтом строительного комплекса Республики Башкортостан - БашНИИстрой (кандидат техн. наук Колесник Г.С. - руководитель темы; кандидат техн. наук Еникеев А.X., инженер Долгодворов В.З.); ОАО КПД, г. Уфа (кандидаты техн. наук Мамлеев Р.Ф, Гареев Р.Р., Разумова Г.Ф; инженеры Москалев А.П., Сагитов Р.Ш., Коробейников Ю.М.); ОАО БНЗС, г. Уфа (инженер Карташов В.Б.).

2. ПОДГОТОВЛЕНЫ К УТВЕРЖДЕНИЮ отделом внедрения новых технологий, научного и информационного обеспечения Государственного комитета Республики Башкортостан по строительству, архитектуре и транспорту (начальник отдела Мухаметзянов Р.X., главные специалисты отдела к.т.н. Кощин А.Д., Габидуллина Ю. Н.).

3 УТВЕРЖДЕНЫ И ВВЕДЕНЫ В ДЕЙСТВИЕ приказом Государственного комитета Республики Башкортостан по строительству, архитектуре и транспорту 48 от 14 мая 2004 г.

Содержание

ВВЕДЕНИЕ

1 ОБЩИЕ ПОЛОЖЕНИЯ

1.1 Принципиальные технологические схемы кладки наружных многослойных стен

1.2 Требования к технологии кладки стен на основе пустотелых бетонных блоков и керамического (силикатного) кирпича

1.3 Требования к кладочным растворам

1.4 Требования к бетонам для обетонирования пустот в пустотелых блоках, обвязочных поясов, сборно-монолитных перемычек

1.5 Требования к производству каменных работ в зимних условиях

2 ТЕХНОЛОГИЧЕСКИЕ СХЕМЫ ПРОЦЕССОВ И ОПЕРАЦИЙ ПРИ КЛАДКЕ НАРУЖНЫХ МНОГОСЛОЙНЫХ СТЕН

2.1 Технологическая схема возведения многослойных стен по «одновременной» технологии (с внутренних подмостей)

2.2 Технология строительства при разновременном возведении несущего, утепляющего и облицовочного слоев многослойной стены (с использованием подмостей и наружных лесов)

3 МЕТОДЫ ТЕРМИЧЕСКОЙ ОБРАБОТКИ БЕТОНА В ЗИМНИХ УСЛОВИЯХ

3.1 Проектирование параметров режимов термообработки бетона при устройстве монолитных обвязочных поясов

3.2 Проектирование параметров термообработки бетона при устройстве вертикального железобетонного каркаса в кладке из пустотелых блоков

3.3 Особенности технологии зимнего бетонирования и система контроля за прогревом конструкции

4 КОНТРОЛЬ КАЧЕСТВА РАБОТ ПРИ КЛАДКЕ МНОГОСЛОЙНЫХ СТЕН

Общие положения

4.1 Входной контроль

4.2 Кладочные изделия

4.3 Арматурные и закладные изделия

4.4 Кладочные растворы

4.5 Бетонные смеси

4.6 Теплоизоляционные материалы

4.7 Пооперационный контроль при кладке многослойных стен по «одновременной технологии»

4.8 Пооперационный контроль при кладке многослойных стен по «разновременной технологии»

4.9 Контроль за производством бетонных работ и качеством бетона в зимних условиях

4.10 Приемочный контроль

4.11 Инспекционный контроль

5 ПРИНЦИПЫ ПРОЕКТИРОВАНИЯ ОРГАНИЗАЦИИ СТРОИТЕЛЬНЫХ ПОТОКОВ ПРИ КЛАДКЕ МНОГОСЛОЙНЫХ СТЕН

ВВЕДЕНИЕ

«Рекомендации по технологии возведения наружных теплоэффективных трехслойных стен зданий на основе вибропрессованных бетонных изделий, керамического и силикатного кирпича» (далее Рекомендации), рассматривающие технологию возведения теплоэффективных многослойных (трехслойных) наружных стен зданий из вибропрессованных бетонных изделий и традиционных мелкоштучных стеновых материалов (керамический и силикатный кирпич), разработаны в развитие СНиП 3.03.01-87 «Несущие и ограждающие конструкции» и СНиП 3.03.01-87 «Изоляционные и отделочные покрытия».

В настоящих Рекомендациях освещаются основные принципиальные этапы возведения теплоэффективных трехслойных стен зданий для двух характерных технологий - производство работ с внутренних подмостей и с наружных трубчатых лесов. Учитывая, что в действующих СНиП работы по кладке многослойных наружных стен практически не регламентированы, в Рекомендациях с необходимой детализацией излагаются правила и требования основных этапов ведения каменной кладки (внутреннего несущего или самонесущего и облицовочного слоев, теплоизоляции, армирования и устройства монолитных поясов и опорных столиков под облицовку), в том числе для стен, выполненных с применением бетонных изделий, производимых по вибропрессовой технологии на оборудовании фирмы «Бессер».

Рекомендации предназначены для организаций Республики Башкортостан, ведущих проектно-технологическую подготовку производства, строительство зданий и сооружений различного назначения с применением современных теплоэффективных ограждающих конструкций, а также для служб заказчика и органов стройнадзора.

Рекомендации разработаны на основе исследований и практической апробации основных технологических регламентов кладки наружных многослойных стен при проектировании и строительстве ОАО КПД, ОАО БНЗС ОАО Башстрой ряда экспериментальных объектов в Республике Башкортостан.

1 ОБЩИЕ ПОЛОЖЕНИЯ

1.1 Принципиальные технологические схемы кладки наружных многослойных стен

1.1.1 В настоящих Рекомендациях рассматривается технология строительных процессов при возведении жилых и гражданских зданий с наружными многослойными стенами на основе мелкоштучных стеновых материалов (вибропрессованные бетонные блоки, производимые на оборудовании фирмы «Бессер», традиционный керамический и силикатный кирпич). В зависимости от этажности возводимого здания и соответственно толщины конструктивной части стены технология ее кладки возможна на основе двух принципиальных схем: «с перекрытия» и «с лесов».

1.1.2 Первая схемас перекрытия») предусматривает одновременное возведение всех слоев наружных стен с использованием междуэтажных перекрытий и традиционных средств подмащивания при поэтапном наращивании стен. Данная технологическая схема именуется далее как «одновременная технология».

1.1.3 Очередность кладки многослойных наружных стен по одновременной технологии принимается от наружного облицовочного слоя к внутреннему несущему (самонесущему) слою, то есть в такой последовательности, при которой обеспечиваются необходимые условия труда каменщиков и безопасность работ.

1.1.4 Устойчивость однорядной кладки «облицовки» обеспечивается рациональной высотой яруса. Такая высота наружной версты, исходя из прочностных характеристик кладочных растворов в каменной конструкции, находится в пределах 400-600 мм. Таким образом, технология одновременной кладки многослойной стены с перекрытия и внутренних подмостей предусматривает поярусное развитие следующей «технологической цепочки» операций: облицовка, несущий слой, слой утеплителя, армирование кладки выполненного яруса и устройство «опорных столиков» под облицовочный слой.

1.1.5 Преимущества одновременной технологии заключаются в том, что:

- обеспечиваются минимальные затраты на монтажную оснастку и нормокомплект бригады каменщиков;

- законченный цикл работ по кладке одного этажа позволяет передавать готовый фронт работ последующим исполнителям (отделочному циклу), что сокращает общий срок строительства объекта.

1.1.6 Недостатками одновременной технологии являются:

- ограниченная предельная толщина несущего слоя (£ 510 мм) при общей толщине многослойной стены в пределах 750 мм;

- большие трудности при необходимости применения в трехслойных стенах дополнительных прослоек пароизоляции, ветрозащитных покрытий по утеплителю из минеральной ваты, устройства водоотводных экранов и т.д.;

- невозможность полного контроля качества работ представителями заказчика и составления актов скрытых работ на установку гибких связей, устройство теплоизоляции и дополнительных прослоек ветрозащиты и пароизоляции и т.п.

1.1.7 Вторая принципиальная технология возведения многослойных стен, именуемая в дальнейшем как «разновременная» технология, существенно отличается от первой и является двухстадийной. На первой стадии возводится несущая (самонесущая) внутренняя стена с инвентарных подмостей по традиционной технологии кладки монослойной стены.

1.1.8 На второй стадии - после завершения кладки внутреннего слоя стен и монтажа перекрытий всего здания - осуществляется цикл работ по утеплению несущего слоя и кладке облицовочного слоя стены.

1.1.9 Данный технологический цикл работ требует проведения подготовительного этапа по возведению инвентарных наружных лесов по периметру здания и на всю его высоту. Монтаж и последующий демонтаж лесов требуют дополнительных затрат труда, повышения стоимости производства работ, что соответственно отражается на итоговых показателях работы строительной организации.

1.1.10 Преимуществами второй принципиальной технологической схемы являются:

- более высокое качество работ по теплоизоляции и облицовке, выполняемых способом последовательного «наращивания» слоев «утепление-облицовка» в условиях хорошего визуального контроля исполнителем качества работ;

- более высокий уровень безопасности и удобства выполнения работ.

1.1.11 Высота зданий, строящихся по «разновременной» технологии, регламентируется допустимой отметкой применяемых лесов.

1.1.12 При возведении зданий повышенной этажности (более 40 м) и большой толщине наружных стен (более 750 мм) необходимо использование двух технологий:

а) «разновременной» - при строительстве зданий, например, высотой до 40 м с инвентарными лесами Промстройпроекта;

б) «разновременной», с использованием средств подмащивания после 40 м в виде подвесных струнных лесов, закрепленных к несущему каркасу здания, или иным способом. Данная технология не рассматривается в настоящих Рекомендациях.

1.1.13 Технологические схемы возведения наружных многослойных стен по обеим «технологиям» рассматривают всю гамму возможных конструктивных сочетаний несущих и утепляющих материалов и, применительно к ним, технологические регламенты при их возведении.

1.1.14 Разработанные технологические схемы в виде карт трудовых технологических процессов и операций рассматривают правила и требования при проведении следующих работ:

- кладка облицовочного слоя;

- производство работ по утеплению наружной стены;

- кладка несущего конструктивного слоя наружной стены;

- армирование кладки (горизонтальными сетками и вертикальными арматурными стержнями);

- устройство опорных выносных конструкций (опорных столиков) под слой облицовки;

- устройство горизонтального монолитного пояса в уровне типового этажа и омоноличивание вертикальных пустот в несущем слое наружной стены на основе пустотелых бетонных изделий.

1.1.15 Регламент трудовых процессов в технологических схемах разработан с необходимой детализацией и охватывает типичную для типового этажа этапность работ, которая включает цикл процессов и операций по ярусам возведения стены. В качестве последнего принят ярус стены между элементами горизонтального армирования, равный 600 или 400 (450) мм.

1.1.16 Многодельность технологических процессов при возведении многослойной стены, большинство которых не регламентированы существующими нормами, требует особо строгого соблюдения допусков и предельных отклонений от норм СНиП. Поэтому в технологическом разделе разработаны требования по пооперационному контролю качества работ для каждого технологического передела, которые сформулированы в разделе 4 «Контроль качества при производстве каменных работ».

1.1.17 Нетрадиционная технология кладки многослойной стены, характеризующаяся значительным объемом «мокрых» процессов, требует специальной разработки следующих технологий

- кладки из вибропрессованных бетонных блоков при отрицательных температурах;

- зимнего бетонирования монолитных обвязочных поясов;

- зимнего бетонирования армированного вертикального каркаса наружных стен. Указанные вопросы изложены в разделе 3 «Методы термической обработки бетона в зимних условиях».

1.1.18 Технология кладки многослойной стены характеризуется большим, чем при традиционной схеме, числом процессов и операций, сопряжена с более сложным характером согласования темпа и ритма работ исполнителей, что требует использования эффективных методов управления ими.

1.1.19 Теоретические предпосылки рекомендуемой методики проектирования организации работ на основе поточного строительства объектов с многослойными стенами рассматриваются в разделе 5 настоящих Рекомендаций «Принципы проектирования организации строительных потоков при кладке многослойных стен», имеющем рекомендательный характер.

1.2 Требования к технологии кладки стен на основе пустотелых бетонных блоков и керамического (силикатного) кирпича

1.2.1 Первый ряд кладки по верху фундамента или цоколя, а также каждый ряд, укладываемый по верху железобетонных обвязочных балок (поясов) и перемычек, должен укладываться по сплошной растворной постели. Последующие ряды кладки из пустотелых камней шириной 190 мм должны укладываться на горизонтальные (постельные) швы, выполняемые в виде двух параллельных полос раствора, располагаемых вдоль продольных стенок кладочных камней с отступом от края на 5-10 мм.

1.2.2 На поперечные стенки пустотелых камней раствор наносится только в тех случаях, когда это специально оговорено и требуется по проекту (узкие простенки со штабельной кладкой, столбы, а также краевые участки стен, между которыми вертикальные пустоты в блоках должны быть заполнены замоноличивающим бетоном).

1.2.3 Пустотелые камни шириной 90 мм с пустотностью менее 30 % укладываются на полную по ширине камня растворную постель.

1.2.4 Для образования торцовых (вертикальных поперечных) швов раствор наносится в виде двух полос по обеим сторонам торцовой части блока, и в таком состоянии блок укладывается на растворную постель с одновременным прижимом к торцу ранее уложенного камня. При этом должен образовываться полностью заполненный вертикальный шов между камнями. При неполном заполнении шва раствором не допускается его исправление путем «вмазывания» раствора с боков кладки. Неправильно уложенный камень должен быть удален вместе с раствором, и кладочный процесс необходимо выполнить заново.

1.2.5 Толщина горизонтальных и вертикальных швов должна составлять 10 мм. Для первого ряда толщина сплошного растворного шва может колебаться от 6 до 20 мм для выравнивания поверхности фундамента.

Толщина швов, в которых расположена арматура, должна превышать диаметр арматуры не менее чем на 4 мм.

1.2.6 Для кладки стен должны применяться сухие, чистые бетонные камни и пластичный раствор.

Кладку стен следует выполнять горизонтальными рядами с перевязкой швов и соблюдением вертикальности поверхностей.

1.2.7 Вертикальность граней и углов кладки из кирпича и блоков, горизонтальность ее рядов необходимо проверять по ходу выполнения кладки каждого ряда с устранением всех обнаруженных отклонений.

Вертикальность поверхностей стен рекомендуется контролировать не реже чем через 0,6 м по высоте.

Наружные и внутренние поверхности стен, помимо вертикальности, должны быть ровными, без выпуклостей и вогнутостей.

1.2.8 Оси конструкций здания проверяются на каждом этапе кладки; отклонения устраняются на уровне междуэтажных перекрытий.

После окончания кладки каждого этажа следует производить инструментальную проверку горизонтальности и отметок кладки, независимо от промежуточных проверок горизонтальности ее рядов. Допускаемые отклонения в размерах и положении каменных конструкций от проектных не должны превышать отклонений, указанных в разделе «Контроль качества» настоящих Рекомендаций.

Возведение стен последующего этажа следует выполнять только после укладки плит перекрытия над нижележащим этажом, анкеровки стен и замоноличивания швов плит перекрытия.

1.2.9 Вертикальные пустоты в блоках, подлежащие замоноличиванию, должны иметь размеры в свету, соответствующие проекту. Раствор, выдавливаемый из швов, необходимо удалить.

1.2.10 Для обеспечения герметичности воздушных прослоек при кладке стен поперечные швы должны быть тщательно заполнены раствором, при этом должны быть приняты меры против попадания раствора в воздушную прослойку.

1.2.11 При вынужденных перерывах кладку необходимо выполнять в виде наклонной (убежной) штрабы. Разность высот на смежных захватках и при кладке примыканий наружных и внутренних стен не должна превышать половины высоты этажа.

1.2.12 Укладка тычковых рядов в стенах обязательна в нижнем (первом) и верхнем (последнем) рядах, на уровне обрезов стен и столбов, в выступающих рядах кладки (карнизах, поясках) и т. д. только из целых блоков и кирпичей (независимо от системы перевязки).

1.2.13 Не допускается ослабление конструкции отверстиями, нишами, монтажными проемами, не предусмотренными проектом.

1.2.14 При перерывах в работе верх незаконченной кладки должен оставляться не прикрытым раствором и защищенным от атмосферных осадков водонепроницаемым экраном (полиэтиленовой пленкой, брезентом, слоем рубероида).

1.2.15. Для связи облицовочного и несущего слоев используются сварные сетки, каркасы и отдельные стержни Z-образного очертания или изогнутые в виде рамок из нержавеющей или коррозионно защищенной арматурной проволоки класса Вр-1 Æ3, 4, 5 мм.

1.2.16 Арматурные сетки должны укладываться в швы с полным обволакиванием продольных проволок сетки кладочным раствором.

1.2.17 Арматурные стержни в полости блоков при вертикальном армировании стены следует устанавливать в центр полости строго вертикально с соблюдением величины нахлеста по высоте в соответствии с проектом и указаниями к производству работ, изложенными в разделе 2 настоящих Рекомендаций.

1.2.18 Обетонирование полостей пустотных кладок при формировании внутреннего каркаса должно производиться подвижными бетонными смесями с применением суперпластификаторов. При заполнении бетоном вертикальных каналов в стеновых блоках высота одновременно укладываемого слоя бетонной смеси не должна превышать 800 мм или 4 ряда кладки. При необходимости виброуплотнения бетонной смеси режим вибрирования смеси по времени не должен превышать 8-10 с, что должно обеспечить монолитность вертикального столба без раковин и воздушных мешков.

1.2.19 Закладные детали из металлических уголков или анкерные болты, предназначенные для крепления опорных столиков, воспринимающих нагрузку от веса облицовочного слоя стен, необходимо устанавливать в строгом соответствии с проектом, с соблюдением глубины заделки уголков в несущий слой стены или анкерных болтов в железобетонные элементы каркаса здания или плиты междуэтажных перекрытий.

1.2.20 Усиление кладки монолитными бетонными или железобетонными поясами, заполнение вертикальных каналов в пустотных кладках бетонной смесью следует выполнять в соответствии с проектом и руководствуясь указаниями по выполнению бетонных работ, изложенными в разделе 2 настоящих Рекомендаций.

1.2.21 Облицовочную поверхность стен (фасадная часть здания) следует выкладывать из блоков и кирпича с правильными кромками и углами, одинаковыми по тону окраски в строгом соответствии с проектом. Вертикальные и горизонтальные швы в облицовке должны быть заполнены раствором и расшиты.

1.2.22 Облицовочная поверхность стены не должна иметь сколов, трещин, пятен, потеков раствора и высолов. Выщерблины, зазубрены и сколы углов облицовочных изделий допускаются размером не более 2-3 мм. Рисунок стены (расположение швов, цвет изделий, толщина швов) должен быть выверен в каждом ряду.

1.2.23 Неоштукатуриваемые поверхности стен следует очистить от ржавчины, высолов, растворных и бетонных потеков и различных загрязнений с помощью питьевой воды. Применять различные растворители и смывки для удаления высолов на поверхности каменных стен без предварительной проверки специалистами не рекомендуется.

1.2.24 До укладки элитного утеплителя поверхность стен должна быть очищена от наплывов, раствора, мусора, грязи, снега и «провешена» с целью определения имеющихся отклонений от регламентированных допусков. Укладку плит утеплителя следует выполнять с плотным прилеганием их к внутреннему слою стены и друг к другу В случае утепления стен в два слоя вертикальный и горизонтальный швы выполняются «вразбежку», так как это показано на схемах в разделе 2.

1.2.25 В процессе устройства теплоизоляции необходимо постоянно следить за качеством материалов, их влажностью в соответствии с требованиями действующих технических условий и ГОСТ, приведенных в таблицах и на рисунках в разделе 4 «Контроль качества» настоящих Рекомендаций. В период выпадения атмосферных осадков и при перерывах в работе следует принять меры по защите утеплителя от увлажнения.

1.2.26 В условиях жаркой погоды, когда температура окружающего воздуха превышает 38°С или 32°С при скорости ветра, превышающей 3,6 м/с и относительной влажности воздуха менее 50 %, кладка и уход за ней должны производиться по рекомендациям строительной лаборатории и осуществляться с выполнением следующих требований:

- устанавливать кладочные камни на место в течение не более 1 мин после укладки раствора;

- раствор, который не использовался в течение 2 часов после начального смешивания (приготовления) и начал твердеть (схватываться), применять запрещается.

1.2.27 В период неблагоприятной для высыхания каменной конструкции среды желательно в конце рабочего дня стены укрыть пленкой или брезентом для поддержания температурно-влажностного режима, обеспечивающего нарастание прочности раствора.

1.2.28 При среднедневной температуре 0 ± 4°С завершенную кладку стен необходимо защитить на 24 часа от дождя и снега, накрыв ее пленкой, брезентом или другими материалами, устойчивыми против атмосферных влияний, для поддержания рекомендуемого температурно-влажностного режима.

1.3 Требования к кладочным растворам

1.3.1 Кладка с применением высокопустотных вибропрессованных бетонных блоков, производимых на оборудовании фирмы «Бессер», ведется при использовании кладочных растворов марок по прочности М75, М100, М150 и М200. Растворы марок ниже 75 в каменной кладке с применением вышеуказанных изделий не рекомендуются. Подбор состава кладочного раствора с учетом условий эксплуатации здания следует выполнять в соответствии со справочным приложением 15 СНиП 3.03 01-87 и СП 82-101-98, а требуемые показатели качества и свойства раствора должны соответствовать ГОСТ 4.233-86.

1.3.2 Для приготовления раствора в качестве заполнителя применяются пески, удовлетворяющие требованиям ГОСТ 8736-93, в которых содержание зерен размером свыше 2,5 мм не превышает 5 % при исключении зерен размером свыше 5 мм. В качестве вяжущего для кладочных растворов рекомендуется портландцемент марок М400, М300, либо шлакопортландцемент тех же марок по ГОСТ 10178-85*. В кладочных растворах для достижения необходимой прочности рекомендуются пластифицирующие и воздухововлекающие добавки (СДО, СНВ и др.).

1.3.3 Подбор состава кладочного раствора выполняется исходя из заданной марки раствора и степени подвижности растворной смеси, требуемой для производства каменных работ. Контроль приготовления и применения кладочных растворов должен производиться методами, предусмотренными ГОСТ 5802-86. Этот контроль включает определение подвижности, расслаиваемости растворной смеси, а также определение прочности при сжатии и морозостойкости затвердевшего раствора.

1.3.4 Подвижность кладочного раствора для кладки стен по глубине погружения стандартного конуса по ГОСТ 5802-86 должна быть в пределах 7-8 см. Расход воды на 1 м3 песка для получения раствора заданной подвижности устанавливается на опытных замесах. Для цементно-известковых растворов подвижностью 7-8 см расход воды приближенно определяется по формуле:

B = 0,45 (QЦ + QB),                                                               (1.1)

где QЦ - расход вяжущего, кг;

Qb - расход стандартного известкового теста, кг.

Расчетный расход воды корректируется в соответствии с требуемой подвижностью раствора.

1.3.5 Величина расслаиваемости растворной смеси, определяемая по методу, предусмотренному ГОСТ 5802-86, не должна превышать разности объемов погружения стандартного конуса для определения подвижности раствора, то есть 30 см3.

1.3.6 Морозостойкость кладочного раствора определяется в соответствии с требованиями ГОСТ 10060-95 и должна быть не ниже F50.

1.4 Требования к бетонам для обетонирования пустот в пустотелых блоках, обвязочных поясов, сборно-монолитных перемычек

1.4.1 Требуемая подвижность бетонной смеси, обеспечивающая ее удобоукладываемость, определяется способом уплотнения смеси. Рекомендуются мелкозернистые (среднезернистые) литые смеси с подвижностью по осадке конуса 15 см и более по ГОСТ 10181-2000. Необходимая подвижность бетонных смесей достигается применением суперпластификаторов (типа С-3, ЛСТМ, Лигнопан Б-1, Б-2, Б-3 в количестве 0,2-0,5 % от массы цемента). Уплотнение может производиться внутренними (глубинными) компактными вибраторами или «штыкованием».

1.4.2 Проектирование состава бетона следует осуществлять в соответствии с «Руководством по проектированию составов тяжелого бетона» (НИИЖБ, М.: Стройиздат, 1979). Рекомендуемый ориентировочный состав среднезернистой бетонной смеси в расчете на 1 м3 для получения бетона класса по прочности на сжатие В15 с использованием классифицированного речного песка при соотношении фракций 1,2-10 мм и 0-1,2 мм около 4:1:

- цемент М400 - 350 кг;

- заполнители - 1700 кг;

- расход воды определяется требуемой подвижностью смеси и видом применяемого пластификатора.

Окончательный состав определяется строительной лабораторией.

1.5 Требования к производству каменных работ в зимних условиях

1.5.1 Каменные здания обычной и повышенной этажности могут возводиться в зимних условиях с применением растворов и бетонов с химическими добавками, способными твердеть при отрицательных температурах. При этом требуется, чтобы интенсивность их твердения при возведении здания всегда обеспечивала такую необратимую (накапливаемую за счет процесса твердения, а не процесса замерзания) прочность, которая будет достаточна для восприятия в период оттаивания действующих на конструкции нагрузок от веса возведенной части здания и внешних воздействий (ветра, снега и т. п.).

1.5.2 Конструкции из бетонных пустотелых камней в зимних условиях допускается возводить на обыкновенных (без противоморозных добавок) растворах с последующим своевременным упрочнением кладки прогревом или на растворах с противоморозными добавками марок не ниже М100 (поташ, нитрит натрия).

1.5.3 Вести кладку из пустотелых бетонных блоков и из керамического кирпича методом замораживания не допускается

1.5.4 Интенсивное твердение растворов и бетонов при отрицательной температуре без прогрева может быть достигнуто за счет введения в них поташа при минимальной температуре наружного воздуха до -30°С или нитрита натрия при минимальной температуре до -15°С в количестве, указанном в таблице 1.1. Дозировка добавки определяется по СНиП 3.03.01-87 в зависимости от прогнозируемой минимальной температуры наружного воздуха на предшествующий период твердения не менее 10-15 дней. Необходимо учесть, что применение поташа для кладки из вибропрессованных бетонных блоков «Бессер» не допускается.

1.5.5 В случаях, когда по темпам возведения зданий в зимних условиях не требуется интенсивного твердения растворов или бетонов с химическими добавками, допускается их использование при минимальной температуре наружного воздуха ниже указанных в таблице 1.1, а именно до -35°С при максимальном количестве добавки поташа и до -20°С - добавки нитрита натрия.

1.5.6 Для обеспечения требуемой надежности конструкций стен в зимних условиях на растворах или бетонах с химическими добавками должен быть организован систематический контроль за их фактической прочностью, набираемой в зимний период. Величина этой фактической прочности растворов и бетонов должна быть не ниже требуемой для восприятия нагрузок от возведенной части здания

1.5.7 Запрещается возводить на растворах с добавками поташа или нитрита натрия здания и сооружения, эксплуатирующиеся в условиях повышенной (выше 60 %) влажности воздуха (бани, прачечные, влажные цеха) или повышенной (выше 40°С) температуры (трубы, горячие цеха), а также работающие в условиях воздействия на конструкции агрессии, вызывающей разрушение растворов и бетонов с химическими добавками (химические цеха отдельных предприятий).

Таблица 1.1 - Оптимальное количество добавок к растворам и бетонам

Добавки

Среднесуточная температура воздуха, °С

Количество добавки, % от массы цемента

Поташ (К2СО3)

от 0 до -5

5

от -6 до -15

10

от-16 до -30

12

Нитрит натрия (NaNО3)

от -1 до -5

5

от -6 до -9

8

от -10 до -15

10

1.5.8 При производстве каменных работ не допускается:

- применять растворы и бетоны с добавками нитрита натрия и поташа для возведения конструкций, расположенных в зонах переменного уровня воды и под водой и не имеющих специальной защитной гидроизоляции, а также для конструкций, находящихся в непосредственной близости (ближе 100 м) к источникам тока высокого напряжения;

- непосредственный контакт растворов и бетонов с добавками нитрита натрия с закладными частями из алюминия или защищенными покрытиями из алюминия, а также с добавками поташа с закладными частями из алюминия и цинка или защищенными покрытиями из них; эти покрытия должны перед замоноличиванием стыков защищаться протекторными обмазками;

- вводить добавки в бетоны и растворы с заполнителями, содержащими реакционноспособный кремнезем (опал, халцедон и другие) в виде включений между слоями или кристаллами основной щелочестойкой породы;

- вводить добавки поташа в бетоны и растворы в количестве более 15 %, нитрита натрия - более 10 % от массы цемента.

1.5.9 Для приготовления интенсивно твердеющих на морозе растворов и бетонов с добавками поташа и нитрита натрия рекомендуется применять портландцемент марок М300 и выше с содержанием в клинкере трехкальциевого силиката (C3S) более 50 % и трехкальциевого алюмината (С3А) не более 8 %. Вода и заполнители для растворов и бетонов должны удовлетворять требованиям действующих ГОСТов.

1.5.10 Химические добавки должны удовлетворять требованиям ГОСТов и СН, а именно:

- калий углекислый технический К2СО3 (поташ) - требованиям ГОСТ 10690-73;

- натрий азотистокислый технический NaNО3 (нитрит натрия) - требованиям ГОСТ 6194-69;

- лигносульфанаты технические ЛСТ (ЛСТМ) - требованиям ГОСТ 8518-57, СДБ (сульфидно-дрожжевая бражка) - СН 406-70.

1.5.11 При расчете марки кладочных растворов для конструкций, расчетная несущая способность которых в проекте недоиспользуется на 20 % и более (выполняемых при любой отрицательной температуре), марки растворов могут приниматься равными проектным (летним). В остальных случаях они принимаются:

- равными проектным, если кладка и монтаж будут выполняться при температуре не ниже -3°С;

- на одну марку выше проектных, если кладка и монтаж будут выполняться при температуре от -4°С до -20°С;

- на две марки выше проектных, если кладка и монтаж будут выполняться при температуре ниже -20°С.

1.5.12 В проектах зданий повышенной этажности, возведение которых будет производиться в зимних условиях на растворах с химическими добавками, должны дополнительно указываться требования к минимальной прочности раствора и армированию кладки, выполнение которых обеспечивает достаточную несущую способность конструкций при разных стадиях готовности по этажам (жилые и общественные здания) или через 3-5 метров по высоте для высотных зданий.

1.5.13. Ориентировочная расчетная прочность растворов марки 50 и выше (на портландцементе марки 300 и выше) с добавками поташа или нитрита натрия в количестве, указанном в таблице 1.1, твердеющих на морозе, приведена в таблице 1.2.

Таблица 1.2 - Ориентировочная расчетная прочность (в %) растворов марки 50 и выше на портландцементе с добавками поташа или нитрита натрия, твердеющих на морозе

Наименование химической добавки

Средняя температура твердения, °С

Прочность раствора, % от его марки (ГОСТ 5802-86) при твердении на морозе в течение

3 суток

7 суток

28 суток

90 суток

Поташ

от 0 до -5

15

25

60

80

от -6 до -15

10

20

50

65

ниже -15

5

10

35

50

Нитрит натрия

от 0 до -5

5

10

40

55

от -6 до -15

3

5

30

40

1.5.14 Величина необходимой минимальной прочности раствора (при проектных марках камня или блоков, а также при проектном армировании) для различных стадий готовности возводимого здания назначается по расчету несущей способности, требуемой для данной стадии загружения конструкции.

1.5.15 Состав раствора и бетона с химическими добавками заданной проектной марки назначается предварительно в соответствии с нормативными документами и корректируется строительной лабораторией с учетом применяемых материалов и их взаимодействия с химическими добавками. Приготовление растворов и бетонов с химическими добавками производится по правилам приготовления обычных растворных и бетонных смесей. Отличие лишь в том, что затворение их производится водными растворами химических добавок (поташа или нитрита натрия). Дозировка добавок приведена в таблице 1.1.

1.5.16 В случае необходимости замедления схватывания растворной или бетонной смеси с поташом в нее вводится водный раствор ССБ, СДБ или других замедлителей схватывания. Потребное количество ССБ и СДБ устанавливается на пробных замесах, но должно быть не более 0,15 % от массы цемента для портландцементов и не более 2,5 % для шлакопортландцемента.

1.5.17 Растворная и бетонная смесь с химическими добавками может перевозиться в неутепленной таре, но с обязательной защитой ее от попадания снега и воды. Подогрев смеси с добавкой поташа при перевозке не допускается.

1.5.18 Кладку стен рекомендуется выполнять на кладочных растворах с использованием портландцемента марок не ниже 400.

1.5.19 В качестве противоморозных добавок на облицовочный слой (версту) допускается применять добавки, исключающие высолообразование.

1.5.20 В зимний период применяют цементно-песчаные кладочные растворы, при этом температура применяемого раствора в момент укладки должна быть +30°...+40°С с добавкой нитрита натрия и 0...+5°С - с добавкой поташа.

1.5.21 Кирпич и блоки допускается укладывать без предварительного подогрева, но они должны быть сухими, без наледи и загрязнений. Обледенения и загрязнения должны предварительно удаляться механическим способом или горячим воздухом. Все утеплители (плитные, сыпучие) укладываемые в стену, должны быть сухими и не содержать смерзшихся комьев.

1.5.22 Возведение каменных конструкций в зимних условиях на растворах с химическими добавками производится такими же способами, как и в летних условиях. При производстве работ необходимо особое внимание обращать на получение горизонтальных швов нормальной толщины. Обжатие раствора в швах должно происходить до его загустевания. Не допускается при перерывах в работе укладывать раствор на верхний ряд кладки. По окончании кладочных работ на захватке верх кладки следует прикрывать для предохранения от обледенения и заноса снегом, а также во избежание попадания снега (осадков) в межслоевое пространство стен. Хранить раствор с добавкой поташа не уложенным в дело разрешается не более 1 ч, а раствор с добавками нитрита натрия - не более 2-3 ч. При нарушении сроков хранения пластические свойства раствора допускается восстанавливать вибрацией.

1.5.23 При установке оконных коробок по ходу кладки простенков оставляют промежуток не менее 15 мм (осадочный зазор) на осадку кладки между верхом коробки и низом перемычки.

1.5.24 При ожидаемой температуре ниже -15°С работы по кладке стен следует приостановить и принять меры, предотвращающие замерзание раствора (защита выполненной кладки войлоком или другими утепляющими материалами с применением дополнительного обогрева для поддержания температуры кладки не ниже +5°С). Схема обогрева устройством тепляка приведена на рис. 1.1.

1 - воздухонагревательный агрегат; 2 - кронштейн-площадка для поддержания войлока; 3 - подкосы (шаг 1,5 - 2 м)

Примечание. Торцы тепляка закрыть по месту.

Рис. 1.1 - Схема устройства тепляка

1.5.25 Температура в тепляке должна быть не ниже +5°С, влажность не более 70 %; влажностный режим обеспечивается соответствующим открытием продухов в торцевых частях тепляка.

1.5.26 При прогнозируемой температуре наружного воздуха в течение 10-15 дней с момента укладки ниже -15°С марку кладочного раствора следует увеличить на одну ступень. Укладку плит перекрытия и кладку стен вышележащего этажа допускается производить с разрешения технического или авторского надзора и заключения строительной лаборатории, подтверждающей на основании испытания контрольных кубов соответствие фактической прочности раствора расчетной для данной нагрузки.

1.5.27 В весенний период при оттаивании раствора с перекрытий необходимо снять все непредусмотренные проектом нагрузки и вести строгий контроль за поведением стен и их деформациями. При необходимости следует произвести временное усиление отдельных столбов, простенков стойками на встречных клиньях.

1.5.28 Для восприятия усилий, возникающих от применения в конструкциях стен различных по упругим и температурно-влажностным характеристикам стеновых материалов, необходимо устройство монолитных бетонных поясов через 3-5 этажей в зависимости от требований проекта.

1.5.29 В качестве замоноличивающего бетона для заполнения пустотелых блоков рекомендуется использовать мелкозернистый бетон, соответствующий по прочности требованиям проекта, но не ниже класса В15, при необходимости с противоморозными добавками.

1.5.30 Установка анкеров и связей в стенах и между панелями перекрытий и стенами должна актироваться.

1.5.31 В журнале производства работ помимо обычных записей о составе работ, выполняемых по дням, должны фиксироваться температура наружного воздуха, количество вводимых в растворы химических добавок, условия хранения образцов раствора и другие данные, влияющие на процессы твердения.

1.5.32 Для проведения последующего контроля прочности при возведении конструкций необходимо изготовлять контрольные образцы - кубы раствора размером 7,07×7,07×7,07 см на отсасывающем основании. Количество изготовляемых образцов должно быть не менее 9 штук на каждый этаж при односекционных домах. При количестве секций 2 и более необходимо изготовлять не менее 6 контрольных образцов (на 1 этаж каждой секции). Образцы должны хранится на открытом воздухе в таких же условиях, что и конструкции. Сверху образцы должны закрываться толем или другими рулонными материалами от попадания на них воды или снега.

1.5.33 Испытания контрольных кубов раствора должны производиться после 1-2 часового оттаивания в сроки, необходимые для определения прочности кладки, а также по истечении 28 дней их пребывания в условиях нормального твердения. Одновременно должно испытываться не менее трех образцов-близнецов. Для определения конечной прочности раствора рекомендуется изготовлять дополнительно 3 образца, которые должны храниться в зимние и весенние периоды на открытом воздухе и испытываться по истечении месячного срока их пребывания при положительной температуре.

1.5.34 При строительстве зданий в зимних условиях необходимо руководствоваться действующими правилами охраны труда и техники безопасности.

1.5.35 При использовании поташа (калиевой соли угольной кислоты, относящейся к разряду щелочей) в качестве добавки в цементные растворы и бетоны должны соблюдаться следующие требования:

- лаборанты или рабочие допускаются к работе с поташом только по достижении ими 18-летнего возраста и после прохождения медицинского осмотра и инструктажа;

- лица, имеющие повреждения кожных покровов (ожоги, раздражения, царапины и т.п.), к приготовлению растворов поташа не допускаются;

- поташ следует хранить в запираемом сухом (желательно отдельном) помещении в таре завода-изготовителя (ящики, барабаны, бумажные мешки); вход в это помещение посторонним лицам должен быть запрещен;

- запрещается принимать пищу в помещениях, где хранится поташ или приготовляется его водный раствор;

- цистерны и емкости для хранения водных растворов поташа должны быть заперты на замок, ключи от которого в каждой смене должны находиться у ответственного лица;

- приготовление водных растворов поташа должны производиться рабочими в комбинезонах, резиновых сапогах и перчатках, утепленных с внутренней стороны;

- по окончании работ по приготовлению водных растворов поташа спецодежда должна храниться в специальных шкафчиках.

1.5.36 При использовании нитрита натрия (натриевой соли азотистой кислоты, являющейся ядом, а также легковоспламеняющимся продуктом) в качестве добавки в цементные растворы и бетоны должны соблюдаться (в дополнение к требованиям по использованию поташа) следующие требования:

- нельзя хранить в одном помещении нитрит натрия с окислами и растворами, имеющими кислотную среду, при взаимодействии которых могут образоваться ядовитые газы;

- запрещается вести работы с открытым пламенем (газосварка, газорезка и т.п.), а также курить в помещениях, где хранится кристаллический нитрит натрия;

- помещения, где готовят водные растворы нитрита натрия, должны быть оборудованы приточно-вытяжной вентиляцией;

- на всех емкостях с водным раствором нитрита натрия должна быть предупредительная надпись «Яд».

2 ТЕХНОЛОГИЧЕСКИЕ СХЕМЫ ПРОЦЕССОВ И ОПЕРАЦИЙ ПРИ КЛАДКЕ НАРУЖНЫХ МНОГОСЛОЙНЫХ СТЕН

2.1 Технологическая схема возведения многослойных стен по «одновременной» технологии (с внутренних подмостей)

2.1.1 Настоящими Рекомендациями предусмотрены технологические схемы производства работ при возведении многослойных наружных стен, выполняемых из вибропрессованных бетонных блоков и традиционного керамического и силикатного кирпича.

2.1.2 Весь технологический комплекс по кладке несущего, облицовочного слоев, теплоизоляции, продольному и вертикальному армированию осуществляется в одном потоке с использованием инвентарных подмостей и средств дополнительного подмащивания. Технологическая схема замащивания этажа-захватки шарнирно-панельными и доборными подмостями приведена на рис. 2.1.1.

2.1.3 Общая последовательность развития комплексного потока осуществляется по следующей схеме: «облицовка» - «несущий слой» - «теплоизоляция» - «продольное армирование» - «устройство опорных конструкций под облицовочный слой».

2.1.4 Комплекс работ при «облицовке» и кладке «несущего слоя» стены по составу и характеру выполненных операций и процессов достаточно традиционен, но существенно разнится в зависимости от используемого материала - вибропрессованных бетонных блоков или керамического и силикатного кирпича. В настоящих Рекомендациях в дальнейшем рассматривается технология указанных операций по ярусам типового этажа здания применительно к каждому из названных стеновых материалов.

2.1.5 Комплекс работ по теплоизоляции стен, кроме собственно утепления конструкции, может включать: устройство гидроизоляционных экранов (фартуков, предотвращающих увлажнение опорных столиков и отводящих конденсат из трехслойных стен), устройство пароизоляции между несущим слоем стены и слоем теплоизоляции, устройство ветрозащитного экрана между малоплотным утеплителем из минеральной ваты и формирование воздушной вентилируемой прослойки.

2.1.6 Типовой этаж здания, как терминологическое понятие, здесь и далее по тексту подразумевает объемно-планировочное и конструкционное решение этажа, наиболее часто повторяющееся в здании и, очевидно, присущее всем этажам здания, за исключением 1-го (при встроенных помещениях и пристраиваемых объемах) и последнего верхнего этажа (в зависимости от конструкции кровли и крыши здания).

2.1.7 Возведение 1-го яруса стены типового этажа осуществляется непосредственно с плит перекрытия. Последующие ярусы стены (600-1200; 1200-1800; 1800-2400; 2400-3000 мм) возводятся с использованием инвентарных подмостей для нечетного ряда (3, 5 ярусы) и дополнительных средств подмащивания для четного ряда (2, 4 ярусы). Это позволяет «выравнивать» по горизонтали уровень подмостей с высотой следующего яруса кладки стены.

2.1.8 Кладка каждого яруса на типовом этаже здания начинается с облицовочного слоя высотой 600 мм. При кладке из бетонных блоков, производимых по технологии вибропрессования на оборудовании фирмы «Бессер», технологическая схема устройства облицовочного слоя приведена на рис. 2.1.2. Кладка этого же облицовочного слоя из керамического или силикатного кирпича показана на рис. 2.1.3.

2.1.9 Содержание и последовательность технологических операций кладки облицовочного слоя ярусов типового этажа регламентируются графиками трудового процесса, приведенными на рис. 2.1.2 и 2.1.3.

2.1.10 Технологическая схема кладки несущего слоя очередного яруса на этаже из вибропрессованных бетонных блоков и керамического (силикатного) кирпича рассматривается на рис. 2.1.4 и 2.1.5.

2.1.11 При кладке из вибропрессованных бетонных блоков возведение несущей стены каждого яруса производится по цепной системе перевязки смежных рядов. Подготовительные работы и непосредственно сам производственный процесс требуют для звена исполнителей фронта работ (делянки) не менее 5,5-6 м.

2.1.12 Цикл подготовительных работ (очистка основания, раскладка блоков, расстилание растворной постели) осуществляется каменщиком 2-го разряда и выполняется, как это показано на схеме, таким образом, чтобы обеспечить качественное формирование горизонтального и вертикального швов между блоками.

2.1.13 Кладка стены с предварительной установкой причалки и контрольных реек осуществляется каменщиком 4-го разряда. Требуемые допуски при использовании вибропрессованных бетонных блоков приведены в разделе 4.


План установки инвентарных шарнирно-панельных подмостей на захватках

Указания к производству работ:

1. До начала установки шарнирно - панельных подмостей должны быть выполнены следующие работы

- произведена кладка стен первого яруса на высоту 600 мм, установка утеплителя и гибких связей на первой захватке;

- завезено необходимое количество шарнирно-панельных подмостей в зону действия башенного крана для I и II захваток;

- очищено от строительного мусора место установки подмостей;

- установлен и опробован башенный кран.

2. Установка подмостей начинается с первой захватки, на которую с помощью башенного крана подаются доборные шарнирно-панельные подмости.

3. После окончания работ по возведению 1-го яруса на 2-й захватке каменщики убирают растворные ящики и строительный мусор и переходят на возведение стен 2-го яруса (600 мм) 1-й захватки В это время в свободные «окна» от подачи материала каменщикам, плотники производят установку доборных подмостей на второй захватке.

4. По окончании возведения стен 2-го яруса на 1-й захватке, каменщики освобождают подмости и переходят на кладку 2-го яруса 2-й захватки. Плотники производят замену доборных подмостей на первой захватке типовыми.

5. Окончив возведение стен 2-го яруса на 2-й захватке каменщики, очистив подмости, переходят на 1-ю захватку для кладки стен 3-го (600 мм) и 4-го (400 мм) яруса Плотники производят замену доборных подмостей на второй захватке типовыми.

6. Закончив возведение стен 3-го и 4-го яруса на 1-й захватке, очистив подмости, каменщики переходят на кладку 3-го и 4 го яруса 2-й захватки. Плотники производят перестановку во второе положение типовых подмостей на 1-й захватке.

7. По окончании возведения 3-го и 4-го яруса на 2-й захватке, каменщики освобождают подмости и переходят на кладку 5-го яруса (600 мм) 1 й захватки. Плотники производят перестановку во второе положение типовых подмостей на 2-й захватке.

8. Окончив возведение стен 5 го яруса на 1-й захватке, каменщики, очистив подмости, переходят на 2-ю захватку для кладки стен 5 яруса. Плотники в это время занимаются перестановкой подмостей с 1-й захватки на площадку складирования.

9. После монтажа плит перекрытия на 1-й захватке и окончания работ по возведению стен 5-го яруса на 2-й захватке каменщики переходят на кладку стен 1-го яруса следующего этажа на 1-й захватке. Плотники в это время производят перестановку подмостей со 2-й захватки на площадку складирования.

10. По окончании кладки стен, установки теплоизоляции и гибких связей 1-го яруса 1-й захватки второго этажа и переходе каменщиков на возведение стен 1-го яруса 2-й захватки 2-го этажа цикл установки и перестановки подмостей повторяется. И так по каждому этажу.

11. В «разрывах» между подмостями укладываются щиты - настилы из 50 мм досок.

12. Установка и перестановка типовых и доборных шарнирно-панельных подмостей выполняется звеном рабочих, входящих в состав комплексной бригады каменщиков.

В состав звена входят:

- М - машинист крана 3-го разряда - 1 чел;

- П1 - плотник - звеньевой 4-го разряда - 1 чел;

- П2 и П3 - плотники 2-го разряда.

Рис. 2.1.1 - Принципиальная схема замащивания захватки при использовании: а) доборных подмостей (600-1200 мм; 1800-2400 мм); б) шарнирных подмостей (1150-1800 мм, 2400-3000 мм)

Рис 2.1.2 - Технология кладки 1-го яруса «облицовки» типового этажа из вибропрессованных бетонных блоков

Рис. 2.1.3 - Технология кладки слоя облицовки 1-го яруса стены типового этажа из керамического (силикатного) кирпича

Рис. 2.1.4 - Технология кладки типового яруса стены толщиной 430 мм (внутренняя верста - 190 мм) из вибропрессованных бетонных блоков

Рис. 2.1.5 - Технология кладки типового яруса этажа несущей наружной стенывнутренняя верста») из керамического и силикатного кирпича


2.1.14 Возведение несущего слоя из керамического и силикатного кирпича выполняется также по цепной системе перевязки. Кладка каждого четного яруса стены производится с использованием доборных инвентарных подмостей высотой 650 мм. Это позволяет избежать работы каменщика «вниз головой» после перемащивания рабочего настила инвентарных шарнирных подмостей и соблюдать «оптимальную» высоту возводимого яруса в пределах типового этажа, равную 600-650 мм.

2.1.15 Распределение обязанностей и характер выполняемых операций звена каменщиков при кладке стены из керамического (силикатного) кирпича регламентированы указаниями и графиком трудового процесса на рис 2.1.5.

2.1.16 Кладка несущего слоя стены толщиной 390 мм (2 ряда вибропрессованных бетонных блоков) производится по технологии, приведенной на рис 2.1.6. Каждый ярус стены начинается с кладки «тычковой версты», с последующим перекрытием его «ложковыми» рядами.

2.1.17 Структура и содержание подготовительных работ и собственно самого процесса кладки раскрываются указаниями и графиком трудового процесса, приведенными на том же рисунке.

2.1.18 Теплоизоляция многослойной стены выполняется поярусно после кладки несущего и облицовочного слоев стены данного яруса путем установки в «колодец» плит утеплителя.

2.1.19 Технология работ по утеплению стены здания представлена на рис 2.1.7, где приведены порядок и требования по установке плитного утеплителя четного яруса стены этажа, выполненной из керамического (силикатного) кирпича.

2.1.20 Технология работ по утеплению стены типового этажа, выполненной из вибропрессованных бетонных блоков (нечетного яруса), представлена рис 2.1.8.

2.1.21 Последовательность и содержание приведенных на рис 2.1.7 и 2.1.8 технологических операций предусматривают очистку «колодца» между стенами от раствора и строительного мусора, установку «маячных» прокладок воздушного зазора, установку плит утеплителя «запрессовкой» их «сверху-вниз» между несущей стеной и слоем «облицовки».

2.1.22 Монтаж плит утеплителя при двухслойной теплоизоляции (см рис 2.1.8) выполняется по «шахматной» схеме, с разбежкой вертикальных швов в смежных слоях утеплителя одного яруса. Установка «картин» утеплителя I-го слоя производится убежной штрабой, т. е. вначале устанавливается часть плит, прилегающих к несущему слою стены, затем «маячные» прокладки зазора и, только после этого, выполняется установка плит утеплителя II-го слоя, смежных облицовочному слою стены.

2.1.23 Завершающим этапом кладки типового яруса стены является продольное армирование, выполняемое связевыми армокаркасами, включающими продольные и поперечные стержни Æ 3-5 мм, которые укладываются на стену с «нахлестом» не менее 150 мм (см рис 2.1.9).

2.1.24 Образование требуемого зазора для растворной постели под армокаркас обеспечивается путем укладки по утеплителю минераловатной прокладки соответствующей толщины, как это показано на рис 2.1.9.

2.1.25 Технология продольного армирования при укладке стен из вибропрессованных бетонных блоков и кирпича аналогична и регламентирована схемой на рис 2.1.9.

2.1.26 Технологическая схема продольного армирования при завершении работ по типовому этажу предусматривает анкеровку плит перекрытия в стене, показанную на схеме рис 2.1.10.

2.1.27 Вертикальное армирование несущего слоя стены осуществляется на типовом этаже в два цикла: 1 цикл - в процессе кладки многослойной стены высотой до 1,8 м, 2 цикл - после завершения кладки типового этажа до отметки 2,4 м/ Технологические схемы указанных этапов в зависимости от способа омоноличивания пустот в вибропрессованных бетонных блоках, приведены на рис. 2.1.11, 2.1.12, 2.1.13, 2.1.14.

2.1.28 Этапность работ по устройству вертикальных элементов железобетонного каркаса на типовом этаже связана с особенностью технологии кладки из пустотелых вибропрессованных бетонных блоков, «нанизывание» которых на предварительно установленный арматурный стержень, возвышающийся над уровнем кладки на высоту свыше 200-400 мм, представляется весьма затруднительным Поэтому принята следующая схема возведения вертикального армокаркаса типового этажа:

- кладка ярусов высотой 1,8 м, 1-й цикл армирования с выпуском арматурных стержней выше отметки кладки не менее 200 мм;

- кладка последующих ярусов несущей стены;

- армирование вертикального пояса второго цикла армирования с напуском низа арматурных стержней 200 мм и верха арматурного стержня длиной до 600 мм

Это требуется для заделки его в монолитный обвязочный пояс данного этажа и создания «нахлеста» стержней на следующем типовом этаже здания.


Рис. 2.1.6 - Технология кладки типового яруса этажа наружной несущей стенывнутренняя верста») толщиной 390 мм из вибропрессованных бетонных блоков

Рис. 2.1.7 - Технология теплоизоляции стены из однослойного эффективного утеплителя

Рис. 2.1.8 - Технология теплоизоляции стены при 2-х слойном плитном утеплителе

Рис. 2.1.9 - Технология продольного армирования гибкими связевыми каркасами 1-го - 4-го ярусов стены типового этажа

Рис. 2.1.10 - Технология продольного армирования стены гибкими связевыми каркасами (5-й ярус кладки)

Рис. 2.1.11 - Технология бетонирования вертикального каркаса стены из пустотелых вибропрессованных бетонных блоков с ручной подачей бетонной смеси

Рис. 2.1.12 - Технология бетонирования вертикального каркаса стены из вибропрессованных бетонных блоков (механизированный вариант)

Рис. 2.1.13 - Технология бетонирования вертикального каркаса стены из вибропрессованных блоков (механизированный вариант)

Рис. 2.1.14 - Технология бетонирования вертикального каркаса стены из вибропрессованных блоков (вариант ручной подачи смеси)


2.1.29 Технология каждого из этапов армирования аналогична и предусматривает следующую схему производства работ:

- очистка пустот-каналов и подготовка их к бетонированию;

- омоноличивание пустот слоями по 400 мм до установки стержней, что необходимо для последующего «защемления» конца арматурного стержня в колодце.

- установка арматурного стержня длиной 2,0 м с погружением его в бетонный слой омоноличенного блока толщиной 0,4-0,8 м, выверка положения арматуры относительно оси симметрии канала камня, омоноличивание верхней полости «колодца» слоями бетона по 400 мм с уплотнением вручную «штыкованием» смеси или виброиглой.

Правильно установленный стержень выступает над уровнем кладки 1-цикла армирования на высоту ³ 200 мм, 2-го цикла армирования - 600 мм.

2.1.30 Мелкозернистая бетонная смесь для омоноличивания вертикальных каналов в блоках должна иметь подвижность на менее ОК = 15-18 см. Подача смеси в полость колодцев осуществляется «вручную» (см. рис. 2.1.11) или с помощью растворонасоса (см. рис. 2.1.12).

2.1.31 Бетонирование каждого этапа при устройстве в кладке вертикального железобетонного «столба» осуществляется в течение времени, исключающего образование «рабочего шва» в бетоне, т. е. до начала схватывания смеси, укладываемой в пределах захватки, что требует соблюдения определенной схемы и организации процесса бетонирования, изложенных в требованиях на рис. 2.1.11, 2.1.12, 2.1.13, 2.1.14.

2.1.32 Опорные конструкции под слой облицовки закрепляются как к несущему слою стены (из керамического и силикатного кирпича, вибропрессованных бетонных блоков), так и к железобетонным элементам каркаса здания (перекрытиям и обвязочным поясам). В настоящих Рекомендациях рассматриваются технологические решения, присущие (как наиболее часто повторяющиеся) конструкции опорного столика из металлических элементов, устанавливаемых в кладку. Опорный столик под облицовочный слой может также решаться в железобетоне на основе тяжелого бетона на плотных заполнителях или конструкционного керамзитобетона со средней плотностью не ниже 1800 кг/м3.

2.1.33 Устройство опорных конструкций под «облицовку» типового этажа осуществляется в процессе кладки последнего яруса данного этажа после установки плитного утеплителя. Технологические схемы с указаниями и графиками трудового процесса показаны на рис. 2.1.15, 2.1.16. Первая из них касается правил и требований при кладке многослойной стены из вибропрессованных бетонных блоков; вторая - при кладке стены из кирпича.

2.1.34 Технологическая схема устройства опорных конструкций в стене из вибропрессованных бетонных блоков (см. рис. 2.1.15) выполняется по «специфичной» последовательности, которая реализуется (по окончании кладки 4-го яруса стены здания) следующим образом. Вначале производится кладка 2-х рядов облицовки из нижних пустотелых и верхних полнотелых полублоков, затем укладываются два ряда несущего слоя, причем нижний ряд - из пустотелых блоков «Бессер», а верхний ряд - из 2-х полнотелых полублоков, уложенных «плашмя». Выполняется разметка мест установки опорных выносных кронштейнов, установка утеплителя с подрезкой щели под «уголок», монтаж опорного кронштейна в шов кладки между полнотелыми полублоками, монтаж и сварка продольного уголка под облицовку вышележащих ярусов.

2.1.35 Технология устройства опорных конструкций под слой облицовки в стене из керамического и силикатного кирпича принципиально подобна и включает 2 следующие операции: кладка наружной версты на делянке из 5-и рядов облицовочного кирпича, возведение несущего слоя из 4-х рядов камней и разметка мест установки выносных кронштейнов. Затем осуществляется монтаж подрезанного утеплителя с устройством «щели» под полку уголка, кладка 5-го ряда внутреннего слоя стены с одновременным монтажом в шов кладки опорного кронштейна и установка продольного уголка с его приваркой к опорному столику.

2.1.36 Конструктивные характеристики прокатных профилей опорных конструкций и требования по сварке данных конструкций приведены в указаниях к производству работ и узлах на рис. 2.1.15 и 2.1.16.

2.1.37 Завершающим этапом возведения типового этажа является устройство монолитного обвязочного пояса, выполненного в уровне каждого этажа или через несколько этажей, что устанавливается проектом.

2.1.38 Устройство монолитного пояса как составляющая процессов возведения типового этажа входит в перечень работ при возведении последнего яруса стены типового этажа и выполняется по одному из двух вариантов: использование «лотковых» вибропрессованных бетонных блоков (см. рис. 2.1.17), либо применение инвентарной металлической или деревянной опалубки (см. рис. 2.1.18).


Рис. 2.1.15 - Технология устройства «опорного столика» на основе металлоизделий при кладке стены из вибропрессованных бетонных блоков

Рис. 2.1.16 - Технология устройства «опорного столика» при кладке стены из керамического камня

Рис. 2.1.17 - Технология бетонирования монолитного пояса в «лотковых» блоках Бессер

Рис. 2.1.18 - Технология бетонирования монолитного пояса в разборной деревянной опалубке

Рис. 2.1.19 - Организация строительных процессов при бетонировании монолитного обвязочного пояса


2.1.39 Технологическая последовательность работ по 1-му варианту принята следующей:

- кладка облицовочного слоя из 3-х рядов данного яруса на делянке-захватке;

- кладка 1-го ряда пустотелого блока внутренней версты стены с нанизыванием блока через ранее установленный арматурный стержень вертикального «столба»;

- кладка лоткового блока на делянке-захватке несущей стены с предварительной пробивкой отверстий под арматурные стержни вертикального элемента;

- установка продольных арматурных стержней в лотковых блоках с прокладками из обрезков арматуры L £ 100 мм;

- омоноличивание пустот лоткового блока с подачей смеси вручную или растворонасосом и уплотнением бетона.

2.1.40 Армокаркасы обвязочного пояса стыкуются путем укладки «внахлест» не менее 10-15 dap. продольных стержней, и их электросварки (см. рис. 2.1.17).

2.1.41 Монолитный пояс в разборной деревянной опалубке по второму варианту (см. рис. 2.1.18) выполняется согласно следующей схеме:

- кладка облицовочных рядов яруса и первого ряда несущей стены;

- монтаж армокаркасов пояса из готовых блоков (сеток) с нахлестом и сваркой продольных стержней (10-15d) и устройством подкладок для защитного слоя нижней арматуры каркаса;

- установка опалубки из готовых щитов;

- омоноличивание пояса с подачей и укладкой бетонной смеси в опалубку вручную с послойным уплотнением;

- «заглаживание» поверхности бетона под отметку монолитного пояса, выдержка бетона до набора прочности 15-20 % R28;

- демонтаж опалубки.

2.1.42 Организация процессов и операций при устройстве монолитного пояса на типовом этаже-захватке рассматривается в графиках трудовых процессов и указаниях к производству работ, приведенных на рис. 2.1.19.

2.1.43 Технология производства работ при армировании и омоноличивании вертикальных «поясов» кладки требует тщательного соблюдения последовательности операций технологического регламента, и параметров подвижности смеси (ОК), подробно изложенных в требованиях на рис. 2.1.11-2.1.14. Для обеспечения требуемого качества работ исполнителей необходимы нормокомплект инструментов и механизмов.

2.1.44 Окончательным этапом возведения типового этажа здания по рассматриваемой технологии (одновременное устройство всех слоев многослойной стены) является монтаж плит перекрытия.

2.1.45 Технология данного процесса традиционна и осуществляется в соответствии с известными требованиями и допусками, регламентированными нормами СНиП.

2.1.46 Монтаж плит перекрытий с опиранием на монолитный обвязочный пояс выполняется согласно традиционной технологии, изложенной в СНиП 3.03.01-87.

2.1.47 При опирании плит перекрытия этажа на кладку (бетонные блоки) предусматривается два варианта подготовки верхнего (последнего) слоя кладки: «обетонирование» пустот в блоках или использование полнотелых блоков типа БС-4.

2.1.48 При опирании плит перекрытия на вибропрессованные бетонные полнотелые блоки кладка последнего (двух последних) рядов стены этажа выполняются с полным заполнением швов в камне кладочном растворе. Количество полнотелых рядов кладки (один или два) обуславливается расчетом и оговаривается проектом на данное здание.

2.1.49 Бетонирование пустот в бетонных блоках осуществляется по сплошной схеме, без пропуска каналов в блоках, выполняется вручную и тем же раствором , что используется для кладки стены.

2.1.50 Для предотвращения «заваливания» раствора в пустоты блоков, располагаемых ниже омоноличиваемых рядов, кладка предыдущего ряда блоков выполняется с устройством защитного экрана. Для этого пустоты блоков уложенного ряда перекрывают мелкоячеистой арматурной сеткой (аналогично технологии при вертикальном армировании - рис. 2.1.18).

2.1.51 При омоноличивании двух верхних рядов кладки из пустотелых блоков требуемая последовательность (кладка блоков нижележащего ряда, установка защитных сеток, кладка «опорного» ряда камней, заполнение пустот данного ряда раствором) соблюдается для каждого из рядов этажа.

2.1.52 Опирание плит перекрытия непосредственно на кладку из керамического (силикатного) кирпича независимо от систем перевязки швов в несущем слое стены допускается только на тычковый ряд кладки. При этом тычковый ряд укладывается из полнотелых камней и кирпича всех видов.

2.2 Технология строительства при разновременном возведении несущего, утепляющего и облицовочного слоев многослойной стены (с использованием подмостей и наружных лесов)

2.2.1 Технология возведения несущего слоя стен (с подмостей).

2.2.1.1 Технология возведения внутреннего несущего (самонесущего) слоя многослойной наружной стены при использовании керамического и силикатного кирпича традиционна и отличается от последней продольным армированием, устройством опорных конструкций под облицовочный слой и бетонированием монолитных обвязочных поясов в уровне верха типового этажа.

2.2.1.2 Состав производственных процессов и их последовательность при кладке внутреннего несущего слоя из керамического или силикатного кирпича включают следующие операции:

- кладка стены типового этажа поярусно высотой 500-600 мм;

- продольное армирование каждого яруса кладки плоскими армокаркасами;

- устройство опорных конструкций под облицовочный слой стены, выполняемых в последнем ярусе кладки этажа;

- устройство обвязочного монолитного пояса в уровне верха этажа.

2.2.1.3 Технология кладки несущего слоя из керамического (силикатного) кирпича традиционна и регламентируется графиком трудового процесса и указаниями к производству работ, приведенными на рис. 2.2.1.

2.2.1.4 Весь комплекс указанных работ осуществляется с инвентарных шарнирно-панельных подмостей (нечетные ярусы кладки), а при толщине стены более 390 мм - с доборных панельных подмостей (четные ярусы кладки). Технологические схемы замащивания захватки для шарнирных и доборных подмостей аналогичны и приведены на рис. 2.2.1, а схемы основных и доборных подмостей приведены на рис. 4.3 и 4.4.

2.2.1.5 Продольное армирование кладки гибкими связевыми каркасами осуществляется в уровне каждого яруса кладки, например через 600 мм (8 рядов кирпича), и выполняется в процессе завершения работ по ярусу типового этажа (см. рис. 2.2.2).

2.2.1.6 Установка арматурных плоских каркасов с гибкими связями выполняется «насухо» на последний ряд кирпича данного яруса с нахлестом смежных каркасов не менее 150 мм. Фиксирование в плане сетки каркаса арматуры на стене обеспечивается путем искусственного прижима маячным кирпичом, укладываемом на границе нахлеста армокаркасов (см. рис. 2.2.2).

2.2.1.7 Положение гибких связей должно обеспечивать «выпуски» армокаркаса на внешнюю сторону кладки (обращенную к облицовке) не менее 170 мм, а продольные стержни в самой кладке стены должны быть утоплены не менее 10 мм в шве кладки.

2.2.1.8 Устройство опорных кронштейнов под опорный уголок облицовочного слоя осуществляется в процессе кладки наружных стен и предусматривает предварительную разбивку мест установки конструкции на предыдущем ряду кладки несущего слоя.

2.2.1.9 Установка опорных кронштейнов по фронту стены с шагом, предусмотренным проектом, выполняется в вертикальных швах смежных камней с фиксированием положения уголка за счет «прижима» маячным кирпичом (см. рис. 2.2.3). Монтаж опорных кронштейнов под простенками осуществляется аналогичным образом.

2.2.1.10 Устройство монолитного обвязочного пояса, выполняемого в уровне верха типового этажа, производится после окончания кладки стены этажа и осуществляется в следующей очередности (см. рис. 2.2.4):

- очистка основания;

- монтаж армокаркаса пояса с установкой прокладок под продольные стержни;

- сварка стержней «нахлестом» армокаркасов;

- установка опалубки с креплением противостоящих щитов с помощью распорок и проволочных скруток;

- бетонирование пояса с подачей смеси вручную и виброуплотнением;

- заглаживание поверхности пояса под отметку последующего ряда кладки;

- выдержка бетона до набора 15-20 % R28;

- распалубка монолитного пояса.

2.2.1.11 Организация строительных процессов при устройстве монолитного пояса аналогична требованиям, приведенным в п. 2.1.39 и на рис. 2.2.5. Установка опорных кронштейнов и столиков приведена в п. 2.2.1.14.

2.2.1.12 Технология возведения несущего слоя многослойной стены из вибропрессованных бетонных блоков существенно отличается от традиционной кладки не только составом технологических процессов, но и самой технологией кладочных работ из пустотелых блоков.

2.2.1.13 Технологический регламент выполняемых работ и операций при кладке стены из вибропрессованных бетонных блоков подобен характеру и составу работ, подробно изложенных в п. п. 2.1.8-2.1.11 и на рис. 2.1.4, 2.1.6.

2.2.1.14 Возведение несущей стены типового этажа из вибропрессованных бетонных блоков помимо непосредственно самой кладки, выполняемой по схеме (см. рис. 2.1.6), включает следующие процессы:

- продольное армирование связевыми каркасами;

- установка опорных кронштейнов и столиков под облицовку в уровне верха типового этажа;

- вертикальное армирование и бетонирование пустот в блоках;

- устройство обвязочного монолитного пояса в уровне верха типового этажа.


Рис. 2.2.1 - Технология кладки несущего слоя стены типового яруса этажа из керамического и силикатного кирпича

Рис. 2.2.2 - Технология продольного армирования несущей стены из керамического кирпича

Рисунок 2.2.3 - Технология установки опорного кронштейна на типовом этаже кладки несущей стены

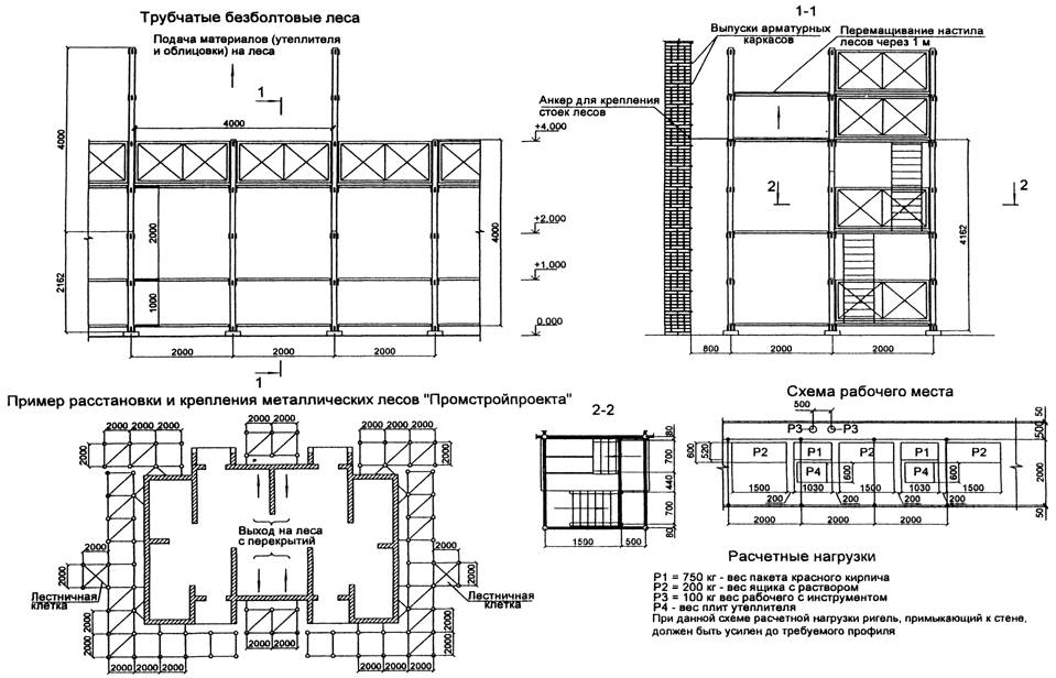
Рис. 2.2.3.1 - Принципиальная схема монтажа лесов «Промстройпроекта» для производства работ по утеплению и облицовке наружных стен

Рис. 2.2.3.2 - Технология теплоизоляции наружной стены из керамического кирпича (1-й ярус 1-го этажа)

Рис. 2.2.3.3 - Технология облицовки 1-го яруса стены, выполненной из вибропрессованных бетонных блоков


2.2.1.15 Устройство гибких связей в кладке несущей стены из блоков «Бессер» аналогично требованиям, изложенным в п. п. 2.2.1.6-2.2.1.7 настоящих Рекомендаций, и технологическая схема указанного процесса иллюстрируется рис. 2.2.10.

2.2.1.16 Установка опорных кронштейнов для стен по каждому типовому этажу рассматривается на рис. 2.2.6 и, как видно из приведенной схемы, вместо пустотелых блоков в месте опирания кронштейна используются полнотелые бетонные блоки.

2.2.1.17 Разбивка осей опорных кронштейнов и место установки полнотелых блоков определяются перед кладкой предыдущего ряда стены, в котором должны быть размещены кронштейны. «Защемление» опорного уголка в вертикальном шве смежных блоков гарантируется установкой дополнительного пригруза сверху кронштейна в виде маячного бетонного блока.

2.2.1.18 Вертикальное армирование монолитных элементов каркаса здания в пустотной кладке осуществляется следующим образом: 1 цикл - после кладки стены этажа высотой 1,8 м; 2 цикл - после завершения кладки стены типового этажа как это изложено в пп 2.1.27-2.1.31 настоящих Рекомендаций.

2.2.1.19 Комплекс и содержание работ каждого из циклов при вертикальном армировании включают:

- очистку каналов скребками и сжатым воздухом;

- разбивку мест установки арматурных стержней (в каждой полости, «через одну», «через две» и т. д.);

- омоноличивание нижней части полости на высоту £ 1/3 высоты кладки;

- установку и выверку арматурных стержней в «бетонный мост»;

- омоноличивание верхней части пустот с уплотнением бетонной смеси и контролем положения стержня относительно оси полости блока.

2.2.1.20 При 2-х рядной толщине стены из вибропрессованных бетонных блоков очередность перечисленного выше набора работ в пределах делянки-захватки (см. рис. 2.2.7) следующая: вначале производятся работы по внешнему ряду блоков стены, а затем по внутреннему. Прочность швов выполненного «этапа» кладки перед его омоноличиванием (независимо от толщины несущей стены) должна обеспечивать восприятие «распорного» усилия бетона, загружаемого в полость блока (но не менее суток после окончания каждого «этапа» кладки этажа).

2.2.1.21 Вертикальное армирование пустот в блоках, в зависимости от способа подачи и уплотнения бетонной смеси, приведено на рис. 2.2.7, 2.2.8 и 2.2.9.

2.2.1.22 Устройство монолитного пояса в разборной деревянной опалубке принципиально подобно технологии, рассмотренной в разделе 2.1 настоящих Рекомендаций. Отличительной особенностью технологии исполнения монолитного пояса по стене из вибропрессованных бетонных блоков, является необходимость защиты от случайного попадания бетонной смеси в свободные от арматурных стержней пустоты. Это обеспечивается предварительной установкой над данными пустотами мелкоячеистой стальной сетки, как это показано на рис. 2.2.10.

2.2.1.23 Кладка последнего яруса стены типового этажа выполняется высотой в 2 блока. При этом одновременно с кладкой 1-го ряда блоков производится устройство опорных кронштейнов с фиксированием их положения на стене при помощи «маячных» камней. Технологическая последовательность операций данного процесса рассмотрена на фрагментах 1 и 2 рис. 2.2.6.

2.2.1.24 Разметка мест установки опорных кронштейнов производится предварительно на торце кладки предыдущего яруса стены до установки продольных связевых армокаркасов. Разметочные риски с шагом, предусмотренным проектом, закрепляются на стене несмываемой краской.

2.2.1.25 Организация работ при устройстве монолитного пояса по кладке из керамического (силикатного) кирпича и из вибропрессованных бетонных блоков рассматривается на схемах и в указаниях, изложенных на рис. 2.2.5 и 2.2.11. Минимально подготовленный фронт работ для бетонирования монолитного пояса должен быть не менее одной захватки (секции) здания. Рекомендуемые схемы «А» и «В» позволяют выполнить бетонирование пояса с минимальной разрезкой конструкции «рабочими швами».

2.2.1.26 Цикл работ по кладке несущего слоя стен всех последующих этажей повторяется согласно изложенным требованиям и правилам в п.п. 2.2.1.1-2.2.1.25 до завершения строительства «коробки», т.е. до окончания кладки внутреннего слоя стены (1-й этап «раздельной технологии»).


Рис. 2.2.3.4 - Технология облицовки 1-го яруса стены из керамического кирпича

Рис. 2.2.3.5 - Технология теплоизоляции наружной стены из керамического кирпича (2-й ярус 1-го этажа)

Рис. 2.2.3.6 - Технология теплоизоляции, облицовки наружной стены 4-го яруса типового этажа

Рис. 2.2.3.7 - Технология облицовки наружной стены типового яруса этажа при использовании трубчатых лесов «Промстройпроект»

Рис. 2.2.3.8 - Технология устройства опорного столика под облицовку типового яруса стены


2.2.2 Технология устройства теплоизоляционного и облицовочного слоев наружной стены здания (производство работ с наружных лесов).

2.2.2.1 Производство работ по утеплению и облицовке наружной стены здания предусмотрено после полного окончания кладки несущих стен и монтажа наружных инвентарных трубчатых лесов типа «Промстройпроект».

2.2.2.2 Максимальная высота строящегося здания по данной технологии возведения здания не превышает 40 м (10-12 этажей).

2.2.2.3 Принципиальная технологическая схема устройства инвентарных трубчатых лесов «Промстройпроекта» в зависимости от конфигурации здания в плане, с привязкой лесов к существующей наружной стене здания приведена на рис. 2.2.3.1.

2.2.2.4 Монтаж лесов осуществляется на полную высоту здания с установкой продольных и поперечных ригелей типовой ячейки лесов через 2 м и креплением стен лесов к анкерам, заделываемым в стену согласно указаниям на схемах (см. рис. 2.2.3.1).

2.2.2.5 Монтаж трубчатых лесов начинается после выполнения комплекса работ по утеплению и облицовке стены с отметки 0,0 на высоту 1,2 м и предусматривает установку теплоизоляции с последующим «укрытием» ее облицовочным слоем керамического (силикатного) кирпича или вибропрессованных блоков ярусами по 600 мм (2 яруса).

2.2.2.6 Организация строительных потоков по «утеплению» и облицовке здания осуществляется по способу «снизу-вверх», т. е. с 1-го этажа последовательным перемещением процессов на последующий верхний этаж.

2.2.2.7 «Рабочей зоной» как при утеплении, так и при облицовке является стена высотой 1,2 м, т. е. два яруса плит утеплителя и кладки облицовки. Поэтому, при высоте пространственной ячейки лесов 2 м перемащивание рабочего настила производится через 1м.

2.2.2.8 Подача материалов (теплоизоляции, камней и блоков облицовки, раствора) осуществляется башенным краном сверху, как это показано на рис. 2.2.3.1.

2.2.2.9 Технология работ по утеплению и облицовке стен типового этажа предусматривает последовательно-параллельное производство работ на делянках-захватках в следующей очередности процессов:

- подготовка поверхности стены;

- установка утеплителя в пределах яруса кладки (600 мм);

- облицовка керамическим кирпичом (толщина ½ кирпича) или бетонными блоками (толщина 90 мм) данного яруса стены;

- установка распорного вкладыша теплоизоляционного слоя;

- устройство (монтаж) продольного опорного уголка под облицовочный слой;

- перемащивание рабочего настила;

- заготовка материалов и конструкций для следующего яруса.

2.2.2.10 Подготовка поверхности несущего слоя стены включает очистку ее от раствора, грязи, мусора и выполняется с помощью скребков, щеток, зачистной машинки и продувки сжатым воздухом. Арматурные выпуски гибких связей очищаются от грязи, раствора и ржавчины и выправляются согласно их проектному положению. Поврежденные участки антикоррозионного покрытия гибких связей должны быть восстановлены перед установкой плитного утеплителя. Правку арматуры каркасов выполняют согласно указаниям п. 4.3.8.

2.2.2.11 Установка плитного утеплителя 1-го яруса стены производится «враспор» гибких связей с плотным прижимом плит к стене (см. рис. 2.2.3.2). Ввод вставки для образования воздушного зазора между утеплителем и пока что не выполненной облицовкой на этом этапе работ не выполняется. Вкладыши устанавливаются после облицовки 1-го яруса стены на границе «стыка» плит утеплителя.

2.2.2.12 Технология утепления стен 2-х слойными плитами регламентирована указаниями и графиком процесса на рис. 2.2.3.3.

2.2.2.13 Облицовка 1-го яруса стен по слою утеплителя показана на рис. 2.2.3.3, 2.2.3.4 и 2.2.3.5. Указания к производству работ и графики трудового процесса раскрывают порядок и очередность работ данного технологического цикла.

2.2.2.14 Кладка облицовочного слоя яруса выполняется с «заделкой» гибких связей в шов кладки и одновременной установкой «вкладышей» зазора теплоизоляции по схеме:

- кладка камней яруса на высоту 2-х рядов облицовки;

- «запрессовка» вкладыша между наружной верстой и плитой утеплителя;

- кладка 3-го ряда облицовки яруса и т. д.

«Защемление» арматурных выпусков в шов облицовки осуществляется на границе ярусов кладки (600, 1200, 1800 и т. д.) следующим образом:

- «выравнивание» выпусков продольной арматуры кладки 3-го ряда каждого яруса;

- устройство растворной постели, укрывающей арматурные выпуски;

- кладка 1-го ряда следующего яруса облицовки.


Рис. 2.2.4 - Технология устройства монолитного пояса в уровне типового этажа при кладке стены из керамического кирпича

Рис. 2.2.5 - Организация строительных процессов при устройстве монолитного пояса на стене из керамического кирпича

Рис. 2.2.6 - Устройство консольного кронштейна опорного столика при кладке стены из вибропрессованных бетонных блоков

Рис 2.2.7 - Технология вертикального армирования наружной стены из двух рядов вибропрессованных бетонных блоков (механизированный вариант)

Рис 2.2.8 - Технология вертикального армирования (II цикл) наружной стены из блоков «Бессер» (ручной способ)

Рис. 2.2.9 - Технология вертикального армирования (II цикл) наружной стены из вибропрессованных блоков «Бессер» (механизированный способ)

Рис. 2.2.10 - Технология устройства монолитного пояса в уровне типового этажа по стене толщиной из 2-х вибропрессованных бетонных блоков (вариант «ручной» подачи бетонной смеси)

Рис. 2.2.11 - Организация строительных процессов при устройстве монолитного пояса


2.2.2.15 Аналогичная последовательность принимается и для прочих ярусов утепления и облицовки типового этажа. Производство работ по последнему ярусу стены этажа включает операции по устройству опорного уголка под облицовочный слой следующего этажа, оформлению температурного шва между опорным уголком и облицовкой, герметизации шва эластичным герметиком, устройству вентилируемых отверстий в верхнем ряде облицовки для стен с «вентилируемой» воздушной прослойкой и перемащиванию рабочего настила лесов (см. рис. 2.2.3.6 и 2.2.3.7).

2.2.2.16 Устройство плитного утеплителя и облицовки верхнего яруса стены выполняется с подрезанным по высоте утеплителем (375 мм - вместо 600 мм) и кладкой облицовочного слоя, состоящего из 2-х пустотелых блоков (см. рис. 2.2.3.6) или 5 рядов керамического (силикатного) кирпича. При использовании минераловатных ковровых прокладок в зависимости от высоты стены и количества рядов кладки верхнего яруса подбирается их требуемый размер.

2.2.2.17 Монтаж опорного уголка выполняется по консольным кронштейнам, заложенным в кладку при возведении наружной стены. Технология монтажа опорного уголка предусматривает: предварительную очистку опорных конструкций, разметку уголков по стене согласно месту их установки, электроприхватку монтируемого и выверяемого по рискам уголка на кронштейне, электросварку сплошным швом стыка опорного уголка и кронштейна, а также восстановление нарушенного при монтаже цинкового покрытия уголков опорных кронштейнов и опорных столиков (см. рис. 2.2.3.8).

2.2.2.18 Перемащивание рабочего настила осуществляется через 1 м после окончания цикла работ на очередном ярусе утепления и облицовке этажа. Поэтому заготовка ресурсов для этих процессов должна предусматривать такое количество материалов и конструкций, которое будет востребовано на данном ярусе стены. Организация рабочего места исполнителей показана на рис. 2.2.3.3

2.2.2.19 Работы по последнему, завершающему этапу возведения здания предусматриваются с использованием «подлесков» высотой 0,5-0,8 м, которые монтируются по настилу лесов. При этом два нижних яруса «облицовки и утеплителя» на каждом этаже здания осуществляются по изложенной выше технологии непосредственно с настила лесов, и «рабочая зона» исполнителя, таким образом, по высоте составляет 1200-1400 мм.

2.2.2.20 Верхний ярус этажа выполняется по тому же технологическому регламенту, но с предварительной установкой «подлесков» по настилу лесов, что обеспечивает требуемую высоту обслуживаемой исполнительной зоны (с высоты 1400 до 2800 мм относительно отметки настила).

2.2.2.21 Использование «подлесков» (высотой не менее 0,8 м) особенно необходимо при завершении работ по последнему (верхнему) этажу здания, когда должны быть обеспечены устройство и безопасность работ при переходе от «рядового» участка стены к сопряжению ее с карнизом и кровельными свесами.

2.2.2.22 В настоящих Рекомендациях изложены требования и регламент производства комплекса теплоизоляционных и облицовочных работ при устройстве «гладкой стены». Детализация технологических указаний при выполнении элементов архитектурного оформления фасада здания (сопряжение облицовки с оконными и дверными проемами, крепление флагштоков, вывесок, щитов рекламы, выступающих за плоскость фасада архитектурных деталей) рассматривается в «Технологической карте трудовых процессов при возведении наружных многослойных стен из вибропрессованных бетонных изделий, керамического и силикатного кирпича».

3 МЕТОДЫ ТЕРМИЧЕСКОЙ ОБРАБОТКИ БЕТОНА В ЗИМНИХ УСЛОВИЯХ

3.1 Проектирование параметров режимов термообработки бетона при устройстве монолитных обвязочных поясов

3.1.1 Бетонирование монолитного пояса при отрицательных температурах наружного воздуха наиболее целесообразно выполнять с электропрогревом конструкции с помощью погруженных в бетонную смесь стержневых электродов. При прохождении электрического тока через свежеуложенный бетон в нем выделяется тепло, обогревающее конструкцию. В зависимости от параметров электрического тока (сила тока, напряжение), свойств бетонной смеси (удельное электрическое сопротивление смеси) и режима прогрева (температура, продолжительность цикла прогрева) обеспечивается требуемая термообработка бетона в пределах заданных значений критической прочности бетона конструкции (в % от R28).

3.1.2 В целях предотвращения замораживания бетона при низких температурах производства работ (-20°С...-30°С), а также при длительных сроках транспортировки (более 10 км) смеси до объекта и при бетонировании тонкостенных конструкций рекомендуется использовать противоморозные добавки (нитрит натрия) в количестве 6-20 % от массы воды в зависимости от температуры наружного воздуха.

3.1.3 Расчет термообработки бетона, помещенный ниже, производится согласно методике кафедры ТСП и Ф УГНТУ, являющейся усовершенствованием известной методики ЦНИИОМТП применительно к условиям импульсного режима прогрева.

3.1.4 Методика расчета параметров режима термообработки бетона электропрогревом заключается:

- в определении режима электропрогрева бетона, обеспечивающего наилучшие технико-экономические показатели термообработки;

- в выборе типа электродов и схемы их размещения в конструкции;

- в определении необходимых характеристик электрической цепи (напряжения, силы тока, требуемой мощности);

Расчет производится с учетом выбранного (имеющегося) типа опалубки, ее теплотехнических характеристик, необходимого комплекта оборудования и технологии производства работ.

3.1.5 Оптимизация режимов теплового воздействия и снижение энергозатрат могут быть достигнуты за счет применения импульсных режимов тепловой обработки (рис. 3.1), обеспечивающих более «мягкий» набор прочности. Последний снижает активные проявления деструктивных процессов в бетоне, связанных с термонапряженным состоянием отдельных элементов конструкции.

tн - начальная температура прогрева (температура смеси, доставленной на объект) - ³ 5°С;

tк - максимальная температура смеси после прогрева - £ 60°С;

tmin - уровень температуры смеси после отключения системы прогрева - £ 40-45°С;

τпод - время подъема температуры смеси с tн до tк, ч;

τост - время остывания смеси после полного отключения системы прогрева, ч;

τтерм - продолжительность термосного выдерживания конструкции, ч.

Рис. 3.1 - Импульсный режим прогрева монолитной конструкции

3.1.6 Расчет времени подъема температуры с tн до tк выполняется по формуле:

                                                                         (3.1)

где vпод - скорость подъема температуры бетона в зависимости от модуля поверхности Мп конструкции, °С/ч;

tн и tк - см. рис. 3.1.

При Мп > 8, vпод = 10 - 15°С/ч.

3.1.7 Средняя температура бетона во время подъема температуры определяется по формуле:

                                                                  (3.2)

3.1.8 По найденным значениям τпод (согласно графику набора прочности бетоном в зависимости от t) определяется процент набора прочности бетона (% R28) за время подъема температуры от tн до tк.

3.1.9 Продолжительность остывания бетона после полного отключения системы прогрева рассчитывается по формуле:

 ч                                          (3.3)

где Сб - удельная теплоемкость бетона, кДж/кг×°С (ккал/кг×°С);

γб - плотность бетона, 2200-2400 кг/м3;

Ц - расход цемента на 1 м3 бетона, кг/м3;

Э - тепловыделение цемента в период твердения за счет экзотермии бетона, Дж/кг (ккал/кг);

 - температура бетона после остывания (не менее +5°С);

К- коэффициент теплопередачи опалубки, Вт/м2 °С (ккал/м2×ч×°С);

МП - модуль поверхности бетонируемой конструкции, м-1;

 - температура бетона в период остывания, °С;

 - температура наружного воздуха, °С.

3.1.10 Средняя температура бетона во время остывания после полного отключения системы прогрева определяется по формуле:

 °С           (3.4)

3.1.11 Значение коэффициента К рассчитывается по формуле:

 Вт/м2×°С (ккал/м2×°С×ч)                              (3.5)

где α - коэффициент теплопередачи опалубки у наружной поверхности (зависит от скорости ветра):

при vв = 3 м/с - α =14,96;

vв = 5м/с - α =26,56;

vв =10 м/с - α = 33,16;

δ1 -толщина i-го слоя утепленной опалубки, м;

λ1 - коэффициент теплопроводности материала i-го слоя опалубки, Вт/м2 °С.

3.1.12 Средняя температура бетона  во время импульсного прогрева рассчитывается по формуле:

 °С.                                                               (3.6)

3.1.13 Продолжительность одного цикла «включения - отключения» прогрева:

 ч                                                                 (3.7)

Циклы прогрева  и  рассчитываются по формулам (3.1) и (3.3). При этом за начальную температуру принимается tmin.

3.1.14 Общая продолжительность процесса τобщ определяется из условия назначаемой критической прочности бетона конструкции к моменту окончания термообработки бетона по формуле:

 ч                                                 (3.8)

где n - количество циклов «включение-отключение» системы.

3.1.15 Продолжительность импульсных циклов прогрева определяется непосредственно как разница задаваемой критической прочности и прочности бетона, набранной за периоды подъема температуры и остывания бетона:

% Rим = % Rкр - (% Rпод + % Rост),                                        (3.9)

где % Rим - требуемый процент набора критической прочности бетона за период импульсных включений в электрическую цепь прогреваемой конструкции.

По найденному значению «%Rим» и «» (согласно графику набора прочности бетоном в зависимости от продолжительности его твердения τ) находиться требуемый параметр (n×). Откуда определяется количество циклов «включение-выключение» «n» системы прогрева и окончательно устанавливается режим прогрева конструкции.

3.1.16 Расчет требуемой мощности, необходимой для электропрогрева конструкции, производится по формулам:

 кВт/м3                                                              (3.10)

                                                                  (3.11)

                                               (3.12)

                                                       (3.13)

 кВт/м3                                         (3.14)

где  - общая удельная мощность, расходуемая для прогрева конструкции, кВт/м3;

Р1 - удельная мощность в период подъема температуры бетона, кВт/м3;

Р2 - удельная мощность в период подъема температуры опалубки, кВт/м3;

Cоп - теплоемкость материала опалубки, кДж/кг×°С;

γоп - плотность материала опалубки, кг/м3;

δоп - толщина опалубки, м;

Р3 - удельная мощность теплопотерь в период подъема температуры от tн до tк, кВт/м3;

 - средняя температура в период импульсного режима прогрева конструкции, °С.

3.1.17 Максимальная мощность, расходуемая на термообработку бетона, определяется в зависимости от объема прогреваемой конструкции и равна:

                                                                   (3.15)

где  - максимальная по величине удельная мощность, потребляемая либо в период подъема температуры, либо в период импульсного режима прогрева, кВт/м3;

Vкон - объем участка прогреваемого монолитного пояса, м3.

3.1.18 Объем прогреваемой конструкции определяется темпом работ (м3/час), параметрами бетонной смеси, доставленной на площадку (температура, °С) и температурой наружного воздуха. Определяющим фактором в данном случае является минимально допустимая температура бетонной смеси, подключаемой к прогреву. Она не может быть менее +5°С. Поэтому температура смеси, доставляемой на площадку, должна быть

                                                      (3.16)

где  - температура смеси, доставленной на площадку, °С;

 - минимально допустимая температура смеси в опалубке, °С;

 - потери температуры смеси при укладке в опалубку, °С;

 - потери температуры смеси при вертикальном транспорте на монтажный горизонт, °С.

3.1.19 При среднем темпе бетонирования (< 5 м3/час), характерным для способа подачи смеси по схеме «кран - бункер - опалубка», готовые к прогреву участки монолитного пояса определяются как «фронт работ» за время, в течение которого бетон остывает до . Данный параметр рассчитывается по формуле:

 ч                                                 (3.17)

где  - средняя за время ожидания температура смеси в опалубке, °С.

Объем бетона в подготовленном участке будет равен:

                                                                   (3.18)

где  - время допускаемого ожидания готового к прогреву участка монолитного пояса, ч;

Пчас - производительность укладки смеси в конструкцию, м3/ч.

Расчет Пчас производится по формуле:

                                                                         (3.19)

где  - сменная производительность используемого бетоноукладочного оборудования, м3/см;

tсм - продолжительность смены, ч.

3.1.20 Общая потребная мощность для прогрева подготовленного участка монолитного пояса в течение смены рассчитывается как суммарная мощность участка, где выполняется подъем температуры, и участков, переключаемых на импульсный режим прогрева

Робщ = Рпод + Рим.пр.,                                                               (3.20)

                                                           (3.21)

                                                         (3.22)

где n - количество участков монолитного пояса, забетонированных в течение смены.

Необходимая мощность трансформатора, обеспечивающего прогрев заданного объема конструкции, будет равна:

                                                                  (3.23)

где  - коэффициент полезного действия трансформатора (η = 0,9);

Ктр - коэффициент допустимой перегрузки трансформатора (Ктр = 1,1...1,3).

3.1.21 Для определения схемы размещения электродов в бетоне монолитного пояса используется формула:

                                         (3.24)

где Р - мощность, эквивалентная максимальной из мощностей в период подъема температуры в бетоне и его прогрева, которые рассчитываются по формулам 3.10¸3.14, то есть:

 кВт/м3                                                                   (3.25)

или

 кВт/м3                                                                    (3.26)

где U - напряжение на электроде, принимаемое равным одному из следующих значений: 51, 67, 87, 110 В;

 - расчетное удельное электросопротивление бетонной смеси, Ом×м;

b - расстояние между одноименными электродами, м;

h - расстояние между разноименными электродами, м;

d - диаметр электродов, м;

α - коэффициент электрической цепи (при трехфазном токе α = 1,5; при двухфазном - α = 2).

3.1.22 Схема прогрева монолитного пояса устанавливается в соответствии с рассчитанными параметрами ρ, α, h и при двухрядном размещении электродов и приведена на рис. 3.2.

bкон - ширина монолитного пояса, м.

Рис. 3.2 - Схема двухрядного размещения электродов в конструкции

При этом полученное значение b должно удовлетворять условиям:

 и                                                        (3.27), (3.28)

3.1.23 Если ширина монолитного пояса не отвечает неравенствам 3.27, 3.28, то принимается другая схема размещения электродов, отвечающая условию (рис. 3.3):

Рис. 3.3 - Схема однорядного размещения электродов в конструкции

3.1.24 Схемы подключения прогреваемого участка конструкции в зависимости от схемы размещения электродов и размеров конструкции приведены на рисунках 3.4 и 3.5. Первая (рис. 3.4) наиболее приемлема для бетонирования монолитного пояса в инвентарной опалубке; вторая - для бетонирования монолитного пояса в лотковых блоках (БЛ).

3.1.25 Схемы подключения прогреваемых участков, приведенные на рисунках 3.4 и 3.5, предусматривают двухфазную сеть соответствующего напряжения. При использовании трехфазной сети соответственно изменится схема «софитов» и подключения группы электродов. И в том, и в другом случае нагрузка на фазы сети должна быть «симметричной».

1 - «софит» с электродами двухфазной сети; 2 - прогреваемый монолитный контур; 3, 4 - разноименные электроды.

Рис. 3.4 - Схема коммутации электродов при их двухрядном размещении

1 - «софит» с электродами двухфазной сети; 2 - прогреваемый монолитный контур; 3, 4 - разноименные электроды.

Рис. 3.5 - Схема коммутации электродов при их однорядном размещении

3.1.26 Завершающим этапом расчета является составление ведомости потребности оборудования (трансформаторов), материаловсофиты», кабель, провода), утепляющих материалов, которые должны обеспечить принятый режим прогрева монолитного пояса.

3.2 Проектирование параметров термообработки бетона при устройстве вертикального железобетонного каркаса в кладке из пустотелых блоков

3.2.1 Устройство вертикального железобетонного каркаса в стенах здания из пустотелых вибропрессованных бетонных блоков армированием и омоноличиванием полостей, образованных пустотами пустотелых блоков, должно осуществляться в зависимости от температуры наружного воздуха следующими методами:

- при t ³ -15 °С - за счет использования химических добавок (нитрит натрия), технология и рецептура которых подробно рассмотрены в разделе «Каменные и бетонные работы в зимних условиях»;

- при t < -15 °С - путем термообработки бетона с помощью струнных электродов, размещаемых в омоноличенных пустотах блоков по схеме, приведенной на рис. 3.6.

1 - вибропрессованный бетонный блок; 2 - арматурный стержень вертикального каркаса; 3 - струнный электрод d ³ 6 мм; 4 - прогреваемый монолитный бетон.

Рис. 3.6 - Схема расположения струнных электродов для электропрогрева бетона

3.2.2 Учитывая специфичность узла прогреваемой конструкции (в центре располагается арматурный стержень), наиболее приемлемой электрической схемой прогрева является схема, показанная на рис. 3.7.

В - размер (наибольший) пустоты в блоке, м; b - расстояние между струнными электродами и арматурным стержнем, м; d1 - диаметр струнного электрода, м; d - диаметр арматурного стержня, м.

Рис. 3.7 - Электрическая схема подключения прогреваемой замоноличенной полости

3.2.3 При использовании арматурных стержней в качестве электродов необходимо соблюдать соответствующий режим прогрева, который должен исключить «пересушивание» и «перегрев» прилегающих к арматуре слоев бетона во избежание их «отслаивания» и уменьшения сцепления с арматурой. Основным требованием при этом является обеспечение «мягкого» режима прогрева, т. е. скорости подъема температуры (£ 10°С /час), максимальной температуры прогрева (tпр £ 50 °С) и напряжения в сети (£ 60 В).

3.2.4 При установке струн, размещаемых по схеме (рис. 3.7), электрическая мощность, выделяемая в бетоне, будет равна:

 кВт/м3                                                   (3.29)

где U - напряжение в сети, В;

ρ - удельное электрическое сопротивление бетонной смеси, Ом×м;

В - размер (наибольший) пустоты в блоке, м;

b - расстояние между струнными электродами и арматурным стержнем, м;

d1 - диаметр струнного электрода, м;

Р - электрическая мощность, эквивалентная теплу, необходимому для подъема температуры бетона (I цикл) и его последующего прогрева (II цикл) до набора критической прочности в % от R28 (последняя задается в зависимости от марки цемента и класса прочности бетона).

3.2.5 Расчет режима прогрева армированного вертикального элемента (рис. 3.8) принимается двухцикличным, т.к. ввиду малого объема полости блока «Бессер» в кладке стены остывание в стене после импульсного прогрева в расчет не принимается из-за незначительного приращения прочности бетона на данном этапе термообработки.

3.2.6 Методика расчета указанных параметров и определение требуемой мощности прогрева рассмотрены в разделе 3.1 «Проектирование параметров термообработки бетона при устройстве обвязочных монолитных поясов».

 - начальная температура прогрева, °С; tк - максимальная температура в бетоне при прогреве, °С; tmin - минимальная температура импульсного прогрева, °С; tб.ср. - средняя температура импульсного прогрева, °С; τпод - время подъема температуры в бетоне до tк, ч; τост - время остывания бетона до tб.ср. , ч; τпр - время цикла прогрева бетона с tб.ср. до tк, ч; τ - общая продолжительность термообработки бетона, которая должна обеспечить набор требуемой критической прочности бетона (в % от R28), ч.

Рис. 3.8 - Режим прогрева монолитного армированного вертикального элемента внутреннего слоя стены

3.2.7 Прогрев каркаса в пределах типового этажа осуществляется в два этапа:

1-й этап - после возведения стены до отметки 1,8 м (максимальная длина арматурного стержня - 2 м, максимальная длина струнного электрода - 1,8 м);

2-й этап - после возведения стены до отметки 2,8 м (3,0 м) перед производством работ по завершении типового этажа (длина «струны» - 1,2 м).

3.2.8 Погружение «электродов - струн» в полость пустотной кладки осуществляется после поэтапного омоноличивания последней и уплотнения бетона. Подвижность смеси для омоноличивания вертикального элемента внутреннего каркаса должна быть не менее ОК ³ 8-10 см. Диаметр «струн» выбирается в зависимости от режима прогрева и обеспечения беспрепятственного погружения их на требуемую глубину в бетон. С этой точки зрения наиболее рациональным является использование проволоки-катанки d ³ 6 мм. Длина струн должна соответствовать длине арматурных стержней 1-го и 2-го этапов прогрева, т.е. равна 1,8 м и 1,2 м.

3.2.9 Прогрев бетона вертикального каркаса на 2-м этапе предшествует работам по устройству монолитного пояса стены и монтажу перекрытия данного этажа здания.

3.2.10 Рекомендуемая схема подключения струнных электродов к электрической сети на забетонированном участке приведена на рис. 3.9.

1 - несущая стена здания из пустотелых вибропрессованных бетонных блоков «Бессер»; 1а - омоноличенная пустота блока; 1б - арматурный стержень; 1в - струнные электроды; 1г - проводники, соединяющие арматурный стержень и струнные электроды с источником тока; 2 - утеплитель; 3 - облицовочный слой; 4 - «софит» с разводкой фаз электрической сети.

Рис. 3.9 - Схема подключения прогреваемых замоноличенных каналов к сети

3.2.11 Размеры участка бетонирования определяются исходя из темпов омоноличивания пустот (м3/час), температуры укладываемого бетона (tбет) и температуры наружного воздуха (tнар). Минимальная температура бетона после его укладки должна быть не ниже +5°С.

3.2.12 Расчет потребной мощности для прогрева (цикл подъема температуры и цикл импульсного прогрева) предусматривает определение количества одновременно прогреваемых участков стены 1-го и 2-го циклов термообработки. Организация работ при прогреве замоноличенных участков стены и последовательность их включения в сеть приведены на рис. 3.10. Расчетные зависимости для указанных параметров рассмотрены и приведены в разделе 3.1 «Проектирование параметров термообработки бетона при устройстве монолитных обвязочных поясов».

I, II,..., VI - последовательность термообработки бетона по участкам

Рис. 3.10 - Организация строительных потоков по возведению стен и электропрогреву готовых участков здания

3.3 Особенности технологии зимнего бетонирования и система контроля за прогревом конструкции

3.3.1 Термообработка бетона производится в соответствии с проектом производства работ и технологическими картами, в которых приведены:

- схемы установки электродов;

- длина и диаметр электродов;

- перечень оборудования и контрольно-измерительной аппаратуры, схемы их установки;

- режимы прогрева конструкции;

- способы крепления и изоляции электродов.

3.3.2 Для сохранения расстояния между электродами и группами электродов между ними, арматурой и металлической опалубкой применяют текстолитовые или бетонные прокладки-кубики, которые закрепляют к арматуре, электродам или опалубке.

3.3.3 По мере бетонирования все открытые (неопалубленные) поверхности закрывают теплозащитным материалом (опилками, матами, щитами).

3.3.4 Для предотвращения пересушивания бетона открытые поверхности закрывают водонепроницаемыми пленками, а деревянная опалубка должна быть пропитана гидрофобными материалами.

3.3.5 После забивки электродов бетон вокруг них уплотняется или вибрируется для лучшего контакта и заполнения пустот. Во избежание трещин в монолитном поясе нагревание его ведут участками с разрывами, которые прогреваются после остывания ранее прогретого бетона. Разрывы в монолитном поясе и на жестких опорах устраивают не более 0,7 м.

3.3.6 Опалубку и теплоизоляцию, устанавливаемые по мере бетонирования, демонтируют после отключения прогрева при охлаждении конструкции до ³ +5°С, не допуская примораживания опалубки. Перепад температур при распалубке не должен превышать:

20°С - для конструкций с Мп £ 5;

30°С - для конструкций с Мп > 5;

40°С - для слабо армированных конструкций;

50°С - для густоармированных конструкций, армированных каркасами и двойными сетками.

3.3.7 При нагреве конструкции необходим постоянный контроль за напряжением прогрева, силой тока и температурой. Температуру в первые три часа прогрева замеряют каждый час, в последующем - через 2-3 часа. Температуру наружного воздуха замеряют три раза в сутки.

3.3.8 Перед прогревом конструкции проверяются правильность установки электродов, их размеры, диаметр, схемы подключения к софитам. Перед включением прогрева необходимо удостоверить правильность подсоединения электродов, надежность контактов, расположение датчиков температур, качество утепления.

3.3.9 Все работники, занятые на прогреве бетонных конструкций, должны пройти инструктаж и иметь удостоверение о знании правил охраны труда при выполнении указанных работ.

3.3.10 Для прогрева применяется напряжение не выше 127 В. Открытая арматура, связанная с участком прогрева, должна быть заземлена. Зону прогрева необходимо оградить и оборудовать системой сигнализации и блокировки.

3.3.11 В сырую погоду и оттепель запрещается прогревать бетон на открытых участках. Поливать водой бетон разрешается только после отключения прогрева.

3.3.12 В зоне прогрева запрещено пребывание посторонних лиц и ведение других работ. Замерять температуру при включенном прогреве разрешается только при напряжении 60 В.

4 КОНТРОЛЬ КАЧЕСТВА РАБОТ ПРИ КЛАДКЕ МНОГОСЛОЙНЫХ СТЕН

Общие положения

Контроль качества должен подтвердить, что выполняемые и выполненные работы, использованные для этого материалы и изделия соответствуют требованиям проекта и соответствующей нормативной технологической документации. Система контроля качества включает входной, операционный, приемочный и инспекционный контроль.

4.1 Входной контроль

4.1.1 Входному контролю подвергаются поступающие на строительную площадку стеновые камни, кладочный раствор, бетон, арматурные изделия, теплоизоляционные и другие необходимые материалы. При этом должны проверяться:

- соответствие их ГОСТам, ТУ, требованиям рабочей документации, паспортам и другим документам, подтверждающим качество их изготовления;

- соблюдение правил транспортирования, разгрузки и складирования.

4.1.2 Входной контроль осуществляет служба производственно-технической комплектации на базах или непосредственно на предприятиях-изготовителях и непосредственно на стройплощадке. При необходимости, материалы и изделия испытывают в аккредитованных строительных лабораториях. Производители работ (мастера) обязаны проверять визуально соответствие качества изделий и материалов, поступивших на строительную площадку, требованиям рабочей документации, ТУ и стандартов.

4.2 Кладочные изделия

4.2.1 Блоки и кирпич, применяемые в кладке, в отношении прочности, морозостойкости и других показателей должны удовлетворять требованиям проекта, ТУ 67.18.78-94 «Блоки бетонные вибропрессованные», ГОСТ 379-95 «Кирпич и камни силикатные. Технические условия», ГОСТ 530-95 «Кирпич и камни керамические. Технические условия», ГОСТ 7484-78 «Кирпич и камни керамические лицевые. Технические условия» и сопровождаться документом о качестве.

В документе о качестве должно быть указано:

- наименование предприятия-изготовителя и (или) его товарный знак;

- наименование и условное обозначение изделий с указанием ГОСТ или ТУ;

- номер и дата выдачи документа;

- номер партий и количество отгружаемых изделий;

- масса изделия;

- марка по прочности;

- марка по морозостойкости;

- водопоглощение;

- удельная эффективная активность естественных радионуклидов;

- теплопроводность изделий;

- отпускная прочность.

В случае отсутствия документа о качестве прочность кладочных изделий на сжатие, принятая в проекте, должна быть подтверждена до начала строительства в соответствии ГОСТ 8462-85 «Материалы стеновые. Методы определения пределов прочности при сжатии и изгибе».

4.2.2 Потребитель имеет право проводить контрольную проверку соответствия изделий требованиям ТУ 67.18.78-94, ГОСТ 379-95, ГОСТ 530-95 и ГОСТ 7484-78, применяя для этих целей правила приемки, порядок отбора образцов и методы испытаний в соответствии с действующими стандартами.

Блоки и кирпич принимают партиями. Размер партии устанавливают в количестве, указанном в товарно-транспортной накладной.

Каждая партия должна состоять из блоков и кирпича одного типа, одних марок по прочности и морозостойкости, изготовленных из материалов одного вида и качества.

4.2.3 Отклонения кладочных изделий от номинальных размеров и показателей внешнего вида не должны превышать значений, указанных в ГОСТ 379-95, ГОСТ 530-95, ГОСТ 7484-78 и ТУ 67.18.78-94.

4.3 Арматурные и закладные изделия

4.3.1 Вся поступающая на строительную площадку арматура (стержневая, проволочная) и арматурные изделия, закладные детали, гибкие связи и анкеры должны иметь сопроводительные документы, характеризующие их сортамент, размеры, массу и качественные показатели, и должны отвечать требованиям соответствующих стандартов, технических условий и проекта.

4.3.2 Арматурная сталь и сортовой прокат при отсутствии сертификата могут применяться только после обязательных механических испытаний и химического анализа при условии соответствия требованиям ГОСТ на эти материалы.

4.3.3 Замена предусмотренной проектом арматурной стали по классу, марке, сортаменту или замена конструкции анкеров должна быть согласована с проектной организацией.

4.3.4 Расчленение пространственных крупногабаритных арматурных изделий на «монтажные блоки» допускается только по согласованию с проектной организацией.

4.3.5 Транспортирование и хранение арматурной стали следует выполнять по ГОСТ 7566-81 «Металлопродукция. Приемка, маркировка, упаковка, транспортирование и хранение».

4.3.6 При приемке на объекте необходимо все изделия подвергать внешнему осмотру, замерам и проверять соответствие их требованиям ГОСТа, ТУ и проекта.

4.3.7 Подвергшиеся коррозии изделия, у которых продукты коррозии, налет и ржавчина не поддаются удалению при протирке, к применению не допускаются.

4.3.8 Деформированные изделия следует выправить. Правка должна быть выполнена без нагрева поврежденного элемента (холодная правка). Холодная правка допускается только для плавно деформированных элементов. Остальные деформированные элементы подлежат изъятию и замене вновь изготовленными. В выправленных элементах необходимо обязательно восстановить (если предусмотрено проектом) противокоррозионное покрытие.

4.4 Кладочные растворы

4.4.1 В рабочих чертежах каменных конструкций должны быть указаны:

- марка кладочного раствора для производства работ, как в летнее, так и зимнее время;

- вид вяжущего;

- требования по систематическому контролю прочности раствора для конструкций, расчетная несущая способность которых используется более чем на 80%.

4.4.2 Состав раствора заданной марки устанавливает строительная лаборатория, руководствуясь «Инструкцией по приготовлению и применению строительных растворов» СП 82-101-98 и СНиП 3.03.01-87 «Несущие и ограждающие конструкции» (приложение 15).

4.4.3 Растворная смесь до отправки ее потребителю должна быть принята отделом технического контроля завода-изготовителя и иметь паспорт. В паспорте указывается дата и время приготовления, вид, марка, подвижность раствора, виды и марка вяжущего, специальные добавки.

Подвижность раствора характеризуется глубиной погружения стандартного конуса по ГОСТ 5802-86. Глубина погружения конуса в растворы, применяемые для кладки из бетонных вибропрессованных блоков, должна быть равна 9-10 см.

4.4.4 Каждая партия раствора, доставляемая с централизованного растворосмесительного предприятия, должна иметь паспорт.

4.4.5 Контроль качества доставленного на строительную площадку раствора должен производиться путем испытаний в строительной лаборатории. Данные паспортов и результаты контрольных испытаний записывать в специальный журнал.

4.4.6 Контроль качества раствора следует производить в соответствии с указаниями ГОСТ 5802-86 на методы испытания строительных растворов по следующим показателям:

- подвижность растворной смеси;

- расслаиваемость растворной смеси;

- водоудерживающая способность растворной смеси;

- плотность растворной смеси и затвердевшего раствора;

- предел прочности на сжатие (марка) раствора;

- морозостойкость раствора.

Прочность раствора должна проверяться ежедневно, а также при каждом изменении состава растворной смеси.

4.4.7 Определение морозостойкости раствора следует производить в тех случаях, когда это требование оговорено в проекте.

4.4.8 Растворы, содержащие цемент при отсутствии добавок, изменяющих их свойства, должны быть израсходованы до их схватывания, но не позднее, чем через 2 часа после приготовления.

4.5 Бетонные смеси

4.5.1 Бетонные смеси, их приготовление, доставка должны отвечать требованиям ГОСТ 7473-94 «Смеси бетонные. Технические условия» и СНиП 3.03.01-87 «Несущие и ограждающие конструкции»

4.5.2 Транспортировать бетонную смесь необходимо специализированным транспортом, в бадьях, бункерах. Способ транспортирования должен исключать возможность попадания атмосферных осадков, нарушения однородности смеси, потери цементного раствора и воздействия на нее ветра, солнечных лучей.

Расстояние транспортирования бетонной смеси к месту укладки по времени доставки не должно превышать срока схватывания.

4.5.3 Бетонная смесь, доставленная на объект с бетонного завода, а также изготовленная на приобъектном участке, должна иметь паспорт с указанием класса бетона, времени ее изготовления и соответствовать по качеству требованиям ГОСТ 7473-94. Контрольную проверку качества бетонной смеси следует проводить по методикам ГОСТ 10181-2000 «Смеси бетонные. Общие требования к методам испытаний. Методы определения удобоукладываемости, плотности, пористости, расслаиваемости».

4.5.4 За качество поступившей на строительную площадку и принятой бетонной смеси полную ответственность несет персонал подрядчика.

4.5.5 Непригодную бетонную смесь или изготовленную не в соответствии с проектом необходимо браковать. Запрещается добавление воды в бетонную смесь для обеспечения нормируемой подвижности.

4.5.6 Проверку подвижности бетонной смеси на стадии приготовления и укладки производят не реже двух раз в смену при установившихся погодных условиях и влажности заполнителей и не реже, чем через каждые 2 часа при изменяющихся погодных условиях и влажности заполнителей, и при изменении состава бетона. Отклонения от заданной подвижности допускаются в пределах ±10 мм.

Подвижность бетонной смеси для каждой партии определяют не позже, чем через 20 минут после доставки смеси потребителю.

4.5.7 Контроль качества бетона заключается в проверке соответствия его физико-механических характеристик требованиям проекта. Проверяют его прочность по ГОСТ 18105-86, морозостойкость определяют по ГОСТ 10060.4-95 и водонепроницаемость по ГОСТ 12730.5-84*.

4.5.8 Прочность бетона на сжатие проверяют на контрольных образцах, изготовленных из проб бетонной смеси одного состава, отобранных после ее приготовления на бетонном заводе, а также непосредственно на месте бетонирования конструкций в соответствии с требованиями ГОСТ 7473-94, ГОСТ 10181-2000, ГОСТ 10180-90 и ГОСТ 18105-86. Все результаты проведенных испытаний записывают в специальные журналы.

4.5.9 При неподтверждении нормируемого показателя качества бетона изготовитель обязан в день получения результатов испытаний сообщить об этом потребителю.

4.5.10. Основные показатели качества бетонной смеси и бетона должны контролироваться в соответствии с таблицей 4.1.

Таблица 4.1

Параметр

Величина параметра и предельные отклонения

Контроль (метод, объем, вид регистрации)

1. Расслоение, не более

6 %

Измерительный по ГОСТ 10181-2000 2 раза в смену, журнал работ

2. Подвижность (осадка конуса) при бетонировании:

вертикальных каналов;

монолитного пояса

 

Измерительный по ГОСТ 10181-2000 2 раза в смену, журнал работ.

не менее 16 см

8¸10 см

4.6 Теплоизоляционные материалы

4.6.1 Поступающий на стройплощадку утеплитель должен соответствовать требованиям проекта и нормативного документа, по которому он изготавливается. Контролируемые параметры:

- объемная масса;

- влажность;

- водопоглощение;

- размеры плиты.

На объекте плитный утеплитель следует хранить в закрытом сухом помещении.

4.6.2 Потребитель имеет право проводить контрольную проверку теплофизических показателей материалов на соответствие документу, подтверждающему их качество (сертификаты, паспорта). Определение теплофизических показателей (теплопроводности, теплоусвоения, влажности, сорбционных характеристик, паропроницаемости, водопоглощения, морозостойкости) материалов 3-х слойной стены производится в соответствии с требованиями федеральных стандартов ГОСТ 7076-87, ГОСТ 30256-94, ГОСТ 30290-94, ГОСТ 23250-78, ГОСТ 25609-83, ГОСТ 21718-84, ГОСТ 24816-81, ГОСТ 25898-83, ГОСТ 7025-91, ГОСТ 17177-94 (и др. показатели в соответствии с требованиями проекта).

4.6.3 Замена предусмотренных проектом теплоизоляционных материалов должна быть согласована заказчиком и проектной организацией.

4.7 Пооперационный контроль при кладке многослойных стен по «одновременной технологии»

4.7.1 Пооперационный контроль предусматривает проверку технологического процесса выполнения качества каждого вида строительно-монтажных работ на всех этапах их производства.

Операционный контроль осуществляют:

- строительная организация (бригадиры, мастера и прорабы с участием лаборантов и геодезистов);

- заказчик с привлечением проектировщиков (авторский надзор) и испытательный (аккредитованный) лабораторный.

4.7.2 Пооперационный контроль следует выполнять в соответствии с проектом, технологическими картами, картами трудовых процессов, СНиП 3.03.01-87 «Несущие и ограждающие конструкции» и соответствующих ГОСТ.

4.7.3 Возможность достижения проектной прочности каменной кладки, должна быть подтверждена до начала строительства. Для этого на строительной площадке должно быть изготовлено пять призм с применением кладочных камней и раствора по марочности, соответствующих проекту, и после 7-ми дневного хранения в нормальных условиях (при температуре +20°С...+22°С и относительной влажности воздуха 70-100%), проведено их испытание на сжатие до разрушения. Одновременно с призмами на испытание должны быть представлены 5 образцов кладочных камней и 6 образцов-кубов кладочного раствора после их 7-ми дневного хранения вместе с призмами. Призмы изготавливаются каждая из двух стеновых камней, поставленных друг на друга, на растворе, уложенном в виде двух полос на продольные площадки стенок пустотелых бетонных камней. При положительных результатах испытаний организацией, осуществляющей авторский надзор, выдается разрешение на производство каменных работ.

4.7.4 В процессе производства работ изготавливаются и подвергаются контрольным испытаниям по 3 призмы и по 6 кубов раствора в расчете на 500 м2 кладки стен, но не менее этого же количества на каждый возведенный этаж. При кладке самонесущих внутренних стен и перегородок контрольным испытаниям подвергаются только кладочные камни и раствор из расчета 3 камня и 6 кубов раствора на каждые 500 м2 кладки.

4.7.5 Контроль качества бетона, применяемого для замоноличивания пустот в пустотелых кладочных камнях для устройства скрытого в стенах железобетонного каркаса, по показателям прочности, установленным проектом, должен выполнятся в соответствии с требованиями соответствующих нормативных документов.

4.7.6 Контроль качества работ по возведению конструкций здания в зимних условиях следует осуществлять на всех этапах возведения стен и перегородок, устройства обвязочных поясов и элементов скрытого железобетонного каркаса, монтажа плит покрытий и перекрытий и их анкеровки со стенами. В журнале производства работ, помимо обычных записей о составе выполняемых работ, следует фиксировать температуру наружного воздуха, температуру в укрытиях (тепляках) при тепловом обогреве конструкций, количество добавок в растворе и омоноличивающем бетоне, температура бетона и раствора в момент укладки и другие данные, влияющие на процесс твердения раствора и бетона.

4.7.7 Для контроля фактической прочности раствора или замоноличивающего бетона с противоморозными добавками необходимо при возведении конструкций изготавливать образцы-кубы непосредственно на объекте. Число образцов на каждом этаже должно быть не менее 12 в расчете на каждые две секции здания, три из которых испытывают в сроки, необходимые для поэтажного контроля прочности раствора после 3-часового оттаивания при температуре +20°С ±2°С. Для определения конечной прочности три контрольных образца необходимо испытывать после их полного оттаивания в естественных условиях и последующего 28-суточного твердения при температуре наружного воздуха +20°С ±2°С.

4.7.8 При возведении зданий на обыкновенных растворах (без противоморозных добавок) с упрочнением кладки искусственным прогревом (тепляках или укрытиях) необходимо осуществлять постоянный контроль за температурными условиями твердения раствора или бетона с фиксацией их в журнале. Температура в помещениях при обогреве замеряется регулярно, не реже 3 раз в сутки (в 01, 09 и в 17 часов). Контроль температуры воздуха следует производить не менее чем в 5-6 точках вблизи наружных стен обогреваемого этажа на расстоянии 0,5 м от пола.

4.7.9 Во время искусственного прогрева конструкций следует осуществлять постоянный контроль за величиной и равномерностью осадок стен, твердением раствора и бетона. Наблюдение необходимо вести в течение всего периода твердения раствора или бетона до проектной (или близкой к ней)прочности.

4.7.10 Система рекомендуемого многоуровневого пооперационного контроля качества при выполнении процессов и операций по возведению многослойных стен приведена в таблице 4.2.

4.7.11 До начала каменной кладки с поверхности фундамента или уже уложенной части стены должны быть удалены цементная стяжка, сыпучие материалы, арматурные остатки и все то, что может мешать сцеплению раствора с основанием.

Контроль качества работ следует осуществлять по ходу возведения монолитных стен. Проверке подлежат:

- качество применяемых материалов на соответствие требованиям проекта;

- соблюдение нормативной толщины швов;

- соблюдение отметок опорных поверхностей;

- правильность перевязки швов;

- прямолинейность поверхностей стен и углов;

- вертикальность поверхностей возводимых конструкций;

- качество поверхностей кладки (рисунок, расшивка швов, подбор изделий с равными кромками и углами, цвет и тональность изделий для неоштукатуриваемой кладки);

- наличие устройств, обеспечивающих вентиляцию и дренаж конденсата;

- устройство слоя утеплителя, пароизоляции, гидроизоляции и воздушного зазора;

- установка гибких связей, арматурных сеток, закладных деталей, анкеров;

- армирование вертикальных и горизонтальных элементов жесткости;

- заполнение пустот блоков бетоном;

- укладка бетона при устройстве горизонтальных поясов.

4.7.12 Пооперационный контроль необходимо оформлять актами на следующие виды скрытых работ:

- укладка в каменные конструкции арматуры, гибких связей и других стальных закладных деталей, а также защита их от коррозии;

- устройство теплоизоляционного слоя;

- устройство противопожарной разделки из минеральной плиты;

- устройство пароизоляции и гидроизоляции;

- зазор воздушной прослойки;

- бетонирование вертикальных и горизонтальных элементов жесткости;

- устройство деформационных и температурных швов;

- отвод конденсата из стен;

- устройство гибких связей для облицовочного слоя.

4.7.13 Отклонения в размерах и положении каменных конструкций от проектных не должны превышать допустимых величин, приведенных в таблице 4.3 и на рисунках 4.1-4.7.

При кладке облицовочного слоя особые требования предъявляются к качеству поверхности кладки, к плотности и расшивке лицевых швов. Швы надежно должны препятствовать проникновению в стену влаги.

Выпуск концов стержней гибких связей на лицевую поверхность облицовочного слоя стены не допускается.

Основные требования и допуски при устройстве опорных конструкций под облицовочный слой многослойной стены приведены в табл. 4.3 и на рис. 4.8.


Таблица 4.2 - Система многоуровневого пооперационного контроля качества работ

Этапы и виды строительных работ

Контроль качества CMP

Подрядчик

Рабочий,
бригадир

Мастер

Прораб
старший
прораб

Начальник
ПТО СМУ

Главный
инженер
СМУ

Строительная
лаборатория

Комплектация рабочих чертежей

 

 

 

 

Обеспечение ППР

 

 

 

 

Осуществление ППР

 

 

 

Разбивка и заложение стен и простенков

 

 

Кладка стен и простенков

Армирование кладки, установка закладных деталей, анкеров и связей

 

Устройство каналов в стенах со шабровкой

 

Устройство дренажных и вентиляционных отверстий в облицовочном слое

 

Устройство пароизоляционного слоя*

Устройство гидроизоляционного слоя для отвода конденсата*

Устройство теплоизоляционного слоя

Устройство ветрозащитного покрытия*

Замоноличивание вертикальных каналов

Устройство монолитных железобетонных обвязочных поясов

Ведение журналов работ

 

 

Приемка выполненных работ

 

 

Примечания:

1. *- работы, нерассмотренные в данных ТСН.

2. Проектная организация осуществляет контроль при наличии договора на проведение авторского надзора.

3. Обозначения в таблице:  - самоконтроль;  - постоянный контроль;  - выборочный контроль.

4. Результаты контрольных проверок по этапам работ заносятся в журналы работ.

 


Рис. 4.1 - Схема допустимых отклонений при кладке стен из керамического и силикатного кирпича

Рис. 4.2 Схема допустимых отклонений при кладке стен из вибропрессованных бетонных блоков.

Расстилание раствора под тычковый ряд

Расстилание раствора под ложковый ряд

Допускаемые отклонения

Рис. 4.3 - Схема допусков и отклонений при кладке из кирпича несущего слоя.

Таблица 4.3

Контролируемый параметр

Величина параметра, предельные отклонения, мм

Контроль (метод, вид регистрации)

Кладка из кирпича

Кладка из блоков

1

2

3

4

Толщина стен

15;-6

15;-6

Измерительный, журнал работ

Отметки опорных поверхностей

-10

-10

то же

Ширина простенков

-15

-15

то же

Ширина проемов

15

15

то же

Смещение вертикальных осей оконных проемов от вертикали

20

20

Измерительный, журнал работ, исполнительная геодезическая схема

Смещение осей конструкции от разбивочных

10

10

тоже

Отклонение поверхностей и углов кладки от вертикали:

 

 

 

на один этаж

10

10

то же

на здание более 2-х этажей

30

30

то же

Толщина швов кладки:

 

 

Измерительный, журнал работ

горизонтальных

-2; 3

-2; 3

вертикальных

-2; 2

-2; 2

Отклонения рядов кладки от горизонтали на 10 м длины стены

15

15

Измерительный, исполнительная геодезическая схема

Неровности на вертикальной поверхности кладки, обнаруженные при накладывании рейки длиной 2 м

10

10

Технический осмотр, журнал работ

Размеры сечения вентиляционных каналов

±5

±5

Измерительный, журнал работ

Отметка опорных столиков

±5

±5

то же

Величина консоли опорных столиков

±5

±5

то же

4.7.14 При установке в кладку гибких связей и арматурных сеток следует контролировать их положение по проекту и следить, чтобы:

- проволоки сеток не располагались над полостями пустотелых блоков;

- концы поперечных стержней арматурных сеток не доходили до грани каменной кладки стены минимум на 10 мм;

- величина стыковки сеток соответствовала проекту;

- толщина швов, в которых расположена арматура, превышала диаметр арматуры не менее чем на 4 мм, т. е. обеспечивая толщину защитного слоя арматуры не менее 2 мм.

4.7.15 Контроль при производстве арматурных работ следует осуществлять при установке арматуры в бетонируемые конструкции в соответствии с проектом. Арматура должна быть закреплена с помощью фиксаторов, исключающих перемещение стержней и арматурных сеток при бетонировании.

Для фиксации арматурных стержней в вертикальных полостях кладки следует в швы между блоками на уровне стыковки стержней устанавливать фиксирующие петли - «кондукторы» из проволоки Æ 5 мм (см. рис. 4.9, 4.10).

Бессварочные соединения стержней должны быть выполнены внахлестку с перепуском не менее 10 диаметров. Крестообразные пересечения арматурных стержней фиксируют вязальной проволокой.

Основные параметры, контролируемые при производстве арматурных работ, приведены в таблице 4.4 и на рис. 4.11.

Расстилание постели

Допускаемые отклонения

Рис. 4.4 - Схема допусков и отклонений при кладке облицовочного слоя из кирпича

Расстилание постели

Допускаемые отклонения

Рис. 4.5 - Схема допусков и отклонений при кладке несущего слоя из бетонных блоков

Расстилание постели

Допускаемые отклонения

Рис. 4.6 - Схема допусков и отклонений при кладке из блоков облицовочного слоя

Рис. 4.7 - Схема допусков и отклонений при кладке несущего слоя каркаса стен (при «разновременной технологии»)

Рис. 4.8 - Схема допусков и отклонений на устройство опорных столиков при «одновременной технологии»

1 - блок «Бессер»; 2 - пустоты в блоке; 3 - арматурный стержень (устанавливается на 1 этапе армирования); 4 - арматурный стержень (устанавливается на 2-ом этапе армирования); 5 - петля кондуктор; 6 - бетон монолитный.

Примечание: схема установки петель кондукторов согласуется со схемой армирования вертикальных поясов.

Рис. 4.9 - Схема допусков при установке «петли»-кондуктора для «фиксирования» вертикальных арматурных стержней

Рис. 4.10 - Схема допусков и отклонений при армировании вертикальных элементов скрытого каркаса

1 - арматура продольная; 2 - стык «внахлест» двух арматурных стержней; 3 - опалубка неинвентарная; 4 - распорка между щитами; 5 - стержни из проволоки d = 5 мм; 6 - подкладки для создания защитного слоя

Рис. 4.11 - Схема допусков и отклонений при устройстве монолитного пояса в опалубке

Таблица 4.4

Контролируемый параметр

Величина параметра, предельные отклонения, мм

Контроль (метод, объем, вид регистрации)

1

2

3

Отклонение в расстоянии между отдельно установленными рабочими стержнями для вертикальных элементов скрытого каркаса

±10

Измерительный, технический осмотр всех элементов, журнал работ

Отклонение в расстоянии между рядами арматуры для монолитных обвязочных поясов

±10

То же

Длина нахлеста арматурных стержней в вертикальных монолитных каналах скрытого каркаса

La ³ 10 d, но не менее 200

То же

Длина нахлеста горизонтальной арматуры в монолитных обвязочных поясах

La = 10 d¸15d, но не менее 250

То же

Толщина растворного шва должна превышать толщину сетчатого армирования

+4

То же

Отклонение от проектной толщины защитного слоя бетона для монолитных конструкций не должно превышать:

 

 

при толщине защитного слоя до 15 мм и линейных размерах поперечного сечения конструкции, мм:

 

 

до 100;

+4

То же

от 101 до 200;

+5

 

при толщине защитного слоя от 15 до 20 мм и линейных размерах поперечного сечения конструкций, мм:

 

до 100;

+4; -3

от 101 до 200;

+8; -3

от 201 до 300;

+10; -3

св. 300;

+15; -5

Отклонение вертикальных арматурных стержней в плане полости блока:

 

 

в продольном направлении;

±0,75 d

То же

в поперечном направлении.

±5

 

Отклонение продольной арматуры сетчатого связевого армирования кладки в горизонтальных швах от проектного положения

±0,5 d

То же

Толщина защитного слоя для стержней сетчатого связевого армирования кладки в горизонтальных швах

не менее 2

То же

Примечание:

d - диаметр рабочей арматуры;

La - длина нахлеста арматуры.

Приемка установленной арматуры должна осуществляться до укладки бетона и оформляться актом освидетельствования скрытых работ.

4.7.16 Установка и приемка опалубки, распалубливание монолитных конструкций, очистка и смазка щитов производятся в соответствии с указаниями технологической карты на опалубочные работы с регистрацией в журнале работ.

Древесные, металлические, пластмассовые и другие материалы для опалубки должны отвечать требованиям ГОСТ 23478-79; деревянные клееные конструкции ГОСТ 20850-84.

4.7.17 Требования к качеству опалубочных работ и допустимая прочность бетона при распалубке приведены в таблице 4.5.

Таблица 4.5

Контролируемый параметр

Величина параметра,
предельные отклонения

Контроль (метод, объем,
вид регистрации)

1

2

3

Смещение осей опалубки монолитного пояса от проектного положения

4 мм

Измерительный, журнал работ

Точности установки инвентарные опалубки:

 

 

расстояние между палубами вертикальных поверхностей;

± 5 мм

То же

отметка верха установленной опалубки;

+10 мм

 

плотность щитов опалубки

Зазоры не допускаются

 

Отклонение палубы от вертикали и горизонтали

±3

То же

Перепады на поверхностях палубы в стыках щитов

Не допускается

Визуально

Уровень дефектности

Не более 1,5 % при нормальном уровне контроля

Измерительный по ГОСТ 18242-72»

Оборачиваемость опалубки

ГОСТ 23478-79

Регистрационный журнал работ

Прогиб поверхностей собранной опалубки:

 

Измерительный, журнал работ

вертикальных;

1/400 пролета

 

горизонтальных

1/500 пролета

 

Контролируемые параметры при приемке опалубки

Основание, жесткость и неизменяемость, правильность сборки и установки закладных элементов, плотность щитов, качество поверхности

Технический осмотр, измерительный, журнал работ

4.7.18 Укладка бетонной смеси в монолитные горизонтальные пояса жесткости и в вертикальные полости кладки должна выполняться в соответствии с требованиями проекта и СНиП 3.03.0-87.

4.7.19 Непосредственно перед укладкой бетонной смеси, при устройстве монолитного жесткого пояса по оконным и дверным проемам, перемычек над проемами, горизонтальных поясов жесткости, вертикальных элементов скрытого каркаса (в углах здания, пилястровые колонны и др.), должна быть произведена детальная проверка мест укладки бетона с составлением соответствующих актов на осмотр и приемку:

- очистки пустот блоков от мусора, грязи, остатков раствора и любого материала, оказывающего вредное влияние на качество бетонирования, а арматуры - от ржавчины и других загрязнений;

- армирования конструкций (правильность укладки арматуры, ее диаметра и вида);

- правильности установки и закрепления опалубки и поддерживающих ее конструкций;

- наличия пробок и выполнения мер по предохранению их от сцепления с бетоном.

4.7.20 При укладке бетонной смеси в конструкцию должны соблюдаться следующие правила:

- должно вестись непрерывное наблюдение за состоянием опалубки;

- при обнаружении деформаций или смещений опалубки, лесов и креплений бетонирование должно быть прекращено, элементы опалубки возвращены в проектное положение и, при необходимости, усилены;

- процесс бетонирования конструкций должен быть отражен в журнале ухода за бетоном.

4.7.21 При устройстве вертикальных элементов жесткости непрерывное бетонирование каналов в пустотелых блоках выполнять участками высотой не более 2-х м.

Верхний уровень заливки бетона должен быть на 3,5 см ниже уровня горизонтального шва кладки.

Продолжительность перерыва для усадки бетона должна быть не менее 40 мин, но не более 2 ч.

Способ бетонирования вертикальных элементов жесткости следует устанавливать опытным путем, для того чтобы обеспечить сохранность бетонной смеси от расслоения, и предотвратить вытекание цементного молока через кладочные швы.

Укладка бетонной смеси в монолитные горизонтальные пояса жесткости должна выполняться горизонтальными слоями одинаковой толщины без разрыва. Направление укладки бетона - в одну сторону во всех слоях. Толщина укладываемого слоя не должна превышать 1,25 длины рабочей части вибратора.

Сведения об укладке бетонной смеси должны заноситься в журнал работ с указанием объема уложенного бетона, начала и конца бетонирования, марки бетона и подвижности бетонной смеси (осадки конуса), даты, числа образцов и результатов их испытаний, а также температуры наружного воздуха во время бетонирования и температуры укладываемой смеси.

Уход и контроль за бетоном, уложенным в опалубку, устанавливается проектом производства работ в соответствии с требованиями СНиП 3.03.01-87.

4.7.22 Демонтаж опалубки разрешается выполнять при достижении бетоном прочности, указанной в ППР.

Распалубливание бетона должно производиться по этапам. Снятие боковых щитов, не несущих нагрузки от массы бетона, разрешается производить по достижении прочности, обеспечивающей сохранность кромок углов и боковых поверхностей конструкций при распалубке.

4.7.23 Приемка бетонных и железобетонных конструкций или частей сооружений оформляется в установленном порядке общим актом на приемку ответственных конструкций (или актом освидетельствования скрытых работ). Решение о приемке бетонных и железобетонных конструкций с некачественной поверхностью (кавернами и раковинами), а также в случае неудовлетворительных результатов испытаний контрольных бетонных кубиков принимает заказчик по согласованию с проектной организацией.

До приемки железобетонных конструкций категорически запрещается заделка раковин, исправление поврежденных при распалубке граней или затирка поверхности бетона.

Допуски, не оговоренные в проекте, а также отклонения в размерах и положении выполненных монолитных бетонных и железобетонных конструкций от проектных не должны превышать допускаемых, указанных в таблице 4.6.

Таблица 4.6

Контролируемый параметр

Величина параметра, предельные отклонения, мм

Контроль (метод, объем, вид регистрации)

Максимальная прочность бетона незагруженных монолитных конструкций при распалубке:

 

Измерительный по ГОСТ 10180-90 и ГОСТ 18105-86, не менее одного раза на весь объем распалубки, журнал работ

вертикальных из условия сохранения формы;

0,2-0,3 МПа

горизонтальных и наклонных при пролете:

 

до 6 м;

70 % проектной

свыше 6 м

80 % проектной

Минимальная прочность бетона при распалубке загруженных конструкций в т. ч. от вышележащего бетона (бетонной смеси)

Определяется ППР и согласовывается с проектной организацией

То же

Отклонение горизонтальных плоскостей на всю длину выверяемого участка

±20

Измерительный, не менее 5 измерений на каждые 50 м, журнал работ

Местные неровности поверхности бетона при проверке двухметровой рейкой, кроме опорных поверхностей

5 мм

То же

Длина или пролет элементов

±20 мм

Измерительный, каждый элемент, журнал работ

Размер поперечного сечения элементов

±10 мм

То же

Отметки поверхности и закладных изделий, служащих опорами для сборных элементов

+5 мм

Измерительный, каждый опорный элемент, исполнительная схема

Разница отметок по высоте на стыке двух смежных поверхностей

3 мм

То же, каждый стык, исполнительная схема

Рис. 4.12 - Схема допусков и отклонений при утеплении стен плитами

4.7.24 Контроль качества теплоизоляционных работ следует осуществлять по ходу устройства теплоизоляции.

Проверке подлежат:

- качество основания;

- плотность прилегания теплоизоляции, непрерывность слоев, крепление утеплителя;

- толщина теплоизоляционного слоя;

- наличие распорных вкладышей и величина воздушного зазора;

- качество выполненных стыков и их расположение;

- наличие противопожарных поясов.

Отклонения в размерах и положении теплоизоляционных материалов не должны превышать допустимых величин, приведенных в таблице 4.7 и на рис. 4.12.

Таблица 4.7

Контролируемые параметры

Величина параметра, предельные отклонения

Контроль (метод, объем, вид регистрации)

Допускаемая влажность оснований не должна превышать

4 %

Измерительный, не менее 5 измерений на каждые 50-70 м2 поверхности; журнал работ

Толщина теплоизоляции от проектной

-5...+10 %, но не более 20 мм

Измерительный, не менее 5 измерений на каждые 50-70 м2 поверхности; журнал работ

Отклонение плоскости изоляции от вертикали

±10 мм

Измерительный, (1 измерение на каждые 50-100 м2 поверхности)

Величина уступов между плитами

не более 5 мм

То же

Непрерывность слоев, качество обделки мест пропуска креплений трубопроводов, оборудования, деталей конструкций и т. д. через теплоизоляцию

отступлений от проекта не допускается

Визуальный, журнал работ

Отсутствие механических повреждений, провисания и неплотностей прилегания к основанию

отступлений от проекта не допускается

Визуальный, журнал работ

4.7.25 Сборно-разборные основные и доборные подмости на площадку должны поступать комплектно. Каждый комплект должен иметь паспорт завода-изготовителя, акт приемки ОТК и комплектовочную ведомость, в которой указывается количество и вес отправляемых элементов.

Средства подмащивания следует эксплуатировать в соответствии с инструкцией, прилагаемой к изделию, СНиП 12-04-2002, часть II «Безопасность труда в строительстве».

Подмости должны устанавливаться на твердое, ровное основание, иметь ровные рабочие настилы из досок толщиной 50 мм, с зазором между досками не более 5 мм.

При расположении настила на высоте 1 м и более подмости должны иметь ограждения и бортовые элементы. Зазор между возводимой стеной и рабочим настилом не должен превышать 50 мм.

Приемку монтажа основных и доборных подмостей следует осуществлять в соответствии с ГОСТ 24258-88, СНиП 12-04-2002, ч. II и рабочими чертежами подмостей, приведенными на рис. 4.13.

При приемке подмостей должны быть проверены:

- соответствие их сборки монтажным схемам;

- правильность сборки узлов и крепления отдельных элементов, обеспечивающих устойчивость;

- надежность рабочего настила и ограждения;

- вертикальность стоек, надежность опорных площадок.

4.8 Пооперационный контроль при кладке многослойных стен по «разновременной технологии»

4.8.1 Пооперационный контроль при кладке многослойных стен следует выполнять в соответствии с проектом, технологическими картами, картами трудовых процессов, СНиП 3.03.01-87 и разделом 4.7.

4.8.2 Отклонения в размерах и положении каменных конструкций от проектных не должны превышать допустимых величин, приведенных в таблице 4.3 и на рис. 4.1-4.7

1 - основание (плита перекрытия); 2 - 1-е положение тумб; 3 - 2-е положение тумб.

Рис. 4.13 - Схема приемки основных шарнирно панельных подмостей

4.8.3 Контроль при производстве арматурных работ следует осуществлять в соответствие с п. 4.7.14.

4.8.4 Основные допуски и требования к качеству опалубочных работ приведены в п. 4.7.16, 4.7.17.

4.8.5 Основные допуски и требования к качеству бетонных работ приведены в п. 4.7.18-4.7.23.

4.8.6 Контроль при производстве теплоизоляционных работ осуществлять в соответствии с п. 4.7.24.

4.8.7 Основные допуски и требования к монтажу сборно-разборных основных и доборных подмостей приведены в п. 4.7.25.

4.8.8 Леса на строительную площадку должны поступать комплектно. Каждый комплект должен иметь паспорт завода-изготовителя, акт приемки ОТК и комплектовочную ведомость, в которой указывается количество и вес отправляемых элементов по маркам.

4.8.9 До начала устройства трубчатых лесов должны быть выполнены следующие работы:

- возведены теплоизоляционный и облицовочный слои на высоту +1.200;

- закончены работы по возведению несущего слоя стены;

- завезено необходимое количество элементов лесов с раскладкой их по фронту сборки;

- установлена электролебедка;

- составлена монтажная схема лесов.

Леса должны быть смонтированы на спланированной и утрамбованной площадке, с которой обеспечен отвод воды, и представлять собой каркасную пространственную систему из стоек и ригелей, соединяемых при помощи крюков и патрубков.

4.8.10 Нижние стойки должны быть оперты на башмаки, установленные на деревянные подкладки длиной 3 м. Подкладки должны быть установлены перпендикулярно к стене. Под каждой парой стоек должна быть подкладка сечением при укладке на грунт не менее 10×20 см, а при укладке на бетон, асфальт и подобные плотные основания - 5×20 см. После устройства первого яруса лесов башмаки должны быть прикреплены к подкладкам при помощи костылей (см. узел на рис. 4.14).

Перильные стойки крепятся к стойкам крюками, входящими в патрубки стоек.

Крепление лесов к стене должно быть выполнено при помощи анкеров и крюков, которые устанавливаются в местах расположения стыков всех стоек (см. рис. 4.15).

Основная особенность монтажа трубчатых лесов при возведении многослойных стен связана с увеличенным зазором между стойками лесов и несущим слоем стены (550 мм + приведенная толщина). При этом длина кронштейнов, закрепляющих стойки лесов к стене, корректируется в соответствии с толщиной воздушной прослойки, утепляющего слоя, облицовки и рассчитывается по формуле:

L = 550 мм + δвз + δут. + δобл (приведенная толщина)

где 550 - нормативное расстояние между стойками лесов и несущим слоем стены, мм;

δвз - толщина воздушной прослойки;

δобл - толщина облицовочного слоя;

δут - толщина утепляющего слоя.

При совпадении стыков стоек с проемами неподвижность узлов достигается с помощью установки дополнительных горизонтальных и диагональных связей между ригелями.

4.8.11 По ригелям перпендикулярно стене должен быть уложен щитовой настил из досок толщиной 50 мм с консольным свесом на 0,5 м. На противоположном от стены конце настила должны быть установлены перила в виде стальной сварной решетки с бортовой доской, прижимающей к ригелю концы щитов настила. Перила крепят к стойкам крюками, входящими в патрубки стоек. Поднятию перил препятствуют приваренные к их обвязке задвижки.

4.8.12 Наращивание лесов производится поэтапно (по захваткам), по мере роста кладки; на высоте более 8 м одновременно должны быть уложены два яруса настила - верхний (рабочий) и нижний (защитный). Расстояние между настилами по высоте должно быть не более 6 м.

4.8.13 В плане в первых двух панелях, считая от угла здания, и через каждые 26-30 м по длине и через 4 м по высоте фасада, а также против лестничных клеток должны быть установлены жесткие диагональные горизонтальные связи из труб диаметром 48/41 мм, соединяемые со стойками. В местах установки связей стойки должны крепиться к стене двойными крюками, расходящимися под прямым углом.

4.8.14 Для подъема людей на леса высотой более 12 м должны быть выполнены лестничные клетки в выносной секции из типовых элементов лесов. Металлические стремянки верхним концом подвешиваются к ригелям, а нижним опираются на щиты настила. Для подъема людей на промежуточные ярусы (высотой 1 м) должны быть установлены специальные решетки перил.

1 - наружная стена (несущий слой); 2 - стойки лесов

Рис. 4.14 - Схема установки лесов у углов и выступов стен здания

1 - наружная стена (несущий слой); 2 - стойки лесов; 3 - анкер для крепления стоек лесов; 4 - кронштейн крепления стойки к анкеру; 5 - теплоизоляционный слой толщиной 200 мм; 6 - воздушная прослойка толщиной 10 мм; 7 - облицовочный слой толщиной 120 мм.

Рис. 4.15 - Схема крепления лесов к стене

4.8.15 В грозовой период леса должны быть оборудованы грозозащитным устройством, состоящим из молниеприемников, токоотводов и заземлителей. Молниеприемники устанавливаются по всей длине лесов на расстоянии, равном семикратной высоте их над настилом, т. е. 24-28 м, при высоте молниеприемника не менее 3,5 м.

Количество заземлителей и их устройство определяется расчетом.

4.8.16 При устройстве лесов необходимо строго контролировать:

- соответствие их сборки монтажным схемам;

- проектные размеры и правильность сборки узлов каркаса;

- качество и надежность опирания лесов на основание и крепление их к стене;

- надежность ограждений на лесах;

- наличие заземлений и молниеприемников;

- вертикальность устанавливаемых стоек по отвесу.

Элементы швов не должны иметь вмятин, раскрытых швов и других дефектов. Кривизна прямых элементов лесов допускается не более 1 мм на 1 м длины.

4.8.17 Разборку лесов следует начинать с верхнего яруса в порядке, обратном устройству, соблюдая следующую последовательность: перила, ограждение, стойки, стыки которых совпадают с разбираемым ярусом, щиты настила (при этом часть щитов переноситься на нижний ярус для использования в качестве подмостей при разборке нижележащего яруса), крепления к стене, диагональные связи и ригели.

Лестничные клетки разбираются также по ярусам одновременно с лесами и в последовательности, обратной устройству. Разобранные элементы с помощью электролебедки опускаются на землю, где они рассортировываются по маркам и укладываются в штабели. Мелкие элементы связываются в пачки и укладываются в ящики.

4.8.18 Основные требования при приемке лесов под теплоизоляцию и облицовку фасада приведены на рис. 4.14 и 4.15.

4.9 Контроль за производством бетонных работ и качеством бетона в зимних условиях

4.9.1 Контроль качества работ по возведению конструкций в зимних условиях следует осуществлять на всех этапах возведения стен и перегородок, устройства обвязочных поясов и элементов скрытого железобетонного каркаса, монтажа плит перекрытия и покрытия и их анкеровки со стенами. В журнале производства работ, помимо обычных записей о составе выполняемых работ, следует фиксировать температуру наружного воздуха, температуру в укрытиях (тепляках) при тепловом обогреве конструкций, количество добавок в растворе и омоноличивающем бетоне, температуру раствора и бетона в момент укладки и другие данные, влияющие на процесс твердения раствора или бетона.

4.9.2 Для контроля фактической прочности раствора или замоноличивающего бетона с противоморозными добавками необходимо при возведении конструкций изготавливать образцы-кубы непосредственно на объекте. Число образцов на каждый этаж должно быть не менее 12 (в расчете на каждые две секции здания), три из которых испытывают в сроки, необходимые для поэтажного контроля прочности раствора после 3-часового оттаивания при температуре +20°С ±2°С. Для определения конечной прочности три контрольных образца необходимо испытывать после их контрольного оттаивания в естественных условиях и последующего 28-суточного твердения при температуре воздуха +20°С ±2°С.

4.9.3 При кладке стен на обыкновенных растворах (без противоморозных добавок) с упрочнением кладки искусственным прогревом (в тепляках или укрытиях) необходимо осуществлять постоянный контроль за температурными условиями твердения раствора или бетона с фиксацией их в журнале. Температура воздуха в помещениях при обогреве замеряется регулярно, не реже 3 раз в сутки (в 1, 9 и в 17 часов). Контроль температуры воздуха следует производить не менее чем в 5-6 точках вблизи наружных стен обогреваемого этажа на расстоянии 0,5 м от пола.

4.9.4 Во время искусственного прогрева конструкций следует осуществлять постоянный контроль за величиной и равномерностью осадок стен, твердением раствора и бетона. Наблюдение необходимо вести в течение всего периода твердения до набора раствором или бетоном проектной (или близкой к ней) прочности.

4.9.5 Бетонирование монолитного пояса здания и бетонирование внутренних элементов вертикального железобетонного каркаса здания, выполненного из пустотелых вибропрессованных бетонных блоков, омоноличивание пустот в структуре стены в зимних условиях должны проводиться по проектам производства работ и технологическим картам, разработанным с учетом рекомендаций, изложенных в «Руководстве по производству работ в зимних условиях районов Дальнего Востока, Сибири и Крайнего Севера» ЦНИИОМТП Госстроя СССР. М. Стройиздат. 1982 г.

4.9.6 Пооперационный контроль и контроль качества бетона необходимо осуществлять с учетом особенностей, изложенных в главе 2 СНиП 3.03.01-87, и в соответствии с требованиями, установленными в таблице 4.5.

4.10 Приемочный контроль

4.10.1 Приемочный контроль по окончании строительно-монтажных работ определенного этажа осуществляет комиссия, назначаемая заказчиком.

4.10.2 Рабочая комиссия обязана проверить: качество и соответствие выполненных строительно-монтажных работ проектно-сметной документации, ГОСТам, СНиПам и ППР с проведением в необходимых случаях контрольных испытаний конструкций и дать им оценку в соответствии с Инструкцией по оценке качества строительно-монтажных работ.

4.10.3 Приемочной комиссии должна быть предъявлена исполнительная техническая документация:

- паспорта и сертификаты на использованные материалы и изделия;

- акты входного контроля материалов и изделий;

- акты приемки предшествующих работ (по устройству фундаментов в целом, по устройству гидроизоляции стен от грунтовых вод, по анкеровке плит перекрытий над нижележащими этажами, по армированию кладки нижележащих этажей, по армированию монолитных поясов и др.).

4.11 Инспекционный контроль

4.11.1 Инспекционный контроль выполняется органами Госархстройнадзора самостоятельно и с привлечением сторонних организаций.

4.11.2 Инспекционный контроль оценивает качество выполнения основных видов работ, материалов, конструкции и изделий и их соответствие требованиям нормативных документов (СНиП, ГОСТ, ТУ и др.).

5 ПРИНЦИПЫ ПРОЕКТИРОВАНИЯ ОРГАНИЗАЦИИ СТРОИТЕЛЬНЫХ ПОТОКОВ ПРИ КЛАДКЕ МНОГОСЛОЙНЫХ СТЕН

5.1 Организация строительства зданий с наружными многослойными стенами на основе мелкоштучных стеновых материалов рассматривает преимущественно вопросы, касающиеся производства работ только по возведению данных конструкций. Остальные этапы строительства остаются традиционными.

5.2 К числу искомых параметров организации строительных потоков относятся:

- продолжительность всего цикла работ по кладке стен на типовом этаже и на здании;

- требуемое количество одновременно строящихся зданий, обеспечивающих непрерывность технологических циклов строительного потока;

- состав и требуемое количество бригад, участвующих в производственных процессах;

- требуемое расчленение общего процесса кладки многослойных стен на элементарные процессы, соответствующие уровню специализации исполнителей общестроительных трестов;

- требуемое расчленение общего фронта работ на типовом этаже на захватки, обеспечивающие непрерывность движения трудовых ресурсов;

- требуемое ресурсное обеспечение строительных процессов, в том числе трудовых ресурсов и комплектов машин и механизмов

5.3 Одной из наиболее простых форм организации поточного строительства является равноритмичный строительный поток, характерный в наибольшей степени застройке жилых объектов. Последние характеризуются однотипными зданиями, что является одной из существенных предпосылок равноритмичного потока.

5.4 Обоснование организационно-технологических параметров осуществляется на основе теории поточного строительства в соответствии с методикой кафедры ТСП и Ф УГНТУ (предлагаемой в рекомендательном порядке).

5.5 Согласно данной методике продолжительность возведения здания определяется соотношениями:

                                                     (5.1)

                                                                    (5.2)

                                                                          (5.3)

где

 - нормативный срок строительства объекта по СНиП, дней;

 - общая продолжительность строительства объекта по СНиП, дней;

 - продолжительность подготовительного периода, дней;

 - продолжительность монтажа оборудования, дней;

 - продолжительность возведения каркаса здания, включая стены и перекрытия, дней;

 - продолжительность работ на типовом этаже здания по возведению стен и перекрытий, дней;

кст - удельный вес работ по возведению каркаса здания к общему нормативному сроку строительства объекта;

Nэт - количество этажей в здании.

5.6 Расчет организационно-технологических параметров потока на типовом этаже осуществляется по формуле равноритмичного потока:

                                              (5.4)

где  - продолжительность специализированного потока на типовом этаже при возведении многослойных стен и устройству перекрытия, ч.

С учетом формулы (5.3) выражение (5.4) принимает вид:

                                              (5.5)

Для установившегося строительного потока при преобразовании основной формулы (5.4) параметр «m» должен отвечать условию:

m ³ (n+1),                                                                             (5.6)

где k - шаг потока, дней;

m - требуемое количество захваток на типовом этаже;

n - требуемое количество звеньев исполнителей при выполнении работ на частных потоках;

tтех - простои или технологические перерывы, связанные с «мокрыми» процессами, дней;

tорг - простои по организационным причинам (отсутствие фронта работ), дней.

5.7 Значение параметра «n» устанавливается на основе структуры специализированного потока и в зависимости от варианта конструктивной схемы и технологии возведения стен представлен в виде следующей блок схемы (см. рис. 5.1).

Рис. 5.1 - Структура специализированного потока по возведению многослойных стен типового этажа из пустотных вибропрессованных бетонных блоков одновременная» технология возведения наружных стен)

5.8 Расчетное значение количества захваток, обозначаемое далее как «mрас», должно соответствовать неравенству:

                                                                 (5.7)

где mф -фактически возможное расчленение общего фронта работ типового этажа на захватки;

Fт.э. - фронт работ типового этажа;

fзах - фронт работ одной захватки.

5.9 Если условие (5.7) не выполняется, то необходимо ввести в строительный поток требуемое количество объектов - зданий (желательно той же серии и этажности). В этом случае количество зданий составит (в соответствии с рисунком 5.2, на котором эти здания обозначены как N+1):

                                                           (5.8)

5.10 Расчет mф производится по соотношениям:

                                                                            (5.9)

                                                     (5.10)

где аi - длина внутренних и наружных стен на .захватке, которая обеспечивает непрерывность процесса в течение времени не менее одной смены;

 - фронт работ i-го ведущего процесса, пог. м;

βi - выработка каменщика (плановая или фактическая), м3/час;

nзв - состав звена исполнителей;

tсм - продолжительность смены, час;

fяр - площадь поперечного сечения стены кладки одного яруса, м2.

5.11 Долговременное развитие строительных потоков на последующих этажах здания требует включения в поток еще ряда объектов для исключения «простоя» трудовых ресурсов. Количество этих дополнительных объектов (Nдоп) следует рассчитывать следующим образен (из циклограммы на рис. 5.2):

                                                 (5.11)

где АВ - период общего запаздывания предоставления фронта работ освобождающемуся ресурсу (бригаде);

CD - период занятости бригады (исполнителя) согласно ритму потока.

Рис. 5.2 - Циклограмма специализированного потока возведения многослойной стены (по «одновременной» технологии)

5.12 Общее количество объектов, включаемых в проект застройки и обеспечивающих равноритмичную организацию строительства с наилучшими технико-экономическими показателями, будет равно:

                                                                  (5.12)

5.13 Методика обоснования «портфеля» заказов при производстве работ по «раздельной» технологии принципиально подобна, но согласно структуре потоков, приведенной на рис. 5.3, осуществляется в два этапа, т. е. для каждого из технологических циклов возведения здания - «несущий каркас» - «утепление и облицовка». Согласно данному расчету определяется «портфель» заказов на планируемый период времени строительной организации.

5.14 Структура строительных потоков «раздельной» технологии кладки стен (с подмостей) и устройства утепления с облицовкой (с лесов) имеет следующий вид (см. рис. 5.3):

Рис. 5.3 - Структура специализированных потоков при возведении многослойной стены по «раздельной» технологии: а) кладка «несущего» слоя стены; б) «утепление и облицовка» кладки фасада.

5.15 Расчет продолжительности строительного потока для рассматриваемого варианта технологии осуществляется по формулам:

                                         (5.13)

                                                                 (5.14)

                                                                         (5.15)

                                                          (5.16)

где

 - продолжительность возведения стен без утеплителя и облицовки, дни;

 - удельный вес данного i-го специализированного потока;

 - трудозатраты i-го специализированного потока;

Тобщ - общие трудозатраты на возведение стен с утеплителем;

 - шаг потока при раздельной «технологии».

5.16 Расчетное значение  позволяет установить продолжительность работы исполнителя на типовом этаже и общую продолжительность развертывания всех частных потоков на одной захватке типового этажа:

tисп = kpm×m,                                                                            (5.17)

                                                   (5.18)

5.17 Построение календарного графика строительных потоков в виде расписания движения исполнителей осуществляется согласно алгоритму, представленному ниже системой неравенств:

                                                                              (5.19)

                                                                        (5.20)

                                                                              (5.21)

                                                                     (5.22)

и т. д.

где  - начало i-й работы (на i-й захватке);

 - привязка начала работы k-го исполнителя к календарю текущего периода на типовом этаже;

ti - продолжительность i-ой работы на захватке, которая, согласно графику на рис. 5.2., равна «k»;

 - окончание i-й работы;

 - начало работы на (i+1) захватке;

 - окончание работы на (i+1) захватке.

Оптимизация календарного плана предусматривается, в первую очередь, за счет минимизации tтех, tорг, которая обеспечивается интенсификацией «мокрых» процессов при устройстве монолитных поясов. С учетом условия равенства ti = k, развернутый график движения каждого исполнителя представлен в виде следующего алгоритма:

                                                                              (5.23)

                                                                        (5.24)

                                                                              (5.25)

                                                                    (5.26)

                                   (5.27)

                                                             (5.28)

и т. д.

5.18 Потребность в ресурсном обеспечении и, в первую очередь ведущего процесса, в трудовых ресурсах определяется из уравнения:

                                                                                (5.29)

где ni - количество исполнителей в i-м ведущем процессе;

mi - трудоемкость выполнения работ i-го ведущего процесса (кладка яруса) на типовом этаже, чел×ч;

 - продолжительность ведущего процесса, определяемая по формуле (5.17).

5.19 Количественный состав исполнителей по прочим частным потокам определяется из условия «ранжирования» времени выполнения каждого из указанных потоков ведущему процессу, т. е.

                                                             (5.30)

                                                                               (5.31)

                                                                            (5.32)

где mj, mk -трудозатраты соответственно j, k-го потоков.

5.20 Интенсивность поставки материальных ресурсов определяется аналогично расчету трудовых ресурсов и производится по уравнению:

                                                                                (5.33)

где ri - интенсивность требуемой поставки ресурса и его потребления при выполнении i-го процесса, м3/см, т/см, ...;

Qi - количество i-го ресурса на выполнение данного процесса, т, м3...

5.21 Режим сменности работ каждого из исполнителей и требуемого состава звеньев рассчитывается на основании следующих соотношений:

                                                                            (5.35)

                                                                     (5.36)

где А - режим сменности (А £ 1 - односменный, А £ 2 - двухсменный, А < 3 - трехсменный);

 - расчетная удельная трудоемкость i-го процесса, чел/см;

 - нормативная удельная трудоемкость i-го процесса по ЕНиР, чел/см;

mi - нормативные трудозатраты i-го процесса, чел×ч.

5.22 При достаточном фронте работ на захватке и возможности размещения на ней нескольких звеньев количество их определяется соотношением

                                                                         (5.37)

5.23 Расчет количества и номенклатуры средств механизации производится из условия обеспечения ими вертикального и горизонтального транспорта конструкций и материалов для строительных процессов на типовом этаже здания. В качестве ведущих механизмов при монтажно-кладочных работах привлекаются башенные краны. Комплектующими машинами являются механизированные установки и транспортные средства по доставке конструкций и материалов.

5.24 Обоснование возможного варианта расстановки механизмов на здании заданного габарита осуществляется из условия безопасной работы согласно следующим соотношениям:

                                                      (5.38)

                                                           (5.39)

где ,  - соответственно количество кранов, размещаемых либо на одном подкрановом пути (), либо на двух противоположных продольных осях ();

Lзд -длина здания, м;

 - радиус i-го крана, м;

 - наибольшая длина перемещаемого элемента, м;

δ - «податливость» стрелы крана, м;

b, b1, b2 - «привязка» кранов к продольным осям здания, м;

Взд - ширина здания, м;

Lкр - общее расстояние между кранами, м, вариант которого рассчитывается по одной из следующих схем (см. рис. 5.4):

Рис. 5.4 - Схема механизации работ на здании

а) при ширине здания Взд £ 14 м ; б) при ширине здания Взд > 14 м.

5.25 Расчет необходимой потребности в кранах и режим их работы определяется возможной «теоретической» и требуемой производительностью, которая рассчитывается по «пику» технологических процессов. Максимальная планируемая нагрузка на кран определяется на основе циклограммы на период полного развертывания потоков (в соответствии с рис. 5.5) согласно следующим соотношениям:

Рис. 5.5 - Эпюра интенсивности потребления ресурсов (в том числе трудовых) при развертывании равноритмичного строительного потока

                                                                        (5.40)

                                                                            (5.41)

                                                                              (5.42)

                                                      (5.43)

5.26 При «критической» загрузке крана (Акр > 2) в комплекте ведущих машин предусматривается использование дополнительных механизмов (в частности, бетононасоса). Режим работы крана в этом случае рассчитывается по формуле:

                                                                   (5.44)

где  - количество рабочих циклов крана на i-м частном потоке в смену;

 - теоретически возможное количество рабочих циклов i-го крана в смену;

 - объем работ i-го частного потока, т, м3...;

 - средний вес поднимаемого краном «ресурса»;

tсм - продолжительность рабочей смены, 8,2 ч;

 - среднее значение i-го цикла крана при обслуживании нескольких частных потоков, ч; ti - время цикла при выполнении работ на i-том частном потоке, ч.

- при Акр £ 1 - режим односменный;

- при Акр £ 2 - режим двухсменный;

- при Акр > 2 - режим трехсменный.

5.27 Требуемое количество транспорта в смену, которое обеспечит необходимый темп работ, определяется соотношениями:

                                                          (5.45)

                                                            (5.46)

                                                   (5.47)

где Рi - объем потребляемого ресурса i-ым потоком;

 - эксплуатационная сменная производительность транспорта i-го типа;

tчп - продолжительность частного потока, ч;

 - продолжительность транспортного цикла, ч;

qi - грузоподъемность транспорта i-го типа;

tсм - продолжительность рабочей смены, ч;

kв - коэффициент использования транспорта по времени;

kгр - коэффициент использования транспорта по грузоподъемности;

t1, t2, t3, t4 - соответственно потери времени на погрузку, выгрузку, доставку груза и возврат порожнего транспорта, ч.

5.28 По завершении расчетов организационно-технологических параметров строительных процессов, согласно принятому перечню (набору) объектов, производится составление календарных планов строительства, включающих расписание движения бригад исполнителей, динамику поставки материально-технических ресурсов, движение комплектов машин и механизмов и прочую организационно-технологическую документацию, которая разрабатывается как в традиционной форме (согласно СНиП), так и в электронной версии.

 




ГОСТЫ, СТРОИТЕЛЬНЫЕ и ТЕХНИЧЕСКИЕ НОРМАТИВЫ.
Некоммерческая онлайн система, содержащая все Российские Госты, национальные Стандарты и нормативы.
В Системе содержится более 150000 файлов нормативно-технической документации, действующей на территории РФ.
Система предназначена для широкого круга инженерно-технических специалистов.

Рейтинг@Mail.ru Яндекс цитирования

Copyright © www.gostrf.com, 2008 - 2026