|
|
|
А.А. Афанасьев, Е.П. Матвеев РЕКОНСТРУКЦИЯ
ЖИЛЫХ ЗДАНИЙ Москва 2008 Рекомендовано Учебно-методическим объединением вузов РФ в качестве учебного пособия для студентов, обучающихся по направлению 270100 «Строительство» Москва 2008 Содержание Приведены характеристики жилого фонда различных периодов постройки, основные виды дефектов и их влияния на эксплуатационную надежность зданий. Приведены теоретические исследования математических методов оценки надежности и долговечности зданий, практические рекомендации инженерных методов диагностики технического состояния зданий. Разработаны основные положения по технологии и организации производства работ по ликвидации дефектов, способствующих продлению жизненного цикла зданий. Приведены методы технологического проектирования на основе комплексной механизации технологических процессов, оценка и влияние организационно-технологической надежности строительного производства в зависимости от ресурсообеспечения, методов, технологий и конструктивных решений. Даны современные технологии производства работ по повышению и восстановлению эксплуатационной надежности жилых зданий: усилению фундаментов, повышению несущей способности основных конструкций стен, колонн, перекрытий, технологии замены перекрытий. Рассмотрены вопросы повышения энергоэффективности зданий путем утепления ограждающих конструкций, применения энергоэффективных светопрозрачных конструкций, снижения теплопотерь за счет вентиляционных эффектов и др. Приведены технологические особенности производства работ по утеплению стен с защитой штукатурными покрытиями и вентилируемых фасадов. Рассмотрены общие принципы повышения энергоэффективности управляемых режимов теплоснабжения жилых домов. Книга рассчитана на специалистов жилищно-коммунального хозяйства, проектировщиков, работников высшей школы, студентов и аспирантов. Рецензенты: Головнев С.Г. - член-корр. РААСН, д-р техн. наук, проф., заведующий кафедрой «Технология строительного производства» Южно-Уральского государственного университета; Олейник П.П. - д-р техн. наук, проф., заведующий кафедрой «Организация строительства» Московского государственного строительного университета. ПРЕДИСЛОВИЕНа протяжении многих лет отсутствовало планомерное восстановление и повышение эксплуатационных характеристик жилого фонда и инженерной инфраструктуры городов. Из общего объема 2809,8 млн. м2, что составляет около 30 % всего воспроизводимого имущества РФ, более 50 млн. м2 составляет ветхий и аварийный фонд с износом 70 %, 11 % жилых зданий нуждается в капитальном ремонте, а 9 % - в реконструкции. Значительную часть жилищного фонда (около 250 млн. м2) представляют дома первых массовых серий, возведенные в период 50-60-х годов. На сегодня они морально устарели, имеют ряд конструктивных недостатков, не отвечают действующим нормам по площади квартир, кухонь, подсобных помещений. Энергозатраты таких домов превышают современные нормативы в 2,5-3 раза. Эксплуатационные расходы на предоставляемые услуги по отоплению, водоснабжению и энергоснабжению неоправданно велики. Состояние жилого фонда таково, что задержка с проведением восстановительных работ на 5-10 лет может привести к необходимости сноса домов в объеме более 20 % существующего жилого фонда. Многие из крупнопанельных, блочных и кирпичных зданий высотой 9-12 этажей, построенные в период 70-80-х годов, нуждаются в комплексной санации в первую очередь со стороны улучшения теплотехнических свойств, в замене инженерного оборудования и ликвидации морального износа. Только в Москве таких жилых домов более 6300 с общей площадью 53 млн. м2. Правительством РФ принята программа по ликвидации ветхого и аварийного жилья. Фонд реформ ЖКХ предусматривает ежегодное финансирование из федерального бюджета в объеме 250 млрд. руб. и 120 млрд. руб. из региональных бюджетов. Из них 100 млрд. руб. предназначено для переселения граждан из аварийного жилья и 150 млрд. руб. - на реконструкцию и ремонт жилого фонда. Рациональное использование выделенных средств позволит в короткие сроки решить комплекс проблем ЖКХ. Определяющая роль в решении вопросов восстановления жилого фонда отводится комплексным региональным программам, учитывающим также строительство социально важных дошкольных объектов, медицинских центров, торговых и спортивных сооружений, сети дорог и др. инфраструктуры. Реализация конкретных проектов реконструкции позволила получить ощутимый экономический эффект за счет снижения на 30-40 % эксплуатационных расходов на отопление, 2-3-кратного сокращения водопотребления, на 15-20 % снизить потери на энергоснабжение, что в условиях реформы ЖКХ является важным фактором для населения. Книга состоит из двух частей и включает 14 глав, содержание которых раскрывает технологические особенности реконструкции как отдельных зданий, так и застройки. Первая часть посвящена вопросам оценки физического и морального износа зданий различных периодов постройки, оценки их надежности и долговечности. Рассматриваются общие вопросы производства строительно-монтажных работ при реконструкции зданий: проектирование технологических процессов, состав проектов производства работ по реконструкции, организационно-технологические принципы и их надежность; экономическая оценка инвестиционных проектов и другие вопросы. Вторая часть посвящена исследованию технологий реконструкции жилых зданий различных периодов постройки. Рассматривается реконструкция жилого фонда ранней постройки, в основе которой заложен метод встроенных систем с использованием сборных, сборно-монолитных и монолитных систем. Приводятся технологии производства работ при реконструкции зданий с сохранением и увеличением (надстройкой) строительного объема, рационального использования подземного пространства, особенности выполнения строительно-монтажных работ в стесненных условиях городской застройки. Приводятся конструктивно-технологические решения по реконструкции зданий первых и последующих массовых серий. Исследованы методы реконструкции, основанные на надстройке этажей и пристройке объемных элементов, одно- и двустороннего расширения корпусов. Дается оценка индустриальных технологий реконструкции зданий, основанных на использовании укрупненных и объемных элементов заводского производства. Рассматриваются технологические особенности реконструкции зданий без отселения жильцов. При написании книги использованы материалы проектных разработок ЦНИИЭПЖилища, МНИИТЭП, методические рекомендации по реконструкции жилых зданий различных конструктивных схем Госстроя России, работы РААСН, опыт реконструкции в городах Санкт-Петербурге, Екатеринбурге, Казани, Московской области, зарубежный опыт и др. ВВЕДЕНИЕРеконструкция жилых зданий является одним из важных направлений решения жилищной проблемы. Она позволяет не только продлить жизненный цикл, но и существенно улучшить качество жилища, ликвидировать коммунальное заселение, оснастить дома современным инженерным оборудованием, улучшить архитектурную выразительность зданий, повысить их энергоэффективность, эксплуатационную надежность и долговечность. С каждым годом возрастает потребность в реконструкции и восстановлении жилищного фонда страны, поскольку к моральному износу зданий добавляется физический износ конструктивных элементов и инженерных систем, что ускоряет общий процесс старения. Минимально необходимые объемы реконструкции жилых зданий в РФ составляют более 700 млн. кв. м. общей площади. Из них около 6 % жилых зданий - дореволюционной постройки, 27 % - построенных в довоенные и послевоенные годы, более 250 млн. жилых зданий - первого поколения индустриального домостроения. Реконструкция связана с восстановлением эксплуатационных показателей и усилением несущих элементов зданий. Эти работы требуют индивидуальных подходов, отличных от конструктивных решений при новом строительстве. Как правило, реконструкция жилых зданий проводится в условиях повышенной стесненности, что не позволяет использовать оптимальные комплексы строительных машин и механизмов. Это обстоятельство требует разработки новых методов производства работ, организационно-технологических решений, привлечения специальной техники и технологии. Острота этой проблемы повышается при производстве реконструктивных работ без отселения жильцов. Одной из важных задач реконструкции жилого фонда является увеличение плотности застройки. Реконструкция жилого фонда путем увеличения его этажности позволяет в некоторой степени решить эту проблему. Наиболее рациональным и экономически эффективным является повышение плотности застройки путем малоэтажной надстройки и обстройки зданий, устройства многоэтажных вставок между реконструируемыми домами и возведения отдельно стоящих жилых корпусов, создания объектов инфраструктуры, более продуктивного использования подземного пространства. Комплексное решение реконструкции квартальной застройки позволяет создать комфортные условия проживания, отвечающие современным требованиям городской среды. Существенным фактором повышения эффективности реконструкции и снижения социальной напряженности является использование индустриальных технологий, обеспечивающих снижение общей продолжительности и стоимости работ. Проблема реконструкции жилых зданий рассматривается с позиции принципа интегральности, предполагающего комплексное рассмотрение внешних и внутренних факторов, воздействующих на здание в процессе его эксплуатации, и системного подхода, означающего принятие решений по выбору наиболее рациональных методов и технологий реконструкции жилых зданий. При этом здание рассматривается как сложная система, состоящая из конструкций, инженерного оборудования, элементов благоустройства и др., находящаяся под воздействием временных факторов внешней среды и внутренних воздействий от эксплуатации. Намечены подходы к практической оценке надежности зданий с учетом степени износа конструктивных элементов и методов их регенерации. Математические и физические модели надежности дают качественную и количественную оценку состояния зданий до и после реконструкции. Полученные методики позволяют прогнозировать состояние зданий и их надежность с использованием временных параметров. Адаптация разработок организационно-технологической надежности строительства, технологичности конструктивных и организационных решений позволила использовать ряд прогрессивных технологий, обеспечивающих комплексную реконструкцию поквартальной застройки. Установлено, что принципы оптимизации организационно-технологических решений могут быть адаптированы к условиям реконструктивных работ, осуществляемых, как правило, на стесненных площадках городской застройки. Использована преимущественно концепция, в основе которой заложен принцип малоэтажной надстройки зданий. Это обстоятельство связано с минимизацией затрат на усиление конструкций и максимальным сохранением существующих инженерных сетей. Такое решение наиболее рационально при выполнении реконструкции жилого фонда малых и средних городов. Рассмотрены методы и технологии, повышающие эксплуатационные характеристики зданий и обеспечивающие снижение теплопотерь, расхода энергоносителей, вибро- и акустических воздействий на жилые помещения, а также обеспечивающие условия комфортного проживания. Книга включает новые отечественные и зарубежные достижения в области технологии реконструкции жилых зданий различных периодов постройки и может представлять интерес для специалистов в области жилищного строительства, студентов и аспирантов. ГЛАВА 1
|
|||||||||||||||||||||||||||||||||||||||||||||||||||||||||||||||||||||||||||||||||||||||||||||||||||||||||||||||||||||||||||||||||||||||||||||||||||||||||||||||||||||||||||||||||||||||||||||||||||||||||||||||||||||||||||||||||||||||||||||||||||||||||||||||||||||||||||||||||||||||||||||||||||||||||||||||||||||||||||||||||||||||||||||||||||||||||||||||||||||||||||||||||||||||||||||||||||||||||||||||||||||||||||||||||||||||||||||||||||||||||||||||||||||||||||||||||||||||||||||||||||||||||||||||||||||||||||||||||||||||||||||||||||||||||||||||||||||||||||||||||||||||||||||||||||||||||||||||||||||||||||||||||||||||||||||||||||||||||||||||||||||||||||||||||||||||||||||||||||||||||||||||||||||||||||||||||||||||||||||||||||||||||||||||||||||||||||||||||||||||||||||||||||||||||||||||||||||||||||||||||||||||||||||||||||||||||||||||||||||||||||||||||||||||||||||||||||||||||||||||||||||||||||||||||||||||||||||||||||||||||||||||||||||||||||||||||||||||||||||||||||||||||||||||||||||||||||||||||||||||
|
Серии типовых проектов |
Общая площадь, тыс. м2 |
||
|
Всего |
В том числе со сроком эксплуатации, лет |
||
|
27-31 |
32-40 |
||
|
1-464(1-464 А) |
77792,2 |
41018,0 |
36773,5 |
|
1-335 |
28211,9 |
12145,5 |
18066,4 |
|
1-468(1-468 БНЧ) |
2735,5 |
1179,8 |
1551,9 |
|
1-438 |
929,9 |
576,7 |
353,2 |
|
1-439 |
13419,6 |
7402,2 |
6017,4 |
|
1-447 |
60947,7 |
31728,7 |
29219,0 |
|
1-467 |
8079,7 |
5672,2 |
2407,5 |
|
1-510 |
6723,3 |
3329,7 |
3393,6 |
|
1-511 |
12092,2 |
5079,0 |
7013,2 |
|
1-515 |
13924,3 |
7838,7 |
6085,6 |
|
К-7 |
3474,8 |
- |
3474,8 |
|
ОД |
952,6 |
- |
952,6 |
|
П-32 |
1274,1 |
- |
1274,1 |
|
Г(ГИ) |
1750,0 |
- |
1750,0 |
|
1-ЛГ-507 |
4502,6 |
1907,0 |
2595,6 |
|
Прочие |
2906,9 |
979,0 |
1927,9 |
|
ИТОГО |
229713,3 |
119957,0 |
120856,3 |
Ежегодно увеличивается ветхий и аварийный жилой фонд с износом, превышающим 50 %. На 1995 г. он составлял более 37 млн. м2, в 2001 г. - около 50 млн. м2, в 2007 - более 80 млн. м2.
Около 2 % населения России проживают в жилых зданиях, подлежащих незамедлительному принятию решений по их восстановлению или сносу.
Распределение такого фонда по округам составляет*: Северо-Западный - 1,8 %, Центральный - 1,2 %, Приволжский - 1,7 %, Южный - 1,3 %, Уральский - 2,1 %, Сибирский - 2,7 %, Дальневосточный - 3,8 %.
Зарубежный опыт показывает, что вопросам реконструкции зданий отводится первостепенное значение. Из общего объема финансирования доля на новое строительство составляет 20-30 %, тогда как оставшаяся часть идет на планомерную реконструкцию. При этом имеется в виду не только повышение капитальности зданий и восстановление их надежности, но и снижение фактора морального износа. По данным ЮНЕСКО, моральное устаревание жилых зданий происходит каждые 8 лет. Это обстоятельство диктует необходимость проведения реконструктивных работ именно с позиций морального износа и снижения уровня комфортности проживания.
Доля затрат на реконструктивные работы достаточно высока. Эти данные подтверждаются многолетним опытом Скандинавских стран (Швеция - 40 %, Финляндия - 51 %), Центральной Европы (Франция - до 60 %, Германия - 30-40 %, Великобритания - до 60 %). Центр тяжести затрат, как правило, переносится на жилищные объекты как наиболее массовые и в меньшей степени на здания общественного и административного назначения.
Неудовлетворительное состояние жилого фонда требует активного использования моделей с приоритетом на модернизацию и реконструкцию. На рис. 1.1 представлено прогнозируемое развитие нового строительства и реконструкции существующего жилого фонда в денежном выражении для стран Восточной и Западной Европы.

Рис. 1.1. Распределение затрат на реконструкцию и новое строительство в странах Восточной и Западной Европы
Основная тенденция развития жилищного строительства в Западной Европе состоит в переходе на малоэтажное строительство с жилыми домами на 1-2 семьи и максимальной поддержкой с помощью государственных субсидий. Преимущественное развитие приобретают модернизация и реконструкция. Для стран Восточной Европы преобладающей остается модель опережающего многоэтажного строительства и менее интенсивного процесса восстановления и доведения до современных требований эксплуатируемого жилого фонда*.
* Стратегия управления недвижимостью. Журнал «Недвижимость, Экономика, Управление», № 1, 2002.
Преимущественная инвестиция в области нового строительства обеспечивает максимально быстрое извлечение коммерческой прибыли. В то время как восстановление и повышение эксплуатационной надежности и энергоэффективности существующего жилого фонда являются менее привлекательными областями инвестиций. Ситуация усложняется тем, что в условиях сосуществования различных форм собственности на жилье система финансирования ремонтно-восстановительных и реконструктивных работ осуществлялась за счет средств местных бюджетов.
Основной причиной высокой степени износа жилищного фонда является несвоевременное проведение ремонтно-восстановительных работ, что является результатом ограниченных средств муниципальных бюджетов.
Вопросам реконструкции зданий в нашей стране уделялось недостаточно внимания. Так, основная масса финансирования преимущественно направляется на новое строительство и только 1,5-3 % средств выделяется на капитальный ремонт, модернизацию и реконструкцию. Требуемый ежегодный объем реконструктивных работ составляет более 700 млн. м2. В то же время темпы восстановительных работ не превышают 4 % потребности.
Формирование фонда реформ ЖКХ, превышающего 350 млрд. руб., и программы ликвидации ветхого и аварийного жилья, принятой правительством РФ, позволит в кратчайшие сроки решить комплекс проблем по восстановлению жилого фонда и созданию инфраструктуры, отвечающей современным требованиям застройки.
Проблеме восстановления жилого фонда начали уделять должное внимание в Москве, Санкт-Петербурге, Архангельске, Екатеринбурге, Сургуте, Северодвинске, Казани и других крупных городах, где разработаны долговременные программы реконструкции застройки как жилых зданий старой постройки, так и жилого фонда первых массовых серий.
РААСН, Ленжилпроект, ЦНИИЭПЖилища, Мосжилниипроект, МИИТЭП, МГСУ и другие научные и проектные организации работают над проблемами реконструкции массовой застройки, что позволит разработать не только концепцию, но и наиболее рациональные организационно-технологические принципы реконструкции малоэтажных жилых домов.
Реконструкция жилого фонда заключается не только в его сохранении, но и в решении важных социальных и градостроительных задач.
Социальные аспекты данной проблемы наиболее остры и состоят в улучшении условий проживания населения и каждой семьи в отдельности, ликвидации коммунального заселения, снижении морального износа зданий, эксплуатационных расходов, формировании инфраструктуры, адаптированной к современным условиям**.
** В условиях реформы жилищно-коммунального хозяйства актуальность проведения комплексной реконструкции жилого фонда исключительно высока, т.к. способствует многократному снижению эксплуатационных расходов на тепло, электроэнергию, воду, техническое обслуживание и др.
Опыт реконструкции пилотных объектов показал реальную возможность обновления жилья без значительных материальных и финансовых затрат. При этом достигнута экономия тепла на 30-35 %, воды до 2-3 раз.
Комплексное решение проблемы реконструкции микрорайонов и кварталов застройки позволяет учесть современные требования по формированию социальной сферы, необходимой для нормальной жизнедеятельности граждан (зоны отдыха и творческой работы, игровые площадки, стоянки, гаражи и т.п.).
Особое место при реконструкции должно отводиться выполнению экологических требований, предъявляемых к строительным материалам и методам выполнения работ. Технология реконструктивных работ должна предусматривать утилизацию и вторичное использование элементов разборки, методы ведения работ, исключающие пыление, разброс материалов, повышенный шум и вибрацию.
Зарубежный опыт восстановления, модернизации и реконструкции зданий основан на использовании нескольких моделей жилищного хозяйства, например социально ориентированные (Швеция, Финляндия, Дания, США, страны Южной Европы и др.).
Особый интерес представляет опыт стран, находящихся в одинаковых с РФ природно-климатических условиях. Так, в Финляндии управление многоэтажным зданием, находящимся в собственности жильцов, осуществляется путем создания квартирного акционерного общества, которое несет ответственность за здание в целом, а жилец - за собственную квартиру. Правление акционерного общества, которое избирают жильцы, отвечает за качественное и рентабельное содержание здания. Владельцы квартиры выплачивают акционерному обществу ежемесячную плату за эксплуатационные расходы и плату за выполнение работ, связанных с капитальным ремонтом или реконструкцией. На выполнение данного вида работ акционерное общество берет банковский кредит с залогом в виде земельного участка и здания.
Решение о ремонте здания или реконструкции принимается большинством членов акционерного общества, что существенно упрощает дальнейшие процедуры финансирования, выбора исполнителей работ и т.п.
В арендных домах собственник несет всю полноту ответственности за техническое состояние всего здания, включая отдельные квартиры. Жильцы выплачивают арендную плату жилищному акционерному обществу.
Для социально ориентированного жилья, кредитование которого осуществляет государство, размер арендной платы включает сумму эксплуатационных и капитальных затрат.
Организация управления жилищным фондом в Финляндии базируется на постоянной информации о техническом состоянии конструктивных элементов, стенового ограждения и инженерных систем путем их периодической оценки.
Наибольшее внимание в процессе эксплуатации уделяется расходам на отопление (до 20 % эксплуатационных затрат), работы по содержанию (до 15 %), расходы на водоснабжение (до 13 %).
В результате проведения реконструктивных работ по утеплению зданий, замене светопрозрачных конструкций на более энергоэффективные, исключения теплопотерь за счет совершенствования вентиляционных систем достигнуто снижение расхода энергозатрат в 1,5-2 раза.
Замена сантехнического оборудования на более совершенное, а также введение поквартирного контроля расхода воды, управляемых режимов отопления и др. позволили сократить общие показатели и соответственно повысить экономию затрат на эксплуатационные расходы.
Для выполнения комплекса работ по повышению энергоэффективности жилого фонда используются заемные средства под достаточно низкий процент. При этом окупаемость затрат по утеплению зданий составляет 15-18 лет, замене оконных и балконных заполнителей - 4,5-5 лет; инженерного оборудования - 7-8 лет. Из условий окупаемости рассчитываются параметры кредитования, которые представляет государственный жилищный фонд.
Государственная поддержка состоит в получении компенсации по кредиту в размере 1,5-5,5 % годовых.
Финансовая поддержка государства в объеме 40-50 % осуществляется при устройстве лифтов в жилых домах высотой более 3 этажей. Кроме того, выделяются муниципальные средства в объеме до 10 % затрат. Такой подход свидетельствует о значимости повышения комфортности условий проживания граждан.
Законодательная база относительно жилого фонда построена таким образом, чтобы максимально продлить жилищный цикл зданий. Так, при сроке эксплуатации жилого дома более 50 лет ежегодная потребность в ремонтно-восстановительных работах составляет в пределах 2 % стоимости здания. Особенно подчеркивается необходимость ежегодного проведения работ, что существенно снижает уровень затрат по сравнению с эпизодическим ремонтом.
Опыт Германии в организации реконструкции и санации жилого фонда крупнопанельного домостроения наиболее приемлем к условиям РФ. Основной подход федеральных властей состоит в оказании государственной поддержки жилищно-строительным компаниям по проведению санации зданий в силу того, что параметры жилых квартир не соответствуют стандартам на жилье ФРГ. Правительством Германии была принята программа реконструкции, модернизации и санации зданий с предоставлением льготного кредита из расчета 50 DM на 1 м2 общей площади. За период 1991 - 1997 гг. удовлетворено более 600,000 заявок на общую сумму 58,9 млрд. DM. Более 56 % этой суммы использовано на восстановление и приведение к действующим нормам строительной части зданий; 27 % - на работы по замене инженерного оборудования, около 8 % - на благоустройство примыкающих территорий.
В зависимости от градостроительной ситуации использовались методы реконструкции путем снижения высотности зданий (с 5 до 3 этажей), расчленения зданий с демонтажом промежуточных секций и снижением этажности.
Наиболее массовой технологией является санация жилых домов, в которую входят: замена светопрозрачных заполнений (окна и балконные двери) на более эффективные; производство отделочных работ и замена сантехнического и другого инженерного оборудования; утепление фасадов стен, чердачных и подвальных перекрытий, замена кровли; электротехнические работы по замене электропроводки и подводящих систем; установка инвентарных входных дверей и тамбуров; звукоизоляция стен лестничных клеток; модернизация балконов, лоджий и др. работы.
Использование типовых конструкций, организация восстановительных работ с минимальными сроками их выполнения в каждой квартире позволили за короткие сроки освоить объемы работ, превышающие 11 млн. м2.
При реконструкции, восстановлении и новом строительстве во Франции существуют две формы бюджетного финансирования социального жилищного сектора: субсидирование генеральных заказчиков, которые строят, реконструируют или ремонтируют жилой фонд; финансовая помощь гражданам в зависимости от уровня доходов с целью облегчения выплаты квартплаты или погашения кредита.
Финансовая помощь инвесторам состоит в снижении налога на добавленную стоимость с 20,6 до 5,5 %.
Кроме того, депозитно-сохранная касса представляет местным властям и организациям социального жилищного строительства кредиты под низкие проценты. Для финансирования кредитов используются средства, отложенные гражданами на доходные сберегательные книжки. Доходы по этому вкладу не облагаются налогом.
Помощь на улучшение жилищных условий включает три формы финансирования.
- Единовременная помощь выплачивается владельцам, проживающим в принадлежащем им жилье, построенном более 20 лет назад, при условии, что их доходы не превышают определенный уровень.
- Размер помощи составляет 20 % затрат на проведение ремонтно-восстановительных работ.
- Субсидии на улучшение жилищных условий в домах, не отвечающих санитарно-гигиеническим нормам, выделяются владельцам, проживающим не менее двух лет в принадлежащем им жилье, при условии, если их доход не превышает определенного уровня.
- Беспроцентная ссуда, которая составляет не более 20 % стоимости приобретаемого жилья и вычисляется в зависимости от доходов и состава семьи.
- Для лиц со средними доходами срок возмещения ссуды обратно пропорционален уровню доходов и составляет от 17 до 7 лет.
Проводятся широкомасштабные программы по реконструкции жилых домов с умеренной квартирной платой. Основные технологии реконструкции включают комплекс восстановительных работ по обновлению фасадов зданий, замене инженерного оборудования, кровельного покрытия, технических решений по снижению морального и физического износа строительных конструкций и оборудования.
Одной из форм обеспечения жильем слоев населения с низким уровнем доходов является адаптация промышленных зданий и сооружений под жилье. Примером таких решений является перепрофилирование корпусов ткацких фабрик, зданий вокзалов бывших местных железнодорожных линий, сельскохозяйственных построек (складов, конюшен и др.).
Для условий РФ реконструкция и восстановление жилищного фонда являются одними из приоритетных направлений в области жилищно-коммунального хозяйства страны. При реконструкции происходит прирост фонда за счет надстройки зданий, увеличения в плане. «Омоложение» фонда достигается за счет сноса ветхих домов и строительства на их месте новых зданий.
В связи с принятием Жилищного кодекса РФ законодательно установлена компетенция органов государственной власти, субъектов Российской Федерации и местного самоуправления в области жилищных отношений. В качестве территориального нормативного правового, регламентирующего отношения по защите прав физических и юридических лиц в сфере реконструкции и ремонта жилищного фонда является положение статьи 14 ЖК о согласовании переустройства и перепланировки жилых помещений, признании жилого фонда непригодным для проживания и др. положения.
Предусматривается государственный учет жилого фонда с технической инвентаризацией и технической паспортизацией.
Управление жилым фондом многоквартирных домов осуществляется некоммерческими организациями «Товарищества собственников жилья». Они имеют право заключать договоры о содержании и ремонте общего имущества, определять смету доходов-расходов, затраты на капитальный ремонт и реконструкцию многоквартирного дома, получать заемные средства и др.
Наиболее важным, с точки зрения реконструкции зданий, является то, что это решение принимается общим собранием, большинством не менее 2/3 голосов собственников жилья. Кроме того, дается право получать в пользование или приобретать в общую долевую собственность земельные участки для осуществления жилищного строительства. Это положение законодательно разрешает не только надстройку зданий, уширение корпусов, но и возведение жилых домов в виде «вставок», торцевых пристроек и т.п.
Для жильцов домов, находящихся в муниципальном жилищном фонде, решение о проведении реконструкции или капитального ремонта принимается муниципалитетом. При этом поименное согласие жителей не требуется.
Возникновение и развитие городов являются длительным многовековым историческим процессом. Во многих регионах сложились различные условия их формирования, что привело к особенностям планировки и застройки.
При рассмотрении градостроительной характеристики существующей застройки старых городов следует учитывать то обстоятельство, что в сложившихся исторических условиях города росли, поглощая при этом сельские населенные пункты. Основным видом застройки были малоэтажные здания из местных материалов, преимущественно деревянные рубленые. Каменная застройка русских городов получила развитие только в XVIII-XIX веках. Она представляла собой 2-3-этажные здания, и только с середины XIX - начала XX веков появились кирпичные дома большей этажности. Этот период характеризуется интенсивным ростом городов, вызванным процессами развития капиталистических форм производства. За 3-4 десятилетия население городов увеличилось в 5-10 раз при соответствующем росте их площадей. Жилые здания тех лет составляют на сегодня значительную часть городского фонда.
Известно, что здания старой постройки отличаются сложностью планировки, повышенной высотой этажей. Их плановые габариты нередко образованы из сложных форм с криволинейными контурами. Доля старой застройки в городах постоянно уменьшается. В старых домах размещается менее 9 % всего жилого фонда (в Москве около 12 %, Санкт-Петербурге - 30 %). Именно многие здания старой постройки придают центральной части Москвы, как и историческим центрам других городов, неповторимый облик.
При реконструкции таких зданий необходим индивидуальный подход к каждому отдельному объекту с максимальным сохранением архитектурного решения фасадов.
Градостроительные решения, как и здания, построенные в различное время, имеют свои характерные особенности.
Для конца XIX - начала XX века использована преимущественно квартальная застройка 4-5-этажными многоквартирными домами с высокой плотностью застройки и минимальным внутриквартальным пространством. Здания существенно отличаются уровнем комфортности планировки и качеством инженерного оборудования квартир. В то же время создавалась гармоничная и привлекательная городская среда за счет единства архитектурного облика зданий. Развитая инфраструктура создавалась путем использования большинства помещений первых этажей под магазины, предприятия службы быта и т.п.
Период строительства 20-30-х годов характеризуется началом использования элементов типовых конструкций и зданий. Это прежде всего 4-5-этажные жилые дома из кирпича. Принципы размещения зданий квартальной застройки отличаются более организованным взаимным расположением при достаточно большом проценте озеленения дворовых участков, четкой системой дорог, пешеходных путей и площадок.
С началом массового индустриального строительства застройка кварталов происходила по укрупненной схеме с площадью кварталов, достигающей 1,4-1,6 км2. Укрупненная система застройки дала возможность существенно улучшить санитарно-гигиенические условия. Такие решения, как правило, имели достаточно низкую плотность застройки, не превышающую 3000-3300 м2 жилой площади на 1 га.
Застройка 50-70-х годов представляет собой 4-5-этажное кольцо, окружающее исторические центры городов, а за пределами этого кольца расположились современные окраинные жилые и промышленные районы.
Наблюдалась тенденция опережения роста городских территорий, это обгоняло прирост населения и приводило к снижению плотности застройки с возрастанием в балансе территории городов внеселитебных территорий. Это привело к увеличению общегородских транспортных и других инженерных коммуникаций, негативным социально-экономическим и экологическим последствиям. Появились так называемые спальные районы, удаленность которых от основных мест работы населения исчисляется часами, проведенными в городских транспортных средствах.
Исследуя проблему восстановления жилого фонда страны, следует отметить, что реконструкция должна базироваться не на индивидуальном объекте - жилом доме, а на жилом квартале или микрорайоне в целом. При этом из градостроительных задач реконструкции следует выделить общеградостроительные условия, инженерно-техническую инфраструктуру, охрану окружающей среды и благоустройство территорий. Особое место должно отводиться улучшению транспортных условий, что весьма актуально при значительном росте численности индивидуального транспорта.
При проектировании реконструкции застройки необходим учет связей реконструируемого квартала или микрорайона с прилегающими частями города, имеющими традиционную или историческую особенность. При этом должны использоваться приемы усиления композиционного и художественного единства или развития реконструируемого и прилегающего микрорайона более ранней застройки. Решение может быть найдено в виде силуэта застройки, путем повышения выразительности ансамблей, создания рациональных функциональных связей и архитектурно-художественной целостности реконструируемой застройки.
Реконструкция внутриквартального пространства наряду с увеличением плотности застройки должна быть направлена на повышение его комфортности и рациональности, выполнение задачи социального и эстетического характера по упорядочению планировочной структуры и сетей улиц, создание требуемой инфраструктуры, озеленение и благоустройство территории, создание объектов активного и пассивного отдыха, развитие коммуникационных связей, сохранение городского ландшафта и окружающей среды. Особое внимание должно быть уделено повышению эксплуатационной надежности инженерных сетей тепло-, водо- и газоснабжения.
Реконструкция жилой застройки не должна сопровождаться ухудшением инсоляции и аэрации и, как следствие, должна быть направлена на улучшение микроклимата жилой застройки, повышение комфортности обитания и оздоровление условий проживания населения. Одним из важных показателей является соблюдение нормального уровня озеленения (не менее 6 м2/чел., СНиП 2.07.01-89*), а также сохранение существующих зон озеленения и посадок, как правило, выполненных жильцами кварталов и микрорайонов.
Типовые решения застройки обладают рядом недостатков, к числу которых можно отнести неблагоприятную аэродинамику, что приводит к высоким скоростям ветра и температурным перепадам. Кроме этого, открытая застройка лишает индивидуального дворового пространства, что негативно оценивается населением. Поэтому реконструкция кварталов и микрорайонов должна базироваться на использовании принципов застройки в полузамкнутую или замкнутую путем пристройки и возведения дополнительных объемов, связывающих между собой отдельные здания. При этом достигается не только экономическая, но и функциональная эффективность использования пространства.
Уплотнение существующей застройки может быть достигнуто не только путем увеличения этажности зданий за счет их надстройки, но и возведением малоэтажных блокированных домов внутри квартально и с размещением встроек между корпусами зданий (рис. 1.2). При этом допускаются частичный снос отдельных зданий и уменьшение их этажности в совокупности с новым строительством жилых домов.

Рис. 1.2. Уплотнение существующей застройки путем внутриквартального выведения малоэтажных блокированных домов (а), малоэтажных вставок между жилыми домами (б), многоэтажных вставок с надстройкой существующих зданий на 2 этажа (в)
Комплексность подхода при реконструкции застройки определяется тем, что модернизация, реконструкция и снос зданий преследуют одну и ту же цель - преобразование устаревшего жилищного фонда с учетом градостроительной ситуации.
Уплотнение застройки осуществляется путем устройства вставок, надстройки зданий, возведения точечных зданий на освобожденной площадке в межквартальной зоне.
Проведение комплекса реконструктивных работ должно осуществляться на базе индивидуального подхода к каждому из объектов, обеспечивая при этом сохранение принципов общности архитектурных форм, характерных для конкретного города, эволюционной отработки и совершенствования форм и облика зданий. Изучение города как сложной художественной системы должно выявить структуру архитектурных признаков, которые несут в себе информацию о его специфике, особенностях происхождения и современной функции, о приемах и способах взаимодействия с природными элементами и ландшафтным окружением.
Вариантами оздоровления городской среды являются вывод промышленного производства из центра крупных городов и адаптация зданий под жилье или инфраструктуру.
Особое влияние на реконструкцию оказывает рыночная стоимость земельных участков, что определяет уровень этажности нового строительства и экономическую целесообразность сохранения малоэтажного жилого фонда.
Жилищный фонд РФ по сравнению с другими европейскими странами сравнительно молод. Это объясняется большими разрушениями, прошедшими во время Великой Отечественной войны, и традиционным применением деревянного домостроения. Объем сохранившихся зданий дореволюционных и довоенных построек сравнительно мал.
Распределение зданий в европейских странах показывает, что более 60-70 % жилого фонда относится к постройкам до 1937-1940-х гг. и только 25-30 % - в последующие годы.
Страны, не подвергшиеся массовому разрушению во время Второй мировой войны, сохранили старый фонд в достаточно большом объеме. Нет сомнения, что эти здания претерпели не одну реконструкцию и модернизацию, и поэтому зарубежный опыт выполнения реконструктивных работ имеет большое значение с практической точки зрения.
В Москве сохранился достаточно обширный жилой фонд постройки 1870-1930-х гг., который составляет около 120 млн. м2 и представляет целую гамму архитектурно-планировочных решений домов разной этажности. Как правило, каждое здание старой постройки возводилось по индивидуальным проектам и отражает эпоху, достаток заказчика и особенности конструктивных решений.
Опыт застройки жилыми домами в Москве и Санкт-Петербурге в конце XIX и начале XX в. показывает, что преимущественное влияние на архитектурно-планировочные решения оказывали стоимость земельного участка и удаленность от центральной части города. В то время получили распространение доходные дома, в которых проживало более 70 % городского населения. Этот период характеризуется возведением зданий с высокой плотностью застройки. Ее форма способна интегрировать в высокоорганизованное городское пространство с максимальным экономическим эффектом, многообразными функциональными и социальными составляющими городской среды.
Плотность застройки в центре крупных городов превышала периферийную в 5-6 раз. Стоимость квартир дифференцировалась в зависимости от качества жилья, которое имело девять основных типов. Каждый тип квартир оценивался по строительному объему, качеству отделки и расположению в плане.
При высокой стоимости земли постройки образовывали полностью замкнутые дворы - дома колодцевого типа. На рис. 1.3 приведены характерные примеры доходных домов в Санкт-Петербурге и Москве. Прибыльность домовладений повышалась за счет размещения в первых этажах объектов общественного назначения: это гимназии, магазины, клубы и т.п.

Рис. 1.3. Архитектурно-планировочные решения доходных домов
а - в
С.-Петербурге (1910-1912 гг.); б -
в Москве на ул. Остоженке; III-IV -
классы квартир по качеству проживания
Здания указанного периода можно разделить по уровню планировочных решений на 4 группы.
К первой группе относятся здания, построенные в предреволюционное десятилетие. Они состоят из квартир повышенного качества, рассчитанных на наиболее состоятельные слои населения.
В планировке квартир используется принцип зонирования на три группы помещений: парадную, группу спален и группу хозяйственных помещений. При этом парадные и черные лестницы расположены по одной поперечной оси. Они отличаются большой шириной корпуса, которая достигает 15-17 м, большой толщиной кирпичных стен.
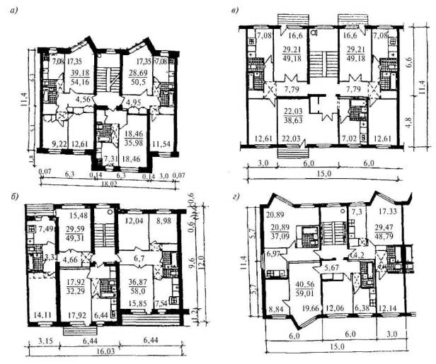
Во II группу входят секционные дома дореволюционной постройки и первых десятилетий Советской власти. Квартиры этой группы (рис. 1.4) предназначались для покомнатного заселения. Площадь квартир достигала 80-100 м2 с высотой этажа 3,0-3,5 м. Ширина корпусов находилась в пределах 10-16 м.

Рис.1.4. Типовые секции, применяемые в массовом жилищном
строительстве Москвы
а - типовая
секция Моссовета; б - типовая секция Наркомстроя; в - типовая секция Управления
жилищного строительства
В первом десятилетии Советской власти и до конца 50-х годов в основном строились дома с квартирами II группы. Здания возводили более узкими (до 12 м) с меньшей глубиной комнат.
В III планировочную группу включены дома коридорной и галерейной систем. В коридорных домах старой постройки жилые комнаты имеют площадь 20-35 м2 и расположены с двух сторон широкого коридора. Дома для дешевых гостиниц и меблированных комнат имели комнаты площадью 10-12 м2. Высота этажей составляла 3,2-3,5 м.
К IV группе домов относятся здания со смешанной планировкой, которые имеют ширину корпусов 10-16 м, с расположением комнат смешанной ориентацией и лестничными клетками различных конструктивных решений.
Основные несущие конструкции зданий старой постройки выполнены с использованием стен из кирпича. Очень часто фасады зданий украшались лепниной, мозаикой, барельефами. Фундаменты и стены капитальных зданий выполнены с большим запасом прочности.
На рис. 1.5 показано уменьшение толщины наружных стен и ширины подошвы фундаментов в течение второй половины XIX века и в первые десятилетия XX столетия. В этот период расход кирпича (материала), необходимого для строительства домов одинакового объема, уменьшился в 2 раза. Это объясняется тем, что в прежние времена толщина стен устанавливалась эмпирически с большим запасом прочности.

Рис. 1.5. Изменение параметров конструктивных элементов
зданий в зависимости от года постройки
а - средние размеры ширины подошвы фундаментов и толщины стен различных
периодов постройки; 1,2 -
наибольшая и наименьшая ширина подошвы фундаментов; б - плотность
размещения фундаментов на площади застройки
здания: 1 - на песчаном основании; 2
- на связных грунтах; 3 - среднее значение
Для построек периода 1860-1960 гг. прослеживается тенденция снижения средних размеров ширины подошвы фундаментов и, соответственно, толщины стен. Это обстоятельство связано с усовершенствованием методик расчетов и уменьшением коэффициента запаса прочности.
Как правило, основными материалами для возведения фундаментов старой постройки служили пережженный кирпич, тесаные блоки из природного камня, бутовый камень и др. Для обеспечения сцепления и однородности кладки использовались известковые, цементные и сложные растворы. Характерной особенностью зданий старой постройки является достаточно высокий показатель плотности фундаментов (отношение площади подошвы фундаментов к площади застройки), который достигает 30-42 %. При этом в 30 % зданий не используется и 50 % нормативного давления. Отсюда следует, что в большей части зданий при их реконструкции возможны увеличение давления на основание и, таким образом, надстройка дополнительных этажей.
Перекрытия в кирпичных зданиях встречаются трех типов: деревянные по деревянным балкам; деревянные по металлическим балкам; железобетонные.
Иногда в одном и том же здании используются различные типы перекрытий: над подвалом - сводчатые из бетона или кирпича по металлическим балкам, междуэтажные перекрытия - деревянные по металлическим балкам, чердачное - деревянное по деревянным балкам.
Перекрытия, как правило, имели значительные запасы толщины и массы. Их толщина достигала в период образования городской застройки 45-50 см, к середине прошлого столетия достигла 25-30 см, в настоящее время снизилась до 16-22 см.
Превышение размеров сечения конструкций по сравнению с современными увеличило сроки службы конструктивных элементов зданий. Достаточно отметить, что при грамотной технической эксплуатации встречаются здания с деревянными перекрытиями, прослужившими более 100 лет, несущая способность которых отвечает требованиям современных норм.
Приведенные сведения дают представление о конструктивных элементах зданий и динамике их изменения. К наиболее важным параметрам, влияющими на принятие технологии реконструктивных работ, следует отнести конструкции фундаментов, толщины наружных и внутренних несущих стен, материал перекрытий.
Конфигурация зданий является одним из ведущих параметров характеристики плана этажа. Домам старой постройки свойственны сложные планы. Однако при всех различиях возможно выделить семь типов, соответствующих планировочной компоновке жилых зданий (таблица 1.2).
Таблица 1.2
Классификация основных схем планировочной компоновки жилых капитальных зданий старой постройки
|
Тип схемы |
Схема планировочной компоновки корпуса здания |
Краткая характеристика схемы |
Повторяемость схем, % |
|
|
Москва |
С.-Петербург |
|||
|
I |
|
Рядовая, или 2 корпуса расположены параллельно улице |
49 |
16 |
|
II |
|
Корпус П-образной формы |
8 |
8 |
|
III |
|
Курдонерное решение (с двумя дворами) |
5 |
12 |
|
IV |
|
Корпус Г-образной формы |
25 |
9 |
|
V |
|
Корпус Т-образной формы |
2 |
1 |
|
VI |
|
Корпус Н-образной формы с двумя дворами |
4 |
3 |
|
VII |
|
Здание с участком, застроенным по периметру, с одним или несколькими дворами-колодцами |
7 |
54 |
Конструктивная схема здания - это комплекс ограждающих и несущих конструкций, объединенных в единую пространственную систему. Классификация конструктивных схем жилых зданий старой постройки базируется на основных параметрах, к которым относятся:
А - ширина здания, определяющая глубину жилых помещений, а также тип планировки;
Б - шаг лестничных клеток в здании, определяющий ширину помещений, а также их число вдоль фасада здания;
В - шаг окон, их число и размеры.
В таблице 1.3 приведена классификация конструктивных схем капитальных жилых зданий для Москвы и Санкт-Петербурга с показателем повторяемости решений.
Таблица 1.3
Конструктивные схемы капитальных жилых зданий старой постройки
|
Тип схемы |
Схема |
Характеристика схемы |
Параметры, м |
Повторяемость, %, Москва, С.-Петербург |
|
|
А |
В |
||||
|
I |
|
Двухпролетная со средней продольной несущей стеной |
10-18 |
12-30 |
56 |
|
II |
|
Многопролетная с поперечными несущими стенами |
14-16 |
12-20 |
11,8 |
|
III |
|
Однопролетная с наружными несущими стенами |
12-14 |
12-22 |
15 |
|
IV |
|
Трехпролетная с двумя продольными внутренними стенами |
12-24 |
12-36 |
12 |
|
V |
|
Смешанная схема |
9-18 |
до 25 |
13 |
Из 5 наиболее употребительных схем максимальную повторяемость имеет двухпролетная с продольной несущей стеной (56 %). Остальные схемы имеют приблизительно равное в процентном отношении распространение (12-15 %).
Прочностные и эксплуатационные характеристики жилых и общественных зданий определяются комплексом нагрузок и воздействий на здание. Эти параметры дают представление об интенсивности износа тех или иных несущих конструкций, степени надежности и долговечности зданий.
Основные виды классификации базируются по видам несущих конструкций стен и фундаментов и применяемым строительным материалам.
Более расширенная классификация учитывает современные строительные материалы конструктивных элементов здания и разделяет их на 6 групп:
1 - здания каменные, особо капитальные; стены кирпичные в 2,5-3,5 кирпича или кирпичные с железобетонным и металлическим каркасом; перекрытия железобетонные и бетонные;
2 - здания со стенами облегченной кладки из кирпича, монолитного шлакобетона, ракушечника; перекрытия железобетонные и бетонные;
3 - здания с кирпичными стенами толщиной 1,5-2,5 кирпича; перекрытия железобетонные, бетонные или деревянные;
4 - здания с крупноблочными стенами, перекрытия железобетонные;
5 - здания со стенами крупноблочными или облегченной кладки из кирпича, монолитного шлакобетона, мелких шлакоблоков, ракушечника, перекрытия деревянные;
6 - здания со стенами смешанными, деревянными рублеными и брусчатыми.
В настоящее время классификация зданий претерпела некоторые изменения в связи с массовым строительством из сборного и монолитного железобетона, с широким использованием композиционных материалов. Основные категории зданий имеют степень капитальности трех групп: особо капитальные, капитальные I и II групп.
В середине 50-х гг. встал вопрос огромной социальной важности: как решить острейшую жилищную проблему, как в кратчайшие сроки избавиться от неблагоустроенных бараков, подвалов и многосемейных «коммуналок», как предоставить каждой семье отдельную благоустроенную квартиру?
Основным направлением решения этой проблемы был избран индустриальный метод возведения жилых домов - строительство по типовым проектам с максимальной унификацией и типизацией архитектурно-конструктивных решений.
1950-1960-е гг. были временем необычного подъема жилищного строительства. За период менее 10 лет было построено более 100 тыс. четырех- и пятиэтажных домов общей площадью 540 млн. м2. Это строительство положило начало внедрению нового жилищного стандарта - переходу от покомнатного к поквартирному расселению семей. В таких домах проживают более 40 млн. человек, а их общая площадь составляет более 20 % городского жилого фонда страны. Острота жилищной проблемы была столь велика, что переход к новому стандарту был возможен только на базе максимальной экономичности объемно-планировочных решений квартир. Огромные масштабы жилищного строительства и ограниченность материально-технических ресурсов диктовали свои условия: строить экономно, отказавшись от прежних представлений о размерах и высоте помещений; строить из сборных конструкций с максимальной заводской готовностью изделий; строить быстро, используя строительный конвейер «ДСК - стройплощадка».
В то же время эти здания возводились из долговечных конструкций, обеспечивающих срок службы 100-125 лет, и имели необходимое инженерное оборудование.
Государственная политика в жилищном строительстве с 1957 г. ориентировалась на возведение наиболее экономичных четырех-, пятиэтажных домов с типовыми планировочными решениями квартир, запроектированных в соответствии с требованиями единых государственных норм. По мере роста национального дохода увеличивались ассигнования на расселение одной семьи в государственном жилом фонде, и в соответствии с этим изменялись нормы проектирования. В таблице 1.4 приведены максимальные величины площади квартир по нормам проектирования различных периодов.
Таблица 1.4
Общая площадь квартир (м2) по нормам проектирования
|
Редакция норм, год |
Число комнат и тип квартир |
|||||||||||
|
1 |
2 |
3 |
4 |
5 |
6 |
|||||||
|
А |
Б |
А |
Б |
А |
Б |
А |
Б |
А |
Б |
А |
Б |
|
|
1962 |
28 |
36 |
36 |
45 |
45 |
56 |
56 |
68 |
68 |
90 |
- |
- |
|
1971 |
28 |
36 |
41 |
48 |
58 |
63 |
70 |
74 |
84 |
91 |
- |
- |
|
1985 |
- |
36 |
- |
53 |
- |
65 |
- |
77 |
- |
95 |
- |
- |
|
1989 |
28 |
36 |
44 |
53 |
56 |
65 |
70 |
77 |
84 |
96 |
96 |
103 |
Смена норм проектирования сопровождалась сменой типовых проектов и практики заселения квартир. Соотношение между количеством членов семьи N и количеством комнат в квартирах К для периода 60-х гг. составляло К= N - 2. В более поздние периоды К= N - 1 и К = N. Такой практике способствовали предусмотренные в нормах и типовых проектах не менее двух вариантов квартир каждой комнатности по величине общей площади: квартиры типа А (меньшей площади) для заселения по формуле К = N и типа Б (большей площади) для заселения по формуле К = N - 1.
Сопровождавшие смену норм проектирования новые серии типовых проектов получили название «поколений». В настоящее время строительство ведется по «четвертому поколению» типовых проектов.
Период массового жилищного строительства связан с началом широкого применения элементов сборного железобетона: при возведении нулевого цикла - фундаментные подушки и блоки, сваи со сборным и монолитным ростверками; надземной части - многопустотные плиты перекрытий, панели, элементы балконов и лоджий, перемычек; покрытия из сборных карнизных блоков и панели покрытий.
До массового распространения домостроительных комбинатов основными конструктивными схемами жилых зданий являлись дома с продольными и поперечными стенами. Наиболее распространены из них кирпичные дома серии 1-447, крупноблочные здания серии 1-510 (рис. 1.6).

Рис. 1.6. Объемно-планировочные решения жилых домов серии 1-447 с кирпичными стенами (а) и крупноблочных зданий серии 1-510 (б)
Первый этап в развитии индустриального жилищного строительства, осуществляемого по типовым проектам «первого поколения» (1954-1963 гг.), позволил реализовать жилищную программу и сыграл свою положительную роль. В то же время выявилось все большее количество негативных сторон. Они сводятся к градостроительным, морально-эстетическим и физическим недостаткам 5-этажной жилой застройки. Планировочные решения квартир этого периода основаны на использовании 4-квартирных унифицированных секций с номенклатурой квартир 1-2-3-3 и 2-2-2-3. Позднее были разработаны трехквартирные решения с набором квартир 1-2-3 и 2-2-2.
Начиная с 60-х гг. полносборные здания постепенно становятся основным видом строительства. В жилых полносборных домах преимущественно использовались две конструктивные схемы: панельная и каркасно-панельная (рис. 1.7).

Рис. 1.7. Объемно-планировочные решения типовых зданий
а - крупнопанельные
серии 1-464 с узким шагом внутренних стен; б - крупнопанельные серии 1-468 со смешанным шагом
внутренних стен; в - каркасно-панельные серии 1-335 с узким шагом
внутренних стен
Каркасно-панельная схема предусматривает передачу нагрузок на каркас, а при панельной схеме - на внутренние несущие панели (панели поперечных стен и перекрытий).
Преимуществами панельной системы зданий являются меньший расход стали (на 15- 20 %), простота обеспеченности общей пространственной жесткости и устойчивости здания, высокая заводская готовность элементов, малая трудоемкость возведения.
К преимуществам каркасно-панельной схемы зданий можно отнести более четкую схему передачи нагрузок, относительно небольшое влияние случайных эксцентриситетов и погрешностей, использование высокопрочных материалов для каркаса и эффективных ограждающих конструкций.
Второй этап (1964-1970 гг.) осуществлялся по типовым проектам «второго поколения». Набор квартир в них увеличился до восьми типов: 1-, 2-, 3- и 4-комнатные квартиры разделились на большие и малые. Однако принципиальные планировочные решения существенно не менялись.
Дальнейшее развитие типового жилищного строительства (1970-1980 гг.) шло по пути незначительного улучшения планировочных решений с увеличением площадей кухонь (до 7,0-7,3 м2), подсобных помещений, с созданием эркеров как для зданий из кирпича, так и для панельных жилых домов. Такое решение несколько разнообразило и улучшило архитектурные и аэродинамические параметры, снизив воздействие транспортных шумов.
Достаточно эффективными следует признать технические решения в крупнопанельном домостроении при переходе на широкий шаг внутренних несущих стен, равный 6 м. Это позволило осуществлять более гибкую планировку помещений, особенно при реконструкции зданий (рис. 1.8).

Рис. 1.8. Планировочные решения жилых домов
а, б - кирпичные
жилые дома серий 71 и 85 (ЦНИИЭПЖилища); в, г - крупнопанельные дома серий 83 и 78 (ЦНИИЭПЖилища)
Анализ архитектурно-планировочных решений крупнопанельных жилых зданий первых двух «поколений» показал полное несоответствие современным требованиям. Характерными признаками морального износа являются: размер кухонь, не превышающий 6 м2; наличие совмещенных санузлов малой площади; низкая звукоизоляция внутренних стен и перекрытий; дискомфорт жилых помещений вследствие нарушения тепловлажностного режима; невыразительность и однообразие фасадов.
Здания каркасных схем выполняются двух типов: полносборные, когда все элементы, включая стены и перегородки, возводятся из сборных элементов и со стенами из штучных материалов - кирпича, мелкоштучных блоков и др., и здания с неполными каркасными стенами.
Следует отметить то обстоятельство, что крупнопанельные здания начального периода индустриализации строительства (пятиэтажки 60-х гг.), несмотря на достаточно высокую конструктивную надежность, имеют малую реконструктивную способность. Это относится прежде всего к жилым домам, у которых внутренние стены являются несущими и расположены с узким шагом.
Морально-эстетическая ущербность пятиэтажной застройки усиливается тем, что был предложен и реализован практически единственный тип секционного дома, без учета демографических, исторических и архитектурных традиций районов, их климатических особенностей. Застройка такими зданиями велась без учета природного ландшафта и архитектурных особенностей окружающей застройки.
Эксплуатационные характеристики таких зданий невысоки. Они отличаются низкими теплозащитными и звукоизоляционными качествами. Так, в летнее время происходит перегрев помещений, особенно верхних этажей, из-за совмещенных крыш, а в зимний период - промерзание стыков, угловых панелей и стен. В неблагоприятных условиях находятся жилые помещения первых этажей, где на микроклимат существенное влияние оказывают наличие плохо изолированного подвального помещения, необустроенность тамбуров и входных дверей.
Практически во всех типах пятиэтажек звукоизоляция внутренних стен, перекрытий и перегородок не отвечает требованиям норм.
Стремление максимально использовать объем здания под жилое помещение определило площадь светопрозрачных ограждений в 29-30 % площади наружных стен, что привело к дополнительному увеличению теплопотерь, а несовершенство стыковых соединений панелей стен - к локальным и общим нарушениям тепловлажностного режима жилых помещений.
Конструктивные просчеты при устройстве плоских кровель привели к постоянному увлажнению помещений верхнего этажа, что существенно осложнило условия проживания.
Перечисленные обстоятельства привели к заметному снижению эксплуатационных характеристик и моральному устареванию жилых зданий данной категории.
Недостатки рассматриваемых зданий ярко проявились в результате их длительной эксплуатации без выполнения плановых ремонтных работ. В то же время исследуемый период времени следует считать началом интенсивного массового строительства жилья, позволившего существенно улучшить жилищные условия миллионов граждан. Так, только в Москве было построено около 36 млн. м2 жилой площади пятиэтажек.
Жизненный цикл зданий - это время от момента обоснования необходимости их возведения до наступления экономической нецелесообразности дальнейшей эксплуатации. Периоды жизненного цикла разделяются на:
I - период по технико-экономическому обоснованию возведения здания;
II - по конструированию и проектированию;
III - по возведению с разработкой технологии, организации и технологических регламентов производства работ;
IV - по предэксплуатационному освоению;
V - по эксплуатации зданий и наработке, позволяющей обеспечить окупаемость средств, вложенных в их создание и освоение;
VI - по поддержанию конструктивных элементов и инженерных систем здания в нормальном техническом состоянии путем проведения планово-предупредительных и капитальных ремонтов;
VII - период физического и морального износа, требующий проведения модернизации, реконструкции или сноса здания. Последнее состояние является периодом окончания жизненного цикла или началом нового.
VIII - период реконструкции, восстанавливающий физико-механические и эксплуатационные характеристики зданий, включающий: I, II - технико-экономическое обоснование и разработку технической документации.
Рассматривая здание как строительную систему с конструктивными элементами из различных материалов с разной долговечностью, имеют место фазовые изменения ее параметров под влиянием факторов внешней и внутренней среды. Траектория движения системы во времени представляет собой некоторую последовательность изменения ее состояния под влиянием эксплуатационных (внутренних) режимов и внешних воздействий различного характера (механические, химические и др. процессы), приводящих к нарушению устойчивого состояния здания как сложной строительной системы.
Устойчивое состояние системы характеризуется ее равновесием на протяжении длительного периода времени.
Возможное изменение параметров здания характеризуется переходными процессами, когда система или отдельные ее элементы не обеспечивают эксплуатационную надежность и требуют ее восстановления.
Последний период характеризуется превышением затрат на поддержание равновесного состояния системы над прибылью от эксплуатации. Этот период свидетельствует о необходимости сноса здания или выполнения реконструктивных работ, восстанавливающих или переводящих его в качественно новое состояние.
На рис. 1.9 приведены основные
периоды жизненного цикла зданий с распределением затрат на эксплуатацию,
реконструкцию и соответствующие доходы, получаемые от выполнения комплекса
работ. Продление жизненного цикла представлено областью
(VIII), которая включает комплекс работ и затрат по реконструкции с
последующими расходами и доходами.

Рис. 1.9. Динамика жизненного цикла зданий (а) и распределение затрат (б) при выполнении ремонтно-восстановительных работ и реконструкции
Наиболее характерная динамика соотношения затрат и получаемой прибыли во времени приведена на рис. 1.9,б, когда на определенном периоде (V) наблюдается не только убыточность, но и небезопасность эксплуатации. Это обстоятельство свидетельствует о необходимости принятия решения по сносу здания и по возведению нового, по его реконструкции, обеспечивающей качественно новые технико-экономические показатели, а также по изменению функций здания (перевод из жилого в нежилое).
Особое значение на принятие решения оказывают район расположения здания и стоимость земельного участка, занятого под застройкой. При его высокой стоимости экономически целесообразны снос здания независимо от его физического состояния и возведение нового.
Примером таких решений является массовый снос жилых кварталов первых массовых серий в Москве.
Результаты инструментальных обследований и выявление дефектов позволяют оценить техническое состояние по степени физического износа. В свою очередь, уровень физического износа дает представление о примерной стоимости восстановительных работ и целесообразности их проведения (рис. 1.10).

Рис. 1.10. Взаимоотношение уровня физического износа конструктивных элементов и здания в целом и стоимость восстановительных работ
Анализ статистических данных показывает, что с увеличением времени эксплуатации уровень физического износа постоянно возрастает и его ликвидация может превысить стоимость здания. В то же время возможно выделить критическую область К (50-60 % физического износа), когда экономически целесообразно проведение восстановительных работ.
Определяющее влияние на экономическую эффективность оказывает распределение эксплуатационных затрат с учетом различного рода отказов в течение жизненного цикла зданий (рис. 1.11), включающих три характерных периода:
- период приработки (Тпр), когда отказы являются следствием дефектов, допущенных при возведении зданий. Они интенсивно проявляются в первые годы эксплуатации зданий (1-2 года);
- период нормальной эксплуатации зданий (Тн), когда количество отказов спадает и эксплуатационные затраты определяются техническими решениями, принятыми в проекте, эти затраты в течение длительного времени возрастают;
- период физического износа (Тиз) характеризуется резким возрастанием эксплуатационных затрат за счет выработки ресурсов материалов и конструкций, используемых при возведении здания.

Рис. 1.11. Распределение эксплуатационных затрат в течение
службы здания (Тц)
Тпр - период приработки; Тн - период нормальной
эксплуатации; Тизн - период износа (снижения эксплуатационной
надежности); Zпр, Zэк, Zизн - затраты в периоды
приработки, эксплуатации и интенсивного износа зданий
Рассматривая динамику каждого из периодов, можно установить количественные характеристики воздействия случайных факторов на эксплуатационные затраты и определить источники их возникновения: в период приработки - качество выполнения строительно-монтажных работ; в период нормальной эксплуатации - качество проектных решений и технология эксплуатации зданий; в период износа - долговечность принятых материалов и конструкций.
Определяющее влияние на характер и объем эксплуатационных затрат оказывает уровень энергоэффективности зданий, включающий надежность инженерных сетей и систем, стабильность теплотехнических характеристик ограждающих конструкций, режим эксплуатации зданий и показатели, характеризующие удельный расход энергоносителей.
Физический износ зданий определяет такие характеристики объекта, как эксплуатационную надежность и стоимость восстановительных работ, которая в итоге оценивается экономической целесообразностью реконструкции или сноса зданий.
Физический износ жилых зданий можно аппроксимировать некоторой функцией Y(t), динамически меняющейся во времени.
Вид функции оценивается в зависимости от многих факторов: текущий и капитальный ремонт; техническая эксплуатация; уровень воздействия динамических нагрузок на фундаменты; влияние техногенных процессов; изменение геотехнического состояния оснований фундаментов; старение материала конструкций под действием атмосферных воздействий.
В соответствии с ВСН 53-86 р «Правила оценки физического износа жилых зданий» этот параметр определяется отношением стоимости ремонтных работ к его полной восстановительной стоимости.
В зависимости от уровня капитальности зданий, воздействия на объект изменившихся нагрузок и реакции здания осуществляют текущие и капитальные ремонты, предусмотренные нормативными документами.
Математическое моделирование
процесса физического износа может быть представлено в виде функции Y(t), зависящей от внешних и внутренних воздействий
G, имеющих
постоянный характер во времени, и переменной F(t), включающей процессы осадки зданий, старение и
изменение физико-механических характеристик несущих и ограждающих конструкций;
инерции системы здания с массой т на ускорение функции
; трения системы, как произведение коэффициента трения
Ктр на
скорость изменения состояния объекта
; реакции здания, связанной со значением износа, который
определяется долей восстановления при капитальном ремонте sd(t)Y.
Процесс физического износа может быть описан дифференциальным уравнением, полученным С.А. Болотиным.
![]()
где s - коэффициент, учитывающий степень износа; d(t)Y - время проведения ремонтно-восстановительных работ со степенью износа Y.
Оценим влияние на интенсивность физического износа зданий текущего ремонта s = 0. В качестве внешних воздействий и реакции здания используем экспоненциальную зависимость осадок здания во времени.
Тогда дифференциальное уравнение имеет следующий вид
![]()
где w - частота проведения ремонтов;
- скорость износа;
- отношение
переменных параметров воздействия к постоянным; g - сила инерции объекта.
Тогда интенсивность физического износа может быть представлена зависимостью типа

где t - постоянная времени для оценки экспоненциального уменьшения осадок фундаментов.
Для оценки интенсивности износа задаются параметры частоты текущих ремонтов. В зависимости от этого функция износа будет иметь различные степенные показатели wt, что определяет характер экспоненциальных кривых в зависимости от времени эксплуатации (рис. 1.12.). В зависимости от условий технического обслуживания график износа будет иметь вогнутую или выпуклую форму.

Рис. 1.12. Кривые износа жилых зданий в зависимости от
продолжительности эксплуатации
1 - выпуклая; 2 - вогнутая; 3 - кривая со смешанной формой
Вогнутая форма кривой свидетельствует о более интенсивном износе в начальный период эксплуатации, а выпуклая - о стабилизации деформации зданий во времени и менее интенсивной потере эксплуатационных свойств.
В зависимости от влияния техногенных процессов и уровня восстановительных работ в период эксплуатации кривая интенсивности износа может иметь как выпуклую, так и вогнутую части, что свидетельствует о некоторой стабилизации эксплуатационной надежности в центральной части (кривая 3) и более быстрой потере эксплуатационных свойств с увеличением параметра времени.
Представленные зависимости дают возможность качественной оценки состояния объектов. Для полной оценки физического износа требуется детальное обследование конструктивных элементов с использованием современных методик, аппаратуры и инженерного расчета остаточной несущей способности зданий как сложных строительных систем.
Оптимизация продолжительности жизненного цикла жилых и зданий инфраструктуры является производной целесообразных границ реконструкции, модернизации и ремонта.
В зависимости от степени соответствия функциональным и техническим требованиям они могут быть разделены на 4 группы.
I - объекты, полностью отвечающие современным жилищным стандартам.
II - объекты, требующие перепланировки основных и вспомогательных помещений путем модернизации или реконструкции здания в целом.
III - объекты, требующие больших объемов ремонтно-восстановительных работ и реконструкции.
IV - объекты, уровень износа конструктивных элементов которых таков, что они не подлежат реконструкции или модернизации.
С точки зрения затрат, капитальность работ восстанавливающего и поддерживающего характера составляет до 5 % оценочной стоимости объекта для первой группы; 5-10 % для второй; до 50 % для третьей группы. При этом ориентировочный срок эксплуатации объектов продляется на 30-50 лет.
Классификация объектов по степени физического и морального износа свидетельствует о необходимости планомерного проведения ремонтно-восстановительных работ начиная с эксплуатации построенного здания. Длительные перерывы приводят к значительному уровню затрат на восстановление требуемых эксплуатационных характеристик, а при увеличении межремонтного срока - к аварийным ситуациям.
На рис. 1.13 приведены графические зависимости уровня надежности и физического состояния жилых объектов для различных периодов восстановительных работ.

Рис. 1.13. Изменение уровня эксплуатационной надежности
жилых зданий
1 - при выполнении плановых
ремонтно-восстановительных работ; 2 - при выполнении восстановительных
работ для зданий с низким уровнем эксплуатационной надежности; 3 - при
отсутствии или эпизодических этапах восстановительных работ; 4 -
интенсивное снижение эксплуатационной надежности при воздействии техногенных
процессов
При соблюдении плановых и текущих ремонтов (кривая 1) жизненный цикл зданий увеличивается, достигая параметров морального износа с сохранением физико-механических характеристик, определяющих эксплуатационную надежность.
Перерывы в восстановительных работах (кривая 2) существенно снижают общий жизненный цикл зданий, а для их восстановления требуются значительные затраты, в т. ч. производство работ с отселением жильцов.
При длительном отсутствии ремонтно-восстановительных работ наступление критической фазы, характеризуемой потерей несущей способности конструктивных элементов, существенно снижает жизненный цикл и само существование объекта.
Влияние техногенных процессов, отклонений режима эксплуатации, скрытые дефекты, вызванные нарушением технологии производства работ, также приводят к снижению жизненного цикла.
В этих случаях прогноз долговечности зданий основывается на оценке вероятностно-статистических моделей с использованием данных мониторинга состояния несущих, ограждающих конструкций и инженерного оборудования.
Данные исследований по оценке несущей способности конструктивных элементов крупнопанельного домостроения свидетельствуют о повышении их несущей способности вследствие длительного процесса гидратации цемента. Несмотря на это, недопустимые деформации зданий могут возникнуть от преждевременного износа и аварийных ситуаций сетей водопровода и канализации, когда интенсивное замачивание основания фундаментов приводит к потере устойчивости здания в целом. Несвоевременный ремонт и восстановление сетей, как правило, приводят к ситуациям, когда стоимость восстановительных работ конструктивных элементов здания в сотни раз превышает затраты на поддержание сетей.
Особенно при оценке надежности жилых зданий и методов их восстановления это относится к ремонтам, где повышен уровень сейсмичности, имеются процессы подтопления территорий, интенсивного развития карстовых образований, увеличения динамических нагрузок от транспорта и др.
Снижение жизненного цикла зданий связано с производством работ по уплотнению застройки, возведению заглубленных частей зданий и сооружений вблизи существующих. Как правило, использование технологий, нарушающих сплошность грунтового основания зданий, динамические нагрузки при забивке свай, изменение гидрогеологического режима в результате устройства противофильтрационных завес и водопонижения, прокладка трубопроводов глубокого заложения без необходимого крепления стенок приводят к изменению устойчивости зданий вследствие дополнительных неравномерных осадок фундаментов.
Очевидно, что сохранение жилищного фонда, повышение энергоэффективности зданий, модернизация и реконструкция застройки для средних и малых городов являются единственным путем предотвращения лавинообразного выхода из эксплуатации значительной части жилых зданий и системы инфраструктуры. Задержка в решении этого вопроса существенно повышает затратный механизм восстановительных работ и создает социальную напряженность ремонтов.
Для планирования и управления этими процессами необходимы проведение инвентаризации жилого фонда на предмет оценки физического и морального износа зданий, разработки долгосрочных программ по повышению эксплуатационной надежности зданий, восстановления энергосистем как наиболее изношенных элементов, способствующих созданию критических ситуаций, особенно в зимний период.
Для построек различных периодов строительства требуется индивидуальный подход в разработке методов и технологий их реконструкции. При этом в основе процесса должно быть заложено не отдельно стоящее здание, а их комплекс - группа зданий, квартал или микрорайон. Это позволяет осуществить комплексную оценку градостроительной ситуации и принять наиболее рациональные решения, отвечающие современным условиям и обеспечивающие логическую связь различных архитектурных течений. При этом возможны варианты уплотнения и разуплотнения застройки, рационального использования межквартального, подземного пространства и систем коммуникации.
Повышение коммерческой стоимости земли в центральных частях городов приводит к необходимости уплотнения застройки, приемы которой позволяют осуществить эти решения при одновременных сносе и расширении межквартального пространства.
Застройка разных периодов имеет свои особенности, что приводит к многообразию вариантных решений, эффективность которых может быть оценена сложившейся ситуацией и потребительским спросом.
Переход от общих градостроительных задач к частным (на уровне реконструируемого объекта) требует учета факторов технического состояния, в том числе степени износа конструкций, состояния основных несущих и ограждающих элементов, архитектурно-планировочных решений реконструируемого здания, инженерных сетей и коммуникаций.
Эстетические задачи связаны с необходимостью внесения новых элементов повышенной художественной и культурной ценности застройки.
На уровне принятия решения при рассмотрении реконструируемого объекта в градостроительной системе требуется владение информацией, существенно влияющей на оценку затрат по восстановлению несущей способности, повышению капитальности и компенсации затрат путем увеличения объема, перепрофилирования объектов и создания более высоких комфортных условий.
Как правило, здания жилого фонда ранних периодов постройки имеют различные уровень капитальности конструктивных элементов и сроки их безотказной работы. Для периода до 40-х гг. характерно применение деревянных перекрытий, долговечность которых существенно ниже ограждающих конструкций, выполненных в кирпиче. Переход на массовое использование железобетонных конструкций повысил долговечность перекрытий, но снизились характеристики ограждающих конструкций, их надежность и долговечность. Существенно претерпели изменения принципы формирования объемно-планировочных решений зданий, снизив комфортность квартир.
Для большинства жилых зданий старой постройки их реконструкция состоит в частичном или полном перепрофилировании, создании объемно-планировочных решений, исключающих коммунальное заселение, рациональном использовании первых этажей под различные административные, коммерческие и производственные нужды.
Особое значение приобретает реконструкция жилых зданий старой постройки с увеличением их строительного объема путем надстройки этажей, расширения корпусов, устройства различных вставок и т.п.
При сохранении функций здания их реконструкция должна быть основана на принципах укрупнения при формировании архитектурно-планировочных объемов из несменяемых конструкций. Такой технический прием позволяет повысить гибкость планировочных решений на любом этапе эксплуатации и осуществить перепланировку помещений в зависимости от динамики роста семьи, социального уровня жильцов, экономического состояния владельца квартиры.
Что касается жилого фонда первых и последующих массовых серий, то в основе концепции реконструкции должны быть заложены принципы и технические решения, обеспечивающие снижение физического и морального износа зданий, повышение долговечности, комфортности проживания и снижение эксплуатационных затрат.
При этом одной из важных задач является решение социальных вопросов путем создания инфраструктуры, учета интересов различных слоев населения, обеспечения экологически здоровой среды обитания.
Опыт обновления жилых домов первых массовых серий по результатам проектных разработок и их практической реализации можно разделить на несколько уровней в зависимости от степени сложности:
без изменения типового проектного решения жилого здания с выполнением реконструктивных работ по восстановлению надежности несущих конструкций и повышению эксплуатационных качеств;
без изменения типового проектного решения, но с частичной перепланировкой путем ликвидации проходных комнат с восстановлением эксплуатационных качеств здания;
с изменением структуры квартир без увеличения строительного объема здания путем объединения квартир в пределах секции и их перепланировки;
с изменением структуры квартир путем увеличения объема здания за счет пристройки объемов и надстройки мансардного этажа, устройство квартир в двух уровнях;
с изменением структуры квартир путем увеличения объема здания за счет расширения корпуса и надстройки несколькими этажами.
При выполнении работ по модернизации и реконструкции жилых зданий особое внимание должно уделяться повышению эксплуатационных характеристик и в первую очередь снижению энергопотребления за счет повышения теплотехнических параметров ограждающих конструкций. Эти требования распространяются на здания старого жилого фонда, жилых домов первых и последующих массовых серий.
Модернизация жилых зданий без изменения строительного объема не требует значительных материальных и энергетических затрат и составляет 25-40 % восстановительной стоимости жилого дома. При изменении структуры квартир - 35-50 %.
Реконструкция жилых зданий с увеличением строительного объема имеет возможность удовлетворения практически любых демографических требований при достаточно высоком уровне комфортности жилья. Эта форма реконструкции наиболее затратна и, как правило, требует проведения работ с отселением жильцов, что возможно при соответствующем инвестировании проектов.
При реконструкции зданий с надстройкой эффективность решений существенно повышается. Так, при устройстве мансардных этажей стоимость работ не превышает 40-50 % нового строительства, а возведение дополнительных этажей снижает себестоимость единицы площадей на 25-30 %.
Рассмотренные концептуальные положения отражают и определяют взаимосвязи комплексного процесса, направлены на механизм принятия оптимальных решений, что в условиях рыночной экономики оценивается надежностью инвестиционных проектов и их рентабельностью.
Здания и сооружения представляют собой сложные строительные системы, состоящие из ряда конструктивных элементов, объединенных с помощью различных стыковых соединений. Особенностью таких систем является то обстоятельство, что их эксплуатационные качества и в первую очередь долговечность разнородны и зависят от таких же качеств составляющих их элементов, а также связей между ними. В результате неадекватности воздействия внешней среды, внутренних технологических и эксплуатационных процессов в различных конструктивных элементах возникают напряжения и деформации, способствующие процессам разрушения.
Разрушение нагруженных конструкций проходит три стадии: стадию зарождения трещин в местах концентрации напряжений и образования различных дефектов, стадию медленного их развития и стадию лавинообразного разрушения при достижении критических напряжений и деформаций.
Начало разрушения обусловливается неблагоприятным сочетанием ряда факторов внешнего и внутреннего воздействий. Возникновение одних дефектов носит случайный характер, других - обусловлено организационными и технологическими причинами. Выявлением дефектов и воздействиями на них возможно существенно повысить качество зданий, эксплуатационную надежность, продлить их долговечность. При этом большое значение приобретают инженерные методы диагностики технического состояния зданий и конструктивных элементов.
Анализ причин повреждений элементов зданий позволяет выделить четыре группы факторов, степень влияния которых в каждом конкретном случае может быть различной по интенсивности воздействия (табл. 2.1).
Таблица 2.1
Классификация повреждений конструктивных элементов зданий

Воздействие внутренних факторов включает природные и искусственные. К природным факторам следует отнести атмосферные, климатические, грунтовые, биологические и сейсмические воздействия. Из группы факторов следует выделить атмосферные, биологические и грунтовые условия, влияние которых в последние десятилетия заметно активизировалось.
В частности, наличие выбросов и загрязнений химическими соединениями атмосферы городов приводит к непрогнозируемым воздействиям, разрушающим ограждающие конструкции, кровли и другие конструктивные элементы. Широкая гамма химических соединений вступает в реакцию с материалом конструкций и способствует возникновению новообразований, нарушающих структурно-механические свойства и существенно снижающих долговечность конструктивных элементов. Особой опасности при этом подвержены композиционные строительные материалы с наличием полимерных материалов и соединений.
Опыт эксплуатации городских территорий показал, что ликвидация естественных насыпей, выемок и активное вмешательство в изменение естественного ландшафта приводят к изменениям геологического характера: повышению уровня грунтовых вод, карстовых образований, нарушениям физико-механических характеристик оснований зданий и другим негативным явлениям.
Воздействие технологических факторов проявляется в результате повышения агрессивности сред, технологических загрязнений и механических воздействий. При этом агрессивными могут быть как атмосферные, так и грунтовые среды. Особое значение приобретают загрязнения грунтового основания и распространение их в результате миграции атмосферных и грунтовых вод. Так, при утечке технологических загрязнений промышленного комплекса последние попадают в грунтовые воды и распространяются на значительные площади, включая и зону жилых зданий. В результате этого, казалось бы, в удаленном от источников загрязнений районе наблюдаются разрушения фундаментов жилых зданий.
Повышение интенсивности транспортных артерий, увеличение грузоподъемности машин и подвижного состава рельсового транспорта приводят к возрастанию воздействий вибрационного и ударного характера. В сочетании с изменившейся структурой грунтов эти воздействия могут принимать весьма опасные размеры. Так, повышение влажности оснований приводит к увеличению скорости распространения колебаний, снижению демпфирующих свойств грунта и в конечном итоге дополнительным динамическим воздействиям на жилые дома. В ряде районов РФ из-за высокой активности техногенных процессов повысился уровень сейсмичности, что требует не только пересмотра норм на новое строительство, но и незамедлительного принятия мер по усилению существующих зданий с целью повышения уровня надежности.
Проявление дефектов при проектировании и технологии производства работ приводит к снижению долговечности и несущей способности зданий. Наиболее часто возникновение дефектов связано с нарушениями технологических регламентов производства работ на стадиях возведения нулевого цикла, надземной части, устройства кровли, производства отделочных работ и т.п. Вероятность возникновения значительных дефектов повышается при производстве работ при отрицательных температурах, стесненных условиях, отсутствии инструментального контроля со стороны заказчика и инвесторов.
Нарушение режима эксплуатации зданий является одной из главных причин преждевременного возникновения дефектов в конструктивных элементах зданий. Наличие протечек кровли приводит к замоканию и размораживанию элементов стенового ограждения, перекрытий, балконных плит, козырьков и других выступающих элементов. Протечки, связанные с авариями системы водоснабжения или канализации, приводят к переувлажнению основания, размыву подошвы фундаментов, что нередко приводит к потере устойчивости здания, вызванной неравномерными осадками.
Нарушение температурно-влажностного режима эксплуатации зданий является причиной снижения эксплуатационной надежности ограждающих конструкций и изменения физико-механических характеристик материала конструкций.
Это далеко не полный перечень факторов и причин, вызывающих повреждения, которые приводят к возникновению дефектов трех категорий. I категория - приводящая к аварийному состоянию здания; II - возникновению повреждений, снижающих несущую способность и эксплуатационную надежность зданий; III - повреждения, не снижающие несущую способность конструкций и легко ликвидируемые при ремонте.
Уровень и значимость повреждений возможно оценить, используя инженерные методы диагностики. Комплекс исследований позволяет получить полное представление о состоянии конструктивных элементов, что является основой для оценки остаточной долговечности зданий, требуемого объема восстановительных работ и методов реконструкции [65].
С момента введения здания в эксплуатацию все элементы и конструкции постепенно снижают свои качества. Эти изменения являются следствием воздействия многих физико-механических и химических факторов. К наиболее важным из них относятся: неоднородность материалов; напряжения, вызывающие микротрещины в материале; попеременное увлажнение и высушивание; периодические замораживания и оттаивания; высокий температурный градиент, приводящий к неоднородным деформациям и разрушениям структуры материала; химическое воздействие кислот и солей; коррозия металла; загнивание древесины и т.п. При этом интенсивность протекания процессов колеблется в достаточно широких пределах и является следствием экологического состояния окружающей среды, уровнем технической эксплуатации, капитальности зданий и качества выполнения строительно-монтажных работ.
Надежность и долговечность конструкций зависят от интенсивности разрушительных процессов. Основной характеристикой зданий является долговечность. Под этим термином понимают такой расчетный срок службы, в течение которого материал или конструкция сохраняют свои свойства и заданные характеристики. Под физическим износом конструкций и зданий подразумевается ухудшение технического состояния, приводящее к потере прочностных, эксплуатационных и других качеств.
Величина физического износа - это количественная оценка технического состояния, показывающая долю ущерба по сравнению с первоначальным состоянием технических и эксплуатационных свойств конструкций и здания в целом.
Прогнозирование износа - сложная многофакторная задача. В связи с наличием в здании огромного количества разнопрочных и разнодолговечных конструкций и материалов нереально спрогнозировать весь срок его службы как сочетание сроков службы каждого элемента в отдельности.
Теоретически предполагается, что физический износ здания со временем увеличивается (рис. 2.1, кривая 1). Фактически, по результатам натурных обследований, параметры физического износа менее интенсивны (кривая 2) в результате поддержания элементов здания в нормальном техническом состоянии и могут периодически снижаться (кривая 3) при выполнении ремонтных сроков эксплуатации зданий.

Рис. 2.1. Изменение физического износа зданий
1 - по данным С.К. Балашова; 2 - по статистическим данным; 3 - при выполнении
ремонтно-восстановительных работ
Вообще ремонту должны подвергаться только сменяемые конструкции, срок службы которых менее нормативного срока службы несменяемых конструкций. В свою очередь, несменяемые конструкции при наличии физического износа должны подвергаться регенерации, т.е. процессам, обеспечивающим восстановление несущей и эксплуатационной способности. В результате использования новых материалов и технологий восстановительные работы могут существенно повысить уровень надежности и долговечности конструкций и здания в целом.
Результаты обследований показывают, что износ зданий и отдельных его элементов происходит более интенсивно в первые 20-30 лет эксплуатации и после 90-100 лет. Анализ развития физического износа конструктивных элементов свидетельствует, что срок службы зданий существенно превышает усредненные и нормативные значения. Данные позволяют сделать вывод, что здания II группы капитальности, уцелевшие и просуществовавшие 70 лет и имеющие при этом износ 40 %, как бы стабилизируются и их дальнейшее существование остается без заметных изменений в условиях нормальной эксплуатации.
В зависимости от капитальности нормами определены усредненные сроки службы конструкций в годах.
|
|
I группа |
II группа |
III группа |
|
Фундаменты .............. |
150 |
125 |
100 |
|
Стены......................... |
150 |
125 |
100 |
|
Перекрытия ............... |
150 |
100 |
50 |
Опыт эксплуатации зданий показывает, что технический срок службы превышает нормативные значения, которые являются в некотором смысле условными. Об этом свидетельствуют различные нормативные сроки для одинаковых конструкций различных стран. Так, расчетный срок службы фундаментов в Венгрии и Бельгии составляет 150, Франции - 100, Швеции - 80 лет.
Физический износ конструкций связан прежде всего со старением материалов и изменением условий эксплуатации. Снижение физико-механических характеристик материала в результате старения соответствует плавному изменению степени износа, в то время как изменение условий эксплуатации и внешних воздействий способствует более резкой и скачкообразной интенсивности износа.
На рис. 2.2 приведены данные по физическому износу фундаментов жилых домов старой постройки за период более 100 лет. При этом установлены области интенсивного износа, связанные с возрастанием динамических нагрузок от транспортных средств, а также вызванные техногенными процессами.

Рис. 2.2. Интенсивность износа фундаментов
1 - при нормальной эксплуатации здания; 2 - при изменении внешних
воздействий; 3 - при возрастании внешних нагрузок; 4 - при замачивании фундаментов
(аварийные ситуации)
Статистическая обработка результатов исследований зависимости процента износа от продолжительности эксплуатации зданий первых массовых серий показала, что интенсивность старения зависит от конструктивной схемы, применяемых материалов и конструкций, а также от характера эксплуатации и планомерности проведения ремонтных работ. Так, для зданий со стенами из кирпича и железобетонными перекрытиями период времени до постановки на капитальный ремонт составляет 15-20 лет, до проведения текущего ремонта - 3-5 лет.
Отсутствие текущего и капитального ремонтов характеризуется кривыми износа 1,3 (рис. 2.3), а при соблюдении правил и технических условий эксплуатации - кривой 2.

Рис. 2.3. Зависимости износа жилых зданий от продолжительности
эксплуатации
1 - крупнопанельные с внутренними несущими стенами и наружными
однослойными панелями из легких бетонов; 2 - здания с кирпичными стенами
и железобетонными перекрытиями; 3 - крупнопанельные с наружными
многослойными стенами
Жизненный цикл зданий возможно повысить при выполнении элементарных требований по их эксплуатации.
Оценка степени износа конструктивных элементов, их несущей способности и ограждающих функций является достаточно сложной и трудоемкой задачей и требует инженерных методов диагностики.
Физический износ оценивается, как правило, методом натурных обследований.
Оценка степени физического износа по общей характеристике технического состояния приведена в таблице 2.2. Рассматриваются четыре степени физического износа и примерная стоимость восстановительных работ. Несвоевременное восстановление несущей способности конструктивных элементов, как правило, приводит к росту стоимости восстановительных работ, иногда превышающей стоимость самих конструкций.
Таблица 2.2
Оценка степени физического износа по материалам визуального и инструментального обследования
|
Физический износ, % |
Оценка технического состояния |
Общая характеристика технического состояния |
Примерная стоимость работ, % стоимости конструктивных элементов |
|
0-20 |
Хорошее |
Повреждений и превышающих деформаций нет. Имеются отдельные дефекты, устраняемые ремонтом |
До 10 |
|
21-40 |
Удовлетворительное |
Конструктивные элементы пригодны для эксплуатации, но требуют ремонта |
15-30 |
|
41-60 |
Неудовлетворительное |
Эксплуатация конструкций возможна при условии восстановительных работ |
40-80 |
|
61-80 |
Плохое |
Состояние конструктивных элементов аварийное. Необходимы меры безопасности и полная замена конструкций |
90-120 |
Экономическая целесообразность реконструкции жилых зданий может быть установлена путем сравнения расходов на реконструкцию с затратами на строительство нового здания такой же площади с учетом сроков дальнейшей эксплуатации.
Моральный износ зданий - это устаревание со временем типов, параметров и объемно-планировочных решений зданий, их оборудования и отделки, художественно-стилевых особенностей архитектуры и внешнего облика зданий в связи с изменением представлений общества. Категория морального износа зданий включает прежде всего изменившиеся со временем нормы и представления об условиях проживания различных слоев населения. Это обстоятельство привело к разработке нормативов, являющихся обязательными при проектировании жилых зданий. Рассматривая систему морального износа в динамике, следует отметить несколько фаз развития нормативной базы жилищного строительства. К основным показателям, существенно влияющим на моральный износ зданий, следует отнести объемно-планировочные решения и, в частности, площадь нежилых помещений - кухни, санитарного узла, подсобных помещений, наличие инженерного оборудования - мусоропровода, лифта и т.п. Немаловажное воздействие на показатель морального износа оказывают факторы архитектурно-планировочных решений: высота этажа, соотношение размеров комнат, общая площадь квартир, объем помещений, приходящийся на одного жильца.
Анализ данных периода индустриального строительства показывает, что большая часть построенного жилищного фонда за период с конца 50-х до начала 90-х годов является морально устаревшей, не отвечающей современным нормативам. Характерными чертами возведенных зданий первого периода индустриализации являются исключительно малые площади кухонь (4-6 м2), наличие совмещенных санитарно-технических узлов, практически отсутствуют прихожие и холлы, а высота этажа составляет 2,5-2,6 м.
Второй период индустриализации связан с широким использованием крупноблочного и панельного строительства зданий высотой 9-12 этажей. Для жилищного фонда этой категории характерно некоторое улучшение архитектурно-планировочных решений за счет применения строительных систем с более широким шагом внутренних стен. Это позволило формировать квартиры с большей площадью, однако размеры подсобных помещений, кухонь и прихожих получили незначительное увеличение, не обеспечивающее размещение современного оборудования (посудомоечные и стиральные машины, встроенные холодильники и др.).
Обследование зданий является важнейшей частью комплекса работ по оценке их технического состояния с целью принятия решений по их реконструкции, модернизации или ремонту. Основная цель диагностики технического состояния зданий заключается в установлении фактической несущей способности и эксплуатационной надежности строительных конструкций. Полученные данные используются при разработке проектов реконструкции.
Оценка физико-механических и технических характеристик конструктивных элементов и здания в целом как сложной строительной системы включает: оценку общих и местных деформаций, состояние основания, фундаментов, несущих и ограждающих конструкций, кровли и т.д.
Конечным результатом обследования является оценка физического состояния конструкций и здания в целом. Немаловажная роль при этом отводится ликвидации причинных факторов износа конструкций.
Работа по обследованию выполняется в два этапа.
I - предварительное, или общее обследование. Осуществляется путем визуального осмотра здания и его конструкций, ознакомления с технической документацией и другими материалами, помогающими составить более полное представление об объекте. Осмотром должны быть выявлены участки и отдельные конструкции, имеющие максимальные повреждения. На этом этапе должны быть приняты меры по временному усилению конструкций.
В результате изучения проектной документации должны быть установлены: период строительства, время проведения капитальных ремонтов, изменения режимов эксплуатации, даты возможных аварий, связанных с затоплением фундаментов или подвальной части, подъемом уровня грунтовых вод и т.п. Изучение архитектурно-строительных, конструкторских, инженерных сетей и коммуникаций и других рабочих чертежей позволит сделать предварительный вывод о расчетных и фактических нагрузках и воздействиях, инженерно-геологических условиях строительства и особенностях эксплуатации зданий.
Для более полного представления о состоянии объекта должны быть использованы дополнительные материалы: акты сдачи объекта в эксплуатацию, акты на скрытые работы, журналы производства работ, документация о проведенных ремонтно-восстановительных работах и т.п.
В случае частичного или полного отсутствия проектной документации необходимо выполнить натурные обмеры конструкций и восстановить чертежи здания. При этом в процессе обмерочных работ устанавливаются конструктивная схема, размеры сечений несущих и ограждающих конструкций, положение конструкций в пространстве с привязкой к координатным осям и отметкам. При этом необходимо определить деформации конструкций, условия опирания, конструкции узлов и их состояние, имеющиеся дефекты несущих и ограждающих конструкций.
По результатам предварительного обследования проводится ориентировочная оценка технического состояния здания и намечается программа детального обследования.
II - детальное обследование. Проводится с целью сбора достоверных сведений для оценки технического состояния конструкций. В результате обследования устанавливают их положение в плане и по высоте, определяют сечение несущих элементов, осадок, смещений и других отклонений от проекта. Систематизируются дефекты и повреждения конструкций, узлов и сопряжений. Уточняются сведения об эксплуатационной среде, устанавливается величина статических и динамических нагрузок, действующих на основание фундамента, основные несущие конструкции. Уточняются расчетные схемы несущих конструкций для выполнения поверочностных расчетов.
Детальное обследование конструкций следует выполнять выборочно или сплошным. Сплошное обследование предполагает проверку всех конструкций, а выборочное - отдельных элементов.
Сплошное обследование осуществляется во всех случаях, когда: отсутствует техническая документация, обнаружены дефекты конструкций, снижающие их несущую способность, неоднородные свойства материалов конструкций, различные условия нагружения при воздействии неблагоприятных условий эксплуатации.
Если в процессе сплошного обследования обнаружится, что не менее 20 % однотипных конструкций находится в удовлетворительном техническом состоянии, то допускается оставшиеся конструкции обследовать выборочно. Объем выборочно обследуемых элементов должен составлять не менее 10 % однотипных конструкций, но не менее трех.
Особое внимание при детальном обследовании уделяется оценке значений физико-механических характеристик материала ограждающих и несущих конструкций. Она производится методом отбора проб с последующими испытаниями, а также неразрушающими методами.
При проведении детальных обследований должны быть установлены вид и степень агрессивности окружающей среды, колебания уровня грунтовых вод, характер динамических воздействий и природа их возникновения.
На этапе детальных обследований проводятся инженерно-геологические изыскания с целью получения более достоверных сведений о состоянии и характере залегающих грунтов, в том числе под подошвой фундаментов, о размерах фундаментов, способах и схемах передачи нагрузок на основание, точности геометрических осей несущих конструкций. Особое внимание уделяется характеру изменения свойств грунтов за период эксплуатации.
Результатом обследования являются: тип фундамента, его форма в плане, размеры и глубина заложения, материал фундамента и его физико-механические характеристики, наличие и состояние гидроизоляции.
Инженерно-геологические изыскания проводят при отсутствии рабочих чертежей фундаментов зданий, исполнительных документов по их возведению, при размещении объектов в сложных инженерно-геологических условиях (на подрабатываемых и подтопляемых территориях, на площадках с большим перепадом высот, при длительной эксплуатации зданий).
Детальное обследование - весьма продолжительный и трудоемкий процесс, поэтому необходимость его проведения должна быть доказана на этапе предварительного обследования.
При выполнении всех видов работ по обследованию конструкций необходима четкая регистрация полученных данных с оформлением актов технического состояния конструкций, материалов, инженерного оборудования.
Техническое обследование зданий имеет целью определить физическое состояние конструкций, степень изменения свойств материалов, дефекты конструкций. Оно производится перед реконструкцией, учитывает будущую перепланировку помещений, возможную замену перекрытий, надстройку и другие решения. Это приводит к увеличению постоянных и временных нагрузок. Поэтому получение наиболее полных данных о фактическом состоянии несущих и ограждающих конструкций с учетом изменения их во времени служит исходным материалом для проектирования реконструктивных работ.
В процессе диагностики и освидетельствования строительных конструкций зданий, для определения физико-механических свойств материалов, геометрических характеристик, прогибов и перемещений, дефектоскопии и т.п. применяют самые разнообразные приборы и оборудование.
Для определения соответствия проектному положению строительных конструкций, включая деформации всех видов, применяются геодезические приборы и приспособления (теодолиты, нивелиры). Для измерения кренов и колебаний зданий применяют оптические лазерные приборы вертикального проецирования.
При обследовании конструкций применяют теодолиты Т2, 2Т5К, нивелиры H1, H05, КОН-007, оптические центровочные приборы ОЦП-2, «Зенит-ОЦГТ», «Зенит-ЛОТ» и др.
Широко используются фототеодолиты различных марок с приспособлениями для обработки данных измерений в виде стереофотограмметрических камер, инженерных фотограмметров, стереокомпараторов и др. Для повышения точности геодезических измерений используются лазерные приборы.
Определение прочностных и деформативных свойств материалов, из которых изготовлены и возведены конструкции зданий, осуществляется методами прямых испытаний образцов. Несмотря на достаточно высокую трудоемкость этих работ, данный метод позволяет получить более достоверные результаты.
Для извлечения образцов широко используются универсальные кернообразователи с алмазными коронками. Они позволяют получать образцы материала в виде цилиндров при различном расположении конструкций. В результате механических испытаний определяются: прочность, плотность, водонепроницаемость и другие физико-механические характеристики.
Для получения требуемой достоверности испытаний используются вероятностно-статистические методы, учитывающие случайный характер распределения свойств материала.
Извлечение опытных образцов из конструкции часто затруднительно. Поэтому при обследовании зданий широко используются неразрушающие методы испытаний.
Приборы для определения прочностных и деформативных свойств материалов конструкций базируются на применении:
I. механических методов - методы пластических деформаций, основанные на вдавливании штампа в поверхность материала (молоток Кашкарова, склерометр Шмидта, прибор КМ, молоток Физделя и др.); методы испытаний на отрыв и скалывание, основанные на отделении бетона путем отрыва со скалыванием (гидравлические пресс-насосы); метод упругого отскока - прибор КМ и др.;
II. физических методов - ультразвуковые методы, основанные на измерении скорости распространения упругих волн. Ультразвуковые дефектоскопы Пульсар, Tico, Бетон 12М, УК-12М (рис. 2.4), измерители прочности бетона, кирпича и других материалов конструкций ОНИКС-2.3, Digi Schmidt (рис. 2.5); ПИК-1 и т.п.; радиоизотопные, основанные на определении плотности по изменению интенсивности гамма-излучения; магнитный для определения толщины защитного слоя арматуры ИЗC-10Н и др.

Рис. 2.4. Ультразвуковые дефектоскопы отечественного (Пульсар) (а) и зарубежного производства (Tico) (б)

Рис. 2.5. Измерители прочности бетона
а - Оникс-2.3
производства фирмы «Карат» (РФ); б - молоток Шмидта (Германия)
Для определения динамических характеристик используются виброметры ВИСТ-2, измеритель механических напряжений и колебаний ИНК-2, амплитудомеры, вибромарки, электронная виброизмерительная и записывающая аппаратура в составе: пьезодатчиков ускорения или перемещений, усилителя и записывающего прибора. При этом запись динамических параметров производится как на ленте с помощью механических или световых систем, так и на компьютере с программным обеспечением расшифровки динамических параметров - амплитуды, частоты колебаний, ускорения, а также амплитудно-частотных спектров. По данным тарировочных испытаний определяются динамические параметры строительных систем.
Современные приборы диагностики обеспечивают не только достаточно высокую точность измерений с пределом погрешностей 3-5 %, но и имеют малые габариты, графический дисплей с подсветкой, оптоинтерфейс - канал информационной связи с компьютером и программы компьютерного анализа.
Для измерения усилий, передаваемых на конструкции лебедками, домкратами и др., применяют гидравлические и пружинные динамометры, прогибомеры типа ПМ-3, ПАО-5, электронные измерители деформации ЭИД, ТЦМ с использованием тензорезисторов различного типа. Для определения углов поворота конструкций используют клинометры.
Широкое распространение для оценки состояния конструкций получили неразрушающие методы натурных испытаний. Их применяют для установления прочности на сжатие R, которая определяется как функция R = f(х1) механической или физической характеристики материала, полученной опытным путем.
Особое место в определении дефектов бетонных, железобетонных и каменных конструкций отводится ультразвуковому методу испытаний. С его помощью определяются дефекты конструкций (полости и пустоты, глубина трещин, толщина поврежденного слоя и т.п.).
Определение прочности бетона по скорости прохождения ультразвука осуществляется при сквозном, диагональном и поверхностном прозвучивании (рис. 2.6).

Рис. 2.6. Принципиальная схема дефектоскопа (а), схемы
определения прочности бетона сквозным (б),
диагональным (в) и
поверхностным (г) прозвучиванием, (д) - градуированная
кривая «прочность - скорость ультразвука»
1,2 - точки
установки преобразователей; 3 - испытываемая конструкция; 4 - кабели; 5 - источник
ультразвука; 6 - цифровой индикатор
Используя градуировочную зависимость «прочность бетона - скорость ультразвука», производится оценка прочностных характеристик конструкций.
На рис. 2.7 приведены некоторые примеры определения дефектов железобетонных конструкций. Для обнаружения пустот и каверн в теле бетонных и железобетонных конструкций используется сквозное ультразвуковое прозвучивание. Зона дефекта оценивается как область с резким снижением скорости ультразвука (рис. 2.7,а).
Для обнаружения и оценки глубины трещин в бетонных и железобетонных конструкциях используются известные в строительстве импульсные ультразвуковые приборы. Применяют поверхностное прозвучивание. Расстояние между ультразвуковыми датчиками составляет 120-400 мм. О наличии трещины свидетельствует изменение времени распространения ультразвуковых колебаний на базе измерения. Для обнаружения трещин удобнее использовать приборы с датчиками на фиксированной базе и сухим контактом (рис. 2.7,б).
При заметном увеличении времени распространения ультразвукового сигнала, свидетельствующего о трещине, может быть установлена ее глубина. Для этого трещина должна располагаться под центром базы установки датчиков. Глубину трещины определяют по соотношению

где l - база установки датчиков; ts, t0 - время распространения ультразвуковых колебаний в бетоне на базе l при наличии и отсутствии трещины.
Толщина поврежденного бетонного
слоя (рис. 2.7,в) определяется по характеру падения скорости прохождения
ультразвука (v1, v2) по следующей зависимости
где v1, v2 - соответственно
скорости распространения импульсов в слое с нарушенной и ненарушенной
структурой.

Рис. 2.7. Определение дефектов железобетонной конструкции
ультразвуком
а - определение пустот; б - определение трещин; в -
ультразвуковой прибор; г - определение зон отслоившегося и разрушенного
бетона; д - график распространения скорости ультразвука; 1,2 - преобразователи
ультразвука; 3 - испытываемая конструкция; 4 - зона дефектов; 5 - график изменения скорости
ультразвука
Сопоставительный анализ неразрушающих методов испытания бетона конструкций показал правомочность и достаточно высокую однородность результатов, полученных прибором упругого отскока КМ, эталонным молотком Кашкарова, ультразвуковым способом и методом непосредственных испытаний образцов, выбуренных из тела конструкций. Коэффициенты вариации по прочности соответственно составили при испытании колонн - 10,3; 10,4; 10,0 и 12,6 %; при испытании плит перекрытий - 12,6; 11,8; 12,9 и 13,8 %; при испытании блоков фундаментов - 16,8; 20,4; 19,6 и 20,8 %.
Для полной оценки железобетонных конструкций необходимо знать состояние арматуры и величины защитного слоя бетона. Наиболее эффективным и достаточно универсальным является магнитный способ, а также вскрытие арматуры на наименее напряженных участках конструкций с последующим восстановлением.
Магнитный способ определения защитного слоя арматуры достаточно прост в обращении, имеет высокую степень точности измерения. Переносной прибор ИЗС-10Н позволяет проводить измерения в стесненных условиях и не требует высококвалифицированного персонала. Он обеспечивает обнаружение арматуры с определением ее диаметра от 4 до 32 мм. Диапазон измерения толщины защитного слоя - от 5 до 50 мм. Допустимая погрешность измерения составляет 5 %. Прибор удобен в эксплуатации, имеет малые габаритные размеры и массу в пределах 4,5 кг.
Новое поколение электронных приборов-измерителей защитного слоя типа ПОИСК-2.2, Profometr и др. (рис. 2.8) имеет автоматизированную систему оценки диаметра арматуры. Поиск арматуры и определение проекций стержней осуществляются по цифровой, тонально-звуковой и мнемонической информации. Прибор имеет габариты 145´40´25 мм, потребляет мощность 0,02 Вт, обеспечивает диапазон толщин защитного слоя до 120 мм при диаметре арматуры 3-50 мм.

Рис. 2.8. Прибор для измерения и регистрации защитного слоя бетона
Вскрытие арматуры для оценки ее состояния является приемом, когда отсутствуют инструментальные средства контроля требуемых параметров, и широко используется в практике диагностирования железобетонных конструкций.
Для оценки и наблюдения за раскрытием трещин в бетонных, железобетонных и каменных конструкциях используются различные системы маяков, микроскопов и индикаторов часового типа.
Помимо физико-механических характеристик и дефектов несущих конструкций весьма важно произвести оценку следующих параметров, существенно влияющих на комфортность проживания, санитарно-гигиенические условия и эксплуатационные качества жилища, таких, как: воздухопроницаемость стыков панелей; влажность утеплителя стен; состояние герметика стыков; теплозащитные свойства ограждений; звукоизоляция ограждений; газовый состав воздуха в помещениях; воздухообмен, влажность воздуха, температура, освещенность помещений; скорость движения воздуха в помещениях и другие параметры.
Следует отметить, что в последнее время разработан ряд приборов, обеспечивающих контактное и бесконтактное измерение параметров с цифровой или магнитной записью процессов. Наиболее эффективными следует считать тепловизоры, с помощью которых производится инструментальная съемка динамики теплопередачи ограждающих конструкций, лазерные системы термощупов, электронные газоанализаторы и др.
На рис.2.9 приведен пример регистрации температурных полей фасада здания с помощью тепловизора. Для оценки температур различных участков используется цветовая шкала, с помощью которой возможно оценить температурные параметры отдельных участков и фасадной поверхности в целом.

Рис. 2.9. Температурные поля фасада здания, зарегистрированные тепловизором
Для количественной оценки теплопотерь и тепловых полей при неоднородности стенового ограждения и примыкания светопрозрачных конструкций (окна, балконные двери и т.п.) очень важен выбор приборов, оптимально решающих задачу бесконтактной регистрации тепловых полей, с учетом разрешающей способности и с учетом критерия «цена - качество».
Известно, что одними из основных факторов, определяемых при регистрации тепловых сетей и влияющих на погрешность оценки термического сопротивления и обнаружения дефектов строительных конструкций, являются пространственная разрешающая способность и температурная погрешность регистрации, а также и временной интервал процесса проведения контроля.
С точки зрения получения реальной картины тепловых полей и источников теплопотерь целесообразно использовать приборы с более высокой разрешающей способностью.
Исследования и анализ аномальных температурных участков ограждающих конструкций, проведенные О.Н. Будадиным, и их оптимизация показали, что пространственный шаг регистрации должен находиться в пределах 120 мм. С учетом изложенного следует применять приборы, обеспечивающие не только требуемую разрешающую способность, но и их быстродействие.
В таблице 2.3 приведены зарубежные и отечественные приборы и их разрешающая способность.
Таблица 2.3
Характеристики тепловизоров
|
№ п.п. |
Наименование прибора (тип прибора, страна-производитель) |
Пространственное разрешение (пиксели), М´N |
Частота кадров, Гц |
Время контроля поверхности 1000 м2 (разрешение - 120 мм), с |
Погрешность измерения температуры |
Цена (базовый комплект), тыс. долл. |
|
Время регистрации одного измерения, с |
||||||
|
1 |
2 |
3 |
4 |
5 |
6 |
7 |
|
1 |
Thermacan PM 595 (тепловизор, США) |
320´240 |
60 3 |
3 |
±2°С |
85,0 |
|
2 |
TVS-100 (тепловизор, Япония) |
320´240 |
10 3 |
3 |
±2% |
35,0 |
|
3 |
Varioscan-3022 (тепловизор, Германия) |
180´120 |
0,8 3 |
10 |
±2°С |
50,0 |
|
4 |
ИРТИС (тепловизор, Россия) |
220´175 |
0,5 4 |
20 |
±2 % |
19,0 |
|
5 |
Aurora (тепловизор-сканер, Россия) |
110´60 |
0,6 4 |
100 |
±1°С |
19,0 |
Для достоверной оценки теплотехнических характеристик необходимо учитывать их тепловое состояние с периодом 1-3 часа. Из этого критерия следует осуществлять выбор прибора, обеспечивающего получение реального состояния тепловых полей.
Так, время контроля поверхности стен с разрешением 120´120 мм составляет от 3 минут до одного часа с уровнем погрешности ± 2 °С.
Кроме контрольных функций целесообразно использовать тепловизоры при назначении технологии производства работ с использованием энергоэффективных блоков стенового ограждения, где материал швов определяет уровень теплопотерь (рис. 2.10).

Рис. 2.10. Термограмма стены крупнопанельного здания (а) и гистограмма (б), построенная с шагом 160´160 мм
Использование экспериментальных участков с различными материалами швов позволит оптимизировать технологию работ с позиций теплотехнической однородности.
Применение тепловизоров при заводском изготовлении наружных стеновых панелей является эффективным средством выбраковки, определения мостиков холода, зон более высокой плотности бетона и др. технологических нарушений.
Отклонение указанных параметров от нормативных значений приводит к разной потере эксплуатационных качеств, повышению расхода тепла на обогрев помещений, изменению микроклимата квартир и другим негативным моментам.
Так, постоянное увлажнение помещений и высокие теплопотери в результате продуваемости стыков приводят к частому заболеванию жильцов. Эти же параметры существенно влияют и на долговечность конструкций.
Слабая звукоизоляция внутренних стен, перекрытий, лестничных площадок и лифтовых шахт, характерная для крупнопанельных жилых зданий, приводит к дискомфорту проживания, а повышенные вибрационные нагрузки - к нарушению герметичности стыков и их преждевременному разрушению.
Существенное влияние на условия проживания оказывают химический состав воздуха и наличие агрессивных компонентов, что может являться результатом внешнего воздействия, а также реакцией материала конструкций и отделочных покрытий при взаимодействии с атмосферой.
Наличие блуждающих токов и других электромагнитных явлений в конструкциях жилых зданий также приводит к нарушению комфортности проживания.
Использование строительных материалов, не проверенных на радиоактивность, приводит в некоторых случаях к повышенному радиационному фону помещений. Это относится прежде всего к стеновым материалам из шлака и золы гидроудаления. Поэтому постоянный контроль за присутствием радиоактивности в щебне и других материалах обязателен при выполнении реконструктивных работ.
Одним из критериев, существенно влияющих на комфортность проживания, является воздухообмен помещений. Требования СНиП нормируют расход воздуха для различных помещений, что достигается методами принудительной и естественной вентиляции. Особое место при этом отводится оценке воздухопроницаемости ограждающих конструкций и их влиянию на микроклимат помещений.
Этими требованиями обеспечивается поддержка чистоты воздуха в помещениях, которая достигается не только кратностью воздухообмена, но и требованиями к элементам зданий и отделочным материалам по их способности выделять вредные вещества.
Экологическая чистота жилых помещений и зданий в целом формирует условия безопасного проживания граждан, обеспечивающие минимально необходимые санитарно-гигиенические условия, образующие внутренний микроклимат: температурный режим; влажностный и подвижный режимы воздуха; приемлемые уровни шума и вибраций; концентрации вредных химических веществ в воздухе; освещенность и инсоляция; уровни электромагнитного и ионообразующего излучения; уровень статического электричества.
Комплекс минимально допустимых параметров дает представление о критериях экологически чистого жилья и экологической безопасности. Каждая квартира или жилой дом должны иметь санитарно-гигиенический паспорт, составленный на основе инструментальной проверки физического состояния. Особое значение данный документ приобретает при выполнении реконструктивных работ, объемы которых ежегодно возрастают.
Под воздействием постоянных и переменных нагрузок в зданиях могут возникать деформации. Они подразделяются на местные, когда перемещения, прогибы или повороты происходят в узлах и конструкциях, и общие, когда перемещается и деформируется здание в целом. В свою очередь, деформации могут быть остаточными и упругими, исчезающими при снятии нагрузки.
Для измерения местных деформаций используются различные системы прогибомеров и индикаторы часового типа.
Общие деформации здания являются следствием просчетов в подборе фундаментов, что приводит к неравномерной осадке различных частей здания, а также к нарушениям эксплуатационного режима - замачиванию грунтов вследствие аварии сетей водо- и теплоснабжения, изменению гидрогеологических условий.
Для измерения осадок, кренов, смещений зданий используют методы инженерной геодезии. Смысл диагностики заключается в сопоставлении отметок реперов и осадочных марок. Реперы закладываются на такую глубину, чтобы их основанием служили практически несжимаемые грунты. Их располагают вокруг здания на расстоянии 30-100 м.
Осадочные марки устанавливают в фундаменты по периметру здания. Положение их осей выносят на стены и фиксируют несмываемой краской. С помощью нивелирования определяют характер общих осадок для различных участков здания (рис. 2.11).

Рис. 2.11. Схемы определения осадки зданий и кренов
а - схема регистрации осадки здания: Роп - опорные
репера; ОМ - осадочные марки; б,
в - определение крена здания методом измерения горизонтальных
углов: А, А1
- центры знаков на расстоянии 30-50 м от здания; С, С1 - удаленные знаки; В -
марка на верхней части здания; g, g1 - измеряемые углы
Крены зданий фиксируют боковым нивелированием или измерением горизонтальных углов. Использование клинометров и кренометров позволяет получить более точные характеристики деформаций. Для измерения наклонов используют точные уровни с измерительным винтом.
Линейная величина частных кренов, мм, определяется по зависимостям (рис. 2.8,б)
![]()
где g, g1 - приращение угла в одну сторону; L, L1 - расстояние от сооружения до знака; r - коэффициент перевода углов в линейное значение.
Измерение сдвигов зданий осуществляется с помощью теодолита. При этом боковое смещение измеряют от прямых линий, фиксируемых вдоль периметра здания. В качестве линии отсчета используют струну или лазерный луч.
Более точным средством регистрации деформаций является метод фотограмметрии, который позволяет получать графическое изображение объекта с параметрами отклонений различных его точек.
Особое внимание при диагностике технического состояния зданий отводится оценке геометрического положения несущих и ограждающих конструкций, узлов и сопряжений, деформаций в виде прогибов, угловых смещений и т.п. Эти параметры измеряются традиционными методами и сравниваются с допустимыми значениями.
В местах, неудобных для геометрического нивелирования из-за стесненности условий работ, используется гидростатическое нивелирование. Гидростатический прибор подвешивается к высотным маркам и по разности отсчетов по соседним трубкам определяется величина превышений. Точность измерений составляет 0,1 мм.
После регистрации деформаций отдельных конструкций производят сравнение с допустимыми значениями (табл. 2.4).
Таблица 2.4
Значение предельно допустимых прогибов
|
№ п.п. |
Элементы конструкций |
Предельно допустимые прогибы |
|
1 |
Железобетонные перекрытия с плоским потолком при пролете, м: |
|
|
|
l < 6 |
1/200 |
|
|
6 < l < 7,5 |
3 см |
|
|
l > 7,5 |
1/250 |
|
2 |
Перекрытия с ребристым потолком, м: |
|
|
|
l < 5 |
1/200 |
|
|
5 < l < 10 |
2,5 см |
|
|
l > 10 |
1/400 |
|
3 |
Металлические балки перекрытий при пролете, м: |
|
|
|
l < 6 |
1/250 |
|
|
6 < l < 7,5 |
2 см |
|
|
7,5 < l < 10 |
1/400 |
|
4 |
Стеновые панели самонесущие при пролете, м: |
|
|
|
l < 6 |
1/200 |
|
|
6 < l < 7,5 |
3 см |
|
|
l > 7,5 |
1/250 |
Данные измерений деформаций представляют в виде исполнительной схемы и журнала изменений. Они используются для составления заключения о техническом состоянии здания.
Обследование оснований и фундаментов
Для зданий, подлежащих реконструкции, требуется в первую очередь установить несущую способность оснований и фундаментов, их техническое состояние. Работы по обследованию предусматривают выполнение инженерно-геологических, гидрогеологических и инженерных работ. Обследование оснований выполняется в соответствии с требованиями СНиП 2.02.01-83*.
Основная цель обследований состоит в оценке инженерно-геологического состояния грунтов, залегающих под подошвой фундамента, а также состояния фундаментов, их целостности, деформативности, устойчивости и прочности материала.
Обследования производят с помощью открытых шурфов, количество и месторасположение которых определяются в каждом конкретном случае. Проходку шурфов осуществляют в наиболее нагруженных и ненагруженных участках, у наружных и внутренних стен, колонн, столбов и т.п. Число закладываемых шурфов принимают по одному у каждого вида конструкции в наиболее нагруженном и ненагруженном местах, при наличии повторяющихся секций - в одной секции отрывают все необходимые шурфы, а в остальных по 2-3 шурфа в наиболее нагруженных местах, в местах, где предполагается установка промежуточных опор или пристройка дополнительных объемов.
Получение достоверных результатов о состоянии основания и фундаментов исключительно важно при увеличении или изменении характера нагрузки, при надстройке, устройстве заглубленных помещений вблизи существующих зданий и в других случаях.
Шурфы отрывают вблизи участков, имеющих значительные деформации, а также в зонах, где предусматриваются надстройка, пристройка и другое повышение нагрузок.
При отсутствии рабочей документации на основания и фундаменты количество, глубина и расположение шурфов в плане должны быть достаточными для восстановления планов и разрезов фундаментов и установления несущей способности основания.
Обработка результатов исследований позволяет сделать вывод о состоянии основания фундаментов, их несущей способности, степени износа конструкций, фактическом сопротивлении грунтов. Устанавливаются зоны, где необходимо укрепление грунтов с целью повышения их несущей способности.
При оценке состояния фундаментов более поздних построек, выполненных из элементов сборного бетона и железобетона, процесс дефектоскопии существенно упрощается.
При наличии технической документации возможно частичное обследование, что существенно снижает трудоемкость и стоимость работ.
В таблице 2.5 приведены характерные повреждения и их причины для фундаментов: свайных, ленточных крупноблочных и сборно-монолитных фундаментов жилых зданий первых массовых серий (кирпичных и крупнопанельных). Причинами дефектов и повреждений служат, как правило, нарушения в технологии производства работ, эксплуатационные условия, отклонения в изготовлении конструкций и др.
Таблица 2.5
Повреждения и дефекты фундаментов и грунтов основания
|
Конструктивный элемент или его часть |
Повреждения |
Основные причины повреждения |
|
Естественные основания |
||
|
Грунт основания фундамента |
Уменьшение расчетного сопротивления грунта, увеличение агрессивности среды |
Эксплуатационные факторы: увлажнение, увеличение нагрузки и ошибки при проектировании |
|
Свайные фундаменты |
||
|
Сваи |
Сваи не объединены в ростверк |
Нарушение условий забивки свай или устройства ростверка |
|
Смещение в плане от проектного расположения свай |
Нарушение проекта в процессе устройства свайного фундамента |
|
|
Несоответствие класса бетона примененных свай проектному |
То же |
|
|
Сваи не забиты до проектной отметки |
Нарушение в процессе устройства свайного фундамента |
|
|
Стальная арматура, закладные и соединительные детали |
Коррозионные следы на поверхности конструктивных элементов |
Коррозия арматуры, закладных деталей |
|
Коррозия арматуры, закладных деталей, соединительных накладок |
Эксплуатационные факторы, нарушения в процессе изготовления |
|
|
Ростверк |
Общие деформации ростверка в вертикальной или горизонтальной плоскости |
Нарушения в технологии устройства; эксплуатационные факторы; ошибки при проектировании |
|
Трещины шириной более 0,3 мм в бетоне ростверка, распространение отдельных из них на цокольные панели |
Нарушение технологии производства работ. Эксплуатационные факторы; ошибка при проектировании |
|
|
Местные деформации (смятие, сколы и др.) бетона ростверка, в том числе в местах опирания панелей |
Нарушение технологии производства работ в процессе возведения; неправильная установка панелей |
|
|
Гидроизоляция |
Полное или частичное отсутствие вертикальной и горизонтальной гидроизоляции ростверка |
Нарушения в процессе возведения зданий |
|
Защитные и защитно-декоративные покрытия |
Полное или частичное отсутствие защитного покрытия на сваях (ростверке) |
Нарушения при изготовлении свай |
|
Фундаменты ленточные крупноблочные сборно-монолитные, фундаменты отдельно стоящих стен технических подполий |
||
|
Горизонтальные и вертикальные поверхности |
Общие деформации в вертикальной или (и) горизонтальной плоскости (искривления, перекосы, прогибы, выпучивания и др.) |
Эксплуатационные факторы; неравномерная осадка; пучение грунта; уменьшение устойчивости грунта и др. |
|
Бетон фундаментов, стен |
Разломы или трещины шириной более 0,3 мм |
То же |
|
Высолы и следы сырости на стенах технического подполья |
Нарушение в технологии производства работ и изготовлении цокольных панелей, устройстве фундаментов и стен |
|
|
Стыки блоков и цокольных панелей |
Трещины в растворе швов стыков |
Отклонения от технологии производства работ. Эксплуатационные факторы |
|
Выпадение раствора из стыков и мест сопряжений; разрушение бетона в зоне стыков по краям панелей и мест сопряжений |
То же |
|
|
Увлажнение бетона в зоне стыков блоков и панелей |
Эксплуатационные факторы: повреждения гидроизоляции; повышение уровня грунтовых вод и др. |
|
Диагностика каменных и армокаменных конструкций
При обследовании каменных и армокаменных конструкций прежде всего выделяются наиболее ответственные несущие конструкции. С помощью приборов устанавливают степень отклонения от проектного положения. Особое внимание уделяется местам опирания перемычек, балок, плит перекрытия и покрытия, характеру сопряжения стен между собой.
Среди причин возникновения дефектов следует выделить: механические, динамические, температурно-влажностные воздействия, а также дефекты, обусловленные неравномерностью осадок основания. Последние, как правило, приводят к наиболее значительным дефектам.
В зависимости от характера изменения осадки фундаментов вследствие технической эксплуатации зданий и других техногенных процессов возможно развитие растягивающих напряжений в кладке, приводящих к образованию трещин. Основные варианты развития трещин состоят в (рис. 2.12):
1 - осадке средней части здания за счет просадочных явлений в грунтах основания. Она вызывает параболические кривые, образованные сетью трещин, расширяющихся книзу и наклоненных к центральной оси здания;
2 - осадке крайних частей здания, что вызывает параболические кривые, образованные сетью трещин, расширяющихся кверху и наклоненных к краям здания;
3 - разломе здания вследствие максимальных осадок крайних частей здания и минимальной осадки в центральной части. Образуется сквозная вертикальная, расширяющаяся кверху трещина. Причиной может служить местная подпирающая опора в грунте основания центральной части здания;
4 - просадке части здания, приводящей к образованию вертикальной извилистой трещины одинаковой толщины раскрытия.

Рис. 2.12. Вид трещин в каменных стенах зданий при основных
видах осадки грунта оснований
а - осадка средней части здания; б - осадка крайних частей
здания; в - разлом здания; г - просадка части здания; R -
сопротивление грунта основания
Вторая группа воздействий, приводящая к трещинообразованию кирпичной кладки, относится к конструктивным деформациям и включает три стадии напряженно-деформированного состояния.
1-я стадия - начало трещинообразования происходит при нагрузках, составляющих 40-60 % разрушающих, при кладке на слабых растворах (менее 1 МПа), 50-70 % - при кладках на растворах средней прочности (1-2,5 МПа), 70-90 % - на прочных растворах (более 5 МПа). Эта стадия включает появление трещин, распространяемых на высоту 2-3 рядов кладки, совпадающих с вертикальными швами кладки. Появление трещин свидетельствует о превышении нагрузки несущей способности кладки;
2-я стадия - при возникновении значительных напряжений в кладке. Она характеризуется появлением вертикальных трещин в нескольких рядах кладки;
3-я стадия трещинообразования соответствует аварийному состоянию.
На рис. 2.13 приведена схема распределения нормальных и касательных напряжений в кирпичной кладке, моделируемой пластиной с прямоугольными отверстиями. При равномерно распределенной нагрузке максимальные нормальные напряжения концентрируются на границе отверстий, а касательные - в простенках. Примерное соотношение напряжений приведено на эпюрах по характерным сечениям.

Рис. 2.13. Распределение напряжений в стене-пластине с
проемами и выпучивание кирпичных простенков
а - нормальные напряжения; б - касательные напряжения; в -
схема деформаций; г - расчетная схема
Определяющее влияние на концентрацию напряжений оказывает процесс старения кладки (выветривание и разрушение швов) в результате влагомассопереноса и влияния цикличных процессов замораживания-оттаивания. В результате обжатия швов в определенной части кладки возникают напряжения, превышающие ее несущую способность.
Методом визуального наблюдения легко устанавливается наличие трещин, сколов. По характеру их расположения можно судить о причинах возникновения дефектов. Так, при увеличении нагрузки выше расчетной наблюдается образование вертикальных трещин различной степени раскрытия. Недостаточная длина опирания перемычек, неправильное выполнение кирпичной кладки над проемами, устройство перемычек над витринными проемами без устройства портала приводят к характерному образованию трещин. Причиной образования трещин в простенках могут служить: применение материалов, не отвечающих проектным требованиям; некачественная перевязка швов в кладке; неправильное выполнение температурных и деформационных швов; нарушение технологии производства работ в зимнее время; перегрузки при надстройке здания и др.
Появление наклонных трещин может иметь различные причины. В первую очередь они вызваны неравномерностью осадок фундамента из-за недостатков в подготовке основания, смещения осей, наложения дополнительных нагрузок от пристраиваемых зданий. Нарушение эксплуатационного режима здания происходит в результате подтопления или вымывания основания атмосферными или техническими водами, увлажнения грунта из-за протечек, понижения уровня грунтовых вод при производстве работ вблизи возведенного здания и др.
Деформации внутренних стен в местах примыкания к наружным вызваны более высокой нагрузкой и отсутствием в этих местах армирования кладки.
На рис. 2.14,в приведены характерные примеры образования трещин для рассмотренных случаев.
В процессе обследования очень важно знать динамику раскрытия трещин во времени. Для этой цели на трещины устанавливают гипсовые, стеклянные или металлические маяки. Гипсовые и стеклянные маяки устанавливают на стене, предварительно очищенной от штукатурки. Используются цементные или гипсовые растворы. Металлические маяки изготавливают из кровельной стали и крепят к стене клеем или дюбелями. На маяках выставляются номер и дата установки. Динамика развития деформаций регистрируется в журнале наблюдений. Глубину трещин определяют с помощью щупов и игл, а ширину раскрытия - с помощью микроскопов МПБ-2, Мир-2. Пределы измерений МПБ-2 составляют до 6,5 мм, а Мир-2 - от 0,015 до 0,6 мм.

Рис. 2.14. Характерные примеры образования трещин в кирпичных
стенах
а - вертикальные трещины в простенках; б - то же, в зоне заделки
перемычек; в - деформации внутренних стен в местах примыкания к наружным
стенам
Важным этапом обследований является процесс определения физико-механических характеристик кладки. Этому этапу предшествуют качественная оценка кладки и ее соответствие техническим требованиям: толщина швов и перевязка, соблюдение горизонтальности рядов, вертикальность стен и др. Для механических испытаний материала каменной кладки из малонагруженных элементов конструкций извлекаются образцы или выбуриваются керны, которые испытываются с использованием стандартного оборудования.
При зондировании отбирают пробы материала не менее чем через каждую четверть толщины стены. Число точек зондирования принимают в зависимости от размеров здания и его этажности (таблица 2.6).
Таблица 2.6
Число точек зондирования для различных зданий
|
Количество секций в здании |
Несущие каменные стены |
||
|
Число этажей |
|||
|
до 3 |
4-5 |
свыше 5 |
|
|
1-2 |
3 |
4 |
4 |
|
3-4 |
5 |
7 |
8 |
|
Более 4 |
7 |
9 |
10 |
Определение прочности камней производится в соответствии с ГОСТ 8462-85, раствора - ГОСТ 5802-86. Морозостойкость материалов каменной кладки испытывают в соответствии с ГОСТ 7025-91.
Условие, при котором поврежденные каменные и армокаменные конструкции подлежат усилению, имеет следующий вид
КбпР > NКТР
где Кбп - коэффициент безопасности (Кбп - 1,7 для неармированной кладки, 1,5 - для кладки с сетчатым армированием); Р - фактическая нагрузка в момент обследования; N - несущая способность конструкции без повреждений; КТР - коэффициент, учитывающий снижение несущей способности (табл. 2.7) при наличии повреждений.
Значения коэффициента К снижения несущей способности кладки в зависимости от характера повреждений
|
№ п.п. |
Характер повреждения кладки стен, столбов и простенков |
К при кладке |
|
|
неармированной |
армированной |
||
|
1 |
Трещины в отдельных кирпичах, не пересекающие растворные швы |
1,0 |
1,0 |
|
2 |
Волосяные трещины, пересекающие не более двух рядов кладки |
0,9 |
1,0 |
|
3 |
То же, при пересечении не более 4 рядов при числе трещин не более 4 на 1 м ширины стены, столба или простенка |
0,75 |
0,9 |
|
4 |
Трещины с раскрытием до 2 мм, пересекающие не более 8 рядов кладки, при числе трещин не более 4 на 1 м ширины стены, столба, простенка |
0,5 |
0,7 |
|
5 |
То же, при пересечении более 8 рядов |
0 |
0,5 |
При этом для расчета
конструкций принимается средний предел прочности кладки
, который при известных марках кирпича и раствора принимается
равным удвоенной величине расчетного сопротивления кладки
.
Для испытаний из различных участков каменной конструкции отбирают образцы. Предел прочности при сжатии кирпича определяется на образцах, состоящих из двух кирпичей или из двух половинок, а предел прочности при сжатии камней определяется на целом камне.
Предел прочности при сжатии Rсж (МПа) определяют по зависимости
![]()
где Р - наибольшая нагрузка, кН; А - площадь поперечного сечения, м2.
Предел прочности при изгибе Rизг (МПа) определяют согласно схеме испытания
![]()
где Р - наибольшая нагрузка; l - расстояние между осями опор; b, h - ширина и высота сечения образца, м.
Полученные данные используются для определения предела прочности RКЛ кладки при сжатии по средней прочности камня и раствора

где А - конструктивный коэффициент, зависящий от вида кладки и прочности камня
![]()
т, п - коэффициенты, зависящие от вида кладки; Rр, RK - прочность раствора и камня.
Значения коэффициентов а, b, т, п приведены в таблице 2.8.
Таблица 2.8
|
№ п.п. |
Вид кладки |
Значения коэффициентов |
|||
|
а |
b |
т |
п |
||
|
1 |
Из кирпича, кирпичных блоков и камней правильной формы с высотой ряда 50-150 мм |
0,2 |
0,3 |
1,25 |
3,0 |
|
2 |
Из сплошных камней правильной формы с высотой ряда 180- 360 мм |
0,15 |
0,3 |
1,10 |
2,5 |
|
3 |
То же, из пустотелых камней |
0,15 |
0,3 |
1,50 |
2,5 |
|
4 |
Из сплошных крупных блоков с высотой ряда более 150 мм |
0,09 |
0,3 |
1,10 |
2,0 |
|
5 |
Из бутового камня |
0,2 |
0,25 |
2,50 |
8,0 |
Коэффициент изменчивости прочности кирпичной кладки принимается С = 0,15, а условное нормативное сопротивление RН = RКЛ(1 - 2С) = 0,7RКЛ. Вероятностное понижение прочности кладки с учетом имеющихся ослаблений (пустошовка, гнезда, отклонения от вертикали) дает значение RКЛ = 0,5RН.
При наличии повреждений кладки стен, столбов и простенков вводится коэффициент снижения несущей способности КТР (таблица 2.7).
Диагностика и оценка остаточной несущей способности бетонных и железобетонных конструкций
Обследование бетонных и железобетонных конструкций осуществляется в соответствии с требованием СНиП 2.03.01-84* «Бетонные и железобетонные конструкции». Обнаруженные при обследовании дефекты разделяются на следующие по степени важности группы: дефекты, приводящие к снижению и потере несущей способности; частично снижающие несущую способность с изменением геометрических размеров; отклонения в геометрических размерах при сохранении несущей способности, вызывающие непригодность к технической эксплуатации.
Одни и те же дефекты могут создавать условия непригодности как по несущей способности, так и по потере эксплуатационных качеств. Например, прогибы, превышающие допустимые значения, исключают нормальную эксплуатацию конструкций. В то же время снижение несущей способности приводит к аварийному состоянию. Ширина раскрытия трещин, нормальных к продольной оси изгибаемого элемента в растянутой зоне, более 0,4 мм свидетельствует о превышении требований по второй группе предельного состояния и одновременно указывает на возможность достижения предела текучести арматурной стали, что сопряжено с потерей несущей способности конструкции.
Наиболее характерными дефектами железобетонных и бетонных конструкций являются трещины. Следует различать трещины, появление которых вызвано напряжениями, возникающими в конструктивных элементах в процессе их изготовления, транспортирования и монтажа, а также обусловленные эксплуатационными нагрузками и воздействием окружающей среды.
К трещинам, появившимся в доэксплуатационный период, относятся: усадочные, вызванные нарушением технологического режима твердения бетона; в результате резких температурных перепадов отдельных участков конструкции и напряжений, возникающих при этом; трещины технологического происхождения, возникающие в элементах сборного железобетона при изготовлении; в результате нарушений условий складирования, транспортирования и монтажа. Объем дефектов такого происхождения достаточно велик и составляет около 60 %.
Трещины, появившиеся в эксплуатационный период, имеют следующее происхождение: возникающие в результате температурных деформаций, неправильного устройства или отсутствия температурных и деформационных швов; вызванные неравномерностью осадок грунтового основания, аварийным замачиванием грунтов, проведением земляных работ в непосредственной близости к фундаментам, динамическими нагружениями, связанными с забивкой свай, уплотнением грунта, близким расположением автотранспортных магистралей и т.п.; обусловленные силовыми воздействиями, превышающими расчетные значения. Последнее обстоятельство связано с увеличением нагрузок от надстройки зданий.
Наиболее опасными являются дефекты, полученные при возведении монолитных конструкций и производстве работ при отрицательных температурах. В этом случае из-за неравномерностей температурных полей возникают дополнительные напряжения, приводящие не только к образованию трещин, но и к нарушениям структуры бетона, снижению физико-механических характеристик, адгезии арматуры с бетоном. Трудноисправимые дефекты возникают при ранней распалубке монолитных конструкций. Так, при распалубке перекрытий, не достигших прочности 70 % Rб, наблюдаются высокие деформации (прогибы), восстановление которых представляет достаточно большие трудности. Увеличение скорости нагружения стеновых конструкций, превышающей интенсивность набора прочности бетоном, приводит к возникновению опасных напряжений.
В каждом конкретном случае необходимо проведение анализа и расчета напряженно-деформированного состояния железобетонных конструкций.
В изгибаемых элементах, работающих по балочной схеме, возникают трещины, перпендикулярные продольной оси, вследствие появления растягивающих напряжений в зоне действия максимальных изгибающих моментов и трещины, наклонные к продольной оси, вызванные главными растягивающими напряжениями в зоне действия перерезывающих сил и изгибающих моментов.
Разрушение бетона сжатой зоны свидетельствует о потере несущей способности конструкции.
Появление в изгибаемых элементах поперечных трещин, проходящих через все сечение, связано с воздействием дополнительного изгибающего момента в горизонтальной плоскости, перпендикулярной плоскости действия основного изгибающего момента.
Трещины в зоне опорной части балок и плит перекрытий указывают на нарушения в анкеровке преднапряженной арматуры, а также недостаточное косвенное армирование. Смятие опорных частей сборных плит является следствием нарушения технологического процесса - замоноличивания пустот опорной части или их заполнения бетонными вкладышами.
В изгибаемых элементах появление трещин сопутствует увеличению прогибов и углов поворота. Аварийными следует считать прогибы изгибаемых элементов более 1/50 пролета при ширине раскрытия в растянутой зоне более 0,5 мм.
Оценка прочностных и деформативных характеристик бетонных и железобетонных конструкций реконструируемых зданий является наиболее трудоемкой и важной операцией. Достоверные результаты способствуют принятию решения по сохранению конструкций здания, предотвращению аварийных ситуаций, разборке и ограждению зоны аварийных конструкций.
Оценка повреждения железобетонных конструкций классифицируется как слабая при снижении несущей способности до 15 %, средняя - до 25 %, сильная - до 50 % и полная - свыше 50 %.
Получение достоверных данных о состоянии железобетонных конструкций связано со степенью точности натурных исследований. На основании полученных результатов дается оценка остаточной несущей способности и эксплуатационной пригодности железобетонных конструкций. В основе оценки заложен принцип расчета несущей способности и эксплуатационной пригодности согласно СНиП 2.03.01-84* «Бетонные и железобетонные конструкции». На первом этапе определяются несущая способность сечений, прогибы, ширина раскрытия трещин. Эти данные сравниваются с реальным состоянием конструктивных элементов.
![]()
Если acrc ≤ [acrc]; f ≤ [f], то конструкция считается пригодной к дальнейшей эксплуатации без усиления или восстановления.
Здесь приняты обозначения: F - фактическое внешнее усилие (продольная сила N, изгибающий момент М, поперечная сила Q); Fn - теоретическая несущая способность сечения элемента; S - фактические геометрические размеры сечения; Rbn - нормативное сопротивление бетона, определенное по фактической кубиковой прочности бетона Rsn, gb - коэффициент надежности по бетону; gbi - коэффициент условий работы бетона конструкций.
По фактическому значению средней кубиковой прочности бетона, полученной в результате прямых или неразрушающих методов диагностики, определяется коэффициент Киз. Затем по СНиП 52-01-2003 устанавливаются класс бетона и все характеристики, необходимые для расчета железобетонных конструкций.
Коэффициент изменчивости свидетельствует о степени повреждения материала конструкций. При его значениях менее 0,8 эксплуатация конструкций без дополнительных мероприятий по разгрузке и временного крепления недопустима. В этом случае целесообразность расчета отпадает, так как требуется принятие более радикальных решений. Если Киз ≥ 0,8, то производится расчет конструкций. При расчете принимается фактическая площадь сечения арматуры с учетом коэффициента Кd, учитывающего степень ослабления площади сечения арматуры коррозией

где d0 - исходный диаметр арматуры;
- средний сохранившийся диаметр прокоррозированной арматуры с
доверительной вероятностью 0,95.

где di - выборочные значения диаметра; Sdk - среднее квадратичное отклонение; t0,95 - коэффициент Стьюдента; Rsn - нормативное сопротивление арматуры; gs - коэффициент надежности по арматуре; gsi - коэффициент условий работы арматуры; acrc, f - расчетная ширина раскрытия трещин и прогиб, вычисленные при фактических прочностных характеристиках бетона и арматуры; [acrc], [f] - допустимые ширина раскрытия трещин и прогиб.
Если в результате расчета разница между полученными и допустимыми по нормам значениями не превышает 25 %, то выполняются расчеты второго этапа, где методами статического моделирования определяются надежность конструкции и ее безотказная работа по первой и второй группам предельных состояний.
В случае невыполнения одного из неравенств конструкцию необходимо усилить.
Малоэтажные крупнопанельные здания первых серий практически являлись экспериментальным полигоном по отработке как конструктивных, так и технологических регламентов будущих массовых серий полносборного строительства жилья. В этой связи неизбежны конструктивные, архитектурно-планировочные и технологические недостатки, которые со временем эксплуатации способствовали возникновению дефектов в зданиях.
Опыт эксплуатации показал, что повреждения начинаются в наиболее уязвимых местах конструкций. Такими являются места сопряжения различных материалов и конструкций; узлы опирания внутренних, наружных стен и плит перекрытия; места ввода коммуникаций; стыки отвода атмосферных вод, наружных стеновых панелей, выступающие элементы балконов, козырьков и парапетов.
Дефекты панельного строительства можно представить в виде трех блоков, представляющих собой: дефекты, возникающие на стадиях изготовления конструктивных элементов, монтажа конструкций и технической эксплуатации зданий.
Наиболее характерные дефекты и причины их возникновения приведены в таблице 2.9.
Таблица 2.9
Классификация дефектов панельных зданий первых массовых серий

Взаимосвязь строительных конструкций и функционирование здания как сложной строительной системы приводят в ряде случаев к компенсации дефектов, но в большинстве - к развитию их зоны, вовлечению в процесс старения и разрушения прилегающих участков и здания в целом. Анализ дефектов конструкций и аварий показывает, что они вызваны действием как одной, так и совокупностью комплекса причин. Ошибки проектных решений составляют 4 % дефектов; низкое качество изготовления деталей и конструкций - 17,6 %; низкое качество монтажа - 41,6 %; неудовлетворительная эксплуатация зданий - 8 %; совокупность различных причин - 17,6 %. По времени проявления недостатки распределяются следующим образом: на период строительства - 48 %, на окончание строительства (период сдачи объекта) - 20 %; на процесс эксплуатации - 22 %, на период после капитального ремонта - 3 %.
Заводское изготовление сборных конструкций крупнопанельного домостроения характеризуется различными технологиями и оборудованием для производства работ, которые в совокупности дают представление о качестве конструкций, их долговечности и эксплуатационной надежности. В этом плане существенное значение приобретают процессы приготовления бетонных и других строительных смесей, технология укладки и вибрационных режимов уплотнения, режимы тепловой обработки ускоренного твердения, качество форм и их геометрическая неизменяемость.
Приготовление бетонной смеси является одним из важных технологических переделов, существенно влияющих на однородность материала и в конечном итоге на физико-механические характеристики. Весьма важными являются точность дозирования составляющих, учет влажности, однородность перемешивания.
В период начала массового крупнопанельного строительства отсутствовали эффективные средства управления технологическими свойствами бетонных смесей. Основным приемом улучшения удобоукладываемости являлось повышение фактора В/Ц. Это приводило к снижению плотности материала и, соответственно, морозостойкости. Избыточная вода, не вступая в химические реакции с цементом, остается в бетоне в виде пор или капилляров, испаряется, оставляя воздушные поры. В результате этого бетон ослабляется, и чем выше В/Ц, тем ниже прочность бетона.
При снижении фактора В/Ц технологические свойства бетона ухудшаются. Жесткий бетон для его уплотнения требует мощного воздействия вибрационными или виброударными режимами. При этом достаточно трудно получить высокую однородность и степень уплотнения. Известно, что недоуплотнение бетона на 1 % приводит к потере прочности на 5-8 %.
Снижение однородности бетона наблюдается при использовании как подвижных смесей за счет частичного расслоения, так и жестких смесей в результате недоуплотнения определенных зон.
Наиболее ярко эти эффекты проявились при кассетном производстве внутренних стеновых панелей, где степень неоднородности достигала 20-40 %. При изготовлении однослойных керамзитобетонных панелей наружных стен разброс плотности по толщине панелей достигал 30 % и более.
По действующим нормам расчетное сопротивление бетона оценивается зависимостью
![]()
где VH - коэффициент вариации, оценивающий колебания прочности бетона (среднее значение по СНиП VH = 13,5 %); R - прочность бетона; К - коэффициент безопасности по бетону.
Коэффициент безопасности К учитывает возможное ослабление конструкции вследствие ряда неблагоприятных технологических факторов.
Если фактическая средняя прочность бетона будет соответствовать проектной, а коэффициент вариации 13,5 %, то нормативные сопротивления будут иметь обеспеченность 97,7 %. На рис. 2.15 показано влияние однородности (коэффициента вариации) на среднюю прочность бетона. С уменьшением коэффициента вариации можно снизить требования к средней прочности бетона, в то время как с увеличением этого показателя требуется увеличивать нормативное сопротивление бетона в конструкции.

Рис. 2.15. Влияние однородности на среднюю прочность бетона
Оценка однородности бетона изготавливаемых конструкций не имела достаточного оснащения контрольными средствами ультразвуковой дефектоскопии, что приводило к снижению их качества.
Весьма характерным примером служат дома серии К-7, где вследствие неоднородности материала плит перекрытий наблюдаются зоны минимальной прочности, приводящие к значительным прогибам и разрушению перекрытий.
Усадка бетона. Большое влияние на долговечность конструкций, соприкасающихся с атмосферой, является усадка бетона, которая проявляется в образовании усадочных трещин. Усадка бетона зависит от его состава и свойств используемых для его приготовления материалов. Увеличение усадочных явлений наблюдается при повышении содержания цемента и воды, использовании мелкозернистых и пористых заполнителей. Как правило, наличие усадочных трещин является источником интенсивных разрушений поверхностного слоя бетона при воздействии атмосферных осадков и отрицательных температур. Интенсивность процессов существенно возрастает при наличии в атмосфере химически активных элементов.
Деструктивные процессы, протекающие в твердеющем бетоне, как правило, связаны с тепловлажностными условиями его обработки. Максимальное воздействие при этом наблюдается в ранние сроки набора прочности бетоном.
Деформации твердеющего бетона, как правило, вызывают деструктивные процессы как при тепловой обработке в заводских условиях, так и при производстве бетонных работ в построечных условиях. Они проявляются в образовании микротрещин, расширении капилляров, снижении адгезии крупного заполнителя и сцепления арматуры с бетоном.
Рассматривая сечение конструктивного элемента по высоте, имеем два вида деформаций, являющихся следствием градиента температурно-влажностного воздействия. При открытых поверхностях и влажности воздуха менее 50 % наблюдается появление усадочных трещин поверхностных слоев бетона, а при прогреве бетона в термоактивной опалубке - появление усадочных деформаций в нижней зоне. Эти процессы особенно часто сопровождают технологию монолитного строительства, когда создание идентичных условий по толщине конструкции практически невозможно или затруднено.
На долговечность бетонов и, соответственно, железобетонных конструкций влияют такие свойства, как плотность, проницаемость и морозостойкость.
Коррозия бетона. Фактором, существенно влияющим на долговечность бетонных и железобетонных конструкций, является коррозия от агрессивных сред.
Степень агрессивности бетонных и железобетонных конструкций определяется для жидких сред наличием и концентрацией агрессивных реагентов, температурой, напором или скоростью движения жидкости у поверхности. Для газовых сред - видом и концентрацией газов, растворимостью их в воде, влажностью и температурой среды. Для твердых сред (соли, аэрозоли, пыли) - дисперсностью, растворимостью в воде, влажностью окружающей среды.
В зависимости от глубины разрушения бетона при коррозии имеют место слабо-, средне- и сильноагрессивные среды.
В таблице 2.10 приведены требования по допустимой глубине разрушения бетона за 50 лет эксплуатации.
Таблица 2.10
Допустимая глубина разрушения бетона за 50 лет эксплуатации
|
Степень агрессивности |
Глубина разрушения бетона, см |
|
|
Железобетонные конструкции |
Бетонные конструкции |
|
|
Неагрессивная |
1 |
2 |
|
Слабоагрессивная |
1-2 |
2-4 |
|
Среднеагрессивная |
2-4 |
4-6 |
|
Сильноагрессивная |
> 4 |
> 6 |
Достаточно отметить, что интенсивность разрушения при появлении первых признаков коррозии возрастает по зависимости, пропорциональной квадрату времени. Поэтому своевременное проведение предупредительных ремонтов позволяет приостановить либо существенно снизить скорость разрушения.
Обеспечить долговечность арматуры в бетонах возможно повышением плотности самих бетонов, уменьшением их проницаемости, путем введения ингибирующих и уплотняющих добавок.
Статистическая оценка состояния железобетонных конструкций крупнопанельных зданий показывает, что наибольшей интенсивности разрушения подвержены конструктивные элементы, имеющие непосредственный контакт с атмосферными воздействиями: наружные стены; балконы, парапетные плиты, а также стыковые соединения, подверженные периодическому замачиванию. В реальных условиях эксплуатации зданий долговечность конструктивных элементов существенно ниже нормативных значений. Так, для многих конструкций при сроке эксплуатации 30 лет образовались дефекты, существенно снижающие их несущую способность и эксплуатационную надежность.
Транспортирование сборных конструкций в ряде случаев вызывает образование дефектов в виде трещин, сколов, загрязнения наружных поверхностей. Условиями транспортирования предусматривается расположение конструктивных элементов в положении, близком к проектному. Так, для балочных конструктивных элементов следует предусматривать опирание на две опоры. Для плит перекрытий, наружных стеновых панелей, панелей внутренних стен и других плоскостных элементов - размещение на упругие элементы по всей плоскости опирания, а их транспортирование - в наклонном положении на спецсредствах (панелевозах, плитовозах и т.п.).
На качество перевозок существенное влияние оказывают состояние дорог, скорость транспортирования, демпфирующие свойства автотранспортных средств.
Рассматривая систему «дорога - транспортное средство - перевозимая конструкция», легко видеть, что при снижении качества дорог в виде выбоин и других препятствий существенно возрастают коэффициент динамичности и, как следствие, передача импульсивных воздействий на транспортируемую конструкцию. Момент передачи сопровождается ударными воздействиями, приводящими к возникновению дополнительных напряжений прежде всего в зоне опирания конструкции.
При совпадении собственных частот колебаний системы и транспортируемой конструкции возникает явление резонанса, что способствует в значительной степени увеличению динамических нагрузок. Это приводит к возникновению очагов местных деформаций и напряжений, превышающих расчетные значения, и образованию трещин, сколов и других дефектов.
На рис. 2.16 приведены графики зависимости коэффициента динамичности от качества дорог и скорости движения транспортного средства. При нормированном значении коэффициента динамичности 1,5 наблюдается его превышение в определенном диапазоне скоростей. Значительные превышения возникают при наезде на некоторые препятствия (трамвайные пути, люки колодцев, выбоины и т.п.).

Рис. 2.16. Динамические параметры транспортирования сборных
железобетонных конструкций автотранспортом
I, II, III - классы дорог; 1,2 - изменение коэффициента динамичности при наезде
транспортных средств на предприятия
Как показали статистические исследования, 4-6 % перевозимых сборных железобетонных конструкций получают повреждения различной степени. Максимальное их число возникает из-за плохого качества приобъектных дорог.
Складирование конструкций. Отступление от технологических требований при складировании сборных железобетонных изделий приводит к возникновению напряжений, превышающих сопротивление бетона, и образованию трещин. Основными причинами являются: слабая подготовка основания, дающая просадки грунта различной интенсивности; несимметричное расположение прокладок между складируемыми элементами; нарушение расчетной схемы опирания, превышение нормативной высоты штабелей и т.п.
Длительное хранение конструктивных элементов на приобъектном складе приводит к коррозии закладных деталей и выпусков арматуры.
Одними из важных причин частичной потери эксплуатационных свойств конструкций являются замачивание атмосферными осадками и попеременное воздействие отрицательных температур (рис. 2.17). Это приводит к первоначальному образованию центров разрушения в виде микротрещин, которые со временем распространяются на значительные площади конструкций.

Рис. 2.17. Изменение прочности бетона конструкций в
зависимости от степени увлажнения и воздействия отрицательных температур
1 - конструкция защищена от
атмосферных осадков; 2 - увлажнение составляет до 20 %; 3 - насыщена атмосферными
осадками при температуре до 0 °С; 4 - то же, -5...-10 °С; 5 - то же, -10...-15 °С; 6 - то же, -20...-25 °С
Интенсивное замачивание конструкций стенового ограждения способствует снижению как теплотехнических, так и физико-механических характеристик панелей стен.
Агрессивное воздействие среды является причиной снижения несущей способности железобетонных конструкций и их разрушения, когда восстановительные работы либо невозможны, либо требуют больших материальных затрат. Снижение эксплуатационного срока службы отмечается при увлажнении и знакопеременном температурном воздействии, а для заглубленных конструкций фундаментов - воздействии агрессивных сред при отсутствии достаточной гидроизоляции (рис. 2.18).

Рис. 2.18. Снижение несущей способности железобетонных
конструкций при агрессивном воздействии среды и отрицательных температур
1 - конструкция внутренних частей
зданий при нормальной эксплуатации; 2 - то же, при нарушении
эксплуатационного режима; 3 -
конструкция наружных стен; 4, 5, 6 - конструкции, подверженные увлажнению и
знакопеременным температурным воздействиям; 7
- заглубленные конструкции фундамента при воздействии агрессивных сред
Дефекты на стадии монтажа конструкций. Дефекты, связанные с монтажом элементов зданий, являются наиболее частыми и значимыми. При использовании преимущественно свободного метода монтажа происходит поэтажное накопление погрешностей, которые в совокупности существенно снижают эксплуатационные характеристики и надежность зданий.
Основными причинами погрешностей являются: отклонения геометрических размеров конструкций от проектных значений; отклонения в разбивке осей внутренних и наружных стен; колебания отметок монтажного горизонта, непостоянная толщина швов; невертикальность установки конструктивных элементов. Совокупность указанных причин приводит к накоплению погрешностей, значения которых могут оказывать определенное влияние на устойчивость здания и его эксплуатационные характеристики.
Невертикальность смонтируемых конструкций может быть представлена следующей зависимостью
![]()
где A1, A2, А3 - передаточные отношения. При высоте элемента Н и установке верхних связей на высоте A1= A2 = А3 = Н/h, п - число этажей; DHB - суммарная погрешность отклонения, h - уровень расположения монтажно-выверочного оснащения (струбцин или подкосов), h = 1,7- 1,8 м.
Здесь первое слагаемое учитывает погрешности элемента нижележащего этажа, второе - влияние неточности установки низа элемента; третье - погрешности, возникающие на данном этаже.
Поэтажное отклонение верха элементов приведено на рис. 2.19, где рассмотрены два варианта установки внутренних несущих перегородок: а - влияние погрешностей в установке низа элемента на поэтажное накопление погрешностей; б - то же, распределение погрешностей при фиксации низа конструкций на их накопление по высоте. При монтаже элементов первого этажа свободным методом путем совмещения оси элемента с разбивочной осью погрешность положения низа элемента относительно базовой оси составит
где
- погрешность в положении
разбивочной оси, вызванная линейными измерениями;
- погрешность
установки элемента относительно разбивочной оси.

Рис. 2.19. Влияние погрешностей при монтаже внутренних и
наружных панелей стен
а - при установке
низа элемента на их накопление по высоте; 6 - то же, при фиксации низа элемента; в - отклонения наружных стеновых
панелей при нарушении уровня монтажного горизонта и геометрических размеров
панелей
Отклонение верха элемента под влиянием погрешности положения его низа, а также погрешностей, возникающих на данном этапе, составит

Для элементов второго этапа погрешность положения его верха составит

Таким образом, имеется полная возможность вычисления погрешностей с заданным пределом, обеспечивающим геометрическую неизменяемость и устойчивость здания. По имеющимся данным отклонений вертикальных конструкций первого этажа путем расчета погрешностей устанавливается положение верха конструктивных элементов, что позволяет компенсировать накопление погрешностей (положение элементов I, II). При неучете компенсации погрешностей монтажа (положение III) суммарное отклонение от вертикали верхней части конструкции может привести к возникновению дополнительного момента сил М с плечом А.
На рис. 2.19,в приведена технологическая схема возникновения погрешностей отклонения наружных стеновых панелей при нарушении уровня монтажного горизонта и геометрических размеров панелей. Результатом являются отклонения параметров швов и стыковых соединений. Это обстоятельство приводит к нарушению эксплуатационных характеристик стыков и вызывает их негерметичность.
Анализ используемых конструкций стыков показал, что максимальные погрешности отклонений наблюдаются в стыках со сваркой закладных деталей. При этом особое влияние оказывает процесс стыковки панелей перекрытий. Выполнение сварных соединений приводит к возникновению деформаций, существенно влияющих на геометрическое положение всех конструктивных элементов, входящих в стык.
Статистические данные обследования панельных пятиэтажных зданий первых массовых серий свидетельствуют о том (рис. 2.20), что максимальный процент дефектов относится к наружным стенам, балконам, козырькам и парапетным плитам (70 %), внутренним стенам (60 %), фасадным поверхностям и стыкам (30 %). В меньшей степени (4- 10 %) подвержены дефектам другие конструктивные элементы.

Рис. 2.20. Распределение дефектов 5-этажных панельных зданий, % числа обследованных
Как правило, большая степень повреждений относится к вышележащим этажам, что объясняется увеличением суммарной погрешности при монтаже конструкций и более интенсивными нагрузками атмосферного воздействия. Сопоставительный анализ распределения повреждений по этажам 5- и 9-этажных зданий (рис. 2.21) подтверждает тенденцию их роста с увеличением этажности.

Рис. 2.21. Распределение повреждений и дефектов по этажам
панельных зданий
1 - пятиэтажные жилые дома; 2 -
девятиэтажные жилые дома
Основными причинами появления и развития дефектов являются: температурные деформации панелей; быстрое старение и потеря эластичности герметиков; превышение допусков при изготовлении конструкций и монтаже; неравномерные осадки здания; увлажнение материала заполнения стыков и потеря его свойств вследствие попеременного замерзания и оттаивания.
Низкая долговечность и наличие дефектов выступающих железобетонных конструкций, козырьков, балконных и парапетных плит являются следствиями нарушения уклона, неорганизованного отвода атмосферных осадков, отсутствия герметика между панелью стены и верхней поверхностью балконной плиты и т.п.
Для большинства жилых зданий, планируемых к выполнению реконструктивных работ, для оценки состояния конструкций целесообразно проводить выборочные обследования, при которых для определения размеров выборки необходимо задаться вероятностью получаемого результата, характеризующего показатель достоверности. Минимум необходимых статистических данных или число наблюдений оцениваются по зависимости
![]()
где К - показатель изменчивости, или коэффициент вариации; f - показатель долговечности; L - показатель точности.
Показатель изменчивости, или вариационный коэффициент, оценивается по известной зависимости
![]()
где М - среднеарифметическое всех имеющихся значений
![]()
a - среднеквадратическое отклонение всех значений от средней величины

Здесь
- сумма квадратов всех
отклонений от среднего арифметического; N - число
наблюдений.
Средняя ошибка, выраженная в % соответствующего среднеарифметического, дает показатель точности
![]()
где
- средняя ошибка.
В практике экспериментальных обследований принимают следующие значения вероятностей:
Р = 0,95 - для оценки предварительных результатов;
Р = 0,99 - для оценки общего критерия надежности;
Р = 0,999 - для критерия максимальной надежности.
Значения показателя достоверности для различных значений вероятности приведены в табл. 2.11.
Таблица 2.11
Значение показателя достоверности
|
Вероятность результата |
Показатель f |
Вероятность результата |
Показатель f |
|
0,683 |
1,0 |
0,970 |
2,17 |
|
0,700 |
1,04 |
0,980 |
2,33 |
|
0,750 |
1,15 |
0,990 |
2,58 |
|
0,800 |
1,28 |
0,995 |
2,80 |
|
0,850 |
1,44 |
0,997 |
3,00 |
|
0,900 |
1,64 |
0,999 |
3,29 |
|
0,950 |
1,96 |
0,9995 |
3,5 |
|
0,955 |
2,00 |
0,9999 |
4,0 |
|
0,960 |
2,05 |
|
|
Для определения исходных прочностных характеристик материалов конструкций, возведенных в прошлом, необходимо пользоваться вероятностно-статистической обработкой результатов измерений.
В процессе обследований как отдельной конструкции, так и группы конструктивных элементов, выполненных путем отбора проб и образцов, а также с использованием неразрушающих методов диагностики, статистическая обработка результатов измерений позволяет получить более достоверные данные.
Среднее значение прочностных характеристик материалов (прочность бетона, кирпича, каменной кладки, сопротивление стали и т.п.) определяется по зависимости
![]()
где п - количество образцов испытаний; Rqi - результат, полученный в i-м испытании образца.
Среднее квадратичное отклонение для выборки

Нормативное значение прочностной характеристики
![]()
где b - коэффициент, учитывающий объем испытаний и с доверительной вероятностью 0,9 определяющий нижнюю границу для нормально распределенной случайной величины.
Значение b в зависимости от количества испытаний (образцов) приведено в таблице 2.12.
Таблица 2.12
|
п |
5 |
6 |
7 |
8 |
9 |
10 |
11 |
12 |
15 |
20 |
30 |
50 и более |
|
b |
3,34 |
3,04 |
2,90 |
2,69 |
2,58 |
2,50 |
2,44 |
2,39 |
2,78 |
2,16 |
2,04 |
1,94 |
Переход от нормативных значений сопротивлений к расчетным (характеристикам прочности, деформативности и др.) осуществляется в соответствии с требованиями СНиП 2.03.02-86.
При оценке несущей способности конструктивных элементов зданий необходимо учитывать действительные постоянные нагрузки от собственного веса, технологические и эксплуатационные, а также особенности работы конструкций в изменившихся условиях.
Физико-механические характеристики материала оцениваются путем извлечения образцов, определения их плотности, прочности и статистической обработки результатов.
Нормативное значение плотности и, соответственно, нагрузки от собственного веса определяется по зависимости
![]()
где
- среднее арифметическое значение измеряемых
параметров;
-
среднеарифметическое отклонение результатов определения плотности; М - плотность, определяемая по
результатам испытаний i-го образца; п - количество образцов; t - коэффициент, учитывающий объем выборки и
определяющий доверительный интервал для среднего значения нормально
распределенной случайной величины с доверительной вероятностью 0,95 (табл.
2.13).
Таблица 2.13
|
п |
5 |
6 |
7 |
8 |
9 |
12 |
15 |
20 |
25 |
30 |
40 |
50 и более |
|
t |
2,13 |
2,02 |
1,94 |
1,89 |
1,86 |
1,8 |
1,76 |
1,73 |
1,71 |
1,70 |
1,68 |
1,67 |
Полученные значения нагрузок определяются преимущественно для конструктивных элементов со сравнительно однородной плотностью материала, например кирпичная кладка, железобетонные перекрытия, несущие внутренние или самонесущие наружные стены и т.п. Эти сведения в совокупности с нормативными значениями временных нагрузок позволяют провести поверочные расчеты с целью определения несущей способности отдельных элементов и усилий в конструкциях от внешних нагрузок и воздействий.
В основе принятия метода реконструкции должен быть заложен комплексный подход, отражающий градостроительные, архитектурно-планировочные и социальные требования. В то же время каждый реконструируемый объект требует индивидуальных решений, что объясняется не столько местом, занимаемым зданием в городской застройке, сколько его техническим состоянием. Последний фактор может быть определяющим в принятии решения. При высоком моральном и физическом износе конструктивных элементов экономически нецелесообразно восстановление и более рационально будет осуществить снос с последующим возведением нового здания.
Методы реконструкции зависят от возраста зданий, который, в свою очередь, отражает конструктивно-технологические и архитектурно-планировочные особенности, присущие данному периоду времени, материалы несущих и ограждающих конструкций, а также качество производства работ.
Переустраиваемый жилой фонд крупных и средних городов РФ можно условно отнести к трем категориям: здания довоенной постройки по индивидуальным проектам; типовые жилые дома неиндустриального периода строительства; типовые жилые здания первых и последующих массовых серий.
Каждая категория зданий независимо от этажности и архитектурно-планировочных решений отличается конструктивно-технологическим подходом, характерным для рассматриваемого периода времени. Поэтому при разработке методов реконструкции и технологии производства работ эти факторы носят определяющий характер.
Значительное влияние на метод реконструкции зданий оказывает уровень стесненности строительной площадки, который определяет возможность организации производства работ, с использованием средств механизации, прогрессивных технологий и строительных методов. Особое место при этом отводится процессам разборки конструктивных элементов и их утилизации.
На выбор решения о реконструкции прежде всего влияет место реконструируемого объекта в развитии района. В процессе осуществления реконструкции сложившихся частей города происходит постоянная переоценка взглядов на предмет реконструкции того или иного здания.
Экономические задачи связаны с необходимостью повышения эффективности использования территории, потребительская ценность которой возрастает.
Социально-функциональные требования диктуют необходимость повышения потребительского качества квартир путем устранения элементов морального износа.
В таблице 3.1 обобщены факторы, влияющие на принятие решения по реконструкции отдельно взятого объекта. Они включают комплекс показателей, совокупность которых приводит к указанной цели.
Таблица 3.1
Методы реконструкции зданий

Оценка комфортности расположения зданий учитывает такие позиции, как степень удаленности от основных видов транспорта, расстояние до центра города, наличие в прилегающей зоне экологически вредных производств, степень благоустроенности района, озеленение и т.п. Совокупность перечисленных факторов является определяющей при выборе методов реконструктивных работ и существенно влияет на рыночную стоимость единицы площади зданий. Уровень комфортности в ряде случаев диктует целесообразность изменения функционального назначения здания, например, использование жилого здания в качестве коммерческого, общественного или частично производственного.
Степень комфортности расположения реконструируемого здания оценивается по трем показателям: соблюдение требований по ориентации и инсоляции; расстояние до соседних зданий; шумовой режим.
Для ориентации и инсоляции имеются три степени показателей.
I - ориентация вдоль меридиана с отклонением от азимута до 30°; II - расположение здания в пределах 30-60° и 120-180°; III - широтное расположение в пределах азимутов 60-120°.
Для оценки расстояний до соседних зданий применяются три степени. I - расстояние больше нормативного, нормативное и меньше до 10 %; II - расстояние меньше нормативного от 10-50 %; III - меньше на 50 % и более.
Для оценки шумового режима.
I - расположение здания в глубине постройки или вдоль второстепенной улицы; II - здание располагается параллельно шумной улице; III - здание располагается торцом к шумной улице или с отклонением до 30°.
Общую степень комфортности определяют как сумму оценок по каждой ситуации в баллах от 1 до 3. Балльность оценки комфортности находится в следующей зависимости: 3-4 - хорошее расположение; 5-6 - удовлетворительное; 7-9 - неудовлетворительное.
Варианты архитектурно-планировочного переустройства включают несколько позиций.
I - сохранение здания без изменения объема и композиции характерно для объектов, имеющих большую архитектурную значимость в районе застройки. Изменение архитектуры фасадов может нарушить историческую ценность и композицию застройки. При этом допускаются перепланировка помещений, а также перепрофилирование здания в целом с изменением его функциональных качеств.
II - расширение корпусов и надстройка как одна из форм реконструкции приемлемы для зданий старой и более поздней постройки, они способствуют увеличению плотности застройки с сохранением жилых функций и частичным или полным перепрофилированием. Изменение архитектурного облика здания в результате пристройки и надстройки этажей должно сочетаться с общей композицией квартальной застройки или перспективами его переустройства. Особое значение при этом уделяется исключению факторов морального износа, повышению эксплуатационных характеристик зданий и созданию условий гибкой планировки.
III - уровень реконструктивных работ определяется степенью изменения первоначального физического износа элементов здания на основе оценки технического состояния и надежности. Реконструкция предусматривает решение широкого класса инженерных задач - от укрепления основания и усиления фундаментов до комплекса работ, включающих повышение этажности и рациональное использование подземного пространства.
Для зданий старой постройки, имеющих высокий износ конструктивных элементов, как правило, требуется комплекс инженерных решений. Степень его расширения фиксируется конечной целью проектов переустройства.
При реконструкции квартала застройки малоэтажными типовыми зданиями первых массовых серий уровень реконструктивных работ диктуется положением жилого дома в районе застройки, техническим состоянием, экономической целесообразностью и социальной необходимостью. При этом наиболее важными критериями служат степень морального, физического износа и уровень снижения эксплуатационной надежности.
Основой реконструктивных процессов является конструктивно-технологический комплекс, включающий наиболее рациональное решение, в сочетании с прогрессивными технологиями, обеспечивающими производство работ в условиях стесненной городской застройки. При этом особое место отводится адаптации эффективных технологий, комплексной механизации строительных процессов, повышению организационно-технологической надежности строительного производства.
Экономическая оценка проектов реконструкции базируется на учете рыночных отношений, в основе которых заложены надежность инвестиционных проектов, их доходность и прибыльность.
Архитектурные аспекты жилых зданий базируются на полной или частичной перепланировке помещений и, соответственно, полной или частичной замене внутренних конструкций. Основой проектов реконструкции являются: конфигурация здания в плане; ширина корпуса; длина фронта, обслуживаемого лестницей; расстояние от лестницы до наиболее удаленной части и др. факторы. Данные обследований свидетельствуют, что около 96 % планировочных элементов рядовых секций имеют ширину до 14,0 м и длину, не превышающую 30,0 м. Это означает, что при габаритах реконструируемых зданий, попадающих в пределы зоны, можно выполнить перепланировку, отвечающую современным нормативным требованиям.
Влияние ширины корпуса в зависимости от его длины сказывается на эффекте планировочных решений неоднозначно и требует помимо разукрупнения квартир изменения расположения коммуникаций.
В узких однопролетных корпусах возможна пристройка к существующему зданию параллельного объема, что позволяет получать 2-3 квартирные секции. С внешней стороны лестничной клетки обеспечивается пристройка лифтовой шахты.
При большой ширине корпуса (15-18 м) в зданиях вдоль продольной оси образуется плохо инсолируемое пространство, которое используется для размещения подсобных помещений.
Приемы архитектурно-планировочных решений жилых зданий коридорной системы в значительной степени связаны также с шириной корпуса. При ширине зданий до 14 м возможна перепланировка по квартирному типу с разнообразным составом.
Для жилых домов П-образной формы (рис.3.1) полная перепланировка достигается путем замены перекрытий и надстройки этажей. Высота надстройки зависит от несущей способности фундаментов и стен и может достигать 3-4 этажей. При реконструкции таких зданий предусматривается обязательное устройство лифтов и мусоропроводов. Дворовое пространство может быть использовано под заглубленную автостоянку.

Рис. 3.1. Пример перепланировки жилого дома П-образной формы
плана со сносом внутренних пристроек
а - до реконструкции; б -
после перепланировки
При реконструкции зданий Г-образной формы с достаточно высокими этажами используется прием превращения 1-2 этажей в нежилые помещения с просторными рабочими помещениями. Здание надстраивается несколькими этажами с посекционной планировкой квартир. Изменяется поэтажная планировка квартир, а сама архитектура здания в большей степени отвечает требованиям к зданиям, расположенным на магистральной улице.
Для зданий колодцевого типа (рис. 3.2) наиболее рациональным является исключение дворовой вставки, что позволяет улучшить инсоляцию и аэрацию квартир. Одним из планировочных вариантов является создание квартир коридорной системы с превращением части лестничных клеток в жилые помещения.

Рис. 3.2. Доходный дом Строгановского училища
а - до реконструкции; б -
после реконструкции
Подобный прием перепланировки может быть распространен на здания Т-образной формы. Здесь за счет превращения лестничных клеток в жилые помещения достигается более рациональная перепланировка квартир (рис. 3.3). При благоприятной ориентации здания может быть применена коридорная система с поярусной компоновкой квартир.

Рис. 3.3. Пример перепланировки Т-образного жилого дома
секционной системы в коридорную
а - до реконструкции; б - после реконструкции
При переходе от коммунального заселения к коммерческому жилью представляет интерес укрупнение квартир. Превращение жилых зданий в систему блочных домов позволяет создать благоприятные условия для получения квартир повышенной комфортности. При этом расположение квартир может быть в 2-3 уровнях с использованием 1-го этажа под гаражи и хозяйственные помещения.
Архитектурно-планировочное переустройство зданий должно учитывать такие факторы, как расположение внутренней продольной стены и шаг оконных проемов, которые влияют на пропорции помещений квартир. Параметр высоты этажа существенно влияет на выбор планировочных решений. Так, высота 3-4 м дает минимальный размер комнат 18-20 м2 и максимальный - 30-45. Естественно, что при реконструкции таких зданий целесообразно размещать квартиры коммерческого плана или перепрофилировать функции жилого дома для перевода в нежилой.
При комплексной реконструкции здания путем перепрофилирования из жилого в нежилое (офисное) возможна более глубокая перепланировка. При этом кроме надстройки этажей осуществляется рациональное использование подвального пространства, а также прилегающих площадей путем размещения заглубленных сооружений, предназначенных для организации магазинов, автостоянок и других объектов социальной сферы.
Особое место при реконструкции старого жилого фонда отводится формированию архитектуры фасадов. Все здания, имеющие архитектурную и историческую ценность, должны решаться с сохранением существующей композиции фасадов и их элементов. Это относится как для частей зданий, не подвергшихся изменениям, так и для надстраиваемых этажей. При этом выполнение работ по фасаду основано на использовании современных материалов и технологий, обеспечивающих требуемую долговечность поверхностей.
Примеры подобного решения приведены на рис. 3.4, где жилые здания надстроены и при этом обеспечено сохранение единства архитектурного стиля за счет использования деталей фасада в соответствии с композицией реконструируемого здания.

Рис. 3.4. Решение фасадов жилых домов с надстройкой и сохранением архитектурного стиля
Методы реконструкции жилых зданий старой постройки достаточно разнообразны и определяются многими факторами. Варианты архитектурно-планировочного переустройства включают: сохранение здания без изменения его объема и композиции, но с перепланировкой помещений; сохранение здания и его функций с перепланировкой и включением его во вновь формируемый комплекс застройки; сохранение здания в виде самостоятельного объема, но с обязательным расширением или надстройкой; снос здания.
В таблице 3.2 приведена схема, показывающая зависимость и вариантность конструктивных решений и методов реконструкции старого жилого фонда. В практике реконструктивных работ, учитывающей физический износ несменяемых конструкций, используются несколько вариантов решений: без изменения конструктивной схемы и с ее изменением; без изменения строительного объема, с надстройкой этажей и пристройкой малых объемов.
Таблица 3.2

Первый вариант предусматривает восстановление здания без изменения строительного объема, но с заменой перекрытий, кровельной части и других конструктивных элементов. При этом создается новая планировка, отвечающая современным требованиям и запросам социальных групп жильцов. Реконструируемое здание должно сохранять архитектурный облик фасадов, а его эксплуатационные характеристики должны быть доведены до современных нормативных требований.
Варианты с изменением конструктивных схем предусматривают увеличение строительного объема зданий путем: пристройки объемов и расширения корпуса без изменения его высоты; надстройки без изменения габаритов в плане; надстройки несколькими этажами, пристройки дополнительных объемов с изменением габаритов здания в плане. Такая форма реконструкции сопровождается перепланировкой помещений.
В зависимости от расположения здания и его роли в застройке осуществляются следующие варианты переустройства: с сохранением жилых функций; с частичным перепрофилированием и полным перепрофилированием функций здания.
Реконструкция жилой застройки должна осуществляться комплексно, захватывая наряду с реконструкцией внутриквартальной среды ее озеленение, благоустройство и восстановление инженерных сетей и т.п. В процессе реконструкции производится пересмотр номенклатуры встроенных помещений в соответствии с нормативами обеспеченности населения учреждениями первичного обслуживания.
В центральных районах городов в реконструируемых зданиях могут располагаться встроенные общегородские и коммерческие учреждения периодического и постоянного обслуживания. Использование встроенных помещений превращает жилые дома в многофункциональные здания. Нежилые помещения размещаются в первых этажах домов, расположенных по красным линиям застройки.
На рис. 3.5 приведены конструктивно-технологические варианты реконструкции зданий с сохранением (а) и с изменением (б,в) конструктивных схем, без изменения объемов и с их увеличением (надстройкой, пристройкой и расширением плановых габаритов зданий).

Рис. 3.5. Варианты реконструкции жилых зданий ранней
постройки
а - без изменения конструктивной схемы и строительного объема; б -
с пристройкой малых объемов и превращением чердачного этажа в мансардный; в - с надстройкой этажей и
пристройкой объемов; г - с пристройкой корпуса к торцевой части здания; д,
е - с обстройкой зданий; ж -
с пристройкой объемов криволинейных форм
Особое место при реконструкции центров городской застройки должно отводиться рациональному освоению подземного, примыкающего к зданиям пространства, которое может быть использовано в качестве торговых центров, автостоянок, малых предприятий и т.п.
Основным конструктивно-технологическим приемом реконструкции зданий без изменения расчетной схемы является сохранение несменяемых конструкций наружных и внутренних стен, лестничных клеток с устройством перекрытий повышенной капитальности. При значительной степени износа внутренних стен в результате частых перепланировок с устройством дополнительных проемов, переносом вентиляционных каналов и т.п. реконструкция осуществляется путем устройства встроенных систем с сохранением только наружных стен как несущих и ограждающих конструкций.
Реконструкция с изменением строительного объема предусматривает устройство встроенных несменяемых систем с самостоятельными фундаментами. Это обстоятельство позволяет осуществлять надстройку зданий несколькими этажами. При этом конструкции наружных и в ряде случаев внутренних стен освобождаются от нагрузок вышележащих этажей и превращаются в самонесущие ограждающие элементы.
При реконструкции с уширением здания возможны конструктивно-технологические варианты частичного использования существующих фундаментов и стен в качестве несущих с перераспределением нагрузок от надстраиваемых этажей на выносные элементы зданий.
Принципы реконструкции зданий поздней постройки (1930-40-е гг.) диктуются более простой конфигурацией домов секционного типа, наличием перекрытий из мелкоштучных железобетонных плит или деревянных по балкам, а также меньшей толщиной наружных стен. Основные приемы реконструкции состоят в пристройке лифтовых шахт и других малых объемов в виде эркеров и вставок, надстройке этажей и мансард, устройстве выносных малоэтажных пристроек административного, коммерческого или хозяйственного назначения.
Повышение комфортности квартир достигается за счет полной перепланировки с заменой перекрытий, а увеличение объема здания в результате надстройки обеспечивает повышение плотности застройки квартала.
Наиболее характерными приемами реконструкции зданий данного типа являются замена перекрытий на сборные или монолитные конструкции с полной перепланировкой, а также дополнительная надстройка 1-2 этажами. При этом надстройка зданий производится в случаях, когда состояние фундаментов и стенового ограждения обеспечивает восприятие изменившихся нагрузок. Как показал опыт, постройки данного периода позволяют осуществлять надстройку до двух этажей без усиления фундаментов и стен.
В случае увеличения высоты надстройки используются встроенные строительные системы из сборных, сборно-монолитных и монолитных конструкций.
Использование встроенных систем позволяет реализовать принцип создания больших перекрываемых площадей, способствующих реализации гибкой планировки помещений.
Реконструкция жилой застройки домами первых массовых серий имеет большое социально-экономическое значение. Ее основные задачи состоят не только в продлении срока службы зданий, но и в ликвидации физического и морального износа, улучшении условий проживания, в оснащении жилых зданий современным инженерным оборудованием, повышении эксплуатационных характеристик и архитектурной выразительности. Актуальность проблемы существенно повышается, так как объем жилого фонда данной категории огромен.
Анализ отечественного и зарубежного опыта реконструктивных работ показывает, что решение данной проблемы встречает много трудностей инженерно-технического, экономического и социального характера. Вариантное решение реконструктивных приемов достаточно многообразно и включает широкий диапазон: от сноса зданий до коренного изменения застройки путем превращения «пятиэтажки» в 7-9-этажные здания современной планировки.
Проблема переустройства жилого фонда из морально и физически устаревших зданий первых массовых серий носит не столько инженерно-технический, сколько экономический характер. В первую очередь следует отметить, что эта проблема должна быть поставлена в ранг общегосударственных и ее решение зависит от проводимой технической и экономической политики. Первые шаги в этом направлении свидетельствуют о полярности принимаемых решений. Так, в условиях Москвы основной технической политикой являются снос зданий и возведение на их месте переселенческого и коммерческого жилого фонда улучшенной планировки. Это обстоятельство позволяет осуществить инвестирование проектов и получение достаточно высокой прибыли. Возведение переселенческого фонда из крупнопанельных зданий обеспечивает загрузку домостроительных комбинатов и создание дополнительных рабочих мест.
Опыт работы С.-Петербурга, Екатеринбурга и других городов свидетельствует о жизнеспособности другого направления - комплексной реконструкции кварталов застройки с сохранением жилых зданий и превращением их в многоэтажные дома с современной планировкой, инженерным оборудованием и благоустройством.
Для многих регионов, крупных, средних городов и поселков возможно применение другой модели, базирующейся на непременном сохранении жилого фонда, но с внесением элементов реконструкции, не затрагивающих коренное конструктивное изменение зданий и городской застройки в целом. Это обстоятельство продиктовано экономическими аспектами, основанными на получении качественного и количественного эффекта при минимальных затратах.
Аналитические исследования по улучшению и сохранению жилого фонда зданий первых массовых серий позволили разработать достаточно гибкую концепцию решения проблемы, адаптированную к различным экономическим условиям и регионам РФ. Основные положения концепции базируются на многоуровневом подходе к техническому решению реконструктивных работ - от модернизации жилых зданий методом архитектурно-планировочного и инженерного переустройства до комплексной реконструкции жилой застройки с решением градостроительных, архитектурных, инженерных и социальных задач.
Реконструкция жилых зданий первых массовых серий в силу разнообразных конструктивных схем, степени физического и морального износа, расположения в городской застройке имеет достаточно широкий диапазон технических решений.
В таблице 3.3 приведена блок-схема многоуровневого подхода, иллюстрирующая основные положения. За критерии, определяющие уровень реконструктивных работ, приняты технические решения и технологии, обеспечивающие ведение работ без отселения жильцов и с их переселением.
Таблица 3.3
Уровень реконструктивных работ жилых зданий первых типовых серий

Важными циклами реконструктивных работ являются повышение эксплуатационных характеристик зданий (теплотехнических характеристик ограждающих конструкций, оконных и дверных заполнений), а также модернизация фасадов с доведением их архитектурного уровня до современных требований. Особое внимание при этом уделяется модернизации вентиляционных систем как интенсивного источника теплопотерь.
На рис. 3.6 приведены конструктивно-технологические схемы многоуровневой реконструкции жилых зданий первых массовых серий.

Рис. 3.6. Конструктивно-технологические схемы реконструкции
малоэтажных жилых зданий
I - путем
пристройки малых архитектурных объемов; II - превращения чердачных помещений в мансардные этажи; III - одностороннего
уширения корпуса зданий с надстройкой этажей; IV - двустороннего уширения
корпусов зданий с надстройкой этажей
Наиболее простым и эффективным конструктивным приемом, повышающим комфортность проживания, является пристройка по фасадам одиночных или групповых эркеров, позволяющих увеличить площадь помещений кухонь, жилых комнат и лестничных клеток (рис. 3.8).
Следующим этапом по сложности являются устройство мансард на высоту 1-2 этажей с одно- и двухуровневым расположением квартир, а также пристройка эркеров.
Работы этих циклов могут быть выполнены без отселения жильцов с соблюдением правил безопасного ведения работ.
Цикл реконструктивных работ с отселением жильцов является наиболее многогранным и включает варианты одностороннего или двустороннего расширения корпусов, надстройку здания на 3-4 этажа с полной перепланировкой помещений, устройством лифтов и мусоропроводов.
В зависимости от конструктивных схем зданий и их технического состояния варианты реконструкции достаточно разнообразны.
Простейший вариант реконструкции заключается в перепланировке квартир. Перепланировку типового этажа легче всего осуществлять в домах каркасной конструктивной системы, а также при схеме с тремя продольными несущими стенами. В домах же с узким и смешанным шагом внутренних несущих стен изменить положение внутриквартирных перегородок достаточно сложно. Именно такие дома составляют основную часть жилищного фонда.
Далее рассмотрим некоторые архитектурно-планировочные и конструктивные решения по реконструкции и модернизации жилых зданий массовых серий.
I - улучшение архитектурно-планировочных решений путем пристройки элементов малых архитектурных форм в виде эркеров и пристроек.
Этот прием позволяет увеличить площади кухонь и прилегающих комнат на 20-30 %, увеличить размеры санузлов, улучшить освещенность помещений, повысить комфортность квартир за счет более рациональной перепланировки. На рис. 3.7 приведены примеры перепланировки рядовых секций домов серий 1-464, 1-447 и 1-510 путем пристройки эркеров размером на ширину комнаты или на ширину двух комнат. При этом достигается возможность перепланировки помещения в результате размещения ванной комнаты в глубине квартиры, санузла - в прихожей и увеличения площади кухонь до 12-14 м2, смежных комнат - на 4- 6 м2. Более рациональный вариант представляет собой сочетание пристройки эркеров с превращением части или всех квартир в двухуровневые.

Рис. 3.7. Примеры планировочных решений при реконструкции
крупнопанельных зданий
а, б - путем
пристройки эркеров; в - уширения
корпусов; г - пристройки
эркеров и лифтовых шахт
II - улучшение архитектурно-планировочных решений путем пристройки малых архитектурных форм, перепланировки секций в квартиры с одним и двумя уровнями, а также надстройки верхнего этажа в виде мансарды.
Сочетание пристроек с возведением мансардных этажей является наиболее эффективным и малозатратным по следующим показателям:
- как правило, несущая способность здания имеет запас прочности, обеспечивающий без усиления фундаментов проведение данного вида работ;
- надстройка с переходом от плоской кровли на скатную с мансардным этажом обеспечивает увеличение площади до 20 % при минимальных затратах;
- использование эркерных пристроек различных глубины и формы позволяет помимо увеличения площадей легко вписать дополнительное инженерное оборудование;
- за счет использования различных архитектурных форм мансардного этажа и эркерной части достигается широкая гамма архитектурных решений.
На рис. 3.8 приведены варианты конкурсных проектных решений по надстройке малоэтажных зданий одно-, двух- и трехуровневыми мансардами, пристройке эркеров и лифтовых шахт, превращению балконов в лоджии и другие технические решения, существенно расширяющие архитектурную гамму зданий. Применение различных геометрических форм мансардных этажей позволяет не только повысить комфортность квартир, но и получить достаточно гибкие архитектурные решения, преобразующие внешний вид типовых жилых домов.

Рис. 3.8. Примеры проектных решений по
реконструкции малоэтажных зданий
1 - г. Екатеринбург - 5-этажный панельный жилой дом с двухуровневой
мансардой; 2 - г. Орел - 5-этажный жилой дом с мансардным этажом; 3 - г. Находка - надстройка
5-этажного жилого дома 3-этажной мансардой; 4 - г. Магнитогорск -
5-этажный панельный дом с мансардным этажом в двух уровнях; 5 - г.
Магнитогорск - проект мансардного этажа на жилом крупноблочном доме
Стремление уйти от однообразия предельно упрощенных «пятиэтажек» стимулировало появление проектов реконструкции, при которых благодаря различным пристройкам и надстройкам пластика здания значительно усложняется. Так, если пристройка к фасаду уменьшается с каждым этажом, то тем самым образуется довольно эффективное зрительное восприятие. Такое решение существенно повышает комфортность квартир и до неузнаваемости изменяет архитектурный облик здания.
При создании домов переменной этажности, когда надстройка делается не над всем домом, а над какой-то его частью, эффект реконструкции существенно повышается. Это особенно важно в тех случаях, когда «пятиэтажка» находится в зоне старой застройки и требуется сблизить архитектурные стили зданий.
III - увеличение общей площади зданий путем относа наружных стен, надстройки этажей и пристройки объемов.
Архитектурно-планировочные решения, проводимые по данной конструктивной схеме, весьма разнообразны и могут иметь достаточно широкий диапазон: от надстройки одного этажа до превращения зданий в 7-9-этажные корпуса и целые комплексы.
На рис. 3.9 приведено архитектурно-планировочное решение переустройства крупнопанельного жилого дома серии 1-464 с увеличением площади путем относа наружных стен, надстройки мансардного этажа и ступенчатой пристройки с торцов здания.

Рис. 3.9. Проектное решение реконструкции жилого дома серии
1-464 со ступенчатой пристройкой объемов и надстройкой мансардного этажа
а, б - фасады
здания; в - фрагмент
плана мансардного этажа; г - поперечный разрез; д - фрагмент планов 3-5 этажей
При этом помещения первого этажа превращаются в нежилые, а вышестоящие - в двухуровневые квартиры. Это обстоятельство существенно улучшает уровень планировочных решений, а использование приемов сплошного остекления лестничных клеток, использование арочных конструктивных элементов стен первого этажа и сложной формы кровли мансарды позволяет расширить архитектурную палитру фасадов зданий.
Реконструкция с надстройкой до 7-9 этажей представляет собой более сложную техническую задачу. При этом реконструируемая часть здания находится как бы внутри вновь возводимого каркаса, а надстройка вышележащих этажей осуществляется самостоятельно и имеет свое архитектурно-планировочное решение. Такой прием сопряжен с серьезными конструктивными изменениями, требующими устройства несущих элементов, воспринимающих нагрузки от надстраиваемых этажей. Обычно после такой реконструкции либо все здание получается шире существующего, либо образуются мощные пилоны, выступающие перед фасадами первых пяти этажей, либо эркерные части, симметрично расположенные по наружным стенам и объединенные на пятом этаже мощным диском жесткости (рис. 3.10).

Рис. 3.10. Реконструкция малоэтажных крупнопанельных зданий
методом обстройки и надстройки
а - фасад здания после реконструкции; б, в, г - планы реконструируемой и надстраиваемой
частей; д - поперечный разрез здания
Практически такой метод реконструкции приводит к созданию ширококорпусных зданий, которые отличаются достаточно гибкой планировкой и более высокими эксплуатационными характеристиками.
Опыт реконструкции по рассматриваемой схеме показал ее жизнеспособность. В то же время комплекс работ по перепланировке, усилению и возведению новых фундаментов, стенового ограждения и других элементов свидетельствует о достаточно низкой технологичности конструктивных решений, что приводит к увеличению трудозатрат, сопоставимых с возведением нового здания.
Дополнительные функциональные и композиционные возможности появляются при реконструкции двух и трех расположенных рядом жилых зданий. В этих случаях возможно применение различного рода встроек, подчеркивающих архитектурный стиль микрорайона.
Особое место при реконструкции отводится формированию надстраиваемых этажей, максимальному выявлению возможности крыши как важного элемента композиции жилого здания. Во всех случаях мансардный этаж позволяет заметно обогатить пластику «пятиэтажек» и тем самым улучшить архитектуру и повысить композиционное значение. Особенно это важно, когда рядом с пятиэтажным зданием находится более высокая встройка.
Комплексная реконструкция допускает устройство надстройки рядом стоящих пятиэтажных и устройство многоэтажных, встроенных между ними зданий. Устройство угловых и линейных встроек позволяет улучшить пространственную композицию застройки.
Долговечность зданий как сложных систем определяется изменчивостью во времени свойств материала за счет физико-химического воздействия окружающей среды, нагрузок и воздействий от эксплуатации. В конструктивных элементах здания происходят значительные изменения и колебания усилий и напряжений, их концентрация и накопление, в результате чего возникают остаточные деформации, вызывающие микро- и макроразрушение. Накопление повреждений в элементах здания приводит к возникновению условий, при которых дальнейшая эксплуатация невозможна без восстановительных работ. Само накопление повреждений является, как правило, длительным процессом и зависит от степени эксплуатации, внешних условий, из которых следует выделить прежде всего температурно-влажностные и агрессивные воздействия окружающей среды. В то же время накопление повреждений носит случайный характер.
Категории надежности и долговечности неадекватны. Как правило, долговечность характеризует эксплуатационный срок здания в целом и конструктивных элементов в отдельности.
Под долговечностью здания понимают такой предельный срок службы, за который под воздействием природно-климатических факторов конструктивные элементы приходят в состояние, когда дальнейшая эксплуатация становится невозможной, а восстановление - экономически нецелесообразным. Долговечность здания определяется сроком службы несменяемых при ремонте конструкций. Некоторые авторы под долговечностью понимают такой срок службы, по истечении которого снижается вдвое несущая способность конструкций.
В зависимости от капитальности зданий установлен нормативный срок службы конструкций. Так, для первой группы капитальности срок службы фундаментов, стен и перекрытий составляет 150 лет; для второй группы: фундаменты и стены - 120 лет, перекрытия - 100 лет; третьей группы: фундаменты и стены - 100 лет, перекрытия - 50 лет.
Опытные данные показывают, что технический срок службы конструктивных элементов зданий существенно превышает нормативный. В то же время достаточная неоднородность по показателю долговечности используемых строительных материалов приводит к возникновению условий, снижающих надежность отдельных узлов и конструктивных элементов здания. Характерным примером неоднородности по долговечности являются деревянные перекрытия, металлическая кровля, инженерное оборудование и др.
Изучение надежности и долговечности зданий является весьма актуальной проблемой. Этому вопросу посвящен ряд работ, из которых следует отметить исследования А.А. Русакова, Б. Г. Бердиневского, В.Д. Райзера, В.Н. Богословского, А.Г. Ройтмана, Е. Арендского, Д. С. Авирома, К.А. Шрейбера, Г. Шлете и других авторов.
Случайный характер воздействий на строительные конструкции потребовал применения вероятностно-статистических методов их расчета, которые успешно используются при конструировании и расчете элементов зданий.
В настоящей работе сделана попытка развить имеющиеся представления о надежности реконструируемых зданий, разработать методику и использовать математический аппарат, позволяющий приблизить модели к реальным условиям.
Представляет интерес рассмотрение физической, математической, технологической и экономической моделей надежности. Эти аспекты исследований охватывают широкий круг технических, организационно-технологических и экономических вопросов, комплексная оценка которых дает путь к оптимизации и принятию решений по проектам реконструируемых объектов как сложных систем.
Основой расчетов конструкций жилых зданий является метод предельных состояний. Расчеты ведутся по двум предельным состояниям:
- по несущей способности, обеспечивающей прочность, общую и местную устойчивость зданий в процессе возведения и эксплуатации;
- по деформациям, появлению или расширению трещин, обеспечивающим пространственную жесткость здания, недопустимость появления или развития трещин, нарушающих нормальную эксплуатацию.
По первому предельному состоянию рассчитывают: фундаменты, стены, колонны, перекрытия и покрытия, лестничные площадки и марши и др. По второму предельному состоянию проверяют здание в целом для оценки деформативности в результате неравномерных осадок от технологических нагрузок и воздействий от ветра.
Отсутствие определенных данных об изменении свойств материалов конструкций во времени в результате воздействия внешних факторов заставляет увеличивать запас прочности конструкций. Это обстоятельство создает определенную степень повышения надежности конструкций. Предполагается, что все элементы здания должны воспринимать предельную нагрузку и в максимальной степени использовать свою несущую способность. На практике сталкиваемся с высокой степенью неравномерности загрузки конструкций, и только меньшая часть элементов и узлов работает в предельном режиме. Кроме того, здания, построенные и рассчитанные по менее совершенным методикам, имеют достаточно высокие запасы прочности.
Факторы, влияющие на надежность зданий, можно условно разделить на две группы: внутреннего характера и внешнего воздействия. К первой группе относятся: физико-химические процессы, протекающие в материале конструкций; нагрузки и процессы, возникающие при эксплуатации; конструктивные факторы; качество изготовления конструкций. Ко второй группе причин относятся: климатические факторы (температура, влажность, солнечная радиация, попеременное замораживание и оттаивание и др.); факторы агрессивности окружающей среды (наличие в атмосфере агрессивных компонентов, биологические факторы, ветры, пыль и т.д.), а также качество эксплуатации. Последний фактор имеет в ряде случаев более важное значение, так как по интенсивности износа конструкций может превышать все остальные.
В качестве примера можно привести наличие протечек и неисправностей в системе водоснабжения и канализации, когда систематические утечки жидкой фазы увлажняют перекрытия, создавая благоприятные условия для возникновения и роста грибковых образований, коррозии арматуры и закладных деталей, нарушения целостности основания фундаментов. Результатом этого процесса при длительном воздействии может быть полная потеря устойчивости здания. Таким образом, следует отметить многообразие факторов, влияющих на надежность здания. При этом выделить группу решающих факторов весьма сложно.
В общем виде физическая модель надежности зданий может быть представлена в виде блок-схемы (рис. 4.1).

Рис. 4.1. Блок-схема физической модели надежности зданий
Графическая интерпретация критерия надежности здания за период эксплуатации может быть представлена системой экспоненциально убывающих кривых. Степень экспоненты, т.е. интенсивность падения надежности, может быть различной, зависимой от характера эксплуатации, конструктивных решений и вида материалов.
На рис. 4.2 приведены графики изменения надежности за период эксплуатации здания. Здесь заданная надежность системы конструкций здания с начальным резервированием по прочности и деформативности N0. Со временем эксплуатации Т происходит снижение надежности до порогового уровня, т.е. до появления отказа системы, приводящего к снижению или потере несущей способности основных конструкций здания.

Рис. 4.2. Изменения надежности за период эксплуатации здания
1 - теоретическая кривая; 2 - то же, при начальном
резервировании; 3 - повышение
надежности при восстановительных работах; DN -
увеличение надежности
По мере эксплуатации зданий имеет место выполнение различного рода ремонтных работ, которые восстанавливают и повышают надежность конструктивных элементов и в целом здания. Так, в периоды Т1, Т2 произведены восстановительные работы, которые привели к повышению надежности системы на параметры N1, N2 или N3.
Приведенная модель динамики изменения надежности в зависимости от времени эксплуатации здания основана на оценке системы в целом и не учитывает надежность и долговечность конструктивных элементов в отдельности. Однако этот фактор в ряде случаев имеет определяющее значение. Так, для зданий дореволюционной и предвоенной построек характерно использование деревянных конструкций перекрытий, что приводит к снижению долговечности зданий по этому параметру. В то же время конструкции фундаментов и стен, выполненные из кладочного материала, имеют более высокие надежность и долговечность. Эти элементы здания могут быть отнесены к несменяемым.
Доля несменяемых конструктивных элементов зданий старой постройки составляет 40- 42 %, для построек послевоенных лет 53-55 %, современных крупнопанельных и сборно-монолитных - до 80 %. К несменяемым элементам относятся фундаменты (5-7 %), стены (35-40 %), перекрытия железобетонные (11-12 %), лестницы (2-3 %), индустриальные кровли (2-3 %), лифтовые шахты, мусоропроводы (2-4 %).
Таким образом, под надежностью здания следует понимать стабильность показателей качества и эффективности его функционирования, которая зависит от надежности конструкций и систем здания в их совокупности. Показателем надежности здания в целом является оптимальный срок его безаварийной службы.
Событие, способствующее нарушению работоспособности конструкций, называется отказом. Под отказом несущих и ограждающих конструкций понимают такое техническое состояние элемента, которое предшествует потере несущей способности или полной потере ограждающих функций.
Отказы конструкций классифицируются по характеру действия на последовательные, постепенные и внезапные.
В зависимости от диапазона - частичные, связанные с отклонением характеристик от допустимых значений и не вызывающие полной утраты работоспособности, и полные отказы.
В зависимости от последствий - незначительные, не приводящие к ухудшению эксплуатационных характеристик; значительные (критические), приводящие к полному прекращению выполнения функций.
Постепенные отказы являются функцией времени, вызываемые, как правило, старением материала конструкций. Внезапные отказы носят случайный характер и являются следствием потери несущей способности конструкций в результате концентрации напряжений, превышающих расчетные.
Для простоты анализа строительных систем имеется два возможных состояния: нормальное эксплуатационное и отказ. В практике эксплуатации жилищного фонда здания могут иметь несколько состояний, соответствующих частичным и постепенным отказам в результате накопления дефектов, а также критическим. В последнем случае имеются в виду отказы несущих элементов зданий, приводящие к полной потере работоспособности здания.
Оценка уровня эксплуатационной надежности зданий показывает соответствие состояния и свойств конструктивных элементов действующим нормативам. Поэтому любое изменение нормативных требований приводит к снижению или повышению уровня надежности. Характерным примером такого влияния являются изменения норм теплотехнических характеристик ограждающих конструкций. Это привело к снижению эксплуатационной надежности и возникновению отказов практически для всех зданий постройки до 1998 г. Подобную ситуацию наблюдаем при оценке эксплуатационной надежности систем инженерного оборудования, энергосистем и др. Даже при низком уровне физического износа такие системы не отвечают новым нормативным требованиям и находятся в состоянии отказа.
На рис. 4.3 приведены характерные типы отказов. В связи со случайным характером воздействий на конструктивные элементы здания модель надежности здания носит вероятностно-статистический характер.

Рис. 4.3. Характеристика отказов
1 - теоретическая кривая; 2 - то же, при начальном резервировании
и влиянии техногенных процессов; 3 - повышение надежности при
восстановительных работах
При реконструкции здания в проектах должен предусматриваться уровень его надежности до и после реконструкции. В зависимости от качества конструкций и узлов здания выбирается тот или иной проект реконструкции. Заметим, что уже в проект нового здания закладывается определенный уровень надежности его элементов (фундаментов, несущих и ограждающих конструкций и т.п.). Обычно начальная надежность здания несколько меньше теоретической. Как уже отмечалось, с первого дня существования здания в отдельных узлах и конструкциях начинают происходить изменения, выражающиеся в ухудшении характеристик и показателей. Эти изменения по важности и интенсивности различны: одни приводят к ухудшению комфорта помещений, другие - к авариям и разрушению всего здания; одни можно быстро устранить, другие - устранить вообще невозможно; одни протекают во времени постепенно, другие - возникают внезапно, без видимых причин.
Нет нужды говорить о том, что при решении вопроса о целесообразности реконструкции необходим тщательный анализ состояния здания с точки зрения надежности его узлов и конструкций, а в случае принятия положительного решения - анализ проекта реконструкции, позволяющий оценить, какой будет надежность реконструированного здания.
Таким образом, с позиции надежности при реконструкции зданий возникают две основные проблемы:
оценка надежности элементов старого здания;
оценка надежности реконструированного здания при принятии того или иного проекта.
Для дальнейшего нам необходим ряд простейших понятий из теории надежности.
Как и в других областях науки, основные понятия теории надежности воспринимаются путем описания соотношений между ними.
Под изделием понимаются элемент, система или ее часть и т.д. Эксплуатация изделия - совокупность всех фаз его существования. Понятие надежности существенным образом связано с понятием качества.
Качеством изделия называется совокупность свойств, определяющих степень пригодности изделия для использования по назначению.
Качество сложных изделий, например здания (или его элементов), как правило, определяется весьма большим набором свойств. С течением времени свойства, составляющие качество изделия, видоизменяются, и чаще всего в нежелательную сторону.
Надежность изделия - это его способность сохранять качество при определенных условиях эксплуатации.
Следующие из основных понятий теории надежности - отказ и безотказность. Под безотказностью понимается способность изделия сохранять работоспособность в течение определенного интервала времени в определенных условиях эксплуатации. Отказ - это частичная или полная утрата или видоизменение таких свойств изделия, которые существенным образом снижают или приводят к полной потере работоспособности. Несмотря на всю относительность, понятие отказа является полезной и содержательной характеристикой надежности, так как оно позволяет вводить различные численные характеристики надежности, а это, в свою очередь, позволяет сравнивать различные проекты реконструкции с позиции надежности будущего здания.
Для таких объектов, как здания и другие строительные сооружения, важнейшим понятием надежности является долговечность. Под долговечностью изделия понимают его способность к длительной эксплуатации при необходимом техническом обслуживании, в которое могут входить и различные виды ремонтов. В конце срока, определяющего долговечность, в изделии появляются такие процессы, связанные с износом или старением, устранение которых либо невозможно, либо экономически нецелесообразно.
Для тех изделий, в которых работоспособность поддерживается с помощью ремонтов, важным показателем является ремонтопригодность. Ремонтопригодностью изделия называется его приспособленность к предупреждению, обнаружению и устранению отказов. К показателям ремонтопригодности относятся вероятность восстановления в заданное время, среднее время ремонта, удельная трудоемкость ремонтов, стоимость и т.п.
Рассмотрим, как работают
введенные понятия в такой системе, как здание. В настоящее время жилые и
общественные здания, как и другие промышленные изделия, переживают значительное
изменение масштабов сложности. Современное здание с полной уверенностью можно
отнести к большим системам. Большие технические системы - это соединение
значительного числа разнообразных компонент, имеющих сложную переплетающуюся
связь и переменные изменяющиеся нагрузки. Среди части инженеров и ученых, занимающихся
проектированием сложных систем, распространено мнение, что понятие теории
надежности неприемлемо для сложных систем. Утверждается тезис, что понятие
надежности сложной системы лишено смысла и надо говорить только об
эффективности таких систем. Действительно, понятие качества сложной системы
(например, здания), созданной для работы в меняющейся обстановке, включает в
себя совокупность многих десятков, а иногда и сотен свойств, определяющих
качество. Потому понятие отказа, связанное с полной или существенной потерей
работоспособности системы, выглядит весьма искусственно. Более приемлемым
является введение сводного показателя качества - эффективности, являющейся
мерой производительности системы с учетом внешней обстановки и способа
применения. На самом деле понятие эффективности не зависит от понятия
надежности. Можно говорить об эффективности абсолютно надежных систем. Однако
если составные части системы не являются абсолютно надежными, то их качество
существенным образом сказывается на эффективности. Другое возражение применению
методов теории надежности при проектировании новых и реконструировании старых
зданий состоит в следующем. Каждое здание - сложная система, состоящая из
большого числа элементов, скажем п. Если Pi - надежность i-го элемента, т.е. вероятность того, что в
течение данного промежутка времени элемент не выйдет из строя, то надежность
здания определяется как
.
Если п велико, то даже при Pi » 1, Pi < 1 надежность всего здания Р << 1, что противоречит практике домостроения. В этих рассуждениях много погрешностей. Во-первых, предлагается слишком упрощенная математическая модель. Во-вторых, формула (4.1) верна, если только элементы сложной системы выходят из строя независимо друг от друга. Это предположение абсолютно неприемлемо для строительных сооружений. Следовательно, проблема состоит не в неприемлемости идей теории надежности, а в трудностях построения адекватной математической модели. Обычно она оказывается чрезвычайно сложной, и возникают новые трудности - в получении решения с помощью модели. Есть еще один круг проблем, которого мы не будем касаться в данной работе. Это - сбор и обработка статистического материала, необходимого для оценки параметров модели.
В заключение параграфа заметим, что часто применительно к зданиям под надежностью понимают только прочностные свойства. Это не совсем верно. Например, наружные ограждающие конструкции чаще оказываются ненадежными при выполнении ограждающих функций, чем прочностных.
До сих пор мы говорили о понятиях надежности в самом общем плане. Однако если мы попытаемся ввести количественные показатели, то неизбежно приходим к вероятностной трактовке этих понятий.
Обычно под надежностью понимается вероятность безотказной работы в течение заданного промежутка времени. Наряду с этим встречаются и другие толкования этого термина. Вообще говоря, количественных характеристик надежности много, в каждом конкретном случае решающую роль могут играть различные показатели надежности.
В отличие от простых систем, где имеются только два возможных состояния - нормальное эксплуатационное и отказ, в зданиях большая часть конструкций и элементов может иметь несколько состояний, соответствующих частичным отказам и неисправностям. В связи с этим иногда- отказы классифицируют: частичный отказ узла или элемента, восстановление или усиление которого приводит к полному восстановлению надежности сооружений; отказ наиболее ответственных элементов сооружений (основания, фундаментов, колонн, ригелей и т.п.), приводящий к полному отказу всего сооружения. Отказы второй группы могут быть внезапными, а усиление этих элементов порой связано с большими объемами работ и экономическими затратами.
Таким образом, характеристики отказов должны отображать различные категории несущей способности здания или его частей. Предельно допустимую вероятность отказа, о которой мы еще будем говорить далее, следует определить в зависимости от тяжести последствий, как это всегда и делается в теории принятия решений. Обычно более надежным является изделие, работающее в мягких (благополучных) условиях эксплуатации, чем в жестких (предельных). Поэтому одним из способов повышения надежности, например в станкостроении, радиоэлектронике и т.п., является создание облегченных условий для работы изделий.
Специфика здания как изделия состоит: в невозможности создания облегченных условий для работы здания в целом, хотя для отдельных узлов и элементов такая возможность имеется; в трудности (или невозможности для некоторых элементов) использования резервирования.
Современные методы расчетов узлов и конструкций зданий (в частности, метод предельных состояний) сосредоточивают внимание на границах качества, хотя для многих характеристик (тепло-, звукоизоляция и др.) важно не только предельное состояние, но и распределение качества. Статистика показывает, что большая часть отказов и аварий происходит из-за так называемых мелочей: невыполнения всех поверочных расчетов конструкций, особенно при проектировании и при работе нескольких авторов, неаккуратности рабочих при изготовлении изделий и монтаже, отклонений от технологических режимов, неподготовленности обслуживающего эксплуатационного персонала и т.п.
Основной недостаток расчетов конструкций по предельным состояниям в том, что отсутствует фактор времени. Статистическую изменчивость нагрузок и механических свойств материалов конструкций указывают соответствующими коэффициентами запаса.
К сожалению, зависимость свойств материалов от времени невозможно прогнозировать с достаточной точностью на длительный промежуток времени. Разумеется, есть параметры, характеризующие свойства материалов, для которых тем или другим статистическим методом удается найти явные временные зависимости. Тем не менее следует отдавать отчет, что все эти параметры являются на самом деле случайными процессами и в лучшем случае мы получаем с помощью статистических исследований среднее их значение. Между тем надежность системы самым существенным образом зависит от статистических свойств этих случайных процессов.
В связи с этим предлагается достаточно общая математическая модель для оценки надежности сложной системы, работоспособность которой будет проиллюстрирована при оценке надежности реконструированных зданий.
Первый шаг состоит в разбиении сложной системы на ее составляющие - элементы. Способ разбиения определяется задачами, которые ставит перед собой исследователь, а также совокупностью статистического материала, которым он располагает.
В качестве примера рассмотрим здание, подлежащее реконструкции. На первом этапе исследования можно выделить следующие основные элементы: грунтовое основание; фундаментная часть; перекрытия; несущие стены продольные и поперечные; кровля.
Для описания состояния здания в каждый момент времени мы рассматриваем многомерный процесс X(t) = (x1(t), ..., Xn(t)),n, так что в момент t состояние процесса описывается n-мерным (в нашем примере пятимерным) вектором. Каждая из компонент вектора X(t) может, в свою очередь, находиться в различных состояниях, так что компоненты принимают различные значения. Для практических расчетов достаточно предположить, что число этих значений конечно. Пусть еi1, ..., eik - возможные значения i-й компоненты.
Совокупность всех значений
процесса X(t) принято называть фазовым пространством. Обозначим его X. В нашем случае X представляет собой конечное множество, состоящее из К1
´ К2, ..., Кп точек. Если X(t) в момент t находится в точке (е1,j1, е2,j2, ..., еп,jn), это означает, что его первая координата
принимает значение е1,j1, вторая е2,j2 и т.д. С позиции теории надежности в фазовом пространстве X выделяется некоторое подмножество состояний Q, попадание в которое процесса X(t) означает аварию (отказ). Тогда надежность
системы Р(Т) за
время Т есть вероятность того, что процесс X(t) за время Т, выйдя из некоторой фиксированной точки, не попадет во
множество Q, т.е.
.
Чтобы сделать это понятие содержательным, необходимо задать вероятностно-статистические характеристики процесса X{t). Это второй шаг построения математической модели.
Мы будем строить это описание исходя из следующих предположений, которые в плане будущих применений к оценке надежности реконструированных зданий представляются достаточно естественными:
за малое время Dt возможно изменение лишь одной из координат процесса;
за малое время Dt возможен переход только в соседнее состояние.
Это означает, что возможные значения координаты перенумерованы таким образом, что возможны только переходы типа i ® i + 1. Позднее мы проиллюстрируем это обстоятельство на примере.
Пусть теперь ai,(x)Dt - вероятность того, что система за время Dt из состояния х(х1,...,
хn) перейдет в состояние
Если
предположить, что переходы из одного состояния в другое зависят только от
текущего состояния процесса, то совокупность функций {ai(x), i = 1,2,...,п} полностью
определяет вероятностные свойства процесса и, таким образом, математическая
задача поставлена.
При этом возникают две основные проблемы:
- как на основании экспериментальных данных получить функцию ai(x);
- как найти вероятность Р(Т), если ai(x) ( i = 1,...,п) дана.
Первая проблема - из области математической статистики, но она самым тесным образом связана с предметной стороной исследования. Вторая проблема - очень трудная математическая задача, решенная к настоящему времени лишь для некоторых частных случаев.
Тем не менее есть математические
идеи, позволяющие получить приближенное значение Р(Т). Они базируются на
ряде математических теорем [95], утверждающих, что время достижения
критического множества Q в достаточно общих предположениях, выполненных для широкого класса
практических задач, имеет экспоненциальное распределение, так что
, где t - среднее время достижения критического
уровня.
Проблема отыскания среднего времени t достижения несравненно проще отыскания распределения. Более того, она может быть получена по результатам прошлых наблюдений за идентичными объектами.
Прежде чем переходить к моделям, связанным с надежностью зданий при их реконструкции, поясним сказанное на простом примере.
Пример 1. Рассмотрим систему, состоящую из двух элементов (например, элемент 1 - грунтовое основание здания, а элемент 2 - его фундаментная часть), так что фазовое пространство X является двумерным с точками (х1, х2).
Зададим различные состояния грунтов, т.е. первой координаты, следующим образом:
состояние 1 - уплотненные фунты с допустимой осадкой и равномерной осадкой здания;
состояние 2 - грунты с нарушением их физико-механических свойств, однако не вызывающим опасения неравномерных осадок здания;
состояние 3 - грунты с таким нарушением их свойств, которое вызывает опасения относительно целостности здания;
состояние 4 - грунты с таким нарушением свойств, которое обычно вызывает неравномерную осадку здания и приводит к частичному разрушению фундамента;
состояние 5 - грунты с нарушением физико-механических свойств, обычно приводящим к полной потере несущей способности фундамента.
Итак, первая координата имеет 5 возможных состояний. При этом если не производятся работы, направленные на упрочнение и укрепление оснований, такие как поверхностное и глубинное уплотнение и инъецирование, закрепление силикатизацией, цементацией и другими техническими приемами, движение процесса по первой координате возможно только в одном направлении, т.е. схематически мы можем иметь только траекторию, представленную на рис. 4.4. Если, например, при достижении состояния 3 проводятся работы по упрочнению и укреплению основания, то возможен переход из состояния 3 в 2 или 1.

Рис. 4.4. Траектория процессов для примера 1
Мы предполагаем, что время
выполнения работ по укреплению грунтов весьма мало по сравнению со временем
функционирования системы и даже по сравнению со средним временем движения
системы из одного состояния в другое. Это позволяет не вводить дополнительную
переменную в наш случайный процесс X(t), которая фиксировала бы, на какой стадии
находятся реконструктивные работы в данный момент. Итак, реконструктивные
работы могут быть заданы такими вероятностями:
- вероятность
осуществления восстановительных работ, если первая координата находится в
состоянии i;
- вероятность
перехода первой координаты из состояния i в состояние j £ i, если осуществляются восстановительные работы.
Переходим к определению возможных значений второй координаты (фундаменты) по состояниям: 1 - нормальное без видимых нарушений; 2 - локальные нарушения сцепления с кладочным раствором; 3 - повсеместное нарушение сцепления с кладочным раствором; 4 - сквозные трещины; 5 - потеря несущей способности (разрушение).
Итак, вторая координата нашего
процесса также имеет пять возможных значений, и если не производятся работы по
усилению, восстановлению или защите фундаментов от агрессивных воздействий,
движение второй координаты возможно только в одном направлении, т.е. из
состояния i в
состояние i +
1. Учет восстановительных работ можно проводить так же, как для координаты х, вводя соответствующие
вероятности
и
.
Критическое множество фазового пространства состоит из точек вида (i, 5), т.е. содержит все точки, в которых фундамент потерял несущую способность: Q = {( i,5), i = 1,2,3,4,5}.
Фазовое пространство X(t) состоит из 25 точек. Критическое множество содержит 5 точек.
На рис. 4.5 изображена одна из возможных траекторий процессов.

Рис. 4.5. Пример траектории процессов
Эта траектория соответствует такой ситуации: из нормального состояния грунта и фундамента (1,1) осуществляется переход в состояние, когда в грунте возникают первичные нарушения физико-механических свойств (состояние (2,1)), что приводит к локальным нарушениям сцепления с кладочным раствором в фундаменте (состояние (2,2)), далее в грунте происходят более глубокие нарушения физико-механических свойств (состояние (3,2)), что приводит к повсеместным нарушениям сцепления с кладочным раствором фундамента (состояние (3,3)) и т.д.
Математическая модель будет полностью определена, если будут заданы вероятностные характеристики, описывающие случайный процесс X(t). Наиболее простая модель получается при предположении экспоненциальности.
Времена пребывания случайного процесса X(t) в состоянии (il,i2), коль скоро он туда попал, имеют экспоненциальное распределение с параметром a(il,i2), по истечении этого времени процесс с вероятностью р(jl,j2/il,i2) переходит в состояние (jl,j2).
Математически это предположение означает, что процесс X(t) является цепью Маркова с конечным множеством состояний и поглощающим множеством состояний Q. Задача вероятности поглощения за определенное время, т.е. по существу надежности системы, может быть решена достаточно стандартными приемами, по крайней мере численно.
Физически предположение об экспоненциальности означает, что мы рассматриваем только так называемые внезапные отказы, не связанные со старением здания, а вызванные скорее нежелательными флуктуациями внешней среды. Безусловно, такие отказы могут иметь место при эксплуатации зданий, но с точки зрения надежности реконструируемых зданий наибольший интерес представляют так называемые постепенные отказы, связанные с изменением свойств материалов при длительной эксплуатации, постепенной неравномерной осадкой здания, разрушениями кирпичной кладки, потерей несущей способности перекрытия из-за коррозии опорных частей, балок и т.п.
Некоторые исследователи считают, что распределение времени пребывания в любом состоянии близко к нормальному. Тем не менее этот вопрос требует глубокого анализа, который выходит за рамки данной работы, кроме того, в дальнейшем мы укажем приемы для оценки надежности реконструированных зданий, позволяющие обойти предположение об экспоненциальности.
Одним из таких приемов служит предположение о том, что интенсивности изменения состояния системы a(t, x) являются функциями не только состояния, но и времени. Это в значительной мере позволяет учесть старение материалов и конструкций, и такая модель хорошо описывает поведение системы в промежутках между ремонтами, возвращающими систему в начальное нормальное или близкое к нему состояние.
Простейшая модель в предположении экспоненциальности
Рассматриваем n-мерный случайный процесс X(t) = xx(t),...,xn(t) с конечным множеством значений X и критическим множеством Q, попадание в которое интерпретируется как
отказ всей системы. Считаются заданными следующие характеристики: a(х) -
интенсивность выхода из
состояния х; Р(у/х)
- вероятность перехода из состояния х в состояние
, если
выход из состояния х состоялся.
Пусть
- вероятность того, что за
время t процесс не попал в критическое множество Q и в момент t он находится в точке х при условии,
что в начальный момент процесс находился в точке х0.
Обычными методами для функций мы получаем следующую систему дифференциальных уравнений
для
и Px(t,x) = Q. (4.2)
Начальные условия для системы
если х ¹ x0. Поскольку множество X конечно, система (4.2) имеет единственное решение и может быть решена,
по крайней мере численно. Заметим, что число уравнений равно числу точек вне
множества Q.
Функция надежности выражается
через решение системы (4.2) с помощью соотношения
где
суммирование ведется по всем состояниям вне множества Q.
Полученная система кажется слишком сложной для практического использования. Чтобы убедиться, что это не так, рассмотрим численный пример.
Пример 2. Предположим, что система состоит из двух элементов и имеет три состояния с переходами и интенсивностями, изображенными на рис. 4.6.

Рис. 4.6. Граф переходов из состояний для примера 2
При этом критическое множество состоит из одного состояния 3. В начальный момент система находится в состоянии 1. Нас интересует надежность системы, т.е. время до попадания в состояние 3. Система (4.1) принимает вид
с начальными условиями Р(0,1)=1, Р(0,2)=0. (Здесь для удобства опущен нижний индекс 1). Наиболее короткий метод решения системы (4.3) - использование преобразований Лапласа, т.е. функций вида
![]()
Для преобразований Лапласа вместо системы дифференциальных уравнений мы получаем систему алгебраических уравнений, интегрирование по частям дает
![]()
Итак, вместо (4.3) мы имеем
откуда
(4.5)
Теперь необходимо обратить преобразование Лапласа для P(s,1). Обозначим s1 и s2 корни знаменателя в выражении (4.5) для P(s,1). Нетрудно проверить, что оба они отрицательны и
![]()
Значения s1,2 определяют из соотношения
![]()
Для обращения преобразований Лапласа воспользуемся справочными данными и получим
![]()
а надежность системы, т.е. вероятность того, что за время t не будет отказа
P(t) = P(t,1) + P(t,2). (4.6)
На этом элементарном примере мы замечаем одно важное обстоятельство: функция надежности имеет экспоненциальный характер. Посмотрим, как ведет себя эта функция при большом t. Для определенности выберем s2 < s1, тогда при t ® ¥
(4.7)
В дальнейшем убедимся, что экспоненциальный характер функции надежности очень часто возникает в приложениях и объясняется целым рядом причин, коренящихся в характере случайных процессов, описывающих соответствующие объекты.
Пример 3. Рассмотрим с этих позиций пример, приведенный в § 4.2. Для простоты предположим, что грунт может находиться в двух состояниях: нормальное, без нарушения структуры, с несущей способностью, обеспечивающей нормальную эксплуатацию здания; нарушены физико-механические свойства, что может привести к неоднородным осадкам, просадкам фундамента и его разрушению.
Фундамент также может находиться в двух состояниях: нормальном, без видимых нарушений, с однородной допустимой осадкой; с потерянной несущей способностью вследствие разрушения полностью или части фундамента.
Вся система будет иметь четыре варианта состояний: 1 - нормальное состояние грунта и фундамента; 2 - нарушены физико-механические свойства грунта и несущая способность фундамента; 3 - нормальное состояние грунта, но фундамент разрушен и потерял несущую способность; 4 - нарушены физико-механические свойства грунта, и фундамент утратил несущую способность.
Критическое множество Q в этом случае содержит два состояния: (4.3) и (4.4). Граф переходов из состояния в состояние выглядит, как показано на рис. 4.7.

Рис. 4.7. Граф переходов
Состояния 3 и 4 образуют критическое множество
Пусть t1 - время, в
течение которого в грунте не возникает опасных изменений; t2 - время между возникновением опасных нарушений физико-механических
свойств грунта и потерей несущей способности фундамента;
- среднее значение ti (i = 1,2).
Переход из состояния 1 в состояние 3 означает разрушение фундамента, не связанное с изменениями состояния грунтового основания.
Обозначим t3 - продолжительность нормального функционирования фундамента при условии, что грунт не подвергался никаким нарушениям.
В соответствии с развитой ранее техникой получим следующие значения для интенсивностей переходов
Система уравнений
![]()
с начальными условиями Р1(0) = 1, Р2(0) = 0.
Решение:
![]()
и вероятность отсутствия отказа до t
Мы видим, что полученная зависимость (4.9) также носит экспоненциальный характер.
Небольшое усложнение модели позволяет учесть большое число состояний.
Основные трудности в применении предложенного метода состоят не в объеме вычислений, а в получении необходимых исходных данных.
Если имеется достаточное число наблюдений за поведением однотипных объектов, то величины, обратные интенсивности переходов, не что иное, как среднее время пребывания объекта в соответствующем состоянии.
Оценка среднего значения случайной величины по наблюдениям - это достаточно элементарная задача математической статистики.
Если объект уникален или нет достаточного числа наблюдений, математическая статистика помочь не может. Здесь можно использовать физико-механические методы.
Пусть, например, выход системы из данного состояния определяется значением некоторого числового параметра x(t) (осадка фундамента, степень уплотненности грунта, деформация конструкций и т.п.). Обычно x(t) - случайный процесс. Например, на конструкцию здания воздействуют следующие факторы: 1 - нагрузки (постоянные, временные, динамические, аварийные); 2 - окружающая среда (ветер, атмосферные осадки, солнечная радиация, неравномерные осадки оснований, землетрясения); 3 - внутренние источники напряжений (температура, усадки, ползучесть, перераспределение нагрузок).
Наличие большого числа факторов свидетельствует о том, что x(t) гауссовский процесс. Выход системы из состояния возникает тогда, когда значение характеристики x(t) превышает некоторый заданный уровень (например, нагрузка на несущие конструкции становится больше допустимой). Тогда нам нужно найти среднее время, за которое процесс x(t), выйдя из точки т, впервые пересечет уровень R. Эта задача имеет решение для целого ряда процессов.
Оценка надежности сложной системы не только представляет значительные вычислительные трудности, но и требует большого числа данных, сбор которых сопряжен с большими затратами, а иногда просто невозможен. Однако есть широкий класс сложных систем, очень часто встречающихся в практике, для которых работают достаточно точные приближенные оценки. Математические утверждения, в которых изучается предельное поведение объекта в предположении, что какой-то из параметров, описывающих его функционирование, мал (велик), носят название асимптотических. Необходимо изучать надежность сложной системы в предположении малости вероятности отказа за конечный промежуток времени. Более точное описание ситуации следующее.
Пусть X(t) = (x1(t),...,xn(t)) - процесс, описывающий функционирование изучаемого объекта, как и ранее Q - критическое подмножество в фазовом пространстве. Мы предполагаем, что процесс X(t) обладает так называемым свойством регенерации (восстановления). Описательно это означает следующее: существует неубывающая последовательность случайных моментов времени 0 = t0 < t1 < t2, ... такая, что в момент tп все стохастические свойства процесса X(t) такие же, как и в момент t0, а значения процесса до момента tп не влияют на его будущие значения. Очень часто случайные моменты tп - это моменты попадания X(t) в какое-то состояние.
Например, если мы предполагаем, что капитальный ремонт здания переводит его с точки зрения надежности в некое первоначальное состояние, то моменты окончания ремонтов - это точки регенерации. Следовательно, развитая далее теория применима для ремонтируемых объектов, которые на протяжении их эксплуатации неоднократно восстанавливают свои надежностные характеристики. Можем считать, что траектория процесса X(t) разбивается на циклы (их называют периодами регенерации), после каждого цикла стохастический процесс X(t) как бы начинается заново. Наглядно это можно изобразить, как показано на рис. 4.8.

Рис. 4.8. Периоды регенерации объекта в результате ремонтно-восстановительных работ
На каждом периоде регенерации (в нашем случае между ремонтами) возможен отказ системы (например, снижение несущей способности фундамента). Обозначим вероятность этого события q. Асимптотические результаты для сложной системы верны, когда q мало (математически q ® 0). Тогда в достаточно широких предположениях асимптотика вероятности отсутствия отказов в течение времени t имеет вид
(4.10)
где t - средняя длина периода регенерации (у нас - среднее время между капитальными ремонтами). Заметим, что среднее время эксплуатации системы Т » t/q, так что в формуле (4.10) можно записать
(4.11)
Основное достоинство этого результата в том, что требуется ограниченное число параметров. В самом деле, среднее время эксплуатации строительного объекта Т до того, как он придет в полную негодность, для серийных объектов можно оценить. Для уникальных объектов следует пользоваться формулой (4.10). Здесь требуются два параметра: t и q, причем t - среднее время между ремонтами - обычно легко оценивается. Трудность - в оценке параметра q. Это достаточно сложная математическая проблема, далеко выходящая за рамки настоящей работы, тем не менее далее предложим один прием для вычисления Т.
Другое достоинство асимптотического подхода в том, что формулы (4.10) и (4.11) дают хорошее приближение для гораздо более широкого класса процессов, чем указано ранее.
В качестве примера 4 рассмотрим систему «основание-фундамент» (рис 4.9). Интерпретируя модель «основание-фундамент», будем учитывать три состояния системы: 1 - нормальное состояние для грунта и фундамента; 2 - нарушение свойств грунта и нормальное состояние фундамента; 3 - потеря несущей способности фундамента (критическое состояние).
Мы несколько изменим граф переходов (рис. 4.10).

Рис. 4.9. График функции надежности для различных времен Т эксплуатации объекта до его разрушения для примера 4

Рис. 4.10. Граф переходов для примера 4
Состояние 3 является критическим множеством
Если b2 > 0, то это означает, что при нарушении свойств грунта с
вероятностью
происходит его
успешное восстановление. Так же, как в примере 1,
(4.12)
(4.13)
только из-за наличия g1, корни s1 и s2 вычисляются по следующей зависимости
![]()
Формулы (4.12) и (4.13) дают точное решение для модели. Мы имеем дело с восстанавливаемой системой, и асимптотическое выражение должно получаться в предположении g1 ® 0, a2 ® 0.
Чтобы упростить выражение, положим g1 = 0, а a2 ® 0. Понятно, что предположение g1 > 0 вносит не принципиальные, а чисто технические трудности. Итак, при a2 ® 0 имеем асимптотику корней
![]()
Отсюда
и поэтому

и функция надежности системы может быть описана в следующем виде
(4.14)
Мы получили результат, вытекающий из общих математических теорем. Одновременно можно оценить среднее время эксплуатации системы как
![]()
Напомним смысл параметров:
- среднее время до
возникновения в грунте опасных нарушений физико-механических свойств; (a2 + b2)-1 = q - среднее время существования грунта в таком
состоянии либо до разрушения фундамента, либо до начала восстановительных
работ;
- вероятность того, что восстановительные работы начнутся
раньше, чем разрушится фундамент, и они будут успешными.
В терминах
, q, р формула (4.14) примет вид
(4.16)
В заключение этого параграфа заметим, что основное достоинство асимптотического метода состоит в том, что на процесс не накладывается никаких условий, кроме наличия восстановления (или регенерации), что характерно для большинства строительных объектов.
Для многих практически важных случаев функция надежности может быть оценена, если известно среднее время достижения критического множества, т.е. среднее время эксплуатации объекта до полной потери несущей способности. Вернемся к модели, описанной в § 4.1.
Пусть т(х) - среднее время до
попадания в множество Q из состояния
. Для функций т(х) выполняется система уравнений
(4.17)
Эта система линейных алгебраических уравнений состоит из конечного множества уравнений, так что ее решение не представляет собой значительных трудностей.
Пример 5. Для наглядности рассмотрим объект, описанный ранее, с графом переходов (рис. 4.11).

Рис. 4.11. Граф переходов для примера 5
Здесь
![]()
Система (4.17) принимает вид
![]()
откуда
(4.18)
Если g1 = 0, a2 ® 0, как это было в предыдущем параграфе, то асимптотика среднего времени эксплуатации
(4.19)
что совпадает с зависимостью (4.15).
Метод наиболее вероятных траекторий
Асимптотические методы при оценке надежности объектов применимы, когда имеются неоднократные восстановления (регенерации) объекта.
Если предположить, что объект не ремонтируется или ремонты не возвращают его в первоначальное состояние, а только задерживают в том, в котором он уже находился, то состояния координат процесса могут быть перенумерованы таким образом, что с течением времени их значения только увеличиваются.
На рис. 4.12 показана типичная траектория такого процесса.

Рис. 4.12. Пример траектории иерархического процесса
По каждой координате возможно только увеличение. На рис. 4.12 показано движение вправо и вверх, но не вниз и влево. Процессы такого рода никогда не возвращаются в состояние, в котором они уже были.
Граф переходов таких процессов не имеет петель и выглядит, как показано на рис. 4.13.

Рис. 4.13. Граф переходов в различные состояния
Такие процессы можно назвать иерархическими, поскольку все множество состояний разбивается на классы К1, К2, ..., Ki и движение возможно только из одного класса в другой или в критическое множество (рис. 4.14).

Рис. 4.14. Иерархический процесс
К - классы состояний
Задачи теории надежности для таких процессов весьма своеобразны, и для них не работает асимптотическая теория. Сразу заметим, что система (4.1) может быть решена рекуррентно. В самом деле, введем двойную нумерацию для состояний, перенумеровав классы и состояния внутри класса, так что состояние (i,j) означает i-е состояние j-го класса. При такой нумерации вместо рис. 4.13 будем иметь схему, представленную на рис. 4.15.

Рис. 4.15. Пример разбиения на классы для иерархической системы
Пусть
- среднее время
пребывания процесса в состоянии (i,j), a
- вероятность перехода из состояния (l,j-1) в состояние (i,j), т.е. из состояния l класса j-1 в состояние i класса j.
Обозначим Pi,j(t) - вероятность того, что до момента t не было попадания в Q и в момент t процесс находился в состоянии i класса j. Тогда вместо системы (4.1) получаем
(4.20)
С начальным условием Р11(0) = 1, Рij(0) = 0, ij ¹ 1. Мы считаем, что класс К1 состоит из одного состояния и движение начинается из него.
Система (4.20) может быть решена последовательно, так как справедлива рекуррентная формула
(4.21)
С самого начала мы знаем вероятность P11(t), затем по формуле (4.21) находим вероятности состояний второго класса, потом третьего, пока не переберем все классы. Функция надежности в этом случае может быть оценена следующей зависимостью
(4.22)
Формула (4.21) показывает также, что P(t) будет представлять линейную комбинацию экспонент.
Отметим также, что для объектов описанного рода можно рассматривать aij как функции от t, что значительно расширяет круг приложений этой модели.
Значительно упрощается для данных моделей и вычисление среднего времени достижения критического множества, т.е. времени безаварийной эксплуатации. Пусть m(i,j) - среднее время достижения критического множества из состояния i класса j. Тогда
(4.23)
где l - номер последнего класса. Для других классов имеем рекуррентное соотношение
(4.24)
Формулы (4.23) и (4.24) позволяют последовательно вычислить m(i,j). Пример 1 превращается в иерархическую модель, если b2 = 0, т.е. имеет граф переходов (рис. 4.16).

Рис. 4.16. Граф переходов для иерархических систем
В этой простейшей модели имеются два класса К1 и К2, каждый из которых содержит по одному состоянию. Тогда
(4.25)
и надежность системы
P(t) = P1(t) + P2(t). (4.26)
Среднее время достижения критического множества из состояния i
![]()
Иерархическая модель позволяет получить оценки для среднего времени достижения уровня и в более сложных случаях, когда имеются системы с регенерацией. Мы знаем, что для оценки этого времени необходимо знание двух чисел: t - среднее время периода регенерации и q - вероятность достижения критического множества на периоде регенерации.
Первое из этих чисел обычно нетрудно найти. Вся проблема во втором. В ряде математических работ ясно и наглядно показано, что основной вклад в q вносят так называемые монотонные траектории, грубо говоря, траектории без петель. Но это и означает иерархичность системы. Более подробно с этим методом можно познакомиться в указанной литературе. Мы же продемонстрируем его применение на следующих примерах.
Система с графом переходов (рис. 4.17). Здесь q удается найти в явном виде
(4.26)
Более сложная система с графом переходов (рис. 4.18). Точки регенерации - моменты возвращения в первое состояние.

Рис. 4.17. Граф переходов из состояния для примера 4

Рис. 4.18. Граф переходов из состояния для примера 5
В качестве оценки для q берем траектории, не имеющие петель. Перечислим их:
1 ®
4, 1®2® 4, 1®2® 3®4.
I II III
Вероятности этих траекторий
![]()
так что
q » P(I) + P(II) + P(III). (4.28)
На самом деле есть еще траектория типа 1 ® 2 ® 3 ® 4, но ее вероятность существенно меньше вероятностей уже указанных траекторий.
Результаты аналитических исследований позволили по-новому подойти к оценке надежности зданий за период длительной эксплуатации. При этом здание рассматривается как сложная взаимосвязанная система. Рассмотренные математические модели могут использоваться не только для прогнозирования надежности зданий в период эксплуатации, но и в случаях, когда требуется осуществить комплекс реконструктивных работ различной степени сложности. Установлены способы оценки входящих в модели параметров, которые преимущественно базируются на результатах статистической обработки наблюдений в сочетании с методами строительной механики и теории случайных процессов.
Установлены области рационального применения исследуемых моделей с учетом старения материала конструктивных элементов, наличия восстановленных свойств объекта после ремонтов с постоянно ухудшающимися свойствами конструктивных элементов и т.п.
Методический подход к оценке функции надежности представлен материалами в таблице 4.1.
Таблица 4.1
Методики оценки функции надежности P(t) реконструированных зданий
|
Предположения |
Модели и методы |
Способы оценки входящих в модель параметров |
|
I. Предложение экспоненциальности распределения всех случайных величин |
1. Цепь Маркова. Метод дифференциальных уравнений
|
1. Статистическая обработка результатов наблюдений за аналогичными объектами. 2. Методы строительной механики в сочетании с теорией случайных процессов |
|
II. Учет старения элементов в предположении экспоненциальности |
2. Цепь Маркова с параметрами, зависящими от времени. Метод дифференциальных уравнений |
1. Статистическая обработка результатов наблюдений за аналогичными объектами. 2. Методы строительной механики в сочетании с теорией случайных процессов. 3. Метод наименьших квадратов |
|
III. Наличие восстановленных свойств объекта после ремонтов. Малая вероятность аварии между ремонтами |
Модель - регенерирующий процесс. Асимметрические методы
|
1. Оценка среднего времени эксплуатации объекта по наблюдениям за однотипными объектами. 2. Оценка среднего времени до аварии с помощью алгебраических уравнений. 3. Метод наиболее вероятностных траекторий |
|
IV. Движение только по монотонным траекториям, т.е. нет регенерации, свойства объекта постоянно ухудшаются |
Иерархическая модель. Рекуррентная формула для вычисления вероятностей состояния
|
1. Статистическая обработка результатов наблюдений за аналогичными объектами. 2. Методы строительной механики в сочетании с теорией случайных процессов. 3. Метод средних значений с помощью решения системы алгебраических уравнений |
Она включает:
раздел предположений, которые позволяют учитывать различный характер случайных величин воздействия и изменения свойств реконструируемого объекта;
математические модели и методы, приемлемые для каждого конкретного случая; способы оценки входящих в модель параметров.
Как будет показано ниже, исследованные модели и методы решения адекватно описывают процессы снижения надежности систем как в период длительной эксплуатации, так и после проведения восстановительных работ (реконструкции).
Анализ надежности реконструируемых зданий рационально проводить с применением численных методов решения уравнений. Наиболее простой является двухэлементная система «основание - фундамент», на примере которой покажем ее количественные характеристики надежности в зависимости от времени эксплуатации и состояния элементов. Выбор данной системы неслучаен, так как она определяет прежде всего необходимость и объем проведения восстановительных работ для обеспечения заданного уровня надежности здания в целом, а также позволяет прогнозировать поведение системы во времени. В то же время эта система является наиболее ответственным элементом здания, определяющим его эксплуатационную надежность и долговечность. Зависимость (4.9) может быть распространена на многоэлементные системы, включающие стены перекрытия и другие несущие конструкции. При этом учитываются соответствующие графы переходов.
В качестве исходных данных берутся следующие параметры: t1 - среднее время от момента постройки до момента, когда в грунте возникают опасные физико-механические изменения; t2 - среднее время между возникновением опасных нарушений физико-механических свойств грунта и потерей несущей способности фундамента; t3 - средняя продолжительность функционирования фундамента при условии, что грунт не подвергается никаким нарушениям. Для расчетов брались следующие значения параметров (в годах)
t1 = 20; 30; 40; 50; t2 = 10; 20; 50; t3 = 50; 100.
Таким образом, получены 24 кривые, приведенные на рис. 4.19.

Рис. 4.19. Графики функций надежности в Р-мерном пространстве
Анализ показывает, что функция надежности монотонно убывает со временем. Кроме того, все кривые в промежутке между 30 и 50 годами меняются медленно, а после 60 лет ведут себя как экспоненты.
При выполнении реконструктивных работ без изменения объема здания и технологических нагрузок, т.е. когда сохраняется прежняя расчетная схема, оценка надежности производится по зависимости (4.9) с введением временных параметров, отвечающих уровню конструктивно-технологических решений.
Пусть, например, в возрасте t лет здание подвергается реконструкции, и при
этом проводятся работы по укреплению фундаментов и грунтов основания. Результат
этих работ таков, что параметры t1, t2, t3 принимают значения
. Тогда функция надежности реконструируемой системы
получается в результате склеивания двух кривых

где a1, a2, Р12 находятся по формулам (4.8), а
- по тем же формулам с заменой
ti на
(i = 1,2,3).
На рис. 4.20,а приведены графики функции надежности здания до реконструкции и после проведения реконструктивных работ. Реконструкция проводится в возрасте 100 лет, и значения после реконструкции приближаются к первоначальным.

Рис. 4.20. Графики изменения показателя надежности зданий до
и после реконструкции
а - при сохранении конструктивной схемы без изменений строительного
объема; б - то
же, при усилении конструктивных элементов и использовании встроенных
строительных систем
Анализ графиков функций надежности показывает, что в целом система при начальной функции надежности, равной единице, постепенно снижает этот показатель до определенного минимума, который является предельным и служит основанием для проведения восстановительных (реконструктивных) работ. Продолжительность реконструкции обеспечивает восстановление первоначальных характеристик, но с некоторым снижением надежности, которое является следствием длительной эксплуатации некоторых невосстанавливаемых элементов здания.
Изменение надежности после реконструктивного периода с незначительными отклонениями повторяет характер кривых дореконструктивного периода эксплуатации здания.
Более низкая степень снижения показателя надежности (рис. 4.20,б) после реконструкции достигается в результате замены сменяемых конструкций на более долговечные, усиления фундаментов, стен, замены перекрытий и т.п. В совокупности комплекс реконструктивных работ повышает эксплуатационную надежность и продляет срок службы здания,обеспечивая менее интенсивное падение показателя надежности. Как правило, повышение капитальности конструктивных элементов способствует безотказной работе здания в достаточно большом промежутке времени.
Полученные зависимости при использовании достаточного количества статистических данных позволяют прогнозировать снижение надежности элементов и здания в целом, а при возникновении экстремальных условий - аварийные ситуации.
Таким образом, с учетом случайного характера воздействия на строительные конструкции предложена и изучена физическая модель надежности реконструируемых зданий. При этом необходимо учитывать две группы факторов: внутреннего характера, включая режимы эксплуатационного воздействия, а также внешнего, существенно влияющих на изменение физико-механических характеристик конструктивных элементов.
Экспоненциальный характер снижения надежности во времени практически преобладает для всех типов зданий, дойдя до порогового значения (отказа), после предотвращения которого (восстановления) система приобретает требуемую надежность. Характер возникновения отказов зависит от режимов эксплуатации зданий. Как правило, имеют место последовательные и постепенные отказы, и только в критических случаях наблюдаются внезапные отказы, вызванные потерей несущей способности конструктивных элементов в короткий срок эксплуатации. Они являются критическими и приводят к потере работоспособности элементов или в целом здания.
Анализ надежности и долговечности реконструируемых зданий должен опираться на описание функционирования объекта как сложной системы. Математически это означает рассмотрение многомерных случайных процессов. При этом отказ возникает при попадании этого процесса в некоторое критическое множество.
При наличии ремонтных работ, предполагающих полное восстановление объекта с точки зрения надежностных характеристик, функция надежности хорошо приближается к экспонентной. Для использования этого результата необходимо знать два параметра: среднее время между восстановительными работами и вероятность отказа в течение этого промежутка времени.
В случаях когда ремонтные работы либо не ведутся, либо не полностью восстанавливают объект с точки зрения его надежностных характеристик, эти параметры с течением времени только ухудшаются. В качестве модели, описывающей функционирование таких объектов, предлагаются иерархические процессы. Для них функция надежности вычисляется с помощью рекуррентной формулы.
Предложенные методики позволяют оценивать долговечность зданий до и после реконструкции при наличии довольно большого числа исходных данных. Часть из них может быть получена на основании статистических данных, а часть - с использованием результатов натурных обследований, расчетных методов строительной механики в сочетании с теорией случайных процессов. Оценка надежности и долговечности реконструированных зданий должна учитывать интенсивность различных воздействий внешнего и внутреннего характера.
Долговечность зданий и их способность в полной мере отвечать назначению достигаются благодаря комплексу организационных и технических мероприятий по содержанию и своевременному восстановлению конструктивных элементов, инженерных систем и оборудования. Этот комплекс работ является системой планово-предупредительных ремонтов. Существуют текущий и капитальный ремонты. Они подразделяются на планово-предупредительный (профилактический), аварийный (непредвиденный), текущий ремонт, планово-предупредительный (комплексный) и выборочный капитальный ремонт.
Текущий ремонт состоит в систематически проводимых работах по предохранению частей здания и оборудования от преждевременного износа и ликвидации возникающих мелких повреждений и неисправностей.
Капитальный ремонт заключается в восстановлении эксплуатационной надежности всех конструкций, санитарно-технических систем и инженерного оборудования в связи с их физическим или моральным износом.
При каждом очередном плановом капитальном ремонте состав восстанавливаемых элементов меняется, т.к. межремонтные сроки службы конструкций, инженерных систем и оборудования различны. В соответствии с действующими нормативами периодичность восстановительных работ различна и зависит от долговечности конструктивных элементов. Например, через девять лет с начала эксплуатации здания ремонтируют крышу, фасады, лестничные клетки, систему горячего водоснабжения и т.д.
Через очередные девять лет ремонтируются система отопления, водоснабжения и канализации, электрооборудования, элементы благоустройства.
Работы текущего и капитального ремонтов не предусматривают перепланировки помещений и изменения объема здания.
Модернизация зданий предусматривает его переустройство с частичным изменением планировочных решений, снижением уровня физического и морального износа как конструктивных элементов, так и инженерного оборудования. При модернизации зданий их габариты и объем остаются неизменными.
Основная цель модернизации состоит в повышении эксплуатационной надежности зданий и продлении жизненного цикла.
Санация зданий состоит из комплекса ремонтно-восстановительных работ, отвечающих современным требованиям СНиП, без изменения планировочных решений. В состав работ данного цикла входят: повышение теплоизоляции наружных стен путем замены оконных и балконных заполнений, утепления стенового ограждения; выполнение кровельных работ с утеплением чердачного пространства; замена морально изношенного инженерного оборудования, сетей отопления и водоснабжения; производство внутренних ремонтно-восстановительных работ; создание архитектурной выразительности фасадных поверхностей.
Реконструкция зданий представляет собой их переустройство с изменением планировочных решений, надстройкой и пристройкой дополнительных объемов, с изменением назначения, повышением эксплуатационной надежности и долговечности. При реконструкции достигаются продление жизненного цикла зданий, повышение энергоэффективности, ликвидация физического и морального износа.
Роль технологии в процессах реконструкции зданий достаточно велика. Она объединяет простые и сложные строительные процессы, различающиеся по основным элементам производства. Эффективность технологий зависит от уровня взаимодействия процессов, современных средств механизации, использования новых материалов.
Производство строительно-монтажных работ по реконструкции основывается на ряде общих принципов, к числу которых относятся:
- технология отдельных строительных процессов должна соответствовать современному уровню производства и обеспечивать строительную продукцию, отвечающую требованиям норм и стандартов;
- ведущим строительным процессом является технологический процесс возведения или усиления несущих конструкций здания;
- возведение несущих конструкций должно обеспечивать геометрическую неизменяемость, пространственную устойчивость и прочность отдельных частей и здания в целом;
- ведущий строительный процесс осуществляется в полной технологической увязке с производством смежных видов работ;
- ведущие процессы осуществляются поточными методами производства работ, обеспечивающими максимальное совмещение сопутствующих процессов и сокращение сроков производства реконструктивных работ;
- каждый специализированный поток оснащается грузоподъемным механизмом, комплектом технологических средств, инструментом и инвентарем;
- материальные ресурсы, необходимые для производства работ, должны отвечать параметрам современных технологий;
- технологические процессы должны соответствовать экологическим требованиям и не наносить ущерб окружающей среде.
Технология реконструктивных работ, как правило, связана с усилением, разборкой ограждающих или несущих конструкций, надстройкой и обстройкой зданий. Это обстоятельство требует разработки методов и принятия прогрессивных технологий, снижающих возможность потери устойчивости отдельных элементов и здания в целом.
Фактор безопасности жильцов и рабочих существенно влияет на принятие технологий, уровень их механизации и методы производства работ, особенно при реконструкции зданий без отселения или с частичным отселением жильцов.
В первую очередь это относится к размещению кранов, подъемников, бетононасосов и др. технических средств, работа которых связана с перемещением грузов в определенном радиусе действия, и к наличию опасных зон.
Должны приниматься технические решения, снижающие затраты ручного труда, повышающие производительность и исключающие негативное влияние на проживающих: производственного шума, вибраций, запыленности и т.п.
Фактор стесненности существенно влияет на принятие технологий, методы производства работ, степень механизации, обеспечивающие сокращение трудоемкости и продолжительность строительных процессов.
Одними из главных требований технологического процесса являются высокий технико-экономический уровень, стабильность производственных показателей, технологичность и конкурентоспособность технологий, что позволяет получать высокий уровень качества продукции.
На технологию реконструктивных работ решающее влияние оказывают соблюдение требований технологических карт, инструкций, руководств и пооперационный контроль качества работ инструментальными средствами.
Снижение продолжительности работ достигается использованием новых технологий и материалов, организационно-технологическими приемами, основанными на поточных методах производства работ: частный поток - для простых процессов; специализированный - для комплексных и объектный поток - для общих строительных процессов.
Главными параметрами, влияющими на технологические режимы при реконструкции зданий, являются:
- температурные пределы применения строительных материалов;
- температура и относительная влажность воздуха;
- скорость воздушных потоков;
- жизнеспособность технологий в зависимости от параметров окружающей среды;
- эксплуатационные режимы машин и механизмов.
В зависимости от используемых конструкций, материалов и полуфабрикатов в технологических процессах протекают физические, физико-химические, гидромеханические, механические и другие процессы, которые определяют условия работы. Эти условия и составляют технологические режимы.
Наибольшее влияние на технологические процессы оказывает температурный фактор, который ускоряет или замедляет химические реакции, связанные с набором прочности бетоном, раствором и другими материалами (рис. 5.1). Переход в зону отрицательных температур приводит к возникновению технологических перерывов, к повышенному расходу энергозатрат, увеличению продолжительности работ. В ряде случаев понижение температуры окружающей среды исключает использование тех или иных технологий. Многими техническими условиями на материалы регламентируются температура и относительная влажность. Отклонения от технологических регламентов приводят к снижению физико-механических характеристик и качества работ.

Рис. 5.1. Кривые набора прочности бетона в зависимости от температуры бетонной смеси
Существенное влияние на качество работ оказывают технологические режимы динамического воздействия. Например, нарушение технологического регламента по вибрационной обработке бетонной смеси приводит к снижению плотности бетона конструкций, его однородности и прочности. При этом определяющими факторами являются продолжительность вибрирования, частота и амплитуда колебаний, а также геометрическое положение вибратора относительно опалубки (рис. 5.2). Отклонение от технологических режимов приводит к расслоению смесей при увеличении продолжительности вибрирования и снижению физико-механических характеристик конструкций при недостаточной продолжительности виброобработки.

Рис. 5.2. Изменение плотности слоев бетонной смеси в
зависимости от продолжительности вибрирования (а) и распределение амплитуд колебаний от
глубинного вибратора (б)
Z - зона
уплотнения бетонной смеси; А1, А2 - амплитуда колебаний вибратора; Zр - зона
расслоения бетонной смеси
Регламентированы режимы работы машин, механизмов и ручного механизированного инструмента. Их параметры и область допустимых отклонений содержатся в технических условиях и паспортах. Они учитываются при проектировании механизации строительных процессов. Температура, относительная влажность и скорость движения воздуха регламентируются не только техническими условиями на материалы, но и санитарными нормами, ограничивающими продолжительность пребывания рабочих или запрещающими производство работ.
Производственный процесс реконструкции зданий является совокупностью простых и сложных технологических процессов, протекающих в пространстве и во времени.
Пространственным параметром служит фронт работ, состоящий из участков, захваток и делянок.
Организация строительного процесса в пространстве осуществляется путем разделения объемного пространства реконструируемого здания на участки и захватки, где в необходимой технологической последовательности выполняются строительные процессы бригадами или звеньями рабочих.
Участками являются части зданий, в пределах которых существуют одинаковые производственные условия, позволяющие применять одинаковые технические и технологические средства.
Захватками служат части зданий, на которых повторяются одинаковые комплексы строительных процессов. Они характеризуются примерно равными объемами работ, трудоемкостью, продолжительностью, составом и количеством строительных процессов. Фронт работ на захватках должен быть достаточным для одновременной работы бригады или звена рабочих. Строительные процессы на захватках должны совмещаться во времени, что обеспечивает снижение продолжительности работ при непрерывном производстве.
Развитие и функционирование технологических процессов в пространстве зависят от уровня реконструктивных работ, конструктивно-технологических решений, организации работ без отселения или с отселением жильцов.
При реконструкции зданий с отселением жильцов наиболее распространенной является вертикально-восходящая схема развития технологических процессов. При этом в качестве захватки принимается секция жилого дома или здания. Работы по усилению фундаментов, как правило, проводятся по горизонтально-продольной схеме, производство отделочных работ - по вертикально-нисходящей, утепление фасадных поверхностей - по вертикально-восходящей (рис. 5.3).

Рис. 5.3. Развитие технологических процессов в
пространстве
а - вертикально-восходящая схема развития технологических
процессов при замене перекрытий; б - вертикально-нисходящая схема при
выполнении отделочных работ; в -
горизонтально-восходящая схема при утеплении фасадов
При санации и реконструкции зданий без отселения жильцов используются различные технологические схемы, обеспечивающие безопасное производство и создание минимального дискомфорта для проживающих. Для каждого технологического процесса разрабатывается оптимальная схема производства работ, обеспечивающая максимальное совмещение во времени смежных процессов. Их осуществление производится параллельным, последовательным и поточными методами.
При реконструкции зданий строительные процессы имеют пространственные параметры, как правило, с неоднородными характеристиками по количеству захваток, направлению развития процессов, размеров захваток и т.п., что вызвано различными архитектурно-планировочными решениями зданий, степенью износа конструктивных элементов, методами реконструкции. Несмотря на эти обстоятельства, принимается производство работ, базирующееся на максимальном использовании современных технологий, обеспечивающих высокие показатели эффективности: трудоемкость, интенсивность производства, продолжительность, расход энергоресурсов, себестоимость работ и др.
До начала основных строительных работ должен быть выполнен цикл подготовительных работ. Его состав, уровень механизации, последовательность выполнения процессов зависят от принятой технологии производства работ.
При варианте с отселением жильцов осуществляется предоставление постоянного или временного жилья для расселения. Затем производят непосредственно цикл строительных подготовительных работ. К ним относятся:
- предварительная планировка площадок, обеспечивающая сток атмосферных осадков при отрывке котлованов под входы, лифтовые шахты, эркеры и другие конструктивные элементы;
- вскрытие асфальтобетонных покрытий для организации трасс перемещения механизмов, перекладки сетей и других элементов;
- устройство подготовок под площадки различного технологического назначения;
- установка временных бытовых помещений и складов;
- устройство временного забора, козырьков безопасности над выходами из здания в безопасные зоны;
- установка предупреждающих и запрещающих знаков у въезда, входов, проемов;
- отключение постоянных коммуникаций при варианте с отселением;
- перенос постоянных сетей, попадающих в зону производства земляных работ;
- подключение временного электро- и водоснабжения для нужд строительства;
- устройство крановых путей и монтаж кранов при варианте с отселением;
- устройство подъездных путей и стоянок под мобильные пневмоколесные краны;
- подготовка площадок и установка крышевых кранов;
- установка подъемников и других средств вертикального транспорта;
- устройство площадок для приема бетонной смеси, складирования материалов и полуфабрикатов.
Подготовительный цикл при реконструкции зданий старой постройки, требующий демонтажа отдельных конструктивных элементов и частей, кроме перечисленных работ включает мероприятия по обеспечению безопасного производства с целью исключения самопроизвольного обрушения конструкций, использование инвентарных мусоропроводов для удаления материалов разборки, специальных средств механизации для разрушения конструкций, предотвращение запыленности площадки и другие мероприятия.
При варианте без отселения жильцов необходимо предусмотреть работы, обеспечивающие защиту здания от атмосферных осадков, возможного промерзания и протечек, связанных с производством работ на надстраиваемых этажах.
В подготовительный период и в процессе строительства следует выполнять натурные наблюдения по определению осадок, кренов и смещений подземной части как строящегося, так и близлежащих зданий, определять напряжения и деформации в грунтовом массиве.
Механизация строительных процессов при реконструкции зданий определяется принятыми конструктивно-технологическими решениями, технологией производства работ и стесненностью строительной площадки. В зависимости от уровня реконструктивных работ (с сохранением строительного объема, надстройкой этажей, пристройкой объемов), геометрических размеров и массы конструктивных элементов механизация основных технологических процессов осуществляется путем рационального использования кранов, грузопассажирских подъемников, бетононасосного транспорта, а также специальных грузоподъемных механизмов и средств малой механизации, обеспечивающих снижение трудозатрат, повышение производительности труда и сокращение продолжительности работ.
Определяющими факторами выбора средств механизации являются методы производства работ: устройство встроенного каркаса из сборных или сборно-монолитных конструкций, пристройка или надстройка здания из штучных, укрупненных плоских или объемных элементов и т.п.
Подбор грузоподъемных механизмов осуществляется исходя из геометрических размеров здания в плане и по высоте, в результате чего определяются параметры монтажных кранов: высота подъема крюка, вылет стрелы, длина кранового пути. В зависимости от массы перемещаемых грузов и требуемого вылета стрелы определяется его грузоподъемность. Выбор типа кранов и грузоподъемности определяется технологией производства работ и в первую очередь максимальной массой монтируемых элементов.
При выполнении реконструктивных работ с применением монолитного железобетона определяющими факторами служат масса опалубочных щитов и бадьи с бетонной смесью, при надстройке мансардных этажей из объемных блоков - их масса и габариты, при устройстве перекрытий - геометрические размеры и масса железобетонных панелей и т.п.
Для каждого грузоподъемного механизма осуществляется вертикальная и горизонтальная привязка к зданию с обеспечением устойчивой и безопасной работы. Для самоходных стреловых кранов на автомобильном или пневмошасси определяются места стоянок и проездов, а также площадки для складирования или укрупнительной сборки. Грузопассажирские подъемники различных систем располагаются по торцам и фасадам зданий. Их устойчивость и безопасность работы достигаются путем крепления к конструктивным элементам зданий.
Расположение грузоподъемных механизмов и схемы их движения являются неотъемлемой частью строительного генерального плана.
На различных стадиях производства работ возможно использование нескольких видов средств механизации. Их функционирование должно обеспечивать безопасное производство работ, различных технологических процессов и обслуживать определенные пространственные зоны в виде захваток, участков и рабочих мест.
Наиболее распространенными средствами механизации при реконструкции зданий с отселением жильцов являются башенные, башенно-стреловые, приставные, крышевые и пневмоколесные краны. Они отличаются грузоподъемностью, мобильностью и габаритными размерами.
Современные средства вертикального транспорта имеют достаточно широкий диапазон грузоподъемности, регулируемый вылет и длину стрелы. Это обстоятельство позволяет для различных технологических процессов применять на одном и том же объекте различные средства механизации.
Принципиальные схемы расстановки монтажных средств вертикального транспорта при реконструкции зданий с надстройкой этажей приведены на рис. 5.4.

Рис. 5.4. Технологические схемы размещения средств
механизации при реконструкции зданий с надстройкой этажей и расширением
корпусов
а - самоподъемный кран; б - башенный; в - крышевой кран; г - мобильный кран на пневмоходу
с телескопической стрелой; д - бетононасос с распределительной стрелой и
башенным краном; е - лебедки
для надвижки объемных блоков, механизм вертикального перемещения
Наиболее распространенной является схема (рис. 5.4,б), когда в качестве грузоподъемного механизма используются башенные краны. В зависимости от конструктивно-технологических решений надстройки применяют башенные и башенно-стреловые краны грузоподъемностью до 8-10 т при надстройке из объемных элементов или сборного железобетона и 3-5 т при монолитном возведении.
В условиях стесненного производства работ используются технологические схемы, основанные на применении самоподъемных (рис. 5.4,а), приставных и крышевых кранов, располагаемых на усиленном перекрытии (рис. 5.4,в). При надстройке зданий объемными блоками мансардных этажей наиболее предпочтительным является использование мобильных авто- и кранов на пневмоходу с телескопическими стрелами, а также специальных подъемников и системы надвижки.
Выбор средств механизации осуществляется путем экономических расчетов по величине прибыли строительной организации.
В ряде случаев применение определенного типа крана диктуется стесненностью строительной площадки, а также конструктивным решением надстраиваемых этажей.
Наиболее распространенные типы кранов и область их рационального применения приведены в таблице 5.1.
Таблица 5.1
|
№ п.п. |
Наименование кранов, марка |
Грузоподъемность, т |
Ширина колей, м |
Вылет стрелы, м |
Высота подъема крюка, м |
Область рационального применения |
|
|
I. Башенные краны |
|
|
|
|
|
|
1 |
КБ-101.1 |
5 |
4,5 |
20 |
33 |
Надстройки зданий до 3-4 этажей |
|
2 |
МСК-5-30 |
5 |
4,0 |
30 |
40 |
|
|
3 |
КБ-100.2 |
5 |
4,5 |
20 |
44 |
|
|
4 |
МСК3-5-20 |
5 |
4,0 |
20 |
37 |
|
|
5 |
КБ-100.3 |
8 |
4,5 |
35 |
48 |
Надстройка зданий с применением тоннельной опалубки |
|
6 |
КБ-160.2 |
8 |
6,0 |
25 |
60 |
|
|
|
II. Приставные башенные краны |
|
|
|
|
|
|
7 |
КБ-573, КБ-180 |
10 |
- |
30-40 |
До 100 м |
Надстройка зданий с применением перекрытий из многопустотного настила |
|
8 |
Башенные краны фирмы POTAIN HDT-70 |
1,1-3,0 |
4,0 |
До 45 |
До 90 |
Надстройка и обстройка зданий из монолитного бетона в щитовой опалубке |
|
9 |
Крышевой кран GMR HD 32 |
1,0-4,0 |
3,5 |
До 30 |
До 30 |
Надстройка зданий с размещением крана на перекрытии |
|
10 |
Самоподъемные краны ТОРК1Т MD 185A |
5-8 |
- |
До 30 |
- |
|
|
|
III. Краны на пневмоходу |
|
|
|
|
|
|
11 |
Поклейн КС-Т473, Т-250, А-331 |
До 23 |
|
|
|
Надстройка зданий из укрупненных плоских и объемных блоков |
|
12 |
КС-4561, 4362, 5363 |
16-25 |
2,6 |
10 |
13 |
|
|
13 |
Локомо А-335 КС-6471 |
До 35 |
3,2 |
- |
30 |
То же |
|
14 |
Крупп КМК 2025 |
20 |
2,5 |
- |
26 |
» |
|
15 |
Като NK-200S |
22 |
2,5 |
- |
36 |
» |
|
|
IV. Автокраны |
|
|
|
|
|
|
16 |
КС-2561, КС-2572, |
6,3 |
2,6 |
12 |
12,0 |
Для обстройки зданий из объемных блоков и возведения эркеров из монолитного бетона |
|
17 |
СМК-10, КС-3575 |
10,0 |
3,0 |
- |
16,5 |
|
|
18 |
КС-3571 |
10,0 |
2,6 |
- |
18,0 |
|
|
19 |
КС-3471, 4572, КС-162 |
16 |
2,8 |
- |
24,0 |
|
Для подачи строительных материалов и конструкций используются подъемники грузоподъемностью 0,8-10 т (РЛ-1000, МГП-1000, ДВМ-1003/100, ПГПМ-4272). Наиболее эффективным является подъемник ПГПМ-4272, который снабжен короткой стрелой для подъема и размещения груза в кабине. Конструкция мачты предусматривает выход на крышу строящегося здания.
Для подъема материалов используются реечные грузовые подъемники ПГР-630, ПГ-800, ПГР-500 грузоподъемностью до 1,0 т.
Для перемещения крупногабаритных грузов подъемники оснащаются грузовой консолью, а подача материалов осуществляется в оконные проемы (рис. 5.5).

Рис. 5.5. Грузопассажирский подъемник ПГПМ-4272 (а) и вариант оснащения подъемника грузовой консолью (б)
Транспортирование и подача бетонной смеси к месту укладки осуществляются с применением автобетононасосов и стационарных бетононасосов производительностью до 40 м3/ч (Штеттер V315, Шеле М27/30, БН-80-20М и др.).
Наиболее рациональным является использование автобетононасосов при усилении фундаментов, замене перекрытий и других конструктивных элементов с подачей смеси через оконные и дверные проемы (рис. 5.6). Широко применяются средства малой механизации в виде ленточных транспортеров, мототележек, ручного механизированного инструмента.

Рис. 5.6. Подача бетонной смеси через оконные проемы автобетононасосами при возведении фундаментной плиты и перекрытий
Особый интерес представляет использование манипуляторов для подъема и перемещения строительных грузов. При расположении на перекрытии они обеспечивают зону обслуживания в радиусе до 30 м.
Для подъема строительных материалов непосредственно в зону восстановительных работ на этаже используются краны с балочной стрелой, устанавливаемые в оконных проемах (рис. 5.7). Они обеспечивают подъем грузов и их перемещение с помощью тельфера вглубь помещений, что существенно снижает трудоемкость работ.

Рис. 5.7. Грузоподъемное устройство, устанавливаемое в
оконном проеме
1 - емкость; 2 - опоры;
3 - тельфер; 4 - балка;
5 - ограничитель;
6 - рукоять
В зарубежной практике широко используются подъемники с наклонными направляющими для подачи мелкоштучных материалов. Они оснащены электролебедками и грузовыми тележками (рис. 5.8). Путем наращивания секций изменяется высота подачи материалов.

Рис. 5.8. Подъемник системы Lift (Германия) для подачи мелкоштучных
материалов
1 - направляющие; 2 - электролебедка; 3 - грузовая тележка
Целью технологического проектирования является разработка рациональных организационно-технологических решений для выполнения строительных процессов, обеспечивающих выпуск строительной продукции в планируемые сроки и при минимальном использовании всех ресурсов.
Технология производства работ по реконструкции существенно отличается от нового строительства. Прежде всего, это связано с необходимостью использования существующих частей зданий, как правило, имеющих определенную степень физического износа. Это обстоятельство требует принятия мер по усилению или замене несущих или ограждающих конструкций, что, в свою очередь, влечет к комплексу работ по демонтажу и разборке частей зданий. Стесненные условия производства работ не позволяют в полной мере использовать средства механизации, что приводит к увеличению доли ручного труда. Снижение несущей способности конструктивных элементов требует как временного, так и постоянного их усиления для обеспечения устойчивости зданий и безопасности производства работ.
Реконструкции зданий базируется на эффективном использовании капитальных вложений, инвестиций трудовых и материально-технических ресурсов, прогрессивных организационно-технологических решений. Она требует системного подхода, учитывающего организационно-техническую, технологическую и экономическую надежность производства, обеспечивающую снижение сроков строительства и максимальную прибыль от реализации проектов.
Методы организации и технологии реконструктивных работ должны быть адаптированы к условиям городской застройки и оптимизированы по основным показателям. При этом должен быть достигнут высокий уровень инженерно-технологической подготовки строительного производства.
Проекты производства работ
Одним из основных этапов подготовки строительного производства является разработка проектов организации реконструкции (ПОР) и проектов производства работ (ППР). Они разрабатываются на базе рабочей документации, отражают качество организационно-технологического проектирования и включают подготовку и создание производственной базы, управление процессами реконструкции с учетом потребностей в материально-технических ресурсах, рабочих кадрах, складских и административно-бытовых помещениях, разработку прогрессивных методов ведения работ и технологий, базирующихся на создании долговременных строительных потоков и т.п.
Проект организации реконструкции квартала микрорайона застройки или отдельно стоящего здания включает:
календарный или сетевой график производства работ с определением очередности реконструкции отдельных зданий и комплексов;
строительные генеральные планы на основные периоды реконструкции;
организационно-технологические решения для конкретных зданий, включая схемы производства работ;
потребность в конструкциях, материалах и полуфабрикатах с распределением материально-технических ресурсов по календарным срокам с учетом очередности реконструкции зданий;
потребность в основных машинах, механизмах, инвентаре и транспортных средствах, привязанных к календарному плану производства работ;
потребность в основных категориях рабочих кадров и их распределение во времени в общем цикле реконструктивных работ;
обоснование решений, принятых в проекте организации реконструкции. Основным документом, отражающим технологию производства работ, является ППР. Проекты производства работ разрабатываются на отдельные строительные циклы: разборка и демонтаж отдельных конструктивных элементов здания; усиление или восстановление несущей способности фундаментов и других конструктивных элементов; производство работ по замене перекрытий, пристройке и надстройке, специальных и отделочных работ.
В состав ППР входят технологические карты.
Технологические карты разрабатывают на отдельные или комплексные процессы, результатом выполнения которых являются законченные конструктивные элементы или части зданий. Технологические карты предусматривают применение новых технологических процессов или адаптацию известных к условиям реконструкции зданий, определяют уровень качества работ, совмещение строительных процессов, соблюдение правил охраны труда и безопасного производства работ.
Технологические карты, адаптированные к реконструируемому объекту и местным условиям, включают следующие разделы: область применения; технология и организация строительного процесса; контроль качества работ; технико-экономические показатели; материально-технические ресурсы.
Технологические карты сопровождаются схемами и графиками производства работ, где отражаются особенности и технологические регламенты выполнения наиболее сложных строительных процессов.
Особое внимание уделяется разработке документации, направленной на контроль качества работ. При этом предпочтение отдается инструментальным методам контроля как наиболее эффективным и достоверным.
Особое внимание уделяется безопасным методам производства работ, защите жильцов, эффективной работе грузоподъемных, землеройных и других строительных машин в стесненных условиях.
Отдельным разделом разрабатываются мероприятия и документация на обеспечение экологической безопасности производства работ: рекультивация земли; применение технологий, снижающих или исключающих пыление, вибрации и шумы в ночное время; работа машин и механизмов.
Вариантное проектирование. Особое место в организации реконструктивных работ отводится вариантному проектированию. Используя принципы организационно-технологического моделирования, осуществляется оптимизация конструктивно-технологических решений по критериям общей продолжительности, уровню механизации, рациональному использованию ресурсов и другим параметрам.
Вариантное проектирование технологии и организации реконструктивных работ должно производиться на стадиях ТЗ и технико-экономического обоснования. С учетом полученных результатов осуществляется разработка рабочей документации. Все стадии проектирования должны осуществляться с участием архитекторов, конструкторов и технологов.
По данным состояния реконструируемого объекта или группы зданий осуществляется оптимизация конструктивных и организационно-технологических решений. На процесс оптимизации решающее влияние оказывает ряд факторов, из числа которых следует выделить уровень реконструктивных работ: с сохранением объема здания; с увеличением объема, надстройкой этажей и перепланировкой помещений; с отселением или без отселения жильцов; с освоением подземного пространства; с частичной или полной заменой инженерных сетей и оборудования и т.п.
На рис. 5.9 приведена принципиальная схема вариантного проектирования реконструкции квартала застройки. Она включает несколько блоков технического, организационного и экономического плана. Каждый из перечисленных блоков преследует цель оптимизировать технические и организационно-технологические решения с обеспечением требуемого уровня надежности и доходности проектов.

Рис. 5.9. Вариантное проектирование реконструкции квартала застройки
Решение задач каждого из перечисленных блоков требует проведения оптимизационных исследований с учетом постоянных факторов и факторов, носящих случайный характер. В качестве постоянных следует выделить градостроительные факторы, определяющие объемно-планировочные и конструктивные решения. К числу случайных факторов следует отнести изменения интенсивности технологических процессов и сроков выполнения отдельных видов работ, влияние инфляционных процессов и т.п. Значительное влияние на экономическую эффективность проектов оказывают организационно-технологические факторы. Они оцениваются определенным блоком, включающим технологичность конструктивных решений и организационно-технологическую надежность. Как правило, приведенные факторы включают параметры случайных воздействий. Их учет и оценка на основе принятия вероятностно-статистических моделей позволяют оптимизировать конечную цель проектов.
Результатами маркетинговых исследований являются выбор приоритетных объектов реконструкции, определение продолжительности и этапов реализации проектов. Непосредственная связь специалистов различного профиля позволяет максимально учесть особенности реализации проектов в условиях квартальной застройки, применить наиболее прогрессивные архитектурно-конструктивные и организационно-технологические решения, обеспечивающие надежность и доходность проектов.
Этапы реализации проектов предусматривают разработку долгосрочной программы, требуют принятия организационно-технологических решений, обеспечивающих непрерывность производства, ритмичность и экономическую надежность.
Поквартальная комплексная реконструкция жилого фонда городов является наиболее рациональной формой восстановления, обновления и продления жизненного цикла зданий, более рационального использования наземной территории, подземного пространства и инженерных сетей. Как правило, квартальная застройка различных периодов возведения имеет свои специфические особенности и по многим показателям не отвечает современным требованиям.
Исследования по реализации проекта реконструкции представляют собой достаточно сложную многофакторную задачу, решение которой зависит от положения квартала в городской застройке, уровня реконструктивных работ, полноты информационного обеспечения, глубины маркетинговых исследований при формировании строительных программ, обладающих высокой экономической надежностью. Немаловажную роль при разработке проектов отводится фактору риска, основанному на финансовом прогнозировании инвестиций. Положительный результат маркетинговых исследований по инвестиционному строительству проекта реконструкции в условиях конкуренции и инфляции может быть получен при надежном финансовом прогнозировании, учитывающем ретроспективные данные оценки инфляционных процессов и ценовой ситуации в строительстве, строительной техники, производстве материалов, конструкций и др.
Опыт реконструктивных работ показывает, что более высокую доходность приносят объекты офисного и торгового назначения, мини-производств и индивидуальной трудовой деятельности, гостиницы. Поэтому при проектировании реконструктивных работ целесообразно перепрофилирование зданий с превращением первых этажей в нежилые помещения с пристройкой и надстройкой дополнительных объемов.
Повышенный интерес к спортивно-оздоровительным мероприятиям делает экономически целесообразным возведение объектов данного профиля. При этом могут использоваться наземные спортивные площадки с комплексом сооружений подземного размещения, включающих тренировочные залы, бассейны, массажные, сауны и др. Их подземное размещение позволяет снизить эксплуатационные затраты, повысить рентабельность и сократить период окупаемости.
Реконструкция объектов жилого фонда с внутриквартальным расположением позволяет получить жилье с повышенным уровнем комфортности. Это обстоятельство обеспечивает его коммерческую значимость и ликвидность. Подобную картину наблюдаем для вновь возводимых зданий в результате сноса морально и физически изношенных строений. Высокая рыночная стоимость единицы продукции за счет создания более качественного жилья повышает доходность инвестиций и снижает степень риска.
Строительные генеральные планы
Стройгенпланы являются частью ППР и разрабатываются в пределах технических параметров генерального плана объекта на все этапы реконструкции: подготовительный период, устройство подземной части, включая усиление фундаментов, надстройка этажей и пристройка объемов. Разрабатываются, а по существу детализируются, планы на выполнение отдельных видов работ: геодезические, санитарно-технические, электромонтажные, отделочные, утепление фасадов и др.
На стройгенплане приводятся итоговые решения как результат расчетов и обоснований. К ним относятся границы участка и опасные зоны, расположение грузоподъемных машин и механизмов, временные дороги для автотранспорта и самоходных кранов, зоны и площадки складирования, санитарно-бытовые помещения, временное энергоснабжение, канализация, водопровод и др.
Стройгенпланы на реконструкцию зданий, в силу стесненности площадок и функционирования прилегающих зданий, могут иметь различные технические решения, хотя основные принципы и нормы расчета остаются такими же, как при новом строительстве.
В общем цикле формирования стройгенплана к параметрам, требующим оптимизации, относятся условия производства работ и степень механизации технологических процессов. В то же время они взаимосвязаны с конструктивно-технологическими решениями, которые, в свою очередь, непосредственно зависят от уровня стесненности площадки. Взаимосвязь указанных параметров и технических решений определяет организационно-технологическую надежность производства работ. На рис. 5.10 приведена схема формирования стройгенпланов, которая включает блок решений, требующих расчета параметров, а также оптимизационный блок, учитывающий конструктивно-технологические параметры и внешние факторы. Определяющими из них на принятие организационно-технологических решений являются показатели объектного строительного генерального плана, вызванные уровнем стесненности строительной площадки. Как правило, объектные стройгенпланы включают территории, непосредственно примыкающие к реконструируемым объектам. Проектные организации согласовывают стройгенпланы с заказчиком и генподрядной организацией. Они согласуются с органами санитарно-эпидемиологического контроля, пожарного надзора, службами безопасности движения, отделами подземных сооружений, энергоснабжающими организациями, административной инспекцией и др.

Рис. 5.10. Блок-схема формирования стройгенпланов
При проектировании стройгенпланов должны устанавливаться зоны, в пределах которых могут действовать опасные для жизни жильцов производственные факторы. Это приобретает особое значение, когда реконструкция зданий осуществляется вблизи заселенных зданий, и еще большее значение, когда работы ведутся без отселения жильцов.
При проектировании стройгенплана особое внимание уделяется определению мест установки и движению грузоподъемных механизмов в стесненных условиях. При этом возникает необходимость в ограничении поворота стрелы, изменении ее вылета, передвижения грузовой тележки или самого механизма. Условия ограничения рассчитаны на соблюдение правил безопасности машинистами, стропальщиками и строительными рабочими.
Под стесненными понимаются такие условия, при которых в зоне работ башенного крана находятся действующие здания и сооружения, дороги, пешеходные переходы. Они включают такие «зоны потенциально действующих опасных производительных факторов», которыми являются места и траектории перемещения строительных грузов.
Для безопасного строительного производства согласно СНиП 12-03-2001 «Безопасность труда в строительстве. Часть 1. Общие требования» и «Правилами устройства и безопасности эксплуатации грузоподъемных кранов» ПБ-10-382-00 Госгортехнадзора РФ предусматриваются следующие решения:
выселение людей из зданий,находящихся в зоне действия крана;
сооружение дополнительных защитных устройств (козырьков над дорогами, пешеходными путями, ограждений), устройство сигнализации и т.п.
Наиболее эффективным является оснащение башенных кранов системой ограничения зоны работы (СОЗР), разработанной ЦНИИОМТП. СОЗР представляет собой комплект датчиков, электронных блоков и устройств, монтируемых на различных элементах крана (рис. 5.11).

Рис. 5.11. Расположение башенного крана при реконструкции
жилого дома в квартале застройки и ограничение зоны его действия (а)
А - зона ограничения поворота стрелы; Б - зона ограничения вылета грузовой
тележки; 1 - реконструируемое здание; 2, 3 - жилые дома; 4 - здание школы; блок-схема системы ограничений зоны
работы крана (б); ДВГ - датчик ограничения вылета крюка; ДВП - датчик
ограничения высоты подъема груза; ДПС - датчик ограничения угла поворота
стрелы; БПСП - блок параметров строительной площадки; ДПК - датчик ограничения
перемещения крана; А/О - преобразователь аналогового сигнала; РУ - решающее устройство;
У - усилитель/согласователь; Р - реле; БУ - блок управления
В блок управления в электронном виде записывается ситуационная обстановка, соответствующая проекту производства работ. В соответствии с этой информацией СОЗР ограничивает перемещение крана по путям, стрелы и груза в вертикальной и горизонтальной проекциях, автоматически блокируя соответствующие приводы.
В состав СОЗР входят: микропроцессорный блок управления (БУ); блок параметров строительной площадки (БПСП); блок питания и реле (БПР); датчик положения крана (ДПК) на крановом пути; датчик углового положения стрелы (ДГТС); датчик вылета груза (ДВГ); датчик высоты подъема крюка (ДВПК).
Функционирование СОЗР осуществляется путем цифровой обработки сигналов аналоговых датчиков и устанавливается на краны заводов-изготовителей РФ и европейских стран.
Зона работы крана осуществляется по минимальным параметрам, при которых обеспечивается строительное производство, а зона ограничения устанавливается с учетом нормативов минимально допустимых расстояний стрелы и груза до выступающих частей зданий и других объектов, находящихся в зоне действия крана. Зона предупреждения устанавливается на расстоянии 1,5-2 м по периметру от зоны ограничения. В зоне предупреждения срабатывают звуковые и световые индикаторы.
Расположение коммуникаций должно обеспечивать подъезд транспортных средств в зону действия грузоподъемных механизмов и средствам вертикального транспорта. Использование существующих дорог и проездов может существенно снизить затраты. Обязательными условиями расположения транспортных зон являются их за-кольцованность, а также возможность беспрепятственного подъезда в экстремальных условиях.
При технологии реконструкции зданий с использованием сборных конструкций размеры складских зон определяются интенсивностью производства работ и ритмичной организацией складируемого ресурса. При этом снижение запаса влечет к дестабилизации технологических процессов, а завышение - к увеличению площадей. При обеспечении нормативных запасов конструктивных элементов, соответствующих интенсивности ведения работ, достигается ритмичная работа бригад и сохраняются плановые сроки возведения. При ресурсосбережении, превышающем интенсивность ведения работ, снижение сроков строительства не достигается, а избыток ресурсосбережения приводит к дополнительным затратам.
Более стесненные условия производства работ требуют применения принципиально новых технологий. Так, при надстройке жилого здания двумя этажами из объемных блоков, включая мансардный, процесс их установки достигается методом надвижки с использованием специальных катучих устройств и системы привода в виде лебедок. Такая технология требует минимальных площадей, примыкающих к торцевым участкам здания, и обеспечивает производство работ с сохранением всех мер безопасности. На рис. 5.12 приведен фрагмент стройгенплана, иллюстрирующий данную технологию.

Рис. 5.12. Фрагмент стройгенплана на период возведения
мансардного этажа методом надвижки объемных блоков
1 - реконструируемое здание; 2 - лебедки; 3 - направляющие; 4 - объемный блок на тележке; 5
- монтажный кран; 6 - площадка
для приведения блоков из транспортного в монтажное состояние; 7 -
объемный блок на кондукторе; 8 -
автотранспортное средство доставки блоков
При надстройке жилых домов серии 1-511 до трех этажей с применением металлических рамных конструкций решение стройгенплана приведено на рис. 5.13. Проведение работ без отселения жильцов потребовало применения специальных ограждений в виде лесов по периметру здания, входных тамбуров с защитными козырьками, ограждения опасных зон работы машин и механизмов и других решений. Особое внимание при этом уделяется созданию условий, исключающих протечки путем попадания атмосферных осадков в процессе производства работ, что достигается устройством перемещаемых временных пленочных покрытий по легкому каркасу. На период производства работ строители не используют для переноса грузов лестничные клетки. Транспортирование грузов и перемещение рабочих выполняются грузопассажирскими подъемниками и по наружным лесам. Бытовые помещения строителей оборудуются автоматической пожарной сигнализацией и снабжаются огнетушителями марки ОГП-10 не менее двух на вагончик. Обязательным является устройство пункта очистки и помыва колес автотранспорта.

Рис. 5.13. Стройгенплан на реконструкцию жилого дома серии
1-511
1 - реконструируемое здание; 2 - грузопассажирский подъемник; 3
- автобетононасос; 4
- наружные леса; 5 - защитные козырьки выходов; 6 - временные
дороги; 7 - площадки для складирования; 8 - площадка для
размещения временных зданий; 9 - площадка контейнеров для мусора; 10 -
переносное сигнальное ограждение; 11 - временный забор; 12 -
биотуалеты; 13 - пункт очистки и помыва колес автотранспорта
Различные технические решения по реконструкции зданий, особенно их размещению в городской застройке, требуют индивидуального подхода в проектировании строительных генеральных планов.
Наиболее полно процесс формирования стройгенпланов осуществляется с использованием ЭВМ. В этом случае программное обеспечение учитывает координаты постоянных зданий и сооружений, транспортных и инженерных коммуникаций. В зависимости от принятой технологии и средств механизации осуществляется их привязка на местности с определением опасных зон, радиусов действия, ограничений по углу поворота и т.п. С учетом потребностей конструкций, материалов и полуфабрикатов осуществляются расчет площадей складов и их расположение в плане. По количеству работающих определяется потребность в инвентарных бытовых помещениях. Аналогичным путем осуществляется расчет потребностей в электроэнергии, воде, сжатом воздухе т.д. Решение оптимизационных задач включает выбор мест установки машин и механизмов, определение монтажных стоянок и прилегающих площадок для складирования. Определяется взаимосвязь местоположения машин и механизмов с расположением инвентарных зданий. Оптимизируется положение временных инженерных и транспортных коммуникаций.
Особое место в проектировании стройгенплана уделяется возможности использования существующих сетей, дорог и зданий для строительных целей.
Проектирование следует осуществлять с детального изучения технической документации объекта и подбора аналогов организационно-технологических схем по технологии реконструкции, имеющих сходные архитектурно-планировочные и конструктивные решения.
Производственный процесс реконструкции зданий проходит в пространстве и времени. Пространственными параметрами служат участки, захватки, рабочие места, фронт работ. Временные параметры характеризуют продолжительность процессов, а их взаимодействие основано на поточных методах производства работ, предусматривающих максимальное совмещение во времени.
На схеме, приведенной на рис. 5.14, дается комплекс параметров и характеристик строительных потоков. Они формируются в зависимости от сложности реконструируемых объектов, применяемых методов и технологий. При этом каждый поток оснащается технологическим комплексом машин и механизмов, а их движение подчинено общему ритму в соответствии с учетом организационно-технологической готовности.

Рис. 5.14. Характеристики строительных потоков при реконструкции зданий и их комплексов
При реконструкции зданий используют частные, специализированные, объектные и комплексные потоки.
Частный поток характеризуется последовательным выполнением одного технологического процесса на различных захватках.
Специализированный поток включает совокупность частных потоков, объединенных общей продукцией в виде элементов зданий.
Объектный поток состоит из совокупности специализированных потоков, продукцией которого является законченный объект.
Комплексный поток является совокупностью объектных, необходимых для реконструкции квартала застройки из разнотипных зданий и сооружений в общий комплекс.
Одним из важных показателей организационно-технологических решений является интенсивность производства работ. Проектирование поточного строительства и увязка с ритмом потоков обеспеченности материально-техническими ресурсами служат одними из необходимых и достаточных условий непрерывности производства и выполнения работ в заданные сроки. Это положение достигается при разработке календарных или сетевых графиков производства работ. Любое отклонение ресурсообеспечения приводит к изменению сроков производства работ. Дестабилизирующее действие указанных факторов может быть усилено отклонениями от технологических регламентов производства работ, снижением качества продукции в результате несоответствия профессионального уровня рабочих уровню механизации, а также нарушениями в системе управления.
Оценка надежности строительных потоков
Типовые архитектурно-планировочные решения различных серий домов позволяют выполнять цикл реконструктивных работ с применением поточных методов. Путем подбора состава бригад, средств механизации и использования прогрессивных технологий возможно создание долговременных объектных ритмичных или кратных изменениям ритма потоков.
Строительный поток представляет собой развивающийся во времени и пространстве производственный процесс. Строительный поток рассматривается как совокупность ряда последовательно включаемых и параллельно выполняемых частных потоков. Его развитие может быть представлено в виде линейных графиков или циклограмм.
Продолжительность выполнения частного ритмичного tп строительного потока Т на т3 захватках определяется соотношениями: t = m3K; Т = К(т3+п-1), где К - продолжительность выполнения работ частным потоком на одной захватке или ритм потока; п - число частных потоков или видов специализированных работ.
Интенсивность частичного потока
оценивается зависимостью ![]()
Для строительного потока интенсивность может быть определена
соотношением
где Рr - объем работ по частному потоку; Рс
- то же, по строительному потоку.
На рис. 5.15 представлена циклограмма строительного потока, состоящего из 5 частных потоков, при работе на четырех захватках.

Рис 5.15. Циклограмма ритмичных специализированных потоков
1 - работа
нулевого цикла; 2 - демонтаж
наружных стеновых панелей; 3 -
монтаж объемных эркеров; 4 - возведение надстройки; 5 - отделочные и
специальные виды работ
Параметры потока оцениваются по следующим показателям:
пространственные - захватки, фронт работ;
технологические - число частных потоков, объемы работ, трудоемкость, интенсивность потока;
временные параметры - модуль цикличности (ритм), шаг потока (интервал времени между включениями частных потоков), темп потока.
Вследствие стохастичности условий функционирования строительного потока его расчет по детерминированным аналитическим зависимостям не дает точного представления о продолжительности и интенсивности работ, которые носят вероятностный характер строительного производства.
Большинство параметров строительного потока (число частных потоков, объем работ и др.) являются детерминированными, в то время как интенсивность и продолжительность производства работ (шаг потока) имеют вероятностный характер, что приводит к их отклонению от расчетных значений.
Так, при постоянном значении объема работ q на захватке интенсивность производства работ i и продолжительность ритма К могут быть непостоянными.
Зная закон распределения ритма потока К как вероятностный параметр, можно постепенно оценить параметр i.
Для комплекса работ, связанных с реконструкцией жилых зданий, наиболее подходящими являются технологии, основывающиеся на применении сборных несущих конструкций. Значения К аппроксимируются бета-распределением, а для других видов работ - Пуассоновским процессом.
Плотность бета-распределения выражается зависимостью
![]()
где К - продолжительность ритма; Кmin и Кmax - максимальное и минимальное значения ритма потоков, принимаемые по статистическим данным.
Кривые теоретического и физического распределения вероятностей продолжительности работ достаточно близки, что свидетельствует об адекватности принятой модели.
Количественные характеристики надежности строительных потоков оцениваются следующими параметрами:
вероятность функционирования потока с заданной интенсивностью

где i, i3 - интенсивности потока фактическая и заданная;
вероятность выполнения объема работ в заданный срок

математическое ожидание по интенсивности потока

среднестатистическая
интенсивность потока ![]()

где тj - частота функционирования потоков с j-й интенсивностью; п - количество наблюдений; Рj - вероятность функционирования потоков с j-й интенсивностью;
дисперсия продолжительности выполнения заданного объема работ Dt

Вероятностный характер интенсивности процессов и сроков выполнения работ обусловлен влиянием большого числа возмущающих факторов, которые проявляются в виде различных простоев или увеличения продолжительности работ за счет нарушения или изменения технологических режимов.
На рис. 5.16 приведена фактическая циклограмма производства работ, которая свидетельствует о переходе ритмичных потоков с кратным изменением ритма.

Рис. 5.16. Реальная циклограмма объектного потока при
параллельно-последовательной схеме производства работ по реконструкции
4-секционного жилого дома
1 - работы нулевого цикла; 2 -
демонтаж наружных стеновых панелей; 3 - монтаж эркеров; 4 -
возведение надстройки; 5 - отделочные и специальные виды работ
Математическое ожидание
продолжительности вынужденных простоев определяется соотношением
с дисперсией 
Вероятность отказа потока
оценивается как величина простоя, достигшего критического параметра 
Факторы, влияющие на надежность потока, разделяются на: управляемые, частично управляемые и неуправляемые.
К управляемым факторам следует отнести: сбалансированность объемов работ с мощностью строительной огранизации; выбор наиболее прогрессивных технологий производства работ; обеспечение средствами механизации, соответствующими принятой технологии.
Частично управляемые факторы: создание текущих запасов материалов и конструкций; соблюдение необходимого интервала между вступлением в работу отдельных частных потоков; полная обеспеченность проектно-сметной и технологической документацией; плановое финансирование объекта; соблюдение технологии выполнения строительных процессов.
Неуправляемые: разработка мероприятий против воздействия погодно-климатических и техногенных условий.
Одним из приемов повышения надежности строительного потока является резервирование производственных мощностей. Определение необходимых мощностей осуществляется методами парного и множественного корреляционного анализа с введением поправочных коэффициентов на однородность работ, концентрацию работ с учетом возможных резервов времени бригад.
Применение резервных ресурсов для повышения надежности строительного потока должно удовлетворять некоторому критерию оптимальности.
На рис. 5.17 приведена принципиальная зависимость между надежностью строительного потока, стоимостью содержания резервов и величиной экономического эффекта от повышения надежности.

Рис. 5.17. К определению оптимальной надежности строительных
потоков в зависимости от затрат на резервирование
1 - текущие затраты на производства работ; 2 - затраты на
резервирование
Оптимальная надежность будет достигнута в точке пересечения кривых 1,2, что позволит определить затраты на резервирование, соответствующие оптимальному уровню надежности.
Календарные планы разрабатываются на реконструкцию объекта. Их основой являются объемы в физических единицах, трудоемкость работ, состав бригад и звеньев, степень использования средств механизации. Для обеспечения нормативного срока производства работ осуществляется оптимизация по подбору состава бригад и их квалификационному составу. Используются методы ведения работ: последовательный, параллельный или совмещенный. Выбор метода диктуется особенностями технологических процессов, уровнем стесненности и безопасности производства работ. При разработке календарных планов применяются преимущественно детерминированные организационно-технологические модели, в которых не учитывается вероятностный характер продолжительности выполнения строительных процессов. В то же время находят применение имитационные модели, которые учитывают стохастические характеристики строительного производства. Такие модели учитывают вероятностный характер производства работ и более полно учитывают возможные колебания их продолжительности.
Объектный календарный план включает несколько циклов, которые отражают технологические особенности производства работ: подготовительный, цикл нулевых работ, работы по подземной части; специальные; отделочные и работы по благоустройству территории.
В зависимости от уровня реконструктивных работ, принятой технологии и объемов рассчитывается потребность в материально-технических и людских ресурсах. Продолжительность работ каждого цикла зависит от объемов работ, трудоемкости, степени использования средств механизации, ручного инструмента, приспособлений и других факторов. При проектировании календарных планов учитываются технологические перерывы, связанные с набором прочности бетоном, кирпичной кладкой и др., что связано с обеспечением фронта последующих работ.
Календарный план представляет собой систему графиков, изображаемых продолжительность и последовательность работ, их интенсивность, совмещение во времени и пространстве отдельных процессов, продолжительность работ на конкретных участках машин и механизмов, движение ресурсов, включая финансовые, трудовые, энергетические, материально-технические и др.
Целевая задача при разработке календарного плана состоит в достижении максимальной прибыли подрядчиком при выполнении договорных обязательств по срокам завершения работ, вводу в эксплуатацию зданий. Параллельно решаются задачи равномерного использования всех ресурсов, особенно трудовых, создания безопасных условий труда, обеспечения нормативных санитарных требований и нормальных бытовых условий.
Особое значение календарного плана отводится при реконструкции зданий без отселения жильцов, когда любое увеличение продолжительности работ влияет на снижение комфортности и безопасности проживающих.
При разработке календарных планов оптимизируются работы основных технологических процессов во времени и производится максимальное совмещение вспомогательных работ.
Основой календарного планирования является поточное производство работ, что обеспечивает сокращение общей продолжительности.
Календарный план реконструкции объекта должен охватывать все общестроительные и специальные работы, начиная от инженерной подготовки площадки и кончая отделочными работами.
Если специальные работы (санитарно-технические, электромонтажные, устройство лифтов и др.) выполняются специализированными организациями на правах производства работ, разрабатываемых общестроительной организацией, указываются лишь согласованные с субподрядными организациями периоды выполнения специальных работ, начало и окончание которых увязаны с общестроительными работами. Субподрядные организации должны составлять детальные календарные планы выполнения своих работ исходя из календарного плана строительно-монтажных работ.
Сроки производства работ каждого цикла рассчитываются исходя из трудоемкости и состава бригад и звеньев.
При разработке календарного плана устанавливаются период работ машин, время установки подъемников и других средств механизации, доставка сборных конструкций, полуфабрикатов, поставка оборудования.
Работы каждого цикла ведутся поточными методами, что позволяет достичь максимального совмещения работ во времени.
Сетевая модель отображает взаимосвязь отдельных работ по реконструкции объекта и позволяет осуществить математический анализ, способствующий рациональному календарному планированию, прогнозированию и управлению процессами, а также объективной оценке эффективности применяемых технологий.
Метод сетевого планирования, аппарат построения, расчета, анализа и оптимизации моделей позволяет в автоматизированном режиме осуществлять управление ходом выполнения строительно-монтажных и других видов работ. Это достигается путем оценки выполнения фактических объемов работ, которые могут отличаться от запланированных. Основные виды работ, как правило, лежат на критическом пути и определяют общую продолжительность реконструкции. Остальные работы имеют частный или общий резерв времени, что позволяет в реальных условиях строительной площадки корректировать их продолжительность путем изменения состава исполнителей или уровня механизации.
Обычно сетевые графики строят от исходного события к завершающему. При этом событие - это факт окончания одной или нескольких работ, необходимый и достаточный для начала следующих работ.
События устанавливают технологическую и организационную последовательность работ.
В ходе построения сетевого графика последовательность и взаимосвязь работ определяются условиями, которые определяют, какие работы необходимо выполнить и какие условия обеспечить, чтобы можно было начать данную работу.
Расчет временных параметров сетевого графика аналитическим путем выполняется по работам и событиям.
Ранние сроки начала и окончания работ рассчитываются начиная с исходного события, последовательно по всем путям сетевого графика.
Ранний срок свершения начального события определяют максимальной величиной суммы ранних сроков свершения предшествующих событий и продолжительности работ, входящих в данное событие.
Поздний срок окончания и начала работ производят после того, как определены все ранние сроки и общая продолжительность.
Сопоставление ранних и поздних сроков работ и событий позволяет рассчитать их резервы времени, критический путь и провести анализ параметров графика. Если ранние и поздние характеристики работ совпадают, то работы лежат на критическим пути.
Для работ, лежащих на критическом пути, резерв времени равен нулю.
Работы, установленные в сетевой модели, могут иметь общий или частичный резерв времени. Общий резерв времени - это максимальное время, на которое можно задержать начало работы или увеличить ее продолжительность без изменения общего срока строительства.
Частичный резерв времени - это максимальное время, на которое можно перенести начало работы или увеличить ее продолжительность без изменения раннего начала последующих работ. Частичный резерв имеет место, когда в событие входят две или больше работ, и определяется разностью значений ранних сроков, событий и продолжительностью работ.
Наиболее рациональным и удобным в оперативной работе является построение сетевого графика в масштабе времени. Корректировка графиков имеет цель сократить общую продолжительность работ, т.е. длину критического пути. Для сокращения срока реконструкции применяют следующие приемы корректировки: перераспределение трудовых резервов; совмещение технологических процессов во времени; привлечение дополнительных ресурсов для параллельного выполнения работ.
Для информационного обеспечения модели автоматизированного проектирования стройгенпланов требуется большой объем исходной информации в виде базы данных, представленной в графической форме и в виде организационно-технологической и справочно-информационной документации (рис. 5.18).

Рис. 5.18. Схема автоматизированного проектирования стройгенплана
Для решения задач формируются три массива информации: постоянная, переменная и информация по общекомпоновочным решениям.
Массив постоянной информации состоит из архитектурно-технологических решений, принятых на предыдущих стадиях проектирования.
Массив переменной информации формируется в процессе решения комплекса задач расчетно-оптимизационного плана.
Массив информации по общекомпоновочным решениям представляет собой графическую часть рассчитанных вариантов стройгенплана.
Основными задачами вариантного автоматизированного проектирования стройгенплана являются разработка методов и алгоритмов выбора и размещения на территории площадки временных зданий и сооружений, определение оптимальных трасс прокладки временных инженерных коммуникаций, выбор расположения складов, мест установки машин и механизмов и др. Решение этих задач носит оптимизационный характер.
Автоматизированное проектирование стройгенпланов неразрывно связано с результатами формирования календарных планов, определения материально-технических ресурсов, оптимизации методов производства работ, использования рационального парка машин и механизмов. Влияние этих данных является определяющим при выборе и привязке монтажных кранов, определении площадей складов, количества инвентарных зданий и т.п.
В практике технологического проектирования получили широкое распространение система «Гектор» и ее модификации.
«Гектор-АРМ ППР» предназначен для автоматизации выпуска наиболее сложных и часто встречающихся в практике разделов проектов производства работ. АРМ ППР обеспечивает необходимые расчеты, ведение текстовых и графических баз данных, составление графической и текстовой документации в диалоговом режиме: подбор и вычерчивание строительно-монтажных кранов, автоматизированное составление технологических схем, подбор землеройной техники и транспорта, подсчет объемов работ, расчет потребностей в машинах и механизмах, рабочих кадрах, временных административно-бытовых зданиях и т.д.
«Гектор-календарь» - предназначена для подготовки и управления ходом реконструкции. Система позволяет создать сетевые технологические модели, рассчитывать календарные планы, корректировать их с учетом выделения ресурсов, получать графики потребности в ресурсах, в том числе в машинах и механизмах, рабочих кадрах, финансировании, фиксировать выполнение объемов работ календарного плана и др.
Поиск наиболее распространенных методов и технологий производства работ осуществляется на основе технологических критериев строительных процессов в виде функциональных зависимостей. К ним относятся:
материалоемкость конструкций, которая характеризует удельный расход материалов на единицу площади: M=f(R,L,KM), где R - физико-механические характеристики материала; L - геометрические параметры конструктивных элементов; KM - коэффициент использования материалов;
трудоемкость работ T=f(Мизг,Mтр,MM,Z,Mпр), где Мизг - трудоемкость изготовления сборных конструкций в зависимости от принятой технологии, уровня механизации и автоматизации производства; Mтр - затраты на процесс транспортирования конструкций к месту монтажа; MM - трудоемкость монтажа в зависимости от геометрических параметров конструкций Z и методов производства работ Mпр;
продолжительность работ N=f(Мв,Moтp,KT), где Мв - метод возведения конструкций; Moтp - организационно-технологические решения; KT - технологичность конструктивных элементов;
энергоемкость Э= f(СМ CM,NМ,Kгр), где СМ CM - стоимость машино-смен средств механизации; NM - мощность строительных машин и механизмов; Kгр - коэффициент использования кранов по грузоподъемности.
Оценка весомости критериев эффективности технологий осуществляется путем построения матрицы ожидаемых результатов

где a1, ..., aj - варианты сравнения различных технологий
х1,...,хп - разноразмерные
показатели эффективности
Хт1,…,Хтп
- значения показателей эффективности; Р=(Хij)
- разноразмерная матрица принятия решений.
Для перехода к однородным
показателям эффективности матрицу Р преобразуют в матрицу оценок
ожидаемых результатов
методами
нормативных векторов или трансформации шкалы

где индекс Э соответствует эталонному значению и в матрице Р используются стоимостные минимизируемые показатели.
Оптимизация методов и технологий реконструкции зданий и сооружений осуществляется путем вариантного сопоставления минимизируемых параметров.
В процессе проектирования организации реконструкции объекта и группы зданий основной задачей является построение организационно-технологической модели, учитывающей структуру строительных потоков, их функционирование и взаимодействие. Создание такой модели базируется на использовании проектно-сметной документации, нормативов удельных затрат труда, выработки, продолжительности работ. Организационно-технологическая надежность в отличие от надежности строительных конструкций и систем является показателем надежности строительного производства как критерия надежности конечных результатов.
Организационная надежность предусматривает принятие решений по реконструкции объектов, с заданной вероятностью обеспечивающих получение запланированного результата функционирования специализированного или объектного потока в условиях случайных воздействий.
Надежность технологических решений должна обеспечивать бесперебойное функционирование строительных процессов. При этом должен быть осуществлен выбор способов производства работ, позволяющий строительному потоку функционировать с заданными параметрами в определенных пределах несмотря на воздействие случайных производственных факторов.
Основными задачами на этапе реализации проектов реконструкции при поточном производстве работ являются оперативное планирование СМР и управление ими, обеспечивающее предупреждение возникновения отказов, ликвидацию отказов и их последствий. Для этой цели осуществляются расчет и создание страховых ресурсов и запасов, разработка организационно-технологических решений по повышению надежности.
При анализе функционирования строительного потока имеют место отклонения фактических параметров его работы от значений, установленных в технологических картах или графиках производства работ.
Полное или частичное прекращение функционирования строительного потока или процесса, вызывающее отклонение от заданных параметров, является технологическим отказом. Они возникают в результате воздействия различных организационно-технологических факторов, дестабилизирующих производство работ. Технологический отказ не обязательно связан с полной остановкой процесса. Наиболее частыми являются частичные отказы, которые самоустраняются или ликвидируются в процессе производства работ. Причины отказов достаточно разнообразны. Они разделяются на:
технические - выход из строя машин и механизмов, инженерных сетей, коммуникаций, низкое качество материалов;
технологические - нарушения технологических регламентов производства работ, устранение брака, появление непредвиденных работ, изменение численного и квалифицированного состава исполнителей, нарушение правил техники безопасности;
организационные - смещение сроков представления фронта работ, несвоевременное обеспечение документацией, срыв сроков работ субподрядными организациями, изменение последовательности выполнения работ, перерывы с ресурсообеспечением, отсутствие рабочих требуемой квалификации;
управленческие - нарушения производственной связи и информации, несвоевременное принятие решений, ошибки оперативного планирования, некомпетентность руководства;
климатические, включая стихийные бедствия.
Наиболее характерными причинами отказов при выполнении реконструктивных работ являются: появление непредвиденных работ в результате недостаточного уровня диагностики элементов здания; снижение интенсивности производства работ в стесненных условиях; несвоевременное обеспечение технической документацией; отсутствие специальных машин и механизмов, ручного инструмента, средств диагностики и контроля качества работ. Перечисленные факторы служат причинами внезапных, постепенных, частичных или полных отказов. Так как большинство производственных факторов являются случайными, то надежность строительного производства оценивается статистически, а критерии и количественные характеристики - вероятностными методами. Отказы в строительном производстве, являясь случайными величинами, могут быть дискретными и непрерывными. Они характеризуются функциями распределения вероятностей.
На этой основе производится имитационное моделирование. При этом распределение вероятностей отказов подчиняется определенным законам. Основной задачей при оценке распределения вероятностей отказов для расчета уровня надежности реконструктивных работ является определение функций, характеризующих вероятностные свойства рассматриваемого строительного процесса.
Наибольшее распространение получили следующие законы распределения вероятностей отказов: нормальный, пуассоновский, экспоненциальный, гамма- и бета-распределения.
Основной задачей при выборе адекватной модели является установление закономерностей распределения отказов или функций, характеризующих вероятностные свойства рассматриваемых строительных процессов.
Закон нормального распределения используется в теории надежности для описания событий, зависящих от многих факторов, каждый из которых слабо влияет на распределение случайного события. По нормальному закону распределяются параметры выработки бригад и звеньев на строительных процессах, продолжительности технологических процессов, сроки реконструктивных работ и др.
Плотность распределения нормального закона имеет следующий вид
![]()
где а = М[х] - математическое ожидание; s = D[х] - дисперсия распределения.
Распределение зависит от
параметров а и s. Кривая плотности распределения (рис. 5.19,а)
симметрична относительно математического ожидания, и ее максимальное значение
равно
.
Вероятность попадания случайных величин на заданный интервал измерения параметра х от a до b определяется интегрированием плотности распределения

или с применением функции Лапласа
![]()
Распределение Пуассона наиболее
успешно используется для определения вероятности дискретных событий (число
отказов на монтаже элементов здания в смену, сутки, месяц или число отказов
башенных кранов в сутки и т.п.). Закон распределения Пуассона описывается в
следующем виде: ![]()

Рис. 5.19. Распределение вероятностей отказов по законам
а - Гаусса; б - Пуассона
На рис. 5.19,б приведены графики функций для lt = 2, 4 и 6. Исследования статистических данных показали, что продолжительность работы сетевого графика tij есть случайная величина, распределенная в интервале (а, b) чаще всего по закону b-распределения с плотностью

Здесь а - нижняя граница интервала распределения случайной величины времени выполнения работы tij; b - верхняя граница интервала; a, b - степенные параметры распределения.
Случайное распределение значений продолжительности работ может быть аппроксимировано частным видом b-распределения.
В проектировании организации работ в управлении строительством процессы строительного производства моделируются с помощью линейных графиков, циклограмм и сетевых графиков (рис. 5.20). Перечисленные модели должны отвечать следующим требованиям:
отражать процесс реконструкции во взаимосвязи составляющих элементов; отражать динамику строительных процессов и возможные отклонения параметров работ от первоначальных значений; отражать взаимосвязь отдельных отклонений на конечные результаты; отображаться в математических символах для анализа строительных процессов.

Рис. 5.20. Модели случайных процессов
- линейный график; б - циклограмма; в -
сетевой график; i
- номер работы (потока); j - номер
конечного события работы; п - количество работ (потоков); т -
количество захваток; t - продолжительность работы; qа - трудозатраты; а -
количество рабочих в бригаде; tсовм - продолжительность совмещенного выполнения
двух работ; tр
- ритм потока; Kр
- коэффициент
кратности ритмов; Lкр
- критический путь; Ткр - продолжительность критического пути; Т - общая
продолжительность строительства
Сравнение приведенных видов моделей показывает, что линейный график в полной мере не отражает взаимосвязи работ.
Циклограмма более полно отражает взаимосвязь работ не столько по технологическим требованиям, сколько по соображениям поточного производства работ. В то же время циклограмма не в состоянии отражать динамику строительства и может функционировать при строгом соблюдении продолжительности работ. Отклонения продолжительности работ, вызванные случайными факторами, требуют пересчета циклограмм.
Сетевой график является более приемлемой моделью для отражения вероятностных производственных процессов. Преимуществом сетевого графика является наличие работ, лежащих на критическом пути. Для работ, лежащих на некритическом пути, возможно определить резервы времени, что дает отклонения, не влияющие на дальнейший ход работ. Модель сетевого графика более динамична, так как позволяет в ряде случаев снимать ресурсы с некритических работ и направлять на критические.
Наиболее эффективным методом
анализа сетевых графиков является метод усреднения. Он предполагает для каждой
из входящих в сетевой график работ две вероятностные оценки продолжительности -
tmin и tmах. Ожидаемое значение продолжительности определяется как tож =(3tmin + 2tmах)/5, дисперсия ![]()
Показатель организационно-технологической надежности как функция, зависящая от многих параметров случайных воздействий, может быть представлен несколькими состояниями, зависящими от ресурсообеспечения принятой технологии производства работ и организационных факторов.
На рис. 5.21,а приведены графические зависимости, свидетельствующие о влиянии ресурсосбережения на организационно-технологическую надежность (ОТН). Показатель ОТН более интенсивно стремится к предельному состоянию при достижении нормативных параметров ресурсообеспечения.

Рис. 5.21. Графические зависимости
организационно-технологической надежности от ресурсообеспечения (а) и (б), использование
ресурсов (в) и методов производства работ (г)
1,2 - совмещенные методы производства работ; 3 -
комбинированные; 4 - раздельные;
s -
среднеквадратические значения продолжительности работ
Увеличение ресурсообеспечения до определенного предела приводит к возрастанию ОТН и последующему более интенсивному падению (рис. 5.21,б).
Повышение ресурсообеспечения сверх нормативного, кроме того, приводит к дополнительным экономическим затратам, связанным с хранением материалов и конструкций, арендной платой за использование механизмов, простоем рабочей силы и т.д. Для каждого реконструируемого объекта существует количественный показатель ресурсов, при котором стоимость и продолжительность возведения принимают свои рациональные значения. Уровень ОТН зависит от степени использования ресурсов. В частности, вследствие простоев или неполного использования производительности машин и механизмов наблюдается его снижение (рис. 5.21,в).
Методы производства реконструктивных работ и принятие современных технологий также существенно влияют на уровень ОТН (рис. 5.21,г). Применение раздельных, комбинированных и совмещенных методов производства работ показывает, что совмещенные методы обладают более высоким уровнем надежности. Следствием данного обстоятельства являются снижение продолжительности работ и повышение экономических показателей.
Анализ факторов, влияющих на ОТН, свидетельствует о необходимости рационального использования различных видов ресурсов при календарном планировании строительного производства с учетом вероятностной продолжительности выполнения работ.
Общая часть
Итогом обследования состояния реконструируемого здания является заключение о его техническом состоянии: состоянии основания, фундаментов, несущих и ограждающих конструкций. Ключевой является оценка несущей способности конструктивных элементов и надежности здания в целом с учетом изменившихся расчетных схем и нагрузок. Осуществляют проведение поверочных расчетов несущей способности оснований и конструкций. При этом нагрузки и воздействия следует принимать, руководствуясь положениями норм, и уточнять на основании проведенных исследований.
Самостоятельной целью диагностики реконструируемых зданий в ряде случаев является определение резервов прочности и деформативности.
Кроме технических запасов прочности возможно использование «расчетных», которые оцениваются разностью величин расчетных показателей характеристик по современным нормам проектирования и величин характеристик по нормам проектирования в период постройки.
Так, например, в таблице 6.1 приведено сравнение расчетного сопротивления грунтов оснований по современным нормам проектирования (СНиП 2.02.01-83*) с ранее действующими нормами на период возведения реконструируемых зданий.
Таблица 6.1
Расчетное сопротивление грунтов по нормам 1932 - 1983 гг.
|
№ п.п. |
Вид грунтов оснований |
Расчетное сопротивление грунтов R , кгс/см2 |
|||||
|
ОСТ 4543 1933 г. |
У-24-41 1941 г. |
НИТУ 127-55, СНиП II-Б.1-62 |
СНиП II-15-74 |
Rгр/R |
|||
|
1 |
Песок крупный: |
|
|
|
|
|
|
|
|
плотный |
4,5 |
4,5 |
4,5 |
6 |
6 |
1,33 |
|
|
средней плотности |
3,5 |
3,5 |
3,5 |
5 |
5 |
1,43 |
|
2 |
Песок средней крупности: |
|
|
|
|
|
|
|
|
плотный |
2,5-3,0 |
4 |
3,5 |
5 |
5 |
1,25-2 |
|
|
средней плотности |
2,5-2,25 |
3 |
2,5 |
4 |
4 |
1,33-1,78 |
|
3 |
Песок мелкий: |
|
|
|
|
|
|
|
|
плотный маловлажный |
2,0 |
3,5 |
3 |
4 |
4 |
1,14-2,0 |
|
|
Влажный средней плотности |
1,5 |
2,5 |
2 |
3 |
3 |
1,5-2,0 |
|
4 |
Песок мелкий сильновлажный и водонасыщенный: |
|
|
|
|
|
|
|
|
плотный |
0,5 |
3,0 |
2,5 |
3,0 |
3,0 |
1-6 |
|
|
средней плотности |
1,0 |
2,0 |
1,5 |
2,0 |
2,5 |
1-2 |
|
5 |
Суглинок: |
|
|
|
|
|
|
|
|
В-0 |
3,5-2 |
4-2,5 |
3-2,5 |
3-2,5 |
3-2,5 |
1-1,25 |
|
|
В-1 |
2,5-1,0 |
2,5-1 |
2,5-1 |
2-1 |
2-1 |
0,8-1,0 |
Анализ приведенных данных показывает, что расчетные запасы прочности достаточно велики, что весьма важно при принятии решений о надстройке зданий. Сопоставление с зарубежными нормативными данными свидетельствует о том, что расчетное сопротивление подобных типов грунтов в европейских странах в 2-2,5 раза выше, чем по действующим СНиП РФ.
Аналогичные запасы прочности имеются и при расчете каменных, железобетонных, металлических и других конструкций зданий.
Несмотря на имеющиеся запасы прочности, длительный срок эксплуатации зданий, а также техногенные процессы приводят к значительным изменениям структуры грунта, его несущей способности. Экстремальные условия технической эксплуатации зданий способствуют изменению свойств материалов, снижению или потере несущей способности конструктивных элементов, утрате теплотехнических, звукоизоляционных и других свойств ограждающих конструкций, функций кровли и т.п.
Поэтому одними из первостепенных задач при реконструкции жилых зданий являются восстановление и повышение несущей способности конструктивных элементов и надежности зданий в целом.
Анализ конструктивно-технологических решений жилых зданий ранней постройки свидетельствует о значительном запасе несущей способности фундаментов и стен. Так, плотность размещения фундаментов для различных периодов построек составляет от 40,4 % (1890-1900 гг.) до 35,9 % (1940-1950 гг.). При невысокой степени физического износа для зданий этого периода возможна надстройка 2-3 этажами без дополнительного усиления фундаментов.
Подобная ситуация наблюдается для построек 1960-70-х гг., когда запасы несущей способности грунтов в 1,5-2,0 раза больше. Как показали исследования, сборные железобетонные конструкции, используемые для устройства ленточных фундаментов, панелей несущих стен и др. конструктивных элементов, за период эксплуатации более 30 лет приобрели прирост прочности в 1,3-1,5 раза, что связано с использованием цементов грубого помола, активная гидратация которых наблюдалась за весь период эксплуатации. Эти обстоятельства позволяют с учетом изменившихся физико-механических характеристик несущих конструкций осуществлять 2 - 3-этажную надстройку домов первых массовых серий.
При выполнении реконструируемых работ выбор того или иного способа усиления зависит от многих факторов и в первую очередь от изменения объемно-планировочных решений, нагрузок и условий эксплуатации. Итогами выбора методов усиления являются экономические показатели. Как правило, процесс усиления весьма трудоемкий и дорогостоящий, требующий больших затрат ручного труда. В ряде случаев экономически целесообразнее произвести замену конструктивных элементов в целом, чем осуществлять их усиление.
Проект усиления различного рода конструкций разрабатывается на основе рабочих чертежей и данных детального обследования зданий, включая дефектоскопию конструкций. Особое внимание при этом уделяется изменившимся условиям эксплуатации: постоянным и временным нагрузкам; изменениям гидрогеологического режима; требованиям по тепло- и звукоизоляции зданий, комфортности помещений и т.п.
Рациональный вариант усиления или восстановления несущей способности конструкций разрабатывается путем технико-экономического сопоставления. При этом первостепенное значение уделяется технологии выполнения процессов, созданию условий обеспечения требуемого уровня качества работ и пооперационного контроля, соблюдению технологических регламентов и в целом надежности конструкций.
При выборе вариантов усиления предпочтение отдается таким решениям, при которых расчетная схема обеспечивает совместную работу усиливаемой конструкции. Важно установить действительный характер работы конструкций, фактически действующие нагрузки, учитывать оценку влияния узлов сопряжения и соответствие выбранных расчетных схем реальным условиям работы. Особое внимание следует уделять ликвидации дефектов конструкций.
При усилении или восстановлении несущей способности необходимо соблюдать плавное включение усиления в работу с существующими конструкциями. Это особенно важно при использовании монолитных вариантов, когда интенсивность набора прочности может иметь различные показатели. Для этой цели следует обеспечивать временную разгрузку усиливаемых элементов.
Расчет железобетонных конструкций усиления должен выполняться с учетом фактических физико-механических характеристик материала и их степени износа. Так, при повреждении площади сечения арматуры более 50 % несущая способность существующей конструкции в расчетах не учитывается. При сварке к существующей арматуре стержней усиления расчетное сечение следует снижать на 25 %.
Для усиливаемых конструкций следует применять арматуру классов А240 (A-I), A300 (A-II), А400 (А-III), а для предварительно напряженных - А600 (А-IV), А800 (A-V), A1000 (A-VI), арматурные канаты классов К1400 (К-7), К1500 (К-19) и др.
Бетон усиления должен приниматься на один класс выше, чем класс прочности усиливаемой конструкции, но не ниже В15. Раствор для заделки штраб, отверстий, защитной штукатурки - не ниже марки 150.
Следует применять средства и методы ускоренного твердения бетона и раствора.
Снижение несущей способности основания фундаментов вызвано несколькими причинами, к которым следует отнести: изменение гидрологического режима площадки вследствие повышения или понижения уровня грунтовых вод; изменение свойств насыпного грунта вследствие временного параметра; воздействие динамических нагрузок от подземного или наземного транспорта, способствующих снижению плотности основания; перераспределение естественного напряженного состояния в результате дополнительных нагрузок от здания и нарушения природного сложения грунтов; нарушения естественного теплового режима и условий аэрации. Анализ аварийных ситуаций в Москве и других крупных городах показал, что одной из причин служат карстовые явления. Они являются результатом растворения некоторых видов грунтов подземными водами, а также действия антропогенных факторов. Растворенные грунты выносятся из мест залегания водяным потоком, и на их месте образуются провальные воронки. Это может привести к катастрофическим явлениям. Поэтому, планируя работы по усилению несущей способности оснований, необходимо эти изменения учитывать.
Для повышения физико-механических свойств оснований реконструируемых зданий и предотвращения развития в их конструкциях деформаций широко применяют различные методы закрепления грунтов, которые разделяют на три группы: химическое, термическое и физико-химическое. Наиболее эффективны технологии химического закрепления фунтов, так как они не требуют перерыва в эксплуатации зданий, являются достаточно быстрым и надежным приемом повышения несущей способности оснований. Химический метод как наиболее эффективный включает: силикатизацию, электросиликатизацию, газовую силикатизацию, аммонизацию и смолизацию.
Основным компонентом для силикатизации является жидкое стекло - коллоидный раствор силиката натрия. В зависимости от состояния грунтов используют: однорастворную силикатизацию - путем инъецирования в грунт гелеобразующего раствора из двух или трех компонентов (силикатно-фосфорнокислые, силикатно-сернокислые, силикатно-фтористоводородные и другие составы) при закреплении песчаных и лессовых грунтов с коэффициентом фильтрации 0,5-5 м/сут; двухрастворный способ силикатизации - для закрепления песчаных грунтов с коэффициентом фильтрации до 0,5 м/сут, который заключается в поочередном инъецировании двух растворов (силиката натрия и хлористого кальция). В результате химической реакции образуется гель кремниевой кислоты, придающий фунту в короткие сроки прочность 2-6 МПа.
Электросиликатизация основана на сочетании силикатизации с одновременным воздействием постоянного электрического тока и предназначена для закрепления переувлажненных мелкозернистых песков и супесей с коэффициентом фильтрации до 0,2 м/сут.
Газовая силикатизация впервые разработана и применена в нашей стране. В качестве отвердителя силиката натрия используют углекислый газ, что позволяет закреплять песчаные грунты с коэффициентом фильтрации 0,1-0,2 м/сут, лессовые и грунты с высоким содержанием органических примесей. Прочность закрепленного грунта составляет 0,5-2 МПа и достигается в кратчайшие сроки.
Смолизация - закрепление песчаных грунтов с коэффициентом фильтрации 0,5-5 м/сут и лессовых грунтов путем инъецирования водных растворов синтетических смол (карбамид-ных, фенольных, фурановых и др.). Время гелеобразования регулируется количеством вводимого отвердителя. Смолизация не только способствует повышению прочности до 1-5 МПа, но и обеспечивает водонепроницаемость грунтов.
Технологические параметры эффективности укрепления грунтов методами инъецирования приведены в таблице 6.2.
Таблица 6.2
Радиусы закрепления грунтов в зависимости от коэффициента фильтрации
|
№ п.п. |
Способ закрепления грунта |
Вид грунта |
Коэффициент фильтрации, м/сут |
Радиус закрепления, м |
|
1 |
Силикатизация: |
|
|
|
|
|
двухрастворная |
Песчаный |
2-10 10-20 20-50 50-80 |
0,3-0,4 0,4-0,6 0,6-0,8 0,8-1,0 |
|
|
однорастворная |
» |
0,8-0,5 0,5-1,0 1,0-2,0 2,0-5,0 |
0,3-0,4 0,4-0,6 0,6-0,8 0,8-1,0 |
|
2 |
Газовая |
» |
0,5-1,0 1,0-5,0 5,0-20 |
0,3-0,5 0,5-0,8 0,8-1,0 |
|
3 |
Однорастворная |
Просадочный |
0,1-0,3 0,3-0,5 0,5-2,0 |
0,4-0,7 0,7-0,8 0,8-1,0 |
|
4 |
Смолизация |
Песчаный |
0,3-1,0 1,0-5,0 5,0-10,0 10,0-20,0 20,0-50,0 |
0,3-0,5 0,5-0,65 0,65-0,85 0,85-0,95 0,95-1,00 |
|
5 |
Электрохимическое закрепление грунтов |
Водонасыщенные глинистые, пылеватые, илистые |
0,10-0,20 |
0,4-1,2 |
Способ инъекционного закрепления заключается в нагнетании реагентов в виде растворов или газов в грунты основания без нарушения их структуры. Инъекционное закрепление распространяется на грунты, обладающие определенной водопроницаемостью. Инъекционному закреплению не подлежат водонасыщенные грунты при скорости фунтовых вод более 5 м/сут.
При закреплении фунтов учитываются конкретные условия: гидрогеологические, характер заложения фундаментов, стесненность производства работ.
Способ закрепления назначается исходя из конкретных условий производств работ и характеристики грунтов.
На рис. 6.1 в схематичном виде приведены методы закрепления грунтов для фундаментов мелкого заложения. В зависимости от принятой технологии расположение инъекторов может быть вертикальным, наклонным и горизонтальным.

Рис. 6.1. методы закрепления грунтов для фундаментов мелкого
заложения
I -
схемы расположения инъекторов при закреплении грунтов основания фундаментов: 1
- фундамент; 2 - инъектор;
3 – зона укрепления; II - зоны
закрепления оснований: а - ленточная;
б - сплошная; в - прерывистая; г - кольцевая
Для зданий с подвальной частью закрепление грунтов может осуществляться с наружной или внутренней стороны. Наиболее распространенным является укрепление грунтов с наружных фасадных поверхностей. Из-за меньшей стесненности производительность работ существенно выше.
Технология и организация производства работ
Инъекционное закрепление грунтов выполняется по результатам инженерного обследования здания с техническим решением о необходимости усиления основания фундамента. При назначении метода укрепления оснований определяющими факторами являются себестоимость производства работ и продолжительность процесса.
До начала производства работ уточняются наличие и расположение подземных коммуникаций, а также размещение зданий и сооружений вблизи мест закрепления. Затем осуществляется комплектование оборудования и материалов в соответствии с проектом производства работ.
Производится контрольное закрепление грунта с последующим испытанием. В результате контрольного закрепления уточняются радиус действия инъекторов, скорость набора прочности фунтом, расход материалов и физико-механические характеристики уплотненного грунта. В зоне контрольных испытаний отрывается шурф, который позволяет оценить геометрические характеристики зоны укрепления. С помощью кернообразователей извлекаются образцы из 3-4 зон, которые подвергаются механическим испытаниям.
Инъекционное закрепление грунтов включает последовательно следующие виды работ:
подготовительные и вспомогательные работы, включая приготовление закрепляющих растворов;
работы по бурению скважин, погружению инъекторов, обустройству инъекционных скважин;
нагнетание закрепляющих реагентов в грунт;
извлечение инъекторов и заделка инъекционных скважин;
работы по контролю качества закрепления.
Подготовительные и вспомогательные работы
До начала работ следует выполнить цикл подготовительных работ: подготовить территорию и фронт работ; провести временное ограждение, подвести электроэнергию, водоснабжение, канализацию; при необходимости установить геодезическое наблюдение за осадками фундаментов; обеспечить зоны складирования, площадки или стационарные узлы для приготовления растворов; осуществить разметку погружения инъекторов или бурения инъекционных скважин; приготовить закрепляющие растворы рабочих концентраций; выполнить работы по закреплению контрольных участков; обеспечить выполнение правил безопасного ведения работ.
Закрепляющие растворы рабочих концентраций приготавливают исходя из требуемой консистенции и необходимого объема.
Погружение и извлечение инъекторов
Способ погружения инъекторов зависит от физико-механических характеристик грунтов, глубины закрепления и может быть осуществлен: забивкой; вибропогружением; задавливанием; установкой в предварительно пробуренные скважины.
На рис. 6.2 приведены конструктивная схема инъектора переменного сечения и метод его погружения. Инъектор состоит из наконечника, перфорированного звена, переходных ниппелей, глухих звеньев. Наличие глухих звеньев позволяет изменять длину инъектора, тем самым обеспечивая необходимую зону инъецирования.

Рис. 6.2. Конструктивная схема инъектора (а), метода погружения (б), реечного домкрата
для извлечения инъекторов (в)
1 - наконечник; 2 - перфорированное
звено; 3 - переходной
ниппель; 4 - глухое звено
После окончания работ по инъецированию необходимо провести извлечение инъектора. Оно производится виброметодом, а также путем использования специального реечного домкрата (рис. 6.2,в).
Погружение инъекторов забивкой и вибропогружением применяют при силикатизации песчаных грунтов на глубину до 15 м. Применяют ударные инструменты механического или пневматического типа. Забивка осуществляется по заходкам в последовательности, отраженной в проекте. При погружении инъекторов через железобетонные плиты фундаментов, отмостки, полы в них предварительно выбуриваются отверстия.
Погружение и установка инъекторов в предварительно пробуренные инъекционные скважины применяются при силикатизации просадочных грунтов при обычной и дополнительной цементации. Бурение ведется вертикальными и наклонными скважинами.
Устройство скважин для цементации зоны контакта подошвы фундамента с основанием рекомендуется производить колонковыми станками сплошным забоем, а в условиях стесненного производства работ - пневмоударными мобильными установками. При наличии слабых грунтов требуется установка обсадных труб.
Расстояние между скважинами колеблется в пределах 1,7-3 м. Очередность бурения скважин и инъецирования определяется проектом производства работ. Чаще всего инъецирование производится с интервалом в последовательности 1; 3; 5; 7 и 2; 4; 6; 8 и т.д. Потребность в оборудовании, приспособлениях и механизмах приведена в таблице 6.3.
Таблица 6.3
Механизмы, оборудование и приспособления для проведения инъекционных работ
|
№ п.п. |
Оборудование, механизмы, приспособления |
Тип |
Марка |
Количество |
Техническая характеристика |
|
1 |
Станок бурильный |
Вращательное бурение |
СКБ-4 |
1 |
|
|
2 |
Компрессор |
|
ПСК-6м |
2 |
Рра6 = 0,7 МПа |
|
3 |
Насосы |
Одноплунжерный Двухплунжерный Шестиплунжерный |
ПС-45 НГП-1М НС-3 |
1 1 1 |
Рра6 = 1,5 Мпа Рра6 = 1,5 Мпа Рра6 = 1,2 МПа |
|
4 |
Насос-дозатор |
|
НЛ 1000/10 |
2 |
П = 1 м3/ч |
|
5 |
Растворосмесители |
|
РН-500 |
1 |
V = 500 л |
|
6 |
Пневматические молотки |
|
ОМ-506 СМ-5 ОСМП-6 |
1 1 |
Рра6 = 0,4-0,5 МПа |
|
7 |
Резиновые рукава диаметром 25 мм |
|
|
|
Р = 3 МПа |
|
8 |
Резиновые воздушные рукава диаметром 19-25 мм |
|
|
|
Р= 1 МПа |
Для нагнетания растворов можно применять насосы с расходом 1-10 м3/мин и давлением до 1,5 МПа. К таким насосам относятся: одноплунжерный ПС-45, двухплунжерный НПГ-1М шестиплунжерный НС-3 и др. Для погружения инъекторов можно применять пневматические и отбойные молотки КЦМ-4, ОМ-506, ОМСП-6, СМ-5 и др. с рабочим давлением 0,4-0,55 МПа и расходом воздуха 1,0-1,6 м3/мин.
Для контроля технологических процессов используется аппаратура: манометры на давление 1-3 МПа, ареометры для измерения плотности растворов, термометры, редукторы УР-2, КРР-50 для регулирования давления углекислого газа.
Инъекторы после окончания цикла нагнетания извлекаются гидравлическими, реечными домкратами или другими приспособлениями грузоподъемностью 5-10 т.
Нагнетание закрепляющих реагентов
Закрепляющие реагенты нагнетают отдельными заходами в технологической последовательности, предусмотренной проектом производства работ. В однородные по водопроницаемости грунты нагнетание производится от устья в глубину или из пяты скважины к устью. В неоднородных по водопроницаемости грунтах в первую очередь закрепляют слои с большей водопроницаемостью.
Величина расхода закрепляющих химических растворов уточняется при контрольном закреплении и контролируется по расходомерной шкале и счетчику расходомера.
Расход раствора Q на одну заходку можно рассчитать по формуле Q=nR2l3a, где п - пористость грунта, %; R - радиус закрепления, м; l3 - длина заходки, м; а - коэффициент, принимаемый в зависимости от способа силикатизации (5 - при двухрастворной; 12 - при однорастворной; 7 - при газовой; 8 - для плывунов; 5 - для просадочных грунтов).
Требуемое количество раствора на одну заходку рассчитывается исходя из радиуса действия, пористости грунта и коэффициента насыщения раствором Q=nR2(1,33R+1)na1000 л, где п - пористость грунта; а - коэффициент насыщения грунта раствором (таблица 6.4).
Таблица 6.4
Значения коэффициента насыщения грунта раствором
|
Скорость распространения раствора, см/мин |
Коэффициент насыщения грунта |
Скорость распространения раствора, см/мин |
Коэффициент насыщения грунта |
|
0,3 |
1,0 |
3 |
0,5 |
|
0,6 |
0,8 |
6 |
0,4 |
|
1,0 |
0,7 |
10 |
0,35 |
|
1,8 |
0,6 |
|
|
На рис. 6.3 приведена технологическая схема инъекционного закрепления грунтов в основаниях фундаментов способом однорастворной силикатизации. Технология выполнения работ предусматривает: разметку мест бурения скважин; пробивку сквозных отверстий под устьем скважин в бетонном основании и отмостки; установку и перемещение бурового станка; непосредственно бурение скважин; приготовление растворов; установку инъекционных труб; нагнетание растворов; заделку скважин; отрывку контрольных шурфов; взятие образцов; обратную закопку с уплотнением шурфов.

Рис. 6.3. Технологическая схема инъекционного закрепления грунтов основания фундаментов способом однорастворной силикатизации
1 - компрессор; 2, 3, 4, 5 - емкости для отвердителя, крепителя, рабочей концентрации; 6 - насосы; 7 - дозатор; 8 - емкость для рабочего раствора; 9 - инъекторы; 10 - расходомер; 11, 12 - инъекционные скважины 1-й и 2-й очередей; 13 - бурильный станок; 14 - зона ограждения; 15 - зона складирования
При двухрастворной силикатизации жидкое стекло и раствор хлористого кальция нагнетаются рядами с чередованием инъекторов через ряд. Перерывы между нагнетанием жидкого стекла и хлористого кальция зависят от скорости грунтовых вод 3-1,5 м/сут. Каждый раствор нагнетается отдельным насосом.
Подобная технология применима для однорастворной силикатизации песчаных грунтов. Химические реагенты доводят до требуемой концентрации и через дозаторы подают в рабочие емкости, где готовится гелеобразная смесь. Затем с помощью насоса закачиваются в инъектор.
При закреплении грунтов способом газовой силикатизации через инъектор нагнетаются углекислый газ и раствор силиката натрия, а затем снова углекислый газ. Давление при нагнетании газа для отвердения силикатного раствора должно находиться в пределах 0,4-0,5 МПа. Перерыв во времени между нагнетанием силиката натрия и газа не должен превышать 30 мин.
Такой метод закрепления грунтов может быть применен для закрепления скальных, песчаных и гравелистых грунтов при следующих коэффициентах фильтрации: для скальных грунтов - 0,01 м/сут, для песчаных - 50 м/сут. Для цементации применяют смеси цементного раствора с В/Ц = 1-0,8. Для улучшения свойств, а также для связывания химически несвязанной воды в раствор добавляется бетонит в количестве до 10 % массы цемента.
В грунт через инъекторы под давлением 3-6 атм нагнетают раствор. Расстояние между скважинами назначают в зависимости от величины удельного поглощения. Радиус закрепления составляет 0,3-1,5 м.
Цементация грунтов обеспечивает создание монолитности основания и повышает прочность в пределах 1,0-4,0 МПа. При этом повышается водонепроницаемость грунта. Вид и марку цемента принимают в зависимости от наличия и агрессивности вод.
Контроль качества работ
Контроль качества работ осуществляется на всех этапах производства работ, проверяются: качество исходных материалов, рабочих закрепляющих реагентов и составов; опытной проверкой - расчетные параметры закрепления и технических условий производства работ; проверкой - соответствие требованиям проекта физико-механических свойств закрепленных грунтов и однородность их закрепления; проверкой - размеры закрепленных массивов, радиусы действия инъекторов, а также сплошность закрепления; контролем - осадка фундаментов геодезическими средствами наблюдения; количество и расположение контрольных скважин и шурфов, количество и качество отбираемых через бурение проб; контрольное бурение должно осуществляться колонковым способом с диаметром скважин не менее 84 мм; испытания образцов закрепленных грунтов производят в лабораторных условиях; отбор кернов (образцов) осуществляется через каждые 0,8-1,0 м по глубине; инструментальные геодезические наблюдения за осадками фундаментов осуществляются до, во время и по окончании инъекционных работ.
При сдаче и приемке законченных работ предъявляют следующую техническую документацию: документы с результатами проверки качества исходных материалов; журналы бурения скважин, погружения инъекторов и нагнетания в грунты реагентов; планы, профили и сечения закрепленного грунтового массива с указанием положения контрольных выработок; акты вскрытия контрольных шурфов, журналы контрольного бурения и результаты физико-механических испытаний.
В развитие технологии закрепления грунтов цементацией появился метод «Геокомпозит», сущность которого состоит в нагнетании цементной композиции под давлением 5-20 атм как под подошву фундамента, так и в область слабых грунтов более глубокого заложения.
Под действием высокого давления осуществляется гидроразрыв грунтового слоя с расположением трещин радиально от инъекторов вглубь массива. Раскрытие трещин происходит по ослабленным участкам грунта с одновременным заполнением цементным раствором и уплотнением. В результате этого формируется каркасная матрица из цементной составляющей с элементами уплотненного грунта. Композитный массив грунта приобретает повышенное значение модуля деформации, увеличиваются сцепление и угол внутреннего трения.
Одним из технологических приемов повышения физико-механических характеристик грунтов является устройство микросвай в результате использования инъекторов. Вокруг каждого из них образуется грунтоцементная свая с несущей способностью 7-10 т.
Технология «Геокомпозит» успешно используется для восстановления и повышения несущей способности фундаментов из бутовой и кирпичной кладки, когда путем инъекции раствора под большим давлением восстанавливается монолитность фундаментов, достигается заполнение полостей от деревянных свай и лежней, происходит цементация слабых и неустойчивых грунтов основания.
Достаточно эффективной технологией закрепления водонасыщенных глинистых, пыле-ватых и илистых грунтов является электрохимический метод. В грунт с наружной и внутренней сторон фундамента погружают трубчатые электроды, один из которых служит анодом, а другой - катодом. Расстояние между электродами одного знака 0,8-1,0 м. Через анодный электрод самотеком поступают растворы солей СаС12, затем Fe2(SО4)3 или A1(SО4)3. Из катода откачивают поступающую грунтовую воду, тем самым создавая дополнительный градиент скоростей. Под действием напряжения постоянного тока 100-120 В происходит направленное движение солевых растворов от анода к катоду. Тем самым обеспечивается насыщение зоны укрепленного грунта поочередно различными солями, взаимодействие которых позволяет получать плотные структуры грунтов с прочностью 0,4-0,6 МПа. При этом средний расход электроэнергии составляет 60-100 кВт·ч/м3 закрепляемого грунта.
На рис. 6.4 приведена технологическая схема производства работ. Основной технологический процесс состоит в устройстве скважин и установке электродов с перфорированной частью нижней зоны.

Рис. 6.4. Технологическая схема производства работ по
закреплению грунтов электрохимическим методом
1 - фундамент; 2, 3 -
анод, катод; 4 - емкость
для раствора солей; 5 - генератор постоянного тока; 6 - насос для откачки воды от
катода; 7 - трубопровод
Оборудованием для проведения работ служат: генератор постоянного тока, система трубопроводов, насос для откачки воды из катода, система коммутации анодов и катодов, бак для раствора солей.
Процесс электрохимического закрепления грунтов осуществляется по захваткам длиной 15-20 м в следующей последовательности производства работ: подготовительные работы на захватке; разметка скважин и бурение; размещение анодов и катодов; установочных емкостей с раствором солей; коммутация, в том числе электрических цепей; откачивание воды из катода; процесс электрохимического закрепления.
По окончании закрепления грунта на одной захватке цикл работ повторяется. При этом особое внимание уделяется процессу контроля качества работ, эффективности набора прочности грунтов, устройству контрольных участков и оценке физико-механических свойств.
При выполнении пробных работ уточняются параметры электромагнитного поля, концентрация солевых растворов и время производства работ. По уточненным техническим параметрам ведутся работы в объеме всего здания.
Сопоставительный анализ методов закрепления грунтов по себестоимости производства работ показал, что минимальная себестоимость работ относится к методам электрохимического закрепления грунтов, а также одноразовой силикатизации. В то же время следует отметить, что постоянный рост цен на электроносители и химикаты, а также повышение эксплуатационной стоимости комплекта машин приводят к значительному удорожанию работ.
Опыт реконструктивных работ показывает, что в ряде случаев экономически целесообразно произвести повышение несущей способности фундаментов, нежели укрепление грунтов основания.
Вторым достаточно объективным фактором является слабая степень контроля укрепления грунтов из-за их неоднородности по толщине и периметру здания. Это требует достаточно плотного зондирования, что приводит к дополнительным затратам.
Таким образом, выбор способа и схем закрепления грунта зависит от характеристик основания, формы и размеров фундамента, требуемой несущей способности основания. Ширина основания закрепляемого грунта может быть определена из соотношения В=b(2К+1), где b - ширина фундамента в плане; К - коэффициент, определяющий связь со средним давлением Р на уровне подошвы фундамента реконструируемого здания. Значения коэффициента К и давления Р даны ниже.
|
Р, МПа |
0,1 |
0,2 |
0,3 |
0,4 |
0,5 |
0,6 |
0,7 |
0,8 |
|
К |
0,1 |
0,15 |
0,2 |
0,25 |
0,3 |
0,35 |
0,4 |
0,45 |
При реконструкции жилых зданий старого фонда часто встречаются ситуации, когда многочисленные аварии сетей водоснабжения и канализации приводят к размыву и образованию полостей и карстовых явлений. Их образование приводит к значительному перераспределению нагрузок на фундаменты и способствует неравномерной осадке и появлению трещин в стенах, перекрытиях и узлах сопряжения конструктивных элементов.
Наиболее важным этапом является определение геометрического положения полостей и карстовых образований. До настоящего времени это была довольно сложная и трудоемкая задача, основанная на сейсмическом зондировании и механическом определении с помощью устройства скважин. Несмотря на высокую трудоемкость и стоимость выполнения работ, точность оценки карстовых образований и их геометрических размеров была достаточно условной.
Для более точной оценки «просвечивания» толщи грунта и состояния основания фундаментов ГПНИИ Приборостроения им. В.В. Тихомирова разработан ряд георадаров, работающих в диапазоне частот от 25 до 1200 МГц и обеспечивающих зондирование сред, грунта и включений на глубине от 0,5 до 30 м с разрешающей способностью от 0,05 до 2 м.
Георадары состоят из антенного блока, блока обработки и управления индикацией, питания, телескопическими штангами, датчиками перемещения и др.
Антенный блок включает приемопередающие антенны, передающие и приемные устройства и системы обработки информации. Тип антенного блока определяет глубину зондирования и разрешающую способность георадара.
Основной принцип работы георадаров состоит в подаче сигнала с поверхности земли определенной частоты и регистрации отраженного от границы раздела сред менее интенсивного сигнала. Для получения физической картины толщи грунта осуществляется перемещение георадара в исследуемой площади с периодической или непрерывной подачей частоты. Обработка результатов путем оценки интенсивности отражения сигналов позволяет получать трехмерную картину состояния основания на различной глубине (рис. 6.5).

Рис. 6.5. Регистрация георадаром металлических труб (1) и карстовых полостей (2)
Для обработки оценки результатов измерений используется программное обеспечение с разнообразными методами обработки на основе математического моделирования, спектрального анализа и различной формы визуализации георадиолокационной информации. Использование персональных ЭВМ в виде «ноутбуков» с операционной системой Windows позволяет получать пространственное очертание различного рода полостей и дефектов по толщине слоев и объему исследуемой площадки.
Для глубины зондирования от 1,0 до 30 м используются две модели георадаров: «Око-М1Д» и «Око-М1».
Первая модель использует генерируемую частоту 25, 50 и 100 МГц, что обеспечивает глубину зондирования от 30 до 10-15 м. Для меньших глубин используется вторая модель, которая генерирует частоту от 150 до 1200 МГц, что позволяет зондировать толщины грунта от 12 до 0,3 м.
Георадар «Око-М1» может успешно использоваться для оценки не только карстовых образований, но и различных включений в виде валунов, металлического лома и др., что исключительно важно при выполнении реконструктивных работ путем пристройки по периметру зданий объемов, требующих устройства свайного основания.
Различные конструкции георадаров используют излучатели с управляемой частотой излучения, которая определяет их технические возможности. В таблице 6.5 приведены зависимости разрешающей способности георадаров от центральной частоты излучения. Она же определяет максимальную глубину и метровые зоны.
Таблица 6.5
|
Параметры |
Центральная частота |
||||||
|
2 ГГц |
900 МГц |
500 МГц |
300 МГц |
150 МГц |
75 МГц |
38 МГц |
|
|
Разрешение, м |
0,06-0,1 |
0,2 |
0,5 |
1,0 |
1,0 |
2,0 |
4,0 |
|
Мертвая зона, м |
0,08 |
0,1-0,2 |
0,25-0,5 |
0,5-1,0 |
1,0 |
2,0 |
4,0 |
|
Глубина, м |
1,5-2 |
3-5 |
7-Ю |
10-15 |
7-10 |
10-15 |
15-30 |
Более высокой разрешающей способностью обладает георадар «Лоза». Он состоит из излучателя, приемника и блока обработки информации (сигналов).
Технические решения, используемые в данном комплекте, позволяют получать на экране радарограммы, лишенные паразитных колебаний, что дает возможность без компьютерной обработки решать многие задачи непосредственно на участке обследования.
Разрешающая способность георадара зависит от характеристики грунта, его влажности и плотности. Глубина зондирования для сухих и влажных песков составляет соответственно 50 и 25 м, для глин - 8, супесей - 12 м. Разрешение по глубине составляет 0,1 м.
С помощью георадара обеспечивается контроль за положением инженерных сетей, фактическим расположением свай и фундаментов, контроль за состоянием грунта в зоне строящихся и эксплуатируемых зданий.
Одним из эффективных средств борьбы с карстовыми явлениями и образованием полостей является нагнетание расширяющихся самоотверждающих композиций. К таким композициям следует отнести вспененные тампонажные растворы с поверхностно-активными веществами (ПАВ) (амоносульфонафтен, акрилсульфат и др.). Разработками ВНИИОСП им. Н.М. Герсеванова доказана эффективность использования вспененных цементно-песчаных растворов. Устойчивый пенистый раствор (двукратное вспенивание) получается при внесении 1 % добавки массы цемента. Плотность образующегося раствора составляет 0,3-1,7 г/см3. Замкнутые поры затвердевшего раствора достигают прочности в пределах 0,5-4,5 МПа.
Более дешевыми материалами являются сульфатостойкие тампонажные растворы с добавлением гипса в количестве 5-7 % массы цемента. Прочность массы после твердения в течение 28 сут составляет 6-7 МПа при расходе цемента М400 до 380 кг, воды - 47 л, песка - 1135 кг, гипса - 7,5 кг (плотность раствора 1,9-1,93 т/м3).
Имеется достаточно успешный опыт использования в этих целях фосфогипса, зол ТЭЦ гидроудаления с небольшой добавкой цемента и ПАВ и других материалов.
Технология производства работ (рис. 6.6) предусматривает: определение зон и границ расположения полостей с использованием виброакустического зондирования; устройство входных и контрольных отверстий для нагнетания композиции; приготовление смесей и их закачивание в полости.

Рис. 6.6. Технологические схемы заполнения карстовых
полостей тампонажными растворами
а - с использованием бетононасосного транспорта; б - с помощью
крана и бадьи; 1 - автобетоносмеситель; 2 - бетононасос; 3 - обсадная труба; 4 -
бадья с тампонажным раствором; 5 - автокран; 6 - смеситель; 7
- загрузочный транспортер; 8 - зона тампонирования
Комплект машин и механизмов включает: бурильные станции колонкового действия, обсадные трубы; смесители для приобъектного приготовления тампонажных смесей и трубопроводный транспорт - растворо- и бетононасосы.
По мере заполнения полостей тампонажными растворами производится контроль заполняемости, интенсивности твердения и физико-механических характеристик затвердевшей массы. Последние определяют путем выбуривания кернов на полную глубину с испытанием отдельных зон.
Наиболее эффективным методом повышения несущей способности оснований и фундаментов является устройство грунтоцементных свай и массивов по струйной технологии (Jet Grouting), который широко используется в зарубежной практике. Метод разработан в Японии в конце 70-х годов и получил развитие во многих странах. Лидерами в изготовлении технологического оборудования в Европе являются немецкие фирмы Keller, Bauer, итальянская Rodo, французская Колагранде и др. (рис. 6.7).

Рис. 6.7. Общий вид буровых установок струйной
технологии закрепления грунтов
а - для работ на открытых поверхностях; б - при производстве
работ в стесненных условиях
Для усиления фундаментов внутри здания используется мини-установка SC-1 на гусеничном ходу фирмы Keller (ФРГ) (рис. 6.7,б). Ее габаритные размеры позволяют перемешаться через проем шириной 0,8 м и работать в подвальном помещении высотой не менее 2,8 м.
Первый опыт использования данной технологии в РФ был осуществлен при реконструкции гостиницы «Метрополь» в Москве в 1986-87 гг. фирмой Bauer.
Способ струйной технологии устройства грунтоцементных свай и массивов состоит из нескольких этапов:
I - осуществляют бурение скважин диаметром 40-90 мм на проектную глубину с погружением оборудования.
II - под давлением 100-400 атм и углом 90° к оси сваи осуществляется резка грунта струей воды или суспензией с добавлением воздуха.
В качестве режущего инструмента используют специальные вращающиеся форсунки, что обеспечивает круговое разрушение грунта. По мере резания осуществляется плавный подъем рабочего инструмента. Частота вращения и скорость подъема зависят от вида грунта и его физико-механических характеристик. Вспученный грунт в виде пульпы может частично вымываться на поверхность.
III - одновременно с резкой и размывом грунта осуществляется его смешивание с цементной или цементно-глинистой суспензией на основе бентонитового порошка. В результате интенсивного перемешивания и разрушения грунта образуется однородная грунтоцементная масса плотностью 1,4-1,9 т/м3. В зависимости от расхода цемента и гранулометрии размытого грунта физико-механические характеристики грунтоцемента могут составлять 5-15 МПа.
IV - для получения грунтоцементного массива осуществляют соединение ранее возведенных элементов. Создание массива может осуществляться как до набора проектной прочности, так и после.
Комбинация различных массивов может повторять плановые очертания фундаментов и иметь разнообразную форму.
Технологические схемы производства работ приведены на рис. 6.8. Они раскрывают перечисленные технологические этапы и особенности производства работ. Усиление фундаментов может осуществляться как с наружной, так и подвальной частей зданий.

Рис. 6.8. Технологические этапы струйной технологии (а),
схемы образования грунтоцементных массивов (б) и технология усиления основания фундаментов (в)
I - бурение скважины; II - разрушение и
вспучивание грунта струей воды; III
- резка с размывом грунта и смешиванием с цементной суспензией; IV - соединение грунтоцементных массивов; 1 - буровая установка; 2 -
компрессор; 3 - насос для воды; 4 - растворонасос; 5 - отстойник для обратной
пульпы; 6 - форсунка
В зависимости от технологических режимов производства работ возможно получение различного профиля грунтоцементного основания:
- при вращении форсунки вокруг оси обеспечивается получение цилиндрической поверхности в виде колонны или сваи;
- при перемещении форсунки на угол 180° обеспечивается получение укрепляемой зоны в виде полуцилиндра;
- при использовании двух форсунок и отсутствии вращения создается плоский профиль;
- при последовательной проходке с шагом установки инъекторов, равным зоне действия струйной технологии, обеспечивается получение плоской вертикальной стены;
- создание массива для переопирания фундаментов осуществляется путем комбинации различных форм и режимов движения режущего инструмента.
При устройстве массивов для переопирания фундаментов грунт размывается струей воды под давлением 300-400 атм. Через дополнительную форсунку подается цементная суспензия под давлением до 15 атм. Полученная грунтоцементная смесь после затвердения обладает высокой несущей способностью и повышенной плотностью, обеспечивающей водонепроницаемость.
Струйная технология укрепления фунтов и устройства свай предусматривает использование сжатого воздуха, который смешивается с цементной суспензией, а грунт вспучивается и образуется гомогенный грунтоцементный массив.
Варианты технологических режимов производства работ применяются в зависимости от грунтовых условий и технологических целей (рис. 6.9).

Рис. 6.9. Варианты технологических режимов устройства
грунтоцементных свай и массивов
I - однокомпонентная; II - двух- и III - трехкомпонентная
технологии образования грунтоцемента
Грунтоцементный массив можно выполнять любой формы и в любом участке грунта: на поверхности, под подошвой фундамента, на определенной глубине.
Устройство грунтоцементных свай может производиться в очень стесненных условиях при любой необходимой глубине. Выполнение работ допускает присутствие подземных коммуникаций и не вызывает их повреждения. Струйная технология экологически чиста на всех технологических операциях.
При реконструкции зданий данная технология может использоваться при заглублении подвальной части зданий, усилении фундаментов, устройстве заглубленных сооружений в стесненных условиях городской застройки и других случаях.
В зависимости от грунтовых условий применяются однокомпонентная, двухкомпонентная и трехкомпонентная струйные технологии.
При наличии большого объема органических включений используются специальные приемы предварительной промывки обрабатываемых грунтов или их полное замещение после гидроразмыва и выноса на поверхность цементным раствором с добавлением мраморной пудры. Режим предварительного размыва позволяет повысить соотношение «цемент - грунт» и прочность закрепленных грунтов.
Использование цементно-песчаных растворов для замещения фунта недопустимо из-за высокой абразивности зерен кварца и быстрого износа раствороподающих шлаков высокого давления.
Однокомпонентная струйная
технология (рис. 6.10,а). Основана на размыве, перемешивании и
закреплении грунта струей цементного раствора с соотношением
Основные параметры струйной
технологии включают: давление подачи раствора - 35-45 МПа; расход раствора -
50-150 л/мин; скорость подъема монитора - 25-50 см/мин; частота вращения
монитора - 10-30 об/мин.

Рис. 6.10. Технологические схемы струйной цементации грунтов
а - однокомпонентная; б -
двухкомпонентная с воздушной струей; в - двухкомпонентная с
водной струей; г - трехкомпонентная; 1 - грунтоцементная свая; 2
- форсунка для
подачи цементного раствора; 3 -
то же, цементного раствора в воздушном потоке; 4 - форсунка для подачи воды; 5
- то же, для подачи воды и воздуха
Двухкомпонентная струйная цементация (рис. 6.10, б, в) состоит из размыва, перемешивания и закрепления грунтов с помощью двух струй.
Используют воздушную систему, когда струя цементного раствора перемешивается внутри струи сжатого воздуха и за счет этого возрастает энергия разлива.
Водная система состоит из предварительного разлива струей воды и подачи цементного раствора.
Параметры двухкомпонентной струйной цементации включают: давление подачи раствора - 35-45 МПа; расход раствора - 100-180 л/мин; давление подачи воздуха - 0,7-1,7 МПа; расход воздуха - 8-12 м3/мин; скорость подъема монитора - 15-25 см/мин; частота вращения - 7-15 об/мин.
Для двухкомпонентной водной системы: давление подачи раствора - 5-8 МПа; расход раствора - 50-100 л/мин; давление подачи воды - 40-60 МПа; расход воды - 80-120 л/мин; скорость подъема монитора - 4-7 см/мин; частота вращения монитора - 3-10 об/мин.
Трехкомпонентная струйная цементация (рис. 6.10,г) состоит из разлива, перемешивания и закрепления грунтов с помощью трех струй. Струя воды помещается внутрь струи сжатого воздуха и подается через верхнее сопло, что позволяет использовать эффект «эрлифта» для выноса на поверхность легких частиц разливаемого грунта. Струя цементного раствора подается через нижнее сопло и служит для перемешивания разлитых частиц грунта.
Основные параметры трехкомпонентной технологии включают: давление подачи раствора - 5-8 МПа; расход раствора - 50-100 л/мин; давление подачи воды - 40-60 МПа; расход воды - 80-120 л/мин; давление подачи воздуха - 0,7-1,7 МПа; расход воздуха - 8-12 м3/мин; скорость подъема монитора - 4-7 см/мин; частота вращения монитора - 3-10 об/мин.
Струйный размыв грунта основан на движении струи малого диаметра и высокой скорости рабочей среды. Разрушение грунта определяется следующими факторами: кавитациоииым воздействием струи на грунт; действием динамического и ударного воздействия струи; снижением прочности грунтов, вызываемых пульсирующей нагрузкой; размывающим воздействием высокоскоростной водяной струи.
Значительное влияние на эффект размыва оказывают физико-механические и реологические характеристики грунтов. Для насыщенных водой грунтов размыв происходит более интенсивно по сравнению с менее влажным или сухим грунтом. Размыв протекает по схеме интенсивной суффозии при больших градиентах напора.
Сила гидродинамического давления на частицы грунта пропорциональна градиенту давления и объему частицы. Разрушение мелкозернистой породы происходит менее интенсивно, чем крупнозернистой.
Расчетная зависимость для оценки и определения радиуса действия (создания) грунтоцементной полости R может быть определена из соотношения

где К - коэффициент, учитывающий свойства грунта; dg - диаметр струи на выходе из насадки; Reg - число Рейнольдса для растворной струи, оценивающее турбулентность потоков; рg - плотность цементного раствора; Е0 - кинетическая энергия струи; Jгр - размываемость грунта; Vс - скорость струи.
По данным И.И. Бройда, значение некоторых параметров в приведенной зависимости требует экспериментального подтверждения.
Процесс выноса разрушенной структуры грунта (рис. 6.11) определяется плотностью и вязкостью транспортирующей жидкости (цементного раствора), диаметром рабочей скважины, сечением затрубного пространства и др. параметрами. При разработке тонкодисперсных грунтов образуется пульпа, обладающая высокой вязкостью, что в ряде случаев приводит к кратковременной закупорке скважины («клапану»). В результате размыв прекращается и происходит инъекция раствора в окружающий грунт с гидравлическим разрывом структуры и последующим выталкиванием «пробки» из скважины (фонтанированием раствора).

Рис. 6.11. Схема формирования грунтоцементной сваи по
однокомпонентной технологии
1 - поступление
цементного раствора; 2 - форсунка;
3 - выход пульпы
(грунтоцементной смеси) через затрубное пространство; 4 - водоцементная струя; 5
- обрабатываемый объем грунта; 6 -
грунтоцементный массив предыдущих циклов; h - высота грунтоцементного слоя
за одну проходку; D - диаметр сваи
В ряде случаев, вследствие временного повышения давления в размываемой полости, происходит подъем поверхности грунта, что является недопустимым явлением.
При двух- и трехкомпонентной технологиях возможность закупорки скважины практически отсутствует из-за образования пульпы с низкой вязкостью, а также в результате ее воздухо-насыщения. Изливающаяся пульпа сбрасывается по открытым каналам в пульпоприемник. Частичное вовлечение цементного раствора после обезвоживания пульпы позволяет получать слабосцементированный грунт, который может использоваться при устройстве земляных сооружений.
По данным А.Г. Малинина, в зависимости от используемых технологий, продолжительности цикла обработки грунта расход цемента аппроксимируется рядом кривых, представленных на рис. 6.12.

Рис. 6.12. Содержание цемента в объеме грунтоцементной сваи
в зависимости от продолжительности цикла обработки грунта
1 - расход цемента в составе струи цементного раствора; 2 -
фактическое содержание цемента в теле сваи; 3 - потери цемента в виде пульпы
Увеличение времени инъекции способствует увеличению потерь цемента в виде пульпы с незначительным повышением его содержания в грунтовой массе. Для каждого вида грунтов существует оптимальный режим инъекции, обеспечивающий получение высоких физико-механических характеристик грунтоцемента.
Соотношение между прочностью грунтоцемента и расходом вяжущего зависит от характеристик грунтов и составляет от 150 до 500 кг/м3 при прочности на сжатие 5-20 МПа.
Минимальный расход цемента при более высокой прочности обеспечивается для песчаных и гравелистых фунтов, а максимальный - для глинистых фунтов. Ориентировочные данные по прочности грунтоцементных образований для различных категорий фунтов представлены в таблице 6.6.
Таблица 6.6
Прочность грунтоцементных образований
|
№ п.п. |
Грунт |
Прочность, МПа |
|
1 |
Торф |
<3,0 |
|
2 |
Ил |
<12,0 |
|
3 |
Глина |
<12,0 |
|
4 |
Суглинок |
1,5-10,0 |
|
5 |
Супесь |
5-14 |
|
6 |
Песок |
6-18 |
|
7 |
Гравий |
10-20 |
Реальные показатели физико-механических характеристик грунтоцемента определяются путем отрывки экспериментальных образований, испытаний кернов или использования неразрушающих методов.
Достаточно высокие прочностные показатели подводимых фундаментов позволяют осуществлять углубление подвальных частей зданий с целью использования заглубленных помещений для различных технологических нужд.
Струйная технология усиления фундаментов успешно используется путем устройства свай. Она основана на выбуривании скважины через тело фундамента и подведении свай под основание. Для повышения несущей способности сваи армируются металлическими трубами на полную высоту. Их погружение производится до периода схватывания грунтоцемента с использованием вибраторов.
Технологическая последовательность производства работ по подведению грунтоцементного массива под фундаменты должна осуществляться отдельными заходками (захватками), исключающими дополнительные осадки фундаментов при пластическом состоянии грунтоцемента. Длина захваток определяется скоростью набора его прочности, что зависит от характеристики грунтов и расхода цемента.
Минимальное значение прочности должно быть не ниже расчетного сопротивления фунтов основания. Эти данные получают расчетным путем с экспериментальной проверкой и отражают в проекте производства работ. В общем случае параметр захватки колеблется в диапазоне 3,0-6,0 м.
Струйная технология находит широкое применение в тоннелестроении, устройстве ограждений котлованов, горизонтальных и вертикальных противофильтрационных завес, возведении фундаментов под опоры мостов и др. случаях. Возможность производства работ в стесненных условиях городской застройки существенно повышает ее конкурентоспособность.
Важными параметрами, определяющими несущую способность здания, являются состояние и степень износа фундаментов. Косвенным параметром может служить осадка фундаментов. Сама по себе однородная осадка фундаментов не приводит к дополнительным напряжениям в конструктивных элементах, в то время как неоднородная осадка приводит к возникновению концентраций напряжений, превышающих прочностные характеристики стен, перекрытий и других несущих элементов.
Величина возникновения неоднородных осадок является следствием неоднородной потери несущей способности грунта в результате размыва грунтовыми или техногенными водами оснований в локальных зонах, возведения зданий вблизи существующих, нарушения условий их эксплуатации и т.п.
При достаточно однородной
структуре грунтов и нормальной эксплуатации зданий величина осадки носит
экспоненциальный характер. Осадку в момент времени t определяют по зависимости
где SК - конечная осадка; е
- основание натурального логарифма; x - коэффициент, зависящий от свойств грунтов основания; t - время эксплуатации.
Зная значения осадок,
накопившихся за время tНП, можно
определить конечную осадку
, где tНП - время от
начала строительства до начала геодезических наблюдений.
На рис. 6.13 приведен график развития осадок фундамента во времени. SНП - осадка, накопившаяся до начала наблюдений; S'H - осадки в момент наблюдения.

Рис. 6.13. График развития осадок фундамента во времени
1 - при
нормальной эксплуатации здания; 2 - возникновение просадок при
замачивании отдельных участков основания; 1*, 2* -
нагрузки на фундамент при нормальной эксплуатации и замачивании; [S]
- допустимая осадка
На характер осадок существенное влияние оказывает пространственная жесткость коробки здания (стен). На жесткость стен влияют такие геометрические характеристики, как отношение длины L и высоты Н. Этот показатель принят нормами за исходный в определении коэффициента условий работы здания при расчете давления на основание фундаментов.
Показатель жесткости здания
имеет определяющее значение при выборе метода реконструктивных работ. Так, при
среднем значении
для зданий массовой
постройки при надстройке зданий старого фонда в процессе реконструкции показатель
- снижается до 1,5 и менее, что позволяет увеличить давление
на основание на 20 %. В то же время с увеличением этажности возрастает
продольная жесткость стен.
В результате обследования более 400 объектов было установлено, что для зданий старой постройки величина осадок фундаментов в 70,6 % случаев не превышает 0,7R. Абсолютная величина осадок как до надстройки, так и после значительно меньше нормативных значений. Это обстоятельство позволяет априорно принимать решение по надстройке зданий при их реконструкции.
Повышение несущей способности фундаментов как одних из основных конструктивных элементов зданий возможно несколькими технологическими и конструктивными приемами. Проектирование усиления фундаментов эксплуатируемых, а также реконструируемых зданий значительно сложнее проектирования новых конструкций. Это объясняется тем, что в каждом конкретном случае следует учитывать условия эксплуатации здания, причины проявления различных деформаций, стесненные условия производства работ.
Методы усиления и реконструкции фундаментов предполагают восстановление несущей способности; усиление за счет увеличения площади опирания; подведение под существующие фундаменты таких сборных конструктивных элементов, как плиты, столбы, сваи; усиление буроинъекционными и корневидными сваями и другие приемы. Каждый вариант технического и технологического решения должен быть адаптирован к конкретным условиям реконструируемого здания на основании результатов натурных обследований.
Наиболее распространенные дефекты фундаментов, их устранение и усиление выполняются следующими приемами.
Усиление кладки фундаментов цементацией. Технология предусматривает при образовании пустот в швах кладки и разрушении материала фундаментов осуществить инъекцию цементного раствора. Для этой цели освобождается поверхность фундамента, устраиваются инъекционные каналы и с помощью инъектора закачиваются цементная суспензия или раствор в тело фундамента.
Способ широко апробирован и применяется при незначительных разрушениях конструкций фундаментов.
При средней степени разрушения материала фундамента используют частичную замену кладки. Это весьма трудоемкий процесс, требующий вскрытия поверхностей фундамента, удаления разрушенных элементов кладки и ее восстановления. Поданным практического опыта, трудозатраты на восстановление 1 м3 кладки фундамента в 200-300 раз выше, чем при новом строительстве.
При значительных разрушениях материала фундамента последний забирается в обойму без уширения подошвы. В качестве обоймы выступают металлические каркасы в виде уголков или арматурной стали, которые в последующем обетонируются.
При увеличении нагрузки на фундамент и недостаточной его несущей способности производится устройство обойм с уширением подошвы фундамента. Варианты уширения и технология производства работ зависят от конкретных условий площадки.
Подведение свай под подошву фундамента осуществляется в случаях, когда при небольшой глубине заложения фундамента невозможно осуществить его уширение. Как правило, в этом случае используются составные сваи.
Усиление буронабивными сваями принимается при значительном увеличении нагрузок и большой толще слабых грунтов основания.
Устройство корневидных буроинъекционных свай производится при невозможности частичной разборки и усиления фундаментов в стесненных условиях строительства, при значительном увеличении нагрузок и наличии слабых грунтов основания.
Конструктивные решения усиления ленточных фундаментов монолитными обоймами: с односторонним расширением; двусторонним; расширением ростверка фундамента с использованием железобетонных обойм (рис. 6.14).

Рис. 6.14. Усиление ленточных фундаментов монолитными обоймами
а - двустороннее уширение с анкеровкой; б - одностороннее расширение; в - двустороннее при
большом развитии существующего фундамента; г - двустороннее при большой
глубине заложения фундаментов; 1 - фундаменты; 2 - монолитные
железобетонные обоймы; 3 - анкеры из прокатного металла или арматурных
стержней; 4 - опалубка;
5 - балки; 6 - щебеночное
основание; 7- опалубка; 8 -
рабочий настил
Общая технологическая схема производства работ может быть использована для кирпичных, бутовых, бетонных и железобетонных ленточных фундаментов.
При выполнении комплекса работ по усилению фундаментов предусматривается следующая очередность процессов: понижение уровня грунтовых вод при их наличии; отрывка траншей с одной или двух сторон фундаментной стены; очистка поверхности фундаментов; послойная укладка бетонной смеси с вибрационным уплотнением; уход за бетоном; распалубка конструкций; проведение цикла гидроизоляционных работ; обратная засыпка и устройство отмостки; контроль качества и приемка работ.
Для повышения несущей способности фундаментов широко используется жесткая арматура из прокатных профилей, размещаемая в виде консольных элементов, при сквозном расположении с объединением балочной системой. В каждом конкретном случае производятся расчет фундамента на дополнительные нагрузки, определение геометрических параметров измерения, степени армирования и класса бетона.
Особое значение отводится созданию монолитности усиливаемого фундамента и железобетонных обойм. Это достигается путем устройства штраб и анкерных систем.
Работы по усилению фундаментов должны проводиться в соответствии с рабочей документацией и проектом производства работ. Они выполняются участками протяженностью не более 1/4 длины фундаментной стены по одной из осей здания, но не более 10-12 м. Для коротких несущих стен допускается отрывка на всю длину. Работы на следующей захватке могут начинаться не ранее чем через двое суток по окончании бетонных работ. Этот цикл может быть сокращен при использовании ускоренных методов твердения бетона.
При глубине заложения фундаментов более 2 м условия производства работ будут меняться в зависимости от величины подпора грунта и состояния фундаментов, обеспечивающих их устойчивость.
Следует отметить, что усиление фундаментов монолитными обоймами является самым трудозатратным способом. Он требует большого объема вскрышных работ и ручной разработки грунта, мероприятий по обеспечению устойчивости стенок траншей, работ по устройству анкеров, дополнительному армированию, установке неинвентарной опалубки и т.д. Это приводит не только к значительным трудозатратам, но и повышению стоимости работ и расхода материалов.
Данная технология не исключает нарушений структуры грунта оснований фундаментов в результате атмосферных воздействий и отрицательных температур.
Достаточно эффективной технологией восстановления несущей способности фундаментов неглубокого заложения является устройство бетонной рубашки. После очистки стен фундаментов на ее поверхность наносятся 2-3 слоя торкрет-бетона. Технологический эффект повышается при использовании пневмонагнетателей с подачей смеси с дисперсным армированием.
На рис. 6.15 приведена технологическая схема производства работ. Процесс восстановления несущей способности включает этапы: механизированной отрывки траншей по периметру здания; ручной подчистки грунта и очистки поверхности фундаментов; увлажнения и промывки; нанесения нескольких слоев торкрет-бетона; устройства гидроизоляции; обратной засыпки пазух с послойным уплотнением; восстановления отмостки.

Рис. 6.15. Технология восстановления несущей способности
фундаментов методом торкретирования
а - общий вид процесса; б -
схема организации площадки: 1 - компрессор; 2 - бак с водой: 3 -
цемент-пушка; 4 - сопло; 5 - материальные шланги; 6 - зона
складирования грунта; 7 - восстанавливаемый фундамент; 8 - стена;
9 - ограждение; 10 - арматурная сетка на поверхности фундамента; 11
- дренажная система; в - распылительное сопло для нанесения
дисперсно-армированного бетона: 1 - шланг для подачи цемента; 2 -
то же, для подачи фибры; 3 - шланг для подачи воды; 4 – водяное
кольцо; 5 - сопло
При достаточно высокой степени износа фундаментов возможно их усиление путем расположения на поверхности арматурных сеток диаметром 4-6 мм с ячейкой 50-100 мм. Их крепление к телу фундамента осуществляется путем анкеровки, а также пристрелкой дюбелями.
После нанесения торкрет-слоев достигаются высокая адгезия и монолитность конструкции. Кроме повышения физико-механических характеристик и монолитности фундамента метод торкретирования позволяет создать водонепроницаемую оболочку, что весьма важно при наличии высоких уровней грунтовых вод.
Процесс торкретирования осуществляется с помощью оборудования, включающего: компрессор, бак с водой, цемент-пушку, комплект материальных шлангов и сопло.
Нанесение торкрет-слоев осуществляется последовательно, снизу вверх с перекрытием ранее нанесенного слоя не менее 0,15-0,5 м.
Для торкретирования используются заполнитель с модулем крупности не менее 2, цемент марок не ниже 400. Особые требования предъявляются к влажности песка, которая не должна превышать 3-5 %. Смесь песка с цементом подается по материальному шлангу к соплу.
Туда же подается по отдельному шлангу вода. Для обеспечения нормального технологического процесса давление в шланге с водой должно быть на 0,5-0,75 атм выше, чем в материальном шланге с цементно-песчаной смесью.
При торкретировании поверхностей сверху вниз состав материалов принимается в соотношении 1:3,75, 1:4,4. Приготовление смеси осуществляется в растворомешалках с длительностью перемешивания 1,5-2 мин. Для повышения физико-механических свойств торкрет-слоя в смесь добавляются суперпластификаторы в сухом состоянии из расчета 1-1,2 % массы цемента. При наличии заводов сухих смесей возможна доставка на объект готовых составов в затаренных емкостях.
Нанесение осуществляется с помощью сопла, отнесенного от поверхности на расстояние 0,5-0,8 м. При скорости выхода увлажняющей смеси 120-150 м/с химически несвязанная вода удаляется за счет воздушного потока. Жесткая смесь адгезируется с торкретируемой поверхностью. При выполнении комплекса работ используется компрессор. При этом осуществляется его очистка от масел и других загрязнений путем фильтрации через водяной затвор. Давление в цемент-пушке 2,0-3,5 атм при шлангах длиной 30-120 м соответственно.
Для обеспечения технологического регламента ведения работ осуществляется пооперационный контроль: влажности составляющих, дозирования цемента и заполнителей, расхода воды. Особое внимание уделяется параметрам давления, которое контролируется манометрами и редукторами.
После нанесения каждого слоя производятся его увлажнение и защита от прямого попадания солнечных лучей. Нанесение второго и последующих слоев производится после достижения прочности не менее 1,5-2 МПа.
Качество нанесения слоев контролируется визуально. Итоговым контролем являются определение степени адгезии с поверхностью фундамента, а также физико-механические характеристики защитных слоев. Путем отбора механических проб (кернов) в лабораторных условиях осуществляется комплекс испытаний.
При степени износа фундаментов, превышающих 50 %, и увеличении нагрузок за счет надстройки этажей усиление фундаментов целесообразно производить методом устройства буронабивных и корневидных свай. Этот весьма прогрессивный метод позволяет провести повышение несущей способности фундаментов с минимальными трудозатратами и предельным сокращением объемов земляных работ.
Ненарушенные структуры грунта позволяют максимально использовать их физико-механические характеристики. В зависимости от характера залегающих под подошвой фундамента грунтов сваи могут работать как сваи-стойки при опирании устья скважины на плотные грунты и сваи висячие, когда основная нагрузка воспринимается силами трения поверхности свай о грунт.
Бурение скважин производится бурильными станками колонкового типа, что позволяет выбуривать отверстия в усиливаемых фундаментах под различным углом наклона. Куст наклонных забетонированных скважин носит название корневидных свай (рис. 6.16,а).

Рис. 6.16. Схема усиления фундаментов
а - корневидными
сваями: 1 - усиляемый фундамент; 2 - стена; 3 - корневидные сваи; 4 - плотные грунты; б -
технологическая последовательность выполнения работ: I - бурение скважин; II - армирование; III - бетонирование
скважины с извлечением обсадной трубы; IV- готовая свая; 1 - рабочий орган буровой машины; 2
- обсадная труба; 3 - арматурный каркас; 4 - бетонная смесь
При использовании бурового оборудования в слабых и неустойчивых грунтах, а также при значительной глубине заложения свай используются обсадные трубы, предохраняющие стенки скважин от обрушения, а также бурение под слоем бентонитового раствора.
Технологический процесс устройства буронабивных свай приведен на рис. 6.16,б. Он включает четыре этапа: бурение скважин с установкой обсадных труб на заданную глубину и под требуемым наклоном; армирование скважин каркасом (как правило, цилиндрической формы); подачу, укладку и уплотнение бетона при одновременном извлечении по мере бетонирования обсадных труб; обустройство оголовка монолитной сваи.
Наибольшее распространение получила технология усиления фундаментов зданий буроинъекционными сваями. Они представляют собой разновидность буронабивных свай, имеют малый диаметр (50-250 мм) и большую длину (до 40 м).
При устройстве таких свай пластичную мелкозернистую бетонную смесь инъецируют под давлением 0,2-0,3 МПа в скважину с предварительно установленной арматурой. После заполнения скважины бетонной смесью ее устье тампонируют и опрессовывают, создавая избыточное давление растворонасосом или сжатым воздухом.
При усилении фундаментов жилых зданий буроинъекционными сваями их длина существенно сокращается, а технология разделена на несколько стадий (рис. 6.17).

Рис. 6.17. Технологическая схема усиления фундаментов
буроинъекционными сваями
I - бурение
скважины в теле фундамента; II
- нагнетание тампонажного раствора; III - повторное бурение; IV -
установка армокаркасов и нагнетание цементно-песчаной смеси; 1 -
фундамент; 2 - буровой станок; 3 - бур; 4 - инъекция тампонажного
раствора; 5 - зона
укрепления фундамента; 6 - инъектор; 7 - армокаркас; 8 - установка для инъецирования;
9 – ростверк сваи
На первой стадии осуществляется выбуривание наклонной скважины в теле фундамента на глубину, не превышающую заглубление 0,5 м. Затем осуществляется цементация фундамента под давлением 0,1-0,2 МПа с целью повышения его монолитности и ликвидации расслоения в швах. После набора прочности 0,2-0,3 МПа производится повторное выбуривание данной скважины, но на глубину, превышающую заложение фундамента. Затем погружается арматурный каркас и производится нагнетание цементно-песчаного раствора или мелкозернистой бетонной смеси с дальнейшей опрессовкой.
В результате многостадийной технологии обеспечивается повышение физико-механических характеристик кладки фундамента, а за счет создания свай достигается значительный прирост несущей способности фундамента в целом.
Для производства работ используются мобильные бурильные станки колонкового бурения с перфораторами.
Скважины выбуривают станками вращательного бурения СБА-500, которые производят бурение скважин через фундаменты, полы и другие конструктивные элементы под любым углом наклона. Малые габариты станка, отсутствие вибрации и ударов позволяют успешно использовать его в стесненных условиях реконструируемых зданий.
Технологический цикл устройства буроинъекционных свай включает: подготовку площадки; разметку мест бурения; устройство скважин первой стадии; тампонирование тела фундамента. После технологического перерыва в 2-3 дня, связанного с набором прочности тампонажного раствора, производят вторичное бурение на проектную глубину, превышающую глубину заложения фундаментов. Затем производят армирование и нагнетание бетонной смеси с последующей опрессовкой. При наличии слабых грунтов и большой глубине скважин используют обсадные трубы.
Малые габариты бурильной установки позволяют выполнять работы как с фасадной стороны здания, так и из подвальных помещений. Это обстоятельство существенно снижает материалоемкость и трудоемкость работ. Использование коронок с алмазным покрытием позволяет существенно ускорить цикл бурения.
Качество производства работ контролируется пооперационно: контроль ведется при разметке мест бурения, установлении угла наклона, глубины бурения. При тампонировании скважин проверяются качество тампонажного раствора, рабочее давление, расход материала. Дальнейшее бурение скважин требует оценки характера и глубины залегающих грунтов, что определяется по выбранным кернам. Устойчивость скважин обеспечивается установкой обсадных труб или бурением под слоем глинистого раствора при наличии грунтовых вод.
Особое место в пооперационном контроле отводится качеству бетонной смеси, ее технологическим и физико-механическим свойствам, характеру армирования и точности установки армокаркасов в проектное положение, соблюдению тепловлажностного режима твердения бетона. Все контролируемые параметры отражаются в материалах технологических карт и проекте производства работ.
Для уточнения несущей способности свай осуществляют контрольное бурение с заданными параметрами. Результаты испытания контрольных свай позволяют внести коррективы в конструктивное решение по усилению фундаментов.
Усиление фундаментов
буроинъекционными сваями наиболее эффективно в условиях слабых грунтов. Принимая
модель в виде тонких и относительно длинных изгибаемых строений, находящихся в
упругом полупространстве, их устойчивость для линейно деформируемой среды
оценивается под действием нагрузок. Длинная и гибкая свая-стойка может
деформироваться вследствие выпучивания. Под действием силы потеря устойчивости
достигается при изгибе по нескольким полуволнам. Для определения критической
силы К. Терцаги предложил зависимость следующего вида:
где т - число
полуволн синусоиды, по которой свая изгибается в грунте; r - радиус сечения сваи; EJ - изгибная жесткость сваи.
Число полуволн определяется
из уравнения
где l
- длина сваи; K
- горизонтальный коэффициент постели.
Изгибающий момент в центрально нагруженной свае может быть оценен зависимостью Мизг = Pa/(1 - Р/Ркр), здесь Р - нагрузка на сваю; Ркр - критическая сила, вызывающая потерю устойчивости сваи; a - коэффициент кривизны, определяемый как отношение прогиба и длины сваи.
В практике усиления фундаментов, как правило, используются ложные сваи, которые рассчитываются по деформированной схеме. С учетом граничных условий по заделке оголовка сваи и на нижнем конце, опирающемся в плотные слои грунтов, А.Г. Шашкиным разработаны расчетные модели, которые приближаются к реальным условиям работы. Установлено, что потеря устойчивости свай невозможна, поскольку необходимая для этого критическая сила в 10 раз превышает несущую способность свай по грунту. Максимальные изгибающие моменты возникают в месте заделки головы сваи в теле фундамента, что требует при производстве работ дополнительного инъецирования этой зоны.
На рис. 6.18 приведены расчетные и экспериментальные данные по осадке наклонных свай, которые свидетельствуют о достаточно высокой степени адекватности результатов.

Рис. 6. 18
а - графики осадки наклонных свай по экспериментальным (1) и
расчетным данным (2); б - схемы деформирования свай при
критической нагрузке Р
Отечественный и зарубежный опыт показывает, что использование буроинъекционных свай является одной из эффективных технологий усиления фундаментов жилых и исторически значимых зданий. Они применяются для восстановления бутовых и кирпичных фундаментов старой постройки с основанием на деревянных лежнях и сваях, которые при длительной эксплуатации утратили несущую способность.
Усиление основания и фундаментов буроинъекционными сваями костела Св. Екатерины в С.-Петербурге потребовало более 1200 свай в веерном расположении и опиранием на относительно прочную толщу песчаных грунтов. Дополнительная опрессовка свай позволила увеличить их диаметр на 10-15 %, уплотнить прилегающие слои грунта, тем самым повысить несущую способность.
Подобной технологией осуществляется усиление фундаментов жилых зданий ранней постройки в условиях слабых водонасыщенных грунтов с потерей несущей способности деревянных свай и лежней (рис. 6.19).

Рис. 6.19. Усиление фундаментов жилого здания
буроинъекционными сваями
1 - фундаменты; 2 - лежни из дубовых бревен; 3 -
деревянные сваи; 4 - буроинъекционные
сваи; 5 - зона
плотных грунтов
Устройство буроинъекционных свай осуществляется как с внешней стороны здания, так и с уровня первого этажа. При этом глубина свай принимается из условия их опирания в плотные слои грунта.
Буроинъекционные сваи выполняют армированными из отдельных стержней диаметром до 25 мм класса А400 при их сечении от 93 до 135 мм и арматурными каркасами с рабочей арматурой из 4 стержней диаметром 16-18 мм из стали класса А400. При сечении свай 150- 200 мм используются мелкозернистые высокоподвижные бетонные смеси класса бетона не ниже В15.
Электроимпульсная технология уплотнения бетона буроинъекционных свай основана на передаче кратковременных импульсов большой мощности в теле скважины, заполненной подвижной бетонной или цементно-песчаной смесью. Для создания импульсов используются специальные установки, обеспечивающие повышение напряжения с 220-380 В до 4,0-10 кВ. Электроэнергия повышенного напряжения, проходя через выпрямитель, накапливается в блоке конденсаторов. С помощью специального разрядника - коммутатора накопленная энергия через коаксиальный кабель подается к излучателю, помещенному в свежеуложенную бетонную смесь. Излучатель состоит из двух электродов с фиксированным расстоянием между ними. При подаче напряжения образуется разряд, который сопровождается повышением температуры и гидродинамического давления до 107-108 МПа за период времени 10-4-10-5 с. В результате гидравлического удара образуются сферические волны сжатия, которые через жидкую фазу бетонной смеси распространяются в окружающем грунте, тем самым уплотняя это пространство и расширяя стенки скважины. Одновременно происходит уплотнение мелкозернистой бетонной смеси. Совокупность факторов уплотнения грунта стенок скважины и бетонной смеси дает увеличение несущей способности свай. По данным фирмы «Рита», достигается повышение несущей способности свай в 2 раза, сопротивление грунта под пятой возрастает в 1,3-2,0 раза, а на боковых поверхностях - в 1,2-1,5 раза.
На рис. 6.20 приведены принципиальная схема формирования электрогидравлических импульсов в бетонной смеси и динамика передачи давления на стенки скважин.

Рис. 6.20. Схема формирования электрогидравлических
импульсов при устройстве свай
а - общая технологическая схема; б - схема разрядника и механизма уплотнения стенок
скважины; в - распределение
плотности зоны грунта, примыкающей к скважине; г - распределение
пульсации давления в бетонной смеси и грунте; 1 - скважина; 2 - погружная труба с
разрядником; 3,4 - генератор
импульсного тока; 5 - литая бетонная смесь; 6,7 - разрядник с
изолятором; Рmax - плотность грунта после электроимпульсного воздействия;
Р0 - начальная плотность
Распространение сферических волн через бетонную смесь обеспечивает уплотнение стенок скважины.
Для повышения технологического эффекта целесообразно использовать высокопластичные смеси с добавкой суперпластификатора С-3 в объеме 0,2-0,3 % массы цемента. Меньшая сжимаемость смеси создает предпосылки более эффективной передачи импульсов стенкам скважины.
При этом в силу высокого коэффициента затухания b наблюдается экспоненциальное снижение амплитуды давления пропорционально коэффициенту затухания Pg = P0e-br, где r - расстояние от источника импульса до исследуемой точки; P0 - динамическое давление на стенку скважины.
Таким образом, достигается локальное уширение скважины за счет кратковременного действия динамической нагрузки и повышения плотности грунта.
Зона уплотнения стенок зависит от величины динамического давления и реологических характеристик грунта. В свою очередь, динамическое давление в зоне разряда Pg = f(V,D,R), где V - подаваемое напряжение; D - зазор между электродами; R - электрическое сопротивление бетонной смеси.
При подаче электроэнергии на электроды излучателя в межэлектродном пространстве создается высокая плотность энергии порядка 1013-1014 Дж/м2. В результате образуется плазма с высокой температурой и давлением до 108-1010 Па. Парогазовая смесь совершает работу по формированию сферической ударной волны, которая распространяется по бетонной смеси, совершая работу по уплотнению грунта начиная с границы раздела «бетон-грунт» (рис. 6.21).

Рис. 6.21. Характер распределения динамического давления в
бетонной смеси (1) и грунте (2)
Р0 - давление на границе раздела сред; Рст.гр
- статическое давление грунта; Рг.б - гидростатическое
давление бетонной смеси
К моменту окончания ввода энергии канал разряда развивается в парогазовую полость, продолжая расширяться, что способствует образованию камуфлетного уширения. Когда в полости давление снизится до гидростатического давления бетонной смеси, происходит процесс «схлопывания» полости, а этот объем занимает бетонная смесь. За полный цикл подачи импульса происходит уплотнение грунта на величину Dr c последующим затуханием волны также по экспоненциальной зависимости, но с другим коэффициентом затухания.
По экспериментальным данным, давление ударной волны в радиусе 1 м от центра разряда составляет 3,56 МПа, а на расстоянии 1,2 м - 1,82 МПа. Это свидетельствует о высоком коэффициенте затухания ударной волны в грунтовых условиях и более высоких давлениях на границе раздела сред.
По данным Г.Н. Гаврилова, при энергии в 20-40 кДж достигается уплотнение грунта на 10-15 % в радиусе до 0,8 м.
Динамический режим пульсации требует учета характеристик грунта, которые определяются путем бурения контрольных скважин с целью определения залегания различных по физико-механическим и реологическим характеристикам грунтовых слоев. Эти данные позволяют осуществлять электрогидравлическую обработку с переменным режимом (энергии) воздействия. Компьютерное управление процессами позволяет получать сваи с заданной несущей способностью.
Технологическая последовательность операций при изготовлении свай состоит в: установке инвентарного кондуктора; бурении скважины и монтаже обсадной трубы; заполнении скважины мелкозернистой литой бетонной смесью подвижностью П5; установке электродной системы в забой скважины и обработке пяты сваи; импульсной обработке ствола сваи по расчетному режиму с дополнением бетонной смеси; погружении арматурного каркаса; демонтаже инвентарного кондуктора; формировании оголовка сваи.
На рис. 6.22 приведена технологическая схема устройства свай.

Рис. 6.22. Технологическая схема устройства свай по
разрядно-импульсной технологии
1 - буровой станок; 2 - трансформаторная подстанция; 3 -
генератор импульсного тока; 4 - металлическая труба для размещения
системы подачи напряжения; 5, 6 - разрядник; 7 -
кондуктор; Dn - диаметр уширения пяты; Dу - диаметр уширения по
высоте сваи; d1
- диаметр скважины; s1 - s1 - сопротивление слоев грунта сжатию
При производстве работ необходимо определить так называемый отказ, т.е. такое камуфлетное уширение, при котором последующее разрядно-импульсное воздействие не приводит к уширению полости сваи.
Это условие контролируется понижением и стабилизацией уровня бетонной смеси.
Особое место в производстве работ отводится процессу уширения «пяты», что в целом определяет несущую способность сваи.
Методика определения несущей способности свай производится согласно нормативному документу СНиП 2.02.03-85 «Свайные фундаменты».
При расчете свайных фундаментов по предельным состояниям первой группы требуется выполнить расчет по несущей способности грунта основания свай (п. 3.1 СНиП 2.02.03-85).
Несущую способность грунтов основания одиночной сваи в составе фундамента и вне его рассчитывают исходя из условия (п. 3.10 СНиП 2.02.03-85): PCB=Fd/gK, PCB - расчетная нагрузка, передаваемая на сваю; Fd - расчетная несущая способность грунта основания одиночной сваи (несущая способность сваи); gK - коэффициент надежности, принимаемый в соответствии с требованиями СНиП 2.02.03-85.
Несущая способность висячей сваи определяется по зависимости Fd = gс×(gCR×R×A + uSgcf××fi×li), gс =1 - коэффициент условий работы сваи; gс = 1,3 - коэффициент условий работы грунта под нижним концом сваи (принимается как для сваи с камуфлетным уширением); gcf - коэффициент условий работы грунта на боковой поверхности сваи (при разрядно-импульсной обработке i-го горизонта принимается gcf = 1,3); R - расчетное сопротивление грунта под нижним концом сваи (кПа).
Серия электрических разрядов в зоне скважины образует уширения, которые заполняются бетонной смесью под действием гидростатического давления.
Понижение уровня бетонной смеси равно: Dh = hнач - hкон.
Расход бетона на заполнение полости равен: Vб = pd2c/4Dh, где dc - диаметр скважины, м.
Приравняв объем полости к
расходу бетона, требуемого на ее заполнение, получим диаметр условной полости,
равный ![]()
Из теории камуфлетных взрывов
известно, что отношение величины зоны уплотнения к радиусу образуемой полости
не зависит от масштаба взрыва и находится в пределах 3,0-3,5: Dу = (3,0 - 3,5)Dn, Dу - диаметр зоны
уплотнения, м; Dn - диаметр условной полости, м. F - площадь опирания сваи, принимаемая равной
площади поперечного сечения уширения, получаемая в результате обработки ее забоя
по разрядно-импульсной технологии, составляет F = pD2у/4, где Dу - наибольший
диаметр, м, разрядно-импульсного уширения; определяется по зависимости
где gб = 0,9 - коэффициент, учитывающий потери бетонной смеси и уменьшение
объема смеси в формируемом уширении за счет фильтрации воды из растворной части
в окружающий грунт; h = Dh/dc - коэффициент, учитывающий отношение изменения уровня бетонной смеси к
диаметру скважины; иi - периметр поперечного сечения ствола сваи на
i-м горизонте, м: иi = DDу, м; sгр - расчетное
сопротивление i-го
слоя грунта на боковой поверхности сваи, кПа (тс/м2), принимается по
СНиП 2.02.03-85; hi - толщина i-го
слоя грунта, соприкасающегося с боковой поверхностью сваи, м.
Технология усиления фундаментов сваями по разрядно-импульсной технологии
Технологические схемы усиления фундаментов с применением наклонных свай РИТА осуществляются с выполнением работ как со стороны подвального помещения, так и по наружному периметру зданий. Устройство свай производится с наклоном в пределах 5-20° от вертикали. При удовлетворительном состоянии кладки электроимпульсное уплотнение осуществляется за пределами подошвы фундаментов.
Значительное повышение несущей способности достигается путем возведения распределительных железобетонных балок, располагаемых в поперечном сечении, с последующим устройством выносных буроинъекционных свай симметрично оси ленточных фундаментов (рис. 6.23).

Рис. 6.23. Усиление ленточных фундаментов сваями РИТА
а - с внешней стороны бесподвального фундамента; б - двустороннее усиление; в -
передача нагрузки на сваи через распределительные балки
Для усиления фундаментов сваями энергия пульсации должна составлять 20-50 кДж с частотой подачи до 60 имп/мин.
Количество свай на 1 мп фундаментов определяется из условия их несущей способности с учетом дополнительных нагрузок от надстраиваемых этажей. Шаг размещения свай оптимизируется не только с техническим, но и с экономическим обоснованием.
Для более полной оценки несущей способности свай производят оценку структуры грунтов, их глубины залегания и физико-механических характеристик. Эти данные получают путем зондирования. Они необходимы для назначения технологических параметров электроимпульсной обработки и компьютерного контроля качества работ.
Для уточнения фактических параметров несущей способности производят испытания контрольных свай, устраиваемых в зоне производства работ. Это обстоятельство позволяет свести до минимума риск снижения их несущей способности с расчетными параметрами.
Технологический эффект от использования электроимпульсной технологии иллюстрируется данными контрольных испытаний буроинъекционных свай без опрессовки, с опрессовкой под давлением 0,4 МПа и свай с электроимпульсным уплотнением (рис. 6.24).

Рис. 6.24. Сопоставительный анализ буроинъекционных свай без опрессовки (1), с опрессовкой под давлением 0,4 МПа (2) и свай с электроимпульсным уплотнением (3), (4)
Двух-трехкратное повышение несущей способности и снижение осадок зарегистрированы для сложных инженерно-геологических условий при реконструкции объектов различного технологического назначения.
Восстановление несущей способности ленточных фундаментов
Технология восстановления несущей способности ленточных фундаментов по разрядно-импульсной технологии состоит в их цементации путем бурения скважин на 2/3 глубины фундамента с последующим заполнением цементным раствором. Разрядно-импульсное устройство мощностью до 4,0 кВ погружается в скважины и производится серия импульсов с последовательным подъемом разрядника и дополнением смеси в скважину. В момент прохождения импульсов создается избыточное гидродинамическое давление, которое способствует заполнению разрушенных швов и отдельных полостей ленточных фундаментов.
Для восстановления бутовой или кирпичной кладки фундаментов энергия электрического разряда принимается в пределах 0,3-1,5 кДж, а частота подачи импульсов 10-150 в минуту. Для цементации зоны «фундамент-грунт» энергия электрического разряда повышается до 5-15 кДж. Воздействие разрядными импульсами производят до полного насыщения цементным раствором кладки, которое визуально оценивается, например, со стороны подвальной части.
На рис. 6.25 приведена принципиальная схема восстановления и усиления фундаментов по данной технологии. Она осуществляется с внешней и внутренней сторон фундамента с шагом размещения скважин 0,5-0,8 м. Образование скважин с внутренней стороны осуществляется легкими бурильными установками, размещаемыми на подвальном перекрытии.

Рис. 6.25. Технологические схемы восстановления и усиления
фундаментов цементацией с использованием разрядно-импульсной технологии
а - схемы насыщения цементным раствором швов кладки; б -
технологическая последовательность производства работ; в - зоны действия цементации; 1
- фундамент из
бутовой кладки; 2 - скважина
диаметром 30-40 мм; 3 - зоны
проникновения цементного раствора в кладку; 4 - возможное укрепление основания цементацией
Для восстановления несущей способности фундаментов разрабатываются проект производства работ и технологические карты. С учетом степени износа фундаментов назначаются технологические режимы цементации: энергия электрического разряда, частота пульсации, шаг скважин и продолжительность динамического воздействия.
Для оценки технологической эффективности и качества работ осуществляют контрольную отрывку шурфов по периметру здания, визуальную и инструментальную оценки степени заполнения швов цементным раствором, а также монолитности фундаментов в целом.
По результатам обследований составляют акт на скрытые работы.
Для более детальной оценки несущей способности фундаментов производят отбор кернов и их испытания в лабораторных условиях.
Достаточно эффективной является технология усиления фундаментов с применением свай в раскатанных скважинах. Скважины, выполненные такими снарядами, имеют повышенную устойчивость стенок и более высокую их плотность.
Раскатка скважин с целью уплотнения стенок грунта, прилегающих к скважине, осуществляется с применением специальных раскатчиков, которые представляют собой цельнометаллическую сварную или литую конструкцию, состоящую из смещенных и развернутых на определенный угол относительно друг друга цилиндров и усеченных корпусов. Они могут выполняться также из подвижных элементов, посаженных на общем валу, оси вращения которых смещены относительно продольной оси, что позволяет получить спиралевидную поверхность (рис. 6.26).

Рис. 6.26. Схемы рабочих органов раскатчиков скважин
а - цельнометаллический со смещением цилиндров и усеченных конусов; б
- с подвижными
катками и взаимным смещением на 90-120°; в - с катками сложной
геометрической формы; 1 - приводной вал; 2 - расшатывающие катки;
3 - диски; 4 - спиралевидная траектория раскатки; 5 - стены скважины; I -
зона сочленения с приводным валом; II - зона, формирующая стенки
скважины; III -
элементы раскатки скважины; IV - конусообразная
часть раскатчика
При внедрении рабочего органа в грунт и вращении его под давлением достигается уплотнение области грунта вокруг раскатчика, что способствует повышению несущей способности свай. Раскатка скважин - непрерывный процесс образования цилиндрическо-конической полости в грунте путем его уплотнения. Длина и диаметр (глубина) скважин принимаются в зависимости от инженерно-геологических условий. Для усиления фундаментов целесообразно использовать раскатчики скважин диаметром 200-300 мм при длине скважин до 4 м.
Они могут располагаться вертикально и наклонно. При устройстве свай в плотных грунтах возможно использование лидирующей скважины.
В зависимости от нагрузок и воздействий сваи армируются отдельными стержнями, каркасами или жесткой арматурой. Бетонирование производится бетоном класса не ниже В15 с уплотнением глубинными вибраторами.
В качестве базовых машин для раскатчиков используются отечественные экскаваторы на пневмоходу ЕК-12 и ТО-49. Гидравлическая система сочленения раскатчика со стрелой обеспечивает высокую мобильность системы и возможность устройства скважин под различным углом наклона (рис. 6.27).
Основные технические характеристики на базе ТО-49 и ЭК-12 показаны в таблице 6.7.
Таблица 6.7
|
№ п.п. |
Характеристика |
ТО-49 |
ЕК-12 |
|
1 |
Диаметр раскатчика, мм |
До 250 |
До 300 |
|
2 |
Глубина раскатки скважин, м |
До 8 |
До 8 |
|
3 |
Расположение скважин в пространстве |
Вертикальное и наклонное ±30° к вертикали |
Вертикальное наклонное, горизонтальное |
|
4 |
Ширина захватки для раскатки скважин с одной стоянки, м |
До 2,7 |
До 15 |

Рис. 6.27. Общий вид установки для раскатки скважин на базе экскаватора ТО-49
Отличительной особенностью технологии является возможность уплотнения прослоек слабых грунтов за счет дополнительного втапливания щебня, шлака и др. сыпучего материала. Это обеспечивает значительное повышение несущей способности за счет вовлечения в работу свай объема уплотненного грунта.
Инженерно-технологические изыскания проектирования и устройства свай должны содержать подробные сведения о состоянии, видах и физико-механических характеристиках грунтов под подошвой фундамента, наличии прослойки слабых, просадочных, насыпных, а также грунтов с повышенной влажностью. Материалы инженерно-геологических изысканий рекомендуется уточнять дополнительными исследованиями с шагом по глубине через 0,2 м с использованием установок статического зондирования.
Несущая способность свай
оценивается как висячих с учетом расчетного сопротивления слоев грунта,
соприкасающихся с боковой поверхностью. Методика расчета потока забивным сваям
дана в соответствии со СНиП 2.02.03-85:
где и - периметр цилиндрической
сваи, м; hi - толщина i-го
слоя грунта основания по боковой поверхности цилиндрической и конической частей
сваи; fi -
расчетное сопротивление i-го слоя грунта основания по боковой поверхности цилиндрической и
конической частей сваи; Ei - модуль деформации i-го слоя; xr, Ki - коэффициенты, учитывающие расположение и
физико-механические свойства грунта; ip - наклон боковой поверхности конической
части сваи.
Для усиления фундаментов внутренних стен, а также при работе в подвальной части зданий используется малогабаритная установка УРС-150, которая обеспечивает производство работ в стесненных условиях. Диаметр раскаточных скважин составляет 150 мм. Использование стандартных буровых штанг длиной 1,8-2,0 м позволяет получать скважины глубиной до 4,5 м.
При проектировании усиления фундаментов определяются расчетным путем диаметр, длина и размещение свай в плане. Технологическая эффективность такого метода усиления повышается при объединении тела фундамента со сваями путем устройства монолитного железобетонного ростверка.
Преимущества данной технологии состоят в улучшении физико-механических характеристик грунтов основания; обеспечении примерно равной несущей способности свай в плане фундаментов за счет повышения однородности грунтов околосвайного пространства; отсутствии вибрационных воздействий; возможности производства работ в эксплуатируемых и аварийных зданиях.
Расположение свай в плане фундамента должно учитывать необходимость устранения просадочных свойств грунта межсвайного пространства.
Производство работ
На рис. 6.28 приведены варианты технологических схем усиления фундаментов короткими сваями, расположенными под различным углом к вертикальной оси фундамента. Для реализации процессов усиления требуется отрывка траншей по периметру фундаментов, которая осуществляется участками длиной 6-10 м. Затем производится устройство раскаточных скважин с расчетным шагом размещения (1,0-1,5 м) и заданной глубиной.

Рис. 6.28. Технологическая схема усиления фундаментов с
применением свай в раскаточных скважинах
а, б - на уровне
залегания подошвы фундамента; в,
г - путем устройства вертикальных свай и ростверка; д -
наклонными сваями без отрывки фундамента; 1 - приямок; 2 -
ограждение приямка; 3 - железобетонная свая; 4 - ростверк; 5 - фундамент реконструируемого
здания; 6 - штраба;
7 - зона уплотненного грунта; 8 - засыпка щебнем с уплотнением
При наличии слабых прослоек фунта повышение их плотности достигается путем заполнения щебнем, шлаком и др. сыпучими материалами, которые втапливаются в стенки скважин.
Песчаные грунты с низкой влажностью перед устройством скважины увлажняются.
При работе с водонасыщенными грунтами особое внимание уделяется сохранению устойчивости скважин.
Процесс устройства свай состоит в армировании скважин и укладке бетонной смеси. Как правило, бетонная смесь приготавливается на объекте. Для этого используются передвижная бетономешалка и сухие расфасованные смеси. Подача бетона производится из бункера или с помощью лотков. Необходимо обязательное вибрационное уплотнение глубинными вибраторами.
Более трудоемким является процесс усиления фундаментов внутренних стен. Стесненные условия производства работ требуют значительного объема подготовительных работ, дополнительных трудозатрат по доставке материалов, перемещения установки для раскатывания скважин и др.
Наиболее технологичным является усиление фундаментов наружных стен путем устройства вертикальных скважин. Для передачи нагрузки в местах примыкания сваи к фундаменту устраивается штраба, которая служит элементом ростверка. Такое решение позволяет снизить объемы земляных работ и существенно интенсифицировать основные технологические процессы.
По окончании работ по устройству ростверка на захватке и набора прочности бетоном восстанавливается гидроизоляция и производится обратная засыпка пазух с послойным вибрационным уплотнением грунта.
Оценка уровня трудозатрат и технологичности производства работ показывает, что наиболее эффективными являются технологические схемы, исключающие или снижающие до минимума объемы земляных работ.
Использование коротких свай в раскатанных скважинах обеспечивает снижение расхода бетона и металла в 1,5-1,8 раза и трудоемкости работ до трех раз.
Наибольшая технологическая эффективность достигается для возведения свайных фундаментов под пристройки объемов (эркеров, лоджий, лифтовых шахт) при реконструкции малоэтажных жилых зданий.
Использование в качестве раскатчика скважин экскаваторов позволяет совмещать производство земляных и свайных работ.
Контроль качества работ осуществляется в период раскатки скважин. Допускается отклонение сваи от проектного положения не более 0,1 диаметра сваи. При наличии слабых грунтов в верхней зоне раскатка скважин ведется в два этапа: с укреплением грунтов в начальной фазе и последующим прохождением раскатчика до проектной отметки.
Оценка несущей способности свай осуществляется по материалам контрольных испытаний свай, которые устраиваются в непосредственной близости к усиляемому фундаменту.
В процессе производства работ ведется журнал, в котором отражаются технологические режимы, характеристики используемых материалов и нестандартные ситуации.
В стесненных условиях производства работ, когда невозможно использовать буровую технику, применяются технологии устройства многосекционных свай методом вдавливания.
Для производства работ используются гидродомкраты и короткие пустотелые элементы железобетонных или металлических свай, которые наращиваются по мере погружения. Для создания необходимого усилия вдавливания используют распределительные балки при двухстороннем расположении свай и железобетонный ростверк, устраиваемый в нишах фундамента при одностороннем расположении.
По окончании погружения полость заполняется мелкозернистой бетонной смесью, чем достигается монолитность.
Одностороннее размещение свай используется в случаях, когда кроме повышения несущей способности фундамента необходимо произвести углубление подвальной части.
При одностороннем расположении свай со стороны подвальной части используются комплект механизмов для разборки кладки при устройстве ниш, опалубочные системы для возведения ростверка, бетононасосный транспорт. Стесненность условий производства требует высокой квалификации рабочих, соблюдения технологических регламентов и применения техники безопасности.
При значительном углублении подвальной части зданий технологические схемы производства работ включают (рис. 6.29): подготовку участка фундамента под усиление и устройство железобетонного ростверка на уровне существующей отметки подвальной части, который служит опорной частью для размещения гидравлических домкратов для погружения элементов механических свай; монтаж домкратов и вдавливание элементов свай в грунт на проектную отметку; армирование и омоноличивание участка фундамента, в результате чего образуется стена подвальной части требуемого заглубления; разработку грунта, устройство бетонной подготовки, гидроизоляции и монолитного железобетонного пола подвала.

Рис. 6.29. Схема усиления фундаментов многосекционными
сваями с двусторонним (а) и
односторонним размещением (б)
1 - фундамент; 2 - стена; 3 - распределительная
балка; 4 – гидравлический домкрат; 5 - короткие пустотелые
элементы; 6 - железобетонная опорная плита, размещаемая в теле
фундамента; 7 - гидравлическая насосная станция
Производство работ осуществляется по захваткам 4,5-6,0 м, что исключает дополнительные осадки старых фундаментов и связанное с этим процессом нарушение сплошности кладки.
Другим вариантом усиления фундаментов и углубления подвальной части является технология устройства набивных свай, размещаемых на консольной части железобетонного ростверка, размещаемого в теле существующего фундамента (рис. 6.30).

Рис. 6.30. Технология усиления фундаментов и заглубления
подвальных частей зданий
а, б - погружение
свай; а', б' - омоноличивание
и углубление подвальной части; 1 - железобетонный опорный элемент; 2 - гидравлический домкрат; 3
- инвентарная
опалубка; 4 - элементы
свай; 5 - штраба в фундаменте; 6 - монолитный участок
Железобетонный ростверк выполняется с отверстиями, которые служат направляющими для размещения гидравлической системы вдавливания труб.
После погружения труб на проектную отметку осуществляются их дополнительное армирование и бетонирование.
Совместная работа старого фундамента и усиления в виде свай позволяют углубить подвальную часть на требуемую отметку, объединить сваи в единый ростверк, создав дополнительную стену подвала.
Рассмотренные технологии требуют большого объема ручного труда по устройству штраб, ростверка, консолей. Процесс погружения свай осуществляется из отдельных коротких элементов, что исключает применение механизированных способов ведения работ.
Наиболее распространенной технологией является подведение под существующие фундаменты отделанных столбчатых элементов (рис. 6.31), располагаемых в шахматном порядке, на глубину до 0,5 м ниже новой отметки пола подвала, с последующим их объединением в общий массив. Технология производства работ предусматривает отрывку грунта под подошвой фундамента короткими захватками длиной 1,2-1,5 м с устройством инвентарной опалубки в плоскости существующего фундамента и укладкой бетонной смеси.

Рис. 6.31. Углубление подвальных частей зданий путем
подведения монолитных элементов фундаментов
1 - существующий фундамент; 2 - монолитная часть фундамента; 3 - опалубка; 4 -
вибратор; 1-10 -
технологическая последовательность подведения фундаментов
Углубление фундамента осуществляется с интервалом в несколько захваток, что исключает дополнительную осадку.
После набора прочности бетоном не менее 50 % проектной осуществляются разработка грунта в прилегающих зонах и подведение промежуточных монолитных элементов фундамента.
Стесненные условия производства работ исключают использование механизированных средств отрывки грунта, что делает данную технологию весьма трудоемкой.
Способы и технологии усиления или восстановления несущей способности фундаментов определяются уровнем реконструктивных работ, а также методами создания новых архитектурно-планировочных решений. При критическом износе внутренних стен и перекрытий возникает необходимость усиления фундаментов с изменением расчетной схемы. В таких случаях экономически целесообразно принять комбинированную систему фундаментов: фундаменты для самонесущих стен и монолитная железобетонная плита для встроенных конструктивных элементов. Передача нагрузки на монолитную плиту снимает ограничения по высоте и количеству надстроенных этажей. При этом в зависимости от состояния фундаментов наружных стен не исключаются их восстановление, усиление и укрепление основания подошвы рассмотренными ранее методами и технологиями.
Устройство монолитной фундаментной плиты предусматривает полный демонтаж конструктивных элементов внутри коробки здания, подготовку основания, устройств для объединения фундаментов стен с плитой с целью перераспределения нагрузок.
На рис. 6.32 приведены некоторые конструктивные решения, способствующие созданию устойчивых, малодеформативных систем, объединяющих фундаменты стен с монолитной фундаментной плитой. Они основаны на использовании анкерных устройств в виде металлических консолей в фундаментных стенах, которые затем объединяются с армокаркасами плит и замоноличиваются.

Рис. 6.32. Конструктивные решения сопряжений фундаментов
наружных стен с монолитной фундаментной плитой
а - с размещением анкеров в стене фундамента; б - то же, под
подошвой фундамента; в - с подведением монолитной плиты под стену
фундамента; г - с размещением анкеров в стене фундамента и
омоноличиванием с фундаментной плитой: 1 - фундамент наружных стен; 2
- сквозные отверстия в фундаменте; 3 - металлический анкер из
прокатной стали; 4 - монолитная железобетонная плита; 5 -
бетонная подготовка; 6 - уплотненный грунт; 7 - гидроизоляция
В каждом конкретном случае техническое решение может отличаться как конструктивной схемой, так и технологией производства работ. Наиболее простым вариантом является устройство в основании фундамента штрабы глубиной 0,3-0,5 толщины стены с последующим подведением монолитной армированной плиты. При этом арматурный каркас должен входить в штрабу, тем самым объединяя конструктивные элементы фундамента стены и монолитной плиты.
В местах размещения внутренних стен устраиваются дополнительные ленточные углубления с проектным армированием и омоноличиванием совместно с основным телом плиты (рис. 6.32). При устройстве фундаментов под колонны над поверхностью плиты устраиваются сборные или монолитные стаканы.
При достаточно больших нагрузках на общий фундамент возможно устройство свайного основания из буронабивных свай с последующим объединением их оголовков с монолитной плитой. Такие решения, как показал опыт реконструктивных работ, экономически целесообразны и весьма технологичны. По сравнению с методами, основанными на увеличении или восстановлении несущей способности старых фундаментов, себестоимость работ снижается на 30-40 %, в то же время резко сокращается продолжительность работ вследствие возможности использования высокоэффективных машин и механизмов.
На рис. 6.33 и 6.34 в качестве примера приведены конструктивно-технологические схемы устройства монолитной плиты фундамента реконструируемого здания. Наличие большого фронта работ и отсутствие стесненности позволяют применять поточные методы производства работ и высокопроизводительное оборудование. Так, при подготовке основания используются самоходные вибротрамбующие плиты. Армирование осуществляется армокаркасами заводской готовности. Подача и укладка бетонной смеси - автобетононасосами производительностью 20-40 м3/ч или с помощью бадьи и башенного крана. Большие размеры захваток обеспечивают нормальный фронт работ и возможность использования современных техники и технологии.

Рис. 6.33. Варианты переустройства ленточных фундаментов в
плитные
а - устройство
сплошной плиты снизу подушек; б -
то же, сплошной плиты с балками на шпонках; 1 - фундамент; 2
- монолитная плита; 3 - отметка
верха пола подвала; 4 - рабочая
арматура плиты; 5 - кирпичная плита; 6 - штрабы; 7 -
подготовка под монолитную плиту; 8 - гидроизоляция

Рис. 6.34. Технологические схемы укладки бетонной смеси в
монолитные плиты фундаментов
а - с подачей бетононасосным транспортом; б - то же, башенным краном; 1
- бетоновоз; 2 - автобетононасос; 3 - распределительная стрела; 4
- бетонная плита; 5 - бадья; 6 - башенный кран
Анализ трудоемкости работ по усилению фундаментов показывает, что в зависимости от конструктивного решения принятой технологии и производства работ этот показатель может колебаться в достаточно широких пределах (от 1,2 до 12 чел.-дн/м3). В таблице 6.8 приведены статистические данные трудоемкости выполнения работ различных методов усиления фундаментов.
Таблица 6.8
|
№ п.п. |
Методы усиления фундаментов |
Трудоемкость работ на 1 м3 фундамента (чел.-дн/м3) |
|
1 |
Бетонными обоймами |
3,0-5,0: |
|
2 |
Железобетонными обоймами |
3,5-6,6 |
|
3 |
Методом токретирования |
2,4-5,0 |
|
4 |
Уширение фундаментов с использованием металлических связей |
1,8-5,6 |
|
5 |
Свайным основанием |
4,6-10,8 |
|
6 |
Короткими сваями в раскатанных скважинах |
1,2-2,6 |
|
7 |
Сваями с электроимпульсным уплотнением бетона (РИТА) |
2,0-2,4 |
|
8 |
Корневидными сваями |
5,0-12,0 |
|
9 |
Восстановление фундаментов с устройством монолитной плиты |
2,8-4,6 |
|
10 |
Замена фундаментов |
7,0-18,0 |
Несмотря на значительный разброс трудоемкости производства работ, на каждом объекте возможно применение только определенного метода усиления, который учитывает конкретные условия. При возможности использования технология усиления с помощью свай в раскатанных скважинах является наиболее эффективной и экономичной. Ее отличительной особенностью является возможность уплотнения прослоек слабых фунтов за счет дополнительного втапливания щебня, шлака и другого сыпучего материала. Это обеспечивает значительное повышение несущей способности за счет вовлечения в работу свай объема уплотненного грунта.
Применением коротких (до 4 м) набивных свай в раскатанных скважинах достигаются снижение расхода бетона и металла в 1,5-1,8 раза и трудоемкости производства работ до 3 раз. Другим преимуществом данной технологии является возможность устройства фундаментов в насыпных грунтах, что характерно при устройстве пристроенных объемов реконструируемых зданий, находящихся в зоне обратной засыпки.
Для восприятия возросших нагрузок от надстраиваемых этажей эффективно использование буровых свай с электроимпульсным уплотнением (сваи РИТА). Достаточно адаптированная технология к стесненным условиям производства работ может найти массовое применение для восстановления и повышения несущей способности фундаментов жилых зданий различных периодов постройки.
Технологический эффект может быть существенно повышен при сочетании технологии раскатанных скважин и разрядно-импульсной.
При всем разнообразии технологий следует отметить, что методы усиления фундаментов, основанные на их вскрытии, требуют специальных мер по предотвращению нарушения сложившейся структуры грунта в уровне подошвы от воздействия атмосферных осадков и других техногенных процессов. Как правило, это приводит к дополнительным трудовым и материальным затратам и, в ряде случаев, способствует снижению их надежности.
При реконструкции зданий особое внимание должно уделяться процессам восстановления горизонтальной, вертикальной гидроизоляции и водонепроницаемости стен и подвальных помещений. Значение этих работ трудно переоценить, так как нарушение функционирования приводит к постоянной миграции атмосферных осадков и грунтовых вод по поверхностям стен и фундаментам. Скорость миграции как процесса влагопоглощения зависит от состояния конструктивных элементов, их материала, технического состояния, а также уровня воздействий. Например, нарушение горизонтальной гидроизоляции приводит к постоянному увлажнению наружных и внутренних стен, появлению различного рода высолов, потере физико-механических характеристик штукатурных слоев, снижению адгезии с кирпичной кладкой и их разрушению. Постоянное увлажнение несущих конструкций при расположении в зоне отрицательных температурных воздействий способствует постепенным разрушениям, приводящим к потере несущей способности.
Восстановление горизонтальной гидроизоляции
Восстановление горизонтальной гидроизоляции является весьма ответственным и трудоемким процессом. В большинстве случаев многооперационные процессы восстановления горизонтальной гидроизоляции проводятся в стесненных условиях, требуют больших затрат ручного труда, мало механизированы.
Анализ отечественного и зарубежного опыта показывает, что наряду с традиционными и трудозатратными методами ведения работ осваиваются более прогрессивные, обеспечивающие достаточную степень надежности и долговечности, а использование высокоэффективного и производительного ручного инструмента позволяет снизить до минимума трудоемкость работ. Особое место при этом отводится нетрадиционным способам устройства гидроизоляции, что является результатом внедрения достижений научно-технического прогресса в область технологии реконструктивных работ.
Наиболее прогрессивным и технологически эффективным следует считать метод установки жесткой гидроизоляции с использованием вибрационной технологии. Она основана на разрушении материала шва кирпичной кладки или стыка панелей под действием высокочастотной вибрации или виброударных воздействий. При этом вибрационное или виброударное воздействие передается через гофрированную пластину, которая после разрушения материала оставляется в разрабатываемой полости и служит жесткой гидроизоляцией.
На рис. 6.35 приведена технологическая схема производства работ. Оборудованием для ведения работ служит вибрационный агрегат с частотой колебаний 200 Гц и амплитудой 0,1-0,3 мм. Использование горизонтально направленных гармонических колебаний обеспечивает эффективное разрушение материала шва и проникновение пластины. После прохождения 3/4-4/5 глубины резания осуществляется ручная добивка гофрированной пластины до проектного положения. Установка очередной пластины осуществляется последовательно за предыдущей с обязательным взаимным перекрытием не менее чем на 2 паза.

Рис. 6.35. Вибрационная технология устройства жесткой
горизонтальной гидроизоляции
а - технологическая схема; б - схема размещения элементов жесткой гидроизоляции в
плане: 1 - горизонтальный элемент гидроизоляции; 2 - вибратор
направленного действия; 3 - струбцина для крепления с элементами
изоляции; 4 - тележка; 5 - кирпичная стена; в - зоны
перекрытия элементов жесткой гидроизоляции; г - технологическая
эффективность разрушения шва в зависимости от режимов колебаний: 1 -
частота 50 Гц, амплитуда 0,5 мм; 2 - то же, 200 Гц; 3 -
виброударный режим с частотой 20 Гц
Горизонтально направленная вибрация создает условия виброударного взаимодействия погружаемой пластины и материала шва. Такие режимы существенно повышают технологический эффект, увеличивая скорость погружения пластин.
С целью однородного воздействия на обрабатываемый материал пластина по всей ширине закрепляется с источником колебаний с помощью струбцин, а виброагрегат снабжается виброизолированными рукоятками. При общей массе виброагрегата 6-8 кг обеспечивается ручная работа по устройству жесткой гидроизоляции.
Для обеспечения требуемой долговечности материал жесткой гидроизоляции выполняется из оцинкованной стали толщиной 1,0-1,2 мм или из алюминиевого сплава. Ширина полос составляет 0,4-0,6 м при длине, равной толщине изолируемой стены.
В зависимости от физико-механических характеристик материала шва скорость погружения может колебаться в достаточно широких пределах.
На процесс разрушения материала шва существенное влияние оказывают профиль рабочего органа, а также интенсивность вибрационного воздействия. В первом случае гофрированный профиль обеспечивает необходимую жесткость системы, а ее периодический профиль - более интенсивное разрушение материала.
Исследования процесса вибрационного разрушения показали, что эффективность виброударных режимов существенно выше, чем гармонических колебаний. В общем случае интенсивность колебаний оценивается соотношением J = а2f3, где а - амплитуда колебаний, f - частота. Из соотношения следует, что повышение частоты приводит к более высокой интенсивности по сравнению с амплитудой. Поэтому использование вибраторов дебалансного типа с частотой колебаний 200 Гц приводит к достаточно высокой интенсивности при относительно низкой амплитуде колебаний.
Виброударный режим в отличие от гармонических колебаний несет более высокую энергию при более низкой частоте колебаний. Так, при частоте 25-30 Гц и амплитуде колебаний 0,5-0,8 мм эффективность разрушения материала более высокая, чем при гармонических колебаниях с частотой 50, 100 и 200 Гц и амплитудой колебания соответственно 1,0; 0,6; 0,3 мм.
Интенсивность колебаний при виброударных режимах может быть оценена зависимостью более сложного вида.
Увеличение прочностных характеристик раствора приводит к некоторому снижению скорости разрушения. Эта зависимость близка к линейной. Установлена некоторая пропорциональность скорости разрушения от механических характеристик растворной части.
Создание эффективного камнерезательного оборудования позволило перенести достижения в этой области на реконструктивные работы. В частности, фирмой Cedima выпускается резательное оборудование в виде дисковых и цепных алмазных пил, обеспечивающих сухую резку железобетонных и каменных конструкций с глубиной реза до 800 мм. Использование алмазного инструмента позволяет существенно интенсифицировать процессы и повысить производительность труда.
Так, ручная алмазная пила 823Н имеет массу рабочего органа 4,6 кг, гидравлический привод с маслостанцией HAG-11 мощностью 7,5 кВт с набором гидрошлангов длиной до 10 м. Она обеспечивает образование прорезей в кирпичной кладке, железобетоне и других материалах с радиусом действия до 10 м. Компактное решение гидропривода на пневмоходу обеспечивает его размещение в зоне производства работ.
Отличительной особенностью данного оборудования является отсутствие недопустимых вибраций и шума.
Для выполнения небольшого объема работ возможно использование гидравлической ручной цепной пилы JCS-823H с глубиной резания до 450 мм в бетоне, кирпичной кладке и других материалах.
Этот способ заключается в выбуривании горизонтальных отверстий диаметром 20-25 мм на глубину 0,8-0,9 толщины стены по одной горизонтальной линии на уровне гидроизоляционного слоя с расстоянием 0,6-0,7 м. Затем в образовавшиеся цилиндрические полости устанавливаются инъекторы, в которые нагнетаются кремнийорганические соединения типа ГКЖ-10 или ГКЖ-11. Обладая высокой проницаемостью и малой вязкостью, кремнийорганические соединения распространяются по периметру инъекционных трубок в радиусе 0,5-0,6 м.
Отверстия под инъектором после окончания цикла нагнетания тампонируются. Расстояние между инъекторами принимается таким образом, чтобы зоны инъецирования пересекались не менее 1/3 диаметра. Этот параметр, как правило, принимается экспериментально и учитывает пористость материала кладки, состояние швов и отдельных камней.
Как правило, работы по восстановлению гидроизоляции осуществляются изнутри подвального помещения и только в редких случаях - со стороны фасадных поверхностей.
Способность кремнийорганических соединений вступать в реакцию с элементами кладки и образовывать плотные геле-вые структуры обеспечивает требуемый уровень гидроизоляции.
На рис. 6.36 приведена принципиальная схема производства работ. Она включает: разметку мест выбуривания полостей, выбуривание отверстий и нагнетание кремнийорганической композиции. Работу выполняют 3 человека: бурильщик IV разряда - 1, изолировщики III разряда - 1 и IV разряда - 1.

Рис. 6.36. Технологическая схема восстановления
горизонтальной гидроизоляции методом инъецирования кремнийорганических
соединений
1 - стена фундамента; 2 - отверстие для инъекций; 3 - зона
инъецирования; 4 - материальный шланг; 5 - гидронасос; 6 -
перфоратор; 7 - инъектор; 8 - зона разрушения гидроизоляции

Рис. 6.37. Схемы восстановления горизонтальной гидроизоляции
стен путем инъецирования изолирующего состава в швы кладки
а, б - общий вид
процесса гидроизоляции; в - принципиальная
схема: 1 - емкость
с изолирующим составом; 2 - трубопроводы; 3 - шов кладки с отверстием; 4
- зона насыщения
раствором
Контроль качества выполнения работ осуществляется визуально, по моменту появления инъецируемой среды на наружной поверхности кладки. При этом трудоемкость работ в 1,5-3 раза ниже, чем для случаев, рассмотренных выше.
При восстановлении горизонтальной гидроизоляции для фундаментов с малой степенью физического износа применяется более простая технология, основанная на создании кристаллизационного барьера путем инъекции высокопроникающих растворов щелочных кремнийорганических соединений типа метилсиликонатов калия с низкой плотностью - «вязкостью».
В результате взаимодействия химически активных кремнийорганических соединений с углекислым газом воздуха, а также с растворами солей и известью образуются кристаллы нерастворимых гидросиликатов. С течением времени происходит рост кристаллов, которые блокируют капилляры, поры и трещины в материале стен, а также создают внутренний гидрофобный барьер.
Благодаря пропиточной технологии введения раствора создается водонепроницаемый экран толщиной 30-40 см. Химический процесс завершится через 28-30 сут.
Средний расход раствора для кирпичной стены толщиной 52 см составляет 6-8 л на погонный метр в горизонтальном направлении.
Технология производства работ состоит в устройстве отверстий в швах кладки на 2/3 ее толщины, установке инъекторов и системы полимерных труб, отходящих от емкости с композиционным раствором.
Основными преимуществами данной технологии являются малая трудоемкость подготовительных работ, универсальность и высокая технологичность.
Процесс насыщения раствором контролируется по расходу используемого композита и времени, необходимого для кристаллизации новообразований.
Наиболее частыми являются повреждения вертикальной гидроизоляции с внешней стороны фундамента. Разрушение вертикальной гидроизоляции и высокий уровень грунтовых вод приводят к насыщению фундаментов водой, затоплению грунтовыми водами помещений и постепенному их разрушению.
Усиление или устройство новой наружной гидроизоляции выполняют в следующей последовательности.
Вдоль стен подвала отрывают траншею на глубину на 0,5 м выше подошвы фундамента. После этого для устройства изоляции нижнего пояса стены отрывают траншею отдельными участками длиной 2-3 м с интервалом 6-8 м. Лицевую сторону стены очищают и промывают поверхность. Затем наносят цементно-песчаный раствор.
Гидроизоляционный слой может быть устроен в зависимости от проектного решения из рулонных материалов, асфальтовых мастик, полимерных композиций, цементно-песчаного раствора.
При устройстве изоляции из рулонных материалов, в том числе полимерных пленок, по высушенной оштукатуренной поверхности производят огрунтовку с последующей наклейкой рулонного материала в несколько слоев.
Для исключения доступа грунтовых вод к изолируемой поверхности используется водо-понизительные установки, а после выполнения работ устраивается глиняный замок из жирной мягкой глины толщиной не менее 20 см. Затем производят обратную засыпку с послойным уплотнением.
На рис. 6.38 приведены некоторые технологические схемы процесса замены и восстановления вертикальной гидроизоляции подвальных стен и фундаментов здания.

Рис. 6.38. Технологическая схема процессов
восстановления вертикальной гидроизоляции
1 - изолируемые стены фундаментов; 2 - траншея; 3 -
комплект оборудования для торкретирования; 4 - комплект оборудования для
наклейки рулонной изоляции; 5 - обратная засыпка траншеи бульдозером с
послойным уплотнением; 6 - ограждение площадки; 7 - складирование
грунта; 8 - зона складирования материалов
Отрывка траншей с целью освобождения поверхности стены от грунта осуществляется экскаватором с вместимостью ковша 0,15-0,25 м3. Затем вручную осуществляется доработка грунта до основания фундамента. Поверхность стены и фундаментов очищается, промывается и высушивается.
Если проектом предусмотрена рулонная гидроизоляция, то поверхность стены и фундамента выравнивается штукатурным цементно-песчаным раствором, после затвердения которого производятся огрунтовка поверхности и наклейка 2-, 3-слойного гидроизоляционного ковра.
При устройстве гидроизоляции в виде торкрет-слоя последний устраивается после очистки и увлажнения поверхности. При этом 2-3 слоя торкрет-бетона наносятся сверху вниз с взаимным перекрытием слоев.
При наличии в проекте защиты гидроизоляционного слоя в виде кирпичной кладки или кладки из бетонных блоков этот процесс выполняется параллельно ведению работ по гидроизоляции.
Объект разбивается на приблизительно равные захватки, на каждой из которых ведется определенный вид работ.
После окончания гидроизоляционных работ осуществляются их приемка и оценка качества. Затем производят обратную засыпку с послойным уплотнением, восстановление отмостки и асфальтового покрытия.
Повышение водонепроницаемости заглубленных конструкций получило все большее развитие как принципиально новый метод, основанный на создании кристаллизационного барьера путем проникновения в капилляры, поры цементного камня, микротрещины в бетоне, кирпичной кладке насыщенных растворов, содержащих химические соединения. Образующиеся при контакте с минералами цемента на стенках пор и капилляров нитевидные игольчатые кристаллы создают плотные участки бетона, препятствующие водопроницаемости.
Основной принцип создания кристаллизационного барьера состоит в эффекте осмоса, когда растворимые химически активные добавки перемещаются от большей концентрации к меньшей, проникая вглубь капилляров, пустот и микротрещин. Внутрикапиллярное кристаллообразование уплотняет структуру бетона на большую глубину, вступает в реакцию с негидратиро-ванными цементными зернами, образуя повышенный объем геля.
При разработке составов для гидроизоляции пористых материалов (бетон, кирпич и др.) учитывается эффект снижения размеров за счет повышения их смачиваемости и проникновения композиции на большую глубину. Проникая в капилляры, они вступают в реакцию с компонентами бетона или кирпича, образуя химические связи с сохранением капилляров, диаметр которых соизмерим с молекулами воды. Такой механизм взаимодействия защищает конструкции из бетона или кирпича от проникновения влаги, сохраняя их воздухопроницаемость.
Для восстановления гидроизоляции используются составы зарубежных и отечественных разработок. Материалы, обеспечивающие формирование кристаллизационного барьера, производятся в Канаде, США, Бельгии и в основном предназначены для повышения водонепроницаемости бетона. Составы Клайпекс, Пенетрон, Кальматрон, Вендекс, Торасил позволяют повысить стойкость бетона не только по отношению к воде, но и к агрессивным средам. Глубина пропитки такими составами составляет до 100 мм и возрастает со временем. В С.-Петербурге освоена технология изготовления Кальматрона и налажено массовое производство, а Пенетрон различных модификаций производится в Екатеринбурге и др. городах России.
Результаты испытаний состава Клайпекс приведены на рис. 6.39, где показано, что сопротивление водопроницаемости со временем возрастает и достигает к 28-суточному сроку со дня обработки более 1,6 МПа. Уплотнение структуры бетона сопровождается повышением его долговечности. Получен эффект резкого повышения морозостойкости.

Рис. 6.39. Физико-механические характеристики водонепроницаемости (а) и морозостойкости (б) необработанных (1), обработанных концентратом Клайпекс (2) и Акватроном (3) бетонных конструкций
Отечественная разработка - состав Акватрон существенно превышает технологический эффект восстановления гидроизоляции эксплуатируемых конструкций и вновь возводимых. Он обладает двойным защитным действием: капиллярным - композиционный материал глубоко проникает в поры изолируемой поверхности и бронирующим - образует на поверхности плотный и высокопрочный защитный слой. Механизм повышения сопротивления водопроницаемости основан на реакции между компонентами Акватрона и гидроксидом кальция бетона. В результате химической реакции образуются нерастворимые кристаллы игольчатой формы, которые заполняют капилляры и трещины, вытесняя при этом воду. При эксплуатации действие Акватрона носит эстафетный характер. Как только возникает новый контакт с водой, возобновляется реакция и процесс уплотнения структуры материала развивается в глубину до 150 мм.
Такое проникновение внутрь материала обеспечивает водонепроницаемость до 20 МПа и повышение морозостойкости до F300 и более.
Применение гидроизоляционной смеси в качестве защитного покрытия увеличивает стойкость материала к растворам серной, азотной, ортофосфорной кислот, морской воде, обеспечивает непроницаемость по отношению к нефтепродуктам.
Серийно изготавливаются два состава гидроизоляционной смеси: Акватрон-6 и Акватрон-8.
Состав Акватрон-6 обладает периодом схватывания (твердения) 4-5 ч, а Акватрон-8 - 15-20 с. Быстродействие смеси успешно используется при наличии активных протечек.
В таблице 6.9 приведены основные показатели и свойства гидроизоляционных смесей.
Таблица 6.9
|
Наименование показателей |
Гидроизоляционная смесь |
|
|
|
Акватрон-6 |
Акватрон-8 |
|
Состав |
Цемент, песок, химические добавки |
|
|
Внешний вид |
Порошок серого цвета |
|
|
Область применения |
Обеспечение гидронепроницаемости бетона, кирпича |
Зачеканка активных протечек |
|
Растворитель для приготовления смеси |
Вода |
|
|
Водонепроницаемость |
W12 |
W5 |
|
Прочность на сжатие, МПа |
45 |
Не менее 6 |
|
Прочность на растяжение, МПа |
6,2 |
Не нормируется |
|
Глубина проникновения, мм |
150 |
Не нормируется |
|
Адгезия, МПа: к бетону к кирпичу: красному силикатному шамотному кислотостойкому |
1,0
1,2 0,8 1,8 1,75 |
Не нормируется |
|
Время твердения |
4-5 ч |
15-20 с |
|
Расход материала, кг/м2 |
0,8-5 |
В объеме шва зачеканки |
|
Морозостойкость |
F300 |
Не нормируется |
|
Влажность, % |
0,1 |
0,1 |
|
Температура эксплуатации, °С |
-60...+200 |
|
|
Время хранения, мес |
9 |
6 |
Наибольшее распространение получила технология, реализующая метод кристаллизационного барьера при помощи нанесения на изолируемую поверхность смеси портландцемента и мелкого кварцевого песка с набором химических добавок. Такая смесь затворяется водой и наносится на влажную поверхность с помощью кисти, щеток, малярных валиков или распылителей.
При значительном повреждении гидроизоляции заглубленных частей фундаментов и подвальных помещений нанесение композиционной смеси осуществляется методами набрызга или оштукатуривания.
Цементно-песчаная составляющая композиция служит матрицей, обеспечивающей распределение химических добавок по изолируемой поверхности. В то время как в цементно-песчаном растворе проходят процессы гидратации, на влажной изолируемой поверхности образуется высококонцентрированный раствор химических добавок, который проникает вглубь капилляров, пустот и микротрещин.
Средний расход состава Акватрон-6 - 1-3 кг/м2 изолируемой поверхности и зависит от состояния конструкции и гидростатического давления жидкости.
При высоком гидростатическом напоре (до 1,2 МПа) осуществляется нанесение состава в виде штукатурного покрытия толщиной 10-12 мм с расходом 5-9 кг/м2.
При значительном износе заглубленных конструкций технология восстановления гидроизоляционных свойств осуществляется путем нагнетания раствора в пробуренные скважины. Это обеспечивает более глубокое проникновение состава и восстановление не только гидроизоляционных, но и физико-механических характеристик материала.
Отличительной особенностью композиционных смесей Акватрон является высокая адгезия к бетону, кирпичу (керамическому, силикатному, шамотному), что существенно расширяет диапазон использования при восстановлении гидроизоляции реконструируемых заглубленных частей зданий и сооружений, а также при ликвидации дефектов возводимых конструкций.
Невысокая трудоемкость работ способствует снижению себестоимости, повышению долговечности и эксплуатационной надежности реконструируемых зданий.
При реконструкции жилых зданий со стенами из кирпичной кладки возникает необходимость восстановления несущей способности или усиления элементов кладки вследствие увеличения нагрузок от надстраиваемых этажей. При длительной эксплуатации зданий наблюдаются признаки разрушения простенков, столбов и кладки стен в результате неравномерных осадок фундаментов, атмосферных воздействий, протечек кровли и др.
Процесс восстановления несущей способности кладки следует начинать с исключения основных причин трещинообразования. Если этому процессу способствует неравномерная осадка здания, то следует исключить это явление известными и описанными ранее методами.
До принятия технических решений по усилению конструкций важно оценить фактическую прочность несущих элементов. Эта оценка выполняется методом разрушающих нагрузок, фактической прочности кирпича, раствора, а для армированной кладки - предела текучести стали. При этом необходимо наиболее полно учитывать факторы, снижающие несущую способность конструкций. К ним относятся трещины, локальные повреждения, отклонения кладки от вертикали, нарушение связей, опирания плит и т.п.
Что касается усиления кирпичной кладки, то накопленный опыт реконструкционных работ позволяет выделить ряд традиционных технологий, основанных на использовании: металлических и железобетонных обойм, каркасов; на инъецировании полимерцементных и других суспензий в тело кладки; на устройстве монолитных поясов по верхней части зданий (в случаях надстройки), предварительно напрягаемых стяжек и др. решений.
На рис. 6.40 приведены характерные конструктивно-технологические решения. Представленные системы направлены на всестороннее обжатие стен с использованием регулируемых натяжных систем. Они выполняются открытого и закрытого типов, при внешнем и внутреннем расположении, обеспечиваются антикоррозионной защитой.

Рис. 6.40. Конструктивно-технологические варианты
усиления кирпичных стен
а - схема усиления кирпичных стен здания металлическими тяжами; б, в, г - узлы
размещения металлических тяжей; д - схема размещения монолитного
железобетонного пояса; е - то же, тяжами с центрирующими элементами: 1
- металлический тяж; 2 - натяжная муфта: 3 - монолитный
железобетонный пояс; 4 - плита перекрытий; 5 - анкер; 6 - центрирующая рама; 7
- опорная пластинка с шарниром
Для создания требуемой степени натяжения используются стяжные муфты, доступ к которым должен быть всегда открыт. Они позволяют по мере удлинения тяжей в результате температурных и других деформаций производить дополнительное натяжение. Обжатие элементов кирпичных стен производится в местах наибольшей жесткости (углы, сопряжения наружных и внутренних стен) через распределительные пластины.
Для равномерного обжатия кладки стен используется специальная конструкция центрирующей рамы, которая имеет шарнирное опирание на опорно-распределительные пластины. Такое решение обеспечивает длительную эксплуатацию с достаточно высокой эффективностью.
Места расположения тяжей и центрирующих рам закрываются различного рода поясами и не нарушают общий вид фасадных поверхностей.
Для элементов стен, простенков, столбов, имеющих разрушения кирпичной кладки, но не потерявших устойчивость, производится местная замена кладки. При этом марка кирпича принимается на 1-2 единицы выше, чем существующая.
Технология производства работ предусматривает: устройство временных разгрузочных систем, воспринимающих нагрузку; разборку фрагментов нарушенной кирпичной кладки; устройство кладки. При этом необходимо учитывать, что удаление временных разгрузочных систем должно осуществляться после набора прочности кладки не менее 0,7RКЛ. Как правило, такие восстановительные работы ведутся при сохранении конструктивной схемы здания и фактических нагрузок.
Весьма эффективны приемы восстановления неоштукатуренной кирпичной кладки, когда требуется сохранить прежний вид фасадов. В этом случае очень тщательно подбираются кирпич по цветовой гамме и размерам, а также материал швов. После восстановления кладки производится пескоструйная очистка, что позволяет получать обновленные поверхности, где новые участки кладки не выделяются из основного массива.
В связи с тем что каменные конструкции воспринимают в основном сжимающие усилия, то наиболее эффективным способом их усиления является устройство стальных, железобетонных и армоцементных обойм. При этом кирпичная кладка в обойме работает в условиях всестороннего сжатия, когда поперечные деформации значительно уменьшаются и, как следствие, увеличивается сопротивление продольной силе.
Расчетное усилие в металлическом поясе определяется по зависимости N = 0,2RKJl×l×b, где RKJl - расчетное сопротивление кладки скалыванию, тс/м2; l - длина участка усиливаемой стены, м; b - толщина стены, м.
Для обеспечения нормальной работы кирпичных стен и предотвращения дальнейшего раскрытия трещин первоначальным этапом является восстановление несущей способности фундаментов методами усиления, исключающей появление неравномерных осадок.
На рис. 6.41 приведены наиболее распространенные варианты усиления каменных столбов и простенков стальными, железобетонными и армоцементными обоймами.

Рис.
6.41. Усиление столбов
стальной обоймой (а), армокаркасами (б), сетками и железобетонными обоймами (в, г)
1 - усиливаемая конструкция; 2 - элементы усиления;
3 - защитный
слой; 4 - щитовая опалубка с хомутами; 5 - инъектор; 6 -
материальный шланг
Стальная обойма состоит из продольных уголков на всю высоту усиливаемой конструкции и поперечных планок (хомутов) из плоской или круглой стали. Шаг хомутов принимается не более меньшего размера сечения, но не более 500 мм. Для включения обоймы в работу следует инъецировать зазоры между стальными элементами и кладкой. Монолитность конструкции достигается путем оштукатуривания высокопрочными цементно-песчаными растворами с добавкой пластификаторов, способствующих большей адгезии с кладкой и металлоконструкциями.
Для более эффективной защиты на стальную обойму устанавливается металлическая или полимерная сетка, по которой осуществляется нанесение раствора толщиной 25-30 мм. При незначительных объемах работ раствор наносится вручную с помощью штукатурного инструмента. Большие объемы работ выполняются механизированным путем с подачей материала растворонасосами. Для получения высокопрочного защитного слоя используются установки торкретирования и пнев-мобетонирования. Из-за высокой плотности защитного слоя и большой адгезии с элементами кладки достигается совместная работа конструкции и повышается ее несущая способность.
Устройство железобетонной рубашки осуществляется путем установки арматурных сеток по периметру усиливаемой конструкции с креплением ее через фиксаторы к кирпичной кладке. Крепление осуществляется путем использования анкеров или дюбелей. Железобетонная обойма выполняется из мелкозернистой бетонной смеси не ниже класса В10 с продольной арматурой классов А240-А400 и поперечной - А240. Шаг поперечной арматуры принимается не более 15 см. Толщина обоймы определяется расчетом и составляет 4-12 см. В зависимости от толщины обоймы существенно меняется технология производства работ. Для обойм толщиной до 4 см используются методы нанесения бетона торкретированием и пневмобетонированием. Окончательная отделка поверхностей достигается устройством штукатурного накрывочного слоя.
Для обойм толщиной до 12 см по периметру усиливаемой конструкции устанавливается инвентарная опалубка. В ее щитах устанавливаются инъекционные трубки, через которые мелкозернистая бетонная смесь нагнетается под давлением 0,2-0,6 МПа в полости. Для повышения адгезионных свойств и заполнения всего пространства бетонные смеси пластифицируются путем введения суперпластификаторов в объеме 1,0-1,2 % массы цемента. Снижение вязкости смеси и повышение ее проницаемости достигаются дополнительным воздействием высокочастотной вибрации путем контакта вибратора с опалубкой рубашки. Достаточно хороший эффект
дает импульсный режим подачи смеси, когда кратковременные воздействия повышенного давления обеспечивают более высокий градиент скоростей и высокую проницаемость.
На рис. 6.41,г приведена технологическая схема производства работ путем инъецирования железобетонной обоймы. Установка опалубки производится на всю высоту конструкции с обеспечением защитного слоя арматурного заполнения. Нагнетание бетона осуществляется по ярусам (3-4 яруса). Процесс окончания подачи бетона фиксируется по контрольным отверстиям с противоположной стороны от места нагнетания. Для ускоренного твердения бетона используются системы термоактивных опалубок, греющих проводов и другие приемы повышения температуры твердеющего бетона. Демонтаж опалубки осуществляется по ярусам при достижении бетоном распалубочной прочности. Режим твердения при t = 60 °С обеспечивает распалубочную прочность в течение 8-12 ч прогрева.
Железобетонные обоймы могут выполняться в виде элементов несъемной опалубки (рис. 6.42). При этом наружные поверхности могут иметь мелкий или глубокий рельеф или гладкую поверхность. После установки несъемной опалубки и крепления ее элементов обеспечивается замоноличивание пространства между усиливаемой и ограждающей конструкцией. Использование несъемной опалубки имеет значительный технологический эффект, так как отпадает необходимость в разборке опалубки, а главное - исключается отделочный цикл работ.

Рис. 6.42. Усиление столбов с использованием
опалубки-облицовки из архитектурного бетона
1 - усиливаемая конструкция; 2 - армокаркас; 3 -
элементы облицовки; 4 - бетон омоноличивания
Наиболее эффективными несъемными опалубками следует считать тонкостенные элементы (1,5-2 см), изготовленные из дисперсно-армированного бетона. Для вовлечения опалубки в работу она снабжается выступающими анкерами, существенно повышающими адгезию с укладываемым бетоном.
Устройство растворных обойм отличается от железобетонных толщиной наносимого слоя и составом. Как правило, для защиты арматурной сетки и обеспечения ее адгезии с кирпичной кладкой используются штукатурные цементно-песчаные растворы с добавкой пластификаторов, повышающих физико-механические характеристики. Технология строительных процессов практически не отличается от выполнения штукатурных работ.
Для обеспечения совместной работы элементов обоймы по ее длине, превышающей в 2 и более раз толщину, необходима установка дополнительных поперечных связей через сечение кладки. Усиление кирпичной кладки может быть произведено методом инъецирования. Оно осуществляется путем нагнетания через заранее пробуренные шпуры цементного или полимерцементного раствора. В результате достигается монолитность кладки и повышаются ее физико-механические характеристики.
К инъекционным растворам предъявляются достаточно жесткие требования. Они должны обладать малым водоотделением, низкой вязкостью, высокой адгезией и достаточными прочностными характеристиками. Раствор нагнетается под давлением до 0,6 МПа, что обеспечивает достаточно обширную зону проникновения. Параметры инъекции: расположение инъекторов, их глубина, давление, состав раствора в каждом конкретном случае подбираются индивидуально с учетом трещиноватости кладки, состояния швов и других показателей.
Прочность кладки, усиленной инъецированием, оценивается по СНиП II-22-81* «Каменные и армокаменные конструкции». В зависимости от характера дефектов и вида инъецированного раствора устанавливаются поправочные коэффициенты: тк = 1,1 - при наличии трещин от силовых воздействий и при использовании цементного и полимерцементного растворов; тк = 1,0 - при наличии одиночных трещин от неравномерных осадок или при нарушении связи между совместно работающими стенами; тк = 1,3 - при наличии трещин от силовых воздействий при инъекции полимерных растворов. Прочность растворов должна быть в пределах 15-25 МПа.
Усиление кирпичных перемычек достаточно распространенное явление, что связано со снижением несущей способности распорной кладки вследствие выветривания швов, нарушения адгезии и другими причинами.
На рис. 6.43 приведены конструктивные варианты усиления перемычек с использованием различного рода металлических накладок. Они устанавливаются путем пробивки штраб и отверстий в кирпичной кладке и в дальнейшем омоноличиваются цементно-песчаным раствором по сетке.

Рис. 6.43. Примеры усиления перемычек кирпичных стен
а, б - путем
подведения накладок из уголковой стали; в, г - дополнительными металлическими перемычками из
швеллера: 1 - кирпичная кладка; 2 - трещины; 3 - накладки
из уголков; 4 - полосовые накладки; 5 - анкерные болты; 6 - накладки из швеллера
Для перераспределения усилий на железобетонные перемычки вследствие увеличения нагрузок на перекрытия используются металлические разгрузочные пояса, выполненные из двух швеллеров и объединенные болтовыми соединениями.
Усиление и повышение устойчивости кирпичных стен. Технология усиления базируется на создании дополнительной железобетонной рубашки с одной или двух сторон стены (рис. 6.44). Технология производства работ включает процессы подготовки и очистки поверхности стен, сверления отверстий под анкеры, установки анкеров, крепления к анкерам арматурных стержней или сеток, омоноличивание. Как правило, при достаточно больших объемах работ используется механизированный метод нанесения цементно-песчаного раствора: пневмобетонированием или торкретированием и реже ручным способом. Затем для выравнивания поверхностей наносится затирочный слой и выполняются последующие операции, связанные с отделкой поверхностей стен.

Рис. 6.44. Усиление кирпичных стен армированием
а - отдельными стержнями арматуры; б - арматурными каркасами; в
- арматурной сеткой; г - железобетонными пилястрами: 1 -
усиливаемая стена; 2 - анкеры; 3 - арматура; 4 -
штукатурный или торкрет-бетонный слой; 5 - металлические тяжи; 6 - арматурная сетка; 7 -
армокаркас; 8 - бетон; 9 - опалубка
Эффективным приемом усиления кирпичных стен является устройство железобетонных одно- и двусторонних стоек в штрабах и пилястр.
Технология устройства двусторонних железобетонных стоек предусматривает образование штраб на глубину 5-6 см, высверливание сквозных отверстий по высоте стены, крепление с помощью тяжей арматурного каркаса и последующее омоноличивание образовавшейся полости. Для омоноличивания используют цементно-песчаные растворы с пластифицирующими добавками. Высокий эффект достигается при использовании растворов и мелкозернистых бетонов с предварительным домолом цемента, песка и суперпластификатора. Такие смеси кроме большой адгезии обладают свойством ускоренного твердения и высокими физико-механическими характеристиками.
При возведении односторонних железобетонных пилястр требуется устройство вертикальных штраб, в полости которых устанавливают анкерные устройства. К последним осуществляется крепление арматурного каркаса. После его размещения производится установка опалубки. Она выполняется из отдельных фанерных щитов, объединенных хомутами и прикрепляемых к стене с помощью анкеров. Мелкозернистая бетонная смесь нагнетается с помощью насосов поярусно через отверстия в опалубке. Подобная технология применяется при двустороннем устройстве пилястр с той разницей, что процесс крепления щитов опалубки осуществляется с помощью болтов, перекрывающих толщину стены.
Основной принцип усиления конструкций заключается во включении в работу дополнительных элементов, увеличивающих сечение и степень армирования, также и за счет изменения расчетной схемы путем введения дополнительных опор.
Усиление железобетонных колонн возможно производить различными методами. Ряд из них подобен способам усиления кирпичных столбов.
Широко используются способ устройства железобетонных и стальных обойм, метод усиления путем приварки металлических уголков к рабочей арматуре, установка предварительно напряженных хомутов, металлических обойм из уголка и листа, предварительно напряженного арматурного каркаса или хомутов.
На рис. 6.45 приведены некоторые варианты усиления колонн.

Рис. 6.45. Технологические схемы усиления железобетонных
колонн
а - стальными обоймами: 1 - колонна; 2 -
металлический лист; 3 - уголки; б - наращиванием железобетонных
обойм: 1 - железобетонная обойма с отверстием для нагнетания
цементно-песчаного раствора; 2 - растворная часть; 3 -
дополнительное армирование сеткой; 4 - патрубок; 5 -
насос-инъектор; в - усиление рабочей арматуры дополнительными стержнями
и обоймой из уголков: 1 - усиливаемая колонна; 2, 3 - рабочая и
наращиваемая арматура; 4, 5 -
уголки; г - усиление рабочей арматуры отдельными стержнями с последующим
омоноличиванием: 1 - колонна; 2 - рабочая арматура; 3, 4 - наращиваемая арматура; 5, 6 - опалубка; 7
- фиксаторы опалубки
При выполнении работ следует руководствоваться следующими положениями технологии строительных процессов.
При усилении методом наращивания сечения в виде железобетонных обойм следует произвести тщательную очистку поверхности колонн; выполнить насечку, обеспечивающую более высокое сцепление с новым бетоном; при нарушении защитного слоя очистить выступающую на поверхность арматуру, произвести антикоррозийную защиту; перед укладкой бетонной смеси поверхность колонн увлажнить.
При усилении с помощью металлических уголков и хомутов обязательным условием является плотное сопряжение усиливаемых элементов с поверхностью колонны. Для этой цели осуществляются удаление неровностей и шлифовка поверхности колонн.
Усиление методом наращивания к продольной арматуре дополнительных уголков требует очистки швов после выполнения сварочных работ и омоноличивания вскрытых полостей полимерными растворами. Использование напрягаемых хомутов требует применения инструмента, обеспечивающего равномерность натяжения до расчетных усилий. Залогом качественного выполнения технологических операций являются правильная организация пооперационного контроля и соблюдение технологического регламента.
Особый интерес представляет усиление колонн, примыкающих к наружным или внутренним стенам. Наиболее эффективной технологией остается устройство железобетонной рубашки. Такое решение принимается в случае, когда поверхность колонн сильно разрушена, имеют место отслоение защитного слоя бетона, высокая трещиноватость. Производство работ заключается в очистке поверхности колонны, устройстве насечки, установке дополнительного арматурного каркаса, монтаже опалубочных щитов и нагнетании бетонной смеси в полость. Как правило, перед нагнетанием мелкозернистой бетонной смеси производится обильное увлажнение поверхности колонн.
Нагнетание смеси производится известными установками с обязательным контролем качества работ. Особое внимание уделяется вибрационным воздействиям на щиты опалубки, что обеспечивает более равномерное распределение смеси и заполнение всех пустот и дефектов.
Возможно поярусное бетонирование усиливаемого слоя. В этом случае торцевой щит опалубки выполняется разъемным. После заполнения одного яруса бетонной смесью производят наращивание торцевого щита, и цикл повторяется. В процессе укладки необходимо тщательное уплотнение бетонной смеси глубинным вибрированием.
Достаточно высокий эффект омоноличивания достигается при использовании опалубки в виде вакуум-щитов. Это обстоятельство позволяет удалить значительное количество химически несвязанной воды, что приводит к повышению прочности бетона на 25-30 %. При этом сокращается цикл набора прочности и обеспечивается более ранняя распалубка конструкции.
При увеличении нагрузок на колонну, а также вследствие деструктивных процессов, протекающих в бетоне, повышение несущей способности достигается путем установки разгрузочных элементов в виде швеллеров, объединенных по периметру колонн хомутами.
Несмотря на простоту решения, метод усиления металлоемок и малопригоден в условиях реконструкции жилого фонда.
Для вовлечения в работу элементов стены используют наклонные напряженные хомуты, объединяющие колонну со стеной. Для этой цели на поверхности колонн устраивают штрабы, фиксирующие положение хомутов, а в кирпичной стене - наклонные сквозные отверстия. С помощью натяжных устройств обеспечиваются равномерное натяжение хомутов и вовлечение стены в совместную работу с колонной.
При высокой прочности стен такое решение позволяет усилить колонну. В то же время оно может выполнять и противоположную функцию - повысить устойчивость наружных стен. Это решение может быть успешно использовано при реконструкции старого жилого фонда с применением метода встроенных систем, когда имеет место снижение устойчивости кирпичной кладки стен.
Усиление балочных конструкций осуществляется, как правило, несколькими способами: наращиванием арматуры растянутой зоны; наращиванием балок снизу с увеличением степени армирования и высоты сечения; установкой железобетонных обойм; устройством шпренгельных систем; устройством затяжек по нижнему поясу балок.
Если по расчету требуется незначительное увеличение сечения арматуры растянутой зоны, то процесс усиления осуществляется следующим образом. С шагом 500-600 мм отбивают защитный слой бетона от боковых стержней, оголяют арматуру. Затем осуществляют приварку z-образных коротышей диаметром 20-40 мм, длиной до 200 мм. Далее приваривают дополнительные стержни продольной арматуры (рис. 6.46).

Рис. 6.46. Конструктивно-технологические схемы усиления
железобетонных балок
а - наращиванием арматуры растянутой зоны: 1 - усиливаемая
конструкция; 2 - наращиваемая зона; 3 - рабочая арматура; 4 - кронштейн для крепления дополнительной арматуры; 5-
наращиваемая арматура; б - наращивание арматуры растянутой зоны в виде
уголков: 1 - усиливаемая конструкция; 2 - рабочая арматура; 3 -
опорный уголок; 4 - дополнительное армирование; 5 - зона заделки
цементно-полимерным раствором; в - устройство затяжки по нижнему поясу: 1
- усиливаемая конструкция; 2 - дополнительная арматура; 3 -
коротыш; 4 - натяжное
устройство; г - дополнительное
армирование нижнего пояса: 1 - усиливаемая конструкция; 2 - арматура усиления; 3 -
полимерцементный раствор
После установки дополнительной арматуры осуществляется ее защита. Наиболее эффективной технологией является торкретирование. В то же время имеется ряд композиционных растворов, которые обладают хорошей адгезией со старым бетоном и арматурой и наносятся методом оштукатуривания.
Для более высокой степени усиления балочных конструкций используется для дополнительного армирования уголковая сталь, которая с помощью коротышей и сварных соединений фиксируется к крайним стержням арматуры.
Сколы бетона после выполнения всех операций заделываются цементно-песчаным раствором.
Усиление нижнего пояса отдельными стержнями осуществляется путем устройства затяжек, а также путем расположения дополнительных стержней в пазы с последующим омоноличиванием полимерцементными высокоадгезионными составами. Пазы образуют, используя специальный ручной инструмент с алмазным напылением.
Для зданий жилого фонда шпренгельное усиление балок используется чрезвычайно редко, так как требует периодического наблюдения за состоянием конструкции, а содержание без экранов и подвесных потолков нарушает интерьер помещений.
Усиление и восстановление несущей способности перекрытий являются наиболее распространенными задачами при реконструкции зданий.
По результатам обследований и оценки степени износа конструктивных элементов принимают решение о восстановлении, усилении несущей способности, частичной или полной замене перекрытий. Принятию решения предшествует технико-экономическая оценка вариантов.
Конструктивные решения перекрытий для зданий различного периода строительства весьма разнообразны. К наиболее распространенным следует отнести: каменные перекрытия по несущим металлическим балкам; монолитные балочные и безбалочные; сборные из сплошного и многопустотного настилов; сборные по балкам из штучных материалов и др. В перечисленные типы перекрытий не вошли деревянные, так как срок их эксплуатации и физический износ многократно превышают допустимые нормы.
Каменные перекрытия по металлическим балкам, как правило, выполнялись в подвальных этажах жилых зданий. Они представляют собой арочное перекрытие из кирпича по несущим металлическим балкам из двутавра или рельса. В зависимости от степени физического износа кирпичной кладки возможны следующие варианты усиления: установка затяжек для восприятия распора с частичным восстановлением кладки; устройство железобетонного наращивания сверху; устройство железобетонного наращивания снизу в виде арочной плиты; замена кирпичного арочного перекрытия на железобетонные.
Способы усиления монолитных перекрытий достаточно разнообразны и приведены на рис. 6.47. Основой усиления является увеличение степени армирования растянутой или сжатой зоны с одновременным наращиванием сечения.

Рис. 6.47. Конструктивно-технологические
схемы усиления монолитных перекрытий
а - путем наращивания
арматуры растянутой зоны и торкретирования поверхностей; б, в - устройством
дополнительного армирования плиты с наращиванием верхнего железобетонного слоя;
г - установкой звуко- и виброизоляционных плит и наращиванием верхнего
железобетонного слоя; 1 - железобетонное перекрытие; 2 - наращиваемая арматура; 3 -
дополнительный слой бетона; 4 -
штрабы; 5 - подвесная опалубка; 6 - шумо- и
виброзащитные плиты
Наиболее сложным и достаточно трудоемким является вариант усиления, основанный на установке дополнительных стержней арматуры в растянутой зоне. В этом случае с интервалом 60-120 см по длине вскрывается рабочая арматура на участках длиной 2-12 см, к которой с помощью Z-образных кронштейнов приваривается дополнительная арматура. Затем осуществляется торкретирование поверхности для обеспечения требуемой адгезии и защитного слоя.
Рассматриваемый способ целесообразно использовать, когда нижняя поверхность перекрытия имеет существенные дефекты в виде разрушения бетона, при утрате защитного слоя арматуры, высокой трещиноватости поверхности и в других случаях.
Перед выполнением работ по наращиванию дополнительной арматуры осуществляют очистку поверхности с помощью пескоструйных аппаратов, обеспечивающих также очистку арматуры от коррозии.
Процесс торкретирования осуществляется по известной технологии путем нанесения 3-4 слоев. Как правило, работы по торкретированию потолочных поверхностей весьма трудоемки, требуют использования специальных составов бетона и методов пооперационного контроля. Особое внимание при этом должно уделяться соблюдению режимов тепловлажностной обработки и уходу за поверхностью торкрет-слоев, чтобы не допустить высыхания.
Более простыми и эффективными являются методы, основанные на поверхностном наращивании железобетонных слоев, а также устройстве дополнительных балочных систем.
По данной технологии в плите перекрытия вырезаются сквозные продольные штрабы параллельно расположению рабочей арматуры. Затем устанавливаются подвесная опалубка, арматурный каркас, после чего производят укладку бетонной смеси. Одновременно производят работы по армированию наращиваемого поверхностного слоя. До укладки бетонной смеси необходимо выполнить работы по насечке бетонной поверхности, а перед непосредственной укладкой смеси - увлажнение.
Укладку смеси производят за один прием с использованием виброреек и маячных досок с соблюдением известного технологического регламента. Особое внимание уделяется вибрационной проработке густоармированной области штраб, где используются глубинные вибраторы с гибким валом. Предотвращение смещения арматуры от проектного положения должно обеспечиваться использованием фиксаторов. Более простым технологическим решением является усиление перекрытий путем наращивания слоя железобетона. В этой связи следует отметить, что для повышения адгезии старого бетона с вновь укладываемым целесообразно на предварительно очищенную поверхность осуществить наклейку полимерной или металлической сетки на бентонитовом растворе. Помимо высокой адгезии при этом исключается весьма трудоемкий и экологически неблагоприятный процесс устройства насечек на старой поверхности бетона. Процесс бетонирования производится через 6-8 ч после наклейки сетки.
На рис. 6.47, г приведена конструктивно-технологическая схема, направленная на повышение не только несущей способности перекрытия, но и на повышение его вибро-, шумоизолирующих свойств. В качестве изоляционного материала могут использоваться плитный пенополистирол толщиной 2-4 см, жесткие минераловатные плиты, прессованный картон и другие материалы. Они наклеиваются на заранее подготовленную поверхность перекрытия таким образом, чтобы оставалось свободное пространство для армирования и устройства ребра наращиваемого перекрытия. После выполнения работ по армированию производят подачу и укладку бетонной смеси одним из приемлемых способов.
Конструктивное решение такого метода усиления позволяет без дополнительного расхода бетона увеличить высоту сжатой зоны, тем самым повысив несущую способность перекрытия.
Технологические схемы производства работ по усилению перекрытий реконструируемого здания базируются на механизированных процессах транспортирования композиционных смесей к месту укладки. Кроме широко распространенного бетононасосного транспорта используются пневмонагнетатели, цемент-пушки, растворонасосы. Они обеспечивают шланговую подачу смесей на высоту до 30 м и до 200 м по горизонтали. Как правило, для сохранения стабильных физико-механических и технологических свойств смеси приготавливаются в сухом состоянии с заданными пропорциями. На строительную площадку они доставляются в упакованной таре, и достаточно внести указанное количество воды, чтобы получить требуемую консистенцию.
Отличительными особенностями использования транспортных средств для доставки композиционных смесей являются их высокая производительность (до 5 м3/ч), малочисленность обслуживающего персонала и надежность в работе. Эти обстоятельства позволяют довести выработку на одного рабочего в пределах 150-200 м2 в смену.
Усиление перекрытий из многопустотного настила осуществляется технологическими приемами, приведенными на рис. 6.48, путем верхнего наращивания слоя железобетона; установки дополнительной арматуры нижнего пояса и использования пустот. Последний вариант является наиболее эффективным, так как позволяет значительно увеличить несущую способность конструкции без заметного увеличения ее высоты при дополнительном армировании зоны пустот. Технология производства работ мало отличается от ранее рассмотренных и ведется традиционными приемами.

Рис. 6.48. Технологические схемы усиления перекрытий из
многопустотного настила
а - методом наращивания железобетонного поверхностного слоя: 1 -
многопустотная плита перекрытия; 2 - металлическая сетка; 3 - слой наращиваемого
бетона; б - дополнительным армированием нижнего пояса: 1 -
многопустотная плита перекрытия; 2 - дополнительная арматура, устанавливаемая в пазы; 3 -
омоноличивание арматуры; в,
г - путем армирования и бетонирования пустот: 1 -
многопустотная плита перекрытия; 2 - продольные и поперечные сетки; 3
- слой наращиваемого
бетона; 4 - арматура в виде двутавров; д, е - схемы дополнительного армирования зон опирания на
стены
Метод верхнего наращивания плит перекрытий железобетоном кроме увеличения несущей способности способствует образованию горизонтальных дисков жесткости, что в значительной степени приводит к повышению пространственной жесткости реконструируемых зданий.
Локальные приемы и технологии повышения монолитности перекрытий (рис. 6.49) могут быть достигнуты путем анкеровки железобетонных плит с наружными стенами, установкой анкерных связей в виде стержней и каркасов, устройством шпонок, монолитного обвязочного пояса, объединенного с плитами, и др. приемами.

Рис. 6.49. Конструктивно-технологические решения
включения в совместную работу железобетонных плит перекрытия
а - усиление анкеровки железобетонных плит; б - установка
анкерных связей в виде стержней; в - то же, армокаркасами; г -
устройство обвязочного монолитного пояса; д, е - устройство шпонок и железобетонного
наращивания
Совместная работа плит перекрытий позволяет перераспределить постоянные и временные нагрузки, снизить величину прогибов и исключить случаи нарушения сцепления материала шва между плитами.
Усиление конструкций композитными материалами из углеродных волокон
Данный метод является наиболее прогрессивным, менее трудоемким и более надежным. Его использование достаточно универсально, не вызывает дополнительных нагрузок.
Углеродные композитные материалы обладают высокой прочностью на растяжение, модулем линейной упругости, коррозийной стойкостью.
Они успешно используются при выполнении ремонтно-восстановительных работ с целью повышения несущей способности различных конструктивных элементов колонн, балок, плит перекрытий, выполненных из железобетона, металла, кирпича, дерева и др. материалов.
Разработаны три типа графитопластиковых лент с расчетным сопротивлением растяжению 2800, 2400 и 1300 МПа.
Ленты поставляются в бухтах с общей длиной до 250 м, шириной от 50 до 120 мм и толщиной 1,2-1,4 мм.
Основной способ усиления состоит в наклейке лент или полотнищ из углеродистых волокон на усиливаемые конструкции (рис. 6.50). В качестве клеящего материала используют специальные составы эпоксидных клеев, а также ремонтные растворы. Качество усиления конструктивных элементов зависит от подготовки основания и соблюдения технологического регламента.

Рис. 6.50. Усиление несущих конструкций композитными
материалами в виде лент из углеродистых волокон
а - колонн; 6 -
балок; в - плит перекрытий; г - графики набора прочности клея на
сжатие (I) и
растяжение (II); 1 - наклеиваемые ленты; 2 - защитные покрытия
Основание усиливаемой конструкции должно быть ровным, обезжиренным, обеспыленным и чистым. При наличии раковин и выколов основание шпатлюется ремонтным полимерным раствором.
Технология производства работ состоит в нанесении на подготовленную поверхность и ленту клеящего состава толщиной прослойки в пределах 3-5 мм. Затем осуществляется наклейка ленты с прижатием с помощью ролика таким образом, чтобы избыток клеящей массы был выдавлен за пределы кромок.
Усиление колонн цилиндрической или прямоугольной формы осуществляется наклейкой ленты с расположением по спирали с расчетным шагом, а также путем наклейки полотнищ по периметру колонн.
Балочные конструкции получают дополнительное усиление путем размещения лент в растянутой зоне, а для восприятия поперечных сил - по периметру. Плиты перекрытия могут усиливаться путем наклейки лент в продольном и поперечном направлениях. При усилении конструкций целесообразно осуществлять небольшую тепловую обработку составов. Это позволяет за 8-12 ч достигать требуемой адгезии с поверхностью усиливаемой конструкции.
Простота технологии наклейки, малая масса и коррозионная стойкость позволяют широко использовать данную технологию для усиления конструкций реконструируемых зданий при наличии дефектов, трещинообразования, а также при возросших нагрузках.
В большинстве случаев основной причиной проведения реконструкции жилых и гражданских зданий старой постройки является повышенный износ конструкций междуэтажных перекрытий, лестничных маршей и площадок. Замена таких конструктивных элементов не только является дорогостоящим и трудоемким видом работ, но и вносит значительные изменения в нагрузки на стеновые конструкции и фундаменты. Поэтому процессу принятия решения о материале и конструкции заменяемых перекрытий предшествуют расчеты несущей способности стен и фундаментов.
Повышение капитальности и огнестойкости реконструируемых зданий достигается путем замены перекрытий из сборных, монолитных и сборно-монолитных железобетонных элементов.
Анализ конструктивных решений при сборном варианте показывает, что серьезными препятствиями на пути осуществления общей технической политики в области проектирования реконструкции жилых зданий являются большая номенклатура конструкций и их высокая себестоимость.
Тенденции использования эффективных сборных конструкций шли по пути моделирования старых технологических схем перекрытий по деревянным или металлическим балкам с адаптацией их к железобетонным конструкциям. Это привело к их разнотипности, мелко-штучности и нетехнологичности как в процессе изготовления, так и монтажа.
При замене перекрытий целесообразно выделить несколько конструктивных решений, отличающихся более высокими индустриальностью и технологичностью. К ним следует отнести: использование балочных систем с заполнением пустотелыми керамическими или керамзитобетонными блоками; сборно-монолитные перекрытия по металлическим балкам с заполнением мелкоштучными плитами-вкладышами; сборно-монолитные перекрытия с применением несъемной опалубки из железобетонных плит-скорлуп, профнастила, пенополистирольных плит; монолитные балочные и безбалочные перекрытия; перекрытия из железобетонных плит многопустотного настила по металлическим балкам.
Область применения конструктивных решений зависит от степени износа несущих стен, изменившихся нагрузок и условий механизации технологических процессов.
При использовании средств механизации в виде подъемников, тельферов и кранов малой грузоподъемности широко применяются балочные системы с заполнением керамзитобетонными пустотелыми балками (рис. 7.1).

Рис. 7.1. Сборные и сборно-монолитные перекрытия
из мелкоразмерных блоков по балкам
а - сборное
перекрытие из керамических блоков по стальным балкам; б -
сборно-монолитное перекрытие из керамических блоков «Симплекс»; в -
сборное перекрытие по железобетонным тавровым балкам с заполнением керамзитобетонными
блоками; г - сборно-монолитное перекрытие системы Omnia (Великобритания): 1 -
балки; 2 - блоки и вкладыши; 3 - монолитный участок; 4 -
арматурный каркас; 5 - арматурная сетка; 6 - поддерживающие
балки; 7 - телескопические стойки
Основные нагрузки воспринимаются балками, которые располагаются с шагом, соответствующим ширине проемов, а их концы заделываются в несущие стены. Используются металлические балки в виде двутавров, таврового и прямоугольного сечений из преднапряженного железобетона или монолитные балки, образуемые пространством между продольными рядами блоков, устанавливаемых на временные поддерживающие балки и телескопические стойки.
После установки в проектное положение блоков их наружная поверхность омоноличивается легкобетонной смесью с предварительным сетчатым армированием.
Приведенные конструктивно-технологические решения позволяют получать перекрытия требуемой несущей способности и толщины с минимальным расходом материала. Они обладают достаточно высокими показателями по звукоизоляции за счет использования пустотных элементов и легкобетонных смесей.
Широкое распространение при замене перекрытий получила технология с использованием несъемной опалубки в виде профнастила по балкам и тонкостенных железобетонных плит с арматурными выпусками (рис. 7.2).

Рис. 7.2. Сборно-монолитные перекрытия в несъемной опалубке
а - с использованием металлических балок и профнастила: 1 -
стена; 2 - балка;
3 - подвесной
потолок; 4 - технологические
отверстия в стенке балки; 5 - монолитная железобетонная плита; 6
- профнастил; б -
с использованием железобетонной несъемной опалубки; 1 - стена; 2 - монолитный бетон; 3 -
несъемная опалубка; 4 - распределительные балки; 5 -
телескопические стойки
В Германии, Франции, Бельгии нашли распространение оставляемые опалубочные системы из пенополистерольных плит. Основными их преимуществами являются малый вес, достаточная прочность и невозгораемость. Малая масса элементов опалубки позволяет выполнить работы вручную, используя систему подмостей и распределительных стоек, исключающих деформации от свежеуплотненного бетона.
Оставляемая опалубка (Интербаусистем) предусматривает использование армоопалубочных плит на пролет. Они опираются на штрабы, а по длине устанавливаются распределительные стойки для исключения деформаций. После плотного сочленения панелей производится укладка бетонной смеси. Размер плит, степень их армирования и толщина укладываемого бетонного слоя рассчитываются индивидуально для каждого перекрытия с учетом пролета и нагрузок. Для повышения несущей способности верхняя зона перекрытия армируется дополнительной сеткой. Такое решение обеспечивает совместную работу плит несъемной опалубки.
При реконструкции зданий достаточно часто встречаются случаи, когда применение сборных и сборно-монолитных конструкций бывает нерационально. Так, для зданий, имеющих в плане сложную конфигурацию, применение сборных конструкций требует использования большого количества типоразмеров (при малом количестве деталей каждого типа), что сводит «на нет» саму идею повышения уровня индустриализации реконструктивных работ. То же самое происходит и при реконструкции зданий с разновеликими или неповторяющимися пролетами.
В подобных случаях наиболее рационально устройство монолитных железобетонных междуэтажных перекрытий. Они могут оказаться более эффективными в тех случаях, когда нет возможности установить на объектах реконструкции соответствующие грузоподъемные механизмы.
Монолитные перекрытия, нашедшие в настоящее время широкое применение при реконструктивных работах, применяются в зависимости от величины пролетов, состояния несущих стен и других элементов в различных конструктивно-технологических схемах (рис. 7.3). Они выполняются безбалочными, балочными, ребристыми или кессонного типа.

Рис. 7.3. Конструктивно-технологические
схемы монолитных перекрытий
а - монолитное безбалочное перекрытие; б - балочное монолитное
перекрытие; в - кессонное безбалочное; г - монолитное ребристое
перекрытие с пенополистирольными вкладышами; 1 - монолитная плита; 2 -
опалубка; 3 - поддерживающие элементы опалубки; 4 - балка; 5
- пенополистирольный вкладыш
Немаловажным фактором является возможность проведения реконструктивных работ с частичным отселением жильцов, когда, например, одна секция здания реконструируется, а все остальные находятся в эксплуатации.
Другим примером может служить вариант замены перекрытий нескольких первых этажей, когда при ранее выполняемой надстройке здания применены долговечные материалы, а конструкции находятся в хорошем состоянии.
Технология замены перекрытий предусматривает ведение работ по захваткам. В строительном процессе участвуют несколько технологических потоков: разборка перекрытий и демонтаж внутренних перегородок; устройство штраб и опорных элементов под балки; возведение опалубки перекрытия; армирование конструкций; подача, укладка и уплотнение бетонной смеси; уход за бетоном и его тепловая обработка до набора распалубочной прочности; демонтаж поддерживающих элементов стоек, прогонов, палубы.
В зависимости от конструктивно-технологических решений размер захваток может колебаться в широких пределах. При возведении перекрытий из мелкоштучных конструкций по балкам за захватку принимается часть секции, обслуживаемая грузоподъемным механизмом. При устройстве перекрытий в несъемной опалубке из профнастила размер захватки может достигать площади секции или этажа. Это связано с применением бетоноукладочного комплекса на базе бетононасосов. Их высокая производительность обеспечивает непрерывную укладку смеси на размер захватки в течение рабочей смены.
В общем плане размер захваток определяется уровнем механизации производства работ. При этом интенсивность работ обеспечивается количественным составом рабочих для создания ритмичного производства.
В таблице 7.1 приведен примерный график производства работ по устройству монолитного перекрытия с применением несъемной опалубки из профнастила. Секция жилого дома имеет 4 захватки, на которых с отставанием на две смены ведется комплекс строительно-монтажных работ поточным методом. Общая продолжительность работ составляет 8 рабочих дней.
Таблица 7.1
График производства работ при устройстве монолитного перекрытия по профнастилу

Весьма распространенным решением при замене перекрытий является устройство междуэтажных перекрытий из несущих сборных железобетонных балок разного сечения и различного рода вкладышей. По своим конструктивным решениям железобетонные балки подразделяются на несколько типов: балки цельного сечения (тавровые и прямоугольные с выпусками арматуры); балки составного сечения (швеллерные, Г-образные).
Балками таврового сечения перекрывают пролеты до 7 м. Эти балки изготавливаются преднапряженными на специальных длинных стендах с последующей разрезкой на требуемые размеры. Основным видом вкладышей в междуэтажных перекрытиях такой конструкции являются пустотелые железобетонные, керамзитобетонные и керамические блоки.
Недостатком данной технологии является необходимость частого расположения балок (через каждые 60-80 см), что влечет за собой потребность вырубки в несущих стенах проемов для их опирания.
В зависимости от принятой технологии и подъемно-транспортных механизмов производство работ осуществляется снизу вверх или сверху вниз. Преимуществом замены перекрытий начиная с верхнего этажа является возможность сохранения пространственной жесткости и геометрической неизменяемости несущих и ограждающих конструкций стен. При этом в качестве подъемно-транспортных средств используются приставные подъемники и консольные краны, которые обеспечивают подачу конструктивных элементов через оконные проемы.
Недостатком этой технологической схемы является то обстоятельство, что процессы замены перекрытий и демонтажа нижележащих конструкций должны производиться параллельно. Это требует дополнительных мер по технике безопасности и специальных мероприятий по исключению запыленности рабочих мест. Такое решение возможно при выполнении малых объемов работ в зданиях небольшой этажности.

Рис. 7.4. Технологическая схема замены перекрытий из
мелкоштучных блоков по железобетонным балкам
1 - подъем балок на этаж; 2 - подъем блоков системой Lift; 3 - подача бетонной смеси
автобетононасосом; 4 - распределительные стойки; 5 - подмости
На рис. 7.4 приведена организационно-технологическая схема производства работ по устройству междуэтажных перекрытий из пустотных вкладышей по железобетонным балкам с последующим омоноличиванием бетоном или пенобетоном.
Работа по замене перекрытий ведется по захваткам с применением башенного крана. До начала работ по устройству перекрытия должны быть выполнены: разборка, демонтаж и удаление элементов конструкций, пришедших в негодность; ремонт, перекладка или усиление несущих и ограждающих кирпичных стен; пробивка и заделка проемов в перекрываемом этаже в соответствии с проектом; подача на возведенное перекрытие нижележащего этажа материалов и изделий для послемонтажных работ.
Для укладки балок в стенах пробивают гнезда глубиной в 1,5 кирпича, высотой 4-5 рядов и шириной в 1 кирпич. По нижней грани гнезд, соответствующей проектной отметке, устраивается основание для опор балок. Оно может выполняться из бетонных подушек или цементно-песчаной стяжки. Монтируемую балку подают в наклонном положении, обеспечивающем заведение ее концов в опорные гнезда. При монтаже балок обязательно соблюдаются единый монтажный горизонт и фиксированное расстояние между осями балок. Последнее обеспечивается путем использования шаблонов.
После установки и выверки балок осуществляются их анкеровка к стене и заделка гнезд бетоном или кирпичом на цементно-песчаном растворе. При выполнении работ по установке балок используют монтажные подмости и инструмент для выверки в проектное положение. Затем производят укладку плит-вкладышей межбалочного заполнения, пустотелых блоков и других элементов, предусмотренных проектом.
Для обеспечения монолитности перекрытия на верхний слой блоков укладывается арматурная сетка и осуществляется бетонирование. Толщина укладываемого слоя не превышает 10 см. Используются высокопластичные и литые бетонные смеси, что позволяет с минимальным вибрационным воздействием получать достаточно высокую плотность бетона и горизонтальность поверхности. После приобретения бетоном прочности 1,5-2,0 МПа осуществляются его затирка и последующая шлифовка. Это позволяет получать поверхности, готовые к укладке чистых полов. Эффективно использование бетонов на легких заполнителях, а также пенобетона.
Последние достижения в области технологии приготовления и транспортирования пенобетона показывают, что использование мобильной установки обеспечивает приготовление и перекачивание смесей на высоту до 30 м и до 300 м по горизонтали. При этом возможно получать поризованные смеси различной плотности - от 300 до 1800 кг/м3 и прочностью от 0,5 до 20,0 МПа. Пенобетон плотностью 300-400 кг/м3 возможно использовать в виде изоляционного слоя при возведении перекрытий из железобетонных плит по металлическим или железобетонным балкам таврового сечения.
Организация работ по замене перекрытий предусматривает использование звена рабочих в количестве 5 человек: монтажники 4-го разряда - 1, 2-го разряда - 1, каменщики-бетонщики 4-го разряда - 2, такелажники 2-го разряда - 1.
Монтаж балок и заделку гнезд выполняет звено в полном составе, пробивку гнезд и подготовку опорных площадок производят каменщики 2-го и 4-го разрядов, укладку арматурной сетки и бетонной смеси - бетонщики (2 человека). При использовании высокопроизводительного бетононасосного транспорта или пенобетонной установки площадь захваток должна быть увеличена из условия сменной производительности механизмов подачи смеси. Поэтому размер захваток при бетонировании может достигать 400-500 м2, что соответствует площади одного или двух этажей.
При производстве работ необходимо соблюдать правила техники безопасности: запрещается хождение по уложенным плитам; для передвижения рабочих по балкам должны использоваться временные настилы из досок или щитов; запрещается перегружать балки сосредоточенными нагрузками от штабелей строительных материалов и деталей; не разрешается устанавливать монтажные столики или подмости на балки без дополнительного настила.
Оценка качества работ должна производиться пооперационно. Смещение осей балок и расстояния между ними должны отличаться от проектных размеров не более 15 мм.
Отклонение нижних горизонтальных поверхностей потолка на 1 м длины должно быть не более 2 мм и не более 10 мм на всю длину помещений или его части, ограниченной балками.
Замена перекрытий из крупноразмерных плит является наиболее индустриальным и высокопроизводительным методом ведения реконструктивных работ. При этом используют технологические схемы с опиранием консольных выпусков плит на стены, металлические балки или железобетонные ригели. В связи со значительным увеличением массы перекрытия такое решение допустимо при достаточной несущей способности стен и фундаментов.
Обязательным условием технологии и организации работ является наличие подъемно-транспортных механизмов - башенных, стрелковых или кранов на пневмоходу.
До начала монтажа перекрытий из многопустотных плит с консольными выпусками выполняется комплекс работ, включающий: разборку конструкций на захватке; монтаж перекрытий нижележащих этажей; ремонт и перекладку отдельных участков стен; пробивку и заделку проемов в перекрываемом этаже; подачу на смонтированное перекрытие материалов и изделий для послемонтажных работ.
Для укладки плит при двухпролетной схеме здания (рис. 7.5) пробиваются гнезда во внутренней продольной стене и борозды (штрабы) глубиной 0,5 кирпича в наружной или противоположной стене. Пробивку борозд и гнезд осуществляют с подмостей по предварительной разметке. На нижнюю поверхность гнезд и борозд укладывается цементно-песчаная подготовка, обеспечивающая единую отметку монтажного горизонта. В целях обеспечения устойчивости стен пробивку гнезд и борозд производят участками длиной, равной ширине 5-6 плит.

Рис. 7.5. Технология замены перекрытий из крупноразмерных
железобетонных плит
а - план участка
перекрытий из железобетонного пустотного настила; б - монтаж с подачей настила в
наклонном положении; в - монтаж
с поворотом настила в горизонтальной плоскости; I, II, III - этапы монтажа
Работы по монтажу плит перекрытий производят снизу вверх на участках, ограниченных капитальными стенами. Железобетонные плиты подают в наклонном положении, для чего используют четырехветвевой строп с различной длиной ветвей, обеспечивающий наклон в пределах 20-30°. Монтаж элементов осуществляется с инвентарных подмостей. Последние 2-3 плиты захватки монтируют с установленных плит.
После установки 4-5 плит производят их анкеровку, заделку гнезд и борозд кирпичной кладкой или цементно-песчаным раствором. Должное внимание уделяется устройству теплоизоляции торцов плит, опирающихся на наружные стены, с целью исключения мостиков холода. Швы между плитами заделываются цементно-песчаным раствором с уплотнением вибратором, оснащенным штырьевой насадкой.
На участках недоборов в промежутках между выпусками консолей плит производится омоноличивание. Для этой цели используют подвесную инвентарную опалубку, армирование сетками или каркасами и бетонирование подвижными смесями. Разборка опалубки производится после достижения 70 %-ной прочности бетона.
Основные требования к качеству работ включают: обеспечение плотного примыкания плит перекрытий; обязательное замоноличивание швов; разница в отметках опорных частей плит не должна превышать 4 мм, а в отметке верхней поверхности - 8 мм; отклонение от горизонтали (разность отметок опирания плит) не должно превышать 8 мм.
Особое внимание в производстве работ должно уделяться вопросам техники безопасности при пробивке гнезд и борозд, своевременному обнаружению деформаций стен, предотвращению потери их устойчивости. При подаче в монтажную зону плит перекрытия должны быть исключены раскачивание и удары о стены.
Замена перекрытий из крупноразмерных плит выполняется звеном в составе 5 человек, из них: монтажники конструкций 4-го разряда - 1, 2-го разряда - 1, каменщики 3-го разряда - 1, 2-го разряда - 1. В звено входит также такелажник 3-го разряда.
При частом расположении внутренних несущих стен используется технология замены перекрытий большеразмерными плитами по металлическим балкам.
На рис. 7.6 приведена организационно-технологическая схема производства работ по замене перекрытий. Из-за частого расположения поперечных стен, различного пролета требуется большое число типоразмеров плит и балок. Это требует использования башенного крана грузоподъемностью до 8 т для обеспечения монтажного процесса наиболее тяжелых и удаленных плит.

Рис. 7.6. Технологическая схема и план площадки по замене
перекрытий многопустотным настилом по металлическим балкам
1 - металлическая балка; 2 -
многопустотный настил; 3 - бетонная опорная площадка; 4 - штраба
омоноличенная
Снижение себестоимости работ из-за большой номенклатуры изделий достигается путем использования преднапряженных плит перекрытий, изготовляемых по экструзионной технологии безопалубочного формирования. Резательная технология позволяет получать практически любую номенклатуру изделий в соответствии с принятым планом перекрытия. При этом используются специальные захваты для беспетлевого монтажа плит.
Сборно-монолитные перекрытия с применением оставляемой опалубки являются наиболее эффективной технологией реконструктивных работ. Основным преимуществом таких систем является возможность получения высококачественных потолочных поверхностей.
На рис. 7.7 приведены организационно-технологические схемы возведения перекрытий с использованием железобетонной тонкостенной опалубки.

Рис. 7.7. Технология устройства сборно-монолитных перекрытий
в несъемной опалубке из железобетонных плит с выпусками арматуры (а) и
пенополистирольных плит (б) с
последующим омоноличиванием
1 - несъемная опалубка; 2 - ригели; 3 - телескопические
стойки; 4 - монолитный
бетон
При толщине железобетонной несъемной опалубки 4-6 см масса монтажных элементов (ширина 1,2-2 м, длина - 5,8 м) составляет соответственно 0,72 и 1,2 т, что обеспечивает организацию монтажного процесса путем использования башенного крана грузоподъемностью до 3 т.
Технологический процесс возведения перекрытий включает: устройство штраб по периметру или продольным сторонам стен глубиной 0,5 кирпича и высотой 1 - 1,5 кирпича; устройство единого монтажного горизонта путем выравнивания опорной поверхности цементно-песчаным раствором; установку распределительных балок на телескопических стойках и непосредственно монтаж элементов несъемной опалубки.
Установку элементов несъемной опалубки производят при работе крана «на себя», в наиболее удаленном пролете. Свободные концы панелей заводятся в полость штраб, затем осуществляется более плотное примыкание внутренней кромки панели к ранее установленной. Учитывая достаточно высокую гибкость панели, ее горизонтальность обеспечивается установкой 2-3 направляющих деревянных ригелей на телескопических стойках, снабженных винтовыми домкратами. Это обеспечивает проектное положение и точное совмещение потолочных плоскостей. Панели крепятся между собой распределительными стержнями арматуры или временными устройствами. В местах контакта панелей устанавливается дополнительное сетчатое армирование в 2-3 местах по длине пролета.
По окончании монтажа панелей осуществляется контроль их геометрического положения. Отклонения по горизонтали не должны превышать 3-4 мм на пролет. Перепад высот смежных потолочных поверхностей ± 1 мм. Выполнение этих требований осуществляется путем выверки панелей в проектное положение с помощью винтовых домкратов, устанавливаемых на распределительных балках.
Омоноличивание конструкций перекрытия производится по нескольким технологическим схемам. Если принята крановая подача бетонной смеси, то ее укладка производится по окончании работ на захватке. В случае использования бетононасосного транспорта захваткой может служить один этаж, что позволяет максимально использовать технические возможности бетононасоса.
Укладка бетонной смеси производится по очищенному основанию панелей несъемной опалубки. Перед укладкой смеси должно быть проведено обязательное увлажнение поверхности. Для укладки смеси используются переходные мостики и временные настилы для расположения рабочих. Обязательным требованием является вибрационная проработка смеси с использованием глубинных или поверхностных вибраторов (виброреек). Карта бетонирования рассчитывается в каждом случае в зависимости от конкретных условий и особенностей планировочных решений. Подача смеси начинается с наиболее удаленной точки. Бетонирование производится на проектную толщину. При этом особое внимание уделяется получению горизонтальных поверхностей, для чего используют систему маяков и маячных досок. После набора прочности бетоном 1,5-2,0 МПа осуществляют затирку и шлифовку поверхности бетонного покрытия. До начала бетонирования производят работы по прокладке электропроводки, канализационных труб и др. элементов.
После набора прочности бетоном 30-40 % проектной осуществляется освобождение панелей от поддерживающих элементов.
Работы выполняет звено в составе 4 человек: монтажники 4-го разряда - 1, 3-го разряда - 1; бетонщики-арматурщики 4-го разряда - 1, 2-го разряда - 1. При подаче смеси бадьями в звено включается такелажник 2-го разряда - 1, а при подаче бетононасосным транспортом - машинист и оператор 5-го разряда.
Применение виброреек позволяет получать горизонтальные поверхности с достаточно высокой вибрационной проработкой смеси. Это обстоятельство способствует повышению адгезии укладываемого слоя с бетоном несъемной опалубки и арматуры.
Особый интерес представляет возможность использования монолитного слоя из пенобетона. Обладая значительной пористостью и достаточно высокой прочностью, он способен существенно повысить звукоизоляционные характеристики перекрытий.
Для указанных целей целесообразно использование пенобетона плотностью 900-1000 кг/м3 при прочности на сжатие 10-12 МПа. При использовании несъемной опалубки с более высокими физико-механическими характеристиками плотность пенобетона может быть понижена до 600-800 кг/м3, что заметно влияет на снижение виброакустических характеристик перекрытия. Подача пенобетона осуществляется трубопроводным транспортом при цикличном или непрерывном его приготовлении.
Отечественной промышленностью выпускаются прицепные мобильные установки производительностью 5-8 м3/ч. При средней толщине монолитного слоя 10-12 см часовая производительность установки позволяет забетонировать 50-60 м2 перекрытия.
Эффект бетонирования повышается при использовании пенобетона с температурой на выходе 30-40 °С. При этом цикл твердения существенно ускоряется. Через 10-12 ч выдерживания пенобетон набирает до 50 % прочности, что достаточно для дальнейшего ведения реконструктивных работ. Регулирование температуры пенобетона достигается за счет подогрева воды до 80-90 °С.
Комплексный технологический процесс возведения монолитных конструкций включает: подготовительные работы по устройству штраб; устройство опалубки перекрытия с использованием наиболее эффективных опалубочных систем; армирование отдельными стержнями или арматурными каркасами; подачу и укладку бетонной смеси средствами механизации; ускоренное твердение бетона с применением различных энергоэффективных методов воздействия; уход за бетоном; демонтаж опалубки; контроль качества производства работ, в том числе режимов тепловой обработки; оценку интенсивности набора прочности и времени распалубочных работ инструментальными методами.
Эффективность технологии достигается во взаимосвязи указанных процессов, обеспечивающих ритмичную работу по захваткам и высокую оборачиваемость опалубки. При этом определяющим фактором интенсивности является процесс набора прочности бетоном.
В качестве опалубок могут быть использованы: опалубочные системы конструкции Алума-Системс (Канада); Пашал (ФРГ), Утинорд (Франция), Ишебек (ФРГ), Пери, ЦНИИ-ОМТП (РФ) и др.
Основными принципами формирования опалубливаемой поверхности являются: устройство поддерживающих элементов в виде телескопических стоек и фиксаторов, пространственных рам из стоек; размещение ригельной системы, воспринимающей нагрузки; устройство палубы из отдельных унифицированных щитов или листов водостойкой фанеры.
На рис. 7.8 приведены конструктивные схемы наиболее распространенных и адаптированных к условиям реконструктивных работ опалубочных систем. Общим элементом систем являются телескопические поддерживающие стойки или рамы. Они снабжены различными элементами, обеспечивающими установку поддерживающих балок или щитов опалубки на данном уровне.

Рис. 7.8. Конструктивно-технологические схемы устройства
монолитных безбалочных перекрытий с использованием различных опалубочных систем
a - опалубка перекрытия системы Ишебек: 1
- телескопические стойки; 2 -
системы балок и подвижных ригелей; 3 - палуба из листов фанеры; 4 - армирование; 5
- бетон; б - опалубка
системы Алума-Системс; в - опалубка системы Пери: 1 -
телескопические стойки; 2 - опорные балки; 3 - прогоны; 4 -
палуба из фанеры; 5 - монолитный железобетон; 6 - виброрейка; г
- опалубка системы
Утинор: 1 - телескопические стойки с оголовником; 2 - инвентарные
опалубочные щиты; 3 - железобетонное перекрытие; 4 - доборные элементы опалубки
Конструкция стоек такова, что она позволяет, изменяя высоту, производить распалубку с сохранением устойчивости всей системы. Ригели и балки, воспринимающие непосредственно нагрузки от бетона, выполняются с возможностью размещения палубы из многослойной водостойкой фанеры с гвоздевым креплением. Это обстоятельство позволяет успешно выполнять работы по устройству перекрытий сложной геометрической формы.
Применение инвентарных щитов с палубой из фанеры также весьма эффективно, однако требует дополнительных затрат на устройство доборных элементов. Такие системы могут быть успешно использованы при реконструкции зданий прямоугольной формы.
Наиболее приемлемой для целей реконструкции и технологичной следует считать систему опалубки Ишебек. Ее отличительным признаком является создание балочной системы, опирающейся на телескопические стойки, между которыми располагаются прогоны с изменяемым расстоянием между опорами. Такое решение позволяет за счет изменения шага прогонов возводить перекрытия различной толщины, а также успешно использовать палубу в виде фанерных щитов. Механическая система крепления балок к опорным стойкам существенно упрощает процесс сборки и распалубки. Комплекс технических новшеств позволяет повысить технологичность системы и довести трудоемкость монтажа опалубки до 0,2-0,28 чел.-ч на 1 м2 перекрытия.
В целом трудоемкость опалубочных работ зависит от многих факторов: материала опалубки, конструктивного решения, уровня собираемости и точности сохранения геометрической формы, массы отдельных элементов и степени подготовленности инженерно-технического состава и квалификации рабочего персонала.
Анализ трудозатрат на устройство 1 м2 опалубки перекрытий для различных систем показал, что при ручной установке этот показатель колеблется от 0,3 до 1,2 чел.-ч/м2. Наиболее технологичными следует считать опалубочные системы Пашал, Алума-Системс, Пери, у которых трудоемкость возведения опалубки не превышает 0,3 чел.-ч/м2, а масса элементов опалубки составляет 24-17 кг/м2. За счет использования фанерной палубы вместо отдельных щитов трудозатраты могут быть снижены до 0,2-0,22 чел.-ч/м2.
С целью снижения удельной массы опалубочных щитов и поддерживающих элементов используются легкие сплавы из алюминия, а также титана. Это обстоятельство позволяет вручную осуществлять сборку, что делает процессы малозависимыми от кранового оборудования. Таким образом, интенсивность ведения опалубочных работ можно повысить путем увеличения численности рабочих.
Технология производства работ по устройству безбалочных перекрытий ведется по захваткам. Обязательным конструктивным условием является устройство штраб по периметру стен при опирании плит по контуру или при опирании по двум сторонам. Эта технологическая операция выполняется традиционным способом с использованием приставных подмостей и ручного механизированного инструмента. Затем производится цикл опалубочных работ.
При ручной установке опалубочной системы предварительно на перекрытие нижележащего этажа подается с помощью крана комплект опалубки в соответствии с расстановкой опорных стоек, раскладкой прогонов, балок, щитов или фанерных листов палубы. Выполнение опалубочных работ сопровождается геодезическим контролем уровней и отметок, контролем качества сборки щитов, оценкой устойчивости стоек и опалубочной системы в целом.
После окончания работ на захватке осуществляют армирование плиты. Как правило, эти работы выполняют из отдельных стержней с ручной вязкой и установкой фиксаторов, обеспечивающих получение заданного защитного слоя. Это обстоятельство позволяет высвободить крановое время на другие операции и обеспечивает заданный цикл работ путем регулирования численности рабочих.
Цикл бетонирования осуществляется с подачей смеси краном или бетононасосным транспортом. Принятие той или иной схемы зависит от объема одновременно укладываемой смеси. Цикл укладки бетонной смеси сопровождается обязательным вибрационным уплотнением, затиркой поверхности и ее шлифовкой.
Фактором, определяющим цикл бетонных работ, является процесс набора прочности бетоном. Для перекрытий распалубочная прочность должна составлять 70 % проектной.
Современные технологии термообработки бетонных смесей в совокупности с использованием химических добавок позволяют достигать указанные пределы прочности за 24-36 ч. На основании данных параметров процесса набора прочности осуществляется выбор потребного количества опалубочных систем с учетом поточного производства работ. Как правило, используются комплекты опалубки на две захватки. На одной осуществляются бетонирование, выдержка и тепловая обработка, а на второй - монтаж и арматурные работы. Распалубливаемые конструкции опалубочной системы очищаются, при необходимости восстанавливаются и поступают на монтаж третьей захватки. Таким образом, осуществляется поточное производство работ по возведению перекрытий.
На рис. 7.9 приведена организационно-технологическая схема возведения перекрытий для здания сложной конфигурации. Перекрытие каждого этажа реконструируемого здания разбито на 3 захватки, где поочередно или с совмещением ведутся работы по монтажу опалубки, армированию перекрытия и бетонированию. На фрагменте стройгенплана приведены схема размещения складских зон, участок подготовки опалубочной системы, места приема бетонной смеси. Весь технологический процесс обслуживается башенным краном грузоподъемностью 3,0 т. Организация работ предусматривает групповую подачу элементов опалубки на ранее возведенное перекрытие и ручную ее установку.

Рис. 7.9. Организационно-технологическая схема возведения
монолитных безбалочных перекрытий при реконструкции здания сложной формы плана
Захватка 1 - устройство опалубки; захватка 2 - армирование;
захватка 3 - укладка
бетонной смеси
На схеме раскладки щитов показаны участки, где требуется возведение индивидуальной опалубки (доборные зоны).
Бетонирование конструкций перекрытия производится с подачей бетонной смеси бадьями вместимостью 0,3 м3. Укладка и уплотнение осуществляются с помощью виброреек.
При достижении распалубочной прочности бетона на захватке № 1 производятся демонтаж опалубки, ее очистка, смазка, ремонт и установка на захватке № 3.
В зависимости от используемых опалубочных систем удельная трудоемкость на возведение 100 м2 перекрытий находится в пределах 32,5-42,6 чел.-ч. При организации электротермообработки бетонных конструкций суммарные трудозатраты возрастают на 15-20 % и составляют 48,7-50 чел.-ч.
Критерием эффективности конструктивно-технологических решений и непосредственно технологии и организации ведения работ служит дополнительная прибыль для строительной организации, получаемая за счет снижения себестоимости строительно-монтажных работ.
Сравнительная экономическая эффективность осуществляется на основе анализа факторов, влияющих на изменение показателей: трудоемкости строительно-монтажных работ; продолжительности производства работ; снижения показателей за счет сокращения прямых затрат (материальных ресурсов, основной заработной платы, эксплуатации машин) и уменьшения накладных расходов.
Снижение трудоемкости, сокращение основной заработной платы и продолжительности реконструктивных работ приводят к снижению затрат по накладным расходам.
В целом эффективность принятой технологии оценивается показателем прибыли.
Оценивая конструктивно-технологические решения по приведенным критериям, можно получить показатель эффективности организационно-технологических решений.
Имеется прямая связь между надежностью реконструируемых зданий и уровнем прибыли. Так, при варианте реконструкции с надежностью, превышающей средний уровень, стоимость и себестоимость работ существенно возрастают и будут влиять на стоимость реализации 1 м2 площади. Важным фактором в стоимостной оценке является долговечность применяемых конструкций, которая, в свою очередь, оказывает влияние на эксплуатационные расходы.
Общий принцип оценки должен осуществляться с учетом требований рыночной экономики.
В таблице 7.2 приведены данные о трудозатратах и расходе материала при замене перекрытий рассматриваемых вариантов.
Таблица 7.2
Трудозатраты на устройство междуэтажных перекрытий при реконструкции жилых зданий
|
№ п.п. |
Описание реконструктивных работ |
Трудоемкость, чел.-дн/м2 |
Машины и механизмы для производства работ |
Средства подачи бетонной смеси |
|
|
Наименование |
Грузоподъемность, т |
||||
|
1 |
Междуэтажные перекрытия по стальным балкам с заполнением сборных плоскими железобетонными плитами |
0,16-0,37 |
Башенный кран |
2-3 |
|
|
2 |
То же, по железобетонным балкам таврового сечения с заполнением пустотными блоками |
0,20-0,27 |
То же |
3-5 |
Крап-бадья |
|
3 |
Междуэтажные перекрытия балочной конструкции с заполнением среднеразмерными железобетонными элементами |
0,27-0,32 |
» |
3-5 |
» |
|
4 |
То же, из крупноразмерных плит с консольным опиранием |
0,20-0,24 |
» |
5-7 |
|
|
5 |
То же, крупноразмерными плитами с опиранием на металлические балки |
0,19-0,23 (0,34)* |
|
7-10 |
- |
|
6 |
Сборно-монолитные перекрытия в несъемной опалубке: |
|
|
|
|
|
|
из железобетонных плит |
0,51-0,59 0,31-0,32 |
» |
2-3 |
Кран-бадья, бетононасос |
|
|
из пенополистирольных армоконструкций |
0,36-0,4 0,19-0,2 |
Башенный кран |
2-3 |
Кран-бадья, бетононасос |
|
7 |
Междуэтажные монолитные безбалочные перекрытия |
0,48-0,50 0,36-0,4 |
Башенный, стреловой кран |
2-3 |
Кран-бадья, бетононасос |
|
8 |
То же, с термовкладышами |
0,52-0,64 |
Подъемник |
|
Кран-бадья |
|
9 |
Балочные монолитные перекрытия |
0,52-0,64 0,39-0,42 |
Башенный, стреловой кран |
3-5 |
Кран-бадья, бетононасос |
|
* С учетом омоноличивания металлических балок. |
|||||
Принимать к руководству данные таблицы 7.2 можно только с определенными оговорками. Прежде всего следует отметить, что не всегда трудоемкость работ определяет экономическую эффективность. Так, при возведении перекрытий по балкам таврового сечения с заполнением пустотными блоками около 50 % трудозатрат приходится на ручной труд. Но несмотря на это, общий эффект такого конструктивного решения достаточно высок, так как исключает ряд дополнительных трудоемких процессов, связанных с утеплителем и звукоизоляцией перекрытия.
Другим примером может служить устройство монолитных перекрытий с термовкладышами (рис. 7.3). Здесь, кроме подачи бетонной смеси, все процессы ведутся вручную. Несмотря на это, эффективность технологических решений достаточно велика.
Анализ таблицы показывает, что использование монолитных и сборно-монолитных систем по трудозатратам в 1,5-2,0 раза выше, чем в сборном варианте. При этом следует учитывать, что оценка трудоемкости работ с использованием элементов сборного железобетона не учитывает трудозатрат на их изготовление.
Комплексная оценка технологической эффективности возведения перекрытий должна учитывать помимо этого прямые затраты, связанные с использованием транспортных и подъемно-транспортных средств. Их доля повышается при нерациональном использовании, например, башенных кранов. Так, снижение грузоподъемности кранов с 10 до 3 т приводит к сокращению расходов в 2-2,5 раза.
Достаточно высоки колебания прямых затрат в виде заработной платы. В этой связи возможно определить дополнительную прибыль за счет более дешевой рабочей силы.
Себестоимость работ по статье затрат «Эксплуатация машин» вносит существенные колебания в зависимости от принятой технологии ведения работ. Так, использование бетононасосного транспорта может снизить себестоимость работ и сократить их продолжительность при условии максимального использования его производительности.
Снижение накладных расходов достигается прежде всего сокращением трудоемкости работ. В то же время переход от механизированных процессов к ручным может привести к повышению прибыли. Примером может служить армирование с ручной вязкой по сравнению с каркасами заводского изготовления.
Изменение заработной платы непосредственно связано с трудоемкостью работ. В монолитном и сборно-монолитном вариантах этот показатель имеет тенденцию роста.
Анализ европейского опыта (таблица 7.3) использования различных конструктивно-технологических схем показывает, что при возведении перекрытий преимущественно используют сборный и сборно-монолитный варианты и в меньшей степени - монолитный. Рациональный диапазон перекрываемых пролетов для сборных перекрытий достаточно велик и достигает 20 м; для сборно-монолитных - 7-9 м и монолитных - до 7 м.
График производства работ по устройству сборно-монолитных перекрытий показан в таблице 7.4.
Таблица 7.3
Область эффективного применения различных конструктивных схем перекрытий
|
Схема перекрытия |
Пролет |
Высота, мм |
Нагрузка, кН/м2 |
Ширина элементов, мм |
|
|
£9 |
100-300 |
2,1-4,0 |
300-2400 |
|
|
£20 |
100-500 |
2,0-4,8 |
1200 |
|
|
£7,2 |
100-200 |
2,4-4,8 |
600-2400 |
|
|
£9,0 |
150-350 |
1,0-3,0 |
600-2400 |
|
|
£7,2 |
200-300 |
1,8-2,4 |
600-800 |
|
|
£7,0 |
140-180 |
1,8-2,0 |
|
Таблица 7.4
График производства работ по устройству сборно-монолитных перекрытий

Функция ограждающих конструкций - поддерживать внутри здания заданный температурно-влажностный режим, который влияет на комфортность проживания и зависит от теплотехнических свойств строительного материала, из которого выполнены ограждающие конструкции.
Ограждающие конструкции - многофункциональные и многоэлементные системы. Их функции обеспечиваются определенными свойствами материалов и конструкций: теплозащита - теплопроводностью и теплоемкостью; водозащита - воздухопроницаемостью, герметичностью узлов и стыков конструкций; звукозащита - звукопоглощением и звуконепроницаемостью; физико-механические свойства - долговечность стенового ограждения. Кроме того, ограждающие конструкции выполняют архитектурную функцию, которая связана с приданием поверхности ограждающих конструкций заданной формы и цветовой гаммы.
Изменение во времени свойств материала ограждающих конструкций приводит не только к нарушению тепловлажностного режима помещений, но и повреждению конструкций, снижению их несущей способности и долговечности. Недостаточная теплоизоляция стен способствует увеличению влажности, которая, конденсируясь и распространяясь на несущие конструкции, приводит к изменению их физико-механических свойств.
Наружные стены должны обеспечивать не только защиту от проникновения атмосферной влаги, но и свободную диффузию водяных паров из внутренних помещений в наружную среду. Важнейшее условие нормального режима состоит в том, чтобы атмосферная влага, конденсат и диффузия паров имели возможность испаряться во внешнюю среду. Эффективность защиты от переувлажнения атмосферными осадками имеет свои положительные и отрицательные аспекты. Для стен с различными видами наружной отделки динамика влагопереноса зависит от многих факторов. Так, защита в виде штукатурного покрытия способствует постоянному накоплению влаги, в то время как для стен без наружной отделки влага быстро отдается наружу. Такое явление особенно ярко проявляется для стеновых ограждений из пористого материала (газосиликата, газо- и пенобетона). Устройство покрытий из керамической плитки препятствует попаданию атмосферных осадков, но не обеспечивает миграции влаги из помещений.
Скорость водоотдачи зависит от паропроницаемости материала конструкции и от упругости пара. При нанесении на наружную штукатурку ограждения защитного слоя краски или облицовочной плитки снижается паропроницаемость, что приводит к конденсации воды под изоляционным слоем и разрушению поверхностных слоев при цикличном воздействии отрицательных температур.
Жидкая и газообразная фазы атмосферной влаги воздействуют на ограждающие конструкции под действием капиллярных сил, ветрового напора, градиента давления и проникают во внутренние слои, что приводит к увеличению влажности материала и ухудшению теплотехнических и прочностных свойств.
Эксплуатационные качества несущих и ограждающих конструкций в значительной степени зависят от величины деформаций. Их суммарные параметры являются следствием возрастания вертикальных нагрузок в период возведения и длительных процессов усадки и ползучести в окончательно сформированной системе здания. Вторая составляющая полных деформаций может превышать расчетные значения первой.
Определяющее влияние на эксплуатационные характеристики зданий оказывают температурно-влажностные деформации. При перепадах температур наблюдаются перемещения в горизонтальной и вертикальной плоскостях. Наиболее опасными для панельных зданий являются деформации, вызванные перепадом температур по сечению стен. Деформированное состояние панели представляется в виде сферы, выгнутой в сторону нагреваемой поверхности. Наличие напряжений растяжения в нагреваемом слое и сжатия в ненагреваемом вызывает деформации и напряжения, которые могут превышать предел прочности материала, что приводит к трещинообразованию. Циклические воздействия постоянно увеличивают число трещин и ширину их раскрытия.
Эксплуатационные показатели зданий значительно ухудшаются в связи с возникновением отказов в результате инфильтрации воздуха под действием градиента давления между наружной и внутренней средами. Основным полем воздухопроницаемости в помещение являются стыки панелей и примыкания оконных и балконных заполнений. Воздухопроницаемость значительно повышается при изменении свойств герметиков в результате их старения и для домов первых массовых серий выше нормативных значений в несколько раз. Это обстоятельство создает дополнительный инфильтрационный тепловой поток, нарушая комфорт помещений.
Важное значение для воздухозащиты помещений имеет правильная технология установки окон и балконных заполнений, т.к. теплопотери через их примыкания достигают до 50 % общих. Увеличение герметичности окон должно повышаться с ростом этажности зданий. Так, для зданий высотой до 17 этажей герметичность должна быть повышена в 2-3 раза по сравнению с пятиэтажными.
Большое влияние на процесс воздухообмена оказывают вентиляционные системы и системы инженерного оборудования (лифтовые шахты, мусоропроводы). Отклонения от проектных решений приводят к интенсивному воздухообмену, что незамедлительно сказывается на температурно-влажностном режиме жилых помещений.
В то же время недостаточный воздухообмен приводит к ряду негативных явлений.
Так, опыт эксплуатации санированных панельных жилых зданий в Германии показал, что около 30 % квартир подвержены образованию грибковой плесени. Основная причина интенсивного роста грибковых колоний состоит в недостаточном воздухообмене при утеплении фасадов панельных домов. Применение герметичных окон и стремление снизить энергозатраты за счет сокращения вентиляционных потерь существенно повышают влажность воздуха. Другой причиной служат ошибки в проектах, способствующие возникновению мостиков холода, что при повышенных влажности и температуре внутренней поверхности наружной стены являются причиной выпадения конденсата. Достаточно высока вероятность появления конденсата в угловых комнатах, что связано с аэродинамическим эффектом, способствующим более эффективной теплоотдаче и снижению теплоизоляционных свойств материала.
Важным условием комфортного проживания является показатель звукоизоляционных свойств конструкций. Изоляция смежных помещений оценивается звукоизолирующей способностью разделяющих ограждений и интенсивностью передачи звука прямым и косвенным путями. В этом плане большое влияние оказывают архитектурно-планировочные решения, материал разделительных стен и перекрытий, а также конструктивное решение узлов и примыкающих элементов. Звукоизолирующие качества конструкций со временем эксплуатации ухудшаются в результате изменения их физико-механических характеристик: упругости, деформативности, образования и раскрытия трещин.
Особое влияние на виброакустические параметры помещений оказывают структурные шумы и вибрации, которые передаются по каркасу стен и перекрытий. Основным методом борьбы с ними является создание узлов с демпфилирующими прокладками, обеспечивающими гашение колебаний, разрезных конструктивных систем с виброизоляцией, плавающих полов и т.п.
Наибольшая дискомфортность жилых помещений появляется в результате воздействия воздушных шумов от автомобильного и других видов транспорта. Она определяется интенсивностью движения и удаленностью зданий от основных магистралей. Снижение этого воздействия осуществляется методами звукоизоляции поверхности стен, устройством 3-слойного или пакетного остекления, снижение воздействия звуковых колебаний достигается путем посадки шумозащитных зеленых насаждений и возведения специальных отражающих барьеров.
В соответствии с нормами МГСН 2.04-97 «Допустимые уровни шума, вибрации и требования к звукоизоляции в жилых и общественных зданиях» активизируется борьба с воздушными и ударными шумами методами строительной физики.
При выполнении реконструктивных работ необходимо учитывать процессы и явления, направленные на повышение технической и эксплуатационной надежности зданий, снижение вредного воздействия окружающей среды, применение энергосберегающих конструкций, эффективных материалов и технологий, существенно оздоровляющих условия комфортного проживания.
Энерго- и ресурсосбережение являются главными направлениями технической политики в различных отраслях производства.
На диаграмме рис. 8.1 приведены усредненные значения получаемой энергии топлива на различных технологических этапах и потери при транспортировании, генерации, коммуникации и в жилищно-коммунальном хозяйстве. Анализ графика показывает, что максимальные потери наблюдаются в секторе ЖКХ. Это обстоятельство ставит задачу резкого снижения энергозатрат в первую очередь за счет максимального исключения теплопотерь при строительстве нового и эксплуатации старого жилого фонда.

Рис. 8.1. Потери полезной энергии топлива на различных технологических этапах
В энергосбережении большое значение отводится повышению теплозащиты ограждающих конструкций. Сравнение видов потребления энергии показывает, что на жилищно-коммунальное хозяйство расходуется около 117 млн. т усл.т., из которых 75 - на отопление, что составляет около 43 % общего расхода энергии.
Анализ существующего положения в строительном секторе показал, что вновь построенные жилые здания в средней полосе России расходуют на нужды отопления многоквартирных зданий от 350 до 800 кВт×ч/м2. В целом по РФ расходы на отопление составляют 55 кг усл. т/м2 в год и на горячее водоснабжение - 19 кг усл. т/м2, т.е. суммарно 74 кг усл. т/м2 в год. Для сравнения: в ФРГ расходуют 260 кВт×ч/м2 в год, Швеции и Финляндии - 135 кВт×ч/м2 в год. Или, если сравнивать по расходу условного топлива, то в ФРГ - 34 кг усл. т/м2 в год, Швеции - 18 кг усл.т/м2 в год, что в 2,0-2,5 раза превышает средние показатели по РФ.
Следует отметить, что с 1986 года нормативы по теплозащите зданий в нашей стране не менялись, в то время как западные страны за этот период времени несколько раз ужесточали требования.
На рис. 8.2 приведены сведения о динамике изменения теплопроницаемости стен на примере европейских стран. Резкий скачок в сторону энергоснабжения приходится на период энергетического кризиса 1970-1980-х годов. Начиная с этого периода ведется планомерная работа по увеличению термического сопротивления ограждающих конструкций и, как следствие, достигнуто существенное снижение энергозатрат.

Рис. 8.2. Динамика изменения сопротивления теплоотдачи для
ряда европейских стран и РФ в соответствии с действующими нормами
1 - Россия; 2- Франция;
3 - Германия; 4 - Нидерланды;
5 - Великобритания; 6 -
Швеция; 7 - Норвегия; 8 - Дания
Для уменьшения неоправданно большого эксплуатационного энергопотребления зданий Госстроем РФ введены новые нормативы, которые предусматривают снижение энергопотребления на 20-40 % путем увеличения до 3,5 раза сопротивления теплопередаче стеновых конструкций и снижения теплопотерь различных конструктивных элементов. Особое место в решении данной проблемы отводится не только новому строительству, но и эксплуатируемому и реконструируемому жилому фонду.
Актуальность проблемы энергосбережения повышается при реформе жилищно-коммунального хозяйства, когда уменьшается или прекращается дотация государства на содержание жилых зданий.
Снижение энергопотребления может быть решено комплексом архитектурно-планировочных приемов путем повышения теплотехнических характеристик ограждающих конструкций, сверхпрозрачных элементов, совершенствования вентиляционных систем, использования отопительных систем с управляемыми тепловыми режимами и др. решениями.
Для повышения энергоэффективности зданий требуется комплексный подход, учитывающий все источники теплопотерь. Поэтому выполнение неполного цикла работ по теплоизоляции, например, только стенового ограждения, не может привести к положительным результатам. На рис. 8.3 приведены диаграммы теплопотерь через различные конструктивные элементы зданий, что подтверждает необходимость комплексного подхода в решении данной проблемы.

Рис. 8.3. Распределение теплопотерь через различные конструктивные элементы
Особенностью новых нормативных положений является то обстоятельство, что приведенное сопротивление теплопередаче ограждающих конструкций следует принимать в зависимости от градусо-суток отопительного периода, но не менее Rотр, которое определяется из санитарно-гигиенических и комфортных условий R0 ³ Rотр
Величина ГСОП (градусо-сутки отопительного периода) зависит от климатических условий местности и определяется по зависимости ГСОП = (tв – tот.пер)×Zот.пер, где tв - расчетная температура внутреннего воздуха согласно СНиП 31-01-2003 «Здания жилые многоквартирные», tв =18 °С при расчетной температуре наружного воздуха до -30 °С, tв = 20 °С при расчетной зимней температуре наружного воздуха от -31 °С и ниже; tот.пер - средняя температура периода со среднесуточной температурой воздуха t £ 8 °С; Zот.пер - продолжительность периода (в сутках) со среднесуточной температурой воздуха t £ 8 °С.
Требуемое сопротивление теплопередаче различных ограждающих конструкций R0TР при выполнении реконструктивных работ определяется в зависимости от величины ГСОП.
В новых нормативах ограничен температурный перепад для зданий различного назначения и конструктивных элементов.
При выборе конструктивной схемы ограждающих конструкций учитывается коэффициент теплотехнической однородности.
Внесены новые требования по ограничению воздухопроницаемости ограждающих конструкций.
В результате использования новых конструктивных решений оконных заполнений и балконных дверей приведенное сопротивление теплоотдаче должно находиться в определенных пределах. Выполнение комплекса нормативных требований позволит не только повысить комфортность проживания жильцов, но и обеспечить существенное снижение эксплуатационных расходов на отопление, которое, по данным Госстроя РФ, составит до 40 % нынешнего потребления.
Методика теплотехнического
расчета осуществляется как для многослойных конструкций, определяется требуемая
толщина теплоизоляционного слоя dут при заданных теплоизоляционных свойствах материалов и конструктивных
слоев
где
- требуемое приведенное сопротивление теплопередаче стен; r - коэффициент теплотехнической однородности; Rl,…,Rn - термическое сопротивление конструктивных
слоев; lв, lн - нормируемые
коэффициенты теплоотдачи внутренней и наружной поверхностей.
Для проверки правильности
принятой толщины утепленного слоя dут выбирается фрагмент стены с проемом, и для него определяется
приведенное сопротивление теплопередаче. Фрагмент стены разбивается на участки.
Для каждого участка определяется приведенное сопротивление теплопередаче с
учетом влияния включений с различными термическими сопротивлениями (перемычек,
противопожарных рассечек, оконных откосов и т.п.): ![]()
Для полного фрагмента стены 
где SF - площадь фрагмента стены за вычетом проемов; F1, F2,...,Fn - площади участков фрагмента стены; F01, F02,..., F0n - приведенные сопротивления теплопередаче участков фрагмента стены; п - число участков.
Если
то конструкция стены считается удовлетворяющей требованиям
строительной теплоизоляции.
Выбор теплоизоляционных материалов для повышения теплотехнических характеристик ограждающих конструкций основан на учете наиболее важных физико-механических, эксплуатационных, технологических и экологических параметров. Помимо этого теплоизоляционный материал должен отвечать требованиям огнестойкости.
В настоящее время спектр теплоизоляционных материалов достаточно ограничен и состоит из материалов, которые можно разбить на несколько групп.
I. Волокнистые материалы в виде матов, плит и других элементов плотностью от 50 до 350 кг/м3. В качестве волокон используется минеральное сырье, а для придания геометрической формы - различного рода связующие (на синтетической, битумной или крахмальной основе). Наибольшее распространение получили минераловатные и плиты из базальтового волокна, у которого более низкий коэффициент теплопроводности и достаточно широкий диапазон физико-механических характеристик (эластичные маты, полужесткие и жесткие плиты). Основными производителями теплоизоляционных материалов этой группы являются фирма «Партек» (Финляндия), «Изовер» и «Ирса» (Германия) и др.
Для теплоизоляции наружных стен целесообразно применение только минераловатных плит из базальтового волокна плотностью 90 кг/м3 с перпендикулярным направлением волокон и 150 кг/м3 с горизонтальным направлением волокон. Содержание фенольного связующего не должно превышать 3,5 %. Для повышения долговечности теплоизоляционного слоя его поверхность пропитывается водоотталкивающим составом.
Наибольшее распространение при решении вопросов теплозвукоизоляции нашли теплоизоляционные материалы на основе базальтового и стеклянного волокон. Полужесткие изоляционные плиты могут выполняться с водоотталкивающей обработкой. Они отвечают самым высоким требованиям: несгораемые, экологически безопасные, с низким коэффициентом теплопроводности (0,044-0,047), обладают физико-механическими характеристиками, обеспечивающими высокую эксплуатационную надежность при утеплении вертикальных поверхностей.
Мягкие эластичные маты марок ММ и МП имеют плотность 14 и 22 кг/м3, выпускаются в виде плит и рулонов длиной 4000-18000 мм, шириной 500-1400 мм и толщиной 50, 60, 80, 100, 120, 140 мм. Они предназначены для утепления горизонтальных поверхностей (полы, чердачные перекрытия, кровля и т.п.), экологически и пожаробезопасные. Их высокие технологические параметры обеспечивают широкий диапазон применения.
II. Синтетические вспученные материалы и их композиции: пенополистирол, пенополиуретан, пенопласт. Они обладают достаточно низкой плотностью и являются эффективным утеплителем. Основной их недостаток - горючесть и плавление при температуре 120-150 °С. При горении могут выделяться вредные химические соединения.
Основным материалом этой группы следует считать пенополистирольные плиты марок ПСБС-25 и 35. Они применяются в комбинации с минераловатными плитами, когда поверхности по периметру проемов стен изолируются негорючим материалом, а остальное пространство - пенополистирольными плитами.
К группе пенолистирольных вспученных теплоизоляционных материалов следует отнести продукцию ТИГИ Knauf, которая производится по технологии австрийской фирмы «Визер» беспрессовым способом из суспензионного вспенивающегося полистирола. Пенополистирол состоит из 95-98 % воздуха и 2-5 % полистирола. Это позволяет получать изделия с плотностью от 15 до 50 кг/м3 с прочностью на сжатие от 0,05 до 0,2 МПа и на изгиб 0,07-0,35 МПа с водопоглощением 3,0-2,0 %.
Для повышения огнестойкости изделий в состав вводятся добавки антипирена, а для борьбы с грызунами - специальные биодобавки. Продукция ТИГИ Knauf из-за широкого диапазона теплотехнических и физико-механических характеристик может быть использована как тепло- и звукоизоляционный материал. По данным исследований фирм-производителей, долговечность материала превышает 50-70 лет, что вызвано отсутствием или весьма слабыми химическими реакциями с окружающей средой.
Теплоизоляционным материалом, отвечающим современным требованиям, является экструдированный пенополистирол Styroform, который разработан фирмой The Dow Chemical Co. Отличительными особенностями данного плитного материала являются его сравнительно высокая прочность на сжатие, которая составляет 0,4-0,5 МПа, а также нечувствительность к атмосферным воздействиям. Эти показатели расширяют диапазон рационального использования, включая теплоизоляцию заглубленных конструкций зданий, кровли, дорожных покрытий и т.п.
III. Строительные конструкционно-теплоизоляционные композиционные материалы, выполняющие функции утепления и ограждения конструктивных элементов. К ним относятся: пенополистиролбетон; пенобетон; газосиликат и другие материалы, имеющие достаточно высокие теплотехнические и механические характеристики. Они могут широко использоваться при реконструкции зданий с надстройкой этажей. Ограждающие конструкции при этом могут выполняться многослойными в комбинации с эффективным утеплителем, облицовкой кирпичом или штукатурным покрытием.
Наиболее перспективными и долговечными являются теплоизоляционные плиты из базальтовой ваты, вспененного экструзионного полистирола, пеностекла и др.
Технология утепления конструкций жилых зданий включает несколько самостоятельных технологических процессов. Их число и последовательность выполнения определяются технологическим регламентом, взаимоувязаны общей продолжительностью работ и согласуются с ведущим процессом. Независимо от материала конструкций стенового ограждения обязательным является период подготовительных работ, который включает очистку поверхностей и восстановление внешних слоев, имеющих дефекты. К ним могут быть отнесены сколы кирпичной кладки, трещины, разрушения отдельных элементов и т.п. Для крупнопанельных зданий кроме восстановления поверхностных слоев необходимо обеспечить водо- и воздухонепроницаемость стыков и межпанельных швов. Эти процессы выполняются известными из практики ремонтных работ приемами и материалами.
Кроме этого, осуществляется процесс замены оконных и балконных заполнений. Эти работы должны выполняться с небольшим опережением основного процесса или отдельным строительным потоком. Замена светопрозрачных заполнений на энергоэффективные состоит в извлечении старого оконного блока, подготовке проема и установке нового блока. Его установка осуществляется с использованием струбцин и домкратов, что обеспечивает проектное геометрическое положение. Пространство между коробкой и проемом заполняется теплоизоляционным материалом и оштукатуривается.
Утепление наружных поверхностей стен осуществляется, как правило, плитным утеплителем (минвата, пенополистирол) с креплением с помощью распорных дюбелей или на мастике с промежуточной установкой и креплением направляющих к поверхности стен.
При устройстве утепляющего слоя из пенополистирольных блоков их выполняют пазо-гребневыми, что обеспечивает плотное сопряжение. Нижний ряд блоков располагается на направляющих из перфорированного уголка, устанавливаемого на заданной отметке и фиксируемого к поверхности стены дюбелями. Затем устанавливаются очередные ряды с креплением полимерными распорными анкерами. При размере блока 40´60 см используются 4-5 анкеров. Для обеспечения плотного примыкания блока к поверхности стены верхняя головка распорных дюбелей выполняется диаметром не менее 50 мм с перфорированной поверхностью.
При отклонениях плоскости стены образуемый зазор заполняется полимерцементной мастикой. Это исключает образование вентилируемых зон и дополнительные теплопотери.
Особое место отводится укреплению угловых элементов здания и откосов оконных заполнений. Для этой цели используется полимерная сетка с угловым элементом из металлического профиля, которые объединяются с утепляемым слоем с помощью полимерцементной мастики. По окончании установки утепляющего слоя яруса или захватки производят крепление полимерной сетки на поверхность утеплителя. Она также закрепляется с помощью полимерной мастики или полимерных дюбелей, ввинчиваемых в теплоизоляционный слой. Затем осуществляется оштукатуривание поверхностей. В утеплителе из пенополистирола необходимо устройство поэтажных противопожарных рассечек полосой из минераловатных плит шириной не менее 200 мм. По периметру оконных и балконных проемов также применяют невозгораемый утеплитель.
При использовании в качестве утеплителя минераловатных плит технология их крепления к стенам осуществляется с использованием клеющих мастик и механического крепления дюбелями. Необходимое количество дюбелей на 1 м2 фасада определяется расчетом, учитывающим массу системы и ветровую горизонтальную нагрузку (откос воздуха).
Различают фасадные системы с тяжелой и облегченной штукатуркой. В первой системе 3-слойное штукатурное покрытие наносят с помощью пневмонабрызга, с последующим устройством накрывочного и финишного слоев. Несущими элементами являются арматурная сетка и анкера, располагаемые в толщине стенового ограждения. Толщина покрытия может составлять 30-40 мм.
Для облегченной системы используется полимерная сетка, которая крепится через утеплитель к несущей части стены. При этом трехслойное покрытие составляет 15-20 мм по толщине. Технологическая схема производства работ по утеплению стен с защитой штукатурным покрытием приведена на рис. 8.4.

Рис. 8.4. Технологическая схема утепления фасадов плитным
утеплителем (а) с креплением распорными анкерами и (б) защитой штукатурным
покрытием
1 - утепляемая стеновая
конструкция; 2 - направляющая
первого ряда блоков; 3 - пенополистирольный
пазогрсбневый блок; 4 - полимерный
анкер; 5 - направляющая порядовка; 6 - анкер-дюбель; 7 - подмости; в, г - рабочие моменты
нанесения штукатурного покрытия
Наиболее трудоемкими являются процессы утепления и оформления оконных примыканий и проемов. Для повышения эксплуатационной надежности места примыкания обрабатываются уплотнительной лентой, а для усиления откосов - уголковым профилем. Поверхность откосов усиляется сеткой из стеклоткани и оштукатуривается.
Оценка долговечности и эксплуатационной надежности различного рода покрытий показала, что наиболее эффективными следует считать известково-цементные дисперсно-армированные составы, наносимые с помощью пневмоустановок.
Подбор состава штукатурного покрытия должен осуществляться с учетом паропроницаемости. Это обстоятельство способствует созданию нормального тепловлажностного режима и предотвращению увлажнения граничных слоев утеплителя.
Влагомассоперенос в этих условиях оказывает существенное влияние на долговечность покрытия, так как постоянное увлажнение в сочетании с воздействием отрицательных температур приводит к интенсивному разрушению изоляционного слоя.
Для климатических условий РФ наиболее надежными и долговечными являются 100 %-ные минеральные связанные системы теплозащиты стен. Синтетические или полусинтетические технологии за счет содержания пленкообразующих компонентов (клей, смеси, краски) не обладают требуемыми паро- и влагопроницаемостью и подвержены отслаиванию слоев.
В теплоизоляционных системах должны применяться крепежные дюбеля из полиамида с аксидированным или нержавеющим сердечником. Все цокольные и шахтовые защитные профили должны применяться из нержавеющей стали или щелочестойкой стекловолокнистой ткани. Применение армированной или оцинкованной стали приводит к распаду материала через 2-3 года.
При выполнении штукатурного покрытия необходимо строгое соблюдение технологических регламентов по составу, методам нанесения, температуре и влажности окружающей среды.
Выполнение работ по теплоизоляции должно осуществляться в комплексе с надстройкой, заменой инженерного оборудования и восстановлением эксплуатационной надежности элементов здания. После производства работ достигаются более высокие эксплуатационные характеристики жилых домов, а также повышается архитектурная выразительность фасадов и их многообразие (рис. 8.5).

Рис. 8.5. Общий вид крупнопанельного дома после утепления и оштукатуривания фасадных поверхностей
Жилые дома с вентилируемым фасадом начали возводиться в конце XIX века в России. Было обнаружено, что если создать относительно наружной поверхности стен воздушную прослойку с защитной системой из дощатой сплошной обрешетки с утеплением войлоком и последующим штукатурным покрытием, то теплотехнические характеристики таких домов резко возрастают, а несущая конструкция стен из бревен сохраняет длительное время физико-механические характеристики, исключаются процессы гниения и другие повреждения.
Подтверждением тому явилась оценка состояния срубов после эксплуатации более 100 лет, когда в результате разборки установлено отсутствие каких-либо видимых повреждений древесины. Причиной тому явилось постоянное проветривание наружной поверхности стен, что исключало замачивание и обеспечивало воздухообмен между внутренней и внешней поверхностями жилых домов.
Начиная с конца 80-х годов XX века эта идея была распространена на современные здания путем строительства вентилируемых фасадов. Впервые такие фасады появились в Германии, это было связано со стремлением снизить энергозатраты на их отопление и обеспечить более высокую долговечность ограждающих конструкций.
Принципиальная схема зданий с вентилируемым фасадом иллюстрируется рис. 8.6.

Рис. 8.6. Схема создания вентилируемых фасадов для
жилых домов из дерева (а) и
композиционных материалов (б)
1 - наружные стены; 2 - воздушная прослойка; 3 - сплошная обрешетка; 4 - утеплитель из войлока; 5 - штукатурное покрытие;
6 - плитный утеплитель; 7 - защитный элемент фасадной поверхности
Учитывая, что воздушная прослойка является хорошим теплоизолятором, ее создание обеспечивает снижение теплопотерь, а движение воздуха создает условия воздухообмена между внутренней и внешней средой. Эффект вентиляции позволяет удалить избыток влаги при атмосферных осадках с поверхности стен, что обеспечивает повышение долговечности как несущих конструкций, так и защитного слоя в виде штукатурного покрытия или слоя теплоизоляции.
Современные конструкции вентилируемых фасадов состоят из каркаса в виде кронштейнов, прикрепляемых к теплоизолируемой поверхности с помощью распорных анкеров, и направляющих с вертикальным или смешанным размещением. На элементы каркаса навешиваются мелкоштучные изделия или крепятся с помощью заклепок, кляммер или специальных приспособлений облицовочные плиты.
В отдельных случаях в качестве направляющих могут использоваться деревянные брусья. Расчетная схема кронштейнов представляет собой консоль с опорной площадкой, которая крепится дюбелем к наружной поверхности стен (рис. 10.8).
Вертикальный профиль, который крепится к кронштейну, рассчитывается на вертикальные нагрузки от массы облицовочных панелей (а) и горизонтальные - ветровые нагрузки (б). Расчетная схема горизонтального профиля при толщине утеплителя более 100 мм может представляться неразрезной многопролетной балкой.
Горизонтальный профиль кроме объединения каркаса выполняет функции регулирования сечения вентиляционного канала и, соответственно, скоростного потока воздуха.
В зависимости от материала облицовки параметры системы «шаг размещения вертикальных и горизонтальных направляющих» может меняться. Большое значение оказывает толщина утепляемого слоя, которая в целом определяет размер кронштейна и создает соответствующие моменты от нагрузок.
Исследования взаимодействия элементов анкера для крепления кронштейнов с материалом стены позволили выявить ряд весьма важных параметров, к которым относятся: наружный диаметр анкера; глубина заложения в стену; угол наклона распорной пробки и др. Как следует из полученных зависимостей, перечисленные конструктивные параметры распорных анкеров зависят прежде всего от материала стен и их физико-механических характеристик (рис. 8.7).

Рис. 8.7. Взаимодействие распорных анкеров с
материалом стен
а - расчетная
схема; б - взаимодействие сил при разрушении материала; в -
зависимость параметров анкера от несущей способности для: 1 - бетона
классов В12- В20; 2 - кирпича; 3 - керамзитобетона
При испытаниях системы «кронштейн-нагрузка» установлено, что анкеры обладают определенной величиной податливости. В этой связи проведены экспериментальные исследования, которые показали, что при нагрузках на кронштейн соединение работает как сдвиго-устойчивое.
Площадь сечения болтовой части анкера можно определить по зависимости

где N - нагрузка, действующая на кронштейн; Ra - расчетное сопротивление болтовой части растяжению; тн = 1,7 - коэффициент надежности; тy.p = 0,8 - коэффициент условия работы соединения; а - расстояние от стены до точки приложения нагрузки; l - расстояние от анкера до нижнего края пяты кронштейна.
На основании проведенных исследований установлены параметры анкеров для установки в стенах из тяжелого и легких бетонов и кирпича.
Очевидно, увеличение прочностных характеристик материала стен приводит к уменьшению диаметра анкеров и глубины заложения. В то же время была установлена взаимосвязь глубины заложения анкера с его диаметром. Это соотношение находится в пределах 4-6. На расклинивающий эффект определенное влияние оказывает угол наклона стенок расклинивающей пробки. Для высокопрочных материалов стен из бетона и железобетона угол наклона составляет 6-8°, в то время как для менее прочных (кирпичная кладка, ячеистые бетоны, керамзитобетон) этот параметр возрастает до значений 11-12°.
В результате проведения экспериментальных исследований и их статистической обработки получены зависимости, позволяющие произвести выбор или конструирование распорного анкера для определенного вида материала стен с учетом их физико-механических характеристик, определяемых методом прямых испытаний.
При этом учет погрешностей испытаний, колебания прочностных характеристик стен и отклонения в технологии производства работ требуют дополнительного запаса прочности, в 2-3 раза превышающего расчетные значения.
В практике теплоизоляционных работ используются различные конструктивные системы, обеспечивающие получение эффекта вентилируемых фасадов.

Рис. 8.8. Системы вентилируемых фасадов «Словения» (а)
и «Марморок» Швеция (б)
1 - стена; 2 - дюбель для крепления бруса (3) или кронштейна (3); 4 - воздушный зазор; 5 -
утеплитель; 6 - направляющие; 7 - облицовочная плитка; 8 -
крепление вертикальных направляющих к кронштейну; в - профиль и размеры
облицовочных плит
На рис. 8.8, а приведены варианты, когда в качестве несущих конструктивных элементов используется деревянная обрешетка, промежуток между которой заполняется минераловатным утеплителем. В продольном направлении крепятся вертикальные направляющие из профильного листового металла с выступающими кронштейнами. На них навешиваются цементно-песчаные мелкоразмерные плиты, профиль которых повторяет профиль направляющих. Цементно-песчаные плиты изготавливаются по экструзионной технологии, что обеспечивает стабильную постоянность поперечного сечения. Конструкция плит такова, что вышележащий ряд частично перекрывает нижележащий. Такое решение исключает прямое попадание атмосферных осадков и в меньшей степени влияет на процесс увлажнения утеплителя.
Развитием данной технологии явилась система «Марморок» (Швеция), которая основана на использовании горизонтальных направляющих, выполняющих роль кронштейнов, вертикальных направляющих в виде специального профиля из оцинкованной стали (рис. 8.8, б) и облицовочных плиток двух типоразмеров.
Процесс создания вентилируемого фасада состоит в установке горизонтальных и вертикальных профилей, заполнении теплоизоляцией с креплением дюбелями и навеске облицовочных плит.
Основными преимуществами данной системы являются малый расход металла, ограниченное число типоразмеров плитки и их самофиксация. Используя различную цветовую гамму, возможно достичь необходимой архитектурной выразительности фасадов зданий. По данным разработчиков, долговечность системы превышает 50 лет.
Система «Этернит» (Германия) базируется на использовании алюминиевого каркаса на кронштейнах с вертикальными и горизонтальными направляющими. Это обстоятельство позволяет осуществлять облицовку фасадов с применением цементно-волокнистых плит. Их крепление к полкам каркаса осуществляется с использованием заклепочных соединений.
Для создания вентилируемого фасада крупнопанельных зданий с наружными стенами из 3-слойных панелей используются специальные анкеры, соединяющие наружную и внутреннюю несущие железобетонные части. Затем к этому анкеру крепятся кронштейны с последующей установкой вертикальных и горизонтальных направляющих (рис. 8.9).

Рис. 8.9. Утепление фасадов крупнопанельных зданий с
облицовкой панелями из этернита (Германия)
а - дефекты фасадных поверхностей; б - схема утепления с
облицовкой; в - рабочий момент производства работ; г - общий вид фасада;
в - конструктивная схема вентилируемого фасада; 1 - 3-слойная
стеновая панель; 2 - анкер; 3 - утеплитель; 4 - кронштейн;
5 - направляющие;
6 - этернитовая панель; 7 -
заклепки; 8 - продольная
направляющая; 9 - подмости
Конструктивное решение кронштейна позволяет регулировать вертикальность облицовки в случае неровности стен. Применение взаимно пересекающихся горизонтальных и вертикальных направляющих обеспечивает гидроизоляцию вентилируемого пространства. В то же время такое решение требует расхода металла на 1 м2 поверхности до 5 кг. Использованием различных разрезки фасадов и цветовой гаммы достигается обновление архитектурной выразительности зданий.
Системы вентилируемых фасадов с применением только вертикальных направляющих Т-образной формы и облицовки плитами из стекла или керамогранита представлены фирмами Aliva (Италия) и BWM (Германия). Принципиальные технические решения представлены на рис. 8.10. Для крепления фасадных панелей используются кляммеры или заклепочные соединения.

Рис. 8.10. Конструктивные технологические схемы утепления
фасадов с облицовкой листами из керамогранита и стекла Aliva Италия (а) и BWM Германия (б)
1,9 - облицовочные панели; 2 - направляющие
Т-образной формы; 3 - кронштейны;
4 - распорные анкеры для крепления кронштейнов; 5 -
минераловатный утеплитель; 6 - ограничитель оконного проема; 7 -
заклепки; 8 - кляммеры
Отличительной особенностью данных систем является наличие горизонтальной щели между плитами, что создает дополнительный вентиляционный эффект. В зависимости от скорости внешнего воздушного потока, перепадов атмосферного давления и других факторов существенно снижается скорость потока в вентилируемой зоне, что исключает применение горизонтальных разделительных диафрагм. Высокие физико-механические характеристики облицовочных плит позволяют использовать шаг вертикальных направляющих от 600 до 1200 мм.
Использование только вертикальных направляющих способствует снижению расхода металла до 2,0-2,5 кг/м2 вентилируемого фасада.
Широкому распространению данной технологии препятствует высокая стоимость облицовочных плит (от 30 до 80 $ США).
Технически подобные решения разработаны в РФ фирмами «Пластоун, РФ» - система «Броня», ПКФ «Профис»-«Красколор», «Фаест», которые используют цементно-волокнистые плиты «Ферпост» с декоративным покрытием из минеральной крошки, плиты «Красколор» - окрашенные цементно-волокнистые, асбоцементные, фиброцементные, цементно-стружечные плиты и другие, стоимость которых по известным причинам существенно ниже.
Большой практический интерес представляет технология утепления и облицовки фасадов из дисперсно-армированных бетонных плит, разработанная в МГСУ. Данная технология основана на использовании только вертикальных направляющих, которые крепятся традиционным способом, но имеют специальные прорези для навески плит (рис. 8.11).

Рис. 8.11. Конструктивные технологические схемы утепления и
облицовки фасадов армоцементными плитами
1 - стеновая панель; 2 - распорный анкер; 3 - кронштейн; 4
- вентилируемый зазор; 5 - утеплитель; 6 - направляющая; 7 -
облицовочная панель; 8 - объемный элемент оконного обрамления
Отличительной особенностью облицовочных плит кроме цветовой гаммы является возможность создания рельефной поверхности. Это обстоятельство позволяет разнообразить архитектурные решения фасадов при достаточно низкой себестоимости работ.

Рис. 8.12. Схема дождевальной установки (а) и испытываемые стыки (б)
Для практической оценки водонепроницаемости различных типов стыков облицовочных панелей (рис. 8.12) аспирантом П. Монастыревым использована специальная методика исследования с использованием дождевальной установки. Она позволяла изменять угол дождевого потока, интенсивность, диаметр панели, а также менять расстояние между утеплителем и облицовочной панелью. Обработка экспериментальных данных позволила оптимизировать конструктивные и теплотехнические решения теплозащиты. Испытания проводились для горизонтальных и вертикальных стыков. В экспериментах регистрировалось отношение объемов влаги, попадающей в пространство между облицовочными панелями, к объему влаги, оставшейся снаружи, в зависимости от ширины зазора между панелями, размера фаски на торцевых гранях облицовочных плит, направлении ветродождевого потока.
Построена регрессионная модель следующего вида:
у = 43,11 - 4,75х1 + 14,64х2 + 1,22х3 + 2,2х4 + 8,07х12-6,31х22-1,56х32-14,7х42.
Анализ уравнения регрессии показал, что наибольшее влияние оказывает фактор х2 - ширина зазора между облицовочными панелями. Доля проникающей влаги составляет от 22 до 51 % при изменении ширины зазора от 3 до 9 мм.
На втором месте по влиянию оказался фактор х1 - размер фаски на торцевых гранях облицовочных плит. Водопроницаемость с увеличением размера фаски от 0 до 5 мм снижается с 56 до 43 %.
Установлено, что диаметр панели х3 практически не влияет на водопроницаемость стыка.
Максимальное значение проникающей влаги имеет место при перпендикулярном направлении ветродождевого потока (фактор х4). Водопроницаемость стыков редко снижается при уменьшении (х4 = 45°) или увеличении угла падения потока (х4 = 135°).
По результатам исследований математической модели построены области факторного пространства и графики зависимости у=f(х1, х2) (рис. 8.13).

Рис. 8.13. Доля влаги (%), проникающей в стык (сплошная
линия) и попадающей на утеплитель (пунктирная линия), при направлении
ветродождевого потока перпендикулярно стене и среднем диаметре капель, в
зависимости от ширины стыка (мм)
а - размера фаски; б - угла наклона торцевой грани
Установлено, что величина стыка между гранями панелей должна быть не более 6 мм, а угол наклона верхней и нижней граней к горизонту должен находиться в интервале от 20 до 30°.
Полученные зависимости позволили оптимизировать размеры облицовочных плит при их приготовлении. Установлены технологические режимы формования плит из дисперсно-армированных тяжелого и легкого бетонов, обеспечивающие высокие физико-механические характеристики (табл. 8.1) и низкую поверхностную пористость. Использование матриц различного рельефа и цветовой гаммы бетонной смеси позволило получать облицовочные плиты широкого спектра.
Таблица 8.1
Физико-механические характеристики облицовочных плит
|
Наименование показателей |
Тип бетона изделий |
|||
|
Тяжелый бетон |
Пескобетон |
Легкий бетон |
||
|
на белом бетоне |
на сером бетоне |
|||
|
Прочность при сжатии, МПа |
90 |
60 |
45 |
25 |
|
Прочность при изгибе, МПа |
9 |
60 |
5 |
3 |
|
Водопоглощение, % |
2 |
3 |
4 |
8 |
|
Водонепроницаемость |
Более W20 |
W20 |
W15 |
W8 |
|
Истираемость, гс/см3 |
Менее 0,3 |
|||
|
Морозостойкость |
Более F300 |
|||
Технологический процесс монтажа плит состоит в их навешивании с использованием самофиксирующегося замка. Для оформления оконных заполнений изготавливается объемный дисперсно-армированный блок, который после теплоизоляции откосов размещается в проеме.
Наибольший эффект данная технология может дать при облицовке и утеплении цокольных и первых этажей зданий. Удельный расход металла, включая анкеры и направляющие, составляет 2,0-2,2 кг/м2 вентилируемого фасада при толщине облицовочных плит 20-30 мм.
Большой практический интерес представляет система утепления фасадов «Диат». В ее основе заложена телескопическая конструкция кронштейнов, что позволяет создавать единую плоскость фасада при значительных отклонениях вертикальности стен и различной толщине утеплителя. Система универсальна (рис. 8.14) за счет использования различного профиля направляющих, что позволяет применять облицовочные плиты из керамогранита, стекла, металлических кассет из алюминия, листового металла и других материалов. Система крепления облицовочных плит осуществляется с помощью кляммер, саморезов, заклепок.

Рис. 8.14. Система с телескопическими кронштейнами для
создания вентилируемых фасадов
а, б - общий вид
телескопического кронштейна после крепления к стене и установки теплоизоляции; в, г - варианты использования
различных направляющих для крепления облицовочных плит; д, е - крепления облицовочных
плит из керамогранита и кассетами из металла; 1 - стена; 2 -
телескопический кронштейн; 3 -
элемент крепления к стене; 4 - теплоизоляция; 5 -
вертикальные направляющие для крепления облицовки; 6 - облицовка из
керамогранита; 7 - то же, из металлических кассет
Подвижность направляющих относительно кронштейнов по вертикали существенно уменьшает трудоемкость при монтаже.
После крепления направляющих к кронштейнам сохраняется возможность плавной регулировки относа, что обеспечивает получение единой плоскости по всему фасаду. Фиксация утеплителя прижимом при накалывании его на кронштейн облегчает монтаж теплоизоляции и дополнительно фиксирует положение, исключая возможные смещения.
В качестве материала кронштейнов используются алюминиевые сплавы или нержавеющая сталь. С учетом более низкой теплопроводности нержавеющей стали и высоких прочностных характеристик такие кронштейны обеспечивают высокую эксплуатационную надежность и долговечность.
Система «Диат» обеспечивает свободное перемещение плит облицовки, что исключает негативное влияние температурных деформаций на систему в целом.
При реконструкции фасадов зданий получила распространение облицовка с утеплением декоративными фасадными плитами Полиаплан. Конструктивная особенность фасадных плит состоит в использовании замкнутого объема пенополистирола с наружными и внутренними слоями из сплава алюминия, марганца и натрия толщиной 0,5 м. Наружный слой имеет рельефную поверхность под декоративную штукатурку, дерево и др. Теплоизолирующий слой состоит из пенополиуретана плотностью 30 кг/м3 с теплопроводностью 0,03 Вт/м×К. Внутренний слой выполняют из легированной алюминиевой фольги толщиной 0,005 мм.
Теплоизоляционные панели изготавливаются в виде досок толщиной 25 и 50 мм. С плотным замковым соединением, обеспечивающим теплотехническую однородность покрытия и водонепроницаемый стык. Длина плит составляет 12 м и более.
Крепление плит к поверхности стен осуществляется с помощью соединений с деревянной обрешеткой из бруса или с использованием специальных монтажных профилей.
Малая масса панелей (3,5 кг/м2) и высокая технологичность стыков позволяют осуществлять установку до 100 м2 облицовки в смену.
Поскольку монтаж не требует использования мокрых процессов, реконструкция фасадов может производиться без всяких ограничений, связанных с сезонными или погодными условиями.
Стойкость лакокрасочных покрытий к солнечной радиации, атмосферным и механическим воздействиям гарантирует длительный срок эксплуатации.
Большой выбор фактуры и цветовой гаммы позволяет создать неповторимый облик реконструируемого здания.
Технология производства работ состоит в создании каркаса из деревянных брусков или монтажных профилей, в разрезке панелей на размеры в соответствии с планом фасадных поверхностей, их установке в вертикальном или горизонтальном расположении.
Для сопряжения с оконными проемами используются специальные элементы, обеспечивающие крепление и создание теплотехнически однородного стыка.
Технологические процессы утепления и облицовки вентилируемых фасадов включают следующие циклы: подготовительные работы, связанные с приведением поверхности стен в состояние, близкое к эксплуатационному. Этот цикл работ включает также проведение геодезических и измерительных работ по уточнению размеров фасадных поверхностей, высотных отметок; ликвидацию дефектов, снятие облицовочной плитки; очистку поверхностей, ремонт и усиление выступающих конструкций козырьков, балконов и других элементов.
До производства работ по утеплению фасадов должна быть произведена замена оконных и балконных заполнений. В подготовительный цикл включаются также работы, связанные с подготовкой площадок и стоянок для средств механизации, для подачи материалов, с подводом временных линий электроснабжения для подключения рабочего инструмента, а также площадок резки и подготовки направляющих, панелей и других элементов. Сюда входят работы, связанные с устройством систем подмащивания (установка лесов, самоходных вышек и т.п.).
Основной цикл работ может быть разделен на три потока: устройство несущих конструкций каркаса; установка и крепление плит утеплителя; монтаж облицовочных плит и оконных обрамлений.
В отдельный поток может быть выделен цикл работ по утеплению и облицовке цокольных элементов здания, а также устройству входных тамбуров.
Кроме перечисленного комплекса теплоизоляционных работ не рассматриваются процессы, связанные с утеплением чердачных перекрытий, кровельной части, сопряжений вентиляционных и других каналов, инженерного оборудования.
Наиболее ответственными этапами являются перенесение на фасадную поверхность положения распорных анкеров, направляющих, определение монтажного горизонта и т.п. Перечисленный комплекс работ выполняется геодезистами с использованием достаточно точной лазерной техники. Наиболее эффективным является лазерный нивелир LNA10 фирмы Leica с лазером видимого диапазона с возможностью задания вертикальных и горизонтальных плоскостей.
Производится несколько геодезических ходов, обеспечивающих снижение погрешностей при измерениях. Особое внимание отводится оценке вертикальности стен, так как это существенно влияет на качество работ при облицовке.
В результате геодезических работ на фасаде здания наносятся с помощью несмываемой краски осевые линии расположения направляющих, положения анкеров и кронштейнов, а также монтажный горизонт каждого ряда плит. При определении неровностей стен и отклонений от вертикали в местах установки кронштейнов указываются параметры отклонения, которые компенсируются.
После выполнения цикла геодезических работ производят утепление и облицовку элементов цокольного этажа. Для обеспечения более эффективной работы теплоизоляции по периметру цокольной части отрывается приямок глубиной 0,4-0,5 м, поверхности стен очищаются. Затем размещаются и раскрепляются анкеры для крепления направляющих. По окончании данного вида работ производят утепление поверхности стен. Наиболее эффективным является плитный утеплитель из пенополистирольных плит типа Styroform, которые обладают более высокими физико-механическими характеристиками. Их крепление осуществляется с помощью дюбелей с возможным плотным примыканием к поверхности стен. При необходимости выполняются работы, связанные с восстановлением поверхности, а также нанесением гидроизоляционного слоя.
После окончания цикла утепления производят установку направляющих и монтаж облицовочных плит.
С целью повышения физико-механических характеристик облицовочные цокольные панели выполняют с большей толщиной, с отличной от фасада здания фактурой и цветовой гаммой. Обязательным условием является устройство вентиляционных отверстий, которые должны совпадать с каналами фасада. Возможен вариант усиления облицовки путем заполнения пространства цементно-песчаным или другим раствором. Верхняя облицовочная панель цоколя, как правило, выполняется с элементом, обеспечивающим отвод атмосферных осадков и сопряжение облицовочных плит фасада.

Рис. 8.15. Технологическая схема производства работ по устройству вентилируемого фасада (а), узел крепления угловых элементов (б) и рабочий момент установки панелей «под кирпич» (в)
Технологическая схема утепления и облицовки фасадных поверхностей приведена на рис. 8.15. Установка анкеров и кронштейнов, как правило, производится с подвесных люлек по заранее зафиксированным местам. Высверливание отверстий под анкеры производится перфораторами с ограничением глубины выбуривания. Процесс установки элементов каркаса, утепления и облицовки производится поэтажно по вертикальной или горизонтальной схеме движения. Как правило, для производства работ используются леса, что обеспечивает нормальное перемещение материала по плоскости фасадов. Такая схема позволяет организовать строительные потоки, так как создается достаточно большой фронт работ.
Для производства работ используются средства подмащивания, подвесные люльки, вышки леса и другое оборудование (таблица 8.2).
Таблица 8.2
Характеристика средств подмащивания
|
№ п.п. |
Средства подмащивания |
Допускаемая нагрузка, кгс |
Высота, м |
Размеры рабочей площадки, мм (длина´ширина) |
|
1 |
УПС-2 - подмости |
200 |
40,0 |
9500´1200 |
|
2 |
То же, ПС-1-100-300 |
300 |
До 100,0 |
6000´1200 |
|
3 |
Подмости самоходные ПВС-12 |
600 |
12,0 |
5000´2000 |
|
4 |
Л-100-600 - люльки подвесные |
600 |
До 100,0 |
4435´935 |
|
5 |
То же, ЛЭ-100-300 |
300 |
До 100,0 |
6300´1000 |
|
6 |
Вышки телескопические ВО-10,6-12 |
500 |
10,60 |
4000´2000 |
|
7 |
Передвижная телескопическая люлька Н-15 |
250 |
15,0 |
2000´2000 |
|
8 |
Леса самоходные универсальные ЛС-18 |
2000 |
17,5 |
3000´900 |
|
9 |
Леса приставные ЛОР-3316 |
200 |
40,0 |
12500´1200 |
|
10 |
Леса безболтовые К913-00 |
250 |
40,0 |
1200´1200 |
Использование различных технических средств приводит к значительному разбросу суммарных трудозатрат. Так, при использовании самоходных лесов трудозатраты составляют 2,64-2,8 чел.-ч/м2; при работе с подвесных люлек - 2,75-2,93; приставных лесов - 4,15-4,32 чел.-ч/м2.
Несмотря на более высокие трудозатраты, предпочтение отдается приставным лесам, так как они могут использоваться многофункционально на всех этапах работ по ремонту, утеплению и облицовке фасадов.
В зависимости от площади облицовочных панелей и схемы разрезки фасадов производительность работ может колебаться в достаточно широких пределах. Так, применение в качестве утеплителя напыляемого пенополиуретана позволяет поднять сменную производительность до 300-400 м2, в то время как при использовании плитного утеплителя выработка на одного рабочего не превышает 50-70 м2. Поэтому при формировании бригад следует учитывать данный фактор.
После окончания цикла утепления производят установку направляющих и монтаж облицовочных плит.
На рис. 8.16 приведены схемы выполнения работ в зависимости от используемых средств подмащивания. Примерный график производства работ по теплозащите жилого дома серии 1 -464 показан в таблице 8.3. Большое влияние на производительность работ оказывают материал стен и эффективность ручного инструмента. Так, для образования отверстия под распорный анкер 016 мм и глубиной 120 мм в бетоне марки 200 необходимо затратить 0,1-0,2 чел.-ч, в то время как в кирпичной кладке эта величина в 2-2,5 раза ниже.

Рис. 8.16. Технологические схемы производства работ с
применением различных средств механизации
а - самоходных лесов; б - подвесных люлек; в - приставных лесов; г -
приставных лесов и подвесных люлек
Таблица 8.3
График производства работ по теплозащите стен пятиэтажного 80-квартирного жилого дома серии 1-464

Значительная доля трудозатрат может быть отнесена на устройство лесов, которые необходимо устанавливать на полную высоту здания. Эти расходы возможно снизить путем использования специальных шарнирных вышек АО «Пекканиска» (Финляндия). Подъемная платформа позволяет выполнить работы на высоте до 18 м, что соответствует 6-7-этажным зданиям. Наличие рабочей площадки длиной 6 м позволяет использовать достаточно широкий фронт работ. Применение таких механизмов обеспечивает технологию вертикальной теплоизоляции, а использование 2-3 вышек позволяет организовать комплексное выполнение работ с меньшими затратами.
Практический опыт модернизации фасадов показывает, что наиболее технологичным оборудованием являются подвесные люльки. Они обеспечивают производство работ в стесненных условиях строительной площадки, весьма мобильны, долговечны и безопасны в работе.
Эксплуатационная надежность утепленных фасадных поверхностей может быть оценена путем учета различных факторов конструктивного и технологического характера.
К конструктивным факторам следует отнести систему крепления утеплителя, сетки, технологию нанесения защитных штукатурных покрытий, устройство температурных швов и другие факторы.
Для систем со штукатурным покрытием их долговечность определяется периодом эксплуатации до появления и раскрытия трещин, когда наблюдаются активная миграция влаги и увлажнение утепляющего слоя. По данным исследований, начальный период оценивается промежутком времени от 2,0 до 5 лет эксплуатации и зависит от соблюдения технологических регламентов нанесения штукатурного покрытия: минимально допустимой температуры и влажности окружающей среды.
Нарушение контролируемых параметров приводит к снижению надежности системы.
Увлажнение штукатурного покрытия и, соответственно, теплоизоляционного слоя приводит к возникновению дополнительных температурных деформаций, превышающих расчетные сопротивления и способствующих более интенсивному трещинообразованию. Эти процессы ускоряются при значительных колебаниях температуры окружающей среды.
Увлажнение теплоизоляционного слоя приводит к снижению коэффициента теплопроводности, а периодическое замерзание и оттаивание - к снижению сцепления защитного покрытия и нарушению связей в утепляющем слое.
Общая математическая и физическая модели эксплуатационной надежности системы «стена-утеплитель-защитное покрытие» могут быть представлены в виде графа переходов в различное состояние за счет влияния внешних факторов среды.
Существенное влияние на эксплуатационную надежность системы оказывает создание температурных швов, компенсирующих относительные деформации. Они рассчитываются исходя из максимальных температур в летний период времени и минимальных - в зимнее время.
Наиболее рациональным является поэтажное устройство горизонтальных и вертикальных швов.
Существенное повышение долговечности штукатурных покрытий достигается при использовании дисперсно-армированных растворов.
В современных условиях используется щелочестойкое стеклопластиковое армирование, представляющее собой отрезки нитей длиной 20-30 мм с толщиной 0,1-0,2 мм.
Нанесение защитного штукатурного покрытия осуществляется как вручную, так и с применением пневмонагнетателей. Механизация процессов обеспечивает многократное повышение производительности труда.
При создании вентилируемых фасадов факторами, определяющими эксплуатационную надежность и долговечность, являются: способы устройства каркаса, обеспечивающие восприятие механических и динамических воздействий от ветровых нагрузок и массы панелей; управление скоростным потоком вентилируемого пространства путем устройства разделительных перегородок и отсечек; использование ветрозащитных покрытий утеплителя, предотвращающих разрушение поверхностных слоев; создание ремонтопригодной системы вентилируемых фасадов с возможностью замены утеплителя.
Анализ факторов свидетельствует о случайном характере воздействий ветровых нагрузок, скоростного потока в вентилируемом пространстве вследствие колебаний атмосферного давления, влажности и направления ветрового потока. При определенной форме здания и скорости обтекания ветрового потока возможны условия создания зон разряжения, когда вентиляционный эффект меняет знак на противоположный.
Исследование процессов старения теплоизоляционных материалов показало, что изменение теплотехнических параметров носит экспоненциальный характер и зависит от физико-механических характеристик, степени защиты от внешних воздействий, деформативных свойств при наличии градиента температурных деформаций и возникающих при этом напряжений в многослойных ограждающих системах.
Для оценки долговечности системы теплоизоляции наружных стен возводимых и реконструируемых зданий наиболее приемлемой является математическая модель, основанная на асимптотических методах оценки надежности сложных систем. При этом в рассматриваемую систему входят: непосредственно теплоизоляция и способы ее крепления к поверхности стен; многослойное защитное штукатурное покрытие; устройство каркаса с последующим креплением облицовочных плит на относе от поверхности утеплителя и т.п.
В силу разнодолговечности применяемых материалов возможен отказ системы, который проявляется в нарушении защитных слоев штукатурного покрытия, снижении или потере теплоизоляционных свойств утеплителя, разрушении или нарушении функций защитных панелей, деформации каркаса, коррозии и разрушении кляммер для крепления облицовочных плит.
Интерпретация системы теплоизоляции может быть представлена в виде графа переходов (рис. 8.17), учитывающего три состояния системы: 1 - отсутствуют физико-механические изменения в системе «стена-теплоизоляция-защитное покрытие»; 2 - имеет место изменение защитного покрытия, но нарушение теплоизоляции отсутствует; 3 - потеря теплоизоляционных свойств в результате снижения функций утепляющего слоя или защитного покрытия (критическое состояние).

Рис. 8.17. Граф переходов для оценки состояния системы утепления фасадных поверхностей
Функция надежности системы может
быть записана в следующем виде:
и среднее время
эксплуатации до возникновения отказа может быть рассчитано по зависимости
где смысл параметров a1, a2, b1, состоит в следующем:
- среднее время до
возникновения нарушений физико-механических и теплоизоляционных свойств; (a1 + b1)-1 = Q - среднее время до начала восстановительных
работ;
- вероятность того, что восстановительные
работы начнутся раньше, чем теплоизоляционное покрытие утратит свои функции.
Тогда функция надежности для
оценки системы принимает следующий вид: ![]()
На рис. 8.18 приведены расчетные зависимости изменения функции надежности теплоизоляционной системы в зависимости от времени эксплуатации. Экспоненциальный характер изменения функции свидетельствует о различной интенсивности снижения уровня надежности для систем утепления со штукатурным покрытием и облицовкой из бетонных плит.

Рис. 8. 18. Изменение уровня эксплуатационной надежности
теплоизолированного стенового ограждения
1, 2 - теплоизоляция
со штукатурным покрытием; 3,
4 - системы с вентилируемым фасадом; 5 - предельно допустимое
снижение теплотехнических и эксплуатационных характеристик
При одинаковом утепляющем материале более долговечной является система, обеспечивающая эффект вентилируемого фасада. В то же время применение различных систем крепления оказывает существенное влияние на эксплуатационную надежность и долговечность защитных покрытий. Так, долговечность каркаса из дерева, при равных параметрах других элементов системы, является определяющим фактором эксплуатационной надежности.
Поэтому при выборе теплоизоляции необходимо руководствоваться математической моделью, учитывающей неоднородные характеристики элементов системы, критическое состояние которой наступает при отказе одной из составляющих.
Экономическая и технологическая оценки эффективности создания вентилируемых фасадов показали, что для реконструируемых зданий наиболее рациональным является создание комбинированных систем, когда первые два этажа облицовываются железобетонными дисперсно-армированными плитами по вертикальным направляющим, а на остальных этажах устраиваются дисперсно-армированное штукатурное покрытие или вентилируемый фасад с применением плоских облицовочных плит. Такое решение позволяет разнообразить архитектурную выразительность зданий, повысить долговечность и эксплуатационную надежность, а также снизить стоимость работ.
Пути снижения энергозатрат на эксплуатационные нужды достаточно разнообразны. Кроме технологий повышения теплотехнических характеристик жилых зданий следует выделить метод модернизации систем отопления, вентиляции, горячего и холодного водоснабжения, а также электроэнергии. Нерегулируемые системы, используемые до настоящего времени, приводят к значительным расходам тепла, горячей и холодной воды. В то же время отсутствует возможность управления температурно-влажностным режимом помещений квартир, что приводит к резкому снижению комфортности проживания, вызывает сезонные вспышки заболеваний в результате понижения или повышения температуры воздуха квартир.
При комплексной реконструкции квартала или микрорайона застройки повышается нагрузка на тепло-, электро-, водо- и канализационные сети за счет увеличения плотности застройки и числа проживающих. Это обстоятельство требует детальных расчетов и исследований экономической целесообразности прокладки сетей, использования автономных источников энергоснабжения и других нетрадиционных решений.
Автономные системы теплоснабжения снижают расход топлива на 20-50 %. Это достигается за счет сокращения потерь при транспортировке, использования управляемых режимов теплоснабжения, а также в результате рационального применения более совершенных отопительных систем и теплогенераторов.
Использование верхней и нижней разводок в эксплуатируемых зданиях приводит к неоднородному распределению тепловой энергии по этажам и значительным колебаниям тепло-влажностного режима помещений. Это обстоятельство существенно снижает комфортность проживания и приводит к дополнительным потерям и затратам за счет наращивания отопительных приборов или создания принудительной вентиляции. Поэтому при реконструкции зданий оснащение теплосистемами с горизонтальным поквартирным распределением теплоносителя от стояков позволяет осуществить индивидуальное регулирование теплового режима квартир и поквартирный учет потребляемой тепловой энергии. Регулирование теплового режима производится путем установки терморегуляторов.
Теплоснабжение реконструируемых зданий может осуществляться:
- от существующих городских теплосетей при условии их удовлетворительного технического состояния и возможности обеспечения теплом с учетом надстраиваемой части здания с устройством ИТП в здании;
- от городских тепловых сетей через реконструируемую ЦТП, перекладкой подводящих тепловых сетей к зданию с учетом увеличения тепловой нагрузки на отопление и горячее водоснабжение и устройством ИТП в здании.
При реконструкции жилых домов производится капитальный ремонт существующей системы отопления с полной заменой трубопроводов, арматуры, нагревательных приборов. Проектируется новая система отопления - единая для существующей и надстраиваемой частей здания.
Система отопления принимается однотрубная или двухтрубная с разводкой магистральных трубопроводов по техническому подполью.
Параметры теплоносителя системы отопления составляют: 95-70 °С - для двухтрубных систем; 105-70 °С - для однотрубных систем.
В качестве нагревательных приборов могут применяться чугунные или стальные радиаторы, конвекторы типа «Универсал», которые оборудуются терморегуляторами фирмы «Дан-фосс». Термостаты, утилизируя свободное тепло от воздействия солнечной энергии, работы электрических приборов, тепло от людей и т.п., обеспечивают большую экономию тепла. Термостаты максимально используют это тепло и поддерживают постоянную температуру, которая регулируется самим потребителем. Полученная экономия может достигать 15 %.
Наибольший эффект экономии тепловой энергии достигается при автоматизированной системе управления режимом теплоснабжения.
Для автоматизации коммерческого учета количества теплоты применяется теплосчетчик ТЭМ-05М (производится НПФ «ТЭМ-Сервис», г.Москва).
На подающем теплопроводе системы отопления, а также на подающем и обратном трубопроводах системы горячего водоснабжения (ГВС) устанавливаются первичные преобразователи расхода.
На подающем и обратном трубопроводах систем отопления, а также на подающем системы ХВС и ГВС устанавливаются преобразователи температуры.
Показания преобразователей расхода и температуры регистрируются и обрабатываются микропроцессорным устройством ИВБ. Оно устанавливается в шкафу учета тепла, где кроме этого размещаются интерфейсная розетка и адаптер.
Система автоматического управления режимом теплоснабжения включает: регулятор давления, погодный конденсатор, наружные и внутренние датчики температуры, термостатический и автоматический компенсационные клапаны, радиаторные термостаты и др. Это оборудование позволяет в автоматическом режиме поддерживать заданный температурный режим. В случае значительного (выше расчетного) понижения температуры наружного воздуха предусматривается использование электрических подогревателей теплоносителя.
Авторегулирование отопительной нагрузки основано на программном обеспечении системы. Регулируемыми параметрами являются температура обратной воды из системы отопления с учетом возможных теплопотерь здания и температура помещений, обеспечивающие комфортные условия проживания. Энергоэффективность в сфере потребления обусловливается информационными потоками, характером и направленностью управляющих воздействий в системе теплоснабжения. Для систем централизованного отопления управление микроклиматом здания и отдельных помещений может быть осуществлено путем реализации принципиальной схемы, приведенной на рис. 8.19. В связи с этим регулирование теплоотдачи нагревательного прибора с термостатом является функцией индивидуального потребителя с экономической заинтересованностью в виде платы за энергоресурсы.

Рис. 8.19. Принципиальная схема управления микроклиматом при
центральном теплоснабжении
=> - управление; -----► - передача информации; ® -
тепломассоперенос; НО - наружные ограждения; ЕВ - система естественной
вентиляции; НП - нагревательный прибор; СЦО - система центрального отопления;
ГВ - система горячего водоснабжения; ТП - тепловой пункт; ЦТИ - центральный
теплоисточник; БЭ - бытовые источники энергии; П - программа управления; АУУ -
автоматическое управляющее устройство
Автоматизированные системы управления подачи тепловой энергии наиболее эффективны при создании локальных газовых котельных, монтируемых на крышах или вблизи зданий и обслуживающих группу жилых домов или квартал. Возможно использование комбинированных систем теплоснабжения от магистральных и локальных сетей.
Перспективным с точки зрения энергозатрат и создания комфортных условий пребывания в помещениях является использование напольных отопительных систем. Они разделяются на системы с теплопроводами из полимерных труб, греющих кабелей и плоских графито-пластиковых нагревательных элементов. Расположение отопительных систем в покрытии пола или подготовке под полы обеспечивает плотность теплоотдачи с 1 м2 50-55 Вт/(м2×°С), что соответствует температуре пола 24-26 °С.
При использовании обычного теплоносителя принимаются полимерные трубы диаметром 15-25 мм, имеющие расчетный срок эксплуатации около 100 лет и выдерживающие температуру 120 °С.
Техническое решение напольного отопления представляет собой змеевидные контуры, подключаемые к стояку отопительной системы с терморегулятором. Равномерное распределение теплового потока позволяет улучшить комфортность помещений, а отказ от навесных отопительных радиаторов не только расширяет свободное пространство помещений, но и снижает нагрузки на элементы здания.
Для компенсации зон нисходящего с наружных стен и окон холодного воздуха предусматривается более частое расположение труб по периметру, что позволяет получать указанные зоны с температурой поверхности пола 28-32 °С.
Технология производства работ предусматривает укладку труб непосредственно в подготовку под полы. Для этой цели используются специальные шаблоны, которые обеспечивают заданный шаг труб, радиус поворота и геометрическую неизменяемость положения при укладке смесей.
Первоначально размещают направляющие шаблоны с шагом, обеспечивающим минимальный прогиб полимерных труб. Своими концами они крепятся к перекрытию с помощью крепежных систем. Затем укладываются полимерные трубы с обязательным креплением к направляющим с помощью прижимных фиксаторов. Концевые элементы труб с помощью соединительных муфт поднимаются к стоякам теплоснабжения. Там же располагаются терморегуляторы. Высота их установки принимается на уровне плинтуса пола.
Наиболее эффективна технология устройства стяжки с использованием пенобетона, бентонита и других типов саморазравнивающихся смесей. Подача и укладка смесей с помощью растворонасосов снижают в 8-10 раз трудозатраты и обеспечивают горизонтальную поверхность, не требующую дальнейшей обработки. Затем на полученные поверхности укладывается чистый пол из различных материалов: ковролина, керамической плитки или паркета. При малых объемах работ, как например, устройство теплого пола ванной комнаты или кухни, процесс укладки поверхностного слоя может осуществляться вручную с приготовлением раствора из сухих смесей в непосредственной близости к помещениям.
При реконструкции зданий нашли применение напольные отопительные системы с использованием греющих электрических кабелей. Отечественной промышленностью выпускаются кабели с удельной мощностью 16-32 Вт/пм. В качестве нагревательной жилы используют нихром, сталь, медь. Допустимая температура в кабеле достигает 150 °С. Рабочая температура на жиле составляет 70-80 °С. Изоляция кабеля стойка к воздействию воды, 20 %-му соляному раствору, 30 %-му раствору щелочи. Греющие провода и кабели могут использоваться при температуре окружающей среды от минус 60 до плюс 50 °С.
В зависимости от площади помещений и требуемой температуры греющие кабели и нагревательные провода выполняются в виде секционных комплектов.
Система обогрева располагается в толщине цементно-песчаной подготовки толщиной 3-5 см, снабжается термодатчиком и термостатом. Подключение производится к сети жилого помещения напряжением 110-220 В. Наиболее эффективным является расположение греющих кабелей в цементно-песчаной подготовке пола. В этом случае материал, обладая высокой теплоемкостью, может длительное время отдавать тепло при отключенной подаче энергии. Поэтому возможна цикличная подача тепла во время суток, когда стоимость и потребление электроэнергии минимальны. При использовании в качестве пола деревянного покрытия греющий кабель располагается на расстоянии 3-5 см от его внутренней поверхности в промежутках между ними. Теплотехнический эффект в данном варианте менее эффективен, так как из-за воздушной прослойки и низкой теплопроводности дерева период нагрева значительно увеличивается. При этом требуется более высокая удельная мощность.
Технология производства работ заключается в раскладке кабельной системы на поверхности перекрытия, фиксации геометрического положения с помощью направляющих, установке термодатчиков и терморегуляторов.
По мере выполнения монтажных работ осуществляется пооперационный контроль, включающий сохранение проектного шага расположения кабеля, горизонтальность размещения по высоте, фиксацию мест установки термодатчиков и проверку функционирования системы в целом.
Для обеспечения требуемого шага расположения кабеля используются металлические или полимерные направляющие с фиксаторами. С помощью фиксаторов осуществляют крепление и вывод системы термодатчиков.
После подготовки системы осуществляют укладку цементно-песчаной стяжки или настилку деревянного пола.
Греющие кабельные системы возможно располагать также под штукатурной поверхностью стен или фиксировать на стенах с экранированием плоскими элементами. Они могут использоваться для отогрева тротуаров, пандусов гаражей и в других случаях.
Одним из эффективных средств создания греющих полов, потолков и стен являются стеклопластиковые графитовые нагреватели. Они представляют собой графитовую ткань, запрессованную в стеклопластиковую оболочку с концевыми выводами для коммутации.
Размеры панелей составляют от 10´70 мм до 800´1200 мм при толщине 0,8-2,5 мм. Возможно использование как постоянного, так и переменного тока. Температура рабочей поверхности может достигать 100 °С. Коэффициент теплоотдачи составляет 0,96-0,99. Системы обладают низким коэффициентом тепловой инерции, что позволяет через 30-40 с после включения получать заданный тепловой поток.
Стеклопластиковые греющие панели имеют высокий уровень энергобезопасности и долговечности. Они одинаково хорошо выполняют свои функции при непрерывной и цикличной работе, сохраняют работоспособность при наличии сквозных отверстий. Это качество существенно упрощает процесс их монтажа, так как позволяет использовать различные крепежные средства в зависимости от материала основания.
Основным преимуществом электрических систем отопления является то, что излучаемый тепловой поток имеет большую площадь и малую тепловую инерцию. Так, для греющих полов период стационарного режима снижается до 30-45 мин, а плоских нагревательных систем - 10-15 мин. При этом излучаемое тепло не сжигает кислород и не создает воздушных потоков, поднимающих пылевые частицы. Это обстоятельство существенно улучшает экологическую ситуацию, благоприятно воздействуя на психику человека.
Следует отметить высокую надежность и долговечность отопительных систем, а также низкие трудозатраты и стоимость при их устройстве. По сравнению с традиционными решениями достигается снижение затрат до 30 %. Однако наиболее ощутимым фактором является эксплуатационная надежность таких систем. По данным финских экспертов, срок эксплуатации таких систем может достигать 100 лет.
1. Авиром Л.С. Надежность конструкции сборных зданий и сооружений. -Л.: Стройиздат, 1971. - 171 с.
2. Ананьев В.П., Зеленский Ю.В., Шувалова Л.П., Исаев Б.Н. Силикатизация лессовых грунтов. - Ростов: Изд-во Рост, ун-та, 1985. - 124 с.
3. Арендский Е. Долговечность жилых зданий/ Пер. с польского. - М.: Стройиздат, 1983. -255 с.
4. Афанасьев А.А., Матвеев Е.П., Монастырев В.П. Индустриальные методы облицовки зданий при их утеплении// ПГС. - № 6. - 1997. - С. 49-52.
5. Бедов А.И., Сапрыкин В.Ф. Обследование и реконструкция железобетонных и каменных конструкций эксплуатируемых зданий и сооружений. - М.: АСВ, 1995. - С. 180.
6. Боровков А.А. Теория вероятностей. - М.: Наука, 1986. - 431 с.
7. Бойко М.Д. Технологическое обслуживание и ремонт зданий и сооружений. - М.: Стройиздат, 1993. - 207 с.
8. Грунау Э. Предупреждение дефектов в строительных конструкциях/ Пер. с нем. - М.: Стройиздат, 1980. - 186 с.
9. Гусаков А.А. Системотехника строительства. - М.: Стройиздат, 1993. - 366 с.
10. Гнеденко Б.В., Беляев Ю.К., Соловьев А.Д. Математические методы в теории надежности. - М.: Наука, 1965.
11. Егнус М.Я., Каграманов Р.А., Левинзон АЛ. Технологическое обеспечение сборки зданий. - М.: Стройиздат, 1979. - 341 с.
12. Жилкин Г.Н. Электромеханическое закрепление фунтов в строительстве. - Л.: Стройиздат, 1966. - 246 с.
13. Калинина В.Н., Панкин В.Ф. Математическая статистика. - М.: Высшая школа, 1994.-335 с.
14. Карлин С. Основы теории случайных процессов. - М.: Мир, 1971. -386 с.
15. Коновалов П.А. Основания и фундаменты реконструируемых зданий. -М.: Стройиздат, 1980. -242 с.
16. Мензуренко А.С. Механизация строительно-монтажных работ при реконструкции, модернизации и капитальном ремонте жилых зданий// ПГС. - № 4. - 1995. С. 30-31.
17. Методические рекомендации по оценке эффективности инвестиционных проектов и их отбору для финансирования. - М., 1994. - 80 с.
18. Михалко В.Р. Ремонт конструкций крупнопанельных зданий. - М.: Стройиздат, 1986.- 310с.
19. Пилягин А.В. Опыт определения осадок фундаментов по данным краткосрочных геодезических наблюдений// Геология и картография. -1973. - № 11.
20. Пискунов М.Е. Методика геодезических наблюдений за деформациями сооружений. - М.: Недра, 1980. - 186 с.
21. Попов Г.Г., Бурак Л.Я. Техническая экспертиза жилых зданий старой постройки. - Л.: Стройиздат, 1986. - 210 с.
22. Перлей Е.М., Раюк В.Ф., Беленькая В.Ф., Алмазов А.Н. Свайные фундаменты и заглубленные сооружения при реконструкции действующих предприятий. - Л.: Стройиздат, 1989.-175 с.
23. Райзер В.Д. Теория надежности в строительном проектировании. -М.: АСВ, 1998. - 302 с.
24. Рекомендации по обследованию и оценке технического состояния крупнопанельных и каменных зданий/ ЦНИИСК им. В.А. Кучеренко. - М.: Стройиздат, 1988. - 57 с.
25. Рекомендации по усилению каменных конструкций зданий и сооружений/ЦНИИСК им. В.А. Кучеренко. - М.: Стройиздат, 1984. - 36 с.
26. Ройтман А.Г. Надежность конструкций эксплуатируемых зданий. - М.: Стройиздат, 1985.-174 с.
27. Ройтман А.Г. Деформации и повреждения зданий. - М.: Стройиздат, 1987. - 157 с.
28. Саурин А.Н., Таранцева Е.А. Опыт устройства набивных свай в раскатанных скважинах применительно к различным инженерно-геологическим и построечным условиям площадок// Основания, фундаменты и механика грунтов. - 1998. - С. 40-43.
29. Соловьев А.Д. Асимптотическое поведение момента первого наступления редкого события в регенерируемом случайном процессе// Изв. АН СССР. Техническая кибернетика. - 1971.-№6. -С. 79-89.
30. Соловьев А.Д., Саходов О.В. Двусторонние оценки для вероятности отказа на одном периоде регенерации// Изв. АН УзССР. - 1977. - № 2. - С. 41-46.
31. Соколов В.К. Реконструкция жилых зданий. - М.: Стройиздат, 1986. - 245 с.
32. Столбов Ю.В. Статистические методы контроля качества строительно-монтажных работ. - М.: Стройиздат, 1982. - 86 с.
33. Седых Ю.И., Лазебник В.М. Организационно-технологическая надежность жилищно-гражданского строительства. - М.: Стройиздат, 1989. - 398 с.
34. Смолко С.Я., Хотяков В.Я., Яковлев В.Г. Применение коротких свай и плитных фундаментов в жилищном строительстве на слабых основаниях// Основания, фундаменты и механика грунтов. - 1991. - № 2. - С. 5-6.
35. Соколевич Л.Е. Химическое закрепление грунтов. - М.: Стройиздат, 1980. - 268 с.
36. Штепе Г. Надежность несущих строительных конструкций/ Пер. с немец. - М.: Стройиздат, 1994. - 287 с.
37. Шторм Р. Теория вероятностей. Математическая статистика. Статистический контроль качества/ Пер. с немец. - М.: Мир, 1970. -364 с.
38. Управление инвестиционным комплексом в новых условиях/ Под ред. А.И. Ресина. - М., 1994. - 104 с.
39. Физдель И.А. Дефекты в конструкциях, сооружениях и методы их устранения. - М.: Стройиздат, 1987. - 335 с.
40. Пособие к МГСН 2.01-99 «Энергосбережение в зданиях». - М., 1999.
41. Проектирование тепловой защиты зданий. СП 23-101-2004. - М., 2001.
42. Рекомендации по проектированию и устройству оснований, фундаментов и подземных сооружений при реконструкции гражданских зданий и исторической застройки/ Правительство Москвы, Москомархитектура. - М., 1998.
43. Рекомендации по обследованию и мониторингу технического состояния эксплуатируемых зданий, расположенных вблизи нового строительства или реконструкции/ Москомархитектура. - М., 1998.
44. Рекомендации по проектированию и устройству оснований и фундаментов при возведении зданий вблизи существующих в условиях плотной застройки в г. Москве/Правительство Москвы, Москомархитектура. - М., 1999.
|
ГОСТЫ, СТРОИТЕЛЬНЫЕ и ТЕХНИЧЕСКИЕ НОРМАТИВЫ. Некоммерческая онлайн система, содержащая все Российские Госты, национальные Стандарты и нормативы. В Системе содержится более 150000 файлов нормативно-технической документации, действующей на территории РФ. Система предназначена для широкого круга инженерно-технических специалистов. Copyright © www.gostrf.com, 2008 - 2026 |