|
|
|
А.А. Афанасьев, Е.П. Матвеев РЕКОНСТРУКЦИЯ
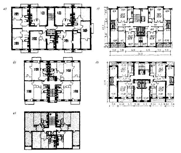
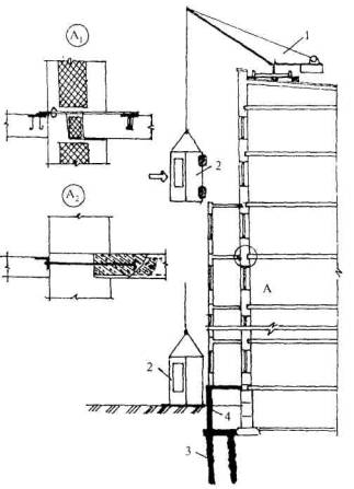
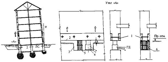
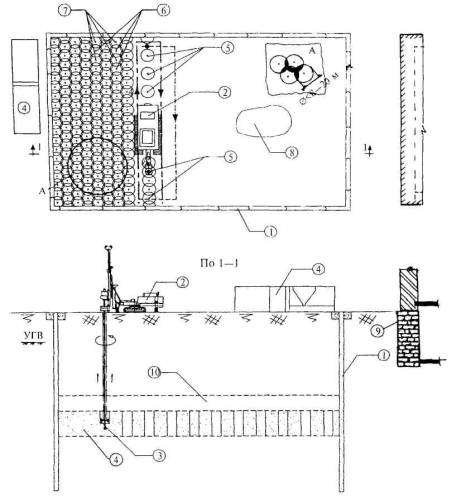
ЖИЛЫХ ЗДАНИЙ Москва 2008 Рекомендовано Учебно-методическим объединением вузов РФ в качестве учебного пособия для студентов, обучающихся по направлению 270100 «Строительство» Содержание Излагаются общие принципы реконструкции зданий различных периодов постройки, методы и технологии, обеспечивающие восстановление несущей способности конструктивных элементов и зданий в целом. Реконструкция рассматривается как комплексный процесс, направленный на снижение морального и физического износа жилищного фонда, повышение и восстановление надежности зданий, решение градостроительных задач с учетом снижения энерго-и ресурсосбережения, повышения плотности застройки и комфортности проживания. Обобщен отечественный и зарубежный опыт реконструкции зданий. Основное содержание работы базируется на использовании современных технологий, средств механизации, материалов и конструктивных решений, обеспечивающих продление жизненного цикла жилого фонда различных периодов постройки. Рассмотрены индустриальные методы реконструкции с изменением объема зданий, надстройкой и расширением корпусов, пристройкой и встройкой, превращением первых этажей и пристроек под помещения инфраструктуры и др. Особое внимание уделено технологиям производства реконструктивных работ без отселения жильцов. Путем математического моделирования оценены параметры непрерывных поточных процессов монтажа объемных блоков при условии случайных воздействий, оптимизированы характеристики технологических процессов при надстройке зданий из монолитных и сборно-монолитных конструкций. Приведены технологии механизированной разборки зданий, передвижки, вертикального подъема, исключения кренов и деформаций зданий. Значительное место отведено комплексной реконструкции городской застройки, когда наряду с работами по восстановлению жилого фонда имеют место снос строений и новое строительство, рациональное использование подземного пространства и другие приемы. Книга рассчитана на специалистов жилищно-коммунального хозяйства, проектировщиков, работников высшей школы, студентов и аспирантов. Рецензенты: Головнев С.Г. - член-корр. РААСН, д-р техн. наук, проф., заведующий кафедрой «Технология строительного производства» Южно-Уральского государственного университета. Олейник П.П. - д-р. техн. наук, проф., заведующий кафедрой «Организация строительства» Московского государственного строительного университета. ВВЕДЕНИЕМинимально необходимые объемы реконструкции жилых зданий в РФ составляют более 700 млн. м2 общей площади. Из них около 6 % жилых зданий дореволюционной постройки, 27 % построенных в довоенные и послевоенные годы, более 250 млн. м2 жилых зданий первого поколения индустриального домостроения. Для реконструкции жилых домов более ранней постройки разработаны технологии встроенных систем, обеспечивающие не только восстановление, но и увеличение объема зданий. Исследованы и адаптированы каркасные, сборно-монолитные и монолитные встроенные системы, приведены технологические показатели и разработаны индустриальные технологии производства работ. Более глубокие исследования проведены по реконструкции домов первых массовых серий. Разработаны новые технические и организационно-технологические решения, обеспечивающие приращение объемов за счет надстройки одно-, двухуровневыми мансардными этажами, пристройки малых объемов, увеличивающих площади кухонь и жилых комнат. Исследованы технологии одно- и двустороннего уширения корпусов жилых зданий с надстройкой 3-4 этажей. Специальные пилоны или объемные элементы обеспечивают восприятие нагрузки от надстройки и способствуют созданию современных архитектурно-планировочных решений. Использование индустриальных технологий позволило существенно снизить продолжительность работ без отселения жильцов, повысить архитектурную выразительность и разнообразие застройки. Для 9-этажных домов разработаны конструктивно-технологические решения по превращению технических этажей в жилые с одновременной надстройкой мансардных этажей. Дается оценка индустриальных технологий реконструкции зданий с использованием укрупненных и объемных элементов заводского производства. Разработана методика оценки инвестиционных проектов, способствующая выбору наиболее рациональных решений с учетом положения реконструируемого объекта в городской застройке. Как правило, реконструкция жилых зданий проводится в условиях повышенной стесненности, что не позволяет использовать оптимальные комплексы строительных машин и механизмов. Это обстоятельство требует разработки новых методов производства работ, организационно-технологических и конструктивных решений, привлечения специальной техники и технологии. Острота этой проблемы повышается при производстве реконструктивных работ без отселения жильцов. Показано, что наиболее рациональным и экономически эффективным является повышение плотности застройки путем малоэтажной надстройки и обстройки зданий, устройства многоэтажных вставок между реконструированными домами и возведения отдельных стоящих жилых корпусов, создания объектов инфраструктуры. Комплексное решение реконструкции квартальной застройки позволяет создать комфортные условия проживания, отвечающие современным требованиям городской среды. Приведены технологии механизированной разборки зданий, передвижки, вертикального подъема, исключения кренов и деформаций зданий. Значительное место отведено комплексной реконструкции городской застройки, когда наряду с работами по восстановлению жилого фонда имеют место снос строений и новое строительство, рациональное использование подземного пространства и другие приемы. ГЛАВА 9 РЕКОНСТРУКЦИЯ ЖИЛОГО ФОНДА РАННИХ ПОСТРОЕК§ 9.1. Технология встроенных системТехнология встроенных строительных систем предусматривает полный демонтаж перекрытий, перегородок, внутренних стен и других конструктивных элементов, оставляя наружные несущие стены, а иногда и стены лестничных клеток. Затем осуществляется встройка внутренних несущих конструкций, которая может выполняться в сборном, сборно-монолитном и монолитном вариантах. Отличительной особенностью ее применения является то обстоятельство, что имея самостоятельные фундаменты, встроенная система воспринимает технологические и эксплуатационные нагрузки, тем самым частично или полностью исключает их передачу на стеновые ограждения. Это позволяет осуществлять надстройку зданий независимо от несущей способности старых фундаментов и стенового ограждения, снизить объем работ по укреплению основания, усилению существующих фундаментов, а также стен. Использование различных встроенных систем способствует созданию более рациональной планировки помещений, обеспечивающей требуемую комфортность квартир, а применение прогрессивных материалов и технологий создает предпосылки использования индустриальных методов ведения работ с необходимым оснащением средствами механизации. На рис. 9.1 приведена принципиальная схема реализации метода встроенных систем.
Рис. 9.1.
Технологическая последовательность реконструкции зданий методом
встроенных строительных систем с надстройкой этажей Принятию решения по устройству встроенной системы предшествует техническое обследование здания, по материалам которого определяется комплекс работ по восстановлению и усилению оставляемых конструктивных элементов здания. Возведение встроенной системы включает несколько технологических циклов, на каждый из которых разрабатываются проекты производства работ. На наиболее ответственные процессы составляются технологические карты и карты трудовых процессов. I цикл включает демонтаж конструктивных элементов здания: кровельной части, перекрытий, внутренних стен, их фундаментов и перегородок. При выполнении данного вида работ предусматриваются меры по обеспечению устойчивости стенового ограждения путем сохранения части балок перекрытий и устройству специальных стяжек, обеспечивающих геометрическую неизменяемость оставляемых конструкций. Разборка конструктивных элементов здания осуществляется с применением средств механизации, ручного механизированного инструмента, грузоподъемных приспособлений, обеспечивающих поэлементный демонтаж, разрушение конструкций и их транспортирование за пределы строительной площадки. При разборке внутренних конструктивных элементов здания особое место отводится очередности производства работ, обеспечивающей технологическую последовательность и устойчивость демонтируемых элементов, а также использование безопасных методов производства работ. Материалы от разборки транспортируются с применением мобильных кранов, лебедок, подъемников. Мелкоштучные элементы от разборки стен, перегородок и перекрытий транспортируются с использованием специальных лотков в емкости, из которых осуществляется погрузка в автотранспортные средства. При выполнении работ по разборке необходимо использовать средства, исключающие запыленность, механизмы с высокими виброакустическими характеристиками. При демонтаже фундаментов под внутренние стены и стеновые элементы из монолитного железобетона целесообразно использовать электроимпульсные установки, обеспечивающие разрушение материала за счет создания высокого динамического давления, специальный инструмент: перфораторы, отбойные молотки и дисковые фрезы с алмазным напылением. II цикл включает работы нулевого цикла. При реконструкции с сохранением объема здания и достаточно высокой степени износа фундаментов осуществляется их усиление известными методами и технологиями. При этом возможно как укрепление грунтов, так и восстановление несущей способности фундаментов стен в связи с изменившимися технологическими нагрузками. При варианте с надстройкой здания осуществляется устройство новых фундаментов под встраиваемую систему. III цикл состоит в выполнении строительно-монтажных работ, связанных с устройством встроенной системы. В зависимости от конструктивно-технологического решения для выполнения работ данного цикла используются различные средства механизации: башенные и пневмоколесные краны; грузопассажирские подъемники; бетононасосный транспорт и т.п. IV цикл представляет комплекс работ по надстройке здания. Используются технологии, принятые для возведения встроенной системы. Производство строительно-монтажных работ предусматривает совмещение технологических потоков по возведению несущих конструктивных элементов с ограждающими, а также выполнение строительных процессов по внутренней планировке помещений. V цикл включает специальные и отделочные виды работ, выполнение которых осуществляется отдельными технологическими потоками с совмещением в пространстве и времени. В отличие от нового строительства, вследствие ограниченных площадей, несколько по-иному решаются доставка и складирование материалов и конструктивных элементов, расположение складских и бытовых помещений, подъемно-транспортного оборудования, средств механизации, временных и постоянных сетей. Стесненность строительной площадки накладывает определенные ограничения не только на формирование строительных генеральных планов, но и технологии ведения работ. Так, при сборном решении встроенных систем возможны варианты монтажа с транспортных средств, с доставкой строительных конструкций по часовым графикам, с приобъектного склада. Условия строительной площадки в ряде случаев диктуют и технологии производства работ. Так, невозможность использования башенных кранов требуемой грузоподъемности приводит к применению варианта монолитных встроенных систем и бескрановых средств подачи материалов и полуфабрикатов. Стесненность площадки приводит к принятию решения по использованию приставных башенных, а также стационарных кранов, расположенных внутри реконструируемого объекта при значительной ширине корпуса. Ограниченность строительной площадки определенным образом влияет и на организацию строительных работ. Так, транспортирование и укладка смеси бетононасосами требуют увеличения площади захваток и соответственно опалубочных систем, приводят к возрастанию технологических перерывов и изменению ритма производства работ. Как правило, снижение уровня механизации способствует увеличению себестоимости работ и повышению трудозатрат. Оптимизация организационно-технологических решений дает ответ о целесообразности использования определенной конструктивной встроенной системы, методах производства работ, технологий и материалов. § 9.2. Встроенная система из сборного каркасаДанный способ реконструкции базируется на использовании сборных железобетонных изделий заводского производства. Он впервые предложен и апробирован Матвеевым Е.П. при реконструкции 4- , 5-этажных жилых домов в Москве. За период до 1994 года по этой технологии было реконструировано более десяти 4-5-этажных зданий постройки 1930-х годов с надстройкой на два этажа. Принципиальное решение способа встроенного каркаса распространяется на здания, имеющие в плане прямоугольную или близкую к ней форму. Используются конструктивные схемы с полным и неполным встроенными каркасами. Полный встроенный каркас позволяет исключить из работы ограждающие конструкции стен, что создает предпосылки выполнения реконструктивных работ не только с полной перепланировкой, но и надстройкой несколькими этажами. При использовании схемы неполного каркаса, когда нагрузка от ригелей передается на стеновые конструкции, возможность надстройки ограничивается несущей способностью стен. Использование полного каркаса является более технологичным по сравнению с традиционными методами замены перекрытий, так как существенно снижается объем работ по устройству гнезд опирания, в меньшей степени ослабляется несущая способность стен, а в результате использования плит перекрытий различной длины обеспечивается возможность получения помещений с гибкой планировкой. Полный встроенный каркас применяют при средней степени износа наружных стен и в случае надстройки здания несколькими этажами. При этом шаг расположения колонн согласуется с шагом оконных проемов и принимается кратным им. Использование полного встроенного каркаса позволяет превратить наружные стены в самонесущие, исключить комплекс работ по их усилению. Такое решение не ограничивает этажность надстройки, что в ряде случаев является определяющим при реализации проекта реконструкции. Базовыми элементами являются сборные железобетонные конструкции модернизированного каркаса серии 1.020-1/87: фундаменты, ригели, плиты перекрытия сплошного сечения или многопустотный настил, стеновые блоки и панели, колонны высотой на 1-3 этажа, лестничные марши и площадки, сантехкабины, вентблоки, секции мусоропроводов, лифтовых шахт и др. В зависимости от шага оконных проемов определяются типоразмеры плит перекрытий, максимальной ширины корпуса - геометрические размеры ригелей, а высоты этажа - параметры колонн. На рис. 9.2 приведены некоторые технологические решения использования сборных встроенных систем для различных типов реконструируемых зданий: однопролетных, двухпролетных с внутренней несущей стеной, однопролетных с внутренними поперечными несущими стенами, секционного типа.
Рис. 9.2.
Встроенные системы с неполным (а,
б) и полным (в, г)
каркасами и повторяемость оконных проемов для различных зданий (д) Для снижения себестоимости производства работ из-за широкой номенклатуры сборных конструкций целесообразно использовать ригели и многопустотный настил, изготавливаемые по экструзионной технологии, с разрезкой на требуемые размеры. Повышение уровня монтажной технологичности может быть достигнуто путем увеличения шага колонн встроенной системы и применения плит большепролетного размера, использования многоэтажных колонн и стыковых бессварных соединений. На рис. 9.3 приведена примерная номенклатура железобетонных изделий.
Рис. 9.3.
Примерная номенклатура сборных изделий При устройстве встроенной системы из типовых элементов сборного железобетона достигается максимальная производительность монтажных кранов за счет повышения коэффициента использования по грузоподъемности. Так, при использовании двух типов кранов КБ-160.2 грузоподъемностью 8 т и вылетом стрелы 25,0 м и КБ-160.1 грузоподъемностью 5 т с тем же вылетом, для крана с меньшей грузоподъемностью (КБ-160.1) необходимо использование колонн 2-3-ярусной разрезки с массой до 4 т, составных панелей стен жесткости из двух элементов, вместо блоков сантехкабин и лифтовых шахт использовать поэлементную сборку из панелей. Вариантное сравнение по степени механизации монтажных процессов в зависимости от массивности изделий показало, что себестоимость работ может быть снижена на 8-12 % за счет использования более технологичных конструктивных элементов. Снижение числа циклов подъема и установки сборных элементов способствует сокращению общей продолжительности производства монтажных работ, а дополнительное снижение монтажного цикла достигается в результате использования менее трудоемких стыковых соединений. Определяющее влияние на продолжительность ведения работ оказывают монтажная оснастка, средства выверки и временного крепления элементов. При монтаже колонн в стаканы фундаментов наиболее эффективно применение инвентарных разводных клиньев или клиновых вкладышей. Они обеспечивают снижение продолжительности работы крана до 15%. Для монтажа многоэтажных колонн успешно используются подкосы одиночные и групповые кондукторы. Оснащение их регулировочными винтами позволяет сократить продолжительность выверки в 1,5-2,0 раза и снизить трудоемкость устройства стыков до 30 %. Технологические аспекты метода встроенного монтажа Основой технологии встроенного монтажа является разбивка на технологические ячейки (захватки), которые представляют собой расстояние между лестничными клетками или секции здания. Индексом, определяющим шаг расположения колонн и ригелей встроенного каркаса, является расстояние между осями оконных проемов, которое принимается кратным п = 1, 2, 3, 4. Этот параметр определяет уровень планировочного решения и габариты свободного от опор объема. С увеличением п возрастает перекрываемая площадь, увеличиваются длина плит, их сечение и полезные нагрузки. Технология встроенного монтажа предусматривает поточные методы ведения работ. При конструктивно-технологической схеме неполного каркаса без надстройки этажей можно выделить четыре технологических потока монтажного цикла: устройство фундаментов под средний ряд колонн; подготовка опор под ригели; монтаж колонн, ригелей, стенок жесткости и плит перекрытия; монтаж сантехкабин, лифтовых шахт, вентблоков, лестничных маршей и площадок. Технологическая последовательность выполнения работ предусматривает раздельный метод монтажа колонн с использованием кондукторных систем для выверки и временного крепления и комбинированный - для монтажа ригелей и плит перекрытия. Ведущим процессом является монтажный цикл, поэтому вспомогательные процессы подчинены ритму работ ведущего. Для установки колонн в стаканы фундаментов используются различные средства для выверки и временного крепления. Технологически эффективными являются клиновые вкладыши, которые обеспечивают высокую точность установки низа колонн в проектное положение. Наличие подвижной системы механических домкратов позволяет с минимальными трудозатратами обеспечить заданное геометрическое положение колонн. Они в меньшей степени препятствуют омоноличиванию стыков, легко извлекаются для повторного использования. При монтаже многоэтажных колонн дополнительно к вкладышам используются телескопические подкосы, которые обеспечивают устойчивость колонн и их геометрическую неизменяемость. Для строповки колонн применяют траверсы различных конструктивных схем. Они позволяют осуществлять строповку в горизонтальном положении, плавный вертикальный подъем и дистанционную расстроповку после выверки и временного крепления. Наиболее технологичными для вертикального наращивания колонн являются одиночные кондукторы. Их использование снижает до 30 % машинного времени монтажного крана, тем самым повышая производительность. Для возведения встроенной системы требуется использование 3-4 кондукторов. Они обеспечивают ритмичную работу монтажного цикла. Состав работ по устройству встроенного каркаса включает установку колонн, поярусный монтаж ригелей и плит перекрытия, сварку закладных и крепежных деталей, устройство стыков колонн, установку опалубки стыков и их бетонирование, заделку швов плит раствором, оштукатуривание примыкания ригелей. При выборе монтажного крана и дополнительных средств механизации следует учитывать максимальную массу монтируемых элементов, вылет стрелы и высоту подъема крюка. Эти данные позволяют осуществлять подбор крана по техническим характеристикам. Наиболее рациональным является вариант, когда средние массы монтируемых элементов приблизительно одинаковы. Это обстоятельство позволяет более рационально использовать грузоподъемность крана, а также существенно повысить технологичность конструктивных элементов. При использовании конструктивно-технологической схемы с полным каркасом и надстройкой здания технологические потоки подобны ранее рассмотренному варианту с той разницей, что значительное увеличение нагрузки от надстраиваемых этажей требует устройства фундаментов в виде монолитной плиты. Возникает дополнительный поток по устройству стенового ограждения из мелкоштучных элементов или панелей наружных стен для надстраиваемой части. На рис. 9.4 приведен пример реконструкции жилого 5-этажного здания с надстройкой трех этажей. Для секционных домов постройки 1930-40-х годов это решение наиболее эффективно, так как позволяет вписать встроенную систему без значительных конструктивных изменений и дополнений. Это достигается в результате использования шага колонн, кратного расстоянию между простенками, применения ригелей и стенок жесткости, обеспечивающих пространственную жесткость каркаса, колонн высотой на 2-3 этажа, объемных элементов лифтовых шахт и сантехкабин, вентблоков и т.п.
Рис. 9.4.
Технологическая схема реконструкции жилого дома с использованием
встроенного каркаса с широким шагом колонн Возведение встроенного каркаса осуществляется по захваткам, размеры которых соответствуют секции жилого дома. При длине секции 24,4 м и ширине 13,8 м на каждой секции используется 12 колонн, 4 ригеля, 4 стенки жесткости и два типоразмера плит перекрытий длиной 9,6 и 2,8 м. Минимальное количество типоразмеров сборных деталей обеспечивает высокую технологичность монтажного процесса и резкое снижение трудозатрат. В рассматриваемом примере удельные трудозатраты на устройство 1 м2 перекрытия составляют 0,6-0,8 чел.-ч, что в 1,3-1,6 раза ниже, чем при замене перекрытий по балочной схеме, и в 2,1-3,2 раза ниже, чем при замене перекрытий из мелкоштучных плит по металлическим балкам. Наиболее рациональной является дифференцированная схема монтажа конструкций. На рис. 9.5, а приведена технологическая последовательность монтажа сборных элементов. Первоначально осуществляется монтаж колонн. Для подвального этажа используются одноярусные колонны, устанавливаемые в стаканы фундаментов. Монтаж колонн осуществляется последовательно по захваткам на все здание. Это обеспечивает последующую установку стенок жесткости, ригелей и плит перекрытий при достижении прочности стыка не менее 70 %. Устройство перекрытий над подвальным этажом дает фронт работ для возведения надземной встроенной части, которая ведется комплексно по захваткам с использованием 2- и 3-ярусных колонн.
Рис. 9.5.
Технологическая последовательность монтажа элементов встроенного каркаса
на захватке (секции) Технологическая схема, иллюстрирующая последовательность монтажа элементов, представлена на рис. 9.5, б. При возведении встроенных конструкций I-II этажей используются двухъярусные колонны, монтаж которых производится с применением одиночных кондукторов. Возведение элементов первого яруса осуществляется в следующей последовательности: монтаж стенок жесткости, являющихся одновременно стенками лестничной клетки; установка ригелей крайнего и среднего рядов; монтаж плит перекрытий; установка лестничных площадок и маршей; монтаж объемных блоков лифтовых шахт, сантехкабин. По завершении монтажа конструкций первого яруса осуществляется установка второго яруса в той же технологической последовательности. Выполнение монтажных работ по захваткам позволяет организовать поточное производство и последовательно создавать фронт работ для других строительных процессов и потоков внутри созданных объемов. Возведение надстройки осуществляется по принятой технологии монтажа. Отсутствие стенового ограждения снижает влияние стесненности работ и повышает производительность труда монтажников. Ведущим процессом при возведении встроенной каркасной системы является монтаж конструкций. Его ритму подчинено выполнение всех других процессов комплекса работ и этапов реконструкции здания. Они увязываются во времени и пространстве. В зависимости от последовательности выполнения монтажных работ применяют раздельный, комплексный или комбинированный методы. В рассматриваемом примере может быть использован раздельный метод для установки колонн и комбинированный - для поярусного возведения перекрытий и монтажа встроенных объемных элементов. Разбивка здания на захватки, являющиеся секциями жилого дома, позволяет принять более рациональную вертикальную схему возведения. Такое решение позволяет создавать необходимый фронт работ для внутриобъектных потоков по устройству стенового ограждения, выполнению специальных и отделочных работ. Последовательное перемещение строительных потоков по секциям обеспечивает ритмичную работу всего комплекса. Максимальное совмещение процессов во времени способствует снижению сроков реконструктивных работ. В процессе выполнения монтажных операций особое внимание уделяется геометрической точности установки сборных элементов. Отклонение параметров от допустимых значений может привести к нарушению собираемости встроенного каркаса, снижению или увеличению опорных площадок ригелей и плит, а также недопустимым отклонениям в размерах. Процесс монтажа сопровождается геодезическим контролем вертикальности колонн, постоянством монтажного горизонта опорных частей для ригелей и плит перекрытий каждого этажа и яруса, сохранением геометрических размеров основных осевых линий и их переносом на уровень монтажного горизонта. Для обеспечения собираемости элементов при их изготовлении и монтаже сохраняются технологические допуски, регламентирующие точность установки. Эти допуски назначаются по условиям технической возможности применяемого оборудования и оснастки при изготовлении и монтажных средств и инструмента при выверке, временном и окончательном закреплении, вызываемых сваркой стыковых элементов. Анализ зависимостей показывает, что вероятность снижения погрешностей снижается с применением кондукторов, а максимальное повышение точности сборки достигается при использовании бессварных соединений колонн (рис. 9.6). Это обстоятельство позволило использовать эти методы стыковки ко тонн в стесненных условиях производства работ, при этом продолжительность и трудоемкость монтажа сокращаются в 1,5-2,0 раза. Бессварные стыковые соединения кроме повышения точности установки элементов способствуют повышению надежности и долговечности встроенных систем вследствие снижения влияния дополнительных напряжений.
Рис. 9.6.
Варианты стыковых соединений колонн При использовании штепсельных соединений каждая колонка имеет в обоих торцах четыре анкера и четыре отверстия, чьи диаметр и глубина несколько больше, чем длина и диаметр анкера (штепсельное и муфтовое соединения). Перед наращиванием колонн на поверхность стыкуемых элементов наносится полимерный клей. Установка верхней колонны осуществляется таким образом, чтобы анкеры верхней колонны вошли в отверстия нижней, а анкеры нижней - в отверстия верхней. С помощью коллоидного цементно-песчаного раствора или полимерной мастики осуществляется инъекция каналов, обеспечивающая требуемую адгезию элементов стыка и его равнопрочность. Наиболее технологичным является стык штепсельного типа, который существенно снижает продолжительность монтажа колонн, так как не требует дополнительных операций и материалов. Эффективность работ по устройству встроенного каркаса увеличивается путем повышения технологичности конструктивных элементов. Обобщенный показатель
технологичности выражается в виде коэффициента, учитывающего снижение или
увеличение себестоимости возведения конструкции по сравнению с эталонной Себестоимость возведения эталонного варианта определяется путем суммирования затрат Сэ = См + Ср + Нр, где См - стоимость механизации; Ср - стоимость рабочей силы; Нр - стоимость накладных расходов. При значении коэффициента технологичности КТ > 1,03 вариант считается более технологичным, чем эталонный. При 0,97 < КТ < 1,03 сравниваемые варианты считаются равноценными. Оценка технологичности отдельных групп конструктивных элементов дает показатель технологичности реконструируемого здания в целом. Он представляет собой сумму средневзвешенных значений соответствующих коэффициентов К конструктивных элементов. Обобщенный коэффициент
технологичности встроенной системы может быть оценен как произведение суммы
средневзвешенных коэффициентов технологичности конструктивных элементов на
коэффициент, определяющий удельную значимость элементов в составе
реконструируемого здания li: КТ =
SКi×li, при этом Анализ конструктивно-технологических решений показывает, что переход на указанные . строительные элементы приводит к значительному росту показателя технологичности. Так, переход на 2-, 3-, 4-этажные колонны повышает коэффициент технологичности соответственно 1,11; 1,14; 1,17. Увеличение площади плит перекрытия также приводит к заметному росту данного показателя до значений 1,18- 1,25. Снижение количества стыковых соединений колонн снижает трудозатраты пропорционально количеству стыков, а переход на бессварные стыковые соединения дает дополнительное сокращение трудозатрат в 1,5-2 раза и снижение стоимости устройства стыков на 9-15 %. В свою очередь, повышение технологичности приводит к удельному сокращению машинного времени и, как следствие, к снижению себестоимости и продолжительности работ. На рис. 9.7 приведены графики изменения себестоимости работ, включая стоимость изготовления и транспортирования, в зависимости от длины (массы) колонн, размеров ригелей, площади плит перекрытий. Статистическая обработка результатов наблюдений показала, что зона оптимальных габаритов колонн находится в пределах 5-8 т (3-4 этажа), ригелей - 4-6 т (6-9 м), плит перекрытия площадью до 25 м2 (10-12 т).
Рис. 9.7.
Себестоимость монтажа в зависимости от массы (площади) конструктивных
элементов Процесс укрупнения конструктивных элементов должен быть регулируемым. При значительном увеличении массы монтируемых элементов возможен их переход в другую массовую группу, для которой необходимо использование кранов большей грузоподъемности. Это обстоятельство, как правило, приводит к скачкообразному увеличению себестоимости монтажных работ. § 9.3. Сборно-монолитная встроенная каркасная система с преднапряженными несущими конструкциямиДанная система может быть успешно применена при реконструкции жилых зданий с кирпичными стенами прямоугольной в плане формы и надстройкой несколькими этажами. Ее отличительной особенностью является возможность адаптации к широкой гамме жилых домов старой постройки с различным шагом оконных проемов и высоты этажей. Широкий шаг (до 9,0 м) размещения колонн позволяет получать помещения с гибкой планировкой. На рис. 9.8 приведены конструктивно-технологические схемы встроенных систем с перекрытиями из несъемной опалубки по преднапряженным ригелям и с использованием многопустотного настила.
Рис. 9.8.
Конструктивно-технологическая схема встроенного сборно-монолитного
каркаса Технология возведения включает: цикл устройства фундаментной плиты из бетона классов В-15-В-25 с фундаментами под колонны стаканного типа, монтаж многоярусных колонн с выверкой и временным креплением с помощью подкосов, поярусный монтаж ригелей, стенок жесткости, установку элементов несъемной опалубки с дополнительным армированием и бетонированием или монтажом многопустотных плит перекрытия с омоноличиванием стыков. В основе системы используются многоэтажные колонны, в которых в местах сопряжения с ригелями и перекрытиями отсутствует бетон. Технология их изготовления производится на длинных стендах из бетонов класса В-30, что позволяет для каждого конкретного здания в соответствии с высотой этажа осуществлять размещение зоны стыка путем устройства вкладышей. Стык колонн при их наращивании производится по штепсельной схеме, что исключает применение сварочных работ. В процессе монтажа каркаса в местах примыкания ригелей и элементов перекрытия выполняются дополнительное армирование и омоноличивание. При омоноличивании образуется узел, обеспечивающий пространственную жесткость каркаса (рис 9.9).
Рис 9.9.
Узлы сопряжения колонн с ригелями и элементами перекрытия Ригели выполняются предварительно напряженными из бетонов класса В-30. Их ширина принимается равной ширине колонн примыкания, а высота рассчитывается в зависимости от воздействующих нагрузок (шага колонн, пролета и длины ригеля). Омоноличивание плиты перекрытия в зоне сопряжения с ригелем создает тавровое рабочее сечение, где сборный ригель является ребром тавра, а его верхней полкой служит примыкающий участок плиты перекрытия. Их изготовление осуществляется на длинных стендах с использованием предварительно напряженной канатной арматуры. Применение длинных стендов позволяет изготавливать широкую номенклатуру по длине, что обеспечивает их использование для зданий с различной шириной корпусов. В верхних зонах ригелей размещаются замкнутые хомуты, обеспечивающие связь со сборно-монолитной плитой перекрытия. Сборно-монолитные перекрытия выполняются из несъемной железобетонной преднапряженной опалубки толщиной 60 мм, которая устанавливается на плоскость ригелей. Дополнительное армирование и шероховатость поверхности плит обеспечивают требуемую адгезию и однородность работы перекрытия по всей толщине. Технологически эффективным является использование в качестве перекрытия преднапряженного многопустотного настила. Такое решение исключает использование в больших объемах монолитного бетона, что особенно актуально при реконструкции зданий в условиях пониженных и отрицательных температур. Наиболее эффективно использование многопустотного настила, изготавливаемого по экструзионной технологии. Это позволяет получать требуемую длину изделий по резательной технологии с минимальными трудозатратами. В зависимости от нагрузок толщина плит перекрытий колеблется от 150 до 400 мм, что позволяет перекрывать пролеты до 20 м (рис 9.10).
Рис 9.10.
Производство плит перекрытия по экструзионной технологии Использование длинных стендов (120-150 м) для изготовления колонн, предварительно напряженных ригелей и несъемной опалубки обеспечивает технологическую гибкость и способствует без переналадки бортоснастки получать широкую гамму сборных конструкций каркаса. При этом высокое качество изделий достигается путем применения бетоноукладчиков специальной конструкции, оптимальных режимов вибрационного уплотнения и тепловой обработки. Использование автоматизированных систем температурного контроля позволяет существенно повысить однородность физико-механических характеристик бетона и оптимизировать расход теплоносителя на прогрев конструкций. На рис 9.11 приведены технологические линии по изготовлению несъемной опалубки, колонн и ригелей.
Рис. 9.11. Технология изготовления многоярусных колонн (а, б), преднапряженных ригелей (в, г) и несъемной опалубки (д, е) на длинных стендах Повышение уровня надежности стеновых соединений достигается контролем технологических регламентов производства работ с использованием инструментальных средств. Так, при омоноличивании стыков колонн с ригелями и плитами перекрытий используются бетонные смеси класса В-30. При укладке смесей осуществляется обязательное уплотнение глубинными вибраторами. При выполнении работ с отрицательной температурой наружного воздуха обеспечивается прогрев греющими проводами или стержневыми электродами. Для формирования однородного температурного поля открытые поверхности бетонной смеси утепляются. Строго выдерживается режим прогрева монолитных участков, что обеспечивает получение равнопрочных стыков. Процесс возведения встроенных систем отличается от ранее рассмотренной схемы меньшей трудоемкостью работ за счет использования бессварных соединений колонн, ригелей и плит перекрытия, использования простейших подкосных систем для выверки и временного крепления колонн, применения крупногабаритных изделий, повышающих уровень технологичности и снижающих машиноемкость процессов. § 9.4. Реконструкция зданий с применением сборно-монолитных встроенных системСочетание преимуществ сборного железобетона с монолитным реализуется с помощью возведения встроенных систем, у которых в монолитном варианте выполняются внутренние поперечные и продольные несущие стены, а перекрытия - из сборного предварительно напряженного многопустотного настила. В сборном варианте используются также лестничные площадки, марши, объемные блоки сантехкабин и лифтовых шахт. Использование большепролетных (до 18 м) плит перекрытий позволяет не только снизить удельный расход материалов, но и повысить технологичность строительных процессов, а также создать свободные планировочные объемы значительных размеров. В то же время использование сборных перекрытий позволяет без значительных технологических перерывов осуществлять их нагружение, что весьма важно при организации поточного производства работ. Применение внутренних монолитных стен позволяет реализовать практически любую высоту этажей реконструируемых зданий. На рис. 9.12 приведена конструктивно-технологическая схема встроенной сборно-монолитной системы. Она включает: внутренние поперечные и продольные монолитные стены; пристеночные железобетонные диафрагмы торцевых элементов зданий; многопустотный настил перекрытия; сборные элементы лестничной клетки и др. Расположение внутренних несущих стен осуществляется таким образом, чтобы площадь перекрытия была максимальной и приближалась к размерам квартир. Это обстоятельство позволяет на любом этапе эксплуатации осуществлять перепланировку помещений.
Рис. 9.12.
Сборно-монолитная встроенная
система Цикл встройки сборно-монолитной системы состоит в устройстве фундаментов, возведении монолитных поперечных и продольных стен, монтаже плит перекрытия и других встроенных элементов. Монолитные стеновые конструкции выполняют функции несущих стен и обеспечивают пространственную жесткость встроенной системы. Взаимодействие ограждающих конструкций с поперечными стенами повышает их пространственную жесткость и в ряде случаев несущую способность. Продольная монолитная стена может выполняться отдельными участками, тем самым обеспечивая получение больших перекрываемых площадей. В любом случае как внутренние поперечные, так и продольные стены должны размещаться соосно по всей высоте начиная с подвальной части здания. В зависимости от грунтовых условий фундаментами под встроенную систему могут служить перекрещивающиеся ленты, плиты сплошного или кессонного типа в монолитном исполнении. Основным условием создания фундаментов является учет восприятия нагрузок как встраиваемой части здания, так и надстраиваемых этажей. При этом существующее стеновое ограждение становится самонесущим. Процесс реконструктивных работ требует использования специальных средств механизации для выполнения цикла нулевых работ: возведения монолитных фундаментов под внутренние несущие стены, поэтажного устройства встроенной системы с использованием различных опалубочных систем, монтажа сборных конструкций междуэтажных перекрытий, объемных элементов сантехкабин, вентблоков и др. Технология возведения вертикальных стеновых конструкций Для возведения вертикальных стеновых конструкций наиболее рационально применение укрупненных опалубочных щитов системы Мева, Дока, алюминиевой опалубки ЦНИИОМТП и др. Их конструктивные особенности позволяют возводить внутренние стены с различной высотой этажа за счет использования доборных элементов. Сравнение опалубочных систем может быть оценено по уровню технологичности процессов укрупнения, сборки и демонтажа. Этот фактор определяется конструктивными особенностями замковых соединений, уровнем их надежности и трудоемкости выполнения работ. Наиболее важными показателями опалубочных систем являются обеспечение плотности стыковых соединений, исключение деформативности от действия гидростатического и динамического давления бетонной смеси, а также их оборачиваемость. На рис. 9.13 приведены технологические схемы возведения монолитных конструкций, типы опалубочных систем и узлы взаимодействия наружных и внутренних стен с ограждающими конструкциями.
Рис. 9.13.
Конструктивно-технологическая схема устройства встроенной
сборно-монолитной системы с широким шагом внутренних стен (а), узлы взаимодействия
наружных (б) и
внутренних (в) стен с ограждающими конструкциями, укрупненные
опалубочные щиты для возведения линейных участков (г) и при пересечении
стен (д) Оснащение щитов системой подкосов обеспечивает быструю выверку в проектное положение, а наличие рабочих площадок создает удобства производства работ по укладке и уплотнению смесей. При устройстве внутренних несущих стен подбор комплекта опалубки осуществляется таким образом, чтобы без переналадки щитов производить цикл возведения как по этажам здания, так и посекционно. Технологический процесс включает арматурные, опалубочные работы, подачу, укладку и уплотнение смесей, тепловую обработку для ускоренного набора прочности бетоном и демонтаж опалубки. Выполнение арматурных работ наиболее рационально осуществлять из отдельных стержней с ручной вязкой. Такое решение исключает использование сварных соединений, что обеспечивает более высокую надежность монолитных конструкций. Для создания проектного геометрического положения армокаркасов используются различные системы фиксации в виде полимерных или бетонных фиксаторов. Их установка препятствует смещению арматурного заполнения в процессах укладки и уплотнения бетонных смесей и обеспечивает требуемый защитный слой. Для создания планировочных решений при возведении внутренних стен предусматривается использование проемообразователей. Они устанавливаются на внутренней поверхности опалубочных щитов с использованием специальной системы крепления. Конструктивное решение проемообразователей обеспечивает их геометрическую изменяемость, что позволяет производить распалубку без нарушения торцевых элементов. Бетонирование стен осуществляется по захваткам. Их длина определяется из условия непрерывной укладки смеси и составляет 10-12 м. Каждая захватка ограничивается разделительной сеткой, которая обеспечивает монолитность соединений отдельных элементов стен. Укладка смеси осуществляется
послойно с толщиной слоев 0,5-0,6 м с обязательным уплотнением глубинными
вибраторами. Интенсивность подачи и укладки бетонной смеси должна
соответствовать производительности глубинных вибраторов J £ Пв×n; J = v×ty; В зависимости от консистенции бетонной смеси время уплотнения может иметь различные значения. Оно определяется экспериментальным путем и оптимизируется в зависимости от подвижности бетонной смеси и толщины бетонируемой конструкции. Повышение времени уплотнения может привести к расслоению смесей, а недостаточная продолжительность вибродействия - к неоднородному уплотнению слоев. При бетонировании тонкостенных элементов необходимо использовать вибраторы с диаметром наконечника, не превышающим 1/3-1/4 толщины. Использование укрупненных опалубочных щитов позволяет снизить трудоемкость и продолжительность работ. В зависимости от степени укрупнения повышаются технологичность опалубочных систем и более рациональное использование крана по грузоподъемности. Технологические потоки возведения внутренних стен предусматривают ритмичное производство арматурных и опалубочных работ. При этом опережающим процессом являются арматурные работы. Обеспечение заданного ритма производства работ достигается подбором количества рабочих, занятых на армировании конструкций. Цикл арматурных работ на захватке должен соответствовать циклу опалубочных
где SТар, STon - суммарная трудоемкость арматурных и
опалубочных работ; Оценка технологических циклов арматурных и опалубочных работ показывает, что их равенство может быть достигнуто путем определения расчетного состава рабочих, занятых на арматурных работах:
Наибольшую трудоемкость работ представляют процессы армирования и устройства опалубки торцевых стен, а также сопряжений с продольными стенами. Эти процессы требуют разработки специальной системы крепления как арматурного заполнения, так и опалубочных щитов. Наиболее рациональным является устройство анкерных соединений, устанавливаемых в стенах. Количество распорных анкеров, их глубина установки и геометрические параметры определяются исходя из технологических нагрузок от укладки и уплотнения бетонной смеси и физико-механических характеристик стенового ограждения. Анкер рассчитывается исходя из восприятия усилий от гидростатического и динамического давления бетонной смеси Рг.б + Рд.б. Усилие, воспринимаемое анкером от выдергивания, определяется исходя из физико-механических характеристик материала стен, диаметра анкера, глубины заделки h. Расчетное усилие на выдергивание за счет создания распора и сил трения может быть оценено по зависимости
где RСТ - фактическое сопротивление кладки стены; m1 - коэффициент условия работы (m1 = 1,2-1,3); Аб - площадь сечения стяжного элемента; f - коэффициент трения металла по камню {f » 0,3); mn - коэффициент надежности работы анкера, тп » 1,8-2,5; g - плотность бетонной смеси; Н - высота столба бетонной смеси; Рд - динамическая составляющая давления от работы вибраторов. Глубина заделки анкеров зависит от физико-механических характеристик материала стен и составляет 4,0-6,0 Æ. Для стен из кирпича марки 75 диаметр анкера составляет 20 мм, глубина заложения 100-120 мм, с разрушающей нагрузкой 6-15 кН. Большое влияние на качество последующих монтажных работ оказывает создание единого монтажного горизонта опорных поверхностей внутренних стен. Отклонения данных параметров могут привести к снижению опорных частей сборных плит и нарушению условий передачи нагрузки. Применение специальных бортовых элементов щитовой опалубки стен позволяет получать высокоточные опорные поверхности. Принцип создания таких элементов состоит в том, что при окончании цикла укладки бетонной смеси осуществляется поворот на 90° откидных бортовых элементов опалубки. В результате передачи энергии колебаний от вибратора бортовому элементу происходят перемещение избытка бетонной смеси в межпалубную зону и образование горизонтальной. Использование таких приспособлений показало, что получение горизонтальных поверхностей обеспечивает высокую точность монтажа плит перекрытий, исключающую перепады, пропеллерность и другие дефекты, существенно снижающие качество потолочных поверхностей. Интенсивность бетонных работ достигается путем снижения цикла набора распалубочной прочности за счет введения в бетонную смесь добавок Линголан-2 и тепловой обработки греющими проводами. Монтаж плит перекрытия осуществляется при наборе прочности не менее 50 % проектной. Организация производства работ Организация производства работ предусматривает создание ритмичных потоков, обеспечивающих их максимальное совмещение во времени. В качестве захватки принимается секция жилого дома. Ведущим процессом является цикл возведения монолитных конструкций. Из этого расчета подбирается комплект опалубки на секцию. Технологические циклы производства работ приведены на рис. 9.14.
Рис. 9.14.
Технологическая последовательность возведения встроенной
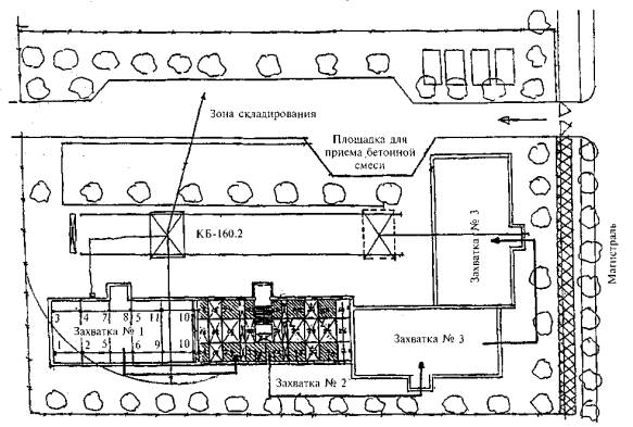
сборно-монолитной системы при реконструкции 3-секционного жилого дома На первой захватке показан технологический этап возведения внутренних монолитных стен. Он состоит из процессов подготовки наружных и внутренних стен, устройства арматурного заполнения, установки опалубочных щитов, проемообразователей, системы крепления щитов к торцевым стенам, подачи и укладки бетонной смеси. Комплекс монолитных работ осуществляется с использованием башенного крана. В связи с ограниченным объемом бетонных работ наиболее рациональными являются подача и укладка смеси по схеме «кран-бадья». После приобретения распалубочной прочности осуществляются демонтаж опалубки и перестановка на прилегающую захватку. Используется горизонтально восходящая схема производства работ, предусматривающая последовательное поэтажное выполнение работ монолитного цикла. В зависимости от интенсивности набора прочности бетоном возможно использование двух комплектов опалубочных систем, что создает предпосылки непрерывного производства работ монтажного цикла. На второй захватке приведены технологическая схема и последовательность монтажа сборных конструкций. Она включает устройство стыковых соединений плит перекрытия, лестничных маршей и площадок. При выполнении монтажных работ особое внимание уделяется сохранению монтажного горизонта, омоноличиванию анкерных элементов плит перекрытия, заделке швов, сварным соединениям лестничных маршей и площадок. На третьей захватке показаны технологические процессы монтажа объемных элементов лифтовых шахт, сантехкабин, вентиляционных блоков и др. Выполнение данного цикла работ связано с подготовкой площадок для монтажа объемных элементов, стыковых соединений и проектного геометрического положения каждого монтируемого элемента. Окончание монтажного цикла работ на захватке дает основание для производства работ по устройству внутренних монолитных стен очередного этажа. Ритмичность производства работ связана с непрерывным материально-техническим обеспечением строительных процессов: доставкой и складированием сборных конструкций, ритмичной подачей бетонной смеси, наличием расчетного количества опалубки, средств тепловой обработки, обеспеченностью рабочими кадрами требуемой квалификации и др. Для выполнения цикла работ по устройству встроенной системы разрабатывается проект производства работ. Особое внимание уделяется технологическим картам, где отдельной позицией представляются материалы по контролю качества работ инструментальными средствами, подбору средств механизации и инвентаря, обеспечивающих интенсивное производство работ на всех этапах устройства встроенной системы. Комплексная механизация технологических процессов требует создания необходимых условий на строительной площадке: размещения и привязки башенного крана, определения зон складирования сборных конструкций; площадок для приема бетонной смеси, по укрупнению опалубочных щитов, приему и складированию арматуры и др. Для обеспечения нормальной работы технологических потоков устраивается сеть временных дорог, осваиваются площадки для размещения инвентарных зданий бытовой зоны, закрытые складские помещения и мастерские. Перечисленные виды работ отражаются при формировании строительного генерального плана с соответствующими технологическими расчетами (рис. 9.15).
Рис. 9.15.
Организация строительной площадки на основной период СМР Стесненность строительной площадки предусматривает размещение технологически необходимых средств механизации, приобъектной зоны, временных зданий, сетей и дорог. При выполнении работ в условиях стесненной городской застройки особое внимание уделяется безопасным методам производства работ, выявлению опасных зон и разработке мероприятий по снижению негативного влияния на прилегающие территории жилой зоны. Примерный график производства работ по устройству встроенной системы приведен в табл. 9.1. Принята горизонтальная схема развития потоков с совмещением работ по захваткам (секциям). Такое решение позволяет увязать технологические потоки, обеспечив фронт работ по возведению монолитных стен и монтажу сборных конструкций перекрытия, выполнению работ по надстройке здания. Совмещение работ обеспечивает их непрерывность и цикличность. Таблица 9.1
График производства работ включает: подготовительный период; работы нулевого цикла; возведение монолитных конструкций этажа, монтаж сборных и объемных элементов. Для создания ритмичного потока осуществляются подбор опалубочной системы объемом на две захватки, выполнение монтажных работ с технологическим циклом, равным по продолжительности возведению внутренних стен. Изменение кратности ритма производства работ наиболее характерно при надстройке здания, когда кроме перечисленных видов работ выполняются технологические процессы, связанные с возведением наружного стенового ограждения. При выполнении строительных процессов ведется контроль качества работ на всех этапах возведения встроенных конструкций и надстраиваемых этажей: приемочный контроль качества сборных конструкций, деталей, материалов и полуфабрикатов; соблюдение условий их хранения и складирования; геодезический контроль производства работ; температурный контроль и контроль степени набора прочности бетоном и др. Наличие объекта в жилой зоне требует выполнения мероприятий и технических решений, обеспечивающих безопасное выполнение работ и исключающих негативное воздействие на людские и транспортные потоки. Рассмотренная технология ведения работ экономически целесообразна как для единичных зданий застройки, так и при условии комплексной реконструкции квартала застройки, что позволяет организовать межобъектные специализированные потоки, создать единую базу подготовки производства. § 9.5. Технология реконструкции зданий с использованием безбалочной каркасной системыСистема универсального безбалочного каркаса (КУБ) отличается от традиционных сборно-монолитных каркасных систем отсутствием ригелей, роль которых выполняют плиты перекрытий, и применением многоярусных колонн без выступающих частей. Пространственная жесткость и устойчивость встроенного каркаса обеспечиваются замоноличиванием стыков между элементами и использованием связей. Каркас работает по рамной или рамно-связевой схеме. Эффективность системы апробирована в жилищном и промышленном строительстве. Она имеет достаточно высокие технико-экономические показатели. В частности, удельный расход материалов на 1 м2 перекрытия составляет: сталь - 12,2-13,2 кг, сборный железобетон - 0,15-0,17 м3, монолитный бетон - 0,021 м3. Нагрузка на перекрытие может составлять от 800 до 2000 кг/м2. Удельные трудозатраты для различных модификаций систем составляют 0,7-1,1 чел.-ч на 1 м2 перекрытия. Основное преимущество системы заключается в возможности за счет изменения размеров рядовых или надколонных плит создавать пространственные ячейки широких типоразмеров. Такое решение весьма важно при выполнении реконструктивных работ, где плановые размеры помещений даже в одном многоэтажном здании могут существенно отличаться. Отсутствие внутренних часто расположенных стен позволяет получать объемы с гибкой планировкой помещений. Применение конструктивной системы безбалочного универсального каркаса приемлемо при реконструкции жилых зданий прямоугольной формы плана. К таким зданиям следует отнести прежде всего жилые дома заводских районов первых массовых серий. Принципиальные схемы встроенных систем приведены На рис. 9.16, где представлены два варианта технических решений: для зданий без надстройки и с надстройкой этажей. В зависимости от количества надстраиваемых этажей фундаменты под колонны могут выполняться отдельно стоящими стаканного типа или в виде монолитной плиты с подколонниками. Система включает обязательное использование 2-3-ярусных колонн, надколонных и рядовых плит. На рис. 9.16, А приведен вариант встроенной системы, когда технологические нагрузки мало отличаются от ранее существующих. В то же время применение отдельно стоящих фундаментов способствует перераспределению нагрузок и снижению их воздействия на стеновое ограждение. Это обстоятельство позволяет исключить работы по усилению наружных стен и их фундаментов. Размещение встроенного каркаса производится таким образом, чтобы расположение колонн находилось в простеночной части, а их высотные отметки соответствовали существующей высоте этажа.
Рис. 9.16.
Принципиальные схемы встроенной системы КУБ при реконструкции зданий При надстройке зданий (рис. 9.16, Б) используется монолитная фундаментная плита, которая воспринимает нагрузки от здания, включая надстройку. При этом возможны изменение высотных отметок надстраиваемых этажей и расширение корпусов за счет применения консольных надколонных плит. Применение 3-ярусных колонн позволяет существенно сократить количество стыковых соединений, способствует не только снижению трудозатрат, но и повышению надежности зданий. Для обеспечения пространственной жесткости используются различные связевые системы, в том числе диафрагмы жесткости, элементы лифтово-лестничных блоков и др. При выполнении работ по устройству встроенного каркаса предусматривается обеспечение связей плит перекрытия со стеновым ограждением путем устройства штраб и омоноличивания стыков, а также установки анкерных элементов, соединяемых с закладными деталями надколонных плит. Предусматривается обязательное омоноличивание плит с колоннами и между собой. Наличие 5-7 типоразмеров плит позволяет вписать систему практически в любую планировочную схему жилого здания прямоугольной формы. Принципиальная схема размещения безбалочного каркаса в секции жилого дома приведена на рис. 9.17. Она включает колонны с шагом расположения, соответствующим размещению оконных проемов, надколонные плиты прямоугольного и консольного типов, межколонные трех типоразмеров и рядовые плиты.
Рис. 9.17.
Размещение встроенного безбалочного каркаса в секцию реконструируемого
здания Стыки колонн с надколонными плитами, а также плит между собой омоноличиваются бетоном не ниже класса В25. Соединение плит со стеновым ограждением выполняется с устройством штраб по периметру стен, армированием этого пространства и омоноличиванием. Используются колонны высотой на 2-3 этажа с открытой арматурой в зоне стыка надколонных плит. Наращивание колонн по высоте осуществляется с использованием штепсельных соединений. Технология устройства фундаментов Как отмечалось, фундаменты под колонны системы КУБ выполняются из отдельно стоящих сборных или монолитных фундаментов стаканного типа при выполнении работ без надстройки зданий и в виде монолитной плиты, когда требуется надстройка несколькими этажами. Технология возведения фундаментов под отдельно стоящие колонны состоит в отрывке котлованов, устройстве основания, установке инвентарной опалубки монолитного фундамента, армировании и укладке бетонной смеси. Как правило, весь цикл работ, кроме подачи бетонной смеси, выполняется вручную и требует больших трудозатрат. При использовании сборных фундаментов процесс возведения осуществляется с применением башенных кранов. На подготовленное основание монтируются сборные фундаменты в соответствии с разбивочными осями. При этом особое внимание уделяется геодезическому контролю положения фундаментов в плане и по вертикали. Создание монтажного горизонта низа стаканов осуществляется путем подливки раствором или использованием системы прокладок. Технологические особенности возведения встроенной системы КУБ Устройство монолитной плиты фундамента Монолитная плита фундамента выполняется по заранее подготовленному основанию (после удаления пола подвала и внутренних стен) в виде уплотненной песчано-гравийной подсыпки толщиной 10-15 см. Возможны два конструктивных варианта: монолитная плита изолирована от фундамента наружных и внутренних стен; плита объединена с фундаментами стен. Изолированная фундаментная плита выполняется из монолитного железобетона толщиной 300-500 мм с армированием. Процесс устройства плиты состоит в армировании и бетонировании. При этом армирование плиты может выполняться как из отдельных стержней с ручной вязкой, так и с помощью сварных сеток. Подача, укладка и уплотнение бетонной смеси осуществляются по схеме «кран-бадья» и с помощью автобетононасосов. Наиболее эффективной является технология, основанная на использовании бетононасосного транспорта, который обеспечивает непрерывную подачу бетонной смеси через проемы 1-2-го этажей. Это позволяет существенно снизить трудоемкость и продолжительность работ. Особое место в процессе бетонирования отводится обеспечению требуемого защитного слоя арматуры, соблюдению единой вертикальной отметки, обработке бетона с целью получения ровных поверхностей (затирка бетона машинами СО-132), фиксированному положению закладных деталей для последующей установки подколонников или стаканов фундаментов колонн. При устройстве монолитной плиты производят установку закладных деталей в местах расположения подколонников. Это позволяет с высокой степенью точности произвести их монтаж. Наиболее технологичным является использование подколонников, так как не требует технологических перерывов на процесс набора прочности бетоном. Более трудоемкой является технология устройства фундаментной плиты, объединенной с фундаментами стен. В этом случае требуются пробивка сквозных отверстий в теле фундамента стен, установка распределительных анкеров, обвязочных балок с последующим омоноличиванием и объединением с плитой фундамента. После приобретения бетоном более 50 % прочности осуществляют монтаж подколонников. Их проектное положение фиксируется путем сварки закладных деталей в соответствии с разбивочными осями. Монтаж колонн Наиболее трудоемкой и ответственной технологической операцией является монтаж колонн. Точность их установки является определяющей в собираемости элементов перекрытия. Она зависит от точности разбивки осей, положения монтажного горизонта. Применение 2-3-ярусных колонн требует использования специальных средств подъема, выверки и временного крепления: самобалансирующих траверс, одиночных кондукторов, фиксаторов, подкосов (рис. 9.18, а). Использование самобалансирующих траверс позволяет уменьшить высоту подъема крюка крана, а система кондукторов и подкосов - увеличить степень точности выверки колонн в проектное положение. Пространство между колонной и стаканом фундамента заполняется мелкозернистой бетонной смесью, а при использовании подколонников закладные детали стыка свариваются. Монтаж надколонных панелей производят при достижении прочности бетона стыка не менее 70 % R6.
Рис. 9.18.
Технологические схемы монтажа элементов встроенной системы и узлы
сопряжения элементов Монтаж панелей перекрытия Панели перекрытия по номенклатуре разделяются на надколонные, которые, в свою очередь, могут быть симметричными для внутреннего ряда колонн и асимметричными (консольного типа) - для наружных рядов и торцевых элементов зданий. Несмотря на это различие, каждая надколонная плита имеет квадратное отверстие с достаточно мощным металлическим «воротником», при замоноличивании которого с телом колонны образуется равнопрочный стык. При монтаже надколонных плит достигается главная цель - обеспечить единый монтажный горизонт для каждого уровня перекрытий. Это достигается путем использования хомутов и специальных струбцин, закрепляемых ниже стыка колонн с плитой и имеющих механические домкратные стойки, которые позволяют обеспечить проектную выверку конструкции (рис. 9.18, б, в). После установки надколонных плит производят монтаж рядовых плит. При достаточно высокой точности монтажа надколонных плит установка рядовых носит чисто механический характер. Их точность определяется соответствующими допусками на изготовление и использование системы временных опор с устройством для регулирования монтажного горизонта. При устройстве встроенного каркаса допускается монтаж двух ярусов с последующим обязательным омоноличиванием стыков. Омоноличивание стыков колонн с плитами и их арматурных выпусков осуществляется бетонной смесью на класс выше, чем бетон основных конструкций. При этом используются различные средства ускоренного твердения: смеси на быстротвердеющих цементах, на вяжущем с низкой водопотребностью, с применением суперпластификаторов и комбинированных добавок, методом обогрева и другими приемами и технологиями. Возведение отдельно стоящих фундаментов производится по захваткам. Отдельным потоком осуществляется цикл земляных работ по устройству котлованов и основания под фундаменты. Затем выполняются арматурные и опалубочные работы. Заключительным этапом являются подача, укладка и уплотнение бетонной смеси в готовую опалубку фундаментов. Применение сборных фундаментов существенно снижает продолжительность работ, не требует технологических перерывов на набор прочности бетоном, исключает трудоемкие процессы устройства опалубки и армирования, распалубки, переноса на очередную захватку и т.п. При реконструкции зданий без надстройки этажей применение сборных фундаментов является предпочтительным и более экономичным. Организационно-технологические принципы реконструкции зданий Реконструкция зданий с использованием безбалочного встроенного каркаса предусматривает следующие циклы производства работ. Подготовительные работы включают освоение и обустройство площадки, перекладку сетей, устройство временных дорог и площадок, демонтаж и разборку конструкций кровли, перекрытий, перегородок, внутренних стен. Особое внимание уделяется производству работ по обеспечению устойчивости конструкций стен и при необходимости их временного усиления. Цикл строительно-монтажных работ состоит в устройстве фундаментов под колонны каркаса и монтаже сборных конструкций. Кроме конструкций безбалочного каркаса осуществляется монтаж лестничных маршей, площадок, межсекционных перегородок, объемных элементов сантехкабин и лифтовых шахт. Этот процесс является ведущим и в целом определяет основную продолжительность работ. Параллельно с монтажом несущих конструкций осуществляется цикл работ по внутренней планировке помещений, а с отставанием на 1-2 этажа производится устройство ограждающих конструкций надстраиваемой части. Отдельными строительными потоками выполняются санитарно-технические, электромонтажные и отделочные работы. Их взаимосвязь с основными технологическими процессами осуществляется путем максимального совмещения во времени и разделения в пространстве. Выполнение перечисленных видов работ осуществляется на захватках, свободных от монтажных процессов. На рис. 9.19 приведен фрагмент стройгенплана с привязкой башенного крана, выделением зон складирования, площадок для приема бетонной смеси, размещением бытовых помещений, ограждения и навесов для безопасного передвижения людских потоков, временных дорог, сетей и т.п. Здесь же дана технологическая последовательность монтажа различных элементов системы КУБ по захваткам. На 1-й захватке условно показана очередность монтажа колонн, на 2-й захватке - плит перекрытия и т.д. Стрелками показан переход специализированных звеньев по захваткам. Принята дифференцированная схема монтажа элементов.
Рис. 9.19. Организация строительной площадки при реконструкции 4-секционного жилого дома с использованием встроенного безбалочного каркаса и технологическая последовательность монтажа элементов встроенного каркаса на захватках Технологическая последовательность производства монтажных работ встроенного каркаса состоит в постоянной установке многоярусных колонн, монтаже надколонных и рядовых плит, элементов лифтово-лестничного узла. По вертикально восходящей схеме осуществляется поэтажное возведение элементов перекрытия. Для монтажа конструктивных элементов используются башенные краны, грузоподъемность которых обеспечивает подъем и установку наиболее массивных конструкций. Вылет стрелы и высота подъема крана должны обеспечивать производство монтажных работ с учетом высоты надстраиваемых этажей и габаритов монтируемых элементов со строповочными устройствами. Монтаж элементов перекрытия начинается с установки надколонных плит. Их выверка и временное крепление осуществляются с помощью механических домкратов, устанавливаемых на колоннах, и временных опорных стоек. После выполнения сварочных работ и омоноличивания стыков осуществляется установка рядовых плит. Монтаж элементов перекрытия производится поярусно. Перед началом монтажа плит осуществляются геодезическая разбивка монтажного горизонта и установка приспособлений для выверки плит. Затем производятся монтаж надколонных и консольных плит, сварка закладных деталей, последовательная установка рядовых плит, армирование и бетонирование стыков. Надстройка этажей ведется в той же технологической последовательности, что и встройка каркаса. По окончании монтажных работ на первой захватке осуществляется цикл работ по устройству стенового ограждения, внутренних межкомнатных и межквартирных перегородок. Достаточно большой фронт работ позволяет организовать поточное производство строительно-монтажных, специальных, а также отделочных работ. Работа по захваткам в горизонтальной плоскости здания позволяет создать систему ритмичных потоков. Ведущим процессом является монтажный цикл возведения каркаса, который определяет взаимосвязь других видов работ в пространстве и времени. Для обеспечения ритмичного монтажного цикла требуются адресная поставка сборных железобетонных элементов, наличие средств выверки, временного и окончательного крепления, обеспеченность рабочей силой соответствующей квалификации. Отличительной особенностью безбалочных систем является наличие большого числа стыков, требующих омоноличивания. Это обстоятельство снижает технологичность конструктивных элементов и требует специальных мер и технологий по обеспечению ускоренного набора прочности бетона. Другим недостатком встроенной безбалочной системы является наличие геометрических отклонений плоскости потолочных поверхностей из-за неравномерного перепада высот монтируемых элементов перекрытия. Это обстоятельство приводит к дополнительным затратам по отделочным работам и возникновению трудноликвидируемых дефектов. Для исключения этого недостатка используется сборно-монолитная система перекрытий, когда в качестве сборных элементов используются только надколонные плиты, а остальное пространство выполняется в монолитном железобетоне. Конструктивно-технологическая схема сборно-монолитного перекрытия приведена на рис. 9.20.
Рис. 9.20.
Сборно-монолитная безбалочная
система После установки надколонных плит и производства сварочных работ по устройству стыков осуществляются процесс установки опалубки, армирование и бетонирование монолитных участков перекрытия. При выполнении арматурных работ производится связь арматурного заполнения плиты с выпусками арматурных плит, чем достигаются монолитность соединений и равнопрочность стыковых соединений. Используется опалубочная система перекрытий, состоящая из опорных стоек, балок, прогонов и фанерной палубы. При этом осуществляется перепуск опалубки по периметру плит на ширину не менее 500 мм. Технологический процесс укладки и уплотнения бетонной смеси осуществляется с крановой подачей и уплотнением с использованием виброреек. Ориентиром для их перемещения служат наружные поверхности надколонных плит. Технология устройства стыков и монолитных участков перекрытий Интенсивность возведения встроенного каркаса существенно зависит от технологии устройства стыковых соединений и монолитных участков перекрытий. В частности, продолжительность набора прочности монолитного бетона непосредственно влияет на ритм ведения монтажных работ, так как возведение очередного перекрытия возможно при достижении прочности стыкуемых элементов не менее 70 %. Современные технологии ускоренных методов твердения бетона позволяют достаточно индустриально решить данную проблему в построечных условиях. В частности, применением технологии прогрева греющими проводами, гибкими графитовыми лентами, термоактивными подвесными опалубками и другими средствами достигается требуемый набор прочности за цикл 24-36 ч. Применение тепловой обработки целесообразно и при летних условиях производства работ, так как резко снижается продолжительность выдерживания бетона и, соответственно, сокращаются технологические перерывы. Процесс устройства стыковых соединений состоит в устройстве подвесной или специализированной опалубки, укладке бетонной смеси, вибрационном уплотнении и тепловой обработке. Опалубка стыков должна легко устанавливаться и демонтироваться. В качестве нагревательных элементов используются графитовые ткани в стеклопластиковой оболочке или греющие провода. Нижняя поверхность опалубки теплоизолируется слоем минеральной ваты или пенополистирола. Это позволяет до минимума снизить теплопотери в окружающую среду. Опалубка выполняется таким образом, чтобы ее греющий элемент захватывал зону сборной конструкции плиты на расстоянии 200-300 мм по периметру. Такое решение позволяет одновременно с прогревом бетонной смеси осуществлять разогрев стыкуемых элементов. Для повышения технологической эффективности процесс отогрева стыкуемых элементов должен производиться за 1,5-2 ч до укладки бетонной смеси. Это особенно важно при производстве бетонных работ при пониженных температурах. Удельная мощность греющей опалубки должна составлять не менее 300 Вт/м2 при летнем производстве работ и 500-700 Вт/м2 при отрицательных температурах. При предварительном разогреве периферийной зоны стыка повышается температура бетона и арматурного заполнения. Она должна составлять не менее 30 °С. Предварительный разогрев обеспечивает интенсивный набор прочности бетонируемых участков. Распалубку конструкций производят при достижении прочности не менее 70 %. Получение указанной прочности достигается расчетом технологического режима прогрева, который включает кроме периода разогрева периферийной зоны время разогрева бетонной смеси стыкуемых элементов, период изотермического или термосного выдерживания, а также период остывания. При важности соблюдения каждого из периодов технологического режима следует особое внимание уделять остыванию конструкции стыка. При достаточно высокой скорости и перепаде температур возможно возникновение температурных напряжений и деформаций, которые могут привести к образованию трещин и снижению несущей способности перекрытия. При возведении сборно-монолитных перекрытий используются термоактивные опалубочные щиты. Конструктивное решение состоит из рамных поддерживающих элементов, на поверхности которых располагают термоактивные щиты. Использование механических винтовых домкратов позволяет создать требуемый горизонт потолочной поверхности перекрытия, а также плотный контакт палубы со сборными элементами. Для разогрева периферийной зоны стыкуемых конструкций размер палубы принимается на 500-600 мм больше, чем геометрические параметры монолитного участка. После предварительного разогрева осуществляется укладка бетонной смеси с тепловой обработкой по расчетным режимам. Для обеспечения ритмичной работы строительных процессов площадь опалубочных щитов подбирается исходя из заданного ритма монтажного процесса. Время тепловой обработки до получения проектной прочности может составлять для летних условий производства работ 24-26 ч, для зимних условий - 32-48 ч. При этом цикл разогрева стыковых соединений может достигать 8-12 ч. Примерный график производства работ по устройству сборно-монолитного перекрытия приведен в таблице 9.2. Работа по захваткам позволяет осуществить наибольшее во времени совмещение работ без снижения фронта и условий производства работ. Использование интенсивных режимов тепловой обработки бетона в течение двух смен обеспечивает получение распалубочной прочности и дальнейшее производство работ по монтажу сборных элементов лестничных маршей, площадок, а также объемных блоков сантехкабин и др. Продолжительность возведения перекрытия на этаже в составе четырех захваток составляет 12 рабочих дней при двухсменной работе основного состава бригады и трехсменной работе по тепловой обработке бетона, удельная трудоемкость составляет 0,94 чел.-ч/м2. Таблица 9.2 График производства работ по устройству сборно-монолитных перекрытий
Опыт возведения зданий системы КУБ выявил ряд недостатков, к которым относятся: наличие большого количества стыковых соединений, требующих дополнительных армирования и обетонирования; создание потолочных поверхностей сопровождается наличием перепадов по высоте плит, что требует дополнительных затрат по их ликвидации; процесс монтажа конструктивных элементов, особенно плит перекрытий, требует использования многочисленного инвентарного оборудования и приспособлений, что приводит к снижению технологичности и повышению трудоемкости работ; различные планировочные решения реконструируемых зданий существенно увеличивают номенклатуру изделий и их типоразмеры. Наиболее рациональной следует считать сборно-монолитную систему, включающую многоэтажные колонны с отсутствием бетона в уровне перекрытий и монолитные железобетонные перекрытия. Сочетание сборных колонн и монолитных перекрытий позволяет реализовать практически любое архитектурно-планировочное решение. За счет использования многоэтажных колонн достигаются снижение сроков и трудоемкости производства работ, повышение надежности сопряжений монолитных узлов, особенно при выполнении строительных процессов при отрицательных температурах. Вариант использования таких систем при реконструкции здания с надстройкой этажей иллюстрируется материалами рис. 9.21.
Рис. 9.21.
Технологическая схема сборно-монолитной встроенной системы Размещение колонн в плане осуществляется с учетом расположения оконных проемов, а также особенностей планировочных решений. Достаточно легко решаются вопросы, связанные с различной высотой этажей реконструируемых зданий, а также их надстройкой. Практически вся эксплуатационная нагрузка воспринимается встроенным каркасом, что не лимитирует количество надстраиваемых этажей. Технологические процессы производства работ являются общими для встроенных систем и хорошо отработаны в практике сборно-монолитного домостроения. Применение широкого шага колонн (до 7,2 м) позволяет снизить удельный расход бетона до 0,18-0,2 м3/м2 площади. Отличительной особенностью данной технологии является необходимость использования башенного крана с грузоподъемностью, обеспечивающей монтаж многоэтажных колонн, а также комплекта технологической оснастки для приведения монтируемых колонн из горизонтального в вертикальное положение путем использования самобалансирующихся траверс. § 9.6. Реконструкция жилых зданий с применением встроенных монолитных системМонолитные встроенные системы позволяют адаптировать здание к разнообразным архитектурным формам и планам. Монолитный вариант реконструктивных работ может быть однозначно рекомендован в зданиях криволинейной и сложной форм плана, с различной высотой этажей, где применение сборных конструкций сопряжено с использованием большого числа доборных элементов и многообразием типоразмеров. При современных технологии и организации работ монолитные системы являются индустриальными и технологичными, а по темпам ведения реконструктивных работ приближаются к сборному строительству. Индустриальность монолитных систем определяется достижениями в области создания опалубок, адаптированных к различным технологическим условиям, а также механизацией процессов транспортирования, укладки и уплотнения бетонной смеси. Немаловажная роль при этом отводится методам, интенсифицирующим твердение бетона, а также использованию химических добавок, регулирующих технологические свойства смесей. Монолитные встроенные системы повышают капитальность зданий и обеспечивают их достаточно высокую долговечность. Проектирование встроенных монолитных систем предусматривает использование конструктивных решений с изменением расчетной схемы здания и с сохранением ее. При сохранении общей расчетной схемы встроенные монолитные системы могут выполняться по стеновой и перекрестной схемам, когда в качестве несущих конструктивных элементов выступают внутренние поперечные и продольные стены совместно с монолитными перекрытиями, а также безбалочные каркасные системы с ядрами жесткости в виде лестнично-лифтовых узлов (рис. 9.22).
Рис. 9.22.
Стеновая (а) и безбалочная (б)
встроенные системы реконструируемых зданий Применение встроенной монолитной системы с изменением расчетной схемы используется в случаях, когда несущая способность наружных стен недостаточна для восприятия изменившихся нагрузок. Наиболее рационально использование встроенных монолитных систем при реконструкции с надстройкой несколькими этажами. Имея самостоятельный фундамент, встроенная конструкция воспринимает все изменившиеся нагрузки, а наружные стены выступают в роли самонесущих ограждающих элементов. Для реализации концепции свободной планировки целесообразно использование безбалочной встроенной каркасной системы. Ее применение позволяет осуществлять планировку помещений как в сторону увеличения числа комнат, так и укрупнения их. Гибкая система планировки осуществляется за счет использования индустриальных перегородок из пазогребневых блоков или каркасно-обшивочных систем. Применение встроенных безбалочных систем с опиранием перекрытий на наружные стены (рис. 9.23, а) осуществляется путем устройства штраб и специальных анкеров, обеспечивающих связь перекрытия со стеновой конструкцией.
Рис. 9.23.
Конструктивно-технологические схемы устройства монолитных встроенных
систем с опиранием плит перекрытия на стены (а) и колонны (б) Для встроенных систем безбалочного или каркасного типа, когда наружные стены исключаются из работы, схемы дополняются системой наружных колонн, примыкающих к стенам или монолитным стеновым элементам. Их расположение в плане кратно простеночному расстоянию. Монолитный вариант позволяет учесть особенность расположения оконных проемов без каких-либо дополнительных решений (рис. 9.23, б). Создается самостоятельная встроенная система, которая рассчитывается на технологические нагрузки, включая надстраиваемые этажи. При этом стеновое ограждение выступает как самонесущее и исключаются нагрузки от элементов встроенного каркаса. Это обстоятельство позволяет снизить объем работ по усилению наружных стен. При возведении надстраиваемых этажей возможна передача нагрузки от стенового ограждения на элементы встроенной системы, что учитывается при расчете ее элементов. Применение облегченных опалубочных систем позволяет существенно снизить их массу и, соответственно, трудоемкость установки. Отличительной особенностью производства работ при реконструкции зданий является высокий уровень стесненности. Это обстоятельство требует использования преимущественно мелкощитовой опалубки. Высокой технологичностью обладают опалубки перекрытий. Использование телескопических стоек обеспечивает установку опалубки любой высоты этажа, что весьма важно при реконструктивных работах, когда этот параметр колеблется в достаточно широких пределах. Особое внимание при выборе опалубочной системы перекрытий отводится процессу демонтажа. Это вызвано наличием стенового ограждения, что требует, как правило, немеханизированных методов. Трудоемкость этого процесса повышается вследствие большого уровня затрат на ручную переноску щитов, ригелей, стоек и других элементов в пределах одной захватки, подготовки и перемещения их на очередную. Уровень технологичности арматурных работ, как показала практика, определяется не степенью заводской готовности плоских и пространственных каркасов, а итоговым показателем удельных затрат. Ручная вязка каркасов методом наращивания позволяет более рационально использовать грузоподъемность транспортных средств, снизить до минимума затраты на электроэнергию, повысить надежность систем в результате исключения сварочных работ. В то же время это позволяет учитывать конструктивные особенности, требующие индивидуального решения по степени армирования отдельных узлов и деталей. Транспортирование, укладка и уплотнение бетонной смеси занимают заметное место в системе монолитного строительства. Не вдаваясь в формирование рыночной цены товарного бетона, следует отметить ряд технологических факторов, влияющих на себестоимость готовой продукции. К ним относятся прежде всего приобъектные средства подачи бетонной смеси и степень механизации. Опыт реконструктивных работ показывает, что использование авто- и стационарных бетононасосов незаменимо в стесненных условиях производства работ, например, при бетонировании монолитных фундаментных плит, перекрытий и других конструктивных элементов с подачей смеси через оконные проемы, в условиях, когда установка грузоподъемного механизма затруднена. Производство работ по возведению монолитных встроенных систем предусматривает непрерывный цикл работ с переходом на захватки. Это обстоятельство требует расчета потребного количества опалубочных элементов, средств ускоренного твердения и количества рабочих, занятых на отдельных процессах. Процесс возведения встроенной системы разделяется на несколько технологических циклов, включающих армирование и установку опалубки вертикальных конструкций стен и колонн. Эти работы выполняются специализированным звеном. После бетонирования конструкций и приобретения распалубочной прочности осуществляются демонтаж опалубки, ее очистка и установка на новой захватке. Отдельным звеном осуществляется цикл устройства опалубки горизонтальных конструкций - перекрытий и балок, включающий их армирование и бетонирование. После набора распалубочной прочности осуществляются демонтаж и перенос на очередную захватку. Подбор количества рабочих осуществляется таким образом, чтобы работы по возведению вертикальных конструкций опережали устройство горизонтальных. Число рабочих на устройстве опалубочных систем определяется по общей трудоемкости работ и требуемой продолжительности установки. Аналогичным образом определяется количество арматурщиков, которые выполняют армирование с совмещением опалубочных работ. Укладку и уплотнение бетонной смеси осуществляют после готовности опалубочных и арматурных работ и их приемки. Преимущественное влияние на формирование потоков оказывает цикл твердения бетона. Он является определяющим при возведении монолитных конструкций и колеблется в широком диапазоне. Поэтому организация производства работ прежде всего зависит от технологии и интенсивности набора прочности бетоном. При использовании мягких режимов тепловой обработки (прогрев греющими проводами, камерный прогрев теплогенераторами) период набора распалубочной прочности колеблется в пределах 60-72 ч. Достаточно высокая продолжительность твердения требует комплекта опалубки не менее чем на две захватки. Более эффективным является переход на жесткие режимы. Так, использование термоактивных щитов с удельной мощностью до 500 Вт/м2 позволяет реализовать технологические режимы, обеспечивающие набор распалубочной прочности в течение 18-24 ч (рис. 9.24).
Рис. 9.24.
Графики набора прочности бетоном (а)
и рабочий момент установки термоактивных щитов (б) При производстве работ с положительными температурами окружающей среды приобретение бетоном 70 % прочности достигается при удельной мощности термоактивных щитов до 300 Вт/м2 за тот же период. Жесткие режимы тепловой обработки требуют более высоких энергетических мощностей. Поэтому организация работ должна планироваться таким образом, чтобы прогрев бетона приходился на суточный период с льготными тарифами на электроэнергию. В таблице 9.3 приведен примерный график работ на захватках, когда применяют мягкие I и жесткие II режимы тепловой обработки. При расчетной продолжительности работ t1...n различных процессов и их максимального совмещения во времени жесткие режимы тепловой обработки обеспечивают снижение времени цикла от установки опалубки до демонтажа на величину DT, которая имеет тенденцию увеличения при возрастании площади захваток и их количества. Мягкие режимы тепловой обработки не только увеличивают общую продолжительность цикла, но и способствуют возникновению технологических перерывов STn. Таблица 9.3 Графики производства работ по устройству монолитного перекрытия при использовании мягких (I) и жестких (II) режимов прогрева бетона
Рациональное использование технологических режимов набора прочности в совокупности с организацией инструментального контроля обеспечивает планирование технологии и организации исходя из заданных сроков производства бетонных работ на этаже или захватке. Непрерывность процессов требует организации 3-сменной работы бригад и звеньев из расчета семидневной рабочей недели. При этом определяющими интенсивность работ факторами являются время набора распалубочной прочности и площадь опалубки. Параметры внутриобъектных потоков реализуются численным составом рабочих и средствами механизации. Пример организации строительной площадки и технологические схемы производства работ по устройству встроенного монолитного каркаса для здания сложной формы плана приведены на рис. 9.25. Здание разбивается посекционно на три захватки с приблизительно равными площадями. Принимается горизонтальная схема движения потоков. На первой секции показан технологический цикл устройства опалубки перекрытий, на второй - процесс возведения монолитных колонн, а на третьей - возведение перекрытий. Использование индустриальных опалубочных систем, эффективных средств подачи и укладки бетонной смеси, а также режимов ускоренного твердения бетона обеспечивает общую продолжительность работ на каждом этаже в пределах 5-7 рабочих дней.
Рис. 9.25.
Реконструкция жилого дома методом встроенной монолитной системы с
надстройкой этажей При выполнении работ по надстройке здания сохраняется прежняя технология. Процесс устройства стенового ограждения ведется после выполнения работ по возведению несущих конструкций надстройки. Создание встроенного монолитного каркаса способствует повышению надежности основных конструктивных элементов, а возведение ограждающих конструкций, отвечающих теплотехническим требованиям, обеспечивает снижение энергозатрат в эксплуатационный период. Уровень технологичности и снижение продолжительности работ достигаются при комбинированном использовании сборных многоэтажных колонн и монолитном перекрытии. Использование сборных колонн позволяет исключить из технологического цикла наиболее трудоемкие процессы поэтапного возведения вертикальных конструкций: армирование, монтаж опалубки, тепловую обработку, демонтаж опалубки и цикл транспортных работ по доставке материалов и технологической оснастки на монтажный горизонт. Снижение суммарной трудоемкости работ обеспечивает сокращение продолжительности возведения встроенной системы на 20-30 %. Использование колонн заводского производства обеспечивает их гарантированное качество по физико-механическим характеристикам. § 9.7. Надстройка зданийНадстройка зданий является наиболее эффективным приемом расширенного воспроизводства жилищного фонда, поскольку она не требует увеличения земельного участка и позволяет реализовать все запасы несущей способности конструкции здания. Именно поэтому надстройка была одним из основных приемов наращивания жилищного фонда крупных городов в 1920-30-е годы и в послевоенный период. В Москве в 1920-30-е годы за счет увеличения этажности жилых домов дореволюционной постройки общие площади в пределах Садового кольца выросли на 8,7 %, одновременно улучшилось инженерное обустройство надстроенных зданий. В большинстве случаев надстройка выполнялась с учетом архитектурно-художественного решения здания и не приводила к ухудшению его внешнего вида. Здания постройки до 1950-х годов имеют достаточно высокий запас несущей способности, что позволяет осуществить надстройку несколькими этажами. В ряде случаев требуется усиление фундаментов, что в целом несущественно повышает себестоимость дополнительных площадей. Основные технические решения при надстройке зданий состоят в возведении несущих стен преимущественно из кирпича, устройстве сборных перекрытий из многопустотного настила или монолитных с использованием несъемной опалубки из профнастила по металлическим балкам или железобетонных скорлуп. При общей высоте зданий 6 и более этажей предусматривается устройство лифтов. Как правило, они размещаются в пристроенных объемах, имеющих самостоятельные фундаменты. Надстройка зданий сопровождается перепланировкой помещений, заменой инженерного оборудования, сетей, утеплением стенового ограждения и заменой светопрозрачных заполнений. Выполнение комплекса работ обеспечивает получение жилищного фонда, отвечающего современным требованиям, способствует продлению жизненного цикла зданий и повышению эксплуатационной надежности. Для зданий, находящихся на центральных магистралях городов, их реконструкция с надстройкой, как правило, сопровождается перепрофилированием в нежилой фонд. Реконструкция с надстройкой этажей включает несколько технологических циклов. Подготовительный цикл включает освоение строительной площади с устройством ограждений, выделением зон складирования, отключением постоянных сетей, размещением складских и бытовых помещений, а также устройством временных сетей для технологических нужд. Осуществляется подготовка площади под размещение башенного или самоходных стреловых кранов. Работа подготовительного периода должна соответствовать основным решениям, принятым в проекте производства работ. Основной цикл состоит из разборки кровельной части с устройством гидроизоляционного ковра для защиты от атмосферных осадков и выполнения строительно-монтажных работ по надстройке этажей. Производство работ выполняется в соответствии с конструктивно-технологическими решениями, представленными в виде рабочей документации, и технологическими картами на отдельные виды работ. Ведущим процессом при надстройке зданий является комплекс работ по возведению несущих стеновых конструкций и устройству перекрытий. Технология производства работ принимается по захватной схеме, обеспечивающей ритмичную работу основного цикла и совмещение других строительных процессов. В качестве захватки принимается секция дома или его часть. Совмещение работ по возведению кирпичной кладки и устройству перекрытий достигается путем использования технологических решений, обеспечивающих примерно одинаковую их продолжительность, что позволяет использовать поточные методы ведения работ. Разбивка здания на захватки позволяет организовать технологические процессы с обеспечением необходимого фронта работ. Как правило, работы основного цикла выполняются комплексной бригадой, состав рабочих которой владеет несколькими смежными профессиями. Для обеспечения доставки материалов и полуфабрикатов к рабочим местам используются, как правило, башенные краны. Их грузоподъемность определяется исходя из максимальной массы монтируемых конструкций и подаваемых материалов. На рис. 9.31 приведены фрагмент стройгенплана на период надстройки здания и основные технологические этапы. Стесненные условия площадки требуют разработки организационно-технологических решений по доставке и складированию материалов с минимальным запасом, использованию автобетононасосов при устройстве монолитных перекрытий, обеспечению безопасных условий производства работ.
Рис. 9.31.
Технологические этапы надстройки здания Совмещение работ во времени достигается путем применения сборно-монолитных перекрытий по металлическим балкам, что позволяет сократить цикл возведения до 2-3 дней на секцию. Возведение аттикового этажа осуществляется с использованием рамных металлических конструкций. Первоначально устанавливаются стойки рам на уровне простенков, которые заключаются в обойму из кирпичной кладки. После возведения стенового ограждения устраивается несъемная опалубка из профнастила и проводится бетонирование покрытия. Затем производится цикл работы по утеплению и устройству кровельного покрытия из металлических листов. Особое место при выполнении работ по надстройке отводится созданию архитектурного облика здания путем использования карнизов сложной геометрической формы, лепных деталей подоконных и простеночных зон и др. частей фасада. Они изготавливаются из полистирола, а также методом набрызга дисперсно-армированным бетоном по объемным матрицам. Армирование бетона осуществляется щелочестойким стекловолокном. Нанесение слоев бетона на матрицы производится с использованием «пистолета», сочетающего в себе функции рубки стекловолокна и набрызга армированной смеси. Путем последовательного нанесения слоев достигается получение однородных, высокопрочных и морозостойких объемных и плоских элементов. Для крепления деталей к поверхности стен используются анкеры различных конструктивных схем. В местах размещения крепежных элементов устанавливаются закладные металлические детали, обеспечивающие восприятие нагрузок. Применение дисперсно-армированных и полимерных архитектурных деталей в десятки раз снижает трудоемкость работ и обеспечивает создание архитектурных форм, соответствующих ансамблю застройки. Надстройка зданий с использованием предварительно напряженных ригелей Данная система используется при ширине корпусов реконструируемых зданий более 16 м. Конструктивная схема включает возведение колонн в монолитном исполнении по наружным и внутренним стенам с устройством обвязочного пояса и последующим возведением плоских монолитных ригелей, обеспечивающих колонны в поперечных осях. Ригели выполняются с преднапряженной арматурой, что позволяет создать эффект плоского перекрытия. Между ригелями размещается монолитное безбалочное перекрытие толщиной, равной сечению ригеля. Для напряженной арматуры используются канаты типа К-7, размещаемые в каналах, оборудованных в процессе бетонирования ригелей. На рис. 9.32 приведены конструктивная схема надстраиваемых этажей и технологические этапы производства работ.
Рис. 9.32.
Технологическая схема надстройки зданий с использованием каркаса с
преднапряженными плоскими ригелями Они включают следующее. Период подготовительных работ: демонтаж кровли и создание гидроизоляцйЪнного ковра, предохраняющего нижние этажи от атмосферных осадков; ограждение площадки и размещение средств малой механизации (подъемников, гидравлической станции, трансформаторов для прогрева бетона, а также площадки для складирования арматуры и опалубочных систем, бытовых и складских помещений); обеспечение временным электро- и водоснабжением для технологических нужд. Основной период состоит в возведении несущих конструкций надстраиваемых этажей: устройстве обвязочного пояса по периметру стен для перераспределения нагрузок от колонн; возведении монолитных колонн с армированием отдельными стержнями и использованием инвентарных опалубочных щитов, подачей и укладкой бетонной смеси автобетононасосом; тепловой обработке колонн с использованием греющих проводов, обеспечивающей цикл набора распалубочной прочности в течение 2-3 сут в зимний период и 1-2 сут - в летний; возведении опалубки ригелей с использованием телескопических элементов и палубы из ламинированной фанеры; армировании ригелей рабочей арматурой с установкой каналов для преднапряженной арматуры; бетонировании ригелей с электропрогревом греющими проводами до получения распалубочной прочности не менее 70 % Rб; распалубке ригелей и устройстве опалубки плит перекрытия по телескопическим стойкам, балкам-протокам и палубы из фанеры; армировании элементов плиты с ручной варкой арматуры; укладке бетонной смеси с подачей бетононасосом и уплотнением глубинными вибраторами; тепловой обработке и демонтаже опалубки при достижении распалубочной прочности не менее 50 % Rб. Натяжение арматуры ригелей Производится одностороннее натяжение арматуры ригелей с использованием мобильных гидравлических домкратов. Цикл натяжения состоит в фиксации напрягаемой арматуры с одной стороны ригелей и двухстадийного натяжения с противоположной стороны. Первоначально усилие натяжения составляет 0,7-0,8 проектного с последующим увеличением усилия до расчетного. Контроль натяжения осуществляется по давлению, развиваемому в гидросистеме, и визуально определяется по показаниям манометров. Завершающим этапом натяжения является устройство анкеров, обеспечивающих проектное положение напрягаемой арматуры. На рис. 9.33 приведены рабочие моменты на период надстройки здания. Для обеспечения безопасности работ и защиты от случайного падения материалов устраиваются защитные системы в виде пешеходных переходов, сетчатого ограждения и др.
Рис. 9.33.
Надстройка зданий с применением преднапряженных плоских ригелей По окончании возведения несущего каркаса надстройки осуществляют цикл работ по устройству стенового ограждения, планировки помещений, кровельных, сантехнических, электромонтажных, отделочных и др. специальных видов работ. Для сокращения продолжительности реконструктивных работ большая часть технологических процессов совмещается во времени и пространстве. Разбивка этажей на технологические захватки позволяет создавать необходимый фронт работ с организацией поточной системы. Применение современных материалов и технологий позволяет получать строительные объемы, отвечающие нормативным требованиям. Стесненность строительной площадки, исключающей размещение башенного крана, потребовала организации работ, базирующихся на использовании легких опалубочных систем, возводимых вручную, на подаче материалов подъемниками, укладке бетонной смеси автобетононасосами. § 9.8. Реконструкция жилых зданий с пристройкой объемовДанный вид реконструкции предусматривает уплотнение городской застройки, более рациональное использование подземного пространства, получение дополнительных площадей с минимальными затратами на устройство сетей и благоустройство территории. Пристройка строительных объемов может осуществляться в общем цикле с реконструкцией существующего здания, а также индивидуально, когда состояние постройки отвечает нормативным требованиям по эксплуатационной надежности. Функционально различные виды пристроек имеют, как правило, нежилое назначение первых и заглубленных этажей или полностью отводятся под административные или торгово-хозяйственные цели. В зависимости от площади пристройки заглубленная часть может использоваться в качестве автостоянок, бассейнов, тренировочных залов, а также производственных помещений малых предприятий. Наиболее рациональным является размещение пристройки к торцевым частям зданий. Это позволяет существенно уменьшить объем работ по усилению фундаментов. В зависимости от конкретных городских условий и градостроительных целей формы пристроек могут быть достаточно разнообразны. Как правило, при возведении пристроек максимально используются заглубленные этажи и прилегающие площади. Поэтому при их возведении используют технологии, обеспечивающие ограждение котлованов буроинъекционными сваями, методами «стена в грунте», «секущих свай», укрепление основания под фундаментами грунтоцементными сваями или массивами. Стесненность строительных площадок требует использования высокомеханизированных технологий, специального грузоподъемного оборудования и инвентаря. Архитектурно-планировочное и конструктивно-технологическое решения пристройки к эксплуатируемому жилому дому для размещения административных и жилых помещений приведены на рис. 9.34.
Рис. 9.34.
Технологическая схема возведения многоэтажной пристройки в монолитном
железобетоне (а) и рабочий момент бетонирования вертикальных конструкций
(б) Конструктивное решение пристройки выполнено в виде безбалочной каркасной системы с шагом колонн 4,0 и 6,0 м, с ядром жесткости, которым служит лестнично-лифтовый узел. Пристройка примыкает к торцевой (глухой) стене жилого дома, что позволяет выполнять строительно-монтажные работы без отселения жильцов. При возведении подземной части максимально используются ограждения котлованов в виде завинчивающихся металлических и буроинъекционных свай. Глубина заложения в пределах 4,5 м позволила осуществлять разработку грунта экскаватором с ковшом «обратная лопата». Выполнение конструкций в монолитном железобетоне потребовало использования бетононасоса с распределительной стрелой, легкого башенного крана, инвентарной щитовой опалубки. График работы машин, механизмов, ручного инструмента осуществлялся с учетом режима отдыха жильцов. Вариант полного перепрофилирования жилого кирпичного дома с пристройкой 5-этажного корпуса шириной 15,0 и длиной 35,0 м приведен на рис. 9.35. В кирпичном здании постройки начала XX века произведены усиление фундаментов, замена деревянных перекрытий на железобетонные и надстройка одного этажа.
Рис. 9.35.
Архитектурно-планировочное решение при реконструкции жилого дома с
перепрофилированием в административное здание и 5-этажной пристройкой Пристраиваемая часть выполнена в виде каркасно-балочной системы из монолитного железобетона с самонесущим стеновым ограждением из многослойной кирпичной кладки с плитным утеплителем. Производство работ осуществлялось с применением башенного крана грузоподъемностью 3 т и вылетом стрелы 36 м, мобильного автокрана для выполнения работ по надстройке, системы грузопассажирских подъемников для подъема материалов и полуфабрикатов. Совмещение строительных процессов при устройстве пристраиваемой и реконструируемой частей обеспечивает ритмичность работы объектных потоков и сокращение общего срока строительства. При ведении строительно-монтажных работ особое внимание уделяется безопасным методам производства работ при эксплуатации кранов, подъемников, бетононасосов, доставке и складировании материалов и полуфабрикатов. Эти требования существенно возрастают при выполнении реконструктивных работ в стесненных условиях городской застройки. Уплотнение застройки за счет пристройки корпусов жилого и административного назначения широко применяется в г. Москве и др. городах. На рис. 9.36 приведены характерные примеры выполненных проектов различных периодов строительства.
Рис. 9.36.
Реализованные проекты ГЛАВА 10
|
||||||||||||||||||||||||||||||||||||||||||||||||||||||||||||||||||||||||||||||||||||||||||||||||||||||||||||||||||||||||||||||||||||||||||||||||||||||||||||||||||||||||||||||||||||||||||||||||||||||||||||||||||||||||||||||||||||||||||||||||||||||||||||||||||||||||||||||||||||||||||||||||||||||||||||||||||||||||||||||||||||||||||||||||||||||||||||||||||||||||||||||||||||||||||||||||||||||||||||||||||||||||||
|
№ п.п. |
Конструктивная схема |
Технологическая схема производства работ |
Конструктивно-технологические особенности |
|
I. Надстройка мансардных этажей |
|||
|
1 |
|
|
Каркас из деревянных ферм на металлических шпонках с оконными блоками «Велюкс». Ручная сборка из полуферм. Утепление минераловатными плитами. Покрытие из металлочерепицы по обрешетке. |
|
2 |
|
|
Каркас из металлических рам. Перекрытие по металлическим балкам и деревянным прогонам. Утепление минераловатными плитами с внутренней облицовкой гипсокартонными плитами. |
|
3 |
|
|
Каркас из деревометаллических шпренгельных ферм по стойкам и обвязочному брусу. Утепление из минераловатных плит. Ручная сборка из полуферм. Предварительное устройство монолитного железобетонного обвязочного пояса. |
|
4 |
|
|
Двухэтажная надстройка из плоских рам. Монтаж каркаса из плоских рам. Возведение стеновых конструкций, перекрытий по балкам с утеплением минераловатной плитой. |
|
5 |
|
|
Надстройка мансардного этажа с использованием несъемной опалубки из пенополистирольных блоков. Подача и укладка бетонной смеси АБН. Монолитный пояс по периметру стен. Ручная сборка опалубки и армирование. |
|
6 |
|
|
Мансардный этаж в монолитном варианте с использованием мелкощитовой опалубки. Подача и укладка бетонной смеси АБН. Ускоренные методы твердения бетона. |
|
7 |
|
|
Возведение из объемных полублоков заводской готовности. Крановая установка по монолитному поясу. Подача материалов подъемниками. |
|
8 |
|
|
Надстройка из объемных блоков заводской готовности. Крановая установка блок-комнат и крышевых блоков. |
|
9 |
|
|
Надстройка из укрупненных на пролет объемных блоков мансардных этажей методами надвижки и кранового монтажа. |
|
10 |
|
|
Двухэтажная надстройка из объемных складывающихся блоков заводского производства. Укрупнительная сборка, крановый монтаж или надвижка блоков. |
|
11 |
|
|
Возведение двухэтажной надстройки с металлокаркасом из плоских рам, монтируемых методом поворота. Монолитные железобетонные перекрытия. Стеновое ограждение из мелкоштучных энергоэффективных блоков с облицовкой или штукатурным покрытием. |
|
II. Пристройка малых объемов к фасадным поверхностям зданий в сочетании с мансардными этажами |
|||
|
12 |
|
|
Превращение балконов в лоджии. Металлический каркас на свайных фундаментах. Обшивка алюминиевой доской. Сборка из объемных или плоских элементов. Омоноличивание балконной плиты с дополнительным армированием. |
|
13 |
|
|
Пристройка объемных элементов лоджий полной заводской готовности. Крановый монтаж. |
|
14 |
|
|
Пристройка эркеров на свайных фундаментах из кирпичной кладки с утеплением. Крановая подача материалов и сборных конструкций. |
|
15 |
|
|
Пристройка эркеров из пенополистирольной несъемной опалубки. Монолитные перекрытия по щитовой опалубке. Подача и укладка бетонной смеси автокраном. |
|
16 |
|
|
Возведение монолитных эркеров в мелкощитовой опалубке, утепление стен с облицовкой. |
|
17 |
|
|
Пристройка эркеров из объемных блоков заводского изготовления. Монтаж с помощью крана. Демонтаж наружных стеновых панелей. |
|
18 |
|
|
Пристройка из объемных элементов полной заводской готовности. Изготовление в заводских условиях, транспортирование, монтаж краном. Устройство ростверка по свайному основанию. |
|
III. Надстройка 1-3 этажами без перепланировки реконструируемых зданий |
|||
|
19 |
|
|
Создание монолитного пояса по периметру стен. Устройство внутренних монолитных стен с широким шагом, перекрытие из плит экструзионной технологии. Трехслойные панели наружных стен. Производство работ с помощью башенного крана. |
|
20 |
|
|
Монолитные конструкции стен и перекрытий в несъемной опалубке из пенополистирола. Ручная установка блоков, арматуры, подача и укладка бетонной смеси краном. |
|
21 |
|
|
Надстройка этажей в монолитном железобетоне в щитовой опалубке. Подача материалов краном. Утепление стен плитным утеплителем с облицовкой. |
|
IV. Расширение корпусов зданий с надстройкой до 9 этажей |
|||
|
22 |
|
|
Одностороннее расширение корпусов с надстройкой 3-4 этажей. Возведение пристроенных объемов и надстроенных этажей в монолитном железобетоне с использованием мелко- и крупнощитовых опалубочных систем. Производство работ с применением башенных кранов и бетононасосов. |
|
23 |
|
|
Одностороннее расширение корпусов с надстройкой этажей, устройством монолитных участков и распределительной плиты. Производство работ с использованием опалубочных систем в сборно-монолитном и монолитном вариантах с применением башенных кранов и бетононасосов. |
|
24 |
|
|
Двустороннее частичное и сплошное расширение корпусов с надстройкой этажей. Производство работ с использованием опалубочных систем с подачей материалов и полуфабрикатов краном, а бетонной смеси - бетононасосом. |
|
25 |
|
|
Пристройка объемов с расширением корпуса в монолитной сотовой системе. Надстройка этажей с индивидуальной планировкой. Возведение с применением свайных фундаментов, монолитных наружных и внутренних стен. Производство работ с использованием башенного крана и бетононасосного транспорта. |
|
26 |
|
|
Пристройка в монолитном железобетоне торцевых секций, лифтовых шахт и мусоропроводов, пилонов, объединенных в пространственные рамы, с надстройкой 4-5 этажей. Производство работ с использованием башенного крана, бетононасосов и щитовых опалубочных систем. Передача нагрузки от надстраиваемых этажей пространственному ж/б рамному каркасу. |
Наиболее важными показателями при выборе вариантов реконструкции являются: себестоимость производства работ и окупаемость затрат, индустриальность и технологичность конструктивных решений, продолжительность реконструкции, повышение архитектурной выразительности зданий. Особое значение при выборе технологий отводится методам возведения, обеспечивающим производство работ без отселения или с частичным отселением жильцов.
Мансардное строительство как форма реконструкции пятиэтажек частично затрагивает решение вопросов повышения комфортности проживания жильцов путем образования квартир в двух уровнях, позволяет получать до 20 % дополнительной площади.
В сочетании с этим приемом следует рассматривать возможные варианты повышения площадей кухонь, санузлов и жилых комнат методами пристройки дополнительных объемов.
Приведенные конструктивно-технологические решения позволяют существенно улучшить среду обитания путем расширения основных и вспомогательных помещений. Следует отметить ряд конструктивно-технологических решений, обеспечивающих выполнение работ без отселения жильцов. К ним относятся решения, основанные на использовании объемных блоков заводской готовности, сборно-монолитных вариантов с применением несъемной опалубки из пенополистирольных блоков, возведении 2-3-этажных надстроек с каркасом из плоских рам и др.
Представлены варианты надстройки зданий до 7-9 этажей с использованием одностороннего и двустороннего уширения корпусов с относом наружных стен на 2,5-4,0 м и превращением домов в ширококорпусные; надстройки этажей с передачей нагрузок на пристраиваемые объемы из монолитного железобетона. Особое место отводится технологиям, позволяющим осуществлять перепланировку реконструируемых зданий. Это обстоятельство существенно расширяет диапазон решений по обновлению жилой застройки с целью максимального приближения к условиям комфортного проживания. Этому процессу способствует новый подход к созданию вентиляционных систем, исключающих использование существующих вентблоков и позволяющих более рационально осуществлять гибкую перепланировку, использование энергосберегающих технологий при замене системы отопления, повышение термического сопротивления ограждающих и светопрозрачных конструкций.
Важным фактором является использование индустриальных технологий, новых материалов и конструкций, обеспечивающих снижение себестоимости, повышение надежности и долговечности зданий, а также сокращение продолжительности работ. Последний фактор является определяющим при выполнении реконструктивных работ без отселения жильцов и направлен на более быстрый оборот инвестиционных средств.
Общая часть
Надстройка мансардных этажей является наиболее эффективным строительным приемом, обеспечивающим получение дополнительной, до 20-25 % жилой площади, по стоимости не превышающей 45-50 % нового строительства. Возведение может производиться без отселения жильцов. При этом возможно широкое использование местных строительных материалов и рабочей силы без применения кранового оборудования и других дорогостоящих средств механизации. Возведение мансардных этажей решает также проблему обновления и повышения эксплуатационной надежности кровельных покрытий.
Развитию и распространению мансардного строительства способствуют изменения СНиП 2.08.01-89 «Жилые здания», введенные в действие с 01.08.1995 г. Более четкая трактовка мансардного этажа представлена как «Этаж в чердачном пространстве, фасад которого полностью или частично образован поверхностью наклонной или ломаной крыши, при этом линия пересечения плоскости крыши и плоскости фасада должна быть на высоте не более 1,5 м от уровня пола мансардного этажа».
Изменениями допускается не предусматривать лифты при надстройке 5-этажных жилых зданий при отметке надстраиваемого этажа не более 16 м.
Крыши следует проектировать, как правило, с организованным водостоком. Допускается сохранять имеющуюся систему мусороудаления. Площадь спальной жилой комнаты и кухни двух- и более комнатных квартир допускается не менее 7 м2 при условии, что общая комната имеет площадь не менее 16 м2.
При определении площади помещения мансардного этажа учитывается площадь этого помещения с высотой до наклонного потолка 1,5 м при наклоне 30° к горизонту, 1,1 - при 45°, 0,5 м - при 60° и более.
Высота жилых помещений от пола до потолка должна быть не менее 2,5-2,7 м. Естественное освещение следует принимать согласно требованиям СНиП 23-05-95 «Естественное и искусственное освещение». Отношение площади световых проемов жилых комнат и кухонь к площади пола этих помещений не должно превышать 1:5,5 при минимальном отношении 1:8 и 1:10 - при использовании мансардных окон.
Особое место в изменениях СНиП 2.08.01-89 отводится возможности выполнения этажей в дереве с соблюдением условий огнестойкости, что позволяет существенно расширить области мансардного строительства. Несмотря на то, что возведение из деревянных конструкций несколько снижает долговечность зданий, применение такого материала экономически оправдано и подтверждено не только зарубежным, но и отечественным опытом.
Повышение долговечности деревянных конструкций достигается путем пропитки антисептическими составами, исключающими появление источников гниения и различного рода биовредителей.
Сохранение требуемой огнестойкости достигается невозгораемостью деревянных конструкций при местном огневом воздействии в условиях начинающегося пожара. Российская фирма «Рогнеда» выпускает экологически чистый высокоэффективный огнебиозащитный состав КСД (ТУ-2089-006-1748308-94), аттестованный ВНИИ противопожарной обороны МВД РФ. Состав заменяет ранее используемые МСПП и ППЛ благодаря присущим ему ценным свойствам, таким как высокая устойчивость к вымыванию, высокая проникающая способность. Он придает древесине биостойкость, не изменяет ее природный цвет. Все эти качества позволяют использовать его для обработки наружных и внутренних поверхностей.
Состав наносят методом воздушного, безвоздушного распыления или в специальных ваннах с расходом 1 л на 2-4 м2 поверхности.
В то же время современные технологии позволяют существенно повысить индустриальность конструкций, обеспечив выполнение работ на строительной площадке в виде сборки из готовых элементов.
В таблице 10.2 приведены возможные варианты мансардных этажей, которые, в зависимости от геометрии кровельной части, разделяются на симметричные и асимметричные, треугольные, с ломаной кровельной частью, одно- и двухуровневые.
Таблица 10.2
Типы мансардных этажей
|
Типы |
Симметричные |
Асимметричные |
|
|
треугольные |
ломаные |
ломаные, односкатные |
|
|
Одноуровневые |
|
|
|
|
|
|
|
|
|
Двухуровневые |
|
|
|
|
|
|
|
|
|
Одно-, двухуровневые с дополнительным этажом |
|
|
|
Принятие той или иной формы мансардного этажа определяется рядом показателей, связанных с освещенностью пространства.
Так, треугольная форма этажа, как правило, требует использования оконных заполнений типа «Велюкс», размещаемых в наклонных элементах кровельной части. Мансардные этажи с ломаной кровлей позволяют использовать оконные блоки вертикального размещения, что для многих регионов РФ более рационально, так как в зимний период времени исключает появление наледи на поверхности светопрозрачных элементов.
Как показали исследования, геометрическая форма надстраиваемых мансард определяется рядом архитектурных и эксплуатационных показателей. Одним из важных параметров является водоудаление атмосферных осадков, образования наледей в период перехода от отрицательных к положительным температурам.
Важным фактором выбора конструктивной схемы надстроек является экономическая сторона вопроса. Так, для районов с лесными массивами целесообразно использовать древесину в качестве несущих элементов каркаса. Использование местных строительных материалов, как правило, снижает себестоимость производства работ.
Варианты конструктивных решений мансардных этажей приведены на рис. 10.15, где показаны каркасные системы, собираемые из металлоконструкций (а), деревянных ферм с параллельными поясами (б), деревянных ферм и рам на металлических шпоночных соединениях (в) и шпренгельных полуферм по стойкам с обвязочным брусом (г). Невысокая масса сборных элементов позволяет использовать малую механизацию при сборке каркасов, что обеспечивает ведение реконструктивных работ без отселения жильцов.
При возведении двухэтажных мансард используются рамные металлоконструкции из гнутого и коробчатого профилей (рис. 10.15, д, е).

Рис. 10.15. Конструктивные схемы мансардных этажей одноуровневые рамные из металлического каркаса (а), деревянных ферм и рам (б, в, г); двухуровневые каркасные из металлического и коробчатого профилей (д, е)
Как показал отечественный и зарубежный опыт, достаточно высокой эффективностью обладают конструктивно-технологические решения, базирующиеся на использовании деревянных ферм и рам на шпоночных соединениях. Такое решение позволяет принимать различную геометрическую форму кровельной части, что существенно расширяет архитектурный облик мансард. Многообразие форм и индустриальность работ обеспечиваются использованием компьютерной технологии расчета плоских несущих элементов, раскроя материала и соединения узлов на металлических шпонках с помощью простейших гидравлических прессов. Эта технология позволяет формировать несущие конструктивные элементы в виде полуферм (рис. 10.16), полурам и балок, что создает предпосылки осуществления последующей сборки непосредственно на рабочих местах. Это обстоятельство не только повышает индустриальность, но и позволяет оптимизировать параметры технологичности на стадиях изготовления, транспортирования и монтажа, разнообразить геометрические формы мансард.

Рис. 10.16. Формирование плоской полуфермы и узлы опирания на обвязочный пояс (а), стеновую конструкцию (б) и деревянный обвязочный брус (в)
Путем создания различного уровня обвязочного пояса возможно получение внутреннего пространства помещений с различным коэффициентом использования, а изменение угла наклона стропильных элементов дает основания оптимизировать внутренние габариты помещений.
Методы возведения мансардных этажей определяются уровнем укрупнения конструктивных элементов, качественными характеристиками используемых строительных материалов и степенью механизации производства работ.
С учетом перечисленных факторов возможно выделить следующие методы:
• надстройка мансардных этажей из мелкоштучных элементов, возводимых вручную;
• возведение несущих конструкций укрупненными плоскими рамами методом надвижки с поворотом в проектное положение;
• надстройка с применением объемных блоков высокой степени заводской готовности при монтаже крановыми средствами или методом надвижки;
• надстройка одно-двухуровневых мансардных этажей из объемных блоков на пролет здания методом надвижки или крановой установки.
В зависимости от степени укрупнения конструктивных элементов мансардных этажей обеспечивается снижение удельной трудоемкости строительно-монтажных работ и общей продолжительности.
Снижение продолжительности работ является определяющим фактором рационального использования инвестиций и более ранней окупаемости затрат. Поэтому предпочтение отдается технологиям, обладающим высокой степенью технологичности и мобильности.
Технология возведения мансардных этажей с использованием сборных несущих конструкций из дерева
Индустриальные технологии изготовления несущих конструкций в виде сборных элементов из дерева позволяют быстро и эффективно возводить мансардные этажи без постоянного использования крановых средств. Об этом свидетельствует достаточно большой опыт мансардного строительства в европейских и скандинавских странах. Это обстоятельство является определяющим при выполнении работ без отселения жильцов.
Современные технологии производства легких несущих конструкций позволяют изготавливать практически любые геометрические формы, что существенно расширяет архитектурный облик зданий.
Для крупнопанельных домов серий 1-464, 1-468 и домов с кирпичными стенами (1-477) этот процесс весьма эффективен и позволяет при минимальных затратах получать дополнительные площади до 20-25 % площади реконструируемого здания.
Так, для 60-квартирного жилого дома серии 1-464 замена плоской или скатной крыши на мансардный этаж дает приращение 482 м2, что составляет 19,2 % общей площади здания. При этом возведение несущих элементов и кровли производится при сохранении существующего кровельного покрытия, демонтаж элементов которого производится после обеспечения защиты от атмосферных осадков.
Использование легких конструктивных элементов позволяет выполнять работы вручную, что снижает стоимость работ и обеспечивает их безопасное ведение для жильцов.
На рис. 10.17 приведен пример использования конструктивных элементов в виде деревянных рам при надстройке мансардного этажа жилого крупнопанельного дома серии 1-464. Как следует из приведенной схемы, процесс возведения на начальной стадии не затрагивает разборку кровельной части, вентиляционных шахт, люков и других элементов, что обеспечивает защиту этажей от атмосферных осадков.

Рис. 10.17.
Конструктивное решение мансардного этажа для жилого дома серии 1-464,
формируемого из деревянных рам
1 - обвязочный пояс; 2 - обрешетка; 3 - утеплитель; 4 - пароизоляция; 5,6 - элементы кровли; 7
- внутренняя обшивка
Технологический процесс возведения мансардных этажей разделяется на несколько самостоятельных циклов.
1-й - подготовительные работы. Они включают работы по освоению площадки: установку 1-2 грузопассажирских подъемников; подготовку площадки для укрупнительной сборки несущих элементов рам или стропильных ферм; организацию площадок для установки бытовых и складских помещений; устройство навесов над входами, обеспечивающих безопасность жильцов; организацию временного энергоснабжения подъемников, а также ручного электрифицированного инструмента и т.п.
Особое внимание должно уделяться выбору стоянок крана для безопасной подачи конструкций и материалов на кровельную часть здания. В целом должна решаться задача рационального формирования стройгенплана с максимальным функциональным сохранением площадей, примыкающих к реконструируемому зданию, и минимальными нарушениями экологической обстановки.
2-й - устройство обвязочного пояса по периметру наружных и внутренних стен. Обвязочный пояс выполняется из монолитного железобетона или керамзитобетона, имеет связь с наружными и внутренними стенами, способствует равномерному распределению нагрузки от мансардного этажа на реконструируемое здание. В то же время наружный обвязочный пояс позволяет воспринимать усилия распора, а создание единого монтажного горизонта обеспечивает монтаж рамно-строительных систем без их смещений от проектного положения. Другой функцией обвязочного пояса является возможность установки подмостей и защитных козырьков, а также организованного водостока атмосферных осадков через отверстия, оставляемые в поперечном сечении обвязочного пояса.
3-й - монтаж конструкций несущей части мансардного этажа. До монтажа конструкций осуществляется крановая подача полурам или полуферм на кровельную часть, а также катучих подмостей для организации стыков элементов. Монтаж начинается с установки крайней рамы и ее раскрепления в проектное положение с помощью подкосов и струбцин. После установки второй рамы обеспечивается их временное соединение с помощью схваток из досок или инвентарных фиксаторов.
Обрешетка производится после монтажа трех и более рам путем нашивки бруса с интервалом 25-30 см.
Таким образом, прослеживаются следующие технологические потоки: первый - монтажный; второй - по устройству обрешетки и обеспечению устойчивости конструкций; третий - установка оконных заполнений; четвертый - устройство кровельной части из мелкоштучных элементов или металлической кровли из профнастила, оцинкованной стали; пятый - устройство теплоизоляции; шестой - обшивка с внутренней стороны стен гипсокартонными плитами с пароизоляцией и т.п.
Отдельным специализированным потоком осуществляется возведение торцевых стен, кирпичной кладки лестничных клеток, межсекционных перегородок.
При выполнении данного вида работ транспортирование материалов осуществляется подъемниками, а их перемещение к рабочим местам - с помощью тележек.
Устройство кровельной части является обязательным условием для перехода на новый цикл работ по выполнению внутренней планировки с использованием легких каркасных систем, специальных видов работ (электрика, сантехника), устройству подготовки под полы.
Заключительным циклом являются отделочные работы.
Начальной фазой работ на кровельной части реконструируемого здания является устройство обвязочного пояса. Используются инвентарные опалубочные щиты и проектное армирование в виде объемных армоблоков и сеток. Для обеспечения взаимосвязи с наружными стенами реконструируемого здания в карнизной плите устраиваются отверстия в узлах соединения внутренних и наружных панелей. Для этой цели в карнизной плите с помощью керно-образователей устраиваются сквозные отверстия с их расширением с помощью дисковых алмазных машин. Полученные полости армируются и при бетонировании объединяются с монолитным поясом.
Для снижения продолжительности работ опалубка устраивается на весь объем, а подача и укладка бетонной смеси осуществляются автобетононасосом. Такой уровень механизации позволяет выполнить общий объем работ в течение одной-двух смен.
При устройстве монолитного пояса оставляются горизонтальные сквозные отверстия из асбоцементных труб на уровне верха карнизной плиты, что позволяет обеспечить водоотвод атмосферных осадков и устройство выносных подмостей по периметру стен, обеспечивающих безопасное ведение работ и защиту жильцов от случайного падения стройматериалов.
Процесс монтажа конструктивных элементов наиболее эффективен при установке плоских рам с предварительным их укрупнением в зоне монтажа. Для этой цели используются кондукторы и шаблоны, позволяющие создавать геометрически неизменяемые системы с высокой пространственной жесткостью. Такой прием позволяет исключить весьма ответственные работы на высоте по объединению полурам и в 1,5-2 раза снизить трудоемкость работ при одновременном повышении качества и равнопрочности стыков.
Перенос сборной площадки на кровлю здания позволяет разгрузить прилегающие к жилому дому площадки, максимально сохранить зеленые насаждения, снизить площади складов. Это обстоятельство, в свою очередь, требует более четкой организации труда.
Технологическая схема производства работ при монтаже рам приведена на рис. 10.18. Здесь используются передвижные подмости с фиксаторами для обеспечения проектного положения рам и объединения полурам в коньковой части, специальные шаблоны-фиксаторы для сохранения проектного положения стропильных ног до устройства обрешетки, система подъема укрупненной рамы методом поворота, кондукторы и приспособления, обеспечивающие повышение технологичности.

Рис. 10.18.
Технологическая схема монтажа каркаса мансардного этажа
а - монтаж полурам; б
- укрупнительная сборка рам
и их установка; 1 - рама, укрупненная из двух блоков; 2 - передвижные подмостки с
площадками; 3 - крепежные
устройства; 4 - ограждения;
5 - фиксаторы; 6 - укрупнение рамы на кровле; 7
- стыкуемые элементы
Выбор организационно-технологической модели и уровня механизации определяется расчетным путем и зависит от общего объема работ, сроков производства, арендной стоимости машин и механизмов, ресурсообеспечения.
Технология работ предусматривает организацию поточного производства с разделением здания на захватки, определение ведущего потока и расчет численного состава бригад для выполнения основных технологических процессов с учетом их совмещения и обеспечения необходимого фронта работ (рис. 10.19).

Рис. 10.19.
Поточное производство работ по возведению мансардного этажа
Работы на захватках; 1-я - устройство кровельного покрытия и оконных
заполнений; 2-я - сплошная обрешетка по стропилам и прогонам с установкой
утепляющего слоя; 3-я - монтаж каркаса; 4-я - кирпичная кладка лестничных
клеток и внутренних межсекционных стен
Подбор состава комплексной бригады осуществляется с учетом приемки, перемещения и транспортирования строительных материалов и конструкций на монтажный горизонт.
На рис. 10.20 приведена примерная циклограмма производства работ по устройству мансардного этажа. Она включает цикл подготовительных работ по освоению стройплощадки и установке грузопассажирских подъемников; комплекс работ ведущего цикла, состоящего из работ по устройству обвязочного пояса, по монтажу каркаса с обрешеткой, установкой оконных заполнений и утеплением, устройством кровельной части.

Рис. 10.20.
Циклограмма производства работ по надстройке мансардного этажа для
жилого дома серии 1-464
1 - подготовительные работы; 2 - устройство обвязочного пояса; 3 - монтаж рам с устройством обрешетки; 4 - установка оконных заполнений,
утепление стен и перекрытий, устройство кровли; 6 - сантехнические и электромонтажные работы; 7 -
устройство лестничных клеток; 8
- устройство внутренних перегородок и полов; 9 - отделочные работы
Параллельно данным видам работ осуществляются кладка торцевых стен из энергоэффективных блоков, лестничных клеток и межсекционных стен из кирпича, устройство лестничных маршей.
По окончании кровельных работ выполняются цикл санитарно-технических, электромонтажных и комплекс отделочных работ. В зависимости от количественного состава специализированных бригад, уровня отделочных работ и архитектурно-планировочных решений продолжительность работ может иметь некоторые колебания в сроках производства работ. Для повышения долговечности конструктивных элементов мансардного этажа необходимо устройство вентилируемого пространства между утеплителем и кровлей, пароизоляции, а также организованного водоотвода атмосферных осадков (рис. 10.21).

Рис. 10.21.
Конструктивно-технологические схемы сопряжений элементов мансардного
этажа с созданием вентилируемого пространства
а - коньковое соединение
с обеспечением вентилируемого зазора и утеплением; б, в - размещение
конструктивных элементов на обвязочном поясе; 1 - монолитный обвязочный
пояс; 2 - размещение
утеплителя; 3 - оконное
заполнение типа «Велюкс»; 4 - чердачное
перекрытие
Повышение эксплуатационных характеристик несущих и утепленных ограждающих конструкций достигается путем использования паровлагозащитного рулонного материала «Изоспан-А» для кровельной части, «Изоспан-В» - для защиты утеплителя (рис. 10.21, 10.22).

Рис. 10.22.
Тепловлагопароизоляция надстроек мансардных этажей из деревянных
конструкций
а - кровельной части; б - наружных стен; в - перекрытий; 1 - обвязочный
монолитный пояс; 2 -
стропила; 3 -
паровлагозащитный материал «Изоспан-А»; 4 - кровельное перекрытие; 5, 6 - воздушный зазор; 7 - утеплитель; 8
- пароизоляция «Изоспан-В»; 9 - отверстия для воздухообмена; 10 - наружная обшивка
Система «Изоспан» является сертифицированным влаговетрозащитным рулонным материалом с хорошей паропроницаемостью, обеспечивающей повышение долговечности теплоизоляционного материала и конструкций. Выпускается в виде рулонов шириной 140 см и длиной - 50 м, плотностью 72 и 110 г/м2.
Особое внимание должно уделяться механизму крепления полужестких минераловатных плит на наклонных поверхностях стен, предотвращающих образование воздушных прослоек перпендикулярно сечению в результате разрыва сплошности среды. Это достигается путем использования специальных крепежных элементов, а также полимерных сеток с вертикальными фиксаторами, выступающими в роли анкеров и предотвращающих расслоение утепляющих слоев. Образование вентилируемого пространства способствует испарению влаги, попадающей на поверхность утеплителя.
Защита утеплителя от атмосферных осадков должна быть предусмотрена на стадиях перевозки, хранения и укладки в проектное положение.
При выборе материала кровли должна учитываться возможная интенсификация работ, снижающая до минимума технологические перерывы. Это особенно важно при технологии утепления, осуществляемой снаружи.
Наиболее технологичными следует считать покрытия из листовой стали, металлочерепицы, профнастила или штучных материалов, например гибкой керамической или цементно-песчаной черепицы.
Продолжительность возведения мансардных этажей снижается путем повышения технологичности конструктивных элементов, их сборности, предварительной заготовки, а также использования укрупненных блоков.
Технологические этапы возведения мансардного этажа на 4-этажном жилом доме с кирпичными стенами приведены на рис. 10.23.

Рис. 10.23.
Технологические этапы возведения мансардной надстройки на 4-м этаже в
кирпичном жилом доме
а - подготовительный
этап; б - установка рам
по обвязочному поясу; в - общий
вид каркаса с обрешеткой; г -
установка оконных блоков «Велюкс» и обрешетки под кровлю; д - утепление стен и обшивка
гипсокартонными плитами; е - общий
вид здания
В организации работ по надстройке мансардных этажей значительное место отводится формированию стройгенплана. Стесненные условия производства работ требуют более рационального использования прилегающих территорий для размещения грузоподъемных механизмов, зон складирования, бытовых помещений и др. Особое внимание при разработке стройгенплана отводится организационно-технологическим решениям, обеспечивающим безопасное ведение работ и защиту жильцов от случайного падения материалов, ручного инструмента и др. Для этой цели устраиваются навесы перед входами, выносные подмости-козырьки по периметру здания, ограничения в повороте стрел кранов, ограждения опасных зон (рис. 10.24).

Рис. 10.24.
Фрагмент стройгенплана и технологическая последовательность ведения
работ по устройству мансардного этажа
1 - устройство монолитного обвязочного пояса; 2 - укрупнение рам; 3 - подмости для установки рам в
проектное положение; 4 - опалубка
монолитного пояса; 5 - ограждение; 6 - защитные козырьки над входом; 7 - грузопассажирский
подъемник; 8 - автокран;
9 - бытовые помещения
Наличие скатной кровли требует более совершенной и интенсивной технологии производства работ, что связано с защитой здания от атмосферных осадков.
Использование пленочных покрытий с временным креплением на элементы подмостей, обрешетки, рам и к другим конструктивным частям не обеспечивает требуемой надежности вследствие низкого сопротивления ветровым нагрузкам, высокой парусности и др.
Одним из конструктивных решений по исключению воздействия атмосферных осадков является создание трансформируемых раздвижных тентовых светопрозрачных устройств в виде арочных конструкций, располагаемых на выносных консолях подмостей и имеющих роликовые катучие опоры (рис. 10.25).

Рис. 10.25.
Технологическая схема устройства тентового светопрозрачного покрытия на
период надстройки мансардного этажа
1 - опорные арки; 2 -
гибкие связи между арками; 3 -
тентовое покрытие; 4 -
растяжки; 5 - консольные подмостки
Для устойчивого сопротивления ветровым нагрузкам и свободного перемещения по горизонтали опорные части арок снабжены катучими опорами, размещаемыми в направляющих, прикрепляемых к консольным подмостям. Такое решение позволяет перемещать покрытие на участки, где производится демонтаж кровли при атмосферных воздействиях, а также выполнять цикл работ по монтажу надстройки. По мере возведения кровли тентовое покрытие перемещается на очередную захватку.
Монтаж и демонтаж покрытия осуществляются в сложенном виде с использованием специальных захватных устройств.
Возведение мансардных этажей с каркасом из металлоконструкций
Использование металлоконструкций в мансардном строительстве нашло наибольшее распространение вследствие универсальности и гибкости конструктивно-технологических решений. Это позволяет осуществлять производство работ укрупненными блоками, плоскими элементами, а также вручную из отдельных узлов и деталей с последующим сварным или болтовым соединением.
Технологический эффект зависит от степени укрупнения элементов, технологичности конструктивных решений узлов и сопряжений, организационно-технологического уровня производства работ, степени механизации и других факторов. Переход от поэлементной сборки к монтажу плоскими и объемными блоками дает скачкообразное сокращение не только трудозатрат, но и продолжительности ведения работ.
Области применения таких решений достаточно многообразны и позволяют осуществлять надстройку мансардных этажей жилых зданий различных конструктивных схем и периодов постройки.
Реальное применение технологий чаще всего диктуется условиями строительной площадки, уровнем ее стесненности, возможностью использования грузоподъемных средств, а также экономическими факторами.
На рис. 10.26 приведены технологические схемы производства работ при возведении несущего каркаса мансардных этажей с различной степенью укрупнения и данные об изменении удельной трудоемкости монтажных процессов. С увеличением степени укрупнения достигается 5-10-кратное снижение трудоемкости работ.

Рис. 10.26.
Технологические схемы производства работ при возведении несущего каркаса
мансардных этажей с различной степенью укрупнения
а, б - поэлементный
монтаж; в, г -
укрупненными плоскими элементами; д, е - объемными блоками; ж - изменение удельной трудоемкости возведения каркасов от
степени укрупнения. Цифрами показана технологическая последовательность
установки элементов мансардного этажа
В то же время любое увеличение массы монтажных элементов требует применения соответствующих средств механизации: башенных и самоходных пневмоколесных кранов, приставных подъемников, лебедок, легких крышевых кранов и т.п.
При выполнении цикла монтажных работ применяют оснастку для временного крепления (подкосы, кондукторы, фиксаторы), а также средства подмащивания (площадки, передвижные подмости, лестницы и т.п.). Как правило, для соединения конструктивных элементов используются болтовые сочленения. Они весьма универсальны и позволяют с достаточной степенью точности осуществлять сборку конструктивных элементов. После окончательной выверки узлы с болтовыми соединениями свариваются.
При выполнении монтажного цикла особое место отводится безопасным методам ведения работ. Это обстоятельство исключительно важно при осуществлении надстройки мансардных этажей без отселения жильцов. До начала производства работ осуществляют установку защитных козырьков над входами, консольных подмостей по периметру здания. При подъеме и перемещении по кровельной части используются дополнительные устройства, обеспечивающие плавное опускание конструктивных элементов, и специальные настилы для их перемещения.
Наибольшее распространение получила технология надстройки мансардных этажей с поэлементным монтажом несущих металлоконструкций.
Основным преимуществом технологии является ручная сборка элементов каркаса с подачей на монтажный горизонт с помощью приставных грузопассажирских подъемников грузоподъемностью до 1,0 т.
Конструктивная схема мансардного этажа выполняется в виде одно-двухпролетных рам, размещаемых на обвязочном поясе, объединенных системой прогонов и обрешетки. Использование гнутых профилей, а также бесчердачного покрытия позволяет снизить удельный расход металла до 30-35 кг/м2 надстраиваемой площади.
В качестве теплоизоляции используются минераловатные плиты плотностью 30-40 кг/м3, размещаемые в стеновом ограждении и покрытии, с устройством ветрозащитных пленок и облицовкой с внутренней стороны двумя слоями гипсокартона.
Наклонная система рам требует использования оконных заполнений системы «Велюкс», в том числе в кровельной части мансардного этажа.
Производство работ осуществляется без отселения жильцов с обеспечением мер безопасности работающих и жильцов.
На рис. 10.27 приведены конструктивно-технологические схемы, иллюстрирующие основные технологические этапы производства работ.

Рис. 10.27.
Конструктивно-технологическая схема надстройки мансардного этажа с
несущими конструкциями из металлических рам
а - фасады здания; б - план мансардного этажа; в - схема размещения несущих конструкций;
г, в - поперечные
разрезы
Первые пионерные проекты были выполнены в гг. Сургуте, Санкт-Петербурге и др.
Развитием строительства мансардных этажей с несущими конструкциями из металла явились унифицированные технологические решения конструкций мансардных этажей применительно к реконструкции домов массовых серий 1-464, 1-468, I-447, 1-335.
Основой конструктивного решения являются поперечные двухпролетные рамы, которые опираются на несущие конструкции существующей части надстраиваемого здания, объединенные монолитным поясом.
Конструктивные элементы рамы-стойки и ригели выполнены из замкнутого металлического профиля сечением 160´160 мм с толщиной стенки 5 мм.
Продольный шаг рам варьируется в пределах 2,6-3,2 м в зависимости от конструктивной схемы каждой серии. Для домов с поперечными несущими стенами (1-464, 1-468, 1-335) рамы располагаются по их осям. В серии 1-468 со смешанным шагом поперечных несущих стен при шаге 6,0 м устанавливается промежуточная рама с опиранием на продольные прогоны. В домах с кирпичными стенами (I-447) рамы располагаются с шагом 2,8 м, который является кратным по отношению к расстоянию между стенами лестничных клеток и межсекционных стен.
Разработаны одно- и двухъярусные (двухэтажные) мансардные надстройки треугольного или ломаного поперечного сечения (рис. 10.28). В качестве оконных заполнителей применяют наклонные системы конструкции фирмы «Велюкс» или оконные блоки вертикального расположения.

Рис. 10.28.
Конструктивно-технологические
схемы надстройки мансардных этажей с использованием металлических рам
а б -
одноуровневые треугольные и ломаного очертания; в, г - двухуровневые ломаного очертания с наклонными и
вертикальными оконными блоками; 1 - обвязочный монолитный пояс; 2,3 - наружные и внутренние
стоики рам; 4 - ригели
рам; 5 - прогон из
досок; 6 - стропила с
обрешеткой; 7 - кровельное покрытие; 8 - оконное заполнение
Пространственная жесткость конструкций мансардных этажей обеспечивается в поперечном направлении жесткостью рам, а в продольном направлении - наличием стен лестничных клеток, продольных связей в виде ригелей, а также введением дополнительных элементов жесткости в виде раскосов в стенах и в уровне чердачного перекрытия.
Междуэтажные и чердачные перекрытия выполняются по деревянным прогонам, расположенным с шагом не более 600 мм и опирающимся на стальные ригели рам с подшивным потолком из двух листов гипсокартона. Листы гипсокартона крепятся на самонарезающихся винтах к металлическим скобам, закрепленным на нижней грани деревянных прогонов. Поверх листов закрепляется металлическая сетка, на которую укладывается минераловатная плита утеплителя толщиной 100 мм в междуэтажных перекрытиях и толщиной 250 мм по слою пароизоляции в чердачных перекрытиях.
В междуэтажных перекрытиях по верху деревянных прогонов укладываются упругие прокладки, по которым размещается конструкция чистого пола.
В чердачном перекрытии по утеплителю укладываются ходовые мостики.
Наружное ограждение или покрытие устанавливается на крайние стойки поперечных рам. Оно включает внешнюю и внутреннюю облицовки и утеплитель. Внешняя облицовка выполняется из металлочерепицы или гофрированного металлического листа, который размещается по обрешетке.
Внутренняя облицовка состоит из двух листов гипсокартона, которые крепятся к вертикальным стойкам из тонколистового металла системы ТИГИ Кнауф.
Утеплителем стен является минераловатная плита (l = 0,04 Вт/м °С) толщиной 200 мм. С внутренней стороны утеплителя предусмотрена пароизоляция в виде пленки толщиной 0,2 мм.
Стены лестничных клеток и межквартирных перегородок возводятся из мелкоштучных материалов.
Над мансардным этажом предусматривается холодное чердачное помещение с покрытием по наклонным деревянным стропилам.
Внутренние межкомнатные перегородки выполняются из гипсокартонных плит по металлическому каркасу.
Помещения санитарно-технических узлов облицовываются гидроизоляционным покрытием.

Рис. 10.29.
Технологическая последовательность производства работ по надстройке
мансардного этажа
1 - устройство монолитного обвязочного пояса; 2 - возведение стен лестничной клетки;
3 - монтаж стоек рам; 4, 5 - установка ригелей и
балок; 6 - устройство
прогонов; 7 - установка стропил и устройство обрешетки; 8 - установка оконных блоков; 9 - устройство обрешетки; 10 - устройство кровельного покрытия
Технологическая последовательность производства работ приведена на рис. 10.29 и включает следующие этапы:
1 - устройство обвязочного пояса по периметру наружных стен и лестничных клеток.
При наличии плоской кровли эти работы выполняются без разборки кровельного покрытия. При скатной кровле необходимо обеспечить гидроизоляцию перекрытия верхнего этажа, затем осуществить частичную или полную разборку кровельной части;
2 - возведение стен лестничных клеток осуществляется после устройства монолитного пояса и может быть совмещено с работами по монтажу элементов рам;
3 - монтаж рамного каркаса мансарды осуществляется из отдельных элементов на болтовых соединениях или после укрупнения в плоские рамы с установкой в проектное положение методом поворота.
При монтаже каркаса используется система подкосов, струбцин, лебедок и других приспособлений, обеспечивающих выверку и проектное закрепление конструкций;
4 - установка балочных соединений рам, обеспечивающих пространственную жесткость конструкции;
5 - установка стопил с обрешеткой и монтаж кровельного покрытия. Выполнение данного вида работ создает благоприятные условия для выполнения работ по утеплению и устройству стенового ограждения, перекрытий и для производства работ по внутренней планировке помещений;
6 - цикл сантехнических, электромонтажных и специальных видов работ выполняется до или параллельно отделочным;
7 - по мере выполнения работ по надстройке мансардного этажа осуществляются утепление стен и замена оконных блоков.
Надстройка мансардных этажей с применением складывающихся объемных блоков
Повышение уровня общей и транспортной технологичности связано с созданием складывающихся объемных блоков, которые на период перевозки занимают горизонтальное положение составных частей. Такое решение позволяет более рационально использовать грузоподъемность транспортных средств, а возможность быстрого приведения в проектное состояние позволяет интенсифицировать процессы надстройки зданий.
При разработке мобильных мансардных блоков основное внимание уделено созданию конструкции, которая обеспечивает изменение геометрических параметров. В основу конструктивного решения заложен принцип шарнирного соединения плоских элементов блока, обеспечивающий снижение в 4-5 раз транспортных габаритов по высоте. Не менее важным условием явилась разработка соединений, легко трансформируемых из шарнирных в жесткие узлы, с обеспечением требуемых пространственной жесткости и устойчивости. Конструкция должна легко переводиться из транспортного (сложенного) состояния в монтажное в виде объемного блока.
На рис. 10.30 приведены принципиальные схемы складывающихся объемных блоков для надстройки мансардных этажей. Конструктивно блоки состоят из стеновых элементов (1), плит перекрытия (2), чердачных перекрытий (3), панелей кровли (4), шарниров (5), дополнительных связей (6), временных стоек, или опор (7). Шарнирное соединение стеновой панели позволяет изменить угол наклона в пределах до 30°.

Рис. 10.30.
Конструктивные схемы складывающихся объемных блоков на один или два
этажа
а, б - полублоки
с шарнирными связями в рабочем и а', б' - в транспортном положении; в, г - элементы блоков при
2-ярусной надстройке; д -
транспортное положение; е -
общий вид укрупненного мансардного блока на период формирования кровельной
части; 1 - стеновая
панель; 2, 3 - панели
перекрытия; 4 - кровельная
панель; 5 - шарнирные связи; 6 - оконный блок; 7 - монтажная стойка; lтр - длина блока в транспортном
положении; Нтр -
то же, толщина пакета блока
С использованием объемных блоков возможна реконструкция различных серий малоэтажных жилых зданий как ранней, так и поздней постройки. Основное преимущество данной технологии состоит в возможности создания пространственных объемов, что дает реальные предпосылки для реализации гибкой планировки помещений надстраиваемых этажей.
На рис. 10.31 приведен вариант одно- и двухъярусных складывающихся объемных блоков треугольной формы, выполненных на пролет здания. Конструкция блоков основана на шарнирном соединении плоских элементов системы: кровельно-стеновых, плит перекрытия и покрытия. В транспортном положении они представляют собой пакеты из горизонтальных элементов. В зависимости от угла наклона кровельной части подбирается определенная крутизна, обеспечивающая более комфортное расположение помещений. Для данного типа объемных блоков наиболее рациональным является применение оконных заполнений системы «Велюкс».

Рис. 10.31.
Конструктивные схемы одно- (А)
и двухъярусных (Б) складывающихся
объемных блоков мансардных этажей
а - общая схема; б - транспортное состояние; в - проектное положение; 1 -
шарниры; 2 - временные
стойки; 3 - кровельное
покрытие
Ширина блоков принимается равной шагу расположения внутренних стеновых панелей для крупнопанельных и шагу оконных проемов для кирпичных зданий и составляет 2,6-3,2 м.
Мансардные блоки изготавливаются в заводских условиях размером на полупролет здания с возможностью их болтового соединения на уровне перекрытия, коньковой части и в опорной зоне стоек. Конструкция блоков предусматривает получение стеновых элементов в виде многослойной утепленной системы с облицовкой изнутри гипсокартонными плитами, а с наружной части - в виде кровельного покрытия из мелкоштучных металлических элементов, металлочерепицы по обрешетке из бруса или защитного слоя из бетона толщиной 25-30 мм. Элементы перекрытия выполняются из несущих металлических балочных элементов, объединенных системой раскосов. Для обеспечения теплотехнических и механических характеристик потолочные элементы перекрытия выполняются из тонкостенной монолитной плиты, на поверхности которых размещается утеплитель в виде минераловатных плит. Поверхность утеплителя закрывается полимерной пленкой или плоскими элементами. Для исключения мостиков холода выступающие поверхности балочных элементов закрываются коробчатыми утепленными элементами.
Повышение эксплуатационной надежности перекрытия достигается в результате перехода от штучных материалов к заливочным. Так, заполнение элементов перекрытия полистирол-бетонной или пенобетонной смесью с небольшим сетчатым армированием обеспечивает получение конструкции с заданными прочностными и теплотехническими характеристиками.
Возможно изготовление комбинированных систем, состоящих из плит перекрытия из тяжелого бетона толщиной 6-8 см с последующим утеплением засыпочным или минераловатным утеплителем.
Стеновые элементы снабжаются оконными коробками, которые крепятся в проектное положение с помощью специальных соединений. Их положение сочетается с элементами кровельного покрытия, что обеспечивает водонепроницаемость стыков и водоотвод атмосферных осадков.
Панель кровельного покрытия выполняется в виде плоской замкнутой рамы. По ее поверхности устраиваются обрешетка из бруса и кровельное покрытие. Соединение элементов кровельного покрытия и стеновой панели выполняется таким образом, чтобы в проектном положении достигалась герметичность кровли. Стык между элементами кровли закрывается нащельником, что обеспечивает его водонепроницаемость.
Технология возведения мансардных этажей
До начала монтажных работ осуществляется подготовительный цикл, в который входят: устройство ограждений и подмостей; выбор стоянок крана и площадок для приведения блоков из транспортного в монтажное положение; устройство обвязочного пояса из монолитного бетона; установка грузопассажирского подъемника; обеспечение электроснабжения; установка ограждений, бытовых помещений и т.п. Особое внимание при этом уделяется вопросам сохранения деревьев и других посадок, а также безопасным условиям труда и защите жильцов от случайного падения материалов.
Технологические схемы и элементы стройгенплана на период монтажа блоков мансардного этажа для 5-этажного крупнопанельного жилого дома серии 1-464 приведены на рис. 10.32.

Рис. 10.32.
Технологическая схема монтажа объемных полублоков мансардного этажа
Обозначено в кружочках: 1 - обвязочный пояс; 2 - объемный блок; 3 - опорная площадка; 4 - монтажный кран; 5 -
грузопассажирский подъемник: 6
- площадка доводки объемного блока; 7 - ограждения по периметру
стен; 1-10 - технологическая
последовательность монтажа объемных блоков
Блоки выполняются двух типоразмеров в соответствии с шагом внутренних стен, равным 2,6 и 3,2 м. Это дает возможность одновременного монтажа ячейки площадью 14,8 и 18,2 м2 при массе элементов 1,8-2,3 т с использованием монтажного крана грузоподъемностью 6-8 т.
С учетом геометрических размеров реконструируемого здания, объемных блоков и их массы, высоты стропов и длины стрелы, принятого типа стрелового крана определяются его монтажные стоянки. Для крупнопанельных и кирпичных пятиэтажных зданий надстройка мансардного этажа может производиться стреловым краном на автомобильном ходу типа МКА-16 на базе КРАЗ-257 грузоподъемностью до 20 т при вылете стрелы 12 м и высоте подъема крюка 21 м. С одной стоянки кран обеспечивает установку 4-5 блоков. Для интенсивного ведения работ, как правило, требуются два крана. Это позволяет исключить частое перебазирование крана и повысить его производительность.
До начала монтажных работ подготавливаются площадки для приведения блоков из транспортного в монтажное состояние. Для этой цели используется кондуктор со специальной опорной площадкой, на которой размещают мансардный блок таким образом, чтобы плита перекрытия заняла горизонтальное положение, а стеновой элемент имел возможность свободного расположения. Приведение элементов конструкций в проектное положение осуществляется путем установки фиксаторов и их анкеровки. Места шарнирных связей теплоизолируются. Осуществляется общая проверка состояния конструктивных элементов, стыков, облицовки, кровли и т.п.
Подготовленный к монтажу блок стропят за монтажные петли и осуществляют подъем к месту установки. Монтаж первого блока является наиболее ответственным этапом, так как любая неточность его установки повлияет на общую схему монтажа и его качество.
Для установки в проектное положение мансардный блок перемещается на кровельную часть, где используется подвижная опора для временного предпроектного его расположения. Затем производятся его выверка и установка в проектное положение с креплением опорных частей к монолитному поясу.
Монтаж очередного блока производят в той же последовательности с тем отличием, что после его установки осуществляют пропуск гибких связей в трубчатые элементы и натяжение их до полного сочленения контактных поверхностей блоков. Элементы кровельной части и плит перекрытия объединяются с помощью болтовых соединений, обеспечивая единый горизонт и уровень расположения.
При организации работ с применением одного монтажного крана после установки шести блоков захватки кран перемещается на противоположную сторону, откуда производят монтаж симметричных блоков в той же последовательности. После их установки и объединения с помощью болтовых соединений осуществляются герметизация стыков, установка коньковых элементов кровли и нащельников. Затем производится цикл монтажных работ на второй захватке с сохранением принятой последовательности.
При нормативной трудоемкости монтажа одного блока 6,8 чел.-ч и составе звена монтажников 5 чел. продолжительность монтажа на захватке без учета подготовительных работ составляет 16,8 чел.-ч, или чуть более двух смен работы крана. Таким образом, для 80-квартир-ного 4-секционного жилого дома общая продолжительность монтажа объемных блоков составляет 8-10 смен работы крана.
После их установки создаются благоприятные условия для производства работ, связанных с устройством торцевых и межсекционных стен, лестничных клеток, перегородок, подготовок под полы, сантехнических, электромонтажных и отделочных работ. При этом достигаются значительный выигрыш в сокращении продолжительности работ, снижение себестоимости и удельной стоимости 1 м2 площади.
Работы внутри созданных объемов осуществляются с подачей материалов и полуфабрикатов приставными подъемниками грузоподъемностью до 1 т. Это обстоятельство позволяет максимально совместить выполнение смежных видов работ.
Примерный график производства работ приведен в таблице 10.3.
Таблица 10.3
График производства работ по возведению мансардного этажа

За счет сокращения строительно-монтажных работ по устройству мансардного этажа общая продолжительность возведения составляет 70-80 рабочих дней. При этом создается дополнительная площадь около 870 м2.
Технологическая эффективность может быть существенно повышена за счет использования объемных блоков сантехкабин, индустриальных технологий устройства внутриквартирных перегородок, снижения объемов мокрых процессов при выполнении отделочных работ и т.п.
Возведение мансардных этажей укрупненными блоками
Технология основана на укрупнении блоков на полную ширину здания и их установке в проектное положение без применения каких-либо промежуточных опор. Такое решение требует использования более мощного монтажного крана при снижении числа монтажных операций более чем в 2 раза.
Масса полублоков размерами 3,2´7,3 и 3,6´7,3 м и высотой 5,1 м составляла 3,6 и 4,2 т. При укрупнении блоков на полный пролет здания соответственно масса удваивалась. Для выбора грузоподъемности крана учитывалась масса траверс и стропов. С учетом этих параметров максимальная монтируемая масса составила 11 т. Подбор монтажного крана по технологическим параметрам при вылете стрелы 19,0 м, высоте подъема крюка 24,0 м дает вариант применения отечественного крана КС-6471 грузоподъемностью 28 т.
В экспериментальных исследованиях использован самоходный кран Liebgherr LTM 1160 с телескопической стрелой 42,5 м и грузоподъемностью на рабочем вылете 24 м - 14,6 т.
Для укрупнительной сборки объемных блоков применялся монтажный кран на автомобильном шасси грузоподъемностью 8 т.
Технология производства работ включала три цикла: транспортную подачу, укрупнительную сборку и монтаж объемных блоков (рис. 10.33).

Рис. 10.33. Технологические схемы укрупнения блоков и их монтаж
I - транспортное средство с объемными блоками; II - раскрытие блоков; III - ук-рупнительная сборка на кондукторе; IV - монтаж объемного блока на пролет здания; 1 - блоки в транспортном положении; 2 - раскрытый блок; 3 - опорная площадка; 4 - автокран; 5 - блок в период монтажа; 6 - траверса
Мансардные блоки доставлялись на строительную площадку автотранспортом в сложенном виде. Число перевозимых полублоков составляет 4 шт. на полуприцепе. Мансардный блок разгружается и складируется в зоне действия автокрана по укрупненной сборке.
Допускается укладка трех блоков друг на друга через деревянные подкладки. При наличии площадок укрупнительной сборки разгрузка производится с раскрытием блоков, что обеспечивает одновременный перенос блока в зону укрупнительной сборки и дальнейшее его приведение в рабочее состояние.
С учетом стесненности строительной площадки должны использоваться две зоны укрупнительной сборки, что обеспечивает расчетную продолжительность ведения работ.
Монтаж укрупненных блоков осуществлялся с трех стоянок крана по схеме 6+5+6 блоков, т.е. с каждой стоянки крана производится установка 5-6 блоков.
Начало монтажного процесса осуществлялось с установки торцевого блока с последующим развитием путем присоединения очередных.
На рис. 10.34 приведен фрагмент стройгенплана, где указаны стоянки крана, зоны укрупнительной сборки и последовательность установки блоков.

Рис 10.34. Фрагмент стройгенплана на период монтажа объемных блоков
Анализ организационно-технологической надежности строительных процессов показал, что для более эффективного использования основного монтажного крана требуется расчет потоков по укрупнительной сборке из условия непрерывной работы крана в течение смены и интенсивности доставки объемных элементов.
Взаимодействие строительных потоков должно быть согласовано во времени с процессами укрупнительной сборки, обустройством и доставкой готовых блоков под монтаж. Оно может быть описано следующим соотношением циклов Тм ³ tук.сб + tт.б + tиз + tкр + Dt, где Тм - время установки объемного блока в проектное положение, включая подготовительные и вспомогательные процессы и операции; tук.сб - необходимое расчетное время укрупнительной сборки как совокупность разгрузочных, монтажных и вспомогательных процессов по приведению объемных блоков в проектное состояние; tт.б - время, необходимое для установки, теплоизоляции и проектной установки оконных блоков; tиз - выполнение комплекса работ, связанных с приведением блоков из транспортного в монтажное состояние; tкр - время, необходимое для приведения кровли в проектное положение; Dt - неучтенные затраты времени, связанные с условиями производства и обеспечением требований техники безопасности.
Как показали расчеты и производственный опыт, интенсификация возведения мансардных этажей, рациональное использование кранового времени достигаются при конвейерной системе доставки, укрупнения и приведения блоков в проектное положение. При этом сокращаются до минимума объемы работ, выполняемые на монтажном горизонте.
Это достигается путем разработки и увязки часовых графиков основных технологических процессов, обеспечения средствами механизации, вспомогательным оборудованием и инвентарем.
При цикличной доставке и конвейерной укрупнительной сборке объемных блоков обеспечивается ритмичный процесс их установки. Рациональное использование монтажного крана во времени может осуществляться по мере накопления объемов работ на полную рабочую смену.
Рассмотренная схема производства работ предусматривает совмещение во времени непрерывного цикла укрупненной сборки и предмонтажной подготовки с установкой блоков в проектное положение. При количестве объемных блоков на захватке в пределах 5-6 шт. достигается ритм монтажного потока, кратный одной смене, с учетом перебазировки крана на новую стоянку.
Примерный график производства работ приведен в таблице 10.4.
Таблица 10.4
График производства работ по возведению мансардного этажа

Организация процесса возведения мансардных этажей существенно зависит от стесненности площадки реконструируемого здания. Как отмечалось, в ряде случаев целесообразно укрупнение и предмонтажную подготовку осуществлять на свободной территории квартала застройки с доставкой в соответствии с графиком монтажного цикла.
Экспериментальные работы показали, что, несмотря на изменения цикличности доставки, укрупнительной сборки и монтажа, принцип объемно-блочного возведения мансардных этажей достаточно эффективен и позволяет снизить продолжительность реконструктивных работ. Наибольший эффект может быть достигнут при выполнении надстройки комплекса зданий или квартала застройки. Наличие значительных объемов работ позволяет осуществить организацию долгосрочных потоков, что приводит к существенному повышению уровня загрузки монтажных механизмов и снижению продолжительности работ.
Организационно-технологическая зависимость становится более сложной, когда наряду с выполнением основного монтажного потока включается комплекс работ по пристройке объемных эркеров, выполнению цикла внутренних, отделочных и специальных видов работ. Как правило, для производства комплекса работ требуется применение мобильных кранов, грузопассажирских подъемников, средств малой механизации и др.
Технологическая эффективность надстройки зданий мансардными укрупненными блоками существенно выше, так как позволяет производить монтажные работы без разборки кровельной части, способствует получению пространственных объемов, лишенных внутренних опор или поперечных стен, что обеспечивает в последующем гибкую планировку помещений. Устройство торцевых элементов стен создает замкнутость объема и формирует благоприятные условия для производства внутренних работ. В то же время процесс возведения требует согласованности потоков доставки блоков, приведения их в рабочее положение, укрупнительной сборки, установки оконных заполнений, работ, связанных с дополнительной тепло- и гидроизоляцией стыкуемых элементов, и др.
Дальнейшим развитием метода объемно-блочной надстройки реконструируемых зданий явилось создание двухъярусного монтажного блока. Он состоит из складывающейся системы «стена-перекрытие» первого яруса и объемного блока мансардного этажа.
Конструктивное решение двухъярусного блока основано на использовании многослойных стеновых элементов с несущей частью из металлического каркаса и комбинированной системы перекрытия, включающей монолитные элементы несъемной опалубки, вкладыши из пенополистирола и поверхностного слоя из тяжелого или легкого бетона.
Такое решение позволило снизить массу объемных блоков и повысить эксплуатационные характеристики стенового ограждения и перекрытий.
Производство работ по укрупнению объемных блоков включает несколько технологических циклов: транспортировку и складирование объемных элементов в сложенном виде в зоне действия крана по укрупнительной сборке; поярусное укрупнение блоков надстраиваемого этажа и мансардной части; выполнение комплекса работ по установке струбцин, стяжек и других элементов для обеспечения пространственной жесткости блока; установку оконных заполнений, изоляцию стыков.
Как и для случая надстройки мансардных этажей, необходимо создание конвейерной укрупнительной сборки, обеспечивающей цикличный процесс монтажа.
При этом экономически целесообразно применение мобильных монтажных кранов на период укрупнения и установки объемных блоков в проектное положение.
С учетом массовых характеристик элементов объемных блоков для их укрупнения следует использовать пневмоколесный кран типа КС 3577, а для установки объемного блока на монтажный горизонт - пневмоколесный кран с телескопической стрелой типа Lokomo или Liebgherr грузоподъемностью до 20 т, вылетом стрелы 19-20 м и высотой подъема крана до 28 м.
На рис. 10.35 приведена технологическая схема укрупнительной сборки и монтажа двухъярусных объемных блоков при надстройке реконструируемого здания.

Рис. 10.35.
Технологическая схема укрупнения объемных блоков на два этажа (а) и установка в проектное
положение (б)
1 - объемный блок первого этажа мансарды; 2 - то же, второго; 3 -
автокрап; 4 - опорные
площадки; 5 - монтажный
кран Lokomo; 6 - укрупненный объемный блок; 7, 8 - связи и раскосы; 9 -
монтажная траверса; 10 -
обвязочный пояс
Применение крупногабаритного объемного блока потребовало использования специальной траверсы, обеспечивающей равномерную передачу усилий в узлы несущих конструкций, а также подвесной тяги и струбцины, снижающих деформации элементов и повышающих пространственную жесткость в момент подъема и установки блоков в проектное положение.
Общая масса блока с учетом установки элементов, повышающих пространственную жесткость, составляет 12 т.
Испытания на статические и динамические нагрузки показали высокую устойчивость, пространственную жесткость, требуемую прочность узлов, соединений и объемного элемента в целом с запасом несущей способности в 1,3-1,5 раза.
Применение двухъярусных блоков позволяет существенно сократить цикл реконструктивных работ и удвоить площади надстраиваемых этажей.
Наиболее рациональной является технологическая схема производства работ, когда осуществляются подготовка и укрупнительная сборка блоков на секцию жилого дома в количестве 6-8 шт.
Определяющими факторами интенсивной технологии монтажного цикла являются наличие свободных площадок для укрупнительной сборки, транспортные пути и др.
Особое внимание при производстве монтажных работ отводится созданию условий безопасного производства работ. С этой целью выполняется комплекс страховочных мер по повышению надежности строповочных устройств, ограждений и других приспособлений. Одним из мероприятий, повышающих безопасность, является временное удаление жильцов из опасных зон. Монтаж объемных элементов должен производиться в дневную смену. Ограждения и площадки по периметру надстраиваемых этажей должны быть рассчитаны на восприятие аварийных нагрузок, входы и тамбуры обязательно защищаются настилом.
Наиболее рационально производить комплексную реконструкцию здания, включающую кроме надстройки этажей пристройку лифтов и объемных эркеров.
Реконструкция с надстройкой мансардных этажей и пристройкой эркеров чаще всего осуществляется в стесненных условиях городской застройки, когда прилегающие территории имеют постоянную систему дорог, инженерных сетей, площадок для отдыха, засажены зелеными насаждениями и т.п., есть факторы, исключающие проектное расположение средств механизации, зон складирования, мест приема материалов и полуфабрикатов. В таких случаях целесообразно использовать бескрановые методы установки блоков.
Метод надвижки объемных блоков
Реконструкция пятиэтажной застройки может быть осуществлена достаточно высокими темпами с использованием метода надвижки при максимальном укрупнении мансардных блоков.
Производство работ в стесненных условиях требует более четкой организации труда на стадиях: подготовительного периода и освоения площадки; основного цикла установки объемных блоков в проектное положение; демонтажа кровельных элементов; выполнения комплекса внутренних работ по устройству торцевых стен, лестничных клеток, вентиляционных шахт; внутренних работ по устройству перегородок; сантехнических, электромонтажных и отделочных работ.
Для реконструируемых жилых зданий первых массовых серий менее загруженными являются территории, прилегающие к торцевым частям, которые, как правило, представляют собой транспортные зоны с минимальной степенью озеленения. Они без ущерба для жильцов могут быть изолированы на период реконструктивных работ с выполнением необходимых технических решений по обеспечению безопасного производства работ и влияния строительных процессов на эксплуатацию жилых зданий.
Основная производственная зона может быть расположена в торцевой части здания. Ее расчетные параметры зависят от вида применяемых монтажных кранов и их габаритов, геометрических размеров площадок укрупнительной сборки, методов и средств доставки объемных блоков, степени их заводской готовности. Эти параметры в целом определяют интенсивность основного цикла - установки объемных блоков в проектное положение. Продолжительность данного вида работ определяется параметрами комплексного потока: ритмичностью доставки объемных блоков, затратами времени на их укрупнительную сборку, доводку до уровня проектного состояния, перемещение блока на монтажный горизонт и его транспортирование (надвижку) в проектное положение.
Для выполнения комплекса строительно-монтажных работ предусматривается размеще-' ние грузопассажирского подъемника для транспортирования строительных материалов и конструктивных элементов, необходимых для возведения торцевых стен, лестничных клеток, маршей и площадок.
Для обеспечения безопасных условий производства работ предусматривается устройство выносных подмостей, навесов входных тамбуров и др.
Наличие одного монтажного крана требует расчета цикла укрупнительной сборки, интенсивности доставки и проектного размещения таким образом, чтобы обеспечивался непрерывный поток с минимальным шагом, характеризующим взаимосвязь ритма выполнения всех строительных процессов.
Время установки блока в
проектное положение состоит из ряда процессов, в число которых входят:
строповка - tстр; время подъема до
монтажной отметки -
время установки на
колесные пары - tуст, подготовка лебедок и
анкеровка полиспастов, непосредственно надвижка - tнад; демонтаж колесных пар и приведение блока в проектное положение - tпр.пол. Таким образом, суммарная продолжительность
цикла составляет
SТц = tстр + tпод + tуст + tнад + tпр.пол.
Из составляющих цикла только первые три члена требуют использования кранового оборудования. Все остальные технологические процессы выполняются с применением лебедок, средств малой механизации и ручного инструмента. Это обстоятельство позволяет высвободить крановое время и использовать его для работы по разгрузке и укрупнению блоков.
Время подготовительного цикла с момента доставки блоков до их перемещения на монтажный горизонт составляет SТп = tукр + tдов, где tукр - продолжительность укрупнения блоков, оснащения поясными опорами, приведения в проектное положение; tдов - время, необходимое для выполнения операций по антикоррозийной защите стыков, для подготовки опорных элементов, превращения шарнирных связей в жесткие, изоляции зон примыкания кровельной части, установки оконных заполнений и т.п.
С учетом временных параметров и трудоемкости работ ритмичный поток надвижки блоков может быть рассчитан из условия их почасовой доставки.
Продолжительность транспортного
цикла должна быть менее
где п - количество полублоков,
транспортируемых за одну ездку; L - расстояние перевозки; v - средняя скорость перевозки.
Достаточно жесткие пределы циклов производства строительных процессов обеспечиваются подбором состава рабочих, занятых на соответствующих операциях.
При соблюдении требуемого ритма возведения мансардного этажа средняя продолжительность установки объемного блока в проектное положение составляет 2,0-2,2 ч, что обеспечивает сменную производительность до 4 блоков, или 120-130 м2 перекрываемой площади.
Для возведения конструктивных элементов мансардного этажа 3-секционного жилого дома требуется 4,5-5 смен работы крана.
Особое место в технологии возведения мансардных этажей отводится процессам надвижки блоков (рис. 10.36). Для их осуществления разработана специальная технология, основанная на использовании сменных колесных опор для оснащения блоков и перемещения по монтажному обвязочному поясу. Конструктивное решение позволяет после перемещения блока с помощью двух лебедок производить подъем каждой стороны с применением гидродомкрата ручного действия с целью освобождения колесных пар и последующего их использования.

Рис. 10.36.
Технологическая схема возведения мансардного этажа методом надвижки (а)
и конструкция роликовых опор (б)
1 - монтажный кран; 2 - объемный
блок с роликовыми опорами; 3 -
лебедка; 4 - направляющая;
5 - рама блока; 6 -
гидродомкрат
Отличительной особенностью данной технологии является возможность устройства конструкции мансардных этажей без промежуточных опор, что позволяет проводить цикл работ по демонтажу кровли, выступающих элементов вентиляционных и других систем после установки блоков.
Возведение торцевых элементов здания обеспечивает создание благоприятных условий производства внутренних видов работ по устройству перегородок, полов, сантехкабин и др. с расчетными параметрами потоков. Подключение отопительной системы создает необходимые температурно-влажностные условия производства отделочных и специальных видов работ независимо от воздействия окружающей среды.
Аналитические исследования технологической эффективности предложенной технологии показали, что применение объемных блоков заводской готовности способствует снижению продолжительности работ в 4-5 раз по сравнению с традиционными методами возведения мансардных этажей.
Снижение морального износа домов первых массовых серий достигается путем пристройки к фасадным и торцевым поверхностям дополнительных объемов, обеспечивающих увеличение кухонь, жилых комнат и вспомогательных площадей. В сочетании с надстройкой мансардных этажей такое решение позволяет решить ряд актуальных задач, а работы выполнить без отселения жильцов.
Одним из технических решений, позволяющих восстановить и повысить эксплуатационную надежность зданий, является превращение балконов в лоджии.
Техническое обследование показывает, что большинство балконных плит в результате длительной эксплуатации и атмосферных воздействий подвержено значительному износу и потере несущей способности. Поэтому превращение балконов в лоджии с увеличением их площадей обеспечивает не только восстановление эксплуатационной надежности, но и позволяет получить дополнительные площади при одновременном улучшении архитектурной выразительности зданий.
Наиболее технологичным является конструктивное решение в виде металлического каркаса из прокатных профилей, объединенного на уровне перекрытий и оконных заполнений угловыми связями (рис. 10.37).

Рис. 10.37.
Конструктивно-технологическая схема пристройки лоджий на месте
размещения балконов
а - фасад; б - разрез
Технология устройства лоджий состоит из: возведения фундамента в виде коротких буроинъекционных свай с монолитным ростверком; поэтажного устройства каркаса; подготовки балконных плит, опалубливания, дополнительного армирования и бетонирования перекрытия лоджий; возведения стенового ограждения и установки оконных заполнений.
Снижение трудоемкости работ достигается путем создания сборного каркаса из отдельных элементов на один или два этажа с их болтовым соединением. Крепление каркаса к наружным стенам осуществляется путем установки анкеров и соединения закладных деталей со стойками лоджий.
Процесс устройства перекрытий осуществляется с предварительным размещением опалубки, удалением разрушенных частей балконов с обнажением арматуры, дополнительным армированием и бетонированием. Омоноличивание существующей балконной плиты и ее связь с вновь создаваемой позволят получить перекрытие, работающее как плита, опертая по двум сторонам.
Достаточно эффективной является установка каркасов лоджий высотой на этаж. В этом случае кроме основного несущего каркаса возможно размещение подвесной несъемной опалубки.
После монтажа блоков и их крепления к стеновым элементам осуществляются армирование и бетонирование плит с подачей и укладкой смеси бетононасосом начиная с нижнего этажа.
В зависимости от используемых материалов процесс устройства стенового ограждения осуществляется изнутри или снаружи пристраиваемых лоджий. В последнем варианте требуется устройство лесов и специальных подъемников для подачи материалов.
Пристройка эркеров предусматривает увеличение площади кухонь и жилых помещений. По геометрической форме эркеры могут иметь различную схему в плане, что обеспечивает разнообразие архитектурных решений. Они выполняются из кирпича, монолитного и сборного железобетона с обеспечением требований по теплотехническим характеристикам и могут пристраиваться как для жилых домов в крупнопанельном исполнении, так и с кирпичными или блочными стенами. Основными условиями создания эркеров являются обеспечение устойчивости, предотвращение осадок и совместная работа с реконструируемым зданием. Для выполнения этих требований устраиваются свайные фундаменты с ростверком. Как правило, используются буронабивные, буроинъекционные сваи в раскатанных скважинах и др. Глубина их заложения зависит от физико-механических характеристик грунтов, залегающих ниже подошвы фундамента реконструируемого здания. Свайные фундаменты позволяют в меньшей степени воздействовать на существующие фундаменты и достаточно технологичны при производстве работ без отселения жильцов. Наиболее эффективной является технология устройства свай с электроимпульсным уплотнением бетонной смеси, которая обеспечивает высокую несущую способность и малую осадку при проектном нагружении (рис. 10.38).

Рис. 10.38.
Технологические схемы устройства свайного фундамента под пристраиваемые
объемы
а - устройство лидирующей
скважины; б - подача
мелкозернистой бетонной смеси и уплотнение электроимпульсами; в - возведение монолитного ростверка; 1
- шнековое бурение скважин; 2 -
подача бетонной смеси и уплотнение; 3 - армирование и бетонирование ростверка
Наибольшее распространение получили пристройки из монолитного железобетона и кирпичной кладки с утеплителем и устройством защитного слоя из штукатурного покрытия (рис. 10.39).

Рис. 10.39. Конструктивные схемы устройства пристраиваемых утепленных эркеров (а), (б), (в) и технологическая схема производства работ (г)

Рис. 10.40.
Варианты пристраиваемых лифтовых шахт, входных тамбуров и
мусоросборников
а, б - из
кирпичной кладки для домов серий 1-464, I-447; в, г - из монолитного железобетона: д, е - разрез и общий вид
Анализ производства работ показывает, что использование кирпичной кладки требует постоянного присутствия крановых средств для подачи материалов и сборных плит перекрытий. В силу малых объемов и фронта работ снижается производительность труда, возрастают сроки производства работ.
Возведение пристроек из монолитного железобетона требует использования индивидуальных типов опалубок, ручной вязки арматуры и раздельной технологии устройства перекрытий. Из-за малых объемов и стесненных условий нецелесообразны использование бетоно-насосного транспорта и доставка бетонной смеси автобетоносмесителями. Эти обстоятельства существенно снижают технологичность конструкций, повышают себестоимость работ и их продолжительность.
Развитие потоков в пространстве и времени (рис. 10.41) для выполнения подземного цикла осуществляется по горизонтальной (периметру здания), а возведение пристраиваемых объемов - по вертикальной схеме. Расчет технологических потоков осуществляется исходя из физических объемов работ, степени механизации и количества рабочих. Так, для оценки продолжительности механизированного цикла земляных работ
![]()
где Пэ - производительность экскаватора; т - коэффициент, учитывающий стесненность производства работ; V, V0 - объем земляных работ при экскавации и подготовке основания вручную; п - количество рабочих; Нвр - норма времени на единицу площади.

Рис. 10.41.
Развитие потоков в пространстве и во времени
- работы по устройству свай;
- ростверка;
- надземной части пристраиваемых объемов
При выполнении работ по устройству свайных фундаментов продолжительность цикла определяется соотношением
![]()
где hб - глубина бурения скважины; Vбур - скорость бурения; пс - количество свай; к - коэффициент, учитывающий стесненные условия производства работ; tарм - время армирования каждой сваи; Vб - объем укладываемого бетона; Нвр - норма времени на единицу объема; п - количество рабочих, участвующих в процессе; tпб - время перебазировки на следующую стоянку.
Цикл по устройству монолитной
плиты включает опалубочные, арматурные и процессы по подаче, укладке и
уплотнению смеси
где St - продолжительность выполнения процессов при
условии их последовательной очередности; Dt - технологический перерыв на твердение
бетона; tд.о - время демонтажа опалубки.
Возведение надземной части включает поэтажное производство работ при использовании монолитного варианта и вертикальную схему при возведении из кирпича.
Расчет технологических потоков осуществляется исходя из объема работ, потребного количества рабочих и средств механизации. При использовании подъемников процесс возведения осуществляется с двух сторон здания. Схемы стоянок крана принимаются таким образом, чтобы обеспечить фронт работ двух звеньев.
На период ведения работ участки ограждаются, а входы дополнительно снабжаются защитными козырьками.
Индустриальные технологии пристройки объемных блоков
Основная задача при реконструкции зданий, особенно без отселения жильцов, это применение технологий, снижающих до минимума продолжительность строительно-монтажных работ. Одним из технических решений является применение объемных блоков заводского производства различного технологического назначения. Отечественный и зарубежный опыт показывает, что их применение позволяет в 10-12 раз снизить цикл строительно-монтажных работ, повысить качество и надежность за счет полной заводской готовности. Широкое распространение в практике реконструктивных работ нашли объемные блоки входных тамбуров и лоджий, пристраиваемые объемные блоки кухонь, саун, балконов и других элементов. Как правило, пристраиваемые объемы выполняются с металлическим легким каркасом, что позволяет осуществить их установку без устройства массивных фундаментов. Для пристройки жилых комнат, кухонь и саун применяют более мощную каркасную систему, обеспечивающую восприятие новых технологических нагрузок. Блоки теплоизолируются, а их наружная поверхность защищается специальными покрытиями из металлических профильных листов, цементно-волокнистых плит или многослойного штукатурного покрытия. Их полная заводская готовность позволяет в кратчайшие сроки привести в эксплуатационное состояние путем подключения на гибких связях системы электроснабжения, отопления и водоснабжения.
Использование пристраиваемых блоков существенно влияет на архитектурно-планировочные решения квартир, увеличивая их площади и повышая комфортность проживания.
Многообразие геометрических форм, цветовой гаммы и конструктивных решений позволяет подчеркнуть индивидуальные особенности каждого жилого дома и отойти от типовых решений, не снижая архитектурной выразительности зданий. При этом технология производства работ практически состоит из монтажного и транспортного циклов с использованием мобильных грузоподъемных средств и почасовой доставки конструкций.
Конструктивное решение объемных блоков предусматривает заводское изготовление элементов различной геометрической формы (рис. 10.42) из тяжелого и легкого железобетона. Они состоят из элементов стенового ограждения и перекрытия, что позволяет получать пространственно жесткие недеформируемые конструкции.

Рис. 10.42. Объемные блоки заводского производства
Они выполняются неутепленными для лоджий, летних эркеров и других элементов, а также утепленными, которые используются для расширения площадей жилых помещений (рис. 10.43).

Рис. 10.43.
Пристраиваемые объемные блоки
а - неутепленный блок
лоджии; б - блок с
утеплением и облицовкой панелями из дисперсно-армированного бетона
Характеристики пристраиваемых блоков приведены в таблице 10.5.
Таблица 10.5
Характеристика пристраиваемых объемных блоков
|
Тип |
Габаритные размеры, м |
Масса, т |
Коэфф. термич. сопротивления |
Применяемые материалы и изделия |
||||||
|
L |
В |
Н |
Стены |
Перекрытий |
Утеплитель |
Облицовка |
Окна |
|||
|
I |
2,4 3,2 3,6 4,8 |
1,2 1,5 1,8 2,1 |
2,7 3,0 3,3 |
3,5-6,0 |
- |
Железобетон |
Железобетон |
- |
Плитка Сайдинг Без облицовки под покраску |
Одинарное остекление |
|
II |
2,7 3,5 4,1 5,2 |
1,35 1,65 1,95 2,25 |
2,7 3,0 3,3 |
4,0-7,5 |
3,04 |
Железобетон |
Железобетон |
Пенополистирол Минераловатные плиты |
Сайдинг Ж/б облицовочная плитка Плитка из естественного и искусственного камня |
Тройное остекление со стекло-пакетами |
Для большинства реконструируемых зданий различных серий целесообразна разработка гибкой номенклатуры объемных блоков различного технологического назначения. Номенклатура изделий, приемлемых для реконструкции зданий с надстройкой до 2-3 этажей, включает: объемный блок кухни площадью 7,08 м2; блок эркера (спальни) - 11,0 м2; блок лоджии - 5,0 м2; столовой - 4,5 м2, а также специальные блоки лифта с мусоросборником и лифтовой шахтой.
В зависимости от архитектурно-планировочных решений размеры блоков, как и их геометрическая форма, могут изменяться.
Одной из важных позиций использования блоков является возможность уширения корпусов за счет передачи на них нагрузки от надстраиваемых этажей. Это обстоятельство требует соответствующего армирования стен, перекрытий, а также дополнительного расчета фундаментов, что существенно упрощает технические решения и способствует снижению трудоемкости и продолжительности работ.
Анализ технологичности изготовления и монтажа блоков показал, что наиболее эффективным является конструктивное решение с размещением потолочного перекрытия, что позволяет выполнять установку блоков в проектное положение без использования специальных средств подмащивания. Для обеспечения геометрической неизменяемости блоков при транспортировании и монтаже нижние боковые грани снабжаются специальной затяжкой в виде металлического стержня или профильного металла. После установки в проектное положение они демонтируются.
Более рациональным является изготовление объемных железобетонных блоков с толщиной стен 8-12 см и перекрытий 16-18 см с последующим утеплением в одном технологическом цикле с наружными стенами.
Для соединения с несущими конструктивными элементами зданий предусматривается размещение в торцевых элементах блоков закладных деталей. К ним осуществляется крепление направляющих, шарнирно связанных с поперечными стенами крупнопанельных зданий.
Пристройка блоков к кирпичным стенам предусматривает размещение распорных анкеров в кладке с последующим соединением связей с закладными деталями. Такое решение обеспечивает компенсацию возможных осадок в вертикальной плоскости и создает условия совместной работы объемных элементов, предотвращая раскрытие трещин в местах контакта вертикальных элементов.
Технология производства работ предусматривает вскрытие вертикальных и горизонтальных стыков между панелями или их предварительный демонтаж с устройством отверстий в поперечных несущих стенах и болтовых соединений направляющих.
Для крупноблочных и зданий с кирпичными стенами возможно использование болтовых соединений пристраиваемых объемов через отверстия в наружных стенах. В том или ином случае осуществляется подбор сечения соединительных элементов с расчетом на сдвиг при осадке фундамента и на отрыв за счет эксцентриситета приложенных сил.
Схемы сопряжений пристраиваемых объемов приведены на рис. 10.44.

Рис. 10.44.
Схемы сопряжений пристраиваемых блоков с конструктивными элементами
здания
а - при демонтаже
наружной стеновой панели; б -
то же, при вскрытии вертикальных и горизонтальных стыков наружных панелей; в, г - с помощью анкерного и
болтового креплений объемного блока с кирпичными стенами; 1 - наружные стены; 2 - внутренняя несущая стеновая
панель; 3 - демонтируемая
наружная стеновая панель; 4 -
закладная деталь; 5 - связующий элемент; 6 - распорный анкер в кирпичной стене; 7 - сварное
соединение; 8 - утеплитель;
9 - облицовка; 10 - стяжной болт
Пристройка блок-комнат к торцовым стенам предусматривает создание более мощных фундаментов, а их фиксация к элементам реконструируемого здания осуществляется в нескольких уровнях по высоте.
Многолетний опыт крупнопанельного и объемно-блочного домостроения позволил оптимизировать рациональные решения стыковых соединений, использовать эффективные технологии монтажа, резко снижающие трудозатраты на строительной площадке. Этому способствуют также приемы и средства выверки, временного и окончательного крепления элементов между собой и стыковых соединений с реконструируемым зданием.
Рациональные решения, обеспечивающие максимальное снижение массы блоков, достигаются за счет использования легкобетонных смесей и эффективного утеплителя. Это позволяет получать блоки массой 1,8-2,4 т и общей площадью 2,6-4,8 м2. Снижение массы оказывает заметное влияние не только на эффективность монтажа за счет использования кранов меньшей грузоподъемности, но и на технологические процессы транспортирования с завода на реконструируемый объект.
Использование объемных блоков требует специальной подготовки площадки и технологии возведения самостоятельных фундаментов. Требования к возведению фундаментов должны максимально исключать недопустимые осадки, обеспечивать их равномерность, а также снижать негативное влияние на фундаменты реконструируемого здания. В зависимости от габаритов и массы объемных элементов наиболее рациональным является устройство свайных фундаментов с ростверком.
Процесс возведения фундаментов является наиболее трудоемким и требует использования специальных средств механизации, адаптированных к стесненным условиям площадки. При этом должен сохраняться единый монтажный горизонт, соответствующий отметке установки низа блоков по всему периметру здания.
Доставка эркерных блоков осуществляется автотранспортом без промежуточного складирования. С одной стоянки крана КС-4572 осуществляется установка эркерных блоков на захватках, используя метод наращивания, обеспечивается последовательный по высоте монтаж блоков с транспортных средств. Для выверки, временного и окончательного крепления используются леса, а также навесные подмости, устанавливаемые на монтируемый элемент до его установки.
Особое внимание при этом уделяется качеству устройства стыковых соединений, изоляции закладных деталей, устройству швов, их герметизации и теплоизоляции стыков.
Наиболее ответственным циклом работ является устройство стыка элементов стен и перекрытия блоков с существующими конструкциями. От степени подготовки стыкуемых элементов зависят эксплуатационные показатели, такие как продуваемость и водонепроницаемость стыков. До установки эркерного блока в проектное положение осуществляется вскрытие контактной зоны наружных стеновых панелей на глубину, равную толщине элементов стыкуемых панелей. Этот технологический процесс осуществляется путем разрезки дисковой пилой с алмазным покрытием с последующим извлечением разрушенных элементов. В образовавшуюся штрабу устанавливается эффективный плитный утеплитель. Затем производится установка эркерного элемента таким образом, чтобы вертикальные и горизонтальные элементы блоков свободно входили в образовавшиеся штрабы. После сварки закладных деталей пространство между стыкуемыми элементами теплоизолируется.
Для жилых зданий с кирпичными стенами крепление объемных блоков осуществляется с использованием металлических связей, располагаемых в стене на уровне закладных деталей. Они выполняются в виде распорных анкеров, устанавливаемых в цилиндрической полости стены и снабженных металлическими пластинами. Закладные детали и пластины анкеров объединяются сваркой с помощью накладок.
Более простым решением является устройство сквозного отверстия в стене, в которое пропускается металлический анкер и соединяется с закладной деталью блока.
Варианты рассматриваемых решений обеспечивают требуемую связь с пристраиваемым объемом, при этом исключаются «мостики холода», что весьма важно для повышения теплотехнических характеристик. В дальнейшем при утеплении фасадных поверхностей стыки дополнительно теплоизолируются и защищаются. Для сообщения с пристраиваемым объемом в наружной стене реконструируемого жилого дома выполняется проем за счет расширения оконного. Этот процесс выполняется после установки блоков на все этажи.
При средней нормативной трудоемкости установки объемного блока 1,2 чел.-ч и объеме подготовительных работ 2,3 чел.-ч суммарная продолжительность работ на захватку составляет 35,0 чел.-ч. При составе звена 4 чел. продолжительность не превышает одной смены работы крана. Таким образом, при реконструкции 60-квартирного жилого дома серии 1-468 путем пристройки 70 объемных элементов эркеров общая продолжительность работ составляет 15- 18 рабочих дней. Продолжительность, в 3-4 раза превышающая монтажный цикл, связана с уширением проемов, транспортированием отходов и выполнением отделочных работ. Эти работы выполняются отдельным технологическим потоком.
Варианты планировочных решений в результате пристройки объемных блоков для домов серий 1-464 и I-515 приведены на рис. 10.45.

Рис. 10.45.
Технологические решения пристройки объемных блоков
а - для расширения
кухонь и санузлов; б -
то же, с устройством лифтов и пристройкой объемов к торцевым частям зданий
Каждая квартира получает дополнительные площади к помещениям кухонь на 7,08 м2 и комнат 4,8-5,0 м2.
Расширение площадей, примыкающих к кухне, позволяет провести модернизацию санузла. В частности, за счет удаления вентиляционного блока достигается превращение санузла в раздельный с выделением площадей под стиральные машины и другое необходимое оборудование.
В случаях надстройки зданий более двух этажей устанавливается лифтовый узел с мусороудалением. При этом к нему пристраиваются объемные блоки кухонь. Комплексное решение данного узла позволяет не только повысить комфортность проживания, но и улучшить архитектурную выразительность зданий.
Пристройка объемных блоков к торцевым элементам здания площадью до 11 м2 в силу больших габаритных размеров и изменившихся нагрузок требует дополнительных работ по устройству фундаментов.
Основная задача при их возведении состоит в обеспечении устойчивости торцевых элементов здания. Традиционные технологии, включающие отрывку котлованов, могут привести к дополнительным осадкам, вызванным влиянием атмосферных воздействий и других факторов. Эти обстоятельства приводят к необходимости создания фундаментов без нарушения земляных масс.
Наиболее рациональным является устройство фундаментов в виде свайного основания с фундаментной плитой. При этом сваи выполняются буронабивными, что позволяет организовать индустриальное производство работ с максимальным использованием средств механизации и исключить влияние производства работ на существующие фундаменты.
Технологические особенности монтажа объемных пристраиваемых блоков состоят в обеспечении низкой скорости опускания конструкций на монтажный горизонт, использовании самобалансирующихся траверс для гашения раскачивания блока, применении специальных фиксаторов, исключающих соударения блока с наружными стенами реконструируемых зданий. Выполнение перечисленных требований и технологического регламента монтажных работ позволяет производить пристройку блоков без отселения жильцов.
Перед монтажом объемного блока осуществляется его оснащение навесными подмостями, фиксаторами, монтажными лестницами. Подготовка блоков осуществляется на специальной площадке в зоне действия монтажного крана.
Для блок-комнат площадью 11-15 м2 используются автокраны грузоподъемностью до 15 т при массе элементов 5,5-6,2 т.
Для обеспечения непрерывного
технологического цикла должна быть согласована почасовая подача блоков под
монтаж, что достигается расчетом транспортного цикла, времени подготовки и
непосредственно продолжительностью монтажа ![]()
Учитывая, что время транспортирования может иметь значительные отклонения от среднего значения, то обязательным условием является резервирование технологического цикла, что достигается путем создания запаса не менее 1-2 блоков.
Наиболее рациональной является комплексная реконструкция зданий, включающая обстройку и надстройку из объемных элементов.
Опыт реконструкции административного здания с превращением в жилое (выполнено Мосэнергостроем) показал достаточно высокую технологическую эффективность.
Промышленная апробация технологии осуществлена на 5-этажном здании с шириной корпуса 14,6 м и длиной 60 м. Для надстройки использовались укрупненные на пролет объемные блоки шириной 3,2 и 3,6 м, массой 7,2 и 8,4 т, общим количеством 17 элементов.
Для монтажа использовался самоходный кран Liebherr LTM 1160 с телескопической стрелой грузоподъемностью на рабочем вылете 24 м - 14,6 т.
Для укрупнительной сборки объемных блоков использовался автокран грузоподъемностью 8 т.
Технология производства работ включала три цикла: транспортирование, укрупнитсяь-ную сборку и монтаж объемных блоков.
С учетом стесненности строительной площадки использовались две зоны укрупнительной сборки, что обеспечило расчетную последовательность и продолжительность монтажных работ.
По мере монтажа мансардных блоков выполнялся цикл работ по устройству торцевых стен, лестничных клеток, лифтовых шахт, внутренних планировочных работ.
Отдельным технологическим потоком осуществлялся монтаж объемных элементов лоджий.
На рис. 10.46 приведены рабочие моменты по укрупнению объемных блоков, их монтажу, возведению элементов лоджий.

Рис. 10.46.
Рабочие моменты возведения мансардного этажа и пристройки эркеров из
объемных блоков
1 - укрупненный рабочий блок; 2 - монтаж мансардных блоков; 3 - то же, объемных блоков эркеров; 4 - общий вид здания на период
окончания монтажа объемных элементов; 5 - отделочные работы фасадных
поверхностей; 6 - общий
вид здания на период окончания работ; 7, 8 - общий вид здания до и после реконструкции
Опыт использования объемных элементов показал высокую технологическую эффективность: снижение сроков производства строительно-монтажных работ, возможность создания гибких планировочных решений, снижение себестоимости работ, уровня морального износа путем пристройки объемов, повышение архитектурной выразительности зданий и их разнообразия.
Метод обстройки и надстройки зданий из объемных блоков является универсальным и может быть использован для большинства массовых серий крупнопанельных и кирпичных зданий.
На рис. 10.47 приведен пример реконструкции жилых домов серии 1-510 путем пристройки объемных блоков торцевых элементов кухонь, лифтовых шахт, лоджий с дополнительной надстройкой 2-3 этажей.

Рис. 10.47. Планировочное решение жилого дома серии
1-510 с надстройкой этажей и пристройкой объемных блоков
а - план торцевой секции
1-го этажа; б - то же,
типового; в, г - планы
надстраиваемых этажей
При этом без значительных изменений планировочного решения достигается увеличение площади кухонь, устройство раздельного санузла, замена балконов на просторные лоджии. Надстраиваемые этажи могут быть запроектированы по гибким планировочным решениям с учетом потребностей жильцов (коммерческое или социальное жилье).
Реализация данной технологии наиболее эффективна при комплексной реконструкции квартала застройки, когда создаются долгосрочные технологические потоки по: замене внешних и внутренних сетей, устройству фундаментов под пристраиваемые объемы, комплексному монтажу объемных элементов, внутренним планировочным и отделочным работам и т.п.
Развитие технологии требует использования специальных и мобильных грузоподъемных средств, оснастки и приспособлений, обеспечивающих заданный ритм производства работ. Целесообразно использовать конвейерную схему возведения надстроек, предусматривающую укрупнительную сборку элементов и доставку под монтаж, максимальное совмещение во времени технологических процессов. Это обстоятельство позволяет снизить цикл реконструктивных работ, обеспечивает максимальную загрузку средств механизации, более рациональное использование ресурсов.
Характерным примером совмещения монтажных процессов является надвижка 2-этажных блоков с использованием специальных подъемников и транспортирующих устройств с монтажом пристраиваемых блоков мобильными грузоподъемными средствами (рис. 10.47).
При надстройке 2-этажными объемными блоками необходимо использовать специальные средства механизации в виде двухмачтовых подъемников и спецтранспортеров. Их технические характеристики приведены в таблице 10.6.
Таблица 10.6
Технические характеристики средств механизации
|
Наименование средств механизации |
Параметры |
Наименование средств механизации |
Параметры |
|
1. Двухмачтовый подъемник: |
|
2. Спецтранспортер: |
|
|
высота подъема объемных блоков, м |
16,0 |
грузоподъемность, кН |
400 |
|
скорость подъема, м/мин |
1,5 |
скорость перемещения, м/мин |
2,0 |
|
грузоподъемность платформы, кН |
500 |
мощность привода подъемника, кВт |
1,5 |
|
мощность привода подъемника, кВт |
7,5 |
тип привода подъема тележки - пневматический |
|
|
масса подъемника, т |
12,5 |
тип трансмиссии - телескопический карданный вал |
|
|
|
|
масса транспортера, т |
3,0 |
Технологические циклы иллюстрируются на рис. 10.48, где показаны этапы пристройки объемных блоков с применением мобильных кранов, установки выносного подъемника с устройством направляющих для перемещения, укрупнительной сборки и надвижки мансардных блоков и др.

Рис. 10.48.
Технологические схемы надстройки и обстройки зданий с использованием
а, г - ленточных
подъемников; б -
пристраиваемых торцевых объемов; в
- специальных подмостей
Взаимодействие технологических потоков при реконструкции 3-секционного жилого дома приведено на графике производства работ (таблица 10.7).
Таблица 10.7
График производства работ по реконструкции жилого дома с обстройкой и 2-этажной надстройкой

Для обеспечения максимального совмещения строительных процессов целесообразно осуществить оптимизацию, предусматривающую экономическую оценку влияния простоя монтажных и транспортных средств на общий цикл монтажа.
В частности, при рассмотрении математической модели с двумя кранами по пристройке объемов и доставке их автотранспортом постановка задачи состоит в рассмотрении системы, включающей два прибора (крана) и входной пуассоновский поток заявок (доставка блоков автотранспортом) с определенным интервалом.
Время обслуживания представляет собой монтажный цикл tM.
Моделирование технологических процессов позволяет осуществить взаимосвязь доставки блоков с интенсивностью монтажа. При этом интенсивность доставки должна превышать интенсивность монтажа. Из этих условий строятся графики работы автотранспорта, обеспечивающие непрерывность работы кранов.
Проектные разработки по реконструкции жилых домов серий 1-464, I-447, 1-510, I-515 и др. показали, что использование принятой технологии обеспечивает прирост общих площадей в следующем диапазоне: пристройка объемных эркеров - 19,4--20,6 %; пристройка объемных эркеров и надстройка мансардного этажа - 42,6-50,3 %; пристройка объемных блоков по периметру здания; с надстройкой полного и мансардного этажей - 70,5-72,8 %.
Одно- и двухэтажные объемные блоки обеспечивают настройку жилых зданий различных серий. При этом габаритные размеры блоков принимаются в соответствии с шагом внутренних несущих стен для крупнопанельных зданий, кратным размещению оконных проемов для крупноблочных и зданий с кирпичными стенами. Отличительной особенностью таких систем является возможность получения пространства зального типа, что обеспечивает гибкую планировку надстраиваемых этажей.
Сопоставительные данные по реконструкции с надстройкой мансардных этажей показали, что применение объемно-блочной надстройки снижает удельные трудозатраты в построечных условиях в 6-8 раз и себестоимость 1 м2 площади на 26-32 %.
Технологические этапы производства работ включают несколько взаимоувязанных во времени строительных потоков.
До производства работ по монтажу объемных блоков выполняется цикл нулевых работ, состоящий в устройстве фундаментов под пристраиваемые объемы в виде монолитных буронабивных свай и ростверка. Параллельно этим работам осуществляется цикл по созданию монолитного обвязочного пояса в парапетной части для последующего размещения на нем блоков мансардного этажа.
Разработаны технологии возведения надстраиваемых этажей методами монтажа полу-блоков и укрупненных на пролет объемных элементов, а также надвижки блоков.
При обстройке зданий объемными элементами и надстройке мансардным этажом наиболее рациональным является производство работ, когда формируется два строительных потока, одним из которых производится цикл надстройки, а другим - осуществляется монтаж с транспортных средств пристраиваемых объемов.
Применение индустриальных технологий производства работ позволило разработать ряд организационно-технологических моделей, обладающих многовариантностью, технологической гибкостью и организационно-технологической надежностью.
Оптимизация монтажных процессов надстройки и обстройки зданий
Использование объемных блоков заводского изготовления потребовало разработки оптимизационных моделей взаимодействия различных средств механизации по укрупнению элементов, их монтажу, доставке на приобъектные или внутриквартальные базы, подбору состава бригад, по доводке элементов и т.п. Основная цель исследования оптимизационных моделей состоит в определении условий непрерывного процесса надстройки и обстройки зданий с целью создания ритмичных потоков, близких к конвейерной схеме производства работ, при условии случайных воздействий на продолжительность составляющих процессов. В качестве критерия оптимизации в каждой из рассматриваемых моделей принимается стоимость производства работ с учетом факторов простоя монтажных кранов или образования очереди из транспортных средств по доставке объемных элементов, их времени обслуживания по укрупненной сборке и доводке. Рассмотрены варианты моделей, когда монтажные элементы подаются непосредственно под монтажный кран и модель с промежуточной площадкой-складом для укрупнительной сборки.
I. Модель с двумя кранами и доставкой блоков под монтаж автотранспортными средствами.
Используется двусторонняя схема монтажа объемных блоков пристройки и надстройки этажей из полублоков.
В математическом плане постановка задачи состоит в рассмотрении системы, включающей два прибора (крана) и входной пуассоновский поток заявок (доставка блоков автотранспортом) с интенсивностью l. Время обслуживания представляет собой цикл для установки элемента, который включает строповку, подъем, перемещение и установку в проектное положение с устройством временных и постоянных связей и креплений. Этот параметр обозначим через m.
Поступающая заявка (доставка объемного элемента) немедленно направляется на свободный прибор (кран). Если оба крана заняты на выполнении монтажных операций, то транспортные средства образуют очередь. При освобождении любого из кранов на него немедленно направляется заявка (автотранспорт с объемным блоком), стоящая в очереди. Стоимость простоя крана в единицу времени равна С1, а стоимость простоя автотранспорта (заявки) в очереди равна С2. Требуется найти значение, при котором затраты в единицу времени минимальны.
Состояние системы в момент времени t может быть описано переменными, имеющими вероятностный характер. Например: вероятность того, что оба крана работают, равна Рп и в очереди находится п ³ 0 автотранспортных средств; вероятность того, что один кран простаивает, Р-1, вероятность простоя двух кранов - Р-2.
С помощью дифференциальных уравнений Колмогорова находятся стационарные вероятности Р-1 = (1/r)Р0; Р-2 = (1/2r2)Р0, РкrкР0 при к ³ 0.
Здесь введено обозначение r = l/2m.
Используя условие, что сумма
вероятностей
получаем

Поскольку Рi - это средняя доля времени, которое система
проводит в состоянии i,
то стоимость затрат системы в единицу времени W(C1, С2) в стационарном решении равна ![]()
Оптимальное значение l (C1, С2), при котором затраты W(C1, С2) минимальны

Результаты численных методов расчета показали, что при интенсивности монтажа объемных блоков m1 = 2, m2 = 1,5 и m3 = 1 шт/ч непрерывная работа двух монтажных кранов будет достигнута при интенсивности доставки, равной соответственно 3,5; 2,7 и 2,2 блока в час.
При этих значениях достигаются суммарные минимальные затраты и обеспечивается непрерывный цикл производства работ.
На рис. 10.49 приведены графические зависимости вариантов.

Рис. 10.49. Оптимизация по стоимости интенсивности доставки блоков на монтаж при продолжительности установки m1 = 2, m2 = 1,5 и m3 = 1 блок/ч
II. Организационно-технологическая модель, которая учитывает очередь автотранспортных единиц с блоками при условии, что оба крана заняты на монтажных процессах. При длине очереди т происходит возврат (отказ) автотранспортного средства с объемным блоком. Стоимость отказа составляет С3.
При количестве отказов в единицу времени (смену) С3lРт оптимизационный критерий может быть описан следующей зависимостью
(4.5)
Выражая критерий через r, получаем
W(C1,C2,C3) = C1A1(r) + C2A2(r) + C3A3(r), (4.6)
где ![]()
Поскольку W(C1,C2,C3) находятся в аналитическом виде, численные методы позволяют найти оптимальное значение l.
III. Организационно-технологическая модель с промежуточным складом и площадкой для доводки объемных блоков имеет место при реконструкции зданий квартала застройки с обстройкой и надстройкой этажей из объемных блоков. При этом поступающие автотранспортом изделия складируются на внутриквартальной площади, где осуществляются их укрупнение и доводка до полной заводской готовности: установка оконных блоков, выполнение работ по тепло- и гидроизоляции узлов и др.
Модель включает заявки двух типов - заявки крана для укрупнительной сборки и заявки монтажного крана.
Заявки первого типа с интенсивностью l поступают на кран укрупнительной сборки. Он обслуживает каждую заявку экспоненциально распределенное время с параметром v. После окончания обслуживания заявка превращается в заявку второго типа - укрупнительный блок переходит в очередь на обслуживание по монтажному крану. Он обслуживает заявки экспоненциально распределенное время с параметром m. Суммарная длина очередей к крану по укрупнительной сборке и монтажному крану не должна превышать количество u. Если очередная заявка застает длину очереди, большую и, то она относится к зоне отказа (возврата).
Требуется разработать организационно-технологическую модель с минимальными затратами в результате простоя механизмов и возвращения блоков в результате отказа. Затраты за простой крана по укрупнительной сборке составляют C1, за простой монтажного крана - С2, стоимость возврата (отказа) - С3.
Состояние системы описывается двумя числами j и i - соответственных количествам заявок, стоящих в очереди к крану по укрупнению блоков и монтажному крану.
Решение дифференциальных уравнений для вероятности Рij нахождения системы в состоянии (i, j) в стационарном режиме имеет вид:

где ![]()
Вероятность того, что будет простаивать монтажный кран, равна
![]()
вероятность простоя крана по укрупнительной сборке составит
![]()
вероятность отказа (возврата автотранспорта с блоками на завод) составит

Критерий эффективности может быть описан следующим соотношением

На рис. 10.50 приведены результаты расчета по оценке оптимальной интенсивности укрупнительной сборки и доводки блоков с учетом стоимости эксплуатации машин, их простоя, а также возврата блоков при отсутствии на укрупнительной площадке свободных стендов и различных соотношениях (С1, С2, С3).

Рис. 10.50. Оптимальные интенсивности укрупнительной сборки и доводки блоков 1-4 при С3 = (0,1; 0,2; 0,3; 0,4)C1, где С1 - стоимость укрупнительной сборки; С2 - стоимость простоя монтажного крана; С3 - стоимость возврата блоков
Полученная методика позволяет оптимизировать и провести согласование циклов укрупнительной сборки и монтажа объемных блоков при минимальных затратах с учетом вероятностного характера продолжительности работы машин.
На рис. 10.51 приведены зависимости себестоимости производства монтажных работ от интенсивности подачи блоков. Кривая имеет минимум, который соответствует оптимальной подаче. При недогрузке кранов наблюдается более высокая себестоимость производства работ, чем при образовании очереди из автотранспортных средств.

Рис. 10.51. Зависимость себестоимости производства монтажных работ от интенсивности доставки блоков
Практическая реализация пионерного проекта показала качественное и количественное подтверждение исследуемых моделей.
Отличительной особенностью данного метода реконструкции жилых домов первых массовых серий является резкое снижение продолжительности строительно-монтажных и общего цикла восстановительных работ. Так, при надстройке мансардного этажа площадью 680 м2 продолжительность монтажных работ составила 8 раб. дней, а общий цикл - 2, 4 месяца.
Более высокая технологическая и экономическая эффективность достигается при комплексной реконструкции квартала застройки, когда кроме производства реконструктивных работ осуществляются возведение 9-12-этажных «вставок» между жилыми домами, а также освоение подземного пространства. Такое решение способствует уплотнению жилой застройки и получению дополнительных площадей различного технологического назначения.
Надстройка зданий из блок-комнат
Опыт мансардного строительства из штучных конструктивных элементов свидетельствует о достаточно высоких трудозатратах и значительной продолжительности возведения. Как правило, все виды работ выполняются вручную с минимальным оснащением средствами механизации.
Анализ трудозатрат показывает, что более 40 % расходуется на погрузо-разгрузочные работы, транспортирование материалов и полуфабрикатов к рабочим местам, около 8 % - на устройство подмостей, ограждений и временных защитных устройств для обеспечения безопасных условий работ и защиты жильцов от случайного падения материала или конструктивных элементов. Достаточно трудоемок цикл отделочных работ. Все это приводит к увеличению сроков возведения мансардных этажей, удорожанию работ и, как следствие, к повышению себестоимости жилья.
Снижение сроков строительства может быть достигнуто путем существенного повышения технологичности конструктивных элементов, их сборности и степени заводской готовности.
Для успешной реализации принципа сборности и заводской готовности необходимо переходить на легкие объемно-блочные строительные системы, обеспечивающие процесс возведения в виде монтажного цикла с минимальными затратами труда на отделочные работы и устройство стыковых соединений. Снижение массы конструктивных элементов способствует применению менее мощных и мобильных крановых средств, что весьма важно в стесненных условиях городской среды.
Аналогом объемно-блочного домостроения является технология реконструкции с надстройкой мансардных этажей из объемных блоков, разработанная академиком РААСН С.Н. Булгаковым.
Конструктивно объемные блок-комнаты представляют собой пространственную рамную конструкцию, состоящую из деревометаллического каркаса с утеплением наружных стен, наружной и внутренней изоляцией. Блок-комнаты имеют габаритные размеры, соответствующие шагу внутренних стен крупнопанельных зданий и существующей планировке реконструируемых зданий с кирпичными стенами. Они получают заводскую отделку с устройством пола, перекрытия, проемообразователей, кровельной части и т.п.
Из-за ограничения в габаритных размерах по высоте используется специальный крышевой блок, который устанавливается на элемент блок-комнаты.
Таким образом, используя объемные элементы, возможна надстройка одно- и двухуровневого мансардных этажей (рис. 10.52). Основой для их размещения является монолитный обвязочный пояс, на который устанавливаются в определенной последовательности блоки. Они различаются по своему функциональному назначению: блок-комнаты (угловые, рядовые) с лестничными маршами, кухонные и т.п. В таблице 10.8 приведены их основные характеристики для возведения одноуровневых и двухуровневых мансардных этажей. Они выполняются угловыми, рядовыми, в виде лестничных и крышевых блоков.

Рис. 10.52.
Конструктивно-технологическая схема надстройки зданий из объемных блоков
заводской готовности
а - одно- и б -
двухэтажные надстройки; 1 - обвязочный пояс; 2 - объемный блок жилой; 3 - крышевой блок
Таблица 10.8
Основные типы объемных блоков
|
Тип блока |
Одноуровневая мансарда |
Двухуровневая мансарда |
|
|
1-й уровень |
2-й уровень |
||
|
Рядовой блок |
|
|
|
|
Угловой блок |
|
|
|
|
Лестничный блок |
|
|
|
По длине блоки изготавливаются с превышением ширины корпуса до 2,1 м, что позволяет получать дополнительные площади и размещать под ними лоджии.
Для получения больших площадей используются объемные блоки, одна из внутренних стен которых выполняется с широким проемом. При их объединении формируется планировочное решение, обеспечивающее полутора- или двукратное увеличение площади комнат.
Процесс надстройки зданий состоит в устройстве обвязочного пояса, на монтажный уровень которого устанавливаются объемные блоки. Они крепятся основанием к закладным деталям пояса, а взаимное сопряжение осуществляется с помощью болтовых соединений.
Технологическая последовательность монтажа осуществляется по нескольким схемам. Первая схема предусматривает посекционный последовательный монтаж блоков на полную ширину корпуса с направлением монтажного потока от торцевой части здания. Вторая схема базируется на порядовой установке, когда первоначально монтируется внешний, а затем внутренний ряд блоков. При ступенчатой схеме установки используется последовательный монтаж на ширину здания первоначально нескольких блоков нижнего яруса с последующей установкой второго яруса и крышевых элементов. Дальнейший монтаж производится поэлементно со смещением на один блок (рис. 10.53).

Рис. 10.53.
Технологическая последовательность монтажа блоков
а - последовательная на
ширину пролета; б -
осевая; в - ступенчатая
Наиболее рациональной является первая схема, которая позволяет выполнять цикл санитарно-технических и другие коммутационные работы путем соединения гибких связей с существующими сетями. В этом случае установка последующего блока осуществляется после завершения работ, связанных с подключением и объединением сетей.
При возведении одноуровневых мансардных этажей по мере установки угловых и рядовых блоков осуществляется монтаж кровельных, что обеспечивает защиту от атмосферных осадков.
Монтаж считается завершенным после окончательного крепления блоков и заделки швов между ними. Для обеспечения технологической надежности соединений осуществляются теплоизоляция стыков и их защита путем установки нащельников и других приспособлений.
При возведении 2-уровневых мансард технологический цикл монтажа осуществляется по горизонтально-восходящей схеме, когда установка блоков производится поочередно для первого, затем второго уровня и оканчивается монтажом крышевых блоков.
Особое место в производстве работ отводится обеспечению геодезической точности установки блоков как по вертикали, так и по плоскости этажа. Для выверки блоков в проектное положение используются механические домкраты-вкладыши, которые позволяют перемещать блок в плане до совпадения с осевыми проектными рисками.
Монтаж объемных блоков осуществляется автокранами на пневмоколесном шасси (МТК-40, МТК-63Б Като, Либхер) с телескопическими стрелами, обеспечивающими подъем и установку элементов массой до 10 т.
Особое внимание при монтаже блоков отводится соблюдению технологических регламентов и техники безопасности. В этом плане исключительно важным является обеспечение мер безопасного производства работ при строповке конструкций, подъеме, перемещении и установке в проектное положение. Для безопасного производства работ осуществляются оснащение блоков инвентарными ограждениями и навесными площадками, создание по периметру здания высоких подмостей, которые в последующем используются для размещения приспособлений по изоляции стыковых соединений.
В связи с определенной стесненностью производства работ наиболее рациональной следует считать технологическую схему, основанную на «монтаже транспортных средств». Согласование работ по доставке и монтажу обеспечивает создание непрерывного потока, существенно снижающего простои дорогостоящих кранов и сокращающего продолжительность производственных циклов.
При надстройке зданий мансардными этажами из объемных блок-комнат в качестве положительных факторов следует выделить снижение трудоемкости в построечных условиях, сокращение продолжительности работ, а также возможность проведения реконструкции зданий без отселения жильцов.
В то же время отрицательными факторами являются ограниченные возможности гибкой планировки помещений, большой удельный расход материалов вследствие необходимости создания пространственной жесткости блоков, невысокие капитальность и огнестойкость, достаточно высокая себестоимость 1 м2 реконструируемой площади.
Ограничения широкого использования данного метода связаны прежде всего с проблемой транспортирования конструкций, складирования в стесненных условиях прилегающих территорий жилых домов, отсутствия свободных площадок для размещения подъемно-транспортных средств и другими факторами.
Снижение себестоимости реконструкции при одновременном увеличении дополнительных площадей достигается путем использования конструктивно-технологических решений, основанных на применении технологии обстройки здания объемными блоками заводской готовности в сочетании с двухэтажной надстройкой каркасного типа из металлических складывающихся рам.
Конструктивная особенность рам состоит в шарнирных сочленениях ее элементов (рис. 10.54), что позволяет осуществлять транспортные операции в сложенном состоянии, в несколько раз сократить цикл укрупнительной сборки и приведения в рабочее состояние.

Рис. 10.54.
Конструктивное решение 2-этажной
рамы
1, 2 - элементы
стоек рамы стенового ограждения; 3,
5 - перекрытия; 4
- опорные стойки; 6 - кровельная
панель; 7 - телескопические раскосы; 8 - узлы шарнирных соединений
Для снижения удельного расхода металла стойки рам выполняют из труб круглого или квадратного сечения, а систему ригелей - из гнутого профиля. Узловые соединения включают шарнирные связи, которые при укрупнительной сборке на кондукторе превращаются в жесткие узлы. Принцип шарнирности соединений и оптимизация сечений несущих элементов осуществлены расчетным и экспериментальным путем по результатам испытаний на технологические и нормативные нагрузки с коэффициентом перегрузки 1,5.
Данная конструктивная схема предусматривает использование технологии поэтажной установки рам с устройством стенового ограждения из мелкоштучных легкобетонных блоков с последующим возведением перекрытия из монолитного железобетона, а также установку рам на полную высоту с предварительным укрупнением в зоне монтажного крана.
Аналитические и экспериментальные исследования показали высокую технологичность конструктивного решения, обеспечивающую ускоренную сборку несущего рамного каркаса с использованием технологии надвижки рам и установки их в проектное положение методом поворота (рис. 10.55).

Рис. 10.55.
Технологические схемы возведения надстройки с несущими конструкциями из
2-этажных рам (а) и
монтажа объемных блоков пристроек (б)
1 - опорная площадка; 2 - обвязочный пояс; 3, 4 - площадка с катучими
опорами; 5, 6 - рама
в момент подъема в проектное положение; 7 - подкосы; 8 - лебедка; 9 - пристроенные объемные блоки;
объемные блоки: Э - эркеров; Л - лоджий; ЛШ - лифтовых шахт; СТ-1, СТ-2 -
стоянки монтажного крана
Технологическая последовательность производства работ состоит из нескольких циклов, включающих следующее.
I. Подготовительные работы, связанные с размещением опорной площадки из трубчатых лесов в торцовой части здания, при:
установке кондуктора для приведения рам в проектное положение;
монтаже направляющих для перемещения рам к месту установки.
II. Монтаж пристраиваемых объемных блоков лифтовых шахт, лоджий, эркеров; демонтаж наружных стеновых панелей.
III. Укрупнительная сборка и монтаж рамного каркаса.
IV. Возведение стенового ограждения из легкобетонных блоков первого этажа надстройки.
V. Устройство опалубки перекрытия, армирование и укладка бетонной смеси.
VI. Возведение стенового ограждения второго этажа надстройки.
VII. Выполнение работ по устройству перекрытия второго этажа надстройки.
VIII. Кровельные работы.
IX. Работы по внутренней планировке.
X. Сантехнические, электромонтажные и отделочные работы.
XI. Специальные работы.
Комплексную реконструкцию целесообразно вести специализированными потоками, каждый из которых имеет оптимизированный состав бригад и средства механизации. Совмещение работ достигается путем применения рациональных технологических систем, использования прогрессивной оснастки, инвентаря, средств малой механизации.
Данная технологическая схема производства работ учитывает стесненность строительной площадки, наличие вблизи реконструируемого здания построек, что исключает применение башенных кранов. Такая ситуация является наиболее типичной для массовой застройки городов.
Снижение продолжительности и себестоимости работ достигается путем разработки проектов производства работ, технологических карт, применения высококачественных строительных материалов, передовых методов организации труда и инструментальной оценки качества работ.
Организационно-технологические принципы реализации ППР хорошо иллюстрируются сетевыми моделями, циклограммами процессов и поточными методами производства работ, в которых учитываются пространственно-временные параметры и возможность их управления.
В таблице 10.9 приведены примерные графики объектных и специализированных потоков, обеспечивающих совмещение технологических процессов и сокращение продолжительности работ.
Таблица 10.9
График производства работ по комплексной реконструкции 3-секционного жилого дома

Анализ состава работ и количество специализированных потоков определяются уровнем физического износа зданий, состоянием инженерного оборудования, систем отопления и водоснабжения, а также степенью износа наружных сетей, перекладка которых, как правило, осуществляется до основного цикла реконструктивных работ.
Разработка поточных методов производства для домов конкретных массовых серий легко оптимизируется по критериям стоимости и продолжительности работ.
Технические решения по перепланировке домов первых массовых серий с целью ликвидации морального износа зависят от конструктивной схемы зданий. Наиболее технологичными являются жилые дома с несущими наружными и внутренними стенами, каркасно-панельные и с неполным каркасом.
При реконструкции таких зданий изменение планировки достигается путем объединения комнат, увеличения площадей кухонь и санузлов, превращения балконов в лоджии и др. решений. Как правило, перепланировка помещений влечет за собой сокращение жилых площадей или числа квартир на этаже.
Более сложным процессом является перепланировка крупнопанельных зданий с внутренними несущими стенами. Наиболее массовыми в этом плане являются жилые дома серии 1-464, у которых размещение несущих внутренних стеновых панелей осуществлено с шагом в 2,6 и 3,2 м.
Наиболее простыми техническими решениями перепланировки крупнопанельных жилых домов серии 1-464 являются пристройка эркеров к жилым комнатам, перенос санитарно-технических кабин в зону межсекционных перегородок и торцевых стен. Такие решения позволяют довести площади кухонь до 8,0-9,0 м2, увеличить площадь комнат на 3,5-4,0 м2, создать лоджии, прилегающие к помещениям кухонь и спален. При этом пристраиваемые объемы могут выполняться из кирпичной кладки, сборных объемных блоков, в монолитном варианте, а элементы лоджий размещаться на специально возводимых пилонах с перекрытием из железобетонных плит (рис 10.56).

Рис 10.56. Вариант перепланировки торцевой секции жилого дома серии 1-464
Комплекс работ по перепланировке помещений требует перекладки канализационной и водопроводной сетей, большого объема работ по демонтажу внутренних перегородок, а также наружных стеновых панелей.
Для крупнопанельных жилых домов с узким шагом внутренних стен более рациональной в планировочном отношении является пристройка объемов как с продольных сторон здания, так и торцевых частей (рис. 10.57). Это решение включает демонтаж наружных стеновых панелей с шагом 2,6 м и пристройку в этих пролетах лифтовых шахт, ризалитов, эркеров и лоджий, что увеличивает площадь кухонь и прилегающих комнат на 5,0-7,0 м2.

Рис 10.57. Планировочное решение торцевой и рядовой секции жилого дома серии 1-335 с пристройкой объемов и торцевых элементов
Пристройка объемов к торцевым частям здания позволяет получить дополнительные жилые комнаты и переместить санитарно-технические узлы вглубь квартир, оставив около входов только гостевой санузел. Достигается прирост площади жилого дома на 1164 м2 при общей площади до реконструкции 4715 м2. При надстройке 2-уровневыми мансардными этажами предусматривается устройство лифта.
Технологический эффект существенно повышается при надстройке мансардного этажа и устройстве квартир в двух уровнях.
При реконструкции домов серии 1-335 требуется: демонтировать наружные стеновые панели в кухнях и пристроить в этих местах эркера; в трехкомнатных квартирах переместить санузел, сделав его разобщенным и увеличив тем самым прихожую и кухню; ликвидировать проходные комнаты; демонтировать балконные плиты и устроить на их месте лоджии глубиной не менее 1,2 м.
Выполнение такого объема работ позволяет только за счет пристроек получить поэтажный прирост площадей более 460 м2.
Технология производства работ включает: устройство фундаментов под пристраиваемые объемы; демонтаж наружных стеновых панелей; пристройку в сборно-монолитном железобетоне эркеров и лоджий.
При надстройке мансардного этажа и устройстве квартир в двух уровнях (рис. 10.58) осуществляется дополнительная перепланировка 5-го этажа с устройством внутренних лестниц. Такое решение существенно расширяет планировочные решения и позволяет исключить устройство лифта. Достигается суммарное увеличение площади для 4-секционного жилого дома в пределах 1100-1200 м2.

Рис. 10.58. Вариант планировочного решения при устройстве квартир в двух уровнях
Комплекс работ по реконструкции зданий требует разработки проекта производства работ на подземную, надземную части и внутренней перепланировки помещений с заменой инженерного оборудования.
Для выполнения работ нулевого цикла необходимо путем технико-экономического обоснования осуществить выбор наиболее рациональной технологии и механизации работ.
Возведение надземной части осуществляется с использованием монолитных или сборных пристраиваемых объемов, что позволяет осуществить совместную работу существующих конструкций с пристраиваемыми путем устройства специальных металлических связей.
Стеновое ограждение пристраиваемых объемов наиболее рационально выполнять из многослойной кирпичной кладки с утепляющим слоем или с применением легкобетонных мелкоштучных блоков и облицовкой из кирпича или многослойного штукатурного покрытия, отвечающих современным теплотехническим требованиям.
Для выполнения комплекса строительно-монтажных работ необходимо использование башенного крана грузоподъемностью 3/5 т с вылетом стрелы, обеспечивающим производство работ на наиболее удаленных участках, и высотой подъема крюка, достаточной для возведения элементов мансардного этажа, использование системы грузоподъемников для удаления продуктов разборки и подачи строительных материалов.
Как правило, работы по реконструкции осуществляются с отселением жильцов, что позволяет разместить грузоподъемные и монтажные механизмы параллельно продольной стороне здания.
При формировании строительного генерального плана (рис. 10.59) учитывается ряд обстоятельств, связанных с наличием зеленых насаждений и их возрастом, расположением реконструируемого объекта относительно магистральных улиц, наличием дополнительных построек в непосредственной близости к реконструируемому объекту.

Рис. 10.59. Стройгенплан на реконструкцию 4-секционного жилого дома серии 1-335
Работы ведутся по захваткам, каждой из которой является секция дома. При этом достигается максимальное совмещение строительных потоков, чем обеспечивается снижение продолжительности работ.
Ритмичность работы зависит от многих факторов и в первую очередь от организации производства работ, материально-технического обеспечения, формирования рабочих бригад, обеспеченности средствами механизации и др.
В практике реконструктивных работ достаточно сложно сохранить ритмичные объектные потоки в силу ряда случайных факторов, связанных с недостаточно полной оценкой объемов восстановительных работ, ритмичностью поставки материалов, конструкций и т.п.
Реконструкция без отселения жильцов является одним из социально-эффективных методов обновления жилого фонда. При этом кроме получения дополнительных площадей достигается повышение комфортности квартир за счет увеличения площади кухонь, создания лифтового узла, замены инженерного оборудования, теплоснабжения, утепления стен и замены светопрозрачных конструкций.
Как показал опыт, многолетнее проживание приводит к увеличению состава семей, что требует расселения именно в этом микрорайоне. При надстройке зданий, как правило, дополнительные площади реализуются жильцам реконструируемого дома.
Особое место при оценке технических и организационно-технологических решений отводится работе с жильцами. При этом согласуются архитектурно-планировочные решения надстраиваемых этажей, вид обстройки и уровень ее капитальности (эркерные утепленные объемы или пристраиваемые застекленные лоджии), площади пристроек и т.п.
При частичной перепланировке согласуются работы по переносу сантехузлов. Обсуждаются и согласовываются основные сроки производства работ, т.к. при этом жильцы подвержены нарушению ритма проживания вследствие выполнения ремонтных работ и т.п.
При разработке проекта производства работ согласуются сроки и продолжительность замены оконных заполнений, инженерного оборудования, системы отопления, водо-, газоснабжения и канализации.
При возведении лифтовых узлов принимается технология, обеспечивающая безопасное перемещение жильцов по лестничной клетке.
На период реконструкции исключаются подача материалов и установка средств механизации в лестничных клетках. Входы в жилые дома снабжаются специальными навесами безопасности.
Технология реконструкции зданий без отселения жильцов требует разработки проектов производства работ с обеспечением безопасности ведения строительных процессов. Это требование может быть обеспечено при использовании пристраиваемых и надстраиваемых объемных блоков с установкой мобильными кранами, методом надвижки, с применением мелкоштучных материалов и легких конструкций.
Наибольшее распространение получили технологии надстройки и пристройки объемов с использованием легких плоских металлических рам, ферм, каркасов, которые устанавливаются методом надвижки с поворотом или непосредственно пневмоколесными кранами с созданием безопасных условий производства работ для жильцов. В качестве стенового ограждения используются мелкоштучные изделия.
Кирпичная кладка пристраиваемых объемов осуществляется с монолитных перекрытий лоджий и эркеров. Такое решение, несмотря на высокую трудоемкость, создает предпосылки, обеспечивающие ритмичное и безопасное производство работ.
Пристройка объемов с торцевых и фасадных поверхностей предусматривает размещение технических средств механизации и складских зон между магистральной дорогой и зданием, а также с использованием дворового пространства. В ряде случаев часть дороги перекрывается и используется для размещения мобильных грузоподъемных средств и складских зон.
Для возведения пристроек с применением металлического каркаса, устройством монолитных перекрытий и кирпичной кладки стенового ограждения используются грузовые подъемники, устанавливаемые к пристраиваемым объемам. С их помощью осуществляется подача кирпича, раствора, арматуры и металлоконструкций. При достижении верхней проектной отметки осуществляется цикл надстройки этажей с использованием металлических форм или рам облегченной конструкции. В целях безопасного ведения работ применяется поэлементная сборка конструкций с использованием болтовых и сварных соединений, а их подъем на монтажный горизонт осуществляется отдельными марками грузопассажирскими подъемниками или автокранами.
При возведении монолитных конструкций подача бетонной смеси должна осуществляться исключительно бетононасосным транспортом, что сводит до минимума вероятность создания опасных моментов производства работ.
Использование рамного каркаса из металлических труб, монтируемых из отдельных элементов высотой на этаж с болтовым соединением узлов, обеспечивает быстрое возведение пристраиваемых объемов по профильным сторонам реконструируемого здания. Для обеспечения устойчивости каркаса в местах сочленения осуществляется дополнительная анкерная связь с наружной стеной кирпичной кладки или внутренних несущих стен в панельных зданиях.
В зависимости от архитектурно-планировочного решения пристройки применяют уширение корпуса в зонах лестничного узла, что позволяет получить дополнительные площади, примыкающие к кухням и столовым (рис. 10.60, а), а также сплошное уширение (рис. 10.60, б).

Рис. 10.60.
Планировочное решение реконструируемых домов с частичным (а),
сплошным (б) уширением
корпусов и технологические схемы производства работ (в, г)
1 -
свайные фундаменты с ростверком; 2
- каркас из металлических труб; 3 - монолитные железобетонные перекрытия; 4 - обвязочный пояс; 5 -
кирпичная кладка стен; 6 - опалубка
перекрытий; 7 - автобетононасос; 8 - грузовой подъемник
В каждом конкретном случае проект пристройки и надстройки здания согласовывается с жильцами и учитывается их мнение.
Применение легких форм и рамных конструкций надстройки позволяет осуществлять гибкую планировку одно- и двухуровневых квартир надстройки.
При возведении надстроек актуальным является предохранение верхнего этажа от атмосферных осадков.
Это достигается путем устройства перекрытия надстройки, что позволяет осуществить последующий демонтаж элементов скатной кровли.
Процесс обстройки зданий и надстройки выполняется в технологической последовательности, обеспечивающей передачу нагрузок от надстраиваемых этажей на элементы пристройки и внутреннюю продольную стену.
После демонтажа кровельной части осуществляется возведение наружных и внутренних стен, лестничных клеток и лифтовых шахт из кирпичной кладки или мелкоштучных энергоэффективных блоков.
Перекрытия надстраиваемых этажей выполняются как в монолитном варианте, так и по балочной схеме с использованием прогонов, деревянной обшивки, утепления и звукоизоляции минераловатными плитами.
Рабочие моменты производства работ по устройству пристроек и несущих конструкций 2-этажной надстройки приведены на рис. 10.61.

Рис. 10.61. Рабочие моменты производства работ но пристройке объемов и монтажу металлоконструкций надстраиваемых этажей
В практике реконструкции кирпичных жилых домов в Московской области (г. Лыткарино) широко используется технология 2-этажной надстройки с передачей нагрузки на монолитные пилоны, пристраиваемые к фасадным частям зданий. Они также являются элементами лоджий.
Использование различных конструктивных схем надстроек позволяет получать достаточно разнообразные архитектурно-планировочные решения. В сочетании с утеплением и облицовкой наружных стен существующих объемов и надстройки достигаются обновление зданий, повышение их энергоэффективности, продление жизненного цикла и эксплуатационной надежности.
Варианты технических решений надстройки зданий приведены на рис. 10.62.

Рис. 10.62. Варианты надстройки жилых 4-этажных зданий мансардными этажами (г. Лыткарино, Московская область)
Использование индустриальных технологий, основанных на массовом применении объемных блоков пристроек и надстроек заводского производства, требует разработки мероприятий по обеспечению безопасных технологий производства работ.
Для полного исключения аварийных ситуаций при монтаже или надвижке объемных блоков жители 4-5 этажей надстраиваемой секции должны временно (на 2-3 часа) покинуть помещение квартир. Такая мера предосторожности позволяет без дополнительных затрат осуществить производство строительно-монтажных работ.
При обстройке зданий объемными блоками требуется временное освобождение помещений, прилегающих к фронту монтажных работ. Учитывая кратковременность монтажных процессов, пристройка объемов не может существенно повлиять на режим труда и отдыха жильцов.
Оценка уровня безопасного производства работ осуществляется исходя из применяемых технических средств, инвентаря и приспособлений. При этом рассчитываются опасные зоны и применяются меры по исключению воздействия на элементы реконструируемого здания. Зоны действия монтажных кранов ограждаются. При установке объемных блоков исключается соударение монтируемых элементов за счет использования расчалок, а также специальных траверс, обеспечивающих гашение колебаний и снижающих до минимума скорость опускания конструкций.
Примерная схема опасных зон реконструируемого здания приведена на рис. 10.63, где показаны участки (квартиры), которые временно отселяются на период монтажа, а также зоны, где пребывание жильцов нежелательно.

Рис. 10.63.
Опасные зоны при монтаже пристраиваемых блоков (а, б) и надвижке объемных блоков (в, г) на 1 и 2 этажа
1 - опасные зоны; 2 - пристраиваемые блоки; 3, 4 - мансардные блоки на 1 и
2 этажа; 5 - подъемник
Одним из технических решений, обеспечивающих безопасное производство работ, является оснащение объемных блоков пневмоподушками и системой ориентации. При изменении уровня горизонта перекрытия или появлении недопустимых уклонов осуществляется срабатывание пневмосистемы. Воздух поступает под давлением в гибкую оболочку, что создает дополнительные опоры с равномерным распределением давления от массы блока на перекрытие. Пневмоопорные элементы выполняются из прорезиненной ткани с системой радиальных и меридианальных гибких связей, что обеспечивает сохранение их геометрической формы под нагрузкой.
Применение таких систем позволяет не только предотвратить аварийные ситуации, но и способствует выверке объемного блока в проектное положение и плавному опусканию на монтажный горизонт.
Наиболее ответственным этапом является обеспечение безопасных входов в реконструируемое здание. Этот цикл работ, как правило, осуществляется в первую очередь. В зависимости от принятой технологии производства: монолитный вариант; возведение из кирпича, а также из объемных блоков это показывает, что наиболее технологичным и безопасным является вариант с применением кирпичной кладки и объемных блоков.
На рис. 10.64 приведены конструктивные решения пристраиваемых лифтовых шахт и входных тамбуров, выполненных в монолитном и сборном вариантах. В первом случае возведение пристраиваемых объемов обеспечивает безопасное перемещение жильцов по лестничной клетке, т.к. все работы ведутся вне корпуса здания.

Рис. 10.64.
Конструктивное решение пристраиваемых лифтовых шахт и тамбуров,
выполняемых в сборном (а) и монолитном (б) вариантах
1, 2, 3 - объемные блоки тамбуров, лифтовых шахт и
пристройки кухни; 4 -
защитный козырек входа; 5 - проем входа, заложенный кирпичной кладкой; 6 - новый проем
При использовании объемных блоков конструктивное решение требует некоторой перепланировки квартиры, прилегающей к лестничной клетке. Осуществляются устройство проема в зоне тамбура, закладка прежнего входа с пристройкой объемного блока лифтовой шахты и использованием промежуточных лестничных площадок для входа в лифт.
Каждый из вариантов предусматривает устройство временных защитных козырьков для безопасного перемещения жильцов.
Производство работ начинается с установки объемного блока тамбура, который по своим размерам соответствует пристраиваемым объемам вышележащих этажей. Его установка в проектное положение обеспечивает требуемую безопасность перемещения жильцов при дополнительном устройстве защитных козырьков. В последующем пристраиваются объемные элементы лифтовой шахты с мусорокамерой и эркер кухонной комнаты.
При обстройке и надстройке зданий для выполнения монтажных работ используются преимущественно пневмоколесные краны: КС-6371, Кранлод LTL 1050 (Германия - РФ), Локомо MS 333 N (Финляндия), Като KR-300 (Япония), Крупп КМК 2025 (Германия) и др. Краны являются короткобазовыми, что обеспечивает повышенную маневренность. Их технические характеристики позволяют выполнять как укрупнительную сборку, так и монтаж блоков. При стреле 31,0 м с «гуськом» длиной 6 м осуществляется подъем груза массой до 12 т. Ширина кранов 2,7-3 м, длина базы 5,7-9,0 м, ширина при установленных аутригерах 5,4- 6,5 м. Максимальная грузоподъемность 25-50 т.
Ходовые характеристики кранов позволяют выполнять вертикальный подъем и перемещение конструкции в проектное положение в стесненных условиях площадки. При этом может использоваться кольцевая схема и со сквозным проездом.
Преимущество кольцевой схемы (рис. 10.65) состоит в технологической возможности возведения пристраиваемых объемов с продольных сторон здания, что существенно снижает технические параметры кранов.

Рис. 10.65.
Схема стройгенплана при надстройке зданий объемными блоками с крановым
монтажом (а) и методом надвижки (б)
1 - объемные блоки; 2 -
краны на пневмоходу; 3 -
подмости; 4 -
грузопассажирские подъемники; 5 - направляющие для надвижки блоков; 6 - защитный козырек входа
Оценка уровня технологичности и безопасности работ показала, что кроме кранового монтажа объемных блоков надстраиваемых этажей достаточно эффективно использование метода надвижки. Для реализации технологии в торцевой части здания устанавливаются эстакады из временных стоек с ходовыми балками, на которые с помощью крана монтируется объемный блок и транспортируется к месту установки.
При выполнении работ по планировке помещений в надстраиваемых этажах для транспортирования материалов используются грузопассажирские подъемники типа ПГС-800 грузоподъемностью 1000 кг, ZREMB DBM 1003/100 (Польша), ALIMAK (Швеция), WARTSILA LH-1000 (Финляндия).
Подъемники имеют грузовую закрытую кабину, в которой можно перемещать грузы длиной до 3 м. Крепление подъемников выполняется к конструкциям здания с помощью рам в уровне перекрытий или специальных анкеров, закрепляемых в проемах. Решение по креплению подъемников принимается в ППР с учетом требований технического паспорта каждого из них.
Разборка конструкций крыши и кровли выполняется с применением режущего, сверлильного, обычного и алмазного инструмента. Резка бетона и кирпичной кладки осуществляется ручной дисковой алмазной пилой типа «Партнер» шведского производства. С помощью этого инструмента осуществляется уширение проемов наружных и внутренних стен, панелей перекрытия и т.п. Глубина резки составляет 22 см, что обеспечивает при двусторонней проходке резку стен толщиной до 44 см.
Горизонтальный транспорт по перекрытиям осуществляется двухколесными тележками. Они должны быть трех видов: для перевозки сыпучих средств и растворов, штучных и длинно-размерных изделий.
Все процессы, связанные с производством бетонных работ, должны выполняться с подачей смесей автобетононасосами непосредственно к месту укладки. Применимы АБН типа Штеттер V315, Шеле М27/30, БН-60-20 и др.
При устройстве наружных торцевых стен и внутрисекционных перегородок используются легкобетонные блоки, обеспечивающие ручную подачу и укладку. Для возведения внутриквартирных перегородок применяют пазогребневые блоки, кирпичную кладку, гипсокартонные каркасные перегородки.
Производство работ по утеплению и защите наружных стен осуществляется с приставных лесов, люлек или самоподъемных платформ.
Выполнение надстройки в условиях неотселенного здания требует обеспечения бесперебойной работы внутреннего инженерного оборудования: теплоснабжения, водопровода, электроснабжения, вентиляции и т.д.
В связи с этим необходимо по мере возведения участков здания наращивать отводы вентиляции из кухонь, санузлов и ванных комнат, а также канализационных стояков путем установки временных пластиковых или жестяных труб на высоту, превышающую уровень рабочего горизонта работающих.
Мероприятия по охране труда и технике безопасности
Для обеспечения безопасных условий производства строительно-монтажных работ необходимо пользоваться СНиП 12-04-2002 «Безопасность труда в строительстве. Часть 2. Строительное производство» и «Правилами пожарной безопасности в Российской Федерации» ППБ-01-03. В дополнение к основным правилам и мероприятиям необходимо выполнять следующие требования: при работе на высоте рабочие должны пользоваться поясами безопасности; наружные леса должны иметь защитные настилы, ограждение сеткой безопасности, заземление и надежные крепления к стенам или подкосами к грунту в зависимости от требований паспорта к лесам; не допускается складирование сгораемых материалов вблизи лесов и здания; при установке временных зданий соблюдать пожарные разрывы; не загромождать проезды к зданию; не допускать посторонних лиц на леса; при неотселенном доме строители не должны пользоваться лестничными клетками, предназначенными для жильцов; опасные зоны у механизмов, а также лесов должны быть постоянно ограждены; в опасных местах должны быть вывешены шиты с предупреждающими надписями; стройплощадка должна быть оборудована полным комплектом первичного пожаротушения; вблизи реконструируемого здания должны быть определены пожарные гидранты, обеспечивающие расход воды не менее 10 л/с; подъемники должны быть оборудованы защитными навесами от случайного падения грузов с приемной площадки, находящейся на высоте; при варианте без отселения жильцов применять механизмы и инструменты с повышенным шумом не допускается; сборные элементы, монтируемые вручную, должны подстраховываться от случайного падения расчалками со стороны, противоположной возможному падению; сборные элементы, монтируемые с помощью кранов, следует временно раскреплять подкосами, связями и другими приспособлениями, указанными в технологических картах; техническое состояние лесов и кранов должно освидетельствоваться до начала работ.
Сохранение окружающей природной среды
Подрядчик обязан в период реконструкции выполнять уборку дворового пространства и улиц в случаях загрязнения строймусором или налипания грязи на колеса автомашин. На стройплощадке должна быть предусмотрена временная мойка колес стройтехники.
Порубка деревьев или кустарников допускается только с ведома зеленхозстроя в соответствии с согласованной ведомостью порубки. Стволы сохраняемых деревьев вблизи проезда автомашин и складирования защищаются дощатыми щитами.
Не допускается сжигание строймусора на стройплощадке или сбрасывание его с высоты.
Для удаления строймусора следует применять инвентарные мусоропроводы, а также удаление на подъемниках, в тачках или тележках. При разборке в летнее время применять увлажнение против пыли.
Тенденция повышения плотности застройки привела к техническим решениям, основанным на расширении корпусов и надстройке зданий на 4-5 этажей.
Основная идея такого способа реконструкции состоит в создании самостоятельных конструктивных элементов обстройки, которые воспринимают нагрузки от надстраиваемых этажей. При этом существующая часть здания изолируется и функционирует как самостоятельный объем.
Имеют место конструктивные решения с асимметричным и симметричным уширением корпусов, где в качестве несущих элементов надстройки выступают пилоны, пристраиваемые объемы, рамы, фермы продольного и поперечного расположения, перекрытия в виде монолитного диска. Надстраиваемая часть здания выполняется по различным конструктивным схемам: в виде стеновой конструкции с монолитными несущими стенами и перекрытиями; с подвесными перекрытиями из сборно-монолитного железобетона; рамных конструкций с продольными и поперечными фермами и стенками жесткости и др. вариантов.
Основным условием сохранения несущей способности реконструируемого здания является передача нагрузок от надстраиваемых этажей на выносные конструктивные элементы с самостоятельными фундаментами. Это обстоятельство снижает ограничения по количеству надстраиваемых этажей.
В то же время работа пристраиваемой и надстраиваемой частей существенно отличается от существующего здания, склонна к дополнительным осадкам и воздействиям на реконструируемую часть вследствие механических связей между ними. Поэтому совместная работа конструкций может вызвать ряд негативных моментов, связанных с перераспределением нагрузок и вовлечением обстраиваемого здания в общую систему. Этот фактор необходимо учитывать при выполнении расчетов на прочностные характеристики, устойчивость и деформативность системы в целом.
Применение односторонней схемы уширения зданий создает асимметричные нагрузки, что требует устройства дополнительных конструктивных элементов в неуширяемой зоне, воспринимающей воздействия от надстраиваемых этажей. Для пристраиваемой части ими являются конструкции наружных и внутренних стен, а с противоположной стороны - пристроенные пилоны в виде колонн на всю высоту здания с промежуточными горизонтальными связями, выступающими в роли балконных плит. На уровне перекрытий 5-го этажа опорные части в виде пристраиваемых стеновых конструкций и пилонов объединяются путем устройства монолитной плиты или балочного пояса. Такое решение обеспечивает геометрическую неизменяемость реконструируемого объема и исключает передачу на него дополнительных нагрузок. Практически имеет место своеобразная пространственная обойма с самостоятельными фундаментами, воспринимающая нагрузки от надстраиваемых этажей и нагрузки, связанные с изменением поэтажных планировочных решений.
Расширение корпуса позволяет осуществить частичную перепланировку помещений реконструируемого здания, что, несомненно, улучшает комфортность квартир и повышает эксплуатационную надежность жилых домов (рис. 10.66). В то же время одностороннее уширение корпусов зданий, несомненно, приводит к некоторым техническим трудностям, связанным с обеспечением пространственной жесткости пилонов, устройством специальных фундаментов, исключающих неравномерные осадки, и т.п.

Рис. 10.66.
Конструктивная схема (а) и планировочное решение (б)
одностороннего уширения жилых домов серии 1-464 с надстройкой четырех этажей
1 - свайные фундаменты; 2 - монолитные железобетонные пилоны; 3
- пристраиваемые объемы; 4 - надстраиваемая часть в монолитном
железобетоне; 5 - лифтовая
шахта
Наиболее рациональным является симметричное расширение корпусов с двух сторон (рис. 10.67). Это решение создает условия равномерного распределения дополнительных нагрузок от пристраиваемых объемов и надстраиваемых этажей. Оно позволяет разнообразить технологии производства работ и может быть выполнено в монолитном, сборно-монолитном и сборном вариантах. Двустороннее увеличение ширины корпуса до 16-18 м позволяет коренным образом провести цикл перепланировки для большинства реконструируемых серий.

Рис. 10.67.
Надстройка зданий с сохранением наружных стен (а) и расширением
корпуса на всю высоту надстройки (б)
1 - свайные фундаменты; 2
- монолитные железобетонные пилоны; 3 - демонстрируемые наружные стеновые панели; 4 - пристройка объемов из монолитного
железобетона; 5 - надстройка этажей
В зависимости от конструктивной схемы здания возможно использование двух вариантов реконструкции: 1 - при сохранении наружных несущих стен возводятся монолитные железобетонные пилоны, которые являются несущими элементами надстройки и стенами лоджий реконструируемого здания; 2 - уширение корпуса на всю высоту здания путем демонтажа ограждающих панелей стен и пристройки объемов в монолитном варианте при узком шаге внутренних несущих стен. В том и другом случаях достигается улучшение планировочных решений, а в результате надстройки и пристройки объемов к торцевым частям зданий - получение дополнительных площадей, превышающих суммарную площадь реконструируемых зданий. Планировочное решение надстраиваемых этажей может быть индивидуальным независимо от конструктивного решения реконструируемого здания. Высота надстройки, как правило, ограничивается условиями инсоляции соседних зданий.
Технология одностороннего расширения корпусов и надстройки зданий
Технологическая последовательность выполнения работ при одностороннем уширении и надстройке дополнительными этажами включает: подготовительный период; нулевой цикл; возведение пристроек; устройство пилонов, распределительной плиты или балочной системы обвязочного пояса; надстройку этажей; перепланировку помещений; цикл специальных и отделочных работ.
Подготовительный этап состоит из работ по превращению зоны, прилегающей к реконструируемому объекту, в строительную площадку. С учетом сложившейся планировки территории, прилегающей к реконструируемому зданию, выделяются: зоны расположения кранов; движения машин и механизмов; складские площадки; зона размещения бытовых помещений; временное водо-, электроснабжение и т.п. В зависимости от типа квартальной застройки и расположения здания относительно магистральных дорог решение стройгенплана может существенно отличаться. При свободной дворовой территории расположение кранов может осуществляться со стороны дворового фасада и в радиусе его действия - размещение необходимых площадок и зон. Если реконструируемое здание посажено торцевой частью к магистральной дороге, то возможно расположение кранов и соответствующих площадок с двух продольных сторон. В каждом конкретном случае производится принятие решения с учетом оптимальных параметров прилегающей зоны, степени озеленения, наличия дополнительных построек, расположения инженерных коммуникаций.
Нулевой цикл.
При одностороннем уширении корпусов и надстройкой 4-5 этажей наиболее рациональной конструктивной схемой является устройство фундаментов из буронабивных свай с ростверком. Эта технология обеспечивает требуемый технологический эффект без значительных затрат на производство земляных работ.
Свайное поле рассчитывается таким образом, чтобы оси свай проходили по осям внутренних несущих стен. Это обстоятельство позволяет снизить осадки пристраиваемых объемов и обеспечить центральное нагружение свай. Создание единого ростверка объединяет элементы свайного поля и является достаточно надежным фундаментом для пристраиваемой части. Параметры свайного поля определяются характеристиками грунтового основания, нагрузками от пристраиваемой и надстраиваемой частей и принимаются по расчетным данным с учетом запаса прочности и обеспечения требуемого уровня надежности системы в целом.
В зависимости от инженерно-геологических условий площадки используются методы бурения скважин, исключающие обрушение стенок. Это особенно важно для мест примыкания новых фундаментов со старыми, где в результате обратной засыпки структура грунтов неоднородна. Поэтому глубина заложения свайного основания должна быть ниже подошвы старых фундаментов не менее чем на 0,5-1,0 м.
Наиболее эффективной является буроинъекционная технология, основанная на шнековом разрушении структуры грунта, подаче бетонной смеси бетононасосом через центральное отверстие в шнеке со скоростью, равной скорости извлечения грунта. После окончания цикла бетонирования устанавливается арматурный каркас, который погружается с помощью навесного вибратора. Данная технология не требует устройства обсадных труб, применима для различного состояния грунтов, в том числе водонасыщенных (рис. 10.68).

Рис. 10.68.
Технология устройства свайных фундаментов под пристраиваемые объемы
а - план свайного поля; б
- технологическая
последовательность производства работ; I - шнековое бурение скважины; II - нагнетание бетонной смеси через
полость шнека; III - вибрационное погружение армокаркаса; IV - готовая свая
Для устройства ростверка используется инвентарная щитовая опалубка. Армирование производят каркасами или отдельными стержнями с ручной вязкой. Подача и укладка бетонной смеси осуществляются с использованием бетоносмесителей с лотковым питателем или автобетононасосом. Бетонная смесь укладывается слоями с уплотнением вибраторами.
При устройстве свайных опор под пилоны на уровне верха фундаментов реконструируемого здания устанавливается опорная площадка, служащая продолжением монолитных или сборных железобетонных пилонов.
Для зданий с двусторонним уширением корпуса процесс возведения фундаментов осуществляется с каждой стороны здания.
Наземная часть пристроек
Возведение наземной части пристроек осуществляется с использованием различных строительных материалов и конструктивных элементов: из кирпича и мелкоштучных блоков с монолитными или сборными перекрытиями; сборно-монолитных; полностью в монолитном или сборном варианте. Использование того или иного конструктивно-технологического варианта определяется экономическими показателями: стоимостью материалов и конструкций; суммарными трудозатратами; продолжительностью работ; стоимостью эксплуатации грузоподъемных кранов, механизмов и оснастки; условиями производства работ. Слагаемые затрат дают представление о себестоимости продукции.
Основным средством механизации является башенный кран, установка которого осуществляется со стороны максимального уширения здания.
Процесс возведения надземной части разделяется на три этапа. Первый этап предусматривает обсторойку здания до уровня перекрытий 5-го этажа. Второй этап состоит в устройстве диска жесткости или внутренних несущих стен (балок жесткости) с передачей нагрузки на выносные опоры для последующего размещения надстраиваемой части. Третий этап включает возведение надстраиваемых этажей.
Типовые решения реконструируемых зданий позволяют организовать поточное производство работ, что в значительной степени сокращает сроки реконструкции путем максимального совмещения работ во времени и пространстве.
За захватку принимается секция жилого дома. Возможно использование нескольких организационно-технологических моделей: поэтажно с развитием потоков в горизонтальной плоскости, посекционно с развитием потоков по вертикали и комбинированные модели. Область их рационального применения диктуется особенностями использования различных строительных материалов, конструкций и технологий. Так, поэтажное возведение пристроек с развитием потоков по вертикали позволяет в более ранние сроки предоставить фронт работ для сантехнических, электромонтажных и отделочных работ. Такой вариант требует максимального использования сборных конструкций или технологий, позволяющих быстрое нагружение возводимых частей здания.
Модель с горизонтальным развитием объектного потока наиболее рациональна при монолитном решении пристраиваемых объемов, когда компенсация технологических перерывов достигается за счет ведения работ на прилегающих участках здания.
Комбинированная модель более эффективна при сборно-монолитном варианте, когда возведение несущих элементов стен осуществляется в монолитном варианте, а перекрытий - в сборном.
Рациональный выбор средств механизации, состава бригад в соответствии с ритмом ведущего процесса позволяет минимизировать продолжительность реконструкции пятиэтажек во времени.
Эффективность производства работ повышается за счет оптимизации организационно-технологических решений и адаптации новых технологий в строительное производство.
Возведение в монолитном железобетоне пристраиваемых объемов ведется по захваткам, площадь которых принимается исходя из условий поточного ведения работ равной 150-200 м2. При реконструкции жилых крупнопанельных зданий из 3-4 секций за захватку принимается одна секция. Технологическая последовательность выполнения работ состоит в установке щитов опалубки внутренних стен и перекрытий, армировании конструкций и укладке бетонной смеси с послойным уплотнением. Производится интенсивный прогрев бетона с термостным выдерживанием, обеспечивающим получение прочности стен не менее 50 и 70 % для перекрытий. Это позволяет довести цикл возведения пристроек до 7-10 дней на этаж.
Более технологичным является применение тоннельной опалубки, которая позволяет в одном технологическом цикле осуществлять возведение вертикальных и горизонтальных конструкций. Такое решение, в свою очередь, требует использования кранов большей грузоподъемности.
Процесс тепловой обработки производится с использованием теплогенераторов, которые обеспечивают получение распалубочной прочности за 18-24 ч. Их мощность подбирается таким образом, чтобы температура разогрева бетона была не менее 60 °С. При комплекте опалубки на объем секции достигается ритмичный поток возведения пристраиваемых объемов.
Для возведения различных по ширине объемов используются вставки с самостоятельными опорами.
На рис. 10.69 приведены технологические циклы производства работ с использованием тоннельной опалубки. Ее применение позволяется в 1,3-1,5 раза ускорить цикл возведения пристраиваемых объемов.

Рис. 10.69.
Технологические схемы обстройки и надстройки зданий с использованием
туннельной опалубки
I - пристройка
объемов и возведение пилонов; II - устройство монолитного распределительного пояса; III - надстройка этажей в
туннельной опалубке
Особое место при выполнении работ отводится организации стыков сборных железобетонных конструкций с монолитными. В первую очередь это относится к элементам перекрытия и внутренних стен.
В случае когда наружные стеновые панели не демонтируются, а только уширяются проемы в зоне стыковых соединений, производится устройство сквозных штраб, обеспечивающих взаимодействие элементов реконструируемого здания с вновь возводимыми. Для обеспечения совместной работы этих элементов применяется система анкерных устройств для вертикальных (внутренних стен) и горизонтальных перекрытий.
Технологическая последовательность выполнения работ при уширении корпуса на 4,0 м и надстройке 4 этажей предусматривает поточное выполнение работ по устройству пристройки, которое достигается использованием двух комплектов опалубочных систем и обеспечивает непрерывность процесса. При общей площади опалубливаемой поверхности в пределах 140-150 м2 и объеме бетонной смеси 30-40 м3 продолжительность работ на захватке составляет 4-5 рабочих смен при цикле тепловой обработки 12 ч.
Для выполнения работ по пристройке объемов формируется комплексная бригада, состоящая из монтажников, слесарей по сборке и демонтажу опалубки, арматурщиков и бетонщиков. Цикл работ рассчитывается таким образом, чтобы строительные потоки не пересекались, а продолжительность технологических перерывов была минимальной. Монтаж опалубочных систем, подача арматуры и бетонной смеси осуществляются башенным краном. Им же осуществляются все транспортные операции по устройству пилонов с фасадной стороны здания. После возведения пристраиваемых объемов производится цикл устройства распределительного балочного пояса или монолитной плиты. Расчеты показывают, что при надстройке до 4 этажей целесообразно устройство балочного пояса. Его основное назначение заключается в перераспределении нагрузок от надстраиваемых этажей на пристраиваемые элементы здания.
Возведение надстраиваемой части осуществляется с учетом поэтажных планировочных решений и может выполняться по стеновой и безбалочной схемам. При производстве работ по стеновой схеме осуществляется возведение внутренних несущих стен с шагом, кратным их расположению относительно реконструируемого здания. Возможен широкий шаг расположения внутренних стен, что создает предпосылки более рационального планировочного решения.
На рис. 10.70 приведена технологическая схема поэтапной реконструкции двух корпусов жилых домов серии 1-464 с их односторонним уширением и возведением вставки между ними.

Рис. 10.70.
Технологическая схема и фрагмент стройгенплана на период реконструкции
домов серии 1-464 с односторонним уширением корпусов и устройством вставки
1 - башенный кран; 2 -
площадка для подготовки туннельной опалубки; 3 - зоны складирования; 4 - бытовые помещения; 5 - бетононасос; 6 - грузопассажирский подъемник
Для производства работ используются башенный кран и комплект туннельной опалубки на две секции жилого дома. Организация строительной площадки осуществлена таким образом, что работа крана обеспечивает поэтапное возведение пристраиваемых объемов и надстройку зданий. Наличие зон складирования, площадок для подготовки полутуннелей опалубки, места установки бетононасосного транспорта и приема бетонной смеси обеспечивает ритмичное производство работ с максимальным совмещением технологических процессов.
Перепланировка помещений осуществляется отдельным технологическим потоком по мере предоставления фронта работ на захватках. Для производства работ по демонтажу панелей наружных и внутренних стен используется мобильный кран, а для подачи строительных материалов - приставные подъемники.
Увязка технологических потоков позволяет создать объектный строительный поток с кратным изменением ритма.
Цикл специальных и отделочных работ выполняется специализированными потоками с совмещением работ в пространстве и времени.
После устройства стеновых элементов производится цикл возведения перекрытий. Используются опалубочные системы, обеспечивающие интенсификацию производства работ путем укрупнения щитов и унифицированных элементов опалубки перекрытий. Возведение наружных стен рационально производить отдельным строительным потоком из мелкоштучных энергоэффективных блоков или трехслойных систем с облицовкой кирпичом.
Реконструкции крупнопанельных зданий с двусторонним расширением корпусов и надстройкой
Преимущества двустороннего расширения корпусов состоят в создании благоприятных условий перепланировки, повышении эксплуатационной надежности по прочностным и теплотехническим характеристикам. Основа конструктивного решения состоит в симметричной передаче нагрузок от надстраиваемых этажей на пристраиваемые объемы, имеющие самостоятельные фундаменты. Опыт реконструктивных работ в Санкт- Петербурге показал, что такая конструктивная схема обеспечивает дополнительную надстройку до 4 этажей. При этом в реконструируемой части здания осуществляются перепланировка помещений, отвечающая современным требованиям, устройство лифтов, мусоропроводов и другого инженерного оборудования. По условиям инсоляции ширина пристраиваемых объемов не должна превышать 2,6 м.
Анализ конструктивно-технологических решений показывает, что, как и при одностороннем уширении зданий, наиболее рациональным является применение буронабивных свайных фундаментов, монолитного или сборно-монолитного варианта надстраиваемой части.
Архитектурно-планировочное решение реконструкции 4-секционного жилого дома серии 1-464 предусматривает двустороннее уширение корпуса на 2,1 м с каждой продольной стороны и устройство торцевых пристроек глубиной 4,2 м. Такое решение позволило получить планировочные объемы с повышенной комфортностью квартир за счет увеличения площади кухонь до 10,2 м, размещения санузла в прихожей и ванной комнаты в глубине квартир, увеличения площади лоджий, встройки лифтового узла. Общий прирост площади на типовом этаже достигает более 350 м2, что составляет около 46 % к существующей. Это позволило довести площади однокомнатных квартир до 61,4 м2; двухкомнатных - 77,6; трехкомнатных - 93,8; четырехкомнатных - 91,1 м2.
Надстройка этажей дает дополнительно приращение площади в 4030 м2, что составляет более чем двукратное (105,2 %) увеличение.
Пристройка объемов выполняется в монолитном железобетоне с демонтажом наружных стен существующего здания, удалением части ненесущих перегородок с целью объединения и расширения комнат.
Внутренние несущие стены расположены по осям существующих, а наружные стены из монолитного железобетона выполнены также несущими. Это решение позволяет создать геометрически неизменяемую систему пристройки, воспринимающую нагрузки как от пристройки, так и надстройки этажей.
Для перепланировки помещений ряд внутренних несущих панелей укорачивается на '/4- '/2 длины, что обеспечивает получение достаточно просторных помещений без существенного нарушения расчетной схемы здания. Демонтаж части внутренних несущих стен потребует принятия решения по восстановлению несущей способности перекрытий путем подведения металлических балок, объединяющих сборные перекрытия и обеспечивающих передачу нагрузки на пристраиваемые объемы.
Технология и организация производства работ предусматривают использование башенного крана. При монолитном варианте наиболее рациональным является расположение крана с одной стороны. Так, башенный кран Liebgherr 20K с вылетом стрелы 24 м и грузоподъемностью 4 т обеспечивает выполнение всего комплекса работ. Возможно использование двух кранов с их двусторонним расположением. В этом случае загрузка кранов позволяет выполнять кроме цикла уширения демонтаж наружных стеновых панелей.
Учитывая технологические особенности демонтажа панелей и создание специализированного потока по выполнению работ, связанных с разборкой, целесообразно применение самоходного стрелового крана МКА-16, который обладает более высокой маневренностью, с возможностью учета стесненных условий производства работ.
Для подачи бетонной смеси применяется традиционная схема «кран-бадья». Однако для выполнения работ по усилению конструкций и надстройке этажей целесообразно применение автобетононасоса.
При большом объеме работ по разборке перегородок, санузлов, вентблоков, инженерного оборудования и других элементов, а также подаче строительных материалов используются приставные грузопассажирские подъемники грузоподъемностью до 1 т. Комплект механизмов рассчитывается по производительности и в соответствии с этим подбираются состав бригад каждого потока, необходимое количество опалубки и других технических средств.
Технологическая последовательность работ по уширению корпуса предусматривает первоначальное возведение внутренних несущих стен в щитовой опалубке и перекрытий - в столовой с размерами палубы на площадь ячейки пристраиваемого объема. Использование унифицированных щитов и столовой опалубки обеспечивает повышение технологичности производства бетонных работ и снижение общих трудозатрат.
Расчеты показали, что ритмичное производство работ достигается при наличии комплектов опалубки на две секции.
Технологическая последовательность выполнения работ по уширению корпуса приведена на рис. 10.71. Здесь показаны границы захваток и схемы перемещения элементов опалубки. Симметричность планировочных решений позволяет использовать опалубочные щиты и элементы столовой опалубки без их переналадки.

Рис. 10.71. Технологические схемы производства работ по расширению корпуса (а, в) и надстройке этажей в монолитном варианте (б, г). За размер захватки принята секция жилого дома
Горизонтальная схема движения потока по пристройке объемов способствует технологической увязке интенсивности бетонных работ и цикла тепловой обработки до получения распалубочной прочности. Средняя продолжительность работ на этаже достигает 7-10 рабочих дней.
Технология надстройки этажей осуществляется двумя технологическими потоками. В состав работ первого потока входят процессы устройства внутренних несущих стен. Они выполняются с использованием крупнощитовой опалубки, армированием сетками и отдельными стрежнями. Второй поток предусматривает выполнение работ по устройству перекрытий, лестничных маршей, лифтовых шахт и других конструктивных элементов. Используются опалубочные системы перекрытий в виде столовой опалубки, а также доборные элементы из мелкощитовой. Анализ технологичности возведения монолитных перекрытий показал, что при узком шаге расположения стен наиболее эффективным следует считать применение столовой опалубки конструкций Алума-Системс, Хунебек и др. В сочетании с интенсивной технологией тепловой обработки цикл работ по захватке составляет 2-3 сут.
На рис. 10.71, б, г приведена технологическая схема производства работ по устройству опалубки внутренних стен на торцевой секции, перекрытий на рядовой и их перемещения на очередные захватки. Приблизительное равенство объемов работ на захватках позволяет создать условия ритмичного потока с общей продолжительностью работ по возведению каждого этажа в течение 8-10 рабочих дней.
Расчет затрат кранового времени показывает, что при возведении надстраиваемых этажей имеет место его дефицит. Поэтому для сохранения ритма потока процесс подачи и укладки бетонной смеси в перекрытия необходимо производить с использованием бетононасосного транспорта.
Особое место отводится процессу возведения наружных стен. Практика домостроения показала, что для обеспечения нормативных требований по теплотехническим характеристикам возведение наружных стен может осуществляться по следующим технологиям: в монолитном варианте с последующим утеплением теплоизоляционным материалом и защитой из кирпичной кладки или штукатурного покрытия; с применением трехслойных сборных панелей заводского производства; из мелкоштучных материалов с последующими утеплением и защитой тонкостенными панелями из архитектурного бетона; с использованием вентилируемых фасадов.
Возведение стеновых конструкций осуществляется технологическим потоком с оснащением средствами для подъема материалов. Как правило, стеновое ограждение осуществляется в виде самонесущей многослойной кладки с утеплителем. Работы ведутся с перекрытий и совмещаются в пространстве на размер захватки, что обеспечивает условия безопасного производства работ.
Ведущими процессами реконструктивных работ являются возведение пристраиваемых объемов и надстройка этажей. Цикл работ на этаже составляет 6-8 рабочих дней. С опережением на две захватки осуществляется процесс демонтажа наружных и внутренних стеновых панелей. Остальные виды работ привязаны к ведущему процессу из условия обеспечения требуемого фронта работ и безопасного производства строительных процессов.
Снижение до технологически
необходимого минимума продолжительности работ на захватке (этаже) достигается
путем рационального выбора технологий, технологической оснастки и
интенсивностью набора прочности бетоном. Требуемая цикличность других видов
работ обеспечивается путем формирования комплексных бригад и регулирования
числа работающих. Необходимым условием формирования количественного и
квалифицированного состава бригад является соответствие численности рабочих
объемам (трудоемкости) выполнения на потоке работ. Численный состав бригад в
потоках определяется соотношением
где V - объем работ; Нвр - норма
времени на единицу объема; К - коэффициент, учитывающий стесненность
производства работ, равный 1,1-1,3; А - продолжительность смены; п - число смен работы в сутках; tn - шаг потока.
При проектировании состава бригад необходимо обеспечивать непрерывность их работы, а распределение труда между членами бригады должно соответствовать их профессии и уровню квалификации. Особое значение имеют рациональное совмещение профессий, а также согласованность технологической взаимосвязи выполняемых бригадой работ. В условиях реконструкции целесообразно производство работ осуществлять комплексными бригадами.
Оценивая технологический, экономический и социальный эффект данного метода реконструкции, следует отметить:
1 - долговечность и эксплуатационная надежность надстраиваемой части существенно превышают аналогичные показатели обстраиваемых зданий;
2 - наблюдается снижение экономического эффекта по сравнению с малоэтажной надстройкой, не требующей устройства дисков жесткости, усиления отдельных частей здания и производства работ по возведению различного рода пилонов. Выполнение дополнительных объемов работ преимущественно в монолитном железобетоне превышает трудоемкость, продолжительность и себестоимость работ;
3 - при асимметричном уширении здания для исключения неравномерных осадок фундаментов требуется ряд технических решений, существенно удорожающих стоимость работ;
4 - снижается социальный эффект из-за качественного различия в архитектурно-планировочных решениях существующей и надстраиваемой частей зданий.
Реконструкция крупнопанельных зданий с надстройкой этажей в сотовой монолитной системе
Конструктивная система «сотовый монолит» разработана ЗАО «Курортпроект» и обеспечивает работу надстраиваемой части здания как единого целого с опиранием на редко расположенные опоры, не увеличивая сечения монолитных перекрытий и стен.
Размещение сотовых структур вдоль фасадов здания и сотовой структуры надстраиваемых этажей, опирающихся на выносные опоры коробчатого сечения, обеспечивает создание планировочных решений независимо от планировки реконструируемого здания. Это позволяет создавать в надстраиваемой части современные квартиры и получать реконструируемые здания разнообразной архитектурной выразительности.
В качестве выносных опор могут служить лифтово-лестничные узлы, а также пристраиваемые по периметру зданий объемы, выполняемые полностью в монолитном железобетоне. Такое решение позволяет расширить корпуса зданий до 4 м в каждую сторону и таким образом сформировать ширококорпусные дома с надстройкой 5-6 этажей и более.
Отличительной особенностью сотовой системы является совместная работа пристраиваемых и надстраиваемых частей зданий, что исключает устройство балочных или сборно-монолитных перекрытий, разделяющих старую и надстраиваемую части зданий.
В качестве фундаментов под пристраиваемые объемы и системы в целом используются буронабивные сваи, что позволяет до минимума снизить объем земляных работ и исключить негативное влияние на реконструируемое здание.
Архитектурно-планировочное решение зависит от степени уширения корпуса и требований по инсоляции помещений. Наиболее рациональным является размещение лифтового узла в лестничной части секций здания. В зависимости от требований заказчика и градостроительной ситуации целесообразно 1-2 этажа использовать под нежилые помещения. При этом обязательна перепланировка помещений, связанная с переносом санузлов в торцевые элементы секций, расширением прихожих, кухонь, жилых комнат.
Надстраиваемая часть здания может иметь самостоятельную планировку, отвечающую современным нормам и запросам потенциальных жильцов различных слоев населения.
На рис. 10.72 приведен вариант реконструкции жилого дома серии I-515 с надстройкой 4 этажей. Несущие элементы сотовой системы выполнены в виде объемов коробчатого сечения с диафрагмами на уровне каждого этажа, что обеспечивает высокую пространственную жесткость. На уровне 5-го этажа пристраиваемая система объединяется монолитным диском жесткости, который является основой для надстраиваемых этажей. При общей площади квартир 4-секционного жилого дома серии I-515 в 3517 м2 после реконструкции площадь составляет более 8700 м2. Коэффициент прироста площадей превышает 2,5.

Рис. 10.72.
Архитектурно-планировочное решение реконструкции 4-секционного жилого
дома серии I-515 с
пристройкой торцевой секции и надстройкой 4 этажей
а, б - план 1-го и 2-5-го этажей; в - то же, 6-9-го этажей
Технология и организация производства работ
Выбор метода производства работ экономически связан с необходимостью отселения жильцов. Наиболее рациональной формой в данном случае является возведение переселенческого фонда в виде 9-этажной пристройки к торцевой части здания. Это позволяет освободить не менее двух секций реконструируемого здания, что дает достаточный фронт работ по выполнению технологических этапов реконструкции с применением современных средств механизации и технологий монолитного строительства.
Для выполнения комплекса работ по возведению пристройки (переселенческого фонда) и реконструкции с надстройкой этажей используется одна из технологий, наиболее приемлемая по условиям производства работ и стесненности площадки. Наиболее рациональным в данном случае является возведение пристроенного здания в монолитном железобетоне с использованием щитовых унифицированных опалубочных систем, армирования с ручной вязкой, подачей материалов, инвентаря и других приспособлений с использованием легкого башенного крана грузоподъемностью до 3 т, подачей бетонной смеси авто- или стационарным бетононасосом с системой бетоноводов и распределительной стрелой.
Возведение пристраиваемого жилого дома осуществляется с использованием объектного потока, включающего группу специализированных и частных потоков, обеспечивающих ритмичное возведение этажей с шагом потока Тп = 7-10 дней по захватной системе. Потребное количество рабочих определяется исходя из трудоемкости работ, максимального совмещения технологических процессов и их непрерывности: п = SТ×К/Тп, где SТ - суммарная трудоемкость работ на типовом этаже; Тп - шаг потока или продолжительность работ на этаже. Для Тп в общем специализированном потоке по устройству монолитного каркаса здания учитываются возможные технологические перерывы Dt, связанные с набором прочности бетоном: Тп = Т0 + Dt, а также воздействием случайных факторов.
Отдельными специализированными потоками ведутся циклы работ по заполнению оконных проемов, теплоизоляции стен и устройству фасадов, сантехническим, электромонтажным и отделочным видам работ. Осуществляется их технологическая взаимоувязка с сохранением расчетной продолжительности работ.
Реконструктивные работы
Начало работ осуществляется после переселения двух секций жилого дома в пристройку.
Цикл реконструктивных работ состоит непосредственно из комплекса строительных процессов, связанных с демонтажом конструктивных элементов, перепланировкой помещений и надстройкой здания.
Технологические этапы включают циклы работ, выполняемые частными или специализированными потоками.
Подготовительный период, состоящий из освоения площадки, отключения и переноса сетей, установки бытовых помещений, устройства площадок складирования, стоянок для кранов, бетононасосов, временных подъездных путей, энерго- и водоснабжения.
Нулевой цикл работ состоит в устройстве свайных фундаментов под выносные опоры и возведения ростверка.
Демонтаж парапетных блоков, кровельной части, балконов и плит перекрытия в зоне размещения лифтового узла ведется отдельным технологическим потоком с использованием грузоподъемных и грузозахватных средств, механизмов для разрушения и распиловки железобетонных конструкций и внутренних перегородок для перепланировки помещений.
Устройство выносных опор и лифтовых шахт осуществляется с использованием вертикально извлекаемых и щитовых опалубок с подачей бетонной смеси автобетононасосами. Наличие замкнутых объемов позволяет рационально использовать теплогенераторы для ускорения твердения бетона.
Возведение монолитной плиты перекрытия производится по существующему перекрытию 5-го этажа с устройством сплошного основания из пенополистирольных плит толщиной 40-50 мм. Такое решение позволяет исключить возможную передачу нагрузок от надстраиваемой части и способствует повышению звукоизоляции.
Отличительной особенностью сотовой системы является совместная работа замкнутых железобетонных объемов с передачей нагрузки на выносные опоры. Поэтому особое внимание уделяется процессам армирования и обеспечения высокого качества сопряжений возводимых элементов.
Надстройка этажей осуществляется по независимой от реконструируемого здания планировке с образованием монолитных замкнутых объемов путем использования щитовых легкомонтируемых опалубочных систем.
Технологические схемы процессов устройства свайных фундаментов, демонтажа плит, перегородок, балконов и других элементов, возведения пристраиваемых объемов и надстройки реконструируемого здания приведены на рис. 10.73.

Рис. 10.73.
Технологические этапы реконструкции
I - демонтаж
элементов кровельного покрытия, плит перекрытий и балконов; II - устройство свайных
фундаментов под выносные опоры; III - возведение пристроек в
монолитном варианте; IV - надстройка
этажей
При сохранении поточного производства работ, где в качестве захватки применяется секция жилого дома, осуществляется расчет состава комплексной бригады из специализированных звеньев. Основной принцип организации поточного производства работ состоит в расчете состава рабочих из условий трудоемкости и выработки при плановой ресурсо- и энергообеспеченности производства. Осуществляется расчет потребности в инвентаре, машинах и средствах механизации. При использовании основного грузоподъемного механизма в виде башенного крана производится оценка его фактической производительности с учетом высоты подъема и числа необходимых циклов для выполнения монтажа и демонтажа опалубочных щитов, подъема арматуры, бетонной смеси и других материалов. Для обеспечения расчетного шага потоков при недостаточной производительности башенного крана используются дополнительные средства механизации - бетононасос, грузопассажирские подъемники, самоходные краны на автошасси и др.
Технологические схемы производства работ по возведению пристройки, перепланировке и надстройке этажей реконструируемой части приведены на рис. 10.74.

Рис. 10.74.
Технологические этапы возведения пристройки и надстройки этажей
а - пристройка секции в
монолитном железобетоне; б- пристройка
объемных элементов; в - устройство
монолитного перекрытия; г - возведение
вертикальных и горизонтальных конструкций; д - внутренняя планировка и отделочные работы; 1 -
башенный кран; 2 - грузопассажирский
подъемник; 3 - бетононасос;
4 - автобетоносмеситель;
5 - опалубка стен; 6 - то
же, перекрытий; 7 - армирование перекрытий
Выполнение работ по реконструкции жилого дома осуществляется по вертикально восходящей схеме с перемещением башенного крана и другой техники на новые захватки. Особое внимание уделяется безопасным методам производства работ, исключению влияния механизированных строительных процессов на проживающих жильцов в соседних секциях.
Сокращение продолжительности работ может быть достигнуто при переходе на двухсекционные участки, когда захваткой служит секция жилого дома. Это обстоятельство позволяет более рационально формировать специализированные потоки, обеспечивая фронт работ и максимальное совмещение технологических процессов.
Посекционная технология реконструкции позволяет осуществлять цикл работ без отселения жильцов. Первая очередь возведения 9-этажной пристройки с торцевой части здания позволяет расселить одну или две секции реконструируемого здания, что создает достаточный фронт работ.
Последовательное возведение надстроек обеспечивает не только переселение жильцов очередных секций, но и избыток площадей коммерческого назначения.
Рациональные архитектурно-планировочные решения позволяют превратить первый этаж в нежилые помещения, что существенно повышает комфортность проживания.
При такой схеме возможна дополнительная пристройка вдоль фасада здания с целью размещения магазинов и др. объектов инфраструктуры.
Надстройка зданий с передачей нагрузок на монолитные выносные рамные конструкции
Данным способом наиболее рационально осуществлять реконструкцию жилых зданий с наружными несущими стенами (серии домов I-515, I-447 и др.) из керамзитобетонных панелей, кирпича, крупных блоков, что позволяет осуществить перепланировку квартир и доведение площадей до современных требований из расчета 18 м2 на одного проживающего.
В качестве конструктивной схемы используется объемная каркасная система, включающая монолитные железобетонные пилоны, размещаемые с шагом 4,2-4,3 м, объединенные монолитными продольными плитами, используемыми в качестве лоджий. Для обеспечения пространственной жесткости системы в местах размещения лестничных клеток пристраиваются замкнутые объемы лифтовых шахт и площадок мусоропроводов.
Объемные пристраиваемые элементы, как и пилоны, объединяются внутренними стенками жесткости и монолитными перекрытиями, что позволяет передавать нагрузки от надстраиваемых этажей каркасной системе, исключая реконструируемую часть здания (рис. 10.75).

Рис. 10.75.
Конструктивная схема надстройки этажей на выносные рамные конструкции (а), поперечные разрезы (б, в)
1 - реконструируемое здание; 2 - торцевая пристройка; 3 - монолитные железобетонные пилоны; 4 - монолитные пристройки лифтовых шахт
и мусоропроводов; 5 - балки-стенки для передачи нагрузок от
надстраиваемых этажей пилонам и объемным элементам шахт; 6 - монолитные плиты лоджий,
объединенные с пилонами
Пространственная жесткость и устойчивость возводимого здания обеспечиваются благодаря совместной работе монолитных железобетонных перекрытий и продольно-поперечных рам. В результате старая и новая части здания образуют единую объемно-пространственную структуру. При этом конструктивно обе части реконструируемого дома при передаче нагрузок на фундаменты «работают» независимо друг от друга. Существующие и вновь возведенные несущие конструкции отделены осадочными швами.
В качестве фундаментов используются буронабивные сваи с ростверком, что обеспечивает передачу нагрузки, исключая контакт с существующими фундаментами.
При расчете таких фундаментов принимается коэффициент условия работ, обеспечивающий минимальную осадку.
Оптимальным решением является надстройка пяти этажей, что определяется условиями инсоляции зданий.
Существенно изменяется архитектурно-планировочное решение реконструируемой части здания. На рис. 10.76 приведено его решение для жилого дома серии I-515.

Рис. 10.76. Планировочное решение 2-5-го этажей реконструируемого здания
В результате обстройки и пристройки торцевых секций достигается перепланировка квартир. В глубине каждой квартиры размещаются просторный холл и второй санузел, на кухне выделяются столовая и рабочая зоны. Трехкомнатные квартиры ориентированы на два фасада и имеют сквозное проветривание. Каждая квартира имеет застекленную лоджию площадью более 6 м2.
Планировочное решение надстраиваемых этажей (рис. 10.77) может быть выполнено с поэтажным и двухуровневым размещением 3-, 4-, 5-комнатных квартир повышенной комфортности. Их коммерческая реализация позволяет распределить затраты по перепланировке реконструируемой части.

Рис. 10.77. Планировочное решение надстраиваемых этажей с поэтажным (а) и двухуровневым размещением квартир (б)
В результате осуществления реконструктивных мероприятий пятиэтажка приобретает потребительские и эстетические качества современного комфортабельного жилья, при этом общая площадь квартир увеличивается более чем в 2 раза.
Учет факторов и моделирование процессов позволяют оптимизировать параметры технологических потоков, обеспечить их ритмичность и снизить продолжительность работ.
Модель производства комплекса работ по реконструкции включает несколько циклов: 1 - подготовительные работы, состоящие из освоения строительной площадки в соответствии со стройгенпланом и ППР; 2 - перенос наружных сетей водоснабжения, теплотрасс и канализации; 3 - выполнение работ нулевого цикла по устройству фундаментов под пилоны и объемные пристраиваемые элементы; 4 - работы по демонтажу и перепланировке существующей части здания; 5 - пристройка и надстройка этажей из монолитного железобетона; 6 - устройство наружного стенового ограждения, замена светопрозрачных конструкций; 7 - кровельные работы; 8 - утепление фасадных поверхностей с облицовкой из керамогранита; 9 - внутренние отделочные и специализированные виды работ; 10 - работы по благоустройству.
В объемы работ по реконструкции существующей части здания входит демонтаж конструкций чердачного покрытия и кровельной части, внутриквартирных перегородок и вентблоков, балконов, инженерных сетей, оконных заполнений, полов и др. элементов, уровень физического износа которых превышает 60-70 %.
Эти виды работ осуществляются специализированным объектным потоком с использованием мобильных крановых средств, грузопассажирских подъемников, алмазного инструмента для разрезки и измельчения.
В соответствии с новой планировочной схемой производится цикл работ по перепланировке помещений. При этом используются индустриальные технологии устройства перегородок из гипсокартонных плит по металлическому каркасу, пазогребневых блоков, газосиликатных блоков и др. материалов, обеспечивающих снижение трудоемкости работ и повышение эксплуатационных параметров квартир (звукоизоляция и теплоизоляция перекрытий и внутриквартирных перегородок).
Производится полная замена инженерного оборудования. Сквозь существующие перекрытия проводятся транзитные трубные разводки отопления, водопровода и канализации. Видоизменяются системы инженерного обеспечения. После модернизации системы старой и новых частей зданий функционируют по единой системе.
Производятся установка приборов регулирования, контроля и учета расхода энергии, потребляемой системой отопления, вентиляции, горячего водоснабжения и освещения, а также автоматизация управления режимами, что позволяет более эффективно использовать топливно-энергетические ресурсы.
Существующие ограждающие конструкции и наружные стены пристраиваемых и надстраиваемых частей здания утепляются с использованием технологий вентилируемых фасадов. Производится замена оконных и балконных заполнений на более современные светопрозрачные конструкции из ПХВ с двухкамерными стеклопакетами.
Использование вентилируемых фасадов с облицовкой из керамогранита, остекление лоджий и др. технические решения способствуют повышению архитектурной выразительности зданий и эксплуатационной надежности.
Надстройка зданий осуществляется в монолитном варианте. В качестве опалубочных систем для вертикальных конструкций используются щитовые опалубки фирм Мева, Дока, Пашаль и др., уровень технологичности которых достаточно высок и составляет по трудоемкости монтажа 0,23-0,25 чел.-ч на 1 м2 площади.
При возведении горизонтальных конструкций наиболее рационально и экономически целесообразно применение фанерной палубы по инвентарным стойкам, балкам и прогонам (рис. 10.78).

Рис. 10.78. Технологическая схема пристройки монолитных пилонов (I), лифтовых шахт (II), стен (III) и перекрытий надстраиваемых этажей (IV)
Процесс интенсивного набора распалубочной прочности осуществляется за счет использования бетонов классов В25-В30 с внесением в смесь пластифицирующих и ускоряющих твердение бетонной смеси добавок. Наиболее эффективными являются комплексные добавки серии Лингопан, которые обеспечивают твердение бетонной смеси при пониженных температурах.
Более раннее распалубливание горизонтальных конструкций перекрытий достигается при достижении бетоном критической прочности, когда производство работ ведется при пониженных температурах, и достижении бетоном прочности в пределах 25-30 % в летнее время.
Для снижения цикла выдерживания бетона применяют систему переопирания перекрытий на стойках с передачей нагрузки на нижние этажи. Такая технология позволяет существенно снизить сроки выдерживания бетонов, что позволяет довести продолжительность возведения этажей до 5-7 рабочих дней.
Технологический процесс надстройки зданий осуществляют по поточно-восходящей схеме, где в качестве захваток используется одна или две секции жилого дома.
Для выполнения комплексного процесса монолитного строительства проводится расчет состава звеньев бригад по устройству вертикальных и горизонтальных конструкций. При этом используется принцип максимального совмещения технологических процессов: армирования вертикальных конструкций, монтажа опалубочных систем и бетонирования.
В общем плане количество рабочих, занятых на технологических процессах, рассчитывается исходя из расчетной продолжительности цикла, ритма потока и совмещения во времени технологических процессов.
Количество рабочих на каждом процессе определяется исходя из трудоемкости работ и может быть оценено зависимостью п = SТ + DT/tц , где SТ - трудоемкость производства работ; DT - увеличение трудоемкости при выполнении работ в стесненных или зимних условиях, tц - время производства работ технологического цикла.
Параметр DT зависит от уровня квалификации рабочих, степени укрупнения опалубочных систем, использования специальных средств малой механизации для ручной вязки арматуры, временного крепления опалубки, укладки смеси бетононасосным или крановым способом, затрат труда на установку средств прогрева бетонной смеси и контроля технологических режимов твердения.
В общем плане совмещение технологических процессов иллюстрируется графиком производства работ, приведенным на рис. 10.79, который свидетельствует о темпах возведения монолитных конструкций.

Рис. 10.79. Примерный технологический график выполнения бетонных работ на отдельной захватке при 7-суточном темпе возведения этажа
В то же время воздействие различных случайных факторов (отклонение от графика доставки бетонной смеси, увеличение цикла тепловой обработки бетонной смеси в результате среднесуточных колебаний температур, непредвиденные простои средств механизации, некоторые организационные факторы и др.) требует рассмотрения технологических процессов возведения монолитных конструкций с позиций надежности строительного производства. В частности, время tц может иметь значительные отклонения от среднего значения.
Для описания событий, зависящих от многих факторов, используются математические модели распределения вероятности отказов.
В монолитном строительстве наиболее адекватна модель нормального распределения. Количественные показатели надежности позволяют рассчитать уровень организационно-технологической надежности в конкретных условиях производства работ и оптимизировать параметр tц.
Вероятность безотказной работы строительного потока может быть определена по продолжительности простоев, интенсивности производства работ или выработке.
Наиболее характерным примером распределения вероятностей интенсивности монолитного строительства являются зависимости, полученные в результате статистической обработки наблюдений интенсивности возведения монолитных конструкций, и теоретическая кривая, учитывающая вероятность отказов в зависимости от случайных факторов и соответствующее снижение интенсивности производства работ.
Особое влияние на организационно-технологическую надежность оказывают методы и технологии производства работ, уровень ресурсного обеспечения, состояние технических средств и простой машин, резкие колебания температуры наружной среды и др.
Взаимодействие технологических потоков представлено в таблице 10.10 в виде линейных графиков с отражением работ по захваткам на примере 5-секционного жилого дома серии I-515. В качестве захватки принята секция жилого дома. По данным НППО «Тема», максимальное смещение технологических процессов из условия поточного производства работ и применение современных технологий обеспечивают снижение общей продолжительности реконструкции до 14 месяцев против нормативной 20 месяцев.
Таблица 10.10
Технологическая последовательность производства работ при реконструкции 5-секционного жилого дома серии I-515

Стоимость реконструкции жилого дома до 10 % ниже нового строительства с аналогичными объемами.
Достигнуто увеличение общей площади здания в 2,4 раза, число квартир возросло на 22 ед. преимущественно с площадью 95-172 м2, почти в три раза увеличилось число однокомнатных квартир с общей площадью 47,3 против 31,8 (до реконструкции) (табл. 10.11).
Таблица 10.11
Технико-экономические показатели
|
Наименование показателя |
До реконструкции |
После реконструкции |
|
Строительный объем здания, м3 в том числе подземная часть, м3 |
19400 2400 |
46900 2500 |
|
Общая площадь здания, м2 |
5400 |
13343 |
|
Общая площадь квартир, м2 |
4460 |
9636 |
|
Число жилых секций |
5 |
5 |
|
Этажность здания |
5 |
5 |
|
Количество квартир |
100 |
122 |
|
в том числе: |
|
|
|
1-комнатных |
10 (площадью 31,8 м2) |
31 (площадью 47,3 м2) |
|
2-комнатных |
75 (площадью 41,5 м2) |
38 (площадью 80,6 м2) |
|
3-комнатных |
15 (площадью 54,6 м2) |
38 (площадью от 109 до 127 м2) |
|
4-комнатных |
- |
11 (площадью от 95 до 176 м2) |
|
5-комнатных |
- |
4 (площадью от 157 до 172 м2) |

Рис. 10.80. Общий вид фасадов реконструируемого дома серии I-515
Высокий потребительский спрос на квартиры реконструируемого дома, инвестиционная привлекательность, архитектурная выразительность (рис. 10.80) и возможности гибкой планировки квартир делают данную технологию конкурентоспособной с новым строительством. Она позволяет решить актуальную проблему больших городов по реконструкции пятиэтажного жилого фонда, продлив жизненный цикл зданий, улучшить экологическую ситуацию, исключив процесс сноса и переработки отходов, решить ряд социальных проблем.
В самом недалеком будущем процесс реконструкции неизбежно распространится на массовую жилую застройку 9-12-этажных зданий, которую принято относить ко второму периоду индустриального домостроения.
В период до 1980 г. было застроено только в Москве более 40 млн. м2 общей площади 9- 12-этажными домами серий II-18, II-29, II-49 П и Д, II-57, 1-507, 1605 AM со стенами из кирпича, керамзитобетонных блоков и одно- и трехслойных панелей, с внутренними несущими стенами из железобетонных панелей и перекрытиями из многопустотного настила.
Более 400 млн. м2 было построено в различных регионах РФ крупнопанельных домов улучшенной планировки серий 135, 83, 75, 92, с кирпичными стенами серий 71, 85, 86 и др. конструкций ЦНИИЭПжилища, КБ им. Якушева, ЛенЦНИИпроекта и др. проектных организаций.
По планировочным решениям жилые дома этих серий выполнены одно- и многосекционные, коридорного типа для малосемейных, с малогабаритными и обычными квартирами.
Архитектурно-планировочные решения зданий этого периода постройки характеризуются показателями, не обеспечивающими требуемый уровень комфортности проживания.
Так, для домов серии II-18 - 9-этажных блочных домов с 1-, 2- и 3-комнатными квартирами (рис. 11.1, а) площадь кухонь составляет 5,77 - 6,36 м2 для двухкомнатных квартир и 9,24-9,75 - для одно- и трехкомнатных. Применены совмещенные и раздельные ванные и туалеты. Прихожие имеют площадь от 2,6 до 4,5 м2. Высота этажа - 2,64 м. Наружные и внутренние несущие стены выполнены из керамзитобетонных блоков толщиной 400 мм, перегородки гипсобетонные толщиной 80 мм. Технические помещения включают техподполье и технический этаж. Здания оснащаются двумя лифтами грузоподъемностью 400 кг.

Рис. 11.1. Планировочные решения 9-этажных жилых домов с блочными стенами серии II-18 (а), кирпичными - II-49 (б), крупнопанельные - II-49 (в), 83 (г) с кирпичными стенами серии 85 (д)
Для многосекционных 9-этажных домов серии II-29 наружные и внутренние несущие стены выполнены из кирпича толщиной 510 мм. Перегородки толщиной 160 и 80 мм из гипсобетонных панелей. Перекрытия из многопустотного настила высотой 220 мм. Каждая секция оснащена лифтом грузоподъемностью 400 кг (рис. 11.1, б).
Для жилых домов серии II-29 с набором квартир 1, 2, 3 площадь кухонь не превышает 5,5 м2, ванных комнат - 2,02 м, прихожих 3,0 - 5,02 м2.
Для панельных домов серий II-49, II-57 применены планировочные решения, имеющие те же недостатки, что и для рассмотренных серий (рис. 11.1, в).
Около 70 % зданий возведено по конструктивной схеме с поперечными несущими стенами с узким (2,6-3,4 м) и широким (6 м) шагом, высотой этажа 2,64 м.
Уровень морального несоответствия современным требованиям состоит в малых площадях квартир, с заниженными размерами подсобных помещений, кухнями площадью 5-7 м2, проходными комнатами, совмещенными санузлами или миниатюрными ванными комнатами.
Все без исключения серии жилых домов не отвечают современным теплотехническим нормам.
Техническое обследование застройки 9-12-этажными жилыми домами свидетельствует о высокой капитальности зданий, малой степени износа несущих и ограждающих конструкций.
Наиболее распространенными дефектами являются низкая долговечность и эксплуатационная надежность кровельных покрытий, коррозионные процессы и частичное разрушение бетона балконных плит, наличие протечек и раскрытие швов между панелями наружных стен, высокая степень износа инженерного оборудования и систем водоснабжения, сверхнормативная энергопотребность в силу отсутствия теплоизоляции стен, чердачных покрытий и подвальных перекрытий, использования светопрозрачных конструкций, не отвечающих современным требованиям.
Проведение реконструкции зданий этого периода постройки вызывает значительные сложности по ряду обстоятельств.
1. Кварталы застройки имеют более плотную структуру, затрудняющую возведение зданий перечисленного фонда.
2. Значительная высота жилых домов исключает или затрудняет использование индустриальных технологий, основанных на расширении корпусов надстройки, приемлемых для пятиэтажной застройки.
3. Для зданий башенного типа экономическая целесообразность надстройки не оправдывает расходы на возведение.
4. Производство работ по перепланировке помещений встречает ряд затруднений, связанных с различными мнениями и возможностями собственников жилья.
В то же время анализ конструктивных решений ряда серий постройки 1970-80 гг. позволяет применить технические решения, обеспечивающие надстройку 1-2 этажами, увеличение площади кухонь путем пристройки малых объемов, превращение балконов с их расширением в остекленные лоджии.
Повышение энергоэффективности зданий требует утепления наружных стеновых ограждений, подвальных и чердачных перекрытий, возведения шлюзовых тамбуров, исключающих теплопотери за счет вентиляционного эффекта, замены светопрозрачных конструкций окон и балконов, перехода на более экономичное и управляемое тепло- и энергоснабжение.
Проведение комплекса работ позволяет не только повысить энергоэффективность зданий и частично исключить уровень морального износа, но и улучшить архитектурную выразительность и разнообразие зданий, исключив монотонность и серость застройки.
Наиболее эффективна надстройка зданий двумя этажами с превращением технического этажа в жилой. Такое решение обеспечивает минимальное приращение нагрузок за счет исключения перекрытия технического этажа и замены кровельного покрытия на более легкое. Это обстоятельство не требует усиления основных конструктивных элементов здания, что снижает стоимость надстройки.
Двухэтажная надстройка экономически целесообразна при реконструкции 2-, 3- и более секционных жилых домов, когда прирост дополнительных площадей составляет более 30 % начальной. Надстраиваемые этажи выполняются по рамно-каркасной системе, в качестве которых используются металлические конструкции из эффективного профиля с последующим омоноличиванием перекрытий, возведением многослойного стенового ограждения и перегородок из пазогребневых блоков или гипсокартонных плит по металлокаркасу системы ТИГИ Кнауф.
Надстраиваемые этажи могут иметь гибкую планировку с разнообразием квартир по площади, высоте этажа, при размещении как в одном, так и двух уровнях.
Это обстоятельство позволяет получать квартиры различного качества, и они могут иметь высокую рыночную стоимость.
Так, размещение металлических рам принимается кратным расстоянию между оконными проемами.
Основной трудностью возведения надстроек является разработка технологий, обеспечивающих максимальную безопасность производства работ.
Анализ организационно-технологических решений показывает, что для реализации проектов надстроек возможно применение технологий сборки каркаса из отдельных отправочных марок, что обеспечивает их подъем на монтажный горизонт с помощью приставных грузопассажирских подъемников с последующей сборкой по месту установки. Данная технология является многодельной, требует применения специальной оснастки, средств горизонтального транспорта и больших трудозатрат, но обеспечивает безопасность жильцов и работающих (рис. 11.2).

Рис. 11.2.
Конструктивно-технологическая схема 2-этажной надстройки с
использованием объемов технического этажа
а - рамный каркас из
металлопроката; б -
разрез надстройки после выполнения СМР
Вторая организационно-технологическая схема предусматривает использование рамной конструкции с шарнирными связями между стойками, ригелями и кровельными балками. Такое решение в 2-3 раза снижает трудоемкость производства работ. При этом требуется использование укрупнительной площадки на уровне перекрытия и легкого крышевого крана. Приведение рамы в проектное положение осуществляется методом поворота, путем организации шарниров в опорной части и ее перемещения с помощью лебедок (рис. 11.3).

Рис. 11.3.
Технологическая схема возведения надстройки из легкого рамного каркаса
методом поворота
1 - грузовой подъемник; 2
- легкий крышевой крап; 3
- площадка для укрупнительной сборки; 4, 4* - рама в горизонтальном и проектном положениях; 5
- электролебедка; 6 -
подкосы; 7 - фиксатор
Обеспечение устойчивости рам достигается путем применения жестких подкосов при установке крайней рамы и горизонтальных связей в виде ригелей и обвязочных балок - при монтаже очередных. Процесс установки связевых систем производится с использованием средств малой механизации: лебедок, домкратов и др. приспособлений.
Реконструкция кирпичных зданий серий I-507 А, II-29 и др. осуществляется путем возведения двухэтажной надстройки с использованием объемов технического этажа.
Производство работ без отселения жильцов требует использования технологий, обеспечивающих максимальную безопасность жильцов, исключение технологических процессов с высоким уровнем шума и вибрации.
Основная конструктивная схема надстройки подбирается таким образом, чтобы исключить применение башенных кранов.
Из приведенных технических решений наиболее рациональным является применение рамного металлического каркаса, стойки которого размещаются на наружных и внутренних стенах технического этажа.
Цикл подготовительных работ.
Для обеспечения производства работ выполняется комплекс подготовительных работ, включающий: установку грузопассажирского подъемника грузоподъемностью 1000 кг; определение и ограждение зон складирования материалов; размещение бытовых и складских помещений; проведение работ по устройству временного электро- и водоснабжения; размещение площадок для приема бетонной смеси и стоянок автобетононасосов; ограждение опасных зон с организацией пешеходных переходов с защитными козырьками. Данный цикл работ выполняется в соответствии со стройгенпланом площадки.
Подготовительный период производства включает также работы по устройству ограждений на уровне технического этажа. Для установки кронштейнов используются вентиляционные отверстия в стенах с креплением с внутренней стороны и последующим устройством деревянного настила.
Для транспортирования элементов каркаса устраиваются временные пути по кровельной части и используются специальные тележки, что обеспечивает снижение трудозатрат на горизонтальное перемещение.
Подготовка объекта реконструкции осуществляется в соответствии с требованиями СНиП 12-03-2001 «Безопасность труда в строительстве. Часть 1. Общие требования».
На рис. 11.4 приведен стройгенплан площадки по надстройке 5-секционного жилого дома серии I-515. При его разработке учитываются безопасная схема движения жильцов, наличие зеленых насаждений, возможность временного использования стационарных площадок для размещения бытовых помещений, стоянок АБН, использования внутриквартальных дорог для доставки бетона, арматуры, металлоконструкций и др. материалов.

Рис. 11.4.
Стройгенплан и технологические схемы производства работ по 2-этажной
надстройке жилого дома серии I-507
А
I-V - номера захваток (секций); 1 - крышевое транспортное
средство; 2 - грузопассажирский
подъемник; 3 - ограждение;
4 - навесы над входами, 5
- бытовые помещения: 6 -
зона складирования; 7 - автокран; 8 - автобетононасос
Ведущий цикл производства работ состоит в устройстве каркаса надстройки. Он выполняется отдельным технологическим потоком поярусно. Первоначально монтируются элементы каркаса первого яруса, который является первым этажом надстройки.
По мере его возведения отдельным технологическим потоком осуществляются установка несъемной опалубки из профнастила и дополнительное армирование покрытия. Цикл работ по возведению первого яруса завершается укладкой бетонной смеси с подачей бетононасосом.
При толщине железобетонного перекрытия 180 мм на каждую секцию требуются подача и укладка бетонной смеси в объеме 40-45 м3. Технологически целесообразно осуществлять посекционное бетонирование, что создает фронт работ по демонтажу кровельного покрытия и несущих элементов покрытия - железобетонных ребристых плит и балок.
Возведение монолитного перекрытия кроме обеспечения пространственной жесткости надстройки является защитой от атмосферных осадков нижележащих этажей, что в условиях реконструкции без отселения жильцов немаловажно.
Второй ярус каркаса возводится по заданной технологической схеме с той разницей, что все процессы ведутся с возведенного перекрытия.
С учетом полной высоты этажа используются соответствующие подмости, инвентарь и грузоподъемные средства в виде домкратов, ручных лебедок и др. приспособлений, облегчающих ручной труд.
Заключительным этапом возведения второго яруса является устройство монолитного перекрытия. Оно выполняется по той же технологической схеме.
Каркас кровельной части также монтируется из отдельных элементов и является продолжением надстройки. Он выполняется с монтажного горизонта монолитного перекрытия с последующим устройством обрешетки и кровельной части.
Отдельными технологическими потоками выполняются работы по устройству лестничных клеток и маршей, стенового ограждения из мелкоштучных энергоэффективных блоков с утеплителем и облицовкой кирпичом, внутренних планировочных работ, установке оконных заполнений и т.п. На рис. 11.5 приведены технологические циклы возведения надстройки.

Рис. 11.5.
Технологическая последовательность поярусного возведения 2-этажной
надстройки
а - монтаж каркаса 1-го
яруса надстройки; б, в -
то же, 2-го и 3-го ярусов с устройством стенового ограждения и монолитных
перекрытий;
1 - ограждение; 2 -
монолитный обвязочный пояс; 3 -
тележка для транспортирования элементонесущих конструкций рам; 4 - подмости; 5 - катучие
подмости; 6 - то же, для
установки кровельных балок; 7 - самоходные телескопические подмости для
транспортирования и проектного размещения элементов каркаса; 8 - монолитное перекрытие; 9 - кровля; 10 - 3-слойная кладка наружных стен; 11
- оконное заполнение мансардного этажа
Наличие кровельной части и светопрозрачных заполнений дает фронт работ по внутренней планировке помещений, выполнению санитарно-технических, электромонтажных и специальных работ.
В зависимости от планировочных решений надстройки (квартиры в одном или двух уровнях) объем и уровень отделочных работ могут колебаться в широких пределах.
Так, при надстройке 9-этажного жилого дома по 1-й Фрунзенской улице (г. Москва) площадь двухуровневых квартир достигала 500 м2 и более (рис. 11.6).

Рис. 11.6. Планировочные решения надстраиваемых этажей (а, б) и общий вид здания на стадии надстройки (в) и в окончательном виде (г)
Реконструкция жилого дома с надстройкой двух этажей показала экономическую целесообразность производства работ без отселения жильцов. При этом получено более 20 % общей площади по себестоимости на 30 % меньше, чем при новом строительстве. Улучшились архитектурная выразительность здания и эксплуатационная надежность кровельного покрытия. Общий вид реконструируемого здания и рабочие моменты приведены на рис. 11.6 в, г.
Основные недостатки используемой технологии состояли в несоответствии интенсивности производства работ на монтаже каркаса и транспортными процессами, отсутствии совмещения работ на захватках, смещении цикла устройства монолитных перекрытий с окончанием возведения каркаса. Эти и другие просчеты в планировании технологии производства работ привели к увеличению общей продолжительности работ, которая составила более 12 мес.
Существенное снижение продолжительности работ достигается при локальном обеспечении технологических циклов средствами механизации на возведение каркаса; демонтаж элементов покрытия; работы по внутренней планировке. Только за счет увеличения числа подъемников в 2-3 раза достигается повышение интенсивности технологических процессов путем сокращения периода транспортировки материалов и конструктивных элементов и исключения пересечения потоков во времени и пространстве.
При расчете количества средств вертикального транспорта требуется учет объемов и времени транспортирования материалов и полуфабрикатов для возведения стенового ограждения, армирования перекрытий, транспортирования материалов разборки покрытия, т.е. тех видов работ, которые совмещаются с ведущим процессом. Это обстоятельство позволяет создать объектный поток, состоящий из частных специализированных. При этом необходимо обеспечение технологических циклов вертикальным и горизонтальным транспортом, механизированным инструментом и инвентарными средствами.
Время цикла ведущего процесса определяется из следующих условий
![]()
где SТМ - суммарная трудоемкость монтажных работ; N - количество рабочих в звене монтажников; к - коэффициент, учитывающий условия работ; п - число смен работы.
Для обеспечения непрерывности
процесса монтажа каркаса
где
- время транспортирования элементов рам в зону монтажа;
где tп - время
погрузо-разгрузочных работ; tв.п -
вертикального и tг.т -
горизонтального транспортирования.
Требуемое количество подъемников
может быть определено как ![]()
При
имеет место цикличная схема транспортирования
конструктивных элементов. В этом случае для исключения простоя осуществляются
подача материалов и полуфабрикатов для стенового ограждения, а также
транспортирование материалов разборки при условии полного использования
производительности транспортных средств.
Повышение интенсивности производства работ достигается совмещением технологических процессов на захватках (секциях жилого дома) при условии соблюдения безопасных условий.
Снижение продолжительности работ при надстройке зданий достигается при переходе от мелкоштучной сборки каркаса к укрупненной в виде складывающихся поярусных элементов рам. Это позволяет снизить трудоемкость и продолжительность основного цикла и создать систему специализированных потоков с максимальным совмещением технологических процессов.
На рис. 11.7 приведена конструктивная схема рамы, состоящая из опорных стоек требуемого сечения, к которым шарнирно соединены ригели и центральная стойка. Верхний ярус рамы включает стойки с шарнирными ригелями и кровельной частью в виде верхнего пояса с раскосами, шарнирно соединенными с нижним поясом (ригелем).

Рис. 11.7. Технологическая схема монтажа облегченного рамного каркаса из складывающихся элементов
Крепление стоек рам приводится к обвязочному железобетонному поясу с помощью болтовых соединений. Между собой рамы соединены с помощью ригелей трубчатого сечения, которые входят в патрубки, размещаемые в узлах из полости рам. Для обеспечения пространственной жесткости на период возведения стенового ограждения предусматриваются наклонные связи, которые в последующем демонтируются.
Конструктивное решение рамного каркаса предусматривает создание монолитных плит перекрытий с омоноличиванием ригелей и связевых систем.
Такое решение приемлемо для зданий с техническим или чердачным этажом, со стенами из кирпича или крупных блоков высотой до 9 этажей. Двухэтажные надстройки выполняются с внутренним или внешним водостоком.
Технология возведения надстройки
Использование облегченной конструкции рамы за счет применения гнутых профилей позволило применять крышевой кран для вертикального подъема и монтажа. Крановые пути размещаются по внутренней оси здания, тем самым передают нагрузки в зоны с минимальным моментом. В случае когда по расчетным данным несущей способности покрытия недостаточно, в зоны технического этажа производят установку временных распределительных стоек. Монтаж рам осуществляется отдельными блоками (ярусами) или при полном их укрупнении на специальной площадке в зоне действия крана. Более безопасным является метод поярусного монтажа, когда суммарная масса элементов рамы не превышает 500 кг.
Для обеспечения устойчивости выверки элементов рам используются подкосы, струбцины, монтажные площадки и др. технологическое оборудование. После выверки и временного крепления осуществляется сварка узловых элементов, что обеспечивает проектное положение рам, их геометрическую неизменяемость и устойчивость. Для объединения в каркас рамы соединяются продольными ригелями и обвязочными балками, которые крепятся к кронштейнам с помощью болтовых или сварных соединений.
Возведение каркаса ведется отдельным технологическим потоком. После выполнения цикла работ на захватке (секции) производят работы по устройству подвесной опалубки и армированию плит перекрытия. Бетонирование перекрытия осуществляется с подачей смеси бетононасосом, что обеспечивает минимальные трудоемкость и продолжительность работ. Выполнение бетонных работ производится после выполнения работ по возведению наружных стен первого яруса. Это обстоятельство позволяет получить объемы, защищенные перекрытием от атмосферных осадков.
После набора прочности первого надстраиваемого этажа осуществляют бетонирование перекрытия второго этажа.
На рис. 11.8 приведена технологическая последовательность производства работ по надстройке 3-секционного жилого дома с кирпичными стенами. Кроме крышевого крана в качестве грузоподъемных средств используются грузопассажирские подъемники, размещаемые в торцах зданий. Они предназначены для подъема материалов и полуфабрикатов на монтажный горизонт с последующим распределением с помощью механизированных тележек. Они используются также для транспортирования материалов разборки железобетонного покрытия.

Рис. 11.8.
Фрагмент стройгенплана и технологическая последовательность производства
работ по надстройке жилого дома с использованием легкого крышевого крана
1 - крышевой кран; 2 - площадка
укрупнительной сборки; 3 -
рамный каркас; 4, 5 -
процессы устройства несъемной опалубки армирования и укладки бетонной смеси
АБН; 6 - грузопассажирский
подъемник; 7 - навесы над входами; 8 - ограждение
После окончания монтажа каркаса крышевой кран демонтируется с использованием пневмоколесного крана Libherr с вылетом стрелы и грузоподъемностью, обеспечивающими его транспортирование на отметку дневной поверхности. При выполнении этого вида работ жильцов временно (на 1,5-2,0 ч) выселяют с верхних этажей опасной зоны.
Применение крышевого крана и двух подъемников позволяет создать ритмичные потоки по выполнению различных циклов работ. Специализированные потоки имеют фронт работ, независимых друг от друга. Это обстоятельство позволяет максимально совместить работы во времени и сократить общую продолжительность работ. Наиболее трудоемкими являются процессы разборки кровельной части и устройство оконных проемов в кирпичной кладке технического этажа.
Для производства работ используются механизированный инструмент для резки кирпича и бетона, газосварочные аппараты и гидравлические ножницы для резки металла, мототележки для транспортирования материалов разборки к грузопассажирским подъемникам. Повышение трудоемкости работ объясняется высоким уровнем стесненности в пространстве технического этажа.
Использование крышевого крана позволяет снизить трудоемкость работ по устройству каркаса в 8-10 раз, что существенно влияет на общую продолжительность. Формирование объектного потока, включающего ряд специализированных работ, обеспечивает планомерный и ритмичный посекционный ввод в эксплуатацию надстройки. Примерный график производства работ приведен на рис. 11.9. Разбивка на захватки и применение поточных методов способствуют максимальному совмещению в пространстве и во времени строительных процессов, что обеспечивает снижение общей продолжительности работ.
Примерный график производства работ по надстройке 3-секционного жилого дома

Рис. 11.9
На рис. 11.10 приведена конструктивно-технологическая схема двухэтажной надстройки с использованием складывающихся рам из гнутых профилей.

Рис. 11.10.
Конструктивно-технологическая схема 2-этажной каркасной надстройки из
складывающихся элементов рам
1 - монолитный железобетонный пояс; 2 - перекрытие; 3
- кровельная часть; 4 - подвесной
потолочный элемент из цементно-стружечных плит; 5 - кладка из
мелкоштучных легкобетонных блоков; 6 - утеплитель; 7 - штукатурное покрытие; 8 - занавес из полимерной ткани; 9 - подмости
Возведение стенового ограждения первого этажа осуществляется с использованием газосиликатных блоков плотностью 450-500 кг/м3 с дополнительной теплоизоляцией пенополистиролом толщиной 80 мм и облицовкой из кирпича.
Второй этаж надстройки выполнен с ограждением и утеплителем минераловатными полужесткими плитами толщиной 250 мм и внутренней обшивкой из гипсокартонных плит. Аналогичная конструктивная схема применена для чердачного перекрытия, которое состоит из двухслойной подшивки цементно-стружечными плитами, пароизоляцией, утеплителем минераловатными полужесткими плитами и поверхностью настила.
Одним из вариантов утеплителя перекрытия может служить монолитный дисперсно-армированный пенобетон, приготавливаемый в условиях площадки и транспортируемый по трубопроводам к месту укладки.
Основные конструктивно-технологические решения приемлемы для зданий, имеющих скатную кровлю с чердачным помещением. Дополнительный объем подготовительных работ состоит в демонтаже элементов кровли, стропил, обрешетки, что требует использования специальной техники и технологии. Наиболее уязвимой является защита перекрытия от атмосферных осадков, что исключительно важно при производстве работ без отселения жильцов.
До производства демонтажных работ осуществляют цикл устройства гидроизоляционного ковра по наружной поверхности чердачного перекрытия с использованием сварных пленочных покрытий. Для обеспечения водостока устраиваются технологические и приемные (временные) воронки.
При использовании крышевого крана производится расчет несущей способности чердачного многопустотного настила на дополнительные нагрузки. В случае недостаточной несущей способности производят усиление перекрытия путем дополнительного армирования пустот и зон опирания с последующим обетонированием.
Устройство кранового пути осуществляется отдельными участками, равными радиусу действия крана. Подъем необходимых материалов и элементов крановых путей осуществляется с торцевой части зданий грузопассажирским подъемником. Монтаж крана на проектную отметку производится пневмоколесными кранами с телескопическими стрелами, обеспечивающими требуемые высоту подъема, вылет стрелы и грузоподъемность. При монтаже крышевого крана требуется временное выселение (на 1,5-2,0 ч) жильцов квартир, находящихся в торцевой секции дома.
При наличии крышевого крана монтаж каркаса надстройки осуществляется плоскими укрупненными элементами.
Ограждения в виде козырьков по периметру несущих стен должны рассчитываться из условия случайного падения фрагмента рамы с коэффициентом запаса по прочности не менее трех. В процессе монтажа рамного каркаса требуется временное отселение жильцов секций, на которых ведутся монтажные работы.
Остальные технологические процессы - возведение монолитных перекрытий, устройство наружных и внутренних стен, кровельные и другие строительно-монтажные работы - производятся без отселения жильцов.
Наиболее рациональным является использование рамной конструкции, выполненной из гнутых профилей. Такое решение позволяет снизить массу конструкции в 1,5-2,0 раза. По данным расчетов, удельный расход металла составляет 30-35 кг/м2 площади.
При общей малометражности квартир основными архитектурно-планировочными недостатками являются малые площади кухонь, балконов, совмещенные или раздельные санузлы, отсутствие второго лифта, что существенным образом снижает комфортность проживания.
Задача реконструкции жилого фонда без отселения жильцов должна в первую очередь решать вопросы, связанные с расширением площадей этих помещений, повышением теплотехнических характеристик ограждений, заменой устаревшего или изношенного инженерного оборудования и светопрозрачных конструкций.
Типовым планировочным решением является размещение кухонь и сантехнического блока в зоне примыкания к лестнично-лифтовому узлу для жилых 9-этажных домов различных серий.
Пристройка объемных эркеров, расширяющих площади кухонь, увеличение площади балконов с превращением их в остекленные лоджии являются наиболее технологичными решениями, обеспечивающими производство работ без отселения жильцов.
На рис. 11.11 приведены планировочные решения типового 9-этажного кирпичного дома серии II-29 до и после реконструкции. Использование индустриальных блоков позволяет в короткие сроки выполнить объем работ по обстройке здания с минимальным нарушением ритма жильцов.

Рис. 11.11. Планировочное решение типовых этажей 9-этажного жилого дома серии II-29 до (а) и после (б) реконструкции
Сохраняя общий принцип технологии производства работ, возможна реконструкция панельных, крупноблочных и кирпичных зданий высотой 9 этажей.
С увеличением высоты зданий существенно меняются условия производства работ, снижается точность монтажных операций в результате ветрового воздействия, повышаются вероятность снижения координации грузоподъемных средств, степень риска.
Обеспечение требуемого уровня безопасности достигается путем использования специальных средств и инвентаря: ловителей, ограждений, кондукторов, строповочных устройств с гасителями колебаний, грузоподъемных средств с изменяемой скоростью вертикального и горизонтального перемещения, пневмоподушек и демпферов, исключающих ударное взаимодействие монтируемых объемных блоков со стеновым ограждением, и др.
Общий принцип пристройки объемов приведен на рис. 11.12. Он включает устройство свайных фундаментов и монолитного ростверка, объединенных с цокольной частью, на который производится поэлементный монтаж блоков. В зависимости от конструктивной схемы зданий крепление блока производится с помощью металлических связей, анкеруемых в сборных плитах перекрытий, внутренних несущих стенах, в плитах многопустотного настила путем омоноличивания анкера в пустотах, и др. Это обеспечивает совместную работу с элементами зданий и исключает образование неплотностей. Верхний блок получает дополнительное омоноличивание при устройстве обвязочного пояса для надстройки этажей.

Рис. 11.12.
Технологическая схема пристройки объемов с использованием крышевого
крана
1 - кран; 2 -
объемный блок; 3 -
свайные фундаменты; 4 -
монолитный ж/б ростверк; А1, А2 - узлы крепления
элементов объемных блоков к междуэтажным перекрытиям
Использование разрядно-импульсной технологии устройства свай обеспечивает их высокую несущую способность и малую осадку фундаментов под пристраиваемые объемы. Это обстоятельство создает предпосылки геометрической неизменяемости и устойчивости пристроек независимо от технологических нагрузок.
Для жилых домов серии II-57 (рис. 11.13) увеличение площади кухонь достигается путем пристройки объемных блоков и вырезки панелей, примыкающих к ним. Этот процесс осуществляется после монтажа объемных элементов, выполнения цикла работ по расширению балконов и превращению их в лоджии, утепления наружных стен и др. восстановительных работ. Мы получаем обновленный облик зданий, отвечающий современным градостроительным требованиям.

Рис. 11.13. Планировочное решение жилых домов серии II-57 до (а) и после реконструкции (б, в, г)
Изменяя геометрию блоков, достигается определенное разнообразие архитектурной выразительности зданий.
Наибольший экономический и социальный эффект достигается при комплексной реконструкции, когда кроме увеличения площади застройки осуществляется надстройка 1-2 этажами, что приводит к получению дополнительных площадей с гибкой планировкой квартир.
Пристройка объемов из сборно-монолитных конструкций предусматривает использование металлических объемных элементов каркаса (этажерки) на 1-2 этажа, их установку с помощью легкого крышевого крана с креплением к несущим элементам здания и последующей укладкой бетонной смеси в плиты перекрытия и полые стойки каркаса этажерки.
Элементы каркаса включают стойки из металлических труб, объединенные с помощью металлических связей. В уровне перекрытий устанавливаются подвесная несъемная опалубка из цементно-стружечных плит и арматурный каркас из сетки. По периметру устанавливается вертикальная несъемная опалубка на толщину перекрытия.
Стойки этажерки, примыкающие к наружному стеновому ограждению, снабжаются кронштейнами для размещения связей с несущими конструкциями.
Поэтажное наращивание объемных каркасов осуществляется на полную высоту здания. Затем производятся подача и укладка бетонной смеси автобетононасосом. Для получения трубобетонных несущих конструкций этажерки осуществляется поярусное их омоноличивание.
Устройство стенового ограждения производится путем монтажа тонкостенных дисперсно-армированных панелей с болтовым соединением закладных деталей к кронштейнам вертикальных трубобетонных стоек (рис. 11.14). Они служат фасадными элементами пристроек. Возведение стенового ограждения производится из пенополистирольных мелкоштучных блоков толщиной 350 мм при плотности 190-200 кг/м3, что обеспечивает теплотехнические требования и соответствует уровню пожарной безопасности Г-1.

Рис. 11.14.
Конструктивно-технологическая схема возведения пристройки с
использованием каркаса из трубобетона
1 - каркас из труб Æ 230 мм; 2 - несъемная опалубка; 3 - монолитная плита; 4 - экран облицовки; 5 - кронштейн; 6 - кладка из легкобетонных блоков; 7
- 3-слойная наружная стеновая панель
Возведение стенового ограждения производится с перекрытия пристройки. Подача материалов осуществляется крышевым краном.
Использование дисперсно-армированных панелей толщиной 30 мм из архитектурного бетона позволяет исключить наружные отделочные работы и существенно разнообразить архитектурную палитру.
На рис. 11.15 приведены технологические схемы и последовательность производства работ по устройству пристроек без отселения жильцов.

Рис. 11.15.
Технологические схемы возведения пристроек из объемных рамных блоков
а - при монтаже крышевым
краном; б -
пневмоколесным краном; в -
бетонирование перекрытий автобетононасосом; 1 - крышевой кран; 2 - пневмоколесный кран; 3 - объемные блоки; 4 - автобетононасос; 5 -
омоноличивание плиты перекрытия
Наиболее эффективной является технология устройства фундаментов по горизонтально-цикличной схеме, а монтажа пристроек - по вертикально-восходящей схеме. Используются специализированные потоки по возведению фундаментов, монтажу объемных элементов пристройки, бетонированию плит перекрытия и устройству ограждающих конструкций из мелкоштучных энергоэффективных блоков.
Определяющим фактором интенсивности производства работ является использование мобильных средств механизации при монтаже, подаче бетонной смеси и материалов стенового ограждения. При этом технология производства работ должна обеспечивать безопасность как работающих, так и жильцов.
Эффективность использования грузоподъемных средств и бетононасосного транспорта определяется из условия непрерывной работы этих механизмов. Решение задачи по минимизации затрат позволило оценить соотношения между интенсивностью монтажа элементов пристройки с доставкой блоков. Получение зависимости изменения себестоимости производства работ показало, что область минимальных затрат достигается при непрерывной работе крана и бетононасосов как наиболее дорогостоящих механизмов.
Целесообразность выполнения реконструктивных работ диктуется многими факторами, к числу которых относятся: архитектурная значимость объекта реконструкции в городской застройке; комфортность расположения в квартале застройки; положение здания (в деловой части города, промышленной зоне, экологически чистом районе, промышленном и т.д.); удаленность от городских транспортных средств; наличие инфраструктуры и т.п.
В общем плане перечисленные факторы служат элементами предварительной оценки принятия решения. Чаще всего на этом этапе решается вопрос перепрофилирования реконструируемого объекта. Например, жилое здание превратить в административное или адаптировать складское помещение под офис, таможню и т.д.
Одним из важных этапов принятия решения являются результаты технического обследования. Оценка состояния грунтов основания, фундаментов, стен и перекрытий в общем плане дает представление о степени износа конструкций и ориентировочном объеме реконструктивных работ. На этом этапе решается вопрос о возможности и целесообразности надстройки здания, реконструкции в прежнем объеме, сносе из-за его ветхости или передвижке на новое место. Исследования и практический опыт реконструктивных работ на Западе показывают, что каждое здание как сложная многофункциональная система имеет срок экономической службы, по истечении которого экономически выгодно выполнять определенный уровень реконструктивных работ.
Процесс принятия решения о выполнении реконструктивных работ является многофункциональным процессом, в основе которого прежде всего лежит финансовый анализ ситуации.
Финансовый анализ проекта реконструкции зданий является важнейшим этапом как на стадии проектирования, так и на стадии принятия решения об инвестировании капитала.
Сущность такого анализа состоит в оценке того, на сколько тот или иной проект будет выгодным с точки зрения получения прибыли инвестором. В настоящее время финансирование реконструкции как жилых, так и административных зданий в Москве и в Санкт-Петербурге осуществляется в основном за счет госбюджетных средств, а также средств частных инвесторов, основная задача которых состоит в получении прибыли.
Постановка задачи при анализе проекта, при которой учитывается только прибыльность инвестиций, существенно снижает число анализируемых параметров, но с другой стороны, существенно повышает требования к точности по оставшимся параметрам.
Эффективность проектов реконструкции характеризуется системой показателей, отражающих соотношение затрат и результатов применительно к интересам участников.
В соответствии с методическими рекомендациями по оценке эффективности инвестиционных проектов показатели могут быть разделены на: показатели коммерческой эффективности, учитывающие реализацию площадей реконструируемых зданий; показатели бюджетной эффективности, отражающие финансовые последствия выполнения проектов реконструкции для федерального, регионального и местного бюджетов; показатели экологической эффективности, учитывающие затраты и результаты, связанные с реализацией проектов и затрагивающие интересы города, региона и т.п.
Этот показатель рассчитывается при выполнении крупного проекта, например по комплексной реконструкции квартала застройки.
Кроме экономических показателей дается оценка социальных и экологических последствий, а также затрат, связанных с охраной окружающей среды.
При разработке и сравнительной оценке вариантов проекта реконструктивных работ учитывается влияние спроса на изменение объема реализации и рыночной цены единицы продукции с учетом изменения цен потребляемых ресурсов.
Для соизмерения разновременных показателей стоимости в результате колебания цен на используемые ресурсы и прогнозируемого эффекта используется норма дисконта, равная приемлемой для инвестора норме дохода на капитал.
Сравнение различных вариантов инвестиционных проектов производится с использованием показателей, к которым относятся: чистый дисконтированный доход (ЧДД); индекс доходности (ИД); внутренняя норма доходности (ВНД); срок окупаемости (СО).
Чистый дисконтированный доход определяется как сумма текущих эффектов за весь расчетный период, приведенная к начальному шагу. В качестве шага принимается период времени, который необходим для получения готовой к эксплуатации продукции. При реконструкции квартала застройки этим периодом является ввод готового объекта или его части (секция жилого дома, этаж надстройки и т.п.).
При отсутствии значительных отклонений
инфляционного характера величина ЧДД для постоянной нормы дисконта может быть
оценена по следующей зависимости: ![]()
где Rt - результат, достигаемый на t-м шаге расчета; Зt - затраты, осуществляемые на том же периоде; Т - горизонт расчета, равный номеру периода расчета, на котором производится реализация готовой продукции.
При этом значение t для каждого объекта реконструкции будет равно суммарной продолжительности реконструктивных работ.
Индекс доходности представляет
собой отношение сумм приведенных эффектов к величине капиталовложения ![]()
где
- затраты на t-м шаге
(периоде) при условии, что в них не входит капиталовложение; К - сумма
дисконтированных капиталовложений
Кt -
капиталовложения на t-м периоде.
Внутренняя норма доходности
(ВНД) представляет норму дисконта, при которой величина приведенных эффектов
равна приведенным капиталовложениям. ВНД определяется путем решения уравнения ![]()
Инвестиционный проект считается оправданным, если ВНД больше или равна требуемой инвестором нормы дохода на капитал.
Срок окупаемости представляет собой минимальный временной интервал, за пределами которого суммарный эффект является положительным и достигается возврат инвестированного капитала. При выполнении реконструкции зданий срок окупаемости как понятие эффективности может быть распространен на объекты, эксплуатация которых обладает доходностью. К ним можно отнести гостиницы, офисы, гаражи и стоянки и другие объекты. Возврат инвестиционного капитала достигается при реализации продукции.
Для анализа долгосрочных
проектов, например комплекса реконструктивных работ квартала застройки,
наиболее приемлемым является показатель внутренней доходности. В простейшем
случае он определяется как решение уравнения относительно i: ![]()
где инвестиционный проект состоит во вложении сумм с1, с2, с3, К, сп соответственно в моменты времени t1 < t2 < К < tn. Получаемый доход определяют суммы d1, d2, d3, К, dn, поступающие в моменты соответственно s1 < s2 < К < sn при tn < s1.
Указанные подходы являются базовыми при анализе любых инвестиционных проектов. Они не учитывают специфику каждой конкретной области. Наконец, эти коэффициенты не учитывают экономическую ситуацию в стране, в которой осуществляются инвестиции. Например, при высоком уровне инфляции такой показатель, как период окупаемости проекта, в принципе неприменим. При анализе инвестиционных проектов по реконструкции зданий приходится учитывать следующие особенности.
Представляется целесообразным разбить финансовый анализ на следующие этапы.
1. Предварительный анализ.
Состоит в оценке прибыли и подборе вариантов. В конце этапа имеются 2-3 конкурирующих проекта.
2. Анализ доходности проектов.
На этом этапе осуществляются детальная оценка размеров капиталовложений и прогноз цены здания после реконструкции для каждого проекта.
В конце этапа должны иметься численные значения показателей ИД, ВНД и СО для каждого проекта.
3. Анализ устойчивости каждого проекта.
На этом этапе исследуется устойчивость показателей по отношению к колебаниям инфляции, цен на недвижимость, цен на рабочую силу, ГСМ, строительные материалы и т.д.
4. Окончательный выбор проекта.
В результате сравнительного анализа коэффициентов и их устойчивости инвестор выбирает проект.
Указанная очередность этапов носит условный характер. Например, возможна ситуация, когда внутренняя доходность каждого из отобранных проектов не устроит инвестора, что приведет к возвращению на 1-й этап. Наконец, вполне возможно, что каждый проект будет неустойчивым по отношению к колебанию какого-либо фактора, что сделает проекты чрезвычайно рискованными и инвестор будет вынужден вообще отказаться от реконструкции данного здания.
Предварительный анализ
Цель предварительного анализа состоит в отборе нескольких «эскизных» проектов реконструкции здания. Под эскизным проектом в дальнейшем будем понимать краткое описание видов работ, проводимых в течение реконструкции, описание требований к качеству работ, требования к срокам выполнения работ.
Анализ состоит в оценке технического состояния здания. Определяются остаточная стоимость здания, процент его износа. В результате строится прогноз обязательных затрат на реконструкцию.
Все затраты по реконструкции можно разбить на две части.
I часть. Обязательные затраты, т.е. затраты на работы, без которых реконструкция невозможна. Например, усиление фундаментов, укрепление грунтового основания.
Как правило, обязательные затраты не влияют на цену, за которую можно будет продать здание, или оказывают слабое воздействие. В дальнейшем предполагаем, что этого влияния нет вообще.
II часть. Удорожающие затраты. Указанные затраты носят дополнительный характер и, как правило, увеличивают рыночную цену здания. Например, особо качественная отделка помещений, прокладка каналов под линии связи, надстройка мансарды, строительство подземного гаража и т.д.
Влияние удорожающих затрат на рыночную цену определяется местоположением реконструируемого здания. Например, в центральном районе города ожидаемая цена здания, реконструируемого под офис, с высокими удорожающими затратами будет выше, чем цена здания, реконструируемого под жилье. В экологически чистой жилой зоне следует ожидать обратной ситуации. Наконец, для реконструкции зданий окраины города следует ожидать ослабленного воздействия удорожающих затрат на цену зданий как офисного, так и жилищного типа.
Связь удорожающих затрат и рыночной цены можно описывать функциями U1(x) для офисов и U2(x) для жилья, где х - удорожающие затраты и U1 и U2 - цена здания.
Анализ технического состояния здания дает не только оценку обязательных затрат С. Совместно с изучением требований администрации округа анализ технического состояния дает возможность составить бинарный вектор вариантов реконструкции R = (r1, К, rк). Каждая компонента вектора есть ответ на вопрос, возможно ли осуществить то или иное конструктивное изменение в здании. Например, повысить этажность, сделать подземный гараж или складские помещения и т.д. Размерность вектора R определяется техническим состоянием здания, его возрастом, местоположением и т.д. Множество векторов R дает пространство конструктивных решений: R = {R = (r1, К, rк)/ri = 0,1}.
Выбор проекта на данном этапе состоит в определении вектора конструктивных решений R и уровня удорожающих затрат. Вид зависимости Х от R чрезвычайно сложен и определяется в каждом конкретном случае.
Выбор R осуществляется на основании максимизации коэффициентов ИД и ВНД, т.е. решения задачи:
![]()
Поскольку данная задача не обязательно имеет единственное решение, в результате будет отобрано несколько проектов.
В тех случаях, когда инвестор использует заемные деньги, например берет кредит в банке, при анализе коэффициентов необходимо учитывать временной фактор - срок реконструкции Т. Здесь необходимо учитывать коэффициент удорожания строительных работ g(Т), график которого изображен на рис. 11.16.

Рис. 11.16. К оценке оптимальной продолжительности реконструктивных работ
Анализ доходности проектов
Анализ доходности каждого проекта начинается с оценки затрат, производимых в каждый момент времени. Оценку затрат следует проводить в одной валюте с учетом прогнозируемого курса.
Пусть финансирование проекта осуществляется вложениями разовых сумм С1, С2, К, Сп в моменты t1, t2, К, tn соответственно и непрерывным вложением денег, описываемым функцией r(t). Пусть продолжительность прогноза будет T и ожидаемая рыночная цена реконструируемого здания - Р. Тогда значение внутренней доходности составит

Внутренняя доходность проекта i есть решение уравнения ВНД(i) = 0.
При сравнении двух или нескольких проектов можно использовать коэффициенты внутренней доходности. Однако наилучший метод - это учет прибыли, особенно если вся инвестируемая сумма или ее часть представляет из себя заемные средства.
Пусть есть два конкурирующих проекта А и В, описываемые функциями внутренней доходности соответственно ВНДA(i) и ВНДВ(i).
Тогда если ВНДA(i) < 0 и ВНДВ(i) < 0, то оба проекта будут убыточны. Если ВНДA(f) > ВНДВ(f) и ВНДA(i) > 0, то стоит выбрать проект А как приносящий большую прибыль.
Анализ устойчивости проектов
На этом этапе решается задача устойчивости проектов по отношению к случайным колебаниям параметров. В реальности все используемые в расчете ВНД(f) параметры являются случайными величинами. Оцениваемая величина ВНД(f) является оценкой случайной величины x, представляющей из себя значение прибыли от проекта. На данном этапе осуществляется оценка распределения прибыли от каждого анализируемого проекта.
Анализ устойчивости предлагается проводить методом случайного моделирования.
Пусть ВНД(x1, К, xk) - значение прибыли в зависимости от к параметров. В результате испытаний имеем вектор реализации (ВНД(х11, К, хк1), ..., ВНД(х1n, К, хкп)).
Оценки среднего и дисперсии производим по стандартным формулам.
Пусть анализируются два проекта - А и В.
Пусть mА и
- среднее и дисперсия для ВНДA, mВ и
- среднее и дисперсия для ВНДВ.
Выбор наилучшего проекта можем осуществить, используя разные критерии. Если,
например, mА > mВ и
то, безусловно, проект А более предпочтителен.
Процесс реализации проекта реконструкции может быть представлен в виде взаимосвязанных информационно-технологических и финансовых потоков, включающих разработку концепции, производственное планирование, проведение маркетинговых исследований, поиск и работу с инвесторами на основе разработанного бизнес-плана, рабочее проектирование и подписание контрактов.
Анализ доходности проектов учитывает обязательные и удорожающие затраты. К обязательным относятся затраты на реализацию конструктивно-технологических решений, отражающие эффективность принятой технологии и организации ведения работ. Удорожающие затраты учитывают факторы: местоположение объекта, продолжительность реконструкции и изменения за этот период процентных ставок кредитов, цен на недвижимость, стройматериалы, арендную плату на машины и механизмы.
Процесс реализации проекта реконструкции может быть представлен в виде взаимосвязанных информационно-технологических и финансовых потоков, включающих разработку концепции, производственное планирование, проведение маркетинговых исследований, поиск и работу с инвесторами на основе разработанного бизнес-плана, рабочее проектирование и подписание контрактов.
Процесс выполнения реконструктивных работ согласуется с графиком финансирования за счет получения кредитов или осуществления платежей инвесторами. В случае кредитования предусматривается расчетный период оплаты за кредиты.
Непосредственно выполнение реконструкции объекта или комплекса зданий и сооружений осуществляется с разбивкой на отдельные циклы, включающие: подготовительные работы; работы нулевого цикла или по усилению фундаментов, надземной части; кровельные, отделочные и специальные виды работ, осуществляемые подрядными организациями.
Завершение работ предусматривает послесдаточное обслуживание, передачу на баланс готовых объектов, сдачу их в аренду или коммерческую реализацию.
На рис. 11.17 приведена схема реализации проекта реконструкции с возможными временными и организационно-технологическими связями. Их анализ показывает, что определяющими факторами эффективности являются продолжительность производства работ и ритмичность (непрерывность) финансирования. Эффективность инвестиционных проектов характеризуется системой показателей, отражающих соотношение затрат и результатов.

Рис. 11.17. График реализации проекта реконструкции
Слежение за изменением стоимости реализации проекта осуществляется по графикам нарастающих затрат. Наиболее рациональным является использование сетевых графиков производства работ. Они позволяют построить линии фактических затрат по ранним и поздним срокам выполнения работ, провести анализ финансовых потоков и выполнить прогнозирование путем сравнения графика выполнения работ по ранним и поздним срокам с учетом вероятностного характера продолжительности. При различной продолжительности выполнения работ их стоимость изменяется в результате привлечения дополнительной рабочей силы или средств производства для интенсификации работ. Подрядная организация, пользуясь графиком нарастания затрат при известных сроках платежей, может планировать взятие кредитов. Заказчик использует данный график для регулирования платежей с тем, чтобы провести некоторые операции со свободными финансовыми средствами. Сетевой график, кроме этого, облегчает слежение за поставками материалов и позволяет осуществлять корректировку стоимости работ с учетом инфляционных процессов.
Снижение параметров инвестиционного процесса существенно зависит от продолжительности и совмещения технологических циклов: технического обоснования t1, разработки проекта t1, t2 и комплекта технической документации t3, t5, подготовительного t3, t4 и основного t4, t6 периодов реконструкции. При их совмещении во времени достигается сокращение общего цикла T1 на величину DТ, что приводит к более раннему вводу объекта в эксплуатацию, смещению периода окупаемости и, соответственно, получению дополнительной прибыли (рис. 11.18).

Рис. 11.18. Снижение общей продолжительности работ за счет совмещения технологических этапов
Помимо рассмотренных примеров возможно снижение продолжительности основного периода реконструкции путем использования более современных технологий, индустриальных конструктивных решений и поточных методов производства работ. Сокращение продолжительности реконструкции за счет организационного фактора может достигать 15-20 % основного времени.
Поэтому в каждом конкретном случае требуется детальная проработка бизнес-планов с учетом рассмотренных факторов.
Ликвидность продукции
Реконструкция жилых зданий различных конструктивных схем дает готовую продукцию в виде квартир различной степени комфортности. Для масссовой крупнопанельной серии 1-464 с узким шагом (2,6; 3,2 м) внутренних несущих стен пристройка объемных эркеров позволяет увеличить площади кухонь и других малометражных комнат на 4-6 м2. В сочетании с надстройкой этажей здание оборудуется лифтами.
Для жилых домов с кирпичными стенами серии I-447 и др. возможна перепланировка квартир с их количественным сокращением, но с увеличением площадей. Это обстоятельство повышает уровень ликвидности квартир. Надстройка корпусов позволяет более рационально выполнить планировочные работы, в том числе с созданием квартир в двух уровнях.
Конкурентоспособность реконструируемых зданий с новым строительством и ликвидность продукции определяются рядом факторов экономического, архитектурного и социального характера.
Как показал опыт реконструктивных работ в Московской области, наибольшей востребованностью отличаются жилые дома с кирпичными стенами и надстройкой, не превышающей 3 этажа, при выполнении работ без отселения жильцов. Основными потребителями являются члены семей, проживающих в реконструируемых домах, при условии, что стоимость единицы площади существенно ниже, чем в новом строительстве, при высоком качестве работ и строительных материалов.
Существенное увеличение уровня спроса дает планировочное решение квартир. Наиболее востребованными являются одно- или двухкомнатные квартиры для поселения молодых семей.
Анализ рынка недвижимости показывает, что с ростом объемов нового строительства спрос на квартиры в реконструируемых зданиях несколько снижается. При росте уровня ликвидности нового строительства наблюдается снижение спроса на многоэтажные надстройки при реконструкции жилых домов первых массовых серий. Объективными причинами этого процесса являются:
- низкий уровень капитальности надстраиваемых этажей, осуществляемый с использованием металлических или деревянных каркасных систем с утеплением минераловатными плитами, обшивкой сайдингом или защитой штукатурными покрытиями с низким уровнем долговечности;
- существенная разница между планировочным решением реконструируемой и надстраиваемой частей, что приводит к социальному расслоению по условиям проживания в одном доме;
- не обеспечивается требуемый уровень надежности реконструируемого здания. Осадки фундаментов пристраиваемых объемов при одностороннем уширении корпусов и надстраиваемых частей приводят к раскрытию стыков и другим негативным явлениям;
- использование неадаптированных технологий по надстройке этажей влечет к протечкам из-за слабой защиты от атмосферных осадков, к случаям возгорания в результате выполнения сварочных работ, нарушению режима проживания жильцов. Эти факторы не способствуют развитию метода реконструкции жилого фонда без отселения жильцов;
- при надстройке выше двух этажей себестоимость единицы продукции, приближающаяся к новому строительству, при слабой организационно-технологической подготовке производства и низком уровне производства работ.
Технология перемещения зданий включает их передвижку на новое место в соответствии с градостроительными задачами и вертикальный подъем, который предусматривает увеличение габаритов первого этажа, а также ликвидацию последствий заглубления здания или его деформаций в результате длительной эксплуатации.
Передвижка зданий и сооружений преследует цель осуществить перепланировку городской среды с целью расширения магистралей или прокладки новых улиц. В этом случае, когда здание препятствует этому процессу, то его либо демонтируют, а в случаях высокой архитектурно-исторической значимости - осуществляют его перемещение на новое место.
Перемещение различного рода построек и массивных элементов осуществлялось в глубокой древности. Примерами тому могут служить работы по возведению пирамид в Египте, когда требовалось транспортировать и перемещать на большие расстояния блоки массой до 100 т. При сооружении храма Солнца в Баальбеш (Ливан) во II в.н.э. использовались отдельные блоки массой до 1200 т, которые доставлялись на расстояние 800 м.
Более поздние сведения свидетельствуют о том, что перемещение различного рода сооружений достаточно часто находило свое применение. Так, в 1586 г. в Риме перемещен на 325 м обелиск императора Калигулы массой 325 т и высотой 27 м. Он простоял на своем месте 15 веков. В результате осадки основания произошло отклонение от вертикали и возникла опасность его разрушения. Работы по перемещению обелиска на новое место были выполнены Доминико Фонтане Перемещение обелиска производилось в три этапа: поворот из вертикального в горизонтальное состояние; перемещение к новому месту установки; поворот из горизонтального в вертикальное состояние. Отсутствие грузоподъемных механизмов потребовало применения специальных башен, которые возводились вокруг обелиска. Затем с помощью полиспастов поднимался и опускался обелиск.
Перемещение производилось по наклонной эстакаде с использованием площадок, опирающихся на катки. Все операции по подъему, приведению в горизонтальное положение, перемещению осуществлялись с использованием полиспастов и кабестанов. Технология и организация работ требовали соответствующих расчетов, использования многочисленной рабочей силы, синхронной работы грузоподъемных средств, четкой организации процессов, большого числа вспомогательных сооружений в виде башен, стен, анкеров, воспринимающих нагрузки от канатов, полиспастов и других подсобных устройств.
На рис. 12.1 приведены рабочие моменты перемещения обелиска, дающие представление о грандиозности проведенных работ.

Рис. 12.1. Общий вид площади с приспособлениями для перемещения обелиска (Рим, 1586 г.)
Из отечественной практики можно отметить перемещение камня для постамента памятнику Петру I, масса которого составляла 1200 т, Александровской колонны, установленной на Дворцовой площади С.-Петербурга, и многих других случаев.
Работы по перемещению различных крупнотоннажных элементов, зданий и сооружений всегда уникальны, требовали индивидуальных решений, расчетов, специфической организации труда, большого количества рабочей силы. В основе методов перемещения использовались, как правило, катучие опоры, которые обеспечивали снижение нагрузок при перемещении грузов в результате перехода от сил трения скольжения на трение качения. Это обстоятельство позволяло в десятки раз снизить усилия, необходимые для перемещения.
Наиболее распространенными механизмами для осуществления цикла работ являлись: система рычагов, лебедок и кабестанов. При этом для обеспечения требуемого усилия использовалась как рабочая сила людская, так и животных.
Совершенствование технических средств позволило осуществлять процесс передвижки с меньшими трудозатратами. Определенный шаг в этом направлении был достигнут при использовании механизмов вертикального подъема в виде механических, а затем и гидравлических домкратов, что позволило заменить малоэффективные громоздкие рычажные устройства.
Использование направляющих в виде металлических рельс, обвязочных поясов из стального профиля и других прогрессивных материалов обеспечивало переход на более эффективные технологии.
Из отечественной и зарубежной практики известны проекты передвижки не только зданий, но и сооружений в виде доменных печей, опор высоковольтных линий электропередачи, фундаментов и др. Разработан практически новый метод возведения и реконструкции зданий и сооружений, основанный на надвижке укрупненных блоков и частей.
Целесообразность передвижки зданий и сооружений оценивается с экономической точки зрения. При этом учитываются такие показатели, как техническое состояние объектов и затраты на усиление конструктивных элементов, непосредственно стоимость передвижки в зависимости от трассы и с учетом вспомогательных работ, продолжительность, трудоемкость и другие показатели.
В Москве массовая передвижка зданий осуществлялась во второй половине 1930-х годов, когда был принят и начал осуществляться план реконструкции города.
Технология передвижки отрабатывалась сначала на зданиях малоэтажных, затем, с приобретением опыта и разработкой средств механизации, перешли на перемещение многоэтажных зданий. Как показал опыт, в большинстве случаев здание может быть передвинуто без нарушения режима его работы, без выселения жильцов, без остановки работы администрации учреждений и даже больниц.
Как правило, перемещаемое здание отделяется от его фундаментной части по так называемой линии среза, производятся цикл работ по усилению надземной части и его передвижка на новый заранее возведенный фундамент.
До осуществления цикла передвижки зданий производится детальный инструментальный контроль технического состояния наружных и внутренних стен, перекрытий, лестничных клеток, лифтовых шахт и других несменяемых конструктивных элементов. В случае нарушения состояния узлов, наличия недопустимых прогибов балок, плит перекрытия, снижения несущей способности стен и т.п. осуществляется их восстановление известными методами и технологиями.
Проектирование процесса передвижки зданий осуществляется путем разработки проектов производства работ и технологических карт. Для их разработки используются данные об объекте передвижки в виде технологической документации и рабочих чертежей, что позволяет учесть их конструктивные особенности.
Проекты производства работ разрабатываются на несколько стадий. Подготовительный период: отделение здания от фундамента и устройство обвязочных балок; устройство путей перемещения в соответствии с принятой трассой; непосредственное перемещение и установка здания на новый фундамент.
Каждый из перечисленных циклов требует детального расчета несущей способности вспомогательных элементов, осадки основания, подбора средств механизации, режима перемещения, потребности в материалах, рабочей силе, специальных приспособлениях, инвентаре и т.п.
Общие принципы neper мщения зданий и сооружений состоят из нескольких технологических циклов. Наиболее важными из них являются: 1 - обеспечение пространственной жесткости и геометрической неизменяемости здания или сооружения путем усиления отдельных частей; 2 - отделение здания от фундамента; 3 - устройство обвязочного пояса по периметру здания и внутренним стенам; 4 - возведение основания для перемещения; 5 - устройство путевых элементов, по которым осуществляется перемещение объекта; 6 - устройство накатных путей или опорных рам с катучими опорами; 7 - разработка и расчет средств механизации в виде лебедок, домкратов, подъемников и других приспособлений, необходимых для осуществления технологических операций; 8 - перемещение объекта; 9 - геодезический и технологический контроль режимов и траектории движения; 10 - установка объекта на новый фундамент; 11 - выполнение работ по восстановлению необходимых для нормальной эксплуатации сетей..
Примерное распределение затрат на различных этажах производства работ приведено в таблице 12.1.
Таблица 12.1
Распределение затрат на передвижку зданий по видам работ, %
|
№ п.п. |
Наименование затрат |
Усредненные затраты, % |
|
1 |
Геолого-разведочные, геодезические и проектно-сметные работы |
4,5 |
|
2 |
Подготовка площадки, разборка внутренних конструкций в подвале, устройство временных входов в здание, ограждение и перекрытие траншей и др. |
1,5 |
|
3 |
Земляные работы |
13 |
|
4 |
Устройство щебеночного основания под пути |
4 |
|
5 |
Устройство и демонтаж верхнего строения путей |
6 |
|
6 |
Устройство и демонтаж рамы |
9,5 |
|
7 |
Устройство и демонтаж ходовых балок |
6,5 |
|
8 |
Посадка здания на катки пути |
3,5 |
|
9 |
Перемещение здания |
2 |
|
10 |
Устройство фундаментов на новом месте |
11,5 |
|
11 |
Посадка здания на новые фундаменты |
6,5 |
|
12 |
Санитарно-технические устройства: демонтаж, устройство временных присоединений, их обслуживание, восстановление постоянных сетей |
6,5 |
|
13 |
Электротехнические работы |
3 |
|
14 |
Геодезическое обслуживание работ |
3 |
|
15 |
Временные сооружения |
2,5 |
|
16 |
Восстановительные работы |
12 |
|
17 |
Разные работы |
4,5 |
|
|
Всего |
100 |
Принципиальная конструктивно-технологическая схема передвижения зданий приведена на рис. 12.2. Она включает обвязочный пояс, создаваемый по периметру всех стеновых элементов и объединяемый в одно целое; ходовые балки из спаренных двутавров; стальные катки, располагаемые между ходовыми балками и рельсами, размещаемыми на шпалах и бетонной подготовке. Ходовые балки размещаются перпендикулярно или с некоторым углом наклона к обвязочным. Для обеспечения равномерного распределения нагрузки от здания на стальные катки и рельсы устанавливается единый горизонт, который обеспечивается соответствующей установкой рельс и ликвидацией зазора между ходовыми балками и обвязочным поясом с помощью клиновых вкладышей.

Рис. 12.2.
Технологические этапы подготовки к передвижке и перемещению здания
а - общая технологическая
схема; 6- технологические
этапы; в - подъем и
перемещение здания с помощью рамы с роликовыми опорами и гидравлическими
домкратами; I - устройство пропила по линии сдвижки; II - установка обвязочного пояса; III - устройство накатных путей; IV - подъем здания гидродомкратами и
подведение ходовых балок и роликовых опор; V - установка
гидравлических толкателей и перемещение здания; 1 - перемещаемое здание;
2 - устройство пропила
ленточной пилой (3); 4 -
обвязочный пояс по наружным и внутренним стенам; 5 - накатные
пути; 6, 7 - основание
и шпалы; 8 - гидравлический
домкрат; 9 - ходовая
балка; 10 - стальные
катки; 11 - гидродомкрат
горизонтального действия; 12 -
механические упоры; 13, 14
- платформа с роликовыми опорами и гидравлическими домкратами (8); 14 - накатные пути
специального профиля
Здесь рассмотрена простейшая конструктивная схема, требующая большого расхода металла и ручного труда для установки всех элементов. Она использовалась в большинстве случаев передвижки зданий в Москве и других городах.
С развитием техники и технологии конструктивное решение видоизменялось. Использовались платформенные конструкции, снабженные стационарными роликовыми опорами, а также системой гидравлических домкратов, обеспечивающих выверку перемещаемого здания в горизонтальном и вертикальном положениях и его подъем на требуемую высоту.
После выверки здания осуществлялось его перемещение с использованием системы гидравлических домкратов горизонтального действия.
Важнейшей задачей является выбор места будущего расположения здания в городской среде. Это обстоятельство является исключительно важным, так как определяет не только протяженность путей движения, но и траектории перемещения.
Наиболее простым решением является передвижка здания по прямой. В реальных условиях городской застройки имеют место более сложные траектории, что, безусловно, усложняет и удорожает процесс передвижки зданий.
На рис. 12.3 приведены варианты перемещения зданий путем разворота по окружности, поворота на 90° с последующим линейным движением и поворотом на 90°. В зависимости от траектории движения здания перемещают в один или несколько этапов.

Рис. 12.3.
Траектории перемещения зданий
а - методом поворота; б
- поворотом на 90° и перемещением по прямой с последующим поворотом на
90°; в - перемещение по
радиусу R1,
с поворотом на 180°; ЦП - центр поворота
Работы подготовительного периода
Цикл подготовительных работ включает обследование здания, определение фактического плана, уточнение геометрических размеров толщины стен, колонн, фундаментов и других конструктивных элементов, определение массы здания. Этот период включает также геологические исследования траектории движения здания с целью определения несущей способности грунтов. Осуществляются снос строений и подготовка площадки к производству работ: перекладка сетей, устройство временных дорог, ограждений, размещение бытовых и складских помещений, временного электро-, водо- и теплоснабжения и др.
В работы подготовительного периода входят также строительные процессы по планировке трассы перемещения здания и ее обустройству.
Отделение здания от фундамента и устройство обвязочного пояса
Отделение здания от фундамента осуществляется по линии среза, которая в каждом конкретном случае принимается с учетом конструктивных особенностей. Как правило, линия среза располагается между перекрытием подвальной части и основанием фундамента (рис. 12.4,а) таким образом, чтобы обеспечивалась возможность устройства обвязочного пояса, расположения опорных балок и путей для передвижки здания. При расположении ЛС ниже дневной поверхности осуществляется отрывка траншей по периметру здания на глубину размещения путей. Разрезка здания по плоскости линии среза осуществляется с применением дисковых алмазных пил, гибких цепных пил и других средств механизации. Она осуществляется по захваткам длиной 4-6 м таким образом, чтобы обеспечить равномерную осадку здания по всей плоскости.

Рис. 12.4.
Положение линии среза ЛС (а), обвязочных балок (б) и монолитных ж/б поясов (в)
1 - наружная стена здания; 2 - подвальное перекрытие; 3 - линия среза пропила; 4 - приямок по периметру наружных стен; 5 - обвязочный
пояс из швеллеров или двутавров; 6
- монолитный обвязочный пояс
Нижняя зона стен и других конструктивных элементов укрепляется системой взаимообъединяемых стальных балок или железобетонным поясом (рис. 12.4,б). При этом создается высокая пространственная жесткость системы, обеспечивающая геометрическую неизменяемость контура и восприятие нагрузок от массы здания. Стальные обвязочные балки служат основанием для установки ходовых балок.
Устройство путей и механизмов перемещения здания
Пути перемещения здания устраиваются в подвальной части после установки обвязочного пояса. Демонтируются внутренние перегородки и стены, затем осуществляется устройство основания в виде щебеночной подсыпки и бетонной подготовки. На подготовку устанавливаются рельсовые пути со шпалами. При этом соблюдается единый горизонт, обеспечивающий равномерное распределение нагрузки от здания. Пути продолжаются по всей трассе перемещения.
После устройства путей осуществляется установка ходовых балок и катучих опор. Ходовые балки выполняются в виде двутавров расчетного сечения и располагаются параллельно рельсовым путям (рис. 12.5). Они объединяются с элементами обвязочных балок, что обеспечивает их геометрическую неизменяемость в процессе передвижки здания.

Рис. 12.5.
Схема установки здания на ходовые балки
а - подъем здания
гидравлическими домкратами; б -
установка ходовых балок; в -
план ходовых балок и обвязочной рамы для передвижения жилого дома; ГД -
гидравлический домкрат; ДД - датчик давления; МШ - материальный шланг; 1
- перемещаемое здание; 2 -
обвязочный пояс; 3 -
ходовые балки; 4 - катучие
опоры; 5 - рельсовый
путь; 6 - шпалы; 7
- бетонная подготовка основания; 8
- связи для объединения обвязочных балок
Большой объем работ и высокая трудоемкость легко прослеживаются на рис. 12.5,в, где приведен план ходовых балок и обвязочной рамы. Ходовые балки выполнены из двутавра № 45 и попарно объединены между собой специальными связями. Осевое расстояние составляет 4100-4200 мм. Для посадки здания на ходовые балки используется система гидравлических домкратов усилием от 200 до 500 т. Они же используются при установке здания на новые фундаменты. При подъеме и установке здания необходимо обеспечить синхронизацию работы домкратов. Неравномерность подъема или опускания отдельных частей здания неизбежно приведет к появлению трещин или разрушению конструктивных элементов.
Синхронизация работы домкратов достигается путем использования единой гидравлической насосной станции с системой материальных шлангов и управлением их работой с применением компьютерной техники. Для этой цели домкраты оснащаются датчиками давления, сигнал от которых подается на блок управления с преобразователем аналогового сигнала и регистрирующее устройство, которое обеспечивает корректировку давления на каждом из гидравлических домкратов. Использование программного управления обеспечивает автоматический режим подъема здания на требуемую высоту. При использовании гидродомкратов с ручным приводом синхронность работы достигалась путем использования геодезических приборов.
Перемещение зданий
В зависимости от средств механизации процесс передвижки зданий осуществляется двумя методами: подтягиванием и с помощью системы гидравлических домкратов.
При подтягивании используют систему полиспастов и электролебедок. В зависимости от траектории перемещения используют одно, два или несколько положений электролебедок. Для обеспечения устойчивого положения лебедки и полиспасты крепятся к якорям. Каждый из якорей рассчитывается на максимальную нагрузку, возникающую в первый момент сдвижки здания, и определенный запас которой составляет не менее 2-кратной величины максимальной нагрузки. При методе подтягивания необходимо обеспечить синхронность работы лебедок, что обеспечивается контролем параметров натяжения канатов. Для гашения инерционности передвигаемого здания используют лебедки, располагаемые с противоположной стороны (тормозные лебедки).
На рис. 12.6 приведена технологическая схема размещения тяговых лебедок и полиспастов при передвижке зданий и сооружений. Достоинством метода подтягивания является возможность непрерывной передвижки на расстояние до 50 м.

Рис. 12.6.
Технологическая схема передвижки зданий с применением лебедок и
полиспастов
1 - перемещаемый объект; 2
- полиспасты; 3 -
якоря; 4 - лебедки для
подтягивания объекта; 5 - тормозные лебедки
При передвижке объектов с помощью системы гидравлических домкратов используют такие же технические решения по устройству обвязочного пояса, ходовых балок и путей, как и при методе подтягивания. Домкратная система обеспечивает возможность создания мощного передвигаемого усилия. В то же время из-за достаточно малого хода штоков домкратов требуется частая перестановка упоров, а процесс перемещения носит циклический характер.
Достоинством домкратной системы является возможность обеспечения их синхронной работы, что позволяет контролировать усилия и равномерность хода.
На рис. 12.7 приведена принципиальная схема домкратной системы. Ее отличительная особенность состоит в том, что домкраты располагаются на торцах ходовых балок, а их штоки упираются на специальные кронштейны, которые, в свою очередь, крепятся механическими домкратами к рельсовому пути. По мере передвижения объекта кронштейны переставляются в соответствии с рабочим ходом штока домкратов, который составляет 500-1000 мм. При криволинейной траектории движения возможно использование домкратов с боковых сторон. Таким образом, достигается поворот здания относительно продольной или поперечной оси.

Рис. 12.7.
Схема передвижки здания с использованием гидравлических домкратов (толкателей)
1 - обвязочные балки; 2 -
ходовые балки; 3 -
роликовые опоры; 4 -
рельсовый путь; 5 - гидродомкраты; 6 - упорные кронштейны, фиксируемые на рельсах пути
Применение гидравлических домкратов существенно снижает трудоемкость работ по сравнению с технологией подтягивания с применением лебедок и делает данный процесс менее опасным и более технологичным.
Использование гидравлических домкратов усилием 500-1000 т с удлиненным штоком позволяет осуществлять передвижку массивных зданий и сооружений. Это обстоятельство существенно расширяет технологию и делает ее универсальной.
Применение системы датчиков давления, перемещений, скорости и других параметров позволяет организовать дистанционный контроль и управление технологическим процессом перемещения.
Процесс передвижки требует выполнения ряда технологических расчетов, обеспечивающих сохранение устойчивости здания на всех технологических этапах производства работ.
Одним из первых этапов является оценка степени износа конструктивных элементов путем диагностики их технического состояния. Данный этап работ предусматривает разработку мероприятий по обеспечению геометрической неизменяемости объекта передвижки, оценку физико-механических и прочностных характеристик основных узлов, стыков и здания в целом. Производятся поверочные расчеты на динамические нагрузки при перемещении, а также исследуется поведение объекта в нештатных ситуациях, когда возникают обстоятельства с неравномерным распределением нагрузок от массы здания на пути транспортировки и другие процессы, имеющие случайный характер воздействия.
Итогами данного цикла работ являются усиление конструктивных элементов, расчет и создание опорного контура здания, обеспечивающего восприятие динамических и статических нагрузок. Осуществляется подбор сечения обвязочного пояса и определяются способы его соединения с отделяемой частью здания. Расчеты ведутся из предположения, что обвязочный пояс, являясь диском жесткости, обеспечивает совместную работу с конструктивными элементами и обеспечивает пространственную жесткость и геометрическую неизменяемость здания в целом.
Обвязочный пояс устраивается по наружным и внутренним стенам путем подведения металлических балок таврового или двутаврового сечения с болтовым креплением к стенам и сварочными соединениями между собой. Для обеспечения совместной работы с элементами стен части обвязочного пояса омоноличиваются мелкозернистым бетоном.
При достаточно высокой степени износа стен осуществляются их усиление, разборка отдельных участков и возведение новой кладки. В ряде случаев устанавливается монолитный железобетонный пояс, обеспечивающий более высокую пространственную жесткость основания здания.
При обеспечении геометрической жесткости здания, отделенного от фундамента, осуществляются подбор и расчет накатных путей в зависимости от технологической схемы перемещения.
На рис. 12.8 приведен вариант перемещения зданий на выносных консолях и ходовых балках.

Рис. 12.8. Схема передвижки здания на выносных опорах (а, б) и расчетные схемы элементов (в, г, д, е)
Последовательность расчета состоит в определении общей массы здания и распределении сосредоточенных нагрузок на балки выносных опор. С учетом пролета определяются изгибающий момент, момент сопротивления и устанавливается сечение балок.
Подбор сечения ходовых балок определяется из расчетной схемы, представляющей многопролетную балку с сосредоточенными нагрузками Р1. При этом каждый пролет соответствует расстоянию между роликовыми катучими опорами.
При расчете балки определяется площадь опирания на катки в результате частичного смятия в зоне контакта.
С учетом дополнительных масс от обвязочных, накатных балок, роликовых опор и путей осуществляется подбор площади шпал, обеспечивающей восприятие суммарной нагрузки на основание. При этом не допускается осадка путей за счет деформирования грунтов основания, т.е. должно выполняться условие Fосн[sтр]>>SР.
При расчете конструктивных элементов принимается запас прочности не менее двух.
Особое внимание уделяется расчету и размещению накатных путей. Они рассчитываются как балки на упругом основании. Определяющая роль при этом отводится характеристикам грунтового основания - плотности, прочности идеформативности. Как показал опыт, в условиях городской застройки используются основание в виде песчано-гравийной или щебеночной подсыпки со сплошным или рассредоточенным расположением железобетонных или деревянных шпал, а также устройство железобетонного основания.
При использовании платформ с роликовыми опорами осуществляются подбор сечения ее элементов из расчета сосредоточенных нагрузок от массы здания в момент его подъема гидродомкратами и перемещение по накатным путям (рис. 12.9), расчет поясов платформы от реакции на роликовые опоры, а также элементы крепления роликовых опор (направляющие, оси роликовых опор и т.п.). Подбор сечения накатных путей осуществляется путем расчета неразрезных балок на подвижные и сосредоточенные нагрузки. Осуществляются подбор шпальных клеток или другого вида опор, расположенных в подвальной части здания, и шаг расположения шпал по трассе перемещения в зависимости от физико-механических характеристик грунтов.

Рис. 12.9.
Технологические и расчетные схемы передвижки зданий с применением рам с
роликовыми опорами и гидравлическими домкратами
а -
схема размещения рам с гидравлическими домкратами; б - перемещение здания с применением
горизонтально установленных домкратов и упоров; в - расчетные схемы и нагрузки на элементы платформ и путей; г - схема размещения гидравлических
домкратов, насосной станции (НС) и управляемой системы (УС); д - графики цикличного и непрерывного
перемещения здания; 1 -
обвязочный пояс; 2 -
платформы; 3 -
гидравлические домкраты; 4 -
роликовые опоры; 5 - накатные пути; 6 - основание из шпал; 7 - гидродомкрат
Как правило, для передвижки зданий используется несколько платформ с роликовыми опорами (рис. 12.9,д), которые подводят под обвязочные балки через проемы в торцевых стенах. При этом гидродомкраты размещают таким образом, чтобы их оси совпадали с осями внутренних стен.
После установки платформ осуществляются подъем здания на высоту 5-6 см и дальнейшее перемещение. Для обеспечения одновременного вертикального подъема осуществляется синхронизация работы гидродомкратов с помощью управляемого устройства к насосной станции и компьютерной системы слежения. В процессе перемещения по горизонтальным путям в случае просадки основания гидродомкраты позволяют обеспечить заданный уровень положения здания.
Технологический режим передвижки здания с помощью гидравлических домкратов является цикличным. Шаг перемещения соответствует ходу штока домкратов и составляет 500- 1000 мм. Каждый цикл состоит из установки упоров на рельсовых путях и синхронной работы домкратов. Максимальное усилие требуется в момент сдвижки здания, когда величина инерционных сил максимальна (рис. 12.9,г).
Усилие перемещения по горизонтали может быть рассчитано исходя из общей массы здания Р, количества опорных роликов п, их диаметра Æ и коэффициента трения качения f. С увеличением диаметра опорных роликов усилие перемещения снижается.
В общем виде требуемое усилие перемещения может быть определено по зависимости N=2PfK/Æ.
В то же время момент сил от гидродомкратов зависит от положения штоков относительно центра вращения роликовых опор. Как правило, гидродомкраты горизонтального действия размещают на обвязочных балках, чем и достигается плечо действия сил.
Для обеспечения непрерывного перемещения объектов целесообразно использовать спаренные домкраты, работающие в противофазе. Технологический эффект передвижки повышается при использовании упорных площадок, объединенных со штоком гидроцилиндров и имеющих фиксирующие устройства гидравлического действия.
Массовая передвижка зданий в Москве осуществлена за период 1937-1941 гг., когда был принят новый генеральный план, направленный на расширение магистралей, строительство новых зданий, создание экологически чистых зеленых зон, проспектов и бульваров. За это время осуществлена передвижка более 20 зданий различной этажности, сложных по форме плана. Масса передвигаемых зданий составляла от 500 до 25000 т. Они перемещались на расстояние до 200 м.
Наиболее характерными представителями зданий того периода были: 1) жилой дом по ул. Осипенко, 77. В плане здание Г-образной формы с массой 8050 т. Передвижка осуществлена на расстояние 44 м с поворотом на 19°; 2) жилой дом по ул. Горького, 24, с кирпичными стенами, массой 22400 т. Перемещено по прямой вглубь квартала на 49,8 м; 3) административное здание Моссовета, ул. Горького, 31, постройки XVIII века. Стены кирпичные, в плане П-образной формы, массой 20000 т. Перемещено по прямой поперек продольной оси на 13,6 м. В последующем здание было надстроено двумя этажами; 4) глазная больница, ул. Горького, 63. Постройки XVIII века, в плане Ш-образной формы, кирпичное, массой 13300 т. Перемещалось в 2 этапа: с поворотом на 97°16' и по прямой на расстояние 93,5 м и под углом 19°65' к продольной оси.
В послевоенное время также выполнен ряд передвижек зданий: в 1958 г. на Комсомольском проспекте передвинуты 2 пятиэтажных здания на расстояние 63 м; в 1979 г. был передвинут дом № 18 по ул. Тверской. Последние годы здание занимало издательство газеты «Труд». Дом переместили на 33 м, что позволило открыть фасад нового редакционного корпуса газеты «Известия».
Выполнены работы по передвижке памятника А.С. Пушкину, здания Пафнутьев-Боровского монастыря и др.
Технология передвижки здания Моссовета
Здание Моссовета (Мэрии) построено знаменитым русским архитектором М.Ф. Казановым в XVIII в. При расширении ул. Горького потребовалось передвинуть здание вглубь на 14 м. Здание в плане П-образной формы с фасадом длиной 55 м и боковыми фасадами - 27 м. Масса здания составила 20000 т. Большой вес для 4-этажного здания объяснялся использованием массивных кирпичных стен толщиной до 1,5 м и тяжелых многослойных перекрытий.
Одним из условий передвижки выдвигались требования, чтобы полы первого этажа были сохранены, здание должно находиться в рабочем состоянии с доступом посетителей и сотрудников. Здание было перемещено за 4 месяца.
При передвижке здания использовалась традиционная технология. На уровне цокольного этажа выполнена линия среза с последующим устройством обвязочного пояса из прокатного металла, произведена установка путевых элементов, подготовлены основание и пути для перемещения, возведен новый фундамент. Использовалась технология надвижки с применением лебедок. Здание перемещалось по 18 четырехниточным путям на стальных катках. На торцевых элементах ходовых балок было установлено 25 толкающих домкратов, что позволило преодолеть дополнительное сопротивление перемещению за счет местного смятия путей, катков и других элементов.
После сдвижки здания толкающие домкраты отключались и передвижка осуществлялась полиспастами.
Отличительными особенностями производства работ при передвижке этого здания явились необходимость замены стеновой части фундаментов на кирпичную кладку на цементном растворе, большой объем земляных работ, которые выполнялись из-за стесненности вручную, снос некоторых дворовых построек и т.п. Несмотря на это, работы по передвижке были выполнены в установленный срок.
Передвижка жилого дома по ул. Осипенко
Передвижка жилого дома была связана со строительством Краснохолмского моста. Корпус этого дома длиной 88 м оказался в зоне действия нового моста. Было принято решение передвинуть его на 44 м и одновременно развернуть на 19°. Общая масса жилого дома составляла 8500 т. Для расчленения корпусов была демонтирована угловая секция, что предоставило фронт работ для перемещения корпуса здания.
На рис. 12.10 представлены схема положения здания до передвижки и после.

Рис. 12.10.
Схема перемещения дома
1 - положение здания до
передвижки; 2 -
положение здания после передвижки; 3 - разбираемая часть здания; R - радиус поворота
Использовалась традиционная отработанная технология. Перемещение осуществлялось по 4- и 6-ниточным путям, размещаемым на основании отсыпки и сплошного настила из шпал. Посадка здания на пути производилась 200-тонными гидравлическими домкратами с ручным приводом, которые также использовались при установке на новый фундамент. В процессе перемещения домкраты оставались между ходовыми балками. Это позволило их использовать для компенсации осадок.
Здание было с высокой точностью установлено на новые фундаменты, восстановлен подвал и проведены другие сопутствующие работы.
На рис. 12.11 приведена принципиальная схема передвижки здания редакции газеты «Труд» (1979 г.). Проект передвижки выполнен институтом «Моспроект-2», а проект производства работ - трестом Мосоргстрой. Непосредственное выполнение работ осуществлено трестом «Мосфундаментспецстрой».

Рис. 12.11.
Схема передвижки здания
1 - новый комплекс редакции газеты «Известия»; 2 - положение здания редакции газеты
«Труд» до передвижки; 3 -
положение здания после передвижки; 4 - встройка, соединяющая здание редакции газеты «Известия» с
передвинутым зданием; 5, 6
- разобранные лестничные клетки; 7- толкающие гидродомкраты; 8 - насосная станция; 9 - нивелиры; 10, 11 - стреловые краны для
разборки лестничных клеток; 12 -
ограждение стройплощадки
Устройство восьми ходовых путей, а также сам процесс передвижки потребовали высокой точности работ. Для этой цели был разработан проект производства геодезических работ, в результате осуществления которого отклонений, превышающих проектные, не отмечено.
Передвижка здания осуществлялась циклично с шагом хода домкратов, равным 1000 см. Здание было перемещено на новый фундамент в течение 28 ч. При этом выполнялись все вспомогательные работы: перестановка упоров, установка вставок, нивелирование катков и др. Средняя скорость движения составила 8 см/мин при протяженности передвижки 34 м.
Проблема передвижки исторически значимых зданий и сооружений остается актуальной и в настоящее время. Экономические расчеты показывают, что в ряде случаев передвижка зданий является более эффективным решением, чем его разборка и утилизация. Актуальность существенно повышается при интенсивном развитии автотранспорта, когда необходимы расширение и прокладка новых магистралей и требуется сохранение зданий, имеющих акцентное значение в городской застройке.
Отечественный и зарубежный опыт показывает, что в целом общие принципы технологии сохраняются. В то же время развитие техники вносит определенные изменения в технологию производства работ.
В первую очередь следует отметить использование рамных конструкций индустриального изготовления взамен ходовых балок. Их оснащение гидравлическими домкратами с дистанционным управлением существенно упрощает передвижку и контроль качества работ. Как правило, платформы снабжаются роликовыми опорами, что является более прогрессивным по сравнению с катками (рис. 12.12).

Рис. 12.12. Рабочий момент передвижки жилого дома (а) с использованием платформ с роликовыми опорами (б)
Колесные платформы могут быть рассчитаны и на движение по поверхности без устройства рельсового основания. Это обстоятельство существенно снижает трудоемкость и металлоемкость процессов.
Расширяется использование гидравлических домкратов не только для подъема зданий, но и их перемещения. Применение новых материалов, например тефлонового покрытия направляющих, позволит отказаться от катучих опор.
Имеется опыт использования пневмоколесных платформ с индивидуальным механическим приводом и управляемой системой поворота. Управление режимом изменения давления в шинах позволяет осуществлять подъем и опускание здания. Применение таких систем исключает трудоемкие и металлоемкие процессы устройства накатных путей и ходовых балок. При этом трасса перемещения объектов выполняется в виде железобетонного основания.
Имеется опыт использования пневмоподушек совместно с гидродомкратами для вывешивания и транспортирования здания. Современные технологии позволяют перемещать здания высотой 8-12 этажей и более.
Метод передвижки зданий нашел свое применение при возведении промышленных объектов и их реконструкции.
Кроме передвижки зданий данный метод используется для перемещения фундаментов и других массивных конструкций.
При реконструкции зданий, представляющих большую архитектурную ценность, и в случае высокой степени износа несущих конструкций возможно перемещение фасадных стен.
На рис. 12.13,б приведены технологические схемы, отражающие основные особенности производства работ.

Рис. 12.13.
Технологические схемы передвижки различных конструктивных элементов
зданий
а - фундаментов; б - фрагментов фасадных стен: 1
- фундамент стаканного типа; 2
- гидродомкрат; 3 -
опорная площадка; 001
- ось нового положения фундамента; а - расстояние перемещения; 4 - вкладыш; 5 -
фасадная стена; 6 - рама
для обеспечения пространственной жесткости; 7 - роликовая платформа; 9 - лебедка; 10 - новый фундамент; w - ветровая нагрузка; р - масса стены; N - усилие в тросах; Н - высота стены; a, b - геометрические размеры основания роликовой платформы
Определяющим условием при перемещении фрагментов стен фасадов является обеспечение требуемой устойчивости системы от действия динамических нагрузок и ее инерционности, от скорости перемещения, а также влияния различных факторов: эксцентриситетов от невертикальности конструкций, случайных воздействий ветровой нагрузки и т.п. Для обеспечения технологического цикла необходим расчет на устойчивость, деформативность и прочность системы. В общем виде устойчивость системы определяется из соотношений опрокидывающего и удерживающего моментов Wh1 + Pl + Nl2 = Pa.
Эти соотношения позволяют определить основные параметры площадки с катучими опорами и габаритные размеры удерживающей рамы.
Метод передвижки широко используется при реконструкции промышленных предприятий. Одним из примеров является передвижка доменной печи в условиях действующего металлургического комбината. Доменную печь монтируют на специальных стендах на накатных путях. Затем производят передвижку новой печи со стенда на постоянный фундамент и подключают все коммуникации. В целом данный метод обеспечивает сокращение срока реконструкции до 2-3 мес, что весьма важно для предприятий такого типа.
Развитие методов передвижки идет по пути создания управляемых и гибких систем, снижающих удельное давление от массы здания. Известны технологии передвижки с использованием платформ на воздушной или гидравлической подушке. Их применение позволяет в 5-7 раз снизить усилия передвижки и обеспечить более безопасные условия.
На рис. 12.14 приведена технологическая схема перемещения здания на платформе с гидравлическими подушками из гибких полимерных материалов, объединенных с платформой.

Рис. 12.14.
Схема перемещения зданий на гидравлических подушках
1 - обвязочный пояс
перемещаемого здания; 2 -
система с гидравлическими подушками; 3 - платформа; 4 -
основание; Р - усилие
передвижки
Путем подачи насосами воды обеспечивается подъем здания в рабочее положение. Его применение обеспечивается приложением бокового усилия Р. Движение деформированных под нагрузкой цилиндрических элементов представляет собой процесс перекатывания с минимальным участием сил трения о перемещаемую поверхность.
Преимущества таких технологий состоят в возможности управления системой в целом, снижении трудозатрат на устройство металлических путей, повышении уровня надежности и снижении стоимости работ.
Системы апробированы в Англии и Канаде при перемещении исторического памятника «Виррингтон Академии», резервуара для хранения нефтепродуктов диаметром 45,5 м и массой 500 тыс. т и др.
Длительная эксплуатация зданий приводит к состоянию, когда отметка пола первого этажа находится ниже уровня дневной поверхности. Это обстоятельство связано как с осадкой фундаментов в результате изменения гидрогеологических условий пучения грунтов при их увлажнении и замерзании, так и за счет повышения уровня культурного слоя при выпадении твердых осадков промышленных выбросов, хозяйственной деятельности населения и других причин. По данным статистических исследований, ежегодный поверхностный прирост составляет от нескольких миллиметров до 4-5 см. Интенсивность прироста поверхности слоев зависит также от процессов ветровой эрозии почвы, ремонтно-восстановительных работ дорожных и тротуарных покрытий, когда с периодичностью 5-8 лет наблюдается повышение уровня дневной поверхности на 10-15 см.
В ряде случаев относительное заглубление зданий сопровождается неравномерными осадками его частей, что приводит к образованию кренов и невертикальности.
Перечисленные факторы приводят не только к заглублению зданий, но и нарушению гидроизоляции, что способствует увлажнению и водонасыщению заглубленной части, более интенсивному износу конструктивных элементов, а также резкому снижению комфортности помещений.
Необходимость вертикального подъема зданий диктуется также изменением функций помещений первых этажей, когда требуется увеличение их высоты для размещения технологического оборудования офисов, магазинов и других служб социального назначения.
Наиболее актуальной эта проблема является для зданий старой постройки, имеющих большое архитектурно-историческое значение, а также специальных зданий и сооружений.
Так, в 2004 г. осуществлен подъем железобетонного купола планетария (г. Москва), обеспечивающий увеличение объема здания и его комплексную реконструкцию.
В зависимости от линейных размеров и высоты здания процесс вертикального подъема может осуществляться как для здания в целом, так и его частей путем разрезки на блоки с последующим восстановлением монолитности.
Комплекс работ по вертикальному перемещению зданий включает несколько циклов: подготовительные работы; отделение поднимаемой части путем горизонтальной разрезки вертикальных конструкций; выполнение объемов работ по созданию обвязочных поясов и ниш для размещения гиродомкратов; установка домкратов и комплекта гидросистемы; непосредственно подъем здания; подращивание стен из блоков и др.
Одним из важнейших этапов подготовительных работ является оценка физического состояния подземной и надземной частей. По материалам диагностики определяется необходимость усиления фундаментов, простенков, колонн и других конструктивных элементов. Расчетным путем определяется устойчивость здания и предусматриваются технические решения, обеспечивающие ее стабильность в процессе вертикального перемещения. В объем подготовительных работ входят освоение площадки (размещение временных складских помещений, сетей, ограждений), демонтаж стыковых соединений канализации, водопровода, отключение газовой и электросети, демонтаж перегородок и других несущих конструкций первого этажа.
Основной цикл строительно-монтажных работ включает устройство обвязочного пояса, разрезку вертикальных несущих конструктивных элементов, подготовку мест размещения гидравлических домкратов.
Комплекс перечисленных работ является наиболее трудоемким и требует использования специальных технических средств по разрезке и разборке кирпичной кладки, подведению металлоконструкций обвязочного пояса и его омоноличиванию.
Выполнение работ ведется по захваткам ограниченной длины, исключающей осадку и разрушение опорных частей здания.
Наиболее ответственным этапом основного цикла является установка гидродомкратов и системы гидропривода.
До подъема здания производится контрольная проверка работы системы и оценивается ее эксплуатационная надежность.
На рис. 12.15 приведены технологические схемы вертикального подъема зданий. В качестве объединяющих конструктивных элементов использованы монолитные железобетонные или металлические обетонированные пояса, которые кроме повышения пространственной жесткости основания зданий служат опорами для передачи давления от гидравлических домкратов.

Рис. 12.15.
Технологические схемы вертикального подъема зданий с кирпичными стенами
при длительной эксплуатации и подъеме уровня дневной поверхности (а) и
увеличении высоты первого этажа (б)
УДП1,УДП2 - изменение уровня дневной поверхности
за период эксплуатации; Нп - высота подъема; Н2э, Н1э - высота первого этажа до подъема и
после; ГД - положение гидравлических домкратов
Установка системы гидродомкратов
Подбор и размещение гидродомкратов производятся по периметру наружных и внутренних несущих стен. Их размещение осуществляется в специальных нишах, образуемых в кладке нижнего пояса, с образованием монолитных железобетонных опорных площадок.
Шаг установки домкратов устанавливается расчетным путем с учетом грузоподъемности и массы здания.
Необходимое количество домкратов определяется с учетом коэффициента запаса, предусматривающего неравномерность нагрузки в начальный период подъема и непредвиденный выход одного из соседних домкратов: N = M×K/P, где М - масса здания; Ртр - техническая грузоподъемность домкратов; К=2 - коэффициент запаса.
Шаг размещения домкратов определяется исходя из периметра и массы несущих конструкций, сосредоточенной и равномерно распределенной нагрузок от этажей здания, приведенных к площади действия домкрата: b = П×m/N, где П - периметр несущих конструкций; т - коэффициент, учитывающий неравномерность распределения нагрузки.
Размещение домкратов должно осуществляться с учетом возможных концентраций нагрузок в угловых элементах здания, а также в местах стыковых соединений внутренних и наружных стен (рис. 12.16).

Рис. 12.16.
Технологическая схема подъема здания
а - схема управления
работой домкратов; б, в
- монтаж блоков; г -
циклограмма работы домкратов; ГД - гидравлические домкраты; НС - насосная
станция; БУ - многоканальный блок управления; КС - компьютерная система; tп - время
подъема; tуст
- время монтажа блоков; t0 - сброс давления в системе
При подборе гидравлических домкратов следует согласовать максимальную высоту подъема с шагом хода домкратов. При ходе поршня, превышающем высоту подъема, принимается одноцикличный подъем. При высоте подъема, большей максимального хода поршня, осуществляется многоцикличная технология (рис. 12.16,г).
Для обеспечения равномерного хода домкратов используется насосная станция с системой материальных трубопроводов, многоканальным блоком управления, подключенным к компьютерной системе. Такое решение позволяет управлять технологическим циклом подъема и исключить такие явления, как отклонение стен от вертикали, обеспечивает перераспределение нагрузок на домкраты, учитывает случайные процессы, связанные с непредвиденными деформациями системы.
Подъем здания осуществляется после выполнения всех подготовительных работ и пробного испытания системы. Устанавливается средняя скорость подъема. В процессе вертикального перемещения здания с помощью геодезических приборов контролируются геометрические параметры. В случае отклонения от проектных значений процесс подъема повторяется после ликвидации дефектов.
При достижении проектного уровня подъема осуществляется установка распределительных блоков в пространство между домкратами. Выполнение этого процесса должно производиться с минимальной продолжительностью.
Для выполнения комплекса работ по вертикальному подъему здания разрабатывается проект производства работ. Он предусматривает в своем составе технологические карты на ведение наиболее сложных строительных процессов, обеспечивающих эффективное и безопасное производство работ. Особое внимание уделяется циклу геодезических работ, на которые также требуется разработка ППР. Важное место в производстве работ отводится контролю качества, соблюдению технологических регламентов, подготовке специального оборудования, обучению инженерно-технического персонала и рабочих, предвидению нештатных ситуаций и разработке мер по их ликвидации.
Основными причинами возникновения крена зданий являются неравномерные деформации оснований фундаментов, вызванные техногенными процессами, замачиванием грунтов в результате утечки из систем водоснабжения и канализации, ошибками в расчете фундаментов, изменением в структуре грунтов, повышением уровня грунтовых вод и др. Так, замачивание лессовых грунтов в г. Тольятти привело к возникновению недопустимых параметров крена жилых и промышленных зданий в результате просадки свайного основания, что потребовало комплекса восстановительных работ.
Ликвидация крена зданий включает несколько технологических циклов: инструментальную оценку деформаций фундаментов и причины их возникновения; инженерно-геологические исследования состояния грунтов основания; поверочные расчеты несущей способности фундаментов; разработку методов и технологий усиления оснований и фундаментов; разработку проектов производства работ по ликвидации кренов зданий; выполнение подготовительного и основного циклов.
В практике производства работ возможно использование двух методов: 1 - путем опускания недеформированной части фундаментов под действием собственной массы здания; 2 - подъем деформированной части гидродомкратами на проектную отметку.
Цикл подготовительных работ включает: ограждение площадки; выделение мест складирования материалов и конструкций; временных дорог для перемещения средств механизации; отключение сетей водоснабжения, канализации и электроснабжения. Для повышения пространственной жесткости здания осуществляют закладку проемов первых 2-3 этажей, усиление несущих конструкций и др. работы.
Основные виды работ включают: укрепление грунтов в просадочной части известными методами, усиление фундаментов путем устройства свай по разрядно-импульсной или струйной технологии .
Наиболее ответственными и трудоемкими этапами производства работ являются создание обвязочного пояса по линии среза контура здания и внутренним несущим стенам, разрезка стен фундаментной или цокольной части с помощью гибких цепных систем. Выполнение строительных процессов ведется по захваткам с обеспечением мероприятий по технике безопасности с постоянным геодезическим контролем. На наиболее сложные процессы разрабатываются технологические карты с непременным условием инструментального контроля качества работ.
Для создания рабочих зон выполняется цикл работ по отрывке приямков по периметру здания, укрепление откосов и др. виды работ.
Основной этап непосредственно связан с подъемом или опусканием здания с использованием системы гидравлических домкратов. Для их размещения устраиваются специальные ниши. Число домкратов определяется исходя из массы здания и коэффициента запаса, учитывающего непредвиденный выход из строя одного или двух соседних.
Система домкратов перед установкой в рабочее положение апробируется, устанавливаются и ликвидируются возможные дефекты в дистанционном управлении, проверяется работа датчиков давления, высоты подъема, синхронности работы и т.п.
Подъем деформированной части здания осуществляется при цикличной работе домкратов. По мере подъема на величину хода штока в нишах устанавливаются опорные элементы в виде металлических стаканов, которые рассчитываются на восприятие нагрузки частей перемещаемого здания. При дальнейшем подъеме металлические стаканы наращиваются (рис. 12.17).

Рис. 12.17.
Технологическая схема ликвидации крена зданий путем вертикального
подъема просадочной части
1 - обвязочный пояс из металлического профиля; 2 - линия среза; 3 - ниши и проемы для установки
гидродомкратов (4) и
опорных элементов (5); 6
- омоноличивание опорных элементов и ниш
Окончанием технологического процесса подъема являются геодезическая оценка вертикальности стен здания и последующая передача нагрузки на опорные элементы.
После демонтажа системы домкратов производится омоноличивание участков с использованием подвижных бетонных смесей и легких опалубочных систем.
Процесс восстановления вертикальности здания считается законченным после выполнения комплекса работ и сдачи приемной комиссии. При выполнении подготовительного и основного циклов работ все технологические процессы и методы их производства регистрируются в журнале работ. При демонтаже части фундаментных стен, устройстве ниш, обвязочных поясов, элементов усиления и др. составляются акты на скрытые работы с инструментальной оценкой качества работ и физико-механических характеристик. Особое внимание уделяется оценке степени набора прочности бетоном, состояния элементов для размещения домкратов, отвечающих требованиям, устанавливаемым в проекте производства работ и технологических картах.
Основные технологические процессы ликвидации крена методом опускания включают усиление фундаментов или основания просадочной части здания, устройство обвязочной системы над линией среза, проемов и ниш для размещения домкратов, установку временных подвижных опорных элементов, демонтаж части плоскости фундаментной стены, непосредственно опускание объекта (рис. 12.18).

Рис. 12.18.
Технологическая схема ликвидации крена путем снижения уровня стеновых
несущих конструкций
а - общая схема здания
на период усиления фундаментов; б,
в - механизм опускания; 1 - сваи усиления фундаментов; 2 - обвязочный пояс по линии среза; 3 - ниши для размещения гидродомкратов
(4) и опорных стоек (5)
с вкладышами (6); 7 - толщина демонтируемой части фундамента
(переменна)
Использование специальных опорных элементов с возможностью синхронного и плавного изменения высоты позволяет осуществить цикл опускания за достаточно короткие сроки. Вертикальность здания достигается за счет перемещения части здания под действием собственной массы, что существенно снижает энерго- и трудозатраты на ликвидацию крена.
Для малоэтажных зданий в качестве временных опорных элементов могут использоваться мешки с сухим песком, а процесс вертикального перемещения осуществляется путем устройства в них отверстий, что способствует интенсивной утечке и падению опорного уровня до проектной отметки.
Современные технологии предусматривают также использование специальных баллонов, размещаемых в нишах и наполняемых под давлением водой. Они служат опорными элементами, воспринимающими давление от деформируемой части здания на фундамент. После демонтажа фундаментной стены до проектной отметки осуществляется синхронное снижение давления в баллонах путем выпуска воды. В результате этого достигаются плавное снижение части здания и восстановление вертикальности стен. Затем осуществляется последовательное удаление баллонов с омоноличиванием участков ниш и проемов.
Одними из технологических приемов реконструкции жилой застройки и зданий являются снос, разборка и демонтаж строений, имеющих высокую степень физического или морального износа. Снос зданий, как правило, преследует кроме решения градостроительных экономические задачи, когда на освободившейся площади возводятся современные строения с более высокими показателями по строительному объему и качеству архитектурно-планировочных решений.
Отечественный и мировой опыт работ по сносу зданий насчитывает несколько методов, включающих:
- разрушение зданий направленным или камуфлетным взрывом;
- поэлементную разборку зданий с применением башенных, стреловых и крышевых кранов;
- разрушение несущих и ограждающих конструкций зданий механическим способом с применением гидравлических экскаваторов, оснащенных специальным оборудованием.
Демонтаж и снос строений независимо от технологии производства работ включают несколько циклов.
Подготовительный период
До начала работ по демонтажу (разрушению) должны быть выполнены организационно-подготовительные мероприятия в соответствии со СНиП 3.01.01-85 «Организация строительного производства»:
обеспечивается «степень готовности» объекта к демонтажу (разрушению);
контролируется документальное и фактическое отселение всех жильцов из демонтируемого дома;
обеспечивается и контролируется фактическое отключение коммуникаций;
согласовывается и контролируется защита сквозных действующих коммуникаций, проходящих через площадку производства работ;
организуется защита зеленых насаждений, не вошедших в перечень ликвидируемых;
организуются временные стоянки крупногабаритных механизмов с их охраной и освещением в темное время суток.
В подготовительный период выполняется временное ограждение площадки производства работ с указанием и обеспечением беспрепятственного въезда и выезда транспортных средств.
Разрабатываются схема движения транспорта по объекту и границы опасных зон; на выезде устраивается экологический пост подготовки транспорта к движению по городу - пункт мойки автосамосвалов; в случае необходимости на отдельных участках площадки производства работ устраиваются временные проезды из ж/б плит; организуется оперативно-диспетчерская связь; размещаются средства пожаротушения, сигнализации и аварийного освещения; обеспечиваются санитарно-бытовые условия для персонала.
При расположении демонтируемого здания вблизи существующих осуществляется их защита от динамических воздействий путем усиления фундаментов, повышения пространственной жесткости закладкой оконных проемов и устройством специальных стяжек и др. приемами.
Основной период разделяется на три этапа.
1-й этап состоит в демонтаже инженерного оборудования, систем отопления, водоснабжения и канализации, разборке встроенных помещений, полов, оконных заполнений и др.
Производство работ этого этапа преимущественно выполняется вручную с использованием индивидуальных средств механизации, газосварочного оборудования и т.п. Демонтируемые элементы перемещаются с помощью грузовых подъемников и размещаются в зоне складирования. Одновременно с данным видом работ производят демонтаж кровельного покрытия.
2-й этап основного периода состоит непосредственно из демонтажа или слома конструкций надземной части, складирования или погрузки боя в автотранспортные средства. В зависимости от принятой схемы производства работ формируется комплект средств механизации, инвентаря, ручного и вспомогательного инструмента.
3-й этап включает работы, связанные с демонтажом подвальной части зданий и фундаментов. Для панельных домов с ленточными фундаментами из блоков и плит процесс демонтажа осуществляется с использованием мобильных кранов, специальных строповочных приспособлений, гидравлических клиньев для отрыва блоков от постели кладки, экскаваторов, оснащенных специальным навесным оборудованием и др.
Для фундаментов свайного типа осуществляются разборка ростверка и последующее извлечение свай с использованием вибропогружателей.
Для выполнения работ по демонтажу и сносу зданий разрабатываются проекты производства работ на различные стадии. Особое внимание уделяется безопасным методам производства работ.
Взрывной метод разрушения зданий применяется при массовом сносе кварталов застройки или отдельных зданий при реконструкции городской застройки. Это связано с прокладкой автомагистралей, возведением современных комплексов вместо ветхих строений, использованием подземного пространства и др. целями.
Основной принцип взрывного метода состоит в создании динамических нагрузок, обеспечивающих разрушение несущих конструкций нижнего и вышележащих этажей, в результате чего достигаются потеря устойчивости здания и его обрушение.
Преимущественно используется технология направленного взрыва, снижающая разлет элементов разрушения.
Для производства взрывных работ осуществляют расчет количества ВВ в зависимости от сечения несущих конструкций, класса бетона и степени армирования, определяют схему расположения зарядов и последовательность их действия.
Опыт разрушения жилых домов первых массовых серий в Москве показал, что в условиях плотной застройки взрывной метод имеет ряд недостатков, к которым следует отнести: негативное влияние динамических нагрузок на соседние здания; высокую запыленность прилегающих территорий и строений в результате аэродинамического эффекта оседания продуктов разрушения; неоднородное измельчение армоконструкций, что в последующем требует больших трудозатрат на ликвидацию связей между продуктами разрушения; затрудняется процесс экскавации и транспортирования разрушенных элементов вследствие различных габаритов, наличия арматурных связей, металлоконструкций от инженерных сетей, разнородных материалов; исключается или затрудняется утилизация продуктов разрушения, что требует высокой трудоемкости по сортировке.
Поэлементный демонтаж предусматривает повторное использование конструктивных элементов для возведения малоэтажных зданий, снижения этажности жилых домов, а демонтаж наружных стеновых панелей преследует цель пристройки эркеров и расширения корпусов. Внутренние стеновые панели и панели перекрытий могут использоваться при устройстве временных и постоянных дорог.
Для демонтажа элементов крупнопанельных и каркасных зданий используются башенные, самоходные стреловые и крышевые краны в комплекте с технологическим оборудованием, средствами малой механизации и механизированным ручным инструментом.
Для поэтажной разборки зданий разрабатываются проекты производства работ, включающие: строительный генеральный план с размещением средств механизации, временных дорог, площадок складирования, закрытых складов, временных сетей, инвентарных бытовых помещений; графики производства работ на подготовительный и основной циклы; технологические карты на выполнение основных процессов по демонтажу конструкций; технологические расчеты по обеспечению устойчивости элементов зданий и последовательности их демонтажа; обеспечение условий производства работ путем использования инвентарных средств строповки, временного крепления и перемещения демонтируемых элементов.
Принципиальная схема организации строительной площадки приведена на рис. 13.1. Она включает: размещение и привязку башенного крана; грузопассажирских подъемников; зоны складирования и размещения бытовых помещений; временные сети и ограждение площадки.

Рис. 13.1.
Фрагмент стройгенплана на демонтаж крупнопанельного жилого дома
1 - башенный кран; 2 - грузоподъемник; 3 - подкосы для обеспечения
устойчивости демонтируемых конструкций; 4, 5, 6 - разборка кровельного покрытия и демонтаж
парапетных плит; 7 - демонтаж ж/б плит покрытия; 8 - складирование конструкций; 9 - бытовые помещения; 10 - тепловой пункт; 11 - гаражи; 12 - автотранспорт для перевозки
демонтируемых конструкций; 13 -
примыкающее здание
В отличие от нового строительства наличие зеленых насаждений, различных площадок дворового пространства, гаражей, тепловых пунктов и магистральных сетей требует принятия решений, исключающих вырубку деревьев, а также максимального использования существующих дорог и площадок. В условиях стесненности необходимо обеспечить не только процесс демонтажа конструкций, но их складирование и вывозку.
Демонтаж конструкций предусматривает определенную технологическую последовательность производства работ, обеспечивающую минимальное применение вспомогательных инвентарных средств для обеспечения устойчивости конструктивных элементов, а также создание безопасных условий производства работ.
В зависимости от применяемых средств вертикального транспорта возможно использование посекционного, поэтажного и покомнатного демонтажа конструктивных элементов.
На рис. 13.2 приведена технологическая последовательность производства работ по раздельной технологии демонтажа конструкций.

Рис. 13.2.
Технологическая последовательность поэтажного демонтажа конструктивных
элементов крупнопанельного жилого дома
I - кровельного
покрытия, включая гидроизоляционный ковер и утеплитель; II - плит перекрытия; III - наружных стеновых
панелей; IV - внутренних стеновых
панелей, вентблоков и лестничных маршей
Началом работ является демонтаж кровельного покрытия. Технологические процессы включают разрезку многослойной рулонной кровли на отдельные карты с погрузкой в емкости и перемещением в бункеры или автосамосвалы. Производятся сортировка материалов кровельного покрытия и утеплителя и их раздельное транспортирование для последующей утилизации.
Следующим этапом является демонтаж конструктивных элементов кровельной части - парапетных плит и плит покрытия. Для их демонтажа осуществляют высверливание отверстий с помощью кернообразователей для последующей установки распорных анкеров и строповоч-ных устройств. При этом сварные соединения деталей разрезаются механическими средствами или газосварочным способом.
Демонтаж плит покрытия открывает доступ к узловым соединениям стеновых и внутренних несущих перегородок. До их освобождения производится временное крепление демонтируемых конструкций наружных и внутренних стен с использованием инвентарных подкосов и струбцин (рис. 13.3). Крепление подкосов осуществляется также с использованием распорных анкеров.

Рис. 13.3.
Временное крепление панелей перед монтажом
1 - наружная стеновая панель; 2 - внутренняя несущая панель; 3 - сварной узел крепления; 4 - пропил омоноличенного участка; 5 - подкосы; 6 - монтажная траверса; 7, 8 - распорные анкеры для крепления
подкосов
Наиболее рациональным является демонтаж по ячейкам жилого дома: сначала освобождается наружная панель от связей с внутренними стенами и производят ее демонтаж. В качестве строповочного устройства используется траверса, обеспечивающая захват панели за перемычечную часть. После ее наклона во внешнюю сторону на угол 15-20° достигаются разрушение сил сцепления в горизонтальном шве, свободное отделение и перемещение к месту складирования.
С использованием грузозахватного устройства в виде гибких тросов и захватов осуществляется демонтаж внутренних стеновых панелей.
Опыт разборки крупнопанельных зданий в районе Черемушек показал, что максимальная трудоемкость зафиксирована на процессах удаления узловых связей в виде сварных полос и накладок. Суммарные трудозатраты и продолжительность демонтажа конструкций в 1,2-1,4 раза превысили аналогичные показатели при возведении новых зданий. В то же время подтверждены высокая эксплуатационная надежность стыковых соединений и отсутствие коррозии закладных деталей и накладок. Испытания кернов, выбранных в различных конструктивных элементах, показали прирост прочности бетона до 30 % за период эксплуатации около 40 лет.
Полученные результаты свидетельствуют о высокой конструктивной надежности крупнопанельных зданий и целесообразности проведения реконструктивных работ.
Экономический анализ затрат на демонтаж зданий показал высокие расходы, связанные с установкой и эксплуатацией кранов, транспортированием конструкций, невозможностью их повторного использования в результате нарушения положения закладных деталей, появления трещин, сколов и др. дефектов, несоответствия габаритных размеров современным конструктивным схемам зданий и т.п.
Технология демонтажа зданий методом разрушения базируется на использовании мощных экскаваторов, оснащенных многосекционными стрелами с гидроприводом и специальными рабочими органами, обеспечивающими механическое разрушение конструктивных элементов из кирпича, бетона и железобетона. Для производства работ используют экскаваторы Hitachi EX-400, Liebherr 942, обеспечивающие разрушение зданий высотой до 20 и глубиной до 3 м.
Для поточного производства работ используется комплект машин, включающий автосамосвалы грузоподъемностью до 16,5 т, машинку для очистки канализационных сетей, топливозаправщик, водометную форсунку и шланги для мойки, очистки автосамосвалов и обеспыливания боя конструкций.
В таблице 13.1 приведен перечень основных механизмов машин и оборудования для производства основных видов работ.
Таблица 13.1
Перечень машин и оборудования
|
Код |
Наименование машин, механизмов и оборудования |
Тип, марка |
Техническая характеристика |
Назначение |
Количество на звено, шт. |
|
1 |
Экскаватор «LIEBHERR» |
R942 |
Вылет стрелы - 20 м Объем ковша - 0,4 м3 |
Разрушение конструкций строения |
1 шт. |
|
2 |
Экскаватор «Hitachi» |
ЕХ400 |
Вылет стрелы - 11 м Объем ковша - 1 м3 |
Погрузка боя, дробление панелей |
1 шт. |
|
3 |
Автосамосвалы |
МАЗ 5516 |
Г/п - 16,5 т, объем к. - 9 м3 |
Вывоз строительного мусора |
По расчету |
|
|
|
КРАЗ 6510 |
Г/п - 13,5 т, объем к. - 8 м3 |
|
|
|
|
|
КАМАЗ 5511 |
Г/п -13 т, объем к. - 6,6 м3 |
|
|
|
4 |
А/Ц машина для очистки канализационных сетей |
Тип КО-502Б |
Вместимость цист. - 5,4 м3 Произв. вод. насоса - 10 м3/ч Рабочее давление - 10 МПа |
Чиста радиатора экскаватора, мойка экскаватора и заправка водой пунктов мойки автомобилей |
1 шт. |
|
5 |
Топливозаправщик |
АТЗ-6 |
Базовое шасси - ЗИЛ-433362 Вместимость цист. - 6000 л Производительность - 400 л/м |
Заправка топливом экскаваторов |
1 шт. |
|
6 |
Грузопассажирский подъемник |
|
Высота подъема до 20 м |
Транспортирование материалов разборки кровли и жилых помещений |
1 шт. |
Для интенсификации процессов демонтажа используется совместная работа двух экскаваторов, один из которых осуществляет разрушение конструкций, а второй производит погрузку боя в автосамосвалы повышенной емкости кузова и грузоподъемности.
До начала производства работ по разрушению здания оформляется весь комплект разрешительной документации, включающий требования по охране окружающей среды.
При производстве работ соблюдаются требования СНиП «Техника безопасности в строительстве». Безопасность проведения работ обеспечивается: выбором рациональной технологической последовательности демонтажа в зависимости от степени стесненности объекта; подготовкой площадки строительства с выполнением всех мероприятий подготовительного периода; безопасными приемами выполнения рабочих операций; при постоянном контроле за ведением работ со стороны ответственного ИТР; удалением персонала и механизмов, не связанных с демонтажом, из опасной зоны.
Перед началом работ рабочий персонал обязан пройти инструктаж по технике безопасности и медицинский осмотр.
Площадка проведения работ должна быть огорожена и снабжена указателями.
Технология и организация работ при разборке кровли и внутренней части крупнопанельных пятиэтажных домов
Для получения материалов вторичной переработки организуются разборка кровли, внутренней части здания и подготовка его к разрушению. До начала работ по разборке здания выполняются следующие виды работ и мероприятия: демонтируется ограждение балконов с фасада здания в местах установки подъемников; устанавливается и закрепляется подъемник для перемещения демонтируемых материалов; производится приемка по акту безопасности и качества установки подъемника, на его соответствие техническим параметрам; производится проверка отключения всех коммуникаций от демонтируемого здания.
Технология демонтажа кровельного покрытия представлена на рис. 13.4. Она включает нарезку и разделку гидроизоляционного ковра и его удаление с помощью тележек и подъемника с последующим снятием утеплителя и подачей в автосамосвалы.

Рис. 13.4. Технологическая схема разборки кровельного покрытия
Демонтаж кровли, включая утеплитель, производится посекционно от краев секции здания к месту установки подъемника. В пределах секции кровля режется на карты с размерами 1´0,5 м и удаляется вручную. По мере завершения выполнения работ по демонтажу кровли часть бригады переходит на демонтаж полов. Он осуществляется по схеме от дальних комнат к кухонному проему. По аналогичной схеме осуществляется демонтаж сантехоборудования, оконных и дверных блоков.
После завершения работ на первой секции здания подъемник перемещается на следующую стоянку и цикл работ повторяется.

Рис. 13.5. Схемы установки мачтового грузоподъемника (а) и технологическая схема демонтажа сантехнического оборудования в секции жилого дома (б)
Материалы разборки подаются с помощью подъемника и бункера в автосамосвал для последующих транспортировки и переработки (рис. 13.5).
Используется комплексная бригада в составе 10-12 чел.
Снос зданий методом механического разрушения
В зависимости от положения объекта демонтажа относительно существующих зданий используется схема бокового или осевого движения экскаваторов. При боковой проходке (рис. 13.6) первоначально осуществляется разрушение торцевых наружных стеновых панелей по схеме «сверху вниз». Материалы демонтажа размещаются в непосредственной близости к осевой зоне здания. Затем производится разрушение несущих конструкций: перекрытий и внутренних стеновых панелей. Технологическая последовательность разрушения принимается таким образом, чтобы исключить потерю устойчивости отдельных элементов и их произвольное обрушение.

Рис. 13.6. Технология демонтажа крупнопанельного 5-секционного жилого дома с боковой проходкой экскаватора Liebherr и погрузкой боя экскаватором Hitachi (фрагмент стройгенплана (а) и схема разрушения дома с погрузкой боя (б))
Экскаватором Liebherr осуществляется разрушение конструкций 3-4 верхних этажей. Материалы демонтажа служат основанием для перемещения экскаватора Hitachi, который производит погрузку боя в самосвалы.
Боковая проходка применяется в случаях, когда по условиям стройгенплана невозможно организовать кольцевую дорогу.
Процесс погрузки боя начинается после разрушения одной секции дома, что составляет 3-4 ч работы экскаватора Liebherr. Для обеспечения более полной загрузки механизмов экскаватором Hitachi осуществляется кроме погрузки боя разрушение первого, цокольного этажей и подвальной части. Эти процессы совмещены с работой экскаватора Liebherr. Для повышения производительности работ по экскавации боя осуществляется дополнительное разрушение сборных элементов, что позволяет более полно использовать грузоподъемность автотранспортных средств.
Технологическая последовательность разрушения конструкций элементов здания приведена на схемах, представленных на рис. 13.7.

Рис. 13.7.
Технологические этапы сноса крупнопанельного здания
а - демонтаж торцевых
наружных панелей; б -
слом конструкции 1,2 и цокольного этажей; в - погрузка боя; г
- очередность разрушения панелей наружных стен; д - то же, перекрытий и внутренних
стен
Она определяется с учетом конструктивных особенностей зданий и должна исключать потерю устойчивости и самопроизвольное падение конструкций.
Совместная работа двух экскаваторов обеспечивает интенсивный процесс демонтажа надземной части зданий.
Для разработки цокольной и подвальной частей используется экскаватор Hitachi. Им же осуществляется отрывка котлована под вновь возводимое здание.
Более технологичной является схема осевой проходки экскаватора. Она обеспечивает непрерывный цикл разрушения этажей здания и погрузки боя, более рациональное использование автотранспортных средств (рис. 13.8). Данная схема производства работ позволяет снизить технологические перерывы в работе экскаваторов и транспортных средств. Кольцевая схема дорог снижает технологические простои самосвалов и обеспечивает более рациональную схему движения транспорта.

Рис. 13.8. Технология демонтажа крупнопанельного 5-секционного жилого дома с осевой проходкой экскаватором Liebherr и погрузкой боя экскаватором Hitachi (фрагмент стройгенплана)
Для оптимизации процессов разрабатываются технологические карты, включающие схемы производства работ, определение стоянок механизмов и продолжительности ведения работ. В технологических расчетах дается анализ себестоимости производства работ, который определяется как сумма эксплуатационных затрат на работу экскаваторов, транспортных средств, подъемников и зарплату рабочих, связанных с демонтажом внутреннего оборудования.
Особое место отводится расчету транспортных средств, обеспечивающих непрерывную работу экскаваторов.
Требуемое число транспортных
средств определяется по зависимости
где tп - время погрузки транспортной единицы с учетом продолжительности
маневров; L - дальность транспортировки боя конструкции; vcp - средняя скорость движения; tp - время разгрузки.
При движении автотранспортных средств в условиях города определяется оптимальный маршрут, а также учитываются статистические данные по напряженности или загрузке этого маршрута в разное время суток. Эти данные позволяют более точно определить среднюю скорость движения и, соответственно, количество транспортных средств.
Продолжительность погрузки одного самосвала определяется по нормативным данным с учетом массы боя конструкций, грузоподъемности автосамосвала и эксплуатационной производительности экскаватора tn = Нв60Мб/Еп, где Нв - норма времени экскаватора на погрузку; Мб - средняя масса боя, загруженного в автосамосвал; Еп - норма времени, маш.-ч, на погрузку 10 т боя.
В зависимости от крупности разрушения сборных элементов коэффициент использования самосвала по грузоподъемности колеблется в пределах 0,6-0,8. С учетом случайных параметров скорости движения и коэффициента по грузоподъемности, число автомобилей принимается таким образом, чтобы образовалась некоторая очередь под погрузку. Это обстоятельство является необходимым условием непрерывной работы экскаваторов и является фактором, снижающим себестоимость работ.
Предположим, что на разрушение объекта привлечены r экскаваторов и п машин для перевозки продуктов разрушения. Среднее время погрузки одной машины равно v-1, а среднее время автосамосвала в пути l-1.
Если в момент прибытия автосамосвала на объект экскаваторы заняты, то машина становится в очередь под погрузку.
Пусть х(t) - количество машин, которые находятся на объекте в момент t. Процесс х(t) является случайным в силу того, что время транспортирования имеет случайный характер в силу технических причин и наличия «пробок», как и сам процесс, из-за различной степени армирования разрушаемых конструкций и их габаритов.
Сделанные предположения означают, что время нахождения автосамосвала в пути и время погрузки имеют показательное распределение соответственно с параметрами l и v. Математическая модель позволяет получать явные формулы для различных характеристик и решать частные задачи при организации производства.
Пусть Pk(t) обозначает вероятность того, что в момент t на объекте имеется к машин.
Тогда для 0 £ к £ п Pk(t + h) = Pk(t)P - за время h ни одна машина не выполнила погрузку; +Pk-1(t)P - одна машина прибыла и стала в очередь под погрузку; +Pk+l(t)P - одна машина выполнила погрузку +о(h).
Это позволяет выявить следующие соотношения:
P0(t + h) = P0(t)(1 - lnh) + P1(t)vh + o(h) для 0 < к < r;
Pk(t + h) = Pk(t)(1 - l(n - k)h - vkh) + Pk-1(t)l(п - к + 1)h + Pk+l(t)(k + 1)vh + o(h)
для r £ к < n,
Pk(t + h) = Pk(t)(1 - l(n - k)h - rvh) + Pk-1(t)l(n - к + 1)h + rvhPk+1(t) + o(h);
Pn(t + h) = Pn(t)(1 - rvh) + (п - 1)lPn-1(t)h + o(h).
Отсюда получаем систему дифференциальных уравнений
![]()
P¢k(t) = (-l(п - к) + vk)Pk + l(п - к+ 1)Рк-1 + v(k + 1)Pk+l для 0 < к < r;
P¢k(t) = - (l(п - к) + rv)Pk + l(п - к+ 1)Рк-1+ rvPk+l для r £ к < n;
P¢n = -rvPn(t) + Чп - l(п - 1)Рп-1
При стационарном распределении
и получаем систему уравнений, если положим P¢n(t) = 0.
Решение такой системы имеет следующий вид

где

При работе одного экскаватора (r = 1)

В качестве критерия эффективности, по которому можно выбирать оптимальное число машин для данного количества экскаваторов, необходим учет стоимости С0 - простоя экскаватора и С1 - стоимость простоя машин.
Зная вероятность различных состояний Рк, определяем время простоя экскаваторов
![]()
а при r = 1 L = Р0.
Среднее время простоя машин ![]()
Для одного экскаватора (r = 1) 
Средние издержки в единицу времени составят W(n) = C0L + С1М.
Вероятность того, что экскаватор простаивает при времени погрузки r = 0,2, когда число автосамосвалов п = 4, составляет L = 0,1914, а средний простой автосамосвалов М = 0,5810.
Технология разрушения зданий, как правило, предусматривает использование двух экскаваторов, один из которых производит разрушение верхних этажей с размещением боя на нижних этажах и созданием бермы для расположения второго экскаватора, который непосредственно осуществляет цикл погрузки боя и последовательного разрушения нижележащих этажей.
Исследование математической модели такой технологии показало, что на различных этажах разборки и перевозки продуктов разрушения среднее время простоя экскаваторов может достигать L = 0,5-0,7 при среднем числе простаивающего автотранспорта М = 0,3-0,35.
В зависимости от принятой технологии осуществляется расчет параметров среднего времени простоя машин, оптимизации их потребного количества и минимизации экономических потерь.
На рис. 13.9 приведен фрагмент технологической карты на демонтаж крупнопанельного дома при совместной работе двух экскаваторов. Он включает циклограмму работы каждого из экскаваторов и автосамосвалов в соответствии с технологической последовательностью демонтажа ячеек здания, фундаментов и отрывки котлована под новое здание.

Рис. 13.9.
Технология демонтажа крупнопанельного дома при совместной работе двух
экскаваторов
а - циклограмма
технологического процесса демонтажа; б - технологическая последовательность демонтажа экскаватором «LIEBHERR R 942»; в - технологическая последовательность
демонтажа экскаватором «HITACHI EX
400»
Для сноса зданий повышенной этажности из кирпича и бетона создан самый большой 100-тонный экскаватор японской фирмы Komatsu. Он оборудован многосекционной стрелой с гидроприводом, что позволяет вести работы на высоте 40 м. Экскаватор оснащен системой оповещения машиниста об опасном наклоне стрелы, с помощью установленной телекамеры он может наблюдать за процессом обрушения. Стрела экскаватора оснащена системой подачи и распыления воды, что снижает запыленность рабочей зоны, повышает обзор и обеспечивает нормальные условия работы.
На рис. 13.10 приведены рабочие моменты разрушения зданий различных конструктивных схем с использованием экскаваторов различных модификаций.

Рис. 13.10.
Рабочие моменты сноса зданий
а - экскаватором Liebherr, оборудованным 4-звеньевой
стрелой; б - то же,
экскаватором Hitachi; в - то же, двумя экскаваторами; г - 100-тонным экскаватором Komatsu с пятизвеньевой
стрелой
Количество строительных отходов при сносе и разборке зданий ежегодно возрастает. Так, в Москве с 2000 по 2005 г. объемы возросли с 200 тыс.м3 до 900 тыс.м3. Большая часть отходов вывозится на подмосковные полигоны и несанкционированные свалки, и только чуть более 10 % подвергаются переработке. Она является единственным экологически приемлемым способом утилизации строительных отходов.
При разрушении зданий образуются разнообразные отходы. Среди них 30-40 % - бетонные отходы, пригодные к дальнейшей переработке.
Получаемый в результате переработки бетона и кирпича щебень используется при изготовлении строительных материалов для возведения основания под дороги и фундаментные плиты, при благоустройстве территорий и т.п.
Исследования, проведенные в МГСУ, показали, что из вторичного сырья возможно получение бетонов классов В15-В20 с плотностью 2,18-2,20 т/м3 и расходом цемента 400- 450 кг/м3. Применение пластификаторов и других химических добавок способствует получению морозостойких сборных и монолитных конструкций.
Проблема переработки строительных отходов требует использования мобильного и высокопроизводительного дробильного оборудования, обеспечивающего получение материала требуемого качества.
Анализ эффективности использования различного дробильного оборудования показал, что для получения заполнителей для бетонов наиболее приемлемыми являются системы, оборудованные роторными или конусными дробилками, которые обеспечивают получение до 70 % фракций в диапазоне от 0,25 до 40 мм.
Переработка отходов железобетона и кирпича осуществляется на специальных полигонах или площадках массового сноса зданий, где размещаются мобильные дробилки, например фирмы PARKER PLAHT, с производительностью до 450 м3 в смену (рис. 13.11).

Рис. 13.11.
Мобильные установки для переработки вторичного железобетона и
строительных отходов фирмы PARKER
а - производительность
до 200 т/ч с максимальным размером кусков до 400 мм; б - производительность до 400 т/ч с
максимальным размером кусков до 1000 мм; в - на базе конусных дробилок производительность до 380 т/ч с
максимальным размером кусков до 250 мм; г, д - рабочие моменты переработки отходов разборки зданий
Подача боя в дробилку осуществляется после сортировки экскаватором-погрузчиком на пневмоходу. Использование различного навесного оборудования обеспечивает дополнительное разрушение конструкций на требуемые габариты и подачу в загрузочный бункер дробилки.
Дробилка снабжена ленточным транспортером, по которому перемещаются в зону складирования материалы переработки в виде щебня. Как показала практика ведущей фирмы «Сатори», переработка отходов от разработки зданий в 2 раза дешевле, чем захоронение их на полигонах.
Получение материала в виде песка и щебня различной фракционности позволяет вторично использовать их при производстве бетонных и железобетонных изделий, а также для приготовления товарного бетона.
Следует отметить, что процесс переработки отходов требует создания технологических линий по разделению материалов из дерева, полимерных композиций и др., что является достаточно трудоемким и требующим механизации процессом.
Так, для извлечения битума от разборки плоских кровель разработана технология выпаривания, обеспечивающая отделение мастики от основы рулонных материалов. Она включает установку для размельчения, транспортер для подачи в технологическую емкость, сбора расплавленного битума в емкости. По мере наполнения основа извлекается из установки.
Разработаны установки цикличного и непрерывного действия, что позволяет получать высококачественный битумный материал для повторного использования.
Подобные технологии разработаны для утилизации дерева с измельчением, полимерных и других материалов от сноса жилых зданий.
Реконструкция застройки городов предусматривает оценку жилых территорий с учетом их местоположения в плане, по планировочным признакам, этажности, плотности застройки и удельному весу зданий опорного жилого фонда. Особое значение приобретает учет историко-архитектурной ценности зданий и городского ландшафта. В зависимости от места расположения и планировочных признаков жилые территории, подлежащие реконструкции, можно разделить на пять категорий.
К первой категории относится застройка в историческом центре городов. Она отличается разнообразием архитектурно-планировочных решений зданий и многократно перепланировывалась, приспособляясь к новым условиям функционирования. Стремление максимально использовать площади квартальной застройки привело к возведению разнообразных по форме и очертанию в плане зданий. Планировочная организация таких территорий отличается большой сложностью и индивидуальностью. Участки с жилыми зданиями переплетаются с предприятиями учреждениями быта и культуры.
Ко второй категории застройки относятся территории, прилегающие к историческому центру городов. Они возникали путем поглощения деревень и пригородных зон. Застройка отличается меньшей плотностью и наличием значительного количества мелких и средних производств. Размеры кварталов существенно возрастали с некоторым снижением плотности застройки. Реконструкция таких территорий связана с преобразованием планировочной системы, подчиняя ее современным требованиям комфортности.
Третья категория территорий представляет собой промышленно-жилые зоны бывших окраин городов. Рядом с заводами и фабриками выросли рабочие поселения и жилые кварталы. Данный вид дореволюционной застройки, сохранившийся во многих городах, отличает структура с расположением зданий вдоль магистралей. Основой реконструкции таких территорий являются вывод производств за пределы городской черты, адаптация производственных зданий под жилые, административные или экологически чистые производства.
Четвертая категория застройки относится к довоенному и послевоенному периоду 1940- 50-х годов. Характерной особенностью комплексной застройки данного периода является переход на типизированные жилые дома с включением учебных, дошкольных и административных зданий в квартальную застройку. Ориентация жилых зданий осуществлялась вдоль магистралей, что экологически нерационально с точки зрения шумового и динамического режимов воздействия транспортных средств.
Пятая категория представляет собой застройку 1950-60-х годов типовыми зданиями первых индустриальных серий. В планировочном отношении она соответствует современным градостроительным нормам, возможны дополнительное благоустройство и ее уплотнение.
Следует выделить несколько первоочередных параметров застройки, требующих неотложных мер по их реабилитации.
Главным дефектом застройки является высокий износ коммуникаций, что требует неотложного вмешательства в решение этой задачи.
Не менее важным является физический и моральный износ зданий, требующий восстановительных и реконструктивных мер.
Особое внимание должно уделяться надежности энергообеспечения реконструируемых зданий с учетом возросшего энергопотребления при использовании современной бытовой техники и другого инженерного оборудования, повышению пожаробезопасности и других показателей эксплуатационной безопасности.
Поквартальная комплексная реконструкция жилого фонда городов является наиболее рациональной формой восстановления, обновления и продления жизненного цикла зданий, более рационального использования наземной территории, подземного пространства и инженерных сетей.
Реализация проекта реконструкции представляет собой достаточно сложную многофакторную задачу, решение которой зависит от положения квартала в городской застройке; уровня реконструктивных работ, полноты информационного обеспечения, глубины маркетинговых исследований при формировании строительных программ, обладающих высокой экономической надежностью. Немаловажная роль при разработке проектов отводится фактору риска, основанному на финансовом прогнозировании инвестиций. Положительный результат маркетинговых исследований по инвестиционному строительству проекта реконструкции в условиях конкуренции и инфляции может быть получен при надежном финансовом прогнозировании, учитывающем ретроспективные данные оценки инфляционных процессов и ценовой ситуации в строительстве.
Особое место в проектах комплексной реконструкции квартала застройки отводится приоритетным областям строительной деятельности, готовая продукция которых обладает повышенным спросом. К ним следует отнести кроме увеличения жилищного фонда объекты инфраструктуры: коммерческого и торгового назначения, офисы, гостиницы и др. Лавинообразное увеличение личного автотранспорта ставит задачу рационального использования территорий и подземного пространства для возведения стоянок и гаражей. Их внутриквартальное расположение в непосредственной близости к местам проживания обеспечивает повышенный спрос и доходность инвестирования таких объектов.
Реконструкция объектов жилого фонда с внутри квартальным расположением позволяет получить жилье с повышенным уровнем комфортности. Это обстоятельство обеспечивает его коммерческую значимость и ликвидность. Уплотнение застройки позволяет получать новое жилье с более высокими эксплуатационными характеристиками.
Реконструкция квартальной застройки зависит от многих градостроительных факторов и в первую очередь от их архитектурной ценности, этажности, плотности размещения и роли района в развитии города.
При оценке проекта реконструкции кварталов особое внимание следует уделять аэродинамике застройки, когда наличие сквозных пространств создает условия многократного увеличения скоростей воздушных потоков, возникновения различного рода турбулентных явлений, способствующих не только повышению теплосъема с поверхности зданий, но и дискомфортному состоянию жильцов. Не менее важным вопросом является принятие решений по снижению параметров шума от автотранспорта и других средств передвижения.
Новое архитектурно-планировочное решение застройки должно быть оптимизировано на предмет размещения внутриквартальных дорог, зон отдыха, объектов бытового обслуживания в «шаговой» доступности, учета рельефа местности, использования экологически чистых материалов, например покрытий из тротуарной плитки вместо асфальтобетона и др.
Увеличение плотности застройки требует значительных затрат по замене сетей коммуникации: канализационных, водоснабжения, энергосистем и др., которые, как правило, имеют предельный физический износ или не обеспечивают возросшие нагрузки.
Отечественный и зарубежный опыт реконструкции в крупных городах свидетельствует о многообразии технических решений по обновлению застройки. Можно выделить несколько технических подходов в решении данной проблемы:
I - полный снос ветхих, морально и физически устаревших жилых домов и волновое переселение жильцов во вновь построенные;
II - передвижка зданий, имеющих архитектурно-историческую ценность, с последующей реставрацией;
III - сохранение зданий с надстройкой 2-4 этажами и частичным сносом отдельных строений, строительством точечных многоэтажных домов и освоением подземного пространства путем возведения заглубленных строений;
IV - сохранение жилого фонда с устройством многоэтажных вставок в сочетании с надстройкой и обстройкой жилых домов;
V - надстройка одно- и двухуровневыми мансардными этажами с производством работ без отселения жильцов;
VI - реконструкция жилых домов известными методами с уплотнением застройки и с освоением подземного пространства под спортивными площадками, дворовыми территориями, внутриквартальными дорогами и др.
Решение комплекса задач организационно-технологического проектирования наиболее рационально с применением ЭВМ. Это предусматривает широкое использование базы данных по новым технологиям, средствам механизации, организационно-технологическим решениям с учетом опыта реконструктивных работ в различных районах РФ и за рубежом. В то же время упрощается решение оптимизационных задач, существенно влияющих на основные показатели, - стоимость, продолжительность реконструктивных работ, доходность реализации проектов.
Реконструкция жилого фонда квартала застройки требует детального планирования и экономической оценки. Причем экономические показатели принятых решений должны учитывать эксплуатационную надежность на длительный срок эксплуатации (более 50 лет). В соответствии с генеральным планом микрорайона осуществляются выделение приоритетных очередей и определение последовательности выполнения реконструктивных работ, сроков производства и реализации готовой продукции. При этом определяющим фактором является создание переселенческого фонда, который требует не только большого объема инвестиций, но и увеличения площадей в 1,7-1,8 раза за счет расселения жильцов в соответствии с действующими нормативами.
Снос морально устаревших с критическим износом конструктивных элементов зданий позволяет полностью обновить квартальную застройку, многократно увеличить площади жилых зданий, создать инфраструктуру, отвечающую нормативным требованиям.
На рис. 14.1 приведен пример волновой формы сноса и строительства новых зданий. В результате такой формы реконструкции достигается более чем 5-кратное увеличение площадей. Процесс реконструкции, как правило, разбивается на несколько периодов по очередности сноса и переселения жильцов с плановыми сроками возведения новых зданий.

Рис. 14.1. Реконструкция квартала застройки методом последовательного сноса жилого фонда и нового строительства (Москва, Хорошево-Мневники)
Вариант надстройки жилых домов 3-4 этажами применим для жилых домов с невысоким уровнем физического износа. Процесс реконструкции состоит кроме надстройки и перепланировки реконструируемых зданий в частичном сносе и возведении на освободившейся территории жилых домов и заглубленных сооружений.
На рис. 14.2 приведены фрагмент ситуационного плана и проектные предложения по реконструкции двух жилых домов с надстройкой, сносу одного из трех, строительству на освободившейся территории многоэтажного жилого дома и подземной автостоянки на 200 маш./мест.

Рис. 14.2.
Реконструкция застройки из 3-, 5-этажных жилых домов
а - ситуационный план до
реконструкции; б -
после; в - общий вид
застройки после реконструкции;
1 - реконструируемые
жилые дома; 2 - сносимый
жилой дом; 3 - многоэтажный
жилой дом переселенческого фонда; 4 - подземная автостоянка; 5 - реконструкция с уширением
корпусов, надстройкой и пристройкой (6)
к торцевым частям зданий
Технологическая последовательность производства работ состоит в первоначальном возведении переселенческого фонда, последовательной надстройке двух жилых домов, сносе и возведении заглубленной автостоянки.
Комплексная реконструкция группы зданий создает условия более плотной застройки, получения квартир, отвечающих современным требованиям, рационального использования подземного пространства, улучшения экологической ситуации.
Одними из архитектурно-строительных приемов реконструкции являются кроме надстройки зданий устройство многоэтажных вставок между существующими корпусами, создание блочной системы разноэтажных зданий с учетом положения объектов в квартальной системе. Такое решение позволяет принять технологию малоэтажной надстройки существующего жилого фонда как менее затратную и социально эффективную.
Высокая рыночная стоимость единицы продукции возводимых зданий с более высоким качеством жилья повышает доходность инвестиций и снижает степень риска. Это позволяет провести цикл реконструктивных работ с заменой внешних сетей и перепланировкой внутриквартального пространства.
На рис. 14.3 приведены застройка квартала 5-этажными домами серий 1-510, 1-511, 1-515, расположение школ, детских садов и других зданий инфраструктуры.

Рис. 14.3.
Пример реконструкции квартала застройки
1, 2, 3 - надстройка
зданий из объемных блоков; 4, 5
- надстройка зданий 2-3 этажами с устройством вставок; 6 - площадка для размещения подземного
гаража стоянки; 7 - новое строительство с подземной автостоянкой 8; 9 - встройка и пристройка
зданий
Реконструкция квартала застройки предусматривает надстройку жилых домов с увеличением высоты на 2-3 этажа, устройство встроек между корпусами высотой 10-12 этажей, возведение новых жилых зданий с подземными гаражами на месте сносимых и другие решения по уплотнению застройки.
Территория квартала разбивается на секторы, которые определяют последовательность производства работ. Особое внимание уделяется сохранению и расширению инфраструктуры квартала, созданию сети дорог, восстановлению и повышению эксплуатационной надежности систем канализации, горячего и холодного водоснабжения, увеличению мощности трансформаторных подстанций и др.
При возведении новых зданий и вставок первые этажи выделяются под магазины, офисы, службы бытового обслуживания. В зависимости от расположения квартала застройки возможно использование встроек и нового строительства под гостиницы.
Школы и детские сады подлежат реконструкции с учетом демографического состава населения и увеличения его численности.
Реконструкция застройки предусматривает развитие сети спортивных сооружений как наземного, так и подземного размещения. Характерными примерами рационального использования подземного пространства являются размещение заглубленных сооружений под открытыми спортивными площадками, возведение бассейнов, фитнес-клубов и др.
Мировой опыт жилищного строительства свидетельствует о том, что развитие жилой среды должно идти по пути создания объемно-пространственных форм, сочетающих здания средней и малоэтажной (2-4 этажа) внутриквартальной застройки. Только совокупность малоэтажных и многоэтажных жилых домов обеспечивает комфортность среды обитания и плотность застройки, соответствующие урбанизированным условиям современного строительства.
Основным принципом формирования застройки путем ее реконструкции является органичное сочетание сохраняемых зданий, новой застройки в виде жилых точечных домов и сбалансированных разноэтажных или малоэтажных построек.
При разработке проектов реконструкции квартала застройки должны учитываться демографические прогнозы развития и роста населения, что приводит к необходимости создания или расширения объектов инфраструктуры: дошкольных и школьных учреждений, предприятий общественного назначения - торговых точек, выставочных залов, клубных, спортивно-оздоровительных комплексов и т.п.
С целью повышения плотности застройки и уровня ее благоустройства должны возводиться гаражи для личного автотранспорта в подземных и цокольных этажах проектируемых жилых домов, под спортивными площадками и внутриквартальными дорогами.
Вариант реконструкции квартала застройки, включающий снос пятиэтажек серии К-7 и возведение на освободившейся территории домов точечного типа для переселенческого фонда, малоэтажных (до 4 этажей) сблокированных домов, устройство подземной автостоянки под спортивным комплексом, и другие решения, повышающие уровень комфортности, приведены на рис. 14.4.

Рис. 14.4.
Вариант реконструкции квартала застройки
с малоэтажной застройкой жилыми сблокированными домами
1 - существующие здания; 2
- жилые дома повышенной этажности; 3, 4 - сблокированные малоэтажные жилые дома; 5 -
подземная автостоянка
В зависимости от планировочного решения, расположения относительно центра города и магистральных улиц варианты реконструкции квартальной застройки могут принимать различные индивидуальные решения, направленные прежде всего на уплотнение застройки и повышение комфортности среды обитания. Одним из важных показателей при реконструкции застройки является исключение негативного влияния аэродинамического эффекта, что достигается путем образования замкнутой или полузамкнутой структуры домов с устройством вставок различной этажности. Малоэтажная надстройка реконструируемых зданий и устройство вставок, а также точечных домов переселенческого фонда позволяют в 2,5-3,2 раза увеличить плотность застройки. Социальный эффект реконструкции повышается за счет использования 1-2 нежилых этажей вставок под магазины, предприятия обслуживания населения и др. цели.
Использование подземного пространства спортивной площадки под автостоянку способствует более рациональному использованию наземного пространства за счет освобождения от временных тендовых укрытий личного автотранспорта.
Реконструкция микрорайонов, как правило, должна носить комплексный характер, включая новое строительство, использование подземного пространства, восстановление или перекладку внешних сетей, внутриквартальных дорог, объектов инфраструктуры. Квартальная застройка разбивается на очереди производства работ с технологической увязкой всех строительно-монтажных работ. Особое место при этом отводится численному и демографическому составу жильцов, наличию и соотношению муниципальной и приватизированной собственности.
Проектные решения по реконструкции такой застройки согласуются с проживающими, что является достаточно важной психологической задачей.
На рис. 14.5 приведена схема реконструкции квартала застройки по ул. Малая Ботаническая района Марфино СВАО г. Москвы. Она включает восемь 3-4-секционных жилых домов с кирпичными стенами высотой 4-5 этажей.

Рис. 14.5.
Схема генплана реконструкции квартала застройки по ул. Малая Ботаническая
1 - нереконструируемые здания; 2 - жилые 4-5-этажные дома с кирпичными стенами, подлежащие
реконструкции; 3 -
9-этажные вставки между реконструируемыми домами; 4 - односекционные жилые дома нового
строительства; 5 - вариант подземной автостоянки в дворовой части; 6 - мобильный бетоносмесительный узел
Предпроектными разработками предусматриваются устройство вставок высотой до 9 этажей, возведение жилых домов точечного типа высотой 12 этажей, обстройка реконструируемых зданий с надстройкой двух этажей.
Особое значение при уплотнении застройки отводится возведению вставок между реконструируемыми домами. Такое решение обеспечивает создание полузамкнутого планировочного пространства, что обеспечивает повышение комфортности дворовых участков.
Одним из вариантов проектных решений является использование подземного пространства дворового участка под заглубленную автостоянку.
Для обеспечения производства работ в монолитном железобетоне на свободной площадке реконструируемой территории размещается мобильный бетоносмесительный узел.
Реконструкция застройки первой очереди (рис. 14.6) предусматривает 4 этапа производства работ.

Рис. 14.6. Поэтажный план реконструкции группы жилых домов по ул. Малая Ботаническая
I этап включает возведение 9-этажной блок-секции (36 кварт.), которая является переселенческим фондом для жилого дома № 23.
II этап состоит в реконструкции дома № 23 и нового строительства 9- и 12-этажных блок-секций. По окончании возведения осуществляется переселение жильцов из 19-го и 21-го жилых домов.
III этап включает непосредственно реконструкцию двух жилых домов и возведение 9-этажной вставки между ними.
IV этап совмещается по времени с реконструкцией и новым строительством и состоит в устройстве заглубленной автостоянки.
По завершении III этапа все жители расселяются по своим реконструированным квартирам, а дополнительная площадь реализуется на коммерческой основе с преимущественным правом жильцов реконструируемых зданий и микрорайона.
Для обеспечения планомерного ввода жилых помещений разрабатываются календарные и сетевые графики. Каждому из жильцов предоставляется право заселения квартир в соответствии с разработанной программой. Реконструкция 4-этажных домов (№ 19, 21, 23) осуществляется путем надстройки двух этажей и пристройки объемных элементов, обеспечивающих увеличение площади кухонь и прилегающих комнат на 8 м2.
Для принятия технических решений по надстройке осуществляются натурные обследования технического состояния зданий, а также маркетинговые исследования.
В основе реконструкции заложен принцип максимального использования индустриальных технологий при надстройке и обстройке зданий.
Обстройка жилых домов осуществляется с применением объемных блоков заводской готовности. Это позволяет увеличить площадь кухонь на 8 м2, осуществлять пристройку лифтовых шахт с минимальными трудозатратами на строительной площадке. На рис. 14.7 приведены планы типовых этажей, характеризующие изменения планировочных решений.

Рис. 14.7.
Технологическая последовательность реконструкции застройки (а) и
архитектурно-планировочные решения (б)
1 - жилой дом № 21; 2, 3 - то же, № 19, 23; 4, 5 - новое строительство
За счет пристройки эркеров достигается приращение площадей в сумме до 2041,2 м2.
Надстройка этажей производится объемными рамными блоками с последующим заполнением стенового ограждения энергоэффективными мелкоштучными блоками.
Возведение 2-этажной надстройки дает приращение площади на 4150,1 м2.
Для повышения энергоэффективности зданий осуществляются замена оконных и балконных заполнений, утепление стен с устройством защитных покрытий.
Параллельно с надстройкой этажей выполняются работы по замене систем отопления и другого инженерного оборудовании.
Показатели прироста площадей приведены в таблице 14.1, которые свидетельствуют о более чем 3-кратном увеличении.
Таблица 14.1
|
Общая площадь в домах № 19, 21, 23 до реконструкции (сущ. фонд), м2 |
Прирост общей площади за счет реконструкции, м2 |
Общая площадь после реконструкции, м2 |
|||
|
Новое стр-во |
Надстройка двух эт. |
Пристройка эркеров |
Всего |
||
|
7054,7 |
12273 |
4150,1 |
1246,4 |
17669,5 |
24723 |
|
|
|||||
Получено дополнительных площадей: за счет надстройки и пристройки - 5396,5 м2. В результате нового строительства - 12273 м2.
Пристройка дополнительных объемов позволяет увеличить общую площадь в квартирах с 18,6 м2/чел. до 21,95 м2/чел.
При этом для квартир муниципальной собственности с 14,4 м2/чел. до 23,2 м2/чел., что свидетельствует о достаточно высокой социальной и экономической эффективности проекта.
Обновление жилого фонда комплексным методом реконструкции приводит к существующему улучшению архитектурной выразительности застройки (рис. 14.8), уходу от однообразия и серости построек.

Рис. 14.8. Ул. Малая Ботаническая до реконструкции (а) и после (б)
Архитектурно-планировочное решение комплекса зданий отличается единым стилем проработки фасадов, кровельной части и цветовой гаммы. Оно формируется пристраиваемыми и выступающими из плоскости стен объемами эркерного типа вдоль фасадов, остекленными лоджиями и надстраиваемыми этажами.
Особый случай представляет реконструкция застройки, прилегающей к центральной части крупных городов, имеющей важное архитектурное значение. Она характеризуется наличием малоэтажных зданий различных периодов постройки с высокой плотностью размещения (рис. 14.9).

Рис. 14.9. Пример квартальной застройки высокой плотности с разновременными постройками
Данный вид реконструкции предусматривает максимально полное использование участка застройки и включает: надстройку зданий, пристройку дополнительных объемов и освоение подземного пространства под свободной дворовой площадью. Такая градостроительная ситуация характерна для центральной части крупных городов с достаточно плотной застройкой жилыми домами конца XIX-начала XX в.
Многоэтажные (6-7 эт.) доходные дома, особняки и др. здания этого периода постройки характеризуются высокой плотностью размещения фундаментов, большой высотой этажей (3,6-4,0 м) и шириной корпуса 16-18 м, кирпичными стенами толщиной до 0,8 м, перекрытиями по металлическим или деревянным балкам, узким шагом оконных проемов, достаточно гибкой планировкой помещений, индивидуальным решением архитектуры фасадов. Как правило, границы участка имеют прилегающую застройку постройками различного уровня капитальности.
Стесненные условия застройки требуют применения технологий производства работ, обеспечивающих совмещение процессов, интенсивных методов, возведения пристроек, совмещенного производства земляных и бетонных работ.
Для реализации проекта реконструкции разрабатываются ППР и технологические карты на основные виды работ. Особое место отводится геотехническим исследованиям и методам усиления фундаментов реконструируемого и примыкающих зданий, а также выбору методов производства работ, исключающих негативное влияние на соседние здания.
На рис. 14.10 приведен ситуационный план фрагмента квартальной застройки, который помимо указанных факторов имеет малую ширину транспортных проездов, что затрудняет или исключает размещение грузоподъемных механизмов с фасадной стороны зданий.

Рис. 14.10. Фрагмент ситуационного плана реконструкции жилого дома (1) с пристройкой секции (2) и устройством заглубленной автостоянки (3) при плотном размещении соседних зданий (4)
Комплексная реконструкция включает замену перекрытий 6-этажного жилого дома постройки начала XX в., надстройку аттикового этажа, пристройку секции на полную высоту основного здания и устройство заглубленной автостоянки на 20 маш./мест (рис. 14.11).

Рис. 14.11.
План подземной части
1 - реконструируемого здания; 2 - пристройки; 3
- автостоянки
Максимальное совмещение технологических процессов достигается путем использования легких башенных кранов типа Liebcherr с вылетом стрелы, обеспечивающим обслуживание реконструируемой и пристраиваемой частей, бетононасосов на автошасси и стационарного типов, индустриальных опалубочных систем, землеройно-транспортных машин и др. специальной техники. Общая технологическая схема производства работ иллюстрируется на рис. 14.12. Совмещение технологических процессов обеспечивает снижение общего цикла строительно-монтажных работ.

Рис. 14.12. Технологические схемы производства работ по замене перекрытий, надстройке аттикового этажа и многоэтажной пристройки
При плотной застройке особое внимание уделяется мониторингу работ и мерам по обеспечению устойчивости примыкающих соседних зданий методами усиления их фундаментов, устройства ограждающих стенок при освоении подземного пространства дворовой части.
При реконструкции квартала застройки малоэтажными зданиями различного технологического назначения с высокой степенью износа конструктивных элементов применяют метод сноса строений с последующим возведением административно-коммерческих и жилых комплексов с максимальным использованием подземного пространства.
На рис. 14.13 приведен проект реконструкции первой очереди застройки Трубной площади (г. Москва), где на месте сноса малоэтажных зданий возводится торгово-административный комплекс с заглубленной частью в 4 этажа с общей площадью более 60 тыс. м2 и комплексом сблокированных 7-9-этажных жилых зданий улучшенной планировки с подземными гаражами.

Рис. 14.13.
Проект реконструкции застройки района Трубной площади в Москве
а - ситуационный план; б, в - продольный и поперечные
разрезы; 1 - торгово-административный
корпус; 2 - сблокированные
7-9-этажные жилые дома; 3 - подземная
автостоянка под всей площадью застройки
Сложные инженерно-геологические условия (насыпные грунты, высокий уровень грунтовых вод, уклон площадки, большая глубина водоносного слоя и др.) потребовали возведения противофильтрационной безанкерной завесы методом «стена в грунте» с жесткой гидроизоляцией, использования модифицированных бетонов, современных технологий и мобильных средств механизации.
Данный вид реконструкции коренным образом меняет структуру застройки и требует больших инвестиционных затрат с достаточно высокой степенью окупаемости.
Представляет значительный интерес и градостроительную значимость реконструкция жилой застройки, включающая здания промышленного назначения. Данный прием реконструкции предусматривает перепрофилирование зданий в административные и офисные, снос ветхих промзданий и прилегающих строений, возведение на освободившейся территории современных жилых комплексов.
Такая градостроительная ситуация характерна для многих районов крупных городов, когда здания нежилого назначения, в том числе промышленные, оказываются приближены к центральной части.
На рис. 14.14 приведен ситуационный план реконструкции квартала застройки ЦАО Москвы, где наряду с жилыми зданиями опорного фонда размещены два 11-этажных каркасно-панельных здания лабораторно-производственных корпусов НИИ шинной промышленности, а также трехпролетное промздание, которое первоначально было трамвайным парком, затем заводом и в начале 90-х годов реконструировано под фондовую биржу. Основные задачи реконструкции застройки, прилегающей к центральной магистрали города, это ее уплотнение путем возведения жилого комплекса и реконструкция многоэтажных зданий промышленного назначения с их перепрофилированием.

Рис. 14.14.
Ситуационный план комплексной реконструкции застройки микрорайона ЦАО
Москвы
I - первая очередь возведения жилого комплекса с подземной
автостоянкой; II
- то же, вторая очередь; III,
IV - реконструкция каркасных зданий с надстройкой этажей и
пристройкой объемов
Реконструкция каркасно-панельных зданий производственного назначения осуществлена путем полной перепланировки, надстройки одного этажа, пристройки многоэтажной этажерки с лифтово-лестничным узлом, двухсветного пристроенного холла и пристройки с торцевой части 4-этажного объема. Произведены замена оконных заполнений, утепление стенового ограждения с созданием вентилируемого фасада с облицовкой стеклянными панелями.
Многоэтажная этажерка выполнена в металлическом каркасе с монолитными междуэтажными перекрытиями и облицовкой вертикальных металлоконструкций кирпичом.
Пристраиваемые объемы возведены в безбалочной монолитной системе со стенами из многослойной кирпичной кладки.
Производство работ осуществлялось с использованием легкого приставного крана для монтажа металлоконструкций, кранов на пневмоходу при возведении пристройки, навесных люлек для утепления наружных стен, создания каркаса и навески панелей вентилируемого фасада.
При возведении пристраиваемой части с несущими конструкциями из монолитного железобетона использовалась инвентарная опалубка колонн и перекрытий. Подача и укладка бетонной смеси производились автобетононасосом.
Процесс перепланировки помещений осуществлялся по вертикально-нисходящей схеме, что позволило осуществлять цикл отделочных работ начиная с верхнего этажа.
В соответствии с назначением здания выполнен цикл специальных работ по кондиционированию помещений, устройству приточно-вытяжной вентиляции, электроснабжению и прокладке сетей общего пользования, системы ЭВМ и др.
В результате реконструкции получено современное доминантное здание с высокой архитектурной выразительностью.
Комплекс сблокированных жилых зданий 7, 14, 16 и 22 этажей состоит их двух очередей строительства. Их плановое размещение симметрично осевой линии между существующими жилыми домами, что обеспечивает получение полузамкнутой схемы с максимальным использованием подземного пространства в качестве гаража-стоянки. Первые этажи комплекса являются нежилыми и предназначены для офисов, торговых точек и предприятий по обслуживанию.
Основная конструктивная схема представляет монолитную каркасно-стеновую систему с элементами жесткости в виде лестнично-лифтовых узлов.
Фундаменты выполнены в виде монолитной железобетонной плиты с заглублением, обеспечивающим размещение автостоянки.
Стесненные условия производства работ потребовали устройства ограждающей стенки котлована, усиления фундаментов жилых домов в зоне примыкания, устройства свайного поля из буронабивных свай для обеспечения устойчивости и предотвращения деформации грунтового основания.
Комплексная механизация технологических процессов и стесненность производства работ потребовали использования легких стационарных башенных кранов, бетононасосного транспорта и комплекта инвентарных опалубочных систем.
Для возведения стенового ограждения из многослойной кирпичной кладки с утеплением, а также устройства внутренней планировки использовались грузопассажирские подъемники, размещаемые по периметру зданий.
Отличительной особенностью данного проекта является создание индивидуальной отопительной системы путем использования крышевых котельных установок.
Для возведения второй очереди жилого комплекса осуществлены снос строений промышленного объекта, устройство ограждения по периметру котлована методом «стена в грунте», возведение фундаментов в виде монолитной железобетонной плиты под весь комплекс второй очереди.
Для выполнения работ по возведению каркаса зданий использованы легкие стационарные башенные краны, бетононасосы, инвентарная опалубка и другое технологическое оборудование, обеспечивающее организационно-поточное производство работ.
На рис. 14.15 приведен общий вид первой очереди строительства жилого комплекса с разноэтажной застройкой.

Рис. 14.15. Общий вид жилого комплекса первой очереди строительства (а) и каркасно-панельного здания с перепрофилированием в банковско-офисное (б)
Процесс реконструкции квартала застройки включает также перепрофилирование каркасно-панельного производственного здания НИИ шинной промышленности в банковско-офисное здание.
Цикл работ по перепрофилированию включал: пристройку к фасадной части этажерки с холлами и лестнично-лифтовыми узлами; надстройку одним этажом; пристройку актового зала; уширение корпуса на высоту двух этажей по основной магистрали; перепланировку помещений, утепление стенового ограждения и создание вентилируемого фасада с вертикальным остеклением.
Выполненный комплекс работ позволил получить из серого каркасно-панельного объекта доминантное здание для данного микрорайона (рис. 14.15).
Использование подобных технологий позволит адаптировать типовые здания производственного назначения не только для объектов социальной сферы, но и жилых целей.
Особая роль в уплотнении застройки и повышении комфортности территорий отводится возведению вставок между реконструируемыми зданиями, которые могут служить как коммерческим, так и переселенческим фондом.
Комплексная реконструкция квартала застройки предусматривает коммерческую реализацию возводимых объектов, частичные средства от которой могут быть направлены на восстановление сетей, благоустройство и другие цели.
Использование встроенных и пристроенных объемов позволяет кроме получения дополнительных площадей создать более комфортные условия проживания за счет рациональной организации внутриквартального пространства.
Комплексная реконструкция застройки требует разработки долговременной программы с элементами прогнозирования демографических, социальных и экологических факторов. Особое внимание при этом должно уделяться разработке организационно-технологического цикла, способствующего реализации принятой концепции.
Одним из этапов строительного производства является разработка проекта организации реконструкции (ПОР) и проектов производства работ (ППР). Они отражают качество организационно-технологического проектирования и включают подготовку и создание производственной базы, управление процессами реконструкции с учетом потребностей в материально-технических ресурсах, рабочих кадрах, складских и административно-бытовых помещениях, разработку прогрессивных методов ведения работ и технологий.
Реконструкция квартальной застройки должна осуществляться несколькими специализированными долгосрочными потоками. К их числу следует отнести специализированные потоки по возведению и усилению фундаментов; демонтажу строительных конструкций; расширению корпусов и надстройке; возведению новых жилых и общественных зданий; освоению подземного пространства. Особое место при этом отводится прокладке и восстановлению инженерных сетей и коммуникаций, созданию дополнительных индивидуальных источников теплоснабжения.
До начала реконструкции должны быть выполнены работы по подготовке строительного производства в объеме, обеспечивающем проведение работ с планируемой интенсивностью и заданными сроками. Они включают общую организационно-техническую подготовку, подготовку к реконструкции объекта или группы зданий, подготовку строительной организации и подготовку к производству строительно-монтажных работ. Удельный вес работ подготовительного периода достигает 20-25 % сметной стоимости строительно-монтажных работ.
Инженерная подготовка производства представляет собой комплекс взаимосвязанных мероприятий организационного, технического, технологического и экономического характера, выполняемых до начала основных производственных процессов на строительной площадке и обеспечивающих своевременные проектирование, развертывание, осуществление и завершение реконструкции объекта или квартала застройки в установленные сроки.
Комплексное решение на основе взаимосвязи всех подготовительных мероприятий и работ, определение их структуры и содержания создают необходимые предпосылки для их непрерывного и эффективного выполнения.
Единая система подготовки строительного производства (ЕСПСП) предусматривает решение всех подготовительных мероприятий и работ поэтапно, начиная с общей подготовки строительного производства, подготовки генподрядных строительных организаций и объектов реконструкции.
При реконструкции объектов состав задач по инженерной подготовке производства возрастает, а методы их решения усложняются. Это связано с необходимостью детальной проработки технологии и организации производства таких специфических для реконструкции процессов и комплекса работ, как разборка зданий, усиление конструкций, замена коммуникаций и т.п.
В процессе подготовки производства требуется дополнительно решать ряд инженерных и технологических задач, связанных с детальным обследованием объектов реконструкции, проектированием технологии и организации сложных и трудоемких строительных процессов, разработкой технологической документации и материально-технического обеспечения производства.
Подготовка к реконструкции объекта или комплекса зданий должна предусматривать выполнение работ подготовительного периода с учетом природоохранных требований и требований по безопасности производства работ. Особое внимание при этом отводится проектированию технологий реконструктивных работ, выполняемых без отселения жильцов. Это обстоятельство требует применения ряда инженерных решений по обеспечению защиты и повышению уровня надежности ограждений, строповочных устройств, блокировок и механизмов.
Инженерная подготовка производства предусматривает определение зон расположения приобъектных или внутриквартальных бетоносмесительных установок (БСУ), отдельных площадок для производства сборных конструкций, складских помещений и т.п. Выбор БСУ и других комплектов осуществляется расчетным путем в зависимости от объемов реконструктивных работ отдельных зданий и микрорайона в целом.
При формировании подготовки производства целесообразны максимально возможное использование существующих внутриквартальных дорог, приспособление площадок для складских целей, размещение бытовых помещений в реконструируемых или подлежащих сносу строениях.
Индивидуальный подход к решению вопросов инженерной подготовки предусматривает оптимизацию организационно-технических решений, направленную на снижение затрат данного цикла.
Повышение организационно-технологической надежности производства может быть достигнуто путем рационального использования внутриквартальных производственных баз. Их создание и функционирование целесообразны при значительных объемах реконструктивных работ. База должна включать производство товарного бетона, элементов сборного железобетона на открытых полигонах, арматурных цехов, участков для изготовления несъемной опалубки, по комплектации и подготовке специальных видов работ.
Целесообразность развертывания баз и полигонов определяются их удаленностью от стационарных баз и возможностью снижения транспортных расходов. Особое значение они приобретают при изготовлении негабаритных конструкций, транспортирование которых по городским магистралям затруднено или невозможно. К ним относятся пристраиваемые и надстраиваемые объемные блоки, сантехкабины и другие крупногабаритные элементы.
При реконструкции жилых зданий постройки 1940-60-х годов методом встроенных монолитных и сборно-монолитных систем с надстройкой этажей экономически целесообразно применение мобильных бетоносмесительных установок (рис. 14.16).

Рис. 14.16.
Фрагмент стройгенплана и технологические схемы реконструкции застройки
кирпичных жилых зданий с надстройкой методом встроенных монолитных каркасных
систем
I-VII - последовательность реконструкции
жилых зданий; 1 - внутриквартальный бетоносмесительный узел; 2, 3 - бетононасос с системой
бетоноводов; 4 - распределительная
стрела бетоновода; 5 -
башенные краны; 6 - зона
производственной базы
В зависимости от объема применяемого монолитного бетона и наличия свободных прилегающих к реконструируемому зданию площадей возможно использование передвижных бетоносмесительных узлов малой (5-10 м3/ч) производительности. Наиболее эффективно их расположение в зоне действия башенного крана, когда исключается необходимость в бетоновозном транспорте, снижаются теплопотери и сохраняются технологические свойства бетонной смеси.
Изготовление сборных конструктивных элементов на приобъектных полигонах существенно снижает себестоимость и повышает организационно-технологическую надежность строительного производства.
Наряду с зарубежными БСУ, поставляемыми фирмами Штеттер, Либхерр и др., представляет интерес мобильный бетонный завод, выпускаемый Каменским опытным механическим заводом. Он обеспечивает приготовление и выдачу товарной бетонной смеси в температурном диапазоне эксплуатации от -30 до +40 °С. Кабина управления снабжается специальным пультом для ручного и автоматизированного режимов приготовления бетонных смесей. Автоматизированная система управления дозировкой с 40 рецептами гарантирует безошибочное и надежное приготовление бетонных смесей с достаточно высокой точностью дозировки. Его габаритные размеры составляют 6´18 м при высоте 13 м. БСУ включает два склада цемента, склад заполнителей, емкостей для добавок, бетоносмеситель принудительного действия и т.п. Решение отдельных узлов в блочном варианте обеспечивает быстрый монтаж, демонтаж и перебазировку.
Альтернативным решением является размещение БСУ и полигонов в квартале застройки. Такое решение позволяет до минимума снизить транспортные расходы и обеспечить бесперебойную работу строительных потоков.
При реконструкции квартала застройки более экономичным является изготовление пристраиваемых объемных блоков в построечных условиях.
В зависимости от назначения пристраиваемых объемных блоков они выполняются полностью в монолитном железобетоне различной геометрической формы. Такие элементы служат для пристройки лоджий и лифтовых шахт. Эркеры и другие элементы, служащие для расширения кухонь и жилых комнат, целесообразно изготавливать из железобетона с последующими утеплением, облицовкой или штукатурным покрытием до их установки в проектное положение.
Технология изготовления блоков может осуществляться по нескольким схемам: с применением металлоформ и размещением плиты перекрытия в верхней зоне; то же, с расположением перекрытия в нижней зоне; с применением инвентарных опалубочных систем монолитного домостроения; несъемной опалубки и др.
Технология производства работ требует создания постов изготовления объемных блоков либо в непосредственной близости от реконструируемых объектов в зонах действия монтажных кранов, или на специальных площадках с последующим транспортированием в зону монтажа (рис. 14.17). Выбор того или иного варианта зависит от объема работ и конкретных условий площадки: стесненности, выполнения работ без отселения жильцов или с их отселением, удаленности базы монолитного бетона и железобетона и других факторов.

Рис. 14.17.
Схема организации полигона по
изготовлению объемных блоков
1 -
бетоносмесительный узел МББ 3-5; 2 - автобетоносмеситель АБС-4; 3 - автокран; 4 -
бадьи для бетонной смеси; 5 - установка
для прогрева бетона УПБ-60; 6 -
объемный блок в монолитном исполнении; 7 - складирование утеплителя и
облицовочного материала; 8 -
установка для нанесения защитного слоя
Повышение индустриальности и снижение себестоимости возведения пристраиваемых объемов могут быть достигнуты путем рационального использования, адаптации прогрессивных технологий с меньшими энергетическими и трудовыми затратами, обеспечивающими получение готовых элементов с высокими эксплуатационными качествами.
Варианты конструктивно-технологических решений при изготовлении объемных блоков предусматривают использование различных технологий. Они включают: монолитный железобетонный блок с утепленными стенами и оштукатуренными поверхностями; монолитными стенами, возводимыми в утепленной несъемной опалубке; монолитными стенами с утеплением пенополистирольными плитами и облицовкой кирпичом; со стенами из несъемной опалубки пенополистирольных блоков и др. (рис. 14.18).

Рис. 14.18.
Технологическая схема изготовления объемных блоков с использованием
инвентарной (а) и
несъемной опалубки (б)
1, 2, 3 - элементы
опалубочной системы; 4 -
монолитная плита перекрытия; 5 -
несъемная опалубка; 6 - бетонная смесь; 7 - монтажные петли
Исследование области рационального применения конструктивно-технологических решений с учетом материалоемкости и трудозатрат позволяет выделить варианты монолитного исполнения с использованием эффективного утеплителя, а также несъемной опалубки из объемных пенополистирольных блоков.
Технология изготовления монолитных объемных блоков предусматривает использование мелкощитовой опалубки с фанерной палубой для возведения стеновых элементов и фанерной палубы по стойкам и прогонам - для перекрытий. Процессы армирования, опалубливания и демонтажа опалубки ведутся вручную без использования грузоподъемных средств, а укладки и уплотнения бетона - с использованием автокрана. Достаточно низкая трудоемкость опалубливания конструкций (0,2-0,3 чел.-ч/м2) позволяет выполнять цикл работ за короткий промежуток времени. Так, для пристроенных объемов площадью 6-8 м2 трудоемкость опалубочных работ составляет 3-4 чел.-ч, арматурных 5-8 чел.-ч и укладки бетона 2,2-2,4 чел.-ч. Таким образом, при поточном производстве работ с наличием комплекта опалубки на 4-6 блоков и интенсивной технологии ускоренного твердения бетона производится изготовление 6-8 блоков в односуточном цикле оборачиваемости опалубки.
Эффективность работ может быть повышена за счет исключения технологических перерывов, например связанных с раздельным бетонированием плиты перекрытия при схеме производства работ «перекрытием вниз».
Отдельным потоком ведутся работы по утеплению наружных поверхностей пенополистирольными или минераловатными плитами и их защите в виде штукатурного слоя по полимерной сетке путем облицовки кирпичом или плитами из архитектурного бетона (рис. 14.19). Трудоемкость этих работ соизмерима с выполнением основного ведущего процесса, что позволяет создать ритмичный поток.

Рис. 14.19.
Конструктивно-технологические схемы утепления стеновых элементов
объемных блоков
а - с облицовкой
кирпичом; б - то же,
плитами из архитектурного бетона; в - оштукатуриванием по сетке; г - утепленной несъемной опалубкой; д - защитой пенополистирольных блоков
штукатуркой по сетке; е -
то же, с облицовкой плитами из архитектурного бетона; 1 - монолитная
стена; 2 - утеплитель; 3 - анкеры; 4 - кирпичная облицовка; 5 -
облицовочные плиты; 6 - панель
несъемной опалубки; 7 - пенополистирольные блоки; 8 - слои штукатурки по сетке; 9 - анкеры; 10 - облицовочные плиты; 11 -
цементно-песчаный раствор
Снижение трудозатрат и, соответственно, продолжительности работ достигается путем использования несъемной опалубки из объемных пенополистирольных блоков. Низкая масса блоков позволяет выполнять работы вручную. Исключение цикла демонтажа опалубки способствует снижению трудозатрат до 50 %, а теплоизолированное состояние бетонной смеси обеспечивает ускоренный набор прочности.
Технологическая эффективность процессов может быть повышена путем пакетного изготовления плит перекрытий. Эта технология рациональна при изготовлении объемных блоков в непосредственной близости к местам их монтажа.
При детальной разработке поточного производства работ возможен переход на конвейерную технологию изготовления объемных блоков.
Организационно-технологическая целесообразность конвейерного метода реализуется при выполнении значительного объема работ, например при реконструкции квартала застройки. В этом случае необходимо создание приобъектного производственного полигона с наличием участков опалубочных, арматурных, бетонных работ, а также работ по утеплению и отделке поверхностей.
Наличие производственного полигона предусматривает использование передвижного бетонного узла МВБ 3-5 малой производительностью (5-6 м3/ч). Его применение рационально при выполнении комплекса реконструктивных работ, когда кроме пристраиваемых объемов возводятся надстраиваемые этажи и мансарды в монолитном исполнении.
В состав полигона входят также передвижная арматурная мастерская в блочном исполнении, автобетоновоз, автокран для подачи бетонной смеси, установка для прогрева бетона, пневмонагнетатель для отделки поверхностей штукатурными составами и др. средства механизации.
Технологическая эффективность процессов возрастает при использовании методов ускоренного твердения бетона, применении различного рада добавок, а также раздельной технологии приготовления бетона. Последнее обстоятельство обеспечивает не только повышение физико-механических характеристик бетона, но и снижает цикл набора прочности. Используя прогрессивные технологии ускоренного твердения бетона, достигается суточная оборачиваемость опалубочных систем, что обеспечивает требуемую ритмичность и существенно интенсифицирует производство работ.
Технологическая гибкость ритмичного потока обеспечивает выпуск объемных блоков различной конфигурации и разнообразным уровнем отделки наружных поверхностей. Это позволяет существенно расширить архитектурную гамму решений при более низкой себестоимости работ.
Технологически эффективным является изготовление блоков в металлической опалубке с камерным прогревом бетона, когда в полости блоков размешают теплогенераторы мощностью, обеспечивающей температурный режим в пределах 60-80 °С. Это создает определенную универсальность независимо от геометрической формы блока и получение распалубочной прочности в пределах 60-70 % Rб. Тепловая обработка бетона целесообразна как в зимнее, так и летнее время. При зимнем производстве работ осуществляется утепление наружной опалубки и пространства перекрытия.
На рис. 14.20 приведена технологическая схема тепловой обработки теплогенераторами с графиком набора прочности бетона.

Рис. 14.20.
Технологическая схема тепловой обработки бетона объемных блоков с использованием
теплогенераторов
а, б - схема
размещения теплогенераторов и утепления поверхностей форм; в - температурные графики бетона и
набора прочности бетоном (г);
1 - металлическая опалубка блока; 2 - проемообразователи; 3 - утепление наружных поверхностей опалубки; 4 - то же, открытых поверхностей плиты
перекрытия; 5 - теплогенераторы
Для снижения теплопотерь и более интенсивной тепловой обработки целесообразно опалубку объемных блоков совмещать открытыми поверхностями. Это позволяет исключить дополнительные затраты по устройству теплозащитных штор и создавать более однородные тепловые поля.
Анализ производства работ показал, что наиболее эффективным является совмещение технологии утепления стеновых конструкций с пристраиваемыми элементами. Поэтому их изготовление целесообразно выполнять без утепления поверхностей.
Практическая реализация проекта реконструкции домов массовых серий наиболее эффективна, когда число объектов составляет 5-6 зданий, локально расположенных в определенном секторе квартала (рис. 14.21). Такое решение позволяет организовать долгосрочные потоки по устройству фундаментов под пристраиваемые объемы, обстройке и надстройке зданий, перекладке сетей и благоустройству площадок.

Рис. 14.21. Технологическая последовательность производства работ при реконструкции пяти жилых зданий и фрагмент стройгенплана
Ведение обстройки отдельным технологическим потоком и надстройки зданий позволяет выполнять объемы строительно-монтажных работ с максимальным совмещением технологических процессов и более рациональным использованием во времени грузоподъемных средств.
Технологическая надежность монтажных процессов надстройки зданий определяется интенсивностью доставки, укрупнительной сборки и доводки блоков. Для этой цели создаются временные площадки складирования, укрупнения и комплектации объемных блоков. Процесс подготовки складывающихся объемных блоков осуществляется с применением автокрана КС-6476 с последующими погрузкой и доставкой к месту монтажа специальными автотранспортными средствами.
В объем предмонтажных работ входят: устройство кровельного покрытия, установка оконных блоков, тепло- и гидроизоляция узлов и другие технологические процессы.
Готовые блоки подаются под монтаж в соответствии с часовым графиком производства работ.
После выполнения монтажного цикла на захватке (секции жилого дома) специализированными потоками осуществляется комплекс работ по внутренней планировке, выполнению специальных и отделочных работ.
Средняя продолжительность реконструкции. 4-секционного жилого дома с 2-этажной надстройкой составляет 4,5-6 мес.
Наряду с надстройкой этажей высокий технологический эффект достигается путем устройства различных по высоте и площади вставок между существующими зданиями и торцевыми пристройками.
Размер вставок (плановые габариты) зависит от типа застройки и колеблется в достаточно широких пределах. Для периметральной замкнутой и полузамкнутой застройки расстояние между жилыми домами составляет 25-30 м, для смешанной застройки - 32-39 м, строчной - до 30 м, свободной - 25-33 м.
Учитывая достаточно широкий диапазон этого параметра, проектирование встроек осуществляется в монолитном железобетоне по стеновой или безбалочной каркасной схеме, а также с кирпичными несущими стенами по индивидуальным проектам.
На рис. 14.22 приведено проектное решение комплексной реконструкции двух жилых домов с 2-этажной надстройкой и встройкой нового 12-этажного здания длиной 26,4 и шириной 19,6 м.

Рис. 14.22. Реконструкция жилых зданий с надстройкой этажей и устройством многоэтажной вставки
Реализация проекта позволяет получить около 1800 м2 за счет надстройки этажей и более 3000 м2 площади встройки.
Технология производства работ предусматривает первоначальное возведение встройки, которая служит переселенческим фондом, с последующей реконструкцией поочередно двух корпусов зданий с надстройкой мансардного этажа и двухэтажной надстройки.
При проектировании и возведении встроенных зданий особое внимание должно уделяться исследованиям геологической структуры грунтов, физико-механическим и деформативным характеристикам, определяющим их несущую способность.
Важное место отводится детальным обследованиям фундаментов существующих зданий на предмет их усиления известными методами и технологиями.
При возведении заглубленных частей встроек необходимо осуществлять геотехнические расчеты путем численного моделирования методом конечных элементов (МКЭ) с программным обеспечением «Геомеханика», Plaxis, Flac и др.
Наиболее универсальной является программа Plaxis, которая охватывает вопросы возведения фундаментов, земляных работ (устройство котлованов), расчеты устойчивости ограждающих стенок и их влияние на осадки и деформации примыкающих зданий.
К основным структурным элементам программы относятся: моделирование грунтов основания упругопластичной моделью Кулона-Мора, реологической моделью с учетом ползучести грунта, модели упрочняющегося грунта; моделирование строительных конструкций набором элементов: плитных для плоских конструкций; стержневых для моделирования анкеров, распорок, стоек и др.; моделирование последовательности технологических операций строительства, темпов возведения, условий работы конструкций и грунтового основания; создание расчетных схем с учетом неоднородности грунтов, геометрии сооружения, нагрузок с разбивкой расчетной области на конечные элементы с возможностью общего или локального изменения сетки; оперативный анализ развития напряженно-деформированного состояния на любом этапе расчетов или технологии производства работ.
На рис. 14.23 приведены варианты расчета деформации системы «основание-сооружение» для ограждения котлована в виде консольной стенки с распорными и грунтовыми анкерами, а также деформации примыкающих зданий.

Рис. 14.23. Расчетные значения деформаций на момент начала потери устойчивости ограждения котлована консольной стенки (а) и окончание разработки котлована с анкерным креплением стенок (б)
Опыт строительства встроенных зданий, особенно при наличии слабых и водонасыщенных грунтов, показывает, что наиболее опасным последствием является неравномерная осадка примыкающих частей зданий, что приводит к значительным аварийным повреждениям.
Начальная фаза деформаций проявляется в образовании наклонных трещин в кирпичных или панельных стенах с последующим развитием ширины раскрытия и потерей несущей способности.
Значение деформаций фундаментов (неравномерных осадок) приведено на рис. 14.24 для условий С.-Петербурга, когда возводимая встройка привела к необратимым деформациям прилегающих жилых зданий. Рост этого параметра возрастал по мере возведения здания за счет увеличения технологических нагрузок и деформаций основания.

Рис. 14.24.
Схема осадки и деформации примыкающих частей зданий и встроенного
объекта за период эксплуатации 10 лет
а - схема размещения
встроенного здания; б -
разрез по 1 - 1; в - графики
осадки фундаментов для различных периодов наблюдения; 1 - кривая осадки
фундаментов после возведения встройки; 2, 3 - через 5 и 10 лет; I - часть зданий, получивших сильные
повреждения; II
- аварийные повреждения
Исключить негативное влияние возможно путем сочетания процессов усиления фундаментов и устройства разделительных стенок, ограничивающих перемещение фундаментов существующих зданий.
Устройство разделительных стенок
Технология устройства разделительных стенок должна обеспечивать геометрическую неизменяемость примыкающих зданий, исключить возникновение осадок, приводящих к концентрации напряжений в несущих конструкциях и образованию трещин, их дальнейшему раскрытию и развитию деформаций.
Основное назначение разделительных стенок состоит в восприятии бокового давления от фундаментов и грунта, предотвращении вытекания грунтового массива из-под рядом стоящих фундаментов, изменении структуры фунтов вследствие разуплотнения при динамических воздействиях, под действием восходящих потоков подземных вод в результате водопонижения, выдавливания плывунных грунтов во время разработки котлованов.
Наиболее интенсивно возникновение осадок фундаментов существующих зданий наблюдается при водонасыщенных фунтах в момент откачки воды из разрабатываемого котлована или производства работ по водопонижению. Эти условия требуют создания разделительных стенок, выполняющих функции противофильтрационных завес с высокой степенью водонепроницаемости.
Особый случай представляет собой наличие линз плывуна. Если разделительная стенка не отсекает эту область, то в процессе разработки котлована возможны ее дрейф в область более низкого давления и возникновение осадок, приводящих к существенным деформациям зданий. Большое влияние на осадку фундаментов оказывает масса встраиваемого здания. При превышении определенных параметров наблюдается эффект воронкообразования, что также приводит к большим деформациям прилегающих к котловану частей фундаментов существующих зданий.
В зависимости от конструктивного решения разделительные стенки могут выполнять, кроме ограждающих и противофильтрационных, функции несущих фундаментов стен.
В ряде случаев возникает необходимость увеличения пространственной жесткости реконструируемых зданий, которое достигается путем закладки оконных и дверных проемов первых этажей, усилением фундаментов известными технологиями.
Варианты устройства разделительных стенок приведены на рис 14.25.

Рис. 14.25.
Способы устройства разделительных стенок
а, б - шпунтовое
ограждение, погружаемое вибрацией и вдавливанием; в - металлическими завинчивающимися
сваями; г -
грунтоцементными сваями по струйной технологии; д - буроинъекционными сваями с электроимпульсным уплотнителем; е - секущими сваями
Они включают шпунтовое ограждение (а, б), устройство стенок из металлических завинчивающих свай (в), грунтоцементных свай и массивов (г), буроинъекционных и секущих свай (д, е) и др.
Выбор метода и технологии производства работ зависит от инженерно-геологических условий площадки, состояния конструктивных элементов, существующих построек, глубины заложения заглубленной части встраиваемых зданий, их конструктивной схемы, габаритных размеров и массы.
Основная задача при оценке геотехнической ситуации состоит в определении типа фундаментов встраиваемого здания, обеспечивающего надежность и безопасность окружающей застройки, а также выбора технологий, не оказывающих негативного воздействия на грунты основания и фундаменты соседних строений.
Из нормативных источников и практического опыта следует, что технологии, основанные на использовании ударных и виброударных режимов погружения свай, железобетонных шпунтовых ограждений и подобных конструкций, приводят к значительным динамическим воздействиям на здания при ускорении более 0,2-0,4 м/с2 и способствуют возникновению и развитию опасных деформаций.
Устройство шпунтовых ограждений
Наиболее технологичны металлические шпунтовые ограждения Z- и U-образной геометрических форм длиной 8-22 м. Они имеют относительно высокий момент сопротивления по отношению к площади поперечного сечения и обладают высокой несущей способностью. Используются для устройства разделительных стенок при глубине котлована 8-12 м.
Технология устройства шпунтового ограждения осуществляется методом вибрационного погружения и вдавливания.
Вибрационное погружение основано на эффекте снижения сил трения между частицами грунта в результате распространения волнового поля от колеблющейся поверхности шпунта. Под действием вибрации грунт приходит в состояние течения (псевдоожижения), тем самым снижая силы сопротивления погружению. Определяющее влияние на эффект погружения оказывает интенсивность колебаний, которая оценивается ускорением колебательного процесса.
В зависимости от частоты колебаний изменяются параметры волновых полей и радиус их действия (коэффициент затухания). Установлено, что увеличение частоты от 50 до 200 Гц приводит к снижению радиуса действия при одновременном повышении технологического эффекта погружения.
Практическими опытами установлено, что использование вибропогружателей с частотой колебаний до 50 Гц и амплитудой 0,6-1,2 мм создает волновые поля с радиусом действия до 3 м. Это обстоятельство способствует нарушению структуры грунта, прилегающего к фундаментам, и воронкообразованию вокруг шпунта за счет течения и уплотнения.
Высокочастотная вибрация (200 Гц и более) при одной и той же интенсивности колебаний снижает радиус действия до 0,2-0,3 м, что вызвано более высоким коэффициентом затухания. Такие режимы исключают негативное воздействие на реконструируемые здания.
Более безопасным способом погружения шпунта является метод вдавливания. Он основан на использовании специальной системы гидравлических домкратов (установка УСВ-120), обеспечивающих развитие усилий вдавливания до 120 т.
Для обеспечения совместной работы элементов шпунтовой стенки и ее устойчивости осуществляются монтаж продольных поясов жесткости распорных систем или устройство грунтовых анкеров. Производство работ по их установке осуществляется по мере поярусной разработки грунта в котловане.
Если шпунтовые элементы не являются частью возводимого фундамента, их извлекают в целях повторного использования.
Ограждение из бурозавинчивающихся металлических свай
Наиболее технологичным и экономически эффективным является устройство стенок из бурозавинчивающихся труб. Этот способ основан на завинчивании металлических труб диаметром до 426 мм, оснащенных винтовой навивкой из арматуры диаметром 10-16 мм с шагом 200-400 мм (рис. 14.26). Завинчивание труб осуществляется станком СО-2 при их длине от 4 до 20 м.

Рис. 14.26. Технологические схемы производства работ по ограждению котлована бурозавинчивающимися сваями (а), производство земляных работ и устройство свайно-плитного фундамента (б), общий вид бурозавинчивающейся сваи (в, г)
В связи с тем что при завинчивании труб отсутствуют удары и вибрация, а также достигается уплотнение грунта, окружающего трубу, то данная технология позволяет вести работы в непосредственной близости от существующих построек. Для зданий высотой до 5 этажей расстояние до плоскости фундаментов может составлять 0,4 м, а более 5 этажей - 0,7 м.
Технология предусматривает сплошное или разреженное расположение труб с последующим их омоноличиванием или устройством железобетонных буронабивных свай. Последний вариант основан на завинчивании труб с теряемым наконечником, армированием полости трубы, подачей литой бетонной смеси в полость трубы и ее извлечением путем вывинчивания. Объединение полученных свай с помощью ростверка обеспечивает их совместную работу, что существенно повышает несущую способность.
Процесс устройства котлованов состоит в разработке грунта I яруса, выполнении работ по формированию обвязочных поясов и установке распорных систем, воспринимающих боковое давление грунта. Для обеспечения геометрической неизменяемости ограждающих стен заглубленной части разработка грунта осуществляется в центральной части котлована с устройством монолитной плиты, усиленной буронабивными сваями. В этом случае используются наклонные распорные анкеры, после установки которых осуществляется доработка грунта в зоне берм (рис. 14.26, б).
Данная технология успешно используется при устройстве ограждающих и ограждающе-несущих конструкций котлованов (фундаментов) при возведении зданий и подземных сооружений.
Она отличается высокой технологичностью, меньшей стоимостью производства работ и надежностью. Как правило, ограждение из завинчивающихся труб не извлекается после выполнения работ нулевого цикла.
Метод струйной технологии
Высокой степенью технологичности обладает метод струйной технологии устройства грунтоцементных свай и массивов, выполняющих функции как разделительных стенок, так и элементов усиления фундаментов.
Технология производства работ предусматривает создание разделительной стенки в виде пересекающихся свай из грунтоцемента. Для восприятия давления грунта сваи армируются жесткой арматурой в виде труб, а по мере разработки котлована могут устраиваться грунтовые анкеры или распорные системы.
Наиболее эффективным является подведение грунтоцементного массива под существующие фундаменты, который служит ограждающим элементом заглубленной части встраиваемого здания (рис. 14.27).

Рис. 14.27.
Технологическая схема подведения грунтоцементного массива под
существующие фундаменты (а) и последовательность работ на заходках (б)
1 - буровой станок; 2 - существующий фундамент; 3 - рабочий орган с форсунками; 4 - грунтоцементный массив; 5 - анкер; в - набор прочности грунтоцемента Rгц в зависимости от расхода цемента и времени твердения
При проектировании и выполнении работ следует учитывать опасность локальных деформаций в процессе временного размыва грунта и в период набора прочности грунтоцементного массива. Для исключения таких процессов предусматривается ограничение длины заходок не более 2 м с их чередованием в плане.
Определяющее значение физико-механических характеристик грунтоцементного массива зависит от структуры грунта, его однородности и изменения свойств по глубине. В этой связи для получения прочности в пределах 15-20 МПа расход цемента составляет от 350 до 700 кг/м3 (рис. 14.27, в).
Менее эффективна данная технология при основании в виде глинистых и торфянистых грунтов, когда физико-механические показатели не превышают 3,0-5,0 МПа со значительными колебаниями прочности по глубине.
Наибольший эффект достигается для песчаных и супесчаных грунтов различной гранулометрии.
Устройство стенок из свай по разрядно-импульсной технологии
Достаточно высокий технологический и экономический эффект достигается при использовании разрядно-импульсной технологии, которая обеспечивает повышение несущей способности за счет вовлечения грунтового массива в работу, локального уплотнения грунта, прилегающего к поверхности свай. Двухрядная система свай может использоваться как фундамент встройки.
Применение свай в ограждающих конструкциях позволяет при минимальной элевации грунта при бурении получить конструкцию, по жесткости и проницаемости практически не уступающую «стене в грунте», способную, кроме того, нести достаточно большую вертикальную нагрузку. Благодаря тому что грунт вокруг свай сильно уплотняется, а пески к тому же и цементируются, появляется возможность устройства свай на относительно большом расстоянии друг от друга, при этом нет необходимости устраивать забирки в межсвайном пространстве, так как в этом случае грунт между сваями достаточно устойчив и к тому же обладает малой водопроницаемостью.
Сваи могут располагаться как в один (рис. 14.28), так и в несколько рядов при размещении их в шахматном порядке. Для обеспечения пространственной жесткости стенки из нескольких рядов свай предусматривается устройство обвязочного пояса по верху свай в виде железобетонного ростверка.

Рис. 14.28.
Схема устройства ограждающих стенок и фундаментов заглубленных частей
зданий сваями, уплотненными по электроразрядной технологии
а - размещение свай
относительно здания; б, в
- варианты двухрядного и однорядного расположения свай
Для повышения водонепроницаемости стен можно применить цементацию межсвайного пространства, также выполняемую по электроразрядной технологии.
При значительной глубине котлованов возможно дополнительное крепление стенок фунтовыми анкерами, выполненными также по разрядной технологии.
Возведение разделительных стен между зданиями с использованием технологии буро-инъекционных свай является достаточно эффективным способом, обеспечивающим стабилизацию осадок существующих строений и возведение новых встроенных зданий.
Их технологической особенностью является создание свайного поля из пересекающихся свай, что обеспечивает формирование водонепроницаемого экрана. Армирование позволяет создавать разделительные стенки с высокими физико-механическими характеристиками в различных грунтовых условиях и использовать в качестве фундаментов.
Использование мобильного буроинъекционного комплекса позволяет выполнять работы в стесненных условиях городской застройки.
Применение буроинъекционных свай с электроимпульсным уплотнением бетона, несмотря на технологическую эффективность, имеет ряд ограничений. Область применения данной технологии ограничена несвязными грунтами, за исключением рыхлых водонасыщенных песков. Использование ЭИУ на песках и слабых глинистых грунтах недопустимо вследствие неконтролируемого разжижения и уплотнения грунтов и динамического воздействия на существующие фундаменты.
Метод секущих свай
Имеет ограниченное изменение при устройстве разделительных стенок в силу большой трудоемкости производства работ и высокой стоимости. Технология может быть использована при возведении стенок из свай большого диаметра (400-600 мм), которые могут использоваться в качестве несущих конструкций заглубленных стен и фундаментов.
Возведение многоэтажных вставок с заглубленной подземной частью
Возведение вставок наиболее технологично выполнять в монолитном железобетоне с использованием инвентарных опалубочных систем и легких башенных кранов.
Монолитный вариант позволяет реализовать современные планировочные решения при значительных колебаниях геометрических размеров встраиваемых зданий вследствие большого диапазона расстояний между реконструируемыми объектами.
Наибольшее распространение получила технология устройства фундаментов методом «стена в грунте».
Заглубленная часть здания может использоваться под стоянки для автотранспорта или другие технологические нужды.
Использование легких опалубочных щитов, ручная вязка арматурного заполнения, подача и укладка смесей бетононасосами позволяют создавать безопасные условия производства работ. Одними из приемов, обеспечивающих гарантированную защиту от случайных процессов, являются оснащение башенного крана автоматизированной системой, исключающей перемещение грузов в опасных зонах, устройство защитных козырьков, ограждений, размещение зон складирования, не препятствующих движению людских потоков, и др.
На рис. 14.29 приведена технологическая схема производства работ по возведению встройки.

Рис. 14.29.
Технологическая схема возведения встроенного здания из монолитного
железобетона с заглубленной подземной частью
1, 2 - реконструируемые
здания; 3 - ограждение
из буроинъекционных свай; 4 -
стена фундамента; 5 -
фундаментная плита; 6 -
встроенный каркас; 7 - стеновое ограждение; 8 - бетоновод; 9, 10 - бетононасос с
распределительной стрелой; 11 -
башенный кран; 12 -
грузоподъемник
Она включает работы по устройству подземной части, состоящие из: устройства разделительных стенок; возведения стен подвальной части с применением метода «стена в грунте»; поярусного производства земляных работ по отрывке котлована с установкой обвязочных балок и анкеров, устройства дренажной системы, бетонной подготовки и гидроизоляции; армирования и бетонирования фундаментной плиты; комплекса работ по устройству встроенной системы заглубленной части.
Демонтаж распорных анкеров и подкосов производится после набора прочности бетоном стен и перекрытий более 70 %, что обеспечивает восприятие нагрузки бокового давления фунта и исключает деформации ограждения, выполненного по методу «стена в фунте».
После завершения нулевого цикла осуществляется поэтажное возведение несущего каркаса здания.
Технологический процесс возведения монолитных конструкций осуществляется по захватной системе со специализацией звеньев бригад по армированию, опалубливанию и возведению вертикальных и горизонтальных конструкций.
Для обеспечения ритмичной работы бригад используются средства механизации в виде башенного крана грузоподъемностью до 3 т, стационарного бетононасоса с распределительной стрелой для подачи и укладки бетонной смеси.
Для интенсификации технологических процессов используются средства теплового воздействия на бетон в виде греющих проводов, термоактивных щитов, химических добавок, ускоряющих процесс набора прочности бетоном.
При современных технологиях производства работ и поточных методах возведения достигается 5-7-суточный цикл возведения этажа.
Для обеспечения более ранней распалубки конструкций тепловая обработка бетона осуществляется и в летнее время.
С отставанием на 4-5 этажей выполняются цикл возведения стенового ограждения, работы по внутренней планировке помещений. Для возведения стен используются мелкоштучные энергоэффективные блоки с облицовкой кирпичом.
Цикл специальных и отделочных работ осуществляется специализированными звеньями и бригадами с совмещением работ по устройству стенового ограждения и внутренних планировочных работ.
Особое внимание уделяется контролю качества работ, геодезическому обеспечению и геотехническому сопровождению.
Наиболее эффективным с экономической точки зрения является возведение встроек с использованием примыкающей территории под заглубленные автостоянки. Такое решение повышает ликвидность квартир и создает более комфортные условия для жильцов.
На рис. 14.30 приведена технологическая схема возведения встройки с несущими конструкциями из монолитного железобетона и примыкающей одноярусной автостоянки с использованием площадей дворовой части.

Рис. 14.30.
Технологическая схема возведения надземной части жилого здания (I) и заглубленной автостоянки (II)
1 - ограждение котлована; 2 - башенный кран; 3
- система трубопроводного транспорта бетонной смеси; 4, 5 - опалубочные системы при
возведении перекрытия автостоянки
В зависимости от класса паркуемых машин шаг колонн может колебаться в пределах 6,0-7,2 м. Минимальная удельная площадь на одно машино-место составляет 21 м2 для стоянок манежного типа.
Для обеспечения эксплуатационной надежности и пожаробезопасности стоянок необходимо их оборудование приточно-вытяжной вентиляцией и противопожарной системой. Как правило, вентиляционные камеры размещаются в отдельных помещениях с соответствующей разводкой воздуховодов.
Для удобства эксплуатации гаражная часть, примыкающая к жилому зданию, снабжается грузопассажирским лифтом. Это позволяет жильцам пользоваться автотранспортом не выходя за пределы жилого дома.
Технология производства работ предусматривает строительство заглубленной части автостоянки в одном технологическом цикле с возведением подземной части встройки.
Планировочное решение принимается таким образом, чтобы большая часть подвальной части могла использоваться под автостоянку, а площади первого этажа - для размещения нежилых помещений (магазины, офисы и др.).
Для снижения объемов земляных работ и исключения деформаций примыкающих жилых зданий используются технологии ограждения котлована в зависимости от инженерно-геологических условий площадки.
Воздействие заглубленных частей автостоянки принимается из условия максимальной механизации технологических процессов по устройству монолитной железобетонной плиты, вертикальных и горизонтальных конструкций.
Уровень механизации и интенсивности производства бетонных работ обеспечивается использованием инвентарной опалубки вертикальных конструкций (наружных стен, колонн) и крупнощитовой опалубки перекрытия (комплекты столовой или тоннельной опалубки). Технологические процессы подачи и укладки бетонной смеси осуществляются с использованием бетононасосов и распределительных стрел, что обеспечивает снижение трудоемкости и сокращение продолжительности работ.
Возведение заглубленной части автостоянки осуществляется несколькими технологическими потоками, совмещенными во времени и пространстве: устройство ограждения котлована; механизированная разработка фунта; устройство дренажной системы и бетонной подготовки; монолитной железобетонной фундаментной плиты; возведение колонн, перекрытия; гидроизоляция вертикальных и горизонтальных поверхностей; обратная засыпка пазух и устройство насыпи на перекрытии; специальные виды работ.
Расчет технологических потоков из условия поточного производства работ осуществляется по ведущим строительным процессам: разработке грунта и производству бетонных работ.
Определяющими факторами принятия технологии являются инженерно-геологические и гидрогеологические условия строительной площадки, удаление от существующих строений, габариты объекта, стесненность производства работ, глубина заложения и уровень грунтовых вод.
При низком уровне грунтовых вод используются технологии, основанные на устройстве ограждений котлованов путем погружения металлических стоек в виде труб или двутавров в лидирующие скважины, разработке грунта с одновременным устройством забирки, установкой обвязочных поясов и распорных или грунтовых анкеров, обеспечивающих геометрическую неизменяемость ограждения от давления грунтовых масс. Данная технология с экономической точки зрения является менее затратной, обеспечивает выполнение работ по устройству заглубленных сооружений с использованием стандартных технологий монолитного строительства. Наличие свободного пространства между ограждением и наружными стенами заглубленного сооружения позволяет выполнить цикл гидроизоляционных работ, использовать рядовые бетонные смеси и технологии, обеспечивающие заданный уровень эксплуатационной надежности объекта.
На рис. 14.31 приведены варианты сооружений глубиной заложения 5-6 и 10-12 м, а также технологические этапы производства работ по устройству ограждающих стенок, разработке грунта и возведению монолитных заглубленных одно-, двухъярусных систем.

Рис. 14.31.
Принципиальные схемы возведения одно- и двухуровневых заглубленных
сооружений вблизи существующих зданий
а - схема взаимодействия
сил на ограждающую стенку и конструктивно-технологическое решение; а' - технология возведения монолитных
конструкций; б -
конструктивно-технологическая схема 2-уровневого заглубленного сооружения на
период разработки грунта второго яруса; б' - технологическая последовательность возведения конструкций; 1
- стенка из завинчивающихся свай с забиркой; 2 - ростверк; 3 -
расстрелы с опиранием на частично возведенную фундаментную плиту; 4 - берма для уравновешивания сил
взаимодействия грунта; 5 -
монолитная плита; 6 - буронабивные сваи; 7 - фундаментная плита; 8 - стеновое ограждение; 9 - колонны; 10 - плита перекрытия
Для развитых в плане сооружений с глубиной заложения до 8-10 м используются наклонные раскосные системы, основанием которых служат сваи или элементы фундаментной плиты. Технологическими особенностями производства работ являются разработка грунта в центральной части котлована, устройство фундаментной плиты и последовательный монтаж подкосов с последующей разработкой грунтового массива берм.
Полученная система обеспечивает устойчивость и геометрическую неизменяемость ограждающих элементов котлована.
При устройстве заглубленного объекта вблизи существующих зданий следует осуществить расчет степени воздействия фундаментов и грунтового массива на ограждающие конструкции на различных стадиях разработки грунта из предположения малых осадок и давления при условии сдвижки. Рассматривая равновесное состояние системы, определяются параметры ограждающей стенки (шаг стоек, их сечение, глубина погружения) с учетом силовых воздействий и подбирается распорная система, обеспечивающая устойчивое положение ограждающих стен в наиболее неблагоприятных условиях производства работ. Для комплексного расчета системы используются метод конечных элементов и стандартные программы, которые позволяют учитывать характеристики грунтов, глубину заложения и расстояние от фундаментов до стенки. По полученным значениям осуществляется подбор сечения, шага размещения стоек и распорных систем.
Возведение автостоянок вблизи реконструируемых зданий
Реконструкция комплекса жилых зданий предусматривает устройство автостоянок заглубленного типа на прилегающих дворовых территориях. Как правило, возводят одноярусные стоянки с глубиной заложения 5,0-6,0 м.
Производство работ включает следующие технологические циклы.
Подготовительный период включает организацию площадки в соответствии со стройгенпланом; перенос внешних сетей из зоны размещения заглубленной части; усиление фундаментов в случае высокой степени их износа.
Устройство ограждающих стен и разработку грунта. Производят установкой бурозавинчивающихся металлических свай, цилиндрических или двутавровых стоек в пробуренные лидирующие скважины.
Для обеспечения совместной работы стоек осуществляется их объединение с помощью ростверка. Повышение несущей способности цилиндрических стоек достигается их дополнительным армированием и бетонированием литыми смесями.
Разработка грунта производится поярусно с использованием экскаваторов, бульдозеров и мини-погрузчиков с вывозом автотранспортными средствами.
По мере разработки грунта осуществляется устройство забирки, исключающей попадание грунта в пределы котлована.
Для снижения давления грунта на ограждающую систему по периметру котлована оставляется берма, которая разрабатывается после устройства в центральной части котлована железобетонной плиты, плоскость которой служит опорой для наклонных распорных анкеров.
Разработка грунта, устройство днища, расстрелов и обвязочных поясов осуществляются по захваткам с максимальным совмещением работ, что позволяет создать непрерывные строительные потоки.
Устройство фундаментной плиты производится по подготовленному основанию с уплотнением и устройством бетонной подготовки. По бетонной подготовке устраивается гидроизоляция, производится армирование плиты с обеспечением защитного слоя. Ее бетонирование осуществляется захватками с устройством рабочих швов. При большой ширине котлованов по периметру стен оставляется часть грунта (берма), которая разрабатывается после установки расстрелов. Затем производятся армирование и бетонирование фундаментной плиты этих зон.
Возведение вертикальных и горизонтальных конструкций включает: стеновые конструкции, колонны и плиты перекрытия, которые возводятся с использованием инвентарных опалубочных систем, ручной вязкой арматуры или использованием каркасов заводского производства. Возведение вертикальных и горизонтальных конструкций ведется отдельными технологическими потоками с максимальным совмещением во времени.
Для подачи и укладки бетонной смеси используются бетононасосы, автокраны и др. технологическое оборудование, обеспечивающее повышение интенсивности производства работ.
Для обеспечения водонепроницаемости фундаментной плиты, вертикальных стенок и перекрытия выполняется цикл гидроизоляционных работ с использованием оклеечной или обмазочной гидроизоляции.
Завершающим этапом производства строительно-монтажных работ является устройство обратной засыпки пазух с послойным уплотнением грунта.
Специальные и отделочные работы выполняются после завершения строительно-монтажных работ и включают: монтаж вентиляционных и противопожарных систем, электромонтажные и отделочные работы. При отапливаемой стоянке производят монтаж систем отопления. К специальным видам работ относится устройство систем видеонаблюдения, охранной сигнализации и др., которые выполняются на завершающей стадии производства работ.
Рациональное использование подземного пространства возможно при реконструкции старого жилого фонда, например колодцевого типа. При этом жилая часть здания реконструируется методом встроенных монолитных систем с надстройкой этажей, а колодцевая часть используется для возведения заглубленной автостоянки (рис. 14.32).

Рис. 14.32.
Технологическая схема устройства заглубленной автостоянки при
реконструкции жилого дома колодцевой системы
1 - монолитная плита
фундамента; 2 -
встроенная монолитная система; 3
- надстройка мансардным этажом; 4 - ограждение котлована; 5 - монолитная плита; 6 - безбалочная система перекрытия
Технология строительства предусматривает устройство ограждения котлована, разработку грунта механизированным способом с вывозом автотранспортными средствами и непосредственно производство работ по возведению конструктивных элементов из монолитного железобетона.
Для обеспечения технологических процессов, связанных с механизацией работ, в период реконструкции жилой части устраиваются временные проемы, которые после выполнения работ ликвидируются.
Возведение подземной части ведется отдельным технологическим потоком параллельно устройству встроенной монолитной системы.
После выполнения работ подземной части осуществляются утепление, гидроизоляция, засыпка поверхностного слоя и благоустройство. Колодцевая часть здания служит зоной отдыха жильцов.
Вариант пристройки автостоянки между двумя жилыми реконструируемыми корпусами приведен на рис. 14.33. Общая площадь стоянки составляет 986 м2 с глубиной заложения - 5,0 м, что обеспечивает постановку около 40 машин. Конструктивно стоянка выполнена в виде безбалочной каркасной системы в монолитном исполнении. Перекрытие и стены гидроизолируются. Под основанием применен пластовый дренаж для отвода грунтовых вод. Стоянка снабжена системой вентиляции, отопления и противопожарной защиты.

Рис. 14.33.
Конструктивно-технологическая схема устройства заглубленной автостоянки
(в) между двумя реконструируемыми жилыми домами (а, б)
1 - фундамент жилых зданий; 2 - ограждение из завинчивающихся свай; 3 - забирка; 4 - опалубочные щиты; 5 -
монолитный железобетон
Для предотвращения сдвига фундаментов зданий устраивается по периметру разделительная стенка из бурозавинчивающихся свай. В непосредственной близости к ней размещается несущая конструкция стены, которая выполняется с использованием инвентарной щитовой опалубки.
Особое место в производстве работ отводится процессам армирования и технологии укладки бетонной смеси.
В качестве ограждающих и несущих заглубленных стен используются металлические сваи, заполненные бетонной смесью и омоноличенные пространством между опалубкой и забиркой.
Для обеспечения требуемого сцепления бетона с трубами осуществляются их очистка и дополнительное армирование. Укладка и уплотнение бетонной смеси производятся захватками длиной 10-12 м с подачей бетононасосом или крановыми средствами.
Пространство между забиркой гидроизолируется рулонными изоляционными материалами или тонким металлическим листом. Полученная система с комбинированным армированием обеспечивает требуемую несущую способность и водонепроницаемость. При этом достигается снижение общих трудозатрат на устройство ограждающих стен.
Для обеспечения устойчивости стен применяют систему подкосов и расстрелов. Их демонтаж производят после возведения несущих конструкций заглубленного сооружения с передачей давления от грунтовых масс и прилегающих фундаментов на перекрытия.
Сущность способа состоит в возведении стен сооружений в узких и глубоких траншеях, стенки которых удерживаются от обрушения тиксотропной глинистой суспензией в результате создания гидростатического давления на грунт.
Устойчивость стенок от обрушения обеспечивается соблюдением условий: Рр ³ 1,1(Ргр + Рв), где Рр - равнодействующая гидростатического давления глинистой суспензии (раствора); Ргр - то же, гидравлическое давление грунта; Рв - то же, гидростатическое давление грунтовых вод.
Давление глинистого раствора и подземных вод определяется в зависимости от их плотностей: Рр = Рр(Н - hр); Ргр = Ргр(Н - hгр), где hр и hгр - расстояние от поверхности грунта до уровня глинистого раствора и уровня грунтовых вод; Н - глубина траншеи; Рр и Ргр - плотность раствора и грунта.
Эти соотношения позволяют в зависимости от гидрогеологических условий осуществлять подбор плотности глинистой суспензии, обеспечивающей устойчивое состояние стенок траншеи. При расчете устойчивости стенок необходимо учитывать условия производства работ, воздействие динамических нагрузок от машин и механизмов, существенно влияющих на характер напряженного состояния грунтового массива траншеи.
Процесс закрепления и удержания от обрушения вертикальных стенок траншеи осуществляется в результате разработки грунта специальными машинами с одновременной подачей глинистой суспензии. Она соприкасается с поверхностью траншеи, проникает в прилегающие слои, создавая заглинизированный слой. Тиксотропная суспензия переходит в гелиевое состояние и связывает частицы грунта, образуя корку. Сочетание гидростатического давления с образующейся коркой способствует удержанию стенок траншеи от обрушения. Однако со временем в результате фильтрации чистой воды, отделяющейся от суспензии, возникает подъем грунтовых вод в окружающем массиве, который может привести к обрушению стенок траншеи. Поэтому продолжительность устойчивого состояния стенок ограничено и зависит от уровня грунтовых вод и фильтрационных свойств корки, образующейся на стенках траншеи.
Необходимая плотность глинистой суспензии определяется из соотношения ргс = qгс/H, где qгс - интенсивность давления глинистой суспензии; H - глубина траншеи.
Для длинных и глубоких траншей в грунтах, не обладающих достаточной прочностью, могут образовываться клинья сползания или зоны обрушения стенок.
Неустойчивое состояние стенок повышается при движении транспорта или ударных процессах рабочего органа грейферных экскаваторов.
Снизить вероятность обрушения стенок возможно путем уменьшения длины или изменения формы траншей в плане. При этом равнодействующая бокового давления грунта может быть оценена следующей эмпирической зависимостью:
![]()
![]()
где В - ширина и Н - глубина траншей; q - угол наклона плоскости скольжения; j - угол внутреннего трения для грунтов различной категории.
Установлено, что определяющим
фактором повышения угла наклона плоскости скольжения q является отношение длины траншей к их
глубине. При
в пределах 0,1-0,2
значение угла q приближается к 90°, в то время как для
- 50-65°.
Повышение устойчивости стенок траншей обеспечивает технологическую надежность производства работ в сложных инженерно-геологических условиях, особенно при возведении сооружений большой глубины. Применение коротких захваток позволяет снизить расход глинистой суспензии и, соответственно, удельную стоимость производства работ.
Способ «стена в грунте» обладает рядом преимуществ и открывает большие возможности для возведения подземных объектов на застроенных территориях городов.
Строительство этим способом имеет следующие преимущества: возможность устройства в непосредственной близости от существующих зданий глубоких выемок любой конфигурации в плане; производить работы, резко уменьшающие объем временных земляных выемок; полное или частичное исключение необходимости применения водопонижения, что особенно важно при строительстве на площадках с высоким уровнем грунтовых вод.
Перечисленные преимущества в полной мере отвечают задачам освоения подземного пространства при возведении заглубленных объектов в стесненных условиях городской застройки.
Конструктивные схемы сооружений, выводимых способом «стена в грунте», достаточно разнообразны и зависят прежде всего от глубин заложения и гидрогеологических условий площадки.
Для сооружений мелкого заложения до 5-6 м используются консольные стены с заглублением стен ниже днища. Такое решение обеспечивает устойчивость и требуемую несущую способность без применения каких-либо дополнительных мероприятий.
В сооружениях глубиной залегания днища 8-10 м используются контрфорсы, распорки или дополнительные анкерные устройства. Расположение устройств в верхней части и заглубление ниже днища стен обеспечивают защемление стен по периметру и повышение их несущей способности.
При возведении сооружений глубиной более 10 м применяют распорную систему или грунтовые анкеры, расположенные в нескольких уровнях по высоте.
Применяемые технологические решения для обеспечения устойчивости стен рассчитаны на период разработки грунта. Для сооружений глубокого заложения по мере выполнения земляных работ осуществляется устройство анкеров, обвязочных балок, распоров и подкосов. Такое решение необходимо для восприятия нагрузок от бокового давления фунта. В дальнейшем при устройстве встроенного каркаса сооружения эти нагрузки воспринимаются элементами каркаса.
Выбор конструктивной схемы сооружения решается на основе расчетов прочности и устойчивости сооружения на всех стадиях строительства с учетом особенностей технологии производства работ.
Наиболее рациональной является схема производства работ, когда по мере разработки грунта стены закрепляются временными или постоянными анкерами. Это обстоятельство обеспечивает создание большого фронта работ по устройству внутреннего каркаса и перекрытий.
Конструктивные решения «стен в грунте» могут выполнятся: монолитными бетонными и железобетонными; сборно из одно- или многоярусных панелей с вертикальными или горизонтальными стенками; сборно-монолитными из вертикальных панелей, пространство между которыми выполняется в монолитном железобетоне; комбинированными системами, включающими сборные и монолитные элементы стен.
Достаточно высокое требование предъявляется к подбору состава бетона, его реологическим и технологическим свойствам. При устройстве стен из монолитного железобетона должен применяться гидротехнический тяжелый бетон класса В20 и выше. Марка бетона по водонепроницаемости должна находиться в пределах F150-F300. Для обеспечения водонепроницаемости используют бетон с модифицированными добавками, пластифицирующими и замедлителями твердения. В зависимости от гидрогеологических условий количество добавок и свойства бетонной смеси корректируются в процессе разработки проекта производства работ.
Технология устройства «стены в грунте» из монолитного железобетона
Технология возведения монолитных стен определяется их конструктивным решением, типом применяемых землеройных машин и инженерно-геологическими условиями.
Выполнению основных циклов производства работ предшествуют подготовительные работы, к которым относятся: геодезическая разбивка и закрепление осей на местности, углов поворота и наружных контуров сооружения; планировка поверхности со срезкой растительного слоя; размещение и установка временных зданий и помещений для хранения, приготовления, транспортирования и очистки глинистого раствора; устройство временных дорог, подъездов и проездов механизмов в рабочие зоны; временных сетей электро- и водоснабжения и т.д.
Для обеспечения направленного стока суспензии, вытесняемой из траншеи, должны быть выполнены отводные канавы, лотки и емкости для ее сбора и накопления.
Для рационального размещения основных и вспомогательных устройств, движения механизмов на площадке формируется строительный генеральный план, который учитывает особенности производства работ и создает благоприятные и безопасные условия их выполнения.
Возведение стен состоит из следующих основных этапов: устройство форшахты траншеи; разработка грунта в траншее; армирование и бетонирование.
Форшахты устраиваются для предотвращения обрушения верха бортов траншеи; фиксации положения в плане и обеспечения проектного движения механизмов при разработке грунта. Они служит также для подвески и раскрепления армокаркасов, ограничителей захваток, размещения бетонолитного оборудования.
Форшахта выполняется в монолитном или сборном варианте, может быть постоянной частью конструкции стены или в виде временного элемента, используемого только на период отрывки траншеи и производства бетонных работ. Высота стенок должна быть не менее 0,8 м, а расстояние в свету между стенами должно быть более ширины траншеи на 2-3 см.
Форшахту располагают таким образом, чтобы уровень глинистого раствора в траншее был ниже ее верха на 0,2-0,3 м.
Интенсивность производства работ по устройству стен определяется правильным подбором средств механизации по отрывке траншеи, установке армокаркасов и укладке бетонной смеси. Перечисленные технологические процессы должны быть увязаны во времени и пространстве таким образом, чтобы выполнение работ осуществлялось в едином ритме строительного потока.
Отрывку траншей осуществляют различными землеройными средствами, выбор которых диктуется инженерно-геологическими условиями, глубиной и шириной траншеи, общим объемом работ, а также условиями строительной площадки.
Наибольшие распространения получили механизмы в виде штанговых ковшовых экскаваторов, а также грейферов с копровой стойкой на базе серийных экскаваторов ЭО-5122. Такое оборудование обеспечивает разработку траншеи глубиной до 40 м и шириной 600-800 мм с производительностью 0,5-3 м2 стенки в час.
Преимущественно используется оборудование зарубежных фирм: «Беното», «Солетанш», «Касагранде» (Франция), «Титания» (Италия), «Зальцгитер», «Баде» (ФРГ), «Тонэ Боуринг» (Япония) и др. Существенно не отличаясь в принципиальном подходе к технологии, их особенности заключаются в использовании различных конструкторских решений бурового механизма и системы управления в целом.
Общая технологическая схема сооружения бетонной траншейной стенки приведена на рис. 14.34. Здесь показаны цикл непрерывной разработки траншеи (а) по захваткам, процесс установки разграничителей захваток и монтажа армокаркасов (б), цикл бетонирования методом ВПТ (в). Как следует из приведенной технологической схемы, достаточно высокая насыщенность технологическим оборудованием требует также больших свободных площадей и транспортных развязок для удаления разработанного грунта или пульпы, подачи бетонной смеси, расположения средств вертикального транспорта для работ по армированию, бетонированию конструкций, демонтажу и перестановке ограждающих элементов и др.

Рис. 14.34.
Технологическая последовательность производства работ по устройству
траншейной стены
а - разработка грунта
грейферным экскаватором на проектную глубину под слоем бентонитовой суспензии; б - монтаж армокаркаса; в - укладка бетонной смеси методом ВПТ
При разработке траншей экскаваторами с грейферами применяют две технологические схемы: 1 - стена образуется из коротких (2,5-3,6 м) захваток, разрабатываемых и бетонируемых через одну с последующими разработкой и бетонированием промежуточных; 2 - стена сооружается последовательным бетонированием захваток при опережающей разработке траншеи.
Технологическая последовательность выполнения работ состоит: в разбивке траншей на захватки по разработке грунта и на захватки бетонирования, разбивке траншеи и установке ограничителей захваток бетонирования, установке с помощью кранов армокаркасов, укладке бетонной смеси с применением бетонолитного оборудования, извлечении ограничителей.
Ограничители захваток, как правило, выполняют из металлических труб, заглубляемых в основание траншеи, которые извлекаются и перестанавливаются на новую захватку после набора прочности бетоном не менее 2,0 МПа.
Для снижения трудозатрат на эти операции могут использоваться оставляемые сборные железобетонные разделительные элементы.
В процессе производства работ особое место отводится технологии укладки бетона и обеспечению требуемого качества. Укладка бетонной смеси, как правило, осуществляется методом вертикальной перемещаемой трубы (ВПТ).
Технология бетонирования конструкций стены под слоем глинистого раствора имеет ряд специфических особенностей. Укладка бетона под глинистым раствором в траншее должна исключать возможность их частичного смешивания. Отрицательное влияние глинистых частиц проявляется в снижении прочности бетона до 30-40 %. Кроме того, при прохождении бетона в грунтовой полости происходит интенсивная миграция химически несвязанной воды в грунт, что повышает пористость бетона и снижение его физико-механических характеристик.
Зависимость качеств бетона от количества содержащихся в нем глинистых частиц свидетельствует о заметной потере его прочности с ростом глинистых включений. Эти данные иллюстрируются кривыми набора прочности. Увеличение процента глинистых частиц до 10 приводит к снижению прочности почти в 4 раза (рис. 14.35). Установлена корреляционная зависимость между степенью коагуляции бентонитового раствора и потерей прочности бетоном.

Рис. 14.35.
Графики изменения прочности бетона от примеси глинистого раствора
1 - при вибрировании; 2
- без вибрации; 3 - с химдобавкой
в количестве 1-1,5 % массы цемента
Исследованиями установлено, что снижение вязкости глинистого раствора и использование слабокоагулирующих систем способствуют повышению физико-механических характеристик бетона, в том числе наблюдается увеличение адгезии бетона с арматурным заполнением.
Повышение адгезии бетона с арматурным заполнением наблюдается при передаче высокочастотной вибрации на арматурный каркас в процессе укладки бетона, а также при предварительном замачивании стержней арматуры перед погружением в глинистый раствор.
Заметное повышение физико-механических свойств бетона достигается при использовании химических добавок, нейтрализующих глинистые включения.
Наиболее трудоемким и технологически сложным является процесс приготовления, подачи, перекачивания глинистого раствора. При этом требуется использование достаточно насыщенного технологического оборудования, четкой системы контроля и обслуживания. Трудоемкость существенно возрастает, особенно при производстве работ при отрицательных температурах, когда необходимо обеспечить утепление трубопроводов, защиту оборудования и открытых поверхностей траншей с глинистым раствором.
Основные правила производства работ
Разработку грунта на средней захватке можно начинать после того, как на прилегающей закончены все работы и бетон набрал прочность не менее 0,1 МПа.
Разработку захватки необходимо заканчивать зачисткой места примыкания соседней захватки и дна траншей с помощью грейфера.
Осуществляется крановая установка разделительного элемента (трубы), который предварительно смазывается консистентной смазкой во избежание адгезии с бетоном. Тем же краном устанавливается армокаркас до проектной отметки и финансируется на форшахте. Непосредственно перед установкой армокаркаса производится промывка захватки восходящим потоком бентонитового раствора, подаваемого в забой через инъекционную трубу.
Арматурный каркас устанавливается не позднее 4 ч до укладки бетона. В случае превышения этого времени производится перемешивание глинистого раствора сжатым воздухом через трубу диаметром 25-50 мм, опущенную до дна траншеи.
Укладка бетонной смеси захватки производится методом вертикально перемещающейся трубы (ВПТ). Вверху бетонолитной трубы устанавливается мягкий пыж, а в горловину воронки - клапан. После заполнения воронки бетонной смесью клапан открывают. Бетонная смесь, вытесняя из трубы бентонитовый раствор, поступает в траншею. Укладка бетона должна производиться непрерывно до выхода чистого бетона из захватки. Общая продолжительность бетонирования не должна превышать 4 ч.
При бетонировании стены в грунте необходимо выполнять следующие условия: бетонолитная труба должна быть постоянно заполнена бетонной смесью; нижний ее конец должен постоянно находиться заглубленным в бетоне не менее 1,0 м ниже поверхности укладываемого бетона; по окончании бетонирования захватки не ранее двух и не позднее четырех часов с помощью гидравлического извлекателя необходимо приподнимать разделительный элемент через каждые 30 мин на 3-5 см, после чего извлечь краном.
Бетонная смесь для несущих стен должна удовлетворять следующим требованиям: иметь связность, обеспечивающую свободное прохождение по бетонолитной трубе и распределение площади захватки без расслоения; осадка конуса бетонной смеси должна быть в пределах 18-20 см; сохранять подвижность в течение времени, необходимого для транспортирования и укладки ее в траншею; срок схватывания бетонной смеси должен быть в пределах двух часов; относительное водоотделение, характеризующее связность бетонной смеси, должно составлять 0,01-0,02; запрещается вводить в бетонную смесь химические добавки-ускорители твердения бетона; для подачи бетонной смеси следует применять круглые металлические цельнотянутые трубы диаметром 250- 300 мм с толщиной стенок 8-10 мм без вмятин и наплывов на стенах.
Контроль качества и приемка работ
Контроль качества работ производится в соответствии с требованиями СНиП III-15-76 и заключается в проверке подвижности бетонной смеси (осадки корпуса) не реже двух раз в смену, соответствии прочности бетона требованиям проекта. Качество бетона, уложенного под бентонитовым раствором, следует оценивать по результатам испытаний контрольных образцов и определения прочности конструкций неразрушающими методами (ультразвуковым, склерометрами и др.).
Приемка железобетонных конструкций должна сопровождаться их освидетельствованием в натуре, контрольными измерениями и испытаниями, оценкой качества строительных материалов, полуфабрикатов, сборных конструкций и должна подтверждаться паспортами, сертификатами или другими документами изготовителя, а при необходимости - актами испытаний материалов на строительство.
Должно быть проверено соответствие конструкций рабочим чертежам, составлены акты на скрытые работы, данные испытаний контрольных образцов бетона, акты приемки арматурных сеток и каркасов, акты приемки блоков перед бетонированием.
Производство работ должно фиксироваться в журналах работ.
Технология устройства анкеров
Анкерные устройства предназначены для передачи выдергивающих усилий на грунтовый массив с целью обеспечения устойчивости и несущей способности стен. Устройство анкеров осуществляют при глубине возводимого сооружения более 10 м. Как правило, они располагаются несколькими ярусами на высоте каждого этажа. Анкеры выполняют линейными, имеющими единую продольную ось и рабочую зону в виде уширения на его конечной части.
Их несущая способность обеспечивается за счет сил сопротивления сдвигу, возникающих по контакту боковой поверхности рабочей части и массива грунта.
Наибольшее распространение получили буроинъекционные анкеры. Технология их устройства (рис. 14.36) состоит из: бурения скважины под заданным углом и расчетной длины, с установкой обсадной трубы; погружения манжетной трубы и анкерной тяги; подачи обойменного раствора; нагнетания цементного раствора с помощью инъектора, обеспечивающего уширенную часть анкера; натяжения анкера и блокировки его на стене.

Рис. 14.36.
Технология устройства инъекционных анкеров НИИОСП (а) и механизм
натяжения анкерной тяги (б)
I - бурение скважины; II - погружение манжетной
трубы и анкерной тяги; III - подача обойменного раствора; IV - нагнетание цементного раствора с
помощью инъектора; V - натяжение анкера и блокировка его на стене; 1 -
скважина; 2 - манжетная
труба; 3 - анкерная тяга
из арматурных прядей (канатов); 4
- замок; 5 - манжеты; 6 - обойменный раствор; 7 - зона закрепленного грунта; 8 - гидравлический домкрат; 9 - анкеры; 10 - опорная площадка
В зависимости от конструктивного решения анкеров могут использоваться тяги в виде стальных канатов, пучков или стержневой арматуры.
Для ориентировочных расчетов диаметр
зоны инъецирования определяется из зависимости, учитывающей коэффициент
пористости грунта е, объем
закачиваемого раствора v, длину зоны анкеровки l: ![]()
Зону инъецирования можно рассматривать как сплошной цилиндрический элемент с эффективным диаметром, определяемым объемом поглощенного раствора. Этот элемент по форме напоминает буронабивную сваю. Давление нагнетания в 1,5-2,0 МПа обеспечивает достаточно высокое сцепление анкера с грунтом.
Более эффективной является технология уширения анкерной части путем использования разрядно-импульсной технологии. При этом уплотненная зона анкера оценивается по объему мелкозернистой бетонной смеси, поглощенной в процессе электроимпульсной обработки.
Процесс натяжения анкеров осуществляется после набора прочности инъецированного раствора с помощью гидродомкрата ДГО-50. Степень натяжения контролируется манометром и тензодинамометром. После проектного натяжения осуществляются блокировка анкерной тяги и омоноличивание участка.
Технологические процессы устройства анкеров осуществляются по мере отрывки котлована. При достижении проектной отметки производятся разметка мест положения анкеров и выполнение комплекса технологических операций.
В качестве средств механизации используются мобильные малогабаритные буровые станции, обеспечивающие выбуривание скважин с устройством обсадки труб. Изменение параметров бурового снаряда позволяет выбуривать скважины проектных параметров по длине и углу наклона. Наиболее эффективными и надежными в работе являются буровые станки французской фирмы «Солетанж», «Зальцгиттер» ФРГ и др.
При значительных размерах сооружения процесс устройства анкеров может быть совмещен с отрывкой котлована. При этом технологические процессы выполняются на захватках, что исключает их взаимное влияние.
В условиях плотной застройки использование анкерных систем в ряде случаев затруднено ввиду наличия подземных сетей, коллекторов и других сооружений. Поэтому в большинстве случаев устойчивость ограждающих стенок обеспечивается установкой расстрелов, распоров, подкосов на обвязочных поясах по мере разработки грунта (рис. 14.37).

Рис 14.37. Размещение распорных систем для обеспечения устойчивости стен, возводимых по методу «стена в грунте»
Технологическая схема комплекса работ по возведению 2-ярусной подземной автостоянки между жилыми зданиями приведена на рис. 14.38. Она включает цикл работ по устройству разделительной стенки в области примыкания «стена в грунте» к фундаментам; разработке грунта грейферным экскаватором под слоем бентонитового раствора короткими захватками с формированием и бетонированием стен; устройству распорных систем по мере отрывки котлована; устройству монолитной фундаментной плиты; поярусной встроенной системы из монолитного железобетона и др. видов строительно-монтажных работ.
Для производства работ используется комплекс строительных машин и оборудования: грейферный экскаватор, кран на гусеничном ходу, автосамосвалы, прицепные бетононасосы, щитовая опалубочная система для возведения встроенного каркаса, оборудование глинистого хозяйства и др.

Рис. 14.38.
Технологическая схема
производства работ по устройству заглубленных сооружений методом «стена в
грунте»*
а - разработка
траншей под слоем глинистого раствора; б - армирование и бетонирование траншей; в - устройство монолитной фундаментной
плиты; г - опалубочные,
арматурные и бетонные работы при возведении колонн и безбалочных перекрытий; 1
- штанговый экскаватор с грейферным ковшом; 2 - емкости для глинистого раствора; 3 - разделительный элемент; 4 - автосамосвал; 5 - кран для монтажа армо-каркасов и
подачи бетонной смеси методом ВПТ; 6 - бункеры для приема бетонной смеси; 7,8 - бетононасос с
бетоноводом; 9 -
разделительная стенка из бурозавинчивающихся свай; 10 - опалубка перекрытия; 11 -
опалубка колонн; 12 -
бетонолитная труба; 13 -
армокаркас; 14 - распорный
элемент
* Разработка грунта котлована условно не показана.
Использование струйной технологии наиболее эффективно при устройстве заглубленных сооружений между существующими жилыми или административными зданиями, а также для углубления подвальных помещений с целью более рационального их использования.
Данная технология позволяет создать грунтоцементный массив под фундаментами на требуемую глубину с параметрами, обеспечивающими несущую способностью и водонепроницаемость.
Технологический процесс получения стенки из грунтоцементного массива состоит в выбуривании скважин диаметром 40-60 мм на глубину заложения с наружной стороны здания, размыве грунта под давлением 300-400 атм специальными форсунками, его перемешивании с одновременной подачей цементной суспензии через дополнительную форсунку под давлением 15-20 атм. Форсунки, обеспечивающие размыв грунта и подачу цементной пасты, совершают вращательное движение с одновременным подъемом, что обеспечивает получение грунтоцементных свай. Устройство последующей сваи обеспечивает их соединение в единый массив.
На рис. 14.39 приведены технологические этапы возведения заглубленного объекта, расположенного между двумя зданиями.

Рис. 14.39.
Технология устройства заглубленных сооружений между жилыми зданиями
I - устройство
грунтоцементного массива под подошвой фундаментов; II - разработка грунта первого
яруса; III, IV - устройство анкеров и разработка грунта второго яруса; V - разработка грунта третьего яруса и устройство дренажной
системы; VI - возведение встроенной
монолитной каркасно-стеновой системы; VII - работы по благоустройству надземной
части;
1 - буровой станок с системой подачи воды и цементной пульпы; 2 - грунтоцементный массив; 3 - грунтоцементный анкер; 4 - монолитная бетонная плита
фундамента с дренажной системой; 5, 6 - опалубка колонн и перекрытий; 7 - гидроизоляция
покрытия
I этап включает устройство грунтоцементного массива под фундаментами с их переопиранием. После приобретения требуемой прочности осуществляется процесс разработки грунта механизированными средствами.
II этап состоит в открытой разработке грунта экскаватором и его вывозе за пределы площадки.
Производится поярусная разработка грунта известными средствами механизации. При этом осуществляется очистка поверхности грунтоцементного массива.
Для сооружений с глубиной заложения более 10 м на каждом ярусе (этаже) устраиваются анкеры, обеспечивающие восприятие давления от грунтового массива. Они выполняются в виде наклонных свай с инъецированием цементной суспензии и армированием стержневой или каркасной арматурой. Шаг размещения анкерных устройств принимается расчетным путем с учетом физико-механических характеристик грунтоцементного массива.
III-V этапы. После производства работ по устройству анкеров осуществляется разработка грунта последующего яруса.
С увеличением глубины котлована процесс разработки и транспортирования грунта на поверхность осуществляется с применением подъемников, специальных бункеров и грузоподъемных механизмов.
V этап включает установку дренажных систем и подготовку основания под бетонирование днища. При наличии грунтовых вод устраиваются специальные дренажные колодцы для откачки воды насосами.
VI этап включает работы по устройству встроенного монолитного каркаса. Для производства работ используются инвентарные опалубочные системы для возведения вертикальных конструкций - колонн, стенок жесткости, шахт и горизонтальных - балок и плит перекрытия.
Технология производства работ аналогична возведению монолитных каркасных зданий. Механизация технологических процессов предусматривает применение кранов для подачи опалубки, арматурных каркасов, сеток и стержневой арматуры, транспортирование бетонной смеси к месту укладки с помощью авто- и стационарных бетононасосов.
В зависимости от технологического назначения заглубленного сооружения выполняется цикл специальных и отделочных работ; работ по устройству приточно-вытяжной вентиляции; монтажу оборудования; устройству противопожарных завес и др.
VII этап состоит в устройстве гидро- и теплоизоляции покрытия, грунтовой засыпки, благоустройстве территории (посадке деревьев и кустарников, устройстве пешеходных дорожек, площадок отдыха и т.п.).
Сложные инженерно-геологические условия оцениваются наличием слабых грунтов основания, высоким уровнем грунтовых вод, присутствием плывунных образований, глубоким заложением водоупорного слоя и др. факторами, требующими принятия конструктивно-технологических решений, обеспечивающих не только сохранность примыкающих зданий, но и технологии производства работ, повышающих уровень надежности состояния конструктивных элементов.
Наиболее значимым фактором является высокий уровень грунтовых вод, который требует специальных технологий и режимов производства работ, снижающих влияние на примыкающие здания.
Исключение негативного влияния водопонижения достигается путем создания водонепроницаемых экранов вертикальных стен заглубленной части с глубиной заложения до водоупорного слоя. При этом используется технология устройства ограждений методом «стена в грунте» с армокаркасами из листовой арматуры.
При глубоком размещении водоупорного слоя такая технология приводит к дополнительным затратам и является экономически затратной. В подобных случаях требуется выполнить работы по устройству горизонтальных противофильтрационных завес по струйной технологии.
Технологическая последовательность производства работ состоит в первоначальном устройстве ограждающих вертикальных стен с последующим устройством горизонтальной противофильтрационной завесы (рис. 14.40), разработке грунта внутри котлована с устройством обвязочных поясов и распорных анкеров.

Рис. 14.40.
Технологическая последовательность устройства грунтоцементной
противофильтрационной завесы по струйной технологии
1 - ограждение «стена в грунте»; 2, 3 - буровой станок с рабочим органом; 4 - инъекционный комплекс; 5, 6, 7 -
технологическая последовательность устройства грунтоцементных свай; 8 - отстойник; 9 - примыкающее здание; 10 - положение монолитной фундаментной
плиты
В процессе разработки грунта осуществляется водопонижение методом водоотлива из водосборных колодцев. Для предотвращения всплытия горизонтальной завесы осуществляется устройство монолитных буронабивных свай, которые в последующем объединяются с монолитным железобетонным днищем.
На рис. 14.41 приведены технологические схемы поэтапного производства работ, включающие последовательные технологические циклы: устройство вертикальной противофильтрационной завесы методом «стена в грунте», горизонтальной завесы по струйной технологии; поярусная разработка грунта с устройством распорных анкеров; устройство свайного основания и монолитной железобетонной плиты.

Рис. 14.41.
Технологическая последовательность производства работ по устройству
заглубленных частей зданий и сооружений
Технологические циклы: I - устройство противофильтрационной завесы; II -
монтаж распорных систем и поярусная разработка грунта; III -
устройство свай и монолитной фундаментной плиты; IV-V - возведение встроенной монолитной системы с последовательным
демонтажем распорных систем; VI - совмещение
технологических процессов разработки грунта и монтажа распорных систем; VII - схема сопряжения фундаментной плиты с вертикальной стеной; 1
- «стена в грунте»; 2 -
противофильтрационная завеса; 3,
3* - распорные анкеры; 4 - монолитная ж/б фундаментная плита; 5 - сваи,
выполненные по разрядно-импульсной технологии; 6 - монолитный встроенный безбалочный каркас; 7 -
пенополистирольные вкладыши в армокаркасе; 8 - отгиб стержней и соединение с арматурой фундаментной плиты
Для сокращения продолжительности работ нулевого цикла осуществляют совмещение технологических процессов по разработке грунта и устройству анкерных систем. Такое решение отражается в проекте производства работ на основе технологических и геотехнических расчетов, обеспечивающих безопасность и геометрическую неизменяемость заглубленных конструктивных элементов. Особое место при этом отводится геотехническому мониторингу и использованию технологий, исключающих недопустимые деформации между ограждением стен, монолитность горизонтальных противофильтрационных завес, обеспечение пространственной жесткости распорных систем и др. решения.
Особое место в производстве работ отводится разработке новых технологий, обеспечивающих создание монолитных водонепроницаемых узлов сопряжения днища с вертикальной стеной. Одним из таких решений является использование пенополистирольных вкладышей, размещаемых на армокаркасе стены на уровне днища, что позволяет после разработки грунта до уровня противофильтрационной завесы произвести разрушение вкладышей, разрезку и отгиб арматурных стержней этой зоны с последующим соединением с арматурой фундаментной плиты. В процессе бетонирования плиты достигается монолитное соединение с вертикальной стеной, что способствует повышению водонепроницаемости стыка и обеспечивает совместную работу плиты с ограждающей стеной. Это обстоятельство позволяет снизить параметры фундаментных плит, использовать ограждающую стену в качестве фундамента с передачей нагрузки как от встроенных систем, так и наземных частей зданий.
Геотехническое сопровождение включает комплекс работ, направленных на обеспечение безопасности существующих зданий при реконструкции городской надстройки.
Оно включает: предпроектное инженерное обследование реконструируемых зданий и площадки строительства; геотехнический прогноз возможных деформаций зданий при реконструкции и в период дальнейшей эксплуатации; геотехническое обоснование применения различных технологий усиления и устройства оснований и фундаментов; выбор технологии производства работ, исключающей негативное воздействие на основания и фундаменты реконструируемых зданий прилегающей застройки и объектов нового строительства; инструментальный контроль качества работ и соблюдение технологических регламентов с учетом геотехнической сложности объектов реконструкции.
Геотехническое обоснование проекта преследует выбор оптимального решения, обеспечивающего надежность объекта реконструкции, нового строительства и сохранность окружающей застройки.
Геотехнический прогноз возможных деформаций зданий осуществляется по результатам зондирования грунтов основания фундаментов для определения их физико-механических и реологических характеристик. На показатели грунтов существенное влияние оказывают их влажность, структура и плотность.
За период эксплуатации грунты в основании фундамента испытывают внешние техногенные воздействия, что приводит к изменению их физико-механических характеристик, по сравнению с их естественным сложением.
Под подошвой фундаментов наблюдается область локального уплотнения, причиной которой являются фильтрационная консолидация и ползучесть грунтов основания.
Процесс консолидации грунтов основания и формирование зоны уплотнения достигаются в результате постепенного возрастания давлении при возведении здания; уплотнение грунта при постоянной нагрузке в послепостроечный период с дальнейшим нарастанием деформаций грунта и стабилизации осадок - многолетнего обжатия стабилизированного грунта.
При внесении изменений в результате увеличения нагрузки при надстройке или снижения зоны обжатия при разработке котлованов вблизи зданий, усилении фундаментов или укреплении грунтов основания формируется новая структура, что является важными факторами для прогноза поведения объекта после реконструкции.
В общем плане установлено, что в результате длительной эксплуатации зданий повышается расчетное сопротивление грунтов уплотненной зоны, которое может достигать 1,5-2,3-кратного увеличения. Это обстоятельство учитывается в расчетах несущей способности фундаментов при изменении нагрузок в результате надстройки зданий.
Работами Долматова Б.И., Сотникова С.Н., Ройтмана А.Г. установлены имперические зависимости размеров зоны уплотнения - глубины Ну и ширины bу от размеров фундаментов и структурной прочности грунтов.

где b - ширина фундамента; a = 1 МПа - коэффициент размерности.
На основе анализа многочисленных исследований установлено, что зона уплотнения грунтов, которая может быть установлена в расчетах при реконструкции, составляет по глубине 1,75-2,0 подошвы фундамента.
В то же время длительная эксплуатация зданий сопряжена с влиянием различных техногенных факторов, существенно влияющих на состояние грунтового основания. К ним следует отнести замачивание в результате протечек в системе водопровода и канализаций, повышение уровня грунтовых вод, динамические воздействия от транспорта, сезонные промерзания и др.
Поэтому в каждом конкретном случае требуются геотехнические исследования оценки состояния грунтового основания методами наклонного или вертикального зондирования, отбора проб и их испытаний.
Полученные данные могут служить основанием для расчета несущей способности фундаментов с учетом изменившихся нагрузок при реконструкции.
Наличие обоснованного конструктивного решения и щадящей технологии ведения работ при возведении подземных заглубленных сооружений является необходимым, но не достаточным условием успешного производства работ. Как показывает практика, на процесс производства влияет ряд дополнительных факторов: квалификация персонала, состояние техники, щадящий технологический режим ведения работ, геологические и гидрогеологические условия строительства.
Неоднородность разуплотнения грунта, а также геотехнический прогноз осадок при последующем нагружении фундаментов способствуют принятию решений по изменению технологической последовательности производства работ.
Геотехнический мониторинг
Геотехнический мониторинг не только является инструментом оперативного управления производством работ нулевого цикла, но и основным мероприятием для поверок расчетных значений, а также обеспечения надежности возводимых конструкций и сохранности окружающей застройки и коммуникаций. В его сферу, помимо строительной площадки, попадают геологическая и гидрогеологическая среда, капитальная застройка и ответственные коммуникации, находящиеся в зоне риска, связанного с возведением нового подземного или заглубленного сооружения.
Объем и состав мониторинга зависят от категории геотехнической сложности строительства. В общем случае цель мониторинга состоит в: наблюдении и инструментальной оценке поведения грунтов и грунтовых вод, влияющих на принятые проектные решения; оценке данных по технологии производства работ; раннем предупреждении неблагоприятных возведений; сборе данных по превышению критериев безопасного ведения работ и принятии методов исправления и восстановления; контроле процессов производства работ и их влияния на окружающую застройку.
Геотехнический мониторинг состоит из двух этапов - подготовительного и рабочего.
На подготовительном этапе выполняют следующие работы: анализ исходной информации по результатам обследования застройки (освидетельствование технического состояния застройки в зоне действия мониторинга; фиксация дефектов, графическая фиксация и фотосъемка, составление ведомостей дефектов; определение фоновых параметров колебаний конструкций зданий от имеющихся воздействий автомобильного транспорта, трамваев, метро, соседних производств, определение кренов стен зданий, неравномерности осадок); установку маяков и датчиков раскрытия трещин; установку геодезических марок с привязкой к городской реперной сети; установку пьезометров (режимных скважин) для контроля над уровнем грунтовых вод (для случаев, когда дно котлована ниже УГВ); уточнение проектных критериев по допустимым воздействиям; в наиболее сложных и ответственных случаях дополнительно устанавливают грунтовые геодезические марки, марки для измерения послойных деформаций, датчики порового давления, мессдозы для регистрации вертикальных и горизонтальных напряжений.
На рабочем этапе осуществляют (рис. 14.42): визуальный контроль технического состояния конструкций окружающей застройки, контроль состояния маяков и датчиков на трещинах; геодезические измерения деформаций окружающих зданий; геодезические измерения горизонтальных смещений, крена и осадки ограждающих конструкций, а также осадки и деформаций коммуникаций; геодезические измерения выпирания дна котлована; измерение напряжений в системе ограждающих стен (грунтовых анкеров, расстрелов, раскосов и т.п.); измерение поведения окружающих грунтов при проведении производства работ; измерение грунтового давления на ограждающие стенки; наблюдения за параметрами колебаний; фиксацию уровня грунтовых вод по пьезометрам; контроль с соблюдением геотехнического регламента работ; технический контроль состояния возведенных конструкций; контроль качества выполненных работ согласно требованиям нормативных документов; для наиболее сложных случаев производят фиксацию показаний установленной контрольно-измерительной аппаратуры.

Рис. 14.42.
Схема процесса мониторинга при возведении подземных и заглубленных
сооружений
1 - измерение крена и деформаций ограждающей стены котлована; 2 - определение усилий в грунтовых
анкерах; 3 - датчики для
оценки напряжений в распорных системах и их деформаций; 5 - датчики для оценки крена по
глубине; 6 - размещение
датчиков для измерения порового давления; 7 то же, уровня грунтовых вод; 8 измерение осадки
фундаментов и крена зданий; 9 - раскрытия трещин в существующих зданиях
Система мониторинга позволяет получать сведения о раннем предупреждении различного рода осадок и деформаций, принять необходимые меры и изменение технологий, направленные на обеспечение безопасности и надежности как возводимых объектов, так и прилегающей застройки.
Реконструкция жилых зданий и застройки является актуальной, достаточно сложной и многоплановой проблемой. Интенсивный физический и моральный износ жилого фонда требует неотложных мер по восстановлению и повышению эксплуатационной надежности зданий.
В представленной работе авторы осветили круг технических и технологических вопросов, позволяющих решать ряд актуальных задач безопасной эксплуатации зданий:
диагностику технического состояния жилого фонда и прогнозирование безаварийного срока службы;
современные методы и технологии восстановления эксплуатационных характеристик зданий и повышения их энергоэффективности;
апробированы и исследованы прогрессивные технологии обновления жилого фонда, основанные на новых конструктивно-технологических и индустриальных методах решения основной задачи;
оценено влияние организационно-технологических факторов на экономическую эффективность реконструкции, модернизации и санации жилых зданий.
Особое внимание уделено методам и технологиям производства работ, базирующихся на широком использовании местных строительных материалов, облегченных конструкций и новых отечественных технологий.
Основная задача авторов состояла в том, чтобы донести до специалистов различного уровня прогрессивные методы и технологии восстановления и повышения эксплуатационной надежности, энергоэффективности и архитектурной выразительности жилых зданий и застройки.
Надстройка жилых домов является наиболее эффективным приемом воспроизводства жилищного фонда, поскольку не требует увеличения земельного участка и позволяет реализовать запасы несущей способности конструкций зданий. Это обстоятельство способствует решению Национального проекта «Доступное и комфортное жилье - гражданам России».
Исследованиями показано, что только замена плоских кровель панельных и кирпичных 5-9-этажек мансардными этажами может дать прирост площадей по себестоимости на 30- 40 % ниже нового строительства в объеме, сопоставимом с годовой программой строительного комплекса РФ.
Решение проблемы реконструкции жилого фонда требует создания специализированных проектных и строительных организаций, владеющих современными методами и технологиями производства работ, оснащенных специальными средствами механизации, оборудованием и инвентарем.
Комплексная реконструкция застройки требует разработки долгосрочных программ и государственной поддержки в части создания благоприятных условий по привлечению инвесторов для получения ощутимого прироста доступного жилья.
Арбеньев С.А. От электротермоса к синэнергобетонированию / ВГТУ. - Владимир, 1996.- 270 с.
Афанасьев А.А., Данилов Н.Н., Копылов В.Д. и др. Технология строительных процессов. - М.: ВШ, 2000. - 463 с.
Афанасьев А.А., Арутюнов С.Г., Афонин И.А. и др. Технология возведения полносборных зданий. - М.: АСВ, 2003. - 360 с.
Афанасьев А.А. Возведение зданий и сооружений из монолитного железобетона. - М.: Стройиздат, 1990. - 380 с.
Афанасьев В.А. Поточная организация строительства. - Л.: Стройиздат, 1998. - 302 с.
Бедов А.И., Габитов А.И. Проектирование, восстановление и усиление каменных и армокаменных конструкций. - М.: АСВ, 2006. - 568 с.
Булгаков С.Н. Реконструкция жилых зданий. - М.: ГУП ЦПП, 1999. - 248 с.
Булгаков С.Н., Виноградов А.И., Леонтьев В.В. Энергоэкономичные ширококорпусные жилые дома XXI века. - М.: АСВ, 2006. - 269 с.
Бойко М.Д. Техническое обслуживание и ремонт зданий и сооружений. - М.: Стройиздат, 1993. -207 с.
Градостроительный кодекс Российской Федерации. - М., 1998.
Гусаков А.А., Веремеенко С.А., Гинзбург А.В. и др. Организационно-технологическая надежность строительства. - М.: АСВ, 1994. - 471 с.
Дмитриев А.Н. Управление энергосберегающими инновациями. - М.: АСВ, 2001. - 314 с.
Девятаева Г.В. Технология реконструкции и модернизации зданий. - М.: ИНФРА-М, 2005. - 480 с.
Калинин А.А. Обследование, расчет и усиление зданий и сооружений. - М.: АСВ, 2002.- 159 с.
Ливчан В.И., Чучуншин А.А. К методике расчета параметров энергетического паспорта жилых зданий / Инф. Бюллетень. - № 1. - 2001.
Матвеев Е.П. Реконструкция жилых зданий. Ч.I, II. - М., 1999. - 367 с. и 363 с.
Мешечек В.В., Матвеев Е.П. Правила производства и приема работ при реконструкции и капитальном ремонте жилых и общественных зданий. - М., 1998. - 81 с.
Методические рекомендации по оценке эффективности инвестиционных проектов и их выбору для финансирования. - М., 1999. - 80 с.
Монфред Ю.Б. Дом переехал. - Смоленск, 1998. - 340 с.
МНИИТЭП. Конструктивные решения, узлы и детали, технологии производства работ по реконструкции жилых домов первого периода индустриального домостроения в г. Москве. - М., 1997. -90 с.
Олейник С.П. Единая система переработки строительных отходов. - М.: СВР-Аргус, 2006.-300 с.
Олейник П.П. Организация строительства. - М.: Профиздат, 2001. - 407 с.
Перлей Е.М., Раюк В.Ф. и др. Свайные фундаменты и заглубленные сооружения при реконструкции действующих предприятий. - Л.: Стройиздат, 1989. - 175 с.
Пискунов М.Е. Методика геодезических наблюдений за деформациями сооружений. - М.: Недра, 1990. - 186 с.
Реконструкция городов и геотехническое строительство. - № 5. - 2003. - 190 с.
Реконструкция городов и геотехническое строительство. - № 7. - 2004. - 226 с.
Реконструкция без отселения жильцов 5-этажных жилых домов серий 1-510, 1-511, I-515 с надстройкой дополнительных этажей / ОАО «ЦНИИЭПжилища». - М., 1997. - 19 с.
Реконструкция зданий и сооружений / Под ред. А.Л. Шагина. - М.: ВШ, 1991. - 361 с.
Реконструкция и обновление сложившейся застройки города / Под ред. П.Г. Гробового и В.А. Харитонова. - М.: АСВ, Реалпроект, 2006. - 624 с.
Реконструкция и модернизация пятиэтажных жилых зданий первых массовых серий / Под ред. А.Н. Спивака (методические рекомендации), ЦНИИЭПжилища. - М., 1988. - 52 с.
Улицкий A.M., Шашкин А.Г. Геотехническое сопровождение реконструкции городов. - М: АСВ, 2004. - 324 с.
Федоров В.В. Реконструкция и реставрация зданий. - М.: ИНФРА-М, 2003. - 208 с.
Хихлуха Л.В. Строить или ремонтировать? // Строительство и бизнес. - № 11. - 2007.
Шепелев Н.П., Шумилов М.С. Реконструкция городской застройки. - М.: ВШ, 2000. - 324 с.
Шрейбер К.А. Вариантное проектирование при реконструкции жилых зданий. - М.: Стройиздат, 1991. - 326 с.
|
ГОСТЫ, СТРОИТЕЛЬНЫЕ и ТЕХНИЧЕСКИЕ НОРМАТИВЫ. Некоммерческая онлайн система, содержащая все Российские Госты, национальные Стандарты и нормативы. В Системе содержится более 150000 файлов нормативно-технической документации, действующей на территории РФ. Система предназначена для широкого круга инженерно-технических специалистов. Copyright © www.gostrf.com, 2008 - 2026 |