| |
ГОССТРОЙ СССР
ЦЕНТРАЛЬНЫЙ
НАУЧНО-ИССЛЕДОВАТЕЛЬСКИЙ И ПРОЕКТНО-ЭКСПЕРИМЕНТАЛЬНЫЙ ИНСТИТУТ
ОРГАНИЗАЦИИ, МЕХАНИЗАЦИИ И
ТЕХНИЧЕСКОЙ ПОМОЩИ СТРОИТЕЛЬСТВУ
(ЦНИИОМТП)
ОПАЛУБКА РАЗБОРНО-ПЕРЕСТАВНАЯ
Москва - 1985
Содержание
Рекомендовано к изданию
решением Научно-технического совета ЦНИИОМТП Госстроя СССР.
Работа содержит следующие
типы опалубок: мелкощитовая - "Монолитстрой" и Мосспецпромпроекта,
крупнощитовая - ЦНИИОМТП, Госгражданстрой", ОЭС-80
и Мосспецпромпроекта. В альбом включены описание, технические характеристики,
общие виды и основные элементы по каждому виду опалубок.
Альбом подготовили
сотрудники ЦНИИОМТП - д-р техн. наук Топчий В.Д., канд. техн. наук Евдокимов
Н.И. (научное руководство), Гусев В.Н., Ильина А.В., Манукян А.Р., Новиков
А.Ф., Степанов В.П.; треста Оргтяжстрой Минтяжстроя СССР - Горлачев А.И.
Ефремушкииа Л.М., Пилипенко В.И., Редькин А.А., Скарга В.А.; ЦНИИЭПжилища -
Абрамсон Л.А., Бакшеев Н.И., Рудой В.М.; Мосспецпромпроекта - Измаилов Г.С,
Никитин В.В., Ночный А.В., Рыбин А.А., Толстых А.А.; института Оргэнергострой -
канд.техн.наук Чикваидзе К.И.
Альбом предназначен для
инженерно-технических работников строительных организаций.
I. Опалубка
"Монолитстрой"
Опалубка применяется для возведения различных монолитных конструкций.
Опалубка состоит из линейных и угловых щитов, схваток, составных ферм,
поддерживающих элементов опалубки перекрытий, элементов крепления и соединения.
Элементы опалубки и их назначение приведены в табл. 1. Чертежи основных
элементов опалубки приведены на листах 1 - 23.
Щиты каркасной конструкции. Каркас, выполнен из металла, палуба из
металла или фанеры. Размеры щитов кратные модулю 300.
Для соединения щитов применены замки клинового типа, закрепленные на
щитах.
Опалубку можно монтировать и демонтировать как отдельными элементами
вручную, так и крупноразмерными панелями (или блоками) с помощью кранов.
Технико-экономические показатели
Приведенная масса -
65 кг/м2
Оборачиваемость -
100 раз
Средняя трудоемкость
монтажа и демонтажа -
0,6 чел.-ч на 1 м2
Для объединения опалубки в
блоки применяют блокирующие уголки, которые позволяют осуществлять монтаж
опалубки замкнутыми блоками без разборки на отдельные панели.
Применение составных ферм позволяет собирать крупноразмерные блоки
опалубки без установки промежуточных стяжных болтов.
Изменение шага установки поддерживающих элементов позволяет применять
опалубку на различные нагрузки, в том числе на максимальные, при интенсивном
бетонировании монолитных конструкций.
Опалубка разработана на основе опалубок "Тяжстрой-78"
(Минтяжстроя СССР) и "Монолит-77" (ЦНИИОМТП Госстроя СССР), которые
многократно, внедрялись. Опалубка "Монолитстрой" испытана
Минтяжстроем СССР. Внедрение начато в 1985 г.
Проект 8.250.00.000 разработан Оргтяжстроем при
участии ЦНИИОМТП. Рабочие чертежи распространяются Бюро внедрения ЦНИИОМТП
(127434, Москва, Дмитровское ш., 9).
Таблица
1
Мелкощитовая опалубки
"Монолитстрой" (Оргтяжстрой Минтяжстроя СССР, ЦНИИОМТП Госстроя СССР)
|
Наименование элементов
|
Обозначение
|
Габаритные размеры или длина, м
|
Назначение
|
|
1
|
2
|
3
|
4
|
|
Щиты основные
|
ЩС-2,4×1,2
ЩС-2,4×0,9
ЩС-2,4×0,6
ЩС-1,8×0,6
ЩС-1,8×0,3
ЩС-1,5×0,6
ЩС-1,5×0,3
ЩС
1,2×0,6
ЩС-1,2×0,3
ЩС-0,9×0,3
|
2,4×1,2
2,4×0,9
2,4×0,6
1,8×0,6
1,8×0,3
1,5×0,6
1,5×0,3
1,2×0,6
1,2×0,3
0,9×0,3
|
Формообразующие элементы - щиты для
бетонирования вертикальных монолитных конструкций. Размеры щитов по длине,
ширине и высоте кратны модулю 300 мм
|
|
Щит доборный
|
ЩС-0,6×0,15
|
0,6×0,15
|
Формообразующий доборный элемент
|
|
Щит угловой
|
ЩУ-0,6×0,3×0,3
ЩУ-0,9×0,3×0,3
|
0,6×0,3×0,3
0,9×0,3×0,3
|
Формообразующий элемент углов зданий
|
|
Схватки
|
Сх-1,2
Сх-1,8
Сх-2,4
Сх-3,0
Сх-3,5
|
1,34
1,94
2,54
3,14
1,74
|
Несущие элементы, предназначенные для восприятия нагрузок,
действующих на опалубку, а также для объединения щитов в панели и блоки
|
|
Схватки
|
Сх-0,5
Сх-1,6
|
0,74×0,105
1,72×0,105
|
Для соединения щитов опалубки при устройстве внутренних
углов
|
|
Ферма составная
|
Ф-1
|
0,9-1,2
|
Предназначена для восприятия нагрузок, действующих на
опалубку, а также объединения отдельных щитов в панели и блоки
|
|
Связь
|
Св-1
|
6,5
|
Предназначена для восприятия нагрузок, действующих на
опалубку
|
|
Чека торцовая
|
Чт-1
|
0,2
|
Элемент соединения
|
|
Струбцина
|
Сб-1
|
0,28×0,I8×0,3
|
Для крепления схваток к щитам при устройстве ступенчатых
фундаментов
|
|
Болты Т-образные
|
БТ-1
БТ-2
|
0,16
0,23
|
Для соединения схваток друг с другом и крепления к ним
подкосов
|
|
Стяжка (шпилька) винтовая со специальной гайкой
|
СГ-16
|
0,9-1,2
|
Для крепления противостоящих опалубочных щитов и
восприятия нагрузок от давления бетонной смеси
|
|
Петля монтажная
|
ПМ-2
ПМ-1
|
0,1×0,87
0,15×0,24
|
Для подъема и раскрепления элементов опалубки
|
|
Угловые блокирующие элементы
|
УГ-0,9
|
1,1
|
Для соединения наружных углов опалубки ступенчатого
фундамента
|
|
УГ-0,6
|
0,6
|
Для соединения внутренних углов опалубки ступенчатого фундамента
и для изменения размеров блока при снятии опалубки без разборки
|
|
Хомут поворотный
|
Хп-1
|
0,205×0,102×0,05
|
|
|
Хомут неповоротный
|
Хн-1
|
0,18×0,09×0,05
|
|
|
Стойка ограждения
|
CО-1
|
1,1
|
|
|
Площадка навесная
|
ПН-1
|
2,58×1,5×1,31
|
Применяется для обслуживания опалубки при эксплуатации
|
|
Подкос
|
ПК-1,2
|
1,26×1,24
|
Опорный элемент, обеспечивающий устойчивость опалубочных
элементов стен и ростверков при их монтаже. Также выполняет роль опорного
кронштейна при устройстве навесных подмостей
|
|
Стойка вертикальная (телескопическая)
|
Св 1,81-3,16
|
1,81-3,16
|
Предназначены для устройства верхних опор и поддерживания
опалубки на высоте от 1,3 до 10 м, а также используются в качестве временных
опор монтируемых конструкций
|
|
Стойка наклонная, (телескопическая)
|
Сн 1,85-3,20
|
1,852-3,202
|
|
Лестница навесная верхняя
|
ЛН-1
|
2,7×0,60
|
Предназначены для обеспечения безопасности труда при
монтаже, перестановках, демонтаже и обслуживания опалубки при ее эксплуатации
|
|
Лестница навесная нижняя
|
ЛН-2
|
0,97×0,60
|
|
|
Замок
|
Зн-1
Зк-2
|
0,12×0,036
|
Применяется при установке стяжек не отельных стержней
|
|
Оголовник
|
ОГ-1
|
0,205×0,205×0,162
|
Используются как поддерживающие элементы, а также для
устройства временных лестничных клеток для подъема рабочих, передвижных
вышек, эстакад, стеллажей, каркасов временных навесов и т.д.
|
|
Опора
|
Ол-1
|
0,24×0,15×0,086
|
|
Рама основная
|
Р0-1.2×1,2
|
0,76×1,26
|
|
Рама доборная
|
РД-1,2×0,8
|
0,83×1,26
|
|
Колесо опорное
|
КО-1
|
2,2×0,15ш
|
|
Домкрат рабочий
|
ДР-1
|
0,64×0,23
|
|
|
Патрубки
|
П-1
П-2
П-3
|
0,215; Ø40
0,215; Ø50
0,215; Ø50
|
|
|
Лестничный марш
|
ЛМ-1
|
2,575×2,365×1,65
|
|
|
Ригель раздвижной
|
РР 1,45+2,20
РР 2,8+4,40
РР 4,3+6,2
|
1,45-2,2
2,8-4,4
4,3-6,2
|
|
|
8.250.00.000
|
Мелкощитовая опалубка
“Монолитстрой”
|
Лист 1
|
|
Общий вид
|
|

|
|
8.250.00.000
|
Мелкощитовая опалубка
“Монолитстрой”
|
Лист 2
|
|
Использование опалубки при
устройстве подпорной стенки
|
|

|
1-ограждение;
2-схватка;
3-опалубочная
панель;
4-составная
ферма;
5-стяжка с
распорной втулкой;
6-расчалка;
7-телескопичкская
стойка;
8-анкер;
|
|
|
|
|
|
8.250.00.000
|
Мелкощитовая опалубка
“Монолитстрой”
|
Лист 3
|
|
Использование опалубки для
устройства блок-формы для фундаментов
|
|

|
|
8.250.00.000
|
Мелкощитовая опалубка
“Монолитстрой”
|
Лист 4
|
|
Щиты ЩС
|
|

|
|
8.250.00.000
|
Мелкощитовая опалубка
“Монолитстрой”
|
Лист 5
|
|
Щиты ЩС
|
|

|
|
8.250.00.000
|
Мелкощитовая опалубка
“Монолитстрой”
|
Лист 6
|
|
Щит ЩС 0,9×0,6
|
|

|
|
8.250.00.000
|
Мелкощитовая опалубка
“Монолитстрой”
|
Лист 7
|
|
Щит доборный
|
Щит угловой
|
|

|

|
|

|
|
|
|
|
|
8.250.00.000
|
Мелкощитовая опалубка
“Монолитстрой”
|
Лист 8
|
|
Схватки
|
|

|
|
8.250.00.000
|
Мелкощитовая опалубка
“Монолитстрой”
|
Лист 9
|
|
Ферма составная Ф-1
|
|

|
|
1-талреп; 2-опора
|
|
8.250.00.000
|
Мелкощитовая опалубка
“Монолитстрой”
|
Лист 10
|
|
Связь СВ-1/ Болт
Т-образный БТ
|
|

|
|

|
Болт
6 - бобышка;
7 - штырь;
8 - гайка;
|
|
|
|
|
|
8.250.00.000
|
Мелкощитовая опалубка
“Монолитстрой”
|
Лист 11
|
|
Струбцина Сб-1
|
|

|
|
|
1-винт;
2-корпус;
|
|
|
|
|
|
8.250.00.000
|
Мелкощитовая опалубка
“Монолитстрой”
|
Лист 12
|
|
Чека торцовая ЧТ-1
|
Уголок блокирующий Уг-0,6
|
|

|
|
|
|
|
|
8.250.00.000
|
Мелкощитовая опалубка
“Монолитстрой”
|
Лист 13
|
|
Уголок блокирующий Уг-0,9
|
|

|
|
8.250.00.000
|
Мелкощитовая опалубка
“Монолитстрой”
|
Лист 14
|
|
Стяжка Сч-16 / Замок Зк-1
|
|

|
|
8.250.00.000
|
Мелкощитовая опалубка
“Монолитстрой”
|
Лист 15
|
|
Хомуты поворотный ХП-1 и
неповоротный ХН-1
|
|

|
|
8.250.00.000
|
Мелкощитовая опалубка
“Монолитстрой”
|
Лист 16
|
|
Площадка навесная ПН-1
|
|

|
|
8.250.00.000
|
Мелкощитовая опалубка
“Монолитстрой”
|
Лист 17
|
|
Стойка вертикальная
Св-1,81-3,16
|
|

|
|
8.250.00.000
|
Мелкощитовая опалубка
“Монолитстрой”
|
Лист 18
|
|
Стойка наклонная СН-1,85-3,2
|
|

|
|
8.250.00.000
|
Мелкощитовая опалубка
“Монолитстрой”
|
Лист 19
|
|
Рамка основная
РО-12×1,2
|
|

|
|
8.250.00.000
|
Мелкощитовая опалубка
“Монолитстрой”
|
Лист 20
|
|
Домкрат рабочий ДР-1
|
|

|
|
8.250.00.000
|
Мелкощитовая опалубка
“Монолитстрой”
|
Лист 21
|
|
Лестничный марш ЛМ-1
|
|

|
|
8.250.00.000
|
Мелкощитовая опалубка
“Монолитстрой”
|
Лист 22
|
|
Ригель раздвижной РР
1,45-2,20
|
|

|
|
8.250.00.000
|
Мелкощитовая опалубка
“Монолитстрой”
|
Лист 23
|
|
Ригель раздвижной
РР-2,80-4,40
|
|

|
II. Опалубка
Мосспецпромпроекта
Опалубка предназначена для бетонирования небольших по объему и сложных по
конфигурации монолитных конструкций, в том числе в стесненных условиях
строительства.
Опалубка состоит из щитов, охваток, элементов крепления и соединения.
Многие элементы (навесные площадки, опорные элементы и др.) используются те же,
что и в крупнощитовой опалубке Мосспецпромпроекта.
Элементы опалубки, их назначение приведены в табл. 2. Чертежи основных
элементов опалубки приведены на листах 24 - 32
и 97
- 102.
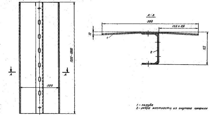
Щиты каркасной конструкции с фанерной палубой. По периметру щитов сделаны
углубления для пропуска тяжей (плоских планок). Щиты соединены между собой с
помощью специальных штырей с опорной головкой и прорезью под клин.
К преимуществам опалубки относится унификация поддерживающих элементов.
Опалубку изготавливают из нестандартных гнутых профилей, выпускаемых завдом
объединения Мосметеллоконструкция.
Технико-экономические
показатели
Приведенная масса (с
поддерживающими элементами) -77 кг/м2
Оборачиваемость
щитов -100
раз
поддерживающих
элементов -300
раз
Трудоемкость монтажа и
демонтажа опалубки -0,7
чел.-ч на 1 м2
Опалубка изготавливается заводом объединения Мосметаллоконструкция на
оборудовании фирмы "Юсон" (Франция) и применяется при строительстве
московских объектов о 1983 г.
Проект 02147.00.000 разработан объединением Мосспецпромпроект
Главмонтажспецстроя на базе опалубки фирмы "Юсон" (Франция) (123557,
Москва, М. Грузинская, 27).
Таблица 2
Мелкощитовая опалубка Мосспецпромпроекта
|
Элементы опалубки
|
Обозначение
|
Габаритные размеры, длина, м
|
Назначение
|
|
1
|
2
|
3
|
4
|
|
Щит основной
|
Щ 0,3×0,6
|
0,3×0,6
|
Формообразующий элемент для
бетонирования прямоугольных бетонных и железобетонных конструкций
|
|
Щ 0,3×0,9
|
0,3×0,9
|
|
Щ 0,3×1,2
|
0,3×1,2
|
|
Щ 0,3×1,5
|
|
|
Щ 0,3×1,8
|
|
|
Щ 0,3×2,4
|
0,3×1,5
|
|
Щ 0,6×0,6
|
0,3×1,8
|
|
Щ 0,6×0,9
|
0,6×0,9
|
|
Щ 0,6×1,2
|
0,6×1,2
|
|
Щ 0,6×1,5
|
0,6×1,5
|
|
Щ 0,6×1,8
|
0,6×1,8
|
|
Щ 0,6×2,4
|
0,6×2,4
|
|
Колодка накладная
|
-
|
0,2×0,105×0,1
|
Съемная колодка для крепления и
подвески схваток к щитам
|
|
Штырь соединительный
|
-
|
0,134
|
Для соединения щитов между
собой
|
|
Чека малая
|
-
|
0,078×0,036
|
-"-
|
|
Чека большая
|
-
|
0,04×0,15
|
Для раскрепления распорных планок
|
|
Замок
|
-
|
0,19×0,15
|
Для крепления колодок накладных к щитам
|
|
Замок
|
-
|
0,6
|
Для связи открытых торцов щитов и крепления торцовых
неинвентарных панелей
|
|
Планка распорная
|
-
|
0,386
|
Для крепления противостоящих щитов опалубки
|
|
02147.00.000
|
Мелкощитовая опалубка
Мосспецпромпроекта
|
Лист 24
|
|
|
Общий вид
|
|
|

|
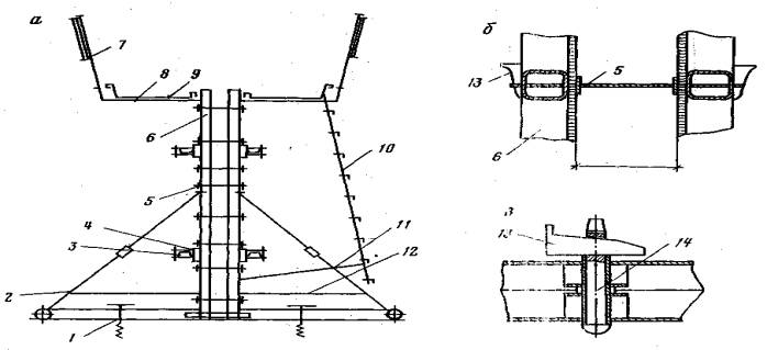
1 - анкерное устройства;
2 - укосина;
3- схватка;
4 - замок крепления схватки;
5 - тяж(пластина);
6 - щит опалубки;
7 - ограждение;
8 - супорт платформы;
9 - платформа;
10 - лестница;
11 - подкос лестницы;
12 - подкос у косины;
13 - клин;
14 - штырь;
|
|
|
|
|
|
|
|
|
|
|
|
|
|
а - схема установки
опалубки стены;
б - установка тяжей;
в - соединение щитов;
|
|
|
|
|
|
|
|
02147.00.000
|
Мелкощитовая опалубка
Мосспецпромпроекта
|
Лист 25
|
|
Щиты 300×600 и 300×900
|
|

|
|
02147.00.000
|
Мелкощитовая опалубка
Мосспецпромпроекта
|
Лист 26
|
|
Щиты 300×1200 и
300×1500
|
|

|
|
02147.00.000
|
Мелкощитовая опалубка
Мосспецпромпроекта
|
Лист 27
|
|
Щиты 300×2400 и
300×1800
|
|

|
|
02147.00.000
|
Мелкощитовая опалубка
Мосспецпромпроект
|
Лист 28
|
|
Щиты 600×600 и
600×900
|
|

|
|
02147.00.000
|
Мелкощитовая опалубка
Мосспецпромпроект
|
Лист 29
|
|
Щиты 600 ×1200 и
600×1500
|
|

|
|
02147.00.000
|
Мелкощитовая опалубка
Мосспецпромпроект
|
Лист 30
|
|
Щиты 300×2400 и
300×1800
|
|

|
1-каркас;
2-паз
для пропуска распорных планок;
3-ответстие
для соединения щитов;
4-палуба;
5-ребро;
6-втулка
|
|
|
|
|
|
02147.00.000
|
Мелкощитовая опалубка
Мосспецпромпроект
|
Лист 31
|
|
Детали
|
|

|
|
02147.00.000
|
Мелкощитовая опалубка
Мосспецпромпроект
|
Лист 32
|
|
Детали
|
|

|
|
|
1-штырь; 2-отверстие для
фиксации замка;
3-упор; 4-отверстие для
пропуска чеки
|
|
|
|
|
I. Опалубка ЦНИИОМТП
Опалубка универсальная. Применяется для возведения крупноразмерных
монолитных конструкций промышленного и жилищно-гражданского строительства.
Состоит опалубка из модульных щитов (с установкой четырех тяжей на щит),
которые воспринимают все нагрузки при бетонировании. При объединении щитов
устанавливается один тяж на два соседних щита. Щиты каркасной конструкции
выполнены в двух вариантах с использованием прокатных и гнутых профилей. Палуба
делается из фанеры или металлического листа.
В комплект опалубки входит также набор дополнительных элементов для
бетонирования жилых зданий.
Элементы опалубки, их характеристика и назначение приведены в табл. 3.
Чертежи основных элементов опалубки приведены на листах 33-50.
Все щиты выполнены симметричной конструкции и могут устанавливаться в
любых положениях и сочетаниях.
Опалубка может монтироваться как отдельными щитами, так панелями. Друг с
другом щиты соединяются специальным замком, позволяющим выравнивать
формообразующие поверхности щитов. Замок унифицирован и может применяться при
различных вариантах исполнения щитов. Устанавливается замок в местах пропуска
тяжей. Для возможности соединения щитов в любом другом месте предусматривается
специальная струбцина. При сборке панелей, не кратных модулю 300 мм, используются щиты-компенсаторы.
Техническая характеристика
Приведенная
масса (в зависимости от материала палубы) -60-85
кг/м2
Оборачиваемость -300 раз
Трудоемкость монтажа и
демонтажа опалубки -0,35
чел.-ч на 1 м2
Проект 625-2.00.000 распространяется Проектной частью ЦНИИОМТП Госстроя
СССР (127434; Москва, Дмитровское ш., 9).
Таблица 3
Крупнощитовая опалубка
ЦНИИОМТП
|
Наименование элементов
|
Обозначение
|
Габаритные
-размеры, длина,м
|
Назначение
|
|
|
1
|
2
|
3
|
4
|
|
|
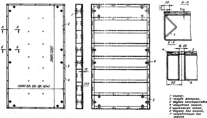
Щит линейный (каркас - гнутый
профиль, палуба - фанера)
|
ЩЛ 0,3-1,2
|
0,3×1,2; 0,6×1,2;
0,9×1,2; 1,2×1,2
|
Формообразующий элемент
опалубки для бетонирования монолитных стен
|
|
|
Щит линейный (каркас - гнутый
профиль палуба металличесская)
|
ЩЛМ 0,3-1,2
|
0,3×1,2; 0,6×1,2;
0,9×1,2; 1,2×1,2
|
|
|
Щит линейный (каркас - прокат,
палуба - фанера)
|
ЩЛП 0,3-1,2
|
0,3×1,2; 0,6×1,2;
0,9×1,2; 1,2×2,4;
1,2×1,2
|
|
|
Щит линейный (каркас - прокат,
палуба металлическая)
|
ЩЛМ 0,3×1,2
|
0,3×1,2; 0,6×1,2;
0,9×1,2; 1,2×1,2
|
|
|
Щит угловой (каркас - гнутый
профиль или прокат, палуба - фанера или металл)
|
ЩУ 0,3×1,2
|
0,3×1,2
0,3×1,2
|
Формообразующий элемент для
обраэования внутренних углов монолитных стен
|
|
|
ЩМ 0,3×1,2
|
|
|
Монтажный уголок
|
МУ 0,13×1,2
|
0,132×1,2;
0,132×2,4
|
Элемент опалубки для
образования наружных углов монолитных стен.
|
|
|
МУ 0,12×1,2
|
0,12×1,2; 0,12×2,4
|
|
|
Щит доборный (каркас - гнутый
профиль, палуба - фанера)
|
ЩДФ 0,3×0,16
|
0,3×0,16-0,76
0,6×0,16-0,76
0,9×0,16-0,76
1,2×0,16-0,76
|
Применяется в качестве доборов
при бетонировании немодульных по размеру конструкций, для увеличения высоты
внутренних угловых щитов
|
|
|
|
Щит доборный (каркас - прокат,
палуба - фанера)
|
|
|
|
Щит доборный (каркас - гнутый
профиль, палуба - металл)
|
ЩДМ 0,3×0,16
|
0,3×0,16-0,76
0,6×0,16-0,76
0,9×0,16-0,76
1,2×0,16-0,76
|
|
|
|
Щит доборный (каркас - прокат,
палуба - металл)
|
|
|
|
Щит доборный угловой
|
ЩУД 0,3×0,15
|
0,3×0,16-0,76
|
Применяется в качестве доборов
при бетонировании немодульных конструкций для увеличения высоты наружных
угловых щитов
|
|
|
Щит-компенсатор
|
ЩК 0,3×1,2
|
0,3×1,2; 0,3×2,4;
0,3×2,5; 0,3×2,7;
0,3×3,0
|
Применяется в качестве добора
при бетонировании немодульных конструкций
|
|
|
Стяжка
|
-
|
0,47-0,85
|
Для соединения
противоположностоящих щитов опалубки стен
|
|
|
Струбцина
|
-
|
0,175-1,1
|
Для фиксации щитов опалубки
стен по верхней грани
|
|
|
Щит торцевой
|
ЩТВ 0,12×1,2
|
1,2×0,12-0,22
2,4×0,12-0,22
|
Формообразующий элемент для
торцов при бетонировании монолитных стен
|
|
|
ЩТ 0,12×2,5
|
2,56×0,12-0,22
2,76x0,12-0,22
3,06×0,12-0,22
|
|
|
Балка
|
-
|
1,6
|
Для восприятия давления
бетонной смеси и исключения прогиба щита компенсатора
|
|
|
Подкос
|
-
|
2,15
|
Для выверки опалубки по
вертикали
|
|
|
Шкворень
|
-
|
0,47; 0,52; 0,57;
0,62
|
Надежный элемент для
закрепления монтажных подмостей к щиту опалубки наружных стен
|
|
|
Домкрат
|
-
|
0,406
|
Для выверки опалубки по
вертикали
|
|
|
Кронштейн
|
-
|
0,957×2,245
|
Для установки подмостей
|
|
|
Зажим
|
1Кд
|
0,06×0,133
|
Для соединения схваток со
щитами, а также при установке подкосов для крепления их к щитам
|
|
|
Зажим
|
2Кд
|
0,141×0,227
0,141×0,196
|
Для соединения щитов в местах
установки тяжей, а также для соединения щитов с монтажными уголками
|
|
|
Монтажные подмости (балкон)
|
|
1,2×1,4
|
Для бетонирования балконов
|
|
|
Струбцина монтажная
|
|
0,368×0,135×0,1
|
Для соединения щитов при сборке
в крупноразмерные панели. Соединение может осуществляться в любом месте
|
|
Опалубка перекрытий,
разработанная ЦНИИОМТП, (листы
51, 52)
выполнена в двух вариантах:
с опиранием на опорные ролики, закрепляемые к стенам;
с опиранием на каркас, устанавливаемый на перекрытие.
Опалубка по первому варианту состоит из щитов, опорных роликов, каркаса,
балкона (подмостей) и стоек.
Ролики навешивается на стены с помощью стяжек, при этом используется
отверстия для стяжных болтов, остающиеся после бетонирования стен.
Ролики навешиваются на стены с помощью стяжек, при этом используются
отверстия для стяжки болтов, остающиеся после бетонирования стен.
Каркас выполнен из швеллеров №12. Балкон (подмостки) оборудован
деревянным настилом и ограждением. Балки образуют раму, на которой закреплены
щиты и подмости. Стойки применяются в качестве дополнительных промежуточных
опор при пролетах перекрытия более 3,6 м.
Опалубка по второму
варианту состоит из балкона (подмостей), опор колес, каркаса. Опора колеса
кренится к стойкам каркаса. Каркас состоит из стоек, укосин и подкосов.
|
625-2.00.000
|
Мелкощитовая
опалубка ЦНИИОМТП
|
Лист
33
|
|
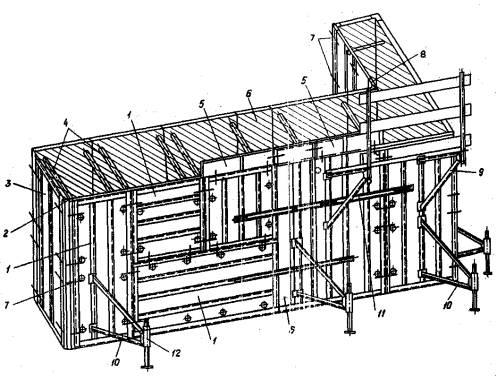
Общий вид
|
|

|
1
- щит стеновой;
2
- уголок монтажный;
3
- щит торцевой;
4
- тяж;
5
- щит доборный;
6
- щит компенсатор;
7
- зажим (клиновой);
8
- щит угловой;
9
- подмости;
10
- кронштейн;
11
- балка (монтируется только в месте установки доборов-щитов компенсаторов);
12 - домкрат
|
|
625-2.00.000
|
Мелкощитовая опалубка
ЦНИИОМТП
|
Лист 34
|
|
Линейные щиты с фанерной
палубой
|
|

|
|
625-2.00.000
|
Мелкощитовая опалубка
ЦНИИОМТП
|
Лист 35
|
|
Линейные щиты с
металлической палубой
|
|

|
|
625-2.00.000
|
Мелкощитовая опалубка ЦНИИОМТП
|
Лист 36
|
|
Щит угловой ЩУ
0,3×1,2
|
|

|
|
625-2.00.000
|
Мелкощитовая опалубка
ЦНИИОМТП
|
Лист 37
|
|
Щит угловой ЩМ
0,3×1,2
|
|

|
|
625-2.00.000
|
Мелкощитовая опалубка
ЦНИИОМТП
|
Лист 38
|
|
Монтажные уголки МУ
0,13×1,2 и МУ 0,13×24
|
|

|
|
625-2.00.000
|
Мелкощитовая опалубка
ЦНИИОМТП
|
Лист 39
|
|
Щиты доборные ЩДФ
0,3×0,16 (0,76)
|
|

|
|
625-2.00.000
|
Мелкощитовая опалубка
ЦНИИОМТП
|
Лист 40
|
|
Щит угловой доборный ЩУД
0,3×0,16
|
|

|
|
625-2.00.000
|
Мелкощитовая опалубка
ЦНИИОМТП
|
Лист 41
|
|
Щит-компенсатор ЩК
0,3×0,12 (3,0)
|
|

|
|
625-2.00.000
|
Мелкощитовая опалубка
ЦНИИОМТП
|
Лист 42
|
|
Стяжка
|
|

|
|
625-2.00.000
|
Мелкощитовая опалубка
ЦНИИОМТП
|
Лист 43
|
|
Струбцина
|
|

|
|
625-2.00.000
|
Мелкощитовая опалубка
ЦНИИОМТП
|
Лист 44
|
|
Щит торцевой
|
|

|
|
625-2.00.000
|
Мелкощитовая опалубка
ЦНИИОМТП
|
Лист 45
|
|
Подкос,балка
|
|

|
|
625-2.00.000
|
Мелкощитовая опалубка ЦНИИОМТП
|
Лист 46
|
|
Шкворень. Домкрат
|
|

|
|
625-2.00.000
|
Мелкощитовая опалубка
ЦНИИОМТП
|
Лист 47
|
|
Кронштейн
|
|

|
|
625-2.00.000
|
Мелкощитовая опалубка
ЦНИИОМТП
|
Лист 48
|
|
Зажимы 1 Кq и 2 Кq
|
|

|
|
625-2.00.000
|
Мелкощитовая опалубка
ЦНИИОМТП
|
Лист 49
|
|
Балкон
|
|

|
|
625-2.00.000
|
Мелкощитовая опалубка
ЦНИИОМТП
|
Лист 50
|
|
Монтажная струбцина
|
|

|
|
625-2.00.000
|
Мелкощитовая опалубка
ЦНИИОМТП
|
Лист 51
|
|
Опалубка перекрытий с опиранием
на стены с помощью роликов
|
|

|
|
625-2.00.000
|
Мелкощитовая опалубка
ЦНИИОМТП
|
Лист 52
|
|
Опалубка перекрытий с
опиранием на нижележащее перекрытие
|
|

|
II.Опалубка
“Гражданстрой”
Опалубка предназначена
для возведения стен бескаркасных гражданских зданий с модульной сеткой и
следующими планировочными и конструктивными решениями:
высота этажа
2,8; 3,0; 3,3; 3,6; 4,2 м;
шаг поперечных
стен 2,4 - 7,2 м;
толщина
внутренних стен 16, 18, 22, 24 см;
толщина
наружных стен 30, 35, 40, 45, 50 см;
толщина
перекрытий 12, 14, 16, 22 см.
Опалубка
включает следующие основные элементы: унифицированные стеновые щиты,
компенсаторы толщин перекрытий (надставки), щиты торцов стен, подкосы, навесные
подмости, угловые щиты, щиты - надставки. Чертежи элементов опалубки даны на листах 51
- 78.
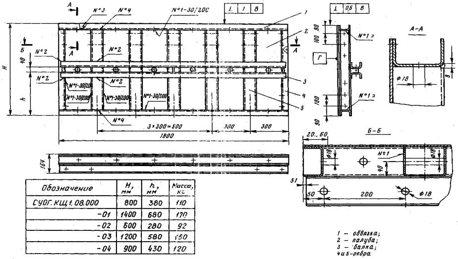
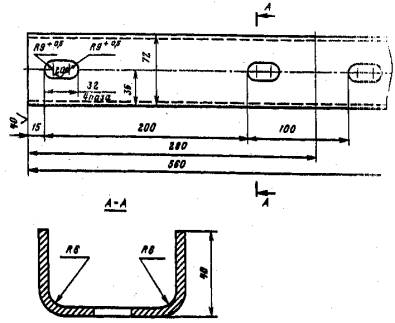
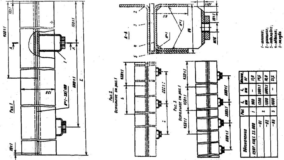
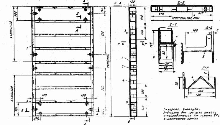
Унифицированный
стеновой щит представляет собой металлическую конструкцию из палубы толщиной 3
- 4 мм и выполненного из гнутого профиля каркаса, вертикальные ребра которого
расположены с шагом 300 мм.
Приняты следующие
длины щитов - 900; 1200; 1500 и 1800 мм и высоты - 2560; 2760 и 3060 мм,
соответствующие высотам этажа 2,8; 3,0; 3,3 м.
При высотах
этажа 3,6 и 4,2 м применяются щиты - надставки, а при толщинах перекрытия,
отличных от 220 мм - надставки (компенсаторы) высотой 60, 80 и 100 мм,
устанавливаемые по верхним торцам унифицированных щитов.
При сборке
опалубочных панелей отдельные щиты соединяют с помощью шпонок, замков
(накладок) и шпилек. Опалубочные панели соединяют струбцинами.
При монтаже опалубки
противостоящие щиты или панели соединяют стяжками, монтируемыми с шагом 1800 мм
на двух уровнях по высоте.
Характеристики
основных элементов опалубки представлены в табл. 4
Технико-экономические
показатели
Приведенная масса -
94...100 кг/м2 при высоте этажа 2,8 м
Оборачиваемость -
300 раз
Трудность монтажа и
демонтажа опалубки -
0,35 чел.-ч на 1 м 2
Головными
организациями по внедрению опалубки являются Минстрой СССР и ГлавУКС ВЦСПС.
Опалубка
применяется при строительстве жилых, общественных и курортно-санаторных зданий.
Заводы-изготовители:
Новочебоксарский РМЗ, Кишиневский РМЗ, завод ''Кузнецы" ВЦСПС (г. Павлов
Посад), Шатурский РМЗ (г. Шатура Московской области).
Рабочие чертежи
(СУ0Г.КЩ0.00.000) разработаны ЦНИИЭП жилища и СКБ Минстроя СССР.
Калькодержатель - ЦНИИЭПжилища (127434, Москва, Дмитровское ш., 9).
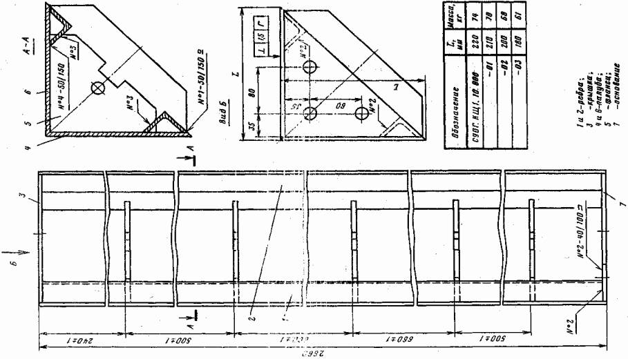
Таблица 4
Крупнощитовая опалубка
внутренних стен "Гражданстрой" (СУОГ.КЩО.00.000)
|
Наименование
элементов
|
№ чертежей
|
Габаритные размеры,
длина, м
|
Назначение
|
|
1
|
2
|
3
|
4
|
|
Щит унифицированный
|
КЩ1.01.000
|
0,9×2,56 (2,7; 3,06)
|
Возведение монолитных стен в
зданиях с высотой этажа 2,8; 3,0 и 3,3 м
|
|
Щит унифицированный
|
КЩ1.02.000
|
1,2×2,56 (2,76; 3,06)
|
|
Щит унифицированный
|
КЩ1.03.000
|
1,5×2,56 (2,76; 3,06)
|
|
Щит унифицированный
|
КЩ1.04.000
|
1,8×2,56 (2,76; 3,06)
|
|
Щит-надставка
|
КЩ1.05.000
|
0,9×0,6 (0,8)
|
Возведение монолитных стен в
зданиях с высотой этажа 3,6 и 4,2 м
|
|
Щит-надставка
|
КЩ1.06.000
|
1,2×0,6, (0,8)
|
|
Щит-надставка
|
КЩ1.07.000
|
1,5×0, 6 (0,8)
|
|
Щит-надставка
|
КЩ1.08.000
|
1,8×0, 6 (0,8)
|
|
Щит угла
|
КЩ1.09.000
|
(0,18(0,2; 0,21; 0,22) 2, 56
(2,78; 3,06)
|
Образование угловых пересечений
внутренних стен
|
|
Угольник внутренний
|
КЩ1.10.000
|
|
|
|
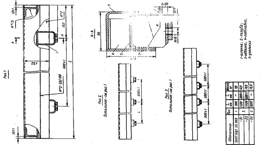
Щит торца стены
|
КЩ1.11.000
|
0,16
(0,18;0,20;0,24)×2,56 (2,76; 3,060
|
Образование торца поперечной
или продольной стены
|
|
Угольник внешний
|
КЩ1.12.000
|
0,07×2,56 (2,76; 3,06)
|
Образование угловых пересечений
наружных стен
|
|
Шпонка
|
КЩ1.13.000
|
0,078×0,06
|
Направляющая для сплачивания
смежных щитов
|
|
Кронштейн настила
|
КЩ1.15.000
|
1,0 (0,7)×0,6 (0,3)
|
Опора рабочего настила
|
|
Домкрат
|
КЩ1.16.000
|
Д винта 42 мм
|
Регулируемая опора шита или
панели
|
|
Подкос
|
КЩ1.17.000
|
1,0×1,4
|
Поддерживающий элемент щита или
панели
|
|
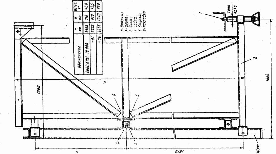
Ферма
|
КЩ1.18.000
|
-
|
То же
|
|
Струбцина
|
КЩ1.19.000
|
-
|
Устройство для быстрого
соединения смежных панелей
|
|
Стойка ограждения
|
КЩ1. 20.000
|
1,22
|
Ограничение габаритов рабочего
настила
|
|
Петля строповочная
|
КЩ1. 21.000
|
0,295
|
Устройство для подъема и
транспортировки щитов и панелей
|
|
Бортик
|
КЩ1.22.000
|
0,07× 0,9 (1,2; l,5; l,8)
|
Ограничение но верхнему торцу
формовочной полости
|
|
Надставка
|
КЩ1.23.000
|
0,06× ,9 (1,2; I,5; 1,8)
|
Изменение высоты щита при
перекрытии толщиной 160 мм
|
|
Надставка
|
КЩ1.24.000
|
0,08×0,9 (1,2; I,5; 1,8)
|
То же, толщиной 140 мм
|
|
Надставка
|
КЩ1.25.000
|
0,1×0,9 (1,2; I,5; 1,8)
|
То же, толщиной 120 мм
|
|
Стяжка конусная
|
КЩ1.26.000
|
Д-30 мм; длина от 0,595 до
0,925
|
Соединение противостоящих щитов
для стен толщиной от 160 до 500 мм
|
|
Ограждение торцевое
|
КЩ1.29.000
|
0,06× 0,5 (0,8)
|
Ограничение габаритов рабочего
настила
|
|
Лестница
|
КЩ1.30.000
|
Высота 2,6; 2,9; 3,2; 3,5; 4,1
|
Обслуживание опалубки
|
|
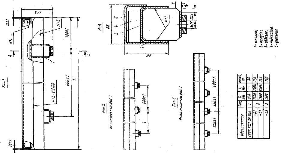
Щит отсечка стены
|
КЩ1.31.000
|
0,16 (0,18;0,2;0,24)×2,
56 (2,76; 3,06)
|
Образование торца поперечной
или продольной стены
|
|
Шпилька
|
КЩ1.00.001
|
16×130 мм
|
Соединение смежных щитов
|
|
Накладка
|
КЩ1.00.002
|
0,072×0,56
|
Соединение горизонтальных балок
смежных щитов
|
|
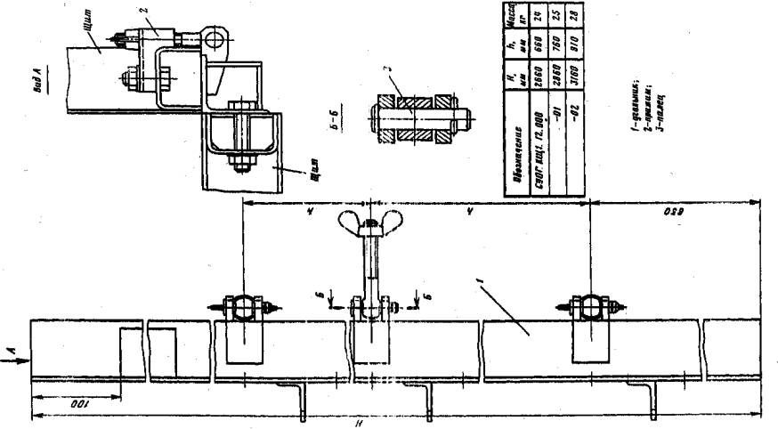
СУОГ КЩ0.00.000
|
Крупнощитовая опалубка
“Гражданстрой”
|
Лист 53
|
|
Общий вид
|
|

|
|
СУОГ КЩ1.01.000
|
Крупнощитовая опалубка
“Гражданстрой”
|
Лист 54
|
|
Щит унифицированный
|
|

|
|
СУОГ КЩ1.02.000
|
Крупнощитовая опалубка
“Гражданстрой”
|
Лист 55
|
|
Щит унифицированный
|
|

|
|
СУОГ КЩ1.03.000
|
Крупнощитовая опалубка
“Гражданстрой”
|
Лист 56
|
|
Щит унифицированный
|
|

|
|
СУОГ КЩ1.04.000
|
Крупнощитовая опалубка
“Гражданстрой”
|
Лист 57
|
|
Щит унифицированный
|
|

|
|
СУОГ КЩ1.05.000
|
Крупнощитовая опалубка
“Гражданстрой”
|
Лист 58
|
|
Щит - надставка
|
|

|
|
СУОГ КЩ1.06.000
|
Крупнощитовая опалубка
“Гражданстрой”
|
Лист 59
|
|
Щит - надставка
|
|

|
|
СУОГ КЩ1.07.000
|
Крупнощитовая опалубка
“Гражданстрой”
|
Лист 60
|
|
Щит - надставка
|
|

|
|
СУОГ КЩ1.08.000
|
Крупнощитовая опалубка
“Гражданстрой”
|
Лист 61
|
|
Щит - надставка
|
|

|
|
СУОГ КЩ1.09.000
|
Крупнощитовая опалубка
“Гражданстрой”
|
Лист 62
|
|
Щит угла
|
|

|
|
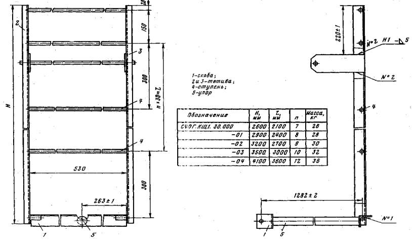
СУОГ КЩ1.10.000
|
Крупнощитовая опалубка
“Гражданстрой”
|
Лист 63
|
|
Угольник внутренний
|
|

|
|
СУОГ КЩ1.11.000
|
Крупнощитовая опалубка
“Гражданстрой”
|
Лист 64
|
|
Щит торца стены
|
|

|
|
СУОГ КЩ1.12.000
|
Крупнощитовая опалубка
“Гражданстрой”
|
Лист 65
|
|
Угольник внешний
|
|

|
|
СУОГ КЩ1.13.000
|
Крупнощитовая опалубка
“Гражданстрой”
|
Лист 66
|
|
Накладка
|
Шпонка
|
|

|

|
|
|
|
|
|
СУОГ КЩ1.16.000
|
Крупнощитовая опалубка
“Гражданстрой”
|
Лист 67
|
|
Домкрат
|
|

|
|
1-винт; 2-гайка;
3-рукоядь; 4-скоба; 5-болт
|
|
СУОГ КЩ1.17.000
|
Крупнощитовая опалубка
“Гражданстрой”
|
Лист 68
|
|
Подкос
|
|

|
|
СУОГ КЩ1.18.000
|
Крупнощитовая опалубка
“Гражданстрой”
|
Лист 69
|
|
Ферма
|
|

|
|
СУОГ КЩ1.19.000
|
Крупнощитовая опалубка
“Гражданстрой”
|
Лист 70
|
|
Струбцина
|
СУОГ КЩ1.00.001
|
Шпилька
|
|

|

|
|
1 - стяжка-,2 - втулка, 3
- щека; 4 - ребро; 5 - палец; 6 - клин; 7 - петля; 8 - связь
|
|
|
|
|
|
|
СУОГ КЩ1.20.000
|
Крупнощитовая опалубка
“Гражданстрой”
|
Лист 71
|
|
Стойка ограждения
|
|

|
|
СУОГ КЩ1.21.000
|
Крупнощитовая опалубка
“Гражданстрой”
|
Лист 72
|
|
Петля строповочная
|
|

|
|
СУОГ КЩ1.22.000
|
Крупнощитовая опалубка
“Гражданстрой”
|
Лист 73
|
|
Бортик
|
|

|
|
СУОГ КЩ1.23.000
|
Крупнощитовая опалубка
“Гражданстрой”
|
Лист 74
|
|
Надставка
|
|

|
|
СУОГ КЩ1.24.000
|
Крупнощитовая опалубка
“Гражданстрой”
|
Лист 75
|
|
Надставка
|
|

|
|
СУОГ КЩ1.25.000
|
Крупнощитовая опалубка
“Гражданстрой”
|
Лист 76
|
|
Надставка
|
|

|
|
СУОГ КЩ1.26.000
|
Крупнощитовая опалубка
“Гражданстрой”
|
Лист 77
|
|
Стяжка конусная
|
|

|
|
СУОГ КЩ1.29.000
|
Крупнощитовая опалубка
“Гражданстрой”
|
Лист 78
|
|
Ограждение торцевое
|
|

|
|
СУОГ КЩ1.30.000
|
Крупнощитовая опалубка
“Гражданстрой”
|
Лист 79
|
|
Лестница
|
|

|
|
СУОГ КЩ1.31.000
|
Крупнощитовая опалубка
“Гражданстрой”
|
Лист 80
|
|
Щит отсека стены
|
|

|
III Опалубка ОЭС-80
Опалубка применяется для бетонирования крупноразмерных вертикальных
конструкций, главный образом, промышленного и энергетического строительства; может
быть применена для возведения гражданских зданий.
Опалубка состоит из модульных щитов, каркасной конструкции. Каркас щита
выполнен из гнутых профилей, палуба - из фанеры или металла.
Элементы опалубки, их характеристика и назначение приведены в табл. 5.
Чертежи основных элементов приведены на листах 79 - 86.
Конструкция щитов позволяет устанавливать их в любых сочетаниях. Тяжи
инвентарные, устанавливаемые в специальных пластиковых трубках, облегчающих их
извлечение. Неиспользуемые отверстия для пропуска тяжей закрываются
пластиковыми пробками.
Возможность монтажа как отдельными щитами, так и панелями позволяет
применять опалубку при различной технологии возведения конструкций. Возможность
изменения монтажных схем с установкой щитов как в вертикальном, так и в
горизонтальном положении, а также применение доборов позволяет использовать
опалубку для возведения различных по размерам и конфигурациям (в т.ч.
модульных) монолитных конструкций.
Технико-экономические
показатели
Приведенная
масса (в зависимости от материала палубы) -52
- 65 кг/м2
Оборачиваемость -300
раз
Средняя
трудоемкость работ -0,35
чел.-ч на 1 м2
Опалубка изготавливается Киевским заводом
экспериментальных конструкций Минэнерго СССР и применяется на стройках
Министерства с 1980 г.
Проект 524.00.000 разработан ин-том Оргэнергострой Минэнерго СССР
(113105, Москва, Варшавское ш., 17).
Таблица 5
|
Элементы опалубки
|
Обозначение
|
Габаритные размеры, длина, м
|
Назначение
|
|
1
|
2
|
3
|
4
|
|
Щит
комбинированный
|
ЩК 2,4×1,2
ЩК 2,4×0,9
ЩК 2,4×0,8
ЩК 1,2×0,6
ЩК 1,2×0,3
|
2,4×1,2
2,4×0,9
2,4×0,8
1,2×0,6
1,2×0,3
|
Формообразующий
элемент для бетонирования прямолинейных бетонных и железобетонных конструкций
(палуба из фанеры)
|
|
Щит
комбинированный угловой
|
ЩуК
2,4×0,3×0,3
ЩуК
1,2×0,3×0,3
|
2,4×0,3×0,3
1,2×0,3×0,3
|
Для образования внутренних
углов во возводимого сооружения (палуба из фанеры)
|
|
Монтажный уголок
|
1МУ 2,4
1М 1,2
|
2,4×0,132×0,132
1,2×0,132×0,132
|
Для образования
наружных углов возводимого сооружения
|
|
Щит металлический
|
ЩМ 2,4×1,2
ЩМ 2,4×0,9
ЩМ 2,4×0,6
ЩМ 1,2×0,6
ЩМ 1,2×0,3
|
2,4×1,2
2,4×0,9
2,4×0,6
1,2×0,6
1,2×0,3
|
Формообразующий
элемент для бетонирования прямолинейных бетонных и железобетонных конструкций
(палуба из фанеры)
|
|
Щит металлический
угловой
|
ЩуМ
2,4×0,3×0,3
ЩуМ
1,2×0,3×0,3
|
2,4×0,3×0,3
1,2×0,3×0,3
|
Для образования
внутренних углов во возводимого сооружения
|
|
Монтажный уголок
|
2Му 2,4
2Му 1,2
|
2,4×0,123×0,123
1,2×0,123×0,123
|
Для образования
наружных углов возводимого сооружения (металлическая палуба)
|
|
Зажим
|
1Кд
|
0,13×0,16
|
Для навески
кронштейнов
|
|
2Кд
|
0,26×0,136
|
Для соединения
щитов между собой
|
|
Тяж с конусом
|
3Кд
|
Д=60×180 мм
|
Для крепления
щитов в рабочем положении и восприятия давления от укладываемой бетонной
стены
|
|
Схватка
|
Сх 1,6
|
1,6×0,18
|
Для увеличения
жесткости щитов
|
|
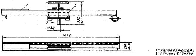
Кронштейн-подкос
|
Кп
|
1,1×0,9
|
Для устройства
навесных рабочих площадок, подмостей и выравнивания щитов опалубки при
установке
|
|
Лестница
|
Л
|
2,2×0,54
|
Для доступа на
рабочие подмости и площадки
|
|
Настил
|
Н
|
1,99×0,8
|
Устройство
рабочего пола
|
|
Ключ
|
-
|
0,18×0,08×0,28
|
Монтажный
инструмент
|
|
524.00.000
|
Крупнощитовая опалубка
ОЭС-80
|
Лист 81
|
|
Общий вид
|
|

|
|
524.00.000
|
Крупнощитовая опалубка
ОЭС-80
|
Лист 82
|
|
Щиты комбинированные ЩК
|
|

|
|
524.00.000
|
Крупнощитовая опалубка
ОЭС-80
|
Лист 83
|
|
Щит угловой ЩуК
|
|

|
|
524.00.000
|
Крупнощитовая опалубка
ОЭС-80
|
Лист 84
|
|
Монтажные уголки 1Му и
2Му. Схватка Сх 1,6
|
|

|

|
|
|
|
|
|
524.00.000
|
Крупнощитовая опалубка
ОЭС-80
|
Лист 85
|
|
Щиты с металлической
палубой ЩМ
|
|

|
|
524.00.000
|
Крупнощитовая опалубка
ОЭС-80
|
Лист 86
|
|
Щиты угловые с металлической палубой ЩуМ
|
2,4×0,3×0,3
1,2×0,3×0,3
|
|

|
|
|
|
|
|
524.00.000
|
Крупнощитовая опалубка
ОЭС-80
|
Лист 87
|
|
Зажимы
|
|

|
|
524.00.000
|
Крупнощитовая опалубка
ОЭС-80
|
Лист 88
|
|
Лестница. Тяж с конусом
|
|

|
IV. Опалубка
Мосспецпромпроекта
Опалубка предназначена для возведения
жилых и общественных зданий. Может применяться также для возведения
крупноразмерных конструкций промышленных сооружений.
Опалубка состоит из
цельнометаллических щитов, а также доборных элементов щитов. Доборные щиты
устанавливают по верху основных и получает панели высотой 3,2 м.
Опалубка может монтироваться
как отдельными щитами, так и укрупненными панелями. Соединение щитов друг с
другом осуществляется на резьбе с конусной центровкой. К преимуществам
относится унифицированность поддерживающих элементов с мелкощитовой опалубкой
Мосспецпромпроёкта. Опалубка изготавливается из нестандартных гнутых профилей,
изготавливаемых заводом объединения Мосметаллоконструкция.
Элементы опалубки, их
характеристики и назначение приведет в табл. 6. Чертежи основных элементов
приведены на листах
87 - 100.
Технико-экономические показатели
Приведенная масса -
96 кг/м2
Оборачиваемость -
300 раз
Средняя трудоемкость монтажа и демонтажа - 0,35 чел.-ч на 1 м2
Опалубка изготавливается
заводом объединения Мосметаллоконструкция на оборудовании фирмы
"Юсон" (Франция) и применяется на строительстве московских объектов с
1983 г.
Проект 14-205.00.000
разработан объединением Мосспецпромпроект Главмонтажспецстроя на базе
конструкции опалубки фирмы "Юсон" (Франция).
Калькодержатель -
Мосспецпромпроект Главмонтажспецстроя (123557, Москва, М.Грузинская, 27).
Таблица 6
|
Элементы опалубки
|
Обозначение
|
Габаритные размеры,
длина, м
|
Назначение
|
|
Щиты основные
|
Щ 2,4×2,7
Щ 1,2×2,7
Щ 3,6×2,7
Щ 0,6×2,7
Щ 4,8×2,7
|
2,4×2,7
1,2×2,7
3,6×2,7
0,6×2,7
4,8×2,7
|
Формообразующий элемент для бетонирования
прямоугольных бетонных и железобетонных конструкций
|
|
Щиты доборные
|
Д 2,4×0,5
Д 1,2×0,5
Д 3,6×0,5
Д 0,6×0,5
Д 4,8×0,5
|
2,4×0,5
1,2×0,5
3,6×0,5
0,6×0,5
4,8×0,5
|
Применяются при высоте
конструкций свыше 2,7 м
|
|
Рейка
|
-
|
0,6
|
Для связки открытых торцов и
крепления торцевых щитов
|
|
Укосина опорная
|
|
1,935; 1,355
|
Для опирания щитов и
регулировки их вертикальности
|
|
Поднос укосины
|
|
0,895
|
|
Анкерное устройство
|
|
|
Для фиксации опалубки
|
|
Платформа рабочая
|
|
2,38 (1,18)×0,51
|
Для обслуживания опалубки при
эксплуатации и бетонировании
|
|
Суппорт платформы
|
|
0,79×0,124
|
|
Ограждение
|
|
2,38×1,068
|
|
Лестница
|
|
2,28×0,5
|
Для доступа на рабочую площадку
|
|
Подкос лестницы
|
|
1,236×0,371
|
|
Тяж
|
|
0,625
|
Для восприятия давления от
бетонной смеси
|
|
14-205.00.000
|
Крупнощитовая опалубка
Мосспецпромпроекта
|
Лист 89
|
|
Общий вид
|
|

|
|
14-205.00.000
|
Крупнощитовая опалубка
Мосспецпромпроекта
|
Лист 90
|
|
Основные щиты 1200×2700
и 600×2700
|
|

|
|
14-205.00.000
|
Крупнощитовая опалубка
Мосспецпромпроекта
|
Лист 91
|
|
Основной щит
2400×2700
|
|

|
|
14-205.00.000
|
Крупнощитовая опалубка
Мосспецпромпроекта
|
Лист 92
|
|
Основной щит
3600×2700
|
|

|
|
14-205.00.000
|
Крупнощитовая опалубка
Мосспецпромпроекта
|
Лист 93
|
|
Основной щит
4800×2700
|
|

|
|
14-205.00.000
|
Крупнощитовая опалубка
Мосспецпромпроекта
|
Лист 94
|
|
Доборные щиты
2400×500; 3600×500 и 4800×500
|
|

|
|
14-205.00.000
|
Крупнощитовая опалубка
Мосспецпромпроекта
|
Лист 95
|
|
Доборные щиты
600×1500 и 1200×500
|
|

|
|
14-205.00.000
|
Крупнощитовая опалубка
Мосспецпромпроекта
|
Лист 96
|
|
Рейка
|
|

|
|
14-205.00.000
|
Крупнощитовая опалубка
Мосспецпромпроекта
|
Лист 97
|
|
Укосина опорная
|
Подкос укосины
|
|

|

|
|
|
|
|
|
14-205.00.000
|
Крупнощитовая опалубка
Мосспецпромпроекта
|
Лист 98
|
|
Анкерное устройство
|
|

|
|
14-205.00.000
|
Крупнощитовая опалубка
Мосспецпромпроекта
|
Лист 99
|
|
Рабочая платформа
|
Суппорт платформы
|
|

|

|
|
|
|
|
|
14-205.00.000
|
Крупнощитовая опалубка
Мосспецпромпроекта
|
Лист 100
|
|
Ограждение
|
|

|
|
14-205.00.000
|
Крупнощитовая опалубка
Мосспецпромпроекта
|
Лист 101
|
|
Лестница и суппорт
лестницы
|
|

|
|
14-205.00.000
|
Крупнощитовая опалубка
Мосспецпромпроекта
|
Лист 102
|
|
Тяж
|
|

|
|
Фланец предохранительный
|
|

|
|
|