Крупнейшая бесплатная информационно-справочная система онлайн доступа к полному собранию технических нормативно-правовых актов РФ. Огромная база технических нормативов (более 150 тысяч документов) и полное собрание национальных стандартов, аутентичное официальной базе Госстандарта. GOSTRF.com - это более 1 Терабайта бесплатной технической информации для всех пользователей интернета. Все электронные копии представленных здесь документов могут распространяться без каких-либо ограничений. Поощряется распространение информации с этого сайта на любых других ресурсах. Каждый человек имеет право на неограниченный доступ к этим документам! Каждый человек имеет право на знание требований, изложенных в данных нормативно-правовых актах!

  


 

РОССИЙСКАЯ АКАДЕМИЯ АРХИТЕКТУРЫ И СТРОИТЕЛЬНЫХ НАУК

 

СТАНДАРТ ОРГАНИЗАЦИИ

СТО
00043363-01-2008

РЕКОНСТРУКЦИЯ И МОДЕРНИЗАЦИЯ ЖИЛИЩНОГО ФОНДА

Москва

2008

Предисловие

Настоящий стандарт СТО 00043363-01 -2008 разработан в соответствии с Федеральным законом от 27 декабря 2002 г. № 184-ФЗ «О техническом регулировании» и ГОСТ Р 1.4-2004 «Стандартизация в Российской Федерации. Стандарты организаций. Общие положения»

Сведения о стандарте

1 РАЗРАБОТАН Научно-исследовательским институтом теории архитектуры и градостроительства РААСН. Авторы разработки - акад. Л.В. Хихлуха, канд. техн. наук, проф. А.Н. Спивак, инж. СБ. Платонов. Одобрен ученым советом НИИТАГ РААСН

2 РЕКОМЕНДОВАН письмом Министерства регионального развития Российской Федерации от 4 мая 2008 г. № 10758-АД/07 для применения в практической работе организациям жилищной сферы всех уровней

3 УТВЕРЖДЕН И ВВЕДЕН В ДЕЙСТВИЕ постановлением президиума РААСН от 19 июня 2008 г. № 9

4 ВВЕДЕН ВПЕРВЫЕ

Область применения

Распространяется на проектирование реконструируемых, модернизированных и подлежащих капитальному ремонту жилых зданий и предназначен для органов управления в области архитектуры и строительства, заказчиков и инвесторов, проектных и научно-исследовательских организаций, строительных предприятий и других участников разработки и реализации проектов; высших учебных заведений в сфере архитектуры, строительства и жилищно-коммунального хозяйства в качестве учебного пособия

Содержание

Введение

1 Правовая и нормативно-техническая база

1.1 Законодательная база

1.2 Нормативно-техническая документация

1.3 Планирование реконструктивных работ

1.4 Проблема тепловой эффективности

1.5 Инвестиционная политика и механизм ее реализации

2 Оценка технического состояния жилых зданий

2.1 Сбор и анализ информации об объекте реконструкции

2.2 Определение гидрогеологических и тектонических характеристик

2.3 Визуальный и геодезический контроль

2.4 Определение физико-механических и геометрических параметров основных конструктивных элементов

2.5 Состояние систем инженерного оборудования

2.6 Обмерочные работы

3 Архитектурно-градостроительные решения

3.1 Градостроительное решение реконструкции объекта

3.2 Архитектурно-планировочные решения

3.3 Мансардный этаж

4 Конструктивные решения

4.1 Общие положения

4.2 Конструктивные решения по увеличению ширины корпуса

4.3 Конструктивные решения надстройки здания

4.4 Конструктивные решения мансардного этажа

4.5 Утепление ограждающих конструкций

5 Модернизация систем инженерного оборудования реконструируемых зданий

5.1 Система отопления и вентиляции

5.2 Системы горячего и холодного водоснабжения

5.3 Система канализации

5.4 Системы электроснабжения и связи

5.5 Система газоснабжения

5.6 Система водостока

6 Противопожарные мероприятия и санитарно-гигиенические требования

6.1 Противопожарные мероприятия

6.2 Санитарно-гигиенические требования

6.3 Защита от шума

6.4 Мусороудаление

7 Особенности предпроектных работ

7.1 Принятие решения о реконструкции объекта

7.2 Участие граждан в процессе подготовки градостроительных решений

7.3 Защита прав юридических и физических лиц, участвующих в реализации проекта реконструкции

8 Особенности ремонтно-реконструктивных работ

8.1 Требования к организации производства реконструктивных работ

8.2 Особенности технологии строительных работ при реконструкции

8.3 Ремонтно-реконструктивные работы без отселения жильцов

8.4 Мероприятия по созданию энергоэффективной демонстрационной зоны реконструкции жилищного фонда

9 Термины и определения

Приложение А Примеры градостроительного решения комплексной реконструкции жилого образования

Приложение Б Методы реконструкции жилого дома с учетом архитектурно-градостроительного и технико-экономического обоснований

Приложение В Примеры архитектурно-планировочных решений реконструкции жилых домов

В.1 Перепланировка квартир в пределах габаритов здания

В.2 Переоборудование квартир в двухэтажные

В.З Перепланировка с увеличением ширины здания

В.4 Надстройка мансардного этажа

В.5 Надстройка этажей

Приложение Г Примеры использования архитектурно-композиционных приемов при комплексной реконструкции жилых образований

Приложение Д Примеры архитектурно-конструктивных решений

Д.1 Теплоизоляция ограждающих конструкций

Д.2 Конструктивные системы мансардного этажа

Приложение Е Архитектурная типология мансардного этажа

Е.1 Объемно-пространственное решение и эвакуационные выходы

Е.2 Определение площади и освещения мансарды

Приложение Ж Мероприятия по созданию энергоэффективной демонстрационной зоны реконструкции жилищного фонда (основные положения)

Ж. 1 Основная цель и задачи

Ж. 2 Правовая и нормативная база

Ж.З Финансирование объекта реконструкции

Ж.4 Организационно-технические и экономические мероприятия

Ж.5 Анкета сбора информации об объеме и техническом состоянии жилого дома

Ж.6 Пример социологического опроса жителей реконструируемых жилых домов

Приложение И Пример мониторинга объектов реконструкции

И.1 Состав информационных данных об объекте реконструкции

И.2 Расчет и показатели потребления тепловой энергии и воды

Приложение К Количественная оценка социально-экономической эффективности реконструкции жилищного фонда

К.1 Экономические показатели социальных результатов реконструкции

К.2 Эталонные показатели энергоэффективности реконструкции жилых домов

Приложение Л Перечень нормативных документов, на которые есть ссылки в настоящем стандарте

Введение

Настоящий стандарт по реконструкции и модернизации жилищного фонда разработан на основе законодательных и нормативных документов Российской Федерации и содержит общие положения и рекомендации по созданию системы правового регулирования процессов реконструкции жилых домов, оценке технического состояния существующего жилищного фонда, подготовке и разработке архитектурно-градостроительных и технических решений реконструкции жилых зданий, предпроектной организации и проведению ремонтно-реконструктивных работ.

Реконструкция и модернизация жилищного фонда являются одним из важнейших направлений в решении жилищной проблемы и реформе жилищно-коммунального хозяйства страны и представляют собой комплекс строительных мер и организационно-технологических мероприятий, направленных на обновление жилых домов и инженерной инфраструктуры с целью сохранения жилищного фонда и улучшения условий проживания, приведения их эксплуатационных качеств в соответствие с установленными требованиями.

В настоящее время жилищный фонд России составляет 2950 млн. м2, из которых на муниципальный фонд приходится 30,6 %, на государственный - 8,7 %, на общественный и коллективный фонд 6,06 %. Более 50 % составляет индивидуальный жилищный фонд.

На протяжении 50 лет прошедшего столетия главное внимание в стране уделялось наращиванию объема жилищного фонда, на что затрачивалось более 85 % материально-финансовых ресурсов страны. Недостаточность финансирования сферы капитального ремонта и реконструкции приводила к постоянному накапливанию так называемого недоремонта, т.е. объема фонда жилых зданий, которые после начала эксплуатации достигли экономически оптимального для проведения ремонта и реконструкции возраста, но не попадали в число обновляемых объектов из-за отсутствия финансирования. Для зданий конструктивных систем, которые применялись в Европе и в нашей стране, периодичность проведения капитального ремонта и реконструкции составляет 25-27 лет.

В результате в общем объеме жилищного фонда 62,1 % жилых домов старше 30 лет, т.е. треть жилищного фонда с износом более 30 %. В стране имеется ветхий фонд в размере 3 % общего объема жилищного фонда, из которого необходимо переселить жителей, для чего потребуется по минимальной норме построить не менее 110 млн. м2 общей площади жилья. Откладывание сроков проведения ремонтно-реконструктивных работ чревато тяжелыми экономическими последствиями и в ближайшие 10-15 лет порядка 300-400 млн м2 жилищного фонда придет в состояние, непригодное для проживания из-за потери потребительских качеств, и станет бесперспективным как источник доходов местных бюджетов.

Нарушение нормативных сроков периодичности капитального ремонта и реконструкции, включая соблюдение теплотехнических норм, привело к тому, что наша страна оказалась практически на одном из последних мест в мире по тепловой эффективности жилых зданий. Удельные затраты топлива в жилищной сфере достигли 87-89 кг условного топлива на 1 м2 общей площади в год, что в 3,5 раза больше, чем в Норвегии и Канаде с аналогичными климатическими условиями. Если 30 % расхода энергоресурсов связано с непроизводственными потерями в установках генерации, транспортировки и распределения энергии, то остальные 70 % потерь происходят непосредственно при потреблении в жилых домах.

Особой проблемой является массовая застройка панельными, блочными и кирпичными жилыми домами по типовым проектам первого поколения, построенными в период 1950- 1960-х гг. Их объем составляет около 290 млн. м2, в которых размещается 10 % всего жилищного фонда, и в нем проживают более 15 млн. человек.

Типовые пятиэтажки проектировались и строились по нормативам полувековой давности с применением неэффективных теплоизоляционных материалов, и теплотехнические характеристики их ограждений не отвечают современным требованиям. В то же время жилые дома первого поколения возводились как сооружения первой категории капитальности с продолжительностью их эксплуатации в пределах 100-125 лет. Эти дома обладают существенными запасами несущей способности, подтвержденными многочисленными обследованиями и изысканиями. Необходимо отметить их моральный износ - планировочные решения, внешний облик зданий, эксплуатационные характеристики по тепло-, гидро- и шумоизоляции не отвечают современным нормативным требованиям и потребительским качествам.

Важнейшей частью нового этапа жилищной политики России должны стать не только новое строительство, но и реконструкция и модернизация существующего жилищного фонда и в первую очередь жилых домов первых массовых серий. Реконструкция обеспечит снижение объемов выбытия жилья по ветхости, снижение расходов потребления и потерь энергоресурсов, безопасность проживания, повышение комфорта и архитектурного качества застройки. Реконструкция повысит стандарт потребительского качества жилья на вторичном рынке и ускорит приватизацию, сделает более плавным процесс продвижения жилищной коммунальной реформы, когда снижение затрат по расчетам за коммунальные услуги компенсирует повышение тарифов за энергопотребление.

Как показывают зарубежная практика и опыт пилотных проектов в России, ремонтно-реконструктивные работы на жилых домах могут производиться без отселения жильцов, а устройство мансардного этажа является наиболее экономически эффективным приемом воспроизводства жилищного фонда, объем которого составит 20-30 % реконструируемых жилых домов. Снос же этих домов представляет серьезную проблему не только по ее масштабу, но и по экономическим факторам, требующим отселения жителей с предоставлением нового жилищного фонда.

Реализация мер по реконструкции и модернизации жилищного фонда не только позволит поддержать жилищный фонд в удовлетворительном техническом состоянии, но и предполагает значительный социально-экономический эффект. При реконструкции не требуется нового отвода земли. Прирост дополнительной общей площади жилья в 1,5 раза дешевле, чем строительство на новой территории, на 25-40 % снижаются расходы материальных ресурсов и на создание инженерной инфраструктуры. Сокращаются расходы на отопление и горячее водоснабжение на 40-50 %. В условиях реконструкции жилищный фонд и рынок насыщаются дефицитными типами квартир. Реконструкция жилых домов, находящихся, как правило, в центральных районах города, в гуще деловой жизни, становится привлекательной и перспективной для инвесторов, желающих улучшить свое жилье, имеющееся в реконструируемых домах.

Настоящий стандарт ориентирован на решение следующих задач:

определение социально-экономической эффективности реконструкции жилых зданий в сравнении с новым строительством при их сносе;

оценку эффективности инвестиционных проектов реконструкции жилых зданий в процессе их разработки;

определение технического состояния жилых зданий, подлежащих реконструкции;

повышение тепловой эффективности, комфорта и безопасности проживания, а также продление срока эксплуатации жилых зданий;

выбор архитектурно-градостроительных решений реконструкции;

определение методов ремонтно-реконструктивных работ и организационных способов производства строительных работ;

создание энергоэффективных демонстрационных зон реконструкции и модернизации жилых зданий и организация мониторинга.

Стандарт касается прав и обязанностей физических и юридических лице целью обеспечения социальных гарантий в области жилищных и имущественных прав граждан, совершенствования отношений участников реконструкции и модернизации жилищного фонда различных форм собственности.

В качестве практических материальных аналогов в приложениях А-К помещены примеры разрешительных документов исполнительных органов различных уровней, варианты архитектурно-планировочных решений реконструкции жилых домов, теплозащиты ограждающих конструкций, формирования энергоэффективных демонстрационных зон, мониторинга объектов реконструкции и комплексной оценки социально-экономической эффективности реконструкции и модернизации жилых зданий.

СТАНДАРТ ОРГАНИЗАЦИИ

 

РЕКОНСТРУКЦИЯ И МОДЕРНИЗАЦИЯ ЖИЛИЩНОГО ФОНДА

1 Правовая и нормативно-техническая база

1.1 Законодательная база

Правовое регулирование отношений участников процесса реконструкции жилищного фонда на всех его стадиях осуществляется в соответствии с:

ст. 25, 40 и 72 Конституции Российской Федерации;

Гражданским кодексом Российской Федерации;

Федеральным законом Российской Федерации от 29 декабря 2004 г. № 188-ФЗ «О введении в действие Жилищного кодекса РФ»;

Жилищным кодексом Российской Федерации;

Градостроительным кодексом Российской Федерации;

Федеральным законом от 30 декабря 2004 г. № 210-ФЗ «Об основах регулирования тарифов организаций коммунального комплекса»;

постановлением Правительства Российской Федерации от 13 августа 2006 г. № 491 «Об утверждении правил содержания общего имущества в многоквартирном доме»;

нормативными правовыми актами субъектов Российской Федерации в соответствии с Федеральным законом от 6 октября 1999 г. № 184-ФЗ «Об общих принципах организации законодательных (представительных) и исполнительных органов государственной власти субъектов Российской Федерации»;

нормативными актами органов местного самоуправления в соответствии с Федеральным законом от 6 декабря 2003 г. № 131-ФЗ «Об общих принципах организации местного самоуправления в Российской Федерации»;

правовыми актами субъектов Российской Федерации и органов местного самоуправления.

1.1.1 Для учета местных особенностей, сложившихся на территории субъекта Российской Федерации, требующих отдельных решений, не детализированных в Жилищном кодексе Российской Федерации (ЖКРФ), в качестве территориального правового акта, регламентирующего отношения по защите прав физических и юридических лиц в сфере реконструкции жилищного фонда, рекомендуется принять территориальный закон «О защите прав физических и юридических лиц в сфере реконструкции жилищного фонда».

В указанном законе могут найти отражение вопросы прав граждан на получение информации о планируемых, проектируемых и осуществляемых мероприятиях по сохранению и обновлению объектов жилищного фонда; на участие в процессе разработки предложений и подготовки проектов до принятия акта по их реализации (социальный опрос); на независимую экспертизу проектов; на участие в обсуждении планов и проектов преобразования территории и находящихся на ней объектов жилищного фонда и элементов благоустройства.

1.1.2 Основанием для осуществления реконструкции должно являться решение общего собрания собственников помещений многоквартирного дома (ст. 44 ЖКРФ). Так как государственный контроль за использованием и сохранностью жилищного фонда независимо от его формы собственности осуществляется уполномоченными федеральными органами исполнительной власти, органами государственной власти субъектов Российской Федерации (ст. 20 ЖКРФ), решение о проведении реконструкции объектов жилищного фонда должно быть с ними (собственниками) согласовано.

1.1.3 Во избежание социальных и правовых конфликтов все жители реконструируемого дома должны быть проинформированы о планируемых ремонтно-реконструктивных мероприятиях. С этой целью рекомендуется довести до сведения каждого ответственного квартиросъемщика и собственника жилья письменную информацию, в которой сообщаются:

характер планируемых мероприятий;

меры по повышению эксплуатационных качеств здания и модернизации инженерного оборудования;

организационная схема проведения реконструкции, общая продолжительность реконструктивных работ по дому в целом и по отдельным секциям, если работы проводятся по секциям.

В целях оперативности в решении вопросов рекомендуется создавать из числа жильцов дома инициативную группу, которая представляла бы интересы всех жильцов дома и участвовала в рассмотрении вопросов реконструкции, связанных с обеспечением прав всех жильцов.

1.1.4 В случае когда состояние отдельных конструкций или дома в целом угрожает жизни и здоровью людей, муниципальные власти в соответствии с Правилами содержания общего имущества в многоквартирном доме, а также нормативными актами органов местного самоуправления и требованиями ВСН 58-88(р) вправе поставить перед собственниками жилых помещений вопрос о принятии решения по модернизации или реконструкции многоквартирного дома.

1.2 Нормативно-техническая документация

Нормативно-технической базой регулирования в сфере реконструкции жилищного фонда являются общие технические и специальные технические регламенты, действующие строительные нормы и правила и государственные стандарты РФ в области строительства, сертификаты и лицензии, территориальные нормы и правила (ТСН), методические пособия, рекомендации, положения и другие нормативные документы, приведенные в приложении Л.

1.3 Планирование реконструктивных работ

Основным направлением планирования реконструкции и модернизации жилищного фонда является подготовка федеральных, региональных и территориальных программ, которые должны быть составной частью жилищных программ.

Необходимо использовать различные формы планового начала на трех направлениях: долгосрочного планирования, планирования мероприятий и организационных мер, градостроительного планирования.

Действенной формой, сочетающей планирование объемов и финансов с планированием конкретных мероприятий, являются долгосрочные целевые жилищные программы по строительству нового и реконструкции существующего жилья, определяющие динамику роста воспроизводства жилья на федеральном и региональном уровнях.

На территориальном уровне программы реконструкции жилищного фонда должны, как правило, разрабатываться на пятилетний период при условии проведения их ежегодной корректировки в соответствии с объемами финансирования из источников всех уровней. Ежегодная программа подтверждается градостроительным планированием, включая структурный план на всю территорию местного самоуправления и адресный план на застройку нового строительства и реконструкцию жилых образований. Адресный план регулирует права и ответственность во взаимодействиях участников его реализации.

Реализация целевой программы реконструкции жилищного фонда осуществляется органами исполнительной власти субъектов РФ и местного самоуправления за счет местных бюджетов и привлеченных внебюджетных источников, создаваемых на местах, включая финансовые жилищные фонды, кредитно-финансовые институты, ипотечные кредиты и др. Исходя из этого, реализация программы предполагает взаимодействие органов местного самоуправления с инвестиционными компаниями, частными инвесторами и предпринимателями в рамках партнерства по консолидации государственных и частных инвестиций. Права и ответственность сторон, участвующих в процессе реконструкции жилищного фонда, определяются, с одной стороны, в соответствии с формой реализации плана и, с другой стороны, с договорными условиями.

Взаимодействие участников инвестиционного процесса при выполнении предпроектных и проектных работ, производстве реконструктивных работ осуществляется, как правило, на договорной основе. Договора, заключенные между участниками реконструкции объектов жилищного фонда, должны предусматривать защиту прав и интересов всех сторон процесса, их взаимные обязательства и санкции за невыполнение данных обязательств.

1.4 Проблема тепловой эффективности

Повышение тепловой эффективности жилищного фонда имеет многоплановый характер, включает экономические, экологические, социальные аспекты и оценивается по следующим критериям:

снижение стоимости эксплуатации жилых зданий;

уменьшение нагрузки на имеющиеся ограниченные источники тепловой энергии, развитие которых связано с крупными капиталовложениями;

повышение теплового комфорта жилых помещений и, как следствие, улучшение здоровья населения;

улучшение экологической обстановки в регионе за счет снижения вредных выбросов в атмосферу производителями теплоты, уменьшения количества шлаков и зол, требующих переработки или захоронения;

повышение экономической и потребительской привлекательности квартир в условиях интенсивного развития рынка недвижимости.

1.4.1 Работы по повышению эффективности энергосбережения подразделяются на две группы: работы, связанные с обеспечением энергоэффективности инженерных систем;

работы, связанные с энергоэффективностью здания.

Энергетическая эффективность достигается в результате системного подхода к проблеме при сочетании мер, указанных в данных группах.

1.4.2 Оптимизация и сбалансированность архитектурного и инженерного решений должны обеспечить энергоэффективность здания с учетом минимизации расходов энергии на создание теплового режима и на эксплуатационные затраты, на создание комфортных условий с рациональным распределением потока теплоты по помещениям.

1.4.3 Отопление здания является одной из главных проблем. Поэтому с самого начала проектирования архитектурное формообразование наилучшим образом должно учитывать энергетическое воздействие природы, климата в данном географическом районе, обеспечивать форму здания, его геометрию, ориентацию и типологию, выбор ограждения, остекления, организацию системы отопления и вентиляции.

1.4.4 В структуре теплопотерь современного жилого дома их наибольшая часть приходится на наружные стены и на светопрозрачные ограждения (окна, балконные двери, витражи и т.п.). Например, жилые здания в середине прошлого столетия проектировались по нормативам полувековой давности, и теплотехнические характеристики их ограждений не отвечают современным требованиям. К этому следует добавить, что теплоизоляционные материалы того времени не обладали необходимой долговечностью, давно потеряли свои качества или полностью разрушились, что усугубляет положение с теплозащитой старых домов. Фактическое приведенное сопротивление теплопередаче наружных стен Я подавляющего большинства пятиэтажек, построенных по типовым проектам, составляет 0,65-0,85 м2-°С/Вт. Согласно действующим сегодня теплотехническим требованиям этот показатель должен быть повышен в 3-3,5 раза.

1.4.5 Тепловая эффективность здания достигается не только обеспечением надлежащей теплозащиты помещений. Очень важно установить рациональный режим теплопотребления. Это возможно с помощью современных систем теплоподачи, контроля, фиксации и регулирования теплопотребления. Реализация этих мероприятий выполнима только при условии полной замены существующей однотрубной системы отопления на двухтрубную с устройством разводок и установкой приборов, позволяющих автономно устанавливать режим обогрева не только в отдельной квартире, но и в каждом ее помещении.

1.4.6 При повышении энергоэффективности зданий следует исходить из того, что техническое состояние, степень морального износа и тепловая эффективность жилищного фонда являются неразрывными стадиями одного процесса, и поэтому мероприятия по повышению теплозащиты зданий, модернизации систем отопления и горячего водоснабжения должны являться неотъемлемой частью модернизации и реконструкции жилых домов, повышения их потребительских качеств.

1.5 Инвестиционная политика и механизм ее реализации

Инвестиционная привлекательность того или иного проекта требует детального анализа множества показателей и принятия правильного решения под влиянием таких факторов, как риск, неопределенность и инфляция. Тщательно проведенный инвестиционный анализ служит основанием для инвестирования.

1.5.1 Привлечение внебюджетных источников финансирования в развитие системы реконструкции жилых домов зависит от следующих факторов:

потребности населения в доступном жилье;

финансовой возможности и готовности вложения в реконструкцию жилищного фонда населением денежных средств;

строительного потенциала для проведения реконструкции.

1.5.2 Для решения задач реконструкции имеются следующие предпосылки:

существуют законодательные и нормативные акты, определяющие юридическую и экономическую базу реконструкции;

устанавливается при помощи рыночных механизмов приемлемое соотношение стоимости жилья после реконструкции с доходами населения;

определена социальная норма площади жилья, оплата которой малообеспеченным семьям субсидируется из местных бюджетов;

осуществлена частичная приватизация жилья;

формируется механизм ипотечного кредитования;

возник ряд строительных организаций, состав которых позволяет проводить реконструктивные работы, обеспечивающие достаточный уровень качества и прибыли.

1.5.3 Инвестор осуществляет вложение денежных средств в реконструкцию, если проведение этих работ (инвестиционный проект) соответствует его целям и задачам, его финансовым и организационным возможностям, рыночному потенциалу реконструированного объекта, периоду окупаемости проекта, получению прибыли. Кроме того, оцениваются уровень риска реализации проекта, его экологическая безопасность и соответствие законодательству.

1.5.4 Эффективность инвестиционного проекта реконструкции определяется:

показателем коммерческой (финансовой) эффективности, учитывающей финансовые последствия реализации проекта для его непосредственных участников;

показателем экономической эффективности, учитывающим затраты и результаты, связанные с реализацией проекта, особенно в масштабах целого города или крупного городского района.

1.5.5 Оценка предстоящих затрат и результатов при определении эффективности инвестиционного проекта реконструкции осуществляется в пределах расчетного периода, продолжительность которого принимается с учетом:

продолжительности реконструкции;

средневзвешенного нормативного срока производства работ;

достижения заданных характеристик прибыли;

условий, поставленных инвестором.

1.5.6 На стадии ТЭО инвестиционного проекта реконструкции обязательным является расчет экономической эффективности в прогнозных и расчетных ценах. Очень важно иметь в виду, что при отборе проекта местные органы власти могут быть посредником и организатором инвестиционной деятельности, оказывая инвестору ту или иную поддержку.

1.5.7 Администрация может выступить в качестве инициатора новых организационных форм инвестирования, например, став во главе создания специальных инвестиционных фондов для концентрации средств из различных источников.

1.5.8 Может создаваться консолидированный инвестиционный фонд, аккумулирующий денежные средства из следующих источников:

кредиты отечественных банков или других финансовых институтов; субсидии и ссуды органов местного самоуправления; средства бюджетов всех уровней; личные средства граждан; средства предприятий и организаций; кредиты зарубежных инвесторов;

средства от реализации готовой строительной продукции в порядке реинвестирования в реконструкцию.

1.5.9 Реализация инвестором готовой строительной продукции может осуществляться в следующих возможных вариантах:

коммерческая продажа жилья по рыночным ценам;

продажа жилья в рассрочку с процентами или без взимания процентов;

продажа жилья с первоначальным установленным взносом и последующей выплатой долга на протяжении договорного срока;

продажа жилья в рамках ипотечного кредитования;

аренда жилья с последующим выкупом;

аренда жилья без последующего выкупа;

передача жилья в распоряжение администрации для распределения по социальной норме в счет внесенной доли местного бюджета.

1.5.10 Средства заказчика при создании консолидированных инвестиций в реконструкцию могут находиться в следующих приемлемых соотношениях (в качестве варианта), %:

собственные, в том числе личные средства граждан……………….

14;

субсидии………………………………………………………………..

34;

ссуды и кредиты……………………………………………………….

27;

доходы от реализации продукции……………………………………

25.

1.5.11 Объединение инвестиционных проектов и создание на этой основе территориальной программы реконструкции жилищного фонда относятся к сфере планирования инвестиций и объемов реконструктивных работ. При формировании территориальной программы реконструкции основными критериями могут служить:

полнота реализации программы, увязка по ресурсам, исполнителям, срокам осуществления, комплекс организационно-хозяйственных, инвестиционных, проектных и строительных мероприятий; комплексность, оперативность, степень управляемости программы; доступность ресурсов; надежность потенциальных инвесторов.

1.5.12 Для реализации инвестиционных программ реконструкции целесообразно создание специальных организационных структур или поручение реализации программ уже существующим структурам. Это необходимо для организации конкурсного отбора проектов реконструкции и для четкого распределения и учета финансовых ресурсов.

2 Оценка технического состояния жилых зданий

2.1 Сбор и анализ информации об объекте реконструкции

2.1.1 Сбор информации об объекте реконструкции следует начинать с изучения технической эксплуатационной документации и архивных материалов. Из технического паспорта здания, раздела проекта «Техническая эксплуатация», паспорта «Планировочные решения и благоустройство территории» и т.п., а также из архивной проектной документации должны быть получены следующие сведения об объекте:

местоположение объекта реконструкции (точный адрес);

градостроительная ситуация (ориентация относительно сторон света, границы придомовой территории, расстояние до соседних зданий и сооружений, их этажность и назначение, наличие необходимых элементов благоустройства придомовой территории и т.д.);

природные и техногенные условия территории, на которой располагается объект реконструкции;

площадь застройки;

объем здания;

общая площадь здания;

количество и общая площадь жилых помещений (квартир);

конструктивная схема здания;

высота этажа;

наличие летних помещений с указанием их типа (балкон, лоджия, веранда) и количества;

наличие элементов декора на фасадах и в помещениях общего пользования (вестибюлях, лестничных клетках и т.п.);

материал и конструктивный тип перекрытий, наружных стен, межквартирных перегородок и их средняя толщина;

материал и конструктивный тип лестничных маршей и площадок;

перечень имеющихся систем инженерного оборудования - горячего и холодного водоснабжения, отопления, канализации, вентиляции (естественной или принудительной), газоснабжения, электроснабжения, телефонизации, телевидения, пожарной сигнализации, домофона, лифта и др.

2.1.2 Оценка технического состояния здания имеет своей целью получение объективной информации о физическом износе конструкций и прежде всего физическом износе несущих элементов здания, основных эксплуатационных характеристиках ограждений - средневзвешенном значении показателей тепло- и звукоизоляции. Необходимо определить размеры сооружения в целом, помещений, конструкций и фактическую прочность их материалов, выявить запасы несущей способности элементов основного остова здания, физический износ всех несущих и ограждающих конструкций и их отдельных частей, моральный износ систем и устройств инженерного оборудования. Определение морального износа объемно-планировочных решений, архитектурно-художественного облика здания, благоустройства придомовой территории производят при проектировании.

Основным источником получения перечисленной выше информации являются натурные приборные измерения, исследования и расчеты, на основе которых осуществляется разработка предпроектной документации, определяются размеры необходимых инвестиций, принимаются проектные решения по реконструкции здания.

2.1.3 Натурные обследования и испытания, выполняемые на объекте реконструкции, включают: определение наличия и величины неравномерных осадок здания;

обмеры сечений конструктивных элементов с выявлением их конфигурации, общих габаритов, пролетов между вертикальными несущими элементами остова здания, высоты помещений и этажей, оконных и дверных проемов;

выявление и измерение отклонений осей и поверхностей несущих элементов от горизонтали и вертикали, определение уклонов балконных плит, плит покрытия (если эти элементы будут сохраняться при реконструкции);

выявление признаков физического износа основных элементов здания и определение по ним величины физического износа в соответствии с ВСН 53-86(р) «Правила оценки физического износа жилых зданий»;

определение прочности материалов основных несущих конструкций (бетона, кирпича, раствора кирпичной и бутовой кладок, стыков полносборных железобетонных элементов и т.п.), марок и видов стали металлических несущих конструкций, сечений сварных швов, заклепок, болтов и т.п., если эти сведения не приведены в проекте или техническом паспорте здания;

определение состояния и основных конструктивных характеристик небетонных материалов - тепло- и звукоизоляционных, огнезащитных засыпок, обмазок, прокладок и слоев, деревянных конструкций, кровельного покрытия, окон и дверей, металлических ограждений лестничных маршей и площадок, лепных элементов декора на фасадах и в местах общего пользования и т.д.;

выявление состояния элементов инженерного оборудования здания, которые могут быть сохранены при реконструкции здания (вентиляционные блоки и короба, канализационные и внутренние водосточные стояки, трубы газопровода, нагревательные приборы системы отопления и т.п.);

гидрогеологические данные о видах, состоянии и несущей способности грунтов основания, уровне подземных вод, наличии или отсутствии дренажей и других водоотводящих систем.

При проведении инженерных изысканий следует руководствоваться положениями и требованиями СНиП 11-02, а также государственными стандартами на методы испытаний различных материалов, конструкций и изделий.

2.2 Определение гидрогеологических и тектонических характеристик

2.2.1 Определение гидрогеологических и тектонических характеристик строительной площадки осуществляется специализированной организацией, имеющей лицензию на выполнение такого вида работ. Необходимые сведения в данной области извлекаются из территориальной технической документации: топографических карт, инженерно-топографических планов, сведений о геодезической сети, кадастровых планов, материалов инженерно-геологических изысканий прошлых лет, прогнозов изменения инженерно-геологических условий и др. В дополнение к полученным камеральным путем сведениям производят натурные геодезические и гидрогеологические обследования и испытания.

2.2.2 Натурные обследования грунтов включают проходку шурфов (преимущественно вблизи фундаментов), бурение скважин с отбором образцов и определением уровня грунтовых вод, зондирование грунтов, испытания грунтов штампами или статическими нагрузками, геофизические исследования. Оторванные образцы грунтов подвергают лабораторным испытаниям с целью получения их физико-механических характеристик, а образцы грунтовых вод - химическому анализу.

По результатам этих работ составляется технический отчет, содержащий разделы и сведения в соответствии с разделами 5 и 6 СНиП 11-02.

Необходимо учитывать, что за годы существования здания могли быть нарушены требования по эксплуатации грунтов его основания. Такие нарушения носят достаточно распространенный характер и отрицательно сказываются на несущей способности грунтов, препятствуют их консолидации и т.д. К нарушениям такого рода относятся водонасыщение просадочных или набухающих грунтов, заиливание дренажных систем, проникновение в грунт веществ, снижающих его внутреннее трение, оттаивание грунтов в районах вечной мерзлоты и т.п. В связи с этим проведение натурных гидрогеологических и геодезических изысканий на объекте реконструкции является обязательным.

2.3 Визуальный и геодезический контроль

На начальной стадии инженерных изысканий на объекте реконструкции производят визуальный и геодезический контроль его состояния.

Визуальные обследования производят с целью оценки технического состояния конструкций по внешним признакам. Осмотр здания позволяет выявить наличие деформаций здания в целом и отдельных его частей, состояние защитных покрытий, наличие трещин, сколов и других разрушений в стенах, плитах перекрытий, балконов и лоджий, козырьков, элементов декора фасадов и т.д.

Результаты приборных геодезических изысканий указывают на наличие или отсутствие осадок здания, величину и равномерность этих осадок, вертикальность колонн, несущих стен, фасадных поверхностей и ряд других характеристик, прямо или косвенно указывающих на наличие опасных геологических процессов.

2.4 Определение физико-механических и геометрических параметров основных конструктивных элементов

2.4.1 Определение физико-механических и геометрических параметров основных конструктивных элементов производят с целью выявления их фактической несущей способности, деформативности и надежности.

Для оценки несущей способности остова здания необходимо иметь исчерпывающую информацию о размерах сечений, пролетах и прочности материалов.

С этой целью производят осмотр, а затем с помощью метрических и геодезических приборов и инструментов обмеры сечений и общих габаритов конструкций, их расстояния друг от друга в чистоте и в осях, высоты, соосности по высоте и в плане.

В зависимости от состояния конструкций их обследование может быть сплошным или выборочным. При сплошном обследовании производят осмотр и необходимые обмерочные работы на всех однотипных конструкциях, а при выборочном ограничиваются выборкой, размеры которой не должны быть менее 10 % общего числа конструкций данного типа, но не менее трех.

Отчет об инженерных изысканиях в этой области должен содержать не только объективную оценку состояния конструкций, но и расчеты их несущей способности с учетом изменения нагрузок после проведения реконструкции.

2.4.2 Необходимо помнить, что:

наиболее инвестиционно привлекательным является получение дополнительных площадей за счет надстройки здания, а это связано с существенным возрастанием нагрузок на конструкции нижних этажей, фундаменты и грунты основания;

увеличение количества и размеров летних помещений (балконов, лоджий) приводит к увеличению собственного веса здания и полезной нагрузки;

переназначение помещений нижних этажей с целью развития социальной инфраструктуры, как правило, связано с увеличением расчетных значений удельной полезной нагрузки и увеличением общей нагрузки на несущие элементы цокольного этажа ( подполья или подвала);

обеспечение современных нормативных требований по теплозащите здания и звукоизоляции ограждений приводит к ощутимому возрастанию собственного веса здания.

2.4.3 Физико-механические характеристики материалов определяются в соответствии с требованиями государственных стандартов. Для достижения необходимой достоверности результатов натурных изысканий рекомендуется определять прочность материалов несущих конструкций как минимум двумя различными методами. Например, при определении прочности бетона самых загруженных несущих элементов жилого дома (колонн или несущих железобетонных внутренних стен цокольного, подвального этажа или подполья) целесообразно использовать в любом сочетании выпиливание и испытание на прессе цилиндрических кернов, склерометрические испытания (молотками Физделя или Кашкарова), ультразвуковые испытания, испытания путем вырыва конуса и другие сертифицированные методы.

Для железобетонных конструкций, проектная документация на которые отсутствует, должно выполняться обследование скрытых металлических элементов (армирования) с помощью индукционных приборов.

Достоверность полученных результатов обеспечивается достаточностью выборки, т.е. общего количества испытаний данного вида, соответствующего требованиям математической статистики, отраженным в государственных стандартах на методы испытаний.

Слоистые конструкции, замена которых при реконструкции не предусматривается или зависит от их технического состояния, при проведении инженерных изысканий должны зондироваться. Зондирование позволяет получить информацию о фактической толщине слоев, их состоянии, наличии засыпок, пустот, качестве материалов заполнения и др. Достоверные данные о состоянии слоистых конструкций могут быть получены:

для панельных несущих слоистых наружных стен жилых домов высотой 5 этажей и более и протяженностью более 4 секций - не менее 10 панелей;

то же, для ненесущих стен - не менее 6 панелей;

для перекрытий общей площадью свыше 3000 м2 - не менее 12 точек.

2.5 Состояние систем инженерного оборудования

Обследование состояния систем инженерного оборудования следует производить с учетом предполагаемой их модернизации. Следует иметь в виду, что при реконструкции жилых зданий большинство систем подлежит радикальной модернизации или полной замене. В первую очередь это относится к системам электроснабжения, отопления и горячего водоснабжения.

2.5.1 Замена системы электроснабжения связана с изменением нормативных требований к электроустройствам жилых домов. В соответствии с действующими в настоящее время «Правилами устройства электроустановок» (7-я редакция) расчетная нагрузка на одну квартиру в среднем выросла в 1,5 раза (с 7 до 11 кВт). При таких нагрузках исключается применение алюминиевых проводов. Перепланировка квартир приводит к перемещению геометрических центров помещений и проемов. Как следствие, изменяются места установки распаячных коробок на потолках и стенах, практически исключается возможность использования существующих скрытых в теле конструкций пластмассовых трубок для прокладки скрытых проводок. В соответствии с новыми нормативными требованиями ликвидируются групповые квартирные электрощитки - теперь они устанавливаются поквартирно. Существенное увеличение общей потребной для жилого дома мощности вызывает необходимость замены вводов и части внешних питающих электросетей. В этой связи обследования состояния силового электроснабжения рекомендуется ограничивать изучением исходной проектной документации и осмотром вертикальных каналов, по которым прокладываются кабели секционной разводки, с тем чтобы убедиться в их пригодности для устройства новых разводок.

2.5.2 Необходимость в поквартирном учете потребления теплоты требует оснащения систем отопления всех жилых помещений здания приборами контроля, учета и регулирования расхода теплоносителя. Это возможно только при переходе от принятых сегодня однотрубных разводок к двухтрубным, и, как следствие, приходится прибегать к полной замене системы отопления. При обследовании систем инженерного оборудования рекомендуется провести осмотр существующих в доме отопительных приборов и установить возможность их дальнейшего использования по назначению.

3.5.3 Обязательному обследованию подлежат система вентиляции с определением размеров и соосности вентиляционных стояков и коробов, канализационные стояки и лифты, если их основные параметры (сечения, грузоподъемность и габариты) и положение относительно планировочных осей здания не меняются при реконструкции.

2.6 Обмерочные работы

Обязательным этапом натурных обследований объекта реконструкции является проведение обмерочных работ. Они производятся с помощью современных лазерных геодезических приборов и измерительных инструментов. В задачи обмерочных работ входит определение:

конфигурации здания в плане (поэтажно);

общей длины, ширины корпуса и высоты здания (посекционно);

расстояний между объектом реконструкции и ближайшими соседними зданиями и сооружениями;

соответствия фактических размеров помещений поэтажным планам, составляемым службой технической инвентаризации и прилагаемым к техническому паспорту здания (выборочно);

соответствия фактической привязки к объекту реконструкции в плане элементов комплексного благоустройства придомовой территории размерам, указанным в паспорте «Планировочное решение и благоустройство территории».

По результатам указанных работ составляются обмерочные чертежи жилого здания и прилегающей к нему территории с указанием границ владения. Обмерочные чертежи являются неотъемлемой частью технического отчета об изыскательских работах на объекте реконструкции.

3 Архитектурно-градостроительные решения

Одним из важнейших направлений решения территориальных проблем при жилищном строительстве на перспективу следует считать вовлечение в сферу градостроительного освоения комплексной реконструкции существующей застройки.

Основными объектами комплексной реконструкции в первую очередь должны стать районы застройки с жилыми домами, морально и технически устаревшими по архитектурно-планировочным решениям и теплотехническим параметрам, с большими малоосвоенными внутримикрорайонными и квартальными территориями.

Реконструкция жилой застройки должна основываться на комплексном решении градостроительных, архитектурных, экологических, инженерно-технических и социально-экономических задач с ориентацией на создание комфортных и безопасных условий среды жизнедеятельности населения.

3.1 Градостроительное решение реконструкции объекта

3.1.1 С целью определения совокупности предпосылок сохранения и обновления сложившейся застройки, формирования объемно-пространственной композиции застройки разрабатывается концепция градостроительного решения комплексной реконструкции жилою образования (квартала, микрорайона, жилого района).

Градостроительное решение проведения работ по реконструкции и застройке на свободных участках жилого образования устанавливает возможность реконструкции объекта на данной территории с учетом архитектурных, градостроительных, историко-культурных, социально-экономических, санитарно-гигиенических и экономических требований по комплексному развитию территории, а также состояния окружающей природной среды, действующих на территории особых режимов градостроительного регулирования.

3.1.2 Градостроительное решение реконструкции застройки жилого образования следует разрабатывать на основании:

градостроительных регламентов, схем градостроительного зонирования, установленных генеральным планом развития города или других поселений;

режимов охраны и использования недвижимых памятников истории, архитектуры и культуры и других объектов, требующих сохранения и обновления;

оценки технического состояния жилых зданий и объектов социального обслуживания, подлежащих реконструкции и модернизации;

оценки свободных участков территории объекта реконструкции, а также состояния благоустройства территории с целью эффективного использования ее для осуществления нового строительства при соблюдении действующих нормативных требований.

3.1.3 Для обоснования градостроительного решения комплексной реконструкции застройки, в целях уточнения объемно-планировочных решений существующих зданий, определения целесообразности размещения объема нового строительства, определения социально-экономической эффективности, обеспечения учета санитарно-гигиенических и экологических условий территории и противопожарных мероприятий проводятся следующие предпроектные проработки:

градостроительные проработки, включая корректировку ранее разработанной градостроительной документации с расчетом показателей развития территории, графические и текстовые материалы, определяющие градостроительное и планировочное решения территории, расчет соцкультбыта, баланса территории с границами земельного участка реконструкции объекта на территории, технико-экономические показатели, схемы инженерного обеспечения;

предпроектные архитектурно-строительные проработки реконструкции объекта, содержащие графические и текстовые материалы и определяющие размещение объекта на участке, его объемно-пространственное и архитектурные решения с учетом расширения, надстройки или пристройки объекта реконструкции, технико-экономические показатели;

вариантный подбор земельных участков для объектов нового строительства, содержащий графические и текстовые материалы, границы земельных участков, варианты объемно-пространственного и архитектурного планировочного решения, технико-экономические показатели.

3.1.4 В градостроительном решении в процессе разработки рекомендуется рассматривать следующие основные факторы:

совершенствование архитектурно-градостроительного решения при реконструкции застройки может быть достигнуто в условиях малого, среднего и большого городов, в исторически сложившейся архитектурно-пространственной среде, в застройке крупного и крупнейшего городов с усиленной контрастностью средств архитектурной композиции при сохранении сложившейся архитектурной среды и масштаба городской застройки;

при реконструкции застройки исторических городов следует исходить из оценки ценностей историко-культурного и архитектурно-градостроительного наследия, имея в виду: города, в которых композиция и архитектурный облик, ансамбли и комплексы зданий сохранили решающее значение; города, в которых сохранились фрагменты и ведущие ансамбли, не играющие значительной роли в облике города; города, обладающие архитектурно-планировочным наследием в виде отдельных памятников. Учет этих факторов необходим прежде всего для выявления особенностей построения градостроительного и объемно-пространственного решения, его преемственного развития;

при реконструкции застройки домами индустриального строительства 50-60-х гг. и последующих периодов строительства следует соблюдать комплексное градостроительное завершение застройки, следя за композиционным единством существующих объектов реконструкции и зданий нового строительства, обогащая градостроительное и архитектурное качество городской среды и ценность первоначального положения;

при объемно-пространственной организации городской застройки с учетом решения территориальных проблем должен использоваться прием вовлечения в среду градостроительного освоения нового территориального ресурса - поверхностей неиспользованных плоских, малоуклонных крыш и пустующих чердаков зданий, дублирующих площадь застройки и пригодных для функционального использования, а также возможность надстройки зданий несколькими этажами при соответствующем технико-экономическом обосновании;

архитектурное завершение зданий путем надстройки, включая мансардный этаж, требует композиционного единства реконструируемого объекта и существующей застройки, учитывая масштаб, этажность и протяженность здания, уровень видимости и зрительное восприятие, а также исторический период строительства. Формирование застройки с учетом надстройки зданий для помещений жилого или общественного назначения, наличие которых обусловлено эксплуатационными потребностями и экономической целесообразностью, улучшением архитектурно-градостроительного качества городской среды, выполняется с соблюдением градостроительных нормативных требований, а также с учетом особенностей городской среды.

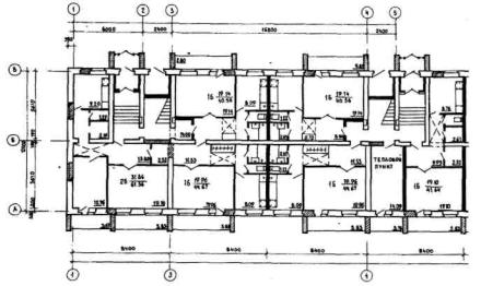
3.2 Архитектурно-планировочные решения

3.2.1 Архитектурно-планировочные решения включают:

перепланировку квартир, секций, этажей или имеющихся нежилых помещений;

увеличение размеров кухонь, санитарно-технических узлов, прихожих и летних помещений путем устройства ризалитов, эркеров, приставных лоджий или балконов;

устройство двухэтажных квартир на первом-втором этажах или на пятом и надстраиваемом этажах;

изменение объема жилого дома за счет надстройки этажей, включая мансардный, расширение корпуса здания частично или полностью и пристройку к нему новых объемно-планировочных элементов, в том числе жилого и нежилого назначения;

изменение в целом функционального назначения жилого здания;

повышение комфорта проживания и архитектурного качества реконструируемого жилого здания.

3.2.2 Перепланировка существующего (типового) этажа предполагает два основных подхода - в пределах габаритов существующего здания и путем частичного или полного увеличения ширины корпуса.

Перепланировка квартиры в пределах габарита здания должна быть направлена на увеличение размеров кухни, передней, санитарно-технического узла, изоляции общей комнаты от кухни, устройство встроенных шкафов, замену балконов лоджиями. В существующих границах легче всего выполнить перепланировку в зданиях с тремя продольными несущими стенами. Радикальный вариант перепланировки в габаритах существующего здания может быть за счет превращения части или всех квартир в двухэтажные, размещаемые на первом и втором этажах.

Перепланировка секций в пределах габарита здания сводится, как правило, к объединению смежных квартир и преобразованию их в многокомнатную квартиру, отвечающую требованиям действующих норм и стандарту повышенного потребительского качества.

Перепланировка, сопровождаемая уширением корпуса здания в отдельных конструктивных пролетах, возможна в типовых зданиях всех серий. Некоторые жилые комнаты или кухни выдвигаются из габаритов, что позволяет устраивать большие прихожую или коридор. При этом для расширения проема между существующим и пристраиваемым помещениями удаляется подоконная часть стены, а иногда вся наружная стена (панель) в пределах конструктивного пролета. Такое решение требует соответствующей конструктивной и технологической проработки.

Для увеличения площади кухни возможна пристройка с использованием для размещения обеденного места, а в некоторых случаях для размещения кухни целиком с превращением оконного проема в дверь. Освобождаемая часть площади предусматривается для увеличения помещения санитарно-технического узла и прихожей.

Перепланировка, сопровождаемая уширением корпуса жилого здания, представляет более радикальное планировочное изменение квартир с увеличением общей площади, что требует соответствующих экономических обоснований, соблюдения норм инсоляции и санитарно-гигиенических требований. В этом случае предполагается полный демонтаж наружных стен здания, что требует предварительной проработки многих технических вопросов.

Все перечисленные варианты перепланировки предполагают замену балконов приставными лоджиями, в том числе остекленными, что создает тепловой барьер между жилыми помещениями и наружным воздухом. Возможна пристройка более просторных летних помещений - веранд для устройства зимних садов при квартире.

3.2.3 Потребительские качества квартир первого и последнего этажей ниже потребительских качеств аналогичных квартир других этажей, поэтому при реконструкции повысить их качества можно более кардинально, чем квартир на вторых - четвертых этажах:

преобразование квартир первого этажа в пределах существующих габаритов здания может быть направлено на реализацию связи квартиры с приквартирным участком за счет устройства второго выхода непосредственно из лоджии квартиры на участок при сохранении выхода квартиры на лестничную клетку;

преобразование квартир с учетом расширения первого этажа позволяет превратить квартиру в жилой дом усадебного типа. В этом случае может быть исключен выход на лестничную клетку жилого здания. Принятая компоновка первого этажа с активным выступом позволяет организовать на крыше небольшие зеленые зоны для квартир второго этажа. Более радикальное преобразование может быть с устройством двухуровневого жилого дома за счет квартир первого и второго этажей;

преобразование первого этажа может быть направлено на изменение функционального назначения жилых помещений с размещением объектов общественного пользования или социально-бытового обслуживания. Такое преобразование целесообразно в жилых зданиях, расположенных на красных линиях улицы;

преобразование квартир последнего этажа в пределах габаритов здания может быть осуществлено за счет использования пустующего чердачного пространства с устройством второго уровня квартиры;

преобразование последнего этажа связано с конструктивными изменениями крыши, в большей части плоской, не обеспечивающей теплозащиту помещений верхнего этажа и неэкономичной из-за постоянных ремонтов. Преобразование последнего этажа в пределах габаритов здания может быть направлено на расширение квартир с созданием второго уровня в пространстве мансардного этажа.

3.2.4 Изменение этажности жилых зданий следует осуществлять с учетом градостроительных и архитектурно-технических обоснований, соблюдения норм по инсоляции, санитарно-гигиенических и противопожарных требований, а также экономических расчетов, региональных особенностей и места строительства:

при надстройке этажей на существующих жилых зданиях в пределах габаритов корпуса следует исходить из несущей способности конструкций и грунтов основания существующего здания, возможности использования существующих внутренних сетей и инженерного оборудования. При надстройке помимо конструктивных разработок следует учитывать архитектурные особенности, связанные с гармонизацией внешнего облика существующего здания и надстраиваемых этажей. Возможно архитектурное решение единого нового фасада на всю высоту здания или отличающееся архитектурное решение надстраиваемых этажей от существующих. В последнем случае рекомендуется архитектурный прием с пластичным переходом от архитектуры существующего здания с сохранением карниза или устройством технического этажа на существующем здании;

при надстройке этажей на существующем жилом здании с недостаточной несущей способностью конструкций или с расширением габаритов надстраиваемых этажей требуется возведение специальных конструкций, обеспечивающих восприятие нагрузки надстраиваемых этажей. Эти предложения должны предусматривать устройство самостоятельных пилонов и фундаментов под них, а также различного рода платформ на самостоятельных опорах и фундаментов по методу «фламинго»;

при надстройке этажей может быть использован архитектурно-композиционный прием пирамидального построения в поперечном направлении или на продольных фасадах с учетом пристроенных к торцам здания объемов, уменьшенных кверху. Возможен прием сложной пространственной композиции при сочетании переменной этажности и переменной ширины корпуса.

Изменение этажности связано с устройством лестнично-лифтовых узлов, которые могут быть самостоятельными объемно-планировочными элементами для подъема на надстраиваемые этажи, устанавливаемые в пролетах лестничных клеток, у торца существующего жилого здания, или соединены с лестничной клеткой переходом (галереей) при постановке отдельно скомпонованных жилых объемно-планировочных элементов.

В случае устройства лестнично-лифтовых узлов у торца (между торцами), а также во вставках между существующими жилыми зданиями надстраиваемые этажи должны быть, как правило, коридорной или галерейной системы.

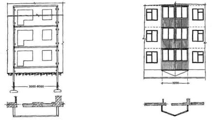
3.3 Мансардный этаж

3.3.1 Одним из вариантов решения территориальных проблем при реконструкции и пространственной организации городской среды является вовлечение в сферу градостроительного освоения нового территориального ресурса - поверхности неиспользованных плоских, малоуклонных крыш и пустующих чердаков зданий, дублирующих площадь застройки и пригодных для функционального использования при устройстве мансардного этажа. Этот ресурс представляется экономически эффективным и градостроительно оправданным, открывает новые возможности повышения архитектурно-композиционного качества существующей городской застройки, пятый фасад.

Во-первых, не потребуется новых отводов земли, а за счет надстройки мансардных этажей повышается плотность застройки в пределах установленных норм, а значит, повышается интенсивность использования городских территорий.

Во-вторых, появляется возможность получить дополнительную площадь жилья на инженерно освоенной территории, имеющую социальную, инженерную и транспортную инфраструктуры.

В-третьих, устройство мансардных помещений в чердачном пространстве взамен плоских и малоуклонных крыш сократит теплопотери через крышу и обеспечит долговечность кровли.

Широкое распространение мансардное строительство может получить при реконструкции районов, застроенных жилыми домами первых массовых серий, построенных в 50-60-е гг. и требующих обновления, а также при реконструкции жилых домов последующих периодов. При устройстве мансардных этажей в условиях реконструкции застройки исторических городов следует исходить из оценки ценности историко-культурного и архитектурно-градостроительного наследия, выявляя особенности построения объемно-пространственного решения мансардного этажа с учетом сохранения сложившихся стиля, масштаба, силуэта и архитектурной пластики фасадов существующих зданий.

В целях обеспечения охраны памятников архитектуры и культуры в зонах с режимом регулирования реконструкции существующей исторической застройки необходимо устройство мансардных этажей с учетом визуальной непросматриваемости их с планшета противоположной стороны улицы или устройство мансардных помещений в пределах уклона существующей кровли зданий.

3.3.2 Архитектурная типология мансардного этажа способствует формированию оптимальной и безопасной среды пребывания человека в помещениях мансардного этажа, учитывает систему обязательных объемно-планировочных, технических, экологических, санитарно-гигиенических и противопожарных требований, которые должны быть обеспечены при проектировании, строительстве и во время эксплуатации помещений.

Мансардный этаж в структуре здания в силу своего пространственного размещения как архитектурно-объемный элемент, завершающий композицию здания с максимальным использованием его строительного объема, представляет собой относительно самостоятельный объект проектирования и имеет характерные особенности, отличающие его от традиционных этажей, а следовательно, обладает спецификой.

Объемно-пространственное решение мансардного этажа требует композиционного единства проектируемого объекта строительства или реконструкции. При этом следует учитывать уровень видимости, зрительное восприятие, масштаб, этажность и протяженность, архитектурный стиль здания и в целом ансамбля, в котором оно расположено.

Функциональное использование мансардного этажа определяется в основном назначением здания-основы, а планировочные особенности связаны с их размещением в структуре здания и с нижерасположенными помещениями. Выбор планировочного решения должен основываться на анализе планировочных решений последнего этажа здания-основы. Мансардный этаж может занимать всю площадь в контуре здания-основы либо часть ее, но, как правило, в пределах проекции лежащих ниже стен базового здания. Архитектурно-планировочные решения имеют широкий диапазон, не связаны с реконструктивными ограничениями, а помещения - любой площади и конфигурации.

Объемно-пространственное решение помещений мансардного этажа обусловлено особенностями форм образования покрытия. Помещения характеризуются полностью наклонными потолками из плоских или криволинейных поверхностей, горизонтальными потолками и наклонными стенами, пространствами с частично наклонными потолками. Как бы ни были различными архитектурно-пространственные решения, они должны представлять рациональную форму, определяемую функциональным назначением и конструкцией покрытия.

3.3.3 Следует различать три основных типа мансардных этажей: первый - мансардный этаж в одном уровне; второй - этаж в двухуровневом развитии; третий - с пространственной организацией антресольного этажа или второго уровня последнего этажа здания-основы. На базе основных типов мансардных этажей имеются большие возможности расширить типологию, в том числе: при секционной схеме выполнить мансардный этаж в два уровня и более, в два уровня с антресолью; мансардный этаж при коридорной схеме - в одном уровне с антресолью, в два уровня. Устройство квартир в двух и более уровнях рекомендуется для коммерческого жилища.

3.3.4 Виды взаимосвязи помещений мансардного этажа с вертикальной коммуникационной структурой здания в зависимости от этажности и функционального назначения определяют следующую классификацию: мансардные помещения, непосредственно примыкающие к лестничному или лестнично-лифтовому узлу; мансардные помещения, требующие специальных соединительных коридоров; мансардные помещения, подступы к которым требуют устройства специальных коммуникаций - лестниц и лифтов, в том числе вне здания. При смешанном функциональном использовании, в том числе для других целей, чем основная часть здания-основы, требования по устройству вертикальных коммуникаций, входов, эвакуационных выходов должны выполняться в соответствии с противопожарными нормативами. В этом случае возможно размещение лестнично-лифтового узла или лифтового ствола между торцами двух зданий при обеспечении соединительных галерей посадочной площадкой на уровне планировочной отметки земли и остановкой лифта на уровне мансардного этажа. В этом случае помещения мансардного этажа могут быть использованы для проживания инвалидов или других целей.

Смешанное функциональное использование регламентируется местными органами исполнительной власти исходя из тенденции современных и будущих подходов и интеграции к многофункциональному назначению зданий.

3.3.5 При проектировании мансардных этажей окна могут быть вертикальными и наклонными (мансардными). Рекомендуется следовать следующим основным положениям при выборе окон с учетом объемно-пространственного решения и энергоэффективности помещений мансардного этажа: вертикальные окна применяются в целях преемственности стиля и пластики фасада здания-основы, при этом общая длина вертикальных окон, рассчитываемая для каждой отдельной поверхности крыши, не должна превышать половину длины поверхности крыши; мансардные окна рассматриваются как составная часть поверхности крыши, а следовательно, число мансардных окон, их общая длина и размещение на крыше не ограничиваются. Мансардные окна рекомендуется, как правило, применять при устройстве мансардных этажей на исторических зданиях, сохраняя силуэт, соответствующие разрывы между зданиями и непросматриваемость крыши мансардного этажа с планшета улицы.

3.6.6 Широкие архитектурно-планировочные возможности организации мансардных этажей имеются при реконструкции детских яслей-садов, школ, других общественных зданий и, прежде всего, на зданиях массовых типовых серий. Типологические и функциональные особенности формирования мансардных пространств общественных зданий идентичны с приемами при устройстве мансардных этажей жилых зданий, но имеют и свою специфику, регламентируемую нормативами. Функциональное назначение помещений зависит от выбора номенклатуры помещений, обусловленной социальной необходимостью увеличения общественного фонда в сложившихся жилых образованиях, и потребности в увеличении помещений для творческих и общественно-массовых мероприятий населения.

При размещении мансардного этажа в общественных зданиях могут быть использованы две планировочные схемы: обычная (надстройка), в которой функции объединены, и автономная, где функции разделены. Выбор планировочного варианта должен быть основан на анализе планировочной схемы здания-основы, определен при изучении потребности социальной инфраструктуры данного жилого образования в зависимости от месторасположения здания и выполнен в соответствии с действующими нормативными требованиями.

3.3.7 Архитектурная стилистика формы крыши, ее геометрия определяют конструктивную систему крыши, а это означает необходимость создания единства архитектурного и конструктивного решений во взаимосвязи с внутренним пространством мансардного этажа, обусловленного функциональным назначением помещений. Выбор той или иной конструктивной системы мансардного этажа определяет конструкции и ограждения, а также методы организации строительных работ на объекте. Для надстройки мансардных этажей рекомендуется выбирать легкие конструкции и материалы, поскольку, с одной стороны, следует максимально облегчить транспортировку, а с другой - снизить собственный вес нагрузки, которая будет перенесена на уже существующее здание. Эти предпосылки в целом указывают на то, что конструкции следует выбирать на основе древесины, тонкостенного холодногнутого металлического профиля или других легких материалов.

Кровельное покрытие должно соответствовать этим же предпосылкам и выполняется преимущественно из металлических листов, металлочерепицы и других легких материалов. В исключительных случаях, когда это требуется условиями средовой застройки, покрытие может быть выполнено из глиняной или цементно-песчаной черепицы и других материалов с учетом расчета нагрузки на несущие конструкции.

Мансардный этаж подвержен большим потерям теплоты, чем расположенные ниже этажи, по той простой причине, что над ним, как правило, нет «тепловой подушки». Имея большую общую поверхность соприкосновения с внешней средой, он требует существенной эффективной теплоизоляции.

Устройство инженерного оборудования мансардного этажа требует его расположения с соблюдением взаимосвязи с инженерным оборудованием здания-основы и с обеспечением их совместной работы. Возможность подключения инженерных сетей проектируемого мансардного этажа к существующей системе должна определяться расчетами в каждом конкретном случае и соответствовать действующим нормативам.

3.3.8 Инженерные сети нежилых помещений мансардного этажа жилого дома проектируются автономными, за исключением небольших офисов и творческих мастерских, сети которых допускается подключать к существующим системам здания после подтверждения расчетами.

Подключение хозяйственно-питьевого и пожарного водоснабжения, а также канализационных стоков осуществляется к существующим сетям здания-основы с учетом установки контрольно-измерительных приборов по расходу воды в здании.

Отопление может быть по совмещенной со зданием схеме или раздельным при условии расчета дополнительной нагрузки, используя резерв экономии теплоты за счет сокращения расходов и установки контрольно-измерительных приборов, терморегуляторов и системы регулирования на все здание. При размещении мансарды на зданиях с нижней разводной системой отопления наиболее приемлем вариант по раздельной схеме. В случае верхней разводки отопления основного здания следует предусматривать переоборудование ее верхней части с размещением в пределах мансардного этажа.

Вентиляция выполняется путем наращивания каналов или устройства механической вытяжки, объединяющей всю систему. При существующих и проектируемых газовых плитах для пищеприготовления требуются расчеты.

Систему электроснабжения рекомендуется выполнять с учетом дополнительных нагрузок и соответствия современным нормативам.

При надстройке мансардного этажа устройство лифта в соответствии с нормативами реконструкции жилых домов допускается не предусматривать. В случае устройства в мансарде высококомфортабельного жилья установка лифта решается исполнительной властью, заказчиком при согласии собственников жилья.

При устройстве мансардного этажа в зданиях с общим мусоропроводом допускается сохранять имеющуюся систему мусороудаления здания-основы.

4 Конструктивные решения

4.1 Общие положения

Реконструкция современных жилых зданий требует особого внимания к выбору конструктивно-технологических решений при совершенствовании объемно-планировочных решений и обеспечению соответствия эксплуатационных характеристик требованиям действующих нормативов.

Как правило, основной задачей, которую ставит перед собой инвестор, вкладывающий средства в обновление здания, является получение дополнительных площадей и таких объемно-планировочных компоновок, которые отвечают сегодняшним представлениям о качестве жилища, обеспечивают надлежащий уровень санитарно-гигиенических условий проживания. Поэтому наиболее характерными для реконструкции решениями являются надстройка здания, пристройка к нему дополнительных объемов и радикальная перепланировка существующих квартир, секций, а порой и дома в целом.

4.1.1 При реконструкции жилых домов, построенных до 1941 г., строительный процесс практически сводится к встройке в существующие кирпичные наружные стены системы новых монолитных или полносборных несущих и ограждающих конструкций. Имеющиеся в таких домах перекрытия выполнены, как правило, деревянными по деревянным или металлическим балкам. Они не отвечают действующим нормативным противопожарным требованиям, не обеспечивают необходимую звукоизоляцию, имеют прогибы, значительно превышающие допустимые значения. Такие перекрытия демонтируют и на их месте последовательно сооружают новые железобетонные из монолитного бетона или сборных плит заводского изготовления. При этом имеется возможность выбрать такую конструкцию перекрытий, которая отвечает всем перечисленным выше требованиям, позволяет ее использовать, с помощью подъемных кранов легко подавать на строительный горизонт и устанавливать панельные перегородки, готовые санитарно-технические кабины, укрупненные блоки встроенной мебели и т.д. Достаточно удачным перепланировкам способствуют и относительно простые конструктивные схемы зданий. Большинство зданий старой постройки имеют три продольные несущие стены, большую ширину корпуса (12-16 м), а диафрагмами поперечной жесткости служат межсекционные и торцевые стены дома, а также лестничные клетки.

4.1.2 При реконструкции массовых жилых зданий постройки 50-80-х гг. прошлого столетия (2/3 из них выполнены полносборными) мы сталкиваемся с сооружениями, отличающимися относительно низкой материалоемкостью, несущими элементами предельно малых сечений, эксплуатационными характеристиками, в лучшем случае отвечающими нормативным требованиям 30-40-летней давности. Перепланировку таких зданий, усиление их конструкций, выполнение изоляционных работ приходится выполнять в крайне стесненных условиях, так как плиты перекрытий в этих домах не заменяются, подачу на рабочий горизонт элементов перегородок, встроенной мебели, половых покрытий и прочего осуществляют через оконные и дверные проемы, зачастую вручную.

Указанные обстоятельства и ограниченные запасы несущей способности остова здания вынуждают искать пути максимального снижения собственного веса устанавливаемых конструктивных элементов, разрабатывать и осваивать технологии на основе применения высокомеханизированного ручного труда.

Ниже приводятся рекомендации по выбору основных конструктивных решений при реконструкции массовых жилых зданий.

4.2 Конструктивные решения по увеличению ширины корпуса

Увеличение ширины корпуса реконструируемого дома производят путем пристройки к нему дополнительных объемов. Такая пристройка может производиться как с одной, так и с двух сторон здания и носить двоякий характер - глобальный и локальный. В первом случае увеличение ширины корпуса происходит по всей длине дома. Во втором дополнительные объемы пристраиваются дискретно. В качестве дополнительных объемов могут выступать отапливаемые помещения, присоединяемые к существующим комнатам (ризалиты, эркеры), а также остекленные или открытые лоджии, веранды, галереи.

4.2.1 Главной конструктивной задачей при проектировании пристроек является обеспечение совместности работы существующего здания и пристраиваемых объемов. Для выполнения этого условия в расчетах исходят из того, что разница в величине осадок существующего и пристроенного сооружений должна быть минимальна или равна нулю. Это условие реализуется путем устройства свайных фундаментов с жестким монолитным ростверком в пристраиваемых частях здания. В этом случае разница осадок в 10-этажном доме не превышает 1,5-2 мм. Но и такие относительно небольшие смещения в стыке объемов здания приходится учитывать, существующие и новые стены соединяют гибкими связями, а стык снаружи тщательно герметизируют в соответствии с требованиями технических условий по герметизации стыков наружных стен крупнопанельных зданий.

Поскольку использование забивных железобетонных и металлических свай вблизи существующих зданий и сооружений не допускается, прибегают к устройству буронабивных свай.

При увеличении ширины здания за счет устройства достаточно глубоких (1,2-1,6 м) остекленных или открытых лоджий, галерей и веранд конструкция пристроя, как правило, представляет собой железобетонную сборную или монолитную этажерку, вертикальными несущими элементами которой являются стенки-пилоны толщиной от 16 до 24 см, а горизонтальными - железобетонные плиты толщиной 18-20 см и пролетом до 7,5 м.

4.2.2 При реконструкции жилых домов на сейсмоопасных территориях для увеличения поперечной жесткости здания стенки-пилоны располагают с обеих сторон здания и связывают между собой на уровне чердака или кровли. Этот прием особенно эффективен при необходимости существенного повышения сейсмостойкости здания, которое строилось до введения нового районирования сейсмоопасных территорий России и сегодня не отвечает действующим нормативным требованиям по сейсмостойкости. Соединенные между собой в П-образные рамы стенки-пилоны существенно увеличивают сейсмостойкость здания, если предусмотрены меры, исключающие «биение» существующего корпуса здания внутри замкнутых жестких П-образных рам при горизонтальных ударах.

Конструкция сочленения существующего здания с пристроенными объемами решающим образом зависит от конструктивной схемы реконструируемого дома. В крупнопанельных домах серии 1-468 ненесущие наружные стены из ячеистого бетона могут быть демонтированы при обстройке без какого-либо ущерба для устойчивости и несущей способности здания. Это позволяет органично соединить существующие и пристроенные помещения, традиционно решить их интерьеры. В крупнопанельных домах серии 1-464 (1-464А, 1-464Д) такое решение возможно только в шаге поперечных осей, равном 2,6 м. Здесь перекрытие рассчитано как опирающееся по длинным сторонам, наружная стена фактически является самонесущей и может быть демонтирована при реконструкции.

4.2.4 В каркасно-панельных домах серии 1-335 с неполным каркасом и в так называемых домах-трехстенках (серия 1-447С и аналогичные широко распространенные кирпичные жилые дома) нагрузка от перекрытий передается на наружные стены и удалить их не представляется возможным. В этом случае соединение существующего помещения с пристроенным происходит через оконный проем, в котором разбирают нижнюю (подоконную) перемычку и удаляют оконный блок. В результате простенки существующей наружной стены становятся пилонами, разделяющими новое объединенное помещение на два полупространства. При увеличении размеров кухни за счет пристройки дополнительного объема простенки-пилоны делят помещение на две функциональные части - обеденное место на 3-4 человека и собственно кухню с достаточно протяженным технологическим фронтом. При реализации аналогичного решения в малых спальных комнатах последние условно разделяются пилонами на альков и хорошо освещенную приоконную зону, где может размещаться письменный (спальня-кабинет) или туалетный стол (спальня-будуар).

4.3 Конструктивные решения надстройки здания

4.3.1 Возведение дополнительных рядовых жилых этажей на реконструируемом доме связано с решением трех конструктивных задач:

выбором конструктивной схемы надстраиваемой части здания; предельным снижением собственного веса надстраиваемой части здания; усилением (при необходимости) несущих конструкций существующего здания.

4.3.2 При выборе конструктивной схемы надстраиваемой части здания необходимо исходить из того, что нагрузки от нее должны распределяться в плане равномерно, не вызывать перегрузки отдельных узлов остова существующего здания. Решение этой задачи производят в такой последовательности. Сначала современными методами выполняют расчет несущей способности остова существующего здания с учетом результатов его обследования при проведении изыскательских работ. Затем рассматривают возможные конструктивные схемы надстраиваемого этажа, выбирают ту из них, которая, исходя из потребных размеров помещений, применяемых конструкций, технологии их монтажа, обеспечивает наиболее рациональное сочленение надстройки с реконструируемым домом. С учетом этого определяют места передачи нагрузок от надстраиваемой на существующую часть здания и выполняют расчет здания вторично. Результаты этих расчетов позволяют найти наиболее рациональный компромисс между планировочными параметрами помещений надстраиваемых этажей и их конструктивным решением.

В случаях когда конструктивная схема существующего здания и несущая способность его остова не позволяют достичь желаемых результатов, используют конструктивную схему надстройки, получившую название «фламинго». Эта конструктивная идея получает все более широкое применение в реконструкции массовых пятиэтажных зданий. Суть ее сводится к тому, что при надстройке здания дополнительными четырьмя-пятью этажами нагрузка от них передается не на существующее здание, а на железобетонный «стол», покоящийся на стенках-пилонах или пристроенных объемах, равномерно размещенных по периметру здания и опирающихся на собственные фундаменты. В пристроенных объемах или между несущими пилонами размещают шахты лифтов и лоджии, заменяющие морально устаревшие балконы. При таком решении появляется возможность принять конструктивную схему надстройки, при которой квартиры в ней по своим планировочным решениям наилучшим образом соответствуют целям и задачам реконструкции.

4.3.3 Самостоятельной задачей при выборе конструктивных решений надстройки является предельно возможное снижение ее веса.

Обследования и современные расчеты конструкций полносборных домов первых массовых серий выявили в них существенные запасы прочности.

Фактическая прочность бетона несущих конструкций, как правило, превышает проектную в 1,5-2,2 раза.

Повышенная несущая способность полносборных жилых домов, проектировавшихся в 50-60-е гг., связана с несовершенством применявшихся тогда методов расчета конструкций и зданий в целом. Появившиеся в середине 80-х годов новые автоматизированные методы расчета позволили установить, что необходимая несущая способность полносборного пятиэтажного здания серии 1-464 обеспечивается при прочности бетона несущих стен 100 кгс/см2. В типовом проекте этот показатель равен 200 кгс/см2. Однако указанных запасов прочности недостаточно для увеличения высоты реконструируемых зданий до 9-10 этажей без усиления конструкций нижних этажей. Нагрузка на эти конструкции вырастает в 2- 2,5 раза по следующим причинам.

Жилые дома, строившиеся почти до конца 70-х гг. прошлого столетия, не отвечают действующим в настоящее время нормативным требованиям по звукоизоляции перекрытий и межквартирных стен.

В 50-70-е гг. нормативное значение индекса изоляции воздушного шума составляло /в = 48 ± 2 дБ, сегодня оно равно 50 дБ. Добиться увеличения показателя звукоизоляции существующей плиты перекрытия можно двумя путями - существенным увеличением ее веса или созданием многослойной конструкции пола. Первый путь практически неприемлем, особенно для домов с тонкими (8-10 см) плитами перекрытий. Как правило, следует идти по второму пути, но и при нем поверхностная плотность (вес 1 м2) перекрытий увеличивается не менее чем на 15 %. Аналогичная картина наблюдается во внутренних межквартирных перегородках, вес которых вырастает на 8-10 %.

Общий вес здания возрастает и за счет утепления всех наружных ограждающих конструкций в соответствии с требованиями новых нормативов по строительной теплотехнике. Общий вес здания Qдоп увеличится:

где     L - длина здания, м;

В - ширина здания, м;

Н - высота здания по основному фасаду, м;

q - средний вес дополнительного утепления (17-25), кгс/м2;

а - угол наклона кровли, рад.

Расчеты показывают, что при указанных выше условиях надстройка здания до высоты в 9-10 этажей потребует обязательного усиления несущих конструкций нижних этажей, реконструкции фундаментов или повышения несущей способности грунтов основания. Снижение веса надстройки является одной из важнейших задач при проектировании и проведении реконструкции жилых зданий. Для реализации этого требования можно рекомендовать:

выполнять наружные стены и внутренние перегородки надстраиваемой части из небетонных материалов, как правило, из каркасной конструкции (с деревянным или металлическим каркасом) с обшивкой из долговечных листовых материалов;

при назначении видов утеплителя отдавать предпочтение негорючим теплоизоляционным материалам на основе минеральной или стеклянной ваты;

при устройстве внутренних разводок холодного и горячего водопровода, отопления и канализации отдавать предпочтение трубам из металлопластиков и других композитных материалов.

Вместе с тем для надстройки здания четырьмя-пятью этажами рекомендуется использовать конструктивную схему, исключающую передачу нагрузок от надстройки на существующее здание.

4.4 Конструктивные решения мансардного этажа

4.4.1 Вне зависимости от применения для легких несущих конструкций мансарды элементов на основе древесины или легкого тонкостенного холодногнутого оцинкованного металлического профиля несущая конструкция мансарды, как правило, состоит из плоских поперечных двухпролетных рам с дополнительными связями по длине здания. В отдельных случаях могут применяться пространственные металлические конструкции, которые включают металлический прокат и холодногнутые тонкостенные оцинкованные металлические элементы.

4.4.2 Использование каменных и бетонных материалов для создания несущей конструкции мансардного этажа неэффективно прежде всего из-за высокой стоимости материалов и работ и из-за высоких нагрузок на существующее здание.

4.4.3 Поперечные рамы мансарды опираются на несущие конструкции существующей части надстраиваемого здания или на вновь создаваемые конструкции при расширении мансардного этажа сверх пролета здания.

4.4.4 Продольный шаг рам мансардного этажа выполняется в пределах поперечных стен в зависимости от конструктивной схемы здания. Например, для типовых серий 1-464 и 1-335 рамы располагаются по осям поперечных несущих стен, в типовой серии 1-468 для сокращения пролета 6 м устанавливается промежуточная рама, опирающаяся на продольные прогоны, в типовой серии 1-447 рамы устанавливаются с шагом 2,8 м, который является кратным к расстояниям между стенами лестничных клеток и межсекционных стен.

4.4.5 Геометрическая форма и высота рам должны соответствовать принятой конфигурации мансардного этажа. Крайние стойки рам должны конструктивно опираться на монолитный железобетонный пояс высотой не менее 200 мм, возводимый по верхнему перекрытию в створе наружных стен надстраиваемого здания. Этот пояс жестко объединяет в горизонтальной плоскости продольные и поперечные стены, а также перекрытия верхнего этажа с помощью анкеров из арматурной стали, устанавливаемых в просверленные отверстия наружных стен и плит перекрытия.

4.4.6 Пространственная жесткость конструкции мансардных этажей обеспечивается продольными связями, в случае необходимости могут вводиться дополнительные элементы жесткости в виде раскосов в уровне стоек рамы или чердачного перекрытия.

4.4.7 Наружное ограждение и покрытие мансарды крепятся за крайние стойки поперечных рам. Они могут выполняться преимущественно из металлочерепицы, плоского и гофрированного металлического листа по обрешетке. Внутренняя облицовка помещений мансарды может выполняться из двух листов гипсокартона (гипсоволокна), которые крепятся к наклонным стойкам самонарезающими винтами, с внутренней стороны в целях предотвращения обрушения утеплителя при пожаре должна предусматриваться металлическая просечная сетка. Внутренняя облицовка может также устраиваться из цементно-стружечной плиты толщиной 30 мм тоже в сочетании с просечной сеткой.

4.4.8 Для теплозащиты мансардного этажа должен, как правило, применяться эффективный утеплитель, например минераловатная плита, с теплопроводностью Х=0,04 Вт/(м-°С), толщиной по расчету. С внутренней стороны утеплителя предусматривается пароизоляция в виде полихлорвиниловой пленки толщиной 0,2 мм. С наружной стороны - слой гидроизоляции.

4.4.9 Необходимым элементом конструкции покрытия мансарды является вентиляционный канал, оставляемый над наружным слоем теплоизоляции для обеспечения вентиляции покрытия. Более совершенной является конструкция покрытия, имеющая не один, а два вентиляционных канала, второй расположен над слоем гидроизоляции. Вентиляционные каналы должны иметь входы воздуха под карнизом и выходы на уровне конька покрытия мансардного этажа.

4.4.10 Внутренние перегородки мансарды целесообразно предусматривать поэлементной сборки с обшивкой двумя листами гипсокартона (гипсоволокна) по стойкам из деревянных брусьев или металлических профилей. Внутрь перегородок в целях пожаробезопасности и шумозащиты укладывается теплоизоляция. Конструкция межквартирных стен аналогична конструкции перегородок с дополнительной закладкой с двух сторон просечной сетки и увеличением по толщине слоя теплоизоляции, выполняющей роль защиты при пожаре.

4.4.11 Междуэтажные перекрытия мансарды выполняются по деревянным или металлическим прогонам, установленным с шагом 600 мм (для деревянных) и опирающимся на ригели рам, и подшиваются потолком из двух листов гипсокартона на самонарезающих винтах с металлической просечной сеткой, на которую укладывается минераловатная плита в качестве огнезащиты. В междуэтажных перекрытиях по верху деревянных прогонов укладываются упругие прокладки, по которым настилается конструкция чистого пола.

4.4.12 Листы гипсокартона (гипсоволокна) могут подвешиваться также на самонарезающих винах к стальному профилированному настилу, на который укладывается утеплитель.

В междуэтажных перекрытиях по верху прогонов должна предусматриваться конструкция чистого пола, например в виде цементно-стружечной плиты с покрытием линолеумом на мягкой основе или паркетной доски по лагам и др.

4.4.13 Полы в санузлах целесообразно устраивать в виде пластикового поддона, который одновременно играет роль чистого пола и выполняет функции гидроизоляции. Стены санузлов чаще всего принимаются той же конструкции, что и перегородки, с облицовкой изнутри слоистым пластиком или самоклеящейся пленкой.

4.4.14 При различных технических решениях крыш существующих зданий возможны два принципиально отличающихся подхода к строительству мансарды: 1) разборка существующей крыши с использованием чердачного перекрытия в качестве междуэтажного. Такое решение является обязательным при наличии чердачной крыши с наружным водостоком и целесообразным при бесчердачных крышах; 2) оставление существующей бесчердачной крыши или крыши с полупроходным чердаком с соответствующим подъемом уровня перекрытия мансарды.

4.5 Утепление ограждающих конструкций

4.5.1 При разработке технических решений для теплозащиты наружных ограждений рекомендуется условно принимать три уровня продолжительности отопительного периода в градусо-сутках (ГСОП) для регионов страны:

2500-3000 - южных; 4000-4500 - центральных; 7000 - северных.

Промежуточные значения приведенного сопротивления теплопередаче утепляемых наружных ограждений следует определять точным расчетом или методом интерполяции.

4.5.2 Применяемые на практике теплоизоляционные материалы отличаются большим разнообразием по физико-механическим, эксплуатационным и теплофизическим характеристикам. Поэтому технические решения, заимствованные из сертификатов, проектов, каталогов и т.п., должны корректироваться с учетом того, что в этих документах, как правило, значения коэффициентов теплопроводности наиболее распространенных видов и марок эффективных утеплителей условно приняты равными 0,04; 0,05 и 0,08 Вт/(м -°С).

4.5.3 В качестве основных видов эффективного утеплителя рекомендуется использовать полужесткие минераловатные плиты на синтетическом связующем типа Rockwooll или Рагос с коэффициентом теплопроводности 0,04 Вт/(м-°С), а также полужесткие минераловатные плиты на синтетическом связующем с расчетным коэффициентом теплопроводности, не превышающим 0,08 Вт/(м -°С).

4.5.4 При использовании утеплителей из горючих, в том числе полимерных, материалов в соответствии с установленным регламентом* необходимо выполнять следующие требования.

4.5.4.1 Горючий утеплитель с фасадной стороны необходимо защищать слоем негорючего материала. Для многоэтажных зданий I-III степеней огнестойкости защита должна обеспечивать нулевой предел распространения огня (таблица 1 СНиП 2.01.02).

Этому требованию, как показывает практика, соответствуют слой штукатурки толщиной 25-30 мм, армированный прикрепленной к утепляемой стене металлической сеткой, либо облицовка фасада в полкирпича. Применение металлических (алюминий, сталь) обшивок и облицовок для этих целей не допускается.

4.5.4.2 В уровне перекрытий, но не менее чем через 4 м по высоте, в слое горючего утеплителя на всю толщину его слоя должны устраиваться горизонтальные рассечки от 15 см и более из негорючих теплоизоляционных материалов (например, из минераловатной плиты). Желательно также устройство вертикальных рассечек по осям поперечных стен.

Защитный слой из негорючих материалов толщиной на 40-50 % большей, чем толщина защитного слоя на фасаде (за исключением случая облицовки фасада кирпичом), следует предусматривать в обрамлении оконных и дверных проемов наружных стен.

Такая же защита требуется в местах прохождения инженерных коммуникаций сквозь наружную стену.

* Письмо Госстроя России и Главного управления противопожарной службы МВД РФ от 20.11.96 г. № 13/620

4.5.5 Фасадные слои на высоту до 2,5 м от земли должны либо обладать достаточной прочностью, либо быть защищены от возможных механических повреждений.

4.5.6 В расчетах не следует определять общее приведенное сопротивление теплопередаче наружного ограждения как сумму приведенных сопротивлений теплопередаче существующей стены и дополнительно устраиваемого утепления. Это обусловлено тем, что влияние существующих теплопроводных включений после утепления существенно изменяется по сравнению с первоначально вычисленным.

Помимо этого устройство наружного утепления сопряжено с введением новых, ранее не учитываемых теплопроводных включений в виде обрамлений окон и балконных дверей, крепежных металлических деталей (дюбелей, гибких связей) и т.п.

4.5.7 Утепление наружных ограждений, как правило, следует располагать снаружи здания, поскольку оно:

защищает стену от переменного замерзания и оттаивания и других атмосферных воздействий;

выравнивает температурные колебания основного массива стены, благодаря чему исключается появление в нем трещин вследствие неравномерных температурных деформаций, что особенно важно для крупнопанельных наружных стен. Вышеуказанные факторы способствуют увеличению долговечности наружных стен;

сдвигает точку росы во внешний теплоизоляционный слой, благодаря чему исключается или существенно уменьшается влагонасыщение (отсыревание) внутренней части стены;

создает благоприятные условия для паропроницания, исключает необходимость устройства специальной пароизоляции, в том числе на оконных откосах, что требуется при устройстве внутренней теплоизоляции;

формирует более благоприятный микроклимат помещения;

позволяет улучшить оформление фасадов реконструируемых или ремонтируемых зданий, не уменьшать площадь помещений, не создавать дискомфортных условий проживания.

Важным преимуществом наружной теплоизоляции является возрастание теплоаккумулирующей способности массивной части стены. По данным фирмы Karl EppLe GmbH, изолированные с наружной стороны кирпичные стены при отключении источника теплоты остывают в 6 раз медленнее стен с внутренней теплоизоляцией при одной и той же толщине слоя утеплителя.

Эту особенность наружной теплоизоляции рекомендуется использовать для экономии энергии в системах с регулируемой подачей теплоты, в том числе за счет ее периодического отключения, а также при печном отоплении, что очень важно для индивидуальных домов.

Внутреннюю теплоизоляцию следует применять только при невозможности использования наружной, например при повышении тепловой эффективности здания с исторически или художественно ценным фасадом. В этом случае обязательно следует выполнить расчет годового баланса влагонакопления в конструкции.

4.5.8 Для принятия конструктивных и технологических решений по дополнительному утеплению ограждений необходимо провести их теплотехнические обследования с одновременной оценкой состояния фасадных поверхностей, их прочности, ровности, наличия трещин и т.п.

4.5.9 Системы наружного утепления стен зданий, применяемые в настоящее время, подразделяют на:

сплошные слоистые системы утепления с оштукатуриванием фасадов или облицовкой кирпичом, другими мелкоштучными материалами;

слоистые системы утепления с воздушным зазором и защитно-декоративным экраном, получившие название «вентилируемый фасад».

4.5.10 Для системы утепления с оштукатуриванием фасадов рекомендуется клеевое крепление утеплителя на существующей стене или механическое - анкерами, дюбелями, каркасами. При использовании клеев и различных штукатурных растворов необходимо таким образом подбирать их рецептуру, чтобы паропроницаемость наружного ограждения не снижалась после устройства дополнительного утепления.

Клеевое закрепление утеплителя на существующей стене рекомендуется применять при прочной и ровной фасадной поверхности высотой до 8 м.

В связи с этим при утеплении массовых жилых зданий высотой более трех этажей рекомендуется применять надежное механическое крепление утеплителя к стене здания.

Это конструктивное решение рекомендуется применять для теплоизоляции и декоративной отделки наружных стен высотой до 100 м в сухих и нормальных зонах влажности при относительной влажности внутри помещений 50 %, в I, Ia, II, III ветровых районах и в обычных условиях строительства.

Обязательным условием применения является достаточная прочность наружных стен для закрепления в них дюбелей и восприятия дополнительной нагрузки от веса системы.

4.5.11 В зависимости от толщины фасадных штукатурных слоев должна применяться одна из двух разновидностей рассматриваемой системы - с жесткими или гибкими (подвижными или шарнирными) крепежными элементами (кронштейнами, анкерами).

Первую рекомендуется использовать при малой толщине штукатурного слоя - порядка 8-12 мм. В этом случае температурно-влажностные деформации тонких слоев штукатурки не вызывают образования в ней трещин, а нагрузка от веса может восприниматься жесткими крепежными элементами, работающими на поперечный изгиб, и растяжение от ветрового отсоса.

При значительной толщине штукатурного слоя (20-30 мм) следует применять гибкие крепежные элементы, которые не препятствуют температурно-влажностным деформациям штукатурных слоев и воспринимают только растягивающие напряжения, обеспечивая передачу нагрузок от веса штукатурных слоев через плиты утеплителя на существующую стену здания.

При утеплении с жесткими крепежными элементами следует предусматривать устройство адгезионного (клеящего) слоя толщиной 2-5 мм. При неровностях фасадной поверхности в 5-10 мм необходимо произвести выравнивание основания раствором и затем наклеивание плит утеплителя.

В случаях когда толщина штукатурки не превышает 12 мм по соображениям пожарной безопасности, предпочтительно применять утеплители из негорючих материалов, например минераловатные плиты. Возможность использования утеплителей из полимерных и других горючих материалов должна подтверждаться стандартными огневыми испытаниями.

4.5.12 Для устройства штукатурных слоев рекомендуются составы на основе минеральных и полимерных материалов. Штукатурки должны быть в достаточной степени паропроницаемыми, но долговечными и водонепроницаемыми, а также обладать необходимыми декоративными свойствами.

4.5.13 При оштукатуривании фасадных поверхностей для предотвращения растрескивания штукатурки рекомендуется применять армирующие сетки из стекловолокна с защитным покрытием или из щелочестойкого стекла, синтетики или оцинкованной стали.

4.5.14 Отделку цоколя рекомендуется выполнять из материалов повышенной прочности и декоративности, допускающих их очистку и мойку, например из лицевого кирпича, плит из натурального или искусственного камня, керамической плитки и т.п.

4.5.15 Для изготовления экранов дополнительного утепления типа «вентилируемый фасад» рекомендуется применять металлические (сталь или алюминий) гладкие и рельефные листы и изделия, асбестоцемент, стеклофибробетон, стеклофибробетонные и цементно-волокнистые плиты, пластмассы и другие материалы. В качестве экранов могут также использоваться крупноразмерные панели, состоящие из внешней декоративной алюминиевой оболочки, заполненной пенополиуретаном, типа изделий фирмы POLYALPAN.

Как облицовочные элементы могут использоваться также различного рода плиты, например из полимербетона и стеклофибробетона, типов ВЕТО-PARMA, ETERNIT и STENI, мелкозернистого, армированного сеткой бетона типа RATI, пластика ALLIANCE, керамические блоки типа ARGETON, линейные элементы типа INTER-STONE или SIDING, а также листовые облицовки из алюминиевых сплавов или ЦСП с различными покрытиями.

4.5.16 В качестве утеплителя целесообразно использовать огнестойкие минераловатные и стекловатные полужесткие плиты, характеристики и толщины которых определяются расчетом в зависимости от материала и конструкции существующих стен, местных климатических условий.

4.5.17 Утеплитель и экраны должны крепиться к существующей стене для восприятия ветрового отсоса. Для их монтажа могут использоваться специальные металлические крепежные элементы или деревянные каркасы.

Все металлические крепления (в том числе анкеры, шурупы и гвозди) должны выполняться из коррозиестойкой стали или алюминия. Все деревянные элементы каркаса должны быть антисептированы и антипирированы. Для крепления деревянного каркаса целесообразно использовать металлические уголки. Сечения и глубина заделки анкеров (дюбелей) должны определяться расчетом на восприятие ими усилий от веса закрепляемых на них конструкций и отсоса ветра.

4.5.18 Системы утепления с облицовкой кирпичом или другими мелкоштучными материалами обладают достаточной паропроницаемостью и не требуют обязательного устройства вентилируемого воздушного зазора. В то же время из-за различных механических и температурно-влажностных деформаций основной стены и облицовочного кирпичного слоя высоту последнего ограничивают 2-3 этажами.

Поэтому при утеплении зданий большей этажности рекомендуется устраивать поэтажно навешиваемый облицовочный слой. В качестве утеплителя рекомендуется использовать полужесткие минераловатные или стекловатные плиты, толщина которых определяется расчетом.

4.5.19 Несущие элементы конструкции утепления следует выполнять из алюминиевых сплавов или коррозионно-стойкой стали. Вертикально устанавливаемые кронштейны следует располагать в простенках с шагом 50 см в уровне верха оконных проемов по одному ряду на этаж.

4.5.20 Утепление крыш с холодным полупроходным или проходным чердаком сводится к утеплению чердачных перекрытий. С этой целью следует удалить с их поверхности старый насыпной или плитный утеплитель, затем уложить пароизоляцию в виде полиэтиленовой пленки толщиной 0,8-1,0 мм, утеплитель - жесткие минераловатные или стекловатные плиты и гидроизоляцию - один слой рубероида с проклейкой краев битумной мастикой. После этого во избежание повреждения утеплителя перемещение обслуживающего персонала по чердачным перекрытиям должно осуществляться по деревянным трапам.

4.5.21 Утепление крыш заключается в удалении кровли, очистке поверхности покрытия и последовательной укладке пароизоляции, утеплителя и гидроизоляции, как это описано в предыдущем пункте. По слою гидроизоляции должна устраиваться стяжка толщиной не менее 40 мм из цементно-песчаного раствора марки М 150, которая служит основанием кровли.

4.5.22 Утепление технических подполий выполняется исходя из того, что температура воздуха в них не должна опускаться ниже плюс 5 °С. Таково условие обеспечения нормальной эксплуатации инженерных коммуникаций, проходящих по подполью. Для этого следует утеплять наружные стены цоколя, уменьшать площадь продухов в зимний период с помощью специальных щитов. Полностью перекрывать продухи зимой не следует из-за необходимости удаления вредных газов - радона и диоксинов.

4.5.23 Наличие охлажденного подполья требует устройства утепления перекрытия над ним до величины, обеспечивающей нормативный температурный перепад на поверхности пола.

По технологическим соображениям утепление перекрытия над подпольем целесообразно располагать сверху.

4.5.24 Утепление наружных стен цоколя следует выполнять аналогично утеплению рядовых стен.

4.5.25 По противопожарным нормам высота сквозных проездов должна быть не менее 4,6 м. Чтобы не нарушать это нормативное требование, перекрытие над сквозными проездами рекомендуется утеплять сверху, т.е. из помещения технического этажа, который, как правило, располагается над проездом. Конструкция утепления должна быть аналогична утеплению чердачного перекрытия (п. 4.5.22).

4.5.26 Наиболее весомую долю (до 60 %) в общих теплопотерях жилого дома составляют теплопотери через оконные проемы и балконные двери. Отечественные теплотехнические нормы предусматривают обязательное повышение их теплозащитных качеств.

4.5.27 Для увеличения сопротивления теплопередаче окон наиболее простым решением является введение третьего стекла в конструкцию окна при спаренных или раздельных переплетах. С этой же целью рекомендуется применять двухкамерные стеклопакеты взамен одного из стекол, а также заменять обычное стекло на теплоотражающее или устанавливать дополнительный экран из теплоотражающей пленки. При этом теплофизические свойства окон возрастают на 30-50 %.

4.5.28 Существенное снижение расхода теплоты может быть достигнуто за счет уплотнения притворов окон. Ориентировочный перерасход теплоты через неуплотненные притворы окон, плохо заделанные оконные коробки и стекла, установленные в оконный блок только на штапики, без герметизации примыканий замазкой, составляет около 14 %. В целях существенного снижения таких теплопотерь рекомендуется уплотнять притворы резиновыми прокладками, устанавливать фальцы стекол на замазке. Однако эти мероприятия существенно сокращают приток свежего воздуха в жилые помещения.

Для обеспечения необходимого воздухообмена, который для одного человека составляет 46 м3/ч, при компенсации потерь теплоты рекомендуется применять окна с вентиляционными устройствами, которые на 30 % снижают теплопотери на 1 м2 площади окна.

4.5.29 В зависимости от состояния деревянных элементов окон и балконных дверей, выявленного в процессе обследования светопрозрачных ограждений, их ремонт может предусматривать:

полную замену оконных блоков балконных дверей на новые изделия, соответствующие требованиям действующих нормативов;

частичный (выборочный) ремонт деревянных элементов окон и балконных дверей (как правило, в нижней их части) с осуществлением мероприятий по повышению теплозащитных качеств;

осуществление мероприятий по повышению теплозащитных качеств окон и балконных дверей, в том числе мероприятий по повышению их сопротивления воздухопроницанию.

4.5.30 Наиболее распространенный способ повышения теплозащитных свойств окна заключается в увеличении числа воздушных прослоек в остекленной его части. Для повышения температуры внутренней поверхности стекла и сопротивления теплопередаче окон рекомендуется устанавливать светопрозрачный экран высотой 80-120 мм в нижней части между спаренными переплетами. Экран может быть изготовлен из пленки, пластмассы или стекла с обработанными кромками (с теплоотражающим покрытием).

4.5.31 В окнах, в которых выявлена эксфильтрация воздуха (особенно в районах с сильными ветрами, на заветренных фасадах и в верхних этажах зданий повышенной этажности), для того чтобы предупредить образование инея и наледей на внутренней поверхности наружного стекла, а также в окнах с раздельными переплетами рекомендуется устанавливать дополнительное стекло в наружном переплете с внутренней стороны основного стекла.

В районах с продолжительной полярной ночью в отопительный период рекомендуется размещать между стеклами полиэтиленовую пленку или, что предпочтительнее, полупрозрачную металлизированную пленку ПЭТФ и ПЭТФ, модифицированную ДАФ.

4.5.32 При выборе типа уплотнений предпочтение следует отдавать пенополиуретановым прокладкам. При отсутствии стандартных прокладок рекомендуется применять прокладки из губчатой резины (например, «ВАРНАМО ГУМИ-ТРЕЛЛЕБОРГ») при условии обеспечения ими допустимой воздухопроницаемости окон. Перед установкой уплотняющих прокладок в окнах и балконных дверях должен быть выполнен ремонт переплета, врезаны или отремонтированы оконные приборы, выполнено остекление переплетов, окончательно окрашены и просушены деревянные элементы окон.

Уплотняющие прокладки следует устанавливать по всему периметру открывающихся элементов окон и дверей (створок, полотен, форточек, фрамуг, клапанов и пр.), в обязательном порядке в притворах внутреннего переплета окон любой конструкции, между спаренными переплетами в окнах по ГОСТ и дополнительно (если требуется по расчету) в окнах с раздельными переплетами - в притворах наружного переплета по нижнему притвору.

5 Модернизация систем инженерного оборудования реконструируемых зданий

Модернизация систем инженерного оборудования жилых зданий должна осуществляться с учетом фактического состояния элементов систем, определенного методами визуального и инструментального обследования. Выбор материалов и изделий для замены или ремонта систем инженерного оборудования производится в соответствии с действующими параметрами, установленными требованиями и с учетом имеющегося опыта выполнения работ по модернизации.

Для прокладки инженерных коммуникаций допускается использование существующих технических подполий, отвечающих нормативным требованиям. При отсутствии технического подполья в реконструируемых жилых зданиях допускается устройство непроходных и полупроходных каналов под нежилыми помещениями и технического подполья или проходного канала под жилыми помещениями с изолированным входом.

При реконструкции жилых зданий рекомендуется в подвальных помещениях и техподпольях, а при их отсутствии в помещениях первых этажей размещать автоматизированные индивидуальные тепловые пункты (ИТП). Помещение ИТП должно соответствовать установленным требованиям, быть обособленным от других помещений и иметь самостоятельный выход наружу. При наличии насосного оборудования и водонагревателей ИТП допускается располагать только под нежилыми помещениями.

При невозможности устройства в микрорайоне (квартале) центрального теплового пункта присоединение систем отопления жилых зданий к тепловым сетям следует предусматривать по зависимой схеме. Присоединение по независимой схеме с устройством ИТП должно быть технически и экономически обосновано.

Учитывая высокую изношенность внутренних проводок, несоответствие их современным требованиям, отсутствие контрольно-измерительных и регулирующих приборов, позволяющих рационально снизить энергопотребление и, как следствие, стоимость эксплуатации, практически все существующие системы инженерного оборудования жилых зданий подлежат замене.

Функционирование устройств инженерного оборудования при надстройке этажей, в том числе мансардного этажа, требует его расположения, обусловленного взаимосвязью с инженерным оборудованием основного здания и обеспечением их совместной работы. Возможность подключения новых этажей к существующим системам инженерного оборудования здания должна определятся в каждом отдельном случае и соответствовать действующим нормативным положениям и соответствующим ведомственным документам.

Основными требованиями должны быть: проектирование и строительство инженерной системы надстраиваемых этажей, основанной на реальных условиях конкретного здания; инженерное оборудование должно исполняться таким образом, чтобы избежать ненужного потребления энергии. А это значит, что системы инженерного оборудования здания и прежде всего надстраиваемых этажей должны быть

экономичными и оснащены измерительными устройствами или приборами, позволяющими вести контроль за рабочими условиями и потреблением энергии. Что касается отопления здания, то одним из главных резервов экономии потребления теплоты является утепление зданий и, прежде всего, утепление ограждающих конструкций. Это позволит достичь резерва теплоты для обеспечения отопления надстраиваемых этажей при централизованном теплоснабжении.

В отдельных случаях имеет смысл произвести реконструкцию системы инженерного оборудования здания или отдельных ее частей в связи с сооружением надстраиваемых этажей. Рекомендуется осуществлять обеспечение жилых помещений надстраиваемых этажей и жилых помещений здания раздельными инженерными системами или самостоятельными ветвями общей системы.

5.1 Система отопления и вентиляции

При модернизации существующих двухтрубных систем отопления следует заменить все краны с ручным управлением термостатическими радиаторными клапанами. Это позволит автоматически регулировать температуру в помещениях.

Дополнительно на каждом стояке системы рекомендуется устанавливать автоматические регуляторы перепада давления (автоматические балансировочные клапаны), что обеспечит оптимальный гидравлический баланс в системе для подачи в каждый радиатор расчетного количества теплоносителя при полностью открытых термостатических регуляторах.

Существующие однотрубные системы отопления при реконструкции следует заменить двухтрубными.

При реконструкции или капитальном ремонте жилых зданий узлы ввода систем отопления также подлежат модернизации.

Схема узла ввода зависит от способа присоединения к наружным сетям (зависимое или независимое), пьезометрических напоров в подающем и обратном трубопроводах, статического давления.

В узлах ввода следует устанавливать регулятор перепада давления и смесительный узел. Регулятор перепада давления необходим, если давление в подающем трубопроводе колеблется или слишком велико. Возможность принудительного изменения перепада давления обеспечивает оптимальные режимы работы регулирующих клапанов и предотвращает появление нежелательного шума.

При невозможности замены поврежденных участков трубопроводов центрального отопления, проложенных в бетонных отопительных панелях, или такой системы отопления в целом должны проектироваться открыто прокладываемые системы отопления с установкой радиаторов или конвекторов. Стальные радиаторы должны применяться с учетом качества воды по данным теплоснабжающей организации.

При размещении в надстраиваемых этажах традиционных систем отопления рекомендуется: в случае верхней разводки отопительной системы существующего здания предусматривать разборку существующей системы труб верхней разводки и устройство ее на вышерасположенном или чердачном этаже; сохранение системы труб верхней разводки с устройством технического этажа и новых самостоятельных ветвей существующей системы; в случае нижней разводки отопительной системы, не позволяющей принять дополнительную нагрузку, предполагается устройство раздельной системы или самостоятельных ветвей общей системы.

Для повышения комфорта проживания в помещениях надстраиваемых этажей рекомендуется применять прогрессивные системы отопления и вентиляции, в том числе: кондиционирование воздуха, воздушные системы отопления, совмещенные с вентиляцией, электрические системы отопления, системы использования солнечной энергии и др. Применение данных систем особенно эффективно, когда нежелательно подключение к базовым системам отопления существующего здания.

Необходимость устройства систем кондиционирования воздуха, воздушного и другого отопления устанавливается соответствующими нормативными документами и заданием на проектирование.

Необходимость устройства поквартирных генераторов теплоты или автономного оборудования для помещений (группы помещений) устанавливается с учетом возможности их расположения заданием на проектирование и соответствующих согласований с инженерными службами.

Вентиляция надстраиваемых этажей выполняется путем наращивания каналов или устройства механической вентиляции, объединяющей всю систему. В исключительных случаях, по согласованию с местными органами пожарного надзора, допускается размещение в надстраиваемых этажах, до 10 включительно, газовых установок, обеспеченных сигнализаторами загазованности помещений с автоматическим отключением подачи газа.

При недостаточной производительности индивидуальных вытяжных каналов следует устраивать дополнительные приточные решетки в окнах или наружных стенах. В квартирах одного-двух верхних этажей, оборудованных газовыми водонагревателями, следует предусматривать индивидуальные вентиляторы, устраиваемые в обособленных каналах с выпуском устья канала в атмосферу. При этом необходимо обеспечить предотвращение перетока вытяжного воздуха из квартиры в квартиру по вертикали. Протяженность горизонтальных участков каналов в квартирах должна быть не более 1,8 м.

При перепланировке квартир, приводящей к изменению положения, размеров санитарно-технических кабин или устройству дополнительных санузлов, вытяжку из них следует проектировать путем устройства горизонтальных коробов или воздуховодов до места врезки в существующие вертикальные вентиляционные каналы. Неиспользуемые каналы в вентиляционных блоках должны быть герметично заглушены в местах их соединения с вентшахтой.

5.2 Системы горячего и холодного водоснабжения

При реконструкции жилых зданий системы холодного и горячего водопровода полностью демонтируются. Стояки водоснабжения рекомендуется прокладывать в тех же шахтах и бороздах, которые были изначально предназначены для них.

5.2.1 Стояки систем горячего водопровода одной секции дома при реконструкции, как правило, объединяются в секционные узлы по 3-4 стояка в одном узле с прокладкой одного циркуляционного стояка, диаметр которого определяется расчетом.

Стояки рекомендуется изолировать во избежание образования конденсата и теплопотерь.

Прокладку кольцующих трубопроводов рекомендуется производить под потолком верхнего этажа в подсобных помещениях квартир или по теплому чердаку. Циркуляционный стояк рекомендуется прокладывать в санузле.

При устройстве перекидок стояков, когда оборудуются квартиры в двух уровнях, необходимо изолировать перекидки для предотвращения образования конденсата и теплопотерь. Перекидки не должны проходить под потолком жилых комнат. Трубопроводы рекомендуется предусматривать из металло-пластмассовых труб.

5.2.2 Стояки холодного водопровода каждой секции дома рекомендуется закольцевать между собой так же, как и стояки горячего водопровода в секционном узле. Это позволит более устойчиво снабжать водой квартиру, так как стояки будут подпитывать друг друга.

Системы холодного водопровода должны иметь на вводах водомерные узлы с обводной линией. При любом варианте ввода (от уличной сети или от тупиковой линии от ЦТП) при транзитной прокладке водопроводной магистрали по подвалам или техподпольям каждый дом должен иметь ответвление с устройством водомерного узла.

Системы горячего водоснабжения также должны иметь на вводе водомерные узлы на подающей и циркуляционной трубах, но без обводной линии.

На замыкающей циркуляционной трубе секционных узлов перед присоединением к циркуляционной магистрали необходимо установить водомеры.

На ответвлениях от стояков к квартирным разводкам для непосредственного учета расхода холодной и горячей воды также устанавливаются водомеры.

На всех водомерных узлах холодного и горячего водопровода, на водомерных узлах секционных узлов горячего водопровода, а также при установке водомеров в квартирах рекомендуется устанавливать магнитные муфтовые фильтры с гарантийным сроком не менее трех лет.

Установка водомеров на замыкающих циркуляционных участках секционных узлов горячего водоснабжения и в квартирах позволяет достаточно точно определить расход горячей воды по квартирам вне зависимости от количества проживающих в них людей.

Квартирные водомеры целесообразно размещать на ответвлениях в квартиру от стояков, в шахтах или коробах после отключающего вентиля. В местах установки водомеров для доступа к ним должны быть предусмотрены съемные щиты.

5.2.3 На вводах холодного и горячего водопровода и секционных узлах горячего водоснабжения рекомендуется устанавливать водомеры с дистанционной передачей показания на пульт обслуживающей дом организации.

При давлении на вводах в дом холодного и горячего водопровода более 0,45 МПа рекомендуется устанавливать регуляторы давления.

В модернизируемых зданиях при наличии в квартире двух санитарных узлов с расстоянием между ними от 8 м рекомендуется установка счетчиков на холодном и горячем водопроводе в каждом санузле.

В квартирах в двух уровнях рекомендуется установить один счетчик на санузлы первого и второго уровней квартиры, расположенные по вертикали друг над другом. Схему прокладки разводящих трубопроводов в квартире с установкой по одному счетчику холодной и горячей воды целесообразно делать при расстоянии санузлов друг от друга до 3 м. В этом случае для прокладки разводящих труб в полу рекомендуется использовать полипропиленовые трубы.

В остальном при реконструкции зданий рекомендуются те же мероприятия в системах холодного и горячего водоснабжения, которые используются при проектировании новых зданий.

5.3 Система канализации

При реконструкции жилых зданий системы внутренней канализации, как правило, полностью демонтируются, включая выпуски, а все санитарные приборы заменяются.

Прокладывать канализационные стояки вновь рекомендуется в тех же местах, где для них были сделаны шахты и борозды. С образованием надстраиваемых этажей и квартир в двух уровнях возможны перекидки стояков под потолком нижележащих этажей. В этом случае перекидки не должны прокладываться под потолком жилых комнат.

При перепланировке этажей, надстройке и устройстве квартир в двух уровнях должны быть выбраны те варианты, при которых санузлы квартир в двух уровнях не размещаются над жилыми комнатами нижележащих этажей.

В случаях отступления от этого правила требуется предусматривать технические мероприятия с условиями гидроизоляции перекрытий, герметизации стыков, устройства в особых случаях аварийного слива в существующую канализацию здания.

В остальном при реконструкции зданий рекомендуются те же мероприятия в системе канализации, которые предусмотрены требованиями действующих нормативов.

5.4 Системы электроснабжения и связи

5.4.1 В жилых домах при реконструкции и капитальном ремонте вся электропроводка должна быть сменена.

Согласно действующим Правилам устройства электроустановок (ПУЭ, 7-я редакция) в жилых домах электропроводки должны выполняться проводами и кабелями с медными жилами. Это вызвано тем, что в новой редакции ПУЭ величина расчетных нагрузок на квартиру увеличена примерно в 1,5 раза. Необходимо учитывать, что при надстройке домов с устройством наружных лифтов так же, как и при переходе от газовых плит к электроплитам, категория электроснабжения будет изменяться с третьей на вторую.

Работы по реконструкции электрических сетей должны включать:

пересчет электротехнических нагрузок применительно к вариантам перепланировки с учетом увеличения мощности и перевода энергоснабжения на вторую категорию по надежности;

определение местоположения электрощитовой, поскольку по действующим правилам вводно-распределительные щиты не могут располагаться под лестничным маршем на первом этаже. Помещение для электрощитовой рекомендуется располагать в техподполье. В этом помещении предварительно должны быть проведены работы по его гидроизоляции.

Все питающие линии по техподполью подлежат демонтажу и замене новыми. Их прокладка должна осуществляться в пластмассовых трубах.

Для квартир повышенной комфортности в надстраиваемых и мансардных этажах рекомендуется предусматривать трехфазные вводы.

При замене алюминиевых проводов в резиновой оплетке проводами с медными жилами их перезатяжка практически возможна только в панелях перекрытия от одной выкружки до другой в пределах одной панели. В стеновых панелях перезатяжка проводов затруднительна. В проектах реконструкции и капитального ремонта с радикальной перепланировкой должны быть предусмотрены методы прокладки новых внутриквартирных проводок: открыто - в пластмассовых плинтусах и наличниках, скрыто - в штробах стен и потолков. Все установленные изделия подлежат замене, в том числе применяются розетки с заземляющим контактом, для которых прокладывается трехпроводная линия. Защитный проводник следует прокладывать таким образом, чтобы при монтаже розетки не происходило разрыва цепи заземления других розеток. Прокладка защитного провода шлейфом запрещается.

Ответвление защитного проводника производится в распаячной коробке. При этом должно применяться неразъемное соединение сваркой или спецзажимом, обеспечивающим надежный контакт.

В комфортных квартирах на мансардных этажах и квартирах на двух уровнях, где предусматривается трехфазный ввод, должно соблюдаться следующее условие: в одной комнате (помещении) питание однофазных нагрузок должно осуществляться одной фазой, т.е. розеточная проводка и проводка к светильникам подсоединяются к одной из фаз. В распаячных коробках не должно быть двух разных фаз, а только одна фаза, рабочий и защитный нулевые провода. В домах, где перекрытия выполнены в виде пустотных плит, рекомендуется использовать пустоты для электропроводок. Существующая электропроводка в пустотных плитах должна быть демонтирована и заменена новой. В панелях замена электропроводки в каналах практически невыполнима. Новая проводка в пределах 5 этажей к выключателям и розеткам прокладывается открыто в электротехнических плинтусах. В надстраиваемых этажах целесообразно розеточную сеть прокладывать в подготовке пола.

При реконструкции домов серии 1-447 вся электропроводка проводится в новых штробах. Старые штробы не вскрываются. В пустотных плитах проводка заменяется путем вытягивания старой проводки и затягивания вместо нее новой. При необходимости пустоты около стен вскрываются.

В первом этаже и обслуживаемом подвале электропроводка выполняется заново по отдельному проекту. При наличии в реконструируемом доме встроенного, пристроенного или встроенно-пристроенного учреждения социальной инфраструктуры (магазина, кафе и т.п.) в электрощитовой выделяется отдельный независимый щит для питания этого предприятия. Расчеты нагрузок должны быть откорректированы по технологическому заданию.

В домах, где предусмотрена возможность перехода на электроплиты, требуется произвести пересчет нагрузок и замену сечения проводов, идущих к розетке 16 А на кухне, проводами большего сечения из расчета установки электроплиты мощностью до 8 кВт, т.е. не менее 6 мм2.

5.4.2 При реконструкции жилого дома с надстройкой или устройством мансарды требуется установить на кровле новые радиостойки и телеантенны.

При реконструкции телефонная сеть должна быть дополнена новыми номерами до 100 %-го обеспечения квартир, что повлечет за собой переустройство наружных телефонных сетей. Во всех секциях жилого дома должны устанавливаться домофоны, для чего необходима реконструкция входных дверей. Существующая радиотрансляционная сеть в случае ее прокладки проводами ПТПЖ-2*1,2 может быть сохранена.

5.5 Система газоснабжения

При реконструкции и капитальном ремонте жилых домов системы газоснабжения полностью демонтируются. Газовые разводящие магистрали рекомендуется прокладывать по фасадам зданий под или над окнами первого этажа, т.е. на высоте не менее 1,80 м от отмостки, а при прокладке на высоте низа балконных плит второго этажа - на высоте не менее 3,60 м от отмостки.

Газовый ввод устраивается один с установкой отключающего крана на высоте 1,80 м от отмостки. По местным условиям на вводе может быть установлена пробка диаметром 25 мм для продувки газопровода. Если газовая магистраль опоясывает дом, подводки к газовым стоякам рекомендуется делать непосредственно в кухне. Если газовая магистраль проходит по фасаду, на который выходит большинство кухонь, то к стоякам кухонь, расположенных на противоположном фасаде, подводки проходят по лестничной клетке и подсобным помещениям квартир, за исключением санузлов.

В местах прокладки газопровода антресоли в квартирах не устраиваются. Прокладка газовых разводок по санузлам запрещена нормами. Краны, отключающие стояки, должны устанавливаться снаружи здания. Необходимость установки кранов для отключения стояков или целых подъездов должна оговариваться и согласовываться с местными органами газнадзора.

В жилых домах для учета расхода газа должны устанавливаться газовые счетчики. Исходя из местных условий к установке могут быть приняты, к примеру, бытовые газовые счетчики АО «Сигнал», г. Энгельс, ПО «Точмаш», г. Владимир, а также импортные. В случае установки на кухнях проточных газовых водонагревателей необходимо обратить внимание на объем кухни, который увеличивается на 6 м3 по сравнению с объемами, предусмотренными нормами.

Допускается предусматривать прокладку дымоотводящих труб газовых водонагревателей через ванные комнаты при условии герметичности этих труб. Дымоходы в наружных стенах могут быть сохранены при условии соответствия толщины наружной стены дымохода противопожарным и теплотехническим требованиям.

Допускается сохранять отклонение (увод) дымовых каналов от газовых приборов под углом не более 30° к вертикали с относом по горизонтали не более 1 м. Наклонные участки должны иметь по всей длине постоянное сечение, площадь которого должна быть не менее площади сечения вертикальных участков.

5.6 Система водостока

При устройстве внутреннего водостока водосточный стояк, как правило, один на секцию прокладывается или в лестничной клетке, или по подсобным помещениям квартир. Расход дождевых вод на один стояк определяется расчетом. На секцию рекомендуется устанавливать две водосточные воронки.

Выпуск водостока может предусматриваться открытым на отмостку вокруг здания, тогда для работы водостока в зимний период устраиваются перепуск в систему канализации диаметром 15 мм и гидравлический затвор на стояке. При наличии наружной системы дождевой канализации выпуски проектируются в наружную сеть без устройства перепуска и гидрозатвора. Для внутренних водостоков применяют пластмассовые, асбестоцементные, чугунные напорные трубы.

6 Противопожарные мероприятия и санитарно-гигиенические требования

6.1 Противопожарные мероприятия

Работы по реконструкции жилых зданий в противопожарном отношении проектируются исходя из того, что нормативами допускается надстраивать, в том числе мансардным этажом, здания I, II, III, степеней огнестойкости с несущими элементами, имеющими предел огнестойкости не мене R45 и класс пожарной опасности К0 независимо от высоты зданий, но не выше 75 м.

При изменении функциональных назначений при реконструкции существующих зданий или отдельных помещений в них, а также при изменении объемно-планировочных и конструктивных решений должны применяться действующие нормативы в соответствии с произведенными изменениями.

Техническая документация на надстройку этажей зданий, включая мансардный этаж, строительные конструкции, изделия и материалы, должна содержать их пожарно-технические характеристики, регламентируемые СНиП 21-01. Наряду с этими нормами должны соблюдаться противопожарные и технические требования, изложенные в других нормативных документах, утвержденных в установленном порядке.

6.1.1 Противопожарная безопасность надстраиваемых в процессе реконструкции этажей, включая мансардный, по проекту должна быть обеспечена принятыми планировочными и конструктивными решениями. Ограждающие конструкции надстраиваемых этажей, включая мансардный, должны отвечать требованиям, предъявляемым к конструкциям надстраиваемого здания.

6.1.2. В жилых зданиях секционного типа при площади секции до 500 м2 включительно допускается предусматривать эвакуационный выход с этажа секции на одну лестничную клетку. При этом в каждой квартире, расположенной на высоте более 15 м, следует предусматривать аварийные выходы по п. 6.20 (а, б или в) СНиП 21-01. В связи с этим все квартиры в надстраиваемых этажах должны быть запроектированы с дополнительными аварийными выходами через балконы: выходы на открытый балкон с глухим простенком не менее 1,2 м от торца балкона до оконного проема (остекленной двери) или не менее 1,6 м между остекленными проемами, выходящими на балкон. Вертикальные окна, выходящие на балконы, должны быть выполнены в металлических переплетах. На стеклах наклеивается пленка, повышающая огнестойкость стекла.

6.1.3 Лестницы основных эвакуационных выходов по проекту наращиваются дополнительными маршами и лестничными площадками. Марши и лестничные площадки на мансардный этаж допускается выполняют по металлическим балкам и косоурам, которые в целях защиты от огня затем оштукатуриваются по сетке. Ступени лестниц сборные железобетонные. Дополнительно предусматривается выход на кровлю из лестничной клетки с помощью металлической лестницы с устройством площадки противопожарной двери 2-го типа EI30 размером не менее 0,75×1,5 м.

6.1.4. Конструкция покрытия мансардного этажа должна быть испытана на огнестойкость или проверена расчетами по методике, изложенной в специальной литературе, приведеной ниже:

Инструкции по расчету огнестойкости легких ограждающих конструкций (М.: ВНИИПО МВД СССР, 1981);

Методики расчета пределов огнестойкости металлических конструкций. Яковлев А.И./Огнестойкость строительных конструкций// Сб. тр. № 8. (М.: ВНИИПО МВД СССР, 1980).

Предел огнестойкости такой конструкции составляет I90, R60 при условии крепления утеплителя с помощью металлической сетки для защиты от выпадения при пожаре из плоскости покрытия мансарды. Должна быть также предусмотрена укладка негорючего утеплителя на слой парозащитного материала, настеленного по существующим плитам перекрытия над верхним этажом под полом мансардного этажа, что повысит противопожарную защиту перекрытия.

6.1.5. Конструктивные решения перегородок и стен на металлическом каркасе, обшитых гипсокартонными листами и заполненных негорючим утеплителем, должны соответствовать конструкции перегородки, приведенной в «Справочнике по огнестойкости и пожарной опасности строительных конструкций, пожарной опасности строительных материалов и огнестойкости инженерного оборудования зданий» (М.: ВНИИПО МВД РФ, 1999, поз. 3, с.17), и иметь предел огнестойкости EI90 .

6.1.6 В целях определения огнестойкости конструкции по ее целостности должна быть использована информация о результатах натурных испытаний на огнестойкость слоистых изгибаемых конструкций с негорючим утеплителем. Эта информация приводится в:

Справочнике по огнестойкости и пожарной опасности строительных конструкций, пожарной опасности строительных материалов и огнестойкости инженерного оборудования зданий (в помощь инспектору Государственной противопожарной службы) (М.: ГУГПС МВД РФ, ВНИИПО МВД РФ, 1999, с.62);

Пособии по определению пределов огнестойкости конструкций, пределов распространения огня по конструкциям и групп возгораемости материалов (к СНиП Н-2-801), разработанном ЦНИИСК им. В.А. Кучеренко Госстроя СССР (М.: Стройиздат, 1985);

Технической информации (в помощь инспектору Государственной противопожарной службы) (М.: ГУГПС МВД РФ, ВНИИПО МВД РФ, 1994-2002).

В этой информации указывается практический предел огнестойкости конструкций по потере целостности, который наступает не раньше чем по потере несущей либо теплоизолирующей способности, т.е. составляет не менее Е60.

_______

1 В настоящее время заменен на СНиП 21-01-97* «Пожарная безопасность зданий и сооружений».

6.1.7 Наружное пожаротушение здания должно быть запроектировано от существующих пожарных гидрантов, обеспечивающих расход воды порядка 15 л/с. Помещения всех квартир должны оборудоваться первичными противопожарными средствами:

автономными дымовыми оптико-электронными пожарными извещателями, устанавливаемыми на потолке помещений;

заборными устройствами на трубопроводах холодной воды и шлангами с насадками.

6.1.8 Для обеспечения пожарной безопасности здания с утеплением стен, выполненных с использованием негорючего утеплителя, производится поэтажная рассечка из вставок негорючего утеплителя.

6.2 Санитарно-гигиенические требования

6.2.1 Высота помещений квартиры от пола до потолка по проекту реконструкции должна быть не менее 2,5 (2,7) м, внутриквартирных коридоров - 2,1 м. В помещениях квартир, расположенных в мансардном этаже, при наклонных ограждающих конструкциях допускается высота менее 2,5 (2,7) м. При этом в помещении допускается меньшая относительно нормируемой высота на площади, не превышающей 50 % его площади.

6.2.2 Продолжительность инсоляции принимается согласно федеральным и региональным нормативным документам и по согласованию с органами Роспотребнадзора. Естественное освещение должны иметь жилые комнаты, кухни, входные тамбуры в здание (кроме ведущих непосредственно в квартиры), лестничные клетки. Нормативные показатели естественного освещения (КЕО) могут быть приняты по СНиП 23-05.

6.2.3 Отношение площади световых проемов помещений к площади пола этих помещений должно быть принято, как правило, не более 1:5,5 и не менее 1:8; для мансардного этажа со световыми проемами в плоскости наклонных ограждающих конструкций - не менее 1:10. Допускается в соответствии с проектом остекление летних помещений при кухнях и других комнатах при обеспечении в них нормируемых КЕО и инсоляции, а также при помещениях, в которых КЕО не нормируется.

6.2.4 Помещения, имеющие естественное освещение, должны быть обеспечены проветриванием через фрамуги, форточки или другие устройства. В квартирах из трех комнат и более, как правило, предусматривается сквозное (или угловое) проветривание. При проектировании элементов конструкций, узлов их соединения, при реконструкции и надстройке существующего здания, а также вентиляционных решеток должны быть учтены требования по защите жилища от проникновения паразитирующих животных и насекомых.

6.2.5 В целях обеспечения экологических требований к жилищу строительные и отделочные материалы должны приниматься согласно «Перечню полимерных материалов и конструкций, разрешенных к применению в строительстве Минздравом СССР» № 3859-85.

6.3 Защита от шума

6.3.1 Меры защиты должны включать:

обеспечение функционального зонирования территории района реконструкции и формирование застройки с учетом требуемой степени акустического комфорта;

градостроительные, архитектурно-планировочные, строительно-акустические мероприятия;

устройство санитарно-защитной зоны между жилой застройкой района реконструкции и промышленными, коммунальными, транспортными предприятиями, аэропортами и другими пространственными источниками шума;

применение планировочных и объектно-пространственных решений застройки, использующих шумозащитные свойства окружающей среды;

использование при необходимости шумозащитных экранов-барьеров, размещаемых между источниками шума и объектами защиты от него;

усиление звукоизоляции наружных ограждающих конструкций зданий.

6.3.2 Ожидаемые уровни шума на территории застройки, в жилых зданиях, требуемая величина их снижения, выбор мероприятий и средств шумозащиты должны определяться расчетным путем с учетом шумовой характеристики и согласно действующим нормативным документам, руководствам и рекомендациям (СН 2.2.4/2.1.8.562, СНиП 23-03, «Руководство по расчету и проектированию средств защиты застройки от транспортного шума», «Руководство по учету в проектах планировки и застройки городов требований снижения уровней шума», «Руководство по составлению раздела «Охрана природы и улучшение окружающей среды градостроительными средствами» в проектах планировки и застройки городов, поселков и сельских населенных пунктов», «Рекомендации по измерению и оценке внешнего шума промышленных предприятий», «Рекомендации по установлению зон ограничения жилой застройки в окрестностях аэропортов гражданской авиации из условий шума», «Шумозащитные мероприятия и средства в жилой застройке и местах отдыха от внешнего шума городских источников»).

6.3.3 Снижение шума может быть обеспечено:

дополнительной установкой на стенах существующего здания теплоизоляции;

ремонтом или возможной заменой некоторых существующих окон;

применением мансардных и вертикальных окон с высокой степенью шумозащиты.

6.3.4 Принято, что шумовая характеристика транспортных потоков может достигать в дневные часы «пик» порядка 80 дБА и более на расстоянии 7,5 м от полосы уличного движения. Учитывая, что применяемые в настоящее время конструкции наружных стен имеют индекс изоляции воздушного шума порядка 45-47 дБА, а конструкции теплозащитных окон из дерева и ПВХ имеют в закрытом состоянии индекс изоляции от 25 до 35 дБА, то при регламентируемом уровне шума, проникающего в жилые

помещения, 30 дБА в ночное время и 40 дБА в дневное время суток такие оконные системы могут обеспечить защиту от воздействия транспортного шума с уровнем 85-75 дБА только в закрытом состоянии. Открытая форточка площадью, равной 8 % общей площади окна со звукоизоляцией в 22 дБА, увеличит шум в помещении на 12 дБА. Створка окна, открытая на 20 %, увеличивает шум на 17 дБА , а открытая на 50 % увеличивает шум на 20 дБА. Принимая во внимание, что в жилых домах массового строительства используется по экономическим соображениям только естественная вентиляция квартир, то для проветривания должны применяться специальные вентиляционные устройства, обеспечивающие в режиме вентиляции звукоизоляцию не менее 23-25 дБА. Вентиляционный клапан, установленный в мансардных окнах ВЕЛЮКС, обеспечивает при проветривании помещения индекс изоляции воздушного шума оконного блока 28-32 дБА.

6.4 Мусороудаление

При реконструкции домов, как правило, допускается сохранять существующую систему мусороудаления.

7 Особенности предпроектных работ

7.1 Принятие решения о реконструкции объекта

7.1.1 Заказчик (застройщик) - гражданин или юридическое лицо (инвестор), имеющий намерения осуществить за свой счет реконструкцию объекта, обращается с письмом в администрацию города.

Все без исключения обращения, как правило, в установленный срок должны рассматриваться в городской (окружной) комиссии по земельным отношениям и градостроительству, и заявитель уведомляется о дальнейшем рассмотрении обращения или об отказе.

7.1.2 Архитектурный орган для дальнейшего рассмотрения обращения и принятия решения на городской (окружной) комиссии по земельным отношениям и градостроительству (далее - Комиссия) подготавливает комплект документов:

градостроительное обоснование по объекту в соответствии с установленной формой;

заключение по инженерному обеспечению, включающее сведения о размерах средств, подлежащих передаче инвестором на долевое участие в реконструкции внеплощадочных инженерных коммуникаций для объекта и систем инженерного обеспечения города; предварительные технические условия эксплуатирующих организаций на присоединение объекта в пределах нормативных объемов нагрузок для разрешения строительства (реконструкции);

заключение государственной экологической экспертизы.

Утвержденное решение Комиссии является основанием для оформления распорядительного документа в установленном порядке. При положительных заключениях архитектурного органа, Земельного комитета, Росимущества проект распорядительного документа согласовывается главой администрации.

Управление делами администрации или соответствующие подразделения в установленном порядке уведомляют заявителя о выходе соответствующего распорядительного документа.

7.1.3 Инвестор, претендующий на устройство помещения мансардного типа, определяется по результатам специального конкурса, проводимого администрацией города.

Для проведения конкурса конкурсная комиссия заказывает техническое заключение проектной организации о состоянии конструкций дома, перекрытий последнего этажа и конструкций крыши, проектную документацию на устройство мансарды, согласованную в установленном порядке, стоимость которых в дальнейшем оплачивает инвестор, победивший на конкурсе.

Не позднее чем за месяц до проведения конкурса его условия должны быть опубликованы. Кроме того, в комплект конкурсных документов обязательно включается расчет обязательных компенсационных выплат за счет инвестора в пользу собственников (нанимателей) квартир, непосредственно примыкающих к зонам проведения строительных работ. Размеры компенсационных выплат определяются БТИ.

Вопросы, связанные с разрешением инвестору компенсировать часть стоимости права инвестирования выполнением планово-предупредительного, текущего или капитального ремонта дома, где расположен объект инвестирования (или другими работами в соответствии с нуждами городского хозяйства), рассматриваются в администрации специальной (конкурсной) комиссией.

По просьбе собственников квартир, непосредственно примыкающих к зонам проведения строительных работ, указанные компенсации могут быть заменены ремонтными работами на сумму компенсации.

7.1.4 Товарищества собственников жилья (ТСЖ), принявшие жилые дома в управление, имеют право на исполнение функций заказчика по проведению реконструкции жилых домов с освоением чердачного пространства под мансарду и надстройку здания. Решение о проведении реконструкции принимается на общем собрании товариществ.

При принятии решения о проведении реконструктивных работ должны быть уведомлены все собственники, проживающие в этом доме.

7.1.5 Решение конкурсной комиссии утверждается решением администрации города. На основании распоряжения администрации города и проведенной оплаты прав инвестирования в бюджет города оформляется договор с инвестором на освоение чердачного пространства, отдельного его участка или надстройки здания. Договор подлежит регистрации в администрации.

О решении Комиссии заявитель (в том числе победитель конкурса) уведомляется в установленном порядке и при его согласии на основании этого решения, как правило, в 10-дневный срок оформляется распорядительный документ:

о предоставлении права реконструкции в случае наличия у заявителя оформленных в установленном порядке земельных отношений;

о предоставлении права осуществить реконструкцию важного для города объекта в случае предоставления в этих целях нового земельного участка (без конкурса);

о предоставлении земельного участка (объекта недвижимости):

а) по результатам конкурсов;

б) по результатам инвестиционного конкурса на реконструкцию объекта на основе инвестиционного контракта.

7.1.6 Архитектурный орган в недельный срок на основании представленного заказчиком (застройщиком) распорядительного документа после выполнения им обязательств по компенсации городу расходов на подготовку исходно-разрешительной документации выдает заказчику для последующего проектирования и оформления земельных отношений экземпляр прилагаемых к решению Комиссии Градостроительного заключения, Заключения по инженерному обеспечению и Заключения государственной экологической экспертизы.

Комитет по землеустройству в месячный срок на основании распорядительного документа и в соответствии с решением Комиссии оформляет правоустанавливающие документы на землепользование.

Заказчик (застройщик) в процессе проведения изыскательских работ и проектирования в соответствии с Градостроительным заключением обеспечивает выполнение необходимых топографических, историко-культурных и археологических исследований.

7.1.7 Разрешение на производство строительных работ по реконструкции выдается заказчику (застройщику) инспекцией госархстройнадзора на основании:

распорядительного документа;

оформленных имущественно-земельных отношений;

утвержденного в установленном порядке проекта, согласованного архитектурным органом, госэкспертизой и другими надзорными ведомствами, имеющего положительные результаты государственной экологической экспертизы.

7.1.8 Разработка обоснований градостроительных решений, заключений по инженерному обеспечению и заключений государственной экологической экспертизы по поручению Городской комиссии осуществляется исключительно за счет средств бюджета города и фондов финансовых ресурсов административных районов с последующим возмещением расходов инвесторами.

Должны быть исключены случаи привлечения инвесторов к выполнению обязанностей органов управления администрации по финансированию разработки и согласованию исходно-разрешительной документации.

Взаимодействие городских организаций с заказчиком осуществляется только при наличии у заказчика соответствующей лицензии.

7.1.9 Для обеспечения своевременной подготовки градостроительных заключений может быть создана рабочая группа из представителей согласующих организаций: городского центра санэпиднадзора, комприроды, управления государственной противопожарной службы МЧС России, земельного комитета, комитета по управлению имуществом, Министерства по чрезвычайным ситуациям, управления государственного контроля охраны и использования памятников истории и культуры.

Установить указанным организациям срок рассмотрения документации и подготовки заключений по типовой форме за подписью руководителя согласующей организации либо уполномоченного им лица целесообразно до двух недель.

7.1.10 Для комплексного и оперативного рассмотрения условий на присоединение к городским инженерным коммуникациям может быть создана Рабочая группа из представителей эксплуатационных организаций. Срок подготовки технических условий на присоединение к инженерным коммуникациям целесообразно устанавливать также до двух недель.

Службам инженерного обеспечения совместно с энергетическими службами и службой энергосбережения, отделам транспорта и связи и другим заинтересованным организациям целесообразно:

разработать и утвердить в администрации методику определения объемов инвестиций, требуемых от инвестора для получения технических условий на присоединение инженерных коммуникаций и передаваемых на развитие городской инженерной инфраструктуры, исходя из удельной стоимости затрат на квадратный метр площади объектов различного функционального назначения; типовые формы заключений по инженерным условиям на присоединение объекта к городским коммуникациям;

разработать порядок аккумуляции и использования средств, передаваемых инвесторами, координации строительства внеплощадочных коммуникаций и объектов, оформления обязательств города по строительству внеплощадочных коммуникаций.

7.1.11 Необходимо ежегодно обеспечивать финансирование подготовки архитектурным органом как генеральным подрядчиком при участии заинтересованных организаций заключений, выполняемых исключительно по поручениям Городской комиссии по имущественно-земельным отношениям и градостроительству за счет средств:

получаемых от инвесторов в порядке возмещения расходов города на разработку заключений; предусмотренных для выполнения проектно-изыскательских работ по городскому заказу.

7.1.12 Инспекции госархстройнадзора и административно-технической инспекции необходимо выдавать разрешения на подготовительные работы и строительство, ордера на разрытие в соответствии с установленным порядком.

7.2 Участие граждан в процессе подготовки градостроительных решений

7.2.1 Совершеннолетние граждане, проживающие в городе, должны иметь право участвовать в процессе разработки предложений и подготовки проектов градостроительных решений до принятия органом власти или должностным лицом городской администрации правового акта о реализации конкретного архитектурно-строительного проекта.

7.2.2 При реализации градостроительных решений граждане должны иметь право:

на получение от органов власти города и районов достоверной информации о конкретных градостроительных решениях по реконструкции, комплексному благоустройству территории в порядке, установленном законодательством;

на независимую экспертизу градостроительных проектов за счет собственных средств, в том числе техническую и экологическую;

на участие в обсуждении градостроительных планов и проектов развития территории до их утверждения органом власти района или администрацией города.

7.2.3 Порядок участия граждан в обсуждении градостроительных планов, проектов и решений по иным вопросам, связанным с использованием городской территории, должен определяться нормативными правовыми актами города и решениями районных администраций.

7.2.4 На основе выявленных интересов граждан по месту жительства и на уровне района при отсутствии противоречий с городскими градостроительными программами и планами администрация принимает решение о сохранении или изменении приоритета архитектурно-строительного проекта или градостроительной программы.

7.2.5 Органы власти и (или) должностные лица городской администрации обязаны:

до принятия правовых актов о реализации градостроительного проекта проинформировать граждан, проживающих в границах территорий, соответствующих градостроительному приоритету градостроительного проекта, о предполагаемой реализации такого проекта;

обеспечить возможность обсуждения градостроительного проекта в органах территориального общественного самоуправления.

7.3 Защита прав юридических и физических лиц, участвующих в реализации проекта реконструкции

7.3.1 Гражданам, проживающим на территории районов города, целесообразно осуществлять свои права, в том числе относящиеся к подготовке и принятию градостроительных решений, через своих полномочных представителей.

7.3.2 На уровне района или микрорайона права и законные интересы жителей в части подготовки и принятия решений по вопросам использования недвижимости реализуют и должны защищать районное собрание и районная администрация, в том числе путем выпуска распорядительных документов, согласования в установленном порядке градостроительной документации, подачи предложений и замечаний в органы администрации города, организации проведения опроса, а также с помощью иных в законном порядке установленных полномочий.

7.3.3 Районные собрания и администрация могут обладать следующими полномочиями в области регулирования отношений при подготовке и реализации градостроительных проектов на уровне районов и микрорайонов города:

на рассмотрение градостроительных проектов реконструкции объектов, иной градостроительной документации, предоставляемой по их запросам органами администрации города или субъектами градостроительной и инвестиционной деятельности на территории района или микрорайона для выработки предложений;

на передачу для обязательного рассмотрения в органы администрации города предложений по реализации градостроительных решений и регулированию использования недвижимости в целях улучшения экологического состояния среды обитания, обеспечения бытовых, социально-культурных и иных условий проживания граждан;

на получение информации от органов территориального общественного самоуправления по всем вопросам, относящимся к защите прав и согласованию законных интересов граждан по месту жительства;

на рассмотрение коллективных жалоб граждан, решений органов территориального общественного самоуправления по поводу готовящихся или реализуемых градостроительных проектов, расположенных на территории соответствующего района;

на создание согласительных комиссий по рассмотрению коллективных жалоб граждан, а также решений органов территориального общественного самоуправления по поводу готовящегося или реализуемого градостроительного проекта;

на рассмотрение программы (плана) социально-экономического развития территории района, схемы зонирования территории района или микрорайона;

на утверждение границ районов, в пределах которых создаются населением и осуществляют свою деятельность органы территориального общественного самоуправления, а также проводится согласование законных интересов граждан.

7.3.4 Общий порядок рассмотрения вопросов и принятия градостроительных решений в районах города определяется федеральным законодательством, Уставом города, законодательными актами города, распоряжениями Главы администрации и постановлениями городской администрации.

7.3.5. Граждане, проживающие на территории города, должны осуществлять свои права по реализации градостроительных решений через своих полномочных представителей - Главу администрации, его заместителей, депутатов городской Думы.

В городе реализацию градостроительных решений должна осуществлять администрация города путем выпуска правовых нормативных актов, заключения инвестиционных контрактов и иных гражданско-правовых договоров с физическими и юридическими лицами, выдачи государственных актов, утверждения градостроительной документации, принятия обращений в органы власти Российской Федерации, выхода с законодательной инициативой, а также используя иные законным порядком установленные полномочия.

При осуществлении градостроительных решений органы власти города должны реализовать в полном объеме права и обязанности органов власти субъекта Российской Федерации и городского (местного) самоуправления в соответствии с Конституцией Российской Федерации, законодательством Российской Федерации и Уставом города.

7.3.6 Юридические и физические лица, участвующие в реализации архитектурно-строительных проектов в соответствии с утвержденной в установленном порядке градостроительной (проектно-разрешительной) документацией, имеют право на защиту своих прав и интересов, вытекающих, прежде всего, из договора, а также из законодательства Российской Федерации.

Такая защита обеспечивается либо в судебном порядке в соответствии с действующим законодательством, либо в досудебном порядке органами власти и (или) должностными лицами городской администрации в соответствии с их компетенцией.

7.3.7 Необходимость согласования частных интересов граждан, местных, районных и городских интересов возникает при инициации, разработке и реализации градостроительных проектов и планируемых изменений условий использования недвижимости, а также при возникновении или угрозе связанных с этим социальных конфликтов по месту жительства граждан. Целями процесса согласования являются выявление общих социально значимых приоритетов и обеспечение механизмов их последующей реализации.

Инициаторами процесса согласования могут выступать:

граждане по месту жительства посредством подачи в органы власти района петиционных листов за подписью граждан, достигших совершеннолетнего возраста и проживающих в границах территории одного района;

органы территориального общественного самоуправления;

инвестор или строитель, реализующий конкретный градостроительный проект;

районное собрание;

глава районной администрации;

глава администрации города;

городская Дума (городское собрание).

7.3.8 При получении петиционного листа от граждан, инициативы инвестора или строителя, решения органов территориального общественного самоуправления глава районной Управы направляет полученные предложения на рассмотрение районного собрания. В случае принятия районным собранием решения об инициации процесса согласования глава районной Управы издает распоряжение, устанавливающее границы территории согласования интересов в соответствии с градостроительным приоритетом проекта, конкретные формы и сроки согласования.

7.3.9 При получении главой районной Управы решения районного собрания или постановления (распоряжения) органа администрации города процесс согласования инициируется и проводится в обязательном порядке.

7.3.10 Выявление интересов и приоритетов граждан в пределах границ не менее чем одного микрорайона проводится в соответствии с законодательством города, правовыми актами администрации города и решениями районной администрации.

Основными методами выявления интересов жителей являются:

проведение собраний с участием не менее 50 % жителей микрорайона с принятием решений по вопросам простым большинством голосов;

проведение конференции жителей при участии большинства делегатов от соответствующей территории с принятием решений по вопросам простым большинством голосов от числа присутствующих делегатов;

получение решения органа территориального общественного самоуправления;

опрос на территории не менее чем одного микрорайона;

иные методы в соответствии с законодательством города.

После подведения итогов согласования районное собрание рассматривает результаты выявления интересов и приоритетов граждан по месту жительства, вырабатывает предложения и принимает решения для включения в программы (планы) социально-экономического развития и реконструкции микрорайона (территории) и схемы зонирования территории.

Результаты выявления интересов граждан по месту жительства, решение районного собрания, а в случае несогласия с этим решением особое мнение главы районной администрации направляются в органы администрации города.

7.3.11 Для стимулирования защиты приоритетных направлений и конкретных проектов по реконструкции при осуществлении градостроительной деятельности администрация города может использовать следующие механизмы:

предоставление в установленном порядке налоговых льгот или налогового кредита инвесторам, заказчикам и (или) подрядчикам при производстве строительных работ;

частичное и полное освобождение социально значимых предприятий, организаций от арендной платы за землю и нежилые помещения, за использование городской инфраструктуры, а также от иных платежей;

предоставление льготного кредита физическим и юридическим лицам уполномоченными банками под гарантии органов власти района или администрации города;

обеспечение внеочередного приема, рассмотрения и согласования градостроительной и иной документации в органах администрации города;

иные механизмы поддержки со стороны города.

8 Особенности ремонтно-реконструктивных работ

8.1 Требования к организации производства реконструктивных работ

Основой для разработки организационно-технологической документации являются исходно-разрешительная документация, разработанная проектная документация на реконструкцию объекта и разрешение на производство строительных работ, оформляемые в установленном порядке.

Разработка организационно-технологической документации включает:

организацию тендера на реконструктивные работы, подписание контракта с подрядчиком, предоставление гарантий, определение метода реконструкции объекта;

разработку календарного плана, уточнение сметной документации в зависимости от периода производства работ, согласование результатов с заказчиком (инвестором);

разработку строительного генплана на различные периоды реконструкции, согласование границ строительной площадки, режима работ строительной техники, автотранспорта, расположение временных зданий и сооружений, в том числе согласование этих вопросов с жителями реконструируемого жилого дома при методе без выселения или частичного (временного) отселения;

согласование с территориальными службами подключения потребителей временных объектов подрядчика к энергосетям, сетям водоснабжения, канализации и связи;

разработку технологических требований по геодезическому и метрологическому контролю, разработку требований по охране труда и защите окружающей среды;

разработку специальной оснастки и элементов защиты и безопасности, временного крепления строительных конструкций при частичном демонтаже деталей реконструируемого объекта;

разработку технологических карт на все основные процессы реконструкции;

согласование всех составляющих организационно-технологической документации с подрядной строительной организацией и заказчиком;

соблюдение правил техники безопасности;

выполнение требований по охране окружающей среды;

согласование работ всех участников реконструкции строительного объекта с координацией их деятельности генеральным подрядчиком, решения которого по вопросам, связанным с выполнением утвержденного календарного плана и технологическими графиками работ, являются обязательными для всех участников независимо от ведомственной подчиненности.

Работа подрядчика на стадии подготовительного периода включает:

получение проектно-сметной и организационно-технологической документации от заказчика;

открытие ордера на производство работ, регистрацию объекта, согласование дорожного движения, связи и электроснабжения;

ограждение площадки, размещение информационных щитов, установку пожарных постов, указателей, организацию кольцевой временной дороги и проездов на строительной площадке, установку временного освещения, ограждение временного городка строителей, площадок для временного складирования, сооружение пунктов мойки колес и дождевых установок для обеспыливания строительного мусора.

8.2 Особенности технологии строительных работ при реконструкции

При реконструкции зданий следующие работы требуют специальных мероприятий:

Земляные работы, связанные с углублением подвальных помещений, устройством подземных этажей при сохранении конструкций надземной части, отрывкой котлованов в стесненных условиях и в непосредственной близости от существующих зданий, устройством свайных оснований (буронабивных свай) при реконструкции объектов или пристроях к реконструируемому зданию, усилением оснований под фундаменты.

Частичная или полная разборка конструкций зданий и сооружений с разработкой технических мероприятий по обеспечению устойчивости зданий в процессе демонтажных и строительных работ.

Бетонные и железобетонные работы с разработкой методов дополнительного армирования, бетонирования и возведения железобетонных и металлических конструкций в стесненных условиях строительной площадки.

Монтажные работы с разработкой технологических схем, с применением специальных монтажных кранов и механизмов, оснастки в стесненных условиях, на больших высотах, методов подъема перекрытий и подъема этажей.

Работы по устройству кровель различных конструктивных исполнений, в том числе эксплуатируемых, применению специальных мероприятий по удалению наледей, сосулек и снежных наносов.

Гидроизоляционные работы, методы «сухого» и «мокрого» торкретирования.

Ремонт фасадов и реставрационные работы фасадов с применением новых технологических способов восстановления, создание форм для объемных элементов наружного и внутреннего убранства стен, карнизов и потолков.

Работы по монтажу инженерных сетей с применением автономных систем, использование нетрадиционных источников энергии.

8.3 Ремонтно-реконструктивные работы без отселения жильцов

8.3.1 Все строительные работы по реконструкции могут осуществляться без прекращения эксплуатации здания и без расселения жильцов реконструируемого дома. Возможен вариант с частичным или временным отселением.

При реконструкции здания без расселения жильцов строительная площадка огораживается забором с защитным козырьком. Для обеспечения безопасности предусматриваются галереи над входами в подъезды с усиленным покрытием, способным выдержать удар падающего груза. Следует ограничить предельный вес строительных конструкций и изделий, не превышающий, как правило, 150 кг.

Заказчику и подрядчику совместно с генеральной проектной организацией необходимо: согласовать объемы, технологическую последовательность, сроки выполнения строительно-монтажных работ, а также условия их совмещения с функционированием жилого дома; сроки поэтапного выполнения строительно-монтажных работ согласовываются с жильцами.

Все ремонтные работы внутри жилых помещений (квартир) производятся по согласованию с жильцами и по законченному технологическому циклу (демонтаж, установка по видам работ) с учетом исключения многократного захода в жилое помещение в рабочую смену.

Строительные работы осуществляются без применения грузоподъемного кранового оборудования.

8.3.2 Строительство мансардного этажа или надстройка одного этажа с мансардой должны вестись в технологической последовательности в соответствии с календарным планом (графиком) с учетом обоснованного совмещения отдельных видов работ в условиях реконструкции объекта. Выполнение работ сезонного характера (включая отдельные виды подготовительных работ) необходимо предусматривать в наиболее благоприятное время года в соответствии с решениями, принятыми в проекте организации строительства.

Производство строительно-монтажных работ по строительству мансарды в условиях реконструкции объектов должно быть увязано с функционированием реконструируемого жилого дома. Заказчик и подрядчик должны определить порядок согласованных действий и назначить ответственного за оперативное руководство работами.

При строительстве надстройки в условиях реконструкции объекта необходимо предусматривать совместное использование транспортных коммуникаций и инженерных сетей, грузоподъемного оборудования строительным и эксплуатационным персоналом.

8.3.3 Подъем грузов на надстраиваемый этаж осуществляется с помощью специальных подъемников, смонтированных у торца здания или в ином удобном для производства работ месте. Для передачи строительных материалов с подъемника на перекрытие верхнего этажа устраивается выносная приемная площадка, а по периметру здания - консольные навесные леса с ограждением, на которых находятся рабочие при производстве строительно-монтажных работ.

Консольные навесные леса изготавливают из древесины и собирают на строительной площадке из готовых элементов. Они состоят из горизонтальных несущих элементов, на которые укладывается настил, раскосов и ограждения. Горизонтальные несущие элементы и раскосы упираются одним концом в упорные элементы, изготовленные из железа толщиной 10 мм и сваренные по форме, представленной проектом. В вертикальных пластинах упорных элементов просверливаются отверстия для крепления их к стене с помощью анкеров на мастике. После монтажа консольные навесные леса проверяются на расчетную нагрузку.

Вес грузов, подаваемых подъемником, ограничивается возможностью их перемещения вдоль здания по консольным навесным лесам, по чердачному перекрытию или по плоской крыше вручную с помощью средств малой механизации.

Работы по строительству мансарды (надстройке этажа) при плоской совмещенной крыше здания-основы начинаются с периметра здания, где проводится демонтаж карнизных блоков (демонтаж карнизных блоков может не проводиться, если это не предусмотрено проектом), после чего вдоль стен устанавливается монолитный пояс, на котором укрепляется проектируемая конструкция мансарды, закрытая временным покрытием из специальной армированной пленки. После этого производится демонтаж существующей крыши здания и начинается монтаж покрытия надстраиваемого этажа, который проводится захватками по 6 м.

Работы по устройству мансарды при скатной крыше на здании-основе могут проводиться захватками с циклом: демонтаж существующей (скатной) крыши на захватке 6 м, дальше устройство покрытия мансарды на освобожденной захватке. В этом случае также используется защитная пленка для защиты разобранной части крыши здания, предохраняющая чердачное перекрытие от промокания при дожде или таянье снега.

После монтажа покрытия на первой захватке аналогичные работы выполняются на следующих захватках. При этом временное покрытие защищает здание от атмосферных осадков до окончания устройства проектируемого покрытия.

Работы по устройству мансарды могут проводиться с использованием вместо консольных навесных лесов с ограждением обычных наружных лесов, устройство которых требуется также для производства реконструктивных работ по утеплению наружных стен. С помощью тех же лесов возможно устройство покрытия надстраиваемого (мансардного) этажа над реконструируемым зданием.

8.3.4 Строительно-монтажные работы по устройству мансардного или надстраиваемого этажа с мансардой могут выполняться с помощью подъема кранами большой грузоподъемности укрупненных элементов конструкции мансарды (как правило, металлических) и установки их наверху здания с последующим креплением между собой и со зданием-основой. Монтаж конструкций проводился с временным отселением жильцов. При монтаже конструкций должны приниматься меры по технике безопасности и защите населения. В этом случае строительно-монтажные работы проводятся захватками, соответствующими габаритам укрупненных элементов по длине здания.

8.3.5 При различных технических решениях крыш существующих зданий возможны два принципиально отличающихся подхода по строительству мансарды или этажа с мансардой в условиях реконструкции:

разборка существующей крыши с использованием чердачного перекрытия в качестве междуэтажного. Такое решение является обязательным при наличии чердачной крыши с наружным водостоком;

оставление существующей бесчердачной крыши или крыши с полупроходным чердаком с соответствующим подъемом уровня перекрытия мансарды.

8.3.6 При проведении работ по реконструкции и надстройке этажей, в том числе мансардного, следует осуществлять мероприятия, препятствующие складированию (с перегрузкой) материалов и конструкций от разборки части здания и крыши на перекрытии верхнего этажа.

8.3.7 Во всех случаях следует избегать чрезмерного раскрытия кровли, обеспечивая, если это допускает конструктивная система надстраиваемого этажа с мансардой, постепенный, по мере возведения конструкций, монтаж покрытия при частичной разборке существующей кровли или без ее разборки. Если нерациональны или невозможны указанные рекомендации, следует предусматривать защиту лежащего ниже этажа здания от протечек.

8.4 Мероприятия по созданию энергоэффективной демонстрационной зоны реконструкции жилищного фонда

8.4.1 При создании энергоэффективной демонстрационной зоны реконструкции жилищного фонда рекомендуется руководствоваться постановлением Правительства РФ «О государственной поддержке создания в Российской Федерации энергоэффективных демонстрационных зон» от 12 октября 1995 г. № 998.

8.4.2 Для создания оптимального варианта энергоэффективной демонстрационной зоны разрабатывается программа «1000 квартир», для чего местной администрацией выбирается и утверждается жилое образование в квартале или микрорайоне из группы жилых домов в количестве 800-850 квартир с учетом получения в процессе реконструкции жилых домов дополнительно новых 150-200 квартир.

Из общего числа жилых домов выбирается жилой дом из 3-4 секций, которому решением местной администрации присваивается статус пилотного проекта.

При реконструкции пилотного дома со статусом пилотного проекта отрабатываются архитектурно-планировочные и конструктивные решения, организационно-технические и финансовые механизмы, которые в дальнейшем распространяются на реконструкцию жилых домов демонстрационной зоны.

8.4.3 В процессе подготовки к реконструкции пилотного жилого дома и в дальнейшем жилых домов энергоэффективной демонстрационной зоны составляются анкеты информации об объеме и техническом состоянии объектов реконструкции, проводится социальный опрос жителей реконструируемых домов по планируемым мероприятиям сохранения и обновления жилищного фонда.

процессе реконструкции ведется мониторинг об объемах ремонтно-реконструктивных работ, результатах их завершения с последующим составлением количественной оценки социально-экономической эффективности реконструкции жилищного фонда энергоэффективной демонстрационной зоны.

9 Термины и определения

Здание жилое - здание, предназначенное для постоянного проживания людей, а также для проживания людей в течение ограниченного срока работы или учебы (общежитие).

Здания и сооружения общественные - здания и сооружения, предназначенные для социального обслуживания населения и для размещения административных учреждений и общественных организаций.

Земельный участок - часть земной поверхности, имеющая замкнутые границы, фиксированное местоположение, площадь и правовой режим.

Конструкции несущие - строительные конструкции, воспринимающие нагрузки и воздействия и обеспечивающие прочность, жесткость и устойчивость зданий и сооружений.

Конструкции ограждающие - строительные конструкции, предназначенные для изоляции внутренних объемов в зданиях и сооружениях от внешней среды или между собой с учетом нормативных требований по прочности, теплоизоляции, гидроизоляции, пароизоляции, воздухопроницаемости, звукоизоляции, светопрозрачности и т.д.

Мансардный этаж (мансарда) - этаж в чердачном пространстве, фасад которого полностью или частично образован поверхностью (поверхностями) наклонной, ломаной или криволинейной крыши.

Физический износ здания - величина, характеризующая степень ухудшения технических и связанных с ними других эксплуатационных показателей здания на определенный момент времени.

Моральный износ здания - величина, характеризующая степень несоответствия основных параметров, определяющих условия проживания, объем и качество предоставляемых услуг, современным требованиям.

Реконструкция жилого дома - комплекс финансовых, организационно-технических мероприятий и строительных работ, связанных с изменением основных технико-экономических показателей жилого дома (количества и площади квартир, строительного объема и общей площади дома) или его первоначального функционального назначения, осуществляемых в целях улучшения условий проживания и приведения эксплуатационных показателей жилого дома к уровню современных требований. Реконструкция жилого дома может включать: изменение планировки помещений, габаритов, возведение надстроек, встроек, пристроек, переоборудование чердачного помещения или мансарды, а при наличии обоснований - частичную разборку здания; повышение уровня инженерного оборудования, включая наружные сети (кроме магистральных), замену изношенных и морально устаревших конструкций и инженерного оборудования на современные, более надежные и эффективные, улучшающие эксплуатационные показатели жилого дома; улучшение архитектурной выразительности здания, а также благоустройство прилегающей территории.

Комплексная реконструкция - совокупность работ и мероприятий, осуществляемых для повышения условий жизни населения в домах, на территории городов, поселков городского типа, сельских

населенных мест, курортов и мест массового отдыха. Включает работы по реконструкции зданий, дорог; головных инженерных сооружений и коммунальных сетей водоснабжения, канализации, энергоснабжения; отдельные мероприятия по озеленению, улучшению микроклимата, оздоровлению и охране от загрязнения воздушного бассейна, открытых водоемов и почвы, санитарной очистке, снижению уровня городского шума, уменьшению возможности уличного травматизма.

Капитальный ремонт - проведение комплекса строительных работ и организационно-технических мероприятий по устранению физического и морального износа, не связанных с изменением основных технико-экономических показателей здания и функционального назначения, предусматривающих восстановление его ресурса с частичной заменой при необходимости конструктивных элементов и систем инженерного оборудования, а также улучшение эксплуатационных показателей.

Модернизация (франц. modernisation, от moderne - новейший, современный) - комплекс мероприятий по капитальному ремонту в целях улучшения состояния здания в соответствии с новейшими, современными требованиями и нормами при сохранении или изменении его функционального назначения.

Перепланировка помещений - проведение строительных работ в отдельных помещениях здания при сохранении функционального назначения объекта перепланировки, предусматривающих один из следующих видов работ (или их комплекс):

замену (частичную или полную) несущих перегородок;

пробитие проемов в несущих перегородках;

замену инженерного и сантехнического оборудования помещений (не влекущую переоборудование по всему зданию).

Оборудование инженерное жилых зданий - комплекс технических устройств, обеспечивающих благоприятные (комфортные) условия быта проживающих, включающий системы холодного и горячего водоснабжения, канализации, отопления, вентиляции, газоснабжения и электроснабжения, а также средства мусороудаления и пожаротушения, лифты, телефонизацию, радиофикацию и другие виды внутреннего благоустройства.

Энергоэффективная демонстрационная зона - зона строительства энергоэффективных энергосберегающих объектов, включая жилые, общественные и производственные здания.

Инвестиционный проект - система организационно-правовых и расчетно-финансовых документов, необходимых для осуществления каких-либо действий, обеспечивающих достижение определенных целей или получение определенных результатов.

Исходные материалы - комплект документов и информационных материалов, определяющих совокупность специальных требований, рекомендаций, условий, разрешений, правовых обоснований для осуществления этапа инвестиционно-строительной деятельности.

Исходно-разрешительная документация - комплект документов, оформляющий результаты предпроектной подготовки и являющийся основанием для оформления разрешения на осуществление градостроительной деятельности.

Архитектурно-градостроительное решение (архитектурный проект) - архитектурная часть проектной документации, содержащая архитектурные решения, которые комплексно учитывают градостроительные, конструктивные, социальные, экономические, функциональные, санитарно-гигиенические, экологические, инженерно-технические требования к объекту.

Градостроительная документация - документация, определяющая градостроительное развитие территории, регламенты градостроительной деятельности, социально-экономическое и градостроительное обоснование размещения объектов, их основные технико-экономические показатели и функциональное назначение (Генплан города, градостроительный план развития административного округа и района, схема размещения отраслевого строительства, проект планировки территории, градостроительное обоснование размещения объекта).

Предпроектная подготовка строительства - комплекс работ, проводимых в целях обоснования градостроительной деятельности на территории и получения права на ее проведение.

Проект застройки - градостроительная документация, определяющая архитектурно-пространственное решение застройки, использование земельных участков, параметры объектов транспортной и инженерной инфраструктуры, решения по благоустройству и озеленению территории, линии регулирования застройки.

Проект планировки - градостроительная документация, определяющая планировочную структуру территории, предложения по развитию застройки, культурно-бытового, транспортного обслуживания, инженерного обеспечения и устанавливающая регламент градостроительного зонирования территории и основные показатели ее градостроительного развития.

Проектная документация - документация, содержащая архитектурно-градостроительные решения, учитывающие социальные, экономические, функциональные, инженерные, технологические, противопожарные, санитарно-гигиенические, экологические, архитектурно-художественные и иные требования к объекту, в объеме, необходимом для разработки рабочей документации, а также включающая сметную стоимость строительства.

Рабочая документация - документация, разработанная на основании утвержденной проектной документации и предназначенная для проведения строительных работ.

Проектная подготовка строительства - комплекс работ, проводимых в целях оформления разрешения и ордера на производство строительных работ, включающих разработку, согласование и утверждение проектной документации, предназначенной для проведения строительных работ.

Разрешение на осуществление градостроительной деятельности - правовой акт городской администрации о разрешенном использовании градостроительного объекта, являющийся составной частью разрешения на строительство и устанавливающий право застройщика на проведение комплекса работ по осуществлению инвестиционно-строительной деятельности по объекту недвижимости.

Разрешение на строительство - комплект документов, удостоверяющий право собственника, владельца, арендатора или пользователя объекта недвижимости осуществить застройку земельного участка, строительство, реконструкцию, реставрацию, капитальный ремонт здания; ремонт, покраску фасадов; установку нестационарных объектов; перепланировку, переоборудование помещений; реконструктивные работы по объекту, строительные работы по использованию, благоустройству территории.

Разрешение (ордер) на производство работ - документ, являющийся составной частью разрешения на строительство и выдаваемый специально уполномоченными органами контроля и надзора, дающий разрешение на производство отдельных видов строительных работ в соответствии с разрешением на осуществление градостроительной деятельности, согласованной и утвержденной в установленном порядке проектной документацией.

Мониторинг - процесс постоянного наблюдения за выполнением установленных требований и достижением запланированных результатов путем отслеживания, контроля, измерения, оценки, проведения анализа и представления информации в процессе принятия решений.

Приложение А

Примеры градостроительного решения комплексной реконструкции жилого образования

Пример 1. Квартал № 5, г. Лыткарино, Московская обл.

Существующее положение - 714 квартир          Проект реконструкции - 1015 квартир (142 %)

Пример 2. Демонстрационная зона в микрорайоне № 8, г. Сургут

Существующее положение - 945 квартир,

45,6 тыс. м2

Проект реконструкции - 1270 квартир (145 %),

71,0 тыс. м2(156%)

Пример 3. Квартал по ул. Оплеснина, г. Сыктывкар

Существующее положение - 304 квартиры,

13,2 тыс. м2

Проект реконструкции - 442 квартиры (147 %),

23,46 тыс. м2 (177 %)

Приложение Б

Методы реконструкции жилого дома с учетом архитектурно-градостроительного и технико-экономического обоснований

В пределах габаритов здания

С частичным расширением в отдельных пролетах здания

Перепланировка квартир

Устройство лоджий, эркеров

Использование чердачного пространства для квартир

Устройство 2-этажных квартир 1-2-го этажей

Устройство эркеров, ризалитов

Увеличение кухонь и отдельных жилых комнат

Надстройка мансардного этажа

Устройство 2-этажных квартир 5-го и мансардного этажей

 

Надстройка этажей

Предельно возможное расширение габаритов и надстройка этажей

Надстройка одного-двух и мансардного этажей

Устройство лифта

При необходимости устройство пилонов

Устройство лоджий, эркеров и ризалитов с частичным расширением здания

Обстройка и надстройка этажей с учетом устройства платформы при градостроительном и технико-экономическом обосновании

Приложение В

Примеры архитектурно-планировочных решений реконструкции жилых домов

В.1 Перепланировка квартир в пределах габаритов здания

Изменение планировки 1-го этажа (серия 1-447)

Изменение планировки типового этажа

Устройство лоджий, эркеров (ризалитов)

В.2 Переоборудование квартир в двухэтажные

Переоборудование квартир 1 и 2-го этажей с выходом на участок (серия 1-447)

Перепланировка квартир 4 и 5-го этажей (серия 1-510)

Переоборудование квартир последнего этажа с использованием чердачного пространства (серия 1-447)

В.3 Перепланировка с увеличением ширины здания

Устройство ризалитов в отдельных пролетах здания (серия 1-446)

Устройство ризалитов и лоджий в отдельных пролетах здания (серия 1-447)

Перепланировка этажей с предельным увеличением ширины здания (серия 1-515)

В.4 Надстройка мансардного этажа

Надстройка мансардного этажа в пределах габаритов здания (серия 1 -446)

Надстройка 2-уровневого мансардного этажа с опорой на пилоны (серия 1-447)

В.5 Надстройка этажей

Надстройка этажей в пределах габаритов здания(серия 1-515)

Надстройка этажей с увеличением габаритов здания (серия 1-515)

Обстройка и надстройка трех и более этажей 5-этажного жилого дома (серии 1-510; 1-511; 1-515)

п.п.

Показатель

Единица измерения

До реконструкции

После реконструкции

1-510

1-511

1-515

1-510

1-511

1-515

1

Этажность здания

этаж

5

5

5

8

8

8

2

Количество квартир

ед.

80

80

80

128

128

128

3

Общая площадь квартир здания

м2

3479,9

3372,7

3516,8

9110,0

9186,0

9216,0

Приложение Г

Примеры использования архитектурно-композиционных приемов при комплексной реконструкции жилых образований

Пирамидальное построение в продольном направлении

Пирамидальное построение в поперечном направлении

Пирамидальное построение в продольном и поперечном направлениях

Построение в поперечном направлении

Приложение Д

Примеры архитектурно-конструктивных решений

Д.1 Теплоизоляция ограждающих конструкций

Утепление фасадных поверхностей                        Фасадная система «Синтеко»

наружных стен с применением «Термоблока»

Утепление фасадных наружных стен                         Фасадная система «Полиалпан»

с применением декоративных плит                              Вентилируемый фасад

Д.2 Конструктивные системы мансардного этажа

Пространственная конструктивная система с применением деревянных элементов

Пространственная конструктивная система с применением легких металлических тонкостенных холодногнутых профилей

Теплоизоляция и вентиляция покрытия мансардного этажа

1 - прокладная лента; 2 - контрбрусья; 3 - обрешетка; 4 - теплоизоляция; 5 - паро- и ветрозащита; 6 - вентиляционная черепица; 7 - вентиляционный конек; 8 - деревянная обшивка; 9 - защитный слой

Конструкционные примеры теплоизоляции между стропилами, слева с прикладной лентой, справа с деревянной обшивкой и защитным слоем

Приложение Е

Архитектурная типология мансардного этажа

Е.1 Объемно-пространственное решение и эвакуационные выходы

а - с наклонным потолком; б - с наклонными потолками из плоских поверхностей; в - с наклонными и горизонтальными потолками; г - с внутренним водостоком

Коммуникации, входы и эвакуационные выходы

Е.2 Определение площади и освещения мансарды

Расчет площади помещений мансардного этажа

ПРАВИЛЬНОЕ РАСПОЛОЖЕНИЕ ОКОН ПО ВЫСОТЕ

Преимущество низкого  парапета

 

Мансардное окно в высоком парапете

Приложение Ж

Мероприятия по созданию энергоэффективной демонстрационной зоны реконструкции жилищного фонда (основные положения)

Ж. 1 Основная цель и задачи

Основной целью является создание условий для осуществления реконструкции жилых домов с обеспечением их сохранности и обновления, повышением тепловой эффективности за счет утепления ограждающих конструкций и модернизации систем инженерного оборудования, увеличением общих объемов жилищного фонда за счет надстройки и пристройки дополнительных объемов.

Для достижения цели рекомендуется решить следующие задачи:

принять решение субъекта РФ (города) о программе реконструкции жилищного фонда на территории субъекта РФ;

принять решение администрации города о создании энергоэффективной демонстрационной зоны для отработки методов комплексной реконструкции жилых домов, организационно-экономического механизма по программе «1000 квартир»;

провести оценку технического состояния зданий, необходимые инженерные изыскания, определить объемы ремонтно-реконструктивных работ;

обеспечить эффективность использования существующей территории при комплексной реконструкции с увеличением общей площади жилья на 30-50 % за счет надстройки, пристройки и нового строительства в пределах нормативных требований;

увеличить теплоэффективность зданий на 20-40 % за счет утепления ограждающих конструкций и модернизации систем инженерного оборудования;

снизить материалоемкость реконструкции на 25-30 % по сравнению со строительством на новых территориях;

использовать существующую инженерную, транспортную и социальную инфраструктуры;

обеспечить проведение мониторинга объектов реконструкции и определить количественную оценку социально-экономической эффективности реконструкции жилищного фонда.

Срок реализации проекта реконструкции жилищного фонда в рамках энергоэффективной демонстрационной зоны - 3 года.

Ж. 2 Правовая и нормативная база

Правовое регулирование отношений участников процесса реконструкции жилищного фонда осуществляется в соответствии с:

Конституцией Российской Федерации;

Гражданским кодексом Российской Федерации;

ст. 12,19, 36,40, 41, 44,46, 65, 88, 110,117, 137, 146 Жилищного кодекса РФ (2005 г.);

законодательством о местном самоуправлении, а также на основании правовых актов субъектов РФ и органов самоуправления.

Для учета местных особенностей, сложившихся на территории субъекта РФ, не детализированных в Жилищном кодексе РФ, рекомендуется разработать и принять территориальный закон «О защите прав физических и юридических лиц в сфере реконструкции жилищного фонда», регламентирующий отношения физических и юридических лиц, органов власти и должностных лиц, прямо или косвенно принимающих и реализующих решения по реконструкции жилых домов и градостроительных образований, связанные с порядком согласования частных интересов граждан, местных, районных, городских и территориальных интересов для определения и правового закрепления социально значимых приоритетов, которые учитываются в основе реконструктивной деятельности.

Нормативно-технической базой правового регулирования в сфере реконструкции жилищного фонда являются общие и специальные технические регламенты, строительные нормы и правила (до их отмены в 2010 г.), государственные стандарты в области строительства, сертификаты на применяемые материалы, территориальные нормы и правила, методическое пособие по реконструкции жилищного фонда и другие территориальные акты, определяющие права и обязанности, порядок реализации и осуществления инвестиционной деятельности при реконструкции жилищного фонда.

Основанием реализации проекта реконструкции жилых домов в рамках демонстрационной зоны является техническая документация в составе:

оценка технического состояния жилых домов на основе сбора информации и обследований;

обоснование градостроительных решений;

социологический опрос и согласование решений;

проектно-сметная документация на пилотный проект и последующие объекты реконструкции.

Ж.3 Финансирование объекта реконструкции

Финансирование объекта реконструкции целесообразно осуществлять на основе консолидированных инвестиций с созданием инвестиционного фонда, аккумулирующего денежные средства из различных источников, включая:

субсидии и ссуды местного самоуправления;

средства бюджетов всех уровней;

средства предприятий и организаций;

личные средства граждан;

кредиты отечественных банков и других финансовых институтов;

кредиты зарубежных банков;

средства соответствующих федеральных и региональных программ;

средства от реализации готовой строительной продукции в порядке реинвестирования в реконструкцию.

Объем финансирования объекта реконструкции, осуществляемого на основе консолидированного бюджета, распределяется:

объем возможного кредита от сметной стоимости реконструктивных работ - 75 %;

объем собственных средств заказчика от сметной стоимости работ - 25 %.

На стадии ТЭО инвестиционного проекта реконструкции обязательным является расчет экономической эффективности в расчетных и прогнозных ценах.

В расчете экономической эффективности особое место занимает повышение тепловой эффективности жилых зданий, преследующее цели:

снижения стоимости эксплуатации зданий;

уменьшения нагрузки на имеющиеся источники тепловой энергии, горячей и питьевой воды;

повышения теплового комфорта жилых помещений и, как следствие, улучшения здоровья населения;

улучшения экологической обстановки за счет снижения вредных выбросов в атмосферу.

Ж.4 Организационно-технические и экономические мероприятия

Для создания энергоэффективной демонстрационной зоны в городе целесообразно использовать районы застройки 4-5-этажными жилыми домами различных конструктивных систем (кирпичные, блочные, панельные, каркасные). Дома должны быть обустроены всеми основными видами инженерного оборудования, предназначены для посемейного и коммунального заселения квартир и иметь невысокий (непредельный) уровень физического износа.

Программа с условным названием «1000 квартир» создается в качестве одного из оптимальных вариантов организации демонстрационной зоны. Решением местной администрации выбирается и утверждается жилое образование (в квартале, микрорайоне) в количестве 800-850 квартир (10-12 домов) с учетом получения в процессе реконструкции дополнительных новых квартир в количестве 150-200.

Из общего количества домов определяется один дом в качестве пилотного проекта реконструкции, на котором отрабатываются организационные, технические и экономические механизмы, распространяемые в дальнейшем на реконструкцию домов демонстрационной зоны.

Организация энергоэффективной демонстрационной зоны реконструкции жилищного фонда предполагает:

изучение состояния жилищного фонда и выработку рекомендаций о возможности и целесообразности его комплексной реконструкции и модернизации;

изучение потребности и возможности по увеличению жилищного фонда за счет устройства дополнительных этажей и уплотнения застройки в условиях реконструкции существующих зданий и использования территории, освободившейся после сноса ветхого и аварийного фонда;

изучение демографической структуры населения, состава семей для формирования квартирной структуры вновь создаваемого жилищного фонда;

анализ доступности складывающейся цены вводимого жилья при комплексной реконструкции жилищного фонда с учетом проводимых работ по капитальному ремонту и утеплению зданий;

изучение базы строительных материалов и стройиндустрии в регионе в направлении максимального использования местных строительных материалов и изделий, проведения маркетинга на внешнем рынке строительной продукции для создания экономически эффективных проектных решений;

анализ подходов к реализации реконструктивных работ без отселения жителей или с отселением в существующий резервный фонд;

проведение мониторинга объектов реконструкции и разработку количественной оценки социально-экономической эффективности реконструкции жилищного фонда;

информацию и согласование решений по реконструкции конкретных жилых домов, начало производства и завершение работ с жителями данного жилья в соответствии с требованиями действующих законодательных актов, территориальных правовых и нормативных документов, регламентирующих и регулирующих права и обязанности участников процесса реконструкции жилищного фонда.

Ж.5 Анкета сбора информации об объеме и техническом состоянии жилого дома

1

Город (поселок)

 

2

Район

 

3

Адрес

_________________________

(улица, №дома, корпус)

 

 

 

 

4

Принадлежность

 

5

Типовой проект

Муниципальный

Ведомственный

ЖСК

Обществ. организаций

Приватизированный

Серия

Шифр

 

 

 

 

 

 

 

 

6

Дата ввода в эксплуатацию

 

7

Площадь, м2

 

8

Этажность

 

9

Кол-во жителей в доме, чел.

Общая

Жилая

 

 

 

 

 

 

 

 

 

10

Количество квартир

 

11

Количество лицевых счетов

Всего

1-комн.

2-комн.

3-комн.

4-комн.

Более 4

Всего

В 2-комн. квартирах

В 2-комн. квартирах

В 2-комн. квартирах

 

 

 

 

 

 

 

В том числе с коммунальным заселением

I

 

 

 

 

 

 

 

 

 

 

 

12

Тип здания по материалам стен

Крупнопанельный (КПД)

Каркасно-панельный (КРП)

Крупноблочный (КБ)

Кирпичный (КР)

Каменный (КМ)

Смешанный

 

 

 

 

 

 

 

13

Тип здания по инженерному оборудованию

Отопление

Водопровод

Канализация

Газ

Электрооборудование

Телефон

Радио, ТВ

 

 

 

 

 

 

 

 

14

Технико-экономические характеристики

 

Дата заполнения

Балансовая стоимость, тыс. руб.

Физический износ, %

 

 

Ж.6 Пример социологического опроса жителей реконструируемых жилых домов

1. Степень приватизации квартир в обследованных жилых домах (по мнению жителей), %

Таблица 1

 

Степень приватизации

Всего

Дом № 33

Дом № 35

Дом № 37

Дом № 39

Дом № 41

1.

Квартира приватизирована, в личной собственности семьи

61,1

67,3

63,2

61,7

53,0

62,9

2.

В квартире живут по договору аренды, по ордеру

35,7

32,7

34,4

36,2

38,6

35,5

3.

Жилье является служебным

3,2

-

2,3

2,1

8,4

1,6

4.

Жилье имеет статус общежития

-

-

-

-

-

-

5.

Затруднились ответить

-

-

-

-

-

-

2. Оценка жителями технического состояния жилых домов, %

Таблица 2

 

Степень приватизации

Всего

Дом № 33

Дом № 35

Дом № 37

Дом № 39

Дом № 41

1.

Хорошее, нормальное

6,1

8,2

4,6

4,3

8,5

6,5

2.

Так себе, терпимое

33,7

59,2

33,4

22,3

34,1

30,6

3.

Плохое

59,1

32,6

60,9

72,3

54,9

62,9

4.

Затруднились ответить

1,1

-

1,1

1,1

2,5

-

Оценка жителями технического состояния жилых домов

Приоритетные для жителей виды капремонте при реконструкции жилых домов, %

Перечень преимуществ реконструкции жилых домов с надстройкой мансарды, %

Потребность жителей в реконструкции дома с надстройкой мансардного этажа, %

Дом по улице __________________, №__________

Потребность жителей в реконструкции жилых домов с надстройкой мансарды,%

Приложение И

Пример мониторинга объектов реконструкции

Мониторинг является необходимым элементом системы информации процесса управления отраслью. Его рекомендуется формировать как многоцелевую систему, позволяющую получать и анализировать информацию о:

объемах реконструктивных работ в различных областях городской экономики и в социальной сфере за определенный период времени;

размерах прироста фондов недвижимости за счет входящих в них объектов;

затратах (абсолютных и удельных) по реконструкции зданий, сооружений и территорий различного типа и назначения;

размерах инвестиций из городского бюджета и сторонних источников с оценкой доли города и адресности его затрат;

роли реконструкции в реализации социальной политики по улучшению жилищных условий, культурного и бытового обслуживания населения;

продолжительности проведения реконструктивных работ в зданиях и сооружениях разного типа и назначения (абсолютной и относительной - на 1000 м2 общей площади и т.п.);

общем количестве предприятий и организаций, участвующих или участвовавших в реконструктивных работах и их производственных показателях;

доле каждого субъекта экономики - участника в общем объеме реконструктивных работ и его производственных показателях (информация особенно необходима при проведении торгов на подрядные работы по реконструкции);

степени достаточности и технологической оснащенности строительных мощностей в городе в увязке с планируемыми объемами реконструктивных работ;

других показателях и характеристиках реконструктивных работ по городу в целом и по его административно-территориальным подразделениям.

Особого внимания и постоянного мониторинга требуют вопросы повышения тепловой эффективности жилых зданий с отслеживанием факторов, влияющих на санитарно-гигиенические качества жилища, стоимость его эксплуатации, иными словами, на социально-экономическую эффективность реконструкции.

Организациями, заинтересованными в постоянном отслеживании социальной и технико-экономической результативности реконструкции городских объектов, являются органы управления городом - правительство города, мэрия и т.п. Материалы мониторинга служат исходной информацией для формирования градостроительной, инвестиционной и социально-экономической политики органов управления, которые выступают в роли одного из основных потребителей результатов мониторинга.

Потребителями результатов мониторинга выступают:

территориальные и местные органы управления и планирования, формирующие социально-экономическую политику в жилищном фонде;

органы управления территориальным строительным комплексом;

ремонтно-строительные, монтажно-строительные, специализированные монтажные организации и их объединения, заинтересованные в получении подрядов на выполнение реконструктивных работ в данном регионе;

проектные организации, научные и учебные учреждения, выполняющие проекты, научно-исследовательские работы, разработку учебных курсов и т.п. в области реконструкции зданий.

И.1 Состав информационных данных об объекте реконструкции

№ п.п.

Наименование показателя

Единица измерения

До реконструкции

После реконструкции

1

2

3

 

 

1

Адрес объекта реконструкции

Указать

 

 

2

Административный район, микрорайон, квартал

»

 

 

3

Принадлежность к исторической застройке

»

 

 

4

Форма собственности и наименование владельца

»

 

 

5

Дата постройки (год)

»

 

 

6

Дата проведения последнего капитального ремонта или реконструкции (год)

»

 

 

7

Физический износ

%

 

 

8

Общее количество жильцов, в том числе лицевых счетов

чел.-шт.

 

 

9

Этажность общая, надстройка, мансардный этаж, пристройка

этаж-шт.

 

 

10

Количество секций

секц.

 

 

11

Количество квартир

В том числе:

однокомнатных

двухкомнатных

трехкомнатных и т.д.

шт.

 

 

12

Общественные помещения (указать наименование)

В том числе:

встроенное

пристроенное

встроенно-пристроенное

да/нет

 

 

13

Цокольный этаж, подвал, техническое подполье

м2

 

 

14

Общий объем здания

м3

 

 

15

Площадь застройки

м2

 

 

16

Общая площадь дома, в том числе общая площадь жилых помещений

м2

 

 

17

Высота этажа цокольного, рядового, мансардного, надстройки

м

 

 

18

Летние помещения

В том числе:

балконы

лоджии

ризалиты

эркеры

шт.

 

 

19

Наличие элементов декора на фасадах

да/нет

 

 

20

Шифр типового проекта

Указать

 

 

21

Конструктивная схема:

перекрестно-стеновая

продольно-стеновая

каркасная

каркасно-стеновая

Отметить

 

 

22

Наружные стены, толщина

В том числе:

колодцевой кладки

панельные

слоистые железобетонные

легкобетонные

ячеистобетонные

крупнобетонные

и т.п.

»

 

 

23

Конструкция перекрытий:

железобетонные сплошные плоские

то же, монолитные

железобетонные пустотные

»

 

 

Продолжение

№ п.п.

Наименование показателя

Единица измерения

До реконструкции

После реконструкции

1

2

3

 

 

 

деревянные

железобетонные наборные по металлическим балкам

Отметить

 

 

24

Конструкция фундаментов:

железобетонные ленточные

сборные

тоже, монолитные

железобетонные свайные

бутобетонные

ленточные

то же, столбчатые и т.д.

»

 

 

25

Конструкция лестничных маршей и площадок:

железобетонные сборные

железобетонные наборные по металл, балкам и т.д.

»

 

 

26

Наличие систем инженерного оборудования

В том числе:

отопление от ТЦ

тоже, от дворовой котельной

индивидуальные отопительные агрегаты

горячее водоснабжение от ТЦ

то же, от индивидуальных нагревательных

агрегатов

холодное водоснабжение

канализация

вентиляция естественная

тоже, принудительная

газоснабжение

телефонизация

домофон

пожарная сигнализация

лифт

»

 

 

27

Организация реконструкции

с переселением жильцов

с полным временным отселением

с частичным отселением

В том числе:

посекционно

с верхнего этажа (этажей)

»

 

 

28

Генеральный застройщик, полное наименование, адрес

Указать

 

 

29

Генеральный проектировщик, полное наименование, адрес

»

 

 

30

Заказчик-инвестор, соинвесторы, полное наименование, адрес

»

 

 

31

Технический заказчик, полное наименование, адрес

»

 

 

32

Генеральный подрядчик, полное наименование,

»

 

 

33

Субподрядчики. Вид работ, полное наименование, адрес

»

 

 

34

Сроки проведения работ:

изыскания

проектные работы ремонтно-строительные работы

Даты начала/ окончания, ч

 

 

35

Общая стоимость работ (договорная цена) В том числе:

изыскания

проектные работы

переселение жильцов общестроительные работы, включая мероприятия по технике безопасности

специальные работы комплексное благоустройство

тыс. руб.

.

 

36

Долевое участие соинвесторов, наименование инвестора, его доля в общих затратах

Указать %

 

 

И.2 Расчет и показатели потребления тепловой энергии и воды

Расчет экономии потребления тепловой энергии на отопление квартир жилого дома по ул. ____________________№______

за 2 месяца 2001 г. и 12 месяцев 2002 г.

Месяцы 2001 Г./2002 г.

Нормативное месячное потребление тепловой энергии на отопление жилого дома, Гкал

Фактическое месячное потребление тепловой энергии на отопление квартир жилого дома по показаниям квартирных приборов учета, Гкал

Расчет с РКЦ

Ноябрь 2001 г.

65,8

62,87

Декабрь 2001 г.

65,8

75,85

Итого 2001 г.

131,6

138,72

Январь 2002 г.

65,8

84,12

Февраль 2002 г.

65,8

61,77

Март 2002 г.

65,8

42,83

Апрель 2002 г.

65,8

47,60

Май 2002 г.

65,8

23,63

Июнь 2002 г.

65,8

6,74

Июль 2002 г.

65,8

0,00

Август 2002 г.

65,8

0,00

Сентябрь 2002 г.

65,8

50,67

Октябрь 2002 г.

65,8

50,67

Ноябрь 2002 г.

65,8

50,67

Декабрь 2002 г.

65,8

50,67

Итого 2002 г.

789,6

469,37

Всего:

921,2

608,09

Сводные показатели нормативного месячного потребления тепловой энергии на отопление квартир жилого дома

по ул._____________________ №______, в сравнении с фактическим месячным потреблением тепловой энергии

по показаниям квартирных приборов учета

Месяцы 2001 Г./2002 г.

Экономия (+), перерасход (-), %

Экономия (+), перерасход (-), Гкал

Тариф полный на единицу измерения услуги, руб. Оплата населения 50 %, дотация бюджета 50 %

Экономия, руб.

Ноябрь 2001 г.

+4,4

2,93

316,49

927,32

Декабрь 2001 г.

-15,3

-10,05

316,49

-3180,72

Итого 2001 г.

 

-7,12

 

-2253,4

Январь 2002 г.

-27,9

-18,32

316,49

-5798,09

Февраль 2002 г.

+6,1

4,03

316,49

1275,45

Март 2002 г.

+34,9

22,97

316,49

7269,78

Апрель 2002 г.

+27,6

18,20

316,49

5760,12

Май 2002 г.

+64,1

42,17

366,48

15454,46

Июнь 2002 г.

+89,7

59,06

366,48

21644,31

Июль 2002 г.

100

65,8

366,48

24114,38

Август 2002 г.

100

65,8

366,48

24114,38

Сентябрь 2002 г.

23

15,13

366,48

5544,84

Октябрь 2002 г.

23

15,13

366,48

5544,84

Ноябрь 2002 г.

23

15,13

366,48

5544,84

Декабрь 2002 г

23

15,13

366,48

5544,84

Итого 2002 г.

 

320,23

 

116014,15

Всего:

34

313,11

 

113760,75

Расчет экономии потребления тепловой энергии на горячее водоснабжение квартир жилого дома по ул.____________________ № _____

за 2 месяца 2001 г. и 12 месяцев 2002 г.

Месяцы 2001 Г./2002 г.

Нормативное месячное потребление тепловой энергии на ГВС квартир жилого дома, Гкал

Фактическое месячное потребление тепловой энергии на ГВС квартир жилого дома по показаниям квартирных приборов учета, Гкал

Расчет с РКЦ

Ноябрь 2001 г.

36,0

26,33

Декабрь 2001 г.

36,0

21,77

Итого 2001 г.

72,00

48,04

Январь 2002 г.

36,0

26,26

Февраль 2002 г.

36,0

24,18

Март 2002 г.

36,0

27,56

Апрель 2002 г.

36,0

26,19

Май 2002 г.

36,0

24,65

Июнь 2002 г.

36,0

24,65

Июль 2002 г.

36,0

24,65

Август 2002 г.

36,0

24,65

Сентябрь 2002 г.

36,0

24,65

Октябрь 2002 г.

36,0

24,65

Ноябрь 2002 г.

36,0

24,65

Декабрь 2002 г

36,0

24,65

Итого 2002 г.

432,00

297,07

Всего:

504,00

345,11

Сводные показатели нормативного месячного потребления тепловой энергии ГВС квартир жилого дома

по ул. ________________ № ______ в сравнении с фактическим месячным потреблением тепловой энергии на ГВС квартир жилого дома по показаниям квартирных приборов учета

Месяцы 2001 Г./2002 г.

Экономия (+), перерасход (-), %

Экономия (+), перерасход (-), Гкал

Тариф полный на единицу измерения услуги, руб. Оплата населения 50 %, дотация бюджета 50 %

Экономия, руб.

Ноябрь 2001 г.

+26,9

9,67

316,49

3060,46

Декабрь 2001 г.

+39,7

14,29

316,49

4522,64

Итого 2001 г.

 

23,96

 

7583,10

Январь 2002 г.

+27,1

9,74

316,49

3082,61

Февраль 2002 г.

+32,8

11,82

316,49

3740,91

Март 2002 г.

+42,8

15,39

316,49

4870,78

Апрель 2002 г.

+32,3

11,63

316,49

3680,78

Май 2002 г.

+23,4

8,44

366,48

3093,09

Июнь 2002 г.

+27,2

9,81

366,48

3595,17

Июль 2002 г.

+31,5

11,35

366,48

4159,55

Август 2002 г.

+31,5

11,35

366,48

4159,55

Сентябрь 2002 г.

+31,5

11,35

366,48

4159,55

Октябрь 2002 г.

+31,5

11,35

366,48

4159,55

Ноябрь 2002 г.

+31,5

11,35

366,48

4159,55

Декабрь 2002 г

+31,5

11,35

366,48

4159,55

Итого 2002 г.

 

134,93

 

47020,64

Всего:

31,5

158,89

 

54603,74

Расчет экономии потребления холодной и горячей воды по жилому дому по ул. __________________ № _______

за 2 месяца 2001 г. и 12 месяцев 2002 г.

Месяцы 2001 Г./2002 г.

Месячная норма ХГВС по жилому дому, м3

Суммарный месячный расход холодной и горячей воды по показаниям квартирных приборов учета, м3

Суммарный месячный расход холодной воды по показаниям квартирных приборов учета, м3

Суммарный месячный расход горячей воды по показаниям квартирных приборов учета, м3

Ноябрь 2001 г.

1440,0

851,0

446,00

405,00

Декабрь 2001 г.

1440,0

735,0

401,00

334,00

Итого 2001 г.

2880,0

1586,0

847,0

739,0

Январь 2002 г.

1440,0

884,0

480,00

404,00

Февраль 2002 г.

1440,0

849,0

477,00

372,00

Март 2002 г.

1440,0

714,0

397,00

317,00

Апрель 2002 г.

1440,0

834,0

459,00

375,00

Май 2002 г.

1440,0

929,0

505,00

424,00

Июнь 2002 г.

1440,0

853,0

450,00

403,00

Июль 2002 г.

1440,0

831,1

415,5

415,5

Август 2002 г.

1440,0

831,1

415,5

415,5

Сентябрь 2002 г.

1440,0

831,1

415,5

415,5

Октябрь 2002 г.

1440,0

831,1

415,5

415,5

Ноябрь 2002 г.

1440,0

831,1

415,5

415,5

Декабрь 2002 г

1440,0

831,1

415,5

415,5

Итого 2002 г.

17280,0

10049,6

5261,3

4788,3

Всего:

20160,0

11635,6

6108,3

5527,3

Сводные показатели суммарного месячного расхода холодной и горячей воды по жилому дому

по ул. ______________ № _______ в сравнении с месячным нормативом

Месяцы 2001 Г./2002 г.

Экономия, %

Экономия, м3

Тариф полный на единицу измерения услуги, руб.

Оплата населения 100 %

Экономия, руб.

Ноябрь 2001 г.

+40,9

589,0

6,65

3916,85

Декабрь 2001 г.

+49,0

705,0

6,65

4688,25

Итого 2001 г.

 

1294,0

 

8605,10

Январь 2002 г.

+38,6

591,0

6,65

3697,40

Февраль 2002 г.

+41,0

726,0

6,65

3930,15

Март 2002 г.

+42,1

606,0

6,65

4827,90

Апрель 2002 г.

+35,5

511,0

6,65

4029,90

Май 2002 г.

+40,8

587,0

7,21

4029,90

Июнь 2002 г.

+42,3

608,9

7,21

3684,31

Июль 2002 г.

+42,3

608,9

7,21

4232,27

Август 2002 г.

+42,3

608,9

7,21

4390,17

Сентябрь 2002 г.

+42,3

608,9

7,21

4390,17

Октябрь 2002 г.

+42,3

608,9

7,21

4390,17

Ноябрь 2002 г.

+42,3

608,9

7,21

4390,17

Декабрь 2002 г

+42,3

608,9

7,21

4390,17

Итого 2002 г.

 

7230,4

 

50742,95

Всего:

42,3

8524,4

 

59348,05

Приложение К

Количественная оценка социально-экономической эффективности реконструкции жилищного фонда

К.1 Экономические показатели социальных результатов реконструкции Классификация качественных результатов реконструкции

Показатели единичных результатов

Социальный стандарт или документ, его регламентирующий

Весомость социального результата, единицы

1

2

3

Жилое здание

 

В том числе:

61

1. Соответствие состава квартир структуре и численному составу семей

12,6

Система заселения

Поквартирная (каждой семье - отдельную квартиру)

6,5

Обеспеченность общей площадью одного человека

18 м2 общей площади на человека

6,1

2. Планировочные решения квартиры

17,3

Соотношение жилой и полезной площадей

К=0,59

3

Изолированность жилых комнат

Спальни непроходные, допускается проход через общую комнату

2,4

Раздельность санитарно-технического узла

Начиная с двухкомнатных квартир санузлы раздельные

2,8

Высота помещений

2,8 м от пола до пола

1

Размеры кухни и ванной комнаты

Кухня - 8 м2, ванная - 4 м2

3

Соотношение между длиной и шириной комнаты

1:1

1,1

Наличие вспомогательных помещений и встроенной мебели (кладовые, холлы, стенные шкафы, антресоли)

Хозяйственная кладовая:

в 1-2-комн. кварт. - 1 м2

в 3-5-комн. кварт. - 1,5 м2

Хозяйственный шкаф:

в 2-комн. кварт. - 0,6 м2

в 3-5-комн. кварт. - 1 м2

2,1

Наличие летних помещений (балконов, лоджий)

Площадь летних помещений - не более 10 % верхних пределов общей площади квартиры

1,9

3. Инженерное благоустройство квартиры

11,8

Наличие горячего водоснабжения:

СНиП 31-01

 

централизованного

 

4,6

газовая колонка

 

1,1

Телефонизация квартиры

Один абонентский номер в квартире

1,8

Наличие электроплит

В домах выше 9 этажей наличие электроплит обязательно

3,1

Дополнительное инженерное оборудование (биде и т.п.)

Определяется экспертно

1,2

Продолжение

Показатели единичных результатов

Социальный стандарт или документ, его регламентирующий

Весомость социального результата, единицы

1

2

3

4. Санитарно-гигиенические условия в квартире

6,6

Инсоляция

2,5 ч непрерывной инсоляции в летний период

1,6

Сквозное или угловое проветривание

Воздухообмен:

в жилой комнате - 3 м3/ч на 1 м2

в кухне - 60 м3

в ванной - 25 м3

1,2

Уровень шума в квартире

Допустимый уровень шума - 30 дБА

2,3

Долговечность отделки и инженерного оборудования

Определяется экспертно

1,5

5. Функциональность внеквартирных помещений и инженерное оборудование здания

8,7

Наличие внеквартирных помещений для хранения домашнего инвентаря

СНиП 31-01

1,5

Наличие лифта

В домах выше 5 этажей наличие лифта обязательно

2,5

Наличие мусоропровода вне квартиры

В домах выше 4 этажей наличие мусоропровода обязательно

1,7

Наличие кодового замка при входе в секцию

Все квартирные дома должны иметь кодовые замки при входах

0,9

Наличие связи с ОДС в лестничной клетке

Все квартирные дома должны быть подключены к ОДС

1,3

Наличие телефона в подъезде

Определяется экспертно

0,8

6. Архитектурная выразительность внутренней отделки

4

Соответствие цветового решения отделки функциональному назначению помещений

То же

1,4

Использование декора в отделке прихожих, кухонь, ванных и т.п.

»

1,1

Удобство размещения кухонного и санитарно-технического оборудования

Нормали на размещение оборудования нежилых помещений квартир

1,5

Прилегающая территория

37,6

В том числе:

 

1. Общественное обслуживание микрорайона

10,4

Детские дошкольные учреждения

60 мест на 1000 жителей (при охвате 75-80 % детей)

1,6

Поликлиника

35 посещений в день на 1000 жителей

1,2

Общеобразовательные школы

100 мест на 1000 жителей при охвате 50 % школьников 9-10 классов

1,5

Предприятия торговли продовольственными

70 м2 торговых помещений на 1000 жителей

1,2

То же, промышленными товарами

40 м2 торговых помещений на 1000 жителей

0,7

Предприятия бытового обслуживания

0,6 раб. мест на 1000 жителей

1,4

Предприятия общественного питания

16 мест на 1000 жителей

0,6

Спортивные сооружения

0,8 м2 на 1 жителя

0,7

Продолжение

Показатели единичных результатов

Социальный стандарт или документ, его регламентирующий

Весомость социального результата, единицы

1

2

3

Стоянки и гаражи

Гаражи - 1,2 м2/чел.

0,7

Стоянки - 0,8 м2/чел.

0,8

2. Уровень организации городского транспорта в микрорайоне

6,1

Удобство сообщения с объектами городского и районного значения

Расстояние между остановками не более 600 м

2,4

Удобство связи со станцией метро

Определяется экспертно

2,6

Размещение остановок городского транспорта вблизи продовольственных магазинов

Длина пешеходного пути до ближайшей остановки городского общественного транспорта не должна превышать 500 м

1,1

3. Санитарно-гигиеническое состояние окружающей среды

5,2

Изолированность мусоросборников от детских и хозяйственных площадок, окон жилых помещений

Расстояние мусоросборника от окон жилых зданий - не менее 20 м

1,1

Загазованность воздуха микрорайона

Определяется экспертно

1,8

Шумозащита придомовой территории

СНиП 23-03

2,3

4. Уровень технической эксплуатации жилых зданий в микрорайоне

6,2

Уровень технической эксплуатации дома (своевременность проведения ремонтов, наладки оборудования, сезонная подготовка, оперативное устранение неисправностей)

Определяется экспертно

2

Качество уборки территории

То же

1,8

Сбор, хранение и вывоз мусора

»

1,1

Уход за зелеными насаждениями, малыми формами, детскими и игровыми площадками

»

0,8

Ремонт и содержание тротуаров и подъездов

»

0,5

5. Благоустройство микрорайона

7,3

Наличие малых архитектурных форм на детских площадках и придомовой территории

Спортивные снаряды и движущиеся устройства должны занимать 20-25 % общей площади площадки

2,1

Наличие хозяйственных площадок

В 20 м от здания должны располагаться

хозплощадки в расчете на 1000 жителей:

30 м2 -для мусоросборников

100 м2 -для чистки одежды, мебели

150 м2 - для сушки белья

1,5

Наличие таксофонов в микрорайоне

4 телефона-автомата на 1000 жителей

1,0

Зеленые насаждения

11 м2/чел.

1,9

Освещенность территории в темное время суток

1-4 лк

0,8

6. Архитектурно-художественная выразительность придомовой территории

2,4

Использование декора и цвета в оформлении здания

Определяется экспертно

0,7

Декоративное и рекламное оформление витрин

То же

0,8

Ландшафтно-архитектурное оформление

Определяется экспертно

0,9

7. Эффективное использование территории и инфраструктуры застройки

 

Повышение плотности застройки

СНиП 2.07.01

Расчет плотности населения не более 450 чел/га, определено экспертно

1,2

Получение дополнительной площади жилья на существующей территории

СНиП 31-01

1,5

Снижение расходов материально-технических ресурсов

Определяется экспертно

1,25

Использование существующих инженерных сетей

То же

1,5

Использование транспортной и социальной инфраструктуры

»

1,7

Уменьшение выбросов углекислого газа и кислотных эквивалентов в окружающую среду

»

0,3

Примечание - Классификация результатов реконструкции принята на основе «Рекомендаций по социально-экономической оценке эффективности реконструкции и модернизации жилищного фонда» ЦНИИЭП жилища.

К.2 Эталонные показатели энергоэффективности реконструкции жилых домов

Классификация качественных результатов энергоэффективности реконструкции

Показатель единичных результатов

Нормативный документ, регламентирующий потребление

Весомость результатов, единицы

1

2

3

Усиление теплозащиты наружных ограждений

СНиП 23-02

1,40

Усиление теплозащиты окон и балконных дверей

-

1,39

Усиление теплозащиты крыши

-

1,13

Усиление теплозащиты пола 1 -го этажа

-

1,06

Поквартирный учет тепла с установкой термометров и счетчиков

Определено экспертно

1,10

Программное регулирование потребления теплоты в ИТП

То же

1,05

Устройство систем отопления с поквартирной разводкой

»

1,03

Установка за радиаторами теплоотражающих экранов

»

1,01

Установка поквартирных счетчиков водопотребления

»

1,45

Установка двухсекционных моек и сливных бачков

»

1,01

Установка стабилизаторов давления в ВС и ГВС

»

1,02

Предварительный нагрев холодной воды

»

1,01

Предотвращение охлаждения горячей воды в циркуляционном водопроводе

Определено экспертно

1,03

Установка поквартирных генераторов отопления и горячего водоснабжения

То же

1,10

Поквартирная утилизация теплоты вытяжного воздуха

»

1,01

Создание систем лучистого напольного отопления

»

1,02

Применение активных гелиосистем

»

1,02

Применение мансардных окон

»

1,18

Остекление лоджий и балконов

»

1,02

Применение электроаккумуляторов тепла в системах отопления и ГВС при двойном тарифе на электроэнергию

»

1,03

Устройство сезонного аккумулятора теплоты

»

1,02

Всего

 

23,09

Показатели реконструкции внешних инженерных сетей
Теплоэнергетическое хозяйство жилой застройки

№ п.п.

Новые способы, схемы

Условия и область применения

1

Создание локальных (автономных на дом или работающих на общие сети для 2-3 домов) газовых котельных установок, монтируемых в контейнерах на крыше или вблизи зданий

Наличие резерва в газоснабжающей системе

2

Создание комбинированных (поливалентных) систем теплоснабжения, включающих традиционный источник теплоснабжения и пиковые электроподогреватели, устанавливаемые в здании котельной, на тепловых вводах или непосредственно в отапливаемых помещениях (функционирующих в режимах выработки теплоты в часы провала графика электрической нагрузки либо круглосуточно)

Наличие резерва электрической мощности на трансформаторной подстанции, на вводе в квартал. Установка теплоаккумулирующих устройств (в котельной, на тепловом вводе)  либо специальных накопителей прецизионных приборов

3

Создание поливалентных систем теплоснабжения, включающих базовый традиционный источник теплоснабжения и 1-2 возможных дополнительных источника (теплонасос и др.)

Местные условия (климатические, геологические), район строительства

4

Создание локальных (автономных или работающих на общие тепловые и электрические сети) мини-ТЭЦ на базе газовых дизелей и теплоутилизаторов

Наличие резерва в газовой системе, необходимость повышения надежности электроснабжения, недостающая электромощность на вводе в квартал

5

Увеличение тепловой мощности системы теплоснабжения путем реконструкции наиболее перегруженных участков тепловой сети (перекладка участков трубопроводов с заменой на большие диаметры)

Удовлетворительное состояние тепловых сетей и источников теплоты, локальность зон увеличения тепловой нагрузки

6

Увеличение температурного перепада (пропускной способности) тепловой сети за счет:

большего охлаждения обратной воды (при установке калориферов, отопительных приборов со встроенными вентиляторами, напольных отопительных систем, а также при установке тепловых насосов на обратном трубопроводе)

повышения расчетной температуры в подающем трубопроводе от 150 до 180 °С

снижения теплопотерь в тепловых сетях

Наличие резерва на источнике, проведение реконструкции систем отопления либо тепловых сетей, сооружение теплонасосных установок.

Продолжение

№ п.п.

Новые способы, схемы

Условия и область применения

7

Увеличение перепада давлений (пропускной способности тепловой сети) за счет:

установки насосных перекачивающих подстанций

установки циркуляционных (смесительных) насосов у концевых объектов

Наличие резерва на источнике, проведение реконструкции тепловых сетей и тепловых пунктов

8

Изменение схемы теплоснабжения с частичным переводом централизованного горячего водоснабжения на местные системы с установкой квартирных (индивидуальных) водонагревателей

Наличие резерва электрической мощности, установка местных теплоаккумуляторов и введение двуставочного тарифа

Внешние водопроводные и канализационные сети

№ п.п.

Способы

Условия и область применения

1

Полная перекладка водопроводных и канализационных сетей

Сети физически изношены, поражены внутренней и наружной коррозией, имеют механические разрушения. Ремонту не подлежат

2

Капитальный ремонт и реконструкция внешних водопроводных и канализационных сетей с использованием новых технологий, позволяющих восстановить их механическую прочность и увеличить пропускную способность

Сети подлежат восстановлению с использованием новых технологий, не требующих вскрытия грунта по трассе реконструируемых коммуникаций

3

Частичная перекладка сетей. Удаление органических и коррозийных отложений с использованием гидравлических, гидропневматических, механических инструментов и технологий на сохраняемых участках сетей

Необходимость увеличения пропускной способности некоторых локальных участков коммуникаций и прочности сохраняемых сетей

4

Прокладка сетей к вновь возводимым объектам

Необходимость водоснабжения и водоотведения от вновь создаваемых объектов

5

Внедрение оборотного водоснабжения, бессточных и малосточных технологий на коммунальных объектах территории за счет использования нового эффективного оборудования

В соответствии с технико-экономическим расчетом

6

Выравнивание графика водопотребления за счет двухставочных тарифов на энергетические и водные ресурсы, а также за счет внедрения аккумулирующих резервов квартального, домового или квартирного типа

То же

7

Использование внутриквартальных тепловых сетей после соответствующей их реконструкции в качестве дополнительных водопроводных сетей холодной воды

При полном переводе теплоснабжения объектов квартала от локальных источников внутриквартальные тепловые сети могут использоваться по другому назначению

Системы электроснабжения

1

Увеличение мощности трансформаторных подстанций (ТП):

 

установка в существующих ТП дополнительных трансформаторов

Существующие ТП имеют резервные площади для установки дополнительных трансформаторов

строительство дополнительных ТП

Существующие ТП не в состоянии обеспечить необходимое количество электроэнергии

2

Замена существующей кабельной сети на большие сечения, прокладка кабелей к вновь возводимым объектам, создание кольцевой схемы электроснабжения

Сечение существующих кабелей недостаточно для обеспечения возросшего электропотребления реконструируемых зданий. Вновь сооружаемые объекты социальной сферы не имеют электропитания. Надежность электроснабжения должна быть повышена

3

Создание в районах жилой застройки собственных источников электроснабжения:

монтаж блочных мини-ТЭЦ в контейнерном исполнении на базе газового двигателя и котлаутилизатора

реконструкция, преобразование квартальной водогрейной котельной в мини-ТЭЦ путем установки предвключенной газовой турбины перед котлом

реконструкция квартальной котельной с паровыми котлами с установкой после котла противодавленческой паровой турбины

Региональная электросистема не имеет резерва генерирующей мощности либо резерва пропускной способности внешних линий электропередачи для покрытия возросшей электрической нагрузки. Надежность электроснабжения объектов недостаточна

Приложение Л

Перечень нормативных документов, на которые есть ссылки в настоящем стандарте

СНиП 2.01.02-85*

Противопожарные нормы

СНиП 2.07.01-89*

Градостроительство. Планировка и застройка городских и сельских поселений

СНиП 21-01-97*

Пожарная безопасность зданий и сооружений

СНиП 11-02-96

Инженерные изыскания для строительства. Основные положения

СНиП 23-02-2003

Тепловая защита зданий

СНиП 23-03-2003

Защита от шума

СНиП 23-05-95*

Естественное и искусственное освещение

СНиП 31-01-2003

Здания жилые многоквартирные

ВСН 53-86(р)

Правила оценки физического износа жилых зданий

ВСН 58-88(р)

Положение об организации и проведении реконструкции, ремонта и технического обслуживания зданий, объектов коммунального и социально-культурного назначения

ПУЭ

Правила устройства электроустановок

СН 2.2.4/2.1.8.562-96

Шум на рабочих местах, в помещениях жилых, общественных зданий и на территории жилой застройки

 

Ключевые слова: комплексная реконструкция, реконструктивные работы, мансардный этаж, тепловая эффективность, мониторинг, градостроительные решения, технико-экономические обоснования, потребительские качеств квартиры, модернизация инженерных систем, противопожарные мероприятия.

 

 




ГОСТЫ, СТРОИТЕЛЬНЫЕ и ТЕХНИЧЕСКИЕ НОРМАТИВЫ.
Некоммерческая онлайн система, содержащая все Российские Госты, национальные Стандарты и нормативы.
В Системе содержится более 150000 файлов нормативно-технической документации, действующей на территории РФ.
Система предназначена для широкого круга инженерно-технических специалистов.

Рейтинг@Mail.ru Яндекс цитирования

Copyright © www.gostrf.com, 2008 - 2026