Крупнейшая бесплатная информационно-справочная система онлайн доступа к полному собранию технических нормативно-правовых актов РФ. Огромная база технических нормативов (более 150 тысяч документов) и полное собрание национальных стандартов, аутентичное официальной базе Госстандарта. GOSTRF.com - это более 1 Терабайта бесплатной технической информации для всех пользователей интернета. Все электронные копии представленных здесь документов могут распространяться без каких-либо ограничений. Поощряется распространение информации с этого сайта на любых других ресурсах. Каждый человек имеет право на неограниченный доступ к этим документам! Каждый человек имеет право на знание требований, изложенных в данных нормативно-правовых актах!

  


 

Утверждаю

Генеральный директор

ЗАО «ТехноНИКОЛЬ»

___________/Колесников С.А./

10 декабря 2007 г.

Инструкция

по применению рулонных звукоизоляционных материалов
"Техноэласт-Акустик" и "Техноэласт-Акустик Супер"

Согласовано:

 

НИИСФ РААСН

Директор

________________/Осипов Г.Л./

 

Разработано:

ЗАО «ТехноНИКОЛЬ»

 

Руководитель направления

«Специальные материалы»

_______________/Фисюренко Д.А./

 

Вед. Научный сотрудник

лаборатории архитектурной

акустики акустических материалов

________________/Градов В.А./

 

Руководитель службы

технической поддержки

_______________/Колдашев С.Н./

ОАО «ЦНИИПромзданий»

 

Зам. Генерального директора

________________/Гликин С.М./

 

Технический специалист

_______________/Лычиц А.Н./

Руководитель отдела кровель

________________/Воронин А.М./

 

 

Москва 2007 г.

Содержание

1. Введение.

Современный ритм жизни в мегаполисах несет в себе массу вредных воздействий, направленных на человека. Одним из наиболее вредных воздействий является разнообразный шум: работающая офисная техника, шум двигателя автомобиля, производственные шумы. Среда, в которой находится человек, ограниченная помещением, должна иметь такие характеристики, которые создавали бы комфортные условия для труда или отдыха человека. В последние годы проблемам звукоизоляции уделяется все больше внимания: человек хочет чувствовать себя более защищенным от внешней среды, посторонних звуков и шума. Наука не стоит на месте, и развивается в соответствии с этими возросшими требованиями, предлагая новые строительные материалы для решения этих проблем.

Наряду с воздушным шумом, в ограждающих конструкциях возникает и структурный шум - звук, распространяющийся в твердом теле, одной из форм которого является ударный шум под плитой перекрытия. Любое динамическое воздействие на несущую конструкцию передает по ней звуковые колебания, которые, в конечном итоге создают звуковое давление на человека.

Компания ТехноНИКОЛЬ, являясь лидером на российском рынке гидроизоляционных мембран, не осталась в стороне от проблемы звукоизоляции. В результате плодотворной работы специалистов научного центра компании совместно с НИИСФ РААСН были созданы материалы Техноэласт-Акустик и Техноэласт-Акустик Супер, применение которых в строительстве направлено на изоляцию ударных шумов, передающихся по несущей конструкции здания.

Настоящая инструкция распространяется на устройство изоляции от ударных шумов в конструкции плавающих полов, применяемых в производственных, жилых, общественных, административных и бытовых зданиях.

В инструкции изложены характеристики звукоизоляционных материалов Техноэласт-Акустик и Техноэласт-Акустик Супер, процедура укладки материалов, приведены конструкции плавающих полов.

При проектировании и устройстве полов, кроме указаний по укладке звуко- и гидроизоляционных материалов, должны выполняться требования действующих норм проектирования, правил техники безопасности по охране труда и противопожарной безопасности.

2. Описание материалов для звукоизоляции.

Техноэласт-Акустик (ТУ 5763-005-72746455-2007) - материал рулонный звукоизоляционный прокладочный. Материал производится на основе звукоизоляционного  стеклохолста, на одну сторону которого нанесен слой битумно-полимерного вяжущего, защищенного полимерной пленкой; применяется для устройства звукоизолирующих прокладок в конструкциях "плавающих полов" или других конструкциях, где требуется изоляция от ударных шумов.

Внешний вид материала приведен на фото.

Структура материала Техноэласт-Акустик.

Техноэласт-Акустик Супер (ТУ 5763-005-72746455-2007) - материал рулонный звуко- и гидроизоляционный. Производится на стекловолокнистой основе, на обе поверхности которой нанесено битумно-полимерное вяжущее, со слоем  звукоизоляционного геотекстиля с одной стороны и полимерной защитной пленкой с другой стороны полотна. Применяется для устройства звукоизолирующих прокладок и гидроизоляции в конструкциях "плавающих полов" или других конструкциях, где требуется изоляция от ударных шумов и влаги.

Физико-механические свойства материалов приведены в таблице 1.

Структура материала Техноэласт-Акустик Супер.

Таблица 1.

Характеристики

Техноэласт-Акустик

Техноэласт-Акустик Супер

Вес 1 кв.м., кг (не менее)

1,3

2,0

Толщина материала (± 0,2), мм*

2,5

4,8

Усилие на разрыв, не менее, Н

170

300

Динамический модуль упругости

при нагрузке 2 кПа, МПа, не более

0,20

0,25

Индекс снижения уровня ударного

шума ∆ Ln, дБ, не менее

21

23

Гибкость на R=25 мм, ºС, не выше

-

-15

Теплостойкость, ºС, не ниже

-

85

Водонепроницаемость при давлении 2 МПа, в течение 2 часов

-

абсолютная

Размеры рулона, м

15×1

10×1

* - методика измерения толщины указана в ТУ на материал.

3. Конструктивные решения плавающих полов.

3.1. Конструкция пола по плите перекрытия с устройством плавающей стяжкой:

Несущей конструкцией здесь может быть монолитный железобетон, пустотные и ребристые плиты перекрытия. Выравнивающие стяжки выполняются, как правило, по монолитному основанию. В случае, если поверхность монолитного железобетона ровная, выравнивающую стяжку можно не выполнять. Для ребристых и пустотных плит достаточно заделать стыки цементно-песчаным раствором.

Толщина выравнивающей стяжки должна быть достаточной для закрытия неровностей на несущем основании.

Толщина армированной цементно-песчаной стяжки задается в соответствии со СНиП 2.03.13 «Полы» по действующим нагрузкам на покрытие пола. В случае если в качестве финишного покрытия используется паркетные доски или щиты, вместо армированной цементно-песчаной стяжки можно использовать сборную стяжку из листов ГВЛ, фанеры, которая укладывается в два слоя вразбежку.

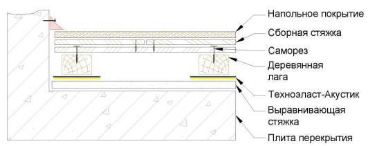
3.2. Конструкция пола с деревянными лагами.

Звукоизоляционный материал укладывается непосредственно на выравнивающую стяжку под деревянные лаги звукоизолирующей основой вниз таким образом, чтобы он выходил из-под лаги на величину не менее 20 мм.

В случае, если необходимо выполнить еще и гидроизоляцию пола, используют только материал Техноэласт-Акустик Супер, укладывая его по всей поверхности пола.

Для лаг используют нестроганые доски (ГОСТ 2695-83*, ГОСТ 8486-86*Е) 2-го и 3-го сортов из здоровой антисептированной древесины хвойных и мягких лиственных пород, за исключением липы и тополя. Толщину лаг, опирающихся непосредственно на звукоизоляционный материал следует принимать равной 40 мм и шириной 80 - 100 мм. Пролет лаг следует принимать не более 0,9 м. В покрытиях из паркетных досок толщиной 25 мм, пролет лаг принимают 400 - 500 мм, в покрытиях их паркетных щитов - 300 - 400 мм. При больших эксплуатационных нагрузках на пол, шаг лаг и их толщину следует устанавливать по расчету. Между лагами и стенами оставляют зазор 20 - 30 мм. Длина стыкуемых лаг должна быть не менее 2 м. Для изоляции от воздушного шума пролет между лагами может быть заполнен минераловатным утеплителем, обернутым в полиэтиленовую пленку.

3.3. Конструкция пола с укладкой звукоизоляционного материала под финишное покрытие.

Конструктив используется, как правило, при ремонте или замене финишного покрытия пола.

3.4. Конструкция пола с регулируемыми лагами.

В конструкции с деревянными регулируемыми лагами Техноэласт-Акустик укладывается под финишное покрытие пола. Выполнение выравнивающей стяжки необязательно.

4. Укладка материала Техноэласт-Акустик.

Работу с материалом производят в хлопчатобумажных перчатках и спец. одежде (одежда должна быть из плотной ткани, обувь - мягкая, без каблуков).

После подготовки поверхности для укладки материала в соответствии с п. 3.1., материал можно укладывать на основание.

Рулон раскатывают по основанию, примеряют по месту. При примерке необходимо учитывать, что материал укладывают с заведением на стены до высоты финишного покрытия. При необходимости материал обрезают по размеру с помощью острого ножа.

Материал укладывают звукоизоляционным слоем к основанию.

При укладке полотна материала в примыканиях к вертикальным конструкциям, его загибают на высоту финишного покрытия.

Затем подвигают все полотно до плотного прилегания к стенам. При необходимости место перегиба материала разравнивают.

В углу помещения полотно материала надрезается ножом на расстояние высоты подъема материала на вертикальную стенку.

Загибают вторую сторону полотна материала на вертикаль и формируют сплошное звукоизоляционное покрытие в углу помещения.

Раскатывают соседнее полотно материала. Вдоль полотна материала укладывают встык. В торцах рулона формируют нахлест не менее 20 мм. Окончания двух рулонов соседних полотен разносят на расстояние на менее 500 мм. Трубы, проходящие через плавающую стяжку, в обязательном порядке оборачиваются Техноэластом-Акустик. После выполнения и высыхания стяжки, в случае, если проводилась изоляция двух и более, рядом расположенных труб, пустоты заполняют монтажной пеной.

Рядом расположенные рулоны склеивают липкой лентой, шириной не менее 50 мм. Проклеивают продольные швы, поперечные нахлесты, перехлест материала в углу помещения, места прохода труб отопления, и т.п.

Теперь можно делать стяжку пола, согласно СНиП 2.03.13 «Полы» по действующим нагрузкам на покрытие пола.

Крепление плинтуса производят, как правило, к стенам. Между плинтусом и напольным покрытием оставляют зазор 1 - 2 мм.

В случае проводки труб через пол (трубы отопления, колонны, и т.п.), их оборачивают материалом Техноэласт-Акустик или Техноэласт-Акустик Супер, причем таким образом, чтобы исключить касание плавающей стяжки.

Для фиксации материала Техноэласт-Акустик вокруг трубы, его обматывают скотчем.

 

5. Укладка материала Техноэласт-Акустик Супер.

Работу с материалом производят в хлопчатобумажных перчатках и спец. одежде (одежда должна быть из плотной ткани, обувь - мягкая, без каблуков).

После подготовки поверхности для укладки материала в соответствии с п. 3.1., материал можно укладывать на основание.

Ввиду того, что материал Техноэласт-Акустик Супер помимо звукоизоляции является еще и гидроизоляцией, процедура его укладки отличается от процедуры укладки материала Техноэласт-Акустик.

Рулон раскатывают по основанию, примеряют по месту. При примерке необходимо учитывать, что материал укладывают с заведением на стены до высоты финишного покрытия. При необходимости материал обрезают по размеру с помощью острого ножа.

Материал укладывают звукоизоляционным геотекстилем к основанию.

При укладке полотна материала в примыканиях к вертикальным конструкциям, его загибают на высоту до финишного покрытия. Причем полотно материала укладывают геотекстилем к стене. В случае если кромка нахлеста приходится на устройство примыкания, ее срезают до звукоизоляционного слоя.

В углу помещения полотно материала надрезают ножом на расстояние высоты подъема материала на вертикальную стенку. Лепесток материала освобождают от геотекстиля и приклеивают его с помощью фена горячего воздуха.

Раскатывая соседний рулон, формируют продольный нахлест не менее 80 мм. При этом необходимо следить, чтобы звукоизоляционный слой вплотную прилегал к кромке соседнего рулона.

Нахлесты сваривают при помощи промышленного фена горячего воздуха.

Для формирования поперечного нахлеста от материала отделяют геотекстиль на величину 150 мм, при этом следят, чтобы не был поврежден гидроизоляционный слой.

Места торцевых нахлестов также сваривают промышленным феном горячего воздуха.

Таким образом получается сплошное звуко- гидроизоляционное покрытие.

Также для создания герметичных нахлестов можно использовать безосновные самоклеящиеся ленты NICOBAND или Техноэласт-БАРЬЕР Мини.

 

Непосредственно на материал Техноэласт-Акустик или Техноэласт-Акустик Супер укладывают плавающую стяжку. Толщину плавающей стяжки выбирают в соответствии со СНиП 2.03.13 «Полы» в зависимости от величины и интенсивности нагрузок, действующих на пол. Финишное покрытие выполняют после высыхания стяжки. Узел примыкания финишного покрытия выполняют в соответствии с рисунком.

Места примыканий к трубам, колоннам выполняют следующим образом.

Вырезают заготовку длиной, равной сумме высоты заведения материала на вертикаль и нахлеста на горизонтальную поверхность (не менее 100 мм). Отделяют от битумно-полимерного вяжущего геотекстиль и обматывают им вертикальную конструкцию до высоты финишного покрытия. Количество витков должно быть не менее одного. При необходимости скрепляют геотекстиль скотчем.

На оставшемся от заготовки битумно-полимерном полотне делают надрезы на величину нахлеста.

Оборачивают вокруг выступающей вертикальной конструкцией и сваривают феном горячего воздуха как вертикальный шов, так и нахлест материала на горизонталь.

Узел колонны выполняют тем же способом.

Служба технической поддержки Компании "ТехноНИКОЛЬ"

тел. +7(495)925-57-75

факс. +7(495)925-81-55

e-mail: tehno@tn.ru

WEB: www.tn.ru

 

 




ГОСТЫ, СТРОИТЕЛЬНЫЕ и ТЕХНИЧЕСКИЕ НОРМАТИВЫ.
Некоммерческая онлайн система, содержащая все Российские Госты, национальные Стандарты и нормативы.
В Системе содержится более 150000 файлов нормативно-технической документации, действующей на территории РФ.
Система предназначена для широкого круга инженерно-технических специалистов.

Рейтинг@Mail.ru Яндекс цитирования

Copyright © www.gostrf.com, 2008 - 2026