Министерство коммунального хозяйства РСФСР
Ленинградский
научно-исследовательский институт Академии коммунального хозяйства им. К.Д.
Памфилова
ТЕХНОЛОГИЧЕСКАЯ КАРТА № 2
Герметизация стыков наружных стеновых панелей, выполняемая при ремонте
крупнопанельных жилых домов серии 1-335
Утверждена приказом МКХ РСФСР № 113 от 1 апреля 1970 г.
Ленинград 1970 г.
Содержание
|
Технологическая карта № 2
|
Герметизация стыков наружных стеновых панелей, выполняемая при
ремонте крупнопанельных жилых домов серии 1-335
|
ЛНИИ АКХ
1969 г.
|
Настоящая технологическая карта разработана на герметизацию тиоколовыми
герметиками вертикальных и горизонтальных стыков наружных стеновых панелей
крупнопанельных жилых домов серии 1-335, находящихся в эксплуатации.
Типовая технологическая карта составлена на герметизацию стыков одного
80-квартирного жилого дома, при этом за единицу измерения в калькуляции принято
100 п.м. стыков.
1. Производство работ по герметизации стыков панелей наружных стен
крупнопанельных зданий серии 1-335 предусмотрено выполнять с одноместных и
двухместных люлек, навешиваемых на консольные балки, предназначенные для
крепления на пологоскатных крышах.
В отдельных случаях могут применяться вышки Ш2СВ-18 и др.
2. Тиоколовые герметики следует применять при температуре не ниже +5°С.
3. Запрещается производить герметизацию во время дождя и мокрого снега.
4. Перед началом герметизации стыки (рис. 1) следует
расчистить вручную с помощью скарпели и молотка или механизированным путем с
помощью электропневмомолотков удалить
специальным крючком оставшиеся в швах кусочки растворы и материалы
проконопатки, если они находятся в неудовлетворительном (необжатом) состоянии и
очистить металлической щеткой, а затем кистью герметизируемую поверхность стыка
от кустков раствора грязи и пыли.
|
Разработана
лабораторией технической эксплуатации
|
Утверждена
1 апреля 1970 г. приказом МКХ РСФСР № 113
|
Срок введения
" " ____ 19 г.
|
Герметизация стыков панелей наружных стен домов серии 1-335.
Фрагменты стыков.

Рис. 1
5. Поверхности, подготовленные под
герметизацию, не должны иметь следов видимой влаги. В противном случае
герметизируемую поверхность необходимо просушить.
Средствами сушки могут быть
сжатый воздух с подачей от компрессора, аппараты типа «ФЕН», инфракрасные
горелки типа АКХ, электрические peфлекторы.
6. В качестве основания под
тиоколовые герметики, при ширине стыков более 10 мм, должны использоваться
пористые резиновые прокладки (ПРП) типа пороизола или гернита. Последние
заводятся в расчищенный стык, в обжатом на 30-50% от первоначальной толщины
состоянии, путем закатывания их специальным роликом или ручными деревянными
чеканками. Перед заведением пороизола кромки стыка предварительно промазывают
мастикой "изол", а перед заведением гернита - клеем КН-2.
При герметизация стыков
значительной ширины ПРП могут заводиться в стык в сплетенном из нескольких
жгутов виде для обеспечения требуемой степени обжатия. Используемые при
герметизации ПРП должны быть сухими, чистыми и не иметь повреждений.
При ширине стыков до 10 мм
вместо ПРП в стыки заводится просмоленная пакля.
Приготовление тиоколовых герметиков
Приготовление тиоколовых герметиков,
вследствие быстрого их загустевания, должно осуществляться в помещении
при плюсовой температуре, в количествах, необходимых для работы одного человека
в продолжении 1,5-2 часов.
8. Герметики долины приготавливаться в чистой посуде (металлическом
ящике, ведре и т.п.) чистым инструментом, с перемешиванием состава
электрической мешалкой или вручную стальным шпателем при небольших количествах
герметика.
9. Подбор компонентов для герметика производится по таблице 1.
10. Компоненты тиоколовых герметиков У-30М и УТ-32 отвешиваются в
соответствии с таблицей 1. Отверждающая
паста № 9 растворяется в ацетоне или этилацетате до исчезновения комочков.
Полученный состав смешивается с ускорителем вулканизации (ДФГ). Затем вся
полученная смесь, при постоянном перемешивании, вводится в герметизирующую
пасту У-30 или УТ-32, перемешивание при этом продолжается 10 мин.
Контроль степени перемешивания осуществляется каждый раз после
приготовления очередной порции герметика (примерно 400-500 г на каждого
работающего) путем нанесения небольшого количества его на стекло, на котором
при этом не должны обнаруживаться комочки, при наличии последних перемешивание
продолжается.
11. Компоненты остальных тиоколовых герметиков также выбираются по
таблице 1.
Отверждающие пасты в тщательно перемешанном виде вводятся в
герметизирующие пасты. После соединения компонентов герметика вся масса, в свою
очередь, перемешивается в продолжении 10 мин, как описано выше, до полного
исчезновения комочков при пробах на стекле.
13. Компоненты тиоколовых герметиков должны храниться на складе при
плюсовой температуре в герметично
закрытой тape.
Таблица 1
Компоненты тиоколовых герметиков (в весовых частях)
|
Компонент
|
Марки герметиков
|
|
У-30М
|
УТ-32
|
ГС-1
|
КБ-1
|
TH-1
|
КБ-0,5
|
ТБ-0,5
|
ТМ-0,5
|
|
Герметизирующая паста У-30
|
100
|
|
|
|
|
|
|
|
|
Герметизирующая паста
УТ-32
|
|
100
|
|
|
|
|
|
|
|
Герметизирующая паста Г-1
|
|
|
100
|
|
|
|
|
|
|
Герметизирующая паста K-1
|
|
|
|
100
|
|
|
|
|
|
Герметизирующая паста T-1
|
|
|
|
|
100
|
|
|
|
|
Герметизирующая паста
К-0,5
|
|
|
|
|
|
100
|
|
|
|
Герметизирующая паста
Т-0,5
|
|
|
|
|
|
|
100
|
100
|
|
Отверждающая паста № 9
|
4-8
|
6-8
|
|
|
|
|
|
|
|
Отверждающая паста Б-1
|
|
|
14
|
12
|
|
12
|
11
|
|
|
Отверждающая паста № 30
|
|
|
|
|
12-23
|
|
|
12-23
|
|
Ускоритель вулканизации
дифенилгуанидин (ДФГ)
|
0,05-0,2
|
0,1-0,2
|
|
|
|
|
|
|
|
Растворитель (ацетон или
этилацетат)
|
8-10
|
8-10
|
|
|
|
|
|
|
Гарантийный срок хранения: паст У-30, Г-1, № 9
и Б-1 - 6 месяцев, пасты УТ-32 и ускорителя ДФГ - соответственно 3 и 12 мес.
Условия хранения не должны
допускать изменения заданных физико-механических свойств герметиков,
приведенных в таблице 2.
Таблица 2
|
Название герметика
|
Цвет
|
Жизнеспособность час, х)
|
Свойства герметиков
|
Наименование
ТУ
|
|
прочность кг/м2
|
деформативность не менее,
%
|
относительное удлинение %
|
остаточное удлинение %
|
|
У-30M
|
|
0,8
|
25
|
-
|
150
|
10
|
|
|
УТ-32
|
|
1
|
7
|
-
|
180
|
20
|
|
|
ГС-1
|
черный
|
1
|
35
|
-
|
140
|
15
|
|
|
KБ-1
|
-"-
|
1-6
|
5
|
100
|
-
|
-
|
ТУ-38-3 № 339-68
|
|
TM-1
|
серый
|
1-6
|
5
|
100
|
-
|
-
|
-"-
|
|
КБ-0,5
|
черный
|
1-6
|
3
|
170
|
-
|
-
|
-"-
|
|
ТБ-0,5
|
светло-желтый
|
1-6
|
3
|
180
|
-
|
-
|
-"-
|
|
ТМ-0,5
|
светло-серый
|
1-6
|
3
|
180
|
-
|
-
|
-"-
|
х) "Жизнеспособность'' - время с момента
приготовления герметика, в течение которого он сохраняет способность
образования ровной пленки на герметизируемой поверхности.
Нанесение герметиков
13. Герметики на поверхность
стыка следует наносить только после выполнения всех необходимых
подготовительных операций: расчистки и сушки стыка, проконопачивания его
смоляной прядью или заделки пористыми резиновыми прокладками, очистки
поверхностей стыка от пыли, грязи, промазкой поверхностей, соприкасающихся с
пороизолом мастикой "изол", а с гернитом - клеем КН-2.
14. Герметик следует наносить
шприцем конструкции НИИ ОМТП с последующим разравниванием шпателем.
При незначительном объеме работ
герметик наносить стальным шпателем 4; 6; 10 см.
15. Толщина пленки герметика
должна быть в пределах 2-2,5 мм и заходить на прилегающие к стыку кромки
панелей не менее, чем на 2,5 см. При этом ширина пленки должна быть одинаковая
как в горизонтальных, так и в вертикальных стыках.
На прилегающих в стыку
поверхностях стены не должно быть следов герметика.
16. На вертикальный стык
герметик наносить от карниза здания или верха парапета без разрыва пленки
движением шпателя сверху вниз. Если используется герметик У-30М, последний
следует наносить по слою клея 88Н, которым предварительно покрываются кромки
или фаски панелей за 10 мин до герметизации.
17. Работы по герметизации
стыков фиксируется а специальном журнале, ведение которого является
обязательным для исполнителя.
Форма журнала приводится ниже.
Журнал производстве работ по герметизации стыков панелей наружных
стен.
|
Дата проведения работ по
герметизации
|
Адрес объекта
|
Атмосферные условия во
время работы по герметизации (температура, влажность)
|
Местоположение обработанных
стыков (ориентация, вертикальный, горизонтальный, на какой высоте)
|
Сведения о подготовке
герметизируемых поверхностей
|
Результаты
физико-механических испытаний герметиков
|
Применяемые инструменты и
приспособления
|
Состав бригады и
квалификации
|
Запись технического надзора
о приемке
|
Примечание
|
|
подготовительных работ
|
работ по герметизации
|
|
|
|
|
|
|
|
|
|
|
|
|
Контроль качества
18. Контроль качества
герметизации стыков должен осуществляться в процессе работ и заключаться в
проверке:
- состояния поверхностей перед
нанесением герметика;
- точности дозировки компонентов;
- качества перемешивания
компонентов;
- чистоты посуды и инструментов;
- толщины и конфигурации пленки
нанесенного герметика;
- соответствия
физико-механических свойств герметиков, приведенным в таблице 2 (испытания проводятся по ГОСТ 270-64 на стадии
производства работ по герметизации, а также по истечении указанных в таблице
сроков хранения компонентов герметиков);
- степени обжатия ПРП или пакли;
- отсутствия следов герметика на
поверхности стен;
- воздухопроницаемости стыков
через 5-7 дней после завершения работ по герметизации в соответствия с
"Указаниями по проверке воздухопроницаемости стыков наружных стен
крупнопанельных зданий в Ленинграде." ЛНИИ АКХ, 1967г. (У-105-67).
Контроль качества перемешивания
компонентов осуществляется после приготовления небольшого количества на стекле,
на последнем не должны обнаруживаться комочки, при наличии таковых
перемешивание продолжается.
Техника безопасности
19. Стальные канаты и вся
подвесная система люлек до пуска в эксплуатацию должны быть проверены и
испытаны на двойную статическую нагрузку в течение 10 мин и на динамическую
нагрузку путем равномерного подъема, опускания и остановок люльки с грузом,
превышающим рабочий груз на 10%.
20. Крепление консолей для подвески люлек должно быть произведено к
надежным конструкциям точно по проекту, а крепление инвентарных консолей должно
полностью соответствовать инструкции.
Опирать консоли на карнизы
здания не разрешается.
21. Стальные канаты должны предохраняться от перетирания в
соприкосновении с выступами стен, кровли и т.д. путем устройства специальных
подкладок.
22. Диаметры стальных канатов,
поддерживающих люльки, должны быть определены расчетом с запасом прочности не
менее шестикратного.
23. Проходы под люльками должны
быть закрыты или защищены навесами.
24. Лебедки, служащие для
поднятия и опускания люлек, должны соответствовать расчетный нагрузкам и
оборудоваться двойными тормозными устройствами.
Лебедки, служащие для подъема и
опускания люльки и устанавливаемые на земле, должны быть загружены балластом
(весом не менее двойного веса люльки) с полной расчетной нагрузкой. Балласт, во
избежание смещения, прочно закрепляют на раме лебедки.
Запрещается доступ к лебедкам
посторонних лиц.
25. Не допускается применение
пеньковых канатов для подвески люлек.
26. Перегрузка люльки сверх
установленной предельной нагрузки не допускается.
27. Запрещается подъем и спуск
людей на люльках без помощи
лебедок.
Люльки, с которых работа не
производится, должны быть опущены на землю.
28. Все рабочие в люльке, а
также рабочие, занимающиеся перестановкой консолей и привязкой люлек на крыше,
должны быть снабжены предохранительными поясами привязываться веревками к
надежным частям здания.
29. При работе с тиоколовыми
герметиками запрещается пользоваться открытым огнем, так как растворители огне-
и взрывоопасны.
30. Работа с молотком С-549 разрешается
при напряжения до 220 В, но с обязательным применением диэлектрических
перчаток, галош и ковриков. Корпус молотка С-549 должен быть заземлен. Рабочий
при этом обязан иметь очки и респиратор.
31. Рабочий, занятый
приготовлением тиоколовых герметиков, должен быть в резиновых перчатках.
32. К работе у компрессора
допускаются лица, прошедшие специальное обучение и инструктаж по технике
безопасности и оказании первой помощи.
33. Перед началом работ рабочие
должны пройти инструктаж по технике безопасности на рабочем месте с занесением
инструктажа в специальный журнал.
34. После окончания работ
необходимо отключить электроинструменты и эл. лебедку от энергосети и закрыть
на замок главный рубильник.
Работы по герметизации стыков
панелей наружных стен крупнопанельных живых домов серии 1-335 при необходимости
сплошной герметизации вертикальных и горизонтальных стыков предусмотрено
выполнять двумя звеньями рабочих, состоящими из трех человек каждое (один
штукатур IV разряда, один - III разряда и один - II разряда или рабочими других специальностей,
подготовленными для герметизация стыков).
Работа в звене распределяется следующим образом. Двое рабочих работают с
люльки и выполняют все операции по герметизации стыков. Третий рабочий
приготовляет герметик, обслуживает лебедку (если люлька не самоподъемная),
помогает при перенавеске с передвижением ее по земле. В оставшееся время
выполняет все операции по герметизации горизонтальных и вертикальных стыков
первого этажа непосредственно с земли.
Перечень всех работ, подлежащих
выполнению при герметизации, трудовые затраты по их производству и стоимости
этих работ приведены в калькуляции трудовых затрат (таблица 3).
Таблица 3
Калькуляция трудовых затрат.
|
№№ пп
|
Основание к принятым
нормам
|
Наименование работ
|
Единица измерения
|
Объем работ
|
Норма времени на единицу
измерения, в чел.час.
|
Затраты труда на весь
объем работ, в чел.час.
|
Расценка на единицу
измерения, в руб.коп.
|
Стоимость затрат труда на весь
объем в руб.коп.
|
|
1
|
2
|
3
|
4
|
5
|
6
|
7
|
8
|
9
|
|
I. Подготовительные работы
|
|
1
|
ЕНиР I-II п.2а,д
(1969)
|
Погрузка на автомашину люлек, материалов и
инструментов при доставке их на объект и разгрузка
|
т
|
2,0
|
1,14
|
2,28
|
0-50
|
1-00
|
|
2
|
ЕНиР 1969г.
1-14 п.2
|
Подъем вручную (по блоку)
на крышу дома на высоту до 15 м консольных балок и др. элементов для навески
люлек
|
т
|
0,6
|
5,14
|
3,08
|
2-25
|
1-36
|
|
3
|
ЕНиР 1969г. 20-1-174 п.4,7
|
Установка блока на временной
консоли с последующей разборкой
|
шт.
|
1
|
1,75
|
1,75
|
0-98
|
0-98
|
|
4
|
ЕНиР 1969г. 1-14, п.2
|
Опускание с крыши дома
вручную (по блоку) с высоты до 15 м разобранных элементов крепления люлек
после окончания работ на доме
|
т
|
0,6
|
4,24
|
2,54
|
1-85
|
1-11
|
|
|
|
Итого
|
|
|
|
9,65
|
|
4-45
|
|
II. Герметизация стыков
(при работе с навесных двухместных люлек)
|
|
5
|
Применительно ЕНиР 1969
11-46 п.2н
|
Приготовление мастики с тщательным
перемешиванием электромешалкой. Замесы делаются порциями на 2 часа
непрерывной работы одним рабочим (из расчета приготовления 14 кг герметика на
100 п.м стыка)
|
100
п.м стыка
|
1
|
0,26
|
0,26
|
0-13
|
0-13
|
|
6
|
Применительно к
ЕНиР 20-1-140 т.l, п.
1в, 4-1-22 п.5, K=0,5 (1969)
|
Расчистка стыков от
цементно-песчаного раствора на глубину до 40 мм шириной до 20 мм
электропневмомолотками с удалением материала проконопачивания специальным
крючком
|
-"-
|
1
|
19,10
|
19,10
|
10-84
|
10-84
|
|
7
|
ЕНиР 20-1-140
т.2, п.1в, 4-1-22 п.5
К=0,5 (1969)
|
То же, вручную
|
-"-
|
1
|
35,10
|
35,10
|
17-74
|
17-74
|
|
8
|
ЕНиР 20-1-171
п.5 (1969)
|
Очистка стыков от следов
раствора, краски и грязи металлической щеткой и кистью вручную
|
-"-
|
1
|
2,5
|
2,5
|
1-10
|
1-10
|
|
9
|
Норма времени принята на
основании наблюдения за работой,
тарифный
разряд II
|
Просушка поверхности 25%
п.м стыков подогретым воздухом при ширине поверхности до 6-7 см
|
-"-
|
0,85
|
0,675
|
0,168
|
0-33
|
0-08
|
|
10
|
Применительно к ЕНиР 4-1-22
п.1 1969г.
|
Проконопачивание 15% всех стыков жгутом из смоляной
пакли (с приготовлением жгута) пре ширине стыка до 10 мм
|
100 п.м стыка
|
0,15
|
13,0
|
1-95
|
8-13
|
1-22
|
|
11
|
Применительно ЕНиР 11-35, п. I-A, К=1,2 в в.ч.
п. 3 1969г.
|
Проконопачивание 85% всех стыков пористыми
резиновыми прокладками (ПРП) в виде пороизола и т.п. при ширине стыка более
10 мм с предварительной промазкой мастикой «изол»
|
-"-
|
0,85
|
10,20
|
8,67
|
5-24
|
4-47
|
|
12
|
ЕНиР 1969г. 11-65 т.2, п. 2а К=1,2 в в.ч. п.3
|
Промазка кистью клеем 88Н кромок и фасок панелей в
случае герметизации стыка мастикой У-30М при ширине поверхности стыка 6-7 см
|
-"-
|
1
|
1,12
|
1,12
|
0-59
|
0-59
|
|
13
|
ЕНиР
1969
4-1-20
п. 2,3
|
Нанесение тиоколовой
мастики толщиной 2-2,5 мм на поверхность стыков шприцем при ширине
поверхности стыка до 6-7 см с последующим разравниванием шпателем
|
100 п. и
стыка
|
1
|
12,75
|
12,75
|
7-53
|
7-53
|
|
14
|
ЕНиР 1969
8-32
п. 10 1-14 п. 11
|
Перемещение по крыше
здания консольных балок для навески люлек с креплением их в соответствии с
проектом и перемещение по земле люлек, лебедок и др. оснастки после окончания
работ на захватке вдоль фасада здания на расстояние до 5,5 м с укреплением
блоков
|
-"-
|
1
|
5,0
|
5,0
|
2-93
|
2-93
|
|
15
|
Нормы приняты
на основании
наблюден. за работой.
тарифный разряд II
|
Работы по обслуживанию
механизмов на земле и подноска материалов к рабочему месту
|
-"-
|
1
|
11
|
11
|
0-555
|
6-11
|
|
|
|
Затраты труда и стоимость
рабочей силы на выполнение укрупненных операций.
|
|
|
|
|
|
|
|
|
а)
|
Подготовительные операции
(пп.1-4)
|
|
|
|
9-65
|
|
4-45
|
|
|
б)
|
Герметизация стыков герметиком
У-30М с механизированной расчисткой стыков от цементно-песчаного раствора
(пп. 5, 6, 8-15)
|
|
|
|
62,52
|
|
26-00
|
|
|
в)
|
То же, с ручной расчисткой
стыков (пп. 5, 7-15)
|
|
|
|
78,52
|
|
41-90
|
|
|
г)
|
То же, с механизированной расчисткой
стыков без подготовки клеем 88Н (пп. 5, 6, 8-11, 13-15)
|
|
|
|
61,40
|
|
34-41
|
|
|
д)
|
То же, с ручной расчисткой
стыков (пп.5, 7-11, 13-15)
|
|
|
|
77,40
|
|
41-31
|
|
|
е)
|
То же, с механизированной расчисткой
стыков без просушки их (пп. 5, 6, 8, 10, 11, 13-15)
|
|
|
|
61,23
|
|
34-33
|
Калькуляция дает возможность определить
трудовые затраты и стоимость их при различных способах выполнения ремонта
(например, при ручной или механизированной расчистке стыков и т.д.).
Разбивка фронта работ по герметизации
стыков на захватки приведена на рис. 2, последовательность работ - на рис. 3.
При выполнении работ двумя
звеньями продолжительность их определяется примерно в 17 смен.

Рис. 2

Рис. 3
1. Материалы на 100 п.м стыка.
|
№№ пп
|
Наименование
|
Марка
|
Един. изм.
|
К-во
|
Основания к принятым нормам
|
|
1
|
2
|
3
|
4
|
5
|
6
|
|
1
|
Герметик тиоколовый
|
ГС-1
|
кг
|
14,0
|
Сборник ЕР на ремонтно-строительные работы, вып.2,
Москва, 1967г. Жилуправление, институт "Мосжилпроект".
|
|
в том числе:
|
|
|
|
|
паста герметизирующая
|
Г-1
|
кг
|
12,2
|
|
паста отверждающая
|
Б-1
|
кг
|
1,8
|
|
2
|
Герметик тиоколовый
|
У-30М
|
кг
|
14,0
|
Сборник ЕР на ремонтно-строительные работы, вып.2, Москва.
1967г. Временные указания по замоноличиванию, герметизации и утеплению стыков
в крупнопанельных зданиях. Москва, 1963г.
|
|
в том числе:
|
|
|
|
|
паста герметизирующая
|
У-30
|
-"-
|
12,163
|
|
паста отверждающая
|
№ 9
|
-"-
|
0,730
|
|
Ускоритель вулканизации дифенингуанидин (ДФГ)
|
|
-"-
|
0,012
|
|
Растворитель (ацетон или этилацетат)
|
|
-"-
|
1,095
|
|
|
3
|
Герметик тиоколовый
|
УТ-32
|
кг
|
14,0
|
Сборник ЕР на ремонтно-строительные работы, вып.2, Москва,
1967г. Временные указания по герметизации, замоноличиванию и утеплению стыков
в крупнопанельных зданиях. Москва, 1963г.
|
|
в том числе:
|
|
|
|
|
паста герметизирующая УТ-32
|
|
-"-
|
12,163
|
|
паста отверждающая № 9
|
|
-"-
|
0,730
|
|
Ускоритель вулканизации дифенингуанидин (ДФГ)
|
|
-"-
|
0,012
|
|
4
|
Растворитель (ацетон или
этилацетат)
|
|
кг
|
1,095
|
|
|
Пакля смоляная (на 15%
стыков при расходе 0,14 кг п.м)
|
|
кг
|
21,0
|
Сборник ЕР на ремонтно-строительные
работы, вып.2, Москва, 1967г.
|
|
5
|
Прокладки пористые
резиновые (ПРП), гернит на 85% стыков при расходе 0,68 кг на п.м
|
П
|
кг
|
57,6
|
Временные указания по герметизации, замоноличиванию и
утеплению стыков в крупнопанельных зданиях. Москва, 1963г.
|
|
6
|
Клей
|
88-П
|
кг
|
1,0
|
Установлено опытным путем.
|
|
7
|
Изол
|
-
|
кг
|
7,0
|
Временные указания по герметизации, замоноличиванию и
утеплению стыков в крупнопанельных зданиях. Москва, 1963г.
|
|
8
|
Клей-мастика
|
КН-2
|
кг
|
3,0
|
То же
|
Примечание: В разделе IV «Материально-технические
ресурсы» приводятся в качестве примера только три марки тиоколовых герметиков
ГС-1, У-30М и УТ-32. В случае применения других марок герметиков проводится
дополнительный расчет.
2. Машины, инструмент, в т.ч. механизированный, и приспособления
(на одно звено работающих.)
|
№№ пп
|
Наименование
|
Тип
|
Марка
|
К-во
|
Техническая характеристика
|
|
1
|
Люлька двухместная
|
|
|
1
|
см. таблицу 4
|
|
2
|
Люлька одноместная
|
|
|
1
|
см. таблицу 4
|
|
3
|
Лебедка электрическая для
подъема одноместной люльки
|
|
Т-66А
|
1
|
Q =
0,5 т
Ø каната 7,7 мм
n =
950 об/мин
l
= 85 м
N =
2,8 кВт
|
|
4
|
Электропневмомолотки
|
|
|
2
|
см. таблицу 4
|
|
5
|
Шпатели:
|
|
|
|
|
|
|
1) стальной
|
ШСП-100
|
|
2
|
ГОСТ 10778-64
|
|
|
2) деревянный с резиновым
наконечником
|
|
|
1
|
Трест Мосгорсгрой
Главмосстроя при Мосгорисполкоме
|
|
6
|
Скарпели для расчистки швов
шириной менее 10 мм
|
СТР 20-6
|
|
3
|
НИИ синтетических
сверхтвердых материалов и инструмента Госплана УССР
|
|
7
|
Молоток-кулачек
|
МКУ
|
|
|
ГОСТ 11042-64
|
|
8
|
Киянка для конопатки
стыков
|
|
|
3
|
120´60´140 длина рукоятки 400
|
|
9
|
Чеканка
|
|
|
S
|
НИИСП Госстроя УССР
|
|
10
|
Электромешалка для
перемешивания пасты на базе электродрели
|
|
|
1
|
Производительность 30 кг/ч
N =
0,4 кВт
см. таблицу 4
|
|
11
|
Ящик стальной для приготовления мастики
|
|
|
1
|
Ø = 300 мм
h
= 500 мм
|
|
12
|
Компрессор передвижной
|
|
0-39
|
1
|
Производительность 0,25 м3/мин
Р = 7 ати
N = 2,8 кВт
|
|
13
|
Щетка стальная
прямоугольная
|
|
|
3
|
Гипрооргсельстрой
Минсельстроя СССР
|
|
14
|
Приспособление для
закатывания жгута из пороизола
|
|
|
3
|
см. таблицу 4
|
|
15
|
Шприц конструкции НИИ ОМТП
|
|
|
3
|
Емкость цилиндра 0,8 л,
ход поршня 280 мм, Ø поршня 60 мм вес (без мастики) 1,6 кг
|
|
16
|
Установка для сушки
поверхности стыков
|
|
|
1
|
см. таблицу 4
|
ТАБЛИЦА 4
основных средств механизации, рекомендуемых для применения при ремонте
крупнопанельных жилых домов
|
Наименование и краткое
описание
|
Техническая характеристика
|
Иллюстрация
|
|
1
|
2
|
3
|
|
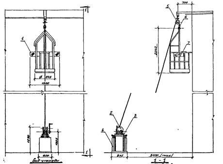
Самоподъемная люлька конструкции
Мосжилуправления
|
|
|
|
Люлька подвешивается на двух металлических канатах.
Подъем и опускание производится двумя ручными лебедками.
Каркас люльки изготовлен
из полосовой стали, настил деревянный, ограждение трубчатое.
Лебедки имеют зубчатые
передачи и безопасные рукоятки с храповыми собачками.
Для облегчения перемещения
вдоль фасадов зданий люльки оборудуются роликами или колесами диаметром
100-150 мм.
|
Грузоподъемность - 250 кг
Высота подъема - 30 м
Скорость подъема - 1,5-2
м/мин
Усилие на рукоятке лебедки
- 7 кг
Вес люльки - 250 кг
Габаритные размеры:
длина - 4000 мм
ширина - 1020 мм
высота - 1450 мм
Рабочее звено - 2 чел.
|
см. рис. 1
|
|
Люлька конструкции треста
"Фасадремстрой-1" УКР Ленгорисполкома
|
|
|
|
Люлька состоит из трех
основных частей:
1) неподвижная часть,
2) подвижная часть,
3) две балки консольные
складные.
Неподвижная часть люльки состоит
из рамы, на которой установлен привод в виде эл. двигателя, редуктора в 3-х
барабанов на одной оси для накатывания тросов. Два барабана служат для
подъема и опускания люльки, и один для страховочного троса.
Рама, в свою очередь,
установлена на тележку компрессора ЗИФ-55, прицепа к автомашине или др.
Подвижная часть
представляет собой собственно люльку, изготовленную из сортового алюминия с
двумя коромыслами.
Две консольные балки
состоят из двух частей каждая, которые позволяют складывать и устанавливать
их под разными углами на 15 и 30° в зависимости от
конструкции крыши.
Пусковая аппаратура, кроме
кнопки управления, устанавливается на неподвижной части люльки.
Кнопка управления и
конечные выключатели устанавливаются на подвижной части люльки.
Люлька снабжена
автоматическим отключением привода при перегруз, а также, если она
зацепляется о какое-либо препятствие при подъеме или опускании.
Люлька снабжена ловителями
на случай обрыва основного каната. Люлька перевозится на собственных колесах.
Дополнительный груз на
нижней части люльки - 300 кг.
|
Грузоподъемность - 250 кг
Высота подъема
максимальная - 30 м
Скорость подъема
(опускания) средняя - 0,1 м/сек
Длина подвесной части
люльки - 5 м
Вес люльки - 280 кг
Вес тележки с лебедкой -
1450 кг
|
см. рис. 2
|
|
Самоподъемная передвижная
одноместная люлька СД-120
|
|
|
|
Люлька состоит из
собственно люльки и подъемного механизма, который в свою очередь состоит из
4х колесной каретки, электролебедки подъема, двух лонжеронов и механизма
ручного привода, обеспечивающего возможность подъема и опускания люльки при
отсутствии электроэнергии.
Для обеспечения
безопасности работ и ограничения высоты подъема люльки на одном лонжероне
установлен конечный выключатель, а на другом предохранительное устройство,
которое разрывает цепь в случае отказа конечного выключателя или пригорания
контактов электромагнитного пускателя.
От подъемного механизма к
самой люльке подводится кабель с кнопочной станцией для дистанционного
управления подъемом и опусканием непосредственно с люльки.
Перемещение каретки, а
вместе с ней и люльки, в горизонтальном направлении производится по
направляющим, которые устанавливаются на парапете и на крыше.
|
Максимальная полезная
нагрузка - 120 кг
Максимальная канатоемкость
барабана - 45 м
Скорость подъема люльки
электролебедкой 10 м/мин.
Скорость подъема люльки
вручную до 1,2 м/мин.
Мощность электродвигателя AOЛ
2-31-1 - 1,5 кВт.
Габариты люльки:
длина - 2,6 м
ширина – 0,6 м
высота - 1,15 м
Вес люльки - 75 кг
Вес каретки с механизмом
подъема - 295 кг.
|
см. рис. 3
|
|
Люлька двухместная ЛЭ-30-250
конструкции СКБ "Мосстрой"
|
|
|
|
Люлька снабжена ловителями на случай обрыва с
грузового каната или превышения скорости опускания.
Управляют работой лебедок с пульта управления,
установленного на настиле люльки.
В комплект люльки входят два подвесных блока с
карабинами для крепления к консолям, два грузовых каната и две ручки для
ручного привода лебедок на случай прекращения подачи электроэнергии.
Электролебедки, два ловителя и электрооборудование
установлены на каркасе люльки.
Металлоконструкция люльки сварная из уголков - труб.
|
Максимальная высота подъема - 30 м
Допускаемая рабочая нагрузка - 250 кг
Скорость подъема или опускания – 8 м/мин
Количество лебедок на люльке - 2 шт.
Марка лебедки - ЛТ-250
Тяговое усилие одной лебедки - 250 кг
Мощность электродвигателя лебедки - 0,6 кВт
Канатоемкость барабана лебедки при навивке в два
слоя - 67 м
Габаритные размеры:
длина – 5000 мм
ширина – 850 мм
высота – 1700 мм
Вес (подвесной) – 500 кг
|
см. рис. 4
|
|
Люлька самоподъемная двухместная
конструкции ДСК-2 Главленинградстроя
|
|
|
|
Люлька предназначена для
производства ремонтных работ на фасаде крупнопанельных жилых домов двумя
человеками.
Электродвигатель и
двухбарабанная лебедка смонтированы под настилом люльки.
Люлька снабжена ловителем
и конечным выключателем.
Передвижение люльки по
земле осуществляется помощью 4-х колес.
Металлоконструкция люльки
сварная из труб.
|
Грузоподъемность люльки -
250 кг
Высока подъема - 30 м
Скорость подъема - 6,3¸8 м/мин.
Лебедка двухбарабанная:
диаметр барабана - 159 мм
длина барабана - 200 мм
Диаметр грузового каната -
7,6 мм
Количество грузовых
канатов – 2
Канатоемкость барабана при
4-х слойной навивке - 62 м
Род тока: переменный,
трехфазный.
Напряжение - 220/380 В.
Мощность эл. двигателя -
1,1 кВт
Габаритные размеры:
длина - 3396 мм
ширина - 967 мм
высота – 2500 мм
Вес - 390 кг
|
см. рис. 5
|
|
Люлька одноместная. Конструкция
ДСК-2 Главленинградстроя.
|
|
|
|
Люлька предназначена для
производства ремонтных работ на фасаде
крупнопанельных жилых домов одним человеком.
Для подъема и опускания
люльки служит лебедка ручная, передвижная.
Для обеспечения
устойчивости лебедки при работе в карманы рамы заливается бетон с объемным
весом -2000 кг/м3.
|
Люлька одноместная
Грузоподъемность - 150 кг
Габаритные размеры:
ширина - 746 мм
длина - 927 мм
высота - 2326 мм
Вес - 67 кг
Лебедка ручная
передвижная.
Тяговое усилие в канате -
125 кг
Канатоемкость барабана -
160 п.м
Режим подъема и опускания
- принудительный.
Вес передвижной ручной
лебедки - 445 кг.
|
см. рис. 6
|
|
Люлька одноместная конструкции ДСК-3 Главленинградстроя.
|
|
|
|
Люлька подвешивается на
металлическом канате. Подъем и опускание производится электрической или
ручной лебедками, устанавливаемыми на земле.
Металлоконструкция люльки
сварная из труб.
Люлька имеет карманы для
установки в них ящиков с материалами и инструментами.
|
Грузоподъемность - 100 кг
Максимальное удаление
лебедки от стены здания – 8 м
Габаритные размеры:
в) люлька:
диаметр - 965 мм
высота - 2040 мм
б) лебедка с рамой:
длина - 835 мм
ширина - 620 мм
высота - 1165 мм
Вес
в) люлька - 59 кг
б) лебедка с рамой - 87 кг
Вес противовесов (общий) -
195 кг
Количество противовесов –
4 шт.
|
см. рис. 7
|
|
Ловитель для страховки рабочих при
падение подвесных люлек.
|
|
|
|
Предложение Г.С. Петрова,
А.С. Гуслякова.
Приспособление состоит из
следующих деталей: страховочного троса 1 диаметром 8 мм и длиной, зависящей
от высоты здания и расстояния до места крепления к конструкциям,
корпуса-обоймы 2 из листовой стали толщиной 8 мм с пружиной 3 из стальной
проволоки диаметром 2,5 мм, рукояти-рычага 4 с отверстием 5 (диаметр 16 мм)
для карабина монтажного пояса на одном конце и эксцентриковым кулачком 6,
имеющим притупленную насечку на рабочей плоскости, на другом.
Ловитель устанавливается
на тросе и фиксируется под тяжестью рукояти и прижимной пружины
эксцентриковым выступом к тыльной поверхности корпуса.
При рывке рукояти вниз
трос у корпуса изгибается под углом 90° и зажимается эксцентриком
тем сильнее, чем сильнее рывок или давление ручки вниз.
|
|
см. рис. 8
|
|
Ловитель для закрепления на
страховочном тросе работающих с подвесной люльки.
Предложение
Е.А. Сиревича.
|
|
|
|
Рядом с люлькой натягивается
стальной страховочный трос 1 диаметром 9 мм. На один конец троса, надежно
закрепленный вверху на здании, надеваются ловители 2 по количеству рабочих,
второй конец закрепляется внизу за якорь.
Зацепившись карабином 3
предохранительного пояса за рычаг 4 ловителя, работающий может свободно
передвигаться на рабочем месте, при этом ловитель перемещается за ним по
тросу.
В случае падения рычаг под
действием веса упавшего прижимает трос к стенкам корпуса ловителя, падение
прекращается и рабочий подхватывается страховочным тросом.
|
|
см. рис. 9
|
|
Консоль к люлькам для домов серии
«ОД» и ЛГ-502. Конструкция ДСК-2
Главленинградстроя.
|
|
|
|
Консоль предназначена для
навешивания одноместных и двухместных люлек при производстве ремонтных работ
по фасадам домов серии "ОД" и ЛГ-502.
При навешивании
одноместной люльки используется один комплект консоли, а при навешивании
двухместной люльки соответственно два комплекта.
Люльки навешиваются на
консоль поз. 1. Вспомогательный страхующей кронштейн поз. 2 служит в качестве
страхующего устройства. Для этого канат с карабином, закрепленный на барабане
лебедки страхующего кронштейна, заводится за распорку страхующего кронштейна,
затем за распорку подвеси и конец с карабином закрепляется на распорке
страхующего кронштейна.
Второй канат, закрепленный
на распорке кронштейна, пропускается через распорки и ось блока на ловитель
люльки.
|
Грузоподъемность - 350 кг
Вес консоли -70,3 кг
в том числе:
консоль - 30,3 кг
кронштейн страхующий - 40
кг
|
см. рис. 10
|
|
Консоль конструкции А.И. Кодкина (Мocква)
для подвески люлек.
|
|
|
|
Консоли могут применяться
для подвески люлек на зданиях со скатными, а также с плоскими крышами.
Консоли предназначены для
подвески любых люлек, как самоподъемных (т.е. с лебедками, установленными непосредственно
на люльке), так и люлек с лебедками, установленными на земле.
Консоль выполнена в виде
двух А-образных трубчатых металлоконструкций, сидящих на одной оси, которая
продета через проушины основания, включающее в себя деревянный брус, который удерживается
винтовыми прижимами.
Консоли легко разбираются.
Вес отдельного узла не
превышает 15 кг.
|
Каждая консоль рассчитана
на нагрузку
- 800 кг (от веса люльки и
находящихся в ней вещей и материалов).
Вес каждой консоли - 67
кг.
|
см. рис. 11
|
|
Телескопическая вышка ВИ-23 на
автомобиле ЗИЛ-157 с высотой подъема 23 м
|
|
|
|
Телескопическая вышка ВИ-23
предназначена для подъема двух рабочих с инструментом на высоту до 23 м при
выполнении строительно-монтажных или ремонтных работ.
Привод от двигателя
осуществляется через раздаточную коробку автомобиля, коробку отбора мощности,
карданный вал и раздаточную коробку
лебедки.
Телескопическая часть
устанавливается на кронштейн, закрепленный на раме автомобиля, и при
транспортировке укладывается на специальную подставку.
Телескоп состоит из пяти
раздвигающихся стальных труб. На конце последней трубы укреплена монтажная
площадка-корзина. Все трубы раздвигаются одновременно и с одинаковой
скоростью.
Вышка оборудована
устройством для автоматического выключения коробки отбора мощности при
подъеме площадке на полную высоту. Управление вышкой осуществляется из кабины
автомобиля.
|
Наибольшая высота подъема
(с учетам роста рабочего) - 23 м
Грузоподъемность корзины -
200 кг
Скорость подъема вышки при
1300 оборотах двигателя - 7,5 м/мин.
Скорость опускания - 8
м/мин.
Скорость передвижения
вышки до 40 км/час.
Наибольший вес груза,
перевозимого в кузове
- 500 кг.
Грузовая лебедка:
грузоподъемность - 300 кг
высота подъема груза - 23
м
Максимально допустимая при
работе скорость ветра - 10 м/сек
Габаритные размеры в
транспортном положении:
длина - 8,35 м
ширина - 2,35 м
высота - 3,72 м
|
см. рис. 12
|
|
Примечание: Вышка ВИ-23А является
модернизацией вышки ВИ-23 и аналогична ей по конструкции. Новая вышка
смонтирована на автомобиле ЗИЛ-164.
|
Габаритные размеры в
рабочем положении:
длина - 7,15 м
ширина с выдвинутыми опор.
домкратами - 3,2 м
высота до пола площадки:
максимальная - 21,65 м
минимальная - 6,34 м
Вес вышки:
с автомобилем - 8950 кг
без автомобиля - 3000 кг.
|
|
|
Телескопическая вышка на
автомобиле ГАЗ-51 с высотой подъема 15,3 м
|
|
|
|
Вышка предназначена для
подъема двух рабочих с инструментом при монтажных или ремонтных работах на
высоте.
Основными узлами вышка являются
коробка отбора мощности, редуктор с барабанами, телескопическая часть и
рычаги управления.
Телескопическая часть
состоит из раздвигающихся стальных
труб и монтажной площадки-корзины, укрепленной на конце последней трубы. Все
трубы раздвигаются одновременно и с одинаковой скоростью.
Подъем вышки производится
с помощью редуктора. Редуктор – самотормозящий и предохраняет вышку от
произвольного опускания.
Вышка снабжена
пневматическим тормозом, что предохраняет площадку от падения в случае обрыва
каната.
Управление вышкой
осуществляется из кабины автомобиля.
|
Наибольшая высота подъема
(до пола площадки) - 15,3 м
Грузоподъемность корзины -
150 кг
Наибольший вес груза,
перевозимого в кузове - 500 кг
Максимально-допустимая при
работе скорость ветра - 10 м/сек
Габаритные размеры в
транспортном положении:
длина - 6,11 м
ширина - 2,2 м
высота - 3,48 м
Габаритные размеры в
рабочем положении:
длина - 5,87 м
высота (исходная) - 4,56 м
высота (максим.) - 15,3 м
Вес вышки
с автомобилем - 4470 кг
без автомобиля - 1950 кг
|
см. рис.13
|
|
Шарнирная двухсекционная вышка
Ш2СВ-18 конструкции ЛНИИ АКХ
|
|
|
|
Шарнирная двухсекционная вышка
Ш2СВ-18 предназначена для профилактического осмотра и ремонта фасадов зданий
и других работ на высоте до 18 м.
Вышка установлена на
самоходном прицепе, который может передвигаться на участке со скоростью 1
км/час.
Механизмы подъема
выполнены в виде винтовых домкратов с индивидуальным приводом от
электродвигателя.
При стационарной стоянке
вышки можно осуществлять работы в радиусе до 16м.
Возможность управления из
люльки позволяет обходить выступающие части фасадов зданий, балкона, провода.
Конструкция вышки
обеспечивает безопасную работу на высоте.
|
Тип вышки - шарнирная
двухсекционная.
Максимальная высота до
пола люльки - 16,2 м
Максимальный вылет опор –
9 м
Грузоподъемность - 150 кг
Время перевода в рабочее
положение - 15 мин.
Габаритные размеры:
длина - 0,5 м
ширине - 2,8 м
высота - 3,2 м
Рабочий вес – 7 т
|
см. рис. 14
|
|
Молоток-зубило
|
|
|
|
Предназначен для отбивки плотной
ржавчины, прочно сцепленной окалины и старой краски в углах и труднодоступных
местах, а также для зачистки кромок и сварных швов.
Молоток может быть
использован при слесарно-сборочных, монтажных и ремонтных работах.
|
Число ударов - 1500
уд/мин.
Рабочее давление воздуха - 6 ат
Расход воздуха - 0,15 м3/мин
Диаметр воздухопроводного
шланга в свету - 9 мм
Длина молотка - 140 мм
Вес молотка - 1,5 кг
|
см. рис. 15
|
|
Примечания:
1. Изготовитель: заводы судостроения
(изготовляется для предприятий судостроительной промышленности).
2.
Конструкция разработана Центральным научно-исследовательским институтом
технологии судостроения.
3. Данные
взяты из каталога-справочника "Механизированный инструмент и отделочные
машины". Изд. "Машиностроение", М, 1967, с.315.
|
|
Молоток C-549.
|
|
|
|
Предназначен для пробивки
мелких борозд и гнезд в кирпичной кладке и бетоне при электромонтажных
работах, а также для насечки бетонных и кирпичных поверхностей при отделочных
работах. Молоток может быть применен для художественной обработки камня
(мрамор, известняк).
Молоток имеет
компрессионно-вакуумный ударный механизм с автоматическим переходом на
холостой ход.
Молоток комплектуется
штепсельным соединением И-145 и сменным рабочим инструментом (пика, зубило,
бучарда).
|
Энергия удара бойка - 0,2
кгм
Число ударов бойка - 1600
уд/мин.
Режим работы - длительный.
Электродвигатель
(коллекторный) номинальная мощность - 120 Вт
Род тока - переменный,
однофазный.
Напряжение - 220 В
Частота тока - 50 Гц
Габаритные размеры:
длина - 348 мм
ширина - 76 мм
высота - 190 мм
Вес молотка (без кабеля и
раб. инструмента) - 3,5 кг
|
см. рис. 16
|
|
Примечание:
1. Чертежи и
опытные образцы молотка изготовлены ВНИИСтройдормаш.
2. Данные
взяты из каталога-справочника "Механизированный инструмент и отделочные
машины". изд. "Машиностроение", М, 1967, с. 99.
|
|
Молоток МЗС
|
|
|
|
Предназначен для зачистки
сварных швов от шлака, застывших капель и брызг металла, а также для легкой
клепки, рубки и чеканки.
Молоток может быть
использован и на строительных объектах.
Малые размеры и вес
молотка позволяют применять его для работы в труднодоступных местах.
|
Энергия удара – 0,15-0,2 кгм.
Число ударов – 2800-3000
уд/мин.
Давление воздуха в сети –
6 ат.
Наибольший расход воздуха
- 0,3 м3/мин.
Диаметр воздухопроводного
шланга в свету -
9 мм
Габаритные размеры:
длина - 250 мм
ширина - 48 мм
высота - 51 мм
Вес молотка - 1,0 кг
|
см. рис. 17
|
|
Примечания:
1. Изготовитель: заводы судостроения
(изготовляется для предприятий судостроительной промышленности).
2.
Конструкция разработана Центральным научно-исследовательским институтом
технологии судостроения.
3. Данные
взяты из каталога-справочника "Механизированный инструмент и отделочные
машины". Изд. "Машиностроение", М, 1967, с.314.
|
|
Приспособление для закатывания
жгутов из пороизола или гернита в стык вручную.
|
|
|
|
Состоит из одного рабочего
и трех направляющих роликов, насаженных на общую ось, и рукоятки.
|
Длина - 650 мм
Вес - 1,4 кг
|
см. рис. 18
|
|
Установки для сушки поверхности
стыков.
|
|
|
|
Состоит из трех газовых
горелок ветроустойчивых инфракрасного излучения (ГИИВ-1). Горелки
смонтированы на несущей раме и связаны шлангом с баллоном сжиженного газа
(пропан-бутан) емкостью 25-27 литров бытового назначения. Баллон снабжен
редуктором РД или РДК.
Установка снабжена
специальным устройством для подвешивания на люльке и ориентирования по стыку.
|
Горелка работает при
скорости ветра до 5 м/сек.
Теплоотдача - 4500 к.кал/ч
Время разогрева - 45-55
сек.
Длина одновременного
обогрева поверхности - до 1,2 м
Расстояние экрана до
объекта обогрева - 0,18-0,25 м.
|
см. рис. 19
|

Рис. 1

Рис. 2 Люлька конструкции треста
«Фасадремстрой-1» УКР Ленгорисполкома
1 – люлька; 2 – балка консольная; 3 - лебедка

Рис. 3 Самоподъемная передвижная одноместная
люлька СЛ-120 конструкции минского ДСК-1
1 – 4х колесная каретка; 2 – механизм ручного привода; 3 –
электродвигатель; 4 – редуктор; 5 – барабаны для навивки тросов

Рис. 4. Люлька для отделки фасадов ЛЭ-30-250

Рис. 5. Люлька самоподъемная двухместная
конструкции ДСК-2 Главленинградстроя
1 – металлоконструкции люльки; 2 – лебедка; 3 – ловитель; 4 – упор отключающий;
5 - электрооборудование

Рис. 6. Люлька одноместная конструкции ДСК-2
Главленинградстроя
1 – люлька-корзина; 2 – блок; 3 - ловитель

Рис. 7. Люлька одноместная конструкции ДСК-3
Главленинградстроя
1 – люлька; 2 – лебедка ручная; 3 – рама; 4 – противовес; 5 – блок
уравнительный; 6 – карабин; 7 – бачок
Ловитель для страховки рабочих при падении подвесных люлек
Предложение Г.С. Петрова, А.Б. Гуслякова.

Рис. 8
Ловитель для закрепления на страховочном тросе работающих с
подвесной люльки
Предложение А.Е. Сиревича

Рис. 9

Рис. 10. Консоль к люлькам для домов серии
«ОД» и ЛГ-502 конструкции ДСК-2 Главленинградстроя
1 – консоль; 2 – кронштейн страхующий; 3 - барабан

Рис. 11. Установка консолей конструкции А.И.
Кодкина (Москва) на зданиях с пологоскатными крышами
1 – консоль 2 штуки, вес 1 шт – 49 кг; 2 – кронштейн задний 2 штуки, вес 1 шт –
7,9 кг; 3 – кронштейн для крепления в продухах 2 штуки, вес 1 шт – 9 кг;

Рис. 12. Телескопическая вышка ВИ-23 на
автомобиле ЗИЛ-157

Рис. 13. Телескопическая вышка на автомобиле
ГАЗ-51

Рис. 14. Шарнирная двухсекционная вышка
Ш2СВ-18

Рис. 15. Молоток-зубило пневматический

Рис. 16. Молоток С-549

Рис. 17. Молоток МЗС

Рис. 18. Приспособление (ролик) для
закатывания жгута из пороизола

Рис. 19

Рис. 20. Электромешалка