Крупнейшая бесплатная информационно-справочная система онлайн доступа к полному собранию технических нормативно-правовых актов РФ. Огромная база технических нормативов (более 150 тысяч документов) и полное собрание национальных стандартов, аутентичное официальной базе Госстандарта. GOSTRF.com - это более 1 Терабайта бесплатной технической информации для всех пользователей интернета. Все электронные копии представленных здесь документов могут распространяться без каких-либо ограничений. Поощряется распространение информации с этого сайта на любых других ресурсах. Каждый человек имеет право на неограниченный доступ к этим документам! Каждый человек имеет право на знание требований, изложенных в данных нормативно-правовых актах!

  


 

Министерство жилищно-коммунального хозяйства РСФСР

Ленинградский научно-исследовательский институт
ордена Трудового Красного Знамени
Академии коммунального хозяйства им. К.Д. Памфилова

ТЕХНОЛОГИЧЕСКАЯ КАРТА №37

Улучшение звукоизолирующей способности межквартирных перегородок крупнопанельных жилых домов серии 1-464А

Ленинград
1974 г

Содержание

Область применения

1. Настоящая технологическая карта разработана на выполнение работ по улучшению звукоизолирующей способности межквартирных перегородок толщиной 12 см в крупнопанельных домах серии 1-464А, находящейся я эксплуатации.

Технологическая карта составлена на одну-, двухкомнатную квартиру с двумя межквартирными перегородками (площадь перегородок - 80,13 м2).

Организация и технология ремонтного процесса

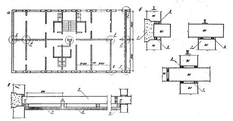
2. Улучшение звукоизолирующей способности межквартирных стен и перегородок достигается устройством дополнительных слоев из мягких древесноволокнистых плит и надлежащей заделкой швов в местах сопряжений перегородок с соседними конструкциями (рис. 1.)

Работы предусматривается проводить не во всех квартирах дома, а только в таких, где недостаточная звукоизоляция жилых помещений вызывает жалобы населения (например: перегородки между квартирами, заселенными большими семьями с детьми, перегородки, установленные с нарушением правил производства работ, т.п.). При этом несоответствие звукоизолирующей способности межквартирных перегородок нормативным требованиям, приведенном в СНиП II-Д.1-71, должно быть подтверждено результатами инструментальных измерений.

3 Доставка материалов к месту работы производится с помощью устанавливаемой на земле электролебедки типа Л-0,125, подъемный блок которой навешиваема на консольную балку, закрепленную на пологоскатной крыше (рис. 2). При отсутствии лебедки Л-0,125 возможно использование лебедки Т-66А, грузоподъемностью 500 кв. В отдельных случаях, при небольшом объеме работ допускается подъем материалов вручную. При любом способе доставке материалов древесноволокнистые плиты и листы сухой штукатурки разрезаются по ширине пласта на две части 1,80×1,20 и 0,90×1,2 м. Разрезка на более мелкие части запрещается.

При подъеме материалов с помощью лебедки плиты укладываются в контейнер не более:

древесноволокнистые - 3 плиты размером 1,30×1,20 м

 и 3 плиты размером 0,90×1,20 м

сухой штукатурки - 1 плита размером 1,80×1,20 м

и 1 плита размером 0,90×1,20 м

Конструкция контейнера представлена на рис. 3.

При разгрузке торец контейнера ставится на нижний брус оконной коробки, снимается накладка (крючок) в материал втаскивается внутрь комнаты.

4. Работа по усилению звукоизолирующей способности межквартирных перегородок производится в следующем порядке:

а) вскрываются обои по периметру перегородки для обнаружения сквозных щелей;

б) щели расчищаются, проконопачиваются паклей и заделываются сверху известково-цементным штукатурным раствором или уплотняются пороизолом или гернитом (рис. 1);

в) вскрывается пол у основания перегородки, возможные щели между перегородкой и несущей плитой перекрытия плотно проконопачивается паклей или заделываются пороизолом (гернитом), а сверху раствором на глубину 2 см;

Рис. 1 Улучшение звукоизолирующей способности межквартирных железобетонных перегородок в эксплуатируемых жилых домах серии 1-464А

а) участок плана здания с обозначением сопряжений подлежащих уплотнению (условные обозначения принятые на плане --- устройство дополнительного слоя О - дополнительное уплотнение пороизолом); б) рекомендуемые способы уплотнения указанных сопряжений; в) устройство дополнительного слоя; 1 - раствор; 2 - конопатка паклей; 3 - пороизол; 4 - проконопатить минеральной ватой;  5 - ж.б. межквартирная стена; 6 - мягкая древесно-волокнистая плита 25 мм; 7 - сухая штукатурка.

Рис. 2 Схема установки консольной балки и лебедки для подъема материалов

1 - консольная балка I №10 l = 4,5 м; 2 - приваренная к балке метал. планка сечением 30×10 мм; 3 - прокладка - доска 50×25×6 см; 4 - карабин; 5 - трос Ø 4,6; 6 - захват; 7 - платформа для установки противовеса (6 жел. дет. плит весом по 40 кг размером 0,7×0,4×0,06 м) из двух полос Ст 3 сеч. 60×8 мм, закрепленных на конце консольной балки болтами, 8 - лебедка Л-0,125 грузоподъемность 125 кг, вес лебедки 50 кг (лебедку поместить в будку с деревянным полом) 9 - пригруз - железобетонные плиты (4 шт. по 40 кг каждая)

Рис. 3 Контейнер для подъема древесно-волокнистых плит и сухой штукатурки (вес контейнера около 27 кг)

1 - 25×25×3, 2 - лист из кровельного железа; 3 - откидной крюк; 4 - приваренная планка;

г) на перегородке укрепляются деревянные бруски сечением 50×50 мм, Бруски располагаются только в вертикальном положении и должны доходить до несущей плиты перекрытия.

Крепление брусков к деревянными пробками, забиваемыми в предварительно просверленные в перегородке отверстия.

При просверливании отверстий их следует располагать таким образом, чтобы избежать попадания в канавы скрытой электропроводки.

В отдельных случаях, когда для этого имеется возможность, прикрепление брусков к железобетонной межквартирной перегородке производится пристреливанием. При этом должны строго соблюдаться правила техники безопасности, и работы могут производиться только после получения согласия жилищной конторы и жильцов.

д) при наличии на перегородке штепсельных розеток или выключателей их  необходимо снять, удлинить провода и закрепишь вновь на дополнительном звукоизолирующем слое в соответствии с рис. 4.

При этом необходимо соблюдать следующий порядок работы:

- напаять провода на 15 см;

- против отверстия для розетки между двумя вертикальными брусками установить доску толщиной 5 см, к которой гвоздями прибить деревянную прокладку размером 150×150×24 мм (рис. 4);

- специальным сверлом (рис. 5) высверлить в прокладке и доске отверстие диаметром 80 мм, стенки которого изолировать асбестовым листом;

- образовавшееся в межквартирной перегородке отверстие плотно заделать распущенным асбестовый шнуром;

- установить коробку для розетки так, чтобы она на 1 см выходила за верхнюю деревянную прокладку;

е) к вертикальным брускам прибиваются последовательно первый и второй слой мягкой древесно-волокнистой плиты и лист сухой штукатурки.

Рис. 4 Установка розеток и выключателей при устройстве дополнительных звукоизолирующих слоев

1 - брусок 50×50 (пристреливается); 2 - доска 200×50; 3 - штепсельная розетка; 4 - два слоя древесно-волокнистых изоляционных плит; 5 - слой сухой штукатурки; 6 - кольцо из листового асбеста; 7 -  плотная заделка распущенным асбестовым шнуром; 8 - панель перегородки.

Рис. 5 Перовое центровое сверло (по дереву) для сверления вручную коловоротом отверстий для установки розеток

Горизонтальные и вертикальные стыки между листами древесно-волокнистой плиты в первом и втором слоях устраиваются вразбежку (стыки в различных слоях не должны совпадать).

В местах установки розеток и выключателей древесно-волокнистые плиты подрезаются так, что бы они плотно примыкали к верхней деревянной прокладке (рис. 4, разрез I-I), а сухая штукатурка к выступающей части коробки для розеток;

ж) восстанавливается пол у основания перегородки. В примыкании пола к перегородке должны быть проложены прокладки из древесно-волокнистой плиты в один слой (12 мм);

з) производится оклейка обоими по сухой штукатурке. Если отделка комнаты выполнена не обоями, а окраской то поверхность сухой штукатурки проолифивается и шпаклюется, после чего окрашивается под цвет существующей окраски стен.

5. Работ производится с инвентарных подмостей (рис 6). Все работы выполняются под наблюдением мастера, который обязан вести пооперационный контроль работ и фиксировать качество выполнения в специальном журнале (форма журнала приводится).

Особое внимание следует обращать на качество уплотнения сквозных щелей и отверстий, а также на плотность примыкания дополнительного звукоизолирующего слоя к стенам и перекрытиям.

Техника безопасности

6 Стальные канаты для подъема грузов должны быть испытаны на двойную статическую нагрузку, путем равномерного подъема, опускания и остановки с грузом, превышающим рабочий груз на 10%.

7. Опирание консольной балки на карниз не разрешается.

Пригнув на конце консольной балки, противоположном концу, свешивающемуся над карнизом, должен быть не менее двухкратного тягового усилия лебедки.

Рис. 6 Трубчатый раздвижной столик

1 - опоры; 2 - пальцы; 3 - выдвижные штоки; 4 - настил-площадка; 5 - поперечины.


Таблица 1.

Форма журнала учета работ по улучшению звукоизоляции межквартирных перегородок

№№ квартир

№№ перегородок

Площадь перегородок, м2

Наименование работ

дата

исполнители

Оценка качества за подписью мастера и представителя ЖЭК

Результаты инструментальных измерений звукоизоляции (Ед, дБ)

фамилии

профессии

До выполнения работ

После выполнения работ

 

 

 

1. Уплотнение мест примыкания межквартирной перегородки к стенам и потолку

 

 

 

 

 

 

 

 

 

2. Заделка отверстий

 

 

 

 

 

 

 

 

 

3. Укрепление деревянных брусков под дополнительный звукоизолирующий слой

 

 

 

 

 

 

 

 

 

4. Пробивка древесно-волокнистых плат с плотной подгонкой в местах примыкания к стенам, потолкам, розеткам, выключателям.

 

 

 

 

 

 

 

 

 

5. Восстановление пола с постановкой звукоизолирующих прокладок вдоль перегородки.

 

 

 

 

 

 

 

 

 

6. Отделка (оклейка обоями или окраска)

 

 

 

 

 

 

Примечания:

1. Оценка качества выполнения отдельных операций производятся мастером и подтверждается подписью представителя ЖЭК. Облицовка мягкими древесно-волокнистыми плитами разрешается только после тщательной заделки всех щелей и отверстий в межквартирной перегородке.

2. Инструментальная проверка звукоизолирующей способности производится специализированной лабораторией - по заявке эксплуатирующей организации.


8. Место подъема груза должно быть ограждено (проход под грузом воспрещается).

9. Лебедка, установленная на земле, должна иметь пригруз (балласт) весом не менее двойного тягового усилия лебедки.

В качестве балласта рекомендуется применять ящики с песком, гравием, а также бетонные блоки.

Укладка штучных изделий (плит, радиаторов) без крепления их раме запрещается.

10. Удаление розеток и выключателей, наращивание проводов, постановки розеток вновь должны производится при полном отключении тока в квартире.

11 Ведущий конец каната, подходя к лебедке должен быть перпендикулярен к ее барабану и подходить к лебедке снизу. Все наружные вращающееся части лебедки должны иметь ограждение. Электропроводка должна быть проложена в трубах, а корпус электродвигателя и - металлоконструкция лебедки заземлены.

12. К работе по установке консольной балки и лебедки, а также подъему грузов допускаются рабочие, прошедшие инструктаж по технике безопасности.

13. При применений строительно-монтажных пистолетов должны быть предусмотрены меры, исключающие возможность сквозного пробивания конструкций и поражения находящихся вблизи людей, отлетающими осколками бетона.

К работе с этими пистолетами допускаются только обученные рабочие, причем должны соблюдаться требования специальной инструкции,

14. Строительно-монтажные пистолеты следует хранить на складах в запирающихся шкафах и выдавать операторам только по специальным нарядам на производство работ.

15. Патроны к строительно-монтажным пистолетам должны храниться в соответствии с правилами хранения и перевозки взрывоопасных материалов.

16. К работе с электроинструментом допускаются рабочие, прошедшие специальное обучение.

17. При напряжении выше 36В работа с электрофицированным инструментом должна производиться в диэлектрических перчатках и галошах.

Корпуса электроинструмента должны быть заземлены.

Организация и методы труда рабочих

18. Работы выполняются звеном из двух человек:

плотника 4 разряда и маляра-штукатура 3 разряда.

При плотничных работах маляр-штукатур помогает плотнику, при штукатурно-малярных работах плотник участвует в выполнении малярных работ. Эти же рабочие устанавливают (и переставляют при необходимости) консольную балку и лебедку, и производят подъем материалов лебедкой. Для выполнения этих операций рабочие проходят соответствующее обучение.

Работы, связанные со снятием и установкой розеток, наращиванием проводов выполняются электромонтером, который специально вызывается на объект.


Таблица 2.

Калькуляция трудовых затрат
на усиление звукоизоляции межквартирных перегородок на 1 квартиру из двух комнат (при двух перегородках, площадью 30,13 кв. м.)

№№ пп

Основание к принятым нормам

Наименование работ

Ед. изм.

Объем работ

Норма времени на единицу измерения в чел. час

Затраты труда на весь объем работ в чел. час

Расценка на единицу измерения в руб. коп

Стоимость затрат на весь объем работ в руб. коп

!

0

3

4

5

6

7

8

9

1

ЕНиР 1969г. 1-11 п.2а, д

Подготовительные работы

Погрузка на машину консольной балки, лебедки, пригруза, материалов, доставка их на объект т разгрузка с подноской

т

1,4

1,14

1,59

0-49,9

0-70

2

ЕНиР 1969 г 1-14 п 2а, д.

Подъем вручную на крышу дома на высоту до 15 м элементов консольной балки, пригруза, при весе одного элемента до 25 кг

т

0,3

5,14

1,54

2-25

0-87,5

3

ЕНиР 1969 г 20-1-174 п. 4

Сборка на крыше дома элементов консольной балки для подъема грузов лебедкой с электроприводом

шт

1

1,1

1,1

0-61,5

0-61,5

4

ЕНиР 1969 г 1-14 п. 2 а, д

Опускание с крыши вручную с высоты 15 м разобранных элементов консольной балки, пригруза при среднем весе одного элемента до 25 кг

т

0,3

4,24

1,27

1-85

0-55,5

 

 

Итого:

 

 

 

5,50

 

2-55

5.

ЕНиР 1969 г 20-1-45 п. 2а

К = 1,3

К = 1,45

Вскрытие дощатого крашеного пола вдоль перегородок с разборкой основания на ширину 30 см с обрезкой концов шаг дисковой ручной пилой и восстановлением части основания и дощатого пола с добавлением досок до 25% (после облицовки перегородки, в том числе разборка пола)

м22)

3,17

(3,17)

1,92

(0,18)

6,08

(0,57)

0-0,95

(0-08,9)

3-03

(0-28)

6.

ЕНиР 1969 г 4-1-22 п. 2

Расчистка щелей по периметру перегородки на глубину до 6 см, ширину 3 см, с проконопачиванием сухой паклей или пороизолом (гернитом), заделкой раствором на глубину 2 см, с приготовлением раствора на месте

п.м.

31,52

0,145

4,57

0-09,1

2-87

7.

ЕНиР 1969 г 6-1-16 п. 2 20-1-141

Прибивка деревянных брусков длиной 2,6 м (четырьмя гвоздями) к железобетонной перегородке, с высверливанием гнезд Ø2 см и забивкой пробок

брусок

18

0,555

9,99

0-28,1

5-05

8.

ЕНиР 1969 г 6-1-16 38-3-7 п. 4

Установка деревянной доски с врезкой ее «на ус» между вертикальными брусками, прибивка к ней деревянной планки, высверливанием в доске гнезда Ø8 см, глубиной 8 см

мест

2

0,36

0,72

0-21,6

0-43,2

9.

ЕНиР 1969 г 20-1-165 п. 2

Разборка штепсельных розеток, напайка до 4-х концов проводов для удлинения на 15 см

мест

2

0,057

0,11

0-028

0-05,6

10.

ЕНиР 1969г. 23-1-19 п.2а

Установка розеток и коробок для электропроводки

шт.

2

0,57

1,14

0-31

0-62

11.

ЕНиР 1969г. 8-1, п.2а

К=2

Обивка перегородок (по брускам) мягкой древесно-волокнистой плитой в 2 слоя

м2

30,13

0,29

8,74

0-16

4-82

12.

ЕНиР 1969г

8-1, п.2а

Обивка сухой штукатуркой в 1 слой по древесно-волокнистым плитам

м2

30,13

0,145

4,37

0-08

2-42

13.

ЕНиР 1969г. 20-1-131 п.1

Оклейка стен обоями хорошего качества по сухой штукатурке, с проклейкой марлей швов и подготовкой поверхности под оклейку обоями (при варианте отдери стен обоями)

м2

87

0,32

27,84

0-17,9

15-57

14.

ЕНиР 1969г. 20-1-124 т. 2, п. 3а

Улучшенная клеевая окраска стен жилых помещений с подготовкой под окраску (при  варианте окраски стен)

м2

87

0,14

12,18

0-07,5

6-53

15

ЕНиР 1969т. 8-1, п.3

Обработка швов сухой штукатурки под окраску

м2

87

0,038

3,30

0-02,1

1-83

16.

ЕНиР 1969г. 20-1-174 п..4,7

Перестановка консольной балки на крыше

мест

1

1,75

1,75

0-97,8

0-97,8

17.

ЕНиР 1969г. 1-14, п.2

Перемещение по земле вручную лебедки (с противовесом) на расстояние до 10 м среднем

1

0,3

0,94

0,28

0-41,2

0-12

18.

ЕНиР 1969г. 1-8, п.6

Подъем материалов электролебедкой на высоту в среднем на 10 м (в контейнере)

т

1,05

0,544

0,57

0-36,8

0-28

 

 

Итого по калькуляции на одну двухкомнатную квартиру

 

 

 

 

 

 

 

 

 

 

 

 

 

 

 

 

пп. 1-4, 16,17

Подготовительные работы на объекте с доставкой механизмов, установкой, перестановкой и испытанием их, разборкой после окончания работ

на 1 объект

 

 

7,53

 

3-65

 

пп. 5-13, 18

Основные работы

а) при отделке стен обоями

1 кварт.

 

 

64,13

 

35-15

 

пп. 5-12. 14,15,18

б) при отделке стен клеевой окраской

1 кварт.

 

 

51,77

 

27-94


Материалы, потребные на усиление звукоизоляции двух межквартирных перегородок общей площадью 30,13 м2 (двухкомнатная квартира).

№№ пп

Наименование

Ед. изм

К-во

Г0СТ

1

2

3

4

5

1

Мягкая древесно-волокнистая (изоляционная) плита толщиной 12 мм

м3

1,53

ГОСТ 4598-60

2

Сухая штукатурка

М2

32

ГОСТ 6266-67

3

Бруски деревянные, антисептированные, сечением 5×5 см (длиной 2,6 и)

п. м

3)

45 (0,1)

-

4

Материалы для уплотнения швов:

 

 

 

 

а) пакля смоляная

кг

10

ГОСТ 16183-70

 

б) пороизол

кг

14

МРТУ РСН-18-63

 

в) гернит

кг

83

ГОСТ 51011-71

5

Асбестовый пух-шнур

кг

6,0

ГОСТ 1779-55

б

Раствор цементно-песчаный, состав 1:4

м3

0,033

-

7

Доски толщиной 50 мм шириной 20 см, 1 сорта

м3

0,1

-

8

Доски толщиной 25 мм шириной 15 см, 3 сорта

м3

0,01

-

9

Гвозди строительные (равные)

кг

5

ГОСТ 4028-63

10

Обои

м2

87

ГОСТ 6810-65

11

Бордюр

п.м

31

-

12

Клей малярный

кг

1,0

-

13

Крахмал

кг

11,0

-

14

Провод (для внутренней осветительной проводки)

п м

5

-

15

Коробка под розетки и выключатели

шт

9

-

16

Олифа

кг

8

ГОСТ 7931-56

17

Белила цинковые тертые

кг

7,5

ГОСТ 482-67

18

Краски тертые

кг

1,36

-

19

Мел молотый

кг

1,0

ГОСТ 1498-64

Примечание: Для уплотнения стыков применяется один из материалов, указанных в п. 4.


Машины, инструмент, в т.ч. механизированный, и приспособления

№№ пп

Наименование

Тип

Марка, ГОСТ, ОСТ

Ед. изм

К-во

Техническая характеристика

1

2

о

4

5

б

7

1

Лебедка

Л-0,125 (или лебедка Т-66А, грузоподъемностью 0,5 т)

ГОСТ 2914-67

шт.

1

Лебедка однобарабанная, электрореверсивная, с тяговым усилием 125 кг, вес лебедки - 50 кг, диаметр каната 4,8 мм, скорость навивки каната - 38 м/мин, канатоемкость - 30 м.

2

Консольная балка

 

 

шт.

1

Консольная балка сборная из труб при весе отдельного элемента до 20 кг.

3

Контейнер для подъема плит сухой штукатурки и древесно-волокнистых

 

 

шт.

1

Контейнер изготавливается из уголкового железа профилем 25×25×3 мм Вес контейнера 27 кг. Размеры:

длина - 190 см

ширина - 20 см

высота - 125 см.

4

Противовесы (пригрузы) лебедки и кон сольной балки

 

 

шт.

9

Железобетонные плиты размером 0,7×0,4×0,06 м весом по .10 кг каждая. На лебедку -4 шт. на консольную балку - 6 шт.

5

Инвентарные подмости - трубчато-раздвижной столик

 

«Альбом машин, приспособлений и инструментов для кап. Ремонта жилых домов» МКХ РСФСР ЛНИИ АКХ, изд. М-Л 1962г.

шт.

1

Габаритные размеры столика:

длина - 175 см

ширина - 80 см

высота при слож. раме - 100 см.

6

Ударно-клещевой гвоздодер

 

Там же

шт.

1

 

7

Ящик для раствора емкостью 0,06 м3

 

 

шт.

1

Ящик металлические, или |деревянный, размером 0,5×0,6×0,2 м

8

Электропила дисковая ручная

 

 

 

1

 

9

Электродрель

 

 

 

1

 

10

Молоток стальной

 

ГОСТ 11042-64

 

1

 

11

Клещи 250

 

ГОСТ 14184-59

 

1

 

12

Пила-ножовка поперечная по дереву

 

КБ Горьковского металлургического завода Минчермет СССР

шт.

1

 

13

Коловорот с трещеткой и инструментом к нему, в т.ч. перовым сверлом Ø 80 мм

 

ГОСТ 7467-55

К-т

1

 

14

Уровень строительный

УС1-300

ГОСТ 9416-67

шт.

1

 

15

Топор плотничный

А-1

ГОСТ 1399-56

шт.

1

 

16

Лом стальной строительный - гвоздодер

ЛГ-20

ГОСТ 11405-65

шт.

1

 

17

Цикли паркетные

Ц1-170

ГОСТ 12378-66

шт.

2

 

18

Нож для резки сухой штукатурки

СШ-1

Треста Мосгорстрой Главмосстроя

шт.

1

 

19

Конопатка стальная

К-50

ГОСТ 11618-65

шт.

2

 

20

Рейка с отвесом для штукатурных; работ

 

НИИСП Госстроя УССР

шт.

1

 

21

Краскопульт ручного действия

 

ГОСТ 7467-55

шт.

1

 

22

Валик поролоновый для малярных работ

 

Трест Мосстрой Главмосстроя

шт.

1

 

23

Ножницы обойные

 

НИИСП Госстроя УССР

шт.

1

 

24

Кисти для малярно-штукатурных работ

 

ГОСТ 10597-65

шт.

1

 

25

Шпатели

 

ГОСТ 10778-64

шт.

3

 

26

Кельмы для штукатурных работ

КШ

ГОСТ 9633-71

шт.

1

 

27

Сокол дюралюминиевый

 

ВНИИ СМИ Минстройдормаш чер. 131.00.000

шт.

1

 

28

Полутерки деревянные

 

Оргстрой Минстроя ЭССР

шт.

2

 

29

Правило прижимное

 

Треста Мосгорстрой Главстроя

 

1

 

30

Лопата стальная растворная

 

ГОСТ 3620-63

шт.

1

 

 

 

 

 

 

 

 

 

 




ГОСТЫ, СТРОИТЕЛЬНЫЕ и ТЕХНИЧЕСКИЕ НОРМАТИВЫ.
Некоммерческая онлайн система, содержащая все Российские Госты, национальные Стандарты и нормативы.
В Системе содержится более 150000 файлов нормативно-технической документации, действующей на территории РФ.
Система предназначена для широкого круга инженерно-технических специалистов.

Рейтинг@Mail.ru Яндекс цитирования

Copyright © www.gostrf.com, 2008 - 2026