Крупнейшая бесплатная информационно-справочная система онлайн доступа к полному собранию технических нормативно-правовых актов РФ. Огромная база технических нормативов (более 150 тысяч документов) и полное собрание национальных стандартов, аутентичное официальной базе Госстандарта. GOSTRF.com - это более 1 Терабайта бесплатной технической информации для всех пользователей интернета. Все электронные копии представленных здесь документов могут распространяться без каких-либо ограничений. Поощряется распространение информации с этого сайта на любых других ресурсах. Каждый человек имеет право на неограниченный доступ к этим документам! Каждый человек имеет право на знание требований, изложенных в данных нормативно-правовых актах!

  


 

ФЕДЕРАЛЬНОЕ АГЕНТСТВО
ПО ТЕХНИЧЕСКОМУ РЕГУЛИРОВАНИЮ И МЕТРОЛОГИИ

НАЦИОНАЛЬНЫЙ
СТАНДАРТ
РОССИЙСКОЙ
ФЕДЕРАЦИИ

ГОСТ Р ИСО
2531-
2008

ТРУБЫ, ФИТИНГИ, АРМАТУРА И ИХ СОЕДИНЕНИЯ ИЗ ЧУГУНА С ШАРОВИДНЫМ ГРАФИТОМ ДЛЯ ВОДО- И ГАЗОСНАБЖЕНИЯ

Технические условия

ISO 2531:1998
Ductile iron pipes, fittings, accessories and their joints for water or gas applications
(IDT)

Москва
Стандартинформ
2009

Предисловие

Цели и принципы стандартизации в Российской Федерации установлены Федеральным законом от 27 декабря 2002 г. № 184-ФЗ «О техническом регулировании», а правила применения национальных стандартов Российской Федерации - ГОСТ Р 1.0-2004 «Стандартизация в Российской Федерации. Основные положения»

Сведения о стандарте

1 ПОДГОТОВЛЕН Техническим комитетом по стандартизации ТК 357 «Стальные и чугунные трубы и баллоны» и Открытым акционерным обществом «Российский научно-исследовательский институт трубной промышленности» (ОАО «РосНИТИ») на основе аутентичного перевода стандарта, указанного в пункте 4, который выполнен ФГУП «СТАНДАРТИНФОРМ»

2 ВНЕСЕН Техническим комитетом по стандартизации ТК 357 «Стальные и чугунные трубы и баллоны»

3 УТВЕРЖДЕН И ВВЕДЕН В ДЕЙСТВИЕ Приказом Федерального агентства по техническому регулированию и метрологии от 25 декабря 2008 г. № 662-ст

4 Настоящий стандарт идентичен международному стандарту ИСО 2531:1998 «Трубы, фитинги, арматура и их соединения из чугуна с шаровидным графитом для водо- и газоснабжения» (ISO 2531:1998 «Ductile iron pipes, fittings, accessories and their joints for water or gas applications»).

Наименование настоящего стандарта изменено относительно наименования указанного международного стандарта для приведения в соответствие с ГОСТ Р 1.5-2004 (подраздел 3.5)

5 ВВЕДЕН ВПЕРВЫЕ

Информация об изменениях к настоящему стандарту публикуется в ежегодно издаваемом информационном указателе «Национальные стандарты», а текст изменений и поправок - в ежемесячно издаваемых информационных указателях «Национальные стандарты». В случае пересмотра (замены) или отмены настоящего стандарта соответствующее уведомление будет опубликовано в ежемесячно издаваемом информационном указателе «Национальные стандарты». Соответствующая информация, уведомление и тексты размещаются также в информационной системе общего пользования - на официальном сайте Федерального агентства по техническому регулированию и метрологии в сети Интернет

Содержание

Предисловие

1 Область применения

2 Нормативные ссылки1)

3 Термины и определения

4 Технические требования

4.1 Общие положения

4.2 Требования к размерам

4.3 Характеристики материала

4.4 Покрытия труб

4.5 Покрытия соединительных частей

4.6 Маркировка

5 Требования герметичности

5.1 Трубы и соединительные части

5.2 Гибкие соединения

6 Методы испытаний

6.1 Размеры

6.2 Кривизна труб

6.3 Испытания на растяжение

6.4 Испытания на твердость

6.5 Испытания на герметичность труб и соединительных частей для водоснабжения

6.6 Испытания на герметичность труб и соединительных частей для газоснабжения

7 Типовые испытания

7.1 Герметичность соединений при испытании внутренним давлением

7.2 Герметичность соединений при испытании внешним давлением

8 Таблицы размеров

8.1 Трубы с раструбом и трубы с охватываемым концом

8.2 Фланцевые трубы

8.3 Соединительные части для раструбных соединений

8.4 Соединительные части для фланцевых соединений

Приложение А (справочное) Область применения, характеристики грунта

Приложение В (справочное) Область применения, характеристики воды

Приложение С (справочное) Жесткость труб и диаметральный прогиб

НАЦИОНАЛЬНЫЙ СТАНДАРТ РОССИЙСКОЙ ФЕДЕРАЦИИ

ТРУБЫ, ФИТИНГИ, АРМАТУРА И ИХ СОЕДИНЕНИЯ ИЗ ЧУГУНА С ШАРОВИДНЫМ ГРАФИТОМ ДЛЯ В ОД О- И ГАЗОСНАБЖЕНИЯ

Технические условия

Ductile iron pipes, fittings, accessories and their joints for water or gas applications. Specifications

Дата введения - 2010-01-01

1 Область применения

Настоящий стандарт устанавливает требования и методы испытаний труб и соединительных частей из чугуна с шаровидным графитом и их соединений, используемых для изготовления трубопроводов:

- для транспортирования воды (например питьевой воды) или газа (например природного);

- работающих под давлением или без давления;

- прокладываемых под землей или наземных.

Примечание - В настоящем стандарте давление является относительным давлением и выражено в паскалях.

Настоящий стандарт включает технические требования к материалам, размерам и допускам, механическим свойствам и стандартным покрытиям труб и соединительных частей.

Настоящий стандарт распространяется на чугунные трубы и соединительные части, отлитые любым способом литейного производства или изготовленные из отлитых деталей, а также на соответствующие соединения диаметром DN от 40 до 2600 мм включительно.

Настоящий стандарт применим к трубам и соединительным частям, которые:

- выполнены с фланцевыми или раструбными концами для соединения посредством уплотнений различного типа (уплотнения не рассматриваются в настоящем стандарте);

- обычно поставляются с внутренним и наружным покрытиями.

2 Нормативные ссылки1)

1) Для всех ссылочных международных стандартов, кроме ИСО 6506-1:2005, соответствующие национальные стандарты отсутствуют. До их утверждения рекомендуется использовать перевод на русский язык этих международных и регионального стандартов. Переводы стандартов находятся в фонде технических регламентов и стандартов ОАО «Российский научно-исследовательский институт трубной промышленности» (ОАО «РосНИТИ»).

В настоящем стандарте использованы нормативные ссылки на следующие стандарты:

ИСО 4179:1985 Трубы из чугуна с шаровидным графитом для напорных и безнапорных трубопроводов. Футеровка цементным раствором, нанесенным центрифугированием. Общие требования

ИСО 4633:1996 Уплотнения резиновые. Уплотнительные кольца для питающих, дренажных и канализационных трубопроводов. Технические условия на материалы

ИСО 6447:1983 Уплотнения резиновые. Уплотнительные кольца для газопроводных труб и фитингов. Технические условия на материалы

ИСО 6506-1:2005*) Материалы металлические. Испытание на твердость. Определение твердости по Бринеллю

*) ИСО 6506-1:2005 соответствует национальный стандарт РФ ГОСТ 9012-59 (ИСО 410-82, ИСО 6506-81) «Металлы. Метод измерения твердости по Бринеллю».

ИСО 7005-2:1998 Фланцы металлические. Часть 2. Фланцы из литейного чугуна

ИСО 7268:1983 Элементы трубопроводов. Определение номинального давления (с Изменением 1:1984)

ИСО 7483:1991 Размеры прокладок, используемых с фланцами по ИСО 7005

ИСО 8179-1:2004 Трубы из чугуна с шаровидным графитом. Наружное цинковое покрытие. Часть 1. Покрытие металлическим цинком с отделочным слоем

ИСО 8179-2:1995 Трубы из чугуна с шаровидным графитом. Наружное покрытие. Часть 2. Покрытие краской с большим содержанием цинковой пыли и отделочный слой

ИСО 8180:1985 Трубы из чугуна с шаровидным графитом. Полиэтиленовая муфта

ИСО 10804-1:1996 Система фиксированных соединений для трубопроводов из чугуна с шаровидным графитом. Часть 1. Правила проектирования и типовое испытание

ЕН 1092-2:1997 Круглые фланцы для труб, клапанов, фитингов и арматуры, предназначенные для номинального давления (PN). Часть 2. Фланцы из литейного чугуна

3 Термины и определения

В настоящем стандарте применены следующие термины с соответствующими определениями:

3.1 высокопрочный чугун с шаровидным графитом (ductile iron): Тип чугуна, в котором графит присутствует преимущественно в шаровидной форме.

3.2 труба (pipe): Отливка с равномерным каналом, с прямой осью, имеющая раструбные, охватываемые или фланцевые концы.

3.3 соединительная часть*) (connecting part): Присоединяемая к трубе отливка, которая обеспечивает отклонение, изменение направления трубопровода или канала. Фитинги и арматура, за исключением запорной и предохранительной, являются соединительными частями. Трубы с соединительными частями являются элементами трубопровода.

*) Термин, принятый в международных стандартах.

3.4 фланец (flange): Плоский круглый конец трубы или соединительной части, расположенный перпендикулярно к их оси, с отверстиями под болты, равномерно расположенными по окружности.

Примечание- Фланец на трубе может быть закреплен неподвижно или быть регулируемым; регулируемый фланец включает кольцо, присоединенное болтами в одном или нескольких местах, которое несет нагрузку на конце втулки соединения и может свободно вращаться вокруг оси трубы до соединения.

3.5 узкая втулка; муфта (collar; coupling): Соединительная деталь, используемая для соединения вместе охватываемых концов труб или соединительных частей.

3.6 гладкий конец (spigot): Конец трубы или соединительной части, помещаемый в раструбное соединение.

3.7 раструб (socket): Конец трубы или соединительной части, охватывающий гладкий конец трубы или соединительной части.

3.8 прокладка (gasket): Уплотняющий элемент соединения.

3.9 соединение (joint): Связь между концами труб и/или соединительными частями, в которой прокладку используют в качестве уплотнения.

3.10 гибкое соединение (flexible joint): Соединение, которое обеспечивает значительное угловое отклонение и параллельное или перпендикулярное движение относительно оси трубы.

3.11 раструбное гибкое соединение (socket flexible joint): Гибкое соединение, собранное посредством толчка гладкого конца через прокладки в раструб сопряженного элемента.

3.12 механическое гибкое соединение (mechanical flexible joint): Гибкое соединение, в котором уплотнение обеспечивается давлением на прокладку механическими средствами, например сальником.

3.13 фиксированное соединение (restrained joint): Соединение, в котором предусмотрено средство, предотвращающее разъединение собранного соединения.

3.14 фланцевое соединение (flanged joint): Соединение между двумя фланцевыми концами.

3.15 номинальный размер DN (nominal size): Условный проходной диаметр трубы, который является общим для всех элементов трубопроводной системы.

3.16 номинальное давление PN (nominal pressure): Цифровое обозначение, выраженное числом, имеющим справочный характер. Все элементы одного номинального размера, обозначенные одним и тем же числом номинального давления, имеют совместимые сопряженные размеры (ИСО 7268).

3.17 допустимое рабочее давление (allowable operating pressure): Внутреннее давление, исключая скачки давления, которое элемент (трубы, фитинги, арматура и их соединения) может безопасно выдерживать при постоянной работе.

3.18 максимальное допустимое рабочее давление (allowable maximum operating pressure): Максимальное внутреннее давление, включая скачки давления, которое элемент может безопасно выдерживать при работе.

3.19 допустимое испытательное давление (allowable test pressure): Максимальное гидростатическое давление, которое элемент может выдерживать в течение относительно короткого промежутка времени, предназначенное для определения целостности и герметичности трубопровода.

Примечание - Настоящее испытательное давление отличается от испытательного давления в системе, которое относится к проектному давлению трубопровода и предназначено для обеспечения его целостности и герметичности.

3.20 диаметральная жесткость трубы (diametral stiffness of a pipe): Характеристика трубы, которая обеспечивает устойчивость к диаметральному прогибу под нагрузкой.

3.21 партия (batch): Количество элементов, из которого можно выбрать образец для испытания в процессе производства.

3.22 типовое испытание (type test): Испытание на соответствие конструкции, которое проводится один раз и повторяется только после изменения конструкции.

3.23 длина (length): Действительная длина трубы или соединительной части, которая показана на рисунках раздела 8.

Примечание - Для фланцевых труб или соединительных частей действительная длина L (l для патрубков) равна полной длине. Для раструбных труб и соединительных частей действительная длина Lu (lu для патрубков) равна полной длине минус глубина, на которую входит охватываемый конец, как указано в каталогах изготовителей.

3.24 отклонение (deviation): Величина, на которую проектная длина может отличаться от стандартной длины трубы или соединительной части.

Примечание - Трубы и соединительные части проектируются соответственно длиной, выбранной из диапазона стандартных длин, плюс или минус отклонение (таблица 4); они изготовляются этой длины плюс или минус допуск, указанный в таблице 5.

3.25 овальность О (ovality), %: Отклонение от окружности поперечного сечения трубы.

                                                                                                           (1)

где Dmax - максимальный наружный диаметр, мм;

Dmin - минимальный наружный диаметр, мм;

D - номинальный наружный диаметр, мм.

4 Технические требования

4.1 Общие положения

4.1.1 Трубы и соединительные части

Номинальный диаметр, номинальная толщина стенки, длина и покрытия определены в настоящем пункте, 4.2.2, 4.2.3, 4.4 и 4.5 соответственно. Если по согласованию между изготовителем и потребителем поставляют трубы и соединительные части по настоящему стандарту другой конструкции, другой длины, другой толщины и с другим покрытием, чем указанные в 8.3 и 8.4, то трубы и соединительные части должны соответствовать всем другим требованиям настоящего стандарта.

Номинальные размеры (DN) труб и соединительных частей должны быть следующие: 40, 50, 60, 65, 80, 100, 125, 150, 200, 250, 300, 350, 400, 450, 500, 600, 700, 800, 900, 1000, 1100, 1200, 1400, 1500, 1600, 1800, 2000, 2200, 2400, 2600 мм.

Функциональные свойства (жесткость труб и диаметральный прогиб) труб из чугуна с шаровидным графитом указаны в приложении С.

Допустимое рабочее давление, максимальное допустимое рабочее давление и допустимое испытательное давление (3.17, 3.18 и 3.19) указаны в национальных стандартах.

Примечание - Когда трубы и соединительные части из чугуна с шаровидным графитом установлены и работают в условиях, для которых они сконструированы (приложения А и В), они сохраняют все рабочие характеристики в течение срока службы, что обусловлено постоянными свойствами материала, стабильностью поперечного сечения и их конструкцией с высоким коэффициентом безопасности.

4.1.2 Состояние поверхности

Трубы и соединительные части не должны иметь дефектов и повреждений поверхности, которые могли бы нарушить их соответствие требованиям разделов 4 и 5.

4.1.3 Типы трубопроводных соединений

4.1.3.1 Общие положения

Конструкция соединений и формы прокладок не являются объектами настоящего стандарта.

Материалы резиновой прокладки должны соответствовать требованиям: ИСО 4633 - для водоснабжения и ИСО 6447 - для газоснабжения. Когда требуются нерезиновые материалы (например для фланцевых соединений), они должны отвечать требованиям соответствующих стандартов.

4.1.3.2 Фланцевые соединения

Размеры и допуски фланцев труб и соединительных частей должны соответствовать ИСО 7005-2 или ЕН 1092-2, а фланцевых прокладок - ИСО 7483. Это обеспечивает соединение между фланцевыми элементами (трубы, соединительные части, клапаны и т.д.) одного и того же номинального диаметра и номинального давления, соответствующее эксплуатационной характеристике соединений.

Хотя это не влияет на соединение трубопроводных систем, изготовитель должен указать в своем каталоге, поставляются его изделия с глухими или неплотными фланцами.

4.1.3.3 Гибкие соединения

Наружные диаметры гладких концов труб и соединительных частей с гибкими соединениями и их допуски должны соответствовать требованиям 4.2.1.1. Это обеспечивает возможность соединения элементов, снабженных гибкими соединениями различного типа. Кроме того, гибкие соединения всех типов должны соответствовать эксплуатационным требованиям 5.2.

Примечания

1 Для соединения различных типов элементов, работающих в узком диапазоне допусков наружного диаметра, инструкция изготовителя должна использоваться как средство обеспечения адекватной работы соединения даже при самых высоких давлениях (например измерение и выбор наружного диаметра).

2 Для соединения с существующими трубопроводами, которые могут иметь наружные диаметры, не соответствующие 4.2.1.1, инструкции изготовителя могут использоваться для рекомендации соответствующих средств соединения (например адаптеры).

4.1.3.4 Фиксированные соединения

Фиксированные соединения для высокопрочных трубопроводов из чугуна с шаровидным графитом должны быть спроектированы в соответствии с ИСО 10804-1. Наружные диаметры гладких концов и допуски на них должны соответствовать 4.2.1.1.

4.1.4 Материалы, контактирующие с питьевой водой

Если трубы из шаровидного графита и соединительные части используют в условиях, для которых они были спроектированы, при постоянном или временном контакте с питьевой водой, они не должны оказывать вредного воздействия на свойства воды.

Примечание - В соответствующих случаях необходимо обращаться к стандартам или другим нормативным документам относительно воздействий материалов на качество воды.

4.2 Требования к размерам

4.2.1 Диаметр

4.2.1.1 Наружный диаметр

В таблице 11 (8.1) указаны значения наружного диаметра гладкого конца труб или соединительных частей, измеренного по окружности мерной круговой лентой в соответствии с 6.1.1. Положительный допуск равен + 1 мм и распространяется на все классы толщин труб и фланцевых соединительных частей с гладким концом.

Отрицательный допуск зависит от конструкции каждого типа соединения и должен быть таким, как указано в каталогах изготовителей для рассматриваемого типа соединения и номинального диаметра.

В дополнение, овальность (3.25) гладкого конца труб и соединительных частей должна:

- оставаться в пределах допусков наружного диаметра для номинальных диаметров от 40 до 200 мм;

- составлять не более 1 % наружного диаметра - для номинальных диаметров от 250 до 600 мм или не более 2 % - для номинального диаметра свыше 600 мм.

Примечание - В рекомендациях изготовителя должно быть указано средство коррекции овальности, которая необходима; некоторые гибкие соединения могут допускать максимальную овальность без необходимости повторного округления охватываемого конца перед присоединением.

4.2.1.2 Внутренний диаметр

Номинальные значения внутренних диаметров центробежно отлитых чугунных труб, выраженные в миллиметрах, приблизительно равны значениям номинального диаметра.

4.2.2 Толщина стенки

Номинальную толщину стенки чугунных труб и соединительных частей следует рассчитывать по следующей формуле, при этом толщина стенки должна быть не менее 6 мм для центробежно отлитых чугунных труб и 7 мм - для чугунных труб, отлитых другим способом, и соединительных частей к ним

е = К(0,5 + 0,001DN),                                                                                                          (2)

где е - номинальная толщина стенки, мм;

К - коэффициент для обозначения класса толщины стенки. Он выбирается из серий целых чисел: 7, 8, 9, 10, 11, 12...;

DN - номинальный диаметр, мм.

Стандартные классы толщины стенки для труб приведены в 8.1 и 8.2; по согласованию между изготовителем и потребителем возможны другие толщины стенок труб.

Для соединительных частей толщина стенки е, приведенная в 8.3 и 8.4, является номинальной толщиной, соответствующей основной части корпуса. Фактическая толщина в любой отдельной точке может быть увеличена, когда необходимо выдерживать локальные высокие напряжения, зависящие от размера и формы отливки (например в пределах внутреннего радиуса колен, в пределах соединения отвода тройника и т.д.).

Допуски на номинальную толщину стенки труб и соединительных частей должны соответствовать указанным в таблице 1. Измерение толщины стенки трубы должно проводиться так, как указано в 6.1.2.

Таблица 1 - Допуск на номинальную толщину стенки

В миллиметрах

Тип отливки

Толщина стенки е

Допуск1)

Центробежно отлитые чугунные трубы

6

-1,3

>6

-(1,3 + 0,001 DN)

Трубы, отлитые другим способом, и соединительные части

7

-2,3

>7

-(2,3 + 0,001 DN)

1) Отрицательный допуск указан только для того, чтобы обеспечить достаточную устойчивость к внутреннему давлению.

4.2.3 Длина

4.2.3.1 Длина раструбных труб и труб с гладкими концами

Трубы должны поставляться в соответствии со значениями длины, указанными в таблице 2.

Таблица 2 - Стандартная длина труб

Номинальный диаметр DN, мм

Стандартная длина Lu1), м

40 и 50

3,00

От 60 до 600 включ.

4,00; 5,00; 5,50; 6,00; 9,00

700 и 800

4,00; 5,50; 6,00; 7,00; 9,00

От 900 до 2600 включ.

4,00; 5,00; 5,50; 6,00; 7,00; 8,15; 9,00

1) См. 3.23.

Проектная длина Lu (3.23) должна быть в пределах соответствующих стандартных значений длины ± 250 мм (таблица 2) и должна быть указана в каталогах. Действительная длина Lu должна измеряться по 6.1.3 и не должна отличаться от проектной длины больше, чем на допуск, указанный в таблице 5.

В общем количестве поставляемых труб с раструбом и труб с гладкими концами каждого диаметра процент коротких труб не должен превышать 10%.

Примечания

1 Трубы, разрезанные для испытания, могут быть исключены из 10% и рассмотрены как трубы полной длины.

2 Когда трубы упорядочены по метражу, изготовитель может определять требуемое количество поставляемых труб путем суммирования действительных длин труб, измеренных индивидуально.

4.2.3.2 Длина фланцевых труб

Значения длины фланцевых труб указаны в таблице 3. По согласованию между изготовителем и потребителем допускаются другие длины.

Таблица 3 - Длина фланцевых труб

Тип трубы

Номинальный диаметр, мм

Стандартная длина L1), м

Отлитые вместе с фланцами

От 40 до 2600 включ.

0,5; 1,0; 2,0; 3,0

С привернутыми или приваренными фланцами

От 40 до 600 включ.

2,0; 3,0; 4;0; 5,0

» 700 » 1000 »

2,0; 3,0; 4,0; 5,0; 6,0

» 1100 »2600 »

4,0; 5,0; 6,0; 7,0

1) См. 3.23.

4.2.3.3 Длина соединительных частей

Соединительные части должны поставляться соответственно значениям длины, указанным в 8.3 и 8.4.

Примечание - Указаны две серии размеров - серия А и новая серия В, обычно ограниченные до DN 450 мм.

Допустимые отклонения (3.24) длины соединительных частей серии А должны соответствовать указанным в таблице 4.

Таблица 4 - Отклонения длины соединительных частей

В миллиметрах

Тип соединительной части

Номинальный диаметр

Отклонение

Фланцевые раструбы

От 40 до 1200 включ.

±25

Фланцевые охватываемые концы

Узкие втулки

От 1400 до 2600 включ.

±35

Тройники

От 40 до 1200 включ.

+50

-25

От 1400 до 2600 включ.

+75

-35

Колена 90° (1/4)

От 40 до 2600 включ.

±(15 + 0,03DN)

Колена 45° (1/8)

От 40 до 2600 включ.

±(10 + 0,025DN)

Колена 22°30' (1/16) и 11°15' (1/32)

От 40 до 1200 включ.

±(10 + 0,02DN)

»1400 » 2600 »

±(10 +0,025DN)

4.2.3.4 Допуски на длину

Допуски на длину должны соответствовать указанным в таблице 5.

Таблица 5 - Допуски на длину

В миллиметрах

Тип отливки

Допуск

Раструбные трубы и трубы с гладкими концами (полной длины или укороченные)

±30

Соединительные части для раструбных соединений

±20

Трубы и соединительные части для фланцевых соединений

±101)

1) По согласованию между изготовителем и потребителем возможны меньшие допуски, но не менее ± 3 мм для DN £ 600 мм и не менее ± 4 мм для DN > 600 мм.

4.2.4 Кривизна труб

Трубы должны быть прямыми с максимальным отклонением 0,125 % от их длины.

Проверку этого требования проводят визуально, но при сомнении или в спорном случае отклонение (кривизна) может быть измерено в соответствии с 6.2.

4.3 Характеристики материала

4.3.1 Прочность на растяжение

Трубы и соединительные части, выполненные из чугуна с шаровидным графитом, должны иметь прочность на растяжение, указанную в таблице 6.

В течение производственного процесса изготовитель может проводить соответствующие испытания для проверки прочности при растяжении. Для этих испытаний можно применять:

- метод отбора проб из партии, в которой образцы отбирают от охватываемой части трубы, или для соединительных частей из образцов, отлитых отдельно либо целиком с соответствующей отливкой. Испытуемые образцы должны быть отобраны из партии, подготовлены механической обработкой и испытаны на растяжение по 6.3;

- метод испытания при контроле технологического процесса (например неразрушающий контроль), когда о положительной корреляции свидетельствуют механические свойства при растяжении, указанные в таблице 6. Процедура проверки заключается в сравнении сопоставимых образцов, обладающих определенными свойствами. Этот метод испытаний должен быть подтвержден испытанием на растяжение по 6.3.

Таблица 6 - Механические свойства чугуна в изделиях

Тип отливки

Предел прочности при растяжении sв, МПа, не менее

Процент удлинения после разрыва dр, %, не менее

DN от 40 до 2600 мм

DN от 40 до 1000 мм

DN от 1100 до 2600 мм

Центробежно отлитые трубы

420

10

7

Трубы, отлитые другим способом, и соединительные части

420

5

5

Примечания

1 По согласованию между изготовителем и потребителем может быть определен предел текучести sт0,2 при допуске не менее 0,2 %. Он должен быть, не менее: 270 МПа, когда dр ³ 12 % для DN от 40 до 1000 мм или dр ³ 10 % для DN > 1000 мм; не менее 300 МПа - в остальных случаях.

2 Для центробежно отлитых чугунных труб DN от 40 до 1000 мм минимальное удлинение после разрыва должно быть не менее 7 % для классов толщины стенки более, чем К12.

4.3.2 Твердость по Бринеллю

Различные элементы должны быть настолько твердыми, чтобы их можно было разрезать, нарезать резьбу, сверлить и/или механически обрабатывать стандартными инструментами. В спорном случае твердость должна быть измерена согласно 6.4.

Твердость по Бринеллю не должна превышать 230 НВ - для центробежно отлитых чугунных труб и 250 НВ - для чугунных труб, отлитых другим способом, и соединительных частей. Для элементов, изготовленных сваркой, самая высокая твердость допустима в тепловой зоне сварного шва.

4.4 Покрытия труб

Поставляемые трубы должны иметь наружные и внутренние покрытия.

4.4.1 Наружные покрытия

В зависимости от внешних условий эксплуатации (приложение А) и в соответствии с нормативными документами можно использовать следующие наружные покрытия:

- металлический цинк с отделочным слоем в соответствии с ИСО 8179-1;

- краску с большим содержанием цинковой пыли с отделочным слоем по ИСО 8179-2;

- более толстое покрытие из металлического цинка с отделочным слоем;

- полиуретан;

- полиэтилен;

- фиброцементный раствор;

- клейкие ленты;

- битумную краску;

- эпоксидную смолу.

4.4.2 Внутренние покрытия

В зависимости от внутренних условий эксплуатации (приложение В) и в соответствии с нормативными документами можно использовать следующие внутренние покрытия:

- раствор портландцемента (с добавками или без добавок) в соответствии с ИСО 4179;

- раствор глиноземистого цемента по ИСО 4179;

- раствор шлакопортландцемента по ИСО 4179;

- раствор цемента с изолирующим слоем;

- полиуретан;

- полиэтилен;

- эпоксидную смолу;

- битумную краску.

4.5 Покрытия соединительных частей

Поставляемые соединительные части должны иметь наружное и внутреннее покрытия.

4.5.1 Наружные покрытия

В зависимости от внешних условий эксплуатации (приложение А) и в соответствии с нормативными документами можно использовать следующие наружные покрытия:

- битумную краску или краску на основе синтетической смолы;

- эпоксидную смолу;

- цинк с отделочным слоем;

- полиэтиленовую муфту по ИСО 8180;

- полиуретан;

- клейкие ленты.

4.5.2 Внутренние покрытия

В зависимости от внутренних условий эксплуатации (приложение В) и в соответствии с нормативными документами можно использовать следующие внутренние покрытия:

- битумную краску или краски на основе синтетической смолы;

- раствор портландцемента (с добавками или без добавок);

- раствор глиноземистого цемента;

- раствор шлакопортландцемента;

- раствор цемента с изолирующим слоем;

- полиуретан;

- полиэтилен;

- эпоксидную смолу.

4.6 Маркировка

Все трубы и соединительные части должны иметь устойчивую и четкую маркировку, включающую:

- наименование или товарный знак изготовителя;

- обозначение года изготовления;

- обозначение материала (чугун с шаровидным графитом);

- номинальный диаметр;

- номинальное давление фланцев, при использовании;

- обозначение настоящего стандарта;

- обозначение труб, которые были испытаны для газоснабжения.

Первые пять маркировочных знаков должны отливаться или наноситься холодной штамповкой. Два последних обозначения наносят любым способом, например краской на отливке, или наносят на этикетку, которую укрепляют на упаковке.

5 Требования герметичности

5.1 Трубы и соединительные части

Трубы и соединительные части должны проектироваться так, чтобы быть герметичными при допустимом испытательном давлении. Их следует испытывать по 6.5 или 6.6, при этом они не должны иметь видимой протечки, выпотевания или любых других признаков повреждения.

5.2 Гибкие соединения

5.2.1 Общие положения

Все гибкие соединения элементов трубопроводов из чугуна с шаровидным графитом и компоненты должны проектироваться в соответствии с требованиями настоящего подраздела. Если конструкция прошла испытание, результаты которого зафиксированы изготовителем в документе о качестве, а затем успешно использовалась в течение не менее десяти лет, то проведение испытаний в соответствии с 5.2.2 - для внутреннего давления и 5.2.3 - для внешнего давления проводят только при значительных изменениях в конструкции, которые могут отрицательно влиять на рабочие характеристики соединения.

Конструкции соединения должны пройти типовое испытание для подтверждения герметичности при внутреннем и внешнем давлениях в самых крайних значениях допусков на отливки.

Типовые испытания должны проводиться хотя бы для одного DN для каждой из групп номинальных диаметров, указанных в таблице 7. Один номинальный диаметр представляет группу, когда характеристики основаны на одних и тех же параметрах конструкции для всего размерного диапазона.

Таблица 7 - Предпочтительные номинальные диаметры для проведения испытаний на герметичность

В миллиметрах

Группа номинальных диаметров DN

От 40 до 250 включ.

От 300 до 600 включ.

От 700 до 1000 включ.

От 1100 до 2000 включ.

От 2200 до 2600 включ.

Предпочтительный номинальный диаметр DN для каждой группы

200

400

800

1600

2400

Если группы включают изделия разных конструкций и/или изготовленные разными технологическими процессами, они должны быть разделены.

Примечание - Если группа включает только один номинальный диаметр, этот номинальный диаметр может рассматриваться как часть смежной группы в том случае, если она идентичной конструкции и изготовлена одним и тем же технологическим процессом.

Типовые испытания проводят при максимальном радиальном зазоре между соединительными элементами (самый малый диаметр гладкого конца вместе с самым широким раструбом).

В типовом испытании максимальный зазор равен максимальному радиальному зазору с допуском плюс 0 % и минус 5 %. Внутренний диаметр раструба может быть механически обработан для получения этого допуска, даже если полученный диаметр отклоняется от заданного значения.

Сжатые гибкие соединения должны быть спроектированы и испытаны согласно ИСО 10804-1.

5.2.2 Внутреннее давление

Соединения должны проходить типовые испытания на стойкость к внутреннему давлению по 7.1 при испытательном давлении, которое должно быть не менее чем заявленное допустимое испытательное давление; соединения не должны иметь видимой утечки в двух следующих положениях:

- соединение обеспечивает соосность элементов и подвержено действию поперечной силы, при этом поперечная сила должна быть не менее 30 DN и выражена в ньютонах;

- соединение прогнутое, испытательный угловой прогиб должен быть максимально допустимым прогибом, указанным в каталоге изготовителя, но не менее чем 3° - для DN от 40 до 300 мм, 2° - для DN от 350 до 600 мм, 1° - для DN от 700 до 2600 мм.

5.2.3 Внешнее давление

Соединения должны проходить типовые испытания на стойкость к внешнему давлению по 7.2; соединения не должны иметь видимой утечки под действием поперечной нагрузки, равной 30 DN и выраженной в ньютонах.

Испытательное давление должно быть не менее 100 кПа.

6 Методы испытаний

6.1 Размеры

6.1.1 Наружный диаметр

Диаметр труб с раструбами и охватываемыми концами необходимо измерять у охватываемого конца круговой мерной лентой с учетом допуска на наружный диаметр. Их можно также проверять с калибром для наружных измерений.

Кроме того, трубы необходимо визуально проверять у охватываемого конца с учетом допуска на овальность, а в случае сомнения - путем измерения максимального и минимального диаметров. Эту проверку можно проводить с использованием калибров для наружных измерений.

Частота испытаний зависит от производства и контроля качества, используемого изготовителем.

6.1.2 Толщина стенки

Соответствие толщины стенки трубы определенным нормам должно быть подтверждено изготовителем; он может использовать комбинацию различных средств таких, как:

- весовой контроль трубы;

- прямое измерение толщины стенки соответствующим механическим или ультразвуковым инструментом.

Частота испытаний зависит от производства и контроля качества, используемого изготовителем.

6.1.3 Длина

Длину центробежно отлитых чугунных труб с раструбами и охватываемыми концами следует измерять соответствующим инструментом:

- на первой трубе, отлитой из новой формы, для измерения труб полной длины;

- на первой отрезной трубе для измерения систематически отрезаемых труб соответственно предварительно установленной длины.

6.2 Кривизна труб

Труба должна прокатываться на двух опорах или вращаться вокруг своей оси на роликах, расстояние между которыми в каждом случае составляет не менее 2/3 стандартной длины трубы.

Должна быть установлена точка максимального отклонения от действительной оси, и отклонение, измеренное в этой точке, не должно превышать предела, установленного в 4.2.4.

6.3 Испытания на растяжение

6.3.1 Отбор образцов

Толщина и диаметр испытательного образца должны соответствовать указанным в таблице 8.

Таблица 8 - Размеры сечения испытательного образца

Тип отливки

Испытательный образец. Метод А

Испытательный образец. Метод В

Номинальный диаметр, мм

Номинальная площадь S0, мм2

Номинальный диаметр, мм

Допуск по диаметру, мм

Центробежно отлитые трубы толщиной стенки, мм:

 

 

 

 

до 6

2,5

5

2,52

±0,01

от 6 до 8

3,5

10

3,57

±0,02

» 8 » 12

5,0

20

5,05

±0,02

» 12

6,0

30

6,18

±0,03

Трубы, отлитые другим способом, и соединительные части:

 

 

 

 

образцы, отлитые как одно целое

5,0

20

5,05

±0,02

отдельные отливки размером, мм:

 

 

 

 

12,5 для образцов толщиной до 12 мм

6,0

30

6,18

±0,03

25 для образцов толщиной от 12 мм

12,0 или 14,0

-

-

-

6.3.1.1 Центробежно отлитые чугунные трубы

Образец должен быть вырезан из охватываемого конца трубы. Этот образец может быть вырезан параллельно или перпендикулярно к осям трубы, но в спорном случае должен быть использован образец, вырезанный параллельно оси.

6.3.1.2 Трубы, отлитые иным способом, и соединительные части

Образцы должны быть взяты по усмотрению изготовителя из пробы, отлитой как одно целое, из пробы, соединенной с отливкой, или из пробы, отлитой отдельно. В последнем случае она должна быть отлита из того же металла, который использовался для отливок. Если отливка проходит горячую обработку, образец должен пройти туже горячую обработку.

6.3.2 Испытательный образец

Испытательный образец должен быть изготовлен методом механической обработки из каждой выборки для представления металла, взятого из ее середины по толщине; диаметры цилиндрической части соответствуют значениям, указанным в таблице 8.

Базовая длина испытательных образцов должна быть не менее пяти номинальных диаметров испытательного образца. Концы испытательных образцов должны быть подходящими для установки образца в испытательной машине.

Шероховатость поверхности Rz испытательного образца базовой длины должна быть не более 6,3 мкм.

По усмотрению изготовителя может быть использовано два метода измерения прочности на разрыв:

- метод А: изготовляют испытательный образец номинальным диаметром ±10 %, измеряют настоящий диаметр до испытания с точностью ± 0,01 мм и используют измеренный диаметр для расчета площади поперечного сечения и прочности на разрыв;

- метод В: изготовляют испытательный образец номинальной площадью S0 с установленным допуском на диаметр (таблица 8) и используют номинальную площадь для расчета прочности на разрыв.

6.3.3 Оборудование и метод испытаний

Испытательная машина на разрыв должна иметь соответствующие держатели или захваты для крепления концов испытательного образца так, чтобы правильно передать осевую испытательную нагрузку.

Скорость нагружения должна быть по возможности постоянной и находиться в пределах 6-30 Н/(мм2×с).

Прочность на разрыв должна рассчитываться путем деления максимальной силы, воздействующей на испытательный образец, на площадь поперечного сечения испытательного образца с учетом отношения удлиненной базовой длины к подлинной базовой длине. Удлинение может быть измерено экстензометром.

6.3.4 Результаты испытаний

Результаты должны соответствовать данным таблицы 6. Если они не соответствуют, изготовитель должен:

a) в случае, когда металл не достигает требуемых механических свойств, исследовать причину и обеспечить, чтобы все отливки партии прошли повторную термическую обработку или были отбракованы; отливки, которые прошли повторную термическую обработку, должны пройти повторное испытание на растяжение;

b) в случае дефекта испытательного образца провести дополнительное испытание. Если оно проходит успешно, партию принимают; если нет, изготовитель может продолжить в соответствии с перечислением а).

Примечание - Изготовитель может сократить количество бракованной продукции, проводя дополнительные испытания в ходе производства, ограничивая партии отбракованных отливок до и после проведения испытаний, показывающих положительные результаты.

6.3.5 Частота испытаний

Частота испытаний связана с характером производства и методом контроля качества, используемым изготовителем (4.3.1). Максимальные размеры партии должны соответствовать таблице 9.

Таблица 9 - Максимальный размер партии

Тип отливки

Номинальный диаметр, мм

Максимальный размер партии труб, шт.

при выборочном контроле партии

при проведении испытания для управления процессом

Центробежно отлитые чугунные трубы

От 40 до 300 включ.

200

1200

» 350 » 600 »

100

600

» 700 » 1000 »

50

300

» 1100» 2600 »

25

150

Трубы, отлитые другим способом, и соединительные части

Все размеры

4

48

6.4 Испытания на твердость

При определении твердости по Бринеллю (4.3.2) испытания должны проводиться на сомнительной отливке или образце, вырезанном из отливки. Испытуемая поверхность должна быть соответствующим

образом подготовлена путем легкого локального шлифования, и испытание должно проводиться согласно ИСО 6506-1 с использованием стального шарика диаметром 2,5 или 5, или 10 мм.

6.5 Испытания на герметичность труб и соединительных частей для водоснабжения

6.5.1 Общие положения

Трубы и соединительные части следует испытывать по 6.5.2 и 6.5.3 соответственно. Испытания должны проводиться на всех трубах и соединительных частях до нанесения на них наружных и внутренних покрытий, исключая цинковые покрытия труб, которые могут быть нанесены до испытания.

Испытательные приборы должны обеспечивать применение установленных испытательных давлений для труб и/или соединительных частей. Они должны быть снабжены манометрами с точностью измерений не ниже ±3 %.

6.5.2 Центробежно отлитые чугунные трубы

Центробежно отлитые чугунные трубы подвергают гидростатическому испытанию в рабочих условиях продолжительностью не менее 10 с при минимальном значении внутреннего испытательного давления, указанного в таблице 10.

Таблица 10 - Минимальное значение испытательного давления

Номинальный диаметр, мм

Минимальное значение испытательного давления в рабочих условиях, МПа

Центробежно отлитые чугунные трубы

Чугунные трубы, отлитые другим способом1)

К3) < 9

К3) ³ 9

Все классы по толщине

От 40 до 300 включ.

0,05(К3) + 1)2

5,0

2,52)

» 350 » 600 »

0,05К2)3)

4,0

1,6

» 700 » 1000 »

0,05(К3) - 1)2

3,2

1,0

» 1100 » 2000 »

0,05(К3) - 2)2

2,5

1,0

» 2200 » 2600 »

0,05(К3) - 3)2

1,8

1,0

1) Испытательное гидростатическое давление для соединительных частей меньше, чем для труб, поскольку форма соединительных частей осложняет обеспечение достаточного ограничения для высоких внутренних давлений в течение испытания.

2) 1,6 МПа - для фланцевых труб и соединительных частей с PN 1,0.

3) К - коэффициент для обозначения класса толщины стенки.

6.5.3 Чугунные трубы и соединительные части, отлитые иным способом

По выбору изготовителя чугунные трубы и соединительные части должны быть подвергнуты гидростатическому испытательному давлению или испытанию сжатым воздухом, или любому другому аналогичному испытанию на герметичность.

Если проводят испытание гидростатическим давлением, его следует проводить точно также, как и для центробежно отлитых чугунных труб (6.5.2), исключая испытательные давления, которые должны соответствовать таблице 10.

Если проводят испытание сжатым воздухом, его следует проводить при внутреннем давлении не менее 0,1 МПа и в течение времени проверки не менее 10 с; для обнаружения утечки отливки должны быть равномерно покрыты с наружной поверхности соответствующим пенным агентом или погружены в воду.

6.6 Испытания на герметичность труб и соединительных частей для газоснабжения

Трубы и соединительные части должны быть подвергнуты испытанию сжатым воздухом при внутреннем давлении не менее 0,1 МПа и в течение времени проверки не менее: 30 с - для труб и 10 с - для соединительных частей. Для определения утечки трубы и соединительные части погружают в воду или равномерно покрывают с наружной поверхности подходящим пенным агентом.

7 Типовые испытания

7.1 Герметичность соединений при испытании внутренним давлением

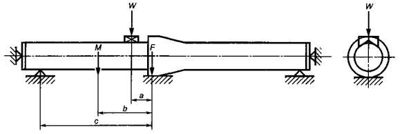
Настоящее типовое испытание следует проводить на собранном соединении, включающем два отрезка трубы длиной не менее 1 м каждый (рисунок 1).

Рисунок 1

Испытательное устройство должно обеспечивать соответствующее зажимание концов, независимо оттого отрезки труб расположены соосно, под углом друг к другу или подвержены поперечной нагрузке. Оно должно быть снабжено манометром, имеющим класс точности не ниже 3.

Поперечная нагрузка W должна быть приложена к охватываемому концу блоком V-образной формы с углом 120°, размещенным приблизительно на расстоянии 0,5´DN мм или 200 мм от торца раструба, в зависимости от того, что больше; раструб опирается на плоскую опору. Нагрузка W должна быть такой, чтобы общая поперечная сила F равнялась значению, указанному в 5.2.2, с учетом массы М трубы, их составляющих и геометрии испытательной конструкции

                                                                                                              (3)

где W, F и М выражены в ньютонах;

а, b и с показаны на рисунке 1.

Испытательную конструкцию наполняют водой, а воздух соответствующим образом удаляют, за исключением труб для газоснабжения, в которых соединения должны быть испытаны воздухом. Давление должно расти постепенно до достижения значения испытательного давления, указанного в 5.2.2; скорость роста давления не должна превышать 0,1 МПа/с. Испытательное давление должно быть постоянным в пределах ±0,05 МПа в течение не менее 2 ч; в это время соединение тщательно проверяют каждые 15 мин.

7.2 Герметичность соединений при испытании внешним давлением

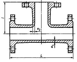
Этот тип испытательной конструкции используют только для раструбных гибких соединений. Конструкция должна включать два соединения из двух трубных раструбов, соединенных вместе, и одну охватываемую трубу, чтобы создать кольцевую камеру, позволяющую провести испытание одного соединения под внутренним давлением и одного - под внешним давлением (рисунок 2).

Рисунок 2

Испытательную конструкцию подвергают поперечной нагрузке по 5.2.3; одну половину этого усилия прикладывают к охватываемому концу на каждой стороне испытательной конструкции V-образным блоком с углом 120°, размещенным приблизительно на расстоянии 0,5´DN мм или 200 мм от конца раструбов, в зависимости оттого, что больше; раструбы помещают на плоской опоре.

Испытательную конструкцию наполняют водой, и воздух соответствующим образом удаляют. Давление должно расти постепенно до достижения испытательного давления, указанного в 5.2.3, и затем оставаться постоянным в пределах ± 0,01 МПа в течение не менее 2 ч, в это время внутреннюю сторону соединения, находящегося под внешним давлением, тщательно проверяют каждые 15 мин.

8 Таблицы размеров

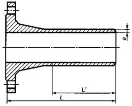
8.1 Трубы с раструбом и трубы с охватываемым концом

Размеры труб с раструбом и труб с охватываемым концом, показанных на рисунке 3, должны соответствовать значениям таблицы 11.

Рисунок 3

Таблица 11 - Размеры труб с раструбом и труб с охватываемым концом

В миллиметрах

DN

Наружный диаметр DE1)

Толщина чугунной стенки е, К9

40

56

6,0

50

66

6,0

60

77

6,0

65

82

6,0

80

98

6,0

100

118

6,0

125

144

6,0

150

170

6,0

200

222

6,3

250

274

6,8

300

326

7,2

350

378

7,7

400

429

8,1

450

480

8,6

500

532

9,0

600

635

9,9

700

738

10,8

800

842

11,7

900

945

12,6

1000

1048

13,5

1100

1152

14,4

1200

1255

15,3

1400

1462

17,1

1500

1565

18,0

1600

1668

18,9

1800

1875

20,7

2000

2082

22,5

2200

2288

24,3

2400

2495

26,1

2600

2702

27,9

1) Допуск - +1 мм (4.2.1.1).

Значения Lu приведены в таблице 2. Наружные и внутренние покрытия приведены в 4.4.

8.2 Фланцевые трубы

Стандартизированные классы (К) толщин стенки, DN и РN фланцевых труб приведены в 8.2.1-8.2.3. Значения длины фланцевых труб L приведены в таблице 3. Наружные и внутренние покрытия приведены в 4.4

Примечание - Размеры фланцев соответствуют ИСО 7005-2 и ЕН 1092-2.

8.2.1 Центробежно отлитые чугунные трубы с приваренными фланцами

DN от 40 до 450 мм: К9 для РN 10, РN 16, PN 25 и PN 40;

DN от 500 до 600 мм: К9 для РN 10, РN 16 и PN 25; К10 для PN 40;

DN от 700 до 1600 мм: К9 для РN 10, PN 16 и PN 25;

DN от 1800 до 2600 мм: К9 для РN 10 и РN 16.

8.2.2 Центробежно отлитые трубы со сболченными фланцами

DN от 40 до 450 мм: К9 или К10 для РN 10, РN 16, PN 25 и PN 40;

DN от 500 до 600 мм: К9 или К10 для РN 10, РN 16 и PN 25; К10 для PN 40;

DN от 700 до 1200 мм: К10 для РN 10, PN 16 и PN 25;

DN от 1400 до 2600 мм: К10 для РN 10 и РN 16.

8.2.3 Трубы, отлитые вместе с фланцами как одно целое

DN от 40 до 600 мм: К12 для РN 10, РN16, PN 25 и PN 40;

DN от 700 до 1600 мм: К12 для РN 10, PN 16 и PN 25;

DN от 1800 до 2600 мм: К12 для РN 10 и РN 16.

8.3 Соединительные части для раструбных соединений

В таблицах 12-20 все размеры имеют номинальное значение в миллиметрах. Значения Lu и lu округлены до ближайшего числа, кратного пяти.

Наружные и внутренние покрытия приведены в 4.5.

8.3.1 Фланцевые раструбы (рисунок 4 и таблица 12)

Рисунок 4

Таблица 12 - Размеры фланцевых раструбов

В миллиметрах

DN

е

Lu

d

Серия А

Серия В

40

7,0

125

75

67

50

7,0

125

85

78

60

7,0

125

100

88

65

7,0

125

105

93

80

7,0

130

105

109

100

7,2

130

110

130

125

7,5

135

115

156

150

7,8

135

120

183

200

8,4

140

120

235

250

9,0

145

125

288

300

9,6

150

130

340

350

10,2

155

135

393

400

10,8

160

140

445

450

11,4

165

145

498

500

12,0

170

-

550

600

13,2

180

-

655

700

14,4

190

-

760

800

15,6

200

-

865

900

16,8

210

-

970

1000

18,0

220

-

1075

1100

19,2

230

-

1180

1200

20,4

240

-

1285

1400

22,8

310

-

1477

1500

24,0

330

-

1580

1600

25,2

330

-

1683

1800

27,6

350

-

1889

2000

30,0

370

-

2095

2200

32,4

390

-

2301

2400

34,8

410

-

2507

2600

37,2

480

-

2713

8.3.2 Фланцевые охватываемые концы (рисунок 5 и таблица 13)

8.3.3 Узкие втулки (рисунок 6 и таблица 13)

Рисунок 5

Рисунок 6

Таблица 13 - Размеры фланцевых охватываемых концов и узких втулок

В миллиметрах

DN

е

Фланцевые охватываемые концы

Узкие втулки

L

L'

Lu

d

Серия А

Серия В

Серия А

Серия В

40

7,0

335

335

200

155

155

67

50

7,0

340

340

200

155

155

78

60

7,0

345

345

200

155

155

88

65

7,0

345

345

200

155

155

93

80

7,0

350

350

215

160

160

109

100

7,2

360

360

215

160

160

130

125

7,5

370

370

220

165

165

156

150

7,8

380

380

225

165

165

183

200

8,4

400

400

230

170

170

235

250

9,0

420

420

240

175

175

288

300

9,6

440

440

250

180

180

340

350

10,2

460

460

260

185

185

393

400

10,8

480

480

270

190

190

445

450

11,4

500

500

280

195

195

498

500

12,0

520

-

290

200

-

550

600

13,2

560

-

310

210

-

655

700

14,4

600

-

330

220

-

760

800

15,6

600

-

330

230

-

865

900

16,8

600

-

330

240

-

970

1000

18,0

600

-

330

250

-

1075

1100

19,2

600

-

330

260

-

1180

1200

20,4

600

-

330

270

-

1285

1400

22,8

710

-

390

340

-

1477

1500

24,0

750

-

410

350

-

1580

1600

25,2

780

-

430

360

-

1683

1800

27,6

850

-

470

380

-

1889

2000

30,0

920

-

500

400

-

2095

2200

32,4

990

-

540

420

-

2301

2400

34,8

1060

-

570

440

-

2507

2600

37,2

1130

-

610

460

-

2713

Примечание - L' - длина охватываемого конца, к которому применимо DE и его допуск, приведенный в таблице 11.

8.3.4 Колена с двойным раструбом 90° (1/4) (рисунок 7 и таблица 14)

8.3.5 Колена с двойным раструбом 45° (1/8) (рисунок 8 и таблица 14)

Рисунок 7

Рисунок 8

Таблица 14 - Размеры колен с двойным раструбом

В миллиметрах

DN

е

Колена 90° (1/4)

Колена 45°(1/8)

Lu

Lu

Серия А

Серия В

Серия А

Серия В

40

7,0

60

85

40

85

50

7,0

70

85

40

85

60

7,0

80

90

45

90

65

7,0

85

90

50

90

80

7,0

100

85

55

50

100

7,2

120

100

65

60

125

7,5

145

115

75

65

150

7,8

170

130

85

70

200

8,4

220

160

110

80

250

9,0

270

240

130

135

300

9,6

320

280

150

155

350

10,2

-

-

175

170

400

10,8

-

-

195

185

450

11,4

-

-

220

200

500

12,0

-

-

240

-

600

13,2

-

-

285

-

700

14,4

-

-

330

-

800

15,6

-

-

370

-

900

16,8

-

-

415

-

1000

18,0

-

-

460

-

1100

19,2

-

-

505

-

1200

20,4

-

-

550

-

1400

22,8

-

-

515

-

1500

24,0

-

-

540

-

1600

25,2

-

-

565

-

1800

27,6

-

-

610

-

2000

30,0

-

-

660

-

2200

32,4

-

-

710

-

2400

34,8

-

-

755

-

2600

37,2

-

-

805

-

8.3.6 Колена с двойным раструбом 22°30' (1/16) (рисунок 9 и таблица 15)

8.3.7 Колена с двойным раструбом 11°15' (1/32) (рисунок 10 и таблица 15)

Рисунок 9

Рисунок 10

Таблица 15 - Размеры колен с двойным раструбом

В миллиметрах

DN

е

Колена 22° 30' (1/16)

Колена 11° 15' (1/32)

Lu

Lu

Серия А

Серия В

Серия А

Серия В

40

7,0

30

30

25

25

50

7,0

30

30

25

25

60

7,0

35

35

25

25

65

7,0

35

35

25

25

80

7,0

40

40

30

30

100

7,2

40

50

30

30

125

7,5

50

55

35

35

150

7,8

55

60

35

40

200

8,4

65

70

40

45

250

9,0

75

80

50

55

300

9,6

85

90

55

55

350

10,2

95

100

60

60

400

10,8

110

110

65

65

450

11,4

120

120

70

70

500

12,0

130

-

75

-

600

13,2

150

-

85

-

700

14,4

175

-

95

-

800

15,6

195

-

110

-

900

16,8

220

-

120

-

1000

18,0

240

-

130

-

1100

19,2

260

-

140

-

1200

20,4

285

-

150

-

1400

22,8

260

-

130

-

1500

24,0

270

-

140

-

1600

25,2

280

-

140

-

1800

27,6

305

-

155

-

2000

30,0

330

-

165

-

2200

32,4

355

-

190

-

2400

34,8

380

-

205

-

2600

37,2

400

-

215

-

8.3.8 Тройники с тремя раструбами (рисунок 11 и таблица 16)

Рисунок 11

Таблица 16 - Размеры тройников с раструбами

В миллиметрах

DN´dn

Корпус

Отвод

е1

Lu

е2

Lu

Серия А

Серия В

Серия А

Серия В

40´40

7,0

120

155

7,0

60

75

50´50

7,0

130

155

7,0

65

75

60´60

7,0

145

155

7,0

70

80

65´65

7,0

150

155

7,0

75

80

80´40

7,0

120

155

7,0

80

80

80´80

7,0

170

175

7,0

85

85

100´40

7,2

120

155

7,0

90

90

100´60

7,2

145

155

7,0

90

90

100´80

7,2

170

165

7,0

95

90

100´100

7,2

190

195

7,2

95

100

125´40

7,5

125

155

7,0

100

105

125´80

7,5

170

175

7,0

105

105

125´100

7,5

195

195

7,2

110

115

125´125

7,5

225

225

7,5

110

115

150´40

7,8

125

160

7,0

115

115

150´80

7,8

170

180

7,0

120

120

150´100

7,8

195

200

7,2

120

125

150´150

7,8

255

260

7,8

125

130

200´40

8,4

130

165

7,0

140

140

200´80

8,4

175

180

7,0

145

145

200´100

8,4

200

200

7,2

145

150

200´150

8,4

255

260

7,8

150

155

200´200

8,4

315

320

8,4

155

160

250´80

9,0

180

185

7,0

170

185

250´100

9,0

200

205

7,2

170

190

250´150

9,0

260

265

7,8

175

190

250´200

9,0

315

320

8,4

180

190

250´250

9,0

375

380

9,0

190

190

300´100

9,6

205

210

7,2

195

220

300´150

9,6

260

265

7,8

200

220

300´200

9,6

320

325

8,4

205

220

300´250

9,6

375

380

9,0

210

220

300´300

9,6

435

440

9,6

220

220

Примечание - DN - основной номинальный диаметр, dn - номинальный диаметр отвода.

8.3.9 Двухраструбные тройники с фланцевым отводом, DN от 40 до 250 мм (рисунок 12 и таблица 17)

Рисунок 12

Таблица 17 - Тройники с фланцевым отводом, DN от 40 до 250 мм

В миллиметрах

DN´dn

Корпус

Отвод

е1

Lu

е2

Lu

Серия А

Серия В

Серия А

Серия В

40´40

7,0

120

155

7,0

130

130

50´50

7,0

130

155

7,0

140

140

60´40

7,0

-

155

7,0

-

130

60´60

7,0

145

155

7,0

150

150

65´40

7,0

-

155

7,0

-

130

65´65

7,0

150

155

7,0

150

155

80´40

7,0

-

155

7,0

-

135

80´60

7,0

-

155

7,0

-

155

80´80

7,0

170

175

7,0

165

165

100´40

7,2

-

155

7,0

-

145

100´60

7,2

-

155

7,0

-

165

100´80

7,2

170

165

7,0

175

170

100´100

7,2

190

195

7,2

180

180

125´40

7,5

-

155

7,0

-

160

125´60

7,5

-

155

7,0

-

180

125´80

7,5

170

175

7,0

190

185

125´100

7,5

195

195

7,2

195

195

125´125

7,5

225

225

7,5

200

200

150´40

7,8

-

160

7,0

-

170

150´60

7,8

-

160

7,0

-

190

150´80

7,8

170

180

7,0

205

200

150´100

7,8

195

200

7,2

210

205

150´125

7,8

-

230

7,5

-

215

150´150

7,8

255

260

7,8

220

220

200´40

8,4

-

165

7,0

-

195

200´60

8,4

-

165

7,0

-

215

200´80

8,4

175

180

7,0

235

225

200´100

8,4

200

200

7,2

240

230

200´125

8,4

-

235

7,5

-

240

200´150

8,4

255

260

7,8

250

245

200´200

8,4

315

320

8,4

260

260

250´60

9,0

-

165

7,0

-

260

250´80

9,0

180

185

7,0

265

265

250´100

9,0

200

205

7,2

270

270

250´150

9,0

260

265

7,8

280

280

250´200

9,0

315

320

8,4

290

290

250´250

9,0

375

380

9,0

300

300

Примечание - DN - основной номинальный диаметр, dn - номинальный диаметр отвода.

8.3.10 Двухраструбные тройники с фланцевым отводом, DN от 300 до 700 мм (рисунок 12 и таблица 18)

Таблица 18 - Размеры тройников с фланцевым отводом, DN от 300 до 700 мм

В миллиметрах

DN´dn

Корпус

Отвод

е1

Lu

е2

Lu

Серия А

Серия В

Серия А

Серия В

300´60

9,6

-

165

7,0

-

290

300´80

9,6

180

185

7,0

295

295

300´100

9,6

205

210

7,2

300

300

300´150

9,6

260

265

7,8

310

310

300´200

9,6

320

325

8,4

320

320

300´250

9,6

-

380

9,0

-

330

300´300

9,6

435

440

9,6

340

340

350´60

10,2

-

170

7,0

-

320

350´80

10,2

-

185

7,0

-

325

350´100

10,2

205

210

7,2

330

330

350´150

10,2

-

270

7,8

-

340

350´200

10,2

325

325

8,4

350

350

350´250

10,2

-

385

9,0

-

360

350´350

10,2

495

500

10,2

380

380

400´80

10,8

185

190

7,0

355

355

400´100

10,8

210

210

7,2

360

360

400´150

10,8

270

270

7,8

370

370

400´200

10,8

325

330

8,4

380

380

400´250

10,8

-

385

9,0

-

390

400´300

10,8

440

445

9,6

400

400

400´400

10,8

560

560

10,8

420

420

450´100

11,4

215

215

7,2

390

390

450´150

11,4

270

270

7,8

400

400

450´200

11,4

330

330

8,4

410

410

450´250

11,4

390

390

9,0

420

420

450´300

11,4

445

445

9,6

430

430

450´400

11,4

560

560

10,8

450

450

450´450

11,4

620

620

11,4

460

460

500´100

12,0

215

-

7,2

420

-

500´200

12,0

330

-

8,4

440

-

500´400

12,0

565

-

10,8

480

-

500´500

12,0

680

-

12,0

500

-

600´200

13,2

340

-

8,4

500

-

600´400

13,2

570

-

10,8

540

-

600´600

13,2

800

-

13,2

580

-

700´200

14,4

345

-

8,4

525

-

700´400

14,4

575

-

10,8

555

-

700´700

14,4

925

-

14,4

600

-

Примечание - DN - основной номинальный диаметр, dn - номинальный диаметр отвода.

8.3.11 Двухраструбные тройники с фланцевым отводом, DN от 800 до 2600 мм (рисунок 12 и таблица 19)

Таблица 19 - Размеры тройников с фланцевым отводом, DN от 800 до 2600 мм

В миллиметрах

DN´dn

Корпус

Отвод

е1

Lu

Серия А

е2

l

Серия А

800´200

15,6

350

8,4

585

800´400

15,6

580

10,8

615

800´600

15,6

1045

13,2

645

800´800

15,6

1045

15,6

675

900´200

16,8

355

8,4

645

900´400

16,8

590

10,8

675

900´600

16,8

1170

13,2

705

900´900

16,8

1170

16,8

750

1000´200

18,0

360

8,4

705

1000´400

18,0

595

10,8

735

1000´600

18,0

1290

13,2

765

1000´1000

18,0

1290

18,0

825

1100´400

19,2

600

10,8

795

1100´600

19,2

830

13,2

825

1200´600

20,4

840

13,2

885

1200´800

20,4

1070

15,6

915

1200´1000

20,4

1300

18,0

945

1400´600

22,8

1030

13,2

980

1400´800

22,8

1260

15,6

1010

1400´1000

22,8

1495

18,0

1040

1500´600

24,0

1035

13,2

1035

1500´1000

24,0

1500

18,0

1595

1600´600

25,2

1040

13,2

1090

1600´800

25,2

1275

15,6

1120

1600´1000

25,2

1505

18,0

1150

1600´1200

25,2

1740

20,4

1180

1800´600

27,6

1055

13,2

1200

1800´800

27,6

1285

15,6

1230

1800´1000

27,6

1520

18,0

1260

1800´1200

27,6

1750

20,4

1290

2000´600

30,0

1065

13,2

1310

2000´1000

30,0

1530

18,0

1370

2000´1400

30,0

1995

22,8

1430

2200´600

32,4

1080

13,2

1420

2200´1200

32,4

1775

20,4

1510

2200´1800

32,4

2470

27,6

1600

2400´600

34,8

1090

13,2

1530

2400´1200

34,8

1785

20,4

1620

2400´1800

34,8

2480

27,6

1710

2600´600

37,2

1100

13,2

1640

2600´1400

37,2

2030

22,8

1750

2600´2000

37,2

2725

30,0

1850

Примечание - DN - основной номинальный диаметр, dn - номинальный диаметр отвода.

8.3.12 Двухраструбные конусы (рисунок 13 и таблица 20)

Рисунок 13

Таблица 20 - Размеры двухраструбных конусов

В миллиметрах

DN´dn

е1

е2

Lu

Серия А

Серия В

50´40

7,0

7,0

70

75

60´50

7,0

7,0

70

75

65´50

7,0

7,0

80

75

80´40

7,0

7,0

-

80

80´60

7,0

7,0

90

80

80´65

7,0

7,0

80

80

100´60

7,2

7,0

-

120

100´80

7,2

7,0

90

85

125´60

7,5

7,0

-

190

125´80

7,5

7,0

140

135

125´100

7,5

7,2

100

120

150´80

7,8

7,0

190

190

150´100

7,8

7,2

150

150

150´125

7,8

7,5

100

115

200´100

8,4

7,2

250

250

200´125

8,4

7,5

200

230

200´150

8,4

7,8

150

145

250´125

9,0

7,5

300

335

250´150

9,0

7,8

250

250

250´200

9,0

8,4

150

150

300´150

9,6

7,8

350

370

300´200

9,6

8,4

250

250

300´250

9,6

9,0

150

150

350´200

10,2

8,4

360

370

350´250

10,2

9,0

260

260

350´300

10,2

9,6

160

160

400´250

10,8

9,0

360

380

400´300

10,8

9,6

260

260

400´350

10,8

10,2

160

155

450´350

11,4

10,2

260

270

450´400

11,4

10,8

160

160

500´350

12,0

10,2

360

-

500´400

12,0

10,8

260

-

600´400

13,2

10,8

460

-

600´500

13,2

12,0

260

-

700´500

14,4

12,0

480

-

700´600

14,4

13,2

280

-

800´600

15,6

13,2

480

-

800´700

15,6

14,4

280

-

900´700

16,8

14,4

480

-

900´800

16,8

15,6

280

-

1000´800

18,0

15,6

480

-

1000´900

18,0

16,8

280

-

1100´1000

19,2

18,0

280

-

1200´1000

20,4

18,0

480

-

1400´1200

22,8

20,4

360

-

1500´1400

24,0

22,8

260

-

1600´1400

25,2

22,8

360

-

1800´1600

27,6

25,2

360

-

2000´1800

30,0

27,6

360

-

2200´2000

32,4

30,0

360

-

2400´2200

34,8

32,4

360

-

2600´2400

37,2

34,8

360

-

Примечание - DN - большой номинальный диаметр, dn - малый номинальный диаметр отвода.

8.4 Соединительные части для фланцевых соединений

Стандартизованные номинальные давления указаны в 8.2.3. В таблицах 21-30 все размеры являются номинальными значениями в миллиметрах. Данные для наружных и внутренних покрытий приведены в 4.5.

8.4.1 Двуфланцевые прямые колена под углом 90° (рисунок 14 и таблица 21)

8.4.2 Двуфланцевые прямые лапчатые колена под углом 90° (рисунок 15 и таблица 21)

Рисунок 14

Рисунок 15

Таблица 21 - Размеры двуфланцевых прямых колен и двуфланцевых лапчатых колен

В миллиметрах

DN

Серии А и В

е

Прямые колена

Прямые лапчатые колена

L

L

с

d

40

7,0

140

-

-

-

50

7,0

150

150

95

150

60

7,0

160

160

100

160

65

7,0

165

165

100

165

80

7,0

165

165

110

180

100

7,2

180

180

125

200

125

7,5

200

200

140

225

150

7,8

220

220

160

250

200

8,4

260

260

190

300

250

9,0

350

350

225

350

300

9,6

400

400

255

400

350

10,2

450

450

290

450

400

10,8

500

500

320

500

450

11,4

550

550

355

550

500

12,0

600

600

385

600

600

13,2

700

700

450

700

700

14,4

800

-

-

-

800

15,6

900

-

-

-

900

16,8

1000

-

-

-

1000

18,0

1100

-

-

-

8.4.3 Двуфланцевые косые колена под углом 45° (рисунок 16 и таблица 22)

Рисунок 16

Таблица 22 - Размеры двуфланцевых косых колен

В миллиметрах

DN

е

L

Серия А

Серия В

40

7,0

140

140

50

7,0

150

150

60

7,0

160

160

65

7,0

165

165

80

7,0

130

130

100

7,2

140

140

125

7,5

150

150

150

7,8

160

160

200

8,4

180

180

250

9,0

350

245

300

9,6

400

275

350

10,2

300

300

400

10,8

325

325

450

11,4

350

350

500

12,0

375

-

600

13,2

425

-

700

14,4

480

-

800

15,6

530

-

900

16,8

580

-

1000

18,0

630

-

1100

19,2

695

-

1200

20,4

750

-

1400

22,8

775

-

1500

24,0

810

-

1600

25,2

845

-

1800

27,6

910

-

2000

30,0

980

-

2200

32,4

880

-

2400

34,8

945

-

2600

37,2

1005

-

8.4.4 Фланцевые тройники, DN от 40 до 250 мм (рисунок 17 и таблица 23)

Рисунок 17

Таблица 23 - Размеры фланцевых тройников, DN от 40 до 250 мм

В миллиметрах

DN´dn

Корпус

Отвод

е1

L

е2

l

Серия А

Серия В

Серия А

Серия В

40´40

7,0

280

255

7,0

140

130

50´50

7,0

300

280

7,0

150

140

60´40

7,0

300

-

7,0

130

-

60´60

7,0

320

300

7,0

160

150

65´65

7,0

330

305

7,0

165

150

80´40

7,0

-

310

7,0

-

135

80´60

7,0

-

310

7,0

-

155

80´80

7,0

330

330

7,0

165

165

100´40

7,2

-

320

7,0

-

145

100´60

7,2

-

320

7,0

-

165

100´80

7,2

360

330

7,0

175

170

100´100

7,2

360

360

7,2

180

180

125´40

7,5

-

330

7,0

-

160

125´60

7,5

-

330

7,0

-

180

125´80

7,5

400

350

7,0

190

185

125´100

7,5

400

370

7,2

195

195

125´125

7,5

400

400

7,5

200

200

150´40

7,8

-

340

7,0

-

170

150´60

7,8

-

340

7,0

-

190

150´80

7,8

440

360

7,0

205

200

150´100

7,8

440

380

7,2

210

205

150´125

7,8

440

410

7,5

215

215

150´150

7,8

440

440

7,8

220

220

200´40

8,4

-

365

7,0

-

195

200´60

8,4

-

365

7,0

-

215

200´80

8,4

520

380

7,0

235

225

200´100

8,4

520

400

7,2

240

230

200´125

8,4

-

435

7,5

-

240

200´150

8,4

520

460

7,8

250

245

200´200

8,4

520

520

8,4

260

260

250´60

9,0

-

385

7,0

-

260

250´80

9,0

-

405

7,0

-

265

250´100

9,0

700

425

7,2

275

270

250´150

9,0

-

485

7,8

-

280

250´200

9,0

700

540

8,4

325

290

250´250

9,0

700

600

9,0

350

300

Примечание - DN - основной номинальный диаметр, dn - номинальный диаметр отвода.

8.4.5 Фланцевые тройники, DN от 300 до 700 мм (рисунок 17 и таблица 24)

Таблица 24 - Размеры фланцевых тройников, DN от 300 до 700 мм

В миллиметрах

DN´dn

Корпус

Отвод

е1

L

е2

l

Серия А

Серия В

Серия А

Серия В

300´60

9,6

-

405

7,0

-

290

300´80

9,6

-

425

7,0

-

295

300´100

9,6

800

450

7,2

300

300

300´150

9,6

-

505

7,8

-

310

300´200

9,6

800

565

8,4

350

320

300´250

9,6

-

620

9,0

-

330

300´300

9,6

800

680

9,6

400

340

350´60

10,2

-

430

7,0

-

320

350´80

10,2

-

445

7,0

-

325

350´100

10,2

850

470

7,2

325

330

350´150

10,2

-

530

7,8

-

340

350´200

10,2

850

585

8,4

325

350

350´250

10,2

-

645

9,0

-

360

350´350

10,2

850

760

10,2

425

380

400´80

10,8

-

470

7,0

-

355

400´100

10,8

900

490

7,2

350

360

400´150

10,8

-

550

7,8

-

370

400´200

10,8

900

610

8,4

350

380

400´x250

10,8

-

665

9,0

-

390

400´300

10,8

-

725

9,6

-

400

400´400

10,8

900

840

10,8

450

420

450´100

11,4

950

515

7,2

375

390

450´150

11,4

-

570

7,8

-

400

450´200

11,4

950

630

8,4

375

410

450´250

11,4

-

690

9,0

-

420

450´300

11,4

-

745

9,6

-

430

450´400

11,4

-

860

10,8

-

450

450´450

11,4

950

920

11,4

475

460

500´100

12,0

1000

535

7,2

400

420

500´200

12,0

1000

650

8,4

400

440

500´400

12,0

1000

885

10,8

500

480

500´500

12,0

1000

1000

12,0

500

500

600´200

13,2

1100

700

8,4

450

500

600´400

13,2

1100

930

10,8

550

540

600´600

13,2

1100

1165

13,2

550

580

700´200

14,4

650

-

8,4

525

-

700´400

14,4

870

-

10,8

555

-

700´700

14,4

1200

-

14,4

600

-

Примечание - DN - основной номинальный диаметр, dn - номинальный диаметр отвода.

8.4.6 Фланцевые тройники, DN от 800 до 2600 мм (рисунок 17 и таблица 25)

Таблица 25 - Размеры фланцевых тройников, DN от 800 до 2600 мм

В миллиметрах

DN´dn

Корпус

Отвод

е1

L

Серия А

е2

l

Серия А

800´200

15,6

690

8,4

585

800´400

15,6

910

10,8

615

800´600

15,6

1350

13,2

645

800´800

15,6

1350

15,6

675

900´200

16,8

730

8,4

645

900´400

16,8

950

10,8

675

900´600

16,8

1500

13,2

705

900´900

16,8

1500

16,8

750

1000´200

18,0

770

8,4

705

1000´400

18,0

990

10,8

735

1000´600

18,0

1650

13,2

765

1000´1000

18,0

1650

18,0

825

1100´400

19,2

980

8,4

795

1100´600

19,2

1210

13,2

825

1200´600

20,4

1240

13,2

885

1200´800

20,4

1470

15,6

915

1200´1000

20,4

1700

18,0

945

1400´600

22,8

1550

13,2

980

1400´800

22,8

1760

15,6

1010

1400´1000

22,8

2015

18,0

1040

1500´600

24,0

1575

13,2

1035

1500´1000

24,0

2040

18,0

1095

1600´600

25,2

1600

13,2

1090

1600´800

25,2

1835

15,6

1120

1600´1000

25,2

2065

18,0

1150

1600´1200

25,2.

2300

20,4

1180

1800´600

27,6

1655

13,2

1200

1800´800

27,6

1885

15,6

1230

1800´1000

27,6

2120

18,0

1260

1800´1200

27,6

2350

20,4

1290

2000´600

30,0

1705

13,2

1310

2000´1000

30,0

2170

18,0

1370

2000´1400

30,0

2635

22,8

1430

2200´600

32,4

1560

13,2

1420

2200´1200

32,4

2220

20,4

1510

2200´1800

32,4

2880

27,6

1600

2400´600

34,8

1620

13,2

1530

2400´1200

34,8

2280

20,4

1620

2400´1800

34,8

2940

27,6

1710

2600´600

37,2

1680

13,2

1640

2600´1400

37,2

2560

22,8

1760

2600´2000

37,2

3220

30,0

1850

Примечание - DN - основной номинальный диаметр, dn - номинальный диаметр отвода.

8.4.7 Двуфланцевый конус (рисунок 18 и таблица 26)

Рисунок 18

Таблица 26 - Размеры двуфланцевых конусов

В миллиметрах

DN´dn

е1

е2

L

Серия А

Серия В

50´40

7,0

7,0

150

165

60´50

7,0

7,0

160

160

65´50

7,0

7,0

200

190

80´60

7,0

7,0

200

185

80´65

7,0

7,0

200

190

100´80

7,2

7,0

200

195

125´100

7,5

7,2

200

185

150´125

7,8

7,5

200

190

200´150

8,4

7,8

300

235

250´200

9,0

8,4

300

250

300´250

9,6

9,0

300

265

350´300

10,2

9,6

300

290

400´350

10,8

10,2

300

305

450´400

11,4

10,8

300

320

500´400

12,0

10,8

600

-

600´500

13,2

12,0

600

-

700´600

14,4

13,2

600

-

800´700

15,6

14,4

600

-

900´800

16,8

15,6

600

-

1000´900

18,0

16,8

600

-

1100´1000

19,2

18,0

600

-

1200´1000

20,4

18,0

790

-

1400´1200

22,8

20,4

850

-

1500´1400

24,0

22,8

695

-

1600´1400

25,2

22,8

910

-

1800´1600

27,6

25,2

970

-

2000´1800

30,0

27,6

1030.

-

2200´2000

32,4

30,0

1090

-

2400´2200

34,8

32,4

1150

-

2600´2400

37,2

34,8

1210

-

Примечание - DN - большой номинальный диаметр, dn - малый номинальный диаметр.

8.4.8 Глухие фланцы PN 10 (рисунок 19 и таблица 27)

8.4.9 Глухие фланцы PN 16 (рисунок 20 и таблица 27)

Рисунок 19

Рисунок 20

Таблица 27 - Размеры глухих фланцев, PN 10 и PN 16

В миллиметрах

DN

PN 10

PN 16

D

а

b

с

D

а

b

с

40

150

19,0

16,0

3

150

19,0

16,0

3

50

165

19,0

16,0

3

165

19,0

16,0

3

60

175

19,0

16,0

3

175

19,0

16,0

3

65

185

19,0

16,0

3

185

19,0

16,0

3

80

200

19,0

16,0

3

200

19,0

16,0

3

100

220

19,0

16,0

3

220

19,0

16,0

3

125

250

19,0

16,0

3

250

19,0

16,0

3

150

285

19,0

16,0

3

285

19,0

16,0

3

200

340

20,0

17,0

3

340

20,0

17,0

3

250

400

22,0

19,0

3

400

22,0

19,0

3

300

455

24,5

20,5

4

455

24,5

20,5

4

350

505

24,5

20,5

4

520

26,5

22,5

4

400

565

24,5

20,5

4

580

28,0

24,0

4

450

615

25,5

21,5

4

640

30,0

26,0

4

500

670

26,5

22,5

4

715

31,5

27,5

4

600

780

30,0

25,0

5

840

36,0

31,0

5

700

895

32,5

27,5

5

910

39,5

34,5

5

800

1015

35,0

30,0

5

1025

43,0

38,0

5

900

1115

37,5

32,5

5

1125

46,5

41,5

5

1000

1230

40,0

35,0

5

1255

50,0

45,0

5

1100

1340

42,5

37,5

5

1355

53,5

48,5

5

1200

1455

45,0

40,0

5

1485

57,0

52,0

5

1400

1675

46,0

41,0

5

1685

60,0

55,0

5

1500

1785

47,5

42,5

5

1820

62,5

57,5

5

1600

1915

49,0

44,0

5

1930

65,0

60,0

5

1800

2115

52,0

47,0

5

2130

70,0

65,0

5

2000

2325

55,0

50,0

5

2345

75,0

70,0

5

Примечание - У глухих фланцев номинальным диаметром, равным или более DN 300 мм, середина может быть вогнутой.

8.4.10 Глухие фланцы PN 25 (рисунок 21 и таблица 28)

8.4.11 Глухие фланцы PN 40 (рисунок 22 и таблица 28)

Рисунок 21

Рисунок 22

Таблица 28 - Размер глухих фланцев, PN 25 и PN 40

В миллиметрах

DN

PN 25

PN 40

D

а

b

с

D

а

b

с

40

150

19,0

16,0

3

150

19,0

16,0

3

50

165

19,0

16,0

3

165

19,0

16,0

3

60

175

19,0

16,0

3

175

19,0

16,0

3

65

185

19,0

16,0

3

185

19,0

16,0

3

80

200

19,0

16,0

3

200

19,0

16,0

3

100

235

19,0

16,0

3

235

19,0

16,0

3

125

270

19,0

16,0

3

270

23,5

20,5

3

150

300

20,0

17,0

3

300

26,0

23,0

3

200

360

22,0

19,0

3

375

30,0

27,0

3

250

425

24,5

21,5

3

450

34,5

31,5

3

300

485

27,5

23,5

4

515

39,5

35,5

4

350

555

30,0

26,0

4

-

-

-

-

400

620

32,0

28,0

4

-

-

-

-

450

670

34,5

30,5

4

-

-

-

-

500

730

36,5

32,5

4

-

-

-

-

600

845

42,0

37,0

5

-

-

-

-

Примечание - У глухих фланцев номинальным диаметром, равным или более DN 300 мм, середина может быть вогнутой.

8.4.12 Переходные фланцы PN 10 (рисунок 23 и таблица 29)

8.4.13 Переходные фланцы PN 16 (рисунок 24 и таблица 29)

Рисунок 23

Рисунок 24

Таблица 29 - Размеры переходных фланцев, PN 10 и PN 16

В миллиметрах

DN´dn

PN 10

PN 16

D

а

b

с1

с2

D

а

b

с1

с2

200´80

340

40

17,0

3

3

340

40

17,0

3

3

200´100

340

40

17,0

3

3

340

40

17,0

3

3

200´125

340

40

17,0

3

3

340

40

17,0

3

3

350´250

505

48

20,5

4

3

520

54

22,5

4

3

400´250

565

48

20,5

4

3

580

54

24,0

4

3

400´300

565

49

20,5

4

4

580

55

24,0

4

4

700´500

895

56

27,5

5

4

910

67

34,5

5

4

900´700

1115

63

32,5

5

5

1125

73

41,5

5

5

1000´700

1230

63

35,0

5

5

1255

73

45,0

5

5

1000´800

1230

68

35,0

5

5

1255

77

45,0

5

5

Примечание - DN - большой номинальный диаметр, dn - малый номинальный диаметр.

8.4.14 Переходные фланцы PN 25 (рисунок 25 и таблица 30)

8.4.15 Переходные фланцы PN 40 (рисунок 26 и таблица 30)

Рисунок 25

Рисунок 26

Таблица 30 - Размеры переходных фланцев, PN 25 и PN 40

В миллиметрах

DN´dn

PN 25

PN 40

D

а

b

с1

с2

D

а

b

с1

с2

200´80

360

40

19

3

3

375

40

27

3

3

200´100

360

47

19

3

3

375

47

27

3

3

200´125

360

53

19

3

3

375

53

27

3

3

350´250

555

60

26

4

3

-

-

-

-

-

400´250

620

60

28

4

3

-

-

-

-

-

400´300

620

61

28

4

4

-

-

-

-

-

Примечание - DN - основной номинальный диаметр, dn - номинальный диаметр отвода.

Приложение А
(справочное)

Область применения, характеристики грунта

Трубопроводы из чугуна с шаровидным графитом с соответствующими наружными покрытиями по 4.4.1 и 4.5.1 можно применять во всех типах грунта. Выбор соответствующего покрытия зависит в основном от:

- удельного сопротивления грунта;

- рН грунта;

- наличия грунтовых вод на уровне трубы;

- присутствия блуждающих токов;

- наличия коррозионных элементов, обусловленных наружными металлическими конструкциями;

- возможности загрязнения грунта сточными водами или отходами.

Приложение В
(справочное)

Область применения, характеристики воды

Трубопроводы из чугуна с шаровидным графитом с соответствующим внутренним покрытием по 4.4.2 и 4.5.2 могут быть использованы для транспортирования всех типов питьевой и необработанной воды.

Для цементной футеровки без изоляционного слоя пределы использования зависят от типа цемента, используемого для футеровки, и характеристик воды (минимальное значение рН, максимальное содержание агрессивного СО2, сульфатов, магнезии и аммония).

Для других типов футеровочных покрытий пределы применения указывают в документах изготовителя.

Приложение С
(справочное)

Жесткость труб и диаметральный прогиб

Трубы из чугуна с шаровидным графитом могут испытывать большие диаметральные прогибы при эксплуатации, сохраняя все функциональные характеристики. Допустимые диаметральные прогибы труб при эксплуатации трубопровода приведены в таблице С.1 вместе с их минимальной диаметральной жесткостью, которая позволяет трубам выдерживать большую толщину покрытия и/или большие дорожные нагрузки при широком диапазоне условий эксплуатации.

Таблица С.1 - Допустимый диаметральный прогиб

DN, мм

Минимальная диаметральная жесткость S трубы К9, кН/м2

Допустимое диаметральное отклонение, %

40

14000

0,45

50

8000

0,55

60

5000

0,65

65

4000

0,70

80

2400

0,85

100

1350

1,05

125

800

1,30

150

480

1,55

200

230

1,90

250

155

2,20

300

110

2,50

350

88

2,70

400

72

2,90

450

61

3,05

500

52

3,25

600

41

3,55

700

34

3,75

800

30

4,00

900

26

4,00

1000

24

4,00

1100

22

4,00

1200

20

4,00

1400

18

4,00

1500

17

4,00

1600

17

4,00

1800

16

4,00

2000

16

4,00

2200

15

4,00

2400

14

4,00

2600

13

4,00

Примечание - Значения S были рассчитаны при предположении, что толщина стенки трубы равна минимальной толщине плюс половина допуска, с учетом того, что имеется только небольшое количество точек, где толщина равна или близка к минимальной толщине.

Диаметральный прогиб в процентах составляет одну сотую часть от вертикального прогиба в миллиметрах, деленного на номинальный наружный диаметр DE в миллиметрах. Значения допустимого диаметрального прогиба, указанные в таблице С.1, относятся к трубам класса К9 с цементной футеровкой; они обеспечивают целостность соединения также, как надежность от перегрузок стенок трубы и чрезмерного растрескивания футеровочного слоя. Изготовители могут устанавливать более строгие ограничения, такие как 3 %.

Диаметральную жесткость труб S определяют по следующей формуле

                                                                                              (С.1)

где S - диаметральная жесткость труб, кН/м2;

Е - модуль упругости материала, МПа(170 000 МПа);

l - второй момент инерции площади стенки трубы на единицу длины, мм3;

D - средний диаметр трубы (DE - е), мм;

е - толщина стенки трубы, мм;

DE - номинальный наружный диаметр, мм.

Ключевые слова: трубы, фитинги, арматура, соединения, чугун с шаровидным графитом, трубопроводы для водоснабжения, трубопроводы для газоснабжения, технические условия, размеры, механические свойства, герметичность, испытания, испытания на растяжение, испытания на герметичность, измерения размеров, маркировка

 

 




ГОСТЫ, СТРОИТЕЛЬНЫЕ и ТЕХНИЧЕСКИЕ НОРМАТИВЫ.
Некоммерческая онлайн система, содержащая все Российские Госты, национальные Стандарты и нормативы.
В Системе содержится более 150000 файлов нормативно-технической документации, действующей на территории РФ.
Система предназначена для широкого круга инженерно-технических специалистов.

Рейтинг@Mail.ru Яндекс цитирования

Copyright © www.gostrf.com, 2008 - 2026