Крупнейшая бесплатная информационно-справочная система онлайн доступа к полному собранию технических нормативно-правовых актов РФ. Огромная база технических нормативов (более 150 тысяч документов) и полное собрание национальных стандартов, аутентичное официальной базе Госстандарта. GOSTRF.com - это более 1 Терабайта бесплатной технической информации для всех пользователей интернета. Все электронные копии представленных здесь документов могут распространяться без каких-либо ограничений. Поощряется распространение информации с этого сайта на любых других ресурсах. Каждый человек имеет право на неограниченный доступ к этим документам! Каждый человек имеет право на знание требований, изложенных в данных нормативно-правовых актах!

  


 

ОТКРЫТОЕ АКЦИОНЕРНОЕ ОБЩЕСТВО
ЦЕНТРАЛЬНЫЙ НАУЧНО-ИССЛЕДОВАТЕЛЬСКИЙ И
ПРОЕКТНО-ЭКСПЕРИМЕНТАЛЬНЫЙ ИНСТИТУТ
ПРОМЫШЛЕННЫХ ЗДАНИЙ И СООРУЖЕНИЙ

ОАО ЦНИИПромзданий

СТАНДАРТ ОРГАНИЗАЦИИ

УТВЕРЖДАЮ
Зам. генерального директора
ОАО «ЦНИИпромзданий»

_______________ С.М. Гликин

24 февраля 2009 г.

ПОЛЫ

«МЕТОД ОЦЕНКИ ЗЫБКОСТИ ПОЛОВ»

СТО-005-02495342-2009

Москва 2009

Содержание

ПРЕДИСЛОВИЕ

РАЗРАБОТАН Сектором полов ОАО «Центральный научно-исследовательский и проектно-экспериментальный институт промышленных зданий и сооружений (ОАО ЦНИИПромзданий)

СТАНДАРТ ОРГАНИЗАЦИИ

ПОЛЫ

«МЕТОД ОЦЕНКИ ЗЫБКОСТИ ПОЛОВ»

Дата введения 24 февраля 2009 года

1 ОБЛАСТЬ ПРИМЕНЕНИЯ

Настоящий стандарт распространяется на полы жилых и общественных зданий и устанавливает метод оценки их прочности и деформативной стойкости под действием сосредоточенных нагрузок.

Зыбкость пола оценивают по величине просадки при сосредоточенных нагрузках, равных 2 кН в помещениях жилых зданий и 5 кН в помещениях общественных зданий.

2 НОРМАТИВНЫЕ ССЫЛКИ

В настоящем стандарте использованы ссылки на следующие стандарты.

ГОСТ 1.1-2002 Межгосударственная система стандартизации. Термины и определения

ГОСТ Р 1.4-2004 Стандартизация в Российской Федерации. Стандарты организаций. Общие положения

ГОСТ Р 1.5-2004 Стандартизация в Российской Федерации. Стандарты национальные Российской Федерации. Правила построения, изложения, оформления и обозначения

ГОСТ Р 1.12-2004 Стандартизация в Российской Федерации. Термины и определения

ГОСТ 427-75 Линейка измерительная металлическая. Технические условия.

ГОСТ 26433.0-85 Система обеспечения точности геометрических параметров в строительстве. Правила выполнения измерений. Общие положения

ГОСТ 26433.1-89 Система обеспечения точности геометрических параметров в строительстве. Правила выполнения измерений. Элементы заводского изготовления

ГОСТ 26633-91 Бетоны тяжелые и мелкозернистые. Технические условия.

ГОСТ 30494-96 Здания жилые и общественные параметры микроклимата в помещениях.

3 ТЕРМИНЫ И ОПРЕДЕЛЕНИЯ

В настоящем стандарте применены термины по ГОСТ Р 1.12-2004, а также следующие термины с соответствующими определениями:

3.1 Покрытие пола - верхний слой пола, непосредственно подвергающийся эксплуатационным воздействиям.

3.2 Прослойка - промежуточный слой пола, связывающий покрытие с нижерасположенным слоем или служащий для покрытия упругой постелью.

3.3 Стяжка (основание под покрытие) слой пола, служащий для выравнивания поверхности нижерасположенного слоя пола или перекрытия, придания покрытию пола заданного уклона, укрытия проложенных трубопроводов, а также распределения нагрузок по нежестким слоям пола на перекрытии.

3.4 Теплоизоляционный слой - элемент пола, уменьшающий общую теплопроводность пола.

3.5 Звукоизоляционный слой - элемент пола, повышающий звукоизолирующую способность пола.

3.5 Подстилающий слой - слой пола, распределяющий нагрузки на грунт.

3.7 Грунтовое основание - слой грунта, по которому устраивается подстилающий слой

3.8 Параметры окружающей среды - сочетание температуры и относительной влажности воздуха при нормализации, кондиционировании и испытании.

3.9 Подготовка образцов - кондиционирование образцов перед испытанием.

3.10 Кондиционирование - выдержка образцов в определенных условиях окружающей среды в течение определенного условиях окружающей среды в течение определенного периода времени.

3.11 Условия испытания - условия окружающей среды, в которой находятся образцы во время испытания.

4 СРЕДСТВА ИСПЫТАНИЙ

Деформатор, соответствующий приведенному ниже описанию (рисунок 1).

Рис. 1 Схема деформатора

Деформатор представляет собой рычажную систему, упирающуюся в потолок помещения и пол. Один конец рычага (6) шарнирно соединен с осью (11), передающую давление через стойки (13 и 21) в потолок помещения, а на другой конец подвешивают груз (10). Острым ребром призмы (5) рычаг упирается во впадину оголовника (3), который через опорный стержень (2) и штамп (1) передает давление на испытываемую конструкцию. Прибор снабжен квадратным и роликовым сменными штампами, соответствующими по форме и размерам опорам ножек мебели, передающими нагрузку на полы жилых и общественных зданий. Ось, острие призмы и крюк (9) для подвески груза расположены на одной прямой, благодаря чему соотношение длин плеч рычага и давление на конструкцию сохраняются неизменными независимо от угла наклона рычага. Под давлением прибора конструкция пола проседает, угол наклона рычага уменьшается, ось перемещается в прорези (12), обеспечивая этим вертикальное опускание оголовника и опорного стержня со штампом. Одновременно происходит опускание измерительного стержня (14), нижний конец которого скреплен с оголовником, а верхний выведен на уровень глаз наблюдателя для измерения величины просадки конструкций под нагрузкой.

Гири массой 6 и 18 кг.

Прибор для измерения относительной влажности воздуха с точностью ±5%

Термометр для измерения температуры воздуха с точностью ±2 °С.

Линейка измерительная металлическая по ГОСТ 427-75.

5. ПОДГОТОВКА К ИСПЫТАНИЮ

5.1 Испытания проводят на опытных участках, устраиваемых по бетонному подстилающему слою из бетона класса по прочности на сжатие В25 (ГОСТ 26633-91) толщиной не менее 80 мм, выполненному по грунтовому основанию.

Опытный участок пола должен включать тепло-звукоизолирующий слой, стяжку, клеевую прослойку и покрытие пола с соблюдением толщины и материалов слоев регламентируемых соответствующими нормативными документами.

Допускается проводить испытания реальных полов, например, при приемке их в эксплуатацию и при периодических испытаниях.

5.2 Размер опытного участка должен быть не менее 1000 × 1000 мм.

5.3 Материалы, из которых выполняется опытный участок пола, а также условия подготовки и обработки поверхности нижележащего элемента перед укладкой последующего, условия твердения элементов должны удовлетворять требованиям соответствующих нормативных документов.

Испытания проводят после достижения материалами покрытия прочности в проектном возрасте, регламентируемом соответствующими нормативными документами.

5.4 Во время испытания покрытие пола должно быть сухим. Перед испытанием следует проверить отсутствие отслоений при помощи простукивания верхних элементов опытного участка пола.

6. КОНДИЦИОНИРОВАНИЕ

Перед испытаниями и в процессе его проведения в помещении с выполненным опытным участком пола в течение не менее 48 часов должны поддерживаться температура воздуха в пределах от +18 до +24 °С и относительная влажность воздуха в пределах от 30 до 45%.

7. ПРОВЕДЕНИЕ ИСПЫТАНИЙ

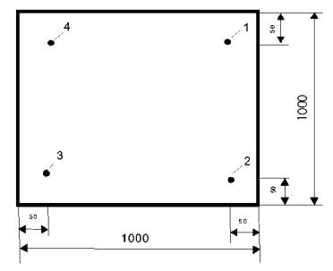
7.1 На опытном участке пола намечает четыре точки, расположенных в соответствии с рекомендациями, приведенными на рис. 2. При испытании реального пола в помещении намечаются четыре точки, расположенные на расстоянии 50 мм от стены и не менее 500 мм друг от друга.

Рис. 2 Схема размещения испытательных точек на опытном участке полг

7.2 Определение деформации полов включает следующие этапы

7.2.1 На бетонное основание (при лабораторных исследованиях) или на пол (при испытании реальных полов) укладывается металлический лист толщиной не менее 2 мм и с линейными размерами не менее 500 × 500 мм и намечают на плите центральную точку.

7.2.2 Устанавливают прибор в вертикальном положении таким образом, чтобы штамп или ролик (1) упирался в центральную точку металлического листа и закрепляют стойку (2) винтом (4).

7.2.3 Придерживая прибор, выдвигают верхнюю стойку (21) внутри стойки (13) до упора в потолок помещения и закладывают штырь (15) в отверстие в стойке (13) под нижний конец стойки (21).

7.2.4 Закрепляют индикатор (20) винтом (18) в хомуте (19), который также укрепляется винтом на стойке (13). Хомут устанавливается в такое положение, чтобы штифт индикатора опирался на торец (16) измерительного стержня (14) и находился в своем верхнем положении при показании по красной шкале индикатора 0-1 мм.

7.2.5 Открепляют штырь (15) отвинчивая винт (4) и регистрируют показание на индикаторе.

7.2.6 Подвешивают на крюк (9) груз массой 6 кг (при испытании зыбкости пола в жилых помещениях) или 18 кг (при испытании зыбкости пола в общественных помещениях).

7.2.7 Регистрируется температура и относительная влажность воздуха.

7.2.8 После выдержки прибора в нагруженном состоянии в течении двух суток по разности показаний индикатора определят величину деформации стойки прибора и перекрытия (D1)

7.2.9 Снимается груз, разбирается прибор, устанавливается на намеченную точку 1 на опытном участке пола или на реальном полу и повторяются испытания в соответствии с рекомендациями п. 7.2.2-7.2.7. По разности показаний индикатора определят величину деформации в точке 1 (D2-1)

7.2.10 Последовательно проводят определение величины экспериментальной деформации и в точках 2 (D2-2) и 3 (D2-3). Если разница между значениями замеров составляет более 10%, проводятся дополнительное испытание в точке 4 (D2-4).

7.3 Результирующее значение деформации D2 определяется среднеарифметическим значением замеров по результатам трех измерений. При проведении четырех испытании отбрасывается максимально отличающееся значение.

7.4 Используя полученные результаты расчета результирующего значения деформации и определения деформации стойки прибора и перекрытия, определят деформацию пола по формуле:

D = D2 - D1 , где

D - деформация пола в точке;

D2 - результирующее значение экспериментальной деформации пола;

D1 - деформация стойки прибора и перекрытия;

8. ОЦЕНКА ЗЫБКОСТИ ПОКРЫТИЙ ПОЛА

Полы относятся к прочным и обладают стойкостью против деформаций под действием сосредоточенных нагрузок (не обладают свойством «зыбкости») при условии, что величина деформацию пола составляет менее 2 мм.

9. ОТЧЕТ О ИСПЫТАНИЯХ

Отчет должен содержать следующее:

- ссылку на данный стандарт

- конструкцию пола, использованные материал, их поставщика, толщину слоев

- дата устройства реального пола

- дату проведения испытаний

- расположение помещения (при испытании реального пола)

- схему помещения с указанием расположения испытательных точек (при испытании реального пола)

- температуру и относительную влажность в помещении

- количество мест замеров

- величину деформации стойки прибора и перекрытия (D1)

- величины экспериментальной деформации в точках и их среднеарифметическое значение

- отклонение от стандарта

- заключение по «зыбкости» пола.

 

 




ГОСТЫ, СТРОИТЕЛЬНЫЕ и ТЕХНИЧЕСКИЕ НОРМАТИВЫ.
Некоммерческая онлайн система, содержащая все Российские Госты, национальные Стандарты и нормативы.
В Системе содержится более 150000 файлов нормативно-технической документации, действующей на территории РФ.
Система предназначена для широкого круга инженерно-технических специалистов.

Рейтинг@Mail.ru Яндекс цитирования

Copyright © www.gostrf.com, 2008 - 2026