Крупнейшая бесплатная информационно-справочная система онлайн доступа к полному собранию технических нормативно-правовых актов РФ. Огромная база технических нормативов (более 150 тысяч документов) и полное собрание национальных стандартов, аутентичное официальной базе Госстандарта. GOSTRF.com - это более 1 Терабайта бесплатной технической информации для всех пользователей интернета. Все электронные копии представленных здесь документов могут распространяться без каких-либо ограничений. Поощряется распространение информации с этого сайта на любых других ресурсах. Каждый человек имеет право на неограниченный доступ к этим документам! Каждый человек имеет право на знание требований, изложенных в данных нормативно-правовых актах!

  


 

ЦНИИПромзданий МНИИТЭП

СТАНДАРТ ОРГАНИЗАЦИИ

ПРЕДОТВРАЩЕНИЕ
ПРОГРЕССИРУЮЩЕГО
ОБРУШЕНИЯ ЖЕЛЕЗОБЕТОННЫХ
МОНОЛИТНЫХ КОНСТРУКЦИЙ
ЗДАНИЙ

Проектирование и расчет

СТО-008-02495342-2009

Москва

2009

Предисловие

Цели и принципы стандартизации в Российской Федерации установлены Федеральным законом от 27 декабря 2002 г. № 184-ФЗ «О техническом регулировании», а правила разработки и применения - ГОСТ Р 1.4-2004 «Стандартизация в Российской Федерации. Стандарты организации. Общие положения».

Сведения о стандарте

1. РАЗРАБОТАН И ВНЕСЕН рабочей группой в составе: д.т.н., проф. Гранев В.В., инж. Келасьев Н.Г., инж. Розенблюм А.Я. - руководитель темы, (ОАО «ЦНИИПромзданий»), инж. Шапиро Г.И. (ГУП «МНИИТЭП»), д.т.н., проф. Залесов А.С.

2. РЕКОМЕНДОВАН К УТВЕРЖДЕНИЮ секцией «Строительные конструкции зданий» НТС ОАО «ЦНИИПромзданий» 24 августа 2009 г.

3. УТВЕРЖДЕН И ВВЕДЕН В ДЕЙСТВИЕ приказом Генерального директора ОАО «ЦНИИПромзданий» от 7 сентября 2009г № 20.

4. ВВЕДЕН ВПЕРВЫЕ

содержание

СТО-008-02495342-2009

СТАНДАРТ ОРГАНИЗАЦИИ

ПРЕДОТВРАЩЕНИЕ ПРОГРЕССИРУЮЩЕГО ОБРУШЕНИЯ
ЖЕЛЕЗОБЕТОННЫХ МОНОЛИТНЫХ КОНСТРУКЦИЙ ЗДАНИЙ

Проектирование и расчет

Дата введения - 7.09.2009 г.

Введение

Прогрессирующее обрушение (progressive collapse) обозначает последовательное разрушение несущих строительных конструкций здания (сооружения), обусловленное начальным локальным повреждением отдельных несущих конструктивных элементов и приводящее к обрушению всего здания или его значительной части.

Начальное локальное повреждение конструктивных элементов здания возможно при аварийных ситуациях (взрывы газа, теракты, наезды автотранспорта, дефекты проектирования, строительства или реконструкции и т.п.), не предусмотренных условиями нормальной эксплуатации здания.

В несущей системе здания допускается разрушение при аварийной ситуации отдельных несущих конструктивных элементов, однако эти разрушения не должны приводить к прогрессирующему обрушению, т.е. к разрушению смежных конструктивных элементов, на которые передается нагрузка, воспринимавшаяся ранее элементами, разрушенными в результате аварийной ситуации.

При разработке стандарта учтены положения СНиП 2.01.07-85* «Нагрузки и воздействия» (изд. 2003 г.) [4], СНиП 52-01-03 «Бетонные и железобетонные конструкции. Основные положения» [5], СП 52-101-2003 «Бетонные и железобетонные конструкции без предварительного напряжения арматуры» [9] и СТО 36554501-014-2008 «Надежность строительных конструкций и оснований. Основные положения» [11].

1 Область применения

1.1 Настоящий стандарт организации устанавливает правила проектирования железобетонных монолитных конструкций жилых, общественных и производственных зданий, подлежащих защите от прогрессирующего обрушения при аварийных ситуациях.

1.2 К объектам, разрушение которых может привести к большим социальным, экологическим и экономическим потерям и при проектировании которых должно быть обеспечено недопущение прогрессирующего обрушения, относятся:

а) здания жилые высотой более 10 этажей;

б) здания общественные* с пребыванием 200 чел. и более одновременно в пределах блока, ограниченного деформационными швами, в т.ч.:

- учебно-воспитательного назначения;

- здравоохранения и социального обслуживания;

- сервисного обслуживания (торговля, питание, бытовое и коммунальное обслуживание, связь, транспорт, санитарно-бытовое обслуживание);

- культурно-досуговой деятельности и религиозных обрядов (физкультура и спорт, культурно-просветительские и религиозные организации, зрелищные и досугово-развлекательные организации);

- административного и пр. назначения (органы управления РФ, субъектов РФ и местного самоуправления, офисы, архивы, научно-исследовательские, проектные и конструкторские организации, кредитно-финансовые учреждения, судебно-юридические учреждения и прокуратура, редакционно-издательские организации);

- для временного пребывания (гостиницы, санатории, общежития и т.п.).

в) здания производственные и вспомогательные с пребыванием 200 чел. и более одновременно в пределах блока, ограниченного деформационными швами.

*) Классификация общественных зданий по назначению приведена в СНиП 2.08.02-89* «Общественные здания и сооружения» [6] и СНиП 31-05-2003 «Общественные здания административного назначения» [7].

1.3 Объекты жизнеобеспечения городов и населенных пунктов, а также особо опасные, технически сложные и уникальные объекты**) следует проектировать в соответствии со специальными техническими условиями.

**) Классификация особо опасных, технически сложных и уникальных объектов приведена в Градостроительный кодекс РФ, ст. 481 [3].

1.4 Применительно к конкретному объекту требование о недопущении прогрессирующего обрушения при аварийных ситуациях принимается в соответствии с заданием на проектирование, согласованным в установленном порядке и утвержденным заказчиком и/или инвестором.

2 Термины и определения

2.1 Прогрессирующее обрушение - последовательное разрушение несущих конструкций здания (сооружения), обусловленное начальным локальным повреждением отдельных несущих конструктивных элементов и приводящее к обрушению всего здания или его значительной части (двух и более пролетов и двух и более этажей).

2.2 Нормальная эксплуатация здания - эксплуатация в соответствии с условиями, предусмотренными СНиП 2.01.07-85 [4] и СНиП 52-01-03 [5].

2.3 Первичная конструктивная система здания - система, принятая для условий нормальной эксплуатации здания.

2.4 Вторичная конструктивная система здания - первичная конструктивная система, измененная путем исключения одного вертикального несущего конструктивного элемента (колонны, пилястры, участка стены) в пределах одного этажа.

3 Основные положения

3.1 Конструктивная система здания не должна быть подвержена прогрессирующему обрушению в случае локального разрушения отдельных конструктивных элементов при аварийных ситуациях, не предусмотренных условиями нормальной эксплуатации здания. Это означает, что при особом сочетании нагрузок допускаются локальные разрушения отдельных элементов конструктивной системы здания, но эти разрушения не должны приводить к разрушению других конструктивных элементов измененной (вторичной) конструктивной системы.

3.2 Недопущение прогрессирующего обрушения здания следует обеспечивать:

- рациональным конструктивно-планировочным решением здания с учетом вероятности возникновения аварийной ситуации;

- конструктивными мерами, увеличивающими статическую неопределимость системы;

- применением конструктивных решений, обеспечивающих развитие в несущих конструктивных элементах и их соединениях пластических (неупругих) деформаций;

- необходимой прочностью несущих конструктивных элементов и устойчивостью системы для условий нормальной эксплуатации здания и для случаев локального разрушение отдельных конструктивных элементов здания.

3.3 При проектировании здания наряду с расчетами для нормальной эксплуатации должны быть:

- произведены статические расчеты измененных конструктивных систем здания с выбывшими в результате аварии конструктивными элементами (вторичных конструктивных систем) и, соответственно, измененными расчетными схемами на действие особого сочетания нагрузок. Расчет оснований следует производить только по несущей способности для условий, предусмотренных п. 2.3. СНиП 2.02.01-83* [8];

- установлены запасы устойчивости вторичных конструктивных систем и при их недостаточности увеличены размеры сечения элементов или изменено конструктивно-планировочное решение здания;

- определены совместно с результатами расчета для условий нормальной эксплуатации требуемые класс бетона и армирование конструктивных элементов.

3.4 В качестве гипотетического локального разрушения следует рассматривать разрушение в пределах одного (каждого) этажа здания поочередно одной (каждой) колонны (пилона) либо ограниченного участка стен.

3.5 Условиями обеспечения недопущения прогрессирующего обрушения вторичных конструктивных систем здания являются:

- непревышение в конструктивных элементах значений усилий (напряжений), определенных при значениях нагрузок по п. 5.1, по отношению к усилиям (напряжениям) в них, определенным при предельных значениях характеристик материалов с применением соответствующих коэффициентов надежности;

- недопущение уменьшения запаса устойчивости системы по отношению к коэффициенту надежности по устойчивости γs = 1,3.

При этом коэффициент надежности по ответственности следует принимать равным γn = 1.0, если иное не предусмотрено в техническом задании на проектирование.

Перемещения, раскрытие трещин и деформации элементов не ограничиваются.

4 Конструктивно - планировочные решения

Рациональным конструктивно - планировочным решением здания с точки зрения предотвращения прогрессирующего обрушения является конструктивная система, обеспечивающая при выбывании отдельного (любого) вертикального несущего конструктивного элемента здания превращение конструкций над выбывшим элементом в «подвешенную» систему, способную передать нагрузки на сохранившиеся вертикальные конструкции.

Для создания такой конструктивной системы следует предусматривать:

- монолитное сопряжение конструкций перекрытий с железобетонными вертикальными конструкциями (колоннами, пилястрами, наружными и внутренними стенами, ограждениями лестничных клеток, вентиляционных шахт и т.д.);

- железобетонные монолитные пояса по периметру перекрытий, объединенные с конструкциями перекрытий и выполняющие функции надоконных перемычек;

- железобетонные монолитные парапеты, объединенные с конструкциями покрытия;

- железобетонные стенки в верхних этажах здания или железобетонные балки в покрытии, объединяющие колонны (пилястры) между собой и с другими вертикальными железобетонными конструкциями (стенами, ограждениями лестничных клеток, вентиляционных шахт и др.);

- проемы в железобетонных стенах не на всю высоту этажа, оставляя, как правило, участки глухих стен над проемами.

5 Нагрузки

5.1 Расчет вторичных конструктивных систем на недопущение прогрессирующего обрушения следует производить на особое сочетание нагрузок, включающее нормативные значения постоянных и длительно действующих временных нагрузок, с коэффициентом сочетания равным Ψ = 1,0.

5.2 К постоянным нагрузкам следует относить собственный вес несущих железобетонных конструкций, вес частей здания (пола, перегородок, подвесных потолков и коммуникаций, навесных и самонесущих стен и т.п.) и боковое давление от веса грунта и веса дорожного покрытия и тротуаров.

5.3 К длительно действующим временным нагрузкам следует относить:

- пониженные нагрузки от людей и оборудования по табл. 3 СНиП 2.01.07-85* [4];

- 35% полной нормативной нагрузки от автотранспорта;

- 50% полной нормативной снеговой нагрузки.

5.4 Все нагрузки следует рассматривать как статические с коэффициентом надежности по нагрузке γf = 1,0.

6 Характеристики бетона и арматуры

6.1 При расчете железобетонных конструктивных элементов на недопущение прогрессирующего обрушения следует принимать:

а) расчетные значения сопротивления бетона осевому сжатию, равным их нормативным значениям, умноженным для конструкций, бетонируемых в вертикальном положении, на коэффициент условия работы γb3 = 0,9;

б) расчетные значения сопротивления бетона осевому растяжению, используемые при расчете на действие поперечных сил и на местное действие нагрузок, равными их нормативным значениям, деленным на коэффициент надежности по бетону γn = 1,15;

в) расчетные значения сопротивления продольной арматуры конструкций растяжению, равными их нормативным значениям;

г) расчетные значения сопротивления продольной арматуры конструкций сжатию, равными нормативным значениям сопротивления растяжению, за исключением арматуры класса А500, для которой Rs = 469 МПа (4700 кгс/см2), и арматуры класса В 500, для которой Rs = 430 МПа (4400 кгс/см2);

д) расчетные значения сопротивления поперечной арматуры конструкций на растяжение, равными их нормативным значениям, умноженным на коэффициент условия работы γs1 = 0,8;

е) нормативные значения сопротивлений бетона и арматуры, а также значения модуля упругости арматуры Es и начального модуля упругости бетона Eb по СП 52-101-2003 [9].

7 Расчет

7.1 Расчет вторичных конструктивных систем здания на недопущение прогрессирующего обрушения следует производить отдельно для каждого (одного) локального разрушения.

Допускается производить расчет только наиболее опасных случаев разрушения, которыми могут быть схемы с разрушением поочередно вертикальных несущих конструктивных элементов:

а) имеющих наибольшую грузовую площадь;

б) расположенных у края перекрытия;

в) расположенных в углу,

и распространять результаты этих расчетов на другие участки конструктивной системы.

7.2 В качестве исходной следует принимать расчетную схему, принятую при расчете первичной конструктивной системы здания для условий нормальной эксплуатации, и превращать ее во вторичную систему путем исключения поочередно вертикальных несущих конструктивных элементов для наиболее опасных случаев разрушения. При этом рекомендуется включать в работу конструктивные элементы, обычно не учитываемые при расчете первичной системы.

7.3 В качестве одной исключаемой вертикальной несущей конструкции следует принимать колонну (пилон) либо участок пересекающихся или примыкающих под углом несущих стен. Общая длина этих участков стен отсчитывается от места пересечения или примыкания до ближайшего проема в каждой стене или до сопряжения со стеной другого направления, но не более 7 м.

7.4 Вертикальные конструкции системы следует считать жестко защемленными на уровне верха фундаментов.

7.5 Статический расчет вторичный системы следует производить как упругой системы по сертифицированным программным комплексам (SCAD, Лира, STARK - ES и др.) с учетом геометрической и физической нелинейности. Допускается производить расчет с учетом только геометрической нелинейности.

При расчете с учетом геометрической и физической нелинейности жесткость сечений конструктивных элементов следует принимать в соответствии с указаниями СП 52-101-2003 [9] с учетом продолжительности действия нагрузок и наличия или отсутствия трещин.

При расчете с учетом только геометрической нелинейности жесткость сечений B конструктивных элементов следует определяется как произведение модуля пропорциональности Eпр на момент инерции железобетонного сечения Jb.

Модуль пропорциональности Eпр следует принимать:

при определении усилий - Eпр = 0,6Еb для горизонтальных элементов и Eпр = Еb для вертикальных элементов;

- при расчете устойчивости - Eпр = 0,4Еb для горизонтальных элементов и Eпр = 0,6Еb для вертикальных элементов

7.6 Расчет сечений конструктивных элементов следует производить в соответствии с Пособием [10] на усилия, определенные в результате статического расчета принимая их кратковременными.

7.7 В результате расчета первичной и вторичных конструктивных систем определяются усилия (напряжения) в конструктивных элементах, назначается результирующие класс бетона и армирование элементов и узлов их сопряжений и устанавливается запас устойчивости каркаса, а при его недостаточности увеличиваются размеры сечений элементов или изменяется конструктивное решение здания.

8 Конструктивные требования

8.1 Конструирование элементов и их сопряжений следует производить в соответствием с Пособием [10] и СП 52-103-2007 [13].

8.2 Класс бетона и армирование конструктивных элементов следует назначать наибольшими из сопоставления результатов расчетов для условий нормальной эксплуатации здания и на недопущение прогрессирующего обрушения.

8.3 При армировании конструктивных элементов следует обратить особое внимание на надежность анкеровки арматуры, особенно в местах пересечений конструктивных элементов. Длины анкеровки и перехлеста арматурных стержней должны быть увеличены на 20% по отношению к требуемым по [10].

8.4 Продольная арматура конструктивных элементов должна быть непрерывной. Площадь сечения продольной арматуры (отдельно нижней и отдельно верхней) плит безбалочных перекрытий и балок балочных перекрытий должна составлять не менее μs,min = 0,2% площади сечения элемента.

8.5 Продольное армирование вертикальных несущих конструктивных элементов должно воспринимать усилие растяжения не менее 10 кН (1 тс) на каждый квадратный метр грузовой площади этого конструктивного элемента.

Приложение (рекомендуемое)

Пример расчета каркаса здания на предотвращение прогрессирующего обрушения *)

*) Составитель инж. А.П. Черномаз

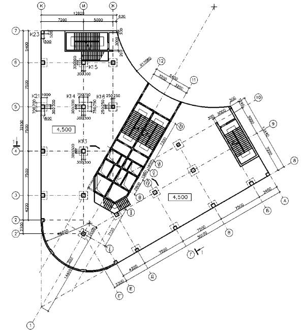
Здание гостинично-офисного комплекса переменной этажности (рис. 1 и 2). Наибольшее число надземных этажей 14, подземный - 1. Максимальный размер в плане 47,5×39,8 м. Расположено в Московской области. Ветровой район IB, снеговой район III.

Здание каркасное с центральным лестнично-лифтовым ядром жесткости и двумя боковыми лестничными клетками. Прочность, устойчивость и жесткость каркаса здания обеспечивается дисками перекрытий и системой колонн и стен, заделанных в фундамент.

Основная сетка колонн 7,5×7,2 м. Колонны квадратного сечения от 400×400 до 700×700 мм. Перекрытие безбалочное толщиной 200 мм с капителями.

Конструкции каркаса (колонны, перекрытия), фундаменты, лестницы, стены лестничных клеток, лифтовых и коммуникационных шахт, наружные стены подземных и XI-го (технического) этажей, частично, внутренние стены - монолитные железобетонные. Бетон класса В30, продольная рабочая арматура класса А500С.

Для недопущения прогрессирующего обрушения при аварийной ситуации предусмотрены специальные конструктивные элементы (железобетонные стены по периметру технического XI этажа, стена по оси 11 начиная с XII этажа и до покрытия, стена по оси 1 начиная с X этажа и до покрытия), обеспечивающие наряду с конструктивными элементами, необходимыми для функционирования здания при нормальной эксплуатации, превращение конструкций в «подвешенную» систему над гипотетически выбывшими в результате аварийной ситуации колоннами по периметру здания и, частично, средними. Зоны вокруг части средних колонн, не превращающиеся в «подвешенные» системы при разрушении этих колонн в случае аварийного на них воздействия, при необходимости дополнительно армируются (см. ниже).

Расчетная схема здания принята в виде пространственной системы из заделанных в фундамент колонн и стен, объединенных перекрытиями и лестницами (рис. 3). Расчет произведен по программному комплексу SCAD Office 11.3.

По уровню ответственности здание отнесено к I-му (повышенному) уровню. Коэффициент надежности по ответственности принят равным γn = 1,1 для основного сочетания нагрузок.

Расчет каркаса здания произведен на основное сочетание нагрузок для стадии эксплуатации (первичная конструктивная система) и на особое сочетание нагрузок на предотвращение прогрессирующего обрушения (вторичные конструктивные системы).

Величины нагрузок приведены в табл. 1 и 2.

Таблица 1

Место

Вертикальные нагрузки тс/м² (без собственного веса)

нормативные

расчетные

постоянные

временные

основное сочетание

особое сочетание

полн.

в т.ч. длит.

постоянные

временные на

перекрытие.

каркас

полн.

длит

полн.

длит.

Перекры­тие

0,15+0,45+0,04 = 0,64 (пол, перегородки, подвес)

0,2

0,07

0,18+0,50+0,05 = 0,73

0,24

0,09

0,12

0,09

0,64+0,07 = 0,71

Покр. экспл.

0,39 (кровля, подвес)

0,13 (снег)

0,07

0,48

снег мешок

0,09

0,20

0,09

0,39+0,07 = 0,46

Нагрузка от наружных стен принята равной qн = 0,4 тс/м² стены и qр = 0,56 тс/м² стены.

Таблица 2

№ n/n

Место приложения нагрузки

Вид расчета

Сочетания расчетных вертикальных нагрузок (без собственного веса), тс/м ²*)

основное

особое

1

на перекрытия

расчет фундамента, колонн и каркаса

(0,73 + 0,12)·1,1 = 0,94

0,71

2

расчет перекрытия

(0,73 + 0,24)·1,1 = 1,07

0,71

3

На эксплуатируемое покрытие

расчет фундамента, колонн и каркаса

(0,48 + 0,2)·1,1 = 0,75

0,46

4

расчет покрытия

(0,48 + снег)·1,1

0,46

5

от стен

расчет всех конструкций

0,56∙1,1 = 0,62

0,40

*) - значения всех нагрузок, кроме стен, даны на м² перекрытия и покрытия, а от стен - на м² стены.

Значения расчетных сопротивлений арматуры и бетона приведены в табл. 3.

Таблица 3

Вид конструкции

Усилие и характер армирования

Расчетное сопротивление арматуры, кгс/см² для сочетания нагрузок

Расчетное сопротивление бетона, кгс/см² для сочетания нагрузок

основного

особого

основного

особого

Перекрытие

Растяжение продольной арматуры класса А500С

Rs = 4430

Rsn = 5100

Сжатию

Rb = 173

Сжатию

Rbn = 224

Поперечная арматура класса А240

Rsw = 1730

Rsn·γs1 = 2450·0,8 = 1960

Растяжению

Rbt = 11,7

Растяжению

Колонны, пилястры стены

Сжатие продольной арматуры класса А500С

Rsc = 4080

Rs = 4700

сжатию

Rb·γb3 = 173·0,9 = 156

сжатию

Rbn· γb3 = 224·0,9 = 202

Растяжение продольной арматуры класса А500С

Rs = 4430

Rsn = 5100

Таблица 4

Элемент каркаса

Начальный модуль упругостибетона Eб × 10-6 тс/м²

Модуль деформации Eпр при расчете тс/м² × 10-6

усилий и армирования элементов

устойчивости

на основное сочетание нагрузок

на особое сочетание нагрузок

Плиты перекрытий

3,31

3,31·0,6 = 2,0

3,31·0,2 = 0,66

3,31·0,4 = 1,3

Балки

3,31

3,31·0,6 = 2,0

3,31·0,2 = 0,66

3,31·0,4 = 1,3

Колонны

3,31

3,31

3,31·0,3 = 1,0

3,31·0,6 = 2,0

Стены

3,31

3,31

3,31·0,3 = 1,0

3,31·0,6 = 2,0

Модули деформации железобетонных конструкций приняты по табл. 4.

При расчете вторичных конструктивных систем на особое сочетание нагрузок рассматриваются случаи исключения поочередно средней колонны № 14, крайней колонны № 21 и угловой колонны № 23 на I и XIII этажах (см. рис. 1, 2)

Расчеты показали, что по сравнению с первичной конструктивной системой при исключении поочередно указанных колонн запас общей устойчивости каркаса здания практически не меняется, однако происходит очевидное перераспределение усилий в конструкциях.

Некоторые результаты расчетов первичной и вторичной систем при удалении колонны № 14, представлены в табл. 5 и 6 и на рис. 5÷8.

Таблица 5

№ № колонн 4)

Расчетная суммарная площадь продольной арматуры колонн, см2

при первичной конструктивной системе 1)

при удалении колонны №14 на I этаже 2)

при удалении колонны № 14 на XIII этаже 2)

результирующее

I этаж

XIII этаж 3)

I этаж

XIII этаж

I этаж

XIII этаж

I этаж

XIII этаж

13

18,8

39,4/36,0

18,8

31,4

18,8

25,2

18,8

39,4

14

62,4

12,8/13,0

-

17,4

18,8

-

62,4

17,4

15

13,6

39,8/36,8

13,6

37,8

13,6

20,0

13,6

39,8

16

13,6

33,6/29,8

23,2

55,4

13,6

17,6

23,2

55,4

21

94,4

17,0/18,6

32,6

21,4

19,8

19,0

94,4

21,4

1) - при основном сочетании нагрузок;

2) - при особом сочетании нагрузок;

3) - над чертой при Nmax, под чертой при Nmin;

4) - сечение колонн на I этаже: № 14 - 70×70 см, остальные 60×60 см; на XIII этаже - все 40×40см.

Как видно из табл. 5, при удалении колонны № 14 (средняя) требуется усиление арматуры соседних колонн № 16 и 21. При удалении колонны № 21 (крайняя) потребуется усиление армирования стен технического XI-го этажа и горизонтального армирования парапета (табл. 6).

Таблица 6

Продольная арматура парапета над колонной № 21

Требуемая площадь сечения продольной арматуры в парапете, см²

при первичной конструктивной системе

при удалении колонны № 21 на XIII этаже

верхняя

4,8

2,2

нижняя

4,8

20,3

В результате расчета первичной и вторичных конструктивных систем определяется результирующее армирование конструктивных элементов с учетом конструктивных требований о непрерывности продольной арматуры, минимального процента армирования и увеличенных значений анкеровки арматуры. В зависимости от принятого постоянного (фонового) армирования перекрытий определяются в необходимых местах зоны дополнительного армирования.

Такой расчет теоретически должен быть проведен при поочередном удалении всех колонн каркаса, однако в большинстве случаев достаточно рассмотреть ограниченное число определяющих ситуаций и результаты этого рассмотрения распространить на другие участки конструкций, как это сделано и для данного примера. Когда количество рассматриваемых вариантов становится значительным, целесообразно использовать предусмотренные программными комплексами специальные режимы вариации расчетных моделей. При использовании этих режимов следует для сохранения нумерации конечных элементов не удалять исключаемые конечные элементы из расчетной схемы, а присваивать им жесткость близкую к нулю (или применять специальный конечный элемент).

В данном примере для всех перекрытий принята нижняя и верхняя непрерывная арматура Ø18 с шагом 200×200 мм с дополнительным верхним армированием в местах расположения всех колонн и дополнительным нижним армированием в местах расположения средних колонн.

Рис. 1. План II этажа на отм. 4.500.

Рис. 2. Разрез 1-1.

Рис. 3. Расчетная схема каркаса здания.

Рис. 4. Расчетная схема II этажа на отм. 4.500.

Рис. 5. Армирование перекрытия на отм. 4.500 при первичной конструктивной системе на эксплуатационную расчетную нагрузку 1,07 тс/м2. Нижняя арматура вдоль буквенных осей.

Рис. 6. Армирование перекрытия на отм. 4.500 при первичной конструктивной системе на эксплуатационную расчетную нагрузку 1,07 тс/м2. Нижняя арматура вдоль цифровых осей.

Рис. 7. Армирование перекрытия на отм. 4.500 при удалении на отм. 0.000 колонны № 14 на нагрузку 0,71 тс/м2. Нижняя арматура вдоль буквенных осей.

Рис. 8. Армирование перекрытия на отм. 4.500 при удалении на отм. 0.000 колонны №14 на нагрузку 0,71 тс/м2. Нижняя арматура вдоль цифровых осей.

Библиография

1. Федеральный закон «О техническом регулировании» от 27 декабря 2002 г. № 184-ФЗ.

2. ГОСТ Р 1.4-2004 «Стандартизация в Российской Федерации. Стандарты организации. Общие положения».

3. Градостроительный кодекс РФ, ст. 481.

4. СНиП 2.01.07-85*. «Нагрузки и воздействия» (изд. 2003 г.).

5. СНиП 52-01-03. «Бетонные и железобетонные конструкции. Основные положения».

6. СНиП 2.08.02-89*. «Общественные здания и сооружения».

7. СНиП 31-05-2003. «Общественные здания административного назначения».

8. СНиП 2.02.01-83* «Основания зданий и сооружений».

9. СП 52-101-2003. «Бетонные и железобетонные конструкции без предварительного напряжения арматуры».

10. Пособие по проектированию бетонных и железобетонных конструкций из тяжелого бетона без предварительного напряжения арматуры (к СП 52-101-2003), ЦНИИПромзданий, НИИЖБ, 2005 г.

11. СТО 36554501-014-2008. «Надежность строительных конструкций и оснований. Основные положения». НИЦ «Строительство».

12. СТО 36554501-015-2008. «Нагрузки и воздействия». НИЦ «Строительство».

13. СП 52-103-2007. «Железобетонные монолитные конструкции зданий».

14. Рекомендации по защите монолитных жилых зданий от прогрессирующего обрушения. МНИИТЭП, НИИЖБ, 2005 г.

15. Рекомендации по защите высотных зданий от прогрессирующего обрушения. 2006 г.

 

 




ГОСТЫ, СТРОИТЕЛЬНЫЕ и ТЕХНИЧЕСКИЕ НОРМАТИВЫ.
Некоммерческая онлайн система, содержащая все Российские Госты, национальные Стандарты и нормативы.
В Системе содержится более 150000 файлов нормативно-технической документации, действующей на территории РФ.
Система предназначена для широкого круга инженерно-технических специалистов.

Рейтинг@Mail.ru Яндекс цитирования

Copyright © www.gostrf.com, 2008 - 2026