Крупнейшая бесплатная информационно-справочная система онлайн доступа к полному собранию технических нормативно-правовых актов РФ. Огромная база технических нормативов (более 150 тысяч документов) и полное собрание национальных стандартов, аутентичное официальной базе Госстандарта. GOSTRF.com - это более 1 Терабайта бесплатной технической информации для всех пользователей интернета. Все электронные копии представленных здесь документов могут распространяться без каких-либо ограничений. Поощряется распространение информации с этого сайта на любых других ресурсах. Каждый человек имеет право на неограниченный доступ к этим документам! Каждый человек имеет право на знание требований, изложенных в данных нормативно-правовых актах!

  


 

ФЕДЕРАЛЬНОЕ АГЕНТСТВО
ПО
ТЕХНИЧЕСКОМУ РЕГУЛИРОВАНИЮ И МЕТРОЛОГИИ

НАЦИОНАЛЬНЫЙ
СТАНДАРТ
российской
ФЕДЕРАЦИИ

ГОСТ Р ИСО
5010-
2009

Машины землеройные

СИСТЕМЫ РУЛЕВОГО УПРАВЛЕНИЯ
КОЛЕСНЫХ
МАШИН

ISO 5010:2007
Earth-moving machinery
- Rubber-tyred machines - Steering requirements
(IDT)

Москва

Стандартинформ

2010

Предисловие

Цели и принципы стандартизации в Российской Федерации установлены Федеральным законом от 27 декабря 2002 г. 184-ФЗ «О техническом регулировании», а правила применения национальных стандартов Российской Федерации - ГОСТ Р 1.0-2004 «Стандартизация в Российской Федерации. Основные положения»

Сведения о стандарте

1 ПОДГОТОВЛЕН Открытым акционерным обществом «Центральный научно-испытательный полигон строительных и дорожных машин» (ОАО «ЦНИП СДМ») на основе собственного аутентичного перевода на русский язык стандарта, указанного в пункте 4

2 ВНЕСЕН Техническим комитетом по стандартизации ТК 267 «Строительно-дорожные машины и оборудование»

3 УТВЕРЖДЕН И ВВЕДЕН В ДЕЙСТВИЕ Приказом Федерального агентства по техническому регулированию и метрологии от 7 декабря 2009 г. 571-ст

4 Настоящий стандарт идентичен международному стандарту ИСО 5010:2007 «Машины землеройные. Машины с резиновыми шинами. Требования к системам рулевого управления» (ISO 5010:2007 «Earth-moving machinery - Rubber-tyred machines - Steering requirements»).

Наименование настоящего стандарта изменено относительно наименования указанного международного стандарта для приведения в соответствие с ГОСТ Р 1.5-2004 (пункт 3.5).

При применении настоящего стандарта рекомендуется использовать вместо ссылочных международных стандартов соответствующие им национальные стандарты Российской Федерации и межгосударственные стандарты, сведения о которых приведены в дополнительном приложении ДА

5 ВЗАМЕН ГОСТ Р ИСО 5010-2006

Информация об изменениях к настоящему стандарту публикуется в ежегодно издаваемом информационном указателе «Национальные стандарты», а текст изменений и поправок - в ежемесячно издаваемых информационных указателях «Национальные стандарты». В случае пересмотра или отмены настоящего стандарта соответствующее уведомление будет опубликовано в ежемесячно издаваемом информационном указателе «Национальные стандарты». Соответствующая информация, уведомление и тексты размещаются также в информационной системе общего пользования - на официальном сайте Федерального агентства по техническому регулированию и метрологии в сети Интернет

Содержание

1 Область применения

2 Нормативные ссылки

3 Термины и определения

4 Общие требования

4.1 Все системы рулевого управления

4.2 Системы рулевого управления с рабочим и дополнительными управляющими элементами

4.3 Системы рулевого управления с электрическими/электронными устройствами

5 Эргономические требования

6 Технические требования

6.1 Рабочая система рулевого управления

6.2 Аварийное рулевое управление для систем с усилителем

6.3 Аварийное рулевое управление для систем с силовым приводом

6.4 Все системы рулевого управления

7 Испытательные коридоры

8 Требования к испытуемым машинам

9 Методика определения окружности поворота по следу колес

10 Испытания систем рулевого управления

10.1 Испытания, проводимые со всеми системами управления

10.2 Испытания рабочей системы рулевого управления

10.3 Испытания аварийной системы рулевого управления

10.4 Испытания системы рулевого управления с дополнительными управляющими элементами

Приложение ДА (справочное) Сведения о соответствии ссылочных международных стандартов ссылочным национальным стандартам Российской Федерации и действующим в этом качестве межгосударственным стандартам

 

Введение

Настоящий стандарт устанавливает критерии эксплуатационных качеств систем рулевого управления самоходных колесных землеройных машин, имеющих скорость более 20 км/ч. В настоящем стандарте содержатся технические и эргономические требования к рабочей системе рулевого управления, аварийной системе рулевого управления с усилителем и аварийной системе рулевого управления с силовым приводом.

Настоящий стандарт содержит требования к методике испытания систем рулевого управления, в том числе к системам с дополнительными управляющими элементами, требования к испытуемым машинам и испытательным коридорам для машин.

НАЦИОНАЛЬНЫЙ СТАНДАРТ РОССИЙСКОЙ ФЕДЕРАЦИИ

Машины землеройные

СИСТЕМЫ РУЛЕВОГО УПРАВЛЕНИЯ КОЛЕСНЫХ МАШИН

Earth-moving machinery. Steering systems for rubber-tyred machines

Дата введения - 2011-01-01

1 Область применения

Настоящий стандарт устанавливает методы испытаний и критерии эксплуатационных качеств систем рулевого управления самоходных колесных землеройных машин, имеющих скорость, определяемую в соответствии с ИСО 6014, более 20 км/ч.

Настоящий стандарт распространяется на бульдозеры, погрузчики, экскаваторы-погрузчики, экскаваторы, землевозы, самоходные скреперы и автогрейдеры, оборудованные или только ручным управлением, или частично механизированным ручным управлением, или полностью механизированным ручным управлением согласно ИСО 6165.

Стандарт не распространяется на катки, уплотняющие машины и трубоукладчики.

2 Нормативные ссылки

В настоящем стандарте использованы недатированные нормативные ссылки на международные стандарты. При недатированных ссылках действительно последнее издание приведенного стандарта (со всеми поправками и изменениями).

ИСО 3450 Машины землеройные. Тормозные системы колесных машин. Требования к системам и их эксплуатационным характеристикам и методы испытаний (ISO 3450 Earth-moving machinery. Braking systems of rubber-tyred machines. Systems and performance requirements and test procedures)

ИСО 6014 Машины землеройные. Определение скорости движения (ISO 6014 Earth-moving machinery. Determination of ground speed)

ИСО 6165 Машины землеройные. Основные типы. Идентификация, термины и определения (ISO 6165 Earth-moving machinery. Basic types. Vocabulary)

ИСО 7457 Машины землеройные. Определение размеров поворота колесных машин (ISO 7457 Earth-moving machinery. Measurement of turning dimensions of wheeled machines)

ИСО 10968 Машины землеройные. Органы управления, используемые оператором (ISO 10968 Earth-moving machinery. Operator's controls)

ИСО 13849 (все части) Безопасность оборудования. Элементы систем управления, связанные с безопасностью (ISO 13849 (all parts) Safety of machinery. Safety-related parts of control systems)

ИСО 15998 Машины землеройные. Системы управления с использованием электронных компонентов. Критерии эффективности и испытания на функциональную безопасность (ISO 15998 Earth-moving machinery. Machine-control systems (MCS) using electronic components. Performance criteria and tests for functional safety)

МЭК 62061 Безопасность машин и механизмов. Функциональная безопасность электрических, электронных и программируемых электронных систем контроля, связанных с безопасностью (ISO 62061 Safety of machinery. Functional safety of safety-related electrical, electronic and programmable electronic control systems).

3 Термины и определения

В настоящем стандарте применены следующие термины с соответствующими определениями:

3.1 система рулевого управления (steering system): Система, включающая в себя все элементы машины, расположенные между оператором и контактирующими с землей колесами и участвующие в управлении машины.

3.1.1 ручная система рулевого управления (manual steering system): Система, использующая для управления машиной исключительно мускульную энергию оператора.

3.1.2 система рулевого управления с усилителем (power-assisted steering system): Система, использующая для управления мускульную энергию оператора и вспомогательный энергетический источник(и).

Примечания

1 В отсутствие вспомогательного энергетического источника(ов) управление машиной может быть осуществлено только при помощи мускульной энергии оператора.

2 См. 6.2.1.

3.1.3 система рулевого управления с силовым приводом (full power-assisted steering system; fully powered steering system): Система, использующая для управления один или несколько энергетических источников.

Примечание - Система управления с силовым приводом - это система, которая требует усилия не менее 115 Н.

3.1.4 аварийная система рулевого управления (emergency steering system): Система, используемая в случае отказа рабочего энергетического источника (источников) системы рулевого управления или в случае остановки двигателя.

3.2 энергетические источники системы рулевого управления (steering power sources):

3.2.1 рабочий энергетический источник системы рулевого управления (normal steering power source): Средство обеспечения энергией процесса управления в системах рулевого управления с усилителем и системах с силовым приводом, например гидравлический насос, воздушный компрессор, электрогенератор.

3.2.2 аварийный энергетический источник системы рулевого управления (emergency steering power source): Средство обеспечения энергией аварийной системы рулевого управления, например гидравлического насоса, воздушного компрессора, аккумулятора, батареи.

3.2.3 отказ рабочего энергетического источника системы рулевого управления (failure of normal steering power source): Полная и мгновенная потери мощности рабочим энергетическим источником системы рулевого управления.

Примечание - Принимается, что в течение одного и того же времени не происходит более одного отказа.

3.3 управляющий элемент системы рулевого управления (steering control element): Средство, используемое оператором для передачи командного сигнала системе рулевого управления для выполнения желаемого направления движения машины.

3.3.1 рулевое колесо (steering wheel): Управляющий элемент в форме круга или сегмента круга, используемый для передачи сигнала угла поворота управляемым колесам.

3.3.2 устройство рычажного управления (lever control): Управляющий элемент, состоящий из двух независимых рычагов, обеспечивающих изменение скорости колес левого и правого бортов машины.

3.3.3 устройство управления посредством джойстиков (joystick control): Управляющий элемент (элементы), используемый или для изменения угла поворота управляемых колес, или для изменения относительной скорости приводов левого и правого бортов машины путем воздействия на рабочий элемент правого и левого бортов.

3.3.4 устройство кнопочного управления (pushbutton control): Управляющий элемент, состоящий из двух независимых кнопок, используемый для изменения угла поворота управляемых колес или для изменения относительной скорости приводов левого и правого бортов машины.

3.3.5 устройство педального управления (foot pedal control): Управляющий элемент, используемый для изменения угла поворота управляемых колес или для изменения относительной скорости приводов левого и правого бортов машины путем нажатия педалей.

3.4 усилие управления (steering effort): Необходимое усилие, с которым оператор воздействует на управляющий элемент системы рулевого управления для изменения направления движения машины.

3.5 угол поворота (steering angle): Общий угол полного отклонения, измеряемый между передними и задними колесами при их перемещении относительно одной или более вертикальных осей из положения обычного прямолинейного движения в положение поворота.

Примечания

1 Угол поворота для многоосных машин определяют между колесами первого переднего и последнего заднего мостов.

2 Для системы рулевого управления Аккерманн (с поворотными кулаками, рычагами и трапецией) характерно, что угол поворота колес, расположенных с внутренней стороны поворота, превышает угол поворота колес, расположенных с внешней стороны поворота. Следовательно, при использовании такого рулевого управления должно быть также указано место измерения угла поворота.

Для определения угла поворота, полученного в случае комбинированного применения кинематических схем, включая систему Аккерманн, также необходимо указать место измерения угла поворота.

3.6 окружность поворота по следу колес (tyre circle): Габаритный диаметр поворота по следу внешней шины, определяемый в соответствии с разделом 9.

3.7 рабочее давление гидросистемы (working circuit pressure): Номинальное давление, развиваемое насосом (насосами) в конкретной гидросистеме.

3.8 передающее устройство (transfer device): Компоненты системы управления (см. 3.1), используемые для передачи усилий (усилия запуска и усилия управления), и/или управляющие сигналы между органом рулевого управления (см. 3.3) и, если используется, энергетическим источником системы рулевого управления (см. 3.2).

Примечание - Усилия управления и/или управляющие сигналы могут передаваться:

- механически,

- гидравлически,

- электрически,

- электронно

или как их комбинации.

3.9 управляемые колеса (steered wheels): Колеса, направление перемещения которых может непосредственно или косвенно изменено при выборе направления движения машины.

3.10 безопасное состояние (safe state): Состояние, которое достигается автоматически или вручную, когда после нарушения функционирования контрольная система рулевого управления приостанавливает или отключает оборудование, процесс или систему, обеспечивая защиту от неожиданных движений или потенциально опасной реализации запасенной энергии.

Примечание - Безопасное состояние является функцией многих факторов, включающих рабочие условия, технологию, превышение потенциала мощности и условия безопасности. Для электрогидравлических контрольных систем рулевого управления прекращение, при обнаружении неисправности, подачи электронного сигнала в гидравлическую систему управления является одним из путей достижения безопасного состояния.

4 Общие требования

4.1 Все системы рулевого управления

Указанные ниже требования относятся ко всем системам рулевого управления, на которые распространяется настоящий стандарт.

4.1.1 Рабочий элемент контроля системы рулевого управления должен обеспечивать оператору при любых обстоятельствах возможность контролировать процесс управления.

4.1.1.1 Если управляющий элемент системы рулевого управления разблокирован, выбранная окружность поворота по следу колес (см. 3.6) должна оставаться идентичной или увеличиваться по ходу движения.

4.1.1.2 Система рулевого управления должна быть сконструирована так, чтобы перемещение управляющего элемента соответствовало эффекту от его перемещения. Если операция контроля неочевидна, необходимо обеспечить проявление операционного сигнала (например, используя символы).

4.1.1.3 В процессе работы машины бесконтрольное движение исключается путем применения системы электронного контроля.

4.1.1.4 Управляющий элемент системы рулевого управления должен обеспечивать контроль в соответствии с предварительно отградуированным диапазоном регулирования. Если градуировка отсутствует, максимальная скорость машины не должна превышать 10 км/ч.

4.1.2 Все системы управления должны быть спроектированы и установлены на машине таким образом, чтобы без потери работоспособности противостоять усилиям оператора в условиях паники.

4.1.3 Чувствительность, модуляция и реакция рабочей системы рулевого управления должны обеспечивать квалифицированному оператору возможность постоянно поддерживать машину в рабочем состоянии при выполнении тех операций, для которых она была спроектирована. Это должно соответствовать требованиям 10.2. Если система контроля рулевого управления не позволяет управлять скоростью по шкале, скорость машины должна быть не более 10 км/ч.

4.1.3.1 Машины с задней управляемой осью должны отвечать требованиям устойчивости в соответствии с 10.2.2.

4.1.3.2 Машины с максимальной скоростью заднего хода, превышающей 20 км/ч, должны иметь аналогичные показатели в части усилий на рулевом колесе, эффективности и продолжительности работы системы рулевого управления при движении передним и задним ходами. Для контроля следует проводить специальные расчеты. Испытания при движении задним ходом не проводят.

4.1.4 Гидравлические контуры системы рулевого управления, при их наличии, должны включать в себя следующие устройства:

a) устройства для контроля и регулирования давления в гидравлической системе для предотвращения избыточных давлений в гидросистеме;

b) гибкие рукава; фитинги и трубопроводы с разрывным давлением, не менее чем в четыре раза превышающим рабочее давление, контролируемое специальными устройствами в рабочей и аварийной системах рулевого управления;

c) приспособления для разводки, которые позволяют исключать чрезвычайно плотную компоновку и скручивание гибких рукавов или их износ в процессе трения друг о друга.

4.1.5 Надежность системы рулевого управления должна быть обеспечена правильным выбором ее элементов, их конструкцией и компоновкой, удобной для проверки и технического обслуживания.

4.1.6 Помехи в системе рулевого управления должны соответствовать условиям, указанным в 4.1.6.1 и 4.1.6.2.

4.1.6.1 Компоновка элементов и кинематическая схема системы рулевого управления должны сводить к минимуму последствия воздействий, вызываемые работой других систем машины. Изгиб или смещение элементов подвески, боковые наклоны машины, колебания осей и отклонение от курса, связанные с возникновением крутящих моментов в системах привода и тормозов колес, относятся к тем факторам, которые должны быть минимизированы оптимальным расположением и геометрией системы рулевого управления.

4.1.6.2 Последствия воздействия внешних сил при эксплуатации машины в условиях, для которых она предназначена, не должны влиять на ее управляемость.

4.1.7 Системы рулевого управления с усилителем и силовым приводом должны соответствовать требованиям 4.1.7.1 и 4.1.7.3.

4.1.7.1 Эти системы предпочтительно должны быть независимыми от других силовых систем и контуров. Если это невозможно, то системы рулевого управления с усилителем и силовым приводом должны иметь преимущество по сравнению с другими системами или контурами, исключая аварийную систему рулевого управления и аварийную тормозную систему, эффективность которой должна соответствовать требованиям ИСО 3450.

4.1.7.2 Если от рабочего энергетического источника системы рулевого управления снабжаются другие системы (потребители), то любой отказ этих систем (потребителей) необходимо рассматривать как отказ рабочего энергетического источника системы рулевого управления.

4.1.7.3 При отказе рабочего энергетического источника системы рулевого управления допускается изменять передаточное отношение между командным органом рулевого управления и управляемыми колесами при условии выполнения требований 10.3.

4.1.8 Для машин, оборудованных аварийной системой рулевого управления, рекомендуется эту систему выполнять независимой от других силовых устройств и контуров. Если это невозможно, то устройства и контуры аварийной системы рулевого управления должны иметь преимущество по сравнению со всеми другими системами или контурами, исключая аварийную тормозную систему, эффективность которой должна соответствовать требованиям ИСО 3450.

4.1.9 Руководство для оператора машин с аварийной системой рулевого управления должно содержать следующую информацию:

a) сведения о том, что машина оборудована аварийной системой рулевого управления;

b) пределы возможностей аварийной системы рулевого управления;

c) методы полевых испытаний для проверки работоспособности аварийной системы рулевого управления.

4.1.10 Непреднамеренное включение

Все управляющие элементы системы рулевого управления, исключая рулевое колесо, должны быть соответствующим образом спроектированы, приспособлены к нестандартным условиям (например, при отсутствии кабины), неудобству обслуживания (сервис централизованный) или свести к минимуму риск непреднамеренного включения, когда оператор входит или покидает рабочую зону.

4.2 Системы рулевого управления с рабочим и дополнительными управляющими элементами

Если в системе рулевого управления применяется более одного элемента контроля, необходимо выполнять дополнительные к указанным в 4.1 технические требования.

4.2.1 Если обычное рулевое колесо является одним из элементов контроля, оно всегда должно быть в состоянии готовности и иметь наивысший приоритет по сравнению с любым другим управляющим элементом, и рассматриваться как управляющий элемент рабочей системы рулевого управления.

4.2.2 Управляющие элементы системы рулевого управления, которые могут быть включены или выключены или которые обеспечивают ограниченный скоростной диапазон, должны иметь визуальную или звуковую индикацию, позволяющую оператору отслеживать процесс управления.

4.2.3 Если в соответствии с планом эксперимента по 10.4 скорость передвижения машины должна иметь различные значения, необходима конструкторская разработка, обеспечивающая работу управляющего элемента по установленной программе.

4.2.4 В программу дополнительного управляющего элемента системы рулевого управления должна быть заложена функция отключения, если существует такое требование, при выезде на дорогу общего пользования.

4.3 Системы рулевого управления с электрическими/электронными устройствами

В дополнение к требованиям 4.1 данные системы рулевого управления должны также отвечать требованиям ИСО 15998 или ИСО 13849, или МЭК 62061, которые состоят в следующем.

4.3.1 В случае единичного отказа системы рулевого управления с электрическими/электронными устройствами в опасных условиях и в том случае, когда скорость машины превышает 10 км/ч, система управления должна перейти в режим безопасности.

4.3.2 Для машин со скоростью более 20 км/ч система рулевого управления, имеющая электрические/электронные устройства, должна удовлетворять следующим критериям:

a) эксплуатационные свойства должны сохраняться такими же, как и в случае единичного отказа*);

b) вероятность непреднамеренного управления должна быть минимальной;

c) оператор должен получать предупредительный сигнал при отказе*).

*«Отказ» означает любую неисправность, зафиксированную диагностически с 80 %-ным усреднением в соответствии с ИСО 13849 или подобными методами.

4.3.3 При отказе энергетического источника дополнительного управляющего элемента системы рулевого управления в случае, если рабочий элемент контроля системы рулевого управления не поврежден, требования перечислений а) и b) не применяются.

4.3.4 Требования, указанные в 4.3.2, могут быть подтверждены с использованием методов анализа существенных рисков, таких как FMEA, FTA, ЕТА, или просто подробно описаны производителем.

5 Эргономические требования

Требования, указанные в данном разделе, относятся ко всем системам рулевого управления, на которые распространяется настоящий стандарт.

5.1 Машина должна поворачиваться в направлении, соответствующем направлению перемещения управляющего элемента системы рулевого управления, т.е. вращение рулевого колеса по часовой стрелке должно вызывать поворот машины вправо, вращение против часовой стрелки - влево.

Работу управляющего элемента системы рулевого управления следует проводить в соответствии с ИСО 10968 и, как требуется, с технически исправной машиной.

5.2 Усилие управления по 3.4 должно быть легким и удобным и не должно превышать значений, указанных в 5.2.1 и 5.2.2.

5.2.1 Усилие управления для рабочей системы рулевого управления при испытаниях по разделу 10 не должно превышать 115 Н.

Значения сил, возникающих в элементах управления, исключая рулевое колесо, должны соответствовать указанным в таблице 1.

Таблица 1 - Значения сил, возникающих при выполнении рабочих операций управления

Тип рабочей операции управления

Значение силы, Н

максимальное

нормальное

минимальноеa

Рука:

 

 

 

рычаг, движение вперед/назад

230

80

20

рычаг, движение вбок

100

60

15

рычаг торможения, движение вверх

400

60

15

Ступня:

 

 

 

педаль

450

120b

30

ступень, поворот относительно центра

230

50

30

Носок ботинка:

 

 

 

педаль

90

50

12

Клавиатура:

 

 

 

рычаг или переключатель

20

10

2

а Для информации. В связи с тем, что сила воздействия может изменяться по мере перемещения рычага, ее обозначенное выше значение, в частности, может быть достигнуто перед переключением рычага в фиксированное положение.

b С задней опорой - 150 Н.

5.2.2 Усилие управления для аварийных систем рулевого управления при испытаниях по разделу 10 не должно превышать 300 Н.

5.3 Неравномерность перемещения управляющего элемента системы рулевого управления, производимого для получения установленного угла поворота колес 30° между правым и левым поворотами, не должна превышать 25 %. Этот показатель может быть проверен расчетным путем. Для системы управления Аккерманн этот угол относится к колесам, расположенным с внутренней стороны поворота.

5.4 Если для продолжения изменения угла поворота требуется продолжение перемещения управляющего элемента системы рулевого управления, желательно выполнить большее перемещение управляющего элемента в положении прямолинейного движения, что достигается применением червячного рулевого механизма с переменным передаточным числом.

6 Технические требования

6.1 Рабочая система рулевого управления

Усилие управления (см. 3.4) для рабочих систем рулевого управления (ручной, с усилителем или с силовым приводом) не должно превышать 115 Н, как того требует порядок испытаний, указанный в 10.2.3.

6.2 Аварийное рулевое управление для систем с усилителем

6.2.1 Усилие управления (см. 3.4) при испытаниях аварийной системы рулевого управления по 10.3.5 и 10.3.6 не должно превышать 350 Н. Если это требование не выполняется, система рулевого управления должна быть классифицирована и испытана как система с полностью силовым приводом.

6.2.2 Машина должна быть оснащена устройством предупредительной сигнализации, оповещающим об отказе рабочего энергетического источника системы рулевого управления. Это устройство должно обеспечивать звуковую или визуальную сигнализацию и срабатывать при отказе рабочего энергетического источника. Вместе с тем энергетический источник аварийной системы рулевого управления или устройство предупредительной сигнализации не устанавливают, если аварийная система рулевого управления соответствует требованиям 6.2.1 и не зависит от продолжительности или числа включений системы рулевого управления; при этом значительное увеличение усилия управления или значительное увеличение перемещения рулевого колеса при повороте на данный угол дает оператору сигнал об отказе рабочего энергетического источника системы рулевого управления.

6.2.3 Устройство предупредительной сигнализации аварийной системы рулевого управления должно действовать также и при движении машины задним ходом, если максимальная расчетная скорость заднего хода превышает 20 км/ч.

6.3 Аварийное рулевое управление для систем с силовым приводом

6.3.1 Машины, оборудованные аварийной системой рулевого управления с силовым приводом, должны иметь аварийный энергетический источник аварийной системы рулевого управления, как это определено 3.2.2.

6.3.2 Усилие управления при испытаниях согласно 10.3.5 и 10.3.6 не должно превышать 350 Н.

6.3.3 Машина должна быть оснащена устройством предупредительной сигнализации, оповещающим об отказе энергетического источника рабочей системы рулевого управления. Это устройство должно обеспечивать звуковую или визуальную сигнализацию и срабатывать при отказе энергетического источника рабочей системы рулевого управления.

6.3.4 Данная аварийная система рулевого управления должна действовать также и при движении машины задним ходом, если максимальная расчетная скорость заднего хода превышает 20 км/ч.

6.4 Все системы рулевого управления

Функционирование всех систем рулевого управления (рабочих и аварийных) при испытаниях согласно 10.1.1 не должно быть нарушено.

7 Испытательные коридоры

7.1 Все испытания систем рулевого управления следует выполнять в коридорах, имеющих ровную поверхность с уплотнением или твердым покрытием, с уклоном не более 3 % в любом направлении (см. раздел 9, пункты 10.2.1 и 10.3.3 и рисунки 1 и 2).

7.2 Размеры испытательного коридора, указанные на рисунке 1, определяют в зависимости от диаметра окружности поворота по следу колес, колесной базы, ширины машины по шинам и типа машины.

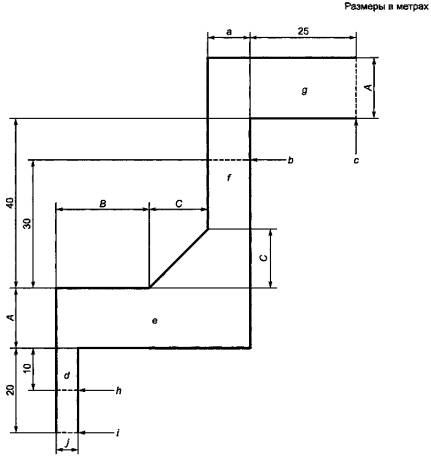
А - расстояние, в 1,1 раза превышающее диаметр окружности поворота по следу колес, или 14 м (в зависимости от того, какой из размеров больше); В - расстояние, в 1,75 раза превышающее диаметр окружности поворота по следу колес, или 22 м (в зависимости от того, какой из размеров больше); С - расстояние, в два раза превышающее максимальную колесную базу, или 15 м (в зависимости от того, какой из размеров меньше)

Длина коридора

Машины с диаметром окружности поворота по следу колес меньше 12 м, колесные бульдозеры и все виды автогрейдеров должны начинать старт у линии «Старт 1» и заканчивать у линии «Финиш 1». Все остальные машины должны начинать старт у линии «Старт 2» и заканчивать у линии «Финиш 2».

а - расстояние, в 2,5 раза превышающее максимальную ширину по шинам; b - линия «Финиш 1»; с - линия «Финиш 2»; d - коридор 3; е - коридор 4; f - коридор 2; g - коридор 1; h - линия «Старт 1»; i - линия «Старт 2»; j - расстояние, в 2,5 раза превышающее максимальную ширину по шинам

Рисунок 1 - Испытательный коридор

7.3 Указанные на рисунке 1 размеры являются минимальными и должны обеспечивать соответствующий испытательный коридор для самых маленьких машин.

7.4 Колесной базой многоосной машины при установлении размеров испытательного коридора по рисунку 1 является расстояние между осями первого и последнего заднего мостов.

7.5 Возможно использование испытательных коридоров, зеркально-симметричных по отношению к изображенным на рисунке 1.

7.6 На машинах, которые могут быть укомплектованы шинами различных типоразмеров, при испытаниях должны быть установлены шины из числа рекомендованных изготовителем, имеющие наименьшую ширину протектора.

7.7 Дополнительные испытания следует проводить по 10.4 для дополнительных управляющих элементов, таких как управляющий рычаг, управляющий джойстик и управляющая кнопка.

8 Требования к испытуемым машинам

8.1 Скреперы и землевозы должны быть подвергнуты испытаниям при максимальном указанном изготовителем значении полной массы машины с грузом и расчетном распределении ее по осям, включая массу наиболее тяжелых видов оборудования и приспособлений, рекомендуемых изготовителем для монтажа, массу оператора (75 кг) и массу топлива при полной заправке бака.

8.2 Колесные погрузчики, колесные бульдозеры, экскаваторы и автогрейдеры должны быть подвергнуты испытаниям при указанном изготовителем значении массы машины без груза, включая массу наиболее тяжелых видов оборудования и приспособлений, рекомендуемых изготовителем для монтажа и создающих наибольшую нагрузку на управляемый мост (мосты), массу оператора (75 кг) и массу топлива при полной заправке бака.

8.3 Все параметры элементов машины, влияющие на ее управляемость, должны соответствовать требованиям изготовителя. К ним относятся размеры шин, давление воздуха, давление и расход в гидравлической системе, момент включения устройства предупредительной сигнализации и т.д.

9 Методика определения окружности поворота по следу колес

Окружность поворота по следу колес (используемая при расчете размеров испытательных коридоров (см. рисунки 1 и 2) представляет собой окружность с габаритным диаметром поворота по внешней шине, определяемым по ИСО 7457 и в соответствии со следующими указаниями.

9.1 Используют только рабочий орган системы управления (например, рулевое колесо) и рабочую систему рулевого управления. Органы управления, предназначенные для выполнения других функций, которые могут повлиять на траекторию поворота (например, управление торможением, наклоном колес автогрейдера, задними тележками автогрейдера), использовать не допускается.

9.2 Для машин с разными окружностями поворота вправо и влево при определении размеров испытательного коридора используют меньшую из двух окружностей поворота по следу колес.

9.3 Для машин с не менее чем тремя осями, имеющих буксируемые прицепы, окружность поворота по следу колес определяют без буксировки прицепа или полуприцепа, чтобы предотвратить упор в системе рулевого управления при соприкасании прицепа с тягачом.

10 Испытания систем рулевого управления

10.1 Испытания, проводимые со всеми системами управления

10.1.1 Системы рулевого управления, где в качестве управляющего элемента используют рулевое колесо, должны выдерживать без функционального повреждения усилие 900 Н, приложенное к рулевому колесу в направлении его перемещения.

Другие управляющие элементы должны выдерживать вдвое большую нагрузку относительно максимального рабочего усилия, указанного в таблице 1.

10.1.2 Колеса машины должны оставаться внутри границ испытательных коридоров, как показано на рисунках 1 и 2, за исключением машин с прицепами или полуприцепами, имеющими не менее трех осей, поскольку траектория колес этих прицепов и полуприцепов не помещается в границы испытательного коридора.

10.2 Испытания рабочей системы рулевого управления

10.2.1 Эффективность системы рулевого управления должна быть достаточной для того, чтобы при движении машины с максимальной скоростью переднего хода следы ее колес не выходили за границы прямого испытательного коридора длиной 100 м и шириной, в 1,25 раза превышающей максимальную наружную ширину колеи. Допускается корректировать направление движения машины с помощью системы рулевого управления.

10.2.2 Машины с задними управляемыми осями должны быть испытаны при движении со скоростью (8 ±2) км/ч по круговой траектории диаметром, соответствующим приблизительно половине наибольшего угла поворота. При освобождении управляющего элемента системы рулевого управления угол поворота не должен увеличиваться.

10.2.3 Система рулевого управления должна обеспечивать удержание колес машины (см. 10.1.2) в границах испытательного коридора, указанного на рисунке 1, проложенного в соответствии с разделом 7, при движении вперед с установившейся скоростью (16 ± 2) км/ч, начиная от момента, когда оси передних колес войдут в коридор, до момента, когда оси передних колес достигнут конца коридора. При этом регистрируют усилие рулевого управления, которое не должно превышать 115 Н. Допускается провести несколько пробных заездов, чтобы позволить оператору отработать навык плавного, постепенного приложения мускульного усилия к управляющему элементу системы рулевого управления.

10.3 Испытания аварийной системы рулевого управления

10.3.1 Для оценки функционирования аварийной системы рулевого управления проверяют устройства предупредительной сигнализации в соответствии с 6.2.2 и 6.3.3.

10.3.2 Подача мощности к рабочей системе рулевого управления должна быть прекращена, если она передается от двигателя, поскольку мощность двигателя используется для движения машины по испытательным коридорам, указанным в 10.3.3, 10.3.5, 10.3.6 и 10.3.8.

10.3.3 Эффективность аварийной системы рулевого управления должна быть достаточной для того, чтобы при движении машины со скоростью (16 ± 2) км/ч следы ее колес (см. 10.1.2) не выходили за границы прямого испытательного коридора длиной 100 м и шириной, в 1,25 раза превышающей ширину машины по шинам. Допускается корректировать направление движения машины с помощью системы рулевого управления.

10.3.4 В начале любого заезда при испытаниях аварийной системы рулевого управления энергетический уровень ее энергетического источника не должен превышать энергетический уровень рабочего источника в момент срабатывания устройства, сигнализирующего об отказе рабочего источника.

10.3.5 Аварийная система рулевого управления должна обеспечивать достаточное исполнительное усилие и продолжительность работы для выполнения требований 10.1.2 при безостановочном прохождении машиной испытательного коридора согласно рисунку 1 со скоростью (8 ± 2) км/ч с момента входа осей передних колес в коридор до момента достижения осями передних колес конца коридора.

10.3.6 Аварийная система рулевого управления должна обеспечивать достаточное исполнительное усилие и скорость управления (см. 10.1.2) при безостановочном прохождении машиной испытательного коридора (см. рисунок 1) со скоростью (16 ±2) км/ч с момента входа осей передних колес в коридор до момента достижения осями передних колес конца коридора.

10.3.7 Во время испытаний по 10.3.5 и 10.3.6 регистрируют усилие рулевого управления, которое не должно превышать 350 Н. Допускается провести несколько пробных заездов, чтобы позволить оператору отработать навык плавного, постепенного приложения мускульного усилия к управляющему элементу системы рулевого управления.

10.3.8 Реакцию на быстродействие аварийной системы рулевого управления по данному пункту проводят при выполнении машиной маневра в испытательном коридоре, показанном на рисунке 2, со скоростью (16 ± 2) км/ч. Маневр выполняют в противоположную сторону по сравнению с изображенным на рисунке 2, если был применен испытательный коридор, зеркально-симметричный по отношению к изображенному на рисунке 1. Испытания начинают при рабочем энергетическом уровне аварийной системы рулевого управления. Поворот начинают в точке А как показано на рисунке 2. В начальный момент воздействия на управляющий орган рулевого управления должно сработать устройство для нанесения отметок на опорную поверхность, размещенное под передним мостом машины, и одновременно должна произойти имитация отказа рабочего энергетического источника (источников) системы рулевого управления. Машина должна выполнить поворот на 90°, при этом следы колес должны остаться в установленных границах.

А - расстояние, в 1,1 раза превышающее диаметр окружности поворота по следу колес, или 14 м в зависимости оттого, какой из размеров больше; а - перпендикуляр к первоначальному направлению движения; b - первоначальное направление движения; с - точка А: положение передней оси в момент начала управляемого движения (см. 10.3.8); d - внешняя линия следа колес

Рисунок 2 - Быстродействие аварийной системы управления

10.4 Испытания системы рулевого управления с дополнительными управляющими элементами

Испытания дополнительных элементов контроля должны быть проведены в соответствии с рисунком 1. В случае отказа наибольшая разрешенная скорость должна быть определена в соответствии с рисунком 3.

Колеса машины должны оставаться внутри границ испытательного коридора, как показано на рисунке 3, за исключением машин с прицепами или полуприцепами, имеющими не менее трех осей, поскольку траектория колес этих прицепов и полуприцепов не помещается в границы коридора (тем более при объезде препятствий).

Ни один из конусов не должен быть опрокинут.

Машина, где в качестве управляющего элемента используют рулевое колесо, должна обеспечивать тот же уровень безопасности и эффективности, что и обычная машина.

Зона 1. Максимальная скорость должна быть реализована в зоне 1. Машина должна войти в зону 2 по центру между конусами и параллельно коридору. Скорость может быть снижена только после того, как передний край машины достигнет первой группы конусов.

Зона 2. В этой зоне оператору разрешается выполнять все операции для поддержания или снижения скорости, за исключением использования тормозов. Машина должна сделать поворот относительно единственного конуса; дополнительные маневры не разрешены (например, поворот в форме петли).

Зона 3. В этой зоне оператор может использовать тормоза после того, как центр переднего колеса пройдет конуса. Машина должна оставаться внутри коридора, пока не дойдет до последней остановки.

L - общая длина машины (например, для колесного погрузчика это длина между контргрузом и режущей кромкой ковша, с ковшом в транспортном положении); W - общая длина машины, измеренная поперек ковша.

Рисунок 3 - Испытания системы рулевого управления с дополнительными управляющими элементами
(
испытания при объезде препятствий)

Приложение ДА
(справочное)

Сведения о соответствии ссылочных международных стандартов ссылочным национальным стандартам Российской Федерации и действующим в этом качестве межгосударственным стандартам

Таблица ДА.1

Обозначение ссылочного международного стандарта

Степень соответствия

Обозначение и наименование соответствующего национального стандарта

ИСО 3450:1996

IDT

ГОСТ Р ИСО 3450-99 «Машины землеройные. Тормозные системы колесных машин. Требования к эффективности и методы испытаний»

ИСО 6014:1986

MOD

ГОСТ 27927-88 (ИСО 6014-86) «Машины землеройные. Определение скорости движения»

ИСО 6165:2006

-

*

ИСО 7457:1997

-

*

ИСО 10968:2004

-

*

ИСО 13849-1:1999

IDT

ГОСТ Р ИСО 13849-1-2003 «Безопасность оборудования. Элементы систем управления, связанные с безопасностью. Часть 1. Общие принципы конструирования»

ИСО 15998:2008

-

*

МЭК 62061:2005 с поправками: 1-2005, 2-2008

-

*

*Соответствующий национальный стандарт отсутствует. До его утверждения рекомендуется использовать перевод на русский язык данного международного стандарта. Перевод данного международного стандарта находится в Федеральном информационном фонде технических регламентов и стандартов.

Примечание - В настоящей таблице использованы следующие условные обозначения степени соответствия стандартов:

- IDT - идентичные стандарты;

- MOD - модифицированные стандарты.

 

Ключевые слова: машины землеройные, рабочая система рулевого управления, аварийная система рулевого управления, испытательный коридор, окружность поворота по следу колес

 

 




ГОСТЫ, СТРОИТЕЛЬНЫЕ и ТЕХНИЧЕСКИЕ НОРМАТИВЫ.
Некоммерческая онлайн система, содержащая все Российские Госты, национальные Стандарты и нормативы.
В Системе содержится более 150000 файлов нормативно-технической документации, действующей на территории РФ.
Система предназначена для широкого круга инженерно-технических специалистов.

Рейтинг@Mail.ru Яндекс цитирования

Copyright © www.gostrf.com, 2008 - 2026