Крупнейшая бесплатная информационно-справочная система онлайн доступа к полному собранию технических нормативно-правовых актов РФ. Огромная база технических нормативов (более 150 тысяч документов) и полное собрание национальных стандартов, аутентичное официальной базе Госстандарта. GOSTRF.com - это более 1 Терабайта бесплатной технической информации для всех пользователей интернета. Все электронные копии представленных здесь документов могут распространяться без каких-либо ограничений. Поощряется распространение информации с этого сайта на любых других ресурсах. Каждый человек имеет право на неограниченный доступ к этим документам! Каждый человек имеет право на знание требований, изложенных в данных нормативно-правовых актах!

  


 

ЦЕНТРАЛЬНЫЙ НАУЧНО-ИССЛЕДОВАТЕЛЬСКИЙ И ПРОЕКТНЫЙ
ИНСТИТУТ ТИПОВОГО И ЭКСПЕРИМЕНТАЛЬНОГО ПРОЕКТИРОВАНИЯ
КОМПЛЕКСОВ И ЗДАНИЙ КУЛЬТУРЫ, СПОРТА И УПРАВЛЕНИЯ
ИМ. Б. С. МЕЗЕНЦЕВА
(ЦНИИЭП ИМ. Б. С. МЕЗЕНЦЕВА)
ГОСКОМАРХИТЕКТУРЫ

Справочное пособие к СНиП

Серия основана в 1989 году

Проектирование клубов

Москва Стройиздат 1991

Рекомендовано к изданию Научно-техническим советом ЦНИИЭП им. Б. С. Мезенцева Госкомархитектуры

Редактор Н. В. Лосева

Разработано к СНиП 2.08.02-89 «Общественные здания и сооружения». Содержит общие положения выбора типа клуба, площадей и структуры пространства; требования к акустике помещений и защите от шума, к условиям видимости и расположению зрительских мест в залах, к конструктивным решениям, к инженерному оборудованию зданий клубов

Для инженерно-технических работников проектных и строительных организаций.

ПРЕДИСЛОВИЕ

Справочное пособие разработано к СНиП 2.08.02-89 «Общественные здания и сооружения» и конкретизирует общие требования к проектированию клубов и других объектов клубно-досугового назначения.

Материалы Пособия частично используют опыт нормативных разработок и директивные документы последних лет, результаты прикладных исследований типов и сетей клубов, а также обобщают опыт текущего проектирования. Этот опыт демонстрирует, особенно в конкурсном и поисковом проектировании, в разработке индивидуальных программ и проектов, исключительное разнообразие решений клубов. Сам объект проектирования обретает новые границы. Он выходит за рамки традиционных клубов и домов культуры типового проектировании семидесятых - восьмидесятых годов. В составе клубно-досуговых сооружений оказываются и новые объекты - досуговые клубы, центры досуга и рекреативные комплексы, профильные и любительские клубы и т. д.

Ведущим условием эффективного проектирования становится учет местных условий и прогноз развития культурной сети. Составление программ проектирования и определение конкретных требований к клубу и клубно-досуговой системе становится ответственной задачей, решение которой требует специальных предпроектных исследований исходной ситуации.

Данное Пособие не может охватить всех вариантов конкретных ситуаций. Оно касается лишь некоторых общих положений, выбора типа клуба, определения состава помещений, площадей и структуры пространства.

Положения Пособия имеют рекомендательный характер и допускают отступления, мотивированные конкретными условиями.

Требования к акустике помещений и защите от шума, к условиям видимости и расположению зрительских мест в залах, к конструктивным решениям, к инженерному оборудованию зданий клубов, противопожарные требования представлены в соответствующих нормативных документах.

Пособие разработано ЦНИИЭП им. Б. С. Мезенцева (кандидаты архит. Е. М. Соснова - ответственный редактор, Г. И. Быкова, Н. Н. Ерофеева, А. Я. Никольская, В. Н. Ревякин, М. Р. Савченко; архитекторы А. Л. Иликчян, А. С. Кравченко, Е. К. Милашевская).

1. ОБЩИЕ ПОЛОЖЕНИЯ

1.1. Клубы разделяются на типы:

досуговые;

общего профиля;

любительские.

Досуговые клубы - первая ступень клубной типологии, клубы общего профиля - вторая, любительские клубы - третья и высшая на сегодня ступень. Эти типологические ступени-уровни определяют направление перспектив его развития и пополнения клубно-досуговой сети. Они отвечают переходу от первичного и пассивного приобщения к коллективному досугу к активизации и дифференциации клубных интересов, от универсальных клубных пространств - к специализации помещений, и росту разнообразия типов клубных зданий и систем.

1.2. Области применения клубов досуговых, общего профиля, любительских определяются достигнутым и прогнозируемым уровнем социально-экономического развития каждого региона, числом жителей и административным статусом населенного места, сложившейся и прогнозируемой активностью посещений клубов и насыщенностью культурной сети.

По мере роста культурного потенциала, повышения уровня урбанизации населенных мест, дифференциации культурного спроса населения и становления самоорганизующихся клубных коллективов исходная сеть досуговых клубов должна пополняться (и частично вытесняться) клубами общего профиля, а затем и любительскими. В развитой клубно-досуговой сети присутствуют все указанные типы клубов.

1.3. Распределение типов клубов по территории области, сельского района, города подчиняется, как правило, следующей закономерности: более высокая типологическая ступень клубов - в центре, более низкая - на периферии сети. Кроме того, центр сети имеет большее типологическое разнообразие клубов, представительство как нижних, так и верхних типологических ступеней. Периферийные территории города или сельского района предполагают преимущественное развитие досуговых клубов, а центральные территории - как досуговых, так и клубов общего профиля, в крупнейших городах - также и любительских клубов.

1.4. Общий культурный и социально-экономический потенциал региона влияет на пропорции распределения разных типов клубов в центре и на периферии клубных сетей, но при этом сохраняется тенденция более высокого типологического уровня и разнообразия центра.

В настоящее время относительно пониженный уровень социально-экономического развития и соответственно большую долю досуговых клубов на всех уровнях клубной сети имеют регионы Севера, Сибири и Дальнего Востока, Средней Азии; средний уровень и соответственно увеличение доли клубов общего профиля - центральные, западные и южные районы РСФСР, отдельные районы УССР, БССР, Молдовы, Прибалтики, Закавказья, более дифференцированной клубной типологией (включая и любительские клубы) отличаются ряд областей РСФСР, Литвы, отдельные южные и западные районы страны.

Указанные уровни развития регионов составляют обобщенную и изменяющуюся во времени картину. В ряде регионов с повышенным уровнем социально-экономического развития существуют районы и населенные пункты, имеющие клубы менее высокого типологического уровня и наоборот. Направление повышения социально-экономического потенциала регионов определяет общую тенденцию развития клубной типологии в сторону ее обогащения и дифференциации.

1.5. В зависимости от социально-экономического потенциала региона, административного статуса населенного места, численности населения и согласно положению в сети типы досуговых, общего профиля и любительских клубов имеют разную вместимость, функциональную нагрузку и состав помещений.

1.6. Досуговые клубы на периферии клубной сети жилой группы и микрорайона города, сельского поселка и т. д. - это, как правило, малые клубы с универсальными пространствами - отдельно стоящие, кооперированные с другими сооружениями местного центра или встроенно-пристроенные к жилым зданиям и т. п. Досуговые клубы в центре клубной сети (городской центр, центр планировочного района-новостройки, центр сельского административного района и т. д.) - это относительно крупные центры досуга, универсальные залы и многоцелевые зрелищные, развлекательные, физкультурно-оздоровительные комплексы, а также система малых досуговых клубов.

1.7. Клубы общего профиля на периферии клубной сети (городские жилые районы, средние и малые города вблизи областного центра, центральные усадьбы колхозов и совхозов и т. д.) - это здания, совмещающие зрелищную часть (зрительный зал, фойе) и клубную часть (помещения для отдыха и развлечений, лекционно-информационные и студийно-кружковые помещения). Чем выше культурная активность населения и экономический потенциал населенного места, тем выше необходимая доля клубной части в общей вместимости клуба и ниже доля зрелищной части.

Клубы общего профиля в центре клубной сети (общегородской центр, центр сельского административного района и т. д.) должны иметь, как правило, относительно большую долю клубной части в общей вместимости здания в основном за счет помещений для отдыха и развлечений, а также студийных помещений.

Если согласно численности населенного места в составе его центра предусматривается несколько клубов общего профиля (городские центры больших, крупных и крупнейших городов), то среди них должны предусматриваться так называемые профильные клубы с преимущественным развитием или зрелищных, или лекционно-информационных, или развлекательных, или студийных групп помещений. Такая профильная специализация клубов позволяет интенсифицировать их работу. Наряду с ними возможны и самостоятельные здания клубов общего профиля, совмещающие все группы помещений, а также клубы в составе кооперированных культурных центров. Чем выше культурный потенциал города, его административный статус и число клубов центра, тем, больше доля профильных клубов в составе клубов общего профиля. Она колеблется от 15-20% в центрах больших городов до 60-70% в центрах крупнейших городов. Остальные клубы общего профиля совмещают все основные группы помещений. В составе клубов центра рекомендуется предусматривать также и досуговые клубы.

1.8. Любительские клубы согласно дифференциации своей деятельности и контингента являются принадлежностью исключительно центра клубной сети, как правило, в крупнейших городах с высоким культурным потенциалом. Формирование этого уровня типологии возможно только на базе насыщенной культурной сети города. Типы любительских клубов составляют развитую систему из множества клубов разной специализации (клубы исполнительского творчества, клубы коллекционеров, дискуссионные клубы, клубы авангардного искусства, ремесел, любителей старой техники, спортивные клубы и т. п.). Доля любительских клубов в крупнейших городах составляет сейчас около 10% сети.

1.9. Организационный статус клуба-учреждения в привязке к административно-территориальным единицам (городской Дом культуры – в центре города, городской клуб – в жилом районе, районный Дом культуры – в административном центре района, сельский Дом культуры – на центральной усадьбе, сельский клуб – в поселке и т.д.) не имеет однозначной связи с типом клуба-сооружения. Так, например, в разных населенных пунктах функции районного Дома культуры может исполнять досуговый клуб, клуб общего профиля или любительский клуб (в научном городке или академическом центре; прил. 1, 2)

1.10. Вышеперечисленные типы клубов являются элементами так называемой открытой (общедоступной) клубной сети, предполагающей свободный выбор места клубных занятий для разных групп населения. При проектировании ведомственных клубов, клубов предприятий, клубов творческих союзов, Домов техники и иных специализированных клубных объектов следует, как правило, предусматривать возможность их работы как в закрытом режиме, так и в составе открытой сети населенного места.

1.11. В условиях реконструкции как существующих клубных зданий, так и при приспособлении для клубной работы общественных и жилых зданий, а также при создании на базе клуба культурных центров целесообразно применение клубных блоков, основанных на одном из функциональных элементов клуба (зрительные, танцевальные, лекционные и спортивные залы, кружковые помещения.)

При реконструкции клубных зданий и при приспособлении для клубной работы зданий иного назначения в соответствии с конкретными условиями могут допускаться значительные отклонения от предлагаемых в прил. 3-7 примерных составов и норм площадей помещений на 1 посетителя. Проектирование этих объектов рекомендуется вести согласно заданию на проектирование. Примерная номенклатура типов клубов, включая клубные блоки, приведены в прил. 2.

1.12. Размещение, величина и состав земельных участков клубов определяются согласно требованиям СНиП 2.07.01-89 и требованиям настоящего раздела Пособия. Площадь земельного участка принимается из расчета 10-15 м2 на 1 посетителя клуба (20-25 м2 на 1 место в зрительном зале).

1.13. Земельный участок клуба разделяется на следующие зоны:

общественная или представительная (площадки перед входами из расчета не менее 0,2 м2 на 1 посетителя, памятник, Доска почета и т.п.);

зрелищная (рекламная и киноконцертная площадки, танцевальная площадка, открытая эстрада);

спортивная (комбинированная площадка для волейбола и баскетбола, другие площадки);

зона отдыха (павильон для чтения и настольных игр, площадка для аттракционов, детские площадки);

хозяйственная (площадка для транспортных средств, хозяйственный склад, навес для тары, мусоросборник).

1.14. При проектировании клубов в составе сложившейся городской застройки и на затесненных территориях допускается уменьшать площадь их земельных участков при сохранении необходимых площадок перед входами в здание и выходами из него, а также хозяйственной площадки.

1.15. Стоянки индивидуальных автомашин посетителей клуба следует предусматривать не далее 400 м от входов в здание клуба из расчета 2-5 мест для автомашин на 100 посетителей с учетом местных условий строительства.

1.16. На месте автомобильной стоянки необходимо выделить место с отличительными знаками для парковки автомобилей инвалидов. Ширина стоянки для автомобиля инвалида должна быть не менее 3,5 м.

1.17. На земельных участках клубов в IV строительно-климатическом районе рекомендуется предусматривать устройство навесов, пергол и других затеняющих сооружений. В зданиях необходимо обеспечивать оптимальную ориентацию основных помещений.

2. ДОСУГОВЫЕ КЛУБЫ

2.1. Досуговые клубы следует проектировать в составе: помещений универсального назначения; специализированных помещений; служебно-бытовых помещений.

Отношение вместимостей помещений универсального и специализированного назначения рекомендуется принимать от 1:0,2 до 1:1.

2.2. Досуговые клубы разделяются на типы:

малые клубы с универсальной гостиной вместимостью от 50 до 250 посетителей (Д1);

клубы с универсальным залом вместимостью от 250 до 1500 посетителей (Д2);

клубы с универсальной рекреацией вместимостью от 250 до 1000 посетителей (Д3);

развлекательные, физкультурно-развлекательные и иные комплексы клубного досуга вместимостью от 150 до 1000 посетителей (Д4).

2.3. При проектировании досуговых клубов следует учитывать их размещение в составе культурной сети:

в периферийных сельских поселках, центрах производственных бригад досуговый клуб (клуб с универсальной гостиной) является, как правило, единственным культурным объектом населенного места. Здесь необходимо обеспечить возможность кинопоказа, танцевальных вечеров, работы кружков, концертов, нерегламентированного общения и т.п. Возможна кооперация досугового клуба с иными объектами поселкового центра (магазин, почта и т.п.);

на центральных усадьбах колхозов и совхозов, в центрах сельских административных районов досуговый клуб (как правило, клуб с универсальным залом) является основным культурным объектом центра сельских районов в развиваемых и среднеразвитых регионах страны. Универсальный зал позволяет осуществлять как зрелищные мероприятия, включая гастроли, и выезд концертных бригад, так и вечера отдыха, танцы и праздничные комплексные программы. В таких досуговых клубах целесообразно предусматривать специализированные помещения кружковых в отношении 1:0,4-0,8 к расчетной вместимости универсального зала.

в жилых группах и микрорайонах городов досуговый клуб (как правило, клуб с универсальной гостиной и клуб с универсальным залом) предназначен для обслуживания прилегающего населения микрорайонов в основном для немобильного населения (дети, семьи с маленькими детьми, пенсионеры, а также для развития, работы придомовых спортивных, семейных, детских клубов, самодеятельных клубов по интересам, клубных кооперативов. Рекомендуется проектировать также досуговые клубы как в отдельно стоящем здании, так и встроенными в цокольные и первые этажи жилых домов в виде пристроенных к жилым домам блоков, в составе кооперированных общественных центров микрорайонов, с учетом использования территории дворов;

в жилых районах в центрах городов (в том числе крупных и крупнейших) рекомендуется предусматривать досуговые клубы с универсальной рекреацией и клубы с универсальным залом. Основное назначение таких клубов - организация массового зрелищного и развлекательного досуга молодежи и других групп населения (работа дискотек, проведение музыкальных концертов и фестивалей, организация сменных выставок, проведение массовых собраний и дискуссий, физкультурно-оздоровительные занятия). Досуговые клубы обеспечивают первичное приобщение аудитории к клубному досугу. На уровне жилых районов и городского центра такие клубы сосуществуют с клубами общего профиля (профильными) и любительскими клубами.

2.4. Кооперация клуба со спортивными сооружениями и создание клубных спортивных центров особенно целесообразны в населенных пунктах на 2-5 тыс. жителей, в общественных центрах городов от 25 до 250 тыс. жителей, в центрах жилых районов на 60 тыс. жителей.

Путем кооперирования и блокирования могут быть созданы многофункциональные центры: культурно-спортивные и культурно-оздоровительные, учебно-культурно-спортивные и т. п.

2.5. Помещения универсального назначения рекомендуется проектировать с горизонтальным полом и сборно-разборным оборудованием (эстрадами, помостами, рабочими столами, мебелью и т. п.). Следует предполагать как последовательное во времени использование универсального помещение для разных видов клубных занятий, так и одновременное использование разных зон универсального помещения, выделенных сборно-разборным оборудованием, мебелью, озеленением, рельефом пола и т. п.

2.6. Специализированные помещения досуговых клубов (аудитории, мастерские, кабинеты домоводства, буфеты и другие помещения со стационарным оборудованием) следует предусматривать согласно заданию на проектирование.

2.7. Вестибюли и фойе досуговых клубов рекомендуется проектировать с учетом возможности присоединения к универсальным помещениям клубов.

2.8. Состав и площади помещений универсального назначения в досуговых клубах рекомендуется принимать по табл. 1. Основное универсальное помещение малого клуба - универсальная гостиная, представляющая собой пространство многоцелевого назначения, рассчитано на одновременное использование его для разных целей, в соответствии с которыми оно может подразделяться на функциональные зоны (место для просмотра телевизора, место настольных игр, чаепития, нерегламентированного общения и др.). Структура такого пространства должна предусматривать возможность его использования и для одной цели - собрание, вечер отдыха, дискотека, детская елка, занятие группы общефизической подготовки, детского хореографического кружка и др. Помещение зала-гостиной должно иметь плоский пол. Допускается устройство небольшой эстрады или подиума со стационарными местами по периметру.

Таблица 1

Помещения универсального назначения досуговых клубов

Площадь, м2, на 1 посетителя

Универсальная гостиная

1,3-1,8

Универсальный зал

1,1-1,7

Универсальная рекреация

2,2-3,2

Кладовые мебели и инвентаря

0,05

Примечания: 1. Состав и площади специализированных помещений и помещений административно-бытового назначения рекомендуется принимать согласно требованиям к помещениям клубов общего профиля (табл. 2-7). 2. При помещениях универсального назначения допускается дополнительно предусматривать камины, кухонное оборудование, сервизную, кино- видеоаппаратуру, радиоузел, кладовые для спортивного оборудования и т. п. 3. Меньшие значения площадей указаны для помещений большей вместимости, большие - для помещений меньшей вместимости.

2.9. При залах-гостиных вместимостью 100 чел. и более рекомендуется оборудовать киноаппаратную на 1 пост (площадью б м2), в меньших залах-гостиных - место для установки передвижного кинопроектора. Входные помещения рассчитываются по наименьшим значениям удельной площади (табл. 2), гардеробная может располагаться в кладовой, стенной нише или оборудуются крючки по стенам.

2.10. Малый досуговый клуб не обязательно размещать в отдельно стоящем здании. Его можно организовать встроенным или в пристройке к жилому дому, учреждению, предприятию общественного питания, на территории предприятия и т. п. Рекомендуется не только строительство новых зданий, но и приспособление старых помещений общественного и жилого назначения.

При проектировании клубов с универсальной гостиной для тех регионов, где сохранились традиции народной клубной архитектуры (кунацкая у народов Кавказа, мехмон-хона в Средней Азии и др.) рекомендуется учитывать национальные особенности этих сооружений в композиции здания и декоре.

2.11. Ядром досугового клуба с универсальным залом является общее зальное пространство вместимостью от 200 до 1000 чел., в котором проводятся не только вечера отдыха, кинопоказ, концертные выступления и собрания, но и физкультурно-спортивные мероприятия. Поэтому рекомендуется предусматривать здесь открытую в зал (сборно-разборную) эстраду, плоский пол (на глубину до 12 м от края эстрады) и оборудование трансформации зрительских мест. Допускается организация рельефа пола (платформы, блитчеры и т. д.). Предполагается возможность размещения в общем пространстве эстрады, зоны зрительских мест, свободного пространства фойе, зоны буфета и т. п. Общее пространство, позволяет мобильно использовать помещение зала, в том числе эпизодически увеличивать его вместимость в 1,5 раза на аншлаговых концертах и иных программах.

Помимо универсального зала в таком клубе рекомендуется предусматривать специализированные помещения игровых, кафе (с возможной связью с универсальным залом), помещения для работы кружков, раздевальные, душевые, вестибюль, гардероб, санузлы, административные помещения, а также кладовые для мебели и инвентаря.

2.12. Досуговые клубы с универсальной рекреацией формируются на основе универсального назначения не зала (в отличие от досуговых клубов с универсальным залом), а общих помещений для отдыха и развлечений, включая площадь фойе, вестибюля, буфета, гостиных, игровых помещений, спортивной и танцевальной площадок, зимнего сада. В таких клубах зрительный зал (аудитория) обособлен от общего рекреационного пространства. Вместимость зала-аудитории - от 100 до 500 мест. В нем проводятся лекции, кинопоказ, некоторые концерты. Вместе с тем массовые, аншлаговые, в том числе зрелищные программы и кинопоказ проводятся в универсальной рекреации, вместимость которой от 150 до 500 посетителей. Это общее пространство предназначено также для танцев и праздничных вечеров, физкультуры и спортивных занятий, отдыха и развлечений. Универсальная рекреация предусматривает эпизодическое зонирование при будничном режиме работы клуба и объединение зон в праздничном режиме. Следует предусматривать несложную плоскостную трансформацию (см. разд. 5). Форма универсальной рекреации может быть сложной, включая ниши, балконы и т. п.

Кроме специализированного зрительного зала (аудитории) в составе этих клубов необходима входная группа помещений с гардеробом и помещениями администрации, санузлы, раздевальные и душевые (для спортсменов, кладовые инвентаря и мебели, специализированные помещения студии), состав и площади которых следует принимать согласно требованиям к помещениям клубов общего профиля (табл. 2-7).

2.13. В составе развлекательных, физкультурно-рекреационных и иных комплексов клубного досуга рекомендуется предусматривать несколько видов универсальных пространств: универсальные гостиные, универсальные залы и рекреации, в том числе для использования в будничном и праздничном режиме, вечеров отдыха, концертов, выставок, встреч и собраний, спортивно-оздоровительных, занятий и отдыха.

Помимо универсальных пространств в таких объектах могут быть также специализированные помещения кинозалов, видеотек и видеобаров, дискотек, кафе, залов для компьютерных игр, аттракционов, спортивных залов разного назначения, помещений мастерских, студий и т. п.

2.14. Указанные сооружения отличаются сочетанием универсальных помещений (разного назначения) и специализированных помещений. Соотношение вместимостей универсальных и специализированных помещений от 1:0,5 до 1:1,5.

Примерный состав и вместимости групп помещений разных типов досуговых клубов приведены в прил. 3.

3. КЛУБЫ ОБЩЕГО ПРОФИЛЯ

3.1. Клубы общего профиля следует проектировать в составе:

зрелищной части;

клубной части;

служебно-бытовых помещений.

Клубную часть рекомендуется принимать в составе групп помещений:

отдыха и развлечений;

лекционно-информационных;

студийно-кружковых.

3.2. Отношение вместимостей зрелищной и клубной частей клубов общего профиля составляет от 1:0,2 до 1:1,7.

Типы клубов общего профиля рекомендуется принимать согласно ряду отношений вместимостей их частей (типы I-IV по прил. 4).

В составе типов клубов общего профиля предусматриваются также типы профильных клубов и клубных блоков.

3.3. Вместимость зрительного зала в клубах общего профиля рекомендуется принимать от 150 до 1000 мест (допускается - до 1500 мест), общую вместимость - от 200 до 2100 посетителей (допускается - до 3000 посетителей).

3.4. При проектировании профильных клубов рекомендуется предусматривать следующие варианты состава групп помещений:

зрелищная часть и группа отдыха и развлечений;

группа отдыха и развлечений и лекционно-информационная группа;

Общая вместимость таких профильных клубов - от 300 до 1500 посетителей.

Примерный состав и вместимости разных типов профильных клубов (П1, П2, ПЗ) приведены в прил. 5.

3.5. При проектировании клубных блоков, включающих одну из указанных групп помещений, общую вместимость таких блоков рекомендуется принимать от 100 до 500 посетителей. (Типы блоков Б1, Б2, Б3, Б4 приведены в прил. 6.).

3.6. При реконструкции и оборудовании под клубы зданий (помещений) иного назначения, а также при проектировании клубно-досуговых центров состав групп их помещений следует определять заданием на проектирование.

3.7. Возможна кооперация клубов общего профиля со спортивными, выставочными и иными сооружениями, предприятиями общественного питания и т. п. согласно заданию на проектирование.

3.8. При проектировании клубов общего профиля, в том числе профильных клубов и клубных блоков следует учитывать их размещение в составе культурной сети:

на центральных усадьбах колхозов и совхозов, в центрах сельских административных районов рекомендуется применять клубы общего профиля в центральных, западных и южных регионах страны (в остальных регионах - типы досуговых клубов);

в жилых и планировочных районах городов, в центрах малых, средних и больших городов. В развиваемых регионах страны клубы общего профиля рекомендуется применять, как правило, в центрах, в остальных регионах - также и в жилых и планировочных районах городов;

в центрах крупных и крупнейших городов рекомендуется применять, как правило, профильные клубы, а также клубы общего профиля, с учетом их градостроительного положения в составе сети;

при реконструкции действующего фонда клубов города и села, а также при пополнении сложившейся сети рекомендуется применять клубные блоки как пристройки к действующим клубам, а также как отдельно стоящие здания в системе клубной сети. При этом целесообразно учитывать сложившуюся обеспеченность сети и характер ее функционирования.

Состав и площади помещений зрелищной части

3.9. Состав и нормы площади помещений для зрителей рекомендуется принимать по табл. 2.

Таблица 2

Помещение

Площадь на 1 место в зале, м2

Примечание

Зрительный зал

0,65

Включая площадь балконов, лож, ярусов, проходов для зрителей. Определяется от передней границы эстрады, сцены, авансцены, барьеры оркестровой ямы

Фойе с буфетной стойкой

0,35-0,5

Включая подсобные помещения при буфетной стойке (не менее 0,2 м2 на 1 место в зале, но не менее 10 м2) и кладовую (не менее 0,02 м2 на 1 место в зале, но не менее 10 м2)

Фойе-вестибюль с буфетной стойкой

0,4-0,6

То же

Фойе-зал массовых мероприятий

0,5-0,7

В клубах II и III типов, а также в клубах, не оборудованных танцевальными залами

3.10. Эстрады и сцены клубов разделяются на:

сборно-разборные (трансформирующиеся) эстрады на площади зала;

открытые в зал эстрады;

портальные эстрады;

сцены.

3.11. Рекомендуемые размеры портальных эстрад и сцен указаны в табл. 3. Размеры сборно-разборных и открытых в зал эстрад в залах и иных помещениях клубов следует принимать по заданию на проектирование, но не менее 3´4 м.

Таблица 3

Портальные эстрады и сцены

Размеры, м

ширина

глубина

высота

строительного портала (в скобках – игрового портала)

глубина авансцены, не менее

ширина

высота

Эстрады

Э-1

Э-2

Э-3

Э-4

Э-5

Э-6

9

12

15

18

21

24

6

7,5

9

12

12

15

5,5

6

7,5

9

9

11

-

8,5

10,5

12

14

16

-

5

5,5

6,5

7,5

9

1,5

Сцены

С-1

С-2

С-3

С-4

12

15

18

21

7,5

7,5

9

12

10,5

11,5

12,5

10

8,5(6)

10,5(6)

13(6)

14(8)

5(4,5)

5,5(4,5)

6,5(4,5)

7,5(5,5)

1,5

Примечания: 1. Размеры (в плане) эстрад и сцен указаны в осях строительных конструкций, авансцены - от внутреннего края проема оркестровой ямы или передней кромки авансцены до красной линии сцены (эстрады). 2. Высота эстрад определяется от уровня планшета (отметки строительных конструкций) до потолка, технологического оборудования. Высота сцен определяется от уровня планшета до верха колосникового настила. Высота над колосниковым настилом (в свету) - 2 м, при наклонном перекрытии - не менее 1,5 м. 3. При проектировании оркестровой ямы глубину авансцены следует соответственно увеличивать на величину открытого проема оркестровой ямы (не менее 2,5 м). 4. Ширину строительного портала допускается увеличивать на 1-5 м, высоту - на 0,5-2,5 м. 5. При увеличении глубины авансцены допускается соответственно уменьшать глубину эстрады (сцены), но не более чем на 0,25 указанной глубины эстрады (сцены).

3.12. Допускается при назначении зрительных залов клубов для постоянных театральных гастролей и выездов применение видов, размеров и оборудования сцен, указанных в справочном пособии «Проектирование театров» к СНиП 2.08.02-89.

3.13. Рекомендуемые варианты применения портальных эстрад и сцен в клубах I-IV типов общего профиля указаны в прил. 7. Конкретный вариант и размеры эстрады (сцены) в клубе следует определять по заданию на проектирование с учетом размещения клуба, вместимости зрительного зала, ожидаемого режима его функционирования и преимущественных видов зрелищных программ, а также состава культурной сети населенного места (района).

3.14. Состав и площади технологических помещений, обслуживающих портальную эстраду (сцену), рекомендуется принимать по табл. 4 и 5.

Таблица 4

Помещение

Единица измерения

Площадь технологического помещения, м2

Примечание

при эстраде

при сцене

Э-1,

Э-2

Э-3,

Э-4

С-1, С-2, С-3

С-4

Склады объемных и станковых декораций, сценической электроаппаратуры, мебели и реквизита

% площади сцены (эстрады)

15

25

40

55

-

Комната художника

% площади сцены

-

-

15

15

Не менее 30 м2

Столярная мастерская

То же

-

-

10

10

То же

Механическая мастерская

»

-

-

5

5

Не менее 10 м2

Костюмерные

»

 

 

15

15

Следует предусматривать при вместимости зрительного зала 300 и более мест

Гримерно-парикмахерская

»

-

-

5

5

Не менее 10 м2

Артистические уборные

м2

-

-

Не менее 5 м2 на каждые 100 мест зрительного зала

Не менее 2 уборных площадью 15 м2 каждая; допускаются при эстрадах в залах вместимостью 500 чел. и более

Звукоаппаратная

»

-

6

12

18

-

Кабина диктора

»

-

-

-

8

-

Светопроекционная

»

-

9

9

18

При вместимости зала 500 мест и более

Киноаппаратная

-

По табл. 5

 

Светоаппаратная

м2

(9)

(15)

15

18

При вместимости зала 500 и более мест

Тиристорная

»

-

-

25

35

 

Совмещенная светоаппаратная и тиристорная

»

-

20

30

40

Для сцен при вместимости зала до 500 мест, для эстрад - при вместимости зала 400 мест и более

Комната отдыха рабочих при сцене

м2

-

-

-

10

-

Санузлы с умывальниками в шлюзе

»

(4)

6

6

6

Не менее двух

Душевые

»

-

(4)

(8)

16

-

Пожарный пост (диспетчерская)

»

-

15

15

25

При вместимости зала 500 мест и более

Примечания: 1. При проектировании клубов со сценами, предназначенных для постоянных театральных гастролей, допускается изменять состав и увеличивать площадь помещений в соответствии с заданием на проектирование. 2. Допускается располагать в общем помещении светопроекционную и светоаппаратную. При вместимости зрительного зала 700 мест и менее в общем помещении допускается располагать и звукоаппаратную, а при вместимости зала 400 мест и менее - также и киноаппаратную. 3. Помещения, площади которых указаны в скобках, допускается предусматривать по заданию на проектирование.

Таблица 5

Помещение

Площадь, м3, при числе кинопроекторов

2

2

1

при системе кинопроекции

для 35-мм фильмов с ксеноновыми лампами

для 35-мм фильмов с лампами накаливания

для 16-мм фильмов

Проекционная и перемоточная

20

10

6

Агрегатная охлаждения кинопроекторов (при вместимости зала 500 мест и более)

6

-

-

Комната киномеханика (при вместимости зала 500 мест и более)

10

-

-

Санитарный узел (при изолированном входе в киноаппаратную с улицы)

2

-

-

Примечание. При ином числе кинопроекторов или при ожидаемом числе киносеансов более 15 в неделю состав и площади помещений киноаппаратной определяются согласно пособию «Проектирование кинотеатров» к СНиП 2.08.02-89.

Состав и площади помещений клубной части

3.15. Состав и нормы площади помещении на 1 посетителя клубной части клубов общего профиля рекомендуется принимать по табл. 6.

Таблица 6

Помещение

Площадь*, м2

Примечание

Помещения для отдыха и развлечений

Гостиная

1,6-2,4

Не менее 30 м2

Буфет с подсобными помещениям

3-4,2

Необходимо уточнять по соответствующим нормативным документам

Игровая:

 

 

игровых автоматов

4-6

Необходимо уточнять согласно составу и габаритам оборудования

настольных игр

1,6-2,4

Танцевальный зал

1-1,5

Не менее 50 м2, при оборудовании дискотеки - 1,2-1,8 м2

Биллиардная

2,4-3,6

Не менее 30 м2 (необходимо уточнять согласно габаритам оборудования)

Бар с подсобными помещениями

2-2,7

-

Зал с подсобными помещениями для физкультурно-оздоровительной работы

4-6

Подсобные помещения, включая раздевалки, душевые и санузлы - не менее 1 м2 на 1 посетителя. Площадь зала для коллективных занятий – не менее 80 м2, для индивидуальных (в том числе на тренажерах) - не менее 20 м2

Зимний сад

2,4-3,6

Не менее 30 м2

Лекционно-информационные помещения

Кабинет передового опыта и политпросвещения

1,8-2,6

Не менее 24 м2

Аудитория

0,8-1,2

Следует оборудовать киноэкраном и эстрадой на площади аудитории

Кулуар аудитории

0,2-0,4

Допускается не предусматривать при непосредственной связи аудитории с вестибюлем, гостиной или объединять с этими помещениями

Выставочный зал с подсобными помещениями

3-4,5

Не менее 50 м2, площадь подсобных помещений не менее 0,7 м2 на 1 посетителя

Видеозал

1-1,5

При проектировании видеокабин 1,5-2 м2

Зал празднеств и обрядов

2,4-3,6

Не менее 50 м2

Клубный читальный зал

2,4-3,6

-

Библиотека:

 

 

аванзал, читательские места;

2,2-3,2

-

фонд открытого доступа;

4,5 м2 на 1000 ед. хранения

80% общего фонда

фонд закрытого доступа;

2,5 м2 на 1000 ед. хранения

20% общего фонда

место кафедры выдачи книг, рабочее место сотрудника

8-12 м2 на библиотеку

-

Студийно-кружковые помещения

Помещения кружков:

 

 

хорового и по интересам универсального назначения, театрально-драматического, изобразительного искусства, кино- фото-технического (без крупногабаритного оборудования), культуры быта (домоводства), оркестрового;

1,2-1,7

1,8-3

-

-

танцевального, циркового, технического (с крупногабаритным оборудованием), художественных промыслов и ремесел

4-6

-

Кладовые, встроенные шкафы

Около 0,1 площади помещений кружков

Дополнительно к площади кружков изо-, кино-, фото, оркестрового, художественных промыслов и ремесел, в остальных случаях - на площади кружков

* Меньшие значения указанных площадей рекомендуются при проектировании периферийных объектов сети, большие - для центральных.

Состав и площади входных и административно-хозяйственных помещений

3.16. Состав и нормы площади на 1 посетителя входных и служебно-бытовых помещений рекомендуется принимать по табл. 7.

Таблица 7

Помещение

Площадь*, м2

Примечание

Кассовый вестибюль с кассовыми кабинами

0,04-0,06

При зрелищной части клубов с залами более 300 мест при меньшей вместимости зала - кассовая кабина на площади - вестибюля

Вестибюль зрелищной части*2

0,24-0,36

На 1 посетителя зрелищной части рекомендуется в клубах IV и V типов

Вестибюль клубной части

0,12-0,18

На 1 посетителя клубной части

Вестибюль клуба (общий)*3

0,16-0,24

На 1 посетителя клуба, рекомендуется в клубах III - IV типов и при вместимости клуба менее 1000 посетителей

Гардеробная (за барьером) при вестибюле:

 

 

зрелищной части

0,08-0,1

-

клубной части

0,03-0,04

-

общем

0,05-0,07

-

Санитарные узлы*4

1,8-2,5 на 1 санитарный прибор, а также в соответствии с пособием «Общие вопросы проектирования» к СНиП 2.08.02-89

Количество санитарных приборов рекомендуется определять при соотношении мужчин и женщин 1:5 в зрелищной части: 4 на каждые 100 мужчин (1 унитаз, 2 писсуара, 1 умывальник; 6 на каждые 100 женщин (4 унитаза, 2 умывальника)

Курительная

0,05-0,07

В клубах с залом более 300 мест

Помещения административного и обслуживающего персонала

0,2-0,4, а также в соответствии с требованиями СНиП 2.09.04-87

Не менее 10 м2

Помещения клубного актива*5

0,02-0,03

В клубах III-V типов

Хозяйственные кладовые

0,01-0,03

-

* Меньшие значения указанных площадей рекомендуется при проектировании периферийных объектов сети, большие - для центральных.

*2 В строительно-климатических подрайонах 1А, 1Б, 1Г следует увеличивать площадь вестибюля на 20% и дополнительно предусматривать при вестибюле комнаты для переодевания по норме 0,06 м2 на 1 посетителя зрелищной части.

*3 Допускается перераспределить площади фойе и вестибюли в пределах до 1/3 указанных величин.

*4 Соотношение мужчин и женщин в зрительном зале следует определить в соответствии с конкретными условиями.

*5 В клубах III-V типов рекомендуется предусматривать методический кабинет площадью 80 м2.

Требования к помещениям зрелищной части

Помещения для зрителей

3.17. Зрительный зал является необходимым планировочным элементом клубов общего профиля всех типов. Зал предназначается для проведения собраний, кинопоказа, концертных программ, театральных постановок (профессиональных спектаклей в выездном оформлении и любительских спектаклей). В клубах типов I и II залы вместимостью до 300 мест включительно используются не только для зрелищ, но и для празднеств и гражданских обрядов, поэтому в таких залах рекомендуется предусматривать горизонтальный пол на глубину до 9-12 м от эстрады, а группу остальных мест располагать на наклонном амфитеатре. Допускается оборудование балкона. Места на горизонтальном участке пола целесообразно проектировать съемными секциями, предусматривая кладовую для их хранения. Оборудование и варианты трансформации зрительских залов см. и разд. 5 Пособия.

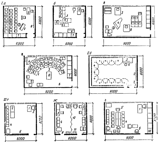
3.18. Форму зрительных залов целесообразно избирать согласно требованиям комфортной видимости (см. пособие «Общие требования» к СНиП 2.08.02-89), а также с учетом композиционного решения здания (рис. 1 и 2).

Рис. 1. Варианты решения формы зрительных залов на 150-500 мест

Рис. 2. Варианты решения формы зрительных залов клубов (продольные разрезы залов)

3.19. Допускается предусматривать зону размещения дополнительных мест зала с эпизодическим подключением смежных с залом помещений. Условия видимости с дополнительных мест могут быть пониженной характеристики. Количество дополнительных мест следует принимать не более 300. Из подключаемых к залу помещений следует предусматривать самостоятельные эвакуационные выходы. При непосредственной связи дополнительных мест со зрительным залом пути эвакуации из зала рассчитывают исходя из его суммарной вместимости; включая и дополнительные места.

3.20. В зрительных залах клубов следует резервировать не менее 3% мест для инвалидов на колясках. Желательно, чтобы это была отдельная ложа, в которую можно было бы беспрепятственно попасть с лифта либо прямо с улицы.

3.21. Места для инвалидов предусматриваются в первом ряду, при этом в той части ряда, где расположены места для инвалидов, сидения не устраиваются а их роль выполняют кресла-коляски. Ширина подъезда к местам принимается не менее 0,9 м, а при необходимости поворота кресла-коляски на 90° - не менее 1,1 м. Ширина каждого места должна быть не менее 0,9 м.

3.22 Высоту зала при вместимости 150 мест и более рекомендуется принимать не менее 3,6 м с учетом условий видимости и композиционного решения зала.

При расположении потолочных светильников зрительного зала на высоте более 5 м над полом следует предусматривать устройства доступа к светильникам.

В зрительных залах клубов I типа рекомендуется, а клубов иных типов при вместимости зала до 400 чел. допускается проектировать естественное освещение при оборудовании устройствами для зашторивания световых проемов.

3.23. Расстояние между передней границей эстрады (сцены, авансцены или барьера оркестровой ямы) и спинками сидений первого ряда зрительских мест должно быть не менее 1,5 м, а в зрительных залах вместимостью до 300 мест - не менее 1,2 м.

Высота уровня планшета эстрады (сцены, авансцены) над уровнем пола первого ряда зрительских мест рекомендуется не более 1 м (с горизонтальным полом - не более 1,1 м).

В зрительных залах уклон пола (пандуса) допускается не более 1:7. При устройстве в проходах ступеней высоту подступенков следует принимать не более 0,2 м.

3.24. При проектировании в зрительном зале ярусов или балконов с количеством рядов не более трех высота от пола зрительских мест до выступающих конструкций вышерасположенных ярусов, балконов или потолка зрительного зала принимается не менее 2,1 м, при большем количестве рядов - не менее 3 м. Высота барьеров балконов или ярусов должна быть не менее 0,8 м. На барьерах следует предусматривать устройство, предохраняющее от падения предметов с высоты.

3.25. Зрительные залы рекомендуется проектировать с учетом установки в них полумягких или жестких кресел с откидными сидениями. Допускается также установка стульев или скамей.

Ширину кресел (между осями подлокотников) следует принимать не менее 0,5 м, ширину сидений стульев и скамей - не менее 0,45 м, глубину - соответственно 0,4 и 0,35 м.

Расстояние между спинками кресел (глубину ряда) следует предусматривать не менее 0,9 м, а между спинками стульев и скамей - соответственно не менее 0,85 и 0,8 м. При проектировании для строительно-климатических подрайонов 1А, 1Б и 1Г глубину ряда допускается принимать не менее 1 м.

Кресла, стулья, скамьи или их звенья в зрительных залах (кроме балконов и лож вместимостью до 12 мест) следует предусматривать с устройствами для крепления к полу. При вместимости залов не более 300 мест допускается установка кресел, стульев и скамей или их звеньев без крепления к полу, но с обеспечением устройств, предотвращающих их опрокидывание.

3.26. Фойе-зал массовых мероприятий рекомендуется в клубах II и III типов и допускается в клубах IV типа со вместимостью зрительного зала не более 500 мест. В фойе должна быть небольшая стационарная или разборная эстрада размером не менее 4´3 м, площадь которой позволила бы разместить 6-10 оркестрантов. Высота помещения фойе-зала массовых мероприятий не менее 3,6 м.

3.27. В клубах IV и V типов помимо помещения буфета возможно устройство в фойе дополнительной буфетной стойки.

Для повышения гибкости и плотности использования помещения фойе рекомендуется предусмотреть возможность трансформации с целью изменения его площади и конфигурации. Это достигается за счет присоединения смежно расположенных помещений (буфета, гостиной, вестибюля и др.), а также за счет использования трансформирующегося оборудования (складная мебель, эстрада и др.; см. разд. 5). При проектировании на площади фойе выставок и экспозиций музея следует увеличивать принятую площадь на 5%.

В составе площади фойе могут быть выделены кулуары, шириной не менее 2,4 м, площадь которых уточняется расчетом путей эвакуации зрителей из зала и здания.

При необходимости площади вестибюля и фойе могут быть объединены в общее многоцелевое пространство с его зонированием при помощи мебели, перепада отметок пола, создания ниш и т. д. Допускается объединение фойе с танцевальным залом, зимним садом, выставочным залом (рис. 3).

Рис. 3. Варианты взаимного расположения вестибюля (В), фойе (Ф), фойе-вестибюля (Ф - В) и зрительного зала клуба (стрелками указаны возможные направления входа в здание)

Демонстрационные помещения

3.28. Демонстрационные помещения состоят из игровой площадки (сцены, эстрады) и помещений, ее обслуживающих.

Игровая площадка

В зависимости от места клуба в системе культурного обслуживания игровая площадка несет различную функциональную нагрузку. Для кинопоказа, лекций и собраний, концертов профессиональных и самодеятельных коллективов достаточно, как правило, оборудование открытой в зал эстрады или портальной эстрады. Это характерно для большинства клубов села, где гастрольные спектакли бывают редко, а также для клубов городов, в которых развита сеть зрелищных учреждений (театры, концертные и городские залы).

При выделении клуба как центрального (базового) Дома культуры, принимающего выездные профессиональные спектакли в объеме не менее 30 в год, зал можно оборудовать сценами С-2, С-3, С-4. В исключительных случаях допускается применять сцены театрального типа в клубах с залами 700 мест и более, являющихся базой регулярных театральных гастролей и выездов с полным оформлением спектаклей из близрасположенного крупнейшего города и в городах, не имеющих театра (см. пособие «Проектирование театров» к СНиП 2.08.02-89).

3.29. Площадь сцены (портальной эстрады) делится на две части: видимую зрителю - игровую, на которой происходит действие, и невидимую – закулисную, служащую для передвижения актеров, размещения механизмов, дежурных декораций.

Игровую часть ограничивают обычно «одеждой сцены»: с боков – кулисами, сзади - задником, а сверху - падугами, скрывающими источники освещения и верхние конструкции. Игровая площадка делится по глубине на планы. Глубина плана 1,5-2,5 м, кроме переднего нулевого плана, который может быть более узким (1-1,5 м). Кулисы и падуги размещаются по границам планов. Кулисы можно делать поворотными (используя индивидуальные подъемы), это помогает закрыть от зрителя боковые стены игровой площадки.

Связь авансцены с полом зала рекомендуется осуществлять открытыми лестницами или устройством пандусов вдоль боковых стен зала.

3.30. Для эстрад Э-2 - Э-6 допускается не предусматривать строительный портал, отделяя авансцену от эстрады занавесом. Открытые в зал эстрады рекомендуется проектировать площадью, отвечающей размерам соответствующих портальных эстрад.

Колосниковый настил следует располагать перпендикулярно порталу сцены с зазорами между колосниками 0,05 м.

3.31. По боковым и задней стенам сцены следует предусматривать ярусы рабочих галерей. Верхний ярус надо размещать на 2,5 м ниже колосникового настила. Нижний ярус следует располагать на 1 м выше строительного портала, но не ниже верха проема арьерсцены плюс 0,5 м.

Расстояние между ярусами рабочих галерей от пола до пола составляет от 2,5 до 3 м по всей высоте сцены. Ширину (в свету) рабочих галерей, расположенных на боковых стенах, следует принимать: при установке электроприводов подъемов на галереях - 2,8 м, при установке электроприводов за пределами сценической коробки, при ручном приводе подъемов и на осветительных галереях - 1,5-1,8 м. Ширину рабочих галерей (обходных мостиков) на задней стене сцены следует принимать не менее 0,8 м.

Между боковыми рабочими галереями предусматриваются переходные мостики шириной не менее 0,6 м. Рабочие галереи и переходные мостики должны иметь сплошной настил пола, ограждения высотой 1,2 м и отбойный брус высотой 0,15 м.

3.32. Для обслуживания рабочих галерей и верхней части сцены С-4 должны быть предусмотрены две колосниковые лестничные клетки до уровня колосникового настила (при вместимости зала менее 800 мест допускается от уровня пола нижней рабочей галереи). Для сцен С-1 - С-3 допускается устройство открытых внутренних лестниц от уровня пола нижней галереи или планшета сцены с оборудованием проходов на общие лестницы или открытые пожарные лестницы. Открытые внутренние лестницы должны иметь ширину не менее 0,6 м, угол наклона не более 45°, поручни и сплошной настил ступеней.

3.33. Оркестровую яму для сцен и эстрад рекомендуется проектировать не менее следующих размеров: ширина - 2,5 м, ширина проема - 1,7 м, высота (до низа, выступающих конструкций) - 1,9 м. При этом желательно предусматривать возможность перекрытия проема оркестровой ямы, трансформацию ее барьера и пола (см. разд. 5).

3.34. Виды механического оборудования и другие элементы технологического оснащения сцен и эстрад следует принимать согласно заданию на проектирование.

Основу механического оборудования игровых площадок клубов составляют штанкетные подъемы. На клубных сценах, предназначенных для гастролей профессиональных коллективов, может быть установлен поворотный круг.

Проектирование круга и другого механического оборудования сцен следует осуществлять согласно требованиям пособия «Проектирование театров» к СНиП 2.08.02-89.

Под планшетом сцен С-4 допускается предусматривать трюм с размерами в плане, равными размерам сцены.

Высоту этажа трюма до низа выступающих конструкций следует принимать не менее 1,9 м.

Технические помещения

3.35. В клубах со зрительными залами вместимостью 300 чел. и более желательно устройство отдельного наружного входа для персонала в помещения, обслуживающие игровую площадку.

В клубах со зрительными залами вместимостью 500 чел. и более, оборудованных сценой, допускается устройство служебного вестибюля при помещениях, обслуживающих игровую площадку. Площадь такого вестибюля принимается не более 10% площади сцены.

3.36. В клубных зданиях, где могут проходить гастроли, целесообразно обеспечивать связь правой и левой сторон игровой площадки в задней части эстрады (сцены). Если эта связь осуществляется через служебный коридор, он должен быть достаточно просторным, так как он служит местом накопления артистов перед выходом на сцену (рис. 4).

В клубах, где будут проходить гастроли профессиональных коллективов, должны быть предусмотрены возможности технологического обеспечения игровой площадки: верхнее освещение сцены (софиты), боковое освещение (осветительные башни, по боковым стенам сцены) и освещение из зрительного зала.

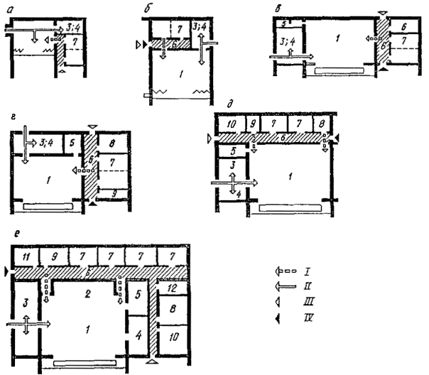
Рис. 4. Схемы расположения помещений, обслуживающих игровую площадку:

а, б - с одной стороны; в, г, д - с двух сторон; е - с трех сторон игровой площадки;

1 - игровая площадка (эстрада, сцена); 2 - арьерсцена; 3 - склад объемных декораций; 4- склад бутафории и мебели; 5 - склад электроаппаратуры; 6-служебный коридор; 7 - артистические уборные; 8 - костюмерная; 9 - пожарный пост; 10 - комната художника; 11 - гримерно-парикмахерская; 12-комната рабочих сцены;

I - выход на игровую площадку артистов; II - путь перемещения декораций; III - вход с улицы; IV-вход из клубных помещений

3.37. Помещения технологического обеспечения размещаются:

осветительные боковые ложи - у боковых стен зала;

помещение выносного софита - над зрительным залом;

светопроекционная, светоаппаратная - за задней стеной зрительного зала;

помещение для фронтального выносного освещения (фронтальная осветительная ложа), звукоаппаратная, кабины дикторов и переводчиков, ложа звукооператора - за задней стеной зрительного зала или у этой стены со стороны зала;

тиристорная - вблизи сцены.

3.38. Осветительные боковые ложи размещаются в зоне, ограниченной углами (в плане) 55 и 65° к продольной оси зала с вершиной, расположенной на передней границе авансцены. Ширину проема осветительной ложи следует принимать не менее 1,8 м.

Оборудуются, как правило, две боковые осветительные ложи с каждой стороны зрительного зала для сцен С-4 при вместимости зала 800 мест и более. В залах меньшей вместимости со сценами С-2 - С-4 оборудуются по одной боковой осветительной ложе с каждой стороны зрительного зала.

Для сцен С-1 - С-3 при вместимости зала менее 600 мест, а также для эстрад при любой вместимости зала допускается предусматривать размещение осветительной аппаратуры на боковых стенах зала.

Расстояние от уровня пола нижней осветительной ложи до уровня планшета сцены (эстрады) принимается не менее 2,5 м. Расстояние между уровнями полов лож, расположенных одна над другой, - не менее 2,5 м. Глубина лож должна быть не менее 2 м.

3.39. Помещение выносного софита высотой и шириной не менее 2 м рекомендуется размещать над зрительным залом таким образом, чтобы оптические оси осветительных приборов располагались в зоне, ограниченной лучами к горизонтальной плоскости:

от 50 до 60° с вершиной на расстоянии 1 м от передней границы авансцены (барьера оркестровой ямы) в сторону сцены;

от 9 до 15-20° с вершиной на уровне верха игрового портала, отстоящей на 1 м от красной линии в глубину сцены.

Для сцен С-1 - С-3 при вместимости зрительного зала 500 мест и менее допускается предусматривать подъемно-опускной софит. При высоте зрительного зала 5,5 м и менее допускается стационарное крепление осветительной аппаратуры к потолку.

3.40. Фронтальная осветительная ложа размещается таким образом, чтобы ось помещения находилась в пределах ширины игрового портала. При невозможности размещения помещения в указанных пределах следует предусматривать для помещения размером по фронту не менее 4 м каждое.

Уровень пола фронтальной осветительной ложи, как правило, располагается не ниже верха игрового портала.

3.41. Светопроекционную рекомендуется размещать таким образом, чтобы угол отклонения оптической оси проектора от нормали в геометрическом центре строительного портала по красной линии равнялся:

в горизонтальной плоскости ................

в вертикальной плоскости при проекции:

сверху вниз ..................

снизу вверх ..................

Размещение светопроекционной или кинопроекционной в указанных пределах определяется заданием на проектирование.

Длину помещения светопроекционной нужно принимать не менее 3 м для сцен С-1 - С-4, а также эстрад Э-4 и Э-6.

Уровень пола светопроекционной должен быть выше уровня пола примыкающей к ней части зрительного зала не менее чем на 0,9 м.

3.42. Уровень пола рирпроекционной, как правило, находится на высоте от уровня пола арьерсцены, равной половине высоты строительного портала.

3.43. Светоаппаратная размещается обычно в пределах проекции строительного портала на заднюю стену зала. Длину помещения светоаппаратной следует принимать не менее 4 м.

Уровень пола светоаппаратной должен быть выше уровня пола примыкающей к ней части зрительного зала не менее чем на 0,9 м. Уровень пола тиристорной должен быть не ниже уровня пола первой рабочей галереи.

3.44. Звукоаппаратную, кабину диктора (речевую) и переводчиков, а также ложу звукооператора (звукорежиссера) следует размещать с обеспечением прямой видимости сцены.

Помещение звукоаппаратной допускается проектировать без обеспечения прямой видимости сцены в случае, когда видимость обеспечивается из ложи звукооператора.

В трансляционном пункте аппаратную звукорежиссера и кабину диктора (речевую) желательно располагать смежно.

Телевизионный полустационар следует размещать в цокольном или первом этажах с выходом наружу и возможностью подъезда к нему передвижной телевизионной станции.

3.45. Артистические уборные, предназначенные для переодевания в сценические или репетиционные костюмы, наложения и снятия грима, отдыха и т. д., рекомендуется размещать на этаже сцены, желательно не выше уровня третьего этажа от уровня планшета сцены и проектировать, как правило, с естественным освещением. Артистические уборные рекомендуется предусматривать при вместимости зала 300 мест и более; при меньшей вместимости для этой цели следует использовать комнаты для работы кружков.

К блоку артистических уборных примыкают костюмерные и гримерно-парикмахерские. Ширина лестничных маршей в зоне артистических уборных принимается не менее 1,5 м, ширина коридоров при одностороннем расположении уборных 2 м, при двухстороннем - 3 м. Технологическим оборудованием артистических уборных являются гримировальные столы со светильниками, шкафы и вешалки. Необходимо предусмотреть умывальники.

3.46. Помещение склада объемных декораций рекомендуется размещать смежно с игровой площадкой. Наиболее удобно для транспортировки декораций, если дверные проемы складов проектируются ближе к первым планам эстрады, особенно в случае стационарно установленного экрана. В клубах с эстрадами Э-1 - Э-3 и сценами С-1 - С-3 склады объемных декораций и склад мебели и бутафории целесообразно объединить в одном помещении; часть склада, предназначенная для хранения мебели и реквизитов, может проектироваться с пониженной высотой. В клубах с эстрадами Э-4 - Э-6 или сценой С-4 эти склады можно разделять в пропорции 2:1. Размещение дверей не должно препятствовать транспортировке и складированию декораций. Полы складов и игровой площадки необходимо делать в одном уровне.

Высота складов декораций, примыкающих к сцене, должна, быть равна высоте строительного портала.

Проемы, соединяющие склады декораций со сценой (эстрадой), должны иметь ширину, м, не менее:

для сцен С-4 .................. 2,5

» » С-1 - С-3 ................ 2

» эстрад .................... 1,8

Высота проемов принимается равной высоте проемов карманов для сцен С-4, для сцен С-1 - С-3 - равной высоте строительного портала минус 0,5 м, а для эстрад - не менее 2,5 м.

3.47. Склад сценической электроаппаратуры и электрореквизита предназначен для хранения переносных осветительных приборов, проекционной и светопроекционной аппаратуры, объективов, светофильтров и пр. Высота в свету целесообразна не менее 3,6 м. По условиям переноски осветительных приборов на штативах размеры дверного проема на сцену проектируются не менее 1´2,4 м. Оборудование составляют шкафы и открытые стеллажи с расстоянием между полками 0,6 и глубиной полок 0,6 м на всю высоту помещения и стол-верстак со специальным щитом и приборами для проверки и мелкого ремонта аппаратуры.

3.48. Склады мебели, бутафории и реквизита оборудуются трехъярусным стеллажом для мебели с расстоянием, между полками 1 м и шириной 1 м. Бутафория и реквизит хранятся на 3-5-ярусных стеллажах шириной 0,6 м, с проходами между стеллажами с мебелью не менее 1,7 м, а между полками с реквизитом не менее 0,8 м. Размер дверных проемов - не менее 1,5´2,5 м.

3.49. Склад мелких скатанных декораций (сейф) предназначен для хранения живописных фонов декораций-панорам, горизонтов, задников и пр., свернутых в рулоны (скатки). Длина сейфа принимается равной 1,5 ширины игрового портала сцены. Ширина сейфа при одностороннем расположении полок - 1,8 м (0,9 м ширина полки плюс 0,9 м проход), при двустороннем – 2,7 м (0,9 м´2 м ширина полок плюс 0,9 м проход).

При проектировании кассетного сейфа его размеры определяются заданием на проектирование.

3.50. Столярная и слесарная мастерские, в которых делаются крупногабаритные детали, оснащенные тяжелыми станками, требуют удобной загрузки, поэтому желательно их размещать на первом, в цокольном или подвальном этажах. Эти помещения следует проектировать с естественным освещением. Полы для столярной мастерской предпочтительны деревянные, для механической - асфальтовые.

Столярную и механическую мастерские можно объединять в одном помещении. Мастерская должна иметь удобную связь с хозяйственным двором. Набор оборудования должен обеспечить обслуживание клуба столярными и механическими работами, а также создать возможность для работы технических кружков.

3.51. Стационарные киноэкраны в клубных залах обычно располагаются на задней стене эстрады и бывают двух типов: плоские и с радиусом кривизны, равным расстоянию от экрана до кинопроектора. Плоские экраны, как правило, рекомендуются при ширине их зеркала до 10 м, но допускаются и более широкие экраны.

Наиболее часто в клубных залах применяются убирающиеся экраны, представляющие полотнище из поливинилхлоридной пленки, которое при помощи электропривода свертывается вверх в металлический кожух. Пульт управления электроприводом находится в кинопроекционной. Ширина зеркала у свертывающихся экранов принимается обычно 8-10 м, так как свертывающиеся киноэкраны не крепятся стационарно к задней стене зрительного зала. Кожух для свертывания может быть установлен в любом месте потолка над эстрадой. Высота подвески нижней кромки экрана от пола 1-го ряда не менее 2 м.

3.52. Заэкранные громкоговорители следует размещать на высоте 1,2-2,3 высоты экрана.

Оси излучения заэкранных громкоговорителей направляются на зрительские места, расположенные на расстоянии 0,5-0,7 длины зала. Громкоговорители для звуковых эффектов рекомендуется размещать на равных расстояниях друг от друга на задней и боковых стенках, у потолка или в потолке по периметру зала. Передние громкоговорители устанавливают на уровне первых рядов.

Требования к помещениям клубной части

3.53. Помещение гостиной предназначается для нерегламентированного общения и рекреации, групповых занятий, просмотров, выставок. Гостиная используется, как правило, универсально. В клубах сокращенного состава помещений гостиная является основным клубным помещением, центром композиции, в крупных клубах она входит в состав группы отдыха и развлечений, образуя единый комплекс с буфетом, игровыми и т. д. Возможно выделение гостиной в общем объеме группы с помощью мебели, оборудования, разницы отметок пола.

В крупных городских клубах, где гостиная сама может стать местом проведения мероприятий особого характера (диспут, встречи с интересными людьми, вечера вопросов и ответов, консультации и т. п.), целесообразно предусмотреть возможность изоляции помещения с помощью раздвижных перегородок.

Помещение гостиной оборудуется мебелью для рассаживания расчетного количества людей по 2 м2 на 1 чел. Для этой цели рекомендуются мягкие скамьи, диваны, кресла. Необходимо предусмотреть установку телевизора, шахматных столиков, журнального стола, в крупных гостиных - пианино или рояля. Допускается гостиную оборудовать камином (рис. 5).

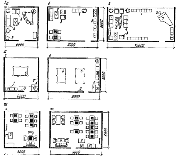
Рис. 5. Помещения клубной части

I - гостиные: а - на 15 посетителей; б - на 20 посетителей; в - на 30 посетителей; 1 - стул; 2 - табурет винтовой; 3 - кресло полумягкое без подлокотников; 4 - диван мягкий; 5 - банкетка; 6 - стол журнальный; 7 - рояль; 8 - телевизор; II - биллиардные: г - на 1 стол; д - на 2 стола;

1 - стул; 2 - табурет винтовой; 3 - кресло полумягкое без подлокотников; 4 - то же, с подлокотниками; 5 - диван мягкий; 6 - стол биллиардный; 7 - стол однотумбовый; 8 - доска для записи с полками для шаров; 9 - подставка для киев пристенная; III –игровые на 15 (е) и 30 посетителей (ж);

1 - стул; 2 - кресло полумягкое без подлокотников; 3-диван мягкий; 4 - кресло полумягкое с подлокотниками; 5 - банкетка; 6 - стол журнальный

3.54. Игровые предназначаются для игры в настольный теннис и бильярд, кроме того, в них размещаются игровые автоматы и столы для настольных игр (шашки, шахматы и т. п.). В игровых помещениях должны быть шкафы для хранения инвентаря и небольшие классные доски для записей. Столы для настольных игр рекомендуется делать складными.

Площадь биллиардной следует уточнять в соответствии с размерами столов. Над биллиардным столом (столами) должен быть источник света в специальном абажуре, рассеивающем свет. Допускается применение трех типов биллиардных столов: клубных, полуклубных и настольных (последний в сельских клубах). Размеры столов:

клубного - 320´160, 290´145, 260´130 см;

полуклубного - 200´100, 180´90 см;

настольного - 150´75, 120´60 см.

Длина кия:

клубного - 165-152 см;

полуклубного - 145-135 см;

настольного - 120-100 см.

Проходы между столами (или столом и стеной) должны обеспечивать свободное движение кия на всю длину.

Игровые - шумные помещения, поэтому целесообразно размещать их в стороне от лекционно-кружковой группы рядом с другими помещениями группы отдыха (танцевальным залом, кафе) (рис. 5).

3.55. Размещение буфета в клубных зданиях зависит от количества обслуживаемых посетителей.

Состав и площади помещений буфета определяются исходя из требований к предприятиям общественного питания.

Можно рекомендовать следующие ориентировочные расчетные показатели площади торгового зала, м2, на 1 место, при вместимости буфета:

до 20 чел. ............. 3 (но не менее 24 м2)

от 20 до 30 чел. ........... 2,5

» 30 » 50 » ............ 2,3

Площади подсобного помещения вместе с моечной составляют около 40% площади торгового зала буфета.

3.56. В небольших клубах помещения буфета рекомендуется размещать или в едином пространстве с гостиной, или в непосредственной близости от нее для обеспечения возможности их объединения и совместного использования. Размещение буфета предпочтительно и в непосредственной близости к танцевальному залу. В тех случаях, когда предусматривается строительство танцевального зала типа дискотеки, возможно устройство двух буфетов. При этом в помещении дискотеки размещается буфет или барная стойка, рассчитанные на 0,3 суммарной вместимости буфета, а другой буфет вместимостью 0,7 от расчетной следует располагать рядом с помещениями гостиной, игровой, зала физкультурно-оздоровительных занятий (рис. 6).

Рис. 6. Помещения буфетов на 18 посетителей (а), на 30 (б) и на 48 посетителей (в)

1 – стул; 2-стол обеденный: 3 – прилавок-витрина для буфетов; 4 - прилавок для отпуска товаров; 5 – прилавок приставной

3.57. В крупных клубах помимо буфета может быть размещено небольшое кафе на 25-50 посетителей. Расчет площади торгового зала кафе проводится исходя из нормы 1,6 м2/чел., а остальных помещений - в соответствии с требованиями для предприятий общественного питания. При устройстве кафе следует учитывать возможность его самостоятельной эксплуатации, поэтому желательно устраивать дополнительный вход с улицы или размещать кафе в непосредственной близости от вестибюля.

3.58. Для проведения танцевальных мероприятий в клубе используются как универсальные, так и специализированные помещения.

При проектировании танцевальных залов вместимостью более 200 чел. необходимо дополнительно предусмотреть при них вестибюль с гардеробом и санузлом, буфет (стойку), кулуары. Танцевальные залы вместимостью более 150 чел. должны иметь кладовые для мебели (0,03 площади зала) и музыкальных инструментов (6 м2), комнату музыкантов (8-12 м2), радиоузел (10 м2), комнату администрации (9 м2) и художественного руководителя (10 м2).

3.59. Танцевальные залы различаются не только вместимостью и характером функционирования, но и решением пространства танцевального помещения. В настоящее время распространены две формы проведения танцев - традиционная и дискотека.

В танцевальном помещении традиционного типа можно выделить две зоны:

танцевальная площадка с эстрадой и зона отдыха. В дискотеке, как правило, три зоны: танцевальная площадка с пультом диск-жокея и (или) эстрадой, зона отдыха со столиками и буфет (бар). Возможны решения, предполагающие включение в состав танцевального помещения дискотеки зоны кулуаров и гостиной.

3.60. Различие функционирования традиционного танцевального зала и дискотеки определяет различие их объемно-пространственного решения. Традиционный зал включает танцплощадку - около 0,7 м2/место, зону ожидания - около 0,3 м2/место и эстраду - около 0,1 м2/место (но не менее 9 м2). Дискотека включает: танцевальную площадку с пультом диск-жокея или небольшую эстраду (6-12 м2) - 0,5 м2/место, зону ожидания со столиками - около 0,7 м2/место и буфета (бара) - около 0,1 м2/место.

Для танцевального зала естественное освещение не обязательно, так как в основном танцевальные мероприятия проводятся в вечернее время. В связи с этим возможно размещение танцевальных залов в подвалах и цокольных этажах клубов с обеспечением вентиляции. Высоту танцевального зала допускается принимать равной 3,6 м и более. Допускается устройство двухсветного пространства танцевального зала.

3.61. Видеозалы предназначаются для демонстрирования программ, записанных на видеокассеты.

Число мест в зрительном зале принимается: в видеозалах общего и специализированного назначения - 40-120, индивидуального - 4-6.

Помещение видеопроекционной аппаратной размещается с учетом обеспечения беспрепятственной видимости экрана через смотровое окно. Площадь видеопроекционной следует принимать не менее 8 м2.

Нижняя кромка экрана и видеомонитора располагается на расстоянии не менее 1,5 м от уровня пола в зоне зрительских мест первого ряда. Минимальное расстояние до зрителя - 2м.

Громкоговорители рекомендуется располагать по сторонам экрана.

3.62. Видеозалы в составе клуба могут функционировать автономно, в этом случае целесообразно предусмотреть отдельный вход, буфет, санитарные узлы и т. д. Возможно устройство видеобаров с соответствующим оборудованием и подсобными помещениями.

В составе клубных зданий могут размещаться видеотеки, предназначенные для выдачи во временное пользование кассет с записями видеопрограмм населению (указанные конкретные случаи данным Пособием не регламентируются, а состав и площади помещений определяются в соответствии с заданием на проектирование).

3.63. Помещения для физкультурно-оздоровительных занятий в составе клуба могут быть представлены как небольшими помещениями для тренажеров, так и залами 9´9, 12´9, 12´12, 24´12 м.

Такие залы являются многофункциональными, с разными вариантами использования, в том числе и для массовых праздничных и танцевальных мероприятий. Клубно-физкультурный характер работы предполагает возможность применения сложной конфигурации таких залов (не обязательно прямоугольной).

Зал 24´12 м и высотой не менее 6 м может быть использован для проведения комплексных занятий, общей физической подготовки (ОФП), включающих: общеразвивающие упражнения, упражнения на гимнастических снарядах, игровые виды занятий. Кроме ОФП могут проводиться занятия ритмической гимнастикой, ритмикой, хореографией, для чего желательно иметь хореографический станок с зеркалом.

Возможны варианты с использованием заранее установленного гимнастического оборудования или с использованием оборудования для игр спортивного характера и их элементов.

При необходимости допускается разделение зала трансформируемыми перегородками на две части (рис. 7).

Рис. 7. Варианты расстановки оборудования в зале общей физической подготовки

а - при проведении занятий с использованием съемных гимнастических снарядов;

б - при проведении игр спортивного характера и их элементов; 1 - стенка гимнастическая; 2 - брусья гимнастические; 3 - перекладина гимнастическая; 4 - монорельс с подвесным оборудованием; 5 - бревно гимнастическое; 6 - конь гимнастический; 7 - щит баскетбольный основной; 8 - щит баскетбольный тренировочный; 9 - тренажер «стенка здоровья»; 10 - тренажер «Лидер»; 11 - дорожка для разбега; 12 - ворота для минифутбола; 13 - пианино

Залы 9´12 и 12´12 м высотой 4(5) м предназначены для занятий ритмической гимнастикой, ритмикой, хореографией (минимальная площадь на 1 чел. равна 5,5 м2). Эти залы могут быть использованы также для проведения занятий ОФП, исключая игровые виды занятий (волейбол, баскетбол и т. п.).

Зал 9´9 м высотой 4 м предназначен для проведения занятий борьбой, может быть использован для занятий силовой подготовкой.

3.64. Зал для занятий на тренажерах может иметь любые габариты, Площадь зала определяется из расчета 4 м2 на каждый тренажер. Для вновь проектируемых залов желательно предусматривать высоту не менее 4 м.

3.65. Рядом с залами для физкультурно-оздоровительных занятий следует предусматривать раздевальные с душевыми (минимальная площадь на 1 занимающегося равна 1 м2) и санузлы. При залах рекомендуется устройство помещений для хранения спортивного инвентаря площадью не менее 15 м2 и кладовых.

3.66. Аудитория - лекционный зал предназначается для проведения лекций и докладов, просмотра слайдов, семинаров и пр.

Аудиторию желательно проектировать с естественным освещением с левой стороны от зрителя или сверху и предусмотреть устройство для механического зашторивания окон. В торце зала аудитории следует оборудовать эстраду и место для киноэкрана и классной доски. Дополнительно целесообразно предусмотреть при зале кулуары или использовать для них смежные помещения.

Рекомендуется оборудовать аудиторию стационарными креслами с пюпитрами или съемными креслами - при универсальном использовании зала. Если зал оборудуется стационарными креслами с пюпитрами, площадь его определяют из расчета 1 м2 на место.

При вместимости аудитории 120 чел. и более следует дополнительно предусматривать проекционную на 1 кинопроектор (допускается на 2 кинопроектора), а в аудиториях меньшей вместимости - место для передвижной киноустановки. Высота зала должна быть не менее 3 м.

3.67. Библиотеки в клубе следует проектировать с учетом возможности непосредственной связи с вестибюльным помещением клуба, обеспечивающей в случае необходимости изоляцию библиотеки от других помещений, имеющих звуковой фон более 50-60 дБ.

Библиотека использует часть общих клубных помещений для обслуживания своих читателей: вестибюль, гардероб, санузлы, зону отдыха, помещения для массовой работы с читателями, в том числе: аудиторию, помещения для групповых занятий и кружковой работы, кабинет политпросвещения.

Библиотеки с объемами фондов от 5 до 15 тыс. ед. хранения занимают, как правило, одно помещение площадью от 50 до 100 м2, а библиотеки с фондами 15-25 тыс. ед. хранения - одно, два, три помещения суммарной площадью от 100 до 200 м2 соответственно вместимости. Функциональное зонирование этих помещений осуществляется библиотечным технологическим оборудованием - стеллажами открытого доступа, шкафами, витринами для выставки новых поступлений. Разделение на изолированные помещения (передвижными или раздвижными перегородками) позволяет по необходимости производить внутреннюю перепланировку помещений.

Объемно-планировочные решения должны обеспечить возможность организации чтения на открытом воздухе - на первом этаже, используя террасу, выгороженную зону парка или на втором этаже - на балконах, ориентированных в парк.

3.68. Выставочные залы клубов предназначены для проведения разного рода временных и постоянных выставок и экспозиций. В составе клубов на площади выставок организуются музеи, как правило, следующих видов: историко-краеведческие, художественные и трудовой славы. Минимальный состав помещений включает экспозиционные залы, комнату сотрудников, помещения для хранения экспонатов и оборудования.

Допускается предусматривать кооперацию клубов с помещениями музея, примерный состав которых представлен в табл. 8.

Таблица 8

Помещения музея

Площадь, м2 при единовременном числе посетителей

200

100

80

50

30

Экспозиционные залы

500-800

250-300

150-200

120-150

80-100

Выставочные залы

150-200

100

50

В экспозиционной зоне

Кабинеты сотрудников

45

30

20

15-20

10

Фондохранилища

150

100

60

50

30

Вспомогательные помещения

30

20

15

10

5

Реставрационные мастерские и лаборатория

30

20

Место реставратора

-

3.69. Численность каждого кружка практически зависит от места клуба в сети и колеблется от 7-10 до 20-40 чел. в среднем.

Значительная доля новых, нетрадиционных видов кружковой деятельности, сменяемость популярных видов занятий, а также сменность работы кружковых комнат требуют широкого применения кружков универсального назначения.

В универсальном кружковом помещении могут проводиться занятия кружков, не требующие специального оборудования или с мобильным оборудованием (пюпитры, стулья, столы, станки для хора) и др. Универсальное помещение кружка оборудуется, как правило, встроенной стенкой для хранения мобильного оборудования и мебели (стулья, столы).

Определение состава кружковых помещений для конкретных условий следует проводить с учетом развития народных ремесел и других видов занятий, традиционных для данного населенного пункта.

3.70. Кабинет культуры быта (рис. 8, е, ж) служит для занятий кружков домоводства, кройки и шитья, вязания, изготовления мягкой игрушки, изделий из кожи и др. В нем ведутся как практические, так и теоретические занятия. Помещение должно иметь стационарное кухонное оборудование, стационарные швейные и вязальные машины, встроенные шкафы, гладильные доски, столы рабочие (обеденный и кухонные), доску, зеркало, стенды и др. Кабинет культуры быта должен быть оборудован горячим и холодным водоснабжением (при отсутствии горячего водоснабжения - титаном). Рекомендуется предусматривать возможность использования этого помещения как кухни-доготовочной при проведении в клубе семейных, производственных и иных торжеств. Целесообразно размещение этого помещения с возможностью функциональной взаимосвязи с залом празднеств и обрядов или гостиной.

Рис. 8. Схемы планировки помещений для занятий

I - репетиционный зал с эстрадой (1 - эстрада; 2 - стулья; 3 - стол руководителя);

II - помещения танцевальных коллективов (а - репетиционный зал на 24 чел.; б - то же, на 16 чел ; 1 - станок; 2 - зеркало; 3 - музыкальный инструмент; 4 - табурет). III - кабинет политпросвещения и передового опыта (в - на 15 чел.; г - на 25 чел.; 1 - стол одноместный; 2 - стол двухместный; 3 - стол руководителя; 4 - стол для газет; 5 - меловая доска; 6 - переносная меловая доска; 7 - выставочная витрина; 8 - стенд напольный; 9 - стенд выставочный; 10 - встроенный шкаф); IV - кабинет культуры быта (д - на 12 чел. для занятий кружков кройки и шитья, вязания; е - на 18 чел. для теоретических занятий кружков кройки и шитья, вязания, домоводства; 1 - стол рабочий; 2 - стол обеденный, раздвижной; 3 - стол руководителя: 4 - гладильный стол; 5 - вязальная машина; 6 - стул; 7 - кресло; 8 - табурет; 9 - доска меловая; 10 - встроенный шкаф; 11 - швейная машина; 12 - стенд; 13 - манекен; 14 - зеркало; 15 - плитка электрическая; 16 - кухонный стол с мойкой)

3.71. Классы изобразительного искусства (рис. 9, е, ж) предполагают занятия студий рисунка, живописи, дизайна (как индивидуальных, так и групповых). Окна этих помещений рекомендуется ориентировать на северную и северо-восточную сторону. В помещениях вместимостью более 20 чел. желательно предусматривать место для переодевания натурщиц. Оборудование классов изобразительного искусства составляют: шкафы-стеллажи, табуреты, мольберты, подставки для натюрмортов, моделей и натурщика; стенд. Эти помещения должны иметь мойку. Для затемнения окон следует предусматривать шторы из темного драпировочного материала.

Рис. 9. Схемы планировки помещений для занятий

I - классы прикладного искусства (а - ткацкий кружок на 8 чел.; б - ткацкий кружок на 18 чел, в - керамическая мастерская на 8 чел; г - скульптурная мастерская на 8 чел.; д - кружок моделирования сельхозтехники на 14 чел.; 1 - стол рабочий; 2 - стол руководителя; 3 - стол складируемый; 4 - стул складируемый; 5 - стул; 6 - табурет винтовой; 7 - ткацкий станок горизонтальный; 8 - ткацкий станок вертикальный: 9 - простая перемотка ниток; 10 - шпулерная; 11 - барабан навивки основы; 12 - встроенный шкаф; 13 - раковина с отстойниками; 14 - замочка глины; 15 - хранение глины; 16 - склад для хранения гипса; 17 - станок для скульптуры; 18 - вращающийся стол для модели; 19 - место дли заводки гипса; 20 - шаровая мельница; 21 - гончарный круг; 22 – тумба - подставка для модели; 23 - электропечь; 24 - трансформатор; 25 - терморегулятор; 26 - подставка под станок; 27 - стеллаж открытый; 28 - токарно-винторезный станок; 29 - верстак слесарный; 30 - станок токарный по дереву; 31 - верстак столярный; 32 - экран и классная доска; 33-вытяжной шкаф); II - классы ИЗО (е - занятия рисунком на 15 чел.; ж - занятия живописью на 20 чел.; 1 - табурет винтовой; 2-стул; 3 – табурет; 4 – мольберт низкий; 5 - мольберт высокий; 6 - стол руководителя; 7 – стенд навесной; 8 - зеркало; 9 - подставка для натюрморта; 10 - шкаф-стеллаж встроенный; 11-клееварка; 12 - урна; 13 - подставка для натурщика; 14 - подставка для моделей; 15 - стол складируемый; 16 - шторы)

3.72. Музыкальные классы (рис. 10, а-г) желательно размещать в двух-трех помещениях для занятий хора, оркестра. Эти помещения следует располагать обособленно и предусматривать хорошую звукоизоляцию. Классы рекомендуется оборудовать встроенными шкафами, переносными пюпитрами, станком дирижера, роялем или пианино и т. д. В кружковых классах размером 9´9 м и более возможно устройство стационарных помостов для репетиции.

3.73. Классы театрального искусства (рис. 10, е-з) целесообразно размещать вблизи игровой площадки зала для возможности использования в качестве артистических. Для занятий художественным чтением и индивидуального разучивания ролей рекомендуется или отдельное помещение, или выделенная зона размером не менее 4,5´4,5 м.

3.74. Кружковые помещения для занятий хореографией оборудуются стационарными станками, зеркалами (см. рис. 8, а, б; рис. 10, д).

Рис. 10. Схемы планировки помещений для занятий

I - помещения музыкальных коллективов (а - для занятий хора на 24 исполнителя; б - для репетиции эстрадного оркестра и оркестра народных инструментов на 12 исполнителей; в - для репетиции эстрадного оркестра на 9 исполнителей; г - для репетиции оркестра народных инструментов на 18 исполнителей; 1 - стул; 2 - стол руководителя; 3 - пюпитр; 4 - рояль; 5 - стул винтовой; 6 - доска грифельная; 7 - встроенный шкаф; 8 - станок дирижера; 9 - пианино); II - помещения танцевальных коллективов (д - танцевальный класс на 12 чел.; 1 - станки; 2 - зеркало; 3 - музыкальный инструмент; 4 - табурет; 5- стул); III - помещения театральных коллективов (е - театральный класс 6´6 м; ж - класс-артистическая 6´6 м; г - театральный класс 6´9 м; 1 - стол руководителя; 2 - стол для занятий; 3 - стол гримерный; 4 - стул: 5 - кресло; 6 - доска грифельная; 7 - стенд; 8 - зеркало; 9 - вешалка; 10 - раздельная перегородка; 11 - раковина; 12 - встроенный шкаф)

В клубах, имеющих зал для спортивно-оздоровительных занятий, помещения для занятий танцевального кружка рекомендуется размещать вблизи от раздевалок и душевых спортивного зала. В клубах, не включающих в состав спортивный зал, следует предусматривать раздевальные с душевыми рядом с кружковыми помещениями для танцев из расчета 1 м2/чел. По форме помещения танцевальных кружков должны приближаться к квадрату. Пол должен быть деревянным, при устройстве пола на железобетонном перекрытии он настилается по лагам с амортизирующими прокладками. Балетные станки состоят из круглых шестов, прикрепленных на расстоянии 25 см от стены на двух уровнях от пола: 95-100 и 60-65 см. Зеркало должно быть не менее 2´2,5 м, расположение зеркала на стене против окон недопустимо. Высота помещения должна быть не менее 3,6 м.

3.75. Занятия кружка циркового искусства обычно проводятся в спортивном зале или в специальном помещении, размеры которого не меньше 12´12 м, высота - не менее 6 м.

При этом помещении необходимо устройство кладовой инвентаря для циркового искусства площадью не менее 10 м2. Для занятий циркового кружка помимо специализированного инвентаря используются традиционные спортивные снаряды и оборудование спортивных залов.

3.70. При общей вместимости кружково-студийной группы помещений 100 и более посетителей в ее составе допускается предусматривать детский сектор, который состоит из 2-3 помещений: кружковой, помещения для тихих игр (возможно использование как библиотеки-читальной), зала для шумных игр и празднеств, детских аттракционов. При детском секторе необходимо предусматривать комнату для руководителей кружков площадью не менее 12 м2.

При вместимости кружково-студийной группы от 50 до 100 посетителей следует выделять 1-2 комнаты эпизодического использования для детских кружков, причем целесообразно предназначать эти помещения для занятий техническим творчеством и прикладными видами искусства.

3.77. Помещение кинофотокружка предполагает наличие двух-трех комнат: кино- и фотолаборатории и ателье (студии), где производится съемка, демонстрируются любительские кинофильмы и проводится теоретические занятия. Вход в лаборатории рекомендуется предусматривать из ателье. Для кружка с численностью более 30 чел. возможно устройство кладовой для хранения инвентаря (рис. 11, а-в).

Рис. 11. Схемы планировки помещений для занятий

I - кинофотокласс (а - на 5 чел.; б - на 30 чел.; в - на 50 чел.; 1 - стол руководителя; 2 - стол рабочий; 3 - стол для фотоувеличителя; 4 - стул; 5 - стул вращающийся; 6 - стол монтажный; 7 - шкаф встроенный; 8 - шкаф сушильный; 9 - ванна; 10 - сейф; 11 - фильмостат; 12 - проявочная машина; 13 - магнитофон студийный; 14 - кинопроектор; 15 - селеновый выпрямитель; 16 - экран (классная доска); 17-динамики; 18 - светоотражающие экраны; 19 - звукозаписывающая приставка; 20 - осветители; 21 - выставочные стенды; 22 - фотоувеличитель; 23 - глянцеватель); II - мастерская по обработке дерева (г - на 6 чел.; д - на 9 чел.; 1 - верстак руководителя; 2 - помост деревянный; 3 - верстак столярный; 4 - доска классная; 5 - станок сверлильный настольный; 6 - точило наждачное; 7 - станок токарный по дереву; 8 - станок фуговально-распиловочный; 9 - клееварка; 10-стеллаж; 11 - стенд по технике безопасности; 12- шкаф вытяжной; 13-стол монтажный; 14 - табурет; 15 - стол-подставка под вытяжной шкаф; 16 - урна для мусора; 17 - подставка для настольных станков; 18 – стенд - выставка изделий); III - мастерская по обработке металла (е - на 6 чел.; ж - на 15 чел.; 1 - шкаф для книг и пособий; 2 - муфельная печь; 3 - доска классная; 4 - верстак руководителя; 5 – табурет; 6 - верстак слесарный; 7 - точило наждачное; 8 - наковальня; 9 - станок сверлильный настольный; 10-станок токарный; 11 - станок токарно-винторезный; 12 - стол разметочный; 13 - стеллаж; 14 - устроенные шкафы для спецодежды)

Помещения лабораторий должны быть оборудованы горячим и холодным водоснабжением, приточно-вытяжной вентиляцией, а также стационарными ваннами для проявления пленок, увеличителями, глянцевателями, монтажным столом и другими предметами кино- и фотоаппаратуры. Стены лаборатории и рекомендуется покрывать влагостойкими материалами, а полы выполнять из материалов, стойких к действию влаги и химических веществ.

3.78. Помещения для кружков по обработке металла и дерева и теоретическому моделированию рекомендуется разделять на три зоны: теоретических занятий и практических работ, в которой размещают рабочие столы и чертежные станки; станочной и инструментальной обработки; выставочно-складскую, состоящую из шкафов и стеллажей для демонстрации изделий (рис. 11 г-ж).

3.79. В клубах, предназначенных для гастролей и стационаров профессиональных театральных коллективов, допускается проектировать репетиционный зал размером 14´9 м (см. рис. 8, 1). Эстрада в репетиционном зале может быть сборно-разборной. Располагать репетиционный зал рекомендуется вблизи кружковых помещений. Целесообразно предусмотреть возможность эпизодического увеличения размеров репетиционного зала в том случае, если он будет использоваться как студийный зал.

Примерные составы групп помещений клубов общего профиля и профильных клубов приведены в прил. 7.

Требования к входным и административно-хозяйственным помещениям

3.80. В соответствии с функциональным назначением можно выделить следующие виды архитектурно-планировочных решений помещений вестибюля, которые различаются нормированием площадей, имеют особенности в планировке и оборудовании: кассовый вестибюль, вестибюль с гардеробом общий для всего клубного здания; вестибюль зрелищной части; вестибюль клубней части, фойе-вестибюль.

Кассовый вестибюль проектируется, как правило, в клубах типа III-V, имеющих вместимость зрительного зала свыше 300 мест. Количество касс определяется в зависимости от вместимости зрительного зала при норме - одно окно на 100 мест. Для кассира устраивается кабина площадью 2,5 м2 с кассовым окном на высоте 1-1,2 м от уровня пола. При кассовом вестибюле или в непосредственной близости к нему следует оборудовать кабину дежурного администратора площадью не менее 4 м2.

В клубах, в которых не предусматривается кассовый вестибюль, кассовая кабина устанавливается на площади входного вестибюля, при этом желательно обеспечить также возможность продажи билетов с улицы.

3.81. При проектировании клубов II-IV типов при вместимости зрительного зала 500 мест и менее рекомендуется общий вестибюль зрительного и клубного комплексов. В клубах IV типа с вместимостью зрительного зала свыше 500 мест допускается, а в клубах V типа желательно организовать раздельные вестибюли для зрительского и клубного комплексов. В малых и средних клубах типов I и II вестибюль может выполнять также функции фойе. Это вызвано тем, что в этом помещении не только происходит накопление посетителей перед началом мероприятия, но также возможны занятия кружковой работой, танцы и т. д.

3.82. Членение внутреннего пространства вестибюля на отдельные и вместе с тем связанные друг с другом зоны: входную, гардеробную и отдыха - даст возможность перераспределения площадей зон в зависимости от проводимого мероприятия, количества посетителей, времени года и т. д. Эти зоны выделяются в основном мебелью или технологическим оборудованием, поэтому необходимо использование гибкого трансформируемого оборудования. Так, при большом наплыве посетителей можно увеличить гардеробную зону за счет зоны отдыха, а в летнее время года гардеробная зона может быть присоединена к зоне отдыха.

3.83. Гардеробную желательно располагать на некотором расстоянии от основного потока посетителей. Рекомендуется пристраивать гардероб к глухой стене и не заслонять естественный свет. Глубину гардеробной (от барьера до стены) следует принимать не более 4 м, высоту - не менее 2,1 м в свету. Ширина прохода перед барьером должна составлять не менее 2,5 м, между барьерами - не менее 5 м. Длину барьера гардеробной следует определять из расчета 1 м на 50 посетителей.

3.84. Санитарные узлы проектируются в составе двух помещении - туалетная и уборная.

Количество приборов (унитазов, умывальников и писсуаров) рекомендуется определять из расчета соотношения мужчин и женщин 1:2. Иное соотношение устанавливается исходя из местных условий и указывается в задании на проектирование.

В каждой туалетной желательно предусматривать шкафы или кладовые для инвентаря площадью 1,5-2 м2.

3.85. Необходимо наличие в клубных зданиях туалетных кабинок для инвалидов (мужской и женской). Кабинки для инвалидов должны быть оборудованы специальными откидывающимися поручнями около унитаза и поручнями, жестко укрепленными на стенах кабины. Желательно наличие подвесной ручки над унитазом. Подход к унитазу инвалида на коляске должен быть свободным спереди и с обоих боков унитаза. Туалетная кабина должна быть снабжена гибким шлангом со смесителем горячей и холодной воды, а также душевой насадкой. На стенке кабины на высоте не более 1,2 м необходима установка крючков для одежды и костылей.

3.86. Курительную желательно размещать недалеко от фойе. Курительная должна быть непроходным изолированным помещением с хорошей вентиляцией.

Не рекомендуется устройство курительной в виде шлюза перед туалетами. Оборудование курительной составляют стулья, кресла, диваны, журнальные столики и урны.

3.87. Количество административных помещений (комнат) в клубе определяется согласно вместимости клуба и соответствующей общей площади таких помещений. В среднем одна комната (кабинет) административных помещений клубов приходится на каждые 300-400 посетителей.

3.84. В группу административных помещений клубов вместимостью более 2000 посетителей входят кабинеты директора, заместителя директора, художественного руководителя; комнаты методистов, инструкторов по художественной и культмассовой работе, а также бухгалтерии, заведующего хозяйством и инспектора по кадрам. Все помещения желательно располагать в едином блоке, связанном с лестницей, ведущей к выходу, или непосредственно с вестибюлем. Необходимо предусмотреть также удобную связь со сценической и зрительной частями здания. Комната заведующего хозяйством должна располагаться в непосредственной близости от хозяйственных кладовых.

3.89. Помещения административно-хозяйственного персонала должны иметь естественное освещение. Количество и площадь кабинетов и общих рабочих комнат зависят от штатного расписания клуба. Для расчета суммарной площади этих помещений рекомендуется ориентироваться на следующие показатели:

кабинеты - не менее 12 м2 каждый;

общие рабочие комнаты - 4,6-6 м2 на одно рабочее место.

Кабинеты директора н его заместителя могут иметь общую приемную-секретарскую.

В группе административно-хозяйственных помещений или вблизи них желательно предусмотреть санузел.

4. ЛЮБИТЕЛЬСКИЕ КЛУБЫ

4.1. Любительские клубы являются высшим звеном клубной сети. Они формируются в основном в крупных и крупнейших городах регионов с высоким уровнем социально-экономического развития, а также в городах и поселках с высоким культурным потенциалом.

Любительские клубы обычно возникают на базе развитой клубной и зрелищной сети населенного места, первоначально в составе крупных клубов профильных или общего профиля, а также на инициативной основе.

В настоящее время типология любительских клубов находится в стадии формирования. Примерное разделение типов любительских клубов по видам деятельности следующее:

клубы самодеятельного творчества;

клубы активного отдыха;

клубы коллекционеров и знатоков;

клубы ремесел и техники.

4.2. Клуб самодеятельного творчества включает, как правило, зрительный зал и помещения студий (любительские театры, фольклорные ансамбли, рок-ансамбли, любительские киностудий и т. п.). В этом типе клуба допускается иное, чем в клубах общего профиля, соотношение количества зрительских мест и типа сцены (эстрады). Здесь можно проектировать при небольшой вместимости зала большую эстраду (сцену), проектировать залы «свободного пространства» с возможностью установки зрительских мест и эстрады для конкретного спектакля или концерта. По периметру зала рекомендуются рабочие галереи для размещения осветительной аппаратуры. Зал должен быть снабжен несколькими входами для увеличения разнообразия решений спектаклей и концертов. При соответствующей специализации клуба самодеятельного творчества возможно преимущественное развитие выставочных залов и помещений художественных студий (любительские студии авангардистского искусства и т. п.) и т. д.

Клуб активного отдыха основан на развлекательных программах, работе молодежных и физкультурных коллективов (клуб современного танца, клуб «Здоровье», клуб туристов и т. п.).

Клуб коллекционеров и знатоков основан на работе выставочных помещений, лекционного зала, гостиных (клуб филателистов, нумизматов, любителей природы, энтузиастов охраны памятников архитектуры и т. п.).

В клубе ремесел и техники работают по преимуществу мастерские и выставочные залы (клуб любителей старой техники и т. п.). Возможны и другие целевые занятия и интересы, определяющие состав помещений любительского клуба.

4.3. Любительские клубы могут быть однопрофильными или многопрофильными, но в любом случае необходимы специализированные помещения для сборов и занятий, дополненные общим помещением универсального назначения (отдых, общение, питание и т. д.).

Практика функционирования демонстрирует разные варианты организационного объединения таких клубов и развития их филиалов.

Различаются клубы, направленные только на внутреннее взаимодействие коллектива или направленные на эпизодический показ своих достижений (спектаклей, коллекций, изделий и т. д.) широкой публике. В последнем случае необходимо предусматривать экспозиционные помещения.

4.4. Организация внутреннего пространства любительского клуба основана на:

развитии общего пространства, дифференцированного на зоны и предусматривающего визуальную связь отдельных групп рабочих помещений;

разделении рабочего пространства на изолированные помещения с созданием небольшой общей зоны.

4.5. Необходимый состав помещений любительских клубов не поддается однозначной регламентации. Создание задания на проектирование этих клубов требует консультационного участия самих членов клуба.

Нормы площади помещений любительских клубов на 1 посетителя рекомендуется принимать, как правило, согласно нормам для клубов общего профиля и досуговых клубов.

Площади помещений, не предусмотренных данным Пособием, следует принимать по заданию на проектирование с учетом местных условий.

5. МНОГОЦЕЛЕВОЕ ИСПОЛЬЗОВАНИЕ И ТРАНСФОРМАЦИЯ
КЛУБНЫХ ПОМЕЩЕНИЙ

5.1. Каждый клуб попеременно работает в нескольких режимах функционирования, различающихся характером использования помещений и видами мероприятий.

Все мероприятия клуба условно разделяются на рабочие (кружки, репетиции, лекции, посещение библиотеки, будничные клубные программы) рекреационные (вечера отдыха, встречи, концерты и т. п.).

Использование помещений клуба может быть совместным (совместная работа зрелищной и клубной части, разных групп помещений клуба) и раздельным (независимая и параллельная работа частей и групп помещений).

Основные режимы работы клуба - будничный и праздничный. Рабочие мероприятия при раздельном использовании помещений определяют будничный режим работы клуба. Рекреационные мероприятия при совместном использовании помещений определяют праздничный режим работы клуба.

5.2. Будничный режим работы предполагает независимое и параллельное использование всех групп помещений клубов общего профиля Занятия кружков и студий вечером осуществляются одновременно с кинопоказом или концертом в зале. Гостиные используются как рабочие помещения или места бесед. В дневное время зал и фойе также могут использоваться для занятий. Разновидности будничного режима – репетиции.

Репетиции предполагают подготовку к итоговым смотрам самодеятельности, праздничным дням, фестивалям и т. п. При этом все помещения клуба используются совместно как рабочие и репетиционные.

Гастрольные мероприятия превращают клуб в место демонстрации уникальных (для этих посетителей) зрелищ (концерты, кинопремьеры, театральные постановки, отчасти лекции). Гастроли предполагают торжественность мероприятия. Здесь происходит максимальная загрузка зала (на 120% и более). Целесообразна возможность расширения зала на гастрольных программах (как минимум, открытием дверей и подстановкой стульев).

5.3. Режим массового праздника, торжественного календарного мероприятия - один из самых существенных в клубе. Здесь клуб испытывает максимальную загрузку всех помещений, и все помещения вовлекаются в сценарий праздника, в его последовательность: торжественная часть, концерт, игры и танцы, кинопоказ и т. д. Кружковые помещения используются как артистические, для президиума и гостей, для расширения буфета и т. д. При этом необходима связь всех помещений клуба, в том числе возможность использования спортивного зала для танцев, для постановки елки и т. д. Клуб в праздничном режиме фактически работает как досуговый. Разновидность праздничного режима - вечера отдыха и тематические вечера, требующие частичного объединения помещений зрелищной и клубной части.

Среднее по регионам страны количество массовых мероприятий в клубах разного градостроительного уровня при будничном и праздничном режимах приведены в прил. 1.

5.4. В досуговых клубах смена будничных и праздничных режиме как правило, не требует трансформации, открывания дверей и т. п. - так клубы предполагают одно мероприятие, одну досуговую группу посетителей и соответственно взаимосвязь всех помещений. Основное универсальное помещение досугового клуба - гостиная, зал или рекреация - может проектироваться, как правило, проходным для примыкающих к нему студий, игровых, аудиторий и т. д. Возможность изоляции и внутренней независимой связи (минуя универсальное помещение) можно предусматривать для специализированных помещений общей вместимостью более 75 посетителей.

Универсальное помещение досуговых клубов является их композиционным и функциональным ядром.

5.5. Любительские клубы также рекомендуется проектировать по схеме композиционного ядра в составе общих рекреационных помещений (гостиные, буфеты, выставочные залы и т. п.), предусматривая при этом возможность изоляции крупных специализированных групп помещений (мастерские, группы студий и т. п.).

5.6. В клубах общего профиля (в том числе профильных клубах) преимущественно режимы эксплуатации определяют характер функциональных связей и состав помещений, а также общую композицию здания. Клубы общего профиля II и III типов проектируются, как правило, с одним вестибюлем, предусматривающим, однако, возможность разделения частей клуба, клубы IV и V типов могут проектироваться с преимущественным разделением частей (разные вестибюли), но возможностью внутренней связи помещений фойе, зимнего сада, гостиных, буфета и т. п. при праздничном режиме.

5.7. Основными композиционными приемами, позволяющими использовать клубные помещения в разных режимах работы, являются:

в зрительном зале - устройство горизонтального пола на глубину до 12 м от эстрады и съемных секций кресел (скамей), трансформация оркестровой ямы, возможность прохода в зал из вестибюля (минуя фойе), устройство тамбуров при входах в зал или другие приемы звукоизоляции зрительного зала, расположение части кружковых вблизи эстрады зала для подключения их в качестве артистических при гастролях; естественное освещение зала и зашторивание окон (рис. 12, 13);

Рис. 12. Трансформация оркестровой ямы

а, б - перекрытие оркестровой ямы в уровне планшета сцены и в уровне пола зала поперечными накладными щитами; в - перекрытие оркестровой ямы в уровне планшета сцены откидными щитами; г- в уровне пола зала накладными щитами по балкам;

д, е - перекрытие оркестровой ямы в уровне планшета сцены и в уровне пола зала при помощи подъемно-опускных механизмов

Рис. 13. Трансформируемое оборудование

а - эстрада секционная складная; б - рабочая трибуна лекционная с пультом управления (передвижная, складная); в - банкетки; г - стулья секционные складные, складируемые;

д - скамьи складные, складируемые; е - секция кресел, складируемая на 3 и 4 места, жестких или полумягких

в фойе зонирование с выделением непроходной части и ее планировочной изоляцией для занятий и репетиций при проектировании фойе как зала массовых мероприятий; возможность полной изоляции фойе (входы в зал через вестибюль), непосредственная связь фойе со спортзалом, зимним садом, буфетом, гостиными, выставочным и танцевальным залами, игровыми; возможность оборудования временного гардероба непосредственно в фойе (или смежных помещениях) и расширения буфетной стойки, примыкание к фойе кладовых для мебели и инвентаря;

в вестибюле - возможность непосредственного подключения к фойе или устройство буфетной стойки, зонирование вестибюля с проходами в зрелищную и клубную часть, возможность снятия гардероба или его расширения;

в рекреационных помещениях клубной части - возможность проведения танцевальных мероприятий и праздников в зале для физкультурно-оздоровительных занятий, в помещениях студий площадью более 50 м2 и др., проектирование кружков универсального назначения, размещение группы кружково-студийных помещений вокруг общего композиционного ядра (гостиной, холла, выставки); возможность связи групп помещений клубной части и связи с фойе клуба, минуя вестибюль;

во всех помещениях клуба - возможность трансформации помещений.

5.8. В состав трансформации входят:

изменение габаритов помещений (плоскостная трансформация - замена мебели и оборудования, разделение помещения на секции без акустической изоляции; пространственная трансформация с помощью раздвижных и иных перегородок - увеличение и уменьшение вместимости зала и иных помещений, в том числе за счет подсоединения смежных помещений и т. д.);

изменение планировочной структуры помещения (организация помостов, изменение уклонов, применение блитчеров, изменение формы и назначение функциональных зон и т. д.);

временное объединение помещения клуба (зал, фойе, рекреация) с экстерьерным пространством в летнее время.

5.9. Средствами плоскостной трансформации являются трансформируемые оборудование и мебель:

складируемые стулья, скамьи, кресла, банкетки;

складные столы, пюпитры;

выдвижные, складные и наклонные трибуны;

разборные стенки, подъемно-опускные щиты, складируемые столы для настольного тенниса;

лекционные складные стенды, встроенные шкафы, складные щиты и экраны (рис. 13, 14).

Рис. 14. Трибуны зрительские

а – трибуны-скамьи раздвижные; б - трибуны-скамьи сборно-разборные; в - трибуна зрительская - шведская стенка

Применение этих средств обеспечивает возможность проведения различных мероприятий клуба в одном помещении.

Секционные стулья, предварительно сложенные, позволяют в два-три раза сократить площадь для их хранения.

Складируемая эстрада собирается из нескольких секций. В некоторых случаях используются лишь элементы эстрады. Ее секции могут блокироваться вдоль продольной или торцевой стороны, кроме того, каждая секция складывается, что сокращает площадь ее хранения (по сравнению со стационарной) в 8-10 раз.

При проведении спортивных мероприятий можно использовать трибуны-скамьи, сложенные секции которых трансформируются в шведские стенки. При размещении этих сложенных секций в торце зала на них можно, навешивать киноэкран. Возможно также использование их как подставки для демонстрационного оборудования.

Кольца, канаты, шесты можно перемещать по потолочным рельсам в необходимую зону; по завершении занятий они хранятся у стены.

Гимнастические снаряды, не подлежащие складированию (бревно, конь и т. п.), снабжаются роликами, с остановом.

Складируемое оборудование целесообразно устанавливать, в помещениях для хранения непосредственно на специальных тележках. Этот принцип вдвое сокращает время на расстановку мебели.

Хранение мебели и оборудования, используемых в помещениях для студийной работы, можно организовать непосредственно в этих помещениях, в емкостях ниш, встроенных шкафов и перегородок.

5.10. Перегородки по способу устройства можно, условно разделить на сборно-разборные, раздвижные, подъемно-опускные и поворотные (рис. 15).

Рис. 15. Трансформируемые перегородки

а - перегородка раздвижная створчатая телескопическая; б - перегородка раздвижная створчатая; в - перегородка прямораздвижная створчатая; г - перегородка раздвижная;
е - перегородка-сетка подъемная скручивающаяся

Сборно-разборные перегородки отличаются, капитальностью, и стабильностью, устанавливаются фиксирование, путем закрепления верхних и нижних граней в пазах или с помощью специальных крепежных элементов.

Раздвижные перегородки достаточно мобильны, что позволяет производить многократную и обратимую трансформацию помещения. Эти перегородки могут иметь верхнее и нижнее или только верхнее крепление. Среди них можно выделить: сдвижные - трансформируемые путем скольжения створок по направляющим с заходом друг за друга; занавесы - с горизонтальным или вертикальным направлением и складывающиеся.

Подъемно-опускные перегородки характерны особой фундаментальностью. Их можно подразделить на: гильотинные - двигающиеся по вертикали сверху, выдвижные - выдвигающиеся из трюма при помощи подъемников, и рулонные - наматывающиеся на вертикальные и горизонтальные барабаны.

Поворотные перегородки представляют собой поворачивающиеся на вертикальной или горизонтальной оси лопасти различной конструкции.

5.11. При проектировании клубов рекомендуется применять, как правило, простые средства трансформации, позволяющие перепланировать помещения с помощью персонала и посетителей.

ПРИЛОЖЕНИЕ 1

СРЕДНЕЕ ПО РЕГИОНАМ СТРАНЫ КОЛИЧЕСТВО КУЛЬТУРНО-МАССОВЫХ МЕРОПРИЯТИЙ В КЛУБАХ РАЗНОГО ГРАДОСТРОИТЕЛЬНОГО УРОВНЯ

Режим работы клубы

Регионы

Севера, Сибири, Дальнего Востока и Средней Азии

центральные

развитые центральные, западные и южные

СК

СДК

РДК

ГК

ГДК

СК

СДК

РДК

ГК

ГДК

СК

СДК

РДК

ГК

ГДК

Будничный, репетиционный, рекреационный

70

120

210

190

350

90

150

230

200

450

120

180

250

280

600

Праздничный гастрольный

5

20

50

70

200

10

35

70

100

300

15

50

90

150

400

Всего мероприятий в год

75

140

260

260

550

100

185

300

300

750

135

230

340

430

1000

Примечание. СК - клуб поселка, бригады; СДК - клуб центральной усадьбы колхоза, совхоза, агропромышленного комплекса, рабочего поселка; РДК - клуб центра сельского административного района; МК - клуб городского микрорайона, жилой группы и др.; ГК - клуб центра жилого района и др.; ГДК - клуб центра планировочного района, городского центра и др.

ПРИЛОЖЕНИЕ 2

ПРИМЕРНАЯ НОМЕНКЛАТУРА ТИПОВ КЛУБОВ

Типы клубов (число посетителей)

Регионы

развиваемые Севера, Сибири, Дальнего Востока, Средней Азии

центральные

развитые Центра, Запада, Юга

Досуговые

ск, сдк, мк, гк

ск, сдк, РДК, МК, ГК, ГДК

ск, мк, гк

ск, сдк, мк, гк, гдк

МК

ск, сдк, мк, гк, гдк

Д1 - с универсальной гостиной (50-250)

Д2 - с универсальным залом (250-1500)

Д3 - с универсальной рекреацией (250-1000)

Д4 - комплексы клубного досуга (150-1000)

Общего профиля

 

рдк, гдк

 

СДК, РДК,

гк, гдк

 

ск, сдк,

РДК, МК,

гк, гдк

I – 1:0,2-0,3 (200-400)

II - 1:0,4-0,5 (300-750)

III - 1:0,7-0,8 (350-1200)

IV - 1:1-1,2 (650-2100)

V - 1:1,5-1,7 (750-1800)

Профильные

 

ГДК

 

гдк, гк

 

рдк, гк, гдк

П1 - зал (150-1000) и группа отдыха и развлечений (всего 300-1500)

П2 - группы: отдыха и развлечений (150-1000), лекционно-информационная (150-500, всего (300-1500)

П3 - группы: лекционно-информационная (150-700), кружково-студийная (150-300), всего (300-1000)

Клубные блоки

 

гдк

 

гк, гдк

 

РДК, ГК,

гдк

Б1 - зрительный зал (200-500)

Б2 - группа отдыха и развлечений (150-300)

Б3 - лекционно-информационная группа (100-200)

Б4 - кружково-студийная группа (100-300)

Любительские

Клубы исполнительского творчества, активного отдыха, ремесел и техники, коллекционеров и знатоков, спортивные, туристические, дискуссионные и иные любительские клубы (150-1000)

-

гдк

гк, гдк

Примечание. СК - клуб поселка, бригады; СДК - клуб центральной усадьбы колхоза, совхоза, агропромышленного комплекса, рабочего поселка; РДК - клуб центра сельского административного района; МК - клуб городского микрорайона, жилой группы и др.; ГК - клуб центра жилого района и др.; ГДК - клуб центра планировочного района, городского центра и др.


ПРИЛОЖЕНИЕ 3

ПРИМЕРНЫЙ СОСТАВ И ВМЕСТИМОСТИ ГРУПП ПОМЕЩЕНИЙ РАЗНЫХ ТИПОВ ДОСУГОВЫХ КЛУБОВ

Группы помещений

Типы досуговых клубов

Д1

Д2

Д3

Д4

Примерная общая вместимость клуба, чел.

50

75

100

150

250

250

250

400

700

1000

1500

250

400

700

1000

150

250

400

700

1000

Помещения универсального назначения:

 

 

 

 

 

 

 

 

 

 

 

 

 

 

 

 

 

 

 

 

универсальная гостиная

35

50

70

100

150

125

-

-

-

-

-

-

-

-

-

30

-

50

-

-

универсальный зал

-

-

-

-

-

-

200

300

500

700

1000

-

-

-

-

-

100

150

300

300

универсальная рекреация

-

-

-

-

-

-

-

-

-

-

-

150

350

500

500

70

50

-

100

150

Специализированные помещения (аудитория, студии, спортзалы, кафе, видеозалы, игровые и т. п.)

15

25

30

50

100

125

50

100

200

300

500

100

150

200

500

50

100

200

300

500

Примечание. Допускается предусматривать досуговые клубы иной общей вместимости, состава и вместимости частей.

ПРИЛОЖЕНИЕ 4

ПРИМЕРНЫЙ СОСТАВ И ВМЕСТИМОСТИ ГРУПП ПОМЕЩЕНИЙ РАЗНЫХ ТИПОВ КЛУБОВ ОБЩЕГО ПРОФИЛЯ

Группы помещений

Примерные вместимости групп помещений клубов общего профиля, чел., по типам

1 (1:0,2-0,3)

II (1:0,4-0,5)

III (1:0,7-0,8)

IV (1:1-1.2)

V (1:1,5-1,7)

при общей вместимости клуба, чел.

200

250

400

250

300

450

750

350

500

850

1200

650

1100

1500

2100

750

1300

1800

Зрелищная часть

150

200

300

150

200

300

500

200

300

500

700

300

500

700

1000

300

500

700

Клубная часть

50

50

100

100

100

150

250

150

200

350

500

350

600

800

1100

450

800

1100

В том числе группы помещений:

 

 

 

 

 

 

 

 

 

 

 

 

 

 

 

 

 

 

для отдыха и развлечений

10

10

50

50

50

50

100

50

75

150

200

150

200

300

500

200

300

500

лекционно-информационная

15

15

25

25

25

50

75

50

75

100

150

100

200

200

300

100

200

300

кружково-студийная

25

25

25

25

25

50

75

50

75

100

150

100

200

300

300

150

300

300

Примечание. Вместимости групп помещений в клубах иной общей вместимости определяются заданием на проектирование. Допускается перераспределять вместимости указанных групп помещений.


ПРИЛОЖЕНИЕ 5

ПРИМЕРНЫЙ СОСТАВ И ВМЕСТИМОСТИ ГРУПП ПОМЕЩЕНИЙ РАЗНЫХ ТИПОВ ПРОФИЛЬНЫХ КЛУБОВ

Группы помещений

Примерные вместимости групп помещений профильных клубов, чел., по типам

П1А

П1Б

П1В

при общей вместимости клуба, чел.

300

400

600

1000

500

800

1200

700

1000

1500

Зрелищная часть

150

200

300

500

300

500

700

500

700

1000

Клубная часть

150

200

300

500

200

300

500

200

300

500

В том числе группы помещений:

 

 

 

 

 

 

 

 

 

 

для отдыха и развлечений

150

200

300

500

200

300

500

200

300

500

лекционно-информационная

-

-

-

-

-

-

-

-

-

-

кружково-студийная

-

-

-

-

-

-

-

-

-

-

Продолжение прил. 5

Группы помещений

Примерные вместимости групп помещении профильных клубов, чел., по типам

П2А

П2Б

П2В

при общей вместимости клуба, чел.

300

400

600

1000

500

800

1200

700

1000

1500

Зрелищная часть

-

-

-

-

-

-

-

-

-

-

Клубная часть

300

400

600

1000

500

800

1200

700

1000

1500

В том числе группы помещений:

 

 

 

 

 

 

 

 

 

 

для отдыха и развлечений

150

200

300

500

300

500

700

500

700

1000

лекционно-информационная

150

200

300

500

200

300

500

200

300

500

кружково-студийная

-

-

-

-

-

-

-

-

-

-

Продолжение прил. 5

Группы помещений

Примерные вместимости групп помещений профильных клубов, чел., по типам

П3А

П3Б

П3В

при общей вместимости клуба, чел.

300

400

600

1000

500

800

1200

450

700

100

Зрелищная часть

-

-

-

-

-

-

-

-

-

-

Клубная часть

300

400

600

1000

500

800

1200

450

700

1000

В том числе группы помещений:

 

 

 

 

 

 

 

 

 

 

для отдыха и развлечений

-

-

-

-

-

-

-

-

-

-

лекционно-информационная

150

200

300

500

300

500

700

300

500

700

кружково-студийная

150

200

300

500

200

300

500

150

200

300

Примечание. Вместимости групп помещений клубах иной общей вместимости определяются заданием на проектирование. Допускается перераспределять вместимости указанных групп помещений.

ПРИЛОЖЕНИЕ 6

ПРИМЕРНЫЙ СОСТАВ И ВМЕСТИМОСТИ КЛУБНЫХ БЛОКОВ

Группы помещений

Клубные блоки

Б1

Б2

Б3

Б4

Вместимость блока, чел.

200

300

500

150

200

300

100

150

200

100

150

200

300

Зрелищная часть

200

300

500

-

-

-

-

-

-

-

-

-

-

Помещения для отдыха и развлечений

-

-

-

150

200

300

-

-

-

-

-

-

-

Лекционно-информационные помещения

-

-

-

-

-

-

100

150

200

-

-

-

-

Кружково-студийные помещения

-

-

-

-

-

-

-

-

-

100

150

200

300

ПРИЛОЖЕНИЕ 7

РЕКОМЕНДУЕМЫЕ ВАРИАНТЫ ПРИМЕНЕНИЯ ПОРТАЛЬНЫХ ЭСТРАД И СЦЕН В I-V ТИПАХ КЛУБОВ ОБЩЕГО ПРОФИЛЯ

Вместимость зрительного зала, мест

Эстрады и сцены в типах клубов

I

II

III

IV

V

150-200

Э-1, Э-2

Э-1, Э-2

-

-

-

200-300

Э-2, Э-3

Э-2, Э-3

Э-2, Э-3

-

-

300-500

Э-3, Э-4

Э-3, Э-4

Э-3, Э-4

С-1, С-2, С-3

Э-3, Э-4

С-1, С-2, С-3

Э-3, Э-4

500-700

-

Э-4, Э-5, С-2, С-3, С-4

Э-4, Э-5,

С-2, С-3, С-4

Э-4, Э-5,

С-2, С-3, С-4

Э-4, Э-5,

С-2, С-3, С-4

700-1000

-

-

Э-5, Э-6,

С-3, С-4

Э-5, Э-6,

С-3, С-4

Э-5, Э-6,

С-3, С-4

ПРИЛОЖЕНИЕ 8

ПРИМЕРНЫЙ СОСТАВ ГРУПП ПОМЕЩЕНИЙ КЛУБОВ
ОБЩЕГО ПРОФИЛЯ И ПРОФИЛЬНЫХ КЛУБОВ

Помещения

Расчетное количество посетителей, чел.

10

25

50

75

100

150

200

300

500

Группа помещений для отдыха и развлечений

Гостиная

+

+

+

+

+

+

+

+

-

Буфет

-

+

+

+

+

+

+

+

-

Игровая

-

-

-

+

+

+

+

+

+

Танцевальный зал

-

-

-

-

+

+

+

+

+

Биллиардная

-

-

-

-

-

+

+

+

+

Бар

-

-

-

-

-

-

-

+

+

Зал для физкультурно-оздоровительных занятий

-

-

-

-

-

-

+

+

+

Зимний сад

-

-

-

-

-

-

+

+

+

Лекционно-информационная группа помещений

Кабинет передового опыта и политического просвещения

+

+

+

+

+

+

+

+

-

Аудитория

-

-

-

+

+

+

+

+

-

Видеозал

-

-

-

-

-

+

+

+

-

Выставочный зал

-

-

+

+

+

+

+

+

-

Зал празднеств и обрядов

-

-

-

+

+

+

+

+

-

Клубный читальный зал

-

-

-

-

+

+

+

+

-

Библиотека с читальным залом

+

+

+

+

-

-

-

-

-

Кружково-студийная группа помещений

Кружки универсального назначения

+

+

+

+

+

+

+

+

-

Сценические студии (хоровая, театрально-драматическая, оркестровая, танцевальная и цирковая)

-

-

-

+

+

+

+

+

-

Технические студии (технические, кинофото)

-

-

-

+

+

+

+

+

-

Художественные студии (изобразительного искусства, культуры быта - домоводства)

-

-

-

-

+

+

+

+

-

Студии по интересам (художественных промыслов и ремесел, по интересам и др.)

-

-

-

-

-

-

+

+

-

СОДЕРЖАНИЕ

Предисловие. 1

1. Общие положения. 2

2. Досуговые клубы.. 4

3. Клубы общего профиля. 6

Состав и площади помещений зрелищной части. 7

Состав и площади помещений клубной части. 9

Состав и площади входных и административно-хозяйственных помещений. 10

Требования к помещениям зрелищной части. 11

Требования к помещениям клубной части. 18

Требования к входным и административно-хозяйственным помещениям.. 27

4. Любительские клубы.. 28

5. Многоцелевое использование и трансформация  клубных помещений. 29

Приложение 1 Среднее по регионам страны количество культурно-массовых мероприятий в клубах разного градостроительного уровня. 33

Приложение 2 Примерная номенклатура типов клубов. 33

Приложение 3 Примерный состав и вместимости групп помещений разных типов досуговых клубов. 35

Приложение 4 Примерный состав и вместимости групп помещений разных типов клубов общего профиля. 35

Приложение 5 Примерный состав и вместимости групп помещений разных типов профильных клубов. 36

Приложение 6 Примерный состав и вместимости клубных блоков. 36

Приложение 7 Рекомендуемые варианты применения портальных эстрад и сцен в i-v типах клубов общего профиля. 36

Приложение 8 Примерный состав групп помещений клубов  общего профиля и профильных клубов. 37

 




ГОСТЫ, СТРОИТЕЛЬНЫЕ и ТЕХНИЧЕСКИЕ НОРМАТИВЫ.
Некоммерческая онлайн система, содержащая все Российские Госты, национальные Стандарты и нормативы.
В Системе содержится более 150000 файлов нормативно-технической документации, действующей на территории РФ.
Система предназначена для широкого круга инженерно-технических специалистов.

Рейтинг@Mail.ru Яндекс цитирования

Copyright © www.gostrf.com, 2008 - 2026