Крупнейшая бесплатная информационно-справочная система онлайн доступа к полному собранию технических нормативно-правовых актов РФ. Огромная база технических нормативов (более 150 тысяч документов) и полное собрание национальных стандартов, аутентичное официальной базе Госстандарта. GOSTRF.com - это более 1 Терабайта бесплатной технической информации для всех пользователей интернета. Все электронные копии представленных здесь документов могут распространяться без каких-либо ограничений. Поощряется распространение информации с этого сайта на любых других ресурсах. Каждый человек имеет право на неограниченный доступ к этим документам! Каждый человек имеет право на знание требований, изложенных в данных нормативно-правовых актах!

  


 

ПРАВИТЕЛЬСТВО МОСКВЫ
МОСКОМАРХИТЕКТУРА

РЕКОМЕНДАЦИИ
ПО РЕКОНСТРУКЦИИ И МОДЕРНИЗАЦИИ ЗДАНИЙ
ДОШКОЛЬНЫХ УЧРЕЖДЕНИЙ

1997

Содержание

ПРЕДИСЛОВИЕ

ОБЛАСТЬ ПРИМЕНЕНИЯ

ВВЕДЕНИЕ

1. ХАРАКТЕРИСТИКА ФОНДА ЗДАНИЙ ДОШКОЛЬНЫХ УЧРЕЖДЕНИЙ РАЗНЫХ ЭТАПОВ СТРОИТЕЛЬСТВА В СООТВЕТСТВИИ С НОВЫМИ ТРЕБОВАНИЯМИ К ФУНКЦИОНАЛЬНО-ПЛАНИРОВОЧНОЙ СТРУКТУРЕ И ОСНОВНЫЕ ПРИНЦИПЫ РЕКОНСТРУКЦИИ ЗДАНИЙ

1.1 Послевоенный период доиндустриального строительства

1.2 Период индустриального строительства 60-х годов

1.3 Период индустриального строительства 70-х и 80-х годов

Раздел 2. ПРЕДЛОЖЕНИЯ ПО РЕКОНСТРУКЦИИ НАИБОЛЕЕ МАССОВЫХ ТИПОВ ЗДАНИЙ - ПРЕДСТАВИТЕЛЕЙ СУЩЕСТВУЮЩЕГО ФОНДА ДОШКОЛЬНЫХ УЧРЕЖДЕНИЙ В МОСКВЕ

2.1 Общие принципы модернизации и реконструкции зданий дошкольных учреждений на основе требований МГСН 4.07-96 "Дошкольные учреждения"

2.2 Предложения по реконструкции зданий ДОУ, построенных по типовым проектам Vl-01 и VI-02 (представители 50-х годов строительства)

2.3 Предложения по реконструкции зданий ДОУ, построенных по типовому проекту VI-13 (представитель 50-х годов строительства)

2.4 Предложения по реконструкции зданий ДОУ, построенных по типовому проекту 2 МГ-04.3 (представитель 60-х годов строительства)

2.5 Предложение по реконструкции зданий ДОУ, построенных по типовому проекту VI-52 в.2 (представитель 70-х годов строительства)

2.6 Предложения по реконструкции зданий ДОУ, построенных по типовому проекту VI-44 (представитель 70-х годов строительства)

2.7 Предложение по реконструкции зданий ДОУ, построенных по типовому проекту VI-49 (представитель 70-х годов строительства)

2.8 Предложения по реконструкции зданий ДОУ, построенных по типовому проекту VI-52 в.3 (представитель 80-х годов строительства)

ИЛЛЮСТРАЦИИ

Приложение 1 Состав и площади (м2) основных групп помещений дошкольных учреждений разных этапов строительства

Приложение 2 Нормативные и минимально допустимые площади групповых ячеек (м2) при реконструкции и модернизации дошкольных учреждений

Приложение 3 Нормативные и минимально допустимые площади специализированных и сопутствующих помещений (м2) при реконструкции и модернизации зданий дошкольных учреждений

Приложение 4 Дефицит площадей в распространенных типовых проектах ДОУ в Москве, по сравнению с МГСН 4.07-96

Приложение 5 Дефицит площадей в распространенных типовых проектах ДОУ в Москве по сравнению с минимально допустимыми при реконструкции (исходя из проектной вместимости - количества детских групп)

Приложение 6 Предлагаемые варианты реконструкции и модернизации зданий ДОУ, построенных по распространенным типовым проектам в Москве

Приложение 7 Типовые проекты массовых зданий ДОУ, построенных в Москве, к которым даны предложения по реконструкции и модернизации

ПРЕДИСЛОВИЕ

1. Рекомендации разработаны Институтом общественных зданий Минстроя России (канд. арх. Смывина Л.А.) и Московским научно-исследовательским и проектным институтом типового и экспериментального проектирования (арх. Скобелева Т.С.).

2. Согласованы с Департаментом образования г. Москвы, Центром Госсанэпиднадзора г. Москвы, Мосгорэкспертизой, Москомархитектурой.

3. Подготовлены к утверждению и изданию Управлением перспективного проектирования и нормативов Москомархитектуры (арх. Шалов Л.А., инж. Щипанов Ю.Б.).

4. Утверждены Указанием Москомархитектуры от 01.07.1997 г. № 25.

ОБЛАСТЬ ПРИМЕНЕНИЯ

Настоящие Рекомендации разработаны в соответствии с Программой по разработке Московских городских строительных норм, рекомендаций, пособий и других нормативно-методических материалов по проектированию, утвержденной постановлением Правительства Москвы от 01.11.94 г. № 992.

Рекомендации разработаны как дополнение к нормативно-методическим документам в строительстве, действующим на территории г. Москвы, и распространяются на проектирование реконструкции и модернизации существующего фонда зданий дошкольных учреждений в г. Москве.

Настоящие Рекомендации содержат предложения по реконструкции и модернизации существующего фонда зданий дошкольных учреждений, основанные на законе об образовании и Типовых положениях о дошкольном образовательном учреждении, действующих на территории Москвы, а также вышедших в 1996 г. Московских городских строительных нормах - МГСН 4.07-96 "Дошкольные учреждения".

В настоящих Рекомендациях затронут аспект, который раньше не учитывался в прикладных типологических разработках: дошкольные учреждения рассматриваются не только как самостоятельный тип здания или комплекса, но совместно с общеобразовательными школами как единый муниципальный фонд учебных зданий, предназначенный для обслуживания всего детского населения жилого комплекса (микрорайона). Уточненные параметры снижения потребности в дошкольных учреждениях, при одновременно возросшей потребности школ в дополнительных площадях позволили определить основные приемы функционально-пространственной трансформации учебных зданий, имеющихся в микрорайонах, вплоть до изменения назначения зданий (детский сад становится начальной школой) или уточнения специализации учебных учреждений (детский сад с приоритетными направлениями интеллектуального, художественно-эстетического или физического развития, возможно, с включением первых классов начальной школы, и т.п.). В результате анализа наиболее типичных для Москвы учебных зданий разных этапов строительства и особенностей эксплуатации этого фонда в настоящее время в Рекомендациях разработаны конкретные предложения (варианты) по реконструкции этих зданий, включая случаи изменения их назначения и (или) вместимости, реконструкции или модернизации фонда в соответствии с измененными функциональными параметрами.

Материалы Рекомендаций также целесообразно использовать для составления заданий на проектирование по реконструкции и модернизации существующих дошкольных учреждений.

ВВЕДЕНИЕ

Градостроительные традиции и современная практика формирования селитебных территорий в Москве во многом определили и традиции формирования системы учебно-воспитательных зданий в жилых комплексах (кварталах, микрорайонах, межмагистральных территориях). Концептуальные подходы к системе учебно-воспитательных зданий и их типологии были определены, главным образом, Академией архитектуры (в послевоенный период), институтами МНИИТЭП и ЦНИИЭП учебных зданий. Интерес к реконструкции не только отдельных зданий дошкольных учреждений, но и всего комплекса учебных зданий в жилом образовании, с целью оптимизации использования их фонда, определяются достаточно широко распространенными в современной Москве работами по комплексной реконструкции больших площадок - Химки-Ховрино, Хорошево-Мневники, Квартал 32-33 на Проспекте Вернадского и др. - на основе сноса и нового строительства жилья, при соответствующей реновации, как правило, остающегося фонда учебных зданий. При этом решается не только задача упорядочения функционально-пространственной организации образовательных учреждений (дошкольных и общеобразовательных школ), но и задача решения полноценной архитектуры этих зданий, адекватной новому качеству архитектуры новых жилых ансамблей.

Дошкольные образовательные учреждения (ДОУ) и общеобразовательные школы (ОШ) всегда, в практике отечественного градостроительства, рассчитывались на обслуживание всего контингента детей каждого конкретного жилого комплекса, в котором они размещались: 100 %-й охват школьников и 60-70 %-й охват дошкольников учебно-воспитательными учреждениями осуществлялся ранее и, преимущественно, осуществляется в настоящее время по месту жительства детей. По пути в детский сад или школу дети не должны пересекать автомагистрали городского транспорта, прочие естественные или искусственные преграды. При этом фактические радиусы обслуживания (нормируемые 300 м для ДОУ и 500 м для ОШ) в общем случае, при применении жилых зданий со средней этажностью 5 этажей, уже сокращаются вдвое (при равномерном размещении их в жилой застройке), поэтому в московской городской практике учебные здания, как правило, всегда размещались группами, на смежных земельных участках.

Московская практика характеризовалась двумя основными отличительными признаками.

Во-первых, как правило, в жилых комплексах (кроме имеющих низкие показатели селитебной плотности и (или) численности жителей) предусматривалась не одна, а, в среднем, 2-3 школы и 5-6 и более дошкольных учреждений. Вместимости последних менялись на разных этапах строительства, поскольку менялся и нормативный уровень обеспеченности, и селитебная плотность в жилых комплексах.

Во-вторых, как правило, размещение этих зданий в застройке было не механическим, равномерным, безразличным по отношению к жилой застройке, а было подчинено определенному архитектурно-планировочному замыслу всего жилого комплекса и выражалось либо в акцентировании укрупненного планировочного ритма групп жилых зданий или отдельных крупных жилых домов, либо в создании крупного планировочного элемента композиции жилого комплекса (школьные городки, пешеходные улицы с выделенными на них школьными и дошкольными зданиями и т.п.).

Современный этап строительства характеризуется некоторым снижением потребности в дошкольных учреждениях. При этом снижение численности детей в здании ДОУ, кроме повышения комфорта, открывает новые перспективы его усовершенствования - организации развитого состава специализированных помещений для работы с детьми, создания эстетически полноценной среды и т.п. Выделение дополнительных специализированных помещений (часть из которых являются обязательными, а часть - рекомендуемыми) - обеспечивает необходимые условия для полноценного функционирования дошкольных учреждений с различными направлениями педагогических программ.

Дошкольные образовательные учреждения общего типа в соответствии с приоритетными направлениями педагогических программ подразделяются на:

общеразвивающие - детские сады с приоритетным осуществлением одного иди нескольких направлений развития воспитанников (интеллектуального, художественно-эстетического, физического и др.);

детские сады компенсирующего вида с приоритетным осуществлением квалифицированной коррекции незначительных отклонений в физическом и психическом развитии воспитанников;

детские сады присмотра и оздоровления с приоритетным осуществлением оздоровительных мероприятий и процедур;

детские сады комбинированного вида (на основе сочетания детских групп с вышеназванными направлениями обслуживания, представленными в любом соотношении);

детские сады физического и психического развития, поддержки и оздоровления всех воспитанников (центр развития ребенка).

Вышеперечисленные учреждения являются основными видами дошкольных учреждений в соответствии с Типовым положением о дошкольном образовательном учреждении.

В соответствии с указанным Положением все эти учреждения являются организационными разновидностями одного и того же дошкольного образовательного учреждения - Детский сад. Он может содержать любые по возрасту детей группы в диапазоне от 2 месяцев до 7 лет при любом их соотношении.

Нормами МГСН 4.07-96 "Дошкольные учреждения" допускается применять и прежнюю классификацию видов ДОУ:

детские ясли (для детей от 2 месяцев до 3 лет);

ясли-сад (для детей от 2 месяцев до 6-7 лет);

детский сад (для детей от 3 лет до 6-7 лет).

С учетом конкретной ситуации в жилых комплексах, по отношению к каждому дошкольному учреждению возможны разные подходы реконструкции и модернизации:

сохранение числа групповых ячеек неизменным, с надстройкой или пристройкой дополнительных объемов, в которых могут предусматриваться специализированные помещения для работы с детьми или сопутствующие помещения;

снижение числа групповых ячеек и организация на высвобождающихся площадях недостающих специализированных и сопутствующих помещений;

увеличение числа групповых ячеек (у небольших ДОУ с надстраиванием до 2-3-х этажей, пристраиванием блоков, строительством отдельных блоков, соединяемых наземными или надземными переходами, в которых предусматриваются дополнительные групповые ячейки, а также недостающие специализированные и сопутствующие помещения.

Фонд существующих зданий дошкольных учреждений в Москве в основном представлен универсальными зданиями ДОУ общего типа (кроме них имеются специализированные ДОУ для детей с нарушениями физического и умственного развития, которые по новой терминологии называются компенсирующими). В соответствии с приоритетными направлениями развития детей в дошкольном учреждении реконструируемые здания могут быть (по видам предоставляемых педагогических или медицинских услуг) общеразвивающими, оздоровительными, компенсирующими, комбинированными. Функционально-планировочная основа реконструируемых ДОУ (нормируемые состав и площади обязательных помещений) должна быть универсальной, чтобы в случае изменения конъюнктуры спроса учреждение могло поменять профиль.

Специализация ДОУ достигается за счет дополнительных помещений и (или) увеличения площадей помещений, нормируемых как обязательные.

Компенсирующие дошкольные учреждения, в свою очередь, могут быть как универсальными - пригодными для содержания детей с различными видами нарушений, так и специализированными - для детей только с одним или несколькими, но заранее определенными нарушениями. В ДОУ общего типа (то же в комбинированных ДОУ) могут предоставляться компенсирующие услуги отдельным детям или отдельным группам. В этом случае, как правило, достаточно тех помещений, которые предусматриваются МГСН 4.07-96 "Дошкольные учреждения" как обязательные.

Полный состав и площади помещений при реконструкции существующего здания ДОУ под компенсирующее ДОУ рекомендуется принимать в соответствии Пособием к МГСН 4.07-96.

Дошкольные образовательные учреждения общего типа в настоящее время имеют тенденцию к специализации. Это определяет целесообразность и необходимость рассмотрения всего фонда зданий ДОУ в жилом комплексе (в отдельных случаях вместе со школами) как единой сети образовательных учреждений для оптимизации реконструкции существующего фонда зданий.

Массовое применение в современном строительстве и реконструкции жилых и общественных зданий стропильных кровель, мансардных этажей, выступающих из плоскости стены остекленных эркеров, красивых объемных крылец или выступающих входных тамбуров можно рекомендовать также в качестве архитектурных приемов реновации зданий дошкольных учреждений. Надстройка второго и третьего этажей (мансардных или обычных), допускаемая действующими нормами, в большинстве случаев помогает реализовать потребность в дополнительных, как правило, крупногабаритных помещениях - залы, классы, рекреации.

Следует учитывать, что мансардный этаж, пристраиваемые к дошкольным учреждениям или присоединяемые теплым переходом объемы (включая сам переход) должны иметь степень огнестойкости материалов и конструкций не ниже, чем у основного здания.

При реконструкции ДОУ следует учитывать тенденцию снижения вместимости крупных ДОУ: по новым нормам она не должна превышать 10 групп.

При реконструкции следует предусматривать возможность входа и перемещения по зданию человека в инвалидном кресле-коляске.

1. ХАРАКТЕРИСТИКА ФОНДА ЗДАНИЙ ДОШКОЛЬНЫХ УЧРЕЖДЕНИЙ РАЗНЫХ ЭТАПОВ СТРОИТЕЛЬСТВА В СООТВЕТСТВИИ С НОВЫМИ ТРЕБОВАНИЯМИ К ФУНКЦИОНАЛЬНО-ПЛАНИРОВОЧНОЙ СТРУКТУРЕ И ОСНОВНЫЕ ПРИНЦИПЫ РЕКОНСТРУКЦИИ ЗДАНИЙ

Развитие типологии зданий ДОУ в Москве, их проектирование и строительство происходило в основном по 4 этапам, характеризующимся определенными изменениями нормативных требований к составам и площадям помещений, а также уровнем обеспеченности дошкольными учреждениями и тенденциями градостроительной практики, которые влияли на общую вместимость зданий, их специализацию и универсализацию.

1.1 Послевоенный период доиндустриального строительства

Первый этап формирования типологии дошкольных учреждений совпадает с довоенным строительством, с процессом создания государственной системы дошкольного воспитания в стране, отработкой основных типологических моделей зданий и последующим проектированием и строительством в 1946-1961 гг. В 1946 г. были приняты первые послевоенные нормы проектирования детских яслей и садов.

В послевоенный период типология дошкольных учреждений общего типа включала:

ясли, обслуживающие детей от нескольких месяцев до 3 лет;

детские сады, обслуживающие детей в возрасте от 3 до 7 лет;

детские ясли-сады или детские комбинаты, обслуживающие детей от нескольких месяцев до 7 лет.

До 1956 г. в Москве применялись, как правило, раздельные здания детских яслей и детских садов. Однако, к моменту перехода к индустриальному строительству (после 1959 г.) основным типом дошкольного учреждения был признан и получил распространение тип объединенного учреждения - ясли-сад. Эти объединенные учреждения были удобнее для семей, имеющих нескольких детей, обеспечивали одинаково высокий уровень педагогических и медицинских услуг, как детям ясельного возраста, так и детям старше трех лет, т.к. раньше ясли имели ведомственное подчинение органам здравоохранения, детские сады - органам образования.

В доиндустриальный период строительства ДОУ проектировались из расчета на дневное (9-14 часов в сутки) или круглосуточное обслуживание - своеобразные дошкольные интернаты, в которых дети находились круглосуточно в течение 6 дней рабочей недели.

В первые послевоенные годы все дошкольные учреждения проектировались только в расчете на дневную эксплуатацию: эти учреждения характеризовались тем, что не имели в составе групповых ячеек спален: дневной сон детей организовывался, как правило, с применением раскладных кроваток. В то же время, к концу 50-х годов в Москве в ДОУ стали организовывать круглосуточные группы, особенно при предприятиях, где женщины работали в ночную или вечернюю смену. Общий состав помещений ДОУ этого периода был предельно ограничен.

Для организации в эксплуатируемых зданиях групп с круглосуточным пребыванием детей отводили одну или несколько групповых комнат под спальни для круглосуточных групп. В этот период, в связи с отсутствием типовых проектов ДОУ со спальнями в групповых ячейках, достаточно большое количество зданий ДОУ строилось по индивидуальным проектам. Эти проекты уже отличались достаточно развитым составом помещений, высоким качеством архитектуры и технических решений, и в настоящее время представляют собой достаточно ценный фонд зданий ДОУ. Однако, в этот же период, как промежуточные решения, создавались дошкольные учреждения так называемого смешанного типа - с несколькими дневными и круглосуточными группами в одном здании.

Нормами до конца 60-х гг. предусматривалось проектирование двух типов (по времени работы) дошкольных учреждений: зданий яслей-садов с дневным и с круглосуточным пребыванием детей.

В дневных ячейках яслей предусматривались: групповая (игральная) площадью 50 м2, туалетная - 10 м2, раздевальная, которая состояла из нескольких помещений (бокс, фильтр, приемная), суммарной площадью 20 м2. В круглосуточных ячейках предусматривались веранды и отапливаемые спальни, площадью 30 м2. При этом площадь сопутствующих помещений (медицинских, пищеблока, постирочной) составляла лишь около половины от требуемой современными нормами. В зданиях этого периода, как правило, вовсе не предусматривались залы для музыкальных и гимнастических занятий.

В составе помещений дневных ячеек детского сада имелись групповые комнаты площадью около 62 м2, раздевальные - 12-15 м2, туалетные - 11 м2, спальни не предусматривались. Допускалась одна раздевальная на две группы.

Для круглосуточных групповых ячеек проектировались спальни площадью 50 м2. Площадь общих помещений составляла лишь четверть от требуемой современными нормами; в зданиях также не было залов для музыкальных и физкультурных занятий.

В конце 40-х - начале 50-х гг. в типовом проектировании и массовом строительстве ДОУ предусматривались только здания малой и средней вместимости - на 1-5 групп, причем интервалом вместимости при определении типов зданий принималась одна группа. Таким образом, номенклатура типов зданий по вместимости в целом по стране состояла из яслей на 25, 40, 60, 80 и 100 мест, и детских садов на 25, 50, 75, 100 и 125 мест, и только в Москве в то время строились здания детских садов и яслей вместимостью в 6 групп (детские ясли на 120 мест и детские сады на 150 мест).

С современных позиций дошкольные учреждения этого периода характеризуются вполне приемлемой комфортной вместимостью (объемом здания). При этом здания с одним помещением пребывания детей в групповой ячейке (групповая) могут без реконструкции использоваться как Прогулочные группы - имея в виду наличие необходимых и достаточных для этих групп помещений и наличие земельного участка - для преимущественного пребывания детей на свежем воздухе (дневной сон и обед у детей в этих группах происходит дома).

Площади спален-веранд и спален круглосуточных групп - 36 м2 сейчас вполне отвечают современным требованиям, имея в виду нормативное сокращение наполняемости детских групп (до 20 детей в дошкольных и до 15 - в ясельных).

Если подходить с позиций решения реконструкции всей системы ДОУ в жилом комплексе, следует учитывать, что жилые комплексы этого периода строительства имели примерно 2/3 величины современного норматива обеспеченности дошкольными учреждениями, а жилой фонд, как правило, за прошедшее время подвергался уплотнению. Поэтому, чаще всего, при комплексной модернизации ДОУ в жилых образованиях (кварталах) послевоенного строительства, бывает необходимо обеспечить недостающее количество мест, определяемое расчетом в соответствии с демографическими данными, а также необходимым набором помещений в соответствии с современными нормативными требованиями.

Небольшие 1-2 этажные здания ДОУ в отдельных случаях могут быть эффективно использованы для реконструкции с расширением надстройкой 1-2 верхних этажей, а также пристройкой блоков дополнительных помещений, в т.ч. с переходом.

В надстраиваемых этажах могут размещаться детские групповые ячейки, а также залы для музыкальных и физкультурных занятий и специализированные помещения для работы с детьми или недостающие сопутствующие помещения (кружковые комнаты, классы, комната коррекции, процедурный кабинет, методический кабинет, кладовые). В блоках-пристройках целесообразно размещать залы, бассейн и т.п.

При реконструкции следует уделять внимание организации в ДОУ общего рекреационно-коммуникационного пространства, например, выделение холла или зимнего сада с верхним светом, которые могут иметь двойное назначение и использоваться как зал музыкальных занятий, занятий кружков и секций, помещение для организации праздников.

Для ДОУ, групповые ячейки которых вполне удовлетворяют условиям размещения современных детских групп (при современной сокращенной наполняемости детских групп), весьма эффективным является прием углового блока-пристройки (квадрат, пристраиваемый углом при помощи шейки-перехода), когда не затеняются окна существующего здания. Такой блок-пристройка может содержать зал, бассейн, кружковые комнаты, классы для занятий и т.п.

С точки зрения архитектурного дизайна, здания этого периода могут весьма эффектно выглядеть в модерной современной жилой застройке. В случае реконструкции фасадов, при применении мансардных этажей, остекленных веранд, веранд-эркеров, фонарей верхнего света или наклонного остекления они, наоборот, могут составить неомодернистский контраст с окружающей их застройкой прошлого.

При надстраивании этажей, применительно к ДОУ данного этапа строительства, достигается возможность предусмотреть дополнительно не более чем 2 групповые ячейки на каждом этаже.

В отдельных случаях к зданиям могут пристраиваться блоки с групповыми ячейками или только со спальнями, напрямую примыкающими к каждой групповой ячейке. Это решение должно быть выполнено аккуратно, без ущерба для архитектуры и естественного освещения помещений, например, как это было указано выше или с использованием объемов, поднятых в уровне первого этажа на опоры. В архитектурном решении фасада в этом случае может быть обыграна тема многоплановости фасада, использования декоративной колоннады и т.п. В утилитарном отношении этот прием хорош тем, что в большей степени позволяет сохранить существующие подземные инженерные сети и подходы к зданию.

В жилых комплексах этого периода строительства, при использовании многоэтажных жилых зданий, были также широко распространены встроенные ДОУ на 2-4 группы детей, размещаемые в первых этажах жилых зданий.

Небольшие встроенные ДОУ в жилом комплексе чаще всего применялись в сочетании с отдельно стоящими зданиями детских яслей или детских садов. Наиболее удачное решение такого сочетания - в многоэтажных жилых кварталах на Фрунзенской набережной. В подобных случаях во встроенных дошкольных учреждениях целесообразно размещать группы для ослабленных детей (оздоровительные ДОУ), а отдельно стоящие ДОУ, как правило, более крупные (на 4-6 групп) дополнять зальными, рекреационными и специализированными помещениями для работы с детьми, преобразуя их в общеразвивающие дошкольные учреждения с одним или несколькими направлениями развития: художественно-эстетического, физического, интеллектуального и др.

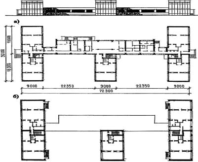
На рис. 1-4 показаны примеры реконструкции дошкольных учреждений доиндустриального периода строительства.

1.2 Период индустриального строительства 60-х годов

С выходом в свет норм СНиП II-Л.3-62 объединенные здания яслей-садов стали единственным типом ДОУ общего типа. В это время в эксплуатации детских учреждений смешанного типа, имеющих и дневные и круглосуточные группы, с жестко определенным соотношением дневных и круглосуточных групп, не всегда соответствовавшим разнообразным потребностям, стали наблюдаться такие явления, как вынужденное формирование разновозрастных групп детей или образование так называемых сборных групп, когда днем дети находятся в соответствующих их возрасту группах, а на ночь по нескольку детей от каждой группы собирали вместе и временно размещали в одной из групповых ячеек со спальней. Такая система приводила к серьезным осложнениям с точки зрения выполнения педагогических программ и нарушениям гигиенического требования групповой изоляции.

В 1960 г. заданиями на проектирование вместимость ДОУ определялась уже в следующем виде:

детские ясли на 4 и 6 групп (80 и 120 мест);

детские сады на 4 и 6 групп (100 и 150 мест);

детские ясли-сады на 2, 4, 6, 8 и 12 групп (50, 90, 140, 185 и 280 мест соответственно).

Появление крупных по вместимости ДОУ объяснялось, с одной стороны, существенным повышением этажности жилых зданий, с другой - увеличением норматива обеспеченности населения дошкольными учреждениями.

Малые и средние по вместимости детские сады и ясли вполне соответствовали старым приемам строительства жилых районов отдельными небольшими кварталами площадью 6-8 га с преимущественной двух- трех- четырех- пятиэтажной застройкой. В этом случае потребность в детских садах и яслях в каждом квартале ограничивалась двумя зданиями на 4-6 групп каждое и необходимости в укрупнении детских дошкольных учреждений не возникало.

Положение существенно изменилось с переходом к новым принципам в градостроительстве Москвы, выразившимся в:

отказе от выборочного строительства отдельных зданий и переходе к созданию больших жилых комплексов на новых территориях;

значительном укрупнении кварталов и широком применении комплексной застройки жилых микрорайонов;

увеличении плотности населения в связи с повышением этажности жилых домов с 2-3 до 5-14 этажей.

Это привело к необходимости строить в каждом микрорайоне по 6-8 и более зданий ДОУ при, как правило, существенном снижении площади земельного участка по отношению к нормативной (в балансе территории брутто суммарная площадь участков ДОУ достигает максимального значения - 15 %).

Крупные здания ДОУ, наряду с их недостатками (повышенная концентрация детей, возможность распространения инфекционных заболеваний, снижение психологического комфорта) имеют в то же время ряд преимуществ. В ДОУ большой вместимости, как правило, обеспечивалось более квалифицированное руководство: заведующая часто была с высшим образованием, привлекался более опытный медицинский и педагогический персонал, хороший шеф-повар, специальный музыкальный руководитель, преподаватели физкультуры или танцев, иностранного языка. Сейчас этот фактор для повышения качества обслуживания не имеет значения, т.к. практикуются новые разнообразные формы приглашения любых специалистов, которые не обязательно должны быть в штате дошкольного учреждения. Численность детских групп важна только для определения ставки заведующего в муниципальных ДОУ.

Однако, другой фактор остается актуальным и в наши дни: в крупных учреждениях больше возможности организовать необходимые медицинские и профилактические мероприятия, связанные с применением сложных и дорогостоящих технических средств. В этой связи дошкольные учреждения компенсирующего типа лучше предусматривать вместимостью не менее 6-8 групп и при реконструкции выбирать здания соответствующей вместимости.

Здания крупной вместимости более экономичны по удельным показателям единовременных и эксплуатационных затрат (на 10-15 %); например, в крупных ДОУ более оправдано содержание бассейна, компьютерного класса и т.п. В то же время удельный показатель фонда оплаты труда персонала в малых ДОУ может быть не ниже благодаря отказу от жестких штатных расписаний и возможности совмещения должностных обязанностей.

Еще следует иметь в виду, что в зданиях ДОУ того периода была существенно завышена (по сравнению с современной потребностью) доля ясельных групп: в то время женщинам еще не предоставляли оплачиваемые и неоплачиваемые отпуска по уходу за маленьким ребенком, и в ДОУ (яслях-садах) соотношение ясельных и дошкольных групповых ячеек было 1:2 (т.е. в ДОУ на 6 групп было 2 ясельные группы, в ДОУ на 12 групп - 4). В ДОУ пригородных поселений это соотношение доходило до 1:1.

Сейчас это соотношение в среднем равно 1:5, а в более социально благополучных районах - и того меньше.

При переходе к индустриальному домостроению и строительству крупных жилых комплексов с высокой селитебной плотностью, по существу полностью отказались от применения встроенных ДОУ, т.к., во-первых, встроенными их неудобно и нецелесообразно было делать крупными, а мелкие ДОУ в то время были экономически малоэффективны; во-вторых, технология типового проектирования и полносборного домостроения почти не допускали применения нетиповых первых этажей.

Нормами проектирования в 60-е гг. предусматривалось строительство объединенных яслей-садов. Здания проектировались только с дневными или только с круглосуточными групповыми ячейками. В ячейке для дневного пребывания детей ясельного возраста предусматривались групповые площадью 50 м2; неотапливаемые спальни-веранды - 36 м2; приемные - 15 м2; туалетные - 20 м2. В круглосуточных групповых ячейках вместо веранд предусматривались теплые спальни площадью 36 м2.

В дневной ячейке для дошкольников имелись групповые комнаты площадью 60 м2, раздевальные - 15 м2, туалетные - около 14 м2. Спальные помещения не предусматривались.

Для круглосуточных групп в групповой ячейке предусматривались групповая и спальня площадью по 50 м2.

Площади служебно-бытовых и административно-хозяйственных помещений практически соответствуют современным нормам, однако в московских ДОУ этого периода значительно занижены площади пищеблока и постирочной.

Существенным недостатком зданий крупной вместимости этого периода строительства было то, что в них предусматривался только один зал.

Групповые ячейки в ДОУ этого периода имеют минимально необходимый состав помещений. При этом, учитывая, что в современных нормах произошло сокращение наполняемости детских групп, на площадях даже ясельных групповых ячеек может размещаться современная группа детей возраста от 3 лет, численностью 20 детей. Площадь спальни (36 м2) позволяет организовать спальные места для современной дошкольной группы, а площадь групповой (50 м2) - соответствует нормам при сегодняшней наполняемости групп. Групповые ячейки для дневных групп - не содержащие спальни, но с увеличенной (до 60 м2 ) групповой комнатой, непригодные для размещения полнокомплектной детской группы, тем не менее весьма эффективно могут использоваться в нестандартных ситуациях:

при снижении численности детей в группе в два раза против нормы (до 10 детей). В этом случае площадь групповой делится на две части - 24 м2 под спальню и 36 м2 - под собственно групповую;

для Прогулочных групп - которым не нужно спальное помещение. Этот подход целесообразен в ДОУ смешанного типа (по старой типологической терминологии), где дневных групп не более 3-4 в здании, иначе трудно будет набрать контингент под эту специфическую форму обслуживания;

для организации недостающих залов для музыкальных и гимнастических занятий (при вместимости учреждения 8 и более групп) или для организации класса, комнаты ручного труда, изостудии, прочих специализированных помещений для работы с детьми.

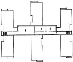
Весьма эффективным приемом реконструкции учреждений этого периода строительства может быть проектирование блока-пристройки, содержащего один зал для музыкальных и физкультурных занятий, бассейн с ванной площадью 20-30 м2 и класс или универсальное кружковое помещение для занятий. Следует отметить целесообразность применения этого блока как к ДОУ вместимостью 4-6 групп, проектировавшихся в то время без залов и каких бы то ни было прочих специализированных помещений для работы с детьми, так и для ДОУ на 8-12 групп, имевших только один зал (рис. 6, 7).

При размещении в зданиях ДОУ начальных классов I ступени общеобразовательной школы следует иметь в виду, что для размещения первого класса (шестилеток), нуждающегося в спальном помещении, подойдут только круглосуточные групповые ячейки со спальными помещениями: групповая оборудуется как класс-игровая, а спальня используется по прямому назначению. При размещении в здании ДОУ двух классов шестилеток целесообразно на площади еще одной групповой ячейки организовать две классные комнаты. Тогда у каждого первого класса будет по три помещения - класс, игровая и спальня. Такой состав помещений наиболее предпочтителен для размещения первых классов. Эти классы могут работать в режиме продленного дня, с трех- четырех-разовым питанием.

Для размещения остальных классов I ступени ОШ (2, 3, 4-го) целесообразно использовать групповые дневных детских групп, имеющие площадь 60 м2, хотя подойдут и 50-метровые помещения. Однако, следует учитывать, что для размещения начальных классов потребуются еще групповые ячейки - чтобы организовать рекреации. В такой планировочной структуре каждый класс имеет свою индивидуальную раздевальную - бывшую раздевальную одной из двух групповых ячеек. Лишние раздевальные могут быть использованы как учительские, помещения для занятий по подгруппам (иностранного языка), кладовых для хранения пособий и оборудования и т.п.

При размещении в здании на 6 групп комплекта 4 классов начальной школы (I-IV кл.) под классные помещения можно отвести весь второй этаж здания, оставив две дошкольные группы на первом этаже. При этом в каждой бывшей групповой ячейке одно помещение отводится под классную комнату, а второе - под рекреацию. Целесообразно рекреации сгруппировать так, чтобы они составляли единое рекреационное пространство. Спортивный зал, классы математики и труда, пара кружковых помещений могут разместиться в надстроенном третьем этаже здания.

В зданиях на 12 групп эти параметры как бы удваиваются. Принцип тот же: на первом этаже остается не более 4 дошкольных групп, выделяется отдельный вход и вестибюль (вестибюль-гардероб) для школьников. На втором этаже - либо два комплекта начальных классов (I-III или I-IV), либо один комплект начальных классов (3-4 класса с I по III или IV) и еще, как правило, 2 группы дошкольников. Зальные помещения, кабинеты математики, ручного труда, кружковые помещения - в надстроенном третьем этаже.

В отдельных случах планировочная структура здания в большей степени соответствует вертикальному зонированию на дошкольное и школьное отделения, например, когда в здании предусмотрены две пары лестниц, обеспечивающих автономную вертикальную связь двух отделений.

На рис. 5 показан пример пристраивания недостающих спален (в зданиях, где это позволяет планировочное решение), на рис. 8 пример комплексной реконструкции дошкольных учреждений строительства 60-х годов.

1.3 Период индустриального строительства 70-х и 80-х годов

Круглосуточные ДОУ к началу 70-х годов имели более развитый состав помещений и отвечали перспективным требованиям к зданиям ДОУ - иметь в каждой групповой ячейке спальню, используемую в дневных группах для дневного сна детей. Групповые ячейки, как и само ДОУ, становятся универсальными: как для дневного, так и для круглосуточного содержания детей в каждой детской группе. И хотя в настоящее время потребность в круглосуточных группах обычно составляет не более 5 % от общего расчетного количества мест в ДОУ, наличие спальни в групповой ячейке в соответствии с современными нормами - обязательно, поскольку в этом случае эффективно решаются вопросы проветривания и уборки помещений групповой ячейки, гораздо выше качественные параметры внутренней среды и т.п.

С этого периода состав и площади помещений групповых ячеек в основном соответствуют требованиям современного нормирования. Основным недостатком зданий крупной вместимости этого периода строительства было отсутствие второго зала, что затрудняло выполнение программных занятий с детьми.

Нормы проектирования дошкольных учреждений начала 1980-х годов (СНиП II-64-80), по составу и площадям помещений не претерпели серьезных изменений в конце 80-х при переходе к ВСН 49-86.

В зданиях этого поколения вместимостью 12-14 групп имеется два зала для музыкальных и гимнастических занятий.

В Приложении 1 приведены составы и площади основных помещений ДОУ на разных этапах строительства.

Здания ДОУ этого этапа строительства отличаются повышенной вместимостью: для Москвы, с нормируемым уровнем обеспеченности в 70 мест на 1000 жителей, ДОУ менее 10 групп в это время не применялись.

Следует отметить еще одну особенность. Градостроительная практика Москвы - практика проектирования и строительства крупными жилыми комплексами до 20-30 тыс. жителей - характеризовалась тем обстоятельством, что и заселение таких больших массивов осуществлялось практически единовременно, причем новые квартиры получали преимущественно молодые семьи. В таких жилых комплексах до сих пор наблюдаются демографические колебания, связанные то с ростом, то со спадом рождаемости по отношению к среднестатистическому показателю по Москве, равному 16 %. Во время пика рождаемости (демографического взрыва), наблюдаемого в первые 10-15 лет после заселения нового жилого комплекса, потребность в дошкольных учреждениях вдвое превышает нормативную, а еще через 10-15 лет спадает и становится вдвое меньше нормативной. Так было в Новых Черемушках, Химки-Ховрино, кварталах по Ленинскому проспекту и др. Спад этой демографической волны совпал со спадом рождаемости из-за экономического кризиса 1990-95 гг., создавая иллюзию ненужности 50-75 % фонда зданий детских садиков. При комплексной реконструкции учебных зданий в существующей или модернизируемой жилой застройке следует иметь в виду, что этот спад, вызванный больше шоком от резкого изменения социально-экономической ситуации, довольно быстро пройдет, а если в жилом комплексе проектируются новые объемы жилья - в них еще будет наблюдаться и некоторое относительное превышение рождаемости (порядка 25 %).

Существующие и загруженные не на полную функциональную мощность дошкольные учреждения или помещения в них в настоящее время не разрешается сдавать в аренду. В связи с этим появляется целесообразность использования части высвобождающихся зданий ДОУ в микрорайонах (или части групповых ячеек в зданиях ДОУ) под размещение в них начальных школ. Причем, при современном снижении спроса на ДОУ на 25 %, из зданий существующих школ можно вывести до 2/3 общего количества классов первой ступени; при снижении спроса до 50 % - из существующих в микрорайоне школ могут быть выведены все классы первой ступени образования. Это обеспечит возможность создания автономного режима учебы и отдыха, питания и дневного сна младших школьников, при необходимости - групп продленного дня для них, а остальные учащиеся получат необходимые недостающие помещения, высвобождающиеся при этом в существующих зданиях школ.

В наиболее типичных случаях в жилых комплексах этого периода строительства на одну школу на 30-33 класса приходится по три ДОУ на 10-12 групп. Начальные классы можно по одному комплекту (по 3-4 класса) разместить в каждом здании ДОУ, с сокращением числа детских групп до 4-6; можно разместить в одном здании ДОУ два комплекта (6-8 классов), тогда детский сад превратится полностью в выделенный блок начальных классов - филиал общеобразовательной школы. В зависимости от конкретного проекта ДОУ в нем может оставаться 2-4 дошкольные группы.

Планировочная структура зданий ДОУ этого периода хорошо подходит для размещения в них начальных классов. Почти во всех проектах в планировочной структуре зданий выделены объемные двухэтажные блоки, на 2 или 4 групповые ячейки, с отдельным входом, в которых, соответственно, может размещаться по два или четыре начальных класса. В зданиях этого типа классные помещения лучше решаются в помещениях спален (при КЕО не ниже 1,5); при этом групповые преобразуются в общее (на два класса) рекреационное пространство. Структура групповой ячейки позволяет в каждом классе иметь собственный гардероб. В надстроенный мансардный или третий этаж выносятся спортивный и небольшой актовый залы с параметрами в плане 912 или 1212 м, класс-кабинет математики и конструирования (компьютерный класс) - 75 м2, класс-кабинет природоведения - 60 м2, универсальное помещение для труда - 72 м2, общее рекреационное пространство - площадью порядка 150 м2.

На участках ДОУ, в зданиях которых размещаются школьные классы, на площади, высвобождающейся от ненужных групповых площадок, следует предусмотреть: общую игровую площадку для первых классов (по количеству классов детей 6-7 лет) и общую физкультурную площадку для младших школьников.

Если назначение здания ДОУ не меняется, в нем, для повышения комфортности для детей и получения необходимых в связи с новыми требованиями дополнительных помещений, определяемых приоритетными направлениями образовательных программ, должна быть сокращена вместимость (примерно на 2 группы). Высвобожденные помещения могут использоваться как:

специализированные для занятий с детьми (компьютерный класс, ИЗО, иностранного языка, ритмики) - в общеразвивающих ДОУ;

как физиокабинет, бассейн (или 2-3 ванны-бассейны), процедурный кабинет, зал тренажеров - в оздоровительном ДОУ;

кабинеты педиатра, узких специалистов, психолога, логопедический, 6-8 комнат коррекции (по числу детских групп) - в компенсирующих ДОУ.

В двухэтажных зданиях ДОУ этого периода строительства, сохраняемых без изменения назначения и вместимости (по числу детских групп), целесообразна надстройка третьего (мансардного) этажа с организацией там недостающих помещений для работы с детьми, необходимых в связи с приоритетной направленностью дошкольного образовательного учреждения. При наличии дополнительных площадей - они могут быть использованы как комнаты кружковых занятий, семейных клубов, место для семейных клубов, проведения родительских семинаров и пр. - по желанию заказчика и в соответствии с образовательной программой конкретного дошкольного учреждения.

На рис. 9-10 показаны примеры реконструкции зданий ДОУ строительства 70-80-х годов.

Раздел 2. ПРЕДЛОЖЕНИЯ ПО РЕКОНСТРУКЦИИ НАИБОЛЕЕ МАССОВЫХ ТИПОВ ЗДАНИЙ - ПРЕДСТАВИТЕЛЕЙ СУЩЕСТВУЮЩЕГО ФОНДА ДОШКОЛЬНЫХ УЧРЕЖДЕНИЙ В МОСКВЕ

2.1 Общие принципы модернизации и реконструкции зданий дошкольных учреждений на основе требований МГСН 4.07-96 "Дошкольные учреждения"

2.1.1 Особенностью современного этапа в развитии типологии ДОУ является разделение типологии зданий и комплексов (архитектурная типология) и классификации видов организационных моделей учреждений, определяемых приоритетными направлениями развития детей.

2.1.2 Типология зданий и комплексов в настоящее время лишь косвенно зависит от вместимости учреждений, но главным образом определяется наличием определенных функциональных групп помещений или особенностью их организации. Основные типы зданий и комплексов ДОУ, на которые распространяются новые МГСН 4.07-96, следующие:

малые ДОУ - при числе детских групп от 0,5 до 3, признаком которых является отсутствие зала для музыкальных и гимнастических занятий, других общих специализированных помещений для работы с детьми (как элементов обязательного нормирования);

ДОУ общего типа - при числе групп 4-10, имеющие зальные помещения - по одному на каждые 4-6 групп;

КДВ - комплексы дошкольного воспитания, объединяющие ряд отдельных (преимущественно малых) ДОУ в жилых комплексах на базе широкого набора общих специализированных помещений для работы с детьми;

УВК - учебно-воспитательные комплексы, характеризующиеся объединением детских групп дошкольного возраста с ученическими классами общеобразовательной школы (преимущественно I ступени образования) на базе единых общих помещений для работы с детьми (спортивный и актовый залы, класс математики и пр.) и общих сопутствующих помещений (медицинских, пищеблока).

2.1.3 Типологическая классификация основана на особенностях нормирования, заложенных в МГСН 4.07-96.

Все типы учреждений в данной классификации являются универсальными архитектурными моделями, в которых могут размещаться практически все виды образовательных дошкольных учреждений, предусмотренные Типовым положением об образовательном дошкольном учреждении:

детский сад с приоритетным осуществлением одного или нескольких направлений развития воспитанников (интеллектуального, художественно-эстетического, физического и др.);

детский сад присмотра и оздоровления с приоритетным осуществлением санитарно-гигиенических и оздоровительных мероприятий и процедур, а также

детский сад компенсирующего вида с приоритетным осуществлением квалифицированной коррекции отклонений в физическом и психическом развитии воспитанников.

2.1.4 В детских садах компенсирующего вида нормируется только самый минимальный набор помещений, позволяющий оказывать помощь детям с легкими нарушениями развития: это может быть логопедический детский сад, детский сад для часто болеющих детей, а также с оказанием помощи лишь части детей или части детских групп в учреждении.

2.1.5 Компенсирующие дошкольные учреждения следует проектировать по Пособию к МГСН 4.07-96. Это дошкольное учреждение может быть универсальным - иметь единый дополнительный состав индивидуальных для каждой группы и общих для всех групп помещений, которые оборудуются по-разному для детей с нарушениями:

произношения;

слуха (глухих и слабослышащих);

интеллекта;

зрения (слабовидящих и с косоглазием и амблиопией);

опорно-двигательного аппарата (главным образом, с последствиями полиомиелита и церебральных параличей).

В данном случае специализация достигается применением того или иного оборудования, а универсализация - возможностью замены этого оборудования.

2.1.6 Наиболее распространенные компенсирующие дошкольные образовательные учреждения:

для детей с нарушением слуха (глухих и слабослышащих);

для детей с нарушением зрения (слабовидящих, с косоглазием и амблиопией);

для детей с нарушением интеллекта (с разной степенью нарушения и возможностью обучения);

для детей с нарушением опорно-двигательного аппарата (с детализацией видов нарушений).

Эти учреждения проектируются по индивидуальным программам и не являются универсальными.

2.1.7 В общем случае ДОУ общего типа должны проектироваться универсальными по составу и площадям помещений, и, кроме частных малых ДОУ, рассчитываться на нормативную наполняемость детской группы (даже если программой предполагается сокращение числа детей в детской группе).

Это объясняется тем, что Типовым положением о государственном дошкольном образовательном учреждении, Уставом дошкольного учреждения предусматривается возможность смены одного приоритетного направления на другое; ДОУ может содержать детские группы с разными приоритетными направлениями развития детей или оказывать дополнительные внепрограммные услуги отдельным детям в отдельных группах. К отдельным услугам может относиться и сокращение числа детей в группе.

Применение индивидуальных программ проектирования, предполагающих в частных ДОУ отклонения от нормативных требований, могут также создать дополнительные трудности при сертификации зданий.

2.1.8 В дополнение к обязательному набору помещений ДОУ может иметь дополнительные - по усмотрению заказчика или из числа рекомендуемых нормами. При этом дополнительные помещения в составе групповой ячейки, а также в составе общих помещений для работы с детьми могут быть как универсальными, так и специализированными и служить для реализации той или иной программной направленности или специализации.

2.1.9 В ДОУ общего типа для реализации той или иной направленности педагогических, психолого-гигиенических и медицинских программ в групповую ячейку рекомендуется включить дополнительное универсальное помещение для занятий детей по подгруппам, площадью от 12 до 18 м2, которое может использоваться как:

кабинет для занятий по подгруппам - компьютерных игр, изучения иностранного языка, математики и др. - при приоритете интеллектуального развития;

комната для занятий ИЗО, учебных видео-, диа- и телепрограмм, прослушивания аудио-записей - при приоритете художественно-эстетического развития;

помещение, в котором размещается пространственный модуль физкультурно-игрового оборудования или ванна-бассейн - в группах с приоритетом физического развития;

мини-физиокабинет (ингаляторий) или процедурный кабинет - для закапывания капель, лечебного массажа и т.п. - в оздоровительных группах.

При компенсирующей направленности ДОУ эта комната может являться комнатой коррекции - в основном для логопедических групп.

2.1.10 Общие для всех детских групп универсальные помещения в ДОУ общего типа могут быть представлены двумя комнатами площадью 54 и 36 м2, каждая с кладовой, и в зависимости от приоритетной направленности развития могут использоваться как:

класс математики и компьютерный класс или компьютерный класс и два помещения по 18 м2 для изучения иностранных языков - в ДОУ с приоритетом интеллектуального развития;

репетиционный зал со сценой, балетный класс и комната видео-, теле-, аудиопрограмм или изостудия - при приоритете художественно-эстетического развития;

бассейн с ванной 3´7 м, с раздевальными и душевыми или гимнастический зал с раздевальными и душевыми - при приоритете физического развития;

физиокабинет и бассейн - в оздоровительном детском саду;

5 комнат коррекции по 18 м2 или физиокабинет и 2-3 кабинета врачей-специалистов (при наличии комнат коррекции в каждой групповой ячейке) - в компенсирующем дошкольном учреждении.

2.1.11 Способ преобразования дошкольных учреждений следует выбирать исходя из необходимого числа детских групп с учетом состава и площадей помещений существующего здания.

2.1.12 Модернизация зданий ДОУ, как правило, проводится с сокращением вместимости дошкольного учреждения, так как площади зданий, спроектированных в 1946-1979 гг. меньше, чем требуется по действующим нормам.

Реконструкция зданий ДОУ может проводиться с сокращением, сохранением или увеличением вместимости.

2.1.13 В районах с плотной застройкой, где значительная часть зданий детских яслей и садов не соответствует современным требованиям, целесообразно рассматривать группы расположенных рядом муниципальных ДОУ, что, возможно, позволит перераспределить детей между ДОУ с учетом радиусов обслуживания, выбрать оптимальный вариант комплексной реконструкции зданий (или здания, более подходящие для реконструкции и модернизации).

Возможны случаи пространственного объединения двух рядом расположенных маленьких зданий ДОУ в одно, с применением общего надстраиваемого этажа, теплого наземного или надземного перехода, блока-вставки.

В таких районах целесообразно предусматривать организацию централизованной стирки белья и централизованного приготовления пищи с доставкой ее в термоконтейнерах. Это одинаково целесообразно как по отношению к группе отдельно стоящих мелких зданий старых ДОУ, так и встроенных в жилые здания, и позволяет сократить затраты на реконструкцию самих зданий, эксплуатационные расходы, а также улучшить гигиенические условия в ДОУ.

2.1.14 Реконструкция устаревших зданий должна осуществляться таким образом, чтобы с наименьшими затратами создать в ДОУ условия для воспитания и обучения детей, их физического и психического развития.

Однако стремление добиться полного соответствия устаревших зданий действующим нормам проектирования может привести к неоправданно большим затратам на их преобразование, заставит делать пристройки к большинству таких детских садов, что не всегда возможно и желательно, так как пристройки искажают облик здания, сокращают площадь участка, требуют перекладки подземных коммуникаций.

2.1.15 В модернизируемых и реконструируемых зданиях площади помещений могут иметь некоторые отклонения от предусмотренных действующими нормами проектирования. Увеличение площадей помещений, а также расширение их состава действующими нормами не ограничивается. В зданиях старых дошкольных учреждений ряд помещений может иметь завышенные площади, главным образом, из-за сокращения вместимости детских групп до современной нормативной.

На основании анализа педагогических и гигиенических требований и разработки функционально-габаритных схем помещений были определены возможности сокращения площадей ряда помещений и их минимальные значения (заниженные по сравнению с требованиями действующих норм, но допустимые при реконструкции и модернизации зданий ДОУ).

Эти и другие приведенные ниже отклонения от требований МГСН 4.07-96 согласованы с Московским Департаментом образования и Центром Госсанэпиднадзора в г. Москве (Приложения 2 и 3).

2.1.16 Основным местом пребывания детей в яслях-садах является групповая ячейка, поэтому при ее формировании необходимо строгое соблюдение санитарно-гигиенических требований и условий для организации воспитательного процесса. При сокращении нормативной наполняемости детских групп, произошедшей в 1995 г., в соответствии с Типовым положением о государственном дошкольном образовательном учреждении, площади некоторых помещений групповой ячейки, в частности, групповой комнаты, в нормах МГСН 4.07-96 не были сокращены, чтобы обеспечить детям дополнительную возможность двигательной активности, а также гигиенические параметры объема воздуха. В то же время, в условиях реконструкции можно придерживаться других стандартов: в Приложении 2 показано соотношение нормативных и минимальных допустимых площадей групповых ячеек.

2.1.17 Площади спален определяются расстановкой кроваток с соблюдением нормативных расстояний между ними (при использовании экранов, устанавливаемых между кроватками, эти расстояния могут быть сокращены). Величина площади спален зависит также от конфигурации помещения, расположения оконных и дверных проемов. Площадь спален может быть сокращена до 36 м2 - для детей 3-6 (7) лет, до 27 м2 - для детей 0-3 лет или другого возраста в группах с числом детей 15 и менее. По согласованию с органами Госсанэпиднадзора допускается сокращение площади спальни в группах детей 3-6 (7) лет до 25-27 м2 при установке двухъярусных кроваток, мобильных выкатных, выдвижных, откидных или облегченных выносных кроваток - например, в спальнях-верандах или в спальных зонах на площади групповой.

В зданиях яслей-садов, где помещения для спален отсутствуют, для сна дошкольников могут использоваться групповые комнаты площадью более 60 м2, с размещением в групповой облегченных выносных, выдвижных, откидных или выкатных кроваток, кроваток-ковриков. Следует учитывать, что для размещения одноярусных откидных кроваток протяженность стен без оконных и дверных проемов должна составлять не менее 10 м.

2.1.18 Площади туалетных в групповых ячейках определяются расстановкой санитарно-технического оборудования. В условиях реконструкции и модернизации площади туалетных могут быть меньше нормируемых, если предусмотреть душевой поддон, открытый с одной или двух сторон, а также совместить проходы с функциональными зонами при шкафах и санитарно-технических приборах, которыми дети не пользуются (умывальник для взрослых, слив-видуар) или пользуются эпизодически (душевой поддон). Нельзя совмещать с проходами функциональные зоны при детских умывальниках и унитазах. Анализ планировочных решений показал, что при перечисленных условиях площади туалетных для детей ясельного возраста могут составлять (в зависимости от конфигурации помещения, расположения окон, дверей, стояков, вентшахт и т.п.) - 8-12 м2, для детей дошкольного возраста - 13-16 м2.

2.1.19 При реконструкции и модернизации здания допускается изменение функциональных связей между помещениями групповой ячейки.

Проход из групповой комнаты в спальню и из раздевальной в групповую может быть организован через умывальную, из раздевальной в групповую - через спальню (в зоне прохода расстояние между кроватками должно быть не менее 1,4 м).

Допускается проход из групповой в спальню через раздевальную.

2.1.20 Площадь залов для музыкальных и гимнастических занятий может быть сокращена на 20 % и может составлять в яслях-садах на 4-6 групп не менее 60 м2, на 7-8 - не менее 75 м2, на 9-10 - два зала площадью 75 м2 и 50 м2. Залы могут быть проходными, проход должен быть организован вдоль одной из сторон зала.

2.1.21 Площади служебно-бытовых помещений - методического кабинета, кабинетов заведующего и завхоза, комнаты (обеденной) персонала, комнаты кастелянши, кладовой чистого белья и хозкладовой - могут быть сокращены по сравнению с нормируемыми не более чем на 20 %.

2.1.22 Ряд служебно-бытовых кабинетов и комнат может быть объединен в одном помещении, например, в ДОУ на 4-6 групп могут быть объединены методический кабинет и кабинет заведующей, в ДОУ на 8-10 групп - кабинеты заведующего и завхоза, комната кастелянши может быть объединена с кладовой чистого белья. Суммарная площадь этих помещений может быть сокращена против нормируемой на 20 %. В ДОУ на 8-10 групп допускается не предусматривать помещение охраны, холодильную камеру пищевых отходов, бассейн; в ДОУ любой вместимости - холлы, универсальные помещения детских кружков и секций.

2.1.23 Площади медицинских помещений, помещений пищеблока и постирочной определяются в соответствии с организацией технологических процессов, расстановкой технологического оборудования и должны, как правило, соответствовать требованиям МГСН 4.07-96.

Связь постирочной с остальными помещениями ДОУ может осуществляться через улицу.

2.1.24 Минимально допустимые в условиях реконструкции и модернизации площади помещений групповых ячеек приведены в Приложении 2, площади медицинских, служебно-бытовых помещений, залов, пищеблока и постирочной - в Приложении 3.

2.1.25 В реконструируемых и модернизируемых зданиях менее жесткие требования могут предъявляться к освещенности и инсоляции залов, раздевальных, служебно-бытовых и хозяйственных помещений, коридоров, лестниц, в частности, в результате организации пристраиваемых блоков, соединяемых с основным зданием теплым переходом или при организации пристройки в уровне II-III этажа, поднятой в уровне I этажа на колонны. Недостаточное естественное освещение этих помещений должно быть компенсировано искусственным освещением.

2.1.26 На основе изложенных выше принципов проектирования в данном издании подготовлены предложения по реконструкции и модернизации наиболее массовых типов зданий ДОУ разных этапов строительства в Москве. Эти предложения основаны на достаточно свободном подходе к реорганизации внутреннего пространства здания. Рассматриваются различные возможные варианты использования каждого конкретного здания из числа наиболее массовых, исходя из его объема, планировочной структуры, возможности внутренней перепланировки и надстраивания дополнительных этажей или пристраивания дополнительных объемов. При этом анализируется возможность как увеличения вместимости здания, так и ее снижения, развития специализации учреждений в соответствии с приоритетными направлениями педагогических программ, а также размещения в здании ДОУ ученических классов начальной школы.

Основные характеристики по составам и площадям помещений наиболее распространенных типовых проектов в Москве по сравнению с действующими нормами МГСН 4.07-96 приведены в Приложении 4, а по сравнению с минимальными допустимыми значениями в условиях реконструкции - в Приложении 5.

2.2 Предложения по реконструкции зданий ДОУ, построенных по типовым проектам Vl-01 и VI-02 (представители 50-х годов строительства)

2.2.1 Здания дошкольных учреждений, построенные по типовому проекту VI-01, являются наиболее старыми из построенных в Москве по типовым проектам. Анализ планировочного потенциала здания показывает, что надстройка третьего этажа может дать две дополнительные групповые ячейки и удобно расположенное в центре этажа зальное помещение площадью около 90 м2, с кладовой. В зал попадают непосредственно и с одной и с другой лестничной клетки. Расположение зала на третьем надстраиваемом этаже позволяет сделать его шириной 9 метров (пролет между двумя лестничными клетками). При неизменной планировке I и II этажей общая вместимость здания составит 7 групп. При этом центральная групповая ячейка второго этажа может иметь спальню 32 м2: при полнокомплектной группе детей такую спальню лучше оборудовать двухъярусными, трансформируемыми или мобильными кроватками, либо сократить число детей в ней до 15.

2.2.2 На втором этаже здания - вместо дневной группы (без спального помещения) может быть удачно решено рекреационное пространство между двумя лестницами, а на месте групповой комнаты дневной группы - универсальное классное помещение. В зависимости от выбранного дошкольным учреждением приоритетного направления развития детей эта площадь (около 60 м2) вместе с кладовой (помещение бывшей туалетной) может использоваться как:

класс математики (компьютерный), изостудия, комната ручного труда или два кабинета по 30 м2 для занятий по подгруппам и изучения иностранного языка - в общеразвивающих дошкольных учреждениях;

как физиокабинет, в том числе с организацией гидропроцедур - для оздоровительных дошкольных учреждений;

как три комнаты коррекции - если дошкольное учреждение создается как компенсирующее.

Удобная связь этих помещений с рекреационным межлестничным пространством в компенсирующих дошкольных учреждениях может выполнять роль раздевальной с местами для отдыха после процедур или ожидания, т.к. дети на процедуры приглашаются в течение всего дня, в том числе с прогулок.

Вместимость ДОУ в этом случае при надстраивании третьего этажа составит 6 групп, при неизменной этажности - 4 группы.

2.2.3 В общеразвивающем дошкольном учреждении рекреация сама может использоваться как помещение для занятий.

2.2.4 Если по заданию на проектирование в здании будут предусмотрены 1-2 ясельные группы, их целесообразно разместить на первом этаже, возможно, с организацией пристроенных открытых террас с навесами.

2.2.5 При варианте реконструкции с выходом за границы площади застройки (пристраиваемые объемы), можно рекомендовать устройство полукруглого, треугольного или прямоугольного в плане объема, вступающего из плоскости стены со стороны главного фасада на уровне 2-го (2-го и 3-го) этажа, а также блок-пристройку, соединяемую с основным зданием переходом. Пристройку лучше решить надземной, поднятой на опорах в уровне 1-го этажа, чтобы сохранить естественное освещение помещений по первому этажу, подходы и входы в здание, фундаменты, сети.

При трехэтажном варианте здания (когда третий этаж предусматривается идентичным второму) пристройку можно предусмотреть двухэтажной, содержащей зал, помещения для специализированных занятий и бассейн, а в двухэтажном варианте здания пристройку целесообразно ограничить одним этажом, а состав ее помещений - залом и парой помещений для специализированных занятий (в зависимости от приоритетной программы ДОУ).

2.2.6 Варианты модернизации и реконструкции здания типа VI-01 и VI-02 показаны на рис. 11, вариант применения блока-пристройки к этому зданию - на рис. 12.

2.3 Предложения по реконструкции зданий ДОУ, построенных по типовому проекту VI-13 (представитель 50-х годов строительства)

2.3.1 Здания ДОУ, построенные по типовому проекту VI-13, содержат групповые ячейки без спальных помещений. Дефицит площади при сохранении проектной вместимости здания 12 групп составляет 1000 м3, т.е. 50 % от предусмотренных по проекту. В зданиях нет залов для музыкальных и гимнастических занятий, а площади пищеблока, постирочной, группы медицинских помещений - недостаточны.

2.3.2 При сохранении проектной вместимости здания и нормативной наполняемости детских групп прежде всего следует предусмотреть пристроенные спальни: по первому этажу выходящими вперед, чтобы не загораживать входы в здание, по второму этажу их можно разместить сбоку от групповых, обеспечивая угловое проветривание в групповых и дополнительную возможность противопожарной эвакуации через соседний блок с детскими группами (рис. 13).

2.3.3 Сокращение вместимости до 6 групп (с объединением двух смежных групповых ячеек в одну в уровне каждого этажа) позволяет организовать полноценные групповые ячейки со спальными помещениями только средствами внутренней перепланировки, не выходя за пределы площади застройки. При этом одна из высвобождающихся раздевальных в каждой новой групповой ячейке может использоваться как дополнительное помещение для занятий по подгруппам, а лишняя туалетная - как площадь для проведения закаливающих гидропроцедур, устройства ванны-бассейна. Эти групповые ячейки будут одинаково эффективны как для размещения общеразвивающей детской группы, так и оздоровительной.

2.3.4 Возможны варианты использования здания для ДОУ с компенсирующей направленностью. Имея ввиду существенное снижение наполняемости групп детей с недостатками физического и умственного развития (в среднем 10-12 детей), можно сохранить существующую групповую ячейку, оборудуя на месте бывшей групповой, площадью 60 м2, два помещения - собственно групповую площадью 36 м2 и спальню - площадью 24 м2.

В этом случае следует предусмотреть сокращение общей вместимости здания с 12 до 10 или 8 групп, высвобождая один из этажей или весь средний двухэтажный блок для размещения комнат коррекции (в среднем по 18 м2 для каждой группы, но уточняется в зависимости от вида нарушений развития у детей). Здесь же следует иметь физиокабинет, кабинет педиатра, 1-2 кабинета врачей-специалистов (процедурный, массажа и др.). Состав этих помещений также уточняется в зависимости от вида нарушений у детей и принимается по Пособию к МГСН 4.07-96.

2.3.5 Для размещения компенсирующего дошкольного учреждения следует организовать большие групповые ячейки (как для общеразвивающего или оздоровительного детского сада), объединяя бывшие групповые двух смежных групп. Число детей в одной такой группе может доходить до 12-15. Вместимость здания после реорганизации составит 6 групп. В каждой групповой ячейке вместо лишней раздевальной и туалетной, при их объединении между собой, будет своя комната коррекции площадью 18-20 м2, что соответствует требованиям проектирования групповых ячеек с компенсирующей направленностью.

2.3.6 Зальные помещения в зданиях этого типа могут быть решены надстройкой третьего этажа над центральным или двумя боковыми двухэтажными блоками. Надстройка третьего этажа над всеми тремя блоками решит вопрос с недостатком медицинских помещений, методкабинета, дополнительных специализированных помещений для работы с детьми или рекреационных, например, зимнего сада.

Зальные помещения, а также дополнительные специализированные помещения для работы с детьми весьма эффективно могут быть предусмотрены в надстройке второго этажа над центральным продольным блоком хозяйственных и служебно-бытовых помещений.

2.3.7 Вопрос с зальными помещениями также может быть решен с применением блока-пристройки (или двух симметрично расположенных блоков-пристроек). В массовой застройке Москвы использовались модификации здания с залом - под шифром VI-13a. Для этого типа здания модернизация с сокращением вместимости может быть достаточной.

2.3.8 Здание ДОУ типа VI-13 может быть также реконструировано за счет расширения центрального продольного блока общих помещений при одновременной надстройке над ним второго этажа. На основе этого приема возможны следующие варианты использования здания:

ДОУ на 10 групп;

Центр развития ребенка на 6 групп;

УВК на 2 дошкольные группы и 4 класса начальной школы.

Площадь застройки здания увеличивается на 50 %, однако, предложение по реконструкции учитывает конфигурацию здания и практику его размещения на участках, анализ которых подтверждает возможность расширения центрального блока. Полезная площадь увеличивается на 400 м2 на каждом этаже, что обеспечивает соответствие здания требованиям МГСН 4.07-96.

2.3.9 Для организации в здании 10 групп вновь возводимый блок выполняется в два этажа. На первом этаже размещаются помещения пищеблока, постирочной, медицинские помещения, бассейн, вестибюль с гардеробом и часть групповых ячеек. В блок-секциях основного здания размещаются ячейки по одной на этаж и спальня групповых ячеек, размещаемых в центральном блоке. На втором этаже центрального блока (помимо групповых ячеек) располагаются залы и служебно-бытовые помещения, включая методический кабинет.

2.3.10 В тех же габаритах здания может размещаться Центр развития ребенка. В этом случае вместимость здания сокращается до 6 групп, каждая из которых располагается по одной на этаже основного здания в блок-секциях. Площади ликвидированных групп используются для размещения специализированных помещений Центра.

В новой части здания размещаются двухсветные или односветные с эксплуатируемой кровлей помещения бассейна и зала физкультурных занятий. На первом этаже располагаются все сопутствующие и служебно-бытовые помещения, вестибюль с гардеробом, на втором этаже - универсальные залы.

2.3.11 Для размещения УВК на 2 дошкольные группы и 4 класса начальной школы габариты здания также увеличиваются за счет перестройки центрального блока, в котором размещаются все специализированные и сопутствующие помещения.

Две блок-секции основного здания используются для классов, имеющих три помещения: групповую, спальню, класс-кабинет и, аналогично групповым ячейкам, раздевальную, туалетную, буфетную. Одна из блок-секций остается в прежнем качестве и включает в себя две групповые ячейки по одной на каждом этаже. Излишек помещений может использоваться в зависимости от ситуации для специализированных кабинетов-студий.

2.3.12 Данные предложения показывают варианты перестройки одноэтажной части здания с максимальным увеличением габаритов здания, предполагающим не только соответствие нормам, но и перспективное развитие структуры здания. При постановке задачи точного соответствия положениям МГСН 4.07-96 "Дошкольные учреждения" объем вновь возводимой части здания может быть сокращен.

2.3.13 Площадь групповых ячеек во всех вариантах соответствует требованиям новых норм и составляет 134 м2.

Площади сопутствующих помещений: пищеблока, постирочной, медицинских и служебно-бытовых помещений соответствуют или приближены к требованиям МГСН 4.07-96.

Излишек площади предусмотрен в зальных помещениях и универсальных помещениях общевоспитательного назначения, являющихся резервным фондом учреждения.

2.3.14 Приемы пристраивания спален, вариант объединения двух групповых ячеек в одну, вариант решения второго этажа над одноэтажным продольным блоком хозяйственных и служебно-бытовых помещений, вариант решения центрального поперечного блока здания в случае, когда проектируется компенсирующее ДОУ, а также варианты использования здания на основе расширения площади застройки продольного блока хозяйственных и служебно-бытовых помещений показаны на рис. 13-16.

2.4 Предложения по реконструкции зданий ДОУ, построенных по типовому проекту 2 МГ-04.3 (представитель 60-х годов строительства)

2.4.1 Здания дошкольных учреждений, построенных по типовому проекту 2 МГ-04.3, возводились в экспериментальных конструкциях с пониженной высотой этажа - 2,8 м. Это обстоятельство является причиной нецелесообразности проведения дорогостоящих мероприятий по увеличению объема здания с сохранением первоначальной вместимости. Отсутствие стационарных спален в групповых ячейках и невозможность их пристройки диктует необходимость объединения смежных ячеек с организацией взамен 8 центральнорасположенных групповых ячеек - 4 полноценных групповых ячеек со спальнями.

2.4.2 Для размещения дополнительных залов могут быть использованы помещения торцевых групповых ячеек на втором этаже здания (с сокращением вместимости ДОУ до 6 групп) или надстройка третьего этажа над двумя торцевыми двухэтажными блоками (вместимость ДОУ составит в этом случае 8 групп). Наличие зала на третьем этаже и дополнительные помещения на втором обеспечивают условия для нормальной работы учреждения. Предлагаемая модернизация здания является наиболее предпочтительным методом его усовершенствования.

2.4.3 Вариант объединения пар смежных групповых ячеек для достижения полноценного состава помещений каждой детской группы показан на рис. 17.

2.5 Предложение по реконструкции зданий ДОУ, построенных по типовому проекту VI-52 в.2 (представитель 70-х годов строительства)

2.5.1 Основным недостатком зданий этого типа является отсутствие второго зала. Попытку решить проблему за счет сокращения числа групп и устройства второго зала на освободившейся площади одной из групповых ячеек (на площади групповой и спальни) на практике уже давно предпринимались в ряде действующих дошкольных учреждений этого типа. Анализ показывает, что наличие портала (увеличенного проема) в несущей перегородке между групповой и спальней в большой степени осложняет проведение физкультурных и музыкальных занятий в таком зале - создаются помехи при движении детей, а также ухудшается акустика помещения.

2.5.2 В качестве варианта модернизации здания предлагается сократить число групп с 12 до 11, при этом на место ликвидированной групповой ячейки (желательно в одном из центральных блоков первого этажа) переместить: служебно-бытовые, административно-хозяйственные, медицинские помещения и постирочную, а на их месте предусмотреть дополнительный зал для музыкальных и физкультурных занятий с кладовой.

2.5.3 Другим примером возможной реконструкции здания может стать надстройка третьего этажа над продольным центральным блоком (блок административно-хозяйственных, служебно-бытовых и специализированных помещений), используя для вертикальной связи две лестницы, расположенные в противоположных концах этого блока.

На третьем этаже могут быть предусмотрены второй зал для музыкальных и физкультурных занятий, а также помещения общей площадью около 100 м2, которые в зависимости от приоритетной направленности дошкольного учреждения, могут быть решены в виде двух специализированных классных помещений (или четырех помещений для занятий по подгруппам, например, иностранным языком) - в общеразвивающих ДОУ, или как физиокабинет и дополнительные кабинеты (например, процедурный и коррекции) - для оздоровительного учреждения.

2.5.4 Вариант надстройки третьего этажа над центральным продольным блоком общих помещений показан на рис. 18.

2.6 Предложения по реконструкции зданий ДОУ, построенных по типовому проекту VI-44 (представитель 70-х годов строительства)

2.6.1 Анализ функционально-планировочной структуры зданий ДОУ, построенных по типовому проекту VI-44, показывает, что основным недостатком здания является отсутствие полноценного второго зала. Сокращение вместимости и устройство зала на площади ликвидируемых групп нецелесообразно, т.к. жесткая конструктивная схема групповых ячеек, наличие несущей стены между помещениями групповой и спальни не позволяют организовать достаточно удобный зал таким способом. Здания типа VI-44 не имеют планировочного резерва, позволившего бы осуществить перепланировку и организовать зал без увеличения объема здания.

2.6.2 Первые два варианта реконструкции здания типа VI-44 предлагаются методом надстраивания одноэтажного продольного центрального блока хозяйственных и служебно-бытовых помещений до двух этажей и методом пристраивания дополнительного блока.

Предпочтение следует отдать второму варианту как наиболее независимому от технического состояния здания. При разработке проектов надстройки должны применяться соответствующие конструктивные решения и проводиться экспертиза, подтверждающая возможность надстраивания.

Оба предлагаемых варианта не предусматривают сокращения числа групп и рассчитаны для ДОУ на 10 групп. Планировка групповых ячеек остается неизменной.

2.6.3 Вариант с надстраиванием второго этажа центрального блока здания позволяет увеличить площадь сопутствующих и служебно-бытовых помещений, расположенных на первом этаже, за счет переноса зальных помещений на второй - надстраиваемый этаж. Дополнительные площади при этом могут позволить разместить в реконструируемом здании Центр развития ребенка.

2.6.4 Вариант с пристраиванием блока обеспечивает несколько меньшее, по сравнению с первым вариантом, увеличение площадей сопутствующих и служебно-бытовых помещений, но достаточное с точки зрения соответствия МГСН 4.07-96. В блоке-пристройке размещаются бассейн и залы. Это увеличивает вариантность специализации дошкольного учреждения, повышает его комфортность.

2.6.5 Третьим вариантом реконструкции здания предлагается надстройка третьих этажей над двухэтажными блоками с детскими группами. В ней могут быть расположены два зала для музыкальных и физкультурных занятий, напротив них - специализированные помещения для работы с детьми (компьютерный класс, комната ручного труда, помещения для занятий иностранными языками). Зальные помещения третьего этажа могут иметь 9-метровый пролет по ширине корпуса.

Третий этаж центрального блока может быть спланирован как группа помещений укрепления здоровья и коррекции недостатков развития детей (физиокабинет, кабинет коррекции, кабинет педиатра, процедурный кабинет). Состав помещений зависит от конкретного вида нарушений развития у детей.

Освободившееся помещение зала на первом этаже площадью 75 м2 целесообразно преобразовать в холл при главном входе в здание, оборудовать его мягкой мебелью для посетителей и родителей, ожидающих детей, для организации информационного стенда, выставки детских рисунков и т.п.

Это все повышает общий комфорт здания, а также обеспечивает условия для создания в нем Центра дошкольного воспитания.

2.6.6 Вариантом использования здания может стать преобразование его в учебно-воспитательный комплекс с размещением 4 ученических классов начальной школы в боковых блоках слева и справа по главному фасаду здания и двух дошкольных групп - на двух этажах центрального блока.

Это может быть филиал общеобразовательной школы или прогимназия с дошкольным отделением.

2.6.7 Здание УВК может быть решено трехэтажным. Тогда оно будет вмещать 6 начальных классов и 3 группы дошкольного отделения. В этом случае на третьем этаже целесообразно предусмотреть спортивный зал 9´12 м (в центральном блоке над служебно-бытовыми помещениями второго этажа), а над залом второго этажа - два кабинета по 36 м2 для занятий по подгруппам по изучению иностранного языка, или одно специализированное классное помещение, например - класс математики.

2.6.8 Варианты реконструкции здания VI-44 показаны на рис. 19-21.

2.7 Предложение по реконструкции зданий ДОУ, построенных по типовому проекту VI-49 (представитель 70-х годов строительства)

2.7.1 В зданиях ДОУ, построенных по типовому проекту VI-49, дефицит нормируемой площади в сравнении с требованиями МГСН 4.07-96 составляет 70 м2 - в основном за счет недостающего второго зала.

2.7.2 Вариантом реконструкции здания может быть надстройка третьего этажа и увеличение общей вместимости здания до 9 детских групп. Такая потребность может возникнуть, например, при комплексной модернизации жилого фонда в микрорайоне, сопряженной с уплотнением этого фонда и увеличением числа жителей.

2.7.3 На третьем этаже следует разместить три групповые ячейки и второй зал для музыкальных и гимнастических занятий. Оставшуюся часть третьего этажа следует использовать в зависимости от программных приоритетов в развитии детей: в общеразвивающем ДОУ это могут быть два специализированных помещения для работы с детьми (например, класс-кабинет математики и компьютерных игр и изостудия или комната ручного труда), в оздоровительном ДОУ это может быть кабинет физиотерапии, гидропроцедур и комнаты коррекции.

2.7.4 В данном случае предпочтительно создание комбинированного дошкольного учреждения: когда два этажа - первый и третий - отводятся для размещения групп оздоровительного и (или) общеразвивающего направления, а второй этаж - под три группы для детей с недостатками развития (например, логопедические, для детей с нарушением зрения или слуха). Группы для таких детей не рекомендуется размещать выше второго этажа.

Помещения второго этажа - комната персонала, бельевая, комната завхоза, инвентарная и методический кабинет - следует перенести на третий этаж (в этом же месте), а вместо них на втором разместить три комнаты коррекции по 18 м2 каждая (по числу детских групп компенсирующей направленности) и кабинет педиатра и врача-специалиста. Состав этих помещений должен уточняться в зависимости от профиля компенсирующих программ (видов нарушений развития у детей).

2.7.5 Схема решения третьего надстраиваемого этажа показана на рис. 22.

2.8 Предложения по реконструкции зданий ДОУ, построенных по типовому проекту VI-52 в.3 (представитель 80-х годов строительства)

2.8.1 Здания ДОУ на 12 групп, выстроенные по типовому проекту VI-52 в.3, имеют нормируемую площадь по проекту 2283,0 м2, что соответствует требованиям МГСН 4.07-96 "Дошкольные учреждения" практически полностью. Состав и площади помещений этого типа здания также в целом соответствуют современным требованиям.

2.8.2 Предлагаются следующие варианты модернизации этих зданий, связанные, во-первых, с изменением вместимости здания, а во-вторых, - с изменением назначения или специализации.

2.8.3 Вместимость ДОУ может быть снижена с 12 групп до 10, что соответствует новым требованиям ограничения вместимости зданий ДОУ общего типа. Лучше это сокращение осуществить за счет двух ясельных групповых ячеек первого этажа, так как маловероятно, что для ДОУ на 10 групп потребуется 4 ясельные групповые ячейки (по среднестатистическому соотношению, двух вполне достаточно).

2.8.4 На освободившихся площадях (около 300 м2) целесообразно предусмотреть две группы помещений: специализированные, состав которых уточняется в зависимости от программных приоритетов развития детей (художественно-эстетического, физического, интеллектуального) и укрепления здоровья и коррекции недостатков развития.

2.8.5 В группу специализированных помещений могут войти:

2 классных помещения (математики, оборудованный компьютерами; ручного труда и моделирования) и четыре помещения для занятий по подгруппам иностранным языком - при приоритете интеллектуального развития;

два зала акробатики, ритмики и т.п. площадью по 75-100 м2 с раздевальными и душевыми или зал бассейна с ванной 3´7 м с раздевальными и душевыми - при приоритете физического развития;

одно классное помещение для специализированных занятий, два помещения для занятий по подгруппам или два классных помещения и группа помещений коррекции и оздоровления (физиокабинет и две комнаты коррекции) - при организации Центра развития ребенка.

2.8.6 Если здание реконструируется как компенсирующее ДОУ, в его состав вместо указанных выше двух ликвидируемых групповых ячеек следует включать физиокабинет, 1-2 комнаты коррекции, комнату гидропроцедур или лечебного массажа, кабинеты врачей-специалистов. Состав помещений уточняется в зависимости от вида нарушений у детей и программы работ по коррекции.

2.8.7 Вариантом использования здания может стать создание на его основе учебно-воспитательного комплекса. При современных нормах наполняемости 20 детей в дошкольной группе (столько же было раньше в ясельной) в ясельных групповых ячейках первого этажа (4 ячейки) могут быть размещены группы детей 3-6 (7) лет.

2.8.8 Следует отметить, что в здании данного типа при площади спален в 56 м2 имеются условия для размещения классов начальной школы, если в микрорайоне школы перегружены, а ДОУ недогружены. В этих зданиях на месте 8 дошкольных групповых ячеек можно разместить 8 начальных классов. Классные помещения следует разместить на площади бывших спален, а площади групповых использовать как рекреационные пространства, индивидуальные для каждого класса и с удобно расположенными также индивидуальными для каждого класса раздевальной, туалетной и буфетной, удачно вписывающимися в новую планировочную структуру.

При этом в раздевальной следует зону около окна переоборудовать в комнату для учителя площадью около 10 м2, а оставшуюся площадь оборудовать как гардероб верхней одежды для школьников.

2.8.9 Методкабинет и кабинет заведующего дошкольным отделением могут быть организованы на первом этаже - на месте стиральной (20 м2), т.к. для оставшихся 4 дошкольных групп достаточно постирочной, оборудуемой в одном помещении - бывшей гладильной. При этом учительская и кабинет заведующего школьным отделением могут находиться в помещениях бывших методкабинета и кабинета заведующей на втором и третьем этажах.

2.8.10 Предложение по снижению вместимости здания ДОУ, выстроенного по т.п. VI-52 в.3, с 12 до 10 групп и расширению группы специализированных помещений для работы с детьми в плане I этажа показано на рис. 23. Предложение по размещению в этом же здании УВК на 4 группы и 8 классов - на рис. 24.

Задания на проектирование реконструкции и модернизации зданий дошкольных образовательных учреждений необходимо согласовывать с городскими или муниципальными органами образования и госсанэпиднадзора. При принятии решения о надстраивании этажа необходимо проведение обследования несущей способности конструкций и фундаментов здания, а также соответствия плит покрытия характеру новых нагрузок на него в качестве перекрытия.

Предлагаемые варианты реконструкции наиболее массовых зданий ДОУ, выстроенных в Москве, представлены в Приложении 6.

В Приложении 7 представлены планировочные схемы типовых проектов наиболее массовых ДОУ Москвы, к которым в настоящих Рекомендациях даны предложения по реконструкции и модернизации.

Инженерное и технологическое оборудование реконструируемых и модернизируемых зданий ДОУ следует проектировать в соответствии с требованиями номативных документов, действующих на территории г. Москвы.

ИЛЛЮСТРАЦИИ

Рис. 1 Пример модернизации и реконструкции здания ДОУ, построенного по т.п. 2-04-11*

а - детский сад на 50 мест - 2 дневные группы; б - модернизация (перепланировка помещений) здания с сокращением вместимости на одну группу; в - реконструкция здания (приведение в соответствие с современными нормами) с помощью двух пристраиваемых объемов с торцов здания

1 - раздевальная ясельной группы; 2 - групповая ясельной группы, 3 - спальня ясельной группы; 4 - туалетная ясельной группы; 5 - раздевальная дошкольной группы; 6 - групповая дошкольной группы; 7 - спальня дошкольной группы; 8 - туалетная дошкольной группы; 9 - буфетная; 10 - помещение для хранения кроваток и спальных мешков; 11 - медицинские помещения; 12 - служебно-бытовые помещения

(Полезная площадь здания - 267 м2; полезная площадь пристраиваемых объемов -140 м2).

Примечание. Здесь и далее значком * обозначены авторские предложения канд. архитектуры Л.А. Смывиной (ИОЗ), значком ** - авторские предложения арх. Т.С. Скобелевой (МНИИТЭП).

Рис. 2 Пример реконструкции здания ДОУ малой вместимости, построенного по индивидуальному проекту: надстройка II этажа, увеличение вместимости с 2 до 4 групп (Полезная площадь здания - 340 м2; надстраиваемого объема - 394 м2)*

а - план I этажа (без изменения); б - план II этажа (надстраиваемого)

1 - раздевальная; 2 - групповая; 3 - спальня; 4 - туалетная; 5 - буфетная; 6 - остекленная веранда; 7 - кабинет заведующей; 8 - медицинская комната; 9 - кухня.

Рис. 3 Пример реконструкции здания ДОУ малой вместимости, построенного по индивидуальному проекту: надстройка II этажа, увеличение вместимости с 2 до 4 групп (Полезная площадь здания - 134 м2; надстраиваемого объема - 278 м2 )*

а - план I этажа (существующее здание); б - план II этажа (надстраиваемого)

1 - раздевальная; 2 - групповая; 3 - спальня; 4 - туалетная; 5 - буфетная; 6 - зал для музыкальных и гимнастических занятий.

Рис. 4 Пример реконструкции здания ДОУ малой вместимости (индивидуальный проект): организация спален на надстраиваемом мансардном этаже и пристройка зала для музыкальных и гимнастических занятий (Полезная площадь здания - 664 м2; надстраиваемого и пристраиваемого объемов -175 м2) *

а - планы I и II этажей (существующее здание); б - реконструируемый II и надстраиваемый мансардный этажи здания

1 - раздевальная; 2 - групповая; 3 - спальня; 4 - туалетная; 5 - буфетная; 6 - зал для музыкальных и гимнастических занятий; 7 - кухня; 8 - кабинет заведующей.

Рис. 5 Пример пристраивания недостающих спален к сблокированным дневным групповым ячейкам, в которых групповая имеет угловую ориентацию

1 - раздевальная; 2 - групповая; 3 - спальня (пристраиваемая); 4 - туалетная.

Рис. 6 Типовая одноэтажная блок-пристройка для реконструкции ДОУ вместимостью 4-6 групп, не имеющих зала

а - план этажа; б - вариант использования блока-пристройки с классом для специализированных занятий с детьми площадью 50 м2 и служебно-бытовыми помещениями

1 - зал для музыкальных и гимнастических занятий; 2 - класс; 3 - кладовая; 4 - комната преподавателя; 5 - туалет.

Рис. 7 Проектное предложение универсального блока-пристройки к ДОУ на 4-6 групп (не имеющих зального помещения) и к ДОУ на 8-10 (12) групп (имеющих только один зал)*

а - план I этажа; б - план II этажа

1 - зал бассейна с ванной 30 м2; 2 - раздевальные бассейна; 3 - душевые; 4 - туалеты; 5 - комната тренера с душем и туалетом; 6 - инвентарная; 7 - комната медсестры; 8 - узел управления бассейном; 9 - зал для музыкальных и гимнастических занятий; 10 - помещение для специализированных занятий с детьми; 11 - кладовые.

Рис. 8 Пример реконструкции ДОУ на 6 групп (т.п. 2-04-651/5, 2С-04-10, 2С-04-11 и т.п.) Полезная площадь 1080 м2; расширение 504 м2 (надстройка III этажа)*

а - т.п. 2-04-651/5; б - пример реконструкции здания аналогичного типа: преобразование в УВК на 3 начальных класса и 2 дошкольные группы, с расширением пищеблока, служебно-бытовых помещений и надстройкой мансардного этажа со спортзалом и специализированными помещениями для занятий

1 - раздевальная; 2 - групповая; 3 - спальня; 4 - туалетная; 5 - классное помещение; 6 - рекреация; 7 - учительская; 8 - медицинские помещения; 9 - администрация; 10 - пищеблок; 11 - постирочная; 12 - зал; 13 - специализированные классы.

Рис. 9 Пример модернизации ДОУ на 12 групп (т.п. 2С-04-7): с расширением центрального блока на 108 м2*

а - план первого этажа: 2 первых класса и 2 дошкольные группы; б - план II этажа: начальные классы и 2 дошкольные группы

1 - раздевальная; 2 - групповая; 3 - спальня; 4 - туалетная; 5 - класс; 6 - зал для музыкальных и гимнастических занятий; 7 - рекреация; 8 - медицинские помещения; 9 - пищеблок.

Рис. 10 Пример организации мансардного этажа здания ДОУ на 14 групп (т.п. 214-1-178), при реорганизации его в УВК*

1 - специализированные помещения для занятий с детьми; 2 - рекреационные помещения (зимний сад, комната сказок и т.п.).

Рис. 11 Варианты реконструкции и модернизации зданий ДОУ, построенных по т.п.VI-01 и VI-02*

а - надстройка III-го этажа при проектировании универсального ДОУ общего типа; б - вариант III-го или перепланировка II-го этажа при проектировании общеразвивающего ДОУ; в - вариант III-го или перепланировка II-го этажа при проектировании оздоровительного ДОУ; г - вариант III-го или перепланировка II-го этажа при проектировании компенсирующего ДОУ

1 - раздевальная; 2 - групповая; 3 - спальня; 4 - туалетная; 5 - буфетная; 6 - зал для музыкальных и гимнастических занятий; 7 - кладовая при зале или кабинете; 8 - специализированное классное помещение; 9 - рекреация; 10 - физиокабинет или зал тренажеров; 11 - процедурный кабинет, кабинет массажа или др., определяемые программой ДОУ; 12 - комната коррекции, кабинет врача-специалиста.

Примечание: к этому и последующим предложениям схемы проектов-оригиналов даны в Приложении 7.

Рис. 12 Вариант организации двухэтажного блока-пристройки к зданию VI-01 и VI-02 с переходом с промежуточных площадок лестничной клетки:

а - между первым и вторым этажом и б - между вторым и третьим (надстраиваемым) этажом, решенным по аналогии со вторым*

1 - раздевальная; 2 - групповая; 3 - спальня; 4 - туалетная; 5 - буфетная; 6 - зал для музыкальных и гимнастических занятий; 7 - класс для специализированных занятий; 8 - кладовые; 9 - бассейн с площадью ванны от 20 до 30 м2.

Рис. 13 Вариант реконструкции здания ДОУ, построенного по т.п. VI-13 (пристраивание блоков со спальнями)*

а - план I этажа; б - план II этажа

1 - раздевальная; 2 - групповая; 3 - спальня; 4 - туалетная; 5 - открытая терраса; 6 - блок хозяйственных и служебно-бытовых помещений.

Рис. 14 Предложение по реконструкции ДОУ на 12 групп (т.п. VI-13). Вариант с сокращением числа групп до 10 и перестройкой части здания**

а - план I этажа: 1 - групповая; 2 - спальня; 3 - раздевальная; 4 - туалетная; 5 - буфетная; 6 - пищеблок; 7 - постирочная; 8 - гардероб; 9 - бассейн; 10 - медицинские помещения

б - план II этажа: 1 - групповая; 2 - спальня; 3 - раздевальная; 4 - туалетная; 5 - буфетная; 6 - универсальный зал; 7 - служебно-бытовые помещения; 8 - зал для музыкальных занятий; 9 - класс-кабинет.

Примечание. Планировка помещений пищеблока, прачечной, медблока и бассейна конкретизируется при разработке проекта.

Рис. 15 Предложение по реконструкции ДОУ на 12 групп (т.п. VI-13) с преобразованием его в Центр развития ребенка (сокращение числа групп до 6, перестройкой части здания)**

а - план I этажа: 1 - групповая; 2 - спальня; 3 - раздевальная; 4 - туалетная; 5 - буфетная; 6 - универсальное помещение для занятий; 7 - бассейн; 8 - пищеблок; 9 - постирочная; 10 - служебно-бытовые помещения; 11 - медицинские помещения; 12 - зал для музыкальных и гимнастических занятий

б - план II этажа: 1 - групповая; 2 - спальня; 3 - раздевальная; 4 - туалетная; 5 - буфетная; 6 - универсальное помещение для занятий; 7 - инвентарная; 8 - второй свет (эксплуатируемая кровля); 9 - зал для музыкальных и гимнастических занятий; 10 - выставочный зал.

Примечание. Планировка помещений пищеблока, прачечной, медицинских и служебно-бытовых помещений конкретизируется при разработке проекта.

Рис. 16 Предложение по реконструкции ДОУ на 12 групп (т.п. VI-13) с преобразованием его в УВК на 2 группы и 4 начальных класса (перестройка части здания)**

а - план I этажа: 1 - групповая; 2 - спальня; 3 - раздевальная; 4 - туалетная; 5 - буфетная; 6 - класс для занятий; 7 - бассейн; 8 - пищеблок; 9 - постирочная; 10 - служебно-бытовые помещения; 11 - медицинские помещения; 12 - обеденный зал

б - план II этажа: 1 - групповая; 2 - спальня; 3 - раздевальная; 4 - туалетная; 5 - буфетная; 6 - класс для занятий; 7 - физкультурный зал; 8 - зал для музыкальных занятий; 9 - универсальный зал; 10 - выставочный зал-рекреация.

Примечание. Планировка помещений пищеблока, постирочной, медицинских и служебно-бытовых помещений конкретизируется при разработке проекта.

Рис. 17 Предложения по модернизации здания ДОУ, выстроенного по т.п 2МГ-04.3 Сокращение вместимости до 8 групп с обеспечением повышенного состава и площадей помещений (ДОУ общего типа или Центр развития ребенка)*

а - план I этажа; б план II этажа; в - план III этажа

1 - раздевальная; 2 - групповая; 3 - спальня; 4 - туалетная; 5 - помещение для занятий по подгруппам; 6 - комната коррекции; 7 - зал для музыкальных и гимнастических занятий; 8 - класс для специализированных занятий; 9 - рекреация.

Рис. 18 Предложение по надстройке III-го этажа у здания ДОУ, выстроенного по т.п. VI-52 в.2*

1 - зал для музыкальных и гимнастических занятий; 2 - классы для специализированных занятий.

Рис. 19 Предложение по реконструкции ДОУ на 10 групп (т.п. VI-44)

Вариант с блоком-пристройкой и перепланировкой центрального блока служебно-бытовых помещений**

План I этажа: 1 - групповая ячейка; 2 - пищеблок; 3 - постирочная; 4 - служебно-бытовые помещения; 5 - медицинские помещения; 6 - бассейн и зал (на втором этаже блока).

Рис. 20 Предложение по реконструкции ДОУ на 10 групп (т.п. VI-44)

Вариант с блоком-пристройкой и перепланировкой центрального блока служебно-бытовых помещений**

План I этажа: 1 - групповая ячейка; 2 - пищеблок; 3 - постирочная; 4 - служебно-бытовые помещения; 5 - медицинские помещения; 6 - бассейн и зал (на втором этаже блока).

Рис. 21 Предложение по размещению в здании ДОУ, выстроенному по т.п. VI-44, УВК на 2 группы и 4 начальных класса при размещении спортивного зала и специализированных помещений для занятий на втором этаже (надстроенным над центральным блоком служебно-бытовых помещений)*

а - план I этажа; б - план II этажа

1 - раздевальная; 2 - групповая; 3 - спальня; 4 - туалетная; 5 - классное помещение; 6 - рекреация (помещение для отдыха и игр); 7 - спортивный зал 9´18 м2; 8 - помещение для занятий по подгруппам; 9 - общая рекреация.

Рис. 22 Предложение по расширению здания ДОУ, выстроенного по т.п. VI-49 с 6 до 9 групп методом надстройки третьего этажа*

План III этажа: 1 - раздевальная; 2 - групповая; 3 - спальня; 4 - туалетная; 5 - второй зал для музыкальных и гимнастических занятий; 6 - классное помещение для специализированных занятий с детьми; 7 - комната коррекции.

Рис. 23 Предложение по снижению вместимости здания ДОУ, выстроенного по т.п. VI-52 в.3 с 12 до 10 групп и расширению группы специализированных помещений для работы с детьми в плане I этажа*

План I этажа: 1 - раздевальная; 2 - групповая; 3 - спальня; 4 - туалетная; 5 - класс для специализированных занятий с детьми; 6 - помещение для работы с детьми по подгруппам; 7 - помещение для индивидуальной работы с ребенком или с небольшой группой детей; 8 - физиокабинет; 9 - кабинет гидропроцедур и закаливания; 10 - комната коррекции; 11 - кабинеты и кладовые преподавателей и врачей-специалистов; 12 - детские туалетные; 13 - блок служебно-бытовых и хозяйственных помещений.

Рис. 24 Предложение по размещению в здании ДОУ на 12 групп, построенном по т.п. VI-52 в.3 УВК на 4 группы и 8 классов (планы II и III этажей в блоках с ученическими классами идентичны)*

а - план III этажа; б - возможная надстройка спортивного зала на IV этаже

1 - раздевальная; 2 - классное помещение; 3 - рекреация; 4 - детская туалетная; 5 - зал для музыкальных и гимнастических занятий (в случае надстраивания спортивного зала на IV этаже может использоваться как обеденный зал для школьников).

Рис. 25 Предложение по реконструкции ДОУ с использованием блока-пристройки "БАССЕЙН-ЗАЛЫ", выстроенных по типовым проектам:

а - т.п. 2МГ-04-3; б - т.п. VI-13; в - т.п. VI-49; г - т.п. VI-44; д - т.п. VI-52 в.2; е - т.п. VI-52 в.3 **.

Приложение 1

Состав и площади (м2) основных групп помещений дошкольных учреждений разных этапов строительства

Основные группы помещений

I этап
1946-1956
гг.

II этап
1956-1962 гг.

III этап
1962-1971 гг.

IV этап
после 1971 г.

 

 

Ясли

Сады

Дневные ясли

Дневные сады

Универсальные ясли-сады

Дошкольные учреждения

группа детей 0-3 лет

группа детей 3-6 (7) лет

группа детей 0-3 лет

группа детей 3-6 (7)лет

 

 

1

2

3

4

5

6

7

8

9

 

1. Групповая ячейка:

111,5

90,0

103,0

97,0

116,0

99,0

117,0

135,0

раздевальная

26,5

12,0

20,0

15,0

15,0

15,0

16,0

16,0

групповая

50,0

62,0

115,0

66,0

50,0

62,0

50,0

50,0

спальня (веранда)

25,0

-

25,0

-

36,0

-

36,0

50,0

туалетная

10,0

11,0

10,0

11,0

10,0

14,0

12,0

16,0

 

 

 

 

 

 

 

2. Общие помещения

 

 

 

 

 

 

(без вестибюля):

127,5

52,0

128,5

58,5

190,0

213,0

методический кабинет

-

-

-

-

-

10

зал для музыкальных и гимнастических занятий

-

-

-

-

75

75

медицинские помещения и изолятор

40,0

6,0

44,0

8,0

20,0

26,0

служебно-бытовые помещения

16,0

13,0

18,0

18,0

32,0

33,0

пищеблок

26,5

33,0

32,5

32,5

43,0

45,0

постирочная

45,0

-

34,0

-

20,0

24,0

Примечание. Приведены данные для сопоставительного анализа состава и площадей помещений в зданиях дошкольных учреждений по нормам проектирования 1946-1987 гг. на примере ДОУ вместимостью 6 групп.

Приложение 2

Нормативные и минимально допустимые площади групповых ячеек (м2) при реконструкции и модернизации дошкольных учреждений

Наименование помещений

Универсальная групповая ячейка на 20 детей

Малокомплектная групповая ячейка на 10-15 детей

Групповая ячейка прогулочной группы (без спальни)

 

 

 

 

 

 

 

 

Норм.

Доп.

Норм.

Доп.

Норм.

Доп.

 

 

 

 

 

 

 

Раздевальная

18

16

15

12

15

10

Групповая

50

40

40

30

36

30

Спальня

46

36

30

27

-

-

Туалетная

16

12

12

10

6

6

Буфетная

3,8

3

3,8

3

3,8

2

Приложение 3

Нормативные и минимально допустимые площади специализированных и сопутствующих помещений (м2) при реконструкции и модернизации зданий дошкольных учреждений

Помещения

Количество групп в здании дошкольного учреждения

 

 

 

1-3

4-6

8-10 (12)

 

 

Норм.

Доп.

Норм.

Доп.

Hopм.

Доп.

 

1

2

3

4

5

6

7

 

1. Медицинские помещения:

4

4

12

8

10

8

медицинская комната

процедурный кабинет

-

-

-

-

8

8

изолятор:

2

-

2

2

2

2

приемная

палаты

4

-

6

2

6+4

6+4

туалет

2

-

2

6

2

2

комната коррекции

-

-

12

-

16

-

Итого по п.1

12

4

34

18

48

32

 

2. Помещения пищеблока:

15

15

23

23

28

28

кухня с раздаточной

моечная кухонной посуды

4

4

4

4

5

5

кладовая сухих продуктов

7

6

6

6

8

8

загрузочная

4

4

4

4

5

5

 

заготовочный цех

6

6

8

8

12

12

кладовая овощей

4

4

4

4

4

4

охлаждаемая камера

-

-

6

6

6

6

охлаждаемая камера пищевых отходов

-

-

-

-

6

-

Итого по п.2

50

46

66

63

87

76

 

3. Специализированные помещения для работы с детьми:

-

-

100

60

100+50

75+60

залы для музыкальных и гимнастических занятий

классы и кружковые помещения

36

-

36

-

54

-

бассейн

-

-

-

-

88

-

Итого по п.3

36

-

136

60

292

125

 

4. Служебно-бытовые помещения:

-

-

10

8

12

10

методический кабинет

кабинет заведующего

4

4

10

8

10

10

комната завхоза

-

-

6

4

6

5

комната персонала - обеденная

6

4

10

6

10

8

хозкладовая

3

3

4

3

4

4

кладовая чистого белья

2

2

6

3

8

6

помещение для постирки, сортировки и хранения грязного белья

-

-

4

-

6

-

туалет персонала

3

3

6

3

9

6

Итого по п.4

18

16

56

37

65

49

 

5. Постирочная стиральная

12

12

14

14

16

16

гладильная

-

-

10

10

12

12

Итого по п.5

12

12

24

24

28

28


Приложение 4

Дефицит площадей в распространенных типовых проектах ДОУ в Москве, по сравнению с МГСН 4.07-96

№ п.п.

Число универсальных групповых ячеек

Число групповых ячеек на 15 мест

Число групповых ячеек без спален

Дефицит площадей, м2

 

 

Залы для музыкальных и гимнастических занятий

Медицинские помещения

Пищеблок

Постирочная

Служебно-бытовые помещения

 

1

2

3

4

5

6

7

8

9

 

VI-01

4

1

-

136

19,6

42,6

10

27,9

VI-02

VI-13

-

-

12

292

14,8

29

-

45

2МГ-04.3

4

-

8

210

-

-

-

16

VI-52 в.2

10

2

-

192

-

15,1

-

16

VI-44

10

-

-

217

8,1

22,3

-

10,9

VI-49

6

-

-

70,5

-

22

1,7

-

VI-52 в.2

12

-

-

155,8

-

27

-

-

Примечание: - Данные 3МГСН 4.07-96: Приложения 10 (рекомендуемое), Приложения 11 (обязательное), Приложения 12 (обязательное).

Приложение 5

Дефицит площадей в распространенных типовых проектах ДОУ в Москве по сравнению с минимально допустимыми при реконструкции (исходя из проектной вместимости - количества детских групп)

№№ т.п.

Число универсальных групповых ячеек

Число групповых ячеек на 15 и менее мест

Число групповых ячеек без спальни

Дефицит площадей, м2

 

 

Залы для музыкальных и гимнастических занятий

Медицинские

Пищеблок

Постирочная

Служебно-бытовые помещения

 

VI-01

4

1

-

60

0,9

39,6

10

10,9

VI-02

VI-13

-

-

12

125

-

18

-

30,6

2МГ-04.3

4

-

8

43

-

-

-

1,0

VI-52 в.2

10

2

-

25

-

4,1

-

-

VI-44

10

-

-

50

-

11,3

-

-

VI-49

6

-

-

-

-

19

1,7

-

VI-52 в.2

12

-

-

-

-

16

-

-

Примечание. Данные минимально допустимых площадей принять по Приложению 2 настоящих Рекомендаций.

Приложение 6

Предлагаемые варианты реконструкции и модернизации зданий ДОУ, построенных по распространенным типовым проектам в Москве

Типовые проекты, варианты реконструкции и модернизации

Сохранение вместимости

Сокращение вместимости

Увеличение вместимости

 

 

Внутренняя перепланировка

Надстройка этажей

Применение пристраиваемых объемов

Внутренняя перепланировка

Надстройка этажей

Применение пристраиваемых объемов

Внутренняя перепланировка

Надстройка этажей

Применение пристраиваемых объемов

 

1

2

3

4

5

6

7

8

9

10

 

VI-01

 

 

 

 

 

 

 

 

 

VI-02 на 5 групп

1) ДОУ общего типа на 7 групп

-

-

-

-

-

-

-

+ 2 гр. яч.

+ зал

-

2) ДОУ общего типа на 4 группы

-

-

-

- 1 мало-

компл. гр. яч.

+ класс

-

-

-

-

-

3) ДОУ общего типа на 6 групп

-

-

-

-

-

-

- 1 мало-

компл. гр. яч.

+ класс

+ 2 гр. яч.

+ зал

-

4) ДОУ общего типа на 5 групп

-

-

+ зал

+ бассейн

+ кружк. пом.

-

-

-

-

-

-

5) ДОУ общего типа на 8 групп

-

-

-

-

-

-

-

+ 3 гр. яч.

+ зал

+ бас­сейн

+ кружк. пом.

 

VI-13 на 12 групп

 

 

 

 

 

 

 

 

 

1) ДОУ общего типа или Центр развития ребенка на 6 групп

-

-

-

- 6 гр. яч.

+ спальни, помещ. для занятий по подгруппам, ванна- бассейн в каждой гр. яч.

+ зал

+ недост. мед., сл.-быт., рекр.

+ специ­ализир. пом. для работы с детьми в зависим. от профиля ДОУ

-

-

-

-

2) ДОУ общего типа на 6 групп

-

-

-

То же

-

+ зал

+ бассейн

+ класс

 

 

 

3) Компенси­рующее ДОУ на 8 групп

-

-

-

- 4 гр.

+ 8 комнат коррекции

+ физиокабинет

+ спец. мед. пом.

-

То же

-

-

-

4) Компенси­рующее ДОУ на 8 групп

-

-

-

То же

+ зал

+ недост. мед., сл.-быт., рекр. пом.

+ специ­ализир. пом. для работы с детьми

-

-

-

-

5) Компенси­рующее ДОУ на 6 групп

-

-

-

- 6 гр.

+ комната коррекции в каждой гр. яч.

То же

-

-

-

-

6) Компенси­рующее ДОУ на 6 групп

-

-

-

То же

-

+ зал

+ бассейн

+ спец. пом. для занят.

-

-

-

7) ДОУ общего типа на 10 групп

-

-

-

- 2 гр. яч.

Надстройка 1-эт. блока:

+ зал

+ спец. пом. для работы с детьми

Расширение 1-эт. блока:

+ доп. сл.-быт. пом.

-

-

-

8) УВК на 2 группы и 4 класса

-

-

-

- 12 гр. яч. без спален

+ 2 полно- компл. гр. яч.

+ 4 кл.

-

Расширение 1-эт. блока сопутств. пом.

+ спец. пом. для работы с детьми

-

-

-

 

2 МГ-04.3 на 12 групп

 

 

 

 

 

 

 

 

 

1) ДОУ общего типа на 8 групп

-

-

-

- 4 гр.

+ недост. спальни в 4-х гр. яч.

+ 2 зала

-

-

-

-

-

2) ДОУ общего типа или Центр развития ребенка на 8 групп

-

-

-

То же

+ зал

+ спец. пом. для занятий

-

-

-

-

VI-52 в.2 на 12 групп

 

 

 

 

 

 

 

 

 

1) ДОУ общего типа на 11 групп

-

-

-

- 1 гр.

+ зал (при перепла­нировке части I-го эт.)

-

-

-

-

-

2) ДОУ общего типа, ЦДВ на 12 групп

-

+ зал

+ специал. пом. для занятий

-

-

-

-

-

-

-

 

VI-44 на 10 групп

 

 

 

 

 

 

 

 

 

1) ДОУ общего типа на 10 групп

-

II-ой эт. над центр. блоком:

+ зал

+ спец. пом. для занятий

-

-

-

-

-

-

-

2) ДОУ общего типа на 10 групп

-

-

+ зал

+ бассейн

+ спец. пом. для занятий

-

-

-

-

-

-

3) ДОУ общего типа, ЦДВ на 10 групп

-

III эт.:

+ зал

+ спец. пом. для занятий+ поме­щения коррек­ции и компен­сации

-

-

-

-

-

-

-

 

VI-49 на 6 групп

 

 

 

 

 

 

 

 

 

1) ДОУ общего типа на 9 групп

-

-

-

-

-

-

-

+ 3 гр. яч.

+ зал

+ спец. пом. для занятий

-

 

VI-52 в.3 на 12 групп

 

 

 

 

 

 

 

 

 

1) ДОУ общего типа, ЦДВ на 10 групп

-

-

-

- 2 гр.

+ 2 зала

+ спец. пом. для занятий

-

-

-

-

-

2) УВК на 4 группы и 8 классов

-

-

-

- 8 гр.

+ 8 кл.

 

 

 

 

 

Примечание. Специализированные помещения для работы с детьми определяются в соответствии с приоритетами педагогических программ ДОУ; общеразвивающие с различными направлениями развития (интеллектуального, физического, художественно-эстетического и др.); оздоровительных и компенсирующих (для детей с недостатками развития).


Приложение 7

Типовые проекты массовых зданий ДОУ, построенных в Москве, к которым даны предложения по реконструкции и модернизации

1) Типовой проект ДОУ на 5 групп VI-01a и VI-02a (рис. 1);

2) Типовой проект ДОУ на 12 групп VI-13 (рис. 2);

3) Типовой проект ДОУ на 12 групп 2МГ-04-3 (рис. 3);

4) Типовой проект ДОУ на 12 групп VI-52 в.2 (рис. 4);

5) Типовой проект ДОУ на 10 групп VI-44 (рис. 5);

6) Типовой проект ДОУ на 6 групп VI-49 (рис. 6);

7) Типовой проект ДОУ на 12 групп VI-52 в.3 (рис. 7).

Рис. 1 Типовой проект ДОУ на 5 групп VI-01a и VI-02a

а - план I этажа: 1 - групповая 50,0 м2; 2 - спальня 42,1 м2; 3 - буфетная 2,0 м2; 4 - раздевальная 12,7 м2; 5 - туалетная 12,0 м2

б - план II этажа: 1 - групповая 48,3 м2; 2 - групповая 58,2 м2; 3 - спальня 42,0 м2; 4 - раздевальная 12,7 м2; 5 - спальня 32,5 м2; 6 - туалетная 12,0 м2; 7 - буфетная 1,8 м2.

Рис. 2 Типовой проект ДОУ на 12 групп VI-13

а - план I этажа: 1 - групповая 63,4 м2; 2 - буфетная 2,0 м2; 3 - раздевальная 15,5 м2; 4 - туалетная 11,0 м2; 5 - групповая 56,6 м2; 6 - раздевальная 15,1 м2; 7 - туалетная 10,2 м2; 8 - холл

б - план II этажа: 1 - групповая 63,4 м2; 2 - раздевальная 13,0 м2; 3 - буфетная 2,0 м2; 4 - раздевальная 11,8 м2; 5 - туалетная 11,0 м2; 6 - подсобная 8,0 м2.

Рис. 3 Типовой проект ДОУ на 12 групп 2МГ-04-3

а - план I этажа; б - план II этажа; в - план III этажа

1 - групповая 70,0 м2; 2 - раздевальная 15,5 м2; 3 - буфетная 3,0 м2; 4 - кроватная 5,0 м2; 5 - туалетная 13,3 м2; 6 - групповая 60,0 м2; 7 - спальня-веранда 35,2 м2; 8 - зал для музыкальных и гимнастических занятий.

Рис. 4 Типовой проект ДОУ на 12 групп VI-52 в.2

а - план I этажа; б - план II этажа

1 - групповая 50,0 м2; 2 - спальня 49,1 м2; 3 - раздевальная 17,4 м2; 4 - туалетная 17,0 м2; 5 - буфетная 2,6 м2; 6 - зал для музыкальных и гимнастических занятий 100,6 м2.

Рис. 5 Типовой проект ДОУ на 10 групп VI 44

а - план I этажа; б - план II этажа

1 - групповая 50,9 м2; 2 - спальня 48,3 м2; 3 - раздевальная 14,5 м2; 4 - туалетная 14,5 м2; 5 - буфетная 2,6 м2; 6 - зал для музыкальных и гимнастических занятий 75,0 м2.

Рис. 6 Типовой проект ДОУ на 6 групп VI-49

а - план I этажа; б - план II этажа

1 - групповая 49,0 м2; 2 - спальня 48,5 м2; 3 - раздевальная 14,8 м2; 4 - туалетная 14,3 м2; 5 - групповая 48,9 м2; 6 - спальня 48,9 м2; 7 - раздевальная 13,5 м2; 8 - туалетная 14,3 м2; 9 - зал для музыкальных и гимнастических занятий 65,5 м2.

Рис. 7 Типовой проект ДОУ на 12 групп VI-52 в.3

а - план I этажа; б - план II этажа; в - план III этажа

1 - групповая 52,8 м2; 2 - спальня 37,0 м2; 3 - спальня 56,0 м2; 4 - раздевальная 20,1 м2; 5 - буфетная 2,6 м2; 6 - туалетная 15,2 м2; 7 - холл 18,0 м2; 8 - зал для музыкальных и гимнастических занятий 68,1 м2.

 




ГОСТЫ, СТРОИТЕЛЬНЫЕ и ТЕХНИЧЕСКИЕ НОРМАТИВЫ.
Некоммерческая онлайн система, содержащая все Российские Госты, национальные Стандарты и нормативы.
В Системе содержится более 150000 файлов нормативно-технической документации, действующей на территории РФ.
Система предназначена для широкого круга инженерно-технических специалистов.

Рейтинг@Mail.ru Яндекс цитирования

Copyright © www.gostrf.com, 2008 - 2026