Крупнейшая бесплатная информационно-справочная система онлайн доступа к полному собранию технических нормативно-правовых актов РФ. Огромная база технических нормативов (более 150 тысяч документов) и полное собрание национальных стандартов, аутентичное официальной базе Госстандарта. GOSTRF.com - это более 1 Терабайта бесплатной технической информации для всех пользователей интернета. Все электронные копии представленных здесь документов могут распространяться без каких-либо ограничений. Поощряется распространение информации с этого сайта на любых других ресурсах. Каждый человек имеет право на неограниченный доступ к этим документам! Каждый человек имеет право на знание требований, изложенных в данных нормативно-правовых актах!

  


 

Система нормативных документов в строительстве

СВОД ПРАВИЛ
ПО ПРОЕКТИРОВАНИЮ И СТРОИТЕЛЬСТВУ

ЗДАНИЯ И ПОМЕЩЕНИЯ С МЕСТАМИ
ТРУДА ДЛЯ ИНВАЛИДОВ

СП 35-104-2001

ГОСУДАРСТВЕННЫЙ КОМИТЕТ РОССИЙСКОЙ ФЕДЕРАЦИИ
ПО СТРОИТЕЛЬСТВУ И ЖИЛИЩНО-КОММУНАЛЬНОМУ КОМПЛЕКСУ
(ГОССТРОЙ РОССИИ)

Москва 2001

ПРЕДИСЛОВИЕ

1 РАЗРАБОТАН ГУП «Научно-проектный институт учебно-воспитательных, торгово-бытовых и досуговых зданий» (Институт общественных зданий) Госстроя России - ведущая организация при участии ЗАО «Архитектурное проектно-исследовательское объединение - Центр» (АПИО-Центр)

2 ВНЕСЕН Министерством труда и социального развития Российской Федерации

3 ПРЕДСТАВЛЕН Управлением архитектуры и проектных работ и Управлением стандартизации, технического нормирования и сертификации Госстроя России

4 УТВЕРЖДЕН приказом директора ГУП «Научно-проектный институт учебно-воспитательных, торгово-бытовых и досуговых зданий» (Институт общественных зданий) от 20 июня 2001 г. № 5 г.

5 ОДОБРЕН И РЕКОМЕНДОВАН к применению в качестве нормативного документа Системы нормативных документов в строительстве постановлением Госстроя России от 16 июля 2001 г. № 69

6 ВВЕДЕН ВПЕРВЫЕ

СОДЕРЖАНИЕ

Введение. 1

1 область применения. 3

2 общие положения. 4

3 обеспечение доступности мест приложения труда инвалидов при проектировании территории. 5

Оборудование территории. 6

4 требования к зданиям и помещениям.. 6

Здания и помещения социально-бытового назначения, административные здания. 10

5 рабочие места (рабочая зона) для инвалидов. 12

Приложение а Порядок организации доступности рабочих мест для инвалидов (при проектировании предприятия общего типа или учреждения) 16

Приложение б Нормативные документы.. 19

Приложение в Требования к условиям и организации труда на рабочих местах инвалидов с различными заболеваниями. 20

ВВЕДЕНИЕ

Свод правил СП 35-104-2001 «Здания и помещения с местами труда для инвалидов» разработан по заказу Министерства труда и социального развития Российской Федерации в рамках федеральной целевой программы «Социальная поддержка инвалидов на 2000-2005 годы» в соответствии с Государственным контрактом №5.1.1. 227 юр-98 от 25 июня 1999 г. по теме: «Создание единой системы отраслевых требований по проектированию доступной для инвалидов среды жизнедеятельности».

Федеральный закон «О социальной защите инвалидов в Российской Федерации» от 24 ноября 1995 № 181-ФЗ, глава 3, статья 9 (Собрание законодательства Российской Федерации, 1995, № 48, ст. 4563) предусматривает «профессиональную реабилитацию инвалидов», которая состоит из профессиональной ориентации, профессионального образования, профессионально-производственной адаптации и трудоустройства. В законе также предусматривается обеспечение занятости инвалидов (статья 20) с помощью специальных мероприятий, в том числе: квоты рабочих мест для приема на работу инвалидов (статья 21), создания специальных рабочих мест для трудоустройства инвалидов (статья 22), создания соответствующих условий труда (статья 23) и определения прав, обязанностей и ответственности работодателей в обеспечении занятости инвалидов (статья 24).

Нормативной базой, регламентирующей мероприятия по адаптации существующей среды жизнедеятельности с учетом потребностей инвалидов и других маломобильных групп населения, призван стать 35-й комплекс нормативных документов в области проектирования и строительства. Основным документом федерального уровня для данного комплекса является СНиП 35-01-2001 «Доступность зданий и сооружений для маломобильных групп населения».

Кроме СНиП 35-01-2001, в состав базового блока нормативных документов нового поколения по 35 комплексу входят:

СП 35-101-2001 «Проектирование зданий и сооружений с учетом доступности для маломобильных групп населения. Общие положения»;

СП 35-102-2001 «Жилая среда с планировочными элементами, доступными инвалидам»;

СП 35-103-2001 «Общественные здания и сооружения, доступные маломобильным посетителям»;

СП 35-104-2001 «Здания и помещения с местами труда для инвалидов».

Настоящий Свод правил, дополняющий и детализирующий требования СНиП 35-01-2001, должен применяться совместно с СП 35-101-2001.

На предприятиях многих отраслей промышленности, в различных учреждениях и организациях имеются профессии и специальности, соответствующие психофизиологическим особенностям инвалидов различных категорий. На основании перечня таких профессий в учреждениях Государственной службы медико-социальной экспертизы разрабатываются индивидуальные программы реабилитации инвалидов, в которых даются рекомендации по профессионально-производственной адаптации и трудоустройству. С учетом этих рекомендаций трудоустройство инвалидов может осуществляться по двум направлениям.

Первое направление - создание специализированных предприятий, производственных зданий, цехов, мастерских и т.п. для тех категорий инвалидов, физиологические особенности которых предъявляют сложный комплекс специфических санитарно-гигиенических, архитектурно-строительных и эргономических требований к производственной среде. Это направление целесообразно преимущественно для инвалидов:

слепых, глухих и глухонемых, инвалидов со сниженным интеллектом и инвалидов, пользующихся для передвижения креслами-колясками, хотя и для них могут быть подобраны и организованы рабочие места в отдельных цехах и помещениях на предприятиях общего типа, а также в учреждениях.

Второе направление - подбор на предприятиях общего типа и в учреждениях помещений, цехов, производственных участков, вспомогательных служб, в которых отсутствуют противопоказанные для инвалидов производственные (технологические и санитарно-гигиенические) факторы, или же они легко устранимы с помощью несложных мероприятий, и в то же время имеются профессии и специальности, соответствующие психофизиологическим особенностям инвалидов той или иной категории. В этих случаях достаточными могут стать сравнительно несложные архитектурно-строительные, эргономические и организационные мероприятия, обеспечивающие оптимальные условия труда для инвалидов.

Свод правил содержит рекомендательные нормы и правила в соответствии с требованиями СНиП 10-01-94 «Система нормативных документов в строительстве. Основные положения» и является документом федерального уровня.

В данной разработке учтены опыт отечественных и зарубежных специалистов в освещаемой области, а также новые разработки различных авторов и авторских коллективов.

Работа выполнена авторским коллективом в следующем составе: руководитель темы, научный редактор, канд. архитектуры A.M. Гарнец, руководитель разработки; ответственный исполнитель Свода правил - канд. архитектуры Л.А. Викторова; канд. мед. наук О.С. Андреева, канд. экономических наук В.В. Петрова; ответственные исполнители (компьютерная графика): арх. К.В. Карпач и инж. А. И. Цыганов, при участии: канд. архитектуры Б.П. Анисимова, арх. Н.П. Малиночки и инж. М.М. Миловидова.

Внесен Департаментом по вопросам реабилитации и социальной интеграции инвалидов Минтруда России (И.В. Лебедев, А.Е.Лысенко).

Представлен к утверждению Управлением стандартизации, технического нормирования и сертификации Госстроя России (В.В. Тишенко, Н.Н. Поляков, Л.А. Викторова), Управлением архитектуры и проектных работ Госстроя России (Э.А. Шевченко, Н.Н. Якимова, В. Г. Хахулин).

Согласован Государственной противопожарной службой МВД России, Госсанэпиднадзором Минздрава России, Главгосэкспертизой России, Всероссийским обществом инвалидов, Всероссийским обществом слепых и Всероссийским обществом глухих.

В работе использованы материалы «Рекомендаций по проектированию окружающей среды, зданий и сооружений с учетом потребностей инвалидов и других маломобильных групп населения: Вып. 20. Промышленные предприятия, здания и сооружения для труда инвалидов различных категорий» / Минстрой России, Минсоцзащиты России, АО ЦНИИпромзданий. - М.: ГП ЦПП, 1994 (канд. архитектуры Л.А. Викторова, арх. Н.Б. Сипкина, инж. О. И. Алексютина).

Использован также ряд положений ВСН 62-91* «Проектирование среды жизнедеятельности с учетом потребностей инвалидов и других маломобильных групп населения» / Госстрой России. - М.: ГП ЦПП, 1994 (ЦНИИЭП им. Б.С. Мезенцева, ЦНИИЭП жилища, ЦНИИП учебных заведений и ЦНИИП курортно-туристических зданий и комплексов Госкомархитектуры).

СВОД ПРАВИЛ ПО ПРОЕКТИРОВАНИЮ И СТРОИТЕЛЬСТВУ

ЗДАНИЯ И ПОМЕЩЕНИЯ С МЕСТАМИ ТРУДА ДЛЯ ИНВАЛИДОВ

BUILDINGS AND PREMISES WITH WORKING PLACES FOR DISEBLED

1 ОБЛАСТЬ ПРИМЕНЕНИЯ

1.1 В данном Своде правил из всех маломобильных групп населения принимаются во внимание в основном инвалиды трудоспособного возраста, так как остальные маломобильные группы: люди старшей возрастной группы, временно нетрудоспособные, в том числе женщины в декретном отпуске, не учитываются при организации рабочих мест на предприятиях и в учреждениях. В связи с этим в последующем тексте данного Свода правил будет употребляться термин «рабочее место для инвалида».

1.2 Настоящий Свод правил распространяется на проектирование предприятий, учреждений, зданий и помещений с целью создания рабочих мест для инвалидов всех групп и большинства нозологии (заболеваний, являющихся причиной инвалидности), в том числе для инвалидов, передвигающихся с помощью кресел-колясок и других вспомогательных средств. Это обусловлено тем, что ориентация на все категории позволит более полно охватить трудоустройством инвалидов, проживающих в пределах пешеходной доступности, что в свою очередь облегчит решение транспортной проблемы. При этом также следует учитывать, что контингент инвалидов, проживающих в близлежащем к учреждению или предприятию районе, достаточно изменчив.

В каждом конкретном случае в зависимости от особенностей контингента населения территориальными органами социальной защиты населения в задании на проектирование могут быть установлены требования к рабочим местам по определенным нозологиям. Однако во всех случаях должны выполняться мероприятия по обеспечению доступности рабочих мест для инвалидов, передвигающихся с помощью специальных средств, так как эти мероприятия обеспечат доступность рабочих мест для большинства инвалидов других категорий, в том числе для наиболее многочисленной группы инвалидов вследствие сердечно-сосудистых заболеваний.

1.3 Данный Свод правил распространяется на проектирование предприятий различных отраслей промышленности, в том числе: машиностроения, приборостроения, электроники, радиотехнической, электротехнической; легкой, пищевой, местной промышленности, предприятий бытового обслуживания населения, ремонтных предприятий и других, где имеются профессии и специальности, медицински показанные для инвалидов; а также на проектирование административно-управленческих зданий, зданий проектных и научно-исследовательских институтов и других общественных зданий, где могут быть организованы отдельные рабочие места для инвалидов. Порядок организации доступности рабочих мест для инвалидов при проектировании предприятия общего типа или учреждения приведен в приложении А.

1.4 Настоящий Свод правил не распространяется на проектирование специализированных предприятий, а также на организацию рабочих мест в квартирах для инвалидов-надомников.

2 ОБЩИЕ ПОЛОЖЕНИЯ

2.1 Отправными точками проектирования предприятия или учреждения с учетом интересов трудящихся инвалидов являются: во-первых, изначальное наличие рабочих мест, пригодных для труда инвалидов, во-вторых, их размещение в объемно-планировочной структуре предприятия, учреждения, здания, помещения, в-третьих, доступность рабочих мест для инвалидов, в-четвертых, безопасность и комфортность этих рабочих мест, в том числе оптимальные (или допустимые) санитарно-гигиенические условия в помещениях, где размещаются рабочие места для инвалидов.

2.2 В соответствии с Федеральным законом «О социальной защите инвалидов в Российской Федерации» от 24 ноября 1995 г., № 181-ФЗ, глава 3, статья 21 (Собрание законодательства Российской Федерации, 1995, № 48, ст.4563) органами исполнительной власти субъектов Российской Федерации устанавливается для каждого предприятия, учреждения, организации квота рабочих мест для инвалидов в процентах средне-списочной численности работников, если она превышает 30 человек; при этом квота должна быть не менее 3 %. Квота рабочих мест, виды и группы инвалидности работников, которым может быть предоставлена работа, уточняются в задании на проектирование с участием в его составлении территориальных органов социальной защиты населения в соответствии с правилами, установленными в РДС 35-201 (нормативные документы, на которые есть ссылки в СП, приведены в приложении Б).

2.3 Рабочие места для инвалидов на каждом конкретном производстве или в учреждении могут быть одиночными, рассредоточенными или сконцентрированными на специализированных производственных участках или в специализированных цехах. Принцип размещения рабочих мест зависит от особенностей технологических процессов и организации производства (структуры учреждения), а также от контингента инвалидов, определяемого территориальными органами социальной защиты населения в задании на проектирование.

2.4 Рабочие места в зависимости от специальности (профессии), для которой они предусмотрены, и нозологии инвалидности могут быть обычными, то есть с оборудованием, предназначенным для здорового работника, или специализированными для определенной нозологии инвалидности, что устанавливается в задании на проектирование.

Профессии и специальности, присущие данному производственному процессу и пригодные для инвалидов, определяют территориальные органы социальной защиты населения в соответствии с рекомендациями органов медико-социальной экспертизы, записанными в утвержденную «Индивидуальную программу реабилитации инвалида».

2.5 Доступность рабочих мест для инвалидов должна обеспечиваться:

комплексным определением принципов их размещения, в том числе - в структуре населенного пункта, предприятия, учреждения или организации; - в объемно-планировочной структуре здания (производственного, административного, общественного, в ряде случаев - жилого);

устранением или преобразованием элементов среды жизнедеятельности, которые могут являться барьерами на путях передвижения инвалидов к местам приложения их труда;

информативной оснащенностью путей передвижения инвалидов.

2.6 Комплекс мероприятий, обеспечивающий доступность мест приложения труда для инвалидов, должен быть рациональным. Из него, по возможности, должны быть исключены дорогостоящие мероприятия, например, устройство лифта в малоэтажном здании при наличии одного рабочего места для инвалида, передвигающегося с помощью кресла-коляски, или устройство для этих инвалидов подземного перехода с пандусом на территории небольшого предприятия. В таких случаях доступность рабочих мест и безопасность передвижения к ним может обеспечиваться другими архитектурно-планировочными или организационными мероприятиями.

2.7 Комфортность рабочего места обеспечивается хорошо подобранными в соответствии с физиологическими особенностями инвалида комплектом оборудования, различных вспомогательных приспособлений к нему и мебели, а также созданием необходимых санитарно-гигиенических условий в рабочей зоне.

Безопасность рабочего места обеспечивается специальными защитными приспособлениями, входящими в набор его оборудования, а также созданием условий для своевременной эвакуации инвалида в экстремальных случаях, например при пожарной опасности.

3 ОБЕСПЕЧЕНИЕ ДОСТУПНОСТИ МЕСТ ПРИЛОЖЕНИЯ ТРУДА ИНВАЛИДОВ ПРИ ПРОЕКТИРОВАНИИ ТЕРРИТОРИИ

3.1 Территория предприятия (учреждения) должна быть доступна для инвалидов всех категорий, так как невозможно предусмотреть, инвалиды какой нозологии будут трудоустроены, какой контингент будет проживать в близлежащих жилых районах.

3.2 Для обеспечения доступности территории предприятия (учреждения) ее генеральный план должен формироваться в комплексе с прилегающей территорией города, поселка или другой территориальной единицы, в которую входит данное предприятие или учреждение. При этом должны быть предусмотрены элементы, обеспечивающие связь мест проживания инвалидов с местами приложения их труда. К ним относятся: стоянки личного транспорта инвалидов, специально оборудованные остановки общественного транспорта (если это предусматривается в задании на проектирование), контрольно-пропускные пункты, оборудование которых обеспечивает проезд кресел-колясок.

На крупных предприятиях для обеспечения наиболее коротких связей возможно устройство дополнительных контрольно-пропускных пунктов и остановок общественного транспорта, рассредоточенных вдоль границы территории, а также размещение стоянок личного автотранспорта инвалидов непосредственно на территории предприятия вблизи цехов, где предусмотрены рабочие места для инвалидов (рисунок 1).

3.3 Остановки общественного транспорта и стоянки личного автотранспорта инвалидов должны размещаться не далее 50 м от контрольно-пропускных пунктов. На крупных и реконструируемых предприятиях, где расстояния от автостоянок общего пользования превышают лимитируемые 50 м до проходных, а от проходных пунктов до входов в здания, где расположены рабочие места инвалидов, в сумме превышают 300 м, автостоянки для инвалидов следует делать обособленными и размещать их в производственной зоне предприятия рассредоточено, вблизи входов в бытовые корпуса. В этих случаях в планировке контрольно-пропускных пунктов или проходных предусматривают возможность пропуска личного автотранспорта инвалидов на заводскую территорию.

3.4 Количество мест на автостоянке для работающих инвалидов (без учета инвалидов-посетителей) определяется в каждом конкретном случае в зависимости от принятой на данном предприятии (учреждении) квоты рабочих мест для инвалидов, но не менее одного места при общем количестве мест на стоянке до 100.

3.5 Контрольно-пропускные пункты, оборудованные турникетами, должны иметь проезды для инвалидных колясок шириной не менее 1,2 м. На пути передвижения инвалидов со сниженным интеллектом, слепых и слабовидящих устройство турникетов-вертушек нежелательно (рисунок 2).

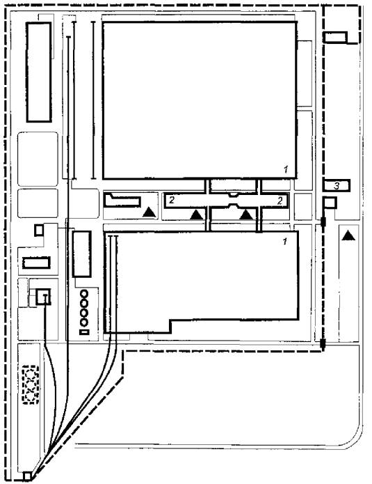
3.6 Планировка территории предприятия (учреждения) и ее оборудование должны обеспечивать (рисунок 3):

минимальную протяженность пешеходных путей передвижения);

безопасность передвижения по территории;

отсутствие элементов, создающих препятствия на путях передвижения инвалидов.

3.7 Планировка территории предприятия, на котором предполагается трудоустройство слабовидящих или слепых инвалидов, должна быть предельно простой для удобства ее запоминания и ориентации в пространстве, пешеходные и транспортные пути спроектированы по прямоугольной схеме.

3.8 На заводской территории не допускается пересечение пешеходных путей инвалидов, пользующихся для передвижения креслами-колясками, слабовидящих и слепых инвалидов с грузовыми потоками. На крупных предприятиях, где на таких пересечениях предусмотрены подземные переходы, последние целесообразно оборудовать пандусами и перилами.

3.9 Уклоны и габариты пешеходных дорожек, тротуаров и пандусов на путях передвижения инвалидов, а также пересечения этих путей с внутризаводскими проездами должны обеспечивать безопасное передвижение инвалидов на креслах-колясках.

Участки пешеходных дорожек и тротуаров, примыкающие к местам их пересечения с проездами, целесообразно выполнять с фактурной поверхностью покрытия, отличной от других участков дорожки или тротуара.

ОБОРУДОВАНИЕ ТЕРРИТОРИИ

3.10 Все предметы, которые могут явиться препятствием на путях движения инвалидов, например деревья, осветительные столбы и т.п., целесообразно огородить. Основные пути передвижения инвалидов по территории желательно оборудовать направляющими поручнями (для слепых и слабовидящих), а при их протяженности, превышающей 100 м, - площадкой для кратковременного отдыха.

3.11 Осветительные устройства на путях движения рекомендуется устанавливать по одной стороне дороги. Освещенность поверхности путей движения в темное время суток должна быть не менее 20 лк при лампах накаливания и не менее 40 лк - при люминесцентных лампах.

3.12 Территория предприятия или учреждения должна быть обеспечена системой ориентиров и информации, разработанной в каждом конкретном случае в зависимости от контингента работающих инвалидов, устанавливаемого местными органами социальной защиты населения в задании на проектирование.

Визуальная информация должна обеспечивать ориентацию инвалида и предупреждение о возможных источниках опасности и препятствиях. Она должна давать по возможности полную информацию по всему комплексу производственной деятельности, социальному и культурно-бытовому обслуживанию.

На предзаводской территории и в распределительной (общественной) зоне учреждения целесообразно установить знаки (символ, эмблему, наименование учреждения или предприятия и т.п.), обозначающие вход (входы) на территорию предприятия.

Специальными знаками или символами могут быть обозначены: повседневно или периодически посещаемые инвалидами здания, сооружения и места отдыха на территории, пересечения пешеходных путей с проездами, входы на территорию, в отдельные цехи и здания.

В необходимых случаях визуальная информация может дублироваться звуковой в виде отдельных звуковых маяков или при помощи радиофикации всей территории.

Пути пешеходного движения при трудоустройстве слепых и слабовидящих рекомендуется оснащать элементами тактильной информации, размещаемыми на направляющих поручнях, при входах в здания и отдельные цехи, на пересечениях путей движения.

3.13 При устройстве на территории предприятия (учреждения) площадок для активного отдыха и занятий спортом их целесообразно группировать в едином комплексе. Устройство специальных площадок для занятий спортом должно обеспечивать безопасность занятий, а для инвалидов с недостатками зрения - возможность ориентироваться в пространстве.

Площадки для пассивного отдыха целесообразно рассредоточить, приближая их к входам в здания, где имеются рабочие места инвалидов.

3.14 При проектировании благоустройства территории учреждения и предприятия следует учитывать, что у инвалидов определенных нозологии утраченные или ограниченные функции одних органов часто компенсируются обострением чувствительности других. Например, у слепого обостряются чувства обоняния и осязания. В связи с этим целесообразно окружающую среду проектировать достаточно разнообразной по ее цветовым, световым, фактурным, слуховым и даже обонятельным качествам. Поэтому при озеленении мест пассивного отдыха на открытом воздухе рекомендуется использовать сильно пахнущие растения, что позволит слепым и слабовидящим работникам не только получать эстетическое удовольствие, но и ориентироваться на территории при выборе места отдыха.

3.15 Элементы благоустройства и различные малые формы на территории должны быть достаточно динамичными, легко демонтируемыми и заменяемыми, что позволит в процессе эксплуатации предприятия формировать благоустройство территории с учетом изменчивости контингента трудоустраиваемых инвалидов. Кроме того, в проекте невозможно предусмотреть все особенности восприятия окружающей среды людьми с психофизиологическими изменениями организма.

4 ТРЕБОВАНИЯ К ЗДАНИЯМ И ПОМЕЩЕНИЯМ

4.1 Объемно-планировочные решения производственных и других зданий, в которых предусматриваются рабочие места для инвалидов, рекомендуется проектировать с учетом следующих требований:

оборудование здания системой информации, обеспечивающей ориентацию и наиболее короткие пути передвижения инвалидов;

обеспечение наиболее коротких путей передвижения за счет локальной, по возможности, группировки помещений различного назначения, ежедневно посещаемых инвалидами (рисунок 4);

организация путей передвижения по зданию, свободных от строительных «барьеров» и оборудованных элементами, обеспечивающими достаточную информативность и безопасность передвижения;

обеспечение эвакуации инвалидов в соответствии с противопожарными нормами и физическими возможностями инвалидов;

обеспечение специально приспособленным применительно к физиологическим особенностям инвалидов санитарно-гигиеническим и бытовым оборудованием.

4.2 Главный вход в здание, являющийся во многих случаях и главным входом в учреждение или предприятие, должен быть архитектурно-художественно оформлен для удовлетворения и эстетических, и ориентировочных потребностей работников. Например, загубленная ниша с яркой суперграфикой будет служить хорошим ориентиром для всех работающих, в том числе и инвалидов, особенно - для инвалидов с ослабленным зрением. Аналогичным ориентиром может быть и вход, расположенный в портике с колоннами. Здесь глубокая светотень также позволит ориентироваться слабовидящим. Для слепых главный вход целесообразно оборудовать звуковым маяком.

Здания, в которых предусматриваются рабочие места для инвалидов, пользующихся для передвижения различными приспособлениями, должны иметь входы, адаптированные для инвалида на коляске, то есть оборудованные площадками, пандусами, тамбурами и дверями с габаритами, обеспечивающими проезд инвалидной коляски и проход человека на костылях.

4.3 В зданиях, помещения которых, расположенные выше первого этажа, предназначены для пребывания в них инвалидов с поражениями опорно-двигательной и сердечно-сосудистой систем, целесообразно предусматривать пассажирские лифты независимо от этажности здания.

Если в ряде случаев такое решение экономически нецелесообразно, то рабочие места и помещения повседневного обслуживания инвалидов, не способных передвигаться по лестницам, следует размещать на уровне первого этажа. Одним из вариантов организации эвакуационных путей для инвалидов, передвигающихся при помощи кресел-колясок, может быть использование междуэтажного пандуса, применяемого в технологических целях для перемещения грузов (такие решения применяются для некоторых предприятий электронной промышленности).

Рабочие места и помещения повседневного обслуживания инвалидов вследствие сердечно-сосудистых заболеваний, гипертонии, двигательных нарушений, инвалидов со сниженным интеллектом и других (по определению местных органов социальной защиты населения) в зданиях, не оборудованных лифтами, желательно размещать не выше второго этажа с отметкой пола 4,2-4,5 м.

4.4 При организации в производственных зданиях специализированных цехов или производственных участков для инвалидов с поражениями опорно-двигательного аппарата их, по возможности, следует размещать на уровне земли. С целью сокращения путей передвижения этих инвалидов и устранения нерациональных передвижений желательно помещения, повседневно посещаемые инвалидами, как-то: бытовые помещения, комнаты приема пищи и т.п., блокировать с указанными специализированными цехами (участками), по возможности, исключая из этих блоков помещения, не посещаемые инвалидами (складские, конторские, хозяйственные и другие подобные помещения).

4.5 При организации в производственных зданиях специализированных цехов и производственных участков для слепых и слабовидящих их следует размещать вблизи входа в здание, желательно не выше третьего этажа. Планировка этой части здания должна быть предельно простой, симметричной, легко запоминающейся. Желательно, чтобы блок социально-бытовых помещений находился на одном уровне со специализированным цехом.

В местах пересечений путей передвижения по производственному зданию слепых и слабовидящих инвалидов и напольного транспорта целесообразно устраивать защитные ограждения в виде съемных барьеров, перил, цепей и т.п.

Вблизи производственных участков, предназначенных для труда слабовидящих и слепых инвалидов, целесообразной является установка автоматов по продаже газированной воды или других напитков, телефонных аппаратов городской и внутренней связи, автоинформаторов.

При производственных участках, предназначенных для труда слепых инвалидов, следует устраивать умывальные, так как их трудовой процесс связан в основном с осязанием, что требует периодического мытья рук.

Материалы покрытия полов не должны допускать скольжения.

4.6 При организации в производственных зданиях специализированных цехов или производственных участков для инвалидов со сниженным интеллектом их следует размещать не выше второго этажа, в блоке с помещениями социально-бытового обслуживания этих инвалидов. Планировка этого блока должна быть четкой с минимальными по протяженности путями передвижения, без дублирования, по возможности, одинаковых по назначению помещений (гардеробов, санузлов, кладовых и т.п.).

4.7 Пути передвижения глухих и глухонемых инвалидов по производственному зданию к цеху или производственному участку, предназначенному для их труда, а также к помещениям социально-бытового назначения и другим, периодически посещаемым этими инвалидами, должны быть оснащены визуальной информацией.

4.8 При планировке зданий следует учитывать, что площадь помещений, в которых размещаются рабочие места для инвалидов, должна быть увеличена для ряда нозологии, а именно: для инвалидов вследствие заболеваний туберкулезом, заболеваний легких с дыхательной недостаточностью, сердечно-сосудистых заболеваний, двигательных нарушений нижних конечностей, ампутации нижних конечностей, для инвалидов с высокой близорукостью, слепых, передвигающихся с помощью кресел-колясок, или с эмоциональной неустойчивостью. Увеличение площади связано с увеличением по сравнению с нормами для здоровых работников ширины проходов между оборудованием, а также рабочей зоны для этих инвалидов.

4.9 Помещения с рабочими местами для инвалидов со сниженным интеллектом и эмоциональной неустойчивостью, а также инвалидов-гипертоников должны иметь небольшие габариты.

4.10 Помещения с рабочими местами для инвалидов с заболеванием туберкулезом желательно ориентировать на солнечную сторону, а для инвалидов вследствие заболеваний сердечнососудистой системы - на теневую, при невозможности соблюдения последнего требования необходимо применение солнцезащитных устройств.

В этих помещениях следует обеспечить повышенную кратность воздухообмена, при этом рециркуляция воздуха не допускается.

В помещениях для труда инвалидов вследствие туберкулезных заболеваний отделочные материалы пола и стен следует выбирать с учетом обеспечения влажной уборки и дезинфекции.

4.11 Для обеспечения ориентирования в зданиях, сокращения излишних передвижений по зданиям и безопасности передвижений в проекте интерьеров должна разрабатываться система визуальной, звуковой и тактильной информации. Эта система должна быть нацелена в первую очередь на безопасность передвижения и ориентировку в пространстве инвалидов с недостатками зрения. Такая хорошо продуманная система позволит ориентироваться и инвалидам других нозологий.

Осязательные (тактильные) ориентиры: направляющие поручни в коридорах; рельефные обозначения на поручнях; таблицы с выпуклыми надписями или шрифтом Брайля при входах в помещения и цехи; рельефные поэтажные планы на лестничных площадках, в вестибюлях и лифтовых холлах; изменяемый тип покрытия пола (по фактуре, по цвету) перед препятствиями и местом изменения направления движения (входами, подъемами, лестницами, лифтами, поворотами коридоров и т.п.).

Звуковые ориентиры: звуковые маяки при входах, пересечениях путей движения с внутрицеховыми транспортными проездами; радиотрансляция в зданиях, помещениях (цехах) с рабочими местами инвалидов, в лифтовых кабинах, в бытовых помещениях с гардеробными для инвалидов.

Визуальные ориентиры: различные специально освещаемые указатели в виде символов и пиктограмм с использованием яркого цвета, контрастного по отношению к фоновой поверхности; контрастное цветовое обозначение входов. Текстовая информация должна быть максимально краткой. Ориентиры-указатели направления движения должны быть однотипными для всего объема здания и зданий одного комплекса.

Система ориентиров должна быть достаточно продумана, чтобы не допускать их переизбытка, способствующего созданию «тепличных» условий и ослабления навыков пространственной ориентации в другой среде, особенно у инвалидов с недостатками зрения. Для последних целесообразным является использование системы опорных ориентиров, установленных в «Рекомендациях по системе ориентиров на предприятиях и в организациях ВОС».

4.12 Отделочные материалы помещений, в которых предполагается размещение рабочих мест инвалидов, следует выбирать, учитывая специфические требования по шумопоглощению и цветовому решению в зависимости от нозологии инвалидности, устанавливаемые органами социальной защиты в задании на проектирование.

При организации рабочих мест для труда инвалидов в помещениях, где уровень шума или вибрации превышает допустимые уровни, установленные в ГН 2.2.4/2.1.8.562 и ГН 2.2.4/2.1.8.566, следует, как правило, проводить мероприятия по защите рабочих мест инвалидов от шума и вибрации.

Мероприятия по защите от шума и вибрации особенно важны для инвалидов вследствие гипертонической болезни, заболеваний органов слуха, нервно-психических заболеваний и инвалидов с недостатками зрения (для последних шум затрудняет ориентировку в пространстве).

Следует учитывать, что для достижения максимального эффекта площадь звукопоглощающей облицовки потолка и стен должна составлять не менее 60 % общей площади поверхностей, ограничивающих помещение, где размещаются рабочие места инвалидов.

Для снижения уровня шума и вибрации следует устраивать звукопоглощающие облицовки потолков и стен в зоне работающего в помещении шумного оборудования. Возможно устройство отдельных звукопоглотителей, звукоизолирующих кожухов, акустических экранов или перегородок, не доходящих до потолка.

В ряде случаев целесообразно применять звукоизолирующие и вибродемпфирующие (снижающие вибрацию) покрытия на поверхности проходящих вблизи рабочих мест инвалидов трубопроводов.

Цветовая отделка интерьеров производственных помещений должна выполняться в соответствии с требованиями «Указаний по проектированию цветовой отделки интерьеров производственных зданий промышленных предприятий» и с учетом психофизиологических особенностей восприятия окружающей среды отдельными категориями инвалидов.

Для улучшения освещенности помещений цвета отделки, применяемые в верхней зоне интерьеров, должны иметь наибольший коэффициент отражения, то есть они должны быть светлыми с минимальным количеством колера или белыми.

При выборе цвета для отделки средней зоны интерьеров (стен, перегородок, колонн, дверей и т.п.) следует учитывать особенности восприятия окружающего пространства инвалидами вследствие нервно-психических заболеваний, глазных болезней и в других случаях, когда требуется обоснованный выбор цвета, а также с учетом необходимости обеспечения ориентировки в пространстве инвалидов с остаточным зрением.

При цветовом решении нижней зоны интерьеров следует обеспечивать условия безопасности передвижения по цехам и другим помещениям инвалидов с недостатками зрения и заболеваниями органов слуха. Цветовое решение нижней зоны должно разрабатываться в комплексе с системой визуальной информации, включающей предупредительную окраску опасных в отношении травматизма зон помещения и элементов оборудования, опознавательную окраску коммуникаций, ориентирующие указатели и прочие виды цветовой сигнализации.

Цветовое решение интерьеров помещений, в которых предполагается пребывание инвалидов с остаточным зрением, следует разрабатывать на основе контраста оборудования с общим цветовым фоном или мебели и деталей помещения функционального назначения с общим цветовым фоном помещения. Например, объекты красного и желтого цветов наилучшим образом распознаются на ахроматическом фоне, а объекты ахроматического тона - на синем и желтом фонах. В сигнальных и предупреждающих ориентирах наиболее воспринимаемыми являются сочетания: желтое - черное, белое - черное.

Предупреждающая окраска должна применяться для следующих элементов помещений:

элементов, фиксирующих границы опасных участков и зон помещений, в том числе: границ внутренних проездов в цехах и примыкающих к ним рабочих площадок и зон напольного вида транспорта (конвейеры, транспортеры и т.п.), зон складирования сырья, заготовок или готовой продукции, а также барьеров, перил и других видов ограждений;

элементов строительных конструкций в помещении и оборудования, например, створок ворот, колонн, габаритов проемов и оборудования, дверных коробок, перепадов и выступов в плоскости пола.

Первая и последняя ступень каждого лестничного марша должна быть окрашена в контрастные цвета для предупреждения слабовидящих в начале и конце лестничного марша.

На полу или стенах различных коммуникационных помещений: коридоров, проходов, вестибюлей, холлов возможно применение ориентирующей и направляющей окрасок.

В учреждениях и предприятиях при трудоустройстве значительного количества слабовидящих инвалидов возможно применение так называемого цветового кода помещений, когда каждое помещение в зависимости от его функционального назначения получает определенный цвет, что дает дополнительную информацию и возможность быстро ориентироваться.

Для инвалидов вследствие заболевания нервной системы и психических заболеваний в окраске помещений следует применять спокойные тона.

ЗДАНИЯ И ПОМЕЩЕНИЯ СОЦИАЛЬНО-БЫТОВОГО НАЗНАЧЕНИЯ, АДМИНИСТРАТИВНЫЕ ЗДАНИЯ

4.13 Здания и помещения социально-бытового назначения, административные здания и аналогичные им по основным строительным параметрам здания конструкторских бюро и учебных заведений промышленных предприятий, а также общественные здания административно-управленческого назначения следует, как правило, проектировать доступными для инвалидов, передвигающихся с помощью различных приспособлений, в том числе - кресел-колясок. Это связано с тем, что практически на подавляющем большинстве промышленных предприятий и во всех учреждениях в этих зданиях могут быть организованы рабочие места для инвалидов, а на предприятиях, где трудоустройство инвалидов предусматривается в заводских корпусах, эти здания и помещения повседневно или периодически посещаются инвалидами.

4.14 Здания социально-бытового назначения целесообразно располагать таким образом, чтобы пути движения инвалидов от контрольно-пропускных пунктов через бытовые корпуса до рабочих мест были наиболее короткими. Для этого рекомендуется здания социально-бытового назначения, здания проходных и производственные корпуса по возможности блокировать друг с другом, отдавать предпочтение встроенным или пристроенным к производственным корпусам бытовым помещениям.

4.15 В отдельно стоящих бытовых корпусах размещение гардеробных блоков для инвалидов целесообразно увязывать с расположением производственных участков, где для них организуются рабочие места, таким образом, чтобы они располагались в одном уровне и вблизи от переходных галерей.

Если позволяют условия технологического процесса, на первых этажах бытовых корпусов в ряде случаев могут быть организованы специализированные производственные участки для инвалидов с поражениями опорно-двигательного аппарата.

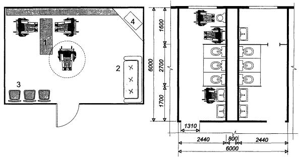
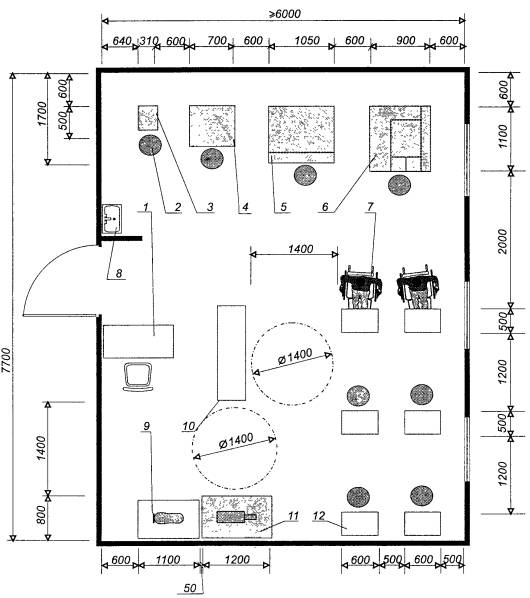
4.16 Для формирования блоков помещений социально-бытового обслуживания при специализированных для труда инвалидов производственных участках целесообразно применять встроенные помещения инвентарного типа. В инвентарных помещениях могут располагаться гардеробные, санузлы, комнаты отдыха, комнаты приема пищи, помещения для переводчиков жестового языка и другие, необходимые для организации условий труда инвалидов на специализированном производственном участке. Преимуществом таких помещений перед стационарными является их приближенность к рабочим местам инвалидов, а также возможность передислокации при изменении специализации производственного участка или его техническом переоснащении или реконструкции (рисунок 5).

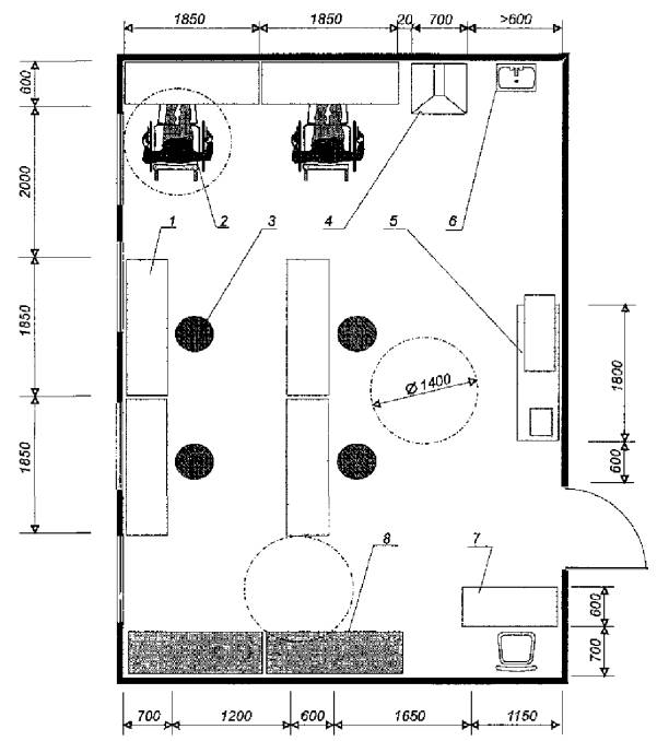
4.17 Размещение гардеробных и душевых для инвалидов всех нозологии возможно в составе общих гардеробных блоков. При этом их расположение в блоке должно обеспечивать наикратчайшие пути передвижения для инвалидов с поражениями опорно-двигательного аппарата и слабовидящих от гардеробных блоков до рабочих мест (рисунок 6). При размещении гардеробных и душевых для слепых и зрячих в одном помещении их следует четко разделять.

4.18 Шкафчики в гардеробных для инвалидов с поражениями опорно-двигательного аппарата и для слепых должны быть для совместного хранения уличной, домашней и рабочей одежды.

Шкафчики для слабовидящих рекомендуется оборудовать внутренним светильником с автоматическим включением при открывании дверцы шкафчика и приспособлением для фиксации дверцы в открытом положении.

Размещение шкафчиков должно быть однорядным.

Скамьи для переодевания должны примыкать к тыловой стороне противоположного ряда шкафчиков.

4.19 Душевые для слепых при размещении их в общем блоке с душевыми для зрячих должны быть с закрытыми кабинами, имеющими вход непосредственно из гардеробной.

Умывальные для слепых и для инвалидов, передвигающихся на креслах-колясках, следует размещать непосредственно в гардеробном блоке или смежно с ним.

Умывальные для слепых не рекомендуется оборудовать круглыми групповыми умывальниками. Вентили горячей и холодной воды должны быть различными по форме.

Оборудование санитарно-гигиенических помещений при трудоустройстве слабовидящих инвалидов должно быть одинаковым по типу, форме, цвету и материалу.

При трудоустройстве инвалидов, передвигающихся с помощью кресла-коляски, уборные с кабиной для инвалида должны быть в составе гардеробного блока независимо от численности этих инвалидов.

Уборные в зданиях, где работают инвалиды, рекомендуется размещать на каждом этаже, независимо от численности работающих. Кабины для инвалидов, пользующихся креслами-колясками, следует устраивать в тех этажах, где для них предусматриваются рабочие места. Если в задании на проектирование трудоустройство инвалидов на креслах-колясках не указывается, кабину для инвалида все же следует разместить в составе санузлов, расположенных на первых этажах зданий, так как возможно трудоустройство таких инвалидов в процессе эксплуатации здания.

На предприятиях, где преобладают здоровые работники, а число инвалидов, пользующихся креслами-колясками, составляет 3-5 человек в смену, и они заняты на одном производственном участке, для них может быть оборудована индивидуальная сантехническая кабина, в которой совмещены туалет и душевая.

4.20 Помещения для пассивного кратковременного отдыха должны быть оборудованы с учетом категории инвалидности, характера работы, создания в них необходимых санитарно-гигиенических условий. Они могут размещаться рассредоточено вблизи рабочих мест, на свободных участках площади производственных цехов или в специальных комнатах в составе бытовых помещений.

Открытые места отдыха можно организовать в производственных помещениях с комфортной для инвалидов всех категорий воздушной средой и бесшумным производством. Их можно выделить передвижными перегородками-экранами, декоративными решетками и другими инвентарными, легко демонтируемыми устройствами. При необходимости более полной изоляции мест отдыха, расположенных в производственном цехе, для их сооружения целесообразно применять переносные объемные блоки.

Количество мест и оборудование помещений отдыха инвалидов определяются в каждом конкретном случае при консультации врачей-реабилитологов. Ориентировочно число отдыхающих в одном помещении не должно превышать 20 человек, и оно должно быть значительно меньше для инвалидов вследствие нервно-психических заболеваний и гипертоников.

4.21 При проектировании помещений для активного отдыха и занятий спортом целесообразно ориентироваться на то, что назначение, состав и оборудование этих помещений должны соответствовать потребностям медицинской реабилитации инвалидов и, по возможности, включать площади, занятые тренажерами для лечебной физкультуры.

При организации спортивных помещений следует учитывать показанные для инвалидов виды спорта в закрытых помещениях:

для глухих - шахматы, шашки, настольный теннис, легкая атлетика, волейбол, плавание, дартс, бильярд, баскетбол, стритбол, бадминтон, армреслинг;

для слепых и слабовидящих - шахматы, шашки, гимнастика, плавание;

для инвалидов с поражениями опорно-двигательного аппарата - шахматы, настольный теннис, игра с мячом сидя, плавание.

4.22 Пункты питания, которые могут посещать инвалиды, пользующиеся для передвижения креслами-колясками, слабовидящие и слепые, должны иметь специальные посадочные места, расположенные вблизи входа в столовую или буфет. При этом необязательно предусматривать возможность проезда инвалидной коляски к раздаточной, если обслуживание их осуществляется работниками столовой или другими сотрудниками учреждения (предприятия).

При наличии на предприятии специализированных цехов или производственных участков для инвалидов этих категорий целесообразно вблизи них размещать комнаты приема пищи, в том числе в инвентарном исполнении.

4.23 Медицинские пункты предприятий и учреждений, применяющих труд инвалидов, могут быть дополнены кабинетами врачей-специалистов и другими медицинскими помещениями в соответствии с видами заболеваний основного контингента работников-инвалидов, если это устанавливается в задании на проектирование местными органами социальной защиты населения.

4.24 В помещениях социально-бытового назначения (гардеробных, помещениях отдыха, медпунктах) на предприятиях и в учреждениях, где трудоустраиваются инвалиды вследствие заболеваний, которые могут сопровождаться внезапным резким ухудшением здоровья (сердечно-сосудистые, нервно-психические и другие заболевания), должны быть предусмотрены дополнительные площади для установки лежанки и оказания первой помощи.

4.25 На крупных предприятиях с массовым использованием труда инвалидов таких категорий, трудовая деятельность которых требует специального инструктажа или выработки специальных навыков в труде, а также выработки навыков ориентации в пространстве предприятия, должны быть предусмотрены помещения для кабинетов социально-трудовой ориентации. Например, для инвалидов с полной или частичной потерей зрения необходимо практическое обучение специальности на полностью оснащенных типовых рабочих местах, обучение ориентации на предприятии на планшетах с рельефными планами или макетами предприятия, цеха и участка, где для них предусмотрены рабочие места, ознакомление с системой ориентации на данном предприятии.

На предприятии, использующем труд инвалидов по слуху, должен быть кабинет переводчика жестового языка. Указанный кабинет должен быть оборудован специальными техническими средствами связи для глухих: телефонами с текстовым устройством или телефаксами.

Площади кабинетов социально-трудовой реабилитации определяются в задании на проектирование местными органами социальной защиты населения. Их размеры зависят от численности инвалидов, вида инвалидности, формы проведения занятий (групповые или индивидуальные).

5 РАБОЧИЕ МЕСТА (РАБОЧАЯ ЗОНА) ДЛЯ ИНВАЛИДОВ

5.1 Проектирование и оснащение специальных рабочих мест для инвалидов должны осуществляться с учетом профессии, характера выполняемых работ, тяжести инвалидности, степени функциональных нарушений и ограничения способности к трудовой деятельности, уровня специализации рабочего места, механизации и автоматизации производственного процесса.

При проектировании, реконструкции и эксплуатации специальных рабочих мест для инвалидов следует руководствоваться:

«Едиными санитарными правилами для предприятий (производственных объединений), цехов и участков, предназначенных для использования труда инвалидов и пенсионеров по старости»;

стандартами системы безопасности труда (ССБТ);

санитарными правилами, нормами и гигиеническими нормативами;

«Гигиеническими критериями оценки и классификации условий труда по показателям вредности и опасности факторов производственной среды, тяжести и напряженности трудового процесса»;

нормативными документами общественных объединений инвалидов (ВОИ, ВОГ, ВОС), Министерства труда и социального развития Российской Федерации, регламентирующими труд инвалидов.

Специальное рабочее место инвалида должно обеспечивать безопасность труда, работу с незначительными или умеренными физическими, динамическими и статическими, интеллектуальными, сенсорными, эмоциональными нагрузками (1-й и 2-й классы согласно «Гигиеническим критериям»), исключать возможность ухудшения здоровья или травматизма инвалида.

5.2 Противопоказанными для трудоустройства инвалидов являются условия труда, характеризующиеся наличием вредным производственных факторов, превышающих гигиенические нормативы и оказывающих неблагоприятное воздействие на организм работающего и/или его потомство (3-й класс согласно «Гигиеническим критериям»), и условия труда, воздействие которых в течение рабочей смены (или ее части) создает угрозу для жизни, высокий риск возникновения тяжелых форм острых профессиональных поражений (4-й класс согласно «Гигиеническим критериям»).

Противопоказанные для трудоустройства инвалидов условия труда характеризуются повышенными (пониженными) уровнями:

физических факторов (шум, вибрация, температура воздуха, влажность и подвижность воздуха, электромагнитные излучения, статическое электричество, освещенность и др.);

химических факторов (запыленность, загазованность воздуха рабочей зоны);

биологических факторов (патогенные микроорганизмы и продукты их жизнедеятельности);

физических, динамических и статических нагрузок при подъеме и перемещении, удержании тяжестей, работе в неудобных вынужденных позах, длительной ходьбе;

нервно-психических нагрузок (сенсорные, эмоциональные, интеллектуальные нагрузки, монотонность, работа в ночную смену, с удлиненным рабочим днем).

5.3 Условия труда на рабочих местах инвалидов должны соответствовать Индивидуальной программе реабилитации инвалида, разрабатываемой Бюро медико-социальной экспертизы.

Показанными условиями труда для трудоустройства инвалидов являются:

оптимальные и допустимые санитарно-гигиенические условия производственной среды (1-й и 2-й классы) по физическим (шум, вибрация, инфразвук, электромагнитные излучения, пыль, микроклимат), химическим (вредные вещества, вещества-аллергены, аэрозоли и др.) и биологическим (микроорганизмы, включая патогенные, белковые препараты) факторам;

работа с незначительной (1-й класс) или умеренной (2-й класс) физической, динамической и статической нагрузкой, в отдельных случаях с выраженной физической нагрузкой (п. 3.1);

работа преимущественно в свободной позе, сидя, с возможностью смены положения тела, в отдельных случаях - стоя или с возможностью ходьбы;

рабочее место, соответствующее эргономическим требованиям;

работа, не связанная со значительными перемещениями (переходами).

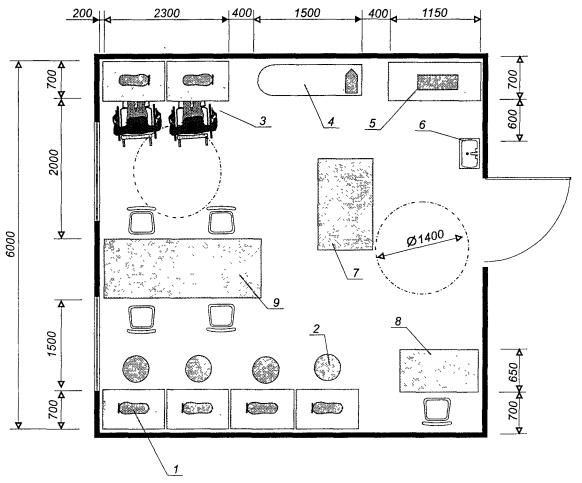
5.4 Расстановка оборудования и мебели на рабочих местах инвалидов должна обеспечивать безопасность и комфортность труда (рисунки 7-11).

Расстановка станков, оборудования и мебели на рабочем месте, предназначенном для труда инвалида, пользующегося для передвижения креслом-коляской, должна обеспечивать возможность подъезда и разворота инвалидной коляски, а на рабочем месте слепого и слабовидящего - возможность работы без помех от передвижений в помещении других работников. Для удобного нахождения своего рабочего места слепым работником станки, оборудование или мебель должны быть снабжены тактильными ориентирами.

Оргтехоснастка рабочих мест для инвалидов (рабочие столы, верстаки, стеллажи, шкафы) должна соответствовать антропометрическим данным исполнителя (таблица 1).

Таблица 1

Параметры и рабочее положение, мм

Рост человека

низкий

средний

высокий

Высота рабочего стола при обычной работе сидя

700

725

750

Высота стола для особо точных работ при работе сидя

900

950

1000

Высота рабочей поверхности для работы на станках и машинах при работе сидя

800

825

850

Высота рабочей поверхности для работы на станках и машинах при работе стоя

1000

1050

1100

Высота рабочей поверхности при работе, где возможно изменение рабочего положения - сидя или стоя

950

1000

1050

Примечание - Высота для ног от отметки пола до нижней поверхности стола - 600-625 мм, ширина зоны для ног - 400 мм.

Отдельные элементы оборудования и мебель на рабочих местах инвалидов с поражениями опорно-двигательного аппарата должны быть трансформируемыми. Рабочий стол должен, как правило, иметь изменяемую высоту и наклон рабочей поверхности, а также - регулируемую подставку для ног. Рабочий стул для инвалидов этой категории должен быть оснащен устройством для изменения положения сиденья по высоте и наклону, регулируемой подставкой для ног, в отдельных случаях - специальным сиденьем, обеспечивающим компенсацию усилия при вставании, приспособлением для рабочих инструментов, устройством перемещения вдоль рабочей плоскости по направляющей, а также посредством электромеханических автономных устройств (рисунки 12 и 13).

5.5 Специальное рабочее место инвалида должно иметь основное и вспомогательное оборудование, техническую и организационную оснастку, обеспечивающие реализацию эргономических принципов при организации рабочих мест инвалидов и учитывающих индивидуальные возможности и ограничения конкретных лиц. Целесообразно применять специально комплексно разработанные для различных специальностей рабочие места инвалидов, включающие рабочий стол, стул, технологическое оборудование и подставки для сырья, инструментов и готовой продукции. При проектировании рабочего места инвалида с поражениями опорно-двигательного аппарата следует учитывать параметры оперативного поля, доступного верхним конечностям при условии фиксированного положения тела.

Организация рабочего места и конструкция всех элементов мебели, оргтехоснастки производственного оборудования должны соответствовать антропометрическим, физиологическим и психологическим особенностям и ограниченным возможностям работающих инвалидов с учетом:

анатомо-морфологических характеристик двигательного аппарата;

возможностей распознавания органов управления оборудованием, предметов труда, инструмента;

точности, скорости и амплитуды движений при осуществлении управляющих действий;

возможностей захвата и перемещения инструментов, предметов труда (пальцами, кистью, всей рукой, стопой, в том числе с использованием протезов и рабочих насадок на них);

величин усилий, развиваемых при осуществлении управляющих действий.

При проектировании и организации специальных рабочих мест для инвалидов должно быть предусмотрено:

использование специальных приспособлений для управления и обслуживания оборудования, компенсирующих анатомо-морфологические и физиологические недостатки и ограничения инвалидов;

применение специально разработанного ручного инструмента, форма, размеры и величина сопротивления приводных элементов которого обеспечивают надежный захват и эффективное использование;

расположение органов управления оборудованием, технологической или организационной оснастки, обрабатываемых деталей на рабочем месте в пределах зон досягаемости моторного поля (в горизонтальной и вертикальной плоскостях), учитывающих антропометрические и физические размеры и физические ограничения инвалида;

использование для регулировки высоты рабочей поверхности стола и элементов рабочего стула легко досягаемых и управляемых механизмов, имеющих надежную фиксацию;

выделение дополнительных площадей, обеспечивающих возможность подъезда, разворота на рабочем месте и выполнения работы в инвалидной коляске;

оснащение оборудования и мебели на рабочем месте индикаторами (визуальные, акустические, тактильные), учитывающими возможности и ограничения отдельных групп инвалидов (слепые, слабовидящие, глухие) в восприятии информации для беспрепятственного нахождения своего рабочего места и выполнения работы.

Все элементы стационарного оборудования, предназначенные для пользования инвалидами, должны быть прочно и надежно закреплены. Крепежные детали оборудования, регуляторов, электровыключателей и т.п. не должны выступать за плоскость закрепляемого элемента.

5.6 При размещении рабочего места инвалида в помещении, где на отдельных участках протекают процессы, противопоказанные для его организма, следует регулировать параметры производственной среды в рабочей зоне инвалида. При этом следует учитывать требования СН 2.2.4./2.1.8.583 по гигиеническим нормативам инфразвука на рабочих местах, требования СанПиН 2.2.4./2.1.8.582 при работе с источниками ультразвука, а также особые требования, устанавливаемые для различных видов инвалидности.

При организации рабочих мест для труда инвалидов в помещениях, где уровень шума или вибрации превышает допустимые уровни, установленные в ГН 2.2.4./2.1.8.562 и ГН 2.2.4./2.1.8.566, а мероприятия по защите рабочих мест инвалидов от шума и вибрации, предусмотренные в п. 4.12 данного СП, при небольшом количестве рабочих мест инвалидов экономически нецелесообразны, то следует применять звукопоглотители кулисного типа, звукопоглощающие экраны или различные штучные звукопоглотители.

Штучные звукопоглотители изготавливают в виде объемных конструкций (призм, шаров и т.п.), подвешиваемых в помещении в непосредственной близости от источника шума. Для изготовления штучных звукопоглотителей применяют твердый материал, оклеенный изнутри войлоком, или заполняют конструкцию звукопоглощающим материалом.

Звукопоглощающие экраны изготавливают из твердого материала, облицованного звукопоглощающим материалом, обращенным в сторону источника шума. Линейные размеры экрана должны превосходить линейные размеры источника шума не менее чем в три раза.

На рабочих местах инвалидов, организуемых в конторских помещениях, шумы от телефонных разговоров и пишущих машинок следует снижать при помощи звукопоглощающей облицовки стен, устройства акустических потолков, коврового покрытия полов и расстановки книжных шкафов и стеллажей, изолирующей рабочее место инвалида.

5.7 Требуемое качество воздушной среды на рабочем месте инвалида устанавливается в соответствии с требованиями СНиП 2.04.05, а также СанПиН 2.2.4.548, ГН 2.2.5.687.

5.8 При организации искусственного освещения рабочего места инвалида следует учитывать требования безопасных и благоприятных условий труда, а также современные требования по экономии электроэнергии.

При выборе рациональных источников света следует учитывать светоотдачу источника, цвет света; при установке - светораспределение, обеспечивающее образование контрастов на объекте зрительного наблюдения и ослабляющее отраженную блесткость. Следует учитывать, что наилучшую светопередачу обеспечивают лампы накаливания, но у них - наименьшая светоотдача. У люминесцентных ламп светоотдача в четыре раза выше, чем у ламп накаливания, срок их службы - в пять раз больше.

Установка светильников должна обеспечивать рациональное светораспределение. Следует учитывать, что наилучшая направленность света, увеличивающая контрасты и ослабляющая блесткость, достигается, когда свет падает на рабочее место главным образом сбоку, наискось и сзади.

Рекомендуется освещенность в зоне рабочих столов увеличивать путем опускания светильников, но не ниже 240 см, так как подвешенные ниже светильники будут мешать своей близостью, особенно когда часть работы за столом производится стоя.

5.9 Искусственное освещение рабочей зоны и рабочих мест инвалидов с остаточным зрением следует разрабатывать наиболее тщательно. Оно всегда предусматривается общее и местное. Местное освещение должно осуществляться лампами накаливания. Шкафы или стеллажи, входящие в оборудование рабочего места инвалида с остаточным зрением, должны быть с вмонтированными светильниками с автоматическим включением при открывании дверей шкафа.

Местное освещение должно быть стабильным (исключающим мерцание), регулируемым по яркости и спектру в зависимости от заболевания глаз. Уровень освещенности на рабочей плоскости устанавливается в зависимости от характера работы и особенностей инвалидности в соответствии с приложением В.

5.10 Рабочие места инвалидов вследствие сердечно-сосудистых заболеваний при их расположении в непосредственной близости от окон должны быть защищены от перегрева в летнее время солнцезащитными устройствами. Таким же образом расположенные рабочие места для инвалидов с заболеваниями органов зрения должны быть защищены от слепимости специальными солнцезащитными устройствами.

Данное правило не распространяется на окна, ориентированные на северную сторону, а также на окна, ориентированные на западную четверть горизонта, при работе инвалидов только в первой половине дня.

ПРИЛОЖЕНИЕ А

ПОРЯДОК ОРГАНИЗАЦИИ ДОСТУПНОСТИ РАБОЧИХ МЕСТ ДЛЯ ИНВАЛИДОВ
(при проектировании предприятия общего типа или учреждения)

1 После аттестации рабочих мест для инвалидов на предприятии общего типа следует сделать проект мероприятий по обеспечению их доступности. Комплекс этих мероприятий разрабатывается совместно врачом-реабилитологом, технологом и архитектором, который составляет проект предприятия в целом и производственных помещений, в которых предполагается разместить рабочие места для инвалидов.

2 Для разработки комплекса мероприятий по обеспечению доступности рабочих мест следует провести предпроектную работу, которая включает в себя:

предварительное определение точек размещения рабочих мест для инвалидов в технологической схеме производственного процесса;

сравнение существующих условий труда в рабочих зонах аттестованных рабочих мест и требуемых для видов инвалидности, для которых данные рабочие места предназначаются, при этом учитываются: габариты рабочей зоны, качество воздушной среды, наличие неблагоприятных факторов, а также строительных и планировочных барьеров на пути инвалида к рабочей зоне в пределах производственного помещения;

выявление строительных и планировочных барьеров на путях передвижения инвалида от рабочего места до помещений социально-бытового назначения, повседневно или периодически им посещаемых (санузлы, гардеробные, помещения отдыха и приема пищи, медпункт и т.п.);

предварительное составление комплекса мероприятий по обеспечению доступности всех аттестованных для труда инвалидов рабочих мест;

экономическую оценку комплекса указанных мероприятий, выявление обязательных и рекомендуемых мероприятий, а также рабочих мест, аттестованных для инвалидов, мероприятия по обеспечению доступности которых являются экономически нецелесообразными;

составление оптимального комплекса мероприятий по обеспечению доступности рабочих мест.

3 Примеры адаптации производственных зданий для обеспечения доступности рабочих мест инвалидов приведены ниже.

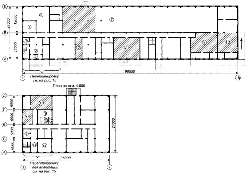
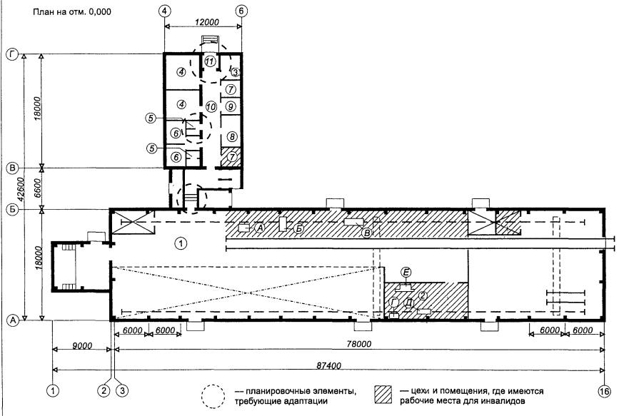
3.1 Адаптация здания цеха мучных кондитерских изделий мощностью 1000 т/год (по типовому проекту № 414-1-049.91)

Штатное расписание - 83 чел.; 3 %-ная квота рабочих мест для инвалидов - 3 чел.

Перепланировка помещений осуществляется за счет резервов площади вестибюля и помещения общественных организаций на втором этаже.

Размещение рабочих мест для инвалидов - в таблице А.1.

Планы цеха и перепланировки его элементов для адаптации в целях обеспечения трудоустройства инвалидов даны на рисунках 14 и 15.

Обязательные мероприятия

3.1.1 На каждом этаже кабина уборной для женщин должна иметь размеры, соответствующие потребностям инвалидов с поражениями нижних конечностей (большинство работающих - женщины).

3.1.2 В женском гардеробе на первом этаже одна из душевых кабин должна иметь размеры, соответствующие потребностям инвалидов с поражениями нижних конечностей.

3.1.3 На втором этаже должна быть размещена комната отдыха.

Желательные мероприятия

3.1.4 Устройство пассажирского лифта с кабиной, обеспечивающей въезд инвалидной коляски.

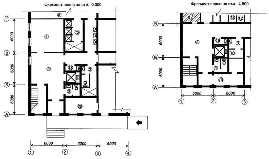
3.1.5 Устройство пандуса при входе в здание, для чего площадку перед входом объединить с рампой (оси 3-4) и сделать на нее пандус (см. фрагмент плана на отметке 0.000).

Примечание - Желательные мероприятия рассчитаны на возможность трудоустройства на втором этаже в лаборатории инвалида, пользующегося для передвижения креслом-коляской.

3.2 Адаптация здания цеха по производству комплектов деревянных изделий (по типовому проекту 411-2.186.87)

Штатное расписание - 51 чел.; 3 %-ная квота рабочих мест для инвалидов - 2 чел.

План цеха - рисунок 16, размещение рабочих мест для инвалидов - в таблице А.2.

3.2.1 При привязке типового проекта предлагается выровнять отметки пола цеха и административно-бытовой пристройки.

На действующем предприятии при ступенях, соединяющих цех с пристройкой, целесообразно иметь инвентарный деревянный пандус (в случае трудоустройства в конторе или лаборатории инвалида, пользующегося для передвижения креслом-коляской).

3.2.2 Устройство пандуса при входе в пристройку у оси Г.

3.2.3 В мужском санузле одна из кабин должна иметь размеры не менее 1,8 ´ 1,65 м (расширение за счет площади курительной).

3.2.4 В мужском гардеробе одна из душевых должна иметь размеры не менее 1,2 ´ 0,9 м (открытая) и не менее 1,8 ´ 1,8 м (закрытая).


Таблица А.1 - Потенциальные рабочие места для инвалидов в цехе мучных и кондитерских изделий

Профессии и специальности

Инвалиды

Размещение рабочих мест

вследствие внутренних болезней

с дефектами зрения (кроме слепых)

с дефектами слуха (восприятие разговорной речи от 1 м)

с заболеваниями ЦНС

с заболеваниями и поражениями опорно-двигательного аппарата

Наименование цехов и помещений

№ по экспликации рисунка 14

Размещение по отношению к уровню земли

не пользующиеся приспособлениями для передвижения

с ампутацией голени или стопы наименование

Машинист тесторазделочных машин

 

+

 

 

+

+

Отделение производства печенья

7

Первый этаж с отметкой пола 1,2 м

Упаковщик-укладчик

+

+

+

+

+

+

То же

7

То же

Лаборант

+

 

+

+

+

+

Лаборатория

15

Второй этаж

Кладовщик

+

 

 

 

+

+

Кладовая сменного запаса сырья

6

Первый этаж с отметкой пола 1,2 м

 

 

 

 

 

 

Кладовая сырья

8

То же

 

 

 

 

 

 

Склад готовой продукции

9

»

 

 

 

 

 

 

Склад тары

10

»

Слесарь-ремонтник

 

 

+

 

 

 

Помещение дежурного слесаря

17

Второй этаж

Слесарь-сантехник

 

 

+

 

 

 

То же

17

То же


Таблица А.2 - Потенциальные рабочие места для инвалидов в цехе деревянных изделий

Профессии и специальности

Инвалиды

Размещение рабочих мест

вследствие внутренних болезней

с дефектами слуха (восприятие разговорной речи от 1 м)

с заболеваниями и поражениями опорно-двигательного аппарата

Наименование цехов и помещений

№ по экспликации рисунка 16

не пользующиеся приспособлениями для передвижения

с ампутацией голени или стопы

Плотник

+

+

+

+

Участок обработки пиломатериалов

1

Лаборант

+

+

+

+

Лаборатория

3

Заточник

+

 

+

 

Пилоножеточка

2

Конторский служащий

+

+

+

+

Контора

7

ПРИЛОЖЕНИЕ Б

НОРМАТИВНЫЕ ДОКУМЕНТЫ

НОРМАТИВНЫЕ ДОКУМЕНТЫ ПО СТРОИТЕЛЬСТВУ И АРХИТЕКТУРЕ, СОДЕРЖАЩИЕ ПОЛОЖЕНИЯ, ОБЕСПЕЧИВАЮЩИЕ ДОСТУПНОСТЬ РАБОЧИХ МЕСТ ДЛЯ ИНВАЛИДОВ

1 СНиП 31-03-2001 «Производственные здания».

2 СНиП 2.04.05-91 * «Отопление, вентиляция и кондиционирование».

3 СНиП 2.09.04-87* «Административные и бытовые здания».

4 СНиП II-89-80* «Генеральные планы промышленных предприятий».

5 «Рекомендации по устройству систем ориентиров на предприятиях и в организациях ВОС».

6 СНиП 2.10.02-84 «Здания и помещения для хранения и переработки сельскохозяйственной продукции».

7 СНиП 2.10.03-84 «Животноводческие, птицеводческие и звероводческие здания и помещения».

8 СНиП 2.10.04-85 «Теплицы и парники».

9 СНиП 2.10.05-85 «Предприятия, здания и сооружения по хранению и переработке зерна».

10 СНиП 2.11.02-87 «Холодильники».

11 СН 512-78 «Инструкция по проектированию зданий и помещений для электронно-вычислительных машин».

НОРМАТИВНЫЕ ДОКУМЕНТЫ, ОБЕСПЕЧИВАЮЩИЕ КОНТРОЛЬ ЗА ВЫПОЛНЕНИЕМ ТРЕБОВАНИЙ ПО ОБЕСПЕЧЕНИЮ ДОСТУПНОСТИ РАБОЧИХ МЕСТ ДЛЯ ИНВАЛИДОВ

12 СНиП 11-01-95 «Инструкция о порядке разработки, согласования, утверждения и составе проектной документации на строительство предприятий, зданий и сооружений».

13 РДС 11-201-95 «Инструкция о порядке проведения государственной экспертизы проектов строительства».

14 РДС 35-201-99 «Порядок реализации требований доступности для инвалидов к объектам социальной инфраструктуры».

ДОКУМЕНТЫ ГОСУДАРСТВЕННОЙ СИСТЕМЫ САНИТАРНО-ЭПИДЕМИОЛОГИЧЕСКОГО НОРМИРОВАНИЯ РОССИЙСКОЙ ФЕДЕРАЦИИ, КОТОРЫМИ СЛЕДУЕТ РУКОВОДСТВОВАТЬСЯ ПРИ ОРГАНИЗАЦИИ РАБОЧЕГО МЕСТА ИНВАЛИДА

15 СанПиН 2.2.2.542-96 «Гигиенические требования к видеодисплейным терминалам, персональным электронно-вычислительным машинам и организации работ».

16 СанПиН 2.2.2.540-96 «Гигиенические требования к ручным инструментам и организации работ».

17 СН 2.2.4./2.1.8.583-96** «Гигиенические нормативы инфразвука на рабочих местах, в жилых и общественных помещениях и на территории жилой застройки».

18 СанПиН 2.2.4./2.1.8.582-96** «Гигиенические требования при работах с источниками воздушного и контактного ультразвука промышленного, медицинского и бытового назначения».

19 ГН 2.2.4./2.1.8.562-96** «Допустимые уровни шума на рабочих местах, в помещениях жилых и общественных зданий и на территории жилой застройки».

20 ГН 2.2.4./2.1.8.566-96** «Допустимые уровни вибрации на рабочих местах, в помещениях жилых и общественных зданий».

21 СанПиН 2.2.4./2.1.8.055-96 «Электромагнитные излучения радиочастотного диапазона (ЭМИ РЧ)».

22 СанПиН 2.2.4.548-96 «Гигиенические требования к микроклимату производственных помещений».

23 ГН 2.2.5.686-98 «Предельно допустимые концентрации (ПДК) вредных веществ в воздухе рабочей зоны».

24 ГН 2.2.5.687-98 «Ориентировочно безопасные уровни (ОБУВ) вредных веществ в воздухе рабочей зоны».

25 СанПиН 2.2.0.555-96 «Гигиенические требования к условиям труда женщин».

26 ГН 1.1.725-98 «Перечень веществ, продуктов, производственных процессов, бытовых и природных факторов, канцерогенных для человека».

27 МУ 2.2.4.706-98/МУ ОТРМ 01-98 «Оценка освещенности рабочих мест».

28 СП 2.2.1.002-94 «Санитарные правила содержания производственных предприятий».

29 СанПиН 2.2.4.723-98 «Переменные магнитные поля промышленной частоты (50 Гц) в производственных условиях».

30 СП 2.6.1.758-99 «Нормы радиационной безопасности» (НРБ-99).

31 Р.2.2.755-99 «Руководство. Гигиенические критерии оценки и классификации условий труда по показателям вредности и опасности факторов производственной среды, тяжести и напряженности трудового процесса».

32 СанПиН 2673-83 «Единые санитарные правила для предприятий (производственных объединений), цехов и участков, предназначенных для использования труда инвалидов и пенсионеров по старости».

Примечание - В данных санитарных документах установлены показатели для здоровых работников, которые при организации рабочих мест для инвалидов корректируются врачом-реабилитологом с учетом нозологии трудоустраиваемых инвалидов.

ПРИЛОЖЕНИЕ В

ТРЕБОВАНИЯ К УСЛОВИЯМ И ОРГАНИЗАЦИИ ТРУДА НА РАБОЧИХ МЕСТАХ ИНВАЛИДОВ С РАЗЛИЧНЫМИ ЗАБОЛЕВАНИЯМИ

В соответствии с Руководством Р 2.2.755 для инвалидов пригодны: 1-й класс - ОПТИМАЛЬНЫЕ условия труда, при которых сохраняется не только здоровье работающих, но и создаются предпосылки для поддержания высокого уровня работоспособности; 2-й класс - ДОПУСТИМЫЕ условия труда с уровнем факторов среды и трудового процесса, которые не превышают установленных гигиеническими нормативами для рабочих мест, а возможные изменения организма восстанавливаются во время регламентированного отдыха или к началу следующего рабочего дня.

ТРЕБОВАНИЯ К УСЛОВИЯМ И ОРГАНИЗАЦИИ ТРУДА НА РАБОЧИХ МЕСТАХ ИНВАЛИДОВ ВСЛЕДСТВИЕ ЗАБОЛЕВАНИЙ СЕРДЕЧНО-СОСУДИСТОЙ СИСТЕМЫ

1 Оптимальные и допустимые санитарно-гигиенические условия производственной среды - 1-ого и 2-ого классов (в соответствии с Руководством Р 2.2.755), в том числе:

- температура воздуха, скорость движения и влажность воздуха, соответствующие 1 -му классу;

- отсутствие вредных веществ, аллергенов, канцерогенов, металлов, оксидов металлов, аэрозолей преимущественно фиброгенного действия;

- отсутствие тепловых излучений;

- отсутствие локальной вибрации, электромагнитных излучений;

- производственный шум - не выше ПДУ (2-й класс);

- освещенность - норма (2-й класс);

- отсутствие ультрафиолетовой радиации.

Необходимые защитные мероприятия:

- повышенная кратность воздухообмена без рециркуляции воздуха;

- шумовибропоглощение (защитные кожухи на оборудовании, облицовка строительных конструкций звукопоглощающими материалами и др.).

2 Архитектурно-планировочные требования к зданиям и помещениям - в соответствии с п. 3.6; 4.3; 4.8; 4.10; 4.14; 4.15; 4.17; 4.24 данного СП*.

* Здесь и далее указываются наиболее значимые для данного вида заболеваний положения СП, их перечень не исключает необходимость применения других положений СП при проектировании зданий и помещений для труда инвалидов.

3 Требования к оборудованию рабочего места:

расположение шкафов, конструкция стеллажей должны исключать вынужденные наклоны туловища; полки должны быть расположены на уровне плеч и не выше человеческого роста;

столы - с регулируемыми высотой и углом наклона поверхности;

стулья (кресла) - с регулируемыми высотой сиденья и положением спинки.

ТРЕБОВАНИЯ К УСЛОВИЯМ И ОРГАНИЗАЦИИ ТРУДА НА РАБОЧИХ МЕСТАХ ИНВАЛИДОВ ВСЛЕДСТВИЕ ПАТОЛОГИИ ОРГАНА ЗРЕНИЯ

По идентичности требований к организации рабочих мест и однотипности реакции на воздействие факторов внешней среды инвалидизирующие заболевания органа зрения подразделяются на 8 основных групп-категорий (таблица В.1).

Применительно к организации рабочих мест состояние основных зрительных функций инвалидов (степень их сохранности) подразделяется на следующие группы:

1 Слепота: острота зрения - 0-0,04 или концентрическое сужение поля зрения до 10° и менее от точки фиксации.

2 Слабовидение высокой степени: острота зрения 0,05-0,1 или концентрическое сужение поля зрения до 20-10° и менее от точки фиксации.

3 Слабовидение средней степени: острота зрения - 0,2 и выше.

В зависимости от степени сохранности зрительных функций определяется возможность организации трудового процесса.

Для инвалидов со слабовидением средней степени рекомендуются виды труда, относящиеся к IV-VI, VIII, «в», «д», «ж», «з» разрядам зрительных работ. Инвалиды со слабовидением высокой степени могут выполнять работы, относящиеся к VI, VIII, «д», «ж», «з» разрядам зрительных работ. Инвалиды с абсолютной или практической слепотой могут выполнять трудовые операции без зрительного контроля, используя анализаторные системы, компенсирующие зрительный дефект (осязание, тактильно-мышечное чувство, слух).

1 Санитарно-гигиенические условия

Гигиенические характеристики условий труда на рабочих местах инвалидов вследствие зрительных нарушений дифференцируются в зависимости от заболевания органа зрения (таблица В.1).

В таблице В.1 приведены показанные при разных видах офтальмопатологии классы условий труда в соответствии с Руководством Р 2.2.755.

2 Архитектурно-планировочные требования к зданиям - в соответствии с п. 3.5-3.7; 3.10-3.14; 4.1; 4.2; 4.5; 4.8; 4.11; 4.12; 4.17-4.19; 4.21; 4.22 данного СП.

3 Требования к рабочему месту

3.1 Рабочее место для инвалидов с полной и практической слепотой, а также со слабовидением высокой степени должно быть обустроено системой тифлотехнических ориентиров (осязательных, слуховых, зрительных), обеспечивающих ориентировку этих инвалидов на рабочем месте (в соответствии с «Рекомендациями по устройству систем ориентиров на предприятиях и в организациях ВОС». - М.: ВОС, 1990). Технологическое оборудование данных рабочих мест (от простого инструмента до сложных технических устройств) должно быть оснащено тифлотехническими приспособлениями, обеспечивающими возможность выполнения работы без зрительного контроля и исключающими возможность получения производственной травмы.


Таблица В.1 - Гигиеническая характеристика (классы) условий труда на специальных рабочих местах инвалидов вследствие патологии органа зрения

Группа

Вид паталогии

Санитарно-гигиенические факторы

Микроклимат

Излучение

Шум*

Вибрация

Ультразвук, инфразвук

Аэрозоли (пыль)

Освещенность рабочей поверхности**, лк

Вредные вещества

1

Дегенеративная миопия. Глаукома

1-й, 2-й классы

Нет

В пределах ПДУ

Нет

Нет

Нет

250-700

Нет

2

Наследственные ретинальные дистрофии. Атрофия зрительных нервов

То же

»

То же

»

»

В пределах ПДК

250-700

100-500 (при центр. дистрофии)

»

3

Воспаление сосудистой оболочки глаз (хориодиты, хореоретиниты, увеиты), врожденные аномалии глаз

1-й класс

»

»

»

»

Нет

200-500

»

4

Афакия; вывих, подвывих хрусталика; артифакия

1-й, 2-й классы

В пределах ПДУ

»

»

В пределах ПДУ

»

100-500

В пределах ПДК

5

Катаракта; врожденная катаракта

То же

Нет

»

В пределах ПДУ

То же

В пределах ПДК

250-700

Нет

6

Рубцы и помутнения роговицы

»

В пределах ПДУ

»

То же

»

Нет

250-700

»

7

Кератоконус

»

То же

»

»

»

»

250-500

»

8

Высокая гиперметропия

1-й класс

»

»

»

»

В пределах ПДК

250-700

В пределах ПДК

* На рабочих местах инвалидов - слепых и слабовидящих - высокий уровень производственного шума не должен превышать 80 дБА. Не допускается использование повышающих поправок к допустимым уровням шума и вибрации, даже при непродолжительном их действии.

** Естественная освещенность - норма.


3.2 Освещенность на рабочих местах инвалидов с патологией глаз должна устанавливаться индивидуально с учетом нозологической формы заболевания, путем устройства комбинированного освещения. Общее освещение в системе комбинированного должно составлять не менее 20 %. Недопустимы резкие изменения освещенности в течение рабочего дня (не более 30 %). По мере снижения естественного освещения автоматически должно подключаться искусственное путем ступенчатого включения отдельных групп светильников.

3.3 Для снижения резкой неравномерности распределения яркости в поле зрения работающих инвалидов необходимо предотвратить попадание прямых солнечных лучей в помещение с помощью штор или жалюзи, которые, однако, не должны значительно снижать освещенность. Местные светильники должны быть оснащены устройствами для регулирования направления и интенсивности светового потока.

3.4 Окраска поверхностей рабочих помещений и элементов рабочего места инвалидов по зрению должна осуществляться таким образом, чтобы коэффициент отражения световой энергии был близок к максимальному. Наименьшие коэффициенты отражения поверхностей приведены в таблице В.2.

Таблица В.2

Наименование поверхностей

Наименьший коэффициент отражения, %

Потолки

70

Стены (верх)

60

Панели стен

35

Рабочее оборудование

25-40 (в зависимости от коэффициента отражения материала изделия)

Полы

20-25

3.5 На рабочих местах инвалидов по зрению соотношение между коэффициентами отражения рабочих поверхностей и обрабатываемых изделий должно быть не менее 1:3, что достигается покраской рабочих поверхностей (либо использованием комплектов съемных покрытий) в цвета, подобранные по цветовому контрасту к обрабатываемому материалу:

а) для деталей холодного цвета (сталь, алюминий и т.п.) - теплые цвета (например, кремовый);

б) для деталей теплого цвета (медь, латунь и т.п.) - холодные цвета (например, серо-голубой);

в) для деталей темного цвета - светлые тона. Для инвалидов с врожденной цветоаномалией и с заболеваниями, сопровождающимися нарушением цветовой чувствительности, не следует предоставлять виды работ, требующие различения цветов.

3.6 Одиночные рабочие места для слепых следует радиофицировать. При размещении нескольких рабочих мест для слепых в одном помещении радиофицировать следует помещение.

ТРЕБОВАНИЯ К УСЛОВИЯМ И ОРГАНИЗАЦИИ ТРУДА НА РАБОЧИХ МЕСТАХ ИНВАЛИДОВ ВСЛЕДСТВИЕ ЗАБОЛЕВАНИЙ ОПОРНО-ДВИГАТЕЛЬНОГО АППАРАТА

1 Санитарно-гигиенические условия производственного помещения оптимальные - 1-й класс и допустимые - 2-й класс (в соответствии с Руководством Р 2.2.755), в том числе:

- температура, влажность, скорость движения воздуха, тепловое излучение в рабочей зоне устанавливаются в соответствии с санитарными нормами (1, 2-й классы условий труда);

- шум не выше предельно допустимого уровня;

- отсутствие общей и локальной вибрации, инфразвука, постоянного магнитного поля, статического электричества, электрического поля промышленной частоты (50 Гц), электромагнитного диапазона, лазерного излучения, вредных веществ: канцерогенов, аллергенов, металлов, оксидов металлов; микроорганизмов, препаратов, содержащих живые клетки и споры микроорганизмов.

2 Архитектурно-планировочные требования к зданиям и помещениям - в соответствии с п. 3.2-3.6; 3.8; 3.9; 3.12; 3.13; 4.1-4.4; 4.8; 4.11; 4.13-4.22 данного СП.

3 Требования к рабочему месту

3.1 Организационно-техническая оснастка по своим размерам должна соответствовать антропометрическим данным, обладать устойчивостью, обеспечивать комфортность и безопасность пользования: рабочие столы, верстаки высотой в пределах 630-1020 мм; полки на кронштейнах для размещения настольного оборудования, для выполнения измерений, записей; инструментальные шкафы (или встроенные ящики), расположенные на высоте 800-1600 мм от пола для хранения на рабочем месте документации, крепежного вспомогательного и режущего инструмента и других средств.

3.2 Рабочий стол должен обеспечивать возможность изменения высоты и наклона рабочей поверхности, цвета и фактуры поверхности, крепления к ней на струбцинах лампы местного освещения и малогабаритного технологического оборудования, поручней для обеспечения легкого подъема с места, подножек, подлокотников. Стол должен иметь выдвигаемые ящики для хранения инструмента. Габариты стола должны соответствовать эргономическим требованиям работы инвалида на коляске и функциональным требованиям выполнения рабочих операций в пределах зоны досягаемости.

3.3 Рабочий стул должен обеспечивать возможность поворота и изменения высоты и наклона сиденья, угла наклона высоты спинки, крепления подножек, подлокотников, спинки под шею, штанги для инструментов, компенсационной подушки, облегчающей вставание.

3.4 Подставка для сырья и готовой продукции должна быть передвижной с возможностью изменения высоты и угла наклона поверхности крепления тары.

ТРЕБОВАНИЯ К УСЛОВИЯМ И ОРГАНИЗАЦИИ ТРУДА НА РАБОЧИХ МЕСТАХ ИНВАЛИДОВ ВСЛЕДСТВИЕ ЗАБОЛЕВАНИЯ НЕРВНОЙ СИСТЕМЫ

1 Санитарно-гигиенические условия производственного помещения оптимальные и допустимые классов 1 и 2 (в соответствии с Руководством Р 2.2.755), в том числе:

- температура, влажность, скорость движения воздуха, тепловое излучение в рабочей зоне в соответствии с санитарными нормами (1-й, 2-й классы условий труда);

- шум не выше предельно допустимого уровня (ПДУ).

- отсутствие воздействия общей и локальной вибрации; инфразвука; ультразвука; постоянного магнитного поля; статического электричества;

электрического поля промышленной частоты;

электромагнитного излучения радиочастотного диапазона; постоянного лазерного излучения;

вредных веществ: канцерогенов, аллергенов, металлов, оксидов металлов, микроорганизмов - продуцентов, препаратов, содержащих живые клетки и споры микроорганизмов.

2 Архитектурно-планировочные требования к зданиям и помещениям - в соответствии с п. 3.5; 3.12; 4.8; 4.11 и 4.12 данного СП.

2.1 Размещение рабочих мест в небольших помещениях, мастерских, участках.

2.2 Обеспечение возможности визуального наблюдения и контроля за работающими инвалидами.

2.3 Ограждение движущихся механизмов, лестничных пролетов и других опасных зон. Остекление окон небьющимися стеклами.

2.4 Для инвалидов с двигательными нарушениями нижних конечностей производственные здания и помещения должны проектироваться в соответствии с п. 3.5-3.7; 3.10-3.14; 4.1; 4.2; 4.5; 4.8; 4.11; 4.12; 4.17-4.19; 4.21; 4.22 данного СП.

3 Требования к рабочему месту

3.1 Рабочие столы, верстаки высотой в пределах 630-1020 мм.

3.2 Рабочее кресло или стул, легко перемещающиеся в рабочей зоне.

3.3 Инструментальные шкафы, расположенные на высоте 800-1600 мм от пола для хранения на рабочем месте документации, крепежного вспомогательного и режущего инструмента, запасных частей, средств ухода за рабочим местом;

3.4 Полки-стеллажи для размещения аппаратуры, приспособлений, деталей с такими размерами, чтобы располагаемые на них предметы не выступали за края полок. Полки для размещения мелких предметов и деталей должны иметь бортики.

ТРЕБОВАНИЯ К УСЛОВИЯМ И ОРГАНИЗАЦИИ ТРУДА НА РАБОЧИХ МЕСТАХ ИНВАЛИДОВ ВСЛЕДСТВИЕ ПСИХИЧЕСКИХ ЗАБОЛЕВАНИЙ

1 Больным с основной психической патологией, признанным инвалидами II группы (92 % всего контингента с психическими заболеваниями), в 50 % случаев доступно участие в различной трудовой деятельности в специально созданных условиях на спецпредприятиях, спецучастках, на дому, а также на обычных предприятиях, учреждениях, где условия работы приравнены к специально созданным.

2 Оптимальные и допустимые санитарно-гигиенические условия производственной среды (1-й и 2-й классы, в отдельных случаях 3.1 класс в соответствии с Руководством Р 2.2.755-99), в том числе:

- температура воздуха в холодный период года при легкой работе - 21-24 °С; при средней тяжести работ- 17-20° С; в теплый период года при легкой работе 22-25, 20 °С; при работе средней тяжести 21-23 °С;

- влажность воздуха в холодный и теплый периоды года 40-60 %;

- скорость движения воздуха, м/с: при легкой работе 0,1-0,2; при работе средней тяжести 0,1-0,2 в холодный период года и в теплый период года - не более 0,3;

- отсутствие вредных веществ: аллергенов, канцерогенов, аэрозолей, металлов, оксидов металлов;

- электромагнитное излучение - не выше ПДУ, шум - не выше ПДУ (до 81 дБА, 1-й класс);

- отсутствие локальной и общей вибрации;

- отсутствие микроорганизмов, продуктов и препаратов, содержащих живые клетки и споры микроорганизмов, белковые препараты.

3 Архитектурно-планировочные требования к зданиям и помещениям - в соответствии с п. 3.3; 3.5; 3.6; 3.12; 4.3; 4.6; 4.8; 4.12; 4.16; 4.24 данного СП.

3.1 Помещения, мастерские или участки должны быть небольших размеров (что уменьшает возможность контакта с окружающими).

3.2 Обеспечение возможности визуального наблюдения и контроля за работающими инвалидами; обеспечение аварийными сигнализирующими устройствами рабочих мест;

3.3 Ограждение движущихся механизмов, лестничных пролетов и других опасных зон; остекление окон небьющимися стеклами.

3.4 Помещения медицинской службы должны быть приближены к рабочим местам психически больных для контроля за поведением в процессе трудовой деятельности и проведения адекватной терапии, коррекции поведения, способствующих безопасности самих инвалидов и их окружения. В связи с этим целесообразно размещать помещения для трудовой занятости инвалидов вблизи или на базе специализированных медицинских учреждений (психоневрологические диспансеры, психиатрические больницы, психоневрологические интернаты).

Создавать на специализированных предприятиях медицинские кабинеты, в штате которых должен быть врач-психиатр и средний медицинский персонал, а также средства для проведения основных специализированных терапевтических мероприятий.

4 Требования к рабочему месту

4.1 Оборудование (станки, технические устройства) - безопасное и комфортное в пользовании (устойчивые конструкции, прочная установка и фиксация, простой способ пользования, без сложных систем включения и выключения; с автоматическим выключением при неполадках; расстановка и расположение, не создающие помех для подхода, пользования, передвижения; расширенные расстояния между столами, мебелью, станками и в то же время не затрудняющие досягаемость; исключение острых выступов, углов, ранящих поверхностей, выступающих крепежных деталей).

4.2 Эстетический дизайн и яркая окраска оборудования и мебели для активизации эмоционально-волевой сферы, положительного эмоционального настроя, концентрации и фиксации внимания.

4.3 Трансформирующаяся конструкция рабочего стола и сиденья.

4.4 Удобные устройства для инструментов, одежды, готовой продукции, заготовок и пр.

4.5 Упрощенные в применении рабочие инструменты.

4.6 Удобная рабочая одежда ярких и заметных окрасок.

ТРЕБОВАНИЯ К УСЛОВИЯМ И ОРГАНИЗАЦИИ ТРУДА НА РАБОЧИХ МЕСТАХ ИНВАЛИДОВ ВСЛЕДСТВИЕ ТУБЕРКУЛЕЗА ЛЕГКИХ

1 Оптимальные и допустимые санитарно-гигиенические условия производственной среды (1-й и 2-й классы) - в соответствии с Руководством Р 2.2.755, в том числе:

- отсутствие веществ с раздражающим действием на дыхательные пути; аллергенов; канцерогенов; металлов, оксидов металлов; аэрозолей преимущественно фиброгенного действия; белковых препаратов; ультрафиолетовой радиации; а также неблагоприятных микроклиматических факторов, связанных с высокой или низкой температурой воздуха и ее значительными перепадами на рабочем месте, повышенной влажностью и сквозняками (температура воздуха, скорость движения и влажность по санитарным нормам должны соответствовать 1-му классу). Повышенная кратность воздухообмена. Не допускается рециркуляция воздуха.

2 Архитектурно-планировочные требования к зданиям и помещениям - в соответствии с п. 3.3; 3.6; 4.8; 4.10 данного СП.

2.1 Площадь и объем производственных помещений на одного работающего следует увеличить на 10 %.

2.2 Передвижения, обусловленные технологическим процессом, в течение смены не должны превышать 4 км.

2.3 Полы производственных помещений в рабочей зоне инвалидов с туберкулезом должны быть теплыми.

2.4 Для инвалидов с туберкулезом и для здоровых лиц должны быть предусмотрены раздельные столовые (буфеты) и туалеты.

2.5 На предприятиях должны быть предусмотрены помещения для стерилизации и дезинфекции готовой продукции, отходов, спецодежды, продуктов и т.п. При буфетах и столовых следует предусмотреть комнату для дезинфекции посуды и остатков пищи, оборудованную посудомоечным агрегатом.

2.6 Производственные и специальные помещения должны быть оборудованы бактерицидными лампами.

3 Требования к рабочему месту - в соответствии с разделом 5 данного СП. Кроме того, все работающие, а также посещающие спеццех должны быть обеспечены комплектом спецодежды (халат, шапочка) и спецобуви (тапочки). Запрещается выдача необеззараженной спецодежды. Не реже 1 раза в месяц проводится дезинфекция помещений с применением приемов и средств, рекомендованных для заключительной дезинфекции.

АДАПТАЦИЯ ПРЕДПРИЯТИЙ (УЧРЕЖДЕНИЙ), ЗДАНИЙ И ПОМЕЩЕНИЙ ДЛЯ ТРУДОУСТРОЙСТВА ИНВАЛИДОВ

Размещение стоянок личного транспорта инвалидов

1

Рассредоточенное размещение личного транспорта инвалидов

 - стоянки личного транспорта инвалидов;

1 - производственные корпуса;

2 - бытовые корпуса;

3 - административное здание

 

Встроенный контрольно-пропускной пункт

2

1 - тамбур;

2 - вестибюль;

3 - камера хранения;

4 - санузел;

5 - коридор;

6 - пандус;

7 - дверной проем с устройством для плавного открытия;

8 - специальное покрытие пола;

9 - бюро пропусков;

10 - помещения охраны

 

Размещение рабочих мест инвалидов

3

Сосредоточение рабочих мест инвалидов вблизи входа на завод

 - помещения и цехи, повседневно посещаемые инвалидами;

1 - производственные корпуса;

2 - бытовой корпус;

3 - административное здание;

4 - конструкторское бюро

 

Адаптация здания для инвалидов

4

Мастерская по ремонту бытовой радиоаппаратуры

А - аналог; Б - перепланировка;

 - помещения повседневного пребывания инвалидов (А - 156 кв. м; Б - 68 кв. м);

- - - - общая длина перемещений инвалидов (А - 42 м; Б - 20 м).

Состав помещений: 1 - кладовая запчастей; 2 - кладовая готовой продукции; 3 - салон; 4 - контора; 5 - комната приема пищи; 6 - женский гардероб; 7 - мужской гардероб; 8 - участок чистки; 9 - тепловой узел; 10 - венткамера; 11 - вакуумная; 12 - комната линейных мастеров; 13 - участок ремонта радиоаппаратуры; 14 - участок ремонта телевизоров

 

Помещения социального обслуживания

5

Встроенное помещение инвентарного типа для пассивного отдыха; пример оборудования комнаты отдыха для инвалидов:

1 - стол для настольных игр; 2 - диван;

3 - кресла; 4 - телевизор                                        Цеховая уборная с кабиной для инвалидов

Места инвалидных колясок в помещении для собраний

 

Гардеробные и душевые

6

Размещение гардеробной (А) и душевой (Б) для инвалидов в общем гардеробном блоке. Индивидуальная кабина инвалида в общей душевой

 

Пример планировки помещения

7

Столярная мастерская

1 - верстак столярный;

2 - рабочее место инвалида;

3 - табурет с регулируемым сиденьем;

4 - стол с вытяжкой;

5 - верстак с деревообрабатывающим станком и циркулярной пилой;

6 - мойка;

7 - стол мастера;

8 - стеллаж производственный

 

Пример планировки помещения

8

Мастерская по ремонту обуви

1 - стол мастера;

2 - табурет с регулируемым сиденьем;

3 - машина для приклеивания каблуков;

4 - пресс для приклеивания подошв;

5 - машина для отделочных операций;

6 - машина для пристрочки подошв;

7 - рабочее место инвалида;

8 - мойка;

9 - швейная машина;

10 - шарошечно-полировальный станок;

11 - верстак;

12 - стол обувщика

 

Пример планировки помещения

9

Мастерская по ремонту аппаратуры и бытовой техники

1 - стол монтажный;

2 - стенд испытательный;

3 - стол с вытяжкой;

4 - стол приемщика;

5 - мойка;

6 - стеллаж для материалов;

7 - табурет с регулируемым сиденьем;

8 - стеллаж приемщика

 

Пример планировки помещения

10

Швейная мастерская

1 - швейная машина;

2 - табурет с регулируемым сиденьем;

3 - рабочее место инвалида;

4 - гладильный стол;

5 - гладильный пресс;

6 - умывальник;

7 - стол раскроечный;

8 - стол мастера;

9 - сборочно-сметочный стол

 

Пример планировки помещения

11

Картонажный участок, приспособленный для труда инвалидов в тарном цехе завода

1 - стол рабочий;

2 - табурет с регулируемым сиденьем;

3 - проволочно-швейный аппарат;

4 - клееварка;

5 - стол мастера;

6 - стул;

7 - мойка

 

Трансформируемый рабочий стол для инвалида

12

 

Трансформируемое рабочее кресло для инвалида

13

1 - ручное управление изменением высоты и углом наклона сиденья;

2 - подставка для ног;

3 - приспособление для рабочих инструментов;

4 - уровень рабочего стола;

5 - подъемный агрегат


Адаптация здания для инвалидов

14

Адаптация цеха мучных изделий для обеспечения трудоустройства инвалидов

План на отм. 0,000

Помещения, посещаемые инвалидами:

1 - тамбур;

2 - вестибюль;

3 - санузлы;

4 - комната приема пищи;

5 - женский гардероб уличной и спецодежды;

6 - кладовая сменного запаса сырья;

7 - отделение производства печенья;

8 - кладовая сырья;

9 - склад готовой продукции;

10 - склад тары;

11 - коридор;

12 - душевая;

13 - преддушевая;

14 - помещение общественных организаций;

15 - лаборатория;

16 - мужской гардероб;

17 - помещение дежурного слесаря

 - цехи и помещения, где имеются рабочие места для инвалидов

 

Адаптация здания для инвалидов

15

Адаптация цеха мучных кондитерских изделий для инвалидов

Помещения, посещаемые инвалидами:

2 - вестибюль;

3 - санузлы;

4 - комната приема пищи;

5 - женский гардероб уличной и спецодежды;

12 - душевая;

13 - преддушевая;

17 - помещение дежурного слесаря

18 - кладовая уборочного инвентаря

19 - комната отдыха;

20 - помещение охраны

 - цехи и помещения, где имеются, где имеются рабочие места для инвалидов

 

Адаптация здания для инвалидов

16

Адаптация цеха по производству комплектов деревянных деталей для обеспечения трудоустройства инвалидов

Помещения, посещаемые инвалидами:

Производственный корпус:

1 - участок заготовки и обработки пиломатериалов;

2 - пилоножеточка;

3 - лаборатория;

Бытовые помещения:

4 - гардеробные и душевые;

5 - санузлы;

6 - комнаты для курения;

7 - конторские помещения;

8 - комната для приема пищи;

9 - комната общественных организаций;

10 - коридор с вестибюлем и переходом;

11 - тамбур

Оборудование потенциальных рабочих мест для инвалидов:

А - станок комбинированный;

Б - станок круглопильный;

В - станок четырехсторонний строгальный;

Г - станок заточный универсальный ТчПА-5;

Д - станок заточный универсальный ТчПА-6;

Е - полуавтомат для заточки строгальный; ножей

Ключевые слова: доступность рабочих мест для инвалидов, комфортность и безопасность рабочего места, оборудование территории

 




ГОСТЫ, СТРОИТЕЛЬНЫЕ и ТЕХНИЧЕСКИЕ НОРМАТИВЫ.
Некоммерческая онлайн система, содержащая все Российские Госты, национальные Стандарты и нормативы.
В Системе содержится более 150000 файлов нормативно-технической документации, действующей на территории РФ.
Система предназначена для широкого круга инженерно-технических специалистов.

Рейтинг@Mail.ru Яндекс цитирования

Copyright © www.gostrf.com, 2008 - 2026