Крупнейшая бесплатная информационно-справочная система онлайн доступа к полному собранию технических нормативно-правовых актов РФ. Огромная база технических нормативов (более 150 тысяч документов) и полное собрание национальных стандартов, аутентичное официальной базе Госстандарта. GOSTRF.com - это более 1 Терабайта бесплатной технической информации для всех пользователей интернета. Все электронные копии представленных здесь документов могут распространяться без каких-либо ограничений. Поощряется распространение информации с этого сайта на любых других ресурсах. Каждый человек имеет право на неограниченный доступ к этим документам! Каждый человек имеет право на знание требований, изложенных в данных нормативно-правовых актах!

  


 

ГОСТ 30744-2001

МЕЖГОСУДАРСТВЕННЫЙ СТАНДАРТ

ЦЕМЕНТЫ

Методы испытаний
с использованием полифракционного песка

МЕЖГОСУДАРСТВЕННАЯ НАУЧНО-ТЕХНИЧЕСКАЯ КОМИССИЯ
ПО СТАНДАРТИЗАЦИИ, ТЕХНИЧЕСКОМУ НОРМИРОВАНИЮ
И СЕРТИФИКАЦИИ В СТРОИТЕЛЬСТВЕ
(МНТКС)

Москва 2002

Предисловие

1 РАЗРАБОТАН ЗАО «Концерн Цемент», фирмой «Цемискон» ОАО «НИИ ЦЕМЕНТ»

ВНЕСЕН Госстроем России

2 ПРИНЯТ Межгосударственной научно-технической комиссией по стандартизации, техническому нормированию и сертификации в строительстве (МНТКС) 30 мая 2001 г.

За принятие проголосовали

Наименование государства

Наименование органа государственного управления строительством

Азербайджанская Республика

Госстрой Азербайджанской Республики

Республика Армения

Министерство градостроительства Республики Армения

Республика Казахстан

Казстройкомитет Республики Казахстан

Кыргызская Республика

Государственный Комитет по архитектуре и строительству при Правительстве Кыргызской Республики

Российская Федерация

Госстрой России

Республика Узбекистан

Госархитектстрой Республики Узбекистан

3 ВВЕДЕН ВПЕРВЫЕ

4 ВВЕДЕН В ДЕЙСТВИЕ с 1 марта 2002 г. в качестве государственного стандарта Российской Федерации постановлением Госстроя России от 20 августа 2001 г. № 98

СОДЕРЖАНИЕ

Введение

В разных странах применяют существенно различающиеся методы определения основных физико-механических свойств цемента - прочности, водопотребности, сроков схватывания, равномерности изменения объема, которые дают различные результаты при испытаниях одних и тех же цементов.

В настоящее время Европейским Комитетом по стандартизации (CEN) приняты европейские стандарты серии EN 196 [1], [2], [3], регламентирующие единые для стран ЕС методы физико-механических испытаний цемента в пластичных растворах с использованием полифракционного песка и специального оборудования. В странах СНГ вся нормативная база строительства основана на характеристиках цемента, получаемых при испытании образцов, изготовленных из более жестких растворов с использованием монофракционного песка.

Настоящий стандарт разработан с целью нормативного обеспечения производителей цемента в странах СНГ методиками испытаний своей продукции, позволяющими получить аналогичные со странами ЕС результаты для сопоставимой оценки строительно-технических свойств цемента в процессе научно-технического и экономического сотрудничества.

Для определения прочности цемента настоящим стандартом предусмотрено использование полифракционного песка по ГОСТ 6139, требования которого соответствуют требованиям EN 196-1. Песок по ГОСТ 6139 производится в промышленных масштабах ООО «Цемсэнд» (г. Подольск, Россия). Оборудование для испытаний цемента по настоящему стандарту выпускает ООО НИКЦИМ «Точмашприбор» (г. Армавир, Россия).

Проведенные в России сравнительные испытания цементов на прочность по настоящему и европейскому стандартам свидетельствуют о полной идентичности результатов с учетом критериев достоверности, установленных EN 196-1.

Настоящий стандарт не отменяет ГОСТ 310.1-ГОСТ 310.4 [4-7], которые следует применять для оценки соответствия применяемых в странах СНГ цементов межгосударственным стандартам, действующим в настоящее время на территории большинства этих стран (ГОСТ 10178 [8], ГОСТ 22266 [9], ГОСТ 965 [10], ГОСТ 11052 [11], ГОСТ 25328 [12], ГОСТ 969 [13], ГОСТ 15825 [14]).

ГОСТ 30744-2001

МЕЖГОСУДАРСТВЕННЫЙ СТАНДАРТ

ЦЕМЕНТЫ

Методы испытаний с использованием полифракционного песка

CEMENTS

Methods of testing with using
polyfraction standard sand

Дата введения 2002-03-01

1 Область применения

Настоящий стандарт распространяется на все виды цемента и устанавливает методы их испытаний с использованием полифракционного песка.

Настоящий стандарт применяют, если в контрактах (договорах) предусмотрена поставка цемента по EN 197-1, а также по требованию потребителя (заказчика) и для целей сертификации цемента на соответствие EN 197-1.

2 Нормативные ссылки

В настоящем стандарте использованы ссылки на следующие стандарты:

ГОСТ 166-89 Штангенциркули. Технические условия

ГОСТ 1770-74 Посуда мерная лабораторная стеклянная. Цилиндры, мензурки, колбы, пробирки. Технические условия

ГОСТ 6139-91 Песок стандартный для испытаний цемента

ГОСТ 6613-86 Сетки проволочные тканые с квадратными ячейками. Технические условия

ГОСТ 6709-72 Вода дистиллированная. Технические условия

ГОСТ 24104-88 Весы лабораторные общего назначения и образцовые. Общие технические условия

ГОСТ 25706-83 Лупы. Типы, основные параметры. Общие технические требования

ГОСТ 30515-97 Цементы. Общие технические условия

3 Определения

Термины и определения - по ГОСТ 30515.

4 Общие положения

4.1 Отбор проб выполняют по ГОСТ 30515.

4.2 В рабочем журнале записывают вид и состояние тары, в которой доставлена проба.

4.3 Пробы цемента до испытания хранят в сухом помещении при относительной влажности воздуха не более 50 %.

4.4 Перед испытанием каждую пробу цемента просеивают через сито с сеткой № 09 по ГОСТ 6613. Остаток на сите взвешивают и отбрасывают. Массу остатка в процентах, а также его характеристику (наличие комков, кусков дерева, металла и пр.) заносят в рабочий журнал. После просеивания пробу цемента перемешивают.

4.5 При приготовлении стандартного цементного раствора применяют стандартный полифракционный песок (далее - песок) по ГОСТ 6139. Могут применяться другие пески, удовлетворяющие требованиям ГОСТ 6139 по соответствию эталонному песку, при этом содержание SiO2 в стандартном песке должно быть не ниже 96 %.

4.6 Для приготовления цементного теста, изготовления и хранения образцов применяют водопроводную воду. Сосуд для отмеривания или взвешивания воды тарируют в смоченном состоянии.

4.7 При проведении приемосдаточных, сертификационных и иных контрольных испытаний, а также сравнительных испытаний применяют дистиллированную воду, соответствующую ГОСТ 6709 в части требований к массовой доле ионов хлора и кальция.

4.8 Перед испытанием цемент, песок и воду выдерживают до принятия ими температуры помещения.

4.9 Испытания следует проводить в помещениях с температурой воздуха (20±2)°С и относительной влажностью не менее 50 % при изготовлении образцов для определения прочности, не менее 65 % - при определении сроков схватывания и равномерности изменения объема и не более 65 % - при определении тонкости помола.

Температура и влажность воздуха помещений должны ежедневно отмечаться в рабочем журнале.

4.10 Температура в камере (шкафу) влажного хранения должна быть (20±1)°С, относительная влажность - не менее 90 %. Температуру и влажность следует регистрировать непрерывно или периодически не реже, чем через каждые 4 ч.

4.11 Цемент и песок взвешивают, воду взвешивают (отмеривают) с погрешностью, не превышающей указанную в таблице 1.

Таблица 1

В граммах

Наименование материала

Погрешность взвешивания (±)

Цемент для определения:

 

- тонкости помола

0,01

- сроков схватывания и равномерности изменения объема

1

- прочности

2

Песок

5

Вода

1 (1 мл)

4.12 Средства контроля, применяемые при испытаниях, должны быть изготовлены из коррозионностойких и не реагирующих с цементом материалов. Применение алюминиевых и оцинкованных форм, чаш, лопаток и т.п. не допускается.

4.13 Средства контроля, применяемые при испытаниях цемента, должны быть аттестованы или поверены в сроки, установленные в приложении А.

5 Определение тонкости помола

5.1 Определение тонкости помола по остатку на сите

5.1.1 Средства контроля

Сито с контрольной сеткой № 009 по ГОСТ 6613. Допускается применение сита с сеткой № 008. Сито представляет собой цилиндрическую обойму диаметром 150-200 мм и высотой 40-100 мм, в которой на расстоянии около 10 мм от нижнего края натянута и плотно зажата контрольная сетка. Сито имеет подситную тарелку и крышку.

Прибор для механического или пневматического просеивания.

Весы по ГОСТ 24104 с погрешностью не более 0,01 г.

Колба по ГОСТ 1770.

Стержень.

Лупа типа ЛП по ГОСТ 25706.

5.1.2 Подготовка и проведение испытания

5.1.2.1 От пробы, подготовленной по 4.4, отбирают необходимое количество цемента, помещают в стеклянную колбу, закрывают пробкой и встряхивают вручную в течение 2 мин для дезагрегирования, после чего оставляют в покое на 2 мин, а затем перемешивают чистым сухим стержнем для равномерного распределения мелких частиц.

5.1.2.2 Перед проведением испытания сетку сита осматривают в лупу и при обнаружении каких-либо дефектов (дырки, отход сетки от обоймы и др.) ее заменяют. Сито должно быть сухим и чистым.

5.1.2.3 При ручном просеивании навеску цемента массой 10 г, подготовленную по 5.1.2.1, высыпают на сито, установленное на подситной тарелке. Сито закрывают крышкой и встряхивают вручную.

Операцию просеивания считают законченной, если при контрольном просеивании сквозь сито проходит не более 0,01 г цемента. Контрольное просеивание выполняют вручную при снятой подситной тарелке на бумагу в течение 1 мин.

Остаток на сите взвешивают и выражают в процентах к первоначальной массе цемента.

5.1.2.4 При использовании приборов для механического или пневматического просеивания испытания выполняют в соответствии с инструкцией, прилагаемой к приборам. Контрольное просеивание выполняют по 5.1.2.3.

5.1.2.5 За тонкость помола по остатку на сите принимают среднеарифметическое значение результатов двух определений, расхождение между которыми не должно быть более 1 % среднеарифметического значения. Если расхождение более 1 %, проводят третье определение и за тонкость помола принимают среднеарифметическое значение результатов трех определений.

Результат вычисления округляют до 0,1 %.

5.2 Определение тонкости помола по удельной поверхности

5.2.1 Средства контроля

Прибор для определения удельной поверхности методом воздухопроницаемости.

Прибор Ле Шателье для определения плотности цемента (рисунок 1).

Весы по ГОСТ 24104 с погрешностью не более 0,01 г.

Емкость стеклянная, штатив.

5.2.2 Подготовка и проведение испытания

5.2.2.1 При определении удельной поверхности для расчета массы навески цемента используют величину его плотности, определенную по 5.2.2.2.

5.2.2.2 Прибор Ле Шателье помещают в стеклянную емкость с водой и закрепляют в штативе так, чтобы вся его градуированная часть была погружена в воду. Температура воды в емкости должна соответствовать температуре, при которой производилась калибровка прибора.

Прибор наполняют обезвоженным керосином до нулевой черты по нижнему мениску. После этого свободную от керосина часть прибора (выше нулевой черты) тщательно протирают тампоном из фильтровальной бумаги. От цемента, подготовленного по 5.1.2.1, отбирают навеску массой 65 г и высыпают ее в прибор Ле Шателье ложечкой через воронку небольшими равномерными порциями. Для удаления пузырьков воздуха прибор вынимают из емкости с водой и поворачивают его в наклонном положении в течение 10 мин на гладком резиновом коврике. Затем прибор снова помещают в емкость с водой не менее чем на 10 мин, после чего проводят отсчет уровня жидкости в пределах верхней градуированной части прибора. Плотность цемента rц, г/см3, вычисляют по формуле

,                                                         (1)

где тц - масса навески цемента, г;

V - объем керосина, вытесненного цементом, см3.

Рисунок 1 - Прибор Ле Шателье

За плотность цемента принимают среднеарифметическое значение результатов двух определений, расхождение между которыми не должно превышать 0,02 г/см3.

Результат вычисления округляют до 0,01 г/см3.

Допускается использование других методов определения плотности, погрешность которых не превышает требования настоящего стандарта.

5.2.2.3 Расчет массы навески цемента с учетом плотности, определенной по 5.2.2.2, и проведение испытаний для определения удельной поверхности выполняют в соответствии с инструкцией к прибору. Пробу цемента для испытаний готовят по 5.1.2.1.

5.2.2.4 За удельную поверхность принимают среднеарифметическое значение результатов двух определений, расхождение между которыми не должно быть более 1 % среднеарифметического значения.

Результат вычисления округляют до 1 м2/кг (10 см2/г).

6 Определение сроков схватывания

6.1 Средства контроля

Прибор Вика в комплекте с пестиком, иглами (длинной и короткой), кольцом и пластинкой (рисунок 2). Прибор Вика состоит из цилиндрического металлического стержня, который свободно перемещается в обойме станины в вертикальном направлении и может фиксироваться на требуемой высоте с помощью стопорного устройства. На стержне имеется указатель для отсчета перемещения его относительно шкалы с ценой деления 1 мм. Пестик должен быть изготовлен из нержавеющей стали и иметь полированную поверхность. Размеры рабочей части пестика должны соответствовать указанным на рисунке 3. Иглы должны быть изготовлены из стальной нержавеющей проволоки с полированной поверхностью и не должны иметь искривлений. Короткая игла для определения конца схватывания должна быть снабжена кольцеобразной насадкой с наклонным каналом для выхода воздуха. Размеры рабочей части игл должны соответствовать указанным на рисунках 4 и 5. Общая масса перемещающейся части прибора Вика должна быть (300±1) г и сохраняется взаимной перестановкой пестика и игл либо с помощью дополнительного пригруза, закрепляемого в верхнем конце стержня прибора. Для определения сроков схватывания могут применяться автоматизированные приборы при условии получения тех же результатов, как при использовании прибора Вика. При этом определения выполняют в соответствии с инструкцией к прибору.

а - положение кольца при определении нормальной густоты и начала схватывания; б - положение кольца при определении конца схватывания
1 - кольцо; 2 - пестик; 3 - пригруз; 4 - цилиндрический металлический стержень; 5 - обойма станины; 6- стопорное устройство; 7 - пластинка; 8 - шкала; 9 - указатель; 10 - игла; 11 - основание станины

Рисунок 2 - Прибор Вика

Рисунок 3 - Рабочая часть пестика

Рисунок 4 - Рабочая часть длинной иглы

А - канал для выхода воздуха

Рисунок 5 - Рабочая часть короткой иглы с кольцеобразной насадкой

1 - чаша; 2 - лопасть

Рисунок 6

Кольцо и пластинка должны быть изготовлены из нержавеющей стали, пластмассы или другого не впитывающего воду материала. Форма и размеры кольца должны соответствовать приведенным на рисунке 2. Размер пластинки, на которую устанавливают кольцо, должен превышать диаметр кольца, толщина пластинки должна быть не менее 2,5 мм. Допускается применять цилиндрическое кольцо высотой (40±0,2) мм при условии получения тех же результатов, как и при определении с кольцом в виде усеченного конуса.

Смеситель для приготовления цементного теста, чаша и лопасть которого изготовлены из нержавеющей стали (рисунок 6). Смеситель должен иметь приспособление, позволяющее крепить чашу вместимостью около 5 л неподвижно к станине и изменять положение чаши по высоте относительно лопасти для регулирования зазора между ними, который в момент максимального приближения лопасти к стенке чаши должен быть (3,0±1,0) мм. Чаша и лопасть используются в паре и должны быть индивидуально подогнаны друг к другу. При работе смесителя вращение лопасти вокруг собственной оси и планетарное перемещение ее по периметру чаши должны осуществляться в противоположных направлениях со скоростью, указанной в таблице 2.

Таблица 2

В оборотах в минуту

Ступень скорости

Скорость вращения лопасти смесителя

вокруг собственной оси

при планетарном перемещении относительно оси чаши

Малая

140±5

62±5

Большая

285±10

125±10

Весы по ГОСТ 24104 с погрешностью не более 1 г.

Цилиндр мерный по ГОСТ 1770 с ценой деления не более 1 мл.

6.2 Подготовка и проведение испытания

6.2.1 Приготовление цементного теста нормальной густоты (стандартной консистенции)

6.2.1.1 Перед началом испытания в нижний конец стержня прибора Вика вставляют пестик, проверяют свободное перемещение стержня и нулевое показание прибора, соприкасая пестик с пластинкой, на которой установлено кольцо. При отклонении от нуля указатель шкалы прибора устанавливают в нулевое положение. Кольцо и пластинку перед началом испытания смазывают тонким слоем машинного масла.

6.2.1.2 Пробу цемента подготавливают по 4.4.

6.2.1.3 Воду в количестве, необходимом (ориентировочно) для получения цементного теста нормальной густоты, выливают в чашу смесителя, предварительно протертую влажной тканью, затем осторожно в течение 5-10 с высыпают 500 г цемента и включают смеситель на малую скорость. Время окончания высыпания цемента в воду считают началом затворения. Через 90 с смеситель останавливают на 15 с, в течение которых скребком снимают тесто, налипшее на стенках чаши, сдвигая его в середину чаши. Затем вновь включают смеситель на малую скорость и продолжают перемешивание еще в течение 90 с. Суммарное время перемешивания цементного теста должно составлять 3 мин, не считая времени остановки.

6.2.1.4 Приготовленное цементное тесто быстро за один прием переносят в кольцо, установленное на пластинке, заполняя его с избытком, но без уплотнения или вибрации. Избыток цементного теста срезают ножом, протертым влажной тканью, вровень с краями кольца до получения ровной поверхности. Кольцо с пластинкой устанавливают на основание станины прибора Вика, опускают пестик до соприкосновения с поверхностью цементного теста в центре кольца и в этом положении закрепляют стержень стопорным устройством. Через 1-2 с освобождают стержень, предоставляя пестику свободно погружаться в цементное тесто. Время от начала затворения по 6.2.1.3 до начала погружения пестика в цементное тесто должно составлять 4 мин. Через 30 с после освобождения стержня фиксируют по шкале прибора глубину погружения пестика в цементное тесто. В течение всего времени испытания кольцо с цементным тестом не должно подвергаться толчкам или сотрясениям.

6.2.1.5 Нормальной густотой цементного теста считают такую консистенцию, при которой пестик прибора, погруженный в заполненное цементным тестом кольцо, не доходит на (6±1) мм до пластинки, на которой установлено кольцо.

6.2.1.6 Если глубина погружения пестика окажется меньше или больше указанной в 6.2.1.5, испытания повторяют, соответственно увеличивая или уменьшая количество воды затворения до погружения пестика на требуемую глубину.

6.2.1.7 За нормальную густоту цементного теста принимают количество воды затворения в процентах массы цемента, при котором достигается нормированная консистенция цементного теста.

Результат вычисления округляют до 0,25 %.

6.2.2 Определение начала схватывания

6.2.2.1 В нижний конец стержня прибора Вика вставляют длинную иглу и проверяют по 6.2.1.1 готовность прибора к проведению испытания, чистоту поверхности и отсутствие искривлений иглы.

6.2.2.2 Готовят цементное тесто нормальной густоты по 6.2.1.3. Цементное тесто переносят в кольцо, как указано в 6.2.1.4.

6.2.2.3 Иглу опускают до соприкосновения с поверхностью цементного теста и в этом положении закрепляют стержень стопорным устройством. Через 1-2 с освобождают стержень, предоставляя игле свободно погружаться в цементное тесто. В начале испытания, пока цементное тесто находится в пластичном состоянии, во избежание сильного удара иглы о пластинку допускается ее слегка задерживать при погружении в тесто для исключения повреждения иглы. Как только цементное тесто загустеет настолько, что опасность повреждения иглы будет исключена, игле дают свободно опускаться. Через 30 с после освобождения стержня фиксируют по шкале прибора глубину погружения иглы в цементное тесто. Затем иглу погружают в цементное тесто через каждые 10 мин, передвигая кольцо после каждого погружения таким образом, чтобы каждое последующее погружение иглы находилось на расстоянии не менее 10 мм от мест предыдущих погружений и от края кольца. После каждого погружения иглу протирают.

В промежутках между погружениями иглы кольцо с цементным тестом на пластинке помещают в камеру (шкаф) влажного хранения. Допускается кольцо с цементным тестом накрывать влажной тканью и оставлять в помещении с относительной влажностью не менее 65 %, при этом ткань не должна соприкасаться с цементным тестом.

6.2.2.4 Началом схватывания считают время от начала затворения цемента до момента, когда игла при проникновении в цементное тесто не доходит до пластинки на (4±1) мм.

Результат определения записывают с округлением до 5 мин.

6.2.3 Определение конца схватывания

6.2.3.1 Длинную иглу в приборе Вика заменяют на короткую иглу с кольцеобразной насадкой. Проверяют чистоту поверхности и отсутствие искривлений иглы.

6.2.3.2 Кольцо с цементным тестом, использованное для определения начала схватывания по 6.2.2, переворачивают таким образом, чтобы определение конца схватывания проводить на поверхности, контактировавшей с пластинкой. Иглу осторожно опускают до соприкосновения с поверхностью цементного теста, погружение иглы выполняют по 6.2.2.3 с интервалом 30 мин. При приближении конца схватывания интервалы времени между погружениями могут быть сокращены.

6.2.3.3 Концом схватывания считают время от начала затворения цемента до момента, когда игла проникает в цементное тесто не более чем на 0,5 мм, что соответствует положению иглы, при котором кольцеобразная насадка впервые не оставляет отпечатка на поверхности цементного теста.

Результат определения записывают с округлением до 15 мин.

7 Определение равномерности изменения объема

Равномерность изменения объема цемента характеризуют величиной расширения образца из цементного теста нормальной густоты в кольце Ле Шателье при кипячении.

7.1 Средства контроля

Смеситель, весы, мерный цилиндр по 6.1.

Кольца Ле Шателье в комплекте с пластинками и пригрузом (рисунок 7). Кольцо Ле Шателье представляет собой разрезанный по образующей полый цилиндр с двумя индикаторными иглами, припаянными по обе стороны на одинаковом расстоянии от прорези. Кольцо должно быть изготовлено из латуни. Размеры кольца и индикаторных игл должны соответствовать указанным на рисунке 7. Для облегчения расформовки кольцо может иметь скобы, припаянные с наружной стороны и расположенные выше индикаторных игл. Упругость кольца должна быть такой, чтобы под действием усилия, создаваемого грузом массой 300 г, приложенного в середине прорези кольца, как показано на рисунке 7, расстояние между концами индикаторных игл увеличилось на (17,5±2,5) мм без постоянной деформации. Кольцо должно быть снабжено двумя стеклянными пластинками, размеры которых превышают диаметр кольца. На одну из пластинок устанавливают кольцо, вторую накладывают сверху. Масса верхней пластинки с дополнительным при грузом должна быть не менее 75 г.

а - кольцо Ле Шателье (вид сверху); б - кольцо Ле Шателье с пластинками и пригрузом (вид сбоку); в - схема поверки упругости кольца Ле Шателье
1 - кольцо с прорезью; 2 - индикаторная игла; 3 - пластинка; 4 - пригруз

Рисунок 7

Бачок для кипячения, имеющий подставку для размещения колец Ле Шателье.

Камера (шкаф) влажного хранения по 4.10.

Штангенциркуль по ГОСТ 166.

7.2 Подготовка и проведение испытания

7.2.1 Кольца и пластинки перед началом испытания смазывают тонким слоем машинного масла.

7.2.2 Готовят цементное тесто нормальной густоты по 6.2.1. Кольца устанавливают на пластинки и наполняют в один прием цементным тестом с избытком, но без уплотнения или вибрации. При заполнении колец исключают случайное раскрытие прорези осторожным сдавливанием кольца пальцами или резиновой лентой. Избыток цементного теста срезают ножом, протертым влажной тканью, вровень с краями кольца. Для одного испытания заполняют два кольца из одного замеса цементного теста.

7.2.3 Кольца, заполненные цементным тестом по 7.2.2, накрывают сверху пластинками, на которые устанавливают пригруз, и помещают в камеру влажного хранения, где выдерживают в течение (24±0,5) ч. Допускается выдерживать кольца в воде в течение (24±0,5) ч при температуре (20±1)°С при условии получения одинаковых результатов.

7.2.4 После предварительного твердения по 7.2.3 кольца извлекают из камеры, измеряют штангенциркулем расстояние между концами индикаторных игл с точностью до 0,5 мм (начальное измерение), освобождают от пластинок и пригруза и помещают в бачок для кипячения индикаторными иглами вверх. Воду в бачке доводят до кипения за (30±5) мин и выдерживают кольца в кипящей воде в течение (180±5) мин. Уровень воды в бачке должен быть выше размещенных на подставке колец на 4-6 см в течение всего времени кипячения.

После окончания кипячения кольца извлекают из воды, дают им остыть до температуры помещения, после чего измеряют расстояние между концами индикаторных игл (конечное измерение).

7.3 Обработка результатов

7.3.1 Вычисляют разность между значениями конечного и начального измерений для каждого кольца.

7.3.2 За расширение образцов в кольце Ле Шателье принимают среднеарифметическое значение результатов двух определений, вычисленных по 7.3.1.

Результат вычисления округляют до 0,5 мм.

8 Определение прочности

8.1 Средства контроля и вспомогательное оборудование

Смеситель по 6.1, снабженный дозирующим устройством для подачи песка.

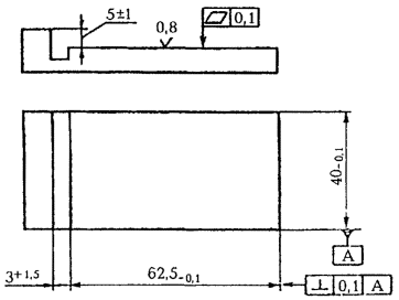
Трехгнездовые разъемные формы размером 40´40´160 мм для изготовления образцов-балочек (рисунок 8). Конструкция форм должна обеспечивать возможность удаления из них отформованных образцов без повреждения. Формы должны быть изготовлены из материалов, обеспечивающих сохранение размеров и формы образцов. Продольные и поперечные стенки формы должны быть пронумерованы для удобства их сборки и при закреплении плотно прилегать друг к другу и к опорной плите, не допуская вытекания воды из формы. Опорная плита должна быть достаточно жесткой для предотвращения вторичных вибраций. Приспособления для разъема и чистки формы должны обеспечивать выполнение соответствующих операций без повреждения образцов и деталей формы.

Насадка к формам высотой 20-40 мм с фиксаторами на наружных стенках, обеспечивающими правильную установку ее на форму. Предельное несовпадение внутренних стенок насадки и формы не должно быть более 1 мм.

Пластинки для форм размером 210х185 мм, изготовленные из стекла толщиной 6 мм с шлифованными краями или другого водонепроницаемого материала.

Приспособления для укладки цементного раствора в форму, включающие два типа лопаток и линейку (рисунок 9).

Встряхивающий стол для уплотнения раствора в форме, имеющий конструкцию, обеспечивающую плавный без перекосов подъем платформы стола на высоту (15±0,3) мм и ее свободное падение с этой высоты до удара о неподвижную преграду. Суммарная масса перемещающейся части стола вместе с пустой формой, насадкой и зажимами для формы должна быть (20±0,5) кг. Число ударов за рабочий цикл должно составлять 60 с частотой один удар в секунду. Отключение стола после выполнения 60 ударов должно производиться автоматически.

Рисунок 8 - Форма для изготовления образцов-балочек

Прибор для испытания на изгиб образцов-балочек любой конструкции с предельной нагрузкой до 10 кН, обеспечивающий возможность приложения нагрузки по заданной схеме (рисунок 10) со средней скоростью нарастания нагрузки (50±10) Н/с. Погрешность прибора при измерении нагрузки не должна быть более ±1 % в верхних 4/5 диапазона измерения. Захват для фиксации образца должен быть снабжен цилиндрическими элементами, изготовленными из нержавеющей стали с твердостью 56-61 HRCэ. Форма, размеры и взаимное расположение нагрузочного элемента и опор приведены на рисунке 10.

Н - высота насадки
1 - лопатка для первого слоя, 2 - лопатка для второго слоя, 3 - металлическая линейка

Рисунок 9 - Приспособления для укладки цементного раствора в форму

Машина для испытания на сжатие половинок образцов-балочек любой конструкции с предельной нагрузкой до 500 кН, обеспечивающая нагружение образца в режиме чистого сжатия. Погрешность измерения нагрузки не должна быть более ±1 % в верхних 4/5 диапазона измерения. Машина должна иметь подвижную шаровую опору для компенсации пространственных непараллельностей опорных граней образца. Машина должна быть снабжена нажимными пластинками для передачи нагрузки на половинки образцов-балочек и приспособлением для центрированной установки нажимных пластинок, смещение которых относительно оси системы нагружения не должно превышать ±0,5 мм. Нажимные пластинки должны быть изготовлены из нержавеющей стали твердостью не менее 60 HRCэ, размерами: толщина не менее 10 мм, ширина (40±0,1) мм, длина (40±0,1) мм. Допускается использование нажимных пластинок, форма и размеры которых приведены на рисунке 11.

1 - нагрузочный элемент; 2 - образец-балочка; 3 - опора

Рисунок 10 - Схема расположения образца-балочки при испытании на изгиб

Рисунок 11 - Нажимная пластинка для передачи нагрузки на половинку образца-балочки

Прибор для испытания на изгиб образцов-балочек и машина для испытания на сжатие половинок образцов-балочек могут быть совмещены в одной испытательной машине.

Камера (шкаф) влажного хранения по 4.10.

Ванна для водного хранения образцов с решеткой из некорродирующего материала для размещения образцов-балочек. Не допускается использование деревянных решеток.

Весы по ГОСТ 24104 с погрешностью не более 2 г.

Цилиндр мерный по ГОСТ 1770 с ценой деления не более 1 мл.

8.2 Подготовка и проведение испытания

8.2.1 Приготовление стандартного цементного раствора

Пробу цемента подготавливают по 4.4.

Образцы изготавливают из стандартного цементного раствора (далее - цементный раствор), состоящего из цемента и стандартного полифракционного песка в соотношении 1:3 по массе при водоцементном отношении, равном 0,50. Для приготовления одного замеса цементного раствора, необходимого для изготовления трех образцов-балочек, взвешивают 450 г цемента, используют одну упаковку стандартного полифракционного песка массой 1350 г и отмеривают или взвешивают 225 г воды.

Песок высыпают в дозирующее устройство смесителя. В предварительно протертую влажной тканью чашу смесителя выливают воду и добавляют цемент, после чего смеситель включают на малую скорость. Дальнейшая процедура приготовления цементного раствора приведена в таблице 3.

Таблица 3

Наименование и последовательность операций

Скорость вращения лопасти

Продолжительность операции, с (±1)

Перемешивание цемента с водой

Малая

30

Дозирование песка

»

30

Перемешивание цементного раствора

Большая

30

Остановка (в том числе сбор цементного раствора со стенок чаши в середину)

-

90
(первые 15)

Перемешивание цементного раствора

Большая

60

8.2.2 Изготовление образцов

8.2.2.1 Перед изготовлением образцов внутреннюю поверхность стенок формы и опорной плиты смазывают тонким слоем машинного масла. Стыки наружных стенок формы друг с другом и опорной плитой промазывают слоем солидола или другой густой смазкой.

На подготовленную форму устанавливают насадку, форму устанавливают на платформу встряхивающего стола и закрепляют зажимами.

Приспособления для укладки цементного раствора в форму перед применением должны быть протерты влажной тканью.

8.2.2.2 От приготовленного по 8.2.1 цементного раствора непосредственно из чаши смесителя лопаткой отбирают поочередно три порции цементного раствора массой около 300 г каждая и заполняют первым слоем отсеки формы. Цементный раствор выравнивают лопаткой для первого слоя, которую в вертикальном положении помещают плечиками на стенки насадки и перемещают по одному разу туда и обратно вдоль каждого отсека формы. Затем включают встряхивающий стол и уплотняют первый слой цементного раствора за рабочий цикл из 60 ударов.

После уплотнения первого слоя отсеки формы равномерно заполняют оставшимся в чаше цементным раствором и выравнивают его лопаткой для второго слоя, перемещая ее аналогично выравниванию первого слоя. Снова включают встряхивающий стол и уплотняют второй слой цементного раствора за рабочий цикл из 60 ударов.

8.2.2.3 По окончании уплотнения с формы снимают насадку и ребром металлической линейки, расположенной перпендикулярно к поверхности образцов, удаляют излишек цементного раствора пилообразными движениями вдоль формы по одному разу туда и обратно. Затем выравнивают поверхность образцов той же линейкой, наклоненной почти до горизонтального положения, и производят их маркировку (ставят номер образца).

Для каждого установленного срока испытания изготавливают по три образца-балочки.

8.2.2.4 Форму с образцами накрывают пластинкой и помещают на полку в камеру (шкаф) влажного хранения. Не допускается устанавливать формы с образцами одна на другую.

8.2.2.5 Через (24±1) ч с момента изготовления формы с образцами вынимают из шкафа и осторожно расформовывают. Для проверки качества выполнения операций перемешивания и уплотнения, а также контроля содержания воздуха в цементном растворе рекомендуется взвешивать расформованные образцы.

Образцы, подлежащие испытанию в суточном возрасте, расформовывают не ранее чем за 20 мин до испытания. Образцы, имеющие через (24±1) ч прочность, недостаточную для их расформовки без повреждения, допускается расформовывать через (48±2) ч с указанием этого срока в рабочем журнале.

8.2.2.6 После расформовки образцы укладывают на решетки в ванну с водой в горизонтальном положении заглаженной поверхностью вверх так, чтобы они не соприкасались друг с другом и уровень воды был выше образцов не менее чем на 2 см. Температура воды при хранении образцов должна быть (20±1) °С.

Через каждые 14 сут половину объема воды в ванне меняют на свежую воду. Не допускается полная смена воды в ванне во время хранения образцов. В одной ванне следует хранить образцы из аналогичных по составу цементов.

8.2.2.7 По истечении срока хранения образцы испытывают. Предельные отклонения по времени от момента затворения до начала испытания не должны быть более указанных в таблице 4. Непосредственно перед испытанием с поверхности образцов должны быть удалены капли воды.

Таблица 4

Срок испытания, сут

Предельное отклонение (±)

1; 2

15 мин

3

45 мин

7

2 ч

28

8 ч

8.2.3 Определение прочности при изгибе

Образец устанавливают на опорные элементы прибора таким образом, чтобы его грани, горизонтальные при изготовлении, находились в вертикальном положении, а поверхность с маркировкой была обращена к испытателю. Образцы испытывают в соответствии с инструкцией к прибору.

Средняя скорость нарастания нагрузки на образец должна быть (50±10) Н/с.

8.2.4 Определение прочности на сжатие

Полученные после испытаний на изгиб по 8.2.3 половинки образцов-балочек сразу же испытывают на сжатие. Половинку образца-балочки помещают между нажимными пластинками таким образом, чтобы его грани, горизонтальные при изготовлении, находились в вертикальном положении, а поверхность с маркировкой была обращена к испытателю. В продольном направлении расположение половинки образца-балочки должно быть таким, чтобы ее торец выступал из нажимных пластинок размером 40х40 мм примерно на 10 мм. Образцы испытывают в соответствии с инструкцией к испытательной машине. Средняя скорость нарастания нагрузки на образец должна быть (2400±200) Н/с.

(Поправка, 21.04.2003 г.)

8.2.5 Обработка результатов

8.2.5.1 Прочность при изгибе Rизг, МПа, отдельного образца-балочки вычисляют по формуле

,                                                       (2)

где F - разрушающая нагрузка, Н;

b - размер стороны квадратного сечения образца-балочки, мм;

l - расстояние между осями опор, мм.

За прочность при изгибе принимают среднеарифметическое значение результатов испытаний трех образцов. Результат вычисления округляют до 0,1 МПа.

8.2.5.2 Прочность на сжатие R, МПа, отдельной половинки образца-балочки вычисляют формуле

,                                                         (3)

где F - разрушающая нагрузка, Н;

S - площадь рабочей поверхности нажимной пластинки, мм2.

За прочность на сжатие принимают среднеарифметическое значение результатов испытаний шести половинок образцов-балочек. Результат вычисления округляют до 0,1 МПа.

Если один из шести результатов отличается более чем на 10 % от среднеарифметического значения, этот результат следует исключить и рассчитывать среднеарифметическое значение для оставшихся пяти результатов.

Если еще один результат отличается более чем на 10 % от среднеарифметического значения оставшихся пяти результатов, испытания считают выполненными неудовлетворительно, в этом случае все результаты признают недействительными.

8.3 Критерии точности метода определения прочности

8.3.1 Точность метода определения прочности оценивают повторяемостью и воспроизводимостью результатов.

8.3.2 Повторяемость метода определения прочности является количественным выражением разброса результатов испытаний, полученных в одной и той же лаборатории для одной и той же пробы цемента при идентичных условиях (один и тот же испытатель, один и тот же комплект испытательного оборудования и стандартный песок, короткие перерывы во времени и т.п.).

При этих условиях для прочности на сжатие образцов в возрасте 28 сут ошибка повторяемости, выраженная коэффициентом вариации, не должна быть более 3 % при числе испытаний не менее 10.

8.3.3 Воспроизводимость метода определения прочности является количественным выражением разброса результатов испытаний, полученных для одной и той же пробы цемента в различных лабораториях, различными испытателями, с использованием различных партий стандартных песков и комплектов испытательного оборудования.

При этих условиях для прочности на сжатие образцов в возрасте 28 сут ошибка воспроизводимости, выраженная коэффициентом вариации, не должна быть более 6 % при числе испытаний не менее 20 для лабораторий, аккредитованных в установленном порядке.

8.3.4 При испытании одной и той же пробы цемента в различных лабораториях расхождение между значениями прочности на сжатие образцов в возрасте 28 сут не должно превышать 15 % среднеарифметического значения результатов испытаний.

ПРИЛОЖЕНИЕ А

(обязательное)

Поверка и аттестация средств контроля

Поверке и аттестации подлежат средства контроля согласно таблице A.1.

Поверку и аттестацию проводят не реже одного раза в год по методикам, утвержденным в установленном порядке.

Таблица A.1

Объект поверки (аттестации)

Поверяемые (аттестуемые) узлы или детали

Проверяемые параметры

Прибор Вика

Пестик

Диаметр

Иглы

Диаметр, отсутствие искривлений

Падающие части в сборе

Масса

Кольцо к прибору Вика

Кольцо

Размеры

Смеситель для приготовления цементного теста и раствора

Смеситель в целом

Зазор между чашей и лопастью, скорости вращения лопасти

Кольцо Ле Шателье

Кольцо

Упругость кольца

Форма для изготовления образцов-балочек

Форма в сборе

Размеры, параллельность и перпендикулярность стенок формы

Встряхивающий стол для уплотнения цементного раствора

Падающие части в сборе

Масса

Встряхивающий стол в целом

Высота подъема, число встряхиваний за рабочий цикл

Прибор для испытания на изгиб

Опоры и нагрузочный элемент

Размеры и взаимное расположение

Прибор для испытания на изгиб

Прибор в целом

Точность воспроизведения нагрузок, средняя скорость нарастания нагрузки

Машина для испытания на сжатие

Нажимные пластинки

Размеры, состояние рабочей поверхности

Машина в целом

Точность воспроизведения нагрузок, средняя скорость нарастания нагрузки

Весы

Весы

Погрешность взвешивания

Штангенциркуль

Штангенциркуль

Погрешность измерения

ПРИЛОЖЕНИЕ Б

(информационное)

Библиография

[1] EN 196-6 Методы испытаний цемента. Определение тонкости помола (Methods of testing cement - Determination of fineness)

[2] EN 196-3 Методы испытаний цемента. Определение сроков схватывания (Methods of testing cement - Determination of setting time and soundness)

[3] EN 196-1 Методы испытаний цемента. Определение прочности (Methods of testing cement - Determination of strength)

[4] ГОСТ 310.1-76 Цементы. Методы испытаний. Общие положения

[5] ГОСТ 310.2-76 Цементы. Методы определения тонкости помола

[6] ГОСТ 310.3-76 Цементы. Методы определения нормальной густоты, сроков схватывания и равномерности изменения объема

[7] ГОСТ 310.4-81 Цементы. Методы определения предела прочности при изгибе и сжатии

[8] ГОСТ 10178-85 Портландцемент и шлакопортландцемент. Технические условия

[9] ГОСТ 22266-94 Цементы сульфатостойкие. Технические условия

[10] ГОСТ 965-89 Портландцемента белые. Технические условия

[11] ГОСТ 11052-74 Цемент гипсоглиноземистый расширяющийся

[12] ГОСТ 25328-82 Цемент для строительных растворов. Технические условия

[13] ГОСТ 969-91 Цементы глиноземистые и высокоглиноземистые. Технические условия

[14] ГОСТ 15825-80 Портландцемент цветной. Технические условия

Ключевые слова: цемент, полифракционный песок, методы испытаний

 




ГОСТЫ, СТРОИТЕЛЬНЫЕ и ТЕХНИЧЕСКИЕ НОРМАТИВЫ.
Некоммерческая онлайн система, содержащая все Российские Госты, национальные Стандарты и нормативы.
В Системе содержится более 150000 файлов нормативно-технической документации, действующей на территории РФ.
Система предназначена для широкого круга инженерно-технических специалистов.

Рейтинг@Mail.ru Яндекс цитирования

Copyright © www.gostrf.com, 2008 - 2026