Крупнейшая бесплатная информационно-справочная система онлайн доступа к полному собранию технических нормативно-правовых актов РФ. Огромная база технических нормативов (более 150 тысяч документов) и полное собрание национальных стандартов, аутентичное официальной базе Госстандарта. GOSTRF.com - это более 1 Терабайта бесплатной технической информации для всех пользователей интернета. Все электронные копии представленных здесь документов могут распространяться без каких-либо ограничений. Поощряется распространение информации с этого сайта на любых других ресурсах. Каждый человек имеет право на неограниченный доступ к этим документам! Каждый человек имеет право на знание требований, изложенных в данных нормативно-правовых актах!

  


 

ПРАВИТЕЛЬСТВО МОСКВЫ

МОСКОМАРХИТЕКТУРА

РЕКОМЕНДАЦИИ
По развитию и реконструкции сети
объектов образования
(учреждений дошкольного образования)

2001

Предисловие

1. РАЗРАБОТАНЫ ГУП "Институт общественных зданий» (канд. архитектуры Смывина Л. А. - автор и руководитель разработки, арх. Дунаева Т. Г.)

2. ПОДГОТОВЛЕНЫ к утверждению и изданию Управлением перспективного проектирования и нормативов Москомархитектуры (Арх. Шалов Л. А., инж. Щипанов Ю. Б.).

3. СОГЛАСОВАНО с Комитетом образования г. Москвы.

4. УТВЕРЖДЕНЫ указанием Москомархитектуры от 27.02.2001 г. № 12.

СОДЕРЖАНИЕ

Введение. 1

1. Концепция дошкольного образования и ее влияние на формирование материально-технической базы дошкольных образовательных учреждений. 2

2. Характеристика материальной базы дошкольных образовательных учреждений и примененных проектов для их строительства (по отношению к мгсн 4.07-86 "дошкольные учреждения". 5

3. Характеристика сложившейся сети зданий дошкольных образовательных учреждений и направления ее развития. 19

4. Предложения по развитию сети и фонда зданий дошкольных образовательных учреждений с адресными программами проектирования. 25

4.1 район «басманное» (в пределах садового кольца) 25

4.2 район «хамовники» (за пределами садового кольца). 28

4.3 район «черемушки». 36

ВВЕДЕНИЕ

Характеристика сложившейся сети зданий ДОУ города в исследовании была ограничена тремя районами: "Басманное" в пределах садового кольца, "Хамовники" - за пределами Садового кольца и "Черемушки" - район юго-западнее "Хамовников", подвергающийся в настоящее время реконструкции жилищного фонда.

Результаты анализа зданий сложившейся сети дошкольных образовательных учреждений показали, что под влиянием спроса и объективной необходимости "выживания" в условиях рыночной экономики, к настоящему моменту практически во всех дошкольных учреждениях сокращена на 1 - 2 группы вместимость зданий и за этот счет выделены необходимые общевоспитательные помещения, соответствующие новым педагогическим и медико-гигиеническим требованиям. Увеличен против расчетного показатель общей площади на одно место - с 8 - 12 до 16 м2.

Развитие фонда зданий в направлениях создания материальной среды для развития специализации учреждений, расширения ассортимента предоставляемых услуг и качества обслуживания является определяющим для конкурентоспособности государственных дошкольных учреждений наряду с частными или ведомственными. Педагогические и медико-гигиенические приоритеты и направления уставной деятельности учреждения определяют виды предлагаемых населению услуг и необходимый состав помещений (изостудия, физиокабинет, лингафонный кабинет, помещение для занятий по подгруппам, помещение ванны гидромассажа и бассейна, массажного кабинета и пр.).

Предложения по развитию фонда зданий строятся исходя из эмпирических рекомендуемых показателей общей площади по зданию в интервале 12,5 - 17,5 м2 на 1 место, при этом учитывают наличие реальной возможности расширить здание и объективной необходимости, обоснованной социально-педагогическими и медико-гигиеническими требованиями.

Следует отметить, что принципиальные различия в особенностях развития сети и фонда зданий от центра к периферии в юго-западном направлении от центра Москвы выражены не слишком заметно. Юго-западное направление весьма престижно, поэтому спрос на высококачественное обслуживание, комфортные условия содержания детей и разнообразие услуг остается стабильным по всем трем районам.

Разница определяется особенностями сложившегося фонда: повышение комфорта в центральных детских садах "Басманного" достигается снижением вместимости и возможностью расширения отдельно стоящих небольших по объему зданий, в то время как, например, встроенные учреждения на Фрунзенской набережной условий расширения не имеют. В этих учреждениях меньше дополнительных (платных) услуг.

В районе "Хамовников" зафиксирован дополнительный спрос на места в дошкольных учреждениях в северо-восточной части района из-за утраты части фонда в период приватизации временно высвободившихся зданий ДОУ в середине 90-х гг., а в "Черемушках" - из-за нового строительства многоэтажных жилых зданий взамен сносимых пятиэтажных панельных жилых домов, выстроенных по первым типовым проектам. Сохранить фонд зданий на 8 - 10 - 12 групп в «Черемушках» удалось благодаря образованию таких учреждений как «начальная школа - детский сад», возникших в период спада спроса на места в дошкольных учреждениях.

Однако, несмотря на различия в особенностях фонда зданий и его эксплуатации, приоритеты и количественные ориентиры в части расширения фонда во всех районах примерно одинаковы. По показателю общей площади на 1 место в здании это максимально 17,5 м2 (с учетом снижения до нормативной наполняемости детских групп разных форм обслуживания или с разной паталогией развития детей). Этого уровня мы придерживались и в настоящих рекомендациях.

В качестве объектов нового строительства следует рекомендовать 3 здания по 4 - 6 групп в "Хамовниках" в районе Фрунзенской набережной, 2 здания по 6 групп в "Хамовниках" в районе улицы Плющиха, 2 здания по 8 - 10 групп в районе "Черемушки" в зоне нового жилищного строительства. Большинство остальных зданий нуждаются в пристраиваемых или надстраиваемых объемах, причем, примерно в половине случаев - с увеличением вместимости.

Организационно подготовка реконструкции и реконструкция фонда зданий ДОУ осуществляется в соответствии со следующими этапами:

              определение зоны реконструкции, предпочтительно включающей группу из 5 - 8 компактно расположенных зданий ДОУ;

              подготовка исходно-разрешительной документации, включающей уточнение программ реконструкции, объемов работ, несущей способности зданий и наличия необходимой площади территории участка (как для размещения пристраиваемых объемов, так и производства строительных работ);

              разработка проектно-сметной документации;

              организация и осуществление реконструктивных работ с возможным временным отселением детей из первого реконструируемого здания в остальные реконструируемые здания или другие близлежащие ДОУ.

1. КОНЦЕПЦИЯ ДОШКОЛЬНОГО ОБРАЗОВАНИЯ И ЕЕ ВЛИЯНИЕ НА ФОРМИРОВАНИЕ МАТЕРИАЛЬНО-ТЕХНИЧЕСКОЙ БАЗЫ ДОШКОЛЬНЫХ ОБРАЗОВАТЕЛЬНЫХ УЧРЕЖДЕНИЙ.

1.1 Деятельность государственных городских дошкольных образовательных учреждений (ДОУ) регламентируется Типовым положением о дошкольном образовательном учреждении, утвержденном постановлением Правительства Российской Федерации от 1 июля 1995 г. № 677. Типовое положение регламентирует типологию видов дошкольных образовательных учреждений, типы и наполняемость детских групп в них.

1.2 Дошкольное образовательное учреждение - тип образовательного учреждения, обеспечивающего присмотр, уход и оздоровление детей в возрасте от 2-х месяцев до 6 - 7 лет. Основными задачами дошкольного образовательного учреждения являются:

охрана жизни и укрепление здоровья детей;

обеспечение интеллектуального, личностного и физического развития ребенка; осуществление необходимой коррекции отклонений в развитии ребенка; приобщение детей к общечеловеческим ценностям; взаимодействие с семьей для полноценного развития ребенка.

Дошкольные образовательные учреждения в соответствии с их направленностью делятся на следующие виды:

- детский сад;

- детский сад с приоритетным осуществлением одного или нескольких направлений развития воспитанников (интеллектуального, художественно-эстетического, физического и др.);

- детский сад компенсирующего вида с приоритетным осуществлением квалифицированной коррекции отклонений в физическом и психическом развитии воспитанников;

- детский сад присмотра и оздоровления с приоритетным осуществлением санитарно-гигиенических, профилактических и оздоровительных мероприятий и процедур;

- детский сад комбинированного вида (в состав комбинированного детского сада могут входить общеразвивающие, компенсирующие и оздоровительные группы в разном сочетании);

Центр развития ребенка - детский сад с осуществлением физического и психического развития, коррекции и оздоровления всех воспитанников.

1.3 Объем и качество выполнения функций, определенных уставом дошкольного образовательного учреждения: реализацию в полном объеме образовательных программ; качество реализуемых образовательных программ, соответствие применяемых форм, методов и средств организации образовательного процесса возрастным, психофизиологическим особенностям, склонностям, способностям, интересам и потребностям детей; жизнь и здоровье детей и работников учреждения во время образовательного процесса во многом зависят от наличия в здании соответствующего состава и площадей помещений.

1.4 В соответствии со своими уставными целями и задачами дошкольное образовательное учреждение может оказывать дополнительные (платные) услуги сверх основных воспитательных, оздоровительных, образовательных программ на основе договора с родителями (лицами их заменяющими) с учетом потребностей семьи. Как правило, дополнительные (платные) услуги требует дополнительных помещений (класс для занятий, изостудия и т.п.).

1.5 Закон об образовании, Положение о Государственном дошкольном образовательном учреждении является основой формирования типологии образовательных учреждений. Появление новых типов государственных образовательных учреждений вызывается во многом разнообразием форм взаимодействия с общеобразовательной школой. В ряде районов Москвы работают государственные образовательные учреждения "начальная школа - детский сад". Дошкольные образовательные учреждения общего типа готовят детей к школе, и эта подготовка связана как с образовательными дошкольными программами (чтение, письмо, устный счет, рисование), так и с коррекцией физического и психического развития детей. Оздоровительные ДОУ создают условия оздоровления ослабленных и часто болеющих дошкольников, а в учреждениях типа "начальная школа - детский сад" - и школьников начальных классов, включая дневной сон, трех- четырехразовое питание, лечебно-профилактические мероприятия.

1.6 В таблице 1 приведены усредненные по районам Москвы данные охвата дошкольников тем или иным видом обслуживания в дошкольных учреждениях Москвы.

1.7 Состав и площади помещений в зданиях ДОУ зависят от повозрастного охвата детей. Преобладание младших возрастных групп требует в здании иного набора общих специализированных помещений, связанных главным образом с оздоровительными программами - массажный и физиокабинет, кабинет гидромассажа, фитобар. Преобладание старших возрастных групп требует увеличения числа специализированных помещений для занятий с детьми, в соответствии с приоритетными направлениями педагогической деятельности: зальные помещения, классы для занятий, изостудия, помещение театральной деятельности, классы для специализированных занятий, комната экологического воспитания, библиотека, игротека и пр.

1.8 Количество групп в дошкольном образовательном учреждении определяется с учетом предельной наполняемости групп.

В группах:

от 2 месяца до 1 года - 10 детей;

от 1 года до 3 лет - 15 детей;

от 3 лет до 7 лет - 20 детей.

В разновозрастных группах:

при наличии в группе детей двух возрастов (от 2 месяцев до 3 лет) - 8 детей;

при наличии в группе детей любых трех возрастов (от 3 до 7 лет) - 10 детей;

при наличии в группе детей любых двух возрастов (от 3 до 7 лет) - 15 детей.

Таблица 1

Средние значения процентного охвата детей дошкольного возраста видами обслуживания в дошкольных образовательных учреждениях г. Москвы

Вид дошкольного учреждения

Средний процент охвата видами обслуживания

Общеразвивающие дошкольные учреждения - 40 %

Художественно-эстетического - 10 %

Физического - 10 %

Интеллектуального - 10 %

Прочие - 10 %

Дошкольные образовательные учреждения оздоровительного типа - 30 %

Частоболеющие, нуждающиеся в щадящем режиме - 15 %

Выздоравливающие после перенесенных заболеваний - 15 %

Компенсирующие дошкольные учреждения - 30 %

Логопедические - 10 %

С нарушением слуха - 5 %

С нарушением зрения - 5 %

С нарушением психического развития - 5 %

С нарушением опорно-двигательного аппарата - 5 %

В дошкольных образовательных учреждениях компенсирующего назначения наполняемость групп устанавливается в зависимости от категории дефекта детей и их возраста (до 3-х лет и старше 3-х лет) и составляет соответственно:

для детей с тяжелыми нарушениями речи - до 6 и до 10 детей;

для детей с фонетико-фонематическими нарушениями речи только в возрасте старше 3-х лет - до 12 детей;

для глухих детей - до 6 детей для обеих возрастных групп;

для слабослышащих детей - до 6 и до 8 детей;

для слепых детей - до 6 детей для обеих возрастных групп;

для слабовидящих детей, для детей с амблиопией, косоглазием - до 6 и 10 детей;

для детей с нарушениями опорно-двигательного аппарата - до 6 и 8 детей;

для детей с нарушением интеллекта (умственной отсталостью) - до 6 и до 10 детей;

для детей с задержкой психического развития - до 6 и до 10 детей;

для детей с глубокой умственной отсталостью только в возрасте старше 3-х лет - до 8 детей;

для детей с туберкулезной интоксикацией - до 10 и до 15 детей;

для детей, часто болеющих - до 10 и до 15 детей;

для детей со сложными дефектами (2 и более дефекта) - до 5 для обеих возрастных групп;

Для детей с иными отклонениями в развитии - до 10 и до 15 детей.

1.9 Расширение типологии дошкольных образовательных учреждений, а также снижение нормативов наполняемости детских групп проводит, с одной стороны, к разнообразию и увеличению в составе функциональной структуры учреждения доли общевоспитательных помещений, с другой стороны - к появлению новых возможностей в использовании старых зданий, в том числе тех, которые при прежних нормативах считались практически непригодными для эксплуатации.

Здания ДОУ в период 60 - 80-х годов строились преимущественно по типовым проектам под одну принципиальную модель дошкольного учреждения: детские ясли-сад общего типа, без дифференциации на общеразвивающие, оздоровительные, компенсирующие, комбинированные, хотя в практике получили распространение так называемые оздоровительные группы, предусматриваемые в ДОУ общего типа для организации в них щадящего режима и некоторых несложных медицинских процедур для часто блеющих детей, перенесших длительные заболевания. По неофициальной статистике число детей, нуждающихся в щадящем режиме, составляет от 30 до 50 %.

Другими типами ДОУ были специализированные дошкольные учреждения: для детей с нарушениями опорно-двигательного аппарата, зрения, слуха, психического развития. Однако специальные типы зданий под специализированные образовательные учреждения проектировались преимущественно как дошкольные интернатные учреждения с пятидневным пребыванием и предназначались для детей с тяжелой паталогией. Компенсирующие ДУ, подготавливающие воспитанников к обучению в общеобразовательной школе, размещались, как правило, в универсальных зданиях типовых проектов яслей-садов общего типа.

Для реализации в существующих зданиях новой программной деятельности ДОУ, как правило, необходимо сокращать вместимость существующих зданий (число детских групп), чтобы на освободившихся площадях (1 - 2-х групповых ячеек) получить недостающие помещения. Обычно, это первый или второй зал, помещения специализированных классов для занятий, изостудия, помещение для занятий театральной деятельностью, изучения национальной культуры, библиотека, зал ЛФК, физиокабинет, кабинеты массажа и гидромассажа, комнаты психологической разгрузки, помещения приготовления кислородных коктейлей и другие.

1.10 При использовании существующих зданий дошкольных учреждений в качестве компенсирующих ДОУ за счет снижения вдвое нормативной наполняемости детских компенсирующих групп, в планировочной структуре групповой ячейки типового детского яслей-сада может разместиться две детские группы компенсирующего ДОУ. Исключение составляют учреждения для детей с нарушениями зрения и слуха: в этом случае на площади одного из двух крупных помещений групповой ячейки (групповой или спальни) следует предусматривать плеоптоортоптическую комнату или класс-кабинет для занятий слабослышащих детей.

Часть высвободившихся групповых ячеек используется под размещение общих для всех групп медицинских помещений, залов ЛФК или физиотерапии, гидромассажа, кабинетов врачей-специалистов.

Весьма эффективно могут быть использованы старые проекты ДОУ с групповыми ячейками без спален: на площади групповой (около 60 м2) для компенсирующей группы и с числом детей от 6 до 12 можно выделить и групповую и спальню. Помещения раздевальной и туалетной имеют незначительную площадь - по 12 - 14 м2, а для групп с новой комплектацией они будут достаточными.

2. ХАРАКТЕРИСТИКА МАТЕРИАЛЬНОЙ БАЗЫ ДОШКОЛЬНЫХ ОБРАЗОВАТЕЛЬНЫХ УЧРЕЖДЕНИЙ И ПРИМЕНЕННЫХ ПРОЕКТОВ ДЛЯ ИХ СТРОИТЕЛЬСТВА ПО ОТНОШЕНИЮ К МГСН 4.07-86 "ДОШКОЛЬНЫЕ УЧРЕЖДЕНИЯ"

2.1 Состояние сети и фонда зданий дошкольных образовательных учреждений в г. Москве в настоящее время характеризуется следующими факторами.

1) В связи с экономическим кризисом и изменениями социально-демографического характера (снижение рождаемости с 1991 г.) функциональная нагрузка на фонд зданий снизилась - в среднем по разным районам г. Москвы на 30 - 50 %.

2) Сеть государственных ДОУ действует автономно от ведомственных и частных дошкольных учреждений. Государственные дошкольные образовательные учреждения самостоятельно формируют контингент обслуживаемых детей, получают лицензии на те или иные педагогические и медицинские услуги, под влиянием спроса формируют свою систему обслуживания детей, получают права владения зданием и земельным участком. От инициативы администрации ДОУ зависят вопросы, связанные с дальнейшим развитием и реконструкцией фонда зданий.

3) Фонд зданий, выстроенный за последние 50 лет, представлен в центральных районах Москвы приспособленными особняками довоенного строительства, зданиями, выстроенными по первым индивидуальным или типовым проектам; в периферийных районах - преимущественно по типовым проектам МНИИТЭП. Фонд зданий неоднороден по функционально-планировочным качествам. Ранние проекты 50 - 60-х годов строительства характеризуются отсутствием спальных комнат в групповых ячейках и существенной нехваткой площадей служебно-бытовых и хозяйственных помещений, а также залов для музыкальных и гимнастических занятий, других специализированных помещений для занятий с детьми или укрепления их здоровья. Здания 70-х годов строительства отличаются нехваткой второго зала для музыкальных и гимнастических занятий и также острой нехваткой площадей для специализированных занятий с детьми в соответствии с новыми педагогическими программами или приоритетами педагогической деятельности. Здания 80 - 90-х годов отвечают требованиям МГСН 4.07-96 "Дошкольные учреждения". В связи с нормативным сокращением наполняемости детских групп (с 25 до 20 в дошкольных и с 20 до 15 в ясельных) эти здания вполне комфортны и в общем случае в реконструкции не нуждаются.

4) Снижение функциональной нагрузки на здания дошкольных учреждений позволило снизить фактическую численность детских групп в них, и это обстоятельство определило возможность на высвободившихся площадях частично предусмотреть необходимые помещения общевоспитательного цикла, обусловленные новыми педагогическими программами. В то же время, сокращение числа групп в здании определило некоторый резерв площади участка, позволяющий в перспективе проводить работы по реконструкции, связанные с пристройкой дополнительных объемов.

5) Введение новой наполняемости компенсирующих групп (от 6 до 10 - 15 мест) определило новую возможность эффективного использования старых зданий с групповыми ячейками без спален: на площади групповой при размещении компенсирующей группы можно выделить и спальню. Однако проектную численность детских групп в этих зданиях сохранить невозможно, так как часть групповых ячеек требуется использовать для размещения недостающих специализированных помещений для занятий с детьми, зала ЛФК, физиокабинета, кабинетов врачей-специалистов.

2.2 Основной целью развития сети зданий дошкольных образовательных учреждений в Москве является сохранение существующего фонда зданий при развитии специализации обслуживания детей, расширении ассортимента услуг, привлекательности и комфорта зданий, т.е. при совершенствовании и развитии внутренней планировочной структуры здания в соответствии с новыми педагогическими программами и приоритетами педагогической и медико-гигиенической деятельности.

2.3 Фонд зданий в центре Москвы и прилегающих с внешней стороны к Садовому кольцу районах требует индивидуального адресного подхода, поскольку большинство дошкольных учреждений размещаются в приспособленных зданиях или зданиях, выстроенных по первым типовым проектам со значительными отклонениями в составах и площадях помещений от современного нормативного уровня. Практически индивидуальный для каждого ДОУ набор видов программной деятельности с детьми не позволяет унифицировать программы развития и реконструкции отдельных зданий. Отличительным признаком этих зданий в центральных районах является их малая вместимость - преимущественно 3 - 4 группы.

2.4 Для периферийных районов Москвы характерным является эффективное использование в соответствии с новыми педагогическими программами дошкольного образования массовых типов зданий ДОУ, выстроенных по типовым проектам 70 - 80-х годов. Направления и методы использования зданий, выстроенных по распространенным в Москве типовым проектам под новые типы ДОУ представлены в разделе 4 настоящих Рекомендаций. Вопросы использования существующих массовых типов зданий дошкольных учреждений под детские сады общего типа (общеразвивающие, с приоритетными направлениями интеллектуального, физического, художественно-эстетического развития и пр.) подробно рассмотрены ранее в Рекомендациях по реконструкции и модернизации зданий дошкольных учреждений (Москва, 1977 г.). В настоящем разделе основное внимание уделено оздоровительным, компенсирующим и комбинированным дошкольным образовательным учреждениям.

2.5 В современной сети ДОУ получают широкое развитие оздоровительные и компенсирующие типы учреждений, так как до 50 - 70 % детей дошкольного возраста нуждаются в услугах по коррекции и компенсации недостатков развития, а также по профилактике их возникновения, в щадящем режиме и системе профилактических процедур для часто болеющих детей. Размещение в существующем фонде этих типов учреждений, а также примеры эффективных планировочных решений таких типов государственных образовательных учреждений, как "начальная школа - детский сад", получивших широкое распространение в сложившихся периферийных районах г. Москвы, представлены в настоящем разделе.

2.6 Фонд зданий ДОУ в Москве в основном сформирован зданиями, выстроенными по типовым проектам, которые разрабатывались для дошкольных учреждений общего типа, не предполагающих разнообразия в формах и методах воспитания и медицинского обслуживания детей. Поэтому одной из задач развития сети и фонда зданий ДОУ является изучение и выявление возможности эффективного использования существующих зданий для размещения в них новых типов образовательных учреждений, в частности, для размещения компенсирующих ДОУ с современным нормативным снижением вместимости детских групп до 10 - 12 детей.

2.7 В зданиях, выстроенных по старым проектам (например, У1-13 - без спален) число детских групп сокращается весьма существенно: с 12 до 5 - 6 - 8 детских групп. Это объясняется тем, что для компенсирующего дошкольного учреждения, в зависимости от его профиля (вида и степени нарушений здоровья у детей) требуется развитый состав специальных помещений коррекции и медицинского обслуживания.

В зданиях, выстроенных по более поздним проектам, возможно размещение в среднем лишь на 2 группы меньше проектной:

в проектах 2 МГ-04.3 - происходит снижение численности групп с 12 до 8; в проекте У1-52.2 - с 12 до 10; в проекте У1-44 - с 10 до 8; в проекте У1-49 - с 6 до 5 детских групп.

2.8 Осуществление предварительной оценки материальной базы существующих ДОУ, определение степени ее соответствия действующим строительным нормам, позволят при реконструкции оптимизировать сложившуюся систему учреждений для детей, расширить перечень услуг, предоставляемый населению, дополнить ее новыми типами оздоровительных, компенсирующих и комбинированных учреждений для детей с различными отклонениями в состоянии здоровья, учреждений типа "начальная школа - детский сад", также часто применяющих медико-оздоровительные виды обслуживания детей.

2.9 Медико-педагогическим процессом в данных типах учреждений могут быть предусмотрены как отдельные оздоровительные мероприятия, являющиеся дополнением к режиму учреждения общего типа и осуществляющиеся в пределах групповой ячейки и на участке, так и комплексное всестороннее медико-педагогическое воздействие в специально оборудованных для этого помещениях, требующих значительных площадей.

2.10 Оценка возможности и выбор рациональных способов использования существующих типовых зданий во многом определяются степенью соответствия его функционально-планировочного решения требованиям, предъявляемым к различным типам компенсирующих и оздоровительных учреждений - для часто болеющих и ослабленных детей, для детей с туберкулезной инфекцией, логопедических; профилированных - для детей с нарушениями слуха, зрения, опорно-двигательного аппарата и имеющих планировочную структуру детского сада общего типа.

2.11 В конкретных условиях для создания компенсирующих учреждений в зданиях ДОУ, соответствующих нормативным требованиям разных периодов застройки, может потребоваться изменение функционального зонирования отдельных помещений и их групп; внутренняя перепланировка этажей здания; достройка недостающих помещений в виде блоков и этажей.

2.12 Анализ состава и площадей основных групп помещений в зданиях ДОУ массовой типовой застройки последних 40 лет с позиций МГСН 4.07-96 "Дошкольные учреждения" показывает, что приспособление их под компенсирующее учреждение без осуществления достройки недостающих помещений потребует, как правило, сокращения проектного числа детских групп и использования площади освободившихся групповых ячеек для восполнения дефицита площадей для коррекционно-профилактической работы. Состав этой группы помещений регламентируется специализацией компенсирующих учреждений. Основу ее составляют кабинеты для физиотерапии (минимум 18 м2), массажа (минимум 9 м2), врачей-специалистов (минимум 9 м2), помещение для водных процедур и зал ЛФК.

Дополнительные помещения требуются для коррекции и восстановления двигательных функций в компенсирующих учреждениях для детей с нарушениями опорно-двигательного аппарата.

2.13 Проанализированные проекты зданий разработаны для учреждений общего типа с наполняемостью групп 20 - 25 детей, поэтому площадь существующего группового пространства, как правило, позволяет сформировать в его границах компенсирующую групповую ячейку требуемых параметров с выборочной наполняемостью малокомплектной группы 15 - 12 - 10 - 8 - 6 детей (в зависимости от профиля нарушения развития).

2.14 Основу компенсирующих ячеек составляют: раздевальная площадью 12 - 18 м2; групповая 24 - 50 м2; спальня 24 - 46 м2; туалетная 10 - 16 м2; буфетная 3 - 5 м2, комнаты коррекции - назначение - в зависимости от профиля учреждения: класс для специальных занятий для детей с нарушением слуха, интеллекта, кабинет тифлопедагога, плеопто-ортоптический кабинет, логопедический кабинет, массажная комната (от 12 до 24 м2).

В групповой ячейке, особенно групп круглосуточного пребывания, предусматриваются также: столовая - 16 м2; комната индивидуальных занятий или занятий по подгруппам - 12 - 18 м2; остекленная веранда - 20 - 24 м2, комната психологической разгрузки - 9 м2. Для водных процедур в групповой ячейке может быть размещен мини-бассейн (ванна гидромассажа).

2.15 В наиболее старых зданиях с групповыми ячейками с одним основным помещением - групповой, используются сдвоенные ячейки для организации компенсирующей ячейки по действующим нормативам. Дополнительные резервы площади используются под специализированные помещения. Так, в зданиях ДОУ на 12 групп общего типа, выстроенных по проекту У1-13 (представитель 50-х годов строительства) в групповых ячейках отсутствуют спальни; в учреждении не предусмотрены зальные помещения для музыкальных и гимнастических занятий, помещение специального медицинского назначения. При уменьшении количества детских групп в здании с 12 до 6 на площади двух смежных групповых ячеек размещается компенсирующая групповая ячейка для дневного или круглосуточного пребывания детей. В групповой ячейке оздоровительного типа на 10 - 15 мест кроме групповой предусматривается спальня (40,0 м2), комната индивидуальных занятий или комната коррекции (18 - 20 м2), при необходимости расширяется площадь туалетных и выделяется место для закаливания. Кроме этого, на освободившихся площадях размещаются зал ЛФК (гимнастических занятий), универсальный зал, физиотерапевтический кабинет (ингаляторий), массажную, кабинет врачей-специалистов - стоматолога и по профилю заболевания (рис. 1 а, б).

2.16 Для детей с нарушениями опорно-двигательного аппарата и интеллекта (при объединении двух ячеек в одну) следует обеспечить доступность туалета как из спальни, так и из игровой (рис. 2 а, б). В качестве варианта в состав оздоровительного учреждения на 6 групп могут быть включены дополнительно 1 - 2 прогулочные группы (рис. 3).

2.17 Для детей с круглосуточным пребыванием объединение групповых ячеек позволит максимально расширить состав помещений для оздоровления и коррекции недостатков развития непосредственно в групповой ячейке. В этом случае в состав ячейки на 6 - 10 мест кроме групповой и спальни может быть включена столовая, комната коррекции, минибассейн (ванна гидромассажа), размещаемый на площади одного из санузлов, массажная комната (рис. 4).

При сочетании в учреждении групп с круглосуточным и дневным пребыванием (4 + 2) зал гимнастических занятий, зал для музыкальных занятий (50 м2) размещаются в центральном блоке на 1 этаже (рис. 4).

2.18 Создание компенсирующего учреждения на 8 - 10 групп по 6 - 10 детей возможно при условии сохранения существующих групповых ячеек. Площадь существующих групповых ячеек (69,4 м2 и 56, 6 м2) делится на две части с выделением спален - по 24 м2. По согласованию с Госсанэпиднадзором предусматривается общая раздевальная на 2 малокомплектные группы, а на месте другой предусматривается комната коррекции (рис. 5). За счет закрытия 2 - 4 групп и изменения структуры центрального блока в целом размещаются все помещения, необходимые для коррекционной работы: зал ЛФК, кабинеты врачей-специалистов, процедурные, зал музыкальных занятий, бассейн с ванной 3 х 7 м (рис. 5).

Такой прием в меньшей степени подходит для размещения групп детей с нарушениями зрения и опорно-двигательного аппарата, для которых коррекционные помещения должны иметь кратчайшую связь с основными помещениями групповой ячейки.

Рис. 1 Компенсирующее ДОУ на 6 групп (т.п. ДОУ VI -13 на 12 групп)

а - план 1 этажа: 1 - групповая; 2 - спальня; 3 - комната коррекции; 4 - туалетная; 5 - буфетная; 6 - раздевальная; 7 - зал гимнастических занятий; 8 - физиотерапевтический кабинет; 9 - комната отдыха; 10 - ингаляторий; 11 - кабинет логопеда; 12 - кабинеты врачей специалистов; 13 - открытая терраса

б - план 2 этажа: 1 - групповая; 2 - спальня; 3 - столовая; 4 - буфетная; 5 - туалетная; 6 - комната занятий по подгруппам; 7 - помещение для водных процедур; 8 - логопедический кабинет; 9 - массажная; 10 - раздевальная; 11 - зал ЛФК

Рис. 2 Компенсирующее ДОУ на 5 групп для детей с нарушением опорно-двигательного аппарата, интеллекта, часто болеющих детей (т.п. ДОУ VI -13 на 12 групп)

а - план 1 этажа: 1 - групповая; 2 - столовая; 3 - спальня; 4 - комната индивидуальных занятий; 5 - туалетная; 6 - раздевальная; 7 - комната коррекции; 8 - буфетная; 9 - кладовая

б - план 2 этажа: 1 - групповая; 2 - столовая; 3 - спальня; 4 - туалетная; 5 - раздевальная; 6 - комната индивидуальных занятий; 7 - комната коррекции; 8 - процедурная; 9 - универсальный зал

Рис. 3 Компенсирующее ДОУ на 5 - 6 групп (т.п. ДОУ VI - 13 на 12 групп). Групповой блок с прогулочной группой.

План 1 этажа: 1 - групповая; 2 - спальня; 3 - раздевальная; 4 - туалетная; 5 - комната коррекции; 6 - кабинет логопеда

Рис. 4 Компенсирующее ДОУ на 6 групп (т.п. ДОУ VI -13 на 12 групп). Вариант планировочного решения.

План 1 этажа: 1 - групповая; 2 - столовая; 3 - спальня; 4 - комната коррекции; 5 - туалетная; 6 - раздевальная; 7 - минибассейн; 8 - кабинет врача-специалиста; 9 - буфетная; 10 - универсальный зал

Рис. 5 Компенсирующее ДОУ на 8 групп (т.п. ДОУ VI - 13 на 12 групп).

Вариант реконструкции центрального блока под медицинские и зальные помещения. План 1 этажа: 1 - групповая, 2 - спальня; 3 - раздевальная на 2 группы; 4 - туалетная; 5 - буфетная; 6 - комната коррекции; 7 - универсальный зал для музыкальных и гимнастических занятий; 8 - бассейн; 9 - узел управления бассейном; 10 - кладовая инвентаря; 11 - комната медсестры; 12 - кладовая инвентаря; 13 - раздевальная.

Рис. 6 Компенсирующий УВК на 2 группы и 4 класса (т.п. ДОУ VI -13 на 12 групп).

План 1 этажа: 1 - игровая-рекреация; 2 - класс; 3 - спальня; 4 - туалетная; 5 - буфетная; 6 - раздевальная; 7 - комната занятий по подгруппам и индивидуальных занятий: 8 - комната коррекции: 9 - универсальный зал;

Примечание: размещение детских помещений на 1 и 2 этажах идентично

Рис. 7 Компенсирующее ДОУ на 8 групп с дневным и круглосуточным пребыванием детей (т.п. 2МГ-04.3 на 12 групп).

План 1 этажа: 1 - групповая; 2 - спальня; 3 - раздевальная; 4 - буфетная; 5 - туалетная; 6 - столовая; 7 - комната коррекции; 8 - массажная; 9 - комната для занятий лечебной физкультурой; 10 - кладовая

Рис. 8 Компенсирующее ДОУ на 8 групп (т.п. 2МГ-04.3 на 12 групп).

Вариант с выделением зальных помещений. План 1 этажа: 1 - групповая; 2 - спальня; 3 - раздевальная; 4 - буфетная; 5 - туалетная; 6 - комната коррекции; 7 - массажная; 8 - зал гимнастических занятий; 9 - комната индивидуальных занятий; 10 - класс; 11 - столовая

Рис. 9 Компенсирующий УВК на 4 группы и 4 класса (т.п. 2МГ-04.3 на 12 групп).

Варианты планировки учебных ячеек для начальных классов: 1 - групповая; 2 - класс; 3 - спальня; 4 - туалетная; 5 - раздевальная; 6 - буфетная; 7 - комната коррекции; 8 - комната индивидуальных занятий

2.19 При условии перепланировки групповых блоков в здании, построенном по типовому проекту У1-13 может быть размещено оздоровительное учреждение, в том числе с ученическими классами начальной школы. В этих учреждениях с детьми, обучающимися по общеобразовательным школьным программам, проводятся мероприятия по закаливанию, организуется дневной сон (рис. 6).

2.20 В зданиях ДОУ, построенных по типовому проекту 60-х годов 2МГ-04.3 на 12 групп возможно размещение ДОУ на 8 компенсирующих групп - 4 со входом с центральных лестниц и по 2 - с боковых. Площади сдвоенных ячеек, освобождающиеся на двух этажах, - предназначаются для организации специальных помещений (рис. 7).

Применительно к данному типовому проекту возможна разработка вариантов различных планировочных решений для организации комбинированного учреждения с различным соотношением групп общеразвивающего, оздоровительного и компенсирующего типа по 15 и 6 - 10 детей в группе; вариант с выделением при необходимости второго зала на площади одной из групповых, площадью 70 м2, показан на рис. 8. Поскольку для 4-х групп, расположенных в торцах здания, использование зала может быть затруднено (проход через 3-й этаж), его выделение должно быть планировочно обосновано; например, размещением в прилежащих групповых ячейках групп детей с нарушением опорно-двигательного аппарата.

Место расположения специальных помещений также должно быть определено с учетом их удобной доступности. Объединение групповых ячеек позволяет создать в здании компенсирующие группы круглосуточного пребывания с групповой, столовой, буфетной, спальней, классом, комнатой коррекции, раздевальной, туалетной.

На площади 8-ми сдвоенных групповых ячеек возможно также размещение 4-х учебных ячеек (ученических классов) начальной школы с компенсирующей или оздоровительной функцией. Пример такого типа учреждения - детский сад - начальная школа на 4 дошкольные группы и 4 ученических класса показан на рис. 9.

2.21 При разработке вариантов планировки реконструкции здания под компенсирующее ДОУ необходимо сохранять пути эвакуации детских групп, предусмотренные проектом, или предусмотреть дополнительные меры, определяемые условиями эвакуации детей-инвалидов.

2.22 В здании ДОУ, выстроенному по типовому проекту У1-52 в.2 наиболее рациональным будет размещение 10 - 11 компенсирующих групп по 6 - 10 детей в группе. В этом случае на площади спальных выделяются комнаты коррекции (рис. 10). Для детей с нарушением опорно-двигательного аппарата вместо отдельного кабинета массажа на площади спальной выделяется место для массажа, а комната врача-ортопеда включается в группу специальных помещений.

2.23 Принимая во внимание малую наполняемость детских групп (6 - 10 детей), вопрос со вторым залом можно решить, в частности, поделив с учетом профиля заболевания существующий зал (100,6 м2) на две части стационарной или трансформируемой перегородкой. Как вариант размещения необходимых недостающих специальных помещений (физиотерапевтического кабинета, кабинета логопеда, кабинета ЛФК, кабинетов врачей-специалистов и пр.) можно рассматривать использование площадей 1 - 2 групповых ячеек (с демонтажем ненужного сантехнического оборудования).

2.24 При размещении в здании дошкольного учреждения оздоровительного типа на 10 оздоровительных групп (групп для часто болеющих детей, детей с туберкулезной инфекцией и т.п.), комнаты коррекции на площади спальни не выделяются. Они предусматриваются в группе специальных помещений для коррекционно-профилактической работы.

2.25 Планировочная структура здания позволяет разместить в нем детский сад оздоровительного типа, возможно, с классами начальной школы (2 ясельные группы + 6 дошкольных групп + 2 первых класса начальной школы с организацией дневного сна школьников или 4 дошкольные группы + 6 классов начальной школы без организации дневного сна школьников или 4 дошкольные группы + 3 ученических класса с организацией дневного сна школьников). Для организации каждого ученического класса (с дневным сном) потребуется площадь двух групповых ячеек (рис. 12).

2.26 При размещении учреждения компенсирующего типа в ДОУ, выстроенному по проекту У1-44, можно использовать тот же прием, что и в зданиях, построенных по проекту У1-52 в.2 (п. 2.22), т.к. групповая ячейка имеет ту же планировочную структуру: на площади спальных 8 - 9 групповых ячеек выделяются комнаты коррекции (12 - 18 м2) Центральный блок перепланируется под группу специальных помещений, в том числе включающую зал ЛФК площадью 48 м2, физиотерапевтический кабинет, кабинет врачей-специалистов (рис. 13 а, б)

По площади центральный блок с групповыми ячейками допускает размещение плавательного бассейна с ванной 3 х 7 м. Поскольку здание построено из панельных конструкций, необходима дополнительная оценка возможности организации на их основе и эксплуатации бассейна (это относится также к проекту У1-52 в.2).

2.27 Здание ДОУ, выстроенное по типовому проекту У1-44, может быть приспособлено под компенсирующее учреждение типа "начальная школа - детский сад" с комплектацией 4 дошкольные группы + 4 ученический класса без организации дневного сна школьников или 4 дошкольные группы и 2 ученических класса с организацией дневного сна школьников (рис. 13 в.).

2.28 Четыре групповые ячейки ДОУ на 6 групп (типовой проект У1-49) имеют практически аналогичную структуру, что и в двух ранее рассмотренных проектах - У1-52 в.2 и У1-44. Поэтому аналогично происходит преобразование обычной групповой ячейки в компенсирующую: на площади спальных выделяются комнаты коррекции (12 - 18 м2), с учетом снижения наполняемости детских групп по сравнению с группами общего типа. Групповая может быть дооборудована спортивно-игровым комплексом.

2.29 Жесткая конструктивная схема групповых ячеек типовых проектов У1-52 в.2, У1-44, У1-49 ограничивает возможности их приспособления для групп детей с нарушением развития, так как небольшие площади помещений ограничивают двигательную активность детей. Поэтому целесообразно при реконструкции здания под компенсирующее учреждение активно задействовать для этих целей территорию, прилегающую непосредственно к зданию, для создания террас, остекленных озелененных веранд - зимних садов, полуоткрытых пространств с перголами, солнцезащитными устройствами и озеленением.

Рис. 10 Компенсирующее ДОУ на 10 групп или УВК на 6 групп и 4 класса (т.п. VI - 52 в.2 на 12 групп)

а - план 1 этажа: 1 - групповая; 2 - спальня; 3 - туалетная; 4 - буфетная; 5 - раздевальная; 6 - комната коррекции

б - план 2 этажа: 1 - игровая (рекреация*); 2 - спальня (класс*); 3 - комната коррекции; 4 - туалетная; 5 - раздевальная; 6 - буфетная; 7 - зал музыкальных занятий; 8 - зал гимнастических занятий; 9 - зал ЛФК; 10 - тренажерная; 11 - массажная; 12 - физиотерапевтический кабинет; 13 - кабинет врачей-специалистов

Рис. 11 Компенсирующий УВК на 4 группы и 3 класса (т.п. VI - 52 в.2 на 12 групп)

а - план 1 этажа: 1 - групповая; 2 - спальня; 3 - комната коррекции; 4 - туалетная; 5 - буфетная; 6 - раздевальная; 7 - зал ЛФК; 8 - тренажерная; 9 - массажная; 10 - физиотерапевтический кабинет; 11 - кабинет врача-специалиста

б - план 2 этажа: 1 - класс; 2 - рекреация-столовая; 3 - спальня; 4 - комната индивидуальных занятий; 5 - комната коррекции; 6 - туалетная: 7 - комната психологической разгрузки; 8 - раздевальная; 9 - игровая; 10 - комната персонала; 11 - зал музыкальных занятий; 12 - зал гимнастических занятий

Рис. 12 Компенсирующее ДОУ на 8 групп (т.п. VI - 44 на 10 групп)

а - план 1 этажа: 1 - групповая; 2 - спальня; 3 - комната коррекции; 4 - туалетная; 5 - раздевальная; б - буфетная; 7 - универсальный зал; 8 - процедурная; 9 - кабинет врачей-специалистов

б - план 2 этажа: 1 - групповая; 2 - спальня; 3 - комната коррекции; 4 - раздевальная; 5 - туалетная; 6 - буфетная; 7 - зал ЛФК; 8 - физиотерапевтический кабинет

Рис. 13 Компенсирующий УВК на 4 группы и 2(4) класса (т.п. VI - 44 на 10 групп).

План 2 этажа: 1 - групповая; 2 - спальня; 3 - туалетная; 4 - комната коррекции; 5 - раздевальная; 6 - столовая; 7 - буфетная; 8 - класс; 9 - рекреация-игровая; 10 - комната занятий по подгруппам; 11 - зал ЛФК; 12 - физиокабинет

Примечание: план 1 этажа УВК аналогичен плану 1 этажа ДОУ на 8 групп (см. рис. 12 а); на 2 этаже могут размещаться четыре класса начальной школы при отсутствии в учебных ячейках спальных помещений

Рис. 14 Компенсирующее ДОУ на 4 группы и нулевой класс (т.п. VI - 49 на 6 групп)

а - план 1 этажа: 1 - рекреация-игровая; 2 - спальня; 3 - класс; 4 - раздевальная; 5 - туалетная; 6 - столовая; 7 - комната коррекции; 8 - групповая

б - план 2 этажа: 1 - групповая; 2 - спальня; 3 - раздевальная; 4 - туалетная; 5 - буфетная; 6 - комната коррекции; 7 - комната ЛФК; 8 - кабинет логопеда; 9 - массажная; 10 - процедурная; 11 - комната отдыха; 12 - универсальный зал

2.30 Для ослабленных детей в целях подготовки их к школе целесообразно в составе оздоровительных учреждений иметь первые классы начальной школы. Для этого в одной группе на втором этаже здания ДОУ на основе типового проекта У1-49 может быть оборудован ученический класс с рекреацией-игровой, спальней, туалетной, раздевальной и буфетной (рис. 14 а, б).

Размещение дополнительных помещений специального назначения осуществляется на площади одной из групповых ячеек. Таким образом, в здании может быть размещено компенсирующее учреждение на 4 - 5 детских групп.

Нормами для ДОУ данной вместимости второй зал не предусматривается. Тем не менее, учитывая специфику организации различных видов деятельности для детей с нарушениями развития целесообразно предусмотреть дополнительное зальное помещение, например, зал ЛФК.

2.31 Типовой проект У1-52 в.3 разработан по нормам 80-х годов и в наибольшей степени соответствует требованиям МГСН 4.07-96 "Дошкольные учреждения" для учреждений общего типа. Здание ДОУ трехэтажное, поэтому при его использовании под компенсирующее учреждение необходимо учитывать, что размещение специализированных групп выше второго этажа не рекомендуется и эксплуатировать это здание целесообразно в качестве комбинированного дошкольного учреждения, с группами общеразвивающего, оздоровительного и компенсирующего типа, с размещением на верхнем этаже общеразвивающих и оздоровительных групп. Для расширения состава специальных помещений можно использовать площади двух групповых ячеек 2 и 3 этажа: разместить на их месте класс специальных занятий, помещения для физиотерапевтических процедур, гидропроцедур и закаливания, комнаты коррекции и кабинеты врачей-специалистов, а также помещения для персонала.

2.32 Здание ДОУ, выстроенное по типовому проекту У1-52 подходит для использования его в качестве оздоровительного дошкольного учреждения с начальной школой (4 дошкольные группы + 4 ученических класса начальной школы). Это требует минимальных затрат на перепланировку и создает условия для продленного пребывания ослабленных детей в условиях щадящего режима.

На первом этаже размещаются дошкольные оздоровительные группы с комнатами коррекции в структуре каждой ячейки (рис. 15 а). На 2 и 3 этажах из двух групповых ячеек формируется одна учебная ячейка на 15 - 20 детей, состоящая из класса, игровой-рекреации, спальни, столовой, комнаты коррекции и комнаты индивидуальных занятий, других специализированных помещений (рис. 15 б).

В качестве планировочного варианта можно сгруппировать в 2-х блоках классы и рекреации, в одном блоке - только специальные помещения для коррекции и лечения (рис. 15 в).

2.33 Осуществление перепланировки здания дошкольного учреждения общего типа для размещения в нем компенсирующего ДОУ в границах существующего объема здания является наименее затратным.

Рис. 15 Компенсирующий УВК на 4 группы и 4 класса (т.п. VI - 52 в.3 на 12 групп)

а - план 1 этажа: 1 - групповая; 2 - спальня; 3 - туалетная; 4 - буфетная; 5 - раздевальная; 6 - комната коррекции (занятий по подгруппам или индивидуальных занятий)

б - план 2 этажа: 1 - рекреация-игровая; 2 - класс; 3 - комната для занятий по подгруппам; 4 - спальня; 5 - туалетная; 6 - буфетная: 7 - массажная; 8 - раздевальная; 9 - комната коррекции; 10 - комната персонала; 11 - зал музыкальных занятий; 12 - кружковая комната

в - план 3 этажа: 1 - класс: 2 - рекреация-игровая; 3 комната индивидуальных занятий; 4 - туалетная; 5 - буфетная; 6 - раздевальная; 7 - спальня; 8 - комната коррекции; 9 - массажная; 10 - зал ЛФК; 11 - кабинет

Таблица 2

ВОЗМОЖНЫЕ ВАРИАНТЫ ИСПОЛЬЗОВАНИЯ ФОНДА ЗДАНИЙ ДОШКОЛЬНЫХ ОБРАЗОВАТЕЛЬНЫХ УЧРЕЖДЕНИЙ

№№ т.п., проектная вместимость зданий ДОУ

Увеличение вместимости

Сокращение вместимости

Сохранение вместимости неизменной

Сокращение вместимости (количества мест) при размещении в здании компенсирующего ДОУ

 

1. У1-01 и У1-02

5 групп

6 групп: надстройка 3-го этажа

4 группы: компенсация недостающих площадей

 

 

2. У1-13

12 групп

-

6 групп: из 2-х групповых ячеек без спален предусматривается одна;

2 гр. + 4 кл.: УВК

Надстройка 2-го этажа над 1-этажным хозблоком: компенсация недостающих помещений

10 групп, с надстройкой 2-го этажа над одноэтажным хозблоком: компенсация недостающих помещений

3. 2МГ-04.3

12 групп

-

1) 8 групп: из 8-ми групповых ячеек без спален предусматриваются 4 полноценные групповые ячейки + надстройка (пристройка) залов 2) УВК: 4 гр. + 4 кл.

-

8 групп по 6 - 10 мест (компенсация недостающих помещений)

4. У1-52 в.2

12 групп

-

1) 10 групп (компенсация недостающих помещений + возможная надстройка 3-го этажа);

2) УВК:

8 гр. + 2 кл.

4 гр. + 6 кл.

4 гр. + 3 кл. со спальнями

-

1) 8 групп по 6 - 10 мест (компенсация недостающих помещений);

2) Компенсирующие УВК:

4 гр. + 4 кл.;

4 гр. + 2 кл, со спальнями.

5. У1-44

10 групп

-

УВК:

2 гр. + 4 кл.

6 гр. + 2 кл.

Надстройка зала

 

6. У1-49

6 групп

9 групп: надстройка 3-х групповых ячеек на 3-м этаже

 

Без изменений

6 компенсирующих групп (компенсация недостающих площадей)

7. У1-52 в.3

12 групп

 

1)10 групп (компенсация недостающих помещений);

2) УВК: 4 гр. + 8 кл.

Без изменений

1) 10 групп: 8 компенсирующих + 2 гр. общего типа;

2) Компенсирующие УВК: 4 гр. + 4 кл.

Если при реконструкции типовых зданий под компенсирующие ДОУ стоит задача сохранения количества групп в здании (или числа мест) или увеличения проектной вместимости, для ликвидации дефицита нормируемых площадей потребуется пристраивание новых объемов (как отдельных помещений так и целых блоков - групповых ячеек, помещений для водолечения и закаливания, физиопроцедур, ЛФК, специализированного медицинского обслуживания), а также надстройка дополнительных этажей.

2.35 В табл. 2 представлена общая характеристика фонда зданий ДОУ с позиций возможности развития специализации учреждений, совершенствования их внутренней планировочной структуры.

3. ХАРАКТЕРИСТИКА СЛОЖИВШЕЙСЯ СЕТИ ЗДАНИЙ ДОШКОЛЬНЫХ ОБРАЗОВАТЕЛЬНЫХ УЧРЕЖДЕНИЙ И НАПРАВЛЕНИЯ ЕЕ РАЗВИТИЯ

3.1 Для анализа состояния сети и фонда зданий, прогноза перспектив их развития были выбраны районы Центра Москвы («Басманное» - часть в пределах Садового кольца и «Хамовники» - часть за пределами Садового кольца), как зона со сложившимися современными функциональными моделями дошкольных учреждений на базе мелких, практически уникальных зданий ДОУ, а также с наименьшим процентом дошкольников в структуре населения, - с одной стороны, - и район «Черемушки», с активной реконструкцией и расширением жилищного фонда и наличием зданий ДОУ, выстроенных по распространенным в Москве типовым проектам, где наблюдается повышенный спрос на дошкольные учреждения, а также дефицит мест в дошкольных учреждениях.

3.2 Современная сложившаяся сеть государственных дошкольных образовательных учреждений сегодня составляет примерно треть общего числа действующих в городе ДОУ, наравне с частными детскими садами и ведомственными дошкольными учреждениями. Общая потребность в дошкольных учреждениях реализуется в городе предоставлением мест в государственных (муниципальных), ведомственных (принадлежащих корпорациям и крупным компаниям) и частных дошкольных учреждениях. Сказать что-либо определенное о точном соотношении мест в них, а также, допустим, о конкретной потребности в государственных учреждениях на сегодняшний день не представляется возможным.

Сеть государственных (городских) ДОУ действует автономно от ведомственных и частных дошкольных учреждений.

3.3 Учитывая нормативный расчетный показатель процента детей 0 - 6 лет в структуре населения города - 52 % (МГСН 01-99. Нормы и правила проектирования планировки и застройки г. Москвы) и то, что на долю государственных дошкольных учреждений приходится от 14 - 16 мест на 1000 жителей в Центре (районы «Басманное» и «Хамовники») и до 18 - 19 в «Черемушках» (район активной реконструкции жилищного фонда), приблизительный процент охвата детей государственными ДОУ составляет: от 26 - 30 % (в центре Москвы) и до 36 % в районе «Черемушки».

3.4 В связи с падением рождаемости и со снижением фактического процента охвата детей в настоящее время, а также оттоком части контингента детей в частные дошкольные учреждения, для обеспечения целостности сети государственных дошкольных учреждений и сохранения их нормативной пешеходной доступности (нормативный радиус доступности - 300 м), сеть государственных дошкольных учреждений следует формировать мелкими зданиями вместимостью 3 - 4 группы в Центре и прилегающих районах со стабильной демографической структурой. В районе «Черемушки» до начала реконструкции жилищного фонда в крупных зданиях ДОУ вместимостью 10 - 12 групп оставалось по 5 - 6 детских групп, дополняемых начальными классами из соседних школ.

3.5 Современная сеть дошкольных образовательных учреждений характеризуется полной автономией в работе каждого из них. Каждое государственное ДОУ самостоятельно формирует контингент обслуживаемых детей, ведет запись очередников, желающих устроить ребенка в конкретный детский сад, получает лицензии на те или иные услуги, оформляет на себя права владения зданием и определения направлений развития ДОУ.

Весь комплекс предоставляемых детям услуг определяется возможностями данного учреждения. Внешние функциональные связи ограничиваются приглашением преподавателей на договорной основе или стиркой белья в городских прачечных.

3.6 Современная сеть ДОУ характеризуется существенным расширением ассортимента предоставляемых в пределах учреждения педагогических и медико-гигиенических услуг, который формируется под влиянием потребительского спроса. В настоящее время каждое дошкольное учреждение вправе определить свой типологический вид, определиться с направленностью педагогической деятельности, с выбором приоритетных направлений развития и обслуживания детей. Это обстоятельство определяет большое разнообразие и специфичность требуемых для работы составов и площадей помещений дошкольных учреждений. Дошкольные учреждения в условиях конкурентной борьбы за обслуживаемый контингент заинтересованы в создании как можно более привлекательных условий для воспитания, развития и оздоровления детей, увеличении комфорта и предоставлении новых, в том числе платных услуг, повышении потребительского спроса на дорогие и высококачественные услуги учреждения, чтобы быть конкурентоспособными с частными и ведомственными детскими садами.

Появление новых видов обслуживания требует новых помещений. Это, как правило, дополнительные (рекомендуемые) к минимальному нормативному набору помещения педагогического и медико-гигиенического назначения - классы для занятий, изостудии, зооуголки, зимние сады, физиокабинеты, залы ЛФК, кабинеты массажа и гидромассажа, помещения приготовления кислородных коктейлей, бассейны и др.

3.7 В настоящее время в городе, за исключением районов с меняющейся демографической структурой, установился определенный баланс между спросом и предложением по набору видов педагогических и медицинских услуг в дошкольных учреждениях (об этом свидетельствует отсутствие очередей в ДОУ), а также по потребности в количестве мест. Существующая функционирующая сеть ДОУ позволяет объективно судить об основных сетевых характеристиках: требуемом расчетном числе мест в ДОУ, их специализации и вместимости, а также о требуемых функциональных моделях зданий - их составах и площадях помещений.

Разница между фактической функционально-планировочной структурой зданий ДОУ и требуемой моделью (требуемыми составами и площадями помещений) в данной работе принята за основу адресных программ развития фонда зданий.

3.8 В условиях демографического спада рождаемости в 90-х гг. и снижения спроса на ДОУ, государственные дошкольные учреждения имели возможность сократить проектную вместимость зданий на 1 - 2 группы и за счет освободившихся площадей отчасти решить проблему нехватки новых помещений, обусловленных новыми педагогическими программами. Высвободившиеся площади, как правило, используются под общевоспитательные помещения: зал, изостудию, физиокабинет, кабинеты ЛФК, массажа или гидромассажа, комнаты коррекции, библиотеку, игротеку, комнату экологии, зимний сад и т.п.

Обследования сети и зданий ДОУ показали, что в 90 % случаев здания фонда дошкольных учреждений нуждаются в дальнейшем расширении. Программы расширения зданий примерно поровну делятся на три типа:

а) незначительное расширение за счет блоков-пристроек (в редких случаях - использования дополнительных подвальных помещений), с расширением в среднем на 20 - 25 % по отношению к первоначальной общей площади зданий.

б) расширение, связанное с надстройкой третьего (второго и третьего) этажей - связанное с увеличением первоначальной общей площади зданий в среднем на 50 %;

в) расширение, сочетающее строительство блоков-пристроек (в основном, недостающие спальни в групповых ячейках зданий, выстроенных по старым индивидуальным и типовым проектам) с надстройкой третьего (второго и третьего) этажей - связанное с увеличением первоначальной общей площади здания в среднем на 75 %. Этот тип, как правило, связан с увеличением числа мест в дошкольном учреждении.

3.9 Структура сети государственных ДОУ после ее выхода из нее частных дошкольных учреждений и приватизированных зданий (иными владельцами) приобрела характер "кустовых" образований, то есть сформированных выстроенных групп зданий от 3 до 5 - 8 учреждений, компактно локализованных в пределах одного-трех соседних кварталов, одного-двух соседних микрорайонов. Такое расположение зданий в сочетании с их небольшой вместимостью способствовало развитию специализации учреждений при сохранении нормативного радиуса доступности (за исключением районов с меняющейся демографической структурой населения). Ввиду небольшой вместимости дошкольных учреждений, сеть зданий ДОУ в центральной части весьма густая: при этом расстояние между "кустами" не превышает 300 - 400 м. Это позволяет в радиусе пешеходной доступности предусмотреть необходимые виды и формы обслуживания детей.

3.10 Почти всех дошкольных учреждениях обследованных районов («Басманное», «Хамовники» и «Черемушки») вместимость меньше проектной на 1 - 2 группы в «Басманном» и «Хамовниках», на 6 групп (в 12-групповых ДОУ без спален) - в «Черемушках». Учитывая это, а также определившуюся функциональную организацию педагогической и медико-гигиенической деятельности ДОУ основной задачей развития сети и зданий ДОУ является совершенствование собственно планировочной структуры зданий.

3.11 При оценке фонда зданий на современном этапе недостаточно ориентироваться только на минимальный состав помещений и удельные показатели общей или расчетной (нормируемой) площади. Для общеразвивающих ДОУ этот показатель составляет 10,52 м2 на 1 место нормируемой площади или около 12, 62 м2 на 1 место - общей площади (МГСН 4.07-96 "Дошкольные учреждения"). Удельные показатели общей площади колеблются в диапазоне от 15,5 до 17,5 м2 на одно место в ДОУ с компенсирующими группами (МГСН 4.07-96 и Пособие к МГСН 4.07-96 «Дошкольные учреждения»), (Табл. 3). Этот показатель рекомендуется для дошкольных учреждений соответствующей педагогической приоритетной направленности или специализации. Он учитывает дополнительные помещения как в групповой ячейке, так и общие для дошкольных учреждений с приоритетными направлениями развития и для оздоровительных детских садов.

3.12 Развитие материальной базы зданий дошкольных образовательных учреждений по районам города от центра к периферийным районам проходило ряд этапов и зависело от ряда факторов.

В центральной части строились первые дошкольные учреждения советского периода. Под дошкольные учреждения отводились приспособленные особняки или строились здания по индивидуальным или первым типовым проектам малой вместимости - не более 2 - 4-х групп. По индивидуальным проектам здания возводились преимущественно в довоенный период, а по типовым проектам - в период до 1960 г. Поэтому при реконструкции этих зданий требуется проведение технического обследования их конструкций и систем инженерного обеспечения.

3.13 В 1946 г. были приняты первые нормы проектирования детских яслей и садов. Нормируемая площадь на 1 место в этих учреждениях не превышала 6 - 7 м2, общая - 8 м2.

В послевоенный период типология дошкольных учреждений включала: ясли, обслуживающие детей от 2 месяцев до 3 лет, содержащие групповые ячейки со спальнями-верандами площадью 36 м2; детские сады для детей от 3 до 7 лет, с достаточно большой групповой комнатой (до 60 м2), но без спальных помещений; детские комбинаты, обслуживающие детей от 2 месяцев до 7 лет, без спален, либо с общей спальней на несколько дошкольных групп, для детей из разных групп, оставшихся на ночь. В основном здания этих типов формируют фонд ДОУ Центра.

Это характерно преимущественно для центральных районов Москвы, а также районов 50 - 60-х гг. строительства. Для анализа ситуации в центре был выбран район «Басманное» в пределах Садового кольца. Отличительной особенностью развития сети ДОУ в центре является небольшая вместимость детских учреждений - 3 - 4 группы. При этом в центральной части города наблюдается самый высокий уровень обеспеченности площадями - в среднем 14,85 м2 общей площади на 1 место в «Басманном» и 13,12 м2 общей площади на место в «Хамовниках» (Табл. 4). По обеспеченности местами в государственных ДОУ район «Басманное» имеет самый низкий показатель - 14,1 места на 1000 жителей. Это объясняется пониженным процентом детей дошкольного возраста в демографической структуре населения, а также тем, что значительную долю детей приняли на себя частные и ведомственные дошкольные учреждения. В "Хамовниках" обеспеченность - 16,9 места на 1000 жителей, в «Черемушках» - 18,7 (табл. 5).

Таблица 3

Рекомендуемые показатели удельной площади для зданий дошкольных образовательных учреждений с компенсирующими группами (МГСН 4.07-96 «Дошкольные учреждения». Пособие к МГСН 4.07-96 «Дошкольные учреждения»)

Наименование показателей

Удельная площадь (м2 на 1 место) в дошкольных учреждениях для детей с нарушениями:

слуха

зрения

(слабовидящие)

зрения (с косоглазием и амблиопией

интеллекта

опорно-двигательного аппарата

1. Рекомендуемая расчетная площадь по групповой ячейке

9,58

14,65

9,31

10,82

11,31

2. Рекомендуемая расчетная площадь в целом по зданию

12,88

17,95

12,81

14,12

14,61

3. Ориентировочная общая площадь в целом по зданию

15,45

21,54

15,13

16,94

17,53

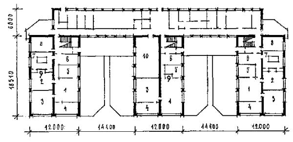
3.14 Схема сети городских дошкольных образовательные учреждений в «Басманном» показана на рис. 16.

3.15 Район "Хамовники" был выбран для анализа как пример района за пределами Садового кольца. Район Хамовники" отличается наличием зданий, выстроенных по типовым проектам 50 - 60-х годов (в среднем на 3 - 4 группы). При этом более половины общего количества дошкольных учреждений "Хамовников" (9 учреждений) - встроенные детские сады. Появление встроенных дошкольных учреждений было вызвано увеличением селитебной плотности строящегося в послевоенный период жилого комплекса вдоль Комсомольского проспекта и дефицитом свободных территорий. Встроенные учреждения размещаются на первых двух нежилых этажах 8 - 9-этажных жилых домов. Вместимость встроенных учреждений - в среднем 3 - 4 группы. Внутридворовое пространство отводилось в основном под территории школ и лишь под незначительное количество детских яслей-садов вместимостью 4 - 6 групп.

Рис. 16 Район «Басманное» (в пределах Садового кольца)

3.16 Из 34 государственных (районных) дошкольных учреждений, действовавших до 1991 г., существующая есть в «Хамовниках» (в пределах Садового кольца) на сегодняшний день насчитывает 18 зданий ДОУ. Фактическая численность детей в государственных дошкольных учреждениях сократилась более чем вдвое. Однако на сегодняшний день по району наблюдается незначительный дефицит мест в ДОУ в районе улицы Плющиха где в начале 90-х годов были закрыты 6 дошкольных учреждений.

3.17 Общая очередь в детские сады района сейчас не ведется, поэтому потребность в дополнительных местах определялась по сумме заявок, поданных в конкретные соседние учреждения. В районе улицы Плющиха в «Хамовниках» требуется дополнительное строительство двух зданий ДОУ по 6 групп (с общим числом 240 мест).

3.18 В настоящее время фонд встроенных дошкольных учреждений невозможно развить методом расширения объемов функционирующих ДОУ, за счет приватизированных примыкающих жилых и нежилых помещений, но можно выделить часть территории (в районе Фрунзенской набережной) для нового строительства двух небольших (на 4 - 6 групп) дошкольных учреждений, что позволит сбалансировать количество мест в дошкольных учреждениях этого района с потребностью.

3.19 Основными направлениями развития сета и фонда отдельно стоящих зданий ДОУ являются совершенствование их внутренней планировочной структуры и расширение зданий - за счет надстройки для дополнительных помещений в соответствии со специализацией учреждения или приоритетными направлениями педагогической деятельности.

3.20 Схема сети городских дошкольных образовательных учреждений в «Хамовниках» показана на рис. 17.

3.21 Район «Черемушки» застроен зданиями ДОУ преимущественно на 10 - 12 групп (типовые проекты У1-44, У-13А, У1-52), в которых фактически размещается на 1 - 2 группы меньше проектного числа групповых ячеек. В зданиях, выстроенных по проектам У1-13А, У1-52, размещены три учреждения «начальная школа - детский сад» с 5 - 6-ю дошкольными группами.

3.22 Район «Черемушки» был выбран как пример реконструкции застройки со сносом пятиэтажных жилых зданий, выстроенных по типовым проектам первого периода массового индустриального строительства, и заменой их новыми жилыми зданиями повышенной этажности (от 8 - 10 до 17 этажей). Этот процесс сопровождается увеличением населения и нагрузкой на существующую сеть ДОУ. В то же время, существовавшая в районе «Черемушки» сеть зданий ДОУ к настоящему моменту сократилась вдвое: из 25 выстроенных зданий дошкольных учреждений по прямому назначению как государственные функционирует только 12 учреждений. Число детей в ДОУ сократилось с 2585 до 1648 мест, что составляет 63,75 % уровня периода до 1991 г. без учета ведомственных детских садов Газпрома.

3.23 В «Черемушках» в первые 20 лет существования района наблюдался дефицит мест в ДОУ примерно в 25 - 30 %, а через 20 лет (в 1985 - 95 гг.) - демографический "спад", обостренный социально-экономическим кризисом в стране. Такие демографические "волны" характерны при быстром строительстве крупных жилых районов, фактически единовременно заселяемых в основном молодыми семьями. Несколько зданий ДОУ в «Черемушках» отошло частным фирмам; в трех крупных зданиях ДОУ были открыты учреждения "начальная школа - детский сад", в которых оставалось по 5 - 6 дошкольных групп. Часть зданий полностью отошла в школьный фонд.

Рис. 17 Район «Хамовники» (за пределами Садового кольца)

Таблица 4

Данные сети государственных дошкольных образовательных учреждений

Район

Общая площадь, м2

Вместимость проектная существующих зданий ДОУ, число групп (мест)

Вместимость фактическая,

число групп (мест)

Обеспеченность проектная (м2 на место)

Обеспеченность фактическая (м2 на место)

"Басманное" (в пределах Садового кольца)

12303,2

51 группа

(1020 мест)

41 группа

(780 мест)

12,06

14,85

"Хамовники" (за пределами Садового кольца)

18116

83 группы

(1660 мест)

71 группа

(1380 мест)

10,91

13,12

"Черемушки"

16704,2

113 групп

(2260 мест)

69 групп

(1350 мест)

7,39

12,37

3.24 В качестве основного направления развития сети зданий ДОУ района «Черемушки» принята в основном надстройка зданий (второго-третьего этажей над 1 - 2-х этажными частями) при одновременной пристройке в виде двух- трехэтажных блоков спален со стороны групповых ячеек (типовой проект У1-13).

Верхние надстраиваемые этажи могут быть выполнены как мансардные, что благоприятно повлияет на органичное архитектурное единство с новым комплексом жилых зданий.

3.25 В районе жилых новостроек потребуется построить еще 2 здания ДОУ по 8 - 10 групп.

Рис. 18 Район «Черемушки»

 Номер ДОУ по списку (табл. 9)

 Объекты нового строительства - здания ДОУ на 8 - 10 групп

Таблица 5

Обеспеченность государственными дошкольными государственными учреждениями

Наименование показателей

Районы

«Басманное» (пределах Садового кольца)

«Хамовники» (за пределами Садового кольца)

«Черемушки»

1. Число мест в ДОУ

780

1380

1350

2. Число жителей по районам, (тыс. человек)

55,4

81,7

72,1

3. Число мест в государственных ДОУ на 1000 жителей

14,1

16,9

18,7

Примечание. 1 .Число жителей по районам - по данным 1997 г.

2. Норма обеспеченности - не менее 40 % от детей дошкольного возраста, или 40 мест на 1000 жителей в районах со сложившейся демографической структурой. Кроме государственных потребность реализуют частные и ведомственные ДОУ.

3.26 Расположение государственных дошкольных образовательных учреждений в районе «Черемушки» - на рис. 18.

4. ПРЕДЛОЖЕНИЯ ПО РАЗВИТИЮ СЕТИ И ФОНДА ЗДАНИЙ ДОШКОЛЬНЫХ ОБРАЗОВАТЕЛЬНЫХ УЧРЕЖДЕНИЙ С АДРЕСНЫМИ ПРОГРАММАМИ ПРОЕКТИРОВАНИЯ

4.1 Район «Басманное» (в пределах Садового кольца)

4.1.1 В таблице 6 представлен уточненный перечень государственных дошкольных образовательных учреждений на территории района «Басманное» в пределах Садового кольца. Порядковые номера ДОУ на иллюстрациях к программам реконструкции соответствуют порядковым номерам ДОУ в таблице 6.

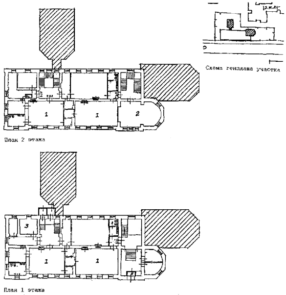
4.1.2 Детский сад № 2032 по Малому Златоустинскому пер., 9/2 стр. 2 - расположен в здании, выстроенном по типовому проекту 1937 г. Проектная вместимость здания - 4 группы, фактическая - 3 группы. Общая площадь на 1 место - 16,47 м2. Дошкольное учреждение комбинированного типа: 2 группы с нарушением опорно-двигательного аппарата, 1 - общевоспитательная.

Вместо одной групповой ячейки в здании предусмотрены столовая и гимнастический зал.

В связи с наличием компенсирующих групп учреждению дополнительно необходимы бассейн, другие помещения медико-гигиенического назначения.

В качестве предложения развития здания рекомендуется пристройка блока бассейна с ванной 3 х 7 м, с ванной гидромассажа и столовой на 2 группы детей в одну посадку (40 мест), с восстановлением вместимости учреждения до 4-х групп. Зал для гимнастических занятий останется в здании на месте столовой.

Ориентировочная общая площадь блока-пристройки составит 210 м2. Итоговая общая площадь по зданию составит 1198 м2 или 14,9 м2 на место.

4.1.3 Дошкольное образовательное учреждение № 1981 по М. Козловскому пер., 3а стр. 1 на 4 группы, имеет в своем составе две младшие санаторно-оздоровительные группы. С младшими детьми проводится массаж, закаливание водой, ультрафиолетовое облучение, физиотерапия. Старшие дети занимаются по общей федеральной программе.

В дополнение к общей федеральной программе с детьми с 4-х лет проводятся занятия английским и русским языком. Показатель общей площади на одно место по зданию невелик: 10,26 м2.

Учреждение испытывает потребность в ряде дополнительных помещений: В качестве рекомендаций по развитию планировочной структуры здания предлагается строительство блока-пристройки, содержащей бассейн, ванну гидромассажа и физиокабинет на 4 кабины.

Общая площадь пристройки - около 162 м2; общая площадь по зданию после расширения - 983 м2 или 12,28 м2 на одно место.

4.1.4 Дошкольное образовательное учреждение № 2334 по Фурманному пер., 8 имеет три разновозрастные группы по 10 детей и одну - подготовительную - 20 детей. Общее количество воспитанников - 50. Вместо двух групповых ячеек в здании предусмотрены бассейн и зал для музыкальных и гимнастических занятий, а также класс интеллектуального развития по программе Монтессори. Эта методика предполагает индивидуальную работу с ребенком на основе свободы выбора видов деятельности самим ребенком.

Детский сад № 2334 расположен в типовом здании 1991 года постройки, имеет достаточно помещений и не требует реконструкции.

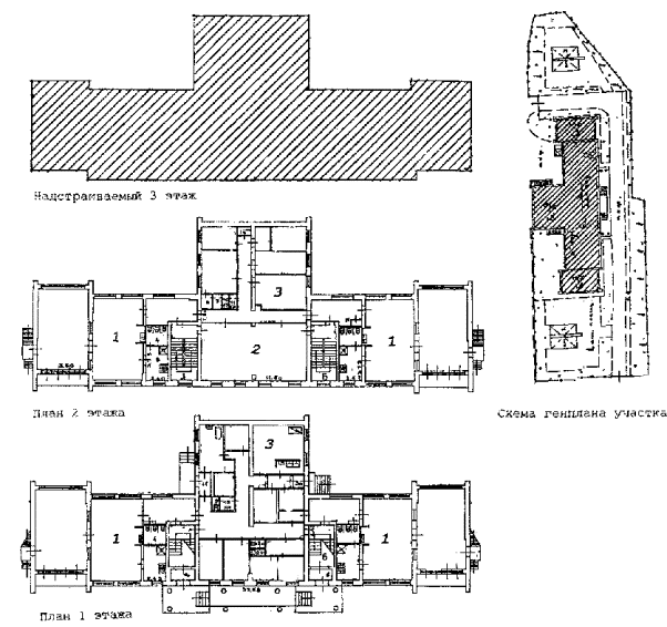
4.1.5 Здание дошкольного учреждения № 300 по ул. Машкова, 19 стр. 1 на 3 группы детей, с 1957 г. работает как логопедическое. При каждой группе предусмотрен кабинет логопеда. В здании групповые ячейки не имеют спален, отсутствует зал для музыкальных и гимнастических занятий и кабинеты врачей-специалистов. В составе предложения по развитию планировочной структуры здания - пристройка спален, а также зала для музыкальных и гимнастических занятий. Логопедические кабинеты предусматриваются в пристроенных блоках со спальнями, что позволить увеличить площади групповых. Общая площадь пристраиваемых объемов - 336 м2. Общая площадь здания после расширения составит 709 м2 или 11,8 м2 на 1 место.

4.1.6 Дошкольное образовательное учреждение № 1977 по ул. Машкова, 20 при проектной вместимости здания 6 групп фактически имеет только 4 группы детей, с приоритетными направлениями физкультурно-оздоровительного и художественно-эстетического развития детей. Все группы занимаются по обоим направлениям. Вместо двух групповых ячеек предусмотрены зал для музыкальных и гимнастических занятий, изостудия, административно-хозяйственные помещения, игротека.

Учреждение испытывает потребность во втором зале (физкультурном), бассейне, в кабинете массажа.

В здании ДОУ существенное превышение удельного показателя общей площади -17,4 м2 на 1 место. Поэтому при неизменной вместимости в качестве перспективного предложения представляется возможным рекомендовать использовать часть площадей подвала для организации в них бассейна и второго физкультурного зала с кабинетом массажа. Общая площадь реконструируемых помещений - 180 м2.

4.1.7 В здании дошкольного учреждения № 376 по Казарменному пер., 8 в групповых ячейках не предусмотрены спальни. Учреждению нужны: спальни, второй зал, помещение для занятий по подгруппам иностранным языком, компьютерный класс, ванна гидромассажа, а также недостающие служебно-бытовые помещения (комнаты бухгалтера, завхоза), медицинский кабинет. В здании необходимы также методический кабинет, кабинет физиотерапии на 4 кабины.

Для расширения здания по полной программе в соответствии с педагогическими требованиями, приоритетами воспитательной работы предлагается пристройка спален и надстройка третьего этажа, на котором будут предусмотрены:

- изостудия 54 м2;

- зал музыкальных занятий 60 м2;

- помещение для занятий по подгруппам 24 м2;

- ванна гидромассажа 24 м2;

- медицинский кабинет 12 м2;

- комната психологической разгрузки 16 м2;

- помещение столовой на 2 группы детей 60 м2.

Общая площадь надстраиваемого этажа - 300,0 м2. Общая площадь вместе с пристраиваемыми спальнями - 484 м2. Общая площадь по зданию с учетом расширения - 1108 м2 или 13,85 м2 на 1 место.

В качестве варианта предлагается пристройка 4-х спален и второго зала для музыкальных занятий площадью 60 м2. Общая площадь пристраиваемых объемов - 341,6 м2; Общая площадь после реконструкции по данному варианту составит 965,6 м2 или 12,07 м2 на 1 место.

4.1.8 Прогулочный детский сад № 764 по Подсосенскому пер., 28 на 4 группы - ДОУ общеразвивающего типа с приоритетным направлением художественно-эстетического развития. Учреждение испытывает потребность в бассейне для детей и зимнем саде, используемом как помещение экологического воспитания, общения с природой и психологической разгрузки для детей. В здании проводятся дополнительные занятия ритмикой и английским языком. Есть два раздельных зала для музыкальных и гимнастических занятий, изостудия, кабинет психолога.

В составе предложений по развитию планировочной структуры здания может быть рекомендована организация блока-пристройки бассейна с ванной 3 х 7 м, с зимним садом на втором этаже. Общая площадь пристраиваемого объема - 210 м2; общая площадь здания после расширения - 990 м2 или 12,37 м2 на 1 место.

4.1.9 Дошкольное учреждение № 1983 комбинированного типа - 2 группы общеразвивающие и 1 - логопедическая. Все группы разновозрастные. В здании групповые ячейки без спален; на месте одной групповой ячейки предусмотрены: столовая на 1 группу с чередованием групп при кормлении детей; одна спальня и кабинет ИЗО.

Для развития планировочной структуры здания предлагается предусмотреть блок-пристройку со следующим составом помещений:

- 1 групповая ячейка 144 м2;

- класс Монтессори 50 м2;

- кабинет психолога, логопеда 16 + 16 = 34 м2;

- логопедический кабинет 16 м2;

- зал для музыкальных и гимнастических занятий с кладовой 75 м2;

- зимний сад 24 м2;

- кабинет ИЗО 54 м2;

- кабинет английского языка 36 м2;

- процедурный кабинет 9 м2.

Итого 442 м2 нормируемой или 590 м2 общей площади. Общая площадь по зданию составит 1014 м2 или 16,9 м2 на 1 место.

4.1.10 Таким образом, в районе «Басманное» (в пределах садового кольца) общая фактическая площадь фонда зданий государственных дошкольных образовательных учреждений составляет 12303,2 м2. Общее фактическое число мест в государственных дошкольных учреждениях - 785. Средняя удельная общая площадь по сети государственных дошкольных учреждений - 15,67 м2 на 1 место. Этот показатель соответствует рекомендуемому (при наборе рекомендуемых помещений с учетом развития специализации педагогических и медико-гигиенических программ),

Анализ сети государственных ДОУ показал сложившийся в районе баланс между потребностью и предложением в части количества мест в дошкольных учреждениях и структуры обслуживания, т.е. возможностью фонда удовлетворить имеющийся спрос на детские дошкольные учреждения, ассортимент и качество предоставляемых в них услуг.

Рекомендации по развитию фонда учитывают объективную потребность учреждений и строятся с учетом не превышения рекомендуемых показателей общей площади на одно место за пределы 17 - 18 м2, нормируемой - ориентировочно 15 - 16 м2 на одно место.

4.1.11 В качестве предложения по оптимизации сети зданий в «Басманном» можно рекомендовать применение централизованного блока приготовления пищи и стирки белья, состав и площади помещений которого приводятся в табл. 7. Это позволит высвободить в ДОУ дополнительные площади для размещения новых помещений, определяемых педагогическими программами. Готовая пища может доставляться как в термоконтейнерах, так и замороженными порциями при доготовке в детских садах в печах СВЧ. Доставка в дошкольные учреждения готовой пищи и чистого белья, а также термоконтейнеров, прочей тары и грязного белья из ДОУ в централизованный хозяйственный блок осуществляется автотранспортом.

Таблица 7

Примерный состав помещений централизованного блока приготовлений пищи и стирки белья группы дошкольных учреждений общей вместимости
от 300 до 600 мест

Наименование помещений

Площади, м2

1

2

1. Помещения кухни

 

- горячий цех

80

- холодный цех

14

- хлеборезка

8

- мясной и рыбный цех

25

- овощной цех

20

- моечная кухонной посуды

10

- моечная и кладовая термоконтейнеров для групповых отделений или хранения комплектов одноразовой тары

18

- охлаждаемая камера для хранения мяса и рыбы

8

- охлаждаемая камера для хранения фруктов, овощей, молочных продуктов

10

- охлаждаемая камера пищевых отходов (в том числе неохлаждаемое помещение - 4 м2)

8

- кладовая сухих продуктов

15

- кладовая овощей

18

- кладовая и моечная тары

10

- кладовая инвентаря

9

- комната кладовщика

5

- загрузочная продуктов

18

- загрузочная термоконтейнеров

18

- экспедиция

18

2. Помещения прачечной

 

- помещения приема и сортировки белья

10

- стиральный цех

40

- кладовая стиральных материалов

3

- сушильно-гладильный цех

25

- помещение для починки белья

10

- цех разборки и упаковки белья

12

- помещение выдачи белья

6

3. Помещение персонала кухни и прачечной

 

- гардеробная персонала

30

20 + 10

- душевые, умывальные, уборные

15

9 + 6

- помещение личной гигиены женщин

3

4. Гараж

 

- крытое помещение для стоянки автомобилей

60 (на 3 автомобиля)

- слесарная мастерская со станочным оборудованием

12

- гардероб персонала

8

ИТОГО нормируемая площадь централизованного блока приготовления пищи и стирки белья                                                                                              - 546 м2.

4.2 Район «Хамовники» (за пределами Садового кольца).

4.2.1 Район «Хамовники» характеризуется наличием мелких зданий дошкольных учреждений (на 2 - 4 группы), построенных по типовым проектам 50 - 60-х годов и встроенных в первые этажи жилых зданий (в районе Комсомольского проспекта и Фрунзенской набережной).

4.2.2 Реконструкция и совершенствование дошкольных учреждений в основном связаны с необходимостью получить дополнительные помещения для организации новых направлений и приоритетов педагогической и медико-гигиенической деятельности, создания более благоприятных условий для интеллектуального, психического и эмоционального развития ребенка, при этом снижение численности детей в здании или в группе является фактором повышенного комфорта. Такие решения принимаются в каждом конкретном ДОУ индивидуально.

1. "Басманное" 1.1 Детский сад № 2032 комбинированного типа

Экспликация помещений после реконструкции

1 - групповая ячейка

2 - зал для музыкальных занятий

3 - административные и служебно-бытовые помещения

 - пристраиваемый объем

Схема генплана участка

Состав помещений блока-пристройки

Наименование помещений

Нормируемая площадь, м2

1. Бассейн с ванной 3 х 7 м

75

2. Обеденный зал столовой на 40 посадочных мест

75

ИТОГО

150

Ориентировочная общая площадь - 210 м2

1. "Басманное" 1.3 Детский сад № 1981 комбинированного типа

Экспликация помещений после реконструкции

1 - групповая ячейка

2 - зал для музыкальных занятий

3 - административные и служебно-бытовые помещения

 - пристраиваемый объем

Схема генплана участка

Состав помещений блока пристройки

Наименование помещений

Нормируемая площадь, м2

1. Ванна для гидромассажа, бассейн

75

2. Физиокабинет на 4 кабины

60

ИТОГО

135

Ориентировочная общая площадь - 162 м2

1. "Басманное" 1.6 Детский сад № 300 логопедический

Экспликация помещений после реконструкции

1 - групповая ячейка

2 - административные и служебно-бытовые помещения

 - пристраиваемый объем

Схема генплана участка

Состав помещений блоков-пристроек

Наименование помещений

Нормируемая площадь, м2

1. Спальни для 3-х групп

135

45´3

2. Логопедические кабинеты при спальнях

45

15´3

3. Зал для музыкальных и гимнастических занятий

60

Итого

240

Ориентировочная общая площадь - 336 м2

1. "Басманное" 1.7 Детский сад № 1977 физкультурно-оздоровительный

Экспликация помещений после реконструкции

1 - групповая ячейка

2 - зал для музыкальных занятий

3 - административные и служебно-бытовые помещения

 - реконструируемый объем:

4 - физкультурный зал с кабинетом массажа;

5 - бассейн с ванной 3´7 м

Площадь реконструируемых помещений - 180 м2

1. "Басманное" 1.8 Детский сад № 376 Художественно-эстетический

Экспликация помещений после реконструкции

1 - групповая ячейка

2 - зал для гимнастических занятий

3 - административные и служебно-бытовые помещения

 - реконструируемый объем:

4 - спальни;

5 - зал для музыкальных занятий

Состав помещений блоков-пристроек

Наименование помещений

Нормируема я площадь, м2

1. Зал для музыкальных занятий

60

2. Спальни

184

46´4

Итого

244

Ориентировочная общая площадь - 341,6 м2

1. "Басманное" 1.10 Детский сад № 764 Круглосуточный

Экспликация помещений после реконструкции

1 - групповая ячейка

2 - зал для музыкальных занятий;

3 - зал для гимнастических занятий

4 - административные и служебно-бытовые помещения

 - пристраиваемый объем:

Состав помещений блока-пристройки

Наименование помещений

Нормируемая площадь, м2

1. Бассейн с ванной 3´7 м

75

2. Зимний сад

75

Итого

150

Ориентировочная общая площадь - 210 м2

1. "Басманное" 1.11 Детский сад № 1983 Комбинированный

Экспликация помещений после реконструкции

1 - групповая

2 - спальня

3 - кухня

4 - столовая на 2 группы

5 - служебно-бытовые помещения

 - 3-этажная блок-пристройка

Состав помещений 3-этажного блока-пристройки

Наименование помещений

Нормируемая площадь, м2

1. групповая ячейка

144

2. класс Монтессори

50

3. кабинеты психолога и логопеда

32

4. логопедический кабинет

16

5. зал для музыкальных и гимнастических занятий

75

6. зимний сад

24

7. Кабинет ИЗО

54

8. кабинет английского языка

36

9. процедурный кабинет

9

Итого

442

Ориентировочная общая площадь - 590 м2

4.2.3 Здание яслей-сада № 104 по Пуговишникову пер., 7 стр. 2. Проектная вместимость - 5 групп, фактическая - 4 группы. В настоящее время на месте одной групповой ячейки предусмотрены зал и методический кабинет. Для ДОУ функционально необходимы: столовая, бассейн, второй зал, физиокабинет, изостудия, медицинский изолятор.

Для реконструкции здания предлагается надстройка третьего этажа с выделением в нем следующих помещений:

- бассейн с ванной 3´7 м - 75 м2

- зал для музыкальных занятий 75 м2

- изостудия 54 м2

- физиокабинет на 4 кабины - 36 м2

- медицинский изолятор 18 м2

- столовая на 2 группы детей - 50 м2

Итого 308 м2

Общая площадь надстраиваемого этажа 431,2 м2, общая площадь по зданию с учетом расширения составит 1256 м2, или 15,7 м2 на 1 место.

4.2.4 Детский сад № 153 по Ружейному пер., 8 - проектная и фактическая вместимость здания - 4 группы. ДОУ имеет лицензию на платные услуги. Учреждение нуждается во втором зале, помещении театральной студии, в бассейне (в том числе возможен быстровозводимый бассейн из сборных конструкций на свободной площади), используемый при сочетании гидропроцедур с массажем. В части медицинских помещений необходимы изолятор и процедурный кабинеты, физиокабинет для приготовления фиточая, кислородных коктейлей, а также 2 - 3 кабинета: методический, психолога, комнаты психологической разгрузки.

Надстройка 3-го этажа здания скорее всего невозможна, так как во время его ремонта имелись проблемы с фундаментом и стенами. Для реконструкции здания предлагается организация блока-пристройки со следующими помещениями:

- зал для музыкальных занятий 75 м2

- изостудия 54 м2

- театральная студия 54 м2

- бассейн с ванной 3 х 7 м - 75 м2

- кабинеты массажа и гидромассажа 24 м2

- медицинский изолятор 18 м2

- физиокабинет 36 м2

- кабинеты: процедурный, методический, психолога 36 м2

- кладовые инвентаря 6 х 3 = 18 м2

Итого 390 м2

Общая площадь блока-пристройки - 470 м2; общая площадь в целом по зданию с учетом расширения составит 1504 м2 или 18,8 м2 на одно место.

4.2.5 Здание ДОУ № 1183 по ул. Плющиха, 16/18 к. 3 на 4 группы, компенсирующего типа: одна группа детей с нарушением опорно-двигательного аппарата и 3 - с нарушением речи. Здание типовое, 1979 г. строительства.

Учреждению необходимы второй зал, физиокабинет, кабинет психолога, изостудия, 4 кабинета логопеда (по одному при каждой группе), комната психологической разгрузки, зимний сад, комната сушки верхней одежды, методический кабинет и др.

Для развития планировочной структуры здания предлагается надстройка третьего этажа, где будут размещены следующие помещения:

- зал для музыкальных занятий 75 м2

- физиокабинет на 4 кабины 36 м2

- изостудия 54 м2

- логопедические кабинеты 12´4 = 48 м2

- комната психологической разгрузки 16 м2

- методический кабинет 18 м2

- кабинет психолога 18 м2

- зимний сад (оранжерея) 60 м2

- кладовые инвентаря 6´2 = 12 м2

Итого 337 м2

Общая площадь надстраиваемого объема 470 м2. Общая площадь по зданию составит 1400 м2, или 17,5 м2 на 1 место.

4.2.6 Детский сад № 1246, на 4 группы, комбинированного типа (две группы - для детей с нарушением опорно-двигательного аппарата). Учреждение размещается в доме дореволюционной постройки (купца Румянцева). Раньше здание использовалось на шесть групп, позже из двух групповых ячеек сделали спальни для оставшихся четырех групп. В здании предусмотрены один зал, зал ЛФК, массажный кабинет, изолятор. Учреждению, в соответствии с его назначением, требуется: кабинет физиотерапии, бассейн, кабинет логопеда, кабинет психолога, изостудия и зимний сад, используемый как помещение экологического воспитания и психологической разгрузки детей.

Для реконструкции здания предлагается пристройка двух объемов, связанных с основным зданием через лестничные площадки.

Состав одного двухэтажного блока (со стороны бокового эркера);

- изостудия с кладовой инвентаря 54 + 6= 60 м2

- зимний сад 54 м2

- кабинет психолога 16 м2

- кабинет логопеда 16 м2

Итого 146 м2

Состав второго блока-пристройки (со стороны дворового входа);

- бассейн с ванной 3´7 м 75 м

- зал музыкальных занятий 60 м2

- кабинет физиотерапии на 2 кабины 18 м2

- кладовые инвентаря 6´2 = 12 м2

Итого 165 м2

Итого расчетная (нормируемая) площадь пристраиваемых объемов - 311 м2

Общая площадь пристраиваемых объемов - 435 м2. Общая площадь по зданию после расширения составит 1570 м2 или 19,6 м2 на 1 место.

4.2.7 Детские ясли-сад № 2172 по 3-ей Фрунзенской, с.1 на 4 группы - встроенные, приспособленные. В учреждении 2 ясельные группы, две дошкольные. Состав и площади помещений, а также площади и размещение земельного участка учреждения, работающего по федеральной программе, мероприятий по реконструкции не требуют.

4.2.8 Детский сад № 1362 по Фрунзенской набережной 36/2 на 4 группы комбинированного типа: 2 группы для детей с нарушением речи и 2 - для приходящих с родителями детей-инвалидов с нарушением опорно-двигательного аппарата. Учреждение расположено в двух изолированных объемах: одна группа и служебно-бытовые помещения - в одном объеме и 3 группы - в другом, связь с которым осуществляется через улицу.

Учитывая неприспособленность помещений по функциональным требованиям и невозможность их обеспечения и расширения за счет прилегающих к учреждению квартир и офисов, предлагается ликвидировать этот детский сад и на свободной территории внутридворового пространства построить новый.

4.2.9 Детский сад № 1476 по 2-ой Фрунзенской, д.10 - компенсирующее логопедическое ДОУ, встроенное, на 3 группы. В составе помещений предусмотрен зал, три логопедических кабинета. В качестве дополнительных помещений необходимы изостудия, второй зал, кабинеты для преподавателей, зимний сад (уголок природы), медицинский изолятор.

Как и в предыдущем случае, реконструкция и расширение дошкольного учреждения невозможны в связи с приватизацией прилегающих помещений.

Предлагается строительство нового объекта - отдельно стоящего здания детского сада на 4 группы.

4.2.10 Детский сад № 1359 по 3-ей Фрунзенской ул., д.3, на три разновозрастные группы детей, расположен встроенным. В учреждении нет спален: в групповой применяются раздвижные трехъярусные кровати. В составе помещений - проходная общая на все три группы раздевальная.

В соответствии со специализацией учреждения, 3 раза в неделю специалисты Центра развития личности проводят занятия в группах: требуются дополнительные помещения изостудии, выставочное помещение, столовая на одну группу, процедурный кабинет, ингаляционная, кабинет физиотерапии.

Расширение и реконструкция детского сада невозможны в связи с приватизацией прилегающих помещений, поэтому предлагается строительство нового здания.

4.2.11 Для оптимизации и развития сети ДОУ, с учетом большого числа встроенных учреждений, рекомендуется предусмотреть централизованный блок приготовления пищи и стирки белья (см. п. 4.1.11).

В таблице 8 представлен уточненный перечень государственных дошкольных образовательных учреждений района "Хамовники" за пределами Садового кольца. Порядковые номера ДОУ на иллюстрациях к программам реконструкции соответствуют порядковым номерам ДОУ в таблице 8.

4.3 Район «Черемушки»

4.3.1 Начальная школа-детский сад № 1649 по ул. Цюрупа, 8а. В здании 5 дошкольных групп. В групповых ячейках отсутствуют спальни: в групповых используются раскладушки. В здании нужен второй зал, бассейн, кабинет ИЗО, библиотека, кабинет логопеда, психолога, комната релаксации для взрослых. Недостаточен по площади пищеблок, необходим холодный цех и прачечная.

Для реконструкции здания предлагается пристройка спален к групповым ячейкам первого этажа и надстройка одноэтажного хозяйственного блока здания. На надстраиваемом этаже предусматриваются четыре веранды для четырех групп (если в групповой ячейке размещается класс - веранда используется как рекреационное помещение; если дошкольная группа - то как спальня). Пристроенные блоки спален по бокам здания (у крайних групповых ячеек) - двухэтажные. Назначение второго этажа у них то же: спальня или рекреационные помещения. Остальные помещения второго этажа - 2 зала (музыкальный и гимнастический), кабинет ИЗО, кабинеты логопеда, психолога, комната релаксации. Бассейн предлагается разместить на первом этаже на месте зала для музыкальных и гимнастических занятий.

Ориентировочная общая площадь пристраиваемых и реконструируемых помещений - 894 м2. Ориентировочная общая площадь здания после реконструкции - 2289 м2 или 10,64 м2 на одно место (с учетом школьников в здании).

4.3.2 Общеразвивающее ДОУ Ясли-сад № 236 по ул. Н. Черемушкинская, 54, проектная вместимость - 8 групп, фактическая - 4 группы. В ходе капитального ремонта за счет сокращения числа групповых ячеек были оборудованы спальни, физкультурный зал. Это район нового строительства жилых домов, и ясли-сад нуждается в расширении.

При реконструкции целесообразно увеличить вместимость здания до 10 групп, рекомендуется надстройка второго этажа над одноэтажным хозяйственным блоком и двухэтажная пристройка к одному из блоков. В составе помещений надстраиваемого этажа предлагается предусмотреть сушильные для сушки верхней одежды детей, медицинский изолятор, столовую.

Состав помещений двухэтажного блока-пристройки:

- 4 групповые ячейки 144´4 = 576 м2

- зал для музыкальных и гимнастических занятий с кладовой инвентаря 100 + 6 = 106 м2

- бассейн с ванной 3´7 м - 75 м2*

- столовая на 2 группы 50´2 = 100 м2

- медицинский изолятор 35 м2

- помещение для сушки верхней одежды 60 (6´10) м2

- кладовые инвентаря

Итого: 871 м2 (кроме площади бассейна, размещаемого на первом этаже основного здания)

Общая площадь пристроенного и надстроенного объемов - 1050 м2.

Общая площадь по зданию после реконструкции составит 1495 м2 или 7,5 м2 на одно место.

2. "Хамовники" 2.1 Детский сад № 104 (2126)

Экспликация помещений после реконструкции

1 - групповая ячейка

2 - зал для музыкальных занятий

3 - административные и служебно-бытовые помещения

 - надстраиваемый объем

Состав помещений надстраиваемого этажа

Наименование помещений

Нормируемая площадь, м2

1. Бассейн с ванной 3´7 м

75

2. Зал для музыкальных занятий

75

3. Изостудия

54

4. Физиокабинет

36

5. Медицинский изолятор

18

6. Столовая на 2 группы

50

Итого

308

Ориентировочная общая площадь - 431,2 м2

2. "Хамовники" 2.3 Детский сад № 153

Экспликация помещений после реконструкции

1 - групповая ячейка

2 - зал для музыкальных занятий

3 - административные и служебно-бытовые помещения

 - надстраиваемый объем

Состав помещений 3-этажного блока-пристройки

Наименование помещений

Нормируемая площадь, м2

1. Бассейн с ванной 3´7 м

75

2. Зал для музыкальных занятий

75

3. Изостудия

54

4. Театральная студия

54

5. Физиокабинет

36

6. Медицинский изолятор

18

7. Кабинеты массажа и гидромассажа

24

8. Кабинеты: процедурный, методический, психолога

36

Итого

372

Ориентировочная общая площадь 446,4 м2

2. "Хамовники" 2.6 Детский сад № 1183 комбинированный

Экспликация помещений после реконструкции

1 - групповая ячейка

2 - зал для музыкальных занятий

3 - административные и служебно-бытовые помещения

 - надстраиваемый объем

Состав помещений надстраиваемого этажа

Наименование помещений

Нормируемая площадь, м2

1. Зал для музыкальных занятий

75

2. Изостудия

54

3. Физиокабинет

36

4. Логопедические кабинеты

12´4 = 48

5. Комната психологической разгрузки

16

6. Методический кабинет

18

7. Кабинет психолога

18

8. Зимний сад (оранжерея)

60

Итого

325

Ориентировочная общая площадь - 390 м2

2. "Хамовники" 2.7 Детский сад № 1246 комбинированный

Экспликация помещений после реконструкции

1 - групповая ячейка

2 - зал для гимнастических занятий

3 - административные и служебно-бытовые помещения

 - пристраиваемые объемы

Состав помещений пристраиваемых объемов

Наименование помещений

Нормируемая площадь, м2

1. Изостудия

54

2. Зимний сад

54

3. Кабинеты психолога, логопеда

16´2 = 32

4. Бассейн с ванной 3´7 м

75

5. Зал для музыкальных занятий

60

6. Кабинет физиотерапии на 2 кабины

18

Итого

293

Ориентировочная общая площадь - 351,6 м2

2. "Хамовники" 2.16 Детский сад № 2172

Экспликация помещений

1 - групповая ячейка

2 - служебно-бытовые помещения

2. "Хамовники" 2.19 Детский сад № 1359

Экспликация помещений

1 - групповая ячейка

2 - зал для музыкальных и гимнастических занятий

3 - служебно-бытовые помещения

4.3.3 Дошкольное образовательное учреждение № 1279 по ул. Цюрупа, 15 (здание ДОУ на 10 групп, т.п. У1-44). Фактическое число групп - 9. За счет двух групповых ячеек размещены физкультурный зал, изостудия.

Предлагается расширить здание за счет надстраиваемого над хозяйственным блоком объема и предусмотреть в нем:

- физкультурный зал - 100 м2

- зал для музыкальных занятий - 75 м2

- кладовые инвентаря 6´2 = 12 м2

Итого 187 м2

На месте существующего музыкального зала - на первом этаже здания предусматривается бассейн с ванной 3´7 м.

Общая площадь надстраиваемого объема - 260 м2, общая площадь здания после расширения - 2000 м2 или 12,5 м2 на 1 место.

4.3.4 Государственное образовательное учреждение "начальная школа - детский сад" № 1656 по ул. Новые Черемушки, кв. 32а корп. 13 (здание ДОУ на 12 групп, т.п. У1-52). Фактически размещены 4 дошкольные группы и 4 класса начальной школы. При этом одна групповая ячейка используется как библиотека школы, кабинет математики. Кабинет природоведения, зимний сад. Вторая групповая ячейка - как кабинет хора и сольфеджио, кабинет театрализованной деятельности, физкультурный зал, лингафонный кабинет и класс для занятий.

Предлагается пристройка бассейна:

- бассейн с ванной 3´7 м - 75 м2;

Общая площадь пристраиваемого объема - 105 м2.

Общая площадь здания после расширения - 2300 м2 или 12,8 м2 на 1 место.

4.3.5 Государственное образовательное учреждение "начальная школа - детский сад" № 1655 на 5 дошкольных групп и 4 класса начальной школы. Дополнительно в дошкольном учреждении ведутся занятия по ИЗО, русской культуре, экологии, английскому языку, информатике. Учреждение является экспериментальным и находится в подчинении Городского комитета образования. В перспективе планируется расширение учреждения до 8 дошкольных групп и 7 ученических классов (т.е. до 300 мест).

Реконструкция здания предполагает надстройку третьего этажа над двухэтажными блоками с детскими групповыми ячейками, а также надстройку второго этажа над одноэтажным блоком административных и служебно-бытовых помещений. Кроме этого, к восьми групповым ячейкам должны быть пристроены спальни. В составе надстраиваемого второго этажа над одноэтажным хозблоком следует предусмотреть:

- кабинет эстетики 54 м2

- лингафонный кабинет 36 м2;

- столовая на 100 мест 100 м2;

- физиокабинет на 4 кабины 36 м2;

- фитобар 14 м2;

- веранды-рекреации при классных помещениях 36´4 = 144 м2;

- кладовые инвентаря 6´2 = 12 м2;

Итого 396 м2.

Ориентировочная общая площадь надстраиваемого второго этажа 550 м2.

Ориентировочная общая площадь надстраиваемых групповых ячеек (классных помещений) на третьем этаже 430 м2.

В составе работ по расширению еще 8 пристраиваемых спален общей площадью 46´8 = 368 м2 и перекрытие открытого бассейна площадью 75 м2.

Общая площадь расширения здания - 1425 м2 Общая площадь здания после расширения 2895 м2 или 9,65 м2.

4.3.6 Ясли-сад № 466 по ул. Обручева, 47а (т.п. У-13А, вместимость 12 групп, без спален в групповых ячейках). Из-за отсутствия спален в здании фактически 6 групповых ячеек. В перспективе предусматривается надстройка второго этажа над одноэтажным хозяйственным блоком здания, с расширением вместимости ДОУ до 8 групп. В здании в настоящее время предусмотрены 2 зала, изостудия, комната сказок; для восьми групповых ячеек требуются спальни.

Надстройка второго этажа над одноэтажным блоком обеспечит возможность предусмотреть на первом этаже бассейн с ванной 3´7 м (на месте зала), на надстраиваемом этаже - два зала для музыкальных и гимнастических занятий.

Состав дополнительных помещений:

- Групповые ячейки 144´2 = 288 м2;

- Залы для музыкальных и гимнастических занятий 75´2 = 150 м2;

- Кладовые инвентаря 6´2 = 12 м2

Итого 450 м2.

3. "Черемушки" 3.2 Начальная школа - детский сад № 1649

Состав помещений пристраиваемых и реконструируемых объемов

Наименование помещений

Нормируемая площадь, м2

1. Спальни (рекреационные помещения для школьников)

46´8 = 368

2. Залы спортивный и для музыкальных занятий

100 + 100 = 200

3. Изостудия

54

4. Кабинеты психолога, логопеда, комната релаксации

16´3 = 48

5. Бассейн с ванной 3´7

75

Итого

745

ориентировочная общая площадь - 894 м2

Экспликация помещений после реконструкции

1 - групповая ячейка

2 - бассейн

3 - административные и служебно-бытовые помещения

 - пристраиваемые и реконструируемые объемы:

4 - спальни;

5 - спортивный зал и зал для музыкальных занятий, изостудия, библиотека, кабинеты логопеда и психолога

3. "Черемушки" 3.3 Детский сад № 236

Состав помещений пристраиваемого 2-этажного блока

Наименование помещений

Нормируемая площадь м2

1. 4 групповые ячейки

144´4

576

Состав помещений надстраиваемого 2-го этажа

Наименование помещений

Нормируемая площадь м2

1. Зал для музыкальных и гимнастических занятий

100

2. Столовая на 2 группы

100

3. Медицинский изолятор

35

4 . Помещение для сушки верхней одежды

6´10

60

Итого

295 м2

Общая площадь пристроенного и надстроенного объемов - 1050 м2

3. "Черемушки" 3.3 Детский сад № 236

Экспликация помещений после реконструкции

1 - групповая

2 - бассейн

3 - административные и служебно-бытовые помещения

4 - зал для музыкальных и гимнастических занятий пристраиваемые и надстраиваемые объемы:

5 - 4 групповые ячейки

6 - зал для музыкальных и гимнастических занятий, столовая на 2 группы, медицинский изолятор, помещение для сушки верхней одежды

3. "Черемушки" 3.4 Детский сад № 1279

Экспликация помещений после реконструкции

1 - групповая ячейка

2 - бассейн

3 - административные и служебно-бытовые помещения

 - надстраиваемый 2-й этаж: зал для музыкальных занятий; зал для гимнастические занятий с кладовыми инвентаря

Состав помещений надстраиваемого 2-го этажа

Наименование помещений

Нормируемая площадь м2

1. Зал для музыкальных занятий с кладовой

106

2. Зал для гимнастических занятий с кладовой

106

Итого

212 м2

Общая площадь надстроенного объема - 260 м2

3. "Черемушки" 3.6 "Начальная школа - детский сад № 1655

Состав помещений надстраиваемого второго этажа

Наименование помещений

Нормируемая площадь, м2

1. Кабинет эстетики

51

2. лингафонный кабинет

36

3. столовая на 100 мест

100

4. физиокабинет на 4 кабины

36

5. Веранды-рекреации

36´4 = 144

6. Фитобар

14

Итого

370

Экспликация помещений после реконструкции

1 - групповая ячейка

2 - зал для музыкальных занятий

3 - административные и служебно-бытовые помещения

 - пристраиваемый объем:

5 - спальни

Ориентировочная общая площадь надстраиваемого второго этажа - 444 м2;

Ориентировочная общая площадь надстраиваемых групповых ячеек (классных помещений) на третьем этаже - 432 м2;

Площадь 8 пристраиваемых спален - 368 м2;

Перекрытие открытого бассейна - 75 м2.

3. "Черемушки" 3.9 Детский сад № 2135

Состав помещений пристраиваемого 2-этажного блока

Наименование помещений

Нормируемая площадь м2

1. Столовая на 2 группы

54

2. Зал для гимнастических занятий с кладовой инвентаря

81

3. Методический кабинет

18

4. Изостудия с кладовой инвентаря

60

Итого

213 м2

Общая площадь пристраиваемого объема - 300 м2

Экспликация помещений после реконструкции

1 - групповая ячейка

2 - зал для музыкальных занятий

3 - административные и служебно-бытовые помещения

 - пристраиваемый объем

Общая площадь расширения здания 630 м2

Общая площадь здания после расширения 2100 м2 или 13,1 м2 на 1 место.

4.3.10 Ясли-сад № 2135 (общеразвивающий) по ул. Профсоюзная, 34-2 (типовой проект 50-х годов на 5 групп, где 4 группы имеют спальни-веранды, а одна группа - без спальни). Поэтому в здании фактически 4 дошкольные группы, есть зал.

Здание старое; для определения возможности его реконструкции требуется дополнительная инженерная экспертиза.

ДОУ дополнительно необходимы: второй зал, методический кабинет, изостудия.

В программе реконструкции здания рекомендуется предусмотреть 2-хэтажную блок-пристройку перед главным фасадом здания со следующим составом помещений:

- столовая (на 2 группы) 54 м2;

- зал для гимнастических занятий 75 м2;

- методический кабинет 18 м2;

- изостудия 54 м2;

- кладовые инвентаря 6´2 = 12 м2

Итого 213 м2

Общая площадь блока-пристройки ориентировочно составит 300 м2. Показатель общей площади в целом по зданию 1070 м2 или 13,4 м2 на одно место.

Номера дошкольных учреждений на рисунках даны в соответствии с перечнем их в табл. 9.

В таблице 10 представлены комплексные мероприятия с указанием вида и объемов реконструкции зданий на обследованных территориях Москвы.

Таблица 6

Перечень дошкольных образовательных учреждений, расположенных на территории района «Басманное» (в пределах Садового кольца)

№ № пп

Наименование учреждения, специализация

Адрес учреждения

Число детских групп по проекту

Число детских групп фактическое (мест)

Тип здания, год строительства

Общая площадь здания (м2)

Площадь участка, (га)

1

2

3

4

5

6

7

8

1.

Детский сад № 2032 комбинированного типа

Мал. Златоустьинский пер., 9/2 стр. 2

4

3

(50)

Т.П. 1937г.

988

0,21

2.

Детский сад № 304 общеразвивающий с приоритетом интеллектуального развития

Б. Трехсвятительский пер., 1-3/12

6

6

(115)

Приспособленное помещение, 1820 г.

1692

0,45

3.

Детский сад №1981 комбинированного типа (санаторно-оздоровительные группы)

М. Козловский пер., 3а, стр. 1

4

4

(70)

Т.П. У1-49 1971 в.

821,2

0,16

4.

Детский сад № 827 общеразвивающий с приоритетом художественно-эстетического развития

Ул. Машкова, 3а

4

4

(80)

Т.П. 50-х гг.

847

0,12

5.

Детский сад № 2334 общеразвивающий с приоритетом физкультурно-оздоровительной деятельности

Фурманный пер., 8

6

4

(50)

Т.П. У1-49

998

0,43

6.

Детский сад № 300 компенсирующий (логопедический)

Ул. Машкова, 19, стр. 1

3

3

(40)

Приспособленное помещение, 1940г.

373

0,22

7.

Детский сад № 1977 общеразвивающий с приоритетом физкультурно-оздоровительной и художественно-эстетической деятельности

Ул. Машкова, 20

6

4

(80)

Т.П. 50-х гг. 1952г.

1395

0,26

8.

Датский сад № 376 Общеразвивающий, с приоритетом художественно-эстетического развития

Казарменный пер., 8.

4

4

(75)

Т.П. 50-х гг. 1952 г.

624

0,40

9.

Детский сад № 1948 Комбинированный: церебральный паралич, центр ранней социализации

Подсосенский пер., 26 стр. 6

6

6

(90)

Инд. проект 1936 г.

2445

0,75

10.

Детский сад № 764 Общеразвивающий, круглосуточный

Подсосенский пер., 28

4

4

(80)

Т.П. 50-х гг. 1956 г.

780

0,26

11.

Детский сад № 1983 Комбинированный общеразвивающий и логопедический

Казарменный пер., 4

4

3

(55)

Т.П. 1936 г. 1937 г.

1340

0,27

ИТОГО

39(785)

 

12303,2

 

Примечание. Фактический показатель обеспеченности общей площадью по фонду зданий 15,67 м2 на 1 место (нормируемой площади - ориентировочно - 13,0 м2 на 1 место).

Таблица 8

Перечень дошкольных образовательных учреждений, расположенных на территории района «Хамовники» (за пределами Садового кольца)

№ № пп

Наименование учреждения, специализация

Адрес учреждения

Число детских групп по проекту

Число детских групп фактическое (мест)

Тип здания, год строительства

Общая площадь здания (м2)

Площадь участка, га

1

2

3

4

5

6

7

8

1.

Ясли-сад № 23

Погодинская ул., 20 с. 3

6

4

(80)

Приспособленное, 1909 г.

596,0

0,21

2.

Ясли-сад № 104 Компенсирующий: для детей с туберкулезной инфекцией

Пуговишников пер., 7.С.2

5

4

(60)

Типовое, 1952 г.

825,0

0,26

3.

Детский сад № 153

Ружейный пер., 8

4

4

(80)

Типовое, 1939 г.

1034,0

0,32

4.

Детский сад № 669 Комбинированный: для детей с нарушением речи

7-й Ростоковский пер., 16

5

4

(60)

ТП У1-23

809,0

0,36

5.

Детский сад № 1155

Хамовнический вал, 10А Хамовнический вал, 4

5

4

(80)

Типовое + встроенное

1012,0 584,0

0,6

6.

Детский сад № 1183

Ул. Плющиха, 16/18, к. 3

4

4

(80)

Типовое, 1970 г.

928,9

0,2

7.

Детский сад № 1246 Комбинированный (2 группы для детей с нарушением ОДА)

Ул. Россолимо, 10

6

4

(60)

Приспособленное: дореволюционное строительство

1136,0

0,22

8.

Ясли-сад № 1472 Компенсирующий логопедический

1-я Фрунзенская, 6А

6

4

(60)

Типовое, 1967г.

1859,0

0,44

9.

Детский сад № 1515 Общеразвивающий с приоритетом художественно-эстетического развития

Хамовнический вал, 28, с.2

4

3

(60)

Типовое, 1960 г.

848,0

0,33

10.

Детский сад № 1323 Компенсирующий для детей с дефектами зрения

Комсомольский просп., 47, к. 2

4

3

(45)

Типовое, 1959 г.

1051,0

0,36

11.

Детский сад № 676 Общеразвивающий

Кооперативная ул., 2 с. 13

4

4

(80)

Встроенное

668,0

0,1

12.

Детский сад № 681 Общеразвивающий

Новодевичий пр-д, 2 стр. 10

4

4

(80)

Встроенное

778,0

0,14

13.

Детский сад № 1089 Общеразвивающий

Бол. Пироговская, 53/55

4

4

(80)

Встроенное

532,0

0,11

14.

Детский сад № 1093 Компенсирующий (логопедический)

Комсомольский просп., 41

3

3

(60)

Встроенное

571,0

0,11

15.

Детский сад № 1108 Общеразвивающий

3-я Фрунзенская, 9

4

4

(80)

Встроенное

685,0

0,09

16.

Ясли-сад № 2172 Общеразвивающий

3-я Фрунзенская, 147 с.1

5

4

(70)

Встроенное

947,0

0,28

17.

Детский сад № 1362 Комбинированный (две группы - логопедические, две - приходящие инвалиды)

Фрунзенская наб., 36/2

4

4

(45)

Встроенное (в двух филиалах)

1055,0

0,11

18.

Детский сад № 1476 Компенсирующий (логопедический)

2-я Фрунзенская, 10

3

3

(45)

Встроенное

686,0

0,1

19.

Детский сад № 1359 Общеразвивающий (разновозрастные группы)

3-я Фрунзенская, 3

3

3

(45)

Встроенное

638,0

0,09

ИТОГО

71 (1250)

 

18116

 

Примечание. Фактический показатель обеспеченности общей площадью по фонду зданий - 14,49 м2 на 1 место (нормируемой площади - ориентировочно - 12,07 м2 на 1 место).

Таблица 9

Перечень государственных дошкольных образовательных учреждений, расположенных на территории района "Черемушки"

№№ пп

Наименование учреждения, специализация

Адрес учреждения

Число детских групп по проекту

Число детских групп фактическое (мест)

Тип здания, год строительства

Общая площадь здания (м2)

Площадь участка, (га)

1

2

3

4

5

6

7

8

1.

Детский сад № 1528 Общеразвивающий

Ул. Арх. Власова, 7/3

5

3

(60)

ТП 50-х гг. 1966 г.

694,2

0,7

2.

Начальная школа - детский сад № 1649

Ул. Цюрупа, 8 а

12

7 + 3 кл. (215)

ТП У-13А

1470

0,9

3.

Ясли-сад № 236 Общеразвивающий

Ул. Н. Черемушкинская, 54

8

4

(120)

ТП 50-х гг.

720,0

0,8

4.

Ясли-сад № 1279 Общеразвивающий

Ул. Цюрупа, 15

10

8

(160)

ТП У1-44

1740

1,3

5.

Начальная школа - детский сад № 1656

Н. Черемушки, кв. 32а к.13

12

4 + 4 кл. (180)

ТП У1-52

2196

0,9

6.

Начальная школа - детский сад № 1655

Ул. Херсонская, 36

12

5 + 4 кл. (200)

ТП У-13А

1470

0,9

7.

Ясли-сад № 466 Общеразвивающий

Ул. Обручева, 47 а

12

6

(120)

ТП У-13А 1965 г.

1470

1,1

8.

Ясли-сад № 543 Общеразвивающий

Ул. Херсонская, 17а

12

6

(120)

ТП У-13А 1966 г

1470

0,9

9.

Ясли-сад № 9 2135 Общеразвивающий

Ул. Профсоюзная, 34-2

5

4

(80)

ТП 50-х гг.

769

0,4

10.

Ясли-сад № 982 Общеразвивающий

Н. Черемушки, кв. 32а к.12

10

9

(180)

ТП У1-52

2196

0,8

11.

Ясли-сад № 8 1068 Комбинированный (оздоровительный)

Ул. Цюрупа, 11/1

10

9

(135)

ТП У1-44

1740

0,9

12.

Ясли-сад № 1165 Комбинированный (логопедическая группа)

Ул. Профсоюзная, 38/3

5

4 +4 кл. (180)

ТП 50-х гг.

769

0,9

 

ИТОГО

 

69 (1370)

 

16704,2

 

Примечание. Фактический показатель обеспеченности общей площадью по фонду зданий - ориентировочно 10,15 м2 на 1 место

Таблица 10

Мероприятия по развитию фонда зданий дошкольных образовательных учреждений

№№ п/п

Наименование учреждения

Адрес учреждения

Общая площадь по зданию, м2

Дефицит общей площади в соответствии с новыми образовательными программами

Фактическая площадь участка, га

Нормативная площадь участка, га

Наличие свободной площади для пристраиваемых объемов

Предлагаемый вариант расширения здания

1

2

3

4

5

6

7

8

9

«БАСМАННОЕ» (в пределах Садового кольца)

1

ДОУ № 2032 компенсирующего типа (для детей с нарушением ОДА)

М. Златоустинский пер., 9/2, стр. 1

988

210

0,21

0,16

+

Двухэтажный блок-пристройка

2

ДОУ № 1981 оздоровительного типа

М. Козловский пер., 3 а, стр. 1

821,2

162

0,28

0,24

+

Двухэтажный блок-пристройка

3

ДОУ № 2334 общеразвивающего типа

Фурманный пер., 8

998

168

0,43

0,17

+

Объект в реконструкции не нуждается

4

ДОУ № 300 компенсирующего типа (логопедическое)

Ул. Машкова, 19 стр. 1.

373

336

0,22

0,14

+

Два двухэтажных блока-пристройки

5

ДОУ № 1977 общеразвивающего типа

Ул. Машкова, 20

1395

-

0,26

0,26

-

Перепланировка подвальной части здания

6

ДОУ № 376 общеразвивающего типа

Казарменный пер., 8

624

341,6

0,4

0,28

+

Пристройка 4-х двухэтажных блоков-спален и одноэтажного блока

6 (вариант)

То же

То же

624

484

0,4

0,28

+

Надстройка 3-го этажа, пристройка двухэтажных блоков-спален

7

ДОУ № 764 общеразвивающего типа (прогулочное)

Подсосенский пер., 28

780

210

0,26

0,21

+

Двухэтажный блок-пристройка

8

ДОУ № 1983 комбинированного типа (с логопедическими группами)

Казарменный пер., 4

624

590

0,27

0,24 (с учетом расширения здания до 4-х групп)

+

Двухэтажный блок-пристройка

«ХАМОВНИКИ» (за пределами Садового кольца)

9

ДОУ № 104 общеразвивающего типа

Пуговишников пер., 7 стр. 2

825,0

431,2

0,26

0,21

+

Надстройка 3-го этажа

10

ДОУ № 153

Ружейный пер., 8

1034,0

446,4

0,32

0,24

+

Трехэтажный блок-пристройка

11

ДОУ № 1183 комбинированного типа (с логопедическими группами и для детей с нарушением ОДА)

Плющиха, 16/18 к. 3

928,9

390,0

0,2

0,21

-

Надстройка 3-го этажа

12

ДОУ № 1246 комбинированного типа (с группами для детей с нарушением ОДА)

Россолимо, 10

1136,0

351,6

0,22

0,21

+

Два двухэтажных блока-пристройки

13

ДОУ № 2172 общеразвивающего типа

3-я Фрунзенская, 14/37

947

-

0,28

0,24

+

Объект в реконструкции не нуждается

14

ДОУ № 1362 комбинированного типа

Фрунзенская наб., 36/2

1055,0

-

0,11

0,15

-

Новое строительство

15

ДОУ №1476 компенсирующего типа

2-я Фрунзенская, 10

686,0

-

0,1

-

-

Новое строительство

16

ДОУ № 1359 общеразвивающего типа

3-я Фрунзенская, 3

638,0

322,0

0,09

0,15

+

Новое строительство

«ЧЕРЕМУШКИ»

17

ДОУ № 1649 общеразвивающего типа

Ул. Цюрупы, 8а

1470,0

894,0

0,9

0,84

+

Пристройка спален к групповым ячейкам первого этажа и надстройка второго этажа над хозблоком

18

ДОУ № 236 общеразвивающего типа

Новочеремушкинская, 54

720,0

1790,0

0,8

0,84

-

Надстройка 2-го этажа над хозблоком и двухэтажный блок-пристройка

19

ДОУ № 1279 общеразвивающего типа

Ул. Цюрупы, 15

1740,0

180,0

1,3

0,84

+

Надстройка 2-го этажа над хозблоком

20

ДОУ № 1656 общеразвивающего типа

Н. Черемушки, кв. 32а

к.13

2196,0

1280,4

0,9

0,84

+

Одноэтажный блок-пристройка бассейна

21

ДОУ № 1655 общеразвивающего типа

Херсонская, 36

1470,0

2117,0

0,9

0,84

+

Надстройка

3-го этажа над блоками с групповыми ячейками и 2-го этажа над хозблоком

22

ДОУ № 466 общеразвивающего типа

Ул. Обручева, 47

1470,0

894,0

0,9

0,84

+

Надстройка 2-го этажа над хозблоком

23

ДОУ № 2135

Профсоюзная ул., 34-2

796,0

285,6

0,4

0,28

+

Двухэтажный блок-пристройка

 

 




ГОСТЫ, СТРОИТЕЛЬНЫЕ и ТЕХНИЧЕСКИЕ НОРМАТИВЫ.
Некоммерческая онлайн система, содержащая все Российские Госты, национальные Стандарты и нормативы.
В Системе содержится более 150000 файлов нормативно-технической документации, действующей на территории РФ.
Система предназначена для широкого круга инженерно-технических специалистов.

Рейтинг@Mail.ru Яндекс цитирования

Copyright © www.gostrf.com, 2008 - 2026