Крупнейшая бесплатная информационно-справочная система онлайн доступа к полному собранию технических нормативно-правовых актов РФ. Огромная база технических нормативов (более 150 тысяч документов) и полное собрание национальных стандартов, аутентичное официальной базе Госстандарта. GOSTRF.com - это более 1 Терабайта бесплатной технической информации для всех пользователей интернета. Все электронные копии представленных здесь документов могут распространяться без каких-либо ограничений. Поощряется распространение информации с этого сайта на любых других ресурсах. Каждый человек имеет право на неограниченный доступ к этим документам! Каждый человек имеет право на знание требований, изложенных в данных нормативно-правовых актах!

  


 

ПРАВИТЕЛЬСТВО МОСКВЫ

МОСКОМАРХИТЕКТУРА

РЕКОМЕНДАЦИИ
по предотвращению
прогрессирующих обрушений
крупнопанельных зданий

1999

ПРЕДИСЛОВИЕ

1. РАЗРАБОТАНЫ: МНИИТЭП (инженеры Г.И. Шапиро, Ю.А. Эйсман) и НИЦ СтаДиО (к.т.н. Ю.М. Стругацкий - руководитель темы).

2. ПОДГОТОВЛЕНЫ к утверждению и изданию Управлением перспективного проектирования и нормативов Москомархитектуры (инженеры Ю.П. Ванян, Ю.Б. Щипанов).

3. СОГЛАСОВАНЫ: ЦНИИСК им. Кучеренко, ЦНИИЭП жилища.

4. УТВЕРЖДЕНЫ И ВВЕДЕНЫ В ДЕЙСТВИЕ Указанием Москомархитектуры от 24.08.1999 № 36.

СОДЕРЖАНИЕ

1. Основные положения. 1

2. Методика расчета панельных зданий на устойчивость против прогрессирующего обрушения. 2

3. Конструктивные требования. 6

Приложение 1 Методика расчета устойчивости против прогрессирующего обрушения панельных зданий перекрестно - стеновой системы.. 8

1. Методика расчета зданий с ненесущими продольными наружными стенами из легких небетонных материалов. 8

2. Методика расчета зданий с наружными стенами из бетонных или железобетонных панелей. 16

Приложение 2 Пример расчета здания серии пзм на устойчивость против прогрессирующего обрушения. 19

Список литературы.. 28

1. ОСНОВНЫЕ ПОЛОЖЕНИЯ.

1.1. Конструктивная система жилых панельных зданий должна быть защищена от прогрессирующего (цепного) обрушения в случае локального разрушения ее несущих конструкций при аварийных воздействиях, не предусмотренных условиями нормальной эксплуатации зданий (взрывы, пожары, ударные воздействия транспортных средств и т.п.). Это требование означает, что в случае аварийных воздействий допускаются локальные разрушения несущих конструкций (полное или частичное разрушение отдельных стен в пределах одного этажа и двух смежных осей здания), но эти первичные разрушения не должны приводить к обрушению или к разрушению конструкций, на которые передается нагрузка, ранее воспринимавшаяся элементами, поврежденными аварийным воздействием.

Конструктивная система здания должна обеспечивать его прочность и устойчивость в случае локального разрушения несущих конструкций, как минимум на время, необходимое для эвакуации людей. Перемещение конструкций и раскрытие в них трещин в рассматриваемой чрезвычайной ситуации не ограничивается.

1.2. При проектировании защиты панельных зданий от прогрессирующего обрушения следует выделять два типа неповрежденных конструктивных элементов. В элементах первого типа воздействия локальных разрушений не вызывают качественного изменения напряженного состояния, а приводят лишь к увеличению напряжений и усилий (неповрежденные стеновые диафрагмы и плиты перекрытий, не расположенные над локальным разрушением). В элементах второго типа (к ним относятся конструкции, потерявшие первоначальные опоры - стеновые панели и плиты перекрытий, расположенные над локальным разрушением) в рассматриваемом состоянии здания качественно меняется напряженное состояние.

В связи с тем, что элементы первого типа при нормальных эксплуатационных воздействиях подвергаются нагрузкам в два - три раза ниже разрушающих, основной задачей проектирования является обеспечение прочности и устойчивости стеновых панелей и плит перекрытий, потерявших опору в результате локального разрушения стен. Обеспечение устойчивости этих конструкций, которая зависит как от прочности самих зависших элементов, так и от прочности их связей между собой и с неповрежденными стенами, - основная задача защиты зданий от прогрессирующего обрушения.

1.3. Устойчивость здания против прогрессирующего обрушения следует обеспечивать наиболее экономичными средствами, не требующими повышения материалоемкости сборных элементов:

- рациональным конструктивно-планировочным решением здания с учетом возможности возникновения рассматриваемой аварийной ситуации; в частности, не рекомендуется применять внутренние отдельно стоящие стеновые пилоны, связанные с остальными вертикальными конструкциями только перекрытиями; применение отдельно стоящих наружных (торцевых) стен не допускается;

- конструктивными мерами, способствующими развитию в сборных элементах и их соединениях пластических деформаций при предельных нагрузках;

- рациональным решением системы конструктивных связей, отдельных узлов и элементов соединений и стыков панелей.

2. МЕТОДИКА РАСЧЕТА ПАНЕЛЬНЫХ ЗДАНИЙ НА УСТОЙЧИВОСТЬ ПРОТИВ ПРОГРЕССИРУЮЩЕГО ОБРУШЕНИЯ.

2.1. Устойчивость здания против прогрессирующего обрушения проверяется расчетом на особое сочетание нагрузок и воздействий, включающее постоянные и временные длительные нагрузки, а также воздействие гипотетических локальных разрушений несущих конструкций.

2.2. Постоянная и временная длительная нагрузка должна определяться по СНиП 2.01-07-85*. При этом коэффициенты сочетаний нагрузок и коэффициенты надежности по нагрузкам к постоянным и длительным нагрузкам следует принимать равными единице.

2.3. Воздействие локальных разрушений несущих конструкций учитывается тем, что расчетная модель конструктивной системы здания рассматривается в нескольких вариантах, каждый из которых соответствует одному из возможных локальных разрушений конструкций при аварийных воздействиях.

Для панельных жилых зданий в качестве расчетной схемы локального разрушения следует рассматривать разрушение (удаление) двух пересекающихся стен одного (любого) этажа на участках от их вертикального стыка (в частности, от угла здания) до ближайшего проема в каждой стене или до следующего вертикального стыка со стеной перпендикулярного направления.

Для оценки устойчивости здания против прогрессирующего обрушения разрешается рассматривать лишь наиболее опасные расчетные схемы разрушения:

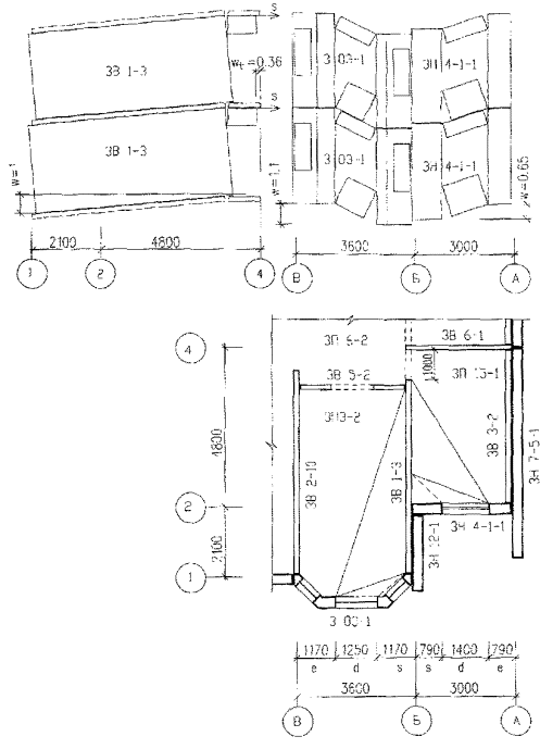
локальные разрушения, включающие разрушения наружных стен, ослабленных дверными проемами выходов на балконы и лоджии (схемы 1, 2, 3 на рис. 1);

локальные разрушения, включающие разрушения внутренних стен, слабо связанных с остальными вертикальными конструкциями из-за наличия дверных проемов (см. схемы 2, 4, 5 на рис. 1), из-за балочной разрезки большепролетных перекрытий (см. схемы 2, 4, 5 на рис. 1) или из-за частичного отсутствия связей через перекрытия (стены, примыкающие к лестничным клеткам; схема 4 на рис. 1).

2.4. При расчете панельных зданий на устойчивость против прогрессирующего обрушения нормативные сопротивления материалов принимаются в соответствии со СНиП 2.03.01-84* и СНиП II-23-81*. Расчетные характеристики сопротивления материалов, определяемые делением нормативных сопротивлений на коэффициенты надежности для бетонных и железобетонных конструкций повышают за счет использования коэффициентов надежности, указанных в таблице 1. Кроме того, расчетные сопротивления умножают на коэффициенты условий работы, учитывающие малую вероятность аварийных воздействий и интенсивный рост прочности бетона в первый период после возведения здания, а также возможность использования арматуры за пределом текучести материала.

Таблица 1.

Материал

Напряженное состояние или характеристика материала

Условное обозначение

Коэффициент надежности по материалу

Бетон

Сжатие

γb

1,15

Растяжение

γbt

1,25

Коэффициенты условий работы для бетона принимают по таблице 2, для арматуры всех классов вводится единый коэффициент γs=1,1.


Рис. 1. Фрагмент жилого дома


Таблица 2.

Факторы, обусловливающие введение коэффициентов

Условное обозначение

Коэффициент условий работы бетона

1. Конструкции бетонные

γb1

0,9

2. Нарастание прочности бетона во времени, кроме бетонов класса В50 и выше, бетонов на глиноземистом цементе, алюминатных и алитовых портландцементах

γb2

1,25

3. Элементы заводского изготовления (бетонные и железобетонные)

γb3

1,15

Расчетные сопротивления прокатной стали принимаются по СНиП II-23-81* с учетом допустимости работы пластичных сталей за пределом текучести. Коэффициент условий работы для пластичных сталей принимается равным 1,1.

2.5. Для расчета панельных зданий на устойчивость против прогрессирующего обрушения рекомендуется использовать пространственную расчетную модель в виде системы пластинок (с проемами или без проемов), соединенных между собой сосредоточенными связями, прочность которых эквивалентна прочности фактических связей между панелями (рис. 2а).

Такая модель должна включать элементы, которые при нормальных эксплуатационных условиях являются ненесущими, а при наличии локальных разрушений активно участвуют в перераспределении нагрузки: наружные навесные панели, монтажные связи и т.п. Модель здания должна быть рассчитана при всех выбранных в соответствии с рекомендациями п. 2.3 расчетных схемах локального разрушения конструкций.

Рис. 2. Расчетная модель здания с локальными разрушениями

1 - локальные разрушения

2.6. В случае обеспечения пластичной работы конструктивной системы в предельном состоянии расчет рекомендуется проводить кинематическим методом теории предельного равновесия. В этом случае допускается проверять устойчивость лишь элементов, расположенных над локальным разрушением, и расчет здания при каждой выбранной схеме локального разрушения сводится к следующей процедуре:

задаются наиболее вероятные механизмы прогрессирующего (вторичного) обрушения элементов здания, потерявших опору (задать механизм разрушения значит определить все разрушаемые связи и найти возможные обобщенные перемещения (wi) по направлению усилий в этих связях);

для каждого из выбранных механизмов прогрессирующего обрушения определяются прочности всех пластично разрушаемых связей (Si), находятся равнодействующие внешних сил, приложенных к отдельным звеньям механизма, то есть к отдельным неразрушаемым элементам или их частям (Gi), и перемещения по направлению их действия (ui);

определяются работы внутренних сил (W) и внешних нагрузок (U) на возможных перемещениях рассматриваемого механизма

;

и проверяется условие равновесия

.                                                                  (1)

Указанная расчетная процедура детально изложена в обязательном Приложении 1 и применима лишь при условии выполнения требований п. 3.2, 3.3 об обеспечении пластичной работы отдельных панелей и связей между ними в предельном состоянии. Если пластичность какой-либо связи не обеспечена, ее работа учитываться не должна (связь считается отсутствующей). Если таких связей и элементов, которые могут разрушаться хрупко, слишком много, и их формальное исключение слишком сильно уменьшает оценку сопротивления здания прогрессирующему обрушению, следует или обеспечить пластичность связей, или использовать другую - упругую расчетную модель здания (см. п. 2.7 и 2.8).

2.7. Упругая расчетная модель здания, как и упругопластическая, должна включать расчетное локальное разрушение и позволять учитывать изменившийся характер работы элементов, потерявших опору.

Полученные при упругом расчете усилия в отдельных элементах должны сравниваться с их расчетными несущими способностями. Устойчивость здания против прогрессирующего обрушения при этом будет обеспечена, если для любого элемента соблюдается условие FS, где F и S соответственно усилие в элементе, найденное из упругого расчета, и его расчетная несущая способность, найденная с учетом указаний п. 2.4.

2.8. Допускается вместо расчета на устойчивость против прогрессирующего обрушения рассчитывать здания на сейсмическое воздействие равное 6 баллам в соответствии со СНиП II-7-81*, принимая необходимые коэффициенты по экстрополяции. По результатам этого расчета должны быть запроектированы узлы и связи в соответствии со СНиП 2.03.01-84* и СНиП II-23-81*.

3. КОНСТРУКТИВНЫЕ ТРЕБОВАНИЯ.

3.1. Для защиты крупнопанельных зданий от прогрессирующего обрушения связи между сборными элементами, устанавливаемые по расчету на нормальные эксплуатационные или монтажные нагрузки или по конструктивным соображениям, следует проектировать с учетом возможности аварийных локальных разрушений. Для эффективного решения проблемы защиты крупнопанельных зданий от прогрессирующего обрушения с учетом всех задач проектирования при нормальных эксплуатационных и монтажных условиях наиболее предпочтительна следующая система связей:

- горизонтальные продольные и поперечные связи между плитами перекрытий, обеспечивающие необходимую прочность дисков перекрытий при растяжении и сдвиге;

- вертикальные (междуэтажные) связи между несущими стеновыми панелями одного стенового пилона, обеспечивающие необходимую прочность горизонтальных стыков стен и перекрытий при растяжении и сдвиге;

- горизонтальные связи между навесными наружными стенами и дисками перекрытий, обеспечивающие устойчивость и работу на ветровые и температурные воздействия навесных стеновых панелей.

В оптимальную систему связей не включены обычно применяемые как монтажные горизонтальные связи между стеновыми панелями одного этажа; эти связи не всегда осуществимы (возможность их постановки зависит от планировочных решений здания) и, как правило, малоэффективны в условиях, отличных от монтажных;

тем не менее, при использовании этих связей их необходимо конструировать так, чтобы их сопротивление прогрессирующему обрушению было максимальным, т.е. в соответствии с требованиями п. 3.2.

3.2. Эффективная работа связей, препятствующих прогрессирующему обрушению, возможна лишь при обеспечении их пластичности в предельном состоянии:

необходимо, чтобы после исчерпания несущей способности связь не выключалась из работы и допускала без разрушения сравнительно большие абсолютные деформации (порядка нескольких миллиметров).

Для обеспечения пластичности соединений сборных элементов их конструктивные решения должны включать специальные пластичные элементы, выполненные из пластичной листовой или арматурной стали.

Растянутая линейная связь между сборными элементами, как правило, представляет цепочку последовательно соединенных элементов - анкер закладной детали, закладная деталь, собственно связь, закладная деталь второго элемента и ее анкер. В силу случайной изменчивости сопротивлений отдельных элементов этой цепи и их соединений предельное состояние всего стыка определяется слабейшим звеном. Соответственно реальная пластичность всего соединения зависит от того, какой элемент окажется слабейшим:

если произойдет выкалывание бетона, в котором анкеруется закладная деталь, то разрушение будет носить хрупкий характер с весьма незначительными абсолютными деформациями, предшествующими выключению связи из работы (рис. 3,а);

если разрушится одно из сварных соединений, то, хотя при качественной сварке пластичность и проявится, в силу малой протяженности самого разрушаемого звена абсолютные деформации, предшествующие выключению связи из работы, будут сравнительно невелики (рис. 3,б);

только в том случае, когда слабейшим звеном соединения окажется собственно металлическая связь, все соединение проявит максимально возможные пластические свойства (рис. 3,в).

Рис. 3. Диаграмма деформирования растянутой линейной связи при разрушении различных ее элементов

а - при выкалывании анкерующего бетона; б - при разрушении сварных соединений; в - при разрушении листовой или стержневой связи

Соединения сборных элементов, препятствующие прогрессирующему обрушению панельных зданий, должны проектироваться неравнопрочными, при этом элемент, предельное состояние которого обеспечивает наибольшие пластические деформации соединения, должен быть наименее прочным.

Для выполнения этого условия рекомендуется рассчитать все элементы соединения, кроме наиболее пластичного, на усилие в 1,5 раза превышающее несущую способность пластичного элемента, например, анкеровку закладных деталей и сварные соединения рекомендуется рассчитывать на усилие в 1,5 раза большее, чем несущая способность самой связи. При этом несущую способность связи следует определять в соответствии со СНиП II-23-81 * по формуле

при , . Необходимо особо следить за фактическим точным исполнением проектных решений пластичных элементов, замена их более прочными недопустима.

3.3. Эффективность сопротивления прогрессирующему обрушению здания требует пластичной работы в предельном состоянии не только связей, но и других конструктивных элементов. В частности необходимо:

надпроемные перемычки, работающие как связи сдвига, проектировать так, чтобы они разрушались от изгиба, а не от действия поперечной силы;

шпоночные соединения проектировать так, чтобы прочность отдельных шпонок на срез была в 1,5 раза больше их прочности при смятии.

3.4. Сечение всех перечисленных в п. 3.1 типов связей должно определяться расчетом на эксплуатационные, монтажные или рассматриваемые здесь аварийные воздействия, но не менее требуемых для обеспечения восприятия растягивающих усилий следующих величин:

для горизонтальных связей, расположенных в перекрытиях вдоль длины протяженного в плане здания, - 15 кН (1,5 тc) на 1 м ширины здания;

для горизонтальных связей, расположенных в перекрытиях перпендикулярно длине протяженного в плане здания, а также для горизонтальных связей в зданиях с компактным планом - 10 кН (1,0 тс) на 1 м длины здания; для горизонтальных связей между бетонными и железобетонными навесными наружными панелями с дисками перекрытий - не менее 10 кН (1 тс) на 1 м длины стены;

для вертикальных междуэтажных связей, оптимальное конструктивное решение которых предусматривает использование деталей для подъема панелей (подъемные петли, штыри и т.п.) - не менее, чем прочность соответствующей детали для подъема;

при других конструктивных решениях не менее 25 кН (2,5 тс) на 1 м ширины стены.

ПРИЛОЖЕНИЕ 1 (обязательное)

МЕТОДИКА РАСЧЕТА УСТОЙЧИВОСТИ ПРОТИВ ПРОГРЕССИРУЮЩЕГО ОБРУШЕНИЯ ПАНЕЛЬНЫХ ЗДАНИЙ ПЕРЕКРЕСТНО - СТЕНОВОЙ СИСТЕМЫ

1. Методика расчета зданий с ненесущими продольными наружными стенами из легких небетонных материалов

1. Для зданий с несущими поперечными и внутренними продольными стенами и ненесущими небетонными продольными наружными стенами опасность локального разрушения определяется лишь его расположением на плане здания и не зависит от расположения по его высоте. Наиболее опасными и, следовательно, расчетными локальными разрушениями являются:

разрушение панели торцевой поперечной стены, примыкающей к углу здания;

разрушение панели внутренней поперечной стены, несущей нагрузку от навесных лоджий или балконов и притом ослабленной дверными проемами.

Количество расчетных локальных разрушений указанных типов в каждом конкретном случае определяется индивидуально в зависимости от особенностей плана здания и принятых конструктивных решений. При унифицированном решении сборных элементов и связей между ними и относительно простом плане здания можно ограничиться рассмотрением двух-трех опасных локальных разрушений.

При каждом выбранном локальном разрушении необходимо рассмотреть все указанные в пп. 2 - 5 механизмы прогрессирующего обрушения и проверить условие равновесия

WU,                                                                  (1)

где W, V - соответственно работы внутренних сил (Si) и внешних нагрузок (Gi) на возможных перемещениях рассматриваемого механизма:

;.

2. Первый механизм прогрессирующего обрушения характеризуется одновременным поступательным смещением вниз всех стеновых панелей (или отдельных их частей), расположенных над локальным разрушением (рис. 4). Такое смещение возможно при разрушении связей сдвига между продольными и поперечными стенами (рис. 4,а) или при разрушении надпроемных перемычек и плит перекрытий (рис. 4,б,в).


Рис. 4. Вариант механизма прогрессирующего разрушения I типа


При оценке возможности одновременного обрушения конструкций всех этажей условие равновесия (1) заменяется условием

,                                                               (2)

где Wf и Uf - соответственно работа внутренних и внешних сил на перемещениях элементов одного этажа; этажи разделяются нижней поверхностью перекрытия, которое относится к этажу, расположенному над перекрытием.

Если плиты перекрытий не заведены в продольные несущие стены, обрушению препятствуют лишь связи сдвига между панелями разрушенной поперечной стены и продольной стены (рис. 4,а). В этом случае условие равновесия (2) эквивалентно требованию

,                         (3)

где S1 - прочность связей сдвига в вертикальном стыке между продольными и поперечными стенами; Gw,in Gl - соответственно вес панели поперечной стены и приходящаяся на нее нагрузка от лоджии;  - соответственно веса панелей наружных стен, примыкающих с двух сторон к разрушенной поперечной стене; - равномерно распределенная нагрузка на плиты перекрытия;  - размеры плит перекрытий, опирающихся на разрушенную стену.

Если плиты перекрытия заведены в продольные и поперечные стены (платформенные стыки), то они образуют между ними практически неразрушимую связь сдвига. В этом случае рассматриваются лишь такие разновидности механизма обрушения I типа, которые возможны при ослаблении поперечной стены проемами (см. рис. 4,б,в). При этом условие (2) принимает вид

,                                             (4)

где  - соответственно работа внутренних и внешних сил на перемещениях отдельных частей панели внутренней стены;  - соответственно работа внутренних и внешних сил, приложенных к плитам перекрытий;  - работа внешних сил, приложенных к наружным панелям.

Работа  определяется сопротивлением изгибу над- и подпроемных перемычек и в общем случае определяется соотношением

,                                          (5)

где  - соответственно прочности при изгибе левого и правого опорных сечений верхней и нижней перемычек, а b - пролет перемычек.

Если поперечная стена отделена от продольной дверным проемом и связь между ними отсутствует, то  Если связь между поперечной и продольной стеной осуществляется перемычкой - «флажком» (см. рис. 4,в), то прочность опорного сечения () определяется прочностью горизонтальной линейной связи (S2) при этом прочность сдвиговой связи в соответствии с рекомендациями п. 4 должна удовлетворять условию

,                                                        (6)

Работа  определяется весом обрушающейся части панели внутренней стены aGw,in, (где Gw,in - вес всей панели, 0 < а < 1) и приложенной к ней вертикальной нагрузкой от навесной лоджии (Gl)

                                                    (7)

Работа внешних и внутренних сил, приложенных к плитам перекрытий, первоначально опертых по трем сторонам, определяется их пластическим изломом по схеме, показанной на рис. 4,б,в, и вычисляется по формулам

; ,                                         (8)

где

;                                             (9)

li , Li - пролет i-й плиты в направлении продольных стен и пролет в поперечном для здания направлении;   - изгибающие моменты, воспринимаемые i-той плитой перекрытия при ее изгибе по балочной схеме соответственно вдоль пролетов li и Li при растяжении нижних волокон (верхних волокон); t - ширина дверного проема во внутренней стене (см. рис. 4,б,в); f - привязка проема к внутреннему торцу.

Если перекрытие выполнено из балочных плит, то в неравенстве (9) принимается

; .                                      (10)

Работа сил, обусловленных весом наружных панелей, примыкающих к поврежденной стене слева и справа (и G"w,ex), приблизительно вычисляется так:

.                                         (11)

Выполнение требования (4) является необходимым условием предотвращения прогрессирующего обрушения здания, при сравнительно небольших перемещениях (менее 10 см) конструкций, потерявших опору. Если оно выполнено, следует перейти к проверке дополнительных условий, изложенных в пп. 3 - 5. Если же условие (4) не соблюдается, возможны два варианта:

первый - усилением (или перераспределением) арматуры перемычек внутренних стен и плит перекрытий добиться его выполнения;

второй - перейти к другим конструктивным способам защиты от прогрессирующего обрушения, допускающим очень большие перемещения (десятки сантиметров) элементов, потерявших опору и требующих соответственно выполнять расчет по деформированной схеме (см. п. 6).

3. Механизм прогрессирующего обрушения второго типа характеризуется одновременным поворотом каждой стеновой панели, расположенной над локальным разрушением, вокруг своего центра вращения (рис. 5). Такое смещение требует разрушения растянутых связей этих панелей с неповрежденной стеной (S2 на рис. 5а), разрушения связей сдвига стеновых панелей с плитами перекрытий в горизонтальных стыках (S3 на рис. 5) и пластического излома плит перекрытий, первоначально опертых по трем сторонам, по схеме, приведенной на рис. 5, г. В рассматриваемом случае условие (2) принимает вид

,                                        (12)

где  - то же, что и величины  в (4), a  - работа сил сопротивления связей (S2 и S3) стеновых панелей, потерявших опору, с неповрежденными конструкциями. Отдельные слагаемые из (12) вычисляются следующим образом:

;                                                    (13)

.                                                   (14)

где y2, h, x - расстояния от центра вращения до линии действия усилий S2 и S3 и силы тяжести Gw,in (см. рис. 5);

 - вычисляются по формулам (8) при соответствующей замене верхнего индекса, причем

; .                                (15)

Рис. 5. Механизм прогрессирующего разрушения II типа

Здесь все величины имеют тот же смысл, что и в формуле (9); величина  вычисляется по формуле (11).

Выполнения условия (12) следует добиваться прежде всего за счет увеличения связей сдвига (S3) так как увеличение прочности растянутой связи (S2) не всегда возможно (рис. 5,б), а иногда и нецелесообразно: если к продольной стене прикрепляется поперечная стена лишь с одной стороны, то для учета этой связи в расчете необходимо оценить прочность продольной стены на изгиб из ее плоскости (см. рис. 5,в).

4. Помимо условий необрушения (4) и (12) необходимо оценить возможность обрушения лишь одних плит перекрытий, расположенных непосредственно над выбитой панелью поперечной стены и первоначально опертых по трем сторонам (третий механизм).

Для того, чтобы эти плиты не обрушивались, достаточно выполнить условие

,                                              (16)

где S4, - прочность сдвиговой связи между навесной панелью и поперечной стеной (рис. 6); в формуле (16) S4 принимается по расчету, но не более величины Uw,ex

Если соотношение (16) не выполняется, это значит, что плиты необходимо прикрепить к вышерасположенной поперечной стене связями, воспринимающими растяжение (рис. 6). Тогда условие (16) заменяется следующим:

,                                      (17)

где  - работа сил растяжения связей S5. Эта работа вычисляется по формуле

,                                                        (18)

п - число связей; x5 - координата, определяемая линией действия равнодействующей реакции рассматриваемых связей в предположении, что все они достигли своего предельного значения - S5

Рис 6. Схема обрушения плит перекрытий

Если перекрытия выполнены из балочных плит, условие (16) не выполняется (), поэтому в этом случае постановка связей рассматриваемого типа обязательна. При этом их прочность определяется величиной опорных реакций каждой балочной плиты.

5. Четвертый механизм обрушения предусматривает перемещения конструкций лишь одного этажа, расположенного непосредственно над выбитой панелью поперечной стены (рис. 7). Этот механизм предполагает сочетание поступательного перемещения поперечной стены (как в первом механизме) с изломом плит, характерным для второго механизма (см. рис. 5,в, г). Такой механизм возможен лишь при ослаблении поперечной стены дверными или оконными проемами.

Условие невозможности образования механизма рассматриваемого типа

,          (19)

где  - работа сил растяжения вертикальных связей типа S6, и S5;

,                                        (20)

где k - число связей шестого типа; S6, S5 - предельные усилия в связях шестого и пятого типа; w, - перемещения по направлению 1-й связи пятого типа, они определяются как разность перемещений точки прикрепления связи к плите и точки прикрепления связи к панели поперечной стены.

Если при отсутствии связей шестого типа (S6=0) условие (19) не выполняется, не рекомендуется добиваться его выполнения за счет усиления связей пятого типа - это неэкономично, поскольку эти связи, как следует из уравнения (20), работают неравномерно. В этом случае наиболее рациональное решение - поставить связи шестого типа и образовать междуэтажные связи.

6. Если при локальном разрушении внутренней поперечной стены не удается обеспечить выполнение условия (4), то есть не удается предотвратить прогрессирующее обрушение по первой схеме (см. рис. 4), рекомендуется специальными связями плит перекрытий обеспечить их эффективное сопротивление прогрессирующему обрушению при больших прогибах как элементов висячей системы (рис. 8). Такой прием обычно оказывается целесообразен и необходим при локальном разрушении поперечной стены, значительно удаленной от остальных несущих стен и связанной с ними только балочными плитами перекрытий или слабоармированными большепролетными плитами, первоначально опертыми по трем сторонам.

Рис. 7. Схема обрушения конструкций одного этажа

Рис. 8. Работа плит перекрытий как элементов висячей системы

Требования, которым должны удовлетворять связи и плиты, образующие висячую систему, вытекают из расчета по деформированной схеме (см. рис. 8,б): цепь последовательно соединенных элементов (связь - плита - связь - плита - связь) должна включать очень пластичное звено, которое обеспечивало бы общее удлинение цепи порядка нескольких процентов (естественно, при этом в плитах допускаются какие угодно трещины). Для выполнения этого условия необходимо, чтобы

,

,

где G - погонная нагрузка, приходящаяся на разрушенную стену с каждого этажа

,                                                 (21)

N - погонная несущая способность слабейшего звена висячей цепи; ε- расчетное относительное удлинение плиты с меньшим пролетом (точнее относительное увеличение расстояния между точками стыковки этой плиты с другими плитами); w - прогиб, при котором достигается равновесие; lmin, lmax - соответственно минимальный и максимальный пролеты.

Соотношения (21) получены из предположения, что в силу случайной изменчивости сопротивлений материалов максимальное возможное удлинение реализуется лишь в одной плите. Таким образом, в случае lmin=lmax= l при ε=4÷6% из формулы (21) следует, что N=(2÷2,5)G и w=(2÷0,25)l.

Максимально возможное относительное удлинение плиты существенно зависит от конструктивного решения ее арматуры и связей между плитами, от соотношения прочностей отдельных элементов, от их пластичности, от прочности соединения этих элементов; теоретически определить эту величину в общем случае не удается и поэтому каждое конкретное конструктивное решение рекомендуется оценивать экспериментально.

2. Методика расчета зданий с наружными стенами из бетонных или железобетонных панелей

7. Для расчета зданий с железобетонными наружными стенами следует использовать те же основные типы механизмов прогрессирующего обрушения, что и для зданий с ненесущими наружными стенами из легких небетонных материалов. При этом однако необходимо учитывать, что для образования этих механизмов требуется разрушение не только внутренних стеновых панелей и плит перекрытий, но и наружных стеновых панелей, которые в рассматриваемом случае обязательно включаются в работу, даже если они запроектированы навесными.

Наружные стеновые панели с проемом, независимо от типа механизма общего прогрессирующего обрушения, работают на перекос как прямоугольные рамы (рис. 9). При этом, если плиты перекрытий заведены в наружные стены, то они тоже вовлекаются в работу, и характер их разрушения меняется - к основным пластическим шарнирам, показанным на рис. 4 и 5, добавляются шарниры, связанные с изломом внешнего края плиты (рис. 10). При проверке возможности обрушения одних плит перекрытий (см. п. 10) этих шарниров нет.

Для того, чтобы учесть сопротивление наружных стен прогрессирующему обрушению и связанное с ними дополнительное сопротивление плит перекрытий, нужно вычислить работу соответствующих внутренних сил (Ww,ex) по п. 14 и использовать ее при проверке условий равновесия, указанных в п. 15.

8. Для того, чтобы учесть сопротивление наружной стены прогрессирующему обрушению, нужно вычислить работу внутренних сил при разрушении панелей наружных стен типового этажа (Ww,ex) Поскольку при локальном разрушении внутренней стены прогрессирующему обрушению на каждом этаже сопротивляются две панели наружной стены (или одна двухмодульная), величина Ww,ex в общем случае рассматривается как сумма слагаемых

.                                                (22)

Величина работы , (W"w,ex) зависит от соотношения геометрических размеров панели и армирования ее перемычек и простенков, а также от наличия в ней проема для балконной двери. В общем случае любую наружную панель можно рассматривать как раму, разрушающуюся вследствие образования в ней четырех пластических шарниров (см. рис. 9, б, в), так что

.                      (23)

При этом предельные изгибающие моменты, действующие в угловых шарнирах (например,  - в левом верхнем углу), определяют как наименьшую из двух величин несущих способностей по изгибу перемычки и простенка, образующих этот угол.

Рис. 9. Работа элементов наружных стен

Рис. 10. Работа плит перекрытий в зданиях с железобетонными наружными стенами

В случае локального разрушения поперечной стены, примыкающей к углу здания, панель наружной стены может разрушиться по схеме поворота жесткого диска (см. рис. 9,а); при этом работа внутренних сил будет определяться прочностью сдвиговой связи этой панели с вышележащим перекрытием (V) и растянутой связи с соседней фасадной панелью (S)

                                                          (24)

Из двух возможных значений Wwx, определенных по формулам (23) и (24), в дальнейших расчетах учитывается меньшее.

9. Для учета сопротивления наружной стены прогрессирующему обрушению прежде всего необходимо убедиться в том, что она «несет сама себя», то есть проверить условие

>0,                                                     (25)

в котором работа внешних сил Uw,ex определяется по формуле (11).

В тех случаях, когда условие (25) не выполняется (Rw.ex<0), весь дальнейший расчет проводится точно так же, как для зданий с продольными ненесущими стенами из легких небетонных материалов - по рекомендациям пп. 2÷5 с той лишь разницей, что во всех соотношениях работа Uw,ex заменяется величиной Rw,ех. Если же условие (25) выполняется, то дальнейший расчет определяется конструктивным решением сопряжения плит перекрытий и наружной продольной стены.

Если плиты перекрытия не заведены в наружную стену, необходимо, чтобы прочность соединения внутренней панели поперечной стены и панелей наружных стен при их взаимном сдвиге (S4) удовлетворяла условию

S4w³R.                                                              (26)

В этом случае проверка возможности прогрессирующего обрушения проводится последовательно по рекомендациям пп. 8 - 11 со следующими незначительными изменениями:

в соотношениях (4) и (12) работа Uw,ex заменяется величиной - Rw,ex

в формулах (16), (17) принимается, что Uw,ex=S4ww,ex;

в формуле (19) при этом принимается: Uw,ex-S4(ww,ex-ww,in)=-Rw,ex.

Если плиты перекрытий заведены в наружную стену, то сдвиговая связь между внутренней поперечной и продольной наружной стенами может не ставиться (S4=0), и для оценки защиты здания от прогрессирующего обрушения проверяются лишь условия (4) и (12) при

Uw,ex,i=-Rw,ex,i-Wp,bor,i,                                                (27)

где Wp,bor,i - дополнительная работа плит перекрытий, связанная с изломом их внешнего края, заведенного в наружную стену; эта работа зависит от типа рассматриваемого механизма прогрессирующего обрушения.

Сопротивление внешнего края плиты перекрытия, заведенного в наружные стены, создает дополнительную работу внутренних сил, вычисляемую для механизма обрушения первого типа (см. рис. 10,а) для i-й плиты

,                        (28)

где еi, di, si, - привязки краевых шарниров в плите, а остальные величины те же, что в формуле (9).

Для механизма обрушения второго типа

.       (29)

При использовании формулы (27) следует помнить, что она применима только при Rw,ex>0, то есть при

<0.

При проверке невозможности обрушения одних лишь плит перекрытий по формулам (16), формуле (17) принимать

В формуле (19) при этом принимается:

если S7w>Rw,ex, то ;                                       (30)

если , то , ,

где s7 несущая способность связи растяжения между наружной стеной и перекрытием.

ПРИЛОЖЕНИЕ 2

Пример расчета здания серии ПЗМ на устойчивость против прогрессирующего обрушения.

1. Исходные данные.

Проект разработан Мастерской № 3 МНИИТЭП. Конструктивная система здания - поперечно-стеновая (рис. 11). Высота этажа hf=280 см. Наружные стены толщиной 32,5 см трехслойные железобетонные двухмодульные и одномодульные; внутренние стены толщиной 18 см и 14 см из тяжелого бетона В22,5. Плиты перекрытий сплошные толщиной 14 см из тяжелого бетона В22,5, армированного нижней сеткой и каркасами. Конструкции сборных элементов приняты по альбомам, указанным в таблице 1.

Исходные данные по сборным элементам

Таблица 1.

Марка изделия

Альбом

Стр.

Габариты,

см

Масса,

кН

Бетон

Наружные стены

3Н 4-11

3РС41-21

56 - 58

298´32,5´262

20,6

В15

3Н 1-19

3РС41-21

18 - 25

698´37,5´286

54,1

В15

3Н 4-1-1

3РС41-21

119 - 125

298´37,5´286

30,9

В15

3Н 6-1-1

3РС41-21

100 - 105

692´37,5´286

59,9

В15

3Н 7-5-1

3РС41-21

114 - 118

633´37,5´286

69,2

В15

3Н 10-2

3РС41-21

70 - 72

313´32,5´262

28,6

В15

3Н 12-1

3РС41-21

85 - 87

230´32,5´286

24,1

В15

Объемный эркер

ОЭ 1

3РС43-13

10, 11, 26, 28, 29

358´106´278

37,7

к/б В7,5

Плиты перекрытия

3П1-1

3РС53-13

24, 25

358´598´14

74,5

В22,5

3П2-2

3РС53-13

38, 39

298´628´14

62,3

В22,5

3П15-1

3РС53-13

26, 27

318´478´14

52,8

В22,5

3П15-2-1

3РС53-13

28, 29

318´478´14

52,8

В22,5

3П16-1

3РС53-13

46, 47

358´568´14

68,3

В22.5

3ПЭ2

3РС53-13

55, 56

358´637´14

74,5

В22,5

3ПД-1

3РС53-13

59 - 61

358´98´37,5

8,6

В22,5

Внутренние стены

3В 1-1

3РС31-11

22, 23

672´263´18

68,2

В22,5

3В1-3

3РС31-11

24, 25

672´263´18

68,2

В22,5

3В2-3

3РС31-11

26, 27

612´263´18

61,7

В22,5

3В2-4

3РС31-11

28 - 32

612´263´18

61,7

В22,5

3В2-10

3РС31-11

16, 17

612´263´18

69,6

В22,5

3В3-2

3РС31-11

18, 19

462´263´18

52,6

В22,5

Объемный балкон

3ОБ 10-2

3РС45-11

 

400´206´122

35,5

В22,5

Плиты и ограждения лоджий

3ПЛ11-2

3РС45-12

-

290´135´18

16,0

В22,5

3Б02

3РС45-12

-

142´10´94

2,8

В22,5

Нормативные нагрузки на перекрытия: постоянная нагрузка g=3,85 кН/м2 длительная часть временной нагрузки ql=0,3 кН/м2.

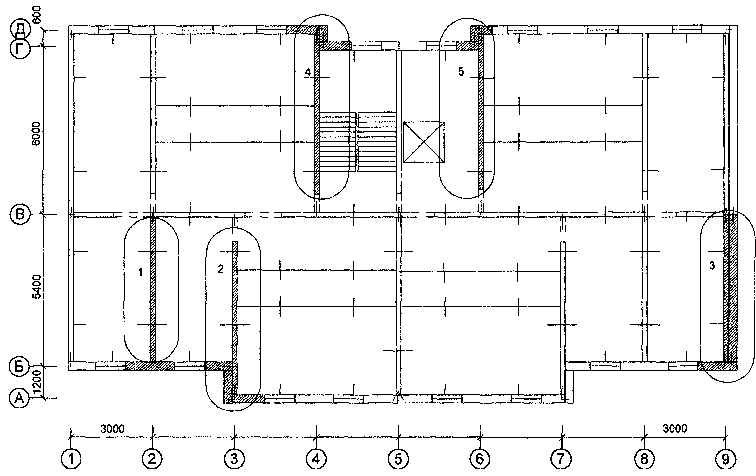
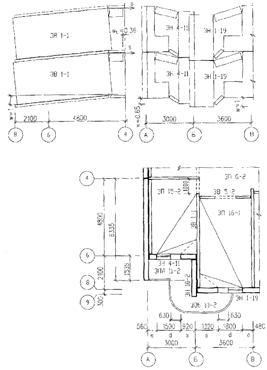
Всего q=(g + ql)=4,15 кН/м2. Нормативная нагрузка на лоджии ql=0,3 кН/м2 Расчет производится по Приложению 1. Несущие способности элементов определяют по СНиП 2.03.01- 84*. Наиболее опасные случаи расположения гипотетических локальных разрушений на плане здания в соответствии с п. 7 показаны на рис. 11. Здесь для примера рассмотрены схемы разрушений №1 - № 4.

Рис. 11 Фрагмент жилого дома ПЗМ.

2. Расчет несущей способности отдельных сечений конструктивных элементов.

2.1. Панели наружных стен.

Расчетное сопротивление материалов определяют по указаниям п. 3 Приложения 1.

Бетон: Rb=Rbngb2gb3/gb=11´1,25´1,15/1,15=13,75;

Rbt=Rbt,ngb2gb3/gbt=1,15 х 1,25 s 1,15 /1,25=1,44 МПа

Арматура Æ8 мм класса A-111 Rs= 390´1,1/1,05=408 МПа.

Несущая способность по изгибу верхней и нижних (под окном и под дверным проемом) перемычек определяется по СНиП 2.03.01-84*. Проверка невозможности хрупкого разрушения элементов наружной панели производится в соответствии с требованиями п. 51. Условие прочности выполняется.

Несущая способность по изгибу простенков заведомо больше, чем перемычек. Проверка прочности простенков по поперечной силе дает удовлетворительные результаты1.

Предельные изгибающие моменты, действующие в угловых шарнирах рамы наружных панелей принимаются из расчета перемычек по изгибу и представлены в таблице 2.

1Численная реализация расчета здесь не приводится

2.2. Внутренние стены

Расчетное сопротивление материалов:

Бетон: Rb=20,9 МПа;

Арматура Æ10 А-111 Rs= 408 Мпа, Æ5 BI Rs= 408 Мпа.

Несущая способность по изгибу надпроемных перемычек приведена в таблице 2.

Несущая способность перемычек стеновых панелей

Таблица 2.

Панель

Несущая способность перемычек, кН × м

Ширина проема

верхней

под окном

под дверью

окно

окно + дверь

М'sup

М"sup

М´inf

М"inf

M'inf

М"inf

см

см

Наружные стены

3Н 4-11

14,6

14,6

-

-

3,1

3,1

 

87+63

3Н 1-19

14,6

14,6

11,2

11,2

3,1

3,1

170

117+63

3Н 6-1-1

14,6

14,6

11,2

11,2

-

-

140

-

3Н 7-5-1

-

-

 

-

-

-

-

-

3Н 4-1-1

14,6

14,6

11,2

11,2

-

-

140

-

3ОЭ 1-1

2,9

25,7

32,6

32,6

-

-

125

-

Внутренние стены

3В2-4

62,3

31,1

-

-

-

-

-

 

3В 1-3

63,2

31,1

-

-

-

-

-

 

2.3. Несущая способность сечений плит перекрытия.

Плиты перекрытий железобетонные размером на комнату, Запроектированные на работу при опирании по трем сторонам. Для каждой плиты рассматриваются две зоны армирования: основное поле и краевая зона. Несущая способность их сечений по изгибу при растяжении нижних (верхних) волокон при изгибе вдоль короткой l и длинной L стороны m11´) и т22´) определяется по СНиП 2.03.01-84* и приведена в таблице 3.

Несущая способность плит перекрытий по изгибу, кН м / м

Таблица 3.

Плита

Основное поле

Краевая зона

Изгиб вдоль l

Изгиб вдоль L

Изгиб вдоль l

Изгиб вдоль L

m1

т1´

т2

т2´

m1

т1´

т2

т2´

3П 15-2

11,2

0

3,73

1,9

34,1

0

3,73

1,9

3П 1-1

8,4

0

3,5

1,9

8,4

0

3,5

1,9

3П 2-2

8,4

0,9

3,73

1,9

8,4

1,8

3,5

1,9

3П 16-1

7,4

0

3,7

1,9

7,4

0

9,5

2,4

3ПЭ-2

7,4

0

3,7

3,8

35,6

10,7

13,4

28,1

3П15-1

11,2

0

3,73

1,9

34,1

0

3,73

1,9

т - изгиб с растяжением нижних волокон;

т" - изгиб с растяжением верхних волокон.

Несущие способности по изгибу плиты лоджии и объемного балкона представлены в таблице 4.

Несущая способность плиты лоджии и объемного балкона

Таблица 4.

 

Единица измерения

Изгиб вдоль l

М1b)

М'1(М'b)

3ПЛ 11-2

кНм

6,0

15,3

3ОБ 10-2

кН м

83,0

70,0

М - изгиб с растяжением нижних волокон;

М' - изгиб с растяжением верхних волокон.

Используя данные таблицы 3 по формулам п. 2 обязательного Приложения вычислялась величина работы внутренних сил на перемещениях плит перекрытий Wp в зависимости от их несущих способностей, геометрических характеристик примыкающих стеновых панелей и вида механизма прогрессирующего обрушения. Необходимые для этого характеристики, применяемые формулы и результаты расчета приведены в таблице 5

В таблице 6 вычисляется работа внешних сил на перемещениях плит перекрытий Up.

Работа внутренних сил плит перекрытий

Таблица 5.

Плита

Схема

Механизм обрушения

Геометрические характеристики

Перемещения

Работа

L

l

е

d

s

t

w

Wp

Wp,bor

W

 

 

 

м

м

м

м

м

м

 

кН

кН

кН

3П 15-2

1

2

4,8

3,0

 

 

 

 

0,76

0,90

0

0,90

3П 1-1

2

1

6,0

3,6

0,9

1,7

1,0

0,88

1

24,14

9,51

33,66

3П 2-2

2

1

6,0

3,0

0,95

1,4

0,65

0,88

1

20,87

11,40

32,27

3П 1-1

2

2

6,0

3,6

0,9

1,7

1,0

0,88

1

0,86

9,73

10,59

3П 2-2

2

2

6,0.

3,0

0,95

1,4

0,65

0,88

1

3,28

9,11

12,39

3П 15-2

3

2

4,8

3,0

0,56

1,50

0,92

1,0

0,8

0,77

16,80

17,57

3П 16-1

3

2

6,0

3,6

0,48

1,80

1,32

0

1,0

0,99

16,36

17,35

3ПЭ-2

4

2

6,7

3,6

1,17

1,25

1,17

0

1,1

1,52

116,11

117,63

3П 15-1

4

2

4,8

3,0

0,79

1,40

0,79

1,0

0,8

0,88

127,97

128,85

Механизм обрушения первого типа:

Основное поле Wp= w[tm1/l+(m2'l+m2l)/t];

краевая зона:

.

Механизм обрушения второго типа:

основное поле: для схем 1, 3, 4                      w (m'1L + т2'l) /l L;

для схемы 2:                                                      w[Lm1'/(l-e)+(l-e)m2'/L];

краевая зона w{m1'х(ls2 + eLd)/ld(l-e)+m2'[(l-e)/d-e/L]+s/d(m1+m2)}.

Определение работы внешних сил на перемещениях плит перекрытия (Upi)

Таблица 6.

Схема

Механизм

Плита

Формула

q

L

l

d+s

t

f

и

U

 

 

 

 

кН/м2

м

м

м

м

м

 

кН

1

II

3П 15-2

qLlu/6

4,15

4,8

3

-

-

-

0,76

7,57

2

I

3П 1-1

ql(L-2t/3-f)/2

4,15

6

3,6

-

0,88

0,76

1

34,76

 

 

3П 2-2

ql(L-2t/3-f)/2

4,15

6

3

-

0,88

0,76

1

28,97

2

II

3П 1-1

qL(d+s)u/6

4,15

6

-

2,7

-

-

1

11,21

 

 

3П 2-2

qL(d+s)u/6

4,15

6

-

2,05

-

-

1

8,51

3

II

3П 15-2

q(L-t)(d+s)u/6

4,15

4,8

-

2,42

1

-

0,65

4,13

 

 

3П 16-1

qL(d+s)u/6

4,15

5,9

-

3,12

-

-

1

12,73

4

II

3ПЭ-2

qL(d+s)u/6

4,15

6,7

-

2,09

-

-

1,1

10,65

 

 

3П 15-1

q(L-t)(d+s)u/6

4,15

4,8

-

2,2

1

-

0,65

3,76

2.4 Несущая способность связей.

В настоящее время практически во всех типовых проектах используются связи для восприятия монтажных нагрузок. Связь, представляющая собой цепочку: анкер первого элемента, заделанный в бетон; приварка анкера к пластине (штампованной) закладной детали; сварные швы, соединяющие накладку с закладной деталью; накладка; сварные швы, соединяющие накладку со второй закладной деталью; приварка анкеров к пластине этой закладной детали, анкер второго элемента.

Анализ конструкции узлов выполнен по альбому «3НДС, часть III, Железобетонные конструкции надземной части здания. Детали узлов. М., 1996 г.» Монтажные накладки имеют сечение не менее 40×6 мм, несущая способность такой накладки по растяжению в расчетах на прогрессирующее обрушение N=62 кН. Приварка накладки осуществляется двумя сварными швами с катетом 6 мм, L=60 мм. Несущая способность швов до N=63,0 кН.

Несущая способность анкеровки закладных деталей в бетоне для принятых конструктивных решений не превышает 36 кН. При этом приварка анкеров к штампованной пластине считается равнопрочной заделке анкеров.

Таким образом, в рассматриваемой цепочке хрупкое разрушение (вырыв анкеров из бетона или разрушение сварных швов) наступает ранее, чем реализуется пластичность накладки, несущая способность связи S2=36 кН.

3. Проверка устойчивости здания при локальном разрушении его несущих конструкций по схеме № 1 (рис. 11). Рассматривается обрушение конструктивной ячейки в осях 4 - 8 и А - Б io этажа. Первично разрушаются панели внутренней и наружной стены по оси А между осями 4 - 8 и панель наружной стены по оси 6. Проверяется невозможность обрушения зависших над локальным разрушением конструкций перекрытий и стеновых панелей.

Поскольку плиты перекрытий заведены в стены, а внутренняя поперечная стена не имеет дверного проема, первый механизм обрушения невозможен (см. 8 Приложения 1).

3.1. Оценка возможности возникновения механизма прогрессирующего обрушения второго типа.

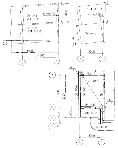
Схема возможного разрушения конструкций представлена на рис. 12.

Рис. 12 Схема № 1. Механизм обрушения второго типа.

Прогрессирующему обрушению в данном случае сопротивляются на каждом этаже плита 3П 15-1; плита лоджии 3ПЛ 11-2 и объемный балкон 3БО 10-2; связи растяжения второго типа, соединяющие между собой внутренние поперечные стены, а также наружные стены в узле 11 / H1.

Прочность связей в узле 11 / H1 принята равной S2= 36 кН.

Наружные стеновые панели 3Н 4-11 и 3Н 7-5-1, а также внутренняя стеновая панель 3В 3-2 при рассматриваемой схеме не разрушаются, поэтому для них работа внутренних сил принята равной нулю.

Прочность связи растяжения между наружной стеной 3Н 4-11 и внутренней 3В 1-1 считается нулевой, т.к. она ограничена прочностью стеновой панели при изгибе ее из плоскости.

Проверка устойчивости конструкций против прогрессирующего обрушения производится в таблице 7, где работа внутренних и внешних сил плит перекрытий принята из таблиц 5 и 6, соответственно. Прочность наружных и внутренней стеновых панелей принята по таблице 2. Работа сил веса стеновых панелей определяется по формуле (11), веса элементов приняты по таблице 1.

Работа внутренних сил плиты лоджии определена при величине перемещения wl=0,5×(1+0,76)/3,0; а объемного балкона - при wb=0,5/(3,0/2).

Условие необрушения не выполняется. Рекомендуется увеличить прочность связей растяжения в узле 11 / H1, причем нет необходимости увеличивать сечение накладки, нужно лишь обеспечить большую прочность анкеровки закладной детали в бетоне и (или) установить вертикальные междуэтажные связи.

Проверка условия устойчивости по схеме № 1 (рис. 12)
Механизм прогрессирующего обрушения второго типа

Таблица 7.

Конструктивный элемент

w

Работа внутренних сил

Работа внешних сил

Формула

Прочн.

Работа W кН

Формула

Работа

U кН

3Н4-11

0,76

 

 

0

(11)

7,83

3Н7-5-1

1,00

 

 

0

(14)

34,60

3В3-2

0,76

 

 

0

(14)

19,99

Узел 1 I/HI

внутр.стены

1,00

(13)

36,0

15,8

 

0

Узел 11 /HI

наружн. ст.

1,00

(13)

36,0

15,8

 

0

3П15-2

0,76

табл.5

0,90

табл. 6

7,57

3ПЛ11-2

0,88

w(2Mi/ll)

15,3

4,44

wGl/2

8,18

3ОБ10-2

0,50

w(2Mb/lb)

70

23,10

wGb/4

4,62

Всего

 

60,04

 

82,79

Примечание. В скобках указаны номера формул по Приложению 1.

W< U Условие устойчивости нарушено

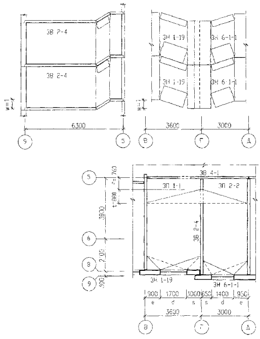
4. Проверка устойчивости здания при локальном разрушении его несущих конструкций по схеме № 2.

Рассматривается обрушение конструктивной ячейки в осях 5 - 9 и В - Д (рис. 11) на i-м этаже здания. Первично разрушается панель внутренней стены по оси Г между осями 5 и 9 и примыкающие к ней два простенка наружных стен по оси 9. Проверяется невозможность обрушения зависших над этим локальным разрушением конструкций перекрытий и стеновых панелей. Прогрессирующему разрушению в данном случае сопротивляются на каждом этаже панель внутренней стены; плиты перекрытий слева и справа от оси Г; наружные стены.

4.1. Оценка возможности возникновения механизма прогрессирующего обрушения первого типа.

Расчет производится в соответствии с пп. 9 - 15 настоящего Приложения. Схема возможного разрушения конструкций представлена на рис. 13.

Проверка устойчивости конструкций против прогрессирующего обрушения производится в таблице 8, где работа внутренних Wр, и внешних Up сил плит перекрытий принята из таблиц 5 и таблиц 6, соответственно. Прочность перемычек наружных и внутренней стеновых панелей принята по таблице 2. Работа сил веса стеновых панелей определяется по формуле (11), веса элементов приняты по таблице 1. Условие устойчивости выполняется.

Проверка условия устойчивости по схеме № 2 (рис. 13)

Механизм прогрессирующего обрушения первого типа

Таблица 8.

Конструктивный элемент

w

Работа внутренних сил

Работа внешних сил

Формула

Прочн.

Работа W кН

Формула

Работа U кН

3Н1-19

верх перем.

1,00

(23)

14,6

8,59

(11)

13,50

 

ниж.перем.

1,00

(23)

11,2

6,59

 

 

3Нб-1-1

верх перем.

1,00

(23)

14,6

10,43

(11)

15,00

 

ниж.перем.

1,00

(23)

11,2

7,95

 

 

3В2-4

перем.

1,00

(5)

62,3(31,1)

106,14

(14)

53,81

3П1-1

1,00

табл. 5

33,66

табл. 6

34,76

3П2-2

1,00

табл. 5

32,27

табл. 6

28,97

Всего

 

 

205,63

 

146,04

Примечание. В скобках указаны номера формул по Приложению 1.

W > U Условие устойчивости выполнено.

Рис. 13 Схема № 2. Механизм обрушения первого типа.

4.2. Оценка возможности возникновения механизма прогрессирующего обрушения второго типа.

Расчет производится в соответствии с пп. 9 - 15 настоящего приложения. Схема возможного разрушения конструкций представлена на рис. 14.

Прочность связи растяжения между внутренней стеной 3В 2-4 и продольной внутренней стеной 3В 4-1 в узле 01 / Н2 считается нулевой, т.к. поперечная стена не имеет продолжения. Разрушение панелей наружных стен и, соответственно, их работы и W и U аналогичны механизму первого типа. Внутренняя стеновая панель разрушается с образованием пластических шарниров в перемычке.

Проверка устойчивости конструкций против прогрессирующего обрушения производится в таблице 9. Условие устойчивости нарушено. Ввиду отсутствия продолжения внутренней стены, необходимо установить либо вертикальную связь между внутренней стеной и перекрытием, либо вертикальные междуэтажные связи.

Рис. 14 Схема № 2. Механизм обрушения второго типа.

Проверка условия устойчивости по схеме № 2 (рис-14)

Механизм прогрессирующего обрушения второго типа

Таблица 9.

Конструктивный элемент

w

Работа внутренних сил

Работа внешних сил

Формула

Прочн.

Работа W кН

Формула

РаботаU кН

3Н1-19

верх перем

1,00.

(23)

14,6

8,59

(11)

13,50

 

ниж.перем.

1,00

(23)

11,2

6,59

 

 

3Н6-1-1

верх перем.

1,00

(23)

14,6

10,43

(11)

15,00

 

ниж.перем.

1,00

(23)

11,2

7,95

 

 

3В2-4

1,00

 

 

0

(14)

30,85

3П1-1

1,00

табл. 5

 

10,56

табл. 6

11,21

3П2-2

1,00

табл.5

 

12,39

табл. 6

8,51

Всего

 

56,51

 

79,07

Примечание. В скобках указаны номера формул по Приложению 1.

W < U Условие устойчивости нарушено

4.3. Оценка возможности возникновения механизма прогрессирующего обрушения третьего типа.

Рассматривается обрушение плит перекрытий и связанных с ними вертикальными связями панелей наружных стен. Излом плит перекрытий и наружных стен аналогичен второму механизму обрушения. Расчет приведен в таблице 10. Условие устойчивости выполняется.

Проверка условия устойчивости по схеме № 2

Механизм прогрессирующего обрушения третьего типа

Таблица 10.

Конструктивный элемент

w

Работа внутренних сил

Работа внешних сил

Формула

Прочн.

Работа W кН

Формула

РаботаUкН

3Н1-19

верх перем

1,00

(23)

14,6

8,59

(11)

13,50

 

ниж. перем.

1,00

(23)

11,2

6,59

 

 

3Н6-1-1

верх перем.

1,00

(23)

14,6

10,43

(11)

15,00

 

ниж. перем.

1,00

(23)

11,2

7,95

 

 

3П1-1

1,00

табл. 5

10,59

табл. 6

11,21

3П2-2

1,00

табл. 5

12,39

табл. 6

8,51

Всего

 

33,56

 

15,00

Примечание. В скобках указаны номера формул по Приложению 1

W > U Условие устойчивости выполнено

5. Проверка устойчивости здания при локальном разрушении его несущих конструкций по с. № 3.

Рассматривается обрушение конструктивной ячейки в осях 5 - 8 и А - В (рис. 11) на i-м этаже здания. В качестве первичного локального разрушения рассматривается разрушение внутренней стены по оси Б между осями 5 - 8 и простенков примыкающих к ней наружных стен 3Н 4-11 и 3Н 1-19. Проверяется невозможность обрушения зависших над этим локальным разрушением конструкций перекрытий и стеновых панелей.

Простенок внутренней панели 3В1-1 опирается, кроме плит перекрытия 3П 15-2 и 3П 16-1, на плиту 3П 6-2; все горизонтальные стыки платформенные. При рассмотрении механизма прогрессирующего обрушения первого типа необходимо учитывать излом плиты 3П 6-2, опирающейся по четырем сторонам, что значительно увеличивает величину работы внутренних сил перекрытий; данный механизм не рассматривается как заведомо невозможный.

5.1. Оценка возможности возникновения механизма прогрессирующего обрушения второго типа.

Схема возможного разрушения конструкций представлена на рис. 15. Поворот внутренней стеновой панели 3В 1-1 реализуется при образовании пластического шарнира в ее перемычке и пластической деформации связи растяжения, соединяющей эту стеновую панель с панелью, расположенной между осями 1 - 4. Кроме того, прогрессирующему обрушению сопротивляются на каждом этаже плиты перекрытия 3П 15-2 и 3П 16-1, плита лоджии и объемный элемент балкона, а также наружные стеновые панели, разрушающиеся с образованием пластических шарниров в углах рамы (в перемычках).

Проверка устойчивости конструкций против прогрессирующего обрушения производится в таблице 11 так же, как это описано выше. Условие устойчивости выполняется.

Рис. 15 Схема № 3. Механизм обрушения второго типа.

Проверка условия устойчивости по схеме № 3 (рис. 15)

Механизм прогрессирующего обрушения второго типа

Таблица 11

Конструктивный элемент

w

Работа внутренних сил

Работа внешних сил

Формула

Прочн.

Работа W кН

Формула

Работа U кН

3Н 4-11

верх перем

0,65

(23)

14,6

12,55

(11)

6,44

 

ниж. перем.

0,65

(23)

3,1

6,39

 

 

3Н 1-19

верх перем.

1,00

(23)

14,6

16,22

(11)

13,50

 

ниж. перем.

1,00

(23)

3,1

9,84

 

 

3В 1-1

перем.

1,00

(5)

62,3

10,20

(14)

34,10

Узел 01/Н2

1,00

(13)

42,3

15,23

 

0

3П 15-2

0,65

табл. 5

17,57

табл. 6

4,13

3П 16-1

1,00

табл. 5

17,35

табл. 6

12,73

3ПЛ 11-1

0,825

w(4Mi /ll)

15,3

10,20

wGl/2

7,70

3ОБ 10-2

1,00

w(2Mt/lb)

83

111,22

wGb/2

19,25

Всего

 

226,77

 

97,85

Примечание. В скобках указаны номера формул по Приложению 1.

W> U Условие устойчивости выполнено

6. Проверка устойчивости здания при локальном разрушении его несущих конструкций по схеме № 4.

Рассматривается обрушение конструктивной ячейки в осях 1 - 4 и А - В (рис. 11). Первичное локальное разрушение предполагается на 5-м этаже здания, т.к. эркеры запроектированы на 6 - 16 этажах. Эркер 6-го этажа утяжелен теплозащитным элементом 3ПД-1. Первый механизм прогрессирующего обрушения не рассматривается по тем же причинам, что и для схемы № 3.

6.1. Оценка возможности возникновения механизма прогрессирующего обрушения второго типа.

Схема возможного разрушения конструкций представлена на рис. 16. Первичное разрушение: поворот внутренней стеновой панели 3В 1-3 и разрушение простенков примыкающих к оси Б наружных ограждающих панелей по осям 1 (под эркером) и 2 (3Н 4-1-1). Проверяется невозможность обрушения зависших над этим локальным разрушением конструкций перекрытий и стеновых панелей.

Разрушение внутренней стеновой панели описано для схемы № 3. Схема разрушения эркера принята с образованием 4-х пластических шарниров в перемычках среднего оконного проема. Наружная панель 3Н 12-1 беспрепятственно опускается вместе с внутренней стеной 3В 1-3.

Проверка устойчивости конструкций против прогрессирующего обрушения производится в таблице 12. Условие устойчивости выполняется с большим запасом, благодаря усиленному армированию краевой зоны плиты 3ПЭ-2.

Проверка условия устойчивости по схеме № 4 (рис. 16)

Механизм прогрессирующего обрушения второго типа

Таблица 12.

Конструктивный элемент

w

Работа внутренних сил

Работа внешних сил

Формула

Прочн.

Работа W кН

Формула

Работа U кН

3ОЭ-1-1

верх перем.

1,10

(23)

2,9(25,7)

22,88

(11)

20,74

 

ниж. перем.

1,10

(23)

65,2

52,16

 

 

3Н4-1-1

верх перем.

0,65

(23)

14,6

8,47

(11)

6,67

 

ниж. перем.

0,65

(23)

3,1

3,59

 

 

3В1-3

перем.

1,00

(5)

63,2

10,53

(14)

34,10

3ПЭ-2

1,10

табл.5

117,63

табл. 6

10,65

3П15-1

0,65

табл.5

128,85

табл. 6

3,76

3ПД-1

1,10

 

0

wG

7.70

Всего

 

344,11

 

83.62

Примечание. В скобках указаны номера формул по Приложению 1.

W> V Условие устойчивости выполнено

Рис. 16 Схема № 4. Механизм обрушения второго типа.

Список литературы

1. Report of the Inquiry into the Collapse of Flots at Ronan Point, Caning Town; MSO, 1968. (ЦИНИС, перевод 18736).

2. Сергеев Д.Д. Краткий обзор отчета об аварии 22-этажного жилого дома в Лондоне. Обзорная информация № 2. М., ГлавАПУ, 1969.

3. Разработка и исследование усовершенствованной системы конструктивных связей между сборными элементами панельных зданий унифицированной конструкции с целью повышения их надежности и улучшения технико-экономических характеристик. Научно-технический отчет МНИИТЭП, шифр НИ-1696. М., 1976.

4. Пуме Д. Особенности проектирования многоэтажных зданий на аварийные нагрузки. «Строительная механика и расчет сооружений», 1977, № 1.

5. Стругацкий Ю.М. Обеспечение прочности панельных зданий при локальных разрушениях их несущих конструкций. В сб. «Исследования несущих бетонных и железобетонных конструкций сборных многоэтажных зданий», МНИИТЭП, М., 1980.

6. «Инструкция по проектированию конструкций панельных жилых зданий» ВСН 32-77 Госгражданстроя. М., 1978.

7. «Пособие по проектированию жилых зданий. Вып 3. Конструкции жилых зданий (к СНиП 2.08.01-85)». М., 1989.

8. СНиП 2.03.01-84*. Бетонные и железобетонные конструкции. М., 1996.

9. СНиП II-23-81*. Стальные конструкции. М.1996.

10. СНиП II-7-81*. Строительство в сейсмических районах. М., 1996.

11. СНиП 2.01.07-85*. Нагрузки и воздействия. М., 1996.

12. Design and Typical Details of Connections for precast and Prestressed Concrete, Second Edition, PSI, Chicago, 1988.

13. British Standard Structural use of Concrete.

a) BS 8110:Part 1:1997. Code of practice for design and construction.

b) BS 8110:Part 2:1985. Code of practice for special circumstances.

14. Construction Standards Manual. CSM CS:1996 Common Standards, (summaries of standards etc, of professional interest across construction sector).

15. Building Regulations. Disproportional collapse. The Structural Engineer 1993, v71, N23.

16. J.B. Menzies improving strortural safety through feedback. The Structural Engineer. 1993, v. 71, N21.

17. J.N.J.A. Vambersky. Precast concrete in buildings today and in the future. The Structural Engineer. 1994, v. 72,

18. Ю.М. Стругацкий, Г.И. Шапиро. Безопасность московских жилых зданий массовых серий при чрезвычайных ситуациях. ПГС №8, Стройиздат, М, 1998.

 




ГОСТЫ, СТРОИТЕЛЬНЫЕ и ТЕХНИЧЕСКИЕ НОРМАТИВЫ.
Некоммерческая онлайн система, содержащая все Российские Госты, национальные Стандарты и нормативы.
В Системе содержится более 150000 файлов нормативно-технической документации, действующей на территории РФ.
Система предназначена для широкого круга инженерно-технических специалистов.

Рейтинг@Mail.ru Яндекс цитирования

Copyright © www.gostrf.com, 2008 - 2026