Крупнейшая бесплатная информационно-справочная система онлайн доступа к полному собранию технических нормативно-правовых актов РФ. Огромная база технических нормативов (более 150 тысяч документов) и полное собрание национальных стандартов, аутентичное официальной базе Госстандарта. GOSTRF.com - это более 1 Терабайта бесплатной технической информации для всех пользователей интернета. Все электронные копии представленных здесь документов могут распространяться без каких-либо ограничений. Поощряется распространение информации с этого сайта на любых других ресурсах. Каждый человек имеет право на неограниченный доступ к этим документам! Каждый человек имеет право на знание требований, изложенных в данных нормативно-правовых актах!

  


 

Госстрой России

Минтруд России

ЗАО ЦНИИЭП им. Б.С. Мезенцева

РЕКОМЕНДАЦИИ
по проектированию окружающей среды,
зданий и сооружений с учетом потребностей
инвалидов и других маломобильных
групп населения

Выпуск 10

Общественные здания и сооружения.

Учреждения лечебно-профилактические:

поликлиники, амбулатории, аптеки

МОСКВА 1998

СОДЕРЖАТ рекомендации по проектированию поликлиник, амбулаторий и аптек, приспособленных к нуждам инвалидов: общие требования к участкам и планировочные решения основных помещений, оборудование, детали и элементы архитектурно-конструктивных решений, анализ планировочных схем отдельных сооружений.

РАЗРАБОТАНЫ ЗАО ЦНИИЭП им. Б.С. Мезенцева (кандидаты арх. Н.Б. Мезенцева, Е.М. Лось, Г.И. Быкова), МНИИЭТЭП (канд. арх. С.И. Яхкинд).

ОТРЕЦЕНЗИРОВАНЫ АО «ГИПРОНИИЗДРАВ» (кандидаты арх. А.П. Моисеенко, Л.Ф. Сидоркова).

ПОДГОТОВЛЕНЫ К ИЗДАНИЮ редакционной коллегией Госстроя России (В.А. Цветков, Н.Н. Якимова), Минтруда России (Ю.В. Колосов).

ПРЕДНАЗНАЧЕНЫ для работников проектных и строительных организаций, органов социальной защиты населения, общественных объединений инвалидов.

Медицинское обслуживание - наиболее важная сфера, с которой чаще всего соприкасаются инвалиды, граждане старшего поколения и люди с малолетними детьми. Архитектурная среда, предназначенная для медицинского обслуживания, должна быть наиболее гуманистической, щадящей и учитывающей психофизическое состояние инвалида.

Данные рекомендации направлены на устранение «строительных барьеров», препятствующих обслуживанию инвалидов и маломобильных людей, а также на достижение качественно нового уровня обслуживания этих групп населения. Как в существующих, так и в проектируемых медицинских учреждениях - поликлиниках и аптеках - не всегда учитываются потребности инвалидов, что пагубно сказывается на уровне обслуживания маломобильных групп населения. В рекомендациях рассматриваются вопросы улучшения обслуживания инвалидов, пожилых людей, родителей с детьми в поликлиниках и аптеках.

Рекомендации развивают и дополняют положения ВСН 62-91* и СНиП 2.08.02-89* «Общественные здания и сооружения» (М.: ГП ЦПП, 1993). Данный документ имеет рекомендательный характер, но обязателен при включении данных положений в архитектурно-планировочное задание на проектирование. Данные рекомендации могут быть использованы при проектировании новых и реконструкции существующих поликлиник, амбулаторий и аптек.

В рекомендациях рассматриваются только специальные строительные требования, относящиеся к данным типам сооружений с учетом потребностей инвалидов. Все общестроительные требования, которыми следует руководствоваться при проектировании (с учетом организации входов в здания, устройства пандусов и увеличения площади санузлов), приведены в «Рекомендациях по проектированию окружающей среды, зданий и сооружений с учетом потребностей инвалидов и других маломобильных групп населения. Выпуск 1. Общие положения». Организация и проектирование пешеходных путей и переходов, мест для стоянок инвалидного автотранспорта, площадок для отдыха даны в выпуске 2 Рекомендаций - «Градостроительные требования» (М.: ГУП ЦПП, 1995).

В настоящих Рекомендациях последовательно рассматриваются:

общие положения, относящиеся к поликлиникам, амбулаториям, аптекам (различные варианты размещения необходимых для инвалидов блоков медицинского обслуживания от максимально приближенных к жилью до крупных поликлиник и аптек);

требования к участку;

варианты адаптации отобранных типовых проектов поликлиник и аптек;

конструктивно-планировочные критерии оценки проектов поликлиник и аптек;

специфика планировки и оборудования отдельных помещений;

детали и элементы оборудования аптек.

Рекомендации основаны на изучении опыта проектирования, строительства и эксплуатации объектов лечебно-профилактического назначения, результатах исследований, проведенных ЗАО ЦНИИЭП им. Б.С. Мезенцева и Гипронииздравом.

Рекомендации рассчитаны на проектирование и реконструкцию сооружений лечебно-профилактического назначения с учетом потребностей инвалидов различных категорий:

с поражением опорно-двигательного аппарата (ПОДА), использующих различные приспособления для ходьбы или кресла-коляски;

с недостатками зрения;

с дефектами слуха.

Основная цель рекомендаций по проектированию лечебно-профилактических зданий с учетом потребностей инвалидов - совершенствование архитектурно-планировочной структуры объектов для равно-комфортного обслуживания всех категорий посетителей.

ОБЩИЕ ПОЛОЖЕНИЯ

Лечебно-профилактические учреждения, к которым относятся поликлиники, должны проектироваться в соответствии со СНиП 2.08.02-89* «Общественные здания и сооружения», а также пособием к СНиПу, разработанным Гипронииздравом в 1990 г. Дополнительно следует учитывать ряд требований, предъявляемых к различным помещениям, их элементам с целью обеспечения доступности для маломобильной части населения.

Поликлиники предназначены для оказания квалифицированной внебольничной медицинской помощи населению. К важнейшим функциям поликлиник, помимо врачебного приема, диагностики и лечения заболеваний, относятся проведение профилактических и реабилитационных мероприятий для населения прикрепленной к поликлиники территории. Особенно важно проведение реабилитационных мероприятий для инвалидов.

При проектировании и реконструкции поликлиник необходимо создавать условия доступной, безопасной и удобной для маломобильного населения среды и предусматривать группы помещений, предназначенных для реабилитации, - реабилитационные блоки или отделения восстановительного лечения.

Структура и состав помещений реабилитационных блоков для поликлиник представлены в «Рекомендациях по реновации существующего фонда поликлиник, построенных по проектам разных лет» (Гипронииздрав. - М.,1992).

Создание микрополиклиник в городах и амбулаторий в сельской местности позволяет приблизить медицинскую помощь к населению. Радиус обслуживания этих учреждений не должен превышать 300 м, обеспечивая таким образом пешеходную доступность для населения, в первую очередь его маломобильной части (в соответствии с выпуском 2 Рекомендаций). В экстремальных условиях севера и юга, а также сложного рельефа радиус доступности первичных учреждений медицинского обслуживания следует сократить до 100 м.

Организацию микрополиклиник целесообразно производить в первых этажах жилых домов с обязательным соблюдением всех правил подъезда к ним и организацией внутреннего пространства, удовлетворяющей требованиям безбарьерной среды. Они могут размещаться во встроенных, встроенно-пристроенных помещениях жилых домов в условиях многоэтажной застройки. При малоэтажной застройке возможно строительство отдельно стоящих таких учреждений.

Микрополиклиники комплектуются врачебными кабинетами в зависимости от типа застройки (табл. 1). Структура и состав помещений микрополиклиник разного типа представлены в работе «Методические рекомендации по проектированию отдельно стоящих и встроенных микрополиклиник» (Гипронииздрав. - М.,1992).

В зданиях поликлиник, помещения которых расположены выше первого этажа и предназначены для пользования инвалидами на креслах-колясках, следует предусматривать лифты. Число пассажирских лифтов следует устанавливать расчетом, но, как правило, не менее двух. Допускается второй лифт заменять грузовым, в котором разрешено транспортировать людей, если по расчету вертикального транспорта в здании достаточно установки одного пассажирского лифта. Один из лифтов в здании (пассажирский или грузовой) должен иметь глубину кабины не менее 2100 мм для возможности транспортирования человека на носилках.

В малоэтажных зданиях поликлиник, не оборудованных лифтами и недоступных для инвалидов, возможно устройство лестничных подъемников.

При реконструкции поликлиник, объемно-планировочные решения которых не позволяют обеспечить доступность врачебных кабинетов для инвалидов на креслах-колясках, рекомендуется организовывать на первом этаже дополнительный многофункциональный кабинет, предназначенный для приема инвалидов врачами различных специальностей

Таблица 1

Численность обслуживаемого населения, чел.

Радиус обслуживания, м

Плотность населения, чел/га

Тип учреждения

Число врачебных специальностей

Наименование кабинетов, число кабинетов

1500-1700

300

До 180

Микрополиклиника, амбулатория

Общий врач - 1; стоматолог - 1

Терапевтический - 1; стоматологический - 1

4000-6000

300

От 180 до 300

То же

Терапевт - 2-3; педиатр - 1-1,5; стоматолог-2; гинеколог - 0,5; психоневролог - 0,5

Терапевтический - 2; педиатрический - 1; стоматологический - 1; гинекологический - 1

8000-10000

300

От 300

»

Терапевт - 5; гинеколог - 1; психоневролог - 1; педиатр -2-2,5; стоматолог - 5-6

Терапевтический - 3; гинекологический - 1; неврологический - 1; стоматологический - 1; педиатрический - 1

ТРЕБОВАНИЯ К УЧАСТКУ

При выборе места размещения поликлиники в структуре города необходимо исходить из условий транспортной и пешеходной доступности с учетом удобства пользования маломобильными группами населения.

Вдоль пешеходных путей, ведущих к поликлинике, следует создавать места для отдыха, которыми могли бы пользоваться не только лица с физическими недостатками, люди старшей возрастной группы, но и больные сердечными и легочными заболеваниями. В зависимости от состояния здоровья инвалидов и пожилых людей оптимальная длина преодолеваемого ими без отдыха пешеходного пути (в одном направлении) может колебаться от 100 до 500 м, поэтому ориентироваться следует на физически ослабленных людей, т.е. создавать места отдыха через 100 м.

ОТДЕЛЬНЫЕ ПОМЕЩЕНИЯ

В вестибюльном помещении должна быть сосредоточена информация об услугах поликлиники, пространственной и функциональной структуре учреждения. На доступном для слабовидящих месте, с учетом инвалидов на колясках, следует располагать информацию о месторасположении регистратуры, поэтажную функциональную схему учреждения, план 1-го этажа с указанием лифтов, поворотов, лестниц, переходов - мест требующих повышенного внимания.

Визуальная информация о месте и времени приема врачей должна быть продублирована звуковым и тактильным способами оповещения.

Входной вестибюль должен создавать удобства для переодевания людей с физическими недостатками, для чего предлагается выделить дополнительную свободную зону.

В детских поликлиниках во входной группе следует предусматривать помещение для хранения инвалидных и детских колясок, а в вестибюле - предусматривать столы для пеленания грудных детей.

Необходимо во входной группе поликлиники предусмотреть помещение (место) для собаки-поводыря и хранения других всмогательных средств.

В вестибюле необходимо предусмотреть телефоны-автоматы. Один из таксофонов, размещаемых в доступных для инвалидов местах общего пользования, следует устанавливать на высоте от 0,85 до 1,1 м от уровня пола.

Рабочие поверхности аптечных киосков, гардеробных стоек, регистратуры, прилавков, предназначенных для обслуживания инвалидов, должны размещаться на высоте не более 0,8 м от уровня пола.

При вестибюле должен быть как минимум один доступный для инвалидов туалет, оборудованный специальными приспособлениями. Возможно оборудование специальной кабины для инвалидов в общем туалете (по 1 в мужском и 1 в женском).

Для удобства переодевания инвалидов с нарушением опорно-двигательного аппарата следует в вестибюле поликлиники предусмотреть свободную зону, оборудованную дополнительными настенными полками-столами, крючками и перилами на разной высоте (0,8-1,2 м).

Оборудование настенными полками-столами

В помещении регистрации больных для организации самостоятельной предварительной записи к врачам следует предусмотреть удобное место для инвалида на коляске.

В зонах ожидания перед врачебными кабинетами следует предусматривать место для размещения инвалида на коляске.

Организация мест для размещения инвалидов

А - места предварительной записи к врачам, учитывающие требования инвалидов, передвигающихся на кресле-коляске; Б - зона ожидания с организацией места для инвалида на коляске

Кабинеты, предназначенные для приема больных, должны быть запроектированы с учетом оказания услуг в них инвалидам, необходимо также предусматривать возможность разворота кресла-коляски.

В кабинетах специалистов с дополнительными помещениями (кабинеты офтальмолога, оториноларинголога и др.), предназначенными для пациентов, ширина дверных проемов в эти помещения должна быть не менее 0,85 м.

Планировочные решения различных медицинских кабинетов с учетом оказания услуг в них инвалидам

А - кабинет главного врача; Б - кабинет врача; 1 - кушетка; 2 - умывальник; 3 - стол; 4 - шкаф; 5 – тумбочка; В - кабинет гинеколога; Г - кабинет зубного врача; Д - кабинет старшей медсестры; 1 - кушетка; 2 - стол врача; 5 - умывальник; 4 - стерилизатор; 5 - холодильник; 6 - медоборудование; 7 - кресло стоматологическое; 8 - шкаф; 9 - тумбочка; 10 - кресло гинекологическое; 11 - стерилизационное помещение

Е - перевязочная; 1 - каталка; В - стол врача; 3 - кушетка; 4 - холодильник; 5 - умывальник

Ж, 3, И - кабинеты ингаляции; 1 - оборудование для ингаляции; 2 - стол медсестры; 3 - шкаф; 4 - тумбочка; 8 - умывальник

При поликлиниках следует предусматривать помещения для занятий лечебной физкультурой с учетом возможности их использования инвалидами на колясках. В зависимости от численности обслуживаемого населения в поликлинике могут быть предусмотрены помещения для занятий лечебной физкультурой длиной 10-12 м при ширине 6,0-9,0 м.

Наличие душевых кабин может увеличить длину помещения как минимум на 2,0 м.

Вариант планировки помещения для занятий лечебной физкультурой

1 - свободная зона для упражнений; 2 - стол преподавателя; 3 - гимнастическая стенка; 4 - гимнастические скамейки

Различные варианты планировки помещений для занятий лечебной физкультурой с душевыми кабинами (А, Б, В)

1 - свободная зона для упражнений; 2 - стол инструктора; 3 - кварцевая лампа; 4 - световое медицинское оборудование; 5 - гимнастическая стенка; 6 - гимнастические скамейки; 7 - габариты места для инвалидов; 8 - ковер для упражнений; 9 - душевая кабина; 10 - зона для занятий у стены в положении лежа

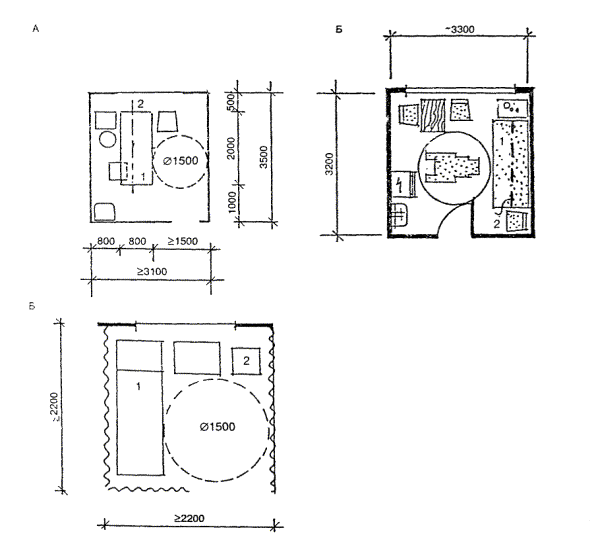
Площадь и планировочное решение кабинетов физиотерапии, посещаемых инвалидами, должны быть рассчитаны на возможность разворота кресла-коляски, при этом размеры кабины электросветолечения должны быть не менее 2,2×2,2 м.

Массажный кабинет должен иметь размеры 3,5×3,1 м с учетом разворота в нем инвалида на кресле-коляске. Размеры кабинета кислородной терапии должны быть не менее 3,2×3,3 м.

Пример планировочного решения кабинетов физиотерапии

А - массажный кабинет; 1 - кушетка для массажа; 2 - специальное оборудование для перемещения на кушетку; Б - кабинет кислородной терапии; 1 - кушетка; 2 - специальное оборудование для перемещения на кушетку; В - кабина электросветолечения; 1 - кушетка; 2 - стол для аппаратуры

Кабины душевого зала поликлиники должны иметь специальное оборудование для перемещения инвалида с ПОДА из коляски в кабину, а также специальные поручни и упоры для коленей с целью опирания инвалида во время приема процедуры.

Пример планировочного решения душевого зала

А - водолечебная кафедра с набором душей; 1 - кафедра; 2 - пылевой душ; 3 - дождевой душ; 4 - восходящий душ; 5 - циркулярный душ; 6 - струевой душ; 7 - поручень и упоры для коленей; 8 - оборудование для перемещения инвалида; Б - вариант специального оборудования

В помещении подводного душа-массажа рекомендуется устройство специального оборудования для перемещения инвалида из коляски в ванную.

Варианты помещений ванны подводного душа-массажа

1 - фигурная ванна; 2 - кушетка; 3 - настенный поручень; 4 - оборудование для пересадки в ванну; 5 - тангентор

В составе помещений для реабилитации инвалидов следует предусмотреть специальную кабину с ванной, оборудованной для инвалида на коляске. Желательно предусмотреть при ванне две раздевальные.

Варианты решения кабины с ванной

А - ванная кабина с раздевальной (для инвалидов); 1 - ванна медицинская; 2 - кушетка; 3 - настенный поручень; 4 - потолочная трапеция для пересадки в ванну (возможны варианты); Б - ванная кабина с двумя раздевальными

При помещениях лечебной физкультуры, а также при душевом зале должны быть предусмотрены раздевальные с учетом возможности их использования инвалидами на колясках. Раздевальные должны иметь непосредственный выход в помещение лечебной физкультуры либо в душевой зал.

Вариант решения раздевальной

1 - скамья для раздевания; 2 - шкаф для одежды; 3 - поручень; 4 - подставка для ног

ПЛАНИРОВОЧНЫЕ РЕШЕНИЯ

В качестве основных критериев оценки проектов поликлиник приняты следующие:

наличие пандуса при входе в поликлинику;

наличие лифта с кабиной размерами не менее 1,1×1,5 м;

единый уровень пола в помещениях, где возможно присутствие пациента с недостатками зрения;

ясность и простота конфигурации плана поликлиник;

отсутствие неожиданных препятствий в виде отдельно стоящих опор-колонн и т.п. на путях передвижения пациентов;

обеспечение возможности разворота инвалида в кресле-коляске.

В результате анализа планировочных и конструктивных решений типовых проектов поликлиник (в том числе ранее действующих и которые могут быть использованы как материалы для проектирования - 2-05-629/61, 252-4-11/76) отобрано несколько проектов, отвечающих основным потребностям маломобильной части населения (табл. 2).

Таблица 2

Номер проекта и его краткая характеристика

Мощность поликлиники*

Год выпуска проекта

Конструктивно-планировочные критерии оценки

наличие пандуса

наличие лифта

единый уровень пола

ясность плана

отсутствие отдельных опор-колонн

252-4-42.84, 3-этажное каркасно-панельное здание для взрослых и детей

250

85

-

-

+

+

-

251-4-55.87, 5-этажное панельное здание для взрослого населения

380

87

-

+

+

+

+

252-4-56.87, 5-этажное каркасно-панельное здание для взрослого населения

380

87

-

+

+

+

-

2-05-629/61, 3-этажное кирпичное здание для взрослых и детей

500

61

-

-

+

+

-

252-4-35.83, 4-этажное каркасно-панельное здание для взрослого населения

600

83

-

+

+

+

+

252-4-11/76, 7-этажное каркасно-панельное здание для взрослого населения

850

76

-

+

+

+

-

252-4-25, 7-этажное каркасно-панельное здание для взрослого населения**

1000

80

-

+

+

-

-

252-4-28, 8-этажное каркасно-панельное здание для взрослого населения**

1600

81

-

+

+

-

-

* Мощность поликлиник указана в посещениях в смену.

** Укртиппроект, П02-91.

Кроме названных критериев оценки проектов поликлиник, к внутренним пространствам (вестибюлям, коридорам, кабинетам, санузлам и др.) в АПЗ и задании на проектирование могут быть предъявлены особые требования по габаритам помещений и расстановке основного оборудования и дополнительного оборудования для маломобильных групп населения: поручней, ручек, вешалок, специального покрытия полов, звуковой и наглядной информации и др. Эти требования могут быть реализованы в процессе внутренней отделки здания, при частичной его модернизации.

При привязке проекта, в реальных условиях строительства должны решаться вопросы устройства пандусов при входных группах помещений, увеличения тамбуров и т.д.

В приведенных ниже примерах планировочных решений поликлиник в кружках указаны помещения (зоны), подлежащие перепланировке (адаптации).

Поликлиника на 250 посещений в смену (типовой проект 252-4-42.84) является примером сооружения с четкой структурой плана, позволяющей легко ориентироваться инвалидам.

Для адаптации здания поликлиники к посещению инвалидами необходимы наружные входные пандусы и частичная перепланировка помещений (увеличение санузла, выделение зоны для самозаписи инвалидов к врачам, увеличение кабинета гинеколога, устройство лифта).

План 1 -го этажа

1 - вестибюль; 2 - регистратура; 3 - гардероб; 4 - тамбур; 5 - кабинет гинеколога; 6 - санузлы; 7 - справочная и самозапись; 8 - пандус

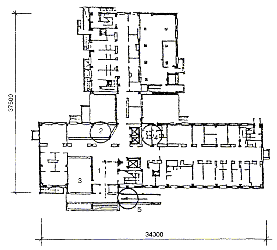
Поликлиника на 380 посещений в смену (типовой проект 252-4-56.87) является примером удачной, четкой планировки лечебно-профилактического учреждения (ЛПУ). Переработке подлежат: зона регистратуры, гардеробная, входной блок, санузлы, душевой зал с раздевалкой.

План 1 -го этажа

1 - вестибюль; 2 - регистратура; 3 - гардероб; 4 - санузлы; 5 - душевой зал; 6 - раздевальные при зале; 7 - пандус

Поликлиника на 1600 посещений в смену (типовой проект 252-4-28) является примером ЛПУ с комплексом восстановительного лечения, который нуждается в перепланировке части помещений и насыщении помещений комплекса специализированным оборудованием. Кроме того, переоборудованию подлежит зона регистратуры, гардеробной, санузлов.

План 1-го этажа

1 - вестибюль с аптечным киоском; 2 - гардероб; 3 - грязелечебный комплекс; 4 - ванна для лечения движением в воде; 5 - бассейн; 6 - подводный душ-массаж; 7 - пандус

Поликлиника на 500 посещений в смену (типовой проект 2-05-629/61). Проект поликлиники требует доработки: устройства лифта, дополнительного пандуса при входе, увеличения площади процедурной и кварцевой, кабинета хирурга и др. После доработки здание может стать удобным для маломобильных групп населения.

План 1 -го этажа

1 - вестибюль; 2 - фильтр; 3 - санузел; 4 - гардероб; 5 - кабинет хирурга; 6 - процедурная; 7 - регистратура; 8 - фильтр; 9 - кварцевая; 10 - пандус

Городская поликлиника на 1000 посещений в смену (типовой проект 252-4-25) является примером ЛПУ с комплексом водных процедур, помещения которого нуждаются в переработке (помимо гардеробной, регистратуры и других помещений).

План 1 -го этажа

1 - вестибюль, 2 - регистратура; 3 - гардероб; 4 - санузлы; 5 - комплекс водных процедур; 6 - пандус

Поликлиника на 600 посещений в смену (типовой проект 252-4-35.83) является примером сооружения, где необходимы: устройство пандуса при входе, перенос регистратуры ближе к вестибюльной зоне, увеличение площади гардероба, санузлов, кабинета взятия проб крови. После переработки здание становится доступным для маломобильной части населения.

План 1 -го этажа

1 - вестибюль; 2 - гардероб; 3 - санузлы; 4 - помещение для взятия проб крови; 5 - регистратура; 6 - пандус

Поликлиника на 380 посещений в смену (типовой проект 251-4-55.87) может быть доступна для маломобильного населения при условии организации пандуса при входе, увеличения и перепланировки ряда помещений, кабинетов, вестибюля с гардеробной, регистратуры, помещения для взятия проб крови, санузла.

План 1 -го этажа

1 - вестибюль; 2 - гардероб; 3 - буфет; 4 - регистратура; 5 - помещение для взятия проб крови; 6 - санузлы; 7 - пандус

Поликлиника на 850 посещений в смену (типовой проект 252-4-11/76) является примером ЛПУ, где необходимо устройство пандуса при входе, переоборудование санузлов для нужд инвалидов, а также увеличение площади ряда кабинетов.

План 1 -го этажа

1 - вестибюль; 2 - гардероб; 3 - регистратура; 4 - санузел; 5 - пандус

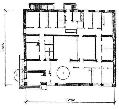
Поликлиника на 750 посещений в день (типовой проект VII-79) является примером ЛПУ, возводящихся в настоящее время в районах новостроек Москвы. После устройства пандуса при входе здание может быть использовано маломобильными группами населения.

План 1 -го этажа

1 - вестибюль; 2 - гардероб; 3 - санузлы; 4 - пандус

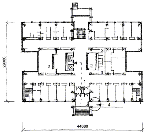
Взросло-детская поликлиника на 420+180 посещений в смену. Поликлинический комплекс предназначен для строительства в новых районах малоэтажной застройки с населением до 20 тыс. взрослых и 6 тыс. детей. Комплекс запроектирован из трех блоков: взрослого - на 420 посещений в смену, детского - 180 посещений в смену и общего - с подразделениями, обслуживающими оба основных блока. Система блокировки обеспечивает автономную работу поликлиник и удобную функциональную связь с общим блоком. Блочная структура позволяет возводить отдельно детскую или взрослую поликлинику, расширять и дополнять существующие поликлиники пристройкой отдельных блоков из данного комплекса.

Общий вид и планировочное решение поликлинического комплекса

А - аксонометрия; Б - план 1 -го этажа; 1 - вестибюль; 2 - гардероб; 3 - регистратура; 4 - санузлы; 5 - душевой зал; 6 - гардероб персонала; 7 - помещение вызова на дом; 8 - пандус

ОБЩИЕ ПОЛОЖЕНИЯ

Хозрасчетные аптеки общего типа в соответствии со СНиП 2.07.01-89* должны иметь радиусы доступности не более 500-800 м, что обеспечивает доступность аптечного обслуживания всем категориям населения и учитывает необходимость приближения этого вида обслуживания к маломобильным группам населения.

Для удобства посещения хозрасчетных аптек общего типа (включая мелкорозничную сеть - аптечные киоски и аптечные пункты 1 категории) их целесообразно размещать в комплексе с учреждениями торговли или лечебно-профилактическими учреждениями. При этом допускается размещение аптек как в отдельно стоящих зданиях, так и в первых этажах общественных и жилых зданий (Пособие по проектированию учреждений здравоохранения. К СНиП 2.08.02-89* /Гипронииздрав. - М., 1989. Раздел V - Станции скорой и неотложной медицинской помощи, станции переливания крови с виварием, молочные кухни, раздаточные пункты, аптеки, контрольно-аналитические лаборатории).

ОТДЕЛЬНЫЕ ПОМЕЩЕНИЯ

Входы в здания аптек должны проектироваться в соответствии с требованиями, изложенными в ВСН 62-91*, раздел 2, подраздел 2.6.

Информация о наличии тех или иных лекарственных препаратов, их назначении и т.д. должна размещаться на видном месте и быть доступна для всех категорий инвалидов (слабовидящих, в креслах-колясках и др.).

Указатели о размещении и назначении отделов выдачи лекарств, касс, справочных и других служб аптеки должны быть достаточно крупными и четкими.

При размещении оборудования следует оставить свободную зону размером 150×150 см для разворота инвалидной коляски. Следует применять прилавки, конструкция которых позволяет инвалидам ознакомиться с ассортиментом аптечных товаров.

ПЛАНИРОВОЧНЫЕ РЕШЕНИЯ

К планировочным и конструктивным решениям торговых залов аптек предъявляются те же требования по доступности для инвалидов и маломобильных групп населения, что и в зданиях торгового назначения. При этом эти потребности для лиц как с нарушениями опорно-двигательного аппарата, так и с недостатками зрения будут общими и сводятся к следующему:

наличие пандуса для въезда колясок при входе;

наличие площадки для маневрирования коляски при входе;

единый уровень пола в торговом зале и на путях передвижения посетителей;

отсутствие отдельно стоящих колонн в помещении для обслуживания посетителей и на путях передвижения посетителей;

простота конфигурации торгового зала.

Результаты анализа типовых проектов аптек, предназначенных для обслуживания городского населения, представлены в табл. 3.

Таблица 3

Номер и краткая характеристика проекта

Год выпуска проекта

Конструктивные и планировочные критерии оценки

наличие пандуса

наличие площадки для маневрирования

единый уровень пола

отсутствие отдельно-стоящих колонн

простота конфигурации торгового зала

254-8-29*
Аптека V кат., 1-этажное, блокированное, кирпичное здание

82

-

+

+

+

+

251-8-47.13.88
Аптека IV кат., для строительства в Ленинградской обл., 1-этажное, блокированное, панельное здание

89

-

+

+

+

+

254-8-48.1.88
Аптека I кат., 1-2-этажное, кирпичное здание

88

-

+

+

+

+

254-8-25
ЦРА IV кат., 2-этажное кирпичное здание

81

-

-

+

+

+

252-8-23
ЦРА III кат., 2-этажное, каркасно-па-нельное здание

79

-

-

+

+

+

254-8-22М
Аптека II кат., 2-этажное кирпичное здание для условий вечной мерзлоты

78

-

+

+

+

+

252-8-28
ЦРА I кат., 2-этажное, каркасно-па-нельное здание

81

-

-

+

-

+

* Минск, Пс 02-91

Типовой проект 254-8-29 служит примером аптеки, в которой необходимы устройство пандуса при входе, расстановка оборудования с учетом удобного пользования им инвалидами на колясках и другими маломобильными группами населения.

План 1 -го этажа

1 - торговый зал; 2 - пандус

Типовой проект 251-8-47.13.68 является примером аптеки, где необходимы устройство пандуса при входе, расстановка оборудования с учетом комфортного пользования им инвалидами на креслах-колясках и другими маломобильными группами населения.

План 1-го этажа

1 - торговый зал; 2 - пандус

Типовой проект 254-8-48.1.88 служит примером аптеки, в которой необходимы устройство пандуса при входе, расстановка оборудования с учетом удобного пользования им инвалидами на колясках и другими маломобильными группами населения.

План 1-го этажа

1 - торговый зал; 2 - пандус

Типовой проект 254-8-25 служит примером аптеки, в которой необходимы устройство пандуса при входе, а также расстановка оборудования в торговом зале, удобного для пользования им инвалидами на колясках и другими маломобильными группами населения.

План 1-го этажа

1 - торговый зал; 2 - пандус

Типовой проект 254-8-22М служит примером аптеки, в которой необходимы устройство пандуса при входе, расстановка оборудования с учетом пользования им инвалидами на колясках и другими маломобильными группами населения.

План 1 -го этажа

1 - торговый зал; 2 - пандус

Типовой проект 252-8-23 служит примером аптеки, в которой необходимы устройство пандуса при входе, а также расстановка оборудования в торговом зале с учетом удобного пользования им инвалидами на колясках и другими маломобильными группами населения.

План 1-го этажа

1 - торговый зал; 2 - пандус

Типовой проект 252-8-28 служит примером аптеки, в которой необходимы устройство пандуса при входе, а также расстановка оборудования торгового зала с учетом удобного пользования им инвалидами на колясках и другими маломобильными группами населения. В торговом зале имеются отдельно стоящие колонны, которые могут затруднить передвижение инвалидов по помещению.

План 1 -го этажа

1 - торговый зал; 2 - пандус

Пример включения медпункта и аптечного киоска в жилом образовании Центра обслуживания нетрудоспособных людей в состав жилого комплекса для престарелых и инвалидов в жилом микрорайоне «Зие-мельблазма» в г. Риге.

Жилой комплекс для престарелых и инвалидов в г. Риге, 1980 г.

А - девятиэтажный жилой дом с квартирами для престарелых и инвалидов (1-2-е этажи); Б - шести-, семиэтажный жилой дом с квартирами для престарелых.

Поэтажные планы

1 - помещение для хранения колясок; 2 - медпункт; 3 - парикмахерская; 4 - комендант; 5 - аптечный киоск; 6 - столовая; 7 - магазин-кулинария

Пример включения аптечного киоска в 14-этажный специализированный каркасный жилой дом с шагом внутренних поперечных несущих стен 6,5 м, с комплексом служб социально-бытового назначения и помещениями для трудовой деятельности для одиноких граждан старшей возрастной группы и супружеских пар пожилого возраста в микрорайоне 3 Митино в Москве (проект И-1311).

Жилой дом серии II-68 с социально-бытовым комплексом

План 1-го этажа

1 - аптечный киоск

ДЕТАЛИ И ЭЛЕМЕНТЫ

Аптечные прилавки должны быть доступными для инвалидов, передвигающихся в креслах-колясках. Товар на прилавках следует располагать в поле зрения людей, сидящих в инвалидных колясках. Конструкция, состоящая из мелких элементов, позволяет компоновать прилавок, отвечающий требованиям конкретного помещения.

Аптечный прилавок, позволяющий расположить товар на уровне видимости инвалида в кресле-коляске

А - вид спереди; Б - план; В - пример расположения в помещении; 1 - полка из стекла; 2 - несущий каркас; 3 - шкафы с товаром

Пример устройства аптечного прилавка, состоящего из трех частей, с учетом потребностей инвалида на кресле-коляске.

Стеклянная витрина позволяет расположить товар на полках в несколько ярусов в поле зрения инвалида в кресле-коляске.

Низкий прилавок, состоящий из откидной доски, служит местом обслуживания инвалида, а в нерабочем положении является проходом для продавца. Место для продавца с кассовым аппаратом - стандартное решение торгового оборудования.

Аптечный прилавок, доступный для инвалида в кресле-коляске

А - вид спереди; Б - план; В - расположение в интерьере; 1 - витрина из стекла; 2 - прилавок, состоящий из откидной доски, служащий местом обслуживания инвалида; 3 - прилавок для продавца с кассовым аппаратом; 4 - шкафы с товаром

Приложение

ОБЩИЙ ПЕРЕЧЕНЬ РЕКОМЕНДАЦИЙ ПО ПРОЕКТИРОВАНИЮ
ОКРУЖАЮЩЕЙ СРЕДЫ, ЗДАНИЙ И СООРУЖЕНИЙ С УЧЕТОМ
ПОТРЕБНОСТЕЙ ИНВАЛИДОВ И ДРУГИХ МАЛОМОБИЛЬНЫХ
ГРУПП НАСЕЛЕНИЯ

Номер выпуска

Наименование выпуска

1

Общие положения

2

Градостроительные требования

3

Жилые здания и комплексы

4*

Общественные здания и сооружения. Учреждения бытового обслуживания населения и общественного питания

5*

Общественные здания и сооружения. Учреждения торговли

6*

Общественные здания и сооружения. Специализированные детские дошкольные учреждения

7

Часть 1. Проектирование новых и адаптация существующих зданий для воспитания, обучения и реабилитации детей-инвалидов

8*

Общественные здания и сооружения. Высшие учебные заведения

9*

Общественные здания и сооружения. Стационарные коррекционные учреждения для детей-инвалидов: дома-интернаты, школы-интернаты

10

Общественные здания и сооружения. Учреждения лечебно-профилактические: поликлиники, амбулатории, аптеки

11*

Общественные здания и сооружения. Учреждения санаторно-курортного лечения и отдыха

12

Общественные здания и сооружения. Спортивные сооружения

13

Общественные здания и сооружения. Физкультурно-оздоровительные сооружения

14

Общественные здания и сооружения. Кинотеатры, клубы, библиотеки, музеи

15*

Общественные здания и сооружения. Театры, театры-студии, цирки, спортивно-зрелищные залы, стадионы

16*

Общественные здания и сооружения. Учреждения управления и информации, проектные и научно-исследовательские организации

17*

Общественные здания и сооружения. Учреждения кредитно-финансовые

18*

Общественные здания и сооружения. Культовые здания и сооружения различных конфессий

19

Общественные здания и сооружения. Здания и сооружения транспортного назначения

20

Промышленные предприятия, здания и сооружения для труда инвалидов различных категорий

21*

Реконструкция и модернизация зданий и сооружений

22*

Мероприятия по обеспечению эвакуации инвалидов в экстремальных условиях

* Планируются к изданию.

1. СНиП 2.08.02-89*. Общественные здания и сооружения. - М.: ГП ЦПП, 1993.

2. ВСН 62-91*. Проектирование среды жизнедеятельности с учетом потребностей инвалидов и маломобильных групп населения/Госстрой России. - М.: ГП ЦПП, 1994.

3. РДС 35-201-98. Порядок реализации требований доступности для инвалидов к объектам социальной инфраструктуры/Совет по делам инвалидов при Президенте Российской Федерации, Госстрой России, Минтруд России. - М.: ГУП ЦПП, 1998.

4. Амбулаторно-поликлинические учреждения. Пособие к СНиП 2.08.02-89*/Гипронииздрав. - М., 1990.

5. Рекомендации по проектированию окружающей среды, зданий и сооружений с учетом потребностей инвалидов и других маломобильных групп населения: Вып. 2. Градостроительные требования/Минстрой России, Минсоцзащиты России. АО ЦНИИЭП им. Б. С. Мезенцева. - М.: ГП ЦПП, 1995.-36с.

6. Рекомендации по проектированию окружающей среды, зданий и сооружений с учетом потребностей инвалидов и других маломобильных групп населения: Вып. 1. Общие положения/Минстрой России, Минсоцзащиты России, АО ЦНИИЭП им. Б.С. Мезенцева. - М.: ГП ЦПП, 1995.-52с.

7. Архитектурная среда обитания инвалидов и престарелых. - М.: Стройиздат, 1989.

8. Калмет Х.Ю. Жилая среда для инвалидов. - М.: Стройиздат, 1890.

9. Обеспечение возможности передвижения инвалидов и престарелых в больших городах// Проблемы больших городов. Обзорная информация. Вып. 26. - М.: Госплан РСФСР, ЦНТИ и пропаганды.

10. Степанов В.К., Шарапенко В.К. Среда обитания для людей с недостатками зрения. - М.: ЦНТИ, 1982.

11. Рекомендации по проектированию различных типов жилища для престарелых и инвалидов. - Иваново, 1991.

12. Типовая инструкция по обеспечению передвижения инвалидов, пользующихся креслами-колясками, в проектах общественных зданий, планировки и застройки населенных мест. - М., 1988.

13. European Manual for an Accessible Built Enviroment. - CCPT, 1990.

14. Barriar-Free Design. The Law. V. 1 № V, 1989.

15. Geboden Toegang. Druk Libertas Drukverk Service, Utrecht, The Netherlands, 1990.

16. Рекомендации по реновации существующего фонда поликлиник, построенных по проектам разных лет/Гипронииздрав. - М., 1992.

17. Методические рекомендации по проектированию отдельно стоящих и встроенных микрополиклиник /Гипронииздрав. - М., 1992.

СОДЕРЖАНИЕ

 

 




ГОСТЫ, СТРОИТЕЛЬНЫЕ и ТЕХНИЧЕСКИЕ НОРМАТИВЫ.
Некоммерческая онлайн система, содержащая все Российские Госты, национальные Стандарты и нормативы.
В Системе содержится более 150000 файлов нормативно-технической документации, действующей на территории РФ.
Система предназначена для широкого круга инженерно-технических специалистов.

Рейтинг@Mail.ru Яндекс цитирования

Copyright © www.gostrf.com, 2008 - 2026