Крупнейшая бесплатная информационно-справочная система онлайн доступа к полному собранию технических нормативно-правовых актов РФ. Огромная база технических нормативов (более 150 тысяч документов) и полное собрание национальных стандартов, аутентичное официальной базе Госстандарта. GOSTRF.com - это более 1 Терабайта бесплатной технической информации для всех пользователей интернета. Все электронные копии представленных здесь документов могут распространяться без каких-либо ограничений. Поощряется распространение информации с этого сайта на любых других ресурсах. Каждый человек имеет право на неограниченный доступ к этим документам! Каждый человек имеет право на знание требований, изложенных в данных нормативно-правовых актах!

  


 

ГОСТ 14098-91

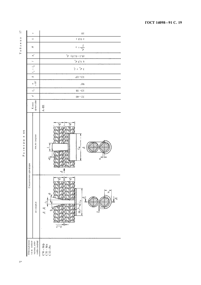
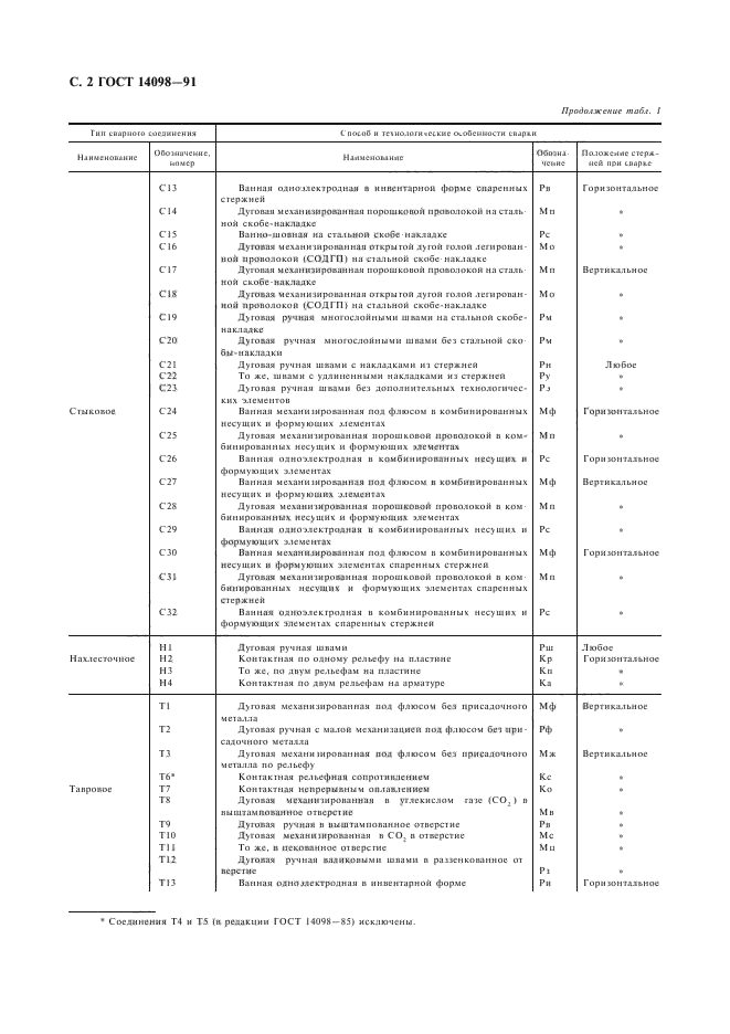
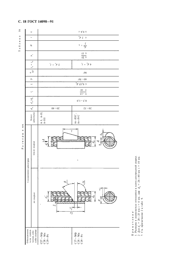
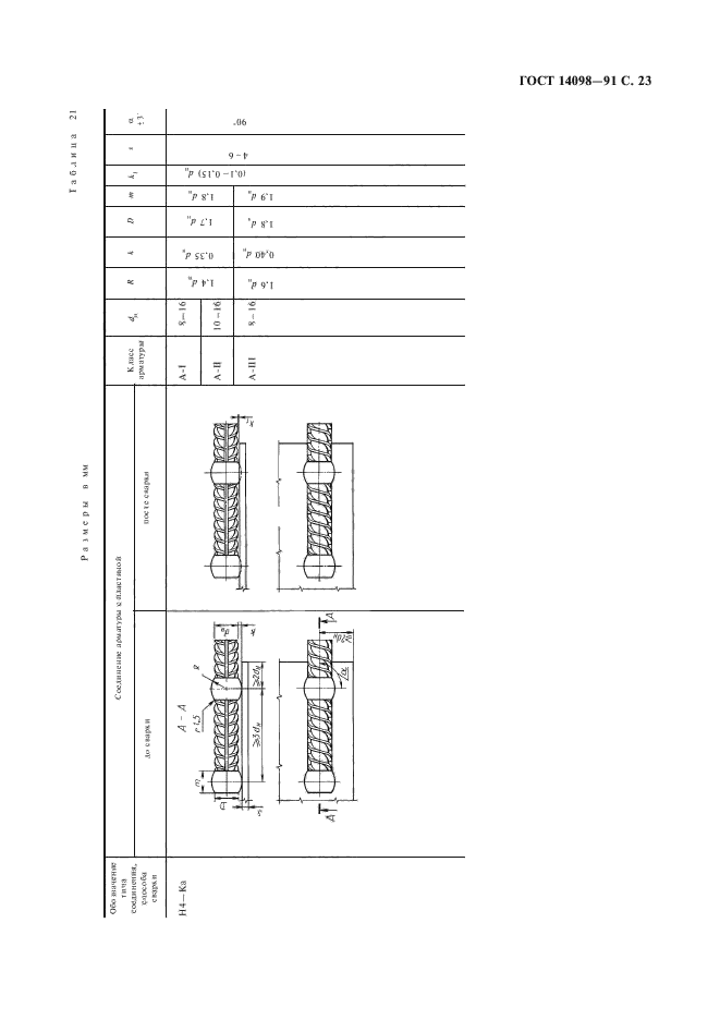
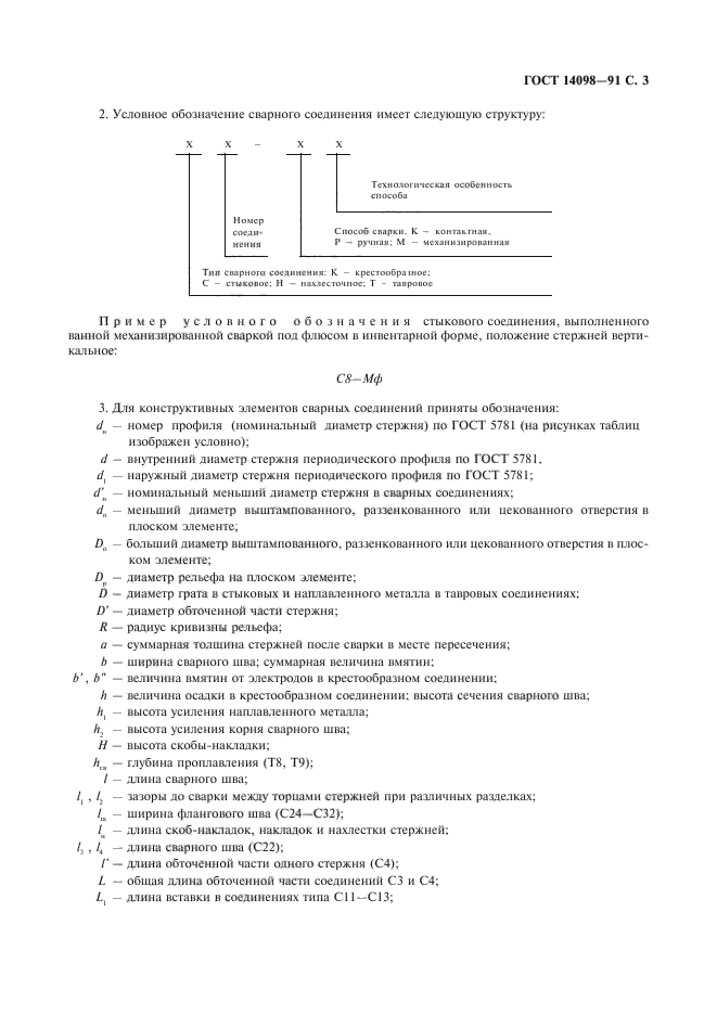
Соединения сварные арматуры и закладных изделий железобетонных конструкций. Типы, конструкции и размеры

Обозначение:ГОСТ 14098-91
Текущий статус документа: действующий
Название документа рус.:Соединения сварные арматуры и закладных изделий железобетонных конструкций. Типы, конструкции и размеры
Название документа англ.:Welded joints of reinforcement and inserts for reinforced concrete structures. Types, constructions and dimensions
Дата актуализации текста:01.12.2013
Дата издания:01.07.2007
Дата введения:30.06.1992
Дата последнего изменения:22.05.2013
Переиздание:переиздание
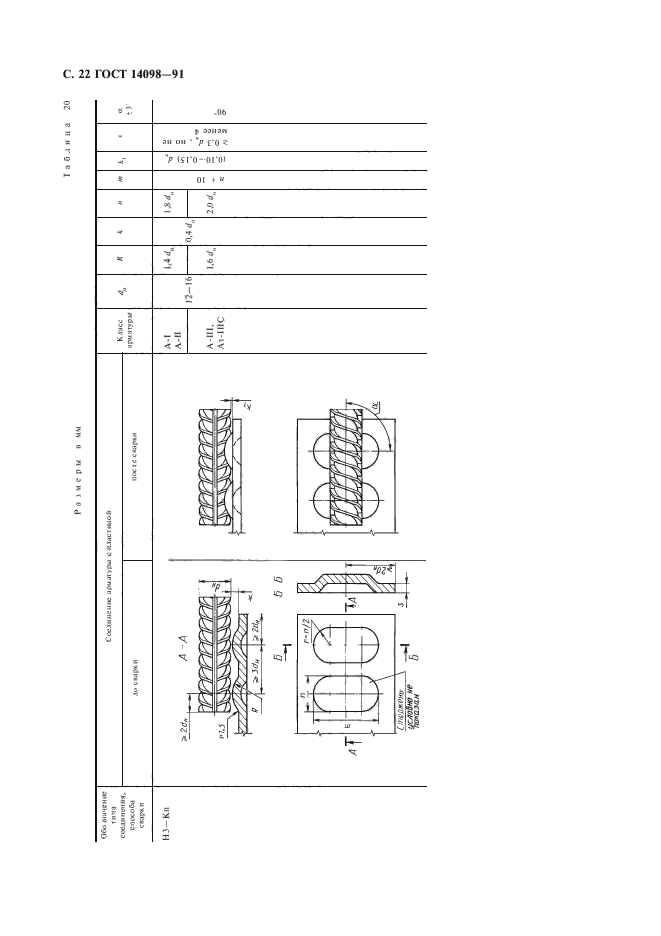
Область применения:Настоящий стандарт распространяется на сварные соединения стержневой арматуры и арматурной проволоки диаметром 3 мм и более, сварные соединения стержневой арматуры с прокатом толщиной от 4 до 30 мм, выполняемые при изготовлении арматурных и закладных изделий железобетонных конструкций, а также при монтаже сборных и возведении монолитных железобетонных конструкций.
Стандарт не распространяется на сварные соединения закладных изделий, не имеющих анкерных стержней из арматурной стали
ГОСТ 14098-91ГОСТ 14098-91ГОСТ 14098-91ГОСТ 14098-91ГОСТ 14098-91ГОСТ 14098-91ГОСТ 14098-91ГОСТ 14098-91ГОСТ 14098-91ГОСТ 14098-91ГОСТ 14098-91ГОСТ 14098-91ГОСТ 14098-91ГОСТ 14098-91ГОСТ 14098-91ГОСТ 14098-91ГОСТ 14098-91ГОСТ 14098-91ГОСТ 14098-91ГОСТ 14098-91ГОСТ 14098-91ГОСТ 14098-91ГОСТ 14098-91ГОСТ 14098-91ГОСТ 14098-91ГОСТ 14098-91ГОСТ 14098-91ГОСТ 14098-91ГОСТ 14098-91ГОСТ 14098-91ГОСТ 14098-91ГОСТ 14098-91ГОСТ 14098-91ГОСТ 14098-91ГОСТ 14098-91ГОСТ 14098-91ГОСТ 14098-91ГОСТ 14098-91ГОСТ 14098-91ГОСТ 14098-91ГОСТ 14098-91
 




ГОСТЫ, СТРОИТЕЛЬНЫЕ и ТЕХНИЧЕСКИЕ НОРМАТИВЫ.
Некоммерческая онлайн система, содержащая все Российские Госты, национальные Стандарты и нормативы.
В Системе содержится более 150000 файлов нормативно-технической документации, действующей на территории РФ.
Система предназначена для широкого круга инженерно-технических специалистов.

Рейтинг@Mail.ru Яндекс цитирования

Copyright © www.gostrf.com, 2008 - 2026