Крупнейшая бесплатная информационно-справочная система онлайн доступа к полному собранию технических нормативно-правовых актов РФ. Огромная база технических нормативов (более 150 тысяч документов) и полное собрание национальных стандартов, аутентичное официальной базе Госстандарта. GOSTRF.com - это более 1 Терабайта бесплатной технической информации для всех пользователей интернета. Все электронные копии представленных здесь документов могут распространяться без каких-либо ограничений. Поощряется распространение информации с этого сайта на любых других ресурсах. Каждый человек имеет право на неограниченный доступ к этим документам! Каждый человек имеет право на знание требований, изложенных в данных нормативно-правовых актах!

  


 

ГОСТ Р 41.52-2005

Единообразные предписания, касающиеся транспортных средств малой вместимости категорий М2 и М3 в отношении их общей конструкции

Обозначение:ГОСТ Р 41.52-2005
Текущий статус документа: действующий
Название документа рус.:Единообразные предписания, касающиеся транспортных средств малой вместимости категорий М2 и М3 в отношении их общей конструкции
Название документа англ.:Uniform provisions concerning the categories M2 and M3 small capacity vehicles with regard to their general construction
Дата актуализации текста:01.12.2013
Дата издания:01.09.2007
Дата введения:01.01.2007
Дата последнего изменения:22.05.2013
Переиздание:переиздание
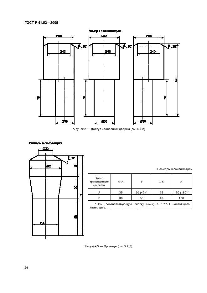
Область применения:Настоящий стандарт распространяется на одноэтажные одиночные транспортные средства категорий М2 и М 3, предназначенные для перевозки пассажиров, вместимостью не более 22 сидящих или сидящих и стоящих пассажиров, исключая водителя.
Настоящий стандарт не распространяется на транспортные средства, предназначенные для перевозки пассажиров с ограниченной способностью к передвижению
ГОСТ Р 41.52-2005ГОСТ Р 41.52-2005ГОСТ Р 41.52-2005ГОСТ Р 41.52-2005ГОСТ Р 41.52-2005ГОСТ Р 41.52-2005ГОСТ Р 41.52-2005ГОСТ Р 41.52-2005ГОСТ Р 41.52-2005ГОСТ Р 41.52-2005ГОСТ Р 41.52-2005ГОСТ Р 41.52-2005ГОСТ Р 41.52-2005ГОСТ Р 41.52-2005ГОСТ Р 41.52-2005ГОСТ Р 41.52-2005ГОСТ Р 41.52-2005ГОСТ Р 41.52-2005ГОСТ Р 41.52-2005ГОСТ Р 41.52-2005ГОСТ Р 41.52-2005ГОСТ Р 41.52-2005ГОСТ Р 41.52-2005ГОСТ Р 41.52-2005ГОСТ Р 41.52-2005ГОСТ Р 41.52-2005ГОСТ Р 41.52-2005ГОСТ Р 41.52-2005ГОСТ Р 41.52-2005ГОСТ Р 41.52-2005ГОСТ Р 41.52-2005ГОСТ Р 41.52-2005ГОСТ Р 41.52-2005ГОСТ Р 41.52-2005ГОСТ Р 41.52-2005ГОСТ Р 41.52-2005ГОСТ Р 41.52-2005ГОСТ Р 41.52-2005ГОСТ Р 41.52-2005ГОСТ Р 41.52-2005ГОСТ Р 41.52-2005ГОСТ Р 41.52-2005ГОСТ Р 41.52-2005ГОСТ Р 41.52-2005
 




ГОСТЫ, СТРОИТЕЛЬНЫЕ и ТЕХНИЧЕСКИЕ НОРМАТИВЫ.
Некоммерческая онлайн система, содержащая все Российские Госты, национальные Стандарты и нормативы.
В Системе содержится более 150000 файлов нормативно-технической документации, действующей на территории РФ.
Система предназначена для широкого круга инженерно-технических специалистов.

Рейтинг@Mail.ru Яндекс цитирования

Copyright © www.gostrf.com, 2008 - 2026