Крупнейшая бесплатная информационно-справочная система онлайн доступа к полному собранию технических нормативно-правовых актов РФ. Огромная база технических нормативов (более 150 тысяч документов) и полное собрание национальных стандартов, аутентичное официальной базе Госстандарта. GOSTRF.com - это более 1 Терабайта бесплатной технической информации для всех пользователей интернета. Все электронные копии представленных здесь документов могут распространяться без каких-либо ограничений. Поощряется распространение информации с этого сайта на любых других ресурсах. Каждый человек имеет право на неограниченный доступ к этим документам! Каждый человек имеет право на знание требований, изложенных в данных нормативно-правовых актах!

  


 

ГОСТ Р МЭК 60297-3-101-2006

Конструкции несущие базовые радиоэлектронных средств. Блочные каркасы и связанные с ними вставные блоки. Размеры конструкций серии 482,6 мм (19 дюймов)

Обозначение:ГОСТ Р МЭК 60297-3-101-2006
Текущий статус документа: действующий
Название документа рус.:Конструкции несущие базовые радиоэлектронных средств. Блочные каркасы и связанные с ними вставные блоки. Размеры конструкций серии 482,6 мм (19 дюймов)
Название документа англ.:Mechanical structures for radio-electronic equipment. Subracks and associated plug-in units. Dimensions of mechanical structures of the 482,6 mm (19 in) series
Дата актуализации текста:01.12.2013
Дата издания:31.07.2007
Дата введения:01.01.2008
Дата последнего изменения:22.05.2013
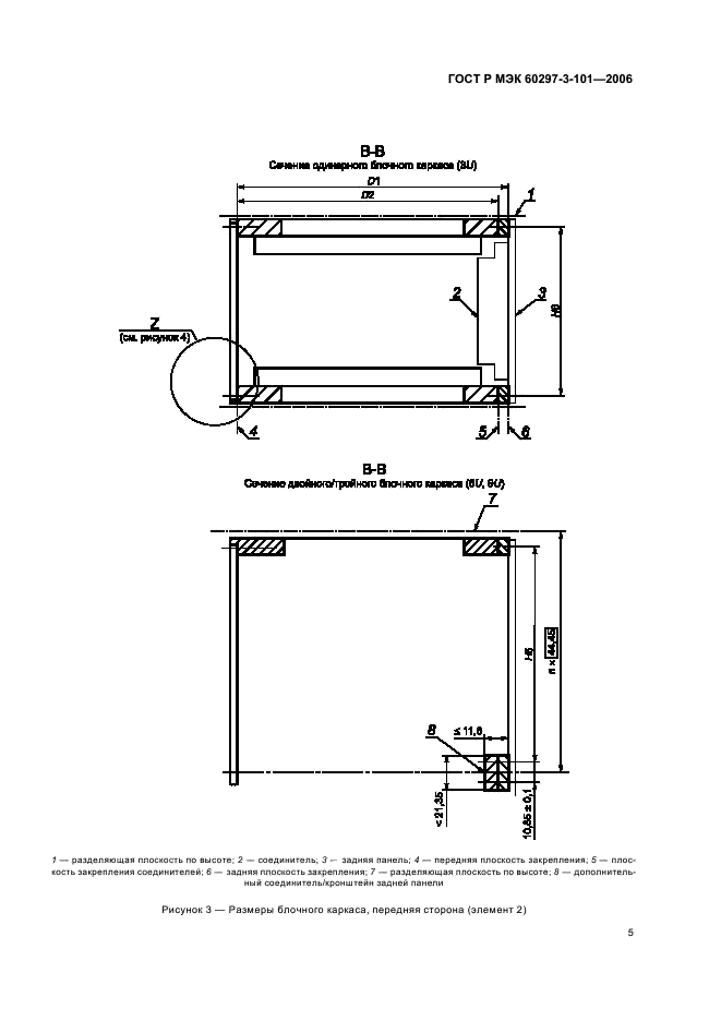
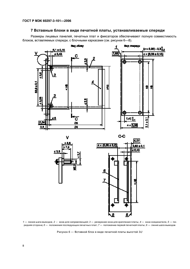
Область применения:Настоящий стандарт распространяется на основные размеры модульного ряда блочных каркасов и связанных с ними вставных блоков в соответствии со стандартами серии МЭК 60297.
Настоящий стандарт предназначен для определения размеров, обеспечивающих размерную взаимозаменяемость блочных каркасов и вставных блоков. Размеры применяемых разъемов ограничены только установочными размерами
ГОСТ Р МЭК 60297-3-101-2006ГОСТ Р МЭК 60297-3-101-2006ГОСТ Р МЭК 60297-3-101-2006ГОСТ Р МЭК 60297-3-101-2006ГОСТ Р МЭК 60297-3-101-2006ГОСТ Р МЭК 60297-3-101-2006ГОСТ Р МЭК 60297-3-101-2006ГОСТ Р МЭК 60297-3-101-2006ГОСТ Р МЭК 60297-3-101-2006ГОСТ Р МЭК 60297-3-101-2006ГОСТ Р МЭК 60297-3-101-2006ГОСТ Р МЭК 60297-3-101-2006ГОСТ Р МЭК 60297-3-101-2006ГОСТ Р МЭК 60297-3-101-2006ГОСТ Р МЭК 60297-3-101-2006ГОСТ Р МЭК 60297-3-101-2006ГОСТ Р МЭК 60297-3-101-2006ГОСТ Р МЭК 60297-3-101-2006ГОСТ Р МЭК 60297-3-101-2006ГОСТ Р МЭК 60297-3-101-2006ГОСТ Р МЭК 60297-3-101-2006ГОСТ Р МЭК 60297-3-101-2006ГОСТ Р МЭК 60297-3-101-2006ГОСТ Р МЭК 60297-3-101-2006
 




ГОСТЫ, СТРОИТЕЛЬНЫЕ и ТЕХНИЧЕСКИЕ НОРМАТИВЫ.
Некоммерческая онлайн система, содержащая все Российские Госты, национальные Стандарты и нормативы.
В Системе содержится более 150000 файлов нормативно-технической документации, действующей на территории РФ.
Система предназначена для широкого круга инженерно-технических специалистов.

Рейтинг@Mail.ru Яндекс цитирования

Copyright © www.gostrf.com, 2008 - 2026