Крупнейшая бесплатная информационно-справочная система онлайн доступа к полному собранию технических нормативно-правовых актов РФ. Огромная база технических нормативов (более 150 тысяч документов) и полное собрание национальных стандартов, аутентичное официальной базе Госстандарта. GOSTRF.com - это более 1 Терабайта бесплатной технической информации для всех пользователей интернета. Все электронные копии представленных здесь документов могут распространяться без каких-либо ограничений. Поощряется распространение информации с этого сайта на любых других ресурсах. Каждый человек имеет право на неограниченный доступ к этим документам! Каждый человек имеет право на знание требований, изложенных в данных нормативно-правовых актах!

  


 

ГОСТ 31336-2006

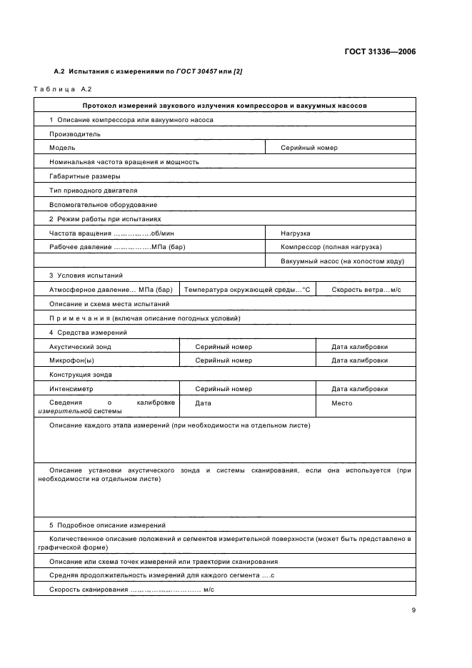
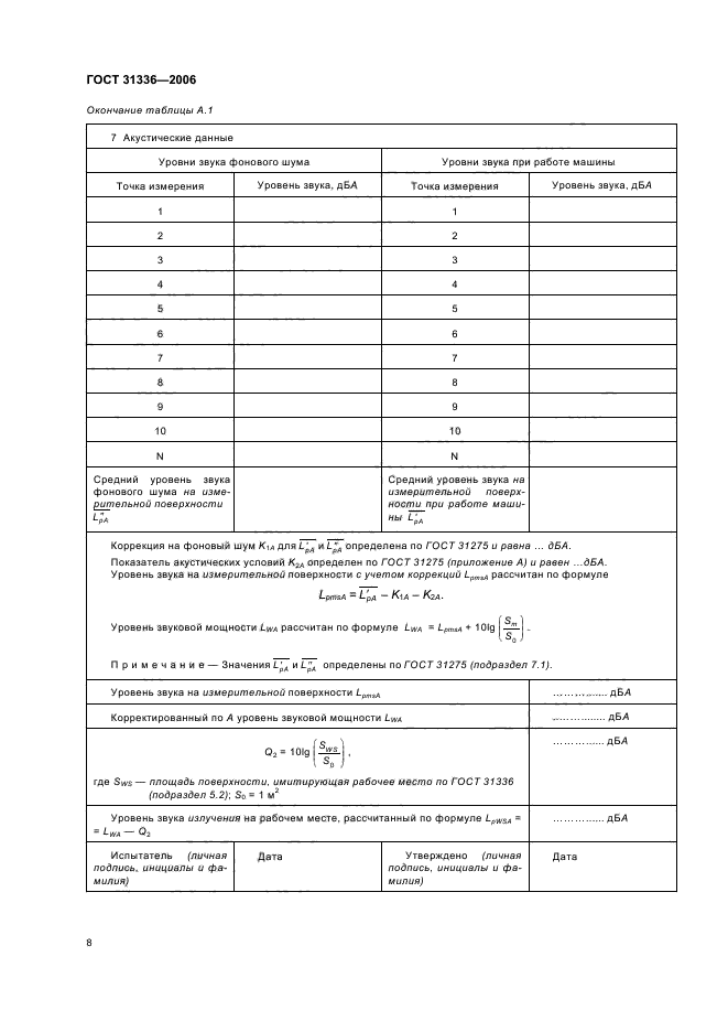
Шум машин. Технические методы измерения шума компрессоров и вакуумных насосов

Обозначение:ГОСТ 31336-2006
Текущий статус документа: действующий
Название документа рус.:Шум машин. Технические методы измерения шума компрессоров и вакуумных насосов
Название документа англ.:Noise of machines. Engineering methods for measurement of noise of compressors and vacuum pumps
Дата актуализации текста:01.12.2013
Дата издания:01.04.2008
Дата введения:30.09.2007
Дата последнего изменения:22.05.2013
Переиздание:переиздание
Взамен в части: в части методов измерений шума компрессоров
Область применения:Настоящий стандарт устанавливает методы измерения звукового излучения передвижных и стационарных компрессоров и вакуумных насосов и заявления значений их шумовых характеристик.
Стандарт устанавливает требования к монтажу, нагрузке и режиму работы машин при испытаниях и следующие шумовые характеристики: уровень звуковой мощности на заданном режиме работы; уровень звукового давления излучения на рабочем месте на заданном режиме работы.
Настоящий стандарт распространяется на следующие машины: газовые компрессоры (для различных газов); маслосмазываемые воздушные копрессоры; маслозаполненные воздушные компрессоры; водозаполненные воздушные компрессоры; бессмазочные воздушные компрессоры; газовые копрессоры для опасных газов; кислородные компрессоры; компрессоры для ацетилена; компрессоры высокого давления (свыше 4МПа (40 бар); компрессоры для низких температур на всасывании (ниже 0 град. С); крупные компрессоры (потребляемая мощность более 1000 кВт); передвижные воздушные компрессоры и воздушные компрессоры на салазках; роторные воздуходувки, центробежные вентиляторы и вытяжные вентиляторы для давления <= 0,2 МПа (<= 2 бар).
Настоящий стандарт не распространяется на: газовые компрессоры (кроме ацетилена) с максимально допустимым рабочим давлением менее 0,05 МПа (0,5 бар); холодильные компрессоры систем охлаждения или тепловых насосов; портативные переносные компрессоры
ГОСТ 31336-2006ГОСТ 31336-2006ГОСТ 31336-2006ГОСТ 31336-2006ГОСТ 31336-2006ГОСТ 31336-2006ГОСТ 31336-2006ГОСТ 31336-2006ГОСТ 31336-2006ГОСТ 31336-2006ГОСТ 31336-2006ГОСТ 31336-2006ГОСТ 31336-2006ГОСТ 31336-2006ГОСТ 31336-2006ГОСТ 31336-2006ГОСТ 31336-2006ГОСТ 31336-2006ГОСТ 31336-2006ГОСТ 31336-2006ГОСТ 31336-2006ГОСТ 31336-2006ГОСТ 31336-2006
 




ГОСТЫ, СТРОИТЕЛЬНЫЕ и ТЕХНИЧЕСКИЕ НОРМАТИВЫ.
Некоммерческая онлайн система, содержащая все Российские Госты, национальные Стандарты и нормативы.
В Системе содержится более 150000 файлов нормативно-технической документации, действующей на территории РФ.
Система предназначена для широкого круга инженерно-технических специалистов.

Рейтинг@Mail.ru Яндекс цитирования

Copyright © www.gostrf.com, 2008 - 2026