Крупнейшая бесплатная информационно-справочная система онлайн доступа к полному собранию технических нормативно-правовых актов РФ. Огромная база технических нормативов (более 150 тысяч документов) и полное собрание национальных стандартов, аутентичное официальной базе Госстандарта. GOSTRF.com - это более 1 Терабайта бесплатной технической информации для всех пользователей интернета. Все электронные копии представленных здесь документов могут распространяться без каких-либо ограничений. Поощряется распространение информации с этого сайта на любых других ресурсах. Каждый человек имеет право на неограниченный доступ к этим документам! Каждый человек имеет право на знание требований, изложенных в данных нормативно-правовых актах!

  


 

ГОСТ Р ИСО 13706-2006

Аппараты с воздушным охлаждением. Общие технические требования

Обозначение:ГОСТ Р ИСО 13706-2006
Текущий статус документа: отменён
Название документа рус.:Аппараты с воздушным охлаждением. Общие технические требования
Название документа англ.:Air cooled apparatus. General technical requirements
Дата актуализации текста:01.12.2013
Дата издания:24.09.2007
Дата введения:01.10.2007
Дата последнего изменения:22.05.2013
Дата окончания срока действия:01.01.2013
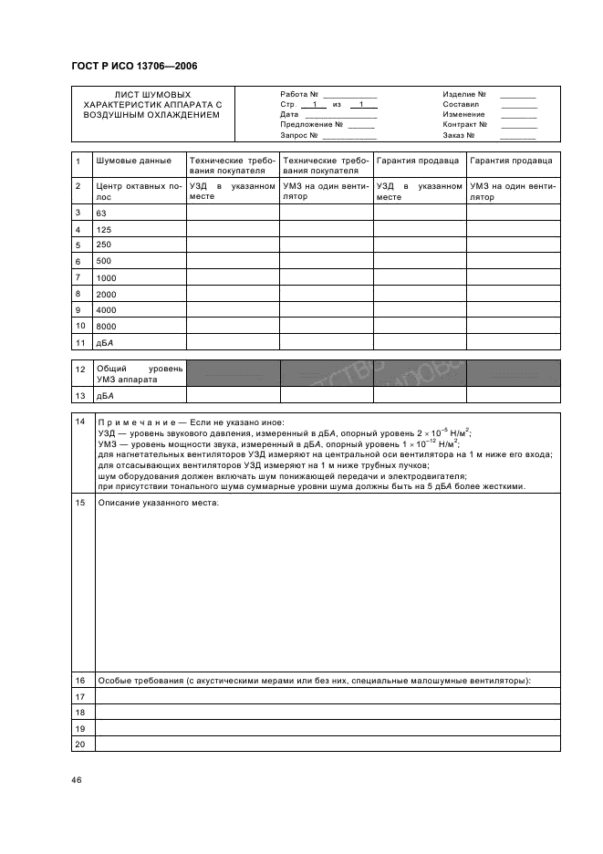
Область применения:Настоящий стандарт устанавливает требования и рекомендации по проектированию, материалам, изготовлению, контролю, испытаниям и подготовке к отгрузке аппаратов с воздушным охлаждением для использования в нефтяной и газовой промышленности.
Настоящий стандарт применим к аппаратам с воздушным охлаждением, предназначенным для охлажения и конденсации различных сред с горизонтальными трубными пучками, но его основные требования допускается применять и к другим конфигурациям
Список изменений:№0 от 01.01.2008 (рег. 01.01.2008) «Дата введения перенесена»
№0 от 01.01.2013 (рег. 13.12.2011) «Текстовое изменение; Изменено заглавие»
Приложение №1:Поправка к ГОСТ Р ИСО 13706-2006
ГОСТ Р ИСО 13706-2006ГОСТ Р ИСО 13706-2006ГОСТ Р ИСО 13706-2006ГОСТ Р ИСО 13706-2006ГОСТ Р ИСО 13706-2006ГОСТ Р ИСО 13706-2006ГОСТ Р ИСО 13706-2006ГОСТ Р ИСО 13706-2006ГОСТ Р ИСО 13706-2006ГОСТ Р ИСО 13706-2006ГОСТ Р ИСО 13706-2006ГОСТ Р ИСО 13706-2006ГОСТ Р ИСО 13706-2006ГОСТ Р ИСО 13706-2006ГОСТ Р ИСО 13706-2006ГОСТ Р ИСО 13706-2006ГОСТ Р ИСО 13706-2006ГОСТ Р ИСО 13706-2006ГОСТ Р ИСО 13706-2006ГОСТ Р ИСО 13706-2006ГОСТ Р ИСО 13706-2006ГОСТ Р ИСО 13706-2006ГОСТ Р ИСО 13706-2006ГОСТ Р ИСО 13706-2006ГОСТ Р ИСО 13706-2006ГОСТ Р ИСО 13706-2006ГОСТ Р ИСО 13706-2006ГОСТ Р ИСО 13706-2006ГОСТ Р ИСО 13706-2006ГОСТ Р ИСО 13706-2006ГОСТ Р ИСО 13706-2006ГОСТ Р ИСО 13706-2006ГОСТ Р ИСО 13706-2006ГОСТ Р ИСО 13706-2006ГОСТ Р ИСО 13706-2006ГОСТ Р ИСО 13706-2006ГОСТ Р ИСО 13706-2006ГОСТ Р ИСО 13706-2006ГОСТ Р ИСО 13706-2006ГОСТ Р ИСО 13706-2006ГОСТ Р ИСО 13706-2006ГОСТ Р ИСО 13706-2006ГОСТ Р ИСО 13706-2006ГОСТ Р ИСО 13706-2006ГОСТ Р ИСО 13706-2006ГОСТ Р ИСО 13706-2006ГОСТ Р ИСО 13706-2006ГОСТ Р ИСО 13706-2006ГОСТ Р ИСО 13706-2006ГОСТ Р ИСО 13706-2006ГОСТ Р ИСО 13706-2006ГОСТ Р ИСО 13706-2006ГОСТ Р ИСО 13706-2006ГОСТ Р ИСО 13706-2006ГОСТ Р ИСО 13706-2006ГОСТ Р ИСО 13706-2006ГОСТ Р ИСО 13706-2006ГОСТ Р ИСО 13706-2006ГОСТ Р ИСО 13706-2006ГОСТ Р ИСО 13706-2006ГОСТ Р ИСО 13706-2006ГОСТ Р ИСО 13706-2006ГОСТ Р ИСО 13706-2006ГОСТ Р ИСО 13706-2006ГОСТ Р ИСО 13706-2006ГОСТ Р ИСО 13706-2006ГОСТ Р ИСО 13706-2006ГОСТ Р ИСО 13706-2006ГОСТ Р ИСО 13706-2006ГОСТ Р ИСО 13706-2006ГОСТ Р ИСО 13706-2006ГОСТ Р ИСО 13706-2006ГОСТ Р ИСО 13706-2006ГОСТ Р ИСО 13706-2006ГОСТ Р ИСО 13706-2006ГОСТ Р ИСО 13706-2006ГОСТ Р ИСО 13706-2006ГОСТ Р ИСО 13706-2006ГОСТ Р ИСО 13706-2006ГОСТ Р ИСО 13706-2006ГОСТ Р ИСО 13706-2006ГОСТ Р ИСО 13706-2006ГОСТ Р ИСО 13706-2006ГОСТ Р ИСО 13706-2006ГОСТ Р ИСО 13706-2006ГОСТ Р ИСО 13706-2006ГОСТ Р ИСО 13706-2006ГОСТ Р ИСО 13706-2006ГОСТ Р ИСО 13706-2006ГОСТ Р ИСО 13706-2006ГОСТ Р ИСО 13706-2006ГОСТ Р ИСО 13706-2006ГОСТ Р ИСО 13706-2006ГОСТ Р ИСО 13706-2006ГОСТ Р ИСО 13706-2006ГОСТ Р ИСО 13706-2006ГОСТ Р ИСО 13706-2006ГОСТ Р ИСО 13706-2006ГОСТ Р ИСО 13706-2006ГОСТ Р ИСО 13706-2006ГОСТ Р ИСО 13706-2006

Поправка к ГОСТ Р ИСО 13706-2006

Обозначение:Поправка к ГОСТ Р ИСО 13706-2006
Дата введения:01.01.2008


Поправка к ГОСТ Р ИСО 13706-2006
 




ГОСТЫ, СТРОИТЕЛЬНЫЕ и ТЕХНИЧЕСКИЕ НОРМАТИВЫ.
Некоммерческая онлайн система, содержащая все Российские Госты, национальные Стандарты и нормативы.
В Системе содержится более 150000 файлов нормативно-технической документации, действующей на территории РФ.
Система предназначена для широкого круга инженерно-технических специалистов.

Рейтинг@Mail.ru Яндекс цитирования

Copyright © www.gostrf.com, 2008 - 2026