Крупнейшая бесплатная информационно-справочная система онлайн доступа к полному собранию технических нормативно-правовых актов РФ. Огромная база технических нормативов (более 150 тысяч документов) и полное собрание национальных стандартов, аутентичное официальной базе Госстандарта. GOSTRF.com - это более 1 Терабайта бесплатной технической информации для всех пользователей интернета. Все электронные копии представленных здесь документов могут распространяться без каких-либо ограничений. Поощряется распространение информации с этого сайта на любых других ресурсах. Каждый человек имеет право на неограниченный доступ к этим документам! Каждый человек имеет право на знание требований, изложенных в данных нормативно-правовых актах!

  


 

ГОСТ 2.104-2006

Единая система конструкторской документации. Основные надписи

Обозначение:ГОСТ 2.104-2006
Текущий статус документа: действующий
Название документа рус.:Единая система конструкторской документации. Основные надписи
Название документа англ.:Unified system for design documentation. Basic inscriptions
Дата актуализации текста:01.12.2013
Дата издания:01.08.2007
Дата введения:31.08.2006
Дата последнего изменения:22.05.2013
Переиздание:переиздание с поправкой
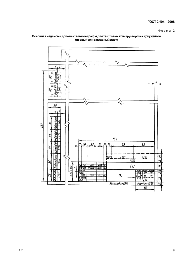
Область применения:Настоящий стандарт устанавливает формы, размеры, номенклатуру реквизитов и порядок заполнения основной надписи и дополнительных граф к ней в конструкторских документах, предусмотренных стандартами Единой системы конструкторской документации.
На основе настоящего стандарта допускается, при необходимости, разрабатывать стандарты, отражающие особенности указания реквизитов и атрибутов при оформлении конструкторских документов с учетом их специфики
Список изменений:№0 от 01.12.2006 (рег. 01.12.2006) «Дата введения перенесена»
№0 от 01.04.2007 (рег. 01.04.2007) «Дата введения перенесена»
№0 от 05.12.2011 (рег. 05.12.2011) «Дата введения перенесена»
Приложение №1:Поправка к ГОСТ 2.104-2006
Приложение №2:Поправка к ГОСТ 2.104-2006
Приложение №3:Поправка к ГОСТ 2.104-2006
ГОСТ 2.104-2006ГОСТ 2.104-2006ГОСТ 2.104-2006ГОСТ 2.104-2006ГОСТ 2.104-2006ГОСТ 2.104-2006ГОСТ 2.104-2006ГОСТ 2.104-2006ГОСТ 2.104-2006ГОСТ 2.104-2006ГОСТ 2.104-2006ГОСТ 2.104-2006ГОСТ 2.104-2006ГОСТ 2.104-2006ГОСТ 2.104-2006ГОСТ 2.104-2006ГОСТ 2.104-2006

Поправка к ГОСТ 2.104-2006

Обозначение:Поправка к ГОСТ 2.104-2006
Дата введения:01.12.2006


Поправка к ГОСТ 2.104-2006

Поправка к ГОСТ 2.104-2006

Обозначение:Поправка к ГОСТ 2.104-2006
Дата введения:01.04.2007


Поправка к ГОСТ 2.104-2006

Поправка к ГОСТ 2.104-2006

Обозначение:Поправка к ГОСТ 2.104-2006
Дата введения:05.12.2011


Поправка к ГОСТ 2.104-2006
 




ГОСТЫ, СТРОИТЕЛЬНЫЕ и ТЕХНИЧЕСКИЕ НОРМАТИВЫ.
Некоммерческая онлайн система, содержащая все Российские Госты, национальные Стандарты и нормативы.
В Системе содержится более 150000 файлов нормативно-технической документации, действующей на территории РФ.
Система предназначена для широкого круга инженерно-технических специалистов.

Рейтинг@Mail.ru Яндекс цитирования

Copyright © www.gostrf.com, 2008 - 2026