Крупнейшая бесплатная информационно-справочная система онлайн доступа к полному собранию технических нормативно-правовых актов РФ. Огромная база технических нормативов (более 150 тысяч документов) и полное собрание национальных стандартов, аутентичное официальной базе Госстандарта. GOSTRF.com - это более 1 Терабайта бесплатной технической информации для всех пользователей интернета. Все электронные копии представленных здесь документов могут распространяться без каких-либо ограничений. Поощряется распространение информации с этого сайта на любых других ресурсах. Каждый человек имеет право на неограниченный доступ к этим документам! Каждый человек имеет право на знание требований, изложенных в данных нормативно-правовых актах!

  


 

ГОСТ Р 52524-2005

Контейнеры грузовые. Кодирование, идентификация и маркировка

Обозначение:ГОСТ Р 52524-2005
Текущий статус документа: действующий
Название документа рус.:Контейнеры грузовые. Кодирование, идентификация и маркировка
Название документа англ.:Freight containers. Coding, identification and marking
Дата актуализации текста:01.12.2013
Дата издания:01.01.2008
Дата введения:30.06.2006
Дата последнего изменения:22.05.2013
Переиздание:переиздание
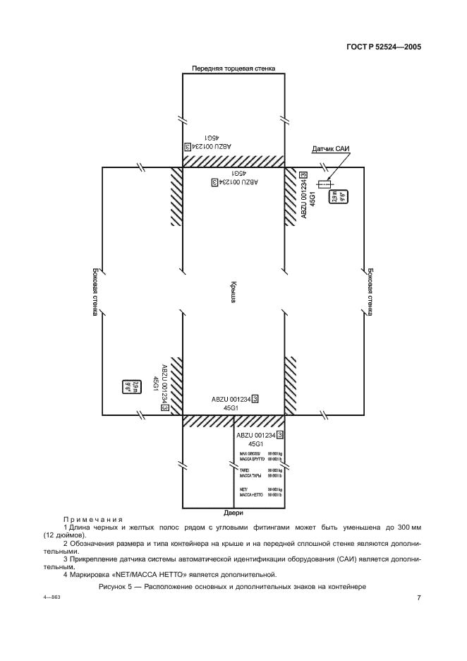
Область применения:Настоящий стандарт распространяется на систему идентификации и обеспечения информации о грузовых контейнерах с помощью кодов и маркировки. Система идентификации предназначена для общего использования, например для работы с документацией, осуществления контроля (в т.ч. в автоматизированных системах обработки данных) и непосредственно маркировки контейнеров.
Стандарт содержит методы представления данных системы идентификации и других данных (включая эксплуатационные) на контейнерах при помощи установленных знаков маркировки.
Настоящий стандарт не распространяется на временную эксплуатационную маркировку, т.е. маркировку, которая должна наноситься в соответствии с межправительственными соглашениями, национальным законодательством или решениями других, кроме ИСО, неправительственных организаций
ГОСТ Р 52524-2005ГОСТ Р 52524-2005ГОСТ Р 52524-2005ГОСТ Р 52524-2005ГОСТ Р 52524-2005ГОСТ Р 52524-2005ГОСТ Р 52524-2005ГОСТ Р 52524-2005ГОСТ Р 52524-2005ГОСТ Р 52524-2005ГОСТ Р 52524-2005ГОСТ Р 52524-2005ГОСТ Р 52524-2005ГОСТ Р 52524-2005ГОСТ Р 52524-2005ГОСТ Р 52524-2005ГОСТ Р 52524-2005ГОСТ Р 52524-2005ГОСТ Р 52524-2005ГОСТ Р 52524-2005ГОСТ Р 52524-2005ГОСТ Р 52524-2005ГОСТ Р 52524-2005ГОСТ Р 52524-2005ГОСТ Р 52524-2005ГОСТ Р 52524-2005
 




ГОСТЫ, СТРОИТЕЛЬНЫЕ и ТЕХНИЧЕСКИЕ НОРМАТИВЫ.
Некоммерческая онлайн система, содержащая все Российские Госты, национальные Стандарты и нормативы.
В Системе содержится более 150000 файлов нормативно-технической документации, действующей на территории РФ.
Система предназначена для широкого круга инженерно-технических специалистов.

Рейтинг@Mail.ru Яндекс цитирования

Copyright © www.gostrf.com, 2008 - 2026