Крупнейшая бесплатная информационно-справочная система онлайн доступа к полному собранию технических нормативно-правовых актов РФ. Огромная база технических нормативов (более 150 тысяч документов) и полное собрание национальных стандартов, аутентичное официальной базе Госстандарта. GOSTRF.com - это более 1 Терабайта бесплатной технической информации для всех пользователей интернета. Все электронные копии представленных здесь документов могут распространяться без каких-либо ограничений. Поощряется распространение информации с этого сайта на любых других ресурсах. Каждый человек имеет право на неограниченный доступ к этим документам! Каждый человек имеет право на знание требований, изложенных в данных нормативно-правовых актах!

  


 

ГОСТ 28737-90

Балки фундаментные железобетонные для стен зданий промышленных и сельскохозяйственных предприятий. Технические условия

Обозначение:ГОСТ 28737-90
Текущий статус документа: действующий
Название документа рус.:Балки фундаментные железобетонные для стен зданий промышленных и сельскохозяйственных предприятий. Технические условия
Название документа англ.:Reinforced concrete foundation beams for buildings walls of industrial and agricultural enterprises. Specifications
Дата актуализации текста:01.12.2013
Дата издания:05.03.1991
Дата введения:30.06.1991
Дата последнего изменения:22.05.2013
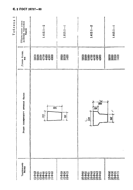
Область применения:Настоящий стандарт распространяется на железобетонные фундаментные балки, изготовляемые из тяжелого бетона и предназначаемые для опирания наружных и внутренних стен зданий промышленных и сельскохозяйственных предприятий
ГОСТ 28737-90ГОСТ 28737-90ГОСТ 28737-90ГОСТ 28737-90ГОСТ 28737-90ГОСТ 28737-90ГОСТ 28737-90ГОСТ 28737-90ГОСТ 28737-90ГОСТ 28737-90ГОСТ 28737-90ГОСТ 28737-90
 




ГОСТЫ, СТРОИТЕЛЬНЫЕ и ТЕХНИЧЕСКИЕ НОРМАТИВЫ.
Некоммерческая онлайн система, содержащая все Российские Госты, национальные Стандарты и нормативы.
В Системе содержится более 150000 файлов нормативно-технической документации, действующей на территории РФ.
Система предназначена для широкого круга инженерно-технических специалистов.

Рейтинг@Mail.ru Яндекс цитирования

Copyright © www.gostrf.com, 2008 - 2026