Крупнейшая бесплатная информационно-справочная система онлайн доступа к полному собранию технических нормативно-правовых актов РФ. Огромная база технических нормативов (более 150 тысяч документов) и полное собрание национальных стандартов, аутентичное официальной базе Госстандарта. GOSTRF.com - это более 1 Терабайта бесплатной технической информации для всех пользователей интернета. Все электронные копии представленных здесь документов могут распространяться без каких-либо ограничений. Поощряется распространение информации с этого сайта на любых других ресурсах. Каждый человек имеет право на неограниченный доступ к этим документам! Каждый человек имеет право на знание требований, изложенных в данных нормативно-правовых актах!

  


 

ГОСТ 28279-89

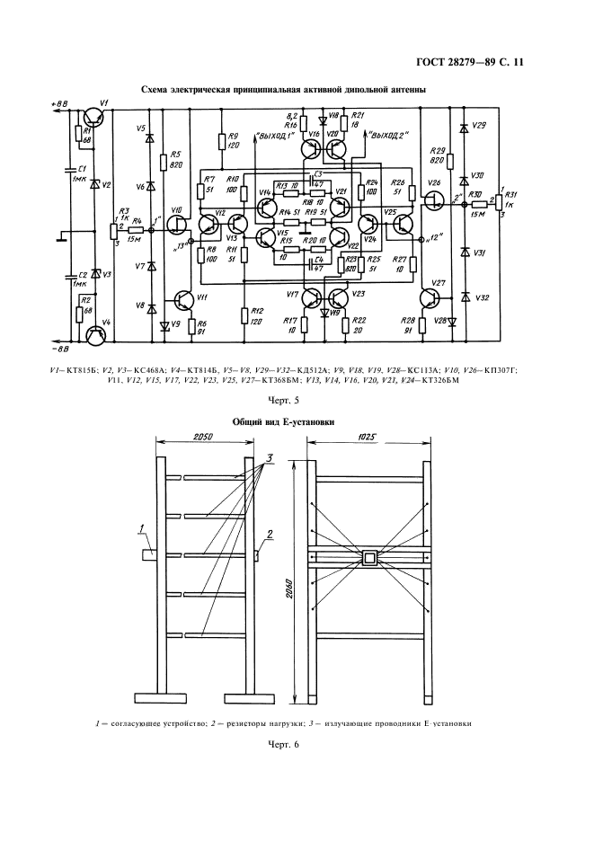
Совместимость электромагнитная электрооборудования автомобиля и автомобильной бытовой радиоэлектронной аппаратуры. Нормы и методы измерений

Обозначение:ГОСТ 28279-89
Текущий статус документа: действующий
Название документа рус.:Совместимость электромагнитная электрооборудования автомобиля и автомобильной бытовой радиоэлектронной аппаратуры. Нормы и методы измерений
Название документа англ.:Electromagnetic compatibility of on-board radio equipment and electrical network in a vehicle. Limits and test methods
Дата актуализации текста:01.12.2013
Дата издания:01.04.2004
Дата введения:01.01.1991
Дата последнего изменения:22.05.2013
Переиздание:переиздание
Область применения:Настоящий стандарт распространяется на автомобили и автомобильные радиовещательные приемники (далее - приемники) и антенны, в том числе входящие в состав магнитол.
Стандарт не распространяется на автомобили, в технических заданиях на разработку которых указано, что они не предназначены для оборудования указанной аппаратурой.
Стандарт устанавливает нормы и методы измерений параметров индустриальных радиопомех, создаваемых электрооборудованием автомобиля, и параметров помехозащищенности приемников от индустриальных радиопомех в полосе частот от 0,15 до 110 МГц.
ГОСТ 28279-89ГОСТ 28279-89ГОСТ 28279-89ГОСТ 28279-89ГОСТ 28279-89ГОСТ 28279-89ГОСТ 28279-89ГОСТ 28279-89ГОСТ 28279-89ГОСТ 28279-89ГОСТ 28279-89ГОСТ 28279-89ГОСТ 28279-89ГОСТ 28279-89ГОСТ 28279-89
 




ГОСТЫ, СТРОИТЕЛЬНЫЕ и ТЕХНИЧЕСКИЕ НОРМАТИВЫ.
Некоммерческая онлайн система, содержащая все Российские Госты, национальные Стандарты и нормативы.
В Системе содержится более 150000 файлов нормативно-технической документации, действующей на территории РФ.
Система предназначена для широкого круга инженерно-технических специалистов.

Рейтинг@Mail.ru Яндекс цитирования

Copyright © www.gostrf.com, 2008 - 2026