Крупнейшая бесплатная информационно-справочная система онлайн доступа к полному собранию технических нормативно-правовых актов РФ. Огромная база технических нормативов (более 150 тысяч документов) и полное собрание национальных стандартов, аутентичное официальной базе Госстандарта. GOSTRF.com - это более 1 Терабайта бесплатной технической информации для всех пользователей интернета. Все электронные копии представленных здесь документов могут распространяться без каких-либо ограничений. Поощряется распространение информации с этого сайта на любых других ресурсах. Каждый человек имеет право на неограниченный доступ к этим документам! Каждый человек имеет право на знание требований, изложенных в данных нормативно-правовых актах!

  


 

ГОСТ 7396.1-89

Соединители электрические штепсельные бытового и аналогичного назначения. Основные размеры

Обозначение:ГОСТ 7396.1-89
Текущий статус документа: действующий
Название документа рус.:Соединители электрические штепсельные бытового и аналогичного назначения. Основные размеры
Название документа англ.:Plugs (electrical) and socket-outlets for domestic and similar general use. Standards
Дата актуализации текста:01.12.2013
Дата издания:01.07.2003
Дата введения:30.06.1990
Дата последнего изменения:22.05.2013
Переиздание:переиздание с изм. 1
Взамен в части: в части разд. 2
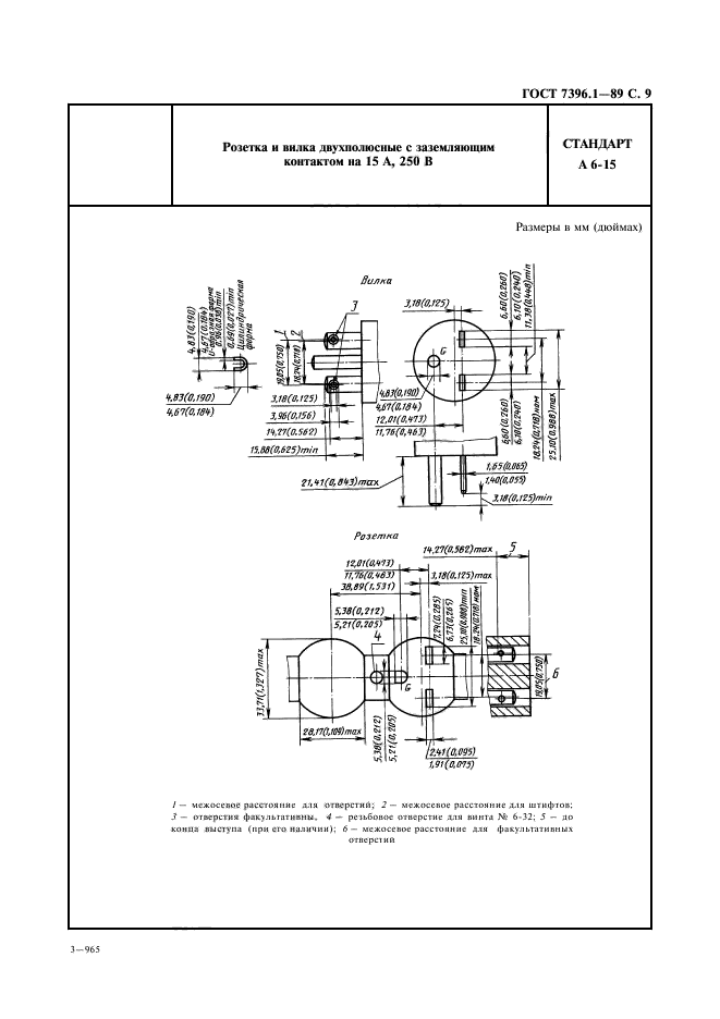
Область применения:Настоящий стандарт распространяется на штепсельные соединители с заземляющими контактами и без них (одноместные и двуместные розетки, разъемные и неразъемные вилки, разветвители и удлинители) для присоединения к электрической сети переменного тока электрических приемников бытового и аналогичного назначения с номинальными токами до 20 А и напряжением до 277 В, поставляемые для нужд народного хозяйства и экспорта, и устанавливает основные размеры соединителей, а также требования, относящиеся к взаимозаменяемости и безопасности соединителей.
Настоящий стандарт не распространяется на соединители, встраиваемые в приборы, а также предназначенные для эксплуатации в пожароопасных и взрывоопасных помещениях
Список изменений:№1 от 01.01.1993 (рег. 17.09.1992) «Поправка»
ГОСТ 7396.1-89ГОСТ 7396.1-89ГОСТ 7396.1-89ГОСТ 7396.1-89ГОСТ 7396.1-89ГОСТ 7396.1-89ГОСТ 7396.1-89ГОСТ 7396.1-89ГОСТ 7396.1-89ГОСТ 7396.1-89ГОСТ 7396.1-89ГОСТ 7396.1-89ГОСТ 7396.1-89ГОСТ 7396.1-89ГОСТ 7396.1-89ГОСТ 7396.1-89ГОСТ 7396.1-89ГОСТ 7396.1-89ГОСТ 7396.1-89ГОСТ 7396.1-89ГОСТ 7396.1-89ГОСТ 7396.1-89ГОСТ 7396.1-89ГОСТ 7396.1-89ГОСТ 7396.1-89ГОСТ 7396.1-89ГОСТ 7396.1-89ГОСТ 7396.1-89ГОСТ 7396.1-89ГОСТ 7396.1-89ГОСТ 7396.1-89ГОСТ 7396.1-89ГОСТ 7396.1-89
 




ГОСТЫ, СТРОИТЕЛЬНЫЕ и ТЕХНИЧЕСКИЕ НОРМАТИВЫ.
Некоммерческая онлайн система, содержащая все Российские Госты, национальные Стандарты и нормативы.
В Системе содержится более 150000 файлов нормативно-технической документации, действующей на территории РФ.
Система предназначена для широкого круга инженерно-технических специалистов.

Рейтинг@Mail.ru Яндекс цитирования

Copyright © www.gostrf.com, 2008 - 2026