Крупнейшая бесплатная информационно-справочная система онлайн доступа к полному собранию технических нормативно-правовых актов РФ. Огромная база технических нормативов (более 150 тысяч документов) и полное собрание национальных стандартов, аутентичное официальной базе Госстандарта. GOSTRF.com - это более 1 Терабайта бесплатной технической информации для всех пользователей интернета. Все электронные копии представленных здесь документов могут распространяться без каких-либо ограничений. Поощряется распространение информации с этого сайта на любых других ресурсах. Каждый человек имеет право на неограниченный доступ к этим документам! Каждый человек имеет право на знание требований, изложенных в данных нормативно-правовых актах!

  


 

ГОСТ 16037-80

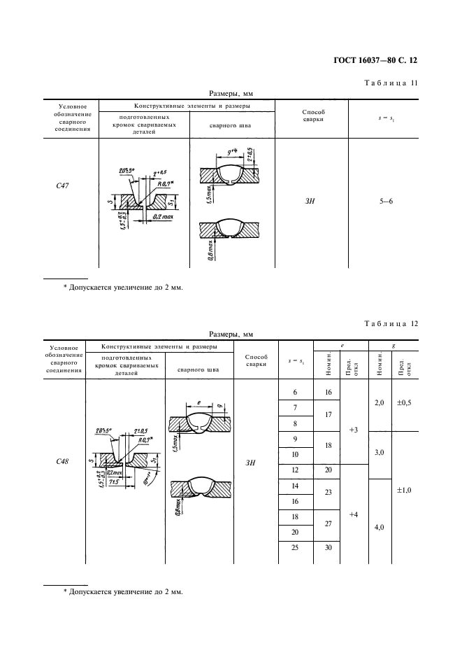
Соединения сварные стальных трубопроводов. Основные типы, конструктивные элементы и размеры

Обозначение:ГОСТ 16037-80
Текущий статус документа: действующий
Название документа рус.:Соединения сварные стальных трубопроводов. Основные типы, конструктивные элементы и размеры
Название документа англ.:Welded joints in steel pipelines. Main types, design elements and dimensions
Дата актуализации текста:01.12.2013
Дата издания:01.05.1999
Дата введения:30.06.1981
Дата последнего изменения:22.05.2013
Переиздание:переиздание с изм. 1
Область применения:Настоящий стандарт распространяется на сварные соединения трубопроводов из сталей и устанавливает основные типы, конструктивные элементы и размеры сварных соединений труб с трубами и арматурой.
Стандарт не распространяется на сварные соединения, применяемые для изготовления самих труб из листового или полосового материала
Список изменений:№1 от 01.07.1991 (рег. 03.12.1990) «Срок действия продлен»
ГОСТ 16037-80ГОСТ 16037-80ГОСТ 16037-80ГОСТ 16037-80ГОСТ 16037-80ГОСТ 16037-80ГОСТ 16037-80ГОСТ 16037-80ГОСТ 16037-80ГОСТ 16037-80ГОСТ 16037-80ГОСТ 16037-80ГОСТ 16037-80ГОСТ 16037-80ГОСТ 16037-80ГОСТ 16037-80ГОСТ 16037-80ГОСТ 16037-80ГОСТ 16037-80ГОСТ 16037-80ГОСТ 16037-80ГОСТ 16037-80ГОСТ 16037-80ГОСТ 16037-80
 




ГОСТЫ, СТРОИТЕЛЬНЫЕ и ТЕХНИЧЕСКИЕ НОРМАТИВЫ.
Некоммерческая онлайн система, содержащая все Российские Госты, национальные Стандарты и нормативы.
В Системе содержится более 150000 файлов нормативно-технической документации, действующей на территории РФ.
Система предназначена для широкого круга инженерно-технических специалистов.

Рейтинг@Mail.ru Яндекс цитирования

Copyright © www.gostrf.com, 2008 - 2026