Крупнейшая бесплатная информационно-справочная система онлайн доступа к полному собранию технических нормативно-правовых актов РФ. Огромная база технических нормативов (более 150 тысяч документов) и полное собрание национальных стандартов, аутентичное официальной базе Госстандарта. GOSTRF.com - это более 1 Терабайта бесплатной технической информации для всех пользователей интернета. Все электронные копии представленных здесь документов могут распространяться без каких-либо ограничений. Поощряется распространение информации с этого сайта на любых других ресурсах. Каждый человек имеет право на неограниченный доступ к этим документам! Каждый человек имеет право на знание требований, изложенных в данных нормативно-правовых актах!

  


 

ГОСТ 18058-80

Двигатели трехфазные асинхронные короткозамкнутые погружные серии ПЭД. Технические условия

Обозначение:ГОСТ 18058-80
Текущий статус документа: действующий
Название документа рус.:Двигатели трехфазные асинхронные короткозамкнутые погружные серии ПЭД. Технические условия
Название документа англ.:Three-phase asynchronous squirrel-cage submersible electric motors series ПЭД. Specifications
Дата актуализации текста:01.12.2013
Дата издания:01.09.1986
Дата введения:30.06.1981
Дата последнего изменения:22.05.2013
Переиздание:переиздание с изм. 1
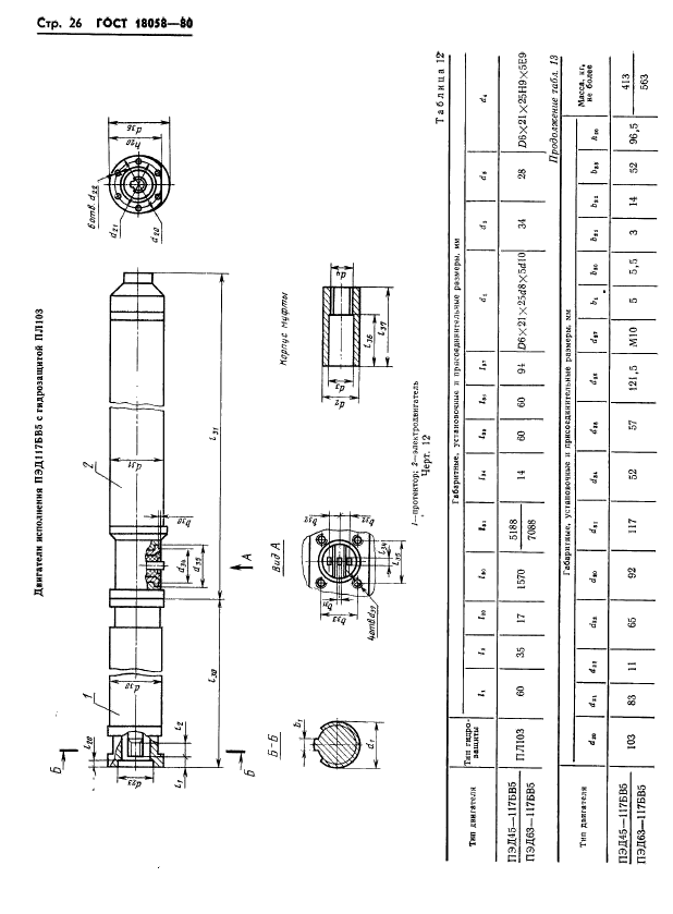
Область применения:Настоящий стандарт распространяется на трехфазные асинхронные короткозамкнутые двухполюсные погружные маслонаполненные двигатели серии ПЭД, климатического исполнения В, категории размещения 5 по ГОСТ 15150-69, предназначенные для продолжительного режима работы S1 по ГОСТ 183-74 от сети переменного тока частотой 50 Гц в качестве привода центробежных насосов для откачки пластовой жидкости из нефтяных скважин с углом отклонения по вертикали в месте подвески УЭЦН не более 40 град., изготовляемые для нужд народного хозяйства
Список изменений:№0 от 13.10.1988 (рег. 13.10.1988) «Срок действия продлен»
№1 от 01.04.1984 (рег. 31.10.1983) «Срок действия продлен»
№2 от 01.07.1984 (рег. 31.03.1984) «Срок действия продлен»
№3 от 01.11.1985 (рег. 28.05.1985) «Срок действия продлен»
№4 от 01.07.1987 (рег. 27.01.1987) «Срок действия продлен»
№5 от 01.01.1988 (рег. 09.06.1987) «Срок действия продлен»
№6 от 01.10.1988 (рег. 16.05.1988) «Срок действия продлен»
ГОСТ 18058-80ГОСТ 18058-80ГОСТ 18058-80ГОСТ 18058-80ГОСТ 18058-80ГОСТ 18058-80ГОСТ 18058-80ГОСТ 18058-80ГОСТ 18058-80ГОСТ 18058-80ГОСТ 18058-80ГОСТ 18058-80ГОСТ 18058-80ГОСТ 18058-80ГОСТ 18058-80ГОСТ 18058-80ГОСТ 18058-80ГОСТ 18058-80ГОСТ 18058-80ГОСТ 18058-80ГОСТ 18058-80ГОСТ 18058-80ГОСТ 18058-80ГОСТ 18058-80ГОСТ 18058-80ГОСТ 18058-80ГОСТ 18058-80ГОСТ 18058-80ГОСТ 18058-80ГОСТ 18058-80ГОСТ 18058-80ГОСТ 18058-80ГОСТ 18058-80ГОСТ 18058-80ГОСТ 18058-80ГОСТ 18058-80ГОСТ 18058-80ГОСТ 18058-80ГОСТ 18058-80ГОСТ 18058-80ГОСТ 18058-80ГОСТ 18058-80ГОСТ 18058-80ГОСТ 18058-80ГОСТ 18058-80ГОСТ 18058-80ГОСТ 18058-80
 




ГОСТЫ, СТРОИТЕЛЬНЫЕ и ТЕХНИЧЕСКИЕ НОРМАТИВЫ.
Некоммерческая онлайн система, содержащая все Российские Госты, национальные Стандарты и нормативы.
В Системе содержится более 150000 файлов нормативно-технической документации, действующей на территории РФ.
Система предназначена для широкого круга инженерно-технических специалистов.

Рейтинг@Mail.ru Яндекс цитирования

Copyright © www.gostrf.com, 2008 - 2026