Крупнейшая бесплатная информационно-справочная система онлайн доступа к полному собранию технических нормативно-правовых актов РФ. Огромная база технических нормативов (более 150 тысяч документов) и полное собрание национальных стандартов, аутентичное официальной базе Госстандарта. GOSTRF.com - это более 1 Терабайта бесплатной технической информации для всех пользователей интернета. Все электронные копии представленных здесь документов могут распространяться без каких-либо ограничений. Поощряется распространение информации с этого сайта на любых других ресурсах. Каждый человек имеет право на неограниченный доступ к этим документам! Каждый человек имеет право на знание требований, изложенных в данных нормативно-правовых актах!

  


 

ГОСТ 21341-75

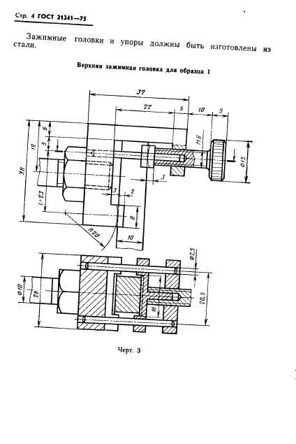
Пластмассы и эбонит. Метод определения теплостойкости по Мартенсу

Обозначение:ГОСТ 21341-75
Текущий статус документа: действующий
Название документа рус.:Пластмассы и эбонит. Метод определения теплостойкости по Мартенсу
Название документа англ.:Plastics and ebonite. Method of determining the Martens heat resistance temperature
Дата актуализации текста:01.12.2013
Дата издания:01.09.1980
Дата введения:01.01.1978
Дата последнего изменения:22.05.2013
Переиздание:переиздание с изм. 1
Взамен:
Область применения:Настоящий стандарт распространяется на пластмассы и эбонит и устанавливает метод определения теплостойкости по Мартенсу.
Стандарт не распространяется на материалы, у которых:
теплостойкость по Мартенсу ниже 313 К (40 град. С);
кривая зависимости деформации от температуры, получаемая при деформации до 6 мм при помощи дополнительных устройств (индикаторной головки), имеет S-образную форму
Список изменений:№1 от 01.12.1979 (рег. 18.02.1980) «Срок действия продлен»
ГОСТ 21341-75ГОСТ 21341-75ГОСТ 21341-75ГОСТ 21341-75ГОСТ 21341-75ГОСТ 21341-75ГОСТ 21341-75ГОСТ 21341-75ГОСТ 21341-75ГОСТ 21341-75
 




ГОСТЫ, СТРОИТЕЛЬНЫЕ и ТЕХНИЧЕСКИЕ НОРМАТИВЫ.
Некоммерческая онлайн система, содержащая все Российские Госты, национальные Стандарты и нормативы.
В Системе содержится более 150000 файлов нормативно-технической документации, действующей на территории РФ.
Система предназначена для широкого круга инженерно-технических специалистов.

Рейтинг@Mail.ru Яндекс цитирования

Copyright © www.gostrf.com, 2008 - 2026