Крупнейшая бесплатная информационно-справочная система онлайн доступа к полному собранию технических нормативно-правовых актов РФ. Огромная база технических нормативов (более 150 тысяч документов) и полное собрание национальных стандартов, аутентичное официальной базе Госстандарта. GOSTRF.com - это более 1 Терабайта бесплатной технической информации для всех пользователей интернета. Все электронные копии представленных здесь документов могут распространяться без каких-либо ограничений. Поощряется распространение информации с этого сайта на любых других ресурсах. Каждый человек имеет право на неограниченный доступ к этим документам! Каждый человек имеет право на знание требований, изложенных в данных нормативно-правовых актах!

  


 

ГОСТ 20162-74

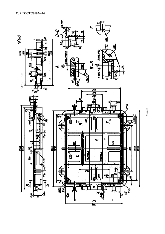
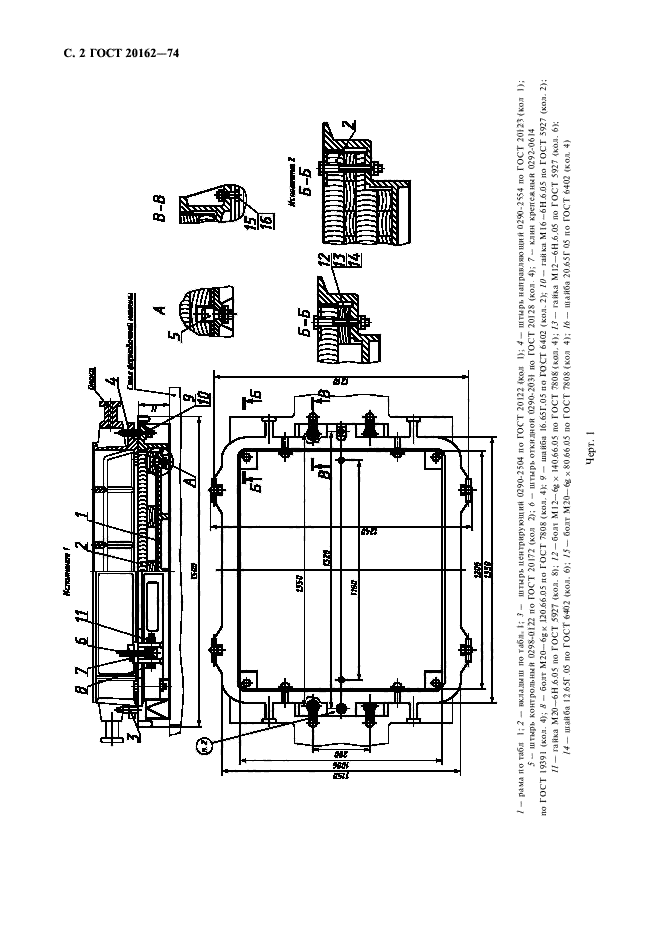
Плиты модельные со сменными деревянными вкладышами для опоки размерами в свету 1200х1000 мм на формовочные литейные машины с поворотом полуформы без допрессовки. Конструкция и размеры

Обозначение:ГОСТ 20162-74
Текущий статус документа: действующий
Название документа рус.:Плиты модельные со сменными деревянными вкладышами для опоки размерами в свету 1200х1000 мм на формовочные литейные машины с поворотом полуформы без допрессовки. Конструкция и размеры
Название документа англ.:Pattern plates with changeable wooden inserts for moulding box having inside dimensions 1200x1000 mm for moulding foundry machines with turn of half mould without squeezing. Design and dimensions
Дата актуализации текста:01.12.2013
Дата издания:01.09.2000
Дата введения:30.06.1975
Дата последнего изменения:22.05.2013
Переиздание:переиздание с изм. 1
Область применения:Настоящий стандарт устанавливает конструкцию и размеры модельных плит
Список изменений:№1 от 01.05.1982 (рег. 09.02.1982) «Срок действия продлен»
№2 от 01.06.1988 (рег. 17.12.1987) «Срок действия продлен»
ГОСТ 20162-74ГОСТ 20162-74ГОСТ 20162-74ГОСТ 20162-74ГОСТ 20162-74ГОСТ 20162-74ГОСТ 20162-74
 




ГОСТЫ, СТРОИТЕЛЬНЫЕ и ТЕХНИЧЕСКИЕ НОРМАТИВЫ.
Некоммерческая онлайн система, содержащая все Российские Госты, национальные Стандарты и нормативы.
В Системе содержится более 150000 файлов нормативно-технической документации, действующей на территории РФ.
Система предназначена для широкого круга инженерно-технических специалистов.

Рейтинг@Mail.ru Яндекс цитирования

Copyright © www.gostrf.com, 2008 - 2026