Крупнейшая бесплатная информационно-справочная система онлайн доступа к полному собранию технических нормативно-правовых актов РФ. Огромная база технических нормативов (более 150 тысяч документов) и полное собрание национальных стандартов, аутентичное официальной базе Госстандарта. GOSTRF.com - это более 1 Терабайта бесплатной технической информации для всех пользователей интернета. Все электронные копии представленных здесь документов могут распространяться без каких-либо ограничений. Поощряется распространение информации с этого сайта на любых других ресурсах. Каждый человек имеет право на неограниченный доступ к этим документам! Каждый человек имеет право на знание требований, изложенных в данных нормативно-правовых актах!

  


 

ГОСТ 18717-73

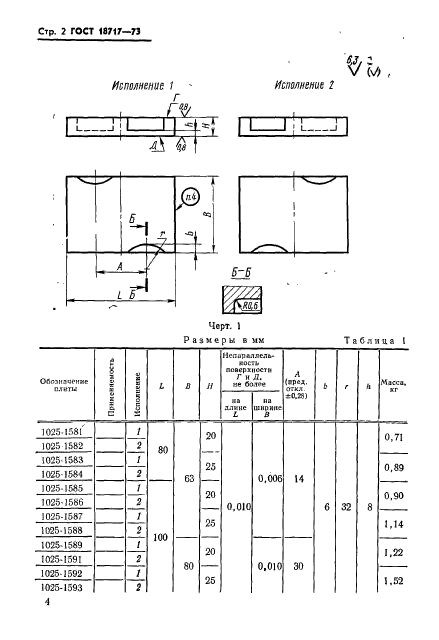
Плиты для сменных разделительных штампов листовой штамповки (заготовки). Конструкция и размеры

Обозначение:ГОСТ 18717-73
Текущий статус документа: действующий
Название документа рус.:Плиты для сменных разделительных штампов листовой штамповки (заготовки). Конструкция и размеры
Название документа англ.:Plates for changeable sheet stamping cutting dies (blanks). Construction and dimensions
Дата актуализации текста:01.12.2013
Дата издания:01.05.1985
Дата введения:30.06.1974
Дата последнего изменения:22.05.2013
Переиздание:переиздание с изм. 1
Взамен:МН 1920-61 МН 1921-61 МН 1926-61 МН 1927-61 МН 1928-61 МН 1929-61
Область применения:Настоящий стандарт распространяется на плиты для сменных разделительных штампов листовой штамповки, устанавливаемых на блоки по ГОСТ 17662-72 и ГОСТ 17663-72
Список изменений:№1 от 01.07.1981 (рег. 29.05.1981) «Срок действия продлен»
№2 от 01.05.1984 (рег. 08.12.1983) «Срок действия продлен»
ГОСТ 18717-73ГОСТ 18717-73ГОСТ 18717-73ГОСТ 18717-73ГОСТ 18717-73ГОСТ 18717-73ГОСТ 18717-73ГОСТ 18717-73ГОСТ 18717-73ГОСТ 18717-73ГОСТ 18717-73ГОСТ 18717-73ГОСТ 18717-73ГОСТ 18717-73ГОСТ 18717-73ГОСТ 18717-73ГОСТ 18717-73ГОСТ 18717-73ГОСТ 18717-73ГОСТ 18717-73ГОСТ 18717-73ГОСТ 18717-73ГОСТ 18717-73ГОСТ 18717-73ГОСТ 18717-73
 




ГОСТЫ, СТРОИТЕЛЬНЫЕ и ТЕХНИЧЕСКИЕ НОРМАТИВЫ.
Некоммерческая онлайн система, содержащая все Российские Госты, национальные Стандарты и нормативы.
В Системе содержится более 150000 файлов нормативно-технической документации, действующей на территории РФ.
Система предназначена для широкого круга инженерно-технических специалистов.

Рейтинг@Mail.ru Яндекс цитирования

Copyright © www.gostrf.com, 2008 - 2026