Крупнейшая бесплатная информационно-справочная система онлайн доступа к полному собранию технических нормативно-правовых актов РФ. Огромная база технических нормативов (более 150 тысяч документов) и полное собрание национальных стандартов, аутентичное официальной базе Госстандарта. GOSTRF.com - это более 1 Терабайта бесплатной технической информации для всех пользователей интернета. Все электронные копии представленных здесь документов могут распространяться без каких-либо ограничений. Поощряется распространение информации с этого сайта на любых других ресурсах. Каждый человек имеет право на неограниченный доступ к этим документам! Каждый человек имеет право на знание требований, изложенных в данных нормативно-правовых актах!

  


 

ГОСТ 30444-97

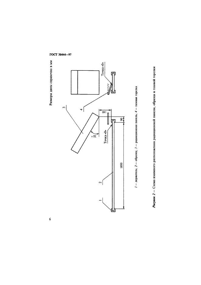
Материалы строительные. Метод испытания на распространение пламени

Обозначение:ГОСТ 30444-97
Текущий статус документа: действующий
Название документа рус.:Материалы строительные. Метод испытания на распространение пламени
Название документа англ.:Building materials. Spread flame test method
Дата актуализации текста:01.12.2013
Дата издания:31.03.1998
Дата введения:20.03.1998
Дата последнего изменения:22.05.2013
Область применения:Настоящий стандарт устанавливает метод испытания на распространение пламени по материалам поверхностных слоев конструкций полов и кровель, а также классификацию их по группам распространения пламени.
Настоящий стандарт применяется для всех однородных и слоистых горючих строительных материалов, используемых в поверхностных слоях конструкций полов и кровель
ГОСТ 30444-97ГОСТ 30444-97ГОСТ 30444-97ГОСТ 30444-97ГОСТ 30444-97ГОСТ 30444-97ГОСТ 30444-97ГОСТ 30444-97ГОСТ 30444-97ГОСТ 30444-97ГОСТ 30444-97ГОСТ 30444-97ГОСТ 30444-97ГОСТ 30444-97ГОСТ 30444-97ГОСТ 30444-97ГОСТ 30444-97ГОСТ 30444-97
 




ГОСТЫ, СТРОИТЕЛЬНЫЕ и ТЕХНИЧЕСКИЕ НОРМАТИВЫ.
Некоммерческая онлайн система, содержащая все Российские Госты, национальные Стандарты и нормативы.
В Системе содержится более 150000 файлов нормативно-технической документации, действующей на территории РФ.
Система предназначена для широкого круга инженерно-технических специалистов.

Рейтинг@Mail.ru Яндекс цитирования

Copyright © www.gostrf.com, 2008 - 2026