Крупнейшая бесплатная информационно-справочная система онлайн доступа к полному собранию технических нормативно-правовых актов РФ. Огромная база технических нормативов (более 150 тысяч документов) и полное собрание национальных стандартов, аутентичное официальной базе Госстандарта. GOSTRF.com - это более 1 Терабайта бесплатной технической информации для всех пользователей интернета. Все электронные копии представленных здесь документов могут распространяться без каких-либо ограничений. Поощряется распространение информации с этого сайта на любых других ресурсах. Каждый человек имеет право на неограниченный доступ к этим документам! Каждый человек имеет право на знание требований, изложенных в данных нормативно-правовых актах!

  


 

ГОСТ 28830-90

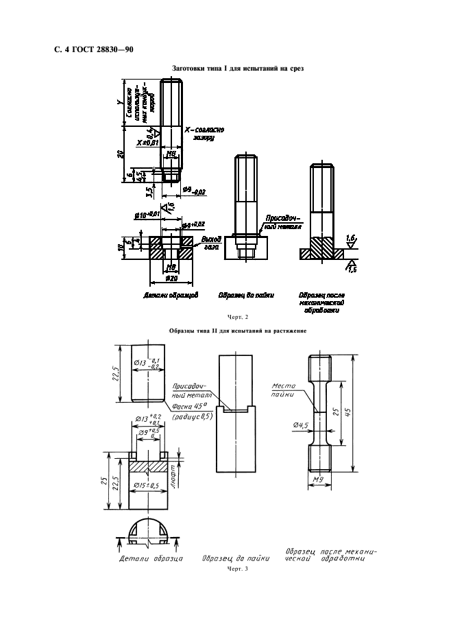
Соединения паяные. Методы испытаний на растяжение и длительную прочность

Обозначение:ГОСТ 28830-90
Текущий статус документа: действующий
Название документа рус.:Соединения паяные. Методы испытаний на растяжение и длительную прочность
Название документа англ.:Soldered and brazed joints. Test methods for tension and long-term strength
Дата актуализации текста:01.12.2013
Дата издания:01.02.2005
Дата введения:01.01.1992
Дата последнего изменения:22.05.2013
Переиздание:переиздание
Взамен:
Область применения:Настоящий стандарт распространяется на паяные соединения металлов и сплавов и устанавливает методы статических испытаний на растяжение и длительную прочность при нормальных, высоких и низких температурах от минус 269°С до 1200(+50)°C
ГОСТ 28830-90ГОСТ 28830-90ГОСТ 28830-90ГОСТ 28830-90ГОСТ 28830-90ГОСТ 28830-90ГОСТ 28830-90ГОСТ 28830-90ГОСТ 28830-90ГОСТ 28830-90ГОСТ 28830-90ГОСТ 28830-90ГОСТ 28830-90ГОСТ 28830-90ГОСТ 28830-90ГОСТ 28830-90ГОСТ 28830-90ГОСТ 28830-90ГОСТ 28830-90ГОСТ 28830-90ГОСТ 28830-90ГОСТ 28830-90ГОСТ 28830-90ГОСТ 28830-90ГОСТ 28830-90ГОСТ 28830-90ГОСТ 28830-90ГОСТ 28830-90ГОСТ 28830-90ГОСТ 28830-90ГОСТ 28830-90
 




ГОСТЫ, СТРОИТЕЛЬНЫЕ и ТЕХНИЧЕСКИЕ НОРМАТИВЫ.
Некоммерческая онлайн система, содержащая все Российские Госты, национальные Стандарты и нормативы.
В Системе содержится более 150000 файлов нормативно-технической документации, действующей на территории РФ.
Система предназначена для широкого круга инженерно-технических специалистов.

Рейтинг@Mail.ru Яндекс цитирования

Copyright © www.gostrf.com, 2008 - 2026