Крупнейшая бесплатная информационно-справочная система онлайн доступа к полному собранию технических нормативно-правовых актов РФ. Огромная база технических нормативов (более 150 тысяч документов) и полное собрание национальных стандартов, аутентичное официальной базе Госстандарта. GOSTRF.com - это более 1 Терабайта бесплатной технической информации для всех пользователей интернета. Все электронные копии представленных здесь документов могут распространяться без каких-либо ограничений. Поощряется распространение информации с этого сайта на любых других ресурсах. Каждый человек имеет право на неограниченный доступ к этим документам! Каждый человек имеет право на знание требований, изложенных в данных нормативно-правовых актах!

  


 

ГОСТ 16553-88

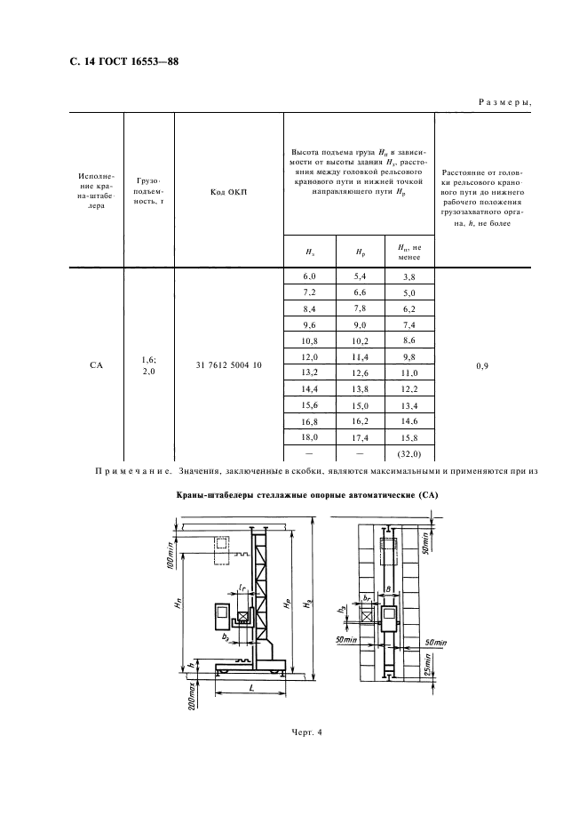
Краны-штабелеры. Типы

Обозначение:ГОСТ 16553-88
Текущий статус документа: действующий
Название документа рус.:Краны-штабелеры. Типы
Название документа англ.:Stacker cranes. Types
Дата актуализации текста:01.12.2013
Дата издания:01.04.2008
Дата введения:01.01.1989
Дата последнего изменения:22.05.2013
Переиздание:переиздание с изм. 1
Область применения:Настоящий стандарт распространяется на электрические опорные мостовые и стеллажные краны-штабелеры грузоподъемностью от 0,16 до 12,5 т, управляемые с пола, из кабины и автоматически, предназначенные для работы в непожароопасных зонах, а также пожароопасных зонах категории П—IIа согласно “Правилам устройства электроустановок“.
Стандарт не распространяется на краны-штабелеры специальные, в том числе для автоматизированных транспортно-складских систем, на краны-штабелеры, предназначенные для переработки химически активных и ядовитых веществ, а также заготовок, разогретых до температуры свыше 80 град. С
Список изменений:№1 от 01.01.1989 (рег. 20.09.1988) «Срок действия продлен»
№2 от 01.07.1990 (рег. 09.08.1989) «Срок действия продлен»
ГОСТ 16553-88ГОСТ 16553-88ГОСТ 16553-88ГОСТ 16553-88ГОСТ 16553-88ГОСТ 16553-88ГОСТ 16553-88ГОСТ 16553-88ГОСТ 16553-88ГОСТ 16553-88ГОСТ 16553-88ГОСТ 16553-88ГОСТ 16553-88ГОСТ 16553-88ГОСТ 16553-88ГОСТ 16553-88ГОСТ 16553-88ГОСТ 16553-88ГОСТ 16553-88ГОСТ 16553-88ГОСТ 16553-88ГОСТ 16553-88ГОСТ 16553-88
 




ГОСТЫ, СТРОИТЕЛЬНЫЕ и ТЕХНИЧЕСКИЕ НОРМАТИВЫ.
Некоммерческая онлайн система, содержащая все Российские Госты, национальные Стандарты и нормативы.
В Системе содержится более 150000 файлов нормативно-технической документации, действующей на территории РФ.
Система предназначена для широкого круга инженерно-технических специалистов.

Рейтинг@Mail.ru Яндекс цитирования

Copyright © www.gostrf.com, 2008 - 2026