Крупнейшая бесплатная информационно-справочная система онлайн доступа к полному собранию технических нормативно-правовых актов РФ. Огромная база технических нормативов (более 150 тысяч документов) и полное собрание национальных стандартов, аутентичное официальной базе Госстандарта. GOSTRF.com - это более 1 Терабайта бесплатной технической информации для всех пользователей интернета. Все электронные копии представленных здесь документов могут распространяться без каких-либо ограничений. Поощряется распространение информации с этого сайта на любых других ресурсах. Каждый человек имеет право на неограниченный доступ к этим документам! Каждый человек имеет право на знание требований, изложенных в данных нормативно-правовых актах!

  


 

ГОСТ 14921-78

Газы углеводородные сжиженные. Методы отбора проб

Обозначение:ГОСТ 14921-78
Текущий статус документа: действующий
Название документа рус.:Газы углеводородные сжиженные. Методы отбора проб
Название документа англ.:Liquefied hydrocarbon gases. Methods of sampling
Дата актуализации текста:01.12.2013
Дата издания:01.03.2006
Дата введения:01.01.1980
Дата последнего изменения:22.05.2013
Переиздание:переиздание с изм. 1
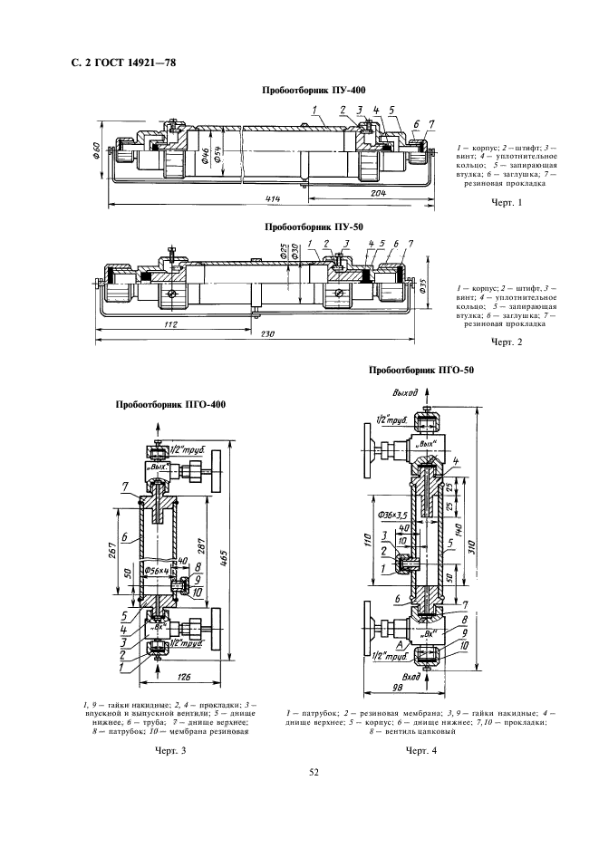
Область применения:Настоящий стандарт распространяется на сжиженные углеводородные газы, находящиеся под избыточным давлением собственных паров, и устанавливает методы отбора их из стационарных емкостей (цилиндрических, шаровых), железнодорожных цистерн, баллонов, а также из трубопроводов при перекачке газов в герметичный металлический пробоотборник путем продувки его сжиженным газом.
Допускается отбирать пробы сжиженных газов в контейнеры
Список изменений:№1 от 01.07.1984 (рег. 19.12.1983) «Срок действия продлен»
№2 от 01.07.1989 (рег. 20.12.1988) «Срок действия продлен»
№3 от 01.01.2001 (рег. 13.04.2000) «Срок действия продлен»
ГОСТ 14921-78ГОСТ 14921-78ГОСТ 14921-78ГОСТ 14921-78ГОСТ 14921-78ГОСТ 14921-78ГОСТ 14921-78ГОСТ 14921-78
 




ГОСТЫ, СТРОИТЕЛЬНЫЕ и ТЕХНИЧЕСКИЕ НОРМАТИВЫ.
Некоммерческая онлайн система, содержащая все Российские Госты, национальные Стандарты и нормативы.
В Системе содержится более 150000 файлов нормативно-технической документации, действующей на территории РФ.
Система предназначена для широкого круга инженерно-технических специалистов.

Рейтинг@Mail.ru Яндекс цитирования

Copyright © www.gostrf.com, 2008 - 2026