Крупнейшая бесплатная информационно-справочная система онлайн доступа к полному собранию технических нормативно-правовых актов РФ. Огромная база технических нормативов (более 150 тысяч документов) и полное собрание национальных стандартов, аутентичное официальной базе Госстандарта. GOSTRF.com - это более 1 Терабайта бесплатной технической информации для всех пользователей интернета. Все электронные копии представленных здесь документов могут распространяться без каких-либо ограничений. Поощряется распространение информации с этого сайта на любых других ресурсах. Каждый человек имеет право на неограниченный доступ к этим документам! Каждый человек имеет право на знание требований, изложенных в данных нормативно-правовых актах!

  


 

ГОСТ 24698-81

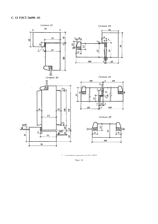
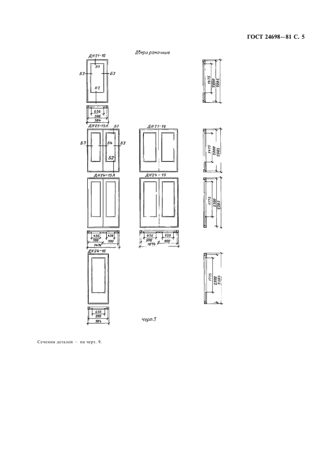
Двери деревянные наружные для жилых и общественных зданий. Типы, конструкция и размеры

Обозначение:ГОСТ 24698-81
Текущий статус документа: действующий
Название документа рус.:Двери деревянные наружные для жилых и общественных зданий. Типы, конструкция и размеры
Название документа англ.:Wooden external doors for dwellings and public buildings. Types, structure and dimensions
Дата актуализации текста:01.12.2013
Дата издания:01.10.2010
Дата введения:01.01.1984
Дата последнего изменения:22.05.2013
Переиздание:переиздание
Область применения:Настоящий стандарт распространяется на деревянные наружные распашные двери для жилых и общественных зданий, а также для вспомогательных зданий и помещений предприятий различных отраслей народного хозяйства.
Настоящий стандарт не распространяется на двери уникальных общественных зданий: вокзалов, театров, музеев, спортивных дворцов, выставочных павильонов, дворцов культуры
ГОСТ 24698-81ГОСТ 24698-81ГОСТ 24698-81ГОСТ 24698-81ГОСТ 24698-81ГОСТ 24698-81ГОСТ 24698-81ГОСТ 24698-81ГОСТ 24698-81ГОСТ 24698-81ГОСТ 24698-81ГОСТ 24698-81ГОСТ 24698-81ГОСТ 24698-81ГОСТ 24698-81ГОСТ 24698-81ГОСТ 24698-81ГОСТ 24698-81ГОСТ 24698-81
 




ГОСТЫ, СТРОИТЕЛЬНЫЕ и ТЕХНИЧЕСКИЕ НОРМАТИВЫ.
Некоммерческая онлайн система, содержащая все Российские Госты, национальные Стандарты и нормативы.
В Системе содержится более 150000 файлов нормативно-технической документации, действующей на территории РФ.
Система предназначена для широкого круга инженерно-технических специалистов.

Рейтинг@Mail.ru Яндекс цитирования

Copyright © www.gostrf.com, 2008 - 2026