Крупнейшая бесплатная информационно-справочная система онлайн доступа к полному собранию технических нормативно-правовых актов РФ. Огромная база технических нормативов (более 150 тысяч документов) и полное собрание национальных стандартов, аутентичное официальной базе Госстандарта. GOSTRF.com - это более 1 Терабайта бесплатной технической информации для всех пользователей интернета. Все электронные копии представленных здесь документов могут распространяться без каких-либо ограничений. Поощряется распространение информации с этого сайта на любых других ресурсах. Каждый человек имеет право на неограниченный доступ к этим документам! Каждый человек имеет право на знание требований, изложенных в данных нормативно-правовых актах!

  


 

ГОСТ 24370-80

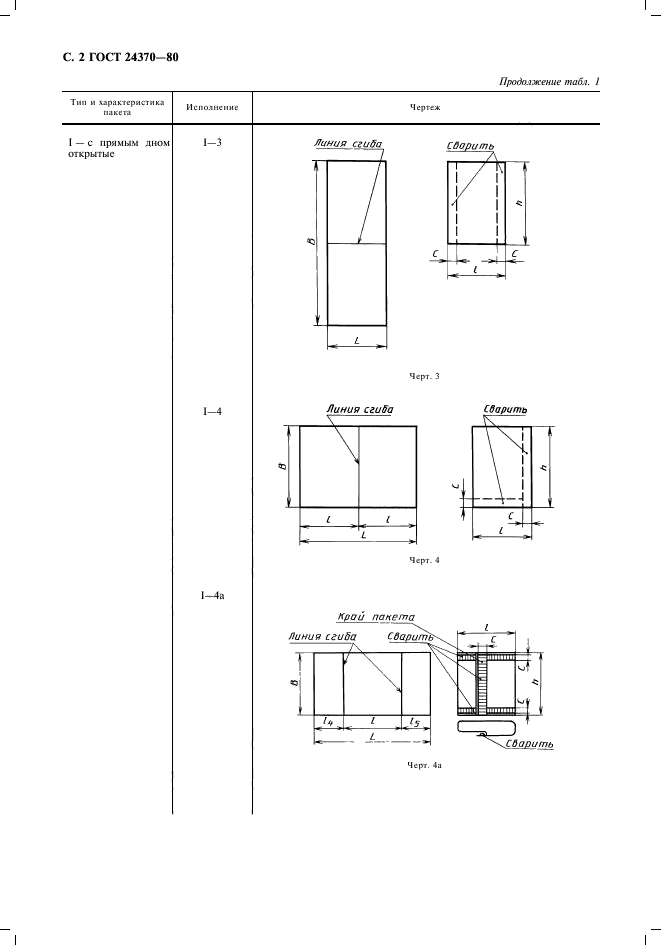
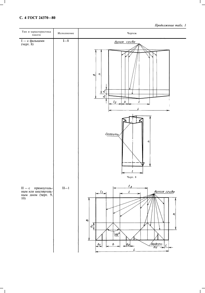
Пакеты из бумаги и комбинированных материалов. Общие технические условия

Обозначение:ГОСТ 24370-80
Текущий статус документа: действующий
Название документа рус.:Пакеты из бумаги и комбинированных материалов. Общие технические условия
Название документа англ.:Packets of paper and composite materials. General specifications
Дата актуализации текста:01.12.2013
Дата издания:01.08.2008
Дата введения:01.01.1982
Дата последнего изменения:22.05.2013
Переиздание:переиздание с изм. 1
Взамен в части: в части бумажных пакетов и пакетов из комбинированных материалов на основе бумаги
Область применения:Настоящий стандарт распространяется на пакеты из бумаги и пакеты из комбинированных материалов на основе бумаги, предназначенные для упаковывания сыпучей и штучной продукции
Список изменений:№1 от 01.07.1985 (рег. 17.01.1985) «Срок действия продлен»
№2 от 01.07.1986 (рег. 11.02.1986) «Срок действия продлен»
№3 от 01.01.1992 (рег. 24.04.1991) «Поправка»
ГОСТ 24370-80ГОСТ 24370-80ГОСТ 24370-80ГОСТ 24370-80ГОСТ 24370-80ГОСТ 24370-80ГОСТ 24370-80ГОСТ 24370-80ГОСТ 24370-80ГОСТ 24370-80ГОСТ 24370-80
 




ГОСТЫ, СТРОИТЕЛЬНЫЕ и ТЕХНИЧЕСКИЕ НОРМАТИВЫ.
Некоммерческая онлайн система, содержащая все Российские Госты, национальные Стандарты и нормативы.
В Системе содержится более 150000 файлов нормативно-технической документации, действующей на территории РФ.
Система предназначена для широкого круга инженерно-технических специалистов.

Рейтинг@Mail.ru Яндекс цитирования

Copyright © www.gostrf.com, 2008 - 2026