Крупнейшая бесплатная информационно-справочная система онлайн доступа к полному собранию технических нормативно-правовых актов РФ. Огромная база технических нормативов (более 150 тысяч документов) и полное собрание национальных стандартов, аутентичное официальной базе Госстандарта. GOSTRF.com - это более 1 Терабайта бесплатной технической информации для всех пользователей интернета. Все электронные копии представленных здесь документов могут распространяться без каких-либо ограничений. Поощряется распространение информации с этого сайта на любых других ресурсах. Каждый человек имеет право на неограниченный доступ к этим документам! Каждый человек имеет право на знание требований, изложенных в данных нормативно-правовых актах!

  


 

ГОСТ Р 12.4.216-99

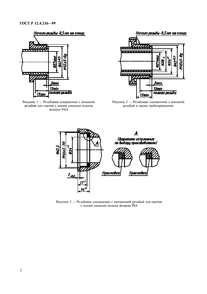
Система стандартов безопасности труда. Средства индивидуальной защиты органов дыхания. Резьба для лицевых частей. Резьбовое соединение М45х3

Обозначение:ГОСТ Р 12.4.216-99
Текущий статус документа: действующий
Название документа рус.:Система стандартов безопасности труда. Средства индивидуальной защиты органов дыхания. Резьба для лицевых частей. Резьбовое соединение М45х3
Название документа англ.:Occupational safety standards system. Respiratory protective devices. Thread for facepieces. Thread connection M45x3
Дата актуализации текста:01.12.2013
Дата издания:25.08.2000
Дата введения:01.01.2003
Дата последнего изменения:22.05.2013
Область применения:Настоящий стандарт распространяется на резьбовое соединение М45х3 для лицевых частей изолирующих средств индивидуальной защиты органов дыхания (СИЗОД), работающих на сжатом воздухе.
Стандарт не распространяется на резьбовое соединение для СИЗОД следующих типов:
- дыхательных аппаратов отрицательного давления;
- дыхательных аппаратов замкнутого цикла;
- для подводных работ;
- пожарных;
- военных;
- медицинских;
- авиационных
ГОСТ Р 12.4.216-99ГОСТ Р 12.4.216-99ГОСТ Р 12.4.216-99ГОСТ Р 12.4.216-99ГОСТ Р 12.4.216-99ГОСТ Р 12.4.216-99
 




ГОСТЫ, СТРОИТЕЛЬНЫЕ и ТЕХНИЧЕСКИЕ НОРМАТИВЫ.
Некоммерческая онлайн система, содержащая все Российские Госты, национальные Стандарты и нормативы.
В Системе содержится более 150000 файлов нормативно-технической документации, действующей на территории РФ.
Система предназначена для широкого круга инженерно-технических специалистов.

Рейтинг@Mail.ru Яндекс цитирования

Copyright © www.gostrf.com, 2008 - 2026