Крупнейшая бесплатная информационно-справочная система онлайн доступа к полному собранию технических нормативно-правовых актов РФ. Огромная база технических нормативов (более 150 тысяч документов) и полное собрание национальных стандартов, аутентичное официальной базе Госстандарта. GOSTRF.com - это более 1 Терабайта бесплатной технической информации для всех пользователей интернета. Все электронные копии представленных здесь документов могут распространяться без каких-либо ограничений. Поощряется распространение информации с этого сайта на любых других ресурсах. Каждый человек имеет право на неограниченный доступ к этим документам! Каждый человек имеет право на знание требований, изложенных в данных нормативно-правовых актах!

  


 

ГОСТ Р ИСО 6941-99

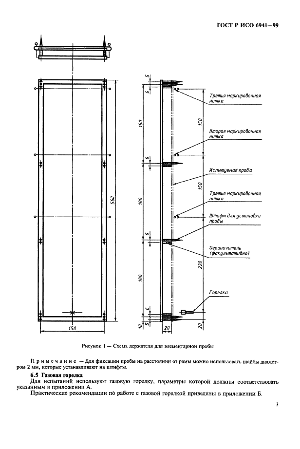
Система стандартов безопасности труда. Материалы текстильные для средств индивидуальной защиты. Метод определения способности распространения пламени на вертикально ориентированных пробах

Обозначение:ГОСТ Р ИСО 6941-99
Текущий статус документа: действующий
Название документа рус.:Система стандартов безопасности труда. Материалы текстильные для средств индивидуальной защиты. Метод определения способности распространения пламени на вертикально ориентированных пробах
Название документа англ.:Occupational safety standards system. Textile fabrics for protective clothing. Measurement of flame spread properties of vertically oriented specimens
Дата актуализации текста:01.12.2013
Дата издания:06.06.2000
Дата введения:01.01.2001
Дата последнего изменения:22.05.2013
Область применения:Настоящий стандарт распространяется на текстильные материалы одно- и многокомпонентные (с покрытием, стеганые, многослойные конструкции с чередующимися слоями в различных комбинациях), предназначенные для изготовления средств индивидуальной защиты.
Настоящий стандарт устанавливает метод определения свойств распространения пламени на вертикально ориентированных пробах в строго контролируемых условиях.
Стандарт не распространяется на одежду для пожарных
ГОСТ Р ИСО 6941-99ГОСТ Р ИСО 6941-99ГОСТ Р ИСО 6941-99ГОСТ Р ИСО 6941-99ГОСТ Р ИСО 6941-99ГОСТ Р ИСО 6941-99ГОСТ Р ИСО 6941-99ГОСТ Р ИСО 6941-99ГОСТ Р ИСО 6941-99ГОСТ Р ИСО 6941-99ГОСТ Р ИСО 6941-99
 




ГОСТЫ, СТРОИТЕЛЬНЫЕ и ТЕХНИЧЕСКИЕ НОРМАТИВЫ.
Некоммерческая онлайн система, содержащая все Российские Госты, национальные Стандарты и нормативы.
В Системе содержится более 150000 файлов нормативно-технической документации, действующей на территории РФ.
Система предназначена для широкого круга инженерно-технических специалистов.

Рейтинг@Mail.ru Яндекс цитирования

Copyright © www.gostrf.com, 2008 - 2026