Крупнейшая бесплатная информационно-справочная система онлайн доступа к полному собранию технических нормативно-правовых актов РФ. Огромная база технических нормативов (более 150 тысяч документов) и полное собрание национальных стандартов, аутентичное официальной базе Госстандарта. GOSTRF.com - это более 1 Терабайта бесплатной технической информации для всех пользователей интернета. Все электронные копии представленных здесь документов могут распространяться без каких-либо ограничений. Поощряется распространение информации с этого сайта на любых других ресурсах. Каждый человек имеет право на неограниченный доступ к этим документам! Каждый человек имеет право на знание требований, изложенных в данных нормативно-правовых актах!

  


 

ГОСТ 3.1404-86

Единая система технологической документации. Формы и правила оформления документов на технологические процессы и операции обработки резанием

Обозначение:ГОСТ 3.1404-86
Текущий статус документа: действующий
Название документа рус.:Единая система технологической документации. Формы и правила оформления документов на технологические процессы и операции обработки резанием
Название документа англ.:Unified system of technological documentation. Forms and rules of making documents on technological processes and cutting operations
Дата актуализации текста:01.12.2013
Дата издания:01.04.2003
Дата введения:01.01.1987
Дата последнего изменения:22.05.2013
Переиздание:переиздание
Взамен:
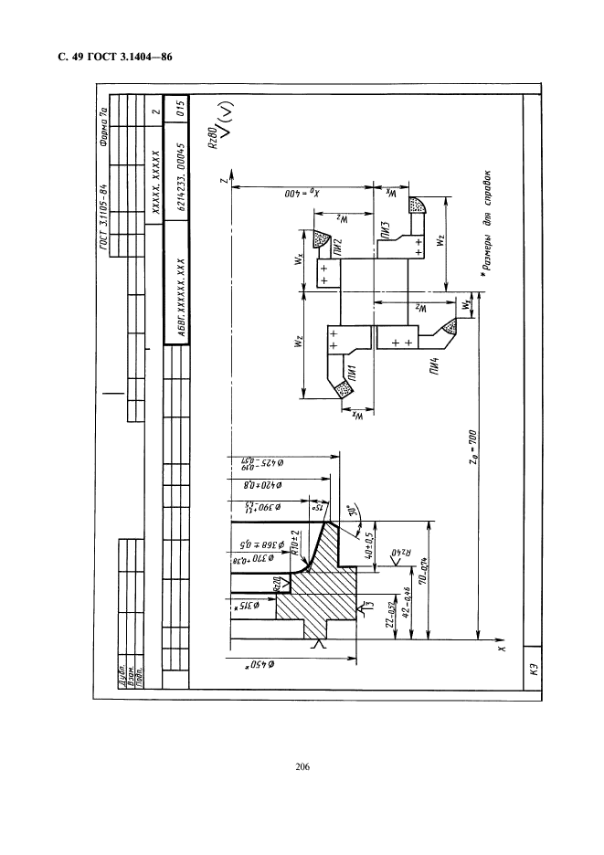
Область применения:Настоящий стандарт устанавливает формы и правила оформления технологических документов, проектируемых с применением различных методов, на процессы и операции обработки резанием, выполняемых с применением универсального, специализированного и специального оборудования
ГОСТ 3.1404-86ГОСТ 3.1404-86ГОСТ 3.1404-86ГОСТ 3.1404-86ГОСТ 3.1404-86ГОСТ 3.1404-86ГОСТ 3.1404-86ГОСТ 3.1404-86ГОСТ 3.1404-86ГОСТ 3.1404-86ГОСТ 3.1404-86ГОСТ 3.1404-86ГОСТ 3.1404-86ГОСТ 3.1404-86ГОСТ 3.1404-86ГОСТ 3.1404-86ГОСТ 3.1404-86ГОСТ 3.1404-86ГОСТ 3.1404-86ГОСТ 3.1404-86ГОСТ 3.1404-86ГОСТ 3.1404-86ГОСТ 3.1404-86ГОСТ 3.1404-86ГОСТ 3.1404-86ГОСТ 3.1404-86ГОСТ 3.1404-86ГОСТ 3.1404-86ГОСТ 3.1404-86ГОСТ 3.1404-86ГОСТ 3.1404-86ГОСТ 3.1404-86ГОСТ 3.1404-86ГОСТ 3.1404-86ГОСТ 3.1404-86ГОСТ 3.1404-86ГОСТ 3.1404-86ГОСТ 3.1404-86ГОСТ 3.1404-86ГОСТ 3.1404-86ГОСТ 3.1404-86ГОСТ 3.1404-86ГОСТ 3.1404-86ГОСТ 3.1404-86ГОСТ 3.1404-86ГОСТ 3.1404-86ГОСТ 3.1404-86ГОСТ 3.1404-86ГОСТ 3.1404-86ГОСТ 3.1404-86ГОСТ 3.1404-86ГОСТ 3.1404-86ГОСТ 3.1404-86ГОСТ 3.1404-86ГОСТ 3.1404-86ГОСТ 3.1404-86ГОСТ 3.1404-86ГОСТ 3.1404-86ГОСТ 3.1404-86ГОСТ 3.1404-86
 




ГОСТЫ, СТРОИТЕЛЬНЫЕ и ТЕХНИЧЕСКИЕ НОРМАТИВЫ.
Некоммерческая онлайн система, содержащая все Российские Госты, национальные Стандарты и нормативы.
В Системе содержится более 150000 файлов нормативно-технической документации, действующей на территории РФ.
Система предназначена для широкого круга инженерно-технических специалистов.

Рейтинг@Mail.ru Яндекс цитирования

Copyright © www.gostrf.com, 2008 - 2026